SEMINARIO DE HISTORIA Y TEORÍA DE LA ARQUITECTURA - MELISSA CAMPOS

Page 1

UNIVERSIDAD DE LIMA

Profesor: Enrique Alfredo Bonilla Di Tolla

PORTAFOLIO 2023-I

SECCIÓN: 1022

SEMINARIO DE HISTORIA Y TEORÍA DE LA ARQUITECTURA

Melissa Campos I.

20183701

FACULTAD DE ARQUITECTURA

Carrera de Arquitectura - Área de Historia y Conservación del Patrimonio Arquitectónico

Ciclo 2023 - 1

Universidad de Lima

Facultad de Arquitectura

Carrera de Arquitectura

Alumna

Melissa Alhely Campos Inga

Código 20183701

Profesor

Enrique Alfredo Bonilla Di Tolla

2023 - 1

UNIVERSIDAD DE LIMA 01

SUMILLA

El Seminario de Historia y Teoría de la Arquitectura está encaminado a realizar una investigación monográfica respecto a las corrientes contemporáneas de pensamiento arquitectónico.

OBJETIVO GENERAL

Desarrollar una metodología de investigación y análisis crítico, que sirva al alumno para la elaboración de investigaciones teóricas en arquitectura, desde la elección de un tema hasta la elaboración de un artículo científico (artículo de investigación).

OBJETIVOS ESPECÍFICOS

Entender las diferentes metodologías de investigación y asimilar las reglas de rigurosidad y exactitud, necesarias para su desarrollo.

Seleccionar un tema arquitectónico de interés a investigar a lo largo del ciclo, desde las perspectivas histórica, teórica y crítica contemporáneas.

Comprender los hechos de la arquitectura a partir del análisis crítico de lo construido y de las ideas generadas alrededor.

Sintetizar la información recabada en un documento escrito, a modo de artículo científico compilatorio. (artículo de investigación)

Objetivos de Desarrollo Sostenible – ODS:

- Lucha contra la pobreza (ODS 11)

Temas RIBA desarrollados en la asignatura:

- Tema 2: Práctica ética y profesional

- Tema 4: Historia, teoría y metodologías

CICLO 2023 - 1 02
2. 3. 4. 5. 6.
1.

RIBA T 2

Práctica Ética y Profesional

Adquirir habilidades profesionales y de comunicación para garantizar la entrega de proyectos con integridad y responsabilidad en el ámbito navional y mundial.

RIBA T 4

Historia, Teorías y Metodologías

Análisis crítico e investigación de narrativas y valores ambientales y sociales culturalesen arquitecturapara comprender y extender la pedagogía arquitectónica.

UNIVERSIDAD DE LIMA 03
CICLO 2023 - 1 04 CONTENIDO 01 Artículo de Opinión Pág. 05 02 Plan de Investigación Pág. 09 03 Avance de Investigación Pág. 13 04 Entrega Final de Investigación Pág. 19 Pág. 41 CV

ARTÍCULO DE OPINIÓN

Trabajo realizado en colaboración de Mishel Rojas

UNIVERSIDAD DE LIMA 05
01

DESCRIPCIÓN

Se trata de un primer trabajo que sirve para explorar el conocimiento previo sobre un tema propuesto por la cátedra, sobre temas vinculados a la historia y la teoría de la arquitectura y el urbanismo.

OBJETIVOS

Hacer que el alumno descubra por si mismo un determinado tema o área del conocimiento dentro de la historia y la teoría de la arquitectura y del urbanismo propuesto por la cátedra.

FORMATO DE ENTREGA

Texto escrito en programa Word con una exensión de aproximadamente 700 palabras, utilizando la técnica del ensayo. El trabajo debe ser remitido a través de mensajes de curso.

CRITERIOS DE EVALUACIÓN

CICLO 2023 - 1 06
Redacción y Ortografía Criterio Estructura del Artículo Contenido Total 5 Puntaje 5 10 20

1. La Permanencia de David Chipperfield

La arquitectura y lineamientos que tiene Chipperfield no busca hacer movimientos innecesarios, ni guiándose de tendencias momentáneas que puede ser viable o llegar a no realizarse, ya que él mismo busca transformar la arquitectura en el sentido de austeridad y sustentabilidad. Por lo cual, se tiene como resultado estructuras funcionales, estéticas y que tenga una permanencia a través de los años. Esta arquitectura principalmente se caracteriza por tener un enfoque en el sentido de la permanencia del espacio y que esto sea durable. Y es aquí donde se logra integrar con su entorno y se adapta a las necesidades cambiantes a lo largo del tiempo.

Es interesante como Chipperfield nos menciona la permanencia de la arquitectura, y como los edificios que realice deben ser diseñados para ser utilizados por diversas generaciones. Es ahora, en la actualidad, donde necesitamos poner más énfasis en esta palabra. Es de saber que mediante la arquitectura podemos lograr cubrir muchas necesidades sociales, por lo que crear una arquitectura duradera en el paso del tiempo es indispensable hoy en día. Sin embargo, a veces se prioriza más el aspecto y el alcance económico que se puede tener para realizar lo planteado y no se usa la inversión requerida y necesaria para los proyectos. Si lo vemos de una perspectiva más amplia, construir con mala calidad, hará que después de no mucho tiempo necesiten arreglos, modificaciones o incluso rehacer el proyecto completo. Tomando en cuenta esto, incluso para el aspecto económico, es más factible realizar una obra de mayor presupuesto, pero con mejor calidad y duradera, o como dice Chipperfield “construir menos pero mejor”.

Podemos estar de acuerdo con que la permanencia depende de la resistencia y la durabilidad al paso del tiempo y de los materiales utilizados; sin embargo, para bien o para mal, la arquitectura se está industrializando y se da como una respuesta a las nuevas necesidades apresuradas y los avances tecnológicos. Tiene muchos aspectos positivos como negativos, uno de los principales puntos a favor son los plazos cortos con los que se trabajan; sin embargo, no siempre se crea con la misma intención de ser duradera. Esta industrialización afecta mucho a la mano de obra, pues con los avances en la tecnología muchos oficios son reemplazados; lo que también significa un impacto ambiental. En nuestra opinión debemos aceptar que el mundo evoluciona y crece, y debemos usar todas las herramientas que se van descubriendo a nuestro favor y en equilibrio con la calidad de lo que trabajamos, sin dejar de lado la permanencia del edificio y la durabilidad al paso del tiempo, manteniendo la esencia de lo que es como tal, saber elegir y decidir cuidar.

Si indagamos entre las obras restauradas de Chipperfield, no podemos olvidar la restauración del The Neues Museum, ubicado en Berlín, Alemania. Esta obra muestra en todo los aspectos su sentido de permanencia y durabilidad. La razón por la cual se necesitaba una restauración de este museo es debido a los daños que sufrió durante la Segunda Guerra Mundial y como este fue abandonado en ruinas durante décadas. Sin embargo, a pesar de que lo mejor hubiese sido restaurar hasta que no haya rastros de su destrucción parcial, Chipperfield lo tomó como algo característico del museo.

UNIVERSIDAD DE LIMA 07
1 2

Él decidió mantener su prioridad principal, por lo cual, preservó y respetó la historia que contaba el museo; y decidió incorporar materiales y técnicas de construcción actuales para que sea duradero la edificación. Lo que obtuvimos como resultado fue una mezcla entre lo antiguo y lo nuevo. De esta manera

The Neues Museum se ha convertido en un modelo para la conservación y restauración de edificios históricos en todo el mundo.

David Chipperfield nos da como aprendizaje el sentido de la permanencia y la durabilidad, dos sentidos que actualmente están desapareciendo. Su preocupación por el impacto ambiental y social del entorno construido con mala calidad de vida nos hace reflexionar sobre lo que estamos construyendo en los tiempos de ahora y la escasez de recursos. Construir bien es una de las claves que nos enseña, y es a lo que aspiramos para poder crear diferencia en nuestros diseños y que superen el paso del tiempo, a través de la estabilidad y la fiabilidad.

REFLEXIÓN DEL EJERCICIO

Eliminar numeración

Evitar la tautología y la redundancia 2

VALORACIÓN

Tiempo Utilizado en Teoría Tiempo Utilizado en Opinión

Motivación frente al Tema Dificultad del Tema

Eliminar numeración

Evitar la tautología y la redundancia

Lo más importante de realizar un artículo de opinión es transmitir de manera clara la postura que tiene uno mismo ante un tema en común. Asimismo, el docente nos brindó un tema y un artículo para realizar la actividad; sin embargo, es crucial tener una recopilación de diversas fuentes relacionadas al tema principal para tener un conocimiento más amplio y completo sobre el tema, para enlazar distintas perspectivas y enfoques que nos ayude a tener argumentos sólidos del tema que es sobre David Chipperfield y su reciente nombramiento de ganador del Premio Pritzker 2023.

A través de este ejercicio, podremos desarrollar nuestro pensamiento crítico y ampliar nuestra comprensión sobre temas complejos que nos rodean, permitiéndonos conocer nuestra opinión propia como la de otros y enriquecernos de un información constructiva.

CICLO 2023 - 1 08
COMENTARIOS 1

02

ARTÍCULO Y ESTRUCTURA DEL PLAN DE INVESTIGACIÓN

Trabajo realizado en colaboración de Mishel Rojas

UNIVERSIDAD DE LIMA 09

DESCRIPCIÓN

Se trata de que los alumnos definan claramente cual es el tema y el problema a investigar, asi como el o los objetivos del mismo , la metodología y las técnicas que van a a utilizar para realizar su trabajo de investigación.

OBJETIVOS

Elaborar un plan de investigación, que contega el tema, problema, objetivos , metodología y técnicas a utilizar, asi como la posible estructura del trabajo a desarrollar.

FORMATO DE ENTREGA

Texto escrito máximo dos carillas conteniendo:

Tema

Problema

Objetivo

Metodología

Tipo de investigación

CRITERIOS DE EVALUACIÓN

Tipo de investigación

Técnicas

Estructura tentativa del informe final Bibliografía (Usando Formato APA)

CICLO 2023 - 1 10
Redacción y Ortografía Criterio Pla de Investigación Bibliografía Total 5 Puntaje 5 10 20

Plan de Investigación y Estructura del Artículo

Tema

La permanencia y durabilidad en el tiempo del Museo Neues de Friedrich August Stüler con la contribución de David Chipperfield, enfocado en los contrastes que contiene.

Problema

¿Cuáles son los aportes que brinda Chipperfield en la reconstrucción del Museo Neues? ¿Funcionan los nuevos aportes tomando en cuenta el edificio original, el tipo de arquitectura y su permanencia?

Objetivos

Entender la permanencia y durabilidad en el tiempo del Museo Neues de Friedrich August Stüler con la contribución de David Chipperfield, enfocado en los contrastes que contiene.

Metodología

Metodología cualitativa

Tipo de Investigación

Investigación correlacional

Técnicas

Técnicas de Recolección de la Información

Técnicas de Estudio Correlacional

Estructura

Resumen / Abstract

Marco Referencial

Arquitectos: Friedrich August Stüler y David Chipperfield

Enfoque de Permanencia y Durabilidad entre ambos arquitectos

Marco Teórico

Investigación de la obra arquitectónica: Museo Neues

Enfoque de Friedrich August Stüler para la construcción

Enfoque de David Chipperfield para la restauración

Cómo estos dos enfoques han logrado relacionarse

Conclusiones

1 1 2 3
UNIVERSIDAD DE LIMA 11

Bibliografía APA

4

Arquitectura Viva. (26 de Diciembre de 2018). Obtenido de https://arquitecturaviva.com/obras/neues-museum Francisco Sánchez , A. (2020). La Luz de los Museos. ETSAB. (2015). Neues Museum – Über sechzig Jahre Kriegsruine. Berlín, Alemania.

Pedrosa Pérez, L. (s.f.). DOS TIEMPOS, DOS MUSEOS. Obtenido de https://oa.upm.es/51422/1/TFG_Pedrosa_Perez_Laura.pdf

Souto, A. (s.f.). Museum Neues Berlin, by David Chipperfield. Obtenido de http://irep.ntu.ac.uk/id/eprint/27651/1/PubSub5200_Souto.pdf

Steingraeber, C. (s.f.). Pequeña Introducción a la Historia. Obtenido de https://www.hatjecantz.de/files/9783775723763_06.pdf

VALORACIÓN

Falta Desarrollar

Colocar

Colocar

Revisar la forma de anotar la bibliografía 4

REFLEXIÓN DEL EJERCICIO

Tiempo Utilizado en Teoría

Tiempo Utilizado en Opinión

Dificultad del Tema

Motivación frente al Tema

Eliminar numeración

Evitar la tautología y la redundancia

Durante este ejercicio de Plan de Investigación, se tenía en mente realizarlo desde los enfoques característicos que tiene David Chipperfield al momento de realizar cualquier construcción; sin embargo, a medida que se iba recopilando una mayor información y conocimiento,se encontró que había un vacío en la información, la cual motivó a tener otro rumbo del enfoque inical de investigación hacia un análisis diferente e innovador. Esta era vincular la intervención de David Chipperfield en el Museo Neues en Berlín desde la perspectiva de la Carta de Venecia de 1964, la cual es un documento oficial que se encarga de regular la preservación y la conservación del patrimonio arquitectónico. Por ello, se tuvieron que modificar los siguientes puntos. Asimismo, si bien se había recopilado una seria de información relacionada por el tema anterior, igual nos ayudó a poder llegar hasta la investigación que se buscó realizar.

COMENTARIOS 1
Marco Teórico Referencial 2
Marco Operativo 3
CICLO 2023 - 1 12

MARCO DE REFERENCIA

Trabajo realizado en colaboración de Mishel Rojas

UNIVERSIDAD DE LIMA 13 03

DESCRIPCIÓN

Se trata de que los alumnos elaboren una descripición del contexto espacio/temporal donde se encuentra ubicada su investigación.

OBJETIVOS

Elaborar un texto que permita contextualizar en tiempo y espacio el trabajo de investigación.

FORMATO DE ENTREGA

Texto escrito con un máximo de 1 500 palabras, donde se describa el espacio/tiempo donde se situa su investigación. El texto deberá usar el sistema APA tanto para las citas como para la bibliografía, que debe tambien adjuntarse al texto.

CICLO 2023 - 1 14
CRITERIOS DE EVALUACIÓN Redacción y Ortografía Criterio Estructura del Artículo Contenido Total 5 Puntaje 5 10 20

MARCO HISTÓRICO REFERENCIAL

Contexto Histórico del Museo Neues

El Neues Museum fue construido entre 1841 - 1855 y es considerado un gran documento de la construcción de museos del siglo XIX. Construido por Friedrich August Stuller, quien recibió el encargo de construir el museo, que se inauguró en 1859, debido a la solicitud de ampliación para “acoger la parte de la colección egipcia que ya no tenía cabida”, refiriéndose al Museo de Altes, diseñado por Karl Friedrich Schinkel (1781 - 1841), arquitecto y pintor alemán destacado por el Neoclasicismo en Alemania, y construido durante 1825 hasta 1830, teniendo su inauguración en este mismo año (Pedrosa Pérez, 2018, pág. 15). Esto dio inicio al proyecto de la Isla de Museos, creado por el Rey Frederick William IV (1795 - 1861), la cual está ubicada en la Isla del Río Spree, para formar un “tranquilo y ricamente dotado santuario de las artes y las ciencias” (Pedrosa Pérez, 2018, pág. 27). Donde, de acuerdo con Miranda Díaz, el Museo Neues en Berlín: Se consideraría parte de una preexistencia, un estrato añadido. Sin embargo, la respuesta a esta necesidad de ampliación versa sobre la creación de un nuevo objeto arquitectónico para complementar a uno existente; sin guardar ningún tipo de relación secuencial, acorde, por tanto, con lo que se ha explicado anteriormente que ocurre con el conjunto patrimonial de la Isla de los museos (Miranda Díaz, 2018, pág. 62).

Por ello, en 1841 comenzó la construcción del Museo Neues, diseñado por Friedrich August Stüler (18001865), arquitecto alemán que trabajaba principalmente en el Reino de Prusia, y quien fue discípulo de Karl-Friedrich Schinkel (1781 - 1841). La construcción empezó con problemas debido a la mala calidad del suelo que se hizo evidente rápidamente cuando los trabajadores descubrieron depósitos de diatomeas debajo de la superficie. Así, se montó una estructura completa a base de columnas compuesta por 2,344 pilotes de cimentación de madera.

Cuando se llevó a cabo la ceremonia de la piedra angular el 6 de abril de 1843, los cimientos y el sótano estaban completos. La construcción de las paredes se completó a fines de 1843 y la cubierta plana del museo se construyó en 1844. En 1845, se completó la construcción de acero de las galerías de conexión del Museo Altus, el piso, las bóvedas del techo y el revestimiento de ladrillo. En 1846, además de las esculturas del frente, los trabajadores comenzaron a trabajar en la fachada del edificio y comenzaron la limpieza del interior. Se comenzaron a tallar escalones de mármol en los pisos de los edificios. El trabajo avanzó rápidamente en 1847 y comenzó a instalarse el equipo para museos. Sin embargo, debido a la Revolución Alemana de 1848, en marzo del año siguiente, los trabajos de construcción se retrasaron varias veces, pero no se detuvieron por completo.

Posteriormente, después de completar las distintas áreas, el museo se inauguró en 1859, según los autores Brühwiler & Pelke, teniendo “una apariencia sólida para el observador externo, los interiores del edificio eran una

UNIVERSIDAD DE LIMA 15
1

combinación convincente de la última tecnología de hierro fundido y antiguas técnicas de construcción liviana” (Brühwiler & Pelke, 2017, pág. 125.)

La decoración interior de las tres plantas de la exposición, como los famosos frescos de Kaulbach en la escalera, fueron realizados por los pintores más importantes del clasicismo tardío berlinés. Sin embargo, durante la Segunda Guerra Mundial, en 1943, el museo fue impactado por bombardeos, iniciando por la parte del vestíbulo de la escalera central ese mismo año en 1945, la cúpula sureste y otras partes más que quedaron a la intemperie. Y “pese a que después hubo intentos de repararlo, sus restos quedaron expuestos y abandonados” por más de 40 años. (López Ujaque & Capdevilla Castellanos, 2021, pág. 09).

Cuando el museo abrió por primera vez, el primer piso albergaba las colecciones egipcia, patriótica y etnográfica. En el primer piso se encontraban esculturas de yeso de la Antigua Grecia y Roma, arte bizantino, románico, gótico, renacentista y clásico. Una colección de grabados artísticos y acuarelas se encuentra en una sala llamada Kunstkammeret. La segunda planta albergaba una colección de maquetas arquitectónicas, mobiliario, maquetas de barro, cerámica, terrarios y objetos religiosos, así como pequeñas piezas de arte medieval y moderno.

El Museo Etnográfico (Völkerkundemuseum) fundado en 1873 se trasladó a su edificio actual en Königgrätzerstrasse en 1886. El edificio fue destruido durante la Segunda Guerra Mundial e involucra la destrucción de partes de la Colección Etnográfica, la Colección de Antigüedades Patrióticas y la Colección "Camara de Arte".

El nuevo Museo de Artes y Oficios (Kunstgewerbemuseum) adquirió alrededor de 7.000 objetos restantes del "Salón de las Artes" en 1875 y se mudó a su propio edificio en Martin Gropius Bau en 1881. La planta baja permanece contiene la colección egipcia, mientras que el segundo piso está ocupado por una colección de frescos e inscripciones.

De 1883 a 1887, el museo construyó un entrepiso adicional que no se puede ver desde el exterior. La colección de moldes de yeso era el punto focal de la colección en ese momento, y en el siglo XIX se había convertido en una de las exposiciones más grandes y completas. Sin embargo, a medida que cambiaron los gustos del público, entre 1916 y 1920 se trasladaron a la Universidad de Berlín, donde fueron destruidas en gran parte durante la Segunda Guerra Mundial. Una colección de herramientas del Museo de Antigüedades y una colección de papiros del Museo Egipcio se exhiben en las instalaciones del primer piso.Los cambios en la planta baja entre 1919 y 1923 dieron como resultado los primeros cambios importantes en el edificio original. En el patio griego, se demolió el

CICLO 2023 - 1 16

MARCO HISTÓRICO REFERENCIAL

ábside, se cubrió el patio con un techo de vidrio y se construyó un piso adicional a la misma altura que el primer piso. También se han instalado varias salas y armarios nuevos para exponer la colección Amarna. Se agregaron falsos techos al área de la planta baja adyacente para crear una galería moderna con exposición neutral cubriendo los acabados originales. La destrucción en la Segunda Guerra Mundial siguió a estas destrucciones internas de la disposición original del museo. En los bombardeos del 23 de noviembre de 1943, fue destruida la escalera central y sus frescos, junto con otros grandes tesoros de la historia humana. En febrero de 1945, las bombas destruyeron el ala noroeste y la conexión con el Altes Museum, y se dañó el ala suroeste, así como la fachada sur-este.

A pesar del nivel de daño, el interior del edificio fue bastante diferente. Algunas partes han sobrevivido casi en su totalidad, con la decoración y techos con frescos en gran parte intactos, mientras que otras existen solo como envolventes en grandes cavidades. Gran parte de la fuerza inherente de la ruina proviene del esqueleto de ladrillo expuesto que rodea el edificio, dándole una presencia indeleble como una pintoresca ruina clásica 150 años después de su concepción, un contraste que evoca contundentemente fuertes nociones de decadencia histórica.

Breve Biografía de David Chipperfield

David Alan Chipperfield nació el 18 de diciembre de 1953, actualmente tiene 69 años, en Londres, Inglaterra. Es un famoso arquitecto británico que desde pequeño la arquitectura “estuvo determinada por su entorno de graneros y dependencias” (Harrouk, 2023). Trabajó para los estudios de arquitectura de arquitectos importantes: Douglas Stephen, Norman Robert Foster (1935 - ) y Richard Rogers (1993 – 2021). Posteriormente, en 1985, estableció David Chipperfiels Architects, la cual “ha desarrollado un cuerpo de trabajo internacional diverso que incluye actividades culturales, residenciales, comerciales, de ocio y cívicas” (David Chipperfield — DAVID GILL GALLERY, n.d.). Actualmente su estudio de arquitectura es mundial con oficinas en Londres, Berlín, Milán y Shanghái. Sus principales obras arquitectónicas son: River and Rowing Museum en Inglaterra (1989 – 1998), Biblioteca Pública de Des Moines en Estados Unidos (2002 – 2006), Galería Hepworth Wakefield en Reino Unido (2003 - 2011), entre otros. Siendo el más importante la intervención que realizó al Museo Neues en Berlín, Alemania, realizada entre 1997 y 2009.

Actualmente, cuenta con más de 100 premios ganados y menciones de manera internacional por su excelencia en el diseño arquitectónico. Entre los principales están: Royal Gold Medal RIBA en Reino Unido en 2011, Mies van der Rohe en España en 2011, Medalla Heinrich Tessenow en Alemania en 1999, entre otros. El más reciente es el Premio Pritzker en 2023, donde destacó su audacia de conservar la memoria de la obra arquitectónica, cuidando frente al olvido.

UNIVERSIDAD DE LIMA 17

COMENTARIOS

Revisar Redacción

REFLEXIÓN DEL EJERCICIO

Eliminar numeración

Tiempo Utilizado en Teoría

Tiempo Utilizado en Opinión

Dificultad del Tema

Motivación frente al Tema

En la primera parte de la entrega del trabajo principal del curso, se comprendió la importancia de comprender el marco histórico en el cual se encuentra la obra arquitectónica elegida. Esta comprensión resulta fundamental, ya que dicho contexto histórico ejerce una influencia significativa en la situación actual de la obra, así como en la necesidad de llevar a cabo una intervención en el Museo Neues en Berlín. Al explorar el trasfondo histórico de la construcción, se adquiere una perspectiva más completa y se comprenden las razones detrás de las decisiones arquitectónicas y los desafíos enfrentados a lo largo del tiempo.

Evitar la tautología y la redundancia

CICLO 2023 - 1 18
1

INVESTIGACIÓN ARTÍCULO DE

Trabajo realizado en colaboración de Mishel Rojas

UNIVERSIDAD DE LIMA 19 04

DESCRIPCIÓN

El artículo de investigación es el trabajo final del Seminario de Historia y Teoría de la Arquitectura desarrollado por el alumno o grupo de alumnos durante el semestre.

El proceso para la elaboración y el desarrollo del artículo se realizó en sesiones en clase de crítica y autocrítica.

OBJETIVOS

Evaluar el resultado final de la investigación propuesta por el alumno o grupo de alumnos en correspondencia con el tema, problema y objetivos de investigación.

FORMATO DE ENTREGA

Texto escrito de 5,000 palabras (aproximadamente), con citas bibliográficas y bibliografia en formato APA. El articulo debe incluir el resumen y palabras clave, abstract and keywords.

Se deberá adjuntar tambien el informe de TURNITIN de la Biblioteca ULIMA.

CRITERIOS DE EVALUACIÓN

CICLO 2023 - 1 20
Redacción y Ortografía Criterio Estructura del artículo, bibliografía y citas Contenido Total 5 Puntaje 5 10 20

INTRODUCCIÓN

Resumen

El Museo Neues en Berlín, construido en 1841 hasta 1855, está dentro de las obras de la Isla de los Museos propuestos por el rey Frederick William IV de Prusia para ser un centro importante de las artes y las ciencias. El museo fue diseñado inicialmente por Friedrich August Stuller y contaba con un estilo neoclásico y con estructuras metálicas. Luego de varios años, el museo fue impactado por bombardeos de la Segunda Guerra Mundial, quedando abandonado por más de 40 años. En 1997 hasta 2009, se llevó a cabo la intervención realizada por David Chipperfield para la preservación y restauración del Museo Neues. Tenía un enfoque de Permanencia y Durabilidad en relación a la Carta de Venecia en 1964. Donde utilizó técnicas constructivas modernas e implementó materialidades modernas que busca que se relacione con los restos existentes, buscando demostrar la historia del museo.

Palabras Clave: Museo Neues, Museo Neues en Berlín, David Chipperfield, Restauración, Carta de Venecia

Resumen

The Neues Museum in Berlin, built in 1841 to 1855, is within the Museum Island works proposed by King Frederick William IV of Prussia to be a major center of arts and sciences. The museum was initially designed by Friedrich August Stuller and had a neoclassical style and metal structures. After several years, the museum was hit by bombings from World War II, leaving it abandoned for more than 40 years. In 1997 until 2009, the intervention carried out by David Chipperfield for the preservation and restoration of the Neues Museum was carried out. He had a Permanence and Durability approach in relation to the Venice Charter in 1964. Where he used modern construction techniques and implemented modern materials that he seeks to relate to the existing remains, seeking to demonstrate the history of the museum.

Palabras Clave: Neues Museum, Neues Museum in Berlin, David Chipperfield, Restoration, The Venice Charter

UNIVERSIDAD DE LIMA 21

MARCO HISTÓRICO REFERENCIAL

Contexto Histórico del Museo Neues

El Museo Neues fue construido entre 1841 - 1855, y posteriormente inaugurado en 1859. El museo es considerado un gran documento de la construcción de museos del siglo XIX. Fue diseñado por Friedrich August Stuller (1800 - 1865), quien recibió el encargo de la ampliación en el Museo de Altes (1825 - 1830), diseñado por su profesor Karl Friedrich Schinkel (1781 - 1841), arquitecto y pintor alemán destacado por el Neoclasicismo en Alemania (Pedrosa Pérez, 2018, pág. 15). La construcción del Museo Neues en Berlín dió inicio al proyecto de ese entonces de la Isla de Museos, creado por el Rey Frederick William IV (1795 - 1861), la cual está ubicada en la Isla del Río Spree, ya que se buscó formar un “tranquilo y ricamente dotado santuario de las artes y las ciencias” (Pedrosa Pérez, 2018, pág. 27). Esta Isla de Museos, a parte del museo mencionado, cuenta con los siguientes museos/edificios: Museo Bode, Museo de Pérgamo, Antigua Galería Nacional, Galería James Simón y el Centro Arqueológico.

El Neues Museum comenzó a construirse en 1841, con la intención de contener el exceso de artefactos para los que el Altes Museum no tenía espacio. Fue diseñado por el arquitecto Friedrich August Stüler, alumno de Schinkel, y supuso un gran hito en el desarrollo tecnológico de la construcción a gran escala. Se aplicaron por primera vez nuevas técnicas industriales, como el uso de una máquina de vapor, necesaria debido a la mala calidad del suelo de la isla. (Google Arts and Culture, Museo Neues).

De acuerdo con Miranda Díaz, el Museo Neues en Berlín: De consideraría parte de una preexistencia, un estrato añadido. Sin embargo, la respuesta a esta necesidad de ampliación versa sobre la creación de un nuevo objeto arquitectónico para complementar a uno existente; sin guardar ningún tipo de relación secuencial, acorde, por tanto, con lo que se ha explicado anteriormente que ocurre con el conjunto patrimonial de la Isla de los museos (Miranda Díaz, 2018, pág. 62).

Imagen 01: Mapa de la Isla de los Museos (Elaboración Propia)
CICLO 2023 - 1 22

MARCO HISTÓRICO REFERENCIAL

El legado que deja Stüler es lo clasicista de este museo, de planta rectangular y cuenta con dos patios interiores. “La fachada de este edificio de tres pisos refleja la sencillez y serenidad que caracteriza la obra de Stüler, quien utilizó estructuras metálicas en su construcción.” (ArchxDe, n.d., s/p).

En abril de 1843 se celebró la Ceremonia de la Primera Piedra, y a finales de dicho año las paredes exteriores se encontraban terminadas. Para la construcción se usó tecnología revolucionaria, siendo relevante el transporte de materiales por una red de tren ligero, dirigido por el supervisor de construcción Hoffman. En 1845 se terminó el enyesado exterior; además de los marcos de las ventanas y repisas, se incorporan las columnas de mármol en el interior y las figuras de arenisca en las cúpulas exteriores. Para 1846, ya se había comenzado el trabajo preparatorio para pintura decorativa al interior; sin embargo, comenzaron a aparecer grietas de subsidencia debido a que las pilas no logran alcanzar el subsuelo estable y lo solucionan con refuerzos de frenillos de hierro. En 1885, los techos se terminaron de construir para facilitar la integración de espacios habitacionales y se añade un ático aventado, por el cual se tuvo que reajustar el sistema de drenaje a las paredes exteriores (Dos tiempos, dos museos, 2017, pág.19).

El Museo Neues de Berlín es un edificio neoclásico que alberga objetos que nos adentran en la historia de Europa y Medio Oriente, desde la Edad de la piedra hasta la Edad Media. Es así como se sabe que la colección de piezas de la cultura Egipcia se encuentra en este espacio. La atracción más destacada es el busto de Nefertiti. De entre las piezas que componen la colección del Antiguo Egipto son destacables las magníficas esculturas y una abundante colección de papiros. Uno de ellos es el busto de Nefertiti, el cuál “ está expuesto en una sala abovedada en el norte del edificio. Los demás edificios son igualmente impresionantes y forman el equilibrio perfecto entre el estilo moderno y clasicista”. (Miller et al., 2010)

Imagen 02: Planta Museo Neues. (Arquitectura Viva)
UNIVERSIDAD DE LIMA 23

MARCO HISTÓRICO REFERENCIAL

Posteriormente, el Museo Neues en Berlín se inauguró en 1859, según los autores Brühwiler & Pelke, teniendo “una apariencia sólida para el observador externo, los interiores del edificio eran una combinación convincente de la última tecnología de hierro fundido y antiguas técnicas de construcción liviana” (Brühwiler & Pelke, 2017, pág. 125.)

Casi al mismo tiempo, entre los años 1919 y 1923, se obtuvieron cambios significativos en el edificio original. En el patio griego, se demolió el ábside, se cubrió el patio con un techo de vidrio y se construyó un piso adicional a la misma altura que el primer piso. También se han instalado varias salas y armarios nuevos para exponer la colección Amarna. Se agregaron falsos techos al área de la planta baja adyacente para crear una galería moderna con exposición neutral cubriendo los acabados originales. La Segunda Guerra Mundial ocasionó continuas destrucciones en el interior del museo realizado por Friedrich August Stuller. El 23 de noviembre de 1943, la escalera central y los frescos de ese ambiente del museo fueron destruidos (Dos tiempos, dos museos, 2017, pág.21).

Imagen 03: El busto de Nefertiti (El País) Imagen 04: Vista del Museo Neues en Berlín en 1850 (Wikipedia)
CICLO 2023 - 1 24

MARCO HISTÓRICO REFERENCIAL

Sin embargo, en 1939 se inició la Segunda Guerra Mundial, teniendo como resultado impactos negativos en distintas partes de Alemania. En 1943, el Museo Neues fue impactado por bombardeos, iniciando por la parte del vestíbulo de la escalera central, la cúpula sureste y otras partes más que quedaron a la intemperie. Y dos años después, se destruyeron el ala del noroeste y la conexión que tiene con el Museo Altes, y se dañó el ala del suroeste, así como la fachada del sur-este. Donde, de acuerdo a López y Capdevilla, “pese a que después hubo intentos de repararlo, sus restos quedaron expuestos y abandonados por más de 40 años”. (López Ujaque & Capdevilla Castellanos, 2021, pág. 09).

Imagen 05: Vista de la Sala de la Cúpula Sur del Museo Neues en Berlín
UNIVERSIDAD DE LIMA 25
Imagen 06: Vista aérea del Museo Neues en Berlín luego de los bombardeos

Breve Biografía de David Chipperfield

Estados Unidos (2002

2006), entre otros. Siendo el más importante la intervención que realizó al Museo Neues en Berlín, Alemania, entre 1997 y 2009.

Estados Unidos (2002 – 2006), entre otros. Siendo el más importante la intervención que realizó al Museo Neues en Berlín, Alemania, entre 1997 y 2009.

Estados Unidos (2002 – 2006), entre otros. Siendo el más importante la intervención que realizó al Museo Neues en Berlín, Alemania, entre 1997 y 2009.

David Alan Chipperfield nació el 18 de diciembre de 1953, actualmente tiene 69 años, en Londres, Inglaterra. Es un famoso arquitecto británico que desde pequeño la arquitectura “estuvo determinada por su entorno de graneros y dependencias” (Harrouk, 2023). Trabajó para los estudios de importantes arquitectos como: Douglas Stephen, Norman Robert Foster (1935 - ) y Richard Rogers (1993 – 2021). Posteriormente, en 1985, estableció David Chipperfiels Architects, la cual “ha desarrollado un cuerpo de trabajo internacional diverso que incluye actividades culturales, residenciales, comerciales, de ocio y cívicas” (David Chipperfield — DAVID GILL GALLERY, n.d.). Actualmente su estudio de arquitectura es mundial con oficinas en Londres, Berlín, Milán y Shanghái. Sus principales obras arquitectónicas son: River and Rowing Museum en Inglaterra (1989 – 1998), Galeria Hepworth Wakefield en Reino Unido (2003 - 2011), Biblioteca Des Moines en Estados Unidos (2002 – 2006), entre otros. Siendo el más importante la intervención que realizó al Museo Neues en Berlín, Alemania, entre 1997 y 2009.

Imagen 07: Fachada River and Rowing Museum

Imagen 08: Planta River and Rowing Museum

Imagen 09: Fachada Galería Hepworth Wakefield

Imagen 10: Planta Galería Hepworth Wakefield

Imagen 11: Fachada Biblioteca Des Moines

Imagen 12: Planta Biblioteca Des Moines

CICLO 2023 - 1 26
Imagen 11: Fachada Biblioteca Des Moines Imagen 12: Planta Biblioteca Des Moines
: Planta River and Rowing Museum
Imagen
f Imagen 11: Fachada Biblioteca Des Moines Imagen 12: Planta Biblioteca Des Moines
Imagen 07: Fachada River and Rowing Museum
08: Planta River and Rowing Museum
Imagen
Imagen 11: Fachada Biblioteca Des Moines Imagen 12: Planta Biblioteca Des Moines
Imagen 07: Fachada River and Rowing Museum
08: Planta River and Rowing Museum Imagen 09: Fachada Galería Hepworth Wakefield

MARCO HISTÓRICO REFERENCIAL

El punto clave de David Chipperfield en la intervención del Museo Neues de Berlín fue re-completar los espacios contrastando lo original y la construcción de lo nuevo sin caer en la imitación. Los vacíos fueron llenados sin buscar competencia en la estructura existente. La intervención que realiza el arquitecto respeta la estructura histórica en sus diferentes estados de conservación, enfocándose en el presente y el pasado con una mezcla de arquitectura contemporánea, restauración y arte.

Un edificio que ha sufrido tantas pérdidas no puede simplemente repararse. Debes añadir algo más. Cuando los berlineses vieron el resultado, dejaron de preocuparse por las formas para valorar el concepto, cabal y sincero, que lo sustenta: no borrar la historia, sino mostrar a la vez lo mejor y lo peor de ella ( Alzubide, 2020).

Actualmente, cuenta con más de 100 premios ganados y menciones de manera internacional por su excelencia en el diseño arquitectónico. Entre los principales están: Royal Gold Medal RIBA en Reino Unido en 2011, Mies van der Rohe en España en 2011, Medalla Heinrich Tessenow en Alemania en 1999, entre otros. El más reciente es el Premio Pritzker en 2023, donde destacó su audacia de conservar la memoria de la obra arquitectónica, cuidando frente al olvido.

UNIVERSIDAD DE LIMA 27

MARCO OPERATIVO

Definición de los Enfoques Permanencia y Durabilidad

David Chipperfield busca que todas sus obras arquitectónicas tengan un enfoque de Permanencia y Durabilidad, ya que, de acuerdo con Alzubide, busca que sean “silenciosos, no necesitan levantar la voz para llamar la atención. Conviven, de manera armoniosa, con el entorno” (Alzubide, 2020, s/p). Con acabados minimalista y geométrico, utilizando materiales de alta calidad y técnicas de construcción modernas para una estética duradera. Todo ello, a “través de la estabilidad y la fiabilidad”, teniendo como resultado obras funcionales, sostenibles, estéticas y duraderas en el espacio. (Zabalbeascoa, 2023). Con el objetivo de “construir una sociedad mejor con obras que, sin duda, perdurarán en el tiempo” (Alzubide, 2020, s/p).

El resultado de la intervención de David Chipperfield en el Museo Neues en Berlín fue una obra arquitectónica única que se ha convertido en un modelo ejemplar de conservación y restauración de edificios históricos en todo el mundo. Su enfoque de permanencia y durabilidad, combinado con una visión contemporánea y utilizando técnicas constructivas avanzadas, permitió su conservación y que sea apreciado por las generaciones presentes y futuras.

CICLO 2023 - 1 28
Imagen 13: Vista del vestíbulo principal del Museo Neues en Berlín

MARCO OPERATIVO

Carta de Venecia en relación a la Restauración de David Chipperfield en el Museo Neues en Berlín

De acuerdo con Alzubide, el arquitecto David Chipperfield “siguió las pautas de la Carta de Venecia, respetando la estructura histórica en sus diferentes estados de conservación” (Alzubide, 2020, s/p). Este documento se refiere a la Carta Internacional de la conservación y la restauración de monumentos y sitios históricos, la cual fue redactada en el II Congreso Internacional de Arquitectos y de Técnicos de Monumentos Históricos del 25 al 31 de mayo del año 1964 (Jokilehto, 2013, pág. 229).

Imagen 14: Acta de la Carta de Venecia firmada en 1964

El objetivo de David Chipperfield en el Museo Neues de Berlín fue su rehabilitación y su intervención. Pero conservando los restos de la infraestructura que no se alteraron en Berlín durante la Segunda Guerra Mundial. Por lo cuál, se intervino para preservar los elementos históricos dañados, manteniendo su apariencia y carácter original del museo. Asimismo, Chipperfield buscó materiales contemporáneos y técnicas constructivas modernas, pero se respetó la escala y el estilo arquitectónico del edificio original. Asimismo, conservando el sentido de Permanencia para que continúe la línea histórica y arquitectónica de la Isla de Museos del Museo Altes. La Carta de Venecia tiene distintas secciones; sin embargo, el análisis a realizar tiene un enfoque a la Restauración:

Artículo 9:

La restauración es una operación que debe tener un carácter excepcional. Tiene como fin conservar y revelar los valores estéticos e históricos del monumento y se fundamenta en el respeto a la esencia antigua y a los documentos auténticos. Su límite está allí donde comienza la hipótesis: en el plano de las reconstituciones basadas en conjeturas, todo trabajo de complemento reconocido como indispensable por razones estéticas o técnicas aflora de la composición arquitectónica y llevará la marca de nuestro tiempo. La restauración estará siempre precedida y acompañada de un estudio arqueológico e histórico del monumento (Jokilehto, 2013, pág. 232).

UNIVERSIDAD DE LIMA 29

Artículo 10: “Cuando las técnicas tradicionales se muestran inadecuadas, la consolidación de un monumento puede ser asegurada valiéndose de todas las técnicas modernas de conservación y de construcción cuya eficacia haya sido demostrada con bases científicas y garantizada por la experiencia” (Jokilehto, 2013, pág. 232).

Artículo 11:

Las valiosas aportaciones de todas las épocas en la edificación de un monumento deben ser respetadas, puesto que la unidad de estilo no es un fin a conseguir en una obra de restauración. Cuando un edificio presenta varios estilos superpuestos, la desaparición de un estadio subyacente no se justifica más que excepcionalmente y bajo la condición de que los elementos eliminados no tengan apenas interés, que el conjunto puesto al descubierto constituya un testimonio de alto valor histórico, arqueológico o estético, y que su estado de conservación se juzgue suficiente. El juicio sobre el valor de los elementos en cuestión y la decisión de las eliminaciones a efectuar no pueden depender únicamente del autor del proyecto (Jokilehto, 2013, pág. 232).

Artículo 12: “Los elementos destinados a reemplazar las partes inexistentes deben integrarse armoniosamente en el conjunto, distinguiéndose claramente de las originales, a fin de que la restauración no falsifique el documento artístico o histórico” (Jokilehto, 2013, pág. 232).

Artículo 13: “Los añadidos no deben ser tolerados en tanto que no respeten todas las partes interesantes del edificio, su trazado tradicional, el equilibrio de su composición y sus relaciones con el medio ambiente” (Jokilehto, 2013, pág. 232).

CICLO 2023 - 1 30

MARCO OPERATIVO

Análisis del Museo Neues en Berlín en relación de la sección de Restauración de la Carta de Venecia

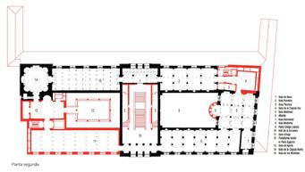
Análisis de Plantas

Según se muestra en los planos, las áreas resaltadas en rojo representan las partes de nueva construcción, lo cual indica que el edificio estaba muy deteriorado al inicio del proyecto. Para restaurar la forma original del edificio, se utilizaron dos materiales: hormigón blanco con incrustaciones de mármol de Sajonia y ladrillo visto hecho a mano. En otro plano secundario, se observa el uso de vidrio y maderas oscuras para construir elementos secundarios como bancos, barandillas y expositores, los cuales se diseñaron de manera discreta para pasar desapercibidos, ya que no fue posible interpretar fielmente los elementos originales, por lo que se crearon completamente nuevos, como la estructura de la cubierta del vestíbulo. Se aplicó el artículo 12 de las Cartas de Venecia, que menciona integrar armoniosamente los elementos reemplazantes, distinguiéndose de los originales a fin de no falsificarlos. La restauración llenó los espacios vacíos siguiendo la secuencia original, generando una continuidad que se evidencia en los diferentes niveles del edificio. Sin embargo, a pesar de buscar la continuidad, no se compite con la estructura existente, sino que se complementa.

Los dos espacios que explican las intervenciones en la obra son la escalera central y el vestíbulo, que desaparecieron en su totalidad y con la restauración se recupera la volumetría y función.

UNIVERSIDAD DE LIMA 31
Imagen 15: Planta Baja del Museo Neues en Berlín donde muestra la restauración realizadas por David Chipperfield Imagen 16: Planta Segundo Nivel del Museo Neues en Berlín donde muestra la restauración realizadas por David Chipperfield

Ambientes del Museo Afectados

El Escalera Principal y Vestíbulo Como se puede apreciar en la imagen anterior, el diseño inicial contaba con un primer nivel del vestíbulo contaba con acabados de mármol en la entrada hacia el sótano. Además cuenta con una escalera en cada uno de sus lados, la cual une el estilo neoclásico y renacentista que van acorde de las obras antiguas que alberga el museo. En el segundo nivel, Friedrich August Stüler propone que en la parte central haya pequeñas esculturas en la unión de las escaleras. Además contaba con paredes y techo revestidos de frescos artísticos que daban un mejor visual al ambiente principal del Museo Neues. Sin embargo, luego de los bombardeos impactados en el museo a causa de la Segunda Guerra Mundial, estos elementos característicos fueron destruidos, por lo cual DavidChipperfield intervino para poder conservar lo que aún se logró mantener.

David Chipperfield realizó su intervención buscando preservar la estructura original. Incorporó elementos contemporáneos como los techos que tienen su estructura metálica a la vista, así como manteniendo la ubicación de las escaleras pero haciéndolo más macizo en comparación a su diseño inicial, esto se logró utilizando hormigón blanco. Además tenía la finalidad de dar una mayor iluminación natural al vestíbulo principal del Museo Neues, y esto lo logró incorporando claraboyas y tragaluces.

CICLO 2023 - 1 32
Imagen 17: Vista Frontal del vestíbulo principal del Museo Neues en Berlín Imagen 18: Vista del vestíbulo principal del Museo Neues en Berlín luego de los Bombardeos de la Segunda Guerra Mundial

MARCO OPERATIVO

Además, contaba con paredes de acabados de ladrillo rojizo, lo cual nos conlleva a los restos que quedaron, ya que este se mantuvo para continuar con la historia que ocurrió en el ambiente, así como también se mantuvo la puerta frontal, la cuál no sufrió algún daño.

La intervención de la Escalera Principal y el Vestíbulo se relaciona con el artículo 9 de la Carta de Venecia, ya que Chipperfield no realizó una intervención alterando drásticamente el ambiente, sino tomó los restos que quedaron y los continuó para darle una continuidad como es el caso de las escalera. Además mantuvo las paredes para darle un sentido a la historia. Asimismo, el artículo 12 se vincula debido a los elementosañadidos durante la intervención buscó reemplazar partes que fueron destruidas, respetando el diseño original.

Imagen 19: Vista Frontal del vestíbulo principal del Museo Neues en Berlín Imagen 20: Vista Aérea del primer y segundo nivel del vestíbulo principal del MuseoNeues en Berlín
UNIVERSIDAD DE LIMA 33

Cúpula

Durante la Segunda Guerra Mundial, la cúpula, con su diseño neoclásico, sufrió daños debido a un bombardeo. Durante el proceso de restauración dirigido por David Chipperfield, se hizo hincapié en la reconstrucción y preservación de la cúpula y otros elementos arquitectónicos originales. Asimismo, como menciona el artículo 9 en las Cartas a Venecia, sobre conservar los valores estéticos e históricos del monumento respetando la esencia antigua, se emplearon técnicas y materiales cuidadosamenteseleccionados para asegurar la autenticidad del diseño original, al mismo tiempo que se realizaron mejoras estructurales y de seguridad.

La restauración tuvo como objetivo principal devolver la cúpula a su esplendor original y lograr una iluminación adecuada del interior del museo mediante luz natural. Como resultado final, se obtuvo una cúpula renovada que armoniza con el estilo arquitectónicodel edificio y realza la belleza del Museo Neues en su totalidad.

Imagen 21: Vista en planta y frontal de la cúpula del Museo Neues en Berlín Imagen 22: Vista Frontal de la cúpula del Museo Neues en Berlín Imagen 23: Vista Aérea de la cúpula principal delMuseo Neues en Berlín
CICLO 2023 - 1 34

MARCO HISTÓRICO REFERENCIAL

Técnicas de Construcción

El arquitecto Stüler empleó técnicas constructivas características de su época en el diseño del edificio. Una de estas técnicas fue la albañilería de piedra, utilizando bloques de arenisca tanto en las paredes exteriores como interiores. También utilizó ladrillos para crear bóvedas y arcos en distintas áreas, lo que permitió la creación de espacios abovedados y la distribución de las cargas estructurales. Aunque la estructura principal era de mampostería de piedra, se incorporaron vigas de madera para sostener los pisos y techos. Además, se prestaron especial atención a los detalles ornamentales, utilizando técnicas decorativas como el hierro fundido en barandillas de balcones y otros elementos, realzando la belleza del edificio.

A diferencia de Stüler, Chipperfield, basándose en las Cartas de Venecia, artículo 10, que menciona valer técnicas modernas de conservación en vez de las tradicionales que se muestran inadecuadas, utilizó otras técnicas como:

Preservación de elementos originales: Se han realizado esfuerzos para preservar y restaurar los elementos arquitectónicos originales siempre que sea posible. Se limpiaron y restauraron la piedra decorativa y el estuco, se conservaron los detalles decorativos y se restauraron las molduras y columnas.

Incorporación de elementos modernos: se hizo un intento por preservar la integridad histórica del edificio, mientras que se realizaron adiciones y modificaciones discretas para mejorar la funcionalidad y la experiencia del visitante. Se utilizaron técnicas y materiales modernos para garantizar la seguridad y longevidad del edificio sin comprometer su apariencia histórica.

Rehabilitación estructural: Se realizaron trabajos de remodelación estructural para reforzar y estabilizar el edificio. Esto incluye la reparación de daños de guerra, el fortalecimiento de cimientos y estructuras internas. Iluminación natural: el diseño de iluminación se ha mejorado para permitir la entrada de luz natural al museo. Esto incluye la restauración de tragaluces, ventanas y tragaluces para maximizar la transmisión de luz y resaltar las exhibiciones de arte.

Materialidad

En la construcción liderada por Friedrich August Stüler, se utilizó el ladrillo rojo como material principal para sus paredes, aparte de utilizar frescos en ciertas partes del museo para darle mayor historia al ambiente. Asimismo, utilizó acabados de piedra en las fachadas para darle una apariencia sólida y duradera al museo. Además se utilizaron la madera y el hierro fundido para darle una mayor variedad de texturas, ya que con la primera aportaba al museo textura y calidez a los espacios interiores, y el segundo otorga ese toque detallado y decorativo al ambiente. Años siguiente, en la intervención realizada por David Chipperfield al Museo Neues en Berlín, busca jugar con las aplicaciones de los materiales, ya que busca que la parte original resalte más a primera vista, teniendo como resultado una visual fuerte y dando sensibilidad al edificio original.

UNIVERSIDAD DE LIMA 35

Como se puede observar en las imágenes anteriores, David Chipperfield no realizó una reconstrucción total ni buscó tapar ciertas partes del museo original para mantener su historia y tener un equilibrio y una comunicación entre la arquitectura de Stüler y la suya. La intervención de los materiales se relaciona con el artículo 12 y 13. Con el primero, enciertas partes como en una de las salas de exposiciones, se integraron en una parte otro material de pared; sin embargo, este se pudo integrar a la materialidad original ya que utilizó un color similar y texturas distinta para que no sobresalga tanto en comparación on el otro. Asimismo, con el artículo 13, la incorporación de ciertos materiales busca adecuarse a lo ya existente, no buscando resaltar y manteniendo un equilibrio entre lo existente.

Imagen 24: Pasadizo del Museo Neues en Berlín Imagen 25: Vista en perspectiva del vestíbulo del Museo Neues en Berlín Imagen 26: Vista de sala de exhibición del Museo Neues en Berlín
CICLO 2023 - 1 36

CONCLUSIONES

La restauración de Chipperfield se llevó a cabo con la idea de enfatizar la estructura con su contexto espacial y materialidad original, mientras que las adiciones nuevas reflejaban lo perdido sin imitarlo. La restauración siguió los principios establecidos en la Carta de Venecia, principalmente los artículos 9, 10, 11, 12 y 13; respetando la estructura histórica en sus diferentes estados de conservación. David Chipperfield demostró la capacidad del edificio para adaptarse a los nuevos tiempos, tecnologías y lenguajes. La intención fue conservar el espíritu de ruina y, al mismo tiempo, introducir elementos nuevos, combinando lo conservado y lo reparado en los espacios interiores. Esto resaltó la paciencia y el gusto por darle tiempo a las cosas, en contraste con una época en la que muchas ciudades estaban llenas de museos nuevos y relucientes. En la intervención del Museo Neues y en los objetos que alberga, se exhiben diferentes grados de tiempo como una arqueología en la que varios estados se superponen: la luz natural y artificial, lo antiguo y lo nuevo, pero sin generar ruido, sino dialogando en perfecta armonía. Se llenaron todos los espacios en la estructura existente sin competir en términos de brillo y superficie.

UNIVERSIDAD DE LIMA 37

BIBLIOGRAFIA

Aigner, U. (n.d.). Museo – Neues Museum. Museums portal Berlin. Retrieved Mayo 10, 2023, from https://www.museumsportal-berlin.de/es/museos/neues-museum/ Alzubide, L. (2020, Junio 4). David Chipperfield y el arte de la permanencia. COSAS, CASAS(281). https://cosas.pe/casas/184497/david-chipperfield-y-el-arte-de-la-permanencia/

Beevor, A. (2002). The Fall of Berlin 1945. Penguin Publishing Group.

https://books.google.com.pe/books?id=JSi86mzy64EC&printsec=frontcover&hl=es&source=gbs_ge_summary _r&cad=0#v=onepage&q&f=false

Beevor, A. (2003). The Fall of Berlin 1945 (Reimpreso ed.). Penguin Publishing Group. https://books.google.com.pe/books?id=JSi86mzy64EC&printsec=frontcover&hl=es&source=gbs_ge_summary _r&cad=0#v=onepage&q&f=false

Brühwiler, E., & Pelke, E. (Eds.). (2017). Engineering History and Heritage Structures - Viewpoints and Approaches. International Association for Bridge and Structural Engineering (IABSE). https://books.google.com.pe/books?hl=es&lr=&id=3JWoEAAAQBAJ&oi=fnd&pg=PA125&dq=Reconstruction +of+the+Neues+Museum+in+Berlin,+Germany&ots=shYywspL01&sig=E8NssGhCLWuSvc3yRnDZlU8--vQ&redi r_esc=y#v=onepage&q=Reconstruction%20of%20the%20Neues%20Museum%20in%20Be

David Chipperfield — DAVID GILL GALLERY. (n.d.). DAVID GILL GALLERY. Retrieved Mayo 11, 2023, from https://www.davidgillgallery.com/david-chipperfield

David Chipperfield gana el Premio Pritzker' • David Chipperfield Architects. (2023, Marzo 7). David Chipperfield Architects. Retrieved Mayo 24, 2023, from https://davidchipperfield.com/press-cuttings/david-chipperfield-gana-el-premio-pritzker

Die Zukunft der Museumsinsel Berlin. (n.d.). MasterPlan Museumsinsel Projektion Zukunft. Retrieved Mayo 10, 2023, from https://www.museumsinsel-berlin.de/home/

Eisele, G., & Seiler, J. (2012). Reconstruction of the Neues Museum in Berlin, Germany (Vol. 165). https://www.icevirtuallibrary.com/doi/epdf/10.1680/ehah.11.00013

Evans, R. J. (2006). The Third Reich in Power (Reprint ed.). Penguin Publishing Group.

https://books.google.com.pe/books?id=3j-Aq1hAgJEC&printsec=frontcover&hl=es&source=gbs_ge_summary_ r&cad=0#v=onepage&q&f=false

Evans, R. J. (2006). The Third Reich in Power. Penguin Publishing Group. https://books.google.com.pe/books?id=3j-Aq1hAgJEC&printsec=frontcover&hl=es&source=gbs_ge_summary_ r&cad=0#v=onepage&q&f=false

Francisco Sánchez, A. (2020). La Luz de los Museos. ETSAB. Alicia Francisco Sánchez. Harrouk, C. (2023, March 7). Sir David Chipperfield, ganador del Premio Pritzker de Arquitectura 2023. ArchDaily. Retrieved Mayo 23, 2023, from https://www.archdaily.pe/pe/997522/sir-david-chipperfield-ganador-del-premio-pritzker-de-arquitectura-20 23

CICLO 2023 - 1 38

BIBLIOGRAFIA

Jokilehto, J. (2013). The context of the Venice Charter (1964) (1998th ed., Vol. 2). https://doi.org/10.1179/135050398793138762

Kershaw, I. (2000). Hitler: 1936-1945 Nemesis (W. W. Norton & Company ed.). W. W. Norton. https://books.google.com.pe/books?id=KZVrCwAAQBAJ&printsec=frontcover&hl=es&source=gbs_ge_summar y_r&cad=0#v=onepage&q&f=false

Kershaw, I. (2001). Hitler: 1936-1945 Nemesis (Reprint ed.). W. W. Norton & Company. https://books.google.com.pe/books?id=KZVrCwAAQBAJ&printsec=frontcover&hl=es&source=gbs_ge_summar y_r&cad=0#v=onepage&q&f=false

López Ujaque, J. M., & Capdevilla Castellanos, I. (2021). Lo construido: ¿Siempre hay que hacer? Acción con lo extraordinario vs. Percepción de lo genérico. Revista de Investigación y Arquitectura Contemporánea, 11. https://doi.org/10.17979/ bac.2021.11.0.7182

Miller, F. P., Vandome, A. F., & McBrewster, J. (2010). Pergamon Museum | visitBerlin.de. Visit Berlin. Retrieved Junio 19, 2023, from https://www.visitberlin.de/en/pergamon-museum

Miranda Díaz, J. (2018). El Espacio de lo Ausente en los Museos. Javier Miranda Díaz.

Museumsinsel (Museum Island), Berlin. (n.d.). UNESCO World Heritage Centre. Retrieved Mayo 18, 2023, from https://whc.unesco.org/en/list/896

Museumsinsel (Museum Island), Berlin. (n.d.). UNESCO World Heritage Centre. Retrieved Junio 02, 2023, from https://whc.unesco.org/en/list/896

Neues Museum, Berlín - David Chipperfield Architects. (n.d.). Arquitectura Viva. Retrieved Mayo 10, 2023, from https://arquitecturaviva.com/obras/neues-museum

Neues Museum, Berlín - David Chipperfield Architects. (n.d.). Arquitectura Viva. Retrieved Mayo 30, 2023, from https://arquitecturaviva.com/obras/neues-museum

Pedrosa Pérez, L. (2018). Dos tiempos, dos museos: Pasado y Presente, Neues Museum y Man. Laura Pedrosa Pérez. https://oa.upm.es/51422/1/TFG_Pedrosa_Perez_Laura.pdf

Pita Castro, P. (2014, Junio 14). RESTAURACIÓN NEUES MUSEUM DE BERLÍN (1997-2009). DAVID CHIPPERFIELD. PROYECTOS 7 / PROYECTOS 8. Retrieved Junio 15, 2023, from https://proyectos4etsa.wordpress.com/2014/06/14/restauracion-neues-museum-de-berlin-1997-2009-davi d-chipperfield/

Portilla, D. (2011, Abril 30). Neues Museum / David Chipperfield Architects en colaboración con Julian Harrap. ArchDaily. Retrieved Abril 24, 2023, from https://www.archdaily.pe/pe/02-87205/neues-museum-david-chipperfield-architects-en-colaboracion-con-ju lian-harrap

Schinkel, K. F., & Bonet, L. (2003). Karl Friedrich Schinkel. Loft Publ. https://books.google.es/books?hl=es&lr=&id=tS7BEFWBWRcC&oi=fnd&pg=PA7&dq=museo+altes&ots=Pqu QcjafUK&sig=9BK41yizFZa_k0IgEjg_nCr9V04#v=onepage&q=museo%20altes&f=false

UNIVERSIDAD DE LIMA 39

Wolf, C. (2003, Junio 17). Rede von Kulturstaatsministerin Christina Weiss anlässlich der "Langen Nacht des 17. Juni"... German Political Speeches Corpus and Visualization. Retrieved Mayo 11, 2023, from https://politische-reden.eu/BR/t/537.html

Zabalbeascoa, A. (2011, Abril 12). Las ruinas como lección de futuro | Cultura. EL PAÍS. https://elpais.com/diario/2011/04/12/cultura/1302559205_850215.html

Zabalbeascoa, A. (2023, Marzo 7). David Chipperfield gana el Premio Pritzker' • David Chipperfield Architects. David Chipperfield Architects. https://davidchipperfield.com/press-cuttings/david-chipperfield-gana-el-premio-pritzker

VALORACIÓN

Tiempo Utilizado en Teoría

Tiempo Utilizado en Opinión

Dificultad del Tema

Motivación frente al Tema

REFLEXIÓN DEL EJERCICIO

El realizar el Artículo de Investigación se basa de una constante investigación sobre el tema, relacionando su contexto histórico con la intervención realizada posteriormente, y vincularlo con las posturas escritas en la Carta de Venecia de 1964. Para ello, se consideró que implementar tres distintos subtemas en el Marco Operativo, ya que, si bien nos basamos principalmente en el documento ya mencionado, es importante destacar los enfoques que tuvo el arquitecto al momento de la intervención al Museo Neues en Berlín, ya que profundiza en el análisis y comprensión de las decisiones tomadas durante el proceso de diseño y construcción, explorando las motivaciones detrás de cada elección arquitectónica. Y al relacionar el contexto histórico, las directrices establecidas en la Carta de Venecia y los enfoques específicos del arquitecto, podemos obtener una visión más completa de la intervención realizada en el Museo Neues.

Evitar la tautología y la redundancia

CICLO 2023 - 1 40

SOBRE MI

MELISSA CAMPOS

(+51) 948 673 019

melissaalhely@gmail.com

Estudiante que cursa actualmente el octavo ciclo de la carrera de Arquitectura, interesada en realizar prácticas en el área de diseño de espacios, dibujos técnicos generales y específicos y planteamiento urbano. Dominio de programas para la realización de planos, representación gráfica adecuada para conocer todo los detalles y levantamiento tridimencional. Con capacidades para la organización del equipo, responsabilidad y creatividad para lograr cumplir con los requerimientos solicitados.

Universidad de Lima 2018 - Actualidad

Colegio San Norberto 2013 - 2017

EXPERIENCIA LABORAL

MGR Arquitectura

Enero 2023 - Marzo 2023

PROGRAMAS

EDUCACIÓN AutoCAD 2D - 3D 4 / 5

Up 5 / 5

PREGRADO DE ARQUITECTURA 2018 - Actualidad

SECUNDARIA 2013 - 2017

PRACTICANTE EN EL ÁREA DE DISEÑO

Encargada de realizar el levantamiento de los diseños de espacios interiores y exteriores, e implementando los diferentes tipos de texturas según los materiales para los posteriores renders, recorridos virtuales y videos comerciales.

Sketch
Revit 3
5 3D Max 4
5 V
Ray 4
5 QGis 3
5
/
/
-
/
/
Adobe
3
5 Adobe Illustrator 4 / 5 Adobe In Design 3 / 5 Microsoft Project 4 / 5 Ofimática 4 / 5
Photoshop
/

Turn static files into dynamic content formats.

Create a flipbook
Issuu converts static files into: digital portfolios, online yearbooks, online catalogs, digital photo albums and more. Sign up and create your flipbook.