MAR 003 - Material de Arquitectura

Page 1


Editorial Diseñar Contenedores 3

168

Americana

Julio Gaeta y Luby Springall

Un bosque urbano. Parque Lineal

Ferrocarril de Cuernavac

Herramientas

Josep María Montaner

Arquitectura Ciudad

Eduardo Agüero, Martin Marcenaro, Marcelo Dorzi, Leonardo Jáuregui, Leandro Zapata y Gustavo Gómez Jones

Contenedor de salud. Sede de Atención Ambulatoria

Hospital Privado de Comunidad. Mar del Plata

Arquitectura Ciudad

Rafael Iglesia

Guía para entender el proyecto

actual. La condición contemporánea de la arquitectura

Argumentos

Carlos Campos

154 144

Más allá de la perspectiva, la a-representación

Material

Ricardo Sargiotti

El espesor del detalle

Ecológicas

Susel Biondi

Las miradas múltiples del proyecto sostenible

3

Revista MAR. Material de Arquitectura, #3, Septiembre 2023, Mar del Plata, Argentina, ISSN 3072-7243

10 36 138 54 92 118

130

Alternancia de sombras y luces. Pabellones de Baños y Fiestas en Parque Independencia. Rosario

Universo-Casa

Jose Cubilla

Vivienda colectiva=Hacer ciudad. Conjunto La Foresta. Asunción

Isla en el bosque. Vivienda Mirikina. Asunción

Aprendizajes

Juvenal Baracco

El Taller Experimental

Hitos de Historia

Claudio Williams

Delfina Gálvez de Williams

Rector / Cdor. Amado Zogbi

Vicerrectora / Ing. Alicia Gil

Delegado rectoral MdP / Arq. Marcelo

Artime

Decano / Arq. Óscar Cañadas

Vicedecano / Arq. Claudio Freidin

Directora / Arq. María Silvia Grilli

ISSN 3072-7243

Equipo

Editor / Arq. Oscar Cañadas

Director / Arq. Roberto Fernandez

Diseño / DG. Jimena Durán Prieto

Consejo Editorial

Arq. Marcelo Artime

Arq. Eduardo Agüero

Arq. Jerónimo Mariani

Arq. Dario Lemmi

Arq. Pablo Rescia

Arq. Leonardo Jauregui

MAR manifiesta que las opiniones consignadas en esta publicación son de absoluta responsabilidad de los firmantes de cada nota y no comprometen a tales instituciones. Las notas sin firma son responsabilidad de la Dirección editorial de MAR. Las imágenes incluídas fueron suministradas especialmente por los autores y/o sujetos protagónicos de cada nota. Cuando fueran solicitadas expresamente se indican las autorías y/o las fuentes originales de tales imágenes. Si alguna imagen careciera a juicio de su autor, del crédito correspondiente rogamos se nos consigne para subsanarlo.

Editorial

Diseñar contenedores

Parece fácil y quizá reduzca notablemente el oficio de proyectar: el arquitecto diseña contenedores. Envoltorios, cajas, cofres, dispositivos que separan exterior de interior (o que construyen interior) y que establecen ya desde la mera cueva excavada del hombre primitivo, condiciones de habitabilidad. Sin querer ser monográfico este mismo numero de MAR propone un conjunto de contenedores, desde la caja saludable del nuevo HPC marplatense hasta los pabellones que flotan en el rosarino Parque Independencia que Rafael Iglesia proyectó hace dos decadas; desde el neto volumen-casa que Cubilla propone en el monte paraguayo hasta el espléndido urnario montevideano que proyectara Nelson Bayardo dialogando con el brutalismo del ultimo Corbusier o con las exploraciones primeras de los brasileños Vilanova Artigas o Mendes da Rocha o con el tecno-artesanato de la modelación espacial que Testa y Agostini proponían en el legendario

Banco de Londres de los primeros 60.

Sin embargo los ensayos teóricos de este número agregan picante a esta cuestion de diseñar contenedores: el cordobés Sargiotti (quizá el mas agudo teórico nuestro sobre la relación entre tecnología y proyecto) comenta cierta desazón sobre un proyecto más bien de bordes o pieles externas de las cajas arquitectónicas sin demasiada intervención proyectual en la resolución del espesor de esas cajas. Y la diseñadora y docente peruana Susel Biondi introduciendo argumentos sobre como reelaborar esa proyectación de cajas ahora desde el complejo asunto de la sustentabilidad, la eficiencia energética y el exámen crítico de la calidad y cantidad de lo material.

Incluso el mapa de arquitectura de las ultimas dos décadas que Jose María Montaner nos presenta en el libro que comentamos en Herramientas (quizá esta vez si queda claro porque

nombramos asi esta sección pues Montaner nos ofrece una especie de guía turística para señalarnos lo relevante de la ultima producción de arquitectura del confuso presente proyectual) presenta y problematiza algunas obras cuya novedad es revisar como hacer un contenedor, por ejemplo en el Museo Camargo de Siza en Porto Alegre, el Museo Folk de Williams&Tsien en Manhattan o la Casa de la Música de Koolhaas en Oporto. Por cierto quiza esta guía agrupa versiones recientes en eso de armar cajas –como las que recién mencionamos–junto a tentativas mas aventuradas y experimentales que por el contrario, tratan de disolver esas totalidades y explotar el proyecto en nuevas y más complejas relaciones entre lo cerrado y lo abierto, entre lo continuo y lo fragmentario, por caso en las obras de Sanaa o Miralles que allí se presentan. En La Foresta de Cubilla aparece otra versión de esto de diseñar contenedores en su intención de colocar un numero de cajas apiladas y dispersas en un terreno tal que más importante que resolver que pasa dentro de cada pieza, lo es el generar intersticios ricos y diversos que fluyen entre tales volúmenes. Asi como el modelo de enseñanza que preconiza el largo magisterio de Juvenal Baracco en Lima parece arrancar con un conjunto de cursos básicos en donde se instruye y entrena para la libertad dispersiva de formas en el espacio para empalmar mas adelante con los cursos superiores que enseñan a diseñar contenedores (quiza otorgando a esta tarea el núcleo principal del saber profesional del arquitecto) aunque siempre con el latente estímulo de aquellos aprendizajes mucho mas libres de los primeros cursos de modo de ensamblar de manera diversa y creativa las formas totalizadas o mas bien cerradas con las transiciones entre arquitectura y ciudad o las tonalidades de articulación de novedad y contexto.

Instrucciones para navegar el MAR

(el número 3 de MAR)

ARQUITECTURA-CIUDAD

Esta sección presenta un complejo edilicio singular local o regional cuyo interés radique en establecer propuestas de relación con sus entornos urbanos además de postular ideas proyectuales significativas en su planteo, desarrollo y materialización. Se presentaran documentaciones originales completas (planos, fotos, memorias) y un análisis que pueda ser útil tanto para su aplicación didáctica como para su recepción académica y profesional.

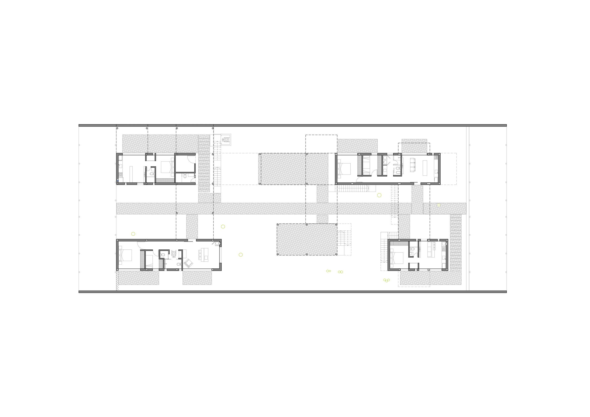
Eduardo Agüero, Martin Marcenaro, Marcelo Dorzi, Leonardo Jáuregui, Leandro Zapata y Gustavo Gómez Jones. Contenedor de salud. Consultorios Externos Hospital Privado de Comunidad. Mar del Plata

La relación arquitectura-ciudad se basa en dos operaciones: (1) ensamblar contenedores nuevos en el parcelario urbano y (2) proponer –cuando el sitio y el programa lo permiten–transiciones entre lo privado y lo público o lo cerrado-abierto, lleno-vacío, etc. En este caso (una máquina saludable) se despliega un contenedor transparente que permite adivinar los interiores, relacionarse fluidamente con el afuera frontal y retrofrontal y plantear cierta contextualidad volumétrica con la lindera y ejemplar construcción del Mar del Plata Community College y sede local de la Universidad CAECE. La geometría proyectual propone asi una caja sensible al entorno que a la vez consigue con su armado interior transparente y liviano que la conjunción de múltiples pequeños locales de consultorios no obstaculice engendrar un interior rico y multiescalar.

Rafael Iglesia. Alternancia de sombras y luces. Pabellones de Baños y Fiestas en Parque Independencia.Rosario

En un nuevo homenaje póstumo a la singular obra del rosarino Iglesia se presenta aquí el par de pabellones que éste construyera en el Parque Independencia en esa ciudad madre de arquitecturas innovativas. Iglesia no sólo convierte a los habitualmente escondidos volúmenes sanitarios, en un contenedor liviano y de lujosa translucencia en esa línea de trabajo de convertir temas sencillos y orbitales de proyecto –como su conocido quincho–en piezas donde desplegar su interés por la exaltación material basada en soluciones vítreas y metálicas a lo que agrega el deconstruido pabellón de fiestas infantiles en que descuella el motivo de las columnas de troncos de árboles previamente seccionados en tablas ensambladas que mantienen la sección necesaria a las cargas pero que se disuelven en su fragmentación.

UNIVERSO CASA

Tratara de ofrecer una secuencia de casas unifamiliares o pequeños conjuntos que contengan proposiciones conceptuales en cuanto a su proceso y razón proyectual, en su realización y construcción y en su uso, identificando valores que vayan más allá de la mera respuesta funcionalista. Tal como en el caso anterior se ofrecerá una documentacion integral y un análisis enfocado en su recepción didáctica tanto como de docentes y proyectistas.

Jose Cubilla. Vivienda colectiva=Hacer ciudad. Conjunto La Foresta. Asunción José Cubilla. Isla en el bosque. Vivienda Mirikina. Asunción

Las investigaciones proyectuales de Cubilla oscilan entre engendrar cajas de envolventes complejas –como el Conjunto San Francisco, de 2014 o el Conjunto Valois de 2021– que sin embargo se disuelven en diversas transiciones de aberturas que el clima admite y recomienda y que aquí se re-presenta en la casa Mirikina (un prisma cerámico con un interior que potencia un espacio conector de sus diversos niveles) y el desarrollo en el caso de La Foresta, de un conjunto multifamiliar que aprovechando un predio generoso, maximiza los espacios comunitarios que rodean el grupo de los pequeños pabellones residenciales, consiguiendo proponer múltiples situaciones de alta riqueza espacial y usos abiertos.

Juvenal Baracco. El Taller Experimental

92

APRENDIZAJES

Plantea recorrer una serie de experiencias educativas de arquitectura reconocidas por su alternativismo y experimentación para acoger planteos y propuestas que pudieran resultar útiles o convergentes con las discusiones pedagógicas de la propia escuela. Así como investigaciones y aplicaciones proyectuales en campos no convencionales del hábitat que abren camino al aprendizaje de prácticas alternativas.

La larga trayectoria de 50 años de enseñanza desplegada por Juvenal Baracco en su célebre taller de la Universidad Ricardo Palma de Lima pone en evidencia un formato integral y alternativo de educación proyectual –en su taller vertical de 10 semestres en que los estudiantes pueden cursar íntegramente su carrera– que mezcla sabiamente etapas iniciales orientadas a desencadenar el subconsciente proyectual del alumno con otras más avanzadas que se ocupan de aportar a la formación técnica del proyectista. Así no sólo se implementan acciones desencadenantes del potencial imaginativo del estudiante sino que tal preparación básica luego repercute en formas ingeniosas de proyectar: hoy casi no hay ningún arquitecto relevante y prestigioso de Perú que no haya sido alumno de esta escuela (Longhi, Biondi, Crousse, Barclay, Llosa, León,Uccelli y un larguísimo etcétera).

Claudio Williams. Delfina Gálvez de Williams

HITOS DE HISTORIA

Mas que presentar grandes hitos de la historia de la arquitectura se tratará de abordar hechos diversos de la historia local y regional que sean de interés en el conocimiento de grandes proyectistas locales y regionales pasados cuyas tareas hayan derivado en producir hechos significativos de la modernidad arquitectónica.

Con la ventaja de conocer cuestiones de primera mano y la desventaja de la proximidad sentimental, Claudio Williams –hijo mayor de la pareja humana y profesional de Amancio Williams y Delfina Gálvez– elabora una semblanza de la trayectoria de Delfina que sin recaer en exageraciones propias de estas épocas de reivindicaciones de género, consigue presentar aspectos de la actividad de su madre en el largo arco de sus aventuras plásticas o literarias pero también en su protagonismo en los trabajos que han solido adjudicarse unilateralmente a Amancio y de tal forma aquí se restablece cierto equilibrio en los aportes de la pareja visibles en la autoría de algunos célebres dibujos o en acciones de activismo cultural como haberse ocupado de traducir La Carta de Atenas, ese manifiesto de la arquitectura y urbanismo CIAM.

ECOLÓGICAS

La cuestión ambiental y de crisis de sustentabilidad se presenta como un desafío para el proyecto actual y futuro y si bien resulta un campo relevante para ajustar y modificar formas tradicionales de proyectar, todavia se carece de metodologias comprehensivas y aplicables por lo cuál se presentarán distintos trabajos y enfoques –desde interdisciplinares hasta urbano-territoriales pero también de proyectos de arquitectura- para empezar a entender las vias de futuros trabajos de mucha mayor implicación ecológica.

Susel Biondi.Las miradas múltiples del proyecto sostenible

La finalidad de un proyecto arquitectónico debería ser la búsqueda de bienestar y confort del usuario. Este, al habitar un ambiente construido, se convierte en el principal evaluador de sus condiciones de sostenibilidad. Para lograr este bienestar se debería cumplir con un confort físico básico: condiciones de iluminación, ventilación, temperatura, etcétera, pero también con un confort psicológico: espacialidad, flexibilidad, posibilidad de apropiación, relaciones interior-exterior, etcétera.

Ricardo Sargiotti. El espesor del detalle

138 MATERIAL

La revista no publicará (salvo alguna específica excepción) proyectos no construídos en el entendimiento de la relevancia por otorgarse a la materialización adecuada de las ideas proyectuales ya que se piensa que la construcción no es una fase ulterior e independiente del proyecto sino que éste cobra sentido, viabilidad y calidad en tanto aborde y resuelva su condición material, lo cuál lleva a entender cuestiones de sustentabilidad y tecnologías de ingenio y cualidad regional, más allá de temas propios de la construcción tradicional.

El arquitecto no está a cargo de lo que sucede detrás del perfil de la línea que separa lo visible de lo invisible del dibujo: definieron sutilmente en renders y maquetas aquella silueta y, aunque la complejidad de las entrañas no esté a cargo de experimentados picapedreros o estucadores como en los tiempos de Palladio, sino en manos de ingenieros especialistas que deben acomodar todos los requerimientos de aislaciones, seguridad, estanqueidad, normativas o acondicionamiento con productos industriales cada vez más estandarizados, su tarea es similar a la de aquellos: satisfacer la silueta definida por el proyectista cancelando cualquier exhibición obscena de sus interiores.

ARGUMENTOS

La producción de proyectos descansa en aprovechar aspectos analíticos emergentes de argumentos teóricos que tratan de entender el pasado y el futuro para acompañar el presente proyectual y de tal forma esta sección se interesa en mostrar trabajos argumentales de teoría y crítica que en algunos casos pueden tener relación directa con acciones de proyecto o en abrir propuestas de formas alternativas de proyectar.

Carlos Campos. Más allá de la perspectiva, la a-representación.

En 2022 los diseñadores recibimos una noticia inesperada. Finalmente teníamos a disposición los dispositivos necesarios para generar imágenes utilizando Inteligencia Artificial a través de una plataforma muy accesible. De repente, lo que sucedió como una explosión no fue otra cosa que la popularización de un dispositivo que nos era ajeno. Y digo ajeno y no desconocido: Los Algoritmos Text-to-Image. Estas aplicaciones funcionan integrando y redefiniendo parte de nuestro material a la hora de proyectar. Este material puede ser un texto o una imagen. Si es un texto, funciona como una ilustración. Si es una imagen, como una transformación de esa imagen a través de un texto.

HERRAMIENTAS

Los buenos libros y artículos de problemas teóricos y prácticos del proyecto de arquitectura son como herramientas de trabajo para formarse y entender aspectos y cualidades por afrontar cuando se está proyectando: por tanto el interes de esta sección será presentar críticamente algunos aportes bibliograficos recientes que suponen conocer el marco cultural general donde se contextualiza el hecho de proyectar y tomar decisiones proyectuales.

Josep María Montaner. Guía para entender el proyecto actual. La condición contemporánea de la arquitectura

Entrados en el siglo XXI, ya podemos tener cierta perspectiva para interpretar la evolución de la arquitectura desde finales del siglo pasado y detectar las características más destacables del reciente cambio de siglo. Como continuación del libro Después del movimiento moderno. Arquitectura de la segunda mitad del siglo XX (1993), se repiensa la arquitectura en el período 1990-2015 revisando las corrientes hegemónicas en las décadas de 1970 y 1980 para comprobar qué aspectos han perdido vigencia, cuáles se han renovado y qué conceptos y movimientos han aparecido.

AMERICANA

Entendemos la cultura proyectual local como haciendo parte de problemas y alternativas propias del mundo latinoamericano cuyas propuestas mas singulares e innovativas se presume que deben conocerse profundamente para insertar el trabajo de proyecto en una condición geocultural especifica que en lo posible aproveche lo bueno de la globalización pero también que cuestione sus defectos y limitaciones.

Julio Gaeta y Luby Springall. Un bosque urbano. Parque Lineal Ferrocarril de Cuernavaca México tiene una deuda de agua y verde con su gente, por ello la propuesta para el concurso fue radical: construir un bosque urbano de 4,5 km de largo, última oportunidad para que la ciudad construyera un nuevo bosque de esta escala. La propuesta se apoyó en dos nociones: la primera fue el bosque que entrelazaría 22 barrios, beneficiando directamente a más de 50000 personas y la segunda fue la comprensión del parque lineal como parte de un sistema mayor: la ciudad. El objetivo es la creación de un lugar que potencia la identidad y la memoria, que sea sostenible con una alta calidad ambiental, que contribuya al orden multiescalar: la ciudad, que se proyecta en el tiempo mediante un mantenimiento de bajo costo.

CONTENEDOR DE SALUD

Sede de Atención Ambulatoria Hospital Privado de Comunidad. Mar del Plata

Leandro Zapata y Gustavo Gómez Jones

Memoria

Como estudio de arquitectura Agüero&Marcenaro es la primera vez que asumimos el desafío de proyectar y dirigir un edificio dedicado a la atención primaria de salud, que será visitado por cientos de personas diariamente y que además representa a la mayor institución dedicada a la atención médica de la ciudad. Recibimos el encargo en plena etapa de aislamiento obligatorio con motivo de la pandemia de Covid 19, marco de una crisis sanitaria que nos obligaba a repensar infinidad de aspectos de nuestra vida cotidiana.Para llevar adelante esta tarea conformamos un equipo de trabajo asociados con Marcelo Dorzi, Leonardo Jáuregui, Leandro Zapata y Gustavo Gómez Jones.

La Fundación Médica Mar del Plata, entidad creada en el año 1965 y que desde el año 1971 administra el Hospital Privado de Comunidad asiste hoy a casi un cuarto de la población marplatense con cobertura social. En la misma se desempeñan casi 1.500 colaboradores y profesionales de la salud distribuidos en 6 centros de atención.

El edificio en cuestión viene a reemplazar, aunque triplicando su capacidad, las instalaciones que hasta principios del año en

curso estaban ubicadas sobre la calle Güemes. La Fundación tiene una estructura interna muy horizontal en cuanto a sus recursos humanos, lo que para nosotros significó trabajar con múltiples clientes, todos con capacidad de decisión. A la hora del armado del programa de necesidades, debíamos ir recabando información, no solo de las distintas especialidades médicas, sino de las áreas de mantenimiento, recursos humanos, marketing y comunicación institucional, informática, enfermería y administración entre otras. Esto nos llevó a desarrollar nuevas estrategias para escuchar y tomar decisiones, que de todas formas podían ir cambiando a lo largo de la obra.

La obra se ubica en un predio que tiene un frente de 17.32 mts, sobre calle Gascón y un fondo de 43.30 mts. Se encuentra a 50 metros del centro comercial a cielo abierto de calle Güemes El sector tiene un importante flujo de tránsito peatonal durante toda la semana y todos los meses del año. Además, es un área muy bien servida por el transporte público de pasajeros y con una variada gama de servicios que van desde el comercio minorista, hasta hotelería.

El programa de necesidades está constituido por 38 consultorios médicos para estudios técnicos y de imágenes, área de

Datos

Las fotos son de Obralinda. Cálculo estructu-

ral Arquitecto Fernando Redivo e Ingeniero

Juan Pablo Sanmartano. Asesores eléctricos

Consorti y Silva, Instalaciones Sanitarias

Arquitecto Adrián Pozzobon, Instalaciones

Termomecánicas Boreas, Instalaciones contra incendio Ingeniero Juan Pablo Vignolo, Inte-

riorismo Agostina Castro San Martín. Asesores internos del HPC Ingeniero Juan Pablo Lahos y Arquitecto José Luis Castorina.

recepción, salas de espera con espacio para 4 personas por consultorio, y servicios como vestuarios de personal, áreas técnicas, sectores para enfermería, depósitos, sanitarios públicos y propios de cada consultorio. Además cocheras en el subsuelo y una planta de remate destinada íntegramente a actividades de capacitación, sociales y culturales. También debíamos resolver en un sector de planta baja y subsuelo el laboratorio de análisis clínicos, con un funcionamiento totalmente independiente. Nuestra primera certeza, fue que teníamos que idear un edificio flexible, adaptable a los cambios de usos y de requerimientos tecnológicos. También nos dimos cuenta desde un comienzo, que el programa de necesidades requerido, se veía algo comprimido por las condiciones reglamentarias del terreno, ubicado en un distrito urbano de media densidad, que privilegia el uso residencial. Esta condición nos llevó a pensar desde un principio en proyectar un subsuelo denso, con múltiples funciones, para no exceder la volumetría reglamentaria. Por otra parte, el ambiente pandémico imperante, nos llevaba a imaginar muchos espacios al aire libre. Teníamos presentes las historias estudiadas en época de facultad, sobre Alvar Aalto en Paimio, en tiempos de la epidemia de tuberculosis. Las imágenes en blanco y negro, de esas terrazas con camas al aire libre, eran parte de nuestro imaginario.

Otra idea originaria, era que el edificio debía implantarse con una actitud respetuosa con su entorno inmediato, lindando con la sede de la Universidad Caece y con una casa, donde al momento del proyecto funcionaba la Escuela de Gastronomía, hoy demolida y donde irá un futuro edificio. Clara demostración, que no solo nuestro encargo trataba de resolver un programa de necesidades cambiantes, sino que hasta el entorno demostró la misma condición.

Comenzamos a imaginar, en las primeras reuniones de proyecto, un gran contenedor, especie de cubo de medianera a medianera, soportado por una estructura de hormigón armado de luces homogéneas. Si bien en los primeros esquemas, este volumen tenía una importante cantidad de vacíos, las exigencias programáticas fueron llevándonos a ir macizándolo, dejando sólo una comunicación espacial vertical en torno a la escalera abierta. Pensábamos desde un comienzo que este cubo tendría similares proporciones de ancho, profundidad y altura, y este postulado se verificó a lo largo del proceso, dada la necesidad que teníamos de aprovechar al máximo el volumen edificable de acuerdo a la normativa municipal.

En cuanto a la implantación, siempre lo pensamos algo retirado del frente como gesto de respeto hacia el edificio ladrillero de la

universidad Caece. Única referencia inmediata dotada de un grado cierto de permanencia, a la luz de la suerte corrida por el chalet que albergaba a la escuela de gastronomía. Los primeros bosquejos en planta, marcaban la necesidad de un retranqueo que marcara el acceso, más precisamente los accesos al centro de atención médica y a los laboratorios de análisis clínicos situados en planta baja. También la necesidad de dos núcleos de circulaciones verticales, uno público con un ascensor y una escalera abierta, que invite a usarla, y otro de uso médico, asociado a una tira de servicios y al acceso vehicular.

Otra idea inicial fuerte, fue el corte del edificio, con una ocupación intensiva del subsuelo, una planta baja transparente y que rematara en una plaza interior, y una sucesión de pisos superiores más bien repetitivos. En estos niveles superiores, comenzamos a imaginar horadaciones, que albergaran esperas cambiantes, tanto en espacios interiores como en terrazas exteriores, una vez más imbuidos del clima que se vivía en la parte más dura de la pandemia.

La incorporación del subsuelo con consultorios y patios ingleses, colaboró para acentuar el atrio de accesos, despegado de la medianera por un patio con árboles que vienen desde el nivel inferior. Esto sumado a la doble altura le da al ingreso la importancia que creemos necesaria.

En todo el proceso de diseño, al cubo siempre lo imaginábamos recubierto por un juego de dobles pieles, tanto al frente como al contra frente.

Planos absolutamente vidriados como primera piel, sistemas de parasoles como piel exterior, y entre medio, balcones corridos. Protegiendo del clima los lugares de uso, a la vez de garantizar ventilaciones naturales, y circulaciones semi cubiertas alternativas entre consultorios. Luego de conversaciones con nuestros clientes, se definió solo preservar esta idea en el frente que da a la plaza interior, y reemplazar la fachada a Gascón por un frente vidriado más tradicional.

Solo cuando nuestros clientes pudieron ver un edificio recubierto en vidrio, lograron visualizarlo y sentirse identificados.

En cuanto a las funciones, comenzamos imaginando un uso intensivo del subsuelo, destinado principalmente a pediatría. Así es como la plaza

inclinada en el corazón de la manzana, estaba unida por unas escalinatas que la conectaban con el interior, actuando como lugar de juegos y espera de esta especialidad. La planta baja sería bien transparente y libre de consultorios, y el resto de las especialidades se distribuirían en los pisos superiores. Esto fue cambiando en el proceso por pedidos de los clientes, y pediatría pasó a planta baja. A nuestro criterio se perdieron ciertas condiciones espaciales, pero el contenedor imaginado desde un principio, terminó dando pruebas de su versatilidad.

Al tener un uso intensivo del subsuelo, planta baja y primer piso, se logra que gran parte del movimiento de los usuarios se pueda resolver por escaleras. En planta baja y subsuelo también se desarrolla el laboratorio de análisis clínicos, resolviendo esta actividad con total independencia funcional del resto del edificio. Los pisos superiores alternan áreas específicas como cardiología o dermatología, con consultorios genéricos para distintas especialidades.

El edificio tiene unas condiciones de iluminación y ventilación natural que superan ampliamente los estándares hasta hoy manejados por todas las instituciones de salud de la ciudad.

La plaza verde proyectada en el pulmón de manzana, tiene también por objeto generar superficies absorbentes que mitiguen los efectos de las lluvias torrenciales sobre el sistema

de desagüe pluvial, de un sector de la ciudad que supo sufrir muchas inundaciones en este tipo de eventos.

Acostumbrados los estudios asociados a realizar una producción volcada principalmente a la vivienda (tanto individual como de propiedad horizontal), este edificio supone un desafío de otro orden. Confiamos en que tendrá un uso muy intenso y que de a poco se irá insertando silenciosamente en la memoria de la comunidad.

Opinión

Este proyecto arranca en su definición, de una implantación muy interesante (un lote urbano grande de 17x43 en una zona de nueva centralidad en MDP, el área Güemes) ensamblada con un programa denso (38 consultorios, sus esperas y muchos servicios adicionales, como laboratorio) que ponía a prueba la edificabilidad permitida para esa zona y predio. Ello sumado a la necesidad cada vez más imperiosa de diseñar equipamientos con la mayor capacidad de adaptación a los cambios tecno-funcionales cada más acelerados que los avances de las terapéuticas medicinales están deparando y que se acrecentrará en futuros próximos. De allí que los autores indican que nuestra primera certeza, fue que teníamos que idear un edificio flexible, adapta-

ble a los cambios de usos y de requerimientos tecnológicos. También nos dimos cuenta desde un comienzo, que el programa de necesidades requerido, se veía algo comprimido por las condiciones reglamentarias del terreno, ubicado en un distrito urbano de media densidad, que privilegia el uso residencial. Esta condición nos llevó a pensar desde un principio en proyectar un subsuelo denso, con múltiples funciones, para no exceder la volumetría reglamentaria.

Allí se evidencian factores centrales del proyecto como enfocar un esquema flexible y adaptable a cambios y cierta constatación de que el programa requerido exigía un aprovechamiento máximo de la edificabilidad permitida y que ello probablemente iba a impactar en las intenciones de proponer una espacialidad conectiva generosa. Lo cuál incidió en la decisión de operar con un gran contenedor cúbico de tres dimensiones equivalentes y en un trabajo que iba a ser detallado escalarmente para conseguir el mejor corte posible, en el sentido de maximizar condiciones de espacialidad interna.

Y asi señalan que comenzamos a imaginar, en las primeras reuniones de proyecto, un gran contenedor, especie de cubo de medianera a medianera, soportado por una estructura de hormigón armado de luces homogéneas. Si bien en los primeros esquemas, este volumen tenía una importante cantidad de vacíos, las exigencias programáticas fueron llevándonos a

ir macizándolo, dejando solo una comunicación espacial vertical en torno a la escalera abierta. La decisión de operar un cubo, de plantear una caja estructural regular que acogiera la diversidad y complejidad del programa tratando de conseguir el mayor espacio co-

nectivo posible permitía además, mediante la opción de retiro frontal no solo el ofrecer un abra urbana mas generosa para la cantidad de público que usaría este edificio sino además, proveer un gesto proyectual sensible en contextualizarse con el lindero edificio de la Universidad Caece (relevante obra del estudio

Mariani-Pérez Maraviglia-Cañadas) tal como lo reconocen los proyectistas:

En cuanto a la implantación, siempre lo pensamos algo retirado del frente como gesto de respeto hacia el edificio ladrillero de la Universidad Caece.

El avance del proyecto debió matizar la envergadura del programa –que requería muchos metros– con la idea básica de acomodar el mismo dentro del prisma máximo que permitía la codificación pero aspirando a conseguir más alternativas espaciales que las surgidas de una mera acumulación de pisos de ocupación completa, según lo indican en su memoria los proyectistas alrededor de ideas como trabajar una planta baja más bien libre así como conectada a un retiro de fondo que se viera como una plaza:

Otra idea inicial fuerte, fue el corte del edificio, con una ocupación intensiva del subsuelo, una planta baja transparente y que rematara en una plaza interior, y una sucesión de pisos superiores más bien repetitivos. En estos niveles superiores, comenzamos a imaginar horadaciones, que albergaran esperas cambiantes, tanto en espacios interiores como en terrazas exteriores.

Esa búsqueda dirigida a maximizar posibilidades de generación de espacios libres, transparentes y que esponjaran la densidad

CORTE LONGITUDINAL

Esc. 1:150

requerida por el metraje programado dio paso a un proceso de proyecto en el cuál cobra interés tratar de obtener recursos como los emergentes de usar el motivo del patio inglés en subsuelo o la búsqueda inherente a darle espacialidad al atrio de acceso como lo indican en su memoria:

La incorporación del subsuelo con consultorios y patios ingleses, colaboró

para acentuar el atrio de accesos, despegado de la medianera por un patio con árboles que vienen desde el nivel inferior. Esto sumado a la doble altura le da al ingreso la importancia que creemos necesaria.

En cuanto al proceso de generación de la piel del cubo –o la definición de la cualidad del cerramiento– en principio se previó con el

recurso de una envolvente compleja basada en un paramento interior transparente debajo de otro con parasoles de sombreo, pero como también observan en su memoria, esta definición –por razones de presupuesto– sólo se pudo mantener en la fachada de contrafrente, lo cuál se acopló adecuadamente al tratamiento paisajístico del patio-parque posterior, como también se observa en un pasaje de su

memoria:

En todo el proceso de diseño, al cubo siempre lo imaginábamos recubierto por un juego de dobles pieles, tanto al frente como al contrafrente. Planos absolutamente vidriados como primera piel, sistemas de parasoles como piel exterior, y entre medio, balcones corridos.

Protegiendo del clima los lugares de uso, a la vez de garantizar ventilaciones naturales, y circulaciones semi cubiertas alternativas entre consultorios. Luego de largas discusiones con nuestros clientes, logramos solo preservar esta idea en el frente que da a la plaza interior, y reemplazar la fachada a Gascón por un frente vidriado más tradicional.

En resumen es altamente valorable este desarrollo de un complejo programa de salud ocupando un contenedor regularizado y transparente tal que la solución obtenida –después

de las variadas contingencias de adaptación de las exigencias de dicho programa que los autores describen en su memoria- maximiza una espacialidad que trata de ir mas allá de proveer puros espacios conectivos y de circulación así como engendrar motivos paisajísticos interesantes en la plaza posterior y en el ensamble espacial del subsuelo con la planta baja. También proponer una sana operación de contextualización con el entorno barrial, tan pujante del área Güemes, tanto como, en la articulación inmediata con el célebre edificio lindero, haciendo que la calidad urbana pueda depender del diálogo entre buenas piezas de arquitectura a lo largo del tiempo y de la diversidad de usos.

ALTERNANCIA DE SOMBRAS Y LUCES

Pabellones de Baños y Fiestas en Parque Indepedencia. Rosario

Memoria

El trabajo consistió en proyectar la infraestructura de un parque de diversiones en el Parque de la Independencia de la ciudad de Rosario. Para ello, se diseñaron dos edificios y se amplió otro existente, además del equipamiento urbano y demás instalaciones del predio. Los edificios son pabellones. Uno destinado a sanitarios públicos, oficinas y vestuarios del personal y otro pensado para albergar un salón de fiestas, un bar y un local vidriado para juegos electrónicos. La ampliación del edificio existente fue concebida para que pudiera cumplir la función de depósito del parque. El primer pabellón se ha emplazado al ingreso del parque. La ubicación de los baños es un tema aparte, ya que siempre se les asigna el lugar más oscuro, cuando no el más sórdido. Recluidos en el peor de los sitios, aquél que solemos identificar como al fondo a la derecha (o izquierda, pero siempre al fondo), no podría decir aquí cuánto hay en esta elec-

ción del dictado de la moral o de la cultura, lo cierto es que, ya en los tiempos de Homero, los baños ocupaban su lugar al fondo del salón principal –megaron– y a su derecha, tal como aparecen descriptos en la Odisea.

Así las cosas, hemos hecho con ellos una operación que ya aparece en otros trabajos anteriores: sacar a la luz ámbitos que permanecen ocultos asignándoles nuevos lugares.

Su localización a la entrada del parque no sólo es una manera de marcar el ingreso sino que expresa nuestra intención de que oficie de linterna en una zona que siempre ha presentado poca iluminación.

Se trata de una estructura de hormigón armado cerrada con vidrio, cuyo lenguaje no es más que la propia estructura. Esta estructuración interna permite por un lado, el grado de privacidad que requieren estos ámbitos y por otro, el vidrio translúcido hace visibles las siluetas a través de él y con ello la cir-

culación interna, de manera que quien está afuera puede ver si hay alguien en el interior del local. Al mismo tiempo, la luz y el vidrio imprimen color a la fachada. Esta estructuración, además, hace posible la ubicación de los lucernarios en los pliegues de los tabiques que se expresan en la cubierta.

El edificio se mantiene de hormigón visto en su exterior tanto como en su interior, buscando contrastar la rusticidad del hormigón y el quebracho colorado de las mesadas con las superficies pulidas y brillantes del vidrio y el acero inoxidable que ofician de espejos que confunden fondo y figura a la manera de Magritte en La condición humana.

El segundo pabellón es para fiestas y es un pabellón de troncos pre-moldeados.

Cuando visité el lugar, la primera impresión que tuve fue el notable contraste de la luz del día –visible en el cielo– y la sombra cerrada bajo la arboleda que sumía al terreno en una noche imposible, a la manera de las pinturas de Magritte que corresponden a la serie El imperio de las luces. Por otro lado, bajo la masa oscura del follaje de la arboleda, la luz pasa recortada a través de los troncos a la altura humana. Una luz compartimentada, cuyo flujo está sujeto al ritmo que le imprimen los troncos, (tal como se la ve entre las arboledas al costado de la ruta), una luz rasante que parece perseguirnos a través de las líneas

verticales de la vegetación. En esa alternancia de sombras y luces está el proyecto. Éste, entonces, plantea una losa que se sostiene sobre unos troncos de quebracho colorado, colocados en el perímetro. La losa simplemente está apoyada y anclada con un tabique en uno de sus extremos. En esta estructura los tabiques divisorios cuelgan del techo para otorgarle más peso y darle a ésta mayor estabilidad. En el interior nada llega al piso, incluso el desagüe de las piletas se detiene unos centímetros antes de llegar al suelo para que el agua pase libremente. Las mesadas, barras y pisos del depósito están acuñados a estos cortinados rígidos de hormigón. Estamos en presencia de lo que comúnmente llamamos una planta libre.

La imagen resultante responde a lo pretendido al comienzo: es decir, el edificio desaparece, los troncos se confunden con los árboles y sólo se manifiesta la línea recta de la losa gravitando en la arboleda como única señal de la intervención del hombre. Es decir: el árbol no tapa el bosque. Sin embargo, los troncos han sido cortados en tres lonjas para favorecer su manipulación y con el fin de interrumpir el efecto mimético y mostrar en ellos la huella de la mano humana, porque lo que se pretende no es imitar a la naturaleza (o forzar a la naturaleza a que imite a la arquitectura), sino con-

tar qué pasa del otro lado. Otra vez Magritte, pero aquél de Amoríos peligrosos. A pesar de su aspecto artesanal, los troncos pueden ser pensados como columnas pre-moldeadas cuya fabricación ha quedado en manos de la naturaleza. No obstante, con el tiempo los troncos irán perdiendo la corteza para dejar paso al color rojo que el tanino le da a la piel y, más tarde, adquirirá el color plateado que le da el tiempo: las canas, la vejez.

Mientras proyectaba este pabellón tuve también muy presente la imagen de los ranchos arreglados para el festejo de un cumpleaños.

Recortada sobre la llanura, la mancha marrón del rancho se transforma con los colores de los globos y las guirnaldas que hacen su trabajo aún en la casa más modesta. Soslayando clases sociales y presupuestos dispares, globos y guirnaldas son, donde quieran que estén, la señal inequívoca del festejo.

En conjunto, los dos edificios se presentan contrapuestos. El edificio de los baños está sobre elevado para que su luz asemeje estar suspendida, flotando; el segundo edificio se resume en la presencia firme de los troncos que se levantan desde el suelo, tal como lo hacen las plantas.

Cuando tuvimos que diseñar la señalética observamos que, generalmente, en las señales las figuras se presentan realizando la acción que deben indicar; sin embargo,

al llegar a los baños, éstas se mantienen estáticas y sólo se distinguen por el género. De allí que, siguiendo la lógica de la acción a graficar, hemos optado por dejarlas hacer lo que necesitan hacer.

En cuanto al equipamiento se han diseñado bancos que sólo son unos durmientes zunchados con cintas de embalaje que se colocaron entre los árboles y una sillas de hormigón que son una reconceptualización de un modelo hecho en Barcelona al cual le hemos desplazado el apoyo para hacerla más cómoda.

Datos

La obra se denomina Parque de Diversiones en un predio de 3 hectáreas dentro del Parque Independencia de Rosario. El arquitecto fue Rafael Iglesia siendo arquitecto colaborador J.J.Dapello además de otros colaboradores como el arquitecto G. Castiglione, el ingeniero R. Osela y los señores A.Barton, G. Farias y L. Villanueva. El cálculo estructural los realizaron l@s ingenier@s Rita Campodónico y Roberto Paloma.

Se proyectó y construyó entre 2002 y 2003. Las fotografías son de Gustavo Frittegotto.

Opinión

La obra de Rafael Iglesia, truncada por su prematura muerte (considerando la bastante

habitual larga duración de los arquitectos), merece un continuo análisis aun después de las más de dos décadas transcurridas en algunas de ellas, revisión que empezamos en nuestro MAR anterior con la Casa de la Cruz. Esta revisita para difundir y volver a discutir las novedades proyectuales del complejo experimentalismo desplegado por El Rafa decanta en esta ocasión en los dos pabellones –de Baños y de Fiestas– que proyectara y construyera en el muy céntrico Parque Independencia al inicio de este siglo.

Se trata de dos experimentos diferentes pero consonantes, casi un ejercicio demostrativo de alternativas para diseñar cajas de usos o complejos contenedores de diferentes relaciones lleno/vacío, exterior/interior, figura/ fondo que como su autor lo consigna en su memoria (otra pieza de escritura arquitectónica de densidad conceptual para nada

habitual en las memorias piadosamente llamadas descriptivas, lo que en general significa que se escriben para repetir cosas que podrían leerse con los planos): En conjunto, los dos edificios se presentan contrapuestos. El edificio de los baños está sobre elevado para que su luz asemeje estar suspendido, flotando; el segundo edificio se resume en la presencia firme de los troncos que se levantan desde el suelo, tal como lo hacen las plantas. Son dos operaciones diferentes que dialogan: los baños como una caja translúcida iluminada y en que se adivinan las siluetas de los usuarios, que además levita despegada del suelo y la reservada para fiestas como un implante de un pequeño bosque artificial, en la alineación de esas columnas hechas con troncos, sin embargo aserrados y manifestando una intención de des-naturalizarlos.

El imperio de las luces, Magritte

Con los baños su autor hasta recurre a citas homéricas que refieren a los sanitarios como aquello que debe ocultarse (al fondo a la derecha…) para situar su intención proyectual en línea con torcer ese anonimato habitual y hacerlos muy pregnantes, presentes y evidentes, como lo indica en la memoria: sacar a la luz ámbitos que permanecen ocultos asignándoles nuevos lugares. Su localización a la entrada del parque no sólo es una manera de marcar el ingreso sino que expresa

nuestra intención de que oficie de linterna en una zona que siempre ha presentado poca iluminación.

Más que un lugar a disimular ahora el asunto se presenta como una linterna, un foco de relevancia, construido de una manera cuasi lujosa (asi definida: estructura de hormigón armado cerrada con vidrio, cuyo lenguaje no es más que la propia estructura) que destinará a la resolución de esta pieza normalmente subsidiaria con toda la potencia expresiva y compositiva que Iglesia reservaba para su arquitectura más relevante y asi lo dice, incluso comparando su proceder con técnicas plásticas de imbricación de figura/fondo operadas por el surrealista belga Magritte: El edificio se mantiene de hormigón visto en su exterior tanto como en su interior, buscando contrastar la rusticidad del hormigón y el quebracho colorado de las mesadas con las superficies pulidas y brillantes del vidrio y el acero inoxidable que ofician de espejos que confunden fondo y figura a la manera de Magritte en La condición humana. Los baños iglesianos (como también ocurriera con proyectos aparentemente menores como una escalera o un quincho) reciben de su autor el resultado de sus investigaciones más ambiciosas en la relación material-expresión con el vidrio, el metal, el hormigón

La condición humana, Magritte Amorios peligrosos, Magritte

o la madera ennobleciendo el trabajo de proyecto.

Asi como el pabellón sanitario resulta resignificado y convertido en protagónico, el otro volumen también recibirá un tratamiento singular especial para acogerlo tanto a la naturaleza funcional y simbólica de sus usos (un sitio para celebraciones) cuanto al interés en insertarlo en el entorno paisajístico del parque.

Por empezar disponiendo una neta cubierta de hormigón que queda sostenida por una alineación de columnas-troncos, en que estos están segmentados en varias tablas que reconstruyen la sección original pero disolviéndose en un juego de lleno/vacio que RI evoca o describe del siguiente modo: Una luz compartimentada, cuyo flujo está sujeto al ritmo que le imprimen los troncos, (tal como se la ve entre las arboledas al costado de

la ruta), una luz rasante que parece perseguirnos a través de las líneas verticales de la vegetación. En esa alternancia de sombras y luces está el proyecto.

Pequeña apelación a la percepción cinética de las líneas de arboledas que se visualizan cuando el sujeto se mueve, como en las miradas del paisaje lindero que se expresa al borde de rutas arboladas.

Pero también este pabellón será depositario de investigaciones iglesianas sobre el recurrente tema de la tectónica y su negación o desafio que prácticamente se repite en toda su obra y que lo lleva en este caso a colgar todo lo físico y pesado del sitio (cortinados rígidos de hormigón) aumentando la carga de la losa apoyada en las columnas compuestas y a la vez liberando el anclaje al suelo de todas esas piezas que cuelgan y que asi contribuyen a definir de modo literal eso que la modernidad supo llamar planta libre: En esta estructura los tabiques divisorios cuelgan del techo para otorgarle más peso y darle a ésta mayor estabilidad. En el interior nada llega al piso, incluso el desagüe de las piletas se detiene unos centímetros antes de llegar al suelo para que el agua pase libremente. Las mesadas, barras y pisos del depósito están acuñados a estos cortinados rígidos de hormigón. Estamos en presencia de lo que comúnmente llamamos una planta libre.

Se trata de desarrollar una construcción de puro techo, definidor de un lugar semiprotegido, pero que se presenta como un exterior acondicionado levemente (para dar sombra o protección frente a la lluvia) cuya intención es asegurar una fiesta en el continuo paisajístico del parque y no en un recinto delimitado y asi lo escribe: el edificio desaparece, los troncos se confunden con los árboles y sólo se manifiesta la línea recta de la losa gravitando en la arboleda como única señal de la intervención del hombre. Es decir: el árbol no tapa el bosque. Con lo cuál nos encontramos con algunos de los aspectos de tensión que alimenta toda la tradición teórico-conceptual del pensamiento proyectual de Iglesia; es decir tensión entre cultura y naturaleza, entre acondicionamento y lugar, entre proyecto y paisaje.

Tensión o dialéctica que se expresa en operar proyectualmente piezas de factura natural (las columnas aserradas y colocadas rearmando el tronco original, ahora con estrías de espacio-luz) que se hacen artificiales o culturales al ser manipuladas: A pesar de su aspecto artesanal, los troncos pueden ser pensados como columnas pre-moldeadas cuya fabricación ha quedado en manos de la naturaleza.

Y esa dialéctica también atraviesa el espesor cultural de como diseñar un espacio

de juego y recreación para lo cuál Rafael recurre a utilizar imágenes que su memoria retenía y que venían de expresiones populares, como se advierte en este otro tramo significativo de su memoria: Mientras proyectaba este pabellón tuve también muy presente la imagen de los ranchos arreglados para el festejo de un cumpleaños. Recortada sobre la llanura, la mancha marrón del rancho se trans-

forma con los colores de los globos y las guirnaldas que hacen su trabajo aún en la casa más modesta. Soslayando clases sociales y presupuestos dispares, globos y guirnaldas son, donde quieran que estén, la señal inequívoca del festejo.

VIVIENDA COLECTIVA = HACER CIUDAD

Conjunto La Foresta. Asunción

Memoria

Este conjunto de viviendas se piensa en dos direcciones: una, de estrategias periféricas o lo que implica trabajar este tema en la ciudad de borde, el crecimiento metropolitano y dos, de buscar en la propuesta atmósferas de encuentros, penumbras y oxígeno, es decir, algo distinto de los bloques compactos de las típicas viviendas colectivas o de apartamentos apilados.

Se trató asi de proponer algo distinto o tal vez lo que creíamos apropiado ante un pedido literal de 8 unidades o chalets en la periferia asunceña, haciendo parte del nuevo housing que se extiende implacablemente en nuestras ciudades, como en este caso, en el barrio Fernando de la Mora que se va configurando como una ciudad dormitorio particular cada vez más valorizada porque es el primer anillo metropolitano fuera de la Asunción central y de tal modo, el área de nueva expansión metropolitana más cercana al centro.

Las condiciones de habitabilidad en las periferias latinoamericanas son más que conocidas: loteamientos o subdivisiones de solares para construcciones de

viviendas mínimas, chalets o duplex como lo llamamos en Paraguay creando barrios sin alma de interminables complejos de barrios dormitorios de poca calidad ambiental.

Somos testigos de la transformación de nuestros lugares originales en infinitos modelos que se multiplican como una gran metastasis periurbana con muchos problemas, en general lugares más calientes, sin espacios públicos y con poca o nula calidad ambiental.

Fernando de la Mora es el primer anillo periférico de Asuncion, una ciudad dormitorio pero con nuevos focos de la expansion urbana y en tal sector el encargo de construir varias unidades como inversion privada nos dio la oportunidad de plantearnos nuevas preguntas sobre cómo habitamos la periferia y qué estrategias podemos implementar para lograr propuestas mas amables o coherentes en un lugar de constante transformación.

En ese sentido algunas premisas de esta propuesta fueron generar lugares de encuentro, terrazas y un esponjamiento del conjunto que le diera oxígeno o sea,

Datos

El Conjunto Habitacional La Foresta se localiza en Fernando de la Mora, Asunción, Paraguay y su arquitecto es José Cubilla, siendo colaboradores Dahiana Núñez, Camila Caffarena, Mauricio Rojas Barrail, Jorge Noreña y Valentina Noreña.

El complejo posee una superficie de 960 m2 y se proyectó y construyó entre 2018 y 2021. Las fotografías fueron realizadas por Leonardo Méndez

un conjunto que pudiera respirar, manteniendo a su vez las huellas existentes y el respeto a los aspectos biofísicos del lugar (condiciones topográficas, flora, etc).

Por tanto se intentaron multiplicar los espacios de esparcimiento y de intercambio entre quiénes habitarían este complejo, además de plantear diversos recorridos de los lugares semipúblicos comunes pero con atención a los criterios de privacidad pedido por el comitente.

Bajo esas ideas se consiguió formular 13 unidades en lugar de las 8 pedidas, aumentando mas de un 40% el área habitable mejorando la oferta y la densidad. Parece que la propuesta le gustó al comitente ya que unificó 3 unidades para configurar su propia vivienda –que es la mas grande de la segunda planta– y aun asi le restaron 10 unidades para rentar.

Se trató de tal modo, no dividir solares sino unificarlos así como multiplicar galerias de usos múltiples, de parrillas o fuego, penumbras frescas en este clima tan peculiar de nuestra ciudad. La construccion es austera con materiales locales y de baja tecnología. En síntesis se puede decir que intentamos decodificar el sitio y desde una construcción casi lúdica, implantar el peso y la geometría adecuadamente.

Opinión

El conjunto La Foresta se postula como una direccion tipológica posible para afrontar el crecimiento metropolitano de Asunción, en este caso, en la zona de Fernando de la Mora que constituye una de las que están recibiendo tal crecimiento. Frente al encargo

de diseñar una vivienda colectiva (8 unidades, que luego se expandieron primero a 13 y finalmente a 10) y disponiéndose de un lote de buen tamaño, la opción asumida es generar un conjunto no uniforme o compacto sino al contrario, una disposición abierta de varios pequeños volúmenes habitacionales que respondieran al pedido del cliente pero otorgando mucha relevancia no solo al diseño de cada volumen sino al espacio colectivo comunitario engendrado entre ellos, algo que Cubilla señala en su memoria como buscar en la propuesta atmósferas de encuentros, penumbras y oxigeno, es decir algo distinto de los bloques compactos de las típicas viviendas colectivas o de apartamentos apilados.

La opción asumida de proyecto endereza su desarrollo a ocuparse de producir un conjunto sumamente esponjado en la diversa multiplicación de espacios libres forestados sobre los que flotan los bloques residenciales y ello puede ser entendido no solo como el partido adoptado en este trabajo singular sino además, más allá de ello, en una crítica al reciente crecimiento periurbano asunceño así descripto: modelos que se multiplican como una gran metastasis periurbana con muchos problemas, en general lugares más calientes, sin espacios públicos y con poca o nula calidad ambiental.

La postura de José Cubilla –que ya tenía su expresión alternativa en otros de sus trabajos de vivienda colectiva como los conjuntos San Francisco y Valois, que si bien eran volúmenes unificados desarrollaban diversos atisbos de otorgar importancia a los espacios comunes de los mismos– se liga a una voluntad de

proyectar en situaciones de densidad media otorgando importancia al diseño ambiental en torno de dar protagonismo a implantaciones que maximicen situaciones de espacios libres asegurando soluciones climáticas de buenas orientaciones y ventilaciones emergentes de lo que llama esponjamiento del conjunto: generar lugares de encuentro, terrazas y un esponjamiento del conjunto que le diera oxigeno o sea, un conjunto que pudiera respirar, manteniendo a su vez las huellas existentes y el respeto a los aspectos biofísicos del lugar (condiciones topográficas, flora, etc.).

Las vistas aéreas que acompañanan esta presentación refieren aspectos de como se configura el tejido de esta zona de reciente expansión inmobiliaria y en ellas puede advertirse que en semejanza de densidades medias, la propuesta de Cubilla aboga por la generación de un espacio colectivo complejo en su imbricación de llenos y vacios, en la multiplicación de espacios conectivos abiertos y de usos comunes y en el respeto por la forestación original y el interés de mantener y consolidar ambientes arbolados y sombreados con el consecuente rédito en calidad ambiental, confort climático y ahorro energético. Frente a este modelo en tales fotos aéreas se advierten tipologías de viviendas adosadas, emblocadas o en tira, cuya performance ambiental y calidad paisajística así como generosidad de áreas comunes, puede advertirse que resultan comparativamnte mucho menos aptas en sus cualidades y de allí puede reafirmarse que La Foresta intenta erigirse como paradigma alternativo en este segmento de opciones habitacionales para la expan-

sión periférica de Asunción. De allí que tiene sentido pleno el título que utilizamos dado que la producción de vivienda colectiva –más allá de ofrecer un menú de oferta de soluciones– asume un compromiso más complejo referente al hacer o producir ciudad. El partido adoptado en La Foresta (aprovechando un terreno generoso) plantea un frente de acceso con un área de parking inmediatamente adyacente a la via de ingreso y detrás de ello, el armado de un circuito circulatorio diverso que va dando acceso a las unidades de planta baja y a las escaleras metálicas que permiten alcanzar las dos plantas elevadas pero que plantea mas allá de los ingresos a las unidades, recorridos alternativos a los que se agregan zonas de usos comunes abiertos como lo postulan equipamientos metálicos de mesas y bancos, usando a veces áreas techadas que se generan debajo de las unidades de primera y segunda planta, todo ello unido inextricablemente a una profusa vegetalidad que construye un clima sombreado y fresco frente a las circunstancias tropicales de la ciudad tal como queda expresado en este pasaje de la memoria: se intentaron multiplicar los espacios de esparcimiento y de intercambio entre quiénes habitarían este complejo, además de plantear diversos recorridos de los lugares semipúblicos comunes.

Si la situación de la cota cero es umbrosa y con alta presencia de la forestación más la sombra provista por algunos intradós de bloques elevados, en las plantas superiores también se adosan a los bloques residenciales diversas terrazas y criterios de acceso a cada unidad que se asemejan a soluciones más propias

de viviendas que de apartamentos repetitivos o mas bien anónimos. Aquí hay un esfuerzo por distinguir y singularizar cada una de las 10 unidades que componen el conjunto todo ello además buscando fortalecer la entidad del gran predio común en lugar de parcelas para cada unidad y así se lo indica en un tramo de la memoria: no dividir solares sino unificarlos asi como multiplicar galerías de usos múltiples, de parrillas o fuego, penumbras frescas en este clima tan peculiar de nuestra ciudad.

El desarrollo tecno-edilicio del conjunto se asume con una construcción de estructuras metálicas, losas

de hormigon y paramentos de ladrillo todo dirigido a soluciones de bajo mantenimiento y cierta eficacia ambiental y así se lo refiere en la memoria: La construcción es austera con materiales locales y de baja tecnología. En síntesis se puede decir que intentamos decodificar el sitio y desde una construcción casi lúdica, implantar el peso y la geometría adecuadamente.

Soluciones constructivas sencillas se articulan asi con la vocación de sugerir la mejor tipología para hacer ciudad periférica con soluciones de vivienda que intentan decodificar el sitio y engendrar vida privada y comunitaria a la vez mediante esa denominada construcción casi lúdica.

ISLA EN EL BOSQUE

Vivienda Mirikina. Asunción

Memoria

Es una vivienda de bajo impacto en las afueras de Asuncion muy cerca del rio Paraguay. Entendiendo los aspectos biofísicos del lugar nos pareció importante asumir una construcción de bajo impacto con una implantación amable y con la menor huella posible en un bosque nativo bajo, húmedo e inundable.

En ese contexto se decidió resolver la vivienda en vertical como una isla en este bosque y sobre ese suelo especial, respetando la maravillosa flora y fauna autóctona del sitio. Es decir, captar las energías del lugar y sumar materiales amables con el mismo para lo cuál se propuso tierra y piedra en su materialidad. Y disponer el agua en su columna principal y en la laguna

ecológica y piscina exterior asi como el fuego como aglutinador central o fuego del hogar en varios niveles del bloque (sala de yoga, estar social y dormitorio principal).

El sistema constructivo es de tierra apisonada o tapial que se eleva sobre una plataforma de piedra bruta y en términos generales la vivienda es bien austera y construida con materiales del lugar y mano de obra local El objetivo fue intentar lograr un balance o equilibrio en un lugar bellísimo, silencioso y de mucha conexión con lo natural así como aspirar a cierta eficiencia energética mediante el uso de muros anchos y perforaciones justas para el ingreso de luz y ventilación, donde mantenemos la penumbra necesaria en un clima sub tropical húmedo y muy caluroso.

El tapial es ideal para mejorar la inercia térmica, además de su bajo impacto constructivo.

Geotermia superficial y piscinas naturales que decantan las aguas grises y negras y el fuego como elemento primordial en el núcleo central son otros componentes importantes en esta experiencia constructiva elemental. La laguna natural se plantea como respuesta a un suelo poco absorbente.

La planta se resuelve como un espacio que se conecta en vertical por medios niveles alrededor de un nucleo central de agua y fuego. En el recorrido vamos descubriendo e intuyendo partes del precioso bosque y su luz filtrada, los aromas, murmullos y el silencio del lugar.

La importancia de la ventilación

Datos

La Vivienda Mirikina se localiza en Mariano

Roque Alonso, Asunción, Paraguay y su arquitecto es José Cubilla siendo colaboradores Ariel Samaniego, Dahiana Nuñez, Jorge Noreña y Mauricio Rojas Barrail. Su superficie es de 220 m2 y fue proyectada y construída entre 2020 y 2021. Las fotografías son de Luis Ayala.

cruzada del aire y oxigeno pertinente que se disuelven en esta especialidad vertical y que culmina con una terraza a cielo abierto

conectada al bosque, al horizonte y a las estrellas cumplen las premisas consentidas con el comitente para la concreción de este hogar o refugio espiritual

La denominamos Mirikina en homenaje al ilustre visitante o duende del bosque (primate o mono local) que nos acompañó en todo el proceso y construcción con mucha paciencia y amabilidad.

Opinión

Como dice la memoria la vivienda toma el nombre de una de las criaturas naturales del lugar, los pequeños monos nocturnos llamados Mirikina, asumidos como duendes del bosque y con quiénes se tiene la intención de con-vivir. Entendiendo los aspectos biofísicos del lugar –dice un párrafo de la memoria– nos pareció importante asumir una construcción de bajo impacto con una implantación amable y con la menor huella posible en un bosque nativo bajo, húmedo e

inundable ya que este proyecto se desarrolla en un terreno boscoso e inundable en una zona de humedal para lo cuál naturalmente el proyecto adoptó el partido de convertirse en una vivienda en vertical como una isla en este bosque y sobre ese suelo especial, respetando la maravillosa flora y fauna Las condiciones ambientales de implantación en un territorio tan a la vez natural y frágil, exigieron un desarrollo proyectual que garantizara la viabilidad de la función residencial a la vez que un modo de vida enteramente respetuoso de las condiciones naturales y para ello el proyecto se propuso captar las energías del lugar y sumar materiales amables con el mismo para lo cuál se propuso tierra y piedra en su materialidad

Pero esas decisiones eco-materiales razonablemente compatibles con un entorno natural se debieron agregar otras que consiguieran adaptar la función residencial a un área de humedal y de allí que el proyecto propuso disponer el agua en su columna principal y en la laguna ecológica y piscina exterior

asi como el fuego como aglutinador central o fuego del hogar en varios niveles del bloque (sala de yoga, estar social y dormitorio principal). Hay en ello una intención de engendrar una casa-árbol –en el sentido de constituir un corazón vertical de energía– además de la necesidad de proyectar formas de relación de la casa y su entorno administrando el tema del agua: tanto el agua ambiental que puede inundar el sitio (y para ello debió preverse cierta forma de embalsar los excesos) cuanto las aguas grises y negras que deben procesarse degradando su poder contaminativo ya que no existen infraestucturas urbanas convencionales y así se expresa en la memoria: Geotermia superficial y piscinas naturales que decantan las aguas grises y negras y el fuego como elemento primordial en el núcleo central son otros componentes importantes en esta experiencia constructiva elemental. La laguna natural se plantea como respuesta a un suelo poco absorbente

La casa es un bloque de tres niveles resuelta en piedra (como basamento) y espesos muros de tapial (dice

su autor que el tapial es ideal para mejorar la inercia térmica, además de su bajo impacto constructivo) organizada en medios niveles pivotantes sobre un núcleo central que instala en la planta baja los sitios de trabajo de sus habitantes (atelier y sala de yoga) y que se espiraliza hacia arriba en las áreas de usos común y dormitorios para acabar en una terraza superior que permite reconstruir el concepto de isla del bosque, al percibirse omnipresentemente, el mar verde de la selva en que se sitúa la Mirikina.

EL TALLER EXPERIMENTAL

Juvenal Baracco Barrios

El presente texto resume la presentación del seminario ofrecido por Juvenal Baracco en el contexto del CD3 del Doctorado FADU UdelaR realizado en Montevideo el 8 y 9 de Noviembre de 2017. Fue publicado originalmente en Thema 2, FADU, UdelaR, Montevideo, a cuyos directivos agradecemos su cesión.

Este ensayo procura sintetizar los aportes innovativos desarrollados desde el Taller Vertical que dirijo en la Facultad de Arquitectura y Urbanismo de la Universidad Ricardo Palma desde 1976 a la fecha según las reformas curriculares del año anterior, como eje principal para la enseñanza de Diseño Arquitectónico a cargo desde entonces del Taller 5, que abarcaba en un inicio desde el tercer semestre en adelante y desde 1998 los primeros dos semestres de la carrera con lo cual la conjunción de los dos talleres permitieron desarrollar una experiencia didáctica integral que atraviesa los 10 semestres de la carrera. Desde ese momento, el diseño se convirtió en una aventura de exploración y formación académica ininterrumpida desde el inicio hasta el final de la carrera y el carácter experimental del método de enseñanza que usamos no nació exprofeso sino del deseo para encontrar mejores soluciones a partir del trabajo en ensayo-error sobre la búsqueda de perfeccionar el método de enseñanza y su coherencia tratando de llenar los vacíos encontrados de la aplicación de la teoría y soluciones

del movimiento moderno a nuestra realidad mediante la reflexión activa.

Los primeros quince años el taller funcionó como un gran equipo de trabajo dirigido por los profesores a grupos integrados por estudiantes de distintos niveles verticalmente, con tareas y responsabilidades de acuerdo a su nivel académico. Las grandes decisiones urbanas las tomaban los estudiantes de los niveles altos descendiendo sucesivamente las responsabilidades para llegar a la unidad de vivienda en el tercer nivel, entonces el inicial, dejando el equipamiento a los grupos de los niveles intermedios del taller.

Desde el año 1990 en adelante se separaron los primeros tres niveles (todavía no teníamos los dos niveles de diseño básico) que se convirtieron en niveles preparatorios horizontales y que luego con la adición de los dos de diseño básico en 1998 se convirtieron en cinco tales niveles formativos horizontales de diseño experimental y especulativo que alimentan a un nuevo taller vertical acortado a los segundos cinco semestres donde se aplica lo aprendido planteando edificaciones

Básico I 2008

con diversos problemas e hipótesis urbanas y arquitectónicas como experiencias sucesivas previas a la práctica profesional.

El Taller 5-15 es un equipo de 26 profesores de los cuales la universidad paga 16 y el resto son asistentes practicantes, generalmente egresados que están haciendo su tesis o que se entretienen, o quieren ensayar si efectivamente les interesa la enseñanza y así nos acompañan y aprenden las rutinas que es parte de la organización. Los profesores que conforman el grupo docente en su mayoría son jóvenes egresados del taller pero los jefes de grupo son personas de alrededor de 40 a 50 años y una característica importante del grupo docente es su movilidad pues el taller es el núcleo formativo de profesores para poblar muchas nuevas facultades de arquitectura en el país, reclutados por otras universidades pues su presencia previa con nosotros en el taller es entendida como su garantía de capacidad. La experiencia de docentes y alumnos del Taller funcionó doblemente como un semillero de formación profesional para sus graduados y de formación docente para los profesores.

El Taller 5-15 tiene un cronograma muy simple para trabajar y es un mes, un trabajo. El primero de cada mes el tema tiene que cambiar. El semestre es de dieciocho semanas con lo cual tenemos cuatro semanas por trabajo, por temas o subtemas, y dos semanas de colchón, con el cual administramos la puntualidad en la entrega de los trabajos, subsanando feriados e imprevistos. El problema que se planteó en el Taller 5-15 es el de cómo formar un arquitecto que desarrolle su capaci-

Básico II 2015

dad de convertir ideas y conceptos en objetos arquitectónicos. Para ello el taller que comprende diez semestres está dividido en dos fases de cinco semestres cada una. La primera se dedica a abrir canales de ideación acerca del hombre y la arquitectura por medio de la simulación. La segunda asume el carácter de un taller vertical de práctica pre-profesional en el que se llevan a cabo experiencias sucesivas de proyectación donde el estudiante desarrolla autónomamente su capacidad creativa de diseñador.

Los años de práctica del taller han creado un espacio académico de características propias muy solidario y también muy competitivo, de un espíritu del taller muy caracterizado e identificado por la comunidad universitaria como una meta a seguir. Se basa en algunos principios básicos que apoyan lo anterior: la memoria y los deseos, que son los mejores recursos de que dispone el arquitecto haciendo posible hurgar en el inconsciente colectivo a través del inconsciente individual. Para eso es necesario buscar la fuerza latente en el estudiante y conducirlo a su afirmación y expresión personal.

La arquitectura exige una actitud positiva ante el mundo y una gran confianza personal que haga posible encontrar respuestas originales lo que no es pura casualidad pues requiere desarrollar el espíritu de búsqueda y la audacia para para la propuesta.

El proceso de formación se entiende como una construcción –en el sentido de la pedagogía constructivista– más que como una enseñanza. En los primeros cinco semestres se trata de alcanzar el potenciamiento creativo personal y el uso de sus posibilidades como

un ser capaz de proponer formas e imágenes arquitectónicas. Esto se logra a través de una serie de descubrimientos y aprendizajes por parte del estudiante. Los procesos creativos de diseño son actos capaces de transformar la realidad y producir algo inesperado al encontrar la posibilidad de resumir un objeto en ciertos elementos básicos que explican todo mediante el uso adecuado de la capacidad de abstracción, reconociendo el valor del esfuerzo físico y mental y lo que esto significa. Este descubrimiento es importante como refuerzo de la seguridad creativa del estudiante inteligente y para esto deberá descubrir el placer del trabajo manual, la construcción y la organización de objetos inertes en objetos capaces de transformar la luz y crear y organizar formas antes no imaginadas.

El estudiante deberá entender la geografía como la madre del espacio ya que si en el territorio hay objetos arquitectónicos que alteran o modifican los entornos es posible establecer relaciones armónicas entre ellos y en la arquitectura es posible manipular las sensaciones para diversos logros mediante el uso del espacio y el lenguaje arquitectónico.

Leer la ciudad como entorno artificial creado por habitantes que realizan sus usos vitales. Donde suceden miles de fenómenos diferentes, porque cada personaje se inventa su propia ciudad y usa la ciudad de una manera distinta es posible modificar comportamientos o rutinas mediante cierto tipo de intervenciones, pues hay relación entre las formas físicas y las formas de uso (función).

Lo anterior se lleva a cabo a través de una serie de

ejercicios para-arquitectónicos y arquitectónicos que permitan confrontar la capacidad del estudiante de armar ideas a partir de situaciones más o menos organizadas y colocarlo en la posición de proponer una arquitectura descontextualizada de las condicionantes inconscientes de su propia memoria. La secuencia de los cursos corresponde con los siguientes criterios: en la instancia básica (semestre 1) fase imaginaria, la luz, la forma y el espacio, (s2) fase inventiva, la estructura y el mecanismo, (s3) fase del descubrimiento del territorio y el hombre, (s4) fase del descubrimiento de la ciudad y el artificio y (s5) fase de la traducción de las ideas, la metáfora y en la instancia formativa (s6 a s10) basados en la práctica pre-profesional.

En los dos cursos llamados básicos o iniciales el estudiante no solo es el objetivo de los proyectos sino que estos son independientes de casi todo lo demás que no sea el objeto mismo y el estudiante como usuario final. En el tercer semestre el objetivo central cambia y aparece el usuario externo como un protagonista teórico al que hay proponerle el proyecto personal del diseñador, conjugando intereses con un método cuyo objetivo permanente es incentivar la observación, la imaginación, la reflexión activa y la creatividad audaz. La metáfora culmina una secuencia de cursos en los que los estudiantes han sido sus propios clientes, ellos mismos son el problema. Trabajar dentro de sí mismos genera responsabilidades y compromisos. El taller vertical, la segunda parte del proceso de formación, comprende los siguientes cinco semestres

y consiste, en experiencias proyectuales sucesivas con temas urbanos y arquitectónicos de distinta escala y uso: vivienda, edificios complejos, conjuntos urbanos, movilidad urbana y ejercicios experimentales. El objetivo general es el de que el estudiante desarrolle su pensamiento como arquitecto y su capacidad de convertir sus ideas en objetos arquitectónicos como un operador cultural. Se forma así un arquitecto generalista que sepa pensar, desarrolle su propio lenguaje y recurra a fuentes diversas que le ayuden a resolver el problema en el cual trabaja. En algún momento del taller vertical se propone un semestre en el que trabaja el tema de la memoria individual que solo se cursa una vez y que es una exploración personal sobre las ideas, vivencias, valores y motivaciones que definieron no solo la decisión de ser arquitecto sino también llevar adelante su carrera.

Teoría

1. ¿Qué es el diseñar en Arquitectura?

El diseño es la anticipación o invención de un objeto por medio de otro objeto teórico que lo precede en el tiempo. El proyectista actúa sobre este segundo objeto modificándolo sucesivamente hasta alcanzar el grado de satisfacción deseado, entonces lo traduce en una serie de instrucciones codificadas a los efectos de que los encargados de materializarlo puedan llevar a cabo esa acción. El proyecto es el eslabón que vincula la decisión de crear un edificio o un objeto con la iniciativa de su materialización, es un acto creativo por el cual

se concilian en una propuesta ideas vinculadas a su percepción, uso, materialidad, costo, etc. en un todo armonioso listo para ser construido.

Para el diseñador este proceso es mirarse en el espejo interior y hurgar en la profundidad de su memoria hasta encontrar intuitivamente una imagen que proporcione la solución a la búsqueda de un objeto que no solo satisfaga una idea estética sino sea capaz de abarcar, conciliar y resolver la multitud de requisitos físicos requeridos por la complejidad de su uso, costo y significado.

El objeto proyectado se representa con un modelo a escala que durante muchos años fueron solo representaciones gráficas del objeto y que llegaron a ser parte principal del proyecto. Estas se realizaban empleando las proyecciones de planta, corte y alzado conocidas desde la antigüedad, pero perfeccionadas por Gaspard Monge ya a fines del siglo XVIII, dando origen a la geometría descriptiva. Actualmente se usan también modelos a escala reales o virtuales con la ayuda de diversos programas de computación de representación gráfica o en maquetas (modelos) que son replicas físicas a escala, fabricadas con materiales que expresan algunas de sus características más relevantes. El diseñador inventa el objeto en el acto mismo de representarlo; esto es, dibuja o modela un objeto inexistente y luego en un proceso progresivo de revisión lo detalla cada vez con mayor precisión.

Así el diseño es la descripción progresiva de un objeto virtual que no existe al comenzar la descripción. La Arquitectura tiene una rica tradición pedagógica

vinculada al proceso de proyectar; que es como pensar e imaginar el objeto arquitectónico mentalmente, luego modelarlo y finalmente proponerlo como un proyecto para luego ser convertido en documentos capaces de transformarlo en una edificación para su uso. En este proceso, cuando es académico, se establece una relación coloquial con un tutor que adiestra al aprendiz, primero en entender el mensaje implícito en la demanda del proyecto, en fijar el proceso para proponerlo y luego en su traducción objetual sujeta a un lenguaje formal y constructivo. Este asume un proceso progresivo enriquecedor en el pensamiento y la acción del educando hasta llegar a un nivel capaz de decidirlo autónomamente, o sea un arquitecto. Proceso antiquísimo que se inició en los albores de la civilización cuando un constructor requirió de un ayudante para su labor y luego este, al conocer el oficio, a su vez se independizó y así sucesivamente, donde los más limitados siguieron trabajando para el principal y los más capaces y perceptivos entendieron la integridad del problema y la sociedad los independizó como edificadores. Este proceso de selección determinará la condición de la arquitectura como un hecho cultural o una manera de que las sociedades expresen sus valores sociales a través de la infraestructura que es una forma de propiciar en el entorno físico la vida humana.

La progresiva burocratización de la cultura universal también ha transformado este proceso elemental de maestro–discípulo y lo ha ubicado en el nivel universitario, rodeándolo de la teoría humanista y la técnica académica vinculada al arte y la ingeniería al princi-

pio, y que luego de la aparición de la Bauhaus abarca un ámbito más amplio vinculado con la necesaria visión del diseñador de la sociedad y el medio físico. La estructura universitaria de la formación del arquitecto ha limitado los tiempos de su formación a 5 ó 6 años dependiendo si su evolución institucional es desde la ingeniería o del arte y que en ciertos casos se ha ampliado a 7 u 8 con la maestría y el doctorado, asumiendo que estos son los tiempos suficientes para su formación profesional, tiempo a mi juicio insuficiente. Pues el adiestramiento del Arquitecto es un proceso casi indeterminado y constante, porque existe una consecuencia entre su visión de la sociedad, su maduración personal y la evolución de sus propuestas formales. Vale recordar que Donald Schon (1998), analista crítico de los procesos de enseñanza de profesionales que se insertarán en un mundo complejo, toma como modelo de formación el taller de diseño de las escuelas de arquitectura. Destaca así el aprendizaje basado en el saber hacer en el que priman dificultades similares a las que se enfrentará el futuro graduado cuestionando de este modo la enseñanza tradicional en los campos de la ciencia que prioriza el saber teórico separado de la práctica y desdeñando así la verdadera meta académico que es el saber pensar.

2. El proceso de diseño

Un diseñador trabaja con variables, reconcilia los valores en conflicto transforma los impedimentos así los convierte en virtudes. Es alguien que transforma situaciones indeterminadas en determinadas. Los di-

señadores construyen e imponen la coherencia propia del objeto de diseño, que es una habilidad integral. Por lo tanto va normalmente de lo general a lo particular, uno no puede armar de una forma atomizada el objeto desarrollando primero unidades más pequeñas y luego a ensamblar esas unidades para lograr un diseño global; pues las piezas tienden a interactuar entre sí y a derivar sus significados y consecuencias de la estructura global del que están formando parte. Se trata de un proceso en el que, aún a sabiendas de que unos objetos diseñados pueden ser mejores que otros, no existe una única respuesta válida. El producto resultante depende de la habilidad del diseñador para reconocer y apreciar cualidades del diseño deseables y no deseables. Lo que es cierto de la descripción y el reconocimiento de las cualidades del diseño lo es, también, en términos generales, para la descripción y el reconocimiento de un diseño competente.

La descripción del propio conocimiento en la acción que el diseñador posee es, en sí misma, una competencia, y pueden poseerla en mayor o menor medida. Los arquitectos pueden aprender a mejorar las descripciones del diseño. Hacerlas más complejas, precisas y útiles para la acción por medio de una reflexión continuada sobre sus propias ejecuciones competentes. Diseñar es una actividad creadora. La conversación reflexiva que un diseñador establece con los materiales de una determinada situación puede generar nuevos descubrimientos, significados e invenciones.

Los profesionales del diseño tratan con la incertidumbre, la singularidad y el conflicto. Las situaciones no

rutinarias de la práctica resultan, al menos en parte, indeterminadas y se les debe proporcionar algún tipo de coherencia. Los competentes aprenden a experimentar sobre el marco conceptual, lo que les sirve para imponer una determinada coherencia sobre situaciones confusas y los marcos que han elegido. Muchas

veces, sus esfuerzos para poner orden en una determinada situación provocan resultados imprevistos. Este conjunto de cuestiones, la reformulación del problema, el experimento riguroso, el descubrimiento de consecuencias e implicaciones. La charla retrospectiva y las respuestas a este tipo de charla, es la que configura una

conversación reflexiva con los materiales de una situación: existen varias características que convierten este proceso en algo factible de ser aprendido y teorizado, pero no enseñado. Un proceso de diseño competente es una forma de conocimiento en la acción. Esto ayuda a explicar por qué los estudiantes deben practicar si

quieren aprender a diseñar y su práctica debe implicar la reflexión en la acción, pero no explica porque pueden aprender a diseñar en el orden propio de un currículo profesional normativo: primero teorías en el aula, después una práctica que las aplica.

3. Creatividad y diseño

Podemos destacar que la creatividad es un valor del siglo XX, anterior a ello, lo que valía era la subordinación a la regla y el apego a la tradición. La creatividad surge en una era que Eric Hobsbawm (1995) denomina de incertidumbre, donde las reglas no siempre pueden ser aplicadas, donde la experiencia no puede necesariamente transferirse.

Antes un buen diseñador no tenía que ser creativo sino debía aplicar con rigor las reglas del oficio. Creatividad e improvisación eran sinónimos de falta de disciplina. Actualmente el tutor debe generar un conflicto cognitivo al someter al alumno a una continua reflexión en la acción. Aunque este proceso de conflicto, desequilibrio y acomodo de esquemas (Pozo, J. 1997), no siempre es buscado por los docentes. Existen métodos para disminuir las inhibiciones y represiones internas que limitan la creatividad, mediante por ejemplo, ejercicios tales como la tormenta de ideas. El problema radica muchas veces, en las inhibiciones externas e internas del aprendiz, el temor al ridículo y la censura (Goleman, D. 1996). Generalmente las personas muy creativas no son necesariamente las más inteligentes pero si las que poseen muy alta auto-estima y son de gran inteligencia emocional no temiendo ser objeto de burla o de crítica.

El fenómeno opuesto a la incertidumbre de nuestros tiempos es lo que se denomina la Macdonaldización de la Sociedad (Steiner 1990) es decir la estandarización de la producción con una combinación limitada de sólo unos pocos componentes, estrictamente prede-

cible en cuanto a su calidad, tiempo de producción y consumo. El resultado es que todo el mundo se transforma en base a la simplificación de las oportunidades para la comparación. Este fenómeno puede definirse como la satisfacción de un conjunto de expectativas preestablecidas y la negación de lo impredecible: un mundo de variables controladas, que da como resultado en el campo de diseño la reiterada falta de creatividad de los alumnos de la que se quejan los profesores. Como sostuvo un profesor de taller, si le pido a los alumnos que realicen una figura geométrica que tenga sus cuatro lados y cuatro ángulos iguales no puedo quejarme si todos dibujan cuadrados. De modo que es obvio señalar que no es posible alcanzar la meta de estudiantes creativos sin docentes necesariamente creativos, preparados para un conjunto de respuestas abiertas, y obviamente, también de preguntas.

Práctica

1. La enseñanza

Según Bernard Huet...esta forma de pedagogía, para ser eficaz, requiere un tiempo muy largo y debe dirigirse a un número limitado de estudiantes. En este caso no puede hablarse de enseñanza masiva ni de duración fija de los estudios. Como en el artesanado, el aprendizaje se hace por impregnación, por ósmosis, por repetición del savoir-faire según un ritmo que depende de la capacidad de asimilación del aprendiz.

Sin embargo, el camino que debe recorrer el alumno no es un trayecto solitario, está acompañado por su

tutor, quien le transmitirá no sólo sus saberes sino sus prejuicios y falencias convertidos en actitudes creativas. Schon (1998) encuentra tres enfoques sobre la tutorización: En la experimentación compartida, la habilidad del tutor descansa en la tarea de ayudar a un estudiante a formular cualidades que necesita adquirir para explorar diferentes maneras de llevarlas a la práctica. El arte del tutor consiste en su capacidad para improvisar una ejecución completa del diseño y, en ese marco, ejecutar unidades parciales de reflexión en la acción. Por eso, una parte importante del arte del tutor consiste en su habilidad para inspirarse en un amplio repertorio de medios, lenguaje y métodos de descripción con la finalidad de representar sus ideas de muchas maneras diferentes, tratando de buscar imágenes que emularan a ese estudiante en particular. En esta sala de espejos, el estudiante y tutor cambiaran continuamente de perspectiva. En un determinado momento ven su interacción como una reconstrucción de algún aspecto de la práctica del estudiante; en otro, como un diálogo sobre esa práctica; y en otro más un modelado del rediseño.

Algunos maestros del taller de proyectos, sienten la necesidad de proteger la singularidad de su arte. Por temor a que sus alumnos puedan comprenderlo, utilizarlo y apropiarse de él de un modo indebido, estos instructores tienden realmente, a veces de forma inconsciente y bajo el disfraz de la docencia, a ocultar lo que saben.

Otra posible causa que determina la dificultad que encontramos en el aprendizaje del diseño de arquitectura

que impide fundir los distintos conocimientos (técnicos, humanísticos, morfológicos) en el proyectar mediante la reflexión en la acción reside en que por un lado, las asignaturas técnicas o humanísticas, privilegian la racionalidad técnica y las de proyectuales la reflexión en la acción, en algunos casos, mientras que en otros sólo la acción, bajo la guía conductista del docente.

En la enseñanza superior muchas veces predomina la racionalidad técnica ya que los sílabos de los centros de formación universitaria presentan en primer lugar las ciencias básicas pertinentes, a continuación las ciencias aplicadas, y finalmente una práctica en el que se supone que los alumnos aprenden a aplicar el conocimiento basado en la investigación de los problemas de la práctica cotidiana.

2. La reflexión en la acción

Vale recordar la clasificación de los tipos de conocimiento usada por Corona Martínez (1990): (1) el saber por experiencia personal que pertenece al conocimiento ordinario o el del sentido común, es fragmentario e inconexo, aplicable, muchas veces, a un único caso. Este saber no es posible explicarlo completamente de manera verbal de tal modo que no puede transferirse o enseñarse, sólo lo podemos aprender a través de la propia experiencia. Construimos este conocimiento mediante el método de ensayo y error (ejemplo: esta silla es incómoda), (2) el saber proposicional o científico, por el contrario, es generalizable, ya que puede ser aplicado en todas las circunstancias del mismo tipo. Este conocimiento puede expresarse

Manzana

por medio de proposiciones que pueden contrastarse de manera intersubjetiva, pudiendo ser aprendido además por medio de la lectura de diferentes textos (ejemplo: las sillas diseñadas por Arne Jacobsen son de madera laminada) y (3) el saber cómo hacer o knowhow, aplicable a diferentes circunstancias. Es el saber de un oficio y se sustenta en la tradición de una comunidad profesional. Muchos aspectos de este saber no pueden ser expuestos verbalmente, por ello en el proceso de enseñanza el tutor muestra cómo se hace y el estudiante lo imita. La investigación se realiza en y sobre la acción. (ejemplo: yo sé cómo diseñar una silla). Por consiguiente intentar aunar o sintetizar los saberes teóricos que habitualmente son entendidos bajo una racionalidad técnica, a la manera positivista o enciclopédica, con los de la práctica –que por definición requiere una conducta reflexiva–, se torna muchas veces una hazaña difícil o imposible, simplemente porque el problema está mal formulado. Recordemos que la situación más grave no es la de resolver problemas, sino la de saber definirlos (Schon, 1998). Aclararemos un poco más este punto: alguien puede aprender historia del siglo XIX, calcular la tela necesaria para un vestido o los metros cuadrados de cerámica, sin que exista una verdadera reflexión sobre el hecho, pero no se puede aprender a diseñar sin que exista reflexión.

Obviamente un alumno conducido por un docente habilidoso puede producir un buen producto de diseño, pero no aprendió a diseñar ¿Por qué no se incentiva la reflexión en la acción en el acto de diseño? Tal vez porque, muchas veces, este pensamiento

crítico pueda poner en crisis el propio pensamiento del docente.

Respecto al diálogo que se establece entre el tutor y el estudiante, también se destaca el carácter siempre incompleto y ambiguo de las instrucciones, dirá Schon. De un mismo modo la respuesta que da el alumno también tiene cierto grado de ambigüedad

¿Lo que el alumno quiere mostrar que ha diseñado es lo que el profesor supone que el alumno imaginó?

La codificación aparentemente estricta que presenta una lámina deja muchos puntos en penumbra, es decir como diría Bertrand Russell, conforma una textura abierta de interpretación.

A veces se aprueba un trabajo con las inferencias que hace el profesor al leer en los bocetos y esto se pone en evidencia cuando el alumno sustenta el proyecto, o cuando una lectura más objetiva o detallada del profesor pone a la vista contradicciones, tecnológicas, geométricas y muchas veces conceptuales.

El maestro de un taller se da cuenta de que los estudiantes no pueden, al principio, comprender las cosas más elementales. Luego advierte de que no puede explicar estas cosas con la esperanza que comprendan, al menos al principio, porque solamente estas pueden irse captando por medio de la experimentación del propio proceso de diseño.

La paradoja de aprender una competencia nueva es que un estudiante no puede, al principio, comprender lo que necesita aprender y a partir de ahí, descubrir consecuencias que el sólo puede aprenderlo formándose a sí mismo y sólo puede hacerlo a sí mismo

comenzando por hacer lo que aún no comprende, muy pronto deberá aprender a confiar en su intuición.

3. La formación profesional

La paradoja de la enseñanza de la arquitectura es que el tiempo que dura la carrera en la universidad es corta y no dura necesariamente hasta la madurez del proyectista. Por eso un punto clave en la búsqueda de la excelencia es adiestrar al estudiante en la rutina autoformativa de aprender constantemente manteniendo su capacidad de asombro ante la novedad y la autocrítica consiguiente para que la haga parte de su rutina personal y le permita enfrentar a los desafíos del siempre cambiante mundo por venir.

Existe según Schon (1998), una desconexión entre aquel conocimiento proposicional que prevalece en algunas escuelas de formación profesional y aquellas competencias que se les exigen a los arquitectos en su tarea diaria. Habitualmente se supone que el profesional debe, una vez concluida su formación académica, aplicar todo aquel bagaje de conocimientos teóricos adquiridos para resolver problemas prácticos, pero la situación problemática a resolver en la realidad concreta no aparece claramente determinada.

Por lo que se hace necesario primeramente, definir cuál es el problema, antes de intentar abordarlo, y aquí nos encontramos con varias cuestiones: el hecho a resolver puede presentarse como si fuese un caso único y excepcional (y no uno típico), no se cuenta con la teoría que pueda aplicarse directamente al hecho, y

el problema abordado puede implicar a su vez conflictos de valores. De modo que, hay zonas de la práctica que escapan a la racionalidad técnica: Cuando una situación problemática es incierta, la solución técnica del problema depende de la construcción previa de un problema bien definido lo que en sí mismo no es una tarea técnica.

Para el caso de la enseñanza de taller, esta debe hacer énfasis en aquello que la universidad no le va a enseñar, o como enfrentar vida y el entorno como proyectista, se trata de aprender a pensar como arquitecto, o sea como usar su mente para convertir idea o conceptos o lo que su sensibilidad percibe en formas y espacios que es el oficio del arquitecto, esa capacidad es la que produce el entorno humano.

Las áreas más importantes de la práctica profesional están más allá de las competencias profesionales tradicionales. Es decir no alcanza con saber resolver problemas. Primero hay que poder definirlos. Y para eso tiene que aprender los mensajes ocultos por las convenciones sociales y descubrir las razones reales por las cuales se genera la necesidad de un proyecto y sus límites.

En su conjunto, los arquitectos están permanentemente comprometidos con una forma particular, profesional, de ver el mundo y una forma de configurar y mantener el mundo según lo ven ellos. La profesión se aprende a través de la inserción en un determinado espacio gremial: cuando alguien lo aprende se inicia en las tradiciones de una comunidad de arquitectos y del mundo de la profesión en que estos habitan. Aprende

sus convenciones, limitaciones, lenguajes y sistemas de valoración, etc

1. El taller como comunidad de práctica

En tanto, la calidad del conocimiento fluctúa con la calidad de las relaciones. No hay conocimiento disciplinar que pueda reemplazar el proceso de construcción de conocimiento que es propio de cada comunidad de práctica, en el caso que nos ocupa, el trabajo de taller.

El monitoreo y la evaluación continua de los resultados, dada la breve duración de las actividades (un semestre), hace que este proceso sea tan importante como los contenidos.

El Taller funciona como una comunidad de práctica, deviniendo en un ámbito para la reflexión en la acción en el que los contenidos están siempre sujetos a ser releídos en función de la experiencia del grupo. Esta dificultad para prever exactamente lo que va a suceder se asienta sobre docentes con una base de conocimiento y experiencia tanto pedagógico-didáctica como disciplinar que les permite afrontar situaciones abiertas con solvencia. Este sentimiento de seguridad está muy trabajado en el taller, sobre todo en los ejercicios relacionados con la memoria, en los que la seriedad, y distanciamiento en el abordaje permite, que el alumno pueda alcanzar conocimientos objetivos profundos desde una fuerte introspección reflexiva.

A lo largo de las distintas actividades que propone el

taller, se brinda a alumnos y docentes la posibilidad de (1) revisar algunos de sus modelos mentales, los valores y las teorías que guían su acción (es decir, entender qué significa la competencia arquitecto), (2) compartir experiencias intentando reconstruir los contextos de esas experiencias y sacando conclusiones significativas para otros contextos (identificar ejemplos de la realidad, propia o de otros, que permitan llenar de contenido la definición de la competencia. Esto es muy importante a la hora de abordar la resolución de una vivienda colectiva en lote urbano, que

El Taller Experimental

se realiza a posteriori de haber realizado ejercicios de memoria con respecto al prócer/patriarca de la familia, sobre sí mismo y sobre el complejo familiar), (3) resignificar la experiencia pasada, dando nuevos significados a las situaciones vividas; imaginar nuevos contextos, nuevas situaciones, generar proyectos, sobre todo en los ejercicios de metáfora y memoria, (4) probar más y diferentes interacciones con otra gente, distintas a las que es posible sostener dentro de la comunidad de práctica (El evento urbano, su identificación en el relevamiento intensivo del barrio consolidado de clase media baja es un buen ejemplo) y (5) construir nuevas distinciones, encontrar rasgos comunes en fenómenos que parecían muy diferentes y rasgos diferenciales en fenómenos que parecían idénticos, esto sobre todo en las investigaciones que se realizan sobre el uso real que los vecinos hacen de los diferentes espacios del barrio.

El Taller es un espacio de ensayo, de exploración, de construcción de distinciones, diferenciaciones y de reflexión sobre las respuestas habituales. Hemos visto que para entender cómo es que el taller facilita o inhibe aprendizajes no alcanza con entender el taller como proyecto racional. Es también necesario verlo como un ámbito humano donde se perpetúan y modifican modos de relación que otorgan significado y sentido a la experiencia. El Taller de Arquitectura no consiste sólo en un sistema de estructuras formales, procedimientos y objetivos, sino también en relaciones capaces de dar sentido a esas estructuras, procedimientos y objetivos.

Una cultura organizativa es un patrón de supuestos básicos que un grupo inventa, descubre o desarrolla para enfrentar su necesidad de responder a las demandas externas sin perder la coherencia interna. El taller ha construido una fuerte identidad, que da como resultado la vocación de un importante número de estudiantes talentosos pujen por ingresar a él.

La cultura del taller, le confiere al mismo y a sus miembros una cierta identidad. Es una cultura orientada hacia los resultados, donde se aprenden criterios de eficiencia, se valoran los logros, se otorga autoridad sobre la base del éxito, se mide el valor de ideas, cosas y gente por su posibilidad de conducir a resultados.

Sin embargo, el hecho de que la construcción del pensamiento sea un hecho social y consecuentemente cultural, hace que este aprendizaje colectivo esté ligado a la calidad de la relación que los miembros del taller mantienen entre sí y que éste mantiene con el sistema total.

Cuando se analiza un espacio académico de taller, como si fuera un ente vivo, se nota que tanto su estructura como su cultura reflejan una historia de interacciones con el mundo y refleja su propia evolución.

El proceso a través del cual los alumnos y docentes construyen redes, grupos y equipos es a la vez, social y cognitivo y la calidad del conocimiento no puede ser separada de la calidad de las interrelaciones.

El Modelo Acción-Reflexión-Acción se basa en el esquema pedagógico elaborado por David Kolb (1977) para abordar los cuatro momentos del proceso de construcción de la competencia y es muy similar al empleado en el Taller 5

y 15: (1) la experiencia concreta, al enfrentar a los participantes con situaciones problemáticas; (2) la observación reflexiva, al analizar diversos puntos de vista, sus propias experiencias y las de otros; (3) la conceptualización, para adquirir perspectiva ante la experiencia, obtener lo invariable, los principios rectores, las teorías de acción, las hipótesis y la puesta en práctica de los conceptos, las teorías de acción y (4) su traducción e interpretación en función de nuevos contextos de intervención.

El taller construye un balance entre lo individual y grupal, entre lo explicitado y lo intangible, produce innovación al atender a la espiral de la creación del conocimiento organizacional.

En un reportaje Ikujiro Nonaka sintetiza apretadamente su teoría de la creación del conocimiento organizacional. En este reportaje nos explica: Basándome en Polanyi, conceptualicé el conocimiento en dos tipos: tácito y explícito. El conocimiento tácito es personal, contextualizado, y difícil de formalizar y comunicar. El conocimiento explícito por otra parte, es transmisible en lenguaje formal y sistemático Los conocimientos tácito y explícito no están separados sino que son mutuamente complementarios. Sin experiencia, no podemos verdaderamente comprender. Pero al menos que tratemos de convertir el conocimiento tácito en explícito no podemos reflexionar sobre él ni compartirlo en la organización.

A través de esta interacción dinámica entre los dos tipos de conocimiento, el conocimiento personal deviene en conocimiento organizacional, mientras que la infraestructura y capital intelectual de una

organización promueve a sus miembros individuales a desarrollar nuevo conocimiento a través de la experiencia. Este proceso dinámico es la llave de la creación organizacional del conocimiento.

a conocimiento tácito a conocimiento explícito

De conocimiento tácito

De conocimiento explícito

Socialización

Internalización

Esta interacción entre los dos tipos de conocimiento genera los cuatro modos de conversión del conocimiento. Estos son, socialización (del conocimiento individual tácito al conocimiento grupal tácito), externalización (del conocimiento tácito al conocimiento explícito), combinación (del conocimiento explicito separado al conocimiento explicito sistémico) e internalización (del conocimiento explícito al conocimiento tácito).

La espiral de creación del conocimiento en el taller está basado en un doble movimiento espiral entre el conocimiento tácito y explícito por un lado e el individual, grupal, divisional, y organizacional en el nivel más amplio por el otro.

La socialización es el proceso de creación del conocimiento tácito común a través de compartir experiencias. Para la socialización tenemos que construir un espacio de interacción en el cual las personas intercambien experiencias espacio y tiempo al mismo tiempo, de tal manera de crear un cuerpo común de

Externalización

Combinación

Gráfico 1 Relaciones entre conocimientos tácitos y explícitos

Variables de partida Consecuencia

Gráfico 2 Aprendizaje de circuito simple

creencias y competencias. Esto es muy fuerte a nivel del cuerpo docente.

La externalización es el proceso de articular el conocimiento tácito en explícitos tales como conceptos y/o diagramas, muchas veces usando metáforas, analogías y/o esquemas. Este modo está impulsado por el diálogo con la intención de crear conceptos desde el conocimiento tácito. La combinación es un proceso de ensamblaje de conocimiento explícito nuevo con el existente dentro de un conocimiento sistémico.

Coincidencia Discrepancia

La externalización es un proceso de transformación, de incorporación del conocimiento explícito, haciéndolo tácito, convirtiéndolo en conocimiento operacional, en saber cómo hacer, en tener el know-how. El conocimiento explicito es documentado en formatos tanto de texto, videos, etc. facilitan el proceso de internalización. Por ejemplo en el taller las memorias de las exhibiciones, que son la quintaesencia de la externalización, influyen en la internalización, al difundir la identidad del taller.

El trabajo del taller de Arquitectura como se enfoca en el Taller 5-15 nos lleva a revisar no sólo los conocimientos disciplinares, sino también los conocimientos tácitos, creencias, emociones y corporalidad que conforman nuestro practica del oficio como arquitectos. Para Schon (1998) la Arquitectura tiene un practicum reflexivo debido a que la práctica del proyecto no

puede transmitirse sino a través del taller debido a que (1) el vacío entre la descripción del diseño y el conocimiento en la acción correspondiente debe llenarse mediante la reflexión en la acción de forma que el arte del proyecto debe captarse de manera integral experimentándolo en la acción y depende del reconocimiento de las cualidades del proyecto que debe aprenderse haciendo, (2) es probable que, al principio, las descripciones sobre el proyecto se perciban como confusas, imprecisas, ambiguas o incompletas; su clarificación depende de una conversación en la que la comprensión, o la falta de comprensión, se ponen de manifiesto en la acción y (3) al ser el arte del proyecto un proceso creador en el que un proyectista llega a ver y a hacer cosas de nuevas maneras, ninguna descripción anterior puede ocupar el lugar de aprender haciendo. En el taller, hay aprendizaje disciplinar involucrado, pero se trata de algo más que eso, de allí que la forma en que se aprende, el diseño cuidadoso de las actividades y la evaluación, sean tan importantes como los contenidos mismos, proceso mucho más complejo y amenazante, tanto para el docente como para los participantes, que la mera repetición de ideas (no estamos haciendo referencia tanto a un contenido disciplinar como a una capacidad) que ni siquiera suele ser una capacidad explicita e individual sino más bien tácita y colectiva, del equipo que como comunidad de práctica, sostiene una clara convicción ético-pedagógica con respecto a su rol. Cuando hablamos de teoría de la Arquitectura aplicada al Taller hablamos de teorías de la acción (Argyris y Schon, 1978). Una teoría de la acción

Retorno
Doble retorno

no es una ley inmutable, es simplemente un esquema de pensamiento que guía a la práctica.

Para Chris Argyris, como para Donald Schon, la teoría es algo muy poco teórico. Ellos hablan de teorías de la acción, y diferencian entre la teoría en uso, que es la que se puede inferir que guía las acciones del sujeto observando su quehacer y la teoría declarada (o preferida), que es la que el sujeto explica con palabras. Cuando un resultado no tiene lo esperado, corregimos nuestras acciones. Esto es lo que Argyris denomina aprendizaje de circuito simple (gráfico 2).

En el caso del Taller 5-15, la flexibilidad y la revisión han sido el dominante, así como revisar la práctica a partir de incorporar docentes con distintos enfoques y perspectivas al equipo. Así se pueden observar cambios producidos por autocrítica, que diferencian entre la teoría en uso, que es la que se puede inferir que guía las acciones del sujeto observando su quehacer, y la teoría declarada (o preferida), que es la que el sujeto explica con palabras. Cuando una acción produce un resultado diferente al esperado, se tiende a revisar la acción. Sin embargo, muchas veces el problema no está en la acción misma sino en la teoría que la sustenta. Si trabajo desde una teoría equivocada, cuanto más corrija las acciones más equivocaré el resultado. En otras palabras normalmente, cuando los resultados no son los contenidos más habituales, tales como la definición de objetivos y roles (típicos de la perspectiva instrumental) o la maduración del grupo (de la

perspectiva social) no se pierden, pero se hace preciso resaltar también otros elementos tales como: el carácter distribuido de la cognición, el juego recíproco entre aprendizaje individual y aprendizaje grupal, los soportes de memoria colectiva, y las decisiones sobre la reelaboración y el uso de la experiencia acumulada por el equipo previamente.

El docente, en este marco puede desempeñar dos funciones (1) la de guiar la actividad del grupo de aula para que funcione como una comunidad de aprendizaje y práctica (que los alumnos puedan interconectar sus ideas y sus acciones y aprender en estos intercambios);

La primera de estas funciones apunta principalmente al conocimiento tácito que un conjunto de personas necesita construir y poner en juego para interconectar acciones y pensamientos individuales; (2) la de estimular la reflexión acerca de sus propias experiencias como integrantes de equipos. En la segunda de las funciones, el énfasis reside en el conocimiento explícito (conceptos, ideas, marcos teóricos) necesario para tomar distancia de la propia práctica como miembros de equipos y transformarla en objeto de análisis y de reflexión.

Se puede reconocer en el modelo desplegado durante estos 40 años por el Taller que se encuentra implícito un modelo de enseñanza por competencias. Los modelos de competencias se piensan a partir del modelo Acción-Reflexión-Acción, ya que el aprendizaje de las

competencias ocurre por aproximaciones progresivas, donde el sujeto avanza en un círculo que parte de la experiencia o de la conceptualización, y que debe siempre pasar por la reflexión y la experiencia de esa reflexión. En efecto, es sabido que los adultos aprenden más fácilmente cuando pueden recurrir a su experiencia y cuando establecen claramente relaciones entre esa experiencia y las situaciones nuevas. La revisión de las teorías a la luz de los resultados y los contextos de los cuales surgieron, es un proceso de construcción de conocimiento a lo largo de los 40 años de funcionamiento interrumpido del taller.

2. Los profesores

El método por excelencia para el taller de proyectos es la tutoría entre instructor y aprendiz, método ancestral de enseñanza irreemplazable de las artes, pues es imposible enseñar proyectos arquitectónicos sin el contacto personal, que se basa en la comunicación de intuiciones que el estudiante lee en su instructor y viceversa y que son la estructura del proceso la caja negra del proyecto.

Las relaciones entre profesores y estudiantes deben ser cordiales pero de mutuo respeto y claramente definidas y separadas las académicas de las personales. Se debe evitar al máximo las relaciones de trabajo profesional y el traspaso de este límite debe ser considerado falta grave. Los profesores auxiliares y asociados deben ser docentes jóvenes, los cuales inspiren seguridad y confianza a los estudiantes de

manera cotidiana.

El o los profesores deben esperar que los estudiantes tengan algo que revisar para tomar contacto personal después de las reuniones introductorias al trabajo proyectual. Estos contactos son mucho más productivos cuando el estudiante tiene pensamientos, propuestas, conclusiones o dudas personales que deben ser confrontadas y no elaboradas sobre la de los instructores.

El profesor no debe estar revisando a cada momento el trabajo en tablero pues eso solo significa más presión sobre él y que el estudiante termine trabajando sobre las ideas y pensamientos del profesor.

La cátedra debe ser tolerante con el ocio creativo en el ámbito físico del taller y propiciar un espacio relajado y acogedor dentro del comportamiento universitario propio de una área de creatividad y trabajo de uso continuo. Esta debe estar abierta a las iniciativas creativas e inteligentes de los estudiantes y dispuesta a modificar su programa original en aras de la eficacia del logro pedagógico ya sea en tiempos, contenidos o productos conciliando situaciones fortuitas inmediatamente.

La lógica motivacional del proyecto debe acudir a la curiosidad inteligente de los estudiantes y la posibilidad de descubrir paradojas del entorno, y/o la sociedad y así convertirse en una motivación que produzca un proceso agradable y divertido que compense el esfuerzo. Nunca se deben mandar a realizar estudios preliminares que no se usen, la sensación de inestabilidad de un esfuerzo que no sirve es muy desalentadora para un estudiante y menos si no es calificado.

El trabajo del docente consiste en comunicar pasión por la arquitectura, para eso requiere haber sido un buen estudiante y exitoso como proyectista pues debe tener una visión positiva y divertida de su oficio y muy amplia. Por lo que debe ser inteligente, talentoso y carismático: ser paciente, objetivo y explícito y suficientemente intuitivo para saber leer en el estudiante sus ideas.

Desgraciadamente los buenos docentes no abundan, menos en taller, y la mejor manera de mejorar la docencia es buscándolos y dándoles facilidades y no obstáculos. Solo una vez definido como docente se puede perfeccionar su oficio mediante el incremento de su conocimiento en teorías de la arquitectura, psicología, técnicas de relaciones humanas, etc.

Los equipos docentes deben ser equilibrados en su formación y deben compenetrarse progresivamente a lo largo del tiempo con ensayos y errores lógicos hasta afiatarse convenientemente, lo cual toma varios semestres sucesivos tanto al equipo docente como a los temas y métodos de ese nivel.

Un docente con experiencia es muy valioso y cuesta mucho formarlo, es la memoria de las experiencias del taller como lugar donde se intercambian ideas y soluciones creativas y el motor intuitivo de los estudiantes. Cada vez que se cambia de profesor el grupo docente tiene otro punto de partida y se inicia otro proceso. Es muy importante la coherencia y el espíritu de equipo de la cátedra, las discrepancias naturales deben resolverse antes de iniciar la clase o por lo menos no ser agresivamente discrepantes, nunca debe haber

una discusión pública entre profesores delante de los estudiantes, se desmoralizan y se vuelven jueces. Eso hace muy difícil a veces cambiar de método con el mismo grupo docente, pues no es posible trabajar con un grupo que se sienta incómodo sobre todo si no está convencido de lo que hace y terminan por irse. Es preferible hacer simultáneamente el cambio de grupo docente y método de enseñanza. El proceso de innovación en los talleres de diseño es siempre a largo plazo, implementar un método toma no menos de cinco semestres a partir de un objetivo que en un primer momento puede no estar necesariamente tan claro, pues el proceso será experimental y la búsqueda finalmente fijará una meta compatible además con las limitaciones de los actores del proceso pues el objetivo no necesariamente se cumple inmediatamente sino al cabo de un tiempo se cierra un círculo a manera de conclusión, si en ese momento funciona perfectamente eso no es posible, entonces habrá que empezar de nuevo. Siempre los cambios trascedentes se deben realizar si es posible en el primer año, pues las experiencias del primer año son un punto de partida que no se olvidan en toda la carrera, más aún, un estudiante se va autoconstruyendo inconscientemente sobre esa base que para él es segura porque ya le proporcionó un resultado con una primera respuesta positiva que él va luego adaptando a las diferentes experiencias proyectuales a lo largo de su proceso formativo sucesivamente en la construcción de su personalidad de proyectista.

3. Los estudiantes

El estudiante al finalizar la carrera debe estar preparado para resolver cualquier proyecto en cualquier sitio y en cualquier condición, para eso debe saber recoger la información necesaria o inferirla si es necesario, ubicar e identificar a sus usuarios, determinar las limitaciones de la edificación y proyectar un edificio que no sólo satisfaga esos esos requisitos, sino que también sea un aporte al entorno de la ciudad y a la cultura de su sociedad, teniendo claro que todas las circunstancias que acompañan a la excelencia del desarrollo de un proyecto son siempre distintas y que la vida es una larga cadena de aprendizaje.

Los estudiantes colaboran inmensamente con su intuición, su falta de prejuicios frente a la forma y los materiales, su entusiasmo, su esfuerzo sin medida y su talento, naturalmente que esto no es posible sin una cátedra motivadora, carismática y que sepa conducir la producción y separar señalando la calidad de lo que es banal, educando el gusto de los estudiantes e incorporando sus descubrimientos al rumbo del curso, integrándolos a la memoria académica.

Por supuesto, la violencia que supone el contraste entre la vida escolar y la universitaria, produce en taller una tensión creativa espontánea extraordinaria producida por la circunstancia de ingresar a una disciplina nueva y diferente lo que produce expresiones plásticas (sobre todo) de gran calidad y que después en niveles superiores aparentemente se pierden, lo que es imposible, en realidad esos talentos se esconden por los numerosos prejuicios de la enseñanza clásica y el

énfasis en áreas periféricas de las ideas, como el entorno, el uso o asuntos que el profesor enfatiza. Parte de la búsqueda de la excelencia en todos los niveles es el cultivo de esa creatividad naif que resultan después en unas propuestas frescas y firmes, inteligentes y creativas, razonadas y fluidas en los niveles de culminación de la carrera.

No se puede separar los niveles con ese propósito, pues la búsqueda de la excelencia no es un proceso grupal sino individual, y no tiene o no debería tener etapas; es una situación permanente y fluida. El objetivo de la búsqueda de la excelencia trata que el estudiante descubra el bagaje de talentos con los cuales ingresó a la carrera y que no solo no los pierda sino que los descubra primero y luego los enriquezca adaptándolos a las disciplinas de la carrera y que luego los amplíe con una vida productiva y rica en vivencias.

El reto consiste en mantener ese proceso encendido toda la carrera, esa es la ventaja del taller vertical y sobre todo en su aplicación para lidiar con una practica futura en un mundo cambiante e impredecible que es el que les espera.

4. La excelencia de la enseñanza

La excelencia de la enseñanza del curso de proyectos de arquitectura en el Taller 5-15 busca el máximo desarrollo de los talentos creativos de los estudiantes mediante el autodescubrimiento de su sensibilidad, del espacio y la forma y el uso profundo de su pensamiento arquitectónico para poder plasmar propuestas basadas en ideas originales que sean adiciones signifi-

cativas al entorno físico y social. Es posible considerar tres niveles importantes: (1) el nivel inicial. El primer objetivo es la ideación o el proceso de conectar pensamientos con objetos arquitectónicos a través del conocimiento del espacio arquitectónico y sus componentes; la luz, la forma, el material, la gravedad y la combinación de estos para formar el lenguaje arquitectónico en el primer año, (2)

el nivel intermedio. Que trata del descubrimiento del ser humano como el protagonista de la percepción del espacio arquitectónico y su uso y disfrute, y la arquitectura como producto de la memoria cultural de su tiempo mediante la materialización de ideas vigentes en ese momento en relación con el medio físico y social en los tres siguientes semestres y (3) el nivel

final. Que es el adiestramiento mediante simulaciones y/o simulacros de aplicación de las ideas y conceptos arquitectónicos personales a casos de diversos temas y escalas, distintos usos que pongan en cuestión las ideas aplicadas a situaciones existentes con las relaciones propias de lugar, urbanas, económicas, constructivas, materiales, sociales, etc. Serán los cinco últimos semestres y el Proyecto de Grado.

Actualmente la ley y la facultad han creado un nivel siguiente frente a la demanda del postgrado universitario que en casi todos los casos sirven para tomar cursos de teoría o de tecnología o finanzas que son complementarias de los procesos proyectuales. Todavía no hemos iniciado un nivel de búsqueda proyectual personal e interna como curso de postgrado en el taller.

Quedan claro desde el comienzo, y siempre, los niveles de simplificación y simulación implícitos en la formulación de las hipótesis de trabajo y los límites que estos suponen para el efecto de los proyectos de taller, pues los estudiantes deben tener claro el entorno en los cuales se desarrollan sus propuestas y las libertades con las que pueden manipular esta hipotética realidad.

En muchas de las escuelas de arquitectura este procedimiento se sigue mediante ejercicios de diseño arquitectónico enunciando temas o casos de proyectos asumiendo consideraciones prácticas de carácter supuestamente real y de tamaño progresivo basados en metodologías realistas simplificando ciertas variables pero insistiendo en un resultado semiprofesional y cometiendo el grave error de asumir que el diseño

es sólo un oficio de servicio al cliente o a la industria, sin entender la responsabilidad del diseño arquitectónico como modelador del entorno humano y su rol de constructor de la imagen de la sociedad.

La cátedra debe tener claro el objetivo pedagógico del semestre y poder experimentar el mejor método para lograrlo, lo cual no se produce inmediatamente, (normalmente toma tres o cuatro semestres de ajustes). La cátedra no se debe preocupar por el éxito del taller, si hay un espíritu experimental real e ideas claras el estudiante se integra gustosamente y para él es una experiencia muy valiosa incluso en los fracasos estudiantiles, una reprobación enseña tanto o más que una aprobación. La calificación siempre debe ser personal, los grupos se deben conformar para estudios preliminares o planteamiento general, pero la responsabilidad debe ser puntual y personal, para luego realizar proyectos personales de temas equivalentes usando los estudios y los parámetros grupales. Las calificaciones sólo deben ser genéricas y con fines de control interno, la que debe valer es la calificación final que significa la culminación de proceso y si es administrativamente posible solo debería ser, reprobado, aprobado o aprobado con honores.

El instructor se debe preocupar por el desarrollo del pensamiento proyectual del estudiante y su dedicación permanente en el manejo del espacio, la luz y la estructura en el proceso simultáneo de modelado del objeto arquitectónico y su inserción en el ámbito externo ya sea urbano o rural. Ambos, profesores y estudiantes, deben tener claro durante todo el proceso de

enseñanza, las condiciones de la ficción pedagógica y sus límites fijados para desarrollar ciertos problemas específicos del proyecto: tamaño, sitio, tiempo, estructura, costo, uso, etc.

Existe un proceso aún inasible, en las mentes creativas que mediante la intuición desarrollan conclusiones originales frente a situaciones para ellos desconocidas,

Bibliografía

Argyris, C. (1993) Knowledge for Action, San Francisco, Jossey-Bass. [Edición en castellano: Conocimiento para la acción, Granica,2016]

Argyris, C. y Schon, D. (1978) Organizational Learning, a theory of action perspective

PUM: Massachusetts, Addison-Wesley.

Corona Martínez, Alfonso (1998) Ensayo sobre el proyecto. Nobuko, Buenos Aires.

Cravino, A. (2009) Releyendo a Donald Schon Papel XVII Jornadas de reflexión en Diseño y Comunicaciones

Falavene, A. (2005) Papel. Posgrado de Arquitectura, Enseñanza de Taller FADU-UBA.

Galernan, Daniel (1996) La inteligencia emocional. Buenos Aires: Javier Vergara Editor.

Hobsbawm, Eric (1995) Historia del siglo XX, 1914-1991. Barcelona: Crítica-Grijalbo Mondadori.

Kolb, David, Rubin, I. y Mclntire, J. (1977) Psicología de las organizaciones: problemas contemporáneos, México, Prentice Hall.

Kolb, David; Orqanisational Psychology, Addison Wesley. Kuhn, Thomas (1971) La Estructura de las Revoluciones científicas. Buenos Aires: Fondo de Cultura Económica.

Lave, J.; Wenger, E. (1991) Situated Learning. Legitimate Peripheral Participation, Cambridge University Press.

usando el modelo Acción-Reflexión-Acción o Ensayo-Error que permite el permanente cambio de enfoque de objetivo en el proceso mental resignificando las premisas en la búsqueda de una solución total. Esto reformula los enfoques tradicionales sobre la investigación y demuestra que el Diseño es una forma de investigación.

Le Boterf, G. (2000a) Compétence et navigation professionnelle, París: Editions d’ organisation. 2000b, Ingeniería de las competencias, Barcelona, Ediciones Gestión 2000.

Nonaka, I. y Takeuchi H. (1999) La Organización creadora de Conocimiento: Cómo las compañías japonesas crean la dinámica de la innovación. México D.F. Oxford Press.

Nonaka, Ikujiro (1996) Knowledqe has to do with truth, goodness, and beauty, Conversación con el Profesor Claus Otto Scharmer, Tokio, 23 de febrero, 1996

Polanyi, M. (1958) Personal Knowledge. Chicago: The University of Chicago Press.

Pozo, Juan Ignacio (1997) Teorías Cognitivas del Aprendizaje. Madrid: Ediciones Morata.

Reck, Ludwig (1986) La génesis y el desarrollo de un hecho científico. tv Madrid: AlianzSchon, Donald (1998) La formación de profesionales reflexivos. Madrid: Paidós.

Steiner, Dietmar M. (1999) The Truman Show en Revista Domus 816, junio

X Encuentro Regional de Investigación Proyectual (2004) XIX Jornadas de Investigación FADU-UBA, Facultad de Arquitectura, Diseño y Urbanismo, Buenos Aires, Noviembre.

DELFINA GALVEZ DE WILLIAMS

* Este texto testimonial sobre su madre y su obra fue escrito en 2020 por Claudio Williams, el hijo mayor del matrimonio de Amancio Williams y Delfina Gálvez y fue originalmente escrito para el Politécnico de Turin en una de cuyas publicaciones fue incluido.

Cuando se habla de Delfina Galvez de Williams, se habla de ella como arquitecta y también como escritora, estudiosa sin límites, políglota, traductora. También como esposa de Amancio Williams, madre de sus ocho hijos. Hablaré de ella simplemente como Delfina, porque todo eso que ella fue, lo fue por su inmensa capacidad intelectual, por su enorme posibilidad de asimilar conocimientos y de memorizarlos para siempre. Y además por su capacidad de transmitir generosamente esos conocimientos y de compartirlos también con personas de gran valía intelectual.

Fueron estas condiciones las que le permitieron acompañar exitosamente como arquitecta a su marido, Amancio Williams, durante los primeros años de su carrera profesional.

Mucho antes que eso, siendo muy joven, ilustró libros de su madre Delfina Bunge de Galvez, como por ejemplo la tapa de Viajes alrededor de mi infancia.

1 Viaje alrededor de mi infancia

Siendo estudiante de arquitectura, produjo un proyecto para una Municipalidad que mereció su inclusión en la Revista de arquitectura de febrero de 1941.

Fue de las primeras mujeres arquitectas en Argentina. Tan pocas eran las mujeres que estudiaban arquitectura que, no habiendo baños para mujeres, tenían que ir al baño del Querandí1.

1 El Bar Querandí todavía existe en la esquina de Moreno y Perú, en San Telmo, frente a la antigua sede de la Escuela de Arquitectura en la llamada Manzana de las Luces.

2 Delfina pintora

3 Proyecto para una Municipalidad

4 Delfina con arquitectos

Ya casada con él, colaboró intensamente en los primeros proyectos de Amancio Williams, como el de las Viviendas en el espacio, cuya imagen acuarelada es de su autoría.

5 Viviendas en el espacio

6 Casa sobre el arroyo

Corte longitudinal

7 Delfina y Amancio en su estudio

8 Delfina en la obra de la Casa sobre el arroyo

O la Casa sobre el arroyo, obra en la que participó desde sus inicios hasta la terminación de la obra.

O la casa para Mario Williams, hermano de Amancio, en un terreno contiguo al de la Casa sobre el arroyo, cuyas perspectivas pintadas con acuarelas son también de su autoría. Con relación a esta casa, hay una muy conocida carta de Amancio a Mario, explicando la idea del proyecto y sentando las bases de

lo que después fueron sus principios arquitectónicos y de vida. Si bien esta carta está firmada por Amancio, él escribe buena parte en plural, y nosotros, sus hijos, conociendo tan bien a ambos, podemos afirmar sin lugar a dudas que en esa carta hay una muy fuerte intervención de Delfina.

Dice Amancio en esa carta También deseo que hayas comprendido nuestra posición en la vida y su desinterés. Está llena de dificultades y renunciamientos, pero estamos resignados de antemano, porque no hemos elegido el camino fácil del éxito sino el difícil camino de la búsqueda y la honestidad, y sabemos perfectamente a lo que vamos y los sacrificios de toda índole que siempre tendremos que hacer. Uno de los peores es sin duda no tener independencia económica, con todo ni eso nos apartará de nuestra línea de conducta. Si es muy desagradable y a los ojos del mundo, indigno, estar dependiendo de todo y de todos, peor es traicionarse y venderse.

9 Casa Mario Williams

10 Plan Regulador para el partido de Tigre

11 La Carta de Atenas

Hay también de esos años, diversa correspondencia personal de Delfina con sus padres y con sus suegros, que pone en evidencia las dificultades que atravesaban, con sus hijas mayores ya nacidas. Y es evidente que Delfina significó un puntal fundamental para Amancio, ayudándolo a superar esas dificultades, entre otras cosas, mediante el enorme compromiso con sus principios de vida y de arquitectura, tan bien expresados en esa carta al hermano Mario.

Es también de su autoría el Plan regulador para el partido de Tigre.

Superada esta primera etapa en la obra de Amancio, Delfina produjo cosas tales como la traducción de la Carta de Atenas, de Le Corbusier. Tuvo también una valiosa intervención en los años en que perduró la versión española de L’architecture d’aujourd’hui. Si bien no realizó las traducciones, se ocupó de su corrección y del diseño, en directa conexión con Andre Bloc, su director. La abundante correspondencia entre Amancio y Bloc muestra la intervención de Delfina, que además de hacer las traducciones participaba en toda esta gestión.

Años más tarde, tradujo Testamento, de Frank Lloyd Wright. Un aspecto digno de ser destacado es la empatía que generó Delfina con los colaboradores o discípulos de Amancio, a lo largo de casi toda su trayecto-

12 L' Árchitecture d' Aujourd'hui en español

ria. Arquitectos como Horacio Pando, Jorge Butler, Jaco Saal, Pampa Toscano, Santiago Bonfanti, Norberto Benvenuto, Emilio Ambasz, Luis Santos, Norberto Steindl o Eduardo Leston y tantos otros, resaltaron la influencia que Delfina tuvo en su formación. Todos ellos, de alguna u otra manera, se incorporaron a la vida de la familia, se hicieron amigos de los hijos, algunos se enamoraron de sus hijas. Y ese contacto tan frecuente e intenso con Delfina, les permitió adquirir infinidad de conocimientos, que Delfina generosamente les transmitía en los almuerzos o encuentros de familia. Muchos aprendieron algunos idiomas con ella también.

Pampa Toscano dijo de ella un ser de corazón heroico, mujer de gran cultura, erudición, infatigable investigadora de artes y ciencias.

Emilio Ambasz, por ejemplo, cuando escribió su prólogo al libro sobre la obra de Amancio que publicamos los hijos después de su muerte, lo hizo bajo la forma de cartas imaginarias que él le habría escrito a Delfina. Es decir que puso a Delfina en el centro de su conexión con Amancio. Dice Emilio: Tal vez si él la hubiera dejado a usted manejar alguno de los asuntos mundanales, algunos de sus proyectos podrían haberse levantado del suelo.

Santiago Bonfanti dice Delfina y Amancio, imposibles de olvidar. Amancio con una imaginación infinita, Delfina con una templanza, claridad, generosidad y sabiduría única.

Y así como lo fue por los colaboradores y discípulos de Amancio, también fue muy querida y admirada por sus propios amigos, muchos artistas, literatos, como Manuel Mujica Laínez, Isabel Padilla y Borbón, Lidy Prati, Ernesto Schoo, Roberto Yahni, Mabel y María Castellano y tantos otros.

En 1964 Delfina escribió La buena forma. Cito una parte de este escrito, resultado de una conferencia organizada por Colette Bocara en una asociación de ceramistas: Cuando una señora explica a su cocinera una receta, y llega a la consabida frase: “désele buena forma”, ninguna de las dos, aunque no hayan leído a Max Bill ni a Tomás Maldonado, tiene la menor duda de lo que esta expresión significa. Y si se les pregunta qué razón existe para que la buena forma de las croquetas, por ejemplo, sea cilíndrica, la cocinera contestará, seguramente, “porque se fríen mejor”, y la señora, con toda probabilidad, “porque quedan más bonitas”. Y, sin sospecharlos, habrán establecido cuáles son los dos polos del eje alrededor del cual gira el problema de la buena forma: uno, la funcionalidad, otro, la belleza.

La funcionalidad es bien fácil de definir: es la cualidad que tiene alguna cosa de ser adecuada a su fin. Definir la belleza es otro cantar. Sobre ella se ha pensado tanto y tan profundamente que cualquier intento de definición nos llevaría todo el tiempo de esta charla y mucho más.

Señalemos solamente que en toda obra de belleza perdurable –y aquí me estoy refiriendo tan solo a las obras que se aprecian con la vista–, se encuentran

13 Fragmento del plano del proyecto de parquización del Club Sirio Libanés en Pergamino

siempre algunos o todos de una serie de elementos, como estos: equilibrio de los volúmenes, proporción de las dimensiones, pureza de línea, armonía de color, economía de medios, y otros menos fáciles de apreciar, como la originalidad y la verdad.

Dice Fenelon que “le Beau, c’est la splendor du vrai”. La verdad, en una obra humana, es la autenticidad, la honestidad, la sinceridad. La funcionalidad es parte de la verdad. Una columna que no sostiene, o una ventana falsa, son mentiras construidas. La funcionalidad y la belleza están tan inextricablemente unidas e interdependientes que a algunas personas les parece legítimo pensar que la belleza se obtiene como subproducto de la funcionalidad, mientras que otras, con argumentos igualmente persuasivos, demuestran que la funcionalidad es un subproducto de la belleza… ... Yo diría que la verdad está en el reconocimiento de un hecho previo, del cual derivan a la vez la belleza y la funcionalidad. Y ese hecho es el buen diseño, es decir, la buena solución de un problema bien planteado.

Siempre existió la “buena forma”, como un hecho, aun cuando no se hablaba de ella… Pero la preocupación teórica por la buena forma, no aparece hasta muy tarde. No tiene cien años. La razón de esta aparente anomalía es muy simple. Antes existía un verdadero divorcio entre la belleza y la utilidad. Por un lado se consideraban las Bellas Artes y por el otro las llamadas Artes Aplicadas, a las cuales se relegaba implacablemente toda obra que, aunque bella, tuviera el horrible estigma de ser, a la vez, útil.

El conflicto aparecía en la arquitectura: siempre se la consideró la mayor de las artes, pero no se le podía negar utilidad… Se solucionaba este conflicto con una increíble aberración, separando, dentro de la arquitectura, el aspecto

Su dominio de tantas lenguas le permitió además abordar cosas tales como las traducciones de canciones de Brahms, Schubert, Faure y tantos otros para los programas de mano del Mozarteum Argentino.

Mientras todas estas cosas sucedían Delfina abordó varias intervenciones en materia de paisajismo, como por ejemplo una para Raúl Desmarás en su casa de San Isidro y se ocupó del diseño paisajístico de la cancha de golf del Club Sirio Libanés, en Pergamino.

Y siguió todo este tiempo, acompañando a Amancio con la traducción de su correspondencia al inglés y francés, y siempre, corrigiendo y perfeccionando los escritos de Amancio que muchas veces merecían sus correcciones. Esto perduró hasta los últimos años de vida de Amancio, aun cuando ya hacía mucho tiempo que se había disuelto el matrimonio. Pero el nexo entre ellos fue un nexo esencial. Tan grande era ese nexo que, una vez terminada la historia de la gran casa de Belgrano, Delfina compró un muy lindo departamento en Talcahuano y Córdoba, frente a su amado Teatro Colón. Y Amancio no pudo con su genio, y compró otro piso en el mismo edificio, no sin antes pedirle y obtener su permiso.

Hoy se habla mucho de invisibilidad. Y son varios los que sostienen que Delfina fue invisibilizada, sin decir claramente por quien o por quienes. Está claro que si alguien pudo haberla invisibilizado, ese habría sido Amancio.

Nada más lejos de la realidad. Delfina no fue invisibilizada ni por Amancio ni por nadie. Era tal la fuerza y la influencia de Delfina que no necesitaba ser visibilizada. Ella se encaramaba en su lugar y tenía su propio pedestal. Siempre tuvo clarísimo cual había sido su rol en la producción de Amancio y no pretendió más de lo que le correspondía, que ya era muchísimo. Ella mismo dijo, en una entrevista de la revista Ramona de junio de 2005:

Lo que pasa es que Amancio muchas veces me hacía firmar cosas que yo no había hecho, y cosas que sí hice no las firmé. Por ejemplo el plan de urbanización del Tigre, ese lo hice yo prácticamente todo, pero no lo firmé. En realidad he trabajado muy poco en Arquitectura.

El tenía la idea central siempre. A los dos se nos ocurrían ideas, a todos los que estábamos al lado de él. Pero a él se le ocurrían mejores.

Yo reconozco que eran mejores. En la casa del puente, por ejemplo, él tuvo otras ideas antes. La idea que tuvimos los dos desde el principio fue no sacar ni un árbol, y el único lugar que quedaba era a ambos lados del arroyo. Siempre existió la idea de edificar sobre el arroyo. Primero habíamos pensado en pilotes, y Amancio había pensado en unas vigas que se llaman Vierendell, que dejaban muchos huecos donde iban a ir los vidrios. Después de pronto se le y la construcción. Aun hoy en ciertos países todavía se enseña arquitectura en la escuela de Bellas Artes y construcción en escuelas técnicas. Es como si ustedes, ceramistas, proyectaran sus formas sin saber cómo se usan el barro y el horno. Como si la calidad, la forma y la técnica, fueran separables.

ocurrió esto que fue una idea muchísimo mejor que todas las anteriores. Estas mismas condiciones que mencioné al principio, fueron las que le permitieron escribir –siempre con gran síntesis, con una valiosa economía del lenguaje–, en torno a temas como El Tigre, Colonia o Fridl Loos.

El Tigre… un lugar que se hace amar tanto que uno siempre vuelve a él, que todos vuelven a él, hasta el río, que en vez de correr hacia el mar como todos los ríos, va y vuelve, viene y va, como si no pudiera vivir lejos de las palmeras y de los ceibos, como si no pudiera resistir la nostalgia de las caricias de los sauces.

He venido a Colonia, caminando desde el precioso parque Ferrando, a través de bosques y playas, con la fresca, y he descansado en la placita junto a la Matriz, esperando la hora de la misa, con mi sempiterno libro y mi sempiterno tejido, escuchando los pájaros. Pocas veces en mi vida he gozado de tanta paz.

Por eso, como no estoy facultada para dar bendiciones, expreso, al menos, un deseo muy sincero al decir: ¡Qué la paz permanezca siempre contigo, Colonia!

El tiempo, que madura y “asienta” la obra plástica, es el enemigo número uno del creador de modas, que sabe que su obra, hoy, y tal vez dentro de cien años, maravillosa, parecerá indefectiblemente ridícula dentro de diez o veinte. El creador de modas lucha contra el tiempo, tratando de trabajar con valores permanentes dentro de lo efímero.

14 El Tigre

¡Qué problema la creación de un vestido! Pocos objetos tienen funciones más dispares: a la vez cubrir y descubrir, poner en valor y disimular, sugerir y frenar, llamar la atención por sí mismo pero hacerla fijar en su dueña, armonizar con el cuerpo y el alma de ésta, y además, con su ambiente y sus circunstancias. Obra de arte para ser mirada por todos lados, en reposo y en movimiento. Obra de arte en el que elemento “sorpresa” es indispensable, de modo que el artista está obligado a renovarse en cada una.

Fridl Loos sortea admirablemente todas esta dificultades y se impone con su arte no solo a las mujeres que pegan sus narices a sus vidrieras de la calle Santa Fe, sino a los hombres sensibles a las cosas de arte….Maneja el color como una gran artista plástica que es, oponiendo, por ejemplo, en un choque sensacional, el verde esmeralda y el azul eléctrico. Maneja la calidad, las texturas, con ese conocimiento del material y del oficio que solo se encuentra en el gran artista artesano. La excepcional categoría de las creaciones de Fridl Loos llevó al Museo de Arte Moderno de Río de Janeiro a realizar una exposición conjunta de vestidos, cuadros, géneros originales y fotogramas de esta artista.

A fines de los años 70, colaboró intensamente con Ignacio Pirovano en su proyecto para la creación de una Fundación para la Promoción de la Creatividad Argentina, proyecto que quedó trunco por la muerte de Ignacio en mayo de 1980. En esos años, tradujo los textos de los escritos de Georges

15 Colonia

Vantongerloo –que éste le había entregado a Pirovano– al español y al inglés, previa reescritura de los originales en francés. Produjo el diseño y la diagramación completa de esta edición trilingüe y se ocupó personalmente de su impresión en España.

Colaboró durante largos años con el Museo de Arte Español Enrique Larreta, cuya directora, Isabel Padilla y Borbón, fue una de sus mayores amistades.

Ello derivó en una intensa participación en la Asociación Argentina de Mujeres Hispanistas, institución que organizó numerosas conferencias de Delfina.

Entre estas conferencias, vale destacar la Convivencia árabe-judeo-cristiana en la cual realizó un minucioso estudio de las exitosas relaciones entre esas tres vertientes religiosas en esos trescientos años en España, que lamentablemente se han perdido en estos tiempos.

Estamos en el año 1995, que fue instituido como “año de la tolerancia”. En los últimos tiempos se ha hablado mucho de tolerancia, convivencia, de ecumenismo religioso, se ha conseguido formar una conciencia en estos temas y se han obtenido algunos logros como el final del apartheid y la demolición del muro de Berlin, se eliminaron en muchos países la esclavitud y la discriminación racial, y se ha llegado a una cierta armonía entre las religiones.

Pero visto en conjunto nuestro siglo va a quedar como uno de los peores de la historia, por los genocidios, las persecuciones, los atentados, el poco

16 Fridl Loos

respeto a los derechos humanos y la general entronización de la violencia en todos los medios.

Antes del siglo XVIII no se hablaba para nada de tolerancia ni de convivencia. La revolución francesa promulgó los derechos del hombre para atropellarlos enseguida en la forma más espantosa. Y sin embargo la tolerancia y la convivencia se dieron una vez. Y no fue en un siglo pomposamente llamado “de las luces” o “de oro”. Fue en la Edad Media, la que algunos se obstinan en llamar obscura aunque haya iluminado al mundo con maravillas como las catedrales románicas y góticas, el canto gregoriano, la “summa teologica” y la “Divina Comedia”. Y el lugar fue España. También tan acusada de barbarie. Concretamente en Toledo, desde el reinado de Alfonso VI de Castilla hasta el siglo XV. La expulsión de los moros tuvo características muy diferentes… La expulsión definitiva fue en 1608, bajo el reinado de Felipe III. España quedó libre de judíos y moros, pero solo aparentemente, porque conservó profundas huellas de unos y otros en su sangre, en su cultura y en su lengua.

17 Vantongerloo

18 Nosotros tres

Y aquellos tres siglos de tolerancia y convivencia en la ciudad de Toledo queda, a pesar de su trágico final, no sólo como un recuerdo honroso para España sino como un ejemplo esperanzador de que a los hombres de buena voluntad les es posible encontrar la paz en la tierra.

Ya al final de su vida publicó dos libros. Uno, Nosotros tres, de las memorias de su más tierna infancia junto a sus hermanos Manuel y Gabriel. Otro de cuentos, Cuentos creíbles.

Así comienza Nosotros tres: Era un portón como tantos otros de Belgrano, de hierro, mitad chapa, mitad lanzas, verdinegro, entre dos pilares de mampostería coronados por copones. De un lado estábamos nosotros tres, en el jardín. Del otro estaba el mundo, le decíamos también la vida.

Dos calles del mundo se cruzaban frente al portón. Ambas estaban plantadas con árboles cuyas ramas se juntaban en lo alto, formando una bóveda. Por una de ellas llegaban, los domingos, los autos de las abuelas, cargados de primos y de masitas para el té. Por la otra se iba a la gran calle del comercio, a lo de Gainza, a las barrancas, y, decían, hasta el río. El río era una franja marrón en el horizonte: nunca fuimos hasta allí.

En el Relato de la mujer de Noé dice Delfina: Nadie piensa en mí, nadie me nombra. Para todos fui siempre la mujer de Noé. Sin embargo tuve grandes

19 Cuentos creíbles

20 Delfina y sus ocho hijos

responsabilidades y pasé terribles penurias y tuve, sin duda, bastante mérito. Eduqué muy bien a nuestros hijos. En nuestra familia los hombres eran honestos, trabajadores y justos, y las mujeres aguantábamos. Teníamos hijos, los cuidábamos, hilábamos, tejíamos en el telar y hacíamos quesos, y aguantábamos.

No era fácil mantener a nuestra familia en la virtud, cuando nos rodeaban tribus enteras de gente que vivía solo para su placer. Cuando algo les gustaba, lo tomaban, fuera un cabrito, una manta o una persona, sin molestarse en averiguar si tenía dueño. Si alguien se oponía, no tenían inconvenientes en herirlo, y aún matarlo. Eran, como dijo el Señor, muy carnales. Es comprensible que se manifestara arrepentido de haberlos creado y dispuesto a borrarlos de la faz de la tierra. Lo que no comprendo es cómo un Ser supremo, tan inteligente, y para quien no había imposibles, no se le ocurrió algo más rápido y práctico que el Diluvio para exterminarlos. Podía haberles mandado una buena peste, o algunos rayos mortíferos. Se lo comenté a Noé, que me dijo muy indignado: –¿Ahora quieres discutirle al Señor, darle lecciones!

Fue una mujer extraordinaria, inmensamente cultivada, de una memoria

prodigiosa y que, entre muchas otras cosas, fue principalmente la esposa y colaboradora de Amancio Williams y madre de nosotros ocho.

21 Delfina

Las múltiples miradas del proyecto sostenible*

Susel Biondi**

* Este texto es un fragmento del libro de Susel Biondi, Arquitectura sostenible: una cuestión de evolución, Fondo editorial Arquitectura PUCP, Lima, 2023. Agradecemos a la autora y a la editorial la cesión del mismo.

** Susel Biondi es Arquitecta URP y Doctora por la Universidad de Lovaina, Profesora Asociada de la Facultad de Arquitectura PUCP y socia del Estudio de Arquitectura Poggione+Biondi Arquitectos.

Para Peter Zumthor, hacer arquitectura significa plantearse uno mismo preguntas, significa hallar […] una respuesta propia mediante una serie de aproximaciones y movimientos circulares. Una y otra vez (1998: 57). Con ello, Zumthor nos habla de cuán compleja es la realidad y de la distancia que hay entre ella y cualquier aproximación teórica. Nos dice además, que el sentido de un proyecto de arquitectura es articular dicha realidad. El hablar solo de edificios, de construcción, de arquitecturas, no refleja la situación de intercambios reales y sensibles con el ambiente.

La mirada de quien proyecta con un enfoque que busca la sostenibilidad intenta abarcar de manera holística el conjunto de sistemas —naturales y artificiales— en el que se inserta el proyecto. Asimismo, busca entender las complejas y múltiples relaciones entre los elementos preexistentes —y entre sus diferentes enfoques—, tomando en cuenta la mayor cantidad de ángulos y momentos posibles.

Esta mirada es, en realidad, una multiplicidad de miradas que, no obstante, para efectos de acompañamiento

al proyecto, se pueden sintetizar en tres momentos de aproximación, partiendo de una determinada mirada como punto de partida: [1] desde el paisaje (mirada integral), [2] desde la arquitectura y [3] desde el habitante. Se explican a continuación estas tres miradas, como tres de esos momentos —interpretando a Zumthor— de la serie de aproximaciones y movimientos circulares que se generan durante un proceso proyectual en busca de una respuesta responsable y pertinente. Estas aproximaciones, sólo se pueden entender simultáneas y concatenadas, corresponden a los tres enfoques de lectura de los proyectos —comprensión sistémica, estrategias ambientales y estrategias para el bienestar—, que son el resultado de las aproximaciones iniciales a la arquitectura sobre las que se reflexiona a continuación. Para efectos de limitar la extensión de este ensayo, no se explicarán todos los puntos contenidos en cada una de las aproximaciones, sino solo los principales, para dar a entender la naturaleza de la reflexión en torno al proyecto sin aburrir demasiado al lector.

Del sistema a la pieza arquitectónica

Mirada integral / Comprensión sistémica del entorno aproximación al sistema mayor y de este hacia la pieza proyectada, que en el futuro formará parte de este sistema (el entorno informa a la arquitectura)

La aparente pérdida de confines y límites, la disolución de los bor des, la preeminencia de la mirada difusa y móvil, la estructuración geométrica menos evidente, rígida, previsible… Todo ello son características típicas del paisaje que enriquecen la identidad de la arquitectura.

Daniela Colafranceschi, Landscape + 100 palabras para habitarlo

Ese paisaje, que en el horizonte parece lejano e intangible, tiene características cercanas y registrables —clima, topografía, suelos, ecosistemas, relaciones— que,

bajo una mirada abierta y sensible a las dinámicas del ambiente, enriquecen el proyecto arquitectónico, estableciendo vínculos más fluidos entre este y su entorno inmediato. Yeang (1999) establece una relación entre el sistema proyectado y su entorno, y deduce que si el proyectista plantea, al inicio del proyecto, hipótesis erróneas sobre esta relación, el resultado será una cierta disonancia en el contacto entre el sistema proyectado y su ambiente.

La pieza arquitectónica como parte de un sistema mayor

Mirada desde la arquitectura / Estrategias ambientales aproximación a las relaciones que se generan desde la pieza arquitectónica hacia el ambiente que la contiene y sostiene (la arquitectura responde al entorno)

Las interdependencias ecológicas del interior al exterior del medio edificado consisten en emisiones de energía y materiales desde el interior hacia los ecosistemas, en forma de productos de desecho.

Wann,

Biologic: Designing with nature to protect the environment

Esta aproximación, propia de los ecologistas, más específicamente del pensamiento de la new ecology, es una idea de ecología urbana ligada al tiempo y las relaciones que se desarrollan en el territorio, en donde la arquitectura puede entenderse como una especie de interferencia a la hora que se le exige responder a las instancias impuestas por un renovado concepto de ecología (Colafranceschi 2007: 121). Renovado, porque se trata de una nueva visión de la ecología, que ya no se basa en congelar paisajes y territorios, sino en una intervención no-impositiva, en sinergia con el medio y con la tecnología: Una ecología donde sostenibilidad es interacción (Gausa y otros 2001: 177).

Partiendo de este enfoque, la arquitectura asume un rol importante que participa en la modificación y evolución del territorio y el paisaje, reconociendo las sutiles interrelaciones entre el ser humano, el ambiente natural y el artificial, construyendo una antropósfera en mayor armonía.

La pieza arquitectónica como lugar habitable Mirada desde y para el habitante / Estrategias para el bienestar aproximación a las relaciones que se generan al interior del nuevo ambiente construido y su influencia en el bienestar de los usuarios (habitando el ambiente construido)

Toda arquitectura constituye un sistema inserto en su entorno, con el que intercambia energía, materia e información. Esta relación de intercambios que se da hacia afuera se repite hacia adentro, entre la arquitectura y el habitante, y estas relaciones y sinergias son las que definen las condiciones de habitabilidad: Habitar es estar donde se está. Y Arquitectura es aquella que hace de ese estar bienestar (Arnau 2000: 100).

La finalidad de un proyecto arquitectónico debería ser esta búsqueda de bienestar y de confort del usuario.

Este, al habitar un ambiente construido, se convierte en el principal evaluador de sus condiciones de sostenibilidad. Para lograr este bienestar se debería cumplir con un confort físico básico: condiciones de iluminación, ventilación, temperatura, etcétera, pero también con un confort psicológico: espacialidad, flexibilidad, posibilidad de apropiación, relaciones interior-exterior, etcétera.

Hay que entender el objeto arquitectónico contemporáneo como un elemento activo y versátil con el entorno y

Las tres aproximaciones con las cuales se propone acompañar el proceso proyectual orientan el diseño y constituyen un conjunto de pasos a seguir, concatenados, interrelacionados y recurrentes. Estos pasos de reflexión aterrizan en el planteamiento de los criterios de sostenibi lidad que podría considerar un proyecto arquitectónico en cuanto a sus diferentes relaciones —y escalas— con el entorno natural y artificial, con los impactos en el ambiente y con los beneficios en el habitar.

su habitante, sugestivo, sereno, generador de calidad de vida, escenario para el bienestar y la felicidad. Consciente de su influencia en la vida de los que lo habitan, el edificio debería controlar sus relaciones de impactos tanto hacia adentro como hacia afuera: La casa nunca más se entenderá como objeto, sino que será sujeto, a todos los efectos (Gausa y otros 2001: 282).

De la mirada reflexiva a la toma de decisiones

Interpretación de los procesos / Lógicas de intervención Paso de la reflexión a la acción (el proyecto se empieza a esbozar a partir de lógicas de intervención derivadas de la interpretación del entorno con el que va a interactuar)

Las aproximaciones de la reflexión a la propuesta

En cada una de las aproximaciones, y especialmente después de la primera, hay un proceso de reflexión y un momento de paso a la propuesta proyectual esbozada inicialmente como lógicas de intervención que poco a poco se van definiendo como precisas estrategias ambientales y de bienestar.

El gráfico 5 representa las tres formas de aproximación e incluye entre ellas este nuevo punto, que representa el paso siempre directo de la interpretación y la reflexión a la acción de la propuesta proyectual, a la toma de decisiones. Ese paso —de interpretación de los procesos a las lógicas de intervención— marca el cambio del rol de la persona o del equipo de diseño: es el paso del rol reflexivo de la lectura del lugar, al rol activo de la toma de decisiones proyectuales.

Las aproximaciones: retroalimentaciones durante

el proceso proyectual

Las diferentes aproximaciones, en su condición de interrelacionadas, simultáneas y complementarias, se intercalan y retroalimentan.

Aunque representan distintas entradas al tema, a diferentes escalas y desde enfoques diferentes,

las tres aproximaciones conducen a un proyecto final de escala arquitectónica. El manejar simultáneamente estas diversas escalas y sentidos de aproximación busca permitirle al proyectista obtener los criterios esenciales para idear una propuesta sostenible. El hecho de que la escala de intervención sea reducida —arquitectónica, y no urbana ni territorial— no implica que el impacto de esa intervención sea menor: la dimensión del impacto está en función de la pertinencia de la arquitectura. Y la pertinencia resulta de una

correcta lectura, reflexión y propuesta. Una arquitectura es pertinente cuando es capaz de mirar integralmente, así como de integrarse orgánicamente a ese sistema al que va a pertenecer, porque, como afirma Angelique Trachana, posiblemente el problema irresuelto de la ciudad esté causado en gran medida por una cultura arquitectónica que [se] mira única y exclusivamente a sí misma (2000: 59).

Y porque ese ensimismamiento, típico de una estética superficial, de la arquitectura como objeto, debería reemplazarse por una estética que responda a una ética global, de la arquitectura como proceso, como sistema abierto, integrante y dependiente de un sistema complejo mayor, como pieza que busca tener un comportamiento sinérgico, de impactos positivos y con los menores impactos negativos posibles.

Mirada integral (comprensión sistémica)

El proyecto ecológico exige que el arquitecto contemple y entienda el medioambiente como un sistema natural activo, y que reconozca que el entorno edificado depende de él.

Ken Yeang, El rascacielos ecológico

Representar una realidad es comenzar a transformarla, se afirma en Gausa y otros (2001: 103). Proyectar de manera sostenible demanda una aproximación diferente al mundo y nuestra relación con él; requiere apartarse de los planteamientos de una situación de

dominio sobre la naturaleza y tener un acercamiento más de ida y vuelta. Es necesario, entonces, que el proyecto se inicie con un análisis atento del paisaje y de las diversas tensiones y relaciones que existen dentro del mismo. Intentar comprender aquello que sucede en el lugar a intervenir constituye la primera acción proyectual. Es ineludible, si se tiene como meta una intervención de carácter relacional, que el proyecto forme parte integral y orgánica de los sistemas a los que se va a incorporar, y con los que necesariamente tiene que saber dialogar. Por ello, antes de cualquier intervención en un entorno, quien proyecta tiene que identificar y comprender las características del lugar: situación geográfica, clima, recursos, ecosistemas, poblaciones y su situación cultural, social, económica, tecnológica, política. Sin una comprensión sistémica real del entorno se vuelve difícil diseñar un elemento relacional, que se integre a un contexto que lo precede y que esté concebido para relacionarse con dicho contexto de la manera más positiva posible, es decir, como un elemento conformante del sistema y no como un objeto aislado, desconectado, autista.

La naturaleza es un sistema único interactuante; los cambios en alguna parte afectarán la operatividad del todo, afirma Ian McHarg (1992: 56). Es necesario tener en cuenta, para este análisis y para la posterior concepción del proyecto arquitectónico, que la lectura de un entorno siempre será subjetiva e incompleta, y que por lo tanto los proyectos deben ser abiertos y flexibles, con la posibilidad de adaptarse, de cambiar según la situación específica del momento.

Para esta aproximación al sistema mayor se propone la metodología de planeamiento ecológico elaborada por McHarg: una forma de lectura que parte de la complejidad del territorio y de la ciudad, un método de acopio y ordenamiento de la información mediante la superposición de mapas por temas, elementos, acontecimientos y relaciones, entendidos como procesos simultáneos y superpuestos en el ambiente.

A esta metodología de lectura por capas de una realidad determinada se la llama lectura de mapas sensibles, como contraposición a un mapeo tradicional y zonificado que excluye la complejidad y que, por lo tanto, es insensible a los valores y atributos sutiles de un lugar. Las lecturas de las diversas características de un lugar se combinan y evalúan de manera conjunta y sintética en mapas síntesis, de los que se infieren conclusiones de lectura de una realidad compleja.

Estas conclusiones, a su vez, dan lugar a un conjunto de lógicas proyectuales. Un mapa es, en el sentido convencional, una representación bidimensional del paisaje tridimensional. En un sentido más contemporáneo, los mapas pueden registrar una gama muy amplia de temas. Este cambio de la condición de los mapas, que pasaron de ser simples representaciones objetivas a tener, ahora, la doble condición de una cartografía al mismo tiempo subjetiva y objetiva, refleja el cambio del centro de atención de nuestra trayectoria cultural (Bowkett, en Co lafranceschi 2007: 186). Ya no son el paisaje o el territorio un objeto —ni de estudio ni de explotación— sino un sujeto con el cual se interactúa.

Los mapas sensibles son una forma de abordar la complejidad del entorno en el que se va a intervenir, que con-

siste en recolectar, combinar y superponer los elementos, flujos y relaciones naturales y artificiales que se dan en el lugar, a manera de layers o capas de información. Cada layer se refiere a un tema de análisis y constituye una manera objetiva de obtener o recolectar información, percibida siempre de manera parcial y subjetiva.

La metodología de layers propone reunir y cartografiar información tratando de abarcar la totalidad de las variables, pero el énfasis en la recolección de las variables dependerá de la postura del estudio. Por ejemplo, desde un enfoque ecológico se harán mapas o cartografías de los ecosistemas, mientras que desde la perspectiva del urbanismo se pueden hacer mapas con énfasis en las características de los asentamientos urbanos. En los dos casos, tanto como en cualquier otra postura, el fin es interpretar objetivamente el entorno en donde se intervendrá.

Esto sirve para comprender las complejas relaciones entre los elementos bióticos y abióticos, naturales y culturales: cómo el ambiente preexistente condiciona el proyecto arquitectónico, y simultáneamente cómo el proyecto podría afectar el ambiente al emplazarse en él.

El enfoque para mapear el emplazamiento del proyecto es más que la simple combinación y comparación de capas: intenta determinar la relación entre los elementos del paisaje y cómo se adaptarían estos al cambio que supone la intervención en el sistema proyectado.

Con estos mapeos se busca acercarse a los sutiles aspectos de los procesos naturales y culturales, con sus propias valoraciones y limitaciones, para determinar los usos más afines a las características de las áreas estudiadas, con criterios del impacto que estos usos pueden ocasionar y de los servicios que estas áreas pueden brindar.

McHarg (1992) sostiene que un estudio completo para una región metropolitana implica la identificación de los procesos naturales que: (1) ofrecen servicios ambientales para el ser humano, tales como purificación del agua, dispersión de la contaminación atmosférica, mejora del clima, almacenamiento de agua, control de inundaciones, sequías y erosiones, acumulación de tierra vegetal, aumento de flora y fauna, etcétera; (2) ofrecen protección o son hostiles, tales como pantanos o lagunas que protegen la vida silvestre o llanuras inundables que ponen en riesgo las ciudades; (3) son únicos o especialmente valorados: tales como zonas de interés geológico, ecológico, paisajístico o histórico; y (4) son vulnerables: tales como dunas, zonas de reproducción de especies y de captación de agua.

Este método abandona valores económicos absolutos —ya que estos solo cubren un rango pequeño de los valores reales— y, usando una escala relativa de valoración (de mayor a menor valor), busca incluir todos los factores importantes que refutan una propuesta puramente economicista del valor del suelo. Otra ventaja es que esta metodología permite obtener una base de datos útil para cualquier propuesta de planeamiento de mínimo costo-máximo beneficio (costo y beneficio entendidos en su sentido más amplio). Se identifican los valores del lugar, los usos posibles y la capacidad del lugar para contenerlos.

Al ser esta metodología un sistema de análisis, la forma de plantear los layers obliga a una categorización a veces difícil. Es difícil, por ejemplo, delimitar o catalogar cuáles son los elementos naturales y cuáles los artificia-

les existentes en el ambiente. Por el grado de intervención del ser humano, hoy no se puede hablar de una naturaleza virgen; tampoco se vive en un medio puramente artificial, sino en un contexto híbrido, transformado, cultural. Sin embargo, y para efectos del acopio de la información, en esta propuesta de lectura de la realidad a través de mapas sensibles las capas se dividen en dos grandes grupos de análisis: ambiente natural y ambiente artificial, cada uno con un conjunto de temas a cartografiar, tales como geografía y clima, recursos, ecosistemas y paisaje en el primero; y ambiente construido, ambiente sociocultural, y ambiente económico, político y normativo en el segundo.

Bibliografía

Arnau, Joaquín (2000). 72 voces para un diccionario de arquitectura teórica. Madrid: Celeste Ediciones. Colafranceschi, Daniela (2007). Landscape + 100 palabras para habitarlo. Barcelona: Gustavo Gili. Gausa, Manuel et al.(2001). Diccionario metápolis de arquitectura avanzada. Barcelona: Actar.

McHarg, Ian (1992). Design with Nature. Nueva York: John Wiley & Sons.

Trachana, Angelique (2000). «Ecología del ambiente artificial», Astrágalo. Cultura de la Arquitectura y la Ciudad, 16, pp. 51-69. Wann, David (1994). Biologic: Designing with Nature to Protect the Environment. Colorado, EE. UU.: Johnson Books.

Yeang, Kean (1999). Proyectar con la naturaleza. Barcelona: Gustavo Gili.

Yeang, Kean (2001). El rascacielos ecológico. Barcelona: Gustavo Gili.

Zumthor, Peter (1998). Pensare architettura. Bade: Lars Müller Publishers

El espesor del detalle*

1Arquitecto por FA UCC (1989) con tesis de grado en el PM de Milán; profesor titular de Diseño Arquitectónico en UCC y Honorario de la UDT Buenos Aires. Colaboró en los estudios Albini, Helg&Piva (Milán) y Ungers (Francfort) y es socio del Estudio Rovea&Sargiotti.

* Esta nota fue escrita para el libro Textos desencofrados, FAUD, UNC. Agredecemos al autor su cesión para esta publicación.

Si intentáramos ahora penetrar en el alma de Quasimodo a través de esa gruesa y dura corteza, si pudiéramos sondear las profundidades de esa organización mal hecha…

Notre-Dame de París. Victor Hugo. 1831

Comenzamos asociando el detalle constructivo a esa pieza gráfica, usualmente un corte en escala 1:20, que iba siempre al final en los proyectos de la facultad, cuando hasta los renders estaban terminados. Probablemente por culpa de esa primera experiencia es que el detalle representaba el último eslabón en una cadena de sucesos (dibujos y pensamientos) que completaban el proyecto; y decir último, de alguna manera, era decir el menos importante, por eso, muchas veces se hacía a desgano y sin comprenderlo del todo. El detalle, debo decir, tiene una relación aún más conflictiva y más compleja con el arquitecto que la que pudiera esbozar aquella primera experiencia de estudiantes, quizá un terapeuta podría poner en vereda después de unas pocas sesiones.

Los arquitectos han llegado a poner a dios en ese lugar1 para después negarlo a falta de presupuesto2. Entre estas dos versiones, de Mies y de Koolhaas, se desarrolla un campo casi infinito de interpretaciones y definiciones, que sitúan al detalle, tanto semántica como prácticamente, al centro de la escena del hacer arquitectura.

1 God is in details. [atribuido a] Mies van der Rohe.

2 Critics say the detail of [our] projects is simply bad, and I say there is no detail… No money, no details, just concepts. Rem Koolhaas.

2_Templo de Antoninus&Faustina
_A.Palladio Detalle del Templo de Antoninus&Faustina
5_ SANAA Pabellon de Vidrio Museo de Toledo Ohio 2006. Detalle

Por ejemplo, analicemos estos dos dibujos (3 y 5), ambos considerados detalles sin objeciones. El primero pertenece a Andrea Palladio y data del siglo XVI, no corresponde a una obra propia, es su relevamiento del templo de Antoninus y Faustina en Roma; como sabemos, por aquellos tiempos el aprendizaje de la arquitectura consistía, principalmente en eso: recolectar datos, medir, redibujar y describir las obras clásicas.

El segundo, ya contemporáneo, es un corte de una de las fachadas del Pabellón del Vidrio, del Museo de Arte de Toledo (Ohio) de Sanaa, un detalle también, con sus descripciones… también.

Los dos casos, abarcan la silueta de un edificio, desde la base hasta su coronamiento.

Cada uno a su modo nos indica cómo se verá la obra, no cómo será la obra completa, para eso serían necesarios el resto de los planos,

Podemos

inferir que

mientras uno

habla de rigurosos órdenes y cornisas, clasicismo y peso, el otro de inmaterialidad, transparencia o ligereza; o como biólogos, valernos de estos dibujos para reconstruir genéticamente los edificios

pero sí, muy claramente cuál es la intención del proyectista en cuanto al modo en que será percibido el edificio. Podemos inferir que mientras uno habla de rigurosos órdenes y cornisas, clasicismo y peso, el otro de inmaterialidad, transparencia o ligereza; o como biólogos, valernos de estos dibujos para reconstruir genéticamente los edificios ¿Podríamos? Quizás no el edificio, pero sí el modo en que ese edificio va a aparecer, es decir, cómo se comunicará, en otras palabras, cuál será su lenguaje, esa palabra tan temida…

De ambos detalles, aparentemente tan distintos, podemos deducir también una realidad común, tan común y tan a la vista que cuesta aceptar: el arquitecto queda en la línea que define la silueta, las entrañas son cosa de otros. Me explico:

4_SANAA Pabellón de Vidrio Museo de Toledo Ohío 2006

la actualidad no depara una alternativa muy distante a la planteada por los detalles de Palladio y Sanaa, sino por el contrario, pareciera propender a un mayor alejamiento del arquitecto de las decisiones constructivas.

En la época de Palladio (y en las anteriores aún más) el arquitecto no necesitaba describir cómo se iba a construir la osamenta del edificio, definía precisamente los órdenes y sus proporciones ya que los constructores sabían perfectamente cómo se debía ejecutar (al referirse a esta mecánica de trabajo, Edward Ford dice que el detalle nació cuando murió el artesanado3).

3 In one sense, detailing was born when craftmanship died. It is always surprising to see how little the drawings of Renaissence architects resemble the finished buildings. The Details of Modern Architecture. Edward R. Ford. 1997

Del detalle de Sanaa, pasado ya el período heroico de la modernidad y sus innovaciones, podemos deducir que el arquitecto tampoco está a cargo de lo que sucede detrás del perfil de la línea que separa lo visible de lo invisible del dibujo: Los arquitectos definieron sutilmente en renders y maquetas aquella silueta y, aunque la complejidad de las entrañas no esté a cargo de experimentados picapedreros o estucadores como en los tiempos de Palladio, sino en manos de ingenieros especialistas que deben acomodar todos los requerimientos de aislaciones, seguridad, estanqueidad, normativas o

6_Wright en el obrador del Gugghenheim

acondicionamiento con productos industriales cada vez más estandarizados, su tarea es similar a la de aquellos: satisfacer la silueta definida por el proyectista cancelando cualquier exhibición obscena de sus interiores.

Aunque esta reseña puede hacernos extrañar (parecer extrañas) obras como las de Wright o Lewerentz (6,7) la actualidad no depara una alternativa muy distante a la planteada por los detalles de Palladio y Sanaa, sino por el contrario, pareciera propender a un mayor alejamiento del arquitecto de las decisiones

constructivas: La aparición en fases tempranas del diseño de software modeladores, basados en tremendas capacidades para producir formas maravillosas, sin límites materiales ni gravitatorios, y la naciente construcción por medio de impresoras 3D a gran escala, son algunas de las herramientas que quizás logren eliminar finalmente la tediosa interfaz del arquitecto, aquella que implicaba preguntarle: ¿Y eso, cómo se construye?. La misma pregunta que nos hacía el obstinado profesor en la facultad.

7_ Detalles de solados de obras de Sigurd Lewerentz

Más allá de la perspectiva, la a-representación

Arrepresentaciones, Superficies de Oclusión, Aleatoriedad. Nuevos modelos representacionales para el dibujo en Arquitectura

Carlos Campos*

* Carlos Campos es

Arquitecto y Doctor FADU

UBA donde es Profesor de Representación y de Arquitectura. Socio del Estudio CCYZA y autor de la tesis Traducciones

Intersemióticas

Todos mis profesores de Dibujo me enseñaron a ver, en cada una de las etapas históricas de Arte y Arquitectura, los modelos a través de los cuales los artistas y arquitectos concebían la Representación. Estos modelos representacionales icónicos (Griego, Egipcio, Maya, Renacentista, Mudéjar, Impresionista, Cubista, Minimalista, Hiperrealista, sólo por citar algunos) tienen la característica de poder confundir su cosmovisión con la percepción psicofísica del espacio.

(¿Estaban los antiguos egipcios equivocados al dibujar los torsos de frente y el rostro de perfil? ¿Por qué las proto perspectivas de los griegos fugaban hacia 3 puntos verticales alineados? ¿Los renacentistas habían acertado en su modo de percibir y representar el espacio? ¿Son las pinturas de Mondrian representaciones del árbol de manzanas de su infancia? ¿Por qué Cy Twombly

garabateaba como un niño perezoso y luego llamaba al resultado Bahía de Nápoles?).

Hace tiempo que nuestra educación asume sin chistar que el espacio se representa en perspectiva porque se percibe de ese modo. Lo admite de la misma manera en que lo admitían los sacerdotes egipcios, los filósofos griegos o los príncipes florentinos. Como si fuera un progreso. La Geometría Analítica de Descartes da origen a la Geometría Descriptiva de Gaspard Monge y ésta a todas las plataformas CAD (Diseño Asistido por Computadora) que utilizamos hasta el día de hoy.

Sin embargo, en todas las épocas ha habido pensadores que, separándose de la corriente dominante, creyeron y desarrollaron modelos representacionales alternativos. La lista es extensa, pero me gusta citar a Tristram Shandy, el conde de Orvieto, Maurits Cornelis Escher,

Charlotte Feninger, Benoit Mandelbrot, Luigi Russolo, Cy Twombly, Erik Satie, John Cage. Todos ellos escu-

charon el ruido residual de su propio tiempo más que la resonante voz de lo establecido. Y produjeron rupturas que cimentaron profundos cambios futuros, algunos de los cuales aún no han llegado al reino de Arquitectura, siempre más lenta y conservadora que otras artes como la pintura, el teatro o la música.

El artista, mónada en su atelier, al igual que el poeta, puede arriesgarse por caminos que lo llevarán a lo más desconocido. El arquitecto, por el contrario, está obligado respetar un sistema de normas que aseguran la continuidad de lo anterior. Por eso las rupturas en Arquitectura llegan siempre mucho más tarde que en otras artes.

En Música empezamos a hablar de contemporaneidad alrededor de los años 50, cuando Edgard Varese compuso la primera obra de música electrónica: El Poema Electrónico, presentado en el Pabellón Philips, de Iannis Xenakis, en el año 1958, mientras en Arquitectura las universidades siguen enseñando a proyectar en la modernidad.

Pero centrémonos por un momento en las discontinuidades: ¿Es posible pensar en el Parque de los Monstruos de Bomarzo, construido en pleno Renacimiento (fue inaugurado en 1547, apenas 22 años más tarde que la escalera de la Biblioteca Laurenziana de Miguel Angel), como un desafío a esa perfección representacional, a las reglas omnipresentes de la perspectiva? Volver a interpelar los edificios renacentistas luego de conocer La Casa Inclinada del Parque de los

Fotografía de de J. Laurent, hacia el año 1875, de la Torre Nueva de Zaragoza. Fototeca del IPCEY.

Dicha torre fue derribada en 18921893. Era una torre civil de estilo mudéjar construida en ladrillo a comienzos del siglo XVI. Laurent tomó varias vistas de esta torre incluso una vista panorámica desde lo alto.

Monstruos de Bomarzo es verlos, literalmente, desde otra perspectiva.

¿Cuál es el paradigma actual?

Las publicaciones repiten que el mundo cambia vertiginosamente, que las transformaciones ocurren como nunca antes, que la brecha entre las generaciones digitales y quienes los preceden resultan insondables. Hoy no podemos discernir entre una imagen real (fotográfica) y una imagen generada a través de medios no fotográficos, como un render, una animación computarizada o una imagen generada a través de un algoritmo Text-to-Image.

Sin embargo, la brecha digital ha existido siempre entre personas que utilizan distintos lenguajes. Quienes saben leer una partitura y los analfabetos musicales; quienes hablan tres o más idiomas y quienes apenas hablan la lengua materna; quienes estudiaron latín en la escuela secundaria, quienes juegan ajedrez, quienes saben programar un Arduino o modelar en Rhino y quienes no. El mundo ha estado siempre envuelto en un cambio constante y muchas de las revoluciones más importantes ocurrieron hace ya mucho, mucho tiempo. Existió solamente una digitalización del mundo, y llegó con la invención de la escritura (IV milenio A.C.).

Las primeras imágenes técnicas comenzaron a aparecer hace ya hace casi 150 años.

En el terreno de la representación, muchas de las novedades que aparecen ante nosotros son más apariencia que sustancia. ¿Cómo determinar qué es lo relevante? Y por fin: ¿Qué enseñar en las escuelas de Arquitectura?

La clave es y fue siempre, la filosofía. Y el conocimiento. Pero no hablo de un conocimiento canónico, referencial, embalsamador de estilos y modernidades. Sino del conocimiento de las llaves del proyecto. La filosofía del diseño, la heurística, la semiótica, la metodología proyectual, la lingüística, la música, la cibernética, la comunicación o la sociología.

Todos estos conocimientos inciden enormemente sobre el proyectista y sobre su medio a la hora de proyectar.

La enseñanza de Arquitectura tiene mucho que ver con Leonardo da Vinci, Zaha Hadid, Filippo Brunelleschi, Gregory Bateson, Michel Foucault, Noam Chomsky, Peter Zumthor, Samuel Beckett, Vilém Flusser, J.S. Bach, Glenn Gould, Steve Reich. El problema es quizás, la vastedad de estos conocimientos. ¿Quién podrá enseñar todo eso? ¿En cuánto tiempo podremos aprenderlo?

La cuerda que vincula a estudiantes jóvenes con profesores experimentados, con docentes inexpertos, es sin duda, la filosofía del Diseño. Sin embargo estudiar y enseñar filosofía no es de las tareas más sencillas que un profesor de Arquitectura puede encarar. Y en los

programas de las carreras de Arquitectura, la materia está generalmente ausente.

Proyectar Arquitectura es una tarea compleja y deudora de un largo aprendizaje. Pero no se trata únicamente de aprendizaje técnico, ni de práctica constructiva o de una buena intuición. Se trata principalmente de una compleja manipulación de signos. Como arquitectos, combinamos estos signos entre sí, produciendo algunos de los posibles emergentes. Esta combinación por más extensa que sea no es infinita, pero tampoco sus componentes dejan de crecer en número día a día. El mundo nunca cesa de no inscribirse en lo simbólico (Lacan).

Vilém Flusser define Universo como la totalidad de las combinaciones posibles de los componentes de un determinado sistema. Desde este punto de vista, Arquitectura también constituye un Universo, y como proyectistas, no podemos hacer otra cosa que combinar sus elementos ya definidos de antemano. ¿Dónde reside la novedad? En la combinación, seguro que más que en la elección.

Esto, en palabras de Lev Manovich, quiere decir que como proyectistas, no utilizamos elementos inexistentes: nuestra creatividad reside en la combinación inesperada, en el contexto inesperado. Y eso es exactamente lo que producen las aplicaciones de Inteligencia Artificial.

Una crítica recurrente hace hincapié en que I.A. no puede

generar nada nuevo: que debe únicamente basarse en cosas que ya existen en la red. Sin embargo, el potencial creativo de nuestras mentes, (y por ende de I.A.) está en la potente e inesperada combinación de este complejo sistema de signos. En la manipulación no humana de miríadas de entidades cero-dimensionales (Flusser).

En 2022 los diseñadores recibimos una noticia inesperada. Finalmente teníamos a disposición los dispositivos necesarios para generar imágenes utilizando Inteligencia Artificial a través de una plataforma muy accesible. De repente, lo que sucedió como una explosión no fue otra cosa que la popularización de un dispositivo que nos era ajeno. Y digo ajeno y no desconocido: Los Algoritmos

Text-to-Image. Estas aplicaciones funcionan integrando y redefiniendo parte de nuestro material a la hora de proyectar. Este material puede ser un texto o una imagen. Si es un texto, funciona como una ilustración. Si es una imagen, como una transformación de esa imagen a través de un texto. En ambos casos, si falta el proyectista, los resultados son magros. Los algoritmos text-to-image no reemplazan al arquitecto, como tampoco lo pueden hacer el renderista o el dibujante. En todo caso todos ellos colaboran en un proceso complejo, en el que sigue siendo la mente del proyectista quien selecciona y descarta; aun cuando lo haga aleatoriamente.

plo Franco Purini, quien aún hoy sostiene que debemos perseverar en llevar adelante aquélla primera imagen, la primera respuesta, y no cambiarla por otra.

Seguramente lo que han logrado poner en evidencia estos dispositivos es la sobrevaloración que la mayoría de los arquitectos tienen del proceso ideativo. Entre los más tenaces defensores de la Idea se encuentran grandes arquitectos de otros tiempos, como por ejem-

La utilización de I.A. en la generación de imágenes de Arquitectura en parte da por tierra con este argumento, dado que lo que obtenemos al interactuar con estos sistemas, dista muchísimo de ser una idea. Por otra parte, las imágenes son tan sugerentes, tan útiles, y tan

Charlotte Reiniger. Superficies de Oclusión. Las aventuras del príncipe Ahmed. 1923

estimulantes que relegan a un segundo plano la intención de converger el proyecto hacia una idea, como sugiere Franco.

Teniendo múltiples posibilidades, es por lo menos necio intentar converger hacia una idea. Quienes hemos trabajado utilizando aleatoriedad en nuestros procesos proyectuales, hemos abandonado la necesidad de convergencia hacia la idea hace mucho tiempo, probablemente por intuición, o a causa de la fascinación que producen los sistemas estocásticos, la autoorganización, el azar y la arrepresentación. Todo eso viene a situarse en el centro de la escena desde hace aproximadamente un año con la popularización del uso de los algoritmos text to image.

¿Qué obtenemos de los algoritmos Text-to-Image?

Si usamos Midjourney primero debemos escribir un texto o prompt. Luego de algunos segundos de haber pulsado enter, entre una y cuatro imágenes aparecen en la pantalla de nuestra computadora. Podemos interactuar modificando esta imagen incansablemente. Pero qué características tiene esta imagen si interactuamos desde Arquitectura? Puede ser un dibujo en 2D, o una imagen con ilusión de tercera dimensión. ¿Una perspectiva? ¿Un render basado en un modelo 3D? ¿Una fotografía? Ciertamente no. Puede parecer cualquiera de estas cosas, pero no lo es.

A mi manera de ver se trata de una resultante compleja: Una a-representación, construida en base a la superposición de superficies de oclusión, generalmente como planos perpendiculares al observador (Lotte Reiniger)1, con características de un hiper-collage extraído de la nube (no olvidemos que operamos a través de una red social). A medida que vamos interactuando con el sistema, éste comenzará a actuar recursivamente, aprendiendo literalmente a conocer los intereses de la componen-

1 Superficies de Oclusión. En los primeros años del siglo XX, La multiplane camera (la innovación de Charlotte Reiniger en el campo de la animación) se basaba en la generación de ilusión de profundidad a través de la superposición de planos perpendiculares al observador. Esta técnica fue luego copiada por los estudios Disney, influyendo masivamente en el modo en la educación visual a través del entretenimiento. La multiplane camera relativiza la utilización de la perspectiva en la representación, sustituyéndola por una profundidad material entre los planos de la representación.

A-representaciones son el resultado de un dispositivo aleatorio. Un garabato, una veta en el mármol, la forma de una piedra de repente nos sugieren algún tipo de orden. La línea renuncia a su capacidad de representar algo y no obstante, conserva un carácter evocativo: nos hace interpretar algo. Cuando utilizamos A-representaciones, la Aleatoriedad se convierte en el centro de la actividad proyectual, en reemplazo de la convergencia hacia una idea.

Inteligencia Artificial. Algoritmos Text-to-Image al servicio de la producción de imágenes arquitectónicas. Gran parte de estas imágenes post humanas se basan en los dos ítems descritos anteriormente. El proyectista interpreta una imagen aleatoria, construida como un hipercollage. La construcción no perspectívica y no representacional del espacio se basa en la generación de superficies de oclusión en planos perpendiculares al observador, similares al trabajo de de Charlotte Reiniger.

te humana (el autor), y dando respuestas cada vez más acertadas.

Por eso es fundamental producir una gran cantidad de iteraciones y rechazar la mayor cantidad de respuestas.

La relación con el algoritmo es de aceptación y rechazo.

Es éste el modo de comunicar nuestros intereses a la hora de representar.

Imágenes 3, 4, 5, 6, 7, 8, 9, 10, 11

De la serie Ucronías. Carlos

Campos 2022

Es obvio que durante los pocos segundos que dura la producción de la imagen, el programa no lograría diseñar una planta para luego generar las elevaciones, el modelo 3D y los renders correspondientes. Las imágenes resultantes, aunque muestren una lógica representacional implacable, no son perspectívicas, ni mucho menos fotográficas.

archivo inmenso, alimentado por innumerables fuentes de desconocido origen, con un conocimiento a veces muy profundo y a veces muy desacertado de la historia, los monumentos, el pasado. En mi serie Ucronías, utilizo I.A. para investigar la Arquitectura de períodos históricos del pasado en hipótesis improbables, para luego confrontar los resultados obtenidos con el presente de estas arquitecturas históricas.

Los algoritmos Text-to-Image no expresan la cultura arquitectónica de la contemporaneidad. Trabajan con un

Esto me ha hecho observar con mucho más detenimiento ciudades como Roma o Florencia, encontrando verdaderas ucronías que no hubiera sido capaz de descubrir por otros medios. Dicho de otro modo, estas aplicaciones pueden constituirse en un instrumento de investigación muy poderoso, siempre y cuando seamos capaces de guiarlo.

Pero al margen de estos ejercicios ucrónicos, es totalmente posible utilizar estos algoritmos para desarrollar

un proyecto aquí y ahora. Actualmente estoy trabajando en proyectos en los cuales he comenzado a generar imágenes plenamente arquitectónicas, utilizando I.A. antes que plantas, cortes, vistas o maquetas. Estas imágenes son arquitecturizaciones de dibujos míos a mano, que no representan arquitecturas concretas. El resultado es sorprendente. Dado un input personal, autoral, surge la posibilidad de transformarlo. Luego de arduas y largas sesiones de transformación (cientos de iteraciones), llegamos a imágenes plenamente arquitectónicas que podemos volver a integrar al sistema de Inteligencia Artificial. Cuando las transformaciones se detienen (incluso este sistema tiene límites claros), comenzamos a producir la documentación técnica. Maquetas, plantas, cortes, vistas. Interpretando el output generado por I.A.

No se trata en ningún momento de copiar lo que el algoritmo ha hecho, sino muy por el contrario, de integrar un

dispositivo más al proceso proyectual, como hiciéramos una vez con las fotocopiadoras, el scanner, las impresoras láser, Photoshop, Rhino.

Si bien estos programas y dispositivos no tienen la autonomía de los algoritmos Text-to-image, supieron darnos visualizaciones alternativas a nuestras propuestas, y modificaron nuestra arquitectura. I.A. nos propone un paso un poco más largo, cediendo algo de autoría, es verdad, pero únicamente porque estamos trabajan-

do en red, compartiendo nuestro proceso con desconocidos, aprovechando los avances que producen otros, perfeccionando el sistema, a través de una plataforma que no es otra cosa que una red social, con todo lo que ello significa. De todas maneras, si pensamos en las imágenes de Arquitectura producidas con I.A. que nos generan más fascinación, descubriremos que todas ellas tienen un autor detrás.

Una vez más, generamos imágenes arquitectónicas de frente a una máquina. Pero esta vez la máquina no nos pide un imput técnico. No exije la construcción exclusiva de planos en un programa determinado. Nos pide palabras. Palabras que necesariamente deben provenir de nuestra formación cultural. Nos pide tener conocimiento de muchas de las cosas de las que habla este artículo.

La singularidad (todavía del lado de la componente humana), se logra a través de la cultura de quien opera. Estamos educando al algoritmo. Estamos intentando una interacción con un sistema inteligente. Y comprender qué cosa es una máquina hoy es en mi opinión, el primero de los actos creativos del arquitecto.

A-representaciones. El Cementerio de Praga VI. Carlos Campos. Máquina de dibujar + Tinta sobre papel. 2022

Guía para entender el proyecto actual

La condición contemporánea de la arquitectura

Gustavo Gili, Barcelona, 2015

Este pequeño librito fruto del intenso trabajo académico y a la vez difusivo de su autor –el catedratico catálan Josep Maria Montaner– no sólo reseña su extensa actividad como cartógrafo de modernidad (a través de numerosos libros) sino que sintetiza tal extensa actividad de registro y clasificación de eventos proyectuales en estas recientes y confusas épocas, ya muy lejanas de aquellos otros momentos históricos donde la explicación de lo que ocurría podía encontrarse en entender estilos, ismos o propuestas señeras de aquellos llamados Maestros o form-givers en la ultima modernidad.

Aquí JMM nos ofrece (sobre todo a estudiantes noveles y aun incluso a un público más bien lego) un espléndido despliegue en el que se ve obligado a seleccionar situaciones o problemáticas –el libro nos presentará 8 de ellas en sendos breves capítulos– sino también a escoger del enorme caudal de proyectos

realizados en el cuarto de siglo que describe (1990-2015) un conjunto de referencias en tanto obra de diversos autores que permiten reconocer procesos, tendencias y filiaciones.

Dada las características del libro y tratando de presentarlo como posible herramienta para el conocimiento de la realidad que va describiendo y siendo que probablemente tal conocimiento sea muy útil en situación de aprendizaje (de noveles estudiantes de proyecto pero también de proyectistas en acción que mercen tomarse la pausa re-educativa para tratar de entender las confusas-difusas circunstancias de un presente proyectual diversificado) quizá sea útil construir esta nota mediante una selección de partes del texto original, a saber su breve texto introductorio y luego un párrafo conciso extraído de cada uno de los 8 capítulos que se orientan a describir alguna cualidad o condición de aquel multifacético estado del arte, intercalando nuestras propias reflexiones.

Entrados en el siglo XXI ya podemos tener cierta perspectiva para interpretar la evolución de la arquitectura desde finales del siglo pasado y detectar las características más destacables del reciente cambio de siglo.

Como continuación del libro “Después del movimiento moderno. Arquitectura de la segunda mitad del siglo XX” (1993), se repiensa la arquitectura en el período 1990-2015 revisando las corrientes hegemónicas en las décadas de 1970 y 1980 para comprobar qué aspectos han perdido vigencia, cuáles se han renovado y qué conceptos y movimientos han aparecido.

Así arranca el texto introductorio indicando que se revisará y actualizará el estado de la cuestión que fuera presentado en libros precedentes del autor y que se centra en revisar corrientes hegemónicas del fines del siglo XX para verificar vigencias o no de las mismas.

Poco queda ya del debate sobre la arquitectura posmoderna como lenguaje formal.

Para ello fue muy fructífera la diferenciación entre un posmodernismo filosófico, moral y social, como crítica humanista y feminista al modernismo universalista, argumentada especialmente por el postestructuralismo y aún vigente; y un posmodernismo estético, más estilístico y epidérmico, coyuntural y efímero. Además, hoy se comprueba cómo el momento posmoderno coincidió con el delirio final del sistema analógico de representación de la arquitectura, justo cuando empezaba a eclosionar la representación digital. La mezcla ecléctica e historicista que dominó la arquitectura más comercial y emblemática del período posmoderno ha ido decreciendo.

Aunque los defensores del New Urbanism en Estados Unidos han seguido argumentando una arquitectura retroactiva, hoy es menos relevante la influencia de personajes como Rob Krier o Philippe Starck, y cierta arquitectura ecléctica se ha convertido en icónica.

La introducción avanza luego para indicar que un aspecto de la revisión de tendencias del ultimo cuarto de siglo implica antes que nada analizar lo que podría entenderse como la decadencia o desaparición del encuadre posmoderno, más allá de reconocérsele cierta relevancia teórico-crítica respecto de la modernidad canónica.

Tal como se ve en el primer capítulo, en el desarrollo de la arquitectura corporativa y comercial predomina una retórica metarracionalista de la que también adolecen proyectos internacionales reconocidos y donde se mezclan comercialmente elementos de lenguajes contemporáneos procedentes de diversas arquitecturas cultas. Denominaciones como arquitectura deconstructivista —que visibilizó el surgimiento de experimentos a partir de los nuevos medios de representación— o regionalismo crítico —una invención paternalista desde la crítica

dominante para apropiarse del avance de la arquitectura en los continentes americano y asiático— han quedado obsoletos para interpretar las condiciones contemporáneas. En esa revisión de la decadencia posmodern se incluye cierta consideración del auge de corrientes como el deconstructivismo, en línea con el reconocimiento de la perduración-renovación del legado racionalista (ahora expresado en retórica metarracionalista) asi como advertir fenómenos operativos nuevos (como el desarrollo de la representación tipo CAD) o conceptos que intentan, en modo algo paternalista, describir marginalidades al mainstream (regionalismo crítico). Cabe aquí apuntar que Montaner aunque duda del rigor de esa corriente –impulsada en su momento por Frampton– ha sido un atento intérprete de la ultima arquitectura latinoamericana, con sus frecuentes viajes a nuestra región y su valoración de exponentes proyectuales

de estas latitudes como se advierte en el presente libro que es una guía descriptiva del proyecto actual que también nos incluye. A lo largo del período que analiza este libro se ha producido un auge y una crisis de la arquitectura entendida como objeto aislado y monumental de costes excesivos. La ausencia en este estudio de ciertos arquitectos de grandes firmas comerciales, que carecen de principios éticos, no es un olvido casual sino intencionado.

Los excesos de esta arquitectura del despilfarro y la ostentación han provocado que surjan alternativas como las que se analizan en los dos últimos capítulos, reaccionando contra la falta de contexto y la ausencia de valores: el renacer de la crítica radical y activista, relacionado con el desarrollo de nuevos métodos pedagógicos; la defensa del urbanismo y la arquitectura informal, y la intensificación de la arquitectura ecológica y sostenible entendida como buen uso de los recursos.

En el prologo al desarrollo del libro se avanza en comentar rasgos de la arquitectura reciente ligados con el lujo, la ostentación y el despilfarro junto a cierta reacción a dicha tendencia asociable a la crítica social y al primario reconocimiento de cuestiones propias de la crisis ambiental.

Las líneas que se mantienen, y en algunos casos se refuerzan, son la continuidad de los principios y objetivos modernos en la arquitectura high-tech y en la teoría de los soportes. Esta línea racionalista tuvo una intensa manifestación en la eclosión del minimalismo en arquitectura y diseño, especialmente en la museografía, durante la década de 1990.

Se reconoce en esta continuidad del desarrollo del texto introductorio, la persistencia de ciertas manifestaciones del discurso racionalista y la teoría de los soportes (o la arquitectura sistémica en general) que aho-

ra encontrarían cierta replicación discursiva en las propuestas minimalistas.

También el organicismo, siguiendo distintas evoluciones o influencias, algunas del surrealismo, ha caracterizado obras emblemáticas de Enric Miralles-Benedetta Tagliabue, Frank O. Gehry, Clorindo Testa y otros estudios que han buscado intervenciones extraordinarias.

La arquitectura basada en la memoria, los monumentos y el contexto urbano, prolongando los conceptos de la crítica tipológica, la han seguido arquitectos como Manuel de Solà-Morales, Rafael Moneo, Tuñón y Mansilla o Álvaro Siza.

Por otra parte asi como se advertiría cierta permanencia de los enfoques racionalistas asimismo se reconoce que la dialéctica central del modernismo entre razón y expresión también persiste en nuestra época, ligada a prácticas que mantienen y renuevan los motivos y los métodos del expresionismo y de nuevos

esfuerzos para promover edilicias singulares o monumentales, junto a la persistencia de criterios asociables al discurso tipologista.

También mantienen su vigor tanto la arquitectura experimental basada en la combinación de fragmentos, ejemplarizada por Rem Koolhaas, como la eclosión de los diagramas de fuerzas, energías y geometrías con raíces en la arquitectura moderna, que han encontrado su emblema en las obras de Kazuyo Sejima y Ryue Nishizawa (SANAA). La gran novedad ha sido la fuerza que ha ido tomando la arquitectura relacionada con la fenomenología, el valor de la experiencia y la percepción de los sentidos.

El texto introductorio concluye con el párrafo precedente que presenta y valora estrategias experimentales asociables al renacer del enfoque filosófico fenomenologista.

El capítulo 1 se denomina Continuidad del racionalismo y de los principios modernos, que así lo sintetiza un párrafo de su autor: Ello se

expresa tanto en la pervivencia de la arquitectura high-tech y en la eclosión y continuidad del minimalismo en la década de 1990 como en la vitalidad de la teoría de los soportes iniciada por N. John Habraken en la década de 1960. La tradición del racionalismo se ha revisado, ajustado y puesto al día en su capacidad de análisis sistemático de la realidad y de hacer propuestas según las capacidades tecnológicas.

Aquí se hacen alusiones a proyectos de Piano o Foster, adalides del high-tech pero también se valoran propuestas de Mendes da Rocha, Taniguchi, Fretton, Lacaton&Vassal, Gasperini, Schnoetta, los mexicanos Norten y Kalach, Pelli y el estudio peruano sito en Miami, Arquitectónica. En la recurrencia a ejemplificaciones ya se advierte un talante inclusivista de experiencias regionales (muchas latinoamericanas) lo que hace más valorable el enfoque de JMM que se esfuerza

Lacaton&Vassal 23 viviendas en Trignac 2010
EMBT Parlamento de Escocia 2004

por superar un encuadre puramente eurocéntrico.

El capítulo 2 se titula La fortuna del organicismo que en este párrafo de Montaner queda descripto sintéticamente: Además de los referentes orgánicos, algunos de los autores contemporáneos han introducido en sus obras referencias oníricas de procedencia surrealista. Precisamente, buena parte de los autores nombrados en este capítulo se nutren de la corriente subterránea del surrealismo, la línea vanguardista más beligerante contra el academicismo de la abstracción y del movimiento moderno. Más allá de esta diversidad, existen una serie de mecanismos recurrentes: posición antitipológica, gestualidad libre, énfasis ergonómico en la estructura, intensidad máxima en el diseño y caracterización de cada elemento distinto, relación de organicidad y continuidad entre partes heterogéneas, superposición de palimpsestos o capas

urbanas y búsqueda de resultados diferentes y extraordinarios.

Los referentes a quienes se apela para ejemplificar con obras de este periódo serán

Miralles, Gehry, Testa, Llinás, Cook, Levete, NOX, Lynn y FOA, es decir nuevamente un conjunto de proyectistas de protagonismo central pero también propios de manifestaciones regionales.

El capítulo 3 se llama Cultura, tipología y memoria urbana: monumentalidad y domesticidad que así se sintetiza en un párrafo de Montaner: En las últimas décadas sigue vigente la línea de arquitectura que pone en primer término su propia historia y, generalmente, el encaje urbano de las obras. Continúa la tradición de la llamada “crítica tipológica”, aunque de manera menos dogmática y más pragmática, aprendiendo a situarse en cada contexto. Todo ello se produce en un

momento, a principios del siglo XXI, en el que empiezan a revisarse las teorías de Aldo Rossi y Manfredo Tafuri en estudios como el de Pier

Vittorio Aureli, “The Project of Autonomy” y el libro colectivo “Aldo Rossi, la storia di un libro”, resultado del seminario dedicado en 2011 al crucial texto de Aldo Rossi. En Estados

Unidos, esta alianza entre la recuperación de la historia de la arquitectura, la defensa de los valores urbanos y los objetivos de la sostenibilidad ha nutrido una amplia corriente, en gran parte dentro del denominado New Urbanism En esta sección se alude referencialmente a trabajos de Moneo, Manuel Solá Morales,Siza,las arquitectas vienesas Ullmann y Prochazka, Chipperfield, el colombiano Bermúdez, el binomio mendocino. Bormida&Yanzon, el guaremalteco afincado en USA

Jiménez, el argentino Clusellas, Fujimoto, la pareja chilena. Pezo&Ellrichausen, Jaim, Tabassum, Villa y el paraguayo Benitez.

El capítulo 4 se denomina Arquitectura y fenomenología y asi se lo describe sintéticamente: La tradición del realismo ha evolucionado hacia el realismo específico de la fenomenología de los filósofos Edmund Husserl, Maurice Merleau-Ponty, Edith Stein y Gaston Bachelard y del existencialismo de Martin Heidegger y Hannah Arendt. Ello se ha concep-

tualizado en las teorías de Juhani Pallasmaa y Alberto Pérez-Gómez, y se ha expresado en las obras de Steven Holl, Glenn Murcutt, Peter Zumthor, Elizabeth Diller y Ricardo Scofidio, Tod Williams y Billie Tsien, entre otros. Las referencias a que se apelan para ejemplificar obras serán Bo Bardi, Holl, Murcutt ,Zumthor, el mexicano Rocha, Diller&Scofidio y Williams&Tsien.

El capítulo 5 lleva el nombre Fragmentación, caos e iconicidad y resulta sintéticamente presentado del modo siguiente: La propuesta de arquitecturas hechas como collage de fragmentos, teorizada por Colin Rowe y Peter Eisenman a partir de la década de 1970, ha seguido desarrollándose hasta la actualidad. Tiene su máximo exponente en la prolífica obra de OMA, estudio liderado por Rem Koolhaas, y se expresa en gran parte de la arquitectura holandesa actual. Se trata de una arquitectura basada en el lenguaje, hedonista y versátil, donde el collage se lleva a las tres dimensiones y los edificios y la ciudad se construyen por superposición de capas. Los autores mencionados en esta sección serán Eisenman, Tschumi, Koolhaas, MVRVD, BIG, Hadid y también Libeskind, el catalán Ferrater y el binomio argentino operante en Viena Blazica&Spinadel.

A.Siza Museo Camargo Porto Alegre , 2008
R.Koolhaas Casa de Musica, Oporto, 2005
SANAA Museo de Arte Siglo XXI, Kanazawa, 2004

El capítulo 6 se designa Diagramas de energía y se lo presenta sintéticamente de esta forma: Tal como se anunciaba a finales de la década de 1980 y principios de la de 1990, una de las líneas contemporáneas que ha pasado a ser más predominante ha sido la arquitectura de diagramas, teorizada hacia 1990 por Anthony Vidler y Robert Somol, entre otros y realizada de modo diverso en las obras de estudios como Kazuyo Sejima, Zaha Hadid o Un Studio.

Esta nueva eclosión de los diagramas de energía se produce tras la edad dorada de la crítica y la teoría de arquitectura de las décadas de 1960 y 1970, y recupera la línea experimental y vitalista del expresionismo alemán de Paul Sheerbart y Bruno Taut. Uno de los arquitectos más emblemáticos de este cambio ha sido Toyo Ito (1941), muy influido por el expresionismo alemán y con obras de síntesis como la mediateca en Sendai (1995-2001)

Los proyectistas mencionados en esta parte serán SANAA, Ishigami, el grupo catalán RCR y Van Berkel.

El capítulo 7 lleva el nombre De la crítica radical a los colectivos: arquitecturas de la informalidad y se lo presenta de la siguiente forma: Este período de cambio de siglo se caracteriza por la aparición de gran cantidad de alternativas en el campo de la arquitectura y del urbanismo, basadas en la aproximación al urbanismo informal, la recuperación de la cultura popular, la participación de los usuarios y la continuidad con la crítica radical de la década de 1960. Ello se ha expresado en la teoría y en las publicaciones, y es el resultado de la influencia, durante años, de experiencias de renovación pedagógica de la enseñanza de la arquitectura.

Aquí se presenta el caso de nuevos ámbitos de enseñanza como Talca o Rural Studio y performances mas bien artísticas como las de Acconci, Cabezas, Ai WeiWei, Eliasson junto a

trabajos de Elemental, Jauregui, el colombiano Mazzanti, Haiek&Cadalso, el andaluz Cirugeda, Ecosistema Urbano y el colectivo La Col.

El capítulo 8 y final se llama Arquitecturas medioambientales y se lo presenta de este modo: Tras los experimentos pioneros de mediados del siglo XX, en las últimas décadas se han sucedido distintas generaciones de arquitecturas ecológicas y sostenibles, desde los primeros prototipos experimentales, y a veces pintorescos, de la década de 1970, hasta los ecobarrios contemporáneos, pasando por propuestas de arquitectura ecológica y tecnológica, denominada ecotech, de la década de 1990. Este complejo proceso de arquitecturas estrechamente relacionadas con el medio ambiente, bioclimáticas y holísticas, se ha desarrollado en muy distintas direcciones.

Aquí las alusiones proyectuales refieren a Ban, Lewis, Herzog, Wigglesworth, Kere, Herringer y Bestraten&Hormías.

En suma, luego de esta minuciosa descripción de su contenido, se trata de un enjundioso trabajo selectivo que enmarca la producción del ultimo cuarto de siglo con selectividad y representatividad, dando espa-

cio a las nuevas condiciones multiculturales y a la crisis del capitalismo eurocentrado y el fracaso del postmodern de derroche y alarde de cuyas obras se objeta cierta falta de ética; todo empero en la dirección esperanzada de

futuras próximas arquitecturas ancladas en la mirada ambiental y la potenciación singularizada de culturas locales y expresiones de las diversas nuevas minorías sexo-raciales que definen la agenda progresista por venir.

G.Mazzanti, Bosque de la Esperanza, Cazucá, Bogotá, 2011
Herringer Meti School, Rudrapur, India, 2006

Un bosque urbano

Parque lineal ferrocarril de Cuernavaca

Memoria

En agosto de 2016 el gobierno de la Ciudad de México lanzó un concurso internacional para la construcción del Parque Lineal Ferrocarril de Cuernavaca. El concurso en dos fases convocó a 400 firmas de varios países. Ganamos la competencia. Este ha sido el proyecto de espacio público más importante de las últimas décadas por su ubicación, tamaño e impacto social.

El sitio del proyecto está ubicado en una sección de la vía férrea construida en 1898 entre la Ciudad de México y Acapulco. El ferrocarril ya no funciona excepto en un tramo de 7 km donde se encuentra el sitio del proyecto. Durante muchos años el derecho de paso se dejó como un espacio residual. La gente comenzó a utilizarlo de diferentes formas aunque nunca se consolidó como un espacio público calificado ya que no contaba con las condiciones necesarias de seguridad, infraestructura y paisaje. El tren pasa 2 o 3 veces al

día, constituyendo una presencia singular en el parque.

México tiene una deuda de agua y verde con su gente, por ello nuestra propuesta para el concurso fue radical y la idea fue construir un bosque urbano de 4,5 km de largo: el argumento era que esta era la última oportunidad para que la ciudad construyera un nuevo bosque de esta escala.

La propuesta se apoyó en dos nociones: la primera fue el bosque que entrelazaría 22 barrios, beneficiando directamente a más de 50000 personas y la segunda fue la comprensión del parque lineal como parte de un sistema mayor: la ciudad.

El objetivo es la creación de un lugar que potencia la identidad y la memoria, que sea sostenible con una alta calidad ambiental, que contribuya al orden multiescalar: la ciudad, que se proyecta en el tiempo mediante un mantenimiento de bajo costo.

Todos estos principios trabajan con una visión de urbanismo del paisaje en el que el parque construye ciudad, vinculando a los diferentes sectores sociales y abordando las infraestructuras, la gestión del agua, la biodiversidad y la actividad humana.

Para lograr estos objetivos, desarrollamos el proyecto bajo 5 criterios:

1_ Vecinos y ciudadanos participando activamente en el proyecto.

Encontramos una gran resistencia hacia el proyecto pero después de un intenso trabajo de dos años, se obtuvo un alto nivel de aceptación y ahora está en proceso de apropiación.

2_ El parque cuenta con programas activadores que son constructores de un uso 24/7.

El ancho del parque varía, en algunos lugares es más ancho y allí se diseña un espacio programático, en algunos otros lugares es muy angosto permitiendo solo senderos ligeros, peatonales y para bicicletas. Foros, espacios de encuentro y descanso, instalaciones deportivas, vías peatonales y ciclistas son las partes del proyecto a lo largo del parque.

3_ El verde es un elemento omnipresente. Estamos construyendo un bosque que en el futuro podrá crear un ecosistema autosostenible. Los árboles son endémicos y requieren poca poda. Optamos por individuos de tamaño pequeño y mediano para dejarlos enraizar correctamente.

4_ La fiesta del agua. México tiene una deuda de agua con sus habitantes. El parque cuenta

con un triple sistema para el cuidado del agua: recolectamos agua a través de jardines pluviales, inyectamos agua al subsuelo a través de biofiltros para ayudar a descongestionar el drenaje de la ciudad, proveemos y mantenemos agua tratada en tolvas de agua para riego durante los 6 meses de sequía.

5_ Una línea roja -un gesto- un uso. Una línea roja de hormigón en el suelo es un símbolo de costura y puente. Un gesto de diseño antimuro de la posible disrupción de los sistemas rígidos (las vías). Muestra una dirección, se acuesta al nivel del suelo, luego se eleva para construir un banco; se entrelaza y conecta. Es un lugar para sentarse, mirar, moverse, jugar. La característica lineal de

nuestro parque hace que además de la conexión con sus lados; crea una costura que cose los barrios en sentido transversal, generando y fomentando las relaciones de un lado a otro en los tejidos sociales y urbanos

A diez meses de la inauguración el parque se siente como un éxito social y espacial por haber recuperado y transformado una zona residual y peligrosa en un lugar democrático y seguro.La gente está feliz y se está construyendo un sentimiento de orgullo y pertenencia.

En la presentación del concurso dijimos No queremos crear un proyecto terminado, sino que tratamos de generar un rumbo proyectual desde una visión abierta, partiendo de la participación de la gente para construir un proceso y un proyecto a mediano y largo plazo Es importante decir que el Parque Lineal FFCC es el único proyecto reciente de la ciudad que es un espacio público en gran escala al servicio de los sectores de clase media y baja. Nos posicionamos en las antípodas del

embellecimiento: muebles sofisticados sobre pavimentos de diseño ni fuentes costosas forman parte de la narrativa de este parque. El presupuesto y el contexto arquitectónico y social nos condicionan a una postura intencionadamente austera y sobria.

Lo mejor de las ciudades es lo que producen y ofrecen gratuitamente. Este es el logro de muchos parques urbanos y estamos seguros que este es el gran logro de nuestro Parque Lineal Ferrocarril de Cuernavaca.

Datos

El Parque Lineal Ferrocarril de Cuernavaca fue proyectado por la firma Gaeta-Springall arquitectos a través de los arquitectos Julio Gaeta y Luby Springall y su demandante fue la SEDUVI, Secretaria de Desarrollo Urbano y Vivienda, Delegación Miguel Hidalgo como consecuencia del premio obtenido en el Concurso Internacional de 2016 y su construcción se concretó entre 2017 y 2018. La coordinación del proyecto la realizaron l@s arquitect@s

Roberto López y Liliana Ramírez y la dirección

de obra estuvo a cargo de l@s arquitect@s Rigoberto Galicia y Lorena Núñez.

Fueron consultores Gustavo Avilés (Iluminación), Entorno-Hugo Sánchez y Tonatiuh Martínez (Paisaje), Guillermo Springall (Mecánica de suelos), Elena Tudela (Manejo de agua),Rolando Springall (Hidrología), Denébola Caraveo y Marco Moreno (Movilidad) y Héctor Margain (Estructura).

Fueron colaboradores Jorge Torres, Pamela Vélez, Paola Ampudia, Itzel Barradas, Martín Barroso, Giovanni Caria, Joel Cruz, Eugenia

Díaz, Natalia Ferolla, Itzel Fuentes, Cristal

Gordillo, Paola Hernández, Oscar Juárez, Juan Manjarrez, Fernando Ochoa, Laura Revelo, Erick Rodríguez , Susana Carrera, Jacopo Sapienza, Aldo Urban, Diego Valadez, Ana Voegelin, Kenneth Wilson

Las tareas de Socialización las realizó la Agencia Barrio y la Construcción estuvo a cargo de la empresa Consa. El área intervenida es de 136000 m2 en unos 4.5 km de longitud.

Las fotografías fueron realizadas por Arturo Arrieta y David Cohen.

Opinión

El proyecto PLFC se concursó como se cuenta, a mediados de la década pasada suscitando el interes de más de 400 participantes siendo una de las clásicas tentativas de reactivar terrain vagues de áreas centrales de ciudades en general resultantes de la desactivación de viejas infraestructuras como ésta, especie de cicartriz urbana de 4 kilómetros y medio , ancho variable y un área intervenida de mas de 130000 m2.

Al contrario de muchas otras situaciones de condiciones similares, en este caso no solo quedo concluida – o puesta en marcha- la intervención propuesta apenas tres años más tarde (2018) sino que su recuperación al servicio urbano fue en términos de desarrollar nuevo y variado espacio publico cuando en muchas ocasiones disponer de estas vastas superficies en áreas centrales y a costo cero suele despertar enormes intereses inmobilia-

rios de tipo privatista.

Aquí en contrario, la propuesta planteó sustancialmente el desarrollo de una zona de usos múltiples basándose en la idea principal de proponer un gran parque urbano apelando a un plan de forestación: Estamos construyendo un bosque –dicen sus autores en la precedente memoria– que en el futuro podrá crear un ecosistema autosostenible. Los árboles son endémicos y requieren poca poda. Optamos por individuos de tamaño pequeño y mediano para dejarlos enraizar correctamente.

También hubo una intención ambiental de reactivar el sitio atendiendo no solo a la generación de áreas verdes sino también con atención al ciclo del agua, esa otra dimensión crítica progresiva de las falencias futuras probables de sustentabilidad: El parque cuenta –dicen sus proyectistas– con un triple sistema para el cuidado del agua: recolectamos agua a través de jardines pluviales, inyectamos agua

al subsuelo a través de biofiltros para ayudar a descongestionar el drenaje de la ciudad, proveemos y mantenemos agua tratada en tolvas de agua para riego durante los 6 meses de sequía

Con la curiosa subsistencia del uso ferroviario de los rieles supérstites (pasan 2 o 3 trenes diarios para conectar un enlace de no mas de 8 kilómetros de largo de la antigua via que conectaba antaño el DF con Acapulco) puede observarse en tal caso la cercanía de usos entre niños jugando y las locomotoras moviéndose, aunque con las precauciones del caso. Si bien ese hecho agrega algo de sabor arqueológico industrial sorprende que no se haya podido generar un parque ya desactivado totalmente de su antigua función. Más allá de ello el proyecto ensambla y viene reactivando parte de las viejas instalaciones para ir habilitando nuevos equipamientos sumados al proyecto. Este fue pensado como un desarrollo en que

cobrase importancia la opinion y el involucramiento decisional de los vecinos puesto que la memoria informa que encontramos una gran resistencia hacia el proyecto pero después de un intenso trabajo de dos años, se obtuvo un alto nivel de aceptación y ahora está en proceso de apropiación

Ello se consiguió primero mediante un trabajo proyectual abierto y participativo –sus autores afirman no queremos crear un proyecto terminado, sino que tratamos de generar un rumbo proyectual desde una visión abierta, partiendo de la participación de la gente para construir un proceso y un proyecto a mediano y largo plazo– y segundo a través de pensar que la ciudad moderna y democrática debe crecer ofreciendo servicios, estructuras y funciones gratuitas a sus vecinos y así este Parque Lineal FFCC es el único proyecto reciente de la ciudad que es un espacio público en gran escala al servicio de los sectores de clase media y baja

La apelación escritural a una traza roja en solados o muretes pintados de ese color, que atraviesa nerviosamente todo el desarrollo lineal del Parque sirve como motivo de conexión longitudinal e indicativo de direcciones y sentidos de uso pero también como una suerte de sutura que trata de obturar la vieja cicatriz atando sus partes tanto como indicando las numerosas transversalidades que este eje propone para conectar el nuevo equipamiento público a las numerosas y diversas barriadas adyacentes.

Dicen también los autores nos posicionamos en las antípodas del embellecimiento: muebles sofisticados sobre pavimentos de diseño ni fuentes costosas forman parte de la narrativa de este parque. El presupuesto y el contexto arquitectónico y social nos condicionan a una postura intencionadamente austera y sobria y será esta opción la que parece haber conseguido proponer un espacio de usos

dominantemente al servicio de las pobladores cercanos, en una decisión de proyecto que recuerda la intención que animaba a Lina Bo Bardi cuando en su propuesta del CESC paulistano de Pompeya escoge producir un evento para nada gentrificador y enteramente al servicio de los antiguos pobladores populares de aquel barrio brasilero de raigambre proletaria. Probablemente el éxito de uso social que se viene constatando en el PLFC se deba a la proposición de una arquitectura de paisaje dominantemente discreta y preparada para ser entendida y usada como patrimonio del común y en tal caso también será posible crear nueva ciudad y memoria de la misma sin riesgo de engendrar gentrificaciones y eventos para cierto up grade turístico: aquí la gente de los populares barrios cercanos parecen haber encontrado su lugar público que los alberga en el tiempo libre y les mejora su convivencia.

Corte
Planta sectorial

Turn static files into dynamic content formats.

Create a flipbook
Issuu converts static files into: digital portfolios, online yearbooks, online catalogs, digital photo albums and more. Sign up and create your flipbook.
MAR 003 - Material de Arquitectura by UniversidadAtlántida - Issuu