MAR 012 - Material de Arquitectura

Page 1


EDITORIAL

Figuras de lo material-sustentable

ARQUITECTURA CIUDAD

Francisco Cadau Edificio Damero, Campana

UNIVERSO-CASA

Fucile&Bianchi. Casaquinta en Los Hornos. La Plata

Juliana Lareu. Casas PSS. Mar del Plata

APRENDIZAJES

Cristian Nanzer. Taller Mediterráneo. UNC. Córdoba

HITOS DE HISTORIA

Carlos Eduardo Dias Comas. Niemeyer In-natural

ECOLÓGICAS

Flores&Prats. Rehabilitación de la fábrica La Favorita. Barcelona. Comunidad en Lund. Suecia

MATERIAL

Arturo Franco. Casa O Fieiro. La Coruña

La Casa das Silvas. Carnota. La Coruña

ARGUMENTOS

José Cruz Ovalle. La arquitectura ante la constitución matemática de la abstracción

MICRO

Ariel Jacubovich. Casas Moldes y Roque Pérez

HERRAMIENTAS

Jussi Parikka. Una geología de los medios

AMERICANA

Taller General + Jose María Sáez. Casa Pitaya. Mindo, Pichincha. Ecuador

Revista MAR. Material de Arquitectura, Año 3, #12, Mayo 2025, Mar del Plata, Argentina, ISSN 3072-7243

Rector / Cdor. Amado Zogbi

Vicerrectora / Ing. Alicia Gil

Delegado rectoral MdP / Arq. Marcelo

Artime

Decano / Arq. Óscar Cañadas

Vicedecano / Arq. Claudio Freidin

Directora / Arq. María Silvia Grilli ISSN 3072-7243

Equipo

Editor / Arq. Oscar Cañadas

Director / Arq. Roberto Fernandez

Diseño / DG. Jimena Durán Prieto

Consejo Editorial

Arq. Marcelo Artime

Arq. Eduardo Agüero

Arq. Jerónimo Mariani

Arq. Dario Lemmi

Arq. Pablo Rescia

Arq. Leonardo Jauregui

Arq. Ezequiel Muñoz

MAR manifiesta que las opiniones consignadas en esta publicación son de absoluta responsabilidad de los firmantes de cada nota y no comprometen a tales instituciones. Las notas sin firma son responsabilidad de la Dirección editorial de MAR.

Las imágenes incluídas fueron suministradas especialmente por los autores y/o sujetos protagónicos de cada nota. Cuando fueran solicitadas expresamente se indican las autorías y/o las fuentes originales de tales imágenes. Si alguna imagen careciera a juicio de su autor, del crédito correspondiente rogamos se nos consigne para subsanarlo.

Editorial Figuras de lo

material-sustentable

El problema de la arquitectura en la hora de la crisis de sustentabilidad es como operar con lo material puesto que en un momento civilizatorio de capitalismo exacerbado (buscar ganancias al límite de la extinción física del mundo: veáse temas como el fracking, el hiper [mas que el neo] extractivismo o la mutación climática regresiva ocurrida como externalidad del desenfreno industrialista) la materialidad actual ya merece un análisis sobre su viabilidad, incluso por el patético hecho de que lo actual in-material (la digitalidad electrónica) requiere y depende de insumos materiales y que sus procesos productivos son notablemente contaminantes, todo lo cuál lo desarrolla el librito del finlandés Jussi Parikka que comentamos en Herramientas

El trabajo del estudio catalán de Flores&Prats –que descolló en la respetuosa recuperación de una ruina devenida en el Espacio Beckett– se afianza en nuevas operaciones vinculadas a reconocer, adaptar y aprovechar antiguas construcciones como la fábrica La Favorita en Barcelona que recupera con total afecto filológico una vieja sede industrial desactivada o en desarrollar una nueva comunidad habitable anexa a antiguas construcciones religiosas en Lund con el propósito de indagar en el tema de como hacer nueva ciudad comunitaria y sustentable, en plena sintonía con los entornos rurales adyacentes.

El par de trabajos de Arturo Franco aun en su modestia de escala y presupuesto plantean relevantes experimentos casi eco-arqueológicos para rehabitar una antigua construcción rural en el gallego paraje de Fieiro o para proponer un pequeño jardin en una casa antigua de Carnota en La Coruña. En ambos casos –como en el trabajo barcelonés de La Favorita– hay un desbordante propósito afectivo de considerar la ruina básica como un material de arquitectura, capaz de ser reinvestido como espacio habitable o de

engendrar una inédita y ultranatural condición de paisaje en el proyecto Panchés.

De otra forma, pues no se trata de construcciones de cierta antigüedad sino viviendas casi banales construidas hace apenas pocas décadas, las operaciones que Ariel Jacubovich llama usurpación de casas vacías vehiculiza lo que su autor llama modificación de lugares atmosféricos como acto de civilidad cuya relevancia acuerda con la intención de reutilizar y repotenciar edilicia existente haciendo que una pura materialidad adquiera intensidad arquitectónica mediante meditadas y económicas actuaciones puntuadas casi con cierta evocación al acting puesto en vigencia por el artista Gordon Matta Clark cuando en los 60 efectuaba gestos como tajos y aberturas en modestas construcciones existentes. Jacubovich no hace arte conceptual pero sus operaciones generan nuevas habitabilidades mediante pequeñas intervenciones calificadoras y reactivantes: quiza esté enseñando una amplia agenda sustentable basada en reactivar pasivos urbanos.

Lo que Jose Maria Saez y la jóven pareja de discípulos del Taller General llaman contenedor biodiverso en su propuesta de la Casa Pitaya en Ecuador es indagar en las posibles imbricaciones de constructo y lugar, haciendo que la arquitectura sea fuertemente transparente y virtualmente disuelta en el paisaje-clima de su implantación tratando de que lo artificial sea justo y equlibrado (en base a madera reciclada) y que la articulación interior-exterior sea también una relación sustentable entre cultura y naturaleza.

Cumple asi esta edición de MAR en presentar y examinar diversas instancias de proyecto en las que emergen figuras en que la acción proyectual puede controlar la violencia arbitraria de lo artificial (tan propio de la utopía moderna confiada en lo inextinguible del tándem materia-energía) para afrontar alternativas en torno de lo material-sustentable.

Instrucciones para navegar el MAR

(el número 12 de MAR)

ARQUITECTURA-CIUDAD

Esta sección presenta un complejo edilicio singular local o regional cuyo interés radique en establecer propuestas de relación con sus entornos urbanos además de postular ideas proyectuales significativas en su planteo, desarrollo y materialización. Se presentaran documentaciones originales completas (planos, fotos, memorias) y un análisis que pueda ser útil tanto para su aplicación didáctica como para su recepción académica y profesional.

Francisco Cadau. Textura de vacíos y llenos a escala urbana. Edificio Damero. Campana.

Buenos Aires

Un edificio de vivienda colectiva con frente a un vacío urbano que lo relaciona con la avenida principal de una ciudad de mediana escala.

El programa de vivienda multifamiliar de 20 unidades se desarrolla en un lote céntrico ubicado sobre una de las calles paralelas al eje Norte-Sur de la ciudad de Campana, una urbanización extendida de baja densidad localizada al NE de Buenos Aires a la vera del Río Paraná dentro de la región de la Pampa ondulada.

El lote de doble ancho abre su frente al espacio abierto del campo de deportes que habilita vistas francas hacia y desde la avenida.

UNIVERSO CASA

Tratara de ofrecer una secuencia de casas unifamiliares o pequeños conjuntos que contengan proposiciones conceptuales en cuanto a su proceso y razón proyectual, en su realización y construcción y en su uso, identificando valores que vayan más allá de la mera respuesta funcionalista. Tal como en el caso anterior se ofrecerá una documentacion integral y un análisis enfocado en su recepción didáctica tanto como de docentes y proyectistas.

Fucile&Bianchi. Devenida del lugar. Casaquinta en Los Hornos. La Plata. Buenos Aires

La obra pretende involucrar de manera consciente tanto al contexto construido como a sus prácticas, materiales y tipologías comunes, y al medio ambiente como parte del paisaje y forma de vida propuesta. Una pieza arquitectónica vinculada a lo industrial, repetible, de alcance masivo, propia de una sociedad especializada, con aspiraciones de transformarse en una estrategia abierta para distintas implantaciones dentro de ciertos parámetros dimensionales, climáticos y contextuales. Un objeto ensamblable en taller y trasladable, que demande de un estudio y comprensión de los parámetros particulares del caso para su inserción específica.

Juliana Lareu. Habitar la transparencia. Casas PSS. Mar del Plata. Buenos Aires

En términos de exploración tecnológico/material, se pensó en la noción del límite como espacio habitable con espesor de uso.

El proyecto incorpora así una envolvente compuesta por un sistema de paneles móviles de tecnología textil en conjunto con las expansiones del nivel superior, generando intimidad respecto de la avenida y actuando como una membrana permeable de intercambio interior-exterior. En términos expresivos, la fachada posee la capacidad de mutar a lo largo del día como un organismo vivo en función de las actividades y el uso cotidiano de los habitantes. Tanto el movimiento, como las transparencias definen el lenguaje y construyen un nuevo paisaje dinámico como parte del ecosistema urbano.

APRENDIZAJES

Plantea recorrer una serie de experiencias educativas de arquitectura reconocidas por su alternativismo y experimentación para acoger planteos y propuestas que pudieran resultar útiles o convergentes con las discusiones pedagógicas de la propia escuela. Así como investigaciones y aplicaciones proyectuales en campos no convencionales del hábitat que abren camino al aprendizaje de prácticas alternativas.

Cristian Nanzer. Observatorio, Laboratorio y Fábrica. Taller Mediterráneo. UNC. Córdoba

La idea de un Taller integrado por asociación de cátedras afines, surge como respuesta al contexto complejo de crisis y fragmentación profunda en que estaba sumido nuestro país por ese entonces, (¿cuándo no?). Por supuesto, la institución académica no estaba ajena a esa condición. En nuestra concepción, flotaba inmanente el legado del Taller Total, experiencia pedagógica radical de los años 70, que al día de hoy divide aguas en quienes pasaron por sus aulas. Buscábamos un campo de exploración colectiva, para lo cual se establecieron acuerdos tácitos, se sintonizaron afinidades y prosperaron voluntades académicas que consolidaron un sentido de búsqueda en la enseñanza del proyecto.

112

HITOS DE HISTORIA

Mas que presentar grandes hitos de la historia de la arquitectura se tratará de abordar hechos diversos de la historia local y regional que sean de interés en el conocimiento de grandes proyectistas locales y regionales pasados cuyas tareas hayan derivado en producir hechos significativos de la modernidad arquitectónica.

Carlos Eduardo Dias Comas. Niemeyer In-natural

Entre las varias acepciones de naturaleza, hay una de particular interés para la arquitectura, construcción extra-ordinaria: la de mundo material que existe independientemente del hombre, aunque donde éste vive y habita. Entre las varias posibilidades de impacto de esa naturaleza sobre la arquitectura, dos son de particular interés para la comprensión de la obra de Oscar Niemeyer: una deriva de su condición de medio, de fisonomía particular y escenario de formas propias, en que la arquitectura forzosamente se ins-cribe; la otra deviene de su condición de matriz de formas y fuente de imágenes que la arquitectura facultativamente trans-cribe.

ECOLÓGICAS

La cuestión ambiental y de crisis de sustentabilidad se presenta como un desafío para el proyecto actual y futuro y si bien resulta un campo relevante para ajustar y modificar formas tradicionales de proyectar, todavia se carece de metodologias comprehensivas y aplicables por lo cuál se presentarán distintos trabajos y enfoques –desde interdisciplinares hasta urbano-territoriales pero también de proyectos de arquitectura- para empezar a entender las vias de futuros trabajos de mucha mayor implicación ecológica.

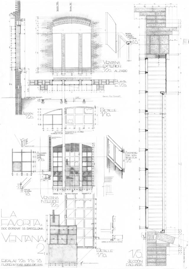
Flores&Prats. Produccion y reproducción. Rehabilitación de la fábrica La Favorita. Barcelona

El proyecto es la rehabilitación del antiguo complejo industrial La Favorita, ubicado en el encuentro de las calles Roc Boronat y Llull de Barcelona, para reutilizarlo como un centro de nuevas formas de producción.

El conjunto de edificaciones que forman el proyecto tiene orígenes y catalogación distintas, pero el proyecto trabaja con todas a la vez, reforzando la condición de recinto industrial que le confiere la larga fachada de 83 metros de longitud y 7 de alto que envuelve las naves existentes, construidas en sucesivas etapas y que casi colmatan la totalidad del suelo de la parcela.

Flores&Prats. Construir una comunidad. Lund. Suecia

El proyecto de esta primera comunidad, que será el inicio de este nuevo barrio de Lund, se centra en el autoabastecimiento, en cómo la comunidad crea una relación con la agricultura, la tierra a su alrededor y el futuro. La nueva comunidad crecerá no solo a partir de personas que viven en nuevos hogares, sino entre los futuros habitantes y la tierra, los animales, los árboles, las piedras… Todos formarán la comunidad, conviviendo en una relación sin jerarquías, tratando de encontrar un equilibrio entre sí mismos y la especificidad de este sitio. La nueva comunidad debe incorporar el conocimiento acumulado del lugar, programas que ya están en la zona o inspirados por ella: cultivo, cocina, coworking, makers, investigación científica…

MATERIAL

La revista no publicará (salvo alguna específica excepción) proyectos no construídos en el entendimiento de la relevancia por otorgarse a la materialización adecuada de las ideas proyectuales ya que se piensa que la construcción no es una fase ulterior e independiente del proyecto sino que éste cobra sentido, viabilidad y calidad en tanto aborde y resuelva su condición material, lo cuál lleva a entender cuestiones de sustentabilidad y tecnologías de ingenio y cualidad regional, más allá de temas propios de la construcción tradicional.

Arturo Franco. Una casa a tracción dentro de otra a compresión. Casa O Fieiro. La Coruña. España

El proyecto contempla la rehabilitación de una pequeña cuadra para animales, una casa de labranza de 1920 construida con muros de piedra de grandes sillares de granito bien concertados, de 70-80 cm de espesor, con una cubierta a dos aguas de placas de fibrocemento apoyada sobre una estructura de viguetas de hormigón pretensadas.

La vivienda original contaba con un pasillo de acceso situado en el centro, separando dos espacios, en uno de ellos se ubicaba la cuadra para el ganado, mientras que en el otro se disponía la cocina con horno de piedra y una hornacina donde se encontraba el fregadero, bajo la ventana. Este espacio daba acceso a una planta superior, ahora derruida, a través de una escalera de piedra, donde se localizaban las habitaciones.

Arturo Franco. El Jardín de Panchés. La Casa das Silvas. Carnota. La Coruña. España Primero desbrozamos, limpiamos y vaciamos de escombros la casa. Retiramos, ordenamos y clasificamos los restos de la cubierta desplomada 40 años atrás. Cientos de tejas, tierra y arqueología doméstica fueron apareciendo. Planchas, bridas, regaderas, estribos, botellas, cráneos de animales…Respetamos algunas de las silvas originales y muchos de los helechos y musgos que allí habían vivido durante años. El resto se saneó y se aportó nueva tierra vegetal. La primera primavera aquello se llenó de ortigas, un océano de plantas urticantes… La segunda primavera de una pequeña planta invasora cuyo nombre no he llegado a descubrir. Poco a poco fueron recuperando espacio las silvas, los helechos y hasta un pequeño rosal silvestre. Entonces llegó la gran viga de batea para romper el espacio. Para dejarse caer por ahí como un animal muerto y generar tensión.

ARGUMENTOS

La producción de proyectos descansa en aprovechar aspectos analíticos emergentes de argumentos teóricos que tratan de entender el pasado y el futuro para acompañar el presente proyectual y de tal forma esta sección se interesa en mostrar trabajos argumentales de teoría y crítica que en algunos casos pueden tener relación directa con acciones de proyecto o en abrir propuestas de formas alternativas de proyectar.

José Cruz Ovalle. La arquitectura ante la constitución matemática de la abstracción. El influjo de Descartes

Hace unos años cuando sinteticé en algunos textos la idea de una abstracción de la singularidad que admite grados, a la que llamé Nueva Abstracción, para diferenciarla de aquella abstracción universal de la generalidad –planteada por las vanguardias artísticas de inicios del siglo XX–, no me detuve en una condición capital del pensamiento moderno que determinó aquella abstracción universal –condición que, por cierto, permanece en nuestra época–, a saber, que el rasgo fundamental del pensamiento moderno es matemático. A partir de Descartes lo es en sentido propio, porque lo matemático busca ser principio y fundamento del saber, norma del pensar. No se trata ya de mathesis vulgaris sino de mathesis universalis, ciencia universal que relaciona y configura todo.

220

Hay arquitectura mínima: pequeñas intervenciones de adaptación o modificación; agregados, acciones de acupuntura urbana por colocación de nuevos objetos. En las escalas opuestas de lo territorial-urbano y cercano a lo doméstico-objetual es posible activar acciones proyectuales que ofrecen nuevas funcionalidades o que agregan variedad y novedad de uso a lo preexistente. Acciones que pueden recaer en trabajos de generación de objetos resueltos casi con artesanatos y/o con enfasis en la emisión de comunicación; objetos que hablan agregando pequeños matices de sentido a lo dado.

Ariel Jacubovich. Notas sobre la usurpación de casas vacías. O la modificación de lugares atmosféricos como acto de civilidad. Casas Moldes y Roque Pérez

Son intervenciones en pequeñas viviendas que modifican su arquitectura incorporando ciertas cualidades del entorno exterior inmediato en su interior. Son PH o departamentos tipo casa, es decir que mantienen alguna de las cualidades propias de una casa (accesos, relación con el exterior, posibilidades de ampliación, expansión, etc), pero en donde la porción de terreno está en copropiedad con otras viviendas de iguales condiciones. A la vez, todos están ubicadas en el pulmón de manzana es decir sin conexión directa con la calle. Las viviendas están vacías, su transformación se produce como parte de un proceso de inversión inmobiliaria, no hay usuario que proponga ninguna determinación.

HERRAMIENTAS

Los buenos libros y artículos de problemas teóricos y prácticos del proyecto de arquitectura son como herramientas de trabajo para formarse y entender aspectos y cualidades por afrontar cuando se está proyectando: por tanto el interes de esta sección será presentar críticamente algunos aportes bibliograficos recientes que suponen conocer el marco cultural general donde se contextualiza el hecho de proyectar y tomar decisiones proyectuales.

Jussi Parikka. No hay nada que no sea material. Una geología de los medios

El libro del finlandés Jussi Parikka observa que los aparatos digitales actuales y su armazón socio-técnico requieren insumos (materiales) de electricidad como de un menú de minerales (litio, tierras raras) actuales estrellas del mundo-commodities y fuentes importantes de vertido de toxinas sobre el ambiente y de afectación sanitaria de personas y seres vivos en general. Una geología de los medios, lo primero conocido en castellano del investigador finlandés, realiza un equivalente geológico de excavación estratificada a lo largo del tiempo de lo que significa el aspecto material de lo medial.

AMERICANA

Entendemos la cultura proyectual local como haciendo parte de problemas y alternativas propias del mundo latinoamericano cuyas propuestas mas singulares e innovativas se presume que deben conocerse profundamente para insertar el trabajo de proyecto en una condición geocultural especifica que en lo posible aproveche lo bueno de la globalización pero también que cuestione sus defectos y limitaciones.

Taller General + Jose María Sáez. Contenedor biodiverso. Casa Pitaya. Mindo, Pichincha. Ecuador

El encargo fue generar una vivienda de fin de semana que establezca una relación íntima con la naturaleza pero mantenga una buena conexión con el exterior, una casa que sume estas dos complejidades y plantee una alternativa a la cotidianidad. La locación es Mindo, un pueblo situado en el bosque húmedo del Chocó andino ecuatoriano: esta zona se caracteriza por tener altas precipitaciones, clima cálido y una humedad ambiental bastante elevada.

A la casa se la plantea como un contenedor biodiverso que busca generar una relación entre lo natural y lo artificial, entendiendo por natural a la flora y fauna originaría de Mindo y por artificial a lo que se enfoque en resolver las necesidades cotidianas de los usuarios (tecnología, conectividad, ocio, confort).

Textura de vacíos y llenos a escala urbana

Edificio Damero, Campana, Buenos Aires

Memoria

Un edificio de vivienda colectiva con frente a un vacío urbano que lo relaciona con la avenida principal de una ciudad de mediana escala.

El programa de vivienda multifamiliar de 20 unidades se desarrolla en un lote céntrico ubicado sobre una de las calles paralelas al eje Norte-Sur de la ciudad de Campana, una urbanización extendida de baja densidad localizada al NE de Buenos Aires a la vera del Río Paraná dentro de la región de la Pampa ondulada.

El lote de doble ancho abre su frente al espacio abierto del campo de deportes que habilita vistas francas hacia y desde la avenida.

El edificio se organiza a partir un basamento extendido en todo el terreno, y de un cuerpo principal, de cinco niveles, concentrado sobre la porción frontal de la parcela.

El basamento presenta dos sectores: sobre el frente, resuelve los accesos vehiculares y peatonales y sobre el fondo organiza dos niveles de cocheras.

El cuerpo principal se define como un volumen exento a partir de retiros perimetrales que organizan variablemente

las relaciones con su contexto: Sobre el frente, un jardín de acceso preserva el pino existente retirando el volumen de la línea municipal aproximándolo a las líneas de edificaciones retiradas de las casas linderas y atenuando su impacto a escala peatonal. Mientras que, sobre el contrafrente, un amplio patio recrea las condiciones del espacio urbano y permite conservar un añoso árbol de palta.

Finalmente, sobre los laterales, retiros mínimos posibilitan iluminar y ventilar de forma natural las circulaciones del edificio.

Las viviendas se prolongan en patios terrazas que expanden los interiores a la vez que configuran una textura de vacíos y llenos a escala urbana.

El edificio se estructura a partir de una doble crujía de viviendas con patios terrazas, que aprovechan el sol del Este y el Oeste y las vistas a la avenida y al corazón de la manzana.

El núcleo, de ascensor y escalera lineal, que completa la organización del edificio se dispone sobre el lateral Norte del perímetro favoreciendo la relación de los espacios comunes con el exterior.

La repetición alternada de viviendas y patios terrazas organiza, al frente y al contrafrente, un patrón en damero de llenos y vanos que configura una textura reconocible a escala urbana.

Por otra parte, una serie de operaciones locales, facetan el volumen, inicialmente prismático, constituyendo un carácter masivo y tallado que identifica al edificio. Los facetados indexan diferencias programáticas y contextuales sobre las distintas caras del prisma:

En la cara del frente y el contrafrente, dos ligeros chanfles les hacen lugar a los árboles existentes y suavizan dos esquinas diagonalmente opuestas del volumen.

En la fachada Norte la mitad delantera del plano se orienta ligeramente hacia el Este estilizando la proporción de esta cara del edificio.

Finalmente, en la parte superior del volumen, el achaflanado perimetral del paramento configura una suerte de mansarda

que resuelve la baranda de la azotea y da coronamiento al edificio contra el cielo.

Una envolvente continua de ladrillos permite controlar, a través de su textura y permeabilidad variable, el asoleamiento y las visuales de los distintos tipos de espacios.

El edificio encarna un modelo de densificación de la vivienda que, desde un posicionamiento contemporáneo, integra y ecualiza las demandas de una ciudad en franco crecimiento con las tradiciones y dinámicas de la vida de sus habitantes.

A través de la repetición de patios terrazas el edificio recupera y actualiza, para la tipología de vivienda en altura, las formas del habitar propias de las ciudades de provincia donde el disfrute del exterior forma parte del estilo de vida.

El cerramiento exterior del edificio se resuelve a partir de la reinterpretación de

una tecnología propia de la cultura local: la mampostería a la vista.

El ladrillo, de amplia y extensa difusión en la región, constituye una solución técnicamente confiable, económicamente asequible y ambientalmente sustentable. Este material posibilita, además, a partir de la ductilidad organizativa de los aparejos, el desarrollo de un amplio espectro de configuraciones superficiales aplicables a diferentes desempeños térmicos, lumínicos y visuales.

La envolvente perimetral se organiza a partir de variaciones del aparejo de soga y de transiciones entre los aparejos de soga y tizón habilitando todo un gradiente de permeabilidad y textura variable. Esta gradación posibilita el pasaje continuo entre el muro ciego, empleado como simple cerramiento, y las mamposterías de calado y relieve variable, utilizadas como quiebra vistas y/o parasoles de las ventanas. De esta manera se integran

Datos

El edificio Damero fue proyectado por la oficina del arquitecto: Francisco Cadau siendo colaboradores Patricio Cantlon, Federico Cione, Victoria Della Chiesa, Andrea Lanziani, Andres Milos, Diego Valenzuela. Se ubica en la calle San Martín 777, Campana, Buenos Aires y se trata de un programa de vivienda multifamiliar con una superficie de 1835 m2

Fue finalizado en 2021. Los créditos fotográficos son de Francisco Cadau Oficina de Arquitectura (imágenes 1-30) y Gustavo Sosa Pinilla (imágenes 31-37).

las diferentes configuraciones y desempeños necesarios para el edificio dentro de una evolvente formal y materialmente continua.

Opinión

El trabajo del campanense Francisco Cadau destaca en varias relevantes obras resueltas con contundencia de partido y con destacada atención al trabajo de las pieles envolventes o divisorias –hay una llamada Casa de los Tamices del 2003– cuyo trabajo basado en cuidadosas mamposterías artesanales y en planos madereros presta mucha atención al modo que el edificio se presenta a la ciudad y ofrece una muestra de calidad material mucho mas compleja que puros muros y ventanas comunes. Las 4 casas de patio al frente de 2008 sostienen esa voluntad mediante una elaborada solución ladrillera de la fachada

retraída y de los paños que limitan hacia el frente, los patios de acceso a cada unidad.

El Damero asume criterios semejantes en la voluntad de modelar la envolvente en base a un virtuosista trabajo de trabas cerámicas en este caso en una escala mayor (es un bloque colectivo de 20 viviendas) con implantación urbana que expone la posibilidad de exhibir la contundencia de un bloque geométrico regular que con retiros laterales permite liberar el cubo de sus medianeras y exponer todas sus caras: incluso el abatimiento de los paños de antepecho superiores ayudan a aumentar la pregnancia visual de este objeto que encuentra asi un valor de hito o signo relevante del paisaje de la ciudad, incluso aprovechando el terreno libre frontal que posibilita una visión lejana.

La memoria comenta que en la parte superior del volumen, el achaflanado perimetral del paramento configura una suerte de mansarda

que resuelve la baranda de la azotea y da coronamiento al edificio contra el cielo en donde se alude a como un pliegue del paramento ladrillero evoca la figura conclusiva de la vieja mansarda dando espesor volumétrico a una figura nítida sobre el fondo del cielo. Mediante un juego de balcones profundos rehundidos en las caras anterior y posterior de la caja, se consigue con luces y sombras, ofrecer un ritmo al objeto que va mucho mas alla de las consabidas apariencias de apartamentos apareados/apilados de cualquier edificio común de vivienda colectiva: aquí se neutraliza esa característica a favor de rescatar la imagen de una importante caja envolvente común. No casualmente la memoria habla de esos vacíos como patios-terrazas y tanto por escala y volumetría desde ya que son mucho mas que balcones incluso por la proporción que tienen respecto de las superficies totales de cada unidad, lo que confirma el interés que el proyectista indica, de ofrecer

opciones que recuperen en lo posible ciertas tradiciones de usos intensivos domésticos de los patios de las casas convencionales. Los laterales medianeros se rasgan al medio para iluminar circulaciones comunes pero sus paredes pudiendo ser ciegas y mudas, reciben en cambio también la orfebrería de la artesanía albañil. La caja encuntra algunas formas de ruptura de manera de configurar un basamento necesariamente mas abierto y transparente pero que sin embargo, consiguiendo cosas como rescatar forestaciones, no supone desestabilizar la potencia visual de esa caja roja.

Asi lo explica la memoria: La envolvente perimetral se organiza a partir de variaciones del aparejo de soga y de transiciones entre los aparejos de soga y tizón habilitando todo un gradiente de permeabilidad y textura variable. Esta gradación posibilita el pasaje continuo entre el muro ciego, empleado como simple cerramiento, y las mamposterías de

calado y relieve variable, utilizadas como quiebra vistas y/o parasoles de las ventanas. De esta manera se integran las diferentes configuraciones y desempeños necesarios para el edificio dentro de una evolvente formal y materialmente continua. Aquí Cadau alude a una tecnología de producción de sus envolventes dominantemente continuas (y superadoras de las geometrías externas de muros con vanos convencionales) pero que yendo mas alla de una gramática, pretende convertir su decisión de materialización proyectual en un instrumento que aporta todo un gradiente de permeabilidad y textura variable, es decir un modo de complejizar y matizar la permeabilidad (mas allá de la dialéctica muro/vano) y de aportar con la variación textural, a una manera inédita de proponer lenguaje. Esa caja potente es no solo oportunidad de aportar un signo destacado de identidad urbana sino también una forma que supera la mera agregación de 20 células habitativas.

Una envolvente continua de ladrillos permite controlar, a través de su textura y permeabilidad variable, el asoleamiento y las visuales de los distintos tipos de espacios.

A través de la repetición de patios terrazas el edificio recupera y actualiza, para la tipología de vivienda en altura, las formas del habitar propias de las ciudades de provincia donde el disfrute del exterior forma parte del estilo de vida.

Devenida del lugar

Casaquinta en Los Hornos,

La Plata

Memoria

Quinta Tetuán es uno de esos lugares en los que el desafío proyectual pasa por hacer propio un paisaje: el ámbito semirural de la periferia platense. La vida transcurre allí entre grandes hiladas de eucaliptus que subdividen el predio. Se suman algunas construcciones dispersas, huertas, mascotas y variados animales silvestres que dan vida al lugar.

La zona productiva de Los Hornos, de tierras transformadas en ladrillos, históricamente vanagloriados como soporte material de la ciudad capital, y un presente de tierras fértiles, abocadas a la producción fruti-hortícola intensiva de alcance masivo, donde el orden rectilíneo y la sucesión de plantaciones dan forma a sus principales construcciones e imágenes consecuentes.

La obra pretende involucrar de manera consciente tanto al contexto construido como a sus prácticas, materiales y tipologías comunes, y al medio ambiente como parte del paisaje y forma de vida propuesta. Una pieza arquitectónica vinculada a lo industrial, repetible, de alcance masivo, propia de una sociedad especializada, con aspiraciones de transformarse en una estrategia abierta para distintas implantaciones dentro de ciertos parámetros dimensionales, climáticos y contextuales. Un objeto ensamblable en taller y trasladable, que demande de un estudio y comprensión de los parámetros particulares del caso para su inserción especifica.

Se elabora una estructura material ajustada al mercado local que, en su repetición indefinida y manipulación, da soporte a espacios cubiertos y semicubiertos.

Por un lado, un prisma cerrado e interior de 7 unidades

de 2,40x6,00x2,90mts conectadas de manera lineal, lo que da un volumen final de 6,00x16,80x2,90mts, separado del terreno natural; por otro, una cubierta de dimensiones variables, también metálica e independiente en términos materiales y perceptuales de 12,00x18,20mts, levemente distanciada en altura del volumen anterior, que lo cubre y que, en conjunto con el piso de ladrillos vistos sobre el terreno natural, funciona como fuelle y amortiguador entre naturaleza y artificio.

La distancia a las masas arbóreas, sus geometrías y claros dominantes establecen la posición final de la casa y configuran los limites perceptuales más distantes.

Hacia el exterior, los intersticios entre elementos constitutivos y su complejidad formal, la sombra arrojada por la cubierta, el color oscuro y los reflejos de algunos paños vidriados del volumen cerrado, proponen reducir el impacto de la edilicia en el paisaje vegetal, aproximándose a algunos cobertizos y estructuras metálicas de la zona.

Hacia el interior, la diferencia es marcada: un espacio rectilíneo íntegramente revestido de madera clara, de umbrales definidos suficientemente definidos como para establecer un momento, en pos de distanciar el mundo interior de lo exterior.

Por último, el espacio-galería resultante de la interac-

ción entre volumen, piso y cubierta, diseñado en lo que respecta a cuestiones climatológicas, de uso y percepción, así como lo han sido tantos tipológicamente asociables de la historia local y nacional, es el ámbito de encuentro por excelencia. Amplio, multifacético y lleno de vida.

Opinión

En un paraje suburbano de La Plata que conjuga en su presente e historia, un paisaje forestado de ecucaliptus con pequeñas viviendas casi de porte popular asi como cobertizos y galpones de pequeñas industrias o explotaciones agrarias, se formula el intento, valga la relativa paradoja, de instalar o colocar (como algo prefabricado en taller) una suerte de rancho tecnológico que aúna respeto por la tipología de cuartos en fila frente a una galería con la voluntad de homenajear las livianas tecnologías de chapas y herrerías casi ferreteras mas que metalúrgicas.

Asi se expresa ese propósito central del proyecto en la memoria de los autores: La obra pretende involucrar de manera consciente tanto al contexto construido como a sus prácticas, materiales y tipologías comunes, y al

Datos

La Casaquinta en Los Hornos es de 2015 y sus autores son los arquitectos Leandro Fucile y Santiago Bianchi, siendo asociada la arquitecta Juliana Bertone. Los dibujos son de la arquitecta Agustina Robles y las fotos son de Santiago Bianchi (1 a 16) y Madeleine Bengolea (17 a 23).

medio ambiente como parte del paisaje y forma de vida propuesta. Comentario que asume tratar de rescatar un paisaje y una tradición habitativa que une el rancho pampeano popular con las modestas casas de quintas típicas del lugar.

Aunque en el ensamble central que coloca el proyecto se observa la voluntad de recoger referencias a contexto, historia y paisaje pero también a referenciar cierta perspectiva de tecnologías populares pret a porter, piezas livianas como muebles que acogen otra tradición, más reciente, de las construcciones ligadas a talleres o cobertizos de granja, ya que se trata, como sigue observando la memoria, de una pieza arquitectónica vinculada a lo industrial, repetible, de alcance masivo, propia de una sociedad especializada, con aspiraciones de transformarse en una estrategia abierta para distintas implantaciones dentro de ciertos parámetros dimensionales, climáticos y contextuales

Hay así como resultado, una tira de varios módulos metálicos livianos hechos en taller y traídos al sitio en camiones e izados y colocados por plumas, despejados del suelo y aptos para ser revestidos por una cubierta también metálica puesta sobre delgadas columnas y es-

beltas vigas que sostienen dicha cubierta plegada vista, todo dentro de una búsqueda de simplicidad constructiva low tech que también ofrece una estética expresada en la visibilidad de materiales simples y recursos, como las instalaciones expuestas.

Ese paisaje tecno-constructivo asume una responsabilidad cuasi cultural, confrontando la escena natural con expresiones que evoca las tecnologías sencillas de galpones, aunque en este caso, con una vocación de extremar la calidad de detalle de una propuesta en todo caso liviana, prefabricada en seco y evocadora del ingenio de constructores rurales.

Todo empero con una intención de conseguir cierto

efecto de paisaje en la mirada de este objeto exento, esta caja alargada de metal, colocada en el entorno de una vegetación periurbana y asi lo expresa la memoria:

Hacia el exterior, los intersticios entre elementos constitutivos y su complejidad formal, la sombra arrojada por la cubierta, el color oscuro y los reflejos de algunos paños vidriados del volumen cerrado, proponen reducir el impacto de la edilicia en el paisaje vegetal, aproximándose a algunos cobertizos y estructuras metálicas de la zona. Con lo cuál se acentúa ese doble contextualismo de acogerse a ese paisaje vegetal y de manejarse con los recursos materiales de algunos cobertizos y estructuras metálicas de la zona.

Los interiores sencillos, forrados de chapa de madera o con enrejados resueltos con paneles de varillas metálicas soldadas en cuadrados, trabajan en la búsqueda de

una estética industrial que junto a una planta de orden canónico con su isla de servicios flotando en la planta libre, parecen intentar construir una imagen que podríamos calificar como un Mies pobre, barrial o suburbano, con calidad detallística pero con voluntad de evocar soluciones populares.

Como la galería anexa al prisma referido que como dice la memoria queda proyectualmente formulada como el espacio-galería resultante de la interacción entre volumen, piso y cubierta, diseñado en lo que respecta a cuestiones climatológicas, de uso y percepción, así como lo han sido tantos tipológicamente asociables de la historia local y nacional y que consigue ser el ámbito de encuentro por excelencia, casi corazón abierto de la casa o sitio flexible que puede acoger buena parte de las actividades sociales y familiares.

Habitar la transparencia

Casas PSS, Mar del Plata

Memoria

Teoría del proyecto

En un área de carácter residencial de densidad baja en la ciudad costera de Mar del Plata, las casas PSS se implantan en una operación de completamiento de la manzana en un terreno de 10 x 23 entre medianeras, buscando consolidar el tejido existente a partir de la ocupación del vacío urbano, con la voluntad de hacer un uso más sostenible de los recursos e infraestructuras disponibles en la ciudad.

Las condiciones de borde del sitio son particulares, encontrándose situado en relación a una de las principales avenidas de la ciudad,

dato relevante como herramienta proyectual para las exploraciones materiales/tecnológicas del límite y las estrategias de organización espacial.

Las viviendas se implantan en el terreno en una organización compacta tomando las medianeras como límite y recuperando la superficie ocupada a través de la incorporación de la terraza como espacio exterior habitable.

Arquitectura elástica: sistemas-flexibilidad

En cuanto a su lógica interna, las viviendas de carácter pasante buscan hacer énfasis en la relación interior-exterior y en el aprovechamiento al máximo del asoleamiento a

partir de la ubicación y agrupación estratégica del soporte, entendiendo el espacio como recurso, nucleando y compactando los servicios y circulaciones con el objetivo potenciar la relación de las áreas sociales de la vivienda con el exterior. Esta estrategia proyectual permite a su vez liberar el espacio interior de uso, en la búsqueda constante de generar espacios flexibles que admitan múltiples modos de habitar y diversas formas de organización posibles, la apropiación por parte de sus habitantes y la capacidad de transformarse y garantizar su vigencia a lo largo del tiempo en función de las de las nuevas necesidades que surjan, en un contexto físico-social dinámico en constante transformación. En cuanto a la organización espacial, las áreas sociales de la vivienda se enraízan en el nivel cero en relación con la tierra, los espacios íntimos de dormir con sus respectivas expansiones y un tercer espacio de

uso indeterminado se organizan en el nivel intermedio y la cubierta en el nivel superior remata como espacio de uso exterior en relación con el cielo. Una estructura metálica define sutilmente el espacio aéreo dándole

escala humana, posándose sobre la cubierta actuando como soporte de actividades provisorias indefinidas. Ya sea para fijar estructuras livianas móviles o textiles, se plantea como un espacio plus que permita eventualmente cerrarse o abrirse de manera dinámica adaptándose a distintos usos, dependiendo la época del año y el clima.

Las escaleras helicoidales por su parte, operan como sistema circulatorio que conecta los tres niveles de expansiones manteniéndolos articulados en vertical.

Arquitectura multiespecie

Las especies vegetales preexistentes del terreno que se encontraban dentro de la super-

ficie a construir fueron preservadas y reincorporadas en la cota superior de su hábitat original en el nivel de terraza, generando un nuevo paisaje en altura y un límite vivo que actúa como tamiz proporcionando intimidad desde la avenida. La operación deviene así en una transformación del paisaje a partir de la aparición de nuevas especies de seres vivos que se ven atraídos como mariposas, abejas y aves, entre otros, con la posibilidad de crear nuevas formas de vínculo con la naturaleza en contextos urbanos.

Es así que por fuera de una perspectiva antropocéntrica, el proyecto reincorpora la vegetación preexistente en el terreno actuando como un dispositivo activador del ecosistema, con la voluntad de construir nuevos escenarios de convivencia con otros organismos vivos como parte de la trama ecosistémica de la cual somos parte. El edificio pretende así ser hábitat no solo del ser

humano, sino también de especies animales, vegetales y otros organismos vivos.

El límite: habitar la transparencia En términos de exploración tecnológico/material, se pensó en la noción del límite como espacio habitable con espesor de uso. El proyecto incorpora así una envolvente compuesta por un sistema de paneles móviles de tecnología textil en conjunto con las expansiones del nivel superior, generando intimidad respecto de la avenida y actuando como una membrana permeable de intercambio interior-exterior. En términos expresivos, la fachada posee la capacidad de mutar a lo largo del día como un organismo vivo en función de las actividades y el uso cotidiano de los habitantes. Tanto el movimiento, como las transparencias definen el lenguaje y construyen un nuevo paisaje dinámico como parte del ecosistema urbano.

Las expansiones junto con la envolvente textil trabajan a su vez en conjunto como dispositivo de regulación térmica colaborando en términos bio-climáticos y mejorando los niveles de eficiencia energética de las viviendas, como estrategia de diseño pasivo. Las mallas de metal desplegado resuelven el solado de las expansiones del nivel superior generando una mayor fluidez espacial entre los tres niveles, incorporando así también las transparencias en el límite horizontal, dialogando con el límite textil con una trama similar a la de su tejido, pero en una mayor escala. A su vez, colabora con la búsqueda de maximizar el aprovechamiento de la luz para los espacios interiores del nivel cero, sin generar grandes planos de sombra.

Por su parte, el límite en relación al espacio público se compone a partir de la repetición de una serie de elementos verticales con una inclinación de 45° generando un tamiz

gradual que varía de opaco a traslúcido en función de la perspectiva y el movimiento de quien circula, como transición entre la ciudad y el espacio doméstico.

En síntesis, repensar las formas de vínculo con el medio ambiente y la construcción de nuevos escenarios de convivencia más amables con las diversidades que conforman la trama ecosistémica de la cual el ser humano es parte; la vigencia de la vivienda a lo largo del tiempo a través de la definición de estrategias de flexibilidad que admitan las transformaciones del habitar y la exploración del límite en términos tecnológicos-espaciales, fueron algunas de las inquietudes y ejes teóricos que se convirtieron en semilla fértil para la generación del proyecto, plasmándose y haciéndose presentes en la materialización de la obra.

Datos

El proyecto y dirección de esta obra es de la arquitecta Juliana Lareu (3G arquitectura). Su ejecución fue a cargo de 3G arquitectura y fueron colaboradores la arquitecta Eugenia Iriberri y Federico Bondarec. La obra posee 190m2 y es de 2023. Las fotografías son de Gonzalo Chinelli.

Opinión

El trabajo de Juliana Lareu incluye acciones investigativas ecotecnológicas sugestivas, como sus diversas incursiones en el análisis de desarrollo de nuevos materiales sustentables basados en el uso de hongos –algunos de cuyos avances publicamos en MAR 7: Biomaterialidad como alternativa sustentable. ¿Podemos crear nuestro hábitat en alianza con hongos?– así como trabajos proyectuales que dirigidos al mercado convencional –como este par de pequeñas casas apareadas sobre la marplatense avenida Paso en plena repotenciación de su cualidad– buscan sin embargo, explorar matices y alternativas ligados a la liviandad, la transparencia y la flexibilidad. Es decir, esa parte del legado teórico de la modernidad que parece compatible con modos actuales de la habitabilidad social.

En este caso destaca un muy racional esquema de apareamiento sobre una espina que agrupa todas las instalaciones (baños, cocinas

y parrilleros) y un diseño de secciones mínimas de todas las carpinterias y elementos envolventes (como las pérgolas de las terrazas) o la escalera de caracol, decisión cuya liviandad resulta acompañada con el minimalista color blanco que unifica todo el conjunto. La transparencia flexible en este caso esta ligada a resolver algunas coberturas móviles que revisten la fachada a la avenida y asi lo expresa la memoria en cuanto en términos de exploración tecnológico/material, se pensó en la noción del límite como espacio habitable con espesor de uso.

Tal espesor de uso es el balcón definido entre las carpinterías frontales de aluminio y los dispositivos de sombra y privacidad, livianos y móviles, que terminan por definir el carácter del proyecto y su cualidad mutante y adaptable; ya que el proyecto incorpora así una envolvente compuesta por un sistema de paneles móviles de tecnología textil en conjunto con las expansiones del nivel superior, generando intimidad respecto de la avenida y

actuando como una membrana permeable de intercambio interior-exterior.

Se aprecia en muchas de las imágenes suministradas para la publicación este interés en presentar como motivo central del diseño una mutabilidad del grado de cierre que permite dicho sistema de paneles móviles y esa mutabilidad o adaptabilidad a diferentes circunstancias de uso deviene característica expresiva central ya que la fachada posee la capacidad de mutar a lo largo del día como un organismo vivo en función de las actividades y el uso cotidiano de los habitantes. Tanto el movimiento, como las transparencias definen el lenguaje y construyen un nuevo paisaje dinámico como parte del ecosistema urbano. De tal modo se confirma que el conjunto de opciones esenciales del proyecto –desde las metálicas secciones mínimas, los paneles textiles móviles o el minimalista blanco que unifica todo– confluyen y definen la declarada intención de habitar transparencia.

Observatorio, laboratorio y fábrica

Taller Mediterráneo. UNC. Córdoba

Cristian Nanzer

I Aquí y ahora

Quisiera ver en la penumbra del presente

Lo que todavía no se ve del futuro.

Un manifiesto revelador

Que cruja sobre la fogata, Epifanía en las chispas.

Me veo revolviendo en frases de otro.

Adrián Dargelos

El siglo XXI, como un espejo, nos devuelve a diario la imagen del homo sapiens que somos y toda la genealogía de nuestros ancestros hasta delinear esto que llamamos género humano. Especie que rápidamente se alzó, en la historia natural, con la supremacía sobre todas las demás especies. Tal vez la razón de su evolución acelerada se debió a dos factores determinantes: un ser social que ejerció el desarrollo de la inteligencia de manera colectiva, entendiendo a la civilización como un fenómeno de redes, y, por otro lado, fue la especie que cultivó la imaginación como vehículo de desarrollo, hecho que resultó tan definitivo como dominar el fuego.

Es necesario que el cuerpo docente se dirija hacia los puestos más avanzados del peligro que constituye la incertidumbre permanente del mundo.

Martin Heidegger

¿Y qué ocurrirá mañana? Nadie lo sabe.

Yuval Harari

Imaginar es poseer la capacidad de creer en una idea y crear algo que aún no existe, creer es el principio de la acción de crear. La imaginación da sentido al conocimiento, amplía los horizontes hasta dimensiones inexploradas, fuente de logros en todos los campos donde se desenvuelve la humanidad. Y también su reverso indisoluble, el origen de los problemas de tanto poder concentrado, las acciones e invenciones humanas como potencial causal de nuestra propia extinción y de otras especies por añadidura.

La ciencia ha dado pruebas irrefutables y ha definido límites duros de sustentabilidad, aquellos que imponen los grandes sistemas biofísicos que mantienen nuestro planeta en el estado de amable equilibrio que hemos conocido los últimos 12000 años, y que hoy se ven comprometidos por nuestras acciones.

Estos umbrales que no debiésemos transgredir, han sido conceptualizados, definidos y ordenados por la ciencia como límites planetarios, y son la crisis climática, la aci-

dificación de los océanos, el adelgazamiento de la capa de ozono, el equilibrio de los ciclos de nitrógeno y fósforo, el uso del agua, la deforestación y otros cambios de uso del suelo, la pérdida de biodiversidad, la contaminación de partículas de la atmósfera y la contaminación química.

Todo esto sucede al mismo tiempo, en movimiento continuo, aquí y ahora. Y es desde aquí y ahora donde debemos torcer la inercia del rumbo, sólo una enorme transformación ecosocial nos permitirá alcanzar otros futuros deseables, un futuro común dentro de los límites planetarios, donde los humanos como especie, nos comprendamos dentro de un solo sistema vivo interconectado y no dividido en sub espacios, ni sub especies. El ser ahí con los otros, la conciencia progresiva del valor de lo comunitario, la inteligencia colectiva y la imaginación para proporcionarnos medios antes desconocidos, dieron lugar a la ciudad. La ciudad representa la construcción colectiva más acabada de la civilización, es la forma suprema de la historia, no hay política sin la ciudad, no hay existencia de la historia sin la historia

de la ciudad. Consiste en las formas que históricamente han adoptado las diversas comunidades humanas para organizarse en el espacio. Constituyen las factorías del conocimiento y desarrollo, el reservorio de la cultura, la diversidad y la imaginación. El devenir de la civilización se juega indefectiblemente en las ciudades, la transformación impostergable en los modos de concebirlas, producirlas y habitarlas constituye el cuerpo esencial de nuestra disciplina. Por tanto, la ciudad es la escuela, es el concepto y el objeto didáctico por excelencia de nuestra teoría y práctica, campo de conocimiento e imaginación, centro de nuestras reflexiones y experimentaciones proyectuales. El ejercicio de nuestra disciplina y su enseñanza, están indisolublemente unidas a la historia y al futuro de la ciudad.

Es por ello que comprendemos el trabajo del arquitecto como acción sobre los conjuntos ambientales en todas sus escalas dimensionales.

Arquitectura, ciudad, territorio, conforman la tríada temática interdependiente, si bien constituyen escalas específicas de abordaje, representan un campo de

TM3 Zheng-OritjaMartinez Aldeas hiperurbanas
01 - Espacio Privado / Private Space Quincho / Barbeque Viviendas / Apartments
02 - Espacio Intermedio / Intermediate Space Terrazas / Garden Terraces Gimnasia / Gym Cafe / Cafe
03 - Espacio Publico / Public Space Ferias / Weekend Markets Plaza / Plaza
TM3 Zheng-OritjaMartinez Aldeas hiperurbanas

lectura y análisis asociados. La multiescalaridad permite alcanzar el entendimiento de los fenómenos complejos y poder discernir la dinámica de los sistemas implicados. De la toma de conciencia de estos fenómenos, de estas relaciones, leídas desde Sudamérica, emergen las temáticas abordadas como cátedra que se imponen y que denominamos Agendas Contemporáneas.

Aquí y ahora, conlleva ejercer la enseñanza y aprendizaje del proyecto desde nuestra región, aspirar a ser universales desde nuestro lugar y en tiempo presente.

Walter Benjamin, citado por Josep Quetglas, recomendaba renunciar a ese concepto de presente que es el del ocaso continuo, y establecerse, en oposición, en un concepto de presente donde el tiempo responde y ha llegado a pararse. Toda ciudad representa una acumulación desigual de tiempos, toda obra de arquitectura, bien mirada, lleva consigo un espesor de tiempo que se lee en su legado y en la genealogía de ideas que la sostiene. Nos gusta pensar que es el mismo tiempo que responde, al que se refería Walter Benjamin. Los proyectos que accedan a la construcción de futuro, vendrán de leer y operar con los legados. La arquitectura, su práctica, es y siempre fue así, un continuum, una secuencia progresiva de legados, tradiciones y transgresiones a esas tradiciones, donde el tiempo ha dado forma, materia y lugar al hecho construido. La forma urbana, que no puede ser entendida exclusivamente como un fenómeno de la construcción, sino que implica valores y significados, por tal razón, ensayamos el proyecto de la arquitectura y la ciudad, como una construcción de sentido.

Al decir de Aldo Rossi, en su Autobiografía científica (1981) siempre he afirmado que los lugares son más fuertes que las personas, el escenario más que el acontecimiento. Esa posibilidad de permanencia es lo único que hace al paisaje o a las cosas construidas superiores a las personas.

II El Taller Mediterráneo

Una escuela de arquitectura debe enseñar como ya no se construye y como no se construye todavía Josep Quetglas, Jornadas Barcelona Madrid Arquitecturas (2005)

La idea de un Taller integrado por asociación de cátedras, surge en el año 2003, cuando Alejandro Cohen, quien ya tenía una destacada actuación como docente e influyente actor en la escena cultural arquitectónica cordobesa, (Taller Internacional Telepuerto 1998 / creador del TIPU: Taller de Investigación en Proyectos Urbanos) gana la titularidad de la cátedra Arquitectura 6A o la cátedra de Tesis, como se la denomina en la FAUD de Córdoba. Este hecho cataliza un proceso que se había iniciado en el 2001, con un recambio generacional de docentes por dentro de una de las cátedras precedentes, Arquitectura 5B, cuyo Titular de entonces era José María Rettaroli, que fue el primer espacio académico que nos congregó, donde nos conocimos los que fuimos sus primeros integrantes.

La idea de un Taller integrado por asociación de cátedras afines, surge como respuesta al contexto complejo de crisis y fragmentación profunda en que estaba sumido nuestro país por ese entonces, (¿cuándo no?).

Por supuesto, la institución académica no estaba ajena a esa condición. En nuestra concepción, flotaba inmanente el legado del Taller Total, experiencia pedagógica radical de los años 70, que al día de hoy divide aguas en quienes pasaron por sus aulas. Buscábamos un campo de exploración colectiva, para lo cual se establecieron acuerdos tácitos, se sintonizaron afinidades y prosperaron voluntades académicas que consolidaron un sentido de búsqueda en la enseñanza del proyecto. Se focalizó en temáticas emergentes de la región, abriéndonos a comprender e incorporar la dimensión geográfica subyacente de toda problemática, como un insumo central en la concepción proyectual. En simultáneo, se participó activamente en redes y seminarios de proyectos por dentro y fuera de la facultad, activando una discusión intelectual que interpelara y sostuviese el hacer, y el hacer situado en relación al contexto regional sudamericano como referencia histórica y geográfica, entendiéndolo como nuestro espacio natural de ensayo y transformación. Se destaca en este proceso, el vínculo sostenido y formulación en paralelo con el Taller Sudamérica de FADU-UBA (Marcelo Vila), sobre todo con la participación anual a la convocatoria del Programa S.O.S. Ciudades que el equipo del Taller Sudamérica lleva adelante hasta el presente. Constituyó siempre un magnífico derrotero de escenarios trascendentes, de intercambios estimulantes con otras escuelas de la región,

TM5 Durandez-Echegaray-Lopez-Rodaro-Rolfi Torres de perimetro libre

TM5 Durandez-Echegaray-Lopez-Rodaro-Rolfi Torres de perimetro libre
TM5 Durandez-Echegaray-Lopez-Rodaro-Rolfi Torres de perimetro libre

geografías nuevas signadas por su dimensión histórica, en definitiva, el descubrimiento de Sudamérica como ideario y aprendizaje. Esto contribuyó a un recentramiento de la mirada, de Europa, referencia ineludible, casi excluyente de la cultura occidental y disciplinar, a América y en especial, Sudamérica, como un territorio de promesas, mucho más inexplorado.

Existió, desde su origen, un deseo de construir conscientemente un campo operativo propio para la enseñanza del proyecto, consolidar un sentido crítico en el abordaje disciplinar y abrevar / aportar a una cultura del proyecto, recuperando referencias canónicas del legado de la arquitectura y el urbanismo moderno, a partir de una revisión contemporánea de sus postulados.

En el año 2012 asumo como Profesor Titular por concurso a la cátedra de Arquitectura IIID y en el 2015 a la cátedra de Arquitectura VB, que, junto con la Cátedra de Arquitectura VIA (Taller de Tesis) de Alejandro Cohen, completan la tríada de este Taller Vertical sui géneris, siempre en construcción, a la cordobesa, que denominamos Taller Mediterráneo, en una Facultad donde no existen los Talleres Verticales como si sucede en otras Universidades Nacionales.

El Taller Mediterráneo fue sumando alumnos, algunos de ellos se integraron con el tiempo como docentes, hoy es un espacio intergeneracional muy diverso y amplio, que orbita entre la práctica profesional efectiva, la investigación y la enseñanza docente, tanto en el grado como en el posgrado.

En paralelo al proceso de conformación académica del Taller, con varios integrantes, docentes, adscriptos y

alumnos, con asociaciones variables según los casos, se participó en una serie de concursos de diferente orden y alcance. Que sirvieron para poner en práctica y a prueba, a través del ejercicio del proyecto, los postulados y posiciones académicas. Así, de los numerosos concursos realizados, se ganó el Concurso de la ampliación de la Facultad de Arquitectura de 2005 (Baulina / Cohen / Jarrys / Nanzer / Saal) y el Centro Cultural Córdoba y Archivo Histórico de la Provincia de 2010 (Castañeda / Cohen / Nanzer / Saal / Salassa / Tissot).

Desde sus inicios, el Taller abordó la realidad a partir de múltiples dimensiones y escalas del proyecto, disolviendo fronteras entre la academia y la práctica profesional, procurando adoptar una distancia crítica, pero con involucramiento activo en la discusión de la agenda urbana y territorial de la región.

No entendemos a la realidad como algo dado, sino como una construcción colectiva compleja, susceptible de interacciones y transformaciones. La realidad no es sólo un paisaje de datos, sino una plataforma subjetiva de posibilidades.

Optamos por la vasta región latinoamericana como el lugar desde donde nos interesa construir una cosmovisión del mundo contemporáneo. Es a partir de la dimensión geográfica y su raíz histórica común, que reconocemos como propio un espacio connotado, que determina y contextualiza la producción del conocimiento. Nos interesa promover un pensamiento de conciencia universal, partiendo de reconocernos culturalmente como pertenecientes a un lugar y su devenir en el tiempo y el espacio. De allí su condición geográfica que le da el

sentido y nombre al Taller. Intentar ser universales desde aquí implica, a veces, convertirnos en extranjeros de nuestro propio lugar.

III Analogías

El Taller Mediterráneo se define por estas 3 analogías:

Observatorio: construcción intelectual de la plataforma de la mirada, posicionamiento teórico para el desarrollo de los modos y sentidos de interpretación que colaboren a desentrañar los mecanismos de la realidad, a transformar la nube de información en conocimiento especifico de las condiciones que interactúan con el proyecto y trazar los mapas de acción.

Laboratorio: Espacio para experimentación y manipulación de las múltiples variables que conforman la realidad, ensayo de conceptos, ideas, tradiciones y transgresiones, a través del pensamiento proyectual.

Fábrica: El Taller de arquitectura considerado como un Taller de oficio, donde se entrenan destrezas para la representación y producción de ideas en la dimensión de su condición material, alimentando una cultura técnica indivisible a la acción de proyectar.

IV El Taller como Inteligencia Colectiva

La idea de este Taller transita más de 20 años, se consolidó como un espacio plural e inclusivo, centrado en explorar los alcances del proyecto como medio de

producción de conocimiento disciplinar. Ensayando sus posibilidades para, entender, interpelar, anticipar y finalmente, alcanzar pleno dominio y conciencia de su vocación esencial: darle forma, materia y espacio al mundo habitable.

El Taller se articula con demandas específicas de Córdo-

TM6 Belagadi-Brizuela-Tabasso Intervencion en Manaus 2018

TM6 Bendayan-Beker-Angelino Volver al centro La Habana

TM6 Ciudad superpuesta Mueble Urbano Habitable Workshop

Tocomadera 2018

TM6 Hidalgo.Bonifay-Lacasia Infraestructura de producción urbana

ba y de ciudades o territorios de distintas regiones del país, atendiendo principalmente, a los intereses de los estudiantes por las problemáticas y potencialidades de desarrollo de sus lugares de origen. Dada la historia de la Universidad Nacional de Córdoba y debido a su localización central y equidistante de muchas regiones, ámbito histórico de entrecruzamientos de caminos, siempre se consideró al Mediterráneo, como una plataforma federal de la Universidad Pública.

Estas acciones académicas y preocupaciones temáticas por historia común y geografía compartida, se hacen extensivas, a través de redes universitarias afines, al resto de Sudamérica. Es así que, en los diferentes cursos de la cátedra, se promueve la participación en seminarios de proyectos y workshops que ofician de lanzamiento y apertura de investigaciones proyectuales en una agenda sudamericana. Estos se complementan a posteriori con publicaciones, alguna de ellas de estos años: Del Proyecto al Ecoproyecto, Roberto Fernández + TIPU / Punto CeroFábrica de Arquitectos / Utopías Fácticas: Latinoamérica explora futuros / Territorios en Movimiento / Suquía Urbano. Imaginarios contemporáneos sobre paisajes de flujos. / La ciudad en la Manzana / Densidades Mínimas / El Bloque: utopía inconclusa - proyectos contemporáneos / Paisajes extremos: Antártida Argentina. Ampliación Base Marambio - Base Petrel, entre otros.

Un taller de arquitectura recrea una comunidad de inteligencia colectiva y subjetividades múltiples, produce conocimiento genuino y cultiva la imaginación a través de su único catalizador: el proyecto. Amalgama lo individual con lo colectivo, el ejercicio del oficio con la

invención proyectual, es la plataforma necesaria para forjar los instrumentos que nos permiten comprender, aprehender y finalmente transformar la realidad.

También es el ámbito donde, a instancias de ejercitar la lectura crítica y la perspectiva histórica, aprendemos a reconfigurar certezas y poner en crisis los dogmas, proceso necesario para ensayar la formulación teórica contemporánea que sustente al proyecto.

Cuando se concibe al taller como un campo de exploración sensible a las dinámicas civilizatorias que dan forma a la arquitectura de la ciudad y sus territorios, cuando se busca dar cabida a los modos de habitar de nuestro tiempo, la construcción de la teoría en sincronía con el proyecto se vuelve un proceso indivisible e indispensable.

De las múltiples dimensiones de la realidad, la arquitectura se ocupa de la organización física de las relaciones espaciales, de los programas y sus soportes, de la construcción material y técnica de sus contextos, así como de preservar la memoria y anticipar el futuro de las formas de habitar, en un mundo cada vez más incierto. En consecuencia, y para lograrlo, El Taller Mediterráneo se propuso transitar por el territorio incómodo que se encuentra entre la tradición y su transgresión, entre el legado y su mutación, entre lo concreto y la utopía. Aspiramos a lo universal, desde aquí, desde el lugar y tiempo que habitamos.

Nota

Las cátedras integrantes del Taller Medi-

terráneo son Arquitectura 3D (Titular: Arq.

Cristián Nanzer / Adjunto: Arq. Marcelo

Fiorito / Asistentes: Arq. Mauro Barrio, Arq.

Diego Sabattini, Arq. Santiago Tissot y Arq.

Francisco Vannini), Arquitectura 5B (Titu-

lar: Arq. Cristián Nanzer / Adjuntos: Arq.

Marcelo Fiorito y Arq. German Margherit

/ Asistentes: Arq. Juan Pablo Accotto, Arqta. Teresita Alvarez, Arqta. Sol Bertoya, Arq. Pablo Firpo, Arq. Leandro Giraudo,

Arq. Pablo Oshiro y Arq. Diego Sabattini, Arquitectura 6A (Titular: Arq. Alejandro Co-

hen / Adjuntos: Arq. Alberto Baulina, Arq.

Javier Giorgis, Arq. Marcelo Fiorito y Arq.

Cristián Nanzer / Asesores

Estructura: Ing. Silvina

Prados / Urbanismo: Arq.

Fernando Díaz Terreno y Arq. Stefano Romagnolo

/ Arq. Martín Benavídez,

Arq. Lucas Carranza, Arqta.

Cecilia Cornaglia, Arq.

Gastón Giusto y Arq. Na-

huel Recabarren) y TIPU

(Taller de Investigaciones

en Proyectos Urbanos; Director; Arq. Alejandro

Cohen, Co-Director: Arq.

Cristián Nanzer).

TM6 Julio Paez Salón comunitario MBYA
2019
TM6 Lista-Ojeda-Torchio-Veglio Tesis Uno en Uno

Niemeyer in-natural

* Licenciado en Arquitectura por la Universidad Federal de Rio Grande do Sul (1966), Máster en Urbanismo y Máster en Arquitectura por la Universidad de Pensilvania (1977) y Doctor en Diseño Arquitectónico y Urbano por la Universidad de París VIII (2002). Profesor Emérito de la UFRGS donde fue Profesor Titular hasta 2013, y con la que mantiene un vínculo como Profesor Invitado, acreditado para actuar como Profesor Permanente y Asesor (maestría y doctorado) del Programa de Investigación y Posgrado en Arquitectura-PROPAR-UFRGS, en el área de Teoría, Historia y Crítica de la Arquitectura.

Entre las varias acepciones de naturaleza, hay una de particular interés para la arquitectura, construcción

extra-ordinaria: la de mundo material que existe independientemente del hombre, aunque donde éste vive y habita.

Entre las varias posibilidades de impacto de esa naturaleza sobre la arquitectura, dos son de particular interés para la comprensión de la obra de Oscar Niemeyer: una deriva de su condición de medio, de fisonomía particular y escenario de formas propias, en que la arquitectura forzosamente se ins-cribe; la otra deviene de su condición de matriz de formas y fuente de imágenes que la arquitectura facultativamente trans-cribe.

La primera relación es física, directa, actual y siempre efectiva, forzosa en la medida en que la demanda de aire y luz es una constante del habitar; por tanto, no restricta a un paisaje rural, sino extensiva a la situación urbana y a la recreación de ese paisaje en forma de jardín; porque a veces la arquitectura también circuns-cribe a la naturaleza.

Es relación interactiva y adjetiva, que implica el modo como la arquitectura aparece en el paisaje en ese senti -

do lato, su manera de tornarse perceptible, de revelarse al ojo del espectador.

La segunda relación es mental, indirecta, potencial y muchas veces latente, facultativa en la medida en que el arte pueda imitar al arte o a la ciencia y no a la vida, o en la medida en que involucra selección en el ámbito de la multiplicidad de cosas que componen la naturaleza.

Es relación sustantiva, de un lado ejemplar, de otro imitativa, que tiene que ver con las cosas a las que la arquitectura se parece independientemente de la presencia efectiva de esas cosas, con el aspecto que la arquitectura asume a los ojos del espectador y las evocaciones que despierta. Ahora, la inspiración biomórfica de Niemeyer no es ningún secreto, al contrario. Para el arquitecto todo el universo está hecho de curvas libres y sensuales, la mujer predilecta inclusive1. No obstante, las curvas de la mujer amada son referentes demasiado vagos, de identificación imprecisa, a la inversa de los contornos de la losa del entrepiso del Pabellón Brasilero en la Feria Mundial de Nueva York en 1939, decididamente ameboides. Los auditorios proyectados al frente del Ministerio de Educación tiene algo de cangrejo con sus exosqueletos nervados. Y el baptisterio de la Catedral

1 Cf. epígrafe en Petit, Jean, Niemeyer, el poeta de la arquitectura, Fidia edizioni d’arte, Lugano, s/d, pero probablemente 1998 en función del último proyecto presentado.

de Brasilia es un volumen ovoide contrapuesto a las costillas que arman el santuario.

Las columnas cilíndricas de aquel mismo Ministerio adquieren connotaciones arbóreas en vecindad con los troncos de palmeras imperiales que plantó Burle Marx. En la Casa del Baile de Pampulha, la sinuosa expansión de la losa del techo rememora copas de árboles estilizadas en una hilera de columnas.

Menos común es la semejanza entre cuerpo humano y elemento arquitectónico, como en los palacios de Brasilia. Mixtilíneas, de elevación y sección romboidales, en relieve, las columnatas del Alvorada recuerdan una procesión de figuras panzonas o bailarinas revoleando las polleras, cariátides contemporáneas –en palabras de Stamo Papadaki2.

Las connotaciones arbóreas vuelven con un bies más primitivo en toda una serie de apoyos bifurcados de los años 1950: las columnas en W, V, Y, y las gigantescas manos francesas alimentan una especie de estructuralismo orgánico; las primeras caracterizando el conjunto Gobernador Juscelino Kubitschek, las demás particularmente notables en el conjunto de Ibirapuera.

En el Palacio de las Industrias –hoy Pabellón de la Bienal– lo que destaca es el espécimen surreal que sostiene las rampas internas, desarrolladas dentro de aberturas en las losas, de contornos labiales.

La alusión antropomórfica tampoco está ausente, pero no es necesariamente femenina. La elevación tripartita es una constante; el resultado lógico de la conjugación de sutiles pilotis, volumen prismático en voladizo y coronamiento de techo terraza con juego de volúmenes; como es sabido, el esquema renueva la analogía tradicional entre la arquitectura y el cuerpo humano, invirtiendo los pesos relativos usuales de base y cuerpo.

2

En contraste, las columnatas del Planalto y del Supremo, planas como placas recortadas, recuerdan atletas danzando en puntas de pie, esbeltos como los de los frescos minoicos. Más recientemente, vigilando todo eso está el ideograma de la visión en el Novomuseu de Curitiba, el ojo ciclópeo hecho logomarca.

Todavía, la transacción de Niemeyer con las formas naturales no se reduce a los seres animados. Como el verde, la tierra y el agua se prestan a una onomatopeya arquitectónica, a la estilización de accidentes geográficos. La tierra informa tres ejemplos inmediatos.

En la Capilla de San Francisco de Pampulha, las cáscaras parabólicas evocan de perfil la silueta de una cumbre aislada o una cadena montañosa, pasando al mismo tiempo por ideogramas de elevación espiritual.

Papadaki, Stamo, Oscar Niemeyer, Editorial George Braziller, Nueva York, 1960.

La cúpula nace del suelo como morro de geometría elemental para constituir el Palacio de las Artes del Ibirapuera, hoy rebautizado como Oca. Para el Museo de Caracas, nada más contundente que la pirámide invertida que espeja, regularizada, la montaña donde se asienta: la contrapartida más espectacular del tambor de la sala de espectáculos del Casino de Pampulha que, mirando al lago, reverbera la rotundidad del promontorio donde se yergue.

En las manos de Niemeyer el lago de Pampulha se transforma en una plaza mojada. Paradójicamente, un poco después, la marquesina del Ibirapuera, cobertura de plaza seca, es un lago petrificado y levantado cuyos contornos evocan el lago artificial de la Quinta de Boa Vista, diseñado por Auguste Glaziou en la mejor tradición del diseño pintoresco, ya en los finales del 2º Imperio brasilero3.

El agua también importa en la casa del arquitecto en la Estrada das Canoas. La piscina, agujero en una plataforma artificial y artificiosa, incorpora una roca protuberante existente en el lugar. El encuentro entre el líquido y lo mineral reproduce el encuentro del Pan de Azúcar con la Bahía de Guanabara. Más sutil tal vez, la contraposición entre tres lados lisos y un frente recortado y bordado da al Hotel de Ouro Preto el aspecto de una geoda partida mostrando sus cristales.

La mayoría de las formas mencionadas envuelven una geometría curva4.

3 Auguste Glaziou (1833-1906), ingeniero y botánico francés, vino a Brasil en 1858 para coordinar la Dirección de Parques y Jardines de la Casa Imperial brasilera. La Quinta da Boa Vista era la residencia de D. Pedro II en Rio de Janeiro, hoy Museo Nacional. Glaziou participó igualmente –ya durante la República– de la expedición que definió el sitio de la futura Brasilia.

4 Ver Goodwin, Philip, Brazil Builds: architecture new and old.1652-1942, MoMA, New York,1943. El uso de la curva no se destaca en la presentación en sociedad de la arquitectura moderna brasilera, porque la curva en la arquitectura moderna no es invención brasilera.

Sin remontar a Hugo Haring o Mies, Mendelsohn o Scharoun, los antecedentes incluyen Le Corbusier, Lubetkin y Aalto. En Le Corbusier, la curva, en términos de pared, losa o perforación en la losa es episodio subordinado o es deformación de la recta, como en los Viaductos Habitados de Río y Argel, más allá de cubierta eventual, en las casas Monol o en el auditorio de la terraza del Rentenanstalt. En las manos brasileras, empero, la curva

Tanto en el elogio cuanto en la censura a Niemeyer es lugar común la identificación de la curva como metáfora de lo natural, orgánico e instintivo, de lo femenino y de lo barroco o rococó, en oposición a la recta racional, artificial, abstracta, masculina, renacentista. Admirador de la curva diferente, el propio arquitecto reitera que no lo atrae el ángulo recto, ni la línea recta, dura, inflexible, creada por el hombre5 .

No obstante, la polémica recta-curva es confusa y en última instancia tediosa. Estrictamente hablando, la validez del uso de la recta o de la curva depende de la situación.

La ortogonalidad es generalmente más económica (por lo tanto más racional bajo un determinado punto de vista), pero no por eso la curva es en principio irracional o la recta artificial.

se suelta, gana complejidad e importancia en el borde de la losa, fuera como dentro.

Adquiere hasta naturaleza de estribillo, comandando toda la composición en la Casa del Baile y en el Hotel de Pampulha, solo muy poco menos en el Pabellón, una parte en el Casino. Apoya la exacerbación en la base del Parque Guinle de Lucio Costa y de la VFRGS de Affonso Eduardo Reidy. En esos momentos, la francofilia da lugar a la conexión inglesa, sensualista, paisajista, pintoresca, animada por el deseo de composición intrincada, variada, innovadora.

5 Cf. nota 1. La comparación con William Hogarth se impone. Para éste, la línea ondulante produce más belleza que cualquier línea recta o circular, como en flores y otras formas de tipo ornamental, y de ahí ser la línea de la belleza; la línea sinuosa, como la forma humana, que tiene el poder de agregar gracia a la belleza; compuesto por más líneas de belleza y de gracia… y también, la forma del cuerpo de la mujer supera en belleza al del hombre

Cf. Hogarth, William, The Analysis of Beauty, Yale University Press, New

A despecho de las declaraciones de Niemeyer, su obra está lejos de despreciar la recta. Como se ha visto, ésta también es parte de su evocación de la naturaleza.

Lo que realmente importa es el uso hábil que el arquitecto da a la convención, sea en lo que respecta a los significados asociados a los dos términos, sea en lo que respecta a la hechura de una figuratividad evidente que cuestiona la asociación de la arquitectura moderna con el abstraccionismo, el arte no-objetivo y no-representativo6.

Haven&London, 1997, pp. 41, 49, 58-9. Editado por Ronald Paulson del original de 1753. El libro es destacado en la tesis de concurso de Morales de los Rios Sr., profesor de la Escuela Nacional de Bellas Artes de Río.

6 Forma es cualidad objetiva, cuya acepción que interesa es la de configuración física

Contrariando a la vanguardia europea de los años 1920, el impacto intelectual y afectivo de la obra de Niemeyer no depende solo de la forma intrínseca, sino también y explícitamente del contenido narrativo y de la representación figurativa. En ésta, los objetos naturales no son representados de forma plenamente realista, sino de forma estilizada, que apela a la simplificación convencional propia de la historieta en cuadros y de la caricatura. En cierto sentido, es la conjugación de la referencia erudita con la referencia popular contemporánea, o al menos, con la referencia aceptable al gusto de las masas, casi rozando el kitsch, respondiendo tal vez a la presión por un realismo socialista. En todo caso, para el arquitecto no se trata de fundir arquitectura y naturaleza, sino de resaltar la distancia entre ellas, de insistir en su recíproca exterioridad. característica de los seres y de las cosas, como consecuencia de la estructuración de sus partes. Imagen es cualidad subjetiva, en cuanto representación de la forma o del aspecto de ser del objeto por medios artísticos. Ver también Colqhoun, Alan, Form and Figure, ensayo en Essays in Architectural Criticism. Modern Architecture and Historical Change. MIT Press, Cambridge, 1981, p. 190-202.

La idea de fusión entre arquitectura y naturaleza en la obra de Niemeyer constituye un lugar común decididamente equívoco, como lo muestra la propia casa del arquitecto. La comparación con la Casa Farnsworth de Mies y la Casa de la Cascada de Wright aclara el punto.

La Casa de la Cascada es una casa en el árbol elaborada que evoca y extiende el paisaje singular y prácticamente intacto en el que crece. La masas verticales de mampostería reproducen los árboles, los balcones espejan el plano horizontal rocoso sobre el que fluctúan. La continuidad entre naturaleza y construcción es enfática y su fusión crea una arquitectura fundada literalmente en la naturaleza.

Mies concibe su casa como un casi nada , la versión high-tech de una cabaña primitiva. Una jaula de vidrio sobre estacas; es tan horizontal y abstracta como el terreno pantanoso sobre el que se posa. Todavía, como un navío en el puerto, ella no pertenece específicamente al sitio y contrasta con la masa de árboles a su alrededor. La arquitectura se construye minimizando al máximo el contacto con la naturaleza.

La Casa de la Cascada es el edificio abierto, extenso que intenta emular o fundirse con el entorno a través de la irregularidad, asimetría, riqueza de texturas y contrastes de color y claroscuros. La Casa Farnsworth es el edificio

compacto cúbico destacándose de la naturaleza con superficies lisas, homogéneas, claramente determinadas. Definida por la losa de la cubierta del sector público y por la plataforma más amplia que oculta los dormitorios y dependencias de servicio, la casa de Niemeyer es otra cosa; a medio camino entre aquellas tipologías extremas.

La horizontalidad de la cubierta y de la plataforma desafía la plasticidad del paisaje.

Como muestra la memoria que registra el proceso del proyecto, los bordes sinuosos resultan de la deformación del esquema inicialmente rectilíneo, para calibrar los tamaños de áreas funcionales distintas y suavizar la tensión entre el contexto natural y el objeto hecho por el hombre.

La Casa de las Canoas es tan dependiente del sitio como la Casa de la Cascada, informal, expansiva, aireada y sensual, mientras que la Casa Farnsworth es tensa, contenida, monumental, cerebral. Impersonal y genérica. Sin embargo, Niemeyer no comparte la preocupación de Wright con las masas en expansión.

Su casa parece también un casi nada: no una cabaña primitiva, sino un toldo petrificado bajo el sol subtropical, el vidrio transparente y los pilotis oscuros indistintos en la sombra de la cubierta plana. Todavía, ni el toldo superior ni la caverna de base pueden entenderse aparte de la plataforma, el

claro artificial que los amarra y que es el fundamento del proyecto.

Ese claro reposa confortablemente sobre el terreno que enmascara y abraza la roca que allí existía, pero transforma el carácter del sitio por completo.

Arquitectura y naturaleza están tan enfáticamente separadas como en la casa de Mies, aunque un arreglo de bordes establezca una correspondencia empática y una mediación.

La casa de Niemeyer ha sido pertinentemente comparada con un oasis, aunque la propia plausibilidad de la metáfora indica alienación de la especificidad del medio natural y desconfianza en cuanto a su capacidad nutritiva. La interacción interior-exterior inmediata se da en el ámbito de la plataforma, no en la conexión entre la arquitectura y el suelo.

En tanto creación del mundo humano, construir es, finalmente y de alguna manera un acto de violencia contra la naturaleza, como sugiere Hannah Arendt en La Condición Humana7. Como mínimo, es el desfloramiento consentido dentro de un casamiento de contornos. El paraíso tropical no desconoce el derramamiento de sangre ni el dolor.

7 Arendt argumenta que la violencia es inseparable de la actividad del hombre en cuanto homo faber. Cf. Arendt. Hannah, The Human Condition, Doubleday Anchor Books, New York, 1958.

8 y 9_

La plataforma de Canoas no es un caso aislado. Su antecedente es el suelo enfáticamente limitado por la topografía, por la pavimentación y por el ajardinamiento intermediario entre la naturaleza propiamente dicha y la arquitectura, notable en todos los proyectos ejemplares de los años 40.

En el Ministerio, ese suelo comprende la cuadra entera, incluyendo la explanada que atraviesa el trecho de pilotis abierto intermediario y las bandas plantadas que prolongan el vestíbulo público en una punta. En el Pabellón de Nueva York el suelo es el macro-lote de esquina, y la explanada traspasa los pilotis para perforarse en el espejo de agua sinuoso. En Pampulha la plaza verde o seca destaca todo y cualquier objeto construido, con pórticos, balcones y galerías encuadrando el lago y reforzando la separación entre paisaje natural e intervención arquitectónica. Y en los años 50 el suelo se inclina bajo la marquesina de Ibirapuera acompañando la pendiente del terreno, aunque es claramente limitado por el piso de cemento; intercambiando parque por selva de piedra en pleno centro paulista; la misma estrategia se adopta en los edificios Copan y Eiffel. Más joven que la Casa de las Canoas, la Brasilia de los terraplenes, de la Explanada de los Ministerios y de la Plaza de los Tres Poderes es de Lucio Costa.

quien firma la plataforma del Congreso, con cúpulas y espacios administrativos en posición análoga al pabellón público y los cuartos de dormir cariocas, y es Niemeyer quien inventa la monumentalidad anti-monumental del Planalto y del Supremo, tan bien descripta por Norma Evenson: Se vuelve máxima la conciencia de la expansibilidad del sitio y de la enormidad del descampado que parece esperar fuera para devorar la ciudad. La insubstancialidad de la arquitectura se acentúa contra la imagen del vacío circundante, y hace sentir cuán osada fue la creación de Brasilia. La ciudad entera reverbera la petulancia de un campamento de frontera; el brillo del mármol y del vidrio en la elegancia decorativa de los proyectos de Niemeyer desafía el territorio inexplorado, como el dorado y el terciopelo trajeron una vez un soplo de hidalguía y civilización al oeste salvaje americano8 .

En cualquier escala, la expresividad de la obra del arquitecto brasilero no se comprende muy fácilmente en límites líricos y naturalistas, como insinúa correctamente Roberto Fernández9.

8 Evenson, Norma, Two Brazilian Capitals: architecture and urbanism in Rio de Janeiro and Brasili, Yale University Press, New Haven and London, 1973, p. 205.

9 Fernandez critica explícitamente el sensualismo como clave de explicación niemeyeriana.

Pero es Niemeyer
10 y 11_

De hecho, es el extrañamiento de la naturaleza lo que la obra resalta, con una ambivalencia que incluye tanto la melancolía propia a una situación de destierro y dépaysement, cuanto la arrogancia exigida por una ocasión de conquista, la fascinación y la desconfianza que señalan una condición americana de relevancia universal.

Es de cultura de lo que finalmente se trata, y la discriminación importa, ya sea en la lectura de la intervención pasada, sea en los preparativos de la intervención futura.

La traducción de este ensayo fue realizada por la Dra. Arq. Mariana Puga.

Cf. Fernández, Roberto, Exceso brasileño: Niemeyer y la omnipotencia del gesto, en revista Summa+ 92, Buenos Aires, 2008, p. 123.

Rehabilitación de la fábrica La Favorita. Barcelona, España

Flores&Prats

El proyecto es la rehabilitación del antiguo complejo industrial La Favorita, ubicado en el encuentro de las calles Roc Boronat y Llull de Barcelona, para reutilizarlo como un centro de nuevas formas de producción. El conjunto de edificaciones que forman el proyecto tiene orígenes y catalogación distintas, pero el proyecto trabaja con todas a la vez, reforzando la condición de recinto industrial que le confiere la larga fachada de 83 metros de longitud y 7 de alto que envuelve las naves existentes, construidas en sucesivas etapas y que casi colmatan la totalidad del suelo de la parcela. El recinto funcionará con un solo acceso a través de una verja en la esquina, que se abre a un pequeño jardín donde se inicia un recorrido hacia los distintos talleres, estudios y escaleras, a veces circulando a cielo abierto, en directo contacto con las demás naves y cobertizos que forman el interior de esta manzana industrial, enlazando las distintas etapas de diseño, fabricación y exhibición que tendrán lugar en su interior.

El proyecto valora las grandes dimensiones y escala de los edificios originales, y por tanto los espacios de trabajo no los parten ni fragmentan, sino que enfatizan su carácter industrial, con unas dimensiones, acabados y luz muy únicos.

Hacia la ciudad, la fachada de una sola planta ha permitido que los plátanos de la acera crezcan sus ramas sobre las cubiertas de las naves. La propuesta toma este dato como una calidad de la calle a proteger, y es por eso que la ampliación del edificio mantendrá la sección actual, retirándose hacia atrás para crecer desde la cumbrera, continuando la propia geometría plegada del edificio original. Esta propuesta respeta así el patrimonio físico pero también el patrimonio ambiental del lugar, ya que el carácter de la calle, sus plátanos, la enorme cantidad de luz natural y de cielo, es tan importante para el barrio como las propias construcciones del lugar.

Memoria
Esquina de la Calle Llull con Roc Boronat
Detalle de la Esquina de la Calle Llull
Axonometría con plátanos

Datos

El proyecto se desarrolló entre 2016 y 2019 y su construcción se prevé entre 2027 y 2027. El cliente es la Familia Casanovas-Permanyer i Planadecursach y se localiza en la intersección de las calles Roc Boronat y Llull, Poblenou, Barcelona. Los arquitectos son Flores & Prats (Eva Prats y Ricardo Flores) y el equipo de proyecto lo integraron Jorge Casajús, Makoto Hayashi, Clàudia Calvet, Inès Martinell, Jorge Galindo, Sílvia

Vila, Teresa Baldó, Eva Blasco, Luka Jerman, Kaisa Kristensen, Nina Andreatta, Lykke Arnfred y Ana Echeverria. El asesor de urbanismo fue Ricard Fayos y el arquitecto técnico Dalmau Morros (David Morros). La asesoría en sostenibilidad fue de Societat Orgànica, de estructuras Eskubi-Turró Arquitectes, de instalaciones

Aiguasol y de movilidad Doymo. Las fotos del edificio existente y de la maqueta son de Adrià Goula.

Plátanos en Calle Roc Boronat

Opinión

El Estudio que integran Ricardo Flores y Eva Prats ha dedicado buena parte de su trabajo a efectuar operaciones proyectuales de actualización funcional de antiguas construcciones, a veces con características patrimoniales estrictas (como en la mallorquina Casa Balaguer), a veces consistiendo en antiguas construcciones de identidad barrial que podía destinarse al derribo o como en la opción de F&P, asumirse como materiales básicos para respetuosas acciones de reconstrucción que pudo alcanzar ribetes filológicos como en la Sala Beckett. Publicamos ambos proyectos en revistas que dirigimos y que ya no continúan (aun cuando no mencionan tales publicaciones en la extensa lista de ediciones que consta en el web) así como también otros trabajos llenos de detalle y precisión como la casa Providencia o el conjunto de vivienda protegida 111 en Terrassa. El caso de la intervención en el viejo y ruinoso complejo fabril La Favorita –que aquí se muestra en su faceta de proyecto pues aun no empezó el trabajo material que dadas las características del Estudio, seguramente será largo y minucioso– es semejante en localizacuón y envergadura si se quiere, al proyecto Beckett y se concentra en volver a des-cubrir y potenciar la cuasi ruina para basándose en su cualidad y oportunidad, instalar allí un complejo destinado a innovación productiva que se vislumbra como abierto y variado,

que desarrollará una cierta colonización del conjunto de amplias naves industriales de hasta 7 metros de altura, pudiéndose asi seguramente acoger, diversas instalaciones parciales para diversas actividades que irán desde diseño y microindustria hasta espacio de producción y exhibición artística.

El trabajar el complejo –que a lo largo del tiempo fue recibiendo diversas y variadas adiciones– como un todo unificado permite dotar al conjunto de múltiples posibilidades de segmentación funcional asi como de vectores conectivos en accesos y circulaciones que consiguen diversidad respecto de lo convencional asi como una recuperación del sabor y estética industriales de lo existente. Asimismo mantener la continuidad de la fachada y el frente arbolado desarrollado a lo largo del tiempo también busca mantener la impronta paisaística tanto cultural como ambiental del área existente, de manera que lo novedoso de los nuevos usos –quiza evocando el pasaje de las pequeñas fábricas textiles neoyorquinas al modelo de lofts– aporte su novedad y riqueza espacial que tal vez no se consigan en una nueva planta, así como los rasgos que permitan evocar y reconocer el pasado fabril popular del complejo. Con ruinas que se trabajan como materiales de arquitectura en plan ecológico y con aperturas a nuevos usos y disfrutes de lo que siempre estuvo allí.

Exterior de la nave de esquina
Nave de esquina con luz cenital
Detalle de una ventana
Ventanas de la nave central
Graffitis en las persianas de la Calle Roc Boronat
Volúmen interior de la nave central
Nave central con luz natural

Nave-plátanos-cielo

Detalle del Alzado de la Calle Roc Boronat
Planta Baja
Planta Altillo
Segunda Planta
Tercera Planta
Nave larga - pliegue - torre
Vecinos y árboles
Alzado de la Calle Roc Boronat
Proceso en las paredes del estudio
Proceso. Plátanos y maquetas
Pasaje interior Abriéndose paso entre las naves

Sección longitudinal

Sección longitudinal

Sección transversal
Sección transversal
Conjunto hacia calles Roc Boronat y Llull
Cubierta y plátanos
Nave interior con luz cenital
Lucernarios a

CONSTRUIR UNA COMUNIDAD

Lund, Suecia

Flores&Prats

La Catedral de Lund, que ha sido el motor moral, cultural y social de la ciudad a lo largo de los siglos, ha decidido promover la creación de un nuevo barrio en Råängen, una zona agrícola de granjas y cultivos en el límite noreste de esta ciudad. Desde el inicio de este proceso, la Catedral se rodeó de un equipo de colaboradores que pudieran orientarla: un estudio de arquitectura local, White Arkitekter, para proponer un plan urbanístico y gestionar las relaciones con la Administración, un economista para ayudar en la viabilidad del proyecto, un comisario de arte para el contenido y la agenda de objetivos que alcanzar… Un proceso lento y muy cuidado que se inició en 2018 y que propuso una serie de acciones para dar a conocer el proyecto a la comunidad local. Finalmente, en diciembre de 2019, en un concurso internacional se eligió a Flores & Prats como el equipo que proyectaría los primeros edificios residenciales para el sitio. El encargo es construir una nueva comunidad pensando en los primeros edificios que ocuparán este lugar y cómo se relacionarán

con este contexto tan especial. Estos primeros vecinos serán pioneros frente a los desafíos de nuestro tiempo: la emergencia climática, nuestra relación con la naturaleza, la necesidad de una inclusión genuina y los cambios en nuestros patrones de vida y trabajo posteriores a la COVID-19.

Una torre y una esquina

El primer edificio propuesto es una torre que tiene una relación muy cercana con Hage, un jardín protegido con un muro como primera señal de ocupación del lugar, diseñado por los arquitectos noruegos Brendeland & Kristoffersen, el primer paso del largo recorrido de Råängen. La torre mantiene una relación muy estrecha con Hage, su programa en planta baja se desarrolla como una extensión de las actividades de este jardín: una cocina con una sala común para encontrarse, reunirse, comer y cocinar. La altura de este espacio es suficiente para incorporar por completo a Hage en su interior; uno puede sentir que el jardín y sus elementos podrían entrar dentro de la cocina, y

Memoria

quisimos representarlo de esa misma forma con un dibujo a color.

Junto a la torre, propusimos un edificio más bajo y horizontal que organiza una esquina, capaz de servir como volumen de referencia para los siguientes edificios que seguirán esta primera implantación. Este edificio-esquina define, junto con la torre, la plaza central de la futura comunidad. Esta plaza contiene todas las actividades al aire libre de los edificios que la rodean y también funciona como una extensión de Hage,

conectándolo con el bosque cercano. Podemos decir que la plaza es el eco de Hage, su doble, muy similar en dimensiones, pero contiene todos los usos que la condición más aislada de Hage no puede contener. Si Hage es un lugar tranquilo que protege una naturaleza delicada, la plaza albergará juegos, bicicletas, patinetes y otras actividades que requieren espacios más abiertos y expuestos. Este espacio público, formado por Hage, la plaza y los diversos caminos que conectan con los patios traseros de los dos edificios

Vista desde el bosque

es crucial para asegurar la convivencia de los vecinos, su interacción e intercambio. Es importante ofrecer no solo buenas viviendas, sino también todos los espacios exteriores de relación que permitan estar individualmente o en grupo. Toda la secuencia de espacios intermedios que van del dominio privado al público debe desarrollarse con cuidado, ya que estos serán los que aseguren que la comunidad crezca e invite a los vecinos a identificarse con un barrio, con un grupo de personas, lugares y situaciones que son su comunidad.

El proyecto comienza con la construcción del contexto y la cultura del lugar, trabajando en las relaciones y las articulaciones entre las cosas, proyectando lentamente los espacios abiertos exteriores y sus cualidades hacia los interiores y los espacios habitables.

Construir comunidad

El proyecto de esta primera comunidad, que será el inicio de este nuevo barrio de Lund, se centra en el autoabastecimiento, en cómo la comunidad crea una

Vista desde Hage

Del campo a la mesa 1 y 2 relación con la agricultura, la tierra a su alrededor y el futuro. La nueva comunidad crecerá no solo a partir de personas que viven en nuevos hogares, sino entre los futuros habitantes y la tierra, los animales, los árboles, las piedras… Todos formarán la comunidad, conviviendo en una relación sin jerarquías, tratando de encontrar un equilibrio entre sí mismos y la especificidad de este sitio.

Patrones de interacción humana

La nueva comunidad debe incorporar el conocimiento acumulado del lugar, programas que ya están en la zona o inspirados por ella: cultivo, cocina, coworking, makers, investigación científica… Establecer una identificación con el sitio incorporando todos los agentes existentes que pueden ser parte de la ecología del lugar. La condición de borde de Råängen, entre la ciudad y la agricultura, es su riqueza y una cualidad que debe aprovecharse para proporcionar a esta comunidad un carácter específico y agregarle valor y singularidad. Esto es lo que llamamos de la tierra a la mesa: incorporar al proyecto los conceptos de cultivo y crecimiento, crear espacios de socialización donde trabajar los alimentos, procesarlos, cocinarlos y compartirlos; secuencias de un proceso donde vecinos y visitantes serán invitados de manera natural a compartir y difundir la cultura del lugar.

Patrones de interacción humana: Zoom

Datos

El proyecto radica en Råängen, Lund, Suecia y el cliente es la Catedral de Lund a través de Lena Sjöstrand y Mats Persson. Los arquitectos son Flores&Prats Archs (Ricardo Flores y Eva Prats). La planificación urbana y programa lo realiza White Arkitekter través de Jake Ford y Åsa Bjerndell. El trabajo es consecuencia de un concurso de diciembre de 2020. La fecha de inicio de las obras se prevé en 2027. El proyecto incluye unos 7000 m2 de vivienda mas 1200 m2 de espacio público. Fueron colaboradores del

Estudio Samuel Laguarta, Roxane van Kregten, Jorge Rodríguez, Lèa Binggeli, Kaisa Hjorth Kristensen, Iñigo Azpiazu, Florette Doisy, Guillem Bosch, Meritxell Ferrando, Pau Olmos y Arianna Piferrer. Las fotos de las maquetas son de Daniel Engvall (M1 a M6), Judith Casas (M7, M8, M10 a M18) y Eva Prats (M9).

Råängen_ Planta Baja y Espacio Público

Esquina_Planta Baja
Esquina_Planta Primera
Esquina_Planta Segunda

Lo que podría entenderse como cierto perfil ético que caracteriza la actividad del servicio profesional de la oficina F&P –que va desde la sensible rehabilitación del Espacio Beckett como pieza esencial de identidad barrial y cultural hasta el ingente trabajo de posproducción que asumieron, como tarea autoasignada, en la puesta en función comunitaria del Conjunto 111 de Terrassa– encuentra un destino lógico en el interés que supone no diseñar un conjunto de vivienda y equipamiento en Suecia, sino en el concentrar esfuerzos en lo que llaman construir comunidad.

En efecto el proyecto de habilitación de una nueva ampliación del barrio de Raangen en Lund implica, ya desde el complejo proceso que describen (al cuál la oficina se suma luego de ganar un concurso internacional de arquitectura) que supone el aporte interactivo de numerosos actores, la intención de no agregar meramente nueva arquitectura sino pensar las acciones proyectuales a emprenderse como profundamente imbricadas en referencias previas tal como se describe en los criterios para afrontar los temas de una torre y una esquina. Se trata pues de asumir el desafio de proveer edificios que deben acompañar y estimular la creación de un

Paisaje de Råängen Opinión

nuevo barrio o comunidad y asi lo expresa la memoria:

El encargo es construir una nueva comunidad pensando en los primeros edificios que ocuparán este lugar y cómo se relacionarán con este contexto tan especial.

Estos primeros vecinos serán pioneros frente a los desafíos de nuestro tiempo: la emergencia climática, nuestra relación con la naturaleza, la necesidad de una inclusión genuina y los cambios en nuestros patrones de vida y trabajo posteriores a la COVID-19.

Nuevas arquitecturas que asumen en tal caso, responder a demandas funcionales precisas pero más allá de ello, con la mirada puesta doblemente en contribuir a forjar

comunidad y hacerlo afrontando los nuevos desafíos del mundo en crisis de sustentabilidad, cuyos nuevos derroteros quizá deban poner en juego todo lo que la era poscovid entrega como avisos para futuros difíciles.

La arquitectura de edificios es en tal sentido, importante, puesto que tendrá que dar respuestas posfuncionales a los programas más o menos convencionales pero mas allá de ese cometido, se convierte en crucial en esta operación en marcha –de la aquí publicamos algunos avances del proyecto mientras se despliega un largo y complejo proceso de desarrollo– el tema de resolver el entre (between) de los diferentes edificios y

Råängen

el asunto de decidir como se engendra un nuevo borde de un área urbanizada, entre su condición suburbana y su entorno de ruralidad.

Respecto del building-between la memoria explicita que es importante ofrecer no solo buenas viviendas, sino también todos los espacios exteriores de relación que permitan estar individualmente o en grupo.

Toda la secuencia de espacios intermedios que van del dominio privado al público debe desarrollarse con cuidado, ya que estos serán los que aseguren que la comunidad crezca e invite a los vecinos a identificarse con un barrio, con un grupo de personas, lugares y situaciones que son su comunidad. Se asigna a lo que tradicionalmente llamamos espacio público la condición de devenir en común, o núcleo de comunidad, diferenciándose en tal forma lo meramente público

de lo más complejo común (según los argumentos que por ejemplo, postularon filósofos como el italiano Roberto Espósito).

Esa búsqueda de un común que es más y distinto que lo publico, implica asumir un proyecto que como afirman, comienza con la construcción del contexto y la cultura del lugar, trabajando en las relaciones y las articulaciones entre las cosas, proyectando lentamente los espacios abiertos exteriores y sus cualidades hacia los interiores y los espacios habitables.

Y respecto del restante punto referido a como lograr una comunidad entre un borde suburbano y un entorno rural y productivo, también se tratará que el proyecto descifre algunas conclusiones del mundo poscovid y de la crisis de la sustentabilidad urbana convencional, al trabajarse sobre como conseguir una

imbricación de vida urbana comunitaria y aprovechamiento de la ruralidad circundante, no solo paisaje sino también posibilidad de producción, empleo y alimento cercano: Esto es lo que llamamos de la tierra a la mesa: incorporar al proyecto los conceptos de cultivo y crecimiento, crear espacios de socialización donde trabajar los alimentos, procesarlos, cocinarlos y compartirlos; secuencias de un proceso donde vecinos y visitantes serán invitados de manera natural a compartir y difundir la cultura del lugar. Quizá ese perfil ético que nombramos al principio, decline otorgar supremacía a la estética arquitectónica, en aras de poner todo el trabajo proyectual en la diversa y compleja acción multiactoral de construir comunidad.

Plano de situación_Råängen y Lund

Sección y Plantas Bajas Comunes con Cultivos
Torre_Plantas Baja y Primera
Torre_Plantas Cuarta y Quinta
Derecha a Izquierda:
M1_Esquina y Paisaje
M2_Pasaje de Acceso
M3_Encuentro
Derecha a Izquierda: M4
M5_Estudios para artistas
M6_Gran Ventanal hacia el paisaje
A través de la ventana
Cocina Familiar
Doble Altura
Torre y Jardín de Hage
Interior de la Torre
Puerta Urbana Torre y pliegue
Desde el jardín interior
Encuentro entre vivienda y cultivos

La construcción de una comunidad

Comienzo del nuevo barrio

UN CASA A TRACCIÓN DENTRO DE

OTRA A COMPRESIÓN

Casa O Fieiro

Arturo Franco

Textos del arquitecto

Texto escrito durante marzo de 2020:

Estos días estoy construyendo una casa en la aldea, la tierra de mis antepasados, en el olimpo celta1. En realidad, es una rehabilitación de una pequeña cuadra para animales de grandes sillares de granito bien concertados. Casi como ocupar una cueva. Voy a utilizar solo tablones de madera de pino de Oregón de 7 cm de espesor para resolver los forjados. Ustedes se preguntarán, y por qué de Oregón y no del país. Esa es una lucha entre las polillas y yo. Las polillas sufren más del estómago con una

madera que no es autóctona y eso, al menos, es ganar la primera batalla.

Los forjados tienen que salvar una distancia entre apoyos de 5,20 metros. Los tablones sueltos sin encolar ni machihembrar lo resolverán todo ayudados de unas sencillas cinchas de camión. El carpintero que me vendió las maderas dice que no va a funcionar, el calculista de estructuras, un tipo infalible, tiene serias dudas, y yo no hago más que apelar al sentido común o lo que es lo mismo, recordar aquella frase evasiva: «Pero si Dios trabaja a tracción» … Pronto sabremos si, como escribía el viejo Oteiza, «existe Dios al noroeste»2 , o tal vez no.

1 Hace referencia al Monte Pindo que se encuentra en el concello coruñés de Carnota.

2 Oteiza, Jorge: Existe dios al noroeste, Navarra: Pamiela, 1990.

Texto escrito durante octubre de 2020: Ahora la vieja cuadra se ha convertido en una casa que se vive como una topografía natural. Una cueva habitada por pequeños salvajes de manera poco convencional. Como en el bosque, en la naturaleza, en el Monte Pindo, uno tiene que moverse mirando al suelo, y hacia arriba, alerta, con precaución. Una casa sostenible como las casas de pueblo, sin imposturas tecnológicas. Muros de piedra de 70/80 centímetros, una triple cubierta ventilada de fibrocemento y madera y una nueva ventana abierta al oeste para exprimir el sol de la tarde, tan necesitado en esta tierra sin sol.

Memoria

La aldea de O Fieiro se encuentra situada en el entorno natural del Monte Pindo, conocido como el olimpo celta, una formación rocosa de granito de la que salen todas las casas tradicionales gallegas de la zona.

El proyecto contempla la rehabilitación de una pequeña cuadra para animales, una casa de labranza de 1920 construida con muros de piedra de grandes sillares de granito bien concertados, de 70-80 cm de espesor, con una cubierta a dos aguas de placas de fibrocemento apoyada sobre una estructura de viguetas de hormigón pretensadas.

La vivienda original contaba con un pasillo de acceso situado en el centro, separando dos espacios, en uno de ellos se ubicaba la cuadra para el ganado, mientras que en el otro se disponía la cocina con horno de piedra y una hornacina donde se encontraba el fregadero, bajo la ventana. Este espacio daba acceso a una planta superior, ahora derruida, a través de una escalera de piedra, donde se localizaban las habitaciones.

Contiguo a la vivienda, a noreste, hay un volumen adosado de piedra de una única planta, con cubierta a dos aguas, que albergaba un almacén. En el lado suroeste hay otro volumen integrado en el volumen principal, con dos plantas sobre rasante, la segunda planta también derruida y también destinado a almacén.

Ninguno de estos volúmenes estaba conectado entre sí por el interior, disponiendo cada uno de ellos de su propio acceso desde el exterior. La intervención para rehabilitar la cuadra y transformarla en una vivienda se basa en el concepto general de aprovechar su sistema de muros de carga que trabajan a compresión y utilizarlo como contenedor y soporte de una nueva estructura de forjados de madera trabajando a tracción.

El sistema constructivo y estructural se resuelve con tres materiales, madera, acero y cinchas de camión, en colaboración con la piedra original. En primer lugar, se realizan aperturas de mechinales en los muros de mampostería a distintas alturas en las que se insertan tres

durmientes de sección metálica. Los forjados de tablones de madera de pino se empotran en el muro de fábrica sobre los durmientes metálicos y se fijan a compresión mediante cuñas de madera.

Los forjados salvan unas luces de hasta 5,20 metros. Los tablones están sueltos, sin encolar ni machihembrar. Para darles estabilidad se dispone de cinchas de amarre que los envuelven, éstas se fijan sobre los paramentos verticales de piedra mediante un sistema de anclaje con aros de acero inoxidable, haciendo que el conjunto trabaje a tracción.

En segundo lugar, se ha conservado la cubierta original de viguetas de hormigón pretensa-

das y placas de fibrocemento, a la que se ha colocado encima una segunda cubierta de placas de fibrocemento apoyada sobre rastreles metálicos, para generar una cubierta ventilada. En la zona oeste se ha demolido la cubierta original para abrir una terraza en la planta superior y aprovechar así la entrada de luz natural desde esta orientación.

Toda la estructura permanece a la vista, incluido una protección en la cara inferior de la cubierta de lamas de madera maciza de pino apoyadas sobre el ala de la vigueta de hormigón.

Se han sustituido todas las carpinterías exteriores e interiores, que estaban en mal estado o inexistentes, por unas nuevas carpinterías

metálicas. Y se han conservado todas las divisiones interiores de piedra, saneando los muros e incorporando nuevos huecos para conectar los espacios entre sí. Además, se han conservado otros elementos de piedra singulares, como las escaleras, la chimenea, el fregadero y una pila.

La vivienda se ha articulado en torno a dos es-

pacios principales en doble y triple altura, conectados visualmente en todas sus diagonales y en relación constante con el exterior. En ellos se desarrolla el programa asociado con el día, como comer, cocinar, reunirse, trabajar, jugar, socializar, relajarse, etc. En el volumen integrado situado en la zona oeste, en un ám-

bito más privado, se sitúan los dormitorios. Finalmente, en el volumen anexo al noreste, se ha ubicado un dormitorio adicional, que es independiente de la vivienda principal. Para conectar los espacios verticales se han conservado las escaleras originales, de peldaños formados por piedras de grandes dimensiones que descargan su peso en el terreno, como antagonista, se ha diseñado una nueva escalera de chapa metálica que parece levitar sobre el forjado de madera.

La vieja cuadra se ha convertido así en una casa que se vive como una topografía natural. Una cueva habitada por pequeños salvajes de manera poco convencional. Como en el bosque, en la naturaleza, en el Monte Pindo, uno tiene que moverse mirando al suelo, y hacia arriba, alerta, con precaución. Una casa sostenible como las casas de pueblo, sin imposturas tecnológicas.

Datos

La Casa O Fieiro es una vivienda construída en O Fieiro, Mazaricos, La Coruña en 2020 con una superficie de 199,82 m2 y un coste de 46200 euros. El arquitecto fue Arturo Franco, el arquitecto técnico Diego Castellano y los colaboradores Patricia Herráez y Mario Azorin. El asesor de estructuras fue Juan Rey (Mecanismo, diseño y calculo de estructuras SL). La maderas son de Maderas Rado SL, el carpintero Priegue SL y la cerrajería Talleres Lado SL. La promoción es de Ana Roman y las fotos de Alfonso Quiroga.

Alzados
Plantas

Axonometría estado actual

Axonometría estado reformado

EL JARDÍN DE PANCHES

Casa Das Silvas

Memoria

1 El encuentro

En octubre del año 2021 encontramos un trozo de monte impenetrable en el interior de la casa más vieja de Panchés. Un lugar junto al mar, a las faldas del Monte Pindo, al final de la infinita playa de Carnota. Venía de rodar 26 programas para @la2_tve llamados Jardines con Historia de @timezoneproducciones. Llegué con muchas ganas de enfrentarme cara a cara con la idea de jardín. Cómo sería un jardín para mi o tal vez cómo sería yo para un jardín...un jardinero ausente. Aquí comienza esa historia.

2 Los primeros jardines

Uno no se inventa nada... o muy poco. Avanzar retrocediendo consiste en apoyarse en el arte de mirar, de desvelar, de saber copiar, de interpretar o de combinar distintas realidades hasta alcanzar otras. El primer jardinero debió fijarse en la naturaleza, en la naturaleza que quiso ser jardín y asociarse con las piedras. El Pindo y sus alrededores está lleno de jardines naturales donde el monte se abre paso sin permiso de jardineros ni arquitectos. Construcciones sin techo que acaban siendo, con el tiempo, el hogar de las silvas...

3 Las plantas del Monte Pindo

Galicia es marela (amarilla) o al menos eso dice Rocío la propietaria del mejor vivero de la zona. Si alguien conoce a los habitantes del monte es ella. Amarilla por las pequeñas flores de las Xestas o el Toxo que tiñen del color de la mala suerte estas laderas. Con sus raíces profundas no hay quien las arranque de esta tierra y si algo tiene tantas ganas de quedarse aquí... pues que se quede. Pero Galicia también es tierra de malas hierbas de pinchos y urticarias. Plantas impertinentes, jodidamente incómodas. Tal vez por eso me resulten tan atractivas. Xesta,toxo, urse o urze, musgos, líquenes, silva, rosales silvestres, ortiga, laurel, carballo, castaño, acebo.

4 A rapa das zarzas

Durante los veranos en los curros se recogen los caballos asilvestrados para proceder al corte de las crines, desparasitarlos y curarles las heridas durante a Rapa das Bestas. Nosotros durante el invierno y mientras las plantas duermen comenzamos a despejar el camino. Fueron apareciendo lareiras, fornos de pedra como barrigas, hinchazones en los muros, pías, lacenas, bancos y al fondo el mar del fin del mundo.

5 Las primeras intervenciones

Primero desbrozamos, limpiamos y vaciamos de escombros la casa. Retiramos, ordenamos y clasificamos los restos de la cubierta desplomada 40 años atrás. Cientos de tejas, tierra y arqueología doméstica fueron apareciendo. Planchas, bridas, regaderas, estribos, botellas, cráneos de animales…Respetamos algunas de las silvas originales y muchos de los helechos y musgos que allí habían vivido durante años.

El resto se saneó y se aportó nueva tierra vegetal. La primera primavera aquello se llenó de ortigas, un océano de plantas urticantes… La segunda primavera de una pequeña planta invasora cuyo nombre no he llegado a descubrir. Poco a poco fueron recuperando espacio las silvas, los helechos y hasta un pequeño rosal silvestre.

Entonces llegó la gran viga de batea para romper el espacio. Para dejarse caer por ahí como un animal muerto y generar tensión. Una tonelada de madera de eucalipto que llevaba sumergida en la ría de Noia más de 20 años. Árbol maldito por estas tierras, pero tan querido para nosotros, como el resto de malas hierbas en este jardín miserable e incómodo. Mas tarde llegaron el carajo (escalera-mirador hacia el mar de redondos de acero) y el columpio (Eslinga amarilla con una piedra a modo de asiento), la mesa de disco para cortar granito y charlar y la puerta de acceso procedente de un cementerio cercano. No hay jardín sin puerta y esta tendría que ser la puerta del infierno.

El resto de los elementos fueron apareciendo o se fueron asomando en busca del sol, llamando la atención como las plantas cada primavera, como los invitados de una boda, amontonados durante los primeros minutos de una barra libre.

6 Los vecinos

Cuando el jardinero permanece ausente, las plantas se liberan, lo saben y se aprovechan de su ausencia como los niños cuando se quedan solos en casa. Todo puede pasar. Pero a derecha e izquierda están los vecinos vigilantes por si algo se desmadra. Jorge que trabajó en la tierra, Ana que nos trae herba de namorar y la planta del dinero y, como no podía ser de otro modo, en este jardín de pinchos ambas duraron poco.

7 Las plantas y los expertos

Solo hay algo peor que un jardinero ausente para un jardín…un jardinero inexperto. Para solucionar ese problema fueron apareciendo Ana Isabel Calo, propietaria de la casa das Camelias en Boiro, Miguel Llana, el bancario apasionado, Rafael Ovalle (Falo), un reputado paisajista asturiano, y Rocio Priegue, la propietaria del vivero de Cee. Entre todos diseñamos un proceso de renaturalización del futuro jardín. Trazamos un recorrido por el Monte Pindo para recoger de los márgenes de los senderos las especies silvestres que invitaríamos a habitar el jardín en compañía de las silvas y helechos que habían sobrevivido a nuestra llegada.

8 En el punto de partida

El tiempo se ha encargado de todo lo demás hasta llegar al punto de partida. Todo es como al principio, pero distinto.

Uno arroja una piedra al agua: la arena se arremolina y vuelve a asentarse. La perturbación fue necesaria, y la piedra ha encontrado su sitio. Sin embargo, el estanque ya no es el mismo que antes. Los edificios son aceptados en su entorno cuando poseen múltiples maneras de hablar desde el sentimiento y la razón

Peter Zumthor

Datos

Lugar de Panchés es en Carnota, La Coruña. El proyecto y su concreción van desde octubre 2021 hasta agosto 2024. El proyecto es del arquitecto Arturo Franco y los asesores en botánica fueron Ana Isabel Calo (Casa das Camelias),

Miguel Llana, Rafael Ovalle (Falo) y Rocio Priegue (Viveiro

Cee). Ana Roman es promotora y propietaria de esta obra hecha por la empresa constructora Gruas Chema en 36 meses con un presupuesto de obra de 5000 € y una superficie de 60.60 m2 .

Axonométrica 2 Preexistente

Bocetos Jaulas
Boceto Maniobras
Sección D-D´
JARDÍN
Planos de lo construido
Croquis
Estado actual

La arquitectura ante la constitución matemática de la abstracción

El influjo de Descartes

* Jose Cruz Ovalle es uno de los mas importantes arquitectos de Chile y América, destacando sus proyectos para el Pabellón Chile de la Expo Sevilla 92 y las diversas obras de la UAI (Universidad Adolfo Ibañez). Se graduó en Barcelona donde tuvo intensa relación formativa con filósofos como Eugenio Trías. Este articulo nos fue enviado en 2019 para su publicación en Modos, revista que se discontinuó poco despúes con lo que cumplimos mas tarde, en republicarlo, dada su vigencia y soporte teórico de la importante obra proyectual de JCO, de la cuál acompañamos este texto con algunas pocas ilustraciones.

A

la memoria de Eugenio Trías

Desprendimiento, desasimiento, puedan ser palabras posibles para designar aquel paso previo que requiere cierta libertad creativa. Desprenderse –al inicio de cada obra– de todo aquello que superponga delante de nuestra mirada algunas conformaciones que la prefiguran. Paso previo a un determinado grado de abstracción que ha requerido de este paulatino desprenderse: de la representación –ya esbozada en textos anteriores–, y esta vez, de ciertas configuraciones que trae la constitución matemática, ya inscrita en nuestro pensamiento. Desprenderse esta vez para cobrar distancia; esa que requiere el mirar para poder ver.

Es que cada obra desata en el arquitecto una puesta en marcha, que tiende –por la interna positividad del pensamiento moderno– a avanzar cubriendo esa distancia, ese necesario vacío que es posible hacer dentro de sí. Silencio con el cual los griegos dieron cabida al soplido de las musas. Pero para nosotros ello no surge

espontáneamente, requiere previamente ser sacado a la luz. De eso tratan estas notas.1

Hace unos años cuando sinteticé en algunos textos la idea –elaborada como trasfondo de las obras– de una abstracción de la singularidad que admite grados, a la que llamé Nueva Abstracción2 , para diferenciarla de aquella abstracción universal de la generalidad –planteada por las vanguardias artísticas de inicios del siglo XX–, no me detuve en una condición capital del pensamiento moderno que determinó aquella abstracción universal –condición que, por cierto, permanece

1 Este texto extracta parte de un estudio –una tesis– sobre de la posibilidad para la arquitectura de una abstracción artística que, dando cabida a la singularidad, no generalice. Gradúe, por tanto, su constitución matemática. Con la preposición ante se quiere indicar la necesaria distancia para encontrarse con ella. El artículo fue originalmente publicado en revista Trace, 11, Santiago de Chile, 2017.

2 Me refiero a los siguientes textos: Para una nueva abstracción. Introducción a un punto de vista y Alcances del campo de trabajo en torno a una nueva abstracción, en Cruz Ovalle, J., Hacia una Nueva Abstracción, ARQ, Santiago, 2004.

en nuestra época–, a saber, que el rasgo fundamental del pensamiento moderno es matemático. A partir de Descartes lo es en sentido propio, porque lo matemático busca ser principio y fundamento del saber, norma del pensar.

No se trata ya de mathesis vulgaris sino de mathesis universalis, ciencia universal que relaciona y configura todo. La arquitectura, sin embargo, desde hace mucho transita otra vía de la abstracción matemática: la que corre a cielo abierto a través de lo numérico que viene de Grecia3. Puede concebir y fundamentar sus obras en relación a la totalidad, como bien saben

hacerlo los arquitectos renacentistas, que parecen conducirse totalidad en mano4. Este camino constituye verdaderamente una tradición que alcanza también a las vanguardias artísticas del siglo XX5. De hecho, el Modulor de Le Corbusier pertenece a esta tradición de abstracción numérica: proporcionalidad del cuerpo humano, cuya serie de medida puede ser llevada hasta

3 Los pitagóricos piensan que a toda realidad subyace el número, este viene a ser principio formal de todas las cosas. Por otra parte, para un neoplatónico como Plotino, la diferencia observada en las cosas sensibles es la que despierta en el alma la noción de número.

4 La arquitectura renacentista florece como un saber capaz de integrar las partes (de un edificio) en la totalidad a través de los cocientes aritméticos, que a su vez responden a un orden superior en vistas a una armonía universal. Lo numérico de las proporciones queda colocado en el horizonte de la totalidad: la Armonía Universal o la Divinidad. Lo matemático, a través de lo numérico, es así la forma de concebir y fundamentar una obra en relación al todo.

5 Debe tenerse presente que lo numérico en sí mismo y no solo en relación a proporcionalidades ni sistemas de medida ha permanecido también como realidad artística cierta hasta ahora en el arte abstracto.

Campus UAI Peñalolen

los trazados reguladores, como un modo de poner en relación las partes con la totalidad. 6

Para entrar al trasfondo matemático de esa abstracción inscrita en nuestro pensamiento -que al revés de la tradición numérica, configura a la arquitectura sin mostrarse de forma explícita-, se hace necesario volver a enfocar la luz hacia Descartes y dejar en sombras las constelaciones de lo numérico.

Al sostener Descartes la necesidad del método para seguir tras la verdad de las cosas, está afirmando que la verdad posible de encontrar en ellas está determinada

6 Esta tradición tiene en el siglo XX otros exponentes dentro de los cuales, tal vez, Matila Ghyka con su Estética de las proporciones en la naturaleza y en el arte (1927) y El número de Oro: Ritos y ritmos pitagóricos en el desarrollo de la civilización occidental (1931) ejerció también un influjo en el arte moderno tardío.

Campus UAI Viña del Mar

por éste. Así, el método pasa a ser centro del pensar. Me decidí –dice– a emplear toda mi vida en cultivar mi razón y adelantar cuanto pudiera en el conocimiento de la verdad siguiendo el método que me había prescrito.7

¿Por qué se hace necesario el método para ir tras la verdad de las cosas?

Él mismo lo aclara, …considerando que entre todos los que antes han buscado la verdad en las ciencias, solo los matemáticos pudieron hallar demostraciones, es decir razones ciertas y evidentes, no dudé de que había que comenzar por las mismas que ellos examinaron…8

7 Descartes, R., El Discurso del método, Losada, Buenos Aires,1961, p.39.

8 Ibíd., pág. 40. Pero en otro pasaje de su Discurso del método, Descartes abunda sobre lo mismo: Gustaba sobre todo de las matemáticas a causa de la certidumbre y evidencia de sus razones;

… Demostraciones…, … razones ciertas, …evidentes…

Se vuelve transparente que el asunto de la verdad ha girado hacia la certeza: lo verdadero solo se constituye desde lo cierto: aquello que es posible probar. No es ya suficiente que la verdad se muestre, se debe demostrar.

Es esto lo que lleva al pensamiento de Descartes a problematizar la realidad: ver en ella dificultades que es necesario resolver en orden a conocer la verdad.9

Me parece que la certeza, que requiere del método, viene, de esta forma, a configurar la búsqueda de la verdad de un modo nuevo, dando lugar a que el pensamiento moderno girase paulatinamente la mirada sobre la realidad desde el interrogar hacia el problematizar. Un problematizar enlazado a un resolver.

La disputa de la verdad tiene así su centro de gravedad en la capacidad de juzgar con certeza, de probar la validez del razonamiento. Tal cosa solo es posible a través de un procedimiento, de un método que otorga lo matemático pues, como ya vimos, para Descartes,…solo los matemáticos pudieron hallar demostraciones… 10 .

más no advertía aún su verdadero uso y, pensando que solo servían para las artes mecánicas, me asombraba que siendo tan firmes y sólidos sus fundamentos, no se hubiera edificado sobre ella algo más elevado. …Yo sentía siempre –dice Descartes– un vivo deseo de distinguir lo verdadero de lo falso, (Ibíd. p. 30).

9 Lo dice Descartes en el enunciado segundo de sus cuatro preceptos: Dividir cada una de las dificultades en tantas partes como fuera posible y necesario para mejor resolverlas. (Ibíd. p. 39).

10 Cuarentaiún años después –para ser exactos– esta idea es también insistida por Leibniz en su carta a la condesa palatina Elizabeth (1678): …llegué a estas materias luego de haber preparado mi ingenio mediante investigaciones de suma exactitud

Me parece que la certeza, que requiere del método, viene, de esta forma, a configurar la búsqueda de la verdad de un modo nuevo, dando lugar a que el pensamiento moderno girase paulatinamente la mirada

sobre la realidad desde el interrogar hacia el problematizar. Un problematizar enlazado a un resolver.

Este carácter con el que se ha ido conformando el pensamiento occidental, a partir de lo abierto por Descartes, –y tras el despliegue sostenido del pensamiento matemático– ha terminado remojando finalmente al arte y a la arquitectura. Ésta difícilmente puede, desde la modernidad, escaparse de extender también sus razonamientos dentro de los vahos del procedimiento: el planteamiento de una obra de arquitectura como un problema. Un problema con sus posibilidades de formulación en vistas a su resolución11.

Este en vistas a configura la mirada, la deja prendida en la focalización hacia un objetivo, cual si existiese un lente colocado delante que re-ordenara nuestra visión de lo real en orden a Así, el acto mismo de mirar adquiere, en virtud de la resolución, su propia conformación 12 .

en ciencias severas que son la piedra angular de todos nuestros pensamientos. En todas las demás disciplinas uno se engatusa a sí mismo y encuentra engatusadores pero hay muy pocos matemáticos que hayan expuesto errores y ninguno existe cuyos errores hayan logrado aprobación (La fábula de Leibniz, p. 237). No podemos pasar por alto que la verdad así concebida –tanto por Leibniz como por Descartes– desde la certeza, la define desde su contracara, como ausencia de error y por tanto de un modo negativo: desde lo que no debe ser.

11 Es necesario aclarar que a partir de Descartes, en cierta forma, problema y dificultad quedan ligados, adquiriendo cierta equivalencia en el pensar habitual . El problema vuelto dificultad lleva, quizás, a relacionar problema y resolución de un modo nuevo. Para la matemática sin embargo, problema tiene relación con aquello que se pro-pone, se ante-pone y con ello se pone a prueba.Un artista abstracto, como Palazuelo, riguroso, reflexivo y distante de toda habitualidad, llega también a referirse a su obra en términos de problemas y de resoluciones

12 Por ejemplo, en orden a lo que considera favorable o desfavorable.

En el mundo moderno cobra cuerpo este enlace a priori, cual mutua inclusión, entre pregunta y respuesta, problema y resolución, considerados con-naturales al pensar. Cortar las ligaduras de este enlace abriendo la forma libre del interrogar es asunto del arte: una mirada no dirigida, que no lleva un requerimiento de respuesta en la interrogación, que sostiene la pregunta en su abertura y la deja permanecer como tal: íntegra en sí misma, libre de expectaciones venideras. Descorrer el velo de la habitualidad para situarse en una región que nos permite ver el acontecer desprendidamente, vale decir, contemplarlo. Mirada que no busca, simplemente podría encontrar.

Si una obra de arquitectura posee origen y no solo generación13, puede plantearse como un dilema creativo y no como un problema. El dilema esta propuesto en tanto disputa, y no lleva implícito el carácter resolutivo, por eso puede colocar a la obra ante lo desfavorable. Desfavorable o indiferente por cuanto no considera la resolución dentro de su horizonte.

Caminamos por los faldeos de la pre cordillera de los Andes sobre Santiago. Fundar allí un centro universitario en que la presencia de la naturaleza pudiese sostener el ritmo de relación entre la contemplación y el estudio. Alumnos y profesores ascendiendo y descendiendo la pendiente, incorpo -

13 Pero habitualmente la arquitectura toma a la generación por origen.

rando a su propio cuerpo las dimensiones propias del paraje.

No asentarse a favor de las curvas de nivel sino encarar con la arquitectura la pendiente. Una mirada desprendida de lo que pueda ser favorable o desfavorable para resolver la obra. Caemos en la cuenta: quien puede sostener el ritmo de relación entre estudio y contemplación no es simplemente la naturaleza sino esa, la que está allí mismo. Así, paso a paso, habrá de

incorporar la obra esa emergencia de rocas allí, rodear esos follajes acá, abrir un ahuecamiento al paso de la brisa aquí, arrojar sombra sobre un patio allá… Acá, aquí, allí, allá. Singularidades que dan cuenta del presente de este paraje, que la obra busca hacer esplender desde sus lugares. Tales singularidades dejan fuera el discurrir fórmulas espaciales que puedan extenderse para resolver la habitabilidad de la obra en la pendiente.

Casa en Valle Escondido

Es que el origen no mira en orden a prever sino que anticipa. Prever supone considerar las variables de un problema; un problema a resolver. Anticipar es advertir plenitudes, esta vez en el paraje, la plenitud de sus lugares. Entender el espacio a partir de los lugares significa no concebirlos desde la continuidad, como parte ni fragmento de una totalidad existente –bien sea ésta considerada finita o infinita–, sino a partir de su discontinuidad básica. El espaciarse del espacio acontece desde la irrupción de sus discontinuidades y es por ello irreductible. No se deja pensar desde una abstracción de constitución matemática. Tal es la razón por la cual la arquitectura planteada desde esta abstracción de la singularidad no propone –por así decirlo– formulas espaciales, hijas de una idealización de la naturaleza. Resultaría imposible desplegar con ellas una obra desde una espacialidad que, abierta a partir de la singularidad de los lugares, viene a ser de suyo discontinua y heterogénea.

Pareciera consustancial a lo matemático el agotar lo que propone. Ello le imprime un impulso innato que corre en su interior, cual suerte de corriente interna imantada por la resolución; de suyo imparable. A este impulso imparable, que avanza hacia la resolución, en tanto consumación de su propia tentativa, le llamo positividad de lo matemático. Esto significa que a lo matemático no le es natural el suspender.14

Sin embargo es propio del arte –y la arquitectura es un arte–, de su dimensión creativa, el poder suspender, el dejar en el aire, en vilo.

Estamos en Isla de Pascua. La mano que busca recibir y celebrar sus dimensiones en una obra, vacila. No solo ante la majestad de esta tierra suspendida en medio de un abismo oceánico, sino frente al abandono que significa tener que habérselas con un lugar ajeno, fuera de la tradición occidental. Pero vacila, también, ante la irrupción de la obra en esa soledad, en la que ninguna de sus líneas resonará con otras líneas dibujadas por

14 Esto no significa que la matemática no pueda llegar a suspender; lo que comúnmente se llama matemática pura

constituye un dominio distinto de aquella matemática útil, de las ciencias y de la que trata este texto. Tal es así que los matemáticos suelen ocultar las huellas de sus descubrimientos, intentando no dejar rastros ni pistas: un modo de velar el invento para proteger su secreto

otras manos. Los trazos buscan, así, hundirse en la tierra para no irrumpir, cual si cada uno de estos debiese ser fundado para cuidar esta irrupción. Reparamos en que acometer esta obra supone fundarla. Pero, ¿qué es fundar? –se pregunta Amereida–, confundirse con la tierra –responde–15. Entonces, primeramente hay que hundirse para fundirse con ella; entrar en la tierra y dejar en suspenso todo lo demás; quedar suspendidos, como la isla, en medio del mar de aquellas faenas por venir, que implica una obra. Fundar, entonces, desde el orden de la tierra y desprenderse de todo lo demás…Poder decir, solo

15 Amereida. Volumen Segundo, p. 77, Talleres de Investigaciones Gráficas de la Escuela de arquitectura de la Universidad Católica de Valparaíso, 1986.

los suelos y lo otro no importa… Originar así la obra desde este desasimiento que suspende16.

Lo que en la obra de Descartes aflora, vuelve a ser iluminado algunas décadas más tarde por Leibniz: el pensamiento matemático se relaciona con la realidad a través de una idealización que, adecuándola a la generalidad hace posible abarcarla para construirla en una formulación. Esta idealización es lo que el propio Leibniz calificaba en sus obras como ficciones, ficciones mentales, …maneras más convenientes y apropiadas para los cálculos…17

Refiriéndose al cambio que encarna Leibniz sobre el concepto idealista de verdad, Godofredo Iommi Amunátegui, en sus comentarios acerca de la La Monadologie, señala que La constancia de las cosas cede primacía a la invariancia de las leyes y de magnitudes respecto a las transformaciones del sistema de referencia.18. Adecuar la realidad al plano de su invariancia es, por cierto, un modo de abstraerla que permite pensarla desde la generalidad. Poder, así, expresarla en leyes con las cuales elaborar sistemas funcionales. Esto se ubica en las antípodas de una abstracción de origen

16 Fragmento de uno de los textos escritos para dilucidar el origen de una obra en Isla de Pascua. En otro momento distante del anterior, ese orden de los suelos recibe el orden del cielo, de la luz…

17 En diversas obras se refiere Leibniz a la matemática en tanto ficción. Poder citarlas a todas sin excepción escapa al alcance de este texto.

18 Iommi Amunátegui,G., La Comarca de Ernst Cassirer–Apuntes de Viaje, p. 154, Escuela de Educación y Humanidades, UCV, Valparaiso,2005.

Casa Estudio Espoz

Hotel Explora, Isla de Pascua

artístico, enderezada precisamente a partir las singularidades, casos únicos, no repetibles, pues para la arquitectura la realidad tiene un carácter irreductible.

Me parece que esta idealización le ha permitido al pensamiento matemático irse apropiando paulatinamente de lo real para hacer de la cosa objeto19. Ello ha penetrado en las ciencias al punto que estas fundamentalmente crean modelos: construcciones matemáticas, cuya razón de ser es, casi exclusivamente, su funcionalidad.

19 El paso de la cosa al objeto ha sido posteriormente secundado por un nuevo paso: el que emancipa en diversos grados al objeto de la presentación sensorial. Como señala G. Iommi Amunátegui, La teoría de la relatividad da un paso desde la teoría del conocimiento como copia hacia una teoría funcional. El objeto no es un modelo absoluto al cual corresponden las presentaciones sensoriales. El objeto es un concepto representado por sistemas de ecuaciones covariantes respecto de substituciones arbitrarias (Iommi Amunátegui,G., Ibíd., p.154).

El oleaje de esta marea ha ido paulatinamente empapando a la arquitectura de un nuevo funcionalismo, no aquel literal, de la forma que sigue a la función, sino un funcionalismo inscrito en un pensamiento que concibe también a la obra de arquitectura como objeto arquitectónico.20 Pero pertenece al objeto, al modelo, en virtud de su configuración matemática –tal como ya se ha explicitado– el agotar lo que proponen.21 Por el contrario, la

20 Entre quienes designan a la obra de arquitectura como Objeto arquitectónico se encuentra Peter Eisenman. Su construcción teórica se endereza desde la transparencia. Aquella con que la matemática edifica su pensamiento.

21 A propósito dice Descartes …por ejemplo, un niño instruido en aritmética y que haya hecho una suma siguiendo sus reglas, puede estar seguro de haber hallado, por lo que concierne a la suma que examinaba, todo lo que el espíritu humano sabría encontrar. Ya que…no habiendo más que una verdad para cada cosa, cualquiera que la encuentre sabe tanto como pueda saberse de ella (René Descartes, El Discurso del método, P. 41, op.cit.).

obra de arte remata y consuma su propia tentativa sin poder agotar jamás aquello que acomete; la naturaleza de la obra es lo más diversa del objeto. Pues hay algo fundamental: es propio de lo matemático construir con y desde la transparencia, en cambio el arte y la arquitectura lo hacen también con la opacidad. Muestran desvelando pero también traen a presencia retirando. El aparecer lleva consigo, cual su propia sombra, una presencia inalcanzable: un límite que no termina de cerrar la obra. Hiato o fisura que la hace permanecer abierta. En cambio, la naturaleza conclusa del objeto lo cierra sobre sí mismo, pues en el objeto tangible conclusividad y finiquito fáctico coinciden22 .

En un texto anterior sostuve cuanto la concepción de una obra queda determinada por la representación previa que pueda tenerse de ella.23 La forma en que nos representamos algo configura de antemano no solo lo que se pretende pensar, sino también lo que

Que la matemática agote lo que propone significa otra cosa muy distinta a que lo hiciera con la totalidad de las configuraciones numéricas y espaciales posibles. Debe entenderse la afirmación dentro del pensamiento de Descartes y también dentro de su influjo en el pensar. Aquello que llamamos matemática pura queda fuera de esta realidad: a veces, después de siglos, nuevos intentos acometen una prueba o una demostración por otro camino, y el camino de una prueba abre otros caminos, crea nuevas conjeturas, nuevos problemas…

22 La positividad de lo matemático, impulsa a la abstracción hacia un orden que deduce lo concluso desde lo resuelto. Resuelto es el estado –que en el caso de la técnica–, corresponde en el objeto a lo que llamé en mis textos anteriores finiquito fáctico

23 Para una nueva abstracción. Introducción a un punto de vista, en Cruz Ovalle,J., Para una nueva abstracción, op.cit. pp. 13-14.

Pero pertenece al objeto, al modelo, en virtud de su configuración matemática –tal como ya se ha explicitado– el agotar lo que proponen. Por el contrario, la obra de arte remata y consuma su propia tentativa sin poder agotar jamás aquello que acomete; la naturaleza de la obra es lo más diversa del objeto. Pues hay algo fundamental: es propio de lo matemático construir con y desde la transparencia, en cambio el arte y la arquitectura lo hacen también con la opacidad.

se intenta ver en aquellas obras que, en el terreno creativo, rebasan el campo habitual. A este mirar convencional, que acaece desde este previo representar le es imposible salir del terreno de la generalidad y dar el paso hacia la singularidad desde la que se levantan las obras de naturaleza artística.

Por un camino diferente, ciertos aspectos de esta abstracción de origen matemático -–tal como se ha expuesto al inicio de estas notas– operan también como una pre-conformación del pensamiento. En este caso, el hacia del estado final de lo resuelto se antepone y prefigura lo que se intenta pensar. Ello ocasiona una pérdida ante las múltiples dimensiones que puede incluir una obra de arquitectura; la arrastra hacia una suerte de simplificación que tiende a volverla esquemática. La pobreza esquemática que suele hacerse patente principalmente en aquellas obras que acometen grandes dimensiones en parajes naturales.24

Llevar adelante un razonamiento supone habitualmente hacerlo enlazando los diferentes pasos en una sucesión progresiva que permita, por así decirlo, hacer avanzar el raciocinio. Es precisamente Descartes quien introduce esta forma matemática de conducir el pensamiento según una sucesión enlazada, que se hace

24 Me refiero a la pobreza que muestran en general estas obras en su relación a una verdadera interacción con el paraje en orden a crear lugares. Ni la saturación por el diseño ni por una complejidad geométrica, cambia en absoluto esta realidad. No son siquiera pálidos balbuceos frente a lo que muchas aldeas, villorrios o pueblos europeos han podido crear: verdaderos lugares.

evidente en las expresiones con las que encabeza los sucesivos párrafos de sus reflexiones: primero.., después.., más inmediatamente después… luego.., por último... Y hace indudable esta idea de transcurso progresivo cuando dice, en la tercera de las cuatro reglas de sus principios: …conducir por orden mis pensamientos, comenzando por los objetos más simples…para subir poco a poco, como por grados, hasta el conocimiento de los más complejos…25

Y agrega en la última de estas reglas: hacer en todo enumeraciones tan completas y revisiones tan generales que tuviese la seguridad de no omitir nada. 26

Abre con ello Descartes la idea de que el pensamiento, en orden a resolver su validez, requiere llevarse a cabo según una estructura secuencial en la cual está presente o subyacente el número.

Encadenamiento de pasos sucesivos que avanzan en una dirección: un proceso que articula el pensamiento en un transcurso temporal. Modo de pensar y abstraer –de orden matemático– abierto desde la temporalidad, cual trazo que se engruesa paulatinamente, como el caudal de un río que aguas abajo va siendo incrementado por sus afluentes.

Sin embargo la arquitectura, de acuerdo a su propia naturaleza, requiere ser concebida primeramente desde el espacio. El orden espacial supone la simultaneidad de todas sus coordenadas que, como cada uno de

25 Descartes, R., El Discurso del método, P. 39,op.cit.

26 Ibid P. 39.

Hotel Explora, Valle Sagrado, Perú

los vértices de una figura geométrica, son a un tiempo igualmente necesarios para configurarla. En este razonamiento matemático abierto por Descartes –extendido y desplegado hoy en día–, cada paso requiere del anterior, dando cuenta de un movimiento progresivo del pensamiento, que construye de este modo su propia irreversibilidad. Por el contrario, la naturaleza simultánea del espacio otorga a la arquitectura reversibilidad. Leibniz hace presente –y su propia obra da testimonio de ello– esta ilimitada cabida que abarca la matemática, poniendo en relación desde lo infinitesimal a lo infinito,

cual si nada de lo real quedase fuera de su alcance: desde lo físico a lo metafísico. Ello otorga, lo que él califica como la “increíble utilidad” de lo matemático. A propósito de la “Doctrina de las variaciones” afirma que “…conduce, sola prácticamente, al alma dócil a través de todo infinito y comprende en una (unidad) la armonía del mundo y las construcciones últimas de las cosas y la serie de las formas, cuya increíble utilidad será estimada correctamente por la, al fin, filosofía perfecta o casi perfecta”.27

27 Iommi, A. y Iommi Amunátegui, G., La Fábula de Leibniz, pp.

La matemática es útil por una suerte de interna docilidad, por así decirlo, se deja traer. Puede ser aplicada en otros saberes; posee, así, una doble condición simultánea: dueña y servidora. Fundamento del saber pero también herramienta útil a disciplinas diversas. Su ductilidad para penetrar ámbitos dispares le permite regir sobre otros modos del pensar.

Utilidad, pero, además, perfección –la belleza de lo matemático estribe, tal vez, en su hacer coincidir perfección y exactitud. Su comprensión de la totalidad puede abarcar lo dispar en la unidad. Armonía del mundo, dice Leibniz, como gran construcción ideal. Es lo que se esbozó al inicio: el Renacimiento da cuenta hasta que punto lo matemático– numérico otorga a la arquitectura una concepción de la totalidad cual si esos arquitectos acometiesen las obras, por así decirlo, totalidad en mano. Una evidencia innegable.

Disputar lo absoluto supone para el arte abrir e integrar grados y formas de abstracción diversos. En virtud de su reversibilidad son posibles, para la arquitectura, lances que accedan a la concepción de una totalidad mediante una abstracción de orden matemático, otros que retornen hacia abstracciones singulares, y vice-versa. Un vaivén que no la saca de su quicio. Ello supone un cambio en la concepción del espacio, que en el primer caso lleva consigo la continuidad homogénea y en el otro, la discontinuidad heterogénea. Dos espacios distintos. Impensable para otras disciplinas, pero no así para el

arte y la arquitectura. Es que esta última se engendra en casos únicos no generalizables, de modo que cada obra inaugura su propio decir y su propio modo de acometer.

Por cierto, la abstracción universal de la generalidad que plantearon las vanguardias suponía un espacio continuo y homogéneo para operar con esa abstracción de origen matemático.28

186-187, PUC, Valparaíso, 2010.

28 Desde el punto de vista del arte, la abstracción no es un procedimiento sino algo propio de la existencia creativa y como tal requiere ser vivida. En tanto la vida de un artista recae en su obra esta puede ser significativa para el arte. La muerte del joven matemático Galois, después de batirse a duelo, carece de una real significación para la matemática; si hubiese sido poeta, la tendría plenamente para el arte, pues a este no le es ajena la vida

Detengamos nuevamente la mirada en aquella abstracción, dicha de pasada al inicio, del Modulor de Le Corbusier –y su serie de medida para originar y generar la arquitectura desde la proporcionalidad y la medida del cuerpo humano– y coloquémosla en relación a la abstracción de la singularidad propuesta. Aunque debe reconocerse que desde el cuerpo renacentista al cuerpo del Modulor se dan dos pasos que abren su relación con el habitar –el número como medida que expresa cantidad y el cuerpo desde la posición única a la postura diversa–, esa proporcionalidad es la de un cuerpo promedio, también un modelo como en el Renacimiento,

Iglesia de Panquehue

obtenido por generalización de lo real: proceder propio de la matemática para abarcar la realidad.

Leibniz le habría llamado ficción, cuerpo ficticio. Pero la abstracción propuesta no mira primeramente al cuerpo en sí mismo, como objeto de medida, sino que, haciéndolo a través la complejidad de los actos humanos, lo ve como cuerpo habitando y, por tanto, busca desentrañar en cada caso, y cada vez, el orden de ese irreductible. Cuál sea dicho orden para ese o esos cuerpos habitando, en tales o cuales actos, y en esas o aquellas circunstancias, es el asunto con el cual ha de habérselas la arquitectura. Es que se trata de lo singular para una arquitectura en la que la circunstancia crea forma. Por ello cuenta con las observaciones. Ellas cuidan no generalizar.

En un momento de distracción a través de una ventana, la mirada desciende y se desliza hacia las faenas de una obra vecina en construcción. Algunos obreros de pie sobre el terreno, trabajan en medio de tierra removida, entre manojos de tuberías, armaduras de acero y encofrados a medio instalar. Sus cuerpos vistos desde arriba aparecen confundidos entre tantos elementos dispersos, y muestran movimientos pesados y cansinos, como de revolverse en medio de aquello, cual si la resistencia de lo aún informe gravitara sobre cada uno de sus gestos y movimientos.

Más allá, sobre lo que parece ser la cubierta de otro edificio en construcción, que emerge por encima del entorno, varios obreros trabajan y se desplazan con sus cuerpos recortados

Lodge Explora, El Chaltén

contra el cielo. Así, perfilados, sus movimientos se dibujan en el aire con inusitada nitidez adquiriendo cada uno de sus gestos y ademanes, un notable grado de perfección. En el acto de ir dibujando, el propio dibujo comienza a asemejarse a otro hecho años atrás: esas esculturas de caballos alados, de ángeles y de embravecidos guerreros, sobre la cúspide de aquellos edificios neoclásicos de la Viena imperial29 . Cuando me refiero al origen de una obra estoy

29 Desde la lejanía las esculturas otorgan al conjunto una nueva esbeltez al inventar otro horizonte por encima de las copas de los árboles.

hablando de un anterior: abertura previa a la generación. El origen otorga orientación y sentido a la generación, para concederle tamaño y figura al espacio, pues esta última apunta en la dirección de la forma, hacia lo que habitualmente se llama proyecto. Más que dirigir, el origen indica, pues no mira hacia lo que pueda ser favorable o desfavorable, en orden a la resolución de la generación. La ausencia de origen tiende a desplazar el centro de gravedad hacia lo resolutivo de la arquitectura. El origen enciende la

llama sobre las observaciones arquitectónicas para hacer con ellas fuego creativo.30

El desprenderse para cobrar distancia –como se dijo al inicio– es lo que requiere el mirar para poder ver. Porque las observaciones nacen precisamente de una mirada desprendida, cual si los ojos estuviesen viendo con la novedad de una primera vez. Un modo de contemplación que se encuentra con lo real a través de una forma. Una creativa que registra el acontecer mediante la simultaneidad de lo sensible y lo inteligible: la palabra escrita y el dibujo. Situaciones habituales a las que nuestros ojos pueden desvelar dimensiones no literales, relaciones no evidentes. Mirada que alcanza a vislumbrar en hechos ordinarios más que la configuración de un cierto orden. Se trata de una abstracción por cuanto la observación desvela la forma de un acontecer. Una que recoge cada vez y en cada caso las singularidades. Ajena a toda generalidad. La observación, en cuanto acto creativo, en sí mismo concluso, no lleva consigo la voluntad de hacer, ni tampoco de no hacer; puede permanecer como tal sin dar lugar a nada. No está orientada por un determi-

nado propósito ni por el tiempo de un interno cumplimiento de sí misma en una obra.

Atravesamos a media falda un cerro sobre un pequeño poblado costero mirando el mar. La masa ascendente del cerro parece empujar el espacio hacia el horizonte. Aquí y allá, casas con sus grandes ventanales a través de los cuales la lejanía succiona sus espacios: ausencia de interiores, cual si estos fuesen robados por el horizonte.

Pequeña casa con leves pilares interiores delante del ventanal: una medida que parece graduar la lejanía y retener el espacio. Otra casa con chimenea encendida; el fuego como pequeño pero poderoso centro capaz de disputar con la vista hacia la inmensidad del horizonte. Lo centrado del fuego y lo fugado de la vista, relación entre centramiento y fuga disputando el habitar.31

Una fogata frente a la rompiente, en la inmensidad de una playa de fuertes oleajes. Lo inasible del fuego y lo incesante del mar. Las infinitas variaciones de las llamas, ante la cadencia inatrapable del oleaje embravecido. El fuego como una pequeña inmensidad en que podemos abandonarnos. Dejarnos ir en el fuego o sumergirnos en el mar…

30 La observación arquitectónica fue creativamente abierta hace ya más de 60 años por Alberto Cruz Covarrubias, fundador de la Ciudad Abierta y del Instituto y de la Escuela de Arquitectura de la Universidad Católica de Valparaíso. Inaugura también la posibilidad de un nuevo modo de estudio que no es empírico ni erudito, sino creativo. Da cuenta que el desvelar la forma de un acto ordinario requiere de otra forma, en sí misma conclusa: aquella del doble lenguaje simultáneo que cobra la observación, en la que el ojo y la mano, la mente y los sentidos van al unísono.

31 Estas observaciones, años después de registradas, dieron origen al dilema creativo de una casa en la costa sobre una pendiente hacia el mar. Disputar la relación entre centramiento y fuga, para que la casa no quede dominada por la unidireccionalidad de la vista; para que su interior no sea vaciado hacia la lejanía. Invención de un dilema creativo: la contravista.

Viña Pérez Cruz

El dilema, abierto desde el origen, en tanto disputa creativa, no va urgido hacia su estado resuelto sino orientado a permanecer en la obra como tal disputa, a acontecer en ella. En ese sentido una obra de arquitectura no es solución a un problema sino, por el contrario, la puesta en obra de un dilema y como tal el acontecer de su interna disputa. Así abre mundo, pues a diferencia de los pájaros, los hombres no llevamos consigo la construcción de un nido desde y para siempre. En su abrir mundo la arquitectura disputa cada vez el espacio habitable, digamos, la casa del hombre, para la que no existe palabra final.

Porque las observaciones nacen precisamente de una mirada desprendida, cual si los ojos estuviesen viendo con la novedad de una primera vez. Un modo de contemplación que se encuentra con lo real a través de una forma. Una creativa que registra el acontecer mediante la simultaneidad de lo sensible y lo inteligible: la palabra escrita y el dibujo. Situaciones habituales a las que nuestros ojos pueden desvelar dimensiones no literales, relaciones no evidentes.

Notas sobre la usurpación de casas vacías

O la modificación de lugares atmosféricos

como acto de civilidad

1Qué es lo que divide el ámbito doméstico y privado, de la calle y el espacio público? Podríamos contestar simplemente: un muro. Uno con cualidades tanto físicas y arquitectónicas como legales y simbólicas. Un muro fundado en la mas antigua tradición urbana que separa como ámbitos con normas y usos distintos el de la vida política y en sociedad, y el del mundo de lo familiar y doméstico.

De esta forma la división que se nos plantea entre el espacio privado y doméstico y el espacio urbano y público se sostiene sobre la precisa delimitación de sus límites. El ámbito de lo doméstico se nos abre en toda su dimensión una vez que traspasamos el umbral que divide la calle de la casa. Es un pasaje a otra dimensión, automático e instantáneo, y habitualmente sin transiciones. Pero es sobre todo un plano virtual, ideal, fundado en la convención de que el límite existe y es real. Así como no hace falta que esté materializado el muro para que esa división se mantenga, tampoco está garantizado que aunque el muro exista y esté construido la separación entre lo privado y lo público no se

pueda subvertir. Esto es lo que podrían demostrar las nuevas tácticas de guerra urbanas como las practicadas en Gaza. El ejército se desplaza a través de interiores como si caminara por la ciudad. La herramienta de sorpresa es utilizar el tejido urbano de la ciudad como si no tuviera límites, atravesar los muros como si se caminara por la calle, evitando de esta forma lo que le resulta previsible a la guerrilla urbana1…

2 Una forma más sutil y podría decirse también mas cívica es la practicada en Hierro 3, la película de Kim Ki-duk: el protagonista entra ilegalmente a diferentes viviendas, al modo de un ladrón, con el único objeto de habitar fugazmente en un medio extraño, y de esta forma modificarlo. Accede a las propiedades

1 Ver Caminar atravesando muros en The Hollow Land de Eyal Weizman. El combate urbano contemporáneo, por otra parte, se ocupa crecientemente de los métodos para transgredir el tipo de limitaciones que se materializan en el muro doméstico. A este respecto, podría resultar útil pensar sobre los muros (domésticos) de la ciudad como se piensa en la muralla de la ciudad (cívica): como bordes que hacen operativa la ley y como condición de la vida urbana democrática.

solo cuando está seguro de que no habrá nadie, y deja siempre como evidencia de su estancia alguna alteración en la disposición o apariencia de los objetos domésticos, existentes en el lugar. La relación con los habitantes de estas casas se establece indirectamente, a través de la extrañeza que generan estas intervenciones inesperadas en el orden prefigurado de las cosas, en lo más profundo e inaccesible del espacio doméstico.

A diferencia de lo que sucede en Quieres ser John Malkovich? (o en la clásica y re versionada varias veces Usurpadores de cuerpos), pareciera que esta usurpación no tratara de un problema de subjetividades o de diferencias de miradas desde un interior extraño. Lo que provoca es más bien la incorporación a la esfera de lo privado y lo familiar de un fragmento del exterior, proveniente del espacio público. Los habitantes de estas viviendas vuelven a sus casas y notan que algo ha cambiado, la ropa que estaba sucia ahora está recién lavada, o se arregla un aparato descompuesto. Es por un lado la sensación de sentirse observados pero

también la de la falta de impunidad de sus acciones. Como si se volviera inevitable de que alguna conexión con los parámetros de convivencia y habitabilidad que establece la sociedad se debiera mantener en el espacio interior y doméstico.

3 Hay una serie de trabajos que vengo haciendo que comparten ciertas cualidades en común. Son intervenciones en pequeñas viviendas que modifican su arquitectura incorporando ciertas cualidades del entorno exterior inmediato en su interior. Son PH o departamentos tipo casa, es decir que mantienen alguna de las cualidades propias de una casa (accesos, relación con el exterior, posibilidades de ampliación, expansión, etc), pero en donde la porción de terreno está en

copropiedad con otras viviendas de iguales condiciones. A la vez, todos están ubicadas en el pulmón de manzana es decir sin conexión directa con la calle. Las viviendas están vacías, su transformación se produce como parte de un proceso de inversión inmobiliaria, no hay usuario que proponga ninguna determinación. Solo las leyes del mercado y el lugar. El trabajo se concentra en difuminar los límites entre el entorno y el lugar, o más bien ponerlos a dialogar materialmente, afectarse. Incorporar alguna cualidad significativa del entorno produciendo un tránsito de objetos del exterior inmediato al interior. No es crear, se trata de darle forma a lo que se recibe, como lo que se produce al entrar en las cosas para modificar su apariencia.

Moldes

Este trabajo es la primera experiencia de la serie Usurpación de casas vacías. Ubicada en el barrio de Belgrano, en planta baja de un conjunto en ph rodeado de edificios altos entre medianeras que filtran la llegada de luz. Moldes es el nombre de la calle y también la figura que determina las operaciones con las que se trabajó. La intervención permite que a través del vaciado, la luz se deslice hasta los lugares más oscuros de la construcción existente. Así, antes que entren los nuevos habitantes se hace entrar la luz. La forma que adquiere el calado de los muros y los entrepisos determina el recorrido de la mirada. Como un molde en negativo de lo que permanece iluminado, y vale la pena ver…

Roque Pérez

Segundo trabajo de la serie Usurpación de casas vacías. En Roque Pérez, ubicado a media cuadra del parque Saavedra, la intervención se construye desde una figura, una estructura arbórea que permite crecer en superficie y desde donde cuelgan invertidos dos techos de madera y chapa. La cercanía del parque no se percibe visualmente desde el interior de la vivienda dada su ubicación en el medio de la manzana. Las partes se pintaron como están pintados los juegos de las plazas… Así, plantar la estructura en el patio permitió incorporar el entorno al interior aislado.

Datos

El proyecto Moldes fue realizado por Gabriela Cardenas y Ariel Jacubovich y su desarrollo fue a cargo de Iarón Jacubovich. La superficie cubierta fue de 52 m2 y se efectivizó en 2005. Los módulos de cocina son de M777. Las fotografías son del arquitecto Andrea Arrighi y del archivo AJ.

El proyecto Roque Perez es de Ariel Jacubovich y con una superficie de 75m2 fue realizado en 2005. Las fotografías son del arquitecto Andrea Arrighi y del archivo AJ.

Dibujos Roque Perez
planta cubiertas
vista tronco y copa
planta alta
planta acceso

CALLE MOLDES

PLANTA BAJA PLANTA ENTREPISO
Dibujos Moldes
vista tronco y copa

No hay nada que no sea material

Una geología de los medios

La historia larga de la cultura medial (medio mineral, vegetal, etc.) tiene miles de millones de años. Mas recientemente –desde Gutemberg en adelante en realidad– emerge el fenómeno de la re-presentación de lo medial a través de otros medios como el libro, la pintura, la fotografía, etc. hasta establecerse la idea de medio como aparato trasmisivo-comunicativo: medios de difusión, comunicación, información con el largo desarrollo de un par de siglos del universo semiológico hasta la actual preponderancia de lo medial-digital. Analizar el ambiente digital que ahora predomina supone avanzar respecto de la dimensión supuestamente univalente de lo semiótico (una mediología de signos, en lo que destaca la presentación mediática de McLuhan) destruyendo el aura de intangibilidad o evanecesencia de esa mediología digital, aparentemente desvanecida en una total inmaterialidad digital: frente a ello el presente libro del finlandés Jussi

Parikka observa que los aparatos digitales actuales y su armazón socio-técnico requieren insumos (materiales) de electricidad como de un menú de minerales (litio, tierras raras) actuales estrellas del mundo-commodities y fuentes importantes de vertido de toxinas sobre el ambiente y de afectación sanitaria de personas y seres vivos en general.

Una geología de los medios, lo primero conocido en castellano del investigador finlandés, realiza un equivalente geológico de excavación estratificada a lo largo del tiempo de lo que significa el aspecto material de lo medial.

Una materialidad que recorre la historia propia del planeta y su materialidad mineral y química hasta incluir la cuestión material de lo (impropiamente) in-material o digital, que también deja huellas regresivas en lo geológico, avanzando en la degradación antropocénica: esa revisión de lo material de lo in-material y su impacto geológico es el aporte principal

de Parikka. Con alguna sincronía conceptual con aportes posthumanistas de Haraway, Braidotti o Preciado; los nuevos materialismos de Morton, Harman o DeLanda, los argumentos críticos acerca de las agresiones materiales del neoextractivismo o el giro cultural ecofeminista-poscolonial, las ideas ligadas a entender lo geomaterial-inorgánico (que no resulta un ambiente inerte e inmutable) de Parikka resultan novedosas para acentuar una teoría general de los medios (materiales e in-materiales) comprensiva de los efectos negativos del acelerado proceso antropocénico, el mas veloz y dañino de toda la macrohistoria geológica. En el libro se comentan efectos graves de contaminación emergente de las áreas de Silicon Valley que concentran la industria in-material, como se refleja en las imágenes adjuntas 1-2-3.

Regresando a las aportaciones dieciochescas fundadoras del saber geológico planetario Parikka recurre a nombrar el libro de Charles Lye-

1- Áreas de Alta Contaminación en Silicon Valley

2- Focos de contaminación

acuífera en Silicon Valley EPA

ll, Principios de geología, que ya en 1830 (casi en simultáneo a la reinvención del mundo natural orgánico que hara Darwin) define a la disciplina de la geología como la ciencia que investiga los sucesivos cambios que han tenido lugar en los reinos orgánico e inorgánico de la naturaleza; indaga las causas de estos cambios y el influjo que han ejercido en la modificación de la superficie y la estructura externa del planeta. Esta temprana definición, acorde a las profundas innovaciones teórico-disciplinares de la primera mitad del siglo XIX no sólo significa adjudicar a la geología el estudio central de lo inorgánico sino también otorgar a esta área de conocimiento planetario, el rol de evaluar las interacciones complejas y a menudo negativas, entre los reinos orgánico e inorgánico, anticipando si se quiere la idea de que lo tecno-humano será capaz de marcar regresivamente la muy lenta evolución de la materialidad geológica del planeta. Lyell enjundia la potencia cognitiva del saber geológico casi como el campo disciplinar propio de abordar la historia material de la Tierra, dejando solo fuera de ese territorio epistemológico al saber de las humanidades que deben construir las verdades éticas acerca de las (malas) relaciones entre lo orgánico e inorgánico planetario, siendo asi Lyell indirectamente cuestionador del extractivismo encarado sin entender la finitud del mundo material asi como analista

6- Henry de la Beche, El profesor Ictiosaurios da una conferencia sobre restos humanos fosilizados de fenómenos como los sismos, la contaminación o la regresión de biodiversidad, los cuáles también –y fundalmente– son explicables y entendibles desde la mirada de una geología omnicomprehensiva. En la época de la intem-

pestiva irrupción de los estudios de Lyell y Darwin se hizo popular una litografía de Henry de la Beche en que el Profesor Ictiosaurio da clases a una audiencia de animales explicando la antigua existencia de fósiles humanos, haciéndose una sátira del evolucionismo o concepción cíclica de la marcha del planeta

esgrimidas por Darwin y Lyell (imagen 6).

En el prefacio de este libro escrito por Claudia Kozak se indica –resumiendo contenido y enfoque– que el presente libro argumenta que el mundo del pensamiento, los sentidos, la sensación, la percepción, las costumbres, las prácticas, los hábitos y la humanización no carece de relación con el mundo de los estratos geológicos, los climas, la Tierra y las enormes duraciones del cambio que parecen burlar las escalas temporales de nuestros pequeños asuntos. Y, sin embargo, los asuntos humanos han demostrado tener un impacto.

La ciencia y la ingeniería repercuten significativamente sobre la Tierra. El objeto idealizado del conocimiento registra él mismo la mirada observadora que se suponía que debía estar a distancia. La geoingeniería es una práctica de naturoculturas entrelazadas, y nuestra continua violación de los límites de las ciencias y las humanidades no puede negarse cerrando los ojos y pensando en semiótica. Las relaciones con la Tierra también son parte de las relaciones sociales de trabajo y explotación que caracterizaron al emergente capitalismo industrial del siglo XIX, así como caracterizan al capitalismo digital contemporáneo del siglo XXI, desde la extracción de minerales, la geopolítica de la carrera por la energía y los recursos materiales hasta las fábricas de producción de equipamientos informáticos (pp.17-18).

Para encarar su propuesta crítico-analítica

Parikka asumiría las aportaciones, interrelaciones y contradicciones operantes desde lo industrial del siglo XIX a lo digital del siglo XXI, entre ciencia, tecnología y arte, en este último aspecto, en cuanto a como el arte asumirá como tema propio, las características de como el desarrollo científico-tecnológico transforma y destruye el mundo natural.

En su libro Parikka alude a expresiones artísticas como las de Trevor Paglen (The Last Picture, imagen 4) o de George Chatonsky (Telofossiles, imagen 5).

En Una geología de los medios –sigue Kozak–hay más minería que minería de datos. Más específicamente, el libro se interesa por las conexiones entre las tecnologías de los medios, su materialidad, su hardware y su energía, y la naturaleza geofísica: la naturaleza hace posible y soporta el peso de la cultura medial, desde los metales y minerales hasta su cúmulo de basura (pp.18-19).

Encarar la descripción crítica de lo material propio de la medialidad in-material digital a partir de su entronque con la macrohistoria geológica (y en todo caso, con su etapa antropocénica) parece raro o inconducente pero la deriva del uso exhaustivo de recursos naturales como el cobre, el petróleo o el uranio, decantará por ejemplo en el nuevo ataque extractivista por caso de la larga lista

de 17 minerales nombrados en grupo como tierras raras (escandio, itrio y los 15 elementos del grupo de los lantánidos: lantano, cerio, praseodimio, neodimio, prometio, samario, europio, gadolinio, terbio, disprosio, holmio, erbio, tulio, iterbio y lutecio), que en realidad son insumos frecuentemente desconsiderados del desarrollo de la nueva medialidad electrónica in-material, que fuera de esa visión etérea, demanda materia y produce residuos.

En la pagina 79 Parikka efectúa un oportuno balance de lo material de lo in-material: La materialidad de los medios (digitales) es altamente metálica. 36% del estaño, 25% del cobal-

to, 15% del paladio, 15% de la plata, 9% del oro, 2% del cobre y 1% del aluminio se destinan anualmente a las tecnologías mediales. Nos hemos desplazado de ser una sociedad que hasta mediados del siglo XX se basaba en una lista muy restringida de materiales (madera, ladrillo, hierro, cobre, oro, plata y algunos plásticos) a una situación en que incluso un chip de computadora está compuesto de 60 elementos diferentes. Tales listas de los metales y materiales de la tecnología contienen materiales críticos, incluídos los minerales de tirras raras que están cada vez mas en el centro de las controversias políticas mundiales sobre aranceles

4- Trevor Plagen - The Last Picture

5- George Chatonsky Telofossiles

como de las restricciones de exportación por parte de China. Agreguemos en este punto que a inicios de 2025 USA (Trump) está pactando con Rusia el fin de la guerra con Ucrania en base a la cesión de territorios ucranianos a Rusia y a la reserva de explotación de sus tierras raras para USA.

La reserva y apropiación de metales estratégicos desde luego no es nueva e incluso hay indicios que los nuevos-raros metales ya despertaban apetencias geopolíticas a mediados del siglo XX como observa Kozak: la importancia de minerales tales como el coltán (tantalio), fue de hecho antes de la cultura digital que este mineral específico (a menudo extraído de los territorios en guerra del Congo) fuera

identificado como parte de la política geofísica del siglo XX: La Oficina de Minas de los Estados

Unidos observó que estos materiales estaban ‘entre los metales exóticos más esenciales en 1952 para el programa de defensa de los Estados Unidos, debido a la utilidad del tantalio (y del niobio) para ciertas aleaciones de acero de alta resistencia.

La catástrofe ambiental colateralmente descripta en este libro de historia material es tanto efecto del capitalismo como de los errores del socialismo real como la radiación radioactiva de Chernobyl, aunque el motor principal del agravamiento del consumo material de la Tierra es fruto de la intensificación capitalista de los modos de producción y búsqueda incesan-

te de ganancias, lo cuál es parte evidente del nombre Antropoceno que suele darse a esta catástrofe. El proyecto moderno de dominar la naturaleza entendida como recurso estaba basado en una división de los dos polos –lo social y lo natural–, pero siempre hubo conflictos entre uno y otro e incluso como planteó Latour, la dificultad epistemológica de deslindar el híbrido natural-poshumano. nos ha recordado insistentemente la imposibilidad de separar la naturaleza de la cultura. Los conceptos Gaia (Lovelock, 1969) y Antropoceno (Crutzen, 2000) indican con diversas modelizaciones, las características regresivas de la relación sociedad-naturaleza.

El pasado geológico en su persistente lentitud; los primeros estudios sobre el antropoceno del italiano Antonio Stoppani (imágenes 7-8) –que acuña la noción de era antropozoica, cuarta y final de las eras geológicas en su Corso di Geologia de 1873 o todo aquello que se pierde en la idealidad de Il Bel Paese de 1876– y George Marsh –que en 1864 publica El hombre y la naturaleza o la geografía física modificada por la acción humana, cuyo célebre capítulo 5 releva las formaciones arenosas e institituye, si cabe, la geomorfología de los médanos y la necesidad de no interferirlos; las fases tempranas de los sistemas científicos y tecnológicos, tales como la meteorología, visualizaron y modelaron el planeta natural como un sistema

Mapa del Corso di Geología 1873

A. Stoppani
8- A. Stoppani Il Bel Paese 1876

global profundamente inteferido por acciones humanas (anhtropos, hombre, impactando el kainos, novedad de lo natural modificado). Cerrando ya esta invitación a frecuentar las ideas de Parikka (que es Profesor de Cultura Tecnológica y Estética en Winchester) vale pensar, desde el puntual espacio de la arquitectura como ésta hace parte de la historia material del mundo acompañando o estremeciéndose frente al entusiasmo moderno de las nuevas materialidades o de cara a la crisis de sustentabilidad y la carencia creciente de energía y materia.

Contenedor biodiverso

Casa Pitaya. Mindo, Pichincha. Ecuador

Memoria

Contexto

El encargo fue generar una vivienda de fin de semana que establezca una relación íntima con la naturaleza pero mantenga una buena conexión con el exterior, una casa que sume estas dos complejidades y plantee una alternativa a la cotidianidad. La locación es Mindo, un pueblo situado en el bosque húmedo del Chocó andino ecuatoriano: esta zona se caracteriza por tener altas precipitaciones, clima cálido y una humedad ambiental bastante elevada.

A la casa se la plantea como un contenedor biodiverso que busca generar una relación

entre lo natural y lo artificial, entendiendo por natural a la flora y fauna originaría de Mindo y por artificial a lo que se enfoque en resolver las necesidades cotidianas de los usuarios (tecnología, conectividad, ocio, confort). De esta forma se busca que la casa propicie un hábitat diverso. Se escoge una ubicación estratégica en el lote, que permite aprovechar las visuales y generar una relación armoniosa entre la altura de la casa y las elevaciones circundantes. Además, con la ubicación se consiguen distintas escalas de relación adentro-afuera que permitirán distribuir el programa en función de las necesidades espaciales que se establecen para cada espacio con el exterior.

Materialidad

En cuanto al material se decide trabajar con madera laminada de pino, buscando potenciar el uso de este sistema constructivo emergente en Ecuador. Madebú –el proveedor del material– manejaba tres dimensiones óptimas (en relación a desperdicio) en cuanto al ancho de la pieza (11, 3,5 y 7,5 centímetros); con relación al alto podíamos trabajar con múltiplos de 3 centímetros y para el largo el límite estaba dado por el transporte y manipulación de las piezas.

Decidimos utilizar las 3 dimensiones de ancho disponibles (para estructura principal, estructura secundaria y complementos respectivamente) siempre con un alto de 30 centímetros y una longitud máxima de 9,5 metros (debido a que el camión más grande que podía acceder al lote tenía la capacidad de cargar como máximo una pieza de esa longitud). Otra condicionante para la dimensión de las piezas fue el peso, debido a la complicada accesibilidad al sitio, el montaje sería manual, para esto las piezas debían poder ser transportadas por un equipo de 6 personas, el peso de la pieza más larga es de 145 kilogramos aproximadamente.

La longitud máxima también definió la altura de la casa, las columnas tenían que ser una pieza continua, entonces, la altura máxima es igual a la longitud máxima; condicionante

que no limita a las vigas porque estos elementos sí podían ser compuestos.

Se interviene el terreno generando dos plataformas a distinto nivel, sobre las cuales se apoya una estructura principal, sistemática, de madera laminada, con piezas de sección 30x11 cm y longitudes variables. Las columnas se componen por dos piezas de esta sección que abrazan a la viga longitudinal y ésta a su vez permite apoyar la viga transversal.

Todas las columnas se asientan sobre soportes de transición metálicos para protegerse de la humedad del suelo.

Para moldear los espacios internos se utiliza un nuevo elemento, al que llamamos radical libre y nos permite romper el orden de la estructura principal para responder a las necesidades espaciales conforme al programa.

Programa

A nivel programático se buscaba una vivienda que pueda cambiar en función de su uso, una casa que pueda servir adecuadamente a la familia pero que a su vez pueda albergar a muchos más usuarios y actividades diversas. Aprovechando el clima particular de Mindo se establece que las condiciones de confort para la familia no necesariamente son las mismas que para las visitas, ellos ocuparán la casa por largos periodos de tiempo por lo que se piensa en cápsulas que puedan aislarse del contexto y mantener estándares de confort altos, pero para las visitas, al entenderlas como esporádicas, pueden ocupar el espacio de una manera más informal.

Se piensa en una casa que pueda albergar muchas visitas pero que no tenga habitaciones de huéspedes, trabajando con muchos espacios intermedios, anexos a las cápsulas de uso familiar, que puedan ampliar la capacidad de ocupación de estas y habilitarse de acuerdo a la necesidad.

Estos espacios intermedios también sirven de circulación, aprovechan las vistas privilegiadas y posibilitan infinitas maneras de ocupar la casa. Además, permiten al usuario modelar la escala de cada cápsula de acuerdo a su necesidad, cualquier habitación de la casa puede crecer y servirse de estos espacios intermedios cuando se requiera.

Datos

El proyecto de la Casa Pitaya es del Taller General (arquitect@s Martín Real y Florencia Sobrero) junto al arquitecto Jose María Sáez. Se registra la colaboración de Madebu, Rothoblast Ecuador y de Santiago León (piezas gráficas). La ingeniería estuvo a cargo de Mathieu Lamour y la construcción de Taller General + Jose María Saez + Estefanía Jácome. El diseño se desarrolló en 2018-2019 y la construcción en 2019-2021. Las fotografías son de JAG Studio.

Opinión

Aprovechando lo benigno del clima y la voluntad de romper la aislación interior/ exterior en beneficio de construir espacios interactivos con el paisaje natural y desarrollando un criterio de diseño muy centrado en la objetualidad monomaterial, Jose

María Sáez –en este caso en sociedad con los jóvenes discípulos Martin Real y Florenca

Sobrero– reedita uno de sus mas espléndidos capolavoros de piezas domésticas diseminadas en un contexto (sobre)natural como fue la Casa Pentimento, Quito Cantón, 2006 (con David Barragán) y que también resuena, aunque con otros registros desligados del monomaterial pero con complejas y notables interacciones interior-exterior y multitud de espacios de transición en la Casa Los Algarrobos, Puembo, 2011 (con Daniel Moreno Flores).

En la memoria de la Pentimento apuntan que el proyecto se genera desde una sola pieza prefabricada de hormigón, que puede situarse en el montaje en cuatro posiciones y que resuelve estructura, cerramiento, mobiliario, escaleras, incluso una fachada jardín que es el origen del proyecto. Por fuera es una retícula neutra que se camufla de valla o de seto. Al interior, cada muro es distinto y se ajusta a sus necesidades de escala, función, posición, etc. y con esa estrictéz de música de

una nota sola pueden organizar un complejo espacio derramado en el territorio que ofrece mucho mas que puro cobijo y que se apartó de tipologías convencionales.

Cuando describen Los Algarrobos indican que ocho piezas metálicas iguales de 18 metros, situadas en los ejes x y z, confinan el espacio de la vivienda y a la vez lo abren al proyectarse en distintas direcciones. Son vigas abstractas que al orientarse buscan su relación con el entorno. Punto de partida estructural de un esquema que cumple una intermediación necesaria entre la escala del paisaje y la de la persona: en su dimensión larga producen los grandes voladizos hacia la quebrada o los mástiles que marcan la

presencia de la casa, en la dimensión de canto dos vigas son una altura habitable. Ahora, con novedades pero también con reelaboraciones de trabajos previos, se trata de resolver el encargo de generar una vivienda de fin de semana que establezca una relación íntima con la naturaleza pero mantenga una buena conexión con el exterior, una casa que sume estas dos complejidades y plantee una alternativa a la cotidianidad. Es decir, insistencia en la apertura del interior para acoger lo imperativamente natural del entorno y también, interés en no reiterar lo cotidiano (o lo tipológicamente convencional).

La opción que reitera Sáez y sus socios es definir una casa super abierta que sin embargo

pueda operar según dice, como un contenedor biodiverso que busca generar una relación entre lo natural y lo artificial, entendiendo por natural a la flora y fauna originaría de Mindo y por artificial a lo que se enfoque en resolver las necesidades cotidianas de los usuarios (tecnología, conectividad, ocio, confort).

Aserción que implica tratar de encontrar un dosaje entre cerrazón doméstica y aperturas varias a lo contextual, desde apropiarse de

lo natural cercano hasta garantizar visiones lejanas de las comarcas serranas. Para conseguir un esqueleto habitable de máxima naturalidad se decide no usar ni hormigón ni metal sino madera, pero madera no emergente de la destrucción de arboles sino de tecnologías sustentables, lo cuál será factible recurriendo a opciones del mercado ya que se decide trabajar con madera laminada de pino, buscando potenciar el uso de este

sistema constructivo emergente en Ecuador. Madebú –el proveedor del material– manejaba tres dimensiones óptimas (en relación a desperdicio) en cuanto al ancho de la pieza (11, 3,5 y 7,5 centímetros); con relación al alto podíamos trabajar con múltiplos de 3 centímetros y para el largo el límite estaba dado por el transporte y manipulación de las piezas. La opción tomada permitirá enviar piezas desde taller –pues el terreno no es muy accesible– y conseguir que esas piezas sean livianas pues el montaje será artesanal y a pulso. De allí la sensación de artesanato que el conjunto ofrece, puesto que es un montaje de elementos prefabricados pero ese montaje implicará alcanzar altas destrezas carpinteriles.

Para superar lo convencional, el proyecto va a afrontar una funcionalidad dual, de casa familiar de recreo pero también de casa para acoger visitantes: una vivienda que pueda cambiar en función de su uso, una casa que pueda servir adecuadamente a la familia pero que a su vez pueda albergar a muchos más usuarios y actividades diversas.

Esa dualidad va a dar soluciones diversas para cada clase de usuario (familiar o visitante) pero que puede empalmar con las características climáticas de la región y asi las condiciones de confort para la familia no necesariamente son las mismas que para

las visitas, ellos ocuparán la casa por largos periodos de tiempo por lo que se piensa en cápsulas que puedan aislarse del contexto y mantener estándares de confort altos, pero para las visitas, al entenderlas como esporádicas, pueden ocupar el espacio de una manera más informal. Esa reprogramación funcionalmente dual de una casa que escapa de lo convencional posibilitará componer recintos mas clásicos (estancias cerradas, cápsulas familiares) junto a diversas espacialidades de transición que mas allá de ser terrazas, circulaciones o patios, ello permitirá que se consiga una casa que pueda albergar muchas

visitas pero que no tenga habitaciones de huéspedes, trabajando con muchos espacios intermedios, anexos a las cápsulas de uso familiar, que puedan ampliar la capacidad de ocupación de estas y habilitarse de acuerdo a la necesidad.

Pero ese supuesto exceso de espacios transitivos que pueden ser aptos para otorgar cierta habitabilidad a las visitas, también o sobre todo, conseguirán engendrar una casa de múltiples experiencias de uso y disfrute ya que los espacios intermedios también sirven de circulación, aprovechan las vistas privilegiadas y posibilitan infinitas maneras de

ocupar la casa y permiten al usuario modelar la escala de cada cápsula de acuerdo a su necesidad, cualquier habitación de la casa puede crecer y servirse de estos espacios intermedios cuando se requiera. Y asi se consigue a nuestro juicio, alcanzarse esa unificada y calificada trilogía que la Pitaya junto a Algarrobos y Pentimento, completa una meditada exploración de objetos que derramados en sus territorios y ambientalmente interactivos, entrega aportes y visiones para otras formas de habitar.

Cortes
Fachada frontal
Fachada posterior
Fachada lateral derecha
Croquis 1_ Ubicación
Fachada lateral izquierda
Planta Alta
Planta Cubiertas
Planta Subsuelo
Equipo de Proyecto

Turn static files into dynamic content formats.

Create a flipbook
Issuu converts static files into: digital portfolios, online yearbooks, online catalogs, digital photo albums and more. Sign up and create your flipbook.