MAR 009 - Material de Arquitectura

Page 1


AMERICANA

Antonio Yemail

252

Multifunción barrial. Atelier Tropical. Bogotá, Colombia

Caja de sorpresas. Galería-taller Binario, Bogotá, Colombia

HERRAMIENTAS

244

Josep Maria Montaner

Desafío de teorías críticas para una nueva realidad. Renombrar la arquitectura en su evolucion técnica, formal y ética

MICRO

230

Fernando Iguerategui y Estudio

Nómade

Habitar container. Casa Container en Villa Elisa, La Plata

ARGUMENTOS

Al Borde

178

Saber originario y ecoproyectualidad. Casa-jardín, Conocoto, Ecuador

Objeto que mira el paisaje. Mirador-Aula, Bosque Protector Cerro Blanco, Guayaquil, Ecuador

MATERIAL

EDITORIAL

Nueva realidad 3

9

ARQUITECTURA CIUDAD

12 46 138 92 112

Alejandro Alvarez

Piezas de precisión. Oficinas Accenture y Solanas. Mar del Plata

Revista MAR. Material de Arquitectura, Año 2, #9, Septiembre 2024, Mar del Plata, Argentina, ISSN 3072-7243

Santiago Losada

Nuevas y reactivadas piezas de ciudad. Edificios Garay y Olavarria/ Rawson 2035

UNIVERSO-CASA

Estudio Nómade

Materialidad y contexto natural. Cabañas en Bosques de Mar Azul, Buenos Aires

Antonio Carrasco

Huyendo del exterior, sin fachada. Casa Moroz, Pinamar

APRENDIZAJES

Sebastián Irarrazaval

Lo rural como modelo de la arquitectura. Una lectura desde la filosofía estoica

Alberto Delorenzini

Contemplar muros. A propósito de “Materia” de Juan Travnik

HITOS DE HISTORIA

Pablo Mastropasqua

ECOLÓGICAS

Carioca&Singular. Modernidad y ciudad ideal en el pensamiento de Sérgio Wladimir Bernardes 130

Estudio Lesch&Alfaro

Desmantelar un zoológico y crear un ecoparque. Mendoza, Argentina

Rector / Cdor. Amado Zogbi

Vicerrectora / Ing. Alicia Gil

Delegado rectoral MdP / Arq. Marcelo

Artime

Decano / Arq. Óscar Cañadas

Vicedecano / Arq. Claudio Freidin

Directora / Arq. María Silvia Grilli ISSN 3072-7243

Equipo

Editor / Arq. Oscar Cañadas

Director / Arq. Roberto Fernandez

Diseño / DG. Jimena Durán Prieto

Consejo Editorial

Arq. Marcelo Artime

Arq. Eduardo Agüero

Arq. Jerónimo Mariani

Arq. Dario Lemmi

Arq. Pablo Rescia

Arq. Leonardo Jauregui

Arq. Ezequiel Muñoz

MAR manifiesta que las opiniones consignadas en esta publicación son de absoluta responsabilidad de los firmantes de cada nota y no comprometen a tales instituciones. Las notas sin firma son responsabilidad de la Dirección editorial de MAR.

Las imágenes incluídas fueron suministradas especialmente por los autores y/o sujetos protagónicos de cada nota. Cuando fueran solicitadas expresamente se indican las autorías y/o las fuentes originales de tales imágenes. Si alguna imagen careciera a juicio de su autor, del crédito correspondiente rogamos se nos consigne para subsanarlo.

Nueva realidad

Cierta arquitectura reciente avanzaría en devenir realista, pragmática, indiferente a cánones o marcaciones de calidad resultantes de características de gusto estilístico o reconocimiento crítico-historiográfico diferencial.

En la actualidad proyectual parecen vislumbrarse (detrás de cierta decadencia social de la importancia de la arquitectura para la gente común: es decir el resto de mortales que queda afuera de la vida en los barrios cerrados o el trabajo en sedes corporativas) (1) respuestas ligadas a resolver demandas casi canónicas –dado el grado de estrictéz programática que plantean los desarrolladores– del mercado inmobiliario cada vez mas orientado a engendrar productos utiles para la circulación del capital financiero, (2) obras de autor en que prevalecen gestualidades, a veces caprichosas o irracionales, de los grandes lápices (globales o locales), (3) indagaciones experimentales en tecnologías y funcionalidades, dentro de voluntades que tratan de resistir el aplanamiento cultural de la globalidad y (4) trabajos en que los proyectistas empiezan sus tareas descubriendo o inventando programas y clientes y que luego avanzan en aceptar esa franja de demanda de arquitectura que se ha creado, a veces en condiciones dificiles en lo económico o en lo institucional. En cierta forma este panorama descriptivo de condiciones actuales adviene a instalar como motor principal de la elucubración proyectual una suerte de realismo o aceptación de circunstancias socio-culturales del zeitgeist que atravesamos, en que se han disuelto los antiguos acuerdos de calidad, belleza o buena vida arquitectural.

Los proyectos de la sección Arquitectura ciudad de Santiago Losada son actuaciones en un área degradada de ciudad que va por su recuperación y así aparece un trabajo de aprovechamiento de un edificio hotelero de baja calidad o la proposición de un nuevo complejo de comercio-oficina con cuidadosa voluntad de engendrar alguna nueva situación de espacio público y cierta rememoración de la modernidad amable del Corbu blanco; es decir un paisaje urbano de geometrías diferentes a bloques anónimos y regulares o repetitivos.

Los trabajos del grupo Nómade o de Carrasco son todas viviendas medianas o pequeñas que se ajustan a entender sus

contextos paisajísticos y procuran proponer ámbitos en donde puedan plantearse diferentes formas de uso o función. En cambio los proyectos de Al Borde, asumen esa condición de adaptación a un contexto relevante, pero agregan intensas exploraciones para transformar las formas de uso de una vivienda (en la singular anti-casa del ecologista) o de un artefacto de equipamiento para uso público (en el aula-observatorio, donde se une la intención de equipar-enseñar un sitio natural relevante y un propósito de investigación tecnológica).

El realismo de cierta omnivalencia político-ideológica con que Sergio Bernardes asumió su vida proyectual (pagando un precio alto al desaparecer de la historia proyectual por su connivencia con la dictadura) no quita una trayectoria de altísima experimentalidad tanto tipológica como tecnológica en una especie algo postrera de proponer un alto protagonismo de ideas arquitectónicas para transformar lo real. La ciudad existente que presentan las fotos de Juan Travnik también asume salirse de cánones de belleza convencional para aceptar que la realidad de lo urbano es desgaste, deterioro u obsolescencias. Los trabajos de Alejandro Alvarez que presentamos entregan una lógica altamente disciplinada a la racionalidad de la construcción industrial y su realismo estriba en sacarle el jugo a esa condición. En cambio el ecoparque mendocino propone romper o disolver un antiguo zoológico y formular un ecoparque para nuevos usos pero también para ayudar a entender el realismo decadente de la crisis ambiental.

El libro de Montaner es una suerte de gran fresco de los ultimos años de la arquitectura, formulando tanto términos de su decadencia ética cuanto gérmenes en que apoyarse para cierta resurrección de proyectos mas realistas. Y los trabajos del colombiano Yemail también escapan de regularidades del gusto calificado de las arquitecturas de hoy y acepta acercarse al dificil ambiente del gusto popular y de los nuevos programas híbridos.

En suma, diversas tentativas de explorar nuevas realidades realistas, nuevas empirias para acercar las arquitecturas a las vidas reales.

Instrucciones para navegar el MAR

(el número 9 de MAR)

ARQUITECTURA-CIUDAD

Esta sección presenta un complejo edilicio singular local o regional cuyo interés radique en establecer propuestas de relación con sus entornos urbanos además de postular ideas proyectuales significativas en su planteo, desarrollo y materialización. Se presentaran documentaciones originales completas (planos, fotos, memorias) y un análisis que pueda ser útil tanto para su aplicación didáctica como para su recepción académica y profesional.

Santiago Losada. Nuevas y reactivadas piezas de ciudad. Edificios Garay y Olavarria/ Rawson 2035

Nos topamos con esta estructura degradada en calle Rawson, sin querer y desde el momento que la vimos sabíamos que podíamos hacer algo para que cobre vida. Como una de las tantas estructuras de hoteles y conventillos (que proliferaron a partir de la cercanía de la vieja terminal) hoy se encuentran en gran parte en mal estado. Con la aparición del Centro comercial Aldrey la zona empezó a mutar y entendíamos que el edificio en cuestión debía hacer lo mismo.

En la misma área cercana al nuevo shopping y en trance de transformarse urbanamente, el complejo de comercios y oficinas de la esquina de Garay y Olavarría pretende reconstruir un tejido urbano mediante un ensamble de bloques de diferentes alturas homogeneizadas por acabados blancos que recuerdan la primera modernidad corbusierana en lenguajes actuales que se articulan con esa estetica blanca y a la vez amable en su relación con contextos de arquitectura-ciudad.

UNIVERSO CASA

Tratara de ofrecer una secuencia de casas unifamiliares o pequeños conjuntos que contengan proposiciones conceptuales en cuanto a su proceso y razón proyectual, en su realización y construcción y en su uso, identificando valores que vayan más allá de la mera respuesta funcionalista. Tal como en el caso anterior se ofrecerá una documentacion integral y un análisis enfocado en su recepción didáctica tanto como de docentes y proyectistas.

Estudio Nómade. Materialidad y contexto natural. Cabañas en Bosques de Mar Azul, Buenos Aires

Surgieron palabras claves como continuidad, gravedad, verticalidad, habitabilidad respondiendo a la inserción en el medio natural y la construcción del paisaje, entendiendo al ser humano, el espacio y el conjunto como contenedor de los comportamientos, la materialidad como expresión, como lenguaje.

Persiguiendo permanentemente nuestras inquietudes basadas en la reutilización y en la búsqueda de construir con recursos mínimos, y tras haber descubierto un viejo depósito de maderas en desuso surge la idea de la materialidad del proyecto. En el mismo nos encontramos con maderas de piso de variedades, calibres y colores diferentes que rápidamente nos dispararon expectativas respecto de la potencialidad del material dándonos como resolución las texturas, los acoples, la composición, el color y tecnología con la que abordamos esta experiencia.

Antonio Carrasco. Huyendo del exterior, sin fachada. Casa Moroz, Pinamar

Se ha tratado conjugar la orientación con la disposición de la vivienda en el terreno, de tal forma que su fachada a la calle, constituyese un muro neutro, una pared de programas que garantizase privacidad e independencia.

Una vivienda para vivir tranquilo hacia el interior, huyendo del exterior, sin fachada, si fuera por el arquitecto, sin ninguna ventana.

La fachada desaparece, solo se busca la relación con el interior, la volumétrica resultante, con sus alturas y retiros reglamentarios, es consecuencia de la preconfiguracion del código urbano. Una fachada sin pretensiones.

APRENDIZAJES

Plantea recorrer una serie de experiencias educativas de arquitectura reconocidas por su alternativismo y experimentación para acoger planteos y propuestas que pudieran rsesultar útiles o convergentes con las discusiones pedagógicas de la propia escuela. Así como investigaciones y aplicaciones proyectuales en campos no convencionales del hábitat que abren camino al aprendizaje de prácticas alternativas.

Sebastián Irarrazaval. Lo rural como modelo de la arquitectura. Una lectura desde la filosofía estoica

Si hay algo que caracteriza a la arquitectura contemporánea es que ha vuelto su mirada al mundo rural, haciendo de las construcciones ligadas a ese territorio un modelo de referencia. Por ello no solo es pertinente, sino también necesario preguntarnos qué virtudes se reconocen en ese universo. Para responder a esta pregunta propongo mirar lo que nos enseña la tradición filosófica estoica. Efectivamente, el estoicismo puede ayudarnos a echar luces sobre el asunto porque, al anteponer como modelo lo natural a la ley, construyó un nuevo sistema de valores que podemos reconocer cuando prestamos atención a estas arquitecturas que se inspiran en los órdenes que surgen extramuros.

Alberto Delorenzini. Contemplar muros. A propósito de “Materia” de Juan Travnik

Los muros de estas fotografías —cerrados, herméticos, opacos, pintarrajeados, derruídos—, en su mayoría muros de la ciudad de Buenos Aires que vemos cotidianamente aunque quizá sin apenas haberlos observado con algún detenimiento, se presentan aquí, por obra de estas mismas fotografías, como enigmas inquietantes: cobran forma de alegorías. Están atravesados de tensiones, son campos de fuerza puestos en obra justamente por el arte.

Estamos aquí ante un mundo de cosas del que los seres humanos que las produjeron y se sirvieron o se sirven de ellas están ausentes, así como están ausentes de las naturalezas muertas de la pintura barroca.

Más que presentar grandes hitos de la historia de la arquitectura se tratará de abordar hechos diversos de la historia local y regional que sean de interés en el conocimiento de grandes proyectistas locales y regionales pasados cuyas tareas hayan derivado en producir hechos significativos de la modernidad arquitectónica.

Pablo Mastropasqua.Carioca&Singular. Modernidad y ciudad ideal en el pensamiento de Sérgio Wladimir Bernardes

El caso de Bernardes en Brasil es comparativamente tan paradigmático como el de Amancio Williams en Argentina, no tanto en su desarrollo de obra construida, que en Bernardes es abundante, sino más en ese ánimo de inagotable búsqueda de respuestas y lenguajes, casi científicos, de la arquitectura y el urbanismo, asumiendo riesgos, experimentando y siendo, muchas veces, incomprendidos o no valorados en su tiempo o en el sentido empírico de sus propuestas.

Esta exploración constante de nuevas respuestas y soluciones no tradicionales con una aparente irresponsabilidad, nunca dejó de lado el equilibrio entre la belleza y un método exhaustivo de análisis del proceso proyectual de sus diseños o búsquedas.

ECOLÓGICAS

La cuestión ambiental y de crisis de sustentabilidad se presenta como un desafío para el proyecto actual y futuro, y si bien resulta un campo relevante para ajustar y modificar formas tradicionales de proyectar, todavia se carece de metodologias comprehensivas y aplicables por lo cuál se presentarán distintos trabajos y enfoques –desde interdisciplinares hasta urbano-territoriales pero también de proyectos de arquitectura– para empezar a entender las vías de futuros trabajos de mucha mayor implicación ecológica.

Estudio Lesch&Alfaro. Desmantelar un zoológico y crear un ecoparque. Mendoza, Argentina El proyecto de ecoparque transforma el problema de desmantelar un zoológico en una oportunidad para generar y crear conciencia. La derivación de animales a santuarios protegidos está alineada con un cambio en la forma en que nos relacionamos con la naturaleza y sienta un precedente para fortalecer el cambio de paradigma. La humanidad debería dejar atrás su ego, dejar de estar por encima del medio ambiente, para convertirse en parte de un todo que lo trasciende. El parque proyectado, lleno de nueva vida y transformado en un espacio público, no es solo un hermoso paisaje recreativo, sino que en su esencia contiene una gran misión, convirtiéndose en el primer gran sitio destinado a la difusión de prácticas sostenibles y la conciencia ambiental.

MATERIAL

La revista no publicará (salvo alguna específica excepción) proyectos no construídos en el entendimiento de la relevancia por otorgarse a la materialización adecuada de las ideas proyectuales ya que se piensa que la construcción no es una fase ulterior e independiente del proyecto sino que éste cobra sentido, viabilidad y calidad en tanto aborde y resuelva su condición material, lo cuál lleva a entender cuestiones de sustentabilidad y tecnologías de ingenio y cualidad regional, más allá de temas propios de la construcción tradicional.

Alejandro Alvarez. Piezas de precisión. Oficinas Accenture y Solanas. Mar del Plata

En Mar del Plata, una empresa constructora de obras industriales, más precisamente, estructuras metálicas en multiplicidad de formas nos convoca para llevar adelante el proyecto de un edificio cuyo destino será sus propias oficinas. Como condición proponen que precisamente contáramos y pusiéramos en valor los recursos materiales, equipos y producción que disponen para el planteo de tal edificio, optimizando sus posibilidades tecnológicas. Considerar las distintas piezas que componen un sistema estructural metálico, sus diversas geometrías, su producción standard y a medida, sus posibilidades de anclajes y uniones y demás detalles, nos permitió familiarizarnos con aquello que disponíamos para plantear un edificio, ya no de almacenaje, a los que mayormente responden estos sistemas, sino de oficinas.

ARGUMENTOS

La producción de proyectos descansa en aprovechar aspectos analíticos emergentes de argumentos teóricos que tratan de entender el pasado y el futuro para acompañar el presente proyectual y de tal forma esta sección se interesa en mostrar trabajos argumentales de teoría y crítica que en algunos casos pueden tener relación directa con acciones de proyecto o en abrir propuestas de formas alternativas de proyectar.

Al Borde. Saber originario y ecoproyectualidad. Casa-jardín, Conocoto, Ecuador

Objeto que mira el paisaje. Mirador-Aula, Bosque Protector Cerro Blanco, Guayaquil, Ecuador

José estudió ecología, siempre se ha acercado a la naturaleza, se siente parte de ella desdibujando los límites entre él y su alrededor. Eso intenta hacer su casa también: dispersa sus partes en el terreno y hace del jardín su circulación. José y su casa cuestionan el estándar de comodidad: para ir de la cama al baño hay que salir y la ducha sucede en medio de las plantas de su invernadero. Aparecen lugares que no se sabe si son jardín o casa, o una casa construida por el jardín.

La primera intervención del plan maestro del Bosque Protector Cerro Blanco confronta a sus usuarios con la magnitud del bosque. Está pensado para que la experiencia de ser la primera persona en el frente, pueda ser colectiva. La circulación central termina en un remate desde el cual un guía o un profesor pueden dar indicaciones a un grupo distribuido en las dos alas laterales. De esta manera el mirador fácilmente se transforma en un aula para la conveniencia de los grupos escolares, los cuales representan el mayor público que visita el parque.

230

Hay arquitectura mínima: pequeñas intervenciones de adaptación o modificación; agregados, acciones de acupuntura urbana por colocación de nuevos objetos. En las escalas opuestas de lo territorial-urbano y cercano a lo doméstico-objetual es posible activar acciones proyectuales que ofrecen nuevas funcionalidades o que agregan variedad y novedad de uso a lo preexistente. Acciones que pueden recaer en trabajos de generación de objetos resueltos casi con artesanatos y/o con énfasis en la emisión de comunicación; objetos que hablan agregando pequeños matices de sentido a lo dado.

Fernando Iguerategui y Estudio Nómade. Habitar container. Casa Container en Villa Elisa, La Plata

El proyecto fusiona sensaciones, tecnología y habitabilidad, las fundaciones se transforman en contrapeso y recinto habitable que nos alberga en las largas noches de concursos y recreo de fin de semana, la posibilidad de un ámbito único no solamente responden a condiciones dimensionales, sino también a la idea de un Taller de Arquitectura, en un entorno natural, donde desarrollamos parte de lo que nos apasiona, donde el tiempo pasa y no te das cuenta. Suspenderlo permitió verificar todos sus elementos, encontrar fundamento urbano al liberar la esquina y permitirle a Martin el vecino sostener desde su ventana la perspectiva larga hacia el bosquecito de álamos. Acceder por el piso no cambia las reglas del juego, despierta otras, recupera una cara oculta que se transforma en fachada, la idea de levitar está asociada al habitar y descubrir que un solo elemento nos provee, cubierto, semicubierto y abierto…

MICRO

244

HERRAMIENTAS

Los buenos libros y artículos de problemas teóricos y prácticos del proyecto de arquitectura son como herramientas de trabajo para formarse y entender aspectos y cualidades por afrontar cuando se está proyectando: por tanto el interés de esta sección será presentar críticamente algunos aportes bibliográficos

recientes que suponen conocer el marco cultural general donde se contextualiza el hecho de proyectar y tomar decisiones proyectuales.

Josep Maria Montaner. Desafío de teorías críticas para una nueva realidad. Renombrar la arquitectura en su evolucion técnica, formal y ética

Con el fin de entender y afrontar los retos actuales de la arquitectura es indispensable revisar su evolución y entenderla desde la óptica contemporánea. Tomando como referencia pensadores como Walter Benjamin, Marina Waisman o Jacques Derrida, en este nuevo libro

Josep Maria Montaner se centra en la historia de la arquitectura, desde la Ilustración hasta la actualidad, para ahondar en sus fenómenos y conceptos clave, renombrándolos para que se conviertan en herramientas de futuro.

252

AMERICANA

Entendemos la cultura proyectual local como haciendo parte de problemas y alternativas propias del mundo latinoamericano cuyas propuestas más singulares e innovativas se presume que deben conocerse profundamente para insertar el trabajo de proyecto en una condición geocultural específica que en lo posible aproveche lo bueno de la globalización pero también que cuestione sus defectos y limitaciones.

Antonio Yemail. Multifunción barrial. Atelier Tropical. Bogotá, Colombia

Caja de sorpresas. Galería-taller Binario, Bogotá, Colombia

El proyecto Atelier responde a un formato de programas híbridos que mezcla comercio con espacio cultural en el primer nivel y unidades residenciales conectadas por un patio interior en tres niveles. Promueve la idea de volver a habitar un barrio que durante la última década se ha ido trasformando en un distrito de arte, introduciendo elementos multiculturales al barrio y sus habitantes.

Binario es un proyecto cultural que mezcla espacios de taller, tienda, terrazas y un espacio flexible que en palabras de Alejandra Molano y Andrés Felipe Pardo –las mentes detrás de todo– alberga prácticas creativas como las artes visuales, plásticas, el diseño, la música y el teatro en pequeños formatos. También es un ejercicio de arquitectura de 4 niveles pensado y construido a varias manos entre 2018 y 2020, con una estructura metálica gris nopal y mampuestos de arcilla en varios formatos.

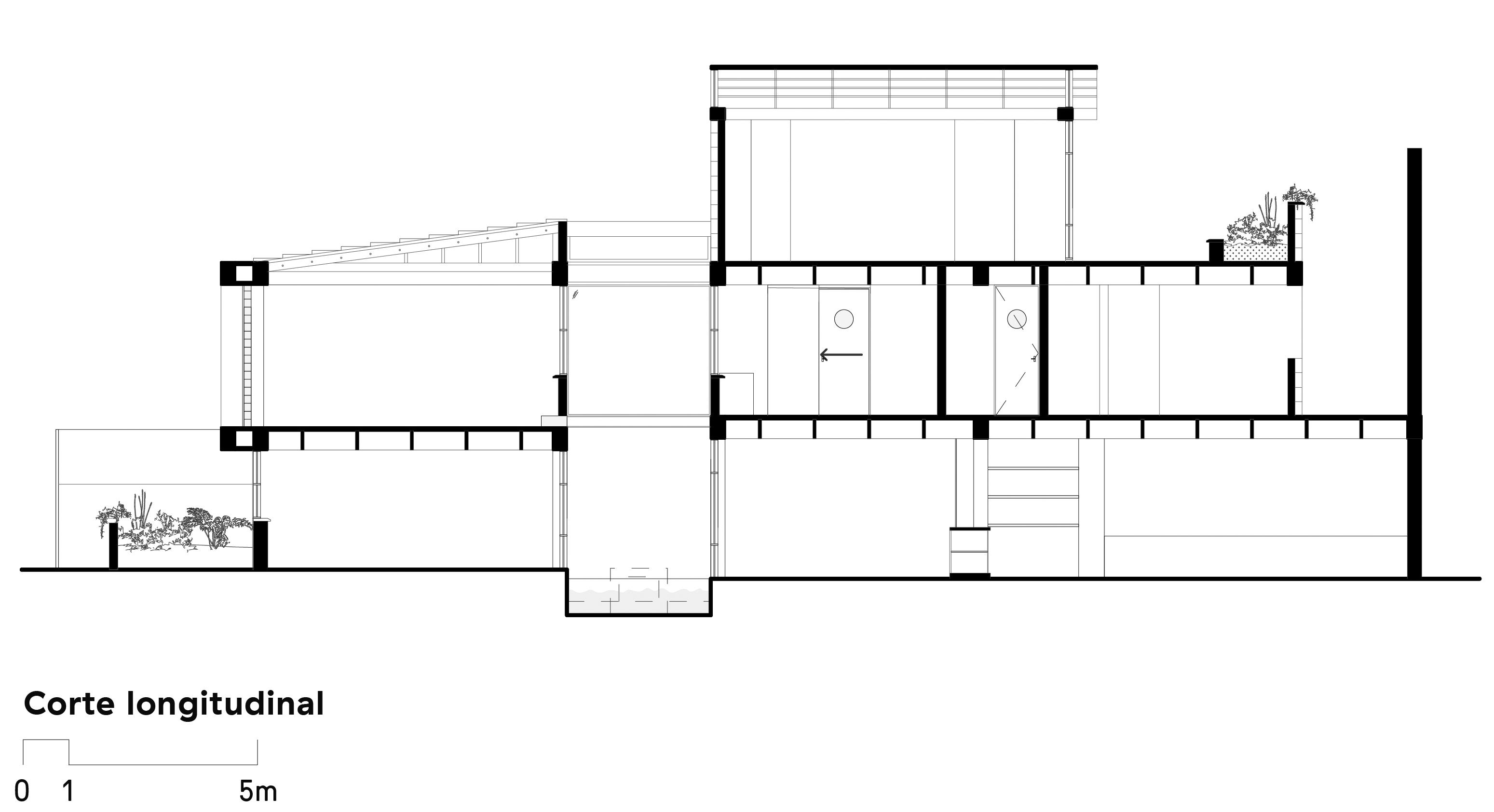
Nuevas y reactivadas piezas de ciudad

Edificios Garay y Olavarria/ Rawson 2035

Santiago Losada

Este edificio de uso comercial completa la esquina adaptándose a los edificios existentes por Garay y Olavarría generando una continuidad en la fachada. El resto de su volumetría se retranquea para dejar vista la continuidad de los remates de los vecinos.

A su vez deja una plaza urbana integrada totalmente desde el cordón de la vereda al hall de entrada para esparcimiento y lugar de encuentro.

Como arquitectos es fundamental entender la ciudad tanto en su morfología, sus usos y sus cambios a través del tiempo.

En el caso de la obra de Rawson 2035 nos topamos con esa estructura existente y en

desuso, sin querer y desde el momento que la vimos sabíamos que podíamos hacer algo para que cobre vida. Como una de las tantas estructuras de hoteles y conventillos (que proliferaron a partir de la cercanía de la vieja terminal) que hoy se encuentran en gran parte en mal estado. Con la aparición del Centro Comercial Aldrey, la zona empezó a mutar y entendimos que el edificio en cuestión debía hacer lo mismo.

El patio central es lo que naturalmente había que potenciar, no solo como articulador sino también como punto de encuentro y esparcimiento. Como resultado surgió un edificio de oficinas y comercios, en donde también intervenimos en sus usos. Tal es así que sugerimos la Memoria

presencia de un Café, que se abre no sólo al patio sino también al hall del edificio, potenciando ese punto de encuentro.

Doce unidades comerciales con una pequeña sala de reuniones común (ex sala de máquinas) completa el programa de Rawson 2035.

Opinión

Son dos operaciones urbanas –una exnovo y otra fruto de una intensa rehabilitación–en la zona de la antigua estación primero ferroviaria y luego de buses, cuyo desmantelamiento dio origen al CCA y a la lenta pero consistente recuperación urbanística de un área degradada como suele ocurrir en las adyacencias de los grandes intercambiadores de transporte sobre todo en Latinoamérica. En ese contexto emerge la posibilidad de acciones proyectuales que descubren potenciales de nuevos usos en la materia disponible,

sean lotes de viejas vivendas que poseen indicadores para aumentar la densidad de ocupación y la diversificación de usos, sean antiguas y modestas construcciones la mayoría de las cuáles ofrecían ofertas hoteleras de bajo estanding acordes a un sector de mucha gente en tránsito.

Este par de trabajos de Losada evidencian la sensibilidad del proyectista primero para descubrir oportunidades y segundo, para plantear reactivaciones cuya calidad resulta de equilibrar nuevas intenciones con características del contexto o del constructo previo sobre el que se proyecta.

En el caso de la esquina de Garay y Olavarría la pieza consolida el vector que une el corredor Guemes con el CCA creándose en los 300 metros de esa conexión una serie de componentes multificionales que equipan ese tramo de Garay, como un posible paseo que todavía puede y debe recuperar mu-

chos lotes de esas tres cuadras. La opción propuesta para esa esquina se nutre de satisfacer un programa variable de oficinas y comercios con la decisión de conformar no un monobloque regular sino un ensamble de volúmenes de diversas geometrías (y un matiz de homogeneidad dado por el blanco de todas sus superficies) que se conforma con sub-bloques de cubiertas inclinadas –con cierto gusto por la estética industrial de los sheds, que es lo que resulta sustancial para entender, porque este conjunto supone cierto tributo a la estética corbusierana de los volúmenes diversos ensamblados en el color blanco unificador– y planos de diferentes alturas y tipos de aberturas matizando superficies completas de carpinterías metálicas con ventanas alargadas que rasgan fuertes muros blancos. El conjunto no sólo ofrece tal ensamble de formas y volúmenes diferentes sino también retranqueos en altura y

la propuesta en cota cero, de una generosa miniplaza que permite acceder a los dos comercios de ese nivel (uno de ellos planteado como un apéndice perpendicular a Olavarria, que delimita tal plaza) y al edificio.

Sobre la idea de concentrar todas las circulaciones verticales sobre el diedro interior del lote, el volumen de oficinas se arma en L, con una pata larga, angosta y mas alta sobre Garay y otra mas corta, ancha y baja sobre Olavarría, con su par de frentes transparentes solucionados con carpinterías metálicas en que destaca un cuidado motivo de parasol barrado que opera tanto en vertical como en horizontal.

En el caso del edificio de Rawson, su partido de circulación central puesta al frente y adosada a un patio posterior con un armado de cuatro recintos dos al frente y dos al contrafrente, se mantiene y potencia, dotándose al conjunto de una renovación de sus envolventes, otorgándose relevancia a un cuidadoso rediseño del patio (como se aprecia en la toma contrapicada que utilizamos para el fondo de portada y la contraportada de este número) y liberando usos de los cuatro cuadrantes de cada planta, que

podrán ser cerrados o estancos (oficinas) o abiertos –como el el caso del bar de planta baja– que derraman hacia los accesos, las circulaciones o el patio. Ese creativo rescate de una estructura de acceso-circulación y patio central en una propuesta que manteniendo esa disposicion, la reelabora y rediseña, deviene en un valor principal de esta operación, que consigue mucho más que rehabilitar un edificio preexistente más bien anónimo y hasta de baja calidad. Se trata pues de un plus, que evoca el modelo de proyecto de proponen Lacaton&Vassal, según el cuál, a menudo las cualidades implícitas en una pieza edilicia convencional pueden explorarse, resignificarse, refuncionalizarse y en suma, devolviéndole una vida posible agregada a la original en la que puede emerger una cierta calidad. También aquí, como en la otra obra del Estudio Losada que aquí se presentan, la calidad final del proyecto depende de detalles de revestimientos, aberturas y escaleras, cuya ingeniosa tecnología de estética contemporánea –cierta cuidadosa ferretería blanca–, entregan matices de gusto actual a esa puesta en nuevo juego del antiguo y degradado edificio.

Subsuelo Planta Baja +0.00
Planta 1
Planta 2
Planta 4
Planta Azotea
Vista Garay
Detalle parasoles

SUBSUELO

Espera Sala de reuniones
Oficina 1
Oficina 2
Oficina 4
Hall
Oficina 3
Palier
PLANTA DE ACCESO
PATIO
Oficina 5
Oficina 6
Oficina 8
Oficina 7
Oficina 9
Oficina 10
Oficina 12
Oficina 11

Materialidad y contexto natural

Cabañas en Bosques de Mar Azul, Buenos Aires

Estudio Nómade

Memoria

El relato de esta experiencia nace en el territorio, precisamente donde se encuentra la pampa húmeda con el

Océano Atlántico y se configura una geografía de relieves, depresiones en permanente transformación por la acción del viento. Es el origen de los médanos.

Ha significado todo un desafío la fijación de estos médanos, el anhelo de habitarlos y construir una relación con el mar. Así surgieron las primeras plantaciones, los bosques y las urbanizaciones entre las que se encuentra este pequeño poblado llamado Mar Azul.

Intervenimos en un pequeño segmento de esta geografía, que exige despertar el máximo sensaciones y racionalidad para una acción proyectual que exprese un relato de arquitectura.

Así fuimos construyendo las primeras prefiguraciones conceptuales y morfológicas, asumiendo el desafío del vacío y la masa como matriz donde se representen los comportamientos del hombre, la relación con el medio y el equilibrio entre la arquitectura construida con el entorno natural.

Surgieron entonces palabras claves como continuidad, gravedad, verticalidad, habitabilidad respondiendo a la inserción en el medio natural y la construcción del paisaje, entendiendo al ser humano, el espacio y el conjunto como contenedor de los comportamientos, la materialidad como expresión, como lenguaje.

Persiguiendo permanentemente nuestras inquietudes basadas en la reutilización y en la búsqueda de construir con recursos mínimos, y tras haber descubierto un viejo depósito de maderas en desuso surge la idea de

La noción de conjunto remite en primera instancia al espíritu colectivo del mismo, a la construcción de una pieza geométricamente clara que exprese las relaciones de las partes en la que están contenidos los diferentes momentos del habitar colectivo, y las identidades morfológicas que los representan. Aparecen entonces el acceso, los semicubiertos, los patios en altura, el mirador…

la materialidad del proyecto. En el mismo nos encontramos con maderas de piso de variedades, calibres y colores diferentes que rápidamente nos dispararon expectativas respecto de la potencialidad del material dándonos como resolución las texturas, los acoples, la composición, el color y tecnología con la que abordamos esta experiencia.

La noción de conjunto remite en primera instancia al espíritu colectivo del mismo, a la construcción de una pieza geométricamente clara que exprese las relaciones de las partes en la que están contenidos los diferentes momentos del habitar colectivo, y las identidades morfológicas que los representan. Aparecen entonces el acceso, los semicubiertos, los patios en altura, el mirador

Así los conceptos de materialidad, tecnología, hábitat y territorio se definen en este juego de volúmenes que gravitan, permitiendo la continuidad del bosque, la relación con

la espesura de los árboles, las perspectivas pronunciadas, asumiendo los materiales, sus leyes: tracción-compresión-textura-color-racionalidad-sensaciones

Entendemos que la arquitectura se construye como un todo, que deja marcas, que se reivindica con el paso del tiempo; conscientes de la lucha por las identidades colectivas que contribuyen a mejorar las relaciones humanas, nuestro país, nuestra América Latina.

Opinión

En un nutrido paisaje boscoso –de esa población genérica de pinos usados para estabilizar la base medanosa del suelo de estos asentamientos balnearios– esta casa parece recoger la metáfora de un árbol, cuyo tronco es un potente prisma de cemento que contiene el núcleo circulatorio vertical y su copa, un plano de vigas y losas llevado al borde del perímetro

de la casa y del que cuelgan tensores que sostienen los volúmenes madereros del primer y segundo nivel que contienen los programas principales del proyecto pero en una forma de espacios continuos y multifuncionales que elude el tópico de los recintos fijos como estares, cocinas o dormitorios.

En ese contexto de paisaje y con un programa de segunda residencia o de descanso –que quizá permita más libertades que en una vivienda convencional, el grupo asume intervenir un fragmento de ese bosque singular con la intención de maximizar sensaciones y asegurar racionalidad en una acción proyectual que desarrolle o proponga un relato (de arquitectura): Intervenimos en un pequeño segmento de esta geografía, que exige despertar el máximo sensaciones y racionalidad para una acción proyectual que exprese un relato de arquitectura. Hablamos pues, de un tipo de arquitectura que se asumirá como narrativa y

Datos

Las Cabañas en Bosques de Mar Azul fueron proyectadas por la oficina de Arquitectura

Estudio Nómade para Andrea

Noemí Poffer. Con una superficie construída de 154 m2 la obra concluyó en 2014, en Mar Azul, provincia de Buenos Aires, Argentina.

Los arquitectos a cargo fueron Fernando Iguerategui y Juan

Olea con la colaboración de la arquitecta Antonela Mansur. El constructor fue el arquitecto

Natalicio Montiel y la asesoría de Electricidad la realizaron

Mario Gavaio, Tomas Eracovich, Micaela Fanessi, Carla Napurí y Eugenia Alues Cardozo. La ingeniería la asumieron los ingenieros Jorge y Santiago Maiztegui y el paisajismo estuvo a cargo de los autores del proyecto. Las fotografías son de Luis Barandiaran.

que intensificará fenomenologías de usos que se distingan de lo convencional.

Del árbol cementicio cuelgan con tensores, como muebles, estos volúmenes madereros, cuya entidad además emerge de haberse utilizado, como refieren en la memoria, materiales diversos en formas y calidades provenientes de un viejo depósito maderero.

Persiguiendo permanentemente nuestras inquietudes basadas en la reutilización y en la búsqueda de construir con recursos mínimos, y tras haber descubierto un viejo depósito de maderas en desuso surge la idea de la materialidad del proyecto. En el mismo nos encontramos con maderas de piso de variedades, calibres y colores diferentes que rápidamente nos dispararon expectativas respecto de la potencialidad del material dándonos como resolución las texturas, los acoples, la composición, el color y tecnología con la que abordamos esta experiencia. En este párrafo los autores acentúan una vocación de proyecto que roza las sabidurías fácticas de lo artesanal, confiando que la correcta manipulación de un material –la madera, suplementada con las piezas de herrajes o anclajes metálicos– será fundamental para operar elementos (texturas, acoples, composi-

Bocetos
Planta Baja
Ubicación
Planta
Planta nivel 2
Planta Terraza

ción, color, tecnología) que definan la materialidad del proyecto y por ende, su calidad espacial y experiencial. La opción estructural permite liberar bastante la cota cero (al reducido cuadrado que configura el tronco de hormigón, mas el pequeño apéndice de una parrilla) y jugar con que las cajas madereras del primer y segundo piso operen como masas casi disueltas en, o mimetizadas, con la masa boscosa, incluso aceptando que determinados árboles atraviesen encapsulados, la obra construida, forzando aún más la idea de disolver esa masa edilicia en la geografía del bosque.

Algunas aberturas dramatizan todavía mas el intercambio visual de lo construido con el paisaje preexistente y los muebles de madera de las dos plantas principales se esculpen para dejar visible la figura de árbol de la casa o bien, se derraman en ocasiones, en planos de terraza que poseen la cualidad de parecer colgaduras del ambiente forestal, como esas casas de niños injertadas en las copas de algún árbol.

La dualidad entre la dureza del tronco y copa de hormigón –que aparece como remate y cubierta en áreas del segundo piso– y el diseño casi de mobiliario habitable, otorgado a los volúmenes madereros (con sus caladuras

horizontales que a veces ocupan ángulos y ablandan todavía más la imagen frágil de estos volúmenes colgados) y la libertad compositiva de hacer fluir los interiores de dicho mobiliario, implica una característica notable del proyecto, que es la de tratar de que los espacios sociales de la casa floten o vuelen a la escala del bosque de piezas tajantemente verticales.

Así los conceptos de materialidad, tecnología, hábitat y territorio se definen en este juego de volúmenes que gravitan, permitiendo la continuidad del bosque, la relación con la espesura de los árboles, las perspectivas pronunciadas, asumiendo los materiales, sus leyes: tracción-compresión-textura-color-racionalidad-sensaciones.

Gravitar, permitir la continuidad del bosque, alcanzar una relación sensible con la espesura de los árboles, conseguir perspectivas pronunciadas: tales son criterios o argumentos que permiten abordar este proyecto como relato.

La casa es como un conjunto de plataformas que levitan en el bosque, que procura no tocarse de manera que lo nuevo regule extremadamente su impacto y el diseño pueda verse como cabalmente integrado a su contexto.

Huyendo del exterior, sin fachada

Memoria

Se ha tratado conjugar la orientación con la disposición de la vivienda en el terreno, de tal forma que su fachada a la calle, constituyese un muro neutro, una pared de programas que garantizase privacidad e independencia.

Una vivienda para vivir tranquilo hacia el interior, huyendo del exterior, sin fachada, si fuera por el arquitecto, sin ninguna ventana.

La fachada desaparece, sólo se busca la relación con el interior, la volumétrica resultante, con sus alturas y retiros reglamentarios, es consecuencia de la preconfiguración del código urbano. Una fachada sin pretensiones.

La entrada, el acceso, una perforación lateral donde nos introducimos a la vida del hogar, un ingreso directo al estudio, independiente y relacionado al interior simultáneamente.

El acceso, una intromisión directa a la vida interior, la cual tiene más interés en llegar a la galería que a otra parte de la vivienda, desde el exterior no existe el acceso, la entrada, solamente un espacio que distribuye. Un hall/escalera, que articula la casa en los tres niveles, consiguiendo absoluta independencia de movimiento, siempre recorriendo la galería y el patio.

El interior, con una galería y un patio en planta alta, donde se deslizará la vida, todo el programa se acomoda alrededor de ellos,

logrando una prolongación del parque y el cielo, hacia el interior de la vivienda.

En planta baja, la galería se interpone entre el estar y la cocina-comedor, es el centro de la vida diaria. En planta alta, el hueco del patio organiza los dormitorios para que puedan aprovecharse de su luz, como así también de la serenidad del parque interior.

La planta baja con las zonas públicas, queda equidistante entre las zonas de dormir y las de servicio, en el sótano.

Un muro pesado y con un pequeño hueco hacia la calle, con una apertura mínima, un cerramiento liviano con grandes huecos hacia la buena orientación, el parque y la tranquilidad.

Datos

La Casa Moroz está en Pinamar, Buenos Aires, Argentina y su proyectista es el arquitecto Antonio Carrasco con la colaboración del arquitecto Juan Ruben Choque. La asesoría de Estructura fue del ingeniero Juan Pablo Busti. El proyecto es del 2015 y la construcción se realizó entre 2015 y 2022.Las fotografías son de Javier Agustín Rojas.

Se valoran el muro y el hueco como forma de relacionarse con el exterior, enfatizando los diferentes espacios de transición entre el interior y el exterior.

Opinión

Las diferentes obras (varias viviendas de veraneo o permanentes –incluso la suya propia– y un pequeño edificio hotelero sobre la playa) de Antonio Carrasco en los parajes costeros de Pinamar poseen una extremada coherencia de lenguajes y composiciones, como si su autor hablará arquitectónicamente en un idioma nítido que permitirá cualquier discurso sin perder la extremada síntesis de ese lenguaje. Que podríamos nombrarlo como minimalista en una suerte de alto interés por modelar y plegar volúmenes y superficies lisas y blancas, pero con libertades de armado que, al contrario de cierta especie de lengua muerta (por ejemplo visible en las arquitecturas domésticas de Pawson o de Ando) trata de escapar de rigorismos inertes o invariables y apostar a que esa estrictez de lenguaje consiga transmutarse en propuestas espaciales complejas,

dinámicas y lejanas de espacios inmutables. Siendo riguroso y ascético, el trabajo de Carrasco no elude la intención de proponer experiencias domésticas intensas y variadas, sin cerrarse a esos discursos en lo que cualquier anomalía (un perro o un triciclo) desequilibran o desbaratan la proposición inicial. Por tal motivo podríamos asumir que el minimalismo de Carrasco no es autoritario ni impositivo (propio de esas arquitecturas no aptas para las transgresiones de la vida doméstica) sino que trata de proponer que esa discreción económica de sus lugares sea punto de partida de experiencias de uso. Exceptuando la cuestión del colorismo, lo mismo se pudo percibir en las arquitecturas domésticas de Luis Barragán, cuyo minimalismo de lenguajes de planos ortogonales siempre resultó un estímulo para insertar en ellos experiencias de vida: un minimalismo que no termina con el proyecto que deviene inmutable, sino que empieza con el mismo, sirviendo como territorio o plataforma para inscribir experiencias. Incluso en algunos

proyectos, Carrasco se ha preocupado por mostrarlos a través de cómo los mismos eran percibidos y usados por las personas, a veces, incluso, niños.

También evoca el modo quirúrgico de resolver la relación entre detalle y obra, la concepción que Mies otorgaba a los proyectos de casas como la Hubbe o la Gericke en las cuáles incluso los espacios abiertos (como galerías o patios) se pensaban como recintos perfectamente delimitados y materializados. En 1923 Mies decía: no reconocemos problemas de forma, solamente de construcción. Mencionamos casas de Mies o Barragán en tanto objetos que pretenden concentrarse en sí mismo, es decir, no depender de sus relaciones con el exterior. Carrasco afirma en tal sentido, su interés en que la casa engendre una vida más bien interior, en este caso, cerrándose al exterior urbano y formulando relaciones con exteriores proyectados (galería, patio). Dice entonces AC en su memoria: Se ha tratado conjugar la orientación con la disposición de la vivienda en el terreno, de tal

forma que su fachada a la calle, constituyese un muro neutro, una pared de programas que garantizáse privacidad e independencia.

La idea de muro neutro fija entonces su interés es deslindar la casa de su exterior, idea comprensible en épocas en que crecen conceptos de exteriores sin proyecto, urbanidad sin calidad, contextualidad sin calidad. Ese muro neutro, es también, pared de programas, porque detrás de ella hay los espacios de estudio y estar en PB y estar íntimo y dormitorio principal en PA.

La intención central de proyecto es entonces una vivienda para vivir tranquilo hacia el interior, huyendo del exterior, sin fachada, si fuera por el arquitecto, sin ninguna ventana.

Lo que afirma la tajante cerrazón de la casa en su fachada, como ocurrió también en la polémica casa de la Cruz de Rafael Iglesia que publicamos en MAR 2. Parece que la ventana cuadrada que únicamente perfora un fragmento del tajante muro de frente (arriba a la derecha, para darle apertura al estar íntimo de la planta alta) si fuera por el

arquitecto, tampoco hubiera existido. Iglesia apuntaba en la memoria de esa casa rosarina que su lenguaje no tiene nada que decir, o el silencio dice mucho más que las palabras. Es como lo dice Alejandro Aravena en su libro “El lugar de la arquitectura”, refiriéndose a una casa de Ostwald Ungers: una arquitectura sin atributos. Para concluir su presentación con esta frase: No es linda ni fea, pretende ser interesante, sin mirar a nadie. Sólo se muestra verosímil. Esta memoria de Carrasco se titula, con cierta referencia al discurso de Iglesia, Huyendo del exterior, sin fachada.

Aprovechando las condiciones de orientación AC celebra la neutralización del frente, que permitirá el modelo de absoluta introversión que se recoge: La fachada desaparece, sólo se busca la relación con el interior, la volumétrica resultante, con sus alturas y retiros reglamentarios, es consecuencia de la preconfiguración del código. Un muro pesado y con un pequeño hueco hacia la calle, con una apertura mínima, un cerramiento liviano con grandes huecos hacia la buena orienta-

ción, el parque y la tranquilidad. Incluso el acceso a esta casa desaparece del frente, al hacerse por una abertura sobre el lado suroeste de la casa, haciendo asimismo que esa cara del volumen también sea un poderoso lienzo cerrado con apenas esta perforación sobre el extemo izquierdo inferior del mismo.

Los dos grandes planos externos de la L de este proyecto, serán así muros casi ciegos, uno el que da al frente con la pequeña abertura cuadrada superior derecha y el que da al lateral SO del lote, con sólo la abertura inferior izquierda que se plantea como el acceso a la vivienda.

Es decir que en las relaciones interior-exterior para cada recinto se prioriza que se resuelvan en el interior del lote, alrededor del espacio de galería-patio que materializa el diedro interior de la L. Se valoran el muro y el hueco como forma de relacionarse con el exterior, enfatizando los diferentes espacios de transición entre el interior y el exterior. Una fachada sin pretensiones. Ya

que el interior, con una galería y un patio en planta alta, donde se deslizará la vida, todo el programa se acomoda alrededor de ellos, logrando una prolongación del parque y el cielo, hacia el interior de la vivienda.

Se consigue en tal forma, un alto grado de intimidad e introversión en los usos abiertos familiares, los que se mediatizan en esa galería baja y patio alto, trabajados con el mismo rigor que un interior ya que Carrasco pretende garantizar una suerte de proyecto total, en el que, por ejemplo, y como se ve en algunas fotografías, la cubierta –solo visible desde un dron– está rigurosamente definida por losetas cuadradas y regulares o las piezas de módulos de guardar que se trabajan, aun siendo simplemente piezas de mobiliario, con una similar intención de conseguir un omnidiseño que no piensa en la forma sino en la construcción.

Lo rural como modelo de la arquitectura

Una lectura desde la filosofía estoica

Sebastián Irarrázaval*

* Sebastián Irarrázaval es un arquitecto chileno que regentea su propia oficina y enseña tanto en la PUC de Santiago de Chile como en la IUAV de Venecia donde es profesor visitante

Si hay algo que caracteriza a la arquitectura contemporánea es que ha vuelto su mirada al mundo rural, haciendo de las construcciones ligadas a ese territorio un modelo de referencia. Por ello, no sólo es pertinente, sino también necesario preguntarnos qué virtudes se reconocen en ese universo. Para responder a esta pregunta propongo mirar lo que nos enseña la tradición filosófica estoica. Efectivamente, el estoicismo puede ayudarnos a echar luces sobre el asunto porque, al anteponer como modelo lo natural a la ley, construyó un nuevo sistema de valores que podemos reconocer cuando prestamos atención a estas arquitecturas que se inspiran en los órdenes que surgen extramuros. De hecho, es frecuente que construcciones que encontramos en el campo sean descritas con nociones que se atribuyen al estoicismo. Por ejemplo, se las considera virtuosas, justas, correctas, honestas y apropiadas, como ocurre con las pircas de piedra, cuya forma sería el resultado de una sabiduría del hacer con lo que se tiene a la mano. Es cierto que el estoicismo radical de los inicios no teorizó sobre lo que

podríamos llamar una praxis estoica del fabricar las cosas que nos rodean ―como la arquitectura― y más bien enfocó su pensamiento teórico, de manera modesta, sólo allí donde creían que podía ejercer un cambio, esto es, en pautas para poner en obra una ética individual y la consecuente transformación del individuo (y no del ciudadano inmerso el coordenadas sociales) mediante una forma de vida virtuosa que llevase a la felicidad. Diógenes Laercio dedica al estoicismo el Libro VII de su voluminosa obra titulada Vidas y sentencias de los más ilustres filósofos, prácticamente la única fuente sobre esta escuela filosófica que ha perdurado hasta hoy. Allí, el gran historiador de la filosofía menciona sólo una vez algo relativo a la manufactura. Lo hace cuando compara la naturaleza a la artesanía y señala que ambas tienen como fin el producir cosas útiles y placenteras.

Dicho esto, y para efectos de responder a la pregunta planteada al inicio, el que los estoicos no hayan teorizado sobre el homofaber no nos imposibilita inferir, de los principios de esta corriente filosófica, unos tipos de espacios que podríamos llamar estoicos y que se encuen-

tran en el mundo rural. Igualmente, hacer este ejercicio nos permite constatar algo tremendamente significativo: que la mirada de los arquitectos está teñida de remanentes heredados de la filosofía estoica, restos que repercuten en la forma en que asignamos significado y valor a las cosas que nos rodean, en especial en este universo de referencias rurales. Siguiendo esta línea también se podría argumentar que, trasladada al campo disciplinar, la oposición ya mencionada entre lo natural y la ley tendría un paralelo en el descrédito que despierta lo que se conoce como el valor institucional del arte. Por este se entiende la construcción de valor mediante una trama de mensajes persuasivos emitidos por las instituciones a través de seminarios, revistas y libros. Se desconfía de estos mensajes porque finalmente representan, al igual que la ley, intereses de grupo que tendrían como finalidad la reproductibilidad de las instituciones más que el bien común. Siguiendo este libre ejercicio de extrapolación, se podría añadir que en las

construcciones rurales (chozas, ramadas, trancas, pircas, media lunas, viñedos, etc.), se manifiestan virtudes que los estoicos asociaban a lo natural y que se encarnan, por ejemplo, en la máxima del pensamiento griego del nada en demasía, así como en la ausencia de vicio, la falta de complicación y, en general, en todo aquello que se entiende que hace bien por provenir de una sabiduría que sería el resultado de una vida en concordancia con lo natural.

El homofaber rural sería algo así como el sabio de la Edad de oro que Hesíodo describe en su poema Trabajos y días (s. VII a. C), que no razona si no que sabe y cuyo hacer, por ende, sería algo así como la puesta en obra de un apetito de sobrevivencia y no de un hambre insaciable de placer. La arquitectura rural sería, por tanto, la manifestación de una

1_ Portada de Essai sur l’architecture, de Marc-Antoine Laugier, 1753.
2_ Capilla Animita, de Eduardo Castillo (Concepción, 1998).

3_ Otro Cielo. Anexo a Iglesia

Diego Villarroel Talca 2022

praxis sana y buena que es resultado del metrón, es decir, de la medida justa que, a su vez, es resultado de una vida ajustada a lo natural.

Esta predilección por lo primitivo y la adopción de la idea de que la arquitectura debe ser una mímesis de lo natural (imitación de lo inerte y/o imitación del fabricar de algunos animales) no es algo nuevo en la disciplina. La idea de que la cabaña primitiva es el modelo de la arquitectura está detrás de un debate que se ha extendido por siglos. La tesis que subyace en esta idea de la cabaña primitiva es que la forma arquitectónica ideal encarna lo natural, y que la naturaleza dicta a

la arquitectura una serie de reglas naturales que esta debe imitar.

En su tratado Essai sur l’architecture (1753), Laugier defiende esta idea de la arquitectura como imitación de la naturaleza y sostiene que el modelo de la cabaña o choza primitiva refleja la virtud más alta que la arquitectura puede lograr. En el capítulo I de dicho libro, el jesuita Laugier escribe lo siguiente en relación al hombre primitivo: Algunas ramas abatidas en el bosque son los materiales adecuados para su propósito. Elige cuatro de las más fuertes que eleva perpendicularmente y que dispone en cuadrado. Por encima, pone otras cuatro atravesadas y sobre ellas eleva las que se inclinan y que se juntan en pico a ambos lados. Este tipo de techo está cubierto con hojas lo suficientemente apretadas para que ni el sol, ni la lluvia, puedan penetrar en él; y he aquí al hombre alojado. Es cierto que el calor y el frío le harán sentir su incomodidad en su casa abierta por todos los lados; pero luego rellenará el entredós de los pilares, y se encontrará seguro

Siguiendo esta estructura pretendo explicar este fenómeno de predilección por aquello de corte primitivista en la arquitectura contemporánea y que se encarna en Chile tanto en la enseñanza de algunas escuelas de arquitectura ―como la de la Universidad de Talca― como en la práctica profesional de algunos arquitectos, como la que desarrolló el prematuramente fallecido Eduardo Castillo y que sirve, a su vez, de modelo a otros arquitectos.

Para ahondar en la pregunta sobre las virtudes que reconocen los arquitectos en ese universo conviene basarse en lo que Diógenes Laercio (s. III d. C.) definió en su libro sobre los estoicos como la rama ética de la filosofía y que organiza según las siguientes ocho categorías: El Impulso, El bien y el mal, Las pasiones, La virtud, La finalidad, El valor principal y las acciones, Las obligaciones y lo apropiado y, por ultimo, De lo que induce a actuar o lo que evita actuar

Con relación al impulso, filósofos estoicos como Zenón, fundador de la escuela, consideraban que el fin ulterior del hombre es la vida en consonancia con la naturaleza. La naturaleza es, para los estoicos, esa fuerza que mantiene al mundo unido y que causa que las cosas en la tierra a veces florezcan. La naturaleza, ellos sostienen, aspira a la utilidad y al placer. La doctrina de algunos estoicos como Crisipo de Solos (s. III a. C.) acerca del mundo indica que este es un ser vivo, racional, animado e inteligente que posee un alma; aunque otros, como Boethus (s. II a. C.) discrepan de que lo sea.

Sin embargo, existe coincidencia en que, para aprender a vivir virtuosamente, hay que seguir las pautas que enseña la naturaleza y tomar como modelo al animal.

Para estoicos como Cleantes (s. III a. C.), Posidonio (s. I a. C.) y Hecato (s. I a. C.), el primer impulso del animal es la auto-preservación, la que se expresa antes que nada en un afecto por su propia constitución y no en el hedonismo. Para los estoicos, el objeto al que se dirige el primer impulso de los animales no es el placer. Este es más

bien un subproducto de la satisfacción de la necesidad de auto-preservación.

Esta idea, trasladada al campo de la arquitectura, se podría traducir en que el primer objetivo de una obra sería durar. En Los diez libros de arquitectura Vitruvio (s. I a. C.) llama a esta cualidad Firmitas o firmeza, es decir, lo que permite durar, cualidad que distingue de los otros dos principios básicos sobre los que descansaría la arquitectura: la Utilitas (función) y la Venustas (belleza). El principio de Firmitas, al igual que en un animal, inclinaría la constitución de la forma del edificio hacia este fin primordial, la auto-conservación, más que al placer que la arquitectura pueda despertar, no descartándose esta en la medida que sea un subproducto y no un fin buscado. El placer material del abrigo, así como el placer intelectual de la experiencia mediada de las ideas de orden, simetría y límite, tan apreciadas por la cultura griega, estaría supeditado a este primer fin, durar. De aquí se concluye que un edificio es bueno si su anatomía lo predispone a la duración y a la sobrevivencia en el tiempo. La ya mencionada choza primitiva, que apoyada sobre troncos de árboles dispone sus techos inclinados para que escurra libremente el agua de la lluvia, es el ícono de este principio de auto-conservación. Analicemos ahora el concepto de bien. Para los estoicos todo bien es útil, vinculante, rentable, bello y justo (o correcto). Es útil porque el bien nos expone a cosas de las cuales resultamos beneficiados. Es vinculante porque produce unidad allí donde esta unidad es

4_ Eduardo Castillo Casa Gallinero

requerida. Es rentable porque aquello que se invierte en el bien siempre produce un balance positivo a favor en la transacción. Es bello porque el bien que provee es proporcionado al uso que de él se hace. Por último, es justo o correcto porque está en armonía con la ley y tiende a reunir a los hombres. Por el contrario, lo feo es sinónimo de injusticia, cobardía, desorden e ignorancia.

El bien es digno de adoración. El sabio encarna estos valores porque es bueno y bello.

Dicho lo anterior, una arquitectura fundada en el bien es aquella que no sólo produce bien porque es útil y sirve a nuestras necesidades materiales, sino también porque reúne. El concepto de bien no se reduciría exclusivamente a lo que Vitruvio llama Utilitas (apropiado a la función), sino también a lo que, además, debe reunir, generar unidad y ser vinculante. Esto nos recuerda la noción heideggeriana del habitar asociado a la creación de lugares, en el sentido de que la construcción de lugar requiere puentes, vínculos con la cultura y con la divinidad, con la tierra y el cielo. Para el estoicismo, el mundo no tiene espacios vacíos, sino que forma una total unidad. De esta idea se desprende necesariamente una simpatía y tensión que reúne el cielo y la tierra.

La idea de vínculo se traslada a la arquitectura de muchas maneras, una de ellas es la idea de reunir en tanto enraizamiento. No es casualidad que se atribuya, a estas arquitecturas de raigambre rural, el don de reforzar los lugares por su capacidad de reunir, de tender puentes,

de vincular; es decir, de ser buenas en el sentido que le atribuían los estoicos a la idea de bien (es bueno todo aquello que es vinculante).

En este sentido, se cumple la máxima estoica de que lo moralmente bello es bueno. Otro de los conceptos fundamentales del estoicismo, la virtud, es definida por los seguidores de Zenón ―según sabemos a través de Diógenes Laercio―, en primer lugar como la perfección de cualquier cosa en general, sea esta de carácter no intelectual (como una estatua) o de naturaleza puramente intelectual (como la prudencia y la justicia). La belleza es, para los estoicos, el florecimiento de la virtud. Los vicios, la cara opuesta de la virtud, son producto de la ignorancia. Es hacia la perfección a la que hay que conducir los esfuerzos en un acto ascendente de progreso moral. La virtudes principales son la sabiduría, el coraje, la justicia y la moderación. Para la materia que nos atañe conviene recordar las siguientes definiciones.

Para los estoicos, la sabiduría es el discernimiento entre lo que produce el bien y lo que produce el mal, así como el conocimiento de lo que no es ni bueno ni malo. El valor o coraje, por su parte, es el conocimiento de lo que debemos escoger, de aquello frente a lo cual debemos estar precavidos o de lo que es indiferente. Las virtudes, por su parte, pueden ser fuentes de bien o resultado de algo bueno como un acto virtuoso. Los vicios, a diferencia de las virtudes, son siempre malos, tanto si son fines como si son medios.

5_ Eduardo Castillo Sentido opaco Expo Liga 09

Visto lo anterior, una arquitectura es buena si persigue fines virtuosos, evita males y utiliza medios buenos. Con respecto a lo primero, y a modo de simple ilustración, podemos afirmar que, por lo general, la arquitectura de la ciudad neoliberal no encarna un ideal de comunidad y por el contrario, es reflejo del culto individualista y en consecuencia, compite a través de su constitución formal y material por superar en gracia a sus vecinos.

Desde el punto de vista estoico, esto es lo opuesto a la virtud, entre otras cosas, porque promueve pasiones como la envidia. Por el contrario, la choza primitiva es virtuosa porque es igual a las otras chozas y no despierta en los hombres impulsos negativos. Del mismo modo, el pensamiento de corte estoico considera que, si un edifico persigue fines buenos, pero utiliza medios materiales que no son buenos ―con conocimiento de causa o por simple ignorancia―, no es virtuoso. Un ejemplo de ello es la predilección que tienen estas arquitecturas de corte ruralista por ciertos materiales y la absoluta aversión a otros. Se opta por aquellos que, desde el punto de vista de la ideología ecológica, son vistos como buenos porque, por ejemplo, están libres de pecado original (entiéndase la poca huella de carbono que deja su elaboración), a diferencia de lo que ocurre con el acero o el hormigón. En este contexto, la madera se enarbola como material virtuoso y cualquier edificio que se construya hoy en madera comparecerá con puntos a favor en la asignación de valor moral.

No es casualidad que en la Bienal Internacional de Arquitectura de Venecia coordinada por Alejandro Aravena, Reportando desde el frente, los materiales predominantes de los edificios expuestos hayan sido la madera y el ladrillo. Por cierto, estas verdades son verdades a medias y muchas veces, por fines comerciales, se ocultan aspectos nada virtuosos. Paradojalmente, la madera que se impone hoy como material bueno es producida de forma industrializada y se oculta que, en países como Chile, su producción está asociada a fragmentación y conflictos sociales sobre el territorio. Este aspecto es algo que debiera discutirse.

6_ Solano Benitez Primer premio XV Bienal de Venecia 2016

Veamos ahora qué ocurre en relación con las pasiones Para el estoicismo, alcanzar la felicidad requiere que el hombre domine las pasiones y no se deje conducir por ellas. Es prioritario ejercer el autocontrol, ejercitar la templanza y practicar la mesura ante todo. La desmesura, producto de la ignorancia de los propios límites, es considerada un vicio.

A primera vista es difícil hacer un símil o establecer vínculos con la disciplina arquitectónica. Pero siguiendo el ejercicio de extrapolación que estamos haciendo, se puede sostener que las construcciones que encontramos desperdigadas en la ruralidad, a diferencia de las que podemos encontrar en la ciudad neoliberal, no se extralimitan y, muy por el contrario, practican la mesura. En arquitectura, desmesura es sinónimo de vicios tales como forzar la estructura con el fin de realizar acrobacias

heroicas cuyo único objetivo es deslumbrar (en lugar de la utilidad). Desmesura es también sobredimensionar un elemento estructural para congraciar al ojo. Por ejemplo, en la naturaleza los árboles no se ensanchan al centro como lo hacen las columnas clásicas por razones ópticas. En arquitectura desmesura es todo aquello que embota los sentidos. La mencionada Bienal de Arquitectura privilegió, como ya se ha dicho, las arquitecturas elementales y excluyó a arquitectos de fama mundial como Zaha Hadid o Frank Gehry, cuyas formas son consideradas virtuosistas más que virtuosas, lo que, a ojos del neo-ruralismo, constituye la encarnación de la desmesura. Con relación a las obligaciones y lo que es apropiado y lo que no lo es, cabe señalar que para el estoicismo es adecuado ―como se ha insistido― todo lo que siga como modelo el comportamiento natural. Para esta corriente de pensamiento, al igual que para toda la filosofía griega, somos parte del todo. Todo es fisis y, a diferencia de lo que plantea el pensamiento moderno, la naturaleza no es separable del sujeto, ya que todo está

conectado. Si echamos a perder una parte, echamos a perder el todo. Esto conlleva obligaciones.

¿Es posible leer este sentido de responsabilidad en las construcciones rurales? La necesidad de hacer las cosas con lo que se tiene a la mano impone el metron. A la luz de las coordenadas actuales de juicio, en esta relación ajustada entre medios y fines se apreciarían valores afines a los que inspiran a los movimientos ecologistas, donde reconocemos la idea sistémica de los estoicos de que todo repercute en el todo. En esta misma línea, para el estoicismo hay dos principios que gobiernan el universo, los activos y los pasivos.

Mientras el principio pasivo es la sustancia sin cualidad, el principio activo es la razón inherente a la substancia, que es lo divino. Cabe hacer notar que existirían diferencias entre los principios y los elementos. Mientras los primeros no pueden ser destruidos, los segundos sí pueden perecer. Los principios son incorpóreos y no tienen forma. Los elementos, en cambio, sí la tienen. La arquitectura se construye a partir de principios que toman cuerpo en ele-

mentos con largo, ancho y profundidad. Estos elementos tienen superficies que los limitan, que los contienen. Hay una materia contenida por principios. De estas consideraciones se desprenden dos ideas en lo tocante a la arquitectura. Una de orden intelectual y otra de orden material. Primero, que la buena arquitectura es aquella que encarna principios; y segundo, que la buena arquitectura tiene límites, es decir, es de espacios finitos. A la primera noción se adscriben las mencionadas arquitecturas que, en palabras de hoy, poseen agenda y se justifican a través de discursos tales como el del reforzamiento de la identidad y del lugar en el sentido heideggeriano ya comentado o el hecho de tener cero huella de carbono .

A la segunda noción adscribe la arquitectura de corte rural, que entiende el espacio arquitectónico como espacio finito (a diferencia de lo que ocurre con la arquitectura de corte corporativo que aspira a la disolverse mediante brillos y reflejos). Mientras lo rural celebra la finitud, lo citadino celebra lo infinito.

Visto lo anterior, a la luz del estoicismo podemos afirmar que existe hoy una mirada de la arquitectura contemporánea que se posa en lo rural en búsqueda de pautas que conduzcan el hacer hacia fines virtuosos. Esta búsqueda refleja un anhelo de mesura, de ajuste de medios y fines orientados por una moral anclada en un universo natural tangible y no abstracto. Esta línea de trabajo inspirada en lo rural natural corre el riesgo de hacer una mimesis de los patrones existentes y así reproducir modelos, sin cuestionar si lo que se hizo antes sigue siendo válido o si, por el contrario, se requiere un ejercicio de total desafiliación para hospedar nuevos ritos y nuevos significados.

Como sea, si para acomodar lo nuevo fuese necesario desatender el pasado y desafiliarse de él, habría que hacerlo sin desatender los valores que encontramos en las construcciones rurales, sobre todo la noción estoica de que la belleza es consecuencia de un florecimiento moral.

Contemplar muros

A propósito de Materia de Juan Travnik*

* Conferencia pronunciada en la Fundación Larivière Fotografía Latinoamericana el 2 de marzo de 2024, con motivo de la exposición Materia, de Juan Travnik

** Alberto Delorenzini es Licenciado en Letras de la UBA y fue investigador del Centro Williams FADU UBA –donde dirigió la revista Pasajes– así como profesor de Estética en FAUD

UNMDP y en la UDT.

En mi primera visita a la exposición Materia, de Juan Travnik, al detenerme a observar las primeras tres fotografías, se me impuso de inmediato la idea de que lo que estaba viendo tenía algún tipo de relación con el Arte Informal: con los muros de Antoni Tàpies principalmente, pero también con algunas obras de Alberto Burri, como las combustiones y los craquelados, así como con las superficies texturadas, de apariencia pétrea, de Jean Dubuffet. A continuación, un poco más adelante en el recorrido, las pinturas de Noemí Di Benedetto y de Clorindo Testa que integran la muestra me confirmaron esa primera impresión.

Otra cosa que me resultó evidente de inmediato fue la sustancial diferencia que separa nuestra percepción cotidiana de los muros de la ciudad cuando caminamos guiados por objetivos prácticos y la artísticamente mediada de las fotografías de Travnik. Por ejemplo, una de las fachadas retratadas es identificable por los carteles de las calles que se ven a cada lado de la ochava: Pasteur y Tucumán. Pasé innumerables veces por allí, sin embargo, es como si nunca la hubiera visto.

A este modo de percepción, Viktor Shklovski, el teórico del formalismo ruso, lo llamó automático. Poco después de identificar la esquina mencionada, tomé al pasar con mi teléfono una fotografía de la fachada en cuestión, donde se la veía en un contexto más amplio: nada en ella resulta digno de mayor atención. La fotografía de Travnik, en cambio, singulariza el objeto al tiempo que lo integra a una visión de conjunto, la de la muestra Materia precisamente.

Reconocimiento y visión

En la terminología de Shklovski, el arte produce un extrañamiento respecto del modo de percepción automático. Automatismo de la percepción y extrañamiento son dos conceptos fundamentales de la teoría estética de este teórico ruso. Ambos se exponen en un célebre artículo de 1917: El arte como procedimiento. Allí dice Shklovski: Si examinamos las leyes generales de la percepción, vemos que una vez que las acciones llegan a ser habituales

1_ Buenos Aires, 2022

se transforman en automáticas. De modo que todos nuestros hábitos se refugian en un medio inconsciente y automático (…). Las leyes de nuestro discurso prosaico, con sus frases inacabadas y sus palabras pronunciadas a medias, se explican por el proceso de automatización. Es un proceso cuya expresión ideal es el álgebra, donde los objetos están reemplazados por símbolos […].

Esta cualidad del pensamiento ha sugerido no sólo la vía del álgebra, sino también la elección de símbolos, es decir, de letras, en particular las iniciales. En este método algebraico del pensar, los objetos son pensados en su número y volumen; no son vistos sino reconocidos a partir de sus primeros rasgos. El objeto pasa junto a nosotros como dentro de un paquete; sabemos que él existe a través del lugar que ocupa […]. Bajo la influencia de una percepción de este tipo, el objeto se desvanece y no deja ni siquiera una primera impresión; por último, incluso su esencia es olvidada […].

Así la vida desaparece transformándose en nada.

La automatización devora los objetos […]. Para dar sensación de vida, para sentir los objetos, para percibir que la piedra es piedra, existe eso que se llama arte. La finalidad del arte es dar una sensación del objeto como visión y no como reconocimiento; los procedimientos del arte son los de la singularización de los objetos […]. El acto de percepción es un fin en sí mismo en arte y debe ser prolongado. El arte es un medio de experimentar el devenir del objeto: lo que está ‘realizado’ no interesa para el arte.

Ahora bien, ¿cómo se singularizan las fotografías de Travnik? Campo de fuerzas

Los muros de estas fotografías —cerrados, herméticos, opacos, pintarrajeados, derruídos—, en su mayoría muros de la ciudad de Buenos Aires que vemos cotidianamente aunque quizá sin apenas haberlos observado con algún detenimiento, se presentan aquí, por obra de estas

2_ Buenos Aires, 2019
3_ Buenos Aires, 2019

mismas fotografías, como enigmas inquietantes: cobran forma de alegorías. Están atravesados de tensiones, son campos de fuerza puestos en obra justamente por el arte. Estamos aquí ante un mundo de cosas del que los seres humanos que las produjeron y se sirvieron o se sirven de ellas están ausentes, así como están ausentes de las naturalezas muertas de la pintura barroca. La naturaleza muerta se entendía como un memento mori

—dice Arnold Gehlen—; el vaso medio vacío advierte que alguien ha sido llamado. Arquitectura muerta, podríamos decir, con Andreas Huyssen: la clave para descifrarla es la alegoría. En la alegoría se pone en juego un campo de fuerzas. Antoni Tàpies, de cuyas pinturas-muros también hablaremos, solía indicar esas fuerzas con el símbolo de la cruz o con una X. Esta X se despeja, igual que en la alegoría barroca, como transitoriedad.

El poeta John Donne escribió en Devociones, publicado en 1624: Este es el juego de cajas de la naturaleza; los cielos contienen la tierra, la tierra, ciudades, las ciudades, hombres. Y todos son concéntricos; el centro común a todo es decadencia, ruina.

Volviendo al campo de fuerzas —y a la X—, ¿cómo está formado, cuáles son las tensiones que lo atraviesan?

Mencionemos algunas de ellas: el orden geométrico de la arquitectura y lo informe que hace presa de ella; el orden del encuadre y lo informe de los materiales con los que trabaja; el signo y la cosa; lo visual y lo táctil; lo que está hecho y las cualidades naturales de la materia; el colorido y la monocromía; lo actual y lo arcaico; lo nuevo y lo ruinoso; lo cerrado y lo abierto; lo opaco y lo traslúcido.

Vamos a detenernos, en primer lugar, en lo visual y lo táctil. Hay un especial interés en estas fotografías por lo táctil de la superficie visible. Sentimos que sus cualidades táctiles son palpables a la vista: la rugosidad, la aspereza, la sequedad, la humedad, el relieve, la porosidad, la dureza. Y sobre todo, las diversas capas de materiales superpuestos (que se reconocen también como capas temporales): revoque sobre revoque, pintura sobre revoque mal alisado, pintura sobre pintura, pintura sobre revoque descascarado, marcas de humedad o de suciedad sobre la pintura o el revoque, papeles pega-

dos, cortinas metálicas pintadas con grafitis, chapas y maderas que cubren las aberturas, cortinas de plástico detrás de los vidrios (rugosas, pegoteadas al vidrio, achicharradas por el sol, quemadas por la luz), tapias que ciegan puertas y ventanas para evitar la intrusión, la ocupación y el así llamado vandalismo, construidas provisionalmente, apresuradamente, toscamente, sin ningún acabado.

A propósito del uso de esta palabra, vandalismo, tan extenso como difuso y olvidado de su sentido histórico, convendría tener presente, al menos, el hecho de que hace referencia a las tribus de origen germánico, consideradas bárbaras por los romanos, que saquearon Roma en el siglo V de nuestra era, porque con esta palabra, vandalismo, aunque sea inadvertidamente para el hablante, el lenguaje da cuenta de la irrupción de algo arcaico en nuestro mundo cotidiano: también nosotros tenemos tribus —urbanas en este caso— que, entre otras cosas, se dedican a la práctica del grafiti. El grafiti —considerado como acto de vandalismo por nuestra legislación— tiene muchísimas variedades, entre ellas

4_ Buenos Aires, 2022
5_ Campana, 2021

el tagging, que se utiliza para demarcar territorios con grafismos que funcionan a la manera de firmas o sellos. Como sabemos, demarcar territorios es algo que compartimos con ciertas especies animales, como los felinos, que también utilizan líquido para hacerlo, aunque no pintura, desde luego.

Los grafitis están muy presentes en las fotografías que integran esta exposición, aunque no tanto como signos sino como materia, es decir, en el mismo nivel que otras capas de materia. Son meros grafismos que no alcanzamos a leer porque ya están semiborrados por la acción del tiempo o cubiertos por pintura aplicada sobre ellos con evidente descuido. De otra manera, nos detendríamos en un significado ostensible, fijo, que pugnaría por imponerse a la imagen como su significado. Pero el significado de la imagen no es separable de la materialidad que tan admirablemente evoca. Y en esto consiste precisamente la tensión entre signo y cosa.

Los muros de Tapies: historia natural de la pintura

Si la pintura tuvo su origen en las paredes de piedra de cavernas, grutas y acantilados (nos referimos a la pintura llamada rupestre, del latín rupes: roca, piedra), ya en tiempos históricos permaneció ligada al muro mediante la técnica de la pintura al fresco, que alcanzó un extraordinario grado de desarrollo en la antigüedad romana, y recién en el siglo XV, con el nacimiento del cuadro, la pintura llamada de caballete, realizada sobre tela, se independiza completamente de su soporte originario. Por eso, en la obra del artista catalán Antoni Tàpies parece operarse una extraña regresión: mediante el uso de materiales no convencionales como tierra, arena, cal, brea y cenizas, mezcladas con óleo y aplicadas con espátula, la pintura se petrifica, tiende a metamorfosearse en piedra, identificándose con ella. Escuchemos a Tàpies: ¡Cuántas sugerencias pueden desprenderse de la imagen del muro y de todas sus posibles deri-

vaciones! Separación, enclaustramiento, muro de lamentación, de cárcel, testimonio de paso del tiempo; superficies serenas, lisas, blancas; superficies torturadas, viejas, decrépitas; señales de huellas humanas, de objetos, de los elementos naturales; sensación de lucha, de esfuerzo; de destrucción, de cataclismo; o de construcción, de surgimiento, de equilibrio; restos de amor, de dolor, de asco, de desorden; prestigio romántico de las ruinas; aportación de elementos orgánicos, formas sugerentes de ritmos naturales y del movimiento espontáneo de la materia; sentido paisajístico, sugestión de la unidad primordial de todas las cosas; materia generalizada; afirmación y estimación de la cosa terrena; posibilidad de distribución variada y combinada de grandes masas, sensación de caída, de hundimiento, de expansión, de concentración; rechazo del mundo, contemplación interior, aniquilación de las pasiones, silencio, muerte; desgarramientos y torturas, cuerpos descuartizados, restos huma-

nos; equivalencias de sonidos, rasguños, raspaduras, explosiones, tiros, golpes, martilleos, gritos, resonancias, ecos en el espacio; meditación de un tema cósmico, reflexión para la contemplación de la tierra, del magma, de la lava, de la ceniza; campo de batalla; jardín; terreno de juego; destino de lo efímero […]. Qué gran sorpresa tuve, por ejemplo, al saber posteriormente que la obra de Bodidarma, fundador del zen, se llamó Contemplación del muro en el Mahayana (Antoni Tàpies, Comunicación sobre el muro, 1970).

La crítica y la filosofía del arte se han ocupado de precisar el carácter matérico específico de la pintura informal. Veamos qué dice al respecto Arnold Gehlen en su Imágenes de época, de 1986: Hoy día se emplea con plena conciencia lo manchado y corroído, lo raído, lo decrépito de las superficies de color […].

Se observan ‘las casualidades de delicado cromatismo’ de las cosas usadas […]. El motivo corresponde a las pequeñas inmediateces de la vida

cotidiana en las vanitas del siglo XVII, por entonces concebidas en términos objetivos: las hebras de tabaco, la mecha que arde, las cáscaras de nuez y las moscas. La inestabilidad de la existencia se hizo sensible de manera penetrante desde los márgenes, y hoy día se descubre que la ‘ausencia de frescura’ ópticamente realizable obtiene el mismo valor afectivo […]. Esta naturalidad consiste en el marchitarse, oxidarse, deshojarse, desteñirse y corroerse; dicho brevemente: en lo incontrolado. Lo incontrolado recibe el encanto de lo natural […]. En el mundo controlado, el moho, la herrumbre, el trabajo de los microbios, lo desaliñado y raído se convierten en emisarios de la naturaleza y de la naturalidad […]. La sensibilidad del ojo y la inseguridad del corazón no quedan agotados por lo pulido e higiénico; pueden distender su dispositivo de alarma y descansar en las casualidades, en las sustancias marginales desatendidas, las superficies desordenadas.

6_ Claromecó, 2023

En un artículo de 1970 reveladoramente titulado Apoteosis de la materia humillada, Roger Caillois comparó el mundo de imágenes de la pintura matérica con fotografías que proporcionan una visión muy próxima de objetos de la naturaleza. Dice allí: Tengo bajo los ojos un álbum de fotografías en colores cuyo autor exalta las cortezas de los fresnos, de los abedules y de los arces, de las hayas purpúreas y de los álamos plateados […]. Jean Rostand, que presenta estas láminas impresionantes, afirma con razón que pueden desalentar a los pintores […]. Aportan en todo caso una prueba más de que el que contempla y lo contemplado son de la misma especie, pertenecen al mismo universo y que la idea de la belleza es como una savia que circula entre ellos en la unidad de su sustancia […]. Interpreto así la expresión sobrecogedora por la cual el naturalista elogia esos documentos extraordinarios diciendo que recuerdan la ubicuidad de lo esencial.

Lo esencial se esconde en los musgos y los líquenes, en el moho y los hongos que atacan las cortezas y las alburas. Los adorna una belleza patética y deslumbrante: librea de las fuerzas pacientes e infalibles que, de igual modo que la crean, destinan cada esplendor a su desaparición. Señalo los adjetivos que vuelven una y otra vez en las breves leyendas de los clisés: calcinado, raspado, podrido, carcomido, herido, agrietado, desollado. Pienso entonces en la preferencia enigmática que traicionan a veces los pintores y escultores en la elección de los materiales que se complacen en incorporar a sus obras: son desechos, residuos y recortes, harapos, escorias y cagafierros, siempre la materia degradada, gangrenada, dañada, cada resto irreconocible y humillado.

El ángel desgastado

Me gustaría cerrar estos breves comentarios con una cita de Theodor Adorno y una última reflexión acerca de las

fotografías de Juan Travnik. La cita pertenece al ensayo sobre Kafka: La única promesa que el ilustrado Kafka no condenada con el mandamiento iconoclasta es la que dice que la creación dañada no puede ya morir. Esa promesa se enlaza con la salvación de las cosas –de las cosas que no están entretejidas con la conexión culposa: las cosas introcables, las cosas inútiles–. A ellas apunta la más profunda capa significativa de lo caduco en Kafka.

Su mundo de ideas parece una tienda de objetos invendibles: ningún theologumenon [enunciado teológico] se le acerca tanto como el título de una comedia cinematográfica norteamericana: Shopworn Angel (Theodor W. Adorno, Notas sobre Kafka, 1953).

Quiero ahora referirme a dos fotografías de Materia: son las únicas en las que se trasluce un interior, todas las demás superficies, incluidas las vidriadas, presentan en este sentido un alto grado de opacidad. En una de ellas vemos dos extrañas figuras bajo el sol. Están colocadas ante un sillón de rojo. Son una gallina y un gallo ubicados frente a frente, parecen fabricados con latón sobre un esqueleto de alambre. Están pintados con colores

brillantes, aunque algunas placas están descascaradas. Otras, faltan y dejan ver el interior oscuro del artefacto.

Shopworn Angel.

En la segunda, pueden observarse dos ventanas en las que se refleja una luz crepuscular. En la parte inferior de esas ventanas, sobre los antepechos, hay una serie de objetos alineados: un faro de juguete, una pequeña maqueta de un velero, un frasco de vidrio como los que se usaban para guardar caramelos, una rama seca de una planta que semeja un pequeño árbol, probablemente un candelabro de terracota, un jarrito metálico, otro objeto difícil de identificar y, por último, un portarretrato visto desde atrás. Natura morta

Carioca & singular Modernidad y ciudad ideal en el pensamiento de Sérgio Wladimir

Bernardes

Pablo Mastropasqua*

* Pablo Mastropasqua es Arquitecto FAUD UNMDP donde es profesor de Historia y Doctor UFRJ Brasil con una tesis del que el presente artículo forma parte. Matropasqua enseña también en FA UA en Mar del Plata.

* * Mello Junior, D., Rio de Janeiro.

Plano, plantas e aparências. Joao Fortes. Rio de Janeiro 1988 p.

247. Traducción del autor

Dentro de la vanguardia moderna brasilera existe un personaje poco conocido u opacado por su singularidad o por la originalidad de sus proyectos urbanos. Es el caso del arquitecto Sergio W. Bernardes (1919-2002). Podemos decir que dentro de la historiografía arquitectónica brasilera, se comete una exclusión injusta con su persona, sus propuestas y sus escritos, es difícil encontrar un análisis de su obra construida y casi imposible sobre sus ideas y proyectos ideales para la ciudad y el territorio (en el libro de Alberto Xavier, Depoimento de uma geraçao, 1987, no existe ninguna referencia a S. Bernardes), únicamente encontramos material en sus propios textos y publicaciones. Recién en los últimos años se ha realizado un rescate con varias publicaciones1 y un film2 .

1 Calvacanti, Lauro, Sergio Bernardes. Serie Perfiles de Rio. Prefeitura de Rio de Janeiro. Relume Dumará, 2004. Finotto, Leonardo, Sergio Bernardes House Lota Macedo Soares, Obra Comunicação

Itemzero,2013. Paciello Viera, Mónica, Sergio Bernardes. Arquitectura como experimentación, UFRJ 2006. Tesis de Maestría. Bernardes, Kykah y Calvacanti Lauro, Sergio Bernardes, Artviva. 2010.

2 Bernardes. Es un largo metraje documental sobre el arquitecto

Utopía seria pensar que tal plan será realizado mañana o de aquí a un siglo.

Realismo es saber que puede ser hecho* *

Sergio Bernardes Plano Río

Parte de esta ausencia de referencias a Bernardes puede tener que ver con lo político y su complejidad en países como Brasil, donde, por su participación como referente arquitectónico de alguno de los miembros de la dictadura, fue rechazado por la intelectualidad progresista de la profesión y con la recuperación de la democracia en el país fue casi borrado de la historiografía nacional por muchos años.

…la ilusión de que [Bernardes] se tornaría en el arquitecto que daría forma al régimen militar se fortaleció con la aproximación de Golbery do Couto e Silva.

El más culto de los militares (...) quedo, al principio, fascinado con las ideas y la personalidad de Sergio Bernardes. (...) El estar cerca del arquitecto, daría entonces refinamiento intelectual y la oportunidad de debate profundo de temas geopolíticos (...). Los unía el entusiasmo en crear nuevas estructuras

realizado por el arquitecto Thiago Bernardes en 2014 (1h 31min) Trailer en https://www. youtube.com/watch?v=K28EMUeLn38 y en http://www.bernardesdoc.com.br/

que posibilitasen el desarrollo del país. Eran dos figuras que, aunque situadas en un espectro político conservador, no pretendían mantener las estructuras arcaicas de organización territorial. El proyecto más arrojado, que obtuvo simpatía inicial de Golbery, era aquel de una Escola Superior de Guerra junto a la Universidade de Brasília. 3

Fue partícipe de varios proyectos arquitectónicos durante el periodo de 1965 a 1973, coincidente con un periodo exitoso en alguno de los aspectos económicos del país pero duro en lo político y con aparatos represivos coordinados con otros países de la región, extrañamente a este periodo suele denominárselo como el milagro brasilero.

Es difícil dejar pasar esta situación en su trayectoria, es una mancha indeleble que ninguno de sus biógrafos o documentalistas podrá borrar, pero esto

no significa que no podamos destacar su obra y que, sin duda, estamos ante la presencia de uno de los grandes arquitectos de la modernidad latinoamericana y brasilera.

Colabora en el desconocimiento general sobre Bernardes que la historiografía arquitectónica internacional, especialmente la europea y norteamericana, se desinteresan de la evolución de la modernidad en Brasil post Brasilia y junto con el golpe militar y la dictadura hay un periodo de silencio y olvido de décadas, decretando en sus publicaciones la muerte de la arquitectura moderna brasilera.

3 Calvacanti, Lauro, Sergio Bernardes.Herói de uma Tragédia Moderna. Relume Dumará, Rio de Janeiro, 2004. P.59. Traducción del autor

2. Film sobre S. Bernardes
1. Sergio Bernardes

3. Mausoleo Castelo

Branco Fortaleza 1972

Diseñando en los trópicos

Eu sou um homem maldito. E por ser maldito eu fico com liberdades enormes de fazer o que quero.4

La palabra diseño en español y la palabra desenho en portugués son parecidas, pero significan conceptualmente algo distinto, los hispanohablantes usamos el termino como un todo en las diversas disciplinas proyectuales y para lo que es prefigurar un proyecto, en portugués el termino es usado para dibujo, desenhar es dibujar, en Bernardes esta habilidad era una virtud de sus proyectos como gran dibujante. No importando el encargo o su dimensión, el dibujaba a mano hasta el detalle. Es particular en Bernardes la manera de abordar las diferentes escalas de los problemas urbanos, una manera que podríamos comparar con los trabajos y propuestas de Buckminster Fuller o en su estética, al metabolismo japonés o los trabajos de Yona Friedman.

4 Sergio Bernardes, Bernardes, dirección de Gustavo Gama y Paulo Barros, producción de Lula Freitas, Rio de Janeiro, 6D Filmes & Rinoceronte Produções, 2014. Yo soy un hombre maldito Y por ser maldito tengo libertades enormes de hacer lo que quiero. Traducción del autor.

Para tener algunas referencias publicadas de su obra debemos retrotraernos a las últimas décadas del siglo XX donde, como primeros rescates y por una serie de hechos aislados: primero una exposición dedicada a su obra y pensamiento montada en el Museo de Arte Moderno de Rio de Janeiro entre octubre y noviembre de 1983 y al mismo tiempo un catálogo y un número especial dedicado a la muestra de la revista Modulo, donde el mismo arquitecto insinúa esta incomprensión de sus ideas y obras.

La visión distorsionada de los gobiernos, en relación a mi pueblo y a su país, hizo que yo asumiese lo que expongo… Ni tiene, lo que presento, ningún posicionamiento científico, tecnológico o pretensión erudita, apenas un comportamiento prospectivo objetivando permitir, de la forma más inmediata, desvestir el futuro de las ropas viejas con que es obligado a presentarse en el

presente, dejándolo libre para escoger su propio ropaje… me expreso en el sentido de contribuir a un mundo mejor.5

La revisión de su obra continuó desde revistas digitales como Vitruvius (www.vitruvius.com.br) donde ha reaparecido su nombre, en artículos de Ana Luiza Nobre, Roberto Segre, Renato da Gama-Rosa Costa y de Paul Meurs así como una tesis de maestría no publicada de Joao Pedro Backheuser de 1997.

El caso de Bernardes en Brasil es comparativamente tan paradigmático como el de Amancio Williams en Argentina, no tanto en su desarrollo de obra construida, que en Bernardes es abundante, sino más en ese ánimo de inagotable búsqueda de respuestas y lenguajes, casi científicos, de la arquitectura y el urbanismo, asumiendo riesgos, experimentando y siendo, muchas veces, incomprendidos o no valorados en su tiempo o en el sentido empírico de sus propuestas.

Esta exploración constante de nuevas respuestas y soluciones no tradicionales con una aparente irresponsabilidad, nunca dejó de lado el equilibrio entre la belleza y un método exhaustivo de análisis del proceso proyectual

5 Bernardes S. Revista Modulo edición especial, Exposición Sergio Bernardes en el MAM, Rio de Janeiro, 1983, p.7. Traducción del autor

de sus diseños o búsquedas.

Si repasamos sintéticamente su trayectoria podemos decir que Bernardes se graduó como arquitecto en 1948, una larga carrera de 9 años que tuvo una serie de idas y venidas fuera y dentro de los claustros. Son éstos los tiempos de reconocimiento mundial de la arquitectura moderna brasilera, con el Ministerio de Educación inaugurado, el conjunto de Pampulha construido y divulgado en Europa y Estados Unidos y la exposición Brazil Builds recorriendo el mundo, promocionando los nombres de Lucio Costa y Oscar Niemeyer entre otros.

Este momento de entrada para la actividad profesional se vislumbra como óptimo para un arquitecto moderno en esa realidad brasilera. Ya pasada la desgastante lucha entre modernos con eclécticos y neocoloniales, el movimiento moderno va dejando de ser un elemento raro para la sociedad; con nuevos recursos técnicos en la construcción, provenientes de la incipiente industrialización del país, permiten que el arquitecto comience su experimentación con sistemas constructivos y nuevos materiales o en todo caso, tradicionales utilizados de nuevas formas.

Ya antes de terminar sus estudios, la revista L’Architecture d’Aujourd’hui, en un número doble dedicado a la Nueva arquitectura brasilera, publica un trabajo del arquitecto, el Country Club de Petrópolis, junto con el Ministerio

4. Casa Macedo 1952

5. Ciudad Jardin Eldorado

de Educación (MEC), el Pabellón de Brasil en la Exposición de Nueva York de Costa y Niemeyer y otras obras de arquitectos de creciente prestigio como Vital Brazil y los hermanos Roberto.

Lo particular de este proyecto de Bernardes y que lo destaca y diferencia de los otros, es la búsqueda por resolver la estructura del edificio en acero, algo muy novedoso en este contexto y una pequeña muestra del espíritu de originalidad y experimentación que va a modelar su trayectoria.

En 1954 presenta lo que será su primer proyecto de escala urbana, la Cidade-Jardim Eldorado una urbanización del tipo satélite, en la periferia de Belo Horizonte, con una estructura urbana moderna y con algunos de los rasgos preconizados por Ebenezer Howard y realizados por Raymon Unwin junto a Barry Parker en 1917 en Jardim América, Pacaembu, Alto da Lapa, entre otros, en la periferia de San Pablo, ejemplos exitosos de ciudad jardín en Sudamérica.

El cliente para dicha urbanización era la empresa de desarrollos inmobiliarios de Río de Janeiro, Compax S.A. El proyecto determinaba cuatro claros sectores semi-autónomos que se volcaban y convergían en una plaza cívica

con iglesia y centro deportivo. Cada sector contaba con una escuela, un cine y un pequeño centro comercial, también se reservaba un área para recreación y como espacio verde. El sistema de calles se dividió en alamedas para peatones, calles locales y avenidas arborizadas. Posteriormente, y por intereses especulativos de los agentes inmobiliarios, muchas de estas premisas no se respetaron o directamente no fueron llevadas a la práctica, reconociéndose solo, el trazado viario por su acompañamiento de la topografía existente; el caso de las infraestructuras de equipamientos públicos no fueron respetadas y su superficie loteada para la construcción de más viviendas, con la excepción del sitio de la iglesia.

El proyecto original, una pequeña utopía urbana, se publicó en el año 1954 en el número 55 de la revista Arquitetura e Engenharia del IAB (Instituto de Arquitetos do Brasil) de Minas Gerais como muestra de una nueva forma de realizar las expansiones de la ciudad.

Con este trabajo Bernardes comenzaba a formar un pensamiento sobre lo que sería la ciudad ideal que más tarde plasmaría en sus escritos:

6 y 7. Pabellon de Brasil en Expo Bruselas 1958

El repensar la ciudad indica la necesidad de aceptar su objetivo de asegurar condiciones para que cada uno tenga una vida productiva y feliz. Para que cada uno comparta la vida con la comunidad; ¿al final no es este deseo de participar, de compartir, de dar, lo que justifico la propia constitución de las ciudades? 6

Su trayectoria profesional se ve reconocida en distintas oportunidades: en 1954 recibe el Gran Premio de Arquitectura de la Bienal de Venecia por el proyecto de la casa de Helio Cabral en Río y un premio en la II Bienal de San Pablo por la casa de Lota Macedo Soares en Samambaia, Petrópolis; una vivienda que por el uso del terreno y su integración con la naturaleza es ejemplo de proyecto, en su momento se le cuestionó el uso de materiales

6 Bernardes, Sergio, Revista Módulo octubre/noviembre 1983, Rio de Janeiro. p.17 Traducción del autor

como la chapa de aluminio para la cubierta en un lugar tan lluvioso como Petrópolis, a lo que Bernardes simplemente respondía: Lota adora ese ruido de la lluvia sobre el tejado. En el mismo año un pabellón de características muy singulares para la Compañía Siderúrgica Nacional en la exposición conmemorativa del IV Centenario de la Ciudad de San Pablo, realizada en el parque Ibirapuera, contaba con una estructura en forma de puente materializada en acero.

Dentro de esta secuencia de reconocimientos, está el premio otorgado en Exposición Internacional de arte Sacra en Darmstadt en 1956 por la Iglesia para Dominicos en San Pablo proyectada en 1951.

Otro pabellón será el que continúa marcando una tendencia hacia las búsquedas innovadoras, en 1958 el entonces embajador brasileño en Bélgica, Hugo Gouthier, invitó a Bernardes a proyectar el edificio emblema de Brasil para la Feria Internacional de Bruselas 1958, que por otra parte recibió la Estrella de Oro del jurado.

En esta misma exposición y entre los pabellones que se perdieron por la posterior demolición, se encontraba el de la empresa Philips realizado por Le Corbusier, en el comienzo de su experimentación con las formas plásticas que permitía el hormigón en lo que fue llamado un poema electrónico.

El sitio donde le correspondía ubicar el pabellón a Bernardes no era el me-

jor, un terreno inclinado en uno de los rincones finales de la muestra. El arquitecto quería provocar una sensación diferente en los posibles visitantes que llegarían al pabellón que vendrían ya cargados de sensaciones distintas después de la caminata, además de cansados del recorrido. Para sugerir la visita usó el recurso plástico de desplegar una alfombra roja de cemento en forma de leve rampa en dirección al bar y el jardín tropical, diseñado por Burle Marx, y a las atracciones audiovisuales de la sala de proyección.

El jardín que diseño Burle Marx fue protagonista en el pabellón, provocando una tensión y un juego formal entre la racionalidad de la arquitectura y los caprichos de las formas curvas y naturales. El elemento central fue el lago debajo del techo perforado con una isla de plantas acuáticas tropicales, donde las márgenes fueron tratadas con canteros de hormigón de forma escalonada que acompañaban en el recorrido a los visitantes hasta el bar donde una serie de bancos y mesas se mezclaban con la naturaleza diseñada.

Otro de los atractivos del pabellón será un globo aerostático que se elevara sobre él y que servirá como apertura o cierre de un gran impluvium en el centro de la cascara de hormigón, que cuando llovía se transformaba en una cascada circular que alimentaba el jardín tropical.

Si revisamos la trayectoria de Sergio Bernardes podemos leer claramente el camino autónomo que tomó dentro de la llamada arquitectura moderna brasilera, y esto se verifica claramente en sus aspectos constructivos y tec-

nológicos, como gran innovador que, al contrario de muchos de sus contemporáneos, no se restringió a las estructuras de hormigón armado, sino que también lo hizo en madera y acero, experimentó con piedras y cerámicas, plásticos y vidrios, usando muchas veces materiales tradicionales de forma no usual y provocando juegos estéticos como neblinas, cortinas de agua y el uso de reflejos, olores y sonidos como parte de los recursos expresivos de sus propuestas.

Si bien apenas graduado trabajó con Niemeyer y recibió su influencia, rápidamente se distanció tanto del Maestro como de Lúcio Costa; o sea, del predominio de las formas libres de hormigón armado del primero y de la articulación entre purismo clásico y lenguaje vernáculo del segundo.7

Estos aspectos singulares de su arquitectura hacen que a la crítica le sea difícil definir y encuadrar el estilo –que en un sentido estético es inexistente– y de allí también puede venir el casi silencio que hay sobre su obra.

Su serie de pabellones se completa entre 1958 y 1960 con el de la Feria Internacional de Industria y Comercio de Sao Cristóvao en Río de Janeiro, un espacio de características monumentales de 250m por 150m, sin columnas intermedias, con una cubierta de cables tensados de acero que se tomaban de una viga perimetral de hormigón armado, el juego de las aguas de lluvia volcándose en su interior usada en Bruselas, se repite en dos lagos en los extremos internos del predio.

El cuarto pabellón de la serie es el único que permanece intacto y con su función original, es el Centro de Convenciones en Brasilia de 1972, otra vez aparecen las estructuras tensadas de acero, en este caso extendidas entre dos pórticos de concreto y que continúan sobre la plaza frente al predio, que en el proyecto original repite la idea de techar con una perforación a modo de “impluvium” en este caso rectangular, pero que finalmente quedaron solo los tensores generando este espacio abierto, contenido virtualmente.

7 Segre, Roberto Sergio Bernardes. Entre el regionalismo crítico y el high tech. En www. vitruvius.com.br. acceso 20/09/02

8. Pabellon de Sao Cristóvao

Apropiación, antropofagia, fagocitación: hacia una modernidad urbana devorada

Bernardes se identificó por tres componentes esenciales que establecen la continuidad expresiva de su obra: la fuerte presencia de la naturaleza; el empleo de los materiales locales; la utilización de la tecnología avanzada.8

Roberto Segre, Sergio Bernardes.

Entre el regionalismo crítico y el high tech

La personalidad de Sergio Bernardes y su relación con Río de Janeiro ha generado gran cantidad de anécdotas; la importancia que daba a la presencia del mar y cómo todos deberían poder disfrutar de esta premio de la naturaleza era casi una obsesión, es quizás por eso que su casa fue construida sobre una roca con una vista paradisíaca sobre la avenida Niemeyer y su

8 Segre, Roberto. Op. cit.,

estudio de tres plantas edificado en hormigón visto con claras alusiones a las formas náuticas sobre la costa en Barra de Tijuca.

La trayectoria de Bernardes en estos últimos cincuenta años muestra un desempeño como proyectista integral, inventor y visionario en todas las escalas del diseño: el mobiliario, medios de locomoción, arquitectura, urbanismo, planificación urbana, propuestas ecológicas planetarias, etc., no es de extrañar que la televisión brasilera en un reportaje lo presentara, cayendo en una exageración, como el Leonardo da Vinci de nuestro tiempo.

En la escala territorial tenía una propuesta para tornar todos los ríos del país en navegables, el diseño fue denominado Plataforma de las esferas Libres (1963) donde el sentido no era modificar los cauces o el calado de los ríos, sino las embarcaciones. Quieren modificar los ríos para hacerlos navegables. Tienen que modificar los barcos.

Muchas de las propuestas ingeniosas, para unos, o delirantes, para otros críticos, se pudieron ver en un número especial de la revista Manchete (Nº 678 del 17 de abril 1965) titulado Rio do futuro: Antevisao da Cidade Maravilhosa no século da eletronica.

9 y 10. Barrios Verticales del Plano-Río

Entre otros proyectos, este número a todo color, traía perspectivas y vistas del Aeropuerto Libre intercontinental, un puente-muelle que unía las localidades de Cajú en Río de Janeiro con San Lorenzo en Niteroi, un centro cívico a la manera de los aconsejados por los CIAM, denominado Centro de Equilibrio de la Ciudad con edificios para los poderes Judicial, Ejecutivo y Legislativo. La propuesta de este centro tenía que ver también con las ideas de descentralización del poder que proponía Bernardes, su ubicación estaba en Jacarepaguá, suburbio de Río de Janeiro. Una de las propuestas más singulares y que tiene semejanzas con las proposiciones contemporáneas de Yona Friedman , Walter Jonas o del metabolismo de Kisho Kurokawa, son los Barrios Verticales del Plano-Río (1965), Bernardes, contrario a la ingenuidad del planeamiento horizontal, propone la verticalización total de la ciudad en 156 edificios de estructura helicoidal de 600m de altura cada uno, con bases en explanadas de

37500m2 donde estarían ubicados los centros de compras y estacionamientos de vehículos.

La capacidad de estos barrios en altura seria de 15.600.000 habitantes, casi la población actual de Rio y el gran Rio.

La forma y estética del edificio es la de una mega estructura –como el metabolismo de Kenzo Tange en plan para Tokio– con los apartamentos alineados en forma de estrella con seis rayos, con una torre de circulación en el centro cada uno de estos y las viviendas articuladas de tal manera de tener todas las orientaciones posibles al exterior.

Sustituía la infinita extensión horizontal de la vivienda individual por altas torres helicoidales de 165 metros de altura, distribuidas libremente sobre el accidentado territorio de los morros de la ciudad. Estas experiencias hicieron que João Vilanova Artigas lo llamara el Flash Gordon brasileño, por esta mezcla de formas tropicales,

estructuras ligeras a la Fuller y conjuntos urbanos de ascendencia metabolista. 9

El Plano-Río se completaba con la propuesta de ejecutar un sistema de transporte que rodearía los morros, un tren de monorriel elevado, que haría la conexión con Niteroi por tres puntos, el Ponte Pier de Cajú, que se integra a la propuesta, el Puente Turístico, desde la Pedra do Leme y un túnel múltiple para vehículos, peatones y monorriel que saldría frente al Ministerio de Guerra, en la Av. Presidente Vargas y alcanzaría el otro lado de la bahía a la altura de la actual estación de barcas de Niteroi.

La infraestructura del plan estaba plasmada en la distribución urbana de 45 centros culturales con teatros, cines y lugares de exposición, 76 centros deportivos y educacionales y dos universidades, una en Isla del Gobernador y otra en el morro do Redondo.

La verticalización de las máquinas de habitar aumentó la densidad, valorizó artificialmente los terrenos, dio margen a la especulación, encerró al pueblo

9 Segre R., Op. Cit.

en los departamentos y en las máquinas registradoras. Nuestros abuelos compraban campos, nuestros padres adquirían hectáreas, nosotros obtenemos metros cuadrados y nuestros nietos centímetros cuadrados (...) La verticalidad osada considera como primer objetivo el bienestar común en subordinación a las legítimas aspiraciones personales. Por eso proponemos, en sustitución al departamento vertical, el barrio vertical, donde el hombre, de hecho, podrá tener su lote y su jardín.10

Dentro de su preocupación constante por el rumbo que estaba tomando la ciudad, en 1979 inaugura el Laboratorio de Investigaciones Conceptuales (LIC) una herramienta para poder encauzar muchas de estas ideas que anárquicamente surgían de intentar solucionar todos los problemas que el

10 Bernardes, S., Plano-Rio Rio de Janeiro 1965 Documentación registrada en el acervo de la Fundación Oscar Niemeyer. R.J. Consulta abril, 2003. Traducción del autor

11 y 12. Projeto Atlantida

territorio comenzaban a demostrar sin remedios aparentes: según Bernardes el LIC ya existía desde 1959 como una actitud y un comportamiento.

En el LIC elaboró una de las etapas más ricas, y podemos decir más utópicas, de su producción de proyecto y pensamiento para las cuestiones sociales y urbanas de Brasil como habitación, contaminación, congestionamientos de tránsito, sequías y desempleo.

El LIC suministró muchos consejos (no solicitados, la mayoría de las veces) a políticos, asociaciones de moradores y a los gobiernos de turno, casi siempre sin respuesta o alimentando algún cajón de escritorio de los funcionarios. Al inicio de los años ´80 un grupo del laboratorio estaba trabajando en un estudio de escala monumental, el desequilibrio entre inundaciones del Norte y las sequías del Nordeste de Brasil y su posible solución en todo el país trazando una red de 16 acueductos, formando una malla de más de 30 mil kilómetros de extensión y cruzando todo el territorio, y otro para el mismo problema que dividía la nación en 17 islas autónomas separadas por canales y ríos que tendrían en sus márgenes un área de 200km de ancho destinadas a la preservación y como reserva natural, denominado

Projeto Brasil.

EL LIC siguió proponiendo proyectos para los problemas emergentes y urgentes que se venían manifestando en Rio de Janeiro como una red de carreteras suspendidas a 100m de altura, llamada Anéis de Equilibrio (1974),

el Lagocean (1983) –solución para la desembocadura del canal que une la laguna Rodrigo de Freitas con el océano a la altura del Jardim de Alah, con una estación depuradora y un puerto de yates– y el Projeto Atlantida (1997) –un puente entre Barra de Tijuca y Cabo Frío donde las torres de sostén serían edificios de departamentos con 12500 unidades de habitación de alrededor de 30 metros cuadrados cada una–.

Sergio Bernardes fue un auténtico carioca y amante de Río de Janeiro y allí desarrolló la mayoría de sus proyectos y es donde imaginó sus más obstinadas utopías, pero no por esto se mantuvo alejado de la realidad y de la vida política, intelectual y cultural de la ciudad, calificado como excéntrico cuando se paseaba con su Ferrari en el circuito de carreras de calle de Río o por su pasión por la aviación y por hacer acrobacias en el cielo carioca.

A lo largo de esta trayectoria Bernardes diseñó y propuso millares de proyectos, todavía no hay un inventario certero sobre esta obra, pero se supone que se acercan a los seis mil; de los cuales parte se encuentra en publicaciones dispersas y una porción importante en el acervo de la Fundación Niemeyer.

Esta vida dedicada en un principio a la ejecución de obras de pequeño o mediano porte, acumulando premio tras premio, se fue transformando en una ferviente inquietud por la invención y la solución de los problemas del prójimo en todas sus escalas y especialmente en su país y su ciudad. Oscar

Niemeyer lo recuerda con estas palabras: Su mayor preocupación, principalmente en los últimos tiempos era la cuestión del espacio y su aprovechamiento social.11

En los proyectos urbanos de Sergio Bernardes vemos que la idea de Ciudad Lineal es frecuentemente reinterpretada como una solución a la dispersión de la ciudad, uno de estos proyectos es el de Eje Polivalente (1967), una ciudad sobre la línea del tren, que realiza con su equipo del LIC y establece que Río de Janeiro tiene un trazado de 105 kilómetros de vías de tren que lo cortan y lo fragmentan en fajas de terreno que varían entre los 25 y 40 metros de ancho donde se podría construir un mundo nuevo para la población de las favelas. Bernardes propone unos módulos que integrarían habitación, educación, trabajo, recreación, servicios y transporte sobre una estructura de acero de 45 metros de altura, es decir un edificio de 14 plantas.

Hay espacio sobre la línea férrea para la construcción de 105 módulos, cada uno con 660 metros de largo, separados 210 metros entre uno y otro. Es una superficie, en toda la extensión de las vías de tren, de 3,15 kilómetros cuadrados, que corresponde a casi la mitad de Copacabana.12

11 Niemeyer, O., Sobre la muerte de S.B. Rio de Janeiro. En Jornal do Brasil 16 de junho de 2002. Traducción del autor

12 Bernardes, S., Rio de Janeiro. Revista Módulo Edición especial. MAM Octubre 1983, p.43.

Los pasos que proponía el estudio del LIC eran en primer término construir una autopista elevada sobre las vías del ferrocarril de seis carriles rápidos para desahogar el tránsito caótico de la avenida Brasil y otras de la zona norte de la ciudad.

Las dos vías se tratarían acústicamente con una suerte de túnel falso que se cerraría con gigantes venecianas verticales de cemento. Entre la pista de los automóviles y los departamentos se construiría un entrepiso técnico para pasar instalaciones de infraestructura y servicios que también aislaría al sector de viviendas.

Una serie de rampas cada 60 metros daría acceso a las viviendas y el sector de servicios que conectarían con las escaleras insertadas en los gigantescos pórticos de sustentación del predio elevado.

El gigantesco módulo de vivienda daría lugar a una nueva experiencia comunitaria con apartamentos de 22,5 metros cuadrados que funcionarían como hoteles de tránsito para los trabajadores de paso; sector de dormitorios para niños de 6m por 6m, comedores colectivos, talleres de trabajo englobando 81 mil rubros de pequeños servicios en base a un estudio realizado sobre las mayores favelas de 120 metros cuadrados cada uno, Escuelas de primero y segundo nivel y de enseñanza profesional, puestos de salud, restaurantes,

bares, tiendas, plazas, parques lineales y centros de compras, aprovechando las zonas de estaciones de intercambio de transporte y su mayor superficie.

Este no es un proyecto de remoción de favelas. Es una propuesta que va mucho más allá de la simple substitución de la barraca por un conjunto habitacional. Es un ejemplo práctico de cómo se pueden alterar estructuras para implantar una nueva filosofía de vida, de trabajo y de desarrollo urbano. 13 Bernardes no sólo imagina la forma del edificio y su organización social (este proyecto podríamos asimilarlo, en su integridad de propuesta, al Falansterio de Fourier) pues también piensa la forma legislativa y económica de materializarla, propone que las unidades tengan un régimen de alquiler sobre una futura Federación del Mercado de la Mano de Obra (FEMMO) que permitiría dar a cada super bloque una imagen propia, llamando a concurso y escogiendo los mejores proyectos y los mejores materiales.

Según los autores, el listado de ventajas de esta tipología seria: cercanía entre residencia y trabajo (máximo 2,5 Km.), mejor relación habitación, ocupación, transporte; al reducir al mínimo los tiempos y distancias de traslado no existirían más adultos o niños abandonados durante tantas horas al día por las ocupaciones de los jóvenes y contarían con un sistema de asistencia social y de educación permanente. Esta seguridad en la familia alentaría el

13 Bernardes, S., Revista Módulo Edición especial MAM Rio de Janeiro Octubre 1983, p.43.

Traducción del autor

Traducción del autor

13. Eje polivalente

ascenso social y por último, las áreas desocupadas por las favelas se transformarían en espacio de la comunidad convertidas en bosques y áreas de esparcimiento.

Las obras de construcción de cada bloque generaría cerca de 17 mil puestos de trabajo y pedidos del orden de las 200 mil toneladas a la industria siderurgica nacional. Además el Eje Polivalente, como una verdadera ciudad sobre la línea del tren, representaría también una iniciativa de elevada importancia

social: la recuperación de por lo menos un tercio de la población que hoy es favelada en Río.14

Bernardes considera que la solución está, primero en una reforma política y después urbana.Pues el urbanismo y la arquitectura son artes finales y para su proyecto Anillos de Equilibrio (1974) considera que esta reforma es imprescindible para poder accionar sobre la propiedad de la tierra y su legislación, este proyecto retoma la idea de ciudad continua que soluciona el problema del transporte y la vivienda al mismo tiempo, pero adaptándose a la accidentada geografía de Río de Janeiro.

Río siempre fue tenido como una ciudad exprimida entre el mar y la montaña.

Si bien eso sea realmente verdadero, la realidad es que dentro de la ciudad existen macizos significativos como Piedra Branca, y el de Tijuca que suman-

14 Bernardes, S., Op. cit., p.44. Traducción del autor

dos se acercan a los 300 kilómetros cuadrados encima de los 100m de altura. Esos siempre fueron vistos como factor negativos para la conexión entre barrios y los flujos de circulación.15

El proyecto fue presentado en primera oportunidad en la revista Manchete (1965) y en una exposición en el MAM; los ajustes posteriores se mostraron y debatieron en el Espacio Cultural Sergio Porto en septiembre de 1990 en una serie de cuatro encuentros denominada Conceitos Universais do Rio y se publicaron en la revista creada por el LIC y dirigida por Bernardes Ecología en su primer número de mayo de 1979.

Con los anillos proponía la creación de un sistema de circulación en grandes vías encima de la cota de 100 metros que sería según Bernardes, un recurso de belleza paisajística, turístico y psicoemocional.

A través de ese sistema circulatorio se haría el transporte de masas, el transporte de mercaderías y viario, la distribución de energía y agua, teléfono, la colecta y almacenamiento de aguas pluviales. El anillo de Tijuca tendría cerca de 45km de extensión y el de Piedra Blanca 47km, los dos serán unidos por el anillo menor de Engenho Vello con aproximadamente 17km.

15 Bernardes, S., Aneis de equilibro, Jornal do Brasil, Rio de Janeiro, 1 de octubre 1979. Traducción del autor

La mitad de esos anillos podría ser recorrida en auto en 15 o 20 minutos viabilizando enteramente la circulación global. La elección de la cota 100m se debe a la legislación del momento que preservaba la floresta a partir de esa cota.

Contaba también con un sistema de calles radiales que permitirían llegar a pie después de 30 minutos a cualquier punto de la ciudad, estas vías radiales estarían de 4 en 4 kilómetros.

Este sistema permitiría la democratización del uso del municipio como un todo. Así se invertiría la posición elitista que se ha preservado, a lo largo de los años, las áreas más nobles tienen la mejor infraestructura para los habitantes de mayor poder económico. El morador de Madureira, Andarai, Tijuca tendría la misma facilidad de acceso a cualquier punto de la ciudad que la que tiene el morador de Ipanema o de Gávea.16

Con ésto se pensaba que los barrios ganarían tranquilidad, dejarían de tener espinas dorsales transformadas en vías de tráfico. La circulación pasaría por la piel del barrio, a mediano o largo plazo los barrios se transformarían en células de desconcentración.

Serian islas de vivienda, de comercio, de convivencia y no barrios de pasaje.

La avenida Copacabana y Rua Vizconde de Piraja podrán ser largos paseos

arbolados con el tránsito en la playa y en Toneleros y la Lagoa. Cada barrio conseguirá su mejor condición ambiental. 17

El presupuesto para la obra también fue estudiado y según el integrante del LIC, Sergio de Maracajá, sería de 11 billones de cruzeiros, una cifra que no consideraban excesiva debido al tamaño de tarea y en comparación de labores tradicionales.

Otra de las ventajas manifestadas por los integrantes del LIC, era la baja agresividad de la obra, para ciudadanos que vivieron los trastornos de la construcción del metro, los aneis no ocasionarían casi inconvenientes, además de usar sistemas constructivos de vanguardia para no perjudicar la floresta como las plataformas móviles de encofrado usadas en el puente Río-Niteroi.

La concepción de un viaducto en la cota 100 es totalmente nueva en el mundo, nunca se pensó en eso en ninguna otra parte. Pero Río, como ciudad atípica, permite ese tipo de alternativa. Lo que se hace siempre es aumentar la capacidad de las vías existentes, eso es exactamente lo que debe ser evitado, ya que no resuelve el problema satisfactoriamente.18

Otro detalle que los autores consideran de gran importancia para su viabili-

16 Bernardes, S., Op. cit. Traducción del autor.

17 Bernardes, S., Op. cit. Traducción del autor.

18 Bernardes, S., Rio de Janeiro, Jornal do Brasil. 3 de septiembre 1995. Traducción del autor

dad, es la de construir edificaciones por debajo del viaducto en que el ruido seria aislado por los propios materiales de construcción. La posibilidad de construir por debajo de los caminos es otra forma que propone el LIC para el traslado de la población de las favelas, con el agregado de consolidar las laderas de los morros ante los continuos desmoronamientos de piedra y barro por las lluvias tropicales y el desmatamiento de la floresta.

Los Aneis de Equilibrio tendrán para el árbol el mismo respeto que se debe tener para el ser humano, la floresta será más fácilmente preservada y mejorada.

Será un nuevo lugar de esparcimiento abierto a la población que pasara a valorizarla y defenderla.19

Una de las últimas soluciones urbanas de Bernardes, dentro de esta idea de ciudad lineal, es la de Projeto Atlântida (1997), un puente habitado desde

19 Bernardes, S., Aneis de equilibro, Jornal do Brasil, Rio de Janeiro,. 1 de octubre 1979.

Traducción del autor

Barra de Tijuca en Río de Janeiro hasta Cabo Frío en el norte del estado.20

Este puente es propuesto para salvar más de 200 kilómetros de distancia, una torre de un kilómetro de altura con 12500 habitaciones individuales en unidades de 27 y 30 metros cuadrados y un anillo de 600 metros marcarían la isla de Catunduba , y los edificios se ubicarían cada 500 metros como los soportes del puente con 1200 unidades habitacionales cada una; por debajo de la autopista se encontrarían los estacionamientos a 70 metros sobre la superficie del mar.

20 Este proyecto parece inspirado en otra utopía carioca de 1937, el puente Río – Niterói del arquitecto León d’Escoffier, que cruzaría desde el barrio de Gloria a la plaza Arariboia por una pista elevada sobre seis niveles: para el transporte público, vehículos pesados y particulares, metro. Bajo esta vía se construiría un complejo de 946 departamentos, 996 comercios, 14 estacionamientos, dos cines y teatros, todo conectado por una serie de 102 ascensores, dos de ellos panorámicos que descenderían bajo el nivel de la Bahía de Guanabara. El proyecto fue ofrecido por el arquitecto a Getúlio Vargas en 1937.

La preocupación constante de Bernardes era el crecimiento desmedido y caótico de Brasil, sus ciudades y particularmente Río de Janeiro. En la historia de la arquitectura moderna de Brasil no encontraremos ningún espíritu tan inquieto, inventivo y productivo, con más de 6000 proyectos, siempre en la búsqueda de mejorar la vida y el espacio urbano.

Es preciso comprender que, sin redimensionar el urbanismo y reposicionar al urbanista en el cuadro de las actividades del mundo moderno, no será posible, a pesar que se detecten los motivos que causan su falla, dar ningún paso. 21

Sergio Bernardes llegó al final de su vida proyectando líneas nuevas para su tierra más querida, Brasil y especialmente Río de Janeiro. No se consideraba un utópico, sino un visionario dando respuestas a un futuro cercano y para los problemas contemporáneos, creía fervientemente en la

posibilidad de realización de sus proyectos y los diseñaba hasta el detalle constructivo, convirtiendo en realidad (virtual) las propuestas que solo quedaban en el papel.

Lauro Cavalcanti, en la presentación de su libro de 2004 señalo que Sergio no se limitó a tener una de las más exitosas y prestigiosas carreras de la arquitectura en este país. Deseó crear una nueva forma de ver el mundo, cambiando no sólo la fisonomía de las construcciones, los modos de vida, organización y forma de pensar de los habitantes.

Sérgio Bernardes pasó los últimos momentos ocupándose de la recuperación del Pavilhão de São Cristóvão, proyectado por él en 1958. El arquitecto murió en su casa una mañana del 15 de junio de 2002, a los 83 años. Hoy su familia rescata su obra con un film documental y varias publicaciones: lamentablemente el reconocimiento le llegó tarde.

21 Bernardes, S., Cidade A sobrvivência do poder, Guavira, Rio de Janeiro,1975, p.63.

Traducción del autor.

Desmantelar un zoológico y crear un ecoparque

Mendoza, Argentina

Estudio Lesch & Alfaro

El proyecto de ecoparque transforma el problema de desmantelar un zoológico en una oportunidad para generar y crear conciencia.

La derivación de animales a santuarios protegidos está alineada con un cambio en la forma en que nos relacionamos con la naturaleza y sienta un precedente para fortalecer el cambio de paradigma.

La humanidad debería dejar atrás su ego, dejar de estar por encima del medio ambiente, para convertirse en parte de un todo que lo trasciende.

El parque proyectado, lleno de nueva vida y transformado en un espacio público, no es solo un hermoso paisaje recreativo, sino que en su esencia contiene una gran misión, convirtiéndose en el primer gran sitio destinado a la difusión de prácticas sostenibles y la conciencia ambiental.

Los circuitos del parque son dinámicos, permiten eventos temporales como festival de cine ecológico, instalaciones artísticas con materiales reciclados, domingos de mercado orgánico: las posibilidades son infinitas.

Un humedal central, recibe agua de lluvia y aguas grises

de las instalaciones recuperándolas para redistribuir en riego del parque.

Todos los nuevos edificios se convierten en parte del paisaje.

La morfología austera, los materiales locales y de bajo mantenimiento, paneles solares, reutilización del agua, terrazas verdes, acondicionamiento natural, el diseño logra minimizar la huella ecológica.

Tanto las prácticas ecológicas que se aprenden en el Ecoparque, como el diseño de los nuevos edificios son experiencias concretas que demuestran al visitante que pueden aplicar las mismas soluciones en su vida y en su hábitat.

El tema del ecoparque en sí ofrece un lienzo en blanco donde se pueden proyectar todas las posibilidades para un futuro donde la conciencia ambiental será la clave para un mundo mejor.

Piezas de precisión

Oficinas Accenture y Solanas. Mar del Plata

Memoria Accenture

En Mar del Plata, se nos invita a proyectar un edificio cuyo programa sería de oficinas comerciales y administrativas de carácter flexible, con posibilidad de adaptarse a distintas demandas. En este caso la convocatoria viene de la mano de una empresa metalúrgica, con lo cual entender los recursos materiales, equipos y producción que disponían, optimizar las posibilidades tecnológicas y lógicas que inherentes a un sistema estructural metálico, diversas geometrías, producción, dimensiones y posibilidades de anclaje y uniones resultó clave para para dar forma a la estructura soporte , atendiendo el programa requerido, sino también a poner

en valor lo expresivo que podía resultar el sistema por sí mismo, o en cada una de sus partes, como también en la búsqueda de lograr una imagen de conjunto respondiendo al contexto en el que se implanta.

A nivel urbano, el planteo se centra en una volumetría austera, simple, monocromática, una caja acristalada neutra que se planta sobre la avenida desfasada de la línea de frente del lote en pos de lograr, no sólo capitalizar la relación frente fondo, sino también, lograr visuales en el sentido longitudinal de la Avenida Independencia permitiendo, a su vez, miradas a la Avenida J. J. Paso y hasta incluso, apenas más lejana la Avenida Juan B. Justo.

Esta posición de la caja, genera una sombra en la vereda que invita y jerarquiza al acceso principal del edificio y, a su vez, la misma se despega de los ejes medianeros en diferentes proporciones o medidas, dando lugar a los accesos secundarios, hacia la izquierda uno peatonal y a la derecha el acceso vehicular rematando en el patio de autos.

La idea de caja acristalada, permite una apariencia de levitación, reflejos de la dinámica

de la ciudad y actúa como fondo neutro de la figura/marca que allí se posiciona.

En torno a un patio central, se organizan dos plantas de uso flexible, se planteó una estructura principal modular metálica que se alza sobre bases de hormigón, con columnas de caño redondo y vigas en perfilería de alma llena. Los entrepisos se resuelven mediante el uso de losas pretensadas que descansan sobre dicha estructura, mientras que en la

cubierta se utiliza chapa conformada U45 con su correspondiente aislación térmica combinada con chapa de policarbonato traslúcida del tipo Danpalon que permite el ingreso de luz natural directa, a circulaciones principales y secundarias del edificio e indirecta, al resto de las áreas.

Carpinterías del tipo frente integral materializan el perímetro de la planta baja, ofreciendo gran transparencia a todo ese nivel,

Datos Accenture

La obra sitúa en la avenida Independencia 4250 en Mar del Plata en un lote de 1349,92m2 con una superficie cubierta y semicubierta respectivamente de 936,54m2 y 143,21m2. La obra concluyó en 2018 siendo realizada por el Estudio Tresce a cargo de los arquitectos Alejandro Álvarez y Fernando Fernández, con la colaboración de l@s arquitect@s Federico Armagno, Agustin Iturbe, Sabrina D´Amico y Jenifer Romay. La empresa constructora fue Solana SRL y el interiorismo estuvo a cargo del Estudio Rosellini.

y en planta alta, dichos cerramientos se resuelven con una piel de vidrio que otorga, al volumen que encierra a dicha planta, gran presencia morfológica sobre la avenida y distingue las áreas de trabajo de la empresa que allí se destinan.

Cielorrasos de placas de roca de yeso cubren circulaciones principales y secundarias mientras que en las áreas de trabajo, se plantearon cielorrasos desmontables que permiten acceder fácilmente a las instalaciones del edificio brindando flexibilidad en los cambios que pudieran sucederse en el tiempo, sujetos a nuevas demandas. Cielorrasos metálicos perforados recrean las circulaciones en torno al patio central, controlando el caudal de luz que otorga la chapa traslúcida y dando cualidades singulares a dicho espacio.

En Mar del Plata, una empresa constructora de obras industriales, más precisamente, estructuras metálicas en multiplicidad de formas nos convoca para llevar adelante el proyecto de un edificio cuyo destino será sus propias oficinas. Como condición proponen que precisamente contáramos y pusiéramos en valor los recursos materiales, equipos y producción que disponen para el planteo de tal edificio, optimizando sus posibilidades tecnológicas. Considerar las distintas piezas que componen un sistema estructural metálico, sus diversas geometrías, su producción standard y a medida, sus posibilidades de anclajes y uniones y demás detalles, nos permitió familiarizarnos con aquello que disponíamos para plantear un edificio, ya no de almacenaje, a los que mayormente responden estos sistemas, sino de oficinas.

A partir de estas variables decidimos utilizar estos elementos de forma expresiva, tal que el comitente, una empresa constructora de obras industriales, pueda sentirse representada por sus instalaciones. En cuanto a nivel urbano, el lote se ubica en calle Los Aromos y Reforma Universitaria, a los márgenes de un tejido residencial de viviendas de densidad media y a orillas de una avenida fuertemente concurrida por vehículos y actividades, como lo es Juan B. Justo. En cuanto a la implantación contamos con un terreno en esquina, producto de la unificación de siete lotes, que resulta generoso en términos de superficie para el programa de necesidades que se nos requiere. En consecuencia, proyectamos considerando que, en tal toma de partido, surgiera una necesidad de crecimiento del programa original, o la posibilidad de implantarse otra empresa, resolviendo con anterioridad un acceso independiente,

expansiones y demás necesidades programáticas. Pensamos entonces en la racional convivencia de empresas distintas, una sinergia donde conocimientos, experiencias, formas de trabajo e incluso de habitar, puedan ser compartidas y hasta solidarias unas con otras. Como parte singular del programa el comitente solicita un quincho totalmente independizado del edificio, en orden que pueda ser usado sin necesidad de tener que abrir el sector de oficinas. Esta condición nos permitió dejar la huella que indica la posición de ese posible crecimiento o implantación de una segunda tira programática, capitalizando el tamaño del lote.

Considerando lo descripto anteriormente, como toma de partido el edificio surge como respuesta al entorno, a un programa flexible y a los límites, normativos y físicos del lugar. En consecuencia, proyectamos el edificio retrotrayéndose de la línea municipal, con-

Datos Solana

El edificio Solana sitúa en la calle Los Aromos 5582,Mar del Plata en un lote: de 2931,28m2 con una superficie cubierta y semicubierta respectivamente de 970,16m2 y 204,84m2. La obra concluyó en febrero de 2023. Fue realizada por el Estudiotresce a cargo del arquitecto Alejandro Álvarez, siendo colaboradores l@s arquitect@ os Nazareno Baldino, Walter González, Luciana Comunelli y el ingeniero Darío Marcos. La empresa constructora fue Solana SRL.

tribuyendo al ensanche de la vereda en la esquina, que auspicia, además, el acceso al edificio y ofrece ampliar el espacio público. El resto de su frente curvo se pone de manifiesto a partir de la materialización de un muro de bloques de hormigón, muy representativo de la industria de galpones, que va a separar el acceso principal del edificio, de otro secundario para usuarios y vehículos de la empresa, más allá de abrazar entre ambos accesos un patio de uso propio del edificio capitalizando la buena orientación. Resulta entonces una tira franca en su condición geométrica, que se distancia de la medianera en un tramo por el paquete de servicios y logra verse definida por la rigurosidad de un sistema de arcos equidistantes que establecen a partir de la posición de sus columnas, áreas de uso, vacíos y circulaciones, otorgando, a pesar de lo duro del sistema, la flexibilidad suficiente para un programa de

estas características, sin resignar relaciones espaciales y visuales tanto interior-interior como interior-exterior. La necesidad de proyectar un edificio de oficinas con tecnología y materiales propios de un galpón a pedido del comitente, nos brindó la oportunidad de pensar arquitectura con estos elementos y sobre todo poner en valor a los mismos, no sólo en términos estructurales, sino en resoluciones de instalaciones, como puede ser el caso las bajadas pluviales que se guardan en el vacío de las columnas cilíndricas, por nombrar algo, pero por sobre todo en su nivel expresivo. Los elementos estructurales, en su justa composición, acompañados de sus dimensiones, devenidas del cálculo en armonía con la escala de los espacios proyectados, sintetizados y a veces neutralizados sólo con la aplicación de dos tonos o colores, acompañados en el interior con cortinas/ costillas de madera en el amarillo natural del

guatambú, otorgan a los espacios de trabajo identidad, calidez y sobriedad. Así mismo ocurre en la fachada, donde todo el sistema se ve reducido a la expresión de las líneas de caños estructurales o planos de estructura metálica revestidos en aluminio compuesto, que refuerzan y acompañan la tira en todo su recorrido, connotando dinamismo. A su vez proyectan luces y sombras validando profundidades en fachada, definen transiciones exterior-exterior (cierre en esquina que da lugar al acceso) o tamizan visuales interior-exterior (parasoles). La línea aparece entonces en sus distintas versiones, como plano remate de cubierta, como parasoles, como bancos o mesas corridas, como límite entre lo público y semi-público. La planta en su condición racional, se encuentra horadada en dos oportunidades con intención de lucir relaciones espaciales, en el hall de acceso brindando la jerarquía que este lugar merece

y en la salida al patio de expansión privada, en concordancia con el vacío por detrás amenizando el recorrido y las relaciones internas del edificio. Ambos vacíos vestidos por las costillas verticales de madera dan cuenta de esta relación vertical acompañados en sus fondos con las escaleras, una pública, de acceso de clientes y la otra de uso interno exclusivamente privado. Ambas se recorren contemplando el patio de fondo coincidentes con los vacíos. Así como el edificio se ve definido por un sistema, la planta hace coherente tal esquema y justamente emplaza en su tramo todo aquello que resulta sistematizable desde el programa, como pueden ser áreas de trabajo, oficinas, y otros; mientras que alberga lo atípico en su esquina o remate, como puede ser una suerte de estar o reunión abierta en planta baja y sala de juntas principal en el nivel superior. Esta fuerte racionalidad constructiva, no condicionó pensar al edificio en los términos arquitectónicos que nos interesan y sobre los cuales reflexionamos a diario, por lo contrario, nos encontramos desafiados a priorizar búsquedas espaciales, optimizar las posibilidades

de los materiales a partir de la coordinación modular y reducir de forma considerable los tiempos de obra. Por último, cabe mencionar la búsqueda personal de nuestro estudio en cada trabajo que se nos encomienda, como premisa nos sentimos invitados a reflexionar sobre la oportunidad de observar la ciudad, que es nuestra primer mirada, entender a lo que hacemos como parte de un todo y que eso que hacemos pueda colaborar en mejorar, desde lo más humilde, austero y aunque más no sea un poco, la ciudad donde vivimos. En este planteo, en particular, el vacío urbano se modificó, se amplió y al contexto y la escala circundante se la respetó y con el placer de que una porción de ese terreno hoy se comparte con la ciudad.

Opinión

La tradición de la conocida como International Architecture –como esa arquitectura emergente del racionalismo europeo de Mies confluyendo en la pujanza tecnológica norteamericana en el desarrollo de piezas icónicas de la arquitectura corporativa,

como el celéberrimo Seagram y con un linaje proveniente de la arquitectura industrial forjada en Inglaterra desde el siglo XIX– se afirma y disemina globalmente en las últimas décadas del siglo pasado y en la primeras del presente, alcanzando un significativo empalme de lenguaje y construcción en la idea de un realismo constructivo emanado de los recursos técnicos de la construcción precisamente denominada industrial, es decir, basada en el desarrollo de componentes generalmente metálicos básicamente como piezas estructurales (columnas y vigas de perfilerías) y elementos de cerramiento de fachadas progresivamente complejizadas hasta el súmmum de la llamada iluminación total o paños enteros y estancos de curtain wall que maximizan iluminación y acondicionan el clima.

La tesis , en curso de publicación, del Dr. Arq. Pablo Corral –La modernidad transparente, defendida en el doctorado DAR a fines de 2023– ofrece una justa descripción de esta arquitectura, conectado su epicentro americano con las manifestaciones en ciudades lejanas, como Buenos Aires. Una arquitectura

que confluye ademas a cierta manera de entender el proyecto moderno más riguroso, como expresión de esta tendencia en la que lo constructivo-material es fundamento de cualquier experimento proyectual, como lo fue teorizando el catalán Helio Piñon cuyas ideas –en que destaca su admiración analítica de la arquitectura de Mario Roberto Alvarez– son asumidas y elaboradas por muchos arquitectos exitosos en la región, tales como Adamo&Faiden, el grupo Dinamo –actuante en Neuquén– o los uruguayos Pablo Frontini y Jorge Gambini.

El estudio que lidera Alejandro Alvarez y que es autor de las dos obras que presentamos en esta ocasión, es cabal expresión de una idea de proyecto radicalmente articulada con su modo técnico de producción industrial, destreza que Alvarez pudo desarrollar trabajando en sintonía con la empresa constructora Solana, para cuyas oficinas técnicas desarrolló uno de los proyectos aquí presentados y con cuya intervención como constructora se llevo a cabo el otro proyecto aquí mostrado. El núcleo principal de los trabajos de Solana fue el el de desarrollar con sus ha-

bilidades técnicas, más bien edificios fabriles o industriales, en general grandes naves que a veces se complementaban con áreas más pequeñas destinadas a usos comerciales o administrativos.

En el caso del edificio Accenture su origen o encargo y las características de su solución racional-racionalista tienen que ver con que cliente encargó el trabajo y que posibilidades devendrían de su influencia, y así, expresa la memoria que la convocatoria viene de la mano de una empresa metalúrgica, con lo cual entender los recursos materiales, equipos y producción que disponían, optimizar las posibilidades tecnológicas y lógicas que inherentes a un sistema estructural metálico, diversas geometrías, producción, dimensiones y posibilidades de anclaje y uniones resulto clave para para dar forma a la estructura soporte, atendiendo el programa requerido, sino también a poner en valor lo expresivo que podía resultar el sistema por sí mismo o en cada una de sus partes, como también en la búsqueda de lograr una imagen de conjunto respondiendo al contexto en el que se implanta.

Aquí Alvarez define que su modo de proyecto se afirma en optimizar las posibilidades tecnológicas y lógicas… inherentes a un sistema estructural metálico… que da forma a la estructura soporte… pero también pone en valor lo expresivo. En estas nociones se destaca lo lógico (no sólo lo tecnológico) y lo expresivo (no sólo lo inherente al soporte): es decir, esa idea quiza fundante en el racionalismo miesiano que implica no solamente construir, o más bien, una manera de construir que garantiza una lógica (o un modo de componer) y un resultado o efecto expresivo o de lenguaje, que en parte posee algunas cualidades como la verdad constructiva (la puesta en visibilidad de todas las piezas y sus articulaciones), la transparencia, la liviandad y la definición de espacios con posibilidades de flexibilidad en su funcionalidad. Cualidades que representan argumentos significativos de la arquitectura moderna en general. Esa relación entre modo constructivo –de ensamble casi totalmente en seco, de piezas metálicas, muchas realizadas en taller y con cualidades industriales en precisión geométrica y calidad de acabados– y posibilidad

de darle al proyecto aspectos de su estética que ayudan a conseguir una respuesta amplia a la necesidad del cliente es clave tal como lo expresa la memoria: La idea de caja acristalada, permite una apariencia de levitación, reflejos de la dinámica de la ciudad y actúa como fondo neutro de la figura/ marca que allí se posiciona. Concepto con que se intentan explicar valores o efectos que se consiguen con esta opción tecnológica (reflexividad, levitación, posibilidad de acentuar la relación fondo/figura de la marca de la empresa, etc.).

La respuesta canónica de esta figura de arquitectura racionalista ensamblada con la functional tradition británica entrega una pieza de planta cuadrada con un paso estructural de 3x3 módulos, un patio central y un perimetro libre, todo lo cuál permite en sus dos pisos, una cómoda distribución de los espacios de trabajo (muchos como islas en planta libre), circulación anular, uso preferencial de los vértices para disponer áreas más privatizables y concentración de servicios y circulación en un lateral del anillo de cada planta.

Hay por lo demás una visible expertise del diseñador tanto en ensamblar materiales de catálogo (chapas U45 y Danpalon en cubierta, placas de roca de yeso, etc.) como en el desarrollo de los detalles resolutivos de empalmes en cubierta, carpinterías, escaleras y barandas, etc.

La sede administrativa de la empresa Solana resultó todavía más direccionada en intentar conseguir una respuesta proyectual ligada a las carácterísticas del cliente que en este caso, también iba a ser la constructora: una empresa constructora de obras industriales, más precisamente, estructuras metálicas en multiplicidad de formas nos convoca para llevar adelante el proyecto de un edificio cuyo destino será sus propias oficinas. Como condición proponen que precisamente contáramos y pusiéramos en valor los recursos materiales, equipos y producción que disponen para el planteo de tal edificio, optimizando sus posibilidades tecnológicas. Considerar las distintas piezas que componen un sistema estructural metálico, sus diversas geometrías, su producción standard y a medida, sus posibilidades de anclajes y uniones y demás detalles, nos

permitió familiarizarnos con aquello que disponíamos para plantear un edificio, ya no de almacenaje, a los que mayormente responden estos sistemas, sino de oficinas. Aquí queda clara la relación entre el cliente (que en la obra precedente fuera la empresa constructora) con el diseño de su propio edificio, puesto que el dominio de estrategias de ingeniería para el desarrollo de emprendimientos industriales de Solana resultan un nítido punto de partida, así como un arsenal de recursos y posibilidades aunque el arquitecto deba utilizar tal bagaje para resolver un edificio ya no de almacenaje (que es el grueso de los trabajos que realizó esta empresa) sino de oficinas. Para lo cuál nuevamente se amalgama esa experiencia técnica de construcción con los principios que ya comentamos de posibilidad de una arquitectura racionalista amparada en el savoir faire técnico de la functional tradition; es decir, esa cultura proyectual protagonizada por las propuestas de Mies.

Lo cuál supuso utilizar las formas técnicas de construcción propias de la empresa para re-presentarlas de modo que resultaran uti-

les para expresar públicamente en su sede, el tipo de construcción racional, casi como una etiqueta de identidad o algo que le sirviera a la propia empresa para mostrar lo que hace a sus propios actuales y futuros clientes, logrando que esa expresión otorgue visibilidad pública y publicidad corporativa: utilizar estos elementos de forma expresiva, tal que el comitente, una empresa constructora de obras industriales, pueda sentirse representada por sus instalaciones. Por fin entonces un edificio de Solana se presenta mostrando el tipo de construcción de tal empresa, todo bajo su nombre y logotipo.

La arquitectura resultante opera como una traducción desde ingenierías de depósitos o contenedores o galpones hacia espacios para la actividad administrativa y el logro principal de Alvarez y su equipo es tomar ese legado o capital tecnológico y usarlo al servicio de una arquitectura contemporánea caracterizada por las cualidades del racionalismo de origen industrial: La necesidad de proyectar un edificio de oficinas con tecnología y materiales propios de un galpón a pedido del comitente, nos brindó

la oportunidad de pensar arquitectura con estos elementos y sobre todo poner en valor a los mismos, no sólo en términos estructurales, sino en resoluciones de instalaciones, como puede ser el caso las bajadas pluviales que se guardan en el vacío de las columnas cilíndricas, por nombrar algo, pero por sobre todo en su nivel expresivo.

Allí destaca esa tarea de traducción o traslado de un tipo de edificio a otro pero guardando fidelidad a un modo técnico de producción, que posibilita aceptar lo sistémico de la arquitectura industrial pero permitiendo un grado de refinamiento específico en ciertas resoluciones.

Lo mismo ocurrirá en la práctica al adaptar una nave longitudinal a un rectángulo usable en dos niveles, con su lateral posterior dispuesto para circulaciones y servicios y dando acceso a los diversos espacios del frente.

Así como el edificio se ve definido por un sistema, la planta hace coherente tal esquema y justamente emplaza en su tramo todo aquello que resulta sistematizable desde el programa, como pueden ser áreas de trabajo, oficinas, y otros; mientras que alberga lo atípico en su

esquina o remate, como puede ser una suerte de estar o reunión abierta en planta baja y sala de juntas principal en el nivel superior. Es decir aquí nuevamente se distingue el grano grueso de la espacialidad genérica de una posible nave o galpón del grano fino de resolver en detalle las precisiones detalladas de las funciones del programa. Aunque Alvarez finalmente valora que esta articulación entre cliente/empresa constructora y equipo de proyecto, funcionó plenamente porque ambos rubros (el actor-ingeniero y el actor-arquitecto por así decirlo) comparten una común valoración de los principios de la racionalidad constructiva y de la lógica sistémica para afrontar un proyecto: Esta fuerte racionalidad constructiva, no condicionó pensar al edificio en los términos arquitectónicos que nos interesan y sobre los cuales reflexionamos a diario, por lo contrario, nos encontramos desafiados a priorizar búsquedas espaciales, optimizar las posibilidades de los materiales a partir de la coordinación modular y reducir de forma considerable los tiempos de obra.

Saber originario y ecoproyectualidad

Casa-jardín, Conocoto, Ecuador

Al Borde

Memoria

José estudió ecología, siempre se ha acercado a la naturaleza, se siente parte de ella desdibujando los límites entre él y su alrededor. Eso intenta hacer su casa también: dispersa sus partes en el terreno y hace del jardín su circulación. José y su casa cuestionan el estándar de comodidad: para ir de la cama al baño hay que salir y la ducha sucede en medio de las plantas de su invernadero. Aparecen lugares que no se sabe si son jardín o casa, o una casa construida por el jardín.

La idea de una casa en simbiosis con su entorno natural, nos hace imaginar estructuras que vivan y mueran con nosotros. Encontramos una primera referencia en la ruralidad ecuatoriana y la manera en que la gente cerca sus propiedades. La solución parte de un árbol (Euphorbia Laurifolia) que se conoce comúnmente como Lechero debido al látex que brota al momento de cortarlo.

Se reproduce fácilmente por estacas, lo cual permite organizarlos a conveniencia de manera muy sencilla.

Es decir, encuentras un árbol de lechero, le cortas una rama del tamaño que necesites para tu cerca y lo plan-

tas tal cual en tu lindero. La rama echará raíces y seguirá su ciclo de vida.

Investigando acerca de este método constructivo llegamos al Parque Arqueológico de Cochasquí, encontramos réplicas de cómo se cree que eran las viviendas de la cultura Quitu Cara según algunos historiadores.

Los Quitu Cara fueron una civilización pre-inca que se asentó en la sierra norte del Ecuador aproximadamente desde el 500 d.c. Las viviendas se estructuraron a partir de un muro circular de tapia construido alrededor de un lechero de 4m de altura aproximadamente, plantado en el centro al momento de la construcción.

El árbol y los muros de tapia, se conectaban con vigas de chaguarquero (penco azul o Agave Americana Andina) y se amarraban con chilpe, una cuerda de fibra vegetal hecha de las hojas del penco verde o Agave Sisalana.

Finalmente la estructura se cubría con paja de páramo (Calamagrostis Effusa).

La columna viva de lechero fue cortada en sus dos extremos, la variación del largo del tronco es mínima y con el paso de los años le crecían nuevas ramas con hojas que le

permitían seguir su ciclo de vida. El lechero atravesaba el vértice del cono de la cubierta en búsqueda de sol. Los cimientos de esta columna central se fortalecían con el paso del tiempo mientras sus raíces crecían. Con esta tecnología no hay problemas de pudrición de la madera, solamente es necesario regar la estructura periódicamente.

Aplicamos esas lecciones de la arquitectura vernácula en los intersticios entre la casa y el jardín. Es decir, la estructura que construye los habitáculos nace del jardín, está viva. El invernadero-ducha, se cubrió con planchas

de policarbonato sostenidas por una estructura tensada entre postes de lechero. Modular una malla de columnas vivas tiene su encanto.

La altura de los postes del invernadero es la misma que tienen los postes de las cercas vivas. Funcionan en la ruralidad y funcionaron aquí. La carga que soportan es mínima, lo que nos permitió hacer detalles radicalmente básicos y primitivos.

Evacuar el vientre para José es un ritual, entre él y las plantas sólo existe un cristal. Una ventaja de que su

espacio privado esté aislado de la vecindad, es dejar de preocuparse por las miradas de los pudorosos. Nos imaginamos que sus invitados tendrán alguna anécdota que contar después de visitarlo.

En cada esquina del cubículo hay un lechero que sostiene una cubierta muy ligera hecha de madera contrachapada protegida con manto asfáltico. Acá los árboles tienen alrededor de 3m de altura y están enterrados 1m en el suelo.

Aprendimos de los relatos rurales a podarlos completamente antes de volver a plantarlos y a las pocas semanas empezaron los primeros rebrotes. Es impresionante la facilidad con que estos árboles pueden ser trasplantados: de 46 árboles que utilizamos sólo 5 murieron y tuvieron que ser reemplazados.

Por último, cuatro árboles más dan la bienvenida al edificio principal. Sostienen una cubierta de policarbonato que se soporta en chaguarqueros amarrados con chilpe y conforman el área social, para recibir a familia y

amigos. El espacio interior es para cocinar, comer y dormir, dando cobijo y manteniendo una temperatura estable, mirando al terreno circundante, al valle y a la cordillera. Usamos la misma tierra del desbanque para la construcción de un muro portante de adobe, este a su vez se apoya sobre una base de piedra que además, funciona como barredera.

El muro con forma de C permite que la fachada principal sea un ventanal de carpintería estructural. La cubierta distribuye su peso sobre una solera de madera y salva la luz a través de dos vigas de sección común, que para lograr su fin, requieren de un refuerzo, que es otra pieza similar simplemente atada, colaborando en la parte de la viga que más trabaja. Encima: duelas, un manto impermeable, tierra y tejuelos, entre los cuales esperamos ver cómo crece la mala hierba.

El proyecto se complementa con un sistema de permacultura propuesto y construido por José, él mismo lo describe así: La casa no está conectada al sistema de alcantarillado: las aguas negras se

limpian a través de un filtro con lombrices rojas (Eisenia foetida); las aguas grises provenientes de la limpieza con jabones biodegradables pasan por una trampa de grasas y filtros con papiros enanos (Cyperus haspan).

Las aguas filtradas de los dos sistemas alimentan distintos frutales. Los residuos orgánicos van a una compostera que alimenta principalmente el suelo de las huertas de hortalizas y plantas medicinales. En este sistema se han mantenido especies nativas-salvajes que atraen insectos y aves del lugar controlando la proliferación de posibles plagas, control biológico in situ.

Opinión

Es sabida la postura intelectual y operativa del grupo Al Borde respecto de ejercer un tipo de trabajo proyectual enteramente dependiente de cuestiones de contexto: un estado de necesidad de grupos marginales (Nueva Esperanza), un aprovechamiento de la oportunidad de un inmueble urbano degradado (el experimento socio-proyec-

Datos

Los arquitectos de esta casa fueron los del colectivo Al Borde siendo colaboradores Iara Pezzuti e Ippolita Barnato. La dirección de obra la ejerció Diego Ledesma y la asesoria en Ingeniería estructural fue de Patricio Cevallos. La obra sitúa en Conocoto, Ecuador y se diseño entre 2018 y 2019 siendo su construcción ejecutada entre 2019 y 2020 por los constructores Miguel Ramos y José Fabara. Las fotografías son de JAG Studio y Al Borde.

tual llamado Casa en Construcción) , un acomodamiento a condiciones de relieve, paisaje y materiales (Culunco), un abordaje de un área de exposiciones con materiales de desecho y de consumo popular con voluntad de dotar de ciclo de vida al objeto (Sharjah), un diálogo con un estado de naturaleza a preservar (Plan maestro protector del área Cerro Blanco), una actuación contemporánea basada en aprovechamientos de saberes técnicos vernaculares como el tapial o la quincha (Entremuros), etc. Es decir un trabajo liberado de los prejuicios propios de una forma de proyectar de talante narcisista y hasta autoritaria, que es lo que ocurre en un altísimo porcentaje de la arquitectura reciente calificada y renombrada. Aquí prevalece una ética propia de la construcción colectiva de soluciones de habitabilidad asi como una epistemología proyectual absolutamente permeable al conocimiento que pueden aportar numerosos y diferentes expertos constructores (la mayoria populares).

Esta singular casa –que en realidad es una alternativa forma de equipar

un terreno grande con diferentes aparatos para diferentes funciones: comer, dormir, evacuar, bañarse, etc.– ejemplifica cabalmente la forma de trabajo de Al Borde, y en este caso el protagonismo que le otorgan al comitente José el ecologista experto en cuestiones de permacultura: José estudió ecología, siempre se ha acercado a la naturaleza, se siente parte de ella desdibujando los límites entre él y su alrededor.

Eso intenta hacer su casa también: dispersa sus partes en el terreno y hace del jardín su circulación. José y su casa cuestionan el estándar de comodidad: para ir de la cama al baño hay que salir y la ducha sucede en medio de las plantas de su invernadero. Aparecen lugares que no se sabe si son jardín o casa, o una casa construida por el jardín. Para ello apelan una vez mas a su enfoque etnoproyectual, en este caso estudiando la habitabilidad de una cultura originaria –los preincaicos Quitu Cara– de la que rescatan el empalme de construcciones murarias en tapia y el potencial autogenerativo del llamado arbol lechero. Los cercos del predio y los

postes linderos que sostienen las cubiertas del baño y de la ducha invernadero son troncos de lecheros y el espacio-casa esta abierto al frente en una carpinteria total y cerrado en sus otros tres lados por muros de adobe apoyados en cimientos de piedra.

El propio José diseño y construyó el sistema de permacultura que consigue una solución de servicios independiente de las redes urbanas con recogida y filtrados diversos de las aguas grises-negras y tratamiento y compostado de los residuos orgánicos.

Hay que adjudicar a esta performance habitativa de AB –finalmente se trata de una casa unifamiliar revisitada intensamente por tales mencionadas condiciones de contexto (y del particular perfil del comitente)– un valor de experimentación tipológica profunda, tanto en pensar el proyecto como un sistema de componentes diversos colocados sobre el terreno como en proponer una idea de habitáculo abierto que en vez de casa-refugio o cueva controlada es un complejo dispositivo de diversa regulación

interior-exterior, experimentación que creemos se comparte (aun con las diferencias entre ellas) con la Casa Pachamanca de 51-1 en Lima y la Casa Hamaca de Javier Corvalán en Asunción.

Lo notable de este proyecto –en línea con el trabajo general de Al Borde– es asumir una especie de realismo que conjuga saberes ancestrales de construcción con la voluntad de restablecer una buen vida de conexión íntima (no solamente contemplativa) con lo natural, todo en una dirección que instala el acto proyectual en una especie de operaciones de selección y ensamble haciendo que el resultado no sea algo connotado o estetizado por voluntades de forma diría, profesionales o cultas. Es un trabajo de búsqueda y experimento y un final de camino abierto y evolutivo y con características realistas-naturales, sin contaminaciones de culturas de elite.

Objeto que mira el paisaje

Mirador-Aula, Bosque Protector Cerro Blanco, Guayaquil, Ecuador

Memoria

La primera intervención del Plan Maestro del Bosque Protector Cerro Blanco confronta a sus usuarios con la magnitud del bosque. Está pensado para que la experiencia de ser la primera persona en el frente, pueda ser colectiva. La circulación central termina en un remate desde el cual un guía o un profesor pueden dar indicaciones a un grupo distribuido en las dos alas laterales. De esta manera el mirador fácilmente se transforma en un aula para la conveniencia de los grupos escolares, los cuales representan el mayor público que visita el parque.

Al ser el primer proyecto del plan, el mirador actuó como un prototipo que nos permitió entender los alcances de la tecnología. Se utilizan piezas de madera comunes y se las ensambla de manera sencilla para hacer algo que no es común, ni sencillo; la arquitectura prescinde de acabados y su forma más primitiva es suficiente para envolvernos. El mirador ni siquiera está pintado, su oscuridad se debe a un método de preservación de la madera en que se quema la capa super-

ficial; esta se mineraliza y la protege de pestes que la pudieran atacar.

La estructura de madera que permite contemplar el paisaje, está protegida por un textil impregnado de mortero cementicio sostenido por una estructura tensada. El Centro de Innovación de Holcim Guayaquil junto al equipo de arquitectura, investigó y desarrolló una cubierta de geometría adaptativa híbrida, empleando un mortero de alta resistencia proyectado sobre un textil.

Basados en investigación bibliográfica, el uso de un encofrado textil flexible data de los años posteriores a la Primera Guerra Mundial, en donde hizo su primera aparición con la utilización de tejidos orgánicos para aplicaciones de ingeniería marina y geotecnia. Con este punto de partida se realizaron múltiples pruebas en laboratorio evaluando textiles de distintos materiales, rigideces, elongación para comprobar la compatibilidad y adherencia con el mortero cementicio, el textil haría la función de un encofrado aerosuspendido, el mortero fue técnicamente diseñado para obtener

altas resistencias iniciales, fluidez necesaria para la proyección y la consistencia necesaria para adherirse y adicionalmente proveer baja permeabilidad en estado endurecido protegiendo al textil del intemperismo y degradación a rayos UV. Varios prototipos fueron ejecutados en campo y laboratorio hasta establecer la metodología de proyección, inclinaciones máximas permitidas del textil, y secuencia de colocación por capas, previo a la colocación definitiva sobre el Mirador. Mediante un análisis de ciclo de vida, el equipo de Holcim determinó una reducción del 68% de huella de carbono embebida en sus materiales con respecto a una cubierta de tejas de concreto por metro cuadrado.

Opinión

Este pequeño proyecto de Al Borde es el primero de una serie de intervenciones integradas en el Plan Maestro del Bosque Protector Cerro Blanco y no sólo es una de las primeras piezas diseñadas para ese propósito sino también el elemento que pretende funcio-

nar como un pórtico de acceso a la observación y al conocimiento de lo que ofrece Cerro Blanco y asi lo expresan en su memoria: La circulación central termina en un remate desde el cual un guía o un profesor pueden dar indicaciones a un grupo distribuido en las dos alas laterales. De esta manera el mirador fácilmente se transforma en un aula para la conveniencia de los grupos escolares, los cuales representan el mayor público que visita el parque. El artefacto se organiza asi como una especie de equipamiento o mobiliario para posibilitar el uso público-educativo del complejo y para ello se busca otro modo de espejar las características del lugar natural al escogerse trabajar con materiales de esa clase, evocando el mito de la cabaña primitiva laugieriana como primer refugio devenido de aprovechar lo vegetal para construir un espacio de arquitectura: Se utilizan piezas de madera comunes y se las ensambla de manera sencilla para hacer algo que no es común, ni sencillo; la arquitectura prescinde

de acabados y su forma más primitiva es suficiente para envolvernos. Esa apelación a fundir lo nuevo (cultural-artificial) que introduce el proyecto en el mundo natural al que pretende asistir y con tratará de alcanzar alguna simbiosis alcanza a definir el modo en que está tratada esa madera común de manera que el tratamiento de la misma trate de garantizar una vida más allá de la mera duración biológica: El mirador ni siquiera está pintado, su oscuridad se debe a un método de preservación de la madera en que se quema la capa superficial; esta se mineraliza y la protege de pestes que la pudieran atacar.

Afrontando la cubrición de esa estructura maderera de observación se debía escoger algún método que también podría haber estado enfocado con materiales naturales como maderas, esteras o alguna forma de quinchado pero en lugar de apelar a esas posibilidades la opción muta a conseguir una solución fruto de una investigación ligada a la posibilidad de trabajar con textiles rigidizados, lo que por

una parte permitirá morfologías mas sugerentes (como lo que surge de trabajar con curvaturas) y por otra avanza en la dirección de conseguir mineralizar o convertir en inerte un material textil, procedimiento en cierta forma equivalente a la mineralización por flambeo de las piezas de madera: La estructura de madera que permite contemplar el paisaje, está protegida por un textil impregnado de mortero cementicio sostenido por una estructura tensada. El Centro de Innovación de Holcim Guayaquil junto al equipo de arquitectura, investigó y desarrolló una cubierta de geometría adaptativa híbrida, empleando un mortero de alta resistencia proyectado sobre un textil.

La colaboración innovativa en lo tecnológico emprendida por la intervención de la multinacional cementera de origen suizo Holcim permitió avanzar en el desarrollo de una cubierta a la vez eficaz en sus prestaciones cuanto ingeniosa en su posibilidad de resolver formas complejas, alcanzándose resultados muy auspiciosos como

Datos

El Mirador-Aula fue realizado por el Colectivo Al Borde en 2021–2022, siendo colaboradora del proyecto María Verónica Paszkiewicz y asesor en Ingeniería estructural: Patricio Cevallos. Se diseñó en 2021 y se construyó entre septiembre de 2021 y enero de 2022 por el constructor Miguel Ramos. La obra se realizó a pedido de la Fundación Pro Bosque y contó con el apoyo de Holcim Ecuador.

Las fotografías fueron realizadas por JAG Studio.

lo expresan en otro tramo de la memoria: el textil haría la función de un encofrado aerosuspendido, el mortero fue técnicamente diseñado para obtener altas resistencias iniciales, fluidez necesaria para la proyección y la consistencia necesaria para adherirse y adicionalmente proveer baja permeabilidad en estado endurecido protegiendo al textil del intemperismo y degradación a rayos UV Y además esas posibilidades tecno-innovativas para resolver una especie de manta rígida (que marida la levedad de curvas colgantes con la resistencia que el mortero cementicio proyectado otorga a la malla textil utilizada) también se exploró en la dirección no solo de experiementar con nuevas materialidades sino también bajo el sentido de conseguir

optimizar cuestiones inherentes a la sustentabilidad y a la minimización del impacto ambiental, ya que mediante un análisis de ciclo de vida –sigue apuntando la memoria– el equipo de Holcim determinó una reducción del 68% de huella de carbono embebida en sus materiales con respecto a una cubierta de tejas de concreto por metro cuadrado.

Habitar container

Casa container en Villa Elisa, La Plata

Fernando Iguerategui y Estudio Nómade

Memoria

Habrá historias resguardadas en esta pieza… puertos y lugares remotos imposibles de enumerar.

Sólo podemos afirmar que aporto la materia prima de base para discutir conceptos, ideas y proponernos operaciones proyectuales que exigieran acciones simultáneas entre tecnología y espacio.

Nos alimentamos de las imágenes que la misma pieza proveía, en entornos rurales, urbanos y suburbanos, elevada en grúas, apiladores, trasladada en barcos o semirremolques, además de un sin número de situaciones y relaciones que se transformaron en argumentos, bocetos y volumetrías.

Si bien consideramos que el proyecto es naturalmente incierto, nos propusimos acentuar esa idea de saltar al vacío entendiendo que frente a las restricciones nacen nuevos grados de libertad…

Sin lugar a dudas constituyó una nueva experiencia… trabajar con un espacio predeterminado, de una impronta tridimensional acentuada, que cobra vida a partir de la obsolescencia respecto de su función origen.

Analizar y decodificar el container nos condujo a estudiar límites y restricciones de una pieza mono material de 2,40 m x 2,40 m x 12.00 m, respuesta dimensional universal, de 4000 kg de peso propio y una capacidad portante de 28000 kg, así surgieron reuniones, aportes, intercambios en el estudio con el Ing. Jorge Maiztegui y en el momento en el cual todo parecía ordenado, Geometría –Centro de Gravedad– Solicitaciones, surgió la asimetría y otra vez al calco, al ensayo, a verificar nuevamente la estructura!!!

La incertidumbre no termina ahí… ¿quién nos construye las pieza que Jhon y Tomy diseñaron? ¿quién nos garantiza el cordón de soldaduras y anclajes? Si bien el container estaba montado sobre una estructura, sabíamos que parte de ella tenía la condición de provisoria (sostén y nivelación) y la otra parte de definitiva. El ajuste milimétrico, es todo un desafío y posiblemente ajeno a nuestro dominio, entonces nos acercamos a los talleres, algunos motivaron la experiencia y otros no tanto…, Pablo diseñador industrial achicó la brecha de la incertidumbre, fabricando, mecanizando y ensayando

las piezas, pero esto es una de las diferentes etapas del proceso constructivo, necesitábamos encontrar quien garantizara la sustentación in situ, la real! y encontrarnos con Paska (Pavlo Yacoblev) soldador con cuño del Astillero Río Santiago fue un verdadero hallazgo, todavía no terminamos de entender cómo pudo montar y calibrar cada uno de esos tensores, ajustarlos, entrarlos en carga, sólo con nuestras eventuales colaboraciones que no podían superar más allá de alcanzar una herramienta, sostener una pieza o un mate: ganó toda nuestra admiración, respeto y agradecimientos por sus enseñanzas. Fue todo un evento el retirar el apoyo, cortar y ver qué sucedía más allá del cálculo y las verificaciones, nuestra expectativa y la del barrio que lo conocía y lo aceptó, incluso hoy es una pequeña referencia urbana, indicativa de direcciones y calles sin números.

Así el proyecto fusiona sensaciones, tecnología y habitabilidad, las fundaciones se transforman en contrapeso y recinto habitable que nos alberga en las largas noches de concursos y recreo de fin de semana, la posibilidad de un ámbito único no solamente responden a condiciones dimensionales, sino también a la idea de un Taller de Arquitectura, en un entorno natural, donde

desarrollamos parte de lo que nos apasiona, donde el tiempo pasa y no te das cuenta. Suspenderlo permitió verificar todos sus elementos, encontrar fundamento urbano al liberar la esquina y permitirle a Martín, el vecino, sostener desde su ventana la perspectiva larga hacia el bosquecito de álamos. Acceder por el piso no cambia las reglas del juego, despierta otras, recupera una cara oculta que se transforma en fachada, la idea de levitar está asociada al habitar y descubrir que un sólo elemento nos provee, cubierto, semicubierto y abierto…

La economía en los esfuerzos simples y la expectativa ¡por el mínimo recurso!

Entendemos como una experiencia abierta, seguramente inconclusa, imperfecta, con la sana ambición de un mensaje valorando, todxs aquellxs que dejaron una buena parte de trabajo y esfuerzo por concluirlo, incluyendo las opiniones de sobremesa de Jujo y Nacho, ¡críticos siempre! y las posibles que 3 generaciones involucradas en articular la diversidad de conocimientos.

Opinión

El proyecto es de los arquitectos para sí, fusionando cliente y diseñador, en la voluntad de conseguir un espacio de trabajo como taller o estudio que permitiera la actividad dentro de una pieza (un container) que en si

Datos

La obra se sitúa en la calle 28 bis 110, esquina 425, en Villa Elisa, La Plata, en un lote de 393 m2. El proyecto es del arquitecto Fernando Iguerategui con la colaboración del Estudio Nómade (integrado por l@s arquitect@s Juan Olea, Tomás Eracovich, Jhonatan Da Silva, Micaela Fanessi, Carla Napuri, Eugenia Alves Cordero y Antonela Mansur). Fueron asesores estructurales los ingenieros Jorge y Santiago Maiztegui y el montaje lo efectuó Pablo Yacovlev con Cuño Astillero Río Santiago. La asesoría eléctrica corrió a cargo de Mario Gaudio, el diseño industrial y la mecanización de Pablo Mini y la herrería de Dionisio Sandoval. Las fotografías las realizó el arquitecto Luis Barandarian.

conlleva toda una historia tecnológica pero que a su vez fuera proyectualmente operada para producir un evento de paisaje puesto que en resumen se trata del volumen de un container que flota en el aire suspendido de un complejo de puntales y tensores.

Dicen así que la inspiración fue entonces, no la pieza en si cuando está inmóvil, sino cuando se mueve en los diversos escenarios del tránsito comercial naval:

Nos alimentamos de las imágenes que la misma pieza proveía, en entornos rurales, urbanos y suburbanos, elevada en grúas, apiladores, trasladada en barcos o semirremolques, además de un sin número de situaciones y relaciones que se transformaron en argumentos, bocetos y volumetrías.

El problema de proyecto –más allá de decidir cómo ocupar el interior delimitado de estas cajas de acero– era

así, evocar esa idea del container volando (no apoyado ni apilado) lo cual, sin embargo, para hacerla habitable, implicaría detenerlo o estabilizarlo en el aire para lo cuál aparecerá un sofisticado y a la vez artesanal, modo de resolución metalúrgica con soldaduras y tensionados. Con algunas situaciones bastante inéditas desde la naturalidad tectónica con que la gran mayoría de la arquitectura se resuelve apoyada en el suelo, lo que

aquí se subvierte y que, por tanto, permitirá experiencias alternativas tales como acceder por el piso que si bien no cambia las reglas del juego, despierta otras, recupera una cara oculta que se transforma en fachada, la idea de levitar está asociada al habitar y descubrir que un solo elemento nos provee, cubierto, semicubierto y abierto.

Desafio de teorías criticas para una nueva realidad

Renombrar la arquitectura en su evolucion técnica, formal y ética

Gustavo Gili, Barcelona, 2023

La obra crítico-historiográfica de quién acaba de concluir su carrera catedrática en ETSA

Barcelona –Josep Maria Montaner– destaca por una persistente voluntad de construir cartografías o descripciones sistémicas y holísticas de los diversos presentes proyectuales desde el fin de la modernidad al fin (?) de la posmodernidad, siempre con una especie de seguridad o positividad que en general tuvo a bien destacar o subrayar los aspectos progresistas de la modernidad sobre todo en sus aportaciones culturales en que la arquitectura trató de sortear (a veces casi en la imposibilidad absoluta de superar el sino de la mercancía, como decía Adorno) su destino articulado al devenir capitalista y ya en cierta sombra, a las aventuras socialistas.

En este reciente y último tratado JMM persiste en su vocación descriptiva de los frescos completos de experiencias y aportes, manteniendo su criterio crítico según el cual,

entender y analizar los desafios actuales de la arquitectura es tributario de la necesidad de revisión de su genealogía histórica de modo que nada de lo contemporáneo es desconexo de largos procesos que lo explican y determinan.

Fiel a su perfil académico –siempre implicado en la enseñanza de la teoría, la historia y la crítica– Montaner utiliza nociones de teóricos diversos como Benjamin, Derrida o Waisman para rescribir una vez más cierta historia de la arquitectura que arrancando en las propuestas ilustradas llega a lo actual con la intención, ya evidente por ejemplo en Tafuri, de usar lo histórico para entender lo presente pero más allá de ello, para prefigurar lo futuro, siempre en un ambiente relativamente decadente en su potencia social que estaría hoy expresando la realidad actual. Ya sea desde lo cultural, lo político o lo ecológico, todos los pensadores progre-

sistas de esa realidad no pueden superar un talante pesimista.

El libro comprende tres grandes partes, la primera de las cuáles revisa el devenir histórico de la arquitectura moderna a partir del cauce tecnológico abierto por la revolución industrial y como el mismo decanta en acciones proyectuales que pretenden coaligar éticas socialistas con estéticas racionalistas (éstas orientadas a forjar de manera bastante fiel o lineal, principios estilísticos o lingüísticos asociados a la lógica tecno-científica).

Esa primera parte empero, descarta rigorismos taxativos en desplegar esa historia optándose por un enfoque más bien ensayístico que se apoya en presentar algunas nociones basales de la historia moderna tales como el afán recurrente de motivos de orden compositivo, las disyuntivas y confluencias entre las pedagogías proyectuales politécnicas y de las Beaux Arts, el peso, conciencia

2 Le Corbusier et al. Hospital de Venecia. 1964

La línea mas productivista y repetitiva de Le Corbusier, iniciada con la lógica sumatoria de la casa Dom-Ino (que tomó su nombre del juego homónimo) evolucionó hacia un tipo de sistema proyectual colectivo que daría lugar a los “mat-buildings”,tal como el mismo puso en práctica junto con Guillermo Jullian de la Fuente en el proyecto del nuevo hospital de Venecia (1964).

El énfasis y el recurso hacia lo no visible en la búsqueda de una especie de estructura del alma que intenta expresar el arte de las vanguardias… (se manifiesta ) en la sueca

Hilma Af Klint, con su exploración sistemática de un universo geométrico abstracto y policromo para expresar lo invisible, el caos y lo inmaterial; en definitiva el espíritu vivo que vincula a todos los seres. Dentro de esta línea surgieron también las visiones psicoanalíticas del lenguaje del subconsciente.

3 Hilma Af Klint. Svanen. 1914

El rechazo de la propuesta de casas prefabricadas para personas sin hogar de Jean Prouvé (1901-1984), proyecto promovido por el Abate Pierre y su asociación Emaús fue un caso triste e indignante. En 1954 Prouvé diseño el prototipo que se montó a orillas del Sena en 1956, de la llamada Casa de los Días Mejores que el propio Le Corbusier calificó

o influencia de las construcciones historiográficas simultáneamente configuradas al desarrollo mismo de la historia moderna, los principios deducidos de lógicas técnicas y lo que bautiza metafísica de la planta libre, el aporte fundacional en lo tectónico y estereotómico de Gaudí , las percepciones crítico-apocalípticas de la cultura capitalista planteadas por Benjamin o los discursos propositivos de las vanguardias abstractas.

Se trataría pues esta parte, de intentar una presentación ensayística cuya tributación al fragmentarismo (shock, iluminaciones, pasajes, etc.) benjaminiano intenta anticipar la hipótesis de que las totalidades modernas solo pueden entenderse desde sus rajaduras o fisuras, o sea un panorama de ensamblaje de fragmentos crítico-analíticos.

La segunda parte parece orientarse a ofrecer, en el mismo modelo ensayístico de articulación de escritos-fragmentos, un panorama como “la casa más bella que yo conozca, el medio mas perfecto de habitar, la más brillante cosa construída”. Tenía 50 metros cuadrados, se instalaba sobre una base de hormigón y contaba con un módulo compacto de baño y cocina. A pesar de que el Abate Pierre y Jean Prouvé habían conseguido las ayudas económicas para construir cientos de estos módulos prefabicados, el Ministerio de la Reconstrucción y la Vivienda no otorgó la licencia de construcción por no cumplir la normativa de ventilación directa del núcleo sanitario, que si lo hacía por un extractor y una chimenea.

4 Jean Prouvé. La Maison des Jours Meilleurs. 1956

de las decadencias culturales y operativas de lo posmoderno, modulando descripción de momentos con enfoques cuestionadores, por ejemplo, acerca de temas tales como el retorno (o restauración) del realismo y las culturas populares, el pasaje y articulación de historia y memoria (y el creciente peso cultural memorabilístico sobre todo en proyectos como los de Ernesto Rogers y Louis Kahn), el renacimiento de lo ético (tan relevante en el siglo XIX, aun en su perfil reaccionario o conservador) tanto a nivel de la cultura político-urbana (Jacobs) como en su relativo rechazo o abandono en muchos proyectos contemporáneos que por tanto, no solo clausuran el espíritu moderno del progreso social sino que anuncian las actuales escenas decadentes.

La tercera parte del libro es la más optimista y de dirección de futuro, sobre todo al explorar la emergencia singular y asociada, de los

5 Lina Bo Bardi. Solar do Unhao. Bahía. 1956

La aproximación al arte popular y a la artesanía está presente en toda la obra de Lina Bo Bardi, tanto como dibujante que registra, coleccionista que recoge, museóloga que clasifica, arquitecta y diseñadora de muebles y de museografía que se inspira, crea y construye. En su obra la energía que aporta la realidad popular es máxima. Ello se refleja tanto

en sus intervenciones en Salvador de Bahía (especialmente en el Solar do Unhao) como en San Pablo, con su Teatro Oficina, una de sus ultimas obras. En ellas Bo Bardi siguió el imperativo propuesto por Antonio Gramsci de la responsabilidad de los intelectuales en la defensa y visibilización de la auténtica cultura popular.

6A-B. A Campos Baeza. Caja Granada 1998.

Junta de Castilla y Leon. 2012

Otro ejemplo de arquitectura cerrada y autónoma que tanto define a la arquitctura que se pretende como no idelógica son las obras de Alberto Campo Baeza que se basan en celebrarse a si mismas con sus formas puras , intemporales y blancas que rechazan el entorno. Lo es la Caja General de Ahorros de Granada (1992-8) , un bloque inaccesible

y rodeado de muros y lo son las oficinas de la Junta de Castilla y León en Zamora (20042012) que situadas como están frente a la catedral y el conjunto patrimonial, se cierran totalmente hacia el con gruesos muros y muy pocos huecos. Han sido proyectadas precisamente , para poder vislumbrar solo la pretendida gran hermosura de la arquitectura acristalada en su interior , lo sublime de la obra de Campo Baeza.

discursos feminista y ecologista, cuyas convergencias y experiencias parecen evidenciar algo en línea con direcciones correctas o necesarias de la disciplina en crisis. Esa fusión o confluencia entre crisis civilizatoria y posible aparición de culturas alternativas, Montaner lo asociará al surgimiento de un espíritu pragmatista emergente en semillas de nueva crítica o nueva didáctica proyectual, que aportan a pensar alternativas metodológicas en la investigación y nuevas posibilidades de relación entre teoría y práctica.

Viniendo de un destacado exponente del trabajo crítico europeo destaca en Montaner la inclusión de referentes de la escena marginal americana (así como de otras periferias al axis mundi eurocéntrico) no como figuras exhóticas sino como protagonistas locales de problemas proyectuales contemporáneos (como Rocha, Barrado&Bertolino, Mazzanti, Beitía, Barragán), de aportes crítico-teóricos

El Museo de la Cultura Bizantina en Tesalónica (1977-1993) de Kyriakos Krokos… consigue la percepción háptica de la diversidad de texturas sobre composiciones y formas clásicas. Todo ello se basa en los valores de los sentidos y de la percepción de sus espacios, sus materiales y sus texturas, su luz natural y sus atmósferas.

7. K. Krokos Museo Bizantino de Tesalónica. 1993

8 M. Rocha y G. Carrillo Museo Anahuacalli. México DF. 2021. (Fotografía de O. Luque)

Una de las obras mas reconocidas del Taller Mauricio Rocha es la ampliación del Museo Anahuacalli en Ciudad de México (2016-2021) donde unos pabellones de basalto y hormigón armado flotan sobre un paisaje de rocas volcánicas y de vegetación tropical creando, con las pasarlelas y las celosías, una serie de itinerarios, vistas y relaciones entre interior y exterior totalmente singulares, una magnífica conciliación entre los prismas de la arquitectura y los valores de la naturaleza.

(Verde Zein, Waisman, Rolnik) o de expresiones de innovaciones didácticas cruciales (Rural Studio, Talca) todo lo cual Montaner lo ha basado en las aportaciones conseguidas en sus múltiples viajes profesorales a Latinoamérica.

Además del esfuerzo taxonómico de registrar episodios proyectuales modernos y actuales –con sintéticas expresiones críticas para cada uno: veánse los epígrafes extraídos de este libro que ilustran la presente recensión–hay en Montaner un importante esfuerzo de presentación de la mayoría de los escritos teóricos del último cuarto de siglo, lo que evidencia por una parte, su interés por la deconstrucción crítica de los objetos arquitectónicos (más que los objetos en sí) así como, por otra parte, un evidente interés en demostrar el todavía potente estado de la teoría crítica, frente a otras opiniones que aluden a su decadencia.

El modelo calidoscópico del libro –tres partes que contienen 19 capítulos o ensayos que se escriben a través de 119 apartados o fragmentos de no más de una página o así–encierra el valor de una cosmovisión diversificable según la combinación de fragmentos que se consigue moviendo el calidoscopio, con articulaciones múltiples o variadas cartografías de situaciones pero también con la solidez crítico-conceptual –de cuño benjaminiano– que se alcanza en cada fragmento. Se consigue así, lucidez en disfrutar el trabajo como un medieval libro de horas (para lecturas acorde a circunstancias) pero también avizorándose que de ahora en más la realidad arquitectural se triturará en pequeños cristales divergentes que hará necesaria la construcción de libros-calidoscopio.

9. RCR. Teatro La Lira. Ripoll. 2005

La Biblioteca Joan Oliver en Barcelona (2002-7) destaca por ofrecer un gran paso cubierto hacia el jardin del interior de manzana. Una estrategia similar se ha aplicado en el antiguo Teatro La Lira, en Ripoll (2004-5) convertido en un monumental espacio público cubierto junto a un nuevo puente que señala una de las entradas a la población.

Multifunción barrial

Atelier Tropical. Bogotá, Colombia

El proyecto responde a un formato de programas híbridos que mezcla comercio con espacio cultural en el primer nivel y unidades residenciales conectadas por un patio interior en tres niveles. Promueve la idea de volver a habitar un barrio que durante la última década se ha ido trasformando en un distrito de arte, introduciendo elementos multiculturales al barrio y sus habitantes.

Desde el andén y el antejardín se construye un gradiente de intimidad que se mueve desde los formatos más públicos hasta la introversión del patio interior. La vivienda tiene circulaciones y divisiones flexibles que permite, por ejemplo, activar el garaje como una galería, conectar un local con un espacio de trabajo o configurar en un mono espacio en donde todas sus unidades se entrelazan en un circuito, la una con la otra.

En la escala y materialidad hay un diálogo con la tradición de la arquitectura moderna bogotana y del espíritu del barrio. Conserva la proporción de los dos primeros niveles de la vivienda prexistente, manteniendo el paramento original, pero agregando capas de profundidad mediante materas de concreto en los antepechos, planos ladrillos de distintos formatos y celosías fabricadas artesanalmente.

El tercer nivel se eleva en retroceso y está conformado por un conjunto de cuatro bóvedas seriadas en concreto asomadas sobre terrazas comunales que conectan todas las unidades, ofreciendo áreas compartidas entre jardines.

En torno a la idea de cultivar una selva andina en el interior de un hogar en una ciudad como Bogotá, está la intención de pensar críticamente la relación con el territorio y la tradición local del uso del patio, dando lugar a un espacio abierto y exuberante donde especies de distintos portes se funden con el interior a

través del juego de luces y sombras. Nos gusta pensar que este paisaje interior resguarda a sus habitantes con una experiencia de desconexión en su espacio personal y atemporal, siendo el preámbulo a una dimensión doméstica más ligada a los ciclos de la vida.

Opinión

Como en el caso del Binario –que acompaña esta presentación del trabajo del bogotano

Yemail– el Atelier Tropical también se manifiesta como una investigación proyectual sobre la multifunción (o la asociación variada entre usos bastante diferentes como el comercial y el residencial) y vinculada a una exploración de contextualidad respecto de entornos barriales que tienen sus tradiciones tipológicas y materiales y que en este caso adicionalmente se vincularía con procesos bastante generalizados segun los cuáles tales barrios se transforman en configuraciones que exponen nuevos usos (mas alla de los anónimos o discretos residenciales) quiza dentro de expresiones que la sociología ha reconocido como desarrollos bo-bos (sigla que refiere a la identificación de grupos sociales bourgeois-bohemian, burgueses bohemios en francés) que agrupa nuevos sujetos urbanos –parejas jóvenes de pasar razonable y gustos relativamente refinados e interesados en general en el arte y la cultura–

que estarían protagonizando procesos de colonización de antiguos barrios, que por ejemplo, habitaban trabajadores populares, siempre que sean relativamente centrales, baratos y con algun signo de identidad.

Esta situación culltural-contextual de un proyecto determinado la define de esta forma

Yemail en su memoria del AT: El proyecto responde a un formato de programas híbridos que mezcla comercio con espacio cultural en el primer nivel y unidades residenciales conectadas por un patio interior en tres niveles. Promueve la idea de volver a habitar un barrio que durante la última década se ha ido trasformando en un distrito de arte, introduciendo elementos multiculturales al barrio y sus habitantes

En tal forma entonces el proyecto asume

la caracterización de programa híbrido que coaligará al menos tres usos (comercio, cultura y habitación) en el contexto de hacer parte de la transformación de un barrio que deviene a convertirse en distrito de arte y que asume la condición de introducir elementos multiculturales al barrio y sus habitantes

Esta caracterización de programa y lugar para esta obra no solo le conferirá vías para explorar la hibridez emergente de la coexistencia de funciones diferentes sino que también le otorgará un pasaporte para la hibridez morfológico-edilicia del conjunto, por ejemplo en las soluciones del ultimo nivel cuyo uso

Datos

El proyecto Atelier Tropical estuvo a cargo de la oficina Yemail Arquitectura y fue terminado en 2024 con una supeficie construída de 466 m2. Los arquitectos a cargo fueron Antonio Yemail, José Fernando Cáceres y Martín Jiménez. La dirección de Arte y mobiliario la realizó Diego García; la dirección de la obra la ejecutó Pablo de Jesús García; el paisajismo estuvo a cargo de Yarumo Botánico-Elisa Triana y el diseño de piezas en ornamentación lo hizo Luz Lizarazo.

Las fotografías son de Santiago Beaumé y Paola Pabón.

residencial da curso a usar bóvedas cerámicas o a manejos mórbidos, curvos y expresivos de cierta espacialidad. Ello además superpuesto pero retranqueado respecto de las plantas inferiores mas regulares y moduladas, con lo que se ofrece desde la calle, el paisaje de un basamento relarivamente regularizado en tres módulos (comercio, atelier) sobre el cual, retraido, se dispone el volumen residencial con sus cuatro espacios modulados bajo diferentes pasos de bóveda.

El autor connota la cualidad híbrida de la construcción de su proyecto con una apelación al diálogo con la tradición de la arquitectura moderna bogotana y del espíritu del barrio: En la escala y materialidad hay un

dialogo con la tradición de la arquitectura moderna bogotana y del espíritu del barrio. Conserva la proporción de los dos primeros niveles de la vivienda prexistente, manteniendo el paramento original, pero agregando capas de profundidad mediante materas de concreto en los antepechos, planos ladrillos de distintos formatos y celosías fabricadas artesanalmente. Quiza se debería aqui reconocerse en esa tradición moderna bogotana a los artífices de esa suerte de expresionismo casi holandés (Wendingen) que protagonizaron por caso, Salmona o Bermúdez.

Hay evidentemente una delectación por el virtuosismo artesanal en la manipulación de los cerámicos (veáse la ilustración que muestra el patio del segundo nivel) tanto en paramentos, pisos, celosías diversas y hasta en proponer unas persianas de sombra resueltas como celosías móviles.

A su vez la decisión de mezclar usos y poner encima unidades de habitación también incluye una voluntad paisajística con la intención de promover un diseño paisajístico cuyo ajardinamiento comunal contiene la idea de cultivar una selva andina en el interior de un

hogar en una ciudad como Bogotá: El tercer nivel se eleva en retroceso y está conformado por un conjunto de cuatro bóvedas seriadas en concreto asomadas sobre terrazas comunales que conectan todas las unidades, ofreciendo áreas compartidas entre jardines. En torno a la idea de cultivar una selva andina en el interior de un hogar en una ciudad como Bogotá, está la intención de pensar críticamente la relación con el territorio y la tradición local del uso del patio, dando lugar a un espacio abierto y exuberante donde especies de distintos portes se funden con el interior a través del juego de luces y sombras. Nos gusta pensar que este paisaje interior resguarda a sus habitantes con una experiencia de desconexión en su espacio personal y atemporal, siendo el preámbulo a una dimensión doméstica más ligada a los ciclos de la vida

En resumen podríamos reconocer intenciones híbridas en lo funcional y en lo formal, homenajes a tradiciones singulares e identitarias de modernidad local y desinhibición tanto en la mezcla de usos como de geometrías, a la búsqueda quiza del realismo inteherente a posibles esteticas cercanas a lo popular.

Caja de sorpresas

Galería-taller Binario, Bogotá, Colombia

Memoria

Binario es un proyecto cultural que mezcla espacios de taller, tienda, terrazas y un espacio flexible que en palabras de Alejandra Molano y Andrés Felipe Pardo –las mentes detrás de todo– alberga prácticas creativas como las artes visuales, plásticas, el diseño, la música y el teatro en pequeños formatos. También es un ejercicio de arquitectura de 4 niveles pensado y construido a varias manos entre 2018 y 2020, con una estructura metálica gris nopal y mampuestos de arcilla en varios formatos. En su origen coexisten la pregunta por la escala y la tradición constructiva del barrio, un homenaje a la escuela de los pequeños edificios de la primera modernidad bogotana, la intención de ensamblar armónicamente distintos usos, o la posibilidad de entender el antejardín como un límite activo equipado para la interacción con la calle.

Opinión

La variada obra reciente del bogotano Yemail destaca por su interés en la renovación programática para proponer no solo arquitecturas específicas sino mas bien artefactos cuyo uso es multifuncional en muchos casos y abierto a diferentes modalidades de usos transitorios o esporádicos. Ese interés por cierta arquitectura dispositiva o performática se traduce en la obra de este arquitecto en una dilatada trayectoria de lugares para exposiciones o eventos transitorios, a caballo de experiencias museológicas orientadas a exponer ciertas objetologías artísticas o mercantiles y un interés especial en ofrecer arquitecturas-soporte para diversas manifestaciones cambiantes o adaptativas en los usos; arquitecturas flexibles y sensibles a diferentes formulaciones de la función. Es decir arquitecturas en cierto sentido, muy dispuestas a cooperar con transformaciones tácticas de uso, lo cuál se liga, quizá, a un reciente pragmatismo cultural que recoge el espíritu de realismos articulados con experiencias del mundo popular.

Datos

El proyecto Galería Taller Binario fue realizado por la oficina Yemail Arquitectura con una superficie construída de 359 m2 y con su construcción finalizada en 2019. El arquitecto a cargo fue Antonio Yemail con la colaboración de Juan Camilo Anzola y Eduardo Sandoval.

Las fotografías las realizó Alejandro Arango.

Esa afección por lo contextual en sentido amplio, se traduce en la obra de Yemail y en ésta en particular, en un interés por interpretar las cualidades de los entornos de cada obra, sobre todo si no se trata de emplazamientos muy centrales y por tanto, ya sometidos al imperativo de gustos o estéticas por asi nombrarlos, globales. Así el autor lo observa en un párrafo de su memoria: En su origen coexisten la pregunta por la escala y la tradición constructiva del barrio, un homenaje a la escuela de los pequeños edificios de la primera modernidad bogota-

na, la intención de ensamblar armónicamente distintos usos, o la posibilidad de entender el antejardín como un límite activo equipado para la interacción con la calle. De donde se asume cierta vocación multifuncional de tales contextos arquitecturales mas bien populares –ensamblar armónicamente distintos usos– y un modo de relacionamiento transicional entre arquitectura y ciudad en la transición afuera-adentro que ofrecen los retiros frontales –entender el antejardín como un límite activo equipado para la interacción con la calle–.

Toda este background teorico de la obra de Yemail se cruza con su conexión con clientes mas bien interesados en aventuras funcionales que de tal forma comparten (o hasta incluso trascienden y potencian) el afán experimental del diseñador. Ya que esta nombrada Galería-Taller Binario es un proyecto cultural que mezcla espacios de taller, tienda, terrazas y una espacio flexible que en palabras de Alejandra Molano y Andrés Felipe Pardo –las mentes detrás de todo– alberga prácticas creativas como las artes visuales, plásticas, el diseño, la música y el teatro en pequeños formatos Con lo cuál queda claro que el proyecto, aun en su modestia de escala y en su implantación en un barrio, intenta ofrecer un menú variado de utilizaciones y cierta polifuncionalidad adaptada a diferentes y variables modos de usos.

El conjunto se dispone con un nivel y medio orientado a usos mas bien expositivos o de galería (prevaleciendo un modelo de planta bastante libre) y un tercer nivel destinado a pequeños estudios o ateliers, cuya cualidad se acentúa con el recurso de iluminación cenital que resulta mas apto para el trabajo artístico, que se resuelve en el contexto de un cubierta metálica liviana.

La condición de posibilidad mutante de usos o performances del proyecto no se adhiere –como sería bastante convencional– a una solución estética neutral o minimalista de la arquitectura-soporte sino que ésta se orienta también a una experimentación diría realista, que conjuga artesanías cerámicas en muros y celosías con recursos derivados de soluciones metálicas, de cualidad industrial (perfiles de acero, etc.), todo ello intentando que la arquitectura visible –acabados, termina-

ciones– ofrezca estímulos y calidades sensibles y perceptuales a los usuarios. Incluso con vocación insistente de manifestar esas materialidades como aportes de diferentes estímulos ópticos y hápticos, por ejemplo en la simultaneidad que los laterales de la escalera ofrecen entre paredes artesanales de ladrillo, escalones metálicos y revestimientos de chapa agujereada y pintada con esmalte amarillo. En resumen, un exponente mas de una obra que en Yemail recorre casi una veintena de proyectos, todos o la mayoría de ellos, en la vocación de asmilar como material de proyecto el realismo inherente a condiciones de contexto, conjugado sobre una recurrente intención de explorar multifunción y hasta trasfunción 0 50m 10

Localización

0 50m 10

Localización

Carrera23
Carrera22
Calle72
Calle72A
Carrera23
Carrera22
Calle72
Calle72A
4. Tienda
5. Galería
6. Patio posterior
1. Antejardín
2. Cuarto de control
3. Baño
1. Taller 1
2. Taller 2
3. Circulación
5m
Planta segundo piso
4. Cocineta
5. Circulación
6. Taller 7
1. Taller 3
2. Taller 4 3. Baño
7. Taller 6
8. Taller 5
1. Corte A-A’
2. Corte B-B’
3. Corte C-C’
Planta cubierta
1. Corte A-A’
2. Corte B-B’
3. Corte C-C’
Planta cubierta
Corte
Fachada oriental - occidental

Turn static files into dynamic content formats.

Create a flipbook
Issuu converts static files into: digital portfolios, online yearbooks, online catalogs, digital photo albums and more. Sign up and create your flipbook.