MAR 013 - Material de Arquitectura

Page 1


EDITORIAL

Prepotencia del lugar

ARQUITECTURA CIUDAD

SPBR Arquitetos. Conjunto de viviendas Zanlorenzi, Curitiba

SPBR Arquitetos. Edificio Joaquin

Ferreira Lobo, San Pablo

UNIVERSO-CASA

Ezequiel Spinelli y Mirella Villanueva.

Casa en las afueras de La Plata

Ezequiel Spinelli y Facundo Lopez. Casa en las afueras de La Plata

APRENDIZAJES

José López-Canti. …Boca arriba con los ojos cerrados entre las hogueras

HITOS DE HISTORIA

Ignacio Hornillos. El Edificio de la Copelec

ECOLÓGICAS

Cazu Segers. Hotel Tierra Patagonia, Lago Sarmiento, Chile

Estudio Alarcia&Ferrer. Suites en Ascochinga, Córdoba

ARGUMENTOS

Jorge Jáuregui. Agenda siglo XXI MATERIAL

MICRO

Estudio Bianchi&Fucile. Casa para Melisa. Berisso. Buenos Aires

Giorgio Grassi. Una vida de arquitecto

AMERICANA

Estudio Barclay&Crousse. Sede del Gobierno de Moquegua, Perú

Revista MAR. Material de Arquitectura, Año 3, #13, Julio 2025, Mar del Plata, Argentina, ISSN 3072-7243

Rector / Cdor. Amado Zogbi

Vicerrectora / Ing. Alicia Gil

Delegado rectoral MdP / Arq. Marcelo

Artime

Decano / Arq. Óscar Cañadas

Vicedecano / Arq. Claudio Freidin

Directora / Arq. María Silvia Grilli ISSN 3072-7243

Equipo

Editor / Arq. Oscar Cañadas

Director / Arq. Roberto Fernandez

Diseño / DG. Jimena Durán Prieto

Consejo Editorial

Arq. Marcelo Artime

Arq. Eduardo Agüero

Arq. Jerónimo Mariani

Arq. Dario Lemmi

Arq. Pablo Rescia

Arq. Leonardo Jauregui

Arq. Ezequiel Muñoz

MAR manifiesta que las opiniones consignadas en esta publicación son de absoluta responsabilidad de los firmantes de cada nota y no comprometen a tales instituciones. Las notas sin firma son responsabilidad de la Dirección editorial de MAR.

Las imágenes incluídas fueron suministradas especialmente por los autores y/o sujetos protagónicos de cada nota. Cuando fueran solicitadas expresamente se indican las autorías y/o las fuentes originales de tales imágenes. Si alguna imagen careciera a juicio de su autor, del crédito correspondiente rogamos se nos consigne para subsanarlo.

Prepotencia del lugar

Sin pretender otorgar a este MAR 13 un tinte monográfico singular (pues en casi todos los numeros es relevante para nosotros y para los proyectistas convocados, la cuestión del lugar) esta vez hay una concurrencia muy explícita de muchos de los trabajos presentados en reconocer eso que dice el título de esta nota, o sea un valor o condición dada de cada proyecto que irrumpe poderosamente para determinarlo o calificarlo: el lugar pide y condiciona un acto proyectual y el proyecto debe tratar de no des-naturalizar (en el sentido figurado y explícito de esta expresión) el lugar.

Sea en los ingeniosos modos que Angelo Bucci confiere a sus proyectos para encontrar identidad para trabajos mas bien del mercado inmobiliario, en un espacio metropolitano como el de San Pablo (o Curitiba en este caso también) que ya se advertía en su tesis doctoral en que revela que es posible pensar algo específico para SP en el espesor de los metros del poco aparente relieve de su ciudad. Sea en las diferentes lecturas contextuales que los estudios platenses de Spinelli-Vilanueva-López y Bianchi-Fucile que asumen para proyectar pequeñas casas periurbanas donde a veces parece flotar una ausencia de referencias pero en que hay una búsqueda de referencias tipológicas (patios, galerías, etc.).

El notable y dilatado trabajo de Jorge Jáuregui arquitecturizando con potencia ética y sensibilidad popular diversos paisajes de los asentamientos marginales brasileños y sudamericanos sirve también como alusión a que siempre es no solo posible sino a menudo, necesario, proyectar como una forma de acentuación y calificación de rasgos territoriales ya dados, lo cual por otra parte, seguramente será la mejor forma de conseguir buenos resultados proyectuales en el complejo marco de la pobreza, la escaséz de recursos y el reto de la sustentabilidad, con el agregado en su caso, de promover soluciones del hábitat que vayan mas allá de la pura vivienda y pueda abordarse el espacio público y la construcción social de la ciudad.

El hotel en la Patagonia chilena que presenta Cazu Segers (con una obra integramente disuelta en una vocación de integración con el paisaje) contiene no solo el propósito de explorar alternativas tipo-tecno-lógicas que se nutren de los rasgos de los asentamientos rurales y de las calificadas arte-

sanías madereras chilenas sino también, el poético intento de articular la forma concreta de su edificio, derramado en el territorio con la forma fluída que provoca el viento en su modelación erosiva de los lugares.

El estudio cordobés Alarcia&Ferrer asume colocar en un paraje de entidad patrimonial –la antigua estancia del Presidente Roca con los jardines y parques de Thays– un gesto que produce espacialidad casi enteramente dependiente del motivo de la pirca, los muros de piedras ciclópeas que usaban los incas para delimitar territorios y así su proyecto de microhotelería casi no es mas que habitar lo que suscita el entre de tales poderosas mamposterías.

Giorgio Grassi, uno de los grandes protagonistas de la Tendenza milanesa, ofrece en un ultimo libro que ahora reseñamos, el nuevo pero reiterativo motivo de presentar una actitud proyectual que renuncia a toda gestualidad modernista y que rechaza acciones de diseño que no sean interpretaciones de los contextos existentes, sean éstos fragmentos urbanos del siglo XIX o ruinas arqueológicas de larga data. Su cualidad de proyecto está enteramente prevista en lo preexistente y solo se trata de seguir hablando sus lenguajes.

El edificio que presenta el mejor actual estudio peruano –Barclay&Crousse– para dotar de sede de gobierno a la región de Moquegua indica de entrada que tratará de trabajar sobre una figura circular porque de tal modo se engendra un motivo de reflejo de la forma del cerro tutelar de la región –el Cerro Baúl– lo cuál se considera relevante para intentar conseguir que el edificio configure una condición de símbolo identitario para su región; identidad que este caso se tratara de apoyar en la rememoración especular de un hito geométrico originario.

Este MAR 13 adquiere entonces, la condición de presentar una diversa panoplia de argumentos y proyectaciones cuya racionalidad y sentido pretende situarse no en la autonomía gestual del artista innovador sino mas bien, en la figura del analista territorial que sabe leer las características de cada lugar –natural, cultural o híbrido– y hacer que el aporte proyectual sea nada mas ( y nada menos) que una acentuación de lo existente y un fortalecimiento de aquello que da sentido a ser habitante de un micro-locus, un paese o un barrio.

Instrucciones para navegar el MAR

(el número 13 de MAR)

ARQUITECTURA-CIUDAD

Esta sección presenta un complejo edilicio singular local o regional cuyo interés radique en establecer propuestas de relación con sus entornos urbanos además de postular ideas proyectuales significativas en su planteo, desarrollo y materialización. Se presentaran documentaciones originales completas (planos, fotos, memorias) y un análisis que pueda ser útil tanto para su aplicación didáctica como para su recepción académica y profesional.

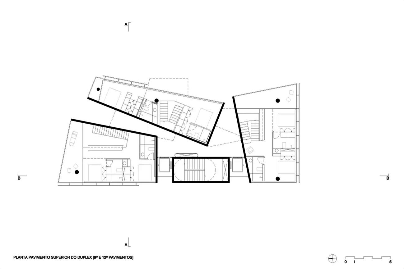
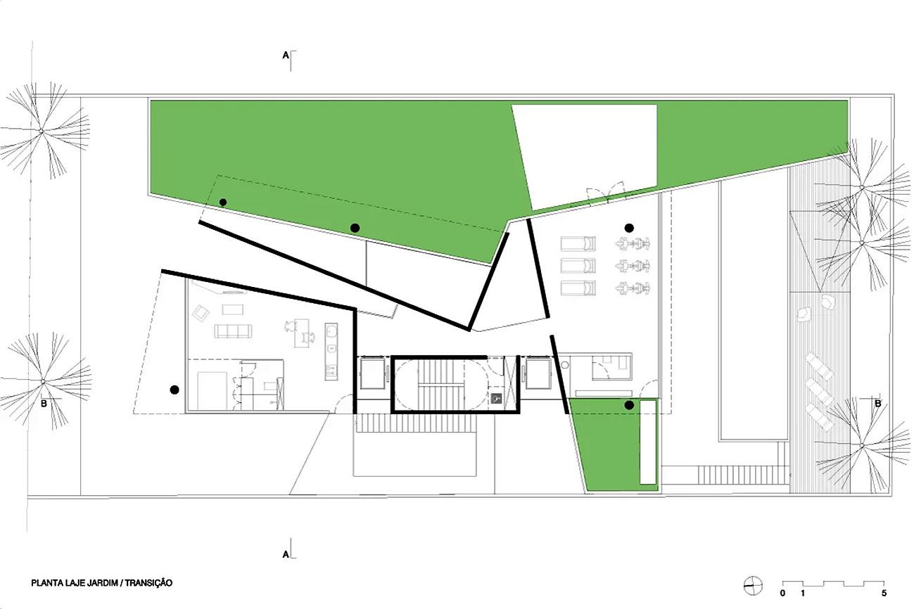
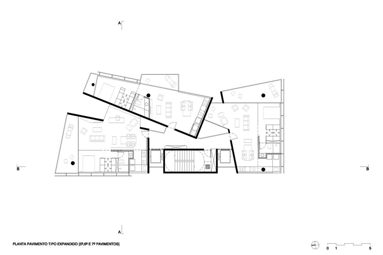
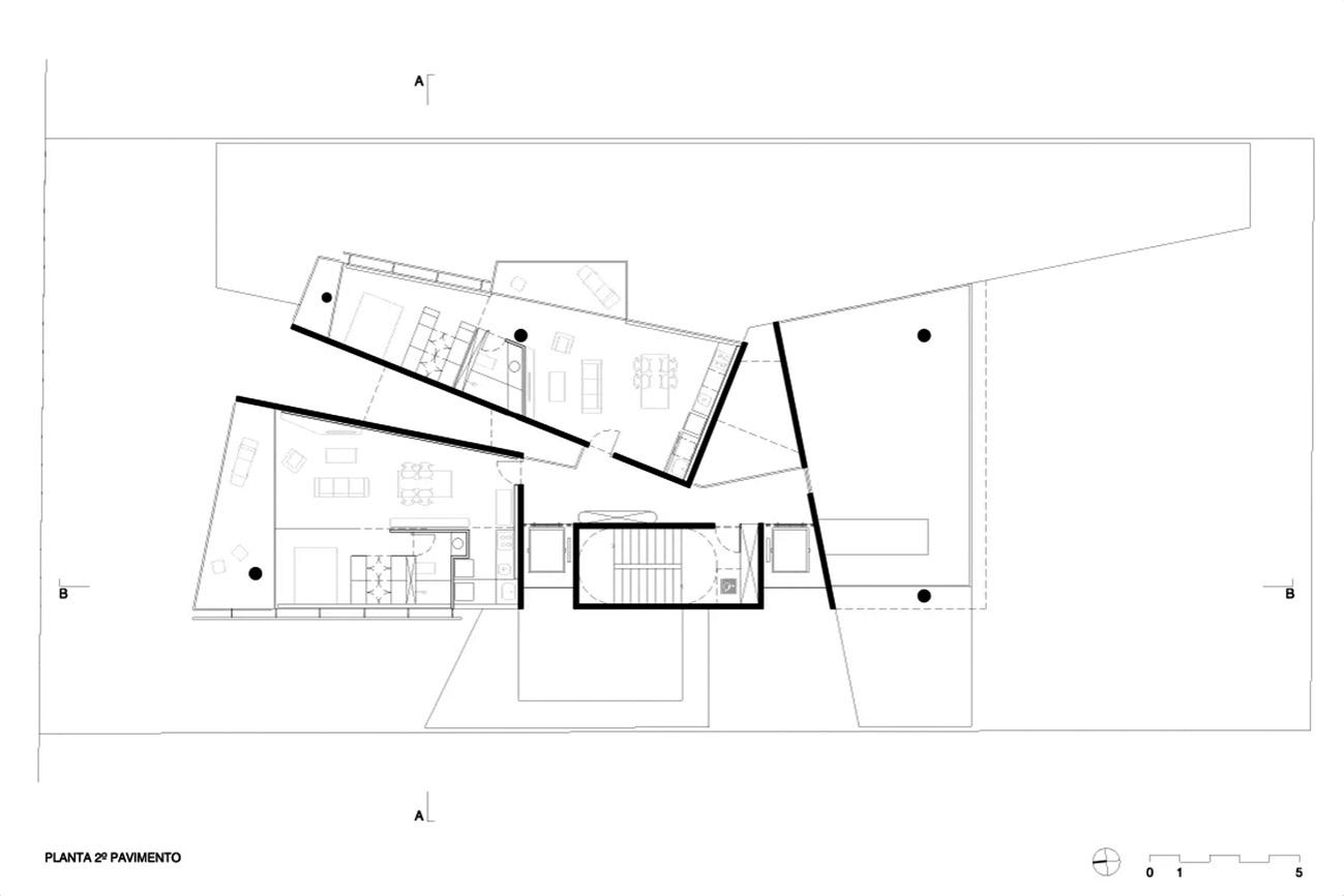
SPBR Arquitetos (Angelo Bucci, Felipe Barradas y Víctor Próspero). El todo y las partes. Conjunto de viviendas de la calle Zanlorenzi, Mossunge, Curitiba, Brasil Es un edificio de siete pisos. Hay dos sótanos, una planta baja, siete plantas y la planta superior. La losa típica, que se repite en las seis plantas, con cuatro viviendas por planta. Tres de ellas tienen planta idéntica, de 110 m2, y otra más grande, de 150 m2. En la séptima planta, mientras que el departamento de 150m2 permanece inalterado, las tres plantas idénticas crecen como departamentos dúplex y ocupan también la octava planta. Otros dos departamentos con jardín en la planta baja. En total, por tanto, hay 31 unidades. El núcleo del edificio es un vacío longitudinal que atraviesa el volumen abierto a la luz por ambos extremos.

SPBR Arquitetos (Angelo Bucci, Felipe Barradas y Víctor Próspero). El núcleo de un edificio puede respirar.Edificio Joaquin Ferreira Lobo, San Pablo, Brasil

La propuesta cuenta con tres departamentos por piso en una disposición que sorprende por la gran proporción de vacío donde menos se lo espera, justo en el corazón del edificio. De esta forma, los ascensores llegan a cada planta como si llegaran a un espacio exterior con sensación de balcón. Los tres apartamentos de cada planta están completamente separados entre sí, no existen paredes divisorias entre ninguno de ellos, por lo que cada una de las tres unidades de la planta tiene su configuración exterior claramente definida. El vacío central no sacrifica el potencial constructivo.

UNIVERSO CASA

Tratara de ofrecer una secuencia de casas unifamiliares o pequeños conjuntos que contengan proposiciones conceptuales en cuanto a su proceso y razón proyectual, en su realización y construcción y en su uso, identificando valores que vayan más allá de la mera respuesta funcionalista. Tal como en el caso anterior se ofrecerá una documentacion integral y un análisis enfocado en su recepción didáctica tanto como de docentes y proyectistas.

Ezequiel Spinelli y Mirella Villanueva. Casa para Camilo y Pampa. Casa en las afueras de La Plata, Buenos Aires

Ubicada en un extenso terreno en las afueras de La Plata, nos encontramos con una vivienda, que en operaciones anteriores y crecimientos poco criteriosos, había sido rodeada por servicios y áreas sociales, que dificultaban su conexión con el lote, bloqueaban las vistas al exterior e impedían el ingreso de luz natural. Se plantean una serie de demoliciones e intervenciones en la existencia, que definen la nueva pisada.

Ezequiel Spinelli y Facundo Lopez. Casa Patio. Casa en las afueras de La Plata, Buenos Aires Esta es una pequeña remodelación, ubicada en el casco de la ciudad de La Plata, Provincia de Buenos Aires. Una vivienda en esquina que no servía a las necesidades de una pareja joven que quería hacerse su casa. La operación curiosa que les propusimos fue, en lugar de agrandar la casa, achicarla, y optimizarla. Con una operación de vaciado dimos luz a un dormitorio y la posibilidad de entrada de luz desde dos orientaciones al estar.

APRENDIZAJES

Plantea recorrer una serie de experiencias educativas de arquitectura reconocidas por su alternativismo y experimentación para acoger planteos y propuestas que pudieran resultar útiles o convergentes con las discusiones pedagógicas de la propia escuela. Así como investigaciones y aplicaciones proyectuales en campos no convencionales del hábitat que abren camino al aprendizaje de prácticas alternativas.

José López-Canti. …Boca arriba con los ojos cerrados entre las hogueras No se puede hablar de la Escuela de arquitectura de Talca y obviar su producto docente más conocido, el más publicado y difundido y por la que es conocida internacionalmente en el ámbito arquitectónico: me refiero a esos proyectos de final de carrera que pasaron de ser un ejercicio académico sobre plano, con un coste económico y de esfuerzo notable para el estudiante, a transformarse en una acción construida, de similar costo pero localizada sobre la geografía del Valle Central –no sobre un plano que enmohece– prestando un servicio a la comunidad, implementando sus equipamientos, actividades y espacios de carácter público, en una perfilada geografía de eminente actividad agrícola (campesina, como a veces aparece escrito).

120

HITOS DE HISTORIA

Mas que presentar grandes hitos de la historia de la arquitectura se tratará de abordar hechos diversos de la historia local y regional que sean de interés en el conocimiento de grandes proyectistas locales y regionales pasados cuyas tareas hayan derivado en producir hechos significativos de la modernidad arquitectónica.

Ignacio Hornillos. El Edificio de la Copelec. Una obra epistolar del Taller de Juan Borchers

Este texto trata de poner de manifiesto que el Taller de Juan Borchers es un ejemplo significativo del entronque entre lo teórico y lo material; trascendiendo parámetros burocráticos y protocolarios. La COPELEC es una obra coral y destacada que merece ser explicada desde el punto de vista del cómo se articuló su diseño y el procedimiento que se usó para su construcción.

Lejos de ser único, este ejemplo lo podemos introducir con aquellos casos significativos de la segunda mitad del siglo pasado donde, de nuevo gracias a un procedimiento epistolar, arquitectos destacados lograban construir obras a distancia.

ECOLÓGICAS

La cuestión ambiental y de crisis de sustentabilidad se presenta como un desafío para el proyecto actual y futuro y si bien resulta un campo relevante para ajustar y modificar formas tradicionales de proyectar, todavia se carece de metodologias comprehensivas y aplicables por lo cuál se presentarán distintos trabajos y enfoques –desde interdisciplinares hasta urbano-territoriales pero también de proyectos de arquitectura- para empezar a entender las vias de futuros trabajos de mucha mayor implicación ecológica.

Cazu Segers. Formas que dibuja el viento.Hotel del Viento (Hotel Tierra Patagonia) Lago Sarmiento, XII Región.Chile

El gesto territorial es el de un cuerpo libre abarcando la extensión, como un cuerpo virtual que se conforma en los recorridos exteriores e interiores. En la cabeza está el macizo del Paine, los brazos son los hitos geográficos que definen los límites de las orillas del lago, las piernas son la forma de acceder al lugar y en el corazón; el edificio del hotel. El gesto del edificio surge de las formas que dibuja el viento, elemento natural característico de la zona. La forma busca no irrumpir en el paisaje metafísico del lugar, sino sumarse. La imagen del hotel es la de un antiguo fósil de algún animal prehistórico, varado en la orilla del lago.

MATERIAL

La revista no publicará (salvo alguna específica excepción) proyectos no construídos en el entendimiento de la relevancia por otorgarse a la materialización adecuada de las ideas proyectuales ya que se piensa que la construcción no es una fase ulterior e independiente del proyecto sino que éste cobra sentido, viabilidad y calidad en tanto aborde y resuelva su condición material, lo cuál lleva a entender cuestiones de sustentabilidad y tecnologías de ingenio y cualidad regional, más allá de temas propios de la construcción tradicional.

Estudio Alarcia&Ferrer. Entre pircas. Suites en Ascochinga, Córdoba

Las pircas rurales, tan caracteristicas del paisaje serrano cordobés, tienen la función de cercar o limitar un terreno. En este caso, delimitan un espacio de uso, unas habitaciones en suite como expansión de un hotel. El lugar en cuestión corresponde a la antigua Estancia veraniega del ex presidente argentino J.A.Roca transformada en hotel. Ubicado al norte de la ciudad de Córdoba y compuesto por uno conjunto de edificios del siglo XIX, un fantástico parque con frondosos arboles –diseñado por Carlos Thays– y un majestuoso lago artificial. Las nuevas suites incorporan las referencias históricas y paisajísticas para codificarlas en un proyecto acorde a su tiempo y lugar.

Jorge Jáuregui. Agenda siglo XXI

ARGUMENTOS

La producción de proyectos descansa en aprovechar aspectos analíticos emergentes de argumentos teóricos que tratan de entender el pasado y el futuro para acompañar el presente proyectual y de tal forma esta sección se interesa en mostrar trabajos argumentales de teoría y crítica que en algunos casos pueden tener relación directa con acciones de proyecto o en abrir propuestas de formas alternativas de proyectar.

La agenda socio-espacial-ambiental actual, demanda necesariamente provocar recentralizaciones en territorios sometidos a expansiones aleatorias y dispersas, capaces de suscitar transformaciones mediante intervenciones puntuales fuertes, generando reconfiguraciones potentes en contextos descalificados. Actuando como catalizadores socio-espaciales. En la era de las pos metrópolis apresadas y desmesuradas, donde imperan los flujos (de vehículos, de gente, de mercaderías, de informaciones y de capital) precisamos de puntos de parada, de espacios de encuentro y descompartimentalización, incrustados en los suburbios, asumiendo los conflictos y las contradicciones como fuente de transformaciones específicas.

Hay arquitectura mínima: pequeñas intervenciones de adaptación o modificación; agregados, acciones de acupuntura urbana por colocación de nuevos objetos. En las escalas opuestas de lo territorial-urbano y cercano a lo doméstico-objetual es posible activar acciones proyectuales que ofrecen nuevas funcionalidades o que agregan variedad y novedad de uso a lo preexistente. Acciones que pueden recaer en trabajos de generación de objetos resueltos casi con artesanatos y/o con enfasis en la emisión de comunicación; objetos que hablan agregando pequeños matices de sentido a lo dado.

Estudio Bianchi&Fucile. Materializar ideas con técnicas locales. Casa para Melisa. Berisso. Buenos Aires

La casa con galería, producto histórico de pertinencia climática y uso vivencial de la tierra, junto a la casa chorizo, exponente urbano de organización lineal, son revisados en pos de una nueva flexibilidad de usos internos y de relaciones con el entorno para esta propuesta. Así, una línea imaginaria es trazada longitudinalmente en su centro, dividiendo el terreno en dos. A partir de allí, se propone una alternancia de llenos y vacíos que varía según la necesidad, pero siempre, hacia un lado lo construido y hacia el otro su contraparte. En CM, la sucesión supondrá 3 instancias finales: cochera y patio de acceso, vivienda y patio general, taller y patio trasero. 164

HERRAMIENTAS

Los buenos libros y artículos de problemas teóricos y prácticos del proyecto de arquitectura son como herramientas de trabajo para formarse y entender aspectos y cualidades por afrontar cuando se está proyectando: por tanto el interes de esta sección será presentar críticamente algunos aportes bibliograficos recientes que suponen conocer el marco cultural general donde se contextualiza el hecho de proyectar y tomar decisiones proyectuales.

Giorgio Grassi. Arquitectura en el corpus del tiempo Una vida de arquitecto Este es otro de los libros de Grassi (de los que destacarán La construcción lógica de la arquitectura, La arquitectura como oficio o Archittetura Lingua Morta, en los que prevalece el talante teórico y la búsqueda casi arqueológica de raíces históricas de las invariancias tipológicas y en que aparece el rescate de Heinrich Tessenow, del olvido al que había sido relegado por ser profesor del fascista –pero capaz proyectista– Albert Speer) en que se conjunta equilibradamente un discurso actualizado de su arcaísmo conceptual y un registro sintético de sus proyectos, cada uno en dos páginas, con tres o cuatro imágenes y un trozo de sus memorables memorias (valga la repetición), que siempre son pequeños intentos de explicar como el proyecto es resultado de una meditación ética, tipológica y a veces arqueologica y nunca al revés: es decir, ningun proyecto surge en GG de la inspiración o el talento genial, de lo cuál expresamente descree y casi repudia.

AMERICANA

Entendemos la cultura proyectual local como haciendo parte de problemas y alternativas propias del mundo latinoamericano cuyas propuestas mas singulares e innovativas se presume que deben conocerse profundamente para insertar el trabajo de proyecto en una condición geocultural especifica que en lo posible aproveche lo bueno de la globalización pero también que cuestione sus defectos y limitaciones.

Estudio Barclay&Crousse. Geometría circular. Sede del Gobierno de Moquegua, Perú

El proyecto propone una solución compacta de seis niveles para liberar un área destinada a un gran espacio cívico que no estaba previsto en el programa de concurso. Este espacio de carácter público es el nexo entre los distintos programas del polo de desarrollo, mientras que el edificio denota su carácter singular con una gran rampa de acceso, un atrio público techado y una forma distinguible dentro del tejido urbano. La forma cilíndrica toma su inspiración del elemento histórico más importante de Moquegua, el Cerro Baúl, que fue el lugar de convivencia de dos grandes culturas prehispánicas: los Huari y los Tiahuanaco, mientras que sus espacios están marcados por los elementos tradicionales de la ciudad de Moquegua, como los mojinetes de sus casas y las formas puras y prismáticas de sus edificios emblemáticos.

El todo y las partes

Conjunto de viviendas de la calle Zanlorenzi, Mossunge, Curitiba, Brasil, 2021

SPBR Arquitetos (Angelo Bucci, Felipe Barradas y Víctor Próspero)

Memoria

La historia de este proyecto comenzó en 2015, cinco años antes de que empezáramos a dibujar. Fue en esa ocasión que, por invitación de las constructoras CRON y L’Espace, realizamos nuestra primera visita a la ciudad. Su interés por nuestro trabajo puede haber surgido del entusiasmo de un joven estudiante de arquitectura que trabajaba en el equipo de la empresa constructora en ese momento. Vale la pena destacar el hecho, ya que dice mucho sobre la capacidad del grupo para dar voz a todos. Fue en esa ocasión que pudimos conocer el trabajo, principios y valores que estaban impresos en las obras.

Era una época de crisis en el mercado de la construcción brasileño. Aunque las empresas del sector reaccionaron restringiendo las inversiones, ellos hicieron lo contrario. Precisamente porque estaban informados sobre el nivel de caída de la inversión en la ciudad y la proyectada falta de oferta en el futuro, tomaron ese contexto como el mejor momento para invertir. El crecimiento que experimentaron en los años siguientes demuestra que tomaron la decisión correcta. Otro aspecto de los valores y la cultura de ese

grupo que nos llamó la atención, quizás en contraste con lo que se practicaba como sentido común en su segmento de actividad, era el orgullo que tenían por su fuerza laboral, enfatizando que era propia y formada dentro de la empresa y su política de mantener a la gente en el equipo. Dijeron: Nuestro equipo es nuestro mayor activo.

Cinco años después, en 2020, nos volvieron a llamar para diseñar un pequeño edificio de departamentos ubicado en la calle Ivo Zanlorenzi, en el barrio de Mossungue, exactamente el mismo lote que habíamos visitado anteriormente.

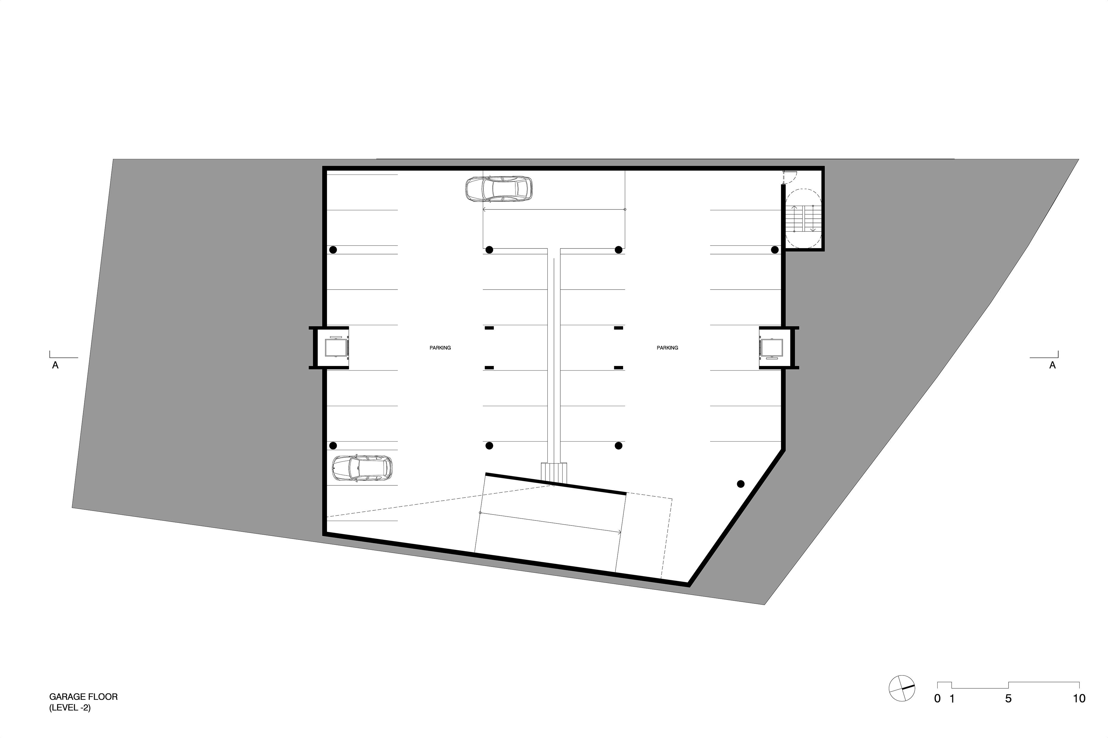
Se trata de un cuadrilátero irregular, de aproximadamente 30m de lado y 60m de fondo y bastante empinado, con un desnivel diagonal de 10 metros, desde el punto más bajo en el vértice junto a la calle y lindero oriental hasta el vértice diagonal junto al lindero occidental al fondo del lote.

Es un edificio de siete pisos. Hay dos sótanos, una planta baja, siete plantas y la planta superior. La losa típica, que se repite en las seis plantas, con cuatro viviendas por planta. Tres de ellas tienen planta idéntica, de 110 m2, y otra más grande, de 150 m2. En la séptima planta, mientras que el departamento de 150m2 permanece inalterado, las tres

el predio con superficie generosa, admitirá que se coloquen –como se advierte en el esquema llamado site– cuatro prismas de 8 niveles que contienen en cada planta, tres unidades de vivienda y el núcleo circulatorio, inusualmente desnudado –respecto de las soluciones convencionales– al emerger bien visible en uno de los cuatro bloques que componen este conjunto, que de tal modo, agranda los perímetros de sus envolventes en un gesto proyectualmente generoso pues aumenta la transparencia y visibilidad de todos los locales

explorar las posibilidades –a priori limitadas– del trabajo con agencias desarrolladoras de productos propios del mercado inmobiliario [...] Lo cuál parece configurar una escena no tan habitual, en la cual todavía el proyectista posee cierta capacidad de experimentación y proposición de productos relativamente aternativos, sin que por ello –y allí reside el interés y la viabilidad de estos trabajos– se comprometa el éxito comercial del emprendimiento.

Datos

El Conjunto de la calle Zanlorenzi, en Curitiba, Paraná se proyecto entre 2015 y 2020 y su construcción está en curso. El terreno tiene uma superfície de 1750 m2. y el edifício suma 3600 m2.

El proyecto fue a cargo de SPBR Arquitetos com la participación de los arquitectos Angelo Bucci, Felipe Barradas y Víctor Próspero y la colaboración de Ana Carolina Mello y Gabriela Takase. El cliente es L'Espace Incorporadora, la ingeniería de Instalaciones queda a cargo de CRON, la ingeniería de Estructuras es de Flexcon (Adriano Etcheverry) y el diseño de Interiores y Paisaje de Marco Bertoldi.

plantas idénticas crecen como departamentos dúplex y ocupan también la octava planta. Otros dos departamentos con jardín en la planta baja. En total, por tanto, hay 31 unidades. El núcleo del edificio es un vacío longitudinal que atraviesa el volumen abierto a la luz por ambos extremos. Dos muros estructurales idénticos y paralelos, separados 2,80 m entre sí, definen el núcleo y protegen las escaleras de seguridad. Los ascensores se colocaron en ambos extremos de este vacío, con el pasillo abierto a la vista. Cada palier da acceso a sólo dos unidades.

El sistema estructural está formado por el conjunto, además de los dos muros que conforman el núcleo, cuatro columnas a cada lado a lo largo de las fachadas laterales y losas macizas sin vigas. Los muros de las plantas de las torres están realizados con marcos de vidrio y aluminio, con colores y tratamientos sobrios, con el fin de conservar el

protagonismo arquitectónico de la estructura de hormigón armado y el diseño de las losas. Aprovechamos el pretexto de este pequeño edificio de apartamentos para demostrar cómo la arquitectura, la concepción del proceso de construcción dentro de la lógica de las técnicas y de los materiales, tiende hacia un trabajo de calidad y bien alineado con los principios que guían la actividad de los clientes y constructoras CRON y L’Espace.

Opinión

Este proyecto, de larga duración en sus diferentes dos etapas signadas por el paréntesis de cierta crisis de la producción de oferta inmobiliaria, representa un aspecto en la trayectoria de SPBR y su líder Angelo Bucci, que remite a explorar las posibilidades –a priori limitadas– del trabajo con agencias

desarrolladoras de productos propios del mercado inmobiliario, si bien en la memoria se destaca y acentúa, ciertas diferencias de los específicos clientes y desarrolladores que encargaron este trabajo.

Lo cuál parece configurar una escena no tan habitual, en la cual todavía el proyectista posee cierta capacidad de experimentación y proposición de productos relativamente aternativos, sin que por ello –y allí reside el interés y la viabilidad de estos trabajos– se comprometa el éxito comercial del emprendimiento. Puesto que en esta hora ultracapitalista queda declinada en general la arquitectura de orden público y engendrada cierta homogeneización de la producción arquitectónica de cara a su condición de bienes de cambio útiles en la dinámica del capital, la emergencia de casos diferentes debe despertar nuestro interés teórico-crítico, aun concentrándonos en estudiar y

valorar pequeñas proposiciones de diseño calificado tales como indagaciones respecto de innovaciones tipológicas o exploraciones referidas a proponer objetos de calidad en la construcción del paisaje urbano.

En este caso, favorecido si se quiere –respecto de la producción convencional– por un predio interesante que admite generar un edificio exento y sin medianeras cegadas, así como, con un pied a terre que en su desnivel de casi 10 metros entre sus extremos permite resolver una llegada al suelo bien diferente a lo tradicional, ahora con un volumen de basamento bastante deconstruído y aireado en componer los elementos tales como el hall de acceso, los ingresos de autos, dos unidades locativas de PB y algún tratamiento de ajardinamiento.

Asimismo el predio con superficie generosa, admitirá que se coloquen –como se advierte en el esquema llamado site– cuatro prismas de 8 niveles que contienen en cada planta,

tres unidades de vivienda y el núcleo circulatorio, inusualmente desnudado –respecto de las soluciones convencionales– al emerger bien visible en uno de los cuatro bloques que componen este conjunto, que de tal modo, agranda los perímetros de sus envolventes en un gesto proyectualmente generoso pues aumenta la transparencia y visibilidad de todos los locales –incluso los convencionamente cerrados, como los huecos de ascensores o los palieres de acceso a las unidades en cada planta–.

El armado tan pregnante y tectónico de cuatro minitorres consigue adicionalmente que ningún apartamento comparta sus muros de limite con vecinos lo cuál sin duda asemeja la propuesta a un apilamiento de casas, que aseguran autonomía no solo en las conjuradas interferencias visuales sino también en las acústicas. Si no fuera por la geometría angulada que fractaliza el conjunto (por eso el título: El todo y las partes) hay en este ejercicio

de Bucci varias resonancias del muy reconocido Altamira de Iglesia, ya sea en la libertad de resolución de las envolventes de cada unidad, en la compleja y rica propuesta de solución del área de acceso o en la llegada del ascensor no a un restringido y oscuro palier mínimo sino a espacios de luz y visión externa. Cabe así otorgarle un significactivo valor a editar este trabajo en la presente sección (Arquitectura-Ciudad) dado que resignifica y potencia un objeto típico de la actual condición de producción de vivienda colectiva urbana –maximizando su distinción respecto a lo tópico convencional del mercado inmobiliario–, ofrece apartamentos que también serán singulares y atípicos en su geometría y sus envolventes, propone una imagen innovativa en el townscape urbano y desarrolla una toma de suelo que evade la repetida estrictéz de las plantas bajas habituales, al plantear espacios y jardines que contribuyen a enriquecer el paisaje de la ciudad.

El núcleo de un edificio puede respirar

SPBR Arquitetos (Angelo Bucci)

Memoria

El barrio de Vila Olímpia surgió en la década de 1930 a partir de la división de las fincas que ocupaban las llanuras de inundación del río Pinheiros. Eran lotes modestos en los que se construyeron viviendas y pequeños negocios. La reciente transformación del barrio se produjo en la década de 1990 con la presión inmobiliaria impulsada por la construcción de las avenidas Nova Faria Lima y Hélio Pellegrino, que destrozaron el tejido preexistente. Además se mantuvo la antigua red de carreteras. La estructura del terreno se transformó mediante la unificación de lotes con el fin de posibilitar la verticalización propia de los grandes desarrollos que cambiaron por completo la densidad de ocupación y la fisonomía del lugar.

Es en este contexto que se enmarca este proyecto de edificio de apartamentos ubicado en la calle Joaquim Ferreira Lobo 333. El lote, con 20 metros de frente y una superficie de 850 m2, es reducido en comparación con el entorno actual.

El empresario Silvio Kozuchowicz, fundador del grupo SKR, nos invitó a diseñar el edificio en 2013, en pleno apogeo de la crisis del mercado inmobiliario en San Pablo. Por suerte

esa crisis nos abrió la ventana de la oportunidad. Mejor aún, el tiempo para las propuestas, normalmente muy corto dado el ritmo de acción del mercado, perdería su prisa debido a la crisis y así extendido, ofrecería una oportunidad rara para un proyecto: más espacio para el diálogo, mayor receptividad para aquello que busca escapar de las fórmulas trilladas del mercado.

Seguiría una extensa secuencia de estudios preliminares con la determinación de ampliar al máximo el campo de posibilidades. Este proceso, alentado por el diálogo entusiasta y el notable repertorio de Sílvio, acumuló dieciocho versiones de estudios. Al final todos estábamos convencidos del proceso y seguros de nuestra elección.

La propuesta cuenta con tres departamentos por piso en una disposición que sorprende por la gran proporción de vacío donde menos se lo espera, justo en el corazón del edificio. De esta forma, los ascensores llegan a cada planta como si llegaran a un espacio exterior con sensación de balcón. Los tres apartamentos de cada planta están completamente separados entre sí, no existen paredes divisorias entre ninguno de ellos, por lo que cada una de las tres unidades de la planta

Datos

El edificio de departamento de la calle Ferreira Lobo al 300, en Villa Olimpia, San Pablo, fue iniciado en su proyecto em 2014 y la obra, concluída em 2022, a cargo de la oficina SPBR Arquitetos liderada en este caso por el arquitecto Angelo Bucci y con la participación de Beatriz Marques, Felipe Barradas, Lucas Roca, Martha Bucci, Nilton Suenaga,Tatiana Ozzetti, Victor Próspero, Beatriz Brandt, Daniela Zavagli, Gabriela Casal, Larissa Oliveira, Mateus Evangelista, Paula Dal Maso y Vitor Endo. El modelo electrónico lo hizo Ricardo Canton.

Las fotos son de Nelson Kon (indicadas NK) y Pedro Mascaro (PM).

La superficie del predio es de 842,72 m² y la construída 4746 m².

tiene su configuración exterior claramente definida. El vacío central no sacrifica el potencial constructivo. Su razón de existir es otra. Está ahí para aliviar la superficie construida en cada nivel para que el edificio pueda ganar altura y así equilibrar mejor su tamaño en relación al entorno ya vertical.

El sistema constructivo, con losas planas y muros estructurales en hormigón armado; ambientes interiores con mínima compartimentación, instalaciones cuidadosamente diseñadas para evitar la fácil solución de revestimientos y techos de yeso; la utilización de conceptos de construcción en seco; de los marcos de piso a techo; la opción de una paleta de materiales extremadamente reducida; atención a los criterios de eficiencia energética y confort garantizado con sistemas pasivos. En definitiva, todo tiende a alinearse con un principio arquitectónico más atento a la esencia y la calidad constructiva. En otras palabras, se busca lograr una sofisticación que emane de la calidad del

diseño, en clara oposición a la extravagancia de revestimientos y especificaciones que simulan exclusividad cuando en realidad sólo segregan. Después de todo, la arquitectura se basa en el precepto de la generosidad. Quizás por eso el núcleo de un edificio puede respirar.

Opinión

El edificio paulistano que aquí presentamos tiene muchas concomitancias con el proyecto de Curitiba que acompaña esta edición de la sección Arquitectura-Ciudad en torno de recientes trabajos liderados por Angelo Bucci sobre el tan convencional tema de edificio de vivienda colectiva en altura, por ejemplo al resaltar que el trabajo adquirió cierta larga duración intermediado por una crisis sectorial o por las posibilidades que surgen cuando interviene un promotor inmobiliario que destaca

respecto de una media interesada en repetir fórmular extremadamente tipificadas. Evidentemente una de las tareas necesarias de los arquitectos con intereses ligados al desarrollo de arquitectura de calidad, estará vinculada con su capacidad de seducir a promotores interesados en alterar la lógica estandar de los productos inmobiliarios.

Las semejanzas con esa otra propuesta indicada y las características innovativas de este proyecto quedan adecuadamente sintetizadas en el párrafo de la memoria que aquí resaltamos:

La propuesta cuenta con tres departamentos por piso en una disposición que sorprende por la gran proporción de vacío donde menos se lo espera, justo en el corazón del edificio. De esta forma, los ascensores llegan a cada planta como si llegaran a un espacio exterior con sensación de balcón. Los tres apartamentos de cada planta están completamente separados entre sí, no existen paredes divisorias entre ninguno de ellos, por lo que cada

una de las tres unidades de la planta tiene su configuración exterior claramente definida. El vacío central no sacrifica el potencial constructivo. Su razón de existir es otra. Está ahí para aliviar la superficie construida en cada nivel para que el edificio pueda ganar altura y así equilibrar mejor su tamaño en relación al entorno ya vertical.

Aquí se advierte –nuevamente en concomitancia con el proyecto de Curitiba– una disposición que sorprende por la gran proporción de vacío donde menos se lo espera, justo en el corazón del edificio, es decir en esta intención de dotar al núcleo circulatorio horizontal y vertical, una condición espacial estructuradora mucho más rica que los habituales núcleos cerrados de superficies mínimas de mera prestación funcionalista y ninguna calidad espacial.

También en consonancia con el edificio curitibense y con el Altamira rosarino de Rafael Iglesia, los ascensores llegan a cada planta

como si llegaran a un espacio exterior con sensación de balcón, lo cual implica proponer una marcada diferenciación con los edificios de vivienda colectiva en altura al tratar de que la experiencia habitativa rescate valores de la vivienda individual en la relación de cada unidad con el entorno urbano, lo cual se complementa con la decisión compositiva generosa (en relación a la restrictiva economía inmobiliaria estándar) de desarrollar tres apartamentos de cada planta (que) están completamente separados entre sí.

No obstante, la intención de aligerar la superficie de cada planta –a favor de conseguir espacialidades inéditas para el núcleo circulatorio y perímetros propios para unidad (al no compartirse muros linderos) hay una sensata explicación de búsqueda de rendimiento con el planteo ya que el vacío central no sacrifica el potencial constructivo. Su razón de existir es otra. Está ahí para aliviar la

superficie construida en cada nivel para que el edificio pueda ganar altura y así equilibrar mejor su tamaño en relación al entorno ya vertical. Plantas mas aireadas y de espacios comunes mas amplios y calificados conduce a buscar mas esbeltéz y altura en el edificio, para acompasarse en el paisaje y densidad circundante dado que en este caso, al contrario del compañero curitibense, se trata de un lote de 20 metros de frente y 850 m2 de superficie, considerado exigüo para lo habitual en esa área paulistana, por lo cuál debe optarse por un planteo de torre con su lado menor frontal a la calle y una proposición de bordes recortados para resolver los retiros laterales y posteriores; recortes que alcanzarán al hueso del núcleo circulatorio, que con aberturas que alcanzan a los ascensores transparentes, es un espacio que puede respirar.

Casa para Camilo y Pampa

Casa en las afueras de La Plata

Memoria

En 2024 ubicada en un extenso terreno en las afueras de La Plata, nos encontramos con una vivienda, que en operaciones anteriores y crecimientos poco criteriosos, había sido rodeada por servicios y áreas sociales, que dificultaban su conexión con el lote, bloqueaban las vistas al exterior e impedían el ingreso de luz natural.

Se plantean una serie de demoliciones e intervenciones en la existencia, que definen la nueva pisada.

Respetando la estructura original, se reorganizan y flexibilizan los dormitorios que dan hacia la calle, se reestructura y amplia la cocina tomando la superficie ocupada por el lavadero y se plantea un crecimiento de un dormitorio y un espacio social hacia el fondo, en el corazón del lote.

Materialmente la casa de resuelve con muros de ladrillo revocados y pintados de blanco, estructura de hormigon para cubrir las grandes luces y se reutilizan las tiranterias y chapas existentes para poder techar los espacios de dormitorios y cocina.

La morfología de la vivienda queda definida por la inclinación de los techos y la repetición de la estructura que marca el ritmo de las nuevas construcciones.

Fueron colaboradores del proyecto Josefina Bátiz y Bautista Rey.

Opinión

En cierta consonancia con el otro trabajo aquí presentado en la sección Universo Casa, este proyecto del equipo platense opera produciendo un híbrido emer-

Se apela al motivo de frentes ritmados por pilares –que aparecen en varios lugares– y en la unidad lingüística que ofrece el color blanco, como recursos que establecen criterios sólidos de unidad de lenguaje, que fortalecen la identidad del conjunto casa... ayuda sin embargo, a conseguir una espacialidad distendida y transparente y muchas situaciones de relación entre el diversificado

interior y el paisajísticamente tratado exterior, en una unidad significativa y valorable.

gente de transformar intensamente una construcción existente, en este caso de las afueras urbanas, en un terreno de dimensiones amplias.

Lo híbrido puede expresarse en un partido que centrado en un eje vertebrador que acoge el acceso y desborda en la nueva área de comer-estar desarrollada al interior del predio, termina por ofrecer un esquema casi bipolar entre el bloque anterior (de 2 dormitorios, servicios, un pequeño estar y hasta una cochera adyacente) y el nuevo corazón de la casa remodelada (con un generoso dormitorio y sus servicios mas un importante espacio de living-comedor con un frente puntuado por pilares que se abre al área de piscina), todo ello anudado por el vector circulatorio que arran-

ca del acceso y la nueva ampliada cocina, con su isla de trabajo.

Se apela al motivo de frentes ritmados por pilares –que aparecen en varios lugares– y en la unidad lingüística que ofrece el color blanco, como recursos que establecen criterios sólidos de unidad de lenguaje, que fortalecen la identidad del conjunto casa, cuya relativa dispersión para colonizar con nuevas construcciones el corazón del lote, requiere aquella disposición de cierta bipolaridad alrededor de los dos bloques colgados del eje circulación-cocina, ayuda sin embargo, a conseguir una espacialidad distendida y transparente y muchas situaciones de relación entre el diversificado interior y el paisajísticamente tratado exterior, en una unidad significativa y valorable.

Casa patio

Casa en La Plata

Ezequiel Spinelli y Facundo López

Memoria

Esta es una pequeña remodelación, ubicada en el casco de la ciudad de La Plata, Provincia de Buenos Aires. Una vivienda en esquina que no servía a las necesidades de una pareja joven que quería hacerse su casa.

La operación curiosa que les propusimos fue, en lugar de agrandar la casa, achicarla, y optimizarla. Con una operación de vaciado dimos luz a un dormitorio y la posibilidad de entrada de luz desde dos orientaciones al estar

Un espacio todo lo largo y ancho que se pudo, abierto enteramente hacia un patio, que coincide en tamaño. Una viga de 12 metros de luz, en apariencia innecesaria para una casa de 50

metros cuadrados, nos asegura la inexistencia de columnas, de mediaciones entre el interior y el exterior. Las carpinterías pueden abrirse y el espacio del estar, exiguo, se duplica en el patio. Ahora hay una casa en donde interior y exterior son lo mismo, en donde patio y living son lo mismo. Un muro que es blanco hacia adentro y negro hacia afuera limita las visuales y da protección a ese patio.

La casa necesitaba ese patio claro, tranquilo, aislado de la ciudad que está afuera. Sin embargo, la mirada del diseño sobre lo constructivo, sigue siendo la clave del proyecto. Esa viga, solo posible gracias al hormigón armado, produce la apertura y un alero que produce la protección de sombra hacia el norte. Como

Datos

Esta casa se construyó en 2019 y recibió premios de FADEA (2024) y CAPBA (2021). Sus autores fueron Ezequiel

Spinelli y Facundo López siendo colaboradores Mirella Villanueva, Julián

Kelis, Giovanni Mario Pemintel, Joaquín

Traverso y Josefina Bátiz. Asesoraron en Estructura Julian Lafuente y Gastón Flores. Las fotografías son de Luis Barandiarán.

las galerías del rancho de la pampa argentina. Aquí, la ausencia de espacio, de perspectivas infinitas de llanura, se reemplaza por la neutra imagen blanca del muro revocado. El usuario imaginará sobre ese lienzo blanco cualquier amplitud que desee.

Opinión

Sin que sea demasiado ostensible este proyecto trata de una remodelación de una casa en esquina en existente, que de todas formas resultó intensamente transformada, entre otras cosas, por una operación curiosa que fue, en lugar de agrandar la casa, achicarla, y optimizarla. Con una operación de vaciado dimos luz a un dormitorio y la posibilidad de entrada de luz desde dos orientaciones al estar.

A veces el trabajo de proyecto posibilita acciones sinérgicas que bien seleccionadas y dispuestas consiguen resultados muy poten-

ciados respecto de la decisión tomada, en este caso, la resultante de plantear una poderosa viga de hormigón en forma de L que se dispone sobre el frente interior del lado largo de la casa, sobre la calle 21. Esa opción permite abrir completamente el interior de la casa al patio longitudinal sobre dicha calle, de modo que, resultantemente, ahora hay una casa en donde interior y exterior son lo mismo, en donde patio y living son lo mismo.

La conformación de dicho patio vertebra la idea proyectual siendo asi que la casa necesitaba ese patio claro, tranquilo, aislado de la ciudad que está afuera .Además de proveer dicho espacio de intimidad el juego del muro envolvente del patio con la viga, se convierten en dispositivos de lenguaje, protagónicos de lo esta pequeña obra quiere expresar. Así se sintetiza, esa conjugación de muro-viga, en la memoria: Esa viga, solo posible gracias al hormigón armado, produce la apertura y un alero

que produce la protección de sombra hacia el norte. Como las galerías del rancho de la pampa argentina. Aquí, la ausencia de espacio, de perspectivas infinitas de llanura, se reemplaza por la neutra imagen blanca del muro revocado. El usuario imaginará sobre ese lienzo blanco cualquier amplitud que desee.

La parte baja horizontal de la viga ofrece la configuración de alero y el muro envolvente pintado de blanco opera metafóricamente como alusión del paisaje de llanura. La blancura del muro se acentúa además, porque es reversa del color negro con que se pinta su cara externa, buscándose una neutralidad silenciosa que alcanza al portón del garaje doble. Hay costos funcionales por pagarse al manipularse una construcción existente –como la no contigüidad de baño y dormitorio– con la ventaja de alinear las cañerías de baño-cocina en un único muro o de conseguir intercalar un pequeño patio interno que oxigena doble-

mente al dormitorio y al área del comedor. Una módica y casi ascética restricción de motivos proyectuales al sugerente tándem de muro y patio permite configurar una propuesta que aun en su pequeñez programática y de superficie, posibilita experiencias sensoriales y visuales complejas y ricas.

…Boca arriba, con los ojos cerrados, entre las hogueras

* Jose Lopez Canti es Profesor en la ETSA de la Universidad de Sevilla. Este texto fue publicado previamente en la revista Astrágalo, a quiénes agradecemos la autorización de republicación asi como a su autor.

El fenómeno acontecido en la Escuela de Arquitectura de Talca, Valle Central, en Chile a lo largo de los últimos veinte años, es un fenómeno con impacto y repercusiones de ámbito internacional. Situación encuadrada y delineada con nitidez en el gran salto cualitativo que la arquitectura chilena ha dado en similar tiempo a las referencias de obras y autores que forman ya parte del panorama de la actualidad, la novedad, la innovación, la tendencia en los marcos de distribución mediática de la arquitectura mundial.

Esta última es una operación que obligadamente debe ser analizada con el ritmo del propio país, con sus circunstancias de desarrollo económico y de evolución política y social; algo parecido al análisis que podría deducirse del salto de la arquitectura española a las salas del MoMA, culminando una larga trayectoria de bipartidismo político, cuya acción sobre la obra pública y las infraestructuras expresó un mecanismo de transformación eficaz a punto de doblegar la hegemonía que culturas como la holandesa habían tenido en términos de liderazgo sobre el dominio de la calidad arquitec-

tónica, el mimo social y la delicadeza territorial y que, finalmente, con la mácula de la burbuja inmobiliaria, la depredación territorial, la crisis económica mundial y demás circunstancias, devolvieron del sueño a la cruda realidad, a una arquitectura que parecía poder exhibirse en los palcos más excelentes de la cultura internacional.

El caso de Talca es muy diferente al del renacimiento chileno, por un doble motivo nítido y transparente: la condición periférica respecto a la posición absoluta de epicentro de Santiago (epicentro político, administrativo, universitario y arquitectónico) y en segundo lugar, por la naturaleza igualmente periférica de los contenidos de las acciones arquitectónicas, que no han jugado el rol de la depuración del lenguaje, la exhibición de la pureza constructiva y ese grado de perfección que hace que los objetos salten a los mentideros internacionales como estrellas rutilantes de un firmamento arquitectónico planetario.

Cabe preguntarse si la deriva del modelo Talca ha sido independiente de esta implosión chilena o si ambas situaciones están íntimamente relacionadas tanto para

lo bueno como para lo malo. Quizá el punto de intersección de ambos fenómenos haya que ir a buscarlo a la Bienal de Venecia de 2016, donde bajo la curatoría de Alejandro Aravena, la Escuela de Arquitectura de Talca mostraba su proyecto A contracorriente, que marcaba un nuevo hito en el devenir de la aventura y el experimento docente de dicha Escuela.

Hacia atrás en el tiempo, otros enclaves han ido jalonando esta marcha sin reposo: la publicación de Talca, cuestión de educación (2013) en una edición de Miquel Adrià de la editorial mexicana Arquine, un libro de bellísima edición que quedará para el futuro como un hito en la historia de la arquitectura americana (es decir, la que va del Canadá al cabo de Hornos), o la participación en la Documenta de Kassel del 2012, en fecha muy similar a la que el escritor Vila-Mata preparaba su novela Kassel no invita a la lógica haciendo coincidir de forma geométrica actividades tan intersecadas y que siempre han interesado a los protagonistas de la revolución docente acontecida en la Escuela de Arquitectura de Talca, donde la relación entre textualidad o relato, narrativa y

territorio se constituye en una suerte de lanzallamas que en su avance carboniza todo lo que toca, dándole un nuevo espacio negro comprensivo.

Pero volvamos a un origen más lejano a todas estas fechas, porque de otra forma el artículo tendría que concluir obligadamente aquí mismo. Y ese regreso tiene que ver con mis recuerdos de lo americano desde edad temprana y a la seria advertencia de que no actúo aquí, en estas páginas, como historiador o crítico de la arquitectura, sino como alguien cuyo debilitado imaginario sobre lo americano, se ha visto impulsado por experiencias en el último decenio que han podido dar una mayor claridad de ideas a una visión por otro lado extraordinariamente parcial. Tenía diez años cuando el golpe en Chile, y aún recuerdo ese avión tembloroso sobrevolando el edificio de la Moneda en la tele marca Inter, en blanco y negro,

Imagen 1

Carolina Guerra Los caminos del agua. Cementerio de Pencahue. Talca

cuando el mundo tremía una y otra vez y las dictaduras portuguesas y españolas avanzaban hacia su desenlace.

El nombre de Antofagasta –supongo que por su irresistible sonoridad– era una de mis favoritas búsquedas en el

Atlas de la editorial Aguilar, de modo que podría decirse que casi desde la infancia, mi predilección chilena por las periferias extremas estaba anidada para siempre y me marcaría hasta el día de hoy.

Casi todos los adolescentes de aquella época, como generación, crecimos bajo la sombra de la magia de Cortázar, La noche boca arriba siempre tuvo para todos nosotros la capacidad de aunar un tiempo precolombino con el presente de nuestras vidas sin solución de continuidad, uniendo terapéuticamente el espacio del sueño y el de la realidad como algo construido de suaves y largas suturas quirúrgicas que supondrían heridas que ya nunca más se volverían a cerrar. Es de los primeros impactos americanos en la adolescencia que irían marcando una identidad híbrida, criolla entre en el sur de Europa y el de una América onírica, irreal, imposible, también violenta en muchos sentidos..., y cuya música reivindicativa ilustró la zona oscura de la adolescencia a la edad adulta.

Debo de saltarme todos los decenios después, porque una autobiografía no procede aquí, pero en una línea, los nombres de Carlos Fuentes, García Márquez, Roberto Bolaño etc., junto con las incorporaciones estadounidenses, Denis Johnson, Foster Wallace, Paul Auster…, han impactado e impregnado las sucesivas habitaciones que he ocupado en mi vida. El Bolaño de Blanes o el García Márquez que identifica a Mamá Grande con Car-

men Balcells deja bien claro las distancias y las proximidades de las geografías continentales, cuando éstas se reúnen y reconfiguran en nuestras cabezas.

Entonces, es una distancia de 11 horas de avión y un parpadeo que aúna de forma instantánea el banano, la lluvia y la arena del más seco desierto. Lo midas como lo midas, está tan lejos y está tan cerca, un patrón muy europeo y que podría equivaler a la vocación colonial durante siglos que ha impregnado nuestra cultura y nuestras aproximaciones.

Regresando a un tiempo más contemporáneo, no quisiera dejar escapar unas experiencias recientes derivadas a partir de la participación en proyectos de investigación relacionados con docentes de la Escuela de arquitectura de Talca. Hace unos años se leyeron en Sevilla, en su Escuela de arquitectura, dos tesis chilenas que fueron realizadas respectivamente por Juan Román, director de la Escuela de Talca, y David Jerez, colaborador asiduo de la docencia en dicha escuela como visitante que periódicamente imparte clases. Estos dos trabajos, en los que tuve la fortuna de participar, me dan hoy una ventaja imprescindible para poder escribir estas líneas –otra cuestión, es que administre con poca inteligencia estos ricos recursos– y a su vez me permiten conocer algo más de cerca la cuestión del Valle Central y conocer de forma directa la experiencia que en términos de acción arquitectónica se está realizando allí de forma sostenida en el tiempo.

Parece algo banal situarse en el espacio de unas Tesis, pero se debe advertir que éstas fueron realizadas en un momento de madurez de sus autores que no sigue

el calendario habitual de la formación de un estudiante que se gradúa y continúa sus estudios postdoctorales, en una edad de juventud formativa, sino con una experiencia y trayectoria acumulada muy notable. Sabido es por otra parte la dependencia que del espacio europeo hay en América latina para poder doctorarse, una dependencia mantenida durante decenios, de la que Barcelona ha sido un espacio de máxima referencia hasta casi convertirla en una suerte de industria del doctoramiento.

Queda para otro lugar evaluar esta situación que se irá mitigando con el tiempo, pero que de alguna manera supone a veces una posición desventajada del doctorando sudamericano que es irreal y ficticia, aunque arraiga en la mentalidad y muchas veces constituye un inconveniente y un freno. Como he comentado circunstancias singulares en los trabajos de los que hablaré, éstos no están afectos de estas condiciones genéricas, especialmente por la madurez intelectual de sus autores.

Del relato y el territorio fue la tesis que leyó en Sevilla Juan Román, un trabajo de investigación que imagino estaba sentado sobre una deuda con la geografía del Valle Central y la ciudad de Talca, y las experiencias realizadas en su Escuela de arquitectura durante casi dos decenios. Diría como preámbulo que ambos trabajos fueron recibidos en Sevilla con tibieza, lo cual también forma parte de lo que nos enseña el continente americano en términos de comprensión mutua; no sólo compartir lengua es suficiente para transparentar el conocimiento y velarlo: cuestiones de identidad y culturas propias, de costumbres e imaginarios se alzan como

cumbres que a veces se hacen inabordables y muy difíciles de escalar; donde hay cumbres, hay también valles y pasos angostos –angosturas– y ésos quizás, son los lugares de cruce y transferencia, de comunicación del conocimiento.

Imagen 2

Antonia Ossa: Proyecto de Título (PT) Talca: Laguna del Maule

Imagen 3

Diego Morales y Claudia

Salas: PT Talca: Valle de Los Condores

El trabajo de Juan Román, que se anclaba sobre la base de una intensa intertextualidad, manejaba las referencias del cine, la literatura, la fotografía (Héctor Labarca) etc., enfocadas a un territorio local que se transformaba en territorio común, en el sentido de la comunidad que se constituye entre el lector y la lectura.

Un texto híbrido que también abría la ejercitación de los estudiantes de Talca a la posibilidad de ser insertada dentro de un devenir de la cultura europea, proyectando –de seguro, sin que el estudiante se aperciba– el trabajo realizado por alguien a miles de kilómetros y a un lado del océano, a la otra orilla, como si hubiera tenido vocación de nacer bajo esas circunstancias extranjeras y lejanas.

Un ejemplo de esto último son los conocidos como cubos de Talca, un ejercicio que realizan en la Escuela los estudiantes de primer curso –se pueden ver muchos de ellos en la red–, a partir de condiciones de enunciado muy simples y poco restrictivas: un cubo de 25 centímetros de arista realizado con materiales de Talca y el Valle Central. Uno de estos cubos aparece en la Tesis, una suerte de amasijo orgánico en el que se ver emerger –creo recordar– unas manzanas. Dicho cubo encuentra su oportunidad de medirse con un fragmento de un texto de Sebald, perteneciente al libro Los anillos de Saturno, de modo que el lector pasa

de una figura a otra –del fragmento literario al cubo de materia y viceversa– fundiéndolos en una correspondencia biunívoca, como si la literatura sobre un determinado evento histórico en la ciudad inglesa de Dunwich, pudiera cubicarse con materia que proviene del Valle Central: así es también como a veces, nuestra basura se mueve por los océanos del planeta y llega de una a otra orilla.

(Muchas escuelas trabajan también en su primer curso con cubos, Sevilla no podría escapar a este invariante. A diario se ven estudiantes desfilar con cubos blancos de terso cartón satinado, a los que falta una esquina, a los que se adivina una escalerita empinada interior, en los que surge una violenta ventana rasgada en diagonal. Estas manipulaciones de las formas puras, aparentemente vocacionales del espacio rotundo, que no establece ningún contacto social ni convoca realidad apremiante alguna, hace tiempo que dejaron de ser llave o clave para la producción del espacio arquitectónico –si es que lo fueron alguna vez–. La diferencia con la experiencia de Talca es esa economía de la inteligencia que explota los recursos disponibles al máximo, e inscribe sobre la experiencia del espacio un fragmento biográfico del estudiante hecho con la sustancia de los elementos con los que creció y desarrolló su incipiente imaginario.)

La realidad socioeconómica del estudiante del Valle Central, está también muy presente en esta política docente. Chile pasa desde la percepción europea por ser una nación económicamente aventajada dentro del marco sudamericano, pero lo cierto es que las dificultades son muchas y la conciencia sobre los recursos del suelo que se pisa a diario –de vocación rural y agraria–

son materias imprescindibles para comprender qué le toca a la arquitectura hacer en un territorio de esa sustancia. Cuestión de educación, como reza el título de la publicación que comentábamos anteriormente, en el doble sentido de formación, pero también de respeto (politesse) con el espacio y medio circundante. No quedaría disponible más espacio para continuar con el asunto de esta investigación, apenas para nombrar la otra investigación o tesis realizada por David Jerez que constituyó para mí una aproximación a la cultura americana y chilena de gran relevancia. Al contrario que Juan Román, David no procede de la formación de la arquitectura, su campo de acción es el diseño gráfico –y muchos otros aspectos de la cultura–. Ha contribuido a la definición gráfica de una cierta identidad institucional chilena, para un Estado que por otro lado se adivina tan magro, tan liberalizado y con serias necesidades de redistribución de riqueza y de sintonía con políticas sociales. Su tesis opera sobre un singular y original concepto del patrimonio que denomina Resonancia de flujo, una táctica –que no estrategia– que opone a las políticas institucionales y proteccionistas del patrimonio compuesto de todo tipo de sustancia incluyendo lo inmaterial, una reserva intimista y desesperada por preservar la autenticidad del relato entre una pequeña y débil red humana. Actitud de resistencia donde las haya, como se suele decir coloquialmente. Las recurrencias biográficas, la narratividad y la imagen son sólo algunas de estas tácticas puestas al servicio de este concepto, que refila tanto de las influencias europeas como de una corriente de pensamiento latinoame-

ricana, muy prestigiada en Europa, con la que la propia tesis parece sentirse permanentemente amenazada. La resonancia de flujo sería entonces este mecanismo anti-institucional que preserva el patrimonio con políticas de olvido defensivo, como si la persona que recuerda y atesora memoria tuviera que ocultarla para su propia conservación y administrarla con enorme cautela a través de frágiles comunidades.

Pienso con frecuencia, ahora que los doctorados en España se han institucionalizado al máximo nivel, y se han dotado de un notable aspecto burocrático, cómo

Imagen 4
Victor Ortega: PT Talca: El Carmen

los doctorandos alentados por el propio profesorado, ven en la Metodología la gran clave que permite fluir el trabajo de investigación; lo cierto es que existen alternativas anti-metodológicas, que de cierto no tendrían, tal vez, cabida en un modelo científico, pero que desde luego hacen posible la producción de conocimiento a partir de materiales heterogéneos que muy difícilmente podrían compartir página si se les impulsa y organiza a partir de un método y sin embargo poseen orden y concierto, lógica, emoción y transferencia. La Resonancia de flujo no arroja resultados en la búsqueda en la red bajo este epígrafe y significado de táctica patrimonial; indefectiblemente en la pesquisa del término nos deparamos con pruebas médicas, escáneres del cuerpo para procesos diagnósticos, lo que nos llevaría a preguntarnos: ¿qué queda del conocimiento que producimos, y a quién llega? Si aquí hago de eco –por seguir con la metáfora médica– es para transparentar y hacer más visible aquello que definitivamente puede estar abocado a perderse entre el recio y opaco músculo del olvido y la indiferencia.

Finalmente, no quiero desaprovechar para poner en contacto el título de esta tesis con el que en la Bienal de Venecia se presentaba la propuesta de la Escuela de Talca: A contracorriente, de la que Juan Román aclaraba en la propia Venecia a la prensa presente que no se trataba de que hubiese unas corrientes de las que Talca jugaría el rol de ir en dirección contraria, sino que el título obedecería a ir contra el olvido, como si éste fuera el stream principal con la que los territorios actuales, periféricos y excéntricos, se desvanecieran a diario. A contracorriente

y Resonancia de flujo serían de esta manera y aplicados a objetos y objetivos diferentes, caras de una misma y única moneda que ya nos cuesta bastante reconocer como tal en el espacio europeo.

No se puede por otro lado hablar de la Escuela de arquitectura de Talca y obviar su producto docente más conocido, el más publicado y difundido y por la que es conocida internacionalmente en el ámbito arquitectónico: me refiero a esos proyectos de final de carrera que pasaron de ser un ejercicio académico sobre plano, con un coste económico y de esfuerzo notable para el estudiante, a transformarse en una acción construida, de similar costo pero localizada sobre la geografía del Valle Central –no sobre un plano que enmohece– prestando un servicio a la comunidad, implementando sus equipamientos, actividades y espacios de carácter público, en una perfilada geografía de eminente actividad agrícola (campesina, como a veces aparece escrito).

El cambio de dirección de este esfuerzo docente, le ha garantizado a la Escuela de Talca un lugar en la historia, y ha acusado, si cabe todavía más, dos vocaciones encontradas con las que la arquitectura y sus Escuelas llevan años debatiendo. De un lado, se encontraría el modelo de ciudad como el gran laboratorio de pasado, presente y futuro. Da igual que sean escalas que desbordan el territorio y acumulen áreas difusas en términos metropolitanos de millones de habitantes, o lo sean de tamaño medio y se constituyan en red con otras ciudades; que tengan centros históricos o áreas con una marcada obsolescencias urbana; que el turismo las impacte como problema, o que la calidad ambiental de

su aire afecte a la larga al factor de esperanza de vida. El caso es que lo urbano, y casi el Urbanoceno, al hilo de las corrientes de Sostenibilidad más afines a su genealogía ecológica, absorbe los esfuerzos de las Escuelas como camino de dirección única.

Es obvio que en prospectiva la población mundial tiende a concentrarse sobre este tipo de soportes; es obvia igualmente que la concentración de consumo de energía y de emisiones que acaban complicando los efectos del cambio climático se encuentran igualmente concentradas sobre este soporte de habitabilidad. También hemos de dar por cierto, que el modelo –el especialmente concentrado– tiene la morfología ideal para prestar servicios, redes e infraestructuras, practicar y ensayar políticas de salud pública; capacidad también de establecer grandes redes de espacios verdes en continuidad generando situaciones complejas de suelos de usos híbridos y de nuevas movilidades, nuevas sociabilidades.

Nadie quisiera restar ni un gramo de importancia a este fenómeno de escala planetaria, ni negar que en el futuro sea la estructura transcendente donde, como se suele decir, se librará la batalla. ¿Pero qué pasará con el otro modelo de distribución poblacional, menos denso, más salpicado por el territorio, que prácticamente lo antropiza sin solución de continuidad, y que tanto y tan bien ha constituido una seña de identidad del continente americano?

Y, además, por si no fuera suficientemente compleja y apremiante la pregunta, dispuesta en una geografía muchísimo mayor que la europea, donde la dificultad de prestar servicios, de llevar redes y asistencia de todo

tipo, se convierte en permanente deuda pendiente, en promesa que sólo puede ser incumplida o aplazada.

Pues bien, la Escuela de Talca ha optado por quedarse en este modelo de territorio en el que, al mismo tiempo, se encuentra inserta, y poner toda su fuerza intelectual en reparar, dar pequeños servicios y soluciones arquitectónicas que mejoren la vida cotidiana de estas pequeñas comunidades diseminadas.

A veces hay que hacer muchos kilómetros desde Talca, varias horas de viaje, para visitar estas pequeñas intervenciones, lo que nos da idea del término región

Imagen 5

Roxana Poblete: PT

Talca: Los Niches

traducido a tamaño, y en el que se repara que existe un compromiso ético de llegar a sus rincones, esas posiciones extremas que sufren lejanía elevada al cuadrado (como los rincones geográficos argentinos que describiera en su día el escritor Haroldo Conti) y, todo ello –se adivina con transparencia– muy diligenciado por parte del estudiante que se convierte en gestor y administrador de la formación recibida, localizando situaciones, necesidades, buscando financiación, materiales y medios, dialogando con las personas, con los agentes que tienen capacidad de decisión.

Es decir, llevando a cabo un sistema de habilidades y competencias que en lo que se refiere al campo universitario de la arquitectura, en el caso europeo, han constituido un olvido imperdonable en lo que atañe a

los acuerdos fundacionales del actual modelo, conocido como plan Bolonia, del que acaban derivándose nuestros planes de estudio.

Pero sería injusto identificar la Escuela de Talca sólo por estos proyectos tan conocidos; es obvio que los estudios se distribuyen durante cursos y años y que sólo un equipo docente muy comprometido y con muchos valores intelectuales podría culminar un trayecto que desemboque felizmente en estas intervenciones de fin de carrera. Así por ejemplo, en el último año de la misma, se hacen ejercicios proyectuales que apuntan ya a la transformación real de los espacios arquitectónicos, usando los propios espacios domésticos frecuentados cotidianamente por los estudiantes como espacio de experimentación o laboratorios sobre los que realizar pequeñas transformaciones que dan un valor añadido, que traducen inteligencia y formación en un mejor bienestar, en una distribución más confortable, en un mejor aprovechamiento de la luz natural o de la espacialidad del interior.

Esta capacidad militante de la acción arquitectónica puede referirse con toda la modestia y limitación de medios que se desee, pero lo que nunca podrá hacerse, es considerarla como una pérdida del campo y radio de acción del arquitecto en términos idealizados, que se imagina capaz de grandes proyectos, grandes transformaciones, grandes planes y edificaciones. Este es otro de los fuertes conflictos que mantiene la Escuela de Talca con el centro del país y con las tensiones que se adivinan entre las producciones arquitectónicas de los más relevantes arquitectos chilenos, y los múltiples es-

Imagen 6
Javier Castro: PT Talca:
Los Montes

pejos en los que se reflejan los estudiantes de Talca, con lo cual, en cierta medida, vamos dando respuesta desde nuestro punto de vista a la lejana pregunta que establecíamos al principio acerca de si el fenómeno acontecido en Talca guardaba conexión con la espectacular relevancia que la arquitectura chilena había obtenido a nivel internacional.

No encontramos aquí el lugar oportuno para detallar estos proyectos fin de carrera, por otro lado, muy accesibles para el lector en las redes –desde el prestigioso blog Dezeen hasta la revista Casabella–, y sin embargo, parece interesante preguntarnos acerca de la continuidad en el tiempo y en el futuro más inmediato de este modelo experimental que ha resultado tan novedoso universitariamente, por parte de la Escuela de Talca.

Ya hemos ido viendo en el tiempo los hitos que han confirmado el buen proceder y que sin lugar a dudas habrán constituido una buena parte del combustible para continuar al frente (de batalla) con el proyecto (Kassel, la publicación de Arquine, Bienal de Venecia, etc.).

También se adivina la posibilidad futura de contacto con universidades estadounidenses de prestigio y gran influencia en el campo de la arquitectura, y que atentas al Sur continental y a cualquier fenómeno de interés, siempre han tratado de equilibrar su vanguardia tecnológica y virtual con abordajes más sociales capaces de satisfacer holísticamente y con todos los medios disponibles las cuestiones principales derivadas de la arquitectura. Es difícil que la memoria no se desvíe a propuestas como las de Rural Studio, y a las articulaciones que se adivinan conflictivas, entre el norte y el sur continental.

En la otra cara de la moneda, siempre sobrevuela el peligro del ensimismamiento, de la autocomplacencia.

Que estas pequeñas obras a la vez que se mantengan en el tiempo vayan progresando en medios, en tecnología, en belleza y encantamiento, y que se alejen de su origen social, casi de su misión pedagógica, y el éxito en sí –término latino terrible en significación– las lacere hasta el inevitable desvirtuado.

Imagen 7

Gerthy Espinoza: PT

Talca: Los Bellotos

¿Quién puede conocer ese futuro y ese destino incierto, y qué tiene la Escuela de Talca en su mano para evitarlo? Preguntas sin duda para las que no hay respuestas, sólo indicios. Al título ya explicitado de A contracorrien-

te, en la Bienal de Venecia, parece que le precedió en primera instancia y de forma provisional el de Frentes de batalla, lo cual es significativo, porque subraya la duración de la resistencia y de que queda todavía mucho por hacer en el territorio del Valle Central, que el proyecto es un proyecto al que le favorece la duración, ya que las circunstancias van a ser insaciables en términos de necesidad, si es que aún, no se van a deteriorar más en el sentido de una mayor carencia de servicios y asistencia técnica. Dicho así, la geografía inspirada en un intermitente galpón habitable, juega a favor de la propuesta de Talca, pero…, ¿podría este modelo ensayarse sobre lo urbano, sobre lo denso, sobre lo metropolitano e hipertrofiado? ¿Sobre esta situación ruidosa que parece inexorablemente ser identidad del siglo XXI, y que desde Talca siempre se ha considerado como un escenario impropio, una distracción a otros objetivos territoriales de necesidades perentorias, de vocación manifiestamente antiurbana?

Hasta que no logremos una síntesis entre ambos abismos territoriales, hasta que la sostenibilidad no se descentralice de la obsesión de la concentración urbana, y reconozca otras situaciones de habitabilidad territorial más allá del término paisaje difícilmente avanzaremos en una situación u otra; más bien ha sido el modelo de ciudad el que se ha mostrado más sensible a que un territorio de perfil agropecuario inespecífico –incluso

traducido a fantasía– le pudiese penetrar; el diseño ambiental, la red de espacios públicos y lo verde ampliado a lógica de lo metropolitano, junto con los huertos de proximidad son sólo algunas señales de descomprimir una situación acercándola a la permanente añoranza que los urbanos tienen del otro modelo, aún a sabiendas de sus dificultades, lejanía y abandono institucional.

Si la Escuela de Talca podría explorar este espacio, se adivina cuasi imposible por razones materiales, y porque un proyecto de estas características precisa de un soporte y apoyo político mantenido en el tiempo. Parece que los avances podrían venir de otras direcciones, de la internacionalización de la propuesta –otras Escuelas en similares localizaciones geográficas y con parecidas problemáticas territoriales–, el intercambio estudiantil, la movilidad no sólo física, sino la movilidad en término de exportación de estas ideas de acción, o la colectivización de las propias acciones –sumando varios estudiantes, varios presupuestos sobre una acción común que pudiera tener más alcance y prestar un servicio más complejo, fintando la evaluación académica de la capacitación individual por el de la producción colectiva y coral–.

Sólo el tiempo encierra con celo las respuestas a estas cuestiones que no se nos ocurriría plantearnos si no viésemos las bondades de la fórmula que de inmediato nos generan la ansiedad por desear una bondades aún de mayor alcance y ambición.

Hace ya años que Juan Román nos visitó en la Escuela de arquitectura de Sevilla para conferenciar sobre el modelo de Talca, especialmente en lo que se refería a las acciones del proyecto fin de carrera. Su concisa exposi-

ción, casi breve, hay que saber interpretarla. Por entonces una fuerte burocratización de nuestros planes de estudios y una obsesión normativa del funcionamiento docente cotidiano convirtieron el debate final en una parodia –aún hoy en la red debe andar por ahí grabado el evento– sobre atribuciones docentes, dedicaciones y participaciones de las distintas áreas de conocimiento en el proyecto final de titulación; esta veladura sobre el fondo de la cuestión, dejó muy claro en qué situación nos hallábamos y posiblemente, en qué situación prorrogada nos encontremos actualmente.

En fecha muy similar nos visitó también Roberto Fernández, director de esta revista (y de Astrágalo), –luego nos ha visitado varias veces más–, conferenciando en el Salón de Actos –nuestro espacio de mayor capacidad y aforo. Allí, sobre una gran pizarra verde, escribió los nombres de Chatwin y Sebald, y los acompañó de la expresión escribiéndola con tiza de escritores del territorio. Para mí constituyó una suerte de revelación y la confirmación de que sobre ese soporte de la cultura era posible establecer penetraciones hacia el campo arquitectónico de la espacialidad humana y la habitabilidad contemporáneas.

Argentina en relación a las Facultades de arquitectura ha mantenido siempre una interesante hibridación con otros lenguajes –la comunicación, las fuentes audiovisuales, el propio cine– replicando un modelo similar al existente en la costa oeste estadounidense, y que tan recia oposición ha tenido en el modelo de planificación en España, supuestamente siempre a favor de una preservación de atribuciones profesionales diariamente

puestas en peligro si cualquier movimiento heterogéneo se plasmaba sobre el diseño de los planes de estudios.

Más adelante en la misma conferencia, Roberto Fernández estableció una reflexión sobre la formación de los arquitectos que resultaba sorprendente –pido disculpas por citarla de memoria– y que más o menos consistía en lo siguiente: si un estudiante de arquitectura, tardará

Imagen 8
Maria Ortiz: PT Talca: Buena Unión

aproximadamente unos 25 años en establecer una cierta experiencia profesional, ¿qué se le puede enseñar a través de los planes de estudio de arquitectura que tenga una mínima vigencia e interés a esa dilatada proyección de años?

Sabemos ya desde luego, que el modelo basado en la redacción de proyectos y direcciones de obras en las que descansan nuestros planes de estudios tienen una mayor influencia de la memoria profesional del siglo pasado que la del presente, y que por otro lado, cuestiones como las políticas de salud pública sobre la planificación urbana y habitacional, cuestiones como la obsolescencia de las estructuras del siglo pasado, de la movilidad, el ocio y el turismo, el envejecimiento poblacional y la prolongación de la esperanza de vida, así como impactos derivados del cambio climático, el usos de las energías, en definitiva, los vectores ecológicos, no van a ser todos ellos circunstancias pasajeras o coyunturales: han venido para quedarse y demandan espacio y troncalidad en el diseño de los estudios, si se quiere dar respuesta a la ecuación lineal que planteaba Roberto Fernández en su conferencia, pero que permanentemente producen vértigo porque se alejan de los grandes contenidos didácticos de la enseñanza de la arquitectura en la modernidad occidental: la geometría como lenguaje, el dibujo como llave, la casa, la ciudad, el proyecto como reiteración a favor de desarrollar habilidades…, todas temáticas enfocadas a pensar que una buena resolución arquitectónica contiene valores añadidos paliativos de cualquier problema que pueda surgir en el presente y en el futuro, actúa como bálsamo

de Fierabrás. Y lo cierto, es que en este desgarro conceptual nos mantenemos hasta el presente.

No quisiera terminar sin recordar la primera obra de los estudiantes de Talca que tuve ocasión de visitar, y las condiciones en las que lo hice porque de alguna manera incrementan una cierta mitología y la fomenta. Había salido de Sevilla dirección Talca. En Santiago me recibió un estudiante de la Escuela, y tomamos un autobús de la conocida línea Talca, París & Londres, uno de esos nombres comerciales que sólo pueden existir en América

Latina o en los relatos de sus escritores. Cuando llegué a Talca y sin solución de continuidad, me esperaba Juan Román, que me llevó al cementerio de Pencahue a ver una obra realizada por la arquitecta Carolina Guerra titulada Los caminos del agua, que básicamente es un depósito de agua al que se le construye una ligera camisa de acero y listones de madera, a modo de cilindro, como esas fundas de cartón rígido en las que suele venir el whisky de malta. Casi más de un día después de salir de casa, estaba allí contemplando esta pieza, con el sello de la Escuela de Talca, y ahora que lo recuerdo, con una gran capacidad de patrimonializar los lugares sin perder la sencillez y la eficacia del servicio que presta. Creo recordar que en las proximidades había otro trabajo de fin de curso, una viga con asiento que se dirigía al vacío de un riacho y en sus proximidades, una vía de ferrocarril que simulaba estar muerta, pero por la que pasó una máquina antigua e indescriptible que tiraba, muy cansada, de un vagón de pasajeros bastante ajado, como una exhibición para coleccionistas de miniaturas de tren. El circuito en las proximidades de Talca,

concluyó con pequeñas estradas salpicadas de casas en su borde, esos paisajes corrientes que sin solución de continuidad se erigen con humildad en un medio natural de enorme bastedad. También por la carretera se divisaban infinitas extensiones de viñedos, vallados con decisión y que inevitablemente nos llevaban a preguntarnos por la propiedad de esta maravillosa tierra, por sus dueños exclusivos.

Dos o tres días más adelante, nos dirigimos al sureste de Talca, siguiendo un largo tiempo el curso del río Maule y aproximándonos tanto a la cordillera de los Andes hasta rozarnos con la carrocería del coche. Allí, en un fin de trayecto en el lago Maule, Juan abrió el maletero y preparó un té. Todas las geologías de todas las texturas y morfologías posibles estaban a nuestra vista sin necesidad de mover la cabeza, acosando con una belleza descarada.

Algunos coches fluían con regularidad. Juan me comentó que la proximidad con la frontera Argentina estaba generando un mercado de electrodomésticos ya que los precios en Chile eran más ventajosos: televisiones, ordenadores etc., en un clásico tráfico comercial de frontera, una de esas economías Lilliput. Vimos dos o tres obras más durante ese trayecto mágico: algo que se asomaba en el aire sobre el Maule; unos lejanos y salvadores refugios de alta montaña…

Todo estaba archivado en mi móvil –incluido las fotos que tomé de los Andes en el vuelo de ida, con una luz de amanecer inefable– hasta que una actualización borró todas las imágenes como si nunca hubiesen existido ni yo hubiese estado allí, así que con motivo de

este artículo le pedí hace poco una imagen a Juan que pudiera hacer de refresco de memoria del trayecto. Me envió una obra de una estudiante de la Escuela que en aquel entonces todavía no existía, es decir, estaba sin construir, algo conmemorativo con ecos de Nancy Holt, con aire megalítico y voluntad de establecer relaciones con el cosmos intemporales y eternas. Pero si observamos con más detalles estas piedras de incierto tamaño, de seguro nacidas al tiempo que los propios Andes, parecen humanizarse porque no emergen del suelo, sino que se encuentran respetuosamente sentadas como campistas en animada conversación. Incluso se adivina una piedra-humano tullida, tal vez para recordar que la memoria es diversa, el proyecto nunca es único, las doctrinas no sirven para nada y los sacrificios se desvanecen en el tiempo. Allí me gustaría volver, para tumbarme boca arriba con los ojos cerrados entre las hogueras del Maule.

Imagen 9

Jose Valenzuela: PT

Talca: Cerro Name

EL EDIFICIO DE LA COPELEC

Una obra epistolar del Taller de Juan Borchers

Ignacio Hornillos*

* Ignacio Hornillos es Arquitecto y Máster en Proyectos Arquitectónicos Avanzados por ETSAM de Madrid. Realizó estancias de estudios en la ETSAS de Sevilla, en el IIT de Chicago, en Domus Academy de Milán y en la Facultad de Diseño y Facultad de Arquitectura de la Universidad del Desarrollo en Santiago de Chile, donde ejerció como profesor y desarrolló además investigaciones sobre Borchers en la PUC de Chile bajo la supervisión de Fernando Pérez Oyarzun.

Comprender la dimensión teórica y plástica que tiene el edificio de la Copelec (imagen 1) es sin duda uno de los retos que se plantean cuando se estudia la compleja figura del arquitecto Juan Borchers. Sin embargo, antes de entrar en tan ardua labor, conviene conocer primero las vicisitudes, los protagonistas y las herramientas que ayudaron a formalizar el edificio de Chillán como una obra significativa de la historia de la arquitectura chilena. Este texto pretender plantear la hipótesis de cómo la herramienta epistolar articulada entre sus autores –Juan Borchers, Isidero Suárez y Jesús Bermejo– permitió levantar, no sólo una obra destacada, sino un mecanismo de diálogo sobre el cual se basó el Taller de arquitectura de Borchers. Los tres integrantes generan una conversación, propia de la época, que permite el desarrollo y la construcción de proyectos y obras a distancia. Además, los aspectos dimensionales derivados de este ejemplo, que venían desarrollándose por los estudios de Borchers en Europa y probados en el proyecto para el fundo de Los Canelos, salen a la luz y se afinan alejándose de la doctrina impuesta por El Modulor. La Copelec es la obra más

significativa hecha por el Taller y a la vez ejemplo de un entronque coherente entre la teoría y la práctica.

En 1997, un nutrido grupo de arquitectos enfocados en la obra del arquitecto Juan Borchers Fernández (1910-1975) solicitaron a la Comisión Nacional de Investigación Científica y Tecnológica –CONICYT– financiación para iniciar un trabajo titulado: El taller de Juan Borchers: obra arquitectónica y de diseño 1943-1975. El resultado de dicha investigación fue publicado, en su mayoría, en el número CA981 de la revista del Colegio Oficial de Arquitectos de Chile. De aquel grupo emergía, como investigador responsable, Fernando Pérez Oyarzun, en ese momento Decano de la Facultad de Arquitectura y Bellas Artes de la Pontificia Universidad Católica de Chile. Además, en la lista aparece el propio Jesús Bermejo, integrante del taller; Hernán Riesco, persona importante en las relaciones de Borchers y Suárez con la Universidad Católica y, Rodrigo de la Cruz, último colaborador del taller y la persona que 1 Equipo de la Investigación Fondecyt: El taller de Juan Borchers, Obra Arquitectónica y Diseño, 1943-1975. Investigador responsable: Fernando Pérez O. Co-Investigadores: Pedro Bannen L.; Rodrigo de la Cruz B.;Hernán Riesco; Pilar Urrejola; J. Bermejo. Tesistas y becarios: Jorge de la Cruz, Romy Hecht, Adela Ortega, Isabel Pérez-Hervada, Yolanda Rodríguez, Marcelo Sarovic. En AA.VV., El taller de Juan Borchers. Revista CA, 98. Santiago de Chile: Colegio de Arquitectos de Chile, 1999.

recibió todo el material inédito de manos del propio Borchers.

El resto del equipo abarcaba tanto a los investigadores Pedro Bannen y Pilar Urrejola, como a los tesistas y becarios Jorge de la Cruz, Romy Hecht, Adela Ortega, Isabel Pérez-Hervada, Yolanda Rodríguez y Marcelo Sarovic. Todos ellos han contribuido en mayor o menor medida a la difusión y expansión del conocimiento de la obra del arquitecto chileno y sus colaboradores.

La primera premisa de este artículo parte de este supuesto: no se concibe a Juan Borchers como actor único de su trabajo sino asociado a Isidro Suarez Fanjul (1918-1986) y a Jesús Bermejo Goday (1928) formando un Taller de arquitectura

Imagen 1

Axonométrica del Edificio Copelec

Por tanto, este texto se suma al supuesto de que Juan Borchers no trabajó sólo, sino que la importancia que tuvo el Taller en sus trabajos fue determinante y premeditada desde mucho tiempo antes. Existen muestras de esta intención recogidas en sus cartas, e iremos desgranando los momentos crí-

ticos de esta colaboración por correspondencia.

La carta nos sirve de hipótesis para explicar el diseño y la construcción de su obra más destacada: el Edificio de la Cooperativa Eléctrica de Chillán (1962-1965), más conocido como COPELEC, que fue nombrado en 2008 Monumento Nacional de Chile (imagen 2).

Este ejemplo es paradigmático en la historia de la arquitectura del siglo XX, ya que Borchers no se reconoció nunca como autor de su obra. Alude a que su trabajo se aplica sobre una labor teórica que trasciende la materialidad del resultado. Sin embargo, sí la entendemos como una obra diseñada bajo unos parámetros teóricos dimensionales concretos, que reflejan de manera necesaria la implicación de Borchers en el diseño y en la formalización de su resultado final.

Este texto trata de poner de manifiesto que el Taller de Juan Borchers es un ejemplo significativo del entronque entre lo teórico y lo material; trascendiendo parámetros burocráticos y protocolarios.

La COPELEC es una obra coral y destacada que merece ser explicada desde el punto de vista del cómo se articuló su diseño y el procedimiento que se usó para su construcción.

Imagen 2

Edificio Copelec, Chillán

Lejos de ser único, este ejemplo lo podemos introducir con aquellos casos significativos de la segunda mitad del siglo pasado donde, de nuevo gracias a un procedimiento epistolar, arquitectos destacados lograban construir obras a distancia. Tres casos, cercanos al protagonista –ideológica o geográficamente hablando–, generan un contexto parecido y sirven de marco referencial para este particular ejemplo chileno.

Le Corbusier y la construcción –a distancia– de la Casa Curutchet en Argentina entre 1948 y 1951 nos arrojan algunos mecanismos de comunicación que tienen

que ver con los parámetros de bidireccionalidad vistos entre Borchers, Suárez y Bermejo.

En el caso del maestro francés, la correspondencia se fija como medio viable para transmitir la información al cliente y al intérprete2: Amancio Williams (1913-1989).

Existe en este caso una relación puramente profesional, donde los tres implicados están supeditados a las órdenes que el arquitecto manda desde París.

Sin embargo, Daniel Merro propone la hipótesis sobre la capacidad del intérprete para tener un protagonismo real en la obra, demostrando que, en una relación epistolar bidireccional, los dos vectores son igual de importantes. El emisor y el receptor se intercambian dibujando un resultado que responde más bien a una coautoría.

Otro ejemplo que viene a contextualizar esta práctica epistolar es el de Antonio Bonet Castellana (1913-1989) –discípulo de Le Corbusier– y miembro del Grupo Austral al que también perteneció Williams.

2 Merro Johnston, Daniel, El Autor y el Intérprete. Le Corbusier y Amancio Williams en la Casa Curutchet. Tesis Doctoral. UPM, ETSAM, Madrid, 2009.

En el caso del arquitecto español nos referimos al mecanismo usado para articular tanto el encargo como la construcción de la Casa de Ricardo Gomis –conocida como La Ricarda–. Este método se prolongó durante más tiempo y estuvo vigente desde 1949, cuando Gomis y Bonet visitan el solar en Barcelona, hasta 1963; año en que se termina la construcción.

Ricardo Flores3 propone un territorio nuevo para la Casa Ricarda a través de unos planos redibujados que buscan llenar un vacío documental extinguido. Genera un nuevo contexto a través del análisis de la obra y de su calendario. Lo interesante es cómo evidencia la necesidad de acudir al registro epistolar como fuente de información primaria a la hora de reelaborar los detalles y recuperar la riqueza del proyecto. La hipótesis de Flores nos descubre la herramienta de la correspondencia como primer argumento, desde donde el cliente y el arquitecto pudieron pensar la casa antes de construirla. Flores reconoce que utiliza el dibujo “como forma de pensamiento” para reconstruir una realidad que sólo se encuentra en la lectura y en el análisis de las cartas que cruzaron Bonet, Gomis y los intervinientes en la construcción de la Casa La Ricarda. La enseñanza de este ejemplo radica en el valor germinal que otorga a la herramienta epistolar y la capacidad que tiene para dar forma a otras realidades más complejas.

El tercer análisis que arroja un contexto parecido, relativos todos a estudios de tesis doctorales, se trata de la construcción de la Villa Planchart por el arquitecto italiano Gio Ponti (1891-1979) en Venezuela.

Este último caso demuestra que el sistema epistolar no era exclusivo de Le Corbusier y sus discípulos, sino que trasciende como mecanismo utilizado en la época y que anticipa escenarios de una deslocalización de la arquitectura.

La investigación de Silvia Necchi4 destaca por el exacto registro de las 724 cartas que se cruzaron los diferentes agentes del proyecto durante los doce años que duró la relación. Otra vez la correspondencia se traduce como verdad en términos de intereses, decisiones y registro de la obra de arquitectura.

Quizá en este último ejemplo se llega a la extenuación del método, ya que ocurre que en los años 1956 y 1957 se llegan a cruzar 209 y 192 misivas, respectivamente. Esta exageración de correspondencia arroja problemas de eficacia en la toma de decisiones y un tiempo perdido en un registro que a veces resulta anecdótico para la arquitectura y para la construcción de un pensamiento.

Más allá de su valoración, estos tres casos de estudio introducen la correspondencia postal como mecanismo proyectual arquitectónico. Además,

3 Flores, Ricardo, Casa La Ricarda de Antonio Bonet Castellana. Un territorio formalizado. Tesis Doctoral. UPC, ETSAB,Barcelona, 2015.

4 Necchi, Silvia, Gio Ponti. La villa Planchart, un progetto per corrispondenza (1953-1957).

Tesis Doctoral. UPC, ETSAB, Barcelona, 2012.

Imagen 3

Facsimil del sobre de una de las cartas enviadas por Borchers

vienen a contextualizar un signo de los tiempos y un anticipo de lo que la globalización e internet han generado en una profesión ahora sin fronteras.

Volviendo a nuestro caso de estudio, es importante destacar cómo lo coral y lo deslocalizado siempre estuvieron en la mente de Borchers. Iremos recorriendo de manera cronológica los acontecimientos para dibujar una obra de arquitectura diseñada y construida bajo parámetros de una coautoría desde la distancia y la soledad que otorga la herramienta epistolar (imagen 3). En arquitectura es interesante constatar que no sólo lo ideal manda, sino que hay que hacerla viable a través de un cliente y de una construcción que permite un resultado completo, complejo e integrador.

El encargo

En sesión de cooperado de la empresa COPELEC, el día 5 de julio de 19605, toma forma la idea de construir un edificio para la Cooperativa que cuente con casas para el personal y un local que poder alquilar.

En aquella sesión estaba el hermano de Suárez, que se ofrece para conseguir un préstamo para la construcción del nuevo edificio. Podríamos decir, ya de

5 Sarovic, Marcelo, Horizonte de concepción y realización en el edificio para la Cooperativa

Eléctrica de Chillán. Intervención Proyectual desde la reconstrucción de un proceso, Tesis

Magister en Arquitectura, PUC Ch, 1999, pp. 48-55.

Imagen 4

Suárez y Bermejo: Anteproyecto Copelec, 1961

inicio, que la capacidad de captación del encargo vino por vía de alguien que no era Borchers y, de hecho, Isidro Suárez, será, para la parte contratante, el arquitecto principal y el firmante de todos los documentos administrativos.

Por otro lado, parece interesante destacar la pronta importancia que adquiere Jesús Bermejo en la obra de la COPELEC. Ya en septiembre existe una misiva6 de Suárez a Edmundo Vélez – que sería el Gerente de la Cooperativa e interlocutor en la obra – donde se refiere al segundo encuentro sobre el encargo. En ella Suárez se disculpa por no haber podido estar presente y se refiere a Bermejo como asociado de Suárez y miembro de la misma oficina de arquitectura.

6 23 de septiembre de 1960. Estimado Señor, Le agradezco la visita que me hizo cuando vino ud. a Santiago y siento mucho no haber estado en casa en ese momento. Entretanto he pensado sobre el tema con los datos que Ud. comunicó a mi asociado Sr. Jesús Bermejo y espero hacer lo más posible pues es interesante y tiene posibilidades. Lo saludo atentamente. Isidro Suárez. Providencia 656. Departamento 52. Santiago. En Fondo Documental Sergio Larraín García-Moreno. FJB-C0781.

El programa comunicado a Bermejo era concreto y se pedía una fábrica de postes de hormigón para tendidos eléctricos, un taller de arreglo y montaje de transformadores, un salón de actos para los cooperados, una oficina de cobros y administración, locales para la venta de electrodomésticos y, por último, una vivienda para el gerente y otra para el personal de vigilancia. Tras esta reunión aparece un primer anteproyecto7 (imagen 4) donde Suarez y Bermejo lo presentan a principios de enero de 1961 con una implicación discreta por parte de Borchers – que se encontraba en ese momento en París estudiando –. De hecho, el lenguaje utilizado recuerda a los concursos presentados por Bermejo en Argentina8 (imagen 5) y evidencian

Imagen 5

Bermejo, Jesús, Maqueta del Concurso del Hospital de las 120 camas. El Dorado. 1 º Premio. 1957.

7 Fechado el 9 de enero de 1961.

8 Bermejo Goday, Jesús, Maqueta del Concurso del Hospital de las 120 camas. El Dorado. 1 º Premio. 1957.

su protagonismo en los orígenes del encargo.

Junto con los planos entregados, se entregó una memoria descriptiva donde ya aparecen muchas de las intenciones finalmente construidas. Se fija el uso del hormigón armado como materialidad general y aspecto físico visible, al tiempo que sirve para asegurar su estructura que se dispone acorde a unos conceptos lógicos antisísmicos. Se propone la necesidad de introducir el máximo de luz natural al conjunto construido y se establece un juego compositivo entre los diferentes volúmenes a levantar.

Imágenes 6 y 7

Planta y Fachada Proyecto Copelec aprobado por el cliente.1962

Sin embargo, este primer anteproyecto difiere bastante en lo que a ocupación se refiere, sobre todo porque pronto se descartó utilizar la parcela completa, y se contuvieron los metros cuadrados solicitados en vistas de hacer un programa más compacto y situado únicamente hacia la fachada de la calle Maipón.

El desarrollo de los sucesivos anteproyectos va desde el mencionado mes de enero de 1961 hasta mayo de 1962, momento en que es aprobado de manera definitiva el proyecto (imágenes 6 y 7) para su construcción. En este tiempo se suceden una serie de cambios que tienen que ver con la definición del cuerpo principal (finalmente el único construido) y donde remarcamos una fecha clave: la vuelta de Borchers desde Paris a Santiago para capitanear el proyecto en agosto de 1961.

La teoría del proyecto

Mucho antes de que Borchers regresara a Chile y se uniera a su taller de trabajo, hemos localizado una carta clave9 que establece las bases teóricas del proyecto y nos permite trazar el origen de las series dimensionales que han sido desarrolladas posteriormente; fundamentalmente en su segundo libro publicado titulado

Meta-Arquitectura10 (1975). Dice así: Mi querido ami, he estado pensando sobre lo que hablamos a propósito de las construcciones industriales. Me decías que estos “elementos” (vigas pilares) estaban dadas en unidades estándar y además medidas en yardas.

Yo creo que podemos utilizar el sistema de cálculo de segmentos (excluido el axioma de Arquímedes que tengo preparado) e introducir la Escala de 7 con facilidad pues no depende las proporciones tal como allí lo estudié de una medida fija y por lo tanto de un sistema rígido cualesquiera. Una vez que venga

9 Borchers F., Juan. Fondo Documental Sergio Larraín García-Moreno. FJB-C0765. Carta de Juan Borchers a Isidro Suárez emitida el 10 de julio de 1960 desde Rocas a Santiago: Proporciones, serie de la escala del 7.

10 Borchers F., Juan, Meta-arquitectura. 1ª ed. Santiago de Chile: Mathesis ediciones, 1975.

Jesús voy a examinar el hecho y te entregaré la manera de operar y podrás proporcionar nuevamente libre y bien. (…) Le explicaba a Jesús por otro lado que la “escala 7” era el lugar de los escalímetros y creo que así como respondió el “metro” responderá la “yarda”. En sí no veo el inconveniente. (…) Además, está el color tal y como tú lo usas y concebir toda la construcción como una superficie continua. (…) Creo que tenemos mucha más penetrabilidad que Le Corbusier con el “modulor” que exige un cambio de medidas. Yo creo que podrás construir siempre un espacio como tu imaginas.”

La carta, fechada sólo 5 días después de la primera reunión de la Cooperativa, evidencia la claridad con la que Borchers afronta este proyecto después de largos años de estudios por Europa. El sistema, en el fondo, repetía ciertas premisas vistas años atrás en los experimentos de Los Canelos11 , donde ya se había puesto a prueba un grupo de trabajo entre Borchers, Suárez y Bermejo y contaban, además, con la participación del ingeniero Atilano Lamana12. Se trataba de sistematizar una repetición de objetos (medidas) que pudieran darle al conjunto una unidad como forma. Borchers incide en su frase todo está en todo como demostración de que un detalle

11 Pérez, Fernando, Juan Borchers en “Los Canelos”, poética rústica o el árbol de la arquitectura, Revista Block 2, 1998, p. 41-53.

12 A Atilano Lamana Pola (1924-2009) Borchers lo conoció en Madrid en 1948: estaba

de la obra tiene que tener sentido y coherencia con el total; una especie de poética arquitectónica

Estamos ante el origen de una posición propia, una evolución que trasciende lo aprendido, intentando dar un paso más del que había dado su maestro. Borchers critica la incoherencia surgida fruto del intento de Le Corbusier de adaptar el Modulor desde el sistema métrico al sistema americano. Uno de los últimos discípulos de Borchers: Rodrigo de la Cruz13, da, de una manera precisa, la deriva que enfrenta estas dos concepciones de las series dimensionales: Mientras Le Corbusier desarrollaba el Modulor, como síntesis instrumental de su pensamiento, Borchers se dirige hacia la destrucción de la analogía como soporte de la proporción. Es decir, toda geometría de la semejanza, basada en el Teorema de Tales y que constituyen la base de los trazados reguladores y por tanto de las progresiones de rectángulos áureos que constituyen el Modulor, es aniquilada por Borchers, dando paso a una concepción nueva de la proporción en arquitecterminando los estudios de ingeniería industrial y lo convenció para que se fuera a vivir a Chile. Allí se formó como ingeniero civil y desarrolló una importante carrera como experto en el uso del hormigón. Colaboró de manera intensa en los inicios del proyecto de la Copelec siendo pieza importante tanto en el proyecto como en las investigaciones que se desarrollaron en torno al Taller.

13 Cruz, Rodrigo de la, “Cooperativa Eléctrica de Chillán”, Revista ARQ 13, 1989, p. 25-31.

tura. En ésta, las relaciones métricas son libremente puestas y reguladas por un sistema operativo basado en una doble serie de números.

La primera es portadora de las relaciones entre magnitudes abstractas y la segunda conformada por los valores que contienen la escala humana y que actúa sobre la primera como un numero imaginario. Como decíamos al principio, no es tanto el momento de desarrollar estas teorías; sin embargo, para el texto, si es importante situarla en el tiempo y en el contexto de la obra. Vemos, por tanto, una justificación de las razones por las que Borchers se despreocupa de los diseños de los anteproyectos. Él entiende que las premisas dejadas desde un punto de vista procedimental y sistemático harán de la obra un ejemplo de coherencia pese a la forma final del edificio.

Imagen 8

Axonométrica estado final

Que el resultado sea el que fue, sin duda se debió a la mano y a la participación de los otros dos integrantes del Taller. Sin embargo, su papel se activa en la fase de construcción, y por tanto su autoría también queda demostrada, aunque de una manera especial a través de un control a distancia.

LA OBRA DE ARQUITECTURA

Recuperando la cronología del edificio, el 5 de julio se aprueba en la Municipalidad los planos de arquitectura y los de cálculo, y el 10 de septiembre de 1962 se da comienzo a la obra.

Los planos entregados y aceptados por la Cooperativa encajan en gran medida con lo finalmente construido. Sin embargo, es crucial el método de comprobación postal que se establece entre los tres arquitectos y que determina el resultado final (imagen 8).

En términos de reparto de responsabilidades, la implicación de Borchers se mantiene al margen en lo que al proceso de obra se refiere. En los libros de órdenes, recogidos con precisión por Suárez y Bermejo, se aprecia un reparto de días en los cuales alguno de los dos arquitectos ha estado controlando. En el periodo comprendido desde 1962 hasta el 24 de marzo de 1966 suman 1260 días de obra. Jesús Bermejo ha estado a cargo un total de 362 días frente a los 327 días de Suárez.

Suárez adquiere una posición más institucional, siendo el responsable de la negociación de los tiempos y los costes del proyecto con el cliente, además del

firmante de todos los documentos técnicos y responsable civil de la obra. Por su parte, Bermejo se sitúa como director de obra, aplicando la herramienta epistolar al proceso de diseño y lidiando con el personal de la obra que era de mala cualificación (imagen 9).

Imagen 9

El grupo de construcción de Copelec. Bermejo es el de pie a la derecha. Son interesantes, por ejemplo, las soluciones técnicas que se aplican para desarrollar los enconfrados curvos de los muros especiales, donde el radio exterior es el mismo que el radio interior por una cuestión de economía de medios. O la decisión sobre el sobre el pilar que se gira entre la planta baja y la entreplanta (imagen 10) donde también Bermejo tira de ingenio para solucionar ese pilar de una sola pieza.

Por el contrario, el registro de visitas que se desprende de Borchers es sorprendente. Hay registradas sólo 6 visitas de Borchers a la obra: 9 de mayo de 1963, 11 de septiembre de 1963, 8 de noviembre de 1963, 20-23 de enero de 1964, 18-20 de julio de 1964 y 5-6 de marzo de 1965. El hecho presencial, y la carga de responsabilidad en obra no debe confundirnos. Al contrario, nos da la pauta organizativa y los motivos por los que el Taller se consolida y se organiza en torno a un sistema epistolar que evidencia la intervención compartida de todos sus miembros. Este asunto epistolar fue investigado por primera vez por Hernán Riesco en un seminario realizado en la Facultad Pontificia Universidad Católica de Chile en 1999. Las conclusiones de aquel trabajo comprendían la sistematización, el archivo y la identificación de los temas sobre las más de 826 cartas que analizaron. Sin embargo, más allá de la lógica de la interacción y su registro, no se

tuvieron en cuenta otros documentos que vienen a complementar el control y la ejecución de la obra de Chillán y que evidencias diferentes puntos de inflexión en todo este proceso.

Al principio, Borchers se conforma con una sistematización de las “reglas de juego” como escenario ideal para que el edificio se construya solo con la participación de Suárez y Bermejo. Él insis-

te en no tener ningún trato con el cliente, por lo que no se siente ni condicionado ni influido por cuestiones funcionales del edificio, ni por las presupuestarias, ni siquiera por los plazos a cumplir con la ejecución. Borchers, como creador, en una posición de cierto desapego, se centra en dar por cerrada su participación y quizá por esto nunca se sitió reconocido como autor: Querido Isidro, ahora que la obra de Chillán va a iniciarse, y quizá a salir del papel, creo que una puntualización sobre los útiles de trabajo que he ido excogitando no vendrán demás. Con ayuda de

Imagen 10

Pilar

se

que
gira entre planta baja y entreplanta

esta explicación podrás interpretar los planos y en caso de duda saber a qué atenerte para decidir pronto y por tu cuenta.

Los dos principales útiles de trabajo son: a) la Escala de 7 (que tú conoces). b) lo que yo llamo el Sistro (que es una manera para ordenar los tamaños; de jerarquizar). Ni uno, ni otro dicen de las proporciones, ni pretenden la belleza; son meros útiles14 .

Imágenes 11, 12 y 13

Dibujos de la carpeta Plástica

proyecto. Borchers es ineludiblemente autor de la obra, pero también lo son sus otros dos compañeros.

Recogemos como epílogo las palabras de Borchers en su primer libro publicado15 : La arquitectura es la totalidad de los hechos arquitectónicos y no de las cosas: la arquitectura es un hecho concluso… la arquitectura es lenguaje de la inmovilidad sustancial… La Arquitectura es la Física hecha Carne.

Sin embargo, los procesos constructivos no se pueden disociar de los intelectuales y el propio Borchers se contradice cuando poco después se mete de lleno en correcciones improvisadas en cartas que manda a la obra.

A sólo tres meses del comienzo de la obra decide crear otro documento clave:

La carpeta de trabajo titulada Plástica, donde desde el 7 de diciembre de 1962 a febrero de 1963 va concatenando correspondencia con al tiempo que deja una gran cantidad de dibujos iluminadores para el proceso constructivo (imágenes 11-12-13) y que acotan las intenciones expresivas y espaciales del

Para el caso del Edificio de la Copelec, la arquitectura se hizo a través de los hechos concretos de su proceso; se formuló a través del diálogo de sus participantes. Este dibujo (imagen 14) muestra a modo de resumen, las tripas de un edificio hecho por partes, construido con la medida, pensado a distancia. Las cartas nos dan la medida de esta singular arquitectura: son las tripas de este proceso entre la teoría y la práctica arquitectural.

14 Borchers F., Juan. Fondo Documental Sergio Larraín García-Moreno. FJB-D0578. Carta de Juan Borchers a Isidro Suárez con la obra a punto de iniciarse.

15 Borchers F., Juan, Institución Arquitectura. Santiago de Chile: editorial Andrés Bello, 1968.

Imagen 14

las tripas de un edificio hecho por partes, construido con la medida, pensado a distancia.

FORMAS QUE DIBUJA EL VIENTO

Hotel del Viento (Hotel Tierra Patagonia)

Lago Sarmiento, XII Región

Cazu Segers

Memoria

El hotel se encuentra ubicado en la entrada norte del Parque Nacional Torres del Paine, a orillas del Lago Sarmiento, que a su vez es el deslinde con el Parque Nacional. El lugar de emplazamiento posee una gran magnitud frente a la vastedad metafísica de la Patagonia Austral. Un primer plano de agua como soporte del macizo del Paine. Estas características son las que llevan a tomar el partido de armar un proyecto extendido, que dialogue con la magnitud del territorio.

Por otra parte el eco-turismo, es la experiencia en la naturaleza, por el largo proceso de domesticación el hombre contemporáneo no está equipado para habitar la intemperie sin una protección, así el edifi -

cio debe ser una segunda piel sensible que permita experimentar la fuerza y belleza mística de este lugar. El gesto territorial es el de un cuerpo libre abarcando la extensión, como un cuerpo virtual que se conforma en los recorridos exteriores e interiores. En la cabeza está el macizo del Paine, los brazos son los hitos geográficos que definen los límites de las orillas del lago, las piernas son la forma de acceder al lugar y en el corazón; el edificio del hotel.

El gesto del edificio surge de las formas que dibuja el viento, elemento natural característico de la zona. La forma busca no irrumpir en el paisaje metafísico del lugar, sino sumarse. La imagen del hotel es la de un antiguo fósil de algún animal prehistórico, varado en la orilla del lago. Algunos de los que permitieron a Charles Darwin elaborar su teoría de la evolución humana.

Este propósito lleva a que la forma nazca de la tierra como un pliegue en la arena dibujada por el viento. El proyecto se ancla al suelo con taludes de piedra y se reviste enteramente con entablado de madera de lenga lavada, para lograr el color plateado característico de las maderas roídas por el agua, que dejan los inviernos. La solución espacial busca el abrigo y la pequeña escala, esta se estructura a partir de los recorridos interiores, que son la forma de habitar esta extensión.

En el ala de los dormitorios el recorrido se resuelve con puentes suspendidos sobre el vacío. El terreno donde se ubica el hotel pertenece a una estancia privada de una familia de colonos de la región, por lo que la arquitectura de interiores, busca que la experiencia de habitar el hotel sea la de la casa de los dueños de la estancia y no la de un hotel internacional.

Datos

En la categoría de arquitectura territorial este proyecto (de 4900 m2 en un terreno de 70 hectáreas en Lago

Sarmiento, Torres del Paine, XII Región, Chile) se llama oficialmente Hotel Tierra Patagonia y poéticamente

Hotel del Viento, siendo su proyectista la arquitecta

Cazu Zegers G. y arquitectos asociados Rodrigo Ferre y Roberto Benavente y colaborador el Grupo Aira. Su desarrollo y gestión fue a cargo del Estudio AI (Arquitectura Integrada) y el cliente comitente Katari SA. Se proyectó en 2005-2006 y 2010-2011 y se construyó en 2011 por la empresa Salfa Corp./ Juan Pablo Libacic.

El cálculo estructural fue de Enzo Valladares y asociados y la inspección técnica a cargo de Coz Cia.Ltda./ Gustavo Soto. La ingeniería sanitaria la realizó Olegario

Pérez, la ingeniería eléctrica Sergio Alemparte, la climatización Rolf Thiele y la ingeniería acústica George

Sommerhof. La asesoría luminotécnica fue a cargo de Paulina Sir y Gaspar Arenas, la asesoría en decoración de Carolina del Piano y Alexandra Edwards y la asesoría en paisajismo de Catalina Phillips y Gerardo Ariztía.

La estructura es de hormigón armado y las cubiertas se hicieron con vigas de madera de pino laminado, entablado de lenga, planchas de OSB, membrana asfáltica y terminación final entablado de lenga. Los muros son de hormigón armado con sistema EIFS y revestido en lenga, las ventanas de PVC y termopanel con revestimiento interior de lenga, los pavimentos son de entablado de lenga y los cielorrasos se resuelven con un cielo acústico con celosía en madera de lenga 1” x 2” imprimado, puesta de canto con separación de 30mm. Los revestimientos y mobiliario son de madera nativa de lenga en bruto y cepillado.

Las fotografías son de Addison Jones.

Opinión

Cuando pedimos al estudio de Zegers la documentación para publicar este trabajo nos respondieron que, por disposición del propietario, solo nos podían enviar fotos y ningún dibujo, tales como plantas o cortes. Aún así, frente a esta curiosa e infrecuente postura (quiza ligada a un exceso de seguridad para huéspedes), decidimos colocar este trabajo en nuestra sección Ecológicas, solo con algunas excelentes fotografías de Addison Jones y el no menos rico texto de la memoria de su autora, por lo demas, de vasta trayectoria y reconocimiento por una rigurosa obra en que destaca su interés por las formas tecnológicas de las maderas (que se imbrica en la densa cultura chilena de casas y embarcaciones sobre todo en las regiones sureñas) y por el acople de naturaleza y cultura –de sitio y artefacto– que cultiva como modo natural de entender la arquitectura como una capa agregada al paisaje y nunca una contrincante del mismo.

Toda esa densidad eco-cultural de la obra de Cazu Segers aflora potente en este trabajo hotelero, en que el propio aparato remite a conseguir efectos de abrigo frente a la naturaleza inclemente buscando resonancias con las formas habitativas de su región de implantación, tales como algunas cualidades de recintos de las estancias patagónicas en uno de cuyos territorios se afinca esta obra.

En la memoria se esclarece nítidamente el motivo fundante (gesto) del proyecto:

El gesto del edificio surge de las formas que dibuja el viento, elemento natural característico de la zona. La forma busca no irrumpir en el paisaje metafísico del lugar, sino sumarse. Aquí aparece una voluntad de diseño supeditada a la potencia del sitio, de sus vientos modeladores de suelos y laderas y de esa condición metafísica de paisaje que tan bien exploraron y describieron poetas como Teilleir o Zurita.

Pero la voluntad de forma –el modo de concebir este artefacto– no se agota en intentar una morfología

mineral resultante de aquella ecuación de sitio y viento sino que agrega el referenciamiento de otro componente de la complejidad del paisaje –más bien metafórico y mnemotécnico– que alude a las formas orgánicas de las antiguas y celebradas criaturas de la región, ahora mineralizadas en su condición fósil, de ensamble con la tierra: La imagen del hotel es la de un antiguo fósil de algún animal prehistórico, varado en la orilla del lago.

Algunos de los que permitieron a Charles Darwin elaborar su teoría de la evolución humana.

La profunda meditación de esta arquitectura –bastante vinculable a las perspectivas de un poderoso land-art–finalmente tiene que centrarse en conseguir un efecto de forma mediante decisiones adecuadas de materia-

lidad, no sólo en cuanto a la definición de la geometría orgánica del artefacto –este propósito –sigue mentando la memoria– lleva a que la forma nazca de la tierra como un pliegue en la arena dibujada por el viento– sino además y sobre todo, en línea con la trayectoria de Segers en su arquitectura maderera, a resolver el modo de construcción en que destacan interiores de diversos enchapados y con columnas naturales y una modelación de la envolvente externa que aúna piedra y madera, en este caso, lenga lavada, para conseguir un color adaptado a los tonos minerales del paisaje y una condición que quiere presentarse como no reciente sino modelada por el tiempo y las esencias del lugar: El proyecto se ancla al suelo con taludes de piedra y se reviste enteramente con entablado de madera de lenga lavada, para lograr el color plateado característico de las maderas roídas por el agua, que dejan los inviernos. Por último, este trabajo afronta la necesidad de resolver la protección placentera que un recinto debe ofrecer en ese sitio de clima extremo evocando las modalidades tipicas de habitarlo: La solución espacial busca el abrigo y la pequeña escala, esta se estructura a partir de los recorridos interiores, que son la forma de habitar esta extensión.

ENTRE PIRCAS

Suites en Ascochinga, Córdoba

Estudio Alarcia&Ferrer

Memoria Descriptiva

Las pircas rurales, tan características del paisaje serrano cordobés, tienen la función de cercar o limitar un terreno. En este caso, delimitan un espacio de uso, unas habitaciones en suite como expansión de un hotel. El lugar en cuestión corresponde a la antigua estancia veraniega La Paz, del ex presidente argentino J.A.Roca transformada en hotel. Ubicado al norte de la ciudad de Córdoba y compuesto por un conjunto de edificios del siglo XIX, un fantástico parque con frondosos arboles –diseñado por Carlos Thays– y un majestuoso lago artificial. Las nuevas suites incorporan las referencias históricas y paisajísticas para codificarlas en un proyecto acorde a su tiempo y lugar.

El proyecto, 7 anchos muros paralelos de piedra distanciados 5 metros entre sí que soportan un techo de madera inclinado a un agua generando habitaciones en su interior. Estos muros y techos se acomodan a las prexistencias naturales de árboles y topografía hasta encontrar su ubicación precisa en el lugar. Cada habitación esta compuesta por una galería frontal de ingreso, un dormitorio, un patio de luz y ventilación, y un nucleo húmedo –antebaño, baño y ducha–. El patio además de ventilación cruzada e iluminación funciona como separador del espacio de estar del de aseo, y los muros divisorios permiten albergar en su interior guardado e instalaciones. La utilización de la piedra y la madera, y el recurso de galerías y patios remiten a las construcciones rurales de la zona.

Datos

La obra EntrePircas Suites se localiza en la Estancia La Paz, Ascochinga, Córdoba, Argentina, se proyectó en 2022 y construyó entre 2022 y 2024 con una superficie cubierta de 360 m2. Fue realizada por el Estudio Alarcia&Ferrer, a cargo de los arquitectos Joaquin Alarcia y Federico Ferrer Deheza. Fueron asesores en Estructura el ingeniero German Sarboraria y en Paisajismo, Blas Spina El interiorismo de Equipamiento fijo fue del Estudio Alarcia&Ferrer y el Equipamiento Movil de Pueblo Estancia La Paz. La construcción quedó a cargo de Bonnart Desarrollista y la dirección técnica la realizaron los arquitectos Federico Monjo y Joaquin Alarcia. Las fotografías son de Milagros Sanchez Azcona.

Opinión

Aun dentro de la gran envergadura de esta estancia+paisaje thaysiano, colocar una nueva intervención aunque no sea exagerada en tamaño y función, requiere de cierta discreción y hasta anonimato, lo cuál quiza lleve a pensar una arquitectura que resulte connotada como un accidente del paisaje, como un episodio que en la distancia de esa parquización, ponga en evidencia nada más que piedra y vegetación. Una solución a la inglesa, en la dirección de colocación de elementos artificiales que no obstruyeran las cualidades del paisaje original, como se hizo célebre en el paisajismo del jardinero Capability Brown.

En la descripción de la memoria se apunta la simplicidad radical del proyecto, a la búsqueda de aquella discreta colocación en el paisaje: El proyecto, 7 anchos muros paralelos de piedra distanciados 5 metros entre si que soportan un techo de madera inclinado a un agua generando habitaciones en su interior. Es decir una arquitectura que obtendrá su espacialidad como consecuencia de colocar en un lugar determinado de la vastedad proyectada de esta estancia devenida en hotel (del cuál esta construcción fungirá como anexo que agrega habitaciones singulares) un conjunto de elementos, en este caso, muros en la modalidad pétreo-ciclópea de las pircas,

entre cuyo par de muros soportantes de un sintético techo inclinado de madera, surgen las habitaciones.

Por tanto el proyecto es una búsqueda del lugar preciso para colocar esta serie de pircas (que en la tradición andino-incaica solían delimitar espacios de cultivo, ofreciendo abrigo frente a las condiciones climáticas rigurosas) y asi se puede subrayar una cualidad de instalación mas que de transformación y allí radicaría su exitosa estrategia de discreción: Estos muros y techos se acomodan a las prexistencias naturales de arboles y topografía hasta encontrar su ubicación precisa en el lugar.

Maqueta
Planta Tipo

Axonométrica

AGENDA SIGLO XXI

La agenda socio-espacial-ambiental actual, demanda necesariamente provocar recentralizaciones en territorios sometidos a expansiones aleatorias y dispersas, capaces de suscitar transformaciones mediante intervenciones puntuales fuertes, generando reconfiguraciones potentes en contextos descalificados. Actuando como catalizadores socio-espaciales. En la era de las pos metrópolis apresadas y desmesuradas, donde imperan los flujos (de vehículos, de gente, de mercaderías, de informaciones y de capital) precisamos de puntos de parada, de espacios de encuentro y descompartimentalización, incrustados en los suburbios, asumiendo los conflictos y las contradicciones como fuente de transformaciones específicas. Mediante objetos contrariantes producidos por actos arquitecturales fuertes, portadores de sentido, capaces de reconfigurar el contexto. Tras dos siglos de revolución industrial estamos viviendo el colapso de una civilización. La de la primera revolución fue urbana, la

de la segunda, suburbana, y ahora son nodos con las infraestructuras en red. Lo que comanda hoy son los mercados y las redes, pasando de la globalización a la globalización, donde cada región se está globalizando, lo que implica interdependencia.

Pero la infraestructura de la tercera revolución industrial no la construirán solo los robots y la inteligencia artificial, sino millones de personas, pues los algoritmos se basan en el pasado y lo que se necesita es mirar los efectos y ver cómo adaptarse continuamente. Hay que construir resiliencia para enfrentar los problemas climáticos, las epidemias, las sequías, el calor, las inundaciones, los incendios, porque el clima está cambiando y hay miles de personas muriendo y migrando. Precisamos pensar en el gran todo viviente, reconsiderando el interés general en los planos cultural, ecológico, social y del medio ambiente.

La geología, la climatología, la historia, la economía, la urbanización acelerada, los hechos de la sociedad, las

actitudes mentales, todo eso interviene en los análisis y las respuestas que debemos dar, donde el desafío es re-aproximar las ciencias exactas de las ciencias humanas, buscando un equilibrio (siempre inestable) entre la observación, y la construcción de lo real. Y de la construcción geométrica con la realidad sensorial del espacio. Hoy precisamos des-cubrir otras posibilidades de vida en aquello que se presenta como inamovible.

En América Latina, vivimos en ciudades fragmentadas, social y espacialmente. Áreas privilegiadas conviven lado a lado con la carencia absoluta; barrios y edificios

de lujo, con favelas a pocos metros de distancia. En Rio eso no se puede ocultar porque los morros son altos y bastante inclinados, lo que coloca a las favelas en el campo visual del ciudadano.

En las ciudades sin morros altos, eso no se percibe tanto, aunque también están muy cerca, como en Buenos Aires, San Pablo, Ciudad de México y muchas otras. Después están las favelas y las áreas carentes que quedan lejos, y por lo tanto se pueden olvidar más fácilmente. Esa escisión caracteriza las grandes ciudades latinoamericanas.

1_ JMJ Naturopolis

Eco-lógica

2_

Releyendo a Guattari en esta época de capitalismo mundial integrado, de poder financiero globalitário, de lo que se trata para enfrentarlo es de la creación de mundos embrionarios, a través de la automatización de subjetividades y grupalidades, buscando comprender la relación entre deseo y vida social, descongelando el paisaje de los posibles, cultivando los valores que pueden crearlo, para relanzar las dimensiones que hacen de la vida algo digno de ser experimentado, un territorio existencial. Poniendo en juego una lógica de la ambigüedad, de la multiguidad, repleta de causas y efectos múltiples y hasta reactivos.

Guattari nos habla de una eco-lógica que implica pensar sus principios y fines; pensar teniendo como objetivo la existencia en vías de, y al mismo tiempo constituirse, definirse y desterritorializarse. Pensar donde no hay razonabilidad, medios términos, justa medida, seguridad, garantía, paraíso...Una ecología que le dé a las situaciones con las cuales somos confrontados, el poder de hacernos pensar, sentir, imaginar y no solo teorizar sobre ellas. Transformando el mundo, y no interpretándolo,

forzando nuestro pensamiento, tornándonos susceptibles a las singularidades.

Lo que por su vez implica una práctica de la transversalidad, que busca la conexión entre heterogéneos que se mantienen como tal, desencadenando juntos un nuevo proceso y recreándose parcialmente a sí mismos. Una máquina existencial abierta a los enriquecimientos, las variaciones y los contagios, buscando constituir pedazos de territorios para sí. Los pueblos originarios no esperaron por Dios, para ellos siempre estuvo ahí, a través de diferentes manifestaciones, representaciones, que implican diferentes visiones de mundo, de formas de entender lo humano y la relación con la naturaleza. Tenemos que escuchar, tratar de entender, siempre mejor, eso, tan alejado del mundo actual. Buscar una comprensión con aquello que im-

plica de originario, de anterior a los griegos, que, para nosotros occidentales, representa el inicio de toda comprensión, inicio del pensamiento.

En Brasil hay varias Naciones dentro de un solo país. Los primeros habitantes de la enorme región llamada Amazonia dejaron sus vestigios, sobre todo pinturas y representaciones tanto en cavernas como en ambientes exteriores con diseños, a gran es-cala, como formas de humanización del paisaje. De afirmar una presencia. Pero hay vestigios desde hace unos 28.000.000 años, lo que indica que comenzaron a “pintar” aquí, simultáneamente con otros lugares de la tierra. Definieron un tipo especial de relación con la floresta, con el manejo del agua, creando represas para pescar, lo que muestra una inteligencia en la relación con el medio ambiente.

Aprendieron a manejarse con los períodos de seca y los períodos de inundaciones en su región. Se distribuyeron por una extensísima área, sin distinciones sociales, sin separar jerarquías. Fue todo un largo tiempo de vida que podemos llamar de harmónica, conectándose a través de enormes distancias no solo para intercambiar objetos sino sobre todo para compartir conocimientos, aprendizados, usos de la naturaleza, especies medicinales, alimentos, rituales, etc.

Eso es lo que podemos entender por lo originario. Mucho después vino la ocupación de la región específica

Pensar donde no hay razonabilidad, medios términos, justa medida, seguridad, garantía,

paraíso...Una ecología que le dé a las situaciones con las cuales

somos confrontados, el poder de hacernos pensar, sentir, imagi-

nar y no solo teorizar sobre ellas.

Transformando el mundo, y no interpretándolo, forzando nuestro pensamiento, tornándonos susceptibles a las singularidades.

llamada marajoara, donde ya aparecieron relaciones jerárquicas y de privilegios para los dirigentes, y que se caracteriza por la sofisticación de su cerámica. Los primeros habitantes de lo que se llama pan-amazónia se establecieron desde unos 2500-3000 años atrás, con una red de relaciones constituidas por varios centros distribuidos por un gran territorio, con un poder central y sin una diferenciación de las personas. Eduardo Viveiros de Castro utiliza el término multinaturalismo para referirse a esas multiplicidades singulares, lo que implica una idea de la mezcla multiplicando la multiplicidad (deleuzianamente hablando). Hoy, nos interesa la constitución de colectivos no-estatales a través de confederalismos democráticos y municipalismos libertarios, basados en una ecología social (o socio-ambientalismo) como base de nuevas potencias de invención.

Combatiendo las dualidades y oposiciones dicotómicas público-privado, cultura-naturaleza, formal-informal, consciente-inconsciente, individual-colectivo, alta cultura-baja cultura, etc., buscando la potencia de común como algo producido, como producción social. Encaminando para un arte de la composición, presentándose a los otros bajo relaciones compositivas. Pensando la ciudad como lo que resulta del encuentro de los cuerpos y los recursos (naturales y productivos) en la producción de lo Común. La ciudad en su doble

condición de realidad física y virtual, lo que demanda construir un nuevo marco jurídico que le permita a la comunidad el control de lo compartido, en un escenario de movilidad urbana, practicando y aprendiendo el arte de auto-gobernarse. Todo lo cual presupone esa zambullida en la sopa cultural, desde los orígenes hasta ahora. Dos ciudades

En lo urbano, podemos hablar de dos ciudades, dos partes de la ciudad, dos lógicas. De un lado, las partes de la ciudad producidas por el neoliberalismo, la uniformización global, donde todo tiende a igualarse: a ser pasteurizado, consumo, comportamientos, e inclusive “pensamientos”, resultando hasta difícil hablar de pensamiento en estos contextos de banalización generalizada. Lo que incluye el consumo de símbolos de prestigio, de manera acrítica. Son áreas urbanas con sus apartamentos, comercios y oficinas diseñados. La ciudad de los iguales, de las marcas estandarizadas, de los brands.

De los Starbucks, Gucci, etc. Y del otro lado, la otra parte de la ciudad, la de la vida más espontánea de los barrios, menos planeada marketeridamente, donde las cosas van sucediendo en un tiempo más prolonga-

do, sin tanta urgencia del retorno inmediato. La ciudad donde las diferencias pueden encontrar expresión, acogida, absorbiendo variadísimas relaciones y formas de producción, que incluyen múltiples relaciones de trabajo y formas de interacción. En la primera, el espacio público si es que podemos hablar de ello en esos contextos siempre muy vigilados, tiende a estar también sobre diseñado, muy intervenido, excesivo, redundante, desnecesario.

En la segunda, que incluye lo informal, esa complejidad confusa, esa mezcla indiferenciada, es donde se debe pensar intensamente, abriendo siempre nuevas posibilidades para que lo inesperado pueda encontrar

lugar, acontecer. Posibilitar el acaso. Pensando los espacios, a todas las escalas, inclusive con un carácter más lúdico, mas convidativo, para todas las edades, buscando siempre la ciudad abierta, inclusivista, estimulante para la convivencia, con bien equilibradas áreas verdes, a es-cala humana, con espacios tanto para permanecer como para circular, bien escalados, posibilitando itinerarios agradables, disponibles para variadísimas posibles apropiaciones.

Donde se trata tanto de disminuir la necesidad de desplazamientos, como de conseguir una efectividad de conexiones con la estructura urbana general de la ciudad. Y eso no es solo una cuestión de bici sendas, de bicicletas.

3_Parque Lineal Domingo Savio Acceso Sur

4_Lectura de lugar Manguinhos

Es preciso utilizar un criterio de diseño urbano que favorezca ciudades amigas de los desconocidos y menos dependientes del automóvil particular, limitándolo, encuadrándolo. Para eso son necesarios ciudadanos atentos, sensibles, observadores, comprometidos con la búsqueda de entornos de calidad, a través de la puesta en práctica de actitudes analítico-críticas consistentes. Hemos visto en las últimas décadas el surgimiento de emprendimientos en China, en Oriente Medio, en Egipto y en varios otros lugares, constituidos por inmensas cantidades de edificaciones sin sentido. Inclusive en Brasil, México y otros países de la región. Son amontonamientos de construcciones sin ninguna idea de ciudad, por más que algunos de ellos quieran

disfrazarse de ecológicos. Esto implica un desaprendizaje completo de todos los conocimientos en materia urbana que la humanidad acumuló a lo largo de milenios. De ahí el interés en lo originario, que no quiere decir volver al origen, sino una manera de operar que valoriza la dimensión de lo humano, para instaurar nuevas bases. Con el apoyo de la tecnología actual, pero no cegados por ella. Apenas como herramienta, pues los valores vienen siempre de otro lugar.

Justamente, del calderón cultural. El apartheid social no es el único camino posible. Depende de la movilización de la inteligencia social existente. Queremos una vida enraizada. Precisamos de una cultura de la delicadeza y la generosidad. Y de nuevos ensambles estéticos.

Las cosas interesantes no son binarias ni dicotómicas. El bien común es una forma de entender las cosas y la vida; bienes comunes son inimaginables mientras no sea posible pensar en su comunidad. Admirar la creatividad colectiva y descubrir la sabiduría de lo común. Los bienes comunes no son una reliquia del pasado ni un residuo resistente de la modernidad.

Los comunes y el bien común son modernos, están entre nosotros y pueden ser productivos. Para ser de los comunes hay que ser empáticos, colaborativos y honestos, y también abiertos al experimentalismo, demostrando capacidad de tomar las decisiones correctas todos los días y entre todos.

Cuando el ambiente es hostil, hay que crear las condiciones para la tomada de decisiones ciertas. El bien común debe ser considerado como un laboratorio ciudadano. Enfrentar el problema actual de la reducción de la capacidad de anticipar, de imaginar los efectos últimos de un modo de hacer. Ampliando las exigencias de comprensión, de las formas de mirar las cosas, expandiendo horizontes, abriendo para nuevas sensibilidades. Si no nos percibimos como encadenados, acorentados, atados a una concepción de la vida limitada, tal vez, de la ceguera actual, por imperceptible, no se pueda salir. No es una cuestión de voluntad, sino de estado de ánimo, como dice Byung-Chul Han. De dar la gracia de desear más de lo

5_Ideograma

Manguinhos

Del diagrama al ideograma, hay una compactación de información, una intensificación de la abstracción y una forma de representación que tiende hacia lo bello

que se puede alcanzar. De dejar el mundo mejor de lo que lo encontramos, re-apreciando la belleza de la Tierra, este planeta azul.

Sobre los límites

La ciudad era el modelo de todo lo civilizado y metáfora de las mejores esperanzas e ideales. Históricamente los límites de cada nueva ciudad se trazaban con el arado que fue en ese sentido el primer instrumento de diseño urbano. Hoy el género humano es mayoritariamente género urbano y las ciudades crecieron tanto que saben muy poco de límites. El tiempo se medía llevando en consideración los ritmos locales, la duración

del día y la noche con sus variaciones según las estaciones del año y la ciudad mantenía relación con un hinterland rural que la proveía de alimentos, materias primas y agua.

A lo largo de las sucesivas generaciones hemos pasado de poblados apenas distinguibles de su entorno, a un mundo de ciudades y mega ciudades, inimaginable para el habitante ateniense o de la Roma de la Urbs, la Civitas y la Polis. El nuevo hábitat es la urbe de asfalto, vidrio, cemento, acero, viaductos y también de chatarra, tablones y cartón, desparramándose sobre áreas ambientalmente frágiles, donde coexisten lo difuso y lo abigarrado.

6_Manguinhos

Diagrama de centralidades

El carácter de cada lugar se oculta cada vez más atropellado por el tránsito y las construcciones, sin una idea de ciudad, apenas amontonando todo tipo de construcciones donde las pautas vitales son dictadas por los semáforos y los horarios de apertura. La urbanización creció junto a la lógica de lo abstracto y lo digital, confundiendo deseos y provocando angustias y miedos. Las aglomeraciones urbanas concentran (y hacinan) poblaciones enormes y transportan y transforman cada día sin cesar toneladas de materiales,

constituyendo la fuerza geológica más notable del planeta, en un voraz metabolismo que exige, de todos, una profunda reflexión.

En estas condiciones, la vida democrática es directamente proporcional al número y la calidad de los espacios para la convivencia y el intercambio, e inversamente proporcional al imperio del vehículo sobre el ciudadano.

Precisamos dar primacía a peatones, bicicletas y al transporte público de calidad, restringiendo al automóvil, haciendo con que las partes formales e informales estén articuladas entre sí, a través de nuevas Ágoras del siglo XXI interconectadas, estructuradas en base a la celebración del trabajo en todas sus modalidades, e incluyendo la habitación, la cultura y la recreación.

Ciudades amigables, conectivas y caminables. Como es conocido, en toda América, del norte al sur, se trata de sociedades muy desiguales que tienen la huella de la esclavitud, el racismo, la violencia y la pobreza como trazos constitutivos. Desde su origen, cada país en mayor o menor grado, exhibe estas marcas que lo identifican y que permanentemente provocan revueltas, manifestaciones y protestas de todo tipo, que son el sín-toma de un malestar de base, nunca resuelto.

A lo largo del tiempo, diferentes interpretaciones buscaron entender y proponer caminos para enfrentar esos males. Podríamos decir que, desde el periodo post colonial hasta hoy, la característica marcante de este continente es el embate entre desarrollo e inclusión, democracia y busca de igualdad de derechos y oportunidades para todos, pueblos originarios y los que llegaron después. En las ciudades que fueron surgiendo y ahora también en las mega ciudades y conurbaciones, el trazo de la exclusión fue identificando las diferentes partes y sectores urbanos, materializando áreas nobles y áreas marginadas.

La pandemia vino a evidenciar esas desigualdades y tornar imprescindible una rectificación de rumbos, basada en principios verdaderamente democráticos de disfrute de la urbanidad para todos, entendida como una forma de convivencia de las diferencias en sociedades heterogéneas, donde el más desprotegido tenga el amparo de la justicia. Una idea de justicia social que implica pensar lo colectivo teniendo al Estado como árbitro, construyendo colectivamente un concepto de igualdad, trabajando a partir de los conflictos, entendiendo que no hay una razón única.

El objetivo es alcanzar condiciones más equitativas y para eso debemos trabajar con una visión de urbanismo social que integre las diferentes dimensiones de los problemas, en cada escala de actuación de que se

trate. Es imprescindible articular urbanismo social con políticas para la generación de trabajo y renta, defensa de la diversidad y protección del medio ambiente, buscando una reactivación económica verde y socialmente responsable.

Pensamiento estético

El pensamiento estético implica consistencia visual y consistencia intelectual. El pensamiento debe ser estético. La pulsión estética debe formar parte desde el primer momento, desde el primer movimiento del pensamiento del proyecto; desde el primer impulso para la construcción de las ideas proyectuales. Esto implica considerar simultáneamente el procesamiento de las demandas, el cruce con las restricciones de todo tipo que actúan en cada circunstancia, y realizar la lectura de las posibilidades derivadas de la interpretación de la estructura del lugar, tanto en sus potencialidades como en sus limitaciones, fuera de cualquier hábito del pensamiento.

Hoy, en un mundo cada vez más mediatizado digitalmente y sometido al bombardeo constante de imágenes, la estetización generalizada que domina la producción y el consumo implica una anesteziacion de la percepción. Actualmente, la producción artística en todos los dominios, incluida la arquitectura, quiere

principalmente agradar, seducir. Pero la experiencia estética no tiene como objetivo complacer, sino conmover. El mundo “interconectado” está permanentemente mirándose a sí mismo; selfis...donde las imágenes digitales tienen más que ver con contagio. Lo bello va mucho más allá de la complacencia; se articula con lo ético.

Ver, diferentemente de mirar, implica experimentar. Es una experiencia que envuelve lo material, lo corporal y lo inconsciente. Los afectos... el poder de recibir, la capacidad de ser afectado. La fruición estética es un acontecimiento que presupone tiempo, distancia, contemplación. La belleza tiende hacia un acuerdo del gusto con la razón y tiene que ver con el concepto, que es quien garante la integridad de un conjunto, de un agregado sensible; la coherencia entre las partes. La belleza implica una “sintonía” entre ellas. No una mera yuxtaposición de las partes, sino que ese conjunto haga sentido.

Un agrupamiento lábil, pero amalgamado. Disfrutar de las cosas bellas tiene que ver con una contempla-

ción que incluye también las ideas; contemplar las ideas. En la belleza acontece una correspondencia entre el evento y el concepto. En nuestros campos del urbanismo, la arquitectura y el paisaje, la idea de belleza siempre pre-supuso, y continúa incluyendo, la producción de armonía, aun si se trata de armonías complejas, contradictorias.

Y las estéticas derivadas de eso. Precisamos poner en acción una inteligencia y una sensibilidad colectivas, articulando individuo y sociedad, en el camino de una comprensión multidimensional de la producción de lo común, abriendo hacía nuevas potencias de creación, hacia un arte de la composición, en el cual no se trata apenas del conocimiento de las relaciones, sino del modo como mis relaciones se componen con otras relaciones y se descomponen o son descompuestas por tantas otras. Lo interesante es postergar todo el tiempo la belleza para poder transitar el camino que pueda llevar a algún lado, como algo que no puede llegar a definirse; el placer de los fines en sí, de formas que tengan sus propios valores, reinventando el sentido…

7_Parque Lineal Manguinhos

IDEAS CON TÉCNICAS LOCALES

Casa para Melisa, Berisso, Buenos Aires

Memoria

Devenida de un proceso

En ciertos contextos, la variable económica es estructural. Las viviendas desarrolladas a partir de los créditos

Procrear suelen ser el caso. Abordar la cuestión implica desarrollar una estrategia que involucre a lo posible y a lo deseable con el mayor rigor. Que piense en presente, en futuro, y porque no, en pasado también.

Como profesionales y trabajadores, implica además encontrar la ecuación adecuada para que la lógica sirva a ambas partes.Bajo estas premisas y previo al Concurso de Proyectos Habitacionales Casa Propia-Procrear II, se planteó una estrategia que encontraba en una serie de decisiones generales las condiciones óptimas para abordar la problemática: (1) Generar un sistema adaptable a una multiplicidad de usuarios y características diversas de emplazamiento que optimice el trabajo en estudio y afronte con eficacia el tiempo entre sorteo y presentación municipal, (2) Incorporar la etapabilidad de obra,

así como de los deseos y necesidades del comitente, en pos de concretar una instancia inicial que sirva de soporte a otras futuras, (3) Proponer superficies compactas y suficientemente flexibles como para ser utilizadas a gusto del usuario, además de reducir envolventes y sobrecostos consecuentes y (4) Materializar las ideas con técnicas locales, dando lugar a detalles atípicos fácilmente apropiables.

La Casa para Melisa –primera etapa–, un trabajo desarrollado en la ciudad de Berisso en 2021 dentro del nuevo barrio que el propio crédito configuró, es la primera adaptación y materialización de una serie prototípica de futuro incierto. La misma es presentada en las fotografías presentes en su etapa inicial, evidenciando el momento en el que los recursos aportados por el crédito fueron agotados. Tiempo después, y vinculado a esta condición prototípica, el sistema productivo permitió el desarrollo de un segundo proyecto en las inmediaciones del primero con la misma suerte y ajustado a las necesidades de Rocío, su nueva comitente y futura habitante.

Casas-patio

La casa con galería, producto histórico de pertinencia climática y uso vivencial de la tierra, junto a la casa chorizo, exponente urbano de organización lineal, son revisados en pos de una nueva flexibilidad de usos internos y de relaciones con el entorno para esta propuesta. Así, una línea imaginaria es trazada longitudinalmente en su centro, dividiendo el terreno en dos. A partir de allí, se propone una alternancia de llenos y vacíos que varía según la necesidad, pero siempre, hacia un lado lo construido y hacia el otro su contraparte. En CM, la sucesión supondrá 3 instancias finales: cochera y patio de acceso, vivienda y patio general, taller y patio trasero.

Etapabilidad.

A partir de una superficie mínima habitable en una de las mitades del terreno, la vivienda puede ser ampliada o complementada por áreas anexas, cubiertas o semicubiertas, bajo una misma lógica constructiva y espacial. En CM, dicha etapabilidad supondrá 3 instancias sucesivas: vivienda (E1); cochera (E2), ampliación de vivienda y taller (E3).

Compacidad y flexibilidad

La estructura de organización lineal interna implica siempre una superficie destinada a circulación y guardado hacia la medianera (que a modo de muro útil contribuye a la libertad de usos mayores, y que a su vez admite la incorporación de muebles y objetos personales); una superficie mayor adecuada tanto para baños como para ambientes principales, todos linderos a espacios exteriores; galería y una porción de parque. La posición desjerarquizada del acceso al interior potencia la independencia de usos y admite diferentes configuraciones de planta. En CM, dicha organización inicial configura un espacio único de estar-cocina-comedor vinculada al espacio de dormir y un baño.

Materialidad

Es planteada inicialmente como una estructura mixta de ladrillos huecos portantes en las medianeras y una combinación de los mismos y columnas metálicas hacia el centro, según la necesidad. Estas son vinculadas por una viga continua que atraviesa la totalidad del terreno en sentido frente-fondo, materializando el eje del mismo. Sobre estos descansa una cubierta de tirantes de madera que transgreden la línea central generando aleros de protección y acceso.

Opinión

Podemos categorizar como micro (el nombre de esta sección) a esta pequeña obra evolutiva y sistemática dado que trabaja en una suerte de grado cero funcional –es una casa-semilla, que se piensa como un sistema que crecerá– y económico –es una casa para resolverse con los limitados fondos del ya difunto Plan Procrear–. Es además una propuesta que si bien en el concreto caso (Casa para Melisa, a las afueras de Berisso) que se presenta, pretende ofrecerse como un modelo repetible de vivienda suburbana en los términos financieros de ese Plan, que a la sazón significa un verdadero acceso de posibilidad a tener una casa individual, en lotes más o menos baratos y por ello, suburbanos, habitualmente para parejas jóvenes. Adopta asimismo un modelo casa de galería o de alineamiento lineal de locales, lo que conjuga una interpretación de tipologías suburbanas populares asi como de las más antigüas y urbanas llamadas casas chorizo Esa adscripción tipológica genera lo que llaman muro

útil, es decir, la cara medianera opuesta a la de galería, configurada como vector circulatorio y pared que recibe áreas de guardar y cierta concentración de instalaciones por ejemplo, con la disposición del área para cocinar.

Esa opción conduce a generar un módulo habitable que puede admitir diferentes opciones de funcionalización, una suerte de loft elemental.

Una tecnología simple, abordable con mano de obra y materiales locales de poca sofisticación y relativa economía de costo y tiempo constructivo, se basará en muros de ladrillo hueco revocados (algunos portantes), columnas metálicas donde haga falta y cubiertas de tirantería y machihembrado de madera revestida por fuera con chapa acanalada. Esas decisiones sencillas y repetidas por muchos barrios populares, permite sin embargo, algún refinamiento estético en las dimensiones de las piezas y en la exposición plena de cada material y sus texturas y colores.

Hay que celebrar también el acercamiento de una arquitectura de calidad a un campo de demanda que habitualmente no tiene posibilidad de acceder a prestaciones profesionales y en ese sentido, es abosolutamente rescatable el maridaje entre lo que supo ofrecer el Plan Crear (con mas de un millar de obras de alta calidad proyectual y desde ya, muchas mas construídas y habitadas) y la actitud de estudios calificados que aceptan convertir su actividad en la prestación de un servicio, para un derecho tan elemental como el de la casa en terreno propio.

Implantación
Planimetría urbana
Planta

ARQUITECTURA EN EL CORPUS DEL TIEMPO

Una vida de arquitecto

Asimétricas, Madrid, 2022

Giorgio Grassi –uno de los puntales firmes de la Tendenza italiana con base en el Politécnico milanés, junto a su amigo Rossi– escribió-enseñó mucho pero también proyectó en cantidad y calidad, siempre articulando férreamente teoría y práctica como si fuera uno mas de su amada época ilustrada (1650-1850), de la cuál en cierta forma se siente formar parte, en este caso confrontando las aventuras modernas de la proyectualidad.

Este es otro más de sus libros (de los que destacarán La construcción lógica de la arquitectura , La arquitectura como oficio o Archittetura Lingua Morta, en los que prevalece el talante teórico y la búsqueda casi arqueológica de raíces históricas de las invariancias tipológicas y en que aparece el rescate de Heinrich Tessenow, del olvido al que había sido relegado por ser profesor del nazi –pero capaz proyectista– Albert Speer) en que se conjunta equilibradamente un discurso

actualizado de su arcaísmo conceptual y un registro sintético de sus proyectos, cada uno en dos páginas, con tres o cuatro imágenes y un trozo de sus memorables memorias (valga la repetición), que siempre son pequeños intentos de explicar como el proyecto es resultado de una meditación ética, tipológica y a veces arqueológica y nunca al revés: es decir, ningun proyecto surge en GG de la inspiración o el talento genial, de lo cuál expresamente descree y casi repudia. Si bien su bibliografía es obsesiva en la repetición casi dogmática de una ideología pro-clasicista, este último libro posee la cualidad de un testamento bio-proyectual, de vida, trayectoria y trabajo, con un inusitado valor de síntesis que debe relacionarse con el ascetismo riguroso de su modo de proyectar y pensar.

Fue y es una arquitectura que aparece (y parece) como anticuada o conservadora y que trata de evitar el gesto arbitrario del diseña-

dor moderno/posmoderno, aunque de todas formas, fruto de una racionalidad por asi decir historicista, serán trabajos muy canónicos o repetitivos de determinados artificios proyectuales (la galeria, los patios, las plantas académicas biaxiales, etc.) y materiales (el mármol, las piedras, los estucos de colores discretos, etc.).

Incluso la manera de dibujar que se muestra en este y en todos sus libros es fruto de una codificación estricta tanto como el alto interés en mostrar sus proyectos en maquetas que son muy anticipatorias de la neutralidad y el silencio del edificio construido. Algo recurrente en sus publicaciones es la relativamente mala calidad de las fotos de los edificios, donde surge que el edificio real debe hacer un esfuerzo para parecerse al dibujo o la maqueta original.

El libro que comentamos es un breve recopilatorio de todo su trabajo y en 200 páginas registra por una parte, el escrito que da nombre al libro –que en sus 60 folios es no sólo un repaso

minucioso de su biografía intelectual (que podría equipararse a aquella autobiografía científica del colega Aldo) sino casi un testamento o una despedida melancólica que a sus poco mas de 90 años de vida Giorgio registra, ya casi retirado del oficio y con elocuencia, capacidad crítica y argumentaciones morales, el esqueleto de su pensamiento– mas las restantes 120 que describen cronológicamente unos 50 trabajos, de los que casi 20 se construyeron y la mayoría fueron resultado de participaciones en concursos, hasta lo que quizá sea su último trabajo, la Casa di Risparmio de Florencia, del 2008, que consecuente con su pensamiento, casi puede ya verse como un monumento de esta ciudad monumental, un enorme conjunto edilicio anti-moderno que parece estar ahí desde siempre, rechazando cualquier efecto de novedad o disrupción de la larga tendencia de construcciones memorables de esa ciudad. Pero si bien Grassi tanto como en su momento Rossi (y la vasta pléyade de tendenziosos que van desde el vasco José Linazazoro –que prologa este libro– hasta Tony Díaz) aceptaron entusiastas ese aforismo de La Bruyére (Todo está dicho ya, solo se trata de repetirlo), el sentido repetitivo –de virtuales reglas compositivas de

una tratadística– no se subyuga en miopías incapaces de entender los entornos o de desarrollar toda la minuciosa investigación de las huellas preexistentes de cada lugar, para trabajar casi en una dimensión científica que a pesar de su semejanza a las autopsias no se priva de ofrecer cada vez, una respuesta precisa que trata de presentarse como inevitable o única.

Asi entonces el libro casi arranca con una fuerte y nítida declaración de los principios de lo que fue retrospectivamente, su vida teórica y práctica: El mundo de la arquitectura contemporánea se ha ido alejando de forma cada vez más visible, con su increíble variedad de formas, aun las más absurdas y sorprendentes, de todo aquello que siempre ha servido para identificar una construcción como arquitectura y a identificar aquella arquitectura como perteneciente por derecho a un corpus que, habiéndose formado a lo largo del tiempo, es el único legitimado para encarnar su propia definición. Por eso, me ha parecido necesario, incluso indispensable para no tener que avergonzarme, comprometerme, en cuanto arquitecto que piensa, en contra de esta tendencia, no solo con mis proyectos sino también con la enseñanza y con mis escritos.

Ahí está todo Grassi, en su crítica a la modernidad (por autoritaria y gestual), en su apología de la arquitectura como construcción y en la intención y búsqueda de una arquitectura que en su caso, busca instalarse genealógicamente en el corpus de una cierta arquitectura formada a lo largo del tiempo. Grassi disfruta usar la palabra construcción como resultado final del trabajo proyectual (ese proceso que termina en un edificio construído) tanto como la palabra que designa el modo o la forma de desarrollo del proyecto (la construcción lógica de la arquitectura) en donde lo construído mental y físicamente siempre está condicionado o dirigido por la lógica (racional).

En un libro que es teoría y práctica (escritos y proyectos, conceptos y objetos) en este caso vale la pena organizar esta presentación escogiendo algunos tramos de sus memorias porque alli se condensa su ética proyectual y también su armazón metodologico, como en obras tempranas tales como el inconcluso bloque de dormitorios de Chieti (que hizo junto a otro de sus grandes colegas como fue Antonio Monestiroli, del que me honró una gran amistad cuando visité varias veces el PM cuyo decanato ejercía y a quién incluso

traje en visita a Mar del Plata): En la residencia estudiantil de Chieti (1976-9) la fachada, estilísticamente uniforme, y la galería abierta de altura completa ofrecen una interpretación adecuada y arquitectónicamente reconocible del papel que se le atribuye a este nuevo e importante edificio en la ciudad, que además aprovecha la propia vía como espacio público por excelencia. La forma de esta parte del proyecto representa una idea definida de la arquitectura urbana. Es evidentemente imposible generalizar esta solución. Su sentido reside también en su singularidad, mientras que su inclusión en una parte de la ciudad la califica como un todo.

Aquí se habla del inevitable compromiso de la arquitectura con la ciudad y en la génesis de una arquitectura urbana, que se extiende a resolver también como la arquitectura construye el borde entre campo y ciudad: Mantener una relación ideal, en cuanto al vínculo entre la ciudad y el campo, es un compromiso que debe confirmarse en la medida de lo posible, más allá de este proyecto. De hecho, aquí representa un vínculo tangible y es, sin duda, el elemento más significativo y cualificado de todo el distrito universitario con respecto a

la ciudad y el campo circundante. La residencia de estudiantes en cuestión consta de varios edificios, pero estos representan un conjunto unitario, compacto y completamente construido: desde los aleros de las unidades de construcción hasta el pavimento de los patios, sus límites y la carretera asfaltada. Un complejo de edificios contenido precisamente dentro de su perímetro. Donde se interrumpe, se abre al campo: al verdor que implica el proyecto y, en este caso, al campo circundante. Cada elemento del proyecto también está cerrado sobre sí mismo (véanse los patios de las habitaciones), abriéndose únicamente a la calle central con columnatas

La reflexión proyectual trata de establecer coherencia entre las diferentes escalas de proyecto, desde un alero o un pavimento hasta un patio o una columnata y todo en búsqueda de relación con un linaje histórico-tipológico y un marco urbano-territorial, un parentesco con la historia y con la ciudad. El sistema de ideas y el método ideal de proyecto de GG cobrará una dimensión muy específica cuando se tiene que hacer cargo de trabajos que dialogan con vestigios arqueológico-patrimoniales o con ruinas de ciudades,

en este caso, destacándose el trabajo de reconstrucción de Teora, pequeño poblado casi totalmente abatido por un sismo: Después del terremoto (Teora, 1981-5) y, sobre todo, tras la demolición y la limpieza parcial de los escombros del antiguo centro, el terreno desnudo en su estado, por así decirlo, “natural” muestra cuán estrecha era la correspondencia entre el edificio y la configuración del terreno, cuán natural era esta adaptación de uno al

otro, ya que las huellas en el suelo ahora son inevitablemente perfectamente legibles: el pavimento intacto de las calles sinuosas y las escaleras, los sótanos de las casas en parte excavados en la roca, los muros de sustentación de las huertas y pequeños espacios públicos se abren al paisaje; siempre una evidente linealidad entre problema y respuesta y una sorprendente sabiduría constructiva. Esta traza planimétrica es fuerte e inmediatamente

evidente, pero ciertamente no es capaz por sí sola de restaurar la tipicidad y la riqueza de los elementos constitutivos del antiguo edificio, incluso si se construyó con medios tan pobres e inadecuados para los desastres naturales a los que la ciudad siempre ha estado expuesta. Teora en cierta forma avanzó o tuvo éxito, sobre todo porque se trataba de interpretar la relación orginaria entre edilicia y relieve natural y porque se manejó reconociendo las trazas supérstites de la ciudad destruída y las características tipo-genéricas de una arquitectura cuasi popular.

Sin embargo la operación Teora rehuye la condición acumulativa y casi evocadora de un poblado medieval (como fue tipico de todas las pequeñas aldeas italianas de locaciones empinadas –ya que solo las llanuras permitieron la claridad de las grillas romanas–) al hacerse cargo de su reconstrucción y ésta asumirá selectivamente rasgos de las trazas originarias pero para suscitar una nueva ciudad en que se pueda evocar su densidad histórica pero ya reflejada en una reorganización clarificadora o iluminista del material previo. Insertamos en esta nota tres imágenes (5-6-7) de como está hoy Teora, que muestran el aporte de

Grassi, nada complaciente con la organicidad espontaneísta del trazado presísmico y que trata de aportar ordenamiento y clarificación, aparte de cierta voluntad de fundir la vieja novedad del proyecto en la urdimbre urbanística tradicional. Es una pequeña ciudad a la que no solo le llegó el siglo XX sino también el XVIII y el XIX.

En cambio, el trabajo que aborda en las grandes ruinas romanas de Sagunto (con toda la polémica con los defensores a ultranza del no-innovar en relación a tales ruinas monumentales frente a la voluntad grassiana de reactivar esos fragmentos en un objetivo cultural y funcional) resultó extremadamente problemático y tuvo que ver con uno de los casos de actuación actual en vestigios patrimoniales relevantes, y así lo cuenta: El proyecto del Teatro Romano de Sagunto (1985-1992) se enmarca dentro de un proyecto más general que incluye todo el conjunto de la ciudad pública romana situada alrededor y en el interior del actual castillo. Un proyecto unitario geográfica, urbanística y arquitectónicamente (tal y como lo era la ciudad romana).Un proyecto unitario también en el sentido de que se aplicaron los mismos criterios de restauración

y restitución arquitectónica tanto en el teatro como en el foro. Estos criterios se pueden resumir en uno solo, que es el más importante y completo: el criterio de restaurar la especificidad arquitectónica de la ciudad pública romana.El criterio de hacer comprensible (pero también habitable, es decir útil) la particular realidad arquitectónica del teatro romano y del foro romano de Sagunto. Es decir, hacerlo accesible no sólo al público educado sino también al público común, menos preparado, a los visitantes ocasionales, como el público atraído aquí por la programación teatral. Actualmente se trata de ruinas de difícil lectura; en ocasiones esta lectura se vuelve imposible, como es el caso del cuerpo escénico del teatro, o como es el caso de los elementos arquitectónicos que delimitaban el foro en la actual Plaza de Armas del castillo: el Capitolium, la Basílica, las tabernae etc. (En realidad, así como el teatro romano era un espacio absolutamente cerrado, el foro romano era también una plaza enteramente cerrada y accesible sólo a través de puertas que se cerraban todas las noches).

Donde emerge claramente su intento de balancear la relación arquitectura-ciudad

(pero apelándose a dialogar con la originaria concepción de la ciudad romana) y de establecer algún puente entre restauración-restitución y el criterio de hacer comprensible (pero también habitable, es decir útil) la particular realidad arquitectónica del teatro romano y del foro romano de Sagunto. Los trabajos en diálogo con preexistencias fuertes (calificadas o no como en Sagunto o Teora) también fueron forjando en Grassi, nociones de metodología de proyecto, por ejemplo, asociando el instrumento del dibujo-relevamiento arquitectónico con las técnicas registrales de la arqueológia como en el caso de la Rehabilitación del Teatro de Brescia (2000): El dibujo nos resulta de gran utilidad cuando es utilizado por los propios arqueólogos como “cuadrícula” para clasificar, ordenar e intentar reubicar los numerosos hallazgos arqueológicos relacionados con las scaenae frons que han salido a la luz a lo largo de los años. Y en este sentido lo utilizamos como referencia para dar una localización, coherente con la hipótesis arqueológica, a aquellas piezas, reconocidas como pertenecientes al primer orden de la columnatio, que se reutilizan en nuestro proyecto de restauración parcial de la propia

columnatio. Además, en esta fase de la obra no nos interesa la precisión (prácticamente imposible) de esta colocación de las piezas, nos interesa su congruencia, su compatibilidad, nos interesa representar “una forma” de recomponer la columnatio que, en presencia de nuevos elementos en cuanto a la interpretación de las piezas, podría cambiar mucho Para quiénes conocen y leyeron a Grassi este pequeño volumen es una preciosa sintetizacion de sus ideas y proyectos y para quiénes –quiza jóvenes y lejanos a esta figura voluntariamente apartada del mainstream– no lo conocen, acceder a este impecable volumen es toparse con un verdadero libro-herramienta, porque se formula nítidamente una ética proyectual asi como una descripción de los engranajes razonados de cada acción proyectual.

GEOMETRÍA CIRCULAR

Sede del Gobierno de Moquegua, Perú

Estudio Barclay&Crousse

Memoria

La aspiración de la pujante región de Moquegua, situada al Sur del Perú, era la de crear un nuevo polo de desarrollo de la ciudad, constituido por una nueva sede institucional del gobierno, un centro comercial, un complejo polideportivo y una escuela. La nueva sede de gobierno debía de incluir un gran auditorio que colmase la ausencia de espacios culturales y de congresos en el Sur del país.

Esta operación es una de las primeras obras por impuestos en el Perú, con la participación de Southern Copper Perú, Interbank y Cementos Yura.

El proyecto propone una solución compacta de seis niveles para liberar un área destina-

da a un gran espacio cívico que no estaba previsto en el programa de concurso. Este espacio de carácter público es el nexo entre los distintos programas del polo de desarrollo, mientras que el edificio denota su carácter singular con una gran rampa de acceso, un atrio público techado y una forma distinguible dentro del tejido urbano.

La forma cilíndrica toma su inspiración del elemento histórico más importante de Moquegua, el Cerro Baúl, que fue el lugar de convivencia de dos grandes culturas prehispánicas: los Huari y los Tiahuanaco, mientras que sus espacios están marcados por los elementos tradicionales de la ciudad de Moquegua, como los mojinetes de sus

casas y las formas puras y prismáticas de sus edificios emblemáticos.

Mientras que el perímetro circular permite una gran eficacia en las distancias de evacuación, reduciendo a dos los elementos de circulación vertical y los servicios, la estructura y el espacio de trabajo es perfectamente ortogonal, respondiendo a una trama estructural sencilla de 7m de lado. La planta esta perforada por cinco patios orientados que permiten iluminar

y ventilar naturalmente los espacios de trabajo, evitando la entrada directa de los rayos solares y preservando una temperatura ubicada dentro de la zona de confort. Cuatro de estos patios ofrecen superficies acristaladas orientadas al Norte y al Sur (casi equivalentes por la latitud intertropical en que se ubica Moquegua), mientras que el quinto está techado, reúne las circulaciones horizontales y conecta entre sí a los otros cuatro.

Tanto la geometría circular como la orientación y disposición de los patios permite un ahorro en materia de energía, redes y dispositivos de seguridad, lo que permitió incorporar aisladores sísmicos a la totalidad del edificio dentro del presupuesto asignado. Así, la sede del Gobierno se convierte en un edificio refugio ante casos de desastre, con lo que la inversión no sólo se destina al aparato burocrático de gestión de la región, sino a toda la población de la ciudad de Moquegua.

Datos

Este proyecto es para el Gobierno Regional de Moquegua y resuelve un programa de plaza cívica, atrio de ingreso, oficinas, auditorio de 500 plazas, zona de exposición, comedor, guardería y servicios. El encargo es fruto de un concurso en 2013, el proyecto se realizó entre 2013 y 2015 y la obra se ejecuto entre 2016 y diciembre 2017 inaugurándose en 2018. Los proyectistas fueron los arquitectos

Sandra Barclay y Jean Pierre Crousse siendo

Asistente María Isabel Pineda.

La gerencia externa la realizó Kukova y la supervisión de proyecto GCAQ asi como la ingeniería Estructural. La ingeniería Sanitaria fue del Equipo G, la ingeniería Eléctrica de AT Consultores, la ingeniería Mecánica de PRO TERM Perú y la ingeniería de Seguridad de Engineering Services.

La asesoria en Iluminación fue de Rie Sakata

Lighting, la asesoría en Acústica de Carlos Jiménez y la asesoría en Acondicionamiento

Ambiental de Cecilia Jiménez.

La Constructora fue INCOT Contratistas

Generales. El predio tiene 15605 m2 y el área construída es de 14505 m2 a un costo de 19.2 millones de USD.

Los principales materiales fueron aisladores sísmicos, estructura en concreto expuesto, elementos prefabricados en concreto para fachadas, elementos de protección solar (parasoles y celosía), pisos exteriores en piedras naturales, pisos interiores en porcelanatos y vinílicos, superficies vidriadas en cristal templado sin marco y ventilación natural por aereadores pivotantes en madera.

Opinión

En la exitosa trayectoria de la oficina limeña de Sandra Barclay y Jean Pierre Crousse destacan varios trabajos en que la demanda de una arquitectura actual debe compaginarse con la necesidad de resolver aspectos relacionados con el paisaje y la memoria, como en los casos del Memorial construído en las laderas de Miraflores o en el Museo de Sitio de Paracas: es decir la obligación proyectual de resolver un programa concreto (en esos casos museísticos) con la exigencia de aportar una densidad simbólica a edificios que será hitos referenciales de una peruanidad conectada a cinco milenios de experiencias de ocupación territorial. También, en otra dirección, el edificio-campus de Piura, se caracterizará por responder a una demanda funcional y programática específica a lo que los proyectistas agregarán su voluntad de construir edificios que posean fuerte identidad para la institución y la región que los demande. En este caso además y exhibiendo otro flanco de intereses teóricos de B&C, con mucha atención a cuestiones de lograr consonancia ambiental con el clima y el paisaje de acogida del proyecto, en una dirección exploratoria de las nuevas exigencias de sustentabilidad proyectual.

Con ese background, la propuesta de sede de gobierno de Moquegua no podía eludir

el conjunto de intenciones que articulan la eficacia de resolución técnico-funcional de sus encargos con la exploración de modos de configurar edificios de alta potencia simbólica e identitaria, cuestión que casi es una necesidad para un edificio de gobierno que se proponga representar y acoger a la comunidad a la que sirve.

Asi indican en la memoria que la forma cilíndrica toma su inspiración del elemento histórico más importante de Moquegua, el Cerro

Baúl, que fue el lugar de convivencia de dos grandes culturas prehispánicas: los Huari y los Tiahuanaco, mientras que sus espacios están marcados por los elementos tradicionales de la ciudad de Moquegua, como los mojinetes de sus casas y las formas puras y prismáticas de sus edificios emblemáticos. Con lo que refieren al efecto de espejo que este nuevo cilindro tiene respecto del viejo y natural cilindro al que se se enfrenta mediante una apertura visual relevante hacia dicho hito natural-cul-

tural. Pero también indican que construirán su arsenal metafórico aludiendo a otros elementos tradicionales de Moquegua como los mojinetes de las casas o las formas puras y prismáticas de edificios emblemáticos.

La preocupación de los diseñadores por aportar elementos que aun fuera de lo pedido, mejoren su funcionalidad cívica, también aparece en la caracterización de la propuesta como cuando indican que la solución compacta de seis niveles (es) para liberar un área destinada a un gran espacio cívico que no estaba previsto en el programa de concurso. Este espacio de carácter público es el nexo entre los distintos programas del polo de desarrollo, mientras que el edificio denota su carácter singular con una gran rampa de acceso, un atrio público techado y una forma distinguible dentro del tejido urbano.

La más relevante trovatta del proyecto es ensamblar una forma externa circular con una forma interna cuadrangular, que obviamente se acoge mejor a los recintos que pide el programa, permitiendo además trabajar con la compacidad que ofrece la pregnancia externa y la economía circulatoria y enérgetica externa; compacidad que como en Piura, depende de la ventilación y asoleamiento que proveen cinco patios interiores, tal como lo describen en la memoria: Mientras que el perímetro circular permite una gran eficacia en las distancias

de evacuación, reduciendo a dos los elementos de circulación vertical y los servicios, la estructura y el espacio de trabajo es perfectamente ortogonal, respondiendo a una trama estructural sencilla de 7m de lado. La planta esta perforada por cinco patios orientados que permiten iluminar y ventilar naturalmente los espacios de trabajo, evitando la entrada directa de los rayos solares y preservando una temperatura ubicada dentro de la zona de confort.

Los espacios residuales que dependen del ensamble circulo/cuadrado son bastante mínimos y en general bien resueltos, siempre a favor de su condición perimetral. Como en casi todos sus trabajos hay detalles que tienden a conseguir buenos rendimientos enérgeticos sobre todo mediante una cuidadosa atención a las buenas orientaciones y a las ventilaciones. Como destaca en otro orden, la calidad de acabados y la potencia

expresiva del hormigón, con cierta resonancia quizá alusiva al brut del último Corbu de los trabajos hindúes.

En resumen, una respuesta actual y expeditiva a requerimientos de un gran edificio público de gobierno pero también, a larga duración, una apuesta a una construcción perdurable y ojalá, a la obtención de un futuro monumento.

Planta
Planta
Corte 1
Corte
Corte
Corte
Corte esquemático
Elevación Norte
Elevación Oeste

Axonométrica espacios programáticos

Croquis 3
Croquis 2
Croquis 5
Croquis 6
Planta Alta
Croquis 7
Croquis 9
Croquis

Turn static files into dynamic content formats.

Create a flipbook
Issuu converts static files into: digital portfolios, online yearbooks, online catalogs, digital photo albums and more. Sign up and create your flipbook.