MAR 010 - Material de Arquitectura

Page 1


AMERICANA

3

EDITORIAL

Nueva realidad

210

Mario Biselli&Artur Katchborian

Inspiración aeronáutica. Aeropuerto Internacional de Florianopolis, Brasil.

Redoblar apuesta en vivienda social. Complejo

Heliópolis. Block G-Fase 2. San Pablo, Brasil.

HERRAMIENTAS

Arturo Escobar

202

Otro diseño para otra sociedad. Autonomía y Diseño. La realización de lo comunal

MICRO

186

Federico Marinaro

Cápsulas operativas. Módulo

habitable para Sidersa

10

ARQUITECTURA CIUDAD

Victoria Salas&Lujan Ranieri

Caja sólida, agrisada, simple y geométrica. Edificio

SECZA Salta 1784, Mar del Plata

24

UNIVERSO-CASA

Estudio Borrachia

Piezas en el terreno generando patios. Casa de veraneo en Chapadmalal, Buenos Aires

Estudio Galera

Dispositivo de observación. Casa Kairós, Cariló, Buenos Aires

10

ARGUMENTOS

166

Horacio Garaventa

Rafael Iglesia. Entre la experiencia y la experimentación

142

MATERIAL

Lukas Fuster

Refugio para un picaflor. Memorial para recordar a un hermano. San Bernardino. Paraguay

Revista MAR. Material de Arquitectura, Año 2, #10, Noviembre 2024, Mar del Plata, Argentina, ISSN 3072-7243

ECOLÓGICAS

APRENDIZAJES

Juan Rois

Breve historia material del diagrama arquitectónico

72

HITOS DE HISTORIA

Carlos Tapia

‘High-Rise’: Politopos hostiles por deformación vertical

86

112

Carolina Vitas&Cristián Nanzer

Una casa, una aldea. Casa P. Villa Cielo, Capilla del Monte, Córdoba

Rector / Cdor. Amado Zogbi

Vicerrectora / Ing. Alicia Gil

Delegado rectoral MdP / Arq. Marcelo

Artime

Decano / Arq. Óscar Cañadas

Vicedecano / Arq. Claudio Freidin

Directora / Arq. María Silvia Grilli ISSN 3072-7243

Equipo

Editor / Arq. Oscar Cañadas

Director / Arq. Roberto Fernandez

Diseño / DG. Jimena Durán Prieto

Consejo Editorial

Arq. Marcelo Artime

Arq. Eduardo Agüero

Arq. Jerónimo Mariani

Arq. Dario Lemmi

Arq. Pablo Rescia

Arq. Leonardo Jauregui

Arq. Ezequiel Muñoz

MAR manifiesta que las opiniones consignadas en esta publicación son de absoluta responsabilidad de los firmantes de cada nota y no comprometen a tales instituciones. Las notas sin firma son responsabilidad de la Dirección editorial de MAR.

Las imágenes incluídas fueron suministradas especialmente por los autores y/o sujetos protagónicos de cada nota. Cuando fueran solicitadas expresamente se indican las autorías y/o las fuentes originales de tales imágenes. Si alguna imagen careciera a juicio de su autor, del crédito correspondiente rogamos se nos consigne para subsanarlo.

Editorial Ideas sólidas

La arquitectura se construye. Hay un circuito de elaboración que solidifica ideas, que pasa de una concepción mental –algo que ocurre en la mente del proyectista y a la vez en el imaginario proyectual de una época-región (es decir, un tiempo-espacio)– que podría entenderse como una anticipación o premonición de un posible ulterior concretado. Eso que aquí se nombra ideas parece un poco ambicioso o rimbombante pero tratamos de aludir a algo que es parte del proceso proyectual y que a veces puede definirse como lo que los franceses llamaron parti y los porteños partido o que en la cabeza tipológica de gente como Aldo Rossi, Giorgio Grassi o Tony Diaz puede emerger como una selección/abstracción que esquematiza en unos pocos rasgos topológicos la inmensa variedad de la edilicia histórica que nos rodea. El concepto de diagrama que nos ofrece en este número un texto de Juan Rois –que se vincula con su trabajo doctoral centrado en explorar los múltiples sentidos de un proyecto nonato (la Biblioteca de Francia, de Koolhaas)– puede entenderse como uno de los posibles formatos de una suerte de ideología –como depósito de ideas– que los proyectistas pueden aquilatar, desde la cuál sería posible escoger algun esquema o dispositivo que permitiría recorrer un camino desde el imaginario al real concretado. Una aldea medieval de montaña es la metáfora o alusión conque arranca el proyecto serrano de Nanzer-Vita que después discurrirá hacia una materialización en la técnica de los muros ciclópeos encofrados que permitirá que los muros funcionen como textos, una caligrafía tectónica dispuesta por marcas y señas, que ofrecerán infinitas variaciones al ser expuestos a las condiciones cambiantes de la luz; es decir una materialidad que ofrece un retorno empírico a aquella idea-metáfora de origen.

Desde la afiebrada novela posmoderna de Ballard (High Rise, que aquí se conocó como Rascacielos) a las fantasías mussolinianas de monumentos modernos como la Mole Littoria del dantesco Mario Palanti conocido frecuentador rioplatense y evocador de la Commedia, el ensayo de Carlos Tapia recorre una especie de historia sobre la compulsión vertical de erigir hitos singulares de ciudades, algunos tan viejos como las torri de San Gimigniano –inspiradoras de la composición verticalizada de los Laborarorios Richards– y otros que recaen en una actualidad en que propuestas radicales, como el Tulipan de Foster, se quedan en ilusiones proyectuales o ideas que no alcanzan a construirse quizá porque son malas ideas. Las capsulas operativas –una suerte de industrializado mueble habitable que insertamos en la categoría nanoarquitectónica que

llamamos Micro– revelan no tanto un resultado material industrial sino mas bien una punta de iceberg de una compleja cooperación entre un designer como Federico Marinaro (extensamente publicado en otras MAR, donde mostramos sus performances metálicas del AO1 y del Urquiza) y la empresa metalúrgica Sidersa para explorar diversas facetas de posibles futuras arquitecturas del metal, empezando por acomodar las propias sedes de esa empresa. La casa Kairós en Cariló –obra del equipo liderado por Ariel Galera– es definida en la memoria que publicamos como un dispositivo de observación que resulta de la intención de proyectar un espacio para el reposo y la relajación en un ambiente natural generado para la observación del entorno, la introspección y el divague. El carácter mas experimental de arquitecturas más lúdicas que operan como casas de verano permite liberar ideas primarias de proyecto mas frecuentemente urgidas por programas, presupuestos y contextos urbanos convencionales, aproximando el proceso y resultado proyectuales a derivas bastante libres, promotoras de espacios fluidos que flotan en el bosque.

Conjugando picaflores y orquídeas Lukas Fuster nos presenta un aparato de recordación en el espacio memorial proyectado en homenaje a su prematuramente desaparecido hermano en el cuál todo lo que se materializa es una mezcla de lo cercano disponible –a veces desechos– con las poéticas evocaciones que recuerdan a una persona que por tanto, más que muerto en una tumba, está vivo en un sitio que sus familiares y amigos disfrutan.

Máquinas de su propia construcción cita Mendes da Rocha refiriéndose a las pirámides egipcias, en conversación con Rafael Iglesia, de quién el fragmento de la tesis doctoral de Horacio Garaventa que publicamos dedica una profunda evaluación de las relaciones entre experiencias y experimentos que explican la obra del gran proyectista rosarino: dice asi Rafael que la explicación de Mendes indica que las pirámides no podían ser sino volúmenes aguzados como resultaron siendo porque no había otras formas posibles para técnicas constructivas basadas en el plano inclinado y la palanca, artilugios físicos que Iglesia indica que se abocará a usarlos, inspirado en esa cita.

De diversas maneras las arquitecturas que se muestran aparecen así, como materialidades de ficciones, deseos y ensoñaciones. Casi como un retruque al lema marxiano-bermaniano todo lo sólido se desvanece en el aire: lo sólido resulta quizá, un camino final del trayecto que se inicia en el aire del pensamiento.

Instrucciones para navegar el MAR

(el número 10 de MAR)

ARQUITECTURA-CIUDAD

Esta sección presenta un complejo edilicio singular local o regional cuyo interés radique en establecer propuestas de relación con sus entornos urbanos además de postular ideas proyectuales significativas en su planteo, desarrollo y materialización. Se presentaran documentaciones originales completas (planos, fotos, memorias) y un análisis que pueda ser útil tanto para su aplicación didáctica como para su recepción académica y profesional.

Victoria Salas&Lujan Ranieri. Caja sólida, agrisada, simple y geométrica. Edificio SECZA

Salta 1784, Mar del Plata

Esta caja sólida, agrisada, simple y geométrica, de líneas claras y ángulos pronunciados, es cuidadosa de las actividades del interior, pertenece al Sindicato de Empleados de Comercios Zona Atlántica y nace con la idea de dejar espacios libres y públicos, sumergidos en el contexto del microcentro de una ciudad altamente consolidada. Dejar libre espacios urbanos es la síntesis de este proyecto que cubre la necesidad del cliente, de albergar a sus afiliados, sobre todo a los adultos mayores, en un espacio donde convivan distintas actividades bajo el lema cada piso un uso.

UNIVERSO CASA

Tratara de ofrecer una secuencia de casas unifamiliares o pequeños conjuntos que contengan proposiciones conceptuales en cuanto a su proceso y razón proyectual, en su realización y construcción y en su uso, identificando valores que vayan más allá de la mera respuesta funcionalista. Tal como en el caso anterior se ofrecerá una documentacion integral y un análisis enfocado en su recepción didáctica tanto como de docentes y proyectistas.

Estudio Borrachia. Piezas en el terreno generando patios. Casa de veraneo en Chapadmalal, Buenos Aires

En el caso de la casa en Chapadmalal cada una de las piezas prefabricadas que la componen fueron resueltas de manera tal que al unirse o separarse, tanto por patios como por circulaciones, generan cierta independencia unas de otras y logran que este edificio pueda ser ocupado de diversas formas incrementando su cantidad de habitantes y permitiendo una especie de autonomía funcional para cada una de las partes; la idea de cerrar y abrir dormitorios según la ocupación, e incluso la posibilidad de sub-alquilar habitaciones y utilizar la parte pública como punto de encuentro, permite, entre otras cosas, una economía de recursos en la vida útil del edificio al no ser necesaria la activación de toda la superficie del programa en cuanto a calefacción, refrigeración, etc…

Estudio Galera. Dispositivo de observación. Casa Kairós, Cariló, Buenos Aires

La pérgola de hormigón, con sus líneas rectas y definidas, contrasta con la naturaleza orgánica del entorno. La luz del sol se filtra entre las vigas, creando un patrón cambiante de luces y sombras que se desplazan a lo largo del día, generando un espacio para el reposo y la relajación en un ambiente natural generado para la observación del entorno, la introspección y el divague. La casa finamente se vive como un dispositivo de observación donde los vecinos y el entorno natural se complementan, generando en las personas que habitan el espacio, la experiencia de ser parte de la naturaleza y el paisaje.

72

APRENDIZAJES

Plantea recorrer una serie de experiencias educativas de arquitectura reconocidas por su alternativismo y experimentación para acoger planteos y propuestas que pudieran rsesultar útiles o convergentes con las discusiones pedagógicas de la propia escuela. Así como investigaciones y aplicaciones proyectuales en campos no convencionales del hábitat que abren camino al aprendizaje de prácticas alternativas.

Juan Rois. Breve historia material del diagrama arquitectónico.

Peter Eisenman ubica el diagrama de Wittkower como influencia del problema de los nueve cuadrados propuesto por John Hejduk en la experiencia de los Texas Rangers en la Universidad de Texas Austin en 1954 como antídoto al diagrama de burbujas del funcionalismo de Harvard. La pedagogía de los Texas Rangers fue una revisión de los métodos de diseño que condujeron a la forma arquitectónica moderna. Influenciada por la euforia modular extendida por el congreso Proporzioni de la Trienal de Milán (1951) y por el libro Architectural Principles in the Age of Humanism (1949) de Wittkower, el dispositivo proyectual del problema de los nueve cuadrados propuso un enfoque atemporal del problema formal en arquitectura, sobre la base de referencias geométricas generales.

HITOS DE HISTORIA

Más que presentar grandes hitos de la historia de la arquitectura se tratará de abordar hechos diversos de la historia local y regional que sean de interés en el conocimiento de grandes proyectistas locales y regionales pasados cuyas tareas hayan derivado en producir hechos significativos de la modernidad arquitectónica.

Carlos Tapia. ‘High-Rise’: Politopos hostiles por deformación vertical.

En un recorrido que encuentra su disparadero en las afirmaciones del arquitecto Anthony Royal en la novela de Ballard “High-Rise” explicando su proyecto de rascacielos, ahondaremos en los principios proyectuales y compositivos históricos de la Arquitectura, como parece ser la deuda conceptual de Royal, pero la extenderemos en las deformaciones que, como concepto, el cubo sacro arquitectónico ha tenido en la historia de la arquitectura. Sobrepasados los años 70, no sólo por la fecha de la novela de Ballard, sino por el sesgo social impuesto por Lefebvre enfrentado al desenfreno edilicio, iremos hacia el estudio de algunos proyectos en altura contemporáneos.

ECOLÓGICAS

La cuestión ambiental y de crisis de sustentabilidad se presenta como un desafío para el proyecto actual y futuro, y si bien resulta un campo relevante para ajustar y modificar formas tradicionales de proyectar, todavia se carece de metodologias comprehensivas y aplicables por lo cuál se presentarán distintos trabajos y enfoques –desde interdisciplinares hasta urbano-territoriales pero también de proyectos de arquitectura– para empezar a entender las vías de futuros trabajos de mucha mayor implicación ecológica.

Carolina Vitas&Cristián Nanzer. Una casa, una aldea. Casa P. Villa Cielo, Capilla del Monte, Córdoba

Toda arquitectura lleva implícita su vocación de ruina, tal condición es la forma final con que la arquitectura entra en comunión y vuelve a la naturaleza. De este potencial destino, nos interesó la expresión física de lo inacabado, lo que el tiempo y las inclemencias van transformando, los modos en que la obra es, gradualmente, tomada y constituida por el paisaje, disolviendo lentamente su singularidad en el todo. La casa se piensa como un promontorio de hormigón y piedra surgido de la colina, una casa muraria fragmentada, que emerge a partir de la organización y repetición de volúmenes de idéntica dimensión en planta.

MATERIAL

La revista no publicará (salvo alguna específica excepción) proyectos no construídos en el entendimiento de la relevancia por otorgarse a la materialización adecuada de las ideas proyectuales ya que se piensa que la construcción no es una fase ulterior e independiente del proyecto sino que éste cobra sentido, viabilidad y calidad en tanto aborde y resuelva su condición material, lo cuál lleva a entender cuestiones de sustentabilidad y tecnologías de ingenio y cualidad regional, más allá de temas propios de la construcción tradicional.

Lukas Fuster. Refugio para un picaflor. Memorial para recordar a un hermano. San Bernardino. Paraguay

El refugio para un picaflor nace con una muerte: la de mi hermano. Mi hermano regalaba orquídeas a mi madre, muchas, siempre. Entonces decidimos construir un lugar para ellas. Este lugar para plantas también debía funcionar como un espacio de celebración.

Está construido con lo que hay a mano, con lo que la naturaleza provee; aquí no hubo un proyecto total preconcebido. Se fue haciendo por etapas y según necesidad: primero dos muros, luego un piso con una mesa larga de piedra con parilla para cocinar a las brasas; después la piscina y más tarde un baño con depósito.

ARGUMENTOS

La producción de proyectos descansa en aprovechar aspectos analíticos emergentes de argumentos teóricos que tratan de entender el pasado y el futuro para acompañar el presente proyectual y de tal forma esta sección se interesa en mostrar trabajos argumentales de teoría y crítica que en algunos casos pueden tener relación directa con acciones de proyecto o en abrir propuestas de formas alternativas de proyectar.

Horacio Garaventa. Rafael Iglesia. Entre la experiencia y la experimentación

Entonces digamos que Iglesia pareciera dejarse impulsar por las peripecias de los sistemas (generadores) que el mismo inventa. Todo comienza en sus dedos: jugando y echada a andar, la máquina es una lógica implacable, arrolladora, que desarticula los conceptos conocidos para barajar y dar de nuevo.

Búsqueda que se orienta en la necesidad de una relación más profunda, poética, vital, con el mundo, con el paisaje, con la ciudad, con el espacio, con los objetos y con la comunidad. Iglesia (2016) describe su Casa en la Barranca situándola en el tiempo y el espacio, entre la inmensidad de la pampa y la brevedad de nuestra historia y frente al Paraná.

Hay arquitectura mínima: pequeñas intervenciones de adaptación o modificación; agregados, acciones de acupuntura urbana por colocación de nuevos objetos. En las escalas opuestas de lo territorial-urbano y cercano a lo doméstico-objetual es posible activar acciones proyectuales que ofrecen nuevas funcionalidades o que agregan variedad y novedad de uso a lo preexistente. Acciones que pueden recaer en trabajos de generación de objetos resueltos casi con artesanatos y/o con énfasis en la emisión de comunicación; objetos que hablan agregando pequeños matices de sentido a lo dado.

Federico Marinaro. Cápsulas operativas. Módulo habitable para Sidersa.

Porque son los medios productivos y humanos que tenemos a disposición y los que tenemos para trabajar y operar en términos más conceptuales este encargo, como por ejemplo, la idea de la Industrialización, la idea de Lo ordinario, y la de lo simbólico y la transformación de lo industrial en lo exploratorio a través del prototipo (cápsulas). Porque como dice Federico Soriano, un prototipo es un instrumento para materializar una idea y explorar o comprobar su relación con la realidad. Se trata de crear algo, de confeccionar un artefacto físico, para testear, explorar o comunicar las ideas de diseño de una cosa, u objeto arquitectónico, que va a ser proyectado. 160

MICRO

HERRAMIENTAS

Los buenos libros y artículos de problemas teóricos y prácticos del proyecto de arquitectura son como herramientas de trabajo para formarse y entender aspectos y cualidades por afrontar cuando se está proyectando: por tanto el interés de esta sección será presentar críticamente algunos aportes bibliográficos

recientes que suponen conocer el marco cultural general donde se contextualiza el hecho de proyectar y tomar decisiones proyectuales.

Arturo Escobar. Otro diseño para otra sociedad. Autonomía y Diseño. La realización de lo comunal. Lo turbador del enfoque es pensar absolutamente otro diseño (otra arquitectura, otro urbanismo, otra objetología) para quiénes se interesen en articularse en dicho espacio de autonomía que implica un universo social de necesidades donde nada sobre ni sea dispendioso ni que posea los rasgos del consumismo generalizado en este tercer milenio. Es turbador porque a lo sumo, en esta parte del mundo, los diseñadores son funcionales a un estatus generalizado de progreso consumístico cuyo acceso en estas regiones está restingido a capas sociales calificadas (ese Norte del mundo que se intercala fragmentaria y calificadamente en las sociedades del Sur) y que hace que lo que se diseña sea a lo sumo, pertinente a algunos procesos de transición.

AMERICANA

Entendemos la cultura proyectual local como haciendo parte de problemas y alternativas propias del mundo latinoamericano cuyas propuestas más singulares e innovativas se presume que deben conocerse profundamente para insertar el trabajo de proyecto en una condición geocultural específica que en lo posible aproveche lo bueno de la globalización pero también que cuestione sus defectos y limitaciones.

Mario Biselli&Artur Katchborian. Inspiración aeronáutica. Aeropuerto Internacional de Florianopolis, Brasil.

Redoblar apuesta en vivienda social. Complejo Heliópolis. Block G-Fase 2. San Pablo, Brasil.

Inspirados en el paisaje tropical y montañoso de Florianópolis y en la estética y técnica aeronáutica, los arquitectos llevaron a la Terminal y a los Pasajeros del Aeropuerto un diseño de la cubierta del ala, además de grandes aberturas cenitales, vanos libres y columpios para el lobby de acceso y el área de check-in, permitiendo grandes entradas de luz y una vista para el jardín repleto de especies nativas. El Aeropuerto Internacional de Florianópolis pasó por un proceso de privatización en 2017 y las demandas del actual operador llevaron a la idea de una terminal con dos niveles operativos (carga y descarga) y diez puentes de salida.

A pesar de la diferencia de 10 años entre la inauguración de la primera fase del proyecto y la segunda –con la implementación de un nuevo bloque– la ejecución del planeamiento resultó eficiente y sin mayores obstáculos, con sólo la revisión de algunos materiales utilizados.Con la incorporación de 221 nuevos departamentos en no más de cinco pisos, y sin posibilidad de uso de ascensores, pudimos cumplir con el requerimiento de aumentar la densidad sin posibilidad de verticalización del nuevo bloque, aprovechando la gran pendiente de la calle adyacente, implementando los primeros pisos de cada edificio, que siguen las variaciones de la calle.

Caja sólida, agrisada, simple y geométrica

Edificio SECZA, Salta 1784, Mar del Plata

Memoria

Es un edificio implantado sobre un lote con un entorno densificado en un terreno de dimensiones atípicas, que deja de lado la explotación intensa del terreno, para concederle al edificio un espacio pensado para la quietud y el reposo al aire libre. Diseñamos un edificio de características arquitectónicas contemporáneas, caracterizado por el uso del hormigón que refleja la exposición honesta de los materiales, que ofrece visuales en donde la textura y tonalidad natural son los protagonistas de la edificación, que presenta una estética austera y masiva, con formas geométricas simples y

repetitivas y el uso de materiales industriales y técnicas constructivas innovadoras.

Esta caja sólida, agrisada, simple y geométrica, de líneas claras y ángulos pronunciados, es cuidadosa de las actividades del interior, pertenece al Sindicato de Empleados de Comercios Zona Atlántica y nace con la idea de dejar espacios libres y públicos, sumergidos en el contexto del microcentro de una ciudad altamente consolidada.

Dejar libre espacios urbanos es la síntesis de este proyecto que cubre la necesidad del cliente, de albergar a sus afiliados, sobre todo a los adultos mayores, en un espacio donde convivan distintas actividades bajo el lema cada piso un uso.

El edificio posee una fachada de hormigón armado suspendido comprendido por dos tabiques y separados por una faja longitudinal de vidrio que hará las veces de haz de luz dentro del espacio de piscina, gesto que lograra generar una dualidad entre lo pesado y lo liviano de este material, elegido también por sus características de austeridad y honestidad que aumentan su vida útil y porque su color neutro garantiza el diálogo con el entorno inmediato, generando una síntesis no sólo en el uso de los materiales sino también en el escaso mantenimiento de los mismos.

Por otro lado, el edificio en su planificación, concepción, diseño y construcción, se realiza

bajo las técnicas de minimización del impacto negativo en el ambiente y maximizar su impacto positivo en la comunidad a lo largo de la vida útil del mismo.

Una de las estrategias utilizadas y diseñadas desde el programa arquitectónico al inicio, fue aumentar la utilización del edificio, para minimizar el consumo de los recursos, agrupando funciones en el mismo espacio.

En materia de construcción se ejecuta una obra para perdurar, cuidando el medio ambiente por medio del diseño y materiales que resistan el paso del tiempo y se priorizan dos principios fundamentales proyectado en sus plantas, que son la versatilidad y la convertibilidad, es decir, diseñado para la

adaptabilidad. Si hablamos de la ejecución de la extensa fachada se utilizaron vigas de encofrado versátil, lo que permitió trabajar con luces anchas reduciendo la cantidad de piezas a encofrar.

En cuanto a la distribución del programa arquitectónico solicitado para cubrir las necesidades requeridas por el cliente las funciones se distribuyen cediendo al espacio urbano la planta baja, para formar una gran escalinata materializada mediante vigas de hormigón y vegetación autóctona de distintas especies conformando una plaza que intenta reunir a la comunidad y a los trabajadores del edificio.

Hacia arriba las plantas albergan el programa requerido, aulas, espacios destinados al área administrativa, biblioteca, un tercer piso de pileta para rehabilitación, cuarto piso de sum y actividades culturales y una última planta de actividades terapéuticas y centro de kinesiología.

El diseño interior sigue los lineamientos de simplicidad utilizados en el edificio. La mampostería se reduce sólo a los sectores medianeros y húmedos mientras que el resto está resuelto mediante tabiquería liviana enchapada en madera y vidrio, priorizando la funcionalidad y el uso racional de estos espacios amplios y flexibles.

Opinión

Dentro de las arquitecturas institucionales –encargadas para uso de una determinada empresa o institución como en este caso un sindicato de los más importantes– puede o no conseguirse que la solución del encargo o la demanda proyectual satisfaga el pedido y proponga algún plus en relación a cómo la arquitectura no residencial o de equipamiento pueda o no ser pensada como un modo de hacer ciudad, contribuyendo aunque sea en pequeñas dosis, al mejoramiento de la calidad de lo público. Porque la ciudad es resultado no sólo de las normas y planes (cada vez mas en déficit) sino también de la

acumulación feliz o saludable de arquitecturas de funcionalidad pública. Este edificio ofrecido al SECZA (Sindicato de Empleados de Comercio Zona Atlántica), inserto en el área central de la ciudad, alcanza un razonable éxito no sólo en desarrollar una respuesta adecuada al pedido del cliente-institución sino –según lo que tratamos de exaltar en esta sección no casualmente denominada Arquitectura-Ciudad- en contener algunas características que tratan de hacer ciudad con la arquitectura.

Por empezar, por ejemplo, con una suerte de decisión que se aparta de buscar el máximo rendimiento edilicio de un lote central (finalmente un sindicato no es un desarrollador

Datos

El edificio SECZA, ubicado en Salta 1784, Mar del Plata, fue proyectado y dirigido por las arquitectas Victoria Salas y Luján Ranieri, quiénes también fueron responsables del interiorismo. La obra fue encargada por el Sindicato de Empleados de Comercio Zona Atlántica y fue construída en 2017 por la empresa constructora CONSCA.

inmobiliario) según se expresa en la memoria: …dejar de lado la explotación intensa del terreno, para concederle al edificio un espacio pensado para la quietud y el reposo al aire libre. Optar por oxigenar la volumetría potencialmente densa de este sector urbano ya supone un aporte a la calidad urbana que se adiciona al tratar de conseguir quietud y reposo al aire libre –al menos para la numerosa población de este sindicato y sobre todo para sus jubilados– en medio de un lugar urbano habiualmente congestivo.

Desde el punto de vista del proyecto arquitectónico destacan ciertas decisiones de partido que resultan adecuadas para maximizar la flexibilidad de usos (y de eventuales cambios de usos) como optar por un módulo estructural relativamente amplio que consigue una planta con sólo cuatro columnas interiores lo que obtiene bastante fluidez espacial, decisión compleja pues se debe sostener la piscina del segundo nivel pero que permitirá bastante libertad para organizar el programa lo que se acentúa en el uso de divisores industrializados en seco.

El conjunto consigue entonces alcanzar como afirma la memoria una estética austera y masiva, con formas geométricas simples y repetitivas y el uso de materiales industriales. Tiene el proyecto una acentuada voluntad de conseguir proponer un lenguaje distin-

tivo para una obra institucional pero cuyas directivas van más por destacarse por la discreción y el disimulo antes que por opciones ruidosas o estentóreas ya que se trata según apuntan en su memoria, de una caja sólida, agrisada, simple y geométrica, de líneas claras y ángulos pronunciados.

La fachada cuenta claramente que ocurre en este edificio multifuncional, al desplegarse en tres franjas nítidas y elocuentes: una primera transparente y de grandes carpinterías de medianera a medianera, una segunda de un potente plano gris de hormigón sesgada por la raja horizontal que ilumina la piscina y una tercera retranqueada y ritmada por aberturas verticales con diferentes alturas de antepechos para proponer un ritmo con las siete ventanas que rasgan esa parte de muro revestido.

Lo que transmite la fachada con sus cambios drásticos pero complementarios de lenguaje, es acompañado con las diferencias funcionales de tales tres estratos, el primero con los dos niveles del acceso-plaza escalonada que resuelve el retiro de fondo y oficinas, el segundo con el doble nivel del paquete recreativo-regenerativo y el tercero con el doble nivel de oficinas y consultorios de atención. Esa diversidad de expresión de fachada y organización funcional de esos tres estratos del edificio se unifican en tratar

de que esos espacios defienciales entre si compartan, según dice la memoria, dos principios fundamentales proyectado en sus plantas, que son la versatilidad y la convertibilidad, es decir, diseñado para la adaptabilidad. Esa voluntad de conseguir flexibilidad de usos y cambios eventuales de usos se apoya en decisiones variadas pero concurrentes tales como el colocar al fondo del volumen edificable una franja de servicios y circulaciones (que dejan por delante distintas plantas casi libres), el proponer para la parte baja un paso estructural que consigue restringuirse a solo cuatro columnas y el resolver toda las tabiquerías interiores con sistemas industrializados en seco.

Pero quizá y mas allá de todo lo ya comentado, la trovatta central del proyecto –y quizá el rasgo por el cual se trata de procurar una arquitectura de calidad y aportación urbana– es la planta baja que propone el acceso a la plaza escalonada posterior tratada con encomiable esmero paisajístico ya que como afirma la memoria el proyecto se conforma cediendo al espacio urbano la planta baja, para formar una gran escalinata materializada mediante vigas de hormigón y vegetación autóctona de distintas especies conformando una plaza que intenta reunir a la comunidad.

Planta Hall de Acceso Nivel +0,10m
Planta
Primer Piso
Nivel +4,03m
Planta
Primer Piso
Nivel +9,90m
Planta
Tercer Piso
Nivel +14,45m
Planta
Cuarto Piso
Nivel +18,15m
Sección B-B
Sección A-A
Vista Contrafrente
Vista Frente

Piezas en el terreno generando patios

Casa de veraneo en Chapadmalal, Buenos Aires

Memoria

...Una casa como un sistema modular y ordenado pero dispuesto de tal manera que sus constantes variaciones provoquen interacciones diversas entre el ser humano, sus usos, la arquitectura y la naturaleza…

La casa en Chapadmalal es parte de una serie de tres casas proyectadas por el estudio que se basan en la prefabricación de ciertos elementos de manera sistematizada contemplando sutiles variaciones según el programa, su posición estratégica y adecuación al territorio; y un conjunto diverso de piezas adosadas a estos elementos, de interface y adaptación al clima y la geografía de la región que dotan de una identidad particular a cada uno de los edificios. Una de las casas es como un puente largo que

salta una pendiente muy pronunciada, otra conforma un claustro con un patio irrigado en un paisaje muy árido, y la que aquí se presenta alterna piezas en el terreno generando patios que se vinculan con un bosque cercano y con una vista lejana hacia el atardecer.

Las tres viviendas están construidas con madera, tanto en sus piezas prefabricadas como en las que funcionan como interface y fueron armadas en el mismo terreno.

En el caso de la casa en Chapadmalal cada una de las piezas prefabricadas que la componen fueron resueltas de manera tal que al unirse o separarse, tanto por patios como por circulaciones, generan cierta independencia unas de otras y logran que este edificio pueda ser ocupado de diversas formas incrementando su cantidad de habitantes y permitiendo una especie de autonomía funcional para cada una de las partes; la idea de cerrar y

abrir dormitorios según la ocupación, e incluso la posibilidad de sub-alquilar habitaciones y utilizar la parte pública como punto de encuentro, permite, entre otras cosas, una economía de recursos en la vida útil del edificio al no ser necesaria la activación de toda la superficie del programa en cuanto a calefacción, refrigeración, etc… Además de los espacios típicos de cualquier casa de veraneo, estar, comedor, cocina, tres dormitorios, baños, etc.. este proyecto considera una serie de situaciones intermedias que se conjugan para lograr un recorrido diverso vinculado con diferentes estadíos de paisaje; el bosque, las galerías y accesos exteriores, los patios entre los volúmenes, el jardín interior vidriado o la circulación que une los dormitorios, el sector de fuego y las pérgolas con la pileta elevada hacia el oeste. Además este recorrido tiene su punto cúlmine al trepar hacia las

cubiertas verdes y finalizar asomados al entorno costero desde este nuevo suelo alto.

Se suman al funcionamiento de la casa toda una serie de sistemas cuyo fin es lograr una mínima huella en el paisaje; como por ejemplo las bases, que se instalan en pocas horas, y pueden ser removidas en el mismo tiempo, permitiendo que la intervención en el territorio sea respetuosa e incluso efímera; O los “ganchos” de izaje, pensados como parte de la arquitectura y que quedan para siempre vinculados con el edificio en caso de tener que volver a trasladarlo.

El estudio pormenorizado que se realiza sobre el ecosistema a intervenir y la adaptación de la pieza a sus condiciones particulares, se trasladan rápidamente a la lógica de fabricación buscando acercar el taller a los dis-

la lógica de fabricación buscando acercar el taller a los distintos puntos en donde serán emplazados los edificios para generar redes locales que nos permitan nutrirnos, no sólo de los materiales de la zona, sino también de la mano de obra necesaria, fortaleciendo con esto a pequeñas economías regionales.

tintos puntos en donde serán emplazados los edificios para generar redes locales que nos permitan nutrirnos, no sólo de los materiales de la zona, sino también de la mano de obra necesaria, fortaleciendo con esto a pequeñas economías regionales.

Estas ideas relacionadas con la economía circular buscan en la prefabricación, en la utilización de materiales como la madera o sistemas constructivos livianos, autoportantes y súper aislados y en la relación optimizada con el clima, el asoleamiento y las ventilaciones, condiciones que permitan hacer más eficientes los recursos utilizados, tanto en la fabricación como en el uso posterior. Criterios de funcionamiento pasivos básicos como la ventilación cruzada, el efecto “chimenea” o la cubierta verde pretenden completar estas premisas según las estaciones y la interacción con el clima. En verano, en cada uno de los espacios y al abrir las carpinterías, se genera una aceleración del aire que ingresa, logrando con la apertura de las lucarnas de la cubierta, que el aire caliente alojado en el interior sea impulsado hacia el exterior, renovando continuamente el clima del edificio, y bajando

Datos

El proyecto fue realizado por el Estudio Borrachia, a cargo del arquitecto Alejandro Borrachia. Se ubica en Chapadmalal, General Pueyrredon, Buenos Aires y fue realizada en 2023 en un terreno de 840 m2 con una superficie cubierta de 120 m2, superficie del deck exterior de 84 m2, superficie de la azotea accesible de 112 m2 y superficie de las bandejas verdes de 78 m2. La construcción en fábrica estuvo a cargo del arquitecto Guillermo Badano y la dirección y logística de obra en terreno quedó a cargo de Matias Carlino, Sofía Nazzabal y Juli Petroff. Fueron colaboradores del proyecto Matias Carloni, Julieta Solari y Ailen Tammaro y la coordinación en fabrica la cumplió Kike González. Las fotos de la obra finalizada las realizó Adrián Rios y las referentes al montaje fueron de Alejandro Calonje.

la temperatura. En invierno, las aislaciones en cada una de las caras, las cámaras de aire y los materiales de las carpinterías, han sido estudiados para que una minima calefacción, como por ejemplo la que genera una salamandra a leña, alcance para abastecer de calor a cada espacio.

Esta casa se completará en el tiempo adosando paneles fotovoltaicos, sistemas de refrigeración y calefacción por geotermia, termos solares y toda una serie de artefactos que optimizan el consumo y permiten, en situaciones extremas, su total desconexión de las redes de infraestructura.

Complementando estas ideas, la casa en Chapadmalal toma de la iconografía náutica ciertas decisiones; la madera al natural, las barandas metálicas, los decks, etc…; y las suma a la manera de habitar desprejuiciada de la comunidad familiar que la origina y un movimiento interesante de jóvenes empresarios, artistas o diseñadores que entienden a esta ciudad costera como una nueva alternativa para su vida cotidiana y un escape posible de la ciudad.

Opinión

Según indica la memoria este proyecto puede ser pensado como una casa como un sistema modular y ordenado pero dispuesto de tal manera que sus constantes variaciones provoquen interacciones diversas entre el ser humano, sus usos, la arquitectura y la naturaleza… En efecto según se explica se trata de la combinación de tres módulos prefabricados en taller y llevados al sitio de implantación con un camión playo e izados y apoyados con un camión grúa. Los módulos son (A) estar-comedor+cocina+toilette, (B) dormitorio principal+baño y (c) dormitorios secundarios+baño. Según se coloquen tales módulos mediante espaciamientos a modo de patios se consiguen diferentes configuraciones y se informa de tres de ellas en Chocón, Angostura y Chapadmalal, de las que en esta publicación se presenta el tercer caso.

La idea básica del proyecto es entonces según se indica en la memoria, un modo que alterna piezas en el terreno generando patios que se vinculan con un bosque cercano y con una vista lejana hacia el atardecer. También se señala

que el montaje requiere cierta articulación con mano de obra local para conseguir algunas peculiaridades o singularidades que agreguen variedad y detalles (como ciertos espacios de decks, galerías o terrazas), siempre a la búsqueda de un optimun insertion sobre todo en terrenos fuertemente forestados, con cuya calidad paisajística procura interactuar esta arquitectura domientemente maderera. A su vez se indica la intención de mantener una posibilidad permanente de armar y desarmar estas combinaciones en diferentes locaciones para lo cuál se observa que las fundaciones son de quita y pon y que los módulos conservan sus anclajes de izado para permitir un eventual traslado.

El concepto de articular módulos separados y relativamenre autosuficientes otorga cierta posibilidad de conseguir diferentes usos como convivir dos familias o grupos o subalquilar una porción ya que –observa la memoria– las piezas prefabricadas que la componen fueron resueltas… permitiendo una especie de autonomía funcional para cada una de las partes; la idea de cerrar y abrir dormitorios según la ocupación, e incluso la posibilidad de sub-al-

quilar habitaciones y utilizar la parte pública como punto de encuentro, permite, entre otras cosas, una economía de recursos en la vida útil del edificio.

Se busca de tal forma no sólo una flexibilidad que permita que la vivienda pueda tener usos parciales o totales según la estacionalidad turística o según la variación de modalidades de uso a lo largo del tiempo. De esta manera cada conjunto modular como el que se presenta puede adaptarse sin disturbar el confort o los usos, a diferentes demandas o modalidades de utilización durante el año y según los años.

El esquema de combinación de módulos prefabricados resuelve –según el criterio de adosamiento o articulación– la organización básica de la vivienda pero esta no queda circunscripta a una simple yuxtaposición de módulos sino que el proyecto le agrega al armado escogido, situaciones intermedias que se conjugan para lograr un recorrido diverso vinculado con diferentes estadíos de paisaje; el bosque, las galerías y accesos exteriores, los patios entre los volúmenes, el jardín interior vidriado o la circulación que une los dormitorios,

el sector de fuego y las pérgolas con la pileta elevada hacia el oeste.

El proyecto también intenta enriquecer una mera juntada de partes prefabricadas con –según expresa la memoria– ideas relacionadas con la economía circular [que se] buscan en la prefabricación, en la utilización de materiales como la madera o sistemas constructivos livianos, autoportantes y súper aislados y en la relación optimizada con el clima, el asoleamiento

y las ventilaciones, condiciones que permitan hacer mas eficientes los recursos utilizados, tanto en la fabricación como en el uso posterior. A la solución de base que aquí se presenta –con una climatización por caso, basada en la mejor ventilación interior y exposición de las caras a cada orientación– se indica que la propuesta pueda evolucionar a una plena tecnología sustentable, adosando paneles fotovoltaicos, sistemas de refrigeración y calefacción por geo-

termia, termos solares y toda una serie de artefactos que optimizan el consumo y permiten, en situaciones extremas, su total desconexión de las redes de infraestructura.

Lo específico de la solución singular de este sistema modular en el emplazamiento de Chapadmalal también se resuelve mediante algunas decisiones proyectuales de sabor local, tales como la adecuación al paisaje boscoso de pinares o al hecho de que la casa en

Chapadmalal toma de la iconografía náutica ciertas decisiones; la madera al natural, las barandas metálicas, los decks. De modo de conseguir que la repetición semi-industrializada del concepto modular del sistema prefabricado no impida sino que potencie, mediante detalles de diseño y lenguaje, resultados que aseguren sentido e identidad.

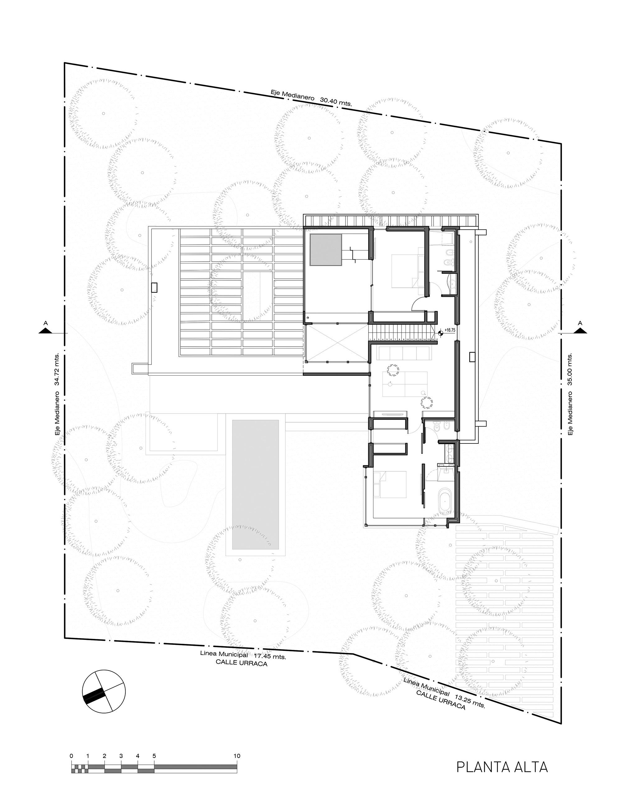
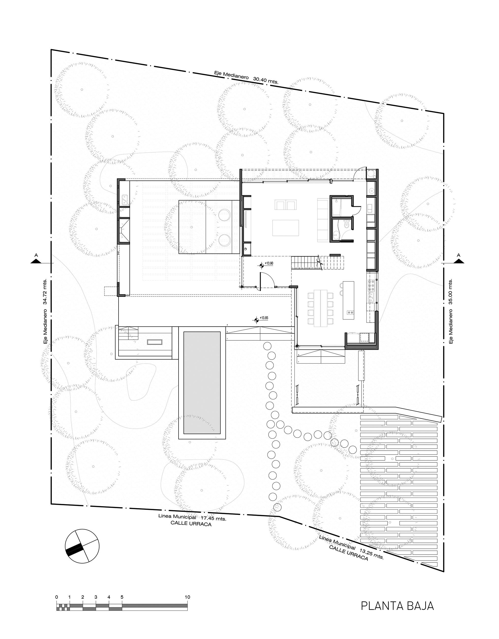
Dispositivo de observación

Casa Kairós, Cariló, Buenos Aires

Ubicada en el extremo sur del Partido de Pinamar, Casa Kairos se construye sobre un terreno que forma parte de un pequeño y nuevo loteo. El mismo se encuentra en crecimiento y actualmente está contenido en 4 manzanas rodeadas de un bosque sin lotear y conectado con el resto de la localidad únicamente por un boulevard, dando así la apariencia de ser un apéndice de Cariló. Terrenos de grandes dimensiones y un código de construcción restrictivo, generan las condiciones para mantener el equilibrio entre la presencia del hombre con la flora y fauna original. Al momento del encargo, el

estudio ya había construido varias viviendas en el barrio, por lo que el planteo de esta nueva obra debía contener criterios similares que la vecina Casa Jaima. La maximización de ambientes de disfrute expuestos al norte y al oeste son los primeros puntos de contacto entre ambas viviendas que comparten también el mismo catálogo de materiales, los mismos equipos de contratistas, metodología e insumos; dando como resultado una impronta similar. Kairos toma la cubierta con pendientes de la construcción vecina.

Sin embargo, lo que en Casa Jaima es losa casetonada, en Kairos se presenta como grandes tabiques triangulares a modo de tímpano, buscando que sea una cuña de hormigón la que en apariencia cubre la casa. La zona de parrilla-quincho es contenida en altura por esbeltas vigas que cruzan sobre el patio ampliando el volumen aparente de la vivienda, dando escala a este espacio y convirtiéndolo en el centro de la casa, el lugar de reunión por sobre otros ambientes destinados específicamente para este fin. El sol incide directamente sobre el patio únicamente al mediodía ya que durante el resto del día, las vigas producen diferentes juegos de luces y sombras que protegen el espacio. El pino existente en el centro de este patio se preservó para generar una isla natural en el centro de la obra construida: un espacio para la permanencia sombreado y ventilado por Memoria

Datos

La casa Kairós fue proyectada por el Estudio Galera, integrado por los arquitectos Ariel Galera, Cesar Amarante, Francisco Villamil y Luisina Noya. Sita en Cariló, Pinamar, Buenos Aires, posee 230 m2 y se construyó en 2024.

Fueron claborradores Pablo Ahumada, Verónica Coleman, Micol Rodriguez, Juan Cruz Ance, Facundo Casales y Soledad van Schaik. Las fotos son de Diego Medina.

el aire fresco, aire que al abrir las carpinterías por diferencia de presión refresca los interiores sin necesidad de equipos forzadores. La construcción se vacía en planta baja prolongando perceptualmente el espacio libre contenido por las pérgolas. En la planta alta se encuentran los ambientes de descanso que como un mirador se extiende hacia el frente aproximándose al bosque. A nivel del terreno los ambientes exteriores se plantean como una plataforma atravesada por el entorno natural conteniendo espacios para el descanso y la contemplación. Estos espacios están marcados y caracterizados por los distintos juegos de luces y sombras creados por la pérgola de hormigón donde, ante la ausencia de columnas, el pino central se transforma en el único elemento vertical dentro del conjunto. La pérgola de hormigón, con sus líneas rectas y definidas, contrasta con la naturaleza orgánica del entorno.

La luz del sol se filtra entre las vigas, creando un patrón cambiante de luces y sombras que se desplazan a lo largo del día, generando un espacio para el reposo y la relajación en un ambiente natural generado para la observación del entorno, la introspección y el divague. La casa finamente se vive como un dispositivo de observación donde los vecinos y el entorno natural se complementan, generando en las personas que habitan el espacio, la experiencia de ser parte de la naturaleza y el paisaje.

Opinión

Kairós es una casa que se inserta en en una serie de proyectos del estudio que aprovechan fuertemente su implantación en lotes generosos con forestación muy rica y desarrollada que trasciende cada lote y entrega la sensación de un bosque habitado,

donde la inserción de las construcciones tiene que ser muy cuidada para no romper esa calidad de paisaje: de hecho en esta casa su epicentro parece ser un patio-galeria (área del quincho-parrilla) importante definido por una grilla de vigas de hormigón, en que a su vez, su foco principal es un enorme pino que atraviesa la trama de cubierta y aporta su cuota de sombra y frescor.

El deliberado sobredimensionado escalar de este espacio semicubierto probablemente engendre una valoración central al sitio que más que espacio de servicio doméstico alcanza a devenir una suerte de espacio de estar abierto pero con sus límites virtuales, decisión que supone cierta innovación programática asociada a otorgar importancia a un sitio que resulta importante en los veranos pero mas allá de esa estacionalidad tiende a proponer maximizar cierta vida social al aire libre.

A su vez la casa linda con otra obra relevante del estudio que es la casa Jaima (publicada en la revista, TODA 3, 2022) que posee el potente motivo de la cubierta plegada que evoca las tiendas textiles arabigas de donde toma se nombre. Kairós, al ser ulterior, toma como referencia de contexto aquella obra y efectúa varias operaciones de asimilación, como la apelación potente al uso de hormigón, la continuidad con algunas pendientes de cubierta y una similar aunque diferente, manera de acoger esta nueva máquina habitativa en la preexistencia del bosque. La palabra kairós es una expresión griega referida al tiempo o más precisamente a un tiempo peculiar, adecuado u oportuno, que luego la teología cristiana adoptó para expresar referencia al tiempo divino o de Dios, tiempo en que se alcanza un cénit de plenitud. No hay alusión en la memoria al uso de esta palabra, pero nosotros podemos asociarla en cuanto a su plenitud u oportunidad a la idea que subrayan en ese texto acerca de pensar esta casa como un dispositivo de observación.

Así lo dicen en el párrafo final de la memoria: La luz del sol se filtra entre las vigas, creando un patrón cambiante de luces y sombras que se desplazan a lo largo del día, generando un espacio para el reposo y la relajación en un ambiente natural generado para la observación del entorno, la introspección y el divague. El kairos de ese desplazamiento de las sombras arrojadas por la trama superior puede llegar a ser el mediodía puesto que entonces el sol perpendicular no arroja sombra. La casa finamente se vive como un dispositivo de observación donde los vecinos y el entorno natural se complementan, generando en las personas que habitan el espacio, la experiencia de ser parte de la naturaleza y el paisaje.

El dispositivo asimismo se genera por sustracción de la planta baja y por voladizo en la alta puesto que la construcción se vacía en planta baja prolongando perceptualmente el espacio libre contenido por las pérgolas. En la planta alta se encuentran los ambientes de descanso que como un mirador se extiende hacia el frente aproximándose al bosque.

El diálogo con la pieza lindera obra del mismo grupo proyectista se afirma en la

geometría análoga de las cubiertas ya que Kairos toma la cubierta con pendientes de la construcción vecina aunque con variación del tipo estructural puesto que lo que en Casa Jaima es losa casetonada, en Kairos se presenta como grandes tabiques triangulares a modo de tímpano, buscando que sea una cuña de hormigón la que en apariencia cubre la casa. Lo que comparten ambos proyectos va más allá de la pendiente de la cubierta ya que hay una análoga disposición de la orientación de los ambientes principales al norte y al oeste y el mismo catálogo de materiales,

los mismos equipos de contratistas, metodología e insumos.

Agregamos que también comparten ambas producciones un criterio de dramatización de la relación entre lo artificial del gris-hormigón y lo natural de algunos árboles que en ambos casos cobran alto protagonismo en la imbricación con las casas. En resumen entonces, una alta priorización de proponer una casa cuyo volcado al exterior adjudique un valor predominante a la observación y disfrute del paisaje natural omnipresente.

Breve historia material del diagrama arquitectónico

* Juan Rois es Arquitecto y Doctor con vasta experiencia profesional en Rosario –su ciudad natal– así con actividad docente en FAPyD, UNR y en universidades norteamericanas, actualmente en GSD Harvard.

El Stanford Encyclopedia of Philosophy informa que los diagramas se encuentran entre las formas de comunicación humana más antiguas1. La filosofía de la tecnología indica que el diagrama es un cuadro, gráfico, dibujo o figura que sirve para explicar y comunicar información. Complementa las tecnologías de la cultura de la escritura y el cálculo, y por lo tanto, es un elemento del repertorio de prácticas usadas para ordenar y preparar información para ser transmitida y procesada de la manera más económica posible (Krausse 1998, 3).

De la familia etimológica de gráfico, su origen griego diagráphein, trazar con líneas, combina día, a través y gráphein, escribir. Proveniente del latín diagramma, el término diagram empezó a utilizarse en el idioma inglés a principios del siglo XVII2. El Merriam-Webster Dictionary incluye esta definición: diseño gráfico que explica

más que representa, dibujo que muestra disposición y relaciones (de partes). Más amplio, el Oxford English Dictionary3 incluye su uso en matemática, figura compuesta de líneas que ilustra una declaración y ayuda en la prueba de una proposición; su aproximación infográfica, conjunto de líneas que representan simbólicamente el curso o resultado de una acción o proceso; y sus posibilidades filosóficas, delineación que simboliza proposiciones abstractas o procesos mentales.

En el idioma español, la palabra diagrama hizo su aparición recién en el siglo XIX. La Real Academia es escueta: representación gráfica, generalmente esquemática, de algo. El diagrama ha estado siempre entre las representaciones utilizadas por la arquitectura. Cuando el tratado de Vitruvio, escrito pocos años antes de Cristo, fue redescubierto 1500 años después, la ausencia de ilustraciones provocó perplejidad, especialmente porque el autor indica nueve figuras, usando el término diagramma.

1 Shin, Sun-Joo, Lemon, Oliver and Mumma, John, “Diagrams”, The Stanford Encyclopedia of Philosophy (Winter 2018 Edition), Edward N. Zalta (ed.) 2 1619, según el Merriam-Webster Dictionary.

3 The Compact Edition of the Oxford English Dictionary, vol. 1 (1971) Oxford: Oxford University Press, 714 2.

Sabemos por sus descripciones que ninguna de estas imágenes representaba objetos: Si se trata de duplicar un cuadrado, o de extender al exterior una voluta iónica, o de dibujar el triángulo de Pitágoras, Vitruvio se limitó a representar diagramas geométricos elementales con patrones de líneas (Carpo 2001, 18).

Diagrama infográfico moderno

En Information at a glance, on the history of the diagram (1998), Joachim Krausse reflexiona sobre las condiciones históricas del surgimiento del diagrama moderno. Las innovaciones en las lógicas de representación gráfica surgirán de los problemas enfrentados por investigadores e inventores; diagramas, cuadros y gráficos fueron cruciales para sus innovaciones. Desde el inicio de la ciencia moderna se han usado coordenadas de tiempo como componente estructural en los gráficos de estudios del movimiento, trayectoria y velocidad se representan como funciones en el tiempo. Estos diagramas están presentes en la formulación de

grandes leyes científicas: la de la órbita de los planetas de Kepler (1571-1630), la ley de los cuerpos que caen de Galileo (1564-1642) y la ley de gravitación de Newton (1643-1727) (imagen 1).

El formato del diagrama infográfico moderno se remonta a William Playfair (1759-1823), quién en 1786 publica una colección de cuarenta y cuatro gráficos de economía política de Europa. En The Commercial and Political Atlas, (imagen 2) Playfair denominó a su método de visualización aritmética lineal y lo explicó de esta manera: La ventaja propuesta por este método no es la de dar una declaración más precisa que por cifras, sino dar una idea más simple y permanente del progreso gradual y cantidades comparativas, a diferentes períodos, al presentar al ojo una figura, cuyas proporciones corresponden a la cantidad de las sumas que se pretenden expresar (cita en Krausse 1998, 17).

La gráfica esquemática de Playfair utilizó los desarrollos de la geometría analítica, del principio de las coordenadas matemáticas, de los estándares

Imagen

cartográficos y de las escalas graduadas de los instrumentos meteorológicos. Su innovación fue entender que los datos numéricos obtenidos empíricamente podían traducirse en curvas, sin necesidad de establecer fórmulas matemáticas para su expresión, como en el caso de las ciencias duras.

Lo que estaba en juego era más que la representación gráfica de la información; para Playfair era importante demostrar que los datos empíricos dibujan una imagen de desarrollos que pueden ser interpretados. Sabiendo que datos lineales dispuestos en serie a lo largo de un eje crean figuras que impresionan contra un fondo neutro y que la comprensión de esta figura se debe a una totalidad, Playfair fue un adelantado a su tiempo: sólo un siglo después, Christian von Ehrenfels (1859-1932) introducirá el paradigma teórico de la Gestalt al decir que la calidad de la forma surge de la combinación de sus elementos. Menospreciado en su momento, sus contemporáneos descartaron el método gráfico de Playfair como trucos ajenos a la ciencia.

Uno de los primeros científicos en reconocer sus logros y adoptar su método fue Alexander von Humboldt (17691859) quién reconocerá la importancia para las ciencias de cuadros y gráficos empíricos y estadísticos y dirá: Cualquier cosa que se base en el tamaño y la cantidad puede representarse mediante figuras. Las proyecciones estadísticas que atraen a los sentidos sin fatigar la mente tienen la ventaja de dirigir la atención a una gran canti-

dad de hechos importantes (cita en Krausse 1998, 22).

Con su registro de isotermas lineales en un cartograma de 1817, Humboldt allanó el camino para la aceptación, en las ciencias duras, de diagramas, cuadros y gráficos. Hans Blumenberg, en Historia del espíritu de la técnica (2009), se pregunta por el nacimiento del concepto de invención y su relación con la noción de autoría y propiedad intelectual; esto es, la concepción del invento como una propiedad protegida, referida no a una cosa, sino a la idea de una cosa. La institución jurídica de protección de derechos de propiedad se desarrolló en Europa a finales del siglo XVII para limitar el derecho del príncipe a conceder privilegios y proteger, con una patente, los derechos del inventor.

Con antecedentes en la Italia renacentista, el sistema de patentes inglés se convirtió en el primer sistema moderno que reconoció la propiedad intelectual para estimular la invención. Base legal sobre la que se desarrolló la Revolución Industrial, influirá en los sistemas de patentes de la Revolución Francesa y de la democracia norteamericana. La primera patente inglesa en requerir una especificación gráfica aclaratoria fue registrada en 17184 y si bien desde 1790 hasta 1880 Estados Unidos requirió modelos físicos (miniaturas no mayores a 12” x 12” x 12” que debían demostrar cómo funcionaba la invención), la 4 Contribuyentes Wikipedia (16 febrero, 2020), Patent Drawing en Wikipedia, The Free Encyclopedia. [Acceso 18 febrero 2020].

Imagen 2

ley de patentes de 1793 dictó que la información adicional fuera proporcionada por dibujos5

Diagramas y patentes confluyen en James Watt (17361819), inventor de la primera máquina de vapor constante, patentada en 1769. Para examinar el proceso de expansión del cilindro (algo que no podía ser observado), Watt construyó un dispositivo que mostraba la presión de vapor durante el proceso. El medidor de presión, el Watt Indicator [indicador de vatios], mostraba la presión de vapor en el cilindro y la velocidad del pistón. El indicador fue incluido (en forma de diagrama) en sus patentes de 1782 y 1784. En Information at glance, Krausse indica que dos años después Playfair, empleado de Watts, publicó su libro con las primeras infografías, concluyendo que las formas de sus diagramas fueron el resultado de la ingeniería visual de Watt (Krausse 1998, 26).

Anthony Vidler, en Diagrams of Utopia (2001) presenta al diagrama (contemporáneo al desarrollo del sistema métrico, la geometría descriptiva y la proyección isométrica) como un producto de la Ilustración y lo relaciona con la invención decimonónica de las máquinas espaciales, dispositivos de configuración de las nuevas relaciones espaciales requeridas por las nacientes 5 Hoy una solicitud de patente puede requerir dibujos de patente para ilustrar la invención. Aunque cambia según la jurisdicción, los dibujos requeridos suelen diagramas de línea en blanco y negro.

necesidades funcionales modernas. Inherente a estas propuestas se encontraba el problema de dar forma visual a estos arreglos. Según Vidler, los diagramas fueron esenciales al momento de establecer especificaciones constructivas para estas novedosas instalaciones.

Ahora bien, un repaso por los ejemplos ofrecidos por Vidler demuestran que, a pesar del esfuerzo interpretativo del autor, no existía aún un uso consciente de la herramienta. En 1791, el jurista inglés Jeremy Bentham (1738-1842), en el libro Panóptico: casa de Inspección describe su modelo de prisión e incluye una detallada cartilla de planta, corte y vista realizada por el arquitecto Willey Reveley. En 1822, en su tratado Théorie de l’unité

universelle, el socialista utópico

Charles Fourier (1772-1837) des-

cribe su Falansterio (comunidad autosuficiente) y lo dibuja en bocetos entre 1808 y 1825, tomando como base la planta del palacio de Versalles. Versiones axonométricas siguen una planta publicada en forma póstuma en 18456

El diagrama aparece en estos intentos utópicos recién en 1898, cuando el urbanista Ebenezer

6 Plan d’un Phalanstère ou Palais habité par une phalange industrielle. Grabado publicado en Le Nouveau

Monde industriel et sociétaire, 2a edición, París, 1845.

Imagen

Howard (1850-1928), en To-Morrow: Peaceful Path to Real Reform acompañe descripciones de su ciudad jardín con una serie de esquemas abstractos que denominó explícitamente diagramas. Howard, que no era diseñador, dejó en claro que los planos para una ciudad en un sitio real se apartarían de lo representado, con una advertencia en cada uno de los dibujos: Sólo un diagrama. La planta dependerá del sitio elegido (imagen 3).

Diagrama arquitectónico moderno

Una primera trayectoria del diagrama arquitectónico moderno se inicia en 1795, cuando Jean-Nicolas Luis Durand (1760-1834) desarrolla en la Ecóle Polytechnique, un método de representación basado en puntos, líneas y planos que responden a la estandarización del Sistema Monge y sus requisitos de simplicidad y economía. El método gráfico de Durand es un sistema analítico y una metodología proyectiva: sintetiza la arquitectura en formas geométricas esenciales y combinables: elementos [elements] (muros, columnas, aberturas) agrupados en partidos [parties] (porches, pasillos, halles), combinados por ejes, simetrías y rotaciones, conforman conjuntos [ensembles]. La representación simplificada, entre lo abstracto gráfico y lo concreto constructivo, demuestra las posibilidades del diagrama como método gráfico-proyectivo (imagen 4).

En sus Lecciones de Arquitectura publicadas en 1805, Durand escribió: La arquitectura es esencialmente simple; enemiga de toda inutilidad; el género de dibujo que utilice deberá estar libre de todo tipo de dificultad, pretensión y lujo. Esto contribuirá a la velocidad, facilidad de estudio y desarrollo de ideas. Lo opuesto sólo hará que la mano sea torpe; la imaginación, perezosa; y el juicio, falso (cita en Vidler 2000, 11).

Presentando una segunda trayectoria del diagrama arquitectónico, The Portfolio and the Diagram: Architecture, Discourse, and Modernity in America (2002) de Hyungmin

Imagen 4

Pai rastrea, en la práctica norteamericana de inicios del siglo XX, el desplazamiento de la centralidad del portfolio hacia la hegemonía, a finales de la década de 1930, del diagrama. Hasta principios del siglo XX, el portfolio (colección de plantas esquemáticas y elevaciones renderizadas de los tipos históricos aceptados) era la base de todo diseño. Con el trasfondo del taylorismo, al inicio de las investigaciones sistemáticas sobre el diseño ergonómico, la economista Christine Frederick (autodenominada ingeniera de la eficiencia doméstica) publicó en Household Engineering (1915) (imagen 5) diagramas de recorridos dibujados con flechas y líneas comparando la eficiencia de los movimientos de un trabajador doméstico. Estos primeros estudios de eficiencia impactan en el contenido gráfico de las publicaciones arquitectónicas de fines de la década de 1920, hasta transformar el sentido mismo de la planta arquitectónica. El diagrama será recomendado por la teoría arquitectónica como una herramienta de análisis para la organización funcional. En 1923, Philip Sawyer sostuvo que con el diagrama de burbujas [bubble diagram], una vez que el problema está expuesto, es difícil equivocarse, porque muestra la mejor solución a desarrollar. En 1932, la primera edición de Architectural Graphic Standards institucionaliza el modo esquemático. En 1937, Percy Nobbs, en su Tratado para el Descubrimiento de la Forma recomienda establecer los componentes del programa con círculos, dibujando líneas para mostrar conexiones, reagruparlos luego para simplificar el diagrama y arribar a una configuración don-

de los programas adyacentes y ciertos espacios se revelen como nodos en red7 (cita en Lueder 2012).

A finales de aquella década, los diagramas serán ya ampliamente utilizados en el proceso de diseño arquitectónico, desplazando al portfolio como fuente de legitimidad.

En una tercera trayectoria, para demostrar la funcionalidad de sus viviendas, Alexander Klein (1879- 1961) realizó diagramas que ilustraban sus patrones de circulación. Estas plantas esquemáticas se publicaron en el libro de Catherine Bauer Modern Housing (1934) con el título La casa funcional para la vida sin fricciones. Klein proponía el análisis gráfico como método de valoración para seleccionar propuestas según criterios funcionales (imagen 6).

Pero hoy reconocemos que a pesar de su declarado objetivo científico de racionalización, el tratamiento gráfico de los diagramas, y una cierta semejanza (no reconocida)

con la notación de la danza, sugiere otra agenda (Lueder

7 No sorprende ni el uso del término diagrama, ni el énfasis en los círculos: ya en 1885 C. S. Peirce escribía, en

The Algebra of Logic, su crítica pragmática a los diagramas circulares de lógica formal de John Venn (1823- 1933): La deducción consiste en construir un icono o diagrama cuyas relaciones presentarán una completa analogía con las partes del objeto de razonamiento, en experimentar con esta imagen y en observar el resultado para descubrir relaciones inadvertidas y ocultas entre la partes.

2012, 218). Un lector contemporáneo lee hoy decisiones estéticas de celebración de la eficiencia, pero en aquel momento estos análisis se presentaban como métodos de evaluación objetiva. Manteniendo la postura analítica, Ernst Neufert (19001986), en la primera versión de su tratado de arquitectura funcionalista (repleto de todo tipo de diagramas), describió su proceso sistemático de diseño señalando que la fase diagramática inicial debía ser seguida por el proceso creativo. Finalmente, estas tres líneas de práctica, la racionalista francesa, la profesionalista norteamericana y la funcionalista alemana, confluyen en la agenda pedagógica de Walter Gropius (1883-1969) quién, al dirigir la Escuela de Diseño de Harvard desde 1937 hasta 1952, logró posicionar a la arquitectura moderna como la metodología de diseño dominante en la profesión arquitectónica de posguerra.

Diagrama arquitectónico posmoderno

La vertiente crítica del diagrama moderno recupera una trayectoria anterior: los historiadores de la arquitectura habían incorporado ya al diagrama como herramienta de análisis formal. Tanto en Vers une Architecture (1923) como en sus artículos en L’esprit nouveu (1920-1921) Le Corbusier reprodujo axonometrías que Auguste Choisy había incorporado a su Historia de la Arquitectura (1899), dibujos que representan, en una sola proyección, espacio y estructura (imagen 7).

El linaje moderno incorpora al diagrama como una metodología racional de resolución de problemas, sus diagramas enfatizan jerarquías y relaciones lógicas y evitan la semejanza con el objeto de análisis. Sobre factores económicos y constructivos (y bases psicológicas más elusivas), la receta recomendada en Harvard combinaba condiciones de sitio y sistemas constructivos, con soluciones estéticas individuales que producían variedad visual.

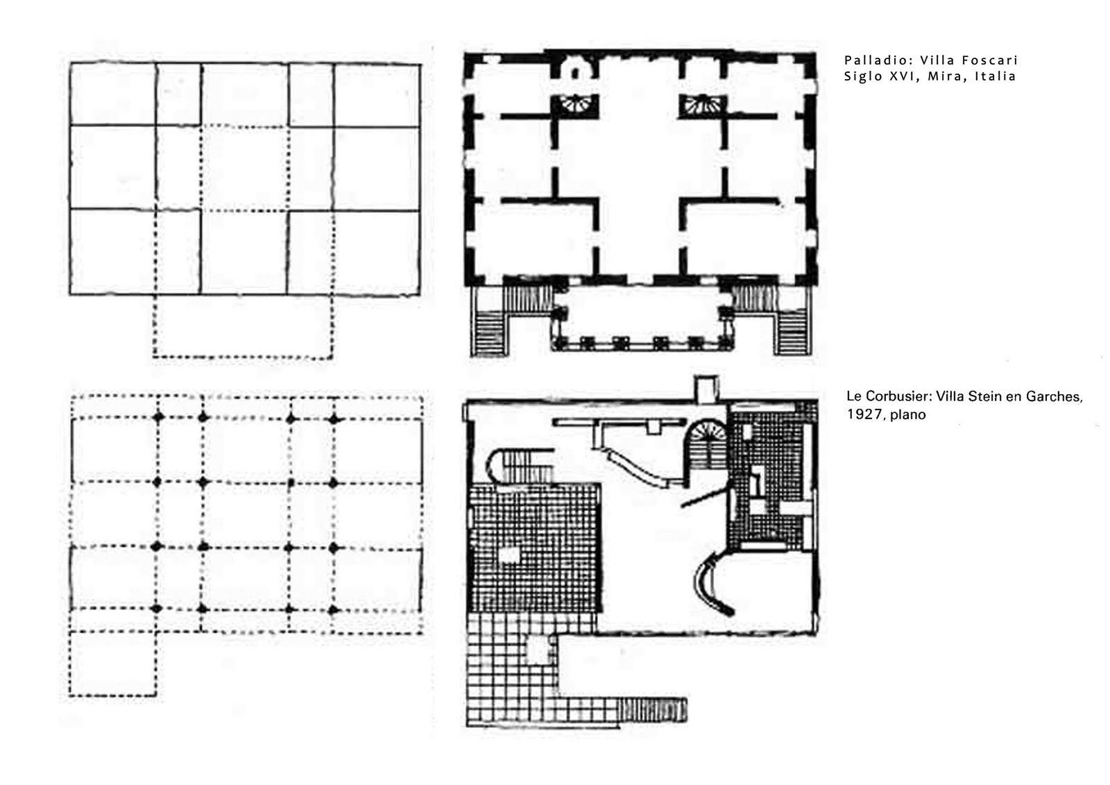
La interpretación espacialista de la arquitectura propuesta por Paul Frankl en The Principles of Architectural History: The Four Phases of Architectural Style (1914) y las plantas esquemáticas de los grupos espaciales renacentistas y barrocos incorporadas por Albert Brickmann en Plastk and Raum. Als Grundformen Künstlerischer Gestaltung (1924) allanaron el camino a análisis similares, fuertemente influenciados por la psicología Gestalt. En 1944, en su cartilla Plantas esquemáticas de once villas de Palladio, Rudolf Wittkower (1901-1971) analizó villas palladianas con diagramas que eliminaron cualquier indicación de sitio, material, tecnología, decoración, función o vínculos entre habitaciones, y más allá de algunas escaleras, movimiento (imagen 8).

Con estos dibujos, Wittkower reveló las plantas palladianas como variaciones de un sistema de reglas geométricas; a los once esquemas de villas, Wittkower agrega un esquema que sintetiza la estructura de sus variaciones

Imagen 7

formales, al que denomina Patrones geométricos de las Villas de Palladio: un diagrama que presenta al tipo arquitectónico como una sistematización geométrica (Hays 2016). Ampliando las premisas de la síntesis esquemática de Wittkower, el ensayo Las Matemáticas de la Villa Ideal, publicado en 19478 (imagen 9) por Colin Rowe (1920-1999) comparó la Villa Stein de Le Corbusier con las geometrías palladianas, proponiendo una dialéctica entre un diagrama ideal (paradigma/ tipo) y sus desarrollos específicos (implementación/programa) (Somol 1999).

Peter Eisenman ubica el diagrama de Wittkower como influencia del problema de los nueve cuadrados propuesto por John Hejduk (1929-2000) en la experiencia de los Texas Rangers en la Universidad de Texas Austin en 19549 como antídoto al diagrama de burbujas del funcionalismo de Harvard. La pedagogía de los Texas Rangers fue una revisión de los métodos de diseño que condujeron a la forma arquitectónica moderna. Influenciada por la euforia modular extendida por el congreso Proporzioni de la Trienal de Milán (1951) y por el libro Architectural Principles in the Age of Humanism (1949)

8 Publicado dos años antes del libro de Wittkower Principios arquitectónicos de la era del humanismo (1949), el discípulo parece adelantarse a su maestro.

9 Este problema pedagógico será paralelo al trabajo de Hejduk en sus siete Casas de Texas, realizadas entre 1954 y 1963

de Wittkower, el dispositivo proyectual del problema de los nueve cuadrados propuso un enfoque atemporal del problema formal en arquitectura, sobre la base de referencias geométricas generales (Oechslin 1997).

Basado en los ensayos Transparencia literal y fenomenal (Rowe y Slutzky 1955) y Chicago Frame (Rowe 1956), el dispositivo pedagógico del problema de los nueve cuadrados colapsó dos diagramas modernos, la estructura Dominó de Le Corbusier y las axonometrías de Van Doesburg y a través de la lógica planimétrica reductiva de Wittkower, propuso estrategias de formalización en articulaciones dialécticas: centro-periferia, vertical-horizontal, interior-exterior, frontalidad-rotación, sólido-vacío y punto-plano (imagen 10).

Peter Eisenman utilizará estas estrategias diagramáticas como herramientas de diseño, sometiendo al proceso de diseño a constantes operaciones de transformación (escalado, rotación, inversión, superposición, desplazamiento).

Operaciones formales que utilizará en una serie de diagramas en proyección axonométrica de sus proyectos de casas realizadas entre 1968 y 1983, iniciadas

desde un cubo neutral articulado con la grilla de los nueve cuadrados. A través de sus diagramas axonométricos, Eisenman desarrolla una ambigüedad conceptual que superpone dos concepciones de espacio: aditivo en capas y sustractivo volumétrico, ninguna de las cuales será dominante, cada una de ellas oscilando indefinidamente con la otra (Somol 1999, 16), (imagen 11).

Concepto filosófico diagrama

Paralelo al desarrollo de la historia disciplinar del diagrama arquitectónico previamente apuntada, en la década del setenta del siglo XX empezó a difundirse un concepto filosófico de diagrama basado en la discusión sobre el panoptismo. En Vigilar y Castigar (1975) Michel Foucault (1926-1984), usó la cárcel panóptica de Jeremy Bentham como instancia ejemplar de un funcionamiento abstraído de cualquier obstáculo o fricción, separado de cualquier uso específico (Foucault 1976, 207). Foucault llamó diagrama a su principio organizador, mecanismo de poder reducido a forma ideal. Aunque su funcionamiento se pueda concebir como un sistema arquitectónico y óptico, es en realidad una tecnología política que puede y debe distinguirse de su uso específico. El panóptico proporciona la fórmula para una generalización (Foucault 1976, 288).

A Foucault le preocupaba cómo el aparato de poder, a través de discursos y enunciados, configura dominios materiales. El panóptico existe como uno de los diagra-

mas subyacentes a los múltiples tipos institucionales de la sociedad moderna (prisiones, hospitales, escuelas, fábricas, cuarteles): El panóptico no tiene significados ocultos, el mecanismo es en sí un diagrama neutro y universal de poder reducido a su forma más simple como sistema arquitectónico óptico. Sin embargo, tampoco es un ideal utópico, ubicado en ninguna parte, como crítica de la sociedad. Es un mecanismo específico y concreto para la operación del poder en el espacio (Adams 2000, 7).

Analizando el concepto, en su libro Foucault (1987), Gilles Deleuze (1925-1995) se interesa por la relación de lo visible (complejos multisensoriales: procesos, acciones y reacciones) y lo articulable (discursos). Al mediador que resuelve esta relación lo llama diagrama. Deleuze afirma que la lista de diagramas de configuraciones del poder y conocimiento es tan amplia como las condiciones materiales históricas (Deleuze 1987, 43), es decir, su concepto diagrama describe una forma de entender un estado de cosas dado, histórico o contemporáneo; nos ubica en relaciones de poder, coaguladas o fluidas.

La lección del panopticismo no es apropiarse de la ‘figura panóptica’ como sistema organizativo, sino comprender a la sociedad como una entidad plástica, susceptible de múltiples diagramas y posibilidades de organización (Somol 1999, 24).

Considerando el papel clave que juegan los diagramas en sus teorías, a Joachim Krausse le resulta extraño que tanto Foucault como Deleuze no profundizaran, en sus estudios de identificación de regímenes organizativos,

Imagen 10

en diagramas concretos en contextos históricos concretos, ya que estos parecen ser parte del paradigma que identificaron en el panóptico de Bentham (Krausse 1998, 11). Mientras Foucault y Deleuze hablan de conceptos filosóficos como diagrama o máquina abstracta, Krausse documenta la construcción histórica de la herramienta gráfica diagrama y encuentra en el diagrama de Watts, pilar de la Revolución Industrial, un instrumento para la configuración de la sociedad moderna más potente que la idea de un edificio que no terminó de construirse nunca.

Confusas apropiaciones arquitectónicas del concepto filosófico diagrama

La crítica arquitectónica hizo una rápida adopción de la propuesta filosófica de Deleuze, incluyendo al diagrama en las operaciones entre la materia e información (Allen 1998) y los materialismos de lo intangible (Kwinter 1999), extendiendo la definición del diagrama más allá de la herramienta gráfica para presentarla como proceso formal. Sobre esto un crítico dijo entonces: El discurso sobre el diagrama, debido a su universal abuso, promoción y denigración simultánea, se ha vuelto confuso (Somol 1999, 7).

Las cualidades procesuales del diagrama adquirían entonces un nuevo significado para un medio que suplantaba el boceto dibujado a mano por la velocidad de los modos de representación digital en el desarrollo y documentación del proceso de diseño. La asociación con

la industria suponía el reemplazo de la estandarización por la fabricación automática de variaciones creadas digitalmente (CAD/CAM Compute-aided Design and Manufacturing). Con instrumentos y procesos permitidos por la interfaz digital, ciertas prácticas arquitectónicas exploraban, en aquel entonces, la calidad gráfica del diagrama al traducirlos, sin mediación, a esquemas arquitectónicos.

En Drawing, Thinking, Doing: From Diagram Work to the Superfold (2011) Hélene Frichot reflexiona sobre aquel momento de la crítica arquitectónica, que en lugar de enfatizar el sentido disciplinar del diagrama enfatizó la fuerza procesual diagramática deleuziana, sin prestar debida atención a la complejidad filosófica de la evolución del concepto en el propio Deleuze. Frichot encuentra en su filosofía tres tipos de diagramas: la máquina abstracta de Mil Mesetas, Capitalismo y Esquizofrenia (1980), los procesos diagramáticos creativos en Francis Bacon: La lógica de la sensación (1981) y los, ya comentados aquí, diagramas de poder y conocimiento descritos en Foucault (1984).

En Mil Mesetas, Capitalismo y Esquizofrenia10 Deleuze y Guattari, al describir el concepto máquina abstracta, llamaron diagramática a su operación. Un materialismo

10 Originalmente escritos en 1972 (El anti-Edipo) y 1980 (Mil Mesetas), los dos tomos de Capitalismo y Esquizofrenia serán publicados en inglés en 1987 y lentamente harán su ingreso en los círculos críticos norteamericanos.

Imagen 11

donde lo real está compuesto tanto de materia como de lógicas de organización y cada objeto es una composición de fuerzas resultado del trabajo de una máquina abstracta, agencia de ensamblaje, organización y despliegue de fuerzas que otorga forma y programa. En las teorías de la complejidad y sistemas dinámicos, las máquinas abstractas constituyen las incesantes interacciones que construyen la realidad material que nos rodea (Kwinter 1999, 33).

La máquina abstracta funciona de acuerdo con una combinación de materia y función; el diagrama es el acto de pensamiento (gráfico externo o procesual interno) a través del cual rastreamos los conjuntos animados de fuerzas para generar un modelo explicativo de una situación compuesta de funciones, acciones y materia: es un ejercicio que intenta dar cuenta del estado de las organizaciones, materiales o sociales, que emergen en diferentes situaciones y escalas (Frichot 2011, 1).

En Francis Bacon: lógica de la sensación11, Deleuze introduce un nuevo sentido a su concepto: el proceso

11 Originalmente publicado en 1981 en Francia, Francis Bacon, Logique de la sensation (Editions de la Difference). La revista ArtForum publica en 1984 un breve ensayo del autor, On Francis Bacon. De aquí proviene su uso en la critica arquitectónica norteamericana. El texto completo solo será traducido al inglés en 2003, publicado por Minnesota Press, de su segunda edición francesa en 2002 (Editions du Seuil).

diagramático incluye una serie de gestos encarnados, transportes hápticos entre el ojo, la mente y la mano, asociados con la práctica del dibujo. Para explicar este concepto de diagrama, Deleuze refiere al proceso creativo de los procedimientos artísticos de Francis Bacon.

Allí, el acto de diagramación permite que comience el trabajo, son marcas libres e involuntarias que confunden el lienzo al inicio del proceso. Deleuze indica que el lienzo nunca está vacío, que incluso antes de estos primeros trazos está lleno de hábitos, opiniones y clichés, de ello deduce una batalla entre el pintor y estos enfoques convencionales, batalla que se libra a través del diagrama: un conjunto operativo de líneas y zonas a-significantes y no representativas que señalan posibilidades, pero que aún no constituyen un hecho (Deleuze y Guattari 1993, 83).

Recuperación semiótica del diagrama

En Diagrams of Interface (2000), Tim Adams intentó explicar las problemáticas conexiones entre el concepto diagrama presente en Mil Mesetas y el de Charles Sanders Peirce. Y esto porque Deleuze y Guattari hacen explícito que la pragmática de Peirce es sinónimo del esquizoanálisis con el que nombran al proyecto de aquel libro. La tricotomía de los signos de la semiótica pragmática de Peirce se compone de íconos, índices y símbolos. El diagrama, integrando la categoría icónica, representa por similitud (aunque en Peirce, todos los signos son mezclas compuestas de diversos grados de las tres clases, de

modo que un diagrama será solo predominantemente icónico; es ayudado por convenciones simbólicas y por efectos indéxicos).

El diagrama representa las relaciones esenciales de partes de una cosa con relaciones análogas en sus propias partes. Uno de los ejemplos que da Peirce es el químico que experimenta con diagramas de estructura molecular, el experimento se realiza sobre las relaciones entre las partes, a través de relaciones correspondientes en el diagrama. Llama a esto sistema de diagramación, experimentos con lo real mediante operaciones sobre diagramas que capturan la naturaleza de sus relaciones (CP 3, 414)12.

Adams (2000) concluye que cuando Deleuze y Guattari dicen haber cambiado las relaciones entre el significante y el significado de la tricotomía del signo en Peirce (similitud en el ícono, efecto en el índice y convención en el símbolo) a relaciones entre territorialización y desterritorialización, están combinando a Peirce con Ferdinand de Saussure (1857-1913). Si bien Peirce dijo que este signo está en lugar de algo: su objeto, en la terminología de Peirce lo que determina la triada del signo son el representante (el signo en sí), el interpretante (proceso de interpretación inducido por el signo) y el referente (el objeto) (CP 2,136).

El término significante en la lingüística de Saussure

12 Peirce, C.P: Collected Papers, Volumen 3, 414.

corresponde al término interpretante en la semiótica de Peirce, pero cualquier cambio entre una dicotomía y una tricotomía es problemático. Resultado de esto Deleuze y Guattari deben aclarar que, en su programa, los diagramas deben distinguirse de los índices (que son signos territoriales) y de los símbolos (que pertenecen a la desterritorialización), pero también de los íconos, que pertenecen a la re-territorialización. Y concluyen: Diagramáticamente, una máquina abstracta no es ni una infraestructura determinando la instancia última, ni una idea trascendental determinando la instancia suprema. Tiene un rol de conducción. La máquina abstracta no funciona para representar, incluso algo real, sino para construir un real que está por venir, un nuevo tipo de realidad (Deleuze y Guattari 1988, 142). Muchas confusiones de la crítica arquitectónica respecto del diagrama derivan de este fragmento. El lingüista danés Louis Hjelmslev (18991965), en Prolegomena to a Theory of Language (1961) propuso un nuevo modelo semiótico. En lugar del modo bilateral del signo en Saussure entre significante (sonido) y significado (concepto), en el modelo de Hjelmslev encontramos expresión y contenido, planos inseparables de la función de signo, estratificados en forma (sistema de formas), sustancia (materia semióticamente formada) y materia (pre-semiótica, continuo amorfo indiviso). Deleuze y Guattari diluyen el diagrama de Peirce en el modelo de signos de Hjelmslev: el diagrama para ellos es una máquina abstracta al nivel del estado de la materia no formada, actuando sobre el potencial de

ensamblaje. Para ellos, el diagrama no es un signo y por ende no representa, se mezcla con los signos debido a la función del lenguaje. En su semiótica asignificante, el diagrama, máquina abstracta desterritorializada, tras su trabajo no deja más que materia y función.

En el año 2002, intentando escapar de las confusiones imperantes en la crítica arquitectónica de entonces, Robert Somol, junto a Sarah Whiting, escriben Notes

Around the Doppler Effect and Other Moods of Modernism

El ensayo presenta al diagrama como la herramienta que reemplazará al enfoque crítico de la arquitectura.

Centrando su mirada en los artículos Aspects of Modernism: Maison Dom-ino and the self-referential sign (1979) de Peter Eisenman y Critical Architecture, between culture and form (1984) de K. Michael Hays, el texto critica como aquellos autores utilizan el concepto índice13 en la lectura de la Maison Dom-ino y el Pabellón de Barcelona.

Para ambos, dado que el índice es un signo físico que combina materialidad con significación (sin estar tan cultural o visualmente determinado como el símbolo

o el ícono), la Dom-ino y el Pabellón son tanto objeto como representación de sus procedimientos. Para Somol y Whiting esta insistencia en la auto-referencialidad demuestra el proceso de regresión constitutiva del proyecto crítico. Algunos años después, en Green Dots 101 Re-thinking representation (2007), Somol propone una 13 A pesar de utilizar conceptos de su semiótica, ni Hays, ni Eisenman, ni Somol o Whiting citan a Peirce.

genealogía perversa entre la figuración de John Hejduk y la decoración de Robert Venturi y presenta al diagrama como un protocolo gráfico capaz de alejar la arquitectura de su fijación con las complejidades formales de la manipulación geométrica (Somol 2007, 29).

Somol prefiere aquí la eficiencia gráfica del diagrama a la complejidad algorítmica de la notación tectónica (híbrido de Eisenman con Frampton en doble indexicalidad, de generación de forma y fabricación). Contrario a la complejidad digital del blob, Somol propone la eficacia gráfica del logo y lo llama acto gráfico [graphic act], refiriendo al acto del habla [speech act]14 de J.L. Austin (1911-1960). Concluye que al pasar del idioma trágico de la crítica, al idioma gráfico de lo proyectivo15, la performatividad del logotipo no representa, hace (Ibíd., 37).

Finalizando esta trayectoria de recuperación operativa del diagrama arquitectónico, Pier Vittorio Aureli (2005) propone un entendimiento semiótico de esta herramien-

14 En filosofía del lenguaje y lingüística, el acto del habla [speech act] es una expresión que no solo presenta información, sino que realiza además una acción.

Incluyen actos como disculparse, prometer, ordenar, responder, solicitar, quejarse, advertir, invitar, rechazar y felicitar

15 Un juego de palabras de difícil traducción. Para contraponer al tragic idiom, Somol usa comic idiom, que puede ser interpretado como lenguaje cómico o como lenguaje del cómic gráfico.

ta gráfica que, mientras imagina aspectos inmanentes de cosas, eventos y sus relaciones, representa también una idea. Nos dice entonces que la efectividad del diagrama radica en su atractivo como ícono. Así, Aureli propone restablecer un discurso sobre el diagrama que aprecie su peso en nuestra imaginación sobre el mundo (Aureli 2005, 9). Este breve artículo es un intento por comenzar ese camino. Adams (2000) utiliza el término en inglés purport (significado, sentido, intención, tenor de una declaración) aún alegando estar incómodo con esa traducción de la palabra danesa mening. Umberto Eco, en sus textos sobre Hjelmslev prefiere traducirlo como materia. A pesar de utilizar conceptos de su semiótica, ni Hays, ni Eisenman, ni Somol o Whiting citan a Peirce.

Referencias

Adams, Tim (2000). “Diagrams of Interface, or, Deleuze and Guattari’s Legacy to Architects” en Der Architekt, 9 Deleuze Symposium, Universidad de Western Australia (1996)

Aureli, Pier Vittorio (2005). “After Diagrams” en Log, 6: 5-9

Blumenberg, Hans (2009 [2013]). Historia del Espíritu de la Técnica, Valencia: Pretextos

Carpo, Mario (2001). Architecture in the Age of Printing, Cambridge: MIT Press

Deleuze, Gilles (1984 [1987]). Foucault, Barcelona: Espasa

Colin Rowe and Robert Slutzky (1997). Transparency, Basel: Birkhäuser,: 9-20 Pai, Hyung Min (2002). The Portfolio and the Diagram: Architecture, Discourse, and Modernity in America, Cambridge: MIT Press

Deleuze, Gilles y Guattari, Felix (1980 [1988]). Mil mesetas: Capitalismo y Esquizofrenia, Madrid: Pretextos

Deleuze, Gilles y Guattari, Félix (1991 [1993]). ¿Qué es la filosofía?, Barcelona: Anagrama

Foucault, Michel (1975 [1976]). Vigilar y castigar. El nacimiento de la prisión, México: Siglo XXI

Frichot, Helene (2009). “On the Death of Architectural Theory and Other Spectres” en Design Principles and Practices: An International Journal, 3

Hays, K. Michael (2016). “Architecture’s Appearance and the Practices of Imagination” en Log, 37: 205-213

Krausse, Joachim (1998). “Information at a glance. On the history of the diagram” en Diagrams OASE, 48: 3–30

Kwinter, Sanford (1998). “The hammer and the song” en Diagrams OASE, 48: 31–43

Lueder, Christoph (2012). “Diagram Ecologies” en Cox P. y Rodgers P. (eds.) Diagrammatic Representation and Inference Lecture Notes in Computer Science, Berlin: Springer

Oechslin, Werner (1997). “Transparency: The Search for a Reliable Design Method in Accordance with the Principles of Modern Architecture” en Hoesli, B. (ed.)

Somol, Robert (1999). “Dummy Text, or the Diagrammatic Basis of Contemporary Architecture” en Eisenman Peter, Diagram Diaries, New York: Universe Publishing, 1999: 6-25

Somol, Robert (2007). “Green Dots 101” en Hunch, 11: 28-37

Vidler, Anthony (2000). “Diagrams of Diagrams: Architectural Abstraction and Modern Representation” en Representations, 72: 1-20

Vidler, Anthony (2001). “Diagrams of Utopia” en Zegher, C. y Wigley, M. (ed.) The Activist Drawing. Retracing Situationist Architectures from Constant’s New Babylon to Beyond, Cambridge: MIT Press, 2001: 83-91

High-rise: politopos hostiles por deformacion

vertical*

Carlos Tapia**

* Este artículo es un capítulo del libro High-Rise, IAU-SC-USP, donde consta bajo el título High-Rise: hostile polytopes by vertical deformation . Agradecemos al autor y sus editores las autorizaciones para esta publicación.

* * Arquitecto, Doctor y Profesor Universidad de Sevilla. Escuela Técnica Superior de Arquitectura. Departamento de Historia, Teoría y Composición Arquitectónicas.

Verticalizar las ciudades ha supuesto un enorme desarraigo social, en el sentido esperable del alejamiento del suelo como soporte, que hace distanciar por altura a las clases sociales y atribuir a las ciudades globales en liza, al vivir imaginalmente arriba, una representatividad arribista. La pregunta que nos hacemos asume que debe haber algo más profundo que la especulación capitalista de la construcción en altura y aspira a indagar en las caracterizaciones estatutarias de la arquitectura, donde las propias formas de los edificios presentarían una imposición social (externa) al tiempo que una distorsión de los principios proyectuales (interna). En un recorrido que encuentra su disparadero en las afirmaciones del arquitecto Anthony

Royal en la novela de Ballard High-Rise (imagen 1) explicando su proyecto de rascacielos, ahondaremos en los principios proyectuales y compositivos históricos de la Arquitectura, como parece ser la deuda conceptual de Royal, pero la extenderemos en las deformaciones que, como concepto, el cubo sacro arquitectónico ha tenido en la historia de la arquitectura. Sobrepasados los años 70, no solo por la fecha de la novela de Ballard, sino por

el sesgo social impuesto por Lefebvre enfrentado al desenfreno edilicio, iremos hacia el estudio de algunos proyectos en altura contemporáneos, para constatar nuestros supuestos de distorsión, tal vez por inconsciencia, pero probablemente por orquestación mediática, en la comprensión de la (imagen) de la arquitectura global.

1 Introducción. La dimensión de dominación de la verticalidad no es la altura

Se cuenta que en la corrupta y presionada Florencia de Ferdinando II de Médici, el gran duque de la Toscana e hijo de Cósimo II, debía despachar en el verano de 1652 con los supervisores de las obras del campanario de la Iglesia del Santo Spirito. El duque, de talante conciliador, atributo por el que, sin embargo, fue considerado mal gobernante, no estaba ese día cumpliendo con la naturaleza de su carácter, toda vez que el funcionario fue por él maleducadamente interrumpido.

El equilibrio político y territorial de Florencia se mantenía entonces en un alambre de sección débil, atado a puntos conflictivos mediante lazos de aparente neutralidad (Capponi, 2004). Rodeado por los territorios papales salvo por el flanco suroeste, que era del control de la Corona de España, Flo-

rencia no estaba como para que un funcionario comenzara el relato de las obras desde el mismo momento fundacional de la nueva iglesia encargada a Brunelleschi, que sustituiría a una anterior tragada por el fuego, glosando parsimoniosamente sus planos, dibujados alrededor de 1444. El duque le espetó que siguiera hablando, que cuando hubiera culminado la narración de los dos siglos faltantes, él ya volvería para escuchar lo que concernía verdaderamente al problema de la obra del campanile en cuestión.

Uno puede imaginar que, para un arquitecto con el encargo de una edificación en altura, la consideración técnica -su dificultad más axiomática-, no es el principal problema a considerar. Podría decirse, y ésta es la hipótesis de este escrito, que las dimensiones de la verticalidad no son dominadas por su altura o que la dominación de la altura provee dimensiones más profundas que erectas –debe decirse, por su elevación y por su capacidad de obliteración de otros, abismales (de Sousa, 2000)-, más expansivas que hieráticas.

En un relato tradicional del sentido de lo vertical en arquitectura, es innegable que el parámetro más empleado es el de la distancia al suelo, siendo proporcional su incremento de medida física con la desmedida ambición de demostración de poder. Sin embargo, si aludimos a la proporcionalidad es precisamente para distinguir entre la simple exhibición de testosterona

con la sutileza de los mecanismos de dominación por verticalización, que no precisan de mucha altura, pero sí de calado.

En los últimos tiempos, hay ejemplos destacados en los que la discusión sobre el control del ejercicio de exhibición de poder por parte de poderes fácticos (especuladores inmobiliarios y/o arquitectónicos, escenarios geopolíticos, regencias basadas en la megalomanía, mercados exclusivistas para autosegregación de las clases adineradas, etc.) encuentran trabas a la ocupación permanente de las alturas. Puede ponerse de muestra la resistencia del alcalde de Londres a la Tulip Tower de Norman Foster (imagen 2), proyectada en 2016 y, tras cinco años de controversias, finalmente rechazada por un panel de expertos. La razón esgrimida consideraba que la presentación del proyecto ni siquiera logró aportar una explicación clara sobre la forma final. Lo interesante aquí es que el alcalde en persona, Sadip Khan, aludió sin tapujos a la calidad proyectual insuficiente de la Torre y que, dada la relevancia de su ubicación, que sería perjudicial para el horizonte visual de la ciudad, sin olvidar que, a ras de suelo, la torre es estéril.

2. N.Foster , Tulip Tower

Es decir, que la aportación urbana como espacio público era ínfima. Debe reconocerse aquí que la proverbial relación que ha dado la verticalidad a la consecución de la grandeur, ya no es tan inmediata. Sobre ello ya escribió Balzac (1830:44) preguntándose retóricamente si, por casualidad, la mayoría de los objetos que sirven a la vida elegante no pertenecerían al ámbito de la arquitectura. Aunque tampoco es que sea algo heroico por parte de los londinenses eso de ahorrarse una torre, vista la densidad de los postes totémicos con que la city exalta aún más su poder recientemente.

Un segundo ejemplo de lo desmedido bajado a tierra podría ser la Dubai Creek Harbour Tower (imagen 3) que Santiago Calatrava presentó y empezó a cimentar en 2016, hasta que en 2020 ya no se tenía la convicción –diríamos, babélica– de querer levantar un palmo más.

Ni los intentos de Foster de definir a su torre como un icono por derecho propio, ni las estimaciones de beneficios que Deloitte valoró en mil millones de libras para 2045, atrayendo a 1,2 millones de usuarios al año, ni las contenciones de emisiones contaminantes que contempló la consultoría del proyecto, junto con los servicios educacionales y sociales añadidos, dieron luz verde al promotor privado, el multimillonario brasileño Jacob Safra. Por su parte, Santiago Calatrava y su hijo Micael (director ejecutivo de Cala-

trava International LLC) convencieron exitosamente en su día con el relato del alcance por verticalidad histórica al inspirarse en la tradición islámica, esa que produjo la Alhambra y la Mezquita de Córdoba, como ellos mismos alegaron. Muy probablemente, su Alteza Shaikh Mohammad Bin Rashid Al Maktoum, Vicepresidente y Primer Ministro de los Emiratos Árabes Unidos, y gobernante de Dubái, escuchó con más paciencia que el Médici los casi 8 siglos que amalgamaban civilizatoriamente las piedras del lado Penibético de Al Ándalus con las arenas dunares del lado del golfo Pérsico. Tal vez fuera porque, con la falsa modestia del que no da importancia a construir el observatorio más alto del mundo, a 1300 metros de altura, el tándem Calatrava dimensionó el alcance de su construcción más profundamente, en las raíces en el arte clásico y la cultura de Dubái. Confiados y animados por la buena recepción de estas primeras justificaciones, amplificaron las cláusulas de su discurso hasta asegurar que, gracias a la oportunidad que ofrecía la construcción de la torre, Dubái tendría a su alcance su propio Risorgimento, a la italiana, como algún diario español testimonió de aquella cobertura del acto promocional de la torre (El Español, 12/12/2021).

Si tal resurgimiento ahonda en la rivalidad entre los propios Emiratos Unidos, o en la permanente condición de ciudad-fénix, consumida por el fuego de su propio exceso, no parecía estar entre las significaciones conscientes

que la defensa del proyecto vertía, y sí una especie de conexión con un punto originario donde lo que somos, y habíamos olvidado, se nos revela. Es decir, no tanto Risorgimento -la reunificación italiana-, sino más bien aludir a la Renaissance florentina de la época de los primeros Médici y del Brunelleschi de la Chiesa di Santo Spirito.

Pero entre punto de origen y punto de destino no hay una progresión lineal (Sherer, 1995:38), como tampoco es admisible arrogarse legitimidad por el manejo –no muy preciso– del análisis histórico. Nótese que hemos tenido la precaución de introducir el Renacimiento no como Rinascimento, sino como Renaissance, por la literatura1 imperiosa de conjugación de esta época que, Tafuri y su progetto storico, ha matizado muy bien, subido en una compren-

1 De la influyente lectura del libro de Burckhardt Civilization of the Renaissance in Italy de 1860 se discurre un repudio del término en inglés por parte de los intelectuales italianos como Delio Cantimori en 1932. La recuperación de Rinascimento articulaba la visión más populista de la época, que Ruskin ensalza, siendo no aristocrática, en una visión enfrentada a la de Burckhardt que, como veremos más adelante, servirá de base a programas políticos fascistas para la exaltación nacional. Ver, Medina Lasansky, 2004.

sión de su presente que no del todo llega a nuestros días, pero que debería haber servido de precautoria a los proyectistas de rascacielos para no frivolizar con sus justificaciones promocionales. Tafuri (1997) dice de Brunelleschi que, al valerse de fragmentos de la sintaxis antigua, anticipaba una racionalidad futura mostrando con convicción todo aquello que había sido obliterado. Nótese, empero, que eso era acción proyectual, y no palabras escritas en la arena de un médano. De todo ello, lo que no se deriva es la expectativa de que toda torre admisible deba expresar los genes de su origen, sino el sonrojo de quien se aferra a una dimensión microscópica (los genes) para justificar un récord de altura, como consecuencia de que la arquitectura es siempre más que su construcción. Lo que sucede es que hace falta tener un talento como el de Louis Kahn para tal síntesis –a los arquitectos mencionados tampoco puede atribuírseles insolvencia-, pero sobre todo una precisión intelectual y verbal (formal, ética y comunicativa) como para insertar sin pretensiones de dominación una edificación en altura2. Y esto último no es tan habitual, ni por la apor-

2 Las torres gemelas de Nueva York no pertenecían a una corporación multinacional que

3. S.Calatrava Dubai Creek Harbour Tower

4A. Louis Kahn, Laboratorios Richards, Universidad de Pennsylvania, Filadelfia, 1957-65. Estudio definitivo.Lápiz sobre papel.

tación arquitectónica ni por la receptividad social: rascacielos es siempre sinónimo de polémica.

No obstante, explorada la vía dolorosa que lleva al calvario al arquitecto colaboracionista –tanto el de la pérdida de encargos como el de la crítica social–, conviene determinar el camino de la propia tipología en altura, como figuración de que no hay otro alcance posible sino el de dominación. Y, más allá, si toda arquitectura es más que sí misma.

2 De lo inconmensurable a lo inconmensurable, pasando por lo medible

A great building ... must begin with the unmeasurable, go through measurable means when it is being designed, and in the end must be unmeasurable... The psyche is expressed by feeling and also thought and I believe will always be unmeasurable. I sense that the psychic existence-will calls on nature to make it what it wants to be.

doblegara culturas más allá de sus fronteras norteamericanas ni pertenecían a los poderes fácticos, institucionales o religiosos. Aquí, bajo nuestros supuestos, el derribo ominoso de las torres no es un acto estético como dijo en su día Karlheinz Stockhausen, ni de distribución de culpas como dijo Virilio, es poner en medidas lo inconmensurable que es la dimensión vertical de por sí.

Louis Kahn, 1961 (Bletter, 1993 citando el libro del mismo año de Wilder Green: Louis I. Kahn, Architect: Richards Medical Research, pág 3).

En los años 50, Kahn recibe el encargo del Richards Medical Research Building, que el arquitecto fundamenta sobre los dibujos hechos por él durante su viaje por algunos países del Mediterráneo entre 1928 y 29, cuando aún no tiene concedida su licencia de arquitecto. Siendo uno de los más exquisitos proyectos del arquitecto norteamericano nacido en Estonia, el rastreo de su causa proyectual aporta una clarificación a la exploración de la verticalidad arquitectónica. Kahn, entre los otros bocetos con motivos de torres, se centra en el estudio del esbozado en la pequeña ciudad de San Gimignano (imágenes 4A-4B).

Si admitimos ese origen para una investigación arquitectónica, y poder parangonarla en esa otra de orden superior –que haya arquitectura más allá de sí misma–, es porque podemos colegir que la expresividad medieval toscana de deseo de altura sería el lugar primordial occidental al que acuden en busca de un modelo los arquitectos de torres y los poderosos que las ordenan. Este modelo existía con anterioridad, como tantos otros ejemplos muestran, construidos o soñados, como el mausoleo de Lars Porsenna en Clusium, Italia (500 dC), pero es su conjunción de perfección compositiva, ligada a

4B. Louis Kahn, 1928-29. Acuarela. San Gimignano, Italia.

la literalidad del ejercicio de poder de altivez formal la que parece haber calado en la psique tanto de arquitectos como de mandatarios en cualquier parte del mundo.

El florecimiento de San Gimignano acaece por su estratégica situación durante la Baja Edad Media, por ser un punto de descanso de peregrinos en la Via Fancigena, camino francés hacia Roma.

A inicios del siglo XIII, siendo ya ciudad libre y regentada por un podestá al que se le requería ser extranjero y con limitación de cargo de seis meses para garantizar la neutralidad territorial, no pudo impedir verse envuelta en las disputas de güelfos –caros a los papas– y gibelinos –fieles al emperador–para finalmente ser parte del territorio de control florentino. La prosperidad se hacía patente en las disputas por las alturas de las torres que las familias adineradas se obstinaban en levantar en la colina de la ciudad, que tiene una cota ya de por sí de unos 330 metros. Disputas ridículas hasta el incumplimiento reiterado de la ley que impedía ser más alta que la que exhibía el palacio del podestá, de 50 metros -con el consecuente mandato de derribo parcial-, o impidiendo el uso de una medianera común en un solar a construir por un rival, dejando un recoveco del ancho de un ladrillo como divisoria entre propiedades. Como testimonio aun impresionante de la perplejidad que ha causado a los viajeros desde hace 5 siglos, quedan 14 de las

72 torres que las crónicas han contabilizado. Las torres son de influencia pisana, construidas con gruesos muros (de hasta 2 metros de espesor), tienen en los niveles inferiores huecos altos y estrechos e, interiormente, la altura entre plantas es doble, subdividido ese espacio por forjados de madera que emergen en algún caso como balcón. Se emplearon como salas, con cocina en las plantas superiores, para evitar riesgos por un fuego ascendente. Fueron usadas como recurso defensivo, pero también como hospederías, pero siempre erigidas como demostración de poder. No se construyeron más torres después del siglo XIII, reemplazadas por otras suntuosas construcciones, palacios, cuya característica principal es la asunción estilística definitoria de otras ciudades del entorno, por lo que, y esto es importante, hasta inicios del siglo XX, algo antes de que Kahn dibujara sus calles, la dispersión ecléctica de expresiones arquitectónicas era la dominante.

Lo que vio y pintó Kahn no era el resultado del devenir de siglos, sino de una depuración estilística que ensalzara la unidad italiana –aquí sí, Risorgimento–, mediante la pureza medieval, y que recompusiera los estragos que el Partido Nacional Fascista italiano consideraba heredados del régimen anterior al acceder al poder en 1922 (Medina Lasansky, 2004). Este tipo de actuaciones, extendidas por todo el país, consideró durante 22 años que la

doctrina fascista tenía su correlato en el espacio urbano3 y que el Medievo

3 Es de hacer notar que no solo el fascismo se arropó de medievo para sus fines de ordenamiento urbano-social. Recuérdese la tentativa de los rascacielos Littoria –una primera tentativa de 88 plantas (335 metros) con un ejercicio de eclecticismo en 1924 en Roma y luego una segunda racionalista en 1937 en Milán–, mandados hacer por Mussolini al arquitecto Mario Palanti en la primera opción romana (imagen 5).

Palanti se había ido temporalmente a Buenos Aires y construyó el edificio Barolo en 1923 y después a Montevideo, para competir consigo mismo, realizando el Palacio Salvo, en 1929. Una dedicatoria del Duce al arquitecto como agradecimiento por el regalo de un cachorro de sabueso argentino muestra la relación altura-fascismo: Per la Mole Littoria, Alalá. La frase tiene enjundia puesto que es parte del grito de guerra compuesto por el poeta fascista D’Annunzio: Eja, eja, eja, Alalà (Neumann, 2014: 143).

No es que hubiera un estilo prevalente, por tanto, sino que racionalistas, historicistas o los protofascistas del futurismo italiano compartían esa transferencia. Lo importante es hacer ver la envergadura de la arquitectura como trasmisor de ideología, al asociar los orígenes históricos a un destino común. El trabajo de investigación de Medina Lasansky da una información detallada de este asunto. Por otro lado, San Gimignano quedó aislado hasta el fin del siglo XIX, absorbiendo Poggibonsi, una población cercana, infraestructuras y edificaciones propias de la modernización. De esa forma, no hubo grandes transformaciones epocales, hasta 1922. Hoy diríamos que en ese año se

era la expresión de la Italianità. La época de los Médici, hasta la última de ellos, Ana María Luisa, en el siglo XVIII, los condottieri, Dante, Petrarca, Piero de la Francesca, o ciudades como San Gimignano pasaron a ser modelos de virilidad, superioridad de raza y orden. Las obras que los arquitectos fascistas realizaron para la conjugación integral de fachadas y espacios, que aún se pueden ver y que no era aquella vista por las hordas históricas de turistas antes de la refinación, demuestra cuán cardinal es la pregunta por la arquitectura más allá de sí misma.

Que el orden sea una de las claves proyectuales más vehementemente defendidas por Kahn al describir su obra no es objeto de duda (Lobell, 1979: 18). Que hagamos un encuentro entre lo redescubierto por Kahn en sus propios dibujos 30 años después, como orden en los volúmenes de San Gimignano, puede parecer forzado o simplemente obvio, pero en ningún caso se podría asociar a un ordenado político, sino arquitectónico. Para argumentarlo, puede decirse que hay más dibujos sobre los que mirar con atención, produjo una disneylandización de San Gimignano.

como el que hizo Kahn de los vanos centrales en la tabla del Ponte Vecchio en Florencia. Se trata de un apunte rápido, elegido el motivo apoyando la espalda en el monumento a Benvenuto Cellini, mirando Arno arriba, sol de tarde y seleccionando el encuadre meramente en 2 de los 3 espacios abovedados inferiores liberados que sostienen el Corredor de Vasari en el vano central del puente. Si se tratara de una comprensión de trasfondo político, habría seleccionado un ángulo de visión mayor, una correlación entre Signoría, Uffizi, Ponte, Palazzo Pitti que marcara la verticalidad como dominación urbana por tal elemento horizontal. Bastaba con bocetar la galería encima de la logia sí pintada y dar continuidad cromática con el apenas tratado brazo vasariano que enlaza la orilla derecha con los Uffizi. Cósimo I de Médici mandó construir al pomposo y sin embargo inseguro giorgin Vasari ese pasadizo para no sufrir atentados, lograr espiar a sus enemigos y poder moverse desde el trabajo a su residencia sin restricciones. Un magistral ejercicio de verticalismo de desarrollo horizontal para la dominación es este corredor. Pero Kahn se conforma con el estudio de la transición espacial en la trama urbana que se adhiere singularmente en la tipología de puente y la singulariza con la distinción de un depósito de pigmento impuesto, no veraz, entre volúmenes. La suntuosidad de la fachada

5. M.Palanti Mole Littoria Roma 1924

de la galería de los Uffizi es irrelevante frente a la búsqueda de una morfología compositiva esencial, su volumen cero como él solía llamarlo4.

En la voluntad de orden, Kahn aclara que no hay nada relativo al hombre (man) que en verdad sea mesurable. Al contrario, es inconmensurable, y tan solo se le permite la inter-mediación, como empleo de la medida, que significa hacer posible la expresión de algo (Lobell, 1979: 14). Basta el apotegma

Order is para notarlo: ninguna cifra lo dimensiona, ningún tratado lo respalda, ninguna definición mejora la expresión del pleno existir que detener ahí lo que puede ser dicho.

4 Ian Hochstim sugiere una causa para ello. Hay un magnífico apunte del Ponte Vecchio de 1929, en grafito, que él publica en su libro The paintings and sketches of Louis Kahn (1991) Rizzoli: New York. Deja constancia del encuentro del puente (con las construcciones existentes antes de los bombardeos en la II Guerra Mundial) con la margen izquierda del Arno, evidenciando con su enfoque la sutileza del engarce, mediante el desdibujado de los detalles por el destacado de los reflejos dinámicos del agua. Según Hochstim, es uno de los 4 dibujos sobre puentes que hizo hasta 1936 y en concreto fue muy inspirador para su trabajo como arquitecto. Tanto es así, que su hipótesis es que el apunte en acuarela que usamos no habría sido hecho in situ, sino ya en Pensilvania, de memoria. De ahí la necesidad de dibujar aquello que le era útil para explicar un concepto formal, y no para ser fieles a una visión política.

El Richards Medical Research Building, declaradamente basado en las dislocaciones por verticalidad inesperada, por boca y pincel de Kahn, presenta la soltura del que domina los procesos escalares, de significación subrogada y de formalización ejemplarizante. A diferencia de otros ejemplos notables de arquitectura vertical, los elementos propios para atribuirles la representatividad que le otorga el ascenso por jerarquía no son aquí sino los secundarios, los servidores: escaleras, ascensores, cuartos de servicio, conductos, etc., mientras que las más bajas, deudoras de la presencia de las torres que componen el conjunto reciben los laboratorios, oficinas y salas de investigación principales.

Trabajando en la cadena helicoidal de relaciones que atan la dimensión vertical a una razón de dominio indiferente a las evoluciones temporales, el editor –y no productor– genético5 que es Kahn, maniobra en la alteración

5 Permítaseme la licencia de metaforizar con la técnica por CRISPR. Tal es el nombre de unas secuencias repetitivas presentes en el ADN de las bacterias, que funcionan como autovacunas. Contienen el material genético de los virus que han atacado a las bacterias en el pasado, por eso permiten reconocer si se repite la infección y defenderse ante ella cortando el ADN de los invasores. La técnica, extrapolada a cualquier célula, permite desactivar o insertar genes. Pero esto ya estaba en el ser de la arquitectura, cuando Valéry pone a dialogar a Eupalinos con los ecos de la Instauratio Urbis

piranesiana: profundizar las partes inexploradas de su arte rompiendo ensambladuras de ideas petrificadas y volviendo a considerar las cosas en su fuente (p.154).

Dando por cierto esa redención por el arte, Kahn, podría ser como Jacob6, la figura del acróbata que des-dimensiona la verticalidad, sea del Cielo o del Poder, pero para nosotros, lo desmedido aquí es la inmensa e injustificada confianza en la arquitectura, a pesar de Balzac, que ni los ejemplos de Foster ni Calatrava, ni los procesos de desigualdad derivados de la cada vez mayor verticalidad residencial en las ciudades de todo el mundo, consiguen hacer valer. Y es que Florencia, como la definió Simmel (2007:42 [1906]), es la suerte de las personas maduras, que han conquistado lo esencial de la vida o que han renunciado a ello y que, para alcanzar esa posesión o renuncia, ya sólo buscan su forma.

Al igual que Cósimo I de Médici, disfrutar de la verticalidad por la elevación al poder, conlleva sufrirla, como cuando acusado por sus excesos, fue reo en una de las celdas que la torre del Palazzo Vecchio, sede de la Signoria tiene en lo más alto. No deja de asombrar cómo la contemplación de la ciudad por sobrevuelo es a la vez el deseo y la expiación del pecado capital de la

6 Sloterdijk (2012: 167) dedica muchas páginas a la idea del acróbata. Proviene de la expresión griega para decir ir de puntillas con la que se designa la forma más simple de una antinaturalidad natural. Un atleta no es un acróbata, al no provocar asombro su destreza, como sí hace este último. Jacob acerca el cielo al soñar la escalera por la que subir temerosamente de puntillas de las jerarquías operativas de la arquitectura. Como creador, y un editor lo es, causaba admiración entre sus estudiantes con frases como siento que la existencia-voluntad psíquica llama a la naturaleza para que sea lo que quiere ser, determinismo que no puede sino ser entendido desde la adquisición de forma: la forma humana, la forma de una flor, etc. Lo que el humano después haga o devenga como resultado no es atributo de su competencia, aunque diríamos que sí de su responsabilidad. Así, el orden es formal, pero no moral, y su resultado es siempre inferior al espíritu de ser, que siempre es elevado. Es decir, que la acción de la arquitectura trabaja en la medianía que logra explicar la estatura que se ha de poseer para comprender que se mira con anhelo hacia arriba, puesto que los destinos siempre se hallan en la descorazonadora inercia del ir hacia abajo. Y como la arquitectura, la estratificación social, solo que, como explica Sloterdijk (2012: 166) sobre la verticalidad humana, las marchas del hombre moderno siguen siendo dirigidas desde las alturas, ya no en forma de religión, sino de las manifestaciones subversivas del arte. Al sobrevolar lo establecido socavan las inercias verticales desde la propia verticalidad.

vanitas. Idea suficientemente sugerente como para que Dejan Sudjic (2002) dijera que Koolhaas es un Savonarola enfundado en un traje de Prada. No salimos de la Toscana. Es una suerte de interpretación psicológica que ha tenido sus momentos de literatura fértil en distintos tiempos. Frente a la excavación del inconsciente por Freud o Jung, de una inevitabilidad de razón eminentemente biológica que jerarquiza en vertical los órdenes y desórdenes de la vida, la psicología de las alturas de Max Scheler, donde a ello se le debe sumar la esfera de valores, espirituales7. O cuando el psicólogo Binswanger da a Foucault la pista –que solo usa con desdén (Sloterdijk, 2012: 199)–, en el contraponer la discursividad de la existencia, eminentemente horizontal, a la extravagancia esquizofrénica que provee la verticalidad. Tomado en una probablemente excesiva literalidad, podríamos concluir que trascender la verticalidad en sentido filosófico confiere a la existencia una resistencia al embeleso de imaginarse en las alturas o a la frustración de sentirse dominado o expulsado por y de las alturas.

7 Para Scheler el espíritu está compuesto de tres atribuciones: distancia, poder simbólico y conciencia.

3 Toda vertical necesita su horizonte

Para San Gimignano se ha elaborado un eslogan fácil, como lo es siempre la asociación de ideas necesaria para arrebatar un origen que esconda por sobreexposición el arribismo del destinatario: San Gimignano es conocido como la Manhattan medieval. Sin embargo, el origen y el destinatario, el donante y el acreedor, no están en la correspondencia de la secuencia histórica que aparenta la frase. Si en San Gimignano confluyen poder y forma en la verticalización de clases y su expresión arquitectónica como foco de atención primordial desde el siglo XIII, debería ser en vez Manhattan la San Gimignano moderna. Pero la hipérbole delirante de los procesos de dominación de la retícula neoyorquina eclipsa la necesidad de explicitación y de atadura histórica. No hay comparación posible, ni con São Paulo o con Hong Kong. Chicago fue ciudad-cumbre antes que Nueva York, la ciudad de los rascacielos, como también hay venecias del norte, o africanas, o evocativas venezuelas, pero la prevalencia de su imaginario colectivo como modelo focal singulariza estas ciudades frente a sus correlatos de inspiración más antiguos. Su exhibición es el “grado cero” de los eventos psíquicos en el montañismo arquitectónico.

Mientras Kahn está recibiendo el encargo para investigación médica en el campus –neogótico– de Pensilvania, Nueva York está construyendo uno

de los edificios en altura que mejor han servido para explicitar la patología mental asociada a los edificios en altura, el 2 Broadway, en Manhattan, completado en 1959. No solamente Robert Stern (1995) lo había referido en su monumental obra sobre la ciudad de los rascacielos en la década de 1960, sino que el cine halló en este edificio un buen diván del que extraer las neurosis colectivas de los habitantes de la Gran Manzana. Como evidencia de que toda vertical necesita realinearse con su horizontal, el gran maestro Billy Wilder filma The Apartment en 1960. La conocida trama de la película, donde un empleado de una compañía de seguros con sede en ese edificio, relata diegéticamente, en las escenas de introducción, su comprensión de sí mismo en la verticalización de la ciudad, muestra un desvelamiento de las afecciones que doblegan a los seres humanos por sus propias recreaciones edilicias de los sistemas de dominación social. El personaje principal, C.C. Buxter, interpretado por Jack Lemmon, pone medida a lo inconmensurable: el 1 de noviembre de 1959 Nueva York contabiliza 8042783 personas que, puestas en horizontal con una media de 1,70 metros de estatura, llegarían desde Times Square hasta Karachi en Pakistán; en el edificio trabajan 31259 empleados, que es la población entera, por ejemplo, de Natchez, Mississippi; su piso es el 19, mesa 851, cobrando $94,70 por semana. El horario comienza a las nueve menos 10 de la mañana y se prolonga hasta las cinco y veinte de la tarde, siendo así para que los 16 ascensores puedan trasladar a los

empleados sin embotellamientos en intervalos reglados por piso. Tras una o dos horas extras que no siempre necesitaría hacer, Buddy, sobrenombre por el que todos lo conocen, intenta regresar a su apartamento en el Upper West Side, cerca de Central Park, por el que paga $80 a la semana. El dilema de regresar a su apartamento proviene de que su jefe en la oficina le requiere el uso de su propio domicilio para tener encuentros con sus amantes. En este poco refinado protocolo de coerción por verticalismo, la sumatoria de escalafones al alza no provee un lugar adecuado para el ejercicio del poder que no sea sino depositado en un horizonte desde el que no se pierda de vista hacia dónde se ha de aspirar. Que se mire hacia arriba o hacia abajo hace toda la diferencia, sea dicho por Pina Bausch ordenando una coreografía para ejecutar con los ojos cerrados, o por Kafka aboliendo la materia sonora como fuga, como salida, cuando el intérprete pide tocar a oscuras, como escribieron Deleuze y Guattari en Kafka, por una literatura menor.

A oscuras empieza otra de las películas filmadas en el 2 Broadway. Mirage, dirigida por Edward Dmytryk, comienza con un apagón del rascacielos. Externamente no es el edificio de 32 plantas del Distrito Financiero de Nueva York, proyectado por Emery Roth&Sons, pero sí internamente. Un Gregory Peck desorientado encara la primera escena donde, en medio del revuelo general, una pareja de mujeres que trabajan en el edificio se topan con él en la media luz de la vela que portan y lo invitan a subir a una fiesta Braille, eu-

femismo que expresa que los participantes deben reconocerse por el tacto, ya que no por la vista. Declinando la sicalíptica invitación, decide salir del edificio bajando por las escaleras de servicio. Allí se encuentra con la voz de una mujer –Diane Baker– que aparentemente parece reconocer la suya, pero no así Peck la de ella. Bajan ayudándose, en planos de sección de escalera que van mostrando el número de la planta en descendimiento, hasta llegar a la calle, donde la primera luz delata el rostro de él, desencajando, al verlo, el de ella. Sin mediar palabra, fuera de sí, Baker comienza una bajada vertiginosa en la oscuridad hacia las plantas subterráneas. Tal viaje de descenso a la locura es magistral en su simplicidad de puesta en escena, iluminando mínimamente y en secuencia el cambio de los letreros que señalan el número de planta con la pequeña linterna que él porta. Si para la oficina de Buxter, Wilder hace construir como decorado de la oficina un interior de punto central en perspectiva, inclinando forzadamente las líneas de los paramentos laterales, levantando suelo y bajando techo por tanto, creando una predominancia de profundidad para el ejercicio del verticalismo corporativo, será el encuentro de Peck, al salir de la escalera de servicio, con el cuerpo aplastado de un supuesto suicida que se arrojó desde el edificio, su equivalente de dimensión opuesta a la altura. Esas expansiones de horizontalidad son siempre necesarias para prevalencia por estrato. De vivir todos en lo alto de rascacielos, su horizontalidad sería insoportable, a pesar de haber

tocado cumbre, económica, social. Es obvio pues que la característica anhelada es tener a alguien a quien mirar desde arriba, más que estar arriba, pero que sus expresiones más profundas no son, porque no pueden representarse sin sus contramedidas, ésas que se alían paradójicamente en tanto que se emparejan resistencia y coadyuvancia. Alcanzar los pisos superiores significa igualmente un aprisionamiento, una colonización por verticalidad de las capas más altas, lo veamos desde el punto de vista de Mike Davis (1986), en los comportamientos de los oligopolios con otras compañías, o desde el punto de vista de un colombiano queriendo inscribir en el registro de Departamento de Planeación Nacional su ascenso socioeconómico a un intermediario estrato 3. La consecuencia más clara es que salir de la propia prisión sería semejante a la pulsión por la escalada. Arriba no hay nada más que el placer del logro de la pura superación. No debe ser cosa despreciable, a tenor de la generalizada verticalización urbana mundial. El horizonte que se vislumbra arriba, como visión privilegiada, es en realidad el horizonte de sucesos, una especie de hipersuperficie en el espacio-tiempo, dispuesta a modo de frontera, donde lo que se escinde es la posibilidad de que lo del otro lado (o el estrato en el caso social), pueda afectarte. Sin embargo, es lo suficientemente permeable en sentido contrario, como para afectar desde aquí a los del otro lado (o a los de abajo).

Otro filme que podría demostrar esta proposición del horizonte de sucesos, que apenas es descrita en el libro de Stern (1995) sobre Nueva York, es la admirable The prisoner of 2nd Avenue de Melvin Frank (1975). De nuevo es Jack Lemmon quien protagoniza la historia. Intentando subir a su casa en un edificio de apartamentos en altura, con el ascensor estropeado –ese singular dispositivo que debería tener un estudio al modo en que Foucault estudió manicomios, hospitales y prisiones– se cruza con alguien que porta con premura un televisor sorprendentemente parecido al suyo. Con alguna parada para el reabastecimiento de oxígeno en sangre, logra llegar a la entreabierta puerta que constata la sospecha: era el suyo. No había tenido tiempo aún de asimilar el despido del trabajo esa misma mañana, también con una lúcida escena de ascensor donde la estabilidad horizontal de la disposición de los cuerpos apiñados, ajenos a la velocidad de subida, prepara al espectador para el desembarco y posterior caída en picado de alguien que por edad no podría esperar una red de salvación en un empleo nuevo.

Lemmon, fuera de sí, de vuelta a su apartamento revuelto, grita, golpea paredes que son tan frágiles como su estatus social, casi sufre un infarto.

Canaliza su ira saliendo al balcón, mirando con desprecio al horizonte, el de sucesos, donde el privilegio de su altura le provee la coraza que al tiempo le retira la propia prisión de su estrato de clase, pero también la actitud soberbia de sus vecinos de más arriba. Escandalizados por los gritos con

insultos dirigidos a la nada, intentando supuestamente proteger la inocencia de unos hijos que no se ven en la escena, los vecinos piden respeto, a lo que Lemmon replica con una grosería, que es zanjada a su vez a la contra con gravedad por la ventajosa posición que ostenta quien tiene un cubo de agua a mano un piso más arriba. Ya advertimos la clave psicológica citando a Binswanger: se enfrenta el discurso de la existencia –el grito horizontal–, a la esquizofrenia –la mojadura vertical–.

Según las directrices de la Física Mecánica, esa rama que estudia el movimiento y las fuerzas que lo generan, a quien requiera entender qué son las dimensiones, se le debe responder que no son sino la cantidad de información necesaria para describir un sistema. Puede que el agua siga el vector de la gravedad sumado al del impulso del privilegiado que la lanza, pero el sistema posee otras dimensiones que deben ser descritas, porque no siempre son de dominación. Y hay arquitectos que son excelentes mecánicos. Uno de ellos fue John Hedjuk para quien, proyectar posee ese rasgo de la física mecánica que estudia lanzar cosas contra algo, como se hace con los proyectiles. Probablemente sea algo no tan simple como el arco parabólico de un obús contra su objetivo, sino más parecido al modo en que los complejos diagramas técnicos de poliedros cuatridimensionales publicados por el artillero Esprit Jouffret en 1903, usando geometría descriptiva y proyecciones axonométricas superpuestas, que demostraron las particularidades de las

6A. Ron Sandford. Serie de dibujos High-Rise para el artículo de J. Ballard “Critical Masses”, en Ambit #63, 1975. Reproducido en Theater #46-1 (2016) por Tom Sellar.

figuras que no podrían construirse en el espacio tridimensional. Se dice que el matemático Maurice Princet le dio una copia a Picasso del libro de Jouffret y mucho se ha especulado sobre el parecido de esos diagramas con el cubismo pictórico. Debe recordarse esa fotografía de Hedjuk con traje negro ligero, corbata fina a juego y con un gran libro bajo el brazo; su título: Juan Gris. Aprender de un cubista para abandonar el típico uso de las proyecciones como operaciones técnicas en arquitectura, de eso se trata. La renovación proviene del hallazgo de algo no visto antes pero identificable de algún modo. Trabaja en un espacio oscuro, como el factor psicológico de las escaleras en Mirage, situado “entre” las dimensiones a pesar de reconocerse en inicio la vertical. Alberto Pérez-Gómez (2005) explica que, para Hedjuk, la profundidad no es un análogo a la anchura y la altura, sino que recibe la carga etimológica como una significativa primera dimensión, que hace permanecer en el misterio el fondo de la arquitectura. Y, ¿cómo se traduce esto a la arquitectura de Hedjuk? En la Diamond House, casa no construida, proyectada entre 1963 y 1967, en planta, las particiones rectas no confinan los espacios, y las curvas definen interior o exterior en la concordancia con lo convexo o lo cóncavo. Su composición, no planar sino topológica, persigue que los recintos formados sean regiones deslizantes de espacio, nunca detenidos, al percibirse todas las circunstancias de alrededor: periférico en un interior, reintegrador al moverse hacia los bordes. Apla-

nar un diamante es algo más complejo que resaltar una de sus dimensiones al hacerlo, como puede comprobarse con las deformaciones del mecánico cuántico Hedjuk y con la inconmensurabilidad de Kahn, el acróbata. Esto, para un matemático, es la figura de un politopo.

4 Politopos de deformación vertical

Antes de empezar High-Rise, me estaba quedando un verano en un rascacielos de playa de Roses en la Costa Brava, no lejos de la casa de Dalí en Port Lligat, y noté que uno de los inquilinos franceses de la planta baja, enfurecido por las colillas de cigarrillos arrojados desde los pisos superiores, comenzó a patrullar la playa y fotografiar a los delincuentes con una lente de zoom. Luego colocó las fotos en un tablón de anuncios en el vestíbulo del bloque. Una exposición muy curiosa, que tomé por otra luz verde para mi imaginación. Entrevista de Thomas Frick, JG Ballard, El arte de la ficción 85 (1984).

Para el matrimonio prisionero de la segunda avenida, Jack Lemmon y Anne Bancroft en el papel de Mel y Edna Edison, una pareja que vive en un edificio residencial de 19 plantas situado en el 245 de la calle 87-Este, su horizonte se encuentra bien lejos: en España. Edna, demostrando una paciencia y un

6B. Google Map. 2nd Avenue-87East. El edificio de la derecha fue locación de Theprisonerofthe2nd Av.

amor desmedido por su histriónico esposo, le recuerda que pueden huir, porque two people can live on 1500$ a year in Spain, coste de la vida de 1975.

Y tenía razón, ya que era de unos 700 euros al año.

En ese año, 1975, J.G. Ballard publica su novela High-Rise.

No porque haya tanto escrito sobre la novela del heterodoxo escritor de ficción británico de vida mundana, ha de perderse el valor de querer añadir algo más. Solo llamar la atención sobre los dibujos de Ron Sandford ilustrando en la revista Ambit8 el primer capítulo de la novela, aporta novedad a la literatura arquitectónica. En la composición de imágenes (imagen 6A), el personaje del fisiólogo Laing se deja ver en el piso 25 de la fachada que no lo solo aprisiona a él, sino que subyuga el reflejo de los edificios colindantes a los que minusvalora, y deja para los pisos altos que se pidan la luna, que les es concedida, en co-propiedad, obviamente. Laing se sitúa, asomado a una de esas ventanas carcelarias, en la medianía del entre de verse expulsado de su edén alquilado y del alcanzar su wish-fulfillment, seguramente con la

8 La revista trimestral de arte y literatura Ambit se inauguró en 1959 en Londres. Entre los artistas publicados se encuentran a J.G. Ballard, Carol Ann-Duffy y Eduardo Paolozzi. Sigue publicando en la actualidad en papel, pero la apuesta ahora es una transición cada vez mayor a formato digital. https://ambitmagazine.co.uk/

mirada perdida en la luna. A la derecha del dibujo de Sandford (imagen 6B) se adosa en nuestra composición la imagen de Google Maps (con deformación curva y no lineal, y por punto central vertical, que no por profundidad) de la 87thEast con la 2ª Avenida de Nueva York, escenario de la película de Melvin Frank.

Es más, dado que me siento en desacuerdo con la afirmación de que el rascacielos en esa novela es un mero telón de fondo (Davidson, 1993:7) incapaz

de ir más allá de lo que comparativamente ya Piero della Francesca aportó como solución en sus pinturas en relación con el marco arquitectónico, centraré el foco de mis hipótesis en la novela, pero mayormente a partir de la versión filmada de High-Rise por Tom Wheatley en 2015. En ese High-Rise, existe todo el juego de resonancias necesarias que ya habíamos encontrado en las películas de Dmytryk, Wilder o Frank: apagones eléctricos –con sus velas, linternas y fiestas promiscuas–, televisores raudos por las escaleras, dispositifs elevadores y caleidoscópicos, física mecánica elemental del lanzamiento de fluidos por los balcones como psicología iniciática (un psiquiatra enseña a los niños que celebran un cumpleaños a lanzar helado desde el balcón a los coches aparcados, recitando la siguiente ley: un objeto no cambia de movimiento a menos que una fuerza externa actúe sobre él), jerarquía por principialismo de clase, suicidas inducidos, groserías –con su escalada a delitos de sangre–, etc.

De Piero (1415-1492) conocemos su vida por Vasari, pero es Robin Evans (2000:167) quien lo trae al frente, el presente, y no precisamente por su fondo. El pintor de Borgo San Sepolcro insiste en el tema tratado en relación a la arquitectura, muy albertianamente, pero no del todo –algo se pierde, algo se gana, dijo Vasari–, al obviar las directrices de la perspectiva central que Alberti preconiza con tratados y obra. O, en otros casos, pinta una arquitectura no angulada, textil, sin contradicción con los principios perspectivos. Observando el fresco El sueño de Constantino (1466) en Arezzo, las perspectivas de los elementos edilicios, cónicos y cilíndricos, como los superpuestos centinelas, o el ángel, con un escorzo imposible en la relación con la tienda de campaña que acoge a Constantino, son claves compositivas –oníricas propiamente, como añade Evans– para una muestra de poder por verticalismo en la predominancia formal del poste de sostén de la tienda, que emerge como potencia sexual desde el centro del cuerpo dormido de emperador, la noche anterior a la batalla de Puente Milvio. Si ahora observamos el fresco de la Madonna del Parto (Monterchi, c.1460), la triple verticalidad de la abertura de dosel, rasgadura de falda y genitales ya augura que la llegada redentora de Jesús es un descenso vertiginoso a contrapelo, vertical y multiescalar, de cielo a tierra. Si Ballard es escritor de excusa según Davidson, es decir, de la parábola que se sirve de un motivo otro para describir

más elaboradamente las psicopatologías de la vida cotidiana9 y que, desde Piero no sabemos ir más allá –o desde de Chirico, añade la directora de Any Corporation–, el filme de Wheatley, con la detención de la trama en algunas secuencias suscita un papel mucho más relevante a la arquitectura que ser un mero fondo10 o excusa. En geometría elemental, un politopo es un objeto geométrico con lados planos. Es una generalización en cualquier número de dimensiones del poliedro tridimensional. Los politopos pueden existir en cualquier número

9 En el filme de Wheatley, el libro Psicopatología de la vida cotidiana (1901) de Sigmund Freud es visible, pero instantáneamente mostrado, por un personaje cualquiera al salir del edificio por la mañana a trabajar, leyéndolo en el trayecto. Otros indicios de exhibición de autoconciencia se encuentran en el filme, como el rito iniciático demoníaco del Aquelarre de Goya (1823) en las paredes del ático del arquitecto Royal.

10 Cómo no ver las referencias a arquitecturas en las decisiones de forma en la jardinería piramidal de sombra equívoca de la azotea del arquitecto Royal con la cinéromán El Año Pasado en Marienbad (1960) de Alain Resnais con guion de Robbe-Grillet, que Enric Miralles (junto a M. Codinachs) usó también para el concurso del COAV en 1977, una coordinación de profundidades que saltan de una dimensión a otra. Lo ficcional y lo no ficcional han llegado a nuestro tiempo con un horizonte de sucesos que muestra una hipersuperficie de frontera igualmente hiperpercolada.

general de dimensiones. Con ellos, se pueden reducir y simplificar para su uso complicados sistemas de muchas dimensiones. En vez de observar por separado cada interacción o movimiento, se analizan las características globales del sistema, sus simetrías, para, proyectándolas, facilitar su manejo.

El diamante en el caso de Hedjuk, o las materializaciones espaciales por paradójica desmaterialización en efectos visuales y sonido de Y. Xenakis, ensayadas entre 1960 y 1970, serían algunos intentos más o menos literales de traducir a la arquitectura los principios matemáticos desarrollados por primera vez por Alicia Boole Stot (1860-1940), hija del famoso matemático autodidacta irlandés.

En la búsqueda de resolver las hipótesis de este escrito –que las dimensiones de dominación por la verticalidad no son patentizadas meramente por su altura, y saber si hay arquitectura más allá de sí misma–, sería factible recomponer o, mejor dicho, proyectar, para representar una figura capaz de explicitar, de desvelar, lo que de otra manera se hace respuesta consabida (que la altura es sinónimo dominación), o que no genera la pregunta fuera del sistema de referencia que satisfaría obtener una perspectiva diferencial, como en Piero o, en nuestro caso, en el Ballard de Wheatley. Es cierto que el guion, ayudado de unos 700 dibujos de Ben Wheatley y la guionista Amy Jump, y un equipo con un estupendo diseñador de producción, Mark Tidesley, es una adaptación con licencias respecto a la novela. Y que la

7. Still frame. Grafistas Michael Eaton y Felicity Hickson para High-Rise, film de Ben Wheatley. 2015

crítica ha echado de menos algunas hilaturas argumentales en el filme, pero no puede acusarse de improvisación a una película que ha tardado años en gestarse (el productor Jeremy Thomas tardó 4 décadas en desarrollar el proyecto). Para nosotros, para elaborar la tesis sobre nuestros prepuestos, diríamos que Wheatley se ha formulado nuestras dos preguntas concentrando en una escena el salto multiescalar por proyección y dibujado de un politopo elocuente (imagen 7).

Al privilegiar la profundidad sobre la verticalidad no entramos en contradicción por la profusión de escenas que marcan la dimensión de la altura. La deformación que implica generar una topología que, como su definición indica, no altera las propiedades a pesar de las transformaciones continuas que se hagan. Se deforma topológicamente una hoja de papel para acercar dos puntos dibujados distantes en él sin que ninguna posición relativa se vea afectada.

Observando la figura que el equipo de diseño desarrolla sobre papel vegetal semitransparente, sobre otros dibujos de proyecciones diédricas de las 5 torres proyectadas, la presencia de un elemento central, no corresponsable con ninguna distribución funcional del conjunto, y circundada por lo que parecen dispositivos mecánicos, alguna especie de juego de válvulas móviles radiales, no aparenta tener nada que ver con la arquitectura, ni la que físicamente

está en uso o en construcción, ni la que puede explicarse a un regente impaciente por parte de su funcionario. Ballard describe la escena de subida del doctor Laing al último piso, el 40, donde vive y trabaja el arquitecto Anthony Royal, mediante la primera impresión que un fisiólogo da a la arquitectura de último nivel: es una arquitectura contra el hombre, para su ausencia, donde no se debe estar más que en el instante de la llegada, como alcanzar cumbre y poner bandera en uno cualquiera de los ochomiles. Sin embargo, ante la imposibilidad de conectar visualmente esa sensación (por demás, Wheatley colocó pinceladas surrealistas en cuadros, caballos, jardines, paisajes y geometrías dispares en el ático) el director acabó asociando la frase exclamativa de Laing al dibujo con el que presume el arquitecto de su profundidad argumental. Están las maquetas de las torres, sí, están los planos en su mesa con su anticuadamente moderno tecnígrafo, sí, pero la cámara muestra un detallado y detenido plano fílmico del elaborado diagrama que encargó a los diseñadores gráficos Michael Eaton y Felicity Hickson, los mismos que ambientaron toda la película en los años 7011. La frase de Ballard es: Ese

11 Diseñaron todos los productos del supermercado con imagen corporativa similar, dando a entender que el edificio también era parte de un entramado empresarial de

conjunto de tejados de auditorios, terraplenes curvos y muros rectilíneos se ordenaba en intrigantes geometrías, menos una arquitectura habitable, reflexionó Laing, que el diagrama inconsciente de un misterioso acontecimiento psíquico (1975:20).

Sorprendido, le pide Royal a Laing permiso para quedarse con la frase habida cuenta que es él un moderno de oficio (modernist by trade) y un fisiólogo lo sabría comprender, por supuesto concediendo su deseo el doctor con la expresión by all means.

Qué mayor inconmensurabilidad por profundidad que la de un evento psíquico, cuestión que ya habíamos tratado. La pregunta a seguir es por la decisión de sacar la frase del jardín del ático y poner a trabajar a unos diseñadores a explicar12 con los medios arquitectónicos qué hay más allá de la mismísima Arquitectura.

Descriptivamente, se trata de un cubo, girado, mostrando sus aristas en proyección, con los vértices lanzando nuevas aristas en un intento de detener el mantenimiento y abastecimiento, como diseñaron igualmente las tipografías con aire de época de los rótulos de cada planta y uso, como gimnasio, piscina, etc.

12 A pesar de haber contactado con el equipo de diseñadores (Meaton Graphics Ltd) no se ha obtenido respuesta, por lo que a continuación se infiere sigue siendo una investigación que se apoya en interpretaciones y materiales propios.

espacio-tiempo deformador de un hipercubo. Una figura geométrica de estas características, aderezada por una suerte de superposición de proyecciones simplificativas, a modo de politopos que, según su intencionalidad proyectiva, inducirían a pensar en destacar del conjunto una propiedad singular. Rastrear esos politopos de deformación en la dominancia de la verticalidad es lo que resolvería las preguntas que aquí nos hemos formulado. No tanto para dar con los elementos de inspiración de un sofisticado equipo técnico, sino para insistir en la condición primigenia de la arquitectura cuando es permeada por sí misma y por los horizontes de sucesos desde otras disciplinas ya no más aisladas, ninguna de ellas. En la primera aproximación, la de corte historiográfico, se debería contar para tal fin con el cuadro sobre el matemático y monje toscano Luca Pacioli, discípulo de Piero, demostrando uno de los teoremas de Euclides pintado por Jacopo de’Barbari en 1495. La escena recoge al monje dibujando sobre pizarra el teorema mientras lo consulta en el libro abierto de Euclides. Se supone que Durero podría ser el personaje que está detrás de él y que el otro libro, que sirve de apoyo a un dodecaedro, es de su autoría, Resumen de aritmética, geometría, proporciones y proporcionalidad (1494), con dibujos de Da Vinci. Debe fijarse la vista sobre el rombicuboctaedro colgado, un sólido de Arquímedes, en la esquina superior izquierda. A la dificultad de dibujo de tal figura, hay que añadir que es transparente, que muestra reflejos –de los Uffizi florentinos nada menos– por tres iluminaciones

y la refracción consiguiente en la mitad de agua que lo llena. Un dispositivo como ése pliega sobre plano la dimensionalidad compleja del Rinascimento.

Fue otro libro de Pacioli, De Divina Proportione, quien debe dar continuidad histórica, pero en un paralelo formal de teoría de conocimiento, al ser uno de los tratados más inspiradores posteriores. Independientemente de las acusaciones de plagio o simple falta de originalidad, el de Pacioli fue un libro de cabecera para el de Wentzel Jamnitzer de 1568 Perspectiva Corporium

Regularium. Entre los historiadores no hay ninguna vacilación de que no solo se sirvió del libro de Pacioli sino también de la geometría de Durero (1528), las de Augustin Hirschvogel (1543), Rivius (1547) y Stoer (1567), entre otros. La transformación de enseñanza con vocación arquitectónica se encuentra en la propia representación de los grabados que ilustran los capítulos13 de Jamnitzer colocando en el quadrivium a la arquitectura en vez de a la música.

13 El capítulo principal representado en su portada a cuatro personajes femeninos con los instrumentos de sus disciplinas: la Aritmética, la Geometría, la Perspectiva ‘(en lugar de la Astronomía) y la Arquitectura. Es casi el quadrivium de las artes liberales, a excepción de la música, que Jamnitzer reemplaza por la arquitectura. Recuérdese la anterior enseñanza del arte por el trivium: gramática, dialéctica y retórica, después el quadrivium, poco enseñado en razón de la clara preponderancia de las disciplinas literarias y retóricas.

Los diseñadores de High-Rise muy probablemente también tuvieron que haber seguido la pista del Modelo de universo según Kepler, en Mysterium Cosmographicum, de1597. Tanto los dibujos de esferas en cubos y tetraedros de Kepler, como los de Jamnitzer, están recogidos en el Storyboard para un film sobre el Monumento Continuo de SuperStudio de 1969, e indiscutiblemente reconocibles en el trabajo relativamente reciente de Olafur Eliasson (2003)14 con el matemático Einar Thorsteinn, que escribió Das spielen mit dem Formen der Natur de 1977. Aquí el matemático y arquitecto islandés creía en una realidad tan plural como la que la teoría puede especular, y que la estética no sólo se encuentra en la visualidad del arte, sino también en las matemáticas de la arquitectura y la geometría.

Visto esto, en perspectiva, colocar este evento psíquico en el plano de la película de Wheatley demanda además de un alto conocimiento, una gran responsabilidad en el atrevimiento de permear la hipersuperficie que bordea la dimensión horizontal respecto a la verticalidad dominante y dominadora. Mirar hacia arriba, supongamos que en El Escorial, presupone el triunfo de la Iglesia y del poder entregado a sus dirigentes. Esto no es San Juan de Letrán en Roma, descubriendo tras su altar el texto donde se

14 Es un proyecto de larga duración. Ver, Olafur Eliasson. Model room, 2003 Moderna Museet, Stockholm 2015

garantizaba que en el imperio el poder emanaba del pueblo y no de otras instancias. Luca Cambiaso a finales del siglo XVI pintó en la bóveda del coro de El Escorial unos frescos para sustituir a los de Francisco de Urbino y Patricio Castello. La Gloria es su título, y bajo la presidencia de Dios, Jesucristo y el Espíritu Santo, emerge la figura de un cubo. Platón lo glosó la idea de cubo en el Timeo, que comenta Ficino estableciendo la fisicidad de la Tierra en esfera circunscrita por un cubo invisible, siendo este último, para Alberti, el símbolo de la buena proporción. Y así es para Juan de Herrera, arquitecto de El Escorial, que escribió inspirado en Ramón Llul el Discurso sobre la figura cúbica que no trata específicamente de arquitectura, cuestión que debe ser puntualizada.

Si, como es evidente, Royal dibuja ese diagrama, es porque conoce todo esto. Si hubiera vivido para contarlo, habría él mismo añadido que parte de las deformaciones espacio-temoporales incluidas en su diagrama forman parte de los estudios del arquitecto Claude Bragdon (1866-1946). Él las llamaba Magic Lines (Projective Ornament, 1915). Y que Dalí, en 1960 pintó Sobre el “Discurso sobre la forma cúbica” de Juan de Herrera (1960), uno de sus trabajos con hipercubos.

Así pues, Anthony Royal, a pesar de la dominación de las alturas, en la confusión que él mismo promueve de ser un Ferdinando II de Médici relatándose parsimoniosamente a sí mismo toda la profundidad de la arquitectura para

meramente dejarse cegar finalmente por el poder que provee la verticalidad, es la figura que simboliza el contenido de esta investigación que se resume en este texto. Ballard le escribe una frase demoledora “soy el arquitecto de mi propio accidente”, que no se conforma con ironizar que había sido atropellado por una hormigonera. Hay una gran duda siempre en el papel del arquitecto como brazo ejecutor de acciones inmorales, como inmoral es aislarse de las que la arquitectura ha elaborado en sus 5000 años de historia para solo ver verticalidad.

En cada peldaño se encuentra alguien arriba y alguien abajo. Y todos absolutamente nos armamos con cubos preventivos, siempre pendientes de no perder pie: la horizontal. Si la torre Trump, una de ellas, y no hay que olvidar que ese apellido en cada rascacielos es la clara expresión de un San Gimignano de libro que compite construyendo y destruyendo –y no solo edificios–, la de la Quinta Avenida en el Midtown de Manhattan en concreto, tuvo un excelente trabajo de equilibrio en Krzysztof Wodiczko con su Homeless Vehicle Project (1988-98), expresión de la máxima horizontalidad frente a máxima verticalidad. Un carro tirado por un indigente que se expande para poder incluir su propio cuerpo como refugio fotografiado delante de la entrada de esa torre proyectada por Der Scutt en 1983. El proyecto se completó con secuencias fotográficas de proyecciones de imágenes sobre los monumentos de Nueva York.

Esas distorsiones, esos politopos por deformación vertical no son un subproducto de la tecnificación en el arte, son diagramas de algún acontecimiento psíquico que hay que llegar a desentrañar. Y se constata con los relatos paralelos que, por sumar fuerzas, se pueden relacionar. En las mismas fechas en que el Broadway 2 se está terminando de construir se filma N.Y., N.Y. (1957), dirigida por Francis Thompson, siendo una de las más osadas celebraciones de la ciudad de Nueva York de la posguerra. Con solo 15 minutos de metraje, pero artesanalmente extraídos de miles de horas de filmación, y 10 años de realización, el corto presenta los edificios y puentes de la ciudad en una serie de imágenes ondulantes en formas difuminadas, superposiciones y configuraciones formales imposibles a través de lentes distorsionadas de corta distancia focal y prismas construidos por el propio Thompson.

Como no sobrevive, Royal no supo nunca que, tras el proyecto de su vida, él confundido con su arquitectura, hubo muchas otras extensiones de la dimensión de profundidad en arquitectura que añadieron espesor al cubo. Proyectos como los de Raimund Abraham, House for Euclid de 1983, o el ejercicio de autoconsciencia de los diarios de Eisenman (1999) declaran lúcidamente de qué se necesita saber para explorar la profundidad arquitectónica:

Mientras que los diagramas de Wittkower y Rowe se basaban esencialmente en un análisis de lo formal como condición estable y a priori, mis diagramas contenían las semillas de algo más: proponían la posible apertura de la interioridad formal de la arquitectura a las preocupaciones de lo conceptual, de lo crítico, y quizás a una diagramación de una inestabilidad preexistente en esta interioridad.

5 Conclusiones. ¿Adónde huir?

Si Edna y Mel Edison hubieran decidido huir a España, a las mismas costas y en la misma fecha donde Ballard se inspira para High-Rise, tal vez se hubiera encontrado en la playa con Henri Lefebvre. Estaba allí con Nicole Beaurain, su esposa, y su joven hija Armelle, por invitación de Mario Gaviria, su discípulo, amigo y encargante de un texto que acabó siendo olvidado y recientemente rescatado por Lukasz Stanek, titulado Hacia una arquitectura del placer (2018) (Vers une architecture de la jouissance). Se hizo el encargo para un proyecto de investigación sociológica sobre el paisaje turístico de España en 1972. Explora la arquitectura dentro de la sociedad, el trabajo y la vida cotidiana. En consonancia con su argumento, por el que la arquitectura no debería

considerarse únicamente derivada de la institucionalización social, hemos expuesto las hipótesis de nuestro escrito.

Lefebvre propone un acuerdo dialéctico entre la imaginación arquitectónica y las fuerzas que intentan confinarla o limitarla. Gaviria desestima lo que Lefebvre le envía, por no poder sumarlo a la intencionalidad de la investigación. Por ello se queda entre los estantes de la antigua casa familiar del sociólogo navarro. Con los años, Gaviria será conocido por su intento de promover la candidatura a Patrimonio de la Humanidad de la ciudad española con el proceso de verticalización más vertiginoso: Benidorm. Apoyado en Lefebvre, el modelo social no basado en el trabajo sino en el placer de esa ciudad vacacional, podría ser la clave del cambio que estabilice la relación vertical-horizontal en lo que podría llamarse la generación de nuevas formas-de-vida. La democracia de las alturas, donde todos tienen derecho de vistas al mar, prevalece por delante de cualquier otro ordenamiento, al menos, en teoría. De haber prosperado –no tuvo la suficiente voluntad psíquica para que sea lo que quiso ser, si seguimos las palabras de Kahn–, quién puede saber si los San Gimignanos del mundo hubieran recentrado sus focos de mención originarios, sin variar un centímetro sus alturas, inconmensurables, por tanto.

Allí, en la costa levantina española, Gaviria presenta al filósofo francés a al arquitecto Ricardo Bofill. Tal vez en el momento más fértil y lúcido de su carrera, colaboran en el proyecto Ciudad en el Espacio de 1970, donde la exploratoria del cubo genera una deformación compositiva acorde con la complejidad de los cambios de la sociedad de la época.

Por estos intentos podemos confiar en que solo de la conjunción del papel intelectual, honesto, coherente de la arquitectura que es permeada por la complejidad de sus propios horizontes de sucesos, será posible dejar de confundir altura con altivez.

Referencias bibliográficas

American, Scientific. (1901). San Gimignano and its towers Scientific American, Vol . 84, No. 10 (March 9, 1901), p. 148 Ballard, J. G. (1975). Critical mass. Ambit, 63, 2-15. Bletter, R. H. (1993). Kahn and His Defenses. Design Quarterly, 159, 7-13. https://doi.org/10.2307/4091326

Capponi, N. (2004). Le Palle di Marte: Military Strategy and Diplomacy in the Grand Duchy of Tuscany under Ferdinand II de’ Medici (16211670). The Journal of Military History, 68(4), 1105–1141. https://doi. org/10.1353/jmh.2004.0176

Cassidy, B. (2012). Artists and diplomacy in late medieval tuscany: The case of Giotto, Simone Martini, Andrea Pisano, and others. GESTA-International Center of Medieval Art, 51(2), 91–110. https://doi.org/10.1086/670674

Craig, R. M. (1993). Modernistic San Gimignano: Recent Atlanta Towers and the Neo-Deco. Studies in Popular Culture, 16(1), 15–28. http://www. jstor.org/stable/23413767

Davidson, C. C. (1993). Dear Reader. ANY: Architecture, Nov/Dec (3 Electrotecture: Architecture and the Electronic Future), 7.

Davis, M. (1986). Prisoners of the American Dream: Politics and Economy in the History of the U.S. Working Class. Verso. de Balzac, H., & Todó, L. M. (2012). Tratado de la vida elegante. Impedimenta. de Sousa Santos, B. (2010). Para descolonizar Occidente: más allá del pensamiento abismal. CLACSO.

Eisenman, P., & Somol, R. (1999). Diagram Diaries. Universe. NY Evans, R. (2000). The Projective Cast: Architecture and Its Three Geometries. MIT Press.

Frick, T. (1984). J. G. Ballard, The Art of Fiction No. 85. The Paris Review, #94. http://www.theparisreview.org/interviews/2929/the-art-of-fictionno-85-jg-ballard

Lasansky, D. M. (2004). Urban editing, historic preservation, and political rhetoric: The fascist redesign of San Gimignano. Journal of the Society of Architectural Historians, 63(3), 320–353. https://doi. org/10.2307/4127974

Lobell, J., & Kahn, L. I. (1979). Between Silence and Light: Spirit in the Architecture of Louis I. Kahn. Shambhala.

Neumann, D. (2014). A skyscraper for Mussolini. AA Files, 68(68), 141–153. Pérez Gómez, A. (2005). Perspectiva y representación arquitectónica. EGA Expresión Gráfica Arquitectónica, 10(10 SE-Artículos), 94–105. https:// doi.org/10.4995/ega.2005.10335

Sherer, D. (1995). Tafuri’s Renaissance: Architecture, Representation, Transgression. Assemblage, 28, 35–45. https://doi.org/10.2307/3171448

Simmel, G. (2007). Roma, Florencia, Venecia. Gedisa editorial.

Sloterdijk, P. (2012). Has de cambiar tu vida: sobre antropotécnica. Pre-Textos.

Stern, R. A. M. (1995). New York 1960: architecture and urbanism between the second World War and the bicentennial (T. Mellins & D. Fishman (eds.)) [Book]. The Monacelli Press.

Sudjic, D. (2002). Críticas y compromisos. Rem Koolhaas, la revolución ambigua. Arquitectura Viva, 83, 34–35.

Tafuri, M. (1997). Teorías e historia de la arquitectura. Celeste.

Valéry, P. (2000). Eupalinos o el arquitecto. El alma y la danza. Machado libros.

Una casa, una aldea

Casa P. Villa Cielo, Capilla del Monte, Córdoba

Memoria

Toda arquitectura lleva implícita su vocación de ruina, tal condición es la forma final con que la arquitectura entra en comunión y vuelve a la naturaleza. De este potencial destino, nos interesó la expresión física de lo inacabado, lo que el tiempo y las inclemencias van transformando, los modos en que la obra es, gradualmente, tomada y constituida por el paisaje, disolviendo lentamente su singularidad en el todo.

La casa se piensa como un promontorio de hormigón y piedra surgido de la colina, una casa muraria fragmentada, que emerge a partir de la organización y repetición de volúmenes de idéntica dimensión en planta, 5 x 5 metros, con alturas variables y techos inclinados por prescripción del código de edificación, articulados por vacíos estratégicos, patios, pasajes e intersticios, que en el exterior dan lugar y preservan a las especies del monte local, quebrachos colorados, talas, espinillos y chilcas, entre otras y en el interior, se convierten en las calles de circulación de esta urdimbre pétrea, a la manera de una aldea medieval de montaña. Cajas murarias que

delimitan vacíos, los cuales son tan importantes como los llenos, por allí se cuela el paisaje circundante y se atempera el espacio exterior para su uso, protegiéndolo de vientos predominantes y orientados en función de la rotación solar.

La circulación principal vincula el exterior con el corazón de la casa, se materializa como un volumen de hormigón netamente horizontal, que por la pendiente del terreno, en el sector del acceso se despega del suelo a 2.20 metros de altura, adoptando la fisonomía de una viga cajón, conformando un pequeño atrio, cuyo punto focal lo constituye una ventana cenital que enmarca el cielo, así, cada vez que alguien entra o sale de la casa, involuntariamente, ejecuta el gesto arcaico de mirar al firmamento, el infinito vertical que nos devuelve la escala precisa de nuestro devenir en relación al universo.

Esta circulación salva los desniveles del terreno y articula todos los espacios de la casa, constituye el lugar por dónde se transita invariablemente a toda hora. Por esta razón asume un rol central en el proyecto, da continuidad al paisaje exterior dentro de la casa, a partir de

Imagen

perforaciones que dan a patios internos o externos, planteando una atmósfera de transición entre el afuera y lo doméstico. Una calle mayor que une, ordena y deriva hacia el resto de las dependencias, en horizontal y en vertical, puesto que se vincula a la escalera principal en su descanso intermedio, determinación tipológica que deja, tanto las habitaciones de planta alta, como las de planta baja con sus respectivos servicios, siempre equidistantes y a medio nivel del espacio de reunión principal, que se estructura alrededor de la cocina y el fuego.

La cocina es el centro de gravedad de la vida en esta casa, la solicitud del comitente queda expresada en la configuración tipológica de la vivienda, siendo el espacio de arribo y estancia, donde el interior se comunica abiertamente y en distintas direcciones con el espacio exterior y la potencia de su paisaje. Constituye un espacio diáfano de altura y media, presidido por una mesada / barra que se despega del suelo, como una escultura o un altar culinario, que rige las horas familiares, encuentros de amigos y sus vivencias, entremezclados con los ritos gastronómicos.

La condición material define y cualifica esta casa, es a través de ella que se expresa la técnica utilizada en todo el conjunto, la del muro ciclópeo encofrado, un procedimiento artesanal ejecutado a partir de la experiencia en el trabajo con la piedra de los obreros locales, que colada tras colada va imprimiendo la textura de la madera que encajona la argamasa y comprime la piedra, también se construye con el error y las variaciones de plomo que surgen en el muro mientras se eleva la estructura, el azar de la distribución de las piedras y su color mineral en función de la procedencia de la cantera donde se las extrae, todo esto da carácter físico, de un estímulo táctil a los límites del espacio. Los muros funcionan como textos, una caligrafía tectónica dispuesta por marcas y señas, que ofrecerán infinitas variaciones al ser expuestos a las condiciones cambiantes de la luz y su incidencia según las estaciones del año.

La materia descarnada expuesta a la intemperie y el tiempo, el procedimiento material para que esta casa entre en comunión con el paisaje circundante.

Datos

La casa P, sita en el barrio Villa Cielo, Capilla del Monte, Valle de Punilla, Córdoba, fue proyectada y dirigida técnicamente por l@s arquitect@s Carolina Vitas y Cristián Nanzer. El interiorismo fue asesorado por la arquitecta María Laura Herrera; el cálculo estructural por el ingeniero Edgar Morán y la construcción fue realizada por Miguel Capdevila.

La superficie de la obra es de 303.60 m2 y fue ejecutada entre 2018 y 2020.

Las fotografías fueron realizadas por Gonzalo Viramonte.

Opinión

La obra de Cristian y Carolina resulta, más allá de su condición concreta de resolver un encargo de un cliente, una interesante meditación sobre una dialéctica que German Valenzuela –uno de los mentores centrales de la Escuela de Talca– llama arcaico-contemporáneo1, es decir un arco intemporal o extendido que liga lo fundante u originario del proyectar en un contexto a la vez de naturaleza e historia y provisto de una cualidad local con reflexiones inherentes a la arquitectura global en esta epoca de declinación ambiental y suspensión de cualidades éticas.

La casa serrana de Nanzer-Vitas recoge una voluntad actual inscripta en una concepción de intemporalidad vinculada a la noción de ruina y al destino que en tal condición, hace inexorable que lo cultural-artificial de un proyecto tarde o temprano se disuelva en lo real-natural preexistente (si el sitio de proyecto es natural) o sea que se integre, perdida su condición intrusiva, en el paisaje previo y permanente (si es que los humanos aceptan conservarlo).

1 Así se llama el texto de su autor en Thema 4, Montevideo, 2021, p.151 y a la vez el título de su tesis doctoral en curso en FADU UdelaR.

Lo dicen con acertada precisión en el impecable texto de la memoria de la casa, cuya calidad merece una lectura cuidadosa pues supera la mera descripción de lo hecho e intenta bucear en su horizonte de pensamiento, aceptando o deseando que la arquitectura sea más cultura que técnica: Toda arquitectura lleva implícita su vocación de ruina, tal condición es la forma final con que la arquitectura entra en comunión y vuelve a la naturaleza. De este potencial destino, nos interesó la expresión física de lo inacabado, lo que el tiempo y las inclemencias van transformando, los modos en que la obra es, gradualmente, tomada y constituida por el paisaje, disolviendo lentamente su singularidad en el todo. Esta base conceptual arcaica de un proyecto contemporáneo que resuena en experimentos teñidos de interés por lo local-inmediato como ocurre en los trabajos didácticos de Talca o en proyectos de Javier Corvalán, el grupo Al Borde y Jose María Sáez pero tambien en trabajos de Francesco Venezia o Peter Zumthor otorga a lo que se está haciendo como novedad o innovación una aceptación de la temporalidad del objeto pensado mas bien como final que como principio y en tal caso un final feliz

Planta Baja

de restitución de lo cultural en lo natural. Quiza pueda encontrarse en esta postura un matiz conservador o anti-moderno, probablemente situado en cierta intención de orden historicista, de repliegue a momentos calificados en algun sentido, que hacen pensar en la in-necesidad de novedad. Así indican en la memoria que este proyecto se apoya en una idea-fuerza basada en “calles” de circulación de esta urdimbre pétrea, a la manera de una aldea medieval de montaña.

O en pequeñas referencias de proyecto que aluden o metaforizan nociones casi metafísicas (en tanto más allá de lo físico existen conceptos que llevan lo fenomenológico a cierta condición de trascendencia como cuando indican que hay una ventana cenital que enmarca el cielo, así, cada vez que alguien entra o sale de la casa, involuntariamente, ejecuta el gesto arcaico de mirar al firmamento.

En cierto modo esa tensión entre lo cuasi eterno de una forma específica del habitar respecto de las contingencias actualizadas del mero campo de lo funcional, también asumen en este proyecto ciertas decisiones

que revisten lo convencional de ciertos usos o prácticas domésticas en operaciones mas complejas como recuperar ciertas ritualidades comunitarias, por ejemplo en centrar el proyecto en el recinto cocina: La cocina es el centro de gravedad de la vida en esta casa, la solicitud del comitente queda expresada en la configuración tipológica de la vivienda, siendo el espacio de arribo y estancia, donde el interior se comunica abiertamente y en distintas direcciones con el espacio exterior y la potencia de su paisaje.

Y en esa investidura de ritualidad que pretende trascender la maquinalidad moderna de un lugar que fabrica alimentación indican que colocan una mesada / barra que se despega del suelo, como una escultura o un altar culinario, que rige las horas familiares, encuentros de amigos y sus vivencias, entremezclados con los ritos gastronómicos

La retro-voluntad que en este proyecto es manifestada en la intención de partido de des-membrar una casa que normalmente agrupa un conjunto de recintos adosados exaltando piezas sueltas alrededor de pasillos circulatorios que alegorizan calles, para conseguir el efecto de aldea medieval serrana, no sólo alcanza como vimos, a definir la composición o la solución arcaica de algunos recintos como la cocina, sino que también inspiran y caracterizan la materialidad constructiva de esa casa-aldea, resuelta casi extensivamente con la

técnica del muro ciclópeo encofrado, un procedimiento artesanal ejecutado a partir de la experiencia en el trabajo con la piedra de los obreros locales, que colada tras colada va imprimiendo la textura de la madera que encajona la argamasa y comprime la piedra, también se construye con el “error” y las variaciones de plomo que surgen en el muro. Es decir que esa voluntad de producir una proto-ruina (si cabe esta expresión) se asegura en la recurrencia fáctica de largas e inmutables experiencias de mampostería ciclópea que en la región los obreros locales van ejecutando con las cualidades de aquello tan sencillo y a la vez complejo, que Richard Sennett explicó como necesidad de recuperación anti-industrial en su célebre texto El artesano2

Y también quiza como una cualidad en la que en las artesanías, su producción manual contiene los rasgos finales de un lenguaje o una estética, aquí también la apuesta figural de este proyecto casi no agregará nada a lo que propone y expresa su materialidad: Los muros funcionan como textos, una caligrafía tectónica dispuesta por marcas y señas, que ofrecerán infinitas variaciones A la espera quiza de alcanzar la condición de ruina y mas alla, de su muerte natural en lo natural.

2 El artesano, Anagrama, Bercelona, 2006. Este texto serviría para acompañar un análisis más detallado de este y otros proyectos arcaico-contemporáneos.

REFERENCIAS

1- MADERAS CEPILLADAS E IMPREGNADAS

2- PERFILES L PARA SOPORTE MADERA CIELORRASO

3- PERFIL COMESI 120-50-16-2.5

4- SOPORTE CLAVADERAS

5- CAÑO 40X40X2.5MM

6- ESPUMA POLIURETÁNICA. e: 4-5cm

7- CHAPA SINUSOIDAL

8- CANALETA

Imagen 9

Detalles 1 y 2: Cubiertas

Croquis

Refugio para un picaflor

Memorial para recordar a un hermano. San

Bernardino, Paraguay

Memoria

Paraguay. ubicado en el centro de Sudamérica, con pocos metros sobre el nivel del mar. es como una olla de calor concentrado. cuando llueve, la diferencia de temperatura provoca tormentas tan fuertes que suelen tirar árboles. en épocas de sequía, los incendios forestales se encargan de quemarlos. generalmente estos incendios son provocados por seres humanos. Paraguay también posee uno de los índices más acelerados de deforestación de la región como consecuencia de los agronegocios.

San Bernardino es una ciudad que se encuentra a 50 km de la capital de Asunción. situada sobre el lado este del Lago Ypacaraí

y rodeada por la serranía de la Cordillera de los Altos. Su ubicación geográfica, muy cercana al Chaco húmedo, permite un mosaico de ecosistemas donde conviven el bosque denso caducifolio (árboles nativos de gran porte) y la sabana arbolada de de Copernia Alba (palma karanday). Los arroyos completan el paisaje, donde el paisaje es lujo.

La actividad socio-económico de la zona es semirural. aún existen pequeñas industrias de producción artesanal que utilizan la leña como combustible. existe una polarización en la forma de habitar de los pobladores locales y los propietarios foráneos.

San Bernardino es una paradoja: es la ciudad de veraneo por excelencia de las

elites que la eligen por su paisaje y al mismo tiempo lo destruyen.

La obra se encuentra en un terreno familiar de dicha ciudad, en la falda de un cerro a 3km del Lago. un terreno con una frondosa vegetación nativa, formaciones rocosas a la vista y un arroyo en su lado sur. La construcción se posiciona justo en la barranca del arroyo.

El refugio para un picaflor nace con una muerte: la de mi hermano. Mi hermano regalaba orquídeas a mi madre, muchas, siempre. Entonces decidimos construir un lugar para ellas. Este lugar para plantas también debía funcionar como un espacio de celebración.

Está construido con lo que hay a mano, con lo que la naturaleza provee; aquí no hubo un proyecto total preconcebido. Se fue haciendo por etapas y según necesidad: primero dos muros, luego un piso con una mesa larga de piedra con parilla para cocinar a las brasas; después la piscina y más tarde un baño con depósito.

Así los troncos de árboles caídos en vez de terminar como leña tienen un destino mejor volviendo a formar parte del paisaje. En el baño utilizamos como estructura troncos enteros de árboles que murieron parados en un incendio y lo recubrimos con chapas offset desechadas de las imprentas. Imitamos a Gehry con restos, humor y martillo.

Las chapas ofrecen una durabilidad infinita y cero mantenimiento, además de sus reflejos que son cruciales para el proyecto. La obra es el resultado de un proceso donde el sitio, la materia y el tiempo alimentan el proyecto. El refugio para un picaflor es un memorial. para celebrar vida y muerte, construido con materiales que fueron desechados y aquí recobran vida como materia: un lugar donde los muros refugian por igual a la naturaleza y las personas. donde los reflejos nos desdibujan el más allá. un lugar para los relatos que nos faltan.

1_ Implantación

La primera idea de mi madre ante la muerte de su hijo, fue de construir una capilla. Pasó un tiempo y la idea se transformó: me encargó construir un memorial. Sin decir mucho más acordamos que debía incluir su colección de orquídeas.

Es una costumbre familiar celebrar las fechas de muerte y cumpleaños de aquellos que ya no están. El memorial no podría ser un espacio de contemplación como los que se acostumbran; más bien debía ser un espacio de celebración. Así se constituyó como el lugar elegido por la familia para conmemorar momentos impor-

tantes. como las fechas de mi hermano. alguna fiesta de fin de año, el antes y después del casamiento de mi hermana,cumpleaños ajenos, reuniones incontables. Un espacio para encontrarnos. para cobijar la alegría y el dolor al mismo tiempo.

Se volvió un espacio de culto para familiares y amigos porque aquí hemos desarrollado un ritual para el lugar vinculado a compartir tiempo y alimentos. Sin darnos cuenta se convirtió en la capilla inicialmente deseada. Un espacio ceremonial al aire libre de nave central y un manco transepto con absidiolo

incluido, que cuando se hace de noche , se enciende una antorcha que refleja las chapas e ilumina suavemente el sitio y la ausencia. El tiempo hizo lo suyo. Los muros de troncos que alojan a las orquídeas generaron hongos y permiten que las plantas se trepen a gusto debido a su humedad hasta convertirse en techo. El ecosistema se suma a la celebración: aquí conviven insectos y reptiles. pájaros y animales domésticos. Con bastante frecuencia suele visitarnos un picaflor.

2_ Corte

Opinión

Este proyecto es una crucial demostración de como Lukas Fuster hace arquitecturas como escrituras (proyecta y escribe igual de bien) y como ejecuta una tarea de recolector-ensamblador ya que sus cosas son el resultado de lo que hay a mano, incluyendo desde ya, al material natural pero también un sensible proceso de reelaborar referencias desde Gehry a su maestro incial, Javier Corvalán. Lukas además es extremadamente creativo en inventar programas y funciones, empezando por su reelaboración de la idea de una plaza pública en su celebrado trabajo de la Plaza Amistad en Remansito, Villa Hayes o la plaza de nuestros sueños como la ha llamado. Aquí se trató de un tema complejo originado en una perdida que fue la de un joven hermano de Lukas, ante lo cuál y con una intención de recordación, la madre de ambos hermanos le pide un proyecto al hijo arquitecto: La

primera idea de mi madre ante la muerte de su hijo, fue de construir una capilla. Pasó un tiempo y la idea se transformó: me encargó construir un memorial. Sin decir mucho más acordamos que debía incluir su colección de orquídeas. El hijo desaparecido tenía la costumbre de regalar orquídeas a su madre, de modo que esa colección que ella atesoraba implicaba tener un recuerdo vivo y espléndido de quién regalaba esas cosas.

Frente a esta situación cabe referirnos al hecho que en Paraguay –como en algún sentido, pero diferente, también en México– hay cierta paradójica con-vivencia con la muerte y con los muertos, en que mas que tender a cierta manera latina trágica y sufriente de enorme pesar por los desaparecidos, parece prevalecer una forma quizá mas ligada a las creencias de sus pueblos originarios, de que la muerte es una forma natural de completar un ciclo de vida y contribuir a su ciclicidad.

En algunos poblados suelen haber cementerios en lugares centrales a modo de plaza pública donde las tumbas son como coloridas maquetas de casas y frente a las cuáles se reúnen las familias. Es decir que existe una conducta social y antropológica diferente a la ritualización dolorosa y trágica de una desaparición.

Así lo pone Lukas en su memoria: Es una costumbre familiar celebrar las fechas de muerte y cumpleaños de aquellos que ya no están. El memorial no podría ser un espacio de contemplación como los que se acostumbran; más bien debía ser un espacio de celebración. Con este comentario se descarta el modelo fúnebre de contemplar una tumba y se avala una idea, arraigada en lo popular y originario, de recordar de manera más feliz a quién ya no está: Un espacio para encontrarnos. para cobijar la alegría y el dolor al mismo tiempo. Entonces se empezó gradualmente a cons-

truir un sitio con varias referencias de partida: albergar la colección de orquídeas en un medio que asegurará su fertilidad y crecimiento (asegurar su vida, que recordaba la otra vida del hermano) y configurar un espacio de reunión donde se pudiera cocinar a la brasa y comer en conjunto para las fechas de recordación. Esa referencia de reunión y comunión (en tanto comer juntos) no está lejos del ritual cristiano de celebración de la muerte de Cristo con pan y vino. Por lo tanto, desarrollada la idea, se volvió un espacio de culto para familiares y amigos porque aquí hemos desarrollado un ritual para el lugar vinculado a compartir tiempo y alimentos. Sin darnos cuenta se convirtió en la capilla inicialmente deseada.

Despues, un despliegue lento y creativo de construcción de un sitio usando lo que hay a mano, como suele repetir Lukas casi en todos sus trabajos. Armar un lugar para comer

y asar con progresivos complementos como un baño y una pequeña piscina y todo más que proyectado/dibujado, ejecutado in situ, con predominio de lo artesanal y aplicación de ingenio jaitek1 , tal como se expresa en otro tramo de su memoria: En el baño utilizamos como estructura troncos enteros de árboles que murieron parados en un incendio y lo recubrimos con chapas offset desechadas de las imprentas.Fruto de esa manera ingeniosa y de aprovechamiento de situaciones encontradas mas que buscadas (en la

1 Jaitek. Relatos de una construcción indócil: asi se llama el articulo escrito por Lukas Fuster en Thema 7, UdelaR, Montevideo, p.135, 2024; que es avance de su tesis doctoral de ese nombre desarrollada en FADU UdelaR y cuya denominación remite al lenguaje jopara (lunfardo guaranítico-castellano) para aludir a la alta tecnología popular de arreglarse con lo poco que cada uno encuentra en su proceso experimental y artesanal de autoconstrucción.

Referencias: Chapa galvanizada
Referencias: Driving Range, J. Corvalan
Referencias: Jarrón Savoy A. Aalto
Referencias: Swiss Pavillion, P. Zumptor

Referencias: Restaurante Mestizo, S. Radic

Referencias: Termocalefón

lógica del objetc trouvée), la publicación que ofrecemos no solo tiene las fotos y dibujos convencionales, sino también un grupo de imágenes que Lukas define como referenciales y de inspiración asi también como otras ilustraciones qur muestran momentos de producción de la obra.

Obra cuya condición cultural trascendental –que trata de resolver lúdica y alegremente, una memoria afectiva de una desaparición–se yuxtapone en esa búsqueda de otorgamiento de naturalidad natural a la muerte como fin ecológico de un ciclo de vida que se imbrica en otros ciclos, a una definición ambiental-material de su proyecto, en que un ecosistema se suma a la celebración: aquí conviven insectos y reptiles. pájaros y animales domésticos. Con bastante frecuencia suele visitarnos un picaflor.

Rafael Iglesia

Entre la experiencia y la experimentación

1Arquitecto y Doctor FADU

UBA donde es Profesor. Este ensayo es un fragmento de su tesis doctoral.

En el relato mitológico del rey Minos de Cre-

ta, Teseo logra llegar y destruir al Minotauro gracias al ovillo de hilo facilitado por Ariadna. El laberinto construido por Dedalos para proteger encarcelar al toro-humano fue flanqueado introduciendo un elemento ajeno a él. Mediante esta simple operación Ariadna es la que restituye la falta de orientación en el laberinto, la que le permite orientar, fijar, saber, que hay delante, detrás, arriba, abajo, lo que pesa y lo que no, aparecen el recorrido, los muros, el piso, todo comienza a tener nombre. Arquitecto no es quien construye, sino quién interpreta, es Ariadna y no Dédalos, la primer arquitecta.

Con esas palabras, tomadas de Josep Quetglas, abrió Rafael Iglesia1 el Congreso Internacional de Arquitectura Latinoamericana en Rosario, en el

1 Arquitecto (1952-2015) rosarino, fundador del Grupo R junto con los arquitectos Marcelo Villafañe y Gerardo Caballero.

año 2010. Interpretando esta imagen en el contexto de las obras del mismo Iglesia podemos conjeturar que es Dédalos quien experimenta, juega con los materiales, se sale de sí mismo generando puntos de vista extraños, para crear nuevos laberintos. Y es Ariadna la que, pacientemente, va encontrando continuidades, se va orientando. Finalmente ambos, arquitectos y habitantes de los espacios.

O quizá esto puede ser visto a través de las palabras de Francisco Liernur cuando al final de su artículo sobre la temporalidad en la arquitectura, La túnica de Venus, dice: …la arquitectura siempre ha funcionado como máquina de poder. Pero no es menos cierto que…en esas formas de la arquitectura se encierran también las experiencias que los hombres acumularon a lo largo de miles de años para la construcción de sus cobijos…Ni una ni otra función parecen prescindibles todavía… (Liernur 1996/2010:127).

Y entonces son tal vez esas mismas máquinas pero en una versión lúdica, más cercana tal vez a las máquinas abstractas de Deleuze que a Foucault, las que pone en juego nuestro arquitecto en su aproximación disciplinar. Pero también son esas experiencias acumuladas, las que al habitar sus obras nos permiten (y también a él) comprender, orientarnos en el mundo. Funciones estas, que desde este trabajo entendemos como divergentes y a la vez imprescindibles para salir airosos del racionalismo funcionalista tanto como de la genialidad romántica.

Y a propósito de estas estrategias/máquinas, el mismo Iglesia (2015) dirá: Mi estudio es un laboratorio. Pero no experimento cuando me viene el trabajo, porque experimento todos los días con alguna cosa. Entonces, cuando viene el trabajo, veo cuál de los experimentos puede encajar… Pretendo no ser racionalista y es muy difícil porque me formé en el racionalismo… un día a Mendes da Rocha, en una comida, le pregunté cuál era la obra más importante para él, una pregunta tonta y

me dijo: “Las pirámides de Egipto”. “¿Por qué?”. Me dice:

“Porque son las máquinas de su propia construcción… nunca hubiesen podido hacer un prisma, tenían que hacer un plano inclinado para subir las piedras”. Yo después de eso, empecé a hacer palancas. La mesa del quincho, es una palanca. Empecé a hacer máquinas simples. Eso que él me dijo, actuó de disparador para una serie de trabajos míos, es decir, una palabra puede actuar en mí como disparador, una palabra para mí vale más que mil imágenes. Una revelación. Mendes además, es un arquitecto de quien me gustan sus estrategias por encima del producto terminado. Cómo entra a un trabajo. (Rafael Iglesia: 2015)

Quizá esta salida del racionalismo, lúdica, con experimentaciones que finalmente encajan o no, palabras como disparadores, estrategias maquínicas, pueda resumirse en el macaneo, esas narraciones, ficciones, verosímiles, tan arraigadas en nuestras costumbres, descripto por nuestro pensador de lo americano Rodolfo Kusch.

Antecedentes

Tomamos como punto de partida para el análisis la relación que establecen los arquitectos Carla Berrini y Claudio Solari en su participación en el Seminario Internacional

Profesionales, expertos y vanguardias, Facultad de Arquitectura Planeamiento y Diseño, UNR, 2018 (Solari; Berrini 2018), en cuanto al grupo de arquitectos rosarinos conocidos como grupo R, entre los que participaron Iglesia, Gerardo Caballero y Marcelo Villafañe, y dos situaciones puntuales que anteceden su actuación.

La que se establece en torno a una segunda generación de la arquitectura moderna que conecta con el grupo R catalán y las visitas de Oriol Bohigas2 a la Argentina, que nosotros intentaremos puntualizar en principio, alrededor del concepto de las preexistencias ambientales y la continuidad. Y por otro lado la relación entre Gerardo Caballero y Mario Corea, rosarino exiliado, que de alguna manera incluye las propuestas disciplinares, que en su caso entendemos ligada a la arquitectura de sistemas, de la postmodernidad o tardomodernidad, ausentes en el debate argentino de los años de dictadura.

En cuanto a la primera de las relaciones, signada por la continuidad, pretendemos trazar un hilo que nace en la

reunión de los CIAM VII, en Bérgamo, en la que coinciden Ernesto Nathan Rogers3, vicepresidente de la comisión de Reforma de la enseñanza de la arquitectura y del urbanismo y Antonio Bonet4, exiliado catalán, como representante argentino.

El italiano crea por esos años, el concepto de preexistencias ambientales y lo difunde funtamentalmente a través de sus editoriales como director de las revistas Domus y Casabella-continuitá. Una definición que se entiende a través de la herencia cultural recibida por Rogers y que tiene sus orígenes en la enseñanza de la filosofía fenomenológica de su maestro en el Liceo Parini de Milán, Antonio Banfi, y su discípulo Enzo Paci, colaborador, miembro del consejo de redacción desde 1957 y filósofo de Casabella.

2 Arquitecto español de los fundadores del Grupo R catalán, entre sus obras está el Parque España en Rosario, sobre la barranca del rio.

3 Arquitecto italiano (1909-1969) formó parte del estudio BBPR, con el que proyectó entre otras obras la Torre Velasca en Milán. Fue director de las muy conocidas revistas Domus y Casabella, desde cuyas editoriales fundamentalmente difundió sus ideas arquitectónicas que aportaron también en el final del CIAM, ligadas al pensamiento de dos filósofos fenomenólogos que influyeron en el: Antonio Banfi, y su discípulo Enzo Paci.

4 Arquitecto catalán (1913-1989) emigró de España en la época de Franco, luego de formar parte junto con su profesor J. L. Sert, del GATCPAC, para pasar por el estudio de Le Corbusier en Paris y luego establecerse en Buenos Aires donde funda el Grupo Austral, hasta su regreso, luego del franquismo.

Imagen 1_ Torre Velasca Milán. BBPR 1950-8

En un artículo que profundiza en el pensamiento de Rogers, Jorge Torres Cueco (2018) dirá al respecto: Las afinidades entre ambos intelectuales fueron muy intensas en la posguerra y, de hecho, la misma filosofía de Paci, calificada como fenomenología relacional; los estudios que realizaba en aquel momento sobre el pragmatismo de Dewey y Whitehead, y la fenomenología de Husserl, se traslucen en los escritos de Rogers. De hecho, sus textos están contaminados por el vocabulario de Paci: “mundo de la vida”, “experiencia”, “suspensión del juicio”, “intencionalidad” y, por supuesto, “permanenza”que Paci definía como “la firmitas, la duración de una construcción en el tiempo según determinadas estructuras y determinado equilibrio” y “emergenza” “la renovación, la apertura al futuro y a las posibilidades”

(Torres Cueco: 2018)

Mientras el catalán, miembro del Gatcpac5, viene de trabajar en el estudio de Le Corbusier en su primer establecimiento como exiliado, en el que junto con Roberto Matta participan de los considerados como primeros dibujos de la maison Jaoul, a partir de la cual se genera cierta épica corbusierana de arquitectura mediterránea,

5 Grupo de Arquitectos y Técnicos Españoles para el Progreso de la Arquitectura Contemporánea.

en relación a las técnicas artesanales, por fuera de un racionalismo a ultranza. Que, más allá de dicha épica, sí va tomando forma, en los trabajos de Bonet fundamentalmente en Uruguay.

A propósito de ello las palabras de Jorge Nudelman (2014) como corolario de su investigación al respecto, son muy descriptivas: De las casas de Garraf se derivan tambien, y en sucesivas combinaciones, las casas rurales para la Argentina publicadas en Austral, de las que La Gallarda –la casa en Punta del Este para Rafael Alberti y Teresa Leon– toma los techos... La capacidad de absorcion y adaptación en Bonet es alta, casi un metodo compositivo. La boveda tabicada catalana fue convocada otra vez en Punta Ballena,al encontrarse con un joven Eladio Dieste. La técnica,

en realidad, es una excusa y, sin prestar la atencion debida a la novedad –la ceramica armada que acababa de inventar el ingeniero tratando de interpretar los imprecisos recuerdos del arquitecto–, este tapa las bovedas con un ondulante pretil que reproduce las cubiertas de las casas de Martinez, en Buenos Aires, con pocas diferencias.

Las bovedas de Dieste en la Berlingieri resultaron demasiado esbeltas y nunca hubo en Bonet la intencion de mostrar ninguna novedad tecnica. El arco es, al menos hasta La Ricarda, en El Prat, ya en los sesenta, la forma de dibujar una linea sinuosa en el perfil contra el cielo, intentos persistentes de reconstruir <aquella> casa Jaoul… (Nudelman 2014).

Imágenes 2-3 Casas La Gallarda y Berlingieri, Uruguay.

Como… la Gallarda, conflicto de memorias… caracterizará Nudelman (2010) en su análisis La casa exiliada.

Antonio Bonet y Rafael Alberti en Punta del Este, a estas evocaciones que se transparentan en la arquitectura. Las de los Alberti y la teja española/árabe, acanalada de la Gallarda y la de las bóvedas catalanas que Bonet ira haciendo resonar en sus casas uruguayas, hasta repatriarla en su vuelta a España, en La Ricarda.

Coronada de tejas árabes, dirá Aitana Alberti, la hija del poeta exiliado, al referirse a su casa de infancia. Y Nudelman cerrará: …la necesidad de construir un mundo de referencias al pasado desgarrado, seguramente provocó la presión sobre el arquitecto, y sobre sus dibujos… Y el arquitecto cede, también malhumorado por no poder completar su propio universo de recuerdos… (Nudelman 2010).

Pero además de la continuidad de los recuerdos, será la continuidad del paisaje la que se haga presente en las casas uruguayas. Un especial cuidado hacia el mismo que Roberto Fernandez (2013:155) describe como una obra esteña sabiamente inserta en la maravilla de ese paisaje costero de mar y sierras.

Finalmente entonces, en derredor de una idea de arquitectura situada que hará pie en Tucuman con la presencia del primero y en Buenos Aires a través del segundo. Y de ambos en Rosario, a través de la influencia de Sacriste y Tedeschi en Scrimaglio por un lado y de la renovación de la Escuela de Arquitectura de Rosario de 1956 y el arribo de los arquitectos modernistas llegados de Buenos Aires Jorge Ferrari Hardoy, Juan Manuel Borthagaray, Jorge Enrique Hardoy varios de ellos relacionados con el bonetiano grupo Austral. (Solari; Berrini 2018) Podríamos establecer así una actitud de despliegue, afianzamiento y salida de lo moderno, en términos de sutura, continuidad, por encima de cualquier tabula rasa tanto en lo geográfico como en lo histórico, en el paisaje y en la memoria. Y para terminar la descripción de esta primer relación es interesante mostrar la divergencia que se produce en la misma redacción de Casabella-Continuitá, entre la mirada instituida por Rogers, de las preexistencias ambientales y el que luego se llamó tipologismo, de la tendenza milanesa personalizada en Aldo Rossi. Que se preanuncia en un incidente, ocurrido cuando Rossi era alumno del Politécnico de Milan y miembro de un grupo conocido como Los jóvenes de las columnas , quiénes iniciaron una controversia académica al desarrollar en sus trabajos una postura marcadamente historicista. Los Giovani delle Colonne son un grupo de estudiantes del Politécnico de Milán, llamados así por Giancarlo De Carlo, que en su revuelta contra el conformismo

de la escuela, sufren la reprimenda de De Carlo por proyectar usando columnas, capiteles o pináculos… (Torres Cueco 2018).

De este modo, lo que comenzó como una mirada en que la memoria y el paisaje ofrecían a la disciplina arquitectónica (en este caso fundamentalmente al racionalismo, aunque también al organicismo wrightiano) una situación en el mundo en relación a la cual orientarse devino, en Italia, en la fundación de nuevos planteos disciplinares, en marcada oposición al movimiento

Imagen 4_Icónica imagen del Teatro del Mondo de Aldo Rossi, en contraste con su preexistencia inmediata.

moderno, en cuanto a su opción por la historia como materia disciplinar, poco menos que rectora, aunque, finalmente reversionando su carácter analítico racional y abstracto6. Y perdiendo, en la atmósfera de sus obras, la continuidad que fue el punto de partida7 La segunda de las relaciones planteadas por Solari y Berrini (2018), que hace de contrapunto a la continuidad, está puntuada por la relación del Grupo R rosarino con el arquitecto Mario Corea .Al respecto dicen: La relación de Corea con Caballero es directa. Recibido en 1982, Caballero se traslada a Barcelona e inicia su trabajo profesional como colaborador en el estudio Manino-Gallardo-Corea, recomendado por su profesor, Roberto Shiira –quien, con anterioridad, había trabajado junto a Corea–. A instancias del mismo Corea, Caballero accede y realiza un master en la Washington University de Saint Louis. Las relaciones interpersonales, académicas y profesionales, establecidas por el arquitecto tanto en

6 Roberto Fernandez en su artículo Decadencia del contextualismo, de su Formas Leves, marca una diferencia entre un primer contextualismo sensible en relación a ciertos sedimentos contextuales del proyecto, las preexistencias ambientales, entre los que destaca a los artículos de Bohigas y las obras de Scarpa, Van Eyck y De Carlo. Y una segunda etapa en la que el contextualismo deriva … neomoderno en tanto imbuido del valor diferencial que la modernidad intentaba incluir en la nueva arquitectura respecto de la masa existente … Nosotros desde aquí, forzando esta división, la planteamos como una fase en que prevalece la situación como acercamiento predisciplinar y un planteo, el segundo, disciplinar, elaborado en línea con lo que llamamos aquí antihumanismo.

7 No obstante los aportes a la disciplina arquitectónica que, más allá de esta crítica, se suelen hacer en cuanto a la desarticulación del funcionalismo ingenuo y demás, que exeden la presente articulación, explicitados contemporaneamente por Carlos Martí Arís, por ejemplo.

Barcelona como en los Estados Unidos, fueron centrales para las actividades culturales promovidas en Rosario por el Grupo R desde principios de la década de 1990.

(Solari y Berrini 2018)

En el inicio de su actuación, Corea, según expone Rigotti (2017), estudia arquitectura en la Universidad de Rosario en la que los talleres verticales seguían relacionados con aquella generación ligada al grupo Austral prosiguiendo su formación en Harvard, en relación con J.L. Sert, ya en una etapa este, en que revisa su pasado CIAM, más en consonancia con el pensamiento de Rogers con quien coincide en la redacción de El Corazón de la Ciudad, uno de los documentos finales del grupo liderado por Le Corbusier. Por ejemplo en la importancia dada al peatón y su necesidad de encuentro e intercambio por sobre la escala del automóvil.

Rigotti resume el inicio de la relación de Corea con lo que llamamos genéricamente, arquitectura de sistemas8 así: Fue la síntesis descarnada de estos cuestionamientos (los…de Sert) por parte de Fumihiko Maki cuando era docente de la Washington University … la que respaldó su nombramiento en el programa de la GSD como una promesa de renovación. Maki fue el maestro de Corea.

(Rigotti 2017)

Y será esta síntesis descarnada lo que nosotros propo-

8 Entendemos por arquitectura de sistemas a los desarrollos que se dan en torno a un pensamiento sistémico que comienza en la biología, desarrolla luego Von Bertalanffy como Teoría general de sistemas y condensa en los escritos de Christopher Alexander con sus Sistemas que generan sistemas en su La ciudad no es un árbol de 1965. Y alredor de lo cual se desarrollan diversas vías disciplinares que entendemos llegan hasta la actualidad.

nemos como adscripción a un paradigma otro. Basado en la crítica de la modernidad, pero ya no desde lo que podríamos llamar un poshumanismo destilado en relación con la fenomenología, en que el acento estaba puesto en la superación de la confianza absoluta en la racionalidad, sino desde un antihumanismo que centra su crítica fundamentalmente hacia la genialidad, la intuición, la caja negra como dadora de forma resultante en un objeto.

Que podríamos organizar en relación a algunos ejes que, desde nuestra perspectiva, delinean dicho perfil disciplinar sistémico: (1) Una variabilidad proporcional, en cuanto a la relación dimensional ciudad/arquitectura en pos de abordar la ciudad desde la arquitectura desenfocando a su vez la unidad del objeto arquitectónico, (2) La neutralidad funcional en torno a la creación de tierras artificiales, infraestructuras pasibles de anidar programas flexibles, (3) La ciudad como relación de flujos de movimiento, en relación a niveles de legibilidad, más que como las partes del esquema CIAM y (4)

El proyecto como proceso analítico en relación a los conceptos de transformación y retroalimentación por sobre la idea romántica del arquitecto artista.

Imagen 5_ Corea, Lozano, Munizaga, Wampler. Proyecto

City Corridor, Boston GSD.

Fuente: Rigotti A.M.

2017

Este perfil entonces, al que Corea adscribe en relación a su acercamiento al metabolista Maki y. en torno al cuál desarrolla su tarea disciplinar/profesional, es revisado por el mismo a partir de, fundamentalmente, su acercamiento, en el Paris posterior al mayo francés, a Henri Lefebvre y su mirada centrada en lo cotidiano. La cual es descripta por Graciela Silvestri (2014) de la siguiente manera:

Entre 1971 y 1972, Corea es becado por el ASTEF. (asociación dependiente del Ministerio de Relaciones Públicas y Cooperación Técnica de Francia) para realizar un seminario sobre proyectos urbanos y regionales. En estos años se produce un desarrollo notable de las investigaciones urbanas en Francia, basado en la extendida voluntad de renovación del conocimiento critico acerca de los procesos de urbanización…Entre estos referentes, se destaca Henri Lefebvre, por entonces profesor en Nanterre,uno de los centros de la famosa revuelta de mayo. Entre 1968 (El derecho a la ciudad) y 1978 (De l’Etat), Lefebvre desarrolla en seis libros su teoría de la producción espacial, centrada en el hecho urbano. Los primeros textos del pensador francés constituirán una referencia central en las propuestas de Corea en la Argentina del 72 al 75, pero no sólo de él: son pieza clave, por ejemplo, de los escritos de Marcos Winograd y de sus discípulos. Por fin la “nueva izquierda” marxista ha encontrado un apoyo teórico sofisticado para pensar la ciudad concreta –resolviendo, al menos en apariencia, problemas de la vida cotidiana que la planificación y la arquitectura no acertaban a enfocar… (Silvestri 2014).

Desde donde Corea comienza un camino entonces, de reenfoque de su planteo disciplinar. A partir del cual podríamos sugerir una simetría en cuanto a la vía anterior, de la continuidad. Si reconocíamos en esta última un devenir hacia los planteos analíticos tipológicos, podríamos plantear en el camino de Corea un pasaje desde

la lógica disciplinar de los procesos hacia una mirada donde reaparece lo cotidiano como hilo de continuidad.

Y entendemos desde aquí, que son los extremos de dicha simetría los que conviven en la arquitectura de Iglesia. En términos literarios, entre los laberintos borgeanos y la comprensión del paisaje y la ciudad que habita los textos de Martinez Estrada. Entre la ubicuidad del sistema y la cotidianeidad situada, pero no como superación dialéctica de opuestos, sino como paciente trabajo de interpretaciones.

El proyecto. Entre la errancia y el acierto

(...) ya que cuando fundamos nuestro Grupo R, lo hicimos por el homónimo grupo que se fundara en Barcelona y por supuesto por la R de Rosario. Sabíamos ya que el grupo R español se creó para introducir los lineamientos de la arquitectura moderna en un país dominado por una arquitectura oficial en época de Franco. Pero siempre quise saber por qué R. Y cuando lo tuvimos (refiere a Oriol Bohigas) aquí se lo preguntamos. Y nos contestó solamente: porque la letra R es una letra fuerte, nada más. Yo me imaginaba racionalismo, revolución, que se yo, muchas cosas más. Pero por esa necesidad que tiene uno de buscar interpretaciones, porque finalmente formalizar e interpretar es lo que hacemos, apelaré a la posibilidad que nos da el lenguaje de decir algo y estar leyendo otra cosa. La letra R en sí, el signo dentro del lenguaje, cuando se transforma en palabra

aparece el verbo: erre, de errar, de errante. Y esto es lo que me interesa: ¿qué es errar, sino desacertar, no dar en el centro? Desde el Renacimiento hasta nuestros días un orden conceptual nos impide ver el mundo en su verdadera complejidad. La certeza consolidándose en base a simplificaciones. El errante, el nómade, (...) maneja otros tiempos, otros espacios. No va de un punto a otro, sino entre dos puntos. No sigue los caminos. Su hábitat es el viaje.

Rafael Iglesia (en Berrini; Solari 2018).

La errancia pareciera ser el proceso del acierto. Mientras que la línea recta, el camino de la certeza. El proyecto para el Heidegger de Ser y Tiempo no tiene ninguna relación con un plan de conducta que el ser ahí habría inventado y según el cual edificaría su ser: como es ser ahí, este ya ha sido proyectado y permanece en proyecto mientras es… Entonces Ricoeur, pone el acento en la posibilidad, en el estado de elección como estructura del ser ahí, más que en que en la sartreana responsabilidad, que sería en este caso, un derivado de la anterior. Y esta parece ser la característica del errante de Iglesia, su plan, su destino es el propio viaje. El proceso crea sus propias reglas. Como las pirámides de las que habla Mendes da Rocha. El producto es parte integrante del propio proceso.

Sintetizando entonces y en relación con el cuadro de análisis anterior, el camino de las continuidades pone en contacto las evocaciones bachelardianas y una especial atención al paisaje, con las cotidianeidades de las

que parte la apropiación del espacio situacionista. Y la vía disciplinar, en torno a Mario Corea, como un pasaje que podríamos desarrollar a partir del concepto de sistema generador de Christopher Alexander. En relación al cual, los sistemas entendidos como totalidades, estructuras, parecieran abrir paso al concepto de pattern o más allá, a la lógica heurística de los diagramas o la paramétrica con toda su condición digital.

Entonces digamos que Iglesia pareciera dejarse impulsar por las peripecias de los sistemas (generadores) que el mismo inventa. Todo comienza en sus dedos: jugando y echada a andar, la máquina es una lógica implacable, arrolladora, que desarticula los conceptos conocidos para barajar y dar de nuevo.

Búsqueda que se orienta en la necesidad de una relación más profunda, poética, vital, con el mundo, con el paisaje, con la ciudad, con el espacio, con los objetos y con la comunidad.

Iglesia (2016) describe su Casa en la Barranca situándola en el tiempo y el espacio, entre la inmensidad de la pampa y la brevedad de nuestra historia y frente al Paraná.

Y enseguida articula un sistema de niveles: 1 Un ingreso en contacto con la calle, 2 Un espacio verde que no deja ver lo que sucede más abajo, 3 La piscina y el techo de la casa conformando el mayor espacio de uso, 4 Por debajo, la casa y el muelle sobre el nivel del río y un espacio que organiza todo lo anterior.

Pero no son cuatro niveles más dicho espacio, no es un quinto nivel más escondido, que subyace… Es simplemente un patio que parece, para Iglesia, dar sentido a

Imagen 6

Casa en la Barranca

Plantas y corte

Fuente: https://www.plataforma arquitectura cl

todo lo demás. Patio desde el cual comienza a verse el río a través de las paredes de vidrio… y entonces el espacio interior se transforma en un ventanal con el espesor del espacio habitable que alberga. Es también un reparo definido en uno de sus lados por una cascada que se deja ver, oír, oler el rocío sobre el césped y sentir su cambio de temperatura.

Después, inmediatamente otro sistema, el que caracteriza su trabajo, el de fuerzas. Allí describe un juego de vigas que se desplazan, se invierten, se desfasan, complicando el camino de la gravedad, que como las fichas de go deleuzianas despliegan estrategias por su sola posición. Heterotopías que deslizan los significados dando lugar a nuevos sentidos. Y nuevamente aparecen las experiencias, como orientando las estrategias, el encuadre del paisaje, la protección del sol de la tarde, la escala de cobijo, o la propuesta de percepción compleja de su estabilidad. Para, finalmente definirla en relación a nuestras ciudades en la vastedad del territorio, como una piedra tirada en el campo.

Pareciera seguir, su discurso, nuestro esquema diacrónico de análisis. Una serie de procesos disciplinares en el centro de la narración. Precedidos por una situación en el mundo, desde donde surgen las preguntas que organizan, orientan a la máquina disciplinar que desterritorializa y reterritorializa. Para finalmente dar paso a la última de las experiencias, la del habitante presente y futuro, en la que el autor sabiamente calla.

Ahora, también podemos verlo como par sincrónico de experiencias cotidianas y procesos heurísticos. Y así podríamos hilvanar en el arquitecto, una mirada de la

pampa, del paisaje que nos hace paisanos, siguiendo a M.I. Bautista(2016), a través de su lectura de Radiografía de la pampa de Ezequiel Martinez Estrada, aunque también podríamos especular con la lectura de La cabeza de Goliat del mismo autor y una mirada crítica entonces, del paisaje urbano metropolitano (aunque más crítica del Buenos Aires centralizado que del Rosario de Iglesia). Aunque sí evitando una mirada romántica, ruralista, conservadora.

En relación a su propuesta disciplinar más visitada, la de trabajar con sistemas de materiales y procesos de descargas de fuerzas quizá sea simplemente la elección de los materiales más a la mano, como el ladrillo, la madera y el hormigón y técnicas del contexto más cercano como el aparejo, el apilado y el colado lo que termine prefigurando una suerte de identidad low-technology9 (aunque claramente no folklórica/romántica)

que lo pone en relación a lo que R. Fernandez (2011:223) entiende como paisaje operativo, natural/antropológico y que lo acerca a otros arquitectos contemporáneos de la región. Aunque lo asimila también, en algún sentido, al pragmático proceso de proyecto de De la Sota de las Casas de Alcudia, descrito por Abalos, en cuanto al uso de los materiales y sistemas constructivos presentes, en su caso, en el mercado.

Pero claramente su entrada al problema es siempre la misma, con pocas exepciones, dejarse llevar por las 9 Roberto Fernandez en Mundo Diseñado refiere a una especie de paradigma global invertido que podría interpretarse en Solano Benitez y al uso de los materiales y tecnologías del lugar también en R. Iglesia.

Fuente: https://www.plataformaarquitectura.cl

Imágenes 7-8_ Casa en la Barranca.

Imagen 9_ Edificio Altamira en Rosario. Plantas. Fuente: https://www.plataformaarquitectura.cl

estrategias de dichos sistemas, desde el juego en un principio, para así desterritorializar, ceder el paso a nuevas habitabilidades, nuevos territorios.

En el edificio Altamira, por ejemplo, pone en juego un segundo sistema, el de lo público y lo privado, articulando dos subsistemas de escaleras que casi diríamos que se interpenetran. Con el sistema de apilado/pliegue de losas, placas y vigas que en su desplazamiento de esfuerzos potencia las oportunidades. Así, sistémicamente hablando, podríamos decir que la potencia de estos sistemas generadores, la logicidad maquínica de estos procesos simples, promueve nuevas tipologías de habitación, de acceso, de iluminación y apertura al exterior, de abordaje del terreno urbano.

Estos sistemas, que el rosarino nombra en la memoria descriptiva de la obra como el programa y la estructura, claramente no son las premisas de las cuales se partiría para responder con la forma del objeto, en términos de causa-efecto. Tampoco son procesos subyacentes que se develan en los detalles de la obra. Son, parafraseando a Federico Soriano (2017), diagramas, manual de instrucciones del proyecto, ahora más liberado de nuestro control racional.

Así, en relación a lo que podríamos describir como reterritorialización de tipologías en Altamira, Liernur dice: Lo infrecuente de esta obra es que esa estructura

Imagen 10_ 46 Edificio Altamira en Rosario. Corte y vista.

Fuente: https://www.plataformaarquitectura.cl que se autofunda como dispositivo plástico, alberga en su interior…una respuesta original al modo de habitar contemporáneo, que contesta de manera contundente y en todos sus detalles, la agotada tipología del edificio de departamentos entre medianeras de propiedad horizontal. No solamente los accesos rompen la secuencia habitual al transformar la circulación habitualmente pública en terraza/patio privada. En ella se brinda además la posibilidad de separar un segmento de la vivienda (para un hijo adolescente o un profesional) a la vez que con esos mismos elementos se construye en una superficie mínima un complejo dispositivo espacial

O sea que, en consonancia con el autor, es ese dispositivo plástico, como proceso operativo, (y no forma como producto/respuesta a una función o forma como premisa flexible) el que da pie a estos nuevos modos de habitar. Es este dispositivo el que convierte las piezas de ajedrez en fichas de go: … simples unidades cuya función es anónima, colectiva y de tercera persona… las vigas aquí son elementos no subjetivados, que no tienen propiedades intrínsecas…pueden ser muro, ventana, puerta…la insistente viga se desplaza construyendo, destruyendo, bordeando, subiendo, bajando, soportando, deteniéndose, ausentándose y desapareciendo cuando menos se lo espera… (Iglesia 2016)

Pero es Ariadna la que restituye la falta de orientación en

el laberinto, la que le permite orientar, fijar, saber, que hay delante, detrás, arriba, abajo, lo que pesa y lo que no, aparecen el recorrido, los muros, el piso, todo comienza a tener (un nuevo) nombre.

El arquitecto pone en marcha este dispositivo de errancia con sus propias manos y cada tanto acierta y comprende espacios, lugares, ritmos, miradas, quizá como primer habitante de los mismos. Luego estos serán habitados, experimentados, interpretados por actuales y futuros propietarios, visitantes, paseantes. A los que además el arquitecto les propone apropiarse de su experiencia exploratoria, en lo que Ana María Rigotti describe como: Las obras de Iglesia no son táctiles en el sentido de las recientes piruetas fenomenológicas centradas en la exacerbación de la sensitividad individual frente a detalles insignificantes (…) son experiencias táctiles porque en sus investigaciones las manos fueron inseparables de la mente… (Rigotti 2016).

Y entonces las percibimos, tanto en su interior como en su exterior como una experiencia lúdica. Y si vamos un paso más en la interpretación podríamos hablar de refe-

Fuente: https://www.plataformaarquitectura.cl

Imágenes 11-12-13-14_ Edificio Altamira en Rosario.

rencias a cartas o dados apilados, inestables. Y la casa, más que un aerolito o una piedra tirada en el campo, sería un hueso, una taba que cae al borde la cancha.

Bibliografía

Bautista, M. I. (2016) Las palabras y las cosas. En Selección de obras Rafael Iglesia. 1:100 ediciones. Buenos Aires.

Fernández, R. (2011). Mundo diseñado. Para una teoría crítica del Proyecto total. Santa Fe: Universidad Nacional del Litoral.

Fernández, R. (2013). Modos del Proyecto. Buenos Aires: Nobuko

Iglesia, R. (2015) Conversación con Félix Arranz (2015). Scalae editorial. En https://arqa.com/actualidad/ scalae-editorial/homenaje-scalae-biaar-y-arqa-a-rafael-iglesia.html

Iglesia, R. (2016). Memoria descriptiva Casa de la Barranca. En Selección de obras Rafael Iglesia. 1:100 ediciones. Buenos Aires.

Liernur, J. F. (1996). La túnica de Venus. Para una reconsideración del tiempo en la Arquitectura contemporánea. Buenos Aires: Nobuko. 2010.

Nudelman, J. (2010) La casa exiliada. Antonio Bonet y Rafael Alberti en Punta del Este. En Actas del Congreso Internacional Viajes en la transición de

la arquitectura española hacia la modernidad. Escuela Técnica Superior de Arquitectura. Universidad de Navarra 31080 Pamplona. España.

Nudelman, J. (2014) Tres visitantes en París. Los colaboradores uruguayos de Le Corbusier. Ediciones Universitarias, Unidad de Comunicacion de la Universidad de la Republica.

Rigotti, A. M. (2017.) Megaformas para una renovada urbanidad. Exploraciones de Mario Corea en cinco movimientos y una coda. En Estudios del hábitat

| Vol. 15 revistas.unlp.edu.ar/habitat Facultad de Arquitectura y Urbanismo | Universidad Nacional de La Plata.

Silvestri, G. (2014). Alma de arquitecto. Conformación histórica del “habitus” de los proyectistas del hábitat

En Registros, Mar del Plata, año 10 (n.11): 72-97.

Solari, C.- Berrini, C. (2018) Profesionales errantes arquitectos de la contemporaneidad. En Actas Profesionales expertos y vanguardia: la cultura arquitectónica en el Cono Sur Seminario Internacional. En https://fapyd.unr.edu.ar/wp-content/ uploads/2018/06/Actas-PEV-alta-res.pdf

Soriano, F.. (2017). Diagramas. Revista Astrágalo 22, Pg 163. CAEAU Buenos Aires.

Torres Cueco, J. (2018). Ernesto. N. Rogers. Aprendiendo de toda la historia. En Dearq 22. Uniandes. En http://dearq.uniandes.edu.co

Cápsulas operativas

Módulo habitable para Sidersa.

Memoria

En el año 2015 se convoca al estudio para generar ciertas acciones que mejoren la calidad y acondicionamiento de hábitat de trabajo dentro de Sidersa, una planta siderúrgica ubicada en las afueras de la ciudad de San Nicolás, Buenos Aires, Argentina. Luego de un largo proceso de reuniones y asambleas (2015-2016) se llegó a un acuerdo entre todos los actores, se lo llamó Proyecto Integral Sidersa 2015-2025, donde se acordó sobre que variables y necesidades operar. El proceso fue desarrollar un consenso entre operarios de planta, ingenieros, personal de calidad e higiene, recursos humanos y directores de la empresa. Austeridad, racionalidad en el uso de los recursos y sobre todo, consenso, son las bases que sustentan cada acción del Proyecto Integral. De esta manera, cada operación o acción se transforma en un esfuerzo de trabajar a partir de lo que nos dan de una manera ordenada y estratégica pero también el esfuerzo de transformarlo en un sistema de trabajo generando una sinergia entre los seres humanos, la industria y el estudio.

La conexión entre la investigación interna del estudio que trabaja con la consideración abstracta de lo ordinario, de lo simbólico y de los medios de producción que tenemos a disposición, son argumentos que trascienden la condición profesional y se transforman en argumentos con un carácter de estrategia desarrollada día a día para la industria sobre la que operamos. Porque son los medios productivos y humanos que tenemos a disposición y los que tenemos para trabajar y operar en términos más conceptuales este encargo, como por ejemplo, la idea de la Industrialización, la idea de lo ordinario, y la de lo simbólico y la transformación de lo industrial en lo exploratorio a través del prototipo (cápsulas). Porque como dice Federico Soriano, un prototipo es un instrumento para materializar una idea y explorar o comprobar su relación con la realidad. Se trata de crear algo, de confeccionar un artefacto físico, para testear, explorar o comunicar las ideas de diseño de una cosa, u objeto arquitectónico, que va a ser proyectado. Un prototipo genera empatía, ya que profundiza la comprensión del objeto arqui-

tectónico por usuarios, clientes, y también por los que van a construirlo, fabricarlo y habitarlo.

El valor añadido proviene de manipular estratégicamente esta realidad pragmática y una de esas manipulaciones es la de convertirlo en una estrategia, trabajando con sistemas que explica la producción de la oficina en esta industria desde el 2015. Los actores de este proyecto son tantos humanos como no humanos, se genera un ecosistema diverso entre operarios, ingenieros, máquinas y vegetación.

Algunos de los encargos son para ámbitos de trabajo o esparcimiento de operarios o personal administrativo y otros son específicamente para alojar máquinas.

Como se explicó anteriormente en el año 2015 se convoca al estudio para generar ciertas acciones que mejorasen la calidad y condiciones en el día a día de los operarios de la planta siderúrgica. La condiciones en aquel 2015 no eran malas hacia los humanos pero estaban quizás algo relegadas, las máquinas y lo productivo tenía un valor algo mayor. Por lo tanto la intención de la dirección de la empresa en aquel entonces fue trabajar en la mejora de dichas condiciones.

Por lo tanto luego de conciliar intereses, pedidos, y equilibrando las partes actuantes se llegó a la elaboración de un proyecto a 10 años que incluiría, una nueva portería, estacionamientos y vestuarios para los operarios, nuevos comedores vinculados al paisaje circundante de la planta, nuevas oficinas generando nuevos ecosistemas internos en ellas, nuevas circulaciones peatonales donde cada operario no camine más de 100m para llegar a su puesto de trabajo luego del almuerzo entre tantas micro operaciones y acciones desarrolladas a lo largo de los años. Y además las llamadas Capsulas Operativas que aquí se presentan.

Otro diseño para otra sociedad

Autonomía y diseño.

La realización de lo comunal

Arturo Escobar

Tinta Limón, Buenos Aires, 2017

más su apariencia que su esencia o su imagen mas que su materialidad. Ese mundo se apoya en la neutralización de una inédita explotación y proliferación de enormes regiones y poblaciones devastadas y pobres, que empero se deben fundar y refundar en distintas estrategias de supervivencia.

Este libro del antropólogo colombiano Arturo Escobar –nacido en Manizales, formado en Cali y arraigado académicamente en Chapel Hill, USA– se une a los variados analistas de cierta preponderancia del diseño en la era contemporánea que ha suscitado, por ejemplo en Hal Foster para la escena posmoderna globalizada, una hipótesis acerca del relativamente nuevo auge teórico y decisional de un diseño que planifica absolutamente el futuro consumístico de toda mercancía, ampliando indefinidamente aquello que pueda resultar atractivo en esa hipertrofia de fruición de inéditas mercancías.

Así, Foster habla desde tetas de diseño hasta la previsión del color de los ojos de bebés de probeta. Un especie de mundo orwelliano en que el diseño ayuda al control, la vigilancia y a infinitas maniobras de alienación de necesidades, ahora trasvestidas a deseos, y para lo cuál el diseño es central en los procesos de estetización de las cosas del mundo, en las que vale

Este nuevo mundo dicotómico entre ultrariqueza dispendiosa que consume diseño y supervivencia cuando más ingeniosa y a menudo trágica, se acopla a nuevas imágenes críticas de totalización negativa como pudo advertirse en las nociones de antropoceno o la aún mas actual de capitaloceno, según la cuál no es el hombre (anthropos) el culpable de una nueva era geológica de rasgos apocalípticos sino en cambio, ese modo de producción salvaje y posthumana cuya expresión final o actual indica la destrucción espectacular del mundo (en las tenazas del calentamiento global y del neoextractivismo intensivo) y la proliferante constitución de una marginalidad o excrecencia a tal fase recargada de capitalismo que es aquella de las escenas de la pobreza generalizada de los territorios y poblaciones del genérico Sur.

El economista británico Jason Moore acuño el término capitaloceno asociado a lo que llamó Four Cheaps, las 4 naturalezas baratas o cuasi gratuitas de este capitalismo: energía, alimentación, trabajo humano y no-humano no

remunerado y materias primas. Esta expresión ha permitido un campo expandido de valor constituído por lo que puede llamarse plusvalía ecológica que es el margen de utilidad que la tasa creciente de apropiación de esas naturalezas baratas excede respecto de la tasa declinante de ganancia en lo que Mandel definía para el capitalismo como el balance de explotación del trabajo social y del intercambio de mercancías. Esto hoy puede verse como una nueva y última revolución ecológica mundial, siendo tal noción de revolución ecológica aquello que ocurrió otras veces en la historia como modo de resolver las crisis evolutivas del capitalismo, reduciendo la capitalización de la naturaleza (por ejemplo, devastando y extinguiendo lo renovable) mediante la puesta en acción de nuevos medios cuantitativos o cualitativos para apropiarse del trabajo y/o energía biosféricos, por ejemplo mediante el fracking, las semillas híbridas o las EPZ (Export Product Zones; amable denominación para ocultar la flagrancia de la nueva población laboral esclava, que puede que llegue a casi mil millones de personas). Escobar plantea en su escrito (que es además un minucioso reporte de algunas de sus propias experiencias con comunidades afrocolombianas) básicamente dos hipótesis: La primera es que la parte sumergida del mundo –ese Sur socio-comunitario que forma parte de las 4 Cheaps que fundamentan, con su

despojo, la neocapitalización de esta fase final de capitalismo global– tiene que ser entendida desde una perspectiva de autonomía (como un en-sí ontológico que debe ser pensado desde sí y no con la mirada pseudo compasiva de las ayudas desarrollistas). Por tanto, no como un territorio social a la espera del derrame benéfico del desarrollo central.

La segunda, propone que para activar tal autonomía y empoderar acciones para una sobrevivencia y, más allá, para una buena vida, es preciso utilizar el dispositivo diseño para fortalecer tal autonomía empoderante y para acceder a acciones autosustentadas que fortalezcan tal supervivencia (como piso social) y tal buena vida (como techo cultural y político).

La argumentación es por una parte ambiciosa y por otra algo turbadora, de cara al estatuto actual de la arquitectura y el diseño.

Ambiciosa porque sostiene la inviabilidad de cualquier clase de integración al episteme capitalista occidental ya que éste, contra las ideas de múltiples reformadores socio-políticos contemporáneos –como Holloway y otros– no da ninguna señal de autocorrección redistributiva y en rigor ocurre lo contrario, visto la geométrica progresión de la acumulación diferencial según la cuál menos de 100 personas físicas poseen la mitad de la riqueza dineraria del mundo. Y si no hay un futuro capitalismo social concertado cabrá enton-

2 Actuaciones de mujeres Mayas en San Antonio Chum

ces el reclamo de conseguir el despliegue político-cultural autónomo de los pobres del mundo de cara al mínimo de existencia y al máximo de buena vida.

Escobar sin embargo, no peca de ingenuidad y otorga un peso significativo a analizar lo que llama transición (el libro destina su capítulo 5 a lo que llama Diseño para las Transiciones), un especie de impasse socio-política en la que cabe entender y usar, aunque sean reformis-

tas, instancias de cooperación y toda la panoplia de ayuda, financiamientos y mecanismos (en general fruto de cierta mala conciencia del progresismo de países centrales) de supuestas mejoras o mitigaciones de la mala vida sureña. Lo turbador del enfoque es pensar absolutamente otro diseño (otra arquitectura, otro urbanismo, otra objetología) para quiénes se interesen en articularse en dicho espacio de autonomía que implica un universo social de necesidades donde nada sobre ni sea dispendioso ni que posea los rasgos del consumismo generalizado en este tercer milenio. Es turbador porque a lo sumo, en esta parte del mundo, los diseñadores son funcionales a un estatus generalizado de progreso consumístico cuyo acceso en estas regiones está restingido a capas sociales calificadas (ese Norte del mundo que se intercala fragmentaria y calificadamente en las sociedades del Sur) y que hace que lo que se diseña sea a lo sumo, pertinente a algunos procesos de transición. Hay que pensar todo de nuevo en esta instancia y allí son interesantes las reflexiones ontológicas y epistemológicas de Escobar, aunque desde luego, es la mirada outsider de un analista que no es diseñador. Su profesión originaria fue la de ingeniero químico (la misma dicho sea de paso, de Enrique Leff, uno de los grandes teóricos latinoamericanos del ecologismo social y la crisis de sustentabilidad)

y en el desarrollo de su pensamiento recoge expresamente –y así lo dice en su libro– aportes diversos del ecologismo con Leff, O’Connor o Martínez Alier, del pensamiento de sistemas y sobre todo de su derivación autopoiética en los aportes de los biólogos Maturana y Varela y los ulteriores desarrollos ontologistas de Flores y Winograd, de los aportes de la comunicación popular con Barbero y Pedrosa ya desde Cali que fue su ciudad de formación y juventud; del convivencialismo de Illich y su crítica al saber de las profesiones cultas y a subproductos empíricos de ese saber/poder en energía, medicina, transporte; de diversos pensadores sudamericanos de Abya Yala desde Rivera a Viveiros; de reproponedores del metier convencional del diseño desde

Mau hasta Brown o Manzini; de pensadores que recentralizan las llamadas minorías como Segato; de críticos del pensamiento social único como Boaventura de Sousa Santos y su epistemología del Sur

El libro es un poderoso aparato de conjugación de estas aportaciones y presenta tanto un mapa o revisión casi cartográfica de posiciones y relaciones de pensamientos vinculados con las culturas del Sur afirmadas en un planteo de autonomía que restrinja o excluya las tentativas integracionistas cuanto una secuencia argumental que ofrece conceptos para redefinir las prácticas: siendo un pensa-

dor teórico, Escobar le otorga un protagonismo al mundo de las experiencias empíricas, al universo de los modos de existencia de los pueblos sureños que sufren la tempestad de la falsa democracia digital y el estrago de las 4

Cheaps. En rigor la idea maximalista de diseño que campea en estas páginas es un diseño de modos de existencia (que incluye las estrategias de supervivencia y de trascendencia).

En la conversación que hace de prólogo a la edición argentina, Escobar se hace cargo de su relativo escaso manejo de la cuestión de las formas de vida urbana ya que acepta (como lo hace el ecologismo de Leff) que su centro de interés radica en analizar comunidades rurales que a veces son además expresiones de culturas vernaculares originarias. Si bien indica que ha trabajado sobre la difícil aculturación urbana de poblaciones migrantes (como las comunidades afrocolombianas originarias de la costa pacífica reinstaladas marginalmente en ciudades como Cali y el valle del Cauca) y que le ha interesado rediscutir el concepto de barrio así como analizar procesos de reruralización (como el

3 E.Manzini: Cuando todos diseñan

4 Asentamientos Misak-guambinos

brasileño Movimiento Sin Tierra) y el despliegue de los incipientemente llamados rurbanismos, la trasposición de su enfoque a la mala vida urbana latinoamericana organizada en los mendrugos marginales del racionalismo iluminista, resulta un vasto y abierto espacio de pensamiento para pensar allí formas convivenciales emergentes de diseños autónomos, ontológicamente pensados para otras comunalidades y epistemológicamente

organizados en prácticas alternativas del habitar (funciones) y el hábitat (formas).

La exigencia de otro diseño para otra sociedad radica en reconocer los procesos disruptivos, expandidos globalmente y universalizados en la potencia de su afectación social: desde una perspectiva de ontolología política –afirma

Escobar– se puede argumentar que la globalización ha tenido lugar a expensas de mundos relacionales y no dualistas… a través de la ocupación de los territorios de la gente por el capital y el Estado… Este es el mundo despiadado del 10%... que es impuesto sobre el 90% y sobre el mundo natural con creciente virulencia, cinismo e ilegalidad (p.144).

Lo que plantea la estrategia de otro diseño es afrontar la situación de lo que se opone a esa escena: contra ello –sigue Escobar– la perseverancia de las comunidades, los comunes y las luchas por su defensa y reconstitución –particular pero no exclusivamente, las que incorporan explícitamente dimensiones etnoterritoriales implican resistencia y la defensa de territorios que… se puede describir como pluriversal, es decir, como el fomento de la coexistencia de múltiples mundos (p.145).

Esas confrontaciones entre lo global y lo local se expresa para Escobar en múltiples procesos, algunos defensivos y otros resistentes y a la vez de cierto optimismo creativo aún en la desmesura de lo que se enfrenta, como

se manifiesta en la lucha de pueblos de las etnias indígenas misak y nasa del norte del Cauca que Escobar comenta y describe en otros pasajes.

Para plantear la noción de diseño ontológico Escobar recurre a Winograd y Flores cuando enuncian que la cuestión profunda del diseño se reconoce cuando al diseñar herramientas estamos diseñando formas de ser. Si como estos autores entienden por diseño a la interacción entre el entendimiento y la creación, Escobar plantea que tal encuadre es ontológico porque es una conversación sobre posibilidades. Y todo ello desemboca en calificar como ontológico al diseño manifiesto en el modo amplio en cómo una sociedad engendra invenciones cuya existencia altera dicha sociedad (p. 203).

Diseñamos herramientas y esas herramientas nos diseñan en la medida que como

dice Haraway, las tecnologías son actores materiales-semióticos que contribuyen a dar forma a lo que es ser humano. El diseño diseña , como dirá Anne-Marie Willis. Para Tony Fry habría una ontología del diseño evolucionando a lo posthumanista, en tanto que aborda las consecuencias (posthumanas) de vivir bajo la insostenibilidad, estructucturada como una condición de la civilización prevalente (p.214).

6 Ritual de fertilidad del pueblo Nasa, Colombia.

5 Universidad Misak

Ello lleva a confrontar uno de los efectos más graves de la modernidad, que sería la des-futurización. La relevancia adquirida por la brutal degradación ambiental planetaria vía calentamiento global (que en USA quiere presentarse neutralmente como cambio climático, que satíricamente señala Timothy Morton equivaldría a llamar cambio cultural al Renacimiento) y la constitución apocalíptica del antropoceno (que para Bruno Latour indica que ya vivimos dentro del apocalipsis y que éste ya ocurrió y estamos inmersos en

8 Neil Cummins, Transacting

ello no siendo ya, algo que vendrá a futuro) impone otro sesgo para la voluntad de configurar teóricamente un diseño autónomo orientado a salvar lo humano y no a intentar otros saltos tecnológicos al vacio, lo cuál explica en Escobar, la tentativa de pensar la sostenibilidad mediante el diseño, siguiendo los argumentos de Erhenfeld. Esa clase de emergente relación entre diseño y defensa de una calidad superviviente del soporte planetario se expresará en enfoques como la ICT (Iniciativa de Ciudades en Transición) desarrollado desde la Inglaterra periférica por Rob Hopkins mediante propuestas de decrecimiento energético y enfoque de resiliencia o por el encuadre Diseño para la transición, programa de la UCM (University Carnegie Mellon) que pretende conjugar múltiples aportes alternativos, incluyendo varias investigaciones

7 Shock city, Neil Cummins & Ezio Manzini

entendibles como transiciones al postextractivismo, que vistas algunas estrategias políticas recientes (Trump, Bolsonaro, Milei, etc.) parece bastante inviable.

Escobar describe el modelo analítico de diseño de la UCM y también las propuestas del diseñador italiano Ezio Manzini, que pasó desde una posición elitista aunque crítica cuando dirigía la Domus Academy de diseño de Milán a un enfoque de omnidiseño –pensar el diseño

cuando todos diseñan– y a operaciones conceptuales de diseño para la innovación social. Aquí cabría preguntarse por la verdadera capacidad autopoiética de las propias comunidades asediadas por las externalidades de la presión productiva-consumística en cuanto a producir su propia teoría de diseño, visto que Escobar presenta sus alternativas todas mas bien emergentes de un Norte crítico con lo que se abre otra discusión sobre la autono-

mía del pensamiento o hasta que punto será inexorable o conveniente que este surja de aprovechar posiciones académicas prestigiosas del Norte, lo que desde luego no debe descalificarse (dada la relevante aportación de críticos como Jameson, Harvey, Said, Boaventura, Mignolo, Bhabha hasta Manzini y el propio Escobar) pero que abre al menos la necesidad de alguna reflexión.

Quizá esa discusión converge con la idea de autonomía que presenta Gustavo Esteva, confrontada a las nociones de ontonomía (normas endógenas y locales) y heteronomía (normas universales, expertas e institucionales): la autonomía sería la capacidad de reelaborar las normas locales junto a un potencial de innovación y eventual transformación de invariantes vernaculares. Un diseño cuya autonomía requiera pués un ensamble justo entre sabiduría local y capacidad crítica y voraz de articularse con el mundo; un mix de tradicionalismo y progresos; una articulación entre lo originario-rural y las derivas a modos de existir en los colectivos, territorios y artefactos de urbanidad que empero sean sostenibles, empáticos, alternativos.

9 Gustavo Esteva. Enseñanza alternativa en escuelas zapatistas.

Inspiración aeronáutica

Aeropuerto Internacional de Florianópolis, Brasil

Inspirados en el paisaje tropical y montañoso de Florianópolis y en la estética y técnica aeronáutica, los arquitectos llevaron a la terminal y a los pasajeros del aeropuerto un diseño de la cubierta del ala, además de grandes aberturas cenitales, vanos libres y columpios para el lobby de acceso y el área de check-in, permitiendo grandes entradas de luz y una vista para el jardín repleto de especies nativas.

El Aeropuerto Internacional de Florianópolis pasó por un proceso de privatización en 2017 y las demandas del actual operador llevaron a la idea de una terminal con dos niveles operativos (carga y descarga) y diez puentes de salida.

Esta estructura totalmente nueva fue instalada en el lado opuesto de la pista principal –en un territorio sin ocupación previa– con el fin de permitir la desactivación de la terminal existente. Para viabilizar su implantación, por el llamado lado tierra se diseñaron nuevos accesos a partir de la ciudad y nuevas áreas de estacionamiento. En el lado aire, se construyeron nuevas calles de rodaje y un nuevo patio de aeronaves.

La estructura para la nueva terminal se organizó entonces en dos bloques formando una “T”. El sector procesador de los viajes alberga las áreas administrativas y los halls de llegadas y salidas, estos últimos con generosos techos altos, sin la intervención de pilares y con una pared inclinada de freijó (madera típica brasileña) para permitir el paso de las tuberías del aire acondicionado.

La gran cobertura en estructura metálica y diseño inspirado en la geometría aeronáutica le da singularidad a este bloque, además de, a través de aberturas cenitales diseñadas a partir de sustracciones y pliegues en la superficie, permitir la entrada de luz natural. Estas entradas fueron posicionadas estratégicamente sobre los mostradores de check-In y sobre el jardín con especies de vegetación nativa. El jardín media entre la acera de embarque –protegida de la intemperie por una cubierta de voladizo de 17,5m– y el interior del sector procesador. Un vasto vidrio plano atraviesa esta vegetación y permite que el paisaje de Santa Catarina ingrese a la terminal.

El sector conector de las aeronaves alberga las salas de embarque y las cintas transportadoras de equipajes. El bloque es un prisma rectangular alargado revestido de chapa ondulada. Las diez pasarelas de embarque dan ritmo a su fachada predominantemente horizontal. Los planos acristalados que dan a la pista permiten a los pasajeros contemplar los aterrizajes y despegues protegidos del sol por un alero que se extiende hacia el patio de aviones.

Opinión

La intervención de readecuación del antiguo aeropuerto encargada a B&K por su nueva empresa operadora (Zurich Airport) se apoyó en convocar a los proyectistas ganadores de un previo concurso de proyectos para modernizar esta estación aeroportuaria. En esta ocasión la intervención optó por colocar la nueva T contenedora de las áreas de acceso y check-in en el lado vertical de dicha T y el area de embarque y desembarque con su decena de mangas de enlace de aeronaves en el largo rasgo horizontal (de casi 400 metros) de esa letra, en el lado opuesto a la ubicación de la antigua terminal, con lo cual el presente proyecto debió resolver las nuevas circulaciones de acceso al complejo asi como readecuar el área operativa de pistas y enlaces de la zona de decolaje y aterrizaje.

Datos

El denominado Aeropuerto de Florianópolis.Terminal internacional de pasajeros fue realizado por la oficina Biselli Katchborian

Arquitetos en 2019 con una superficie construída de 46829 m².

El proyecto fue liderado por los arquitectos Mario Biselli y Artur

Katchborian y desarrollado por un equipo integrado por Cassia

Lopes Moral y Camila Bevilacqua de Toledo (coordinadores) y Marco Aurelio Toledo, Bruno Taiar, Victor Piza, Alexandre Biselli, Breno Quaioti, Karen Sato, Juliana Gea, Andreia Oshiro, Roberto

Dionizio, Mariana Ginesi, Luiz Nogueira, Filipe Battazza, Daniel

Agostinho, Thais Roman, Giovana Viveiros, Maria Carolina Giardino y Leonardo Kliss.

El cliente fue Zurich Airport y la asesoría estructural fue de ENGSERJ; el confort ambiental de Ca2; la acústica de Modal Acústica; la electrónica de Tecnifer; la manpostería y drywall de Addor; las carpinterías de Crescêncio Petrucci; la comunicación visual de 23 Sul; la iluminación de Plinio Godoy y la construcción de Racional.

Fueron proveedores de cristales (Tempermax), de control climático (Prodac), de componentes eléctricos e hidráulicos (Temom), de computación (Controller), de steel frame y fachada drywall (Idea), de paneles de madera del check-in (Arteira), de estructura y cubierta metálica (Medabil), de paneles fenólicos de fachada (Abet Laminati), de armaturas metálicas de fachadas y cielorrasos (Hunter Douglas), de cielorrasos (Armstrong), de cielorrasos de madera (Ambi Brasil) y de cristales (Guardian).

Las fotografías son de Nelson Kon a quién agradecemos su consentimiento para esta publicación.

Las decisiones del grupo proyectista según se afirma en la memoria fueron apelar a típicas formas de la aerodinamia de las naves para diseñar el techo, que supone la intervención principal en esta clase de proyectos: Inspirados en el paisaje tropical y montañoso de Florianópolis y en la estética y técnica aeronáutica, los arquitectos llevaron a la terminal y a los pasajeros del aeropuerto un diseño de la cubierta del ala, además de grandes aberturas cenitales, vanos libres y columpios para el lobby de acceso y el área de check-in, permitiendo grandes entradas de luz y una vista para el jardín repleto de especies nativas.

Es decir, en este párrafo aparecen varias intenciones principales del proyecto tales como desarrollar una edilicia cuya estética evocara las geometrías aeronavales, propiciar vanos de entradas de luz natural y de aberturas que permitieran ciertas percepciones del paisaje y plantear un jardín interior que fuera demostrativo de la biodiversidad nativa.

Dada la cuidadosa capacidad de B&K para trabajar con las altas tecnologías industriales paulistanas disponibles, esta resultó una ocasión especial para trabajar con arquitecturas transparentes, livianas y proponedoras de espacialidades fluidas y flexibles,

prolongando y profundizando otras importantes performances del estudio tales como el Pabellón Castellato (que publicamos en MAR 6) Pero así como consiguen armar el complejo volumen voladizo sobre el acceso principal, montado en pilares oblicuos todo ello de rigurosa y calificada ingeniería metálica, también apelan a revestir algunos cielorrasos con madera de freijó, típico producto forestal brasileño.

Mas allá de la resolución relativamente esterotipada de los más recientes aeropuertos –con la importancia de largos espacios de altura importante que proponen y estimulan la circulación tanto longitudinal como transversal– aquí se aprecian por una parte, soluciones muy livianas y transparentes con piezas metálicas de sección mínima y por otra, cualificaciones variadas de esos espacios relativamente convencionales tales como aberturas cenitales que agregan iluminación y ventilacion natural, las áreas de acceso con grandes alturas y los bloques de circulaciones mecánicas o las varias irrupciones de jardines dentro del complejo edilicio, que proponen la calidad recuperada del tradicional paisajismo brasileño que a su vez, procesa y presenta la riqueza de sus ecosistemas.

Desembarque inferior
Embarque Superior
Corte
Corte
Corte sala de Embarque
Área
Corte perspectivado

Redoblar apuesta en vivienda social

Complejo Heliópolis.

Block G-Fase 2. San Pablo, Brasil.

El proyecto añadió 221 nuevos apartamentos al complejo Heliopólis –erigido hacia 2010– y una generosa plaza interna para uso comunitario. El proyecto de intervención, iniciado entre 2009/2010 y diseñado por el estudio brasileño Biselli Katchborian, dirigido por los arquitectos Artur Katchborian y Mario Biselli, agregó al Conjunto Habitacional Heliópolis un nuevo bloque residencial, denominado Gleba G. Esta ampliación forma parte de la continuación del Programa de Reurbanización de Favelas del Municipio de São Paulo, a través de la Secretaría de Vivienda, e incluye el mantenimiento del modelo de plaza europea, con una implementación sin contratiempos y un gran patio interno, aplicado anteriormente al proyecto original.

A pesar de la diferencia de 10 años entre la inauguración de la primera fase del proyecto y la segunda –con la implementación de un nuevo bloque– la ejecución del planeamien-

to resultó eficiente y sin mayores obstáculos, con sólo la revisión de algunos materiales utilizados. Con la incorporación de 221 nuevos departamentos en no más de cinco pisos, y sin posibilidad de uso de ascensores, pudimos cumplir con el requerimiento de aumentar la densidad sin posibilidad de verticalización del nuevo bloque, aprovechando la gran pendiente de la calle adyacente, adaptando los primeros pisos de cada edificio, que siguen las variaciones de la calle.

A partir de este planteamiento se logró alinear los edificios con la acera, generando dos grandes patios internos para la convivencia comunitaria, el ocio y las actividades deportivas. Grandes cerchas metálicas sirven de conexión entre los edificios, mientras que importantes portales actúan como puntos de acceso a los patios desde las calles.

El proyecto cromático, utilizado anteriormente en el primer bloque, ayuda a distinguir las

torres individuales al tiempo que enfatiza su complementariedad con todo el complejo.

También refuerza la presencia de espacios sociales y el área destinada al ocio del condominio, incentivando a los usuarios a participar en diversas actividades. Además, las nuevas unidades están equipadas con adaptaciones para personas con discapacidad. Los apartamentos tienen aproximadamente 50 m² cada uno y cuentan con espacios

versátiles, bien iluminados y ventilados, lo que los hace adecuados para el home-office de los residentes. Las unidades también incluyen balcones en las zonas de estar, una solución inusual hasta ahora para viviendas sociales en Brasil. Los materiales predominantes que conformaron el diseño del nuevo bloque fueron los marcos de aluminio, la mampostería de bloque estructural revestida y pintada, y el uso de estructuras metálicas

Datos

El conjunto se denomina Complejo de Viviendas Heliópolis Block G-Fase 2 y fue proyectado por Biselli Katchborian Arquitetos Associados, a cargo de Mario Biselli y Artur Katchborian con un equipo de proyecto integrado por Melina Giannoni de Araujo (Coordinadora), Adriana Godoy, André Biselli Sauaia, Cássio Oba Osanai, Guilherme Filocomo, Luiza Monserrat, Marcelo Santos Checchia, Maria Fernanda Vita, Priscila Dianese, Vinicius Figueiredo, Ana Carolina Ferreira Mendes, Carla Gotardello y Hugo Rossini. El proyecto arrancó en 2011 y concluyó en 2023. Localizado en São Pau-

en las pasarelas que conectan los edificios desde sus distintos primeros pisos.

El nuevo bloque de viviendas ofrece soluciones arquitectónicas simples y creativas sin recursos/soluciones tecnológicas de automatización, que traen efectos directos para una mejor incidencia solar y ventilación natural. Los patios se configuraron para recibir luz y al mismo tiempo brindar protección a

lo, posee un terreno de 5099,10 m² y una superficie construída de 16822,94 m².

La construcción fue a cargo de Simétrica; el cálculo estructural de Steng Engenharia de Projetos; las instalaciones de DMA Engenharia y la técnica de GEObrAX.

Las fotografías fueron realizadas por Nelson Kon, a quién agradecemos su autorización para esta publicación.

Los gremios y proveedores fueron Arpa (cerramientos), Planmetal (puentes metálicos), Reyfa (instalaciones eléctricas y sanitarias) y las RRPP a cargo de Cobogó Relações Públicas (Debora Abe Guarnieri y Flavio Junqueira).

los residentes de la luz solar directa, creando un clima confortable durante su estadía en el espacio.

El paisajismo es el protagonista cuando nos fijamos en la gráfica, geometría y materialidad de los patios. Resuelto de forma sencilla pero cuidada, permite una buena transición de la zona pavimentada a la zona verde, creando espacios de calidad que permiten

múltiples usos para momentos de contemplación y actividades de ocio.

Opinión

Este proyecto añade 221 nuevos apartamentos al complejo Heliopólis –erigido hacia 2010– y una generosa plaza interna para uso comunitario, continuando con pocos cambios y mínimas adaptaciones (dado su relativo buen uso y apropiación de los residentes) respecto del anterior y mas grande complejo realizado hacia 2010 formando parte tanto la primera como la segunda –aquí presentada–fases de Heliopólis, del Programa de Reurbanización de Favelas del Municipio de São Paulo, a través de la Secretaría de Vivienda, que supuso realojar habitantes de una favela próxima, tarea que concluye con este segundo emprendimiento.

Aquí debe destacarse por una parte, el generoso criterio estatal de aportar soluciones habitacionales para pobladores muy marginales, que resultan de alta calidad material y funcional asi como de una concepción que promueve la integración socio-urbana de la población realojada ya que se optó tanto en la primera como en la segunda fase, de orga-

nizar al modo de los hof vieneses, bloques de no mas de cinco pisos (para excluir circulaciones mecánicas) con fachadas continuas que definen planos cerrados hacia el contexto urbano exterior y generosos patios-plazas interiores que recogen tradiciones de lo que el propio programa denomina plazas europeas, es decir planos secos y segmentados para diversas funciones, desde áreas de juegos infantiles hasta espacios tranquilos para usuarios mayores y pequeños jardines con arreglos paisajísticos.

Además la solución adoptada engendra grandes puertas o portales de acceso de unos 10x20 metros de abertura cada uno de ellos, lo que aporta cierta accesibilidad pública (que puede regularse) asi como un criterio de control que evitara las grandes areas indecisas –entre lo propio y ajeno de cada conjunto–que fueron típicas de los grandes conjuntos modernos de vivienda social y que quiza implicaron una de las causas de sus fracasos, desde la Robin Hood de los Smithson al Pedregulho carioca o al barrio rebautizado Fuerte Apache en Buenos Aires.

Otras soluciones de este proyecto son proveer balcones (algo bastante sencillo pero

que hasta ahora no formaba parte de las prescripciones para proyectos sociales de vivienda) o articular un plano aéreo de conexiones entre las diferentes tiras periféricas de viviendas, mediante puentes metálicos que atraviesan los patios. El uso variado de colores en un animado diseño cromático del conjunto –que ya formaba parte exitosa del proyecto de la primera fase de este conjunto– propicia aportar matices de identidad a diferentes sectores y unidades, mas allá de la regularidad tipológica de unidades de 50m2 de promedio, que tiene Heliopólis.

Una segunda etapa de proyecto que una década más tarde replica la mayoría de decisiones tomadas en la primera fase con pequeños ajustes o cambios, tiene que resultar una prueba de evaluación de la eficacia y calidad de uso que esa primera década de vida permitió constatar. Esta segunda etapa mantiene y acrecienta un modelo de habitat colectivo que aporta a la condición cooperativa y comunitaria y ofrece una edilicia de alta calidad para una buena vida social de sus habitantes populares. No es poco logro en la escasamente exitosa experiencia latinoamerica.

CORTE TRANSVERSAL (FASE 1)

IMPLANTAÇÃO/TÉRREO

1- ACESSOS

2- PRAÇA

Turn static files into dynamic content formats.

Create a flipbook
Issuu converts static files into: digital portfolios, online yearbooks, online catalogs, digital photo albums and more. Sign up and create your flipbook.