TCC arqurbuvv Morar e envelhecer:arquitetura e cidade no processo de envelhecimento ativo e saudável

Page 1

UNIVERSIDADE VILA VELHA CURSO DE ARQUITETURA E URBANISMO

MORAR E ENVELHECER: ARQUITETURA E CIDADE NO PROCESSO DE ENVELHECIMENTO ATIVO E SAUDÁVEL

ANA CLARA MARTINS DORO

Vila Velha 2022

1

UNIVERSIDADE VILA VELHA CURSO DE ARQUITETURA E URBANISMO

MORAR E ENVELHECER: ARQUITETURA E CIDADE NO PROCESSO DE ENVELHECIMENTO ATIVO E SAUDÁVEL

Trabalho de Conclusão de Curso apresentado ao curso de graduação em Arquitetura e Cidade da Universidade Vila Velha como requisito parcial para obtenção do grau de Arquiteto e Urbanista, sob a orientação da Prof.ª Dr. Larissa Leticia Andara Ramos.

2
Vila Velha 2022

‘’Preparar se para a velhice é principalmente lutar sempre e continuar lutando por objetivos capazes de conferir um sentido à existência ’’ . (Simone de Beauvoir)

4

RESUMO

Pesquisas revelam que a tendência ao envelhecimento populacional mantém-se constante. No Brasil, o número de pessoas com mais de 60 anos é superior aquele de crianças com até 9 anos de idade. Entre 2012 e 2019 houve um aumento de 29,5% nessa faixa etária, estes dados apontam que os brasileiros encaminham -se para uma consequente inversão na pirâmide etária (IBGE,2010) Dessa forma, é dever da arquitetura garantir o conforto e qualidade de vida dos idosos, atendendo as demandas e exigências que este grupo possui, promovendo independência, autonomia e integração com a comunidade. Assim, o estudo propõe se desenvolver um ensaio projetual para habitações multifamiliares, norteadas por parâmetros que visem o bem estar da população idosa, que se mostra cada vez mais crescente na sociedade.

Palavras chave: Envelhecimento ativo; habitação saudável; qualidade de vida; cidade amiga dos idosos.

5

ABSTRACT

Research shows that the tendency toward population aging remains constant. In Brazil, the amount of people over 60 years old is higher than that of children up to 9 years old. Between 2012 and 2019 there was an increase of 29.5% in this age group, these data indicate that Brazilians are heading for a consequent reversal in the age pyramid (IBGE,2010). Thus, it is the duty of architecture to ensure the comfort and quality of life of the elderly, meeting the demands and requirements that this group has, promoting independence, autonomy and integration with the community. Thus, the study proposes to develop a design essay for multifamily dwellings, guided by parameters that aim at the well being of the elderly population, which is increasingly growing in society.

Keywords: active aging; healthy housing; quality of life; elderly friendly city.

6

LISTA DE QUADROS

Quadro 01: indicadores utilizados do índice de longevidade 23

Quadro 02: parâmetros que classificam uma habitação saudável 31

Quadro 03: Pré dimensionamento............................................................................... 65

7

LISTA DE FIGURAS

Figura 01 Comparação da distribuição da população mundial com mais de 60 anos: 2006 e 2050 16

Figura 02: Evolução da pirâmide etária popu lacional entre 1950, 1985 e 2020 .......... 17

Figura 03: Projeção da pirâmide populacional do Brasil em 2100 17

Figura 04: Pirâmide demográfica do Espírito Santo entre 2010 -2060 ......................... 18

Figura 05: População urbana absoluta e relativa no mundo:1950 2050 20

Figura 06: Áreas a considerar numa cidade amiga do idoso ...................................... 22

Figura 07: IDL 2020 em São Caetano do Sul -SP x São Felix do Xingu - PA ............ 24

Figura 8: IDL 2020 Vitória ES 25

Figura 9: Comparação entre São Caetano do Sul - SP e Vitória - ES ......................... 25

Figura 10: Os determinantes do envelhecimento ativo 27

Figura 11: Os três pilares da estrutura política para o envelhecimento ativo 28

Figura 12: Razão de dependência 30

Figura 13: dimensões previstas para espaços acessíveis 33

Figura 14: Diretrizes quarto ......................................................................................... 34

Figura 15: Diretrizes cozinha 35

Figura 16: Diretrizes banheiro ..................................................................................... 36

Figura 17: Parâmetros arquitetônicos e urbanísticos para uma habitação digna 37

Figura 18: Localização edifício Nido 39

Figura 19: Edifício Nido ............................................................................................... 40

Figura 20: Planta térreo residencial Nido 41

Figura 21: Pavimento Tipo .......................................................................................... 41

Figura 22: Fachada ativa e pátio central 42

Figura 23: Apartamento 92m² e 96m² Residencial Nido .............................................. 43

Figura 24: Apartamento 92m² e 96m².......................................................................... 43

Figura 25: apartamento 138 m² Residencial Nido 44

Figura 26: Apartamento 138 m² ................................................................................... 44

Figura 27: Localização Residencial Nido 45

Figura 28: Localização Edificio North Village .............................................................. 48

Figura 29: Edifício North Village 49

Figura 30: térreo edifício North Village 50

Figura 31: apartamento 62 m² edifico North Village .................................................... 51

8

Figura 32:apartamento Studio 45 m² edifício North Village ......................................... 51

Figura 33: localização edifício North Village 52

Figura 34: Localização Área de implantação 56

Figura 35: Caracterização do entorno da área de estudo ........................................... 57

Figura 36: área de estudo pelo ângulo do pedestre 57

Figura 37: hereditariedade das vias ............................................................................ 58

Figura 38: Uso do solo 59

Figura 39: Altura e gabarito ......................................................................................... 60

Figura 40:Funcional Paisagístico................................................................................. 61

Figura 41: condição dos passeios 62

Figura 42: Índices Urbanísticos ................................................................................... 64

Figura 43: Volumetria 66

Figura 44: Setorização 67

Figura 45: Planta baixa Garagem 68

Figura 46: Planta baixa Terrêo 70

Figura 47: imagem frontal do edifício .......................................................................... 71

Figura 48: Planta baixa Pavimento Tipo 72

Figura 49: Acessibilidade apartamentos tipos ............................................................. 73

Figura 50: Acessibilidade apartamento tipo 74

Figura 51: Planta baixa Área de lazer 75

Figura 52: Corte Transversal e Longitudinal ................................................................ 76

Figura 53: Fachadas Principais 77

Figura 54: Fachada frontal .......................................................................................... 78

Figura 55: Fachada frontal 78

Figura 56: Fachada lateral ........................................................................................... 79

Figura 57: Fachada lateral ........................................................................................... 79

Figura 58: Fachada lateral 80

Figura 59: Acessos ...................................................................................................... 80

Figura 60: Horta 81

Figura 61: Bicicletário .................................................................................................. 81

Figura 62: Área de lazer 82

Figura 63: Piscina 82

Figura 64: Vista aerea ................................................................................................. 83

9

Figura 65: vista aerea

10
.................................................................................................. 83

SUMÁRIO

1 INTRODUÇÃO

1.1 Contextualização do tema e justificativa 13 1.2 Objetivos ............................................................................................. 13 1.2.1 Objetivo geral 13 1.1.2 Objetivos específicos ...................................................................... 13 1.3 Metodologia 14 1.4 Organização dos capítulos ................................................................... 14

2 PANORAMA DO ENVELHECIMENTO POPULACIONAL

2.1 Envelhecimento da população mundial 15 2.2 Espaço urbano contemporâneo frente ao envelhecimento populacional 20 2.3 Envelhecimento ativo e saudável 26 2.4 Aspectos que qualificam uma moradia ativa e saudável ...................... 29 2.4.1. Diretrizes para a unidade habitacional 33 2.4.1.1. Quarto ............................................................................................ 34 2.4.1.2 Cozinha 35 2.4.1.3 Banheiro................................................................................... 36 2.4.2. Parâmetros arquitetônicos e urbanísticos para qualidade habitacional 37 3 ANÁLISES PROJETUAIS

11
.................................................................................................. 13
............................... 15
................................................................................ 39 3.1 Edifício Residencial Nido ...................................................................... 39 3.2 Edifício Residencial North Village 48
4 PROPOSTA PROJETUAL ............................................................................... 55 4.1 Caracterização da área de estudo 55 4.1.1 Condicionantes Legais ................................................................... 64 4.2 Proposta Projetual 65 4.2.1 Pré-dimensionamento .................................................................... 65 4.2.2 Proposta projetual 66

6.1. Referências bibliográficas 85 6.2. Referências figuras 86

12
...................................................................................
..............................................................................
4.1.2 Perspectivas
78 5 CONSIDERAÇÕES FINAIS
84 6 REFERENCIAS ................................................................................................ 85
..........................................................................................................
10 ANEXOS
89

INTRODUÇÃO

1.1 Contextualização do tema e justificativa

No Brasil e no mundo, a população idosa está aumentando e o envelhecimento populacional está próximo de se tornar uma das mudanças sociais mais significativas. De acordo com a Organização Mundial da Saúde (OMS, 2019) estima se que o número de pessoas com mais de 60 anos (faixa etária definida como idosa pela OMS) duplicará até 2050. No Brasil, o Instituto Brasileiro de Geografia e Estatística (IBGE,2022) aponta que 9% da população brasileira é idosa.

Para a Organização Mundial da Saúde (OMS, 2019) , pessoas mais velhas já estão sendo vistas de forma mais participativa e at iva na sociedade. Assim, criar ambientes convidativos e acessíveis a este grupo , interligado a políticas públicas favorecedoras, torna se essencial para garantir um envelhecimento com mais qualidade de vida.

Dessa forma, explorar novas formas de habitação baseadas em conceitos que incluam as necessidades desses adultos com mais idade são fundamentais. Visando uma melhor qualidade de vida e incorporando atrativos capazes de proporcionar novas vivencias com atividades diárias que auxiliem na inclusão desse g rupo de forma ativa na sociedade, são deveres da arquitetura.

Assim, evidenciado este novo cenário social, o seguinte estudo busca desenvolver propostas, fundamentadas nos conceitos pilares do envelhecimento ativo e saudável, incluindo ferramentas que pos sam melhorar a qualidade de vida de pessoas já em idade avançada

1.2 Objetivos

1.2.1

Objetivo geral

Este trabalho de conclusão de curso tem como objetivo geral desenvolver um ensaio projetual de uma habitação multifamiliar vertical fundamentada em parâmetros arquitetônicos e urbanísticos que estimulem o envelhecimento ativo e saudável.

1.1.2

Objetivos específicos

a) Analisar a forma acelerada que a sociedade está envelhecend o;

13 1

b) Identificar como a cidade contemporânea está preparada para este processo de envelhecimento;

c) Discutir a importância da inserção do idoso no convívio social;

d) Sintetizar parâmetros arquitetônicos e urbanísticos que contribuem para um envelhecimento ativo e saudável

1.3 Metodologia

O projeto se desenvolverá com embasament o em pesquisas teóricas, que serão essenciais para a elaboração projetual. Referências bibliográficas mostraram-se determinantes para a elaboração da pesquisa, como foco em autores como Wiltake (2012) e Gehl (2012). O “Guia Global: Cidade Amiga do Idoso’’, (OMS, 2008) foi de extrema importância para a realização desta pesquisa, com base nos parâmetros de classificação de habitações saudáveis, foi possível avaliar as necessidade e direitos de pessoas em idade avançada, que devem ser levados em conta na concepção de uma habitação saudável. Também foram levantados dados expostos por órgãos públicos, tais como a Organização Mundial da Saúde e o Instituto Brasileiro de Geografia e Estatística, além de pesquisas em teses, artigos, livros e sites que auxiliaram para o entendimento do tema estudado. Além disso, foram realizados estudos de caso no edifício residencial Nido localizado em São Paulo e no edifício residencial North Village em Vitória ES, abordando as decisões p rojetuais que são benéficas para os idosos e aquelas que não se aplicam, tendo como base de analise o método de avaliação adotado por Wiltake (2012).

1.4 Organização dos capítulos

O primeiro capítulo do estudo aborda uma breve contextualização do tema, assim como os objetivos buscados com a pesquisa , a metodologia do trabalho e a organização dos capítulos.

O capítulo segundo aborda o referencial teórico do estudo, apontando os dados e conceitos existentes, apresentando o panorama sobre o envelhecimento mundial , a sua relação com o espaço urbano e como este está preparado para o novo contingente populacional que está sendo formado mundialmente afunilando para sua conexão com

14

a habitação e as concepções que formam uma moradia que contribuem para um envelhecimento ativo e saudável.

O terceiro capítulo apresenta duas análises de projetos arquitetônicos existentes que se mostram como referência no campo do envelhecimento, reforçando os conceitos de habitação saudável apontados pela Organização Mundial da Saúde, usando como princípio as condições estabelecidas por Wiltake (2012) no livro “Produzir Casas ou construir cidades”

2 PANORAMA DO ENVELHECIMENTO POPULACIONAL

Este capítulo apresenta dados a respeito do envelhecimento populacional que ocorre em escala global, destacando como as cidades contemporâneas estão lidando com o fenômeno, que tende a se acentuar nos próximos anos. Além de contextualizar o processo de envelhecimento ativo e saudável, aponta parâmetros arquitetônicos e urbanísticos aplicáveis em habitação multifamiliar vertical visando um morar mais amigável ao idoso. Evidencia também, o impacto que os ambientes podem gerar no corpo de um indivíduo em idade avançada, e as necessidades que es ses possuem dentro de suas moradias. Por fim, traz a perspectiva d os idosos acerca da estrutura habitacional que é proposta na atualidade.

2.1 Envelhecimento da população mundial

Segundo a Organização Mundial da Saúde (OMS, 2021), a população mundial está envelhecendo rapidamente, devido a redução da taxa de fecun didade Projeções indicam que a mudança na estrutura etária mundial mostra se inelutável, o IBGE (2018) mostra que a taxa de fecundidade brasileira que em 2018 era de 1,77 filhos por mulher deverá chegar a 1,66 no ano de 2060. Ainda segundo dados da OMS (2021), o número de pessoas com mais de 60 anos chegará a 90 milhões até o ano de 2050 Esse fato demonstra que o envelhecimento populacional é um fenômeno crescente e tende a acentuar-se nas próximas décadas, expondo a demanda por medidas e cuidados com a nova conjuntura social que está se formando , bem como a idealização de meios que possibilitem qualidade de vida digna para todos.

A figura 01 apresenta a comparação da distribuição populacional dos 7 (sete) continentes entre o ano de 2006 e 2050, em azul e laranja respectivamente . Nota se que a população da Ásia e da América Latina possui uma perspectiva de

15

crescimento consideravelmente, correspondendo a mais do que o dobro quando comparado com o ano de 2006.

Figura 01 Comparação da distribuição da população mundial com mais de 60 anos: 2006 e 2050

Fonte: Departamento da Nações Unidas para os Assuntos Económicos e Sociais

De acordo com Vasconcelos et al. (2012), a transição demográfica no Brasil deu início na década de 1970, de famílias predominantemente rurais e convencionais para um novo arranjo familiar, dispondo de uma estrutura social urbanizada e com um número menor de filhos. A queda na taxa de fecundidade, agregada a s novas tecnologias e uma população mais informada foram as principais causadoras desse fenômeno

Salientando esses dados no cenário brasileiro, o Instituto de Pesquisa Econômica Aplicada (IPEA, 2021) indica que a proporção de idosos no ano de 2010 atingia a marca de 7,3% e estima que chegará em 40,3% da população do país até 2100. Dessa maneira, a pesquisa aponta que o processo de envelhecimento mais rápido e acentuado acarretará uma mudança em todos os aspectos sociais do país, enfatizando que apenas 9% da população total do Brasil será jovem no ano de 2100. A partir de análises dos gráficos disponibilizados pela Organização das Nações Unidas (ONU, 2019) sobre as expectativas futuras do perfil demográfico brasileiro, a figura 02 ilustra a evolução da distribuição populacional entre os anos de 1950, 1985 e 2020, exibindo a discrepan te diferença de jovens e adultos ao longo desses anos . A figura 3 expõe também que a projeção média (também considerada aquela mais provável de se realizar) se dá com a possibilidade de a idade populacional m édia ser de 51,4 anos no ano de 2100, configurando assim metade da sociedade acima e a outra metade abaixo dessa idade.

16

Figura 02: Evolução da pirâmide etária populacional entre 1950, 1985 e 2020

Fonte: Departamento da Nações Unidas para os Assuntos Económicos e Sociais

Figura 03: Projeção da pirâmide populacional do Brasil em 2100

Fonte: Departamento da Nações Unidas para os Assuntos Económicos e Sociais *Os dados de variação média são mostrados como barras coloridas e a incerteza é mostrada em cinza para intervalos de previsão de 95%.

No estado do Espírito Santo, o envelhecimento populacional demonstra uma proporção mais acelerada quando comparada aos demais estados brasileiros. Ao passo que a idade mediana brasileira subiu de 18,8 a 24,2 anos entre 1970 e 2000, a do estado capixaba foi de 16,95 a 25,40 no mesmo p eríodo, mostrando se mais elevada

17

que a média nacional. Enquanto a mediana brasileira apresentou um diferencial de 5,4 anos entre 1970 a 2000, a mediana inicial do Estado, obteve um acréscimo de 8,45 anos (CASTIGLIONI, 2008). Tal cenário é evidenciado pela figura 04, que mostra o comparativo populacional entre o estado do Espírito Santo com o restante do território brasileiro considerando os anos de 2010 e 2060.

Figura 04: Pirâmide demográfica do Espírito Santo entre 2010 2060

Fonte: IBGE: Projeção da população do Brasil e das Unidades da Federação

Tais índices demonstram que o envelhecimento populacional será o grande desafio do século XXI. Dessa forma, além de medidas que aprimorem a qualidade de vida das pessoas em idade avançada, é necessário buscar meios que incluam esse público na sociedade, não só em espaços públicos, mas também modos de morar que considerem as demandas desse público bem como possibilidade de interação desses com o mercado de trabalho. Fontaine (2010) afirma que a melhoria das condições de vida, agrupadas a descobertas farmacológicas e o aumento do nível cultural, gerou uma maior quantidade de idosos com mais disposição e boa saúde para viver . Atualmente, a percepção de que a velhice é algo negativo, que não poderia agregar no convívio social está sendo vista, pelas novas gerações, de outra forma, enfatizando que, com um maior número de idosos e uma baixa taxa de fecundidade, a

18

sociedade percebe a necessidade de incluir a população em faixa etária avançada nos meios de convívio social Fontaine (2010, p.24) conceitua o envelhecimento como ‘’indissociável ao fato de que todos os organismos vivos são mortais e que o fim natural do processo de senescência e a morte’’. Expondo essa realidade, somada ao que já foi exibido, é notório complementar que incentivar o retorno da população idosa ao mercado de trabalho e a vida social é de extrema relevância, dado as altas projeções de expectativa de vida, ressaltando que de acordo com o Governo Federal (2022) a idade mínima para aposentadoria masculina parte dos 65 anos e feminina a partir dos 61 anos de idade.

Assim, a busca por um envelhecimento ativo e saudável torna se imprescindível. A OMS (2005, p. 13) declara que “o objetivo do envelhecimento ativo é fazer com que as pessoas percebam o seu potencial para o bem estar físico, social e mental ao longo do curso da vida, e que participem da sociedade de acordo com suas necessidades, seus desejos e suas capacidades”.

Entendendo a necessidade de se obter uma sociedade ativa e saudável em todas as fases da vida, é valido ressaltar que com a chegada de uma idade mais avançada, as funções fisiológicas podem sofrer um declínio, nesse quesito Laville e Volkoff apud Falzon (2007) destacam alguns desses efeitos:

Redução da capacidade de esforço físico intenso e brutal e da mobilidade articular

Debilitação do equilíbrio do corpo, que explica a frequência de quedas entre os idosos

Diminuição da memória imediata

Fragilização do sono

Nesse âmbito ainda é valido destacar que , no Brasil, o principal fato externo que gera internações e óbitos da população idosa são as quedas. A OMS (2010) destaca que, a cada ano, de 28% a 35% das pessoas com mais de 65 anos de idade sofrem algum episódio de acidente por queda. A vulnerabilidade dos idosos devida as perdas de funções cognitivas e de equilíbrio do corpo, ao passar dos anos, ligada a uma cidade e uma habitação despreparada para suas necessidades, mostram-se como os causadores predominantes dessa situação.

Mediante ao que foi abordado, cabe mencionar que existem vários meios que possibilitam a inserção da população idosa em diferentes âmbitos sociais, além de se

19

fazer necessária a avaliação das estruturas habitacionais atuais afim de torná las mais confortáveis para o indivíduo em idade avançada, e também criar condições mais favoráveis dentro da cidade contemporânea para que os fatores externos sejam capazes de auxiliar na busca pelo envelhecimento ativo e saudável.

2.2 Espaço urbano contemporâneo frente ao envelhecimento populacional

Nota se que o ambiente urbano carece de espaços qualificados tendo em vista o contingente populacional presente na cidade contemporânea Um dos pontos mais alarmantes dentro desse quesito é como se desenvolve a relação dos espaços urbanizados com a proporção de habitantes, dando ênfase na qualidade que este deve proporcionar ao público idoso que se encontra cada vez mais crescente (VÉRAS, 2016).

De acordo com o IBGE (2010), a estimativa de pessoas residentes nas cidades brasileiras correspondia a 84% em 201 0, e no ano de 2015 esse número chegou a 86%, destacando que hodiernamente 84% do público com mais de 60 anos vive nas áreas urbanas. A figura 05 demonstra a porcentagem da população urbana no mundo entre 1950 e 2050.

Figura 05: População urbana absoluta e relativa no mundo:1950 2050

Fonte: World Urbanization Prospects

Gehl (2010) afirma que as cidades convidativas devem ser o ponto de partida principal do planejamento urbano , desenvolvendo qualidade essenciais para o convívio da população com a mesma, de forma que seja utilizada por diferentes grupos de pessoas em situações diversas.

20

Quando os urbanistas ambicionam mais do que simplesmente garantir que as pessoas caminham e pedalem nas cidades, o foco se amplia de simplesmente proporcionar espaço suficiente para circulação, para o desafio, muito mais importante, de possibilitar que as pessoas tenham contato direto com a sociedade em torno delas. Por sua vez, isso significa que o espaço deve ser vivo, utilizado por muitos e diferentes grupos de pessoas (GHEL, 2010, p. 63).

A qualidade urbana de um ambiente é avaliada pela forma com que a população de uma área é capaz de usá la Áreas de uso público inseridas no tecido urbano, como praças parques e áreas verdes, são fundamentais para garantir o equilíbrio com a natureza , propiciando espaços de refúgio para os habitantes, ‘’são importantes para o lazer, ventilação, equilíbrio ambiental, e suporte para animais e para a flora urbana’’ (PIZZOL, 2005, P. 145).

Buscar aspectos que promovam a vivência na cidade é essencial para a sociedade do século XXI , bem como incentivar a caminhabilidade e a gestão de espaços de permanência que possibilitem que os indivíduos usufruam dos espaços urbanos. Gehl (2010, p .68) enfatiza que ‘’a cidade viva realmente precisa é uma combinação de espaços públicos bons e convidati vos e certa massa crítica de pessoas que queira utilizá los’’, dessa forma, como afirma o autor, criar cidades que sejam capazes de acomodar a todos, significa criar meios de permanência para todas as idades.

Constatando que o mundo está envelhecendo aceleradamente e destacando dados do IBGE sobre o envelhecimento populacional brasileiro , que expõe que até o ano de 2030 o Brasil terá mais idosos que crianças, é fundamental a atenção para políticas públicas que incluam esse grupo de forma ativa e participativa na cidade. Nesse âmbito, a OMS (2008) desenvolveu um guia intitulado ‘’Cidade amiga do idoso’’ no qual realizou uma pesquisa com pessoas de 65 anos ou mais em 33 países diferentes e declarou que as áreas ur banizadas devem abranger as necessidades de grupos em idades avançadas, viabilizando sua proteção e inclusão dentro desses espaços

O Guia enfatiza que “uma cidade amiga do idoso estimula o envelhecimento ativo ao otimizar oportunidades para saúde, partici pação e segurança, para aumentar a qualidade de vida à medida que as pessoas envelhecem’’ (OMS, 2008, p. 7). Esse manual traz, conforme exemplificado na figura 06, as áreas prioritárias que devem ser consideradas para uma cidade se tornarem ‘’amiga do idoso’’

21

Figura 06: Áreas a considerar numa cidade amiga do idoso

Fonte: Guia global das cidades amigas das pessoas idosas

Além disso, o Guia Global traz uma lista de verificação que qualificam os espaços exteriores e edifícios considerados amigos dos idosos , abordando pontos que a população idosa expôs nas cidades usadas para pesquisa em sua execução (OMS, 2008) Dentre os parâmetros destacam se:

Ambientes agradáveis e limpos , pois, idosos valorizam a tranquilidade dos ambientes das cidades

Existência de espaços verdes

Locais propícios para descanso dentro da cidade

Passeios adequados e acessíveis para todos, com superfícies lisas e sem obstáculos com largura suficiente para passagem confortável

Acessibilidade não só nas ruas como também dentro de edifícios públicos

No ano de 2020, O Instituto de Longevidade Mongeral Aegon (MAG) apresentou a segunda edição de sua pesquisa “Índice de Desenvolvimento Urbano para Longevidade (IDL)”, classificando as cidades brasileiras mais bem preparadas para os longevos, usando como base sete indicadores. Para tal classificação, o Instituto considera uma série de indicadores, explicados no Quadro 1 tais cuidados de saúde das cidades, relatando a disponibilidade de atendimentos específicos para cada grupo, o bem estar da população residente, as opções de lazer que a cidade oferece e a a

22

qualidade das habitações de sua população . Foi estudado também a segurança financeira da área, bem como as oportunidades de educação e trabalho e o acesso ao lazer e atividades culturais que são disponibilizadas.

Quadro 01: indicadores utilizados do índice de longevidade

Indicadores

Descrição Indicadores gerais

Reflete a capacidade das cidades em oferecer melhor distribuição de renda, com menores índices de violências e desemprego e gerar maior expectativa de vida.

Cuidados de saúde

Avalia a qualidade e a forma em que os cuidados a saúde são ofertados a população, analisando número de profissionais disponíveis em cada área para atender ao paciente, e a disseminação de dados relacionados a saúde dos indivíduos.

Bem estar Analisa o estilo de vida da população, levando em conta a disponibilidade de estabelecimentos de ativida des de condicionamento físico, a quantidade de espaços de alimentação, os índices de violência, acidentes e suicídios.

Habitação

Classifica a quantidade de pessoas idosas, que moram em instituições, em condomínios residenciais, ou reside com outros parentes, o acesso destes a rede de saneamento básico e a densidade demográfica.

Finanças

Qualifica a segurança financeira do idoso, baseada na renda da população idosa, contribuição com a previdência social, quantidade da população de baixa renda, o nível de investimento na cidade, entre outros.

Educação e trabalho

Cultura e engajamento

Demonstra que a quantidade de idosos atras de ensino tem crescido, assim avalia q quantidade de docentes disponíveis, número de horas aula diárias taxa de desocupação, entre outros.

A garantia ao lazer foi avaliada de acordo com o acesso a internet fixa, televisão por assinatura, casamento de idosos e número de unidades SESC.

Fonte: Elaborada pela autora com base no IDL (Índice de Desenvolvimento Urbano para Longevidade )

O IDL (2020) aponta que a cidade de São Caetano do Sul -SP lide o ranking das cidades mais desenvolvidas Com 161.127 habitantes é uma das quatro cidades que oferece saneamento básico a 100% da população. Lidera no Bem estar que mostra um maior compromisso da cidade em oferecer um estilo de vida saudável. A figura 07 relata a avaliação de todos os indicadores da cidade , comparados a cidade de São Felix do Xingu PA, listada na última colocação da pesquisa.

23

Fonte: Instituto de longevidade MAG

Ao verificar os dados do último colocado no ranking, observa-se realidade muito distintas dentro do território brasileiro. A cidade de São Felix do Xingu PA, conta com 132.138 habitantes e, encontra se na última posição da pesquisa , evidenciando uma desconexão com a cidade de São Caetano do Sul SP, com índices mostrando baixos cuidados com a saúde, habitações precárias e quase nenhuma opção de cultura e lazer. Como evidenciado nos parâmetros ilustrados na, São Felix do Xingu expõe a necessidade de políticas públicas que visem a inclusão da população com a área urbana, e oferecer de fato um morar digno para esses habitantes

A cidade de Vitoria ES, local para implantação do presente estudo, encontra se na 39ª posição do ranking, é visto que a cidade apresenta bom desempenho em todos os seus indicadores, se mostrando com pontuações acima da média, o índice que apresenta menor desempenho na cidade se dá no setor de finanças, com baixo rendimento da população entre 60 -69 anos e um PIB municipal inferior comparado as demais cidades. Porém, ainda consegue expor bons indicativos para a população idosa.

24
Figura 07: IDL 2020 em São Caetano do Sul SP x São Felix do Xingu PA

Figura 8: IDL 2020 Vitória ES

Fonte: Instituto de longevidade MAG

Figura 9: Comparação entre São Caetano do Sul SP e Vitória ES

Fonte: Instituto de longevidade MAG

Dessa maneira, evidenciando o fato do crescimento populacional brasileiro somado ao envelhecimento da mesma, expõe se um dos maiores desafios esperados para o século atual. Como o poder público carece de investimentos nas áreas urbanas, de forma que a qualidade de vida dos moradores seja um ponto de urgência para os governantes, incrementar mais espaços de uso público que permitam a viv ência da cidade, conjunto a um desenho urbano de qualidade baseado em questões primordiais

25

de inclusão de todos os grupos sociais em seu traçado. ‘‘O envelhecimento ativo em cidades que prestam apoio e estimulam a capacitação constitui uma das mais eficazes abordagens’’ (OMS, 2008, p. 75).

2.3 Envelhecimento ativo e saudável

Para entender o conceito e os meios que possibilitam um envelhecimento ativo e saudável, é preciso compreender o processo que gera o envelhecimento humano Entende se que esse processo não ocorre de maneira linear e sim de modo dinâmico, que varia de acordo com o estilo de vida que cada um leva durante o curso de sua existência. Nessa perspectiva, Fontaine (2000) indica que se encontram três formas de apontar a idade em que um indivíduo se enquadra, devido a experiencia individual adquirida ao longo da vida, que leva em conta fatores culturais sociais e não somente a ordem cronológica seguida. São elas Idade Biológica, Idade Social e Idade Psicológica, essas descritas a seguir.

Idade biológica está ligada ao envelhecimento orgânico. Cada órgão sofre modificações que diminuem o seu funcionamento durante a vida e a capacidade de autorregulação torna se também menos eficaz. Idade Social refere se ao papel, aos estatutos e aos hábitos da pessoa, relativamente aos outros membros da sociedade. Esta idade é fortemente determinada pela cultura e pela história de um país. Idade psicológica relaciona se com as competências comportamentais que a pessoa pode mobilizar em resposta às mudanças do ambiente; inclui a inteligência, memória e motivação. (CANCELA, 2007, p. 2, grifo do autor).

A Organização Mundial da Saúde (OMS) define o ‘’Envelhecimento Ativo’’ como o processo de desenvolvimento e manutenção da capacidade funcional que permite o bem-estar em idade avançada (OMS, 2015). Com base nesse conceito, é visto que ao longo da vida, as habilidades gerais que o ser humano possui, não permanecem as mesmas. Contudo existem meios que permitem chegar a uma idade madura com mais tranquilidade e consciência das limitações enfrentadas, as quais não devem impedir o indivíduo de se manter ativo dentro da sociedade. Dentro desta perspectiva, a Organização Mundial da Saúde (OMS , 2005) indica 6 (seis) fatores considerados determinantes para o envelhecimento ativo, observados na figura 11.

26

Fonte: Envelhecimento ativo: uma política de saúde / World Health Organization; tradução Suzana Gontijo. Brasília: Organização Pan Americana da Saúde, 2005.

Dessa forma, entende se que para alcançar o envelhecimento ativo e saudável existem fatores determinantes, que não se baseiam somente em condições fisiológicas do ser humano, mas também as condições espaciais em q ue as pessoas estão inseridas O conceito de envelhecimento ativo e saudável leva em conta todos os traços que trazem consigo, desde a infância até os meios externos que possibilitam a manutenção de suas habilidades e condições que possibilitem o desempenho adequados de funções biológicas e psicologias. Ainda de acordo com a OMS (2005), a estrutura política para o envelhecimento ativo e saudável baseia se em três pilares, indicados na figura 12, e se fundamenta na forma em que tais fatores irão influenciar na forma em que a população envelhecerá.

27
Figura 10: Os determinantes do envelhecimento ativo

Fonte: Envelhecimento ativo: uma política de saúde / World Health Or ganization; tradução Suzana Gontijo. Brasília: Organização Pan Americana da Saúde, 2005.

Segundo a OMS (2005), o pilar da Saúde retrata que os baixos níveis de fatores de risco (comportamentais e ambientais) sejam de doenças crônicas ou declínio funcional, somados a elevados fatores de proteção geram uma maior qualidade de vida para quem a desfruta. A Participação se dá quando indivíduos em processo de envelhecimento ainda podem contribuir na sociedade com atividades socioeconômicas, culturais e espirituais de acordo com seus direitos. E a Segurança acontece no momento em que as políticas públicas abordam as necessidades dos id osos em relação a segurança física, social e financeira. Esses pilares são baseados em interpretações que devem auxiliar na implementação de políticas públicas que colaborarem com o processo de envelhecimento ativo e saudável

Em um contexto que que o mundo caminha para uma população predominantemente idosa, e que a qualidade de vida está interligada com a saúde dos indivíduos, é necessário fornecer meios que reúnam ações de saúde, participação e segurança afim de construir condições favoráveis para uma soc iedade ativa em quaisquer idades.

28
Figura 11: Os três pilares da estrutura política para o envelhecimento ativo

2.4

Aspectos que qualificam uma moradia ativa e saudável

O desenvolvimento de parâmetros que favoreçam pessoas em idade avançada a realizarem tarefas diárias com maior autonomia , segurança e conforto tem ganhado destaque no cenário nacional, e com a habitação não poderia ser diferente. A capacidade funcional, no que implica a fatores externos, deve ser garantida a pessoas mais velha, sendo de grande importância para manutenção da saúde, visto que a capacidade de realizar funções nas quais a própria residência servir a como base auxiliadora, possibilitando o contato das pessoas com o meio em que vivem é de extrema importância. (Cordeiro, 2005)

A Organização das Nações Unidas (ONU) desenvolveu o ‘’Plano Internacional para o Envelhecimento’’, (2007, p.18) na expectativa de ‘’responder às oportunidades que oferece e aos desafios do envelhecimento da população no século XXI e para promover o desenvolvimento de uma sociedade para todas as idades.’’ No que tange a habitação, o documento retrata na sua Orientação prioritária III: criação de ambiente propício e favorável, no primeiro tem a, a preocupação com a moradia e qualidade de vida

Para os idosos, a moradia e o ambiente são particularmente importantes devido a fatores como a acessibilidade e a segurança, o ônus financeiro que supõe manter um lar e a importante segurança emocional e psicológica que o lar oferece. É fato reconhecido que uma moradia satisfatória pode trazer benefícios para a saúde e o bem estar. É também importante que, sempre que seja possível, os idosos tenham a possibilidade de escolher devidamente o lugar onde queiram viver, fator que é preciso incorporar às políticas e programas (ONU, 2002, p. 66).

Além disso a Resolução 46/91 que retrata os direitos dos idosos, redigida pela Organização das Nações Unidas em 199 1, declara que o idoso tem direito a Independência, sendo garantido o acesso a itens de necessidades básicas, a possibilidade de permanência no mercado de trabalho , participação em decisões importantes, programas de educação, viver em ambientes seguros e a possibilidade de permanecer em suas residências por quanto tempo for possível. Tem direito a Participação, mantendo se ativamente integrados na sociedade , podendo prestar serviços à comunidade com tarefas adequadas as suas capacidades, e a possibilidade de constituir movimentos de idosos. Deve ser garantido a Assistência, com cuidados e proteção da família e comunidade, acesso a cuidados de saúde, serviços sociais e jurídicos além de direitos humanos e liberdades fundamentais A possibilidade de

29

Realização pessoal, em que os idosos podem investir em oportunidades que desenvolvam seu potencial, e ter alcance a recursos educativos, culturais, espirituais e recreativos. Por fim, não deve ser negada sua Dignidade, vivendo em plena segurança e tratados de forma justa pela sociedade.

De acordo com o IBGE (2021), o número de idosos que moram sozinhos já ultrapassa a marca de 4,8 milhões, representando 14% da população com mais de 60 anos. Como indica a figura 13 a razão de dependência desse grupo tende a aumentar ainda mais com o passar dos anos, logo aumenta se a preocupação com a habitação destes, de forma que seja mais segura e eficiente.

Figura 12: Razão de dependência

O desejo de permanecer morando sozinho parte -se primordialmente do apego pela moradia, grande parte dos idosos residem nas mesmas habitações em que passaram grande parte da vida, gerando a sensação de pertencimento aquele local, tornando se mais difícil a partida para uma habitação que atenda às necessidades da sociedade em estágios mais avançados da vida. ‘’Com o tempo vão sendo construídos sentimentos de pertencimento, o indivíduo molda o lugar para si ’’ (Duarte e Cohen, 2010). Dessa forma, percebe se a necessidade da construção de um espaço de moradia que contemple todas as necessidades da população idosa, enfatizando os que residem desacompanhados, compensando todas as deficiências que a idade traz,

30

como visuais, auditivas e locomotivas. Preservar a autonomia dos indivíduos, resultara possivelmente permitir uma velhice mais satisfatória.

Espaços planejados para receber idosos com limitações favorecem a independência funcional no exercício de atividade s do dia a dia, a diminuição de estados de apatia, desinteresse e ansiedade e a diminuição no número de queixas de saúde como dor e fadiga, assim como sentimentos de inutilidade, tristeza e solidão. (Prado; Perracini, 2007).

A construção de casas que sigam os conceitos de desenho universal, de forma segura e adaptável, e autônoma que funcione para pessoas em todas as idades, implicará na garantia de uma habitação saudável. (PRADO et. al. 2010). Portanto o ‘’Guia Global das Cidades Amigas das Pessoas Idosas’’ elaborou uma sequência de temas que auxiliam na discussão acerca da habitação saudável:

Quadro 02: parâmetros que classificam uma habitação saudável

Parâmetro Características

Acessibilidade econômica

Relata a necessidade de habitações por preços acessíveis para idosos, visto que a moradia é um fator fundamental que influencia na qualidade de vida destes, além de receberem pensão do governo para se financiar, dessa maneira preços mais acessíveis a esse grupo facilitam a mudança para uma habitação adequada para seu estilo de vida.

Serviços básicos

Concepção da casa

Demonstra que o acesso a serviços de saneamento básico e eletricidade de qualidade aprimoram o nível de vida do cidadão.

Este tópico exemplifica as características que uma habitação deve possuir para gerar maior conforto para os idosos. A construção de casas com materiais adequados, que possuam estruturas solidas e superfícies planas auxiliam a impedir que quedas ocorram; além da implementação de elevadores caso se trate de edifícios com mais de um pavimento; áreas molhadas adequadas; espaços que permitam maior ergonomia para o idoso, com passagens e portas adequadas para a circulação; espaços de armazenamento e por fim depor de equipamento que protejam contra as condições climáticas

Modificações

Manutenção

A possibilidade de realizar modificações nas casas em que vivem de acordo com as necessidades que surgem com o passar dos anos também se qualificam como melhora no conforto de vida dos idosos, a realização de tais mudanças devem possuir custos acessíveis e caso necessite dev e ser disponibilizada assistência financeira para tal.

A incapacidade de realizar tarefas de manutenção em suas próprias moradias devido a deficiências que a idade gera, também é um obstáculo pata os idosos. Dessa maneira devem ser disponibilizados pelos municípios serviços de assistência com custos acessíveis de forma a assegurar que as moradias permaneçam bem cuidadas

Envelhecer em casa Grande parte dos idosos opta por permanecer nas residências em que passaram a maior parte da vida, devido primordialmente ao sentimento de afeto a pertencimento aquele local, como direito do idoso deve ser garantido acesso a serviços e infraestruturas que viabilizem a permanência na moradia que deseja, sabendo que estes serviços serão disponibilizados.

31

Integração com a comunidade

Opções de habitação

Ambiente em que vivem os idosos

Criar ambientes familiares em que as pessoas se sintam parte de uma comunidade local, é importante para boa qualidade de vida dos idosos

Existência de opções de habitação para os idosos, que atendam os anseios destes, com possibilidades economicamente acessíveis com serviços apropriados e conectada com o restante da comunidade

É importante também, a existência de privacidade para os idosos dentro de suas residências, se sentido confortáveis e seguros com auxílio financeiro para que ocorra a instalação de equipamentos de segurança caso necessário, além de manter suas mora dias fora de zonas propicias a catástrofes naturais.

Fonte: elaborado pela autora com base no “Guia Global das Cidades Amigas das Pessoas Idosas’’

Entendendo a necessidade de inclusão de todos os grupos, surge na década de 1980 o conceito de Desenho Un iversal, que tem como objetivo definir projetos de produtos e ambientes que contemplem a todos. Mace (1985) fundamenta o desenho universal em sete princípios básicos:

1. Igualitário = pessoas com diferentes capacidades devem ter facilidade de uso, adaptáveis a necessidade;

2. Adaptável = flexibilidade de uso com amplas variedades de preferência e habilidade;

3. Obvio = deve ser de fácil entendimento, independente da experiencia pessoal;

4. Conhecido = disponibilidade de informação perceptível e eficaz;

5. Seguro = diminui riscos de ações acidentais;

6. Sem esforço = uso com conforto que exija o mínimo de esforço físico;

7. Abrangente = dimensões confortáveis para acesso.

No que diz respeito a unidade habitacional, o manual traz diretrizes que facilita e engloba uma variada gama de pessoas no desenho da habitação. Constatando que uma moradia que siga os princípios do Desenho Universal deve contar com amplos espaços e acessos bem dimensionados que ofereçam conforto térmico e acústico ofertando bem-estar e segurança para o morador. Para isso devem ser previstos sistemas construtivos flexíveis que permitam reformas sem necessidade de movimentar o sistema estrutural além de possibilitar a fixação de equipamentos nas paredes sem que ocorram problemas estruturais (Manual do Desenho Universal, 2010). Além do exposto, devem ser previstas áreas de manobra e que usuários que necessitem do auxílio de uma cadeira de rodas possa, entrar e sair de frente dos ambientes, dispondo de uma largura mínima de 1,20 m por 1,50 m , exemplificados na figura 14. em situações que ocorram desníveis de piso deve ser assegurado espaço

32

suficiente para instalação de patamares e rampas de acesso adequado. As circulações e passagens internas necessitam de dimensões confortáveis par o usuário, com faixas livres de no mínimo 0,90 m de largura e portas com largura mínima de 0,80 m. Portando de pisos contínuos e livres de obstáculos com superfícies antiderrapantes .

Figura 13: dimensões previstas para espaços acessíveis

Fonte: Manual do Desenho Universal (2010)

Adotando as medidas descritas no Manual do Desenho Universal (2010), juntamente aos tópicos sugeridos pelo ‘’Guia Global das Cidades Amigas das Pessoas Idosas’’ poderá se obter um desenho habitacional mais justo e confortável e incluso para todos, que viabilize a adequação dos espaços as pessoas e suas necessidades .

2.4.1. Diretrizes para a unidade habitacional

Considerando as demandas espaciais necessárias para que o público longevo seja atendido de forma satisfatória em sua moradia, foram levantados dados com intuito de trazer maior funcionalidade para os ambientes, desta cando pontos relevantes para o maior conforto diário dessa população. Embasado na cartilha Casa Segura (2018) e Manual do Desenho Universal (2010), foram desenvolvidas sugestões para o quarto, cozinha e banheiro.

33

2.4.1.1. Quarto

Figura 14: Diretrizes quarto

Fonte: Produzido pela autora (2022)

Considerando os aspectos adotados na figura 14 e salientando o que a cartilha Casa Segura (2018) aborda, destacam se tais diretrizes espaciais como a importância de um mobiliário adequado, incluindo mesa de cabeceiras fixas de borda arredondada, armários leves e arejados de forma que facilite a retirada dos objetos, cama com até 50 cm de altura e poltronas com braços, além disso adota se pisos antiderrapantes e sem tapetes a fim de evitar quedas.

34

Figura 15: Diretrizes cozinha

Fonte: Produzido pela autora (2022)

Para mais conforto e funcionalidade no dia a dia, é importante ressaltar aspectos importantes, como exemplificado na cartilha Casa Segura (2018) e evidenciados pela figura 15 , indica-se evitar armários com alturas elevadas que dificultem o manuseio dos utensílios, é recomendado também prever espaços livres abaixo da cuba e fogão facilitando a entrada d e cadeira de rodas, além disso optar por mobiliários arredondados e pisos antiderrapantes evitando quedas e possíveis lesões.

35
2.4.1.2 Cozinha

2.4.1.3 Banheiro

Fonte: Produzido pela autora (2022)

O banheiro é um dos ambientes onde possíveis lesões ou fraturas são mais passiveis de ocorrer devido ao constante uso de água no espaço, dessa maneira a figura 16 ressalta aspectos destacados na cartilha Casa Segura (2018), podendo destacar o uso de barras laterais para apoio, bancadas livres com bordas arredondadas, optando por uso de nichos de apoio substituindo prateleiras, adotar um assento fixo dentro do box, além disso utilizar botões de emergência caso ocorra algum acidente durante o banho.

36

2.4.2. Parâmetros arquitetônicos e urbanísticos para qualidade habitacional

Em “Produzir casas ou construir cidades ”, Wiltake (2012) analisa e sugere parâmetros arquitetônicos e urbanísticos para qualidade habitacional, subdivididos em 3 escala de projeto: inserção urbana, implantação e unidade habitacional, exemplificados na figura 17. Tais parâmetros podem ser adotados a fim de gerar uma habitação com melhor qualidade, abrangendo desde os aspectos urbanísticos até a menor escala da edificação.

é importante ter em vista que as escalas se inter relacionam. assim, a garantia de moradia de qualidade não está apenas na boa inserção urbana, tampouco na boa implantação, como também não depende somente de correta solução tipológica ou tecnológica, isola damente. a qualidade urbanística e arquitetônica está na boa relação entre as três escalas, em diálogo com o contexto socioespacial do qual o empreendimento faz parte (WILTAKE, 2012, p.63)

Figura 17: Parâmetros arquitetônicos e urbanísticos para uma habitação digna

Fonte: WILTAKE (2012)

37

Escala da Inserção urbana

Para Wiltake (2012) um empreendimento habitacional com inserção urbana apropriada pode oferecer melhor qualidade de vida para os moradores. A localização da habitação é dos fatores diretamente ligado s na garantia desta qualidade, em que deve dispor de usos intercalados , mesclando áreas residenciais e comerciais. O investimento público necessita ofertar infraestrutura urbana básica para esses empreendimentos com sistema de abastecimento de água, coleta e tratamento de esgoto. Além disso a proximidade a redes de transporte público são fundamentais para conferir boa acessibilidade ao cidadão A boa adequação a malha urbana ainda é assegurada quando há diálogo entre a edificação e seu entorno de forma que não ocorra ruptura física e visual na circulação.

Escala da Implantação

Para garantir uma boa implantação , segundo Wiltake (2012) devem ser garantidos alguns parâmetros de qualidade. A adequação do empreendimento habitacional ao terreno é de grande importância pois prevê a mínima intervenção no local, reduzindo impactos ambientais e de custos, além disso deve ser assegurado o conforto ambiental optando sempre por áreas arborizadas e criando ambientes agradáveis a permanência que promovam a transição gradual entre espaços públicos e privados Uma implantação adequada também deve assegurar a inserção do empreendimento na malha urbana, com áre as comuns e de lazer integradas a cidade, priorizando os acessos públicos e a mescla de usos, adequando sempre o conjunto a escala do entorno.

Escala das Unidades Habitacionais

Os parâmetros de qualidade a serem seguidos para obter se boas soluções de projeto nas unidades habitacionais, conforme Wiltake (2012), devem primeiramente viabilizar a economia na construção, com boas condições de conforto ambiental, garantindo que as unidades dos pavimentos sejam distribuídas de forma que garantam a privacidade e a facilidade de acessos. Além disso os espaços devem ser dimensionados de acordo com o uso destinado ao ambiente, se adequando ao perfil familiar sem que comprometa a

38

circulação, possibilitando sempre a adaptação interna desses ambient es de acordo com as necessidades que surgirem

3 ANÁLISES PROJETUAIS

A seguinte etapa tem como objetivo analisar projetos arquitetônicos de edifícios de apartamentos de modo a verificar como esses contribuem para um morar mais ativo e saudável dentro de um contexto de envelhecimento populacional, tendo como base o referencial teórico apresentado , e também evidenciar as propostas projetuais que grandes construtoras vem apresentando no cenário atual . Para isso, foram analisados, utilizando a metodologia de análise gráfica de Wiltake (2012), dois edifícios de apartamentos: O residencial Nido, situado em São Paulo, e o Residencial North Village, em Vitoria ES. Tais projetos foram identificados como objetos de análises pois exemplificam o que é proposto atualmente pelo mercado imobiliário , em que foram avaliadas algumas opções existentes, porem os residenciais destacados apresentam decisões projetuais, que segundo a autora desse trabalho, diferem se em determinados aspectos mais proveitosos para a pesquisa.

3.1 Edifício Residencial Nido

O edifício apresentado a seguir, localiza se no bairro Alto da Lapa SP, sendo possível visualizar seu entorno na figura 18. O bairro é em sua maioria residencial, possuindo comércios a nível local por sua extensão Figura 18: Localização edifício Nido

39
Fonte: Produzido pela autora com base em dados do Google Earth (2022)

De acordo com a descrição da construtora Idea!Zarvos (2022) a proposta do edifício residencial Nido foi trazer a tranquilidade de uma casa para um edifício vertical na cidade de São Paulo. O empreendimento habitacional insere se na malha urbana, adequando-se a topografia existente e trazendo fluidez na circulação da cidade, como exposto na figura 18. Conta com lojas no térreo permitindo a interação com o público que circula pela rua, além de um pátio central no qual exerce a conexão entre as torres através de passarelas, como exibem as imagens 20 e 21 Além de incorporar a planta inteligente ao seu projeto, à medida que oferece integração com a cidade e o meio ambiente à medida que traz privacidade para os moradores. Os arquitetos buscaram um layout sem áreas perdidas e que permitisse maior quantidade de luz natural na edificação.

Figura 19: Edifício Nido

Idea!Zarvos (2022)

40
Fonte:

Figura 20: Planta térreo residencial Nido

Fonte: Idea!Zarvos (2022)

Figura 21: Pavimento Tipo

Fonte: Idea!Zarvos (2022)

41

A construtora Idea!Zarvos (2022) informa que o edifício possui apartamentos que variam de 92 m² a 241 m², com a proposta de layout inteligente . Analisando algumas das plantas que o edifício dispõe, apresentadas nas figuras 23 e 25, observase a proposta de centralização de áreas sociais, de forma a promover maior convívio entre os moradores, circundado por áreas intimas, gerando maior conforto e privacidade, sendo possível entender a disposição descrita nas imagens 2 4 e 26 Além disso, as plantas apresentadas propõem janelas de piso a teto, com intuito de proporcionar maior entrada de luz natural durante o dia, contribuindo também para a circulação de ar cruzada nos cômodos, possibilitando um melhor conforto térmico dentro das unidades. Contudo, nota -se que ambientes íntimos como os banheiros não possuem acessibilidade para pessoas portadoras de deficiências, sendo necessários adaptações nessas ocasiões.

Resgatando os princípios de habitação saudável exposta pelo no Guia Global das Cidades Amigas das Pessoas Idosas (ONU, 2008), percebe se que o empreendimento estudado é capaz de reproduzi -los em suas habitações. Foram adotados conceitos de integração com a comunidade, com opções variadas de habitações que podem atender aos anseios dos idosos, respeitando sempre a privacidade do morador, além da possibili dade de futuras modificações no interior da unidade habitacional, e a sensação de “morar em casa” que o edifício busca oferecer. É possível notar também, que o apartamento, expostos nas figuras 2 3 e 25 possuem circulações com dimensões agradáveis, além de possibilitar entrada de luz natural e ventilação por sua extensão. Porém, as unidades não são acessíveis economicamente

42
Figura 22: Fachada ativa e pátio central Fonte: Idea!Zarvos (2022)

para todas as classes sociais, variando entre R$ 1.300.000 e R$ 2.000.000 de reais, de acordo com a metragem da moradia.

Figura 23: Apartamento 92m² e 96m² Residencial Nido

Fonte: Idea!Zarvos (2022)

Figura 24: Apartamento 92m² e 96m²

Fonte: Idea!Zarvos (2022)

43

Figura 25: apartamento 138 m² Residencial Nido

Fonte: Idea!Zarvos (2022)

Figura 26: Apartamento 138 m²

Fonte: Idea!Zarvos (2022)

Após o que foi exposto sobre o Residencial Nido, é possível identificar que o empreendimento habitacional implementa alguns dos quesitos listados pelo Guia Global das Cidades Amigas das Pessoas Idosas (ONU, 2008), oferecendo variadas opções de áreas comuns de lazer, apresenta unidades com flexibilidade nos espaços, além de contar com varandas em todas as unidades trazendo maior conforto para os usuários, com boas soluções de layout que oferecem privacidade aos moradores.

44

Contudo, no que se trata a acessibilidade a pessoas portadoras de deferências, o edifico se apresenta ineficiente. Além disso é possível dizer que o empreendimento beneficia se de uma localização privilegiada, próxima a escolas, praças, comércios locais variados e a unidades de saúde.

Na sequência serão apresentadas as análises gráficas referente ao residencial Nido, com base em Wiltake (2012) considerando as escalas de Inserção urbana identificados em roxo, Implantação representados pela cor verde e Unidade Habitacional, analisados pela cor azul. 

Inserção urbana

Figura 27: Localização Residencial Nido

Equipamentos urbanos

Fonte: Produzido pela autora (2022)

45

Educação

Colégio Módulo I 800 m

Escola Vera Cruz I 1,8 km

Colégio Santa Clara I 1,9 km

Colégio Rainha da Paz I 2,2 km

Colégio Santa Cruz I 3,5 km

Lazer

Praça Sá Pinto I 110 m

Praça São Joao Batista I 290 m

Praça Dom José Thuler I 700 m

Mirante da Lapa I 2,1 km

Parque Villa Lobos I 4,4 km Instituto Tomie Ohtake I 4,5 km Comercio

Comercio diversificado de escala local

Localização / Porte da Cidade dentro da mancha urbana

Saúde

Mba serviços de saúde I 1,9 km Hospital Metropolitano I 1,9 km Hospital São Camilo I 2,8 km

Acessibilidade / Mobilidade 140 m 2,1km 2 km Fluidez urbana

Adequação a malha Muros Grades

Tipo de uso do térreo público condominial individual ocupado desocupado

46

uso residencial uso comercial uso serviços estacionamento  Implantação

Adequação a topografia Áreas sombreadas

Possui equipamentos complementares à moradia Área comum com salão de festas, academia, brinquedoteca piscina e pátio central, além de lojas no térreo.,

Ocupação do terreno insolação adequada espaços públicos 0% do terreno ocupado por vagas (2 pavimentos do subsolo ocupados por estacionamento 132 vaga) 

Tipologia e Tecnologia

Flexibilidade interna as unidades Variação tipológica no conjunto Nº de unidades: 58 apartamentos: 01 Unidade Casa de 241 m ² (área coberta 171 m²/ área descoberta 70 m ²) 01 Unidade Casa de 212

m² (área coberta 171 m ²/ área descoberta 41 m ²) 14 apartamentos tipo de 92 m ² 14 apartamentos tipo de 96 m ² 14 apartamentos tipo de 138 m ² 7 apartamentos tipo de 143 m ²

Conforto / Sustentabilidade

ventilação cruzada insolação adequada proteção solar

Dimensionamento e Agenciamento espacial compatibilidade com mobiliário mínimo

otimização de prumadas hidráulicas na unidade otimização de prumadas hidráulicas no pavimento compartilhamento de usos nos cômodos depósitos e/ou armários embutidos

Modulação

Uso de materiais locais de baixo impacto

Uso de componentes industrializados ou préfabricado

47

Ficha técnica

Endereço: Rua Capitão Alceu Vieira, 44 Alto da Lapa Nº de unidades: 58 apartamentos Área de terreno: 2.672m²

Número de vagas: 2 ou 3 vagas Número de torres: 01

Projeto de arquitetura: Brasil Arquitetura Projeto de paisagismo: Rodrigo Oliveira Incorporação: Idea!Zarvos

3.2 Edifício Residencial North Village

O edifício apresentado a seguir, localiza se no bairro Jardim da Penha Vitoria/ES, sendo possível visualizar seu entorno na figura 28. O bairro é em sua maioria residencial, possuindo comércios a nível local por sua extensão, com muita s escolas infantis e universidades.

Figura 28: Localização Edificio North Village

48
Fonte: Google Earth (2022)

O edifício residencial North Village, que está atualmente em construção, foi projetado pelo grupo Proeng S.A De acordo com a construtora o empreendimento habitacional foi pensado para trazer modernidade para o local, contando com conceitos ecológicos trazidos pelo grupo, como ponto de reaproveitamento de água das chuvas, compartilhamento de bicicletas, gestão de resíduos de material de construção, chuveiros e torneiras com aquecimento solar . Possui unidades com apartamento Studio (01 quarto) de 43 m² a 64 m², também possui apartamentos com 2 quartos e metragens de 62 m² a 96 m² O grupo Proeng S.A. prevê a entrega da edificação para junho/2024.

A construção insere se na malha urbana de forma discreta, como pode ser observado na figura 29, e conta com áreas de lazer privativas onde é disponível para os moradores salas de reunião, lounge café / leitura, espaço gourmet, salão de festas, pub, espaço zen, piscina, deck molhado, ducha, área de lazer descoberta, churrasqueira, espaço pet, exemplificadas na figura 30

49
Figura 29: Edifício North Village Fonte: Proeng (2022)

Figura 30: térreo edifício North Village

Fonte: Proeng (2022)

O edifício North Village dispõe de 19 tipologias de plantas, variando de acordo com a coluna que a unidade está inserida. Condição benéfica, pois permite que o indivíduo escolha o que melhor se encaixa em sua realidade, recordando também os conceitos expostos pelo Guia Global das Cidades Amigas das Pessoas Idosas (ONU, 2008), que relatam a necessidade de opções de habitações para os idosos. Além disso o empreendimento mostra se acessível a pessoas em idade avançada, visto que conta com elevadores, possui estruturas solidas com superfícies planas

A planta baixa de uma unidade exibida na figura 31 apresenta espaços com dimensões mínimas, dessa forma as áreas intimas como banheiros se tornam inacessíveis a pessoas portadoras de deficiências físicas Além disso concentra os banheiros no centro da planta, impedindo a ventilação natural do cômodo, também não dispõe de grandes aberturas, dificultando a entrada de luz natural durante o dia. O edifício também conta com unidades a valores mais acessíveis, com apartamentos Studio, exemplificados na figura 32, porém com dimensões reduzidas , que acabam sendo inacessíveis a pessoas portadoras de deficiência, apresentando também circulações reduzidas, tornando as passagens desconfortáveis ao usuário.

50

Figura 31: apartamento 62 m² edifico North Village

Fonte: Proeng (2022)

Figura 32:apartamento Studio 45 m² edifício North Village

Fonte: Proeng (2022)

51

Na sequência serão apresentadas as análises gráficas referente ao residencial North Village, com base em Wiltake (2012) considerando as escalas de Inserção urbana identificados em roxo, Implantação representados pela cor verde e Unidade Habitacional, analisados pela cor azul. Na figura 33 é possível identificar a localização do empreendimento com os principais equipamentos de seu entorno.

Figura 33: localização edifício North Village

Fonte: produzido pela autora (2022)

1.Equipamentos urbanos

Educação

Centro educacional Charles Darwin I 850 m EMEF Éber Louzada Zippinotti I 800 m

Universidade Federal do Espírito Santo I 3,5 km

Saúde

Hospital vitória I 1,1 km

Hospital santa Úrsula I 1,3 km

Hospital Unimed vitória I 2,1 km

52

Lazer

Praça Wolghano Netto I 220 m

Parque pedra da cebola I 750m

Praia de Camburi I 1,6 km

Praça dos namorados I 3,6 km

Píer de iemanjá I 3,6 km

Fluidez urbana

Comercio

Comercio diversificado de escala local

Localização / Porte da Cidade dentro da mancha urbana

Adequação a malha Muros Grades Tipo de uso do térreo público condominial individual ocupado desocupado uso residencial uso comercial uso serviços estacionamento 2.Implantação

Acessibilidade / Mobilidade

130 m

Adequação a topografia Áreas sombreadas

Ocupação do terreno

insolação adequada espaços públicos 0% do terreno ocupado por vagas (1 pavimento do subsolo ocupados por estacionamento 54 vagas)

53

Possui equipamentos

complementares à moradia

Área comum com coworking, sala de reunião, lounge café / leitura, espaço gourmet, salão de festas, pub, espaço zen, piscina, deck molhado, ducha, área de lazer descoberta, churrasqueira, espaço pet.

3.Tipologia e Tecnologia

Flexibilidade interna as unidades Variação tipológica no conjunto Nº de unidades: 50 apartamentos: Aptos de 2 quartos com suíte contendo sala estar/jantar, varanda, cozinha, área de serviço, 02 (dois) quartos sendo 01 (um) suíte, banheiro social e área técnica. Aptos de 1 quarto, contendo sala estar/jantar, varanda, cozinha, área de serviço, 01 (um) quarto, banheiro social e área técnica.

Conforto / Sustentabilidade

ventilação cruzada insolação adequada proteção solar

Dimensionamento e Agenciamento espacial

compatibilidade com mobiliário mínimo otimização de prumadas hidráulicas na unidade otimização de prumadas hidráulicas no pavimento compartilhamento de usos nos cômodos depósitos e/ou armários embutidos

Modulação

Utiliza modulação/padronização de elementos construtivos

Uso de materiais locais de baixo impacto

Uso de componentes industrializados ou préfabricado

54

Ficha técnica

Localização: Rua Carijós, Nº 580 Jardim da Penha Vitória/ES Autor do projeto: Adriane Alvarenga de Paiva Almeida Número total de pavimentos: 07 pavimentos Número de pavimentos de uso privativo: 05 pavimentos Número de unidades privativas: 50 unidades Número de vagas de garagem: 54 vagas, sendo 51 livres, 2 presas e 1 de visitante

Com a caracterização do Residencial North Village, é possível identificar que o empreendimento habitacional implementa alguns dos quesitos listados pelo Guia Global das Cidades Amigas das Pessoas Idosas (ONU, 2008), disponibilizando unidades flexíveis, com variadas tipologias, opções de áreas comuns de lazer, e se localiza próximo a equipamentos urbanos essenciais. porém as metragens dos apartamentos são mínimas configurando pouca acessibilidade a pessoas portadoras de deficiências.

4 PROPOSTA PROJETUAL

O seguinte capitulo tem como objetivo apresentar a caracterização da área de estudo, bem como os condicionantes legais exigidos, apresentando mapas que facilitem o entendimento da região. Seguido pela proposta projetual desenvolvida para uma habitação multifamiliar vertical fundamentada em parâmetros arquitetônicos e urbanísticos que estimulem o envelhecimento ativo e saudável, prevendo receber um público em diferentes estágios da vida, de forma a estimular o envelhecimento em um ambiente já preparado

4.1 Caracterização da área de estudo

A área proposta para implantação do estudo localiza se no bairro Jardim da Penha na cidade de Vitória Espírito Santo, apresentados na figura 34. O local foi escolhido devido a tranquilidade e interação com serviços fundamentais do entorno, característica essencial para manter a autonomia dos moradores.

55

Figura 34: Localização Área de implantaçã o

O terreno apresentado para implantação do projeto possui aproximadamente 1028 m², encontra se na esquina da Av. Hugo Viola com a Rua Laurentino Proença Filho, destaca se por apresentar proximidade a áreas públicas e de lazer. O bairro Jardim da Penha, conta com variadas opções de lazer, incluindo praças, parques e praia O local conta também com diferentes tipos de comércio , tanto diurnos como noturnos em toda região, preservando a segurança da área A figura 35 exibe os principais instrumentos que circundam a área esco lhida para estudo, destacando os principais pontos de interesse do entorno, com múltiplos comércios locais, farmácias, supermercados e instituições educacionais, incluindo pontos de transporte público próximos.

56
Fonte: Google Earth (2022)

Figura 35: Caracterização do entorno da área de estudo

Fonte: Produzido pela autora (2022)

Na figura 36, é possível analisar que o terreno se encontra atualmente sem uso definido, com um grande espaço livre porem subutilizado, acarretando sensação de insegurança na área, dessa forma o estudo projetual busca trazer dignidade e revitalização para o local

Figura 36: área de estudo pelo ângulo do pedestre

57
Fonte: Google Earth (2022)

Figura 37: hereditariedade das vias

Fonte: Produzido pela autora (2022)

A figura 37 apresenta a conectividade das vias, de acordo com o vigente Plano Diretor Urbano de Vitória. Identifica se que o terreno está localizado na avenida Hugo Viola que é uma via coletora, na qual a velocidade máxima para veículos é de 40 km/h.

58

Figura 38: Uso do solo

Fonte: Produzido pela autora (2022)

A figura 38 exibe as atividades exercidas no entorno do terreno, caracterizadas como comercial, residencial, misto (residencial + comercial), institucional, parques e áreas públicas e espaços sem uso. A partir disso, compreende se que o terreno está inserido em uma região majoritariamente residencial, porem com grande disposição de comércios.

59

Figura 39: Altura e gabarito

Fonte: Produzido pela autora (2022)

A figura 39 apresenta as alturas máximas permitidas por edificação na região, na qual os tons mais claros representam edificações baixas e em tons mais escuros retratam edificações mais altas. Assim é possível identificar como ocorre as relações de do terreno com o entorno, percebe se que no local as construções são majoritariamente baixas, possuindo 06 pavimentos com altura máxima de 18,50 metros, são permitidas edificações de até 07 pavimentos somente em frente a Avenida Fernando Ferrari.

60

Figura 40:Funcional Paisagístico

Fonte: Produzido pela autora (2022)

Na figura 40 identifica se a relação do entorno com sua paisagem natural, incluindo vias bem arborizadas, com vegetação de médio e grande porte predominantemente, além do parque pedra da cebola que se encontra na região, onde possui maiores massas de vegetação. O terreno se encontra em uma região mais plana da cidade, com poucas curvas de relevo.

61

Figura 41: condição dos passeios

Fonte: Produzido pela autora (2022)

A figura 41 traz a análise dos passeios do local, no qual foram classificados como ‘’Calçada boa, Calçada regular e Calçada precária’’, assim percebe se que grande parte está em boa condição, as que estão denominadas como regular possuem asfaltamento porem não possuem sinalização adequadas com pisos táteis e rampas, as que são caracterizadas como precárias possuem asfaltamento inadequado, com rachaduras no piso e dimensões inadequadas se tornando inacessíveis para o pedestre.

62

A seguir serão apresentadas as análises gráficas referente ao entorno da área de estudo, com base em Wiltake (2012) considerando as escalas de Inserção urbana classificada em roxo.

Equipamentos urbanos

Educação

EMEF Éber Louzada Zippinotti I 350 m Centro Educacional Charles Darwin I 600 m Colégio SESI I 800 m Universidade Federal do Espirito Santo I 1,8 km

Parque Pedra da Cebola I 550 m Praia de Camburi I 1,2 km

Comercio

Comercio diversificado de escala local

Saúde

Unidade de Saúde da família de Jardim da Penha I 800 m

Unidade Básica de Saúde Bairro Republica I 1,3 km Unidade Básica de Saúde Bairro Republica I 2,6 km

Lazer

Praça Wolgano Netto I 290 m

Praça Regiani Frigri Furno I 400 m

Localização / Porte da Cidade dentro da mancha urbana

Acessibilidade / Mobilidade 300 m

63

4.1.1 Condicionantes Legais

De acordo com o Plano Diretor Urbanístico da cidade de Vitória - ES, o terreno se encontra em uma Zona de Ocupação Controlada (ZOC 2), caracterizadas pelo documento como: ‘’

Art. 20. As Zonas de Ocupação Controlada (Z0C) são caracterizadas por áreas com predominância de usos diversificados, desde que combinados a limites de incomodidades e às exigências urbanísticas e edilícias, com adequada oferta de equipamentos públicos e infraestrutura urbana ’’

Ainda segundo o mesmo documento os objetivos das Zonas de Ocupação Controlada são: ‘’I Compatibilizar O adensamento construtivo com as características do sistema viário e dos marcos visuais significativos da paisagem urbana; II Melhorar as condições de mobilidade em especial nos pontos problemáticos do sistema urbana, viário; III preservar visuais significativos da paisagem urbana preservar visuais de marcos.’’

Os índices urbanísticos aplicados para áreas que se encontram em Zonas de Ocupação Controlada 02 estão especificados como:

Figura 42: Índices Urbanísticos

Fonte: Plano diretor Urbanos de Vitoria/ Lei n º 9.271 (2018)

64

4.2 Proposta Projetual

4.2.1 Pré-dimensionamento

Para elaboração do pré-dimensionamento foram realizadas analises das normas técnicas que dispuseram das dimensões mínimas necessárias, partindo desse ponto foram aplicados estudos d e layout para definir as proporções que mel hor se adequariam a proposta projetual.

Quadro 03: Pré dimensionamento

Fonte: Produzido pela autora (2022)

65

4.2.2 Proposta projetual

O projeto traz como proposta um edifício que aproveita o máximo do terreno escolhido, respeitando as regras de afastamentos especificadas na figura 42, além de aproveitar o máximo de entrada de ventilação e luz natural. Priorizando sempre dimensões que respeitem as regras de acessibilidade, com dimensões confortáveis em todos os ambientes, além de propor áreas sociais aconchegantes de forma a favorecer o convívio dentro das moradias, porém sem inviabilizar a privacidade de todos. Figura 43: Volumetria

Fonte: Produzido pela autora (2022)

Visando também facilitar o dia a dia dos habitantes promovendo sua autonomia constante, foram propostas áreas comuns no edifico com ess a finalidade, como loja autônoma, coworking, lavanderia, sa la de atendimento, entre outros. O térreo do edifício propõe uma fachada ativa, com lojas diversas em sua extensão, para que aumente a circulação de pessoas na área, elevando a segurança local. O seu formato final e setorização podem ser evidenciados pelas figuras 43 e 44 respectivamente.

O sistema construtivo proposto foi de vigas, pilares, lajes e paredes externas em alvenaria convencional, e paredes internas em drywall, de forma a facilitar possíveis intervenções necessárias pelos moradores. O contato co m a natureza foi levado em conta, com pequenas massas de vegetação por toda sua extensão.

66

Figura 44: Setorização

Fonte: Produzido pela autora (2022)

67

A proposta projetual visa um estacionamento (Figura 45) que ocupa dois subsolos sendo 14 vagas por subsolo onde são destinadas 2 vagas para os apartamentos com 2 quartos e uma vaga para os apatamentos com 1 quarto atendendo as demandas exigidas pelo Plano Diretor Urbano de Vitória ES.

Figura 45: Planta baixa Garagem

Fonte: Produzido pela autora (2022)

68

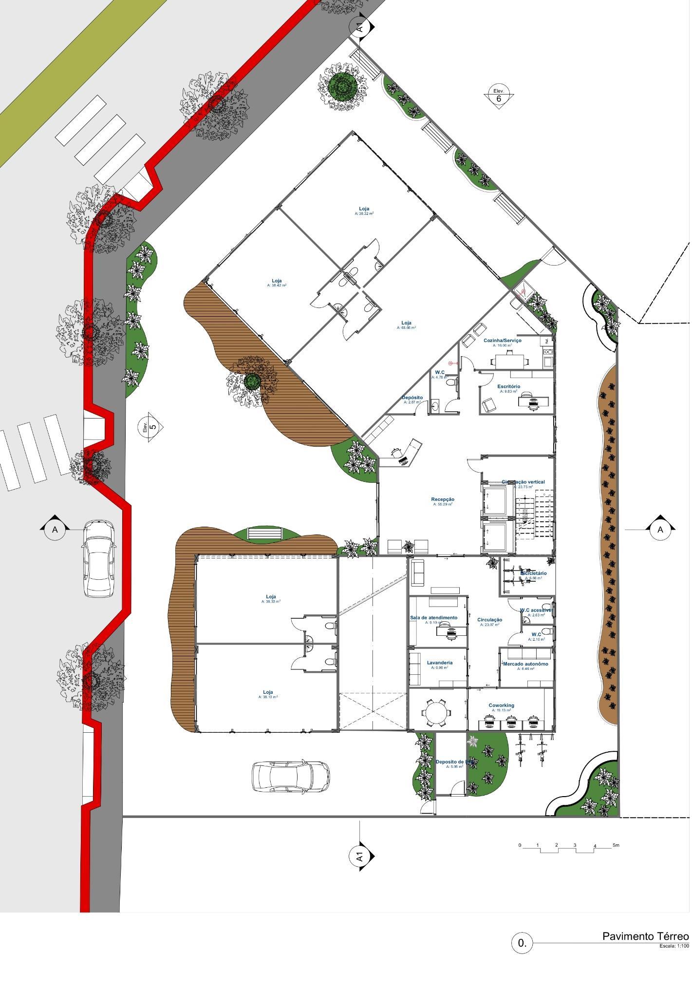
No desenvolvimento do pavimento térreo, o projeto buscou desenvolver uma área que atenda as demandas dos morades de uma forma mais generalizada, onde consiga ter espaços tanto para o funcionamento do edificio como áreas que possam ser utilizadas para realização das atividades das pessoas que habitam o edificio.

A edificação contempla no pavimento térreo 05 lojas (número 01 da Figura 46) que visam porporcionar um mercado a nivel local viabilizando a vitalidade e segurança tanto para os moradores como para a s pessoas que utilizam a área do entorno urbano.

O acesso da edificação para pedestres pode ser feito atraves de duas entradas, sendo uma pela fachada principal, acessada pela esquina da Avenida Hugo Viola com a Rua Laurentino Proença Filho e outra pela R ua Laurentino P. Filho que é destinada a banhistas, ciclistas e para carga e descarga. Ambas entradas dão acesso á recepção do prédio (02)

O adiministrativo do empreendimento conta com 1 escritorio (05) 1 copa e serviço (06), 1 banheiro para os funcionario s (04) e um depósito (03). Sendo estas áreas que atendam as especificações exigidas pela legislação e proporcione o funcionamento do edificio.

Por fim, este pavimento possui áreas voltadas para realização de atividades cotidianas e pessoais, tais como uma sala para atendimento que é destinada ao serviço clinico tanto presencial como online. Esta área foi desenvolvida com o intuito de facilitar a locomoção dos idosos em suas consultas de rotina ou especializadas, podendo ser feitas no proprio edificio e com privacidade evitando incomodos que poderiam ser gerados por atendimentos realizados dentro da residencia. A área social possui tambem uma lavanderia autonoma (09), um coworking (10), um mercado autonomo, banheiro coletivo (04), bicicletário (08) e uma horta que alem de agregar na visual local é utilizada para o consumo dos moradores do edificio.

69

Figura 46: Planta baixa Terrêo

Fonte: Produzido pela autora (2022)

70

O pavimento tipo exposto na figura 48, foi projetado a fim de aplicar as diretrizes estudadas com o intuito de atender não apenas as demandas dos moradores como um todo mas priorizando o bem estar e segurança dos residentes com mais de 60 anos.

São 3 apartamentos de 2 quartos e 1 de 1 quarto por pavimento, totalizando 16 apartamentos em toda edificação.

Os espaços foram desenvolvidos a fim de possuir uma metragem quadrada ampla sendo cerca de 100 m² os apartamentos com 2 quartos e 80 m² os de 1 quarto.

Os ambientes em geral são espaçosos, permitindo que a circulação entre as áreas seja segura e acessivel alem de contar com elementos que potencialize a acessibilidade dentro da moradia, como o uso de barras de segurança em áreas molhadas e disposição dos am bientes possuindo um fluxo livre onde os espaços são pensados para manter a privacidade mas não descartam a integração entre eles.

Alem disso, os apartamentos em geral são estruturados com divisorias internas de drywall que facilitam caso haja necessidade de redividir os ambientes conforme as necessidades de cada morador.

71
Figura 47: imagem frontal do edifício Fonte: Produzido pela autora (2022)

Figura 48: Planta baixa Pavimento Tipo

Fonte: Produzido pela autora (2022)

72

Os apartamentos foram projetados com medidas que respeitassem as normas de acessbilidade e ainda proporcionassem maior conforto dentro dos ambientes. A figura 49 exibe os exemplos de apartamentos tipos onde incorporam estes conceitos.

Figura 49: Acessibilidade apartamentos tipos

Fonte: Produzido pela autora (2022)

73

Figura 50: Acessibilidade apartamento tipo

Fonte: Produzido pela autora (2022)

O ultimo pavimento do edificio foi destinado para a área de lazer que conta com 1 churrasqueira, 1 academia, 1 salão de festas e uma piscina com deck elevado onde o acesso é feito atraves de rampas que atendam as normas legislativas garantindo a acessibilidade e segurança dos moradores. Alem das áreas pré definidas a porposta desenvolveu uma área livre para possibilitar o desenvolvimentos de exercicios variados como yoga.

74

Figura 51: Planta baixa Área de lazer

Fonte: Produzido pela autora (2022)

75

Figura 52: Corte Transversal e Longitudinal

Fonte: Produzido pela autora (2022)

76

Figura 53: Fachadas Principais

Fonte: Produzido pela autora (2022)

77

4.1.2 Perspectivas

Figura 54: Fachada frontal

Fonte:

Figura

78
Produzido pela autora (2022) 55: Fachada frontal Fonte: Produzido pela autora (2022)
79
Figura 56: Fachada lateral Fonte: Produzido pela autora (2022) Figura 57: Fachada lateral Fonte: Produzido pela autora (2022)
80
Figura 58: Fachada lateral Fonte: Produzido pela autora (2022) Figura 59: Acessos Fonte: Produzido pela autora (2022)

Figura 61: Bicicletário

81
Figura 60: Horta Fonte: Produzido pela autora (2022) Fonte: Produzido pela autora (2022)

Figura 62: Área de lazer

82
Fonte: Produzido pela autora (2022) Figura 63: Piscina Fonte: Produzido pela autora (2022)

Figura 64: Vista aerea

Fonte: Produzido pela autora (2022)

Figura 65: vista aerea

Fonte: Produzido pela autora (2022)

83

O presente trabalho buscou entender a relação entre o ambiente construído com a estimulação do envelhecimento ativo e saudável . Partindo deste princípio, foi realizada uma análise de como o espaço urbano está preparado para o novo contingente populacional que está sendo formado mundialmente a fim de resultar em ambientes que proporcionem qualidade de vida ao longo do processo de envelhecimento.

Ao longo da pesquisa, foi possível ter u ma visão mais ampla para o desenvolvimento do trabalho através de materiais extraídos de artigos , manuais disponibilizados por instituições governamentais e pesquisas acadêmicas na qual foram observadas as necessidades da população acima de 60 anos, e entender suas carências e limitações para propor as diretrizes projetuais.

Os fatos pontuados permitiram analisar q ue há um progresso gradativo no envelhecimento populacional e que a arquitetura deve explorar novas formas de habitação que atenda as demandas d esta população visando uma melhor qualidade de vida e uma condição favorável no processo de envelhecimento que resultará na inclusão deste grupo de forma ativa na sociedade.

Com isso, o trabalho buscou sintetizar parâmetros arquitetônicos e urbanísticos que contribuem para um envelhecimento ativo e saudável e após uma análise da importância da inserção do idoso no convívio social, pode identificar como a cidade contemporânea está preparada para este processo e assim propor uma edificação modelo a nível preliminar que atenda as diretrizes propostas ao longo do trabalho.

84 5 CONSIDERAÇÕES FINAIS

6.1. Referências bibliográficas

(OMS), Organização Mundial de Saúde. Guia Global: Cidade Amiga do Idoso 2008. Disponível em: https://www.who.int/ageing/GuiaAFCPortuguese.pdf .

ABREU, D. R. de O. M. et al. Internação e mortalidade por quedas em idosos no Brasil: análise de tendência. Ciência & Saúde Coletiva, v. 23, n. 4, p. 1131 1141, abr. 2018. Acesso em: 05 jun. 2021.

CANCELA, D. O processo de envelhecimento. Portugal: Universidade Lusíada do Porto, 2007. Disponível em: <https://www.psicologia.pt/artigos/textos/TL0097.p df>.

COSTA, R. Projeções indicam aceleração do envelhecimento dos brasileiros até 2100. Disponível em: <https://www.ipea.gov.br/portal/index.php?option=com_content&view=article&id=3 8577>. Acesso em: 05 jun. 2022

DESENHO UNIVERSAL HABITAÇÃO DE INTERESSE SOCIAL. [S.l: s.n.], [s.d.]. Disponível em: <http://www.mpsp.mp.br/portal/page/portal/Cartilhas/manualdesenho universal.pdf>.

FERREIRA, J.S.W et al. Produzir casas ou construir cidades. 1ed. São Paulo: FUPAM, 2012.

GEHL, jan. Cidade para pessoas. 2. ed. São Paulo: PERSPECTIVA S.A, 2013. 262 p. ISBN 978 85 273 0980 6.

GRACIELE DE OLIVEIRA, A. et al. DESENVOLVIMENTO E DEMOGRAFIA: O PROCESSO DE ENVELHECIMENTO POPULACIONAL. [S.l: s.n.], [s.d.].

Disponível em: <http://congressods.com.br/terceiro/images/trabalhos/GT4/pdfs/anelisa_graciele.p df>. Acesso em: 10 abr. 2022

85 6 REFERENCIAS

IBGE (Fundação Instituto Brasileiro de Geografia e Estatística), 2022. Projeção da população do Brasil e das Unidades da Federação

Lei Complementar Nº 9.271 de 22 de maio de 2018. Institui a revisão da lei federal Nº 10.257/2011 que tratava do Estatuto da Cidade. Vitória, 2018. Disponível em: https://www.vitoria.es.gov.br/prefeitura/plano -diretor-urbano

NASRI, F. Demografia e epidemiologia do envelhecimento O envelhecimento populacional no Brasil The aging population in Brazil . v. 6, p. 4 6, 2008. Disponível em: <https://www.prattein.com.br/home/images/stories/Envelhecimento/envelheciment o_popu.pdf>. Acesso em: 5 jun. 2022

ORGANIZAÇÃO MUNDIAL DE SAÚDE (OMS). Envelhecimento ativo: uma política de saúde. Brasília: Organização Pan-Americana da Saúde, 2005. 60 p

Vista do Moradia para o idoso: uma política ainda não garantida . Disponível em: <https://revistas.pucsp.br/index.php/kairos/article/view/6910/5002>. Acesso em: 05 jun. 2022.

WONG, L.L.R; CARVALHO, J.A. O rápido processo de envelhecimento populacional do Brasil, São Paulo, v. 23, ed. 1, p. 5 26, 2006. Disponível em: https://www.scielo.br/j/rbepop/a/D4vwtLJmCFYYf7C7xKkLSnJ/?format=pdf&lang= pt. Acesso em: 5 jun. 2022.

6.2. Referências figuras

Figura 01: https://population.un.org/wpp/Graphs/Probabilistic/POP/60plus/900

Figura 02: https://population.un.org/wpp/Graphs/DemographicProfiles/Pyramid/900

Figura 03: https://population.un.org/wpp/Graphs/DemographicProfiles/Pyramid/900

Figura 04: https://www.ibge.gov.br/apps/populacao/projecao/index.html

Figura 05: https://population.un.org/ wup/

86

Figura 06: http://www.mds.gov.br/webarquivos/arquivo/Brasil_Amigo_Pessoa_Idosa/publicac ao/guia global oms.pdf

Figura 07: https://institutodelongevidademag.org/longevidade e cidades/idl/brasil

Figura 8: https://institutodelongevidademag.org/longevid ade e cidades/idl/brasil

Figura 9: https://institutodelongevidademag.org/longevidade -e-cidades/idl/brasil

Figura 10: https://bvsms.saude.gov.br/bvs/publicacoes/envelhecimento_ativo.pdf

Figura 11: https://bvsms.saude.gov.br/bvs/publicacoes/envelhecimento_ ativo.pdf

Figura 12: https://www.ibge.gov.br/apps/populacao/projecao/index.html

Figura 13: http://www.mpsp.mp.br/portal/page/portal/Cartilhas/manual desenho universal.pdf

Figura 14: Produzir casas ou construir cidades (2012)

Figura 15: Produzido pela autora (2022)

Figura 16: https://ideazarvos.com.br/empreendimento/nido/ Figura 17: https://ideazarvos.com.br/empreendimento/nido/

Figura 18: https://ideazarvos.com.br/empreendimento/nido/ Figura 19: https://ideazarvos.com.br/empreendimento/nido/ Figura 20: https://ideazarvos.com.br/empreendimento/nido/ Figura 21: https://ideazarvos.com.br/empreendimento/nido/ Figura 22: https://ideazarvos.com.br/empreendimento/nido/ Figura 23: https://ideazarvos.com.br/empreendimento/nido/ Figura 24: https://ideazarvos.com.br/empreendimento/nido/ Figura 25: https://www.grupoproeng.com.br/empreendimentos/northvillage/ Figura 26: https://www.grupoproeng.com.br/empreendimentos/northvillage/ Figura 27: https://www.grupoproeng.com.br/empreendimentos/northvillage/

Figura 28: https://www.grupoproeng.com.br/empreendimentos/northvillage/

Figura 29: https://www.grupoproeng.com.br/empreendimentos/northvillage/ Figura 30: Produzido pela autora (2022)

Figura 31: Produzido pela autora (2022)

Figura 32: Produzido pela autora (2022)

Figura 33: https://earth.google.com/web/@ 20.32000552, 40.33089842,8.79719123a,626.96347279d,35y, 0h,0t,0r

Figura 34: Produzido pela autora (2022)

Figura 35: Produzido pela autora (2022)

87

Figura 36: Produzido pela autora (2022)

Figura 37: Produzido pela autora (2022)

Figura 38: Produzido pela autora (2022)

Figura 39: Produzido pela autora (2022)

Figura 40: Produzido pela autora (2022)

Figura 41: Produzido pela autora (2022)

Figura 42: https://m.vitoria.es.gov.br/prefeitura/plano diretor urbano

Figura 43: Produzido pela autora (2022)

Figura 44: Produzido pela autora (2022)

Figura 45: Produzido pela autora (2022)

Figura 46: Produzido pela autora (2022)

Figura 47: Produzido pela autora (2022)

Figura 48: Produzido pela autora (2022)

Figura 49: Produzido pela autora (2022)

Figura 50: Produzido pela autora (2022)

Figura 51: Produzido pela autora (2022)

Figura 52: Produzido pela autora (2022)

Figura 53: Produzido pela autora (2022)

Figura 54: Produzido pela autora (2022)

Figura 55: Produzido pela autora (2022)

Figura 56: Produzido pela autora (2022)

Figura 57: Produzido pela autora (2022)

Figura 58: Produzido pela autora (2022)

Figura 59: Produzido pela autora (2022)

Figura 60: Produzido pela autora (2022)

Figura 61: Produzido pela autora (2022)

Figura 62: Produzido pela autora (2022)

Figura 64: Produzido pela autora (2022)

88
89 10 ANEXOS
90
91
92

Turn static files into dynamic content formats.

Create a flipbook
Issuu converts static files into: digital portfolios, online yearbooks, online catalogs, digital photo albums and more. Sign up and create your flipbook.