MAR 001 - Material de Arquitectura

Page 1


Pablo Rescia y María Florencia Vargas

Tres Casas. Vivienda colectiva en Mar del Plata

Daniel Ventura

Casa en Capilla_ del análisis a la materialización. Casa en Capilla del Señor

Marcelo Roux y Gastón Cuña

Otras ideas para lo público.

Parque de la Amistad. Plaza de la Diversidad. Montevideo

Peter Zumthor

Las cosas a mi alrededor

Ariel Jacubovich

Una arquitectura asamblearia.

Objetos de consenso y urbanismo de las asociaciones en ecologías urbanas complejas

Revista MAR. Material de Arquitectura, #1, Mayo 2023, Mar del Plata, Argentina, ISSN 3072-7243 100 8 22 42 122 116 56 72 80 1

Fernando Murillo

Arquitectura y Urbanismo para la resiliencia

Luis del Valle

Salamone. Desplazamientos y tropismos de la modernidad local

Federico Isla y Pedro Garzo

Playas y pluviales: los impactos de la impermeabilización y el drenaje de barreras medanosas

Matías Beccar Varela

El detalle es la implantación. Conversaciones con Glenn Murcutt:la casa Simpson-Lee y el papel de la técnica en el proyecto de arquitectura

Rector / Cdor. Amado Zogbi

Vicerrectora / Ing. Alicia Gil

Delegado rectoral MdP / Arq. Marcelo

Artime

Decano / Arq. Óscar Cañadas

Vicedecano / Arq. Claudio Freidin

Directora / Arq. María Silvia Grilli

ISSN 3072-7243

Equipo

Editor / Arq. Oscar Cañadas

Director / Arq. Roberto Fernandez

Diseño / Arq. Jimena Durán Prieto

Consejo Editorial

Arq. Marcelo Artime

Arq. Eduardo Agüero

Arq. Jerónimo Mariani

Arq. Dario Lemmi

Arq. Pablo Rescia

Arq. Leonardo Jauregui

MAR manifiesta que las opiniones consignadas en esta publicación son de absoluta responsabilidad de los firmantes de cada nota y no comprometen a tales instituciones. Las notas sin firma son responsabilidad de la Dirección editorial de MAR. Las imágenes incluídas fueron suministradas especialmente por los autores y/o sujetos protagónicos de cada nota. Cuando fueran solicitadas expresamente se indican las autorías y/o las fuentes originales de tales imágenes. Si alguna imagen careciera a juicio de su autor, del crédito correspondiente rogamos se nos consigne para subsanarlo.

Editorial Material de arquitectura

Lanzamos MAR, expresión justa para indicar un medio nuevo de comunicación proyectual de una universidad del mar del sudeste atlántico –Universidad Atlántida– que asimismo inicia el dictado de una nueva carrera de Arquitectura en y para la región. Mas allá de esa palabra MAR, que alberga tantos sentidos desde productivos a poeticos, dicho nombre comprime la denominación MATERIAL DE ARQUITECTURA, que junto a aquella expresión contenedora describe o pormenoriza el propósito de este medio que va a tratar de analizar y presentar materiales de arquitectura cuyo resultado será tener disponibles unos materiales aptos, útiles o estimulantes para el aprendizaje de la Arquitectura.

Un aprendizaje que inicia de una vez un alumno novel de arquitectura pero también un aprendizaje que una y otra vez emprende quién proyecta y enseña a proyectar. Porque nunca se deja de aprender esos menesteres. Llamamos materiales de arquitectura entonces, al diverso espectro que va desde los materiales concretos en si con que se hace la arquitectura –el cemento, la arena, la madera–, los materiales elaborados o industrializados –desde una puerta a un ascensor– y también los materiales intelectuales o reflexivos –desde referencias de proyectos precedentes cuyo conocimiento devela acciones, prácticas y resultados fecundos en las tareas del proyecto hasta el conjunto complejo de saberes que refiere a una cultura del proyecto; es decir una manera

de proyectar en consonancia con una región y una sociedad concreta, en este caso nuestra dimensión referencial que abre un zoom que va de Mar del Plata al área pampeana-litoral, a las diversas geografías del pais, al sur de Sudamérica y por fin –pero sin cerrar allí esclusas de interés, al espacio cultural que nombramos Latinoamérica.

En un texto del 2011 de Helio Piñon llamado Teoría del Proyecto éste propone 5 axiomas para la arquitectura de los que los dos últimos son estos: la materia prima de la arquitectura es la arquitectura misma (o sea que arquitecturas previas proveen materiales a arquitecturas nuevas) y La competencia para proyectar puede adquirirse –sobre todo– re-construyendo obras de arquitectura ejemplares.

Aquí aparece otra idea de materiales que nos interesa en nuestro enfoque: arquitecturas previas ejemplares proveen materiales para encarar arquitecturas nuevas y sería pues esa la orientación que impulsaremos. No revisar lo de ayer o lo de hoy en tanto circunstancias recientes, efímeras y hasta carentes de certezas sino tratar pacientemente de acopiar materiales de lo que la dimensión de nuestra geo-cultura ofrece como experiencias valiosas de abordaje de soluciones proyectuales sobre todo en el campo técnico, estético y social de lo que se llama Modernidad. Sobre la base de la acumulación y utilización de esos materiales será posible encuadrar un aprendizaje crítico del proyecto.

Instrucciones para navegar el MAR

(el número 1 de MAR)

ARQUITECTURA-CIUDAD

Esta sección presenta un complejo edilicio singular local o regional cuyo interés radique en establecer propuestas de relación con sus entornos urbanos además de postular ideas proyectuales significativas en su planteo, desarrollo y materializacion. Se presentaran documentaciones originales completas (planos, fotos, memorias) y un análisis que pueda ser útil tanto para su aplicación didáctica como para su recepción académica y profesional.

Pablo Rescia y María Florencia Vargas. Tres Casas. Vivienda colectiva en Mar del Plata

Se postula un modesto y austero experimento en vivienda colectiva de densidad media: apilar 3 casas y hacer que el convencionamente llamado departamento devenga una casa en el aire, mediante algunas innovaciones tipológicas, como eliminar el palier de ascensor y convertirlo en algo semejante a una puerta de calle. 8

UNIVERSO

CASA

Tratara de ofrecer una secuencia de casas unifamiliares o pequeños conjuntos que contengan proposiciones conceptuales en cuanto a su proceso y razón proyectual, en su realización y construcción y en su uso, identificando valores que vayan más allá de la mera respuesta funcionalista. Tal como en el caso anterior se ofrecerá una documentacion integral y un análisis enfocado en su recepción didáctica tanto como de docentes y proyectistas.

Daniel Ventura. Casa en Capilla_ del análisis a la materialización. Casa en Capilla del Señor Ventura realiza este proyecto real en conexión con su investigación doctoral acerca de lo que llama re_corte que es una definición compleja de la envolvente arquitectónica; esa piel espesa que resuelve estructura y cerramiento y define la espacialidad y la noción de interior; todo ello experimentado en un proyecto concreto de una casa en ambiente rural.

42

APRENDIZAJES

Plantea recorrer una serie de experiencias educativas de arquitectura reconocidas por su alternativismo y experimentación para acoger planteos y propuestas que pudieran resultar útiles o convergentes con las discusiones pedagógicas de la propia escuela. Así como investigaciones y aplicaciones proyectuales en campos no convencionales del hábitat que abren camino al aprendizaje de prácticas alternativas.

Murillo es un consultor internacional de vasta experiencia en trabajos del habitat popular en condiciones de extrema pobreza e incluso en los recientes casos de internación de migrantes. Se abre, en su enfoque, la atención a casos extremos de necesidad habitacional lo que se ilustra con 10 experiencias de la otra globalidad, pobre y marginal.

Fernando Murillo. Arquitectura y Urbanismo para la resiliencia

HITOS DE HISTORIA

Mas que presentar grandes hechos de la historia de la arquitectura se tratará de abordar hechos diversos de la historia local y regional que sean de interés en el conocimiento de grandes proyectistas locales y regionales pasados cuyas tareas hayan derivado en producir hechos significativos de la modernidad arquitectónica.

Luis del Valle. Salamone. Desplazamientos y tropismos de la modernidad local

El caso Salamone –celebre proyectista de más de 80 trabajos en múltiples ciudades y pueblos de la Provincia de Buenos Aires realizados bajo el gobierno autoritario del gobernador Fresco–, resulta de interés histórico por el proceso de construcción de un diverso equipamiento público producido a la vez, que con cierto manejo del repertorio moderno (expresionismo, constructivismo, etc), con la persistente intención de engendrar rasgos de identidad para cada comunidad abordada.

ECOLÓGICAS

La cuestión ambiental y de crisis de sustentabilidad se presenta como un desafío para el proyecto actual y futuro y si bien resulta un campo relevante para ajustar y modificar formas tradicionales de proyectar, todavia se carece de metodologias comprehensivas y aplicables por lo cuál se presentarán distintos trabajos y enfoques –desde interdisciplinares hasta urbano-territoriales pero también de proyectos de arquitectura- para empezar a entender las vias de futuros trabajos de mucha mayor implicación ecológica.

Federico Isla y Pedro Garzo. Playas y pluviales: los impactos de la impermeabilización y el drenaje de barreras medanosas

Isla –en este caso con un investigador asociado–, es la mayor autoridad científica regional en el análisis de las relaciones entre urbanidad y naturaleza, que suele devenir en degradaciones graves del ambiente –como la afectación de barreras medanosas–, que causan graves deterioros del desarrollo urbano del litoral atlántico. Su trabajo desde la geología de costas, es indicativo de la necesidad de la cooperación interdisciplinar para entender y manejar esas problemáticas, ahora agudizadas por efectos del calentamiento global.

MATERIAL

La revista no publicará (salvo alguna específica excepción) proyectos no construídos en el entendimiento de la relevancia por otorgarse a la materialización adecuada de las ideas proyectuales ya que se piensa que la construcción no es una fase ulterior e independiente del proyecto sino que éste cobra sentido, viabilidad y calidad en tanto aborde y resuelva su condición material, lo cuál lleva a entender cuestiones de sustentabilidad y tecnologías de ingenio y cualidad regional, más allá de temas propios de la construcción tradicional.

Matías Beccar Varela. El detalle es la implantación. Conversaciones con Glenn Murcutt:la casa Simpson-Lee y el papel de la técnica en el proyecto de arquitectura

En el marco de su investigacion doctoral MBV viajó a Australia donde consiguió entrevistar largamente a Glenn Murcutt –referente mundial de una arquitectura de racionalidad técnica y acogimiento al clima y el paisaje que hoy suele llamarse diseño sustentable– así como acceder a y trabajar con el vasto archivo documental del Pritzker australiano de lo cual lo publicado es un fragmento que aporta las ideas precisas y sensatas de GM en la descripción del modo técnico de afrontar sus problemas de diseño.

ARGUMENTOS

La producción de proyectos descansa en aprovechar aspectos analíticos emergentes de argumentos teóricos que tratan de entender el pasado y el futuro para acompañar el presente proyectual y de tal forma esta sección se interesa en mostrar trabajos argumentales de teoría y crítica que en algunos casos pueden tener relación directa con acciones de proyecto o en abrir propuestas de formas alternativas de proyectar.

Ariel Jacubovich. Una arquitectura asamblearia. Objetos de consenso y urbanismo de las asociaciones en ecologías urbanas complejas

Ariel Jacubovich, además de su trabajo académico y profesional alternativo es un exponente principal del desarrollo de operaciones de proyecto de tipo hiperparticipativo en el cual el arquitecto más que dueño del proyecto es responsable de montar y coordinar una forma de trabajo que AJ bautiza como asamblearia; de lo cual dan cuenta trabajos reales singulares como Roca Negra, en el AMBA y Espacios de Paz en Caracas.

Peter Zumthor Las cosas a mi alrededor

HERRAMIENTAS

Los buenos libros y artículos de problemas teóricos y prácticos del proyecto de arquitectura son como herramientas de trabajo para formarse y entender aspectos y cualidades por afrontar cuando se está proyectando: por tanto el interes de esta sección será presentar críticamente algunos aportes bibliograficos recientes que suponen conocer el marco cultural general donde se contextualiza el hecho de proyectar y tomar decisiones proyectuales.

La obra singular del suizo Peter Zumthor destaca por su profundidad conceptual y cultural y por su insistencia en trabajar la materialidad constructiva para conseguir resultados de altísima calidad y resonancias poéticas en sus espacialidades como es el caso de su celebre proyecto de las Termas de Valls. PZ ha desplegado didácticamente su enfoque de proyecto en algunas conferencias que fueron compiladas en su libro Atmósferas, que aquí se revisa en detalle para tratar de analizar las ideas que nutren su concepción de proyecto.

AMERICANA

Entendemos la cultura proyectual local como haciendo parte de problemas y alternativas propias del mundo latinoamericano cuyas propuestas mas singulares e innovativas se presume que deben conocerse profundamente para insertar el trabajo de proyecto en una condición geocultural especifica que en lo posible aproveche lo bueno de la globalización pero también que cuestione sus defectos y limitaciones.

Marcelo Roux y Gaston Cuña. Otras ideas para lo público. Parque de la Amistad. Plaza de la Diversidad. Montevideo

Los arquitectos uruguayos Roux y Cuña han desarrollado diversas propuestas ingeniosas y alternativas para generar nuevos equipamientos para el Espacio Público de su ciudad, Montevideo; trabajando para su municipio en la intención de aprovechar y potenciar espacios vacios o terrains vagues de la ciudad en un enfoque que recuerda el modo de trabajo de Aldo Van Eyck en su Amsterdam de posguerra.

TRES CASAS

Vivienda colectiva en

Mar del Plata

Un terreno mínimo (12×12) en esquina en una zona que muta de la vivienda con suelo propio tradicional a una media densidad, tensionada por la cercanía del polo comercial de la calle Güemes.

La normativa, que viene en este caso, por detrás del impulso inmobiliario define una altura (5 pisos) que supera la capacidad edilicia del pequeño lote. La estrategia en relación a ese aspecto es forzar un piso alto de casi dos alturas de uso común como quincho que actúa como remate del edificio e incluye tanque de agua y otras instalaciones.Así el edificio amplía su oferta de equipamiento, dejando la planta baja para el uso de estacionamiento.

La volumetría juega en el contraste con el plano suelto sobre la calle y envuelve el volumen más bajo donde se encuentran las 3 unidades de vivienda, que se consideran pequeñas casas en altura, con los siguientes aportes en ese sentido:

No hay hall común en la salida del ascensor, sino que este lugar ya es propio de la vivienda (una cerradura magnética permite el uso del ascensor sin necesidad del palier común). Esto permite

la doble circulación, una más privada hacia los dormitorios, y otra más pública hacia el área publica, estar y comedor.

La cocina se considera como articulación entre estas áreas, conformando un espacio que se suma al área publica incorporando la mesa de comer a la isla de cocinar.

Las áreas públicas de la vivienda se proponen con grandes paños vidriados de piso a techo en tanto que los vanos que caracterizan circulaciones y cocina, ubicados sobre el filo exterior producen pequeños estantes en los antepechos, donde cada familia ubica su imaginario familiar.

La volumetría es una articulación entre los planos de fachada dejando la esquina como una sustracción donde aparecen balcones y en planta baja el acceso al hall. La primera unidad no tiene balcón, de modo que el acceso toma una doble altura exterior .

La imagen apela a planos tersos y austeros, de un monocolor que abarca todos los componentes de la fachada, reforzando una austeridad que destaca la articulación de los volúmenes, relegando lo maquínico y lo estructural a un segundo plano.

Memoria

Opinión

El nombre otorgado a esta obra –Trescasas–es rotundo en la intención de indagar en el término medio entre las casas unifamiliares tradicionales en este barrio en acelerado proceso de cambio y los convencionales edificios multifamiliares en altura. Incluso indicando que creen que la normativa que permite 5 pisos es algo mas generosa con la expectativa de rentabilidad inmobiliaria que con criterios mas moderados para tratar que la transformación del barrio sea mas tranquila e incluso que permita cierta coexistencia entre casas individuales y pequeños conjuntos de casas: en este caso, tres que se superponen y ofrecen aun en el tamaño reducido que permite el lote, un resultado que también diverge en algunas cuestiones con las tipologías convencionales de edificios de vivienda colectiva como lo indica específicamente la memoria de sus autores: (1) convertir el ascensor en algo similar a una puerta a la calle, (2) disponer en tal acceso la posibilidad de una doble circulación, una privada y otra mas social aun con el relativamente pequeño metraje de cada piso, (3) recuperar una idea de cocina que al integrarse al área pública juntando la mesa de comer a la isla de cocinar, trasciende las cerradas y pequeñas cocinas maquínicas típicas de los departamentos convenciona-

Datos

El edificio Trescasas es autoría de los arquitectos Pablo Fidel Rescia y María Florencia Vargas y se ubica en Avellaneda 1602; Mar del Plata. La superficie del lote es de 149.49 m2 , la superficie semicubierta es de 19.86 m2 y la superficie cubierta es de 411.14 m2. La obra se realizó entre 2015 y 2019 y fueron asesores el ingeniero Felipe Otarola, (calculo estructural) y Pablo Villano (modelado 3d, renders). La empresa constructora fue Leto LJP, las obras sanitarias y de gas las realizó Pozzobon-Troche y las carpinterías estuvieron a cargo de Hemme y Casa del Vitraux. Las fotografías son de Blackline producciones.

les y (4) diferenciar los cerramientos de las áreas públicas (de grandes paños vidriados de toda la altura) de los vanos de circulaciones y cocinas que ubicados sobre el filo exterior producen pequeños estantes en los antepechos, donde cada familia ubica su imaginario familiar. Poder personalizar una arquitectura de pequeña serie como en este caso es lo que pareciera proponer ese planteo en que cada grupo pueda desplegar su imaginario familiar.

Tanto la opción de reducir la cantidad de unidades dotando a cada una de ellas de una cierta identidad de casa como la decisión de aprovechar la altura permitida para favorecer mayor generosidad en los espacios de uso común resultan en definitiva, pequeñas reflexiones en las que el proyecto va mas allá de su pura respuesta a la demanda del comitente, ensayando cierta interpretación acerca de como cada operación edilicia aislada puede (y debe) contribuir a mejorar la calidad de la ciudad.

A su vez también el investigar en los 4 tópicos recién apuntados –que resultan divergentes de las soluciones convencionales– también le aporta a este trabajo una voluntad de revisar las tipologías habituales demasiado estereotipadas buscando producir alternativas habitativas que diversifiquen el espectro generalmente de pocas alter-

nativas, que ofrecen hasta ahora las escasas alternativas que puden escogerse al elegir una residencia.

En cierto sentido y guardando las distancias, hay alguna similitud de intenciones de innovación tipológica con el trabajo del rosarino Rafael Iglesia en su ya célebre Edificio Altamira, tanto en proponer en alguna forma, un apilamiento de casas como en la flexibilidad de usos y la conversión del ascensor en un dispositivo equivalente a una puerta de calle por la eliminación de los paliers. Si bien en Altamira se avanza en una disolución de la caja edlicia incluso horadando medianeras –lo cuál le engendró largas dificultades para conseguir la aprobación municipal– hay aspectos que resultan convergentes o desarrollados en la dirección que inaugura el casi mítico bloque rosarino, como la acumulación de detalles de transgresipon del dogma inmobiliario de células de repetición infinita o el recurso a una solución monocroma cuya clara continuidad propone una estética de austeridad.

CASA EN CAPILLA_

Del análisis a la materialización

Casa en Capilla del Señor*

* El marco teórico de este ensayo forma parte de la tesis doctoral de Daniel Ventura, Re Corte. Del análisis al proyecto dirigida por Roberto Fernández en FADU UdelaR

Montevideo y de los proyectos de investigación Intersticios (realizado en la Facultad de Arquitectura, Diseño y Planeamiento Socio Ambiental de la Universidad de Flores dirigido por Daniel Ventura, Federico Paz y Andrés Virzi) y Dispositivos de Intermediación en la vivienda individual y colectiva (dirigido por Daniel Ventura y Nadia Donato en la FADU, UBA).

1 Imagen exterior página siguiente

La tradición de la Arquitectura en Latinoamérica ha girado en las últimas décadas en la búsqueda de caminos propios con ciertos códigos del Movimiento Moderno y cierta preocupación por los problemas del clima, los modos de habitar y el uso de materiales locales. Se ha conseguido generar obras de calidad espacial y ambiental haciendo énfasis en el sitio y el uso de los espacios para ser habitados.

El objetivo de este ensayo es desandar las formas de producción de una obra de vivienda contemporánea en el pueblo de Capilla del Señor, en la Provincia de Buenos Aires.

La elección de este caso de estudio permite visualizar las problemáticas puestas en juego para la realización de una vivienda unifamiliar en un lote suburbano lindante con un área rural.

El proyecto, entendido como proceso, no utiliza la intuición para su realización, sino que pone en relación una cantidad de variables con las que se desenvuelve de manera simultánea. Esas múltiples capas van entrelazándose hasta generar un único dispositivo para alcanzar la nueva estructura arquitectónica. Dicha estructura es pensada como un sistema de expresión que permite repensar contenidos conceptuales por medio de símbolos puestos en relación con aquellos en los que la sociedad manifiesta lo que piensa; es decir, el lenguaje como instrumento sin el cual sería imposible cualquier forma de cultura.

Mansilla y Tuñón denominan a los procesos generadores de forma como Sistemas Expresivos, los que permiten una aproximación más abstracta, pero no por ello menos material. Entender estas lógicas permite luego comprender los modelos de conocimiento proyectual. Este soporte refuerza el concepto de construcción tectónica, entendida como una estructura de pensamiento que involucra la materia y es capaz de abordar los temas inherentes al espacio arquitectónico, profundizando coherencias en un proceso proyectual.

Investigar los espacios de habitabilidad desde las propias acciones del sujeto en el espacio y no desde modelos prefigurados resulta una oportunidad

2 Vista Aérea página siguiente

para indagar cuáles son las posibles formas de pensar y producir –en términos arquitectónicos– relaciones más profundas que propongan la interacción entre los diferentes espacios público-privado, propiciando interacciones variadas entre sujetos que habitan y recorren el espacio construido.

Juhani Pallasmaa (2016) pone de manifiesto el problema fenoménico a partir de hacer una identificación corporal. Dice que (…)La autenticidad de la experiencia arquitectónica se basa en el lenguaje tectónico de la construcción y en la integridad del acto de construir para los sentidos. Contemplamos, tocamos, escuchamos y medimos el mundo con toda nuestra existencia corporal, y el mundo experiencial pasa a organizarse y articularse alrededor del centro del cuerpo.

Para Pallasmaa, habitar implica un acontecimiento que pone en relación a una cualidad mental con un escenario funcional y técnico. Considera además que (…)

La noción de hogar se extiende mucho más allá de su esencia física y sus límites. Además de las cuestiones prácticas de la vivienda, el propio acto de habitar es un acto simbólico e, imperceptiblemente, organiza todo el mundo para el habitante. Además de nuestras necesidades físicas y corporales, también deben organizarse y habitarse nuestras mentes, recuerdos, sueños y deseos. Habitar forma parte de la propia esencia de nuestro ser y de nuestra identidad. 1

La utilización de la Casa en Capilla como modelo empírico de la experiencia proyectual pone al descubierto

los intereses teóricos para la construcción de las ideas. Richard Sennet en El Artesano (1997) hace alusión a la Práctica como medio para poner en relación con el pensamiento y hace un paralelismo entre la mano y la cabeza al expresar El artesano explora estas dimensiones de habilidad, compromiso y juicio de una manera particular. Se centra en la estrecha conexión entre la mano y la cabeza. Todo buen artesano mantiene un diálogo entre unas prácticas concretas y el pensamiento; este diálogo evoluciona hasta convertirse en hábitos, los que establecen a su vez un ritmo entre la solución y el descubrimiento de problemas. 2

Tal exploración a lo largo del desarrollo pone en términos de experiencia la forma por la cual el proyecto encuentra la manera de descubrir los problemas y le da respuestas concretas.

Decisiones sobre la inserción

La casa opera sobre el tejido en un sector urbanizado próximo a consolidarse y lindante con una extensa área rural en el partido de Exaltación de la Cruz. El lote es parte de ese límite, la operación proyectual plantea esa frontera y ubica a la casa sobre la medianera, toca sobre dos puntos extremos y tensiona un espacio vacío de manera tal que, al desprenderse del tejido, dialoga con el campo abierto.

Esta operación plantea la dicotomía entre el tejido consolidado de la ciudad y su relación con un paisaje rural.

El borde urbano es parte de esta investigación proyec-

1 Pallasmaa, Juhani. Habitar. Gustavo Gili, Barcelona, 2016.

2 Sennet, Richard. El artesano, Anagrama, Barcelona, 2013.

tual, es el determinante de las relaciones de intermediación, estos espacios ambiguos se calibran para poder habilitar las posiciones antagónicas.

Todas las operaciones formales se abren hacia el campo. Dichas acciones permiten tanto una relación visual con el paisaje como con la mejor orientación. El nivel 0 se eleva a + 0.50 m de la tierra mediante una plataforma de hormigón que opera a manera de podio, separando a la casa del territorio. El muro curvo de ladrillo cribado sobre la línea municipal de la rotonda pública materializa un límite traslúcido entre el espacio público y el espacio privado.

En palabras de André Corboz, en su ensayo El territorio como palimpsesto de 2001

Representar el territorio es comprenderlo. Ahora bien, esta representación no es una copia, es una construcción. Se elabora un mapa, en primer lugar para conocer y en segundo lugar, para actuar. El mapa comparte con el territorio, el ser un proceso, un producto, un proyecto y como es también forma y sentido corremos incluso el riesgo de considerarlo como un sujeto. Convertido en modelo posee la fascinación de un microcosmos y es una simplificación absolutamente manejable, que suele suplantar a la realidad misma que representa. (…)

Una observación tan cuidadosa de las huellas y transformaciones del territorio no quiere decir que se profese una actitud fetichista hacia ellas.

No se trata de ponerlas en un pedestal para conferirles una dignidad que no viene al caso, sino

3 Umbral entre espacio interior y exterior

de utilizarlas solamente como elementos, como puntos de apoyo, como acentos, como estímulos para nuestra propia planificación. Un lugar no es un dato sino el resultado de la acumulación de elementos. En las regiones que el hombre se ha instalado desde hace muchas generaciones, desde hace milenios con mayor razón, todos los accidentes del terreno tienen un significado. Comprenderlos es darse la posibilidad de transformarlos de una manera más inteligente. 3

La casa toma el modelo que Rafael Moneo denomina inmovilidad sustancial para referirse al lugar como pertenencia. Dice que la arquitectura alcanza su verdadero status cuando se realiza. El suelo es el que garantiza su condición de objeto. Sin el terreno, sin un específico y único lugar, la arquitectura no existe. Uno de los rasgos característicos que con más fuerza se distingue a la arquitectura es la construcción. Sin embargo quisiera reservar este concepto de arquitectura para la auténtica permanencia de la realidad construida y tal deseo implica que haga acto de presencia aquella “inmovilidad sustancial” que solo puede ser alcanzada con un lugar...4

Construcción de dispositivos de intermediación

La noción de intermediación conlleva la exploración de las proximidades y gradientes entre espacios con cualidades diferentes, público-privado / exterior-interior/ abierto-cerrado, tanto fuera como dentro de la vivienda. Las intermediaciones están definidas por las transiciones entre estos diferentes usos a través de los elementos arquitectónicos que los constituyen, se despliegan de manera tangible en la disposición de límites que se desdoblan para enlazar acciones de naturalezas diversas.

Aldo Van Eyck desarrolla este concepto a través de la noción de Umbral:

Hay una cosa más que ha estado creciendo en mi mente desde que los Smithson pronunciaron la palabra ‘puerta’ en Aix. No me ha dejado desde entonces. He estado reflexionando sobre ello, ampliando el significado tanto como pude.

Incluso he ido tan lejos como para identificarlo como símbolo de lo que la arquitectura significa como tal y debe lograr.

Establecer el ‘intermedio’ es reconciliar polaridades conflictivas. Proporcionar el lugar donde puedan intercambiarse y restablecer el fenómeno dual original. Llamé a esto ‘la plus grande réalité du seuil’ (la mayor realidad del umbral) en Dubrovnic. Martin Buber lo llama ‘das Gestalt gewordene Zwischen’ (el intermedio que se ha convertido en forma). 5

3 Corboz, André. El territorio como palimpsesto. Ecole Polytechnique Federale. Zurich, 2001

4 Moneo Valles, Rafael. Inmovilidad Substancial. Revista Circo 24. Madrid 1995.

5 Van Eyck, Aldo. Collected articles and other writings Sun, 2008, p. 204.

Por otra parte, Van Eyck también manifiesta que la propia naturaleza del proyecto apunta a la necesidad de reanudar la revalorización de la relación real entre unidad-diversidad, parte-todo, grande-pequeño, mucho-poco, adentro-afuera, abierto-cerrado, masa-espacio, continuidad-cambio. Parte de la convicción de que todos estos son fenómenos duales se perdieron entre sí cuando se vieron obligados a separarse en polaridades conflictivas y falsas alternativas. La casa, como describe Alvar Aalto en el texto Del Umbral a la Sala de Estar, después de atravesar la puerta en el muro cribado y subir por la rampa que la vincula a la tierra, se accede a un hall semicubierto en doble altura que se distingue de los demás, tanto por su forma como por su condición espacial que tiene una función psicológica perceptible al ojo sensible. Es la metáfora del aire libre bajo el tejado de la casa. (…) Es también una manera de atenuar el contraste entre ambos; y además, un procedimiento artístico enteramente natural para decorar un espacio que precisamente contiene el paso ‘exterior-interior’. He aquí, en pocas palabras, el fundamento estético del porche de entrada a nuestras viviendas.6

Esta primera acción de intermediación entre el espacio público y el espacio privado permite la interacción entre nuevos espacios que ofician de transiciones entre el espacio abierto y el cerrado.

4 y 5 Espacios intermedios

6 Aalto, Alvar Del Umbral a la Sala de Estar, en número O, revista Aitta, Helsinki 1926.

Los límites que se construyen permiten percibir un espacio continuo que ofician a manera de Umbrales que se desdibujan para generar una mayor fluidez espacial. El borde lindero a la medianera es un intersticio que tensiona los espacios interiores y exteriores desde el cual se genera una multiplicidad de situaciones. Aquí se constituyen los recorridos horizontales y verticales de la vivienda y se plantean los patios que la propia estructura arquitectónica produce.

El borde norte de la vivienda constituye la segunda operación de intermediación hacia el jardín y hacia el campo abierto. Aquí se producen tanto la transición entre el interior y el exterior como los filtros de luz por la incidencia del sol. Estos gradientes permiten el control lumínico dentro de la vivienda y es donde se producen los espacios de contemplación. También aquí se configuran los balcones en planta alta y la terraza semicubierta de la planta baja.

El verdadero umbral de nuestros hogares se atraviesa en el momento en que pasamos de calle o del camino al jardín. El muro del jardín es el que delimita verdaderamente el recinto; que en su interior reine pues, sin obstáculos, la unidad, no sólo entre el edificio en conjunto y las formas del jardín, sino también entre éstas y la disposición de las habitaciones. El jardín (el patio) forma parte de la casa, en la misma medida que cualquiera de sus habitaciones. Que el paso de los parterres a los dormitorios establezca un 6, 7 y 8 Espacios Intermedios

contraste mucho menor que el paso de la calle o del camino al jardín. 7

Materialización de una estructura arquitectónica

La configuración de los elementos constitutivos de una obra de arquitectura y su materialización producen una expresión particular y significativa en la obra. La técnica cumple un rol importante en la construcción material del objeto y su expresión una posibilidad de generar lenguaje.

Su investigación está centrada en las formas con los que se vinculan cada uno de los elementos o las lógicas de repetición, en el caso de los mampuestos; en los moldes con los que se van a realizar los colados y determinar sus texturas; y en las uniones de los elementos que componen los sistemas de montaje.

Cualquiera de los sistemas tiene diferentes maneras de ser producidos tanto de forma individual o conformando sistemas mixtos de producción material. La experimentación sobre la estructura arquitectónica del objeto devela los mecanismos de producción material para la realización de un nuevo proyecto. Ana María Rigotti plantea la idea de que la forma es una manera de desmontar el modo de producción de cosas y a menudo esa forma como tal no es abstracta sino estrictamente dependiente de una materialidad.

La casa pone en valor los sistemas de producción con los cuales fueron construidos. Ignacio Paricio los clasi-

fica designando las formas del material y sus técnicas de producción. En el capítulo Las Técnicas del libro La construcción de la Arquitectura clasifica a las prácticas constructivas utilizadas en arquitectura como sistemas de producción por montaje, sistemas de producción por mampuestos y sistemas de producción por moldeo8. Todos estos modos de hacer materializan el espacio e influyen directamente sobre la configuración del objeto arquitectónico. El estudio de las técnicas posibilita la creación expresiva de la obra y su modo coherente de utilización la vuelve inteligible. En la casa se utilizan los tres sistemas y entre sus vínculos se genera la estructura arquitectónica. La platea elevada de hormigón armado, la rampa de acceso y la pileta son los elementos que vinculan el proyecto con la tierra. El sistema de producción por moldeado aparece en el territorio dejando una huella en su superficie.

La estructura de perfiles metálicos con losas de bovedillas construidas en ladrillos constituye el sistema de montaje que genera el sostén de la obra. Los cerramientos están realizados tanto por muros de ladrillos que conforman un sistema de mampuestos y por un borde perimetral de estructura metálica y chapa en la planta superior de la casa que configuran y limitan al espacio arquitectónico.

La maleabilidad adquiere plena significación estilística en combinación con propiedades más

7 Aalto, Alvar. Del Umbral a la Sala de Estar. Número O revista Aitta, Helsinki 1926.

8 Paricio, Ignacio. La construcción de la arquitectura. Las técnicas, Barcelona, Institut de Tecnologia de la construcció de Catalunya, 1996.

9 Sistemas de producción: Montaje, Mampuesto y Moldeo página anterior

10-11-12 Sistemas de producción: Montaje, Mampuesto y Moldeo

sólidas de los metales, su resistencia, dureza, impermeabilidad y durabilidad, propiedades que ningún otro material combina en igual grado de maleabilidad y flexibilidad comparables. Estas virtudes lo hicieron el material más importante para el vestido defensivo, es decir, para la protección ya no contra la lluvia y el frío sino también contra acciones externas violentas, que

a lo revestido lo mantiene a la vez firme, además de adornarlo.

El espacio habitable Pensar en espacios flexibles implica, entre otras estrategias de diseño, definir una adecuada articulación de los diversos sistemas (elementos constructivos e instalaciones) que confluyen en

13 Paneles móviles del sistema de montaje página siguiente

14-15

la vivienda. Estos deben ser pensados de forma tal que permitan la mayor evolución y adecuación de los componentes a los requerimientos cambiantes de los usuarios. El objetivo es definir sistemas constructivos que no se conviertan en obstáculos para las transformaciones. 9

Pensar en los usos es lo que convierte a la obra de arquitectura en un lugar habitable. La casa no se rige a partir de un programa de necesidades sino de las acciones tendientes a reflexionar acerca de los lugares para dormir, comer, descansar, reunirse, asearse, contemplar, etc. Pensar en las actividades contemporáneas, las nuevas conformaciones de familias y las nuevas tecnologías posibilita la creación de lugares inéditos de uso.

La casa se manifiesta a partir de comprender su relación con el paisaje circundante. Los usos se generan proporcionándole al sujeto la posibilidad de interactuar con el espacio exterior. La flexibilidad de los espacios de la planta baja permite la multiplicidad de usos. Los núcleos de baño, cocina y parrilla se disponen de tal forma que configuran dispositivos que intermedian entre los diferentes usos. En la planta alta los espacios para dormir y estudiar incorporan la acción de contemplar el paisaje rural a través del balcón que funciona como espacio de intermediación entre el afuera y el adentro.

9 Muxi, Zaida–Montaner, Josep. Herramientas para habitar el presente / La vivienda del siglo XXI. Barcelona 2011

La cualidad espacial que el uso le aporta a la obra le confiere un potencial que pone de manifiesto la presencia del sujeto como generador de una experiencia sensorial. Rosalind Krauss, en el capítulo sobre la obra Cambio de Richard Serra, remite a Fenomenología de la Percepción de Merleau Ponty, donde tanto obra, territorio y sujeto se funden para generar nuevas relaciones perceptivas:

(...) una red de perspectivas con la que establecer un horizonte interno para la obra, (por oposición al horizonte real), una red por la cual definir a su vez constantemente la visión personal del objeto en términos de relación con dicho objeto, su idea de la transitividad de esta relación (‘elevar’, ‘extender’, ‘comprimir’, ‘girar’), de manera que la obra marca la actividad de la relación del espectador con su mundo.10

La casa en Capilla indaga particularmente sobre el espesor del límite. En el umbral entre espacios cubiertos, semicubiertos y descubiertos y acciona sobre sus vínculos. Estas operaciones proyectuales transforman el espacio y permiten establecer diferentes grados de jerarquías y resolver nuevas instancias de recorridos. La interacción entre los espacios propuestos produce nuevas percepciones en el sujeto.

Marcel Proust narra en En Busca del Tiempo Perdido esta relación perceptiva que entabla el sujeto al recorrer un espacio a través del tiempo y que está también

10 Krauss, Rosalind, La originalidad de la Vanguardia y otros mitos modernos, Madrid, Paperback Alianza Forma, 2015 16-17

Espacios habitables en PA

presente en la búsqueda de esta investigación para la realización de esta vivienda contemporánea:

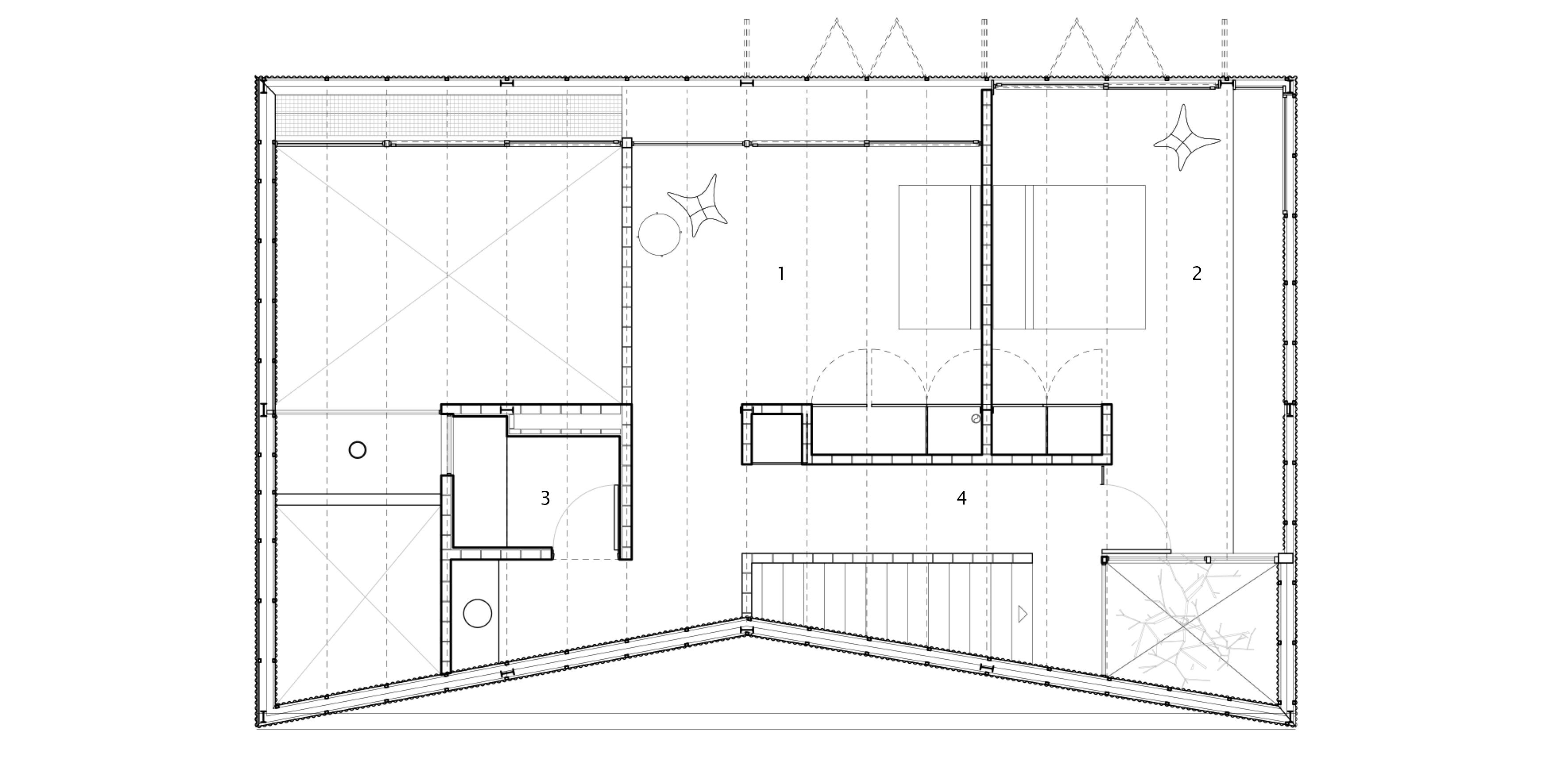
Implantación

1 Depósito

2 Guardacoche

3 Jardín

4 Pileta

5 Sala de máquinas

6 Acceso

7 Terraza

8 Parrilla

(...) ya hacía rato que habíamos salido de Martinville, después que el pueblecillo nos había acompañado unos minutos, y, aún solitarios en el horizonte, sus campanarios y el de Vieuxvicq nos miraban huir, agitando en señal de despedida sus soleados remates. De cuando en cuando uno de ellos se apartaba, para que los otros

dos pudieran vernos un momento más; pero el camino cambió de dirección, y ellos, virando en la luz como tres pivotes de oro, se ocultaron a mi vista. Un poco más tarde, cuando estábamos cerca de Combray y ya puesto el sol, los vi por última vez desde muy lejos: ya no eran más que tres flores pintadas en el cielo, encima de la línea de los campos...

Planta Baja 1 Estar
Comedor
Terraza
Acceso 5 Toilette
Cocina
Parrilla
Planta Alta
1 Estudio
2 Dormitorio 3 Baño 4 Circulación

Datos

La casa en Capilla es una obra finalizada en 2022 del Estudio Ventura. El proyecto fue de los arquitectos Daniel Ventura y Andrés Virzi y la dirección de obra de Daniel Ventura siendo colaboradores los arquitectos Luciana Teper y Dana Martínez De’Nobili y los señores Martin Cribilone, Javier Sandrini y Luis Scazufca. Fueron asesores Stefano D´Amario y Juan Duggan (Paisajismo) y el ingeniero Eduardo Marco (Estructuras). La construcción fue realizada por A4 (arquitecto Sebastián Piovi).

Las fotografías son de Javier Agustín Rojas.

Arquitectura y urbanismo para la resiliencia

* Arquitecto, Magíster en Planificación Urbana y Regional (UBA) y Doctor en Arquitectura y Urbanismo (UBA).Docente e investigador UBA especializado en temas urbano-habitacionales con foco en comunidades vulnerables y desplazados. Líder del equipo de evaluación del Global Development Network (GDN) en investigación aplicada a los procesos de urbanización en América Latina, Asia y África. Consultor de la Agencia Hábitat de las Naciones Unidas (ONU Hábitat y ACNUR) en temas de planeamiento urbano-regional y construcción de vivienda social y consultor de la Organización Internacional para las Migraciones (OIM)

Este artículo explora proyectos de respuesta a emergencias de diversa índole en diez países, procurando extraer lecciones de resiliencia, o capacidad de adaptación al cambio, en el campo de la arquitectura y el urbanismo. A diferencia de los paradigmas proyectuales surgidos a partir de las dos guerras mundiales ocurridas en el siglo XX, el siglo XXI parece apelar a las ideas de la sustentabilidad y la adaptabilidad al cambio permanente. Estas condicionantes llevan a que la arquitectura y el urbanismo necesiten de la participación y la interacción permanente con comunidades para desarrollar proyectos con una naturaleza experimental de edificios y espacios utilizables a partir de nuevas reglas de uso y producción. La adopción de diseños con usos flexibles, los específicos y aquellos que se saben que serán imprevistos relacionados con los cambios climáticos y la irrupción de emergencias, obliga a pensar en materiales locales reutilizables y adaptables, lo cual implica considerar una combinación de recursos efímeros y durables, optimizando los recursos de la naturaleza como el clima, la forestación y la biodiversidad.

A partir del repaso de proyectos que indagan respuestas alternativas a distintas formas de emergencias se busca descubrir resultados a corto plazo, fundamentales en el contexto de emergencia, pero tambien políticas públicas de mediano y largo plazo. Así pues, a la preocupación por la eficiencia energética, la no emisión de gases invernadero a la atmosfera y la utilización de materiales reutilizables, componentes centrales del diseño contemporáneo, se suma la cuestión del no dejar a nadie atrás como versa la Nueva Agenda Urbana, demandando participación, consensos comunitarios y nuevas reglas de subsidio a partir de componentes parametrizados a medida de las necesidades de distintos grupos y políticas.

Introducción

Desde tiempos inmemoriales la arquitectura y el urbanismo han procurado responder a los distintos problemas de abrigo y protección frente a los peligros e inclemencias climáticas utilizando materiales y técnicas constructivas más eficientes y eficaces, hasta cuestiones de prestigio social, identidad y más recientemente sustentabilidad y bio-diversidad. Las últimas décadas han sido signadas por el aumento de riesgos sociales y ambientales a escalas inéditas. La sociedad contemporánea enfrenta desde el aumento de las temperaturas globales de la mano del fenómeno conocido como cambio climático, generando sequías e inundaciones, especialmente en áreas costeras, amenazando la supervivencia misma de ciudades y

países, hasta la emisión de gases de carbono y contaminación permanente no resuelta por los volúmenes de residuos sólidos generados y no tratados. El paradigma de crecimiento social y económico infinito ha sido formalmente declarado obsoleto en los múltiples acuerdos internacionales, desde Río 92, pasando por el acuerdo de Paris y la adopción de la Nueva Agenda Urbana1 en Quito, en 2016. Pero a pesar de ello, las tendencias indican que tales esfuerzos son insuficientes para detener la catástrofe en las próximas décadas. La arquitectura y el urbanismo como disciplinas no se encuentran exentas de responder con soluciones prácticas y viables, no ya como proyectos-productos de las elucubraciones de ciertos iluminados, sino como resultado del trabajo de profesionales comprometidos con sus comunidades a través de un proceso de prueba y error, en desastres de distintos tipos.

Este artículo intenta repasar algunas de esas soluciones que comienzan a aparecer como ilustrativos de estos procesos en distintos países que han innovado en la respuesta a la emergencia intentando engendrar nuevas formas de arquitectura y urbanismo. En verdad, los limites formales entre ambas disciplinas, ante la emergencia, parecen diluirse en un continuo técnico y necesariamente complementario para efectivamente encontrar soluciones integrales y escalas para resolver los problemas acuciantes de comunidades que han sufrido desastres y sus consecuencias en

el tiempo en un contexto generalizado de pobreza y marginación. En los casos estudiados se han seleccionado adrede desastres generados por los efectos de la naturaleza, como terremotos y ciclones, pero también producidos por el hombre como guerras y conflictos. Subyace en los casos seleccionados y ciertamente recogido en la bibliografía especializada desastres provocadas por crisis económicas, políticas y alimentarias, disparadoras de efectos similares en términos de crisis humanitarias.

En definitiva, el análisis de la respuesta de proyectos arquitectónicos y urbanísticos en tales contextos procura dilucidar en que medida su accionar disciplinar puntual aporta no solo a resolver problemas habitacionales y edilicios muy concretos, sino además a renovar estándares constructivos y de diseño incorporando aprendizajes devenidos de intentar reconstruir mejor (building back better), generando nuevas reglas y mecanismos sociales de auto-organización y diseño de políticas públicos ancladas en principios de derechos humanos.

El surgimiento del enfoque de la resiliencia

1 Disponible en https://onuhabitat.org.mx/index.php/ la-nueva-agenda-urbana-en-espanol

El enfoque de la resiliencia plantea que para realmente aporte soluciones en el mundo contemporáneo debe satisfacer la premisa de crear edificios o ciudades capaces de adaptarse inteligentemente al cambio y aprender de las crisis. A diferencia de los paradigmas tradicionales la resiliencia hace foco en la capacidad del diseño para transformar sociedades y superar las

crisis no ya a partir de proyectos sino procesos. Ya no se trata de diseñar edificios o intervenir en ciudades concebidas como tablas rasas sino por el contrario, de adaptar lo existente progresivamente a través de procesos concertados de consumo más responsable y cuidado de los recursos finitos, como el suelo y la biodiversidad.

Según la Organización Mundial de la Salud, las características que definen de la resiliencia son cuatro: La redundancia, capacidad para disponer de más de un sistema clave para el funcionamiento de edificios y ciudades, de modo que, si ante la emergencia deja de funcionar uno, los otros sistemas lo complementan y reemplazan.

Un caso frecuente es el corte del sistema de energía ante emergencias y la utilización de otras fuentes de energía redundantes pero esenciales para no sucumbir ante la crisis. El segundo factor es la flexibilidad. Muchas veces el diseño tradicional concibe un uso restringido, acotado, pensado para sostener determinadas actividades. La flexibilidad plantea que una escuela, por ejemplo, es mucho más que eso en caso de emergencia, sino que debe ser proyectada para servir como centro de evacuados.

Es decir que lo que era una virtud en los enfoques tradicionales, la precisión en la asignación de usos y funciones puede constituir una desventaja muy evidente ante un desastre como es el caso conocido de escuelas que sucumben ante usos no previstos. Gran parte de las soluciones habitacionales que han surgido han sido pensadas para la adaptación. El tercer factor clave es la capacidad para reorganizar.

No se prevé el desarrollo de reglas de producción y administración de hábitat sin una estructura organizacional robusta no solo para atender eventuales desastres sino también para prevenir aquellos que todavía se ignoran. Este aspecto ubica la resiliencia en un campo muy próximo al científico, obligándolo a un dialogo, intercambio y consenso entre actores diversos y hasta a veces, antagónicos. Por último, y sintetizando los otros tres aspectos se señala la capacidad de aprender como clave para acumular saberes en escalas y problemas complementarios.

Después de muchas décadas y esfuerzos invertidos por gobiernos nacionales y organismos internacionales en procura de responder con eficiencia y eficacia a desastres procurando compensar sus efectos, la comunidad internacional ha alcanzado consenso en que el abordaje de la compensación resulta insuficiente. Que es necesario entender y atender también las causas que motivaron el desastre para reconstruir mejor (building back better).

Es decir, no volver a construir lo mismo que existía antes del desastre sino aprender del mismo y cambiar enfoques y estandares para asegurar que la próxima crisis se disponga de diseños que mitiguen efectivamente el riesgo. Este objetivo establece un desafío inédito, al demandar que la crisis genere la reflexión colectiva e institucional que construya saberes nuevos para enfrentar crisis futuras previsibles.

El surgimiento de nuevos enfoques y metodologías de co-creación, se refleja tanto en el establecimiento de campos de refugiados para atender víctimas de de-

sastres, gestionados por Naciones Unidas o Gobiernos como los nuevos saberes para la integración socio-urbana. En ambos casos se produce hábitat utilizando prototipos de vivienda y tecnologías de emergencia que lideran procesos de mejoramiento de hábitat y servicios públicos que garantizan condiciones mínimas de subsistencia. La pandemia COVID-19 tensó ante un crisis de escala planetaria y puso a prueba mucha de estas técnicas, perfeccionadas en contextos específicos recogido por una profusa bibliografía2 que plantea la adopción de proyectos, políticas y planes surgidas en la emergencia, pero cuyos resultados promisorios invitan a escalarse como políticas de estado y organismos internacionales.

Lecciones proporcionadas por diez casos de estudio

En los países seleccionados ha existido la intencionalidad de inventar proyectos superadores de los déficit sociales y ambientales que enfrentan sus poblaciones, muy especialmente los más vulnerables. En todos los casos se trata de proyectos en los que, por la magnitud del desastre y sus consecuencias han intervenido varias agencias de las Naciones Unidas en forma coordinada, lo cual permite el acceso a bases de información muy precisas y validadas.

Para las agencias especializadas el diseño de proyectos de respuesta a la emergencia demanda un esfuer-

2 Ver Publicaciones de IADB, Inmigrando. Tomos I y II. Disponibles en https://publications.iadb.org/ es/inmigrando-fortalecer-ciudades-destino-tomo-1 https://publications.iadb.org/es/inmigrando-construirciudades-plurales-tomo-2

zo de imaginación en planear acciones coordinadas para identificar prioridades en contextos donde todo es realmente prioritario, desde la provisión de agua y saneamiento para el consumo diario y evitar así catástrofes mayores, a la provisión de un techo y abrigo para proteger a las personas y hogares de climas extremos. Precisamente por esta razón surge el concepto de estrategias dirigidas a crear procesos de recuperación temprana (early recovery) como forma de asegurar a todos los decisores de procesos dirigidos a lograr el restablecimiento de comunidades traumatizadas por el desastre, quienes no solo necesitan superar la crisis, volviendo a ser autónomos de toda forma de ayuda, sino también capitalizar el aprendizaje individual y colectivo de la experiencia aplicado en el mejoramiento de sus estrategias de desarrollo comunitario. Pero como revelan los casos presentados a continuación, la realidad dista bastante del ideal de la recuperación temprana y muchas veces las poblaciones desplazadas terminan permaneciendo largos períodos de tiempo en una situación de dependencia. Esta situación lleva a considerar que en verdad el desplazamiento forzado, deben entenderse como obras que permanecerán en el tiempo a partir del carácter efímero con el que fueran proyectadas.

La tabla I presenta un resumen de cada una de las experiencias señalando datos claves como país y contexto de desastre con sus respectivos años, el marco de proyecto formulado y la teoría de cambio detras del mismo, la estrategia proyectual adoptada, y los resultados alcanzados en término de proporcionalidad entre las

País Desastre. Años Marco. Proyecto Estrategia proyectual

PALESTINA

Desplazamiento masivo de población. 1948 al presente. Recurrentes crisis de bombardeos, bloqueos e intervenciones militares. Alto nivel de pobreza y aislamiento

Genocidio. Violencia política entre tribus. 1994. Recuperación socio-económica Plan de pacificación. Migraciones masivas y retornados de la diaspora. 2010 en adelante

Genocidio. Deforestación y desertificación. Desplazamiento masivo de población rural a centros urbanos. 2003 en adelante

SUR SUDAN

MOZAMBIQUE

HAITI

Guerra civil prolongada. Retornados y refugiados 1983/2011 2013 al presente

Varios ciclones y destrucción masiva de ciudades costeras 1977/2018

Terremotos recurrentes, crecimiento de la pobreza y violencia política. 2010/2022

Creación frustrada del estado palestino. Crisis de los refugiados. UNRWA y Plan de manejo de campos de refugiados devenidos en barrios

Proyecto de vivienda en 1997 de viviendas diseñado para la coexistencia multi-etnica. Segundo proyecto en 2015 en respuesta a inclusión de asentamientos

Reemplazo ladrillos cocidos por tecnología de bloques de suelo cemento realizado con prensas manuales.

Campaña de apoyo a retornados y atención a refugiados. Planes de expansión urbana

Reconstrucción masiva de ciudades utilizando materiales locales introduciendo procesos incipientes de industrialización

Reconstrucción de 12,000 viviendas e infraestructura urbana para hogares en campos de refugiados cuyas viviendas fueron demolidas. Proyecto de barrios nuevos de expansión urbana reproduciendo vínculos sociales de los campos de refugiados optimizando suelos a partir de tipologías en tres niveles.

Elección de terreno en área céntrica de la capital y prototipo de vivienda progresiva para desplazados. Integración de asentamientos informales proyectados a partir de infraestructuras urbanas básicas

Construcción de 700 edificios pilotos demonstrativos de bloques de suelo-cemento. Creación de barrios.

Construcción de 15000 unidades de vivienda y lotes auto-construidos con suelo estabilizado de cemento y adobe,

Introducción de nuevas técnicas de construcción en función de su capacidad de resistir ciclones y desastres. Desarrollo de industrias locales de producción de materiales

Resultados

Construcción del proyecto en 10 años y en forma progresiva. Construcción de comunidad auto-sostenida con mejoras de indicadores sociales sobre los fundamentos habitacionales. Manejo integrado de servicios urbanos e inclusión socio-urbana.

Tipología de vivienda asequible de emergencia. Establecimiento regla de re-urbanización de la informalidad basado en acuerdos entre propietarios e inquilinos sobre la base de mejoramiento físico progresivo y desarrollo micro-empresarial

Creación de programas de expansión de las principales ciudades de Darfur a partir de programas de lotes con servicios y prensas manuales de bloques estabilizados de suelo-cemento.

Creación Ministerio de Hábitat con mandato de utilizar la industria de la construcción como medio de desmovilización de ex-combatientes, generación de empleo, creación de regiones

Enormes dificultades en cambio de paradigma proyectual por predominancia de modelos de negocios post-coloniales basados en el prestigio de clases. Desprecio de técnicas vernáculas por prejuicios raciales y falso modernismo.

Replanificación territorial a partir del riesgo.

Plan de reconstrucción basado en la reutilización de materiales y disponibilidad de recursos locales.

Materialización de proyectos en zonas rurales. Dificultades en reconstrucción urbana a causa de la multiplicidad de crisis de gobernabilidad, social, económica y recurrencia de desastres.

EL SALVADOR

Terremoto. Creciente situación de pobreza de la población e inseguridad. 2001

Guerrillas e inseguridad interna con desplazamientos 1995/2016

Sequías extremas y desplazamientos poblacionales 2016

Necesidad de reconstruir rápida y efectivamente las escuelas para mitigar el riesgo de crisis humanitarias

Políticas habitacionales no sensibles a la compleja realidad de los desplazados.

Fuertes procesos de desplazamientos internos de población campesina hacia grandes centros poblados

Desarrollo de prototipo de construcción de escuelas amigas de los niños (UNICEF). Estructuras antisísmicas utilizando fabricas sociales

Proyectos de vivienda y espacios públicos concebidos dentro de una política de expansión urbana

Cochabamba Proyectos de mejoramiento de barrios centrados en la regularización

ARGENTINA

Inundaciones 2014. (Santa Fe). Proliferación de barrios populares (asentamientos informales). Programa de Inclusión Socio-Urbana (PISU, 2019)

Inundaciones recurrentes en Santa Fe y proliferación de asentamientos informales en todo el país aislados de la dinámica de progreso de las ciudades.

Programa de atención y prevención del desastre en Santa Fe. Relocalización a Recreo. Programa Nacional de Inclusión Socio-Urbana, aplicado a todos los asentamientos informales del país

Reconstrucción masiva de escuelas a partir de planificación nacional. Resolución de conflictos asociados a la tenencia del suelo y lecciones de resiliencia incorporadas en el diseño y construcción de escuelas.

Organización comunitaria incorporando la noción de resiliencia

Ampliación de viviendas y empleo de tecnología adecuada para la provisión de servicios sanitarios dentro de un modelo cooperativo.

Relocalización voluntaria de familias afectadas a la localidad de Recreo con viviendas semipermanentes e infraestructura sanitaria. Infraestructura para prevenir el problema de las inundaciones.

Programa de Inclusión socio-urbana define estrategia nacional de intervención.

COLOMBIA
BOLIVIA

obras realizadas, su aporte a superar la crisis cuando fueran construidas y su legado a mediano y largo plazo en término de mejorar estándares y modalidades de respuesta a nuevas crisis.

El caso de Palestina es ciertamente la escuela de la resiliencia, no solo por la alta representatividad del tema en las noticias e interés internacional, sino también por contar con la edad misma de las Naciones Unidas, más de 75 años; sin resolverse. Es un caso frustrante en el que todos los esfuerzos desplegados, diplomáticos y proyectuales, si bien han logrado algunas batallas valiosas de dignificación, no han logrado evitar derrotas estructurales como la negativa a la creación de un estado, ni la materialización de un muro de separación, sometiendo al aislamiento más abyecto a una población vulnerable por tiempos indefinidos, así como los bombardeos recurrentes con su consecuente nivel de destrucción física y de dignidad humana.

De ahí el valor del proyecto de construir barrios de refugiados cuyas viviendas fueron demolidas, planteando una apuesta a la esperanza de representar a partir de ello el deseo insatisfecho de contar con un estado propio, encargado de velar por la seguridad y prosperidad de sus ciudadanos. La imagen 1 muestra justamente una escena de uno de estos barrios proyectados a partir de una pauta de viviendas progresivas diseñadas como un sistema que relaciona tipologías arquitectónicas con vínculos familiares y vecinales, de modo que cada triplex es compartido por miembros de una misma familia o vecinos. El sistema permite establecer

reglas de protección a grupos más vulnerables, como reservar las plantas bajas para familias con discapacitados o personas de la tercera edad, las esquinas para locales comerciales de aquellos con emprendimientos comerciales sociales. También el diseño de fachadas y escaleras ciegas y colocación de ventanas nunca enfrentándose entre sí, responden a la pauta islámica de preservación de la intimidad. La utilización de losas de hormigón armado recuperado de demoliciones locales, en un territorio aislado como la franja de Gaza, permite la construcción de plantas adicionales en función

del crecimiento de la familia en el tiempo, replicando la práctica corriente de crecer en vertical de los campos de refugiados3.

El genocidio de Ruanda, el cual desplazó alrededor de siete millones de personas, indujo el desarrollo de un primer ejemplo de proyecto surgido en la emergencia, concebido como respuesta rápida de vivienda transicional proveyendo fundaciones de piedra donde los

3 Para mayor información sobre este proyecto consultar el paper Refugee city. Between Global human rights and community self regulations. Disponible en https://src. lafargeholcim-foundation.org/dnl/5ddb0f81-7c56-44adbcf2-6dedb1e9f2ad/F07-WK-Temp-murillo02.pdf

beneficiarios podían erigir sus estructuras edilicias en un complejo en el que convivían hogares pertenecientes a los etnias rivales, como se ilustra en la imagen 2.

El proyecto tuvo un foco en la reconciliación y cohesión social promovido desde la localización de los terrenos, hasta el diseño del trazado de lotes y decisiones de técnicas y materiales constructivos delineados como de emergencia4. Afortunadamente el país logro superar sus diferencias y la estabilidad socioeconómica redundó en prosperidad que paradójicamente impulsó un proceso de expansión urbana que, trajo consigo la proliferación de asentamientos informales. Los gobiernos locales abordaron el tema de la integración de estos barrios a partir de una estrategia sistemática de provisión de servicios urbanos básicos, especialmente agua, saneamiento, energía y transporte, adaptados a su inserción geográfica, en las laderas de las montañas, en las proximidades de las principales arterias y en las zonas bajas, donde los riesgos de contaminación de las napas freáticas son mayores. Estos proyectos priorizan la emergencia habitacional generando soluciones adaptativas en el marco de un plan maestro de desarrollo urbano. Sudan y el genocidio en Darfur llevó al desplazamiento de más de dos millones de personas. El disparador de la crisis fue el proceso de desertificación y desforestación que vive la región con enormes impactos en pobla-

4 Para mayor información consultar el paper Refugee dwelling Project in Kigali (Rwanda): Utopía of reintegration? Disponible en https://www.academia. edu/5787245/Refugee_Dwelling_Project_in_Kigali_ Rwanda_Utopia_of_Reintegration

Imagen 2

ciones campesinas impelidas a migrar por la falta de agua alojándose en precarios asentamientos erigidos con ladrillos de barro cocido. El proyecto planteo el reemplazo del ladrillo cocido por bloques estabilizados de suelo cemento a través de prensas manuales para construir edificios demostrativos de uso público, como escuelas, centros de salud y oficinas administrativas sirvieron al propósito de arraigar población en lugares estratégicos5. Una vez testeada la técnica constructiva utilizada en forma masiva en la autoconstrucción de viviendas en lotes con servicios subsidiando el cemento dieron lugar a circulos virtuosos de vivienda, empleo y territorios. Estos nuevos asentamientos fueron proyectados a partir de una lógica de emprendimiento comunitario de producción e industrialización edilicio, generando el diseño y los materiales para su construcción, como puede apreciarse en la imagen 3, así como resolución del sistema de distribución de agua corriente y saneamiento, forestación y tratamiento de envolventes para reducir el consumo energético y provisión de paneles solares. El método de producción de tres bloques, donando uno para la construcción de los edificios públicos comunales, uno para la construcción de la vivienda de cada hogar y uno para comercializar en el mercado local y generar ingresos resulto una regla social clave para lograr la cohesión necesaria.

5 Para conocer mayores detalles de este proyecto llevado delante de la ONU Habitat, consultar el paper disponible en Darfur Early Recovery. Stabilized soil blocks for sustainable urban growth https://www.academia. edu/es/5665878/Darfur_Early_Recovery_Stabilized_ soil_blocks_for_sustainable_urban_growth

El caso de la joven república de Sudan del Sur, es igualmente ilustrativo del diseño de proyectos ambiciosos de alojamiento de población retornada al país posteriormente a la declaración de su independencia en el año 2011. La creación de un ministerio de hábitat e infraestructuras con fuerte apoyo de donantes internacionales trabajó una estrategia de reconstrucción multiescalar en la que se proyectaron infraestructuras viales con un enfoque de soluciones basadas en la naturaleza, como redes viales utilizando técnicas de chinampas en zonas inundables, puentes flotantes y creación de asentamientos humanos nuevos en zonas estratégicas. Un programa de lotes con servicios en las diez ciudades capitales de los nuevos estados constituyó el programa vertebral para lograr el repoblamiento de regiones abandonadas por más de veinte años de guerra civil. La

Imagen 3

adopción de técnicas constructivas diversas, abarcando desde los bloques estabilizados de suelo-cemento al adobe, en las regiones con suelos y climas aptos, así como tipologías de vivienda de paja trenzada y utilización de maderas de arbustos, posibilitó desarrollar un catalogo de soluciones constructivas adaptadas a la diversidad cultural y geográfica6. La imagen 4 ilustra el aspecto de estos asentamientos utilizando una mixtura de técnicas constructivas y diseños dirigidos a satisfacer pautas culturales muy diversas con programas edilicios flexibles y adaptativos. En paralelo, se aplicaron diseños de refugios transicionales en campos de refugiados erigidos originalmente en carpas permitió demostrar la viabilidad de transformación de estos asentamientos altamente dependientes de la ayuda humanitaria en puestos autosuficientes.

El caso de Mozambique7 es emblemático de país en el que se superponen los desastres naturales como

6 Este proyecto fue financiado originalmente por recursos de UNHCR, cuya publicación se encuentra disponible en https://www.academia.edu/7817565/ Shelter_strategy_in_South_Sudan

7 Para más información de estos proyectos de ONU Habitat consultar la publicación “focuss on Mozambique” disponible en https://mirror.unhabitat. org/pmss/listItemDetails.aspx?publicationID=3382

ciclones con el flagelo de la guerra civil prolongada. Sin embargo, los proyectos habitacionales y urbanos en el país han permitido la introducción de técnicas constructivas adaptativas a los fenómenos de ciclones desarrollando prototipos que utilizan materiales no tradicionales, como madera industrializada del cocotero y diseños aerodinámicos que permite que los edificios tengan pandeo ante emergencias, pero no colapsen o se vuelen los techos como ocurre habitualmente.

La imagen 5 presenta una típica imagen de un barrio de desplazados que utiliza esta técnica de diseño y construcción posibilitando la urbanización de zonas históricamente pobres por su recurrente amenaza de destrucción repentina. La creación como en los otros casos de fábricas sociales funcionando con reglas comunitarias demuestra la viabilidad de proyectos de reconstrucción que a partir de la mirada de la resiliencia logra reproducir igualmente estructura de estados que velan por el cumplimiento de las normas, así como de mercados, que permiten el intercambio ordenado de bienes y servicios entre la gente y de esa manera proveer la estabilidad necesaria para sobrevivir el desastre y prosperar.

Haiti es famosa por sus recurrentes y múltiples crisis. Las mas recientes han estado relacionadas a terremotos y han desplegado un importante esfuerzo humanitario en reconstruir mejor, desarrollando barrios destruidos con materiales importados ante la ausencia de recursos de un país que bate récords internacionales de deforestación y pobreza. A pesar de ello, la comunidad organizada aliada con algunas

Imagen 4
Imagen 5

entidades gubernamentales han logrado establecer planes y proyectos que procurando la adaptación a los cambios y shocks permanentes a los que la población se ve sometida recurrentemente permitan un esquema de manejo del riesgo que posibilite la materialización de soluciones durables.

La creación de prototipos antisísmicos con materiales locales, ilustrado en las imágenes 6, es un claro ejemplo de ello. La crítica acumulada señala la inconveniencia de la ayuda humanitaria desarrollada por organizaciones no gubernamentales internacionales con poca visión de construcción de capacidad local, generando ciclos viciosos de dependencia de recursos externos. Algo similar ocurre en El Salvador, donde el terremoto de 2001 atrajo organismos internacionales y particularmente la UNICEF dispuso la construcción de escuelas amiga de los niños utilizando estructuras antisísmicas a partir de la utilización de materiales vernáculos que permiten diseños flexibles de aulas donde estudiantes son tratados con técnicas lúdicas en sus traumas relacionadas con la experiencia de sobrevivir el terremoto, presentado en la imagen 7.

Colombia, al igual que los otros países presentados, ha experimentado décadas de violencia interna que han contribuido a la generación de asentamientos informales en sus principales ciudades en las que conviven poblaciones desplazadas, tanto victimas como victima-

rios. La política pública respondiendo a la emergencia provee unidades habitacionales mínimas en complejos habitacionales que han incrementado las tensiones entre grupos desplazados. Un caso paradigmático es el de Soacha, próxima a la capital, Bogotá, donde una alcaldía rural resulto urbanizada en forma rápida a partir de

población desplazada de otras zonas del país. Impactos ambientales negativos asociados a la urbanización de humedales sumado a la tensión social creada por la respuesta habitacional inapropiada dieron lugar a que el planteamiento de una metodología participativa de planificación territorial introducida por una organización civil diera lugar a un proceso pacífico de cambio de políticas. Se reemplazo la solución tradicional de complejos habitacionales por la generación de soluciones habitacionales concertadas a partir de talleres participativos8 para definir prioridades y acordar acciones

8 Utilizando la metodología de la Brújula cuyos fundamentos pueden conocerse a través de los siguientes videos y publicaciones. https://www.youtube.com/watch?time_

colectivas que empezando por la recuperación de los espacios públicos respetando y asociando las condiciones naturales de los terrenos, y a partir del espacio común, proyectar la unidad habitacional recuperando las tipologías rurales de los lugares de origen de la población, aporta claves de recuperación de la crisis humanitaria a partir de reivindicar la identidad comunitaria como factor de cumplimiento progresivo de derechos. La imagen 8 refleja un espacio público producido a partir de la movilización comunitaria confrontando la lógica de proyectos habitacionales masivos proponiendo una alternativa basada en la autoconstrucción utilizando materiales locales y un sistema de tenencia segura de suelo progresiva.

Bolivia también enfrenta un proceso avanzado de sequía y desertificación que ha impulsado importantes contingentes de campesinos a migrar a las principales ciudades del país y metrópolis de los países vecinos. En Cochabamba, la organización Procasha viene desarrollando prototipos de vivienda de emergencia proyectadas con una lógica sistémica de progreso social a partir de aplicar el modelo cooperativo de desarrollo urbano, adaptado de la rica y prolongada experiencia del Uruguay. El proyecto contiene la resolución del diseño de las viviendas realizadas por autoconstrucción, la gestión de la tenencia de suelos, resultado en loteos piratas especulativos aprovechando la necesidad de

continue=30&v=MjlcTWVxP8U&feature=emb_title; https://www.academia.edu/es/5566377/La_Brujula_de_ la_Planificacion_Urbana_Habitacional

Imagen 8

poblaciones vulnerables desplazadas y la distribución de redes potables en barrios que utilizan distribución de aguateros a tracción animal. La imagen 9 presenta uno de estos barrios en los que se esta produciendo un proceso de empoderamiento comunitario a partir de la facilitación de servicios logrado a partir de la propiedad colectiva del suelo y el manejo de los recursos.

La Argentina ha sufrido múltiples desastres naturales también. Entre ellos es destacable en el año 2004 la inundación de la ciudad de Santa Fe, la cual llevó al dilema de reasentar a sus habitantes en localidades próximas, como el caso de Recreo, o generar la infraestructura que permita la canalización del excedente hídrico. Afortunadamente se logró ambas cosas. La escuela de la resiliencia dejo su impronta también en este caso al introducir soluciones de diseño y construcción de hábitat utilizando recursos fundacionales como plateas de hormigón elevadas que sirven de soporte de estructuras proyectadas en forma modular y preparadas para reconvertirse en infraestructuras preparadas para migrar a pisos superiores en casos de desastre. De alguna manera, las distintas soluciones de vivienda de emergencia, como la casa de Techo, son emergentes de esta escuela de proyectos, en las que se piensa la solución habitacional a partir de una lógica de respuesta al desastre, pero conteniendo la semilla de soluciones a mediano y largo plazo. El Programa de Inclusión Socio-Urbano creado complementariamente a la ley 27453 del año 2019, abre una oportunidad inédita en el país para aplicar conceptos validados en crisis huma-

nitarias utilizando soluciones basadas en la naturaleza para resolver infraestructuras urbanas muy complejas, apertura de calles y los medios más eficientes y eficaces de integración a la ciudad. La imagen 10 ilustra sobre la metodología aplicada para encarar intervenciones en barrios del municipio de Luján en los que se busca la integración y mejoramiento de áreas marginales a partir de las vialidades y la recuperación del espacio público que posibilita la inserción social y laboral de los vecinos a las redes de servicios y oportunidades proporcionadas por el resto del aglomerado urbano.

Imagen

A modo de colofón: De la vivienda de emergencia al urbanismo resiliente

Las experiencias comentadas interpelan a perfeccionar modelos capaces de adaptarse al cambio con técnicas y materiales permanentes, soluciones basadas en la naturaleza y nuevas formas de organización comunitaria. La presencia del subsidio via cooperación internacional o políticas nacionales pro-pobres juegan un papel fundamental en el desarrollo de esquemas urbano-habitacionales que no dejen a nadie atrás. Pero en la definición de los grupos asistidos el paradigma de la resiliencia lleva una ventaja conceptual importante respecto a los de desarrollo tradicional. La población asistida es claramente definida y cuantificada por el desastre, lo cual facilita enormemente la respuesta efectiva de atención sobre un criterio de compensación por daños al que se suma el aporte de reconstruir mejor. También puede reconocerse como otra ventaja sig-

nificativa el carácter perentorio de la respuesta, lo cual permite encontrar atajos administrativos y normativos por su carácter urgente. De esta manera, los proyectos indagados presentan caminos similares de transición entre prototipos de viviendas e infraestructuras de emergencia proyectados para su mutación progresiva a nuevas formas de urbanismo resiliente, capaz de albergar números masivos de desplazados a partir de un fundamento de fortalecimiento comunitario que permite reproducir reglas y mecanismos de coexistencia, autoconstrucción y gestión integrada de riesgos socioambientales.

Quizá inadvertidamente, la experiencia de la vivienda e infraestructura de emergencia en los barrios populares de América Latina, impulsada por colectivos de vecinos y de organizaciones comunitarias, al surgir programas que procuran su integración socio-urbana con acciones de provisión de infraestructura física y social sistémica, provee la oportunidad inédita para resolver de una vez por todas los dilemas en torno a los modelos de urbanización resiliente.

Cuando tales proyectos se materializan a partir del esfuerzo por transformar los barrios populares con la misma lógica, los mismos diseños, materiales y hasta estética de la ciudad formal, procurando sutilmente hacer que el barrio pierda su naturaleza marginal, espacio único que dio acogida a los ciudadanos que cayeron fuera del sistema, procurando soluciones individuales en lugar de colectivas, vuelve a repetir esquemas propios del urbanismo tradicional. Pero en aquellos casos en que los proyectos de integración surgen a partir de

un diagnóstico y una propuesta consensuada con los vecinos, reconocibles por los signos indelebles del desarrollo de mecanismos de asignación justas y reglas de cooperación, dependiendo de la comunidad inclusive trabajando conceptos de cooperativas solidarias que comparten el derecho de propiedad, aporta signos de incipientes formas de nuevo urbanismo. Las diferencias pueden parecer sutiles en las formas de proyectar uno y otro tipo de proyectos, pero las diferencias en sus resultados son abismales. Los modelos tradicionales, aún cuando puedan ser celebrados por sus buenas resoluciones tecnológicas y representaciones gráficas, tienden a reproducir los mismos problemas que se suponían venían a resolver. Pero los modelos resilientes, quizá con menos pompa y más inadvertidamente introducen una lógica de cohesión social que cuando funciona constituye una poderosa herramienta de progreso que dinamiza nuevas formas de proyectación de edificios y espacios públicos. Ciertamente es un desafío muy difícil y complejo el estimular cambios de mentalidad pasando del salvese quien pueda a adoptar un enfoque de manejo de riesgo basado en la solidaridad y la cooperación. Ello implica compartir infraestructuras básicas para la supervivencia, como el suelo, los recursos hídricos y alimentarios y la energía. La hipótesis es que en la medida en que estos esquemas se consolidan en los territorios generando seguridad florecen además engendrando esquemas de prosperidad compartida, paradigma fundamental para avanzar en forma progresiva en la agenda de los derechos humanos.

Bibliografía

IADB, 2020. Inmigrando: Fortalecer las ciudades de destino. Tomo I. Disponible en https://publications. iadb.org/es/inmigrando-fortalecer-ciudades-destino-tomo-1

IADB, 2020. Inmigrando: Construir ciudades plurales. Tomo II. Disponible en https://publications.iadb. org/es/inmigrando-construir-ciudades-plurales-tomo-2

Murillo, Fernando, 2007. Refugee city. Between global human rights and community self regulations. Holcim forum. Shangai. Disponible en https:// src.lafargeholcim-foundation.org/dnl/5ddb0f817c56-44ad-bcf2-6dedb1e9f2ad/F07-WK-Tempmurillo02.pdf

Murillo, Fernando, 2005. Refugee dwelling Project in Kigali (Rwanda): Utopía of reintegration?. At “At War with the cities”. International Press. Disponible en https://www.academia.edu/5787245/Refugee_Dwelling_Project_in_Kigali_Rwanda_Utopia_of_Reintegration

Murillo, Fernando, Sandra Diaz y Gabriel Artese, 2012. La Brújula de la Planificación Urbana-Habitacional. Editorial cuenta hilos. Disponible en https:// www.academia.edu/es/5566377/La_Brujula_de_ la_Planificacion_Urbana_Habitacional

Organización mundial de la salud, 2013. Volver a construir mejor. Atención de salud mental sostenible después de una emergencia. Paris. Paris. Disponible en https://apps.who.int/iris/ handle/10665/85619#:~:text=Volver%20a%20construir%20mejor%3A%20 atenci%C3%B3n%20de%20 salud%20mental,informaci%C3%B3n%20general.%20Organizaci%C3%B3n%20Mundial%20 de%20la%20Salud.%20 https%3A%2F%2Fapps. who.int%2Firis%2Fhandle%2F10665%2F85619

UN Habitat, 2012. Focus on Mozambique. A decade of experimenting disaster risk reduction. Nairobi Press. UNON. Disponible en https://mirror.unhabitat. org/pmss/listItemDetails. aspx?publicationID=3382

Salamone. Desplazamientos y tropismos de la modernidad local

Luis del Valle*

* Arquitecto FADU UBA donde ejerce como Profesor Titular de Historia. Cementerio de Azul

Las obras de Francisco Salamone en la provincia de Buenos Aires realizadas por encargo la gobernación de Fresco fueron parte del programa de modernización sin reformas estructurales puesto en marcha por el gobierno conservador.

Pero más allá de eso, y junto a las articulaciones entre política y arquitectura, las intervenciones de Salamone se dirigie-

ron no sólo a la construcción de obras que podrían ser pensadas como obras en el paisaje sino principalmente a la construcción de un paisaje

Un paisaje que debía construirse como una red extensa sobre el territorio de la provincia y como expresión del proceso de modernización y de presencia estatal que se suponía para la época.

Este plan requirió de un conjunto de diversos programas que funcionaban como representación de la necesidad de una presencia de lo institucional y de las demandas de lo público. Salamone proyectó y ejecutó así una gran cantidad de obras destinadas a municipalidades, mercados, cementerios, escuelas, plazas, equipamiento urbano y mataderos que se diseminaron por toda una cantidad de pueblos y ciudades del interior de la provincia con diferentes escalas y tipos de intervención: en Alem, Azul, Balcarce, Cacharí, Carhué, Cnel. Pringles, González Chaves, Chillar, Guaminí, Laprida, Pellegrini, Saldungaray, Salliqueló, Tres Lomas o Vedia, entre otros.

En muchos de estos programas, como en el caso de las municipalidades, las escuelas o los cementerios, el peso de la tradición representaba una presencia difícil de eludir, aportando soluciones o tipologías ya comprobados a lo largo del tiempo. Precisamente se adoptó un conjunto de resoluciones formales o tipológicas que no presentaban ninguna revisión ni reformulación en los usos o las funciones, no proponían ninguna relación con nuevas formas del habitar o con una reelaboración de las maneras de pensar el espacio público o de los

impactos que una revisión de los modos de apropiación de lo público podrían tener en una definición de lo tipológico, lo configurativo o lo programático.

En este sentido los programas no tuvieron ninguna intención ni propuesta transformadora, limitándose a cumplir los cánones del trabajo, la enseñanza o la recreación, más allá de la búsqueda de un lenguaje. De este modo, y si hiciéramos una traslación de las relaciones entre ideología y arquitectura al campo específicamente disciplinar, podría decirse que las convenciones del programa fueron puestas a salvo –en virtud de las capacidades transformadoras o revolucionarias que el mismo posee– y que la revisión estuvo puesta en la forma y en el lenguaje, algo que podría llevarnos a otro debate1. En este caso particular, las transformaciones a nivel de la concepción del programa y sus capacida-

1 Los debates acerca de las capacidades críticas o transformadoras de la forma y del programa han atravesado todo el arco de la Modernidad. En tales circunstancias pueden encontrarse los momentos tanto en donde la forma sólo ha dado lugar a un formalismo indiferente o sustitutivo como a aquellos en donde la misma ha cumplido una clara función crítica o desestabilizadora o se ha propuesto como una forma de conocimiento. Del mismo modo el programa ha fungido como elemento de una crítica social o cultural. La crítica operativa ha ido demostrando sus posibilidades y limitaciones y los cambios en los modos de abordaje y análisis también han ido construyendo nuevas miradas.

Portada del Cementerio de Azul

des contestatarias o diluyentes de los modos canónicos de lo social hubieran requerido de un sustrato ideológico del cual Salamone carecía, aunque no pueda decirse que se tratara de una operación de simple cosmética.

En el caso de los mataderos, este programa no tenía antecedentes en su concepción y se arrastraban las soluciones dadas por la costumbre en el tema, lo cual permitió inventar concepciones y resoluciones con un cierto grado de libertad. Esto se vio reflejado en los aportes no sólo formales sino también en cuanto a la organización de las tareas y en la configuración de un objeto que por su ubicación debía plantear cierta relación con su contexto físico.

El programa en sí incorporó normas de salubridad al proceso de faenamiento, con mejoras en el control veterinario, en el aseo de las instalaciones y en el tratamiento de los efluentes. Esta modernización se hallaba vinculada al imaginario higienista, en este caso aplicado a las actividades industriales o laborales y que se remontaba al rol del estado en la tradición de la modernidad iluminista en la creación y las características de nuevos programas de carácter social y público: el hospital, la cárcel o la fábrica. La incorporación de tales mejoras en

el proceso productivo era parte de la creación de una industria rural y del desarrollo y potenciación de los modos productivos de la época, pero por otra parte no dejó de poseer un carácter de fantasmagoría, al menos en las visiones del marxismo y de su relectura por parte de Benjamin. Tal estado fantasmagórico proponía una mejora de las condiciones laborales, de higiene y salubridad productivas, pero en definitiva no modificaba las relaciones sociales del trabajo ni las características de la explotación rural, manteniendo y consolidando la organización productiva y la noción de propiedad de acuerdo a la estructura jerárquica tradicional, a pesar de las declaraciones políticas de ocasión: Queremos que la repartición de la riqueza sea una realidad tangible en la provincia de Buenos Aires y, sin insinuar siquiera la posibilidad de despojo, entendemos que los que tienen demasiado, deben pensar en la conveniencia de ceder un poco; al servicio de esta idea pondrá el gobierno todo su poder político para los que no tienen nada, tangan algo también. 2

2 Citado por Longoni, Quinteros, Molteni, Álvarez y Bevilacqua en La Modernidad en la Pampa Bonaerense. Los edificios para mataderos municipales de Francisco Salamone Anales del IAA Nº 33-34 FADU-UBA, 1998-1999, Cita Nº 7, pág. 185.

Cementerio de Saldungaray

La definición de la forma y del lenguaje en estas obras de Salamone va a seguir los principios de la tradición compositiva, basada en la jerarquía, el equilibrio, la frontalidad, la simetría, la axialidad y la centralidad. En el caso de los mataderos, Salamone propuso una tipología –no así un modelo– con la que daba respuesta a dos cuestiones opuestas pero complementarias. Por un lado cada resolución tipológica se acomodaba al problema funcional –el acceso del ganado, el sacrificio, el desposte, el despacho y los locales de servicio y administración– con lo cual podría decirse a simple vista que esas formas respondían al destino o los usos requeridos. Pero por otro la conformación tipológica y la estructura compositiva constituían claramente un procedimiento de combinación formal. Basado en tales criterios compositivos Salamone compone unidades formales y elementos que se proponen eminentemente como una cuestión de forma, independiente del programa o de su destino, ya que ese repertorio obedece a un concepto de forma que sirve para cualquier aplicación. En este caso la forma no obedece a ningún uso sino que es un concepto a priori basado en un conjunto de categorías y procedimientos determinados. Este trabajo con la tipología reconoce el ascendente de la tradición iluminista de fines el siglo XVIII, desde la mecánica combinatoria de Durand, en un

extremo, hasta las invenciones y el llegar a la propia disolución del término tipología por parte de Piranesi, en el otro. Aquí Salamone, mucho menos erudito, se ubica en un punto intermedio. No cristaliza el problema de la combinación compositiva como Durand, que lo lleva a un mecano de partes totalmente neutro y vacío de significados, ajeno a todo programa o materialidad. Tampoco desestabiliza el criterio, como hiciera Piranesi, al provocar su puesta en crisis mediante su total exacerbación y saturación. Salamone deja a salvo las convenciones de la disciplina en términos de la forma en un juego equilibrado, casi correcto, entre el canon y la innovación, trasladando un mecanismo formal a un nuevo programa e introduciendo la contaminación.

Por otra parte su manipulación tipológica da lugar a una casuística, a una serie de unidades formales basadas en un conjunto de elementos y reglas combinatorias limitadas pero en donde cada uno es irrepetible; una serie basada en la salvaguarda del principio y en la manipulación de la diferencia.

Este trabajo plantea una tensión entre dos polos bien definidos. En un extremo se ubica la altísima singularidad expresiva de muchas de las obras de Salamone, una exaltación de los rasgos y de las cualidades formales más propia de la obra singular, única, y que por lo tanto mantiene su carácter aurático respecto

de la individualidad del autor –en tanto sujeto identificable– y de los modos de producción unitarios y de recepción. Pero en su otro extremo, estos objetos singulares, únicos, fueron pensados para ser repetidos, o al menos con la intención de que en su carácter de tipos repitieran soluciones con una vocación de universalidad.

Entre relación entre singularidad y repetición ya era una problemática que atravesaba a toda la cultura moderna y a sus expresiones artísticas, con obras que preservaban su condición singular y única en tanto objeto creado de acuerdo a un modo de producción aurático pero que a su vez incorporaban el uso de materiales o procedimientos formales tomados de los medios industriales de repetición o de los medios de comunicación.

Una problemática moderna que puede constatarse desde Picasso a Le Corbusier en sus expresiones menos radicalizadas hasta Moholy-Nagy y su procedimiento de dictar la ejecución de una obra por teléfono. De todos modos resulta notable como esta relación entre singularidad o exaltación expresiva y repetición que en otras disciplinas se conceptualizaba más profunda o mediadamente –como en el cine o en las artes plásticas– en el caso de la arquitectura se problematizaba en forma reduccionista y aún se banalizaba. Lo que no sucedía necesariamente en otras disciplinas, en la arquitectura singularidad

Matadero de Azul

y repetición se convertían en términos no sólo opuestos, sino irreconciliables, sobrealimentado a la vez por una historiografía tendenciosa.

Tal vez esto se debiése a tres causas diferentes pero asociables: al supuesto y unidimensional carácter pragmático de la arquitectura – y su concepción de que toda exaltación expresiva, exuberancia o saturación llevaban a un derroche de costos, en una unilateralidad arbitraria entre economía y economía expresiva –, a la componente sachlicht que había consagrado la alianza entre abstracción, objetividad y modernidad, o a la concepción evolutiva de la cultura que asociaba evolución formal, eficacia y reducción expresiva; en definitiva, todo lo antedicho no fue sino una de las vertientes de lo moderno apoyada por el grueso de la historiografía más convencional de la arquitectura, aunque otros recorridos nos permitan evidentemente otras interpretaciones.

En el caso de Salamone estas articulaciones entre singularidad y repetición se hallaban dadas por la herencia academicista, por los referentes culturales y por ese filón de lo moderno que no renegaba de una acentuación de la cualidad expresiva. Su formación academicista en la Universidad de Córdoba, las influencias de las relaciones entre tradición y modernidad del Art Decó o la herencia de la tradición monumentalista italiana se encontraban atravesadas

de una búsqueda singular sobre las capacidades expresivas de la forma y del lenguaje, procediendo a cruzas, yuxtaposiciones o superposiciones dadas por una poética personal y por las relaciones entre tradición e innovación en el tejido social, productivo y cultural del momento y sus formas de representación y legitimación ya mencionadas.

Las categorías o procedimientos de la composición tradicional y su singularidad expresiva preservaban al objeto de su reproducción como mercancía, lo mismo que la idea de erigir monumentos que celebraran el ciclo modernizador. Acá la singularidad del monumento y su origen cultual actuaban junto a un momento cualificado de la forma como medio de escape al proceso de cosificación. Aún bajo la forma de producción, circulación y consumo capitalista, el momento de la forma podía, y puede, funcionar como un factor emancipador en su dimensión negativa o al menos de denuncia en su acepción afirmativa.

Y en el caso de Salamone estas articulaciones entre singularidad y repetición no pueden ser separadas de la tensión existente entre el dinamismo, la ascensión y una visión de futuro por un lado y las componentes tradicionales de jerarquía, símbolo, alegoría o centralidad por el otro; casi a la manera de un retro-futurismo.

Matadero de Carhue

Por lo hasta aquí señalado no coincidimos con el juicio de valor de Longoni3 quien califica a las composiciones de Salamone como una rémora académica que debilitaría su modernidad ni su reductiva visión de lo moderno en cuanto esa modernidad en Salamone se remitiría a que las formas responden a la función. Esto significa desconocer las ya trilladas relaciones entre tradición y modernidad y la presencia de principios compositivos en figuras insignes de lo moderno como Le Corbusier, Mies, Mendelsohn o Loos.

Otros autores se han referido a desarticulación de elementos4 o de lo que mejor dicho podría llamarse una descomposición de la forma en sus elementos o partes constitutivas: planos, volúmenes y líneas. Pero esta operación no alcanza a una descomposición real de la forma convencional; la forma es puesta a salvo como entidad reconocible en tanto totalidad o unidad cerrada. De ahí que las operaciones formales de Salamone no puedan reconocerse como una configuración –en los términos en que plantearon sus investigaciones sobre descomposición de la forma el Neoplasticismo o el Constructivismo,

3 Longoni, Quinteros, Molteni, Álvarez y Bevilacqua. Obra citada

4 Liernur, Jorge F. Salamone, Francisco. Voz del Diccionario de Arquitectura en la Argentina Vol. S-Z, Clarín - Bs. As - 2004.

Rietveld, Melnikov o Moholy-Nagy– sino que se mantengan dentro del concepto de composición. En ésta no existen las transformaciones superadoras del criterio de forma, no hay crisis respecto de los criterios de verdad, conveniencia e integridad equilibrada en su concepción y recepción; no existe el conflicto que va a plantear el montaje

Los criterios de definición de la forma en Salamone son absolutamente tradicionales y pretenden eludir todo conflicto refugiándose en una estructura convencional, planteando una cierta renovación del repertorio lingüístico pero conservando la estructura profunda. Pero este refugiarse en una esencia de la disciplina –dictada por una continuidad entre clasicismo y racionalismo– va a revelarse como un intento vano. Aún sin quererlo Salamone va a terminar denunciando el conflicto, el choque de miradas. Estos conflictos han atravesado todo el arco de lo moderno y se han expresado, entre otras cosas, en las dialécticas y tensiones entre figuración y abstracción, entre singularidad y repetición, entre forma y técnica o entre subjetividad y objetividad.

¿Puede decirse que lo moderno se reduce a una esencialización en la expresión, a una adscripción a un código lingüístico basado en la abstracción, o en realidad existe también toda una constelación de experiencias y vocaciones que la modernidad técnico-abstracta y sus panegíricos historiográficos se en-

Matadero de Laprida

Un breve análisis del lenguaje desarrollado por Salamone en sus obras pampeanas nos permitirá algunas observaciones.

En primer lugar surge un aspecto paradójico ya que si bien puede hablarse de una arquitectura elementarista –producto de una descomposición de la forma en ciertos elementos componentes– y cuyas partes son reducidas a una esencia, a una esencialización de tales elementos, al mismo tiempo se propone una profusión expresiva y una exaltación de los rasgos construidas a partir de esa primera reducción. La forma se ha descompuesto para volver a integrarse en una nueva totalidad profusa.

Dejando de lado toda cuestión estilística el lenguaje desplegado por Salamone es eminentemente moderno por su condición de heterogeneidad. La forma y el lenguaje no reconocen una pureza de genealogía sino que surgen de un sincretismo, de una serie de yuxtaposiciones y superposiciones espaciales y temporales: iluminismo, academicismo, art decó, futurismo, modernismo centroeuropeo, constructivismo, retro-Futurismo, expresionismo y monumen-

Junto a la fantasía y a su alto grado de expresividad, las formas y los lenguajes de Salamone se vinculan con los imaginarios y las cualidades de lo urbano. Si bien no se trata de un traslado directo –su sola inserción en un medio rural ya importaría la construcción de nuevos contenidos– es cierto que se pone en evidencia una fuerte presencia de arquitecturas que ya eran decididamente metropolitanas, propias de un sistema de producción cargaron de silenciar? ¿No ha existido, y existe acaso, toda una modernidad basada en la exaltación de los rasgos expresivos, en los contrastes, en la fantasía o en una componente poética –en tanto distancia o salto– y que no reconoce la hegemonía racionalista y propone una forma de conocimiento y de construcción de la realidad alternativas, el impresionar los sentidos, el asombrar o el meditar por medio de la emoción?

talidad italiana. Y esta diversidad de genealogías no implica la presencia de una cuestión de estilo, sino la desestabilización de todo canon a manos de la mezcla y de una creatividad personal; ninguna unidad estilística y más aún, invención de categorías. El sincretismo de Salamone se opone al modelo que contemporáneamente va a sostener Prebisch: en Prebisch la arquitectura es el lugar de la esencia, de un espíritu de verdad por el cual en lo moderno perdura una tradición de la pureza de la idea y del alma que provienen de Platón y el clasicismo esencialista de Boullée, y que preserva en las secretas fórmulas de la armonía la expresión de esa alma –y en nuestro caso de una identidad– frente a la disolución y el objetivismo producto de una acción indeseable de eso mismo moderno.

Pero este análisis también se propone la refutación de ciertas versiones que podrían ver en Salamone la presencia lineal de estos referentes, o dicho de otra manera, para aquellos que explican la arquitectura por medio de una serie de concurrencias de referentes dados.

material y simbólico de las modernidades urbanas, de las sociedades de masas o de los medios masivos, como el Art Decó, lo cual no deja de ser paradójico en relación a su inserción.

Dejando de lado toda cuestión estilística el lenguaje desplegado por Salamone es eminentemente moderno por su condición de heterogeneidad. La forma y el lenguaje no reconocen una pureza de genealogía sino que surgen de un sincretismo, de una serie de yuxtaposiciones y superposiciones espaciales y temporales: iluminismo, academicismo, art decó, futurismo, modernismo centroeuropeo, constructivismo, retro-Futurismo, expresionismo y monumentalidad italiana.

Del mismo modo en que lo hiciera una parte del constructivismo –aunque con contenidos absolutamente diferentes– el lenguaje de Salamone posee un referente técnico, su estética está basada en una expresión de lo constructivo y de la técnica como posibilidad de forma. Pero si en el constructivismo, y en virtud de sus contenidos ideológicos, las relaciones entre técnica, forma y expresión se imbuían de la desestabilización y ruptura de la disciplina y de lo social más extremas, en Salamone la expresión de la técnica se constituye en su estetización, en metáfora de la técnica. En el constructivismo la teoría formalista y la invención tecnológica fueron la base para una innovación técnica y formal, para su expresión y para la creación de nuevas categorías y procedimientos: montaje, collage, dislocación, fragmentación. En Salamone las relaciones entre forma, técnica y expresión no llevan a tal criterio superador y desestabilizador, estando como están atravesadas por la presencia de la tradición y de otros núcleos teóricos. En su caso se trata de una representación de

la técnica, de la metáfora de algunas de sus cualidades como el dinamismo, el movimiento, la elevación o la homogeneidad epidérmica.

¿Qué otra cosa que una representación de esas cualidades es el revoque que unifica las obras y les otorga esa apariencia de forma acabada, unitaria, homogénea en su percepción? ¿No cumple acaso el revoque una función de representación de esas cualidades de lo moderno ocultando los medios tradicionales y artesanales de construcción con los que en realidad es ejecutada la obra?

El constructivismo construye tales cualidades, Salamone las representa; El constructivismo trabaja las relaciones entre forma, técnica y expresión en base a la colisión y la heterogeneidad, Salamone reintegra la diversidad de genealogías en una unidad equilibrada; en el constructivismo la forma surge como proceso constructivo de la misma, en Salamone es una figura a priori

No obstante Salamone intenta plantear una fusión entre imaginación y ciencia, al crear un lugar en el que la técnica no implique la reducción y la simplificación de los componentes y procedimientos y su silencio expresivo a manos de la reproducción seriada, sino que mantenga una cierta concepción aurática en los vínculos entre forma, material y expresión y en aquella tensión entre singularidad expresiva y repetición.

Municipalidad de Alberti

Por otra parte la presencia de la tradición en Salamone es liminar y es lo que le niega una mayor componente desestabilizadora aunque al mismo tiempo lo dota de una alta complejidad y contradicción. Esa presencia de la tradición no se limita a los dispositivos tipológicos o compositivos del iluminismo y del academicismo, sino que existe también una influencia de la tradición italiana basada en la monumentalidad, la clasicidad y la retórica. Estas características han sido una constante en la arquitectura italiana y ni siquiera el fulgor ígneo del futurismo arquitectónico se vio plenamente exento de ellas.

Ese futurismo se hará presente también en el Salamone pampeano vía Marinetti –quien en el ‘25 visita no sólo Buenos Aires sino también Córdoba y Rosario–Chiattone y Diulgheroff, junto a las arquitecturas constructivas o tipográficas de Depero o Dazzi.

Liernur5 aduce que en la época el término futurismo se aplanaba aplicándose indiscriminadamente a todo aquello que presentara un rasgo innovador, cuestionador del pasado o con ausencia de decoraciones figurativas. Eran futuristas las volumetrías cubistas, las composiciones dinámicas, los autos, los aviones, el cine y la electricidad.

Pero en este caso se planteaba una nueva paradoja, ya que parecía tratarse más de un futurismo vuelto hacia el pasado, de un retro-futurismo, de un futu-

5 Liernur, Jorge F. Historia de la Arquitectura en la Argentina en el Siglo XX, Fondo Nacional de las Artes, Buenos Aires, 2001

ro preñado de un arcaísmo de origen ya que las propias imágenes arquitectónicas de Salamone parecían cristalizar un tiempo perdido al cual resultaba vano revivir. A diferencia de las imágenes futuristas dotadas de una imaginación anticipatoria de una película como Lo que vendrá6 en las obras de Salamone no hay anticipación. Mucho menos la concepción vanguardista del futurismo y su culto a la máquina, la velocidad, el ruido o la guerra.

Para completar este cuadro, si bien provisoriamente, tenemos la presencia del trabajo con la alegoría, y lo alegórico en Salamone está asociado directamente con el monumentalismo.

Esta relación entre alegoría y monumentalismo se puede encontrar en algunos ejemplos contemporáneos, sobre todo en aquellos propios de la expresión de un poder político. Tal vez no casualmente aparece en algunos ejemplos del monumentalismo soviético –como en el proyecto para el Ministerio de la Industria Pesada de Melnikov, el del Palacio de los Soviets de Iofan o los destinados al Mausoleo de Lenin–, del nazismo o del fascismo italiano. Tal relación inmediata entre poder político y expresión ya ha sido transitada desde diversas interpretaciones, y por lo general esa apelación a la alegoría, y por lo tanto a la tradición, paradójicamente lo hizo invocando al cambio, la transformación

Municipalidad de Rauch

6 Lo que vendrá (Things to come) película de William Cameron Menzies y Vincent Korda de 1936 y aún a la revolución; nuevamente un acto fundacional hacia el futuro desde un regreso al pasado, en este caso decididamente mítico por cuanto todo aquello que de mítico posee la figura alegórica, mucho más la de la alegoría política.

Pero en el caso de Salamone la presencia de la alegoría se circunscribe al programa de los cementerios, con lo cual una figura tradicional no alude a una posibilidad de futuro –en tanto gesta transformadora– sino a un programa y a un tema tradicionales como la muerte y la trascendencia. Más aún, la figura alegórica aparece en los portales de los cementerios como una puerta entre el mundo de los vivos y el mundo de los muertos. Esto reconoce también toda una serie de antecedentes vinculados a la tradición hermética y a las escatologías, si bien desconocemos en este momento las posibilidades de una filiación de Salamone con el culto esotérico.

Lo cierto es que aquí la alegoría política se ha transformado en alegoría religiosa y que la operación no deja de ser notable. Salamone sustituye la idea del pórtico tradicional de los cementerios, resuelta en la severidad para la ocasión del dórico o en un estilo que dé cuenta de la cultura propia en el caso de los cementerios pertenecientes a alguna colectividad nacional, por la de un portal en el que ha trasladado al acceso figuras extraídas de la lápida o de la bóveda. No era extraña la presencia de estas figuratividades en la ciudad de los muertos y Salamone en todo caso produce una traslación de un lugar a

En tanto no existe una relación unidi-
mensional entre forma e ideología o ética y estética, la arquitectura moderna también ha de poder vincular-
se con el autoritarismo

otro. Lo notable es la operación de extrañamiento que ocurre en tal traslado, un extrañamiento dado por el inmenso cambio de escala y por el gigantismo de las figuras, que dejan la escala de la tumba para pasar a la escala de todo el conjunto. Y resulta más notable aún que esta apelación a la tradición –en la figura de la alegoría– se realice por medio de una operación eminentemente moderna como el extrañamiento.

Las relaciones entre forma y símbolo proveen a la arquitectura de una función propagandística y de una capacidad simbólica que en el caso de Salamone no pueden escindirse, en primer término, de constituirse en un sostén del programa político del gobierno conservador. Pero ahora, en plena década del ’30 y acusando los contenidos de tal programa, el repertorio academicista será sustituido por un nuevo léxico que acusará el proceso de modernización parcial que el gobierno intentaba implantar.

Nuestra modernidad, como tantas otras, en su propia concepción contradictoria y aporística va a permitir que un grupo o elite recoja los términos de un repertorio identificado con temas y representaciones en tanto emblemas de lo nuevo pero sin que se produzcan las transformaciones y rupturas en el campo social, productivo y cultural. Pero esto, como ya se ha dicho, no constituye una modernidad incompleta sino una de las tantas formas de lo moderno, en este caso de lo que podría llamarse una modernidad sin modernización7. El supuesto contenido liberador de lo moderno es sólo una de sus componentes, y la asociación lineal entre arquitectura moderna y democracia o emancipación es tan sólo una de las posibles interpretaciones acuñada por cierta historiografía. En tanto no existe una relación unidimensional entre forma e ideología o ética y estética, la arquitectura moderna también ha de poder vincularse con el autoritarismo –como en el caso de los vínculos entre Terragni y el fascismo mussoliniano– o a una elite o a un contexto que los acuñe también como una identificación propia: en nuestro caso el camino de autocelebración de las elites agrarias tradicionales y del régimen conservador. Es aquí donde aparecen entonces las capacidades monumentales unidas a la tradición de algunas estéticas modernistas en una vertiente de modernidad monumentalista aliada a la capacidad de persuasión o simbólica del poder.

Tales formas y lenguajes podían asumir una representación de las necesidades de autocelebración de la elite o de las instituciones como poder del estado, en un momento, no hay que olvidar, en que elite y Estado coincidían. Muchas veces se ha argüido la presencia que tuvo el estado como agente interventor y regulador en los años ‘30, pero habría que recordar entonces que no se trataba

7 Tomamos aquí los términos modernidad, modernismo y modernización de acuerdo a las definiciones dadas por Habermas en Modernidad, un proyecto incompleto, en AA.VV, El debate modernidad-posmodernidad, Puntosur, Buenos Aires, 1989.

Lo paradójico es que este modelo anti-urbano se llevara adelante justamente por medio de una arquitectura metropolitana.

de un Estado a la manera de la Viena Roja o de la socialdemocracia alemana sino de un Estado en perfecta alianza con la elite tradicional de la cual se proponía cumplir con sus objetivos particulares.

Pero por otra parte esas formas y lenguajes también asumieron las posibilidades de representación de vastos sectores medios –en su otra cara de legitimación– y fueron parte de los nuevos programas vinculados a lo masivo, los medios de comunicación o el movimiento, programas que como también ya se dijo eran eminentemente metropolitanos. Y es con esto donde la experiencia de Salamone cobra un sentido más significativo en el contexto de nuestra Modernidad. Si en primer término se ponía en evidencia aquella relación entre arquitectura y contenido político, un análisis más detallado nos revelará otros niveles de significación.

El programa implementado por el gobernador Fresco tenía un sentido claramente anti-urbano,ya que se trataba de contrarrestar el flujo migratorio hacia la ciudad, potenciar y consolidar la radicación rural y proveer de infraestructuras y mejoras al interior de la provincia. Lo paradójico es que este modelo anti-urbano se llevara adelante justamente por medio de una arquitectura metropolitana

Para algunos autores puede resultar que esta paradoja encerrara una contradicción, algo llamativo en el traslado extrañado de la ciudad al mundo rural por parte de Salamone. Pero no hay que olvidar el carácter universalista que pretendía la modernidad en su conceptualización en tanto creación de un nuevo sujeto habitante de un nuevo ambiente, o aún en el peor de los casos en su pretensión de aplicación a cualquier contexto. A esto podría sumarse el progresivo proceso de artificialización total del ambiente y el rol jugado por el modernismo en tal proceso.

Por otra parte, esto no era nuevo. Independientemente de las insalvables diferencias de contexto, esto ya había sido propuesto por los imaginarios de los constructivistas rusos en los que la imagen tecnológica con sus contenidos de innovación podía aplicarse en el marco de las ubicaciones rurales como parte el programa de modernización de extensas regiones de la URSS. En aquellos idearios del programa soviético, tecnología y proceso de transformación radical preveían una asociación sin fisuras ni contradicciones entre los mundos moderno y rural, no obstante en la práctica esto fuese discutible.

El modernismo arquitectónico había surgido en principio como parte del proceso de modernización que incluía el cambio filosófico, los aportes de la revolución técnica y de la ciencia y el paulatino pero constante fenómeno de conversión de las ciudades en metrópolis. La alianza moderno-público-masivo-transformación tenía su espacio natural en el espacio de la ciudad, la mayoría de sus programas eran metropolitanos y los imaginarios de lo moderno otorgaban a la ciudad la sede de la innovación.

En el caso de Salamone este proceso de trasformación se ha dicho que no existía y sus contaminaciones entre tradición y modernidad le otorgaron un cariz particular. Pero no obstante sus intervenciones aparecen como proclamas de futuro en plena llanura, y en su contaminación no dejan de tener un sentido teatral y efectista, casi dramático. Esto reafirma la fusión entre ciencia e imaginación, o entre razón y persuasión, en la imaginación radicada en la manera de combinar genealogías, formas y contenidos, y en el efecto persuasivo de estar construyendo un paisaje. A partir del traslado de un lenguaje eminentemente urbano al universo rural, a partir de ese extrañamiento, es que se da cuenta de una acción más próxima a la impostación que a un proceso de desarrollo natural en el cometido de hacer irrumpir la modernidad en el interior, en los pequeños pueblos y ciudades.

Y referido a este punto, las intervenciones de Salamone poseen en definitiva tres dimensiones respecto de la noción de escala: la escala del objeto, la escala simbólica de su sistema de representación político y la escala del territorio.

Más allá de la escala inmediata del objeto, las obras de Salamone señalan un área de influencia territorial, una presencia en el territorio que significa los alcances de una acción para el desarrollo regional y la impronta de lo moderno como declaración simbólica y fáctica y que por ende conlleva la intención de construir un paisaje. Si bien las obras de Salamone se presentan como objetos en el paisaje, a su vez exponen la vocación de construir un paisaje, un paisaje

nuevo, moderno y también futuro, que puede surgir de la confrontación de unas geórgicas pampeanas y lo artificial, y aún hacerse insólito, quimérico.

No cabe duda de que Salamone era consciente y partícipe de este proceso de artificialización del mundo natural, de esta acción de colonización del territorio y de su respectiva construcción de un paisaje a partir de intervenciones que proponían no sólo una presencia sino también un futuro, en el cual se darían las respuestas necesarias a las demandas de progreso y de bienestar. Y es que tal vez esto constituya la verdadera paradoja. Tales presencias eran hitos de un futuro por venir pero que finalmente nunca llegaría. Son así vestigios de un futuro no cumplido, la avanzada hacia un nuevo horizonte, emblemas lanzados a un porvenir promisorio pero que en realidad provenían de un mito, se revelarían arcaizantes. Hoy los contemplamos con asombro o perplejidad, nos impacta su presencia extraña, más aún, extrañada, arrancada, insólita, quimérica, desacomodada.

En algunos casos vuelven a construir un paisaje, pero ahora un paisaje surreal o heterotópico ya que denuncian los encuentros extraños, las presencias inquietantes, el lugar de reunión de dos dimensiones irreconciliables, tal vez siniestras8. El extrañamiento del gigantismo de las alegorías, las torres enhiestas, la sordidez del abandono y de lo incumplido, un reloj que señala el vacío y un

8 Tomamos el concepto de lo siniestro en los términos en que fue planteado por Freud en Das Unheimlich [lo siniestro], en Freud, Sigmund. Obras Completas, Biblioteca Nueva. Madrid, 1974.

tiempo metafísico: como naves encalladas en el espejo de la Pampa, como el encuentro casual de una máquina de coser y un paraguas en una mesa de operaciones.

Hoy se nos aparecen como mudos vestigios, espectros de piedra de lo que Benjamin llamara una ur-modernidad, o expresiones de la fantasmagoría que también es parte de lo moderno. Del mismo modo en que Hubert Damisch analizara las imágenes fotográficas de Jacqueline Salmón de la villa de Charles de Noailles9, también aquí podemos decir que las obras de Salamone, las obras modernas, no fueron el telón de fondo pasivo, inmóvil, sobre el cual se representaban las acciones de lo moderno, sino que, aún en su regresividad, se constituían en elementos activos en la construcción de esa acción, eran actores partícipes el movimiento. ¿Es posible, tal cómo se pregunta Damisch, percibir hoy, en esos mudos testigos, la vida de entonces? ¿Existen fantasmas de la acción?… ¿fantasmas de nuestras acciones pasadas? Los minutos vividos, ¿no dejan huellas concretas sobre el aire y sobre la tierra?10

Municipalidad de Tornquist

Y, ¿es posible entonces que las acciones que allí tuvieron lugar en su tiempo hayan dejado en los muros de la arquitectura huellas que aún hoy podamos percibir? ¿Qué perfume, tal como diría Tafuri, es el que se puede arrancar de la historia?11

Estas presencias, hoy fantasmales, reverberan quedamente en su condición de choque, como en los paisajes metafísicos de De Chirico o de Carrá. Porque en ese paisaje hoy fantasmal se produce una reunión inquietante entre lo extraño y lo familiar que es producto de la manipulación sobre los objetos o las situaciones que son en principio comunes, cotidianas. Lo que resulta en realidad misterioso o inquietante es el hecho de esa reunión, el espacio de ese encuentro entre lo familiar y lo extraño y que coincide con esa definición de unheimlich –lo siniestro– que diera Freud: Lo siniestro sería aquella suerte de espantoso que afecta a las cosas conocidas o familiares desde tiempo atrás… unheimlich es todo aquello que debería haber quedado oculto, secreto, pero que se ha manifestado 12

9 Damisch, Hubert. El Desnivel. La Fotografía puesta a prueba, La Marca, Buenos Aires, 2007.

10 Damisch, Hubert. Obra citada

11 Tafuri, Manfredo. Teorías e Historia de la Arquitectura, Celeste,Madrid, 1997.

12 Freud, Sigmund. Obra citada. Imaginario de realización, su “utilidad” práctica y simbólica

Lo que hoy nos ha quedado es un paisaje de despojos de una cultura incumplida. Objetos ahora inútiles, flotantes en un vacío en el que no existen relaciones, en el que el sujeto no ha podido o ya no puede educarse. Lo que se ve tan sólo puede ser mostrado en el silencio terrible de esa frontera de lo que fue real y ahora es extraño; despojos de lo que ya no es –o todavía no es– es lo que se exhibe.

Lo que hace siniestro ese encuentro es en definitiva el incumplimiento de la promesa de una Modernidad que nos cambiaría y mejoraría, la cancelación de un programa del cual quedan sus ruinas, los fragmentos ante los cuales se ve suspendido el Angel de la Historia de Benjamin. Pero ese encuentro entre dos dimensiones opuestas, a la postre irreconciliables, es doble. Por un lado se trata de la inquietud y del misterio producto de la reunión de la inmensidad sublime del paisaje pampeano, de la soledad de su vértigo horizontal que se rehúsa a ser colonizado y del objeto que se exhibe como declaración de cultura, presencia del dominio imposible de cumplir pero que la Modernidad no podrá dejar afanosamente de perseguir. Por el otro, esa otra inquietud que nos acomete al ser testigos de que lo que también se reúnen son esos objetos que fueron parte de una vida cotidiana, de un mundo dado por su uso y su apropiación y la pérdida definitiva de ese valor de uso. En su origen, los objetos-obras tenían un valor verdadero, una cualidad concreta, tangible, real. Era el valor de uso de esos objetos lo que

los hacía verdaderos, sus posibilidades de apropiación por pertenecer a un mundo cotidiano:

Es muy profunda la impresión que nos producen los muebles abandonados en parajes desiertos, en medio de la naturaleza infinita. Imaginarnos un sillón, un diván, sillas agrupadas en una planicie griega, desierta y llena de ruinas, o en las praderas sin tradición de la lejana América. 13

Ahora, esos objetos, al estar abandonados, se han desprendido de ese valor de apropiación, han perdido su conexión con la vida, se han hecho mudos, silenciosos, perdieron su sentido.

Tal vez habréis advertido qué singular aspecto toman las camas, los armarios de espejo, los sillones, los divanes, las mesas, cuando se los ve de repente en la calle, en medio de un decorado en el que no estamos habituados a verlos, como ocurre en las mudanzas, o en determinados barrios, ante la puerta de los comerciantes o revendedores que exponen en la acera las mejores piezas de su mercancía. 14

Los objetos, al perder su valor de uso, su sentido, en su abandono, se vuelven mercancía. Nadie se apropia de ellos, dándoles un valor afectivo, propio, cotidiano, humano. Quedan en suspenso, como la mercancía en la abstracción

13 De Chirico, Giorgio. Estatuas, muebles y generador, en AA.VV. La Pintura Metafísica, Neri Poza,Venecia,1979.

14 De Chirico, Giorgio. Obra citada

del mercado; nada resulta tan impersonal, tan despojado de contenido, de afecto, que la mercancía en la neutralidad anónima del mercado.

Desnudan en su abandono todas las fantasmagorías, las promesas realizadas, su realización elusiva, las falsificaciones de las que también está hecha la modernidad. Quedan investidos de la más profunda soledad: ese momento en que se convierten en mercancía.

Pero esa suspensión que los objetos han sufrido significa que su espacio y su tiempo también han dejado de ser concretos: su lugar y su instante se alargan en una equivalencia infinita, se hacen abstractos. Y esas relaciones lógicas que abandonan de repente a los objetos sólo pueden tener un origen, el valor de uso de cada uno de ellos. Dejados de su valor, los objetos dejan también el tiempo y el espacio concretos en el que, hasta ahora, nos pertenecían. El vacío, la soledad, el silencio del que habla De Chirico, no son sino la consecuencia de descubrir el hechizo de tal enajenación.

Lo que hace siniestro ese encuentro es en definitiva el incumplimiento de la promesa de una Modernidad que nos cambiaría y mejoraría, la cancelación de un programa del cual quedan sus ruinas, los fragmentos ante los cuales se ve suspendido el Angel de la Historia de Benjamin. Pero ese encuentro entre dos dimensiones opuestas, a la postre irreconciliables, es doble. Por un lado se trata de la inquietud y del misterio producto de la reunión de la inmensidad sublime del paisaje pampeano, de la soledad de su vértigo horizontal que se rehúsa a ser colonizado y del objeto que se exhibe como declaración de cultura, presencia del dominio imposible de cumplir pero que la Modernidad no podrá dejar afanosamente de perseguir.

cuyo orden, cuyo poder, está necesariamente falsificado, incumplido. Todo aquello que la inteligencia y la racionalidad se ocupan de ordenar, establecer, metabolizar, redimir, ante las irredentas aporías de lo moderno; la tensión entre la pretensión de eternidad –la utopía– y la verificación del instante –el fragmento–. Esa razón llama a una totalidad incumplida cuya reconstrucción siempre es subjetiva, asaz frustrante. Utopía. Nostalgia. Silencio. En los intentos de comprensión-superación de esa trágica aporía –el deseo de lo acabado y el reconocimiento de la falsedad de su armonía– tal vez se encuentre el interminable trabajo de la historia.

Aquel programa de modernización y progreso ocupa el lugar de una razón

Playas y pluviales: los impactos de la impermeabilización y el drenaje de barreras medanosas

Federico Ignacio Isla* y Pedro Andrés Garzo**

* Doctor en Geología e Investigador del Instituto de Geología de Costas y del Cuaternario (IGCC – UNMDP/CIC) y del Instituto de Investigaciones Marinas y Costeras (IIMyC – CONICET/UNMDP).

** Doctor en Geología e Investigador del Instituto de Geología de Costas y del Cuaternario (IGCC – UNMDP/CIC) y del Instituto de Investigaciones Marinas y Costeras (IIMyC – CONICET/UNMDP).

Imagen 1

Croquis de la costa bonaerense entre Mar Chiquita y el Río Quequén-Grande, realizado por Florentino Ameghino a finales del siglo XIX. Fuente: Tonni (2016).

Introducción

Una de las mayores particularidades de la Pampa Argentina es la velocidad con la que se puede inundar o tener secas extremas. Esto impresionó a escritores como Julio Verne (Verne, 1867) o a naturalistas como Florentino Ameghino (Ameghino, 1884) –veáse imagen 1–; hoy sabemos que se debe a años anómalos El Niño o La Niña.

Uno de los proyectos con relación al cambio global se orientaba a los embalses de las descargas fluviales y con el consecuente impacto en la provisión de sedimento a las costas (IBAHC). En los años 90 se mencionaba como la neocastorización de los ríos. No obstante ello, también impactan en las costas el aumento de excesos hídricos que normalmente se acumulaban temporariamente y recargaban acuíferos o simplemente se evaporaban.

Las ciudades-balnearios se originaron como parte de la demanda turística de sol-y-playa. Las originales villas balnearias surgieron sin planificación. Las depresiones intermedanosas fueron impermeabilizadas, posteriormente pavimentadas y finalmente drenadas hacia las playas (Isla, 2013) aumentando los problemas de erosión. En el presente artículo se tratan algunas alteraciones al drenaje de los excesos hídricos de la Provincia de Buenos Aires. Particularmente, se analizan los cambios en las barreras medanosas compuestas mayormente de arena fina.

Evolución de los humedales de la bahía de Samborombon

De acuerdo a cartas practicadas en el año 1789 por Juan de Lángara, y posteriormente rectificadas en 1794, existían apenas 6 sectores donde las marismas de la Bahía Samborombón estaban canalizadas. De norte a sur los ríos se denominaban: Samborombón, sin nombre, Salado, sin nombre, Roldán, Ortiz y Díaz.

Las recurrentes inundaciones de la Provincia de Buenos Aires obligaron a crear una Comisión de Canales y Desagües que implementó un plan de drenaje hacia esa bahía de baja pendiente (Mercau et al., 1914). La comisión culminó proponiendo el drenaje desde la cuenca sur del Río Salado hacia la desembocadura de la Laguna Mar Chiquita por medio del Canal Mercau. Esta solución sólo apuntaba al drenaje de la planicie y no tenía en cuenta el tema de las secas que alertaba Florentino Ameghino (Ameghino, 1884). Actualmente, el drenaje de la costa de la bahía posee innumerables desagües que no terminan de solucionar el problema de los excesos hídricos (ver imagen 3); la principal problemática se vincula a los niveles freáticos que aumentan por encima de la superficie topográfica.

Imagen 2

Detalle de la carta náutica elaborada por Juan de Lángara entre 1789 y 1794 según Carta Esférica de las Costas de América Meridional. El recuadro rojo indica la zona de influencia de la Bahía de Samborombón, con el detalle de bocas de mareas. Fuente: Modificado a partir de BNC (2015).

El drenaje de las depresiones intermedanosas

La fijación de las barreras medanosas con especies de árboles exóticos de crecimiento rápido fue lograda de modo trabajoso, sobre pruebas y errores que fueron

Imagen 3

Imagen satelital del sensor ALOS PALSAR (26 de enero de 2011) con detalle de la apertura de canales practicados en la Bahía de Samborombón. El tamaño de las flechas corresponde a la magnitud de anchos y caudales. Fuente: Elaboración propia.

Imagen 4

San Clemente del Tuyú. A. Detalle de drenajes pluviales (flechas rojas) en un sector de playa en febrero de 2021; B. Erosión pluvial en Julio de 2022. Fuente: Elaboración propia a partir de imágenes de archivo y de imágenes satelitales de la plataforma Google Earth (https://earth. google.com/web/)

corrigiéndose, al tiempo que se visualizó el negocio de las villas balnearias forestadas (Juárez y Mantobani 2006; Faggi y Dadon, 2010; Isla, 2013).

Algunas localidades de la Barrera Medanosa Oriental como San Clemente del Tuyú, Partido de La Costa, tuvieron playas amplias y hubo que construir desagües pluviales para drenar sus calles (ver imagen 4).

Imagen 5

Villa Gesell. A. Desagüe pluvial (flecha roja) en un sector de playa; B. Disipadores de escorrentía superficial en playas céntricas; C y D, erosión pluvial de playas a partir del escurrimiento canalizado en calles asfaltadas perpendiculares al mar. Fuente: Elaboración propia a partir de imágenes de archivo.

En la Barrera Medanosa Austral de Buenos Aires, las lluvias estivales son menos copiosas y frecuentes. Así y todo, el diseño de Claromecó, Partido de Tres Arroyos, con calles oblicuas a la costa, produce concentración de excesos hídricos que originan cárcavas que afectan la playa (imagen 6). Aún menor es el régimen de lluvias en la localidad de Las Grutas (San Antonio Oeste, Río Negro). El crecimiento de esta localidad balnearia se ha desarrollado sobre acantilados naturales con bajadas peatonales artificiales hacia las playas. El abastecimiento hídrico a través del Canal Pomona-San Antonio y el suministro de agua por medio de camiones, han

En otras localidades, como el caso de Villa Gesell, la urbanización se desarrolló muy cerca de la línea de costa, a la vez que esta fue retrocediendo. Esto generó que los excesos hídricos superficiales fueran canalizados por las calles asfaltadas directamente hacia las playas producto del desnivel topográfico. En la década del ‘90 se construyeron disipadores pluviales que captaban el agua 100 m antes del mar y lo volcaban directamente en los sectores de playas; sin embargo estos no fueron suficientes para subsanar el incremento en los coeficientes de escorrentía superficial por la urbanización del cordón medanoso y el asfaltado de las calles perpendiculares al mar (ver imaten 5).

Imagen 6

Las intersecciones de las calles oblicuas a la costa inducen cárcavas (B) que erosionan la playa en Claromecó (flechas rojas en A – febrero 2021). Las bajadas artificiales a la playa en Las Grutas han originado cárcavas y cursos pluviales (flecha roja en C – diciembre 2020) que drenan la costa acantilada (D). Fuente: Elaboración propia a partir de imágenes de archivo y de imágenes satelitales de la plataforma Google Earth (https://earth.google. com/web/)

originado el aumento del escurrimiento superficial hacia diferentes sectores de la playa. A estos vertidos se suman los líquidos que percolan en las arenas hasta el sustrato impermeable de la Formación Patagonia (imagen 6).

Pluviales que aportan sedimentos en suspensión

Algunos excesos hídricos han sido desviados hacia zonas resistentes y menos erosionables de costa acantilada, tal es el caso de los desagües pluviales de Mar del Plata (imagen 7A). En otros casos han sido encauzados hacia desembocaduras de arroyos como el caso del Arroyo Claromecó (imagen 7B). Estos excesos hídricos con material en suspensión o desechos domiciliarios han originado sectores de la costa con compromisos de balneabilidad (Isla et al., 1998).

Encausamiento de humedales

Los humedales de Punta Mogotes, Mar del Plata, fueron creados artificialmente a partir de la retención sedimentaria provocada por la construcción de la escollera sur del Puerto de Mar del Plata. Rápidamente se transformaron en bañados dominados por juncos y totoras. La construcción de los balnearios de los años ‘80 encauzó aquellos bañados en lagunas y fueron caracterizadas como afloramientos de niveles freáticos de agua dulce (Cionchi et al., 1982). Posteriormente se dragó un canal para drenarlas entre el último balneario y lo que fue denominado Reserva Natural

Imagen 7

A. Pluma originada por el desagüe pluvial ubicado en el Torreón del Monje, Mar del Plata; B. Pluma de material en suspensión drenada por el Arroyo Claromecó, Partido de Tres Arroyos, en agosto de 2021. Fuente: Elaboración propia a partir de imágenes de archivo y de imágenes satelitales de la plataforma Google Earth (https://earth.google.com/web/)

Imagen 8

Los humedales de la playa de la Bahía de Punta Mogotes (A) fueron profundizados en lagunas que fueron drenadas hacia sectores al norte del Complejo de Balnearios (B). Fuente: Elaboración propia a partir de imágenes satelitales de la plataforma Google Earth (https://earth. google.com/web/)

Imagen 9

Manantial en playas de los barrios residenciales del sur de General Pueyrredon. Fuente: Modificado a partir de Isla et al. (2018).

Puerto (Del Rio, 2011). Se estableció así una celda de transporte litoral hacia el norte, iniciada en Punta Cantera y terminando en el extremo de la escollera sur del puerto de Mar del Plata (imagen 8).

Sin embargo, diversas obras de infraestructura han generado alteraciones a este sistema. La construcción de un espigón clandestino en Punta Cantera (Isla et al., 2018) y de un espigón piloto en la mitad de la bahía, el dragado de la desembocadura de las lagunas a solicitud de Obras Marítimas Buenos Aires, y la construcción de un espigón en la base de la escollera sur para habilitar la Arenera Puerto Mar del Plata son ejemplos de ellas.

El aumento de los niveles freáticos

Imagen 10. A. Percolación en la barrera medanosa de Pehuen-Có; B. Percolación por debajo de la barrera medanosa en Las Grutas, Río Negro. Fuente: Elaboración propia a partir de imágenes de archivo y de imágenes satelitales de la plataforma Google Earth (https://earth.google.com/web/)

interfase entre las sedimentitas infrayacentes y las arenas del tope de acantilados, se producen emanaciones de agua subterránea en la playa Las Grutas (Isla e Isla, 2020; imagen 10B).

Cambio climático: Aumento de las precipitaciones y del nivel del mar

La urbanización y la parquización implican riego de jardines y aumento de los niveles freáticos. En sectores medanosos, como Villa Gesell y Pinamar, esto genera que las depresiones con niveles intermitentes de ascensos freáticos resulten permanentes. Pero estos ascensos freáticos son más evidentes en costas acantiladas. El crecimiento no planificado de los barrios residenciales del sur de General Pueyrredon (Planes Procrear) está promoviendo un aumento en los caudales de viejos manantiales en niveles impermeables de los acantilados (imagen 9; Isla et al., 2018).

Algo similar ocurre con el aumento de las cárcavas en las playas de Pehuén Co (imagen 10A). A la vez, en la

Las barreras de Buenos Aires están compuestas por arena finas, siendo altamente vulnerables y fácilmente erosionables (imagen 11; Hjülstrom, 1935). La Regla de Bruun establece que todo aumento del nivel del mar significa erosión en la costa y depositación por debajo del tren de olas efectivo (Bruun, 1962 y 1988). A la vez, se ha previsto un aumento del nivel del mar (imagen 11; Oppenheimer et al. 2019) y de la recurrencia de tormentas sudestadas para el litoral bonaerense (Fiore et al., 2009), lo que incrementará los ritmos de erosión

Imagen 1 1

Izquierda: Diagrama de Hjülstrom (modificado de Hjülstrom, 1935) (izquierda). Derecha: Aumento previsto del Nivel Medio del mar (NMM) al año 2100 (modificado de Oppenheimer et al., 2019).

actuales. Estas proyecciones deben considerarse al momento de planear el desarrollo y el crecimiento de los núcleos urbanos (Walsh et al., 2004).

Discusión

El diseño de villas balnearias debe necesariamente considerar el aumento del escurrimiento de las depresiones intermedanosas, el transporte sedimentario asociado a los excesos hídricos, el incremento de los niveles freáticos y los cambios en los patrones de drenaje superficial producto de la urbanización. Estas particularidades no son normalmente consideradas en las recomendaciones para el diseño de ambientes urbanos (Taylor, 2007).

Afortunadamente, existen programas que permiten simular las crecidas repentinas del drenaje para áreas urbanas. El MIKE 21 se ha utilizado para mejorar los drenajes en el Partido de la Costa (Estudios y Proyectos, 2014). Estos vertidos pueden significar mayores efectos erosivos en las playas. Por otro lado, el Storm Water Management Model (SWMM) es más versátil para simular los excesos rápidos (flash floods). Su uso requiere de datos más precisos (horarios). Así como los planificadores deben necesariamente prever los problemas físicos, sociales y políticos de las ciudades (Bricker et al. 2017), los problemas particulares de las ciudades costeras (aumento del nivel del mar, presión humana estacional) deben también preverse por ser más sensibles a los cambios ambientales. Otras alternativas proponen técnicas de infiltra-

ción (Burchell et al. 2013) que deben considerarse para minimizar los excesos hídricos.

Estos problemas de manejo de excesos hídricos no son únicos para las barreras medanosas de Argentina. En el sur de Brasil con frecuentes, críticos y conocidos como sangradouros (washouts; Portz et al. 2015). Estos pueden ser permanentes, intermitentes y efímeros (Calliari y Pereira Da Silva 1998, Figueiredo y Calliari 2005).

Conclusiones

1. La canalización de los excesos hídricos debe considerarse de manera previa a la planificación de nuevas villas balnearias en áreas medanosas. Los pozos blancos son recomendables de modo de favorecer la infiltración y reducir el escurrimiento.

2. El aumento del nivel del mar y la recurrencia e intensidad de tormentas tropicales aumentará la frecuencia de las inundaciones y los caudales de escorrentía superficial que pueden determinar procesos de erosión de playas.

Bibliografía

Ameghino, F., (1884). Las secas y las inundaciones en la Provincia de Buenos Aires. Obras de retención y no de desagüe. Ministerio de Asuntos Agrarios de la Provincia de Buenos Aires 1884-1984, 62 pp. BNC, Biblioteca Nacional de Chile (2015). Carta esférica de la parte interior de la América meridional para manifestar el camino que conduce desde Valparaíso a Buenos Aires (material cartográfico).

Laboratorio Digital. Disponible en: http://www. bibliotecanacionaldigital.gob.cl/bnd/631/w3-article-157393.html

Bricker, S. H., Banks, V. J., Galik, G., Tapete, D., Jones, R., (2017). Accounting for groundwater in future city visions. Land Use Policy 69, 618-630.

Bruun, P., (1962). Sea level rise as a cause of shore erosion. Journal of Waterways and Harbors Division, ASCE 88, 117-130. https://doi.org/10.1061/JWHEAU.0000252

Bruun, P., (1988). The Bruun Rule of erosion by sea level rise: a discussion on large-sale two- and three-dimensional usages. Journal of Coastal Research, 4, 627-648.

Burchell, M., Hunt, W., Prices, W. D., (2013). Dune infiltration systems for reducing storm water discharge to coastal recreational beaches. North Carolina State University, 8 pp.

Calliari, L. J., Pereira da Silva, R. (1998). Erosion Processes associated to storm surge and washout along the south Brazilian coastline. Journal of Coastal Research. 26, 1-7.

Cionchi. J. L., Bocanegra, E., Fasano, J. L., (1982). Caracterización hidrogeológica preliminar de la laguna Punta Mogotes, Partido de General Pueyrredon, Provincia de Buenos Aires. CIC, Proyectos especiales.

Del Rio, J. L., (2011). Las lagunas del Puerto Mar del Plata: un origen poco natural. En: De Marco, S.

G., Vega, L. E., Bellagamba, P. J. (eds.). La reserva del Puerto Mar del Plata: un oasis urbano de vida silvestre, Universidad Fasta, Mar del Plata, 51-57.

Estudios y Proyectos (2014). Plan director de los desagües pluviales en el Partido de la Costa Informe final, tomo 1, Consejo Federal de Inversiones, Expte. N° 113712101, 178 pp.

Faggi, A. M., Dadón, J. (2010). Vegetation changes associated to coastal tourist urbanizations. Multequina, 19, 53-76.

Figuereido, S. A., Calliari, L. J. (2015). Sangradouros: Distribuição Espacial, Variação Sazonal, Padrões Morfológicos e Implicações no Gerenciamento Costeiro. Gravel, 3, 47-57.

Fiore, M. M., D’onofrio, E. E., Pousa, J. L., Schnack, E. J., & Bertola, G. R. (2009). Storm surges and coastal impacts at Mar del Plata, Argentina. Continental Shelf Research, 29(14), 1643-1649.

Hjulstrom, F., (1935). Studies of morphological activity of rivers as illustrated by the River Fyris. Bulletin of the Geological Institute University of Uppsala, 25, 221-527.

Isla, F. I., Isla, M. del P., (2020). Coastal urbanization strategies for resort locations, Argentina. Revista Geográfica del Sur 9, 11, 57-66.

Isla, F. I., Perez Guzzi, J., Zamora, A. y Folabella, A., (1998). Aportes de coliformes a la costa de Mar del Plata por vías naturales e inducidas. Thalassas 14, 63-70.

Isla, F. I.,Cortizo, L. C., Merlotto, A., Bertola, G., Pontrelli Albisetti, M., Finocchietti, C., (2018). Erosion in Buenos Aires province: Coastal-management policy revisited. Ocean and Coastal Management, 156, 107-116.

Isla, F., Quiroz Londoño, O. M., Cortizo, L. C., (2018). Groundwater content within loessic deposits: the coastal springs of Los Acantilados, Mar del Plata, Argentina. Environ. Earth Sciences, 77: 610. https://doi.org/10.1007/s12665-018-7766-y

Isla, F.I., (2013). From touristic villages to coastal cities: The costs of the big step in Buenos Aires. Ocean & Coastal Management, 77, 59-65.

Juarez, V., Mantobani, J. M., (2006). La costa bonaerense: un territorio particular. En Isla, F. I y Lasta, C. A. (eds.). Manual de Manejo costero para la Provincia de Buenos Aires, EUDEM, Mar del Plata, 41-69.

Mercau, A., Waldorp, J. A., Wauters, C., (1914). Desagües de la Provincia. La Plata, 211 pp. Oppenheimer, M., B.C. Glavovic, J. Hinkel, R. Van de Wal, A.K. Magnan, A. Abd-Elgawad, R. Cai, M. Cifuentes-Jara, R.M. Deconto, T. Ghosh, J. Hay, F. Isla, B. Marzeion, B. Meyssignac y Z. Sebesvari, (2019). Sea level rise and implications for low-lying islands, coasts and communities. En: IPCC Special Report on the Ocean and Cryosphere in a Changing Climate [H.-O. Pörtner, D.C. Roberts, V. Masson-Delmotte, P. Zhai, M. Tignor, E.

Poloczanska, K. Mintenbeck, A. Alegría, M. Nicolai, A. Okem, J. Petzold, B. Rama, N.M. Weyer (eds.)]. Cambridge University Press, Cambridge, UK and New York, NY, USA, pp. 321-445. https://doi. org/10.1017/9781009157964.006

Portz L., Manzolli R. P., Hermanns L., Alcantara-Carrió J., (2015). Evaluation of the efficiency of dune reconstruction techniques in Xangri-lá (Rio Grande do Sul, Brazil). Ocean & Coastal Management, 104:78-89.

Taylor, K., (2007). Urban environments. En Perry, C., Taylor, K., (eds.) Environmental sedimentology, Blackwell, 190-222.

Tonni, E.P. (2016). Los acantilados de la Costa Atlántica Bonaerense y su contribución al conocimiento geológico y palentológico. En: Athor, J. Y Celsi, C.E. (Eds.). La Costa Atlántica de Buenos Aires. Naturaleza y patrimonio cultural. Fundación de Historia Natural Félix de Azara, 42-66.

Verne, J., (1867). Les enfants du Capitaine Grant. Magasin d’Éducation et de Récréation 320 pp.

Walsh, K.J.E.; Betts, H.; Church, J.; Pittock, A.B.; McInnes, K.L.; Jackett, D.R., MC Dougall, T.J. (2004). Using sea level rise projections for urban planning in Australia. Journal of Coastal Research 20(2), 586-598.

El detalle es la implantación

Conversaciones con Glenn Murcutt: la casa Simpson-Lee y el papel de la técnica en el proyecto de arquitectura

Matías Beccar Varela*

* Matías Beccar Varela es arquitecto y profesoren la UDT, Buenos Aires y Doctorando DAR (UAIUFLO-UCU) en cuyo trabajo este texto es un fragmento de sus entrevistas realizadas a Glenn Murcutt en Sydney a efectos de su investigación. La transcripción y traducción de la entrevista fue realizada por el equipo integrado por Lucía Venditti, Francisco Lehoky, Sofía Giayetto y MBV. Han sido colaboradores de la investigación Florencia Cejas, Gabriela Saldaña, Magdalena Achaval, Vanesa Ejberowicz, Mariel Arakaki, Antonella Bordigioni, Sofía Zacher, Emilia Acardi, Gabriel Gullé, Rocío Giardino y Agustina Bautista.

Estas conversaciones son un extracto de una serie de entrevistas llevadas a cabo en cuatro encuentros con Glenn Murcutt, entre los meses de diciembre de 2018 y enero de 2019, en Australia. Para los fines del presente artículo, la entrevista se redujo a un recorte temático que toma como eje el proyecto de la casa Simpson-Lee y el papel de la técnica en el proyecto de arquitectura. Los dibujos son originales a mano de Glenn Murcutt a los que se tuvo acceso en la Biblioteca Mitchell de Sydney o bien fueron proporcionados por el arquitecto. Las fotos son del autor.

El fracaso es el método por el cual avanzamos

Glenn Murcutt

Glenn, estamos aquí en Mount Wilson, en la casa antes conocida como Simpson-Lee. Es uno de mis proyectos preferidos, siempre me pareció que esta planta era muy innovadora y sé que es el resultado de una búsqueda que duró años. Por favor cuéntame de ese proceso.

Cuando hice el primer diseño de la casa, los clientes me preguntaron: ¿Por qué ubicas la casa con el acceso longitudinal en sentido Este/Oeste? Y les dije: Para que la fachada esté hacia el Norte. Me contestaron: Pero mira esos árboles… Y yo: Bueno, podemos podar esos árboles. Entonces mi cliente dijo: Eres demasiado fanático del Norte. Este-Noreste está perfectamente bien. Más que nada, no quiero que la casa se proyecte por sobre el borde hacia el valle. Esto es todo patrimonio de la humanidad, sabes, un Parque Nacional. Y mi cliente dijo: No quiero interrumpir a la gente que disfruta de este paisaje hermoso con una casa que salga allí al final… ¡es la única casa que van a ver! Finalmente le dije: Entiendo. Puedo entender eso. Y entonces me explicó una cosa muy interesante: por aquí pasaba un sendero, justo por aquí, que usaban los pobladores aborígenes para descender al valle. Era un claro del bosque, había sólo césped y flores. Era la forma más fácil de llegar. Y los pobladores aborígenes, estoy seguro, solían acampar detrás de aquella roca; hay una saliente de roca de unos ocho metros de altura. La primera versión de la casa iba en ese sentido [colgando hacia el valle], con un dormitorio en un extremo y otro debajo de la galería. Y pensé que podría ser una casa bastante interesante porque podrías ver todo el valle, tener perspectivas lejanas, todo. Pero también entendí el interés en la cuestión pública.

Ese primer diseño me recuerda a tu reciente casa Donaldson, en Sydney. Proyectándose de esa forma, hacia el valle. ¡Si! Es correcto. Entonces yo estuve de acuerdo y se me ocurrió que, si este había sido un camino de los pobladores

aborígenes, ¿por qué no usarlo? En ese momento yo había visitado muchas cuevas aborígenes en el Norte de Australia. Cerca de Cairns, a unas dos horas en auto, existen unas cuevas con uno de los mejores exponentes en arte aborigen. Y, si has estado en esas cuevas, sabes que siempre llegas a ellas

por el costado, y luego entras y la cueva es así [dibuja una gran cavidad en el aire], llegas al fondo y hay unas rocas grandes en las que simplemente te sientas. A todas las cuevas aborígenes entras por el costado, nunca por el frente. Nunca axialmente. Eso te da permiso para entrar. Entonces, entras

por un extremo, lo recorres y sales. Me dije: Puedo diseñar una casa a partir de este principio. De esta manera, el sendero aborigen sigue aquí y la cueva también [apunta al interior de la casa]: perspectiva, refugio.

Ciertamente. Esa es una de las cosas más interesantes de esta obra, creo: el modo en que te acercas a ella y la recorres a través de, digamos, el mejor borde de la casa.

Wendy [Lewin, su esposa] adora esta casa. Le encanta venir. Y hoy está muy tranquilo, normalmente hay ranas, y son muy ruidosas. Vienen aquí, al estanque; son hermosas. Sabes, si tienes ranas es porque tienes un medioambiente muy sano.

Hoy debe ser su domingo de descanso.

[risas] Paz para todos. Si miras hacia allí [apunta a los parantes en forma de “v” que sostienen el alero] y ves que se parecen a las ramas de los árboles… Eso fue pura coincidencia. Pero, ya ves, al disponerlos de esa manera, estás usando la chapa tanto en tensión como en compresión. Dependiendo de si la fuerza viene de abajo (viento) o de arriba (personas trabajando sobre el techo). Así es que la chapa se convierte en un vector del sistema de transmisión de cargas.

Hablando de ese detalle, al mirar los planos originales de la casa Magney me pareció notar que ese hermoso alero [detalle que precedía al de Mount Wilson] apareció recién durante la obra, en Bingie. ¿Fue realmente así? Sería un interesante caso de “descubrimiento” en el camino del proceso de proyecto, con la estructura

portante ya definida y forzándote a lograr algo técnicamente innovador.

De hecho, el alero apareció como una consecuencia de tener que reducir el presupuesto antes de firmar el contrato con el constructor. Originalmente tenía toda la fachada Norte cubierta con lamas móviles de vidrio, en conjunto con persianas venecianas exteriores de aluminio, de piso a techo (exactamente como en la casa Marie Short). Tuvimos que reducir tanto la cantidad de lamas de vidrio como las venecianas exteriores. Al casi no tener alero, era ese sistema de persianas en toda la altura de la fachada el que proveía control de la luz y de penetración solar. En la reducción de costos, las persianas exteriores fueron reducidas y las lamas de vidrio fueron reemplazadas en su totalidad por ventanales corredizos hasta una altura de 2,10m sobre el nivel de piso terminado, con paños fijos de vidrio sobre el dintel de 2,10m, que por supuesto quedaron expuestos a los rayos solares durante todo el año. De aquí la adición del alero con esos parantes diagonales, para dar sombra a la casa hasta el nivel de dintel a 2,10m. Esto permitió el ingreso del sol en los ambientes a partir del equinoccio y durante todo el invierno. Las persianas venecianas, colocadas debajo de la línea de 2,10m, controlaban la radiación solar en verano, así como también durante las distintas variaciones climáticas a lo largo del año.

Glenn, estudiando en la Biblioteca Mitchell, en Sydney, uno puede ver esa colosal cantidad de dibujos de tus obras… No sé si existe alguien en el mundo que haya dibujado tanto.

Probablemente tengas razón. Porque nunca estoy satisfecho. Y sigo investigando. Cada proyecto es una adición en mi conocimiento. No una adición sobre el último, sino una adición sobre todo lo que he hecho. Y entonces dibujo sobre todo eso. Porque mi forma de trabajar es la misma que cuando comencé: no sabía lo que iba a hacer, pero sí sabía que quería hacer las cosas de manera hermosa y sencilla. Y, sabes, mi gran debilidad fue la incapacidad para dibujar. Y lo reconocí, porque como ya te dije, todo en la Universidad lo hacía con maquetas, siempre entregaba maquetas. No dibujé en absoluto, tuve que hacer maquetas. Y los profesores les quitaban el techo y todo el plano estaba en la maqueta, todo estaba hecho correctamente. Eran hermosas maquetas. Recibía notas altas. Tenía la experiencia de haber hecho todos aquellos aviones y veleros. Pero eso significaba que no tenía que hacer los dibujos y, por lo tanto, no me ejercitaba en el dibujo. Podía pensar tridimensionalmente a través de las maquetas. Pero, sabes, las maquetas son un poco peligrosas. He notado que las personas que hacen maquetas todo el tiempo continúan toda su carrera haciendo maquetas y terminan siendo arquitectos que están más interesados en la forma. Comienzas a manipular la maqueta como forma, en lugar de pensarla desde adentro: espacial, estructural, climáticamente. Todo eso tiene que venir desde aquí [señala su frente], y si no está aquí, estás en problemas.

Esto me recuerda a Enric Miralles. Hizo toda una serie de secciones de un croissant. Representaba las tres dimensiones del croissant, mediante las secciones.

¡Oh sí, claro! Y ya ves, cometemos un gran error, llamamos a la planta una planta, a la vista una vista, al corte un corte... ¡Son todos cortes! Y otro error que cometemos, hablamos de diseño y detalle... ¡Los detalles son diseño! No es algo diferente: es integral con el diseño. Ya que hablamos de dibujar…

Sí. ¿Conoces el libro La mano que piensa? Juhani Pallasmaa es mi mejor amigo. De todo el mundo, él es mi amigo más cercano. Se queda con nosotros en Kempsey, se queda en Mosman, se queda conmigo aquí, en Mount Wilson. Y ese libro te dirá por qué dibujo a mano. Y es porque llegas a las soluciones muy rápidamente. No tienes que sentarte a especular, viene automáticamente. No viene como consecuencia de pensar: viene antes de pensar.

Dibujas todo a mano. Muy rara vez tienes socios o colaboradores. Dedicas una gran cantidad de tiempo, varios años, a cada proyecto, por pequeño que sea. Hoy te tomas entre tres y cinco años para una casa. Pero los primeros diseños en tu carrera probablemente se hacían más rápido...

Mucho más rápido. Por ejemplo, trabajaba siempre con uno o dos constructores, y ellos podían hacer las obras en tres o cuatro meses. Yo hacía las especificaciones a mano, muy sencillas, especificaba el tipo de calentador de agua, el tipo de ventanas...

Apenas dos o tres láminas y eso era todo.

No, todo estaba en una sola lámina. ¡Una sola lámina! Eso era todo. Hoy en día soy mucho más cuidadoso. Solía reconocer

que mientras lograra un experimento en cada una de esas alteraciones, me daría el vocabulario y el potencial de detalle para todo el trabajo que siguiera.

Eso es maravilloso. Experimentabas a propósito.

Siempre quise experimentar. Y, por ejemplo, cuando trabajaba en una oficina, pasaban mucho tiempo desarrollando nuevos detalles, lo cual estaba bien, pero los detalles no eran tan especiales. Pensaba: Tanto tiempo dedicado a hacer esto...

Los detalles eran demasiado complicados, así que desarrollé un detalle (¿dónde puedo dibujar?) que se hizo conocido como el mur-frame: el marco-Murcutt. [risas]

Estás bromeando… ¿Era una especie de parante?

Sí, era como un parante de carpintería. Pero lo más lindo era esto... [dibuja con un lápiz, ver imagen] Esto de aquí podría ser un sellado y el agua que cae, cae allí. Podría ser un montante, con el vidrio allí, y esto sería metal, que podría ser aluminio anodizado, latón, bronce. Y eso es madera. Entonces, desde el exterior, el contravidrio tenía sólo 3 milímetros. Y realmente funcionaba.

Y este es un “mur-frame”.

Lo han llamado “mur-frame” [risas]. Entonces, en mis primeros nueve meses de profesional independiente, cuando no tenía trabajo, lo que hice fue contactar a todos los fabricantes que pude encontrar que producían componentes de metal extruido. ¿Ves eso allí? [señala la ventana de la cocina en Mount Wilson] Eso es un marco de acristalamiento de invernadero. El más barato. Y luego resolví los detalles: mira esa sección, es un poco así [dibuja de nuevo]. Eso es todo parte de la extrusión. Entonces, simplemente ubicas el vidrio aquí, y luego un clip; entonces, todo es acristalamiento seco. Y no usa agarre de goma, solo esto. Todo lo que tienes que hacer es tener una inclinación mayor de veinte grados; de lo contrario, si es demasiado bajo, el agua puede filtrarse y llenar el marco. Pero teniendo veinte grados o más, todo fluye. Y lo que desarrollé fue –y esta es la ventaja– la pieza metálica en ambos lados se proyecta en ángulo y el marco de la ventana se sujeta. Entonces, eso es acero que diseñé como si fuera vidrio; y lo coloqué de la misma manera que colocas un vidrio. Y eso significaba que no tenía que detallar mucho… son todos componentes estandarizados. De pronto estaba descubriendo que los detalles pueden ser realmente hermosos e incluso más hermosos que si me sentara y diseñara todo. Podía usar estos componentes estándar y trabajarlos en mis diseños. Y así, mis detalles se volvieron muy directos y muy simples.

Y uno ciertamente podría decir que tu arquitectura está hecha de detalles.

Cómo todo tiene un lugar. Debes poder ver la otra cara de la complejidad: simplicidad. Tienes que pasar por la complejidad. Es como con un pintor: la mayoría de los pintores que son fantásticos como artistas también tienen una formación clásica. Picasso fue entrenado de forma clásica. Pero cuando estás entrenado clásicamente, te desprendes; yo me desprendí. Fui entrenado clásicamente, y luego lo atravesé. No solo eso, trabajé en la carpintería de mi padre haciéndolo. Entonces, aprendí lo que significaba impermeabilizar algo. Aprendí lo que era unir materiales, hacer juntas. Aprendí que ciertos materiales son compatibles y otros son incompatibles. Por ejemplo, el aluminio reacciona con el galvanizado: si tienes una cumbrera de zincalum sobre sobre un techo de chapa galvanizada, el galvanizado se oxidará. Mientras que, por el contrario, si tienes el galvanizado en la parte superior y el zincalum por debajo, nada se oxidará. Se trata de las reacciones electrolíticas de los materiales. Aprendes sobre esas cosas. Como arquitecto, no querrás tener que pasar el resto de tu carrera pagando a los técnicos de mantenimiento.

¿Por qué usa pintura gris metalizada en lugar de galvanizar los elementos expuestos de acero? Como las columnas y las vigas aquí, en Mount Wilson.

¿Sabes que ahora han demostrado que la pintura dura más?

Dura el doble. ¡Mira la pintura, mírala! Tiene veinticinco años. El galvanizado duraría treinta años. En este sitio quizás un poco más, pero la realidad es que esta pintura durará más que el galvanizado, por décadas. Se trata de una pintura micácea: tiene “vida” en ella. Viene de la mica, el mismo producto que usan para el calor. Otra ventaja de esto es que

puedo hacer una soldadura en el sitio y pintarla después. No puedes hacer eso cuando galvanizas.

¿Conoces el trabajo de Lacaton & Vassal?

Los conozco muy bien. Visité muchos de sus edificios. Son muy buenos, gente excelente. Pero... hay como una cierta crudeza. A mí me gusta lo refinado, no soporto las cosas que son demasiado rudimentarias. A menos que se haga en madera. La madera puede ser maravillosa cuando hay un nivel de crudeza. Kempsey tiene una cierta cualidad de crudeza, por ejemplo: todas las maderas exteriores están usadas como salen de la sierra, sin cepillar. Es que al estar sin cepillar significa que las tinturas penetran más profundamente; su conservación será mucho mejor. Pero para usar en un deck, en una terraza, tiene que estar no solo cepillada sino también lijada, de lo contrario tendrá astillas. Entonces, debes tomar cada elemento según el papel que está cumpliendo.

Peter Rice dice que, durante la competencia por el Centro Pompidou, con Piano y Rogers, estaba tratando de descubrir en aquellos edificios industriales del siglo XIX que adoraba, qué era lo que los hacía más atractivos, menos industriales, más humanos. La respuesta estaba en la tradición del acero fundido. Y entonces nació la famosa pieza del gerberette, y todos los detalles estructurales y de fachada que dan vida al Pompidou. Contra la practicidad industrial, contra la agenda de los clientes. Creo que hay una clave en esa historia, y veo en esa clave una conexión con la forma en que tú todavía trabajas hoy.

Oh sí, eso es absolutamente así. Lo entiendo completamente. Porque la mano humana tenía mucho más que ver con eso. Todos los componentes podían ser recogidos por dos personas. Y cuando puedes hacer eso, puedes atornillarlos, de una forma hermosa. No necesitas una gran máquina, donde pierdes la escala. Se trata de entender cómo van las cosas juntas. Y cómo un humano, en un área remota, se las arreglará con eso. No puedo conseguir una grúa de 30 toneladas en un lugar como este [Mount Wilson]. Puedo traer una pequeña grúa que pueda tomar una de esas columnas y ponerla en su lugar. Hasta ahí puedo llegar. Si voy al doble de ese tamaño, ya no puedo hacerlo. Entonces, el sitio define cómo hacer estas cosas.

Ese triángulo de aquí, por ejemplo. Parece mantener juntos estos dos parantes y la columna. Probablemente podrías haber hecho el mismo edificio con los dos

parantes yendo directamente a la columna. Quizás era un detalle más sencillo, más barato. Pero ese triángulo es, creo, uno de los detalles que hacen al edificio.

Bueno, tiene que ver con tener en cuenta que hay puertas corredizas, que hay persianas, y que la estructura no puede atravesar nada de eso. Por lo tanto, tienes que sacar ese elemento hacia afuera, antes de hacerlo subir. Es totalmente lógico. Puedes ir a la puerta principal y echar un vistazo a la primera columna. Mira esas pequeñas ranuras: eso representa la división de lo que es estructural y lo que es la zona para las persianas. Es decir que está articulado. ¿Y ves la parte baja de ese elemento metálico, cómo se recorta a 45 grados? Cuando la lluvia viene en esa dirección, cae sobre las persianas y sobre esa pieza, y no quiero que el agua vaya hacia abajo de la casa: quiero que el agua baje y se descargue hacia afuera. Así que esa es la razón de que esa pieza apunte hacia el suelo.

Tu descripción suena tan técnica y los resultados son tan poéticos.

Es la unión de lo racional con lo poético. Algo puede ser racional y no bello. Cuando lo racional y la poesía coinciden, entonces estás cerca de una solución. Se trata de hacer consistentemente las mismas preguntas. Las mismas preguntas aparecen y debes obtener una respuesta que sea cada vez la adecuada.

¿Cuál es el rol de los ingenieros, desde el concepto hasta los detalles, en tu proceso de proyecto?

Como arquitecto, uno necesita tener una muy buena comprensión de cada aspecto del proceso de construcción. Hay que entender que cuando se diseña un edificio como este [Mt. Wilson] una Columna Universal de 100x100mm no va a funcionar. Un 100 es demasiado pequeño, tienes que saber eso; pero un 200 es demasiado grande, eso también lo sabes. Y cuando tratas con ingenieros, van a empezar con una Viga Universal de 760mm y uno quiere este tamaño [señala unos diez centímetros]. Y tienes que luchar contra eso. O simplemente dices: Estoy buscando una viga de este tipo de dimensión. Quiero eso debido a la escala del edificio y la escala de los elementos que lo rodean. Ahora, quiero que trabajes duro y me muestres cómo hacerlo. Los mejores ingenieros entenderán de qué estás hablando y harán todo lo posible para lograrlo. Y Jim [James Taylor] hace eso ahora, aunque inicialmente era muy conservador. Por ejemplo, nuestros códigos dicen que una viga de madera, que tiene 230mm de altura por 55mm de ancho, solo puede tener un voladizo de un metro. Jim dice: Mira, no puedo hacerlo volar más de lo que dice el código. Yo digo: Jim, esto irá 1,5 metros. Él dice: No estoy seguro de eso. Yo digo: Lo estoy poniendo y lo voy a hacer. Él dice: OK, yo lo dibujaré según código y tú según lo que quieres hacer. De esta forma el ingeniero no es responsable, porque lo dibuja de un metro; luego yo lo construyo de un metro y medio. Simplemente rompo el código. Pero sabes que una pieza entera de buena madera dura australiana, que cruza todo el espacio y toma un voladizo de cada lado, al ser levantada por la deflexión del centro, no tiene ningún problema en absoluto. ¡Yo eso lo sé!

Suena bien para mí.

Otro ejemplo. Has visto el ventanal de vidrio pivotante en la parte trasera de nuestra casa en Mosman, con el voladizo. Los especialistas en vidrio dijeron que no funcionaría. Simplemente, según el código, no funcionaría. Así que llamé al fabricante de vidrio y él me dijo: Mira, según el código dice que no funciona, pero... puede que tengas razón. Si estás preparado para correr el riesgo, lo haremos nosotros. Le dije: Estoy preparado para correr ese riesgo. El vidrio es increíblemente flexible. En tensión es fantástico; no tanto en compresión, pero en tensión es muy bueno. Mira, incluso la gente de tecnología del vidrio en Australia, a quien le pagamos mil dólares por investigarlo todo, dijo que no funcionaría. Ellos han hecho todas las obras de Renzo Piano en Sydney. No entiendo qué les pasa a todos. Porque funciona. Hay algo mal con el código, y como los consultores y los fabricantes sólo quieren trabajar dentro de ese código, están aterrorizados. ¿Cómo puedes hacer algún progreso sin siquiera intentarlo?

El fracaso es el método por el cual avanzamos. Y si las cosas no fallan, ¡no avanzamos! Si no llevamos los materiales a sus límites, no avanzamos. Y no nos volvemos económicos. Porque si empujamos un material hasta sus límites, lo estamos haciendo trabajar genuinamente muy duro, ¡lo cual resulta ser muy económico!

Glenn, quisiera volver sobre una obra que indudablemente y según tus propias palabras produjo en fuerte influjo en tu forma de diseñar: la Maison de Verre. La visitaste justo antes de un giro importante en tu carrera, el proyecto para Marie Short. ¿Cómo describirías esa

visita y el impacto que tuvo en ti?

En 1973 –creo que fue en ese año– escribí una carta a la dirección. Un hombre llamado Dr. Vellay me respondió con otra carta: La casa no está abierta al público, pero como tienes una beca y estas viniendo desde Australia, me encantaría que vinieras. Eso fue todo. Cuando llegué a Paris, fui a la casa, pasé unos diez minutos con él y me dijo: Ahora tengo que dejarte, pero mi empleada doméstica polaca se va a quedar aquí; ella puede darte acceso a cualquier parte de la casa que quieras ver. Pasé unas cinco horas analizándola, entendiendo sus detalles; saqué unas 70 fotografías de sus componentes. Me encantaba la idea de una casa que podía ser modificada. Como pasa aquí [Mt. Wilson]: puedes abrir el ventanal por completo, ser parte del paisaje. La Maison de Verre no podía abrirse hacia el jardín como esta, pero tenía muchos elementos con movilidad, era muy ingeniosa, inteligente. Y no solo eso, ¡era moderna! Era moderna en ese momento y continúa siéndolo ahora, no ha envejecido. ¡Todavía es moderna hoy! Entonces, lo que esta casa me enseñó es que la arquitectura moderna no ha muerto, la arquitectura moderna de verdad es de final abierto. Y no termina en lo estilístico: tiene que ver con entender la profundidad de la construcción de un espacio y de cómo un espacio puede ser logrado de una forma material, de la manera más hermosa. Bernard Bijvoet y Pierre Chareau lograron eso. Y con ello me enseñaron que había un gran futuro en la arquitectura moderna, y por esa razón no me salí de la senda de la arquitectura moderna.

¿A qué te refieres exactamente?

1 Primera versión del proyecto rotado a 90 grados hacia el valle para orientarse a Norte

Cuando surgió el postmodernismo, yo elegí continuar por los callejones traseros. No me le acerqué de ninguna manera, porque había visto en la casa de Chareau un futuro para mí. No la copia, pero la comprensión de sus principios, digamos, sobre el detalle. Y sobre la luz. Y sobre lo que es un refugio; para Chareau, cuando estás en la ciudad no necesitas muchas vistas, necesitas refugio. Y la casa lo tenía, y sin embargo admitía luz, y variaciones de la luz, por los ladrillos de vidrio. Tenías tu privacidad, pero sabías que era un día soleado, un día ventoso, un día de lluvia o un día frío. La ventilación también era excelente. Hermosa ventilación y también seguridad: por ejemplo, la puerta de acceso tiene una rendija al costado, con una pequeña compuerta por detrás, entonces nadie puede entrar pero lo puedes tener abierto todo el tiempo. Hermoso. O esa puerta curva con una manija arqueada, que fue diseñada para que las mujeres embarazadas pudieran pasar de una forma cómoda y elegante. El médico podía agarrar la manija y levantarla hacia atrás, abriendo así la puerta y sin interponerse en el camino de su paciente. Hermosa forma de pensar; ese tipo de cosas me interesan. Verás, ellos también tenían un herrero que era brillante [Louis Dalbet]. Chareau era un diseñador de muebles e interiores, con lo cual también tienes que mirar al arquitecto holandés Bijvoet [socio de Chareau] y tienes que mirar a este herrero y son realmente ellos los que lograron mucho de lo que se ve allí. Es fantástico. Debo haber estado, después de aquella primera visita, unas diez veces en esa casa.

No confío en el pasado en términos de éxito. Pienso que es peligroso. Si has hecho obras que han sido bien recibidas: ten cuidado. Ten mucho cuidado. Porque la mejor obra convierte en vulnerable todo lo que viene después.

Puedes caer muy fácil. Como sabes, fui criado por mi padre en la filosofía de Henry David Thoreau. Cuando empecé mi práctica profesional, me dijo: Hijo, debes empezar de la manera en la que te gustaría terminar. Y recuerda que por cada compromiso que tomas en tu trabajo, el resultado representa la calidad de tu próximo cliente. ¿No es bueno? Lo resume todo. Es la pura verdad. Y esa es la razón por la cual he intentado hacer una obra decente cada vez. Si haces menos de lo que eres capaz, entonces eso representa los estándares de tu próximo cliente. Y, como dijo Thoreau: Como la mayoría de nosotros haremos cosas ordinarias en nuestras vidas, lo más importante es hacer esas cosas ordinarias extraordinariamente bien.

2 Primer croquis y planta con la disposicion definitiva La pasarela de acceso era curvada en un principio ¿Qué es el éxito para un arquitecto?

3 Casa Magney, detalle original segun ingeniero y alero agregado en lápiz a posteriori

4 Original de la conocida sección universal 1 en 20. Tinta sobre papel de

calco

7

5 Croquis del apodado mur-frame y detalle del ingeniero mostrando su utilizacion en la casa Simpson-Lee
6 Croquis detalle de fachada y alero, con el parante diagonal incorporado a partir de la casa Magney
Detalles 1 en 1 de carpinterias corredizas y persianas venecianas

Una arquitectura asamblearia

Objetos de consenso y urbanismo de las asociaciones en ecologías urbanas complejas

* Ariel Jacubovich es Arquitecto FADU UBA donde practicó la docencia asi como en otras universidades americanas y tiene su práctica profesional en su Oficina desde donde trabaja en proyectos urbanosaquitectónicos típicos (muchos de ellos con rasgos alternativos y experimentales) asi como tareas de servicio social en lo que denomina arquitectura asamblearia, tema en el cuál realiza su tesis doctoral en FADU UdelaR de Montevideo.

Arquitectura asamblearia propone otro modo de producción de arquitectura, que intenta democratizar la transformación de los entornos habitables a partir del ensamblaje en red de entidades heterogéneas.

La asamblea es la figura que nos permite abrir el laboratorio disciplinar de producción de proyectos, habilitando la conformación de los escenarios que los sustenten y los impulsen. Distintos grupos conformados en muchos casos por profesionales de la arquitectura y de otras disciplinas venimos desplegando estrategias complejas para poder implementar formas de colaboración con una multiplicidad de actores del territorio. Los proyectos se despliegan como procesos, acompañando durante un tiempo más o menos extendido experiencias de transformación de lugares específicos.

Esta práctica ha permitido interrogarnos sobre la relación entre producción de proyectos, (representaciones, imaginaciones, documentos técnicos, construcciones, edificios, en fin lo que se produce al hacer arquitectura) y las formas de organización y de representación que

adoptan las comunidades desde donde surgen estas arquitecturas autogestionarias en su afán por incidir en la construcción de los territorios donde actúan y habitan.1 Imbrica el sistema de producción proyectual con formas no convencionales de abordar las controversias que atraviesan el entorno habitable. Territorios donde la tensión en la relación de los flujos y los lugares se concentra puntualmente como Nodos en los que se manifiestan las disputas urbano territoriales y conflictos socio ambientales. Movimientos de resistencia, impulsados especialmente por grupos, movimientos y asociaciones con aspiraciones colectivas por generar nuevos modos de habitar.

Este cambio exige enfocar en las asociaciones y vínculos en forma de redes en constante formación, para poder describir y al mismo tiempo participar desde la arquitectura en lo que está sucediendo.

1 Esta práctica investigativa para el desarrollo de proyectos de arquitectura realizados junto a organizaciones, venimos desarrollándola desde hace más de diez años desde Ariel Jacubovich Oficina de Arquitectura y a través de la plataforma CAPA Colectivo de Arquitectura Pública Asamblearia.

Para insertarse desde las capacidades propias de la arquitectura, adoptamos la manera de tomar decisiones que sostienen muchas de las organizaciones: la asamblea. Esta operación que para nosotros inicialmente se presentó como de sintonización o de generación de confianza entre el colectivo de arquitectura y la comunidad derivó en una transformación en los modos de producir los proyectos, ya no como respuesta a unas problemáticas existentes; sino como una coproducción cooperativa entre grupos diversos puestos a trabajar juntos.

Lo que se produce así no es exclusivamente un proyecto como construcción o visualización de una posible transformación, sino también una prefiguración de formas de vida alternativas, y la construcción de los espacios para su experimentación.

Las problemáticas o controversias no anteceden al proyecto sino que surgen en simultáneo, las condiciones para que emerja una arquitectura se generan a la par que el proyecto.

En el devenir de las sucesivas experiencias hemos tenido que nombrar lo que hacemos con nuevos términos, que describen las prácticas a la vez que las configuran como metodología o herramientas, y que constantemente reflexionan sobre su sistematización: Ecologías urbanas complejas, Agrupaciones socio-técnicas, Asambleas de proyecto, Objetos de consenso, vectores de re-urbanización, o Urbanismo de las asociaciones. Son términos surgidos en el dialogo entre las prácticas de los proyectos que fuimos implementado y las investigaciones y especulaciones conceptuales asociadas.

Del Laboratorio a la Red expandida

Durante el periodo posterior a la crisis de 2001 en Argentina, las organizaciones sociales que habían emergido de las instancias de protesta ante el largo declive económico, social e institucional que produjo en los años 90 el neoliberalismo en Argentina, devinieron en movimientos sociales abocados a la transformación de las condiciones de vida en los barrios. Algunos de estos movimientos protagonizaron situaciones de disputas territoriales que se convirtieron en ensayos pre-figurativos de construcción de ciudad.2

A principios de 2009, luego de varios años de ocupación de un predio industrial abandonado llamado Roca Negra en el sur del partido de Lanús, en el conurbano de Buenos Aires, comenzamos junto al colectivo organizado del MTD, Movimiento de Trabajadores Desocupados, un experimento arquitectónico para producir un proyecto a realizarse de manera asamblearia. Ciudad Roca Negra fue un proceso de más de cuatro años, que a la vez desencadenó una serie de experiencias proyectuales de arquitectura asamblearia. Una práctica que continúa hasta la actualidad, atravesada por la investigación de nuevas formas de producir de

2 Diego Stulwark utiliza la figura del bricoleur, desarrollada por Levi Stauss en El pensamiento Salvaje, para condensar esta relación entre prefiguración y formas alternativas durante la crisis. Las subjetividades de la crisis son como el bricoleur, que no distingue entre pieza y herramienta, y no introduce una diferencia de naturaleza entre criterio formal y movimiento concreto. Los escraches de H.I.J.O.S., los clubes de trueque, las asambleas barriales, las fábricas recuperadas, los piquetes fueron prefiguraciones de postestatalidad. Veáse su libro La ofensiva sensible. Neoliberalismo, populismo y el reverso de lo político, Caja Negra, Buenos Aires, 2019.

manera colectiva una arquitectura que pudiera participar desde sus capacidades políticas, en una transformación urbana o territorial.

Ahí se inició este camino al incorporar las Asambleas al interior del proceso proyectual, permitiendo desarrollar una arquitectura que funciona como Objetos de consenso y a la vez articulando los intereses y las divergencias en un escenario complejo. Las arquitecturas resultantes, al insertarse en estos entramados y estabilizar las controversias hacia un proceso de transformación, pueden operar como vectores de urbanización: como un urbanismo en red o un Urbanismo de las Asociaciones.

Asambleas de proyecto

Este proceso se desplegó y ramificó en otros proyectos conformando una práctica investigativa que se extiende ya durante más de diez años y que fue involucrando a arquitectos profesores, estudiantes, agrupaciones, militantes, artistas, movimientos sociales, sindicatos, cooperativas y a una multiplicidad de actores territoriales que se articulan en torno a los procesos de construcción de arquitectura comunitaria. Procesos al mismo tiempo de generación de condiciones de ciudad en entornos precarios,3 caracterizados por la

3 A estas áreas precarias donde se desarrollan los proyectos preferimos entenderlas como ecologías urbanas complejas. Ecologías ya que funcionan como sistemas donde las diferentes partes que participan interactúan y se afectan entre sí y complejas porque la precariedad, como ausencia, no es lo que funda el estado de cosas (como la ausencia de un actor preponderantes que pueda destrabar la situación) sino más bien la falta de acuerdos entre las partes que posibilite un cambio

falta de infraestructuras y la ausencia o fracaso de políticas públicas, pero también, y como contrapartida, por un alto nivel de organización popular y colectiva en torno a los asuntos comunes.4

A partir de esta primera experiencia de proyecto asambleario que fue Ciudad Roca Negra emprendimos un camino en el cual fuimos desarrollando una sucesión de proyectos de distinta índole y alcance. 5 Tienen en común una etapa asamblearia fundacional y se articulan en torno a conflictos y controversias, o deseos por generar otras formas de hábitat y convivencia urbana:

Ciudad Roca Negra : un experimento para producir condiciones urbanas través de programas autogestionarios (educativos, recreativos, micro-productivos activistas y de economía popular).

de situación. Estas partes o actores suelen estar articulados, y se organizan como redes híbridas en formación, que reúnen a entidades sociotécnicas conformadas por grupos y asociaciones, infraestructuras materiales y formas de organización. Estas redes, en la que se incorporan los proyectos, ya no son lo que se consideraba contexto para la arquitectura, sino las comunidades que construyen escenarios de transformación. En esta concepción, la arquitectura desarrollada de manera asamblearia se incorpora a las redes como un actor más, como un nodo en el mejor de los casos, participando en sostener vinculaciones, pero a la vez respondiendo a sus propios intereses arquitectónicos.

4 Sobre esta relación entre ausencia de infraestructuras materiales y emergencia de organización popular es interesante la mirada de AbdouMaliq Simone sobre las acciones que atraviesan a los diferentes grupos y que terminan funcionando de manera infraestructural, extendiendo la noción de infraestructura directamente a la actividad de las personas en las ciudades. Ver: People as Infrastructure: Intersecting Fragments in Johannesburg Simone, AbdouMaliq. 2004. Public Culture, Goldsmiths Research Online. Disponible en: http://research.gold.ac.uk/1946/

5 Estos proyectos desarrollados inicialmente como trabajos dentro de la oficina devinieron luego en la conformación de CAPA Colectivo Arquitectura Pública Asamblearia funcionando primero como colectivo con miembros fijos y luego como plataforma asociada a la oficina Ariel Jacubovich (http://arieljacubovich.com. ar), activándose para cada proyecto.

Estación Kosteki y Santillán : un espacio comunitario y de reivindicación de la memoria de los dos luchadores populares en la renombrada estación de tren escenario de la Masacre de Avellaneda.

Plaza del Pan : una plaza de juego y deporte vinculada a una panificadora barrial.

Centro comunitario La fe : espacio de equipamiento social en un asentamiento del conurbano.

Biblioteca Caminante : una infraestructura móvil para la generación espontánea de espacios de interacción cultural itinerantes,

EMCUR : Espacio de memoria de la dictadura en el centro universitario de Rosario.

Biarritz : Edificio de vivienda colectiva. 35 viviendas para una cooperativa de docentes de la Provincia de Buenos Aires.

Espacio de Paz Valle del Pino en Venezuela: un espacio comunitario desarrollado por y para sus habitantes.

A lo largo de estos proyectos surgieron las siguientes preguntas: ¿cómo activar la transformación en ecologías complejas, lugares donde las políticas públicas o los procesos de re-urbanización no llegan?

¿De qué manera se puede hacer arquitectura pública, pero autogestionada? ¿Cómo generar instancias de participación dentro de los procesos más disciplinares de los proyectos?¿cómo incorporar al estado con sus programas de gobierno como un actor más en este entramado de asociaciones?6

La forma de desarrollar los proyectos de manera asamblearia es la que permite dar respuestas a estos interrogantes. Pero las asambleas de proyecto no son homogéneas ni siguen un método ya probado, las hay de diferentes tipos según van cambiando sus dinámicas y sus objetivos, así como los actores con los que se pretende trabajar. Llevan lo producido a otro campo, en algunos casos el de lo lúdico o el de la experimentación material.

En sus diferentes formatos y dinámicas hemos puesto en práctica Asambleas de proyecto como formas deliberativas o discursivas, para la producción de documentos arquitectónicos, como talleres de dibujo o maquetas, de construcción, de replanteo o medición de terreno, de escritura, de carpintería, de imaginación de futuros (La casa de futuro) o de proyecciones y teatro de sombras. Cada una de estas dinámicas produce algo en sí mismo y a la vez participa de las definiciones del proyecto de arquitectura. Foros híbridos con especialistas no-humanos

6 Ver en Bruno Latour, Reensamblar lo social, una introducción a la teoría del Actor-red, Buenos Aires, Manantial, 2008, el capítulo Un actor es aquello que muchos otros hacen actuar: ...un actor es un actor-red en primer lugar para subrayar que representa la mayor

Esta concepción del proyecto requiere nuevos protocolos de producción colectiva. Esferas de competencia de múltiples actores, abiertas a foros híbridos y con sistemas de tomas de decisiones no controlados exclusivamente por los arquitectos. Más que la determinación del proyecto como pre-visualización ¿será la conformación de los parlamentos y el diseño de los

fuente de incertidumbre respecto del origen de la acción.

procedimientos colectivos la nueva competencia de la arquitectura?

Para que el proyecto funcione también como dispositivo articulador de estas redes territoriales requiere por un lado viabilizar la potencialidad de los actores que ya están asociados y vienen trabajando en conjunto, y por el otro completar la red incorporando nuevos actores, en algunos casos desvinculados hasta el momento por estar en posiciones políticas contrapuestas o con intereses específicos irreconciliables en relación a la controversia que los reúne. Sin bien no será competencia del proyecto resolver estas controversias, que suelen estar ancladas en situaciones territoriales de conflicto, como si fuera la resolución de un problema; las asambleas pueden participar en la generación de las condiciones para que se genere una posible transformación superadora.

La composición de estos parlamentos puede estar integrada tanto por personas humanas, como por objetos. Cosas significativas, que por su potencialidad de movilización poseen capacidad de agencia en un hipotético escenario de transformación. Estas entidades no-humanas toman el lugar del especialista ya que contienen en su constitución material y en su forma de comportamiento un saber especifico ineludible para la situación.

Desde bloques de hormigón producidos de manera activista hasta imágenes conmemorativas aportadas por artistas y militantes son ejemplos de estas cosas que han participado en alguno de nuestros proyectos. Darle voz a cada uno de estos actores no humanos re-

Imagen 1
PODER POPULAR en bloquera Dario Santillán

quiere reconocer la agencia que ejercen sobre ellos los otros actores [6] y facilitar su participación al apuntar a producir un consenso no-discursivo, a través de la producción colectiva de documentos gráficos que son los que irán constituyendo el cuerpo del proyecto. (ver imágenes 1 y 2)

La Asamblea de Proyecto es un foro híbrido que como dispositivo pone en relación a estos actores heterogéneos en un sistema de transformación material que es el proyecto.

Hacia una arquitectura asamblearia en Ciudad Roca Negra

La primera experiencia por la que transitamos en esta práctica asamblearia fue Ciudad Roca Negra, nombre del proyecto de equipamiento comunitario (emprendimientos educativos, culturales, productivos y recreativos) en un predio de casi tres hectáreas asentado en un área residencial e industrial suburbana de Buenos Aires. El espacio fue ocupado primeramente por la agrupación Madres de Plaza de Mayo y luego por el Frente Popular Darío Santillán (emergente de la agrupación MTD Movimiento de trabajadores Desocupados), que como otras agrupaciones piqueteras surgidas durante los años 90 comenzaron articulados alrededor de la protesta por trabajo pero que con el tiempo fueron mutando, más decididamente a partir de la crisis, en organizaciones por la reivindicaciones de derechos y en impulsores de transformación del entorno habitable.

Sin embargo, en esta ampliación de las competencias, desde la protesta a la construcción de hábitat popular, esta agrupación mantuvo su independencia de organizaciones gubernamentales o partidarias, basadas en el autonomismo como identificación política y la horizontalidad como forma de organización.7 Al momento de comenzar el proyecto ya venían desarrollando en el lugar programas de interés público a escala barrial o urbana de manera autogestionaria: un bachillerato popular, una huerta y comedor comunitario, microemprendimientos productivos (como la fábrica de bloques de concreto Darío Santillán) y una sucesión de actividades nucleadas en torno al espacio de la asamblea destinado a la toma de decisiones de la misma organización.

Al visitar el lugar y conversar con los diferentes referentes del movimiento nos dimos cuenta que la diversidad de miradas y aspiraciones sobre las posibles transformaciones materiales iban a requerir un consenso previo que volviera convergentes las diferentes posiciones sobre las prioridades y estrategias a seguir.

7 Marina Sitrin describió la relación entre lo horizontal y el territorio en su observación de los procesos asamblearios desarrollados en torno a la crisis. En Argentina el uso del espacio y el concepto del territorio también fueron centrales. Esto fue cierto para el movimiento de asambleas vecinales, para los movimientos de trabajadores desocupados y para las empresas y fábricas recuperadas. La gente hablaba de nuevos lugares de encuentro, lugares ajenos a las formas de los poderes institucionales. Un participante en las asambleas lo describió de la siguiente manera: Entiendo la horizontalidad como una metáfora del territorio, como una manera de practicar la política a través de la construcción de un territorio; la política tiene ahí su fundamento, y la democracia directa tiene que ver con esto. Es como si necesitara ocupar un espacio.” Extraído de su artículo Horizontalidad y territorio. De Atenas a Buenos Aires, un fantasma recorre el mundo: el fantasma de la horizontalidad.

Imagen 2

Imagen producida por el TPS Taller Popular de Serigrafía.

Imagen 3

Acampe de las organizaciones

sociales en Avenida 9 de Julio y

Asamble de Proyecto en Ciudad

Roca Negra. 2009

Fue así que utilizar el modelo de la asamblea como un sistema abierto para la toma de decisiones permitió iniciar la conversación con el colectivo a la vez que resolver la necesidad de producir consenso. Pero no nos interesaba un consenso previo al proceso proyectual, sino a través del mismo (ver imagen 3). Iniciamos una sucesión de asambleas de proyecto más o menos periódicas durante casi un año. En las mismas la participación se producía mediada por instrumentos y procedimientos que desarrollábamos previamente y que alentaban el pasaje y la traducción de una instancia de representación en la siguiente: un listado de necesidades, recursos y aspiraciones para el lugar, que devenía en un tablero de juego con fichas de unidades programáticas que ilustraban palabras pronunciadas en asambleas previas y que ejercitaba diferentes disposiciones espaciales de ocupación, unos mapas de agrupaciones de dichas unidades en formas organizativas más complejas, que devenían luego en unos diagramas de ensamblaje de los mismos; y que terminaban en un plano arquitectónico todo el tiempo provisorio esperando la siguiente asamblea para actualizarse.8

A la par que se fue concertando el plan general, con la sumatoria de partes articuladas en un sistema que formarían el proyecto, también iban tomando voz ciertos actores cosas. 9 El bloque de concreto que venía produciendo la Bloquera Darío Santillán pasó a tener una preponderancia en el proceso asambleario basada simétricamente tanto en su productividad material, como en su representación simbólica como elemento transformador de la realidad de los barrios.

Ensamblar la asamblea

Para completar la red que pueda sostener el proyecto fuimos incorporando nuevos actores: la cooperativa de construcción, el bachillerato popular como formación en oficios, así como programas gubernamentales. También se vincularon asociaciones civiles como clubes de futbol, agrupaciones de trabajadores de la tierra (cultivos orgánicos), artistas audiovisuales etc.10 La Universidad de Buenos Aires, a través de nosotros como investigación en la Facultad de Arquitectura que permitió que estudiantes pudieran hacer una práctica en el territorio.

8 Lombardi, Roberto. 2014. El arquitecto como representante, Revista Modos 4: …el trabajo no tratará de modelar rápidamente opciones previsibles, sino de re-construir procedimientos de representación usualmente propios de la disciplina arquitectónica para que operen en otras condiciones, no ya como figuraciones de un autor ilustradas a un comitente, sino como estructuras de soporte para un sistema abierto de toma de decisiones.… Si algo consigue construir con intensidad Ciudad Roca Negra es cómo reorientar la productividad de la arquitectura, no para modelar previsiblemente -sin investigar- las infraestructuras destinadas a identificar y solucionar problemas colectivos, sino para hacer emerger consistente y colectivamente lo imprevisible.

9 Sobre las actores-cosas ver el capítulo Tercera fuente de incertidumbre: los objetos también tienen capacidad de agencia, del libro de Bruno Latour Reensamblar lo social, una introducción a la teoría del Actor-red:… entonces cualquier cosa que modifica con su incidencia un estado de cosas es un actor o, si no tiene figuración un actante. Por lo tanto las preguntas que deben plantearse sobre cualquier agente son simplemente las siguientes: ¿incide de algún modo en el curso de la acción de otro agente o no? ¿Hay alguna prueba que permita que alguien detecte esta incidencia?

10 Ver el video realizado por el LAC Colectivo Audiovisual Comunitario para el Festival de Arquitectura Ciudad Roca Negra: https://www.youtube.com/watch?v=ohZRn6_9kQI

Al desarrollar las partes del proyecto hicimos asambleas específicas con el grupo de las cocineras y con niños. Lo producido por estos grupos se utilizó como material de trabajo en otros talleres y luego sintetizado en un proyecto de juego de plaza que se construyó entre los adolescentes y los estudiantes de arquitectura. Ensamblar la asamblea es poner en relación a los actores ya involucrados, incorporar nuevos actores que complementen la red y darles voz a actores que por distintas razones no participan de estas instancias decisorias (como los niños o adolescentes proponiendo propuestas a problemáticas urbanas). (ver imagen 4).

Esta tarea de re ensamblaje se repite en la sucesión de trabajos y proyectos que fuimos desarrollando a partir de la experiencia de Ciudad Roca Negra.

Traducir la Asamblea

El material producido en las asambleas, en muchos casos, luego hay que traducirlo para utilizarlo como material de proyecto. En Venezuela en 2015 participamos de la segunda edición de Espacios de Paz, un programa que en conjunto con el gobierno central se proponía desarrollar y construir arquitectura comunitaria en 5 puntos del territorio nacional, elegidos por sus condiciones de precariedad y violencia urbana. Fuimos convocados a desarrollar un proyecto para Valle del Pino, un barrio en la montaña cerca de la costa con grandes problemáticas sociales y falta de infraestructura. a particularidad

Imagen 4

Taleres de arquitectura para niños. Proyecto Casa de los Chingolitos

Imagen 5

Inauguración Espacio de Paz

Valle del Pino, mayo de 2015.

de la propuesta era que contábamos solamente con 5 semanas para desarrollar el proyecto con la comunidad incluyendo la construcción. El proceso que en Ciudad Roca Negra llevó casi 5 años acá se reducía a 5 semanas.

Por supuesto que el contexto era muy distinto, la predisposición política junto con el marco normativo de la ley de comunas facilitaba la articulación entre instancias centrales de gobierno con organizaciones territoriales de base y permitía predestinar recursos para que cuando

comenzara el proceso ya estuvieran disponibles y no sea otra tarea a desarrollar. En la semana que le dedicamos a definir el proyecto desde que llegamos al barrio hasta que arrancaríamos la obra nos propusimos hacer una asamblea de proyecto por día con distintos grupos.

Reuniones con vecinos para definir los programas, con los transportistas para delinear los límites peatonales y vehiculares, con los grafiteros para definir las significancias relevantes a representar en los murales, hasta talleres de dibujo, de proyecciones y de teatros de sombras. También la construcción podríamos pensarla como unas asambleas de formación en oficios y transmisión de saberes entre los maestros constructores y los aprendices jóvenes.

Una de ellas fue un taller de dibujo con los niños con la consigna que dibujaran La casa del futuro. Los dibujos que realizaron revelaron información que luego fue clave al incorporarlos como material de trabajo para el desarrollo del proyecto. Muchos de estos dibujos describían la casa, siempre acompañada de grandes árboles. Así fue que comprendimos que el deslave, la catástrofe nacional acontecida en 1999 cuando la montaña se desmoronó hasta el mar y tapó literalmente al pueblo, se había llevado la sombra. Los árboles se vislumbraban a lo lejos en la montaña, pero no había arboles dentro del barrio; y la sombra era un bien escaso… Esos árboles dibujados por los niños y luego por nosotros, se convirtieron en la figura que organizó decisiones fundamentales del proyecto, cuatro pilares troncales que se ramifican y sostienen toda la cubierta que es la que provee sombra a la plaza aérea (ver

imagen 5). Nuestra tarea fue traducir lo producido en las asambleas en un proyecto común a todos.

Construcción de dispositivos

De manera casi opuesta fue el proceso de la Biblioteca Caminante. Nos convocaron a proponer una biblioteca móvil a realizarse como ejercicio de construcción por jóvenes de un programa de formación en oficios para la biblioteca de una escuela, cercana de la villa 31 la más antigua y una de las más populares de la ciudad de Buenos Aires. En este caso las vinculaciones entre los diferentes grupos ya venían dadas por el impulso de docentes y artistas activistas de un Club de jóvenes. La red ya estaba ensamblada antes de comenzar el proceso de proyecto. Por eso podemos pensar retrospectivamente que desarrollar las asambleas, donde cada uno de los jóvenes proyectó una posible biblioteca y luego construirla entre todos con restos de pupitres y otros elementos abandonados encontrados en la escuela, fue el medio para desarrollar un dispositivo, condensado en el objeto biblioteca móvil.11 Es decir, un objeto con capacidades de sostener prácticas y articulaciones de una red heterogénea (ver imagen 6).

11 Agamben cita a Foucault buscando una definición de dispositivo: Lo que trato de determinar con este término es ante todo un conjunto absolutamente heterogéneo que implica discursos, instituciones, estructuras arquitectónicas, decisiones regulativas, leyes, medidas administrativas, enunciados científicos, proposiciones filosóficas, morales y filantrópicas, en breve: tanto lo dicho como lo no-dicho, estos son los elementos del dispositivo. El dispositivo es la red que se establece entre estos elementos...Giorgio Agamben, Qué es un dispositivo. Adriana Hidalgo , Buenos Aires, 2014.

Imagen 6A-B

Biblioteca Caminante en la escuela Carlos Mujica del barrio de Retiro y en el Centro Cultural Haroldo Conti.

Imagen 7

Proyectos de biblioteca móvil desarrollados por los jóvenes en talleares de proyecto y Logo de la Biblioteca Caminante.

Biblioteca Caminante (Walking Library en inglés, parafraseando a Archigram con su Walking city) podría llamarse en simultáneo al objeto y al conjunto de eventos que suceden en derredor del mismo, por eso lo entendemos como un dispositivo, como un ensamblaje entre lo material, las acciones, el empoderamiento y los sucesos. De hecho, la definición del nombre fue a través de un debate que terminó en votación y en el que ganó asociar a la palabra biblioteca con caminante como una cualidad del objeto, en contraposición a la otra opción de quien ejecuta la acción (Biblioteca que camina) (ver imagen 7).

Una vez terminada de construir la Biblioteca Caminante funcionó como soporte de actividades de los diferentes grupos que participaron del proceso de construcción y de otros que se van integrando circunstancialmente: ciclos de narraciones, exposición de fanzines, proyección de audiovisuales producidos por los jóvenes, funciones de kamishibai, escenario de hip hop, soporte de exposiciones, espacio para siestas y sala de lectura durante los recreos.12 Escenarios de transformación

En todos los casos el objetivo de las asambleas de proyecto y de la arquitectura encarada como procesos de articulación de entidades híbridas y actores heterogéneos es la de participar activamente en la conformación de escenarios de transformación. Entendidos

12 http://arieljacubovich.com.ar/biblioteca-caminante/

estos como la construcción de una escenificación entre los actores que estabilice la trayectoria de la red en una convivencia fundada en la transformación del entorno habitable, a través de la construcción de infraestructuras sociales y materiales. Cada vez más las demandas socio ambientales y las disputas territoriales son atravesadas por la necesidad de generar espacio para la experimentación de nuevos modos de habitabilidad, para no seguir delegando las condiciones de producción de lo urbano en el mercado generador de exclusión. El derecho a la ciudad más que un derecho al acceso a las condiciones favorables de urbanidad que ofrecen las ciudades se entendería como el derecho a construir ciudad, a modificar y a configurar las condiciones según modelos alternativos de convivencia en lo urbano.13 Y en ese sentido es un derecho en disputa ya que los diferentes modelos suelen ser controversiales, no basados en un consenso. En este contexto la experimentación se materializa como nuevos escenarios que prefiguran posibilidades surgidas del disenso urbano, donde lo especifico local en el presente cobra una dimensión de escala global hacia el futuro. Lo que se hace ahora como prefiguración, es producir en el presente futuros alternativos. El rol del proyecto de arquitectura en esta concep-

ción ya no es la de previsualizar una transformación a modo de un futuro posible como lo viene haciendo desde la modernidad, sino más bien producir la inestabilidad necesaria en el presente para traducir a un escenario de transformación una situación específica caracterizada por la inacción ante la inequidad socio ambiental o la injusticia espacial.

13 David Harvey, Ciudades rebeldes. Del derecho de la ciudad a la revolución urbana. Ediciones Akal, 2013, Madrid. El derecho a la ciudad es por tanto mucho más que un derecho de acceso individual o colectivo a los recursos que esta almacena o protege; es un derecho a cambiar y reinventar la ciudad de acuerdo con nuestros deseos. Es, además, un derecho más colectivo que individual, ya que la reinvención de la ciudad depende inevitablemente del ejercicio de un poder colectivo sobre el proceso de urbanización

Urbanismo social o Arquitecturas de las Asociaciones

En todos los casos el objetivo de la arquitectura asamblearia es la de participar activamente en la conformación de escenarios de transformación que sean más democráticos. La propuesta de un posible Urbanismo de las Asociaciones a diferencia del “Urbanismo social” enfocaría en potenciar los vínculos de lo que se presenta como disociado pero que sin embargo trabaja en conjunto todo el tiempo. Ni top-down ni bottom up. 14 En esta concepción la arquitectura desarrollada

14 En Re-ensamblar lo social, Bruno Latour se pregunta: Qué es lo social? y responde: Nada. No hay algo así como un campo, una materia de la que esté hecho lo social. A lo social se arriba una vez que se describen cómo son las asociaciones, es decir los vínculos y las relaciones entre las entidades que participan. A esto él lo llama sociología de las asociaciones, en contraposición a la tradicional sociología de lo social El Urbanismo social se dedica a trabajar en un ámbito muy específico: el de las urgencias sociales, y con herramientas muy particularizadas: las que permiten la inclusión y para ello despliega sus prácticas en territorios sectorizados, delimitados por categorías que se proyectan sobre él (pobreza, precariedad, exclusión, marginalidad, informalidad). Son procesos comandados desde arriba hacia abajo con el estado como actor preponderante, pero también poniendo a funcionar un doble estándar: el del Urbanismo social para los sectores necesitados, y el del urbanismo en general para el resto de la ciudad. El Urbanismo de las asociaciones se basaría en la construcción de

Imagen 8

Axonometría Edificio Biarritz

Imagen 9

Asamblea de proyecto y preadjudicación de unidades del edificio Biarritz

junto a las organizaciones, a pesar de su escala acotada, podría funcionar a escala urbana como vector de re-urbanización en ecologías urbanas complejas, ya que al intensificar y completar ese extenso entramado que requiere para su producción permitiría desencadenar una maquinaria de transformación continua con un proceso de escala barrial o municipal. Un caso por el que estamos transitando y que podría ilustrar esta multiescalaridad que permite el pasaje de la escala edilicia a la urbana es el proyecto Biarritz: un edificio de vivienda colectiva para una cooperativa de maestras de la provincia de Buenos Aires. Lo que comenzó siendo un encargo de un proyecto de 35 viviendas, actualmente en construcción por parte de esta cooperativa (ver imágenes 8 y 9), se solapó en un momento con la conformación de una mesa donde participaron organizaciones, equipos técnicos y el gobierno municipal para el desarrollo de una ley de Acceso y producción democrática co-decisoria de la ciudad. Si bien el objetivo principal de la cooperativa es la de construir las viviendas, las dificultades atravesadas durante el proceso para lograr superponer la lógica de producción colectiva del hábitat popular propia de la organización a las condiciones imperantes del mercado para la construcción y el acceso al suelo por un lado, y las de la gestión burocráticas propias del municipio por el otro terminó generando los vínculos que luego se hegemonía a partir de potenciar los vínculos sociales al ponerlos en relación. Propone describir las relaciones heterogéneas que se dan en una ciudad, a partir de rastrear vínculos, relaciones que ya existen o que podrían existir. Conexiones muy específicas que nos conducen a describir lo urbano conformado por un sistema de redes que se despliegan articulando todo tipo de agentes: tecnológicos, legales, organizativos, políticos, científicos, materiales, etc…

continuaron en la lucha más amplia por la gestación de normativas y políticas públicas de escala territorial que la producción social de hábitat popular reclama.

Así, las múltiples experiencias autogestionarias que se despliegan en el territorio pero que en muchos casos se mantienen como experiencias aisladas, podrían terminar de anclar su potencial transformador anticipando las definiciones de una normativa en las prácticas democráticas radicalizadas.

Objetos de consenso

La Arquitectura Asamblearia entonces abre un campo extendido para una práctica activista ya no acotada a las certezas técnicas disciplinares, sino más bien empoderada en las potencialidades de entramados complejos, al mismo tiempo que a modificar las condiciones actuales de reproducción de lo urbano. Pero estos procesos de articulación no se sostienen sólo a través del dispositivo de la asamblea. Una vez que se arriba a cierto consenso general se ponen en práctica otras tareas propias de la actividad proyectual ya en etapas técnicas, (usualmente relegadas a las definiciones puertas adentro del laboratorio de producción de proyectos: estudios, oficinas, departamentos técnicos de instancias gubernamentales, etc.) que requieren un enfoque dual: por un lado que siga avanzando el proyecto resolviendo las cuestiones tecnológicas y de representación arquitectónica pero que a la vez mantenga una representación socio-política del conjunto

Imagen 10a

Plano general de Ciudad Roca Negra acordado en asambleas de proyecto. Disposición de los Corazones en el sistema de circulación

en el que participa, para que lo que se produzca funcione como articulador que permita mantener la participación en la red en la que está inmerso (ver imagen 9).

Esto es a lo que nombramos Arquitectura como Objeto de Consenso, donde lo producido materialmente, sean construcciones o representaciones, sostiene un doble vinculo simétrico entre intereses no coincidentes de los diferentes actores involucrados. Los acuerdos se producen así no de manera discursiva, sino por sus cualidades materiales o tecnológicas.15 Este punto es clave para entender el funcionamiento de la arquitectura asamblearia, que amplifica la capacidad de representación que sostiene el proyecto arquitectónico convencional como potencia de transformación, al sustituirla por la noción de representante, el proyecto no solo representa una transformación sino que es a la vez representante de una red socio-técnica emplazada.16 Una arquitectura participando desde su capaci-

15 Simondon introduce esta capacidad dual de las imágenes en relación a los objetos que por un lado como recuerdo traen al presente experiencias ya vividas y por el otro son un camino hacia el objeto. La imagen símbolo condensa una experiencia contradictoria; ata al sujeto a los acontecimientos de los que posee el recuerdo complejo, y lo hace depender de dichos acontecimientos de los que conserva un fragmento real y representativo, equivalente del objeto en tanto concreto, y de las situaciones en tanto envolventes; inversamente el símbolo es también el camino hacia el objeto, en el sentido de que es un medio para suscitarlo, restituirlo, a partir de rastros. Y los rastros son eficaces para suscitar el objeto cuando todos los diferentes aspectos del objeto son representados simultáneamente en el sistema de las huellas relativas a dicho objeto, con un equilibrio interno que constituye la coherencia, pero también al mismo tiempo la tensión de dicho sistema. En Imaginación e Invención, Simondon, Gilbert, Cactus, Buenos Aires, 2013.

16 Stan Allen plantea esta dualidad como problema de mapeo de la realidad urbana contemporánea y de representación del proyecto, y la anticipa como pregunta en el artículo Notation and

dad de vincularse y activar poderes constituyentes en lugar de seguir respondiendo a poderes constituidos. (ver figura 10).Tal vez, se prefigura así un nuevo rol para la arquitectura.

Diagrams: Mapping the Intangible: A “crisis of representation”? To appeal to notational systems in architecture and urbanism is not to suggest a return to perfect transparency of meaning and the smooth implementation of functionality... Rather they propose a series of open-ended strategies to work within the indeterminate field of the contemporary city. They propose new scenarios, provoke unanticipate combinations and allow incremental adjustments over time. They leave space for tactical improvisation of the user in the field. Whatever coherence is attained is always a provisional stabilization of the mobile forces of the city, not ser in advance, but developed in practice. In this context it is crucial to remember that the problem of representation in architecture is always double. It is necessary to distinguish carefully between techniques of representation: mapping, projection, or notation and the idea that architecture itself functions as a representational

system. En Practice: Architecture, technique + representtation. Stan Allen, Avingdon, Londres, Routledge, 2009.

Imagen 10 b y c

Plano general de Ciudad Roca Negra acordado en asambleas de proyecto. Disposición de los Corazones en el sistema de circulación

Las cosas a mi alrededor

Atmósferas. Entornos arquitectónicos.

Las cosas a mi alrededor

Gustavo Gili, Barcelona, 2006

El segundo subtítulo de este libro testimonial de PZ es las cosas a mi alrededor y refiere en esa voluntad de dejar sentada la característica esencial de su manera de proyectar, a que hay que tratar de definir las envolventes-espacios de un edificio interactuando con lo que está afuera del mismo (el entorno, como reza el primer subtítulo) pero también lo que está adentro: es decir una atmósfera, un vacio, una nada que sin embargo se constituye ensamblando aquella envolvente con lo que queda envuelto y con las cosas que están dentro: muebles, personas, animales, plantas, herramientas, vajilla, vestimentas,etc. Atmósfera es mi estilo le escribe

Turner a Ruskin en 1844 y con esa cita arranca este manifiesto cuya claridad y contundencia se explica porque es la transcripción de una conferencia pronunciada en 2003 en un festival de artes y por tanto, resuena la oralidad de su autor. Zumthor empezó su conocida

conferencia para 400 inquietas personas –la mayoría estudiantes– con imágenes antiguas y monocromas que le resultan empáticas o que lo emocionan como el bar de la residencia de estudiantes de Hans Baumgartner en Zürich, proyecto de 1936 o el atrio neoclásico que Russel Pope proyecta en 1919 para la estación de Richmond en Virginia y además fotos de villas italianas en las que el fuerte contraste de sol y sombra lo seducía mientras tomaba su café en las terrazas: todo evocaba atmósferas, sean las columnas de los pórticos brillando al sol o la gente que leia y fumaba en aquel bar donde flotaba un aire denso de humareda y respiraciones invernales: PZ dirá entonces que le atrae ese aire que hay entre las cosas que se ve sólido. Lo mismo es para Zumthor el tipo de música de Igor Stravinsky con sus despliegues rítmicos que no persiguen hacer música sino sugerir atmósferas, un sonido que parece humo.

La conferencia y el escrito ulterior de PZ va a orillar 9 temas y el primero lo llama el cuerpo de la arquitectura –es decir la carne material de una obra pero que también engendra colateralmente vacios mórbidos o indefinidos y no geométricos luego de lo cuál toca un segundo tema que enuncia como la consonancia de los materiales– que refiere al necesario ensamble de materias diferentes de una construcción (una puerta para Z es mucho roble y poco bronce) para seguir con un tercer punto que menciona el sonido del espacio, desde el silencio total de una obra muerta a a los crujidos y temblores que se escuchan del choque entre el aire y la materia.

La cuarta cuestión es la temperatura del espacio –que compara música con arquitectura al decir que un espacio debería templarse como un piano– y en quinto término aborda el tema de las cosas a mi alrededor –en que en su pura experiencia de vida de ver

casas repletas de gente y de objetos de uso queridos por esa gente le hace preguntarse si la tarea de la arquitectura es crear recipientes para esas cosas que es lo mismo que tratar de proveer un sense of home o una noción de genius locci–.

El sexto ítem alude a la idea de sosiego y seducción , es decir nuevamente comparar arquitectura y música como artes temporales que matizan equilibrios y tensiones donde hay que intercalar intensidades que seduzcan y ofrezcan ritmos para evitar las monotonías.

En séptimo orden Zumthor explica la relación entre interior y exterior para decir que hay que conseguir una gradación de exposición y cerramiento, de transparencia y opacidad lo que lo lleva a vincular esta cuestión con un octavo punto que llamará de los grados de intimidad al diseñar interiores que se abren o fluyen postulando juegos de relación entre afueras y adentros.

Por ultimo su novena cuestión será referirse a la luz sobre las cosas lo que lleva a presentar la idea de la luz como material, como algo

que no debería hacer depender un edificio de iluminación agregada sino pensarlo de modo similar a como el cincel de un escultor trabaja una superficie o un acabado para conseguir gradaciones de luz y sombra.. Mas allá del desarrollo de tales 9 puntos anunciados, PZ propondrá tres cuestiones adicionales que parecen explicar características de sus trabajos: la noción de producir contexto (se proyecta una obra en si pero mas allá de ese ensimismamiento, se diseña algo para congeniar con su ambiente y contexto); la idea de coherencia que alude a que todas las pequeñas decisiones de múltiples detalles deben ensamblarse e integrarse además de superar en tal acomodo, la prueba del uso, y finalmente una referencia sobre la forma, que hay que tratar de evitar:

No trabajamos con la forma, trabajamos con el resto de cosas, con el sonido, los ruidos, los materiales, la construcción, la anatomía, etc.

Nosotros trabajamos con todas esas cosas con un ojo puesto simultáneamente en el lugar y el uso. Si eso todo eso funciona habrá una buena forma o mejor aún, una forma bella, que siempre es algo que aparece y que puede prefigurarse: si todo sale bien habrá una forma y el mismo arquitecto se sorprenderá agradablemente con su adecuación y armonía.

Zumthor desmonta en este, su principal texto de ideas, sus cosas de afecto planteando que el proyecto (sus proyectos) son cuestiones que surgen del cálculo y la precisión racional pero que mas allá de ello, tratan el trabajo del proyecto como un trabajo de pensamiento que como lo que hace un poeta debe ser riguroso pero mas allá de ello, debe procurar sensaciones y emociones.

Otras ideas para lo público

Parque de la Amistad. Plaza de la Diversidad. Montevideo

Marcelo Roux y Gaston Cuña

Parque de la amistad

Opinión

Dentro de una vasta serie de intervenciones de arquitecturas públicas realizadas desde la Intendencia de Montevideo en la última década, activando sus propios equipos de proyecto con sus planteles, destaca una serie de trabajos a cargo del proyecto de Marcelo Roux, en colaboración con Gastón Cuña como los trabajos que aquí presentamos ademas de otros de Roux junto a otros proyectistas como el Parque Idea Vilariño o la Plaza de la Democracia en los que se presenta una voluntad de diversificar y ampliar la dotación de áreas de uso público con fines recreativos dentro de la ciudad cada vez mas inhóspita en la presente posmodernidad en cuanto a multiplicar el espacio público de calidad como parte activa de las políticas públicas de urbanidad y ciudadania.

Un panorama que parece obturar la relevante vocación de engendrar equipamientos públicos de uso social que fuera intención relevante de la modernidad dentro de la noción de condensadores sociales que surgió en la época socialista y que luego Kenneth Frampton presentaria como parte de incumplida utopía de la modernidad. La creciente privatopía que verifica la construcción reciente de ciudad se ensambla con la paranoia suscitada respecto de usar en común la ciudad pública, aspecto que tiene su miga ideológica pero

que también se ata al crecimiento real de ls inseguridad y que en definitiva remite al miedo progresivo de compartir ciudad con los diversos otros que la habitan.

Destaca entonces en la importante praxis generada desde la IM en estos últimos tiempos, la persistente voluntad de dotar de nuevos equipamientos de esta clase abarcando experiencias cuasi regionales como la parquización de la ribera del arroyo Migueletes hasta intervenciones en áreas de marginalidad como algunas plazas de la zona de Casavalle hasta trabajar en recuperaciones de lo público de áreas centrales como el plan de peatonalización de Ciudad Vieja o en intervenciones de bolsillo como esta prequeña plaza casi interior en tal centro histórico como es la activación de un terrain vague de centro de manzana que da paso al desarrollo de la Plaza de la Diversidad Sexual que aquí presentamos. Y que aún en su limitada expresión evoca el trabajo de reactivación de áreas urbanas afectadas por la segunda guerra que hicieran en los años 50 en Amsterdam la urbanista y activista política Jacoba Mulder con el concurso proyectual del por entonces jóven arquitecto Aldo van Eyck. Daniela Arias en el web Un dia, una mujer dice lo siguiente de esa gesta:

A partir de 1947 comienza el desarrollo de los parques infantiles, una idea

que según la propia Mulder le surge a raíz de ver a una niña de su vecindario cavando con una pala y jugando con la arena que extraía (Liane Lefaivre, 2007).

Eran tiempos donde el panorama urbano dejado por la guerra era desolador y los pocos parques de juegos para niñas y niños eran de acceso restringido. Mulder promulga una ley mediante la cual cualquier ciudadano podía identificar un vacío en la ciudad y comunicárselo al Municipio para solicitar construir en él una zona de juegos. Estos vacíos podían ser solares entre medianeras, terrenos desescombrados o aceras.

Con esta información, la Municipalidad supervisaba el solar y ponía en marcha la construcción de dicho espacio lúdico, configurando así una herramienta y un modelo de participación bottom-up.

Aldo van Eyck, que trabajaba en el Departamento desde 1947 se ofreció de voluntario para el diseño de los parques infantiles. De manera brillante conjugó austeridad económica con creatividad; una serie de elementos simples –columpios, areneros, piezas geométricas de hormigón, etc.– conformaban espacios de juegos adecuados a distintas superficies, con una gran variedad de formas, texturas y posibilida-

des a la imaginación de niñas y niños.

Estas intervenciones urbanas y sociales localizadas, evitaron las centralidades y favorecieron las relaciones de equidad. Entre 1947 y 1978 se diseñaron más de 700 parques infantiles. Luego del primero en el barrio de Bertelmanplein, la estrategia pasa a formar parte de los planes de desarrollo urbano previstos para Amsterdam oeste.

El trabajo de Marcelo Roux en diversos equipos de proyecto de espacios públicos abiertos y equipados coincide con otros intereses de su autor, por ejemplo en relación a discutir el rol de estructuración urbana ligado a la sombra de arquitecturas absolutas –como aplicando ideas de Aureli nombra a varias megarquitecturas montevideanas como el Estadio Centenario o el Hospital de Clínicas– que junto a algunos edificios complementarios menores generan un área central de la ciudad que sin embargo es enigmática en su calidad funcional de cara al valor simbólico y de uso del espacio público producido, que más bien emerge como contracara neutra de aquellas grandes formas pregnantes y absolutas: en definitiva Roux avanza alli –ese es su trabajo de investigación doctoral– sobre la complejidad de la relación entre equipamientos y espacios públicos, llenos y vacios.

Tal interés por el espacio público Roux lo trabaja en un largo artículo que publica en colaboración con Patricia Roland y Salvador Schelotto llamado Espacios públicos inclusivos (editado en la publicación oficial Nuestro Tiempo, Montevideo, 2014) donde se registra una breve historia del ultimo medio siglo de producción de espacio público en Montevideo junto a una revisión de 7 ítems referidos a cuestiones contemporáneas de dicha problemática en donde se apuntan y comentan propuestas y valores de una serie de intervenciones recientes promovidas desde la Intendencia de Montevideo, que también es la promotora de los dos trabajos que aquí se presentan.

Allí se ensaya el dificil intento de describir que es un espacio público: El Espacio Público comprende un universo fluido, diverso y que esquiva las definiciones. Por un lado se compone por las áreas reconocidas como tales, aunque no todo lo público corresponde al uso público y no todo lo privado es totalmente privado en la ciudad. Por otro, implica a veces áreas vacías y abiertas, y en otras situaciones áreas cubiertas; implica la calle, la plaza, el parque, el borde costero, la playa; incluye las fachadas de las construcciones que lo delimitan; se reconoce en espacios marginales, perdidos u olvidados. Se explica

como espacio y como prácticas que sobre él ocurren: prácticas contemplativas, festivas o resistentes; reconoce factores y valoraciones patrimoniales; forma parte de un sistema de normas;se entende como un sujeto de planificación, de diseño y de gestión. Es el espacio que incluye las infraestructuras que posibilitan la vida colectiva en la ciudad; es el arbolado que en él se ubica; es permanencia y es objeto de mutacion en el tiempo; es el ámbito de todos y por momentos el menos cuidado; es lugar y no lugar;es historia, es presente y es mañana; es lo previsto y es lo inesperado.

Los trabajos que se presentan desarrollan aspectos diversos de tal fenomenología de lo público. Son estructuras físicas pero mas que nada son soportes de actividades imprevisibles. En el Parque de la Amistad prevalece la idea de montar un eje atravesante o puente que opera como una suerte de equipamiento conectivo pero también posible soporte de actividades junto a un ramillete diverso de artefactos para actividades lúdicas infantiles en que destaca el interés por integrar a personas con disminución de alguna cualidad vital. Algunas fotos generales o mas bien la planta, permiten advertir la idea estructurante pero a la vez muchas tales fotos van mucho allá de lo objetual proyectado y propuesto ya que manifiestan la apropiación social de los

usuarios y la activación de cosas y lugares que revela que en esta clase de espacios es mas importante las calidades de usos y disfrutes en lugar del valor determinado del planteo de su arquitectura.

Son aspectos que permiten dividir la performance de un trabajo de proyecto –en este caso emprendido por un colectivo amplio de especialistas y asesores– entre una idea u oferta determinada de situaciones y la diversidad casi infinita de eventos que la gente puede provocar activando lo que ofrece la

arquitectura. Mas que nunca en estos casos, el proyecto debe superar la prueba no de su calidad por asi decir, metalinguística, sino alcanzar a establecer signos seguros de empatía con sus usuarios. La investigadora rosarina Daiana Zamler está aplicando principios de la psicología ambiental para modelar porqué cada espacio público proyectado entabla o no genuinas relaciones de afecto entre lugares y

cuestión diferente, sea por donde se ubica, sea por lo que pretende promover en su utilización y aprehensión. Es una típica operación que como las de Mulder-Van Eyck o las mas actuales del programa zaragozano Esto no es un solar (nombre que designa un terreno baldío), identifica un hueco de ciudad, un corazon de manzana alcanzable por dos calles y lo reinventa como lugar público cuya entidad no tiene bor-

personas: sus herramientas analíticas probablemente darían buenos resultados analizando esta propuesta.

La Plaza de la Diversidad Sexual aborda una

des libres como los de una plaza convencional sino que remite a un sitio que debe buscarse o penetrarse en el viario intrincado y la edilicia compacta de la Ciudad Vieja. El encontrarlo –o

toparse con el– y el recorrerlo o atravesarlo es ya una característica de este sitio, que puede ser asi usado para estar o para pasar.

foto con el montaje de stands en una de las calles de acceso) podrán contener referencias o alusiones a la denominación del espacio.

gerentes discursos culturales y políticos para seguir postulando y desarrollando condensadores sociales.

En cuanto al modo con que pretende articularse con su caracterización temática, la opción proyectual ha sido promover el diseño de unas plataformas y un escueto equipamiento para activar breves momentos o situaciones de contemplación o reflexion y encuentro junto a instancias que como la pared-mural o la activación específica de alguna de sus partes (como se ve en alguna

En definitiva este par de obras en el contexto de una sistemática y persistente política pública de la Intendencia de Montevideo y en el espesor teórico que alienta la practica de sus proyectistas, manifiestan cabalmente el recla-

Datos Técnicos

El Parque de la Amistad esta ubicado en Rivera y Pereira de Rosell, Parque Villa Dolores, Montevideo y fue proyectado en 2015 en la Intendencia de Montevideo, departamento de

mo y la propuesta de mas y mejores espacios públicos para la ciudadanía, superando el antiguo modelo de las pequeñas naturalezas de las plazas tradicionales e instalando su-

Desarrollo Urbano, División Espacios Públicos y Edificaciones junto a la Secretaría para la gestión de la discapacidad, Departamento de Desarrollo Social con proyecto de los arqui-

tectos Marcelo Roux y Gastón Cuña junto a las asesorias del Ing. Agr. Alfonso Arcos (Paisajismo), Arq. Gabriela Macellaro (Estructura), Tec. San. Fernando Negreira (Sanitaria), Tec. Elect.

Miguel Silveira (Iluminación) –todos ellos

perteneciantes a la Intendencia de Montevideo– con la colaboración de la arquitecta

Laura Fleitas , el ingeniero Nicolás Rebossio y los señor@s Melina Rongolino, Agustina Mannise, Paola Silveira, Julio Carabajal, Magdalena

Deambrosi, Fernanda Gutierrez y Luis Almeida. La Empresa Constructora fue Lejacir y el pro-

yecto de Comunicación Visual fue del Lic. Alejandro Salvo. Con las asesorías y colaboraciones generales de Sebastián Fernandez, Rosario Castellano, Luján Perez, Tania Aguerrebere, Enzo Blanco, Organizaciones de personas con

Plaza de la diversidad

discapacidad, Ciencia Viva, Taller Perdomo, Facultad de Arquitectura, UdelaR, Planetario

Municipal, Zoológico Villa Dolores, el muralis-

mo de la Escuela de Artes y Artesanías de UTU, Pedro Figari y la Coordinación de la Secretaría para la Gestión de la Discapacidad .

La Plaza de la Diversidad Sexual se ubica en el Pasaje Policía Vieja, Ciudad Vieja, Montevideo y fue proyectada en 2019 para la Intendencia de Montevideo,Departamento de Desarrollo

Urbano, División Espacios Públicos y Edificaciones, Secretaría de la Diversidad, Departamento de Desarrollo Social con proyecto del Arq. Marcelo Roux y dirección de obra del Arq. Gaston Cuña y las Asesorías del Ing.Agr.

Alfonso Arcos (Paisajismo), Tec.San. Fernano

Negreira (Sanitaria), División Información y Comunicación IM (Comunicación Visual) y Centro de Fotografía de Montevideo (Fotomural). La empresa constructora fue Pilarsyl y se contó con la colaboración de Analía Young, Nataly Moitiño y Deborah González. La propuesta de equipamieno táctico surgió de una donación del Banco Interamericano de Desarrollo y el proyecto de Pablo Fuentes (Ciudad de Bolsillo) y el mural estuvo a cargo de Ceciro y Noecor.

Turn static files into dynamic content formats.

Create a flipbook
Issuu converts static files into: digital portfolios, online yearbooks, online catalogs, digital photo albums and more. Sign up and create your flipbook.