MAR 007 - Material de Arquitectura

Page 1


HERRAMIENTAS

AMERICANA

EDITORIAL

Materialidades 3

232

TO (Carlos Facio + José Amozurrutia), +UdeB

Arquitectos (Felipe Uribe), AGENdA (Camilo Restrepo)

Jardines para el bienestar. Centros comunitarios de Cuicuilco y Lacandones. México DF.

216

Germán Valenzuela

Arquitectura de escaséz, arquitectura de antípodas. Del Territorio al Detalle.

Al Borde (María Luisa Borja, David Barragán, Esteban Benavides, Pascual Gangotena)

Arquitectura que apuntala procesos sociales.

MICRO

7

194

Federico Marinaro

Minimalismo urbano. Edificio Pequeño en calle Vera Mujica. Rosario

ARGUMENTOS

Julián Roldán

174

Una metáfora del periurbano 2001.

La Mecha de Raúl Perrone

MATERIAL

Federico Marinaro

Sistema de trozos y partes que parece neutral.

De lo ordinario a lo extraordinario. Edificio A01/

Edificio Urquiza, Rosario

Revista MAR. Material de Arquitectura, Año 2, #7, Mayo 2024, Mar del Plata, Argentina, ISSN 3072-7243

10 30

ARQUITECTURA CIUDAD

Moire Arquitectos. Ezequiel Muñoz&Mariel Cámara.

Arquitectura de Urbanidad. Conjunto comercial Santa Ola. Mar del Plata

UNIVERSO-CASA

Elena Risso

Investigación sobre pequeñas casas suburbanas. Tres obras platenses

APRENDIZAJES

Juliana Lareu

Biomaterialidad como alternativa sustentable. ¿Podemos crear nuestro hábitat en alianza con hongos?

138 68 94

ECOLÓGICAS

HITOS DE HISTORIA

Ramiro Piana

Entre lo legible y lo laberíntico.

Observaciones sobre tres galerías de Antonio Bonet en Mar del Plata

112

Al Borde (María Luisa Borja, David Barragán, Esteban Benavides, Pascual Gangotena)

Umbral crudo. Sede SAT (Sharjah Architecture Triennial). Emiratos Arabes Unidos

Rector / Cdor. Amado Zogbi

Vicerrectora / Ing. Alicia Gil

Delegado rectoral MdP / Arq. Marcelo

Artime

Decano / Arq. Óscar Cañadas

Vicedecano / Arq. Claudio Freidin

Directora / Arq. María Silvia Grilli ISSN 3072-7243

Equipo

Editor / Arq. Oscar Cañadas

Director / Arq. Roberto Fernandez

Diseño / DG. Jimena Durán Prieto

Consejo Editorial

Arq. Marcelo Artime

Arq. Eduardo Agüero

Arq. Jerónimo Mariani

Arq. Dario Lemmi

Arq. Pablo Rescia

Arq. Leonardo Jauregui

Arq. Ezequiel Muñoz

MAR manifiesta que las opiniones consignadas en esta publicación son de absoluta responsabilidad de los firmantes de cada nota y no comprometen a tales instituciones. Las notas sin firma son responsabilidad de la Dirección editorial de MAR.

Las imágenes incluídas fueron suministradas especialmente por los autores y/o sujetos protagónicos de cada nota. Cuando fueran solicitadas expresamente se indican las autorías y/o las fuentes originales de tales imágenes. Si alguna imagen careciera a juicio de su autor, del crédito correspondiente rogamos se nos consigne para subsanarlo.

Editorial Materialidades

Toda arquitectura es material (real y virtual; concreta e imaginaria; física y poética y unos cuantos etcéteras posibles) para rescatar lo material no meramente como construcción o ingeniería sino como la materia prima –sustancias, energías y datos– con que arranca un trabajo proyectual que no es mas ni menos que materializar una idea, con-formar un sueño, concretar un concepto. La idea de MAR –apócope de material de arquitectura– es jugar en cada número con episodios proyectuales cuya selección, presentación y análisis pone como horizonte la tarea intelectual de de-construir, o sea poner en evidencia, detrás o debajo de la concreta materialización (esa síntesis de diversos materiales que hace el proyecto), el variado magma de las materialidades que tal proyecto manipula.

Que en el ensamble de novedad y preexistencia valiosa los Moire Ezequiel y Mariel, se proponen con su colegialmente premiado trabajo Santa Ola, todo para resolver creativamente una ampliación de un programa comercial pero con la añadida y estratégica intención de producir una aportación de urbanidad, un cruce inteligente de arquitectura y ciudad en esta hora que la ciudad o lo urbano a veces acepta pagar el precio de eliminar sus residuos patrimoniales en pro de una exagerada voluntad de alcanzar el máximo de rendimiento inmobiliario.

Una más que intensa intención de acentuar lo material puede observarse también en los trabajos domésticos de Elena Risso, en este caso un trío de pequeñas casas suburbanas platenses que parecen dirigirse a cierta vocación de restringir lo arquitectural a la mas directa y potente manifestación de su construcción con cemento y cerámicos, pero también con llenos y vacios: un aire que rodea lo construído y promete libertades futuras.

También ensambla con presentar poderosas alternativas a la idea de materialidad lo que en este numero de MAR nos aporta Juliana Lareu en su oportuna voluntad tanto teórica como práctica en discutir la biomaterialidad resultante de producir unos biomateriales en la actuación digestiva de los micelios (una clase de hongos que refiere ademas a la creciente tentativa de pensar el mundo fúngico como un cuarto reino natural-material despues de lo mineral, vegetal y animal, siendo el fúngico un conjunto mucho mas complejo y extenso) sobre diversos residuos para engendrar unos ladrillos alternativos, fruto de economías circulares y sin el dispendio de

energia que implica la producción del material cerámico. O sea, mucho mas sustentable.

El pujante grupo ecuatoriano Al Borde (integrado por María Luisa Borja, David Barragán, Esteban Benavides, Pascual Gangotena) hace tiempo que innova en investigaciones proyectuales como su célebre escuelita de niños pescadores de Nueva Esperanza en Manabí, siendo central en su trabajo proyectar potenciando, por asi decirlo, oprtunidades materiales, como en el caso de su proyecto expositivo para la Sharjah Architecture Triennial en Emiratos, que radicaliza explorar una propuesta basada en administrar dichas oportunidades. En su texto Arquitectura que apuntala procesos sociales que también incluímos en este MAR (presentando en Herramientas la importante antología de pensamiento proyectual latinoamericano Del territorio al detalle, que organizara Germán Valenzuela con visitantes de la Escuela de Talca) ellos dicen: Nunca trabajamos el mismo material. No porque seamos experimentales sino porque usamos lo que hay Realismo sudaca que consigue vanguardia desde la mas extrema retaguardia en retrasos que son anticipaciones.

El rosarino Federico Marinaro ocupa un tramo relevante de este MAR, al presentarnos en la sección Material el par de obras de vivienda en altura de los edificios A01 y Urquiza que exploran en diverso grado de innovación las posibilidades del metal para revestir alternativamente (en Urquiza) o para desplegar un modelo de ensamble en seco (en A01) que podrían recorrer el trayecto de lo ordinario a lo extraordinario; asi como en la sección Micro, su edificio pequeño de la calle Vera Mujica, un extremo caso de minimalismo tipo-tecnológico que raya en lo elemental o basico en configuración y materialidad.

Las jaulas flexibles y que se poblarán de vegetación que el grupo liderado por el colombiano Camilo Restrepo proyectara en Mexico para dotar el equipamiento de unos centros comunitarios barriales, deriva hacia la metáfora de unos jardines para el bienestar que permite alimentar la ideología de un proyecto serial que aporta soportes para usos variados y alternativos, todo en la pretensión de configurar unos pequeños ecosistemas urbanos sensibles y vegetales, en la idea de alcanzar maridajes entre metal y foresta, entre cultura y naturaleza. Ensambles que preconizan la posibilidad de materialidades sustentables

Instrucciones para navegar el MAR

(el número 7 de MAR)

ARQUITECTURA-CIUDAD

Esta sección presenta un complejo edilicio singular local o regional cuyo interés radique en establecer propuestas de relación con sus entornos urbanos además de postular ideas proyectuales significativas en su planteo, desarrollo y materialización. Se presentaran documentaciones originales completas (planos, fotos, memorias) y un análisis que pueda ser útil tanto para su aplicación didáctica como para su recepción académica y profesional.

Moire Arquitectos. Ezequiel Muñoz&Mariel Cámara. Arquitectura de Urbanidad. Conjunto comercial Santa Ola. Mar del Plata

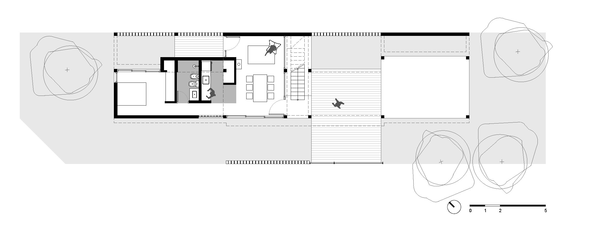
Partiendo de la premisa que hacer arquitectura es hacer ciudad y que una obra de ampliación puede transformar no solo un edificio sino un espacio urbano la decisión proyectual no sólo fue conservar un chalet por lo que significa para la memoria e identidad colectiva de la ciudad sino ponerlo en valor, haciendo del edificio nuevo un telón y otorgándole mayor espacio público a la calle. A través de una intervención dialéctica el conjunto edificio obtiene una nueva imagen en la que lo contemporáneo y lo tradicional se ponen en valor, potenciando y resignificando el sitio, la esquina como espacio urbano singular, la calle vereda como espacio apropiable, el edificio como identidad de la marca y de Mar del Plata.

UNIVERSO CASA

Tratara de ofrecer una secuencia de casas unifamiliares o pequeños conjuntos que contengan proposiciones conceptuales en cuanto a su proceso y razón proyectual, en su realización y construcción y en su uso, identificando valores que vayan más allá de la mera respuesta funcionalista. Tal como en el caso anterior se ofrecerá una documentacion integral y un análisis enfocado en su recepción didáctica tanto como de docentes y proyectistas.

Elena Risso. Investigación sobre pequeñas casas suburbanas. Tres obras platenses

Las casas están ubicadas en las afueras del casco urbano de La Plata. La estrategia de ocupación del suelo se centra en la disposición de superficies reducidas a través de un sistema modular compacto. Se apela a sistema de galerías o patios como espacios transición con el objetivo de producir todas clase de variantes de espacios intermedios posibles entre lo que consideramos espacios netamente interiores y aquellos que son exteriores. Se busca un lenguaje elemental. La disposición funcional se centra en amplificar espacios de mínima superficie logrando cualificarlos con múltiple texturas y posibilidades de uso.

APRENDIZAJES

Plantea recorrer una serie de experiencias educativas de arquitectura reconocidas por su alternativismo y experimentación para acoger planteos y propuestas que pudieran resultar útiles o convergentes con las discusiones pedagógicas de la propia escuela. Así como investigaciones y aplicaciones proyectuales en campos no convencionales del hábitat que abren camino al aprendizaje de prácticas alternativas.

Juliana Lareu. Biomaterialidad como alternativa sustentable.¿Podemos crear nuestro hábitat en alianza con hongos?

Se trata de aportar a la generación sostenible de biomateriales desde la innovación tecnológica co-creando con la naturaleza, a partir de la reutilización de desechos locales. Surge entonces dadas sus características, la oportunidad de explorar nuevas tecnologías biomateriales con micelio (organismo del reino de los hongos) aplicadas a la producción del proyecto arquitectónico, con una lógica circular basada en la reutilización de materia de descarte local como recurso disponible, propiciando la producción de arquitecturas que colaboren con la remediación ambiental, activadoras del ecosistema, que puedan dar respuesta y adaptarse a las distintas necesidades que demanden las constantes transformaciones en el tiempo, desde una mirada situada en el contexto geopolítico del Sur Global.

HITOS DE HISTORIA

Mas que presentar grandes hitos de la historia de la arquitectura se tratará de abordar hechos diversos de la historia local y regional que sean de interés en el conocimiento de grandes proyectistas locales y regionales pasados cuyas tareas hayan derivado en producir hechos significativos de la modernidad arquitectónica.

Ramiro Piana. Entre lo legible y lo laberíntico. Observaciones sobre tres galerías de Antonio Bonet en Mar del Plata.

Bonet, figura fundacional de la arquitectura moderna en Argentina, aportó a la ciudad de Mar del Plata tres edificios con galerías comerciales: Galería/Rascacielos Rivadavia, Galería/ Rascacielos de las Américas y Galería Central (aunque en este último caso la torre nunca se materializó). Al valorarlas dentro de su trayectoria, la historiografía de la arquitectura moderna en Argentina les otorgó distintos grados de relevancia. Estas obras sugieren un intento de experimentar con un tipo arquitectónico que, al difundirse como parte del tejido urbano de las ciudades argentinas, tendió a presentar un carácter anónimo y repetitivo. 68

ECOLÓGICAS

La cuestión ambiental y de crisis de sustentabilidad se presenta como un desafío para el proyecto actual y futuro y si bien resulta un campo relevante para ajustar y modificar formas tradicionales de proyectar, todavia se carece de metodologias comprehensivas y aplicables por lo cuál se presentarán distintos trabajos y enfoques –desde interdisciplinares hasta urbano-territoriales pero también de proyectos de arquitectura- para empezar a entender las vias de futuros trabajos de mucha mayor implicación ecológica.

Al Borde. Umbral crudo. Sede SAT (Sharjah Architecture Triennial). Emiratos Arabes Unidos. La escuela Al Qasimiyah ha dejado su función como escuela primaria y se ha convertido en una de las sedes de la SAT (Sharjah Architecture Triennial). En ese cambio de vocación, la escuela pasa de ser un espacio contenido en un muro perimetral cuya misión era cuidar a los niños, a buscar convertirse en un espacio abierto que se conecte con sus alrededores y la ciudad. Esta apertura crea nuevas formas de ocupar el espacio. Los nuevos accesos peatonales Norte y Oeste convergen en una plataforma, que brinda la oportunidad de remarcar este punto de encuentro y crear un umbral de bienvenida.Este umbral se define mediante una sombra que crea condiciones para habitar el exterior. Requiere una estructura de soporte que puede ser construida con cualquier material disponible. Pero en este contexto, donde todo está disponible, este concepto se vuelve borroso. Pensar en la economía del esfuerzo nos da un camino de búsqueda de eficiencia máxima, al transformar la materia prima en elementos arquitectónicos y, de esta manera, reducir al máximo la energía utilizada en la producción, transformación y transporte de los materiales.

MATERIAL

La revista no publicará (salvo alguna específica excepción) proyectos no construídos en el entendimiento de la relevancia por otorgarse a la materialización adecuada de las ideas proyectuales ya que se piensa que la construcción no es una fase ulterior e independiente del proyecto sino que éste cobra sentido, viabilidad y calidad en tanto aborde y resuelva su condición material, lo cuál lleva a entender cuestiones de sustentabilidad y tecnologías de ingenio y cualidad regional, más allá de temas propios de la construcción tradicional.

Federico Marinaro. Sistema de trozos y partes que parece neutral. De lo ordinario a lo extraordinario. Edificio A01/Edificio Urquiza, Rosario

A01 forma parte de una serie de encargos para realizar edificios en altura de renta de uso turístico y mixto en la ciudad de Rosario. Los promotores de estos proyectos pertenecen a la industria del acero, lo cual establece una constricción inicialen el uso de recursos materiales y tecnológicos. La peculiaridad de los encargos radica en que los promotores otorgan al Estudio el desarrollo total de los mismos identificando potenciales lotes y las necesidades del barrio en el que se ubican,estableciendo el programa y desarrollo correspondiente En 2009 llega el encargo de realizar Urquiza: un edificio en altura en un lote de 8,66m de frente sur en el barrio de Echesortu de Rosario, dentro de la trama urbana de la ciudad cerca de la estación de ómnibus y en el centro geográfico de la ciudad. El encargo lo realiza un comercializador de productos derivados del aluminio (perfilería, líneas de carpinterías, steel-frames, chapas, etc). Las consignas del encargo fueron explotar al máximo los m2 construibles según el Código Urbano de Rosario y utilizar productos derivados del aluminio.

ARGUMENTOS

La producción de proyectos descansa en aprovechar aspectos analíticos emergentes de argumentos teóricos que tratan de entender el pasado y el futuro para acompañar el presente proyectual y de tal forma esta sección se interesa en mostrar trabajos argumentales de teoría y crítica que en algunos casos pueden tener relación directa con acciones de proyecto o en abrir propuestas de formas alternativas de proyectar.

Julián Roldán. Una metáfora del periurbano 2001. La Mecha de Raúl Perrone

Los lenguajes poéticos de las artes plásticas considerados procesos no estructurados e imprevisibles, de interacción comunicativa con el espectador, sintonizan con los procesos arquitectónicos que se abren al campo de los camuflajes, de las pieles y las apariencias segregadas, siempre en esta tensión entre disciplina y técnica comunicativa. Las ideas se estimulan a través de la migración de los medios. La inmensa capacidad de la combinatoria y la digitalización en la producción de imágenes sin referencias encuentra en la ideación arquitectónica asistida por ordenador un inmenso campo de aplicación.

Hay arquitectura mínima: pequeñas intervenciones de adaptación o modificación; agregados, acciones de acupuntura urbana por colocación de nuevos objetos. En las escalas opuestas de lo territorial-urbano y cercano a lo doméstico-objetual es posible activar acciones proyectuales que ofrecen nuevas funcionalidades o que agregan variedad y novedad de uso a lo preexistente. Acciones que pueden recaer en trabajos de generación de objetos resueltos casi con artesanatos y/o con enfasis en la emisión de comunicación; objetos que hablan agregando pequeños matices de sentido a lo dado.

Federico Marinaro. Minimalismo urbano. Edificio Pequeño en calle Vera Mujica. Rosario

El edificio pequeño surge del interés de un grupo de inversores de desarrollar una pieza de pequeñas unidades para renta inmobiliaria. El Estudio elige el terreno y se decide trabajar sobre un lote muy acotado en sus dimensiones (7,26 x 9,50 m) ubicado sobre la calle Vera Mujica, en la ciudad de Rosario, de orientación oeste. Una de las potencialidades del sitio es la presencia al Este de un lote perteneciente al estado por el que circulaban las vías del ferrocarril de las cuales aún se encuentran vestigios. La importancia radica en la posibilidad que tienen los frentistas a calle Vera Mujica de hacer uso del mismo.

HERRAMIENTAS

Los buenos libros y artículos de problemas teóricos y prácticos del proyecto de arquitectura son como herramientas de trabajo para formarse y entender aspectos y cualidades por afrontar cuando se está proyectando: por tanto el interes de esta sección será presentar críticamente algunos aportes bibliograficos recientes que suponen conocer el marco cultural general donde se contextualiza el hecho de proyectar y tomar decisiones proyectuales.

Arquitectura de escaséz, arquitectura de antípodas. Del Territorio al

Los invitados al Seminario del Territorio al Detalle que organizamos en la escuela de Talca desde 2007, cuya selección ha dado origen a este primer volumen, probablemente no se han cuestionado particularmente su aporte a una identidad regional determinada a priori. Tampoco el carácter global de sus formas de hacer está entre sus disquisiciones más contundentes. Ello porque si bien la arquitectura se resuelve con la mirada estrábica que supone la atención a lo general y a lo particular de aquello que cada obra significa y plantea, el afán de cada una parece tener más bien un carácter ensimismado. Se trabaja pues —y quienes aparecen en este libro así lo declaran— con lo que hay a mano para hacer con ello lo mejor y más apropiado en un momento específico, y cada uno de estos hechos construidos resultan ser de interés global justamente por la pertinencia que envuelven.

Al Borde (María Luisa Borja, David Barragán, Esteban Benavides, Pascual Gangotena). Arquitectura que apuntala procesos sociales Este escrito intenta hacer explícitas algunas problemáticas presentes en el conurbano (y más específicamente en el periurbano) mediante la lectura de una representación cultural audiovisual, la película La Mecha de Raúl Perrone que puede verse, no solamente como una película del conurbano, tal como nos tiene acostumbrados en su cine, sino que la podemos ver como un modo de entender o asimilar o vivenciar el periurbano. En su modo de narrar, en la historia que cuenta, en los escenarios que utiliza, en los personajes, se pueden ver un tono, un color, ciertos modos de vincularse, modos de ser e incluso podríamos decir (si personificamos un espacio) que puede verse como una representación de la estructura profunda del periurbano en un momento histórico.

AMERICANA

Entendemos la cultura proyectual local como haciendo parte de problemas y alternativas propias del mundo latinoamericano cuyas propuestas mas singulares e innovativas se presume que deben conocerse profundamente para insertar el trabajo de proyecto en una condición geocultural especifica que en lo posible aproveche lo bueno de la globalización pero también que cuestione sus defectos y limitaciones.

TO (Carlos Facio + José Amozurrutia), +UdeB Arquitectos (Felipe Uribe), AGENdA (Camilo Restrepo). Jardines para el bienestar. Centros comunitarios de Cuicuilco y Lacandones.

México DF

El gobierno de la Ciudad de México convocó por invitación al desarrollo de centros comunitarios – denominados Pilares para el bienestar- en diferentes colonias. Estos centros contienen programas de acuerdo con la demografía, necesidades y vocación de la población. Los tres estudios fuimos invitados a diseñar, cada uno, un centro comunitario. Conversando entre nosotros, concluimos que lo conveniente era desarrollar de manera colaborativa los proyectos. En esta publicación se incluyen materiales referentes a dos de los centros: Cuicuilco y Lacandones.

Una importante preocupación fue la gestión del agua dentro de los edificios, contemplando los periodos de escasez de este recurso en la ciudad. Por lo tanto, lo primero que consideramos que se debía repetir en los tres proyectos era un techo para recolectar agua de lluvia.

Germán Valenzuela.
Detalle

Arquitectura de urbanidad.

Conjunto comercial Santa Ola. Mar del Plata

Moire Arquitectos. Ezequiel Muñoz & Mariel Cámara

Memoria

La obra consiste en la puesta en valor y ampliación de un chalet marplatense que desde hace ocho años funciona como un local comercial. Se encuentra ubicado cerca del paseo comercial Güemes, área comercial en expansión y transformación de gran densidad peatonal y vehicular. Emplazado en una esquina entre Stella Maris y Los Troncos, barrios que deben sus orígenes a las residencias balnearias, principalmente villas, cottages y chalets, hoy barrios tradicionales de la ciudad cuya memoria e identidad colectiva remite a un tejido de chalets del que no quedan casi rastros. El designado popularmente como chalet marplatense, surge como efecto de la popularización de la ciudad balnearia y de la crisis del 30 a partir de una simplificación de los programas y de la implantación de éstos en lotes más reducidos. Estas construcciones buscaron mantener características del pintoresquismo, la estética de sus materiales nobles, las técnicas artesanales, la morfología a partir de la composición aditiva de diferentes volúmenes y cubiertas facetadas que se evidencian a partir del dueto figura-fondo.

Partiendo de la premisa que hacer arquitectura es hacer ciudad y que una obra de ampliación puede transformar no solo un edificio sino un espacio urbano, la decisión proyectual no sólo fue conservar el chalet por lo que significa para la memoria e identidad colectiva de la ciudad sino ponerlo en valor, haciendo del edificio nuevo un telón y otorgándole mayor espacio público a la calle. A través de una intervención dialéctica el conjunto edilicio obtiene una nueva imagen en la que lo contemporáneo y lo tradicional se ponen en valor, potenciando y resignificando el sitio, la esquina como espacio urbano singular, la calle vereda como espacio apropiable, el edificio como identidad de la marca y de Mar del Plata.

El sector nuevo del edificio toma la altura del entorno, enchapando la medianera y a su vez quebrando el eje ortogonal de la cuadricula propia de la manzana para otorgarle singularidad al chalet. Éste elemento a su vez, logra enfatizar la condición de esquina y aumentar su visibilidad. Para generar mayor espacio público y dar una respuesta desde la arquitectura a la densificación que vive este sector urbano, el edificio se retranquea provocando un ensanche de la vereda,

generando un punto de encuentro que enriquece la relación del edificio con la ciudad. El conjunto edilicio posee materiales nobles, de expresión estética y representatividad histórica buscando un diálogo entre pasado, presente y futuro. Por un lado se busca poner en valor la materialidad del chalet, restaurando la madera y recuperando el estado de la piedra y la cubierta de tejas. El área nueva del edificio no busca la mímesis con el patrimonio sino diferenciarse a partir de una imagen contemporánea conformada a partir de formas puras y de materiales y colores que difieren del chalet: hormigón visto, aluminio negro y el vidrio son los elegidos. Éstos conservan la expresividad propia del material al igual que ocurre con la piedra, la madera y la teja en el chalet. El diseño del límite del edificio busca guionar la interacción de éste con las personas que transitan por la esquina tanto a nivel peatonal como

vehicular, otorgando la trasparencia indicada para invitar a ingresar al interior del local. Una secuencia de planos opacos y translúcidos que toman como referencia el límite existente en el chalet se repiten en el sector nuevo del edificio para permitir espiar el interior del local. Se diseñó la estructura y materialización de la obra para potenciar la idea arquitectónica y para dar respuesta a la premisa de que la misma debía desarrollarse con el local funcionando en simultáneo.

Opinión

Pudiéndose –según la lógica edilicia predominante en la zona– derruir el típico chalet de esquina para, adicionándose el lindero, desarrollar un conjunto nuevo, regularizado y quiza con mas rendimientos de metros, en este caso se opta por intervenir el chalet existente (ya convertido en la tienda de ropa deportiva Santa Ola) cuya función se ratifica y

Datos

La obra se localiza en Alvarado 1375 esquina Olavarría,Mar del Plata. La superficie del lote es de 231,07m2 y la superficie cubierta total de 201.41m2. La obra se finalizó en 2023 y sus autores son Moirë arquitectos integrado por Mariel Cámara y Ezequiel Muñoz. Fueron colaboradores los arquitectos Guillermo Bejanele, Facundo

Carrasco, Eugenia Peña y Gerardo Toyos y el señor Juan Chaar. El cálculo estructural

lo realizó el arquitecto Fernando Redivo y las fotografías las realizó Ramiro Sosa.

expande mediante el nuevo edificio de dos niveles que enchapa la medianera sudoeste y la pieza conectora entre lo nuevo y lo existente. Aquello existente –ya devenido en la tienda que encara ahora su expansión– era un chalet típico de la ciudad, con esa cualidad intermedia entre patrimonio monumental a considerar caso por caso y un tejido-paisaje de construcciones discretas y de imagen fuertemente tipificada que configura por asi llamarla, el aura mas identitaria de la ciudad y que precisamente en el área comercial Güemes y en el adyacente barrio de Los Troncos va camino de una seria y completa devastación a favor de una nueva configuración edilicia de bloques regulares de oficinas y viviendas y zócalos comerciales en algun caso.

De alli que la decisión de conservar y restaurar el chalet antiguo debe considerarse un adecuado leading-case que aporta argumentos para tratar de no perder aquella aura

identitaria-paisajística que la ciudad no debería sacrificar en pro de una neutral nueva acumulación de piezas de estilo minimalista. Los proyectistas expresan en su memoria la identificación de los valores que atribuyen a esa edilicia anónima y acumulativa: Estas construcciones buscaron mantener características del pintoresquismo, la estética de sus materiales nobles, las técnicas artesanales, la morfología a partir de la composición aditiva de diferentes volúmenes y cubiertas facetadas que se evidencian a partir del dueto figura-fondo.

Esos valores contenidos en el tipo chalet (pintoresquismo, materialidad noble –o rústico-artesanal–, aditividad, juegos figura-fondo) ellos creen que aun persisten para nuevas rescrituras actuales: neo-pintoresquismo como alternativa al cánon racio-minimalista (por ejemplo en este caso valorándose ejes compositivos oblicuos o no ortogonales),

materialidad calificada (homigón, aluminio negro, etc.) y en su nueva cualidad tecnológica también de una fuerte referencia a la buena construcción, aditividad concebida como un juego de articulación espacial y volumétrica de lo nuevo y lo viejo y relación figura-fondo al atribuir al agregado contemporaneo el rol de fondo o telón respecto de la figura-chalet.

Todo el ensamble de tradición y novedad en este caso y más allá de su valoración cultural-patrimonial, tiene además la pretensión de hacerse cargo de la relación que da nombre a esta sección de MAR: Arquitectura-Ciudad y asi lo expresan sus autores en la memoria: Partiendo de la premisa que hacer arquitectura es hacer ciudad y que una obra de ampliación puede transformar no solo un edificio sino un espacio urbano, la decisión proyectual no sólo fue conservar el chalet por lo que significa para la memoria e identidad

colectiva de la ciudad sino ponerlo en valor, haciendo del edificio nuevo un telón y otorgándole mayor espacio público a la calle. Lo central de este proyecto,además de su revitalización comercial-promocional de la tienda existente en chalet adaptado, es asumir su responsabilidad en mejorar lo público, ya sea otorgándose cierto peso al diseño del espacio abierto de las veredas, ya sea generando una neta imbricación interior-exterior mediante un tratamiento lo mas transparente posible de aquella tipología básica del chalet, de por si, por la privacidad de lo doméstico, bastante opaca y cerrada. Esa mejora de lo público (proyectando el exterior y transparentando el interior) es lo que da sentido al título que escogimos para esta presentación: Arquitectura de Urbanidad, siendo la noción de urbanidad aquella que da espesor a la intención de maximizar la calidad pública de un edificio privado (comercial).

Asi se alcanza un resultado de proyecto que podría ser a la vez, adecuado para su comitente (mejorando su performance comercial, al menos optimizando la visión/promoción de sus productos) y responsable o contributivo a la calidad de urbanidad de la ciudad, tal como se expresa en otro párrafo de la memoria de los proyectistas: …una nueva imagen en la que lo contemporáneo y lo tradicional se ponen en valor, potenciando y resignificando

el sitio, la esquina como espacio urbano singular, la calle vereda como espacio apropiable, el edificio como identidad de la marca y de Mar del Plata.

El proyecto interior (comercial) resuelve adecuadamente la espacialidad emergente de conectar el área comercial original con la nueva, que adquiere valores adicionales de calidad espacial con la doble altura del local nuevo y la integridad de lo nuevo y lo viejo se maneja –también razonablemente– mediante el doble procedimiento de identificar muy claramente cada parte (la nueva y la vieja), sin concesiones de asimilación o imitación (cada parte expresa nítidamente su tiempo y estilo constructivo) y con el peso de una pieza conectiva entre ambos volúmenes que se presenta con fuerza compositiva hacia el exterior.

Por último cabe referir al interés proyectual en diseñar urbanidad pública: el edificio se retranquea –dicen sus proyectistas– provocando un ensanche de la vereda, generando un punto de encuentro que enriquece la relación del edificio con la ciudad. Ese retranqueo ocurre en el área de articulación entre ambas partes y en ello se acentúa la intención de ganar lugar público incluso aportando equipamiento. Pequeños interventos que podrían sumar al compromiso de que cada obra entregue su pequeña ofrenda de mejora del espacio público, que en este caso su suma a una similar

intención que el Estudio Mariani-Pérez Maraviglia-Cañadas aportó al grupo de tiendas que calle Olvarría por medio queda al frente de Santa Ola, también con retranqueos que ganan vereda y con bancos de hormigón para uso público. Diálogo virtual que con mas de dos décadas de diferencia entre una y otra intervención proyectual-comercial, asumen cooperativamente la sana intención de producir arquitecturas de urbanidad.

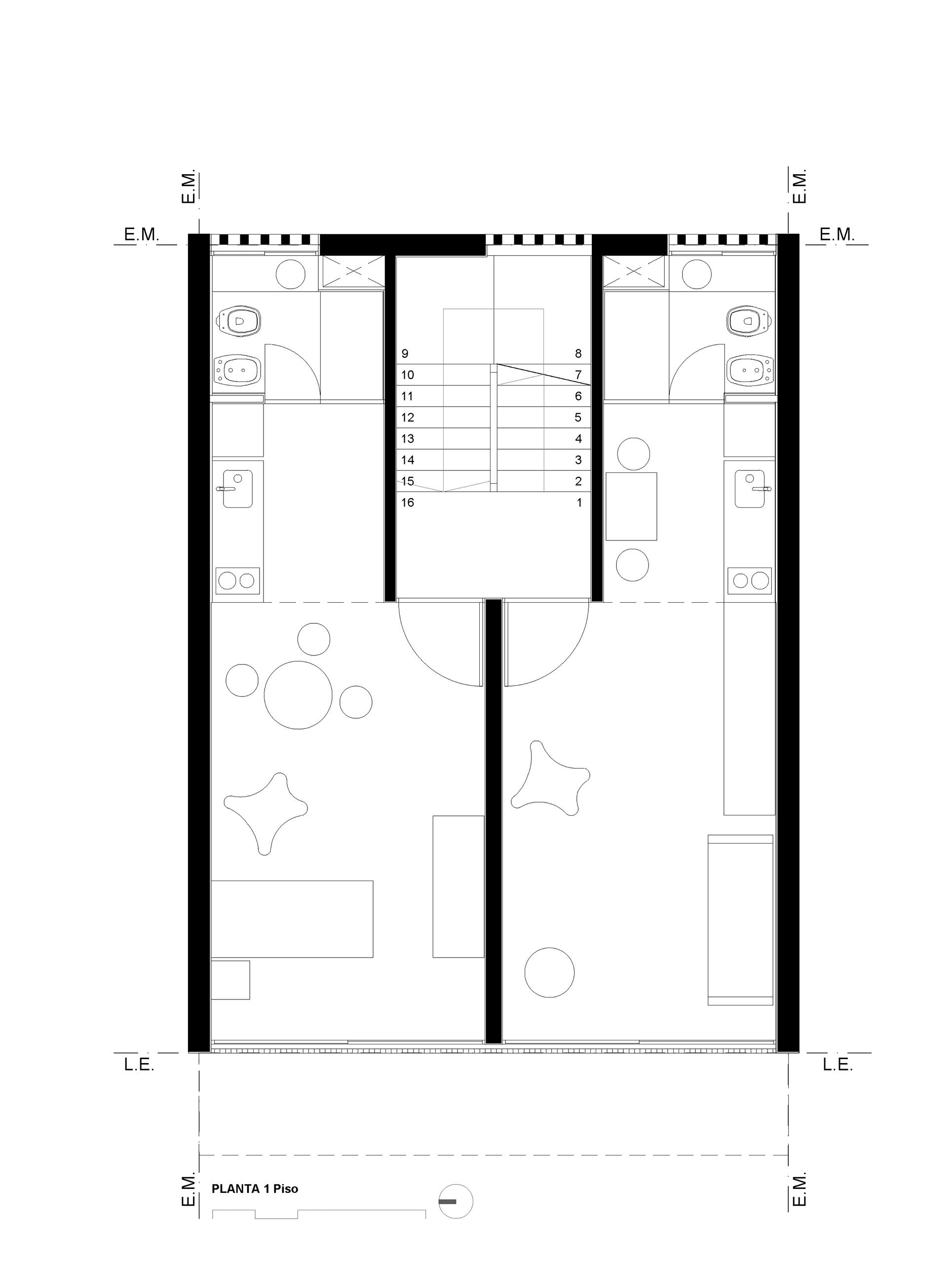
Investigación sobre pequeñas casas suburbanas

Tres obras platenses

Las casas están ubicadas en las afueras del casco urbano de La Plata. La estrategia de ocupación del suelo se centra en la disposición de superficies reducidas a través de un sistema modular compacto. Se apela a sistema de galerías o patios como espacios transición con el objetivo de producir todas clase de variantes de espacios intermedios posibles entre lo que consideramos espacios netamente interiores y aquellos que son exteriores. Se busca un lenguaje elemental. La disposición funcional se centra en amplificar espacios de mínima superficie logrando cualificarlos con múltiples texturas y posibilidades de uso.

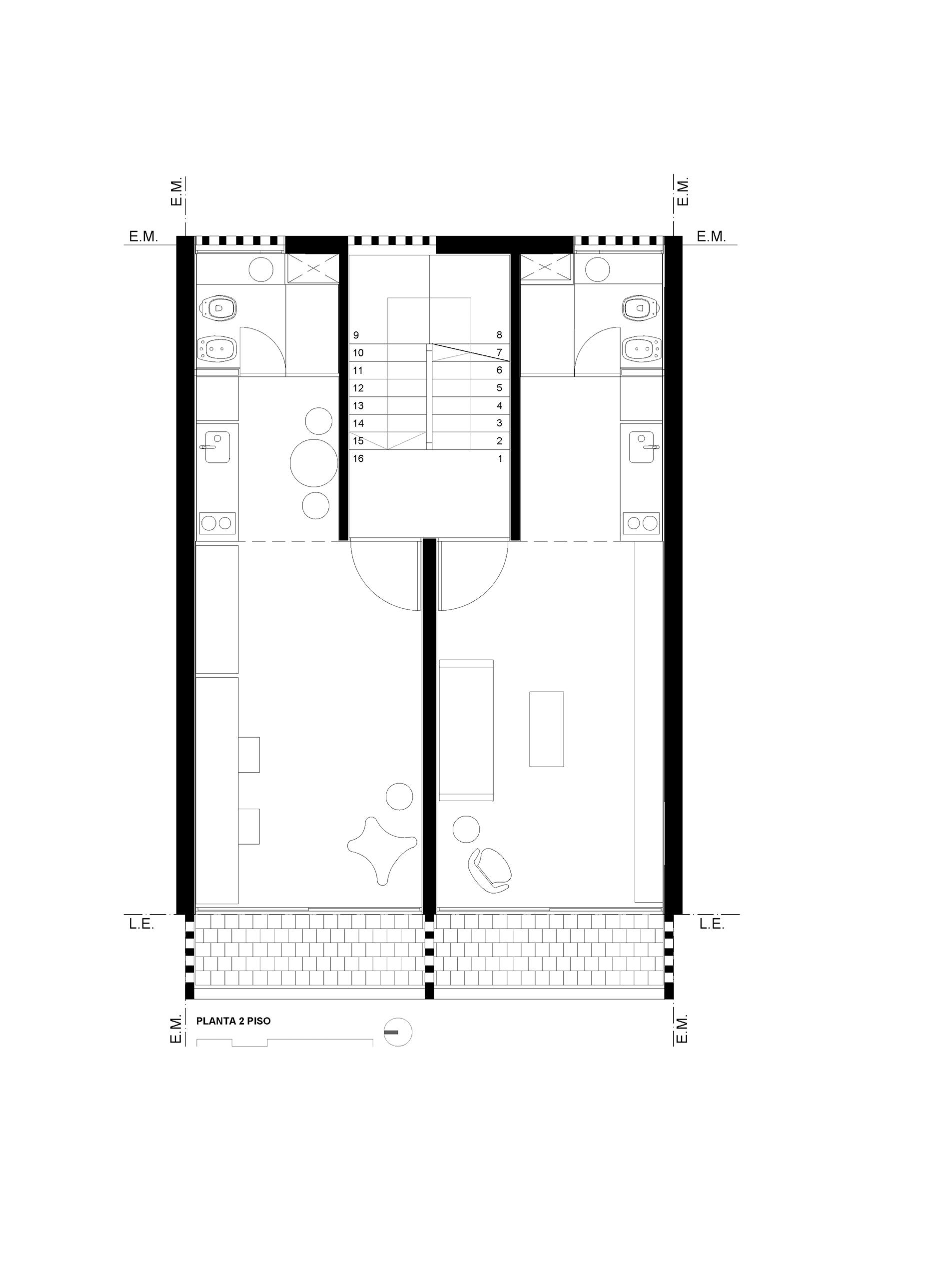
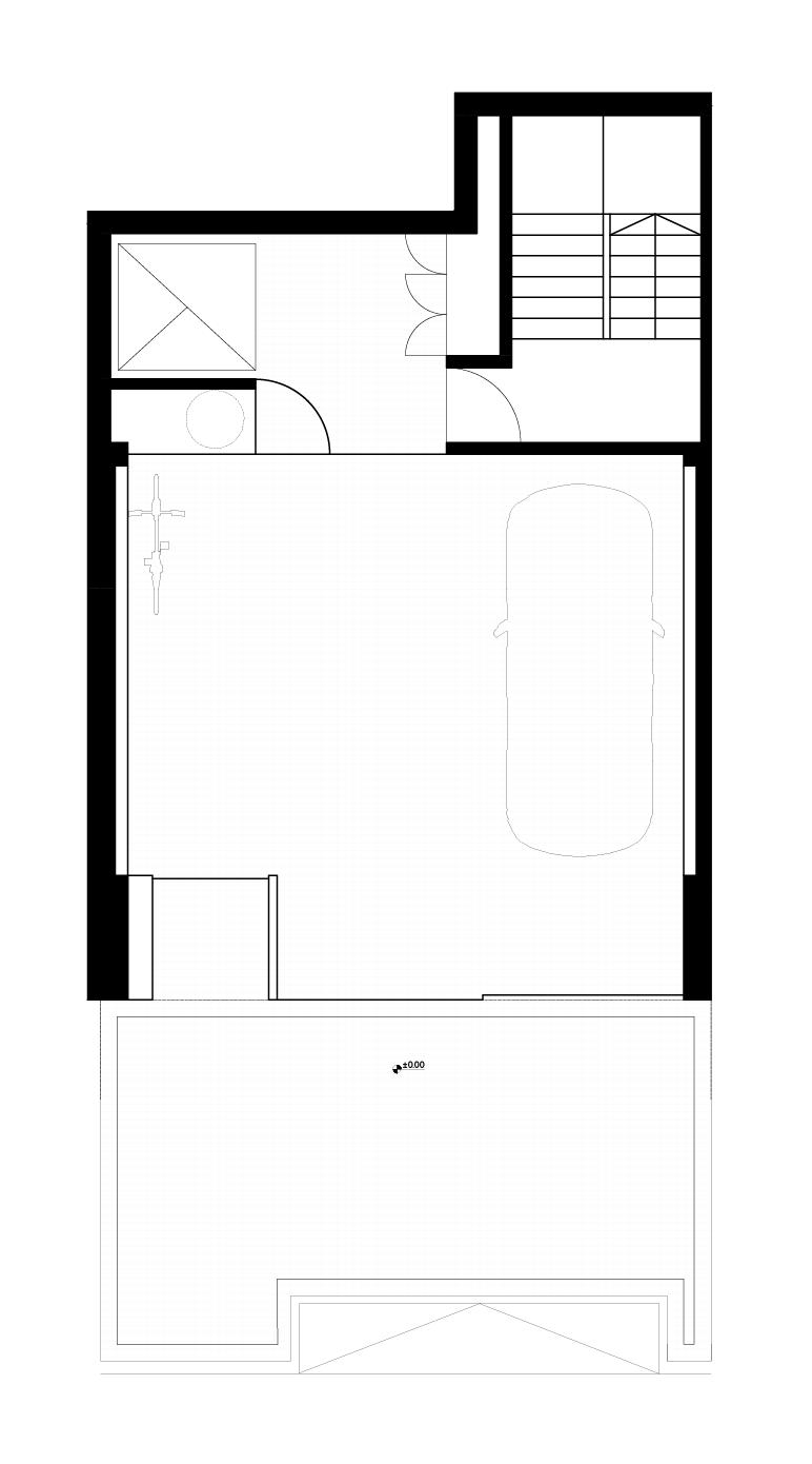
La estrategia de proyecto consiste en generar una grilla simple de hormigón armado que organiza los espacios solicitados por el programa de la casa. La misma se desarrolla íntegramente en planta baja permitiendo un futuro crecimiento sobre la terraza.

El proyecto desarrolla una planta mínima, flexible y diáfana con una clara geometría como base indentitaria de la casa. Los espacios que se expanden hacia el exterior suponen secuencias de apropiación del paisaje circundante, a partir de sistemas de relación flexibles propuestos por los módulos libres.

La lógica compositiva de la estructura propone una dinámica espacial donde los servicios se concentran para liberar los otros espacios de uso. La secuencia geométrica de la modulación funciona como conector y articulador del interior con el exterior. Los materiales exponen su textura y color particulares.

Los espacios que se expanden hacia el exterior suponen secuencias de apropiación del paisaje circundante, a partir de sistemas de relación flexibles propuestos por los módulos libres. La obra pone en valor arquitecturas

locales, a partir de procesos de resignificación de elementos tradicionales.

El objetivo es definir sistemas estructurales y constructivos que se conviertan en oportunidades, espacios de crecimiento y posibles transformaciones. Se piensan de forma libre, abierta para permitir futuras concreciones. Las instalaciones deben admitir cambios y actualizaciones. El habitante es fundamental en el proceso de proyecto, ya que su intervención futura –en la concreción de su hábitat– es uno de los temas fundamentales para decidir los sistemas constructivos: la casa debe adecuarse a sus futuras necesidades, debe ser capaz de ser mejorada.

La vivienda diseñada bajo la condición de adaptabilidad implica concebirla ya no como un producto terminado, sino como un soporte. Una vivienda que en su fase inicial ofrece prestaciones mínimas, pero que ha sido pensada para poder incorporar nuevas terminaciones, mejores equipamientos y futuras aportaciones de nuestros usuarios. De este modo se también se optimizan los recursos económicos y materiales.

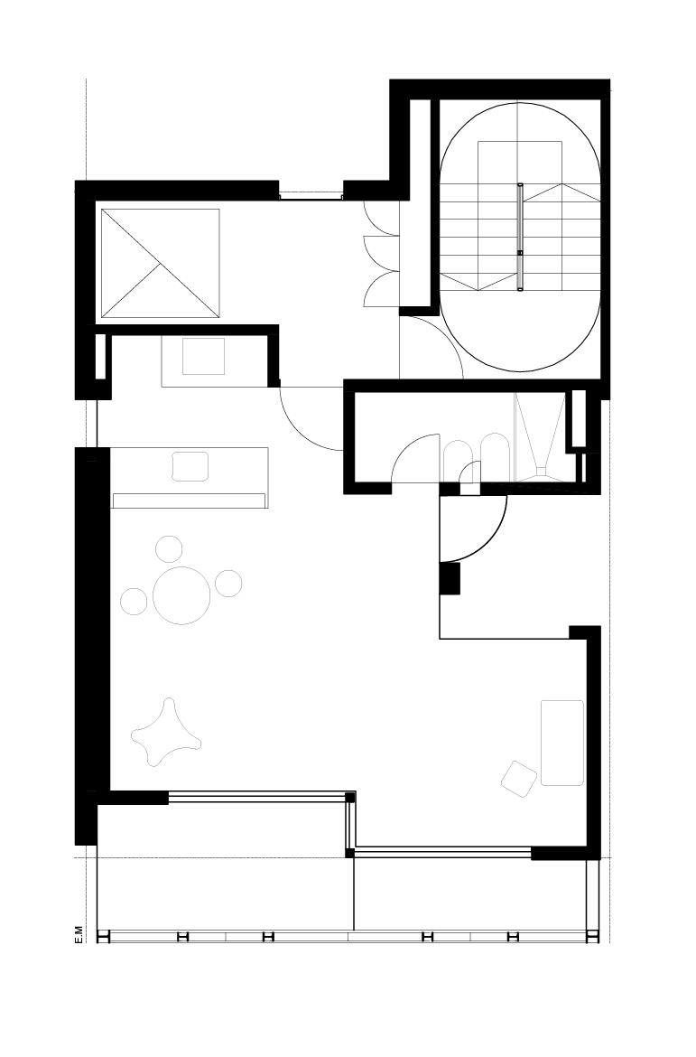
Casa Virginia

Esta es una pequeña vivienda para una única usuaria que requiere una superficie mínima para contener un espacio social multiuso y una habitación.

Se ubica en la localidad de Villa Elisa, del partido de La Plata situada lejos del centro de la ciudad, en un sector que forma parte de las áreas de mayor crecimiento suburbano de los últimos años, razón por la cuál su tejido está compuesto de casas quintas, viviendas aisladas y pequeños conjuntos habitacionales.

Su superficie de ocupación es reducida en la primera etapa y contempla posibilidades de ampliación distintas y combinables para garantizar el incremento sucesivo de nuevos espacios y la apropiada disposición de los mismos en relación a la dimensión extensa del lote.

Unifamiliar de

Ubicada

La

Buenos Aires, Argentina y con 90,50m2 de superficie. El equipo de proyecto se integró con Luciana Fernandez Reimers y Elena Risso y las fotos son de Fernando Schapochnik.

Datos: Casa Virginia
Vivienda
2017, Premio CAPBA 2019.
en
Plata,

...se busca un lenguaje elemental. La disposición funcional se centra en amplificar espacios de mínima superficie logrando cualificarlos con múltiple texturas y posibilidades de uso...

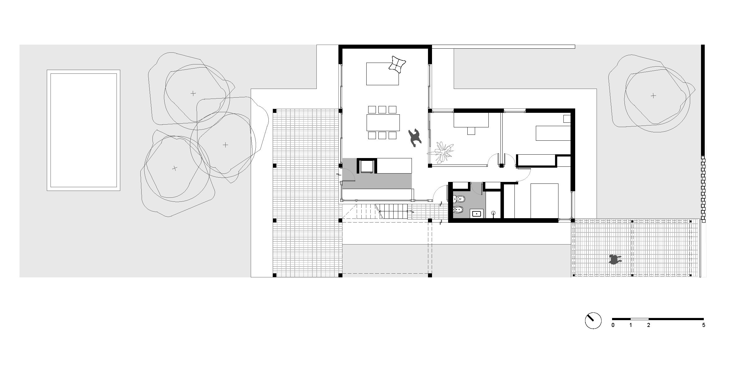
Esta vivienda destinada a una joven fotógrafa se ubica en Parque Sicardi, un área comprendida dentro de la delegación de Arana, en el partido de La Plata, al sudeste del centro de la ciudad, entre el Aeródromo Provincial y la localidad vecina de Ignacio Correas. La estrategia de diseño responde al requerimiento de una superficie de ocupación mínima en primera etapa, que se ajusta a cuatro posibilidades de ampliación distintas y combinables para garantizar la necesidad de adaptabilidad a los cambiantes estilos de vida contemporáneos, procurando la posibilidad de que los mismos sean efectuados por la ocupante, con total independencia, una vez habitada la vivienda. Esta es una casa que incluye un futuro estudio fotográfico, de modo que la incorporación progresiva de espacios debe incluir usos públicos como talleres y exposiciones. En una etapa inicial, se plantea un espacio domestico mínimo, dejando latente la intervención sobre algunos sectores de la vivienda, tanto desde el punto de vista técnico como espacial.

Casa Luisina

Datos

Vivienda Unifamiliar de 2018 localizada en La Plata, Buenos Aires, Argentina y con una superficide de 94,60 m2. El equipo de proyecto lo integraron Luciana Fernandez Reimers y Elena Risso y las fotografías son de Fernando Schapochnik.

Esta vivienda se encuentra ubicada al noreste del casco de la ciudad en la localidad de Gonnet. En este contexto suburbano se diseña una casa para una familia contemporánea, lo que requiere nuevos dispositivos de comprensión y abordaje del proyecto que incorpore las lógicas que este grupo social supone para ser atendidas desde el diseño.

En estos términos es que se opta por plantear una indeterminación casi total de sus ambientes interiores para cumplir con la premisa de asegurar, dentro una superficie acotada, cierta cantidad de prestaciones funcionales y de diversidad de ocupación de los mismos. De este modo, los espacios tienen distintos momentos y es necesario procurar la mayor fluidez posible para adaptar el espacio a una fluctuante cantidad de ocupantes.

En búsqueda de maximizar este concepto, la planta se diseña de manera de conceder a sus usuarios la posibilidad de dividir los ambientes a partir de separadores móviles que se adecúan a cierto número de situaciones disponibles, al tiempo que, permite abaratar aquellos costos considerados en la primera etapa de edificación, contribuyendo a una mudanza temprana.

En esta obra el concepto de adaptabilidad es interpretado a partir del despliegue de usos una vez habitada la vivienda, dado que sus habitantes pueden decidir qué se adecúa mejor a sus necesidades una vez dentro.

Datos

Vivienda Unifamiliar de 2020 ubicada en La Plata, Buenos Aires, Argentina con una superficie de 120,00 m2 El equipo de proyecto lo integraron Luciana Fernandez Reimers y Elena Risso y las fotografías son de Fernando Schapochnik.

Opinión

Esta trilogía de viviendas se basa en implantar alternativas residenciales fuera de la ciudad tradicional (Las casas están ubicadas en las afueras del casco urbano de La Plata, dice su autora).

Responde además a cierta demanda medio-baja (no son casas de lujo) de primeras soluciones habitacionales, de familias recién constituídas o mujeres solas en dos de los tres casos, que prefieren con presupuestos acotados, descartar habitar mini-departamentos urbanos estándar e irse fuera o más lejos de la ciudad formal, a áreas periurbanas de ciertos valores de ciudad-jardín (tampoco será la solución country) donde en lotes acotados se pueda desarrollar una secuencia temporal futura de ampliaciones y adaptaciones, con lo cuál los proyectos se basan en una suerte de forma-semilla que puede crecer en sus bordes o incluso rellenando vacios que deja la estructura o colonizando los techos ya que en inicio son puras plantas bajas.

Esa intención de proyecto queda expresada en la lógica que Risso indica en su memoria:

La estrategia de ocupación del suelo se centra en la disposición de superficies reducidas a través de un sistema modular compacto. Se apela a sistema de galerías o patios como espacios transición con el objetivo de producir

todas clase de variantes de espacios intermedios posibles entre lo que consideramos espacios netamente interiores y aquellos que son exteriores.

Esta clase de casas inciales (primera casa suburbana) se obtiene asi mediante la idea de un sistema modular compacto que permite acomodar los espacios funcionales asi como colocar módulos abiertos que operen como fuelles de crecimiento y/o como espacios de intermediación interior-exterior (patios, galerías, etc.).

Tal idea de modulación básica se asocia a una materialidad sencilla cementicio-ladrillera que se aleja del modelo suburbano (mas bien aquel de los clubes cerrados) de pieles blancas pulidas y minimalistas, con lo cuál se consigue cierta asociación a la rusticidad vinculable al momento de las casas blancas aunque en este caso de mas exhibición de la estructura modular que de paramentos mas

bien rústicos o artesanales: dice su autora que se busca un lenguaje elemental. La disposición funcional se centra en amplificar espacios de mínima superficie logrando cualificarlos con múltiple texturas y posibilidades de uso.

Dicha voluntad compositiva-constructiva de resolver estos proyectos mediante un sistema de módulos está en la base del tipo de diseño adoptado tanto para acoger el programa original de cada proyecto cuanto sus posibilidades de crecimientos, tal cual lo indica la memoria genérica de este conjunto tipológico de proyectos: La estrategia de proyecto consiste en generar una grilla simple de hormigón armado que organiza los espacios solicitados por el programa de la casa. La misma se desarrolla íntegramente en planta baja permitiendo un futuro crecimiento sobre la terraza. Ciertos agregados de pura estructura vacia sobre la primera planta procuran aparecer como zonas de futura colonización, entregando de tal forma, cierta disposición proporcional que elude la chatura de puras plantas bajas e insinuando o previendo la futura ocupación de las terrazas que mientras tanto pueden ofrecerse

como espacios abiertos de expansión como de observación del entorno dominantemente rural de las implantaciones a la manera si se quiere, de antiguos mangrullos.

De esa manera la autora otorga a su diseño de agregados de jaulas de cemento una posibilidad de mejorar la percepción y apropiación de los paisajes contextuales tanto como asumir unos lenguajes elementales que mas que operar como las estéticas de modas countries buscan rememorar lenguajes tradicionales resignificados, tal como se apunta en la memoria: Los espacios que se expanden hacia el exterior suponen secuencias de apropiación del paisaje circundante, a partir de sistemas de relación flexibles propuestos por los módulos libres. La obra pone en valor arquitecturas locales, a partir de procesos de resignificación de elementos tradicionales.

El diseño de tal manera se enfoca prioritariamente en proyectar estructuras ocupables, módulos espaciales (medidas de recintos posibles) y estructurales pensados como esqueletos que alojarán las funciones del programa de modo de plantear oportunidades o sea espacios básicos tanto como espacios

para alojar futuros crecimientos y transformaciones y esa idea esquelética rellenable se presenta como un motivo central de proyecto asi como base cierta de su lenguaje: El objetivo es definir sistemas estructurales y constructivos que se conviertan en oportunidades, espacios de crecimiento y posibles transformaciones. Se piensan de forma libre, abierta para permitir futuras concreciones. Las instalaciones deben admitir cambios y actualizaciones.

La apelación a una estrategia proyectual básica que crecerá y se ocupará con diferentes demandas futuras se entiende como una solución técnica económica que resuelve soportes de futura expansión (que significan el componente de obra gruesa futura, ya resuelta desde el inicio) tanto como una base más o menos libre para receptar la voluntad y deseos actuales y futuros de sus habitantes. Una obra abierta capaz de ocuparse desde el inicio pero con cualidades evolutivas de modo tal que favorece la participación del usuario sobre todo en la toma de decisiones de agregados a la obra básica que se producirán más adelante: El habitante es fundamental en el proceso de proyecto –dice Risso– ya que su intervención

futura –en la concreción de su hábitat– es uno de los temas fundamentales para decidir los sistemas constructivos: la casa debe adecuarse a sus futuras necesidades, debe ser capaz de ser mejorada.

La idea proyectual de valorar arquitecturas locales y de resignificar elementos tradicionales se convierte en central para sostener estéticas de larga duración en el tiempo, eludiéndose las modas lingüísticas que actualmente unifican entornos domésticos country basados en una infinita repetición de cajas blancas y grandes planos acristalados. Aquí se apuesta a presentar una estructura robusta capaz de configurar, como expresa su autora, una vivienda que en su fase inicial ofrece prestaciones mínimas, pero que ha sido pensada para poder incorporar nuevas terminaciones, mejores equipamientos y futuras aportaciones de nuestros usuarios.

Biomaterialidad como alternativa sustentable

¿Podemos crear nuestro hábitat en alianza con hongos?

* Arquitecta en práctica, docente de Proyecto en FAUD UNMDP de Mar del Plata y miembro del colectivo Superpraxis , hace varios años inició una investigación orientada al aprovechamiento de biomateriales de origen fúngico que experimentó el desarrollo de ladrillos obtenidos por la actividad digestora de micelios que luego utilizó en proyectos basados en el uso de esa tecnología, de costo energético-fósil cero.

La crisis ambiental y el estado de emergencia eco-social que atraviesa el planeta Tierra exige hace tiempo plantear nuevos paradigmas que colaboren con la preservación y cuidado del medioambiente en tanto hábitat de las diversidades humanas y no-humanas, por fuera de una mirada antropocéntrica. Surge así la urgente necesidad de repensar y habilitar nuevas formas de convivencia y simpoiésis (co-creación según Donna Haraway.) ecosistémicas, traccionando hacia la producción de arquitecturas multiespecie en términos tecnológico-proyectuales.

En un contexto global contemporáneo dinámico y en constante transformación atravesado recientemente por una pandemia mundial, conflictos bélicos y una creciente porosidad social e individualismo acentuado por la era de la tecnología y la información, donde el teleconsumo y teletrabajo son funcionales a las lógicas del sistema y donde existe un marcado avance en el territorio de lo privado-individual sobre lo público-colectivo determinado por las leyes de mercado, es necesario detenerse a reflexionar acerca de la importancia

de propiciar escenarios que habiliten la construcción de comunidad, la generación de hábitats accesibles, inclusivos y resilientes acompañados por el desarrollo de tecnologías de bajo impacto ambiental.

Los sistemas industrializados contemporáneos de producción de materiales aplicados a la arquitectura presentan cifras alarmantes de emisión de CO2 en el planeta Tierra, generando un alto consumo energético para su producción y transporte, además de obtener materias primas de fuentes no renovables. Ciencia, arquitectura y naturaleza convergen así en el desarrollo de nuevos sistemas de producción biomaterial, con el objetivo de dar respuestas de alto impacto y soluciones que aporten a mitigar la crisis socio-ambiental.

Los mayores saltos evolutivos de las especies se han dado a través de la cooperación y es en las alianzas con otros organismos vivos donde se halla un gran potencial, un camino no muy explorado dentro de la dimensión arquitectónica-proyectual.

En el marco de este problema, se busca aportar a dicha evolución en la generación sostenible de biomateria-

les desde la innovación tecnológica co-creando con la naturaleza, a partir de la reutilización de desechos locales. Surge entonces dadas sus características, la oportunidad de explorar nuevas tecnologías biomateriales con el micelio (organismo del reino de los hongos) aplicadas a la producción del proyecto arquitectónico, con una lógica circular basada en la reutilización de materia de descarte local como recurso disponible, propiciando la producción de arquitecturas que colaboren con la remediación ambiental, activadoras del ecosistema, que puedan dar respuesta y adaptarse a las distintas necesidades que demanden las constantes transformaciones en el tiempo, desde una mirada situada en el contexto geopolítico del Sur Global. Por su parte, las políticas públicas consideran como parte del plan de acción de adaptación al cambio climático en contextos urbanos y rurales la innovación en sistemas constructivos que tiendan a reducir el consumo energético y la huella de carbono en su producción en comparación con los sistemas tradicionales contemporáneos a fin de evitar incrementos de

temperatura, emisión de gases de efecto invernadero y aportando a la transición energética (Ministerio Ciencia y Tecnología, 2020; ONU, 2018).

Tanto considerar estrategias proyectuales de diseño pasivo para la regulación termodinámica del hábitat,

Imagen 1

Refugio fúngico

como también el tratamiento de las envolventes y las características de los componentes materiales que las conforman son fundamentales para la mejora del desempeño energético de los espacios, pudiendo reducir hasta un 35% el consumo de energía.

Como parte del biocompuesto, el micelio posee una estructura de filamentos microscópicos denominados hifas que se expanden en forma de red de manera rizomática alimentándose de materia inerte, aglomerando los desechos orgánicos y generando una estructura que posee la capacidad de adquirir una alta resistencia final a los esfuerzos de compresión y flexión. A su vez, se caracteriza por su gran liviandad, su alta eficiencia

termo-acústica, sus propiedades ignífugas y su flotabilidad debido a su porosidad.

Al estar compuesto por desechos orgánicos y un organismo vivo, el biomaterial obtenido es completamente biodegradable y compostable, por lo que una vez cumplida su función en el tiempo puede volver al medio en forma de abono, cerrando la cadena circular y volviendo al inicio para nutrir la tierra y dar nuevamente vida, proponiendo así un sistema de triple impacto desde el punto de vista social y ambiental. Además de autogenerarse reduciendo la huella de carbono en comparación con otros sistemas de producción contemporáneos, el micelio durante su proceso de expansión consume un 50% de su peso de CO2 de la atmósfera.

La exploración en torno a la biomaterialidad ha trazado en los últimos años un camino de innovación que busca dar respuesta a estas problemáticas tejiendo nuevas culturas materiales, desde la utilización del

desecho como materia prima en procesos de biofabricación, hasta el desarrollo de sistemas con bacterias y otros microorganismos (Kombucha y Scoby, Sistemas Materiales) para la generación de cueros bacterianos como reemplazo de textiles, bioplásticos, etc.

Con el fin de trasladar estas inquietudes al campo de la arquitectura se plantea la siguiente pregunta ¿Podemos cultivar nuestro hábitat en alianza con los hongos?

La exploración e innovación en tecnologías relacionadas a la biomaterialidad con la participación de organismos vivos en su composición como nuevo paradigma registra un camino incipiente de pocos años y un gran potencial a futuro en términos de sustentabilidad socio-ambiental, en respuesta a la crisis climática y eco-social que atraviesa el planeta Tierra.

En 2014 el estudio The Living fundado en Nueva York y dirigido por David Benjamin materializa Hy-Fi en el Museo de Arte Moderno MoMA, la primer instalación circular de bloques generados a partir de micelio y tallos de maíz completamente biodegradable. Otro de los antecedentes registrados es la instalación Grown Bio– Growing Pavilion construida a partir de placas de biocompuestos a base de micelio en 2019 para la Semana del Diseño Holandés, por los estudios Grown. bio de Holanda y Pascal Leboucq.

Ecovative por su parte, es una empresa con base en Green Island, Nueva York, fundada en 2007. Su principal actividad se basa en la producción y comercialización de embalajes, espumas, mico-textiles y otros productos biobasados a partir de micelio. Registra los primeros aportes en la exploración biomaterial,

en el año 2006 y colaboró en la materialización de la instalación Hy-Fi.

Existen estudios y prácticas emergentes que han comenzado a explorar las posibilidades de biofabricación con micelio de hongos en impresión 3D como Blast Studio con base en Inglaterra. A su vez algunas universidades extranjeras y grupos de investigación de la RWTH Aachen University, Alemania se encuentran investigando biocompuestos miceliados desde hace algunos años.

En Latinoamérica se registran algunas prácticas independientes como LABVA en Chile, trabajando no solo con micelio sino también con otros sistemas de biofabricación a base de algas y almidón de papa en objetos de pequeña escala. Radial Bio en México, desarrolla embalajes y reemplazos de cuero a base de micelio y desechos orgánicos y Sistemas Materiales en Buenos Aires trabaja en el diseño bioinspirado.

En el marco de esta investigación e interés por el desarrollo de nuevas biomaterialidades con micelio de hongos y materia de descarte de la industria maderera y alimenticia local, es que se suma la experiencia personal dentro del estudio experimental de arquitectura Superpraxis, Mar del Plata, trabajando desde el año 2020 con mucho compromiso por el cuidado y la preservación del medio ambiente y las diversidades que lo habitamos, llevando a cabo de manera participativa la materialización del proyecto Refugio Fúngico en 2021, en la Patagonia argentina, la primera instalación con micelio de hongos en Latinoamérica como prototipo experimental.

Refugio Fúngico es una bio-instalación efímera viva construida en el marco del proyecto experimental de investigación y desarrollo biotecnológico en alianza con organismos vivos, generada a partir de un biomaterial producido a base de desechos orgánicos y la incorporación de un organismo perteneciente al reino de los hongos, el micelio. La propuesta hace raíz en repensar las formas en las que nos vinculamos con el medioambiente y las diversidades humanas y no-humanas que lo habitamos, en términos ecosistémicos. Pretende visibilizar, concientizar y traccionar hacia el uso de materiales sustentables y respetuosos con el planeta Tierra, como nuevos modelos de producción sostenibles y autogenerados, alternativos a los sistemas de producción industriales contaminantes o de explotación y extracción del medio natural.

Los mayores saltos evolutivos de las especies se han dado a través de la cooperación y así, es momento de comprender que las grandes alianzas están con la naturaleza. Comprenderla permite cuidarla, respetarla y convivir como parte de la trama ecosistémica que conformamos,

Imagen 2

Asiento de banco de micelio fructificado

por fuera de una visión antropocéntrica de explotación-depredación de todo aquello que nos rodea.

La instalación en términos espaciales propone la configuración de un refugio generado a partir de la repetición de una serie de bio-bloques de micelio de una única medida en un sistema de código abierto, conformando un límite permeable que funciona

como membrana de intercambio entre el interior y el exterior. Dicha envolvente de bio-bloques en estado vivo, conformados por micelio de la especie de hongos comestibles Ganoderma Lucidum (Reishi), posee la capacidad de interactuar con el medio que los rodea, dado que su textura y color derivan de la expresión propia natural generada por el micelio en relación a las variantes climáticas y atmosféricas del contexto

Imagen 3
Probeta de micelio fructificada

al que se expone, en un proceso dinámico que muta a lo largo del tiempo, dando lugar a lo indeterminado e impredecible, valorando su transformación, su carácter efímero, la expresión del paso del tiempo y la interacción medio-individuos.

A su vez, propone visibilizar la capacidad de generar herramientas donde naturaleza, diseño y tecnología convergen para dar respuesta y soluciones de alto impacto en términos ambientales y por lo tanto sociales a partir de la reutilización de materia de descarte de la industria alimenticia y maderera local como componentes principales junto con el micelio para la producción del biomaterial.

Se buscó llevar al máximo las múltiples formas de relación con el material, incorporando también la expresión sonora al proyecto. Pretende expandir la experiencia sensorial y las formas de comprender la potencia que poseen las alianzas con la naturaleza, permitiendo verlo y tocarlo, pero también escucharlo.

Se generó la construcción de un paisaje sonoro creado por la misma instalación en tiempo real, traduciendo la bio-data obtenida de la actividad del micelio vivo dentro del material, en expresiones sonoras a través de la bio-sonificación. La misma se obtiene a partir de la captación de los datos generados por la actividad del micelio (imperceptible al ojo humano) a través de electrodos, los cuales conducen la información a una consola o bio-sonificador generando diferentes expresiones sonoras producidas por el mismo biomaterial en el momento. Además de sumarle a la experiencia sensorial el sonido, descubrimos en el proceso que la

biosonificación podía ser una herramienta fundamental para la investigación, ya que nos permitió confirmar que toda la instalación aún se encontraba con vida.

Refugio Fúngico presenta la oportunidad de alejarnos de un pensamiento antropocéntrico, sin generar control o dominio absoluto sobre aquello que nos rodea, pudiendo entablar nuevas formas de co-creación, cuidado y vínculo con la trama ecosistémica, el medio y las diversidades que lo habitamos.

El proyecto tiene como objetivo principal ser semilla fértil para construir nuevos modelos de convivencia y relación con el medioambiente en tanto hábitat, buscando aportar al cuidado, la preservación y el respeto por el planeta Tierra en tiempos de crisis socio-ambiental. Pretende visibilizar y traccionar hacia el desarrollo de nuevos modelos de producción de materiales y economía circular respetuosos con el medioambiente, autogenerados y sustentables tanto desde el punto de vista

Imagen 4 y 5
Micelio inoculado en semillas de trigo

ambiental como social, en respuesta a las acciones de impacto negativo y problemáticas que surgen como resultante de los sistemas extractivistas o de producción industrial contemporáneos. Se busca aportar a dicha evolución en la generación sostenible de biomateriales desde la innovación tecnológica en alianza con la naturaleza, a partir de la reutilización de desechos.

Finalmente, el proyecto propone poner en valor las estrategias de triple impacto desde el punto de vista ambiental y social, produciendo la materia capaz de dar soluciones a problemáticas en términos de hábitat, obtener alimento y volver a abonar la tierra al haber culminado su ciclo de vida en el paso del tiempo.

Metodología Participativa

El proyecto se desarrolla a partir de la reutilización de desechos orgánicos derivados de la producción de cerveza local (bagazo de cebada) y de la industria maderera (aserrín y viruta) como sustrato vegetal al que se le incorpora el micelio de la especie Ganoderma Lucidum (Reishi). La misma pertenece al único grupo capaz de degradar completamente la madera debido a que actúa sobre la lignina, uno de los constituyentes de la pared celular vegetal.

Se organizaron instancias colaborativas abiertas, con el fin de visibilizar, compartir y expandir el conocimiento con la comunidad acerca de nuevos modelos de producción de materiales autogenerados, sostenibles en términos ambientales y sociales, en alianza con organismos vivos.

La primera etapa consistió en la fabricación del biomaterial a partir de la incorporación de desechos orgánicos de la industria local como recurso disponible y del micelio como organismo vivo aliado en la composición de la materia.

En una segunda etapa se llevaron a cabo jornadas de moldeo del biomaterial en matrices de 0.10x0.10x0.20m, para la fabricación de los eco-ladrillos que fueron utilizados en la construcción del Refugio, los cuales fueron luego vinculados entre sí por un sistema de barras de acero cosiendo y comprimiendo la instalación, coronada por la cúpula superior.

Finalmente, el montaje y construcción del Refugio Fúngico en la ciudad de Bariloche fue realizado también

Imagen 6
Moldeo de pieza de micelio

de manera participativa, materializando la instalación de 3,20m de altura con el objetivo de explorar y hacer visible el gran potencial que posee el biomaterial para su aplicación en la arquitectura, una arquitectura más respetuosa con el medio ambiente en términos de cuidado y preservación del planeta Tierra. Se destaca la participación en todas las etapas, con interés, entusiasmo y compromiso, de estudiantes de la Facultad de Arquitectura, Urbanismo y Diseño de la Universidad Nacional de Mar del Plata.

Myco-cabina (*)

Todos somos naturaleza: las cabañas myCO (proyecto para Letonia) coexisten como parte de un ecosistema vivo. Los mayores saltos evolutivos de la especie se han producido gracias a la cooperación. El proyecto combina ciencia, diseño y el poder de la naturaleza para cocrear hábitats sostenibles y ecológicos, para todas las diversidades humanas y no humanas que habitan el planeta Tierra, conectados en un gran ecosistema en red que sustenta la vida, como lo hace Mycelium. El micelio, también conocido como la raíz subterránea del hongo, es un microorganismo que, combinado con residuos del sector maderero local de Letonia y paja disponible en el lugar (utilizada en la arquitectura tradicional letona), materializa las cabañas. Las cabañas myCO se instalan puntual y respetuosamente como parte del bosque, para no dañar el medio ambiente, elevándose del suelo para contemplar el

Imagen 7

Bloques de micelio

Imagen 8

Pieza de micelio conectada a un biosonificador

* Este proyecto resultó premiado en un concurso internacional en que la autora participó en equipo con los arquitectos Facundo Hernández y Lucas Ibarra.

Proceso de biofabricación

Imágenes 10-22

Refugio Fúngico

Imagen 9
circular

paisaje del río Venta. Están conectados entre sí con el programa comunitario por una red rizomática de senderos que posibilita su futuro y crecimiento orgánico. La bioenvoltura de las myCO-cabins es liviana y presenta propiedades térmicas y acústicas altas y eficientes debido a su porosidad, pero también es fuerte como el concreto e ignífuga una vez que está completamente desarrollada, funcionando como una piel protectora contra el fuego y las condiciones climáticas externas. La estructura de madera, ligera y sencilla, funciona como un esqueleto lleno de biomaterial vivo. Los colores y texturas de la myCO-cabin son naturales y típicos del micelio (Ganoderma), cambiando de color a tonos caramelo dependiendo de las variaciones climáticas exteriores. mutando e mimetizándose con el entorno como un organismo vivo. En cambio, el micelio protegido del interior presenta su color blanco natural y su suave textura, creando un espacio acogedor y esponjoso para descansar.

Una vez que se alcanza la temperatura adecuada, los frutos de los hongos cobran vida, listos para ser cosechados como alimento, además de ser una atracción para el turismo en Letonia, hogar de los recolectores de hongos más activos de Europa. El biomaterial es 100% biodegradable y compostable, por lo que una vez cumplida su función en el tiempo, regresa a la tierra para volver a dar vida en un ciclo de economía circular. MyCO-cabin no sólo puede crecer por sí solo, limpia el aire, proporciona alimento y una vez cumplida su función en el tiempo, degrada y fertiliza la tierra para volver a dar vida en el bucle infinito de la naturaleza y la vida.

23-32

Myco-cabinas

Imágenes

Una variante más propia de posibilidades de utilización de la biomateria fúngica (cuyas características admiten una enorme variación de formas y escalas) radica en el desarrollo de un posible mobiliario orgánico (como el desarrollado bajo la designación Mycostool: el hongo como herramienta modeladora de forma) que complete un arco de habitabilidad que va desde las posibilidades de conformar recintos utilitarios (como el modulo cervecero o las cabinas habitables) hasta la producción de multiples posibles objetos cotidianos como lámparas o sillas y así este biomanterial abre un abanico de posible revisión de la arquitectura y el diseño en una era de decadencia inevitable de los materiales fósiles o de origen no renovable.

Imágenes 33-37

Mobiliario fúngico

Mycostool

Entre lo legible y lo laberíntico

Observaciones sobre tres galerías de Antonio Bonet en

Mar del Plata

Ramiro Piana*

* Arquitecto FAUD, Universidad Nacional de Mar del Plata. Maestrando de la Maestría en Historia y Cultura de la Arquitectura y la Ciudad.

Escuela de Arquitectura y Estudios Urbanos, Universidad Torcuato Di Tella.

Los programas destinados al comercio y el consumo han presentado un desafío para la arquitectura, disciplina cuyas ambiciones de prestigio cultural entran en conflicto con el carácter banal y mundano de las actividades comerciales, orientadas al lucro y dependientes de recursos de menor jerarquía. Quizás por ese motivo, los tipos arquitectónicos destinados al retail tuvieron poco peso dentro de su historiografía, aunque existieron excepciones. Tal es el caso de los pasajes cubiertos y las galerías comerciales, valorados como espacios icónicos de la vida urbana en la modernidad, en especial desde la publicación de los célebres estudios de Walter Benjamin y Johann Geist. Los arquitectos modernos, a su vez, encontraron en los programas comerciales no sólo la posibilidad de obtener ingresos, sino también la posibilidad de insertar la nueva arquitectura en el entorno urbano de la

vida cotidiana. La reaparición del tipo pasaje o galería en Argentina y otros países latinoamericanos hacia mediados del siglo XX permitió su reinterpretación por parte de arquitectos de esa generación, como el catalán Antonio Bonet Castellana, quien de hecho ya había acumulado experiencia en programas comerciales (e incluso trabajado como vidrierista) antes de establecerse en la Argentina.

El tipo pasaje o galería permite explorar no sólo la relación entre obra arquitectónica y entorno urbano, sino también entre arquitectura (entendida como disciplina o profesión) y sociedad. A la vez públicas y privadas, interior y exterior, legibles y laberínticas, las galerías requerían respuestas específicas a condicionantes impuestos por la morfología urbana, como sus lotes de dimensiones y proporciones acotadas, a los que la voluntad formal de la arquitectura debía subordinarse. También debían responder a las demandas de rentabilidad por parte de los inversores, quienes querían reducir las superficies circulatorias y maximizar la cantidad de locales (incluso cuando sus dimensiones resultasen excesivamente pequeñas), así como también a

los conflictos programáticos, funcionales y legales característicos de la modalidad de propiedad horizontal que promovió estos emprendimientos.

Bonet, figura fundacional de la arquitectura moderna en Argentina, aportó a la ciudad de Mar del Plata tres edificios con galerías comerciales: Galería/ Rascacielos Rivadavia, Galería/Rascacielos de las Américas y Galería Central (aunque en este último caso la torre nunca se materializó). Al valorarlas dentro de su trayectoria, la historiografía de la arquitectura moderna en Argentina les otorgó distintos grados de relevancia. Estas obras sugieren un intento de experimentar con un tipo arquitectónico que, al difundirse como parte del tejido urbano de las ciudades argentinas, tendió a presentar un carácter anónimo y repetitivo. A ello se le sumó la aplicación recurrente de patterns que las galerías del propio Bonet inventaron o contribuyeron a consolidar, con el objetivo de resolver el conflicto entre la complejidad característica de esta modalidad y la búsqueda de cierta legibilidad en la percepción de aquellas personas que las utilizaran o recorrieran.

1 Vista panorámica del centro de Mar del Plata durante la construcción del Rascacielos Rivadavia y del Rascacielos de las Américas. Fotografía de Annemarie Heinrich. Fuente Mar del Plata, 1940s-1960s V, British Library

Bonet también materializó otros dos edificios con un programa exclusivamente residencial en Mar del Plata: el icónico Terraza Palace y el poco conocido edificio Xauen. Además, proyectó la Galería de las Américas de la ciudad de Córdoba y la Galería Arax, ubicada sobre la peatonal Florida, en la ciudad de Buenos Aires.1 Es necesario señalar las dificultades existentes para identificar el rol de Bonet en algunas de las obras proyectadas entre 1957 y 1958 que se le han atribuido, dado que hacia 1963 regresó a España, por lo que colaboradores como Marta Allio, Ernesto Katzenstein o Débora Di Veroli probablemente hayan tenido un peso significativo en las modificaciones que requirieron para su materialización.2 En cualquier caso, sus tres galerías

1 Bonet proyectó al menos otra galería para Buenos Aires que nunca se concretó, con accesos por Corrientes y Paraná, en un complejo que incorporaba una torre residencial y un teatro.

2 Rascacielos/Galería de las Américas, también conocido como Torre Eiffel X o Edificio Pirámide, se realizó entre 1958 y 1963, con la colaboración de Marta Allio, Juan Rochinotti, Débora Di Veroli y Domingo G. Raffo. Rascacielos/Galería Rivadavia fue proyectado en 1957

2 Rascacielos Rivadavia en la actualidad visto desde la calle San Luis. Fuente elaboración propia

marplatenses ejemplifican algunas operaciones recurrentes mediante las cuales la arquitectura moderna intentó articular las contingencias de la morfología urbana con dos fenómenos mercantiles que la disciplina consideraba problemáticos: el retail y la especulación inmobiliaria.

Las galerías comerciales construidas en ciudades latinoamericanas entre los años 40 y 80 reinventaron el pasaje cubierto decimonónico. El parcelamiento de las manzanas de su damero colonial resultó en lotes angostos y profundos que, al igual que había sucedido en ciudades europeas como París durante el siglo XIX, sugirieron la posibilidad de crear corredores lineales que penetraran en las manzanas. Esto permitía vincular dos o más calles a través de su interior y las fachadas internas de este intento de crear una nueva calle (que de hecho se asemejaban a aquellas que solían presentar hacia el exterior) podían destinarse a vidrieras para pequeños locales comerciales.

Este modelo europeo de pasaje decimonónico también proliferó en Latinoamérica, en un período en el que sus elites se inspiraban en la arquitectura parisina. En Argentina, casos como el Palacio Barolo o el Pasaje y construido entre 1957 y 1961 (en colaboración con Marta Allio, Eduardo Santini y Edith Fiberti), aunque para 1959 la galería ya había sido inaugurada. La Gran Galería Central fue proyectada y construida entre 1958 y 1962.

3 Galería Rivadavia, espacio central en 2019. Fuente: elaboración propia

Güemes, ambos de principios del siglo XX, fusionaron ese tipo arquitectónico con el rascacielos de origen estadounidense. Pero mientras que el pasaje europeo se caracterizaba por contar con una cubierta vidriada sobre su espacio de circulación, los volúmenes de torres o rascacielos de estas experiencias argentinas dificultaban el uso de la quinta fachada para obtener iluminación natural, y obligaban a que las cubiertas de sus espacios circulatorios fueran opacas.

Como consecuencia existió cierta desconexión entre el espacio comercial y los niveles superiores (usualmente destinados a viviendas o espacios de trabajo), que en el modelo original solían presentar aventanamientos hacia esa nueva calle. La primera versión del City Block de Wladimiro Acosta (1927) anticipó esta estratificación del programa en vertical, y la propuesta del propio Bonet para el Barrio Sur (antecedente inmediato de sus galerías marplatenses) se basó en una distribución del programa en volúmenes a distintas alturas y escalas. La influencia del Lever House neoyorkino contribuyó a la idea, entre los arquitectos modernos, de que la combinación de torre y basamento era un modelo adecuado para renovar el tejido urbano. Una modificación del Código de Edificación de la ciudad de Buenos Aires en 1957 tuvo como objetivo promover el modelo de torre exenta o de iluminación total, con cuatro caras libres. De esta forma, era posible incorporar torres con perímetro libre que ventilaran por encima de basamentos, en mu-

chos casos destinados a actividades comerciales, sin necesidad de patios de aire y luz. Esto permitió no sólo incorporar torres exentas en grandes lotes, sino también superar las limitaciones de los predios acotados resultantes del parcelamiento de las manzanas del damero colonial, al promover la posibilidad de unificar varios de ellos. Aunque los códigos solían ser permisivos, la torre exenta fue también tipificada y regulada por las normativas marplatenses poco tiempo más tarde.

Este modelo de tejido se difundió en paralelo a la construcción de numerosas galerías comerciales en las ciudades argentinas, cuya proliferación desde los años 50 ha sido atribuida con frecuencia al impacto de la Ley 13512 de Propiedad Horizontal, aprobada por el primer gobierno peronista en 1948. Es necesario considerar, sin embargo, que esta reinvención del tipo según los lineamientos de la arquitectura moderna ya comenzaba a evidenciarse en algunas obras construidas antes de su aprobación, como en el caso de la reconversión de la inconclusa tienda del Bon Marché en Galerías Pacífico (Aslan y Ezcurra, 1945-46), en pleno centro porteño, o una pequeña galería proyectada por Armando d’Ans en sus inmediaciones. Los nuevos emprendimientos inmobiliarios de propiedad horizontal, de carácter especulativo, consistieron en edificios en altura entre medianeras o torres exentas que se combinaban con basamentos destinados a locales y galerías comerciales, en especial cuando se ubicaban sobre arterias comerciales. Como consecuen-

La multiplicación de la superficie en vertical tuvo su correlato en sus niveles inferiores, ya que las galerías extendieron la actividad comercial hacia el interior de la manzana. Pero esta modalidad destinaba alrededor de un tercio de la superficie de planta a la circulación, mientras que otras alternativas ofrecían mayor rentabilidad al incorporarlas como espacio interior de los negocios. Puede deducirse que su adopción se debió a sus aparentes ventajas comparativas: prestigio cultural, atractivo como paseo con microclima distintivo (que podía atraer potenciales compradores) y una experiencia de consumo basada en la acumulación, bajo un mismo techo, de una oferta amplia y diversa de rubros y locatarios, mediante la modalidad de boutique, destinada a ofrecer las modas y tendencias de la sociedad de consumo masivo. La cantidad de superficie destinada al cerramiento de los locales comerciales fue otro rasgo característico del tipo: no sólo multiplicaron los metros lineales de vidriera en relación con el frente de sus respectivos lotes, sino que casos como la Galería de las Américas y la Galería Central, al desarrollarse en varios niveles, materializaron un total de metros lineales de vidriera comparable con el perímetro de las manzanas en las que fueron implantadas.

Durante este período, Mar del Plata experimentó un boom de la construcción que fue determinante en la consolidación de su actual paisaje urbano.

Si bien este proceso había comenzado antes de la aprobación de la Ley de Propiedad Horizontal, producto de la creciente democratización turística del balneario, en este período se produjo una tendencia a abandonar la vivienda unifamiliar y a adoptar el tipo de edificio en altura, aunque muchos departamentos fueron concebidos como viviendas de veraneo para las clases medias porteñas. Las galerías fueron, como en el resto del país, parte de este fenómeno. La mayor parte se construyó sobre calles comerciales céntricas, como San Martín o su paralela Rivadavia, y de hecho algunas de ellas vincularon ambas calles.

Las parcelas en las que se ubican las tres galerías de Bonet son similares: amplios lotes rectangulares en esquina que ocupan una porción significativa de la típica manzana marplatense de 86,60 metros de lado. El lote en el que fue implantada la Galería de las Américas, por ejemplo, ocupa un cuarto de su manzana. Como consecuencia, fue posible experimentar con diversos motivos y recursos proyectuales poco frecuentes en este tipo arquitectónico, aunque presentan cierta coherencia que sugiere la posibilidad de analizarlas como parte de una misma operación arquitectónica.

Al igual que aquellos edificios con galerías de Buenos Aires proyectados por Aslan y Ezcurra o Mario Roberto Álvarez, estas obras (en especial la Galecia, las ciudades argentinas crecieron en altura entre las décadas de 1950 y 1970. Un proceso similar sucedió durante el mismo período en Chile, Brasil y otros países de la región.

4 Rascacielos Galería Rivadavia. Plantas tipo de departamentos y nivel de acceso. Fuente Nuestra Arquitectura, núm. 427 (agosto de 1965).

ría Rivadavia) trascendieron los prejuicios existentes hacia este tipo de emprendimiento de propiedad horizontal entre los arquitectos, quienes lo consideraban un producto anti-arquitectónico de la especulación inmobiliaria que no respetaba otros valores que no fueran la búsqueda de la mayor rentabilidad posible dentro de lo permitido por los códigos. Los departamentos eran promocionados como ejemplos del lujo y confort moderno que el progreso técnico posibilitaba en la esfera doméstica.3 Resulta paradójico que, en los hechos, consistieran en unidades de menor calidad que la de las viviendas unifamiliares, desconectadas de la naturaleza, con menos superficie interior y sin patios ni jardines. El estilo de vida resultante fue caracterizado como alienante y anónimo, en parte debido a la ausencia de los espacios de encuentro y de la vitalidad social característica de los barrios tradicionales. Es probable que la incorporación de espacios de sociabilidad y esparcimiento (cafés, bares, boîtes, teatros) en

5 Rascacielos Galería de las Américas. Sección, planta tipo de departamentos y nivel de acceso.

Fuente Nuestra Arquitectura, núm. 427 (agosto de 1965).

sus galerías resultara un atractivo adicional para los potenciales propietarios de sus departamentos. Por otra parte, en sus obras marplatenses, Bonet intentó responder a esas problemáticas mediante recursos que lograron reconstruir ciertos aspectos de la vivienda unifamiliar en sus unidades: el Rascacielos Rivadavia contó con departamentos en dúplex y un gesto de carácter vernáculo en su uso de bóvedas catalanas, mientras que el Terraza Palace ofreció amplias superficies interiores y exteriores. Esto, sin embargo, no parece haber sido logrado en el caso del Rascacielos de la Américas.

El edificio de la Galería Rivadavia, ubicado en la esquina de las calles Rivadavia y San Luis, se convirtió en una obra canónica dentro de la trayectoria de Bonet, como se evidencia en su aparición recurrente en monografías y trabajos académicos.4 Un prisma de influencia corbusierana se eleva por sobre un basamento que incluye la galería y locales hacia la calle, separación que

3 Los folletos del Rascacielos Rivadavia, por ejemplo, destacaban la existencia de una conexión que le permitía obtener agua de mar.

4 La Galería de la Américas fue mencionada con menos frecuencia que la Galería Rivadavia. Ambas fueron publicadas en revistas como Summa (núm. 33, enero-febrero de 1971) o Nuestra Arquitectura (núm. 427, agosto de 1965), mientras que la Galería Central fue ignorada.

permitió incorporar una terraza y diferenciar entre esfera doméstica (con una estética acorde en sus fachadas, gracias a las bóvedas y los revestimientos) y comercial (con su correspondiente cartel con el nombre de la galería, superficies vidriadas y sistema de parasoles). Esta volumetría ejemplifica el modelo urbano que la arquitectura moderna proponía como nuevo tejido para las ciudades argentinas.

La galería, con accesos por ambas calles, se desarrolla en torno a un espacio central que bifurca la superficie circulatoria alrededor de una perforación circular en la losa que permite descender, mediante una escalera curva, a un nivel de subsuelo originalmente destinado a un restaurant, aunque este vacío fue convertido en un local cerrado años más tarde. La cubierta del espacio central consiste en un paraboloide de hormigón que produce un efecto dramático, ya que parece flotar sin apoyos visibles. El intersticio entre el paraboloide y la cubierta de los locales se completa mediante aventanamientos que garantizan luz natural.

6 Galería de las Américas en la actualidad, primer piso. Fuente elaboración propia.

Ubicada en una manzana aledaña, sobre la esquina de San Martín y Córdoba, la Galería de las Américas ofrece un sistema de torre y basamento similar, aunque los problemas resultantes de su compleja resolución parecen haberle impedido alcanzar el mismo status canónico. Mientras que el volumen del Rascacielos Rivadavia se ubica en la esquina, por lo que impone su presencia en el entorno urbano, la torre cruciforme adoptada en este caso para los departamentos presenta cierto retiro con respecto a la línea de edificación, y como consecuencia queda opacada tras un basamento cuya fachada del primer piso alterna aventanamientos alargados en sentido vertical y parasoles rojizos. La ubicación central de la torre requirió una boca de acceso adicional que permite que parte de la galería permanezca accesible en horarios nocturnos.

En el interior de la galería, el visitante encuentra cuatro niveles con circulaciones desarrolladas a modo de anillos en torno a la torre, lo que produce, en lugar de un espacio central, cuatro vacíos que los vinculan verticalmen-

te.5 Sus respectivas cubiertas, como en la Galería Rivadavia, consisten en paraboloides que producen el mismo efecto de ligereza y que también permiten el ingreso de luz natural. En este caso, sin embargo, sus caras internas fueron revestidas con pequeños fragmentos triangulares de un material reflectante, en una referencia a la técnica del trencadís ideada por Antonio Gaudí.6 Los corredores del nivel superior están parcialmente cubiertos por lucernarios traslúcidos, rasgo poco frecuente en las galerías argentinas.

De las tres galerías marplatenses de Bonet, la Galería Central es la que cuenta con menor presencia en la historiografía y en las monografías sobre su obra. Esto puede explicarse en parte por el hecho de que la torre de 18 pisos de su proyecto original nunca se construyó, lo que implica una menor presencia urbana y un programa de menor interés y diversidad. Y aunque ubicada en el concurrido cruce entre las avenidas Independencia y Luro, la

5 El proyecto original debió ser modificado: una versión temprana consistía en dos torres de planta cuadrada que se tocaban en uno de sus vértices, y su galería contaba con un espacio central integrador. También se proyectó un nivel destinado a actividades de esparcimiento.

6 Bonet recurrió al trencadís sobre superficies curvas en numerosas ocasiones, y su uso de cubiertas escultóricas expresaba una intencionalidad de inspiración surrealista. Véase José Ramón Domingo Magaña y Juan Fernando Ródenas García, “Cubiertas peculiares en la obra de Antonio Bonet”, en Bitácora Arquitectura, núm. 34 (2016), 62-73.

galería se encuentra alejada de los principales focos de actividad del centro marplatense y de otros ejemplos del tipo con mayor afluencia. Sin embargo, la Galería Central es la primera de una secuencia de galerías existentes en el tramo de Luro que une Independencia con la estación ferroviaria, las cuales fueron inauguradas casi en paralelo, lo que ilustra la importancia de ese tramo de la avenida como arteria y como vía comercial.

En este caso, la distribución de la galería en varios niveles se produce en torno a un vacío de forma triangular en planta, con los dos accesos y sistemas de escaleras en sus vértices cercanos a la vereda. Un aparente anillo de circulación (que solo existe como tal en dos niveles) es complementado por un tramo de circulación en diagonal. De este modo, un sistema de medios niveles permite diferenciar (e intercalar en vertical) cinco plataformas ubicadas sobre la medianera (con aquella ubicada en el centro al mismo nivel que el acceso) y cuatro ubicadas hacia la esquina. Nuevamente Bonet implementa un paraboloide (y tragaluces) sobre el espacio central, pero en este caso incorpora un revestimiento de venecitas sobre su cara inferior, interrumpido por una figura ornamental de octagrama. En sus años de esplendor, este espacio central ofrecía como atractivo una pista de autos eléctricos en el último subsuelo.

La distribución en torno a un espacio central de distintas plataformas escalonadas o intercaladas anticipa el esquema característico de los caracoles

7 Galería de las Américas en la actualidad, vista de sistema de escaleras desde primer piso. Fuente elaboración propia.

comerciales que proliferaron en Chile durante la década de 1970, aunque estos contaban con una circulación suave y continua mediante una rampa helicoidal. El paseante puede recorrer la galería–y contemplar sus distintos niveles–al desplazarse en torno al vacío. Sin embargo, los locales ubicados junto al tramo en diagonal aíslan del espacio central a dos tramos (en dos niveles diferentes) ubicados hacia la esquina, lo que reduce la rentabilidad de sus negocios.

Estas tres obras repiten algunas constantes características de la trayectoria de Bonet, pero también una serie de recursos que fueron implementados de forma recurrente en las galerías comerciales argentinas y que habían sido anticipados por obras tempranas de Aslan y Ezcurra. Ejemplos de ello son los locales con doble altura, los solados de materiales nobles y resistentes, y el uso de revestimientos atractivos, los cuales pueden ser caracterizados como una forma de ornamento aceptable para la arquitectura moderna (como sucedió en el caso de los murales). También se destacaron las cubiertas de hormigón armado como atractivo plástico, mediante formas como paraboloides, cáscaras o cúpulas que solían combinarse con tragaluces laterales y ubicarse sobre los espacios centrales. Así como los tramos lineales de pasajes y galerías han sido descritos como nuevas instancias del tipo urbano calle, el espacio central, estrategia ya presente en los pasajes decimonónicos, fue interpretado como una reinvención

8 Galería de las Américas en la actualidad, vista de uno de los vacíos desde segundo subsuelo. Fuente elaboración propia.

del tipo plaza. El espacio central rompía con la repetición de locales idénticos a lo largo de tramos lineales y, al funcionar como vacío de doble o triple altura, vinculaba distintos niveles en un sentido perceptual. Esto podía resolver un problema que surgió en aquellas galerías que, en su búsqueda de mayor rentabilidad, debían desarrollarse en varios niveles: la posibilidad de que el visitante no percibiera la existencia de otros pisos diferentes de aquel mediante el cual ingresaron a ella.7

Con ese objetivo, las galerías comenzaron a adoptar un sistema de medios niveles, desarrollado casi en simultáneo por Bonet y por Aslan y Ezcurra (en las galerías Larreta, Boston y Río de La Plata). Las distintas losas, en casos como el de la Galería Central, comienzan de este modo a ser percibidas como plataformas intercaladas en altura a ser recorridas secuencialmente, y la ubicación de escaleras junto a sus accesos, algo que Bonet también implementó en la Galería Arax, obliga a

7 La Galería de las Américas y la Galería Central tienen cuatro veces más locales que la Galería Rivadavia, lo que demuestra la magnitud de la repetición de plantas en altura en materia de rentabilidad y diversificación de la oferta comercial.

los paseantes a tomar una decisión y a volverse conscientes de la existencia de diversos niveles que de otra forma posiblemente no hubieran percibido. Si bien desde una perspectiva contemporánea pueden considerarse como barreras para la accesibilidad, las escaleras funcionan como atractivos en sí mismas, al permitir una experiencia sensorial dinámica en el desplazamiento de sus usuarios y un recorrido gradual que aligera la transición entre distintos niveles. Mientras que la escalera curva que permitía descender al restaurant de la Galería Rivadavia presenta un carácter ceremonial, en las otras dos galerías Bonet complejizó el sistema al ubicar descansos a un cuarto de nivel que permiten acceder a locales escalonados y reforzar la aparente continuidad entre distintos niveles.

En los edificios que incluyeron galerías comerciales, la necesidad de articular la relación entre sus plantas y las torres fue usualmente resuelta mediante estructuras de hormigón armado que permitían reducir la cantidad de apoyos y empotrarlos dentro de los tabiques divisorios entre sus locales comerciales.

El potencial conflicto entre ambos volúmenes fue resuelto sin dificultades en la Galería Rivadavia, en la que la ilusoria separación entre torre y basamento que produce la terraza no interrumpe el sistema de apoyos. En la Galería de las Américas, en cambio, fue necesario reducir las columnas de la torre a una cantidad menor de apoyos, aunque de mayor sección. El hormigón, a su vez, permitía formas expresivas como los paraboloides, y su implementación so-

bre los espacios centrales de estas tres galerías rompió con el rigor ortogonal predominante en los emprendimientos de propiedad horizontal.

Un aspecto llamativo de estas tres obras es su pertenencia a un tipo espacial poco frecuente en el caso argentino.8 Aunque se construyeron numerosos ejemplos de galerías en L, que vinculan calles perpendiculares entre sí (usualmente producto de la unión de dos lotes linderos), existieron escasas galerías de tipo L en lotes en esquina, que posibilitan esa misma conexión. Pero esos pocos ejemplos tendieron a recibir particular atención desde un punto de vista arquitectónico. El primero en construirse fue la galería del Edificio Ames, en la ciudad de Córdoba (Ávila Guevara, Moyano y Zarazága, 1953-59), obra canónica de la arquitectura moderna argentina. Las tres galerías marplatenses de Bonet fueron construidas en paralelo a la también icónica Galería Churba/Juramento (Amaya-Devoto-Lanusse-Martín-Pieres, 1962), ubicada en la esquina porteña de Cabildo y Juramento, y a la Galería Florida Central (Aslan y Ezcurra, 1960-63), en la esquina de dos vías comerciales porteñas de gran importancia (Florida y Lavalle), aunque con menor peso historiográfico.

8 Johann Geist denominó tipo espacial a la forma de la superficie de circulación de los pasajes en planta. Véase Johann Geist, Arcades: The History of a Building Type (Cambridge, Massachusetts: MIT Press, 1989). Estudios tipológicos posteriores otorgaron particular importancia a ese rasgo morfológico.

9 Galería Central, vista de sistema de escaleras desde espacio central. Fuente elaboración propia.

Los lotes en esquina no sólo tenían superficies mayores que aquellos entre medianeras, sino que permitían explotar el modelo de tejido urbano basado en la torre exenta. Sus volumetrías podían además ser percibidas en el entorno urbano desde múltiples ángulos y perspectivas. También se diferenciaban de aquellos lotes angostos y profundos que obligaban a adoptar su propia silueta como tipo espacial y restringían la sección transversal a un corredor monótono delimitado por locales comerciales a ambos lados.

Los lotes en esquina, en cambio, permitían mayor experimentación en la resolución de las galerías en planta y en sección transversal mediante bifurcaciones, variaciones en la cantidad y en las dimensiones de los espacios centrales, múltiples accesos paralelos y, en casos como la Galería Central, una ruptura de la ortogonalidad. Es por ese motivo que las tres galerías analizadas no pueden ser reducidas a una perforación lineal de una supuesta masa opaca preexistente destinada a otorgar permeabilidad al centro de manzana al involucrarlo en la vida pública, representación disciplinar de pasajes y galerías que ha predominado mediante recursos como los planos Nolli. Por el contrario, estas obras evidencian libertad y experimentación en su voluntad de ofrecer interiores urbanos innovadores y renovar el tejido urbano por fuera de las limitaciones que caracterizaron a la mayor parte de estos emprendimientos.

Entre los arquitectos, las galerías fueron interpretadas como nuevas calles

10 Galería Central, vista de sistema de escaleras desde espacio central. Fuente elaboración propia.

peatonales que extendían una trama circulatoria de carácter público y que favorecían la conectividad en las zonas céntricas. Esta caracterización fue recurrente en diversos artículos publicados en revistas de arquitectura del medio local entre fines de los años 70 y principios de los años 90, y persiste en investigaciones dentro de ámbitos académicos. Sus locales comerciales fueron, como consecuencia, invisibilizados, y sus superficies circulatorias fueron destacadas como su principal aporte a la ciudad. La estrategia adoptada para sus circulaciones puede considerarse un intento de articular una promenade architecturale con el fin de manipular la percepción del paseante y convertirlo en consumidor.9 Se buscaba incitarlo a adentrarse hacia atractivos ubicados en el centro de manzana y reducir, de esa forma, la distancia física existente entre el paseante-consumidor y las mercancías.

La creciente complejidad interior resultó en entornos laberínticos en los que no siempre se resolvieron problemáticas recurrentes como la dependencia en la iluminación artificial o la decreciente rentabilidad de aquellos locales alejados de la vereda. Las galerías ofrecieron experiencias sensoriales que no siempre reflejaron las búsquedas formales de la arquitectura moderna, así como tampoco garantizaron su éxito comercial o su aceptación por parte

9 Esta mercantilización del paseo puede compararse con el efecto Gruen, en referencia a las estrategias desarrolladas por Victor Gruen en sus obras destinadas a actividades comerciales.

del público.10 La claridad y visibilidad que ofrece la Galería Rivadavia se destaca en comparación con los recorridos excesivamente fragmentarios de la Galería de las Américas y la Galería Central, que dificultan una lectura total del conjunto. Esto parecería corroborar en parte algunas valoraciones e interpretaciones del tipo pasaje o galería como la de Marina Aguerre y María Laura Fernández Landoni, quienes en un artículo sostuvieron la necesidad de que las galerías presentaran una distribución interior legible. Al valorar a las galerías según las nociones de Kevin Lynch, las autoras consideraban necesario garantizar que los paseantes no se perdieran o desorientaran al recorrer su interior.11 Sin embargo, el uso de categorías

10 Quizás como consecuencia de estas experiencias, la concepción de la galería como nueva calle resultó en un nuevo tipo de galería o paseo a cielo abierto que proliferó durante los años 80 y que ofreció una alternativa a los emprendimientos de propiedad horizontal. En ellas se reforzaba su continuidad con el entorno mediante una aparente continuación del paisaje urbano.

11 Marina Aguerre y María Laura Fernández Landoni, “Trasculturación de modelos en la arquitectura de nuestra ciudad: el caso de las galerías

11 Galería Central, vista de espacio central desde primer subsuelo. Fuente elaboración propia.

que Lynch desarrolló para estudiar fenómenos a escala urbana parece inadecuado para interpretar la experiencia específica ofrecida por el interior de las galerías. Y aunque mencionaron algunas implicancias de la sociedad de consumo para este tipo de espacios, la cuestión les resultaba secundaria.

La actividad comercial incorporó signos y estímulos característicos de la sociedad de consumo (cartelería, diseño de vidrieras, ambientación de locales) que podían alterar y contaminar visualmente la imagen anhelada por los arquitectos, no siempre acorde con la realidad funcional de sus usos cotidianos. A su vez, la experiencia de los consumidores estaba mediada por las redes de información consolidadas durante los años de esplendor de las galerías. A través de revistas, anuncios publicitarios y anuarios era posible mantenerse al tanto de las tendencias, de la ubicación de los negocios y de los productos que ofrecían. Sus usuarios no eran, entonces, meros paseantes ingenuos a los cuales seducir o manipular durante itinerarios cotidianos azarosos para incitarlos a un comerciales”, en Summa Colección Temática, núm. 34-35 (abril de 1990), 95-103.

consumo espontáneo, sino que se comportaban según los imaginarios de la sociedad de consumo y solían conocer las direcciones en las que podían adquirir aquellas mercancías que requerían para mantener su estilo de vida. La mayor parte de los negocios que funcionaron en las tres galerías durante sus primeras décadas pertenecieron a rubros característicos de este tipo de centro comercial, con el predominio de boutiques de indumentaria vinculada con la moda prêt-à-porter, así como también joyerías, relojerías, regalerías, jugueterías, librerías, ópticas, cigarrerías, perfumerías y mueblerías. Además de esos productos característicos de la sociedad de consumo y del estilo de vida que promovía (lujo, confort, nuevas tendencias, calidad), existían servicios tales como inmobiliarias, salones de belleza, agencias de viaje y fotografía. Muchas galerías incorporaron espacios de sociabilidad (bares, cafés, restaurantes e incluso boîtes) y los tres casos analizados no fueron una excepción a esa tendencia. Algunos de estos rubros persisten hasta la actualidad, incluso si se incorporaron otros (sex shops, santerías, tatuadores, hobbies, finanzas, servicios técnicos, anticuarios) que suelen instalarse en galerías, ya que no parecen necesitar ser visibles o accesibles desde la calle, y que pueden incluso beneficiarse gracias a cierta discreción permitida por su ubicación en entornos poco concurridos y alejados de la vía pública.

Puede afirmarse que las galerías fueron y continúan siendo espacios adecuados para cierto tipo de pequeño negocio que favorece una atención personalizada, con cierta familiaridad y cercanía física entre comprador y vendedor (en ocasiones propietario del emprendimiento y con interés personal por el producto ofrecido). El declive de este modelo de retail implicó cierta obsolescencia del orden espacial con el que se vinculaba, encarnado

en sus pequeños y característicos locales de entre 10 y 25 metros cuadrados. El menor prestigio de sus actuales negocios, al menos desde la perspectiva de grupos sociales de ingresos medios y altos, no debe ocultar que conservan cierta relevancia para algunos rubros y su respectiva clientela.

El imaginario social que atribuye el declive de las galerías a la llegada de los shopping malls oculta que los problemas del tipo ya estaban presentes desde un principio y que muchos emprendimientos nunca fueron exitosos: ya en 1981, cinco años antes de que se inaugurara el primer mall en Argentina, Carlos Viarenghi se refirió a estas galerías de Bonet como un rotundo fracaso comercial y, por ende, arquitectónico. 12 Aunque la arquitectura intentó funcionar como atractivo en muchas galerías, es difícil determinar el grado de influencia de las estrategias proyectuales adoptadas en su performance comercial, en especial considerando el peso de otras variables (como su ubicación). A su vez, fenómenos como los malls se vincularon con cambios globales más profundos en las modalidades de comercialización que parecen incompatibles con el universo de las galerías, caracterizado por boutiques que ofrecían atención personalizada a un público femenino y negocios especializados destinados a coleccionistas.

Por otra parte, es necesario relativizar aquellas apreciaciones patrimonialistas sobre obras como la Galería Rivadavia que lamentan la pérdida de sus rasgos originales debido a modificaciones posteriores, producto de presiones o necesidades propias de su actividad comercial. Ejemplos de ello fueron la incorporación de cartelería comercial o la conversión del vacío de su espacio central en un local cerrado (con la consecuente pérdida de 12 Carlos Viarenghi, “Las galerías”, en Dos Puntos, núm. 2 (octubre-noviembre de 1981), 9.

sus cualidades espaciales originales). Este tipo de operaciones destinadas a maximizar la rentabilidad fueron recurrentes en las galerías y sin dudas implicaron la destrucción parcial de ese patrimonio. Sin embargo, puede argumentarse que la arquitectura no siempre logró contemplar o adecuarse a esas demandas funcionales o programáticas, propias de una actividad que implica permanente cambio, lo que entra en conflicto con la tendencia de la arquitectura a persistir en el tiempo.

La arquitectura modifica un entorno material fluctuante, pero presenta dificultades para considerar el paso del tiempo como variable, tal como se evidencia en los programas comerciales. Resulta llamativo el interés desproporcionado de la disciplina por las circulaciones de las galerías y su apatía hacia el intercambio (no sólo comercial sino también social) que transcurría dentro de sus negocios, su verdadera razón de ser. Esa esfera fue vinculada

12 Galería Central, vista de paraboloides sobre espacio central desde segundo subsuelo. Fuente elaboración propia.

con lo femenino y lo frívolo, y reducida como consecuencia a una escala menor a la arquitectónica, un ámbito atribuido a especialistas considerados de menor status como vidrieristas o decoradores. La arquitectura, en cambio, prefirió enfatizar cuestiones como la movilidad o la promenade escenográfica, quizás como consecuencia de mitos culturales (como el flâneur) que explican la nostalgia y melancolía que despierta su actual (aunque relativa) obsolescencia, o mediante una equivalencia no siempre verificable entre espacio público y sociabilidad o entre movimiento y democratización. La atracción que producen casos como las galerías de Bonet, mediada por una combinación de nostalgia y ansiedad contemporánea, no debe invisibilizar la necesidad de una comprensión desprejuiciada de la arquitectura como hecho social, así como también de un reconocimiento de su verdadero rol dentro de fenómenos complejos como la sociedad de consumo.

Umbral crudo. Sede SAT (Sharjah Architecture Triennial)

Emiratos Arabes Unidos 2023

Al Borde

Memoria

Entre lo disponible y lo biodegradable

En un contexto donde todo está al alcance, donde todo puede ser adquirido desde cualquier lugar de origen, y el enfoque de desarrollo capitalista ha erosionado la identidad local hasta el punto de destruir por completo vecindarios históricos, surge una pregunta fundamental:

¿Qué significa ser local?

La escuela Al Qasimiyah ha dejado su función como escuela primaria y se ha convertido en una de las sedes de la SAT (Sharjah Architecture Triennial). En ese cambio de vocación, la escuela pasa de ser un espacio contenido en un muro perimetral cuya misión era cuidar a los niños, a buscar convertirse en un espacio abierto que se conecte con sus alrededores y la ciudad. Esta apertura crea nuevas formas de ocupar el espacio. Los nuevos

accesos peatonales Norte y Oeste convergen en una plataforma, que brinda la oportunidad de remarcar este punto de encuentro y crear un umbral de bienvenida.

Este umbral se define mediante una sombra que crea condiciones para habitar el exterior. Requiere una estructura de soporte que puede ser construida con cualquier material disponible. Pero en este contexto, donde todo está disponible, este concepto se vuelve borroso. Pensar en la economía del esfuerzo nos da un camino de búsqueda de eficiencia máxima, al transformar la materia prima en elementos arquitectónicos y, de esta manera, reducir al máximo la energía utilizada en la producción, transformación y transporte de los materiales.

La Sharjah Electricity, Water and Gas Authority (SEWA) ha iniciado un proceso de reemplazo de postes de madera por unos metálicos, lo que ha dejado un centenar de

Datos

Trienal de Arquitectura de Sharjah - La Belleza de la Impermanencia

Curadora: Tosin Oshinowo

Arquitectos: Al Borde

Colaboradores Al Borde: María Fernanda Heredia & Melissa Naranjo

Asesor Estructural: Patricio Cevallos

Ubicación: Sharjah, Emiratos Árabes Unidos

Area: 340.00 m2

Diseño: 2022-2023

Construcción: 2023

Producción: Equipo SAT

Postes de Madera: SEWA (Sharjah Electricity, Water and Gas Authority)

Renders: Pinxcel

Fotos: Danko Stjepanovic - Cortesía de Sharjah

Architecture Triennial, Shahbaz Ahmed y Al Borde

postes de madera inmunizada almacenados en su depósito. Se seleccionan los mejores, se cortan las puntas dañadas y así se obtiene un paquete de troncos de distintas medidas, lo suficientemente altos para armar una estructura de la que se suspende la sombra.

La sombra se crea a partir de esteras de palma, un material ampliamente presente en el lugar, utilizado en diversas aplicaciones, desde los pisos de las casas hasta los cielos rasos de los souks, e incluso en cerramientos.

Estas esteras pueden adquirirse fácilmente en cualquier bazar, ofreciendo una amplia variedad de tipos, tamaños, formas y texturas.

Esta aproximación al proyecto resulta en una obra cruda y táctil, elaborada con materiales naturales que nos permiten establecer un discurso íntimo y directo

con el lugar, enraizándonos en él. El umbral cumplirá la función de dar la bienvenida a los visitantes y, al mismo tiempo, será una forma de experimentar y poner a prueba el uso de este nuevo espacio, atrayendo la atención de quienes residen y trabajan en el área, invitándolos a cruzar sus límites.

El proyecto perdurará mientras el espacio lo demande, ofreciendo la flexibilidad de ser montado y desmontado en otros lugares. Y cuando llegue el momento de finalizar su uso, los postes utilizados podrán retornar al depósito, esperando un nuevo propósito, mientras que las esteras, al ser tan versátiles, podrán encontrar fácilmente otro uso. Llegará el día en que estos materiales se degraden de forma natural, cerrando el ciclo de su vida de manera armoniosa con la naturaleza.

Sistema de trozos y partes que parece neutral.

De lo ordinario a lo extraordinario

Edificio A01/Edificio Urquiza, Rosario

Edificio A01, Rosario, 2021

Memoria

Para describir la argumentación que sustenta la obra nos resulta interesante comenzar con una pregunta:¿Cómo conciliar los diferentes recursos con los que contamos para el habitar futuro, produciendo una arquitectura que opere dentro del mercado inmobiliario? Dentro de la singularidad propia de la economía productiva,constructiva y social, es decir,la economía de recursos de Argentina en el entorno del 2020, proponemos la descripción de un modelo específico y local en el que economía, logística, recursos, sistemas productivos y un cierto aspecto de la industrialización a través de las estructuras metálicas se constituyeron en un sistema de trabajo para el estudio,en ciertos

proyectos en ejecución y en esta obra recientemente finalizada específicamente. Aprovechando estas circunstancias, este contexto y la oportunidad que se presenta,queríamos que el encargo sirva para proponer un debate e intentar operar al margen de la producción local de edificios de viviendas en altura,de esta manera trabajamos con un sistema práctico y pragmático y para conceptualizar este sistema de trabajo y la defensa de la idea del arquitecto trabajando con sistemas frente a modelos,se plantean cuatro referencias:un cierto aspecto de la arquitectura industrial del siglo XX, Venturi y Scott Brown en Learning Las Vegas, Atelier Bow-Wowen en Made In Tokyo y Enrique Walker en Lo Ordinario

Datos

El Edificio A01 se ubica en Córdoba 3827, Rosario, Santa Fe, Argentina y fue finalizado en 2021 con una superficie construida de 847 m2. El autor es el arquitecto Federico Marinaro, siendo asociada la arquitecta

Sofía Settimini y colaboradores los arquitect@s Bruno Turri, Giuliana Colaneri , Juan Cruz Ferreyra, Manuel Giró y el señor Ramiro Busnelli. La Ingeniería fue a cargo del ingeniero Luciano López y la Construcción la realizó Puntal SRL. La Carpintería de Madera la realizó Gonzalo Marinaro y la Carpintería de Aluminio, Claudio Valenti. Las fotografías son de Javier Agustín Rojas.

Cuatro referencias que son claramente distintas entre sí, pero que comparten cuestiones fundamentales:operan de abajo arriba, trabajan con la realidad,son pragmáticas y ajenas a los modelos abstractos: son un sistema que permite operar en los márgenes de la disciplina. Las cuatro aproximaciones convergen en una arquitectura que se produce como resultado del aprovechamiento y manipulación estratégica de los medios productivos y de la realidad y no de un programa estético o por aplicación de un método.

Cuando en nuestro Estudio lo trasladamos a nuestro sistema de trabajo o específicamente al Edificio A01, no solo nos inspiramos en estas arquitecturas ordinarias y genéricas,además utilizamos los sistemas industriales para sacarles beneficio. Y a este sistema de trozos y partes que parece neutral, intentamos añadirle un valor, trabajar con él a partir de sus propias reglas, pero añadiéndole un valor; la

obra intenta moverse en esta línea fina entre lo ordinario y lo extraordinario de la arquitectura.

Estas cuestiones de lo ordinario, la arquitectura sin arquitectos y los contextos culturales y productivos que generan sistemas de trabajo dentro de los que trabajan los arquitectos como nosotros, son importantes desde el punto de vista de la práctica profesional, porque demuestran que podemos trabajar a partir de lo que hay y producir un valor añadido sobre ello. El proyecto forma parte de una serie de encargos para realizar edificios en altura de renta de uso turístico y mixto en la ciudad de Rosario, Santa Fe,Argentina. Los promotores de estos proyectos pertenecen a la industria del acero, lo cual establece una constricción inicial en el uso de recursos materiales y tecnológicos.

La peculiaridad de los encargos radica en que los promotores depositan en nuestro Estudio el desarrollo absoluto de los mismos ;sien-

do tarea nuestra identificar los potenciales lotes y las necesidades del barrio en el que se ubican,estableciendo el programa y desarrollo correspondiente. El objetivo fue implementar un sistema de trabajo y una metodología relacionando las problemáticas iniciales y los argumentos proyectuales.

Es decir, que nuestro cliente comercializara perfiles metálicos y tubos de acero fue una constricción inicial que intentamos transformar en una oportunidad para el desarrollo de la obra. De este modo, la utilización de las estructuras con elementos preformados termina por convertirse en un sistema simbólico propio de la economía de la construcción,la economía de recursos, pero también tiene que ver con la expresión simbólica arquitectónica arraigada en el territorio productivo e interior de la Argentina,que son las estructuras portuarias y naves industriales.

Con lo cual uno puede hacer una arquitectura

que tenga ese carácter de soporte programático neutral, dentro de lo productivo, dentro de los sistemas de producción estándar, pero también tener un carácter,adquirir un valor simbólico y esa tradición de lo que plantea Enrique Walker, y a su vez se puede construir un argumento que transcienda ese limite,una producción mas sofisticada que es la del prototipo, porque como dice Federico Soriano, un prototipo es un instrumento para materializar una idea y explorar o comprobar su relación con la realidad.Se trata de crear algo,de confeccionar un artefacto físico,para testear,explorar o comunicar las ideas de diseño de una cosa, u objeto arquitectónico,que va a ser proyectado.Un prototipo genera empatía, ya que profundiza la comprensión del objeto arquitectónico por usuarios,clientes,y también por los que van a construirlo o fabricarlo.

Edificio Urquiza, Rosario, 2016

Memoria

A finales del año 2009 llega el encargo de realizar un edificio en altura en un lote de 8,66m de frente sur en el barrio de Echesortu de la ciudad de Rosario. Se ubica dentro de la trama urbana de la ciudad cerca de la estación de ómnibus y en el centro geográfico de la ciudad. El encargo lo realiza un comercializador de productos derivados del aluminio (perfilería, líneas de carpinterías, steel-frames, chapas, etc). Las consignas del encargo fueron explotar al máximo los m2 construibles según el Código Urbano de Rosario y utilizar productos derivados del aluminio. Las intenciones iniciales fueron: (1) Reformular el edificio compacto entre medianeras, (2) Reformular el edificio entre medianeras entendido como una simple extrusión del lote, (3) Cómo debería éste relacionarse con la forma de la manzana. Principalmente su solu-

ción maciza, cerrada y compacta, (4) Reformular el edificio entre medianeras para que la masa construida en vertical deje también su registro vacío en vertical sobre el macizo de la manzana, (5) ¿Cómo deberían habitar, vivenciar e interactuar los habitantes dentro y fuera del mismo?, (6) Orientar el edificio hacia el norte y que este acompañe el recorrido

solar, (7) Generar una pieza arquitectónica en donde el vacío del mismo genere tensión al igual que lo hace la masa construída, (8) Pensar cada departamento como una casa en altura. Indagar sobre la experiencia que esto significa en el habitar concreto, (9) Explorar la utilización del aluminio, su alcance y posibi-

Foto G. Viramonte
Maqueta
Fotos G. Viramonte

Datos

El edificio Urquiza es un conjunto de vivienda multifamiliar sito en Rosario, Santa fe, Argentina y se realizó entre 2010 y 2016 en un predio de 500m2, una superficie cubierta de 2300m2 y semicubierta de 360m2

CyE Construcciones estuvo a cargo de Obras civiles y Metales del Talar de la Carpintería de aluminio líneas Extrema 7, Extrema 5 y Extrema Frame. AS Metales realizó la fachada de aluminio. Fueron asesores en aluminio, A.S. Metales y Gustavo Antuña, en Ingeniería el ingeniero

Luciano López y en Representación gráfica el arquitecto Eduardo Martinelli. Fueron colaboradores los arquitect@s Gerónimo Bolsán, Manuel Giró, Rodrigo Cisneros, Federico Iocco, Florencia Allende y Bruno Turri. Las fotografías son de Gonzalo Viramonte y Walter Gustavo Salcedo. Esta obra fue distinguida en la Bienal Internacional de Arquitectura de Argentina

BIA-AR 2016.

Foto W. Salcedo
Foto W. Salcedo

lidades de uso tanto industrial como artesanal y (10) Vincular el edificio con el espacio público de la vereda y la calle, manteniendo una continuidad visual y material.

Investigación

Se planteó el problema de sólo utilizar una de las medianeras y trabajar sobre la medianera norte y este para poder lograr un vacío vertical en el lote según la normativa que establece 3m para poder ventilar e iluminar y 1,15m para poder iluminar locales de departamentos. Al mismo tiempo se busca poder obtener iluminación y ventilación natural a la mayor cantidad de superficie de la fachada este-norte principalmente.

El edificio se concibe como dos torres unidas entre sí por una circulación/corredor abierto a modo de vereda elevada, eliminando la idea de palier cerrado. De este modo siempre se ingresa a las viviendas por un espacio abierto

volcado hacia el vacío vertical y el patio interno orientado hacia el norte y el este. Se buscó que cada unidad de vivienda del edificio sea particular y única, sin repetir ninguna distribución. La iluminación y ventilación natural articuladas con distribuciones espaciales diversas son las condiciones que hacen que cada unidad tenga un carácter singular.

Materia + Sistema

Para la conformación de los cierres exteriores, por ser el cliente proveedor de aluminio, se tenían disponibles aproximadamente 10 bobinas de chapa de aluminio de 500 micrones que se encontraban almacenadas desde finales de los 80 en depósito. Se decidió hacer uso de las mismas, pero para su utilización fue necesario someterlas a un proceso de adecuación y fabricación de paneles.

Proceso de fabricación de los paneles de aluminio

01/ corte: de la bobina de aluminio se obtuvieron cortes de chapas de 60x100cm (módulos de chapas para que puedan ser transportables y manipulados por un solo operario).

02/ estampado: se fabricó una estampadora de chapa y se la estampó de ambos lados con un patrón determinado. Este estampado provee de rigidez a las chapas ya que el espesor de la misma por el tamaño adquiere una cierta deformación.

03/ pintado: luego estas chapas cortadas y estampadas de color aluminio natural fueron llevadas a horno para su pintura. Se le aplicó pintura electrostática Akzo Nobel color gris ceniza, acabado satinado.

04/ proceso de fabricación del steel frame in situ / artesanal: Los módulos de chapas estampadas y pintadas se trasladan a la obra y se fijan mediante remaches a bastidores de

aluminio fabricados in situ en la obra, para ellos se realizó un taller/obrador en la obra, donde se realizan algunos plegados y ajustes finales. 05/ aislación térmica: El último proceso consiste en la aplicación de espuma de poliuretano sobre la cara interna de los paneles.

Aislación térmica de los paneles de aluminio

Para la materialización de los cierres exteriores se realizaron varios análisis previos de cálculos de transmitancia térmica.

Caso 01: chapa aluminio (300micrones) + espuma poliuretano (5cm) + cámara de aire (7cm) + bloque cerámico (12cm) + revoque grueso.

Caso 02: chapa aluminio (300micrones) + espuma poliuretano (3cm) + cámara de aire (7cm) + bloque cerámico (12cm) + revoque grueso.

Caso 03: chapa aluminio (300micrones) + espuma poliuretano (5cm) + cámara de aire (7cm) + placas Durlock (18mm).

Caso 04: chapa aluminio (300micrones) + espuma poliuretano (5cm) + cámara de aire (7cm) + bloque cerámico (12cm) o ladrillo común + revoque grueso

Se optó por la utilización del caso 04 para antepechos y muros inclinados y el caso 03 para los cerramientos desde dintel hasta fondo de losa por ser los mejores casos en cuanto a la resolución constructiva.

Sistema de montaje y anclaje

El sistema de montaje es similar al steel frame tradicional, pero posee una variante no menor, en el primero el anclaje se realiza de losa a losa y en esta obra el anclaje se realiza de losa a antepecho de ventanas.

Se utilizó una modulación para el montaje y fabricación de panelerías y otra modulación para las carpinterías y vacíos, permitiendo abrir vanos del tamaño que se desee sin depender de la modulación estricta del frame.

De este modo se eliminan los montantes que atraviesan las carpinterías y se liberan de la modulación que condiciona las formas de sus aberturas y sus visuales.

Opinión

Estos dos proyectos de Federico Marinaro suponen por un lado trabajar en tipologías de edificios en altura en Rosario con algun matiz de innovación respecto de lógicas imperantes o convencionales y por otro, explorar las posibilidades de las tecnologías metálicas: de manera integral en el A01 y de manera superficial (en cuanto a la concepción y tratamiento de la piel envolvente) en el Edificio Urquiza.

En ese sentido el proyecto A01 adquiere, dado su margen de novedad respecto de lo tradicional, un enfoque de más profundidad conceptual que su autor lo identifica con la idea de trabajar con sistemas frente a modelos,

ligado a cuatro referencias de cierto aspecto de la arquitectura industrial del siglo XX, Venturi y Scott Brown en Learning Las Vegas, Atelier

Bow-Wowen en Made In Tokyo y Enrique Walker en Lo Ordinario

Optar por sistemas refiere a operar, como manifiesta el título, con trozos o partes que parecen neutrales (porque seria algo previo existente al desarrollo del proyecto) y que la acción proyectual consiga en la manipulación de ese sistema de componentes, poder pasar de lo ordinario (la neutralidad de esos componentes) a lo extraordinario (en tanto combinación o ensamble relativamente exitoso). Es como hablar, decir algo o construir un discurso articulando del mejor modo componentes que serían como palabras (neutrales).

De tal modo este razonamiento conceptual que arma Marinaro lo llevaría a diseñar una arquitectura que se produce como resultado del aprovechamiento y manipulación estraté-

gica de los medios productivos y de la realidad y no de un programa estético o por aplicación de un método. Se trataría en tal modo, de una arquitectura fuertemente connotada por tal previo sistema de trozos y partes que parece neutral y por tanto, que no adscribe a preconceptos estilísticos o linguísticos. Lo cual parece confirmarse si se compara el A01 con el Urquiza; uno caracterizado por un montaje completo de piezas estructurales-espaciales y el otro, diferente (a los edificios convencionales en altura) por el carácter casi expresionista de la forma de operar con una envolvente de paneles de aluminio que otorgan una imagen volumétrica facetada y deslindada de las ortodoxias ortogonales.

Este basamento conceptual del trabajo de Marinaro finalmente queda bien resumido en otro significativo tramo de su memoria del A01: …nos inspiramos en …arquitecturas ordinarias y genéricas, además utilizamos los

sistemas industriales para sacarles beneficio.

Y a este sistema de trozos y partes que parece neutral, intentamos añadirle un valor, trabajar con él a partir de sus propias reglas, pero añadiéndole un valor; la obra intenta moverse en esta línea fina entre lo ordinario y lo extraordinario de la arquitectura.

La posibilidad de configurar un trabajo proyectual que obtenga el pase de lo ordinario (un sistema de trozos y partes que seria como un lenguaje virtual apto para quién lo quiera usar) a lo extraordinario (lograr una combinación adecuada de lo que ofrece ese sistema; emitir un discurso eficaz con las palabras-trozos/ partes) implica también adoptar por asi decirlo, un ajuste a condiciones de realidad, un pragmatismo empírico que elude el preconcepto estético y por eso afirman que podemos trabajar a partir de lo que hay y producir un valor añadido sobre ello

Como se explica en la memoria, el proyecto

Foto W. Salcedo
Fotos W. Salcedo
Fotos W. Salcedo

A01 forma parte de una serie de encargos para realizar edificios en altura de renta de uso turístico y mixto en la ciudad de Rosario... Los promotores de estos proyectos pertenecen a la industria del acero, lo cual establece una constricción inicial en el uso de recursos materiales y tecnológicos. Condición inicial que da pie a operar con un sistema (esa constricción inicial de recursos) que según se explica, también otorgó atribuciones al Estudio para escoger los lotes. Tal constricción material –como soporte programático neutral, dentro de lo productivo, dentro de los sistemas de producción estándar– se combinó entonces con la posibilidad de trabajar en determinados predios.

Por otra parte, el desarrollo del A01, aún en su específica limitación (nuestro cliente comercializa perfiles metálicos y tubos de acero… fue una constricción inicial que intentamos transformar en una oportunidad para el desarrollo de la obra) conduce a reconocer que

la utilización de las estructuras con elementos preformados termina por convertirse en un sistema simbólico propio de la economía de la construcción… pero también tiene que ver con la expresión simbólica arquitectónica arraigada en el territorio productivo e interior de la Argentina, que son las estructuras portuarias y naves industriales, con lo cuál este trabajo permite explorar una tecnología no habitual en la construcción residencial pero que se acerca a expresiones típicas del ambiente rosarino, en puertos, naves industriales o edificaciones de la producción rural.

En la memoria se concluye en su dimensión teórica confluyendo con la argumentación de Federico Soriano que asume que existe una producción mas sofisticada que es la del prototipo, entendible como instrumento para materializar una idea y explorar o comprobar su relación con la realidad y que puede alcanzar un estatus según el cuál un

prototipo genera empatía, ya que profundiza la comprensión del objeto arquitectónico por usuarios,clientes,y también por los que van a construirlo o fabricarlo.

Un edificio, como se advierte, plenamente industrial en el sentido de una producción realizada buena parte en talleres y montada en seco en obra mediante plumas, pero también un edificio industrial en la manifestación plena de aquellos componentes metálicos de partida tal como se advierte incluso en la cualidad de los interiores.

El Edificio Urquiza también se entronca con un cliente que es un comercializador de productos derivados del aluminio (perfilería, líneas de carpinterías, steel-frames, chapas, etc) que planteó unas determinadas consignas del encargo que fueron explotar al máximo los m2 construibles según el Código Urbano de Rosario y utilizar productos derivados del aluminio. Esas dos condiciones concretas de la comi-

tencia, Marinaro las despliega analíticamente en las diversas nociones que terminan de definir el programa y los criterios del proyecto como reformular el edificio entre medianeras entendido como una simple extrusión del lote… reformular el edificio entre medianeras para que la masa construida en vertical deje también su registro vacío en vertical… pensar cada departamento como una casa en altura… explorar la utilización del aluminio, su alcance y posibilidades de uso tanto industrial como artesanal.

Habrá pués ciertas novedades tipológicas (respecto de la normativa existente y su edilicia consecuente): el edificio se concibe como dos torres unidas entre sí por una circulación/ corredor abierto a modo de vereda elevada, eliminando la idea de palier cerrado. De este modo siempre se ingresa a las viviendas por un espacio abierto volcado hacia el vacío vertical –y novedades constructivas–linguísticas en la

definición de la envolvente metálica –para la conformación de los cierres exteriores, por ser el cliente proveedor de aluminio–, se tenían disponibles aproximadamente 10 bobinas de chapa de aluminio de 500 micrones que se encontraban almacenadas desde finales de los 80 en depósito. Se decidió hacer uso de las mismas, pero para su utilización fue necesario someterlas a un proceso de adecuación y fabricación de paneles.

Las dos falsas torres (superposición de semipisos de frente y contrafrente) unidas por el bloque circulatorio y el palier abierto al vacio –evocando la voluntad de Rafael Iglesia en su Altamira, de extinguir el modelo cerrado de las circulaciones y tendiendo al criterio de pensar cada departamento como una casa en altura haciendo que el palier devenga una minicalle–se van conformando con diferencias de plantas lo cuál da paso a una modelación escultórica de ambas piezas, cuya geometría mas

orgánica resalta con el revestimiento metálico y diverge netamente del paisaje convencional.

Se alcanza asi por una parte, una caracterización de nítida diferencia del objeto residencial emergente (con un skyline muy destacado en el aún chato barrio Echesortu) tanto por su silueta ondulante resultante de las pequeñas diferencias de las plantas cuanto por la fuerte imagen provista por el revestimiento de los paneles estampados de aluminio que fueron resultado de un proceso de producción de tres etapas en taller (a partir de las bobinas existentes de 500 micrones, cortadas, estampadas y pintadas en la dimensión de 100x60 cm) y tres en obra (armado de bastidores de aluminio de 200x120 cm, remachado de los paneles a los bastidores y armado de su aislacion térmica).

Una metáfora para el periurbano 2001.

La Mecha de Raúl Perrone.

* Arquitecto, Profesor en FA UAI y Doctorando DAR con tesis en curso sobre las relaciones entre los comics y la urbanidad.

Varias veces me hablaron del hombre que en una casa en el barrio de Flores esconde una réplica de una ciudad en la que trabaja desde hace años. La ha construido con materiales mínimos y en una escala tan reducida que podemos verla de una sola vez, próxima y múltiple y como distante en la suave claridad del alba. Siempre está lejos la ciudad y esa sensación de lejanía desde tan de cerca es inolvidable. Se ven los edificios y las plazas y las avenidas y se ve el suburbio que declina hacia el oeste hasta perderse en el campo.

No es un mapa, ni una maqueta, es una máquina sinóptica; toda la ciudad está ahí, concentrada en sí misma, reducida a su esencia. La ciudad es Buenos Aires pero modificada y alterada por la locura y la visión microscópica de su constructor.

El hombre dice llamarse Russell y es fotógrafo, o se gana la vida como fotógrafo, y tiene su laboratorio en la calle Bacacay y pasa meses sin salir de su casa construyendo periódicamente los barrios del sur que la crecida del río arrasa y hunde cada vez que llega el otoño.

Russell cree que la ciudad real depende de su réplica y por eso está loco. Mejor dicho, por eso no es un simple fotógrafo. Ha alterado las relaciones de representación, de modo que la ciudad real es la que esconde en su casa y la otra es sólo un espejismo o un recuerdo.

La planta sigue el trazado de la ciudad geométrica imaginada por Juan de Garay cuando fundó Buenos Aires con las ampliaciones y las modificaciones que la historia le ha impuesto a la remota estructura rectangular. Entre las barrancas que se ven desde el río y los altos edificios que forman una muralla en la frontera norte persisten los rastros del viejo Buenos Aires, con sus tranquilos barrios arbolados y sus potreros de pasto seco.

El hombre ha imaginado una ciudad perdida en la memoria y la ha repetido como la recuerda. Lo real no es el objeto de la representación sino el espacio donde el mundo fantástico tiene lugar.

Este escrito intenta hacer explícitas algunas problemáticas presentes en el conurbano (y más específicamente en el periurbano) mediante la lectura de una representación cultural audiovisual, la película

La Mecha de Raúl Perrone. Se busca –al menos– ampliar las fronteras de las acepciones provenientes de la ciencias sociales en relación a estos términos. En definitiva, se propone desplazar un poco la mirada cientificista e intentar un acercamiento tangencial, proveniente del séptimo arte.

La Mecha de Raúl Perrone puede verse, no solamente como una película del conurbano, tal como nos tiene acostumbrados en su cine, sino que la podemos ver como un modo de entender o asimilar o vivenciar el periurbano. En su modo de narrar, en la historia que cuenta, en los escenarios que utiliza, en los personajes, se pueden ver un tono, un color, ciertos modos de vincularse, modos de ser e incluso podríamos decir (si personificamos un espacio) que puede verse como una representación de la estructura profunda del periurbano en un momento histórico.

La película se sitúa en las inmediaciones de la crisis Argentina del 2001, con las cuasi monedas circulando, con el conflicto social muy presente en los medios de comunicación (las pantallas que aparecen en determinadas escenas y que Perrone con mucho tino ubica en ciertas secuencias), con la violencia latente en la calle y con el inicio de ciertas condiciones previas a la emergencia de una marginación profunda, cuyos consecuencias estamos viviendo hoy en dia. Pero pese a su ubicuidad específica, en la película se pueden ver aspectos del cotidiano que pueden ayudar a entender lo periurbano, incluso en la actualidad. Presuponiendo justamente que esa zona en transición va trasladándose, corriéndose, a medida que la urbanización la consolida como ciudad y la anexa a la mancha urbana. En el comienzo de su derrotero, Niceforo Galván sale de su casa en busca de una mecha para su viejo mechero, e inicia una aventura en busca de su objeto que lo va llevando por distintas calles, locales y personas hasta que finalmente desiste de conseguirlo y vuelve a su casa rendido pero no vencido. Un camino del héroe sudaca y conurbano.

Cine, metáforas, conurbanos y periurbanos.

La Mecha es una película independiente argentina, realizada en base a ciertas premisas que podrían considerarse un decálogo de filmación y que sostienen que lo único importante es filmar, que las condiciones técnicas en las que se filman son subsidiarias. Además Perrone decide solo filmar los fines de semana para poder trabajar en el montaje y la observación del material filmado durante el resto de la semana. Otras condicionantes que se impone son: que el sonido debe ser sonido directo (e incluso que si sale muy limpio hay que ensuciarlo) y que la definición que nos permite una cámara standard de video es suficiente para filmar (estas premisas fueron enunciadas alrededor de los 90, cuando Perrone empieza a filmar).

La acción transcurre en las postrimerías del 2001, un momento de crisis muy profunda para el país, no solo en materia económica sino también en lo cultural. Después de una década de menemato se terminan de romper valores de solidaridad, socavados año tras año, donde predomina el sálvese quien pueda, el que se vayan todos y la individualidad por sobre el bien común. Un epílogo de las políticas neoliberales iniciadas en 1976 y profundizadas por Menem (1989-1999) y rematadas por De La Rúa (1999-2001).

Políticas que hacen cuña en el tejido social y el país estalla por los aires. Un momento de una gran crisis económica y de representatividad política: cinco presidentes en 11 días, saqueos, represión policial, default, corralito y sobre todo 39 muertos y 500 heridos

en las protestas producto de la violencia del aparato represivo del Estado.

El escenario donde Perrone despliega sus películas es el conurbano bonaerense, más específicamente

Ituzaingó, partido de la primera corona de la RMBA, parte del Oeste del conurbano. Su lugar en el mundo. En este caso, por determinados indicios que nos da la película, además, se puede sostener que parte de la acción transcurre en algún borde periurbano (de ese partido o de otro), en ese momento histórico. Más adelante desarrollaremos esta conceptualización. El protagonista vive allí y la trama de la película –ese viaje del héroe en clave tercermundista y sudamericana– se inicia y se cierra allí, en su casa, una edificación austera y sencilla, que se puede inferir que es parte de las construcciones prefabricadas en fibrocemento de los años 1970 y 1980.

El Partido de Ituzaingó es parte del conurbano bonaerense y de la RMBA. El conurbano, la conurbación, es el área que rodea una aglomeración urbana consolidada

y densificada, como la ciudad de Buenos Aires. Este partido se sitúa en lo que se denomina primera corona o primer cordón de la RMBA (Región Metropolitana de Buenos Aires, conformada por la ciudad de Buenos Aires y su conurbano extendido). Es el área urbana más grande del país y, ya en el 2001, junto con otras metrópolis como México, Sao Paulo y Río de Janeiro, componía el conjunto de 15 áreas urbanas de más de 10 millones de habitantes en el mundo, consideradas megaciudades. Es por eso que por sus características sociales, económicas, políticas y culturales, adquiere una dimensión nacional e incluso internacional.

Algunos datos permiten ilustrar la importancia de esta Región. La RMBA concentra algo más de 18000 km2 (el 0,7% del territorio argentino), y en el 2001 a más de un tercio de la población del país, así como gran parte del Producto Bruto Interno (PBI) y el empleo industrial, concentrado en sus primeras coronas. En relación al borde periurbano, se puede decir que etimológicamente es un concepto que asocia dos nociones: perímetro y urbano. Y que refiere en general a las áreas rurales que tienden a abandonar los usos agrarios por efecto de la expectativa de valorización de la tierra y que inducen así, la expansión de áreas urbanas. (Garay, 2021)

La polisemia con la que se nos refiere al término periurbano en la diversa literatura sobre el tema, pone de manifiesto la dificultad que lleva encontrar una visión unívoca que nos permita caracterizarlo. En general incluso, se define por oposición a, por lo que no es. Lo cierto es que el periurbano parece depender del

Un momento de una gran crisis económica y de representatividad política: cinco presidentes en 11 días, saqueos, represión policial, default

, co-

rralito y sobre todo 39 muertos y 500 heridos en las protestas producto de la violencia del aparato represivo del Estado.

momento en el que se toma una determinada fotografía. Una foto en un momento sobre un territorio puede dar una visión más rural o más urbana, pero ¿no existe alguna que sea más periurbana?

Y si la definición es una cuestión del momento en que se toma una foto, entonces por qué el periurbano no puede estar representado por un film, que no es otra cosa que una sucesión de fotogramas, que gracias al efecto de la persistencia retiniana, dan idea de continuidad visual y –en algunos casos– también narrativa. La mayoría de las definiciones coinciden en ver lo periurbano como un territorio en transición, una acepción que quizás sirve para expresar sintéticamente la complejidad de su configuración. Ese territorio que conforma lo periurbano se transforma constantemente, está a mitad de camino entre lo rural y lo

urbano, está en proceso de, tiene cosas de ambos y de ninguno, en un par de años será urbano, aunque algunas partes ya lo son. La expansión de la ciudad lo tocará y mutará, será parte de esa misma ciudad, probablemente con otra configuración, producto de la constante falta de planificación. O producto de la imposibilidad de ponerle límites a la expansión de la mancha urbana incentivada por los desarrollos urbanísticos. Una mancha urbana que ya no crece como aquella otra con sus centralidades tradicionales estructuradas por el tendido de las vías del ferrocarril y los loteos populares. Una expansión marcada por las nuevas centralidades producto de las autopistas y de la renta diferencial de la tierra. Cuando el m2 se posiciona como reserva de valor en reemplazo de otras inversiones (proceso de financiarización de la tierra) se va configurando una ciudad de ciertas características que produce viviendas inaccesibles para las clases populares y medias, que se ven en la necesidad de desplazarse ya no a un conurbano de casitas autoconstruidas dentro de los loteos populares siquiera, sino al periurbano. De manera formal o informal, el periurbano ofrece tierra disponible. Al mismo tiempo, en ese periurbano también se encuentran lotes baratos sin servicios para los barrios cerrados, que configuran enclaves urbanos rodeados de asentamientos serviles a esos mismos barrios cerrados (Svampa, 2001). En este mismo periurbano se localizan las viviendas de las políticas de vivienda estatales. Ese mismo periurbano que es también cinturón frutihortícola que abastece a los aglomerados urbanos. El mismo donde se ubican

las ladrilleras que decapan la tierra fértil para vender ladrillos. O el mismo que sirve de asentamiento precario para los desclasados que viven de la recolección en los basurales clandestinos.

Si sacamos una foto en un momento exacto, entonces ese periurbano encuentra una configuración particular, un territorio en transición que se fija por un instante, siempre en proceso de transformación. Y la película La Mecha puede que sea representativa de éste momento, de ese corte. Podemos pensar que es representativa de un periurbano que inicia un nuevo ciclo de transformación expansiva de lo urbano. El repuesto para la mecha que el protagonista necesita para arreglar su mechero a kerosene ya no se consigue en la zona (que ubicada en Ituzaingó o más allá de la zona Oeste es evidente que no está consolidada). De a poco vamos a ir viendo que tampoco se consigue en las distintas centralidades por las que va pasando, ni las loca-

les, ni las regionales (como Morón). Un tiempo pasado que se va, objetivado en la mecha para una estufa a kerosene que no se consigue. Algo que no parece ser reemplazado por algo mejor, superador, sino simplemente sucede que algo desaparece y algo nuevo e inaccesible emerge. Las opciones son comprar objetos nuevos, inaccesibles para el protagonista o caros de mantener (resistencias eléctricas que gastan mucho). Esos objetos viejos que dejan de funcionar pueden verse como analogías de un territorio y un tiempo que desaparece, que se mueve y deja a la vista cierta tensión entre lo pasado y lo actual. Lo rural (la estufa a kerosene) va desplazando su frontera a medida que lo urbano se expande y la ciudad que viene detrás se consolida (¿las estufas con resistencia eléctrica?).

Un periurbano que deja de ser periurbano y pasa a serlo el borde inmediato rural que le sigue. El viejo no compra una estufa nueva, vuelve a su casa cansado de su periplo, un poco desconcertado por la situación pero no vencido. De algún modo satisfecho por haber hecho el intento, vuelve a su casa periurbana prefabricada y come una comida muy austera, esas croquetas hechas con los restos del pan rallado y el huevo que se hacen para no tirar lo que sobró del empanado cuando se cocinan milanesas (le ponen limón y la empujan con pan). En ese pasado que se está yendo todavía subsisten lazos solidarios entre los sucesivos vecinos que se va cruzando en su travesía. Ahora bien, ¿esto puede trasladarse a la condición transicional del periurbano en general? ¿Puede esta película ser de algún modo una sinécdoque o metáfora del periurba-

no? La sinécdoque es una figura del lenguaje usada en literatura –principalmente en poesía– y que consiste en establecer o definir un concepto o idea completa con una parte o aspecto de tal concepto, es decir, la parte por el todo. O el todo por la parte. Veremos.

El periurbano

Para Barsky (2018), el periurbano como concepto, hace referencia a un espacio de altísima complejidad donde conviven parques industriales, horticultura, urbanizaciones cerradas y otras actividades económicas. Este aparente caos que se presenta ante nuestra mirada en realidad forma parte de un determinado orden en el territorio donde se conjugan múltiples lógicas, orden que tenemos que develar y decodificar para tratar de reorientar sus tendencias reconfiguraciones. Como ya se señaló, existen muchas definiciones de periurbano. Hay conceptualizaciones muy interesantes que pueden ser significativas. Por ejemplo, pensar al

Modelo de coronas que representa los procesos del periurbano (Barsky, 2008)

periurbano como cinturón de especulación inmobiliaria (Barsky 2018). Es decir, que el potencial de conversión del territorio rural en urbano es un escenario constante. Es un territorio donde se despliega una gran energía social que habría que pensar en cómo canalizarla (Barsky 2018). Una conceptualización generalizada es considerar al periurbano como un territorio de barbecho inmobiliario, con una fuerte especulación sobre la tierra –y con agentes muy activos– ante la expectativa de valorización capitalista sobre el espacio. La misma se deriva de lo que implica pasar de un uso del suelo rural a uno urbano, de comprar hectáreas y vender metros cuadrados urbanizados. Este es uno de los cambios de valor más importantes que se registran en el modo de producción capitalista, es decir que operan lógicas propias de la dinámica del modo de producción que no pueden ignorarse (Barsky 2018)

Por otra parte, hay muchas otras conceptualizaciones: desde lo ambiental, lo geográfico, lo social, que tienen que ver con el funcionamiento del periurbano. Esto ha sido analizado desde distintas disciplinas, desde

distintos enfoques, lo cual envuelve de mayor complejidad al tema.

Barsky propone un modelo de coronas para entender los procesos que representa gráficamente el periurbano. El periurbano es un territorio de gradación urbano-rural –prosigue– de intensidades decrecientes en el uso del suelo y aquí se puede apreciar un modelo de coronas de urbanización, algo que los urbanistas emplean mucho en sus regionalizaciones (Barsky, 2008). En realidad, lo urbano y lo rural son dos conceptos dicotómicos que nos restringen su análisis, se puede pensar al periurbano como una interfase en degradé continuum rural-urbano (Barsky, 2008). Entonces el periurbano puede verse como un territorio donde hay desajustes de la ciudad central que se endosan a la cuenta de la periferia, es decir, lo que se llaman deseconomías de aglomeración (Barsky 2018). Y existen otras varias externalidades negativas que la ciudad le transfiere a su entorno. Por lo tanto, prosigue, se podría hablar en términos de un cierto equilibrio que se da en la ciudad central que frecuentemente se sostiene en base a desordenar los sistemas del borde exterior. De esta manera, el periurbano cumple esta función receptiva, muy vinculada a la compleja dinámica de la ciudad, donde distintas actividades económicas, población segregada, etc., se relocalizan hacia las zonas de borde (Barsky 2018).

Esta caracterización de borde, se puede comparar con lo que sostiene Alicia Novick (2021), el término borde,

en su polisemia, tiene la capacidad de dar cuenta de la impronta territorial de la expansión metropolitana. Sin ser una noción ni una categoría, y a diferencia de palabras más literarias como fronteras, orillas, márgenes y de denominaciones como periurbano o edge city, mediante las cuales la literatura académica caracteriza las configuraciones territoriales, alude a una heterogeneidad de formas, ocupaciones y usos que iluminan lo que está en juego en las transformaciones de la ciudad (Novick, 2021). ¿Deberíamos hablar siempre de borde periurbano?

Para Novick, la historia de las ciudades muestra que los bordes en realidad nunca coinciden con las delimitaciones jurídicos-administrativas e incluso físicas –tales como muralles, terrenos no edificables o avenidas periféricas– que se proponen para delimitar y controlar su crecimiento.

En América Latina, los bordes, considerados desde lo territorial, lo simbólico y lo relacional, remiten al mismo tiempo a espacios poco aptos para la ocupación –por razones ambientales, geográficas, dominiales–, a las obras e instalaciones que eluden el control público, a las operaciones inmobiliarias que se benefician del pasaje de la tierra rural a urbana, pero sobre todo al hábitat sin infraestructuras ni servicios, en lugares que se extienden entre la ciudad y el campo –donde vive la mayor parte de la humanidad–, de quienes no pueden acceder al mercado de tierras (Novick, 2021).

En ese marco –explica en consonancia con Barsky– no se trata de oponer el desorden del borde al orden de los centros consolidados; el desafío consiste en compren-

der el desorden de esos bordes, en sus términos propios como un orden que no conocemos (Novick, 2021).

Claudio Carrasco Aldunante propone una analogía morfológica entre borde y costura como conceptos urbano y físicos y la costura de los bordes de una tela o un tejido que se hacen para que no se deshilachen. Había comenzado a escribir sobre el perímetro de un paño, de un tejido que cuando terminan los hilos hay un borde y a veces hay una costura para que no se deshilache el tejido, ¡Que importante es la costura! Y que también hay bordes interiores y costuras si hay agujeros en alguna parte del interior de la tela, como los ojales. Escribía que la ciudad tiene bordes, interiores y bordes exteriores pero sin costura no hay tejido espacial, sin una costura natural no hay tejido natural, sin una costura social no hay tejido social, no hay urbanismo, no hay ciudad, porque nuestras ciudades están llenas de bordes, llenas de sucesos diferentes, pero que se van entrelazando, cosiendo entre sí, traspasando sus bordes Ojala hayan muchos bordes interiores para tener muchos lugares donde vivir el espacio público y que esten todos cosidos entre si, ¡que triste y desolado un borde sin otro al cual coserse! Esa discontinuidad que producen los bordes no cosidos, que a veces se hacen permanentes, destruye la ciudad. Sin bordes no hay ciudad, con bordes construimos, pero sin costuras, la desarmamos (Carrasco Aldunante, 2021). Un periurbano sin costura en sus bordes es como un tejido deshilachado. No deja de ser una construcción extraña la que propone, paradojal, ya que si estamos hablando de un tejido en constante transición, esas cos-

turas de borde deberían ser cosidas y descosidas una y otra vez mientras el periurbano se transforma. Y probablemente siempre quedarían las huellas, las cicatrices de ese proceso, y entonces, ¿cómo serían esas cicatrices? ¿servirían para ese nuevo momento transicional? ¿O se volverían límites, barreras, nuevas externalidades negativas para ese territorio en expansión?

Con una visión pragmática y enmarcada en la planificación urbana encontramos la voz de Alfredo Garay, que insiste en que no se trata sólo de un suburbio más, sino que se remite al área donde se están produciendo nuevas urbanizaciones:

Se trata de áreas donde el mejoramiento o construcción de alguna vialidad, expansión de redes, cambio de norma o simple incremento de los valores a los que se venden las propiedades generan expectativa entre los propietarios. El desplazamiento de las actividades rurales a puntos más distantes (donde el valor de la tierra es menor) suele dejar una franja donde predomina el suelo vacante. Una franja en la cual, por estar demasiado lejos, los proyectos de urbanización no se concretan y donde los agricultores tienden a vender para comprar tierra cultivable en zonas más baratas.

El tamaño de las ciudades y su prosperidad guardan relación con el ancho de esa franja de suelo periurbano.

El manejo de este borde es de gran importancia para la política urbana, porque el ansia de valorización promueve una expansión muy ineficiente del área urbanizada, la creación de islas de urbanización y crecimiento de tejido de muy baja densidad. Las políticas públicas suelen cometer el error de implantar en esas

tierras usos que la ciudad segrega, como tosqueras, ladrilleras, basurales y cárceles. También es frecuente la transformación de granjas en quintas de fin de semana, centros recreativos sindicales y clubes de campo. Suele ser un área donde se multiplican los juicios sucesorios y otros problemas de tenencia, y donde se instalan como medieros productores informales que abastecen a las ciudades a través de circuitos alternativos de economía social (Garay, A., 2021).

El periurbano es entonces un espacio de transición o ecotono entre lo urbano y lo rural, donde ambos se expresan y mezclan dando esta característica única del territorio. Cuenta con mayor diversidad y vulnerabilidad ante los cambios aportando una estructura dinámica entre los componentes naturales y culturales. En las últimas gestiones políticas se entendió al crecimiento como aumento de población, reflejado en el aumento de superficie y por lo tanto, en la ampliación jurisdiccional, para satisfacer principalmente la demanda habitacional, sin considerar las posibilidades y limitaciones ambientales que presentan los ecosistemas y en desmedro de las economías mixtas y actividades rurales. Las actividades agrícolas, ganaderas, urbanas e industriales han incrementado su desarrollo en las últimas décadas, acompañadas en un contexto normativo y político; no siendo así para las de menor visibilización como la horticultura, extractivas, tamberas y espacios nativos. A partir del 2013 se caracterizó el espacio periurbano en función de las parcelas rurales y las ordenanzas municipales, dando como resultado una dinámica de transforma-

ción del espacio dispersa y variados tipos de uso. La espacialización del periurbano y sus usos del suelo aportó a la visibilización de los actores y actividades que se desarrollan en pos de una normativa local integradora. (Guzmán, 2018)

Los espacios periurbanos son por definición las zonas de transición entre lo urbano y lo rural, donde se despliegan fenómenos de transformación y de una alta dinámica social (Barsky, 2018). En estos sistemas la complejidad es uno de los actores principales, ya que comprendiendo la interrelación entre los objetos y los actores se puede planificar para minimizar los riesgos ambientales y promover la convivencia. El anclaje rural-urbano también puede verse en la literatura referente a la planificación urbanística más reciente. Guzmán (2018) sostiene que para la subsistencia urbana se necesita de las producciones y actividades que suceden en el periurbano (ladrilleras, producciones primarias, ganadería, etc). Y en relación a la importancia de alcanzar una planificación sustentable profundiza: es fundamental pensar el territorio de forma integrada en su máxima complejidad, con todos los actores. En este sentido, esa complejidad no puede ser resuelta por medio de la simplificación tradicional de oposición campo-ciudad, sino que debe partirse de la noción de que lo rural y lo urbano operan como un sistema y no de modo independiente (Guzmán, 2018).

Visiones de arquitectos, geógrafos y planificadores urbanos y territoriales que intentan problematizar con una mirada que mira a vuelo de pájaro, que esta-

Los espacios periurbanos son por definición las zonas de transición entre lo urbano y lo rural, donde se despliegan fenómenos

de transformación y de una alta dinámica

social (Barsky, 2018). En estos sistemas la complejidad es uno de los actores principales, ya que comprendiendo la interrelación

entre los objetos y los actores se puede planificar para minimizar los riesgos ambientales y promover la convivencia.

blece parámetros geometrizados sobre un territorio: el plano, el mapa, los datos duros. Miradas que tienden a aproximarse al fenómeno en términos científicos, parametrizables, cuantificables: el periurbano como un territorio de borde, sometido a procesos económicos relacionados a la valorización capitalista del espacio, como consecuencia de la valorización real o potencial de tierras en el mercado de suelo urbano. Un territorio en tensión. Entonces, ¿existe un solo periurbano?, ¿son estos los enfoques, éstas las herramientas para analizarlo?

El periurbano-los periurbanos de la Región Metropolitana Buenos Aires

¿Existe un periurbano o varios periurbanos paralelos para la RMBA? Caracterizarlo no es tarea fácil. La Región Metropolitana de Buenos Aires es una aglomeración de 15 millones de habitantes, donde el periurbano se encarga de aportar un 25%, o 30% de lo que comemos todos los días los habitantes de la Ciudad Autónoma y del conurbano bonaerense. De allí su importancia, de allí la necesidad de contar con una agricultura de proximidad que pueda perdurar en el tiempo, sostienen los especialistas.

A veces se habla de que se están hipotecando la tercera y cuarta coronas metropolitanas, se refiere al avance del suelo urbano, al corrimiento y fragmentación cada vez mayor del cinturón productivo en los bordes exteriores de la ciudad. Las urbanizaciones cerradas (barrios cerrados) en la Región Metropolita-

na ya ocupan un espacio mayor al de la Ciudad Autónoma. Cabe aclarar que las densidades son distintas; existe un extendido consumo de suelo urbano, que también es consumo de tierra fértil que realiza este modelo de ciudad amurallada, fragmentada y autosegregada. Así, el periurbano puede ser visto como un cinturón de especulación o de barbecho urbano. El barbecho es cuando se deja un campo en descanso, sin trigo o sin soja, generalmente haciendo ganadería, se deja al campo en espera. Esta traslación que hace Barsky resemantiza esos territorios como si estuvieran en espera para ser urbanizados. Pero también puede seguir viéndose a través de prácticas asociadas al mundo rural. Según un manual de Buenas Prácticas Agrícolas del Instituto Nacional de Tecnología Agropecuaria que se ha generado en Mendoza, no se deben cultivar productos frutihortícolas en áreas cercanas a donde se registra la presencia de sustancias nocivas, aguas y lodos fecales, metales pesados, agroquímicos, etc. En definitiva, se insta a no cultivar en el periurbano. Con este comentario –que también se puede trasladar al Gran La Plata o al partido de Moreno– se está lejos de querer idealizar al periurbano como un territorio donde la naturaleza es pura, donde hay una ruralidad idílica, lo que se quiere recalcar es que se trata más bien de un territorio de conflicto, un territorio donde se juega el futuro de la ciudad y donde justamente emergen muchas de estas externalidades que se socializan:

Hay que entender al periurbano como un territorio altamente conflictivo, de alta heterogeneidad

en los usos del suelo y donde justamente todo esto está en disputa. (Barsky,2021)

Emergen constelaciones posibles de periurbanos. Si seguimos intentando caracterizarlo, encontramos un fenómeno bien típico del periurbano, que es la geofagia o decapitación de los suelos, un término acuñado por Jorge Morello y que es un factor común en la RMBA tanto para actividades como tosqueras, como para los procesos de urbanización dispersa.

Lo que podríamos decir entonces es que el periurbano es como un gran queso gruyere. Morello estimó que en Buenos Aires se pierden 500 hectáreas por año de suelo fértil.

En este sentido, el Estado tiene un rol complejo y muy ambivalente: por un lado, procura realizar acciones de preservación y conservación de ciertas actividades que se dan en el periurbano, pero por otro lado genera también medidas y obras de infraestructura que potencian la urbanización. Sin embargo, se trata de una urbanización no planificada, aunque inducida muchas veces por la obra pública, generando hipotecas a futuro con respecto a las infraestructuras (Barsky, 2021).

En la Provincia de Buenos Aires se produjo el documento Lineamientos estratégicos para la Región metropolitana de Buenos Aires (Garay et al., 2007), donde el periurbano constituye uno de los capítulos principales. Respecto a la Región Metropolitana de Buenos Aires, ésta se divide a los fines analíticos en cuatro coronas de urbanización. El periurbano se estima que se despliega actualmente, en la tercera corona metropolitana, es decir, que de un periurbano que estaba al principio del siglo XX contiguo a la ciudad de Buenos Aires se ha

pasado de un frente de urbanización que avanza por la tercera corona y ya está empezando a desarrollarse incipientemente en la cuarta corona metropolitana. La separación o límite entre la tercera y cuarta corona metropolitana es la Ruta 6, que acaba de ser inaugurada como autovía de 200 kilómetros de extensión: de La Plata a Zárate-Campana. Esta autovía va a ser la nueva columna vertebral del periurbano del siglo XXI. Porque va a generar o ya está generando una serie de impactos en el potencial urbanizable. La ruta 6 va a ser un fuerte inductor de la urbanización y las infraestructuras todavía son deficitarias en gran parte de las primeras coronas de la ciudad de Buenos Aires. En paralelo se está incidiendo para generar una urbanización en amplios espacios y de muy baja densidad en la tercera y cuarta coronas.

En los últimos años, apareció una profusa literatura que ha sido muy enfática en afirmar: no a la urbanización difusa, no a la urbanización dispersa, no a este verdadero salpicado de urbanización. Es una hipoteca impagable para la sociedad llegar con las infraestructuras a posteriori para abastecer urbanización de tan baja densidad y ocupando tan amplios espacios. El suelo no es un recurso infinito. Aunque parecería que quienes vivimos en la pampa húmeda disfrutamos de un suelo ilimitado, un tema muy serio es que la urbanización está avanzando especialmente hacia la zona norte de la provincia de Buenos Aires, donde se encuentran los mejores suelos de la Argentina: los Argiudoles (Barsky, 2021). Estos suelos son considerados de muy

Ruta 6, coronas o cordones del conurbano y mancha urbana. Fuente: Lineamientos RMBA, 2007.

alta calidad a nivel mundial y, sin embargo, se está incidiendo sobre ellos mediante una urbanización de carácter depredatorio, afectando zonas muy valiosas desde el punto de vista ambiental y ecológico. Suelos, pero especialmente humedales o cabeceras de cuencas hidrográficas, lo cual resultan en un impacto muy alto ambientalmente si se urbanizan.

Todo esto está en discusión cuando hablamos del periurbano. Al analizar la evolución del cinturón verde a través de los modelos económicos (los típicos modelos agroexportador, sustitución de importaciones, neoliberal y el actual, que algunos lo llaman neodesarrollista, keynesiano o neopopulista), lo que aparece es una mayor intensificación del uso del suelo con el correr del tiempo, a través del aumento de producciones bajo cubierta y además de una fragmentación del periurbano que es coherente con esa intensificación del uso de la tierra. (Barsky, 2021)

En el escenario post-crisis 2002 se registró una recomposición en el plano económico, una nueva etapa del régimen de acumulación general y esto generó una nueva expansión metropolitana que nuevamente se reflejó en el territorio periurbano y que está afectando al cinturón productivo. Perrone percibió quizás esto, lo anticipó en su película de algún modo. Un ciclo terminaba y otro comenzaba, una mecha que no existe más, otro modelo de calefacción-energía emerge. A partir de los años noventa, con el crecimiento de los barrios privados y countrys como primera vivienda, aparece un dislocamiento territorial del cinturón que se profundiza con la recomposición económica desde

el 2003. La morfología predominante desde la década del 40-50 hasta ese momento era la de cinturón (verde, ecológico, productivo, industrial, etc.); iniciada desde la década del 90 pero consolidada desde el 2002 emerge otra morfología ahora caracterizada por el archipiélago (de espacios productivos, de urbanizaciones, de basurales, de asentamientos, etc.) 1

Territorios móviles de desigualdades

Existen procesos de segregación y desigualdad social que se evidencian en los modos en los que ciertos grupos sociales acceden o buscan acceder a la ciudad. Los modos de habitar, transitar y circular en la ciudad –en tanto ámbito de reproducción social– contribu-

1 Actualmente existe una política activa desde el Ministerio de Desarrollo Agrario de la Provincia que intenta incentivar la producción de cercanías, utilizando mecanismos de precio sostén o de intervención en las cadenas de valor y mejorando las infraestructuras viales y los caminos rurales. Pero persiste una configuración desde que el Estado se retiró de las regulaciones con el modelo neoliberal del menemismo. Se conformaron dos zonas muy diferenciadas, la zona norte y la zona sur. La zona que realmente es competitiva bajo las reglas del actual libre mercado –que es tan duro y despiadado con respecto a la horticultura– es la zona sur, con epicentro en La Plata.

Ante la retirada del Estado de la regulación de la horticultura, ante un vacío de intervención, especialmente en los años ‘90 y en un marco de alta informalidad, los bolivianos –a través del mecanismo de mediería– avanzaron y fueron ocupando los espacios de la producción periurbana ante una crisis pronunciada de la horticultura tradicional. De esta manera, el horticultor boliviano ocupó ese espacio que otros actores de la producción habían dejado vacantes y, de este modo, aprovecharon los intersticios del periurbano, la baja o muy escasa institucionalidad que se registra en los bordes periféricos de la ciudad, y fue allí donde este actor social supo desplegar sus redes y avanzar, no sólo hacia el segmento de la producción sino también en la comercialización. Se trata de la llamada bolivianización de la horticultura, tema hoy en día estudiado por distintos especialistas.

yen a (re)producir la desigualdad socio-urbana. La desigualdad y los procesos de segregación se construyen en base a elementos materiales y simbólicos, históricamente producidos, sociales y territorialmente contextualizados. De este modo, la desigualdad es un fenómeno socioterritorial. Es decir, un fenómeno socialmente probado que tiene manifestaciones y articulaciones espaciales claras y que, a su vez, se nutre de ellas. En este enfoque, entonces, la desigualdad social tiene su correlato territorial. Asimismo, las manifestaciones y articulaciones espaciales de la desigualdad se ven afectadas por la doble naturaleza del territorio: territorios fijos y territorios móviles (Sack, 1986).

En América Latina, tradicionalmente, el análisis de la desigualdad en las ciudades se asocia al de la segregación urbana, en general, y residencial, en particular. Sin embargo, las formas actuales de la vida urbana desbordan ese concepto y, por tanto, la desigualdad socio-territorial ya no puede requerir sólo en relación a la localización de los actores en un enclave fijo. Es necesario abordarla como desigualdades móviles y relacionales en la ciudad. De este modo, contemplar esta doble naturaleza en la indagación de la desigualdad, supone nutrir el análisis tradicional de la segregación urbana con otro centrado en las prácticas cotidianas y sus distintas esferas y espacios de intercambio e interacción que superan las áreas residenciales fijas (Jirón, 2010).

Así entendida, la desigualdad no puede comprenderse al margen de las relaciones de poder que operan en diferentes niveles y dimensiones de la vida social.

De acuerdo con esta perspectiva relacional, la distribución de los bienes ocurre en el marco de configuraciones estructurales y de interacciones entre diversos actores, en la que se disputan las apropiaciones de esos bienes (Reygadas, 2008). Es la sociedad capitalista, la estructura de clases y la estructura urbana constituyendo, por excelencia, los marcos de la disputa por el territorio (fijo y móvil). En este sentido, La Mecha pone de manifiesto prácticas cotidianas de movilidad e intercambio en la calle y el transporte público, que evidencian procesos de segregación urbanas. El viaje del heroe sudaca de Nicéforo no es otra cosa que la manifestación de esa desigualdad de ese territorio movil.

Por un lado, la estructura de clases opera como un sistema de clasificación que permite establecer diferencias entre grupos sociales en términos de la dotación de recursos (materiales, de poder, simbólicos, etc.) y de la capacidad de controlar dichos recursos dando una inserción (posición) desigual en la estructura económico-social. De este modo, la estructura de clases puede entenderse como una estructura de distribución (desigual) de oportunidades (Dalle, 2012; Filgueira, 2001) que varía temporal y espacialmente.

Por el otro, la estructura urbana condiciona las posibilidades de acceso a bienes, a servicios y al desempeño de actividades, introduciendo variaciones en el acceso a oportunidades. El modelo de expansión del conurbano bonaerense mediante los enclaves urbanos dispersos y sin infraestructuras ni centralidades es una expresión de la falta de planificación y regulación de

los usos del suelo y parece sostenerse en el interés por mantener estables escenarios de distribución desiguales en términos económico-sociales. En La Mecha, en ese momento histórico, todavía podemos ver familias pobres, con integrantes desocupados, habitando una casa con varias habitaciones en medio de un tejido consolidado producto del paradigma de crecimiento de los 50, una foto distinta a la de hoy. No es el caso del protagonista, que habita una prefabricada cercana al monte, un monte abierto, por el que pasa para llegar a su casa y por el que transitan pibes armados en busca de su alimento. Quizás la resignación de Galván tenga que ver con su condición previa al derrumbe del 2001. Un ciclo que terminó de profundizar o de renovar las desigualdades latentes en el conurbano.

La Mecha como metáfora o sinécdoque del periurbano

La historia que parece desarrollar este film de Perrone parece tan simple y directa como su nombre: La mecha. Es una road movie detrás de la cual hay una

decisión de vida, explica el director sobre un film que se estructura alrededor de la búsqueda de un repuesto para la mecha de un calentador que no se fabrica más. Una búsqueda que le permite al realizador retratar fielmente el Oeste del Gran Buenos Aires, su locus. No sabés lo que fue filmar en Morón, confiesa. Y explica: Tuvimos que contratar un guardaespaldas.

Hay un sentido subyacente debajo de esa aparente simpleza: una mecha que enciende algo y que funciona como analogía del país a punto de estallar en ese momento histórico.

Una mañana, Don Galván comprueba que la mecha de su viejo calentador ya no sirve, y decide ir a comprar una nueva. Este motivo banal y doméstico es el impulsor de un viaje, suerte de viaje del héroe sudaca y de road movie periurbana. Don Galván sale al camino desde su modesto hogar en un paraje rodeado de árboles (suponemos el borde periurbano de Ituzaingó), rumbo a una ferretería en el centro de Morón (centralidad regional del oeste del conurbano).

Por ser un anciano de difícil movilidad, busca ayuda en hombres más jóvenes: en su camino encontrará varios protectores, vecinos, conocidos, parientes que lo secundarán y ayudarán a sortear las dificultades que se le presenten. La tarea no es fácil: el calentador es muy viejo y ese repuesto ya no se consigue, pero él no cesa en su cometido. Durante el día que dura su viaje, el film no hace otra cosa que acompañar al viejo en las etapas elementales: la salida, el encuentro de dificultades y desafíos, algunas paradas para comer o ir al baño, algunas charlas, falsas pitonisas, hasta su re-

greso al hogar. El viaje implica también un pasaje del monte a la ciudad: el centro urbano se presenta como el sitio del caos, una gran tienda callejera atravesada por la contaminación sonora y visual. En su derrotero, Galván va socializando con expresiones del periurbano, un mecánico que en el fondo de su taller de autos mata una gallina para comérsela y que mientras lo lleva hasta Morón con su rastrojero por calles con cordón cuneta y veredas con pasto, comenta que le pagan con patacones y después no se los aceptan para pagar impuestos. Por supuesto la camioneta se le queda (por una batería usada que compró), el viejo acepta con resignación y se va a tomar el colectivo mientras le dice que le salga lindo el puchero de gallina, mientras camina por veredas rotas hasta tomar el colectivo. Esas condiciones que se ven en la película, marcadas por una vida semi rural se ponen en contraste con la centralidad de cuando llega a Morón. En esa centralidad y en la anécdota de los guardaespaldas es donde se evidencia más la analogía con esa mecha que enciende en estallido. 2

2 Se viene es una canción de Versuit Vergarabat compuesta en el año 1997-1998 y que reza en su letra: Se viene el estallido, de mi guitarra, de tu gobierno, también. Se supone que compuesta contra Ruckauf , entonces vicepresidente, la canción alude al menemismo, la ostentación de dinero, la corrupción y el poder. Su otra cara es la pobreza, el desempleo y el hambre. Se la

La película tiene un ritmo cansino, como de pueblo del interior, que incluso no se altera con el tránsito del protagonista por las dificultades en la movilidad ni por la efervescencia de las centralidades por las que pasa, que lo abruman pero no lo terminan de perturbar. Se escucha el canto de los pájaros y los truenos de la tormenta que los ronda durante toda la película. Los personajes que lo secundan lo ayudan, lo aconsejan, se solidarizan con él, se muestran como parte de ese mundo que se está perdiendo, incluso cuando llega a la ferretería del centro de Morón, el nuevo dueño, hijo de don Francisco se ofrece a llevarlo a la casa de un viejo empleado a ver si se lo arreglan y mientras lo lleva, por calles consolidadas otra vez, vemos baldíos y casas en construcción.

En la casa del viejo empleado de la ferretería nos enteramos que fue echado por el joven y se apela a un verso de una canción de Larralde para explicarlo de considera como premonitoria, debido que tres años más tarde de la publicación del disco, se produjo el estallido social del 2001 en toda la Argentina, ya comentado anteriormente.

una sangre pareja salió la cría cambiada dice el viejo empleado, y le ofrece unos mates mientras le arregla la mecha (si tiene tiempo le preparo unos mates).3 Una canción que habla de la explotación y de las condiciones laborales en el campo. Otra vez el cambio de los tiempos y del espacio, del campo a la ciudad, del mechero a la resistencia eléctrica.

Hay un momento en el que el viejo se sienta en la barra de un bar de estación y conversa con un conocido (que después resulta pariente) que le cuenta de sus penurias laborales (en el 2001 la desocupación llegaba al 20 %) y de las changas para sobrevivir, y que su mujer viaja todos los días a Escobar para cuidar a un enfermo y que los gastos y los viajes son más que los réditos (otra vez los territorios móviles como marcas de la desigualdad). Y que él trabajaba de remisero para sobrevivir hasta que cerró la remiseria y que ahora está desocupado y va al bar a mirar los avisos clasificados de los diarios. Actividades que daban cuenta de una realidad muy concreta por la que pasaron los habitantes del conurbano (y siguen pasando en muchos casos), el déficit del transporte para movilizarse entre localidades conurbanas, (producto de la centralidad de CABA), el impacto

3 José Larralde (1969) habla del peón que se ve obligado a marcharse cuando el hijo del patrón se hace cargo del campo. Nadie salió a despedirme cuando me fui de la estancia / Solamente el ovejero, un perro / Cosas que pasan / El asunto, una zoncera / Un simple cambio de palabras / Y el olvido de un mocoso del que puedo ser su tata / Y yo que no aguanto pulgas a pesar de mi ignorancia / Ya no más, pedí las cuentas sin importarme de nada / No hubiera pasado esto si el padre no se marchara / Pero los patrones mueren y después los hijos mandan / Y hasta parece mentira pero es cosa señalada / Que de una sangre pareja salga la cría cambiada (...)

de los costos del transporte, el rebusque del remise (con un parque automotor en decadencia) cuando la industria cierra, buscando trabajo en el diario o en las carteleras locales.

Finalmente parece que la solución llega, cuando le sugieren ir a la ferretería de un japonés en Castelar que parece tener de todo (centralidades que prometen el acceso a bienes y servicios) pero otra vez le dicen que no la fabrican más, que si estuviera el padre quizás lo podía ayudar, pero que le dejó la ferretería a él, el japonés joven y otra vez el cambio de mando que rompe las continuidades. Es un momento de crisis en la película, el viejo se siente mal después de tanto dar vuelta, y por suerte aparece la solidaridad de nuevo: unos masajes que le imparte la hermana del dueño del local y un descanso mirando un poco de televisión en japonés. Don Galván ahora vuelve a su casa en colectivo, mirando por la ventanilla, pasando baldíos y calles de tierra hasta que llega al bosque, al monte, a ese borde periurbano todavía no urbanizado pero en donde no hay actividad agrícola tampoco.

Un bosque donde se inicia –por fin– la tormenta y en el que Galván se ve amenazado por unos pibes con rifles que le explican que están cazando para poder comer. Al final se puede ver a su mujer cocinando en una sartén vieja. El viejo se lava un poco en un balde, y se sientan a comer mientras se escucha la tormenta y el sonido de la tele con la señal de cierre, el cura cuenta la parábola del buen samaritano: Cuando pasamos de largo o miramos de lejos, el corazón se nos endurece. La lectura, decía Ezra Pound, es un arte de la réplica. A veces los lectores viven en un mundo paralelo y a veces imaginan que ese mundo entra en la realidad. Es fácil imaginar al fotógrafo iluminado por la luz roja de su laboratorio que el silencio de la noche piensa que su máquina sinóptica es una cifra secreta del destino y que lo que se altera en su ciudad se reproduce luego en los barrios y en las calles de Buenos Aires, pero amplificado y siniestro.(...) Esta obra privada y clandestina, construida pacientemente en un altillo de una casa en Buenos Aires, se vincula, en secreto, con ciertas tradiciones de la literatura en el Río de la Plata; para el fotógrafo de Flores, como para Onetti o para Felisberto Hernández, la tensión entre objeto real y objeto imaginario no existe, todo es real, todo está ahí y uno se mueve entre los parques y las calles, deslumbrante por una presencia siempre distante (Piglia, 2005). Borges describió en su literatura una Buenos Aires que ya no era, con sus compadritos y malevos, la manzana entera pero en mitad del campo, Perrone nos muestra un fragmento de algo que está dejando de ser. Un conurbano que cambia al ritmo de las importaciones

de bienes y la desocupación, un periurbano salvaje con cazadores furtivos. Un proceso que en definitiva sostiene o incrementa las desigualdades existentes. Una urbanización que expulsa, una economía que empobrece. Los chicos van a dejar de cazar palomas, probablemente empiecen a robar gallinas; y ese anclaje en lo rural que todavía sostenía ese periurbano va a terminar de desaparecer.

Colofón: Una máquina sinóptica para el periurbano

Quizás la película de Perrone nos sirva para entender, desde un lugar distinto, ciertas lógicas del conurbano y del periurbano en cierto momento histórico. Entenderlo desde otro lugar quizás sirva para repensarlo en otros términos y para elaborar alternativas de intervención. Si La Mecha pudiera funcionar como máquina sinóptica amplificada, expandiendo el sentido que plantea Piglia, una máquina que nos permita, no solamente interpretar o leer la realidad sino desde la cual se pueda proponer realidad.

Como explica Novick –en consonancia con Barsky– no se trata de oponer el desorden del borde al orden de los centros consolidados; el desafío consiste en comprender el desorden de esos bordes, en sus términos propios como un orden que no conocemos (Novick, 2021).

La diminuta ciudad es como una moneda griega hundida en el lecho de un río que brilla bajo la última luz de la tarde. No representa nada, salvo lo que se ha perdido. Está ahí, fechada pero fuera del tiempo, y posee la condición del arte, se desgasta, no envejece, ha sido hecha como un objeto precioso que rige en el intercambio y la riqueza.

La construcción estaba ahí, como fuera del tiempo. Tenía un centro pero no tenía un fin. En ciertas zonas de las afueras, casi en el borde empezaban las ruinas. En los confines, del otro lado, fluía el río que llevaba al delta y a las islas. En una de esas islas, una tarde, alguien había imaginado un islote infestado de ciénagas donde las mareas ponían periódicamente en marcha el mecanismo del recuerdo. Al este, cerca de las avenidas centrales, se alzaba el hospital, con las paredes de azulejos blancos, en el que una mujer iba a morir. Entonces comprendí lo que ya sabía, lo que podemos imaginar siempre existe, en otra escala, en otro tiempo, nítido y lejano, igual que en un sueño (Piglia, 2005).

Bibliografía

Alsina, Griselda, Borello José Antonio (coord.) (2003), Diagnóstico preliminar ambiental del Partido de Ituzaingó, UNGS, Polvorines, PBA.

Barsky, Andrés (2018) El espacio periurbano como interfase urbano-rural y la afectación del cinturón productivo alimentario en Foro Regional: los desafíos de la gestión territorial rural , compilado por Jorge Silva Colomer; Caterina Dalmasso; Javier Vitale. Luján de Cuyo, Mendoza: INTA, 2018.

Barsky, Andrés (2021) Seminario El periurbano como complejo territorial y productivo. Herramientas para su conceptualización e instrumentos de intervención, en DAR II, UAI, Buenos Aires.

Carrasco Aldunante, J. (2021), Entrada Periurbano; en Corti, M. (ed.), Glosario de las ciudades, Café de las ciudades, Buenos Aires.

Garay, Alfredo, (2021), Entrada Perirubano; en Corti, M. (ed.), Glosario de las ciudades, Café de las ciudades, Buenos Aires.

Guzman, L. Ana (2018), Visibilizacion de las actividades del periurbano de Villa María, Córdoba, Argen-

tina en Periurbanos hacia el consenso. INTA, Córdoba, 2018.

Jirón M., Paola; Lange V, Carlos; Bertrand S., María (2010), Exclusión y desigualdad espacial: Retrato desde la movilidad cotidiana, Revista INVI, vol. 25, núm. 68, mayo, pp. 15-57 Universidad de Chile Santiago, Chile.

Novick, Alicia. (2021), Entrada Periurbano; en Corti, M. (ed.), Glosario de las ciudades, Café de las ciudades, Buenos Aires.

Perrone, Raúl (2001), La Mecha, Pampero FIlms, Buenos Aires.

Perrone, Raúl (2001), Entrevista en relación al estreno en cines de la película La Mecha, Diario Clarín., Buenos Aires.

Piglia, Ricardo (2005) El Último lector, Anagrama,Barcelona.

Reygadas, Luis (2008), Las redes de la desigualdad: un enfoque multidimensional, UNAM, México.

Sack, R.D. (1986). Human territoriality, Cambridge, University Press.

Svampa, Maristella (2001), Los que ganaron: la vida en countries y barrios privados, Biblos, Buenos Aires.

Minimalismo urbano.

Edificio Pequeño en calle Vera Mujica. Rosario

El proyecto surge del interés de un grupo de inversores de desarrollar un edificio de pequeñas unidades para renta inmobiliaria. La elección del terreno por parte del estudio fue una de las variables proyectuales incorporadas. Se decide trabajar sobre un lote muy acotado en sus dimensiones (7,26 x 9,50 m) ubicado sobre la calle

Vera Mujica, en la ciudad de Rosario, de orientación oeste. Una de las potencialidades del sitio es la presencia al Este de un lote perteneciente al Estado por el que circulaban las ex vías del ferrocarril de las cuales aún se encuentran vestigios. La importancia radica en la posibilidad que tienen los frentistas a calle Vera Mujica de hacer uso del mismo. La estrategia, entonces, consistió en adquirir un lote sobre el cual construir y otro aledaño que permita dotar a la obra de iluminación y ventilación, pero abonando solo uno. Esta condición fue un factor determinante al momento de hacerse con el terreno para llevar adelante el proyecto. Otra de las características destacables del sitio consiste en la existencia de plátanos de gran altura ubicados sobre la calle

Vera Mujica, que brindan al proyecto un filtro natural de protección solar. Estos árboles son incorporados a su vez, como condición del paisaje visual interior–exterior. Las intenciones del proyecto pueden enumerarse como (1) Generar en PB una relación visual peatones-habitantes del edificio, (2) Generar un núcleo de circulación compacto, iluminado y ventilado, otorgándole al mismo las cualidades de un espacio abierto interpretado como una extensión de la calle, (3) Obtener plantas libres de elementos estructurales intermedios permitiendo de esta manera asociar unidades o modificarlas a futuro en las direcciones x, y, z, (4). Desarrollar plantas funcionales eficientes, permitiendo que una mínima unidad pueda dividirse y generar un ambiente privado separado de un ambiente público, permitiendo de esta manera en una unidad muy pequeña diversos usos, (5) Utilizar materiales y sistemas constructivos tradicionales de mampostería de ladrillos comunes de junta rasada generando visualmente de esta manera planos y volúmenes homogéneos y no una sucesión de elementos separados en hiladas y (6) Generar ventilación mediante la sustrac-

Memoria

Datos

Esta edificio de vivienda multifamiliar + oficinas ubicado en la calle Vera

Mujica en Rosario, Santa Fe, Argentina se realizó entre 2015 y 2017 en un lote de 65 m2 de superficie y un metraje cubierto de 346 m2 y semicubierto de 8 m2. Su autor es el arquitecto Federico Marinaro siendo colaboradores los arquitect@s Manuel Giró, Bruno Turri, Giuliana Colaneri y Luciana Tinirello. Es obra nominada al Wienerberger Brick Award 2020, Viena, 2019 y obra seleccionada a la XI BIAU (Bienal Iberoamericana de Arquitectura y Urbanismo), 2019 y a la BIAAR (Bienal Internacional de Arquitectura Argentina), 2018.

ción de mampostería donde sea necesario según el uso interno la privacidad y protección solar deseada.

Opinión

Si en la sección Material de esta MAR 7 nos pareció adecuado presentar dos obras recientes de Federico Marinaro, destacables tanto por su elaboración tipológica y lingüística pero sobre todo, por la densidad y originalidad de la investigación tecnológica en que se apoyan, en esta sección Micro es oportuno completar esta presentación de trabajos del arquitecto rosarino con un tercer proyecto que su autor lo nombra como Edificio Pequeño, obviamente porque se trata de un complejo de 5 niveles resuelto en un predio de apenas 65 metros cuadrados con 346 metros construidos (mas 8 semicubiertos) con un total de 4 pequeños monoambientes mas un duplex de oficina y una planta baja libre donde arranca una escalera solitaria y en que se ofrece lugar para una plaza de estacionamiento.

Pero mas allá de esta característica mínima o pequeña

de superficies totales y parciales es adicionalmente destacable el riguroso ascetismo del proyecto, rayano en una presentación totalmente despojada de su condición material incluso en su artesanal contrafachada ladrillera que sin embargo también es radicalmente elemental incluso por el motivo de la sustracción de ladrillos creándose huecos de ventilación que generan ademas un esquema que da ritmo a un plano casi ciego.

La condición de lenguaje de drástico reduccionismo de material y significado se ve con claridad en el escueto motivo de la escalera de hormigón pulido apenas asegurada por una baranda de listones de madera de sección mínima o en los artefactos eléctricos de bombilla expuesta incrustados en el cielorraso de cemento visto. Lo micro pues no solo en reducción y aprovechamiento de tamaños (incluso por conseguir un contrafrente aireado por dar a un remanente de terreno público de un ramal ferroviario desactivado) sino además por el elementarismo absoluto de acabados y soluciones constructivas, muchas de ellas descartando cualquier emprolijamiento derivado de revestimientos.

Ese doble poco de tamaño y detalle expresa literalmente la cualidad de lo micro.

Arquitectura de escasez, arquitectura de antipodas

Del territorio al detalle

Germán Valenzuela (editor)

Bifurcaciones, Santiago de Chile, 2021

Como lo explica su editor en el texto que sigue a continuación con el título de más arriba, este libro que registra testimonios de 12 estudios protagónicos de la actual movida americana (Mauricio Rocha, Rozana Montiel, Daniel

Bonilla, Usina, Marcelo Ferraz, Jose Maria Saez, Al Borde, LlonaZamora, Nicolás Norero, Solano

Benítez, Gerardo Caballero y Claudio Vekstein) –mas dos textos de las críticas Jana Revedin e Inés Moisset– se propone presentar un registro de arquitecturas experimentales que bucean en sus geoculturas, biomas y materialidades con el fin de explorar lo posible en un mundo de potentes carencias tanto como de poderosos estímulos para adentrarse en arquitecturas más socio-culturales que mercantil-profesionales que Valenzuela instala en la fenomenología de mundos de antípodas en estado de escasez. Es decir una condición que dio origen y sentido a la experiencia educativa de la hoy mundialmente célebre Escuela de Talca pre-

cisamente fundada y activada por Germán y el poderoso magisterio de Juan Román Pérez. El libro, que más que comentarlo decidimos presentarlo con el prólogo que aquí sigue de GV mas uno de sus capítulos escrito por el colectivo ecuatoriano Al Borde (Arquitectura que apuntala procesos sociales), acumula piezas de la mas pura teoría/crítica práctica de tal conjunto de estudios, protagonistas emblemáticos de una verdadera cultura proyectual identitariamente americana.

Escasez es uno de esos términos que, con cierta perplejidad, empezamos a escuchar reiteradamente. En su significado ambiguo –recordemos que proviene del latín excarpsus y supone aquello escogido, selecto o raro–, se esconde una condición simultánea positiva y negativa, siempre en tensión con su antípoda: abundancia. Comprendido la mayor parte de las veces en su acepción economicista,

lo escaso se entiende como el desequilibrio entre lo que se desea y la disponibilidad de aquello deseado. La falta de recursos suficientes para cubrir cierta demanda se reconoce como un mal que ha de ser corregido o, en su opuesto, algo que implica una oportunidad para quien pueda hacer uso de la exclusividad de su tenencia: un mercado de la escasez. En economía, la escasez se define entonces como la dificultad de acceso y esto es manejable. Diremos que escasez no significa, como lo concibe la mirada anteriormente descrita, ni pobreza ni riqueza; quizás éstas puedan provocarla, es verdad, pero no constituyen sus sinónimos. El ideal u-tópico de recursos ilimitados a los que tener acceso igualitario de similares bienes, equitativamente distribuidos ad infinitum, involucra en gran medida la explicación de ese equívoco desarrollista vinculado al actual uso abusivo de la naturaleza (nosotros en ella).

El binomio escasez-abundancia permite designar, por ejemplo, una propiedad que entraña una materia o un material que por su rareza resulta altamente valioso, una cualidad que posee un bien favorecido por características peculiares, o la adjetivación de una producción cultural que en tanto pieza única reviste condiciones particularísimas. La mirada económica dirá que son condiciones monopólicas del hacer humano y por ello están presentes en los actos creativos que proveen, las más de las veces, de especímenes originales únicos (escasez), destinados, en mayor o menor medida, a su replicabilidad (abundancia). Los refugios de los arrieros andinos se hacen cuando llega cada noche de montaña, a partir de una serie de materiales (mallas plásticas, varas, alambre, chapas corrugadas), todos ellos llevados a lomo de caballo, que se suman a las piedras del lugar para conseguir capear el recio clima, el calor extremo y el

1 Nueva Esperanza Dibujo de Marie Combette

viendo helado nocturno del verano andino a las dos mil metros de altitud en la naciente del río Maule.

Así, la escasez acompaña conceptualmente tanto a la idea de prestigio –en la producción de exclusividad, por poner un caso– como a la de reproducción de la desigualdad que conlleva la dificultad de acceso, por lo que termina siendo una fuente de inestabilidad. Hablar de escasez es referirse a los conflictos. Entonces la producción de objetos, ciudades o paisajes tiene en los recursos su piedra de tope. Pero la tensión entre ambas, escasez y abundancia, incluye una opción adicional de lectura, diversa a la visión puramente económica que ella contiene: pueden ser entendidos, los dos términos, como extremos, antípodas de una axialidad a ser explorada: lo escaso es lo que produce algún tipo de abundancia o, en la dirección opuesta, es lo abundante lo que puede producir aquella rara avis.

Lo abundante cuando es tratado como algo escaso, es decir, cuando lo cotidiano, lo genérico, lo vulgar incluso, es tratado como singularidad, parece apuntar a una oportunidad para repensar la relación que tenemos con el mundo, con la materia y con la producción del entorno. Lo común y por ello ordinario y doméstico, ampliamente disponible, abundante, trabajado fuera de su destino tributario, esto es, fuera del destino para el que ha sido concebido, reviste la oportunidad (no despreciable en los tiempos que corren) de experimentar sin mayor restricción sobre aquello que, agregado de valor a través de la exploración dialéctica de sus propiedades, pudiere convertirse en algo único, y aquí es donde ocurre la alquimia de las antípodas.

En este espacio de ambigüedad pendular donde se ha movido la arquitectura desde su invención, el extravío de una posmodernidad de puro mercado y un proyecto modernizador de improbable aplicabilidad, es que se manifiesta esta mirada sobre la producción arquitectónica desde lo que hay disponible como oportuna. Y hasta puede que esta particularidad de moverse en los territorios de la escasez provea

2 Nueva Esperanza Dibujo de Marie Combette

un espacio identitario que hermane o enlace familiarmente a una parte de la producción arquitectónica de estas últimas décadas, en especial la de Latinoamérica, más allá de cualquier definición fronteriza: la inteligencia con que se consigue mucho con poco.

Los invitados al Seminario del Territorio al Detalle que organizamos en la Escuela de Talca desde 2007, cuya selección ha dado origen a este primer volumen, probablemente no se han cuestionado particularmente su aporte a una identidad regional determinada a priori.

Tampoco el carácter global de sus formas de hacer está entre sus disquisiciones más contundentes. Ello porque si bien la arquitectura se resuelve con la mirada estrábica que supone la atención a lo general y a lo particular de aquello que cada obra significa y plantea, el afán de cada una parece tener más bien un carácter ensimismado.

Se trabaja pues –y quienes aparecen en este libro así lo declaran– con lo que hay a mano para hacer con ello lo mejor y más apropiado en un momento específico, y cada uno de estos hechos construidos resultan ser de interés global justamente por la pertinencia

que envuelven. Qué es lo latinoamericano no parece a final de cuentas una pregunta interesante, e incluso puede que sea discutible su relevancia, pero habría que anotar aquí que no existe proyecto moderno sin las Américas y que aquel impacto no resuelto de su instalación ha dejado a interpretaciones las diversas formas en que se produce aún el sincretismo del que somos parte. Las diversidades locales y las contaminaciones culturales de latitudes lejanas se manifiestan en forma de obras: la permanente revisión de lo particular en Benítez y en Caballero, de lo atómico en Montiel o Norero, de lo periférico en Al Borde y lo colectivo en Usina, de lo primitivo en Sáez y Rocha o de lo político en Moisset, Bonilla y Vekstein, así como de lo público en Ferraz o LlonaZamora, terminan por aportar a la lectura de una cierta idea de conjunto atizado siempre por la escasez y transformado en abundancia.

3 Nueva Esperanza Dibujo de Marie Combette

Arquitectura que apuntala procesos sociales

4 Nueva Esperanza Dibujo de

Siempre es todo un evento estar de vuelta, no sólo por las amistades que se generan sino por revisitar los espacios, volverlos a ver desde otro lado. Cuando vinimos el 2012, teníamos mucha ilusión, porque, si hubiera existido una escuela así cuando empezamos a estudiar… De hecho, sí existía, pero nosotros no sabíamos que esto había empezado en el 2000. La verdad es que uno va a la escuela que hay no más, uno no sabe qué va a hacer ni qué le va a importar en la universidad. Y es cierto que nos hubiera encantado estudiar acá y ser parte de estos procesos. Lo que ustedes aprenden en cinco años, en el sentido de construir, de la materia, del paisaje, de los sistemas, los materiales, toda esa vaina, a nosotros nos tocó aprenderlo en la calle, a la buena de dios y sin padrinos asesorándonos. Estábamos perdidos en la formación tradicional, genérica, y eso fue quizá lo que más nos interesó al descubrir esta escuela: alguien se había tomado el tiempo de pensar un proyecto académico, justo ahora que las universidades son más bien proyectos comerciales. Se había pensado acá un proyecto específico, para un lugar específico, para un grupo de

alumnos específico, con unos profesores específicos, y nosotros nos identificábamos en esa búsqueda de cosas muy locales que terminan entrando en un discurso global. Así es que llegamos ilusionados el 2012 y ahora lo mismo: venimos a echarnos la vuelta, conocer un poco, revisitar a los amigos; no es sólo el working anglosajón de intercambio de tarjetas.

Después de diez años de tener una oficina e irnos alejando de aquella figura del arquitecto en una cúspide venerable, nos interesa estar en un mundo donde es posible colaborar y compartir. Al igual que ustedes y que todos los latinos, venimos de una sociedad donde prácticamente no existen proyectos por concurso, ni una lista de miles de clientes con encargos, ni un entorno familiar en donde el tío o el primo te piden la fábrica, el banco o la casa de playa. Ha sido inventarnos e ir entendiendo qué podíamos hacer de la profesión. Porque uno sale y está ahí, en bolas, medio desamparado. Las universidades tradicionales te forman para armar un lindo portafolio y salir a buscar trabajo, pero

Marie Combette

nosotros queríamos hacer y desde un comienzo fuimos un equipo. Tampoco quisimos instalar una oficina del tipo “Benavides & Barragán Arquitectos”, sino que buscamos la cooperación: Pascual Gangotena, Esteban Benavides, María Luisa Borja y David Barragán con todas nuestras diferencias y coinsidencias.

Por pereza mental decimos que nuestra idea es indefinible y que está siempre construyéndose, pero a ratos decimos también que es un modo de vida. Nos la hemos ido rebuscando hasta que de verdad sea un modo de vida y creo que en parte lo pueden ver en nuestras obras. Los proyectos serán un pretexto para mostrar cómo vivimos y cómo nuestras vidas se han transformado en estos años, cómo se nos ha ido abriendo el mundo y cómo ha cambiado nuestro pensamiento. Quizá incluso logre contarles hacia dónde vamos, porque la verdad es que estamos más viejos, el tiempo nos pasa, ya no tenemos la edad de cuando empezamos. Al inicio, cuando comenzamos a dar clases, era así: alguien golpeaba la puerta, un administrativo por ejemplo, y

5 Casa entre muros

nos preguntaba: ¿dónde está el profesor? Ahora ya no, y estamos liberándonos de la idea de que no sabemos qué va a pasar mañana, hay un pensamiento cada vez más fuerte y es porque de pronto hemos conseguido hibridarlo todo, vida, la oficina, todo en un solo sistema que, hasta ahora, nos gusta mucho.

En un momento nos cuestionamos nuestros modelos económicos, nuestros modelos de vida, y en parte fue por la casa que ocupábamos y que a la vez es nuestra oficina. Uno se cuestiona todo el tiempo, pero los cambios reales de pensamiento vienen con las crisis, puesto que una crisis hace imposible que no te cuestiones porque supone un cambio.

Para un grupo de jóvenes, nada más caro que mantener una oficina, lo sabemos, con toda esa vaina de los arriendos. Nosotros estamos muy acostumbrados al barrio en el centro histórico donde trabajamos. Estamos ahí no porque sea un centro histórico cool y gentrificado, con cafeterías gourmet, sino porque es de los lugares más baratos para arrendar y cuenta con todas las redes de transporte público. Es bastante pintoresco, patrimonio de la humanidad, muy bonito. Pero claro, son las bellezas de nuestras ciudades informales: sólo la primera parte, la que mira hacia la calle, está consolidada pero hacia atrás es más bien como una tierra de nadie que se

construye como buenamente se puede. El resultado de toda esa ecología interior de las manzanas en parte termino tugurizando muchos espacios; medio feo, medio horrible cuando llegamos al sitio que hoy ocupamos se habitaba de muy mala manera.

Al dueño de la casa le dijimos entonces: “Oye, loco, tienes una casa con un potencial gigante, una casa abandonada casi por completo porque no tienes dinero. Pero tienes ya el bien, tienes y nosotros tenemos la necesidad y las ganas. Podemos construir” y aceptó.

Fue medio a lo bruto en un comienzo y nos tocó ir experimentando: hacer antes de dibujar. Había un capital inicial muy bajo, también nuestras manos y un saber de diseño que podíamos capitalizar pero no menos importante, una red a quienes echar mano. Así las cosas invitamos a nuestros amigos y trabajamos con la red más grande que podíamos, quizás no los mejores del mundo en cada especialidad, pero sí los mejores de nuestro mundo.

Un economista urbano nos ayudó con un análisis económico, ¿qué sería rentable para esa casa?, ¿qué tipo de fraccionamiento?, ¿cuánto se tenía que invertir y cómo sería el tema del retorno del capital? y todas estas cosas que a uno no le enseñan nunca en la universidad o no le prestas mucha atención o están orientadas a otro

tipo de negocios inmobiliarios. Invitamos también a unos amigos asesores urbanos para que nos explicaran cómo son las dinámicas del centro histórico: desde 1990 a 2010 más de veinte mil personas habían dejado de vivir ahí. Había sin duda una oportunidad, porque sigue siendo un buen lugar para vivir, con los mejores espacios públicos y cerca de las universidades donde dábamos clases. Las mismas que tiempo después nos han cuestionado por no tener maestrías, porque nada de lo que hacemos es validado para el sistema académico tradicional.

Había en aquella casa muchísimo potencial. Y la mejor manera de estructurar ese potencial, la mejor ecuación por metro cuadrado para renta, eran los espacios pequeños que pudiesen arrendar personas solas o parejas. Dividimos la casa, hicimos los porcentajes, le contamos el cuento al cliente y el tipo como que tampoco podía decir que no, tampoco tenía opciones. Nos fuimos encontrando entre el hambre y la necesidad; fue generándose la dinámica entre quienes colaborábamos, trabajábamos, construíamos y vivíamos en la casa. Partimos de cosas extremadamente básicas: Un sistema tugurizado y sobre-construido. Con espacios que no tienen ni buena ventilación, ni buena iluminación requiere siempre una estrategia: un acto de sustracción, donde 6 Espacio de experimentación

se trata más de remover que de añadir, reciclar en vez de comprar y preservar en vez de restaurar. Comenzamos a habilitar y re-funcionalizar absolutamente toda la casa a partir de estas premisas.

La cocina, bajita y fea, de menos de 2,10 metros de altura, simplemente se “limpió” de todo lo que estorbaba para hacer espacio, porque era lo que podíamos hacer, agarrar un martillo, un combo, demoler a golpes, cortar con una amoladora. No hubo ningún acto de vanidad, ni siquiera pintamos ni resanamos. Entonces no es que nosotros vistamos todos de negro y tengamos computadoras chic o la oficina sea blanca, para nada. Podemos manejarnos gastando la menor cantidad de dinero y dentro es una casa-oficina con las tripas abiertas, con las llagas sangrando por todos lados, en un proceso que siempre estaba en movimiento del que aprendemos constantemente.

Cuando le mostramos el trabajo que estábamos haciendo, en un principio el cliente se asustó: “¿Qué es esto?”, dijo. Pero al final le respondimos con la propia obra. En un par de años valoramos nuestro diseño y construcción a cambio de arriendos e hicimos el trueque: trabajo por arriendo. Es, claramente, una estética muy difícil de digerir. Al ojo es un golpe, pero si uno se libera de los prejuicios estéticos, eso de que todo debe tener corni-

sas, cenefas y adornos innecesarios, es completamente funcional y lo habilitamos por muy bajo costo.

No hemos pagado arriendo desde febrero de 2014. Incluso se podría considerar que este espacio se conviertió en nuestro propio showroom

Es así, tal cual, los colores de pintura que hubo antes, cada palito que aún funcione lo preservamos y lo que no funciona se quema, hacemos una fogata, nos echamos unas cervezas y seguimos la vida.

En el fondo hay un acuerdo de confianza. Por eso les digo que siempre hay que cooperar, compartir. Con el cliente nunca firmamos nada, nos podía botar al día dos o, por el contrario, nos podíamos apropiar de la casa. Ahora ya está todo prácticamente terminado y funciona. Nuestra historia es finalmente un modelo de cómo reconstruir un espacio en zonas históricas abandonadas, de una manera alternativa al sistema tradicional del capital. Toda la gente que visita Quito lo quiere conocer, todos están invitados, pasan y almuerzan con nosotros.

Comienzan a pasar estas cosas y obviamente que uno se siente empoderado, como cuando uno hace ejercicio y puede levantar un poco de peso y dice “ahora voy por más” y luego se queda roto, se lesiona, en realidad no podía ir tan rápido. Nosotros decidimos hacer la siguiente operación: una casa para nuestro programa de resi-

dentes de prácticas profesionales. Ya no les llamamos pasantías: nos hemos apropiado de la figura artística de las residencias, así que hacemos “residencias de arquitectura”, con un programa medio suizo y disciplinado, de enero a junio y de julio a diciembre, donde vienen cuatro jóvenes de cualquier parte del mundo, seleccionados con un filtro muy fuerte de Marialuisa. Hicimos una intervención de dos pisos, nos volvimos locos y la obra no avanzaba, iba lenta. ¿Y qué hacemos ahora nos preguntamos? Tal vez para ustedes construir no es novedad, pero en otras partes del planeta hay gente que paga muchísimo por ser parte de procesos constructivos. Así que decidimos hacer mingas. En el mundo andino es muy común la organización para construir entre todos, y las comunidades lo han hecho siempre de esa manera, sus viviendas, sus infraestructuras, sus canales de riego, todo. Hicimos llamados virtuales y comenzamos a tener gente todas las semanas para construir con nosotros. Después nos dimos cuenta de que esto servía para algo más grande y entonces creamos un programa de pasantía de construcciones para estudiantes internacionales. Llegaron tres estudiantes de Architectural Association de Londres y dos de la École Spéciale d’Architecture de París. Su único requerimiento: “no queremos estar en oficina”, así es que desde que llegaron nos dedicamos 24/7 a construir.

Alguien que nunca ha agarrado un martillo puede construir. Pasa, sobretodo, porque trabajamos con sistemas muy sencillos de replicar y, en realidad, porque invertimos mucho tiempo de diseño en encontrar el material preciso y en entender qué queremos hacer, para que después cualquiera lo pueda hacer. Esa es la clave: multiplicar la acción, tanto que hasta el dueño de casa se pone a instalar el piso con nosotros y esa energía se va contagiando y contagiando. Incluso cocinamos en la oficina, por eso digo que es un modelo de vida por completo. Somos cuatro residentes y cuatro socios. Trabajamos sólo de lunes a jueves porque nos parece un crimen trabajar los viernes. Nos parece un despropósito si vamos a ganar exactamente lo mismo. Y además es un tema de amor propio, tener el tiempo de renovarnos y darnos ese lujo de pensar, de estar con parejas o lo que queramos y llegar contentos el lunes a trabajar de nuevo.

El 2015 nos invitó organización de la Bienal de Chicago a hacer una instalación. Nos dijeron que les interesaba nuestra casa-taller en construcción permanente. Pero nosotros teníamos muchísimas dudas respecto al sistema de exhibiciones en arquitectura. El sistema de exhibiciones nos generaba problemas, tenemos una larga lista de fracasos. No estábamos acostumbrados a hacer algo para mostrarlo, no es a lo que nos dedica-

mos. Estábamos acostumbrados a resolver problemas. Después comenzamos a entender que, si queríamos hacer de un trabajo nuestro una herramienta de lucha para políticas públicas, la exhibición podía ser un plus.

Ya no sólo era exhibir(se), sino también era difundir y sacar algún provecho de ese formato. Al final lo de Chicago salió tan mal que nos dieron un mal lugar dentro de la exposición general, pero así se va aprendiendo, a golpes y los siguiente exposición en la Bienal de Venecia en 2016 resulto mucho mejor a partir de esa experiencia. La casa se terminó y es altamente digna para vivir, una vecindad como la del Chavo. Se vive bien, los que quieren vienen y cocinan con nosotros (y en ocasiones, como cuando nos visitaron Álvaro Puntoni o Gloria Cabral, ¡hasta se ofrecieron a lavar los platos!).

Cuando nos llega un encargo que no tenemos tiempo de resolver, jalamos a más chicos, abrimos espacios para que todas esas mentes brillantes que van saliendo de la academia no terminen tras un trabajo que sólo les quema el cerebro y los apaga. Había un colectivo muy bueno con el que ya habíamos hecho un concurso, habían sido alumnos nuestros o ayudantes de cátedra, y les dijimos: “vengan, ustedes están comenzando, ocupen la mesa azul” (que es una mesa que teníamos para las reuniones). “Trabajen ahí, nosotros les pasamos

un proyecto y somos como el tutor responsable que los acompaña”. Hicimos los convenios, les enseñamos cómo tratamos con los clientes, cómo se hacen los presupuestos, cómo es toda la organización. Ellos llevan la obra, nosotros no nos involucramos en ello. Sólo hacemos algún asesoramiento técnico si se requiere. Y ellos además van haciendo talleres de construcción dentro de esa misma obra. Entre todos podemos irnos mezclando sin competir. Que el otro sea arquitecto y tenga otra oficina no lo convierte en mi competencia y entonces tampoco tengo que pisarle.

A partir de estas experiencias hemos ido montando lo que ahora se llama ENOBRA que es como una suerte de “academia pirata” para generar una suerte de Netflix de arquitectos como nosotros, en donde podamos invitar a más amigos que son igual de obsesivos que nosotros, evitando todos los problemas burocráticos que tienen las instituciones tradicionales. De nuevo, no lo pensábamos hacer solos. Lo pensamos para compartir, con los del Sindicato Arquitectura, que son nuestros chicos, con Xavier Mera, que es otro gran amigo, y obviamente con nuestro maestro José María Sáez.

Estamos prontos ya a lanzar la plataforma, los primeros talleres se van a comenzar a abrir. Esperamos ir desarrollándolo hasta llegar a esta verdadera “academia pirata”

donde no se den títulos, donde uno esté haciendo lo que le gusta, porque ese placer de hacer lo que a uno le gusta es algo que nosotros defendemos muchísimo, no como un acto hedonista, sino como un acto de vivir en paz, liberarnos de esa suerte de consigna de que si es ocio no es negocio. déjenme a ratos vaguear, también se puede producir desde allí.

Hacer clases orientadas a la práctica nos es innato, porque somos profesores desde hace mucho tiempo, nos reclutaron bastante jóvenes. Después de varias experiencias académicas tenemos también el Taller Al Borde, que lo llevamos a donde sea que viajemos, uno en Ambato, uno en Lima. Y ahí todo consiste en hacer para aprender. La universidad que nos contrate sabe que tenemos una regla: si no es hacer para aprender, no nos interesa. Es así de fácil, no vamos a hacer proyectos de papel o el nuevo museo de las esculturas en un país donde si hay museos no hay gente. Lo colectivo desde el diseño y la construcción participativa: son las dos cosas que nos interesan. Que el diseño cambie su figura de élite y llegue a donde nunca llega. No por caridad, porque tampoco tenemos una filiación religiosa en lo más mínimo, sino porque simplemente queremos ir a unos entornos donde vemos que el diseño tiene una capacidad de transformación.

7 Recursos obscuros

Tenemos además unos proyectos de investigación personal y el desafío es que los alumnos terminen con una obra construida. De nuevo, para ustedes eso no es novedad en Talca, todos se gradúan con una obra construida, pero para un sistema tradicional sí es muy novedoso.

Vamos a distintas ciudades y, cuando estamos en diseño participativo, escogemos entornos marginales, crudos, para que los alumnos vean que hay que pinchar la burbuja en la que uno normalmente vive, ver cómo está viviendo el resto de la sociedad y entender la brecha económica, meterse a donde haya que meterse, dejar que las clases no sean sólo en el aula y comiencen a ser también en el territorio, con los que van a ser beneficiados y empezar con ellos los procesos de pensamiento, de reunión y socialización para entender qué se tiene que hacer y por qué.

La arquitectura sólo les da ahí una patada para acelerar el proceso, para que el proyecto vaya más lejos. La gente nos pregunta cómo lo hacemos para que las personas se involucren y los proyectos perduren, pero la verdad es que esos proyectos ya existían. En el caso del centro comunitario, estaba en muy mal estado y ahora tienen uno con techo, que ya no se les llueve y se pueden reunir en paz, pero el proceso al que nosotros nos sumamos venía de mucho antes. Nos interesa que la obra termine bien, no eso de que “valoramos tanto el proceso” y el proceso

es lindísimo y después acabamos en una arquitectura horrorosa, como muchas ONG. No, nosotros somos arquitectos, y el proyecto por supuesto que nos importa.

Estos proyectos de investigación personal se hacen con un profesor local que supervisa todo, y nosotros seguimos el trabajo por video llamada y viajamos cada vez que se requiere. Una distancia como la de Santiago-Talca no es lo mismo para nosotros en Ecuador ya que es geográficamente muy accidentado y se tarda mucho más. Los estudiantes provenientes de zonas rurales, han estado ligados al territorio y para ellos construir no es ajeno, es natural. Ellos sí han visto martillos de verdad y no solo conocen la pantalla de la computadora. Como profesores les decimos: “qué quieres, que te gusta, haz lo que te dé la gana”. Los tipos se complican muchísimo y es normal, yo también me asustaría a esa edad si un profesor en cuarto año me dice eso. Cada uno llega con lo suyo.

Uno de ellos es de un lugar donde frecuentemente se hacen deportes extremos: rafting, rapel, parapente, y necesitaban un refugio porque con sus hermanos llevan turistas a practicar parapente. El pensaba que no podría, que nunca había gestionado ni había construido nada en serio. Pues hazlo, le dijimos. Otra alumna contó en el taller que al entrar a Arquitectura quería hacer una

casa de muñecas para su hija, pero que ahora la hija tenia como diez años y el sueño de la casa de muñecas se fue transformado hasta convertirse básicamente en una casa en el árbol, financiada a través de la hostería de su hermana. Sólo hazlo y hazlo bien. Otro estudiante cuya pasión es el hip-hop no tenía donde grabar y las grabaciones le quedan pésimo y requiere un estudio:

“Tu prueba va a ser, le decíamos, si no grabas acústicamente como corresponde, vas a terminan reprobando el curso”. Lo hizo tan bien que muchos van ahora a grabar con él en su estudio.

Nosotros somos expertos en nada, los alumnos lo saben pero al igual que quienes nos invitan a trabajar en sus proyectos saben que de algún lado le vamos a darle la vuelta. En Pittsburgh, el Carnegie Museum of Art y el Heinz Architectural Center nos invitaron a ser parte de una exhibición: Building Optimism Public Space In South América. Pasa siempre en todos lados, lo extranjero es lo que valida. ¿Que íbamos a mostrar ahí, en Pittsburgh? Queríamos mostrar proyectos de espacio público que en sentido estricto no teníamos en ese momento, y creo que ahora tampoco. Querían ellos una instalación efímera, que mostrara en Pittsburgh el “espíritu sudamericano”. Cuando éramos más jóvenes quizá sí aceptábamos una instalación efímera, porque

es atractivo tener algo bien fotografiado, que lo puedes montar en corto tiempo y es bonito, un producto comercializable para seguir viajando por todo el planeta. Pero ya nos veníamos cuestionando mucho esas dinámicas y dijimos no, no hacemos nada temporal. Si quieren “espíritu sudamericano” trabajemos dentro de un proceso de participación con una comunidad que ya esté organizada. Y los tipos dicen: “¿En verdad se puede?” Esa es la prueba finalmente. Se conectaron con una comunidad que se llama Braddock, una comunidad afroamericana venida en decadencia, con niveles de pobreza bien duras y a lo gringo, en medio de la nada, del otro lado de una carretera, sin ninguna clase de servicios o equipamiento. Estaban en Braddock trabajando con un parque público, que le venían haciendo a pulso unas artistas que se llaman Transformasium. Perfecto, teníamos a los artistas locales trabajando, teníamos a la comunidad conectada, teníamos un proyecto en camino. Había que entrar a meterle candela en lo que sí sabemos. Hicimos el viaje, conversamos con la gente, montamos los primeros talleres. ¿Qué otros actores ya están en el territorio que pudiésemos involucrar? Pedimos ir a las universidades para tener más alumnos, como siempre lo hacemos, y resolvimos el proyecto fraccionándolo en varios componentes: un jardín urbano (porque había un colectivo de huerteros), una gran pared hecha con prefabricados

cerámicos y unas redes para que jueguen los niños. Usamos ladrillos baratos de una zona donde los terrenos ya no costaban nada y aprovechamos la experiencia la comunidad tenía en la construcción con ese material.

Nos topamos con gente de Urban Design Build Studio, que estaban en lógicas parecidas a las nuestras pero trabajando con convictos aún en prisión, unos tipos de cuatro metros de alto y dos de ancho que hicieron la capacitación y transferencia de conocimiento a los estudiantes. Todo funcionaba y fluía bien, aunque ya sabemos que el problema en Estados Unidos es que necesitas más abogados que arquitectos y todo se vuelve susceptible de demandas, y el proceso de detuvo.

Nunca trabajamos el mismo material. No porque seamos experimentales, sino porque usamos lo que hay. En Venezuela es más barato el acero, entonces trabajamos con acero; en Alemania es más barato trabajar con madera, entonces trabajamos con madera. Es simplemente eso, y buscamos a quien sepa, porque ya después de diez años hemos aprendido que somos buenos para nada específicamente. No nos especializamos en ninguna técnica constructiva. Nos hemos especializado más bien en hacer lo que venga y por lo mismo necesitamos estar con gente, ser muchos, sumar todos los esfuerzos y así partir de cosas que están completamente destruidas

y convertirlas en activadores culturales que aporten a los sueños colectivos, transformar los puentes inseguros de una favela, por ejemplo, en algo por donde se pueda cruzar bien, sin que los niños se caigan ni que la gente se rompa las piernas. Son intervenciones chicas, pero al final hay un proceso de trasformación, mucho más que en una exhibición grande, a menos que la exhibición nos pague por algo que nos sirva para hacer algo mayor y ahí ya pensamos igual en cómo le damos la vuelta.

Se habrán dado cuenta hace rato de que trabajamos en esa lógica de hacer mucho con poco, pero con mucha gente. Hay incluso un documental que está por salir, tarde o temprano en sus salas de cine. Y la gran pregunta es la plata. ¿Eso, cómo se hace?, nos preguntan, y siempre respondemos: “de milagro!, jaja”. Es difícil en realidad de explicar, pero una forma de hacerlo es lo que realizamos en la Bienal de Venecia en 2016, ya que se trataba de “Reportar desde el frente”. Ustedes lo saben, porque el curador es de acá, Alejandro Aravena. Primera vez en Venecia que había un curador del hemisferio sur, asunto muy relevante, porque nos forman siempre mirando al norte, todo lo medimos bajo estos patrones culturales, y nunca nos vemos a nosotros mismos; visión eurocéntrica que tenemos y que no nos deja encontrar nuestros propios parámetros de valoración. Una de las

apuestas interesantes de la curaduría de Aravena fue invitar a cincuenta y cinco oficinas para que presentaran su trabajo, un tercio de ellas por primera vez. Era altamente riesgoso. “Reportar desde el frente” implicaba discutir temas de inequidad. Nos pusimos a pensar en lo que hacemos y en este lío con el dinero y cómo toda la sociedad te mide en base a plata, y sólo eres exitoso por la cantidad de dinero que tienes en el banco o la cantidad de lujos que muestras y no por lo que eres o por lo que haces o lo que sientes. Nos incomoda porque está directamente ligado a nuestra manera de producir.

Entonces hicimos lo de siempre: vamos a trabajar con lo que haya a la mano, ¿Qué recursos tenemos?, dinero que nos entrega la organización, listo! Nos dan el dinero para exhibir, exhibamos dinero, simple.

Lo llamamos “Recursos oscuros”, una analogía con el universo. Los científicos saben apenas el diez por ciento de lo que es el universo, y al resto, que no descifran aún, le llaman “materia oscura”. Lo nuestro son puros recursos oscuros y de ese modo funcionan los proyectos. Así que hicimos metros cuadrados de dibujos en el piso con masking tape y ahí pusimos el valor del metro cuadrado de construcción de esa obra, en monedas de un centavo de euro: quinientos veinte mil monedas en exhibición. Nos dan plata, mostramos plata. Nos evitamos enviar exhibiciones carísimas y, a la vez, parodiamos un poco

con cuánto cuesta construir en Venecia. Pusimos en textos la forma como nosotros trabajamos, una cosa extremadamente sencilla, unos cuadros con los proyectos construidos y una pantalla que enseña cuáles son todos esos recursos oscuros: que exista, por ejemplo, un profesor en medio de la nada liderando un proyecto educativo que transforma positivamente a una comunidad. Eso, lo del profesor, no tiene financiamiento posible, son cosas que no se pagan, que se manejan en otra dimensión, una dimensión donde no todo es plata y que es la misma dimensión que a nosotros nos interesaba y nos sigue interesando mostrar.

8 Taller invernadero

Jardines para el bienestar.

Centros comunitarios de Cuicuilco y Lacandones. México DF.

TO (Carlos Facio + José Amozurrutia), +UdeB Arquitectos (Felipe Uribe), AGENdA (Camilo Restrepo)

Memoria

El gobierno de la Ciudad de México convocó por invitación al desarrollo de centros comunitarios –denominados Pilares para el bienestar– en diferentes colonias. Estos centros contienen programas de acuerdo con la demografía, necesidades y vocación de la población. Los tres estudios fuimos invitados a diseñar, cada uno, un centro comunitario. Conversando entre nosotros, concluimos que lo conveniente era desarrollar de manera colaborativa los proyectos. En esta publicación se incluyen materiales referentes a dos de los centros: Cuicuilco y Lacandones. Una importante preocupación fue la gestión del agua dentro de los edificios, contemplando los periodos de escasez de este recurso en la ciudad. Por lo tanto, lo primero que consideramos que se debía repetir en los tres proyectos era un techo para recolectar agua de lluvia.

La segunda consideración, y entendiendo que debíamos desarrollar tres proyectos, fue la de procurar que, tanto el sistema constructivo, como la estructura espacial pública y urbana pudiera ser repetida, entendiendo los proyectos como un sistema. Entonces, desarrollamos un sistema espacial donde la estructura es forma que define y articula los espacios interior y exterior, procurando ser de fácil acceso mediante la conexión con las dinámicas urbanas, además de ser un atractor a lo largo del día, se continuaron las aceras urbanas alrededor del perímetro del edificio en forma de rampas para que el espacio público pudiera llegar a todos los niveles operando como conector y balcón. La estructura fue resuelta a partir de una combinación de elementos delgados de acero y madera, de tal manera que la permeabilidad y la definición del espacio estuviera siempre referida a una membrana. Esta vía estructu-

ral nos permitió proveer de máxima flexibilidad a cada uno de los espacios, previendo cambios y adaptaciones en sus usos y operaciones futuras como habitualmente sucede en los edificios públicos.

Opinión

En México , como en Brasil o Colombia (sobre todo en Medellín) es destacable la existencia de diversos programas adicionales a los clásicos edificios educativos o sanitarios, previstos para dotar a la población de diversos equipamientos públicos orientados a proveer servicios educativos, deportivos o lúdico-recreativos ligados al bienestar de sus usuarios que a menudo son barriales y de sectores mas bien populares y que tienen necesidad de diversificar y complementar sus condiciones de vida en tiempo libre. En esa dirección destacan los multiples CESC brasileños (de los cuáles es bien conocido

Datos

El diseño arquitectónico fué a cargo conjunto de las oficinas TO (Carlos Facio + José Amozurrutia), + UdeB Arquitectos (Felipe Uribe) y AGENdA (Camilo Restrepo).

La gerencia de Proyecto fué de Studio ZV. El equipo de diseño lo integraron Álvaro

Martínez, Fernando Venado, Sofía Betancur, Úrsula Rebollar, Mariana Brito, Lena Arsenijevic, Luis Gerardo Díaz y Hugo Restrepo

El diseño estructural estuvo a cargo de Óscar Trejo y la Ingeniería mecánica y eléctrica de Enrique Zenón.El diseño de paisaje lo realizó el Taller de Paisaje Hugo Sánchez.

El cliente es el Gobierno de la Ciudad de México, la superficie del sitio de 544 m2 y la superficie de construcción de 700 m2. El diseño se realizó entre Agosto 2020 y Octubre 2020 y la construcción entre Noviembre 2020 y Julio 2022.

Las fotografías las hizo Jaime Navarro.

el que abordó Lina Bo Bardi en el proletario distrito de Nova Pompeia en San Pablo) o el Centro de Arte&Educación de Pimentas diseñado por el Estudio Biselli&Katchborian en Guarulhos, San Pablo, que publicamos en nuestro MAR 6.

Los tres centros comunitarios diseñados en conjunto por los 3 estudios a cargo que optaron por asociarse y evitar hacer uno cada uno, toma el cariz de una operación que pretende adquirir un valor de sistema que posibilite resolver de manera flexible

estos programas de necesidades abiertos y a veces mutables, para lo cuál acordaron asumir un concepto que deriva el nombre oficial del proyecto (Pilares para el Bienestar) a su traducción proyectual en lo que proponen configurar Jardines para el Bienestar,

en una suerte de evocación del motivo de jardines colgantes para proponer unas jaulas estructurales de metal y madera de secciones reducidas que acogen diversas plataformas de actividades y que juegan con la posibilidad de desarrollar colonizaciones vegetales paisajísticas de tales jaulas y con la necesidad (visto las deficiencias hídricas de la ciudad) de administrar el agua pluvial que puede receptarse en las cubiertas.

Aqui se presentan dos de tales trabajos: Cuicuilco que es una larga nave implantada en una estrecha franja de terreno de borde de una manzana y con una fachada connotada por una larga rampa que paralela a la acera, alcanza los dos niveles del conjunto, y Lacandones que en un terreno mas rectangular divide en dos la larga nave unica de Cuicuilco y las coloca pareadas en torno a un patio con escalera y circulaciones horizontales en los dos niveles, abiertas a dicho patio. El sistema contempla en Cuicuilco una estructura de ritmo ABBA con pasos de 2-4 metros, luces de 8 y voladizos de 2 con cubierta pareada con inclinación hacia el eje central, que opera como canalón recoge-

dor de agua de lluvia. El ritmo basico 2-4 se repite con alguna variación de ritmo en los otros complejos,manteniéndose la luz de 8 metros y los voladizos laterales de 2 asi como la misma solución de cubierta.

El concepto modular y sistémico del proyecto permite acomodar con bastante libertad los distintos componentes del programa, tales como aulas, talleres, espacios de trabajo, oficinas y módulos de servicio dejando todos ellos como partes casi flotantes en la estereoestructura general: incluso en Cuicuilco el sistema permite en su segunda planta, obtener un piso inclinado apto para mejorar el funcionamiento de espacios aúlicos escalonados.

La clave es sin duda, el armado de unos pabellones aireados y vegetados que prosperan como piezas transparentes y a futuro muy vegetadas, en la voluntad y propósito de ofrecer unos jardines colgantes de bienestar publico y disfrute en comunidad.

ZAPOTE
CDA.ZAPOTE

Turn static files into dynamic content formats.

Create a flipbook
Issuu converts static files into: digital portfolios, online yearbooks, online catalogs, digital photo albums and more. Sign up and create your flipbook.
MAR 007 - Material de Arquitectura by UniversidadAtlántida - Issuu