MAR 006 - Material de Arquitectura

Page 1


MICRO

EDITORIAL

Más allá de la función 3

AMERICANA

214

Mario Biselli y Artur Katchborian Naves paulistanas. Pabellón Castellato y Centro de Arte y Educación de Pimentas, San Pablo, Brasil

HERRAMIENTAS

206

Derek Jarman

Intensidad de la cultura del color. Croma. Un libro de color

194

Estudio Garage

Magma y módulos. Dos pequeñas cajas de vida. Centro cultural Magma y Módulos playeros

172

ARGUMENTOS

Matías Beccar Varela

La villa, las flores. Una hipótesis local sobre la conformación mítica del hábitat

144

MATERIAL

Tropical Space

Lugar material. La fábrica de barro. Terra Cotta Studio.Dien Phuong, Vietnam

ECOLÓGICAS

Lacol

10

ARQUITECTURA CIUDAD

Pablo Rescia, Horacio Ovejero y Fernando Ovejero.

Estar feliz en un edificio. Centro de Dia Kumelén. Mar del Plata

34

UNIVERSO-CASA

Iván Brankevich, Julieta Knollinger, Agustín Crespo

Identidad y límites. Casa de la Tía Silvia. Mar del Plata

52

UNIVERSO-CASA

6

Estudio Garage

Casa pública frente al mar. La Moringa. Mar del Plata

APRENDIZAJES

Germán Valenzuela Arquitectura Zetética. Búsqueda del proyecto situado y su enseñanza en Talca

72

Revista MAR. Material de Arquitectura, #6, Marzo 2024, Mar del Plata, Argentina, ISSN 3072-7243

Construir habitat para construir comunidad. Casa

Cooperativa La Borda, Barcelona

108

HITOS DE HISTORIA

Jesús Bermejo Goday

Proyectando Copelec. Evocación del proceso de proyecto del edificio de la Cooperativa Eléctrica de Chillán, Chile, 1962

82

Rector / Cdor. Amado Zogbi

Vicerrectora / Ing. Alicia Gil

Delegado rectoral MdP / Arq. Marcelo

Artime

Decano / Arq. Óscar Cañadas

Vicedecano / Arq. Claudio Freidin

Directora / Arq. María Silvia Grilli ISSN 3072-7243

Equipo

Editor / Arq. Oscar Cañadas

Director / Arq. Roberto Fernandez

Diseño / DG. Jimena Durán Prieto

Consejo Editorial

Arq. Marcelo Artime

Arq. Eduardo Agüero

Arq. Jerónimo Mariani

Arq. Dario Lemmi

Arq. Pablo Rescia

Arq. Leonardo Jauregui

Arq. Ezequiel Muñoz

MAR manifiesta que las opiniones consignadas en esta publicación son de absoluta responsabilidad de los firmantes de cada nota y no comprometen a tales instituciones. Las notas sin firma son responsabilidad de la Dirección editorial de MAR.

Las imágenes incluídas fueron suministradas especialmente por los autores y/o sujetos protagónicos de cada nota. Cuando fueran solicitadas expresamente se indican las autorías y/o las fuentes originales de tales imágenes. Si alguna imagen careciera a juicio de su autor, del crédito correspondiente rogamos se nos consigne para subsanarlo.

Más allá de la función

Una parte sustantiva de la modernidad se apegó a una racionalidad que presumía cierto predominio –casi científico– de la idea de función, dentro del proceso proyectual. Acuñó el lema form follows function (la forma sigue a la función) donde el verbo seguir implicaba alguna clase de correlación entre condiciones de ejercicio de los usos de un edificio –desde el mero habitar hasta actividades mas complejas como las educativas, las industriales o las sanitarias– y determinadas formas o cualidades geométricas y espaciales que resultarían racionales (las mas adecuadas al menor costo) respecto de dichas actividades: una escuela lineal o un hospital en trama resultarían racionales pues sus formas seguían requerimientos de la función. En la vivienda colectiva proletaria se decía que habia que colocar una ventana, digamos de un m2 en cada estancia , para asegurar un asoleamiento mínimo de dos horas por dia, permitido por una orientación adecuada. Las posturas bauhausianas –desde Gropius hasta el comunista Hannes Meyer–, la noción de existenz-minimum acuñada por Alexander Klein, discípulo del socialista Ernst May y el libro-catálogo de Alfred Roth (simpatizante nazi y quien le pidió a Piet Mondriaan que le pinte y regale su primera obra Der Stijl) Neue Architektur (1940) son otros tantos episodios significativos del credo funcionalista. El famoso manual de Ernst Neufert –que atravesó 8 décadas de vigencia y solo fue destronado por Internet– era un catálogo prescriptivo de relaciones entre funciones y formas, incluyendo las medidas.

La crítica del Team X a la modernidad, los últimos críticos Congresos del CIAM (que desde los 30 fue una suerte de Naciones Unidas del funcionalismo universalista) y las propuestas teóricas y prácticas de un conjunto de diseñadores –Kahn, Van Eyck, A&P Smithson, De Carlo entre otros– disolvieron el rigor conductista del funcionalismo y aparecieron autores como Chermayeff y las esclusas o Alexander y los patterns, que introducirían matices y alternativas al secundarismo de la forma e incluso el cinismo crítico-irónico y proconsumista del posmodernismo que alcanzaría a alterar aquella formula moderna otorgando plena prevalencia a la forma y mas adelante, a la envolvente aparente de la forma o sea, la imagen. Desde entonces se trata de pensar-proyectar mas allá de la función, ya sea valorando extremas flexibilidades para diferentes configuraciones de uso, ya sea para entronizar la importancia fenomenológica de los usos singulares de cada sujeto concreto frente a las funciones genéricas vinculadas a prescripciones universales.

En este MAR 6 incluimos trabajos conceptuales o proyectuales con interés en explorar un más allá de la pura función, visible por ejemplo en el recientemente premiado por el CAPBA provincial Centro de Dia de Rescia&Ovejero, cuyo nombre Kumelén alude a la intención diríamos transfuncional, de intentar ser feliz en estar y usar un edificio educativo-sanitario o en la Casa Cooperativa La Borda que el colectivo catalán Lacol propone para superar el funcionalismo típico de los bloques multifamiliares, favoreciendo maximizar usos cooperativos y comunitarios, alentar decisiones organizativas y programáticas mediante el potenciamiento de la participación de sus usuarios, todo a la busqueda adicional de mayor sostenibilidad. La conjunción de actividades de una casa-salón de fiestas o una casa-museo que presentan dos trabajos del Estudio Garage avanzan en diversificar casi al infinito la posibilidad de proyectar cosas pensadas para nuevas actividades o cambios y fusiones de las mismas, asi como el atelier de un ceramista vietnamita devenido monumento tecnico-cultural de tradiciones regionales y objeto de uso tanto como objeto de exposición también alude a esa infinitud de nuevas formas proyectuales cuyo origen, fundamento y demanda deviene de cuestiones mas complejas y casi nada unifuncionales.

También asi en un largo arco de tres cuartos de siglo el edificio

Copelec y los pabellones paulistanos de Biselli&Katchborian que aquí incluimos, testimonian la compleja posibilidad de trascender la estabilidad de las relaciones racionales entre programas y edificios, buscando diferentes pluses de complejidad cultural o de dialogo con los paisajes.

El largo después de una modernidad excesivamente cifrada en la racionalidad funcional incluye desde luego la eclosión mercantilista de las arquitecturas producidas en el alto capitalismo como nuevas piezas de inversion financiera, en las que emergen nuevas definiciones programáticas que vuelven a imponer formas (mas bien minimalistas) que siguen a funciones que no innovan demasiado en modos de habitar pero que condicionan los proyectos, asegurando su consumo. Pero también la actualidad proyectual que intenta superar esos condicionamientos presenta alternativas que mejoran y modifican las funciones estrictas, promoviendo flexibilidades de uso y disfrutes para los usuarios, atendiendo a incorporar subjetividades concretas que puedan participar del proyecto y modificar sus usos, más allá de la función

Instrucciones para navegar el MAR

(el número 6 de MAR)

ARQUITECTURA-CIUDAD

Esta sección presenta un complejo edilicio singular local o regional cuyo interés radique en establecer propuestas de relación con sus entornos urbanos además de postular ideas proyectuales significativas en su planteo, desarrollo y materialización. Se presentaran documentaciones originales completas (planos, fotos, memorias) y un análisis que pueda ser útil tanto para su aplicación didáctica como para su recepción académica y profesional.

Pablo Rescia, Horacio Ovejero y Fernando Ovejero. Estar feliz en un edificio. Centro de Dia Kumelén. Mar del Plata Kumelén en mapuche significa estar feliz. Que se supone que sea estar feliz en un edificio?. Puede parecer una pregunta ingenua, sin embargo, comprende un mundo de consideraciones que trata de combinar la arquitectura con sus habitantes, lejos de frivolidades formales de carácter novedoso, solo para desprevenidos amantes de lo instantáneo, carácter tan presente en nuestro tiempo y a su vez tan alejado de la arquitectura como cuerpo físico e intelectual que nos cobija del mundo. Estar feliz podría cumplir cabalmente una serie de necesidades complejas que surgen de posibilitar un sinnúmero de actividades administrativas, educativas, artísticas, incluso algunas domésticas, en una articulación que posibilite el desenvolvimiento de cada una de ellas.

UNIVERSO CASA

Tratara de ofrecer una secuencia de casas unifamiliares o pequeños conjuntos que contengan proposiciones conceptuales en cuanto a su proceso y razón proyectual, en su realización y construcción y en su uso, identificando valores que vayan más allá de la mera respuesta funcionalista. Tal como en el caso anterior se ofrecerá una documentacion integral y un análisis enfocado en su recepción didáctica tanto como de docentes y proyectistas.

Iván Brankevich, Julieta Knollinger, Agustín Crespo. Identidad y límites. Casa de la Tía Silvia. Mar del Plata

La casa de la tía Silvia es pensada en función de dos condicionantes aparentemente contradictorios. La búsqueda de generar espacios diversos con el menor grado de restricción posible sobre sus usos y relaciones debe ser articulada con el entorno de un barrio privado, en donde los límites entre lo propio y lo comunitario son intencionalmente difusos.

La casa busca entonces generar lugares interiores y exteriores distintos y abiertamente vinculados, dedicando un especial cuidado al estudio de sus límites con el objeto de que aquella condición no vulnere la intimidad de la vivienda.

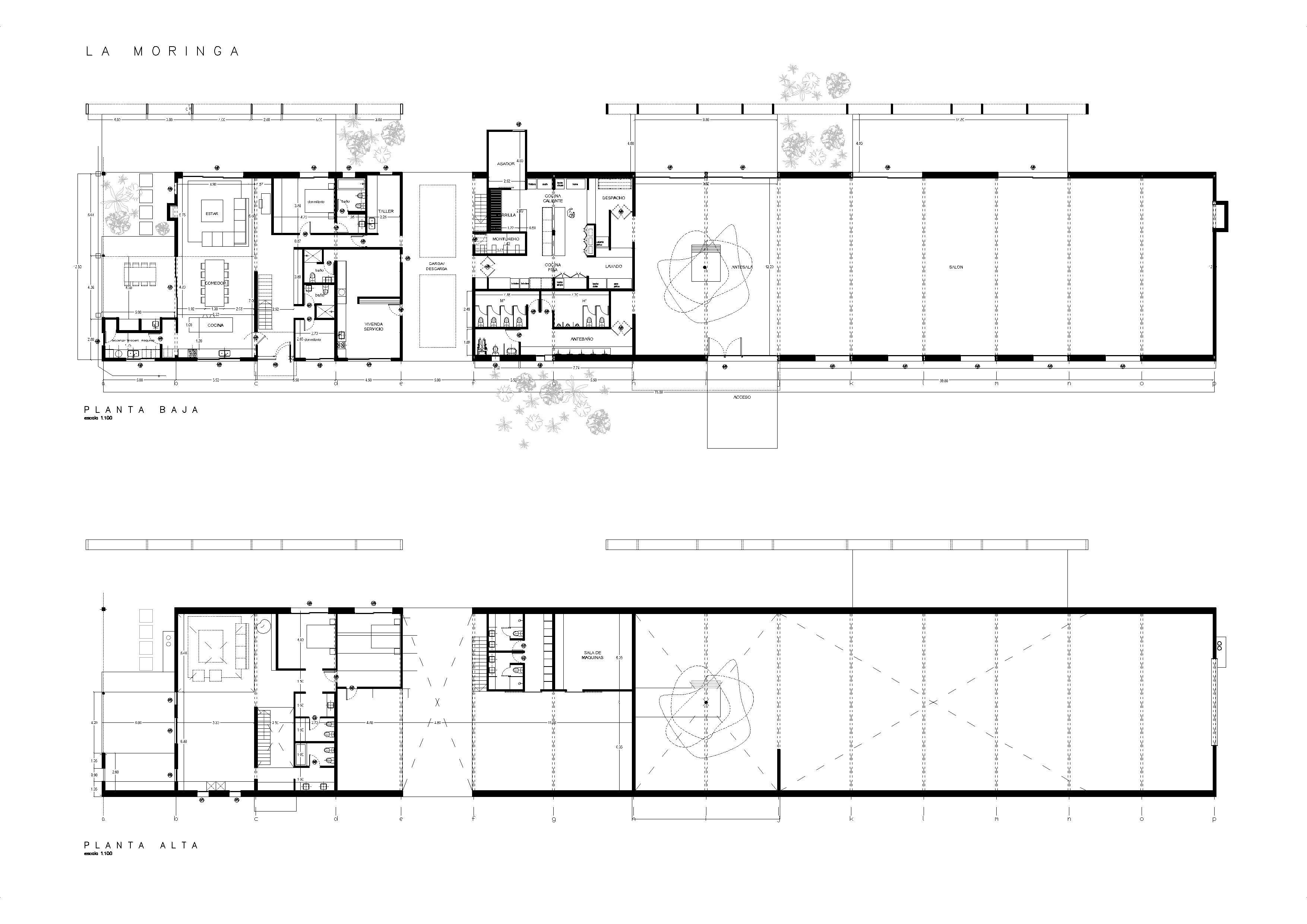
Estudio Garage. Casa pública frente al mar. La Moringa. Mar del Plata

La obra se trata de un único volumen donde conviven un salón de eventos y una vivienda unifamiliar articulados mediante los servicios y los accesos a estos. Este volumen está ubicado en el medio de una llanura, expuesto en sus cuatro caras y a 200m del mar en la ciudad de Mar del Plata, donde el clima es hostil gran parte del año. Por esta razón el edificio orienta sus caras mas amplias hacia el norte y el sur, armando así, una barrera contra los vientos predominantes del sudeste. Al norte un parasol de hormigón funciona como filtro frente al asoleamiento y genera espacios de contención.

72

APRENDIZAJES

Plantea recorrer una serie de experiencias educativas de arquitectura reconocidas por su alternativismo y experimentación para acoger planteos y propuestas que pudieran resultar útiles o convergentes con las discusiones pedagógicas de la propia escuela. Así como investigaciones y aplicaciones proyectuales en campos no convencionales del hábitat que abren camino al aprendizaje de prácticas alternativas.

Germán Valenzuela. Arquitectura Zetética. Búsqueda del proyecto situado y su enseñanza en Talca.

En pocas palabras el método zetético se trata de una forma de proceder por indagación, que renueva el empirismo profundizando el camino de la duda abierto por el posmodernismo, llevándolo a dudar de la duda misma, es decir, desconfiando incluso de la propia forma axiomática a la que podría dar origen. Supone dudar de los métodos y las condiciones generales que nos han hecho llegar hasta la situación actual sin caer en nuevas formas axiomáticas que puedan presuponer una verdad. Se trata de asumir que la habitación en la que nos encontramos y creíamos iluminada y bien amoblada se encuentra a obscuras, pero más allá de inmovilizarnos nos impulsa a conocerla nuevamente.

HITOS DE HISTORIA

Mas que presentar grandes hitos de la historia de la arquitectura se tratará de abordar hechos diversos de la historia local y regional que sean de interés en el conocimiento de grandes proyectistas locales y regionales pasados cuyas tareas hayan derivado en producir hechos significativos de la modernidad arquitectónica.

Jesús Bermejo Goday. Proyectando Copelec. Evocación del proceso de proyecto del edificio de la Cooperativa Eléctrica de Chillán, Chile, 1962.

El edificio Copelec significó un hito del momento brutalista americano tanto por su relación/ contrastación con la estética corbusierana de los 50-60 cuanto por la intención de sostener y superar el modelo matemático proyectual implícito en el Modulor. Aquí se desarrollaron otros conceptos: Las 16 primeras dimensiones que corresponden a los múltiplos de 7: 7, 14, 21, ….. 105, 112, son perfectamente identificables y diferenciables entre sí. Estos 16 tamaños encerrados en 112 constituyen algo que Borchers llamó Campo mágico en su obra Meta Arquitectura.

En el descanso de la rampa en la fachada norte de la Copelec, se trató de hacer visibles todos estos 16 tamaños mediante el dimensionamiento vertical de los elementos que la conforman.

ECOLÓGICAS

La cuestión ambiental y de crisis de sustentabilidad se presenta como un desafío para el proyecto actual y futuro y si bien resulta un campo relevante para ajustar y modificar formas tradicionales de proyectar, todavia se carece de metodologias comprehensivas y aplicables por lo cuál se presentarán distintos trabajos y enfoques –desde interdisciplinares hasta urbano-territoriales pero también de proyectos de arquitectura- para empezar a entender las vias de futuros trabajos de mucha mayor implicación ecológica.

Lacol. Construir habitat para construir comunidad. Casa Cooperativa La Borda, Barcelona

La apuesta de La Borda por un modelo de autodesarrollo comunitario ha permitido superar algunas de las limitaciones existentes en los desarrollos convencionales, ya sean públicos o privados. En el primero de ellos, el miedo al futuro residente –completamente desconocido– imposibilita introducir cambios en un modelo habitacional prefabricado. En el segundo, una imposición de los dictados del mercado da como resultado la mediocratización de la vivienda para facilitar su adopción como artículo de consumo. El proceso de desarrollo innovador ha sido clave para permitir que el trabajo arquitectónico vaya más allá de cuestiones de diseño meramente formales. Diferentes características del proyecto creemos que lo ayudarán a destacarse en el contexto más amplio de la vivienda colectiva: autodesarrollo, concesión de uso, vida comunitaria, sostenibilidad, asequibilidad y flexibilidad y adaptabilidad.

MATERIAL

La revista no publicará (salvo alguna específica excepción) proyectos no construídos en el entendimiento de la relevancia por otorgarse a la materialización adecuada de las ideas proyectuales ya que se piensa que la construcción no es una fase ulterior e independiente del proyecto sino que éste cobra sentido, viabilidad y calidad en tanto aborde y resuelva su condición material, lo cuál lleva a entender cuestiones de sustentabilidad y tecnologías de ingenio y cualidad regional, más allá de temas propios de la construcción tradicional.

Tropical Space. Lugar material. La fábrica de barro. Terra Cotta Studio.Dien Phuong, Vietnam

Este proyecto es un edificio en forma de cubo de un volumen de 7m x 7m x 7m. Alrededor del estudio hay una plataforma con estructura de bambú que se utiliza para secar productos de terracota. Además, está diseñado con dos grandes bancos para descansar, relajarse y tomar el té. Esta plataforma elevada también sirve como valla para separar el estudio de la zona del taller.

La capa más exterior del estudio está hecha de ladrillo macizo de arcilla, lo que recuerda a la gente el uso de hornos tradicionales de Vietnam. El estudio también tiene las características de la cultura Champa, ya que el área era parte de Tra Kieu, capital del reino Champa, del siglo IV al VII.

ARGUMENTOS

La producción de proyectos descansa en aprovechar aspectos analíticos emergentes de argumentos teóricos que tratan de entender el pasado y el futuro para acompañar el presente proyectual y de tal forma esta sección se interesa en mostrar trabajos argumentales de teoría y crítica que en algunos casos pueden tener relación directa con acciones de proyecto o en abrir propuestas de formas alternativas de proyectar.

Matías Beccar Varela. La villa, las flores. Una hipótesis local sobre la conformación mítica del hábitat

La villa nos sitúa en el centro de la marginalidad. La persona que habita en la villa habita en la ciudad: sin embargo, de alguna manera, la ciudad no es su hábitat, no al menos en toda la extensión de su significado. Esto es la marginación. Esta separación, esta discontinuidad en las relaciones sociales, es causa suficiente –junto con la desesperación por la subsistencia– para la aparición de prácticas para-sistemáticas que le darán a sus habitantes la posibilidad misma de sobrevivir: hurto, narcomenudeo, criminalidad. La villa es el espacio en la ciudad que posibilita y potencia estos medios de subsistencia; la marginación genera más marginación, violencia, separación.

Hay arquitectura mínima: pequeñas intervenciones de adaptación o modificación; agregados, acciones de acupuntura urbana por colocación de nuevos objetos. En las escalas opuestas de lo territorial-urbano y cercano a lo doméstico-objetual es posible activar acciones proyectuales que ofrecen nuevas funcionalidades o que agregan variedad y novedad de uso a lo preexistente. Acciones que pueden recaer en trabajos de generación de objetos resueltos casi con artesanatos y/o con enfasis en la emisión de comunicación; objetos que hablan agregando pequeños matices de sentido a lo dado.

Estudio Garage. Magma y módulos. Dos pequeñas cajas de vida. Centro cultural Magma y Módulos playeros.

Magma. En la zona de acantilados, en la ciudad de Mar del Plata, una familia decide armar un centro cultural, un espacio donde poder desarrollar la identidad de la zona. La única certeza de esta familia era el nombre: magma. Con este nombre y la ubicación del espacio el sistema constructivo vino a dar todas las respuestas.

Módulos. Tres amigos amantes del surf deciden alquilar un terreno frente a una de las pocas playas aun vírgenes entre Mar del Plata y Miramar. Su pedido: un espacio pequeño donde albergarse un par de noches y herméticamente cerrado a la hora de irse. Por último, debía ser transportable. A partir de estas premisas decidimos replicar un módulo tipo refugio con los servicios y las comodidades necesarias donde cada uno de ellos se apropie el espacio libre a su manera.

206 214

HERRAMIENTAS

Los buenos libros y artículos de problemas teóricos y prácticos del proyecto de arquitectura son como herramientas de trabajo para formarse y entender aspectos y cualidades por afrontar cuando se está proyectando: por tanto el interes de esta sección será presentar críticamente algunos aportes bibliograficos recientes que suponen conocer el marco cultural general donde se contextualiza el hecho de proyectar y tomar decisiones proyectuales.

Derek Jarman. Intensidad de la cultura del color. Croma. Un libro de color

En su último año de vida, el artista total Jarman escribe Croma cuyas páginas fruto de experiencias febriles arma un verdadero y total tratado sobre el color, que es analizado desde sus razones materiales (el descubrimiento de cada pigmento y de sus formas de uso y preparación) hasta sus manifestaciones en el mundo de arte y la cultura. Internado en un hospital –de donde ya no saldrá– cuando escribe este libro se va despidiendo de su sexo, sus amigos, su inmensa biblioteca, su jardín de Dungeness , de su propia vida y de los colores que ya casi no percibe, lo que encarna un manifiesto culto y vivido que se presenta al lector con intensidad expresiva de la intimidad estética de ese ojo que se muere.

AMERICANA

Entendemos la cultura proyectual local como haciendo parte de problemas y alternativas propias del mundo latinoamericano cuyas propuestas mas singulares e innovativas se presume que deben conocerse profundamente para insertar el trabajo de proyecto en una condición geocultural especifica que en lo posible aproveche lo bueno de la globalización pero también que cuestione sus defectos y limitaciones.

Mario Biselli y Artur Katchborian. Naves paulistanas. Pabellon Castellato y Centro de Arte y Educación de Pimentas, San Pablo, Brasil.

El Pabellón Castellato fue construido en el complejo industrial de la empresa, en las afueras de Atibaia, São Paulo, rodeado de colinas bajas y áreas verdes en un terreno que conserva zonas verdes y un bosque de ciliares a lo largo del arroyo que rodea la propiedad: entre el bosque de ribera y los almacenes se decidió la construcción del Pabellón, debido a su finalidad representativa e institucional, albergando espacios expositivos de los productos de la industria en la que se inserta con el agregado de espacios para exposiciones de arte.

El Centro de Artes y Educación de Pimentas está en Guarulhos, São Paulo, en el barrio de Pimentas, un lugar con poco equipamiento comunitario dirigido a la educación, el ocio y el deporte.El proyecto es lineal, materializado en una gran cubierta metálica que alberga en sus márgenes longitudinales diferentes usos, articulados por un vacío que culmina en una zona central dedicada a deportes con un complejo acuático fuera de este eje, en la zona exterior. La topografía plana y la configuración lineal del sitio fueron determinantes.

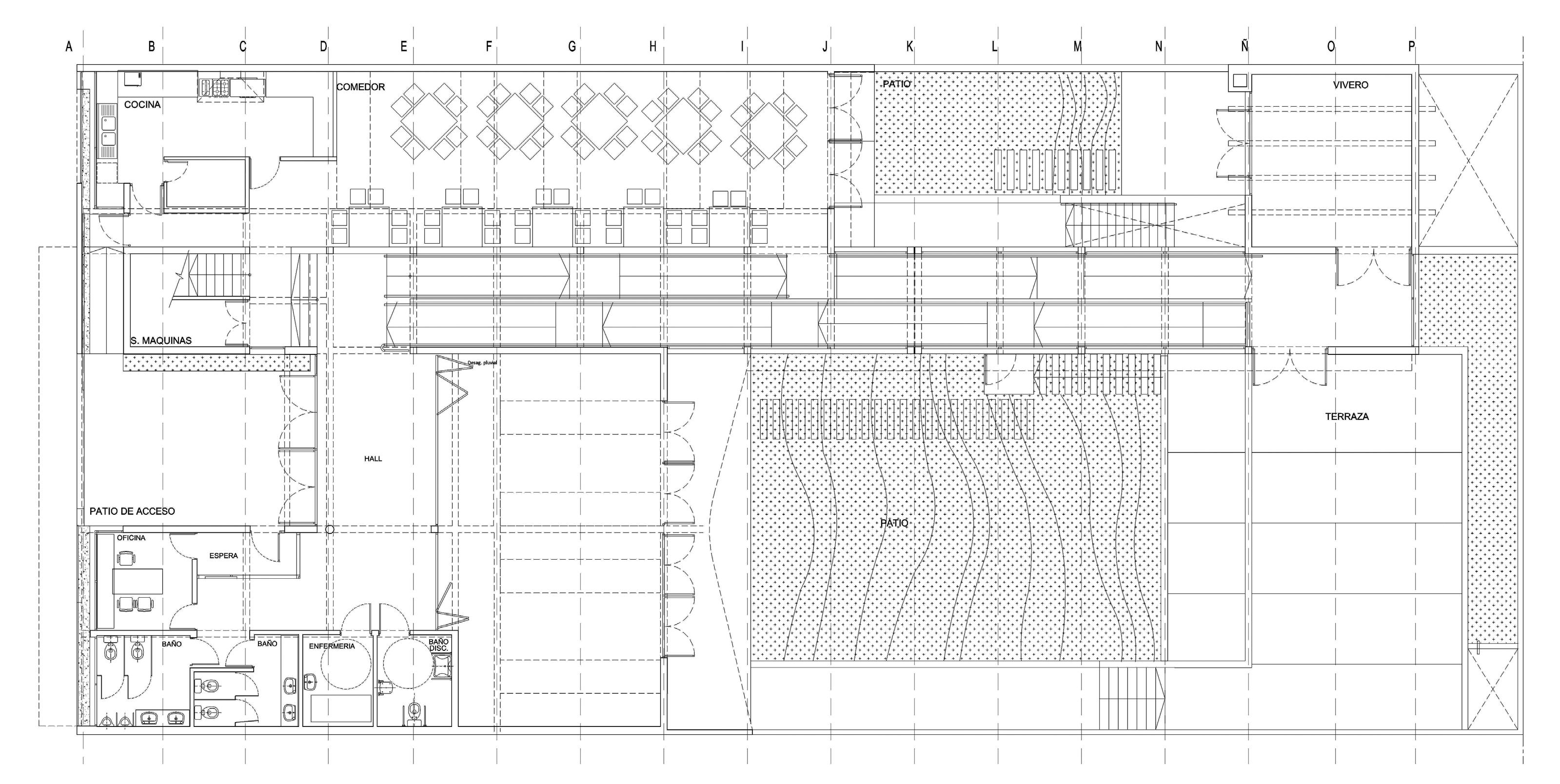
Estar feliz en un edificio.

Centro de Dia Kumelén. Mar del Plata

Memoria

Kumelén es un programa de atención integral a personas adultas con capacidades diferentes, basado en el significado de su nombre, dado que Kumelén en mapuche significa estar feliz.

Que se supone que sea estar feliz en un edificio?. Puede parecer una pregunta ingenua, sin embargo, comprende un mundo de consideraciones que trata de combinar la arquitectura con sus habitantes, lejos de frivolidades formales de carácter novedoso, solo para desprevenidos amantes de lo instantáneo, carácter tan presente en nuestro tiempo y a su vez tan alejado de la arquitectura como cuerpo físico e intelectual que nos cobija del mundo.

Estar feliz podría cumplir cabalmente una serie de necesidades complejas que surgen de posibilitar un sinnúmero de actividades administrativas, educativas, artísticas, incluso algunas domésticas, en una articulación que posibilite el desenvolvimiento de cada una de ellas en consonancia con sus servicios (sanitarios, cocina, etc.)

Sin embargo, esto no resuelve del todo el problema. Estar feliz, también debería ser una instancia en que pudiera dis-

frutar el aire libre, el sol, los espacios exteriores, tal como si fueran una extensión de las actividades interiores aportando además situaciones diferentes, como si el edificio construyera una topografía propia sobre la cual los espacios exteriores otorgan diferentes escenarios según los usos.

Estar feliz es, asimismo una cuestión narrativa de construcción de continuidades, historias donde cada lugar tiene una dimensión funcional y otra dimensión lúdica, dentro de una austeridad de recursos.

Kumelén se encuentra en el barrio San José de la ciudad de Mar del Plata, lugar con una identidad histórica dentro de la ciudad. Es un barrio familiar de costumbres e historias de inmigrantes.

El programa impone una serie de espacios concatenados de diferentes usos y de diferentes cualidades. Por un lado, lo educativo, talleres creativos, sum para eventos o actividades corporales, sala de informática y vivero. Por otro, cuestiones domésticas, como el comedor o sectores de carácter administrativo como oficinas, sala de reuniones docentes, vestuarios de personal.

El programa complejo se articula en torno a una rampa,

que asegura la accesibilidad a todos los lugares educativos, que concilia en medios niveles, dos cuerpos, uno sobre el frente del lote y otro en el fondo, generando dos espacios exteriores. Uno de ellos entre las expansiones de los talleres y el sum y el otro entre la expansión del comedor y el vivero. El acceso al complejo implica una secuencia, que va desde un patio semicubierto de doble altura, donde las personas pueden llegar seguras desde las combis de traslado para, desde allí contar con accesos diferenciados hacia la administración, acceso de servicio a la cocina y el acceso principal al hall que articula el Sum, el área de comedor y la rampa.

El sum se utiliza tanto en el momento de acceso o de salida como patio cubierto. Estos tres espacios, si bien cada uno tiene cualidades espaciales diferenciadas, pertenecen a una continuidad visual que da como consecuencia una libertad en el uso

del espacio interior, que se prolonga tanto a los talleres, en el medio nivel bajo, como al vivero con su propia expansión en el medio nivel alto.

Estas continuidades se dan tambien en relación a los tres patios exteriores que conforman el conjunto, el patio de acceso, la extensión del comedor, conectado con la expansión del vivero, y el patio principal donde se encuentran las expansiones del sum, de los talleres y la terraza lateral del vivero y el remate de la rampa. Este patio configura una topografía que permite enhebrar un circuito exterior propio, independiente del interior. Las continuidades narrativas de los espacios también se involucran en la conformación física del edificio, de su materialidad, siempre con criterios de ascetismo y bajo mantenimiento. Así el eje longitudinal de articulación que es la rampa es una estructura a la vista de hormigón que divide dos volúmenes con cu-

biertas livianas. El cuerpo de dos plantas es el que sale a buscar la calle, con una extensión de su propia contextura arriostrada en tensores metálicos de arbitraria geometría. Estos se anclan en el plano de hormigón visto que da continuidad identitaria a la fachada, pero que a su vez se diversifica en diferentes alturas tratando de responder al escenario que queda por detrás de este telón.

Ese estar feliz supone que este edificio sea escenario y telón al mismo tiempo de las actividades de personas que solo quieren un mundo fraterno que las abrigue.

Opinión

La explicación teórica de este proyecto –su memoria– arranca diciendo que Kumelén es un programa de atención integral a personas adultas con capacidades diferentes, basado en el significado de su nombre, dado que Kumelén en mapuche significa estar feliz.

Desde el nombre, matizado por su traducción a un idioma de pueblo originario, se afirma la voluntad de engendrar un edificio em-pático, sim-pático o amable sobre todo porque se trata de un lugar para personas especiales que se pasan el dia en el lugar, que por tanto debe garantizar función, distracción, dedicación o trabajo, educación o aprendizaje, diversión, contención, atención al cuerpo y a la mente, etc. Todo ello sin ser un sitio específico –una escuela o una clínica o una casa colectiva– sino incluyendo, integrando y trascendiendo esas especificidades. La idea, quizá excesiva de garantía de felicidad, deberá al menos conseguir que la gente que está allí todo el dia –los sujetos contenidos tanto como los sujetos contenedores– puedan hacer satisfactoriamente una cantidad de cosas que sean diversas y complementarias y que además incite a volver al dia siguiente a tener otra jornada productiva y grata. De eso trata el querer superar la pura función de una suerte de contenedor de personas de capacidades diferenciadas al propósito existencial del ser feliz, que según lo expresa la memoria se daría en tres instancias:

En primer lugar estar feliz podría cumplir cabalmente una serie de necesidades complejas que surgen de posibilitar un sinnúmero de actividades administrativas, educativas,

... esa posibilidad lúdica de estar en un lugar que admite hacer cosas puntuales en cada uno de sus sitios pero también, que estimula a transitar y experimentar cambios perceptivos (arriba/abajo, adentro/afuera, abierto/cerrado, etc.)

artísticas, incluso algunas domésticas. Es decir una primaria satisfacción o felicidad de poder resolver allí de manera fácil, toda aquella funcionalidad que es requerida por un centro de atención.

En segundo lugar, estar feliz, también debería ser una instancia en que pudiera disfrutar el aire libre, el sol, los espacios exteriores, tal como si fueran una extensión de las actividades interiores aportando además situaciones diferentes, como si el edificio construyera una topografía propia sobre la cual los espacios exteriores otorgan diferentes escenarios según los usos. Más allá de lo funcional –e inclusive de lo multifuncional– aquí se agrega un requerimiento de alcanzar una topografía propia que articule interior-exterior dentro del edificio, cuya cualidad será tratar de conseguir en el mismo casi tanta interioridad como espacios tipo patios que activen cualidades de confort ambiental y de disfrute del aire libre. Esa topografía propia tratará de deconstruir una mera acumulación de espacios-estancias diferenciales haciendo que haya desbordes, continuidades, paisajes interiores que permitan percibir la totalidad del interior.

En tercer lugar estar feliz es, asimismo una cuestión narrativa de construcción de continuidades, historias donde cada lugar tiene una dimensión funcional y otra dimensión

lúdica, dentro de una austeridad de recursos. Aquí aparece la idea de un edificio que trata de ser mas que una pura agregación de locales, donde cobran protagonismos soluciones como el paseo-rampa que atraviesa todo el interior, los desbordes de los locales principales a expansiones abiertas, el tratamiento secuencial del espacio de ingreso, etc. Todas referencias que apuntan al movimiento fácil y a la flexibilidad espacial y en ello a esa posibilidad lúdica de estar en un lugar que admite hacer cosas puntuales en cada uno de sus sitios pero también, que estimula a transitar y experimentar cambios perceptivos (arriba/abajo, adentro/afuera, abierto/cerrado, etc.).

El edificio organiza en uno de sus lados comedor y vivero y en el otro, sum y talleres, cada lado con sus partes segregadas por espacios abiertos o patios y todo atado o vertebrado por una rampa central que es una espina circulatoria pero también un artefacto cuyo movimiento permite al sujeto vislumbrar y conectar todos los espacios tal como lo enuncia la memoria: El programa complejo se articula en torno a una rampa, que asegura la accesibilidad a todos los lugares educativos, que concilia en medios niveles, dos cuerpos, uno sobre el frente del lote y otro en el fondo, generando dos espacios exteriores. Uno de ellos entre las expansiones de los talleres y el

sum y el otro entre la expansión del comedor y el vivero. Las cuatro grandes partes de una planta –esencialmente baja, con una media primera planta de oficinas mas sobre el frente y una media planta en subsuelo con talleres en expansión de patio inglés al fondo– se ensamblan dinámicamente asi con el motivo de la espina rampada, uno de cuyos laterales está bordeado con listones de madera que intermedian algo mas al espacio comedor. Sin embargo, dada la envergadura de la mitad derecha del amplio lote, la organización cuadrilátera conectada por el vector de la rampa (más a la izquierda del esquema) le da más protagonismo escalar al patio principal –sigue diciendo el texto memoria– donde se encuentran las expansiones del sum, de los talleres y la terraza lateral del vivero y el remate de la rampa. Este patio configura una topografía que permite enhebrar un circuito

exterior propio, independiente del interior. Por último destaca la recurrencia a una materialidad simple y austera que busca engendrar un soporte para la dinámica de actividades del complejo en la que predomina cierto protagonismo de un hormigón expresado ya sea en las fuertes nervaduras de las cubiertas semitransparentes del vivero, ya sea en el potente motivo del frente cementicio que parece colgado de los lúdicos tensores que anclan el liviano techo anterior y que cooperan en separar del suelo ese plano para generar los varios tramos de enrejado de accesos y que termina por aportar a una ciudad barrial discreta el signo de reconocimiento de esta obra. Asi la memoria refiere a esa fachada al escribir que ese estar feliz supone que este edificio sea escenario y telón al mismo tiempo de las actividades de personas que solo quieren un mundo fraterno que las abrigue.

Datos

Los autores del Centro de Dia Kumelén son los arquitectos Pablo Fidel Rescia, Horacio Ovejero, Fernando Ovejero. La ubicación es Dorrego 4031, Mar del Plata. La superficie del lote es de 866 m2 y la superficie construída es de 411,14 m2, de los cuáles 19,86 m2 son semicubiertos. La obra se desarrolló entre 2016 y 2022.

Fueron colaboradores los arquitect@s Alejandro Lotartaro, María José Díaz Varela, Julieta Mackrey y la señorita Josefina Ovejero Solla. El cálculo estructural lo efectuó el arquitecto Federico Poblet.

Detalle reja
Detalle baranda rampa
Detalle techo fachada
Detalle reja

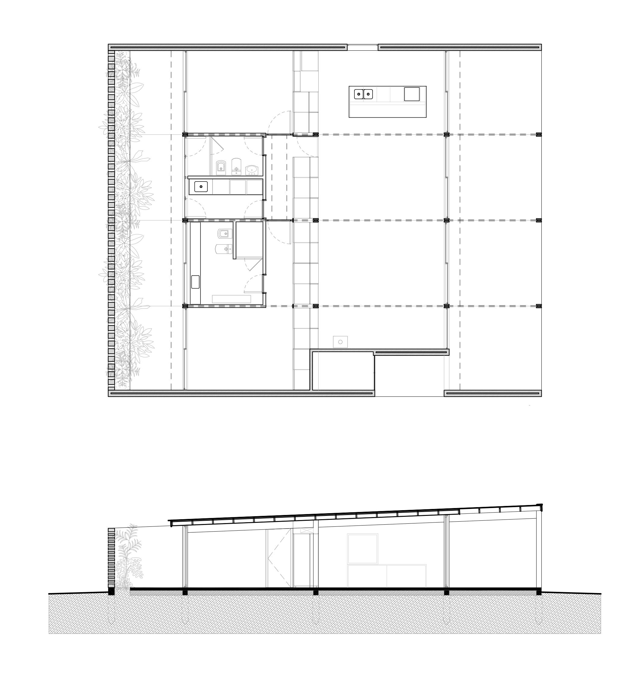
INTIMIDAD Y LIMITES

Casa de la Tía Silvia. Mar del Plata

Memoria

La casa de la tía Silvia es pensada en función de dos condicionantes aparentemente contradictorios. La búsqueda de generar espacios diversos con el menor grado de restricción posible sobre sus usos y relaciones debe ser articulada con el entorno de un barrio privado, en donde los límites entre lo propio y lo comunitario son intencionalmente difusos. La casa busca entonces generar lugares interiores y exteriores distintos y abiertamente vinculados, dedicando un especial cuidado al estudio de sus límites con el objeto de que esta condición no vulnere la intimidad de la vivienda.

Opinión

Se trata de una grilla regular que define un borde continuo –con características variables: muro cribado,

muro ciego, lateral de patio pergolado abierto pero con intención futura de cerrarse con vegetación– para definir su inserción en un loteo de barrio privado, con la voluntad de resolver un alto grado de intimidad para el grupo usuario.

A partir de esa intención de resolver el programa en un rectángulo de unos 120 m2 (más unos 50 m2 apergolados) y tratando de articular la introversión con la orientación, el muro cribado de ladrillo al 50% constituye el frente urbano de la casa a pesar de que detrás del mismo hay un patio algo angosto que tiene un cantero detrás del mismo (cuya evolución vegetal probablemente restrinja el tamiz visual de esa pared) y al cuál dan los dormitorios y el nucleo sanitario. Lo cuál hace que el acceso deba ser lateral a dicho rectángulo con un recoorido que lleva a entrar a la casa por la punta de la pérgola posterior.

El interior del rectángulo es asi muy sencillo: dos franjas, una de dormitorios-nucleo sanitario que se abre al patio cerrado por el muro cribado; otra de un espacio continuo de estar –con una isla-cocina flotante, cercana a la única modesta ventana externa del conjunto– y un pequeño mordisco que resuelve el acceso. Una ascética estructura de pilares y vigas de madera resuelve la estructura para sustentar una cubierta liviana de leve inclinación, que no altera la visión de un bloque geométrico ortogonal regular.

Dentro de las diversas posibilidades de instalar una vivienda en la relativa urbanidad de un barrio privado, vemos que esta alternativa opta por trabajar los límites que aseguren privacidad (aunque sin obstruir las posibilidades perceptivas de visuales largas que permiten esta clase de loteos) y esa decisión de modelación trascendente de las envolventes murarias de la pequeña vivienda es la que le otorga su característica de extrema discreción, frente a los habituales exhibicionismos estético-funcionales de las casas de country. Ello unido al recurso a una materialidad artesanal de madera y ladrillo que también se escapa del lugar común minimalista de las cajas blancas.

Datos

La casa de la Tia Silvia se construyó en 2022 en el Barrio Tierra y Mar, Mar del Plata y es una vivienda de uso permanente. El proyecto y dirección fue realizado por los arquitectos Iván Brankevich, Julieta Knollinger y Agustín Crespo.

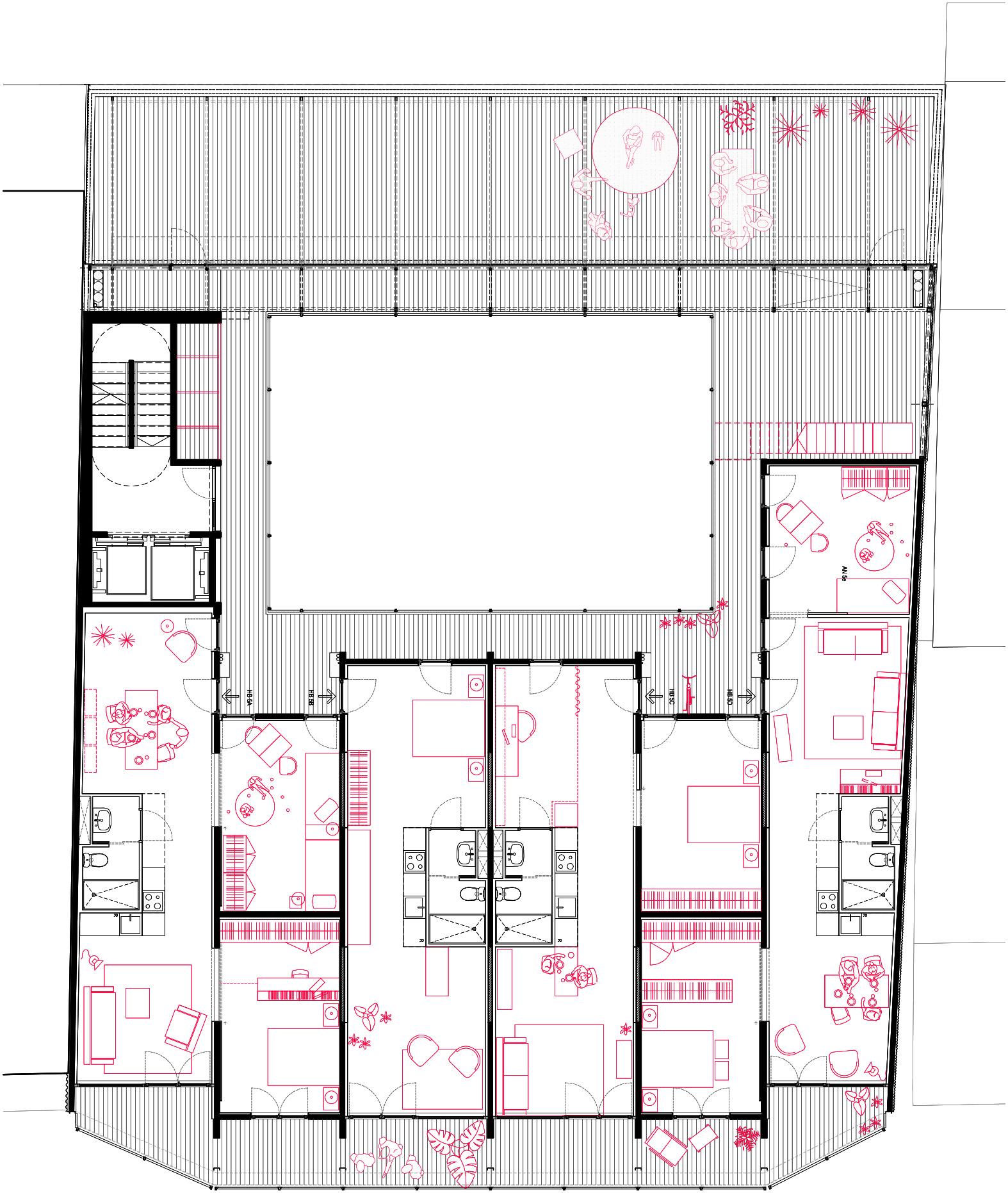
CASA PÚBLICA FRENTE AL MAR

La Moringa. Mar del Plata

Estudio Garage

Memoria

La obra se trata de un único volumen donde conviven un salón de eventos y una vivienda unifamiliar articulados mediante los servicios y los accesos a estos. Este volumen está ubicado en el medio de una llanura, expuesto en sus cuatro caras y a 200m del mar en la ciudad de Mar del Plata, donde el clima es hostil gran parte del año.

Por esta razón el edificio orienta sus caras mas amplias hacia el norte y el sur, armando así, una barrera contra los vientos predominantes del sudeste. Al norte un parasol de hormigón funciona como filtro frente al asoleamiento y genera espacios de contención. El salón de fiestas tiene una capacidad para 450 personas y la necesidad requería un es-

pacio lo mas flexible posible para la realización de eventos con distintas finalidades, un árbol de moringa está ubicado en el acceso del mismo y funciona como anfitrión a la hora de ingresar.

Los servicios (baños + cocina industrial + asador) están ubicados en el extremo del salón facilitando el acceso de los servicios y funcionando como filtro para la convivencia con el otro uso requerido.

La vivienda de 220m2 está ubicada en el sector más cálido, allí el volumen se desmaterializa y la estructura pasa a ser el espacio donde se contempla la naturaleza en todo su esplendor y tamiza el asoleamiento oeste en los días cálidos de verano.

Opinión

En la exploración programática de trascender el esquematismo de funciones precisas y distintas, esta propuesta plantea una asociación curiosa o inédita al formular el problema de resolver un gran salón de reuniones y fiestas anexo a una vivienda unifamiliar, presuntamente de los dueños del espacio de alquiler y en todo caso con la necesidad de unir (en una solución técno-volumétrica integrada) y segregar un uso del otro tratando de que no hayan perjuicios para ninguna de las actividades allí planteadas.

Por imperio de lo dimensional, el partido se acoge a resolver ambas necesidades dentro de un único gran volumen casi de características de nave industrial, cuya escala se adapta al requisito de resolver un espacio para 450 personas y que instala en el mejor borde climático del bloque a la vivienda, tal como lo expone la memoria: La vivienda de 220m2 está ubicada en el sector más cálido, allí el volumen se desmaterializa y la estructura pasa a ser el espacio donde se contempla la naturaleza en todo su esplendor y tamiza el asoleamiento oeste en los días cálidos de verano. Esa desmaterialización del borde oeste del volumen permite ablandar el puro contenedor absoluto definiendo en esa excavación del bloque no sólo una serie de lugares abier-

tos de uso residencial –que aprovecha la posibilidad de utilizar exteriores protegidos de viento que se anudan al espacio adyacente de piscina– sino también otorgando cierta identidad a la vivienda al reducir o moderar su pertenencia a un gran volumen cerrado, como se aprecia en las imágenes 3 y 5.

A su vez, se utiliza como un espacio fuelle de más de 20 metros de ancho que une cosas comunes pero que más bien separa y aisla salón de casa, el área de servicios de la casa (que tiene además una vivienda de servicio)

y del salón, todo además distanciado por un pasante de carga-descarga que aumenta más la separación.

El frente sur del gran bloque se reserva para los accesos –pautados ambos con voladizos colgados de tensores a escala de cada entrada– y algunas aberturas y el paramento norte se protege con una línea de parasoles de cemento que otorga alguna protección y

permite definir espacios de desborde externo relativamente acotados.

El espacio del salón se modula de manera muy prudente en un sector de recepción pautado por la existencia de un árbol de moringa que asume otorgar su signo de identidad al complejo, articulado al salón, todo en un esquema de alta flexibiidad para admitir distintas configuraciones de usos.

Se trata en suma de una decisión programático-proyectual potente en su expresión casi industrial (véanse las imágenes 1 y 2), de una nave que navega en un gran espacio abierto cercano al mar, que también será la posibilidad de eventuales próximos tratamientos paisajísticos que aprovechen el gran espacio disponible.

Arquitectura zetética*

Búsqueda del proyecto situado y su enseñanza en Talca.

German Valenzuela**

* Se llama zetética –palabra no registrada en el Diccionario de la Lengua Española–a una posición filosófica que se basa en el escepticismo y el descreimiento para buscar la verdad. Del griego zetetikós (buscador, que busca o le gusta buscar), es otro nombre para designar el método del escepticismo que consiste en buscar siempre la verdad, sin descartar la imposibilidad de alcanzarla. Esto lo distingue del dogmatismo, que cree haber encontrado una verdad, pero también del sofisma, que renuncia a buscarla. ¿Por qué buscar, entonces, si no es posible encontrar? Esa es la pregunta que trata de resolver la zetética.

** German Valenzuela es Arquitecto y miembro del College of Architecture and Design, University of Tennessee, Knoxville, USA y de la Escuela de Arquitectura de Talca, Chile, de la que fue cofundador y director en varios periodos. Tambien es Doctorando en UdelaR Montevideo y este texto es parte de su tesis en curso.

La misión de una buena escuela de Arquitectura es cambiar el mundo. Pero uno empieza a cambiar el mundo por casa.

Rural Studio

El amplio consenso económico y político respecto a la idea de progreso en Occidente emergió desde principios del siglo pasado, particularmente en los países llamados a desarrollarse, como ágil motor de cambio estructural y paradigmático, incluso ontológico, a partir del ideal de futuro impulsado por el ideario moderno. Aquella racionalidad modernizadora ha tenido como fin último abarcar no tan solo la ciudad sino el territorio en su totalidad y urbanizarlo, impulsando una potente campaña de motorización y tecnificación de las diversas regiones del planeta, expansión a veces sin control que hoy se ha transformado en el principal promotor del cambio climático (véase por ejemplo cualquier informe independiente sobre uso de pesticidas y sus efectos); numerosas voces claman desde inicios de los años sesenta por una transformación radical que hoy parece urgente a partir de la irrefutable evidencia a pesar de lo cual cada año vemos empeorar la situación provocada por el crecimiento desmedido del extractivismo y el consumo.

A partir del cuestionamiento de la propia división clásica entre naturaleza y artificio que se encuentra en la base de nuestra relación con el mundo, se cuestiona también la posibilidad de una práctica arquitectónica sin antes confrontar los axiomas moderno y postmodernos que la rigen. A partir de la recuperación del escepticismo del zetético se plantea la posibilidad de volver a mirar el mundo ya no como una integridad global sino desde lo pequeño que supone una extensa heterogeneidad que compone lo local y que nos reorienta hacia lo material del mundo físico para descubrir en ello las posibilidades de acción del diseño capaz de actuar con los recursos localmente disponibles para producir una arquitectura situada.

Se ofrece a modo de ejemplo de arquitectura zetética de valoración matérico-cultural, una obra producida a partir de la utilización de una antigua maquinaria agrícola en desuso transformada en cantera a partir de su despiece y resignificación. La valoración y estudio del lugar y la utilización de materiales disponibles plantea nuevas posibilidades más allá de las convencionales miradas disciplinares.

Convengamos que todo este proceso tiene un eco histórico de larga data y que es fácilmente rastreable

en multitud de crisis desde los albores de la era industrial atribuibles a los excesos de esta mirada productivo-extractiva, tanto así que los propios conceptos de sostenibilidad, hoy en boga, se remontan a las primeras funciones de la Royal Society que en 1664 presentó un informe muy completo y crítico respecto al mal manejo de las masas arbóreas británicas llevadas prácticamente a la extinción planteando una serie de lecciones: (…) la desproporcionada difusión de la labranza y el arrasamiento destructivo y la conversión de bosques en pastos había causado la devastación de las grandes riquezas y de la gloria de esta nación, para convertirse en epidémica. (Evelyn 1662) El resultado de aquellas indagaciones claramente fue la de llevar este modelo altamente destructivo pero rentable fuera de las fronteras del reino. Conocemos sus efectos.

Avanzado el siglo pasado en todo Occidente se desarrolló un profundo cambio social en el que millones de personas pasaron del mundo rural a habitar ciudades, la mayoría de forma precaria; el antiguo mundo rural se transformó en los dominios de un nuevo modelo

productivo e inmobiliario. Particularmente desde los años ochenta en adelante en los países en desarrollo el espacio rural se transformó en un nuevo espacio de inversiones nacionales y extranjeras lo que contribuyó a reconfigurar el territorio a partir de la reconversión de la agricultura al modelo exportador1 provocando su rápida des-ruralización y la consiguiente migración campo-ciudad a partir de la consolidación del nuevo ethos desarrollista que, tanto en Latinoamérica como en el resto de Occidente, marcaron los cambios profundos en el territorio intra y extra muros urbano. La masiva producción de alimentos, bienes y servicios para una población en aumento ha tenido como correlato el exponencial aumento del consumo mundial de energía primaria: la producción de aluminio, carne y plásticos, papel, madera, acero y cemento están lejos de estabilizarse y no han

1 Ver: Valdés S, Ximena, & Rebolledo G, Loreto. (2015). Géneros, generaciones y lugares: cambios en el medio rural de Chile Central. Polis (Santiago), 14(42), 491-513. https://dx.doi.org/10.4067/S071865682015000300022

dejado de crecer casi duplicándose cada década. Vastas zonas del territorio son convertidas o incorporadas como suelo productivo masivo o urbanizadas en distintos grados y densidades. Si bien todo ello viene ocurriendo desde hace más de un siglo, el desarrollo agroindustrial, forestal, ganadero, minero y energético marcan el presente productivista extendiendo su paisaje allí donde hasta ahora la industrialización no había llegado o su presencia era más bien secundaria. Si bien estos procesos de cambio han sido el tenor desde el siglo XIX, nunca se había asistido a una alteración tan abrupta y abarcadora como la que viven los territorios en las últimas décadas, y vemos como se acelera cada día.

La profundidad de los cambios en el territorio conlleva también cambios en los sistemas de ocupación que hoy son foco de atención desde la antropología y el ambientalismo a la filosofía. En todos los casos se urge por un cambio paradigmático y se alerta sobre la velocidad en la pérdida de especies vegetales y animales, ecosistemas sometidos a la presión de la transformación que pone por primera vez en verdadero riesgo la continuidad de la especie humana, asunto que viene tratándose desde hace ya varias décadas en virtud de que la conciencia de la degradación del entorno emerge en la década de 1960 con la publicación del libro Primavera Silenciosa de Rachel Carson, y se expande luego de la Conferencia de las Naciones Unidas sobre el Medio Ambiente Humano, que tuvo lugar en Estocolmo en 1972. Es en ese momento, cuando se señalan los límites de la racionalidad económica y el desafío que represen-

ta la degradación ambiental para el proyecto de la moderna civilización. La escasez, fundamento de la teoría y práctica económica, se convirtió en un fenómeno global, el cual ya no se resuelve mediante el progreso técnico, la sustitución de recursos limitados por otros más abundantes o el aprovechamiento de espacios no saturados para la disposición de los desechos generados por el crecimiento desenfrenado de la producción (Rivera 2012)

En este sentido lo descrito por Williams en La nueva metrópolis muestra que el actual estado de cosas parecía obvio ya en el 73 y se adelanta a uno de los principales impedimentos actuales respecto de la posibilidad de cambios estructurales en la medida que los llamados países centrales no estén interesados:

En el sentido más general, por debajo de la descripción de las naciones imperialistas como 'metropolitanas', puede advertirse que la imagen del campo penetrado, transformado y sojuzgado por la ciudad, que aprende a devolver los golpes con antiguas tácticas y también con otras más nuevas, aún es válida (…). Las sociedades rurales destruidas incluyen no solo las economías de Latinoamérica, (…) el desarrollo independiente por el que hay que luchar amargamente, ofrece la única oportunidad de cualquier crecimiento dirigido en pos del interés de la mayoría. Y, si bien es cierto que si sumamos todos los éxitos y todos los fracasos del desarrollo, la crisis global es aterradora, hay que admitir que se trata de un proceso que no

puede interrumpirse… los cambios decisivos, si es que han de producirse efectivamente, tendrán que originarse en los países metropolitanos, cuyo poder deforma actualmente todo el proceso e impide la instauración de cualquier sistema genuino de interés y control común. No obstante, cuando observamos el poder y el ímpetu de las tendencias metropolitanas, con frecuencia aceleradas por sus propios crisis internas, no nos cabe duda de que un cambio de rumbo, suponiendo que fuera posible, tendrá que implicar necesariamente un cambio revolucionario. (Williams 1973)

Williams ya apuntaba en este y otros textos a la posibilidad de una resistencia o desarrollo independiente en favor de los bienes comunes. Con el advenimiento del Antropoceno podríamos agregar que el momento revolucionario ocurre desde fuera de los poderes políticos convencionales y ello explica en parte la dilución del poder de las instituciones tradicionales. En otras palabras, el cambio climático y la mutación ecológica parecen tener la capacidad de ser un nuevo Leviatán o dicho en términos latournianos, es Gaia la que impone un nuevo estado de cosas frente a la catástrofe.

Una nueva relación naturaleza-artefacto

Los intentos de dividir las cosas y reducirlas a abstracciones pasan por alto sus interdependencias. Con su economía basada en las ganancias que agota el entorno de vida, el modernismo ha acentuado la separación y explotación de

la naturaleza por parte de la humanidad. Si queremos reorientarnos, debemos activar estas interdependencias. Nuestra tarea es desarrollar formas alternativas de ósmosis que asimilen la naturaleza y las condiciones no fabricadas que mejoren nuestra existencia y calidad de vida (Younés 2019)

La extinción a la que asistimos, sean cuales sean las especies, extingue también modos de existencia2 humana que le han dado forma al territorio y que han demostrado ser el soporte de la vida que les ha permitido llegar hasta la actualidad. La destrucción de aquellas formas de vida, las más de las veces, ha sido simplemente por considerarse atrasadas, arcaicas, antiguas, por entorpe-

cer los planes modernizatorios, la mayor parte de ellos impuestos so pretexto de seguir los lineamientos generales del desarrollismo sin alternativa. En la era del Antropoceno, la de la artificialización desenfrenada —dice Cris Younés —, es necesaria la búsqueda de una relación apropiada con la naturaleza (con toda su ambigüedad), recordando la afirmación de Paul Ricoeur en el sentido de que todas las obras creadas por el hombre técnico son una fuente de fragilidad suplementaria y Younes agrega: Al hablar de fragilidad pensamos habitualmente en la que resulta de nuestra debilidad, de nuestra vulnerabilidad, de nuestro sometimiento a la enfermedad y a la muerte. Quisiera prestar atención a la fragilidad que

2 Concepto desarrollado por Bruno Latour en el libro Investigación sobre los modos de existencia, 2013, Paidós, Buenos Aires.

los hombres añaden con su acción a nuestra finitud original. El caso es que allí donde la intervención del hombre crea poder, crea también nuevas formas de fragilidad y, por consiguiente, de responsabilidad.

El consenso respecto de nuestra responsabilidad compartida en la mutación ecológica a la que asistimos y que ha dado en llamarse Antropoceno, a partir de su surgimiento conceptual en 2016 determina una serie de factores ambientales que han significado entre otros efectos, la acidificación de los océanos, su aumento de temperatura, el cambio del régimen de corrientes y una serie de efectos que comprometen al conjunto del planeta de manera irreversible.

Por su parte la Hipótesis Gaia, acuñada por Lovelock para describir la atmósfera y la parte superficial del planeta Tierra, se comportan como un sistema donde la vida, su componente característico, se encarga de autorregular sus condiciones esenciales tales como la temperatura, composición química y salinidad en el caso de los océanos.

Gaia es el sistema de vida planetaria que comprende todo lo que influye en la biota y es influenciado por ella. El sistema Gaia comprende con los otros organismos la capacidad de procurar la homeostasis: la regulación del ambiente físico o químico dentro de los límites favorable de la vida. (Lovelock 1979)

Gaia es un organismo evolutivo teleológico no completamente compatible con la teoría de la selección natural. En esto coincide con los trabajos posteriores

desarrollados por Bruno Latour en libros como Cara a cara con el planeta. Gaia se comporta como un sistema autorregulado y evolutivo, un organismo vivo (que tiende al equilibrio), y que ha servido a Latour para expandir el término a la filosofía (de la ciencia, principalmente) y a través de ella transformar la idea de globalidad moderna: desde una idea del planeta como un todo entendido como globo y mirado desde un punto de vista extraterrenal imposible (la típica vista del planeta esférico y azul que para Latour imposibilita observar los fenómenos particulares que componen el total) hacia una idea de conjunto hecho de partes hiper específicas tanto en lo químico como en lo biológico o lo cultural.

Gaia, la antigua diosa griega de la naturaleza, sirve ahora como denominación de aquella poderosa conjunción de sistemas abiertos que componen la delicada capa superficial del planeta Tierra, que está compuesto, en definitiva, de infinidad de realidades complejas y diversas, componiendo (concepto clave para Latour) un conjunto sistémico e interdependiente.

Es en aquella idea de lo global como la conjunción de diversidades, a veces no compatibles, que surge la posibilidad de una comprensión diferente de lo local. Para el diseño y para la arquitectura en particular, disciplinas de la transformación del entorno habitable desde la observación creativa surge una posibilidad potente de participación en el debate de cómo participar de los cambios urgentes que se requieren.

El método zetético para una arquitectura situada

Cómo conducir el diseño en las actuales condiciones de cambio vertiginoso?. No tengo espacio aquí más que para esbozar un posible método y mostrar una aproximación a sus alcances. Se trata en primer lugar de recuperar la antigua idea griega de proceso a través del actuar zetético, recuperar el escepticismo activo. En segundo lugar, reestablecer una relación y generar una dialéctica con la materia, con aquello que existe físicamente, natural y artificial incluida su condición híbrida, y en tercer lugar conocer de las particularidades del espacio geo-cultural en el que se interviene con el fin de generar un diseño situado y pertinente, lo anterior en el entendido que la urbanización ya ha alcanzado la completitud del planeta y no existe más ningún tipo de distinción fácil entre ciudad y territorio.

Jason Ananda en su libro Metamodernism: The Future of Theory (Storm 2021) plantea el ser Zetético como una forma de escepticismo capaz de superar el escepticismo posmoderno surgido como reacción a las verdades axiomáticas modernas. Según lo expone el autor, la posmodernidad habría generado una exacerbación del componente escéptico del pensamiento en todas las áreas de las ciencias humanas a partir de una serie de interpretaciones de segundo orden respecto de los autores centrales del posmoderno. Si la búsqueda de verdades irrefutables (modernidad) es una búsqueda infructuosa y condenada al fracaso, el escepticismo posmoderno, en tanto doxa, es igualmente equivoco ya que no se podría decir que es un escepticismo propiamente

tal ya que no se pregunta respecto de la propia duda. Modernidad y posmodernidad son, de esta manera, igualmente doctrinas, a su modo, a las que es necesario buscar una alternativa liberadora.

En pocas palabras el método zetético se trata entonces de una forma de proceder por indagación, que renueva el empirismo profundizando el camino de la duda abierto por el posmodernismo, llevándolo a durar de la duda misma, es decir, desconfiando incluso de la propia forma axiomática a la que podría dar origen. Supone dudar de los métodos y las condiciones generales que nos han hecho llegar hasta la situación actual sin caer en nuevas formas axiomáticas que puedan presuponer una verdad.

Se trata de asumir que la habitación en la que nos encontramos y creíamos iluminada y bien amoblada se encuentra a obscuras, pero más allá de inmovilizarnos nos impulsa a conocerla nuevamente.

Una de las condiciones que tiene el pensamiento creativo es que opera no solo en los razonamientos deductivo e inductivo, sino que transcurre a traves de lo que se ha llamado razonamiento abductivo o inferencia a la mejor explicación, esto es, asumir que tanto la deducción axiomática a priori como la evidencia empírica a posteriori son susceptibles de duda. La inferencia va más allá que la búsqueda y hallazgo de patrones. La inferencia creativa junto al actuar zetético nos permiten volver a mirar sobre lo que aparentemente estaba ya sancionado y proponer hipótesis nuevas considerando lo otro como válido, incorporando la opinión y existencia de los demás. La nueva información disponible nos lleva por el camino necesario del escepticismo que nos permite

repensar las antiguas doxas respecto de la disciplina. Preguntarse por el territorio3 lejos de significar quedar-

1_ Cubos de materia del taller de Juan Roman para primer año en la escuela de Arquitectura de la Universidad deTalca, Chile) (Roman, Talca: Inédito 2013)

3 Construir un cubo de 25 centímetros de arista con materia de Talca o del lugar en que vivieran, parecía un encargo simple que ni lejanamente permitía imaginar los cubos de batro, de curagüilla, de cochayuyo, de orujo, en fin, de toda esa materia de la que efectivamente están hechos Talca y sus alrededores. Decir que las partes tienen mucho que decir a la hora de repetir eso de que “el todo es más que la suma de las partes” se hace necesario para dar cuenta de la idea de territorio que se empieza a configurar a la hora de ver juntos todos y cada uno de esos cubos de 25 centímetros de arista. El encargo, entonces honesto, permite ahora implementar una visión del territorio desde abajo hacia arriba, nada más sea para oponerse a esa mirada de arriba hacia abajo que parece ser el sino de la palabra territorio, siempre plasmada en grandes laminas con planos de escala kilométrica pintados de colores. (Roman, Talca: Inédito 2013)

se en las grandes escalas, asociadas por ejemplo a la planificación que sin duda son importantes y necesarias plantear en estos tiempos, ha de entenderse, como se ha dicho, como un conjunto ya urbanizado compuesto de una multitud de partes heterogéneas y no siempre compatibles entre si. Este punto de vista obliga a una mirada desde abajo hacia arriba conciliable con la necesidad de re-ensamblar nuestra comprensión respecto de las particularidades. Instalar la pregunta respecto de qué es lo que conforma el espacio que se habita considera la necesidad de abrirse a una dialectica con aquello que se encuentra fuera de la disciplina pero cuestiona tambien los objetos tecnicos y culturales de la misma. En este sentido los cubos de materia (imagen 1) son hipotesis de trabajo que cobran particular sentido en en la observación del conjunto, en la simultaneidad de todos los cubos producidos por los estudiantes de primer año ante la misma pregunta, que en las individualidades de cada uno de ellos por separado. Estos cubos no representan la segunda vida de los materiales sino que constituyen hipotesis de trabajo donde la materia resulta protagónica.

En el caso que presento aquí, solo como referencia de esta forma de producción, Sergio Molina en su trabajo final de carrera ha estudiado un territorio particular, la cima de un cerro contiguo al poblado de Colbun que toma el nombre de esta formación geografica cuyo nombre significa cabeza de culebra: el estudio de este espacio territorial visitado desde la prehistoria por transumantes, arrieros y ahora por vecinos y turistas ha sido testigo del abrupto cambio económico del entorno que

2_ Cima del cerro Colbún, tipos de flora nativa existente en el lugar a intervenir. La mancha verde indica lo que aún se mantiene con especies nativas. Las líneas blancas representan los trazados de alta tensión eléctrica.

3_ Maquinaria agrícola en desuso, desmontada para ocupar algunas de sus partes como piezas en la nueva obra.

4_ Piezas recuperadas y trabajadas par su nuevo uso y función.

5_ Aplicaciones de las partes extraídas de la maquina transformadas en partes del recorrido que habilita las rocas y las transforma en promenade.

desde la inundación producida por el embalse del río Maule ha provocado. Se trata de lo poco que queda de flora nativa (2) en medio de un entorno transformado a plantaciones forestales destinadas a la celulosa. Torres de telefonía y de alta tensión cruzan por el lugar. Molina en su recorrido de investigación ha conseguido entender el lugar y su historia, los conflictos ambientales y la oportunidad de intervenir aqui para generar un espacio cultural capaz de contar esta historia apoyandose en el recorrdo por las rocas que coronan el cerro y la potente

Bibliografía

señal telefonica que permite conectarse al relato digital. En el recorrido de busqueda el autor consiguió, a modo de donación, una antigua maquina que sirve, para los efectos de su emprendimiento, como cantera de materiales. A partir del desarme de la maquina y la comprensión del entorno que ha de intervenirse surge la posibilidad de la arquitectura y del diseño de detalle orientado a posibilitar el recorrido del cuerpo y la comprensión de lo que en este lugar ocurre.

Aínsa, Fernando. 2005. Propuesta para una geopoética latinoamericana Archipiélago 13 (50): 4-10.

Chaparro, Alejandro. 2018. Tiempos (pre/post) Modernos. En Modernidad, Colonialismo y Emancipación en América Latina. Buenos Aires: CLACSO.

Cortés, José Miguel. 2000. Contra la Arquitectura. La urgencia por (re)pensar la ciudad. Valencia: Espai d`Art Contemporani de Castelló.

Dovey, Kim. 1999. Framing places. Meding power in built form. New York: Routledge.

Evelyn, John. 1662. Sylva or A Discourse of Forest-Trees and the Propagation of Timber in His Majesty’s Dominions. Royal Society Fundation.

Hui, Yuk. 2020. Fragmentar el futuro. Ensayos sobre tecnodiversidad. Buenos Aires: Caja Negra.

Lovelock, James. 1979. Gaïa. Une médicine pour la planète. Geophysiologie, nouvelle science de la Terre. Barcelona: Oxford University Press.

Rivera, Carlos Mallén. 2012. Rachel Carson, 50 años de romper el silencio.

Revista mexicana de Ciencias Forestales [online] 02-10.

Roman, Juan. 2009. Desigualdades. Summa +103: 112-116.

Roman, Juan. 2013. Talca: Inédito. Santiago: Pequeño Dios.

Storm, Jason Ananda Josephson. 2021. Metamodernism: The Future of Theory. Chicago : Chicago University Press.

Web sites: http://www.maulenauta.cl

Williams, Raymond. 1973. El campo y la ciudad. New York: Oxford University Press.

Younés, Chris. 2019. Arquitectura y naturaleza ¿una nueva sinergia? Paría: Locus

PROYECTANDO COPELEC

Evocación del proceso de proyecto del edificio de la

Cooperativa Eléctrica de Chillán, Chile, 1962

Jesús Bermejo Goday*

A finales de la década de los 50 en el pasado siglo trabajaba junto a los arquitectos Juan Borchers Fernández e Isidro Suarez Fanjul en Santiago de Chile. El estudio donde además vivía, estaba situado al pie del Cerro San Cristóbal, casa por medio de la vivienda de Pablo Neruda, La Chascona. Hoy aquél estudio forma parte del museo Neruda junto a esa ya famosa casa.

Un día, ya en 1960 ó 61, estaba casualmente trabajando en un proyecto de reforma de alguna casa, que hacíamos con Isidro, en su residencia en la Avenida Providencia, cuando apareció el gerente de la Cooperativa de Energía

Eléctrica de Chillán, para encargarle el proyecto de su sede en esa ciudad al sur de Santiago. Yo que estaba solo en ese momento tuve que recibirlo y esperar otra ocasión para la formalización del encargo. Sospecho ahora que el motivo de habernos elegido, probablemente se debió a una cierta influencia del hermano de Isidro, José, por entonces Ministro de Agricultura en el segundo gobierno del presidente Ibáñez del Campo.

La Copelec, nombre de esa cooperativa, se dedicaba a proporcionar electricidad a los agricultores de la provincia

de Ñuble. Para ello contaba con una fábrica de postes de hormigón armado, ejecución de transformadores y tendido de cables.

En ese momento Juan Borchers, nuestro maestro, se encontraba ausente en Europa. Esto hizo que su colaboración en el proyecto que comenzamos a realizar, tuviera un carácter epistolar. Esta era una característica de la actividad de Borchers, presente no solo en en este caso, sino también en la exposición de su pensamiento teórico a través de cartas extensas y continuadas como lo ha demostrado el arquitecto Ignacio Hornillos en su tesis doctoral presentada en la Escuela Técnica Superior de Arquitectura de Madrid con el título El sistema epistolar de Juan Borchers. Un taller de arquitectura.

El terreno tenía un solo contacto con la vía pública en la acera norte de la calle Maipón en la ciudad de Chillán, entre medianeras con un ancho de unos 21 metros. Hacia el interior de la manzana se desarrollaba, ocupando varios fondos de solares, con una superficie total de unos 4000 metros cuadrados. Se preveía disponer sobre la calle el edificio de oficinas, el acceso al conjunto y en una planta elevada lo que debería ser residencia del gerente.

Las primeras propuestas elaboradas incluían la totalidad del terreno: edificio de oficinas y la vivienda solicitada sobre la calle; salón de actos y naves de carácter industrial hacia el interior. Fueron realizadas en forma de anteproyectos sucesivos por Isidro Suarez y por mí mismo, con un continuado contacto epistolar con Juan Borchers.

* Jesus Bermejo Goday es un arquitecto español nacido en Galicia en 1928 y formado en la célebre Escuela de Tucumán donde estudió con Rogers, Calcaprina (con quien tradujo a Zevi al español) y los jóvenes Vivanco, Sacriste y Cesar Pelli, luego discípulo y socio de Juan Borchers con quién proyectó, junto a Isidro Suárez, Copelec, la casa Meneses (que publicamos en MAR 2 y y que ahora en la página 106 se agrega un Epílogo) y otros trabajos.

El edificio de oficinas y residencia, el único que se continuó hasta llegar a su realización, desde un principio tuvo una disposición básica que se conservó a través de los distintos avatares del proyecto: un acceso controlado al interior en la medianera este, un local de oficinas en planta baja y entreplanta con escalera propia (convertida en rampa en el proyecto definitivo), y vivienda con escalera independiente y posibilidad de acceso directo. Vivienda que no llegó a realizarse como tal.

Un problema que estuvo siempre presente fue la necesidad de una estructura resistente al sismo. Veinte años antes la ciudad habían sido destruida por un terremoto. En una primera aproximación la presencia de las medianeras

Este y Oeste, parecían ser suficientes para soportar el sismo en el sentido Norte-Sur. Para un sismo que se presentara en dirección Este-Oeste cualquier solución terminaría por entorpecer la transparencia pretendida para la planta baja del edificio. Refuerzos de elementos perpendiculares a las medianeras parecían insuficientes y especialmente molestos en el caso del acceso al interior del terreno.

Entretanto en el control epistolar con Juan Borchers fue apareciendo la figura del pilar de doble cono característico en el proyecto definitivo. Una de las razones que intervinieron en la presencia de ese pilar tuvo también un carácter antisísmico. Un ingeniero que colaboraba con nosotros, Atilano Lamana, español y más tarde decano en la Facultad de Ingeniería en la

Imagen 1

Evolución de las plantas de la Copelec. Alumno de Fernando Pérez Oyarzun en la Pontificia Universidad Católica de Chile.

Universidad de Chile, investigando en los efectos de varios sismos ocurridos por entonces, había llegado a la conclusión de que gran parte de los daños estructurales se producían en la unión de los pilares con las vigas de forjados o con los cadenas de cimentación, provocados muchas veces por la presencia de nidos o huecos en el concreto, resultado de las dificultades de hormigonado debido a la excesiva acumulación de hierros en esos puntos.

En respuesta a ese hecho la amplitud del cono, a modo de capitel, facilitaba el llenado del hormigón y la labor de los vibradores.

Con estas características fue presentado y admitido en principio por la Copelec un primer anteproyecto que habíamos elaborado con la dirección y participación permanente de Isidro Suarez.

Es entonces cuando se produce el regreso desde Europa de Borchers, quien se hace cargo del desarrollo del proyecto. Sobre un tablero dibuja y plantea soluciones. A su lado muchas veces observaba su trabajo, e iba pasando en limpio sus resultados.

La primera determinación fue la del uso de un único material: el hormigón armado. Asi el proyecto fue adquiriendo forma y medida.

La escalera se convierte en rampa, gracias a aumentar la profundidad del edificio (de 10,50 metros pasa a 12,60) y a sacar fuera su descanso. Se establece un recorrido desde el acceso, que continúa ida y vuelta por la

rampa, hasta llegar a una especie de puente sobre lo que podría ser área de atención al público y de allí hasta llegar a la oficina del gerente, rematada en un muro curvo que excede el volumen a construir. Se me ocurre ahora como un anticipo de los trayectos de Rem Koolhaas en la Casa da Musica de Oporto o en la embajada holandesa de Berlín. Un recorrido que de alguna manera significa el espacio orientado que Juan de Herrera vislumbró al suprimir el atrás en el que podríamos llamar, espacio percibido.

Quizá si Borchers, gran seguidor y conocedor de Herrera, hubiera descubierto esa su supuesta errata, habría suprimido la alusión a ese “atrás” en este diseño de su Institución Arquitectónica 1 .

1 Jesús Bermejo Goday, La “errata” de Juan de Herrera!. En la web de María Luisa López Sardá Acordes Arquitectónicos

Imagen 2

El “Orden Artificial” en Juan Borchers. Institución

Arquitectónica, Santiago Chile. 1968, pág. 75.

Todo esto ocurría en un momento en que estaba todavía muy presente en nuestro recuerdo el desastre de la presa de Malpasset con la destrucción del pueblo de Fréjus (diciembre de 1959), la presa de doble curvatura y radio variable. André Coyne había utilizado allí y en otras presas anteriores la curvatura (equivalente a la de de un arco o de una bóveda de cañón) para responder a un esfuerzo horizontal, en este caso el empuje del agua. Aquí Borchers utilizó la misma forma dos veces (el gran muro curvo, y la escalera) para resistir la fuerza Este-Oeste del sismo. Con ello favorecía la transparencia Norte-Sur de la planta baja del edificio, y hacía que las medianeras simplemente absorbieran el esfuerzo Norte- Sur, sin necesidad de otros elementos.

Principios teórico-prácticos utilizados

En cuanto al conocimiento o práctica de las relaciones métricas que influyen en el trazado o proyecto de la arquitectura, mis conocimientos entonces se reducían al haber adquirido en 1950 (año de su primera edición), el Modulor de Le Corbusier, mientras estudiaba en el entonces avanzado Instituto de Arquitectura y Urbanismo de la Universidad de Tucumán, dirigido por el arquitecto argentino Jorge Vivanco, adonde había llegado por recomendación de Juan Borchers, producto de mi primer encuentro con Juan y con Isidro en la ciudad de Madrid, en los años 1948 y 1949.

Ahora en esta mi participación en el proyecto de Chillán fui poco a poco conociendo y familiarizándome con la preocupación que embargaba a Juan Borchers respecto al número y a su relación con la obra de arquitectura2. Preocupación teórica que se encuentra explicitada en su obra Meta Arquitectura editada coincidiendo con su fallecimiento en 1975. Trataré de explicar, un tanto esquemáticamente, la forma como entonces pretendía

yo entender aquellos principios geométricos y aritméticos, que empezaba a conocer y a ejercitar3.

1 El número 7, tanto como factor de relación de una parte con un todo como dimensión concreta de 7 cm y sus múltiplos. Así todas las dimensiones y acotaciones usadas en la obra, incluso radios de segmentos circulares eran múltiplos de 7 cm.

2 La que llamábamos escala de 7, aparecía como una adaptación de la vara de Castilla, usada también en América, de 84 cm. De ahí surgían unas primeras evidencias: como el triángulo 3-4-5 que multiplicado por 7 daba en centímetros 21-28-35, o bien, palmo-pie de Castilla- pie Palladiano. El pie de Castilla como el doble del jeme de 14 cm.

3 La serie apta, o serie cúbica, con más riqueza de términos que el Modulor (donde cada término es igual a la suma de los dos anteriores, mientras que en la utilizada por Borchers cada término era el resultado de la suma de los dos que precedían al anterior),obteniéndose un mayor número de términos individualizados y diferenciados entre sí.

4 Las 16 primeras dimensiones que corresponden a los múltiplos de 7: 7, 14, 21, ….. 105, 112, son perfectamente identificables y diferenciables entre sí.

2 Estas temáricas tienen relación con la obra del cura holandés Dom Van der Laan, que es explicada sucintamente en un artículo de carácter docente y humorístico: El Evangelio de Van der Laan según San Maradona, en la web Acordes Arquitectónicos

3 Todos esos planteamientos y principios teóricos, a los que se hace alusión aquí, proceden de la obra de Juan Borchers,“Meta-Arquitectura, Mathesis, Santiago de Chile, 1975.

Imagen 3A-B

El sistema de los 16 bastones. Fig. 4. Descanso de la rampa. En Juan Borchers, carta de febrero 1963. En Lo Plástico. Plástica. Cosa General. Santiago Chile, 2014. Págs. 88. Rampa bastones. Dibujo de Juan Borchers

Más adelante entre 112 y 119 puede haber ópticamente alguna confusión. Estos 16 tamaños encerrados en 112 constituyen algo que Borchers llamó Campo mágico en su obra Meta Arquitectura . En el descanso de la rampa en la fachada norte de la Copelec, se trató de hacer visibles todos estos 16 tamaños mediante el dimensionamiento vertical de los elementos que la conforman. Con la libertad de poder sustituir alguna de esas dimensiones por otra que procediera de su adición a la unidad plástica 112. Así por ejemplo 7 podría ser sustituido por 119 = 7+112.

5 La referencia al número 5040 (= 1x2x3x4x5x6x7 = 7x8x9x10) citado en la República de Platón, como aquel número que

Imagen 4

Descanso de la rampa.

Dibujo de Juan Bochers. Fondo Juan Borchers.

Escuela de Arquitectura y Diseño. Pontificia Universidad Católica. Santiago de Chile.

contiene el máximo de divisores posibles. De ahí el trazado de replanteo hecho en obra, en base a un cuadriculado de alambre de 252 cm de lado. 252 es divisible por 2,3,4,6,7 y 9 dando como resultado números enteros y casi todos múltiplos de 7, lo que facilitaba la definición y situación de numerosos elementos a construir.

6 El concepto de proyecto elemental que permite a cualquier elemento de un proyecto convertirse en un nuevo proyecto propio y diferenciado, en su caso, de otros aparentemente iguales o semejantes4.

Realización del proyecto

El proyecto fue tomando forma, ya me he referido a la aparición de la rampa, al planteamiento antisísmico, al recorrido que desemboca en la oficina del gerente, al descanso de la rampa y a los siete pilares de doble cono, cada uno de ellos a su vez tratado como proyecto elemental.

1. El pilar de doble cono se suponía inicialmente de 5.60 m de altura, formado por dos conos de igual dimensión, 2.80. Por razones, también ópticas, el cono más alto se peraltó a 2.94, quedando la altura final en 5.74.

4 Veáse la carta publicada en Juan Borchers Lo Plástico, Plástica, Cosa General, Editor Rodrigo de la Cruz, Universidad Central, Santiago de Chile, 2014

2. El llamado muro del gerente se prolongó al exterior haciendo contrapunto con el descanso de la rampa en la formalización del frente norte del edificio. Ese conjunto fue tratado como un proyecto elemental donde sus elementos, como el gran lucernario que lo corona, eran tratados a su vez como nuevos proyectos elementales.

3. El pilar retorcido que sostiene la entreplanta, de manera de seguir el sentido de la viga-barandilla que sostiene y girado para facilitar el paso en la planta baja.

4. Los lucernarios-cañón de manera de reducir el efecto contraluz de los elementos que cierran la fachada norte. Así como los lucernarios en la planta alta tratan de iluminar el interior del frente opaco de la fachada Sur.

5. Las mismas marquesinas proyectadas hacia el exterior se estiran tratando de recoger algún sol en el mediodía de los veranos, en el más sombrío frente Sur, así como la ventana proyectada hacia fuera y abierta hacia el sol naciente en la planta alta.

Imagen 5

El pilar retorcido En Juan Borchers, carta de febrero 1963. En Lo Plástico. Plástica. Cosa General. Santiago Chile, 2014. Pág. 99

El cálculo de la estructura, en realidad –podríamos decir de todo el edificio– fue realizado por el ingeniero Voloski, recomendado por un amigo el reconocido ingeniero Rodrigo Flores. A él se debe la introducción del gran pilar de sección rectangular que aparece en planta baja en el frente Sur junto al acceso de vehículos. También una recomendación para muchos elementos que todavía no aparecían en los planos originales: para todos ellos, siempre que no excedieran cierta magnitud, la armadura prevista sería una doble malla de barras de acero en diámetro de 10 mm en un cuadriculado de 15 cm.

La ejecución de la obra

La dirección de obra me tocó en gran parte a mi, para lo cual alquilaba una habitación en una vivienda en Chillán, que a veces ocupaba Isidro. Borchers visitó la obra muy pocas veces y siempre sin quedarse a alojar. Por lo general era en una escala viajando hacia Vilcún , donde se encontraba el fundo de nuestro amigo Alfredo Riesco. Yo solía viajar desde Santiago

en autobús, los martes a primera hora para volver las noches de los viernes. Un libro alemán sobre encofrados, en madera y para hormigón visto, cuyo autor no recuerdo, fue mi preparación teórica para la tarea.

El replanteo fue realizado mediante una malla de alambres a 252 cm, que evitaba en lo posible la existencia de elementos a construir, de manera que pudo conservarse sobre el terreno durante bastante tiempo. Las dimensiones se tomaban a partir de esa malla que permitía trabajar siempre con números enteros y múltiplos de 7 cm en dimensiones pequeñas, utilizando metros rígidos sin necesidad de usar grandes cintas. Una anécdota a la que puedo referirme de pasada, fue el descubrimiento del encofrado de aire que permite una calidad extraordinaria al acabado del hormigón. Ocurrió al hormigonar una de las cadenas que ligaban entre

Imagen 6

Los obreros: en primer plano, sentados a la izquierda, los dos maestros carpinteros. En Juan Borchers, Opera Chiillana Digesta, Editorial Fisuras, Madrid. 2017

sí las distintas bases de cimentación. Se me ocurrió, para ahorrar encofrado, verter directamente el hormigón en la excavación. Una burbuja de aire entre el hormigón y la tierra fue la que produjo una extraordinaria calidad de acabado suave y homogéneo en el material en contacto con ella. Por el contrario, el exceso de material utilizado superó con creces al ahorro de encofrado.

El personal y el material, hormigonera y vibradores, con que se contaba para producir y colocar el hormigón era el mismo del que disponía la cooperativa en su fábrica de postes para la distribución de energía. Igualmente sucedía en la ejecución de las armaduras correspondientes.

Los carpinteros, parte esencial en la ejecución de encofrados especialmente complejos y realizados en madera, fueron todos ellos contratados. Con ellos me ocupaba la mayor parte del tiempo de trabajo . Quiero destacar en mi recuerdo los nombres de dos de ellos: los maestros Villanueva y Bustos. Para las formas curvas se hizo una plataforma de trazado donde se trazaban y ejecutaban numerosas cerchas con un número reducido de radios standard, que luego se utilizaban en múltiples encofrados. Estos radios que se guardaban cuidadosamente estaban formados por varillas y clavos que

definían su dimensión. Las cerchas construidas de antemano, eran combinadas y montadas en cada caso para proceder con cierta rapidez a los hormigonados respectivos. Esta rapidez era importante especialmente en el caso de lucernarios complejos, considerados superfluos por el mismo gerente de la cooperativa, lo que algunas veces llevó a ejecutarlos en alguna de sus cortas ausencias.

Para los muros medianeros, en planta alta, se utilizó un encofrado formado por paneles cuadrados con tablas en diagonal, de 63 cm de lado, en relación inmediata con la retícula de 252 cm usada en el replanteo (4x63 = 252). Forjados

Los dos grandes forjados, el primero de ellos correspondiente al suelo de la planta alta y el segundo al forjado de cubierta, se realizaron en dos largas jornadas prolongadas en gran parte de la noche. No contábamos con ninguna clase de grúa para la elevación del hormigón. En el caso de la primera losa o forjado, el hormigón debió subirse trabajosamente por una rampa en carretillas con un peón tirando y otro empujando. Era invierno y con bajas temperaturas. Los áridos se guardaban bajo techo, se calentó el agua de la mezcla, se hicieron braseros colocados sobre

trípodes. Los pequeños cubos de prueba, que se hacían en todas las hormigonadas, se colocaban en la posición más desfavorable, para ser después enviadas para su rotura al laboratorio de la Universidad de la cercana ciudad de Concepción. Recuerdo que siempre se obtuvieron resultados aceptables, destacando que el récord de mayor resistencia lo obtuvo el hormigón utilizado en los pilares cilíndricos de la segunda planta

En el segundo forjado, el de cubierta, se utilizó para el izado de la mezcla un sistema propuesto por el chófer de la empresa: un tractor que recorría un trayecto señalado por banderas y un sistema de poleas que subía los cubos de hormigón. Era verano, escaseaba el agua y gracias a los bomberos municipales se pudo proceder al regado del hormigón durante el tiempo de fraguado. Sobre este último forjado se elevaron una serie de elementos: las ventilaciones de baños, el remate de la escalera interior y su acceso a la cubierta, algunas pequeñas entradas de luz circulares, un gran techo inclinado en medio de la planta así como tres lucernarios o lucarnas que debían iluminar el espacio interior correspondiente a la fachada Sur.

Errores

Cabe señalar dos errores que permanecieron construidos en la obra terminada: uno de ellos provocado por el deslizamiento del encofrado interior en

uno de los lucernarios tipo cañón durante la ejecución del hormigonado. El otro reconvenido por Juan Borchers en su carta de febrero de 1963 (4), se refiere al pilar doblecónico situado en el ángulo Suroeste de la planta.

Este pilar presenta ahora dos vigas que concurren en su parte superior: una de ellas corresponde a su relación con los otros dos pilares del frente Sur; la otra viga, especialmente corta, lo une con el gran muro curvo cercano.

Ambas vigas aparecen hoy unidas al forjado que sustentan.

En realidad la viga corta es totalmente inútil respecto al forjado. Debería haber estado situada más abajo con el objeto de crear junto con el muro curvo un único baluarte antisísmico como se muestra en el dibujo de la carta citada que se adjunta.

Además de la obra de hormigón que a su vez contaba en su interior con tuberías de canalización para instalaciones eléctricas así como perforaciones para conductos sanitarios, se realizaron una vez terminada tabiques (con más libertad de trazado) en ladrillo para aseos, así como instalaciones sani-

Imagen 7

El pilar del error. En Juan Borchers. Carta febrero 1963. Ob. cit. Pág. 65.

tarias y eléctricas, cerramientos de aluminio y cristal, cubiertas en acrílico de colores en los lucernarios curvos, acabados de pavimento y demás.

La obra se dio por terminada un poco abruptamente sin completar el estanque de la fachada norte que debía permitir la visión de esta fachada con un alejamiento de unos 10 metros, donde según Borchers el cono visual de quien lo contemple la abarcaría en su totalidad. También quedó sin realizar la pasarela que debía comunicar la oficina del gerente con el resto de locales destinados entonces a la fabricación de postes y montaje de transformadores. Esta pasarela debería terminar en un pequeño edificio pantalla que cierre el espacio, aislando el conjunto y que podría contener equipamientos necesarios en caso de un nuevo uso. Esperamos que esto pueda llegar a realizarse, aun cuando el edificio cumpla cualquier otro destino.

Fotos P. Birke
Fotos P. Birke
Fotos P. Birke
Foto A. Mora
Foto A. Mora
Despiece

EPÍLOGO

En el número 2 de esta revista tuve la oportunidad de publicar el artículo Un cierto trazado, en el que me refería a una casa en cuyo proyecto y construcción había participado junto a los arquitectos chilenos Juan Borchers e Isidro Suárez. Era la llamada Casa Meneses, situada en Santiago de Chile. Casi por esas mismas fechas pude visitar de nuevo esa casa, invitado por su actual dueño.El resultado de esa visita, en el que tuve constancia tanto de la conservación de buena parte del edificio así como de algunas modificaciones y ampliaciones ejecutadas posteriormente, fue algo que me llamó muy especialmente la atención. Era la forma como el nuevo propietario había logrado vestirlo (vestirlo, sí. en el sentido literal de recubrirlo con tela). Todo lo cual me produjo una gran impresión que me encantaría quedara reflejada en Mar, a modo de epílogo al mencionado artículo.

Seis décadas después de construida la vivienda objeto de aquel artículo y a unos pocos años de la primera publicación digital del mismo, tuve la oportunidad de viajar una vez más

a Chile. Antes de hacerlo y para recordar su ubicación, busqué en Google maps, la imagen de su visión aérea. Allí me encontré, con algo que me hacía pensar que aquel proceso de descomposición o destrucciónde la forma geométrica original había continuado desarrollándose de una forma un tanto inexplicable.

Días después, ya en Santiago, a finales de enero del 2023, me encontré con unos amigos, frente a un cerramiento metálico que ocupaba la totalidad del frente de la parcela. A poco, alguien que salió del interior, se acercó a nosotros. Nos presentamos mutuamente, él en calidad de último propietario de la casa (debía ser aproximadamente el cuarto propietario que siguió al dentista original) y tras una corta conversación nos invitó a que visitáramos su casa un par de días más tarde.

Así lo hicimos y mientras la recorríamos el propietario se declaró encantado por la casa y entusiasmado por las acciones que había emprendido para adaptarla a sus necesidades. Finalmente me obsequió copias de planos, tanto de la obra inicial como de algunas modificaciones posteriores.

Las reformas principales eran algunas, no excesivas, ampliaciones de superficie. Los muros de ladrillo visto se conservaban en

parte. Los bajorrelieves ejecutados

sobre el hormigón sin revocar (el caballo de Borchers reproducido en el artículo citado, así como otro diseño realizado por Isidro Suárez en el forjado del lucernario) estaban cuidadosamente conservados y puestos en valor.

Los baños curvos aparecían espléndidamente tratados. La terraza contaba con escalera de acceso, que en principio no se había hecho ante el temor que experimentaba el primer propietario por una posible caída de sus hijos pequeños.

Algo me llamó muy especialmente la atención y era la utilización de las áreas exteriores determinadas por los muros del trazado que excedían el perímetro de la construcción. En ellas se habían definido espacios, dotados de mobiliario, una pequeña piscina, toldos y vegetación, alcanzando en cada caso un carácter propio.

La vivienda entera, sus exteriores, así como la cubierta aterrazada aparecían como vestidos con telas y toldos además de divisiones de madera, ligeras y trasparentes, arropando tanto la construcción como todos sus exteriores. Podríamos decir que aquí aparecía el tejido vistiendo la arquitectura.

Aquel mismo tejido que para Gottfried Semper (Der Stil in den technischen und tektonische Künsten, München 1863) había sido el origen de la arquitectura misma. No me quedó otra que felicitar al nuevo propietario por su actuación.

Madrid, 5 de abril de 2023

Vista aérea actual de la que fue Casa Meneses

CONSTRUIR HABITAT PARA CONSTRUIR COMUNIDAD

Casa Cooperativa La Borda, Barcelona

Lacol

Memoria

Introducción

En muchas sociedades, especialmente las occidentales, la vivienda se considera de forma individual, como ocupación única o parte de un núcleo reducido de convivencia que incluye a familiares de primer grado. Estos núcleos son cada vez más pequeños, y también aumenta el número de personas que viven solas, reforzando un grado de aislamiento que empuja a nuestras ciudades hacia el individualismo y la soledad.

Además, el objetivo en muchas de estas mismas sociedades es adquirir la vivienda en propiedad, lo que está vinculado al estatus social, la estabilidad y la inversión económica, e incluso puede representar un activo financiero, como explica Raquel Rolnik –relatora especial

de la UN (2008-2014) sobre el derecho a una vivienda adecuada– en su libro Urban Warfare: Housing Under the Empire of Finance. Como resultado, la vivienda es cada vez más inasequible en las ciudades de España y muchos otros países del mundo, con precios en máximos históricos, lo que requiere fondos mucho más allá de lo recomendado o incluso posible.

Nada de esto surge del deseo natural del ser humano, sino que es fruto de décadas de políticas públicas, además de esfuerzos comerciales de bancos y empresas, que nos han hecho creer que ésta es la mejor solución. Uno de los resultados de la hegemonía de la propiedad individual que hemos observado es cómo cientos de miles de familias se han sobreendeudado y finalmente han perdido sus casas, cayendo muchas de ellas en manos de fondos de inversión buitre que, en sólo unos pocos

años, aprovecharon los estragos causados por la crisis crediticia para crear algunos de los actores más importantes de la actualidad en el mercado inmobiliario.

Al mismo tiempo, sin embargo, estamos siendo testigos de un resurgimiento de movimientos cooperativos de vivienda en muchos países, similar a los observados en la ola inicial del movimiento a principios del siglo XX y su expansión allá por los años setenta. Este movimiento va en contra de lo que describimos anteriormente, buscando crear una respuesta colectiva y no especulativa a la necesidad de vivienda. Se define por la autogestión de los desarrollos habitacionales, la propiedad colectiva de las viviendas y la acumulación y transferencia de recursos económicos y conocimientos a otros proyectos. Estos rasgos contribuyen a esfuerzos verdaderamente emancipadores, que son un espejo para quienes los rodean. En medio de esta ola de nuevos proyectos, La Borda comenzó en 2012 como parte de la toma comunitaria de una antigua fábrica de Can Batlló en que un grupo de vecinos decidió unirse para resolver colectivamente la necesidad de acceso a la vivienda mediante la creación

de una cooperativa de viviendas en cesión de uso. La cooperativa de arquitectos Lacol ha estado implicada desde el inicio de la promoción, aprovechándola como una oportunidad para repensar desde cero la urbanización accesible, con la participación de los futuros residentes. En el ámbito del diseño arquitectónico, los proyectos de vivienda cooperativa pueden definirse como un marco para la experimentación en la construcción de viviendas colectivas. La apuesta de La Borda por un modelo de autodesarrollo comunitario ha permitido superar algunas de las limitaciones existentes en los desarrollos convencionales, ya sean públicos o privados. En el primero de ellos, el miedo al futuro residente –completamente desconocido– imposibilita introducir cambios en un modelo habitacional prefabricado. En el segundo, una imposición de los dictados del mercado da como resultado la mediocratización de la vivienda para facilitar su adopción como artículo de consumo. El proceso de desarrollo innovador ha sido clave para permitir que el trabajo arquitectónico vaya más allá de cuestiones de diseño meramente formales. Ahora des-

tacaremos diferentes características del proyecto que creemos que lo ayudarán a destacarse en el contexto más amplio de la vivienda colectiva: autodesarrollo, concesión de uso, vida comunitaria, sostenibilidad, asequibilidad y flexibilidad y adaptabilidad.

Autodesarrollo

Los cooperativistas y futuros residentes han estado involucrados en la dirección, control y realización de todo el proceso de desarrollo, a través de una estructura interna que fomenta su participación directa, con comités de trabajo y una asamblea general mensual. La cooperativa cuenta con el apoyo de equipos técnicos especializados cuando las tareas no pueden ser realizadas por sus miembros. La implicación de los futuros residentes es una de las mayores singularidades y fortalezas en la realización del proyecto arquitectónico, ya que es la gran incógnita en todo proyecto de vivienda colectiva. Aquí se convierte en el punto de partida del proyecto. El conocimiento

profundo de cada futuro residente y de sus necesidades reales ha puesto en tela de juicio los modelos de usuario estándar preestablecidos y la normativa de vivienda, permitiendo adaptar cualquier toma de decisiones a las necesidades específicas de la cooperativa.

Se ha incorporado la participación activa de los vecinos en todas y cada una de las fases: diseño, construcción y gestión del edificio. El futuro residente participa en el diseño colaborativo de todo el edificio a través de talleres temáticos que aprovechan la inteligencia colectiva del grupo humano y convierten al residente en un participante activo en la toma de decisiones del proyecto. Estos procesos aumentan la conciencia y la experiencia, y estimulan un sentido de comunidad y pertenencia.

Concesión de uso y propiedad colectiva

La cooperativa es propietaria del edificio, construido sobre un terreno de titularidad pública destinado a vivienda social, y cede derecho de uso residencial a sus socios, agrupados en unidades de convivencia. A través de este

modelo de propiedad, alternativa a la propiedad privada, se valora únicamente el uso de la vivienda y no su valor de cambio en el mercado, para evitar la especulación.

Con el fin de poner el valor de uso y la comunidad en el centro del escenario, el edificio se concibió como una estructura abierta, cuyo uso es lo que finalmente moldea la arquitectura a largo plazo, adaptándola a la evolución de la comunidad y las necesidades cambiantes. de residentes. La gestión del edificio la asume la propia comunidad.

La infraestructura común (soporte) puede entenderse como una grilla estándar de unidades de vivienda (16m²), que permite un tipo de vivienda no jerárquica y que cada residente puede adaptar libremente. En previsión de futuros cambios, la estructura está preparada para que los espacios auxiliares entre cada unidad de vivienda puedan ser cedidos de uno a otro mediante una simple operación que implica cambios de particiones y accesorios. El marco legal también prevé esta transferencia, que puede realizarse fácilmente dado que la cooperativa es la propietaria final.

Flexibilidad y adaptabilidad

Las cooperativas tienen como objetivo dar una solución estable a la necesidad de vivienda. Pero si la vida y las condiciones de vida están cambiando, ¿cómo pueden adaptarse los edificios cooperativos? Al situar el valor de uso y la propiedad colectiva en el centro del escenario, las cooperativas de vivienda invitan a concebir el edificio como una infraestructura abierta, cuyo uso moldea la arquitectura a largo plazo, adaptándola a la evolución de la comunidad y a los cambios de las necesidades de los residentes.

En una propiedad de alquiler, las posibilidades del inquilino para realizar cambios son limitadas y en muchos casos dependen de la voluntad del propietario. Por otro lado, para los propietarios las únicas limitaciones son el presupuesto y el marco regulatorio. ¿Cuáles son las circunstancias en las que no eres dueño de la casa, pero puedes vivir en ella toda tu vida? En La Borda, se espera un alto grado de modificación liderada por los residentes, gracias a la estabilidad disponible. Se han

adoptado diferentes estrategias para ayudar a hacer de esta vivienda un hogar.

La solución más eficaz pasa por potenciar el sentido de propiedad de los residentes, partiendo de la idea de que el acto de personalizar la vivienda es inevitable. Esto se ha implementado de forma no jerárquica, y cada espacio de la casa puede albergar diversas funciones no predeterminadas. Las casas se entregaban una vez que se cumplían los requisitos habitacionales básicos, tras lo cual cada unidad conviviente podía decidir cómo y cuándo añadir los toques finales que considerara necesarios. Por último, el mobiliario, los elementos decorativos y el uso del espacio aportan a la casa su significado y su forma. Un sentido de propiedad mayor que el que se encuentra habitualmente en cualquier bloque de pisos también se puede ver en los espacios comunes, surgiendo tanto de forma espontánea como por diseño. El proyecto buscó adaptar su punto de partida, en la mayor medida posible, a la comunidad específica de residentes y su idiosincrasia. Inicialmente hubo un alto grado de participación en el desarrollo del proyecto

SUSTAINABILITY galleries, patio covering and high heights for better bioclimatic results.

CONTINUITY OF SPACES FOR RELATIONSHIPS

patio, multipurpose space, walkways and roof terrace

COMMUNITY SPACES ON GROUND FLOOR TRANSITION PUBLIC-COMMON- PRIVATE itinerary from the street until arriving at the units, passing through the community spaces placed on the ground floor

DENSIFY THE SOUTH FAÇADE maximum number of units with optimum sun exposure

WINTER

- greenhouse closes to reduce losses (exceptionally opens to relase CO2) - air temperated for air renewal - galeries (double skin) + inertia

PARTY WALLS volume that acknowledges the neighboring buildings to close the yard

CENTRAL PATIOS (CORRALA) center of the house, the heart of the building, space of circulation, access, relation, coexistence.

HISTORICAL SCALE multi-purpose space recovering the level of preexisting houses.

SUMMER - greenhouse opens to dissipate heat + sun protection

- open gallery + sun protection - cross-ventilation - vegetation

PASSAGE

continuing Hartzenbusch street, allowing a direct connection between the neighborhood and the park. Main access to the building.

en su conjunto. Posteriormente, tras la asignación de viviendas a los residentes, surgieron adaptaciones puntuales durante la fase de desarrollo dentro de límites funcionales y reglamentarios.

Vida comunitaria

La Borda busca impulsar, a través del espacio común, modelos de vivienda comunitaria que potencien las interrelaciones de los residentes, y establecer vínculos de cooperación en los ámbitos del trabajo doméstico y de cuidados visibilizando los ámbitos privados de la vida cotidiana. Casi el 25% de la superficie construida de La Borda se destina a espacios comunes, a diferencia de los edificios plurifamiliares convencionales, donde normalmente se calcula una proporción del 10% y se limita a los espacios necesarios para proporcionar instalaciones compartidas y un recorrido desde la puerta de cada casa al frente.

Hay una cocina-comedor común de 80 m², que sirve para preparaciones de comidas a gran escala o puede usarse como punto de reunión, un espacio multiusos

cubierto de 100 m², dos habitaciones para invitados, un lavadero y un gran espacio de circulación central., aparcamiento de bicicletas y terrazas exteriores. Estos espacios comunitarios tienen un triple propósito.

En primer lugar, dotan al edificio de un lugar de encuentro en el que fortalecer las relaciones entre los residentes, y representan un tipo de espacio que existe entre el espacio público exterior y la intimidad del hogar. Los espacios de circulación juegan un papel central y, junto con los espacios comunitarios, actúan como la columna vertebral del proyecto, además de aumentar las oportunidades de los miembros de la cooperativa para reunirse y socializar. Además, estos espacios mejoran la eficiencia, asegurando que ciertos elementos de infraestructura no tengan que multiplicarse en las 28 viviendas, sino que puedan centralizarse, mejorando la sostenibilidad económica y ambiental. Por último, permiten un aumento significativo de la superficie útil para todos los socios, que tienen acceso a mucho más espacio que en una promoción convencional con la misma superficie total y coste.

Esta premisa abre la posibilidad de repensar la planificación de la vivienda colectiva para adaptarla al modelo de vida concebido por los futuros residentes. Rompe con el paradigma del edificio como suma de sus unidades individuales, valorándolo como una única casa compartida en la que se desdibuja el límite entre el espacio privado y el comunitario.

Sostenibilidad

La cooperativa priorizó el desarrollo de un edificio con el mínimo impacto ambiental tanto en su construcción como en su vida útil. Otro objetivo básico era eliminar el riesgo de pobreza energética entre los residentes, situación que algunos de ellos habían experimentado en lugares de residencia anteriores debido a los altos precios de la energía y la falta de recursos económicos.

El punto de partida estratégico del proyecto ha sido reducir la demanda energética mediante la optimización en la fase de planificación.

A nivel de diseño se han cumplido máximos estándares bioclimáticos para conseguir un edificio genuinamente pasivo, con soluciones que implican la participación activa de los residentes en la gestión climática de sus alojamientos. El resultado es un consumo neto de energía cercano a cero, por lo que el confort en el hogar tiene un coste asociado mínimo.

La primera intervención para reducir considerablemente el impacto medioambiental del edificio fue garantizar que no hubiera aparcamiento subterráneo. La consecuencia directa de esto en la construcción y uso del edificio a lo largo de 75 años permitirá reducciones de entre 500 y 800 toneladas sólo de CO2. Además, esta estrategia supone un claro impulso a la movilidad sostenible y a la reducción de la huella ambiental de los residentes. La estructura de seis plantas está hecha de madera contralaminada (CLT). Se trata de un material renovable, ligero y de gran calidad que permite cerrar ciclos, a diferencia de los materiales de construcción convencio-

nales como el acero o el hormigón, que tienen un coste energético de producción muy elevado y no son renovables. La Borda se convirtió en la estructura de madera laminada más alta de España cuando se completó. En términos de reducción de la demanda, por un lado, se ha limitado la superficie construida de viviendas con mayores requerimientos térmicos, destinándose parte de ellas a la dotación de espacios comunitarios donde la demanda de confort térmico es más discrecional. También se han implementado en la mayor medida posible estrategias bioclimáticas pasivas. Para ello, la cubierta del patio actúa como un invernadero que permite captar la radiación solar en invierno, y proporciona un efecto chimenea para favorecer la ventilación en verano. Complementan esto una impermeabilización de alta calidad, una elección de materiales para reducir los residuos inertes en la construcción y una especial atención al aislamiento térmico.

La Borda también cuenta con un sistema de calefacción central por agua caliente sanitaria y calefacción mediante caldera de biomasa, que permite optimizar la infraestructura productiva, mejorando la eficiencia y el rendimiento de la tecnología utilizada en todo el edificio. Es posible, por tanto, disfrutar de un consumo energético no dependiente de combustibles fósiles y totalmente renovable.

Accesibilidad

Uno de los principios indispensables de la cooperativa es garantizar el acceso a una vivienda digna y asequible, con el fin de servir como una alternativa asequible para las personas de bajos ingresos. Las dificultades para encontrar una financiación significativa a menudo hacen que el costo de la construcción se convierta en un factor determinante a la hora de establecer la cuota mensual que los residentes deben pagar.

Nuestra respuesta a esto consiste en un plan de construcción de dos fases diseñado para minimizar la inversión inicial. La primera fase se centra en completar el espacio habitable mínimo necesario para entrar al edificio. En el segundo, la comunidad añade los toques finales deseados con el tiempo. Se han incorporado soluciones de baja tecnología en el diseño del edificio, para poder acomodar el hágalo usted mismo en tareas específicas involucradas en la finalización de la obra.

Vivienda cooperativa ante la pandemia

La pandemia del COVID19 y el confinamiento que vino con ella cayó sobre una comunidad de La Borda aún joven, con un año de convivencia y ciertos espacios comunitarios aún por concretar. Aunque la respuesta no fue inmediata, se desarrollaron nuevos protocolos para tomar el control de la situación y se proporcionó tiempo para reunirse con aquellas personas que lo necesitaban.

Datos

El proyecto fue iniciado en 2014 y completado en 2018 para la Cooperativa de Vivienda La Borda. Sito en un terreno de 627 m2 en Constitution 85-89, Barcelona alcanzo una superficie construida de 3000 m2 .

Participaron Arkenova (Ingeniería), Miguel Nevado (Diseño estructural), AumedesDAP (Supervisión de obra y presupuesto), Societat Orgànica (Consultoría ambiental), PAuS - Coque Claret y Dani Calatayud (Consultoría de proyecto), Grisel·la Iglesias - Àurea Acústica (Acústica), José Juan Martínez Larriba (Gerente de proyecto), La Ciutat Invisible (Coordinación de la promoción) y Holon (Servicios de diseño).

El costo total del desarrollo fue de € 3,275,000 y el costo de construcción de € 2,460,000 (€ 840 / m²)

Datos energéticos: El porcentaje de superficie con un factor de luz natural > 2% es del 35% y el del factor>5% de un 23%. La energía autogenerada mediante el uso de paneles solares es del 30% del total del consumo eléctrico y del 100% de calefacción y agua caliente mediante el uso de calderas alimentadas por madera de pellets. El volumen de consumo de calefacción y agua caliente es de 39.81 kWh / m² / año y el volumen de gasto energético total de 56.08 kWh / m² /año. La emisión anual de CO2 es de 6.1 kgCO2 / m² y el consumo anual per capita de agua es de 25.25 m³. El valor termal Y es de 0.07 W / m²K y el valor U de 0.82 W / m²K

Nuevas necesidades y usos transformaron y desarrollaron los espacios existentes. Además, se activó por primera vez el mecanismo de solidaridad económica de emergencia para emergencias.

La cuestión de la vivienda ha adquirido una importancia central en las circunstancias actuales, poniendo de relieve las desigualdades y las condiciones precarias en las que vive parte de la población. Ante esto, el potencial de lo que representa La Borda ha cobrado más relevancia que nunca: facilitar la corresponsabilidad, el cuidado colectivo, el apoyo mutuo, combatir la soledad, ampliar los límites y posibilidades de la vivienda y garantizar condiciones de vida dignas y seguras.

LUGAR MATERIAL.

La fábrica de barro

Terra Cotta Studio.

Dien Phuong, Vietnam

Tropical Space

Memoria

Terra Cotta Studio está ubicado junto al río Thu Bon en el distrito de Dien Ban de la provincia de Quang Nam y tiene una estructura arquitectónica particular. Destacado por ser el espacio de trabajo del renombrado artista Le Duc Ha, el estudio es una hermosa estructura artística en la que participar. El río Thu Bon tiene una fuerte influencia en la vida de los residentes locales, ya que la mayoría de la gente depende de la agricultura junto con una variedad de actividades artesanales tradicionales como la terracota, la estera o la seda. Este proyecto es un edificio en forma de cubo de un volumen de 7m x 7m

x 7m. Alrededor del estudio hay una plataforma con estructura de bambú que se utiliza para secar productos de terracota. Además, está diseñado con dos grandes bancos para descansar, relajarse y tomar el té. Esta plataforma elevada también sirve como valla para separar el estudio de la zona del taller. La capa más exterior del estudio está hecha de ladrillo macizo de arcilla, lo que recuerda a la gente el uso de hornos tradicionales de Vietnam. El estudio también tiene las características de la cultura Champa, ya que el área era parte de Tra Kieu, capital del reino Champa, del siglo IV al VII.

En la planta baja hay una mesa giratoria donde trabaja el artista. El artista y sus obras pueden interactuar con la luz del sol, desde el amanecer hasta el crepúsculo. Aquí se puede encontrar la conversación del artista y sus obras y él mismo y su sombra en el silencio.

Los ladrillos se construyeron intercalados creando huecos que facilitan la ventilación del viento y la climatización. Esta capa no es una pared que impide percibir el ambiente exterior desde el interior del estudio, por lo que el artista puede sentir el viento, el frescor del río y el sonido de la naturaleza en el área circundante. Mientras tanto, también crea cierta privacidad para el artista. El interior del estudio es un sistema de estructura de madera de tres pisos que crea módulos de 60 centímetros cuadrados que integran estantes para exhibir obras de arte, una escalera que conduce al piso de arriba, pasillos y bancos para sentarse. La altura de esta estructura es de 7 metros. Andando los pasillos, la gente puede observar el taller, las orillas del río y todo el jardín a través de las ventanas.

El centro del estudio consta de dos plantas. En la planta baja hay una mesa giratoria donde trabaja el artista. El artista y sus obras pueden interactuar con la luz del sol, desde el amanecer hasta el crepúsculo. Aquí se puede encontrar la conversación del artista y sus obras y él mismo y su sombra en el silencio.

Al mismo tiempo, la gente puede ver y sentir el paso del tiempo en las obras de arte de terracota gracias al movimiento de la luz del sol.

En el entresuelo, la gente puede ver muchos espacios diferentes dentro y fuera del estudio, así como observar al

artista trabajando junto al vacío circular en el centro.

Las inundaciones también fueron una consideración al diseñar el edificio. Al alentar al artista a colocar obras terminadas y sin terminar en los estantes superiores, deberían permanecer a salvo si el río se desborda y desemboca en el edificio.

El equipo de diseño desea que el estudio sea un lugar que contenga, contemple y difunda las emociones del artista con sus obras de arte, tanto terminadas como inacabadas. El proyecto es un destino para que las personas amantes de la terracota compartan y tengan la experiencia con la arcilla.

Datos

Terra Cotta Studio se localza en Dien Phuong, Dien Ban en la provincia Quang Nam, Vietnam.

El proyecto estuvo a cargo de la firma Tropical Space Co.,Ltd, siendo los arquitectos participantes del desarrollo del proyecto Nguyen Hai Long, Tran Thi Ngu Ngon, Nguyen Anh Duc y Trinh Thanh Tu. Fué construido en 2016 por trabajadores locales y tiene una planta de 49 m2 y una superfice construida de 98 M2. Los materiales utilizados son ladrillos de barro cocido, madera, concreto y bambú. Las fotografias fueron realizadas por Oki Hiroyuki y la memoria la escribió Le Thi Hanh Nguyen.

LA VILLA, LAS FLORES.

Una hipótesis local sobre la conformación

mítica del hábitat

Matías Beccar Varela

El elemento diferencial no es crítica del valor de los valores sin ser también el elemento positivo de una creación.

Gilles Deleuze

Acá nosotros somos unos reyes.

Ricardo, vecino de la villa Las Flores

1 Ubicación de la Villa

1. Una crónica de la villa Las Flores

Miércoles 1° de mayo de 2002

Primera visita. 45 minutos dentro de la villa. 2 horas en el almacén sobre Av. Constituyentes. 2 horas en el Hospital junto a la Licenciada Cristina Villafañe, quien nos introduce en el barrio y nos presenta a varios de sus habitantes1 .

1 Para mayo del año 2002, la Licenciada en Psicología Cristina Villafañe trabajaba en la villa Las Flores desde hacía ya 20 años. Ella fue, en aquel momento, nuestro anclaje en el barrio. Su lugar formal de trabajo era un consultorio en el Hospital Manuel Belgrano, situado justo en frente a la villa, cruzando la Avenida Constituyentes. Sus tareas habían ido variando a lo largo de los años, pero principalmente se había ido volcando de forma progresiva hacia la problemática interna de la villa. Su lugar de trabajo real eran los pasillos del barrio, quedando su consultorio

Encuentro con Juan y Graciela. Trabajan en todo lo referente a captación y organización de servicios, planes, subsidios, etc., de los gobiernos municipal, provincial o nacional. Su función primordial es acercar la información a los vecinos de la villa. Entre Cristina y ellos conforman el nexo absolutamente necesario (por inexistente bajo cualquier otro tipo de forma) entre los habitantes de la villa y el gobierno.

Juan tiene alrededor de 40 años. Vive en la villa. Es discapacitado y se mueve en silla de ruedas (perdió ambas piernas). No queda claro, por el momento, si percibe algún tipo de remuneración por su trabajo. Se ocupa principalmente de nuclear los reclamos de la gente con discapacidades motrices. Cuenta que ha conseguido, tras meses de reclamos, que la municipalidad le entregue 8 bolsas de cemento para rectificar los 40 metros de pasillo que lo llevan hasta su casa.

En la actualidad los agujeros y grietas en el cemento le hacen particularmente difícil su desplazamiento. Cuando llega al almacén donde nos encontramos, notamos que para venir tuvo que bajar a la Avenida Constituyentes y moverse por ahí entre los autos. En seguida salta a la vista la irregularidad increíble de la vereda que da sobre esta calle. Al menos cada 10 metros hay 2 o 3 escalones. En el interior de la villa aparentemente la cota de los pasillos se mantiene más pareja.

Graciela tiene alrededor de 30 años. Vive en la villa, en la parte central, más cerca de la calle Santa Rosa. Tie-

como sede representativa de lo que en el Hospital se llamaba Área de Recursos Institucionales

ne un problema motriz en una pierna. Tampoco queda claro si ella percibe remuneración por su trabajo. Con ella entramos por primera vez en la villa. Nos conduce a través de los pasillos centrales; la atravesamos entera desde Melo a Santa Rosa, hasta llegar a su casa. Prefiere que no pasemos adentro. Entra y sale enseguida con su hija. Quiere salir rápidamente de este sector. Aparentemente no le gusta su pasillo, el más estrecho de los que conozco hasta el momento. Volvemos hacia adentro y alcanzamos la casa de Don Vera. Es un hombre de unos 65 años, con bastantes problemas de salud: le faltan ambas piernas, tiene diabetes, tiene los ojos en muy mal estado y un cuadro psiquiátrico complicado. Vive por completo de los programas de asistencia social y de la caridad de algunos vecinos. No obstante, desconfía de todos y vive recluido en su casa. A nosotros nos habla desde su encierro, en una especie de estar-patio techado y cerrado con alambre de gallinero. La puerta está cerrada con

candado. Se aferra con las manos al alambrado. Habla a los gritos y a las carcajadas. Nos cuenta (parece que es una costumbre) que es paraguayo y que ha estado en las guerras del Paraguay y del Brasil, en Malvinas... y que no sabe quién le roba su pensión millonaria de veterano ilustre. Graciela es la encargada de inyectarle insulina todos los días. Hoy Graciela le dice que va a dejar de hacerlo porque no puede soportar sus insultos. Cristina trata de hacerle entender a Don Vera que así nadie lo va a querer ayudar. Y él insiste, una y otra vez: si ella no quiere venir, que venga otra. Salimos de los pasillos hacia Melo y recorremos la vereda de los monoblocks. Entramos en una de las viviendas en planta baja. Su propietaria se llama Rosa, tiene alrededor de 70 años y vive con su hija y su nieto de 12 años. Es jubilada del PAMI y con ese dinero paga la vivienda, los servicios y la comida del mes. Separa todas las noches un plato de comida para Don Vera y se mete en la villa para alcanzárselo (está preocupada porque no sabe si está cumpliendo con las restricciones alimenticias de los diabéticos).

La hija trabaja en una fábrica, en el sector limpieza y es muy deportista...corre mucho, tiene medallas... Las medallas y los trofeos son una parte importante en el decorado del estar, que como elemento sobresaliente tiene una colección inmensa de muñequitos diminutos de plástico, dispuestos sobre el machimbrado a media altura de la pared. Todo el departamento se ve muy bien, muy cuidado. Como característica sobresaliente notamos que las persianas se hallan completamente cerradas. Es pleno mediodía, con un sol radiante,

y sin embargo adentro está oscuro y se respira humedad. Rosa nos habla de su vocación religiosa, y nos hace entender que es un motor para su acción solidaria. Ha vivido siempre en la villa y con una sonrisa dice: Porque sufrí mucho, ahora le río a la vida. No le importa vivir al lado de la villa, ahora que por fin accedió a una propiedad más cómoda y legal: Yo sigo siendo pobre; a mí qué me importa la villa.

Los pasillos por los que transitamos hoy tienen en todos los sectores no más de 2 metros de ancho; más del 50%, sobre todo hacia el centro de la villa, no llegan al metro y medio. El piso está hecho en cemento. Con el paso de los años –ésta parece ser la única razón– se ha deteriorado. En los pasillos principales se ve un caño de desagüe pluvial que corre por debajo. Cada unos 10 metros aparecen los huecos para las rejillas (30x30cm). En la mayoría de los casos las rejillas no están y el hueco es un obstáculo más para sortear, entre pozos y grietas. Las casas se hacen más precarias a medida que nos acercamos al centro. Techos muy bajos (2,30m), paredes de ladrillo hueco o de una especie de adobe. En mucho menor proporción aparecen casas de madera, chapa o desperdicios industriales. Hacia el centro también desaparecen las rejas, las puertas de las casas están todas abiertas, y también prácticamente desaparecen las ventanas. Las puertas abiertas reemplazan a las ventanas.

A través de las puertas se adivinan interiores oscuros, de unos 3 x 4m, donde se ven agrupadas la cocina, el televisor, una mesa para comer, y generalmente una cama. Lo común es ver 1 o 2 personas, generalmente

mujeres, mirando TV o cocinando.

En los rincones de los pasillos se agrupan algunos hombres, generalmente jóvenes, en grupos de 3 a 5, cada unos 30 metros promedio.

Los pasillos que recorremos se estrechan a medida que se acercan al centro de la villa. Hacia el centro notamos una presencia más destacada de los interiores de las casas. Hacia el centro todas las puertas están abiertas y todas las interioridades se confunden, en una yuxtaposición pacífica de privacidades. Esto es lo que da forma al espacio público en la villa. Los pasillos son en realidad una sumatoria de espacios privados, atravesados simultáneamente por lo necesariamente público del tránsito desde/hacia las casas. Los pasillos funcionan como el estar, el living-room de la vivienda tradicional. Las casas son evidentemente muy pequeñas, y funcionan más como cuartos que alimentan el estar común, que es la trama de pasillos, hecho de estares privados, que son sectores de pasillos. Los pasillos son de alguna manera lo que fue el patio en el conventillo; pero son algo más. En los pasillos la gente está siempre de pie, recostada contra alguna pared o, donde existe, en algún recoveco. Se percibe un cierto espíritu de tránsito y al mismo tiempo de interacción continua. El estar de los pasillos es privado sobre todo cuando es tránsito, y es público cuando hay un saludo, un freno, una conversación. Pareciera que lo que hace funcionar esta configuración es la completa yuxtaposición indiferenciada del habitar público y el privado. Las puertas abiertas, los sonidos y las miradas que salen y se cruzan de una

Hacia el centro notamos una presencia más destacada de los interiores de las casas. Hacia el centro todas las puertas están abiertas y todas las interioridades se confunden, en una yuxtaposición pacífica de privacidades. Esto es

lo que da forma al espacio público en la villa. Los pasillos son en realidad una sumatoria de espacios privados, atravesados simultáneamente por lo necesariamente público del tránsito desde/hacia las casas. Los pasillos funcionan como el estar, el living-room de la vivienda tradicional.

casa al pasillo, y de una casa a la otra, son la constatación extraña de que otro tipo de ciudad es posible.]

Miércoles 15 de mayo de 2002

Segunda visita. 6 horas dentro de la villa. Unas 4 horas entre el hospital y la calle.

Por la mañana hay mucho movimiento. Cristina, Juan y Graciela están trasladando a las personas que han preparado para anotarse hoy en el plan nacional Jefas y jefes de hogar desocupados. Hay una camioneta prestada por el día por una empresa privada y un automóvil particular. Se traslada hasta la municipalidad principalmente a la gente con problemas de discapacidad o de edad mayor.

Hacia el mediodía, caminando por la calle Santa Rosa, nos metemos en la villa por el último pasillo. A unos 50 metros está el Predio. Es la sede de la Comisión Vecinal. Es un salón de unos 6 x 6 m, con dos cuartos más pequeños a un lado, de unos 3 x 3 m. En unas mesas en el centro están Cristina, Juan, Graciela, Beba, Eva y Ricardo informando y anotando a la gente que se acerca por el plan, que vence mañana. Beba tiene alrededor de 50 años. Es madre y abuela, vive con 8 personas en su casa (uno de los dúplex de la calle Roca). Integra la Comisión Vecinal, conformada por 15 delegados, en representación de sus 130 socios. Los requisitos para ser socio son: vivir dentro de la villa y pagar una cuota mensual (para fotocopias, etc.) De todas formas, los integrantes de la Comisión aclaran que trabajan para todos los vecinos de la villa y Beba insiste justamente en que lo que a ella más le preocu-

pa es la igualdad de oportunidades (por ejemplo: documentar a todos, ya que sin documentación no se puede acceder a ningún programa laboral o de asistencia).

Lo que más la apasiona es el Plan de Vivienda, del que su familia, por ser tan numerosa, fue de las primeras en beneficiarse. Trabajó en las tareas de relocación de familias en las dos etapas ya concluidas del plan. Este trabajo lo hizo como parte de un equipo nucleado por una Antropóloga y una Asistenta Social, dispuestas en el barrio por el Plan de Vivienda.

Eva tiene también unos 50 años. Vive en la villa. Conoce a todos sus vecinos y se lleva bien con todos. Conoce cada pasillo y cada recoveco. Todo esto, aparentemente, no es lo más común en un habitante de la villa.

A Eva –a diferencia de Beba– le gustan los problemas difíciles; no le molesta tratar con los chicos malos, con casos de drogadicción o violencia; le gusta brindar soporte psicológico. Conoce todas las historias de la villa. Es parte de la Comisión Vecinal. Trabajó en el Plan de Vivienda.

Ricardo (el Bicho) tiene alrededor de 35 años. Vive en la villa. Es otro miembro de la Comisión Vecinal (lo han votado los últimos 4 años). Muy enganchado con el desarrollo del Plan de Vivienda.

Con él damos un paseo rápido por un sector de la villa. Esta vez ya es de noche y la zona por la que caminamos es muy diferente de la del miércoles. Es lo que originariamente se llamaba Barrio Las Flores, a diferencia del Barrio Obrero que es toda la parte del centro y más cercana a la avenida Constituyentes. Los pasillos aquí son notablemente más espaciosos y las casas

menos precarias. Abundan las paredes de material, las ventanas y las rejas de seguridad. En el triángulo que ha quedado liberado tras la relocación de la segunda etapa del Plan de Vivienda, ahora funciona una cancha de fútbol (transitoria hasta la tercera etapa, pero que por ejemplo ya dispone de iluminación). En una esquina del triángulo vacío ha quedado una casa sin demoler. Ricardo explica que es una familia que ha crecido mucho en los últimos años y que no se ha querido mudar a ningún precio. También nos cuenta de otra familia conocida suya que se ha mudado a los monoblocks, y que al no poder pagar las cuotas de la compra del departamento, ni los servicios de luz, gas, etc., prefirió vender y regresar a la villa. Nos enseña, en un terreno liberado para la tercera etapa, cómo la gente se preocupa por preservar el espacio vacío; aquí, con la ayuda de la Iglesia, han alambrado y dispuesto unos juegos caseros para los chicos del Jardín de Infantes. De esta manera reaseguran que la ejecución de las futuras etapas no sufrirá contratiempos.

Viernes 17 de mayo de 2002

Tercera visita. 4 horas en la villa.

Llueve intensamente. Ricardo nos espera (vinimos con un amigo) a dos cuadras de la villa. Empapados, corremos hasta la entrada de un pasillo y caminamos hasta su casa. Nos invita a pasar hasta que pare un poco la lluvia. Adentro está Yenny, su compañera, con la que comparte la casa.

La casa de Ricardo es de dos ambientes: un estar-comedor-cocina-dormitorio de 2,50 x 3,50, y un

lavadero-depósito-etc. de 1,50 x 2,00. El baño queda entre ambos y consiste en un inodoro sin depósito de descarga (al costado hay un barril de 200 litros lleno de agua y un balde). El techo de chapa está a 2,40 del piso y tiene en el estar un cielorraso de machimbre rudimentario. Las paredes pintadas de blanco. El piso es de cerámicos azules como nuevos. Hay una cama de madera de dos cuchetas. Un buen ropero de madera. Una buena heladera con freezer, último modelo. Cocina de 4 hornallas y horno. El televisor, inmenso, está en el centro de la escena, siempre encendido. Entre todos estos objetos queda un poco de lugar para poner unas sillas de plástico y sentarnos. Estamos en toda la casa de Ricardo. Esa es la sensación. Miramos un programa de TV, tomamos coca-cola y fumamos cigarrillos. Encima de la tele, en una repisa, se destaca una colección considerable de paquetes vacíos (fumados) de Marlboro Box. Completan la decoración un reloj, una imagen de la Virgen, una de un Santo. Salimos a buscar las llaves del Predio (sede de la Comisión Vecinal). Caminamos hasta los dúplex de Roca, y hablamos con Beba, que tiene las llaves. Arreglamos para ir todos al Predio. Antes hay que buscar agua caliente para el mate en lo de Ricardo, que tiene garrafa de gas, porque Beba está conectada a la red y no quiere pagar más a fin de mes. Volvemos a lo de Ricardo y calentamos el agua para el termo y terminamos tomando mate en su casa. Más TV y cigarrillos. Al rato aparece Beba, que no entiende por qué no fuimos para el Predio. Vamos todos para el Predio. Adentro está una mujer joven con sus seis hijos, que han pasado ahí

la noche en dos colchones. Ricardo nos cuenta que hace poco tiempo se les incendió la casa. Tomamos mate. Beba nos muestra láminas viejas con fotos de actividades que se han realizado en el Predio. Cumpleaños, partidos de fútbol; una salida con algunos chicos a Mar del Plata. Beba nos cuenta un poco de su vida y del Plan de Vivienda. Ella trabajaba hasta hace algunos años atrás; ahora se encarga más de su familia y de la Comisión. Su marido trabaja bien y mantiene económicamente a toda la familia. Cuenta cómo en otros tiempos su marido (un apasionado de los chicos) ha dedicado enormes esfuerzos por darle la oportunidad de jugar al fútbol a algunos chicos (los peores, los que son como paquetes para sus padres y que no han sido aceptados en ningún club de fútbol). Organizaba campeonatos, se encargaba de los traslados, etc. Un verano los llevó a Mar del Plata.

Es recurrente en el diálogo la alusión que hacen tanto Beba como Ricardo al rechazo que les genera la utilización política que algunas personas hacen de la Comisión Vecinal. Luchan constantemente con el trabajo subrepticio de punteros encubiertos. Ricardo cuenta que él ha trabajado 7 años con un político. Ya conoce bastante cómo funciona el asunto y no quiere saber nada con los clientelismos. Ricardo nos cuenta que el único verdadero problema en esta villa es el de los pozos ciegos. Se saturan frecuentemente y todo depende de las campañas de vaciamiento que se realizan periódicamente (cada unos 3 meses). Hay prácticamente un pozo ciego por casa, lo que quiere decir que hay alrededor de 1200 en toda

la villa. Las campañas se hacen largas y difíciles por esta cuestión. Pero, sin embargo, acá nosotros somos unos reyes. Lo que ve en TV sobre las villas del resto del país le parece increíble. Cuenta que hace poco vio un documental sobre La Cava, en San Isidro, y que quedó profundamente impresionado. Acá nosotros somos unos reyes, lo repite.

Ha estado lloviendo durante todo el día y al salir de la villa (atravesamos de noche algunos pasillos de la parte central) no notamos problemas de obstrucción de desagües. Los pasillos no están inundados. Sí, quizás, hay muchas zonas donde los pozos se transforman en charcos inmensos. Otro dato de este paseo es la cantidad de agua que cae sobre la cabeza de uno cuando se camina por los pasillos, bajo el libre escurrimiento de los techos de chapa en un día de lluvia.

La gente se agrupa en algunas zonas de los pasillos, bajo las salientes de los techos más grandes, cerca de los focos de luz, o donde termina la villa frente a alguna calle del barrio que la rodea.

Sábado 8 de junio de 2002

Cuarta visita. 5 horas en la villa.

Salimos desde el hospital con Cristina y Eva. Con mucho sol, atravesamos la villa por el borde norte: un pasillo estrecho –1,50m de ancho promedio– que se forma entre la villa y la medianera de los chalets. Este es el camino longitudinal más usado por los que viven lejos de la calle Melo; es la forma más rápida y segura de llegar a la Avenida Constituyentes.

Llegamos al Predio (sede de la Comisión Vecinal).

Hoy el trabajo consiste en anotar en las planillas del plan Jefas y jefes de hogar a los habitantes del barrio con problemas de discapacidad. La idea es que el hecho de no ser jefe o jefa de hogar no sea un impedimento para que los discapacitados accedan al plan. En la puerta del Predio hay 3 personas esperando. Cuando estamos adentro vienen algunas más.

En toda la tarde se habrán llenado unas 10 planillas. Antes de empezar con el trámite, Cristina explica a las personas cuál es la idea de este plan. La idea es que deben trabajar y capacitarse por un total de 4 horas diarias. Les explican que los trabajos estarán pensados a la medida de las dificultades de cada uno. Las personas mayores y las de menor movilidad, deberán hacer pequeñas tareas, juntarse regularmente, etc.

Los más jóvenes, los de mejores condiciones físicas, deberán tener como meta alguna capacitación, ya sea a través del estudio (la mayoría tiene la escuela primaria incompleta), ya sea a través del aprendizaje de algún oficio. A la vez deberán cumplir con trabajos, fundamentalmente de carácter comunitario. La naturaleza y la distribución de los trabajos puede salir como propuesta del grupo (a través de la Comisión Vecinal) o como programa especialmente dispuesto por la municipalidad.

Uno de los jóvenes que se presentan tiene alrededor de 35 años, está en silla de ruedas y lo acompaña un amigo bastante más chico. Cuando le hablan de estudiar se ríe a carcajadas. Dice que no piensa estudiar; que dejó el colegio porque no le funciona la capocha. En cuanto a capacitarse en algún oficio también ma-

nifiesta su desconfianza: quizá lo que más le interesa es mecánica y electricidad del automóvil, pero deja todo bien claro cuando dice riendo que el problema es que él no entiende nada de cómo se arman los autos, aunque sí de cómo se desarman.

Otro de los más jóvenes tiene alrededor de 25 años y se mueve con muletas. Está acompañado por la madre. La madre tiene unos 60 años. Es a ella a quien no convence la idea de que su hijo tenga que estudiar y trabajar. Dice que no puede dejarlo salir solo. Dice que el chico (así se refiere a su hijo) está en rehabilitación por drogas y que no puede estar en la calle. Ella trabaja a la tarde y no podría acompañarlo. Cuando

Eva le ofrece de buscarlo y llevarlo a su casa todos los días, la madre contesta que tampoco puede ser porque para eso le tendría que dejar las llaves de la casa. El joven, que ahora entendemos que se queda encerrado en su casilla cuando la madre sale, propone a la madre que le deje las llaves al vecino: entonces Eva las busca ahí, le abre, lo saca, lo lleva, lo devuelve y lo encierra. La madre dice que lo va a pensar, porque en el fondo, dice, le gustaría que el hijo saliera un poco, así no se aburre tanto y no le vienen ganas de hacer tonterías.

En una hora de la tarde entra una chica vendiendo pan. Cristina cuenta que esta misma chica ha tenido mellizos hace 11 días, y que ha salido a vender pan hace 5. Uno de los más viejos es un hombre de unos 70 años. Se llama Félix. Camina y se mueve con mucha dificultad. Le cuesta concentrarse, dar respuestas claras. La mujer que lo acompaña nos ayuda a terminar la

planilla. Ella nos cuenta que ambos son viudos desde hace 25 años, que se han juntado y que ella se pasa el día cuidándolo. Ella no sabe leer ni escribir, pero no le interesaría estudiar. Dice que eso lo tienen que hacer los jóvenes. Ella viene del campo y en aquella época en el campo se enseñaban otras cosas. Félix trabajó de albañil en la obra de los monoblocks del Plan de Vivienda. Ese fue su último trabajo. Se lo pagaron todo en negro.

Cuando dan por terminada la jornada de inscripción, Cristina, Eva, Juan y Graciela se quedan discutiendo sobre las vicisitudes de los próximos pasos a seguir. Afuera, frente a la puerta del Predio, está uno de los hombres que se ha inscripto en el plan. Tiene unos 55 años y anda con muletas. Charlamos. Nos dice que el mayor problema de la villa son los que chorean. La villa está divida en dos. Adelante (hacia Constituyentes) están todos los ladrones, los que se drogan, los violentos, etc. Para acá atrás está la gente honesta. El problema es que acá te chorean los de adelante. Y si vas por los pasillos de adelante te van a sacar las zapatillas, una camperita... Nadie quiere vivir adelante; pero los que llegan de afuera no saben eso y compran su casilla ahí. Después los terminan robando o corriendo. Porque ahí viven los que chorean adentro de la villa. Los ladrones de bancos y esos más grandes se compran su chalecito afuera. El problema acá es que hacen lo que quieren. Esto es así: ponele que vos tenés un amigo en la villa; vos vivís en tu barrio y le vas a tirar a tu amigo una fija; se chorean una casa y vienen y se esconden acá. Acá adentro no los agarran más. Claro. Si la cana

no se mete. Solamente se mete cuando hay casos importantes... y ahí se cargan a unos cuantos.

Queda confirmado: Juan y Graciela están incluidos en un plan del gobierno y por el trabajo comunitario que hacen perciben una remuneración. Más allá de esta formalidad, ambos trabajan otras tantas horas en la villa, tanto en asociación con Cristina como con la Comisión Vecinal, o en la organización para discapacitados que ellos fundaron, la fundación Pro en pie. Salimos del Predio y vamos a buscar a las personas discapacitadas que no pueden salir de sus casas. Pasamos por la capilla. Es el sector más consolidado de la villa. Las casas son de material, están pintadas, tienen ventanas amplias. Seguimos hacia Constituyentes y llegamos a lo de Don Vera. Llenamos su planilla. Don Vera sigue contando historias, como todos los días. Dice que no entiende de qué va a trabajar, si ya no sirve para nada. Eva le dice que podría ir a las reuniones en el Predio y contar sus chistes. Antes de despedirnos Don Vera nos muestra una herida que la ha dejado un misil en la guerra de Malvinas: nos muestra la pelada. Nos vamos. En el camino Graciela nos cuenta que Don Vera siempre habla de la guerra de Malvinas. Que se salvó cuando su submarino se ahogó. Que en el medio del mar lo rescataron dos ballenas y que lo trajeron hasta el puerto de Olivos. Eva se ríe y nos dice que lo conoce desde hace 40 años y que desde hace 40 años que no sale de la villa.

Llegamos a otra casa. Esta vez, la casa queda al fondo de un pasillo angosto (90cm). Se abre la puerta, asoma una señora mayor, sonríe, abre la cerradura de la reja

y nos deja pasar. El trámite es para su esposo, pero ella lo llenará por él. Adentro también está la hija. La casa es muy grande. Lo que alcanzamos a ver es un gran espacio de planta cuadrada, de unos 6 x 6m, el cielorraso alto, las paredes pintadas de azul claro. Hay una escalera que lleva al primer piso, una puerta que da a un patio donde se escucha un perro, una puerta que da a otro cuarto donde se escucha un televisor.

En este lugar está la cocina, una mesada grande, con pileta con agua corriente, una heladera vieja, un equipo de música grande, una TV y dos mesas con 6 sillas cada una. Cuando salimos Eva nos cuenta que el hombre había sido uno de los principales constructores de casas en la villa.

Seguimos hasta Constituyentes, de noche, otra vez por el pasillo del borde norte. Graciela camina con dificultad por el piso destruido. Cuando pasamos por el pasillo de la muerte (el último antes de Constituyentes), nos cuenta que en los últimos tiempos la cosa se puso más tranquila, porque mataron a unos cuantos.

En el hospital nos despedimos.

Con el sol hemos descubierto hoy algo: en los pasillos abundan los niños. La gran impresión fue: niños, niños y niños. Si la villa se mantiene en pie es gracias a los pibes que juegan, gritan, pelean y lloran en los pasillos. Los pasillos parecen lugares hechos a su escala. Son los que sostienen toda la villa: a sus padres, a los adolescentes problemáticos, a los viejos nostálgicos.

Definitivamente la fuerza de la villa, su gran depósito de optimismo está ahí.

Con el sol hemos descubierto hoy algo: en los pasillos abundan los niños. La gran impresión fue: niños, niños y niños. Si la villa se mantiene en pie es gracias a los pibes que juegan, gritan, pelean y lloran en los pasillos. Los pasillos parecen lugares hechos a su escala. Son los que sostienen

toda la villa: a sus padres, a los adolescentes problemáticos, a los viejos nostálgicos.

Definitivamente la fuerza de la villa, su gran depósito de optimismo está ahí.

Miércoles 26 de junio de 2002

Quinta visita. 3 horas en la villa.

Acompañados por algunos compañeros y docentes de la facultad, con la presencia especial de Jorge Jáuregui. En lo que a él se refiere, hace un reconocimiento rápido de algunos pasillos de la villa, habla con dos o tres personas, obtiene informaciones diversas; pregunta haciendo hincapié por el lugar donde se baila y se hacen las fiestas, y por otro lado por el tipo de oficio preponderante entre los desocupados actuales. De pronto, como si se hubiera abierto un cofre, nos venimos a enterar de que la gran mayoría de los residentes trabajaba en la compostura de calzado. Antaño existía en la zona, aparentemente, una fábrica grande de calzado que empleaba a muchos de los habitantes actuales de la villa.[Recordamos que de hecho Don Vera tiene una máquina de zapatero en su casa.

Sábado 6 de julio de 2002

Sexta visita. 3 horas en la villa y alrededores.

Conocemos la casa de María, la chica que está viviendo en el Predio con sus 6 hijos. El incendio no dejó nada y aunque ocurrió ya hace 6 meses, la casa sigue sin terminarse. Ahí está el piso de tierra, las medianeras de ladrillo hueco y arriba el cielo abierto. La casa no mide más de 2 metros de ancho y 6 de largo. El vecino, al que también se le ha incendiado la casa, cuando reconstruyó la suya avanzó 1,70 m sobre la casa de María. Nos explican que han iniciado la demanda con el Juez, y que no hay nada más que se pueda hacer. La Comisión Vecinal no tiene suficiente autoridad en

este sentido. Incluso los mismos vecinos están indignados con lo ocurrido, pero nos sugieren que es mejor quedarse tranquilos para evitar problemas mayores. En una casa hacia el centro de la villa nos paramos a comprar dos chapas. Están usadas, pero en relativo buen estado. Miden 1 x 2,50 m y cuestan 100 pesos cada una. Las llevamos al Predio, donde van a estar más seguras.

Breve reseña del Plan de Vivienda para la villa Las Flores

Una historia rápida del barrio: en el año 1958 se asientan las primeras familias, como parte de un plan de relocación de las viviendas demolidas por la ampliación de la Autopista Panamericana. Estas primeras familias se asientan en casas chalet, prefabricadas en madera, a pagar en cuotas. Son las casas que hoy observamos (aunque saturadas con nuevas construcciones) en la parte Este de la villa. Es lo que desde un principio lleva la denominación de Barrio Las Flores y es la única parte con loteo regularizado (aunque hoy muy subdividido) de la villa. Con el paso de los años y principalmente a partir de los años ´60, con la consolidación del sector industrial de los alrededores, nuevas familias de trabajadores se fueron instalando espontáneamente en viviendas precarias y transitorias. Este es el sector Oeste de la villa, tradicionalmente denominado Barrio Obrero. A partir de la década del ’80 la villa menguó su crecimiento –el espacio se encontraba ya

2. Vista aérea de la villa

rar calles y abrir espacios. Un punto de fundamental importancia (y por lo cual el plan también se diferenciaba de los modelos precedentes) era la aplicación de una metodología participativa, donde se incorporaba a la población en el diseño del proyecto.

El Plan comenzó a implementarse en etapas. De las siete etapas ideadas inicialmente, sólo se completaron dos.

saturado– y desde entonces se observa un incremento relativamente bajo de la ocupación del terreno. Las viviendas empiezan a crecer en el primer piso. Hacia 1984 se logra un mejoramiento notable de los pasillos y la instalación de la red de agua potable.

El Plan de Vivienda se comenzó en el año 1984. El lema general del proyecto era urbanizar con reubicación in situ. Con la relocación de la vivienda se lograría recupe-

La primera se terminó en 1985. Reubicó a un total de 172 familias. Sus viviendas eran las que formaban la franja de 20 metros adyacentes a la calle Melo. Una vez mudadas las familias a los edificios tipo dúplex, construidos para este fin sobre la calle Roca, la franja de casillas se fue demoliendo y comenzaron a construirse las tiras de vivienda (tipo monoblock) para la implementación de la segunda etapa.

3 Las Flores. Plan de vivienda original
4 Las Flores. Plan realizado y villa
5 Plan último

La segunda etapa del Plan reubicó a 198 familias, y se concluyó en el año 1997. Sus viviendas eran las que ocupaban el sector triangular del extremo Suroeste de la villa. Las familias se mudaron y se demolieron las casillas. Aunque no se logró demoler la totalidad de las que estaban planeadas. El Plan comenzó a trabarse y nuevas familias empezaron a ocupar casas que debían ser demolidas.

La tercera etapa tenía planeada la relocación de 350 familias. El Plan pasó de la agenda provincial a la municipal y se paralizó definitivamente a partir de los hechos de diciembre de 2001. Las familias adjudicatarias de esta etapa son las ubicadas en todo el sector del extremo Este de la villa. La situación de transitoriedad se ve hoy acentuada en el estado de ese sector.

Nota del año 2022. Casi exactamente veinte años después de nuestras visitas y recorridas enunciadas más arriba, la situación de este enclave urbano no muestra demasiados cambios. La parcela liberada por la segunda etapa del plan –aquel triángulo que los vecinos, para asegurarse su no intrusión, habían establecido como cancha de fútbol– se ha ocupado con edificios. Estos edificios no materializan la pisada mostrada en el Plan, sino que se aprietan entre sí y aumentan en dos niveles su altura. Una práctica de densificación bastante común en las últimas dos décadas de producción de vivienda estatal, en las que la liberación de tierras en barrios de emergencia se hizo cada vez más rara y el espacio disponible por ende menor.

Por último, la factura tipológica procura acercarse a una concepción más próxima al chalet (unidades individuadas, techos inclinados) que al viejo monoblock (unidades colectivas, cubiertas planas), esto sin duda por razones de retórica urbana pero también por la (según la casuística conocida: inventada) preocupación por una eventual ocupación y crecimiento a partir de las azoteas libres. Por lo demás, el barrio se mantiene prácticamente intacto, idéntico veinte años después, con la misma configuración precaria que parecía hecha para no durar dos años, con la misma pregunta persistiendo oculta en su trama abigarrada.

2 Exploraciones sobre la conformación mítica del hábitat

Atarse a través de promesas sirve para establecer en el océano de inseguridad del futuro islas de seguridad, sin las que ni siquiera la continuidad, menos aún la durabilidad de cualquier tipo, serían posibles en las relaciones entre los hombres. Hannah Arendt

Exclusión / Integración

1. El problema propio de la villa tiene que ver con la inaccesibilidad a los servicios de la ciudad y, a la vez, con la inaccesibilidad a los sistemas de generación de sustento propios también de la ciudad. Esto es, rápidamente, para nosotros, lo que significa la palabra

“exclusión”. No hay lugar para todos en la ciudad, no hay oportunidades para todos. En este orden de cosas –que es global pero que se ve exacerbado en nuestro medio– hay ganadores y perdedores: el que habita en la villa es el gran perdedor, el excluido absoluto. La villa como forma, el “asentamiento precario” –como en el otro extremo también el “barrio cerrado”– es la expresión urbana de este conflicto fundamental. La villa es un problema para la civilización (para la ciudad en los comienzos del siglo XXI) pero primero es un problema de la civilización. Este es el nudo gordiano que pareciera transformar todos los intentos por intervenir y mejorar la situación en las villas en un intríngulis en el que las soluciones nunca parecen superar el estatuto de meros paliativos.

2. Las condiciones precarias de la existencia en la villa se ven intensificadas por el contraste que significa estar insertos en la urbe contemporánea. La ciudad que envuelve la villa es la civilización, la consumación tangible del progreso del colectivo humano. La inmediatez espacial de una situación con la otra genera un contraste tal que desde afuera llegamos a leer el episodio “villa” como un anacronismo, una imposibilidad. Sin embargo la villa está ahí, vuelve todos los días, trascendiendo décadas de intenciones vaciadas, transformando la promesa de su solución en una ilusión desesperanzada.

3. La villa nos sitúa en el centro de la marginalidad. La persona que habita en la villa habita en la ciudad: sin embargo, de alguna manera, la ciudad no es su hábitat, no al menos en toda la extensión de su

significado. Esto es la marginación. Esta separación, esta discontinuidad en las relaciones sociales, es causa suficiente –junto con la desesperación por la subsistencia– para la aparición de prácticas para-sistemáticas que le darán a sus habitantes la posibilidad misma de sobrevivir: hurto, narcomenudeo, criminalidad. La villa es el espacio en la ciudad que posibilita y potencia estos medios de subsistencia; la marginación genera más marginación, violencia, separación. El círculo se cierra por donde empieza: la exclusión se vuelve sobre sí misma, en un ciclo del que no parece haber escapatoria.

4. Integración, cuando hablamos de exclusión, de dos ciudades en un mismo lugar, parece ser el concepto más indicado para abordar el conflicto. Sin embargo, pareciera que el problema es mucho más profundo de lo que se muestra como una discontinuidad en la superficie.

6 Villa LF y Circo Massimo

5. Para empezar: ¿qué es integración? Y seguidamente: ¿qué puede significar integrar, como práctica? ¿Qué es integrar, desde la arquitectura?

6. Integración puede entenderse como el lazo comunitario, lo social mismo, en su estado más fortalecido. Se puede decir de la integración que es el objetivo de todas las sociedades. Si hay integración total (utopía) no hay problemas en la sociedad: no hay pobreza, no hay violencia, no hay guerras, etc. El estado de cosas en el que vivimos nos induce a pensar que nos movemos más cerca de una des-integración total que de algún tipo de integración. De cualquier manera, la integración como deseo sigue siendo todo lo que nos mueve a obrar políticamente.

7. Integración como deseo: ¿cómo se procede cuando el objetivo es la integración de la sociedad? ¿Qué es proceder integrando? Si nos limitamos a la práctica de nuestra disciplina, podemos esbozar esta hipótesis: no hay que pensar necesariamente en “integrar” cuando nuestro objetivo final es la integración. Podemos permitirnos reflexionar, una vez que tenemos bien claro nuestro objetivo, acerca de cuáles son los mejores caminos que a él conducen. No siempre el camino recto es el más corto... Lo primero que se piensa, en cuanto se detecta una discontinuidad superficial, es en la manera de suprimirla y de producir una conectividad. Pero no hace falta ir muy lejos para entender que detrás de esa forma hay una historia, que en esa historia hay unos tiempos, que en esos tiempos todos los síntomas tienen una causa, una explicación. Cuando se ataca directamente la des-integración formal, lo

que se está solucionando es la piel del problema; y no parece extraño que así sea, en cuanto la piel es todo lo que propiamente se ve o se vende.

8. Hipótesis de proyecto: la villa tiene que seguir existiendo. No se la puede tocar. Menos que nada “coser” con la ciudad que la rodea. Su marginalidad es una necesidad.

Integración / Institución

1. Denis Merklen (1999):

El individuo libre y responsable es el ideal de la integración social moderna. Pero ese individuo no es autosuficiente [...] El individuo necesita soportes, que en las sociedades latinoamericanas son de tres tipos: a) asociados al empleo; b) asociados a la ciudadanía y al Estado; c) asociados a la familia, al vecinazgo y a las relaciones interpersonales.

El problema [...] es que se han debilitado tanto los soportes de tipo “a” como de tipo “b” luego de un siglo de construcción de esas redes de integración social. En consecuencia, se han reforzado los lazos de tipo “c”, favoreciendo la aparición de comunidades marginales de base territorial. […] Esta fragilidad se expresa en la vida cotidiana, pero tiene su origen en la forma de las instituciones que organizan la cohesión social. […] La vida en los sectores populares urbanos de fin de siglo es inestable principalmente debido a su débil integración al empleo y a la educación, pero también debido a la fragilidad

de la mayor parte de los vínculos institucionales en los que participan.

2. El concepto de integración va íntimamente ligado al concepto de institución. Las instituciones son de alguna manera, la formalización del lazo social. En cada institución están depositadas las voluntades de, por lo menos, más de un sujeto. Lo instituido es lo que permanece, lo que queda como resultado del diálogo y el acuerdo entre los hombres, la cristalización de sus visiones conjuntas, la apuesta comunitaria para el futuro, las promesas comunes.

3. Las instituciones funcionan de una manera que podemos denominar como integradora. Es decir, en el concepto de institución vamos encontrando una forma de vehiculizar el verbo, la acción, de integrar. Si trabajamos en la producción –no en la mera reproducción–de nuestras instituciones, estaremos trabajando en la producción de nuestra integración como sociedad.

4. Lo que debemos especificar es la manera en que producimos esas instituciones. Desde que entendemos que la institución es un escalón donde se apoya la sociedad en su camino hacia la integración, más aún, que la sociedad como un todo no deja de ser nunca otra cosa que algo instituido, o, en todo caso, constantemente instituyéndose, desde que entendemos esto nuestro objetivo tiene que ser trabajar en esa producción concreta de lo institucional.

5. Castoriadis (1989) presenta el concepto de autonomía: Es autónomo quien se da a sí mismo sus propias leyes. (No quien hace lo que le apetece: quien se da leyes.) [...] Y, para una sociedad, darse a sí misma su ley

significa aceptar enteramente la idea de que es ella la que crea su propia institución, y que lo hace sin poder apelar a ningún fundamento extrasocial. [...] Es ella la que ha de decidir qué es justo e injusto –ésta es la cuestión con la que tiene que ver la verdadera política.

[...] La sociedad está ahí para hominizar a ese monstruo llorón que viene al mundo y volverlo apto para la vida.»

[Este es el carácter mítico-redentor de la institución de la sociedad: el hombre se aferra a ella al mismo tiempo que la produce. La institución es el diálogo social hecho fuerza: donde un hombre necesita aferrarse, muchos hombres producen –sin saberlo– la institución, como el soporte que ese hombre necesita para no caer.] «Así pues, en adelante, la institución procura el ´sentido´ a los individuos socializados; pero también les procura los medios para crear ese sentido por ellos mismos. [...]

La única transformación radical de la sociedad, de ser posible, sólo podrá ser obra de individuos que quieran su autonomía, a escala social y a nivel individual.

6. Emilio Tenti Fanfani (1996): Los marginados sociales son los que están de más y que, en la medida en que así lo autoperciban, no tienen mayores razones para vivir, es decir, para encontrarle un sentido a la vida. Y podríamos agregar: para encontrarle un sentido a la sociedad. Los marginados no creen en la institución (o más bien: no toman a la institución como tal) porque la institución no les da nada, ni tampoco recibe nada de ellos. En el marginal no se genera la representación que constituye lo institucional social; es decir, la sociedad incluida –la oficial, la urbana, la formal– no significa nada para él. En la sociedad no encuentra la

materialización de ninguno de sus deseos ni creencias (no se ve representado en ella), ni tampoco encuentra en ella algún tipo de contención (ella no le representa nada). En ese sentido la villa es una configuración emergente pero clave en la subsistencia de la persona marginal. En la villa se estructuran mínimamente las instituciones que la ciudad no le ofrece y de cuya contención necesita como del aire para respirar.]

7. Maria Cristina Cravino (2001): Los villeros son tomados desde su pertenencia territorial y de allí se les asocian características sociales que son construidas como típicas o esencializadas (“todos los villeros son...”). Pero, al mismo tiempo, en la construcción de las reivindicaciones los pobladores muestran su identidad como unívoca y como bandera, esto es como parte de una estrategia de lucha (“las villas reclaman...”). La identidad es parte, entonces, de la disputa por el espacio territorial: físico, social y político. Tal como sostiene Penna: “Las representaciones de identidad cumplen funciones organizacionales en el grupo: demarcan sus límites... creando una unidad en torno de intereses (materiales y/o simbólicos) o mismo de un proyecto común.” [...] esto implica un proceso de representación en un doble sentido: como forma de autorreconocimiento y como imagen para los otros junto a una representatividad de carácter político. Las nociones de institución e identidad funcionan en este sentido social/urbano prácticamente como sinónimos. Juntas, circunscriben la definición de mito en el sentido que estamos persiguiendo.

Institución / Proyecto

1 Seis hipótesis para la introducción de espacio en el tejido de la villa Las Flores:

Hipótesis A

El programa es introducido mediante fragmentos. El espacio necesario se busca en diferentes sectores aislados del tejido y se genera con pequeños vaciamientos. Como resultado tenemos una totalidad cubierta por diferentes programas, conformando una estructura invisible de nodos programáticos específicos. La totalidad sólo se experimenta como tal en la medida que los fragmentos constituyan un sistema simbólico que remita a la estructura general.

Hipótesis B

El programa es introducido mediante una red. El espacio necesario se busca y se genera principalmente a partir de los espacios ya abiertos del tejido, fundamentalmente las circulaciones. Como resultado tenemos una estructura visible, donde la totalidad del gesto se reconoce en todas las situaciones. Los diferentes programas aparecen en el paseo programático que constituye la red.

Hipótesis C

El programa es introducido mediante un gesto concentrado. El espacio necesario se genera con el vaciamiento de un sector específico del tejido. El resultado es una alta centralización programática, una imagen fuerte de totalidad, y una continuidad con respecto del pasado en las zonas periféricas.

9 Hipótesis C
10 Hipótesis D

Hipótesis D

El programa es introducido mediante corredores. El espacio necesario se genera con el vaciamiento de franjas que surcan el tejido de lado a lado. Como resultado tenemos un nuevo tejido regulador, yuxtapuesto al tejido existente, y continuador o autónomo respecto del tejido de los barrios circundantes. El programa arma la espacialidad de estos bulevares.

Hipótesis E

El programa es introducido en los bordes. El espacio necesario se busca y se genera a partir de los vacíos existentes en los bordes del tejido. Como resultado tenemos una articulación marcada entre la villa y los barrios vecinos. Los diferentes programas se reparten actuando como fuelle entre sendas configuraciones. Hay una continuidad con respecto del pasado en las zonas centrales.

El programa no es introducido en la villa, sino en sus alrededores. El espacio necesario se busca en calles y lotes privados abandonados. El resultado es similar al de la Hipótesis E, sin embargo, aquí la villa realiza una especie de movimiento expansivo sobre los barrios vecinos. Es en principio la situación que se experimenta en el presente, en que prácticamente todo el programa de servicios de la villa se encuentra fuera de sus límites. Continuidad total en la configuración interna de la villa. 5 Hipótesis E

Hipótesis F

6 Hipótesis F

2. Nuestra propuesta de integración quiere ir más allá de la integración explícita, de la articulación espacial, formal, entre dos realidades. Entendemos que este último tipo de integración es el resultado de una lectura demasiado ligera del problema de la marginalidad.

3. Nuestra integración no se formaliza en una formal integración con la ciudad. Creemos que para dar cabida a una integración real hacen falta unos pasos previos, hace falta un proceso que actúe en el tiempo. El problema que surge cuando se plantea la posibilidad de integrar un sistema marginal a uno hegemónico tiene que ver con un cierto desfasaje temporal. El proceso de integración debe tener en cuenta esta característica para implementarse acertadamente en un proyecto de largo aliento.

4. La parte que a nosotros nos toca –a nosotros como ciudad y como poder– en el proceso de integración se inscribe fundamentalmente en la calidad de nuestro gesto, en la precisión con la que atiende a las demandas más asordinadas de la situación no sólo urbana sino fundamentalmente social. La integración formal conviene en alguna medida a ambas partes, pero principalmente a la ciudad formal. La calificación de la villa como sistema en sí conviene principalmente a la villa y, a largo plazo, también a la ciudad.

5. La posibilidad de generar un espacio claramente comunitario, pero aún exclusivo y propio de la villa en tanto que villa, puede ser el paso previo y necesario para una deseada integración definitiva.

6. La plaza central (Hipótesis C) es, posiblemente, nuestro mejor gesto.

7. La operación de abrir el corazón espacial de la villa es el primer paso (desesperado) de un programa más ambicioso, sino finalmente utópico. Pues lo que sigue es la transformación paulatina y total de la villa, de adentro hacia fuera, en un continuo que finalmente no se diferencie –no necesite diferenciarse– del resto de la ciudad.

8. La plaza central es la configuración espacial que mejor responde a la necesidad de lo institucional, de lo mítico, de lo dado. Lo institucional es la manera que tiene de materializarse la cohesión social. La integración de una sociedad depende de la fuerza positiva de sus instituciones. Las instituciones son precisamente lo que se comparte. La familia, el amigo, el barrio, el trabajo, la escuela, el hospital, el club: son las institu-

13 Plaza de Siena

ciones (los mitos) que conjugan a los sujetos, son los soportes de lo social.

9. La plaza central plasma lo institucional como forma y como programa en sí misma. Es, al mismo tiempo, una configuración propicia para albergar diferentes programas institucionales. Esta plaza, como corazón visible de la villa, es la forma que mejor reúne a sus habitantes. En esta reunión como diálogo interno, como identidad compartida, como objetivo común, encontramos la fuerza que se hace necesaria en la villa para dar un paso hacia la integración final con la ciudad.

10. Si se saltea este paso previo, creemos, los habitantes de la villa pueden quedar en la ciudad al descubierto. La palabra clave de la intervención tiene que

ser: contención. De aquí en más: institución – cohesión – comunidad – fuerza. Fortalecer lo institucional es acercar un poco la villa a lo que es la configuración institucional por excelencia: la ciudad.

11. El espacio institucional –la plaza central– lo podemos entender como un espacio simbólico-identitario. Es el espacio único, preciso y bien accesible, que nuclea todas las aspiraciones positivas del barrio. Es el lugar que fotografiamos para vernos representados afuera: los chicos jugando al fútbol, los adolescentes reunidos, la gente mayor al sol, una murga ensayando, las celebraciones…

12. Un espacio que de esta manera refuerza (o produce) el lazo social, porque refuerza la identidad del barrio, relativiza las luchas internas, refuerza la noción de pertenencia a una comunidad, refuerza la contención de cada uno de los habitantes, en fin: el habitante de la villa, fortalecido como sujeto y seguro de sí mismo, de sus relaciones sociales y de los significados inscriptos en ellas, estará en posición, ahora sí, de acercarse a una integración real con el sistema formal urbano.

13. La plaza central –como institución dinámica, que favorece la contención, que favorece el proceso integrador– es la forma que transcribe el discurso velado de lo marginal y que se propone como mito al cual aferrarse y desde el cual proyectarse.

14. La plaza-central-como-forma es la mejor manera de: (1) introducir el necesitado drenaje circulatorio longitudinal en la villa, sin abrir una calle que meta a la fuerza la ciudad en la villa; (2) introducir un gran espacio vacío, sin que se pierda la intimidad, la proximidad

14 Las Flores/Piazza Navona

15 Plaza

de los edificios-límite, logrando distribuir en forma pareja la accesibilidad a un espacio común calificado y (3) introducir vacío en un espacio saturado de vivienda, siendo equidistante la accesibilidad al mismo, logrando garantizar que no volverá a ser ocupado.

La plaza-central-como-mito es la mejor manera de (1) agrupar lo institucional (como institución en sí misma y como núcleo de las distintas instituciones sociales concretas existentes y por existir), (2) propiciar la convivencia comunitaria, volverla visible y enteramente compartida, a la vez que resguardada, (3) dar espacio abierto de recreación a los niños, institucionalizarlo (como símbolo identitario), junto a la reunión positiva y visible de todos los demás grupos etarios y (4) positivar la noción de urbanidad, de espacio público, de civitas, en el horizonte del habitante de la villa.

Acceso desde pasillo

16 Plaza

Bibliografía

Arendt, Hannah. La condición humana. Barcelona, Paidós, 1993.

Castoriadis, Cornelius. La institución imaginaria de la sociedad. Vol. 2, El imaginario social y la institución. Barcelona, Tusquets Editores, 1989.

Cravino, María Cristina. La propiedad de la tierra como un proceso. Estudio comparativo de casos en ocupaciones de tierras en el Area Metropolitana de Buenos Aires. SLASS –URBARED– Cámara de Diputados de la Provincia de Santa Cruz, 2001.

Deleuze, Gilles; Guattari, Félix. Mil Mesetas. Capitalismo y esquizofrenia. Valencia, Pre-Textos, 1988.

Deleuze, Gilles. Nietzsche y la filosofía. Barcelona, Anagrama, 2000.

Eliade, Mircea. Mito y realidad. Barcelona, Editorial Labor/Guadarrama, 1978.

Merklen, Denis. La cuestión social al sur desde la perspectiva de la integración. Políticas sociales y acción colectiva en los barrios marginales del Río de la Plata. Montevideo, Udelar FCS-DS, 1999.

Tenti Fanfani, Emilio. Metamorfosis del Estado y la política. Del poder central al poder local. En: Minujín, Alberto (comp.) Desigualdad y exclusión: Desafíos para la política social en la Argentina de fin de siglo. Buenos Aires, UNICEF-Losada, 1996.

Dos pequeñas cajas de vida. Centro cultural Magma y Módulos playeros.

Estudio Garage

MAGMA

En la zona de acantilados, en la ciudad de Mar del Plata, una familia decide armar un centro cultural, un espacio donde poder desarrollar la identidad de la zona. La única certeza de esta familia era el nombre: magma Con este nombre y la ubicación del espacio el sistema constructivo vino a dar todas las respuestas. La tapia consiste en apilar capas de tierra y apisonarla dentro de un encofrado, no sólo es económico sino que también autoportante y genera una identidad inmediata que representa no sólo a los acantilados sino también al magma; esa roca fundida que será piedra, que será arena, que será muro. En el interior el espacio debía contar con un salón principal para desarrollar actividades mas espaciosas y una especie de habitación para actividades más íntimas. La cara interna del espacio orientada al norte es todo lo que no es su fachada, liviano, vidriado y permeable. Dejando así calefaccionar mediante el sol y apreciar la luz natural y la hermosa tranquilidad que el entorno propone.

SALÓN
SALA
acceso
GALERIA

MÓDULOS

Tres amigos amantes del surf deciden alquilar un terreno frente a una de las pocas playas aun vírgenes entre Mar del Plata y Miramar. Su pedido: un espacio pequeño donde albergarse un par de noches y herméticamente cerrado a la hora de irse. Por último, debía ser transportable. A partir de estas premisas decidimos replicar un módulo tipo refugio con los servicios y las comodidades necesarias donde cada uno de ellos se apropie el espacio libre a su manera. Es así como uno teniendo dos hijos armó una serie de cuchetas, otro siendo soltero una especie de refugio espiritual donde cada rincón habla de su ser y por último un tercero siendo también soltero, pero con otra personalidad tan diferente. Todo un estudio sociológico, como 3 amigos con un mismo deseo se apropian de 15m2 de maneras tan diferentes. Al ser transportable cuenta con una estructura principal de hierro y una perfilería perimetral de steel frame. El revestimiento exterior de madera quemada propone cero mantenimiento y una serie de portones plegadizos genera reparo del sur al estar

abierto y hermetismo total al cerrarlo. La terraza vegetal accesible no solo genera una gran masa térmica, sino que también es el lugar indicado para ir a ver las olas y disfrutar de la hermosa vista.

Opinión

Pequeñas cajas plenas de sentido y usos variables, casi muebles, estas dos performances del Estudio Garage, comparten en un sentido cierta concepción de diseño de volumen único que también impregna la Casa-Salón de La Moringa que incluímos en otra sección de este MAR, pero en este caso su escala casi objetual amerita que integre la exploración Micro que preconiza esta sección, a fin de abarcar trabajos pequeños y a veces nómades, cerrados en sus límites acotados y hasta justamente muebles (y no in-muebles que es lo que puebla el resto de MAR) como los módulos playeros aquí mostrados que se llevan armados en un transporte de carga del cual una pluma los coloca en un terreno transitorio (pues es alquilado) del cuál podran trasladarse a otra locación según sea necesario.

Habría también por asi decirlo, una vocación Micro, entendible en la simplificación estricta de las opciones constructivas, un muro de tapia en Magma o un esqueleto de metal revestido con maderas flambeadas en los módulos de los amigos surfistas. Esa decisión de resolver unas cajas –en el caso Magma rebordeando el potente muro térreo térmicamente pasivo con laterales convencionales y un contrafrente de carpintería integral– con sucintos recursos técnicos alude a configurar esa clase de objetos-muebles, artefactos sencillos con un núcleo de servicio libre o apoyado que confronta a un espacio de uso indefinido o flexible, casi como ocupar una cueva o una carpa (con la ventaja moderna del servicio indoor) o sea , con la intención elemental y microcósmica de otorgar un refugio que además puede ser un ámbito de intercambio cultural como en Magma o un espacio de encuentro de amigos en el caso de los contenedores playeros.

Intensidad de la cultura del color

Croma. Un libro de color

Si bien Derek Jarman murió de sida en los 90 y sus películas no alcanzaron entre nosotros mas que intereses de estricto culto, un par de libros suyos editados impecablemente por Caja Negra (que es como un faro de identificación del mejor pensamiento crítico contemporáneo) –éste que comentamos (originalmente publicado en 1994) y Naturaleza Moderna, en 2019 (original de 1991)– sí significan un testimonio inapreciable de este personaje tan intensamente renacentista en la magnitud de su calidad conjunta de artista e intelectual. Alguién pues bien distinto dentro del revival de los 80 que deslumbra últimamente aunque desde luego es referente protagónico de la cultura de esa década precisamente por su condición de artista total: escenógrafo, actor, director de cine, pintor, escritor, jardinero (Naturaleza Moderna, subtitulado Los Diarios 1 Croma

de Derek Jarman, es un registro estrictamente dual de su actividad intelectual tanto como del cuidado de su jardín y de su devenir sexual). Raramente para esos años Jarman presentó desembozadamente su condición queer así como hizo inmediatamente público que había contraído el VIH, al revés por ejemplo, de Freddy Mercuri y haciendo el transcurso de esa declinación una fuente circunstancial de motivos para su tarea de artista y pensador. Lo mejor de sus trabajos es de esa época de agonía por la enfermedad (mas de una década), al final del cuál, casi como testamento escribió Croma , su peculiar ensayo sobre los colores, escrito mientras el sida lo estaba dejando ciego. Así se fue despidiendo de la vida entre color y color para alcanzar el azul que se expresará en su film final: Blue (1994, ver imagen 3), con una trama restringida a sus vivencias de sidoso reflejado en un fondo monocromo azul como única imagen.

2A Blood Help 1992 y 2B Fuck 1990

En Croma unirá su erudición personal (hace un desarrollo histórico de cada color, desde los materiales que lo componen a sus simbologías para diferentes culturas): El rojo se protege a sí mismo. Ningún color es tan territorial. Plantea su reclamo, se mantiene alerta contra el resto del espectro. Escribe sobre el color, enfermo y casi ciego pues lo considera materia esencial de las realidades y los sueños.

Cuando estudiaba arte en la universidad, a principios de los años 60, Derek Jarman pintaba, exponía sus trabajos (estallidos de color: casi reversión del imaginario Pollock; véanse las imágenes 2A y 2B, de inicios de los 90 expuestas póstumamente en la muestra Dead Souls Whisper, Susurros de almas muertas, de 1998) y participó en varias exposiciones de pintura y comenzó a proyectar escenografías. El excéntrico cineasta Ken Russell lo convocó para los

escenarios del film The devils , de inicios de los 70 y allí le picó el bicho de hacer cine, al comienzo en Super 8 haciendo una suerte de diario íntimo visual hasta hacer su primer película Sebastiane, rodada en latín en 1976, sobre vida y muerte de un soldado romano y poco después hace Jubilee, en que la reina Elizabeth I, del siglo XVI, vuelve a vivir en un futuro punk. Al tiempo de todo esto escribe el poemario A finger in the fishes mouth, pintaba y fungía como jardinero aficionado. Croma esta lleno de esas referencias conclusivas de sus trabajos artísticos: Mezclando pinturas nunca lograrás llegar al amarillo, aunque para hacerlo emplees un aceite dorado. Arenas amarillas. Rayo amarillo.

Las películas de Derek Jarman tuvieron grandes rechazos por su abiertamente orgullosa postura gay y en pleno thatcherismo sufrieron el castigo de espectadores y críticos llenos de prejuicios homofóbicos. En verdad empero, su cine era bien político en su armadura crítica y Jarman lo complejizaba con su gusto por la cultura clásica, lo que mezclaba con diversos trabajos que le daban inmersión en la cultura popular como los videoclips que hizo para los Sex Pistols, o los Pet Shop Boys.

4 y 5_ Caravaggio
Fotograma 1y2
6 The Garden Fotograma

En 1986 contrajo el VIH y al revés de lo imperante entonces no solo lo hizo público sino que lo asumió como una oportunidad estética y discursiva; filmó entonces quizá lo mejor de su cine, 6 largos cuyo final fue Blue (1993), hecho cuando había perdido la visión de un ojo y con dificultades para moverse y muchas internaciones: es entonces, en su último año de vida, cuando escribe Croma cuyas páginas fruto de experiencias febriles arma un verdadero y total tratado sobre el color, que es

analizado desde sus razones materiales (el descubrimiento de cada pigmeno y de sus formas de uso y preparación) hasta sus manifestaciones en el mundo de arte y la cultura. Internado en un hospital –de donde ya no saldrá– cuando escribe este libro se va despidiendo de su sexo, sus amigos, su inmensa biblioteca, su jardín de Dungeness , de su propia vida y de los colores que ya casi no percibe, lo que encarna un manifiesto culto y vivido que se presenta al lector con intensidad expresiva de la intimidad estética de ese ojo que se muere. Aca hay otro par de extractos de Croma (cualquiera es magnífico): Los blancos caballos de mar han traído consigo la locura, estoy irritable, incómodo, ansioso. Odio el blanco. Para los japoneses, la campanilla azul es lo que para los ingleses la rosa o para los holandeses el tulipán: esta flor de color azul profundo florece al amanecer y se cierra al atardecer.

7 The Last of England Fotograma
8 Prospect Cottage

Al comienzo de su enfermedad se trasladó a vivir a Prospect Cottage, un cottage (ver imagen 8) en la costa a metros de una central nuclear en Dungeness y allí trabajó con ahínco en crear un jardín en un árido y casi infértil terreno, constuyendo paisaje mezclando plantas autóctonas junto a otras especies. Acompañó ese jardín, de esculturas, grandes piedras, trozos de madera y de metal, aplicando su creatividad como si estuviera trabajando en una de sus películas o pinturas (véase la imagen 9).

Allí se fue quedando ciego, produjo sus últimas películas y entre internaciones y períodos de reciclaje escribió Croma y The Garden, descriptivo de su jardín y escrito-dibujado a mano (ver imagen 11). Junto a su ultima pareja, Kevin Collins –en Croma se

lo nombra HB, Hinny Beast, afectivamente bestia burdégano (animal cruza de caballo y burro)– transcurrió los meses finales en que su actitud frente a la vida y frente al arte, inseparables en su caso, queda reflejada en el tratamiento que hizo de su enfermedad, a la que consideró, en propias palabras, como un regalo que de dió toda clase de perspectivas que de otra forma nunca hubiera tenido. Amigas como Mari French registraron el clima de Prospect, ese sitio de peregrinación de amigos (ver imagen 10).

Leer Croma es ser atrapado por la erudición del autor. Jarman hace un recorrido por el uso del color a lo largo de la historia y cita sin biblioteca a mano sino memorizando, extractos de Marsilio Ficino, Michelangelo o Da Vinci (el Renacimiento es su territorio

9 Pequeña intervención en Prospect Garden

10 Mari French Dungeness 2018

referencial principal) pero también a poetas y filósofos clásicos como Petronio y Aristóteles hasta alcanzar esquirlas de Goethe o Wittgenstein (sobre quién hizo un film con ese nombre) de modo que la traducción-edición de Hugo Salas es una travesía laboriosa por la biblioteca ausente del artista, cuyas citaciones tratará de establecer. Jarman, como inglés formado en el rigor académico high class es un crisol de influencias exquisitamente matizadas, con fuerte peso del repertorio clásico: incluso llegó a cursar con Nikolaus Pevsner para forjar en ese caso, su erudición artístico-arquitectónica.

Su excursión cromática lo lleva a descripciones que reflejan realidad pero que a

su vez, inspiran simbolismos: El gris nos rodea y lo ignoramos. Las rutas por las que viajamos son cintas grises que diseccionan campos de color.

Este texto de Derek Jarman redondea además la reflexión sobre lo colorístico desaforado de sus trabajos plásticos y cinematográficos. Su película de 1986 sobre Caravaggio no solo evoca la intensidad pictórica del joven Merisi sino que también invoca a un personaje de sexualidad ambigüa que refleja su propia disposición (véanse las imágenes 4 y 5, dos fotogramas de ese film). Otra imagen de otra de sus películas –The Garden (imagen 6)– se manifiesta como radical exposición de color y los personajes bizarros se saturan de

cromatismos en sus cuerpos y vestimentas, que en otras muestras de su cinematografia –como en The last of England, imagen 7– alcanza una vocación de interpelar el paisaje desahuciado de su Londres marginal. Para diseñadores interesados en el potencial cultural y crítico de su trabajo, tener a mano este libro significa poseer una herramienta tanto nostálgica (del punk-pop de los 70) como actual para meditar y proyectar en la intensidad del color.

12 Derek Jarman
11 D.Jarman Página de The Garden

Naves paulistanas

Pabellón Castellato y Centro de Arte y Educación de Pimentas, San Pablo, Brasil

Memoria Pabellón Castellato

El Pabellón Castellato fue construido en el complejo industrial de la empresa, ubicado fuera del área urbana de Atibaia, São Paulo, rodeado de colinas bajas y áreas verdes. Las naves de producción ocupan una parte importante del terreno, pero también se conservan zonas verdes y un bosque de ciliares a lo largo del arroyo que rodea la propiedad. Entre el bosque de ribera y los almacenes se dispuso un área de buenas proporciones para la construcción del Pabellón, debido a su finalidad representativa e institucional. El edificio está destinado a albergar espacios expositivos. Inicialmente enfocado a la sala de exposición de los productos de la industria en la que se inserta, el complejo también agregó espacios para exposiciones de arte.

La singularidad de este proyecto radica, en primer lugar, en la calidad de los espacios, que son amplios, bien iluminados y cuentan con patios, jardines y una piscina reflectante.

Además, la calidad de los materiales utilizados, con sus variados colores y texturas, expresa la experiencia de la empresa en el uso del hormigón arquitectónico.

La distribución del proyecto resalta los espacios expositivos, que son la esencia del Pabellón. La concepción se destaca por el deseo de un recorrido agradable –un paseo–desde el acceso externo, con plazas, galerías, espacios de exposición, auditorio, espacios para eventos y terrazas.

Cada espacio tiene una identidad bien definida, y la circulación es continua, sin puertas

ni bloqueos de ningún tipo, por lo que el recorrido tiene la misma importancia que los propios espacios. Además de los ambientes principales, también existen áreas dedicadas a la infraestructura de funcionamiento del Pabellón.

En cuanto a los materiales utilizados, destacan los componentes metálicos de la estructura y el armazón de acero de las paredes.

El uso de hormigón arquitectónico es una característica llamativa en todo el proyecto, con múltiples especificaciones.

El proyecto se inició en 2020 y se desarrolló durante aproximadamente 6 meses. El equipo de arquitectos brindó apoyo técnico a la ejecución de la obra, que concluyó en aproximadamente un año.

Datos

El Pabellon Castelatto fue proyectado por Biselli Katchborian Arquitetos en 2020 y se construyó en 2022 com una superfície de 2350m² en Atibaia, San Pablo. Los responsables del proyecto fueron Mario Biselli y Artur Katchborian y el equipo de proyecto lo integraron Cassia Lopes Moral (coordinador), Alexandre Biselli, Stephanie Luna y Carolina Gomes. La consultoría en Paisaje fue de Benedito Abbud y la de Interiores de Denise Barretto.

La estructura metálica y de concreto fue desarrollada por Edatec, las instalaciones eléctricas e hidráulicas por FTCH Engenharia Civil Ltda., los sistenas electrónicos por Eureka, la climatización por Arcontemp, la iluminación por Rene Adriani Jr. y la construcción fue a cargo de Lock Engenharia.

Las fotografias son de Nelson Kon.

Memoria Centro de Artes y Educación de Pimentas

Brasil se erige hoy en día como una de las economías más importantes del mundo. A pesar de este rápido crecimiento en el escenario internacional en los últimos años, el país tiene muchos problemas sociales por resolver y uno de los más importantes es la educación. Esta asignatura en este proyecto se entiende no sólo como un simple programa escolar, sino como una disciplina global que incluye acciones culturales, artísticas, deportivas y docentes.

El Centro de Artes y Educación de Pimentas está ubicado en Guarulhos, São Paulo, en el barrio de Pimentas, un lugar con poco equipamiento comunitario dirigido a la educación, el ocio y el deporte.

El proyecto se configura en línea, materializado en una gran cubierta metálica que alberga en sus márgenes longitudinales diferentes usos, articulados por un vacío que culmina en una zona central dedicada al uso deportivo. El complejo acuático se sitúa fuera de este eje, en la zona exterior.

La topografía plana y la configuración lineal del sitio fueron determinantes para la idea arquitectónica.

Los distintos usos se distribuyen en bloques, en hormigón armado in situ y en hormigón

prefabricado. Biblioteca, aulas y cafetería se ubican en el lado oeste del eje. En el lado opuesto, se ubican los volúmenes de aulas, gimnasia artística, danza y auditorios.

El vacío central es un cuadrado. Sin un programa previamente definido, articula los programas en torno a él, a través de recorridos y puentes sugeridos en el primer piso, y permite diversos usos a lo largo de sus asientos y espacios libres. Los colores elegidos para las fachadas interiores (que varían del amarillo al verde) contribuyen a la diversidad y la atmósfera lúdica de esta plaza interior.

Accesibilidad

El edificio está ubicado en un terreno llano, lo que supone una gran ventaja para la accesibilidad: toda la planta baja se encuentra en un solo nivel. El acceso al subsuelo y al segundo piso se realiza a través de rampas de baja inclinación, atendiendo a las leyes nacionales específicas, completamente incorporadas a los espacios. Las rampas asumen un papel protagonista en la mayor parte de la organización de los flujos interiores, las escaleras son sólo estructuras auxiliares para la solución de circulación. El asiento amarillo, situada en medio del eje central, está presente desde las fases iniciales de concepción como una continuidad de la planta baja, de forma que se puede acceder libremente a ella.

Dado que el edificio tiene un uso público intensivo, la elección de los materiales de acabado se centró en soluciones básicas y de fácil mantenimiento, como pisos de concreto aparente, paredes de bloques con pintura regular y estructura aparente en el vacío central.

El eje central fue el espacio más explorado en cuanto a la elección de colores. Se realizó un cuidadoso estudio cromático para que el espacio lineal no resultara monótono. La idea principal de este espacio es su constante transformación a través de la variación de color y la alternancia de cubiertas abiertas y cerradas. Este gran eje es el espacio principal del edificio: además de usarse durante los intervalos de clases, realmente funciona como una plaza pública.

Opinión

La empresa Castellato es una gran firma brasilera proveedora de productos cementicios, bloques de construcción, premoldeados diversos y muchas alternativas para revestimientos de pisos y muros. Como dice la memoria este pabellón está destinado a albergar espacios expositivos. Inicialmen-

Datos

El complejo se diseño en 2008 y se construyó hacia 2010 en el barrio de Pimentas en San Pablo, Brasil con una superfície construída de 16000m² en un terreno de 30780m².

Fue diseñado por Biselli+Katchborian arquitetos, a cargo de los diseñadores Mario Biselli y Artur Katchborian con la ayuda del equipo integrado por Paulo Roberto Barbosa, Luiz Marino Kuller, Cassia Moral, Cassio Oba

Osanai,Camila Bevilacqua de Toledo, Gabriel

César e Santos, Débora Rodrigues Pinheiro, Ana Carolina Ferreira Mendes, Claudia Zanoio y CHN arquitetos.

Las fotografias fueron realizadas por Nelson Kon.

te enfocado a la sala de exposición de los productos de la industria en la que se inserta, el complejo también agregó espacios para exposiciones de arte.

Ese ensamble de referencias técnicas y funcionales asi como la necesidad de crear un ámbito de calidades espaciales entronca fluidamente en la experiencia práctica de la gran trayectoria profesional de la oficina Biselli&Katchborian de quién en otras ocasiones difundimos algunas de sus singulares obras (Iglesia de Barueri, en Modos 1, Buenos Aires, 2011; Conjunto Heliopólis, en Modos 4-5, Buenos Aires, 2015) que tienen por fuera de sus valores arquitectónicos generales, un puntual interés en la calidad técnica de su materialización que conjuga innovación tecnológica (finalmente San Pablo es una de las grandes capitales mundiales de la tecnología) con habilidades cuasi artesanales que otorgan a sus trabajos indicios de un saber resolver con prudencia, ingenio y economía antes que puras adscripciones al discurso high-tech. Abordar de esta forma un pabellón referencial de una gran empresa de ingeniería edilicia conlleva por tanto, la garantía de una expertise de esa capacidad previa que B&K tenía con lo tecnoexpresivo, que también aflorará con fuerza en su proyecto para el Aeropuerto de Florianópolis, que publicaremos próximamente

en MAR. A esa base de solvencia técnica el proyecto agrega su intencionalidad expositiva-promocional y asi dicen en su memoria que la singularidad de este proyecto radica, en primer lugar, en la calidad de los espacios, que son amplios, bien iluminados y cuentan con patios, jardines y una piscina reflectante. Además, la calidad de los materiales utilizados, con sus variados colores y texturas, expresa la experiencia de la empresa en el uso del hormigón arquitectónico.

Se expresa asi el doble interes en proveer un pabellón muy fluido y transparente en una implantación de gran calidad paisajística y la citación en colores y texturas de lo que la empresa comitente produce en materiales cementicios.

Esa fluidez y adopción de una funcionalidad ligada a espacios museísticos-expositivos actuales se expresará en resaltar los espacios expositivos, que son la esencia del Pabellón como dicen en la memoria con el deseo de un recorrido agradable –un paseo– desde el acceso externo, con plazas, galerías, espacios de exposición, auditorio, espacios para eventos y terrazas.

El punto principal será asi en este proyecto –más allá de esa marca distintiva de B&K de desarrollar productos de impecable factura técnica– el de pensar una caja expositiva pabellonaria abierta a su entorno pero también

enfatizando una interioridad no tabicada sino definida por la continuidad del movimiento circulatorio y la percepción permanente de tal fluidez: Cada espacio tiene una identidad bien definida, y la circulación es continua, sin puertas ni bloqueos de ningún tipo, por lo que el recorrido tiene la misma importancia que los propios espacios. Quiza la intención expresa de organizar un espacio integrado y fluido en la secuencia de sus flexibles espacios interiores y en la alta integración de interior y exterior, motivó la necesidad de recurrir a un armazón estructural metálico para reducir las secciones, aumentar la liviandad y garantizar la transparencia, descartándose una pura utilización de los productos de Castellato, que sí se reservan para resolver revestimientos: en cuanto a los materiales utilizados, destacan los componentes metálicos de la estructura y el armazón de acero de las paredes El uso de hormigón arquitectónico es una característica llamativa en todo el proyecto, con múltiples especificaciones.

El proyecto Pimentas también anuda intereses tecno-expresivos con requisitos inherentes a desarrollar alternativas flexibles y multifuncionales respecto de los edificios educativos convencionales. En su memoria B&K admiten que en Brasil hay muchos pro -

blemas sociales por resolver y uno de los más importantes es la educación. Esta asignatura en este proyecto se entiende no sólo como un simple programa escolar, sino como una disciplina global que incluye acciones culturales, artísticas, deportivas y docentes. Ello enmarcará la idea programática de resolver como lo indica su nombre, un Centro de Artes y Educación, que además contendrá espacios para actividades deportivas, lúdicas y de esparcimiento.

Tal doble requisito de complejidad multifuncional (con muchos rasgos no convencionales) y la necesidad de cierta flexibilidad apta para proveer a actividades diversas y simultáneas, así como la interpretación de las posibilidades del terreno del proyecto condujo a la decisión de diseñar una gran nave lineal, cuyo corte variable permitiera acoger las diversas condiciones de ciertas actividades: El proyecto se configura en línea –dicen en la memoria– materializado en una gran cubierta metálica que alberga en sus márgenes longitudinales diferentes usos, articulados por un vacío que culmina en una zona central dedicada al uso deportivo. El complejo acuático se sitúa fuera de este eje, en la zona exterior. La topografía plana y la configuración lineal del sitio fueron determinantes para la idea arquitectónica. Aqui enuncian características de acomoda-

miento de esa fuerte linearidad de una gran nave contenedora que sin embargo resultará apta para plantear rasgos diferentes a algunas partes de esa larga configuración como el abordaje específico del sitio central,como señalan en la memoria: El vacío central es un cuadrado. Sin un programa previamente definido, articula los programas en torno a él, a través de recorridos y puentes sugeridos en el primer piso, y permite diversos usos a lo largo de sus asientos y espacios libres.

El tema principal del proyecto se instala asi en compaginar un partido lineal expresado en esa tipologia casi de nave industrial con las diferenciaciones y acentos que permitieran resolver paquetes peculiares o específicos del programa aunque para ello debera prestarse atención a impedir que esa configuración lineal resultará entonces demasiado aburrida o poco estimulante: asi dirán en la memoria que el eje central

fue el espacio más explorado en cuanto a la elección de colores. Se realizó un cuidadoso estudio cromático para que el espacio lineal no resultara monótono. La idea principal de este espacio es su constante transformación a través de la variación de color y la alternancia de cubiertas abiertas y cerradas. Este gran eje es el espacio principal del edificio: además de usarse durante los intervalos de clases, realmente funciona como una plaza pública.Con lo cuál se deja claro que si el edifício garantiza la funcionalidad específica de cada uno de sus zonas o tramos, también alienta en diversas proposiciones –como el motivo del gran asiento amarillo– la intención crucial de proponer espacios de usos y características públicas para acoger la comunidad usuaria.

Turn static files into dynamic content formats.

Create a flipbook
Issuu converts static files into: digital portfolios, online yearbooks, online catalogs, digital photo albums and more. Sign up and create your flipbook.