MAR 005 - Material de Arquitectura

Page 1


AMERICANA

Pedro Livni

228

EDITORIAL

Proyecto y activación de material preexistente 3

Nuevas formas de activar la ciudad

barrial. Complejo Magnolia Media Group. Montevideo

HERRAMIENTAS

216

AMO/Rem Koolhaas

10

ARQUITECTURA CIUDAD

Ezequiel Muñoz&Mariel Cámara: Moirë arquitectos. Gris urbano. Edificio de Oficinas B6. Mar del Plata

34

ARQUITECTURA CIUDAD

Estudio Cella

MICRO

210

Iván Brankevich, Julieta Knollinger, Agustín Crespo

Aprovechar ruinas. PH Catamarca. Mar del Plata

Post-Urbanidad=Ruralidad? Countryside. A report 194

ARGUMENTOS

Jerónimo Mariani, María Haydée Pérez

Maraviglia y Oscar Cañadas

Nueva centralidad multiprogramática.

Complejo de la Manzana de los Circos.

Puerto de Mar del Plata

184

MATERIAL

Rafael Moya Castro

Arquitectura bioclimática como

Arquitectura experimental.

El caso de la Hospedería del Errante (1995-1999)

ECOLÓGICAS

Lacol+La Boquería.

5

Revista MAR. Material de Arquitectura, #5, Diciembre 2024, Mar del Plata, Argentina, ISSN 3072-7243

Vivienda cooperativa: comunidad, participación y sustentabilidad. Conjunto cooperativo La Balma. Barcelona

154

El dificil ensamble de novedad y preexistencia. Tribunal de Cuentas de Misiones. Posadas

64

UNIVERSO-CASA

Estudio Galera.

Cajas en el bosque urbanizado. Casa Tucán.Cariló

APRENDIZAJES

Juan Manuel Rois

Alabama Songs: Una visita al Rural Studio

HITOS DE HISTORIA

Gustavo Scheps

Recíprocas Reconversiones de máquinas y estados espirituales. Nuevo aulario en la vieja

Sala de Maquinas de la Facultad de Ingeniería. Montevideo

104 130

Rector / Cdor. Amado Zogbi

Vicerrectora / Ing. Alicia Gil

Delegado rectoral MdP / Arq. Marcelo

Artime

Decano / Arq. Óscar Cañadas

Vicedecano / Arq. Claudio Freidin

Directora / Arq. María Silvia Grilli ISSN 3072-7243

Equipo

Editor / Arq. Oscar Cañadas

Director / Arq. Roberto Fernandez

Diseño / DG. Jimena Durán Prieto

Consejo Editorial

Arq. Marcelo Artime

Arq. Eduardo Agüero

Arq. Jerónimo Mariani

Arq. Dario Lemmi

Arq. Pablo Rescia

Arq. Leonardo Jauregui

Arq. Ezequiel Muñoz

MAR manifiesta que las opiniones consignadas en esta publicación son de absoluta responsabilidad de los firmantes de cada nota y no comprometen a tales instituciones. Las notas sin firma son responsabilidad de la Dirección editorial de MAR.

Las imágenes incluídas fueron suministradas especialmente por los autores y/o sujetos protagónicos de cada nota. Cuando fueran solicitadas expresamente se indican las autorías y/o las fuentes originales de tales imágenes. Si alguna imagen careciera a juicio de su autor, del crédito correspondiente rogamos se nos consigne para subsanarlo.

Proyecto y activación de material preexistente

Cuando en el siglo XVI la cultura europea desarmaba afanosamente el Anfiteatro Flavio –más conocido como el Coliseo– para acopiar mármoles para construir San Pedro u, océano por medio, hacían lo mismo deconstruyendo la fortaleza incaica de Sacsahumán para erigir las iglesias centrales de la Cuzco recién colonizada, puede decirse que se sostenía un criterio muy antiguo según el cual lo construído podía ser entendido como un material, una preexistencia concreta que perdido su esplendor o importancia, podría reactivarse en nueva forma/función pero a la vez que –mediada la construcción de una nueva ética/estética por ejemplo en las prédicas de Joachim Winckelman, primer superintendente del patrimonio vaticano en el siglo XVIII– empieza a entablarse la dificil dialéctica entre conservar y renovar, sobre todo aquella edilicia considerada valiosa o fruto del moderno concepto de patrimonio

El movimiento moderno asumió una conducta anti-historicista, es decir ferozmente enrolado en demoler y construir a nuevo, un ejemplo cabal de lo cual pudo ser Le Corbusier, por caso en su tabula rasa para el plan de Buenos Aires de 1940, aunque otros modernos radicales como Mies se negaban a recibir metros de sus propias obras en pago de honorarios siendo que ni loco abandonaba su antigua residencia neoclasicista.

Esta MAR 5 se fue armando en torno de esa dialéctica entre conservación estricta y nuevas intervenciones reactivantes o refuncionalizantes, empezando por el polémico proyecto del Tribunal de Cuentas de Misiones intevención en que el estudio de Daniel Cella superpuso una torre contemporánea (pero adaptada a su ambiente e incluso dialogante con trabajos misioneros célebres como los de Soto&Rivarola) a un viejo edificio de menos de un siglo catalogado como patrimonial, engendrando un mix proporcionado y articulado entre el pequeño basamento existente y el cuerpo nuevo elevado. En la saga de la célebre conversión de un edificio comercial de fin del XIX devenido en sede del Banco de la Ciudad, en la peatonal Florida de Buenos Aires a cargo del grupo liderado por Jujo Solsona, esta intervención reactiva un pasivo de interes cultural y lo ensambla en un híbrido razonable e integrado.

La casa del bosque en Cariló, del grupo conducido por Ariel Galera o el edificio B6 de Moireë en Mar del Plata, significan operaciones de reactivación de ambientes o preexistencias naturales o artificiales, mediante sendos diálogos de contextualización entre un paisaje forestal o un tejido urbano barrial existente de paso a su transformación tipológica, y mucho de lo jugado en cada proyecto trata de aprovechar las circunstancias de su puesta en sitio o en extremo, la tentativa de discernir y consolidar un cierto genius locii. La espléndida intervención de Gustavo Scheps –muchos años decano de la FADU UdelaR en Montevideo y encargado de variada obra nueva de

arquitectura universitaria– reactivando una suerte de vacio potencial (la Sala de Máquinas de la Facultad de Ingeniería, el capolovoro de Julio Vilamajó, quiza el arquitecto históricamente más importante de Uruguay) es un potente ejemplo de esta clase de proyecto de lo nuevo en lo viejo, o lo actual sobre lo preexistente, entendiendo que lo previo siempre es una vigorosa expresión de material tanto físico como simbólico o cultural.

El conocido proyecto de Manuel Casanueva en Amereida no solo operó como trabajo didáctico (el trabajo que presentamos lo firma un antiguo alumno) sino como una tentativa experimental de reformular una construcción existente mejorando su envolvente mediante la aplicación de una meditada teoría de proyecto y tratando de que el experimento morfológico sea fruto de cierta racionalidad científica y no de una eventual actuación caprichosa o intuitiva.

La intervención micro del trio Brankevich-Knollinger-Crespo en una pequeña reforma doméstica ellos mismos la definen como la ruina de una vieja construcción del barrio San José en Mar del Plata, para que pueda convertirse en un espacio de habitar contemporáneo y la propuesta ganadora del Estudio M-PM-C para construir un complejo comercial-cultural en el ya antiguo terrain vague de la Manzana de los Circos en el Puerto de Mar del Plata también supone la intención de reactivar un típico pasivo infraestructural no solo para desarrollar un emprendimiento inmobiliario de inversión privada sino para tratar de que el mismo, dentro de diversas variantes de rentabilidad, aspire a generar nuevos focos de interés y atractores para este tipo de ciudad –con tanto turismo– así como para impulsar una fuerte nueva centralidad que equilibre y otorgue mejor equipamiento al pujante desarrollo sur de la ciudad.

El ya celebre conjunto La Balma en Barcelona no solo innova en activar franjas diferenciales de la demanda de habitabilidad social poco atendidas (como el hábitat colectivo cooperativo) sino también para indagar en mejores prestaciones energéticas y la tradición pedagógica de la reconocida experiencia de Rural Studio trata de formar, al decir del desaparecido fundador Samuel Mockbee, arquitectos ciudadanos, haciendo que el trabajo formativo de los alumnos conduzca a potenciar obras concretas, no sólo viviendas para personas reales sino equipamiento público en Alabama, el Estado más pobre de USA. Y el trabajo de Pedro Livni en una calle montevideana –Pablo de María– del que mostramos la primera intervención allí construida (ahora ya hay 4 más en la misma cuadra) supone no sólo proponer nuevos programas, como unas sedes radiofónicas o un restaurante, sino que los trabajos cumplan con sus funciones, pero que se superen agregando diversidad de uso público y espacialidades que van mucho más allá de la tajante separación entre lo privado y lo público.

Instrucciones para navegar el MAR

(el número 5 de MAR)

ARQUITECTURA-CIUDAD

Esta sección presenta un complejo edilicio singular local o regional cuyo interés radique en establecer propuestas de relación con sus entornos urbanos además de postular ideas proyectuales significativas en su planteo, desarrollo y materialización. Se presentaran documentaciones originales completas (planos, fotos, memorias) y un análisis que pueda ser útil tanto para su aplicación didáctica como para su recepción académica y profesional.

Ezequiel Muñoz&Mariel Cámara:Moirë arquitectos. Gris urbano. Edificio de Oficinas B6.

Mar del Plata

Entendemos la tipología edilicia como la disposición de los elementos y las relaciones que permiten configurar la forma y otorgarle aceptación cultural.

El edificio B6 busca generar un modelo que reinterprete la tipología, para eso los signos se reelaboran produciendo graduales desplazamientos de sentido, generando un edificio único que responde a las premisas de que hacer arquitectura es hacer ciudad y que la arquitectura comunica a través de su forma y sus límites. El edificio posee una imagen pregnante que le aporta valor e identidad al edificio a partir de su forma y materialidad, delimitado por un frente integral de vidrio y un treillage de aluminio pintado gris grafito que le otorga unidad y singularidad.

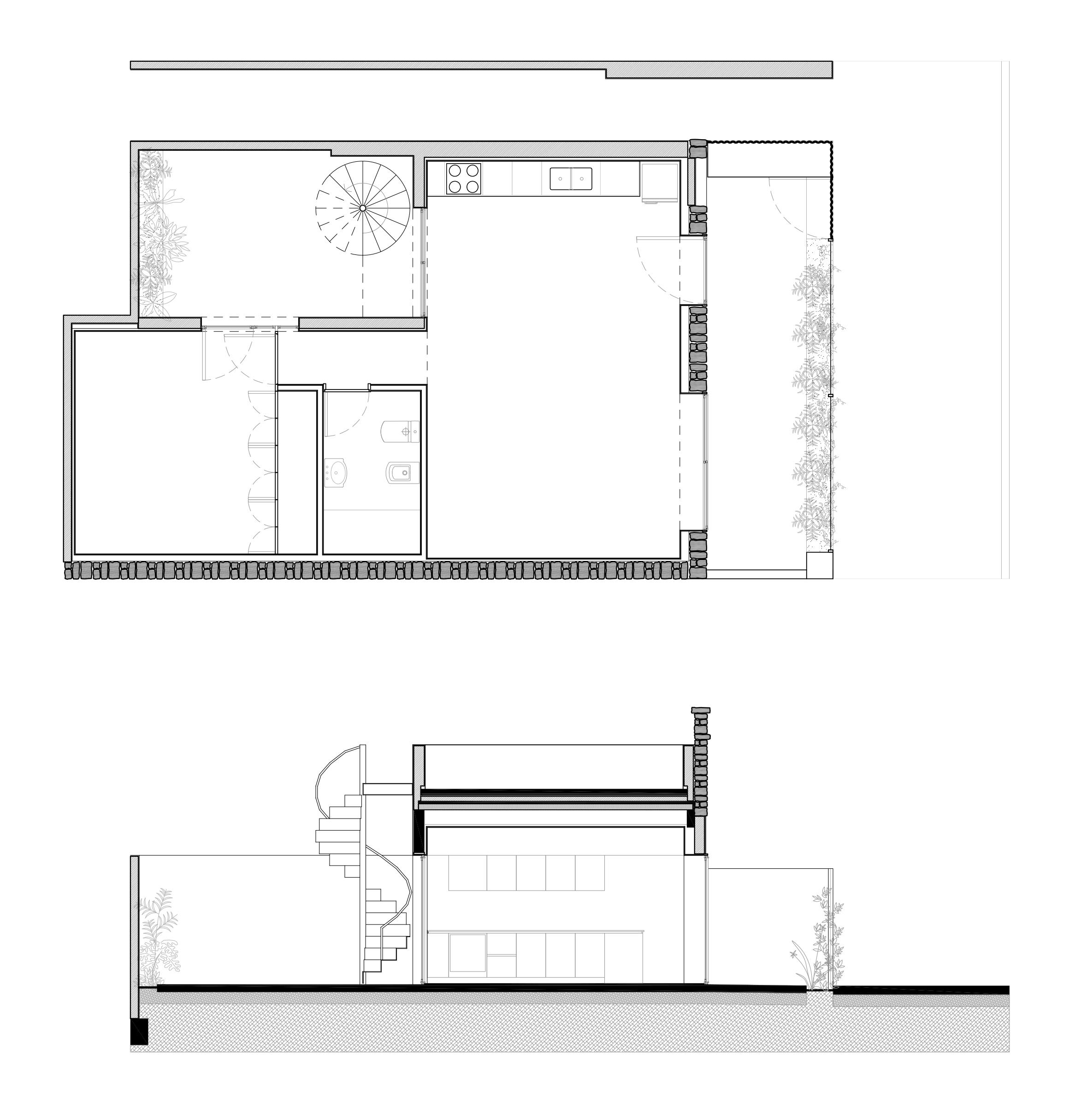
Estudio Cella. El dificil ensamble novedad y preexistencia. Tribunal de Cuentas de Misiones. Posadas

A fin de revalorizar el edificio existente se proyectó conservar la fachada exterior, con sus aberturas metálicas, balcones sobre la fachada y la escalera de mármol que une la planta baja con el piso 1.Se dispone en el primer piso del edificio original un salón de usos múltiples con acceso tanto desde el núcleo circulatorio vertical nuevo, como a través de la escalera de mármol en forma directa desde la planta baja, promoviendo el eventual uso público del salón con acceso a los balcones originales. Para la ampliación proyectada entre los pisos 2 y 11 la tipología adoptada es la de edificio de perímetro semilibre.Lo nuevo se posa o se calza sobre lo viejo procurando homogeneidad volumétrica y a la vez distinción de materiales y lenguajes.

UNIVERSO CASA

Tratara de ofrecer una secuencia de casas unifamiliares o pequeños conjuntos que contengan proposiciones conceptuales en cuanto a su proceso y razón proyectual, en su realización y construcción y en su uso, identificando valores que vayan más allá de la mera respuesta funcionalista. Tal como en el caso anterior se ofrecerá una documentacion integral y un análisis enfocado en su recepción didáctica tanto como de docentes y proyectistas.

Estudio Galera. Cajas en el bosque urbanizado. Casa Tucán. Cariló Casa Tucán es una vivienda inicialmente pensada para su uso durante el verano, construida en un terreno en esquina de la localidad de Cariló. Debido a la vegetación presente en la zona –grandes lambertianas y pinos elliotis–, la distancia a la playa y al centro, el sector se asemeja a la imagen de un bosque urbanizado. La casa se plantea como la superposición de dos cajas de hormigón, cuyo perímetro busca minimizar la tala de árboles necesaria para su construcción. La composición de volúmenes se cierra a la esquina jerarquizando el centro del terreno, donde de manera acelerada la duna con su vegetación natural se eleva hacia el contrafrente generando un microclima, resultado de combinar el cierre natural del terreno con la implantación de la vivienda.

104

APRENDIZAJES

Plantea recorrer una serie de experiencias educativas de arquitectura reconocidas por su alternativismo y experimentación para acoger planteos y propuestas que pudieran resultar útiles o convergentes con las discusiones pedagógicas de la propia escuela. Así como investigaciones y aplicaciones proyectuales en campos no convencionales del hábitat que abren camino al aprendizaje de prácticas alternativas.

Juan Manuel Rois. Alabama Songs: Una visita al Rural Studio

Cuesta mucho encontrar algún otro ejemplo en la historia de las escuelas de arquitectura de un balance tan preciso entre compromiso social, design-built (construir lo proyectado) y calidad arquitectónica como la que ha conseguido en sus más de veinte años de historia el Rural Studio en Hale County, Alabama, el segundo estado mas pobre de Estados Unidos y el condado mas pobre de Alabama, con más de treinta por ciento de la población bajo los niveles de pobreza y altos niveles de desocupación. Sam Mockbee conocía muy bien el territorio que eligió para fundar su proyecto educativo, su interés era hacerles conocer a sus alumnos las circunstancias del entorno para encender en ellos la inquietud de su transformación que llamó la formación de ciudadanos arquitectos.

HITOS DE HISTORIA

Mas que presentar grandes hitos de la historia de la arquitectura se tratará de abordar hechos diversos de la historia local y regional que sean de interés en el conocimiento de grandes proyectistas locales y regionales pasados cuyas tareas hayan derivado en producir hechos significativos de la modernidad arquitectónica.

Gustavo Scheps. Recíprocas. Reconversiones de máquinas y estados espirituales. Nuevo aulario en la vieja Sala de Maquinas de la Facultad de Ingeniería. Montevideo

Uno de los más significativos espacios de la Facultad de Ingeniería UdelaR en Montevideo proyectada por Julio Vilamajó era la Sala de Máquinas, de 15 x 15 x 45 metros, un hueco gris a contraluz lechoso, encajonado en hormigón visto, el único que se preservaba intacto. Sus proporciones, su luz y peculiar ingreso superior, le convertían en un ámbito extraño y sugerente.

La primera impresión que tuve de aquel vacío inesperado, que al ser descubierto desde encima lucía confuso y vertiginoso en su escala indefinida, fue que no debía desaprovecharse.

Visto en retrospectiva, el proyecto surgió de la idea de modelar aquel vacío casi tangible, de afectarle lo menos posible y de la pena sin remedio de perderlo. Aprovechando la potencia de ese espacio piranesiano lo reconvertimos en un area de aularios de enseñanza que flotan en tal ambiente.

ECOLÓGICAS

La cuestión ambiental y de crisis de sustentabilidad se presenta como un desafío para el proyecto actual y futuro y si bien resulta un campo relevante para ajustar y modificar formas tradicionales de proyectar, todavia se carece de metodologias comprehensivas y aplicables por lo cuál se presentarán distintos trabajos y enfoques –desde interdisciplinares hasta urbano-territoriales pero también de proyectos de arquitectura- para empezar a entender las vias de futuros trabajos de mucha mayor implicación ecológica.

Lacol+La Boquería.Vivienda cooperativa: comunidad, participación y sustentabilidad. Conjunto cooperativo La Balma. Barcelona

La Balma es un proyecto de la cooperativa Sostre Cívic, que se adjudicó la parcela de Poblenou en el primer concurso público de suelo municipal para vivienda cooperativa en alquiler. El proyecto busca ampliar el parque de vivienda asequible para hacer frente a la escalada de precios de los últimos años. Teniendo en cuenta los recursos disponibles, el foco está en el coste inicial de construcción y uso del edificio en su vida útil, pensando en el impacto económico final para el usuario reduciendo el coste del confort energético de la vivienda en más de un 50%. Se realizó un diagnóstico socioeconómico del grupo poblacional y un proceso participativo para trabajar y llegar a una propuesta consensuada, en la que el usuario y la comunidad tengan un papel protagónico; y el edificio es la infraestructura que los acompaña y les permite evolucionar libremente desde tres ámbitos sociales: el barrio, la comunidad, la vivienda.

MATERIAL

La revista no publicará (salvo alguna específica excepción) proyectos no construídos en el entendimiento de la relevancia por otorgarse a la materialización adecuada de las ideas proyectuales ya que se piensa que la construcción no es una fase ulterior e independiente del proyecto sino que éste cobra sentido, viabilidad y calidad en tanto aborde y resuelva su condición material, lo cuál lleva a entender cuestiones de sustentabilidad y tecnologías de ingenio y cualidad regional, más allá de temas propios de la construcción tradicional.

Rafael Moya Castro. Arquitectura bioclimática como Arquitectura experimental. El caso de la Hospedería del Errante (1995-1999)

El caso de la Hospedería del Errante, proyecto del arquitecto e investigador Manuel Casanueva corresponde a una obra realizada en el ámbito académico y pedagógico, dentro del campo de la experimentación y apunta a explorar el problema climático y energético de la relacion entre afuera y adentro (in-temperie/temperie) de una arquitectura posada en pura naturaleza. El artículo habla de mi experiencia como alumno, recogida durante la primera etapa del proyecto y construcción de esta obra y de las relaciones entre proyecto, experimentación y tecnología.

ARGUMENTOS

La producción de proyectos descansa en aprovechar aspectos analíticos emergentes de argumentos teóricos que tratan de entender el pasado y el futuro para acompañar el presente proyectual y de tal forma esta sección se interesa en mostrar trabajos argumentales de teoría y crítica que en algunos casos pueden tener relación directa con acciones de proyecto o en abrir propuestas de formas alternativas de proyectar.

Jerónimo Mariani, María Haydée Pérez Maraviglia y Oscar Cañadas. Nueva centralidad multiprogramática. Complejo de la Manzana de los Circos. Puerto de Mar del Plata

La propuesta ganadora del concurso de iniciativas de desarrollo urbano promovida por el Consorcio del Puerto de Mar del Plata planteó la posibilidad de revisar los ejes y condiciones de un proyecto pensado en relación a los fundamentos urbanos, arquitectónicos y paisajísticos de una actuación en un área tan relevante y largamente postergada de la ciudad asi como reflexionar sobre sustentabilidad y accesibilidad universal y al desarrollo de un programa funcional abierto y flexible a variaciones de usos y preferencias que contuviera proponer ideas espaciales que construyan un nuevo lugar de encuentro para la ciudad y un espacio interior como expresión de múltiples usos comerciales y culturales para ofrecer un nuevo polo urbano de nueva centralidad multiprogramática.

Hay arquitectura mínima: pequeñas intervenciones de adaptación o modificación; agregados, acciones de acupuntura urbana por colocación de nuevos objetos. En las escalas opuestas de lo territorial-urbano y cercano a lo doméstico-objetual es posible activar acciones proyectuales que ofrecen nuevas funcionalidades o que agregan variedad y novedad de uso a lo preexistente. Acciones que pueden recaer en trabajos de generación de objetos resueltos casi con artesanatos y/o con enfasis en la emisión de comunicación; objetos que hablan agregando pequeños matices de sentido a lo dado.

Iván Brankevich, Julieta Knollinger, Agustín Crespo. Aprovechar ruinas. PH Catamarca.

Mar del Plata

El PH Catamarca es una obra realizada en 2021, de re-funcionalización de una parte de lo que en algún momento fue una casa chorizo, que a lo largo del tiempo sufrió múltiples intervenciones, subdivisiones, y cambios de uso, convirtiéndose actualmente en una de varias unidades de propiedad horizontal. El ejercicio consistió en imaginar un escenario en el cual la ruina de una vieja construcción del barrio San José en Mar del Plata, pudiera convertirse en un espacio de habitar contemporáneo, manteniendo, si es que lo hubiera, algún valor de esa historia.

HERRAMIENTAS

Los buenos libros y artículos de problemas teóricos y prácticos del proyecto de arquitectura son como herramientas de trabajo para formarse y entender aspectos y cualidades por afrontar cuando se está proyectando: por tanto el interes de esta sección será presentar críticamente algunos aportes bibliograficos recientes que suponen conocer el marco cultural general donde se contextualiza el hecho de proyectar y tomar decisiones proyectuales.

AMO/Rem Koolhaas Post-Urbanidad=Ruralidad? Countryside.A report Countryside, the future fué la exhibición en el museo Guggenheim abierta en 2020 y cerrada por la pandemia que relata la historia del otro 98% del mundo, lo que queda afuera de las ciudades y es también el libro-catálogo de esa muestra que publico Taschen. ¿Y quién mejor que aquél que ha dedicado su carrera a redescubrir, recategorizar y revender lo urbano: Rem Koolhaas, para contarnos sobre lo rural? El visionario arquitecto aborda este tema no con una exposición, sino con una cascada de preguntas sobre el campo. Con mil preguntas, para ser exactos, que, desde el mural de la entrada, marcan el tono para los kilómetros de texto que saturan la gran rotonda del museo y que se transcriben en el libro.

AMERICANA

Entendemos la cultura proyectual local como haciendo parte de problemas y alternativas propias del mundo latinoamericano cuyas propuestas mas singulares e innovativas se presume que deben conocerse profundamente para insertar el trabajo de proyecto en una condición geocultural especifica que en lo posible aproveche lo bueno de la globalización pero también que cuestione sus defectos y limitaciones.

Pedro Livni. Nuevas formas de activar la ciudad barrial. Complejo Magnolia Media Group. Montevideo

La obra de Magnolio Media Group consiste en el reciclaje, ampliación y transformación de una casa existente, de estilo ecléctico, en un complejo de medios para estudios de radio, una sala de espectáculos para 150 personas y un restaurante. Programas que alojados en un mismo edificio tienen que contar con la posibilidad de coexistir de manera independiente.

La dificultad del proyecto radicó en como adosar las nuevas necesidades programáticas que excedían sobremanera el metraje de la casa existente y en mantener cierto equilibrio entre las partes capitalizando la energía previamente desplegada con el propósito adicional de desbordar las respuestas a las puras exigencias de los programas encargados para plantear nuevas ofertas de espacios de uso público.

GRIS URBANO.

Edificio

de Oficinas B6. Mar del Plata

Memoria

El proyecto se ubica en un lote de 10,39 x 21,65, en un distrito central y categorizado por la actividad relacionada a la medicina, finanzas y comercio, en una franja de transición entre usos y densidades complejas sobre la avenida Colón y un área barrial de casas y depósitos de baja altura.

Entendemos la tipología edilicia como la disposición de los elementos y las relaciones que permiten configurar la forma y otorgarle aceptación cultural.

El edificio B6 busca generar un modelo que reinterprete la tipología, para eso los signos se reelaboran produciendo graduales desplazamientos de sentido, generando un edificio único que responde a las premisas de que hacer arquitectura es hacer ciudad y que la arquitectura comunica a través de su forma y sus límites.

Ubicado sobre la calle España a pocos metros de Colón, el entorno se caracteriza por la heterogeneidad del tejido, tránsito vehicular y peatonal.

El terreno linda con un edificio de basamento y torre. Ésta particularidad urbana, nos hace leer al lote con una medianera libre conforme termina el basamento, permitiéndonos tra-

bajar la forma como una articulación de cajas en vertical que responden a las distintas situaciones urbanas. Se escinde de una de sus medianeras, generando una relación dialéctica con el edificio lindero de basamento y torre y el espacio urbano, en los pisos superiores las cajas avanzan sobre la línea municipal, enfatizando el acceso y otorgándole distintas escalas al espacio público.

Posee una imagen pregnante que le aporta valor e identidad al edificio a partir de su forma y materialidad.

El edificio, delimitado por un frente integral de vidrio, posee un treillage de aluminio pintado gris grafito que le otorga unidad y singularidad; a su vez, este tamiz genera un juego de luces y sombras en el interior del edificio.

El edificio se compone de planta baja con un local comercial de 100m2 y ocho pisos de los cuales los cuatro primeros son semi pisos de oficinas de aproximadamente 52m2 y desde el quinto al octavo piso oficinas de 105m2

La distribución en planta logra flexibilidad debido a la ubicación del núcleo de circulaciones verticales en el lateral, dejando así, una planta totalmente libre en todos sus niveles y la posibilidad de dividirla en semi pisos al frente y al contrafrente.

La estructura de hormigón armado está diseñada de modo tal que las plantas se desarrollan sin columnas intermedias, otorgando flexibilidad completa en el armado de las oficinas de pisos y semi pisos.

En el cuarto piso se ubica el estudio de Moirë arquitectos, diseñado con recursos y materiales que son esenciales en sus proyectos.

Para el interior del estudio se eligió utilizar un lenguaje amable e inspirador, espacios enriquecidos por el ingreso de la luz, las visuales a la ciudad y el diseño de sus tamices.

Para las terminaciones y elección del mobiliario, se eligieron materiales nobles, auténticos y perdurables, como la madera, el vidrio, el cuero y el acero inoxidable.

Se incorporó una burbuja geométrica de vidrio que permite aislar y conectar ciertas tareas cuando es necesario y a su vez la posibilidad de innumerables reflejos y transparencias le otorgan dinamismo al estudio.

Opinión

En el área de deslinde que la avenida Colón entrega separando una zona más bien céntrica y consolidada de un barrio de baja densidad y mayoría de casas bajas mezclada con depósitos y talleres de poca altura y cierta decadencia y lindero a un edificio en altura sobre la esquina de Colón planteado

Datos

El proyecto y dirección es de Moirë arquitectos: el proyecto se hizo en 2020 y la construcción en 2021. La superfice cubierta total es de 1205,21m2. El desarrollador es la firma Bonjo SA. El cálculo estructural lo realizó el arquitecto Fernando Redivo y las fotografías son de Ramiro Sosa.

en la tipología de basamento/torre que deja cierto retiro lateral que mejora la silueta del B6, este pequeño edificio de algo mas de 1200 metros se desarrolla para aportar una planta baja de uso comercial y un pequeño lobby de acceso y 8 pisos destinados a usos de oficina los 4 primeros en semipisos de algo mas de 50 metros (con una variación en el nivel cuarto en que el semipiso frontal es mas grande, siendo además el que aloja al Estudio) y los 4 ultimos en pisos de poco mas de 100. El volumen engendrado plantea un retranqueo de 1,2 metros coincidente con el acceso el PB y el hall vertical en los pisos, el que se desarrolla de piso a techo mas un retranqueo de 1,7 metros que angosta el frente desde el piso 5 al 8, coincidente en esos niveles con avanzar en voladizo el prisma frontal resul-

tante en 1,2 metros fuera de línea municipal. Este esquema dinamiza el conjunto y le otorga unas características que aportan diversidad en la conformación de su imagen externa asi como que diversifican situaciones que matizan la uniformidad programática de los pisos y haciendo que los dos diedros configurados –el que da al este de piso a techo y que da al norte en las tres plantas superiores con el retranqueo lateral y el avance frontal–ofrezcan una silueta destacable mas allá de ceñirse a un puro volumen con dos medianeras plenas completas.

Esa búsqueda de discreta diferenciación aporta obviamente la solución geométrica indicada pero además queda potenciada por la proposición de una coloración gris que uniformiza el conjunto pero otorgando cierta elegante distinción de color, lo que se acentuará en el motivo del treillage de aluminio gris grafito que compone en el plano de fachada –tanto el de línea municipal de las plantas inferiores como el sobrevolado en las superiores– la máscara o tamiz de moderación solar que regula térmicamente la fachada del frente integral de vidrio.

El sencillo pero significativo modelado de la geometría del edificio, los retranqueos y avances de varios de sus planos frontales, el color grisáceo de uniformización del conjunto y el motivo de la retícula metálica sobrepuesta a los planos frontales, constituyen las ingeniosas aunque a la vez modestas, operaciones de resolución de un programa cuyas características normativas normalmente conducen a soluciones anónimas y esterotípicas las cuáles aquí se esquivan favorablemente, a la búsqueda de una identidad que permita reconocer esta pieza en su entorno pero a la vez, una identidad obtenida sin gritos ni estridencias.

1_ Planta Baja
Planta 1
Planta 2-3

4_ Planta 4

5_ Planta 5-6-7-8

Placa Durlock Montante 34mm
Estructura H°A°
Contrapiso RDC e:10cm
Porcelanato 85x85
Carpinteria PVC -gris grafito
Tubo de Aluminio 70x50 -gris grafito c/16cm
Anclaje a tubo
PGU 120
PGC 100 - Anclaje a Losa
Placa Durlock Montante 34mm
Estructura H°A°
Contrapiso RDC e:10cm
PGC 100
PGC 100 - Anclaje a Losa
Contrapiso RDC e:10cm
Estructura H°A°
Carpinteria PVC -gris grafito
Tubo de Aluminio 70x50 -gris grafito c/16cm

EL DIFÍCIL ENSAMBLE DE NOVEDAD Y PREEXISTENCIA.

Tribunal de Cuentas de la Provincia de Misiones

Estudio Cella

Memoria

El Tribunal de Cuentas de la provincia encarga construir en un inmueble de su propiedad desde el año 1948, una mayor superficie de oficinas con el objetivo de concentrar en el predio, el funcionamiento de áreas hoy alojadas en distintos inmuebles de Posadas.

Por tratarse de un edificio con valor patrimonial el proyecto ha sido el evaluado por la Comisión Asesora de Patrimonio

Histórico, en el ámbito del Departamento de Patrimonio Histórico de la Municipalidad de Posadas, constituyéndose esta instancia en una oportunidad para la reflexión respecto de la conservación del patrimonio arquitectónico y de la posibilidad de introducir nuevos usos en él medio heredado.

Como parte del Estudio de Impacto Ambiental requerido por el Ministerio de Ecología de la provincia también se ha realizado una audiencia pública a la que fueron convocados entre otros, vecinos, anteriores propietarios, colegios profesionales, representantes del Ministerio de Ecología y de la Dirección de Urbanismo de la Municipalidad de Posadas.

Para el abastecimiento del consumo eléctrico del edificio se debió rehacer y repotenciar la estación transformadora ubi-

cada en la plazoleta de la avenida, enfrente al edificio y además de disponer de un generador que abastezca los servicios centrales (ascensores e iluminación de emergencia.)

El edificio dispondrá de un salón de usos múltiples en el piso 1 y diez pisos de oficinas de aproximadamente 375 m2 por planta, abastecido por tres ascensores para ocho personas cada uno y una escalera presurizada.

En cada piso se disponen sanitarios para ambos sexos con accesibilidad para personas de capacidades o movilidad reducidas.

Los pisos de oficina cuentan con amplias facilidades para el manejo de datos y trabajo en redes, tales como piso técnico elevado, y espacio para racks para servidores en cada piso, sumado a su planta libre, que permite múltiples disposiciones de los puestos de trabajo.

El cerramiento perimetral está compuesto por carpintería de aluminio anodizada, cristales dobles con cámara de aire, y como medida de ahorro energético se disponen de parasoles que atenúan la incidencia de la energía solar en el interior del edificio.Dispone de tres niveles para estacionamiento de vehículos abastecidos por una monta vehículos hidráulico

En el predio se encuentran edificaciones de distinta época principalmente en la esquina de la avenida Roque Pérez y Buenos Aires, el edificio construido en 1930 por Emilio Azar y su esposa Saide Nahme de Chemes que es el consignado con valor patrimonial mas luego, agregados y modificaciones posteriores a 1930 existentes o ya demolidos tales como un entrepiso entre planta baja y primer piso, subdivisiones en planta baja y en el entrepiso, una ampliación sobre el garaje ubicado sobre la medianera norte y una edificación, de planta baja y tres pisos, construida en el año 1978.

A fin de revalorizar el edificio existente se proyectó conservar la fachada exterior, con sus aberturas metálicas, balcones sobre la fachada y la escalera de mármol que une la planta baja con el piso 1.

Se dispone en el primer piso del edificio original un salón de usos múltiples con acceso tanto desde el núcleo circulatorio vertical nuevo, como a través de la escalera de mármol en forma directa desde la planta baja, promoviendo el eventual uso público del salón con acceso a los balcones originales.

Para la ampliación proyectada entre los pisos 2 y 11 la tipología adoptada es la de edificio de perímetro semilibre. Se opta por retirar el edificio de la medianera sur, recostándolo sobre la medianera oeste dado que esta última orientación es desfavorable para los espacios

de trabajo. Sobre Buenos Aires se dispone de tres plantas de cochera y un montautos para alojar los vehículos oficiales de la repartición.

Datos

El Tribunal de Cuentas de la provincia de Misiones se ubica en la calle Buenos Aires

1206-20 en la ciudad de Posadas. Fue proyectado y hecha su asistencia técnica en obra por el Estudo Cella, integrado por los arquitectos

Daniel Cella, Pedro Peralta y Lucia Cella y el MMO Alejandro Aguirre, siendo colaboradores Sebastián Norennberg y Pablo Aguirre.

La inspección de obra fue realizada por la ingeniera Roxana La Barba (Instituto Provincial de Desarrollo Habitacional) y el cálculo estructural lo efectuó el ingeniero Alberto Peresson.

La empresa constructora fue PROOBRA SA y fueron asesores el ingeniero Ignacio Fernández (Instalación eléctrica), el ingeniero Carlos Cabral (Instalación sanitaria) y la arquitecta Eugenia Basabe (Iluminación).

El comitente de la obra es el Instituto Provincial de Desarrollo Habitacional y la superficie construída total de 4970 m2. La obra se concluyó en 2020.

Opinión

El trabajo de Daniel Cella y su destacado equipo misionero se inscribe en una posible serie local, regional e internacional que manifiesta

5_

Tal situación ha venido configurando un campo polémico en el cuál se debate si es posible o no alguna clase de intervención nueva en esas preexistencias siempre partiendo de la base que ello supondrá una nueva (y de mayor porte) construcción oscilando entre demoler y edificar a nuevo o bien, superponer o ensamblar nueva arquitectura a la existente, como es este caso. Tómese en cuenta que nuestro país además ha desvalorado sus edilicias de mayor potencia cultural, como el Cabildo o la Casa de Tucumán, ambos deformados y demolidos y luego reconstruidos como falsos originales.

la intención de aprovechar el potencial edilicio de un predio relativamente central de largo uso histórico (que en nuestra región e incluso en USA, al contrario de Europa, suele no exceder de un siglo) en el cuál existe una construcción patrimonialmente valorada, a veces como en este caso, con el estatus de cierta tutela estatal, que al contrario del modelo europeo, suele ser en general declarativo aunque a veces, despertando intereses conservacionistas en la sociedad civil.

Tal situación ha venido configurando un campo polémico en el cuál se debate si es posible o no alguna clase de intervención nueva en esas preexistencias siempre partiendo de la base que ello supondrá una nueva (y de mayor porte) construcción oscilando entre demoler y edificar a nuevo o bien, superponer o ensamblar nueva arquitectura a la existente, como es este caso. Tómese en cuenta que nuestro país además ha desvalorado sus edilicias de mayor potencia cultural, como el Cabildo o la Casa de Tucumán, ambos deformados y demolidos y luego reconstruidos como falsos originales. Para los referentes –ideológicos y/o expertos–de la conservación patrimonial tanto demoler o erradicar cuanto intervenir modificando sensiblemente el bien original (no tanto remodelando éste sino superponíendole nueva construcción) significan acciones criticables o en todo caso, que extreman revisar la cali-

dad proyectual de la nueva intervención y por asi decir, su sensibilidad en reconocer y resguardar –si caben– valores originales de lo preexistente. Sin embargo numerosos arquitectos modernos han desarrollado proyectos complementarios a piezas de interes patrimonial que resultaron intervenciones exitosas y valoradas, como en obras de Carlo Scarpa, Francesco Venezia o Peter Zumthor.

En este caso además opera el hecho de que es un sector del Estado (otro sector, diferente de aquel que se ocuparía de la tutela patrimonial) y no un privado –que podría estar enfocado en conseguir un máximo de rendimiento inmobiliario– quién demanda el trabajo, con una finalidad de mejorar en lo posible, el desempeño de su actividad y así lo indican los proyectistas en su memoria:

El Tribunal de Cuentas de la provincia encarga construir en un inmueble de su propiedad desde el año 1948, una mayor superficie de oficinas con el objetivo de concentrar en el predio, el funcionamiento de áreas hoy alojadas en distintos inmuebles de Posadas.

Aquí aparece un cliente –en todo caso no sesgado por un criterio de rendimiento inmobiliario dominantemente economicista–, una necesidad programática (de concentrar dependencias dispersas) y una microhistoria, por la cuál este propietario dispone del

predio desde hace tres cuartos de siglo –o sea desde menos de dos décadas después de su erección original– en cuyo transcurso ya habría realizado actuaciones de agregados y modificaciones asi como el hecho de un uso continuo y activo del bien con su consecuente desgaste. Creo que la decisión de este antiguo propietario estatal (no privado) del edificio de aprovechar el potencial edilicio del predio para resolver sus necesidades más la intención de preservar en lo posible la construcción primigenia –incluso restaurando algunas de sus características luego del desgastante uso continuo al que la sometiera– significa una decisión entendible y hasta razonable, asi que como el hecho de ser un organismo estatal exigía o demandaba una intervención proyectual calificada. En cierta forma podría compararse con el proyecto de transformar la antigua sede porteña del Correo Central en el Centro Cultural Kirchner, aunque este caso tuvo la posibilidad de no alterar la volumetría general de la pieza concentrando el proyecto en reformas y agregados por así decirlo, interiores. Por otra parte como indican en la memoria, el peso o densidad cultural del debate patrimonialista tuvo protagonismo:

Por tratarse de un edificio con valor patrimonial el proyecto ha sido el evaluado por la Comisión Asesora de Patrimonio Histórico, en el ámbito del Departamento de 7_

Patrimonio Histórico de la Municipalidad de Posadas, constituyéndose esta instancia en una oportunidad para la reflexión respecto de la conservación del patrimonio arquitectónico y de la posibilidad de introducir nuevos usos en él medio heredado.

Que incluso dio lugar a relizar un estudio de impacto ambiental y una audiencia pública, instrumentos que a veces son meramente formales y otras veces no, dando pie a movilizaciones sociales de opinión en general, negativas o resistentes, que en este caso parecen haberse superado.

Por lo que indica la memoria, el bien –como es bastante habitual en nuestra historia patrimonial débil (en el sentido doble de reciente y de a menudo, heterodoxas formas de conservación)– no sólo se caracteriza por esa condición reciente (menos de un siglo) cuanto conservativamente heterodoxa (con varios agregados y modificaciones) como también se apunta:

En el predio se encuentran edificaciones de distinta época principalmente en la esquina de la avenida Roque Perez y Buenos Aires, el edificio construido en 1930 por Emilio Azar y su esposa Saide Nahme de Chemes que es el consignado con valor patrimonial mas luego, agregados y modificaciones posteriores a 1930 existentes o ya demolidos tales como un entrepiso entre planta baja y primer piso, subdivisiones en planta baja

y en el entrepiso, una ampliación sobre el garaje ubicado sobre la medianera norte y una edificación, de planta baja y tres pisos, construida en el año 1978.

La decisión adoptada de postular un cierto emblocamiento geométrico de lo viejo (constituído ahora en una suerte de basamento) y lo nuevo (un edificio en tipología de semitorre de 3 caras exentas y una medianera al oeste), con ciertas rasantes continuas entre ambas partes, significa una opción razonable y contundente de proyecto, sobre todo tratando de alcanzar una nueva unidad, es decir un edificio viejo-nuevo mas o menos integrado antes que una segregación morfológica y funcional de una y otra parte. Las fotografías lejanas (por ejemplo la 2 o la 11) o las cercanas o de detalle (por ejemplo la 24) manifiestan esa voluntad volumétrica integrativa. En la imagen cercana se advierten actuaciones valorables tales como el enrasamiento de planos, la identificación precisa de límites de cada parte o algunas acciones de articulación como el plano de nueva carpintería retranqueada+celosía enrasada que completa el tramo que une el edificio antiguo con la robusta nueva medianera oeste. Creo empero que tal intención de emblocamiento o articulación de lo nuevo y lo viejo en un cuerpo geométrico de caras enrasadas de piso a techo se complementa eficazmente con la tajante distinción de las superficies o pieles

de cada parte, la tradicional –de la que dicen que a fin de revalorizar el edificio existente se proyectó conservar la fachada exterior, con sus aberturas metálicas, balcones sobre la fachada y la escalera de mármol que une la planta baja con el piso 1– y la nueva que adopta un lenguaje matérico basado en una versión actualizada de brises soleils brutalistas que no sólo responden a la necesidad de atemperar el calentamiento solar en fachadas sino que parecen evocar el trabajo misionero de Soto&Rivarola, en la fachada de la Escuela Alem de 1957 o en IPS en la propia Posadas de 1959 y si se quiere en general, a todo el aggiornamiento que de esa estética emprendió Paulo Mendes da Rocha.Quién dicho sea de paso, también realizó operaciones audaces de imbricaciones viejo-nuevo por ejemplo en su Pinacoteca del Estado, proyecto iniciado en 1993.

Pudiendo ser otra cosa, este proyecto atrasa su novedad (descarta las versiones actuales de torres puro vítreas) y acerca su antigüedad (revalorando la simplicidad casi art deco del neoclasicista italianizante proyecto original, con el rescate simplificado de su piano nobile de paramentos y aberturas de dintel en arco y sus modenaturas o del piano terra con las amplias aberturas comerciales de metal).

El trabajo de la pieza-torre es muy cuidadoso en el ensamble de materiales, por ejemplo, el cerámico medianero –con factura precisa

y estrías horizontales y mordeduras del plano cementicio del parasol que corta la medianera y llega al tope de la misma–, como se ve en la imagen 5. En la imagen 8, que muestra la torre en escorzo desde abajo, se aprecia en cambio la levedad (menos o pos-brutalista si se quiere) de los espesores del hormigón del entramado de brise-soleil asi como el trabajo del diedro esquinero con su alternancia cada tres plantas, de modo que se dispone un recorte de 1x4 módulos de carpintería que se

invierte en el segundo paquete de tres pisos y que regresa en el último. El triple paquete de tres plantas no solo otorga matices diversificados en la arista que materializa el vértice de la ochava sino que además se complementa con recortes en los dos planos que definen el frente a la calle de la torre otorgando diferencias a la fachada que da al oeste y a la del frente interior de la torre que mira al sur. Todo el juego de movimientos de plantas y de los planos del brise soleil de hormigón –así como

14 y 15_

su dimensionamiento esbelto– acentúa un efecto buscado de liviandad general, como se aprecia en la imagen nocturna del edificio (1). El resultado parece adecuado tanto en lo funcional como en lo expresivo y la decisión de proyecto en la relación torre-basamento (que es además la relación nuevo-viejo) rescata la presencia del edificio original y lo ensambla en una nueva pieza que quizá con el tiempo, devenga íntegramente patrimonial.

16, 17 y 18_

Piso 6,7,8_ 1:100
Corte A-A_ 1:200
Corte B-B_ 1:200
AV. ROQUE PEREZ
Vista Este (calle Buenos Aires) 1:200
Vista Norte (av. Roque Pérez) 1:200

DETALLE FACHADA NORTE

Detalle Fachada Norte 1:50

CAJAS EN EL BOSQUE URBANIZADO.

Casa Tucán. Cariló

Estudio Galera Arquitectura

Memoria

Casa Tucán es una vivienda inicialmente pensada para su uso durante el verano, construida en un terreno en esquina de la localidad de Cariló. Debido a la vegetación presente en la zona –grandes lambertianas y pinos elliotis–, la distancia a la playa y al centro, el sector se asemeja a la imagen de un bosque urbanizado.

Proyectada originalmente en 2015 por distintos motivos la obra no se inicio hasta 2020. En este momento el planteo se modificó acorde a los cambios de vida de sus habitantes: familias ensambladas, la presencia de niños y adolescentes que podrían estar juntos o por separado, habitando ya no solo en los veranos. La certeza de un programa que debe adaptarse a las diferentes configuraciones familiares a las que además se sumarian los amigos tanto de jóvenes como de adultos.

La casa se plantea como la superposición de dos cajas de hormigón, cuyo perímetro busca minimizar la tala de árboles necesaria para su construcción. La composición de volúmenes se cierra a la esquina jerarquizando el centro del terreno, donde de manera acelerada la duna con su vegetación natural se eleva hacia el contrafrente generando un microclima, resultado de combinar el cierre natural del terreno con la implantación de la vivienda.

En planta baja y separada varios centímetros sobre el nivel de calle, se ubican las áreas sociales en un espacio de 13.00m x 5.00m sin divisiones. El estar comedor y la cocina se unifican con el exterior con solo desplazar los paños de carpinterías. La percepción de unidad se refuerza por la continuidad de pisos y losa. Este semicubierto ventilado brinda protección del sol y es final-

mente en ese espacio fresco sin cerramientos laterales, donde trascurre la vida en verano. En este nivel y hacia el centro de manzana se plantea un pabellón pensado como sala de juegos, dormitorio o estudio profesional según cambien los hábitos de uso.

Un volumen transversal en planta alta contiene los dormitorios en una secuencia de habitaciones que se cierran al sureste y se abren cual mirador al noreste.

La conexión entre plantas se resuelve con una manga de hormigón que se distingue como un elemento particular en la composición espacial fusionando las dos cajas principales, mientras mantiene la transparencia que permite una relación frente/fondo.

La elección de materiales se reduce a aluminio, vidrio y hormigón. Este último moldeado con tablas de pino de 1” x 4” en encofrados que permiten despliegues como el que se plantea en el acceso y la conexión con planta alta o la ventana apaisada en la zona publica de planta baja. Materiales simples y mano de obra aplicada hacen que los habitantes y visitantes re-signifiquen aquellas situaciones simples como subir, entrar, salir, estar.

Datos

La casa Tucán fue proyectada por el Estudio Galera. Arquitectura integrado por los arquitectos Ariel Galera, Cesar Amarante, Francisco Villamil y Luisina Noya. Se ubica en Cariló, Pinamar, provincia de Buenos Aires en un terreno de 1405 m2 y con una superficie construida de 300 m2, siendo proyectada entre 2015 y 2020 y construída entre 2020 y 2023.

Fueron colaboradores Soledad Van Schaik, Juan Cruz Ance y Facundo Casales. La supervisión de obra la realizó el MMO Pablo Ahumada, la gestión/administración Verónica Coleman y la corrección de textos y traducción Soledad Pereyra.

Fueron asesores el ingeniero Javier Mendía y el agrimensor Juan Pablo D’eramo.

La fotografía fue a cargo de Diego Medina.

La obra fue realizada por Audine Constructora, Gabriel Jaimón (Electricidad), Cristian Carrizo (Sanitarismo), Rubén Calvo (Zinguería y conductos) y por Juan Rascione/ Marcelo Herrero (Herrería).

Fueron proveedores de carpinterías de madera El Holandés, de carpinterías de aluminio Alumia, hormigonera Pasalto, hierros acindar Plastigas, materiales gruesos Cermat, materiales sanitarios Mastergas , pinturas Sagitario y mármoles Lavige.

Opinión

Como ocurre en varias obras recientes del Estudio Galera –como la casa Jaima que publicamos en el numero 2 de nuestra anterior publicación TODA– el foco central de proyecto es instalar un artefacto moderno en un paisaje de bosque urbanizado, cuya espléndida y calificada forestación es la característica principal de Cariló. Asi lo reconocen en su memoria de este otro significativo proyecto cuando dicen que debido a la vegetación presente en la zona –grandes lambertianas y pinos elliotis–, la distancia a la playa y al centro, el sector se asemeja a la imagen de un bosque urbanizado

En ese bosque urbanizado deben buscar el modo más eficaz de depositar una importante casa habitación que debe reunir la cualidad de convertirse en residencia de veraneo (con sus exigencias de flexibilidad de diversas alternativas de usos y tendencia a maximizar la fluencia del interior hacia el exterior o de hacer que tal exterior adquiera posibilidades de uso adecuado) que pueda estar un tiempo desocupada o no, sumando posibilidades de utilización también fuera de temporada.

La relevancia contextual de tal bosque urbanizado –parte del cuál y buscando su menor sacrificio, debe talarse o despejarse para dar espacio de acogida al nuevo artefacto– no lleva al grupo de Ariel Galera a posturas de tipo pintoresquista o de búsqueda de semejanzas o afiliaciones entre el paisaje original y el resultado construido que en esa dirección que no se escoje, supondría cierta tendencia organicista (de acogimiento a lo natural) o de un expresionismo adaptativo (por ejemplo una casa de madera). Sino al contrario, es decir a tratar de establecer un nítido contraste entre lo artificial (que será por ejemplo, de contundente formalización en la estrictéz de las geometrías de un constructivamente espléndido hormigón –con la presencia del ritmo que otorga la marca de los separadores– para nada expresión de una posible manufactura rústico-artesanal, que en volumetría, organización espacial (fluidez de la relación entre lo cerrado y lo abierto) y modalidades de uso (desde la forma de acceso hasta la relevancia que lo exterior cercano adquiere al abrirse la casa a usos exteriores) conseguirá una relación armónica con su territorio de implantación pero sin ninguna tentativa de imitar condiciones o cualidades de sus características de paisaje.

El alrededor de la casa se presenta asi como tajantemente original y sin ninguna transición entre lo artificial y lo natural (salvo unas pequeñas placas de solados cementicios que se posan en el sitio de acceso, pero sin alcanzar a configurar un camino, veánse las imágenes 2 y 10) e incluso el partido adoptado no toca el desnivel que un sector medanoso impone hacia el fondo oeste del lote y que obra como anclaje del recinto de planta baja que soporta la pieza puente del piso de dormitorios que cruza el terreno de este a oeste (veáse la imagen 6).

Hay además una deliberada intención de equilibrar la presencia de la manufactura nueva con una voluntad de subrayar elementos naturales preexistentes como el importante árbol apoyado en un montículo elevado que se destaca sobremanera desde la Tucan, calle del acceso principal a la casa (imágenes 4 y 12). Diríase que la relación entre las aberturas de las casas y la colocación e imagen que proveen ciertos arboles singulares parece ser uno de los criterios compositivos de paisaje.

En su memoria insertan una breve descripción de algunas de las decisiones proyectuales (básicamente el apilado en cruz de los grandes volúmenes habitables) con relación a la intención de dialogar con el paisaje originario:

La casa se plantea como la superposición de dos cajas de hormigón, cuyo perímetro busca minimizar la tala de árboles necesaria para su construcción. La composición de volúmenes se cierra a la esquina jerarquizando el centro del terreno, donde de manera acelerada la duna con su vegetación natural se eleva hacia el contra-

frente generando un microclima, resultado de combinar el cierre natural del terreno con la implantación de la vivienda.

Tomada esa idea de armado del proyecto habrá en mayor desarrollo de detalle del mismo decisiones de ubicación de los espacios principales para establecer visuales y orientaciones (Un volumen transversal en planta alta contiene los dormitorios en una secuencia de habitaciones que se cierran al sureste y se abren cual mirador al noreste) y la decisión de trabajar la articulación entre ese cruce de los dos volúmenes inferior y superior ortogonalmente cruzados con un motivo bien destacado del diseño: La conexión entre plantas se resuelve con una manga de hormigón que se distingue como un elemento particular en la composición espacial fusionando las dos cajas principales, mientras mantiene la transparencia que permite una relación frente/fondo. Esa deliberada apuesta a un fuerte elemento oblicuo implica la intención de complejizar el puro manejo regular de los volúmenes y si se quiere, de romper la predominante estética volumétrica regularizada, aunque la transgresión se modera mediante la continuidad visual y táctil de un mismo material cementicio, apelándose a un cuidadoso detalle de carpintería (veánse la vista contrafrente y las imágenes 9, 15 y 17) que logra ablandar la confluencia de la pieza oblicua con los volúmenes regulares que conecta.

Como también indican en su memoria la voluntad de desarrollar un proyecto ying/yang entre artefacto/naturaleza, ello se consigue mediante por una parte, la

selección de componentes naturales que acentúan su pregnancia (árbol del acceso, duna posterior) y por otra, de componentes artificiales muy reducidos en su variedad material y expresiva: La elección de materiales se reduce a aluminio, vidrio y hormigón

En resumen el proyecto se centra en instalar del mejor modo posible un objeto contemporáneo en una preexistencia natural paisajísticamente calificada que otorga la cualidad de urbanizar (habitar) un bosque, con una simplificación cuidadosa de la artificialidad agregada así como a una vocación de maximizar la apertura del objeto (o su relevancia en dialogar con los afueras de las cajas) en la dirección de conseguir, como dicen, que materiales simples y mano de obra aplicada hacen que los habitantes y visitantes re-signifiquen aquellas situaciones simples como subir, entrar, salir, estar

_22
_23
_24

ALABAMA SONGS:

Una Visita al Rural Studio

Este ensayo se lo pedi hace unos 7 años al professor rosarino Juan Manuel Rois sabiendo que por entonces habia realizado un extenso viaje de estudio de la experiencia de Rural Studio que luego edité en la revista Astrágalo. Cultura de la Arquitectura y la Ciudad por mi dirigida, volúmen 22, Julio 2017, pp. 39–59. En esta reedición agregamos ilustraciones –la mayoría emergentes del archivo de Rural Studio– de la mayoría de las obras visitadas y comentadas por Rois.

La misión de una buena escuela de Arquitectura es cambiar el mundo. Pero uno empieza a cambiar el mundo por casa.

Rural Studio

En este último siglo han existido grandes experiencias pedagógicas en Arquitectura: la Bauhaus en la Alemania de entre-guerras intentó construir una comunidad educativa autosuficiente con programas interdisciplinarios entre artes plásticas, arquitectura y diseño industrial para crear al diseñador que respondiera a las nuevas condiciones de producción del capitalismo moderno. Unos años después, en los Estados Unidos de la temprana posguerra, aunque no estrictamente una escuela de arquitectura si no de artes liberales, el Black Mountain College, insistió en las características de comunidad educativa autosuficiente en entorno rural y en la interdisciplinariedad de las instancias de diseño; el aislamiento geográfico respondía al intento de apartarse de las condiciones políticas y sociales del contexto, para conseguir la modernidad radical de la abstracción plástica buscada. Mas recientemente, han existido intentos por activar una aproximación directa del alumno de arquitectura a la construcción de sus proyectos; los intentos van desde experimentaciones materiales abstractas (Ciudad Abierta) hasta viviendas

prefabricadas de calidad de mercado (Studio 804). Por otro lado, tanto el compromiso social como los intentos participativos con la comunidad han creado experiencias, tal vez interesantes desde lo pedagógico y formativo, pero no tanto desde sus propuestas de diseño.

Ya fuera de las escuelas de arquitectura, hay muchas organizaciones sin fines de lucro, que desde la arquitectura intentan dar respuesta a los problemas relacionados con el hábitat, pero siempre con un gran déficit desde lo disciplinar o arquitectónico. Cuesta mucho encontrar algún otro ejemplo en la historia de las escuelas de arquitectura de un balance tan preciso entre compromiso social, design-built (construir lo proyectado) y calidad arquitectónica como la que ha conseguido en sus más de veinte años de historia el Rural Studio en Hale County, Alabama. Alabama es el segundo estado mas pobre de Estados Unidos, y Hale County es el condado mas pobre de Alabama. Con más de treinta por ciento de la población bajo los niveles de pobreza y altos niveles de des-

ocupación, lo que fue parte del Black Belt (por la capa superficial de rica tierra negra) y uno de los condados mas ricos del país antes que la explotación monocultivo intensiva del algodón destruyera la riqueza del suelo, hoy piletones artificiales criaderos de CatFish perforan los bosques que rodean a las poblaciones mas o menos dispersas de la región. Sam Mockbee conocía muy bien el territorio que eligió para fundar su proyecto educativo, su interés era hacerles conocer a sus alumnos las circunstancias del entorno para encender en ellos la inquietud de su transformación. Algo que él llamó la formación de ciudadanos arquitectos. Vaya si lo logró.

Hace dos días que recorremos alguna de las más de 150 obras construidas por los alumnos del Rural Studio aquí en Hale County y alrededores. Un fin de semana intenso de recorridas. Intento hacer un balance de lo visto: más de la mitad de las veinte Casas 20K, la guardería de perros, las intervenciones en el parque Perry Lakes (baños públicos, un puente, una torre de observación), edificios públicos en Newbern

(la estación de bomberos, la biblioteca, la municipalidad), centros de apoyo infantil en Akron y Greensboro, el parque Lions

Park y sus proyectos: el Playground, el Skatepark, la sede de los Boy-Scouts, el patio del Hospital de Greensboro y el memorial a Mockbee, el hermoso SubRose Pantheon.

De estos edificios e intervenciones construidas sorprende no sólo su calidad arquitectónica y su rigor disciplinar, sorprende además su calidad constructiva. Algo que se vuelve mas sorprendente aún al saber que estas obras han sido construidas por grupos de trabajo conformados por sólo cuatro alumnos. El compromiso de los arquitectos ciudadanos incluye el quedarse después de finalizar sus estudios curriculares a construir lo diseñado

1_ Casa 20K

2_

durante el cursado. Cuatro personas, trabajando colectivamente, desde los primeros intentos de diseño conceptual hasta el día de la inauguración de la obra; en algunos casos casi tres años después de su inicio de proyecto.

El sábado que viene se inaugura la última obra construida, las tres zonas de pérgolas en el Lions Park, las herramientas todavía en el lugar y un equipo de trabajo ausente, todos en la boda de uno de sus compañeros. Como es fin de semana, aún no hemos visto a la escuela en movimiento, pero ya visitamos la Casa Morrisette (entreviendo la vida comunitaria de los alumnos, que almuerzan y cenan juntos, comidas preparadas mayoritariamente con ingredientes locales y de su granja) y pasamos furtivamente por el Red Barn, el edifico al costado de la ruta en Newbern donde se dan las clases y trabajan los alumnos. Lunes y martes dejaremos el auto de lado y nos concentraremos en la escuela.

La recorrida de este increíble fin de semana la hicimos guiados por Xavier Vendrell hoy Acting Director del Rural Studio, ya con mas de diez años de involucramiento directo en mas de cincuenta de sus proyectos. El lujo es tener su relato, con conocimiento intimo de los procesos de cada proyecto y de la evolución de la escuela. Xavier conoce el nombre de cada cliente, de cada alumno, de cada vecino, de cada organización involucrada, cada anécdota. Charlamos de la historia del Rural Studio, de sus cambios, del conocimiento territorial alcanzado en más de veinte años de trabajo, de las relaciones con los más variados colectivos loca-

les, de las formas de financiación de los proyectos, del seguimiento del funcionamiento de las instituciones creadas por los proyectos.

De todos los proyectos que vistamos, tal vez la Torre de Observación en el Perry Lakes Park sea la más impresionante. Si fuera sólo la torre! Pero además para llegar hay que cruzar el puente que construyeron los alumnos del año anterior! Y seguir un camino zigzagueante que te hace caminar en el aire por sobre el pantano, hasta que llegás a la torre y empezás a subir, entre las copas de los árboles, y más allá. Terminás por sobre las copas de los árboles, entendiendo el territorio. Mientras subís, o mejor, mientras bajás mirando al vértigo imaginás que esto fue armado por sólo cuatro alumnos y no lo podés creer. La torre es una torre de observación de incendios forestales en desuso que fue comprada por un dólar. Fue desarmada por los alumnos, trasladada al sitio, re-armada y re-acondicionada con una nueva escalera para que podamos subir nosotros los mortales. El puente cubierto también es hermoso! Y está diseñado para pescar en la sombra. Y todo es así. Hermoso.

Llegamos a Birmingham, Alabama, un viernes a las 11:30 de la noche, Xavier está viniendo desde Greensboro a buscarnos. A las 12 ya estamos en la autopista, saliendo de la ciudad. Nos sorprende la vegetación, abundante, tupida, verde. De a poco la autopista se convierte en ruta, la ruta se parece cada vez más a la imagen de las rutas americanas de las películas. De repente estamos en una bifurcación de caminos con una estación de servicio y un bar, como si fuera un cuadro

Greensboro-HaleCounty
Animal Shelter

de Hooper, o un grabado de Ruscha. Hay una serie de Robert Crumb con la evolución histórica de una esquina rural americana y es como si estuviéramos yendo atrás en el tiempo en esa secuencia.

Lo cual hace todo muy hermoso, porque lo de Crumb es una elegía a un Estados Unidos perdido, y parece que acá, algo de ese Estados Unidos sigue en pie.

Xavier nos lleva en estos paisajes cada vez mas profundos escuchando a un héroe del rock/blues/folk de Mississippi, Tony Joe White. A la 1:30am llegamos a Greensboro, pasamos por su Main Street de dos cuadras sacada de una película del Far West, pasamos por la Iglesia, Xavier dobla y llegamos a la hermosa casa victoriana donde vive. A la mañana nos despertaríamos a recoger los pecans que caen de uno de los siete arboles gigantes de su jardín.

El sábado arrancamos temprano. Salimos a la ruta. Veremos las casas 20K. Xavier nos explica la modalidad de esta línea de investigación en viviendas accesibles para comunidades en necesidad que el Rural Studio lleva más de quince años explorando. Empezamos en orden cronológico. Visitamos las primeras. Para eso tenemos ir a las afueras de Greensboro, de sólo dos mil habitantes, y recorrer las áreas rurales aledañas. Aquí las casas están dispersas, en lotes rurales, terrenos al costado de la ruta; las poblaciones, simple acumulación mínima de estos lotes dispersos. La tierra es ya improductiva, por la destrucción ecológica de su capa rica en nutrientes; en el paisaje hay grupos de bosques plantados (reemplazando al algodón que ya no crece), piletones de criaderos de CatFish, y algún

que otro lote ganadero (algo que es nuevo en esta región); en el medio, naturaleza de bosques nativos, grandes árboles y colinas.

Las casas se acomodan siguiendo la posición de los arboles o la orientación, privilegiando la posición del porche de ingreso, el lugar mas usado de las viviendas. Muchas de las viviendas que vemos en el camino no son casas propiamente dichas, son Mobil Homes, la forma más barata de habitación, algunas con sus porches agregados al costado. Estas son las casas que Rural Studio quiere reemplazar. Ese sábado a la mañana, Xavier nos cuenta cada uno de los pasos de los diez años de estudio sistemático de costos, detalles, modos de uso, calidad de vida ofrecida.

3_ Puente del Parque Perry Lakes

Visitar las casas 20K es entrar a estas agrupaciones de viviendas perdidas en medio de este entramado de rutas (la imagen que tendríamos al final del día es de haber manejado siempre en las mismas rutas entrecruzadas permanentemente); es pasar por Mobil Homes agrupadas, autos viejos, chatarra acumulada al costado. Xavier sabe donde están las 20K, se mete en calles sin salida, saluda a la gente por la ventana del auto. Union Town, Alabama es nuestro primer pueblo visitado: comunidades negras al costado de todo, donde la pobreza es palpable y la desconexión con el entramado económico muy visible. Entramos y salimos. Y ya el paisaje tiene otro significado. La guerra civil, la esclavitud, están a la vuelta de cualquier curva del camino.

Luego de un recorrido por alguna de las casas llegamos a Faunsdale, un pueblo de 100 personas, donde un grupo de cuatro alumnos de quinto año del Rural Studio están trabajando con una fundación local para renovar un edificio abandonado para crear su primer centro comunitario. Hoy los alumnos limpiaban, con los vecinos, la vegetación que tapaba el edificio por atrás y recibían a la comunidad para charlar sobre las posibilidades del proyecto. Cuando llegamos la reunión había terminado (todos se fueron rápido a ver el partido de futbol americano que estaba por empezar).

de los alumnos por empezar es palpable. El grupo de edificios que arman el posible germen de urbanidad de esta localidad se compone de un bar/cantina/restorán y tres edificios abandonados, uno de los cuales será el centro cultural, los cuatro juntos en una misma cuadra, la única, sobre la ruta. Caminamos los dos lotes que nos separan y nos tomamos una cerveza en el saloon sacado de una película del far west, mirando el partido que juega Auburn (la Universidad estatal que sostiene el programa del Rural Studio) en esos momentos. A la noche, después de muchas vueltas por los tres condados, volveríamos a esta cantina para cenar con uno de los profesores del Rural Studio. Visita al patio posterior con la dueña del local incluida para definir si la entrada de servicio al escenario de verano se vería interrumpido por la obra del centro comunitario o no.

Dejamos la mesa de alumnos y padres mirando el partido y vamos al Perry Lakes Park a ver las intervenciones del Rural Studio. De paso al parque paramos en Marion, una ciudad de 3500 habitantes, con hermosos edificios de antes de la guerra civil y estructuras comerciales e industriales de principios de siglo. Salimos a la ruta nuevamente y en un cruce, entramos a un camino de tierra, el ingreso al parque, entre arboles. Bajamos del auto y cruzamos el puente cubierto construido por los alumnos y de a poco empezamos a caminar al lado del pantano.

A la reunión fueron unas 25 personas. Todo un éxito, considerando que es casi un cuarto de la población. La emoción

El camino se convierte de a poco en una pasarela que te lleva a caminar por sobre el pequeño acantilado que te separa del pantano y te acercás a la torre de observación. Llevábamos el aerosol para matar a las avispas

4_ Perry Lakes Park restrooms

que nos avisaron nos esperaban en el ultimo descanso ahí arriba. Luego de la torre de observación, bajamos al pantano y esperamos al cocodrilo que realmente podía aparecer en cualquier momento. Los otros dos proyectos de alumnos en el parque son los baños públicos y el gran techo en la zona de picnics. Cada proyecto (entre diseño y construcción) duró dos años y medio; lo que vimos fue un trabajo escalonado de muchos años en este parque.

En el 2002 el Pabellón, en el 2003 los Baños Públicos, en el 2004 el Puente Cubierto y en el 2005 la Torre. Todos trabajos de gran escala y compromiso estructural importante, en medio de la naturaleza salvaje, llevados a cabo por grupos de sólo cuatro alumnos. Nos vamos del parque con un respeto enorme por el esfuerzo realizado.

No son ni las cinco de la tarde y seguimos camino viendo Casas 20Ks antes que se nos haga de noche. Luego pasaremos furtivamente por Newbern y veremos de paso los edificios públicos sobre la ruta, el RedBarn y la Morrisette House; volveríamos a las afueras de Newbern a pasar a buscar al amigo de Xavier y finalmente volveríamos a Faunsdale a cenar a aquel lugar increíble de la mañana. Y así, mareados de ruta ya ni sabemos donde estamos al volver a Greensboro, lugar del que ya nos habíamos casi olvidado. El domingo nos levantamos temprano, desayuno en la amplia cocina y salimos al jardín a buscar pecans nuevamente. Subimos al auto en el jardín de atrás y antes de arrancar el recorrido por las obras de Rural Studio en Greensboro, damos vuelta por las hermo-

sas calles arboladas del barrio, mirando las casonas victorianas, algunas Antebellum (es decir, de antes de la guerra civil): gigantes palacios de madera, en las que el porche normal se ha convertido en un frontis monumental de columnas blancas, algunas con volutas, algunas con estrías, algunas simplemente hermosas. Las casas todas son con techos a cuatro aguas, hermosos cubos blancos de escala señorial en grandes parques y jardines con magnolias enormes, canteros con flores arregladas, y las pequeñas casas de esclavos al costado.

Greensboro es la capital del condado, aquí está el correo, las escuelas, el hospital, los tribunales. Es un pueblo de 2500 personas, muchas de las cuales van a

5_ Perry Lakes Bird Observatory Tower

trabajar a Tuscaloosa, la ciudad mas grande de esta parte de Alabama. El Rural Studio está en Newbern, una agrupación de 100 personas, a 10 minutos de camino rural de aquí, pero profesores y alumnos de quinto año viven en Greensboro y van todos los días hasta Newbern.

En Greensboro hay una calle principal (Main Street) de unas tres cuadras, lo más parecido a una película del Far West posible, con un café, una peluquería, un gimnasio y varias tiendas de muebles y ferreterías. Esta relación de escalas entre localidades recién la empezaríamos a entender el lunes, el sábado teníamos todo mezclado en una ruta que se entrecruzaba en nuestras mentes como un nudo tridimensional. A poco de recorrer el barrio, ya estamos en la ruta nuevamente, en las afueras de Greensboro. Atrás de la cárcel los alumnos del Rural Studio construyeron la guardería para perros.

Xavier nos explica que el Rural Studio es una institución activa en la comunidad; la municipalidad y diversos actores se acercan a ellos con las necesidades. La guardería, un proyecto de ya 10 años atrás, fue un pensamiento surgido desde los alumnos, pero hoy en día es una institución independiente, una fundación se encarga de proteger a los perros abandonados y conseguirles hogares en todo Estados Unidos. El edificio es un tubo gigante construido con pequeñas piezas de madera. Los proyectos del Rural Studio son cada vez

más grandes y ambiciosos en escala y complejidad, el programa va aprendiendo de sí mismo, la historia institucional agranda la experiencia colectiva. Pero los grupos de trabajo se mantienen siempre en cuatro alumnos.

Es decir, las estructuras tienen que pensarse para poder ser construidas por cuatro personas, sin demasiado equipamiento profesional. Vaya si lo logran! Con pequeñas piezas ensambladas y mucho trabajo se pueden hacer grandes cosas! Nos saludan los perros, mientras nos asombramos cada vez mas de la calidad arquitectónica de lo que vemos.

Nuevamente al auto y nuevamente la ruta, porque Xavier tiene un plan organizado. Ayer fueron los condados vecinos, el parque y las casas 20K, hoy los pueblos cercanos y los edificios públicos. Y vamos a Akron a visitar el primer Club de Chicos y Chicas que es un edificio tubular construido con casi la misma tecnología que la Guardería que acabamos de visitar. En estos pueblos lejos de todo (Akron está lejos de todo) no hay ningún club, ninguna biblioteca, ningún café, ningún cine, nada.

En estos pueblos los problemas de drogas y desocupación son rampantes. Los padres trabajan hasta las cinco de la tarde en otras localidades, a veces a más de una hora de auto. Los chicos van a la escuela a la mañana, los pasa a buscar el autobús amarillo y a las tres de la tarde los devuelve en casa. Es decir, los chicos tienen cuatro horas sin supervisión de nadie cada día. Y en esas cuatro horas puede pasar de todo. El Club de Chicos y Chicas es una organización a nivel

6_ Estación de Bomberos de Newbern

nacional que genera lugares de contención para estos chicos que no tienen dónde ir. Es literalmente un club, podés jugar a juegos de mesa, ping pong, podés jugar al fútbol, o podés sentarte a hacer la tarea. Esto es el hermoso edificio que estamos viendo, construido por cuatro alumnos.

Desde este edifico Xavier nos muestra el primer club de chicos y chicas construido por los alumnos del Rural Studio hace más de quince años, en la otra esquina. Y me cuenta que nunca se pudo usar. Por qué? En los primeros años del Rural Studio tanto los profesores como alumnos estaban ansiosos por construir instituciones y sin mucho contacto territorial con los vecinos construían los edificios, como este que vemos semi abandonado, en terrenos privados. El dueño de este en particular se quedó con el edificio y nunca activó la institución que supuestamente debía albergar.

Desde experiencias como esta, el Rural Studio ahora trabaja con estos preceptos: todos los edificios públicos que construyan deberán estar en tierras públicas, con el aval y participación de los estamentos estatales correspondientes; cada proyecto deberá contar con una institución vecinal/social detrás que llevará adelante el trabajo cotidiano y la puesta en marcha de los programas sociales propuestos. Los juguetes que vemos por la ventana (es domingo, no podemos entrar) nos dicen que este club de chicos y chicas que visitamos hoy está muy bien usado y mantenido, cuidado y querido. Todo es trabajo voluntario; aunque conectado a programas federales que sostienen económicamente las actividades, todo esto

que vemos es fruto de la gestión social a nivel local. Cruzamos las vías abandonadas del tren ya descontinuado y vamos al otro proyecto de Rural Studio en Akron, el Club de la Tercera Edad. Un edifico comercial de ladrillos abandonado al costado de la vía, restaurado y ampliado para dar lugar a esta institución que da de almorzar a jubilados sin recursos, tanto blancos como negros, de esta ciudad abandonada y dividida racialmente. Xavier pensaba que ya no funcionaba, pero un cartel y la limpieza del lugar nos indica que si, que de lunes a viernes, de 10 a 12 los mayores pueden venir a comer, leer y ver una película en su centro de día. Se enoja porque sus alumnos trabajando en el centro comunitario de Faunsdale no han venido a visitar esta institución como él les había pedido.

En busca de uno de los primeros trabajos del Rural Studio, un pabellón a cielo abierto en un terreno rural, nos adentramos por zonas cada vez más rurales, cada vez mas extrañas. Esto es lo que comentaba Xavier, antes hacían proyectos sin mucho trabajo territorial y pasaban cosas como esta: un techo hermoso, sin demasiado programa, ahora queda en el medio de un bosque en un terreno rural privado al que no se puede acceder. Nos asomamos un poco pero no nos animamos mucho; estamos lo suficientemente lejos para salir corriendo si nos ataca un perro y lo suficientemente cubiertos por la vegetación para que el tiro de arma de fuego no pegue tan limpio.

Al final del camino rural por el que íbamos, llegamos a la entrada de un parque. En el parque, un lugar de

7_ Biblioteca de Newbern

camping se ha convertido en una agrupación de Mobil-Homes permanentes. Mientras alguien baja de una lancha de pantano al agua, nos adentramos por un camino de tierra al costado. Las Mobil-Homes que se acomodan al costado de la ruta flotan en el aire, sobre estructuras de madera o metálicas; nos damos cuenta que es una zona inundable.

El camino serpentea entre casas acomodadas mas o menos así, mas o menos de otra forma. De un lado un bosque denso, del otro lado un espejo de agua quieta baja y serpenteante. El camino pasa entre autos estacionados, chatarra, buzones. Imaginamos asesinos escapando de la policía viniendo a vivir a este lugar olvidado. Estamos en el White-Trash profundo y nos costará unos kilómetros acomodarnos.

Recordando la comunidad negra de UnionTown que habíamos visitado ayer, y la Plantación de Algodón de antes de la guerra civil con sus construcciones para los esclavos al costado de la ruta entre Faunsdale y Greensboro, entendemos la fuerza de estas instituciones sociales construidas por el Rural Studio en estas comunidades tan pobres, tan abandonadas y tan divididas.

Después de Akron, volvemos a Greensboro a ver alguna de las casas 20K que nos faltan ver. Vemos la tercera, la cuarta, la quinta y la sexta en sucesión rápida, todas realizadas para Hero, una agencia de desarrollo local. Nos quedan algunas horas de luz y salimos a

pasear por el Lions Park. Hacemos algunas cuadras y ya estamos nuevamente en las afueras de Greensboro, en lo que quiso ser un Parque Industrial periférico.

Hace unos 10 años, luego del fracaso del área industrial, un grupo de activistas local, el Club de Leones, se acercó al Rural Studio con la idea de armar cuatro canchas de beisbol para las ligas infantiles de Greensboro (el Rural Studio había trabajado ya con las ligas infantiles de Akron). Ese trabajo se convirtió en un desarrollo paisajístico integral de un parque urbano que ya lleva unos 10 años en implementación, y que el domingo que viene tiene la inauguración del ultimo proyecto realizado. Xavier nos cuenta la historia de 10 años de trabajo en forma cronológica y recorremos el parque entrando por la obra aún inconclusa, con indicios del trabajo reciente de los alumnos, ausentes hoy por que están en la boda de otro compañero.

La liga de beisbol infantil es importante, es una de las únicas actividades que nuclea en un mismo lugar y hora tanto a blancos como a negros. El proyecto de las canchas crea un espacio central único, con un único puesto de ventas de panchos, desde donde los padres pueden ver las cuatro canchas al mismo tiempo. Un punto de encuentro multi-racial en medio del parque. Durante un tiempo este fue el único equipamiento del parque, alentado por el éxito, el Club de Leones se entusiasma, el Rural Studio se entusiasma y de a poco van trabajando más proyectos (cada uno de los proyectos realizados como de costumbre por grupos de cuatro alumnos, diseñados durante todo un ciclo lectivo y construidos en el año y medio posterior): las

8_ Municipalidad de Newbern
9_ Centro infantil de Grensboro

puertas de ingreso y el master plan de todo el recorrido interno; los nuevos baños y el rediseño de un edificio industrial como superficie deportiva cubierta; el PlayScape (mezcla de nave espacial, instrumento musical, laberinto y área de juegos); el centro base de los Boy Scouts, una de las explanadas de skate más grandes de Estados Unidos (algo que a precio de mercado costaría millones de dólares, construida por los alumnos con una beca de sólo 25000 después de demostrar a la fundación que dio los fondos suficiente conocimiento técnico de las superficies planas, inclinadas y curvas de hormigón, como para ser aceptados como constructores de su propio proyecto); el área de ejercicio bajos los árboles y finalmente; las pérgolas todavía sin inaugurar.

Pero el proyecto que más impresiona es el que todavía no se ve. Un grupo de alumnos se dio cuenta que si se seguía agregando piezas sin un plan paisajístico, el parque nunca dejaría de ser una colección inconexa de momentos. Este grupo se puso la tarea de organizar espacialmente tanto los recorridos como las áreas intermedias. Hizo un trabajo de infraestructura paisajística. Movió tierra para crear topografías y manejar el escurrimiento de aguas superficiales dentro del parque, creó zonas de vegetación controlada, humedales y pastizales, plantó árboles para crear el fondo que tapizará la vista a las instalaciones industriales que afean la vista hacia el campo de futbol, se contactó con

Piet Oudolf para crear una serie de planteros naturales con hierbas altas autóctonas para organizar el espacio entre canchas de beisbol; en fin: este grupo eligió desaparecer para dar lugar al desarrollo de un parque en el tiempo. Un trabajo de una madurez profesional que asombra.

Asombra también el esfuerzo físico puesto en este trabajo que no deja marcas visibles: cuatro personas movieron grandes cantidades de suelo y plantaron grandes cantidades de árboles. Xavier me dice, Juan que no es nada, tenemos unas máquinas para mover tierra y plantar un árbol es hacer un agujero y nada más. No importa lo que diga Xavier, seguimos asombrados que cuatro personas hayan hecho todo esto que vemos y que esperamos visitar en unos años para ver su maduración en el tiempo.

Ya con el sol bajando hacemos unas cuadras más y llegamos el proyecto más lindo que hemos visto hasta

10_ Playground Lyons Park

ahora: el Club de Chicos y Chicas de Greensboro (ese lugar de acogida a chicos de sectores carenciados que no tienen donde quedarse después de la escuela hasta que sus padres lleguen a casa de trabajar). Y nuevamente el asombro ante el tamaño del edificio, ante la ambición de proyecto de los alumnos.

Lo que vemos es un muy buen edificio, de más de 70 metros de largo, de unos siete metros de alto, de estructura de madera, cubierto en chapa metálica azul en el exterior, con un interior generoso y precisamente detallado en fenólico de calidad, con grandes lucernarios con entrada cenital de luz, para dar un ambiente acogedor y al mismo tiempo generoso. El edificio tiene además un gran espacio exterior, cancha de básquet, parrillero y demás, que con una simple diagonal en uno de los lados se abre en deformación geométrica precisa al gran parque verde que se expande hasta el bosque cercano. El espacio exterior es más impresionante en escala que el edificio mismo. No puedo dejar de maravillarme en el hecho que cuatro personas hayan proyectado y construido todo esto, desde la primera reunión con el cliente hasta el último tornillo puesto en obra.

Antes de volver a casa a esperar la hora de la cena, pasamos por el patio del hospital, otro proyecto de paisaje de hace unos años. De a poco empiezo a entender la influencia de Xavier en el desarrollo de la maduración arquitectónica de los proyectos del Rural Studio. Veo su mano en cada decisión, intuyo la pasión y el esfuerzo puesto en estos años por él aquí. Todos los que entran en el influjo del Rural Studio terminan

dando todo por el proyecto. Porque es hermoso y porque hay que hacerlo.

El lunes Xavier sale temprano a la reunión de coordinación semanal con los equipos de alumnos en obra, y nos deja desayunar tranquilos. Vuelve Xavier en el auto oficial del Rural Studio y ya viene acelerado por un par de situaciones. Después de la primer sorpresa de ver a Xavier acelerado nos damos cuenta que el fin de semana ha terminado y que su jornadas laborales son todas tan intensas como lo será la de este día: el trabajo del director del Rural Studio se parece al trabajo de un dueño de empresa constructora rosarina de escala familiar, al capataz de cada una de las obras de esa empresa constructora, al encargado de dirección

11_ Lyons Park skatepark

de obra de cada una de esas obras, al proyectista de cada uno de los proyectos realizadas por esa empresa constructora, y a veces, al trabajo del obrero.

Durante el día, Xavier tendrá varias reuniones, en varios lugares geográficos separados millas uno de otro, reuniones necesarias para solucionar crisis en varias de las obras que llevan adelante al mismo tiempo: el sábado se inauguran dos, un techo (enorme!) en la sede central de la escuela (Casa Morrisette) y las

pérgolas del Lions Park. La reunión de las ocho de la mañana fue para apretar las tuercas de los dos equipos de Exta Left Overs (más de eso adelante) que ya están agotados y no ven la hora de terminar los trabajos, inaugurar e irse a casa. Los equipos arrastran bastantes errores de obra y Xavier también anda cansado; el domingo vimos todas las herramientas tiradas en el parque, dejadas al aire libre y en la obra del techo hay alguien que no deja de romper las pistolas clava-clavos (que salen 400 dólares cada una). Me dice Xavier que en esas reuniones dos de las alumnas lloraron, acusándo al equipo docente de estar torturándolos.

Subimos al auto y nos dirigimos a Newbern, el pueblo donde están todas las instalaciones del Rural Studio, donde pasaremos todo el día. Llegamos directo al almuerzo en el Merchantile, la tienda de ramos generales que junto con el correo y la vieja municipalidad armaban el Main Street de esta localidad rural de 100 habitantes, antes que llegara el Rural Studio y su Red Barn. Nos espera Steve, el profesor que da clases con Xavier y almorzamos en una de las mesas escondidas detrás de las dos estanterías de esta tienda de ramos generales que podría estar tranquilamente en Beravebú o en María Teresa.

Después del almuerzo Xavier tiene que ir a otro lado (nunca sabremos bien a donde tiene que ir) y nos deja para que caminemos un poco por Newbern. Vamos hacia el Subrosa el hermoso memorial que construyó la hija de Mockbee cuando estuvo aquí un año como alumna del programa out-reach. Nos sentamos en el césped cerca del anfiteatro construido por los alum-

12_ Lyons Park Scout Hut

nos, donde hacen la fiesta de fin de año, el famoso Pig Roast. Dejamos pasar el tiempo tirados en el césped y el clima rural es más tranquilo aún que en Greensboro. Recién ahora entendemos las relaciones de escala entre estas localidades dispersas en este pedazo de territorio rural de Alabama.

El Red Barn (sede de los talleres donde trabajan –a toda hora– los alumnos) está a distancia visual, en realidad hemos caminado menos de una cuadra, pero estamos en el medio de la nada, o en el verdadero centro de todo. Decidimos volver a la zona urbana, llegamos a la ruta y pasamos por la Biblioteca, el edificio comercial abandonado y ya estamos enfrente del Red Barn. Al lado del Red Barn está la oficina de correos y al lado, el Merchantile donde almorzamos. Cada edificio tiene un porche y eso es lo que arma la urbanidad de este tramo minúsculo de ruta rural perdida en el medio de la nada.

Del otro lado hay una casa vaciada (que el Rural Studio usa como taller), la nueva estación de bomberos y la nueva municipalidad. Y eso es todo. Eso es el Main Sreet de Newbern. Nos sentamos en el porche del Red Barn y vemos pasar las camionetas gigantes y los enormes camiones llenos de troncos–la plantación forestal es una de las economías fuertes de la región. Hoy no estamos en la ruta, si no al costado de la ruta. El tiempo pasa distinto y está bien experimentarlo de esta manera. Entendemos el lugar. Estamos en el lugar. Xavier llega, tiene que reunirse con alumnos en el Red Barn, nos deja las llaves de la estación de bomberos y sigue camino. Cruzamos la ruta y entramos al edificio

que ya recorrimos varias veces por fuera. Una estructura de columnas ensambladas de madera, con estructuras metálicas para arrostramiento, con un techo alto, enorme, de cabriadas muy elegantes de madera, recubierto en el exterior por policarbonato traslúcido protegido por persianas de madera. La primera vez que vimos este edificio el sábado, casi de noche, lo vimos brillando, iluminado al pasar por la ruta; un flash de contemporaneidad. El único cometido de este edifico es proteger que en invierno no se congele el agua de los camiones hidrantes (el agua está acá siempre en el camión, no hay caños), la piel exterior recibe el calor del sol en invierno, y está lo suficientemente protegida en verano. El edificio es hermoso. No puedo dejar de sorprenderme que sea obra de cuatro personas. Xavier dirá: Juan, pero si son sólo algunas columnas y un techo! Los bomberos tienen decoradas las instalaciones con fotos de los alumnos en cada una de las instancias de obra: Colgados de grúas, volando en el aire para ensamblar las vigas en las columnas. Héroes. Cruzamos nuevamente al porche del Red Barn sobre la ruta y llegan Steve y Jake, los otros profesores. Charlamos de los problemas que se encontraron en las obras: los alumnos de tercero que cavaban los cimientos de la casa que empiezan hoy rompieron dos caños de agua, los del techo no dibujaron por donde pasa la instalación eléctrica y Johny Parker detuvo todo antes que la topadora electrocutara a todos. Nadie sabe dónde está Xavier.

13_ Greensboro Hospital Yard
14_ SubRose Pantheon

Nuestro trabajo ahora es esperar al director. Se asoma Xavier y nos dice, ya se lo que podemos hacer, vayan caminando hasta el Morrissette House y nos encontramos ahí, yo tengo que hacer un par de cosas, los paso a buscar por ahí. Steve y Jake se van a cavar pozos de fundación en la obra que empezó hoy (la de los chicos de tercer año) antes que se haga de noche y nosotros seguimos las claras indicaciones del director y empezamos a caminar por la vereda al costado de la ruta en dirección a Morrisette.

Dejamos la zona urbana de Newbern y empezamos a estar en sus afueras. Cruzamos los jardines de las tres iglesias, una luterana, otra presbiterana y la otra evangélica, la mas nueva de 1855, la mas vieja de 1831, todas de madera blanca, una mas hermosa que la otra.

El sol del atardecer hace que el blanco de las paredes se contraste con el verde del césped y los colores otoñales de los árboles. Una postal tras otra. Increíble. Llegamos a Morrisette con la puesta del sol y damos unas vueltas por el gran terreno (más de Morrisette luego). Esperamos a Xavier sentados en el nuevo portal con vista al gran techo que se inaugura el sábado en el que trabajan contra reloj los alumnos poniendo las ultimas maderas del cielorraso y terminando la instalación eléctrica, mientras alrededor grandes máquinas tiran grava para definir la nueva entrada del estacionamiento. Llega Xavier, con las llaves de la biblioteca y el ayuntamiento, nos subimos al auto y volvemos por el camino que hicimos caminando hace una hora. El sol ya está muy bajo cuando entramos a la Biblioteca de Newbern, el edifico de ladrillo pintado de blanco

de lo que fue el banco del pueblo, al que los alumnos le hicieron una ampliación de madera extruyendo el bloque hacia atrás. Desde adentro una caja con paredes-estanterías de fenólico construye una continuidad espacial que unifica el espacio, esta caja, descentrada del eje del edificio protege, hacia uno de sus lados, espacios semi-secretos entre las estanterías de libros: salas de lectura, mesas de estudio, el espacio para que los chicos lean acostados. Cada uno de estos salones tiene una ventana hacia el patio/jardín exterior, también diseñado con mucho amor por los alumnos. Salimos de la biblioteca y ya es de noche. Cruzamos la ruta y vamos al Ayuntamiento. Un edifico construido con bloques de madera maciza simplemente apilados, con grandes ventanas fijas suspendidas mas allá del filo exterior (No son las de Lewerentz, pero bueno…, dice Xavier como pidiendo disculpas). Las maderas que definen la gruesa pared exterior protegen climáticamente el interior, el voladizo del techo protege los grandes ventanales. El espacio interior se divide en una gran sala publica (donde está preparada toda la parafernalia de votación, porque mañana se vota aquí mismo) y la sala de reuniones del intendente, hacia el lado de la ruta, con una gran ventana que mira (sin marco ni parantes) hacia la colección de edificios que arman el espacio publico de Newbern; un cuadro hermoso, una pintura de pueblo del far-west. Cuando salimos llega el intendente, que nos mira con cara de malo y nos dice Trespassing!. Se vota mañana y están todos los votos apilados en unas cajas, no deberíamos haber entrado.

Le digo que tiene un hermoso edificio (y es verdad, podría ser un proyecto de Herzog & de Meuron); bromeamos un poco más con quedar presos, la cárcel y eso y nos despedimos con buena onda. Desde el porche del Red Barn, ya listos para irnos, volvemos a mirar el gran ventanal de la sala del intendente y lo vemos trabajando en su mesa. El servidor público en plena noche de Newbern, demostrando su compromiso cívico a la comunidad que lo eligió.

Quisiera repasar la secuencia que crea este momento actual de Newbern. El Rural Studio se establece en la Red Barn luego de unos años en Morrisette (la casona rural de las afueras). Los alumnos empiezan a ser parte de esta localidad mínima, usan el correo, compran en la granja. Estando en la comunidad se dan cuenta que no hay estación de bomberos y que eso hace que las primas de seguros de la localidad sean muy altas (las casas son de madera). Logran convencer a la comunidad de conformar un grupo de bomberos voluntarios. Profesores y alumnos conforman ese grupo inicial, se entrenan. Consiguen que otras ciudades donen dos camiones hidrantes, recaudan 150000 dólares en la misma comunidad, construyen el edifico para proteger a los camiones hidrantes. Este edifico es el primer edificio público construido en Newbern en 100 años. Al tener este edifico, al tener un cuerpo de bomberos voluntarios, la comunidad empieza a reunirse más. En ese proceso, se dan cuente que necesitan un lugar para las reuniones que se hacen cada vez mas a menudo. El ayuntamiento se construye paralelo al edificio de Bomberos, creando un parque/jardín arbolado

entre ellos, con un asador comunitario bajo los árboles, un espacio de una intensa urbanidad. Al mudar el ayuntamiento desde el viejo banco, los alumnos propone crear la biblioteca, investigan los trámites necesarios para asociarse al sistema de bibliotecas rurales de Alabama, proyectan y construyen el edificio que acabamos de visitar, el último de los proyectos públicos construidos en Newbern por el Rural Studio, en este proceso colectivo de construcción de esta frágil comunidad rural al costado de la ruta.

El martes Xavier sale temprano nuevamente y nosotros descansamos un poco más. Xavier vuelve a buscarnos con el auto del Rural Studio y nuevamente estamos en la ruta a Newbern (al final del viaje habremos hecho 1000 kilómetros). Llegamos directamente a Morrisete, donde está todo listo para el almuerzo colectivo. Los martes, miércoles y jueves, alumnos, docentes y staff almuerzan y cenan juntos, comidas preparadas por el equipo de cocina con ingredientes locales y de la huerta a cargo de Tim, el jardinero oficial de la Rural Studio Farm.

Explico que es Morrisette. El Rural Studio comienza sus actividades hace mas de veinte años en esta propiedad rural en las afueras de Newbern, sobre la Highway 61, donada a la Universidad. Una casona de madera en un lote rural generoso, de unos 100 de frente por unos 150 de fondo, más o menos. Antes todo pasaba acá, ahora las clases se imparten en el Red Barn, en el Main Street de Newbern. Aquí están las oficinas de administración, la cocina colectiva, la cocina profesional, la huerta, la granja, y las viviendas temporales de los alumnos de tercero. Hoy martes todo está en movimiento, porque los

contratistas están moviendo tierra y grava para dejar lista la primer fase del proyecto de renovación de las loggias de ingreso al predio que se inaugura el sábado que viene (el día que escribo esto en Ann Arbor) junto con el gran techo que están tratando de terminar a contra reloj alguno de los alumnos que almuerzan (tan tranquilamente!) con nosotros hoy. En Morrisette se puede apreciar la maduración arquitectónica del proyecto educativo, como un palimpsesto de las posturas pedagógicas y disciplinares de las tres etapas del proyecto (no es casualidad que hayan salido tres libros del Rural Studio): la etapa inicial Mockbee, la etapa de transición y la etapa madura.

De la etapa inicial quedan como registro las casas habitación de los alumnos (las llaman Pods). En el rincón derecho al fondo, bajo un gran techo porche (de carácter agreste y vernáculo, madera cruda, troncos torcidos) que funciona como un boulevard urbano-rural, se acomodan, todas juntas y cada una como puede, estas casitas individuales, cada una construida con un estilo hippie-freak ad-hoc.

Experimentaciones libres, tanto en forma como en materialidad, que toman todas las licencias posibles, en cuanto a gustos, calidades constructivas, lógicas de terminación (en realidad no parecen terminadas).

Esta es la arquitectura que hizo famoso al Rural Studio en un primer momento, algo que los emparentó (en algunas mentes para siempre) con las lógicas de experimentación (de auto-sugestión-poética-libre-constructiva) de experiencias como Paolo Soleri o Ciudad

Abierta de Ritoque.

La escala individual determinada por el corto tiempo de realización, cuatro meses entre pensamiento y construcción, y los extremadamente bajos recursos disponibles en aquellos primeros momentos. La filosofía del do-it-yourself por arriba de cualquier coordinación entre los esfuerzos, lo colectivo una simple suma por acumulación cronológica de los esfuerzos de cada grupo de trabajo.

El momento de transición lo entiendo cuando Xavier nos cuenta el verdadero significado de las extensiones que vemos en la parte trasera de la casa original. Lo que había sido una suma de agregados construidos a lo largo del tiempo ha sido homogeneizado por una estrategia de piel de madera continua realizada como proyecto de tercer año por una sola alumna, que

15_ Morrisette house and grounds

luego de clasificar los restos de madera acumuladas en los depósitos, utilizó los distintos tipos en franjas alternadas en esta nueva piel. Es claro que en la etapa de transición el elemento de continuidad que intentó organizar los esfuerzos colectivos fue el equipo docente. Entendiendo la continuidad de los proyectos en el tiempo, las estrategias proyectuales propuestas

por los docentes intentaron mantener una línea de actuación que dotara de coherencia a las intervenciones.

(Esto también sucedió en el proyecto de las casas 20K). En Morrisette, las intervenciones intersticiales y la nueva piel homogeneiza varias intervenciones: lo que fue la primer extensión de la cocina (hoy la cocina de los alumnos), el porche que se extiende comunicando con la cocina industrial, a la que se acopla ortogonalmente un bloque de servicios bastante extenso, el refrigerador industrial (construido por los alumnos a muy bajo costo, comprando sólo la puerta y trabajando con muy buena aislación), los baños (con diseño interior con los restos de la madera de la biblioteca de Newbern), el depósito fresco (con refrigeración natural de captación subterránea), todo esto articulado con el gran techo/porche donde comemos este mediodía, al fresco y con vistas a los puntos cardinales del sitio y del proyecto educativo.

Completando esta piel de madera, unos escalones arman la continuidad con el jardín, dando vuelta el frente de la casa, respondiendo al nuevo master plan de Morrisette. Caminado ayer a la tarde recorriendo el jardín, pudimos ver desde atrás como esta nueva continuidad material y este nuevo bloque de líneas largas dan la escala arquitectónica necesaria en este gran lote rural. Xavier me confirma que todo esto ha sido construido por los alumnos de tercer año, sus alumnos. Se ve claramente su visión arquitectónica unificando estéticamente los esfuerzos individuales.

El momento actual, el momento de maduración del proyecto educativo está marcado por los dos grandes

16_ Red Barn

proyectos en marcha: el enorme invernadero a un costado del terreno y el enorme techo de la superficie de trabajo para mock-ups al otro costado del terreno. Proyectos edilicios de gran escala que no pueden ser llevados adelante por un solo equipo de cuatro alumnos (ni aún con el esfuerzo desmesurado que hicieron los que construyeron este techo gigante!) y que necesitan de un plan maestro que articule su desarrollo en el tiempo.

Ese plan maestro también es un esfuerzo colectivo, construido en base a la participación activa de todos los miembros de la comunidad del Rural Studio: el ambicioso proyecto de Rural Studio Farm, tal vez el más radical y ambicioso de todos los proyectos a la fecha. Al darse cuenta que los alumnos de tercer año viviendo en Morrisette (aún hoy en los pods hippies) no tenían demasiadas ofertas para comer y que fatalmente terminaban comprando en el Mac Donald’s de Greensboro, el Rural Studio Farm comienza como un intento de ofrecer comida sana a los alumnos. Ese primer impulso termina en un master-plan ambicioso que utilizará toda la parte delantera del terreno (a la vista de la comunidad y con mejor sol) para una enorme huerta (el proyecto triplicará el espacio utilizado en estos momentos), seguirá por detrás de la casa en un bosque de árboles frutales en permacultura y terminará en el enorme invernadero trabajando con agua de lluvia recogida en los mismos tanques donados para el PlayScape del Lions Park, reciclada y circulada en base a energía eléctrica generada por paneles fotovoltaicos (el edificio hoy ya con sus vidrios puestos).

El Rural Studio Farm producirá comida que llegará a la comunidad rural adyacente y educará sobre las posibilidades de volver a cultivar la comida propia. (En esta zona rural se da la paradoja de la inexistencia de huertas y del uso del supermercado como única alternativa para acceder comida procesada, ver el concepto de food-deserts). Resultado de este ambicioso proyecto, los cambios de ingreso en plena construcción para la inauguración del sábado.

En un próximo viaje, en algún año cercano a una sociedad nueva, visitaremos la Casa Morrisette del Rural Studio, rodeada de la gran huerta orgánica, franqueada por el gran techo del taller de maquetas escala 1:1 y el gran invernadero lleno de plantas verdes, en plena reconstrucción colectiva de la fábrica social, edilicia y ecológica de lo destruido por la ignorancia, la codicia y la discriminación.

Después del almuerzo comunitario en Morrisette nos vamos al Red Barn en Main Street Newbern, donde nos esperan los alumnos de quinto año para la critica de sus proyectos en marcha.

El Red Barn es el edificio al costado de la Highway 61 donde trabajan los alumnos y donde se imparten las clases del Rural Studio. El Sábado a la noche habíamos ingresado subrepticiamente para recorrer esta instalación que desde afuera parece caerse a pedazos. Una vez dentro, el interior y la escalera torcida refuerzan esta impresión: este edifico puede caerse en cualquier momento!

El edificio, que tuvo algún pasado comercial o industrial, tiene una planta rectangular alargada, con su lado mas corto dando frente a la ruta. La planta baja

está dividida en dos, organizando dos espacios finos y largos a cada lado del edificio. En un lado está el estudio de los alumnos de tercero, que el sábado a la noche habían dejado sus dibujos de estudios de fachada de edificios históricos del sur sobre los tableros, los primeros intentos de acuarela apenas empezados. El lunes, esperando a Xavier en el porche, no quisimos interrumpir la presentación de estos dibujos, ejercicio de su clase de historia. El sábado a la noche visitábamos el Red Barn porque Xavier quería explicarnos la secuencia de desarrollo de las veinte casas 20K. Para eso fuimos al otro espacio rectangular fino y largo de planta baja donde están siempre enchinchadas las fotos, cortes y plantas de las todas las casas 20K construidas hasta hoy.

La idea que tiene Xavier es la de un proceso de optimización y crítica constante de las variables del proyecto; tener siempre presente los casos anteriores en el ámbito de trabajo ayuda a la pregunta constante de cómo mejorar en las próximas ediciones.

El sábado también subimos al estudio de planta alta. Ahí no hay pared divisoria, el espacio único reúne a grandes tableros, sobre los tableros, cantidades enormes de papeles demuestran que se realiza un trabajo febril. No hay nadie y todos parecen haber salido en un instante, dejando todo en pausa hasta volver a trabajar. Vemos los planos del edificio que habíamos visitado a la mañana donde se ubicará el centro comunitario de Faunsdale, los mismos planos que estaban colgados ahí a la mañana en la reunión con la comunidad. Vemos pizarrones donde se anota

el cronograma de actividades semanal y los responsables de llevar a cabo cada tarea, más y más papeles; un híbrido prefecto entre un taller de proyecto de cualquier escuela americana (donde cada tablero es de un alumno durante todo el cuatrimestre) y una verdadera oficina profesional con proyectos en marcha al mismo tiempo. Xavier nos señala un mapa de Estados Unidos colgado en la pared con algún que otro chinche marcando pueblos aquí y allá. Este mapa está colgado en la pared hace años y nadie se atreve a bajarlo. Ya nadie sabe porque se marcaron las ciudades.

Los alumnos que llegan cada cuatrimestre aceptan cada una de las cosas de este Red Barn con respeto mítico. Capas y más capas de historias se acumulan aquí. Aquel sábado a la noche daban ganas de quedarse a seguir husmeando, pero es tarde y ya pronto volverán a trabajar los alumnos a trasnochar un poco y avanzar para la crítica del Martes.

El programa del Rural Studio forma parte del cursado de la carrera de Arquitectura de la Auburn University.

A diferencia de muchas universidades que ya han dividido la educación de arquitectura en dos programas separados y correlativos: Bachelor y Máster, Auburn todavía usa el formato Profesional de cinco años, una currícula bastante parecida a lo que podríamos tener en cualquier Facultad Argentina.

Un alumno de Auburn, al terminar los cinco años de educación arquitectónica ya está capacitado para acumular las horas necesarias (firmadas por un arquitecto que certifique la experiencia profesional realizada) para rendir los exámenes de acreditación profesional.

17_ Girls_Boys Club Akron

En los Estados Unidos los títulos universitarios en arquitectura no son títulos habilitantes, el titulo de arquitecto se gana después de aprobar ocho exámenes cuya responsabilidad recae en el Instituto de Arquitectos de cada estado, nuestros colegios de arquitectos provinciales).

Los alumnos de Auburn pueden venir a estudiar al Rural Studio en dos oportunidades en su carrera: en alguno de los semestres de tercer año y en todo el ultimo año de tesis, el quinto. En tercero la selección se hace por simple sorteo, en quinto la selección se hace por curriculum académico y portfolio de proyectos. En tercer año, al ser más corta la estadía los trabajos de diseño y construcción son más chicos, continuaciones de trabajos anteriores, o realizados en grupos mayores.

Los trabajos de tesis de quinto año llevan mas tiempo, un año de trabajo en grupos de cuatro alumnos, sólo para la fase de diseño y planificación. Al final del ciclo lectivo, el equipo docente decide si el trabajo de diseño está lo suficientemente desarrollado como para pasar a la fase de construcción. Para esto, una vez recibidos, los alumnos se quedan un año más (Left-Overs) y como la mayoría no llega a terminar en un año, algunos meses más de otro año más (los Extra Left-Overs), como los que inauguraron tanto las pérgolas en el Lions Park como el gran techo en Morrisette el sábado pasado.

Entiendo su cansancio! Hace dos años y medio que andan por acá trabajando sin parar. Los alumnos que se quedan a construir los proyectos reciben apoyo de los docentes con algún que otro trabajo en el Rural Studio

y si bien no son más alumnos, siguen recibiendo apoyo del seguro de salud de la universidad, pero en realidad están donando su tiempo y trabajo.

Volviendo al martes, después de almorzar fuimos al Red Barn para participar como jurados invitados en la critica de los dos trabajos en marcha: la casa número 21 del sistema de vivienda 20K y el centro comunitario de Faunsdale. Es la primera vez que me toca criticar proyectos a alumnos que van a construir lo que están mostrando. La conversación es otra. Sigue siendo de diseño (y bastante conceptual, porque estamos recién al principio del proceso) pero con un énfasis y compromiso distinto. Los alumnos saben que están metidos en una aventura larga e intensa y así escuchan: con atención e intensidad. Se están jugando dos años y medio de sus vidas, el momento final de su educación arquitectónica y el primero de sus trabajos profesionales construidos. Los alumnos presentan primero el trabajo conjunto realizado al arranque del cuatrimestre, una serie de 9 workshops de dos días cada uno dictado por una lista de docentes invitados, cada uno enfocado a puntos específicos de los dos proyectos, donde todos trabajaron en todos lados, dando tiempo a conocerse entre ellos y a definir en cual de los proyectos les gustaría trabajar. En una presentación muy concisa, nos explicaron las conclusiones de cada workshop para cada uno de los proyectos.

Luego de esta presentación general, siguió el turno del equipo de la Casa 20K, ya trabajando en grupo desde hace tres semanas. Arrancan su presentación con un recuento muy preciso de los preceptos iniciales de la

primer casa 20K y con un análisis de costos y extrapolaciones al momento actual plantean el costo económico posible de la casa que van a diseñar para seguir dentro de los parámetros de accesibilidad económica del proyecto.

El proyecto de casas 20K ha elegido a tres de sus prototipos como Model Studies, para ofrecerlos como productos en el mercado de vivienda local y reemplazar como opción mas barata de vivienda a los Mobil Homes. Estos alumnos plantean que entonces su propuesta será una posible cuarta Casa Modelo, esta vez accesible universalmente (rampas y baños para discapacitados) y de dos dormitorios.

Analizan como los casos anteriores de Casas 20K de dos dormitorios ampliaron excesivamente la superficie y multiplicaron los costos e intentan establecer sus parámetros para mantener los porcentajes de metros cuadrados equivalentes. Nos explican todo esto con una serie de estudios y cuadros muy precisos de casos de estudio, donde con gráfica diagramática muestran el espacio mínimo permitido por los muebles y el espacio en exceso. Aprendemos mucho.

Nos muestran también un estudio de amueblamiento y post-ocupación de las 20 casas anteriores, junto a estudios muy claros sobre recorridos y visuales, estudiando los preconceptos y el verdadero uso de los espacios. Nos explican el estudio sobre los porches que recién empiezan a llevar adelante y terminan la presentación mostrándonos los siete esquemas trabajados para hoy.

Se los ve ansiosos, es claro que quieren que le di-

gamos cuál de los siete esquemas son los mejores. Nuestro aporte ese día fue pedirles que trataran a los esquemas que han propuesto con la misma rigurosidad con la que analizaron los casos de estudio, aplicando las mismas lógicas, tanto en análisis de superficies como en recorridos y visuales. Y que usaran la gráfica diagramática no como herramienta analítica posterior, si no como herramienta propositiva con potencial plástico. Les pedimos que vuelvan a analizar los casos de estudio incluyendo al Porche como un ámbito funcional de la casa, que incluyan su mobiliario, las escaleras de ingreso y la puerta, estudiando las relaciones de contigüidad programática que ofrecen entre exterior e interior. (El Porche es el cuarto más usado de esta casa del sur americano) Y que luego de ese análisis lo incorporen a sus esquemas, como una pieza mas de juego.

Les pedimos que sean mas lúdicos con los esquemas, rotando piezas, cambiando de lugar el porche, etc, pero que al mismo tiempo sean rigurosos con la jerarquización de prioridades, para que puedan evaluar las posibilidades y ser capaces ellos mismos de determinar cuales son los mejores esquemas. Y finalmente agregamos que tal vez estudiar todo desde la planta no sea lo suficientemente determinante, que a veces combinar estos estudios con alguna intuición formal de la figura exterior de la casa (alargada con porche adelante vs gorda con porche al costado, por ejemplo) puede ayudar a imaginar soluciones que en planta es difícil visualizar.

El próximo turno fue para el equipo del Centro Comu-

nitario de Faunsdale. Nos cuentan la historia urbana de Faunsdale, nos cuentan el estado arquitectónico del edificio que tienen que renovar (el techo no sirve, la pared de atrás tampoco), sus posibilidades de reforma (protección térmica al interior para mantener el

registro histórico de la pared exterior), nos cuentan que han recorrido Alabama visitando Centros Comunitarios en localidades cercanas, que algunas de sus autoridades les han dado consejos sobre el tipo de ayuda económica a pedir al gobierno federal y estatal, nos cuentan de sus primeros intentos por acercarse a la comunidad para entender sus necesidades e imaginar que tipo de actividad puede suceder en el edifico, nos cuentan de la experiencia del sábado (a la que nosotros llegamos un poco tarde) donde 25 personas visitaron el edifico y charlaron con los chicos sobre el proyecto y charlamos de dos cosas que sucedieron ese día mientras limpiaban la maleza que rodeaba al edifico: el pozo ciego encontrado y el conflicto con el portón de ingreso del escenario posterior del restorán de Jennifer.

Se decidieron varias cosas en nuestra conversación: uno que hay que pedir un certificado de amojonamiento lo antes posible para saber si la vecina Jennifer tiene razón en tapar el posible uso público exterior del patio de atrás del edificio; que el espacio interior es lo suficientemente amplio y flexible como para acomodar todos los posibles usos comunitarios para este peque-

18_ Faunsdale Community Center

ño pueblo de menos de 100 personas y que no hace falta extender el edificio; que un plano con los espacios de reunión de los que ya disponen hoy (iglesias, municipalidad, bar, restauran) servirá para mostrar a los vecinos que no es necesario ampliar, y que una maqueta a gran escala es la herramienta necesaria en estos momentos para pensar espacialmente las estrategias de actuación en el espacio interior. A lo que agrego que el trabajo puede ser todavía conceptual y formal: espacios dentro de espacios vs objetos dentro de objetos, cosas colgando del techo vs cosas saliendo del piso, etc. Que una vez aclarado el panorama formal, la cosa se encaminará más fácil.

Dejamos a estos chicos entusiasmados con sus proyectos, y la verdad que mas que nunca esperamos haber hecho nuestro trabajo! De la crítica nos vamos a cenar y a la casa de Steve (uno de los profesores), para esperar los resultados del escrutinio de la elección y empezar a presenciar la hecatombe que nos atraganta hasta hoy. Trump Presidente.

Dejamos al equipo docente en estado de shock la noche del recuento de la elección de Trump, nuestro retorno al aeropuerto el miércoles a la mañana se hizo en silencio. Pero Xavier volvía a la reunión de docentes de cada semana y después habrán almorzado todos juntos (docentes, alumnos y staff) la comida preparada con los productos de la huerta, y seguro Xavier seguirá recorriendo las obras que inauguran el sábado. Porque Sam Mockbee empezó este programa hace unos veinte años bajo el auspicio de las políticas progresistas del mejor Clinton, pero después sobrevivie-

ron ocho años de Bush. El Rural Studio ya ha sobrevivido crisis económicas y la gran crisis social desatada después de la caída de la torres. Ha sobrevivido a la muerte temprana de su fundador, justo en el momento de la consolidación de su idea inicial. Por supuesto que si, resultado de los cambios económicos que se nos vienen, las condiciones económicas de la zona se deterioran, todo el proyecto se resentirá; pero las condiciones para resistir están dadas por la madurez autónoma del proyecto. El Rural Studio ha construido suficiente autonomía para sobrevivir a Trump y a mucho más.

No dejo de pensar en lo transformador de la experiencia vivida. Puedo hacer grandes esfuerzos para transcribir lo visto, pero no le haré justicia. Estar ahí es entender, lentamente, la profundidad de lo alcanzado. Una conjunción precisa entre claridad pedagógica, rigor disciplinar, conciencia social y construcción colectiva. Luego de recorrer durante cuatro días el esfuerzo titánico del Rural Studio en la zona rural mas pobre del estado mas pobre de Estados Unidos llegamos a la conclusión que sólo la participación activa de colectivos cívicos organizados podrá sacarnos del atolladero en el que nos encontramos y que la única escala posible para estos colectivos es la local. Desde territorios propios, íntimamente conocidos, donde nuestra participación sea natural desde el trabajo cotidiano. No será fácil, pero esta gran construcción colectiva de lo nuevo deberá empezar desde el trabajo territorial propio.

RECIPROCAS. RECONVERSIONES DE MAQUINAS Y ESTADOS ESPIRITUALES

Nuevo aulario en la vieja Sala de Máquinas de la Facultad de Ingeniería. Montevideo

Gustavo Scheps

1

Las máquinas trasladaron la sede de la Facultad de Ingeniería desde el Puerto de Montevideo hasta el Parque Rodó y con toda seguridad, el sentido figurado de la frase haya tenido mayor consecuencia práctica que su significado literal. Es que a mediados de los años treinta, al abrazarse el Uruguay a los tiempos modernos y promover una balbuceante industrialización, se descubre carente –en cantidad y calidad– de técnicos diestros en los nuevos saberes. Y lo que es peor, ni siquiera cuenta con un ámbito adecuado donde formarles. La Facultad de Ingeniería funciona en un estrecho y vetusto edificio de cuatro plantas, levantado para hotel, que comparte con la Facultad de Arquitectura, junto al puerto de Montevideo1.

Lúcidas, enérgicas –y perseverantes– personalidades tomaron para sí la responsabilidad de conseguir una nueva sede que se juzgaba imprescindible para desarrollar la recién instituida carrera de Ingeniero Industrial2. De ella egresarían los doctos guías que aquellos tiempos reclamaban. Ese fue, al menos, el principal argumento esgrimido por los ingenieros para convencer a propios y extraños de la perentoria necesidad del nuevo edificio; y que les permitió instalar primero la idea en el imaginario colectivo, hacia 1935; para luego, en mayo de 1938, incrustar en el suelo montevideano la piedra fundamental de lo que acabaría siendo una obra imprescindible de la arquitectura uruguaya.

Con cierto asombro la sociedad curioseaba ante aquella construcción. La obra reflejaba los cambios de paradigma que por entonces venían a modificar con hondura la concepción formal y organizativa de la arquitectura, de los espacios públicos de la ciudad y de su relación con la costa. Salvo raras excepciones, acaso resignada y quizás inhibida por el ya consolidado

1 Proyectado por el arquitecto J. Tosi, fue un emprendimiento del inversor Emilio Reus. Iniciado en 1888, la crisis financiera de 1890 interrumpió su construcción. Se le conoce como Hotel Nacional pese a que nunca llegó a funcionar como tal. Fue un conventillo, hasta que luego recaló allí la Universidad, en 1894, primero con oficinas y luego con la Facultad de Matemáticas.

2 En particular el ingeniero Luis Giorgi. Decano de la Facultad de Ingeniería entre 1934 y 1939, Director del Instituto de Máquinas, político y empresario fue sin dudas el líder del proceso en favor de la sede, al que estuvo vinculado hasta 1947, cuando es disuelta la Comisión Honoraria para el Edificio de Ingeniería.

prestigio de su arquitecto, Julio Vilamajó3, la crítica se abstuvo de cuestionar al extraño edificio de hormigón que comenzaba a reformular el paisaje de la rambla4.

El proyecto adquirió proporciones faraónicas. Propulsado al influjo del espejismo de una efímera prosperidad económica, pronto se quedó sin combustible. Inalcanzable5, fue condenado a permanecer inconcluso. Su construcción,

3 Julio Vilamajó (1984-1948) es acaso el arquitecto uruguayo más unánimemente reconocido. Produjo una vasta obra de alta calidad entre la que destaca su propia vivienda (1929); la Facultad de Ingeniería (1937) y sus obras en Villa Serrana (1947). Fue designado asesor para el edificio de las Naciones Unidas en 1947.

4 Nota periodística de enero 1939: Ya se puede advertir, por la progresión de las obras de albañilería, cuál será la magnitud del edificio que se construye en el Parque Rodó para sede de la Facultad de Ingeniería. Es posible, por tal circunstancia, referirse al error en que se ha incurrido al enclavar semejante mole, –cuyos lineamientos arquitectónicos no discutimos–, dentro de un ambiente preparado y destinado a fines determinados [sic].

5 En el antiguo Hotel Nacional la Facultad disponía de 3500 m² útiles; en el Programa del edificio se piden 12.784 m². El proyecto de Vilamajó duplica esta superficie. Ha escrito el Ingeniero Julio Ricaldoni, testigo del proceso: En

que duró más de una década, fue un calvario que acarreó la destitución de la comisión encargada y de los proyectistas-directores de obra6 .

Ante un programa de por sí muy ambicioso, la resolución formal exageró alguno de sus rasgos a extremos sorprendentes. El edificio de Ingeniería puede leerse, en buena medida, como una suerte de monumento que glorifica los nuevos tiempos desde la peculiar perspectiva en que les observa su complejo proyectista. Resulta, a la vez, una verdadera declaración respecto a las relaciones de la Arquitectura con la cultura, el sitio, la tecnología e –incluso– la enseñanza. En el afán de resolver la compleja mezcolanza, algunos requerimientos programáticos fueron manipulados con deliberada teatralidad, subrayando su significado cultural.

Uno de ellos –cabría esperar– fue el ámbito específico de la ingeniería industrial: el Instituto de Ingeniería Mecánica el cual, tras largo periplo proyectual, acaba radicado en el extremo norte del edificio. Sería el formidable escenario donde instalar un decorado de máquinas, a ser admiradas de aquel momento era un aumento tan maravilloso que en 1938, cuando la piedra fundamental, parecía que era un exceso para nuestro país.

6 El Ingeniero Walter Hill fue el proyectista de estructura e instalaciones. Actuó junto con Vilamajó en la dirección de la obra. Aunque poco reconocido, fue importante su aporte en relación al edifico.

arriba abajo. La superficie requerida se cumplía apenas, pero la altura –sin que mediara ninguna razón funcional– se triplicó. Espectaculares esperaron, inútiles sin embargo, sus grandes pórticos de hormigón y la inmensa chimenea/obelisco –que nunca llegó a humear– al puente grúa que faltó, y a las máquinas que nunca asistieron. Durante años el vasto recinto permaneció marginal y expectante; reverberando largamente las escasas voces que le visitaban. Solo ocupado por algunos motores arrinconados contra las paredes de hormigón, en la semipenumbra de la nave principal. Pero nada de esto sabía yo mientras recorría el extraño y desconcertante edificio. Le escudriñaba con la ansiosa avidez del proyectista que busca descifrar claves, para recomponerlas en un nuevo diseño. Acababa de recibir el encargo de reconvertir la antigua Sala de Máquinas, a medio siglo de su construcción7.

2 En una edificación cuyas capacidades se suponían colmadas, debían instalarse a mínimo costo –y con prisa– despachos para investigadores, oficinas

7 El autor trabaja como arquitecto de la Dirección General de Arquitectura de la UdelaR. Los comentarios se extienden a partir de la investigación llevada a cabo con motivo del desarrollo de la Tesis –17 registros– con la cual se doctoró en Teoría y Práctica del Proyecto de Arquitectura, en la ETSA Madrid, 2008.

administrativas y pequeños laboratorios. La vacante Sala de Máquinas era vista por el decanato8 como la única chance.

Al programa básico se agregaba, como requisito adicional, que un gran modelo de puerto recién construido permaneciera intocado y operativo durante la obra. Sería ese, además, el espacio de reserva para futuros modelos hidráulicos, por lo que se requería un mínimo de apoyos al suelo. Ya habían planteado una idea preliminar; con tres entrepisos totales podían obtenerse, a costa de anular la notable especialidad del local, dos mil metros cuadrados nuevos, lo que fijaba una cota mínima para el proyecto –y una imagen a desmantelar–.

Cada reconocimiento, cada análisis, cada mirada en aquella primera recorrida del edificio, acabó siendo una (re) creación; un verdadero acto creativo, desarrollado a media agua entre la razón y la intuición. Aquella visita instituyó –sin ser notado– el primer acto del nuevo proyecto. Puede ser oportuno, entonces, empezar a mostrarlo desde ese origen.

El edificio –de los mayores de la Universidad de la República, con unos 25000 m²– establece una intensa relación con el sitio y la lejanía. El terreno desliza bajo las plantas libres9 de sus cuerpos independientes, compuestos

8 Ejercía el cargo el Dr. Ing Rafael Guarga

9 La idea original de integrarlo plenamente al parque aún al día de hoy –y pese

según principios racionalistas y resueltos en una precoz estética de hormigón visto, con revestimientos parciales de monolítico pulido. Aunque la obra permanece inconclusa, puede argumentarse que su prolongado suspenso asienta, con los previsibles reparos, una cualidad definitiva Los volúmenes son variantes de prismas puros y expresan su individualidad en clave moderna. La formalización, densa y compleja, hibrida veladas referencias a genealogías estilísticas diversas; a medio tránsito entre la abstracción y la figuración, remite de soslayo a los contenidos funcionales. Sutiles combinaciones de un menú restringido y estricto de recursos formales hacen aparecer fugaces alusiones a fábricas, a palacios florentinos, e incluso a unidades de habitación aún no inventadas. Sólo el –raro– Cuerpo Sur evade la lógica de simplicidad adjetivada que prevalece en el conjunto. El edificio, nada complaciente, requiere complicidad para ser disfrutado.

En su interior –también inacabado– no hay recursos amables; allí casi nada parece estático; y todo queda lejos. El espacio interior de este edificio sobre todo concebido desde (o para) el exterior –a juzgar por la mayoría de los documentos preservados10– mantiene no obstante una lógica precisa. a múltiples esfuerzos– no se ha podido concretar.

10 Vilamajó, en la publicación de 1939 Facultad de Ingeniería Su edificio en construcción se refiere únicamente a los espacios libres interiores; extraña

Los cuerpos se vinculan sólo por el primer nivel (llamado “Planta Baja”) que acaba siendo una agregación heterogénea, dinámica y pulsante. El sistema de halles, corredores y puentes (que conectan los volúmenes) define una estructura secuencial simple, enriquecida por el sofisticado enganche de espacios de muy distinta naturaleza. Tramos estrechos alternan su velocidad con halles dilatados –abarcables en picados y contrapicados, en los que los elementos estructurales suelen adquirir protagonismo– de mayor rozamiento y pausa. En los extremos de la “T” que forma la Planta Baja, tres vacíos mayores remataban el sistema de circulaciones.

El más significativo de ellos, la Sala de Máquinas, de 15 x 15 x 45 metros, un hueco gris a contraluz lechoso, encajonado en hormigón visto, era el único que se preservaba intacto. Sus proporciones, su luz y peculiar ingreso superior, le convertían en un ámbito extraño y sugerente.

La primera impresión que tuve de aquel vacío inesperado, que al ser descubierto desde encima lucía confuso y vertiginoso en su escala indefinida, fue que no debía desaprovecharse. Visto en retrospectiva, el proyecto surgió de la idea de modelar aquel vacío casi tangible, de afectarle lo menos posible; y de la pena sin remedio de perderlo.

categoría que engloba a los espacios exteriores que quedan entre los volúmenes.

Con objeto de preservar, o al menos rescatar y reconvertir los atributos esenciales del gran hueco y sus potentes límites, la propuesta incorpora un juego de escalas imbricadas. Espacios intermedios trasladan la altura total de hormigón hacia los locales de trabajo, metálicos, recostados a la fachada luminosa. Las bandejas se alternan. Dos rectas con barandas de chapa perforada dividen la altura en tercios; otras tres, curvas, de barandas livianas, se intercalan con las primeras. Las formas, la materia, los colores y las texturas del sistema existente y del nuevo no se confunden. Todo lo incorporado –liviano, ligero– cuelga dentro de la caja de hormigón existente que mantuvo su denso aspecto original. Un sistema alude y complementa al otro. Tensores oblicuos y verticales definen las cualidades del espacio (debajo, encima, atrás); y por dividir en dos la luz de las vigas principales permiten disminuir su alto como para acomodar seis niveles. El peso de la nueva construcción se desvía hacia capacidades ociosas de la estructura existente.

La Planta Baja queda libre. Los modelos hidráulicos podrán seguir instalándose; las bandejas servirán para realizar observaciones.

La concepción estructural surgió junto con la espacial. Dos juegos de vigas principales, asociados a los niveles rectos, soportan la estructura secundaria de los entrepisos curvos. Este diseño sobrevivió con pequeñas variantes al escrutinio a que le sometió una comisión de especialistas designada por

la Facultad11. Luego vendría la definición de cerramientos, instalaciones, e incluso del procedimiento constructivo.

El ingreso a la antigua Sala de Máquinas, modificado, la subrayó como remate del recorrido interior existente. A su vez, el proyecto incorpora rasgos del edificio; en particular sus dinámicas y variantes espaciales. Es de la experiencia de recorrer el sitio que surge el sentido del todo, sostenido por un juego de contrastes y convergencias. Las abstracciones y las materialidades son desarrolladas en cambiantes perspectivas como temas a un tiempo independientes e interrelacionados, evocando un contrapunto de diálogos en el espacio, y a través del tiempo.

11 Refiero con orgullo que diseñé esta estructura –y la precalculé con buena aproximación– El ajuste final corrió por cuenta del ingeniero Daniel Rapetti; intervino luego el ingeniero César Fernándes.

4

Vilamajó y Hill se propusieron que el edificio fuera, además de todo, una máquina de enseñar donde el estudiante visualizara lo que aprendía. Estructura, instalaciones; todo quedaría al alcance12. Pronto esta idea, de entrada 12 Pese a que el tema suele presentarse exclusivamente como una temprana interpretación por parte de los proyectistas de aspectos que tienen que ver con un manejo explícito y honesto de los materiales y la tecnología, ya estaba sugerido en las bases del frustrado concurso que precedió al encargo directo del proyecto a Vilamajó (cuya aceptación –dicho sea de paso– motivó que la Sociedad de Arquitectos lo eliminara de su registro). En las bases se indica que …las instalaciones eléctricas, de calefacción, etc., servirán a fines docentes para la realización de experiencias técnicas, a cuyo efecto en algunas secciones

FI y Rambla
FI Exterior
FI Hall principal

del edificio a proyectarse deberán ir al descubierto y llevarán los instrumentos indispensables para la realización de tales fines.

Este inciso repercutió en los conceptos que se manejaron en el diseño final. La idea es retomada tres años después por el propio ingeniero Walter Hill, en su escrito incluido en la publicación de 1939 Facultad de Ingeniería. Su edificio en construcción. Escribe acerca de las instalaciones que … se ha tenido en cuenta la posibilidad de sacar un partido docente de las mismas haciendo accesible a la observación los diversos dispositivos, mecanismos y medidas. Con respecto al uso expresivo del hormigón y de la estructura portante como principio expresivo del edificio escribe Hill La exteriorización estructural es una pauta que guía la composición en alzado. El edificio terminado será una estructura aparente… la concepción de la estructura está estrechamente ligada a la concepción arquitectónica, no sólo por un deseo de veracidad constructiva sino porque se adoptó la formula de realizar un edificio totalmente ejecutado en hormigón. La estructura, en

seductora, se revela en esencia ingenua por cuanto asume un imposible: la consecuencia, realiza la doble función de esqueleto resistente y de elemento arquitectónico. La forma proyectada y la intención del arquitecto tendrá como exclusivo vehículo de expresión la propia estructura, sin intermedio de mampostería o rellenos de ninguna especie.

Con Ingeniería nació y murió –tortuosa pieza de un solo acto– el experimento uruguayo del béton brut. Por unos veinte años la Facultad permaneció –en estas tierras– como obra única; como el solitario ejemplar de una especie que pareció extinguida hasta que la década de los 60 recupera –importado– el hormigón visto como opción constructivo-expresiva

FI Paneo Sala de Máquinas

perdurable vigencia tecnológica del edificio. Su discurso didáctico es hoy, más bien, un repaso histórico de tecnologías13.

Sin embargo, al desarrollar el proyecto de reconversión, la idea fue rescatada y también reciclada. Aunque más que intentar un discurso absoluto y 13 El edificio se demuestra hoy múltiplemente obsoleto en las dificultades que ofrece para la incorporación de tecnologías contemporáneas; se ha quedado atrás de la enseñanza que en el se cumple. Esta frase, acaso, pronto deba revisarse; por la incesante tendencia que aliviana la demanda y el porte de los tendidos y conductos de flujos.

eterno, una explicación que se fingiera objetiva y demostrable, la intervención da opiniones a un tiempo firmes y provisionales. Más que la expresión de certezas devino en plataforma desde donde reflexionar, asumiendo las preguntas y las respuestas como el anverso y el reverso del pensamiento. Las preguntas-respuestas multiplican nuevas preguntas-respuestas, sobre las que evoluciona el conocimiento.

FI Vacio Sala de Máquinas
FI Sala de Máquinas

Cabría acá concluir que nada malas son las cuestiones que abre Ingeniería; ni las posibilidades que insinúa. Su edificio en suspensión, lleno de potencial, de ideas latentes e inacabadas, es el espejo en el que tantas épocas han reconocido sus propias inquietudes. Polisémica partitura, ejecutada a su aire por muchas manos y en muchos tiempos nos habla de cambio y permanencia; gira ante ella la flecha del tiempo, alternando futuros y pasados –desde el voraz presente de los procesos iterativos– al reconocer, al crear. … el plano definitivo es simplemente un estado de espíritu ha escrito Vilamajó14.

JV Estado de espíritu

Y puesta la obra al contraluz de esta línea nos interroga, por ejemplo y entre tantas cosas, acerca de quién y cuándo inicia un proyecto; y si, en definitiva, alguien le acaba. O también si, alguna vez –¿cuándo…? ¿cómo…?–, puede dejar de ser.

14 Preparándose a responder una andanada de reclamos, hacia fines del 1940

Vilamajó escribe en nota privada a Hill: ¿Qué es un plano definitivo? ¿Se debe hacer un plano que se llame definitivo? o es el plano definitivo es simplemente un estado espiritual. La esquela inédita, acompañada de una viñeta, fue encontrada en la investigación de la Tesis doctoral del autor.

VIVIENDA COOPERATIVA: COMUNIDAD, PARTICIPACIÓN Y SUSTENTABILIDAD.

Conjunto cooperativo La Balma. Barcelona

Lacol+ La Boquería

Memoria

La Balma es un proyecto de la cooperativa Sostre Cívic, que se adjudicó la parcela de Poblenou en el primer concurso público de suelo municipal para vivienda cooperativa en alquiler. El proyecto busca ampliar el parque de vivienda asequible para hacer frente a la escalada de precios de los últimos años. Teniendo en cuenta los recursos disponibles, el foco está en el coste inicial de construcción y uso del edificio en su vida útil, pensando en el impacto económico final para el usuario. Además, el edificio pretende evitar la pobreza energética reduciendo el coste del confort de la vivienda en más de un 50%. Durante la fase de concurso se realizó un diagnóstico socioeconómico del grupo poblacional y un proceso participativo para trabajar y llegar a una propuesta consensuada, en la que el

usuario y la comunidad tengan un papel protagónico; y el edificio es la infraestructura que los acompaña y les permite evolucionar libremente desde tres ámbitos sociales: el barrio, la comunidad, la vivienda.

El edificio está situado en la esquina de las calles Espronceda y Camí Antic de València. Este último es un eje verde repleto de equipamientos en el barrio. La cooperativa quiso colaborar como un equipamiento más en este eje, compartiendo espacios con el barrio y expresando la riqueza de la vida comunitaria interior. Por eso tiene el acceso principal, todos los espacios comunes y las circulaciones verticales en la fachada norte, abriéndose al espacio público del Camí Antic de València. En la calle Espronceda hay un espacio comercial, que ahora es utilizado por una ONG, colaborando para activar la planta baja de la calle.

Del proceso participativo inicial surge un programa de espacios comunitarios que se distribuyen en altura en todas las plantas del edificio, adquiriendo un carácter diferente según el uso de cada espacio.

Queríamos espacios y circulaciones comunitarias para mejorar las relaciones humanas, los encuentros espontáneos y las actividades cooperativas en todo el edificio. En la planta baja encontramos la cocina-comedor común, espacio para bicicletas y taller abierto al vecindario, el vestíbulo y dos espacios comerciales con vistas a la calle Espronceda que serán gestionados por la cooperativa. En el resto de plantas el programa se distribuye en pequeñas estancias, potenciando la circulación interna (sala polivalente, espacio de lectura, habitaciones de invitados, espacio de cuidados y lavandería). Finalmente, la cubierta, totalmente accesible, se entiende como el espacio exterior de la cooperativa. Una terraza de más de 300m2 que los vecinos podrán dotar de huertas productivas, espacio de sombra y esparcimiento. Las circulaciones siempre acompañan a los espacios

comunitarios. Son espacios abiertos, ventilados y soleados, queriendo dignificar estos espacios, muchas veces minimizados, entendiéndolos como espacios de socialización y descanso.

El edificio cuenta con 20 unidades, una de las cuales será utilizada como piso puente para familias en proceso de reinserción social. Las viviendas se diseñan a partir de una retícula de 16m² que coincide con la estructura de madera laminada. Estas piezas permiten divisiones y distribuciones muy diversas, permitiendo al usuario decidir sus espacios. Cada casa parte de una base de 50m² totalmente equipada, correspondiente a las tipologías pequeñas. Esta unidad básica se amplía con una o dos piezas, pasando a ser de tipo mediano o grande. Las piezas que permiten esta ampliación son espacios gestionados por la cooperativa. Esta gestión permite una flexibilidad real del sistema, y las casas se apropian de ellos de forma individual o compartida. La principal estrategia ambiental es reducir la exigencia sobre todos los consumos del edificio ofreciendo un buen confort climático y una acústica equitativa a pesar

Datos

La Vivienda cooperativa La Balma se construyó en 2017 para la cooperativa Sostre Cívic. Se ubica en la calle Espronceda 131-135, Barcelona. El proyecto fue realizado conjuntamente por los colectivos interdisciplinaris Lacol y La Boquería. La consultoria ambiental fue de Societat Orgànica y PauS (consultoría medioambiental) y la consultoria de ingeniería de Arkenova. Las fotografías son de Milena Villalba.

de las diferentes condiciones de cada planta; por ello el edificio responde con una sección cambiante.

Este objetivo lo logramos con las siguientes acciones: (1) Compactación de zonas climatizadas, dejando las viviendas más aisladas, con mínimas pérdidas energéticas. Para los meses más fríos disponemos de un sistema de recuperación de calor y para los meses más calurosos una buena ventilación cruzada y una pared exterior de protección solar orientada al Sur. Los espacios de circulación están abiertos, (2) Trabajar en una sección cambiante del edificio, para una realidad cambiante en las diferentes plantas del edificio. Se busca la máxima captación solar en las plantas 1, 2 y 3 y se protegen las plantas 4 y 5 del exceso de radiación, (3) La pasarela de la fachada de Espronceda actúa como colchón acústico de las plantas bajas y la pasarela de la fachada interior actúa como protección solar, (4) Centralización de instalaciones para facilitar el mantenimiento, mejorar la eficiencia del sistema y minimizar costs, (5) Infraestructura de instalaciones perfeccionada. Dejando previsión de sistemas que en un futuro puedan mejorar la autonomía del edificio. Desde un inicio se contará con la infraestructura para la instalación de paneles fotovoltaicos y las tuberías para instalar un sistema de recuperación de aguas grises. Este sistema nos permite reducir mucho la inversión inicial y dejar la inversión sujeta a las posibilidades de la cooperativa. Ya sea al principio o cuando baje la carga económica de los primeros años, (6) La climatización y generación de agua caliente sanitaria se realizará mediante un sistema geotérmico

que permitirá conseguir el confort con el mínimo coste energético e impacto ambiental. Este sistema también les permite realizar free-cool y enfriar los suelos durante los meses cálidos sin aporte energético, únicamente con la circulación de agua enfriada sobre el mismo suelo y (7) Climatización mediante paneles radiantes de arcilla. De esta forma se obtiene el máximo rendimiento en geotermia con un sistema que trabaja a baja temperatura. Además, la arcilla actúa como un material altamente regulador del agua.

El edificio cuenta con 2 tipos de estructura que optimizan las funciones de cada material, costo, rapidez de construcción e impacto ambiental. En contacto con el terreno y la calle se propone una estructura de hormigón armado (mínimo material mineral). Para viviendas y espacios comunitarios se propone una estructura de madera laminada, ofreciendo confort, espacios saludables y logrando un mejor impacto ambiental en todo el edificio (material orgánico y liviano). Se trata de una edificación ligera, donde predominan los

materiales reutilizables y removibles, lo que permite reducir la cimentación y directamente los materiales de origen mineral utilizados en la edificación.

Arquitectura bioclimática como

arquitectura experimental

El caso de la Hospedería del Errante (1995-1999)

*Arquitecto de la Universidad Católica de Valparaíso y Magíster en Arquitectura de la Pontificia Universidad Católica de Chile. En Valparaíso participa en la construcción de variadas obras en la Ciudad Abierta de Ritoque (Casa de los Nombres, remodelación Doble Hospedería, Hospedería del Errante).

El presente ensayo busca exponer un ejemplo de arquitectura que se plantea sensible al entorno (medio de energías dinámicas que afectan invariablemente al cuerpo de la obra arquitectónica).

Se trata de aquello definido como la intemperie, a la que están sometidas todas las construcciones, y que ya no se le ve como ingobernable y atentatorio de la obra; como el causante de la entropía o desgaste de esta.

Si no, como parte constitutiva del control de la atmósfera interior de toda obra o de la así llamada temperie1

Esto nace de una necesidad clara y conocida, que es la constante búsqueda de la economía de los sistemas. Cada vez más se cuantifican los costos que implica la construcción de esta temperie en grandes edificios (por ejemplo la

1 El concepto de la temperie (temperie = cabida) se encuentra acuñado en el discurso arquitectónico de Manuel Casanueva.

climatización por medio de sistemas de aire acondicionado y de calderas) y en consideración a esto, la arquitectura nos presenta en este momento una postura que se ha dado en llamar por un lado Arquitectura Bioclimática y en un término más amplio, Arquitectura Sustentable.

El caso de la Hospedería del Errante, proyecto del arquitecto e investigador Manuel Casanueva2 corresponde a una obra realizada en el ámbito académico y pedagógico, dentro del campo de la experimentación y apunta a explorar este problema climático y energético, mencionado en el párrafo anterior. El artículo habla de mi experiencia como alumno, recogida durante la primera etapa del proyecto y construcción de esta obra.

2 Manuel Casanueva Carrasco, fallecido em 2014, fue um destacado arquitecto e investigador chileno, profesor de la escuela de Arquitectura de la Universidad Católica de Valparaíso y miembro fundador de la Ciudad Abierta de Ritoque.

1_Planos vitreaux y arbotantes, en Fachada Oeste

La Hospedería del Errante (1995-1999)

Ampliamente publicada3 esta obra realizada en la Ciudad Abierta (localidad de Ritoque en la V Región de Chile), por el arquitecto-docente

Manuel Casanueva y los alumnos de los talleres de arquitectura de la Universidad Católica

3 La referencia más completa a esta obra se puede encontrar en Casanueva, Manuel: Habitar en Hospederías en CA 84, Abril 1996, Santiago de Chile, pp. 34-39. También en AAVV: Casas: Obra de Arquitectos Chilenos Contemporáneos,ARQ, Serie Difusión Arquitectura / 1, Santiago de Chile, Octubre 1997 y en Casanueva, Manuel, De los campos de Abstracción y los Elementos para una Arquitectura Experimental, Facultad de Arquitectura y Diseño Universidad Finis Terrae, Diciembre 2003.

de Valparaíso, tiene por fundamento dos proyectos de investigación previos Fondecyt del propio Manuel4. La primera investigación se titula Tesis del Arquitecto Orfebre y la segunda

es Desarrollo en el espacio constructivo de elementos técnicos- arquitectónicos que gradúan las energías de la intemperie (y que corresponde a la obra en si).

Se trata de una obra qse desenvuelve en el campo de una Arquitectura Experimental5 al decir de su autor. Y que en este caso implicó el encuentro entre la dimensión de lo existente y lo nuevo, puesto que basándose en una estructura de albañilería original de una primera obra erigida en 1981, se resuelve demoler la antigua cubierta y erigir una envolvente, a la luz de un nuevo planteamiento arquitectónico, tal como lo anuncia el título de dicha investigación.

Pero para entender la propuesta de esta obra, es necesario conocer no solo el resultado arquitectónico, si no también el proceso proyectual que requirió.

Deseando no ahondar en la complejidad de su teoría estética, solo diremos que la dinámica es el espíritu general de la forma en esta obra, lo que se ve en dos aspectos que fueron primordiales en su diseño: la cinética del viento y la cinética del objeto cubo. Ambos conceptos tienen su fundamento en la Tesis del Arquitecto Orfebre por lo que esta obra es la materialización de dicha tesis.

Así, se trata del movimiento que proyectado en y sobre sólidos generó una suerte de envolvente arquitectónica, que se levantó sobre los

4 Casanueva, Manuel, Tesis del Arquitecto Orfebre en Para una tipología arquitectónica americana. Proyecto Fondecyt 91-551, Santiago de Chile, Volumen 9. Casanueva, Manuel, Desarrollo en el espacio constructivo de elementos técnicos- arquitectónicos que gradúan las energías de la intemperie. Proyecto Fondecyt 1941189, 95-96, Santiago de Chile, 6 Tomos.

5 Sobre el sentido de este termino ver Casanueva, Manuel, De los campos de Abstracción y los Elementos para una Arquitectura Experimental. Facultad de arquitectura y Diseño Universidad Finis Terrae, Diciembre 2003,p.14.

restos de una antigua estructura de albañilería. El movimiento del viento sería la ley que definiría la superficie externa de esta envolvente, tomando forma de un fuselaje. Y una teoría de lo cúbico definiría los rincones, espacios e interiores, es decir, la separación formal entre la tradicional contigüidad de las superficies del interior y el exterior6.

Exteriormente se aprecia en la obra una suerte de cubierta compuesta de tres grandes planos cuadrados sucesivos, que por su transparencia actúan como lucarnas iluminando cenitalmente los interiores.

tores de impactos cúbicos. Elementos todos llamados técnico-arquitectónicos, que desde su particularidad pretendían dar respuesta a las diferentes solicitudes y rigores del entorno7

se trata de un proceso de captación de las energías de la intemperie, las cuales a través de estos elementos, son graduadas amortiguando su efecto en los interiores.

Como muros se aprecian diferentes cuerpos poliédricos, huecos, planos ranurados y superficies alabeadas, formando en su conjunto una composición múltiple de aristas y superficies que se interceptan en todas direcciones.

Todas estas formas componen una envolvente, que se definió en algunas partes como fuselaje, en otras como celosía, y en otras como conec-

6 La característica del norte como frente climático es la severidad de las energías del viento y la lluvia en invierno y del sol en verano. No es posible tratar la regulación del cuadrante norte bajo el concepto de plano, sino de espesor (…). Casanueva, Manuel, Formulario de presentación del proyecto Fondecyt, p.8, Santiago, 1994.

Es decir, se trata de un proceso de captación de las energías de la intemperie, las cuales a través de estos elementos, son graduadas amortiguando su efecto en los interiores. Por ejemplo, la energía del viento se consideró como modeladora de la forma de la envolvente arquitectónica, mediante muros diseñados como elementos fuselados y dispositivos de aceleración eólica.

Estas formas conducen y desvían los fuertes y corrosivos vientos que habían deteriorado la estructura de la antigua hospedería e intentan dar protección a determinadas zonas, que por su orientación experimentaban efectos contrarios de viento y lluvia.

Así como el viento, una segunda energía es la luz, la cual se pretende graduar por medio de lo que se definió como umbrales de baja inten-

sidad8. Es decir, diseñar las fachadas expuestas a la incidencia directa del sol (sector norte) como celosías, de forma que hacia el interior de la hospedería se evitaran los desagradables efectos del contraluz y encandilamiento.

Además, esta luz se constituyó como un elemento con el cual intervenir cromáticamente algunos espacios, por lo que se insertaron vidrios de colores en los paramentos de estos umbrales.

7 El proyecto consiste en el estudio y construcción de elementos arquitectónicos-técnicos, cualificadores de una envolvente en un entorno de enérgicas solicitaciones. Casanueva, Manuel, Proyecto Fondecyt 1941189, Op. cit.Síntesis.

Una experiencia pedagógica

Ahora bien, lograr un desempeño eficiente

8 Casanueva, Manuel, Habitar en Hospederías. Op. cit.

2_Detalle de Acceso por Facha Este

de cada elemento y del conjunto de la obra, requirió una metodología de trabajo y proyecto, que implicó, por un lado el conocimiento de teorías plásticas trasmitidas por Manuel Casa-

nueva a la par de manejar algunos principios de aerodinámica.

Y por otro, la experimentación a través de los que se ha dado en llamar campos de abstracción (modelos o maquettes conceptuales de trabajo, exploración y ensayo).

Es de estas “n” coordenadas que el estudio se abstrae9

Todo esto se logró bajo un régimen pedagógico de trabajo, donde los alumnos del taller arquitectónico, trabajaron exclusivamente para esta obra bajo la guía del profesor desde la proyectación, pasando por el ensayo y finiquitando en la construcción de la obra. Los Campos de Abstracción son el fundamento teórico-fáctico de la indagación anterior al caso arquitectónico; en cuanto campo, ellos aportan la claridad de “n” coordenadas menos, las cuales en estos casos son la función, la escala la ubicación, la orientación.

Un deflector aerodinámico10 , una tobera-pórtico espacial galería11 , un vitral12 o celosía pórtico y un rincón de estudio13 son algunos de los elementos que el proyecto trabajó en una primera etapa, no solo desde su dimensión estético-formal, a través de una serie de ejercicios plásticos abstractos (los campos de abstracción, que tenían como base la teoría plástica de Manuel Casanueva), sino que a medida que decantaban en propuestas arquitectónicamente más elaboradas, debían enfrentar diferentes problemáticas referente al tema de la intemperie en Ritoque, estudiando sus comportamientos y posibles soluciones. Es decir se exigía que los modelos debían ser sometidos por los alumnos a pruebas y

9 Ibidem.

10 (…), cuyo rol es proyectar la masa de aire por sobre la techumbre evitando que la lluvia pueda penetrar por la formación de vórtices. Casanueva, Manuel, Habitar en Hospederías.Op.cit..

11 Elemento aerodinámico espacial estudiado y moldeado en el laboratorio de fluidos, siendo su rol el acelerar la masa de aire impidiendo el retorno o área eddy a sotavento, lo que colabora en templar los patios en baja presión. Casanueva, Manuel, Habitar en Hospederías Op. cit.

12 Un Vitral, que como el deflector tiene un rol estructural de arbotantes enfrentando el cuadrante solar mediante un paño de 18 x 4m con una filigrana de celosías receptora de vidrios de color. El triple rol es el de deflector del viento norte. Casanueva, Manuel, Habitar en Hospederías. Op.cit.

3_Detalle Rincón de Estudio con muros troquelados, Fachada Oeste

13 Un Rincón de Estudio como nexo entre dos elementos distintos: su rol es contener un área de aproximación a la luz al modo de los Bow windows antiguos. Es donde se desencadena la sucesión de impresiones cúbicas Casanueva, Manuel, Habitar en Hospederías. Op. cit.

se exigía que los modelos debían ser sometidos por los alumnos a pruebas y estudios

estudios principalmente aerodinámicos. Se experimentó en túneles de viento llamados como de baja y alta tecnología respectivamente (uno fabricado en el Taller de nuestra escuela, y otro existente en el laboratorio de fluidos de La Universidad Técnica Federico Santamaría). En cada uno se estudiaron los modelos propuestos por los alumnos y sus fenómenos a diferentes escalas14

Este ámbito de pruebas, como parte del proceso proyectual redefinió las diferentes propuestas de los deflectores, toberas, etc. como prototipos, con una dimensión cuantificable. Esto se evidencia en la forma en que la obra era estudiada (identificando zonas como áreas de alta y baja presión), entendiéndose la eficiencia como el coeficiente mínimo del

14 El sentido final apuntaba a que las formas que no cumplieran con los requerimientos deseados en las cámaras de prueba, serían corregidas.

4_Vista Bajo Vitreaux y arbotantes, Fachada Oeste
5_Vista desde esquina Noroeste, vista general fachada

número de Reynolds15

Una Arquitectura Experimental

Esta obra es un prototipo. Un modelo a escala 1:1 donde se han privilegiado ciertas características por sobre otras, las cuales han requerido una etapa de cuantificación y cálculo para evaluar su funcionalidad.

Quienes trabajamos en ella -todos estudiantesentendíamos esta obra arquitectónica desde una nueva dimensión. La hipótesis que en algún momento se planteaba la obra, requería ser comprobada, sometida a variadas pruebas y debía generar un registro: aparecen los gráficos de presión, los cuadros de oscilación térmica, los perfiles alares, etc. Nuevas unidades contables para un nuevo lenguaje.

Experimentamos en laboratorios. El primero fue el propio taller donde los alumnos exploraron con las primeras herramientas y escalas, modelos en papel para trabajar el control de intensidad de luz y una cámara de pruebas para ensayos con el viento (campos de abstracción).

Un segundo laboratorio fue el que nos facilitó la universidad citada para que un equipo de estudiantes realizara pruebas más precisas de los fenómenos aerodinámicos de la cubierta para la hospedería. Y el tercer laboratorio fue la propia

Ciudad Abierta de Ritoque. Que es un recono-

15 Casanueva, Manuel, Tesis del Arquitecto Orfebre Op. cit. 6_Fachada

7_Esquina Sureste, vista general borde de ataque, con tobera y plano deflector

8_Fachada sur, vista general

cido campo de experimentación a gran escala que mantiene esta escuela, y en la cual lo talleres de estudiantes se abocaron a construir con sus propias manos la hospedería, sin supeditarse a las reglamentaciones legales o políticas que regulan la construcción tradicional.

Hay que tener muy patente la perspectiva de

ensayo y experimento presente en todo este proceso, por cuanto a pesar de funcionar en la actualidad como vivienda para varias familias, la Hospedería del Errante es primeramente un ejemplo de arquitectura experimental, ya que toda su dimensión, tanto experimental, de campo de abstracción o de prototipo, es de

naturaleza selectiva en sus parámetros, tanto estéticos como funcionales. Privilegiando unos por sobre otros, e incluso suprimiéndolos.

Una Arquitectura Bioclimática

A pesar del título, el artículo no trata de clasificar el carácter de esta obra bajo el rótulo

de Arquitectura Bioclimática (termino que no está en los fundamentos de este proyecto). De hecho, el mero catalogar sería desentenderse de las variadas otras dimensiones que expone. Lo que se pretende es situarnos en un discurso actual en el quehacer de la arquitectura y que como se intuye, es cercano a algunos de los principios que rigen a esta obra.

Así además de lo ya descrito sobre las energías externas y su impacto en lo formal de su exterior, hay que mencionar que se trata de un ejemplo, de un edificio dentro de otro, donde

el más externo se orienta hacia la intemperie, mientras que el más interior al habitar. Esta individualización y separación es fundamental para lograr una eficiente captación y graduación de estas energías, por parte de la capa más exterior.

En su conjunto son permeables y a la vez aislados. Las formas y aberturas matizan y gradúan el clima exterior para crear una atmósfera propia, autónoma, para el edificio que ocupa el interior. Aunque pareciera no ser tan evidente, la envolvente se estudió como un cubrimiento

de dos recintos anteriores, en los cuales se agrupaban la cocina, los dormitorios y baños.

El fundamento de la obra planteaba que el concepto de lo fuselado de la cubierta, se separa de lo interior, para constituir la respectiva temperie, que no es simple aislación, sino un manejo y aprovechamiento controlado de los agentes climáticos.

La Hospedería del Errante de Manuel Casanueva se adecua a la aerodinámica del viento, de forma de captar a ésta con la mayor eficiencia posible, a la manera de un casco de barco que navega en los vaivenes de la atmósfera.

Pero otras partes de la envolvente son principalmente receptoras de la luz del sol. La idea es alcanzar el mayor espacio de atmósfera controlada posible. Su campo de trabajo es la forma planteándose como métodos pasivos de captación, en su interacción con los agentes de la intemperie.

Pero reitero que el alcance hecho aquí hacia lo bioclimático debe tomarse con prudencia ya que sólo pretende apuntar, a que la hospedería es un ejemplo de este tiempo. Es una obra con sensibilidad a un tema presente y que cada vez toma mayor fuerza. El objetivo de este ensayo no es definirla como aporte bioclimárico, sino sumar ese concepto al resto de sus fundamentos ya que en resumen, la Hospedería del Errante es un cruce de variados ejercicios plásticos, físicos y pedagógicos.

9_Prueba incidencia del viento sobre el frente de cubierta de la tobera en fachada sur
10_Prueba captación y aceleración del viento por la tobera en fachada sur
11_Prueba incidencia del viento en el plano deflector en fachada norte

Nueva Centralidad Multiprogramática.

Complejo de la Manzana de los Circos.

Puerto de Mar del Plata

Memoria

La propuesta ganadora del concurso de iniciativas de desarrollo urbano promovida por el Consorcio del Puerto de Mar del Plata planteó la posibilidad de revisar los ejes y condiciones del proyecto desarrollado en relación a los fundamentos urbanos, arquitectónicos y paisajísticos de una actuación en un área tan relevante y largamente postergada de la ciudad así como reflexionar sobre sustentabilidad y accesibilidad universal y al desarrollo de un programa funcional abierto y flexible a variaciones de usos y preferencias que contuviera proponer ideas espaciales que construyan un nuevo lugar de encuentro para la ciudad y un espacio interior como expresión de múltiples usos comerciales y culturales.

El islote urbano llamado la manzana de Los Circos conforma una isla de tres predios, siendo el número

uno el asignado para el proyecto, con una superficie equivalente a casi cinco manzanas. Esta isla constituye un vacío o espacio vacante que actúa de interfase entre la trama urbana y el área operativa del Puerto; los silos son la referencia visual, desde la Avenida Juan B Justo a la calle 12 de Octubre. El topónimo surgido de la aparición estacional que hace la carpa del Circo todos los veranos en el extremo de la misma, constituye en sí mismo un lugar en la memoria del ciudadano local o turista.

El polígono asignado por el pliego configura una lonja de esta isla, paralela a la Avenida de Los Trabajadores de 35500 m2, que coincide en su extensión en las cinco cuadras que median entre Juan B. Justo y Av. 12 de Octubre. Su característica topográfica lo marca un des-

nivel, el cual es tomado como cero del proyecto. Desde la intersección de Juan B. Justo y Los Trabajadores, desciende 3 metros hacia la Avenida 12 de Octubre y el acceso al Club Náutico. La idea se desarrolla vertebrando con el programa del paseo comercial y el mercado, una propuesta cultural y de entretenimientos, que encadena espacios cubiertos, semicubiertos y a cielo abierto. Una ocupación de suelo de más de 12000 m2, un retiro de la línea medianera a los predios dos y tres de 14 metros y una superficie mínima de 7100m2 de Parque Público son condiciones del pliego y determina el territorio de actuación sobre el que se proyecta un objeto situado, que responde a un contexto urbano paisajístico característico y de bordes disimiles.

El proyecto se propone en cuatro movimientos: la Plaza de Los Eventos, la Plaza de los Juegos, el Área de

Estacionamiento y el objeto o componente edilicio. En el área donde otrora se instalara la carpa del circo que da nombre a la manzana –extremo norte del predio–se proyecta una plaza pública. Un plano inclinado resuelve la diferencia de nivel con una leve pendiente hacia un techo que semicubre el foco escénico de la misma, con los silos como paisaje de fondo. Sobre el retiro que considera el pliego se desarrolla un estacionamiento de 350 espacios en doble crujía, con acceso desde la Avenida Altair y salida a 12 de Octubre. En el tramo entre Gaboto y El Cano, una dársena exclusiva de servicios para el mercado resuelve los servicios de carga, descarga y operaciones propias del uso.

En el extremo sur de la propuesta, otra plaza de menor escala, articula la continuidad con la zona del puerto, el área comercial existente y la circulación peatonal,

Implantación

enlazando esta accesibilidad con la plazoleta que contienen el monumento Hombres de Mar y la plazoleta Comandante Luis Piedrabuena. La fachada hacia la ciudad, frente a Avenida de los Trabajadores, reconoce la trama urbana, generando en su morfología vacíos que corresponden con la prolongación de las calles Solís, Gaboto y El Cano sobre el proyecto, para de ese modo construir fachada.

El objeto singular edilicio del proyecto, como pieza urbana, es un objeto cuya morfología e imaginería tecnológica, técnica y material, abreva en la tradición de galpones y naves industriales propias de las escalas portuarias de astilleros y edificios, para la elaboración de productos y almacenamiento. El artefacto proyectado de este modo asume el sitio y se desarrolla como

una nave de altura y corte continuo con inflexiones que copian la geometría del predio, resultante del retiro adoptado y la forma del solar.

El sistema constructivo y la tecnología utilizada, materializa la cubierta metálica que se pliega para resolver la fachada hacia el sector de estacionamiento y zona de servicios. En la fachada de la calle, respondiendo a la trama urbana, la continuidad de otra banda de locales se desagrega en volúmenes independientes modulados, que producen espacios exteriores intersticiales a modos de patios de tres caras.

Esta operación con incisiones en la fachada, caracterizan su morfología, conformando umbrales y anchas bahías espaciales por donde acceder al paseo cubierto del Mercado. Subrayando una relación de continuidad

Planta Mercado

entre los patios externos de acceso, los patios internos actúan como dispositivos apropiados para ventilar e iluminar el recorrido longitudinal del Paseo Comercial. La resolución de estos intervalos espaciales construyen una secuencia fenoménica donde el espacio continuo, resulta fragmentado en beneficio de una mayor calidad perceptual del recorrido interior.

Esta circulación y las áreas de mesas y stands gastronómicos, cuyo corte resuelve la circulación de doble crujía con una altura de nueve metros, es atravesado por puentes que conectan ambas bandas de locales en el nivel de entrepisos. Superficie en la que se propone escalar la propuesta comercial y cultural, integrando algunos usos con la planta noble del proyecto o proponiendo usos compatibles. En este

nivel, también se sitúan oficinas de administración, la sala de conferencias y espacios complementarios de algunos locales.

Los patios internos son un suplemento de interés, invitando a un recorrido entre jardines que proponen descubrir en cada uno de ellos la expresión de distintas ecorregiones de la flora nacional. Un centro de interpretación profundiza en esta narrativa pedagógica, aborda la flora autóctona y la foránea, como así también en una agenda cultural en relación con la historia del origen y desarrollo de la infraestructura portuaria y la relación con la ciudad y el territorio; en su evolución hasta estos días.

El diseño propone una accesibilidad plena, equipamiento para el deporte y el juego de los niños y niñas,

Esquema accesos y recorridos

Corte

y una propuesta sustentable. La Plaza de Los Eventos es una unidad espacial flexible, de uso público permanente que permite desarrollar eventos culturales de distinto tipo, como ferias, conciertos y muestras. Su diseño resuelve el desnivel de dos metros, entre vereda y escena, emulando las plazas italianas que configuran escenarios urbanos propicios para el paseo

y usos diversos; incluso de mercados gastronómicos de trailers o ferias de artesanías o productos regionales. Un anillo verde cobija el área de plaza seca, conformado por una masa de árboles y médanos de un metro cincuenta cubiertos de vegetación foránea –como tamariscos– y autóctona –como gramíneas y cortaderas– que caracterizan la misma. Los solados de

hormigón con las sendas con baldosas podotactiles, las luminarias, bancos, cestos de residuos separados, unidades de información con sistemas universales y una columnata de gigantescas piezas de hormigón y metal, configuran un espacio amable y dotado de infraestructura pertinente para los usos pensados. Estas columnas resuelven el borde y la necesidad de dotar de sonido e iluminación de distinta naturaleza, como así también permitirían tensar cables de acero que resuelvan con tecnología propia de los barcos pesqueros, unos toldos de escala urbana; como la implementación eventual de una carpa multipropósito a fin de resolver situaciones climáticas impredecibles.

El escenario permanente es un piso de hormigón que cubre baños públicos, depósitos de útiles para eventos, pañol de limpieza y sala de tanque y máquinas.

Sobre él y en acuerdo con la necesidad intrínseca de los eventos, se montarán ampliaciones de escenarios ajustados a las actividades programadas.

La Plaza de los Juegos se ubica en el extremo sur del proyecto y este espacio de juegos y recorridos didácticos articula la relación urbana entre el sector puerto y el paseo comercial. Su diseño resuelve conceptual y materialmente la relación con accesos y área de estacionamiento. Las condiciones materiales, de equipamiento y de paisaje contempladas son las mismas que la de la Plaza de los Eventos.

En lo referente a tecnología y materialidad se adoptan cerchas y vigas metálicas, ancladas a fundaciones ejecutadas en hormigón armado en una coordinación modular con resoluciones especiales que conforman

Esquema patios y estaciones bioclimáticas

elementos de diseño constructivo para una arquitectura de alta presencia visual urbana. La modulación de las unidades estructurales determina la espacialidad articulando locales en doble crujía que permiten la conformación de unidades comerciales ajustables, con variabilidad y flexibilidad espacial y dimensional.

Se piensa desarrollar un estudio de interferencias en el proyecto de fundaciones, en virtud de la traza del arroyo El Barco, que entubado atraviesa el predio.

En cuanto a la propuesta de paisaje, el proyecto se afilia a un modo naturalista de operar con estrategias propulsadas por eminencias destacadas de la disciplina como Gilles Clement, quien desarrolló ideas como El Jardín en Movimiento enmarcadas en el concepto de El tercer Paisaje

La accesibilidad vehicular al predio se articula modificando levemente la rotonda que permite el acceso a la calle Vito Dumas a fin de garantizar la fluidez necesaria al área de estacionamiento del predio, como a los sectores adyacentes, por ejemplo el Club Náutico.

Si bien no forma parte de la propuesta creemos útil mencionar la posibilidad de estudiar dos cuestiones viales, a saber (1) la implementación de una rotonda semaforizada en Juan B. Justo y Avenida de los Trabajadores y (2) que las calles El Cano como Solís, mediante semáforos, permitan acceder a la mano de sentido norte de la Avenida de los Trabajadores, medida que contribuiría a disminuir la velocidad que desarrollan los vehículos en ambas manos del tramo.

Croquis 1: Mercado Planta General
Croquis 2: Aéreo
Croquis 3: Plaza de los Eventos
Croquis 4: Mercado
Croquis 5: Acceso Plaza de los Eventos
Croquis 7: Mercado
Croquis 8: Locales

Aprovechar ruinas

PH Catamarca. Mar del Plata

Memoria

El PH Catamarca es una obra realizada en 2021, de re-funcionalización de una parte de lo que en algún momento fue una casa chorizo, que a lo largo del tiempo sufrió múltiples intervenciones, subdivisiones, y cambios de uso, convirtiéndose actualmente en una de varias unidades de propiedad horizontal. El ejercicio consistió en imaginar un escenario en el cual la ruina de una vieja construcción del barrio San José en Mar del Plata, pudiera convertirse en un espacio de habitar contemporáneo, manteniendo, si es que lo hubiera, algún valor de esa historia. Las estrategias puestas en juego se enmarcan en esta premisa, re-calificando espacios existentes a partir del estudio de sus relaciones funcionales y límites físicos. De este modo, por ejemplo, descubrir un antiguo patio techado permite configurar una gran sala de estar y un dormitorio, o incorporar un sencillo tejido metálico como soporte de crecimiento de plantas permite concebir una nueva relación entre el interior, el exterior propio y el exterior público.

Opinión

Para perfilar este ajustado trabajo ilustrativo de lo que intentamos presentar en esta sección Micro (como operaciones a menudo de detalle o de reconversión / adaptación / captura de una parte utilizable de un constructo, o como engendrar una activación urbana como lo que realiza el kiosko cafetero que publicamos en MAR 4) el joven equipo de arquitectos que encararon este trabajo lo presentan de esta manera: El ejercicio consistió en imaginar un escenario en el cual la ruina de una vieja construcción del barrio San José en Mar del Plata, pudiera convertirse en un espacio de habitar contemporáneo, manteniendo, si es que lo hubiera, algún valor de esa historia.

La apropiación creativa de vestigios de la antigua casa barrial opera en este caso con una fuerte valorización de lo que puede usufructuarse de lo preexistente, tal como el convertir el retiro de frente en un patio que cuando se vegete el paño de cerco que se agrega quedará como un tamiz interior-exterior mucho mas usable que el previo o la conversión de la antigua primera estancia de la vieja

casa en un actualizado dos ambientes o la utilización del pequeño patio como acceso a una buena recuperación de la antigua azotea para armar allí un futuro solario y piscina.

A su vez es interesante el equilibrio emergente entre lo nuevo y lo viejo especialmente en la cuidadosa intervención en el plano original de la fachada de piedra, cuya recuperada rusticidad dialoga con la modernidad de las nuevas aberturas metálicas blancas.

Pocas cosas nuevas y algunos acentos de recuperación de lo previo resultan emblemáticamente ilustrativas de este modo micro de practicar pequeñas dosis de nuevo proyecto, que afirman lo anterior como material de proyecto y consiguen que lo novedoso, como una escritura en palimpsesto, alcance un valor funcional y estético de actualidad.

Post-urbanidad=ruralidad?

Countryside. A report

AMO/ Rem Koolhaas

Taschen, Koln, 2020

Countryside, the future fué la exhibición en el Museo Guggenheim de Nueva York, abierta en 2020 y casi inmediatamente cerrada por la pandemia que relata la historia del otro 98% del mundo, lo que queda afuera de las ciudades y es también el libro-catálogo de esa muestra que publicó Taschen. Se ocupa de ello aquel que dedicara su largo y fructífero trabajo proyectual y teoríco en descubir, potenciar y criticar lo urbano ya desde su temprana descripción de Nueva York: Rem Koolhaas ahora quiere ocuparse de lo rural. El polémico intelectual-designer se acerca a este, su nuevo foco de interés, no solamente con una exposición –bastante desordenada dicho sea de paso, o poco didáctica- sino más bien con una catarata desbordante de preguntas, dudas y alternativas sobre lo que es (o debiera ser) el countryside, el campo. Un millar de preguntas se escriben, ya desde el mural de la entrada y se enroscan en kiló-

metros de textos que tapizan las paredes ascendentes del Guggenheim y el responsable de arquitectura del GM, Troy Therrien asi lo dice: Countryside, the future aborda cuestiones ambientales, políticas y socioeconómicas urgentes a través de la lente del arquitecto y urbanista Rem Koolhaas y de Samir Bantal, director de AMO, cosa que la muestra y el libro abordarán con una estrategia de puntillismo a lo Seurat para catalogar las oportunidades que ese poco conocido otro 98% del mundo puede ofrecer, mas allá de las ciudades. Pero cabe preguntarse oportunidades para quiénes y cómo se definen como tales?

Esta seria la tercera y significativa irrupción del arquitecto y urbanista Koolhaas en la gran manzana, después de Delirious New York que modelaría su discurso narrativo-crítico-proyectual y de su anterior muestra de 1978 en este mismo museo, The Sparkling Metropolis, que hizo junto a sus entonces

nuevos socios de la Office for Metropolitan Architecture (OMA) y que especulaba muy entusiastamente sobre el enorme potencial que por entonces suponían las nuevas metrópolis a través de dibujos y collages, que Paul Goldberger, el crítico de arquitectura del New York Times, veía como intensamente eclécticos y provocativamente teatrales y exuberantes. Veinte años más tarde -1998- Rem crea AMO, el vehículo de investigación de la oficina con lo que conformaría su modelo de negocio en tres áreas - investigación académica, exhibiciones y comunicación visual- como cabeza de puente para abastecer la cartera de comitentes de OMA.

A partir de entonces ninguna actividad aparentemente no profesional de RK dejaría de darle réditos comerciales: por ejemplo abordó como visiting profesor del Harvard Graduate School of Design, una investigación sobre el Pearl River Delta a partir de la cuál se

desencadenaron instancias que lo llevaron a recibir el encargo del proyecto de la sede de la CCTV de Beijing. La publicación académica Al Manak: a gulf survey fue la base para acceder a realizar un master plan y muchos proyectos edilicios en Dubai asi como otro escrito emergente de su trabajo didáctico en USA -The Harvard Design School Guide to Shopping-le sirvió de puerta de acceso a sus trabajos para la firma Prada. A su vez

esas investigaciones las usaba para armar las exhibiciones de OMA en las Bienales de Venecia (2005: Expansion Neglect, 2006: The Gulf y 2010:Cronocaos. Expos que sucesivamente sirvieron para atraer nuevos clientes en temas como el crecimiento de museos, la nueva oferta de arquitectura en la región arábiga o las prácticas patrimonialistas).

Con el presente libro+expo Countryside, the future –que llevó casi diez años de preparación- seguramente RK buscará también usarlo para atraer nuevas demandas de trabajo profesional lo cual ya parece despuntar en encargos para proyectos rurales como Vallée de la Chimie Masterplan, en Francia (veánse la imágenes 9 y 10) que ya están en marcha y que tal vez anuncien una nueva tanda de trabajos en la saga de esta temática.

La presente muestra y su catálogo está lejos de parecerse a los trabajos publicados de Rem como el neoyorquino inicial y la cooperación gráfico-intelectual de Vriesendorp y los Zengelis o el rotundo SMXXL y la contribución gráfica autoral conjunta del canadiense Mau: esta vez se trata de una caótica acumulación de recortes e imágenes de prensa, videos de toda clase y cartografías variadas (2) todo ello exarcerbado por una idea de campo que mas precisamente debería ser no-ciudad, ya que los curadores también aceptaron referirse a océanos,

Imagen 2

desiertos, islas, áreas cuasi vírgenes, etc. y no solo el campo productivo, equipado y semihabitado. Algunos críticos ácidos, como Oliver Wainwright, de The Guardian, bautizó el engendro como una cruza de contenidos de las revistas NatGeo y Wired, es decir de lo natural y lo digital. Lo expuesto recorrerá aspectos absolutamente divergentes como las imágenes que lo rural tenía en la China medieval o en la Alemania de Hitler , desde la declinación del permafrost siberiano o de los grandes monos africanos, rehusándose tratar temáticas como la infraestructura-arquitectura rural o hasta casi cualquier exploración tipo-ontológica sobre el vasto territorio de lo no urbano.

Apenas a la entrada se muestra una granja artificial que cultiva tomates con luz rosada (3) y por otra parte, un tractor robotizado (7), anunciando que la manipulación del campo será no-humana para luego plantar un mapa del mundo que Rem y OMA anticipan recorrer y describir en las

variadas experiencias que junta referencias a la ingenieria genética y la manipulación humana hitleriana y a las diferentes posturas de varios líderes históricos modernos (Mao, Stalin) sobre políticas amplias de ruralidad. Las críticas neoyorquinas a la muestra la compararon con la puerta de una heladera atiborrada de imanes kistch o bien, que pare-

ce un acrítico dazibao (esos periódicos mu-

rales maoístas) que podría haber dado paso a un buen libro, pero este –el catálogo de la desordenada exhibición- pudiera llegar a tener que verse como un buen folleto de ventas de los servicios que ofrece OMA para la próxima década, ya que Koolhaas postula un campo entendible como un mundo todavía inexplorado pero que esta ahí en un silencio denso como un mar de oportunidades.

RK apuntó fuerte que no se trata ya de hablar de arquitectura ni hasta de arte y que ahora habrá que re-colonizar nuevos discursos para hablar de este tema como algo fuertemente emergente y que llegará a tratarlo con una narrativa equivalente a la forma como se escribía sobre la conquista de la Luna. Esa narrativa intenta contrarrestar el apotegma de la UN que dice que en el futuro solo el 20% de la humanidad vivirá en el campo, lo que según nuestro provocarivo holandés, seria increíblemente peligroso, simplista y de una negligencia hacia las posibilidades que ahí se encuentran. Esta narrativa resulta notoriamente ingenua al caracterizar el campo como una tierra de nadie ya que siendo que hasta el 90% de lo que el mundo consume viene directa o indirectamente del campo, es obvio que por lo tanto los grandes actores del poder ya están manejándolo y (re)modelándolo y quizá sea ingenuo que RK nos lo presente como un área de oportunidad para un nuevo pensamiento hiperproyectual. El énfasis que el grupo de RK hace de este proyecto como emergente de una profunda investigación es desmentido en testimonios públicos de algunos de los muchos alumnos de doctorado que participaron, que dicen que solo consistió en acumular datos de muchísimos especialistas en múltiples temáticas pero ensamblando esos saberes

en una especie de mamotreto esculpido ad-hoc; un proyecto que resulta un ejercicio de hablar de lo que uno no sabe y presentarlo como uno quiere, es decir, si cabe, un nuevo experimento de la tan actualmente meneada posverdad.

Acoplado a cierta arrogancia curatorial que descree que se trate de un proyecto colonialista, globalista y eurocéntrico (no se habla nunca de las soberanías políticas de

las regiones del sur mundial que acogen el 80% del potencial recursístico natural de la no ciudad). El curador Thierren dice que es una exhibición abrumadora para el visitante (cuando en realidad es confusa) que presenta un relato puntillista del territorio en mutación que podría sentirse colonialista y sin tacto, puesto que han eludido un discurso políticamente correcto y que aunque la

Imagen 4

Imagen 5

gente hagan un huracán de esto, las cosas son como son.

Y es así, con esa arrogancia curatorial, que la visión de Koolhaas falla en este último proyecto. Y no sólo por falta de claridad y enfoque, sino por falta de honestidad. Desde un inicio es claro que Koolhaas no estaba interesado en mas planificación en el campo o en vaticinar si será el siguiente lugar para que los arquitectos intervengan, como aclara en

su video promocional para el museo. Para él, se trata de su fascinación con esta tipología de lo industrial y de lo rural. Las oportunidades de escala, tecnología, sencillez y funcionalidad que le otorgan estos edificios e infraestructura fuera de las densas y ricas ciudades que pueden pagarle, son infinitas.

No ha habido una arquitectura con vigor similar en los últimos 100 años escribió Koolhaas sobre las naves industriales. Están basadas estrictamente en códigos, algoritmos, tecno-

logías, ingeniería, y performance, y todo sin intención. Es su naturaleza aburrida lo que lo hace hipnótico, y su banalidad deslumbrante.

Si tan solo los siete pisos del museo hubieran estado repletos de investigación y especulación sobre naves industriales, esta exhibición hubiera sido otra cosa. Y aunque es el mismo Koolhaas quien advierte su pasión por las oportunidades que tienen edificios en el countryside, lo construido toma un segundo o tercer plano en esta feria de ciencias.

Imagen 6

Countryside, The Future propone analizar la oposición campo/ciudad, algo esencial para el pensamiento revulsivo de la modernidad.

El modelo de crecimiento tradicional basado en una sociedad metropolitana orientada al capitalismo, agnóstica y occidental, ignoraba otras opciones diferentes y ha desembocado en la situación actual en la que la vida urbana se define como una condena autoimpuesta en la que la economía intenta esconder que no hay nada fundamentalmente nuevo que experimentar en ella.

La investigación que generó este proyecto fue realizada por Koolhaas y OMA junto con estudiantes de Harvard GSD, la Academia

Central de Bellas Artes de Pekín, la Universidad de Wageningen en Holanda y la Universidad de Nairobi. Entre los diferentes aspectos que interesaron a la investigación (bastante pobre en su densidad

científica) aparecen la idea actual del ocio asociada a la crisis del paradigma del trabajo, la planificación y gobernanza mundial (vinculada a lo que también explorara el grupo moscovita del Instituto Strelka dirigido por Benjamin Bratton) , el cambio climático, las migraciones, los ecosistemas humanos y naturales, la preservación de recursos ostigada por el mercado, la bio-coexistencia de lo artificial y lo orgánico, y otras formas de experimentación radical que están alterando el paisaje alrededor del mundo. La creciente concentración territorial-urbana implica que el 50% de la población habita

en ciudades, con solo un 2% del territorio mundial pero la la previsión de la UN es que en esa misma superficie hacia el 2050 se recepte el 70% de población, lo cuál tiende a agudizar la pregunta sobre que pasará o debería pasar en lo no-urbano y en base a esa característica el libro-expo de RK+OMA propone una colección de ejemplos de todas las ideologías y continentes con la que configurar un diseño de la situación actual del campo, con una ambivalencia entre cierta tendencia al cambio radical y la fatalista aceptación de un así son las cosas, en cierto contexto que hace mirar desde una arraigada conciencia metropolitana el panorama de un campo al límite del agotamiento basado en políticas de ecocidio.

En la exposición –y luego en pasajes del libro que aquí comentamos- desfilan opiniones de expertos en campos bien diversos como entre otros, Niklas Maak, el socio de RK

Samir Bantal, Alexandra Khatitonova, Louise Fresco, Linda Nkatha Gichuyia, Etta Madete, Keigo Kobayashi, Ingo Nierman, Janna Bystrykh, Johannes Refish y Lenora Ditzer

Niklas Maak revisa aspectos de la radicación de refugiados en ciudades europeas (Mahneim en Alemania; Riace y Camini en Catania) y de comunidades autogestionadas (Tarnac) en tanto experiencias de razonable readaptación natural y sostenible de los

recursos como instancias opuestas a otras formas de ocupación rural como el caso de los neofalansterios (como Hameau de la Reine) que caracteriza como fake rustic model con una mirada ingenua y melancólica de una ruralidad que pretende instalarse en las ruinas del capitalismo urbano reciente. La aldea didáctica de Maria Antonieta, creada en Versailles, ahora es ocupada por un proyecto de ganadería experimental (10).

Samir Bantal ensaya un racconto autobiográfico acerca de la noción de otium, esa noción grecolatina pero también china (xiaoyao) que describe un estado cerebral que emerge de la polarización estricta de trabajo frente a ocio, aunque dado que el ocio (capitalista) también es activo, se opondría a un otium que seria como un ocio vacío. La confluencia neocapitalista entre trabajo/ocio ambos activos despliega la figura del DMN (Default Mode Network o trabajo automatizado total) y Bantal analiza ese proceso comparando sus veranos en Marruecos –de donde es nativo- y su actividad en Holanda, donde reside, de lo que concluye que ciertas condiciones locales o no globales resisten a la uniformidad disolutiva del tándem trabajo/ocio y que incluso posibilitarían formas de otium. Alexandra Khatitonova revisa las modalidades agroproductivas soviéticas desde los planes estalinianos hasta el Virgin Lands

(1954-1965) o la planificación fluvial de la hidrografía siberiana (1968-1986). El análisis revisa las ideas del responsable de la agroplanificación de Stalin –el ingeniero agrónomo Trofim Lysenko- que con una mirada anticientífica cometió errores graves en la selección de cultivos de los green-belts productivos de las metrópolis soviéticas

pero que en otro orden parece haber tenido éxito en otras iniciativas como Voronzeh-Rostov-On-Don –que todavía funciona adecuadamente hasta ahora- o Virgin Lands –que anduvo bien hasta la degradación del suelo por el uso de agroquímicos- y hasta las ideas retomadas por Brezhnev del trasvase de agua de afluentes del Volga hasta Siberia con un canal de mas de 2500 km que aunque no alcanzo a ejecutarse hubiera sido un emprendimiento activador de un enorme territorio productivo pero semidesértico.

Louise Fresco examina las relaciones entre tecnología y biología pero haciendo la hipótesis que el peso o inmanencia de ciertos factores culturales operarán restringiendo el creciente auge de regulaciones engendradas con dispositivos técnicos. Bajo el concepto de que la comida, la agricultura y la producción de alimentos constituyen un ecosistema en sí mismo ello estaría dando paso a una funcionalidad casi absoluta en la que desecho orgánico tendería a cero y que

es inminente la introducción de sensores que controlen los indicadores nutricionales en tiempo real lo que permitiría a la vez la optimización de la producción y la mejora de la salud de forma que podría ser posible a través de sensores, saber la cantidad exacta de proteínas, vitaminas o carbohidratos que cada uno necesita. Esa especie de huxleyano nuevo mundo feliz (en cuanto a lo alimentario) y de una total rutinirización de la alimentación de manera que se contribuya a una gobernanza mundial de administración racional del alimento sin embargo, según Fresco (apellido que se asociaría a un modo de ser de los alimentos) no podría alterar la

Imagen 10

fuerza imperativa de componentes culturales que seguirán siendo determinantes de las formas de comer más allá de la seducción tecnocrática de la regulación: el Levi Strauss de le cru et le cuit tiene vida por delante para rato.

En otro ensayo de Samir Bantal se trata la cuestión de la seguridad/inseguridad alimentaria y la ausencia de alimento recurriéndose a la descripción del caso de Qatar, con la paradoja de una fase de su historia enclavística que fue capaz de ser agroalimentariamente autosuficiente junto a otro emprendimiento agrario como fue la producción de caca-

huetes, cuya supremacía destruyó la calidad de los suelos y todo para una finalidad antihumana pues se trataba del alimento que posibilita las carreras de camellos.

Linda Nkatha Gichuyia y Etta Madete analizan

la tendencia que abrigaría en Kenia , el deseo de abandonar vivir en grandes ciudades a partir de constatar como asentamientos lujosos como Ocha o Gishagi se apoyan en un regreso al campo, como lugar de la tranquilidad, la tradición y origen de la vida siendo además una clase de vida más barata que la de las ciudades y con servicios equivalentes. Asi como imperan teorías rurbanistas en Austria y Alemania (de vuelta de la experiencia hiperurbana) en Kenia –con otro desarrollo y con cierta omnipotencia de lo natural- estaría ocurriendo una inversión parecida ya que en lugar de urbanizar lo rural, se estaría rura-

lizando lo urbano, que es lo que estas autoras constatan en ciudades como Voi y Samburu bajo la noción utopista de afro-futurism.

Keigo Kobayashi analiza un desarrollo que parece haberse obstruído con la tecno-catástrofe de Fukushima y que es (o fue) un paisaje habitable-productivo enteramente robotizado y la posibilidad de desarrollar granjas de seres creados para suplir esfuerzos humanos mientras que el analista nórdico Ingo Nierman se plantea el modelo de habitar los océanos, que enfoca a la vez como una nueva colonización de naturaleza remanente y un retorno al origen biológico del humano. Janna Bystrykh describe el caso de un hábitat singular (un asentamiento kárstico) que debido al cambio climático alcanza un estatus de colapso con una virulenta afectación de las prácticas agrícolas. Johannes Refish y Niklas Maak estudian el caso-fracaso de Diane Fossey, la célebre investigadora de la reserva de gorilas del Parque Nacional de Virunga quién modeló una forma habitativa para una comunidad de gorilas cuya supervivencia dependía del cambio comportamental emergente de la convivencia con humanos. La historia de Fossey emblematiza circunstancias actuales en que la supervivencia significa adaptación y la emergencia de una dialéctica entre inmanencia biológica y trascendencia socio-cultural.

Lenora Ditzer imagina una hiperanalítica infinitesimal que permitiría analizar el territorio para intentar alcanzar una mejora de biodiversificación lo cuál podría llevar a formas acrecidas de explotación agraria sostenible manteniendo paradigmas biológicos tradicionales o sea, evitando las aventuras transformadoras (mutaciones, clonajes, hibridaciones, etc.) de pronóstico imprevisible. En resumen esta nueva tentativa intelectual de Koolhaas y sus equipos didácticos-comunicacionales-profesionales expone una diversidad de narraciones fragmentarias sobre la Tierra, cruzando lo particular y lo universal y sin una aparente ética acerca de estimular o regular la presión habitativo-productiva sobre el planeta: asi su manera de presentarnos lo rural toma la forma mas de interrogantes que de certezas y el libro y la muestra, operan como un atiborrado y des-ordenado catálogo de cuestiones (investigaciones, procesos, sucesos, proyectos, utopías) que cruzan la noción de campo a través de diversas aventuras y experimentos culturales, identitarios, históricos y biológicos. Supongo que a otros grandes –y sistemáticos- todólogos contemporáneos, como Bruno Latour, Donna Haraway o Peter Sloterdijk , esta visión y este libro los aterraría.

Nuevas formas de activar

la ciudad barrial.

Complejo Magnolio Media Group

Pedro Livni

Aldo Rossi en su Autobiografía Científica (1981) apuntaba que toda búsqueda creativa está fuertemente relacionada a una cierta forma de continuidad de la condición material de la arquitectura. Una guía para trabajar sobre lo existente que llamó principio de continuidad. Un factor que preside toda construcción, en donde la forma arquitectónica es lo que permanece y determina la construcción en un mundo en que las funciones están en perpetuo cambio

La obra de Magnolio Media Group consiste en el reciclaje, ampliación y transformación de una casa existente, de estilo ecléctico, en un complejo de medios para estudios de radio,

una sala de espectáculos para 150 personas y un restaurante. Programas que alojados en un mismo edificio tienen que contar con la posibilidad de coexistir de manera independiente.

La dificultad del proyecto radicó en como adosar las nuevas necesidades programáticas que excedían sobremanera el metraje de la casa existente y en mantener cierto equilibrio entre las partes capitalizando la energía previamente desplegada.

Al estar la casa existente, que se restaura, en la parte frontal del predio y sobre la calle, se evita el problema de generar forma nueva en términos urbanos.

Nuestro principal interés fue dotar al edificio de una fuerte dimensión pública. La particular Memoria

dimensión del predio nos permitió disponer la ampliación de nueva planta totalmente elevada en la parte posterior, a la manera de un edificio puente, que remata en la sala de espectáculos que ocupa todo el ancho del predio. De esta manera y con el espejo de la arquitectura paulista de posguerra el espacio cubierto bajo el edificio puente se convierte en extensión del espacio público de la calle. Este espacio, a la manera de una plaza cubierta, hace las veces de espacio de reuniones y foyer exterior que da acceso a la sala, al tiempo que vincula los tres programas.

Con el fin de generar un extrañamiento entre la calle y el interior del predio, a ambos lados del edificio puente se arman dos jardines que flanquean el foyer inspirados en las imágenes naïf de Henri Rousseau.

En términos constructivos la nueva adición, en su mayor parte, se resuelve mediante el montaje de elementos prefabricados. Una estructura de pilares y vigas de acero sobre la que se apoyan losetas pretensadas para resolver los planos horizontales y una piel de vidrio que resuelve los cerramientos verticales se dispone en el plano exterior.

Datos

El complejo se denomina Magnolio

Media Group y el autor del proyecto es el arquitecto Pedro Livni. Se ubica en la calle Pablo de María 1015, en el barrio

Parque Rodó, Montevideo, Uruguay y se construyó entre 2018 y 2019 con una superficie construida total de 1170 m2 , de lo cuál el reciclaje alcanza a 295 m2 y lo nuevo a 875 m2

Las fotografías fueron realizadas por Javier Agustín Rojas.

El proyecto ejecutivo lo realizaron los arquitectos Pedro Livni y Rafael Solano. El cálculo estructural fue efectuado por el ingeniero Ing. Alberto Catañy, el acondicionamiento fue asistido por el grupo MED, la ingeniería sanitaria estuvo a cargo de la arquitecta Ana Rodrigo y los sistemas de protección ignífuga fueron asistidos por el grupo GRAUSER.

Opinión

Diría ante todo que Pedro Livni es a la vez un arquitecto culto y un activista urbano: culto en el sentido de posesión y operación de cultura (es Master de Arquitectura por la Católica de Chile y profesor en Di Tella: dos ambientes educativos signados por el rigor intelectual mas que por la propensión a instrumentar form-givers); activista en tanto buceador-buscador de oportunidades de ciudad o fragmen-

tos urbanos de potencial desarrollo y mejoramiento. La calle Pablo de María, del muy barrio montevideano de Cordon, recibió en pocos años cuatro intervenciones de Livni, de las que aquí presentamos solo la primera y van componiendo como una especie de sinfonía urbana de actuaciones independientes y tensadas por funciones particulares (desde oficinas o sedes de radioemisoras hasta restaurantes) pero unidas en una especie de orfebrería

de microproducción de ciudad. El conjunto contiene hasta un pequeño local de 8,5 m2 con vidriera a la calle, que nuestro arquitecto aceptó como parte de su cobro de honorarios para montar allí –a expensas propias– una singular galería de arte performático en la que cada varias semanas convoca a algún artista relevante local o regional e inaugura con un vernisagge de vinito en plena calle.

Esa actitud de culta búsqueda de oportunidades urbanas resalta en este caso y así lo asume Livni en su memoria, apelando al contextualismo histórico-tipológico de Rossi cuando dice que este trataba de discernir una guía para trabajar sobre lo existente que llamó principio de continuidad. Un factor que preside toda construcción, en donde la forma arquitectónica es lo que permanece y determina la construcción en un mundo en que las funciones están en perpetuo cambio. Esta y otras intervenciones de Livni –recordamos

trabajos como la Casa MD o la Oficina de Isla de Flores, que publicamos en el número 3 de nuestra anterior revista TODA– cumplen cabalmente con proyectar bajo el principio de continuidad, incluso esforzándose en recuperar y activar preexistencias casi ruinosas, como fue la condición de arranque de la casa MD.

La OIF en cambio, parte de la existencia de un viejo galpón desactivado para hacer buen uso de la rústica estética industrial que contenía para trabajar allí un working-space que no sólo se apoya en la imagen ya clásica del loft sino que aprovecha las grandes luces y alturas para expandir la cualidad funcionalmente flexible del edificio resultante.

Livni indicará en la memoria del complejo que aquí comentamos que la obra de Magnolio Media Group consiste en el reciclaje, ampliación y transformación de una casa existente, de estilo ecléctico, en un complejo de medios para estudios de radio, una sala de espectácu-

Diagrama 1
Diagrama 2
Diagrama 3
Diagrama 4

los para 150 personas y un restaurante. Programas que alojados en un mismo edificio tienen que contar con la posibilidad de coexistir de manera independiente.

En este pasaje se verifica por una parte, la intención de aprovechar lo existente (la casa) asi como instalar en el espacio remanente del lote el programa nuevo (las oficinas de las radios) en lo que queda manifiesto ese doble propósito de apoyarse en la continuidad (de la ecléctica vivienda, que en parte será tratada casi em clave de restauración aunque activando la necesaria refuncionalización que implica acoger el restaurante) y buscar modos de proyectar –básicamente conectores circulatorios– que permitan la coexistencia independiente de ambos programas, instancias que resumen la cuestión principal que debe asumir el partido adoptado puesto que la dificultad del proyecto –sigue anotando en su memoria–radicó en como adosar las nuevas necesidades

programáticas que excedían sobremanera el metraje de la casa existente y en mantener cierto equilibrio entre las partes capitalizando la energía previamente desplegada.

Esa condición –ensamblar lo existente y lo nuevo, en condiciones a la vez de cierto equilibrio compositivo y de autonomía funcionaldescubre otra voluntad del proyectista ligada a la intención original de reactivar una calle de barrio pero sin alterar su fisonomía y carácter y así lo indica el autor cuando expresa que al estar la casa existente, que se restaura, en la parte frontal del predio y sobre la calle, se evita el problema de generar forma nueva en términos urbanos.

Adviértase –y valorese en todo caso– que generar forma nueva en términos urbanos es un problema; es decir que el proyectista rehusará programáticamente una suerte de tabula rasa engendradora de nueva forma urbana, revalidando en cambio su apego a la ética rossiana

del principio de continuidad, actitud para nada desdeñable en una época de exacerbado mercado inmobiliario cuya expectativa de maximización de metrajes y densidades se está cargando áreas o fragmentos urbanos de cierta entrañable calidad e identidad en toda nuestra región.

El otro condimento fuerte de este proyecto –en una fase más audaz de la intención de que la arquitectura produzca ciudad pública- es el desarrollo lindero de una segunda intervención en esta calle (complejo de oficinas y restaurante) que supondrá ampliar el área de circulación pública del Magnolio lográndose armar un circuito de recorrido público que bordea los dos edificios y activa el uso urbano del par de complejos. En el gráfico Nolli que adjuntamos –Las 5 intervenciones de Pablo de María– se advierte en la posición 1 el complejo Magnolia, en la 2 (denominada en el gráfico Fase 2) la segunda pieza que mencionamos además de

otras tres actuaciones actualmente casi enteramente construídas y que serán tema de una nueva publicación en un MAR futuro.

En la planta baja y render que adjuntamos bajo el nombre Ensamble Intervenciones 1 y 2 Generación de nuevo espacio urbano, se aprecia esta actitud del diseñador-activista urbano que ensambla proyectos de diferentes programas y clientes con la finalidad de intentar constituir espacios conectivos que ayuden al funcionamiento interactivo de las partes pero que también se conviertan en novedosas

piezas públicas de una ciudad más diversificada en su monotonía de mera relación entre calles y edificios. Vease además la morfología conectiva de este par de intervenciones en la Axonométrica Fases 1 y 2 que también insertamos en esta nota.

La vocación de conformar arquitecturas públicas –o sea, arquitectura que suplementan la respuesta a sus programas de origen con suplementos espaciales librados a la espontaneidad de diferentes usos públicos– conduce a Livni a adoptar un desarrollo en puente pasante del complejo radiofónico que explica del siguiente modo: con el espejo de la arquitec-

tura paulista de posguerra el espacio cubierto bajo el edificio puente se convierte en extensión del espacio público de la calle.Esa frase evoca arquitecturas como las de Mendes da Rocha, que apuestan a grandes voladizos para despejar espacios que asi devienen mas flexibles. En la imagen adjunta que nombramos Montaje de estructura metálica del área trasera del complejo Magnolio se aprecia un detalle del criterio estructural metálico del cuerpo trasero del complejo cuya solución técnica consigue plasmar el edificio puente debajo del cual

puede accederse en modo público al áreas posterior del terreno en donde se prevé un espacio semiabierto de un pequeño auditorio apto para diversas performances también de carácter público.

El pasaje del edificio remodelado al complejo posterior no solo es espacialmente definido por la estructura pasante comentada sino también por un intento de escenificar ese pasaje tal como lo expresa su autor en su memoria:

Con el fin de generar un extrañamiento entre la calle y el interior del predio, a ambos lados

del edificio puente se arman dos jardines que flanquean el foyer inspirados en las imágenes naíf de Henri Rousseau, concepto que queda anotado en los diagramas D2 a 5 y puesto en evidencia en las imágenes de la pagina 269. Se trata entonces, a modo de resumen, de una operación que reactiva eficazmente la ciudad barrial –esa ciudad que permanece a veces en condiciones de desuso y abandono pero que tiene fuerte identidad de lugar urbano diferente– mediante actuaciones de rescate-reciclaje-restauración de las piezas originales junto con ajustadas acciones de articulación de lo existente con lo nuevo, cada cosa con su lenguaje y tecnología específica pero reconstruyendo la diveridad narrativa de la ciudad histórica a la que se agrega modernidad de pretensión integrada y con vocación de ser a futuro, nuevas formas de identidad: edificaciones que en su modalidad de palimpsesto buscan espesar de diseño multiescalar (desde lo urbano hasta el detalle) la construcción de un lugar memorable.

Ensamble intervenciones 1 y 2. Render I2 y calle interior.
Las 5 intervenciones de Pablo de María
Montaje de estructura metálica del área trasera del complejo Magnolio.

01- CAVA

02- Depósito

03- Depósito 04- SSHH

05- Cámara de frío 0

PLANTA DE SUBSUELO
FACHADA PABLO DE MARÍA
SECCIÓN A-A
SECCIÓN B-B
SECCIÓN C-C

1.

9- Poliestireno rígido e: 20mm

pretil de chapa galvanizada e: 3mm

10- Tubular de hierro 220x50mm relleno de poliuretano

11- Tubular de aluminio 10x30mm pintura electrostática color negro

12- Marco aluminio ventana proyectante

13- DVH 6+12+6 incoloro

14- PNI 30 (estructural)

15- Tubular de aluminio 10x50mm, pintura electrostática color negro

16- Per T de aluminio, pintura electrostática color negro

17- Tubular de hierro 190x50mm, relleno de poliuretano

18- Piso vinílico de 2mm + pegamento espesor total según datos del proveedor

19- Contrapiso de hormigón liviano

20- Viga metálica chapa de 1.6mm según detalle

21- Relleno de poliuretano expandido

22- Tapa de MDF de 50mm pintada con esmalte satinado color negro

23- Placa de yeso enduida pintada

24- Rejilla electrosoldada

25- Sistema de roller para exterior automatizado

26- Linga de acero inox. guía de roller

27- Planchuela soldada estructura para recibir linga

28- Chapa de 1.5mm pintada a soplete color

negro

29- Cielorraso circulación: rejilla anti tacón pintada a soplete color negro

30- Sistema de mampara ver planillas de herrería

31- Marco chapa de 1.6mm

32- Chapa hunter douglas quadroline 30-15

Turn static files into dynamic content formats.

Create a flipbook
Issuu converts static files into: digital portfolios, online yearbooks, online catalogs, digital photo albums and more. Sign up and create your flipbook.