Mieterexposé – Betreutes Wohnen in der Residenz Revita in Wuppertal

Page 1

Modernes Betreutes Wohnen im Generationenpark

BARRIEREFREI WOHNEN MIT SERVICE-OPTION IN WUPPERTAL-BARMEN

Generationenpark Wuppertal-Barmen | Betreutes Wohnen in der Pflegeeinrichtung 4. OG ■ Willibrord-Lauer-Weg 10, 42283 Wuppertal

INHALT ECKDATEN OBJEKT

Grundrisse Wohnungen ��������������������������������������������10

Bildergalerie ������������������������������������������������������������������20

Impressum & Kontakt 21

Status einzelne Wohnungen verfügbar

Bauherr First Retail Consult GmbH

Objektart Betreutes Wohnen im 4 Obergeschoss

Objekttyp Gebäudekomplex Senioreneinrichtung

Fläche „Betreutes Wohnen“ gesamt ca 592,69 m2

Anzahl Wohnungen 8 barriere Wohnungen

Grundstücksgröße Gesamtquartier ca 8 100 m2

Aufzug Ja

Stellplatzanzahl 8 x (ein Stellplatz je Wohnung)

Stellplatzart Außenstellplätze

Gemeinschaftsflächen Nutzung Dachterrasse und Cafeteria

Baujahr 2021

Zustand Neubau

Ausstattung hochwertiger Standard, Einbauküche inkl

Haustiere nach Vereinbarung

Energieausweis vorhanden

Energieausweis gültig bis 24�08 2031

Energieversorgung Wärme- und Stromcontracting (BHKW, PV)

Verfügbar ab nach Absprache

Energieeffizienzhaus KfW 40 Plus

Generationenpark Wuppertal-Barmen Betreutes Wohnen ■ Willibrord-Lauer-Weg 10, 42283 Wuppertal

2 3 Eckdaten �������������������������������������������������������������������������� 3 Bauprojektbeschreibung 4 Standort 5 Ansichten ������������������������������������������������������������������������� 6 Ausstattung ��������������������������������������������������������������������� 8

BESCHREIBUNG BAUPROJEKT STANDORT

Auf dem etwa 8 100 m2 großen Grundstück wurde ein nachhaltiges Generationenquartier umgesetzt Im nördlichen Teil des Areals entstand ein Gebäudekomplex, der eine ganzheitliche Senioreneinrichtung sowie die 3-gruppige KiTa „Zaubersterne“ im Erdgeschoss beherbegt Im 4 Obergeschoss des Gebäudes werden 8 barrierefreie Wohnungen mit Service-Option angeboten, um die es in diesem Exposé geht.

Im südlichen Teil des Grundstücks entsteht eine Stadtvilla mit zwei großzügigen Wohneinheiten sowie drei weitere barrierefreie Wohntürme mit insgesamt 33 Wohnungen, die bereits bezogen wurden Alle Gebäude wurden in Niedrigenergiebauweise gemäß KfW Anforderungen erstellt (KfW 40-Plus).

Das Ensemble bietet ein gepflegtes Umfeld mit begrünten Anlagen und großzügigen Parkmöglichkeiten zentral im Stadtteil Barmen

Alle Wohnungen erhalten einen hochwertigen Standard Eine maßgeschneiderte Einbaumarkenküche komplettiert die Ausstattung. Die Gemeinschaftsflächen im 4.

OG können mitgenutzt werden 1 Stellplatz je Wohnung ist vorhanden�

KOMFORTABLES

UND MODERNES

WOHNEN MIT SERVICE-OPTION

D as Grundstück befindet sich an der schönen und alleeartigen Liebigstraße in unmittelbarer Nähe des Helios Klinikums Wuppertal-Barmen. Das Wohngebiet bietet ein gepflegtes Umfeld mit begrünten Anlagen im Innenhof zentral in Barmen � Einkaufsmöglichkeiten, medizinische Versorgung und Gastronomie befinden sich im direkten Umfeld. Eine bequeme und gute Anbindung mit ÖPNV an die Zentren Barmen, Oberbarmen und Elberfeld ist gegeben� Der „Schönebecker Busch“ als Naherholungsgebiet liegt nur etwa fünf Gehminuten entfernt Auch das Zentrum von Elberfeld und der Hardt-Park, die sogenannte grüne Lunge von Wuppertal, mit seinem schönen botanischen Garten, sind in nur wenigen Fahrminuten erreichbar�

Generationenpark Wuppertal-Barmen Betreutes Wohnen ■ Willibrord-Lauer-Weg 10, 42283 Wuppertal 4 5
Foto: @ Antje Zeis-Loi Medienzentrum; Tourismus Wuppertal
Generationenpark Wuppertal-Barmen Betreutes Wohnen ■ Willibrord-Lauer-Weg 10, 42283 Wuppertal 6 7 0 25 50 75 100 125 150 175 200 225 >250 A+ A B C D | E | F G | H CO2-Emissionen 4.0 [kg/(m2·a)] Primärenergiebedarf 7.6 kWh/(m2·a) Endenergiebedarf 21.1 kWh/(m2·a) ENERGIEBEDARF
3D-Visualisierung Seniorenpflegeeinrichtung/ © Formgrafik Ansicht Nord-West (Parklpatzseite; Eingang zum Betreuten Wohnen)
ANSICHTEN

Im vierten Obergeschoss des Gebäudekomplexes der Senioreneinrichtung befinden sich die 8 rollstuhlgerechten Wohnungen auf einer gesamten Wohn- und Nutzfläche von 592,69 m2 Die 2-Zimmer-Wohnungen haben eine Größe zwischen 48 und 71 m2 WFL

Alle Wohnungen erhalten einen hochwertigen Standard mit bodentiefen Fenstern, einer Einbaumarkenküche sowie beheizten hochwertigen und pflegeleichten Biovinyl-Böden und werden in Niedrigenergiebauweise gemäß KfW Anforderungen erstellt.

Die Energieversorgung erfolgt dezentral über ein Wärme- und Stromcontracting über ein effizientes Blockheizkraftwerk sowie Photovoltaik-Anlagen mit Batteriespeicher.

(Mehr Infos zum Energie-Contracting: www.kwerkservice.de).

Das Gebäude verfügt über einen Personenund separaten Bettenaufzug� Die Gemeinschaftsflächen im Geschoss können gerne mitgenutzt werden

Neben der modern eingerichteten Cafeteria steht in den Sommermonaten eine großzügige Sonnenterrasse im Außenbereich zur Verfügung. Unter Schatten spendenden Sonnenschirmen finden sich gemütliche Sitzgruppen mit einer schönen Aussicht auf Wuppertal

Jeder Wohnung wird ein Stellplatz zugeordnet, der gegen einen Aufpreis dazugebucht werden kann

Der Hausmeisterservice der Einrichtung steht für Kleinigkeiten zur Verfügung Die Mieter der Betreuten Wohnungen haben die Möglichkeit ebenfalls die Therapieangebote im Haus mitzunutzen (in der Miete inkl.).

Ihr vierbeiniger Freund kann nach Vereinbarung mit Ihnen einziehen

Bild oben: Musterwohnung – Inneneinrichtung als Vorschlag zu verstehen

Generationenpark Wuppertal-Barmen Betreutes Wohnen ■ Willibrord-Lauer-Weg 10, 42283 Wuppertal 8 9
AUSSTATTUNG
10 GRUNDRISSE WOHNUNGEN EINRICHTUNG KITA WC WC 01 02 03 04 05 0607 08 Turm 02 Turm 03 Turm01 Villa Pflegeeinrichtung + Wohnenim4.OGKiTaimEG

WHG. 01

WHG. 02

Generationenpark Wuppertal-Barmen Betreutes Wohnen ■ Willibrord-Lauer-Weg 10, 42283 Wuppertal 12 13
Flur 7,24 m² Schlafen 10,03 m² Wohnen/ Essen/ Kochen 25,44 m² Bad 5,10 m² Wohnung gesamt* 47,81 m² Aufteilung Flur 7,35 m² Schlafen 15,18 m² Ankleide 5,53 m² Garderobe 2,04 m² Wohnen/ Essen 25,43 m² Küche 10,12 m² Bad 5,10 m² Wohnung gesamt* 70,75 m² Aufteilung
Wohnflächen
Wohnflächen
WoFlV
*
nach WoFlV *
nach

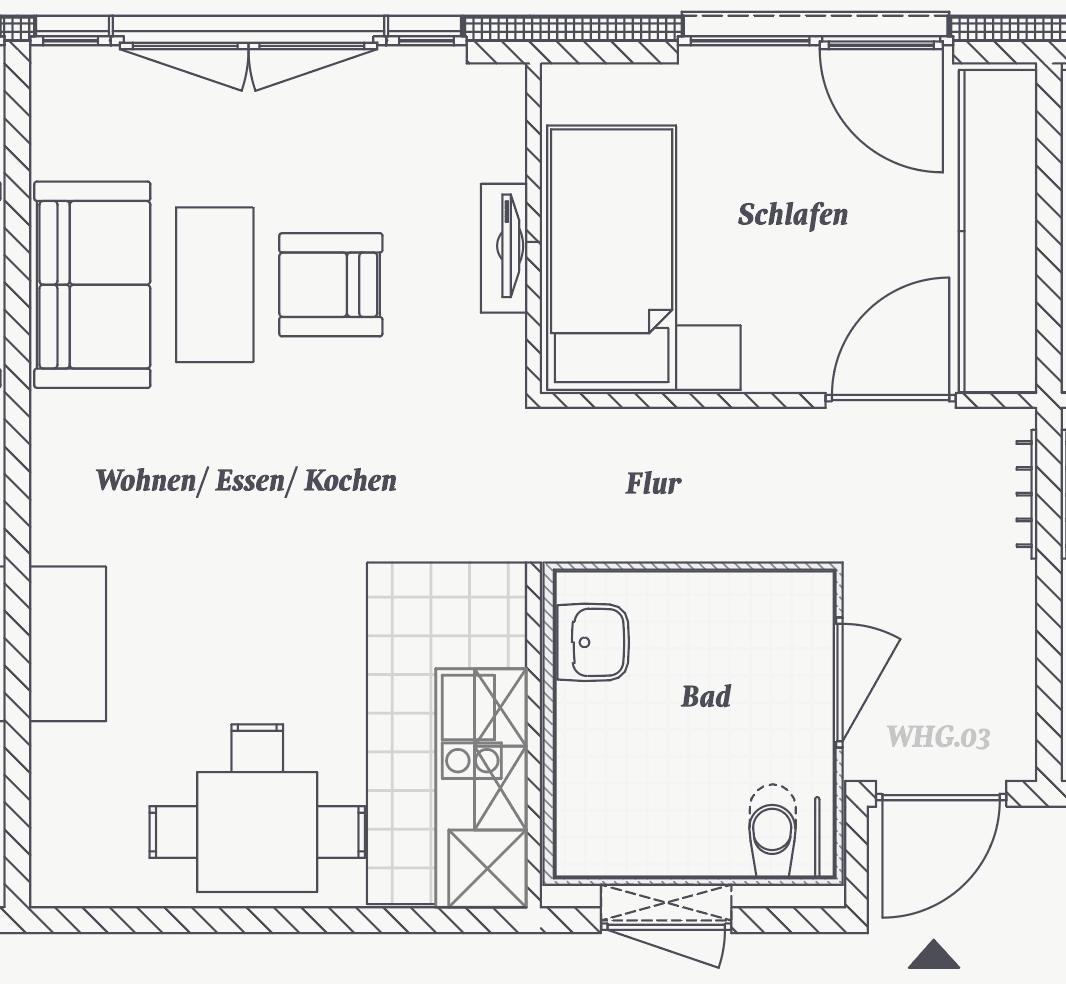
WHG. 03

WHG. 04

Generationenpark Wuppertal-Barmen Betreutes Wohnen ■ Willibrord-Lauer-Weg 10, 42283 Wuppertal 14 15
* Wohnflächen nach WoFlV * Wohnflächen nach WoFlV Flur 7,19 m² Schlafen 10,01 m² Wohnen/ Essen/ Kochen 25,47 m² Bad 5,10 m² Wohnung gesamt* 47,77 m² Aufteilung Flur 7,20 m² Schlafen 10,01 m² Wohnen/ Essen/ Kochen 25,47 m² Bad 5,10 m² Wohnung gesamt* 47,78 m² Aufteilung

WHG. 05

WHG. 06

Generationenpark Wuppertal-Barmen Betreutes Wohnen ■ Willibrord-Lauer-Weg 10, 42283 Wuppertal 16 17
* Wohnflächen nach WoFlV * Wohnflächen nach WoFlV
Flur 7,20 m² Schlafen 10,00 m² Wohnen/ Essen/ Kochen 25,20 m² Bad 5,10 m² Wohnung gesamt* 47,50 m² Aufteilung Flur 7,21 m² Schlafen 10,00 m² Wohnen/ Essen/ Kochen 25,45 m² Bad 5,10 m² Wohnung gesamt* 47,76 m² Aufteilung

WHG. 07

WHG. 08

Generationenpark Wuppertal-Barmen Betreutes Wohnen ■ Willibrord-Lauer-Weg 10, 42283 Wuppertal 18 19
* Wohnflächen nach WoFlV * Wohnflächen nach WoFlV Flur 7,21 m² Schlafen 10,00 m² Wohnen/ Essen/ Kochen 25,39 m² Bad 5,10 m² Wohnung gesamt* 47,70 m² Aufteilung Eingang 5,23 m² Schlafen 11,93 m² Wohnen/ Essen/ Kochen 33,35 m² Bad 5,10 m² Wohnung gesamt* 55,61 m² Aufteilung

BILDERGALERIE

unverbindliche Designvorschläge für den Innenraum

IMPRESSUM

Herausgeber: First Retail Consult GmbH

Herforder Straße 76, 33602 Bielefeld

Texte, Satz & Layout: First Retail Marketing

BILDNACHWEIS

3D-Visualisierungen: Formgrafik.de | Herr Boris Stoev

Imagefotos: First Retail Marketing; Adobe Stock, Backbone Visuals. Für die Dokumente bedanken wir uns herzlich bei unseren Geschäftspartnern für die freundliche Unterstützung. 09/2022.

DISCLAIMER

Alle Inhalte dieses Exposés wurden sorgfältig zusammengestellt. Wir übernehmen keine Haftung für Vollständigkeit und Richtigkeit. Je nach Genehmigungs- und Planungsstand können sich bei der Realisierung noch Änderungen ergeben. Die hier abgebildete Musterwohnung wurde von Homestaging RUHR hergerichtet und versteht sich als Einrichtungsvorschlag. Die Visualisierungen von Gebäuden sowie Wohnanlagen sind immer als künstlerische Illustration zu verstehen und daher unverbindlich. Eingeplante 3D Gegenstände können maßlich und formtechnisch abweichen. Die Haftung hierfür wird ausgeschlossen. Irrtümer und Änderungen bleiben vorbehalten.

www.firstretail.de

Generationenpark Wuppertal-Barmen Betreutes Wohnen ■ Willibrord-Lauer-Weg 10, 42283 Wuppertal 20 21

Rohde Gesellschaft für Revitalisierung und Betreuung mbH

Willibrord-Lauer-Weg.10

42283 Wuppertal

Tel 0202 384 844 925

info@residenz-revita.de www.residenz-revita.de

Residenz Revita

Willibrord-Lauer-Weg.10

42283 Wuppertal Stadtteil Barmen

Modern & barrierefrei Wohnen im Mehrgenerationenpark „Wuppertal-Barmen“
Pflegeangebote der Residenz Revita einsehen
IHR ANSPRECHPARTNER IHR NEUES ZUHAUSE

Turn static files into dynamic content formats.

Create a flipbook
Issuu converts static files into: digital portfolios, online yearbooks, online catalogs, digital photo albums and more. Sign up and create your flipbook.
Mieterexposé – Betreutes Wohnen in der Residenz Revita in Wuppertal by firstretail - Issuu