Carnet de résidence "Jardin du Volcan" PNR des Monts d'Ardèche / Atelier Bivouac / 2019

Page 1

Le jardin du volcan

Une résidence de paysage de l’atelier Bivouac à la Maison du Parc Naturel Régional des Monts d’Ardèche

Préambule

Depuis 2009, le Parc naturel régional des Monts d’Ardèche dispose d’un équipement pour l’accueil des publics : la Maison du Parc sur le domaine de Rochemure.

Ce site de 30 ha sur la commune de Jaujac est en accès libre tout au long de l’année. Il peut se découvrir en empruntant un sentier d’interprétation « La coulé vive » et un parcours d’orientation.

Les jardins de la Maison du Parc constituent un élément important du domaine :

• Ils sont le point de départ du sentier d’interprétation ;

• Ils constituent des compléments extérieurs aux expositions estivales ;

• Ils sont une composante essentielle du refuge LPO ;

• Ils offrent un espace à vocation pédagogique ;

• Ils sont enfin et avant tout un écrin pour la Maison du Parc.

En 2002, une étude de programmation d’aménagement de la Maison du Parc a dégagé un principe de gestion et valorisation du domaine, partant du plus jardiné (jardin potagers et d’agrément, prairies de fauche et maraichages) aux espaces les plus sauvages (mares, forêts, volcans).

Une étude de définition des jardins conduite en 2011 et complétée en 2012/2013 par l’étude d’un sentier d’interprétation a permis un réaménagement des jardins.

En 2019, il a été décidé de lancer une étude de requalification des jardins de la Maison du Parc pour mieux répondre aux attentes qualitatives initiales vis-à-vis d’un tel espace : besoin d’offrir aux visiteurs un jardin plus accueillant et fleuri, enjeu de diversifier les usages du jardin, demande d’ombrage, meilleure gestion de l’eau, enjeu d’entretien, etc.

Il s’agissait ainsi de conférer aux jardins de la Maison du Parc :

• d’une part un rôle de « vitrine des bonnes pratiques de jardinage et d’accueil de la biodiversité au jardin » ;

• d’autre part un rôle de « jardin d’agrément », attractif et accueillant pour les visiteurs tout au long de l’année. La fonction pédagogique des jardins devait être renforcée.

Pour mener à bien cette mission, le Parc a mobilisé le collectif de paysagistes « Atelier Bivouac ». à partir d’un diagnostic partagé des usages et en s’appuyant sur l’existant (études déjà réalisées, ressources locales mobilisables), l’étude a permis :

1/ de proposer une nouvelle composition du jardin assurant :

• une attractivité paysagère renouvelée ;

• un renforcement de volet démonstratif d’un jardin de biodiversité (choix des essences végétales, jardinage écologique, refuge LPO, etc.)

• un confort de visite et d’accueil avec des cheminements clairement définis et la mise en place de mobiliers en bois;

• un entretien facilité avec une stratégie dans le choix des végétaux et dans les modalités de gestion (choix des essences, limitation des surfaces des espaces jardinés, etc.), intégrant la prise en compte du changement climatique (notamment sécheresse et manque d’eau) ;

• une approche artistique, pédagogique et ludique ;

2/ de produire une feuille de route offrant :

• les lignes directrices de gestion du jardin et d’évolutions potentielles ;

• un plan/calendrier annuel identifiant les étapes clés d’intervention ;

• une offre de mobilier pouvant être intégrés ultérieurement dans le jardin.

Dans le cadre d’une « résidence paysagère » pour la conception in situ et la réalisation d’aménagements (plantations et semis, construction de mobiliers sur mesure, etc.), la démarche a été l’occasion de répondre à différentes valeurs du Parc :

• la participation des différents usagers des jardins, interne (équipe Parc) et externe (habitants, partenaires éducatifs) dans la phase de réflexion et d’aménagement ;

• la mobilisation de la ressource locale (bois, pierre) dans une logique de frugalité répondant aux enjeux de transition écologique et énergétique ;

• la valorisation des patrimoines paysagers et naturels ;

• la mise à disposition d’un espace pédagogique pour tout public, à la fois « refuge de biodiversité », espace de transmission de savoir et savoirfaire et espace de convivialité et de contemplation.

Les jardins de la Maison du Parc sont aujourd’hui une illustration positive de nouvelles manières d’aborder l’aménagement d’un espace public : gageons qu’ils seront une belle source d’inspiration !

L’équipe du Parc naturel régional des Monts d’Ardèche

1. A la rencontre du jardin de la Maison du Parc..........page 7

1.1 le diagnostic partagé

1.2 la rencontre des acteurs

1.3 l’histoire des lieux

1.4 le regard paysagiste

1.5 l’inventaire des ressources locales

2. La recherche d’un nouveau dessin.........................page 14

2.1 La définition des axes de travail

2.2 Un dessin inspiré par les formes géologiques

3. Chantier ouvert au public.......................................page 22

3.1 la construction du mobilier en bois local

3.2 la préfiguration des massifs en prairie mellifère

3.3 le plessage de la haie sud

3.4 la sculpture des totems entomozoziologiques

3.5 la plantation des massifs de vivaces

4. L’atelier Bivouac.....................................................page 34

Sommaire

à la rencontre jardins de la du Parc Naturel

Régionnal des

rencontre des la Maison Naturel des Monts d’Ardèche

Le diagnostic partagé

Le projet a débuté avec un atelier de «diagnostic partagé» rassemblant une dizaine de personnes travaillant à la Maison du Parc des Monts d’Ardèche.

L’objectif de cet atelier était de se réapproprier les jardins en procédant à une lecture sensible et subjective des lieux. Il s’agissait ensuite de pointer ensemble les manques, dysfonctionnements de certains espaces au regard des objectifs d’accueil et d’animation de la Maison du Parc puis de révéler leur potentiel en s’appuyant sur les points de vue et les qualités du paysage vécu.

Micro-trottoir au marché de Jaujac

« Pourquoi ne pas agrandir le jardin en l’étendant vers les prairies et le mêler avec un projet d’agro-foresterie ou d’agriculture biologique ? »

« Ces serait possible d’installer des assises plus proches de la mare pour mieux en profiter ? »

« J’apprécie beaucoup venir aux évènements organisés dans les jardins (concerts, spectacle, arts éphémères). »

« Il y a beaucoup d’espaces là-haut ! Il n’y aura pas possibilité de permettre à des habitants du centre-bourg de Jaujac qui n’ont pas de jardin de pouvoir y jardiner ? »

«Ah bon il y a une jardin ? Je n’ai jamais remarqué. Je vais surtout me balader dans la forêt vers le volcan. »

La rencontre avec les acteurs du jardin

Mathieu Lefez

mission: Responsable entretien logistique (je préfère me dire Factotum) formation: Horticulture

«Ce jardin a un potentiel incroyable pour accueillir les familles. Mon rêve serait d’en faire un vrai lieu de ressourcement. Pour arriver à obtenir un beau jardin il faut accepter d’y passer du temps, d’être attentif à ce qui s’y passe avant de vouloir être dans une complète maîtrise de l’espace. »

Chargé de mission Biodiversité et Animateur des Espaces Natura 2000 du Tanargue et des Espaces Naturels Sensibles

« Ce jardin est bien géré selon moi car il bénéficie d’une Charte d’engagement LPO : pas de chasse - pas de pesticides - mise en oeuvre d’actions favorisant la diversité des milieux. Le jardin est un support idéal pour sensibiliser le grand public à la protection de la biodiversité.»

Créatrice et animatrice des Ateliers Passerelles

«Pour moi ce jardin est un vrai média pour accompagner les personnes en difficulté à se relier à la nature et à la vie. Dans un jardin je trouve ça important d’avoir la possibilité de se poser pour prendre le temps de regarder la vie pousser.»

11
12
13

Le regard du paysagiste

Nous oeuvrons à valoriser et à prolonger ce qui est déjà là pour accueillir des usages contemporains à la mesure des besoins et dans le respect des lieux. C’est pourquoi dans un second temps, nous nous sommes attachés à faire ressortir ce qui fait la singularité du jardin, et à inventorier en quoi le site porte en lui les germes d’une possible et heureuse transformation.

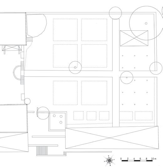
A travers un exercice de cartographie, nous avons inventorié différents éléments : les circulations principales, les cheminements plus spontannés, les zones ombragées, le rapport que l’on a depuis l’intérieur du jardin avec le grand paysage dans lequel il s’inscrit, la nature des sols, etc...

La superposition de ces différentes cartes fait naître de nouveaux questionne ments : où s’installer à l’ombre? que planter là où le sol est peu profond? quelles circulations nouvelles proposer? quelles vues conforter sur l’extérieur? Vue ouest Vue sud

14

Sol peu profond (roche mère proche)

Sol moyennement profond

Sol profond

Vue obstruée totalement ou en partie

Vue semi ouverte

Vue ouverte

Cheminement quotidien allée bordurée en stabilisé

Cheminement occasionnel allée tondue

15 0 -1,00 - 2,30 + 0,30 0 0 0 0 0 0 0
Ombre

L’inventaire des ressources

Face aux contraintes économiques des collectivités et à la nécessité de penser un aménagement du territoire moins consommateur de ressources, tant financières que matérielles, nous mettons au coeur de nos projets la frugalité comme principe fondateur de notre démarche.

Pour ce faire, nous menons des inventaires à travers lesquels il s’agit de révéler, de quantifier, et de mobiliser les ressources matérielles, végétales et humaines que le territoire du projet recèle pour engager sa transformation.

Ce travail d’inventaire consiste tout d’abord à adopter un regard ouvert sur les éléments présents sur un site, de tous les considérer sans a priori : tout matériau peut potentiellement « faire projet » et donner lieu à un aménagement singulier. Faire avec ce qui est déjà présent sur un site, c’est aussi établir un lien fort et cohérent entre un projet et le territoire dont il émane.

16

Déchets de taille

Valorisation possible:

- broyat pour paillage

Pierre (grès schisteux)

Valorisation possible:

- couronnement de mur

- bordurage

- passe pied

- mobilier

Bloc de pierre (grès)

Valorisation possible:

- passe-pied

- mobilier

- signalétique

Rondin (peuplier)

Valorisation possible:

- passe-pied

- signalétique

Bloc de pierre (basalte)

Valorisation possible:

- passe-pied

- mobilier

- signalétique

Châtaigner sur pied

Valorisation possible:

- mobilier

- bordurage

- sculpture

17

la recherche d’un nouveau dessin

nouveau

Les axes de travail

pour une requalification du jardin de la Maison du Parc:

RENFoRCER lE CloS Du jARDiN

- densification des haies

- plantations supplémentaires en bordure

- reprise de couronnement des murs en pierre

METTRE EN VAlEuR lES PoiNTS DE VuE REMARquABlES

- hiérarchisation et cadrage des vues

- installation de mobiliers sur-mesure

- invitation par des cheminements

DiVERSiFiER lES AMBiANCES PAySAgèRES

- hiérarchisation des types de cheminements (allée, contre-allée, passe-pied, etc)

- créations de nouveaux sous-espaces à l’intérieur des quatre grands carrés existants

METTRE EN VAlEuR l’ANCiENNE SERRE

- création d’un «parvis jardiné» devant la serre

- création de plates bandes jardinées à proximité

20

METTRE EN VAlEuR l’ESPACE à l’APloMB Du MuR DE l’ANCiENNE uSiNE

- création de mobilier (platelage, bancs, etc) adossé au mur

- redimensionnement des massifs existants

- mise en lien avec la perspective du bassin

FACiliTER ET guiDER lA gESTioN FuTuRE Du jARDiN

- dissociation entre espaces piétinés (allée) / espaces plantés (massif) par un bordurage

- paillage de l’ensemble des massifs

CRéER lES CoNDiTioNS D’ACCuEil ET DE CoNFoRT DES uSAgES

- redimensionnement de l’espace accueillant les évènements

- création d’espace et de mobiliers facilitant l’accueil de groupe pour les animations

- création d’espace et de mobiliers invitants pour les familles

- redimensionnement de l’espace dédié aux cultures potagères

DiVERSiFiER lES ESPACES REFugES PouR lA BioDiVERSiTé

- épaississement des haies

- diversification des strates végétales dans les massifs

- multiplication des bordures et des effets de lisière

21

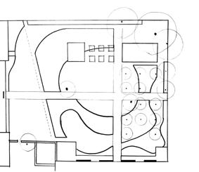
Un dessin inspiré par les formes géologiques locales

Puiser dans les fondements du grand paysage de Jaujac modelé par le volcanisme.

S’inspirer des formes occasionnées par les coulées de lave pour recomposer le dessin du jardin.

Imaginer une série de coulées végétales permettant de venir:

> créer de nouvelles clairières au sein d’un grand espace

> occasionner des jeux de découvertes progressives du jardin

> animer le jardin au fil des quatre saisons

> compléter et sublimer les tracés rectilignes des allées et des murs d’enceinte du jardin

22
23 étape esquisse / recherches de dessins en plan

Esquisses de projet avant/après

24
25

Chantier ouvert au public !

Touchez du bois Mettez les mains dans la terre

La construction du mobilier en bois local

Pour offrir d’autres manières de parcourir le jardin et de s’y installer, nous réalisons différents pontons et bancs en Pin Douglas provenant de Mézilhac et scié par l’association «Grand-mère scie» au Moulinage de Chirols.

28
29

La préfiguration des massifs en prairie mellifère

Pour préfigurer les futures massifs de vivaces, un semis de prairie mellifère est réalisé dans le cadre de la première année de l’exposition sur les pollinisateurs

30
31

Le plessage de la haie sud

Pour conforter le caractère clos du jardin il s’agirait de densifier certaines portion de haie pour mieux cadrer les vues et par là-même d’offrir davantage d’espaces refuges pour la faune qui s’abrite plus volontiers dans des haies denses que dans des alignements clairsemés.

Pour ce faire, nous proposons de réhabiliter l’art du plessage: technique paysanne traditionnelle de taille et et de tressage des haies vives afin de créer une clôture végétale naturelle. Une haie plessée est constituée en fendant, à proximité du sol, les troncs des arbustes ou en taillant et entrelaçant autour de pieux les rameaux des arbrisseaux qui la constituent. Les branches des arbustes fendus sont inclinées et tressées avec des piquets espacés ou bien avec certains arbustes laissés verticaux. Les rameaux sont pliés à l’horizontale et tressés de la même manière.

32
Haie plessée au printemps Haie plessée en hiver
33

Les sculptures entomozoziologiques

Nous proposons de créer des sculptures en bois de châtaignier (prélevés dans le cadre de la gestion forestière du Domaine de Rochemure) érigées ici et là dans les massifs pour créer des points de repère et d’appel dans le jardin. Ces sculptures pourront faire office de perchoirs pour les oiseaux. A plus petite échelle différents motifs creusés dans le bois permettront à différents espèces d’insectes (chrysopes, carabes, abeilles solitaires, osmies, guêpes syrphes, etc) de se confiner.

34
35

La plantation des vivaces

Les massifs de vivaces sont composés sur-mesure selon différents critères: résistance à la sècheresse, floraisons diversifiées pour les visiteurs et les insectes pollinisateurs, plantes attrayantes en hiver, arômatiques, médicinales, etc. Les plants sont issus de la pépinière Vivaces Bertrand à St Vincent de la Commanderie (26).

36
37

Persicaria amplexicaulis

38
Gaura Lindheimeri GERANIUM macrorrhizum Helychrysum italicum Macleaya cordata Mulhenbergia capillaris Nepeta mussini Panicum virgatum Pennisetum alopecuroides Rudbeckia sullivantii Salvia Nemorosa Santolina chamaecyparissus Sedum spectabilis Sedum telephium freude’ Sisyrinchium striatum Stipa tenuifolia Verbena boriensis Erysimum ‘Bowles’s Mauve’
Zoom sur la palette végétale
39
Acanthus mollis Alchemilla mollis Armeria maritima ARUNCUS sylvester Calamagrostis x acutiflora Cerastium tomentosum CHAMAEMELUM NOBILE ‘ Cistus corbariensis Baptisia australis DIGITALE purpurea excelsior Dorcynium hirsutum Echinacea purpurea ECHINOPS ritro Erigeron Karvinskianus Euphorbia ceratocarpa Euphorbia characias Euphorbia polychrona Euphorbia rigida

Plan de plantation

40

Légende:

Stipa tenuifolia / Erysimum ‘Bowles’s Mauve’ / Euphorbia rigida

Armeria maritima

Salvia officinalis

Hemerocallis fulva

Artemisia absinthium

Festuca Glauca

Achillea filipendulina

Melica ciliata / Molinia caerulea

Euphorbia ceratocarpa

Euphorbia characias

Acanthus Mollis

Macleaya cordata

Aruncus sylvester

Helichrysum italicum

Cistus corbariensis

Dorcynium hirsutum

Echinops ritro

Erigeron karvinskianus

Persicaria amplexicaulis

Mélange praiirie mellifère

Verbena boriensis / Stipa tenuifolia

Geranium macrorrhizum

Chamaemelum nobile ‘Plenun’

Rudbeckia sullivantii ‘Goldstrum ‘

Stachys byzantina

Euphorbia polychroma

Sedum spectabilis / Sedum telephium ‘Herbstfreude’

Gaura Lindheimeri

Salvia nemorosa

Echinacea purpurea

Echinacea purpurea

Sisyrinchium striatum / Eryngium giganteum

Stipa arundinacea ‘Sirocco’

Mulhenbergia capillaris

Pennisetum alopecuroides ‘Paul Giant’s’

Calamagrostis x acutiflora ‘Karl Foerster’

Panicum virgatum ‘Warrior’

41

Attrait des vivaces au fil des saisons

42 mars > avril > mai
> octobre > novembre
septembre
43 juin > juillet > août décembre > janvier > février

Du point de vue d’un oiseau en 2019

46

Du point de vue d’un oiseau en 2022

47

L’atelier Bivouac

L’atelier Bivouac est un collectif de paysagistes rassemblés autour d’une aspiration commune : explorer d’autres manières de concevoir les projets d’espaces publics dans les territoires ruraux.

Pour nous, l’expérimentation et la recherche sont indissociables de l’expérience physique et sensible du territoire: être présents et attentifs, faire ensemble ici et maintenant.

Notre pratique du projet se fonde sur une démarche d’immersion: nous proposons d’habiter pour un temps le lieu de la commande et d’y déployer un atelier à ciel ouvert. Cette présence sur le terrain nous permet de comprendre les besoins et aspirations de ceux qui vivent et font vivre les territoires pour formuler et construire une réponse appropriée et singulière.

Par notre attention au « déjà-là », par nos travaux d’inventaires, en nous positionnant volontairement dans une économie de moyens, nous tirons parti des ressources en place, en suivant une logique de réemploi et de recyclage.

48

Remerciements:

Nous remercions toute l’équipe du Parc Naturel Régional des Monts d’Ardèche pour nous avoir accueilli en résidence à la Maison du Parc malgré les contraintes liées au contexte sanitaire. Merci en particulier à Mathieu, Jérôme, François, Emma, Nicolas, Véronique, Vanessa, Marie-Françoise, Marlène et Caroline pour la qualité des échanges et les coups de main. Merci également à tous les bénévoles, habitant. es de Jaujac et d’ailleurs qui sont venus prêter main forte aux différentes étapes de réalisation de ce jardin qui, nous l’espérons, permettra aux visiteurs petit.es et grand. es d’y passer de beaux moments de ressourcement et d’apprentissage au fil des saisons.

49

En février 2020, le Parc Naturel Régional des Monts d’Ardèche entame une réflexion sur la requalification des Jardins de la Maison du Parc à Jaujac. L’ atelier Bivouac est le collectif de paysagistes retenu pour accompagner l’équipe du P.N.R dans ce projet. L’intention est de s’enrichir d’un regard extérieur et d’engager une réflexion active et créative avec les gestionnaires et les usagers sur une amélioration concrète du jardin au fil des saisons.

Ce livret conçu comme un carnet de résidence, raconte les échanges et les différentes étapes de travail qui ont eu lieu pour concevoir et réaliser le jardin que vous êtes invité à parcourir aujourd’hui.

opération réalisée avec le soutien de

Turn static files into dynamic content formats.

Create a flipbook
Issuu converts static files into: digital portfolios, online yearbooks, online catalogs, digital photo albums and more. Sign up and create your flipbook.