Assisted Living & Memory Care Membership Packet

Page 1

May 3, 2023

Greetings Lewes Lodge Assisted Living & Memory Care Depositors!

We are writing to you with much excitement to inform you that our VIP Membership programs for assisted living & memory care at The Lodge at Historic Lewes are now launching!

Right now, you have a 100% refundable deposit on Lewes Lodge’s waitlist – this deposit is securing your eligibility for Membership. Over the next few days, you will follow the steps and timeline detailed below to accept your Membership status once it has been awarded to you.

Included in this package to review:

1. An explanation of all VIP Pre-Opening Benefits at Lewes Lodge

2. The Steps and Timeline of the membership process

3. A sample copy of the Membership Agreement for your review

4. An “Intent to Accept Membership” form that needs to be returned by mail or online by May 18th if you intend to accept membership (unless you’ve already submitted one)

5. An “Application for Residency” that needs to be returned by mail, online, or in-person by May 18th if you intend to accept membership

6. A package that contains building and apartment floor plans, that will help you select your top apartment choices if you plan to accept membership

7. A self-addressed and stamped envelope to return your Application for Residency and Intent to Accept Membership by May 18th.

If you have any questions about the steps outlined please email team@leweslodge.com or call 302-703-1901 as soon as possible. Your timely participation is essential to keeping this process efficient and enjoyable for all involved.

Congratulations on being a part of an exclusive group – we can’t WAIT to officially welcome you to the Lewes Lodge Family!

Sincerely,

Are You Ready

TO EMBRACE A LIFESTYLE LIKE NO OTHER?

As a depositor at Lewes Lodge, you are about to embark on an amazing journey, should you choose to accept the offer to become a member at our incredible community!

The launch of our membership program is an incredibly exciting time. Those who choose to convert their depositor status to that of a member are true pioneers and will help shape the future of the community. This is a big step towards welcoming you home to Lewes Lodge - and you’ll get to officially choose your apartment!

We are so excited to start this process and hope you are as well! If you have any questions about your depositor number, would like to discuss apartment selection, or need anything at all, we’re always here to help.

WHY BECOME A MEMBER?

We’re so thankful that you’ve chosen to put your trust in us by becoming a Lewes Lodge depositor! You know the importance and value of being on our wait list, and now is the time to reap the benefits of your savvy investment.

We begin offering memberships to all of our depositors - beginning with those who have been on the wait list the longest and working our way down the list. As a depositor, you have the option to tell us one of the following:

“Yes! I’m committing to moving to Lewes Lodge within 30 days of opening!”

“I’m not ready to commit to membership just yet, but you can move me to the waitlist for later.”

“I don’t think Lewes Lodge is the place for me. I’d like my deposit back and to be removed from the waitlist.”

Remember, some membership benefits are exclusive and time sensitive!

Become a Member IN 3 EAS Y STEPS!

Step 1

MAY 3RD — MAY 17TH

You will receive notification that membership has begun, and you will have approximately 14 days to return your intention to accept or decline membership, along with your top apartment choices.

In this notification will be everything you need to make an informed decision, including building layouts, apartment types & featured floor plans, and step by step instructions to submit your intent for membership.

Step 2

MAY 18TH

Your intent to accept or decline membership is due. If you intend to accept membership, you’ll need to fill out the Intent for Membership form and provide your top apartment choices.

The interest and strength of Lewes Lodge’s deposit list is unlike any other community Vantage Point has built. As you list out your preferred apartments, please bear this in mind. The more options you list, the better. Remember that your awarded apartment will be based on your deposit date as well as best available choice in apartment preference order.

If none of your apartment choices are available at the time of your selection, we will be in touch as soon as possible to let you know and discuss additional options and next steps.

Step 3

MAY 19TH AND BEYOND

The Lewes Lodge team will begin to contact depositors by order of their deposit date to notify them of their awarded apartment. If you choose to select that apartment we’ll coordinate a time for you to sign your membership agreement and submit the remainder of the one-time community fee for your apartment (1 month’s rent less your $2,500 deposit).

Member Apartment Pricing

These price ranges reflect apartment rates only. Care level and medication management are not included in base rent. Talk to your Lewes Lodge team for these additional rates!

Assisted Living Apartment StylePre-Opening PricesPost-Opening Prices Standard $6,930-$7,245 $7,277-$7,607 Standard Deluxe $7,980-$8,190 $8,379-$8,600 One Bedroom $8,348-$8,505 $8,765-$8,930 One Bedroom Deluxe$8,820-$9,030 $9,261-$9,482 Two Bedroom $9,030-$9,240 $9,482-$9,702 Two Bedroom Deluxe$9,555-$9,713 $10,033-$10,198
Apartment StylePre-Opening PricesPost-Opening Prices Semi-Private $7,105 $7,320 Private $8,755 $9,020 Private Deluxe $10,660 $10, 980
The Compass Memory Care
Rateslistedbelowarebasedona30-daymonth.

Your Path to Membership

Should you choose to take the next step and become a member at Lewes Lodge, you’ll have one of two options!

Once all those who intend to accept membership have returned their forms, our team will begin contacting folks in order of deposit date. At this time, our team will discuss the available membership options with you.

Club Membership

Everyone who accepts membership, regardless of deposit date, will have the option to become a club member!

Pay discounted pre-opening rates for your first TWELVE MONTHS of residency!

Charter Membership

This is a limited opportunity, available to the first 20 people who choose to become members AND choose charter membership.

Pay post-opening rates, and receive a LIFETIME rate lock in Assisted Living or TWO YEAR rate lock in Memory Care!

Assisted Living/Memory Care

Membership Agreement

THIS MEMBERSHIP AGREEMENT (the “Agreement”) is made this (day) of (Month/Year), by and between Lewes Senior Living Owner, LLC, dba The Lodge at Historic Lewes (“Lewes Lodge”), and (the “Applicant(s)”).

1. The Applicant intends to become a “Member” at The Lodge at Historic Lewes, a senior living community (“Lewes Lodge”) which entitles the Applicant to certain Membership benefits based on Applicant’s membership level at Lewes Lodge. The apartment selected is hereby identified as Unit # , and further identified as Unit Type The Applicant is now assigned Membership # .

2. If the Applicant and Lewes Lodge have previously entered into a Deposit and Wait List Agreement (the “Wait List Agreement”). Any payments made toward the Applicant’s Wait List Agreement will be applied to the Total Membership Payment due upon signing this Membership Agreement.

3. The Applicant agrees to make the following payment to Lewes Lodge in connection with becoming a Member, which constitutes payment in full of the “Community Services Fee” which would otherwise be payable by the Applicant upon moving into Lewes Lodge:

4. The Applicant acknowledges that once paid, as provided in paragraphs above and notwithstanding anything in the Wait List Agreement to the contrary, the Community Services Fee (including the Wait List Deposit) shall be non-refundable.

5. The Applicant acknowledges that once paid, as provided in paragraphs above, the Community Services Fee shall be non-refundable except if the resident is not medically qualified for residency upon physical assessment performed by Lewes Lodge within 30-days of the

1
One (1) Month’s Rent for Apartment (Market Value) $ Credit for Wait List Deposit $ Total Membership Payment $

community’s opening or in the event of a resident passing away. If the resident is not deemed qualified for residency in these instances, the Community Services Fee becomes refundable.

6. The Applicant agrees to move into Lewes Lodge within thirty (30) days of Lewes Lodge’s Assisted Living and Memory Care opening date. Lewes Lodge agrees to keep the Applicant informed of this date during the construction process of Lewes Lodge. Applicant understands the opening date is approximate up until the time a Certificate of Occupancy is issued and Lewes Lodge issues an official opening date. In the event that the Applicant does not move into Lewes Lodge within thirty (30) days of the opening date, the Community Services Fee will be forfeited, and the Applicant's apartment may be canceled at the sole discretion of the community.

7. The Applicant acknowledges that his or her rights under the Agreement are personal to the Applicant and may not be reassigned. If this Agreement has been executed by more than one person as Applicant, then the rights under this Agreement shall relate to either or both of said persons, as the case may be.

8. Any notice to the Applicant shall be sufficiently given if mailed to the address given below or as the Applicant later may advise seller in writing.

9. Checks shall be made payable to Lewes Senior Living Owner, LLC and mailed to:

The Lodge at Historic Lewes

1008 Kings Highway

POB 790

Lewes, DE 19958

Applicant Name(s)

Address: Email: Phone:

Primary Signature: Date:

Secondary Signature: _______________________________ (if applicable) Date: __________________

The Lodge at Historic Lewes: By: Name Title Date

2

Membership Acceptance Form

Name

Second Occupant (if applicable) Home Phone Number

Do you intend to become a member at Lewes Lodge and move in within 30 days of the community’s opening? (select ‘yes’ or ‘no’ and follow the appropriate prompts)

NO – I do not intend to become a member at Lewes Lodge at this time. Please select one of the following options:

I would like to remain on the deposit list so I can maintain a priority position if my plans change prior to opening, or in case I would like to join the wait list for a specific apartment upon opening.

I would like to be removed from the wait list and receive a full refund of $2,500

YES – I intend to become a member at Lewes Lodge at this time. Please select your intended level of care* and indicate your top apartment choices** below. We’ll do our best to honor your top choice, but keep in mind that apartments are awarded in depositor order.

Assisted Living

Choice #1

Choice #2

Choice #3 Choice #4

Choice #5

Additional Comments:

Primary Resident Signature Date

Secondary Resident Signature (if applicable)

Responsible Party Signature (if applicable)

Date

Date

If you selected ‘yes,’ and have not already submitted one, an application for residency is also required.

*A clinical assessment will be conducted by our nursing staff 30 days prior to your move to ensure you’re receiving the appropriate level of care

Mobile
Phone Number
Number (i.e.
Apartment Style (i.e.
Apartment
Unit #208)
Standard Type 1)
The Compass Memory Care™ **Only first floor apartments are available at this time

Application for Residency

Personal Information

Primary Applicant Information

Applicant Name: Date:

Address: City: State: Zip:

Primary Phone: Other Phone:

Date of Birth: Age:

Email Address:

Do you have a Power of Attorney? Yes No

Do you have an Advance Directive? Yes No

POA Name:

Secondary Applicant Information (if applicable)

Applicant Name: Date: Address: City: State:

Primary Phone: Other Phone:

Date of Birth: Age:

Email Address:

Do you have a Power of Attorney? Yes No

Do you have an Advance Directive? Yes No

POA Name:

Zip:

Financially Responsible Party (if different from primary applicant) This is the party that will be responsible for payment of the resident’s monthly fees.

Name: Relation:

Address: City: State: Zip:

Primary Phone: Other Phone:

Email Address:

Emergency Contact #1 (POA if applicable)

Name: Relation:

Address: City: State: Zip:

Primary Phone: Other Phone:

Email Address:

Emergency Contact #2

Name: Relation:

Address: City: State: Zip:

Primary Phone: Other Phone:

Email Address:

Other Information

Do you plan to bring a car? Yes No

Do you plan to bring a pet? Yes No Type of Pet:

Do you plan to use our complimentary weekly linen service? Yes No

Those who use weekly linen service must use linens and towels provided by the community.

Financial Information

Please complete this section to the best of your ability. If completing as two applicants and you have shared assets or income, please include in primary applicant information.

Primary Applicant

Income Assets

Monthly Social Security$ Checking Accounts $

Monthly Pension Benefits $ Savings Accounts $

Monthly Veterans’ Benefits $ Money Market$

Income from Investments$ Stocks, Bonds, Mutual Funds $

Monthly Annuity $ CDs$

Home Value $

Other ( )$ Other ( )$

Total Monthly Income$ Total Assets $

Secondary Applicant Income Assets

Monthly Social Security$ Checking Accounts $

Monthly Pension Benefits $ Savings Accounts $

Monthly Veterans’ Benefits $ Money Market$

Income from Investments$ Stocks, Bonds, Mutual Funds $

Monthly Annuity $ CDs$

Home Value $

Other ( )$ Other ( )$

Total Monthly Income$ Total Assets $

I represent that the included information is true and correct.

Applicant Signature: Date:

Applicant Signature: Date:

(if applicable) (if applicable)

Responsible Party: Date:

Community Representative: Date:

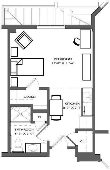
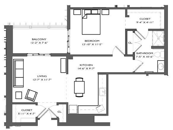
APARTMENT FLOORPLANS

For enlarged versions of the included floorplans, talk to Melissa & Kaitlin, or view online using the methods below:

Visit: https://bit.ly/lewesfloorplans

Scan:

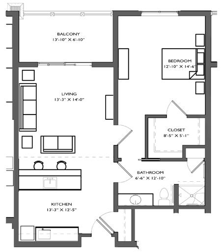
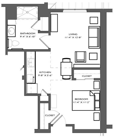
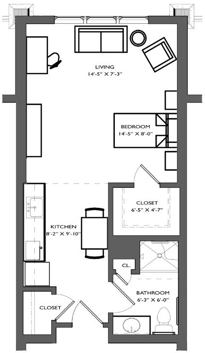
ASSISTEDLIVING Standard Apartments

FEATURED FLOOR PLAN

(See reverse for additional layouts)

STANDARD – TYPE 5

Apartments: 315 SF: 500

Enlarged floor plans with available unit numbers and detailed measurements are available upon request. Our community relations team is available to help assist you in finding the perfect apartment!

STANDARD APARTMENTS

APARTMENTS: 320, 321 STANDARD – TYPE 8 SF: 485 APARTMENTS: 234, 235, 334, 335 STANDARD – TYPE 7 SF: 450 APARTMENTS: 236, 237, 336, 337 STANDARD – TYPE 6 SF: 450 APARTMENTS: 315 STANDARD – TYPE 5 SF: 500 APARTMENTS: 314 STANDARD – TYPE 4 SF: 500 APARTMENTS: 209, 309 STANDARD – TYPE 3 SF: 485 APARTMENTS: 210, 211, 310, 311 STANDARD – TYPE 2 SF: 485 APARTMENTS: 205, 232, 305, 332 STANDARD – TYPE 1 SF: 360
Pre-Opening: Post-Opening: $6,930 $7,277 Pre-Opening: Post-Opening: $7,245 $7,607 Pre-Opening: Post-Opening: $7,245 $7,607 Pre-Opening: Post-Opening: $7,245 $7,607 Pre-Opening: Post-Opening: $7,245 $7,607 Pre-Opening: Post-Opening: $7,245 $7,607 Pre-Opening: Post-Opening: $7,245 $7,607 Pre-Opening: Post-Opening: $7,245 $7,607 APARTMENTS: 201, 207, 226, 233, 301, 307, 326, 333 STANDARD DELUXE – TYPE 1 SF: 550 Pre-Opening: Post-Opening: $7,980 $8,379 APARTMENTS: 228, 328 STANDARD DELUXE – TYPE 2 SF: 700 Pre-Opening: Post-Opening: $8,505 $8,930 Rateslistedbelowarebasedona30-daymonth.

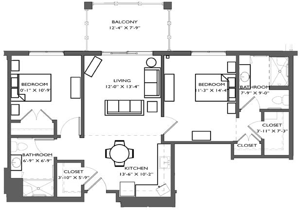
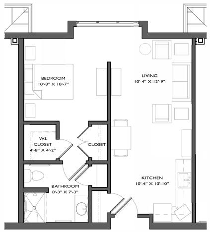
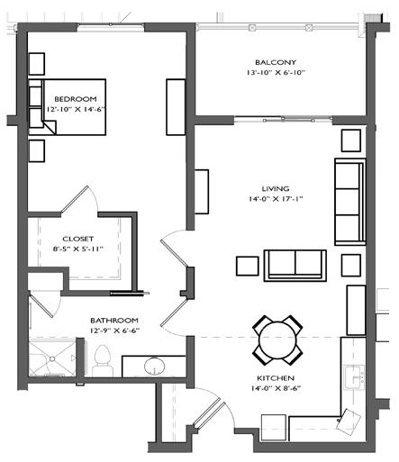
One Bedroom Apartments ASSISTED LIVING

FEATURED FLOOR PLAN

(See

Apartments: 240, 340 SF: 800

REVISED: 10/20/2022
unit
Enlarged floor plans with available
numbers and detailed measurements are available upon request. Our community relations team is available to help assist you in finding the perfect apartment!
1 BEDROOM DELUXE – TYPE 2
reverse for additional layouts)

ONE BEDROOM APARTMENTS

600

APARTMENTS: 238, 308, 338

Pre-Opening: Post-Opening: $8,348 $8,765

600

APARTMENTS: 227, 239, 302, 306, 327, 339

Pre-Opening: Post-Opening: $8,505 $8,930

APARTMENTS: 303

Pre-Opening: Post-Opening: $8,820 $9,261

APARTMENTS: 240, 340

Pre-Opening: Post-Opening: $9,030 $9,482

APARTMENTS: 325, 317

Pre-Opening: Post-Opening: $8,820 $9,261

APARTMENTS: 316, 324

Pre-Opening: Post-Opening: $8,820 $9,261

APARTMENTS: 318, 322

Pre-Opening: Post-Opening: $8,925 $9,371

APARTMENTS: 319, 323

Pre-Opening: Post-Opening: $8,925 $9,371

APARTMENTS: 231, 331

Pre-Opening: Post-Opening: $8,820 $9,261

APARTMENTS: 229, 329

Pre-Opening: Post-Opening: $8,820 $9,261

1 BEDROOM DELUXE – TYPE 2 SF: 800 1 BEDROOM DELUXE – TYPE 3A SF: 760 1 BEDROOM DELUXE – TYPE 3B SF: 760 1 BEDROOM DELUXE – TYPE 4A SF: 800 1 BEDROOM – TYPE 1B SF: 1 BEDROOM DELUXE – TYPE 1 SF: 645 1 BEDROOM – TYPE 1A ADA SF: 1 BEDROOM DELUXE – TYPE 5 SF: 700 1 BEDROOM DELUXE – TYPE 6 SF: 800 1 BEDROOM DELUXE – TYPE 4B SF: 800
Rateslistedbelowarebasedona30-daymonth.
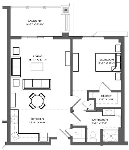
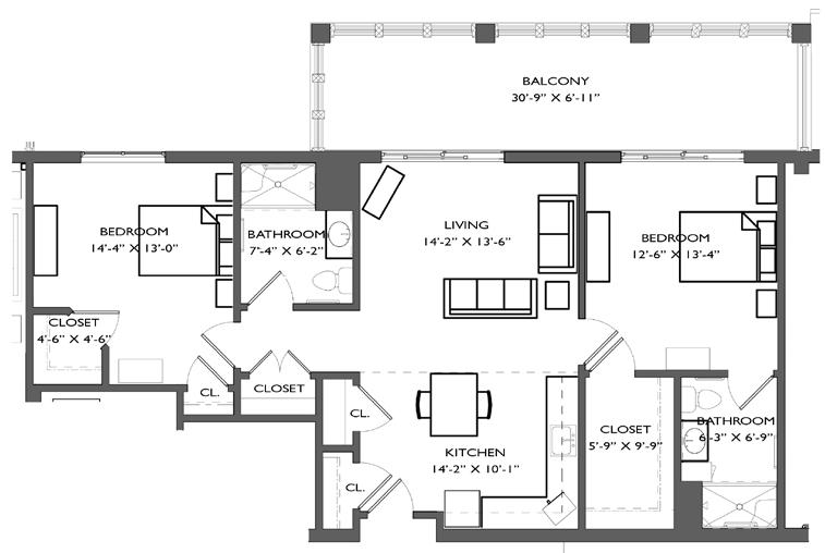
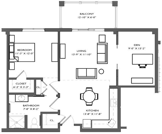
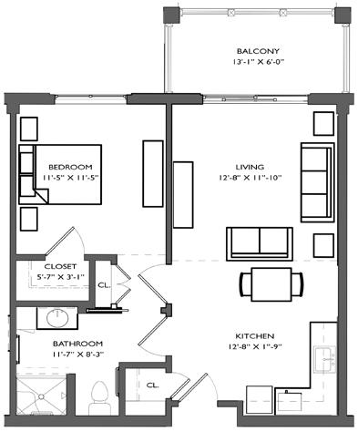
Enlarged floor plans with available unit numbers and detailed measurements are available upon request. Our community relations team is available to help assist you in finding the perfect apartment! 2 BEDROOM DELUXE – TYPE 1 Apartments: 212, 312 SF: 1000 (See reverse for additional layouts) FEATURED FLOOR PLAN
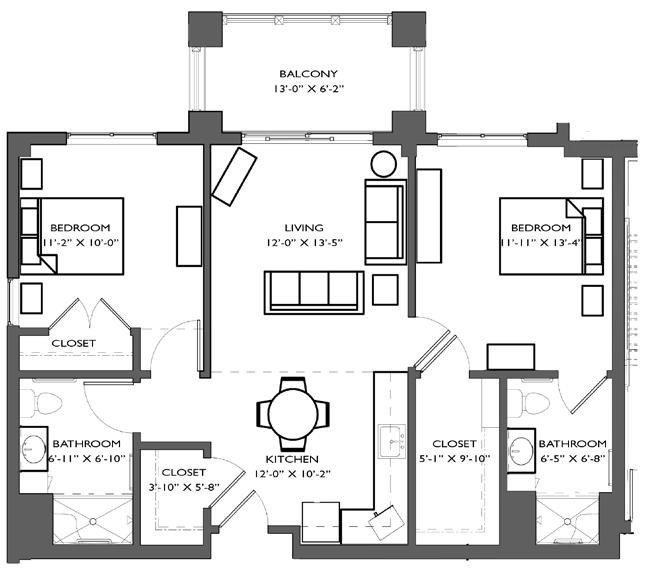
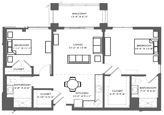
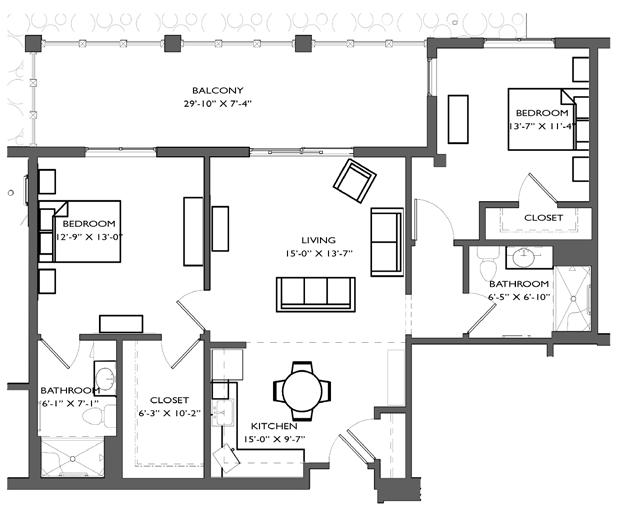
Two Bedroom Apartments ASSISTED LIVING

TWO BEDROOM APARTMENTS

(Balconies included with all two bedroom options)

2 BEDROOM – TYPE 1A

SF: 900

Rateslistedbelowarebasedona30-daymonth.

2 BEDROOM – TYPE 1B

SF: 900

APARTMENTS: 241, 341

Pre-Opening: Post-Opening: $9,030 $9,482

2 BEDROOM – TYPE 3

SF: 900

APARTMENTS: 202

Pre-Opening: Post-Opening: $9,240 $9,702

2 BEDROOM DELUXE – TYPE 2

SF: 1000

APARTMENTS: 204

Pre-Opening: Post-Opening: $9,2713 $10,198

APARTMENTS: 213, 313

Pre-Opening: Post-Opening: $9,240 $9,702

2 BEDROOM DELUXE – TYPE 1

SF: 1000

APARTMENTS: 212, 312

Pre-Opening: Post-Opening: $9,555 $10,033

2 BEDROOM DELUXE – TYPE 3

SF: 1030

APARTMENTS: 304

Pre-Opening: Post-Opening: $9,555 $10,033

Semi Private & Private Apartments MEMORY CARE

FEATURED FLOOR PLAN

(See reverse for additional layouts)

PRIVATE ADA

Apartments: 151, 152, 251, 252 SF: 348

Enlarged floor plans with available unit numbers and detailed measurements are available upon request. Our community relations team is available to help assist you in finding the perfect apartment!

PRIVATE

PRIVATE ADA SF: 348

Rateslistedbelowarebasedona30-daymonth.

PRIVATE SF: 326

APARTMENTS:

151, 152, 251, 252

Pre-Opening: Post-Opening: $8,755 $9,020

SEMI-PRIVATE

SEMI-PRIVATE SF: 434

APARTMENTS:

153, 155, 161, 163, 253, 255, 261, 263

Pre-Opening: Post-Opening: $7,105 $7,320

APARTMENTS:

154, 156, 157, 158, 159, 160, 162, 164 165, 166, 254, 256, 257, 258, 259, 260, 262, 264, 265, 266

Pre-Opening: Post-Opening: $8,755 $9,020

BUILDING FLOORPLANS

BUILDING
FIRST
FLOOR PLAN -
FLOOR
FIRST FLOOR - MEMORY CARE
BUILDING FLOOR PLAN - SECOND FLOOR
SECOND
FLOOR - MEMORY CARE

SECOND FLOOR - ASSISTED LIVING

BUILDING FLOOR PLAN - THIRD FLOOR

Turn static files into dynamic content formats.

Create a flipbook
Issuu converts static files into: digital portfolios, online yearbooks, online catalogs, digital photo albums and more. Sign up and create your flipbook.
Assisted Living & Memory Care Membership Packet by Vantage Point - Issuu