

![]()


Integriertes städtebauliches Entwicklungskonzept für das Centrum von Postbauer-Heng
Integriertes städtebauliches Entwicklungskonzept für das Centrum von Postbauer-Heng
Auftraggeberin:

Auftragnehmerin:
Gemeinde Postbauer-Heng
vertreten durch:
Horst Kratzer, 1. Bürgermeister
fachliche Betreuung:
Florian Beyer, Kämmerer, stellv. Geschäftsleiter
nonconform ideenwerkstatt GmbH
Büro Rosenheim, Westermayer-Straße 1A, 83026 Rosenheim
Bearbeitung durch:
Melina Hölzl, M.Sc. Urbanistik, B.Eng. Landschaftsarchitektur
Christina Kragl, B.Sc. Raumplanung
Lisa Steiner, DI Raumplanung
Lea Ruland, M.A. Architektur und Kulturwissenschaften
Kooperation Verkehrsplanung
in Zusammenarbeit mit:
PSLV - Planungsgesellschaft Stadt Land Verkehr

Andreas Bergmann, Dipl. Geograph, Verkehrs- und Stadtplaner
Das integrierte städtebauliche Entwicklungskonzept für das Centrum von Postbauer-Heng wurde im Bayerischen Städtebauförderprogramm mit Mitteln

Gemeinde Postbauer-Heng
Bayern, Regierungsbezirk Oberpfalz
8.100 Einwohnerinnen/Einwohner
Fläche: 24,65 km²
450m ÜNN
Postbauer-Heng
2.2
Einführung
Der Markt Postbauer-Heng, gelegen in der Oberpfalz zwischen Nürnberg und Regensburg, blickt auf eine lange Geschichte und eine dynamische Entwicklung zurück. Mit der Verleihung des Marktrechts im Jahr 2005 fand der Zusammenschluss der ehemals selbstständigen Gemeinden Postbauer und Heng sowie die spätere Eingliederung von Pavelsbach einen symbolischen Abschluss. Heute ist Postbauer-Heng eine lebendige Gemeinde mit über 8.200 Einwohner:innen und mehr als 3.000 Arbeitsplätzen. Die strategisch günstige Lage an der Bahnlinie Nürnberg-Regensburg mit S-Bahn-Anschluss sowie an der Bundesstraße 8, unweit des Dillbergs, verleiht der Gemeinde eine besondere Bedeutung und birgt weiteres Entwicklungspotenzial.
Das Zentrum von Postbauer-Heng entstand in den 1970er Jahren im Zuge der Gemeindefusion. Es liegt zwischen den ehemaligen Ortskernen von Postbauer, Heng und Kemnath und bildet heute das Herzstück der öffentlichen Versorgung sowie des gesellschaftlichen Lebens. Trotz dieser zentralen Rolle steht das
Centrum vor vielfältigen Herausforderungen, darunter ein hohes Verkehrsaufkommen und eine heterogene Nutzung, die eine umfassende Neuordnung und Aktivierung erforderlich machen.
Vor dem Hintergrund der 2022 durchgeführten Machbarkeitsstudie für den Centrumsbereich hat sich die Marktgemeinde entschieden ein Integriertes Städtebauliches Entwicklungskonzept (ISEK) für einen erweiterten Umgriff um das Centrum herum zu erarbeiten. Dieses Konzept soll eine strategische Vision für die Aufwertung und Anpassung des kleinstädtischen Zentrums bieten – unter Berücksichtigung der aktuellen und zukünftigen Herausforderungen sowie der Bedürfnisse aller Stakeholder:innen und Bürger:innen.
Mit der Erstellung des ISEK verfolgt Postbauer-Heng das Ziel, eine nachhaltige, lebenswerte und zukunftsfähige Entwicklung des Centrums zu fördern und damit die Lebensqualität für alle Einwohner:innen nachhaltig zu verbessern.

Abb.1 Das Centrum aus der Vogelperspektive, aufgenommen aus südwestlicher Richtung
KEMNATH

Abb.2 Das Untersuchungsgebiet im Kontext der Orte Postbauer-Heng und Kemnath M 1:7500
Die Marktgemeinde Postbauer-Heng bewarb sich erfolgreich für die Aufnahme in die Städtebauförderung. Eine entsprechende Rahmenbewilligung der Regierung der Oberpfalz wurde der Gemeinde PostbauerHeng im Zuge dessen erteilt. Seitdem befindet sich die Gemeinde im Bayerischen Förderprogramm. Am 18.06.2024 wurde für die Einzelmaßnahme 001 „Erstellung eines integrierten städtebaulichen Entwicklungskonzeptes - ISEK“ im Rahmen der Gesamtmaßnahme 03 „Ortskern“ und der Teilmaßnahme 01 „Sanierungsgebiet Ortskern“ ein Zuwendungsbescheid erteilt.
Entsprechend den Städtebauförderungsrichtlinien und der aktuell gültigen Verwaltungsvereinbarung 2023/24 (VV 2023/24) zwischen Bund und Län-
1.3 Vorgehensweise
Ein ISEK ist ein umfassendes Konzept, das möglichst viele Bereiche der Stadt- und Ortsplanung für das Centrum von Postbauer-Heng abdeckt und die Entwicklung der nächsten 10 bis 15 Jahre beschreibt, um diese gezielt steuern zu können. Das vorliegende Konzept gliedert sich in drei Teile.
Der erste Teil umfasst die Bestandsaufnahme sowie die daraus abgeleitete Analyse von Stärken und Schwächen, Chancen und Risiken. Dabei fließen sowohl die externe Perspektive der Planerinnen und Planer von nonconform und PSLV als auch das lokale Expert:innenwissen der Bürgerinnen und Bürger ein, welches im Rahmen der verschiedenen Beteiligungsveranstaltungen erfasst wurde. Ergänzt wird diese Bestandsaufnahme und -bewertung durch bestehende Konzepte und Planungsgrundlagen der Marktgemeinde Postbauer-Heng sowie öffentlich zugängliche Daten verschiedener staatlicher Stellen. So entsteht ein ganzheitliches Bild des Centrums von Postbauer-Heng, das die Außenwahrnehmung mit der lokalen Perspektive vereint.
Definition ISEK
dern zur Städtebauförderung ist als Grundlage für die Förderung von Maßnahmen innerhalb eines Sanierungsgebiets die Erstellung einer vorbereitenden Untersuchung (§141 BauGB) erforderlich. Das vorliegende integrierte und gebietsbezogen Konzept stellt eine solche vorbereitende Untersuchung im Sinne der Städtebauförderung dar.
In solch einem Konzept werden, anhand eines Querschnittsvergleichs der in der Bestandsaufnahme erhobenen Daten, die Stärken und Schwächen der relevanten Themenbereiche ermittelt. Darauf aufbauend werden die Ziele und entsprechenden Maßnahmen zu deren Erreichung herausgearbeitet, anhand derer der Vorschlag für ein formelles Sanierungsgebiet formuliert wird.
Im zweiten Teil werden auf Basis dieser Erkenntnisse zentrale Leitlinien und ein übergeordnetes Leitbild für die Entwicklung des Centrums formuliert. Dieser Prozess erfolgt in enger Zusammenarbeit mit der Steuerungsgruppe.
Der dritte Teil baut auf den erarbeiteten Leitlinien und dem Leitbild auf und enthält konkrete Projektideen sowie Maßnahmenpakete. Diese werden abschließend hinsichtlich ihrer Dringlichkeit und ihres erwarteten Beitrags zur Erreichung der Leitziele eingeordnet. Zudem sind die einzelnen Maßnahmen mit groben Kostenansätzen und konkreten Umsetzungsschritten hinterlegt. Auch in dieser Phase wurde die Bevölkerung intensiv in den Prozess eingebunden, um die erarbeiteten Ergebnisse gemeinsam zu überprüfen und sicherzustellen, dass am Ende eine breit getragene Entwicklungsstrategie für das Centrum von Postbauer-Heng entsteht.
Das Integrierte Städtebauliche Entwicklungskonzept (ISEK) ist ein teilräumliches strategisches und umsetzungsorientiertes Steuerungsinstrument der Stadtentwicklung unter Berücksichtigung eines ganzheitlichen, integrierten Planungsansatzes, das in einem dialog- und prozessorientierten Verfahren erarbeitet und fortentwickelt wird. Das ISEK ist Fördervoraussetzung in allen Programmen der Städtebauförderung. (Quelle: Integrierte städtebauliche Entwicklungskonzepte in der Städtebauförderung - Eine Arbeitshilfe für Kommunen I Bundesministerium für Wohnen, Stadtentwicklung und Bauwesen)
Die Marktgemeinde Postbauer-Heng legte von Beginn an großen Wert auf eine intensive Einbindung der Bürgerschaft. Um eine breite Beteiligung sicherzustellen, wurde ein umfassender Beteiligungsprozess initiiert. Dieser wurde vom Planungsteam, bestehend aus den Büros nonconform und PSLV, in enger Abstimmung mit der Auftraggeberin entwickelt und durchgeführt.
Die Zusammenarbeit mit den Bürgerinnen und Bürgern von Postbauer-Heng war zentral für die Erstellung des ISEK. Sie diente nicht nur als Grundlage für die Analyse, sondern auch für die Entwicklung von Zielen, Leitlinien und konkreten Projektideen. Um ein konsensfähiges und breit unterstütztes Ergebnis zu erreichen, wurden die Erkenntnisse aus der Beteiligung fortlaufend überprüft und in den Planungsprozess integriert.
Zur Unterstützung der Planungsbüros wurde eine Steuerungsgruppe ins Leben gerufen. Diese setzte sich aus Vertreterinnen und Vertretern des Gemeinderats sowie weiteren relevanten Akteurinnen und Akteuren der Gemeinde zusammen. Als zentrales Steuerungsgremium war sie intensiv sowohl in die Prozessgestaltung als auch in die inhaltliche Ausarbeitung des vorliegenden ISEKs eingebunden. Durch
22. Oktober 2024
Auftakt der Steuerungsgruppe
28. November 2024
offene
Analysewerkstatt
Ideen sammeln
gemeinsam Stärken, Schwächen und Potenziale des Centrums identifizieren
Vorbereitung,Bestandsaufnahme, Stärken-Schwächen-Analyse
den regelmäßigen Informationsaustausch und die enge Abstimmung der Zwischenergebnisse fungierten die Mitglieder der Steuerungsgruppe zugleich als Multiplikator:innen des ISEK-Prozesses in der Bürgerschaft.
Die breite Öffentlichkeit hatte im Rahmen der Analyse- und Ideenwerkstatt sowie der öffentlichen Zwischenpräsentation die Möglichkeit, sich aktiv in den Erstellungsprozess des ISEK einzubringen. Ergänzend wurden gezielte Workshops für bestimmte Personengruppen durchgeführt, um spezifische Bedarfe noch intensiver zu berücksichtigen.
Die Ergebnisse der Öffentlichkeitsbeteiligung wurden von nonconform in gesonderten Dokumenten ausführlich dokumentiert. Gleichzeitig flossen die Erkenntnisse aus den verschiedenen Beteiligungsformaten direkt in die Bestandsaufnahme, die Analyse der Stärken, Schwächen, Chancen und Risiken sowie in das daraus abgeleitete Entwicklungskonzept ein.
Alle Informationen, einschließlich der Dokumentationen, sind öffentlich auf der Projektwebsite unter www.zukunft-mit-c.de und auf der Homepage der Gemeinde unter www.postbauer-heng.de/isek abrufbar.
27./28. März 2025
offenes Ideenbüro
digital analog
offener Ideenabend
gemeinsam Ideen für die Zukunft des Centrums von Postbauer-Heng entwickeln
29.10.2025
Leitbild, Entwicklungsziele Handlungsfelder erarbeiten
Juli 2025
Ergeb nispräsentation
Zwischenpräsentation
Feedback geben und Maßnahmen entwickeln
Maßnahmen, Finanzierungskonzept, Umsetzungsstrategie





Stakeholder-Workshops




Ideenwerkstatt




Im folgenden Kapitel sind die Ergebnisse der Bestandsaufnahme dargestellt. Es wird erläutert, welche übergeordneten Planungen die Entwicklung von Postbauer-Heng beeinflussen. Anschließend werden statistische Daten und die Ergebnisse der Ortsbegehungen durch das Planungsteam ausgewertet. Zudem fließen die Erkenntnisse aus den Beteiligungsformaten in die Bestandsaufnahme ein.
Die Bestandsanalyse bildet die Grundlage für die weiteren Planungsschritte im ISEK-Prozess. Sie ermöglicht eine umfassende Betrachtung der aktuellen städtebaulichen, infrastrukturellen und sozialen Gegebenheiten im Centrum von PostbauerHeng. Durch die Zusammenführung verschiedener Informationsquellen entsteht ein differenziertes Bild der bestehenden Herausforderungen und Potenziale, das für die Ableitung strategischer Entwicklungsziele entscheidend ist.
2.1.1
Die Marktgemeinde Postbauer-Heng liegt im Freistaat Bayern, am westlichen Rand der Oberpfalz, im Landkreis Neumarkt in der Oberpfalz, und ist Teil der Metropolregion Nürnberg. Ihre geografische Lage, etwa 30 Kilometer südöstlich von Nürnberg und 9 Kilometer nordwestlich von Neumarkt, macht sie zu einem attraktiven Wohnort mit guter Anbindung an größere Städte.
Es bestehen auf Grund der zentralen Lage in Bayern sehr gute Verkehrsanbindungen: an die Hauptbahnlinie Nürnberg-Regensburg mit einem eigenen Bahnhof in Postbauer-Heng, diverse Buslinien und zu den Autobahnen A 3 (Nürnberg-Regensburg) und A 9 (Nürnberg-München).
Das Gebiet der heutigen Gemeinde entstand durch den Zusammenschluss der Gemeinden Postbauer,



Heng und Pavelsbach (1971 und 1975) und setzt sich aus den Ortsteilen Postbauer Heng, An der Heide, Brandmühle, Buch, Dillberg, Kemnath, Köstlbach, Kothmühle, Pavelsbach und Wurzhof zusammen. Im Zuge der Gebietsreform wurde ab 1971 in einem zentralen Bereich zwischen Postbauer, Heng und Kemnath, auf rund 10ha das neue „Centrum“ geschaffen, das als gemeinsamer Mittelpunkt dient. Das Centrum bildet heute das Herzstück der Gemeinde und bietet mit Rathaus, Haupt- und Grundschule, Geschäftszentrum, katholischer und evangelischer Kirche und vielem mehr Raum für Bildung, Kultur, Dienstleistungen und Nahversorgung.
Im September 2005 wurde Postbauer-Heng schließlich offiziell zur Marktgemeinde erhoben – eine Auszeichnung, die die gewachsene Bedeutung des Ortes als regionaler Mittelpunkt mit zentralörtlichen Funktionen unterstreicht und seine historische wie wirtschaftliche Entwicklung würdigt.




Neumarkt i.d. OPf.



Abb.3 Räumliche Einbettung der Gemeinde Postbauer-Heng


Regensburg
Mit dem Zusammenschluss der Gemeinden Postbauer und Heng am 1. April 1971 – der ersten freiwilligen Gemeindezusammenlegung im Landkreis Neumarkt –entstand der Wunsch nach einem gemeinsamen Zentrum für die neue Großgemeinde Postbauer-Heng. Ziel war es, zentrale Aufgaben wie Bildung, Gesundheitsversorgung und Dienstleistungen gemeinsam zu lösen und einen Dienstleistungsschwerpunkt zwischen Neumarkt und Nürnberg zu schaffen. Bereits vor der Gebietsreform gab es erste Überlegungen zu einem zentralen Standort für Rathaus, Schule und andere öffentliche Einrichtungen.
Zur Neuwahl des Bürgermeisters und des Gemeinderates am 4. April 1971 wurde ein möglicher Standort für ein neues Zentrum diskutiert. Mit klarer Mehrheit entschied man sich für die heutige Lage auf einer grünen Wiese zwischen Postbauer, Heng und Kemnath. Die Gemeinde begann daraufhin Grundstücke von 20 Eigentümern zu erwerben und entwickelte einen Bebauungsplan. Der zentrale Bereich wurde anhand eines einheitlichen Masterplans gestaltet, der die baulichen Maßnahmen aufeinander abstimmte und eine funktionale Verkehrsführung sicherstellte. Auf dem rund 10 Hektar großen Gelände wurden Standorte für die Hauptschule, das Rathaus, das heutige Geschäftszentrum sowie die katholische und evangelische Kirche festgelegt.

Zum Zeitpunkt der Errichtung war Postbauer-Heng die am schnellsten wachsende Gemeinde in der Oberpfalz. Das neue Zentrum sollte daher auch die erforderlichen Einkaufsmöglichkeiten für die Bürger:innen der Gemeinde und der umliegenden Orte schaffen. Die zuvor aufgekauften Grundstücke wurden an bauinteressierte Geschäftsleute weiterverkauft. Bereits 1973 entstanden die ersten Gebäude: ein Blumenladen, ein Getränkemarkt und ein Kindergarten. 1975 folgten die Hauptschule und die St.-Elisabeth-Kirche. Im Oktober desselben Jahres begann der Bau des neuen Rathauses, das 1976 bezogen wurde.
1994 wurde der erste Kindergarten zugunsten eines Geschäftszentrums abgerissen und der neue Kindergarten St. Elisabeth entstand als Ersatz. Über die Jahre entwickelte sich das Zentrum stetig weiter: 1990 wurde das Naturfreibad an der Zentrumsstraße eröffnet, das nach einer Schließung im Jahr 2005 dank Bürger:innenengagement und Fördermitteln 2007 als ökologisches Familienbad wiedereröffnet wurde. 2010 kam mit dem Bau eines Nahversorgungszentrums ein weiterer wichtiger Baustein hinzu.
Das Zentrum von Postbauer-Heng wurde über die Jahre zum Herzstück der Gemeinde. Es bietet heute Raum für Bildung, Nahversorgung, Dienstleistungen, Gesundheitsangebote, Glauben und Freizeit.


Abb.6 Postbauer-Heng 1947

Postbauer-Heng 1969

Postbauer-Heng 1993

Postbauer-Heng 1956

Postbauer-Heng 1986

Postbauer-Heng 2003
Im Oktober 2024 zählte die Gemeinde PostbauerHeng 8.077 Einwohner:innen, davon etwa 58% im Hauptort Postbauer-Heng, 23% in Kemnath und 12% in Pavelsbach. Von den weiteren kleinen Ortsteilen weist keiner einen nennenswerten Anteil von mehr als 5% an der Gemeindebevölkerung auf. (Quelle: Bayerisches Landesamt für Statistik (2023), S. 6, Zahlen Einwohnermeldeamt Postbauer-Heng).
Postbauer-Heng kann seit den 1940er Jahren ein stetiges Wachstum verzeichnen. Das Wachstum der Gemeinde ist vor allem auf das positive Wanderungssaldo zurückzuführen. (vgl. Bayerisches Landesamt für Statistik (2023), S. 7) Dies lässt sich unter anderem auf die attraktive Lage in der Metropolregion Nürnberg-Erlangen-Fürth, die gute verkehrliche Anbindung und die Nähe zur Großen Kreisstadt Neumarkt i.d. OPf., sowie den attraktiven Arbeitsmarkt durch die umliegenden Zentren sowie die teilweise günstigeren Baulandpreise im Vergleich zu den umliegenden Städten zurückführen.
Im Regionalplan der Region Regensburg wird dazu festgehalten, dass Postbauer-Heng „einem starken Zuwanderungsdruck ausgesetzt [ist] und [...] hohe Auspendlerzahlen in den großen Verdichtungsraum auf[weist]. Im Zuge der Entwicklung und Ordnung dieses Teilraumes kommt einer verkehrsgerechten
und -minimierenden Zuordnung von Wohn- und Arbeitsstätten im Zuge einer integrierten Siedlungs- und Verkehrsplanung, wie sie im Verdichtungsraum durch die S-Bahn-Strecke maßgeblich bestimmt wird, hohe Bedeutung zu.“ (Regionaler Planungsverband Regensburg (2019): S.35)
Auch die Bevölkerungsprognose von 2019 bis 2039 sagt für Postbauer-Heng ein weiteres Bevölkerungswachstum auf 8.500 Einwohner:innen voraus. (vgl. Bayerisches Landesamt für Statistik (2021): 5)
Wie viele andere Gemeinden ist Postbauer-Heng stark vom demographischen Wandel betroffen. Bis 2039 wird der Anteil der über 65-Jährigen stark ansteigen. Laut Prognose wird sich die Altersstruktur der Gemeinde insgesamt verändern. Während die Anzahl der unter 18-Jährigen voraussichtlich leicht steigen wird, ist bei der Gruppe der 18- bis unter 40-Jährigen ein Rückgang zu verzeichnen. Dies könnte langfristig sowohl den lokalen Arbeitsmarkt als auch die Versorgung älterer Menschen vor Herausforderungen stellen. Das Durchschnittsalter der Bevölkerung wird von 43,9 Jahren im Jahr 2019 auf 45,9 Jahre im Jahr 2039 steigen, was auf eine insgesamt alternde Bevölkerung hinweist. Postbauer-Heng liegt damit im Bayern-Schnitt, jedoch unter dem Altersschnitt des Landkreises und der Oberpfalz (Quelle: Bayerisches Landesamt für Statistik, 2023).

Abb.13 Bevölkerungsentwicklung Gemeinde Postbauer-Heng
Alter
Bevölkerungsskizze im Jahr 2019 bzw . 2039 2019 2039 m ännlich weiblich
Abb.14 Bevölkerungsskizze im Jahr 2019 bzw. 2039
Die räumliche Verteilung der Altersstruktur in Postbauer-Heng und Kemnath, basierend auf den aufbereiteten Daten im Zensusatlas 2022, zeigt eine leichte Häufung der Bevölkerung ab 65 Jahren im Bereich des Centrums und dessen näherem Umfeld. Diese Tendenz wird sich durch die Entwicklung eines neuen Wohnquartiers mit barrierefreien und betreuten Wohnungen am Schauerholz weiter verstärken.

Postbauer-Heng weist eine hohe Zahl an sozialversicherungspflichtig Beschäftigten auf. Zum Stichtag waren 3.368 Personen in der Gemeinde sozialversicherungspflichtig beschäftigt. Der Großteil dieser Erwerbstätigen ist im produzierenden Gewerbe sowie im Dienstleistungssektor tätig, was die wirtschaftliche Struktur der Gemeinde prägt. Trotz dieser soliden Beschäftigungslage pendelt jedoch ein erheblicher Teil der Bevölkerung zur Arbeit in andere Städte, insbesondere in die Metropolregion Nürnberg-Fürth-Erlangen. (vgl. Bayerisches Landesamt für Statistik (2021): 8) Das Pendlerverhalten zeigt eine deutliche Abhängigkeit von umliegenden Wirtschaftszentren. Insgesamt gibt es 3.453 Auspendelnde, während 1.041 Personen innerhalb der Gemeinde arbeiten und 1.930 Einpendelnde aus anderen Orten nach PostbauerHeng kommen. Dies führt zu einem negativen Pendelsaldo von -1.523, wodurch die Tagesbevölkerung mit

Abb.15 Bevölkerungsanteil ab 65 Jahren an der Gesamtbevölkerung
6.584 Personen deutlich unter der Nachtbevölkerung mit 8.107 Personen liegt. Die am häufigsten frequentierten Pendelziele der Auspendelnden sind die Städte Nürnberg und Neumarkt in der Oberpfalz, während die Mehrheit der Einpendler aus den umliegenden Gemeinden – allen voran aus Neumarkt – stammt. (https://pendleratlas.statistikportal.de/)


Abb.16 Einpendler nach Postbauer-Heng


Abb.17 Auspendler von Postbauer-Heng
2.1.5 Bestehende Konzepte und Grundlagen übergeordnet
Regionalplan Region Regensburg
Nach der Fortschreibung des Landesentwicklungsprogramms Bayern, im Jahr 2018, liegt Postbauer-Heng im südlichen Verdichtungsraum Nürnberg und wurde als Grundzentrum im Verdichtungsraum ausgewiesen. Darin formulierte Zielsetzungen für Gemeinden in dem Verdichtungsräumen:
• das Siedlungswesen unter Bewahrung der ländlichen Siedlungsformen weiter zu entwickeln,
• die Bedienung durch den öffentlichen Personennahverkehr zu verbessern,
• den motorisierten Individualverkehr und die damit einhergehenden Belastungen zu verringern,
• das Radwegenetz weiter auszubauen,
• die Möglichkeiten der wohnortnahen Erholung zu verbessern.
Erstellung: 2015, Landschaftsarchitekturbüro ver. de landschaftsarchitektur in Zusammenarbeit mit sturm+schmidtarchitekten und Dr. Klaus Zeitler
• Aufgabenstellung: gemeinsames integriertes Stadtentwicklungskonzept (INSEK) mit dem Markt Pyrbaum und der Gemeinde Berngau; Grundlage für politisches Handeln und für die Erweiterung des städtebaulichen Sanierungsgebiets
• Inhalt: Untersuchungen der städtebaulichen Struktur und städtebaulicher Entwicklungsszenarien
• Relevanz für das Centrum: Geringe Bedeutung
Abb.18 Postbauer-Heng im Landesentwicklungsprogramm Bayern
a) Zeichnerisch verbindliche Darstellungen

Allgemeiner ländlicher Raum
Ländlicher Raum m it Verdichtungsansätzen
Verdichtungsraum
Raum mit besonderem Handlungsbedarf
Kreisregionen
Einzelgem einden
b) Zeichnerisch erläuternde Darstellung verbaler Ziele
Metropole
Regionalzentrum
Oberzentrum
Mittelzentrum
Region
1 B ayerischer Untermain 2 W ürzburg 3 M ain-Rhön 4 O berfranken-West
5 O berfranken-Ost
6 O berpfalz-Nord
7 Nürnberg
8 Westm ittelfranken
9 Augsburg
10 Ingolstadt
11 Regensburg
12 Donau-Wald
13 Landshut
14 M ünchen
15 Donau-Iller
16 Allgäu
17 O berland
18 S üdostoberbayern
II. Zusätzliche Darstellungen
2.1.6 Bestehende Konzepte und Grundlagenkommunal
• Erstellung: 2003, Planungsbüro Zimmermann
• Aufgabenstellung: Ein Flächennutzungsplan (FNP) ist ein strategisches Planungsinstrument einer Gemeinde, das die beabsichtigte Nutzung aller Flächen im Gemeindegebiet in groben Zügen darstellt. Er zeigt unter anderem Wohn-, Gewerbeund Industriegebiete, landwirtschaftliche Flächen sowie Grün- und Erholungsbereiche. Der FNP dient als Grundlage für Bebauungspläne und steuert die langfristige Entwicklung der Gemeinde, indem er eine geordnete Siedlungsentwicklung, den Schutz von Natur und Umwelt sowie die Berücksichtigung infrastruktureller Bedürfnisse gewährleistet.
• Inhalt:
• Gebietskategorien im Centrum: Mischgebiet, Gemeinbedarfsflächen, Sondergebiet, Grünflächen zur Naherholung
• Der aktuelle FNP weist eine Reihe geplanter Flächenwidmungen aus, von denen einige bereits umgesetzt wurden, während andere nicht weiterverfolgt werden.
• Im Laufe der Zeit wurden 28 Änderungen vorgenommen, jedoch existiert kein zusammengefasstes Dokument, in dem alle Änderungen eingearbeitet sind, was das Erkennen einer klar ablesbaren Entwicklungsstrategie erschwert.
• Erstellung: 2011, Bürger:innen des Marktes Postbauer-Heng gemeinsam mit Bürgermeister und Marktgemeinderäten im Rahmen der AGENDA 21
• Aufgabenstellung: Erarbeitung eines zukunftsweisenden Leitbilds für die nachhaltige Entwicklung des Marktes Postbauer-Heng. Das Leitbild soll als Entscheidungsgrundlage dienen und den Prozess der AGENDA 21 lokal verankern.
• Inhalt: Das Leitbild umfasst 10 Handlungsfelder anhand derer eine Zukunftsvision für Postbauer-Heng gezeichnet wird. Es verfolgt das Ziel, die Gemeinde ökologisch, sozial und wirtschaftlich nachhaltig weiterzuentwickeln. Im Fokus stehen die Sicherung der Lebensqualität, ein schonender Umgang mit Ressourcen, zukunftsfähige Energie- und Mobilitätskonzepte sowie ein starkes Miteinander über alle Generationen hinweg. Konkrete Maßnahmen
reichen von der Förderung erneuerbarer Energien und ökologischer Bauweise über den Ausbau der Nahversorgung und sozialen Infrastruktur bis hin zur Stärkung von Demokratie, Bildung und kulturellem Leben.
• Relevanz für das Centrum: Das Leitbild bildet eine wesentliche Grundlage für die Entwicklung des Centrums auf Gemeindeebene. Es liefert Leitlinien für nachhaltige Siedlungsentwicklung, Nahversorgung, Mobilität und soziale Infrastruktur – zentrale Themen im ISEK-Prozess. Besonders relevant sind die Kapitel zu Siedlungsentwicklung, Verkehr, Nahversorgung und Freizeit/Kultur, da sie die Rolle des Centrums als funktionalen und sozialen Mittelpunkt unterstreichen.
Entwicklungsstudie zur zukunftsorientierten städtebaulichen Entwicklung am Siedlungsschwerpunkt Postbauer-Heng
• Erstellung: 2019, Bernhard Bartsch
• Aufgabenstellung: Entwicklungsstudie zur wohnbaulichen Entwicklung für den Siedlungsschwerpunkt Postbauer-Heng zur Sicherstellung einer geoordneten städtebaulichen Entwicklung in Hinblick auf die starken Bevölkerungszuwächse. Frühzeitige konzeptionelle Überlegungen in unterschiedlichen Szenarien hinsichtlich der zukünftigen wohnbaulichen Entwicklung augrund der dynamischen Wohnbauflächenentwicklung
• Inhalt:
• Bedarfsprognose für Wohnflächenentwicklung in unterschiedlichen Wachstumsszenarien für die unterschiedlichen Ortsteile
• Untersuchung der Verträglichkeit von Entwicklungen in Schwerpunktbereichen in Kemnath und Postbauer-Heng
• Festlegung welche Bereiche aufgrund von Naherholungs- und klimatischen Funktionen vollständig von Bebauung frei gehalten werden sollte
• Relevanz für das Centrum: Es werden Aussagen zu Entwicklungsbereichen rund um das Centrum, sowie weitere Entwicklungen, welche das Centrum beeinflussen können, gemacht.

Abb.19 Ausschnitt FNP im Bereich des Centrums

Abb.20 Ausschnitt Entwicklungskonzept aus der Entwicklungsstudie zur zukunftsorientierten städtebaulichen Entwicklung

Verkehrsuntersuchung „Radverkehr Centrum“ im Markt Postbauer-Heng
• Erstellung: 2019, GEO.VER.S.UM
• Aufgabenstellung: Entwicklung von Varianten/Verträglichkeitsprüfung zur Verbesserung der Radverkehrssituation im Centrum
• Inhalt: Es wurden 2 Varianten für den Um- und Anbau der Gemeindestraße (Centrum) zur Verbesserung der Radverkehrsinfrastruktur im Centrum entwickelt
• Relevanz für das Centrum: Ja, hohe Relevanz bei Verkehrsorganisation
• Erstellung: 2022, Gemeinde Postbauer-Heng
• Aufgabenstellung: Die Gemeinde Postbauer-Heng möchte ihre politischen und wirtschaftlichen Aktivitäten gemeinwohlorientiert ausrichten. Dazu hat sich die Gemeinde gemeinwohl-zertifizieren lassen sowie eine Gemeinwohlbilanz erstellt. Diese erfasst die Ausgangslage der Gemeinde und legt Maßnahmen für die nächsten Jahre fest.
• Inhalt: Im Gemeinwohlbericht wird auf alle Einflussbereiche der Gemeinde von Lieferant:innen, über Finanzpartner:innen bis hin zu Bevölkerung und Wirtschaft eingegangen. Ziele sind die Förderung von Nachhaltigkeit, die Stärkung des sozialen Zusammenhalts und soziale Gerechtigkeit, Transparenz und Mitbestimmung, die Förderung der lokalen Wirtschaft und Bildung und Bewusstseinsbildung. Die Ziele und Maßnahmen werden regelmäßig überprüft und angepasst.
• Relevanz für das Centrum: Mehrere Maßnahmen betreffen das Centrum sowie das Vorgehen bei der Umsetzung von Vorhaben und werden in den jeweiligen Handlungsfeldern aufgegriffen.
• Erstellung: 2022/23, PLANWERK Stadtentwicklung
• Aufgabenstellung: Entwicklung einer Strategie zur Aufwertung und Anpassung des Centrums an aktuelle Herausforderungen (Leerstände, Radverkehr, unzureichende Barrierefreiheit,...) unter Beteiligung der Bürger:innen
• Inhalt: Es wurde insbesondere der Öffentliche Raum im Kern des Centrums betrachet, und eine Parkraumerhebung durchgeführt. Eine starke Parkplatzreduktion zur Neugestaltung des Abschnitts wurde vorgeschlagen, welche zu Widerständen aus der Bürger:innenschaft und seitens der Gewerbetreibenden führte. In vier verschiedenen, miteinander verwobenen Ebenen wurden Maßnahmen für die Weiterentwicklung des Centrums vorgeschlagen: grün-blaue Infrastruktur, Nutzungen, Verkehr & Parken sowie Identitätsstiftung.
• Relevanz für das Centrum: Liefert eine Grundlage für Bestandsaufnahme und konkrete Umgestaltungsvorschläge für Teilbereiche des Centrums, welche jedoch wenig Zustimmung fanden; aus der Machbarkeitsanalyse wurde der Bedarf für ein ISEK abgeleitet.
Entwicklungen der letzten Jahre
Seit dem Spatenstich des Centrums 1973 hat sich dieses stetig weiterentwickelt. In den letzten Jahren wurden zusätzliche Infrastrukturen geschaffen und Wohnentwicklungen zentrumsnah vorangetrieben.
y 2010: Nahversorgerzentrum
Im Jahr 2010 wurde auf den ehemaligen Flächen des Sportvereins ein Lebensmittelhändler errichtet, worauf weitere Geschäftsflächen in Gestalt eines Fachmarktzentrums folgten. Diese Entwicklung stellte mit den großteils eingeschossigen Bauten und großflächigen Stellplätzen einen deutlichen Bruch mit der dichten urbanen Struktur des Centrums dar.
y 2016: Eröffnung neue Sporthalle im Centrum
y 2016/2017: Wohnbebauung am Roggenweg Im Bereich südlich des Roggenwegs wurden sowohl Mehrfamilienhäuser als auch Einfamilienhäuser geschaffen. Die Parallelentwicklung dieser unterschiedlichen Wohnformen wirkt großteils inkohärent und wirft Fragen zur strategischen Planung für den zentrumsnahen Bereich auf.
y 2016-2020: Entwicklungen Brunnenweg Im Norden entstanden eingeschossige Sondergebäude (Arztpraxis, Ergotherapie, IntensivpflegeWohngruppe) sowie angrenzend einige Mehrfamilienhäuser. Das Potenzial für eine einheitlich mehrgeschossige, effiziente Bebauung wurde teilweise nicht genutzt.
y 2019: Gewerbepark im Norden
Auf dem ehemaligen Kago-Areal an der PyrbaumerStraße entstand 2019 ein Gewerbepark mit einem Vollsortimenter, Bäckerei, Drogerie und einem weiteren Betrieb. Dieses ergänzt das Zentrum funktionell, verlagert jedoch Einkaufsmöglichkeiten in die Randlage und birgt somit bei weiteren Entwicklungen die Gefahr das Centrum zu schwächen.
y 2020: Eröffnung Kindergarten Himmelszelt
Mit dem Kindergarten Himmelszelt wurde 2020 die Betreuungsinfrastruktur der Gemeinde ausgebaut.
y 2024: Eröffnung „das Kästner“
Im Jahr 2024 wurd das ehemalige Hausmeistergebäude der Erich-Kästner-Grundschule zu einem Bürgertreff und Veranstaltungsort umgebaut.


Nahversorgerzentrum

Aktuelle Entwicklungen
Aufgrund des hohen Siedlungsdrucks durch die steigenden Baulandpreise in der Metropolregion gibt es eine dynamische Entwicklung von Wohnbauflächen in Postbauer-Heng und die Gemeinde wächst insbesondere durch Zuzug. Um die Entwicklung weiterer Siedlungsflächen in Postbauer-Heng strategisch anzugehen, wurde 2019 eine Entwicklungsstudie zur zukunftsorientierten städtebaulichen Entwicklung am Siedlungsschwerpunkt Postbauer-Heng umgesetzt. In der Studie wurden mehrere Schwerpunktgebiete für die zukünftige städtebauliche Entwicklung PostbauerHengs identifiziert, aus welchen sich auch wesentliche Aussagen für das Centrum ableiten lassen:
y Gewerbegebiet an der B8
Das Gebiet ist aufgrund der verkehrlichen Anbindung und der Abgeschirmtheit von Wohnbereichen gut für Gewerbe geeignet. Hier sollen sich auch weiterhin Gewerbeansiedlungen konzentrieren. Gewerbe kann im Centrum ausgeschlossen werden, es würde dort auch nicht zum Nutzungsmix passen.
y Mischgebiet Postbauer-Heng Nord
Der Flächennutzungsplan von 1995, zuletzt aktualisiert 2007, sieht in diesem Bereich eine Mischbebauung mit Schwerpunkt auf Dienstleistungen vor. Laut Bebauungsplan sind hier Gewerbe-, Geschäfts- und Büroräume, Hotels sowie Betriebswohnungen vorgesehen, reine Wohnnutzungen hingegen ausgeschlossen. Diese Entwicklung steht in starker Konkurrenz zu den Nutzungen im Centrum und könnte negative Auswirkungen auf sie haben. Um dies zu verhindern, sieht der Gemeinderat vor, die Entwicklung in diesem Bereich nicht weiter zu verfolgen.
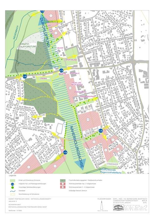
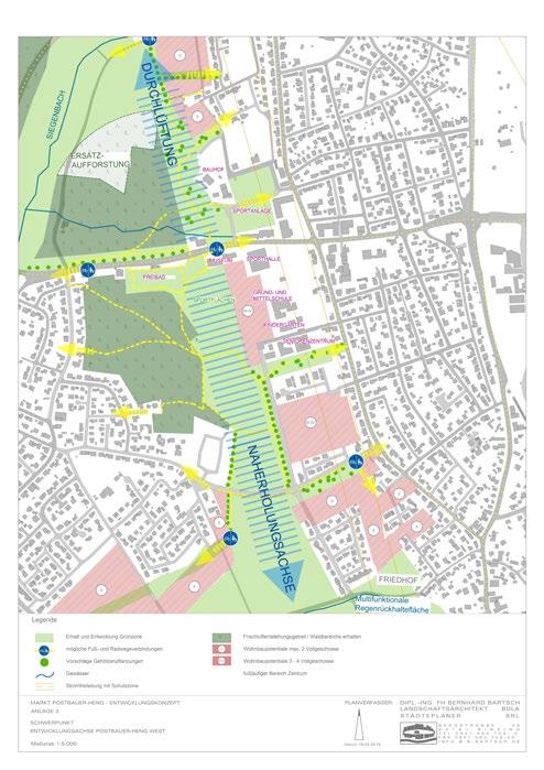
y Entwicklungsachse Postbauer-Heng West
Die Studie aus dem Jahr 2019 konzentriert sich auf den westlichen Siedlungsrand von Postbauer-Heng, der sich in unmittelbarer Nähe zum Centrum befindet. Dieser Bereich ist als künftiger Schwerpunkt für die (wohn)bauliche Entwicklung von PostbauerHeng vorgesehen. Vor dem Hintergrund der bereits bestehenden großvolumigen Baukörper im Centrum wird auch im zentrumsnahen Bereich eine verdichtete Bebauung mit drei bis vier Vollgeschossen angestrebt, während in den weiter außenliegenden Arealen eine geringere Bebauungsdichte geplant ist. Die Studie betont die Notwendigkeit, die Übergänge zwischen Bestandsgebäuden und Neubauten sorg-
fältig zu gestalten, um eine harmonische Integration der neuen Bebauung in das bestehende Umfeld zu gewährleisten. Darüber hinaus wird empfohlen, neben der Wohnnutzung auch andere potenzielle Nutzungen im Bereich des Zentrumsauslaufs zu prüfen. Ein weiteres zentrales Anliegen der Studie ist die Erhaltung der bestehenden Grün- und Landwirtschaftsflächen zwischen Postbauer-Heng und Kemnath. Diese Flächen sollen in einer Breite von mindestens 50 bis 100 Metern als Naherholungsund Durchlüftungsachse von Bebauung freigehalten werden (siehe Karte).
Es erscheint sinnvoll, die Entwicklung auf den zentralen Bereich zu konzentrieren, da dieser bereits über die notwendige Infrastruktur verfügt, die Nutzung dieser stärkt und eine effiziente Flächennutzung ermöglicht. In der Vergangenheit ist es jedoch nur vereinzelt gelungen, neue Strukturen erfolgreich in den Bestand zu integrieren, und auch die angestrebte Verdichtung im Zentrum wurde nicht immer konsequent umgesetzt (z. B. Roggenweg, Brunnenweg).
Trotz der Empfehlung der Studie, die Grünachse zwischen Postbauer-Heng und Kemnath freizuhalten, entschied sich die Gemeinde, das Grundstück „Am Schauerholz“ für den Bau von betreubarem Wohnen freizugeben. Diese Entscheidung erscheint in Anbetracht der unmittelbaren Nähe zum bestehenden Seniorenheim sinnvoll. Bei der Planung der Bebauung wurde besonderes Augenmerk auf die Ausrichtung der Gebäude gelegt, um die Funktion der Grünachse als Frischluftschneise zu erhalten. Auf dem Grundstück entstehen vier Wohngebäude mit betreutem und barrierefreiem Wohnen.
Wohnbaufläche
Wohnbaufläche
Sondernutzung
Sondernutzung
Gemischte Nutzung
Gemischte Nutzung
Industrie / Gewerbe
Industrie / Gewerbe
Sport / Freizeit / Erholung
Sport / Freizeit / Erholung
Wald und Gehölz
Wald und Gehölz
Landwirtschaftliche Flächen
Landwirtschaftliche Flächen
vegetationslose Fläche / Unland
vegetationslose Fläche / Unland
Platzflächen
Platzflächen
Friedhof
Friedhof
Gewässer
Gewässer
Verkehr Straßen
Verkehrsstraßen
Verkehr Wege Wege
Flächen in Gemeindehand
Flächen in Gemeindeeigentum
Abb.24 Flächennutzung im Centrum
Die Auswertung der tatsächlichen Flächennutzung gemäß ALKIS verdeutlicht die noch vorhandene Grünzäsur zwischen den Ortsteilen von Postbauer-Heng und Kemnath, die durch die Centrumsstraße verbunden sind. In einigen Bereichen wurde dieser Grünzug teilweise durch neue Bebauungsstrukturen aufgelöst.
M ischgeb iet P B H -N o rd w ird aufgrund fehlender Entw icklungsperspektiven aus der Widm ung genom m en
B etreutes und b arrierefreies Wo hnen im B au
Flächen mit gültigem B-Plan
Flächen mit gültigem B-Plan
freizuhaltende Freiluftschneise aus Entwicklungsstudie 2019
freizuhaltende Frischluftschneise aus Entwicklungsstudie 2019
Wald und Gehölzflächen
Wald und Gehölzflächen
Flachlandbiotopkartierung
Flachlandbiotopkartierung
Landschaftsschutzgebiet
Landschaftsschutzgebiet
Geplante Flächenausweisungen lt. FNP
Geplante Flächenausweisungen FNP
Gemeinbedarf
Allgemeines Wohngebiet
Allgemeines Wohngebiet
Mischgebiet
Mischgebiet
Gemeinbedarf Sondernutzung
Gewerbe
Gewerbe
Öffentliche Grünflächen Sondernutzung
Öffentliche Grünflächen
Abb.25 Aktuelle und geplante Entwicklungen Der aktuelle Flächennutzungsplan der Gemeinde, der bereits über 20 Jahre alt ist, weist eine Reihe geplanter Flächenwidmungen aus, von denen einige bereits umgesetzt wurden, während andere nicht weiterverfolgt werden. Ein Großteil der Flächen im Ort ist mit Bebauungsplänen belegt - jedoch nicht der Kernbereich des Centrums, welcher als Mischgebiet im FNP ausgewiesen ist.
2.2.2 Städtebauliche Struktur und Charakteristika
Abseits der historischen Ortskerne ist die Gemeinde Postbauer-Heng überwiegend durch eine kleinteilige Einfamilienhausbebauung geprägt, nur vereinzelt finden sich Mehrfamilienhäuser. Das Centrum hebt sich hiervon deutlich ab – sowohl hinsichtlich seiner baulichen Dichte und Höhenentwicklung als auch durch größere Baukörper. Gleichzeitig besitzt es unterschiedliche Teilbereiche mit eigenen Charakteristika und Funktionen, sodass das Centrum nicht durchgängig als einheitliches Ensemble wahrgenommen wird.
Den Kern des Centrums bildet eine dichte Mischnutzung, in der auch der öffentliche Raum mit Pflasterungen und Aufenthaltsbereichen entsprechend gestaltet ist. Ergänzend finden sich hier zentrale Sondergebäude wie Kirchen und Kindergärten, die das lebendige
Ortsbild prägen. Im direkten Anschluss an diesen Kernbereich sind in den vergangenen Jahrzehnten weitere Teilbereiche entstanden, die vielfältige Funktionen erfüllen und sich in ihrer gestalterischen Ausprägung teils deutlich voneinander unterscheiden.
Zwischen den einzelnen Teilbereichen treten häufig städtebauliche Brüche auf, welche die Lesbarkeit des Centrums als ein zusammenhängendes Ganzes erschweren. In den folgenden Abschnitten werden diese unterschiedlichen Bereiche des Centrums vorgestellt und ihre jeweilige Prägung sowie Besonderheiten erläutert.
Einfamilienhausbebauung
Kirche & Kita undefiniert
Senior:innenwohnen
Bildungscampus
Kernbereich Centrum
Einzelhandelszentrum
Kirche & Bücherei
Abb.26 Städtebauliche Bereiche im Centrum

Sondergebäudeeingeschossig
Mehrfamilienhausbebauung
Einfamilienhausbebauung
Der zentrale Bereich des Centrums zeichnet sich durch eine hohe bauliche Dichte, aktive Erdgeschosszonen und eine starke Mischnutzung aus. Ein Großteil des Kernbereichs wurde in einem zusammenhängenden Konzept geplant, was sich in der relativ einheitlichen Struktur und einer ausgeprägten Ensemblewirkung widerspiegelt. Die Gebäude weisen in der Regel drei bis vier Geschosse (inklusive Dachgeschoss) auf und sind mit Giebeldächern versehen. Dadurch entsteht sowohl ein harmonisches Gesamtbild als auch eine klare Wiedererkennbarkeit.
Ein wesentlicher Faktor, der diesen Bereich so attraktiv macht, ist die Orientierung am menschlichen Maßstab. Bis auf das Geschäftsgebäude „Centrum 12“ sind die Baukörper überwiegend kleinteilig und die Fassadengestaltung präsentiert sich weitgehend ansprechend und abwechslungsreich. Die Plätze und Platzstrukturen werden durch die umliegende Bebauung räumlich klar gefasst, wobei nur vereinzelt „Rückseiten“ an Durchwegungen in Erscheinung treten.
Im unmittelbaren Kernbereich an der Centrumsstraße und rund um den Marktplatz ist das Centrum deutlich als solches erkennbar. In Richtung Dürerstraße schwächt sich dieser Zentrumscharakter jedoch ab, da manche Gebäude ihre weniger ansprechende Rückseite nach außen kehren. Zwar folgen dort mit der evangelischen Kirche und der Bücherei noch Sondernutzungen, doch unmittelbar dahinter beginnt bereits Einfamilienhausbebauung, sodass das städtische Erscheinungsbild rasch verläuft.
Auch in Richtung Württemberger Straße wird das Centrum zunehmend undefiniert. Hier befindet sich am Rand des Kernbereichs ein großer Parkplatz, die ehemalige Post (inzwischen leerstehend und in schlechtem baulichen Zustand) sowie ein weiteres eingeschossiges Gewerbegebäude.



Erweiterter Kernbereich
Unmittelbar an den Kernbereich des Centrums angeschlossen und Teil des ursprünglichen Masterplans ist die katholische Kirche St. Elisabeth. Dieses Solitärgebäude weist eine moderne Gestaltung auf und ist von großzügigen Freiflächen umgeben. Auf einem Teil dieser Flächen wurde der Kindergarten „Unterm Himmelszelt“ errichtet. Mit seiner runden Form und der prägnanten „Zelt“-Überdachung stellt er eine architektonische Besonderheit im Centrum dar und fügt sich gleichzeitig gut ins Ensemble ein. Da sich die Pflasterung aus dem Zentrum bis in diesen Abschnitt fortsetzt, bleibt die städtebauliche Verbindung zum Centrum weiterhin gut ablesbar.
Ebenfalls an den Kernbereich angrenzend befinden sich die evangelische Kirche sowie die Bücherei. Diese beiden Einrichtungen liegen jedoch in der „zweiten Reihe“, die unmittelbar in Einfamilienhausbebauung übergeht, sodass der zentrale Charakter hier weniger stark wahrnehmbar ist. Nichtsdestotrotz stellt gerade die katholische Kirche mit ihrem markanten Baustil ein raumprägendes Gebäude dar, das zum charakteristischen Erscheinungsbild des erweiterten Centrums beiträgt.


Abb.31 Außergewöhnliche prägende Gebäudestrukturen - Kindergarten Himmelszelt

Südlich der Centrumsstraße
Im Westen des Zentrums folgt ein schmaler Streifen mit Einfamilienhäusern, der einen deutlichen städtebaulichen Kontrast zum dichten und multifunktionalen Kern darstellt. Diese Wohnbebauung wirkt regelrecht eingezwängt zwischen dem lebendigen Centrum und dem Bildungscampus. Hier gibt es auch noch unbebaute Grundstücke, die aufgrund ihrer Nähe zu Schule und Zentrum ein interessantes Potenzial für die Gemeinde darstellen könnten.
Eine weitere Zäsur stellt die in diesem Bereich verlaufende Hochspannungsleitung dar, unter der ein Grünstreifen freigehalten werden musste. Direkt daran schließen die öffentlichen Einrichtungen an: Mittelschule, Kindergarten, Sporthalle und Bürgerhaus. Die in Grünflächen eingebetteten Solitärbauten bilden eine „Bildungs- und Begegnungslandschaft“, der direkte Bezug zum dicht bebauten Zentrum wird jedoch durch die dazwischenliegende Einfamilienhausbebauung unterbrochen.
Nördlich dieses Areals konzentrieren sich Sonderwohngebäude, welche vor allem ältere Personen in den Fokus stellen: Neben dem bestehenden Seniorenheim entstehen derzeit Angebote für betreutes und barrierefreies Wohnen und die neue Pflegeform „Betreutes Wohnen plus“ mit 107 Pflegeappartments. So können diese Wohnformen kompakt an einem Ort gebündelt und Synergien genutzt werden.

Abb.35 Visualisierung Neubau Betreutes und Barrierefreies Wohnen

Höhensprung und städtebaulicher Bruch zwischen Kernbereich und Einfamilienhäusern

Abb.34 Städtebauliche Zäsur zwischen Centrum und Bildungscampus

Abb.36 Qualitätsvoll gestaltete Turnhalle am Bildungscampus
Nördlich der Centrumsstraße
Nördlich der Centrumsstraße erstreckt sich ein Fachmarktzentrum mit großen Parkplatzflächen und überwiegend eingeschossigen Bauten. Dieser Bereich steht in deutlichem Kontrast zum dicht bebauten, menschlich dimensionierten Centrum. Die großvolumigen Gebäude sind klar auf den Autoverkehr ausgerichtet und könnten genauso gut an einem Ortsrand oder in einem Gewerbegebiet stehen. Die Gestaltung des Raumes besitzt nur geringe gestalterische Qualitäten und ist nicht auf Aufenthalt und angenehmes Verweilen ausgerichtet. Nördlich des Gewerbeparks sind weitere Sondernutzungen mit Schwerpunkt auf Gesundheitsdienstleistungen zu finden, ebenfalls eingeschossig und städtebaulich wenig vernetzt. Eine mögliche Synergie mit dem Zentrum wird dadurch nicht ausgeschöpft. Lediglich ein einzelnes Gebäude mit aktiver Erdgeschosszone setzt hier einen positiven Akzent und führt den Charakter des Centrums zu einem gewissen Grade fort.
Der Großteil der Gebäude im Centrum befindet sich in Privateigentum. Im zentralen Bereich ist insbesondere eine Eigentümergesellschaft hervorzuheben, die mehrere Grundstücke und Gebäude vereint. Eine aktive Mitwirkung dieses Eigentümers am bisherigen Entwicklungsprozess hat bislang nicht stattgefunden; derzeit ist lediglich ein geringes Interesse an den laufenden Planungen erkennbar.



Der Parkplatz dominiert das Fachmarktzentrum

Abb.40 Eingeschossiges Gebäude neben mehrgeschossigem Gebäude mit aktivem Erdgeschoss
2.2.4 Städtebauliche Defizite und Potenziale
Städtebauliche Defizite
y Brüche zwischen den Teilbereichen
Unterschiedliche Funktionszonen grenzen oft unmittelbar aneinander, ohne dass ein durchgehendes gestalterisches Konzept den Übergang unterstützt. Insbesondere dort, wo die Bebauung „Rückseiten“ hin zu öffentlichen Räumen aufweist, entstehen wenig attraktive Bereiche.
y Inkonsistente Bebauung
Einzelne Baukörper (z. B. eingeschossige Gewerbebauten, Einfamilienhäuser im dichten Bereich) wirken voneinander losgelöst und setzen den städtebaulichen Zusammenhang aus. Dadurch wird der Zentrumscharakter abschnittsweise unterbrochen.
y Zentrale Leerstände
Leerstehende oder minder genutzte Gebäude (z. B. die ehemalige Post) entwerten das Erscheinungsbild und verringern die Attraktivität des Centrums.
y Fehlende Barrierefreiheit
Einige ältere Gebäude und öffentliche Räume sind nur teilweise oder begrenzt barrierefrei erschlossen, was die Nutzung für Menschen mit körperlichen Einschränkungen erschwert oder verhindert.
y Heterogene Gestaltungsqualität
Teils bestehen deutliche Unterschiede in Materialität, Baustil und Fassadengestaltung. Ein „wilder Stilmix“ ohne verbindliche Vorgaben beeinträchtig die Ensemblewirkung und das Ortsbild stark.
Städtebauliche Potenziale
y Nachverdichtungspotenzial im Kernbereich
Im Centrum gibt es insbesondere im Bereich der ehemaligen Post großes Nachverdichtungspotenzial, hier ist auf eine entsprechende qualitätsvolle Gestaltung zu achten, um das Erscheinungsbild des Centrums abzurunden.

Beispiel für die „Rückseite“ des Centrums


Abb.43 Nachverdichtungspotenzial - ehemaliges Post-Gebäude mit anschließendem Parkplatz
2.3.1 Nutzungsstrukturen und funktionale Bereiche
Das Centrum von Postbauer-Heng ist geprägt durch drei wesentliche Bereiche: Freizeitflächen im Grünen, Bildung und Betreuung sowie ein multifunktionales Handels- und Dienstleistungszentrum - die Mischung im Kern. Diese drei Elemente bilden gemeinsam ein eng vernetztes und gut zugängliches Gesamtgefüge. Dank ihrer räumlichen Nähe und einer effizienten Verknüpfung profitieren sie gegenseitig voneinander.
Die Freizeit- und Grünbereiche schaffen attraktive Aufenthaltsräume, die den anderen Nutzungen eine hohe Aufenthaltsqualität verleihen und zugleich als Erholungsorte in direkter Wohnortnähe dienen. Einrichtungen für Bildung und Betreuung ergänzen das Angebot durch ihre Anziehungskraft für Familien und junge Menschen, was wiederum das Handels- und Dienstleistungszentrum belebt. Letzteres bietet mit ei-
nem breiten Mix an Geschäften und Dienstleistungen sowohl für die ansässige Bevölkerung als auch für Besucher:innen von außerhalb einen zentralen Anlaufpunkt. Dieses funktionale Zusammenspiel stärkt nicht nur die Identität des Centrums, sondern trägt auch zur Attraktivität und Nachhaltigkeit der Gesamtentwicklung bei.
Gleichzeitig bietet das gesamte Centrum ein vielfältiges Wohnangebot, das unterschiedliche Bedürfnisse abdeckt und eine Alternative zum klassischen Ein- und Zweifamilienhaus darstellt, welches in den übrigen Teilen von Postbauer-Heng dominiert. Dazu gehören kleinere Mietwohnungen und ein Pflegeheim. Ergänzend dazu entstehen derzeit drei Geäbude mit barrierefreien und generationengerechten Wohnformen und betreute Wohnangebote, die ein selbstbestimmtes Leben in jeder Lebensphase ermöglichen.


Grüne

Wohnen

Wohnen




öffentliche Einrichtungen
öffentliche Einrichtungen
Kirche
Kirche
Handel
Handel
Dienstleistungen
Dienstleistungen
Gesundheit
Gesundheit
Bildung
Sport und Freizeit
Betreuung
Bildung
Betreuung
Sport Freizeit
Gastronomie
Gastronomie
Übernachtung
Übernachtung
Abb.45 Nutzungen und Funktionen im Centrum, o.M. Im Centrum von Postbauer-Heng treffen verschiedene Nutzungen auf kleinstem Raum aufeinander. Diese Vielfalt belebt das Centrum zu unterschiedlichen Tageszeiten und ist ein wichtiger Standortfaktor für die Mitte von Postbauer-Heng

2.3.2 Handels-, Dienstleistungs- und Gastronomiebetriebe
Die Einzelhandelsstruktur im Zentrum von PostbauerHeng ist geprägt durch eine Mischung aus kleineren, lokal betriebenen Geschäften, grundlegenden Versorgungseinrichtungen und wenigen spezialisierten Angeboten.
Beschreibung der wesentlichen Merkmale:
Dominanz der Nahversorgung
Im Zentrum von Postbauer-Heng stehen Angebote der Nahversorgung im Vordergrund.
Dazu gehören insbesondere:
• Lebensmittelmärkte: Bäckerei, Metzgerei sowie ein Discounter decken den täglichen Bedarf der lokalen Bevölkerung, werden aber auch von Menschen auf der Durchfahrt genutzt.
• Drogerie- und Gesundheitsprodukte: Apotheke und kleinere Drogerieangebote sind vorhanden.
Lokale Fachgeschäfte
Die Einzelhandelsstruktur umfasst eine begrenzte Anzahl an Fachgeschäften, die häufig von örtlichen Familien geführt werden. Beispiele sind:
• Geschäfte für Bekleidung
• Blumenladen
• Geschäft für Geschenkartikel
• Geschäft für Schreibwaren
Dienstleistungen
Im Centrum gibt es zudem verschiedene Dienstleistungsangebote. Vor allem im Bereich des Gesundheitswesens besteht ein breites Angebotsspektrum (verschiedene Ärzt:innen und Zahnärzt:innen, Optiker:in, Physiotherapie...)
Gastronomie und ergänzende Dienstleistungen Neben dem klassischen Einzelhandel tragen gastronomische Betriebe (Pizzeria, Eisdiele, Bäckereicafé, etc.) zur Attraktivität des Zentrums bei.
Hauptanziehungspunkte im Einzelhandel sind laut Bürgerschaft die Bäckerei Feihl und die Metzgerei Nießlbeck. Durch ihre zentrale Lage an der Centrumsstraße spielen sie auch eine bedeutende Rolle für den Liefer- und Besuchsverkehr, vorallem hinsichtlich zukünftiger Planungen. Handwerker:innen nutzen die
Geschäfte beispielsweise für einen kurzen Stopp, um ihre Brotzeit zu holen oder das Mittagsangebot zu nutzen.
Zusätzlich zu den Angeboten des Einzelhandels findet jeden Freitagvormittag der Bauernmarkt auf dem Marktplatz im Centrum statt. Nach Aussagen der Bürgerschaft ist dies die Zeit, in der das Centrum am lebendigsten wirkt. Der Bauernmarkt wird nicht nur als ergänzende Einkaufsmöglichkeit geschätzt, sondern auch als wichtiger sozialer Treffpunkt und kulturelles Gut wahrgenommen. Er trägt maßgeblich zur Belebung des Centrums bei und stärkt das Gemeinschaftsgefühl in der Bürgerschaft.
Die Bedeutung des Centrums für PostbauerHeng
Das Centrum spielt eine zentrale Rolle in der Versorgung der Bevölkerung mit Gütern des täglichen Bedarfs, da es diese Angebote räumlich bündelt. Südlich des Centrums gibt es nur noch vereinzelt Geschäfte, wodurch es eine wichtige Versorgungsfunktion für den gesamten Ort Postbauer-Heng übernimmt. Ein weiterer Einzelhandelsstandort befindet sich in Postbauer-Heng Nord an der Pyrbaumer Straße. Dort ergänzen Filialen von Rossmann, REWE und Norma die Grundversorgung im Ort, insbesondere im Bereich Lebensmittel und Drogerieartikel, und stellen eine sinnvolle Erweiterung des Angebots im Centrum dar. Die ursprünglich geplante Entwicklung angrenzender Flächen an der Pyrbaumer Straße zu einem Mischgebiet wird von der Gemeinde nicht weiterverfolgt. Die dafür vorgesehene Widmung für Handel, Wohnen und Dienstleistungen wird aus dem Flächennutzungsplan gestrichen.
Neben dem Standort an der Pyrbaumer-Straße befindet sich auch der Espenpark in Oberferrieden in direkter Nachbarschaft zum Centrum. Der Espenpark bietet ein typisches Einkaufserlebnis im Gewerbegebiet mit großflächigen Parkplätzen und einer günstigen Lage an der B8, die ihn besonders für Kund:innen mit PKW attraktiv macht. Allerdings fehlen dort Aufenthaltsqualitäten wie Sitzgelegenheiten, Grünflächen oder gastronomische Angebote, die einen längeren Verbleib fördern würden.
Unterschiede zum Centrum von Postbauer-Heng:
Lage und Erreichbarkeit
Der Espenpark ist vor allem auf den motorisierten Ver-
kehr ausgelegt und profitiert von seiner Anbindung an die B8. Das Centrum hingegen überzeugt zusätzlich durch seine zentrale, fußläufige Lage im Ortskern und die stärkere Nahversorgungsfunktion.
Aufenthaltsqualität und Ambiente
Während das Centrum durch gestaltete Plätze, Begrünung und gastronomische Angebote einladend wirkt und zum Verweilen einlädt, konzentriert sich der Espenpark auf Funktionalität ohne nennenswerte Aufenthaltsbereiche.
Sortimentsstruktur
Der Espenpark bietet ein breites Angebot mit Schwerpunkt auf großflächigen Einzelhandel (z. B. Lebensmittel, Drogerie, Möbel). Das Centrum dagegen zeichnet sich durch kleinere, spezialisierte Fachgeschäfte und Dienstleistungen aus, die eine individuelle Betreuung und ein persönliches Einkaufserlebnis ermöglichen.

Abb.46 Espenpark Oberferrieden
Der Espenpark in Oberferrieden unterscheidet sich vom Centrum vor allem durch die fehlende Nutzungsvielfalt, sowie die mangelhafte Aufenthaltsqualität.
Abb.47 Geplante Flächenwidmung Mischgebiet Im gültigen Flächennutzungsplan der Gemeinde ist die Fläche westlich des Einzelhandelsstandorts an der Pyrbaumer Straße als Mischgebiet ausgewiesen, soll jedoch aus der Planung herausgenommen werden.

Zielgruppen und Einkaufszweck
Der Espenpark spricht vor allem Kund:innen an, die schnelle und praktische Einkäufe bevorzugen und überwiegend das Auto nutzen. Das Centrum hingegen richtet sich an flanierende Besucher:innen, die Einkäufe mit sozialen Aktivitäten, Behördengängen, Arztbesuchen oder Freizeitangeboten verbinden möchten.
Diese Unterschiede heben die jeweiligen Stärken und Zielgruppen der Standorte hervor und verdeutlichen, dass das Centrum von Postbauer-Heng durch seine zentrale Lage und Aufenthaltsqualität eine besondere Rolle in der Nahversorgung für Postbauer-Heng und die nähere Umgebung einnimmt.
Betrachtet man das Centrum von Postbauer-Heng als Handels- und Dienstleistungsstandort im weiteren regionalen Kontext, zeigt sich, dass in der näheren Umgebung weitere Zentren existieren, die teilweise
ähnliche Angebote bereitstellen und um Kund:innen aus dem Einzugsgebiet konkurrieren.
Das nächstgrößere Zentrum ist die Stadt Neumarkt, etwa 6 km entfernt. Mit ihrem umfassenden Handelsund Dienstleistungsangebot deckt sie nahezu alle Bedürfnisse ab und übernimmt eine wichtige überregionale Funktion. Allerdings ist das Angebot in Neumarkt räumlich stark verteilt, was längere Wege innerhalb der Stadt erfordert. Für gezielte und schnelle Einkäufe bietet das kompakte Centrum von Postbauer-Heng daher oft eine attraktive Alternative.
In Richtung Norden und Westen liegen die Märkte Allersberg und Burgthann. Diese verfügen über ein vergleichbares Angebot, das sich jedoch überwiegend auf Gewerbegebiete am Ortsrand verteilt. Im Gegensatz dazu bündelt das Centrum von Postbauer-Heng seine Funktionen im Ortskern, wodurch eine bessere fußläufige Erreichbarkeit und eine engere Verzahnung mit anderen Bereichen wie Verwaltung und Freizeit möglich ist.


Allersberg

Espenpark Oberferrieden
Abb.48 Zentrale Funktionen in der Umgebung Neben dem Centrum von Postbauer-Heng gibt es in der näheren Umgebung zahlreiche weitere kleine Zentren, welche die Nahversorung der Bevölkerung übernehmen - diese unterscheiden sich strukturell jedoch teilweise stark vom Centrum Postbauer-Heng.


2.3.3 Gemeinbedarfseinrichtungen und soziale Infrastruktur
Neben seiner Funktion als Einzelhandels- und Dienstleistungszentrum der Marktgemeinde PostbauerHeng verfügt das Centrum auch über eine vielfältige und gut ausgebaute Landschaft an Gemeinbedarfseinrichtungen und sozialer Infrastruktur. Diese Einrichtungen sind essenziell für die Daseinsvorsorge und tragen maßgeblich zur Attraktivität des Centrums bei.
Trotz der breiten Angebotsstruktur gibt es an der ein oder anderen Stelle Optimierungsbedarf – insbesondere in Bezug auf Barrierefreiheit, Aufenthaltsqualität und räumliche Kapazitäten. Während einige Einrichtungen bereits modernisiert wurden, entsprechen andere nicht mehr den heutigen Anforderungen oder sind städtebaulich ungünstig gelegen. Die Weiterentwicklung dieser Gemeinbedarfseinrichtungen ist daher eine zentrale Aufgabe, um das Centrum als lebenswerten, funktionalen und gut erreichbaren Mittelpunkt der Marktgemeinde weiter zu stärken.
Das Centrum von Postbauer-Heng verfügt über eine Vielzahl an Bildungs- und Betreuungseinrichtungen, die eine wohnortnahe Versorgung für Kinder und Jugendliche sicherstellen. Ein zentraler Bestandteil ist der Schulcampus mit der Erich-Kästner-Grund- und
Mittelschule sowie dem Kinderhort „Die Arche“. Direkt angrenzend befindet sich der Kindergarten St. Elisabeth, wodurch ein enger räumlicher Zusammenhang zwischen Schule und frühkindlicher Betreuung gegeben ist.
Neben diesen zentralen Einrichtungen gibt es weitere Betreuungsangebote, die über das Centrum verteilt sind. Der Waldkindergarten am Schauerholz bietet ein naturnahes Konzept, während die JohanniterKindertagesstätte „Löwenzahn“ hinter dem Naturbad und der Kindergarten „Unterm Himmelszelt“ neben der Kirche St. Elisabeth zusätzliche Betreuungskapazitäten schaffen. Ergänzend dazu existieren weitere Betreuungseinrichtungen in den anderen Ortsteilen von Postbauer-Heng.
Die Grundschule wird derzeit zweihäusig geführt: Die ersten und zweiten Klassen sind am alten Schulstandort in der Schulstraße untergebracht, während die älteren Jahrgänge den Schulcampus im Centrum zusammen mit den Mittelschüler:innen nutzen. Die Gemeinde wünscht sich, langfristig alle Grundschulklassen an einem zentralen Standort im Centrum zusammenzuführen, um die Abläufe zu optimieren und Synergien zwischen den Bildungseinrichtungen besser zu nutzen. Der zusätzliche Standort für die jüngeren Schüler:innen wird gleichzeitig durchaus positiv gesehen, da er einen übersichtlicheren und geschützteren Raum nur für jüngere Schulkinder darstellt.

Die Erich-Kästner-Mittelschule ist in ein größeres Netzwerk eingebunden: Die M-Klassen werden im Schulverbund mit der Mittelschule Burgthann im Wechsel organisiert. Zudem wurde das Ganztagsangebot in den letzten Jahren ausgebaut. An der Grundschule gibt es inzwischen vier gebundene Ganztagsklassen für die Jahrgangsstufen eins bis vier, während in der Mittelschule fünf gebundene Ganztagsklassen für die Jahrgangsstufen fünf bis neun eingerichtet wurden. Diese Erweiterung ermöglicht eine verlässliche Betreuung über die Mittagszeit hinaus und erleichtert vielen Familien die Vereinbarkeit von Beruf und Familie.
Die Konzentration dieser verschiedenen Bildungsund Betreuungseinrichtungen auf engem Raum stellt eine besondere Qualität des Centrums dar. Sie sorgt nicht nur für kurze Wege und eine gute Erreichbarkeit, sondern belebt das Gebiet auch zu unterschiedlichen Tageszeiten. Dieser Vorteil sollte erhalten und weiterentwickelt werden, um das Centrum als Bildungs- und Betreuungsstandort zukunftsfähig zu gestalten.
Soziale
Postbauer-Heng verfügt über ein gut ausgebautes soziales Netz, das sich auch räumlich im Centrum widerspiegelt. Der „Familienstützpunkt“ und „Familiengesundheit vor Ort“ befinden sich im Untergeschoss des Rathauses. Der Familienstützpunkt fungiert als An-
lauf-, Informations- und Kontaktstelle für verschiedene Anliegen von Familien. Hier werden offene Treffen, Bildungsangebote und Beratungstermine angeboten. „Familiengesundheit vor Ort“ bietet spezialisierte Beratungs- und Unterstützungsdienste für Menschen, die sich in psychisch belasteten Lebenssituationen befinden.
Die Nachbarschaftshilfe der Kirchen St. Elisabeth und Martin-Luther bietet flexible und kostenfreie Hilfe für alle Bürger:innen an. Diese umfasst unter anderem die Betreuung von Kranken und Kindern, die Begleitung zu Ärzten und Ämtern sowie Unterstützung in Notfällen im Haushalt. Zudem werden regelmäßig verschiedene Aktionen organisiert, wie das Café Miteinander und die Tafel „Verschenkten statt Vernichten“. Ein Sozialkaufhaus ist ebenfalls in Planung, für das jedoch noch keine passenden Räumlichkeiten gefunden werden konnten.
Die Belange der Jugendlichen werden durch Gemeindejugendpfleger:innen betreut, die sowohl mobil als Streetworker:innen tätig sind als auch im Jugendtreff Seven vor Ort arbeiten.
Das kulturelle Leben in der Marktgemeinde Postbauer-Heng spielt sich größtenteils abseits des Centrums ab. Eine in der Bürgerschaft beliebte Kultureinrichtung


war das K.I.S.H. (Kultur im Sportheim), das jedoch aufgrund des Eigenbedarfs des Sportvereins aus den Räumlichkeiten beim Henger SV weichen musste und in einer weiter entfernten Gemeinde fortgeführt wurde. Damit ging ein wichtiger Kulturort in PostbauerHeng verloren.
Trotzdem gibt es im Centrum einige wichtige Orte des kulturellen Lebens:
Marktbücherei in der Dürerstraße
Die Marktbücherei bietet eine breite Auswahl an Literatur für verschiedene Zielgruppen sowie zahlreiche Veranstaltungen zur Förderung der Lesekompetenz, insbesondere bei Kindern und Jugendlichen. Ein Beispiel ist der monatliche Leseabend, der großen Anklang findet. Allerdings sind die räumlichen Kapazitäten der Bücherei mittlerweile nicht mehr ausreichend. Die Kellerräume sind wenig einladend und zudem nicht barrierefrei zugänglich. Auch die städtebauliche Lage auf der Rückseite des Centrums in zweiter Reihe ist wenig attraktiv. Zudem fehlen Aufenthaltsbereiche im Freien, die den Ort einladender machen würden.
Bürgertreff „Das Kästner“
Das Bürgerhaus „Das Kästner“ befindet sich in den ehemaligen Wohnräumen des Schulhausmeisters und wurde speziell zur Förderung des Vereins- und Gemeinschaftslebens eingerichtet. Nach einer umfassenden Sanierung steht nun ein moderner, ca. 100 m² großer Veranstaltungsraum kostenlos für Vereine und Verbände zur Verfügung. Hier finden regelmäßig Ver-
anstaltungen wie das „Café Miteinander“ statt. Verbesserungspotenzial besteht insbesondere im Außenbereich des Kästner. Die ursprünglichen Außenanlagen mit der Zufahrt dominieren das Bild und bieten wenig Nutzungsmöglichkeiten und Aufenthaltsqualität. Eine Umgestaltung könnte den Außenraum attraktiver und einladender machen.
Sport- und Freizeitangebote Postbauer-Heng und insbesondere das Centrum bieten ein vielseitiges Sport- und Freizeitangebot, das maßgeblich vom Henger SV geprägt wird. Im Centrum stehen zahlreiche Indoor- und Outdoorsportstätten zur Verfügung:
Indoor-Sportstätten: HSV-Sporthalle, HSV-Studio, Erich-Kästner-Sporthalle, HSV-Gym, HSV-Kegelbahn, Kraftfitness-Räume sowie die HSV-Schießanlage.
Outdoor-Sportanlagen: Schulsportplatz, A-Platz, BPlatz und weitere Trainingsflächen.
Der Gebäudekomplex des Henger SV an der Centrumsstraße vereint nicht nur diverse Sporteinrichtungen, sondern beherbergt auch den Sportgasthof. Das Gebäude selbst ist ein verwinkelter und unübersichtlicher Bau, der von außen nicht sofort als Sportzentrum zu erkennen ist. Trotz der umfangreichen Sportangebote wirkt die Anlage eher funktional als einladend. Der angegliederte Sportgasthof bietet Platz für rund 230 Personen und verfügt über zwei Nebenzimmer (jeweils ca. 120 Plätze) für Veranstaltungen und Feiern sowie einen großzügigen Balkon im Außenbereich.
Mitten im Centrum steht die Halle für verschiedene Nutzungen zur Verfügung und ist gleichzeitig ein architektonisches Highlight.

Neben den klassischen Sportstätten gibt es weitere Freizeitangebote, die das Centrum bereichern, darunter das Naturbad, verschiedene Spiel- und Sportplätze zur öffentlichen Nutzung sowie Rad- und Wanderwege, die eine aktive Freizeitgestaltung für alle Altersgruppen ermöglichen.

Abb.52 Örtlichkeiten Henger SV
Sportangebote in Innenräumen finden vor allem im Gebäudekomplex des Henger SV sowie in der gegenüberliegenden ErichKästner-Sporthalle statt.
Das Zentrum von Postbauer-Heng zeichnet sich durch eine Vielzahl öffentlicher Grün- und Freiräume aus, die sich in unterschiedlicher Intensität über das gesamte Untersuchungsgebiet erstrecken. Auch hier lässt sich das Gebiet in drei Bereiche gliedern. Der Bereich rund um den baulich dichten, kommerziellen Kern des Centrums, der Bildungs- und Betreuungscampus und der Freizeitbereich, der sich mit dem Bildungscampus stark überlagert. Die einzelnen Nutzungsbereiche sind durch ein Netz an Spazierwegen miteinander verbunden. Hauptwegeverbindungen verlaufen jedoch großteils entlang der Centrumsstraße.
Die Grün- und Vegetationsstrukturen im Gebiet sind insgesamt gut ausgeprägt. Im dicht bebauten Bereich rund um den baulichen Kernbereich beschränken sich diese jedoch überwiegend auf punktuelle Begrünung durch Bäume und kleinere Vegetationsflächen. Hier dominiert eine hohe Flächenversiegelung, wodurch unversiegelte Oberflächen kaum vorhanden sind und die ökologische Funktion eingeschränkt ist.
Im Gegensatz dazu weisen die Bereiche um die Bil-
Diese Flächen zeichnen sich durch eine hohe Offenheit und Durchlässigkeit aus: Das Schulgelände ist nicht durch Zäune oder Barrieren von seiner Umgebung getrennt, wodurch ein fließender Übergang zwischen den Bildungsfreiräumen und den angrenzenden Freizeitflächen ermöglicht wird. Diese Struktur fördert nicht nur eine harmonische Verknüpfung der verschiedenen Grünflächen, sondern bietet auch großes Potential für die fußläufige Durchgängigkeit und die Aufenthaltsqualität im gesamten Gebiet.
Sport- und Freizeitangebote im Freien konzentrieren sich vor allem auf diesen westlichen Teil des Untersuchungsgebietes (Bildungs- und Freizeitbereich):
- mehrere Fußballfelder
- Basketballplatz
- Rodelhügel
- Minigolfanlage
- Mehrgenerationenspielplatz
- 2 Spielplätze (Naturbad und Bauhof)
Ganz im Westen des Untersuchungsgebietes, auf halber Strecke zwischen Postbauer-Heng und Kemnath, befindet sich das Naturbad, welches eingebettet ist in eine parkähnliche Landschaft, in der sich die Minigolf-



Abb.53 Vegetationsintensität im Centrum von Postbauer-Heng
Die Color-InfrarotLuftbildaufnahmen verdeutlichen die Abnahme der Vegetationsdichte vom Waldgebiet im Westen des Untersuchungsgebiets im Bereich des Naturbads hin zum baulichen Kern des Centrums. Dunkle Rottöne kennzeichnen Bereiche mit einem hohen Grad an Vegetationsstrukturen, während graue und grüne Flächen die versiegelten und bebauten Bereiche darstellen. Besonders im Bereich des Rathausplatzes sind Grünflächen kaum vorhanden, sodass die versiegelten Flächen das Bild dominieren. Lediglich vereinzelte Grüninseln und der vorhandene Baumbestand leisten einen Beitrag zur Durchgrünung des Gebiets.


Abb.54 Grün- und Freiräume M 1:5000 Das Centrum von Postbauer-Heng verfügt über großzügige Grün- und Freiräume im westlichen Teil. Im östlichen Teil hingegen dominieren urbane Platzsituationen und versiegelte Flächen.



Bereich Urbanes Centrum
Bereich Schulcampus
Bereich Freizeit & Sport
Freizeitanlagen / -flächen
Gewässerregulierung
Gewässer
Platzsituationen
stark versiegelte Bereiche
Landschaftsschutzgebiet
Flachlandbiotopkartierung
Wassersensible Bereiche
Fußwege
Fußwege / Pfade

anlage, der Mehrgenerationenparcours, Spielplatz und Basketballplatz befinden. Das Naturbad kann kostenfrei genutzt werden und wird durch einen Förderverein betrieben und in Stand gehalten. Eine Sanierung und Modernisierung des Bads ist nach dem Ende der Badesaison 2025 geplant. Dafür konnten EU-Fördermittel generiert werden.
Hier schließt sich nördlich und südlich der Centrumsstraße ein kleines Waldgebiet an, das mit seinen Forst- und Spazierwegen als wohnortnahes Naherholungsgebiet dient. Gleichzeitig bildet dieses Waldstück eine natürliche Grünzäsur zwischen Postbauer-Heng und Kemnath. Laut der „Entwicklungsstudie zur zukunftsorientierten städtebaulichen Entwicklung am Siedlungsschwerpunkt Postbauer-Heng“ aus dem Jahr 2019 übernimmt diese Waldfläche nicht nur eine wichtige Funktion für die Naherholung, sondern besitzt zudem eine erhöhte Bedeutung für den Frischluftaustausch der angrenzenden Siedlungsflächen. „Gleiches gilt für die Sportflächen sowie für die landwirtschaftlichen Nutzflächen zwischen den beiden Orten. Die Topographie sorgt für einen Kaltluftfluss Richtung Süden und einen Luftaustausch am angrenzenden Siedlungsrand.“ (Bartsch, 2019)
Verschiedene Freiflächen im Centrum werden das ganze Jahr über für temporäre Nutzungen genutzt:
• Eislauffläche auf dem Basketballplatz zwischen Feuerwehrzentrum und Naturbad
• Weihnachtsmarkt entlang der Centrumsstraße am Rathaus
• Anlässlich des 50-jährigen Jubiläums von St. Elisabeth im Jahr 2025 ist neben zahlreichen weiteren Aktivitäten auch ein großes Gemeindefest im Juli geplant.
Abb.55 Bademöglichkeit direkt im Centrum
Das in eine weitläufige Parklandschaft mit vielfältigen Freizeitmöglichkeiten eingebettete Naturbad bietet den Bürgerinnen und Bürgern eine besondere Qualität in unmittelbarer Zentrumsnähe von Postbauer-Heng.
Abb.56 Aktivitäten rund ums Naturbad
Das Naturbad ist von vielfältigen Möglichkeiten zur aktiven Freizeitgestaltung an der frischen Luft umgeben. Dazu gehören ein Kinderspielplatz, ein Mehrgenerationenspielplatz, eine Minigolfanlage und weitere Angebote für verschiedene Altersgruppen




Abb.57 Ausstattungselemente und Gestaltung
Die Möblierung des öffentlichen Raums stammt größtenteils aus der Entstehungszeit des Centrums und wird den heutigen gestalterischen und funktionalen Anforderungen nur noch eingeschränkt gerecht. Hinzu kommt ein uneinheitliches Erscheinungsbild, das durch einen unkoordinierten Mix aus Materialien, Beschilderungen und Ausstattungsgegenständen entsteht.

Abb.58 Fehlende Barrierefreiheit


Gebäudezugänge und öffentlicher Raum im Kerncentrum sind in vielen Bereichen nicht barrierefrei gestaltet und können von beeinträchtigten Menschen nur schwer genutzt werden.


Abb.59 Bildungscampus mit hohen Qualitäten im Außenraum
Der Bildungscampus zeichnet sich durch eine hohe Durchlässigkeit der Freianlagen aus, die auch außerhalb des Schulbetriebs zugänglich sind und mit den Freizeitangeboten im Centrum verknüpft sind. Großzügige Grünflächen schaffen eine einladende und vielseitig nutzbare Umgebung für Schüler:innen, Anwohner:innen und Besucher:innen.
Öffentliche
Die öffentlichen Freiräume im Kern des Centrums wirken durch die dichte Bebauung und den hohen Versiegelungsgrad sehr städtisch. Es gibt drei Plätze im klassischen Sinn: den Rathausplatz, den Deutschordensplatz und den Marktplatz. Diese Plätze werden unterschiedlich stark genutzt, sind in ihrer Ausgestaltung jedoch wenig ausdifferenziert.
Die verschiedenen öffentlichen Räume sind durch Wegeverbindungen und Passagen miteinander verbunden. So entstehen zusätzlich zu der Hauptwegeverbindung entlang der Centrumsstraße und der Nord-SüdVerbindung von der Dürerstraße zum Marktplatz zahlreiche Querverbindungen, welche jedoch nicht selten auf der Rückseite von Gebäuden enden. Gleichzeitig sind die Freiräume und öffentlichen Bereiche im Kern des Centrums größtenteils nicht barrierefrei gestaltet. Sowohl die Zugänge zu den Gebäuden, als auch die Gestaltung der Außenräume stellen für körperlich eingeschränkte Personengruppen große Hürden im Alltag dar.
Von der Bürgerschaft wurden fehlende Grünflächen, die fehlende Barrierefreiheit, sowie die in die Jahre gekommene Gestaltung der Freiräume beanstandet.

Abb.60 Öffentliche Räume im Kern des Centrum Die Freiräume im Herzen des Centrums vermitteln ein (klein-)städtisches Flair in der sonst eher ländlich geprägten Gemeinde Postbauer-Heng. Die dichte Bebauung und das verzweigte Wegenetz aus Passagen und Durchgängen sorgen für eine hohe Durchlässigkeit. Allerdings beeinträchtigen sowohl die in die Jahre gekommene Ausstattung als auch der hohe Versiegelungsgrad der Flächen die Aufenthaltsqualität erheblich.
aktive, belebte Fassade mit Außenwirkung Erdgeschossnutzung ohne Außenwirkung Leerstand rückwärtige, tote Fassaden
Abb.61 Fassaden und EG-Nutzungen beleben den öffentlichen Raum
Nur ein kleiner Teil der Erdgeschossnutzungen und Fassadengestaltungen im Kern des Centrums trägt zur Belebung des öffentlichen Raums bei - diese befinden sich vor allem entlang der Centrumsstraße. In vielen hinteren Bereichen dominieren rückseitige oder abweisende Fassaden und unattraktive Erdgeschossgestaltungen.

Grünflächen mit klar zugeordneter Funktion
Grünflächen mit klar zugeordneter Funktion
Grünflächen mir vorwiegend repräsentativem Charakter
ungenutzte (Brach-)Flächen
Grünflächen mit vorwiegend repräsentativem Charakter ungenutzte (Brach-)Flächen

Abb.66 Großzügige Platzsituationen, großteils nicht barrierefrei

Abb.62 Centrumsstraße mit breitem Querschnitt und hochwertigem Baumbestand

Abb.64 Großzügige Grünflächen rund um die Kirchen werden wenig genutzt
Platzflächen
Plätze
Außengastronomie
Außengastronomie
Straßenraum Centrumsstraße
Straßenraum Centrumsstraße
Verkehrsfläche Centrumsstraße
Verkehrsflächen Centrumsstraße
Parken, Zufahrt, Anlieferung
Parken, Zufahrt, Anlieferung
Aktive Erdgeschosszonen
Freischank- und Verkaufsflächen
Fußwegeverbindungen
Fußwegeverbindungen
Fußwegeverbindungen untergeordnet
untergeordnete Wegeverbindungen
Passagen durch Gebäude
Passagen durch Gebäude
Raumkanten Vegetation
Raumkanten Vegetation

Abb.65 Außenbereiche der Gastronomie beleben den öffentlichen Raum

Abb.63 zahlreiche Querverbindungen und Passagen durchziehen den baulichen Kern des Centrums
Das Centrum von Postbauer-Heng steht im Zuge des Klimawandels vor verschiedenen Herausforderungen. Insbesondere steigende Temperaturen, häufigere und intensivere Starkregenereignisse sowie längere Trockenperioden beeinflussen den öffentlichen Raum, die Infrastruktur und die Aufenthaltsqualität. Ein zentrales Problem, vor allem in den östlichen Bereichen des Centrums, ist der hohe Anteil vollversiegelter Flächen, die sowohl die Erwärmung des städtischen Raums als auch den Oberflächenabfluss bei Starkregen verstärken. Durch fehlende Versickerungsmöglichkeiten kann es insbesondere in tiefer liegenden Bereichen zu Wasseransammlungen und lokalen Überflutungen kommen. Die dichte Bebauung und der hohe Versiegelungsgrad im Centrum begünstigen den städtischen Hitzeinseleffekt, der sich insbesondere in den Sommermonaten negativ auf das Mikroklima auswirkt. Einen positiven Ausgleich schafft der hochwertige Baumbestand entlang der Centrumsstraße: Die Bäume spenden wertvollen Schatten und tragen zur Abkühlung des Straßenraums bei. Der Bestand besteht jedoch fast ausschließlich aus Platanen – und Baumpflanzungen in Monokulturen sind generell anfälliger für Schädlinge und Krankheiten.
Gleichzeitig wird bereits in die Erneuerung und Vergrößerung der Abwasserkanäle im Bereich der Centrumsstraße investiert. Der erste Teil vom Kreisverkehr bis zum Naturbad wurde bereits umgesetzt. Die Sanierung im Bereich des Rathauses steht in den nächsten Jahren an.
Im Bereich der Energieversorgung bestehen bereits nachhaltige Strukturen – insbesondere durch das kommunale Nahwärmenetz auf Basis von Biomasse. Im Centrum gewährleisten zwei Biomasseheiz(kraft) werke die Versorgung zahlreicher öffentlicher und privater Einrichtungen, darunter die Bücherei, Wohnungen, Ladengeschäfte, die Feuerwehr, die Grund- und Mittelschule, die Erich-Kästner-Halle, der Kindergarten, das Pflegeheim und das Betreute Wohnen. Der Anteil erneuerbarer Energien an der Stromversorgung ist hingegen noch ausbaufähig. Photovoltaikanlagen sind bislang lediglich auf der Erich-Kästner-Schule und dem Kindergarten St. Elisabeth installiert. Angesichts der Vielzahl öffentlicher Gebäude im Centrum bietet sich hier jedoch weiteres Potenzial, um den Ausbau einer klimafreundlichen und zukunftsfähigen Energieversorgung gezielt voranzutreiben.
Zusammenfassend zeigen sich im Centrum von Postbauer-Heng klimatische Herausforderungen insbesondere durch Hitzeentwicklung und Starkregenrisiken. Bestehende Infrastrukturen und bauliche Gegebenheiten begünstigen diese Effekte teilweise, vor allem in den östlichen, urbaneren Bereichen des Centrums. Eine genaue Betrachtung von Entsiegelungsmaßnahmen, Begrünung und nachhaltiger Energieversorgung könnte langfristig zur Klimawandelanpassung beitragen.




Abb.68 Überschwemmungsgefahren, Auszug Umweltatlas Bayern Im Bereich des Centrums besteht vor allem die Gefahr eines verstärkten Oberflächenabflusses bei Starkregenereignissen, der insbesondere auf stark versiegelten Flächen zu Sturzfluten führen kann.
Druckdatum: Februar 2025
Fachdaten: © Bayerisches Landesamt für Umwelt Hintergrundkarte: © Bayerische Vermessungsverwaltung; © Bundesamt für Kartographie und Geodäsie; © Bayerisches Landesamt für Umwelt; © GeoBasis-DE / BKG 2015 (Daten verändert); © EuroGeographics (EuroGlobalMap); © CORINE Land Cover (CLC2012); © Planet Observer
Abb.67 Bestehende Anlagen erneuerbarer Energien im Centrum, Auszug Energieatlas Bayern
Regenwasserversickerung und Wasserrückhalt
Die Versickerungseignung und das Wasserrückhaltevermögen von Böden hängen maßgeblich von ihrer Art und den physikalischen Eigenschaften ab. Auf Grundlage der Übersichtsbodenkarte 1:25.000 des Bayernatlas lassen sich im Bereich des Centrums verschiedene Bodenarten identifizieren, die im Folgenden hinsichtlich ihrer Wasserspeicherfähigkeit und Versickerungsfähigkeit eingeordnet werden. Diese Analyse bietet einen allgemeinen Überblick über die typischen Eigenschaften der Böden und ihr Verhalten bei Niederschlagsereignissen.
1f: Braunerde auf Sand Versickerungseignung: Hoch. Sandige Böden haben eine hohe Durchlässigkeit für Wasser, sodass Niederschläge schnell in den Boden eindringen können.
Wasserrückhaltevermögen: Mittel. Obwohl der Boden gut durchlässig ist, ist seine Fähigkeit, Wasser zu speichern, aufgrund der geringeren Speicherkapazität von Sanden moderat.
73b: Braunerde auf Kalkstein Versickerungseignung: Mittel bis hoch. Kalksteinböden haben oft eine mittlere Durchlässigkeit, abhängig von ihrer Textur (meist Sandstein- oder Lehmbestandteile), können aber bei guten Drainagebedingungen auch eine hohe Versickerung ermöglichen. Wasserrückhaltevermögen: Mittel. Braunerde auf Kalkstein hat eine mittlere Wasserspeicherkapazität,
da Kalksteinböden relativ gut durchlässig sind, jedoch auch über ausreichende Wasserspeicherfunktionen verfügen.
76a: Braunerde auf Schotter
Versickerungseignung: Sehr hoch. Schotterböden sind besonders gut durchlässig und lassen Wasser schnell versickern.
Wasserrückhaltevermögen: Gering bis mittel. Schotterböden sind weniger in der Lage, Wasser zu halten, da sie eine geringe Speicherkapazität besitzen, aber sie ermöglichen eine schnelle Versickerung.
355a: Gley auf Ton
Versickerungseignung: Sehr gering. Tonböden sind für ihre geringe Durchlässigkeit bekannt, weshalb Wasser nur langsam versickert und oft Staunässe entstehen kann.
Wasserrückhaltevermögen: Sehr hoch. Tonböden speichern Wasser aufgrund ihrer feineren Partikelstruktur sehr gut, was zu einer hohen Wasserspeicherfähigkeit führt.
359b: Gley auf Sand
Versickerungseignung: Mittel. Während sandige Böden eine hohe Durchlässigkeit aufweisen, kann die Gleybildung (durch ständige Feuchtigkeit und Staunässe) die Versickerung beeinträchtigen, besonders in Bereichen mit hohem Grundwasserstand.
Wasserrückhaltevermögen: Mittel. Obwohl sandige Böden wasserabführend sind, kann der Gleyanteil eine gewisse Speicherung von Wasser ermöglichen.

Abb.69 Übersichtsbodenkarte, Auszug aus dem Bayernatlas
Grundsätzlich verfügen die verschiedenen Bodenarten im Centrum von Postbauer-Heng über eine mittlere bis hohe Eignung zur Versickerung von Niederschlagswasser und temporären Regenwasserrückhaltung. Es handelt sich dabei jedoch um eine grobe Einschätzung, die für detaillierte Planungen im Bereich blau-grüner Infrastrukturen durch ein bodenkundliches Fachgutachten, erstellt von spezialisierten Fachplanern, ergänzt werden muss.
Die wesentlichen, im Rahmen der Bestandsanalyse festgestellten Mängel, werden im Folgenden gegliedert nach Verkehrsarten, kurz zusammengefasst. Ausführlicher dargestellt wird der ruhende Verkehr, zu dem auch umfangreiche eigene Erhebungen durchgeführt wurden.
Insgesamt ist festzuhalten, dass das Centrum in Postbauer-Heng von den umliegenden Wohngebieten gut fußläufig und mit dem Fahrrad zu erreichen ist. Im Centrum selbst ist, ebenso wie Am Schwall und in der Nürnberger Straße, eine reduzierte Fahrgeschwindigkeit von 30km/h angeordnet, in den umliegenden Wohnstraßen gilt jedoch Tempo 50. Vorteilhaft für Fußgänger sind die zahlreichen Zebrastreifen, insbesondere am Kreisverkehr.
Die fußläufige Anbindung des Centrums an den SBahnhof Postbauer-Heng, erfolgt einerseits über den eigenständigen Fuß-und Radweg zwischen Bahnhofstraße und Moselstraße entlang der Kreuzung mit der Staatsstraße 2402, andererseits über die Kemnather Straße, Bayernstraße, Nahestraße und Peter-HenleinStraße. Hier fehlen teils die Gehwege. Die genannten Straßen sind nicht auf 30km/h reduziert.
Die fußläufige Anbindung des neuen Seniorenzentrums südlich der Schule (Am Schauerholz) an das Centrum sollte noch verbessert werden. Eine komfortable, autofreie und für Rollatoren geeignete Fußwegverbindung, sowie eine ausgebildete Querungsstelle über die Straße Am Schwall“, fehlt, um den Marktplatz direkt von Norden zu erreichen. Des Weiteren fehlt eine Querungshilfe in der Nürnberger Straße hin zu den Einkaufsmöglichkeiten nördlich des Netto-Marktes.
Im Einzelhandels-Centrum fällt vor allem die mangelnde Barrierefreiheit am Marktplatz auf (einschließlich Bushaltestellen).
Die wichtige Querungsstelle, im Zuge der in NordSüd-Richtung verlaufenden Fußwegachse von der Dürerstraße zum Marktplatz, ist kaum erkennbar bzw. wird gestalterisch nicht vermittelt. Zudem wird der Zugangsbereich zum Marktplatz durch Dauerparker regelmäßig zugeparkt. Derzeit ist dies rechtlich nicht zu beanstanden, da die Poller eine Fahrzeuglänge zurückgesetzt sind und so optisch zwei Parkmöglichkeiten generieren, die jedoch für den Fußverkehr extrem störend sind.



Auf der südlichen Straßenseite des Centrums verläuft zwischen Rathaus und Kirche ein durchgängiges mit größeren Platten gestaltetes Pflasterband, das in Verlängerung der Gehwege diese durch den weitgehend niveaugleich gestalteten Bereich des Centrums fortsetzt. Vielen Verkehrsteilnehmern ist jedoch nicht klar, ob es sich hierbei um einen Teil der Fahrbahn oder den Gehweg handelt. Kritisch zu sehen ist auch das Senkrechtparken unmittelbar hinter dem Pflasterband. Da die Stellplätze keine regelkonformen Maße aufweisen, kommt es immer wieder zu Konflikten zwischen rückwärts ausparkenden Kfz und Fußgängern. Letztere weichen dann oft spontan auf die Fahrbahn aus, womit der fließende Verkehr nicht rechnet.
Hinweise auf durchlässige Sackgassen sind für den Fuß- und Radverkehr wichtig. Diese fehlen nördlich der Frankenstraße in Richtung Kirche und im Brunnenweg Richtung Norden.
Sowohl für den Fußverkehr, als auch für den Radverkehr, stellen Umlaufsperren ein lästiges Hindernis dar, insbesondere wenn sie nicht richtlinienkonform ausgeführt werden. Häufig liegt dem die Vorstellung zugrunde, dass ein plötzliches „Auf-die-Straße-laufen“ verhindert werden soll. Diese latente Gefahr besteht aber grundsätzlich überall im Straßenverkehr und stellt keine Gefahrenlage dar, die über das normale Maß der Gefahren einer Teilnahme am Straßenverkehr hinausgeht. In den meisten Fällen können sie auch ersatzlos entfallen.
Um das Centrum für den Radverkehr attraktiv zu gestalten, sind zeitgemäße Fahrradabstellanlagen erforderlich. Hier sind noch deutliche Mängel festzustellen. Die im Folgenden aufgelisteten Fahrradabstellanlagen weisen Mängel, hinsichtlich ihrer Anzahl, ihrer technischen Ausführung (z.B. sog. „Felgenbrecher“) und/ oder der örtlichen Situation (z.B. fehlende Überdachung, fehlende oder unzureichende Beleuchtung) auf.
Zur Entlastung vom Kfz-Verkehr und zur Verringerung des Parkdrucks sollte der zentrale Einkaufsbereich für den Radverkehr attraktiv sein. Den Fahrradabstellanlagen kommt hierbei – vergleichbar mit den Parkplätzen für den Kfz-Verkehr – eine zentrale Rolle zu. Die im Centrum vorhanden Fahrradabstellanlagen sind nicht geeignet ein Fahrrad mit Einkäufen zu beladen, da eine Anlehnmöglichkeit fehlt.

Abb.73 Beeinträchtigung wünschenswerter Wegeverbindungen durch Dauerparker aufgrund unklarer Gestaltung, Quelle: PSLV

Abb.74 gestaltetes Pflasterband als Gehweg, Quelle: PSLV

Abb.75 nicht richtlinienkonforme Umlaufsperre, Quelle: PSLV
Im Gegensatz zu den Abstellanlagen im Centrum, finden sich am Netto-Markt vorbildliche Fahrradständer (mit Ansperr- und Anlehnmöglichkeit).
Die zahlreichen Sport- und Freizeitangebote im westlichen Teil des Zentrums werden von der Bevölkerung sehr geschätzt und gut angenommen. Da der freizeitbezogene Verkehr ein hohes Radfahrpotenzial bietet, insbesondere beim Besuch der innerörtlichen Freizeiteinrichtungen, sollten dort qualitativ hochwertige Fahrradabstellanlagen vorhanden sein. Oftmals sind lediglich sogenannte ‚Felgenbrecher‘ vorhanden, deren Einstellabstände für moderne Fahrräder deutlich zu gering bemessen sind. Zudem sind die Fahrradabstellanlagen in der Regel nicht ausreichend gegen das Zuparken durch Kraftfahrzeuge gesichert.
Eine Überdachung der Fahrradständer ist insbesondere an Orten wünschenswert, an denen sich Besucher auch bei ungünstiger Witterung länger aufhalten. Vorbildlich umgesetzt ist dies bereits am Schulzentrum, wo überdachte Fahrradabstellanlagen zur Verfügung stehen. Ein wirksamer Schutz der Fahrräder vor Diebstahl, Beschädigung und Witterungseinflüssen trägt wesentlich zur Wertschätzung des Fahrrads bei. Diese Haltung zu fördern ist insbesondere bei jungen Menschen von Bedeutung, da sie die Mobilität der Zukunft maßgeblich prägen werden.
Auch an weiteren Standorten konnten Mängel an den Fahrradabstellanlagen festgestellt werden:
• Sporthalle („Felgenbrecher“, fehlende Überdachung)
• Schwimmbad („Felgenbrecher“)
• Apotheke („Felgenbrecher“, ungünstige Lage)
• Bibliothek („Felgenbrecher“, fehlende Überdachung, Beleuchtung)
• Rathaus („Felgenbrecher“, fehlende Überdachung, Beleuchtung)
• Tedi / Hotel („Felgenbrecher“, fehlende Überdachung, Beleuchtung)
• Kindergarten („Felgenbrecher“, fehlende Überdachung, Beleuchtung, Anzahl)
• Blumenladen („Felgenbrecher“)
• Passage vom Centrum zur Dürerstraße („Felgenbrecher“)
• Kirche („Felgenbrecher“)
• Feuerwehrhaus (keine Fahrradständer)

Abb.76 Sogenannte „Felgenbrecher“ im Einkaufsbereich des Centrums, Quelle: PSLV

Abb.77 gute Fahrradständer am Nettomarkt, Quelle: PSLV

Abb.78 Ungeeignete Fahrradständer an der Sportgaststätte, Quelle: PSLV

Abb.79 Fehlende Überdachung der Fahrradständer an der Sporthalle, Quelle: PSLV

Abb.80 Vorbildliche Fahrradständer am Schulzentrum, Quelle: PSLV
2.6.2
Postbauer-Heng ist durch die zweimal stündlich (in den Spitzenstunden dreimal stündlich; 20-Min.-Takt) verkehrende S-Bahn S1 sehr gut an das Schienenverkehrsnetz und die benachbarten höherrangigen Zentren Nürnberg und Neumarkt angebunden. Das Centrum ist über die Buslinie 505 mit dem Bahnhof verbunden. Grundsätzlich hat die Busline Anschluss an die S-Bahn, dennoch gibt es nicht zu jeder S-Bahn einen Busanschluss. Dies schmälert die Attraktivität des ÖPNV im Sinne einer lückenlosen Fahrtkette.
Positiv zu vermerken ist der Einsatz moderner, niederfluriger Elektrobusse.
Das Centrum ist über die zentral gelegene Haltestelle ‚Gemeindezentrum‘ sehr gut an den öffentlichen Nahverkehr angebunden. Die Bushaltestellen entsprechen jedoch nicht den heutigen Anforderungen. Auf der Südseite befindet sich zwar ein großzügiger Unterstand, dieser bietet jedoch zu wenig Sitzgelegenheiten und wirkt aufgrund seiner Gestaltung dunkel und wenig einladend. Auf der Nordseite fehlen sowohl eine eigene Wartefläche als auch ein wirksamer Witterungsschutz – beides wäre dringend wünschenswert.
Größter Kritikpunkt ist die fehlende Barrierefreiheit der Haltestelle im Centrum in beiden Fahrtrichtungen. Mobilitätsbehinderten Menschen wird die Nutzung des Busses unnötig erschwert. Darüber hinaus wird das Aus- und Einsteigen verzögert.
Positiv hervorzuheben ist, dass die Haltestelle durch die verschiedenen Schaukästen auch als zentraler Informationspunkt dient und somit bereits in gewissem Maß eine multifunktionale Rolle einnimmt.

Abb.81 Großzügige Bushaltestelle, jedoch nicht barrierefrei, Quelle: PSLV

Abb.82 Großzügige Bushaltestelle mit Informationsfunktion, Quelle: PSLV
Postbauer-Heng liegt an der Bundesstraße B8, die noch den alten Ortskern von Postbauer durchquert, sonst aber außerhalb des Siedlungsgebiets verläuft. Das Centrum ist mit dem Kfz von Westen über die Kreisstraße NM6, von Norden über die Kreisstraße NM8 und von Osten über die Staatsstraße St2402 sehr gut zu erreichen.
Die Straße „Centrum“, die in West-Ost-Richtung verläuft, kreuzt in ihrer Mitte die innerörtliche NordSüd-Achse Nürnberger Straße/Am Schwall. Dieser zentrale Knotenpunkt ist seit 2022 als Kreisverkehr ausgebildet, der nicht nur eine leistungsfähige, sichere und raumsparende Verknüpfung der beiden innerörtlichen Achsen ermöglicht, sondern auch eine geschwindigkeitsdämpfende Wirkung und Portalfunktion entwickelt. Dem Kfz-Verkehr wird somit, ergänzt durch einen anderen Oberflächenbelag (Pflasterung), der Beginn eines neuen Straßenabschnitts - dem Einzelhandels-Centrum - vermittelt, der andere Verhaltensweisen mit erhöhter Aufmerksamkeit im Straßenverkehr erforderlich macht.
Von Osten kommend fehlt eine solche Portalfunktion. Stattdessen verläuft die Straße in gerader Linienführung, zunächst als Staatsstraße, dann als Ortsstraße mit nur geringer Profiländerung, sowie als Gefällestrecke fast ungebremst in das Einzelhandels-Centrum.
Im Zusammenhang mit den vielen Senkrechtparkplätzen im Centrum erscheint die Straßenführung durchaus konfliktbehaftet (rückwärtsausparkende Kfz, Fußgänger-querungen).
Der Straßenraum selbst wurde, infolge der Schaffung des Centrums als neue Mitte nach Zusammenlegung der ehemaligen Dörfer Postbauer, Heng und Kemnath, großzügig angelegt.

Abb.83 Kreisverkehr als zentraler Verknüpfungspunkt mit Portalfunktion zum Einzelhandelsbereich, Quelle: PSLV


2.6.4 Ruhender Verkehr
Eckdaten der Parkraumerhebung und Untersuchungsgebiet
Die Parkraumerhebung in Postbauer-Heng wurde an einem repräsentativen Werktag am Donnerstag, den 07.11.2024 von 07:00 Uhr bis 19:00 Uhr im Halbstundenrhythmus nach der Kennzeichenmethode durchgeführt. Zusätzlich erfolgte um 00:00 Uhr ein Rundgang zur Erhebung der Nachtparker. Der Erhebungstag und Erhebungszeitraum wurde mit dem Lenkungskreis, dem Vertreter der Gemeinde, der Bürgerschaft und des Einzelhandels angehörten, abgestimmt.
Das Untersuchungsgebiet erstreckt sich über das Centrum von der Erich-Kästner-Grund- und Mittelschule bis zur Kreuzung Centrum/ Bayernstraße, über die Peter-Henlein-Straße, hin zur Dürerstraße und Von-Tucher-Straße und zurück über die Nürnberger Straße ins Centrum.
Die Parkraumerhebung umfasste den Bereich „Centrum Achse“ (Teilbereiche P1.1 Centrum, P1.2 Kirche und P1.10 Centrum-West), sowie den Bereich „Centrum Nord“ (Teilbereiche P1.3 Dürerstraße, P1.4 Nürnberger Straße und P1.11 Von-Tucher-Straße) der Parkraumerhebung vom 30.05.2022. Somit war auch eine Vergleichbarkeit der Untersuchungen möglich. Die Parkraumerhebung von 2024 nahm jedoch zusätzlich eine feinere räumliche (einzelne Park-„Batterien“) und zeitliche (Halbstundenrhythmus) Differenzierung vor.
Im Untersuchungsbiet befinden sich insgesamt 194 Stellplätze. Die Parkregelungen und die Nutzungen unterscheiden sich aber. So befindet sich im unmittelbaren Centrum eine auf 2 Std. beschränkte Kurzparkzone vor den Geschäften. Im Norden des Centrums und ebenfalls vor der Kirche sind ein Großteil der Stellplätze unbeschränkt.

Abb.86 Bezeichnung der Stellplätze der Parkraumerhebung, Quelle: PSLV
Zusätzlich gibt es personengruppenbezogene Stellplätze (z.B. Behindertenstellplatz, Stellplätze für die Sparkasse, Stellplätze für Bürgermeister, Pfarrer oder Bibliothekspersonal, etc.), die nicht dauerhaft der Allgemeinheit zur Verfügung stehen und somit bei genauer Betrachtung aus dem Gesamtstellplatzangebot herausfallen.

Abb.87 Parkplatzregelungen und Anzahl der Stellplätze, Quelle: PSLV
Ergebnisse der Parkraumerhebung
In der Zusammenfassung der Ergebnisse der Parkraumerhebung werden zunächst die Beobachtungen, anschließend die statistische Auswertung dargestellt. Grafiken und Diagramme können dem Anhang des digitalen Berichts entnommen werden.
Verkehrsbeobachtungen:
Bei der Parkraumerhebung fiel auf, dass ein Teil der Parkenden ihren Pkw auf der Fläche von mindestens zwei Stellplätzen parken (siehe Abb. 88). Damit stehen für die Allgemeinheit insgesamt weniger nutzbare Parkplätze zur Verfügung. Sie sind in der Praxis „voller“, obwohl theoretisch genügend Stellplätze vorhanden sein müssten. An dieser Stelle ist anzumerken, dass bei einer 85%-igen Auslastung der Parkplätze, diese bereits als voll wahrgenommen werden, da nach einem Stellplatz gesucht werden muss. Dieses Problem besteht meist dort, wo die Stellplätze nicht erkennbar markiert sind.
Des Weiteren sind die Beschilderungen vor Stellplätzen durch privat aufgestellte Schilder oder Hinweise nicht eindeutig bzw. verbindlich (siehe Abb. 89). Ein nichtortskundiger Besucher wird diesen Stellplatz wahrscheinlich nicht nutzen, somit reduziert sich das allgemeine Stellplatzangebot für diese Gruppe. Beobachtet wurden auch dauerparkende Anhänger,

die teilweise über lange Zeit einen Stellplatz blockieren. Anzumerken ist, dass es nicht illegal ist, einen Anhänger für zwei Wochen auf demselben Stellplatz stehen zu lassen, aber es verfehlt das Ziel durch die Bereitstellung öffentlicher Stellplätze den Einzelhandel im Centrum zu stärken (siehe Abb. 90).
Ein Teil der Stellplätze im oder nahe des Centrums sind für bestimmte Personengruppen reserviert (z.B. Kunden der Sparkasse). Diese sind nahe des Centrums und werktags von 8:00 Uhr bis 18:00 Uhr, trotz Fußläufigkeit zum Centrum, für andere Kunden nicht nutzbar. Ihre Auslastung ist gering und die Belegungsdauer ist überdurchschnittlich lang. Dies widerspricht dem Ziel zentrumsnahe Stellplätze für alle Kunden anzubieten (siehe Abb. 91). Ein positives Beispiel für einen personenbezogenen Stellplatz, ist der Behindertenstellplatz direkt am Marktplatz. Dadurch wird dieser Personengruppe ermöglicht das Centrum direkt zu erreichen.
Eine Zweckentfremdung der Stellplätze stellt beispielsweise auch die Nutzung als Containerstellplatz dar (siehe Abb. 92).


Abb.90 durch dauerparkende Anhänger blockierte Stellplätze, Quelle: PSLV

Abb.91 Personengruppenbezogene Stellplätzenicht für die Allgemeinheit nutzbar, Quelle: PSLV

Abb.92 Zweckentfremdung der Stellplätze durch Container-Nutzung, Quelle: PSLV
Verkehrserhebungen:
Im Zuge der Verkehrserhebung wurden Auslastungen halbstündig, je nach Parkplatzbatterie, zwischen 00:00 Uhr (Nachtparker) bzw. 07:00 Uhr und 18:00 Uhr, sowohl relativ, als auch absolut, ausgewertet. Die genauen Belegungen im Halbstundentakt können den Darstellungen im Anhang der digitalen Fassung entnommen werden. Unten ist beispielhaft für die Darstellungen die Zeit von 8:30-10:00 Uhr dargestellt.
Auffällig ist die Morgenspitze zwischen ca. 09:00 Uhr und 11:30 Uhr. Hier existieren abschnittsweise sogar Überbelegungen. Sowohl die zeitlich beschränkten Stellplätze im (Einzelhandels)-Centrum selbst, als auch die unbeschränkten Stellplätze an der Dürerstraße sind zwischen 50% und über100% ausgelastet. Sobald die Spitze aber nachlässt, beruhigen sich die Auslastungszahlen wieder rapide (siehe Abb. 94). Eine weitere Spitze ergibt sich nachmittags zwischen 15:00 Uhr und 16:00 Uhr, auch wenn diese nicht so deutlich ausfällt, wie die Morgenspitze.
Zusammenfassend kann festgehalten werden, dass die Gesamtauslastungen über alle Stellplätze hinweg 70% Auslastung nicht überschreiten. Nicht alle „Parkplatzbatterien“ sind gleichmäßig belastet. Während unmittelbar vor den Einzelhandelsgeschäften sogar zeitweise eine Vollauslastung oder gar Überlastung besteht, stehen Stellplätze in weniger als 100m Entfernung weitgehend leer. Im Folgenden werden exemplarisch Beispiele gezeigt (Verortung siehe Abbildung 86 auf Seite 64).
Beispielhaft hierfür können die Längsparkbuchten gegenüber der Kirche im östlichen Centrum angeführt werden. Diese sind weniger als eine Gehminute von den Haupteinkaufsmöglichkeiten entfernt, stehen aber fast den ganzen Tag leer. Dieser „Konzentrationseffekt“ auf die Stellplätze „direkt vor der Haustür“ kann der gesamten Zeitreihe entnommen werden (siehe Abbildungen 95 und 96).


Abb.94 Auslastung im Centrum (allgemein nutzbare Parkplätze), Quelle: PSLV

Abb.95 Auslastung Längsparker Centrum West, Quelle: PSLV

Abb.96 Auslastung Längsparker Centrum Mitte, Quelle: PSLV
Das Gegenteil kann im Centrum direkt vor dem Bäcker und dem Rathaus beobachtet werden. Hier sind die Stellplätze, zur Spitzenzeit stark ausgelastet – zeitweise sogar überbelegt. Exemplarisch ist hier die Auslastung der Stellplatzbatterie vor dem Bäcker dargestellt (siehe Abb. 97). Die Stellplätze e vor dem Bäcker sind zeitlich auf maximal 2 Std. Parkdauer beschränkt. Positiv ist anzumerken, dass diese Regelung auch eingehalten wird. Im Rahmen der Parkraumerhebung wurde kein einziges Fahrzeug festgestellt, welches die maximal zulässige Parkzeit überschritten hat.
Unbeschränkt hingegen sind die Stellplätze gegenüber der Zahntechnik in der Dürerstraße (siehe Abb. 98). Die Auslastungen sind ähnlich zu denen am Bäcker, was wiederum an der Nähe zum Centrum liegen dürfte. Die Parkdauerbeträgt im Durchschnitt mehr als 4 Stunden, während ca. 1/5 der Fahrzeuge sogar länger als 8 Std. dort verweilt.
Die personengruppenbezogenen Parkplätze, wie beispielsweise die Sparkassenparkplätze, die eigentlich für die Kunden der Sparkasse vorgesehen sind, sind von 09:00 Uhr bis 17:30 Uhr über mehr als 8 Stunden immer von den gleichen Fahrzeugen belegt. Erst ab 18:00 Uhr parken dort auch Besucher des Centrums, da die zeitliche Beschränkung um 18:00 Uhr endet. Somit ist anzunehmen, dass die Stellplätze gar nicht von den Kunden, sondern von den Mitarbeitern genutzt werden (siehe Abb. 99).
Zusammenfassung
Es kann eine starke Morgenspitze zwischen 09:00 Uhr und 11:30 Uhr und eine etwas abgeschwächte Nachmittagsspitze zwischen 15:00 Uhr und 16:00 Uhr festgestellt werden. Auffällig hierbei ist die lokale Verteilung. Während die Stellplätze im Centrum, vor den Einkaufsmöglichkeiten, nahezu vollständig ausgelastet sind, sind kaum 100m weiter entfernt, z.B. bei der Kirche oder im Osten des Centrums, nur geringe Auslastungen festzustellen. Hier ist eine Fokussierung auf die „Lieblingsparkplätze, direkt vor der Haustür“ zu erkennen.
Parkplätze werden im Allgemeinen als „voll“ wahrgenommen, sobald ca. 85% der Stellplätze belegt sind. Dadurch und durch die starke Fokussierung auf die Parkplätze unmittelbar vor den Geschäften wird ein starker Parkdruck wahrgenommen und es entsteht der Eindruck, dass insgesamt zu wenig Parkplätze vorhanden sind. Tatsächlich sind jedoch nur punktuell
zu wenig Parkplätze, insgesamt jedoch ausreichend Parkplätze vorhanden.
Hinzu kommt, dass durch personen- und personengruppenbezogene Stellplätze nicht alle Stellplätze für die Allgemeinheit nutzbar sind.
Durch fehlende oder unkenntliche Markierung der Stellplätze stehen einzelne Fahrzeuge auf zwei Stellplätzen. Dadurch wird das vorhandene Stellplatzangebot nicht optimal genutzt. Dieses Problem tritt vermehrt in der Dürerstraße auf. Dort ist auch die – meist private - Beschilderung der Stellplätze unklar (z.B. Zugang freihalten). Ortskundige wissen, dass sie auf solchen Stellplätzen parken können, Ortsfremde jedoch nicht. Dies hat einen verstärkten Parkdruck auf die übrigen Stellplätzen zur Folge.
Zusätzlich sind allgemein zugängliche Stellplätze durch Sondernutzungen belegt, wie beispielsweise Altkleider-Container oder ein Fischbrater, der wöchentlich dort aufgestellt wird.
Positiv hinzuzufügen ist, dass die Kurzparkregelung von 2 Stunden im Centrum eingehalten wird. Dies hat wiederum den Vorteil, dass die vorhandenen Parkplätze öfter umgeschlagen, d.h. von mehr Besuchern genutzt werden können. Zusammenfassend kann festgestellt werden, dass in und um das Centrum ausreichend Parkplätze existieren und hier eher ein Verteilungs- bzw. Nutzungsproblem vorliegt.
Erste Handlungsempfehlungen
• Unterbindung des Parkens im Bereich der Querung Marktplatz/Centrum durch Versetzen der Poller
• gut sichtbare Abmarkierung der Stellplätze (Dürerstraße, Nürnberger Straße, Von-Tucher-Straße, Kirchenparkplätze)
• Prüfung der Notwendigkeit der personengruppenbezogenen Stellplätze (z.B. Sparkassenstellplätze)
• Prüfung der Sondernutzungen
• Verhinderung von Dauerparkern (z.B:Anhänger)
• Schaffung von richtlinienkonformen Fahrradabstellanlagen (z. B. Anlehnbügel)
• Motivation zur Fahrradnutzung beim Besuch des Centrums

Abb.97 Auslastung Centrum Bäcker mit Belegungsdauer, Quelle: PSLV

Abb.98 Auslastung Dürerstraße Zahntechnik mit Belegungsdauer, Quelle: PSLV

Abb.99 Auslastung Centrum Sparkassenparkplätze mit Belegungsdauer, Quelle: PSLV
Im folgenden Kapitel werden die Erkenntnisse aus der Bestandserhebung hinsichtlich ihrer Auswirkungen auf das Centrum von Postbauer-Heng eingeordnet. In Form einer SWOT-Analyse werden diese Erkenntnisse dargestellt.
Die Analyse beleuchtet sowohl Stärken und Schwächen des aktuellen Zustands als auch Chancen und Risiken, die sich für die zukünftige Entwicklung des Centrums ergeben. Dadurch wird eine fundierte Grundlage geschaffen, um zielgerichtete Strategien und Maßnahmen für eine nachhaltige und zukunftsorientierte Entwicklung abzuleiten.
Im folgenden Kapitel werden die Ergebnisse der Bestandsaufnahme sowie die Erkenntnisse aus den verschiedenen Beteiligungsformaten in Form einer SWOT-Analyse (Stärken, Schwächen, Chancen, Risiken) systematisch bewertet. Diese Methode ermöglicht eine strukturierte Einordnung der Ergebnisse und dient dazu, erste Schlussfolgerungen sowie Entwicklungsrichtungen für die weitere Konzepterarbeitung abzuleiten.
Die SWOT-Analyse erfasst und bewertet den Ist-Zustand des Centrums von Postbauer-Heng umfassend. Durch die gezielte Untersuchung interner Faktoren (Stärken und Schwächen) sowie von Potenzialen und externen Einflussgrößen (Chancen und Risiken) wird eine ganzheitliche Perspektive auf die aktuelle Situation geschaffen. Dabei geht die Analyse über eine reine Bestandsaufnahme hinaus und zeigt mögliche positive wie negative Entwicklungsszenarien auf.
In der SWOT-Analyse werden die Wechselwirkungen zwischen den folgenden Kategorien untersucht:
• Stärken und Schwächen: Gebietsintern entstandene Faktoren, die die Entwicklung des Centrums fördern oder hemmen können.
• Chancen und Risiken: Identifizierte Potenziale sowie externe Einflüsse, die sich als zukünftige Gelegenheiten oder potenzielle Gefahren für die Entwicklung darstellen.
Das Ziel dieser Analyse besteht darin, eine strategische Grundlage für die weitere Planung zu schaffen, indem zentrale Handlungsfelder identifiziert werden. Im Einzelnen bedeutet das:
• Stärken fördern und ausbauen
• Schwächen erkennen und minimieren
• Chancen identifizieren und nutzen
• Risiken frühzeitig erkennen und vermeiden
Durch diese systematische Vorgehensweise werden relevante Handlungsfelder und Schwerpunkte sichtbar gemacht, die eine wesentliche Grundlage für die Entwicklung des Leitbildes und die Festlegung strategischer Ziele bilden.
Insgesamt lässt sich feststellen, dass im betrachteten Bereich eine gute Ausgangslage für die verschiedenen Themenfelder besteht. Gleichzeitig zeigen sich punktuell deutliche Verbesserungsbedarfe. Insgesamt wirkt die Entwicklung des Centrums von PostbauerHeng, als sei sie seit den 1970er Jahren – der Zeit seiner Entstehung – weitgehend stehen geblieben. Trotz alledem funktioniert das Centrum nach wie vor gut, benötigt jedoch in nahezu allen Bereichen eine zeitgemäße Weiterentwicklung.
Schwächen ausbessern um Chancen zu nutzen
HILFREICH FÜR DIE ZIELERREICHUNG
Stärken des Raums
Stärken nutzen, um Chancen zu ergreifen
HEMMEND FÜR DIE ZIELERREICHUNG
Schwächen des Raums
Schwächen abbauen um Risiken zu entgehen
Chancen für die räumliche Entwicklung
Risiken für die räumliche Entwicklung
Stärken nutzen, um Risiken zu vermindern
• Positive Bevölkerungsentwicklung: Ein kontinuierliches Wachstum der Einwohnerzahl spricht für die hohe Lebensqualität und Attraktivität des Standorts.
• Günstige Lage im Ballungsraum: Die Lage in der Metropolregion Nürnberg und die Nähe zu Neumarkt sowie die gute überörtliche Anbindung bieten Vorteile für Wohnen, Arbeiten und Freizeit.
Gesellschaftlicher Zusammenhalt und Engagement
• Starker gesellschaftlicher Zusammenhalt und Kooperation: Die enge Zusammenarbeit innerhalb der Bevölkerung fördert ein positives und kooperatives Umfeld für zukünftige Entwicklungen.
• Hohe Identifikation mit dem Centrum: Die starke emotionale Bindung der Bevölkerung an das Centrum steigert die Akzeptanz und Unterstützung für Veränderungen.
• Gemeinwohlorientierung der Gemeinde: Die gemeinwohlorientierte Ausrichtung der Verwaltung legt den Grundstein für eine nachhaltige und resiliente Stadtentwicklung.
Vielfältige Nutzungen und attraktive Angebote
• Vielfältige Nutzungsmischung: Die enge Verzahnung von Wohnen, Gewerbe, Dienstleistungen und Freizeitangeboten fördert eine lebendige und widerstandsfähige Stadtstruktur.
• Guter Einzelhandels- und Dienstleistungsbesatz: Die hohe Dichte an Einzelhandelsgeschäften und Dienstleistern gewährleistet eine gute Versorgung der Bevölkerung und stärkt die Attraktivität des Standorts.
• Breites Angebotsspektrum: Das vielfältige Angebot aus Nahversorgung, Gastronomie und Dienstleistungen spricht unterschiedliche Zielgruppen an und stärkt die Aufenthaltsqualität.
• Regionale Wettbewerbsfähigkeit: Durch die vielfältige Nutzungsmischung hebt sich das Centrum positiv von benachbarten Standorten ab und stärkt seine Position im regionalen Wettbewerb.
• Diversifiziertes Wohnraumangebot: Die breite Auswahl an Wohnformen – von Miet- und Eigentumswohnungen bis hin zu betreutem Wohnen – ermöglicht eine sozial gemischte und generationenübergreifende Bewohner:innenschaft und wird unterschiedlichen Bedürfnissen gerecht.
Kompaktheit
• Konzentration von Einzelhandel und Dienstleistungen: Die räumliche Nähe von Einzelhandels- und Dienstleistungsangeboten begünstigt kurze Wege und eine hohe Erreichbarkeit.
• Gute Vernetzung der Nutzungen: Die gute Durchwegung und Vernetzung der verschiedenen Funktionen im Zentrum sorgen für eine optimale Erreichbarkeit und Stärkung des sozialen und wirtschaftlichen Austausches.
• Fußläufige Erreichbarkeit mit guten Verbindungen aus den Wohngebieten, großzügigen Gehwegen und einer kompakten inneren Erschließung.
• Nähe zu Bildung und Freizeit: Der Bildungscampus und zahlreiche Freizeitangebote sind in unmittelbarer Nähe zum Versorgungszentrum angesiedelt, was eine hohe Lebensqualität für die Bürger:innen schafft.
Prägende Grünstrukturen
• Großzügige Grün- und Erholungsflächen: Gut zugängliche Grünräume tragen wesentlich zur Aufenthaltsqualität und klimatischen Resilienz des Centrums bei.
• Hochwertiger Baumbestand: Der vorhandene Baumbestand trägt wesentlich zur ökologischen Qualität des Centrums bei, verbessert das Mikroklima, fördert das Wohlbefinden der Bevölkerung und prägt zugleich das charakteristische Erscheinungsbild des Zentrums.
Markante Gestaltung
• Klar definierter Zentrumskern: Die urbane Struktur und klare architektonische Sprache unterstreichen die Funktion des Centrums als lebendiges Herz der Gemeinde.
• Aktive Erdgeschosszonen: Ein hoher Anteil an aktiven Erdgeschosszonen sorgt für ein lebendiges Straßenbild und fördert die soziale Interaktion im öffentlichen Raum.
• Hoher Wiedererkennungswert: Das Centrum besitzt ein markantes Ortsbild, das für Bewohner:innen und Besucher:innen einen hohen Wiedererkennungswert schafft.
Überörtliche Anbindung
• Hervorragende Erreichbarkeit für alle Verkehrsarten (Kfz, ÖPNV, Rad- und Fußverkehr) mit Anbindung an die Gemeindeteile und das nächste Oberzentrum (Neumarkt und Nürnberg).
• Direkte ÖPNV-Anbindung im Centrum durch eine zentrale Bushaltestelle mit Anbindung an die Ortsteile und den Bahnhof.
• Attraktive S-Bahn-Anbindung mit einer 20-Minuten-Taktung nach Nürnberg.
• Zentrale Lage innerhalb der Gemeinde mit kurzen Wegen aus nahezu allen Siedlungsbereichen.
• Gute Kfz-Anbindung über die B8 und St2402 sowie ein ausreichend verfügbares Parkplatzangebot.
Grundlegende Voraussetzungen für aktive Mobilität
• Gute Bedingungen für den Radverkehr durch reduzierte Kfz-Geschwindigkeit, kompakte Siedlungsstruktur, flache Topographie.
• Gestaltung des öffentlichen Raums mit Pflasterung zur Verkehrsberuhigung und Platzcharakter.
• Sicherheit für Fußgänger durch zahlreiche Querungshilfen, insbesondere an sensiblen Bereichen wie Schule und Kreisverkehr.
• Kaum Grundstücke im Gemeindebesitz: Der hohe Anteil privater Grundstücke im Centrum erschwert eine koordinierte, gemeinwohlorientierte Entwicklung und begrenzt kommunale Handlungsspielräume.
• Große Flächen in Einzeleigentum: Die Konzentration großer Flächen im Besitz einzelner Eigentümer kann Entwicklungsprozesse verlangsamen, da Entscheidungen oft zentralisiert sind und die Umsetzung neuer Projekte erschwert wird.
• Fehlender Zugriff auf strategisch wichtige Grundstücke: Die begrenzte Möglichkeit, auf strategisch wichtige Einzelgrundstücke und Baulücken zuzugreifen, verhindert eine gezielte und zukunftsorientierte Entwicklung.
Unkoordinierte Entwicklungen und fehlende strategische Steuerung
• Zersplitterte Flächenentwicklung: Die geplanten Widmungen (vgl. S. 31) im Flächennutzungsplan bergen das Risiko einer fragmentierten Entwicklung. Ohne gezielte Steuerung könnte dies langfristig die Entstehung eines kohärenten Stadtbildes erschweren und funktionale Zusammenhänge im Centrum schwächen.
• Einzelentscheidungen statt langfristiger Planung: Die Siedlungsentwicklung ist stark durch projektbezogene Einzelentscheidungen geprägt. Das fehlen einer langfristigen, konsequent verfolgten Strategie führt zu einer inkonsistenten Stadtentwicklung, schränkt die Steuerungsmöglichkeiten ein und führt zum Verlust wichtiger Freiräume.
• Mangelhafte städtebauliche Vernetzung: Die unzureichende städtebauliche Verbindung zwischen den verschiedenen Bereichen des Centrums mindert die Zugänglichkeit und Attraktivität des gesamten Gebietes.
Uneinheitliches Ortsbild und städtebauliche Defizite
• Inkonsistente Bebauungsstruktur: Die bestehende heterogene Bebauung außerhalb des Centrumskerns (unterschiedliche Gebäudehöhen, -stile und -dichten) stört das visuelle Zusammenspiel und beeinträchtigt das Ortsbild.
• Gestalterische Defizite an Gebäuderückseiten: Wenig oder gar nicht gestaltete Rückfassaden beeinträchtigen die Aufenthaltsqualität und wirken sich negativ auf das Ortsbild aus.
• Vereinzelte Langzeitleerstände in zentraler Lage: Leerstehende oder untergenutzte Immobilien in attraktiven, zentralen Lagen mindern die wirtschaftliche Dynamik und reduzieren die Attraktivität des öffentlichen Raums.
• Fehlende bauliche und verkehrliche Eingangssituation von Osten, wodurch der Beginn des Kerncentrums nicht klar wahrnehmbar ist.
• Fehlende Barrierefreiheit im öffentlichen Raum: Höhenunterschiede, unebene Oberflächen und infrastrukturelle Barrieren erschweren die gleichberechtigte Nutzung und Zugänglichkeit für alle Bevölkerungsgruppen.
• Hoher Versiegelungsgrad: Großflächig versiegelte Flächen mindern die Aufenthaltsqualität, beeinträchtigen das Siedlungsklima und schränken die ökologische Funktion der Freiflächen ein.
• Veraltete Freiraumausstattung: In die Jahre gekommene Oberflächen, wenig ansprechende Gestaltungselemente und ein Wildwuchs an verschiedensten Ausstattungselementen und Materialien mindern die Nutzbarkeit und Attraktivität öffentlicher Räume.
• Unstrukturierte Beschilderung im Centrum: Eine Vielzahl an teils veralteten oder uneinheitlich gestalteten Schildern erschwert die Orientierung und beeinträchtigt das Ortsbild.
• Bushaltestellen mit Ausstattungs- und Sichtbarkeitsdefiziten, etwa durch fehlende Barrierefreiheit (nicht angehobene Bordsteine), zu wenige Sitzgelegenheiten sowie unzureichende Kennzeichnung.
Punktuelle Schwachstellen im Fuß- und Radverkehr
• Unsichere Verkehrsführung für den Radverkehr durch fehlende sichere Verbindungen (v. a. zum Bahnhof und ins Gewerbegebiet), nicht richtlinienkonforme Abstellanlagen sowie Sichtbehinderungen beim Ausparken aus Senkrechtstellplätzen.
• Eingeschränkte Fußgängersicherheit und -freundlichkeit durch fehlende direkte Wege (z. B. zum Bahnhof, von Schule und Seniorenheim), schlecht erkennbare oder fehlende Querungshilfen sowie Konflikte mit dem KfzVerkehr, insbesondere bei zwischen Fahrbahn und Parkflächen verlaufenden Gehwegen.
• Unzureichende Barrierefreiheit aufgrund von Steigungen, Treppen und daraus resultierenden Umwegen.
• Konflikte zwischen Parken und Durchgangsverkehr durch rückwärts ausparkende Fahrzeuge, insbesondere bei Senkrechtparkern.
• Parkraumkonkurrenz zwischen Anwohnern und Besuchern in der Dürerstraße, mit langen Standzeiten und geringen Stellplatzwechseln.
• Schlecht markierte und sehr schmale Parkplätze, die die Nutzung erschweren.
Gezielte strategische Entwicklung
• Weiterentwicklung und konsequente Umsetzung bestehender Konzepte: Die gezielte Evaluierung und Fortschreibung vorhandener Konzepte kann eine solide Grundlage für eine nachhaltige und zukunftsorientierte Entwicklung des Centrums schaffen.
• Einsatz baurechtlicher Instrumente: Durch gezielte Nutzung baurechtlicher Instrumente können hohe Gestaltungsqualität und nachhaltige Bauprojekte sichergestellt werden.
• Nachverdichtung von Baulücken und Potenzialflächen: Durch die gezielte Aktivierung ungenutzter Flächen kann die vorhandene Infrastruktur effizienter genutzt und das Centrum städtebaulich aufgewertet werden.
• Das Centrum immer im Blick: Durch die konsequente Berücksichtigung des Centrums bei Entwicklungen im Rest der Gemeinde kann seine Funktion als Mittelpunkt von Postbauer-Heng gestärkt und weiterentwickelt werden.
Stärkung der Identifikation und des sozialen Miteinanders
• Aktive Mitgestaltung durch die Bürger:innenschaft: Die verstärkte Einbindung der Bürger:innen in Entwicklungsprozesse kann die Akzeptanz und Identifikation mit Maßnahmen erhöhen sowie den sozialen Zusammenhalt stärken.
• Stärkung des Centrums als Mittelpunkt der Gemeinde: Durch gezielte Profilierung und Maßnahmen kann das Centrum als identitätsstiftenden Mittelpunkt für Einheimische und Besucher:innen weiterentwickelt werden.
• Ausbau und Weiterentwicklung gemeinwohlorientierter Sozialraumangebote (z.B. Bücherei, Bürgertreff Kästner) zu Stärkung des sozialen Lebens und dem Austausch verschiedener Gruppierungen.
Gestaltung von attraktiven und klimaresilienten Freiräumen
• Verbesserung der Platzstrukturen: Durch eine gezielte Aufwertung öffentlicher Plätze (Zonierung, Aufenthaltsqualität, Zielgruppenansprache) und Schaffung belebter und ruhiger Verweilflächen kann das Centrum sowohl funktional als auch ästhetisch aufgewertet werden.
• Förderung klimaresilienter Freiraumgestaltung: Maßnahmen wie Entsiegelung, Begrünung und Beschattung können das Stadtklima verbessern und zur ökologischen Nachhaltigkeit beitragen.
• Weiterentwicklung von Grünverbindungen: Die Verbesserung und Erweiterung von Grünachsen kann die Erreichbarkeit von Erholungsräumen steigern und zur Lebensqualität beitragen.
Entwicklung sicherer und attraktiver Verkehrsräume
• Verbesserung der Verkehrssicherheit und Aufenthaltsqualität durch eine Geschwindigkeitsreduzierung
• Schaffung multifunktionaler Flächen, die flexibel genutzt werden können, z. B. als Freischankflächen im Sommer anstelle von Parkplätzen.
• Erhöhung der Stellplatzkapazitäten durch Aufhebung bestehender Parkbeschränkungen und besserer Markierungen.
• Schaffung von Kurzzeitparkplätzen und attraktiven Außenbereichen zur Stärkung des Einzelhandels und zur Ansprache von Durchfahrenden als potenzielle Kundschaft.
Stärkung Mobilitätsformen abseits des PKW
• Stärkung des Radverkehrs zur Reduzierung des Kfz-Verkehrs, wodurch mehr Parkplätze für notwendige Autofahrten verfügbar bleiben.
• Einführung richtlinienkonformer Fahrradabstellanlagen, um die Nutzung und Wertschätzung des Fahrrads zu fördern.
• Attraktive und sichere Fußwege für alle Altersgruppen, um eine höhere Fußgängerfrequenz im Centrum zu erzielen.
• Nutzung der Hochspannungstrasse als grüne Magistrale, um das Centrum schnell und in angenehmer Umgebung zu Fuß oder mit dem Rad erreichbar zu machen.
• Fokus auf den ÖPNV, um mehr Besucher ohne Auto ins Centrum zu bringen und den Kfz-Verkehr weiter zu reduzieren.
Fehlende Entwicklungsstrategie
• Verlagerung zentraler Funktionen aus dem Centrum: Die Entwicklung von wichtigen Funktionen außerhalb des Centrums könnte dazu führen, dass die Ortsmitte an Bedeutung verliert und eine Dezentralisierung stattfindet.
• Fehlende kohärente Entwicklungsstrategie: Unkoordinierte Einzelprojekte ohne langfristige Strategie gefährden den einheitlichen Charakter des Centrums und können die Entwicklung fragmentieren.
• Uneinheitliche Neubebauung: Das Fehlen verbindlicher Gestaltungsrichtlinien könnte zu einer uneinheitlichen Neubebauung führen, die das Stadtbild negativ beeinflusst und die Identität des Centrums verwässert.
• Verlust zentrumsnaher Grünflächen: Der Verlust von Grünflächen in zentraler Lage könnte die Lebensqualität und die Attraktivität des Centrums erheblich mindern.
Beschränkte Steuerungsmöglichkeiten
• Abhängigkeit von Eigentümer:innenentscheidungen: Unerwartete Entscheidungen, wie der Verkauf von Grundstücken, können den geplanten Entwicklungskurs destabilisieren und unvorhersehbare Veränderungen zur Folge haben.
Fehlende Akzeptanz
• Fehlende Kommunikation: Unzureichende Information und Transparenz führen zu Skepsis gegenüber geplanten Veränderungen, geringer Akzeptanz und Sorgen über Kosten in der Bevölkerung – was die Mitwirkungsbereitschaft und Umsetzung geplanter Maßnahmen verzögern bzw. erschweren kann.
• Fehlende Koordination: Verzögerte Planungs- und Umsetzungsprozesse sowie lang andauernde Baustellen können die Entwicklung des Centrums bremsen, Wettbewerbsvorteile mindern und negative Auswirkungen auf Gewerbe sowie die Aufenthaltsqualität haben – was bei Nutzer:innen zunehmend auf Unverständnis und Unzufriedenheit stößt.
Strukturwandel im Handel und wirtschaftliche Unsicherheiten
• Ignorieren des veränderten Einkaufsverhaltens: Wenn der Einzelhandel zu langsam auf die sich verändernden Konsumgewohnheiten reagiert, könnte dies zu einem Verlust von Kundenfrequenz und damit zu wirtschaftlichen Nachteilen führen.
• Rückgang der Angebotsvielfalt: Ein sinkendes Angebot an unterschiedlichen Geschäften könnte das Centrum für Einkäufer:innen unattraktiv machen und die Wettbewerbsfähigkeit schwächen.
• Gefahr der Filialisierung: Eine zunehmende Filialisierung könnte die individuelle Struktur des Centrums bedrohen und zur Verdrängung von lokalen Anbietern führen, wodurch das Ortsbild an Authentizität verliert.
Klimatische Herausforderungen
• Überhitzung durch Versiegelung: Der hohe Anteil versiegelter Flächen im Centrum könnte in den Sommermonaten zu einer unangenehmen Wärmeinsel führen, was die Lebensqualität der Bewohner:innen und Besucher:innen beeinträchtigt.
• Lokale Überschwemmungsgefahr: Zunehmende Starkregenereignisse und die fehlende Entwässerungsinfrastruktur könnten zu Überschwemmungen führen, die sowohl die Lebensqualität als auch die städtische Infrastruktur belasten.
Einseitige Ausrichtung auf den motorisierten Individualverkehr
• Flächenkonkurrenzen und Einzelinteressen (Verkehr vs. andere Nutzungen) können interne Konflikte schaffen und das gemeinsame Standort-Denken schwächen, was Konkurrenzstandorte außerhalb des Centrums stärkt.
• Zu starker Fokus auf Kfz-Stellplätze, wodurch alternative Nutzungen ausgeschlossen werden könnten, obwohl sie das Centrum als Ganzes aufwerten würden.
• Gefahr eines „Durchfahrtscentrums“, wenn die Straßenraumgestaltung nicht zur Geschwindigkeitsreduzierung beiträgt.
• Eingeschränkte Verkehrssicherheit für den Radverkehr, wodurch das Potenzial des Fahrrads als Alternative zum Auto nicht ausgeschöpft werden kann.
• Kürzungen im ÖPNV könnten die Erreichbarkeit des Centrums für Menschen ohne Auto verschlechtern.
• Nicht-Priorisieren von Vernetzung und Durchlässigkeit (z.B. Versäumnisse bei Vorkaufsrecht/Grundstückserwerb, führt zu einer schlechteren Erreichbarkeit des Centrums

Naherholungsflächen
Wald mit Spazierwegen



Naherholungsflächen
Wald mit Spazierwegen
Entwicklungspotential Quartier am Brunnenweg
Potential zur räumlichen und funktionalen Verknüpfung mit Standort Postbauer-Heng Nord
Jugendtreff
fehlende städtebauliche Verknüpfung mit dem Centrum


undefinierter Auftakt des Centrums
Haltestelle
Kästner
fehlender städtebaulicher Übergang zw. Centrumskern und EFH-Bebauung
Entwicklungsfläche mit schwieriger Erschließungsituation
Grünraumverbindung zum Friedhof im Ortsteil Heng
Grünachse zwischen PBH und Kemnath



Abb.100 Räumliche Darstellung der StärkenSchwächen-Chancen-Risiken

+ Grünräume in Entwicklung
G rü n rä u m e in E n tw ick lu n g


hochwertige Grünräume sichern
h o ch w e rtig e G rü n rä u m e s ich e rn
hochwertiger Baumbestand
h o ch w e rtig e r B a u m b e s ta n d
Sicherung, Stärkung und Erweiterung grüner Freiraumachsen
S ich e ru n g , S tä rk u n g u n d E rw e ite ru n g g rü n e r Fre ira u m a ch s e n
Grünflächen mit Potential zur funktionalen und ökologischen Aufwertung
G rü n flä ch e n m it Po te n tia l z u r fu n k tio n a le n u n d ö k o lo g is ch e n A u fw e rtu n g
Spielplätze und Aktivitätsangebote
S p ie lp lä tz e u n d A k tiv itä ts a n g e b o te
Freiräume mit Potential zur funktionalen und gestalterischenAufwertung
Fre irä u m e m it Po te n tia l z u r fu n k tio n a le n u n d g e s ta lte ris ch e n A u fw e rtu n g
Flächen mit positiven Entwicklungstendenzen
F lä ch e n m it p o s itiv e n E n tw ick lu n g s te n d e n z e n
STÄRKEN / CHANCEN
besondere Orte / Nutzungen mit Entwicklungspotential
besondere Orte / Nutzungen mit Entwicklungspotential


hochwertige Grünräume sichern +
Grünräume in Entwicklung
Grünräume in Entwicklung
hochwertige Grünräume (zu sichern)
hochwertiger Baumbestand
hochwertiger Baumbestand
Sicherung, Stärkung und Erweiterung grüner Freiraumachsen
Sicherung, Stärkung und Erweiterung grüner Freiraumachsen
Grünflächen mit Potential zur funktionalen und ökologischen Aufwertung
Grünflächen mit Potential zur funktionalen und ökologischen Aufwertung
Spielplätze und Aktivitätsangebote
Spielplätze und Aktivitätsangebote
Freiräume mit Potential zur funktionalen und gestalterischenAufwertung
Freiräume zur funktionalen und gestalterischen Aufwertung
Flächen mit positiven Entwicklungstendenzen
Flächen mit positiven städtebaulichen Entwicklungstendenzen
Potentialflächen für zukünftige Entwicklungen (Gemeinbedarf)
Potentialflächen für zukünftige Entwicklungen (Gemeinbedarf)
Wichtige Querungsbereiche Centrumsstraße
Wichtige Querungsbereiche Centrumsstraße
bestehende Fußwegeverbindungen weiter stärken
bestehende Fußwegeverbindungen (aufwerten und stärken)
Ergänzung Fußwegeverbindungen prüfen
Bereiche mit hohem Versiegelungsgrad








Potentialflächen für zukünftige Entwicklungen (Gemeinbedarf)
Po te n tia lflä ch e n fü r z u k ü n ftig e
E n tw ick lu n g e n (G e m e in b e d a rf)
Wichtige Querungsbereiche Centrumsstraße
SCHWÄCHEN / RISIKEN
Wich tig e Q u e ru n g s b e re ich e C e n tru m s s tra ß e
bestehende Fußwegeverbindungen weiter stärken
b e s te h e n d e Fu ß w e g e v e rb in d u n g e n w e ite r s tä rk e n
Ergänzung Fußwegeverbindungen prüfen
E rg ä n z u n g Fu ß w e g e v e rb in d u n g e n p rü fe n
Ergänzung Fußwegeverbindungen zu prüfen
Bereiche mit hohem Versiegelungsgrad
Bereiche mit hohem Versiegelungsgrad
B e re ich e m it h o h e m Ve rs ie g e lu n g s g ra d
Flächen mit Bedarf einer gestalterischen Aufwertung
F lä ch e n m it B e d a rf e in e r g e s ta lte ris ch e n A u fw e rtu n g
Flächen mit Bedarf einer gestalterischen Aufwertung
Leerstand
Leerstand
Le e rs ta n d
Gebäude mit städtebaulichem Qualifizierungspotential
G e b ä u d e m it s tä d te b a u lich e m
Gebäude mit städtebaulichem Qualifizierungspotential / Nachverdichtungspotential
Q u a lifiz ie ru n g s p o te n tia l
Flächen mit Nachverdichtungspotential / städtebaulichem Qualifizierungspotential
F lä ch e n m it N a ch v e rd ich tu n g s p o te n tia l /
Flächen mit städtebaulichem Handlungsbedarf (Nachverdichtung/Qualifizerung)
s tä d te b a u lich e m Q u a lifiz ie ru n g s p o te n tia l
Städtebaulicher Bruch
Städtebaulicher Bruch
S tä d te b a u lich e r B ru ch
Fehlende Aufenthaltsqualität im Freiraum
Fehlende Aufenthaltsqualität im Freiraum
Fe h le n d e A u fe n th a lts q u a litä t im Fre ira u m
Fehlende Barrierefreiheit
Fehlende Barrierefreiheit
Fe h le n d e B a rrie re fre ih e it
Gefahrenstelle Fuß- und Radverkehr
Gefahrenstelle Fuß- und Radverkehr
G e fa h re n s te lle Fu ß - u n d R a d v e rk e h r
In diesem Kapitel wird das gemeinsam entwickelte Zukunftsbild für das Centrum von Postbauer-Heng vorgestellt. Es bündelt die zentralen Visionen und Ziele der Gemeinde und dient so als strategische Grundlage für alle weiteren Planungs- und Entwicklungsprozesse.
Ausgehend von der Bestandsaufnahme und der SWOT-Analyse wird zunächst ein übergeordnetes Zukunftsbild formuliert, das verdeutlicht, wie sich Postbauer-Heng langfristig ausrichtet. Darauf aufbauend werden thematische Bausteine definiert, in denen konkrete Leitsätze und Leitlinien für eine nachhaltige und zukunftsorientierte Entwicklung des Centrums verankert sind. Sie dienen als Richtschnur für die künftige Gestaltung und bilden den Rahmen für die Erarbeitung und Umsetzung konkreter Maßnahmen.
Das übergeordnete Zukunftsbild für die Entwicklung des Centrums von Postbauer-Heng dient als Richtschnur für die zukünftige Gestaltung dieses wichtigen Ortsbereichs. Es benennt grundlegende Werte und Entwicklungsziele, die als gemeinsame Basis für alle weiteren Maßnahmen und Projekte im Centrum gelten.
Ziel ist es, eine nachhaltige, zukunftsorientierte und gut abgestimmte Entwicklung zu fördern. Diese soll die Identität des Centrums stärken und sicherstellen, dass die geplanten Maßnahmen den Bedürfnissen der Bürgerinnen und Bürger entsprechen. Gleichzeitig bietet das Zukunftsbild eine verlässliche Orientierung, falls sich äußere Rahmenbedingungen verändern. Statt Prozesse komplett neu aufzusetzen, können Vorhaben angepasst werden – solange sie den definierten Zielen und Werten entsprechen.
Das Zukunftsbild ist in fünf thematische Bausteine
gegliedert. Jeder Baustein steht für ein zentrales Handlungsfeld in der Entwicklung des Centrums:
• Raum und Flächen (weiter-)entwickeln
• Räume vernetzen
• Nutzungsmix (weiter-)entwickeln
• Öffentlichen Raum updaten
• Gemeinschaft und Kultur stärken
Diese Bausteine sind mit konkreten Leitlinien hinterlegt. Sie sind detaillierter, geben eine inhaltliche Richtung vor und enthalten Hinweise zur Umsetzung. Dadurch wird eine Planung möglich, die konsistent aber auch anpassungsfähig ist. Jeder Baustein greift einen wesentlichen Aspekt der Centrumsentwicklung auf. Im Zusammenspiel tragen sie dazu bei, das Centrum als lebendigen, funktionalen und identitätsstiftenden Mittelpunkt von Postbauer-Heng weiterzuentwickeln.
Raum und Flächen (weiter-)entwickeln Räume vernetzen
Öffentlichen Raum updaten

Zukunft schreibt man mit C
Nutzungsmix (weiter-)entwickeln
Gemeinschaft und Kultur stärken
Abb.101 Die Bausteine des Zukunftsbilds Centrum
Spezifischer Bereich
GWÖ-Bilanz 2019-2020
Gesamtgemeinde
Leitbild Gemeinde 2011
Vergangenheit
Das Zukunftsbild für das Centrum von PostbauerHeng ist eng mit bestehenden Konzepten der Gemeinde verknüpft. Frühere Planungen liefern wichtige Aussagen, die in das ISEK eingeflossen sind. Dazu gehören das Leitbild von 2011, oder der Gemeinwohlbericht im Rahmen der Gemeinwohlökonomie-Zertifizierung von 2022.
Das ISEK baut auf diesen Erkenntnissen auf, vertieft sie mit Blick auf den Untersuchungsraum im Centrum und setzt dabei neue inhaltliche Schwerpunkte. Gleichzeitig reicht seine Wirkung über den Ortskern hinaus. Die im Prozess entwickelten Inhalte lassen sich auch auf andere Bereiche der Gemeinde übertragen und in übergeordnete Planungen integrieren.
Zukunftsbild Centrum
Fortschreibung
GWÖ-Bilanz 2021-2024
Gegenwart
Fortschreibung
Leitbild Gemeinde
Zukunft
Abb.102 Verortung des Zukunftsbilds Centrum innerhalb der bestehenden kommunalen Konzeptlandschaft
Durch die Verknüpfung mit aktuellen Analysen, fachlichen Leitlinien und den Ergebnissen der Bürgerbeteiligung entstehen wichtige Impulse. Sie unterstützen die Weiterentwicklung bestehender Konzepte und helfen, diese gezielt zu ergänzen. Das ISEK kann damit dabei helfen, bestehende Planungen zu schärfen und fortzuschreiben. So wird der gesamträumliche Blick und die strategische Steuerung der Gemeinde auf ihre zukünftige Entwicklung gestärkt.
Generationengerechte Flächenentwicklung zielt darauf ab, den Flächenverbrauch zu minimieren und die Ressource Boden nachhaltig zu nutzen. Dabei wird sowohl die Lebensqualität der heutigen als auch die der zukünftigen Generation gesichert. Insgesamt geht es darum, Bedürfnisse der Gegenwart und der Zukunft auszubalancieren, indem Flächen effizient genutzt und eine hohe Lebensqualität für alle Generationen gewährleistet wird.
Boden ist wertvoll – deshalb müssen wir gut und verantwortungsvoll damit umgehen. Unser Ziel ist es, die Gemeinde behutsam und nachhaltig weiterzuentwickeln. Das bedeutet: Wir bauen mit klaren Grenzen, erhalten Grünflächen und planen gezielt, wo neue Gebäude entstehen sollen. Dabei ist es wichtig, eine gute Balance zu finden – zwischen dem Wunsch nach Entwicklung und dem Schutz von Natur und Freiräumen. Wir wollen zuerst Flächen im Ort nutzen (Innenentwicklung), bevor neue Baugebiete am Rand entstehen.
Damit verhindern wir, dass sich die Gemeinde zu stark ausdehnt (Zersiedelung), und stärken die Struktur im Ort. Gleichzeitig bleiben wertvolle Grün- und Freiflächen als Lebensräume für Menschen, Tiere und Pflanzen erhalten. Eine gute Flächenplanung hilft, mit dem vorhandenen Platz klug umzugehen, Ressourcen zu schonen und dauerhaft gute Lebensbedingungen für alle Generationen zu schaffen.
Entwicklungskriterien für (zentrale) Grundstücke Für zentrale Grundstücke gibt es klare Ziele und Regeln für die Entwicklung. Dabei geht es um die Bauweise, eine gute Mischung an Nutzungen, die städtebauliche Qualität und die Höhe der Gebäude. Die Grenze der Gebäudehöhe richtet sich nach der Reichweite normaler Feuerwehrleitern - es darf keine Drehleiter nötig sein. So lassen sich aufwendige Brandschutzmaßnahmen vermeiden und die Kosten für die Gemeinde (Feuerwehr) und die Eigentümer:innen niedrig halten.
Generationengerechte und vorausschauende Flächenentwicklung
Flächen werden sparsam und zukunftsorientiert genutzt. Vorrang hat dabei die Innenentwicklung, das heißt die Nutzung von Flächen innerhalb bestehender Ortschaften oder bereits bebauter Gebiete, bevor neue Bauflächen ausgewiesen werden. So wird sichergestellt, dass auch zukünftige Generationen über ausreichend Raum für Wohnen, Arbeiten und Freizeit verfügen. Neue Baugebiete sollen nur ausgewiesen werden, wenn ein langfristiger Bedarf besteht und ihre Entwicklung als sinnvoll erachtet wird. Es gilt: „Innen vor Außen“.
Freiräume sichern
Die Gemeinde schützt wichtige Grün- und Frischluftflächen. Sie sorgen für gutes Klima, klare Luft, sind Lebensraum für Tiere und Pflanzen und Erholungsraum für Menschen. Damit das so bleibt, darf in der Nähe nicht zu dicht gebaut werden. In besonders wichtigen Bereichen bleibt die Fläche ganz frei von Bebauung.
Räumliche Trennung zwischen PostbauerHeng und Kemnath erhalten
Die Freifläche zwischen den Ortsteilen bleibt erhalten. So können beide Orte ihre jeweilige Identität bewahren. Gleichzeitig wird eine weitere Ausdehnung der Siedlungsflächen verhindert, und die ‚grüne Lunge‘ zwischen den Ortsteilen gesichert.
Klare Abfolge der baulichen Entwicklung
Bevor neue Bauflächen ausgewiesen werden, wird genau geprüft, ob nicht zuerst bestehende Flächen genutzt werden können. Das gilt z. B. für leerstehende Gebäude oder freie Grundstücke im Ort. Neue Flächen sollen nur dann in Anspruch genommen werden, wenn es wirklich keine Alternative gibt.
Grundstücke in Gemeindebesitz bringen
Besonders wichtige Grundstücke sollen – wenn möglich – von der Gemeinde übernommen werden. So kann sie besser steuern, wie sich der Ort entwickelt und wichtige Flächen sichern.
Wir möchten das Centrum für alle gut erreichbar und durchlässig machen – für Menschen, die Natur und die Mobilität. Unser Ziel ist es, Verbindungen und Wege zu verbessern: zwischen den verschiedenen Ortsteilen, in die Nachbarschaft und innerhalb des Centrums selbst. Wir setzen auf eine Mobilität, die für alle einfach und sicher ist – zu Fuß, mit dem Rad, mit dem Auto und den öffentlichen Verkehrsmitteln.
Dabei denken wir auch an die Natur: Grüne Korridore und durchgängige Freiräume schaffen Lebensräume für Tiere und Pflanzen und erhöhen die Aufenthaltsqualität für Menschen. So entsteht ein gut vernetzter Ort mit kurzen Wegen, der Begegnungen fördert und den Zusammenhalt stärkt.
Das Centrum soll für alle gut erreichbar sein – ob zu Fuß, mit dem Rad, mit dem Auto oder dem öffentlichen Nahverkehr. Alle Verkehrsteilnehmenden werden bei zukünftigen Planungen gleichwertig behandelt.
Grünflächen und Naturräume sollen miteinander verbunden und erweitert werden, um die ökologischen Funktionen und die Vielfalt an Pflanzen und Tieren zu fördern.
Die Nord-Süd-Verbindung entlang der Stromtrasse wird insoweit als Freiraum verstanden und weiterentwickelt, dass eine funktionale, ökologische und landschaftliche Durchlässigkeit gewährleistet werden kann.
Wichtige Hauptwege, Verkehrsachsen und Querverbindungen, vor allem für Fußgänger:innen und Radfahrer:innen, werden verbessert und weiter ausgebaut. So kann man sich leichter, schneller und sicherer bewegen.
Wir gestalten ein lebendiges Zentrum, in dem verschiedene Lebensbereiche eng miteinander verbunden sind. Wohnen, Arbeiten, Einkaufen, Lernen, Begegnung und Freizeit sollen an einem Ort möglich sein. Dabei setzen wir auf eine ausgewogene Mischung aus privaten, öffentlichen und gemeinschaftli-
chen Nutzungen – besonders im Erdgeschoss. Diese Vielfalt macht das Centrum attraktiv und lebendig. Mit durchdachten Konzepten und flexibel nutzbaren Räumen sorgen wir dafür, dass sich das Centrum auch in Zukunft an neue Bedürfnisse anpassen kann – und ein Treffpunkt für alle bleibt.
Schwerpunkte setzen und Ankernutzungen stärken
Im Centrum sollen zentrale Funktionen wie Handel, Bildung, Kultur, Gesundheit und soziale Infrastruktur gezielt gefördert und räumlich gebündelt werden. Eine strukturierte Nutzungsverteilung unterstützt die Orientierung, fördert sinnvolle Verbindungen und trägt dazu bei, Nutzungskonflikte zu vermeiden. Ergänzende Angebote werden möglichst so integriert, dass sie das Centrum als lebendigen und vielfältigen Mittelpunkt der Gemeinde stärken.
Das Angebot im Centrum gut mit der ganzen Gemeinde abstimmen
Das Centrum wird gemeinsam mit anderen Bereichen in der Gemeinde weiterentwickelt. Dabei wird darauf geachtet, dass sich die Angebote sinnvoll ergänzen, sodass verschiedene Bereiche sich gegenseitig stärken und unterstützen. Gleichzeitig soll vermieden werden, dass an anderer Stelle neue Angebote entstehen, die dem Centrum Konkurrenz machen oder seine Funktionen schwächen.
Jugendliche im öffentlichen Raum (innen und außen) stärken
EXKURS: Was sind Dritte Orte?
Das Prinzip der Dritten Orte basiert auf der Idee, Räume zu schaffen, die weder Arbeitsort noch Zuhause sind, aber dennoch eine wichtige soziale Funktion erfüllen. Sie bieten Raum einander zu begegnen, sich auszutauschen und gemeinsames zu Erleben – ohne Konsumzwang oder Verpflichtung. Ob Café, Bibliothek oder Gemeinschaftszentrum: Dritte Orte fördern Gemeinschaft, Kreativität und Offenheit. In der Stadtplanung leisten sie einen wichtigen Beitrag zum sozialen Zusammenhalt und zur vielfältigen Nutzung des öffentlichen Raums.
Jugendliche sollen sich im öffentlichen Raum aufhalten, drinnen wie draußen. Gleichzeitig bekommen sie eigene Orte, die sie mitgestalten und für sich nutzen können. Ihre Wünsche und Ideen werden dabei ernst genommen und aktiv einbezogen – unterstützt von Streetworker:innen und Jugendpfleger:innen.
Orte ohne Kaufzwang gehören fest zum Centrum
Im Centrum soll es auch Plätze geben, an denen man einfach sein kann – ohne etwas kaufen zu müssen. Diese öffentlichen Orte sind wichtig für das Zusammenleben. Sie bieten ohne viel Aufwand die Möglichkeit, sich (zufällig) zu begegnen, auszutauschen und am Dorfleben teilzuhaben – für alle Menschen.
Nutzungen gemeinsam denken und flexibel bleiben
Bevor neue Räume für Nutzungen geschaffen werden, wird zuerst überprüft, ob bestehende Räume genutzt oder umgestaltet werden können. Dabei denken wir nicht in getrennten Nutzungen, sondern suchen gezielt nach Kombinationen, bei denen verschiedene Funktionen gut zusammenwirken – also Synergien entstehen. So bleiben wir flexibel und gehen verantwortungsvoll mit dem Vorhandenen um.
Wir machen den öffentlichen Raum zum Wohlfühlraum – klimaangepasst, barrierefrei und charakterstark. Mit gut erreichbaren Wegen, einheitlichem Design, viel Grün und ausreichend Sitzplätzen schaffen wir Aufenthaltsqualität für Menschen jeden Alters. Kunst, Spielmöglichkeiten und kreative Elemente bringen Leben ins Centrum und laden zum Verweilen,
Mitmachen und Entdecken ein. Gleichzeitig machen wir unsere Freiräume fit für den Klimawandel – mit Schattenplätzen, Wasserflächen und naturnaher Gestaltung. So entsteht ein lebendiger Ort mit Wiedererkennungswert, der das Miteinander stärkt und für die Zukunft gut vorbereitet ist.
EXKURS: Was bedeutet Barrierefreiheit?
Alle Menschen sollen öffentliche Räume gleichberechtigt nutzen können – unabhängig davon, ob sie körperliche, geistige oder seelische Einschränkungen haben. Dabei geht es nicht nur um Rollstuhlfahrer:innen, sondern auch um Menschen mit Seh- oder Hörbeeinträchtigungen, ältere Personen oder Menschen mit vorübergehenden Einschränkungen – etwa nach einer Krankheit oder Operation. Auch Menschen mit kognitiven oder seelischen Beeinträchtigungen, wie etwa Autismus oder einer Reizüberempfindlichkeit, brauchen eine Umgebung, die auf unterschiedliche Wahrnehmungen Rücksicht nimmt.
Barrierefreiheit umfasst dabei viele Bereiche: Wege, Beschilderungen, digitale Informationen und auch Sprache müssen so gestaltet sein, dass sie für alle verständlich und nutzbar sind. Da Einschränkungen sehr unterschiedlich sein können, sollten öffentliche Räume so geplant werden, dass wirklich alle Menschen sie ohne Hindernisse nutzen können.
Einheitliche und hochwertige Gestaltung des öffentlichen Raums
Ein klar erkennbares und stimmiges Ortsbild entsteht, wenn der öffentliche Raum nach einheitlichen Gestaltungsprinzipien geplant wird – zum Beispiel bei Sitzgelegenheiten, Beleuchtung, Bepflanzung, Schildern und anderen Elementen. Wichtig ist dabei die sorgfältige Auswahl von Materialien, Bodenbelägen und gestalterischen Details. Im Mittelpunkt stehen dabei Langlebigkeit, gute Gestaltung, einfache Nutzung sowie ein bewusster Umgang mit Ressourcen. Auch der Schutz des Klimas und die Anpassung an den Klimawandel spielen eine zentrale Rolle.
als Standard umsetzen
Der öffentliche Raum wird so geplant, dass alle Menschen ihn sicher und selbstständig nutzen können –egal wie alt sie sind, oder ob sie körperliche, geistige oder seelische Einschränkungen haben.
Klimaanpassung mitdenken
Der öffentliche Raum hilft dabei, mit Folgen des Klimawandels besser umzugehen. Dazu gehören mehr Schatten, entsiegelte Flächen, ein gutes Regenwassermanagement und eine Gestaltung, die Hitze reduziert. So bleibt der Raum auch in Zukunft angenehm und nutzbar – für alle.
Kunst und Spielen sichtbar machen
Der öffentliche Raum ist auch Raum für Kreativität, Kultur und Bewegung. Kunst und Spielangebote gehören selbstverständlich dazu und laden zum Mitmachen und Entdecken ein. Besonders spannend wird es, wenn sich Kunst und Spiel verbinden und neue, gemeinsame Erlebnisse im öffentlichen Raum ermöglichen.
Die Centrumstraße - ein gemeinsamer Raum für alle
Die Centrumsstraße wird im Kernbereich (Peter-Henlein-Straße bis Kreisverkehr) wird so gestaltet, dass sich alle Verkehrsteilnehmenden dort gleichberechtigt bewegen können – egal ob zu Fuß, mit dem Fahrrad, dem Auto oder dem Rollstuhl.
Das zeigt sich nicht nur in den Verkehrsregeln, sondern auch in der Gestaltung der Straße selbst – zum Beispiel durch breite Gehwege, klare Markierungen und mehr Platz für alle.
Bedürfnisse aller Generationen berücksichtigen
Das Centrum wird so gestaltet, dass es für alle Altersgruppen geeignet ist. Angebote und Räume richten sich an die Bedürfnisse von Kindern, Jugendlichen, Erwachsenen und Senior:innen und fördern das Miteinander zwischen den Generationen.
Wir gestalten das Centrum als einen Ort, an dem sich Menschen begegnen, wohlfühlen und aktiv einbringen können – egal ob jung oder alt, neu in der Gemeinde oder tief vor Ort verwurzelt. Es entstehen Räume und Angebote, die den Zusammenhalt stärken: Treffpunkte, Veranstaltungen, kulturelle Angebote und Orte, die
gemeinsam genutzt werden können. Wir setzen auf Offenheit, Vielfalt und gegenseitigen Respekt. So entsteht ein Miteinander, in dem sich alle gehört, gesehen und willkommen fühlen – und aus dem ein starkes „Wir“ wächst.
Kultur sichtbar machen und fördern
Kultur gehört zum Leben im Centrum dazu. Die Gemeinde schafft Räume, Möglichkeiten und Rahmenbedingungen, damit kulturelle Aktivitäten entstehen und sichtbar werden können – ob professionell oder ehrenamtlich, klein oder groß. So wird kulturelle Teilhabe für alle Menschen möglich und das kulturelle Leben im Ort gestärkt.
Inklusion aktiv gestalten
Alle Menschen – unabhängig von Herkunft, Fähigkeiten oder Lebenssituation – sollen gleichberechtigt am Leben im Centrum teilhaben können. Das betrifft den Zugang zu Angeboten, Räumen und Möglichkeiten zum Mitreden/Mitmachen. Dies wird gemeinsam mit den betroffenen Menschen entwickelt. Vielfalt wird dabei nicht nur akzeptiert, sondern sichtbar gefördert und im Alltag gelebt.
Bürgerschaftliches Engagement fördern und unterstützen
Menschen, die sich freiwillig einbringen wollen, werden gezielt unterstützt. Die Gemeinde schafft gute Bedingungen, bietet Hilfe bei Projekten und Initiativen und zeigt Wertschätzung für das Engagement.
Mitwirkung dauerhaft sichern
Alle Menschen sollen die Möglichkeit haben, sich aktiv einzubringen. Dafür schafft die Gemeinde einfache, offene Beteiligungsmöglichkeiten, die leicht zugänglich sind – unabhängig von Alter, Herkunft oder Vorkenntnissen.
So wird Teilhabe für alle möglich und zu einem festen Bestandteil bei der Entwicklung des Centrums.
Aktiv etwas gegen Einsamkeit tun
Einsamkeit ist ein Thema, das viele Menschen betrifft – und dem wir als Gesellschaft gemeinsam begegnen müssen. Offene Treffpunkte, gute öffentliche Räume und gezielte Angebote helfen dabei, Menschen miteinander in Kontakt zu bringen und Vereinsamung zu verhindern.
Im Centrum soll es Orte geben, an denen sich Menschen ganz spontan treffen können – ohne Anmeldung, ohne Zwang. Diese Treffpunkte sollen im Alltag gut erreichbar, offen für alle und leicht zu finden sein. So entstehen Begegnungen ganz nebenbei –für mehr Gemeinschaft im Alltag.
Mit den im ISEK festgelegten Maßnahmen definiert die Marktgemeinde Postbauer-Heng klare Ziele für die Umsetzung im vorgesehenen Geltungszeitraum. Die Realisierung der nachfolgend beschriebenen Maßnahmen wird das Centrum von PostbauerHeng nachhaltig prägen und zukunftsfähig weiterentwickeln.
Jede Maßnahme besteht aus mehreren Umsetzungsschritten, die jeweils eine gesonderte Beschlussfassung, detaillierte Planung und anschließende Ausführung erfordern. Auch bei der weiteren Ausarbeitung und Konkretisierung der einzelnen Maßnahmen soll die Bürgerschaft gezielt eingebunden bleiben, um eine bedarfsgerechte Entwicklung sicherzustellen.
Legende
MX
Maßnahmen
Soziales Dreieck Nord-Süd-Achse entlang Stromtrassenkorridor vorläufige Entwicklungsgrenze Postbauer-Heng
Naturerlebnisraum Schulhof
Ökologische Trittsteine
(Aufwertung öffentliche Freiflächen)
Umgestaltung der Plätze im Kernbereich
Neuordnung und Gestaltung Centrumsstraße
Spazierloop - bestehende Verbindungen
Spazierloop - Lücken
Städtebauliche Potentialflächen
Entwicklungsrichtung Kerncentrum
Grünzäsur / Waldzone („Grüne Lunge“)
Weiterentwicklung Grünzäsur („Grüne Lunge“)
Untersuchungsgebiet
Maßnahmen ohne Verortung
Grünstrukturen
Erweiterung
Abb.103 Rahmenplan Der Rahmenplan dient sowohl der räumlichen Verortung der geplanten Maßnahmen als auch der Vermittlung übergeordneter strategischer Ansätze, die sich aus den Leitlinien des Zukunftsbilds für das Centrum ergeben.
Im Rahmen des ISEK-Prozesses wurden auf Grundlage der Erkenntnisse der Analyse und den formulierten Leitlinien konkrete Maßnahmen herausgearbeitet. Dabei handelt es sich teilweise um Einzelmaßnahmen, welche relativ unabhängig umgesetzt werden können. Ein Großteil der Maßnahmen ist aber inhaltlich und räumlich eng miteinander verbunden.
Einige Maßnahmen befinden sich auf strategischer und konzeptioneller Ebene, andere Maßnahmen sind konkrete Projekte, die sich manchmal in Teilaspekte aufteilen lassen. Zusätzlich wird dargestellt, welche bereits mit wenig Aufwand und Mitteln – also sogenannte „Quick Wins“ – schnell umsetzbar sind. Herausgearbeitet wurde auch, wo eine Einbindung der Bürgerschaft als sinnvoll erachtet wird und gut möglich ist.
Wichtig ist dabei die Unterscheidung zwischen den Bausteinen des Zukunftsbildes und den nun folgenden Maßnahmenclustern.
Die fünf Bausteine des Zukunftsbildes formulieren die übergeordneten strategischen Leitgedanken für die künftige Entwicklung Postbauer-Hengs. Sie bilden die inhaltliche Klammer und Orientierung für alle weiteren Schritte.
Die Maßnahmen selbst sind zur besseren Übersicht in sechs Themenbereiche gegliedert. Diese dienen der konkreten Strukturierung der Projekte und unterscheiden sich bewusst von den strategischen Bausteinen – sie folgen stärker praktischen und räumlichen Gesichtspunkten.
Schlüsselmaßnahmen
3. Öffentlicher
Die sechs Themenbereiche, innerhalb derer die Maßnahmen zusammengefasst sind, lauten:
1. Raumstrategische Maßnahmen
2. Öffentlicher Raum Kerncentrum
3. Öffentlicher Raum erweitertes Centrum
4. Grünraumentwicklung
5. Verbindungen
6. Orte der Gemeinschaft
Auf den folgenden Seiten sind die Maßnahmen im Detail beschrieben, die damit identifizierten Ziele formuliert und das dafür nötige Vorgehen beschrieben. Wo möglich sind sie räumlich verortet. Es wird ein Zeithorizont für die Umsetzung aufgespannt und die Verknüpfungen zu den strategischen Bausteinen des Zukunftsbildes hergestellt.
HINWEIS
Die im Folgenden dargestellten Maßnahmen sind in Teilen detaillierter ausgearbeitet. Dabei handelt es sich jedoch noch nicht um verbindliche Planungen, sondern um beispielhafte Darstellungen von Potenzialen. Es wurde geprüft, welche Möglichkeiten grundsätzlich bestehen und welche Ansätze für die zukünftige Entwicklung denkbar wären. Ziel ist es, Chancen sichtbar zu machen und Anregungen für vertiefte Planungen zu liefern.
Nach Abschluss des ISEK müssen die Maßnahmen weiter ausgearbeitet und konkret geplant werden. Erst in diesem nächsten Schritt wird festgelegt, welche Inhalte im Detail umgesetzt werden sollen.
Tauschhaus mit C
Maßnahmenbeschreibung
Das bestehende Gemeindeleitbild von PostbauerHeng wurde im Jahr 2011 im Rahmen der AGENDA 21 erarbeitet. Die darin behandelten Themen – wie Nachhaltigkeit, Lebensqualität und gesellschaftlicher Zusammenhalt – sind auch heute noch aktuell und bilden eine wertvolle Grundlage für die strategische Gemeindeentwicklung. Ähnliche Themen finden sich auch im GWÖ-Bericht von 2019-2020 sowie in dessen aktueller Fortschreibung
Angesichts neuer Herausforderungen und Zielsetzungen, die im Zuge des ISEK-Prozesses sowie der vertieften Auseinandersetzung mit der Entwicklung des Centrums formuliert wurden, ist nun ein geeigneter Zeitpunkt, das Leitbild zu überprüfen und fortzuschreiben.
Dabei sollte kritisch reflektiert werden:
• Welche Ziele und Maßnahmen aus dem bisherigen Leitbild wurden bereits erfolgreich umgesetzt?
• Welche Inhalte sind möglicherweise überholt oder haben an Relevanz verloren?
• Welche Themenbereiche – etwa Digitalisierung, Klimaanpassung, Daseinsvorsorge oder gesellschaftliche Teilhabe – fehlen bislang und sollten ergänzt werden?
Besondere Bedeutung kommt dem Centrum als lebendigem Mittelpunkt der Gesamtgemeinde zu. Bereits im Leitbild von 2011 wurde seine zentrale Rolle erkannt. Im ISEK wurde dieser Ansatz nochmals geschärft und mit konkreten Perspektiven unterlegt. Eine Fortschreibung des Leitbilds bietet nun die Chance, diese Erkenntnisse auf die Gesamtgemeinde zu übertragen und die zukünftige Entwicklung ganzheitlich, generationengerecht und nachhaltig auszurichten, sowie die Wechselwirkungen zwischen den verschiedenen Bereichen der Gemeinde zu schärfen.
Ziel der Maßnahme
Ein aktualisiertes Gemeindeleitbild soll als langfristiger Orientierungsrahmen für Politik, Verwaltung und Bürgerschaft dienen. Es soll dazu beitragen, ein gemeinsames Zukunftsbild zu entwerfen, strategische Ziele zu formulieren und den gesellschaftlichen Diskurs über die Entwicklung der Gesamtgemeinde zu fördern. Dabei sind vor allem auch die Ergebnisse der aktuellen GWÖ-Bilanz entsprechend zu berücksichtigen.
> B1 Raum und Flächen weiterentwickeln
> B2 Räume vernetzen
> B5 Gemeinschaft und Kultur stärken
Gesamtgemeinde
Umsetzung
kurzfristig mittelfristig langfristig
Empfohlenes Vorgehen
• Evaluierung des bestehenden Leitbilds mit Beteiligung von Gemeinderat, Verwaltung und ggf. Bürgerschaft
• Integration der Ergebnisse des ISEK und der Erkenntnisse aus der Centrums-Entwicklung
• Integration der Ergebnisse der aktuellen GWÖBilanz
• Erarbeitung eines neuen Leitbild-Entwurfs im Dialog mit lokalen Akteur:innen
• Verabschiedung und Kommunikation des fortgeschriebenen Leitbilds als verbindliche Richtschnur für das gemeindliche Handeln
Maßnahmenbeschreibung
Die im Rahmen des ISEK angestoßene Auseinandersetzung mit der Entwicklung des Centrums von Postbauer-Heng hat deutlich gemacht, dass zahlreiche städtebauliche, funktionale und gestalterische Fragestellungen nicht an den Grenzen des enger gefassten Untersuchungsraums enden. Vielmehr bestehen enge räumliche, funktionale und infrastrukturelle Verflechtungen mit angrenzenden Quartieren und Ortsteilen im Gemeindegebiet.
Insbesondere bei Themen wie Verkehrsanbindung, Wohnraumentwicklung und Freiraumvernetzung sind flächendeckende Perspektiven notwendig. Daher wird empfohlen, im Anschluss an die ISEK-Erstellung eine umfassende Neuaufstellung des Flächennutzungsplans (FNP) anzustoßen. Der derzeitige FNP ist in Teilen bereits veraltet; einzelne Eintragungen entsprechen nicht mehr den aktuellen Gegebenheiten, und einige ursprünglich geplante Gebietsausweisungen sind überholt und werden nicht mehr weiterverfolgt.
Durch eine Neuaufstellung können die Entwicklungsimpulse aus dem ISEK-Prozess in einen gemeindeweiten strategischen Rahmen überführt werden. Die Neuaufstellung bietet die Möglichkeit, bestehende Planungsgrundlagen zu überprüfen und zu aktualisieren, zukünftige Bedarfe systematisch zu erfassen und die kommunale Bodenpolitik an den aktuellen Herausforderungen – wie Klimawandel, Mobilitätswende und demografischem Wandel – auszurichten.
Ziel der Maßnahme
Ein zukunftsfähiger Flächennutzungsplan schafft Planungssicherheit für Verwaltung, Politik und private Akteur:Innen. Er soll der Gemeinde ermöglichen, ihre bauliche, funktionale und landschaftliche Entwicklung in Einklang mit den Leitlinien des ISEK und der Fortschreibung des Gemeindeleitbilds zu steuern.
Empfohlenes Vorgehen
• Auswertung der Ergebnisse aus dem ISEK
• Erarbeitung eines gemeindeweiten Zielbilds für Siedlung, Verkehr, Landschaft und Infrastruktur (gekoppelt mit dem Gemeindeleitbild)
• Beteiligung von Politik, Fachstellen, Bürgerschaft und Grundstückseigentümer:innen
> B1 Raum und Flächen weiterentwickeln
> B2 Räume vernetzen
> B3 Nutzungsmix (weiter-)entwickeln
Gesamtgemeinde
Umsetzung
• Aufstellung des neuen FNP im Rahmen der formellen Verfahren gemäß Baugesetzbuch kurzfristig mittelfristig langfristig
Hinweis
Die Neuaufstellung kann auch genutzt werden, um strategische Aspekte wie Innenentwicklung vor Außenentwicklung, die Sicherung von Grünzügen oder die Entwicklung neuer Wohn- und Gewerbeflächen qualifiziert zu steuern und die Umsetzung des ISEK im Centrumsbereich und darüberhinaus langfristig abzusichern.
HINTERGRUND UND BEDEUTUNG
• Der FNP ist eine Art „Landkarte“ für das Gemeindegebiet, die die zukünftig angestrebte Nutzung der Flächen darstellt.
• Er dient als Grundlage für die Aufstellung von Bebauungsplänen, die dann konkrete Baumaßnahmen regeln.
• Die Neuaufstellung ist oft notwendig, um auf geänderte Bedürfnisse und Entwicklungen in der Gemeinde zu reagieren.
Im Kontext von ISEK kann die Neuaufstellung des FNP dazu dienen, die im ISEK formulierten Ziele und Maßnahmen räumlich umzusetzen.
Maßnahmenbeschreibung:
Im Rahmen der Erstellung des ISEK für das Centrum von Postbauer-Heng wurde deutlich, dass viele planerische Überlegungen auf Einzelflächenebene aufgrund fehlender Flächenverfügbarkeit oder komplexer Eigentumsverhältnisse nur bedingt weiterverfolgt werden können. Gleichzeitig haben sich jedoch wichtige Erkenntnisse zur städtebaulichen Entwicklung und zu potenziellen Flächenfunktionen ergeben, die gesichert und für zukünftige Planungen nutzbar gemacht werden sollten.
Ein strategisches Flächenkataster kann hier als informelles, flexibles Planungsinstrument dienen – im Übergang zwischen Flächennutzungsplan und Bebauungsplanung. Es ermöglicht eine systematische und digitale Übersicht über alle relevanten Flächen im Zentrum und – perspektivisch – im gesamten Gemeindegebiet. Ziel ist es, ortsspezifische Informationen und planerische Überlegungen auf Parzellenebene zu erfassen, kontinuierlich fortzuschreiben und strategisch verfügbar zu machen.
Ziel der Maßnahme:
Das Flächenkataster soll als zukunftsorientiertes Werkzeug im kommunalen Flächenmanagement etabliert werden. Es schafft Transparenz, sichert gewonnene Erkenntnisse aus dem ISEK-Prozess und unterstützt eine nachhaltige, strategisch gesteuerte Ortsentwicklung – auch ohne sofortigen Zugriff auf konkrete Flächen.
Kernfunktionen des Flächenkatasters:
1. Systematische Übersicht auf Parzellenebene
• Erfassung aller relevanten Grundstücke: bebaut/ unbebaut, öffentlich/privat
• Integration planerischer Einschätzungen und Entwicklungen aus dem ISEK
• Darstellung auf digitaler Basis
2. Planerisch relevante Informationen je Fläche
• Städtebaulich: Geschossigkeit, Nachverdichtungsoptionen, Freihaltungsbereiche, Baufluchten, gestalterische Anforderungen
• Nutzungsbezogen: Wohnen, Gemeinschaft, Bildung, Handel, Kultur, Mobilität
> B1 Raum und Flächen weiterentwickeln
> B2 Räume vernetzen
> B3 Nutzungsmix (weiter-)entwickeln
Umsetzung
kurzfristig mittelfristig langfristig
• Sonstige Kriterien: Denkmalschutz, klimatische und ökologische Funktionen, Eigentumsverhältnisse, Erschließungssituation
3. Einordnung, Bewertung und Priorisierung
• Einschätzung von Entwicklungstendenzen (z. B. Leerstand, Verkaufsbereitschaft, städtebauliche Konflikte, Potenzialflächen)
• Priorisierung von Flächen für künftige Projekte, Konzepte oder Förderanträge
• Ermittlung und Festhalten von Handlungsspielräumen und notwendigen Voraussetzungen (z. B. Informationen zu Gesprächen mit Eigentümer:innen und Bauwerber:innen)
4. Ableitung einer strategischen Gesamtperspektive
• Verknüpfung der Einzelflächenbewertungen zu räumlichen Entwicklungsschwerpunkten
• Sicherung von zentralen Funktionen im Centrum (z. B. Daseinsvorsorge, Begegnung, Wohnen für alle Generationen)
• Basis und Argumentationsgrundlage für städtebauliche Rahmenpläne, Förderstrategien oder gezielte Bauleitplanung 1.3
Abb.105 Ausschnitt aus den im ISEK-Prozess gewonnenen Erkenntnissen als Grundlage für das digitale Flächenkataster, das fortlaufend ergänzt und angepasst wird (gesamte Karte im Anhang des digitalen Douments)
5. Fortschreibung und Alltagstauglichkeit
• Das Kataster soll kontinuierlich aktualisiert werden – kein Einmalprojekt, sondern ein lebendiges Arbeitsinstrument
• Integration in den kommunalen Planungsalltag (z. B. Bauberatung, Standortentscheidungen, Vergabestrategien)
• Schnittstellen zu Bauleitplanung, Förderprogrammen und Liegenschaftsmanagement
Empfohlenes Vorgehen
• Konzeption und Strukturierung des Katasters in Zusammenarbeit mit Verwaltung, Planung und ggf. unter Beratung durch weitere externe Fachbüros
• Aufbau auf digitaler Plattform, z. B. im RIWA-GIS der Gemeinde oder Flächenmanagementdatenbank des LfU Bayern.
• Integration der ISEK-Ergebnisse und weiterer verfügbarer Daten (z. B. Eigentum, Nutzung, Schutzstatus)
• Regelmäßige Pflege und Weiterentwicklung durch die Verwaltung, mit klar definierten Zuständigkeiten
Das strategische Flächenkataster bildet so einen zentralen Baustein für eine langfristig tragfähige und gemeinwohlorientierte Entwicklung des Centrums –und kann perspektivisch auf das gesamte Gemeindegebiet übertragen werden. Es sichert Wissen, schafft Transparenz, unterstützt Entscheidungen und vermeidet, dass wertvolle Erkenntnisse „in der Schublade verschwinden“.


Abb.106 Infoflyer zur FlächenmanagementDatenbank des LfU
1.4
Maßnahmenbeschreibung:
Das integrierte städtebauliche Entwicklungskonzept (ISEK) bildet die strategische Grundlage für eine zukunftsfähige Entwicklung des Centrums von Postbauer-Heng. Damit die Ziele und Leitlinien des ISEK auch nach einem politischen Wechsel wirksam bleiben, ist eine bewusste Verankerung in der neuen Legislaturperiode erforderlich.
Ziel der Maßnahme:
Ziel ist es, die Ergebnisse des ISEK frühzeitig in der neuen Amtszeit des Gemeinderats zu verankern, Verständnis für dessen Inhalte und strategische Bedeutung zu schaffen und einen gemeinsamen politischen Konsens über zentrale Handlungsprioritäten herzustellen. Die Klausur stärkt das strategische Selbstverständnis des Gemeinderats, schafft Kontinuität über Wahlperioden hinweg und fördert die politische Anschlussfähigkeit langfristiger Entwicklungsziele. So wird das ISEK zu einem lebendigen Steuerungsinstrument für Politik und Verwaltung – über Einzelinteressen hinaus und mit Blick auf eine gemeinwohlorientierte Zukunft.
Inhalte und Aufbau der Klausur
1. Gemeinderatsklausur zum Beginn der neuen Legislaturperiode
• Durchführung zeitnah nach Konstituierung des neuen Gemeinderats
• Fokus auf langfristige Perspektiven und strategische Ausrichtung
• Rückblick auf den Entstehungsprozess und Ergebnisse des ISEK
2. Professionelle Moderation und externe Begleitung
• Einbindung externer Moderation und/oder ISEKFachplaner:innen zur zielgerichteten Prozessgestaltung
• Methoden zur Aktivierung, Perspektivenklärung und Priorisierung der nächsten Entwicklungsschritte
• Chance zur Vermittlung von Grundlagenwissen für neue Mandatsträger:innen
3. ISEK als Hauptthema der Klausur
• Vorstellung der zentralen Entwicklungsziele, Maßnahmenbündel und Leitprojekte
> B1 Raum und Flächen weiterentwickeln
> B2 Räume vernetzen
> B3 Nutzungsmix (weiter-)entwickeln
> B4 Öffentlichen Raum updaten
> B5 Gemeinschaft und Kultur stärken
Umsetzung
kurzfristig mittelfristig langfristig
• Diskussion: Was bedeutet das ISEK für die zukünftige Gemeindepolitik?
• Erarbeitung von Schwerpunkten für die ersten Jahre der neuen Legislaturperiode
4. Bewusstseinsbildung und strategische Einordnung
• Das ISEK wird als lebendiges, kommunal getragenes Steuerungsinstrument vermittelt
• Förderung eines gemeinsamen politischen Verständnisses für nachhaltige Ortsentwicklung
• Stärkung der Rolle des Gemeinderats als Impulsgeber und Träger langfristiger Strategien
ISEK-Manager:in
Maßnahmenbeschreibung:
Für die erfolgreiche Umsetzung des integrierten städtebaulichen Entwicklungskonzepts (ISEK) wird eine eigene Projektstelle eingerichtet. Die/der ISEKManager:in übernimmt die Begleitung und Koordination der Umsetzungsphase und stellt sicher, dass die im Konzept beschlossenen Maßnahmen strukturiert und qualitätvoll realisiert werden. Ein besonderer Schwerpunkt liegt auf dem Schlüsselmaßnahmencluster „Öffentliche Räume im Kerncentrum“, das eine enge fachliche und organisatorische Betreuung erfordert. Die Stelle fungiert als Schnittstelle zwischen Verwaltung, Gemeinderat, Planungsbüros, Fördermittelgebern und Bürgerschaft. Ein Planungshintergrund (z. B. Stadtplanung, Landschaftsarchitektur oder Architektur) ist für die Wahrnehmung der Aufgaben von Vorteil.
Ziel der Maßnahme:
> B1 Raum und Flächen weiterentwickeln
Umsetzung 1.5
Ziel ist es, den ISEK-Umsetzungsprozess dauerhaft zu verankern und professionell zu steuern. Mit der neuen Stelle wird eine zentrale Anlaufstelle geschaffen, die:
• die Umsetzungsschritte koordiniert und den Überblick über alle Maßnahmen behält
• insbesondere die Gestaltung der öffentlichen Räume im Kernzentrum eng begleitet
• Fördermittel akquiriert und deren Einsatz steuert
• Beteiligungsprozesse organisiert und die Kommunikation nach innen und außen sicherstellt
Damit wird gewährleistet, dass die Ziele des ISEK nicht nur auf dem Papier stehen, sondern kontinuierlich in konkrete Projekte überführt und im Ortsbild sichtbar werden.
Mögliche Aufgabenbereiche
• Projekt- und Prozessmanagement: Steuerung der Umsetzung, Monitoring, regelmäßige Berichterstattung
• Fördermittelmanagement: Recherche, Beantragung und Abwicklung von Fördermitteln
• Koordination & Fachbegleitung: Abstimmung mit Planungsbüros, Verwaltung und externen Partner:innen
• Beteiligung & Kommunikation: Organisation von Beteiligungsformaten, Information der Öffentlichkeit
• Fokus Kerncentrum: Sicherstellung einer konsistenten Umsetzung der Schlüsselmaßnahmen im öffentlichen Raum
> B2 Räume vernetzen
> B3 Nutzungsmix (weiter-)entwickeln
> B4 Öffentlichen Raum updaten
> B5 Gemeinschaft und Kultur stärken
kurzfristig mittelfristig langfristig
Empfohlenes Vorgehen
• Erarbeitung eines Stellenprofils mit Anforderungsbeschreibung (inkl. planerischem Hintergrund)
• Ausschreibung und Besetzung der Stelle
• Klärung der organisatorischen Anbindung (z. B. Stabsstelle beim Bürgermeister/Bauamt)
• Aufstellung eines Arbeitsprogramms mit klaren Prioritäten für die ersten Jahre
• Einrichtung von Abstimmungsroutinen mit Verwaltung, Gemeinderat und externen Fachplaner:innen
• Aufbau eines Monitoring- und Berichtssystems zur kontinuierlichen Prozessbegleitung
Hinweis zur Förderfähigkeit:
Im Rahmen der Städtebauförderung können prozessbegleitende Leistungen wie Projektmanagement, Moderation und Fördermittelmanagement anteilig gefördert werden (bis ca. 60 %). Förderfähig ist dabei in der Regel die externe Vergabe an ein Planungs- oder Managementbüro. Die Schaffung einer zusätzlichen kommunalen Personalstelle ist hingegen nicht förderfähig. Die Förderung ist befristet und orientiert sich an der Umsetzungsphase des ISEK (ca. 3–5 Jahre).
Im Maßnahmencluster 2 dreht sich alles um die Entwicklung und Gestaltung der öffentlichen Räume im zentralen Bereich des Centrums von Postbauer-Heng. Die geplanten Maßnahmen bilden den Kernbereich des Integrierten Städtebaulichen Entwicklungskonzepts (ISEK) – sowohl räumlich als auch inhaltlich. Viele der hier verankerten Themen wurden bereits in früheren Beteiligungsprozessen als besonders relevant identifiziert und besitzen daher eine hohe Priorität im Hinblick auf die zeitliche Umsetzung.
Dieses Maßnahmencluster stellt in seiner Gesamtheit eine der zentralen Schlüsselmaßnahmen des ISEK dar. Die enthaltenen Einzelmaßnahmen – vom Gestaltungs- und Möblierungskonzept über die Neuordnung der Centrumsstraße, die Umgestaltung der öffentlichen Plätze, bis hin zur digitalen Infotafel und der Aufwertung der Bushaltestelle – sind inhaltlich eng verzahnt und räumlich unmittelbar miteinander verbunden. Innerhalb des Clusters besitzen die Bausteine jedoch eine unterschiedliche Gewichtung: Einige sind grundlegende Voraussetzungen für weitere Schritte, andere ergänzen und verstärken die Wirkung des Gesamtkonzepts.
Insbesondere die baulichen Maßnahmen im öffentlichen Raum erfordern eine sorgfältige zeitliche und planerische Abstimmung, da sie sich teils überschneiden oder funktional aufeinander aufbauen. Darüber hinaus kommt dem Zusammenspiel von Innen- und Außenraum eine zentrale Bedeutung zu: Der öffentliche Raum endet nicht an der Gebäudekante. Vielmehr müssen sich Nutzungen in Erdgeschossen – wie Einzelhandel, Gastronomie, soziale Einrichtungen oder Treffpunkte – und die Gestaltung der angrenzenden Freiräume gegenseitig ergänzen und stärken. Nur wenn Innen und Außen miteinander harmonieren, entstehen lebendige, nutzbare und identitätsstiftende Räume im Centrum.
Das folgende Maßnahmenpaket beschreibt daher nicht nur einzelne Projekte, sondern definiert die zentralen Schritte für eine koordinierte, nachhaltige und zukunftsfähige Entwicklung des öffentlichen Raums im Centrum von Postbauer-Heng. Durch eine integrative Planung und Umsetzung kann sichergestellt werden, dass Gestaltung, Aufenthaltsqualität, Orientierung, Mobilität, Kommunikation und Klimaanpassung als zusammenhängende Ziele verfolgt und erreicht werden.
Rathausplatz
Centrumsstraße

Deutschordensplatz
Plätze im Centrum
Unterer Marktplatz
Oberer Marktplatz
Abb.107 Abbildung Maßnahmencluster „Öffentliche Räume im Kerncentrum“
Maßnahmenbeschreibung:
Aufgrund des schadhaften Oberflächenbelags ist in den kommenden Jahren eine Erneuerung der Centrumsstraße erforderlich. Diese Maßnahme wird mit einer Umgestaltung der Straße verbunden. Dies erfordert Fingerspitzengefühl, denn sie bildet das Rückgrat des öffentlichen Raums sowie des öffentlichen Lebens und Wirtschaftens im Centrum von PostbauerHeng und verbindet mehrere öffentliche Plätze miteinander.
Aktuell stehen im Straßenraum das Fahren und Parken von Pkw als praktischer Zweck im Vordergrund; der Raum ist wenig einladend gestaltet, es kommt zu Gefahrensituationen, und er stellt hohe Barrieren für Aufenthalt und Querung dar. Mit einer gestalterischen Verbesserung der Oberflächen und einer teilweisen Neuordnung im Straßenquerschnitt wird der Bedeutung als „Visitenkarte“ des Ortes Rechnung getragen: Die Centrumsstraße wird zeitgemäß gestaltet, für alle Verkehrsteilnehmenden sicherer und in alle Richtungen durchlässiger. Die Prämissen für die Neuordnung, die in zahlreichen Abwägungen zu den planerisch dargestellten Empfehlungen geführt haben, sind in der Folge ausführlich beschrieben.
Ziel der Maßnahme:
Ziel ist es, durch eine gestalterische und funktionale Neuordnung der Centrumsstraße einen qualitätsvollen, sicheren und belebten öffentlichen Raum zu schaffen. Aufenthaltsqualität, Sicherheit, Durchlässigkeit und Wahrnehmbarkeit der Ortsmitte sollen gestärkt werden. Der Straßenraum soll als verbindendes Rückgrat des Centrums ausgebaut und die Bayernstraße als „Tor zum Centrum“ sichtbar gemacht werden. Die Maßnahme stärkt die Gesamtwirkung des öffentlichen Raums, sichert wichtige Baumbestände, reduziert Barrieren und verbessert die Orientierung für alle Nutzerinnen und Nutzer.
Umsetzung
> B2 Räume vernetzen
• Einbindung in das Gesamtkonzept des öffentlichen Raums im Centrum 2.1
Teilbereiche der Maßnahme
1. Umgestaltung des Straßenraums Centrumsstraße
• Aufwertung des Straßenraums als verkehrsberuhigte, barrierearme Achse
• Verbesserung der Querungsmöglichkeiten und Stärkung von Querverbindungen
• Reduktion der Kfz-Geschwindigkeit bei Erhalt eines funktionierenden Verkehrsflusses
> B4 Öffentlichen Raum updaten
kurzfristig mittelfristig langfristig
• Erhalt der wertvollen Baumstrukturen
• Neuorganisation der Stellplätze im Sinne von Verkehrssicherheit und Aufenthaltsqualität, möglichst ohne Reduktion der Stellplatzzahl
2. Auftaktsituation Bayernstraße
• Aufwertung der Kreuzung an der Bayernstraße als gestalterischer Auftakt ins Centrum; sichtbare Kennzeichnung des Übergangs vom Straßen- in den Ortsraumcharakter
• Schaffung eines markanten Übergangsraums mit Portalwirkung, z. B. durch einen kleinen Kreisverkehr,
Prämissen für die Neuordnung
Der Baumbestand soll in jedem Fall erhalten und gestärkt werden, denn er hat vielfältige wertvolle Funktionen: Die Bäume bieten Schatten und machen den Kern des Centrums deutlich erkennbar. Bei guter Einbindung in die umliegende Oberflächengestaltung sind sie zudem ein Baustein für die Entwässerung. Jüngere Ersatzbäume an anderer Stelle bräuchten viele Jahre, um annähernd ähnliche Funktionen zu erfüllen. Die Platzierung der vorhandenen Bäume gibt daher grob vor, wo Gehwege und Fahrspuren verlaufen können und wo bzw. in welcher Anordnung Parkplätze für Fahrräder und andere Fahrzeuge untergebracht werden können.
Die Verkehrssicherheit im Centrum soll verbessert werden. Dazu soll das Fahrtempo möglichst niedrig sein, um das reine Durchfahren weniger attraktiv und den Aufenthalt attraktiver zu machen. Niedrigeres Tempo erhöht die Aufmerksamkeit und damit die Sicherheit und erzeugt weniger Lärm. Eine gepflasterte Fahrbahn ist zwar lauter als Asphalt, unterstützt aber die Wahrnehmung, dass man sich an einem besonderen Ort befindet, und fördert angepasstes Verhalten. Die Torsituation an der Bayernstraße erfordert zusätzliche Maßnahmen, um diese Wahrnehmung zu stärken. Zurzeit wird der Gehweg teilweise als Fahrbahn missbraucht; es braucht eine Optimierung der Wegführung für zu Fuß Gehende auf der südlichen Straßenseite (rathausseitig) sowie deutlichere Akzentuierungen zur Stärkung der Querverbindungen.
Der fließende motorisierte Verkehr läuft in beide Richtungen durch die Centrumsstraße. Einbahnlösungen wurden im Zuge dieses ISEK zwar thematisiert, nach Prüfung jedoch nicht empfohlen, da die Konsequenzen für die Verlagerung des Verkehrsaufkommens und damit der Nutzerinnen und Nutzer sowie der Umfang der dann nötigen Umgestaltungsmaßnahmen nicht in einem angemessenen Verhältnis zu den erwartbaren Verbesserungen stehen. Eine Einbahnlösung würde in Teilen der Centrumsstraße zwar eine Pkw-Fahrbahn entfallen lassen und damit mehr Gestaltungsspielraum für Rad- und Fußverkehr eröffnen (z. B. separater Radstreifen, Barrierefreiheit), gleichzeitig aber tendenziell höhere Fahrgeschwindigkeiten begünstigen. Zudem wären eine umfassende Umorganisation der Pkw-Stellplätze und Anpassungen bei der Erreichbarkeit erforderlich. Die Umleitung für die Gegenrichtung würde durch als Wohnstraßen klassifizierte Bereiche führen die bereits eine geringe Breite für größere Verkehrsmengen aufweisen; auch dort wären Maßnahmen nötig, um die Sicherheit für zu Fuß Gehende zu erhöhen.
Eine deutliche Reduktion der PKW-Stellplätze ist aktuell nicht gewünscht. Zwar wird häufig eine Vereinfachung des Parkens und mehr Sicherheit angeregt, etwa durch Schrägparken. Berücksichtigt man jedoch den Baumbestand und den Wunsch, aus beiden Richtungen kommend auf jeder Straßenseite wählen zu können, ist dies ungünstig. Längsparker sind – sofern sie ausreichende Breite aufweisen – eine geeignete Lösung. Durch eine bessere Auslastung vorhandener Parkplätze lassen sich punktuell Räume für weitere wichtige Nutzungen im Centrum gewinnen.

Baumbestand

Querungen

Verkehrsfluss PKWs

Stellplätze
Es wurden zwei Möglichkeiten geprüft, den Fuß- und Radverkehr stellplatzschonend zu stärken: Verkehrsführung nach dem Trennprinzip oder nach dem Mischprinzip. Beim Trennprinzip werden die verschiedenen Verkehrsarten räumlich oder baulich getrennt geführt, während beim Mischprinzip alle Verkehrsarten gemeinsam und gleichberechtigt denselben Verkehrsraum nutzen.
Auf der Centrumsstraße ist trotz Umgestaltung weiterhin mit Durchgangsverkehr zu rechnen. Bei geringem Fußverkehr könnte eine Mischfläche als breite Fahrbahn wirken und dadurch zu höherem Tempo verleiten. Das würde die Verkehrssicherheit gefährden. Daher wird das Trennprinzip empfohlen, welches den
Fahrverkehr von Gehen, Aufenthalt und Parken deutlich abgrenzt.
Beim Trennprinzip bleibt die bestehende Verkehrsführung im Wesentlichen erhalten, wird jedoch punktuell optimiert. Autos, Busse und Fahrräder teilen sich die Fahrbahn gleichberechtigt und haben dort grundsätzlich Vorrang; für den Fußverkehr gibt es ausgewiesene Querungsstellen sowie einen qualitätsvollen Fußweg. Im Plan sind die wesentlichen Aspekte der Veränderung dargestellt.
Im Anhang der digitalen Fassung des Berichts sind die verkehrsrechtlichen Unterschiede der beiden Varianten gegenübergestellt.
Die Querverbindung entlang des Marktplatzes wird gestalterisch aufgewertet und verkehrlich gekennzeichnet. Der Rathausplatz dehnt sich in der Oberflächengestaltung räumlich über die Centrumsstraße hinweg bis zum Rathaus aus.
Rathausplatz
Senkrechtparker
optische Verbindung Vorplatz
Fußweg
Querung & Verbindung zur Bücherei
Unterer Marktplatz
Im Bereich der Bushaltestelle sollte geprüft werden, ob eine Absenkung der Fahrbahn einen barrierefreien Zustieg ermöglichen kann. Der Gehweg wird aufgrund der Verlagerung künftig durch den neu gestalteten Haltestellenbereich geführt.

Deutschordensplatz
Längsparker
Fahrbahn
Längsparker
Fußweg
An der Fahrbahn für Autos und Fahrräder ändern sich Breite und Führung nur gering; beide teilen sich weiterhin die Fahrbahn. Eine verbesserte Oberfläche, in der Außenraumbeziehungen deutlicher hervorgehoben sind, sorgt für eine bessere Wahrnehmbarkeit des Centrums.
Der südliche Gehweg wird – wo noch nicht erfolgt – hinter die Stellplätze verlegt, um den Fußgängerinnen und Fußgängern mehr Komfort und Sicherheit zu bieten. Statt der Querparker entstehen entlang des Kindergartens etwas weniger Längsparker. Auch im Bereich des Rathauses verbessert eine Verlegung der Gehwege die Fußgängerfreundlichkeit, indem durchgehende, direkte Wegeverbindungen geschaffen werden – ohne abrupt endende Gehwege oder Umwege.

Abb.108 Heute: überdimensionierte Kreuzungssituation an der Bayernstraße
Durch eine Verbreiterung der Längsparker gegenüber der Kirche werden diese aufgewertet und als Parkplätze in Centrumsnähe gestärkt. In diesem Zuge sollte zudem eine Vergrößerung der Baumscheiben geprüft werden.

Um den Eintritt in den besonders zentralen Bereich auch an der Oberfläche sichtbar zu machen, braucht es eine Unterbrechung der asphaltierten Kreuzungsfläche. Bereits jetzt ist in der Mitte eine kleine Pflasterung eingelassen, die an einen Kreisverkehr erinnert. Ein Kreisverkehr ist zwar verkehrlich nicht nötig, aber eine ähnliche Gestaltung, die geschwindigkeitsdämpfend wirkt und Portalwirkung hat, ist städtebaulich sinnvoll und bildet eine stadträumliche Klammer mit dem Kreisverkehr am Schwall.
2. Öffentlicher
Maßnahmenbeschreibung:
Die öffentlichen Plätze im Centrum von PostbauerHeng – Rathausplatz, Deutschordensplatz und der bisher zusammenhängend als „Marktplatz“ bezeichnete Bereich südlich der Centrumsstraße – bilden zentrale Orte des alltäglichen Lebens, der Begegnung und der Repräsentation. Aktuell sind die Plätze jedoch untergenutzt, versiegelt, wenig klar gegliedert und in ihrer Gestaltung und Ausstattung teils nicht zeitgemäß. Der Marktplatz weist dabei besondere Defizite auf: Er wirkt räumlich undefiniert, erschwert Orientierung und bietet trotz seiner zentralen Lage nur begrenzte Aufenthaltsqualität.
Im Rahmen der Maßnahme sollen alle zentralen Plätze gestalterisch, funktional und klimatisch weiterentwickelt werden. Dabei wird vor allem der bisherige Marktplatz neu strukturiert und in „Oberer Marktplatz“ und „Unterer Marktplatz“ unterteilt, um der tatsächlichen Raumstruktur und Nutzung besser zu entsprechen.
Ziel der Maßnahme:
Ziel ist es, die zentralen Plätze des Ortskerns in Postbauer-Heng zu lebendigen, einladenden und identitätsstiftenden Aufenthaltsorten weiterzuentwickeln.
Die Maßnahme verfolgt dabei mehrere Ansätze:
• Gestalterische Aufwertung durch klare Raumkanten, Möblierung, Begrünung und Barrierefreiheit
• Klimaanpassung durch Entsiegelung, Schattenstrukturen und Regenwassermanagement
• Funktionale Differenzierung der Plätze entlang ihrer jeweiligen Schwerpunkte (z. B. Veranstaltungen, Rückzug, klimafreundliche Aufenthaltsräume)
• Stärkung des sozialen Lebens und der Ortsidentität durch konsumfreie Angebote und flexible Nutzungen
• Aufenthaltsqualität und Sicherheitsgefühl durch ein ansprechendes Beleuchtungskonzept
• Formelle Widmung und Benennung der Plätze zur Verbesserung der Adressbildung, Orientierung und kommunikativen Klarheit
Die Neustrukturierung schafft die Grundlage für eine gezielte, qualitätsvolle Platzgestaltung und stärkt das Zusammenspiel zwischen öffentlichem Raum, angrenzenden Erdgeschosszonen und der Wahrnehmung der Ortsmitte insgesamt.
> B2 Räume vernetzen
> B3 Nutzungsmix (weiter-)entwickeln
> B4 Öffentlichen Raum updaten
Umsetzung
kurzfristig mittelfristig langfristig
Teilbereiche der Maßnahme:
Die geplante Umgestaltung der Plätze im Centrum von Postbauer-Heng wird in mehrere räumliche Teilbereiche unterteilt. Diese modulare Vorgehensweise erlaubt eine schrittweise Umsetzung, sodass sich Maßnahmen flexibel an Planungs- und Förderbedingungen anpassen lassen und Beeinträchtigungen und Bauabläufe für Anwohner:innen sowie Gewerbetreibende möglichst vergräglich gestaltet werden.
Die vier zentralen Teilbereiche sind:
• Deutschordensplatz
• Rathausplatz
• Unterer Marktplatz
• Oberer Marktplatz
Bislang sind diese Platzbezeichnungen nicht offiziell gewidmet. Im Zuge der Umgestaltung sollte geprüft werden, ob eine formale Benennung und Adressierung dieser Plätze sinnvoll und zielführend ist. Dies würde nicht nur zur Orientierung und Identitätsbildung im öffentlichen Raum beitragen, sondern auch die Neustrukturierung sichtbar nach außen tragen. Gleichzeitig gilt es, die möglichen Auswirkungen auf ansässige Gewerbetreibende und Anwohner:innen (z. B. durch Adressänderungen) sorgfältig zu prüfen und in die Entscheidungsfindung einzubeziehen. 2.2
Hinweise zur Umsetzung:
Beachtung der öffentlichen EG-Zone
Gerade in den Platzbereichen, die als lebendige Aufenthaltsorte für die Bürger:innen dienen sollen, ist das Zusammenspiel zwischen öffentlichem Raum und den Nutzungen in den Erdgeschosszonen von zentraler Bedeutung. Offen gestaltete, aktiv genutzte Erdgeschosse – z. B. durch Gastronomie, Einzelhandel oder soziale Einrichtungen – stärken die Belebung des Außenraums und umgekehrt. Beide Bereiche sollten
Zur Erklärung: Quick-Wins sind temporäre bzw. kurzfristig umsetzbare Maßnahmen, welche rasch, sichtbar und mit geringem Budget realisiert werden können – oft unter Einbindung lokaler Akteur:innen oder als Beteiligungsprojekte mit Bürger:innen und Schulen. Gleichzeitig schaffen sie eine Brücke zwischen dem heutigen Bestand und den langfristig geplanten Umgestaltungen.
Temporäre Gestaltung von Testflächen
Zur Erprobung einer klimafreundlicheren Gestaltung des öffentlichen Raums sollen einzelne, bislang stark versiegelte Bereiche probeweise entsiegelt und naturnah umgestaltet werden.
Diese Maßnahme dient der praktischen Erprobung und Visualisierung zukünftiger Umbauprinzipien und bietet zudem sofort spürbare klima- und aufenthaltsfördernde Effekte.
Konkret vorgesehen sind:
• Rückbau von Asphalt- oder Pflasterflächen auf nicht zwingend benötigten Verkehrs- oder Nebenflächen
• Ersatz durch wasserdurchlässige Beläge, Kies, Rindenmulch oder temporäre Begrünung mit Saatmischungen
• Installation von einfachen Sitzgelegenheiten oder Pflanzkübeln zur attraktiven Zwischennutzung
• Beteiligung von Bürger:innen, z. B. durch gemeinsame Pflanzaktionen oder Blühpatenschaften
gestalterisch, funktional und atmosphärisch aufeinander abgestimmt werden, um ein einladendes, zusammenhängendes Gesamtbild zu schaffen.
Berücksichtigung von Höhenunterschieden und Barrierefreiheit
Besondere Beachtung der Topografie im Planungsgebiet; barrierefreie Lösungen sollen, wo technisch und wirtschaftlich möglich, konsequent mitgedacht und umgesetzt werden.



Abb.111 Temporäre Gestaltung Straßenraum in Lausanne
Rathausplatz Der Große für Veranstaltungen
• bleibt großer offener Platz
• Aufwertung als multifunktionaler Veranstaltungsort mit hoher Aufenthaltsqualität
• Infrastrukturanschlüsse für Veranstaltungen vorhalten
• Einrichtung von Flächen für Außengastronomie und Veranstaltungen
• Optische Verbindung zum Rathaus durch Oberflächengestaltung
• Vorbereich Rathaus aufwerten und barrierefrei gestalten
Deutschordensplatz Der für‘s gute Klima
• Umgestaltung im Sinne der Klimaanpassung: Entsiegelung, Begrünung, großflächige Baumscheiben
• Einrichtung konsumfreier Sitz- und Kommunikationsangebote
• Flexible, niederschwellige Nutzungsmöglichkeiten (z. B. mobile Elemente)
• Schattenspender und Rückhalteflächen für Regenwasser
• Integration des bestehenden Denkmals
• Langfristiges Schließen der Platzkante zur Raumfassung (öffentliche Nutzungen vorsehen!)
Unterer Marktplatz Der Verbindende
• Gestaltung als zentraler Verknüpfungspunkt zwischen Ebenen und Funktionsbereichen
• Entfernung der inoffiziellen Stellplätze neben der Bushaltestelle
• Aufwertung des Zugangs zum Familienstützpunkt
• Spielerische Verbindung der unterschiedlichen Höhenniveaus durch Rampen, Stufen, Rutschen etc.
• Berücksichtigung der Anforderungen für die Nutzung an Markttagen
Oberer Marktplatz Der Gemütliche
• Gestaltung als ruhiger Aufenthaltsort mit Rückzugsmöglichkeiten
• Schaffung eines natürlichen „Dachs“ zur Beschattung z. B. durch Baumbestand
• Gemeinsame Freischankflächen für Gastronomie
• Integration barrierefreier Wege durch gestalterische Rampen
• Verbindung unterschiedlicher Ebenen und Nutzungen
Rathausplatz
optische Verbindung zum Rathaus Vorplatz Rathaus
Fußweg nach hinten verlegt
Querverbindungen
optische Verbindung zur Bücherei
Deutschordensplatz
langfristig Gebäudekante schließen Gebäude mit öffentlichen Nutzungen!
Denkmal Retention Wasser
Fußweg nach hinten verlegt Längsparker PKWs & Radverkehr ausräumen herrichten
Unterer Marktplatz
Oberer Marktplatz
Querverbindungen Rampen
Querverbindungen



Entsiegelung und Versickerung/ Rückhalt von Wasser


Tiefbeete zur Abflussverzögerung
Deutschordensplatz







(Sitz-)stufen

Rampen als Gestaltungselement Ebenen spielerisch verbinden


Unterer Marktplatz
Oberer Marktplatz Rampen

Maßnahmenbeschreibung:
Die zentrale Bushaltestelle im Centrum von Postbauer-Heng befindet sich an einem stark frequentierten Knotenpunkt mit zentraler Bedeutung für den öffentlichen Raum – wird diesem Potenzial derzeit aber nicht gerecht. Die Fläche ist überfüllt mit klassischen Schaukästen, es fehlen ausreichend Sitzgelegenheiten, und der gesamte Bereich wirkt wenig einladend. Derzeit erfüllt die Haltestelle vor allem eine funktionale Rolle – bietet aber keine Aufenthaltsqualität.
Gleichzeitig liegt in dieser Stelle großes Entwicklungspotenzial: Die Haltestelle grenzt direkt an die zukünftige Umgestaltung des Unteren Marktplatzes und der Centrumsstraße und kann in diesem Kontext künftig auch als überdachter Treffpunkt, Unterstand oder Marktbestandteil fungieren. An Markttagen und bei Veranstaltungen kann sie mit einfachen Maßnahmen aktiv mitgedacht und so noch besser eingebunden werden.
Ziel der Maßnahme ist es, die Haltestelle durch eine ansprechende Gestaltung und eine klare Anordnung der Funktionen zu einem attraktiven Ort des Ankommens, Wartens und Verweilens zu machen – und das mit kurzfristig sichtbaren Verbesserungen.
Ziel der Maßnahme:
Die Haltestelle soll in Zukunft mehr sein als ein reiner ÖPNV-Zustieg: Sie wird ein Ort mit neuer Aufenthaltsqualität, der unterschiedliche Nutzungen verbindet –vom Warten auf den Bus über soziale Begegnung bis hin zu seiner Rolle im Marktgeschehen. Zugleich soll sie als Pilotprojekt für zukünftige Aufwertungen im Centrum dienen und zeigen, wie kleine Maßnahmen große Wirkung entfalten können.
Teilbereiche der Maßnahme:
1. Funktionale und gestalterische Aufwertung
• Entschlacken und Neuordnung der Infostrukturen (Schaukästen reduzieren, digitale Infos integrieren)
• Schaffung neuer Sitzgelegenheiten
• Helle, offene und einladende Gestaltung mit Begrünung (zum Beispiel durch Abschleifen des Holzes)
• Prüfung eines barrierefreien Buszugangs
> B2 Räume vernetzen
> B4 Öffentlichen Raum updaten
> B5 Gemeinschaft und Kultur stärken
Umsetzung
2. Zusätzliche Nutzungen
• Trinkwasserstelle, Bücherschrank, kleine Fahrradstation, Handy-Ladestation
• Digitale Infotafel
• Dachbegrünung als Beitrag zur Klimaanpassung
3. Verankerung im Marktgeschehen
• Nutzung an Markttagen als Treffpunkt, Unterstand oder Ort für Sonderformate (z. B. Mini-Ausstellungen)
Empfohlenes Vorgehen
1. Sofortmaßnahme zeitnah umsetzen:
• Erste gestalterische Aufwertung der Bushaltestelle kurzfristig als sichtbares Bürgerprojekt realisieren
• Einbindung des mit der Gesamtmaßnahme beauftragten Planungsbüros zur fachlichen Begleitung und Koordination
• Umsetzung gemeinsam mit lokalen Handwerksbetrieben, Bürger*innen, Vereinen und Jugendlichen
• Mögliche Maßnahmen: Schleifaktionen, temporäre kurzfristig mittelfristig langfristig
Infoelemente und Möblierung, Pflanzaktionen
• Dabei ist von Beginn an die langfristige Entwicklung mitzudenken, um voreilige Schnellschüsse zu vermeiden und spätere Planungen nicht zu behindern
2. Langfristige Entwicklung mitdenken:
• Entwicklung eines Gestaltungskonzepts für die gesamte Haltestelle und deren Umfeld
• Enge Abstimmung mit der geplanten Neugestaltung des Unteren Marktplatzes und der Centrumsstraße
• Integration der Maßnahme ins übergeordnete Möblierungs- und Gestaltungskonzept Centrum
• Überprüfung der Umsetzbarkeit für einen barrierefreien Buszugang





Maßnahmenbeschreibung:
Eine zeitgemäße, bürgernahe Kommunikation ist eine wichtige Grundlage für Beteiligung, Zusammenhalt und Information im Alltag. Um die bestehende Öffentlichkeitsarbeit der Gemeinde Postbauer-Heng sinnvoll zu ergänzen, wird ein digitales Informationssystem eingeführt: bestehend aus einer zentralen digitalen Infotafel im Centrum und bei Bedarf unter Einbindung einer Gemeinde-App (z.B. heimatinfo-app, muni-app, village-app).
Die Infotafel wird gut sichtbar im Centrum installiert und dient als digitale „Anschlagtafel“ für aktuelle Informationen im öffentlichen Raum. Die neue Info-App bietet Bürgerinnen und Bürgern zusätzlich die Möglichkeit, sich mobil über Gemeindeinformationen, Veranstaltungen und Neuigkeiten zu informieren. Beide Elemente sind eng miteinander verknüpft und stellen eine niedrigschwellige digitale Ergänzung zum bestehenden Mitteilungsblatt und zur Gemeindehomepage dar.
Ziel der Maßnahme:
Ziel ist es, die kommunale Kommunikation zu erweitern und zu modernisieren, ohne bestehende Kanäle zu ersetzen. Die digitale Infotafel und die App ergänzen das Mitteilungsblatt und die Website, machen Informationen sichtbarer, flexibler und zugänglicher – insbesondere für jüngere Zielgruppen oder im Vorübergehen im öffentlichen Raum.
Teilbereiche der Maßnahme:
1. Digitale Infotafel im Centrum
• Installation in der Nähe vom Rathaus oder in der neugestalteten multifunktionalen Bushaltestelle
• Ersatz für analoge Schautafeln
2. Auswahl und Aufsetzen einer Info-App für die Gemeinde
• App zur mobilen Information über Veranstaltungen, Hinweise, Meldungen
• Push-Benachrichtigungen für wichtige Themen (z. B. Sperrungen, Veranstaltungen, Abstimmungen)
> B4 Öffentlichen Raum updaten
> B5 Gemeinschaft und Kultur stärken
Umsetzung
kurzfristig mittelfristig langfristig
• Intuitive Bedienung und barrierearmes Design
3. Einbindung lokaler Akteure
• Nutzungsmöglichkeit auch für Vereine, Gruppen, Initiativen
• Veranstaltungskalender, Hinweise, Aktionen
• Redaktionssystem mit Freigabe durch die Verwaltung
Verknüpfung mit bestehenden Medien
• Ergänzung zu Website und Mitteilungsblatt
• Inhalte können parallel auf allen Kanälen ausgespielt werden
• Erhöhung der Reichweite und Sichtbarkeit kommunaler Inhalte

Abb.127 Gemeindeübergreifende Digitale Anschlagtafel im Rupertiwinkel
tagesaktuell & platzsparend

Abb.128 Bestehende analoge Anschlagtafeln im Centrum von Postbauer-Heng
Gestaltungs- und Möblierungskonzept
Maßnahmenbeschreibung:
Im Zuge der Weiterentwicklung des öffentlichen Raums im Centrum von Postbauer-Heng entstehen zahlreiche neue Aufenthaltsbereiche, Plätze, Wege und Verbindungen – von der neugestalteten Centrumsstraße über den Spazierloop bis zu den umgewidmeten Marktplatzbereichen, dem Jugendplatz und naturnahen Grünflächen. Um diese vielfältigen Einzelmaßnahmen zu einem stimmigen, identitätsstiftenden Gesamtbild zu verbinden, wird ein übergeordnetes Gestaltungs- und Möblierungskonzept entwickelt.
Das Konzept definiert einheitliche gestalterische Leitlinien, Materialien, Farben, Formen und Funktionen für Möblierung, Ausstattungselemente, Beläge und Begrünung im öffentlichen Raum des Centrums. Es schafft eine klare Gestaltungssprache und sorgt für Wiedererkennbarkeit, Aufenthaltsqualität und Orientierung – ohne die spezifische Identität einzelner Orte zu verlieren.
Ziel der Maßnahme:
Ziel ist es, durch ein übergreifendes Konzept eine hohe gestalterische Qualität, funktionale Stimmigkeit sowie die Langlebigkeit und gute Instandhaltbarkeit der Ausstattung im öffentlichen Raum sicherzustellen. Das Konzept wird parallel mit der gesamtheitlichen Umgestaltung des Kerncentrums erarbeitet und stellt sicher, dass zukünftige Einzelmaßnahmen zusammenhängend wirken, pflegeleicht umsetzbar sind und einen einheitlichen Charakter und die Wiedererkennbarkeit des Centrums stärken.
Mögliche Inhalte:
1. Möblierung und Ausstattungselemente
• Sitzgelegenheiten, Bänke, Hocker, Liegen
• Papierkörbe, Fahrradständer, Pflanzkübel, Trinkwasserspender
• modulare „Centrums-Möbel“ mit Mehrfachnutzen (Sitzen, Pflanzen, Spielen, Informieren)
2. Material- und Farbkonzept
• Definition von Belägen (z. B. Platten, Pflaster, wassergebundene Decke)
• Holz- und Metalltöne für Möblierung, einheitliche Farbwelt
• Einbindung vorhandener Materialien und ortstypischer Gestaltungsmerkmale
> B4 Öffentlichen Raum updaten
> B5 Gemeinschaft und Kultur stärken
kurzfristig mittelfristig langfristig Umsetzung
3. Grüne Elemente und Begrünung
• Standortgerechte und klimawandelangepasste Pflanzkonzepte für Beete, Kübel, Baumscheiben
• Kleinstrukturierte Begrünung als Beitrag zur Klimaanpassung
• Integration von Fassaden- oder Dachbegrünung im Übergang zum privaten Raum
4. Schnittstellen zum privaten Raum
• Gestaltungsempfehlungen für angrenzende Flächen, Übergänge zu Vorgärten, Einfriedungen
• Verzahnung mit dem kommunalen Förderprogramm Empfohlenes Vorgehen
• Vergabe zur Erarbeitung eines Gestaltungs- und Möblierungskonzepts durch Fachbüros (Landschaftsarchitektur, Stadtgestaltung) – unter Beachtung und möglichst in enger Verzahnung mit der Entwicklung der ISEK-Wandermöbel, ggf. auch in Kombination mit deren Konzipierung
• Abstimmung mit der Verwaltung, dem Bauhof, lokalen Akteuren und Planungen im öffentlichen Raum
• Testphase (während Umbauphase) mit temporären Möblierungselementen (z. B. ISEK-Möbel, siehe Quick-Wins) zur Akzeptanzprüfung
• Integration des Konzepts in alle baulichen Maßnahmen, Ausschreibungen und Beteiligungsprozesse
Aufräumen des „Schilderwaldes“
Die Vielzahl an Verkehrs- und Hinweisschildern im Centrum führt aktuell zu visueller Unruhe und erschwert die Orientierung. Eine gezielte Reduktion, Bündelung und Neuanordnung von Schildern erhöht die Aufenthaltsqualität und verbessert das Stadtbild deutlich – mit relativ geringem Aufwand.
Dazu gehören:
• Überprüfung und ggf. Entfernung nicht mehr erforderlicher oder doppelt vorhandener Beschilderung
• Neuorganisation der verbleibenden Schilder in übersichtlichen Gruppen oder kombinierten Stelen
• Verbesserung der barrierefreien Orientierung z. B. durch größere Schrifttypen oder kontrastreiche Gestaltung
• langfristig: Entwicklung eines einheitlichen Designs für die Beschilderung im Centrum (siehe Maßnahme 2.5)
Testnutzung von Möblierung und Ausstattung
Um bereits während der Umbauphasen Aufenthaltsqualität zu schaffen und neue Nutzungsformen praktisch zu erproben, sollen Möblierungs- und Ausstattungselemente testweise eingesetzt werden. Ziel ist es, im Vorfeld Erkenntnisse darüber zu gewinnen, welche Lösungen sich für die spätere dauerhafte Platzgestaltung eignen und wie sie von den Nutzer:innen angenommen werden.
Die Maßnahme dient somit einerseits dazu, die Bauphase im Kernzentrum zu überbrücken, und andererseits als Modellversuch für ein zukünftiges Möblierungskonzept. Die eingesetzten Elemente ermöglichen Erfahrungswerte im Realbetrieb und tragen dazu bei, spätere Investitionen gezielt und bedarfsgerecht zu tätigen.
Die Möbel und Ausstattungselemente sollen so gewählt sein, dass sie nach der Umgestaltung weiterverwendet oder in die dauerhafte Gestaltung integriert werden können. Dabei ist darauf zu achten, dass sie robust, diebstahlsicher und mit einem Stapler bewegbar sind.
Mögliche Elemente sind:
• Robuste Sitzgelegenheiten mit integrierter Begrünung oder Schattenelementen
• Pflanzinseln mit Stauden oder kleinen Gehölzen zur Verbesserung des Mikroklimas
• Spielobjekte mit Mehrfachnutzung für Kinder und Jugendliche
• Mobile Elemente mit Wiedererkennungswert als „Centrumsmöbel“, z. B. aus lokalem Holz gefertigt
Die Planung erfolgt direkt durch oder unter enger Zusammenarbeit mit den verantwortlichen Planer:innen für die Platzgestaltung.
Bauliches/Technisches Geländeaufmaß des Kerncentrums
Grundlage
Entwurfsplanung für Gesamtbereich auf Grundlage ISEK (z.B. Freiraumplanerischer Wettbewerb)
Abstimmung auf Entwurfsplanung
Erstellung Gestaltungs- und Möblierungskonzept
Testnutzung von Möbeln und Ausstattungselementen
Die folgenden Schritte dienen der strukturierten, koordinierten und qualitätsvollen Umsetzung der geplanten Maßnahmen zur Neugestaltung der öffentlichen Räume im Kern von Postbauer-Heng. Die inhaltlich und räumlich eng miteinander verknüpften Einzelmaßnahmen erfordern eine abgestimmte Vorgehensweise und kontinuierliche Steuerung.
1. Gesamtkoordination durch zentrale Ansprechperson bei der Gemeinde
Einrichtung einer verantwortlichen Koordinationsstelle (z.B. Projektleitung im Bauamt) zur fachlichen und organisatorischen Steuerung des Gesamtprozesses. Aufgaben sind u. a.:
• Abstimmung der Teilmaßnahmen
• Sicherstellung der Planungsziele aus dem ISEK
• Zusammenführung und Koordination der beteiligten Planungsbüros und Fachgewerke
• Sicherung eines einheitlichen, funktionalen und gestalterischen Gesamtbilds
2. Bauliches und technisches Aufmaß
Umfassende Aufnahme des Bestands als Grundlage für die weiteren Planungsschritte:
Gesamtkoordination durch
Deutschordensplatz
Oberer Marktplatz
Unterer Marktplatz Centrumsstraße
Implementierung in die Umgestaltung
• Erhebung von Höhenlagen (mit ausreichender Punktdichte), Oberflächen, Raumkanten, Leitungstrassen
• Verortung von Gebäudezugängen, Gehölzen, Mobiliar und technischen Einbauten (Schächte etc.)
• Dokumentation bestehender Barrieren und Potenziale
3. Integrierte Gesamtplanung der öffentlichen Freiräume
Erarbeitung eines abgestimmten Entwurfsplans für die Gestaltung der Centrumsstraße und der angrenzenden Plätze, idealerweise durch ein interdisziplinäres Team aus Landschaftsarchitektur, Verkehrs- und Freiraumplanung.
• Sicherstellung funktionaler Zusammenhänge
• Gestaltung mit Gesamtblick auf Barrierefreiheit, Klimaanpassung, Aufenthaltsqualität
4. Durchführung eines freiraumplanerischen Wettbewerbs
Zur Entwicklung einer hochwertigen Gesamtlösung und dem Treffen einer sinnvollen Vergabeentscheidung ist ein freiraumplanerischer Realisierungswettbewerb ein geeignetes Instrument.
Verwaltung (fixe Ansprechperson)
Rathausplatz
Oberflächen
5. Enge Abstimmung mit parallelen Projekten im öffentlichen Raum
Koordination mit weiteren geplanten Maßnahmen wie dem Spazierloop, um ein konsistentes Erscheinungsbild und funktionale Synergien zu gewährleisten.
6. Etappenweise Umsetzung mit Übergangslösungen
Realisierung in mehreren, klar strukturierten Bauabschnitten:
• Flexible Anpassung an Fördermittelverfügbarkeit und Baukapazitäten
• Baustellenlogistik frühzeitig mitdenken
• Einsatz temporärer Lösungen (z. B. mobile Sitzgelegenheiten, Pop-up-Nutzung), um Einschränkungen für Anwohner:innen, Gewerbe und Öffentlichkeit zu minimieren und die Aufenthaltsqualität während der Bauzeit zu gewährleisten
7. Baustellenlogistik frühzeitig mitdenken
• rechtzeitige Planung von Abläufen und Anfahrtswegen
• Abstimmung mit Etappierung zur Vermeidung von Rückbauten/Beschädigungen
• Schutz bereits fertiggestellter Flächen
• Minimierung von Belastungen für Anwohnerschaft und Gewerbe
* Abfolge der einzelnen Bauabschnitte abhängig von Gestaltung und Umfang der Arbeiten an den einzelnen Plätzen > Baulogistik frühzeitig mitdenken bei der Abgrenzung der Bauabschnitte
8. Integration von Quick Wins in den Gesamtprozess
Frühzeitige Umsetzung kurzfristiger, ressourcenschonender Maßnahmen wie:
• Temporäre Entsiegelung einzelner Flächen
• Testnutzung von Möbeln und Ausstattungselementen
• Reduzierung des Schilderwaldes
Diese Maßnahmen sollen bewusst als Testfelder dienen, um Gestaltungselemente, Materialien und Nutzungsformen im realen Raum zu erproben und gegebenenfalls in die spätere Dauerplanung zu übernehmen. Damit daraus ein tatsächlicher Mehrwert entsteht, ist es wichtig, dass diese Tests trotz ihres experimentellen Charakters professionell geplant, umgesetzt und begleitet werden.
9. Beteiligung und Kommunikation
Transparente Information und aktive Einbindung der Bevölkerung während aller Planungs- und Umsetzungsphasen:
• gezielte und bedarfsgerechte Bürgerbeteiligung durch Infoveranstaltungen, digitale Kanäle und ggf. intensivere Beteiligungsformate
• Feedbackrunden zu Zwischenergebnissen
• Ziel: Förderung von Akzeptanz und Identifikation
Maßnahmenbeschreibung:
Die nachhaltige Entwicklung des öffentlichen Raums im Sinne des Integrierten Städtebaulichen Entwicklungskonzepts (ISEK) erfordert nicht nur kommunale Investitionen, sondern auch die aktive Mitwirkung privater Akteur:innen. Viele kleinere Maßnahmen – von der Begrünung einer Hauswand bis zur Entsiegelung von Hofflächen – können in ihrer Summe einen sichtbaren Beitrag zur Aufenthaltsqualität, Klimaanpassung und Ortsbildgestaltung leisten.
Mit einem kommunalen Förderprogramm soll ein Anreiz geschaffen werden, dass Eigentümer:innen, Gewerbetreibende, Gastronom:innen und Privatpersonen Maßnahmen im Sinne des ISEK umsetzen. Das Programm unterstützt gestalterische, ökologische und funktionale Verbesserungen im privaten Außenbereich, die das Ortsbild aufwerten und die Zielsetzungen des ISEK verfolgen.
Ziel der Maßnahme:
Ziel ist es, durch ein zielgerichtetes kommunales Förderinstrument private Investitionen zur Verbesserung des Ortsbilds, zur Klimaanpassung und zur Begrünung im Centrum von Postbauer-Heng zu aktivieren. Gefördert werden sollen insbesondere Maßnahmen im direkten Umfeld von Gebäuden und Grundstücken, die eine positive Wechselwirkung mit dem öffentlichen Raum entfalten.
Förderfähige Maßnahmen:
• Entsiegelung von Flächen (z. B. Hof-, Zufahrts- oder Stellplatzbereiche)
• Begrünung von Höfen, Vorgärten oder Randstreifen
• Fassaden- und Dachbegrünung
• Aufstellen gestalterisch passender Möblierung (z. B. Sitzgelegenheiten, Pflanzkübel) im öffentlichen Raum
• Bepflanzung von Beeten und Kübeln mit standortgerechten Arten
• Einbindung in gemeinschaftliche Gestaltungsmaßnahmen (z. B. Straßenabschnitte, Plätze)
Zielgruppen:
• Private Grundstücks- und Hauseigentümer:innen
• Gewerbetreibende und Gastronom:innen im Ortszentrum
• Wohnungsunternehmen, Wohnbaugenossenschaften
> B4 Öffentlichen Raum updaten
> B5 Gemeinschaft und Kultur stärken
kurzfristig mittelfristig langfristig Umsetzung
• Initiativen und Nachbarschaften, sofern die Maßnahmen im förderfähigen Bereich liegen
Empfohlenes Vorgehen:
• Erarbeitung eines einfachen, niederschwelligen Förderprogramms mit klar definierten Förderkriterien, -beträgen und Verfahren
• Orientierung an erfolgreichen kommunalen Förderprogrammen (z. B. in Innenstädten, Sanierungsgebieten, Klima-Anpassungsprogrammen)
• Festlegung eines jährlichen Fördervolumens sowie Obergrenzen pro Maßnahme
• Schulung einer Ansprechperson bei der Gemeindeverwaltung und Einrichtung einer Beratung für Privateigentümer und Gewerbetreibende (z. B. durch praxisorientierte Weiterbildungen der Städtebauförderung oder in Kooperation mit externen Fachbüros; es sind keine tiefgreifenden Fachqualifikationen erforderlich, sondern Grundkenntnisse zu den Förderrichtlinien und Beratungskompetenz)
• Kommunikation über Flyer, Webseite, Vor-Ort-Besuche, Veranstaltungen
Maßnahmenbeschreibung:
Die Feuerwehr Postbauer-Heng hat gemeinsam mit dem Jugendtreff die Idee entwickelt, die bislang ungestaltete Wand des Blockheizkraftwerks an der Feuerwehr im Rahmen eines kreativen Workshops aufzuwerten. Unter fachlicher Anleitung eines erfahrenen Graffiti-Künstlers gestalten Jugendliche die Fläche gemeinsam.
Der Workshop verbindet künstlerische Stadtbildgestaltung mit Jugendbeteiligung und fördert den Dialog zwischen unterschiedlichen Gruppen – insbesondere der Jugendtreff-Besucher:innen und der Jugendgruppe der Feuerwehr. Gleichzeitig wird durch die Aktion ein sichtbares Zeichen für Jugendkultur im öffentlichen Raum gesetzt. Die Maßnahme bietet so nicht nur einen gestalterischen Mehrwert, sondern ist auch ein Beitrag zur Jugendbeteiligung und Kulturförderung. Sie kann bei Erfolg als Pilotprojekt für weitere kreative Kooperationen zwischen Gemeinde, Jugend und Vereinen dienen.
Ziel der Maßnahme:
• Förderung der aktiven Beteiligung junger Menschen an der Gestaltung des Ortsbilds
• Schaffung eines sichtbaren, identitätsstiftenden Kunstwerks im öffentlichen Raum
• Stärkung der Zusammenarbeit zwischen Feuerwehr, Jugendtreff und weiteren Akteuren
• Prävention gegen illegale Graffiti durch legale Gestaltungsmöglichkeiten
• Förderung von Kreativität, Verantwortungsbewusstsein und Ehrenamtsinteresse
Möglicher Ablauf eines fünftägigen Workshops (Konzept von K. Ollikainen):
• Tag 1 (16-19 Uhr): Kennenlernen und Brainstorming
• Tag 2 (10-16 Uhr): Einführung in das Thema, Üben, kleines Bild für sich selbst malen und Vorbereitungen an der Wand treffen.
• Tag 3+ Tag 4 (10-16 Uhr): Malen an der Wand
• Tag 5 (10-16 Uhr): Eröffnungsveranstaltung mit „Livepainting“ und großer Aktion vor Ort.
Umsetzung
kurzfristig mittelfristig langfristig
Empfohlenes Vorgehen
• Klärung rechtlicher und technischer Rahmenbedingungen (z. B. Grundierung der Wand, Gerüst/Hubsteiger)
• Auswahl und Beauftragung eines erfahrenen Graffiti-Künstlers mit pädagogischem Know-how
• Gemeinsame Öffentlichkeitsarbeit zur Ankündigung und Begleitung des Projekts
• Durchführung des Workshops (z. B. als Ferienangebot oder Blockveranstaltung)
• Abschluss mit Eröffnungs-Event und Präsentation des Kunstwerks
Maßnahmenbeschreibung:
Am westlichen Rand des Centrums befindet sich ein vorhandener Basketballplatz mit angrenzender Aufenthaltsfläche, der bisher nur eingeschränkt genutzt wird. Die Maßnahme zielt darauf ab, diesen Ort zu einem attraktiven und vielseitigen Treffpunkt für Jugendliche weiterzuentwickeln – gemeinsam mit den Jugendlichen selbst.
Der Platz liegt direkt neben dem Naturbad und in unmittelbarer Nähe zum Jugendtreff ‚Seven‘ und stellt dadurch eine ideale Ergänzung dar: Er kann sowohl als Außenfläche während der Öffnungszeiten des Jugendtreffs genutzt werden, als auch außerhalb der betreuten Zeiten als niedrigschwelliger Aufenthaltsort dienen und zusätzlich das Freizeitangebot rund um das Naturbad erweitern.
Gleichzeitig bestehen Überlegungen zur künftigen Erweiterung der Feuerwehr, die auch Teilbereiche der Fläche des Basketballplatzes betreffen könnten. Diese Planungen müssen bei der Weiterentwicklung des Jugendplatzes frühzeitig berücksichtigt, sorgfältig abgewogen und gegebenenfalls räumlich aufeinander abgestimmt werden.
Der neue Jugendplatz soll Aktivitätsangebote, Rückzugsorte und Aufenthaltsqualität miteinander verbinden. Dabei wird der Bestand (z. B. Basketballfläche, Bäume, Erschließung) integriert und gezielt weiterentwickelt. Die Maßnahme schafft einen offenen Ort, der Raum für Mitgestaltung und Aneignung bietet – ohne pädagogischen Zeigefinger, aber mit klarer Wertschätzung gegenüber der Zielgruppe.
Ziel der Maßnahme:
Ziel ist die kooperative Entwicklung eines jugendgerechten Freiraums durch aktive Einbindung der Jugendlichen in Planung und Umsetzung. Der Platz soll zum selbstbestimmten, Treffpunkt werden, ohne Überformung, aber mit guter Aufenthaltsqualität, Bewegungsmöglichkeiten und Aufenthaltsflächen. Wichtig ist dabei: robust, multifunktional nutzbar, einladend – bloß keine „Gefängnisatmosphäre“ mehr (Zitat Jugendliche)
> B4 Öffentlichen Raum updaten > B5 Gemeinschaft und Kultur stärken
Umsetzung
kurzfristig mittelfristig langfristig
Teilaspekte:
1. Aktivierung des Bestandsplatzes
• Instandsetzung des Basketballplatzes (Linierung, neue Körbe, Belagsreparatur, Begrenzung)
• Verbesserung der Beleuchtung zur Nutzung in den Abendstunden
• Neue Möblierung: robuste, funktionale und ansprechende Bänke, Sitzinseln oder Liegeflächen
2. Ergänzende Gestaltungs- und Aneignungselemente
• Aufstellen eines Containers zur freien Nutzung („Jugendcontainer“) mit Sitzmöglichkeiten, Wetterschutz und Raum zur Gestaltung
• Schaffung von flexiblen Flächen für Bewegung, Graffiti, Chillen oder kleine Events
• Integration in das umgebende Wegenetz (Spazierloop, Grünzug, Schulhof)
3. Beteiligung & Abstimmung
• Planung und Umsetzung gemeinsam mit Jugendlichen, z. B. über den Jugendtreff Seven
• Abstimmung mit Feuerwehr bzgl. möglicher Erweiterungsbedarfe oder Flächennutzung
• Künstlerische Aktionen (z. B. Graffiti am Heizwerk) als niedrigschwelliger Einstieg.
Empfohlenes Vorgehen
• Auftakt-Workshop mit Jugendlichen zur Sammlung von Wünschen und Ideen
• Machbarkeitsprüfung und Abstimmung mit Feuerwehr bzgl. möglicher Erweiterungsbedarfe und Nutzungskonflikte
• Entwicklung eines gestalterischen Gesamtkonzepts mit Fokus auf flexible, robuste und jugendgerechte Gestaltung
• Realisierung in Teilabschnitten, beginnend mit sichtbaren Quick Wins (z. B. Container, Graffiti-Aktion)
• Langfristige Einbindung der Jugendlichen z. B. über Pflegepatenschaften, Programmangebote oder Container-Gestaltung



Maßnahmenbeschreibung:
Der Schulhof der Erich-Kästner-Schule bietet großes Potenzial, sich von einem funktionalen Pausenhof hin zu einem vielfältigen, naturnah gestalteten Bildungs- und Erlebnisraum zu entwickeln. Bisher ist der Schulhof geprägt von offenen, teils versiegelten Flächen und klassischen Spielgeräten. Die vorhandene Struktur wird den heutigen Anforderungen an einen attraktiven, ökologisch wirksamen und pädagogisch nutzbaren Außenraum nur begrenzt gerecht.
Im Rahmen der Maßnahme sollen ausgewählte Teilbereiche - insbesonderes dort, wo ohnehin Instandsetzungen oder Anpassungen anstehen - nach und nach zu einem Naturerlebnisraum umgestaltet werden. Dabei stehen ökologische Vielfalt, bewegungsfördernde Gestaltung und erfahrbares Lernen im Vordergrund. Grundlage hierfür ist ein übergeordnetes Freiraumkonzept, das entwickelt und als Leitlinie für künftige Umgestaltungen dient. Die Maßnahme verknüpft pädagogische Ziele mit nachhaltiger Freiraumentwicklung und fördert zugleich Gesundheit, Kreativität und soziales Miteinander. Gleichzeitig stärkt die Maßnahme nicht nur die Aufenthaltsqualität für Schüler:innen, sondern wirkt als Vorzeigeprojekt für klimaangepasste, naturnahe und partizipativ gestaltete Bildungsräume.
Ziel der Maßnahme:
Ziel ist die schrittweise Umgestaltung einzelner Teilbereiche des Schulhofs im Sinne eines mehrdimensional nutzbaren Natur- und Bewegungsraum, der gleichzeitig ein Ort der Erholung, der aktiven Aneignung und des spielerischen Lernens ist. Die Maßnahme verfolgt pädagogische, soziale und ökologische Ziele gleichermaßen:
• Natur erleben und begreifen durch modelliertes Gelände, naturnahe Bepflanzung und vielfältige Strukturen
• Bewegung und Spiel ermöglichen mit kreativ nutzbaren Elementen wie Balancierstrecken, Kletterfelsen und Rückzugsorten
• Soziales Lernen fördern durch offene, gemeinschaftlich nutzbare Bereiche und Anlässe zur Kommunikation
• Nachhaltigkeit sichtbar machen durch Integration von ökologischen Prinzipien (z. B. Wasserretention, Artenvielfalt, Sc
• hattenstrukturen)
> B4 Öffentlichen Raum updaten
> B5 Gemeinschaft und Kultur stärken
Umsetzung
kurzfristig mittelfristig langfristig
Teilaspekte der Maßnahme:
1. Naturnahe Gestaltung und Modellierung
• Geländeformen statt Einbauten: modellierte Flächen, Steinsetzungen, Geländestufen
• Pflanzung klimaangepasster, pflegeleichter Vegetation
• Einsatz von Naturmaterialien (z. B. Holz, Findlinge, Kiesflächen)
2. Bewegung und Erlebnis ermöglichen
• Einbau von Elementen wie Balancierstämmen, Kletterparcours, Rutschhügeln
• Offene Räume für freies Spiel und Interaktion
• Kreative Zonen, die auch zum „Anecken“, „Ausprobieren“ und „Austoben“ einladen
3. Lernen im Freien fördern
• Outdoor-Klassenzimmer, Rückzugsbereiche und informelle Lernorte
• Integration von Themen wie Artenvielfalt, Klimaanpassung, Ressourcenschonung
• Anbindung an Unterricht und Projektarbeit (z. B. Pflege durch Schüler:innen)
Empfohlenes Vorgehen:
• Entwicklung eines pädagogisch-ökologisch orientierten Gesamtkonzeptes durch externe Fachplaner:innen unter enger Abstimmung mit dem Schulverband, das als Grundlage für künftige Teilmaßnahmen dient
• Beteiligung der Schulfamilie (Schüler:innen, Lehrkräfte, Eltern, Hausmeister) zur Bedarfsabfrage und Sensibilisierung für die Leitidee eines Naturerlebnisraums
• Verzahnung mit dem Konzept der „Ökologischen Trittsteine“ zur ökologischen Einbindung
• Umsetzung jeweils in ausgewählten Teilbereichen, die sich durch aktuellen Sanierungs- oder Anpassungsbedarf anbieten; Realisierung vorzugsweise in kleinen Etappen mit temporären Nutzungen und Mitmachaktionen zur Aneignung der Flächen durch die Schulfamilie
• Enge Zusammenarbeit mit Bauhof, Landschaftsarchitektur und Umweltbildung
Weitere Informationen: www.naturerfahrungsraum.de



Maßnahmenbeschreibung:
Zwischen Postbauer-Heng und Kemnath liegt eine landschaftlich geprägte Zone mit Wald- und Landwirtschaftsflächen. Vor allem die bewaldeten Flächen können als „grüne Lunge“ bezeichnet werden – ein wertvoller Freiraum mit klimatischer, ökologischer und landschaftlicher Bedeutung. Im Zukunftsbild für das Centrum (siehe S. 91) wurde festgelegt, dass die Trennung zwischen den Ortsteilen langfristig erhalten bleiben soll.
Diese Maßnahme zielt nun darauf ab, diese Grünzäsur in den Randbereichen gezielt weiterzuentwickeln und zu stärken, um einer schleichenden baulichen Verdichtung entgegenzuwirken. Durch gezielte landschaftsplanerische Impulse, strukturelle Eingrünungen sowie Maßnahmen zum Erhalt und zur Erweiterung der bestehenden Wald- und Grünstrukturen soll die Zäsur langfristig stabilisiert und erlebbar gemacht werden. Dabei wird bewusst ein strategisch-kreativer Umgang mit privaten landwirtschaftlichen Flächen verfolgt – z. B. durch Anreize, Förderprogramme oder Modellprojekte.
Ziel der Maßnahme:
Diese Maßnahme verbindet strategische Zielsetzung mit konkreten landschaftlichen Entwicklungsbausteinen. Ziel ist es, die bestehende Grünzäsur zwischen Postbauer-Heng und Kemnath zu sichern, ökologisch aufzuwerten und gestalterisch zu definieren. Die Maßnahme soll:
• einen klaren Ortsrand (v.a. in Kemnath) ausbilden
• klimatische Funktionen sichern und stärken
• einer ungeordneten Bebauung entgegenwirken
• und dabei kooperativ und respektvoll mit landwirtschaftlichen Nutzungen umgehen
Gleichzeitig dient die Entwicklung der Grünzäsur als sichtbares Zeichen für eine nachhaltige Flächenpolitik und ein Bekenntnis zur Innenentwicklung und soll Impulse für den Umgang mit vergleichbaren Übergangszonen im Gemeindegebiet geben.
Teilaspekte der Maßnahme:
1. Stärkung der „grünen Lunge“
• Erhalt, Pflege und Ausweitung des bestehenden Waldstücks
> B1 Raum und Flächen weiterentwickeln
> B2 Räume vernetzen
Umsetzung
kurzfristig mittelfristig langfristig
• Schaffung von Übergangsstrukturen (Saumvegetation, Blühflächen, Wildhecken) am Waldrand
2. Entwicklung landschaftlicher Eingrünungsstrukturen
• Anlage von linearen Gehölzstrukturen, Baumreihen, Feldrainen zur räumlichen Zäsur
• Modellhafte Randbepflanzung von landwirtschaftlichen Nutzflächen (z. B. Streifenbegrünung, Blühflächen, Agroforst-Ansätze)
• Gestaltung ortsnaher Blickachsen und Sichtschutz
3. Kooperative Umsetzung mit Landwirtschaft und Eigentümer:innen
• Entwicklung von Anreizsystemen zur freiwilligen Bereitstellung von Flächenrändern
• Nutzung bestehender Förderprogramme zur Landschaftspflege, Strukturentwicklung oder CO₂Kompensation
• Prüfung von Maßnahmen zur teilweisen Entlastung (z. B. freiwilliger Nutzungsverzicht gegen Ausgleich)
Empfohlenes Vorgehen:
• landschaftsplanerische Abschätzungen zur Potenzialanalyse und konkreten Raumdefinition durch externe Fachplaner:innen
• frühzeitiger Dialog mit Eigentümer:innen, Landwirtschaft und Naturschutz
• Entwicklung eines strategischen Maßnahmenkonzepts mit Handlungsvorrangflächen und Förderoptionen
• Initiierung eines Modellprojekts mit Unterstützung durch externe Fördermittel (z. B. Landschaftspflegeverband, Flächenagentur, Stiftungen)
• Abstimmung mit angrenzenden Ortsteilen, da die Wirkung über den Bearbeitungsbereich des ISEKs hinausreicht

Strukturreicher Übergang vom Wald zur Landwirtschaft


Abb.137 Agroforststrukturen
Abb.136 Offenlandbiotop mit hochwertigen Heckenstrukturen
Maßnahmenbeschreibung:
> B2 Räume vernetzen
beispielhafte Potentialflächen 4.2
Grünflächen in kommunaler Hand besitzen ein hohes Potenzial, um zur Klimaanpassung, Biodiversität und ökologischen Aufwertung im Siedlungsraum beizutragen. In Postbauer-Heng gibt es zahlreiche kleinere und größere öffentliche Grünflächen – viele davon bislang monoton oder pflegeintensiv gestaltet. Mit der Maßnahme werden diese Flächen sukzessive zu wertvollen ökologischen Trittsteinen (Biotopen) weiterentwickelt.
Diese „Trittsteine“ schaffen vernetzte Lebensräume, verbessern Mikroklima sowie Boden- und Luftqualität. Das bedeutet, dass Insekten und Kleintiere wie von Insel zu Insel von einem Lebensraum zum nächsten gelangen können – vorausgesetzt, die Trittsteine bestehen in ausreichender Dichte. So fördern sie die Ausbreitung der Arten und verbinden klimaökologische mit gestalterischen Zielen in einem praxistauglichen Pflegekonzept.
Ein wichtiges Fundament bildet dabei das bereits vorliegende Blühflächenkonzept der Gemeinde Postbauer-Heng, das im Rahmen der Maßnahme gezielt erweitert und in ein umfassenderes Begrünungs- und Pflegekonzept integriert werden soll.
Ziel der Maßnahme:
Ziel ist es, durch die Umgestaltung und das nachhaltige Management öffentlicher Grünflächen einen konkreten Beitrag zum Klimaschutz, zur Klimawandelanpassung und zur Förderung der Artenvielfalt zu leisten. Die Flächen werden nicht nur ökologisch aufgewertet, sondern so gestaltet, dass sie pflegeleicht und möglichst resilient gegen Trockenheit sind. Gleichzeitig sollen sie als grüne Trittsteine eine ökologische Verbindung zwischen bestehenden Natur- und Freiräumen („Grüne Lunge“, Spazierloop etc.) herstellen.
Teilaspekte der Maßnahme:
1. Strukturen schaffen
• Anlage von Strukturelementen für Insekten und Kleintiere, z.B. Holzstrukturen, Trockenmauern/ Steinhaufen, Wildblumeninseln und Rückzugsräume
• Modelliertes Gelände zur Förderung von Mikroklima und Versickerung
• Gestaltungselemente, die auch gestalterisch und pädagogisch wirksam sind (z. B. „benutzbare Biotope“)
> B4 Öffentlichen Raum updaten
> B5 Gemeinschaft und Kultur stärken
kurzfristig mittelfristig langfristig
2. Artenvielfalt fördern
• Umwandlung artenarmer Rasenflächen in extensive Blumen- oder Staudenwiesen
• gezielte Pflanzungen mit regionalen und standortgerechter Pflanzenauswahl mit hohem ökologischen Wert
• Keine Verwendung von Pestiziden, naturnaher Rückschnitt
3. Nachhaltiges Pflegemanagement etablieren
• Integration des Bauhofs in Planung und Umsetzung
• Entwicklung pflegearmer Pflegekonzepte (z. B. zwei Schnitte/Jahr, keine Bewässerung nötig)
• Förderung von Pflanzpatenschaften durch engagierte Bürger:innen, Vereine oder Einrichtungen
• Schulungen und Infotafeln zur Sensibilisierung für ökologische Pflegeformen
Empfohlenes Vorgehen:
• Kartierung und Auswahl geeigneter Flächen mit Entwicklungspotenzial
• Anknüpfen an das bestehende Blühflächenkonzept: Erweiterung um zusätzliche Flächen und Integration in ein ganzheitliches Pflegekonzept
• Erarbeitung eines standortgerechten Begrünungs- und Pflegekonzepts in Zusammenarbeit mit Fachplaner:innen und Bauhof

• Schulung des Bauhofpersonals hinsichtlich pflegeextensiver Pflanzkonzepte
• Beteiligung lokaler Akteure für Patenschaften, temporäre Aktionen oder Pflegeunterstützung
• Schrittweise Umsetzung in Etappen (Pilotfläche, Monitoring, Übertrag auf weitere Standorte)
• Verknüpfung mit anderen Maßnahmen im öffentlichen Raum (z. B. Spazierloop, Schulhofentwicklung, Platzumgestaltungen)


Maßnahmenbeschreibung:
Die bestehende Stromtrasse durch Postbauer-Heng stellt heute noch eine infrastrukturelle Barriere im Ortsbild dar – mit eingeschränkter Nutzbarkeit und keinem gestalterischen Mehrwert. Durch das geplante Auflassen dieser Stromtrasse eröffnet sich die einmalige Chance, diesen langgestreckten Korridor in eine durchgängige, grüne Nord-Süd-Verbindung zu transformieren - vom nördlichen Ortseingang von Burgthann kommend bis zum Henger Friedhof.
Die Maßnahme nutzt diesen linearen Raum zur Entwicklung einer multifunktionalen Achse, die Fußwege, Radverbindungen, Freiraumangebote und ökologische Funktionen miteinander verknüpft. Sie schafft neue Möglichkeiten der Bewegung, Begegnung und Durchlüftung – und wird zum Rückgrat der grünen Infrastruktur in Postbauer-Heng.
Ziel der Maßnahme:
Ziel ist der Aufbau einer durchgehenden, barrierearmen und ökologisch wertvollen Nord-Süd-Achse, die quartiersübergreifend funktioniert. Die Trasse wird als öffentlich nutzbarer Raum erschlossen und gestalterisch so weiterentwickelt, dass sie zur Bewegung zu Fuß und mit dem Rad einlädt, gleichzeitig aber auch Rückzugsraum, Verbindungsraum und Frischluftschneise bleibt.
Diese Achse schafft wichtige neue Wegeverbindungen zwischen Siedlungsbereichen, öffentlichen Einrichtungen, Grünflächen und dem Spazierloop und wird zu einem zentralen Element der nachhaltigen Ortsentwicklung.
Teilaspekte:
1. Grüne Wegeachse entwickeln
• Nutzung von Abschnitten um Lücken in einer NordSüd-verlaufenden Wegeverbindung zum schließen
• Naturnahe Gestaltung mit Bäumen, Wildstauden und Grünflächen
• Gestaltungselemente zur Orientierung und Aufenthaltsqualität (z. B. Sitzmöglichkeiten, Wegweiser)
2. Ökologische Funktion stärken
• Erhalt und Erweiterung als Frischluftschneise und Habitatverbindung
> B1 Raum und Flächen weiterentwickeln
> B2 Räume vernetzen
Umsetzung
kurzfristig mittelfristig langfristig
• Einbindung in das System der „ökologischen Trittsteine“ und naturnahes Grünflächenmanagement
• Maßnahmen zur Biodiversitätsförderung und Regenwasserversickerung
3. Soziale Nutzung ermöglichen
• Einrichtung kleiner Aufenthaltsinseln, Spiel- oder Bewegungsangebote
• Beteiligung der Anwohner:innen, z. B. über Pflanzaktionen oder Pflegepatenschaften
• Schaffung sicherer Querungen an bestehenden Straßen
Empfohlenes Vorgehen:
• Abstimmung mit dem Netzbetreiber und Klärung der technischen Voraussetzungen nach dem Rückbau
• Entwicklung eines Gestaltungskonzepts und konkreter Entwurfsplanungen, welche die einzelnen Abschnitte klar ordnet und sinnvoll miteinander verbindet
• Sicherung der relevanten Flächen
• Einbindung der Anlieger:innen und der Öffentlichkeit zur Ideenfindung und zur Förderung der Akzeptanz
• Umsetzung in mehreren Bauabschnitten
• Abstimmung und Verzahnung mit angrenzenden Projekten wie dem Spazierloop, ökologischen Trittsteinen, der Schulhofumgestaltung und der neuen Platzstruktur im Centrum

... mal Wegeverbindung ... mal Freiraumangebot

ökologische Trittsteine
Spazierloop
Spazierloop1,4km
... mal Grün und Wildnis

Grünstrukturen Erweiterung „Grüne Lunge“ entwickelnSchulhof AmSchauerholz Am Schwall Nürnberger Straße Am Centrum
Soziales Dreieck
Stromtrassenkorridor nachverdichtenlangfristig
Gemeinbedarfsentwicklungen
Postbauer-HengEntwicklungsgrenze
Maßnahmenbeschreibung:
Im Centrum von Postbauer-Heng bestehen bereits zahlreiche Wegebeziehungen, die wichtige Einrichtungen wie Schule, Rathaus, Kirchen, Bücherei, Familienstützpunkt oder Spielplätze miteinander verbinden. Diese Wege sind jedoch oftmals unterbrochen, unattraktiv oder nicht als zusammenhängende Struktur wahrnehmbar. Mit dem „Spazierloop“ entsteht ein zusammenhängender Rundweg, der bestehende Wege qualitativ aufwertet, Lücken schließt und durch niedrigschwellige Aufenthalts- und Bewegungsangebote verschiedene Zielgruppen anspricht.
Der Spazierloop – auch als Rollator-, Buggyrennstrecke oder Mittagspausenrunde bezeichnet – vernetzt zentrale Orte im Centrum auf angenehme Weise und macht das Zufußgehen attraktiver, sichtbarer und erlebbarer. Entlang der Strecke entstehen kleine Stationen mit Bewegungs-, Spiel- oder Sitzangeboten, die zur kurzen Pause, zum Austausch oder zur spielerischen Nutzung einladen. Die Maßnahme schafft nicht nur eine attraktive Verbindung durch das Centrum, sondern trägt auch zur Aktivierung, Begegnung und sozialen Teilhabe für verschiedene Zielgruppen bei.
Ziel der Maßnahme:
Ziel ist es, einen barrierearmen, lebendigen und generationengerechten Rundweg im Zentrum von Postbauer-Heng zu etablieren, der wichtige öffentliche Einrichtungen und zentrale Plätze miteinander verbindet. Die Attraktivierung der Wegeführung durch gestalterische Elemente und Mikroangebote macht das Zufußgehen attraktiver und fördert Bewegung, Begegnung und Aufenthaltsqualität. Der Spazierloop stärkt den öffentlichen Raum als gemeinsamen Ort für alle Generationen – vom Spielangebot für Kinder bis hin zu schattigen Sitzplätzen für ältere Menschen.
Teilaspekte der Maßnahme:
1. Wegeverbindungen verbessern und schließen
• Bestehende Wege qualifizieren, z. B. durch Belag, Beleuchtung, Breite
• Fehlende Verbindungen ergänzen oder neu herstellen
• Barrierefreiheit gewährleisten
> B1 Raum und Flächen weiterentwickeln
> B2 Räume vernetzen
> B4 Öffentlichen Raum updaten
> B5 Gemeinschaft und Kultur stärken
Umsetzung
kurzfristig mittelfristig langfristig
2. Stationen entlang des Loops entwickeln
• Spiel- und Bewegungsangebote (z. B. Balancierbalken, Trittplatten, Sitzschaukeln)
• Benutzbare Kunstobjekte und modelliertes Gelände
• Kommunikationsorte mit Sitzgelegenheiten, Wasserspendern, schattigen Bereichen
3. Erlebbarkeit und Sichtbarkeit erhöhen
• Gestaltungselemente zur Wiedererkennbarkeit des Loops (z. B. Markierungen, Logo, Infotafeln, Centrumsmöbel)
• Einbindung in Ortsplan und digitale Wegeführung
Empfohlenes Vorgehen:
• Bestandserhebung der vorhandenen Wegeführung und Identifikation von Lücken
• Beteiligung von Bürger:innen zur Ermittlung geeigneter Stationen und Bedürfnisse
• Entwicklung eines gestalterischen Gesamtkonzepts für Wege, Stationen und Wiedererkennung durch externes Fachbüro
• Schrittweise Umsetzung
• Kooperation mit lokalen Einrichtungen, Schulen, Senior:innen, Vereinen zur Gestaltung, Umsetzung der Stationen und Bespielung des Loops




modelliertes Gelände





Jugendplatz
Jugendtreff
Kästner Schule
Seniorenwohnen
Waldkindergarten
„Der Spazierloop verbindet zentrale Orte im Centrum von Postbauer-Heng und lädt entlang der Strecke mit kleinen Stationen zum Verweilen, Begegnen und Entdecken ein.“

Innerhalb des Maßnahmenclusters Orte der Gemeinschaft nimmt das Soziale Dreieck eine besondere Rolle ein. Es beschreibt die enge Verknüpfung und Weiterentwicklung von drei zentralen Begegnungsund Lernorten im Centrum von Postbauer-Heng: dem Familienstützpunkt, dem Bürgertreff Kästner und der Bücherei. Gemeinsam bilden sie einen räumlich und inhaltlich verbundenen Kern, der das soziale und kulturelle Leben im Ort stärkt.
Ziel ist es, diese bestehenden Einrichtungen sichtbarer zu machen, ihre Angebote besser miteinander zu vernetzen und so ihre Wirkung im Alltag der Bürgerinnen und Bürger zu steigern. Das Soziale Dreieck soll zu einem erkennbaren, identitätsstiftenden Bestandteil des Centrums werden – nicht nur für regelmäßige Nutzerinnen und Nutzer, sondern auch als Anziehungspunkt für neue Zielgruppen.
Die drei Standorte erfüllen unterschiedliche Funktionen und Angebote und besitzen jeweils eigene Entwicklungsschwerpunkte. Während einige Maßnahmen grundlegende infrastrukturelle Verbesserungen vorsehen – etwa die Anpassung von Zugängen oder baulichen Rahmenbedingungen – setzen andere stärker auf inhaltliche Erweiterungen, Modernisierungen und die Aktivierung der Innen- und Außenbereiche. Die Prioritäten sind dabei nicht an allen Orten gleich, sie ergänzen sich jedoch gegenseitig und entfalten ihre volle Wirkung erst im Zusammenspiel.
Bücherei
Familienstützpunkt
Kästner
Durch eine abgestimmte Planung und Umsetzung können Synergien genutzt, Ressourcen gebündelt und gemeinsame Themen wie Bildung, Begegnung, Ehrenamt oder kulturelle Teilhabe sichtbar in den öffentlichen Raum getragen werden. Das Soziale Dreieck ist damit nicht nur eine Ansammlung einzelner Projekte, sondern ein strategischer Ansatz für eine lebendige und vernetzte Gemeinschaft im Herzen von Postbauer-Heng.
„Das Soziale Dreieck verbindet verschiedene Lern- und Begegnungsorte und steht für einen erweiterten Bildungsbegriff. Es bildet damit das Pendant zum Spazierloop – als Angebot, um geistig fit und sozial eingebunden zu bleiben.“
Der Familienstützpunkt stellt einen wichtigen und wertvollen Baustein innerhalb des sozialen Netzwerks in Postbauer-Heng dar. Er bietet niedrigschwellige Unterstützung, Beratung und Begegnung – insbesondere für Familien – und sollte in seiner Bedeutung gestärkt, sichtbar gemacht und langfristig erhalten werden.
Aktuell ist der Stützpunkt im Kellergeschoss des Rathauses jedoch nur schwer erkennbar und nicht gut erreichbar. Im Zuge der geplanten Umgestaltung des Unteren Marktplatzes ergibt sich die Chance, die angrenzende Böschung gestalterisch aufzuwerten. Ein heller, offener und freundlich gestalteter Zugang kann die Wahrnehmung des Ortes deutlich verbessern und die Schwelle zur Nutzung weiter senken.
Gerade die Nähe zum öffentlichen Raum – wo Kinder spielen, Menschen vorbeikommen oder sich aufhalten – schafft die Möglichkeit für unverbindliche, beiläufige Kontakte. Gespräche können ganz informell entstehen, ohne dass man sich direkt in einer klassischen

Abb.149 Bestandssituation im Zugangsbereich zum Familienstützpunkt
> B3 Nutzungsmix (weiter-)entwickeln
> B4 Öffentlichen Raum updaten
> B5 Gemeinschaft und Kultur stärken
kurzfristig mittelfristig langfristig Umsetzung
Beratungssituation wiederfindet oder das Gefühl hat, sich aktiv Hilfe suchen zu müssen. Denn der Familienstützpunkt wird so als selbstverständlicher Teil des öffentlichen Lebens wahrgenommen – als ein Ort, der einfach dazugehört, weil er auch ein ganz normaler Aufenthaltsbereich im Centrum ist.
Auch perspektivisch bietet der Familienstützpunkt, der auch jetzt schon Heimat der Stelle Familiengesundheit vor Ort ist, Entwicklungspotenzial: So könnte hier beispielsweise eine Gemeindeschwester angesiedelt werden, die das Angebot um Gesundheitsförderung und soziale Unterstützung erweitert – und damit den Stützpunkt als zentrale Anlaufstelle im Ort weiter stärkt.

Abb.150 Versteckter Eingangsbereich ohne Aufenthaltsqualität
Potentiale heben - sichtbar und vielseitig nutzbar machen
Die Bücherei wird bereits intensiv genutzt, ist im Ortsbild jedoch kaum wahrnehmbar. Durch ihre Einbindung in den „Spazierloop“ und die neu geschaffene Verbindungsachse des Marktplatzes rückt sie aus der bisherigen Randlage ins Zentrum der Aufmerksamkeit und gewinnt an Präsenz.
Die Eingangssituation bietet großes Aufwertungspotenzial: Durch gezielte Bepflanzung, ein Sonnensegel sowie die Übernahme des Möblierungskonzepts der Centrumsstraße bzw. des Spazierloops kann ein einladender Bereich geschaffen werden. Dezente Markierungen im Pflaster gliedern den Außenraum in Zonen für Parken, Gehen und Verweilen. Auch die derzeit ungenutzten Flächen hinter dem Gebäude lassen sich aktivieren – etwa als kleiner Lesegarten.
Obwohl der Platz in der Bücherei laut den Verantwortlichen zunehmend knapp wird, bestehen aktuell nur begrenzte Möglichkeiten für bauliche Erweiterungen, ohne größere bauliche Eingriffe vorzunehmen. Umso wichtiger ist es, den vorhandenen Bestand durch kluge Umstrukturierungen effizienter zu nutzen. Durch gezielte Maßnahmen zur Reorganisation lassen sich bestehende Flächen besser erschließen und neue Nutzungsmöglichkeiten schaffen.
So Können etwa durch unterschiedlich große bauliche Eingriffe das Untergeschoss oder die angrenzende Garage aktiviert werden. Großformatige Sitzfenster schaffen dabei neue Blickbeziehungen zwischen Innen- und Außenraum und verleihen dem Gebäude zusätzliche Aufenthaltsqualität. Auch eine kleine Selbstbedienungs-Kaffeeecke könnte hier Platz finden und das Angebot erweitern.
Flexible, multifunktionale Möbel ermöglichen eine passgenaue Anpassung an die unterschiedlichen Nutzungsszenarien der Bücherei – vom Besuch einer Schulklasse über Workshops und Vorlesestunden bis hin zur klassischen Ausleihe. Sie tragen wesentlich dazu bei, vorhandene Flächen optimal auszunutzen.
Die vorgeschlagenen Maßnahmen sind als modulare Bausteine konzipiert, die unabhängig voneinander realisiert werden können. Jeder dieser Bausteine stellt für sich genommen bereits eine qualitative Aufwertung der Bücherei dar – in ihrer Gesamtheit entsteht ein zukunftsfähiger, vielseitiger Ort für Bildung, Begegnung und Kultur.
> B3 Nutzungsmix (weiter-)entwickeln
> B5 Gemeinschaft und Kultur stärken
kurzfristig mittelfristig langfristig Umsetzung

Abb.151 Die Bücherei heute: Gut genutztes Angebot für Kinder, Jugendliche und Erwachsene; ungenutztes Potential in den Räumlichkeiten und schlecht angebundener Raum für Aktivitäten im Keller


Abb.152 Die Bücherei heute: Aufwertungspotential im Außenraum, relativ verschlossene und wenig einladende Fassade, ungenutzte Freiflächen
Verbindung in Keller
Ausgang Lesegarten
Lärmschutz

Büro Empfang
Hockerregal
Leseecke
Fahrradstellplätze
Pflanzen Sonnensegel Möblierung
Lesegarage




vielseitige und flexible Möbel nutzbare
Raumtrenner



Kaffeeecke
Erwachsene
Sitzfenster
Außenraum aktivieren - Innenraum strukturieren
Der zentral gelegene Bürgertreff Kästner bietet großes Potenzial, das bislang noch nicht ausgeschöpft ist. Aktuell wird der Raum überwiegend für gelegentliche Vereins- oder Nachbarschaftstreffen genutzt. Dabei ließe sich seine Funktion deutlich erweitern. Auch eine Nutzung am Vormittag durch die angrenzende Schule wäre gut vorstellbar. Der Wechsel in einen außerschulischen Lernort eröffnet den Schüler:innen die Chance, ihren Lernalltag in einem neuen, anregenden Umfeld zu erleben. Aktuell wird die Fläche bereits temporär durch die Ganztagsbetreuung der Schule genutzt; perspektivisch könnte sie beispielsweise auch durch die SMV in Eigenverantwortung weiter ausgestaltet und genutzt werden.
Das Gebäude befindet sich derzeit noch im Eigentum des Schulverbands. Perspektivisch wäre ein Erwerb durch die Gemeinde durchaus sinnvoll, um die Weiterentwicklung und Öffnung als Bürgertreff langfristig eigenständig steuern und sichern zu können.
Verbindung nach außen stärken
Damit das Kästner als ein „offener Ort für alle“ wahrgenommen wird, ist die Öffnung und Anbindung zum benachbarten Naturerlebnisraum bzw. Schulhof zentral. Im Zuge der geplanten Umgestaltung sollte eine Sichtverbindung geschaffen und durch nutzungsoffene, einladende Plattformen gestärkt werden. Bestehende visuelle oder bauliche Barrieren – etwa Hecken oder Zäune – können behutsam aufgelockert und gestalterisch integriert werden, um Offenheit und Zugänglichkeit zu fördern.
Gemeinsame Aktivierung des Außenraums
In einem ersten Schritt könnten die Außenanlagen gemeinsam mit den Nutzer:innen aktiviert und aufgewertet werden. Ein besonderes Augenmerk sollte dabei auf die Schaffung eines barrierefreien Zugangs zu den oberen Räumen über den bisherigen Hintereingang gelegt werden – so wird das Kästner auch räumlich inklusiver. Langfristig könnte dieser zweite Zugang als Haupteingang für die oberen Räume des Kästner fungieren. Der angrenzende Wintergarten bietet hierfür das Potenzial, eine einladende Ankommenssituation zu schaffen und als Foyer gestaltet zu werden. Im Bereich der ehemaligen Garagenzufahrt – heute Werkstatt – ergibt sich zudem die Chance, einen Werkhof zu entwickeln, der sich auf den Außenbereich ausdehnen lässt.
> B3 Nutzungsmix (weiter-)entwickeln
> B4 Öffentlichen Raum updaten
> B5 Gemeinschaft und Kultur stärken
kurzfristig mittelfristig Umsetzung langfristig


Abb.160 Außenraum Kästner heute
Die ehemalige Nutzung als Privatgebäude ist im Außenraum noch gut ablesbar und könnte angepasst werden.
Raumstruktur und Nutzbarkeit verbessern
Um die Innenräume für vielfältige Nutzungen zu öffnen, sollte seine Nutzung flexibler und intensiver gestaltet werden. Ein zentraler Aspekt dabei ist, dass der Raum im Alltag leer und aufgeräumt bleibt – nur so bleibt er offen für spontane und unterschiedliche Aktivitäten, ohne dass bestimmte Nutzungsarten bereits vorgegeben erscheinen.
Dafür ist ausreichend Stauraum notwendig. Dieser lässt sich bereits durch kleinere, gezielte Eingriffe in die Möblierung schaffen – mit vergleichsweise geringem Aufwand kann so eine deutliche funktionale Verbesserung erreicht werden.
Ein aufgeräumter Raum macht das großzügige Platzangebot deutlich sichtbar und eröffnet neue Nutzungsmöglichkeiten – etwa für Krabbelgruppen, Workshops, Lesungen, Bewegungsangebote oder kleinere Veranstaltungen.
Zugang
Durchblicke
Außenbereich
Multifunktionale Fläche*
Klappbank
Eingang KG
Parkplatz Schule
Abb.161 Mögliche Eingriffe im Kästner*
Erich-Kästner-Schule
Haupteingang OG
Spielgruppe
Kästner-Halle
Lesung/Vortrag/Kino
Workshop
Pilates
*Anmerkung: Die vorgeschlagenen Nutzungen dienen zur Veranschaulichung der vielfältigen Nutzungsmöglichkeiten - es wurde nicht überprüft ob diese Aktivitäten bereichts an anderer Stelle im Centrum stattfinden. Dies müsste bei den Weiterentwicklungen gut abgestimmt werden.





Ein offener sozialer Ort im Herzen von Postbauer-Heng Tausch
Maßnahmenbeschreibung:
Im Centrum von Postbauer-Heng kann mit dem „Tauschhaus mit C“ ein weiterer Ort entstehen, der Begegnung, Teilhabe, Engagement und Nachhaltigkeit auf innovative Weise verbindet. Das Konzept versteht sich bewusst nicht als klassisches Sozialkaufhaus, sondern als wertschätzender, lebendiger Treffpunkt für alle Generationen – ohne Stigmatisierung. Das Tauschhaus soll bestehende Strukturen nicht ersetzen, sondern gezielt das bestehende „Soziale Dreieck“ aus Bürgertreff Kästner mit Reparaturwerkstatt, Familienstützpunkt und Bücherei ergänzen. Sollte sich Bedarf und Trägerschaft ergeben, könnte es als vierter Baustein dieses Netzwerks zum „Sozialen Viereck“ ausgebaut werden. Auch eine flexible Integration der angedachten Nutzungen (Lernort, Tauschpunkt, Freiwilligenagentur) in bestehende Standorte des Sozialen Dreiecks ist möglich – ebenso wie die Einrichtung an einem eigenständigen vierten Ort, wie hier beschrieben.
Geplant sind verschiedene Bausteine wie ein niederschwelliger Tausch- und Mitnahmepunkt (z. B. Kleidung, Bücher, Haushaltswaren), ein offener Lernraum für Schüler:innen, ein Treffpunkt für freiwilliges Engagement sowie möglicherweise ein Quartiersbüro, in dem beispielsweise eine geplante Freiwilligenagentur angesiedelt werden kann.
Als geeigneter Standort wird der derzeit leerstehende Getränkemarkt am künftigen Oberen Marktplatz gesehen – mit dem Vorteil, dass hier auch der Außenraum aktiv genutzt werden könnte und zu einer Belebung des öffentlichen Raumes beitragen kann. Alternativ wäre auch der bereits durch die Gemeinde angemietete Raum neben dem Dönerladen denkbar. Die Umsetzung kann schrittweise und ressourcenschonend erfolgen, etwa durch die Einbindung von Ehrenamtlichen.
Ziel der Maßnahme:
Ziel ist es, im Zentrum von Postbauer-Heng einen weiteren inklusiven, nicht-kommerziellen und vielseitig nutzbaren Ort zu schaffen, an dem soziale Nachhaltigkeit im Alltag erlebbar wird. Das Tauschhaus mit C soll Impulse für gemeinschaftliches Handeln, Ressourcenschonung, Bildung, Nachbarschaftshilfe und freiwilliges Engagement setzen – niedrigschwellig, offen und gemeinschaftlich getragen. Durch die Verbindung von Tausch, Lernen und Begegnung entsteht ein Ort, der
> B3 Nutzungsmix (weiter-)entwickeln
> B4 Öffentlichen Raum updaten
Umsetzung
kurzfristig mittelfristig
> B5 Gemeinschaft und Kultur stärken langfristig
das Miteinander stärkt und neue Formen der Teilhabe ermöglicht.
1. Nutzung im Innenbereich
• Tauschregale und Mitnahmeangebote für Kleidung, Haushaltsgegenstände, Bücher
• Lernraum für Schüler:innen: ruhige Zone mit Tischen, WLAN, flexibler Nutzung
• Raum für freiwilliges Engagement, Ehrenamtsbörse oder Austauschformate
• Einrichtung eines kleinen Quartiersbüros oder einer Anlaufstelle für Nachbarschaftshilfe
2. Nutzung im Außenbereich
• Gestaltung eines offenen Vorplatzes mit Sitzgelegenheiten, Pflanzinseln, Tauschschrank
• Möglichkeit für Aktionen im öffentlichen Raum (z. B. Pflanzentausch, Buchbörse, Nachbarschaftstage)
• Sichtbezug und Zugänglichkeit zum Oberen Marktplatz
3. Organisation und Trägerschaft
• Schrittweiser Aufbau mit Beteiligung von Engagierten, Jugendlichen, Initiativen
• Trägerschaft durch Ehrenamt, Verein oder in Kooperation mit sozialen Trägern
• Flexible Nutzung, einfache Verwaltung, gemeinschaftlich entwickeltes Betriebskonzept
Empfohlenes Vorgehen:
• Sondierung und Bewertung geeigneter Flächen (vorrangig: ehemaliger Getränkemarkt)
• Ideensammlung und Bedarfserhebung über Bürgerbeteiligung, Jugendforum, soziale Einrichtungen
• Pilotphase mit einzelnen Bausteinen (z. B. Tauschregal oder Schüler:innen-Lernort) starten
• Aktivierung über Beteiligung, Förderprogramme und Kooperationen im Gemeinwesen
Koordination
Ehrenamt

Lernort Schüler:innen
Abb.167 Soziales Netz Postbauer-Heng
In einem Workshop im Rahmen der Bürgerbeteiligung zum ISEK-Prozess entwickelte eine Gruppe aus der Bürgerschaft Ideen, an welchen Stellen das bestehende soziale Netz in Postbauer-Heng sinnvoll ergänzt werden könnte.
Fortschreibung Gemeindeleitbild (n.v.*)
Neuaufstellung Flächennutzungsplan (n.v.)
Zukunftsgerichtetes Flächenkataster (n.v.)
ISEK-Klausur mit dem neuen Gemeinderat (n.v.)
Projektstelle ISEK-Managerin (n.v.)
Neuordnung und Gestaltung Centrumsstraße
Umgestaltung öffentliche Plätze
Bushaltestelle PLUS
Digitale Kommunikation im Centrum
Einheitliches Erscheinungsbild für das Kerncentrum (n.v.)
Kommunales Förderprogramm (n.v.)
Graffiti-Aktion am Feuerwehrhaus (Quick Win)
Jugendplatz
Naturerlebnisraum Schulhof
Entwicklung Grünzäsur zw. Postbauer-Heng und Kemnath
Schaffung Ökologischer Trittsteine (Quick Win)
entlang Stromtrasse
Spazierloop
Soziales Dreieck: Familienstützpunkt
Soziales Dreieck: Bücherei
Soziales Dreieck: Kästner Bürgertreff
Tauschhaus mit C
Grünstrukturen
Erweiterung
Die Maßnahmentabelle gibt einen detaillierten Überblick über alle Schlüssel- und Einzelmaßnahmen des ISEK. Zu jeder Maßnahme werden Typ und Art der Maßnahme, die Priorität, der Zeithorizont, ein grober Kostenrahmen, zu prüfende Fördermöglichkeiten sowie die möglichen relevanten Akteure genannt.
Maßnahmenart
• Investive Maßnahmen: beinhalten den Erwerb von Grundstücken und Immobilien, bauliche oder infrastrukturelle Investitionen.
• Nicht-investive Maßnahmen: umfassen Planungen, Konzepte oder organisatorische Projekte.
Zeithorizont
bezieht sich auf den ungefähren Maßnahmenbeginn
• kurzfristig - innerhalb von 2 Jahren
• mittelfristig - innerhalb von 2 bis 5 Jahren
• langfristig - innerhalb von 5 bis 10 Jahren
Kostenrahmen
Der angegebene Kostenrahmen dient als vorläufige Orientierung für die Gesamtfinanzierung und berücksichtigt einen mehrjährigen Planungshorizont. Es wird darauf hingewiesen, dass es sich bei den Zahlen um Näherungswerte handelt, die sich aufgrund von schlussendlichem Maßnahmenumfang, Ergebnissen
Nr. Maßnahme
1. Raumstrategische Maßnahmen
1.1 Fortschreibung
Gemeindeleitbild
1.2 Neuaufstellung Flächennutzungsplan
1.3 Zukunftsgerichtetes Flächenkataster
1.4 ISEK-Klausur mit dem neuen Gemeinderat
1.5 ISEK-Manager:in
aus Beteiligungsprozessen, gesetzlichen Vorgaben oder der allgemeinen Baukostenentwicklung verändern können.
Da sich der Planungsstand im Laufe des Prozesses weiterentwickeln kann, ist es notwendig, die Maßnahmen regelmäßig zu überprüfen, anzupassen und schrittweise zu konkretisieren und im Laufe der Zeit detailliertere Kostenschätzungen vorzunehmen.
Hinweise Finanzierungs-/Fördermöglichkeiten
• Grundsätzlich beträgt die Förderquote der Städtebauförderung 60% der förderfähigen Kosten.
• Die förderfähigen Kosten einer Maßnahme variieren je nach Förderprogramm und Art der Maßnahme.
• Die Städtebauförderung folgt dem Subsidiaritätsprinzip: Fördermittel werden nur eingesetzt, wenn keine anderen Finanzierungsquellen verfügbar sind.
• Die Kombination mehrerer Förderprogramme ist möglich und für größere Maßnahmen auch empfehlenswert, aber einzelfallabhängig zu prüfen.
• Im Einzelfall kann geprüft werden, ob die jeweilige Maßnahme den Voraussetzungen zusätzliche Förderinitiativen gefördert werden kann. Innerhalb dieser ist ein Fördersatz von bis zu 80% der förderfähigen Kosten möglich.
Aktualisierung des Leitbildes aus dem Jahr 2011
Aktualisierung des aus dem Jahr 1973 stammenden Planwerks
Konzeption und Befüllen der Plattform
Eintägiger Workshop mit professioneller Begleitung/Moderation
Koordination Umsetzung der ISEKMaßnahmen (Projektleitung)
Strategien und Konzepte nicht-investiv niedrig
Strategien und Konzepte nicht-investiv mittel
Strategien und Konzepte nicht-investiv mittel
Bewusstseinsbildung nicht-investiv hoch
Koordination nicht-investiv hoch
Es besteht kein grundsätzlicher Anspruch auf Förderung. Die einzelnen Förderungen müssen immer erst bei der Städtebauförderung abgestimmt und beantragt werden.
Monitoring und Evaluierung
Ein kontinuierliches Monitoring und eine regelmäßige Evaluierung sind essenzielle Bestandteile des ISEK-Prozesses, um den Fortschritt der Maßnahmen zu überprüfen und deren Wirkung zu bewerten. In angemessenen Abständen, idealerweise jährlich, sollte der Umsetzungsstand der Maßnahmen im Rahmen der Steuerungsgruppe geprüft werden. Dabei werden nicht nur der Projektstand, sondern auch Erfolgsfaktoren, Verzögerungsgründe und Hemmnisse reflektiert.
Wichtige Fragen umfassen:
• Welche Maßnahmen wurden bereits umgesetzt oder begonnen?
• Entsprechen die Maßnahmen dem Leitbild und den Entwicklungszielen?
• Wo sind Anpassungen nötig, weil sich Rahmenbedingungen verändert haben?
Dieses Verfahren sichert eine zielgerichtete Umsetzung, Transparenz gegenüber Beteiligten und die Möglichkeit, flexibel auf neue Herausforderungen oder Chancen zu reagieren.
Zeithorizont Kostenrahmen (erste Annahmen) zu prüfende Fördermöglichkeiten einzubindende Akteure
mittelfristig bis 50.000 € Städtebauförderung: Regelfördersatz 60%
mittelfristig bis 100.000 € Städtebauförderung: grundsätzlich nicht förderfähig, da Pflichtaufgabe der Gemeinde (Bauleitplanung); möglicherweise anteilig förderfähig > mit Städtebauförderung abklären
kurzfristig bis 50.000 € Städtebauförderung: Regelfördersatz von 60%; prüfen ob bis zu 80% über Sonderprogramme (z.B. Innen statt Außen, Flächen schonen)
kurzfristig bis 10.000 € Städtebauförderung: Regelfördersatz von 60% für Begleit- und Verstetigungsmaßnahme; nicht förderfähig: Aufwände für Bewirtung und Raummiete o.ä.
kurzfristig bis 100.000 € Städtebauförderung: Regelfördersatz 60%; ABER „Externe Vergabe“ notwendig, das heißt: Vertrag mit einem Büro/Träger, nicht Anstellung bei der Gemeinde; direkte Einstellung bei der Kommune nicht förderfähig
GR, Bürgerschaft, Begleitung durch Fachbüro
GR, Verwaltung, Begleitung/Durchführung duch Fachbüro
Bau-Verwaltung, RIWAGIS, ggf. Begleitung durch Fachbüro
GR, Begleitung und Durchführung der Klausur durch Fachbüro
GR, Verwaltung
2.0 Gesamtplanung- und Koordination der öffentlichen Räume im Kerncentrum
bauliches und technisches Geländeaufmaß
Entwurfsplanung (Lph 1-3) für gesamtes Kerncentrum
Betreuung und Koordination durch Verwaltung
2.1 Neuordnung und Gestaltung Centrumsstraße
2.1.1 Umgestaltung Straßenraum Centrumsstraße
Technische Ausführungsplanung (Lph 4-8)
Bauliche Umsetzung
2.1.2 Auftaktsituation an der Bayernstraße
Technische Ausführungsplanung (Lph 4-8)
Bauliche Umsetzung
2.2 Umgestaltung öffentliche Plätze
2.2.1 Rathausplatz
Technische Ausführungsplanung (Lph 4-8)
Bauliche Umsetzung
2.2.2 Deutschordensplatz
Technische Ausführungsplanung (Lph 4-8)
Bauliche Umsetzung
2.2.3 Unterer Marktplatz
Technische Ausführungsplanung (Lph 4-8)
Bauliche Umsetzung
2.2.4 Oberer Marktplatz
Technische Ausführungsplanung (Lph 4-8)
Bauliche Umsetzung
Voruntersuchungen nicht-investiv hoch
Planungen nicht-investiv hoch
Koordination nicht-investiv hoch
Planungen nicht-investiv hoch
Baumaßnahme investiv hoch
Planungen nicht-investiv mittel
Baumaßnahme investiv mittel
Planungen nicht- investiv hoch
Baumaßnahme investiv hoch
Planungen nicht- investiv hoch
Baumaßnahme investiv hoch
Planungen nicht- investiv hoch
Baumaßnahme investiv mittel
Planungen nicht- investiv mittel
Baumaßnahme investiv mittel
kurzfristig bis 50.000 € Städtebauförderung: Regelfördersatz 60% als Teil der Planungsleistungen; prüfen ob bis zu 80% wenn Planungen vorrangig Beitrag zur Klimaanpassung leisten
kurzfristig bis 100.000 € Städtebauförderung: Regelfördersatz 60% als Teil der Planungsleistungen; prüfen ob bis zu 80% wenn Planungen vorrangig Beitrag zur Klimaanpassung leisten
kurzfristig gemeindeinterne Personalkosten
Personalkosten der Gemeindeverwaltung sind NICHT förderfähig; Ausnahme: zusätzliche, befristete Stelle (z.B. Sanierungsmanager) >Städtebauförderung mit Regelfördersatz 60%
kurzfristig bis 150.000 € Fachförderungen Verkehr zuerst prüfen (RZWas; BayGVFG, Rad- und Fußverkehr, Barrierefreiheit);
mittelfristig > 1 Million €
Städtebauförderung: für die städtebaulichen Maßnahmen (Plätze, Entsiegelung, Begrünung, Klima-Anpassung) –möglicherweise bis 80 % im Rahmen aktueller Sonderprogramme mit Schwerpunkt Klimaanpassung
langfristig bis 50.000 € Fachförderungen Verkehr zuerst prüfen (BayGVFG, Radund Fußverkehr, Barrierefreiheit);
langfristig bis 500.000 €
Städtebauförderung: für die städtebaulichen Maßnahmen (Plätze, Entsiegelung, Begrünung, Klima-Anpassung) –möglicherweise bis 80 % im Rahmen aktueller Sonderprogramme mit Schwerpunkt Klimaanpassung
Vermessungsingenieure
Fachplanung Landschaftsarchitektur, Verkehr und Kanal
GR, Verwaltung
GR, Verwaltung, Fachplanung, Bauhof
GR, Verwaltung, Fachplanung, ausführende Bauunternehmen, Bauhof
GR, Verwaltung, Fachplanung, Bauhof
GR, Verwaltung, Fachplanung, ausführende Bauunternehmen, Bauhof
GR, Verwaltung, Fachplanung, Anlieger
mittelfristig bis 250.000 €
mittelfristig bis 50.000 € Städtebauförderung: umfassend förderfähig, da Kernaufgabe (Barrierefreiheit, Klima, Aufenthaltsqualität); Fördersatz: häufig erhöhbar auf bis zu 80 %, wenn Klimaanpassung im Vordergrund steht;
Ergänzung KfW 444 „Natürlicher Klimaschutz in Kommunen > bis zu 90% für Klimaelemente (wenn Entsiegelung & Begrünung im Vordergrund stehen)
mittelfristig bis 50.000 € Städtebauförderung: umfassend förderfähig, da Kernaufgabe (Barrierefreiheit, Klima, Aufenthaltsqualität);
mittelfristig bis 250.000 €
mittelfristig bis 50.000 €
langfristig bis 250.000 €
mittelfristig bis 50.000 €
langfristig bis 250.000 €
Fördersatz: häufig erhöhbar auf bis zu 80 %, wenn Klimaanpassung im Vordergrund steht; Ergänzung KfW 444 „Natürlicher Klimaschutz in Kommunen > bis zu 90% für Klimaelemente (wenn Entsiegelung & Begrünung im Vordergrund stehen)
Städtebauförderung: umfassend förderfähig, da Kernaufgabe (Barrierefreiheit, Klima, Aufenthaltsqualität);
Fördersatz: häufig erhöhbar auf bis zu 80 %, wenn Klimaanpassung im Vordergrund steht;
Ergänzung KfW 444 „Natürlicher Klimaschutz in Kommunen > bis zu 90% für Klimaelemente (wenn Entsiegelung & Begrünung im Vordergrund stehen)
Städtebauförderung: umfassend förderfähig, da Kernaufgabe (Barrierefreiheit, Klima, Aufenthaltsqualität); Fördersatz: häufig erhöhbar auf bis zu 80 %, wenn Klimaanpassung im Vordergrund steht;
Ergänzung KfW 444 „Natürlicher Klimaschutz in Kommunen > bis zu 90% für Klimaelemente (wenn Entsiegelung & Begrünung im Vordergrund stehen)
GR, Verwaltung, Fachplanung, ausführende Bauunternehmen, Anlieger
GR, Verwaltung, Fachplanung, Anlieger
GR, Verwaltung, Fachplanung, ausführende Bauunternehmen, Anlieger
GR, Verwaltung, Fachplanung, Anlieger
GR, Verwaltung, Fachplanung, ausführende Bauunternehmen, Anlieger
GR, Verwaltung, Fachplanung, Anlieger
GR, Verwaltung, Fachplanung, ausführende Bauunternehmen, Anlieger
2.2.5 Benennung Plätze im Centrum Offzielle Adressierung
2.2.6 Temporäre Gestaltung von Testflächen (Quick Win)
Konzeption unter Beratung durch Planer und bauliche Umsetzung
Öffentlichkeitsarbeit nicht- investiv mittel
bauliche Kleinmaßnahme nicht- investiv hoch
2.3 Bushaltestelle PLUS
Konzeption unter Beratung durch Planer und bauliche Umsetzung bauliche Kleinmaßnahme nicht-investiv hoch
2.4 Digitale Kommunikation im Centrum
2.4.1 Digitale Infotafel
Anschaffung und Aufstellen bauliche Kleinmaßnahme nicht-investiv mittel
2.4.2 Digitale Gemeinde-App Aufsetzen anhand bestehender Plattform/App
2.5 Einheitliches Erscheinungsbild für das Kerncentrum
2.5.1 Gestaltungs- und Möblierungskonzept
Erstellung unter Beratung durch Fachbüro
Öffentlichkeitsarbeit nicht-investiv niedrig
2.5.2 Schilderwald aufräumen (Quick Win)
2.5.3 Testnutzung von Möblierung und Ausstattung (Quick Win bzw. erste Bausteine im Umsetzungsprozess)
Gemeinsame Begehung
Testen von Möbeln und Ausstattungselementen bevor sie ins Möblierungskonzept aufgenommen werden und zur Überbrückung der Bauphase
Strategien und Konzepte nicht-investiv mittel
3.1 Kommunales Förderprogramm
Entwurf ausarbeiten, Durchführung mit festgelegter Laufzeit, Evaluation und ggf. Verlängerung
Bewusstseinsbildung und Beteiligung nicht-investiv hoch
Öffentlichkeitsarbeit und Beteiligung nicht-investiv mittel
Bewusstseinsbildung nicht-investiv mittel
3.2 Graffiti-Aktion am Feuerwehrhaus (Quick Win)
Konzeption und Durchführung Workshop
Bewusstseinsbildung nicht-investiv niedrig
langfristig bis 10.000 € Verwaltungsakt nicht förderfähig; Städtebauförderung: Öffentlichkeitsarbeit möglicherweise zu 60% förderfähig
kurzfristig bis 50.000 € Städtebauförderung: Regelfördersatz 60 % für begleitende Maßnahme zur Vorbereitung und Kommunikation; möglicherweise bis 80%, wenn die temporäre Umgestaltung Teil eines Klimaanpassungsprojekts ist (z. B. Verschattung durch mobile Begrünung, Entsiegelungsversuche)
kurzfristig bis 50.000 € Fachförderung prüfen: BayGVFG (Bayerisches Gemeindeverkehrsfinanzierungsgesetz) 60-75% Fördersatz > Förderung für Neubau / Umbau barrierefreier Bushaltestellen, taktile Leitsysteme, Bordsteine, Aufstellflächen; zusätzlich prüfen: VGN > barrierefreier Zustiegsmöglichkeit; Städtebauförderung: Regelfördersatz von 60%
GR, Verwaltung, Fachplanung, ausführende Bauunternehmen, Anlieger
GR, Verwaltung, Bürgerschaft, Beratung durch Fachplaner
GR, Verwaltung, Fachplaner/Handwerker, Bürgerschaft, VGN
kurzfristig bis 10.000 €
kurzfristig bis 10.000 € Förderung über ILE AOM prüfen (Fördersatz bis zu 80%); Städtebauförderung (60% Regelfördersatz) förderfähig sind z. B. Anschaffung & Aufstellung der Tafel, Entwicklung der App, Erstbefüllung / Konzeption; nicht förderfähig: dauerhafte Betriebskosten (Hosting, Pflege, Personal)
GR, Verwaltung, Bauhof, Anbieter Infotafel
GR, Verwaltung, Nutzer:innen (Vereine, Verbände, Institutionen), Anbieter Bürger-App
kurzfristig bis 50.000 € Städtebauförderung: Regelfördersatz 60% für die Erstellung
kurzfristig
kurzfristig bis 50.000 € Städtebauförderung: Regelfördersatz 60%, wenn Möbel als Teil des Gestaltungskonzepts für öffentliche Räume entwickelt werden, und/oder sie temporär während der Bauphase eingesetzt und anschließend dauerhaft integriert werden; Erhöhter Fördersatz (bis zu 80%) möglich, wenn > Möbel zur Klimaanpassung beitragen (mobile Begrünung, Verschattung, Wasserspeicher) > Möbel als Beteiligungstool genutzt werden
mittelfristig bis 100.000 € Fachförderung prüfen: KfW/BAFA für Energie, Denkmalpflege für Denkmale, ALE bei Dorferneuerung; Städtebauförderung: voll förderfähig (Kommunales Zuschussprogramm für Privateigentümer, Geschäftstreibende) > Fördersatz: 60 % > bis 80 % bei Klimaanpassung/ Entsiegelung
kurzfristig bis 10.000 € Städtebauförderung: Regelfördersatz 60%; Förderfähig: Kosten für Workshop-Leitung / Künstler, Materialkosten für die Gestaltung (Farben, Schutzbeschichtungen), begleitende Öffentlichkeitsarbeit;
Verwaltung, GR, Fachbüro, Bürgerschaft (z.B. AG Centrum = ausgewählte interessierte Bürger:innen; ähnlich Gestaltungsbeirat)
GR, Verwaltung, Geschäftstreibende, interessierte Bürgerschaft (z.B. AG Centrum)
GR, Verwaltung, Fachplaner/Handwerker, interessierte Bürgerschaft (z.B. AG Centrum)
GR, Verwaltung, Verwaltung (v.a. Kämmerei),
GR, Jugendtreff PH, Feuerwehr, Graffitikünstler
3.3 Jugendplatz
3.4 Naturerlebnisraum Schulfhof
Planung und bauliche Umsetzung mit Unterstützung von Fachplanern
Planung mit Unterstützung von Fachplanern, Sensibilisierung Schulgemeinschaft für Naturerlebnisräume
bauliche Umsetzung
4.1 Entwicklung Grünzäsur zwischen Postbauer-Heng und Kemnath
räumliche Strategie entwickeln; Verankerung in FNP; ggf. Flächen sichern/kaufen/pachten; ggf. Umsetzung(sbegleitung) zusammen mit Eigentümern/Landwirten
Planung und Umsetzung investiv mittel
Planungen nicht-investiv niedrig
Baumaßnahme investiv niedrig
Strategien und Konzepte /
Planung und Umsetzung nicht-investiv/ investiv mittel
4.2 Schaffung ökologischer Trittsteine (Quick Win)
Flächen identifizieren; Maßnahmen entwickeln und umsetzen
Planung und Umsetzung investiv mittel
5. Verbindungen
5.1 Nord-Süd-Achse entlang der Stromtrasse
Flächen identifizieren und sichern; Maßnahmen entwickeln
Schrittweise Umsetzung der Maßnahmen
Planungen nicht-investiv hoch
Baumaßnahme investiv mittel
5.2 Spazierloop
Flächen identifizieren, Wege aufwerten/erstellen; Stationen entwickeln und umsetzen
6.1 Soziales Dreieck: Familienstützpunkt
Aufwertung Zugangsbereich
Planung und Umsetzung investiv niedrig
Planung und Umsetzung investiv mittel
mittelfristig bis 100.000 € Städtebauförderung: Regelfördersatz 60%; möglicherweise bis zu 80% über Sonderprogramme
mittelfristig bis 100.000 €
Jugendtreff PH, GR, Feuerwehr, Jugend allgemein kurzfristig bis 50.000 € Fachförderung prüfen: v. a. Klimaanpassung (BMUV), evtl. LEADER oder schulische Programme; Städtebauförderung: förderfähig mit 60%, wenn der Schulhof auch als „öffentlicher Freiraum“ und Teil der Ortsmitte wirkt; bis 80 % möglich, wenn Klimaanpassung im Mittelpunkt steht; Ergänzung KfW 444 „Natürlicher Klimaschutz in Kommunen > bis zu 90% für Ökologie (Entsiegelung, Begrünung, Biodiversität)
langfristig je nach Anzahl, Größe und Ausgestaltung der Flächen; 5-20 EUR/qm
kurzfristig je nach Anzahl, Größe und Ausgestaltung der Flächen; 40-150 EUR/qm
Fachförderung prüfen: ALE („Flächen schonen“), Naturschutzprogramme, LEADER; KfW 444 „Natürlicher Klimaschutz in Kommunen > bis zu 90% für ökologische Maßnahmen (Flächensicherung, naturnahe Entwicklung, Waldrandgestaltung); Städtebauförderung: förderfähig für Konzept, Planung, Flächensicherung und Umsetzung (sofern städtebaulicher Bezug bzw. Flächensicherung im Ortsbereich; nicht förderfähig: rein naturschutzfachliche Maßnahmen ohne Bezug zum Ortskern / zur Innenentwicklung
KfW 444 „Natürlicher Klimaschutz in Kommunen > bis zu 90% für ökologische Maßnahmen (Biodiversität, Strukturen, Habitate) ; weitere Fachförderung prüfen: v.a. LNPR und BMUVProgramm; möglicherweise Förderung über ILE AOM, Fördersatz bis zu 80%;
Städtebauförderung: förderfähig (60%) wenn die Maßnahme in ein Gestaltungskonzept oder Freiraumkonzept eingebunden ist; möglicherweise bis zu 80%, wenn insbesondere Klimaanpassungsmaßnahmen (Sonderprogramm)
kurzfristig bis 50.000 € Fachförderungen prüfen: Rad-/Fußverkehr, LNPR, BMUVProgramm; KfW 444 „Natürlicher Klimaschutz in Kommunen > bis zu 90% für ökologische Maßnahmen (Grünzug, Wildnis, Biotopverbund);
langfristig je nach Anzahl, Größe und Ausgestaltung der Flächen
Städtebauförderung (60% Fördersatz): für Planung und Umsetzung; bis 80 % bei Klima-/Entsiegelungsbezug
mittelfristig bis 50.000 € Fachförderung prüfen: Fußverkehrsprogramme, ggf. LEADER; möglicherweise Förderung der Stationen über ILE AOM, Fördersatz bis zu 80%;
Städtebauförderung: förderfähig für Lückenschluss, Wegegestaltung, Aufenthaltsstationen (Fördersatz: 60 %, bis 80 % möglich bei Klima-/Sozialbezug);
Ergänzung KfW 444 „Natürlicher Klimaschutz in Kommunen > bis zu 90% für ökologische Maßnahmen (Stationen mit ökologischer Komponente > Schattenbäume, Blühinseln,...)
mittelfristig in unterer Marktplatz enthalten in unterer Marktplatz enthalten
GR, Verwaltung, Schulverband, Schulgemeinschaft, Fachplanung Landschaftsarchitektur, ausführende Baufirmen
GR, Verwaltung, Grundstückseigentümer, Landwirte, Landschaftsplaner, Naturschutzbehörde
GR, Verwaltung, Grundstückseigentümer, Bürgerschaft/Schule für Pflegepatenschaften, Landschaftsplaner/Landschaftsarchitekten
GR, Verwaltung, Fachplaner Landschaftsarchitektur und Landschaftsplanung,
GR, Verwaltung, Fachplaner Landschaftsarchitektur und Landschaftsplanung, ggf. Bürgerschaft für Stationen
GR, Verwaltung, Personal Familienstützpunkt
6.2 Soziales Dreieck: Bücherei
6.3
Soziales Dreieck: Kästner Bürgertreff
6.4 Tauschhaus mit C
Planung einzelner Bausteine
Bauliche Umsetzung einzelner Bausteine
Planung bauliche Umsetzung einzelner Bausteine
Planungen nicht-investiv mittel
Baumaßnahmen investiv mittel
Planung und Umsetzung investiv niedrig
Konzeptionierung und Identifizierung geeigneter Räumlichkeiten
Strategien und Konzepte nicht-investiv niedrig
kurzfristig bis 50.000 €
Fachförderung prüfen, besonders Bibliotheksförderung für Ausstattung (StMWK / Landesfachstelle für das öffentliche Bibliothekswesen);
GR, Verwaltung, Fachplanung Architektur und Landschaftsarchitektur; Personal Bücherei, Elternvertretung mittelfristig bis 100.000 €
LEADER: möglich, wenn die Bücherei als offener Begegnungs- und Kulturort verstanden wird (z. B. Lesegarten, Veranstaltungsort);
Städtebauförderung: 60% Regelfördersatz, ggf. 80% möglich bei Sozial-/Klimaschwerpunkt
kurzfristig bis 50.000 €
langfristig offen
Fachförderung prüfen: LEADER (wenn der Bürgertreff auch für Vereine, Ehrenamt, Kulturveranstaltungen oder soziale Projekte offensteht)
Städtebauförderung: förderfähig für bauliche Innen- und Außenaufwertung mit städtebaulichem Bezug (Fördersatz: 60 %, bis 80 % möglich bei Klima-/Sozialbezug)
Fachförderung prüfen: Sozialministerium (Bürger-/Mehrgenerationenhaus, Ehrenamt), LEADER, evtl. Umweltförderung.
Städtebauförderung (60% Fördersatz), nicht förderfähig: laufender Betrieb, Personalkosten der Trägerschaft, Bewirtung.
GR, Verwaltung, Fachplanung Innenarchitektur, Nutzer:innen Kästner, potentielle zukünftige Nutzer:innen
GR, Verwaltung, mögliche zukünftige Nutzer:innen, Schüler:innen
Die förmliche Festlegung eines Sanierungsgebiets bietet gegenüber einem ISEK ohne Sanierungsgebiet den Vorteil, dass der Gemeinde erweiterte planungsrechtliche Instrumente zur Verfügung stehen. Dazu zählen besondere Genehmigungspflichten für bauliche Maßnahmen, die Sicherung von Grundstücksverfügungen über den Sanierungsvermerk im Grundbuch sowie das Recht, bei Bedarf Vorkaufsrechte wahrzunehmen. Auf diese Weise können die im ISEK entwickelten Ziele verbindlicher gesteuert und rechtlich abgesichert werden.
Vor diesem Hintergrund beabsichtigt die Marktgemeinde Postbauer-Heng, den Centrumsbereich als Sanierungsgebiet nach § 142 BauGB festzulegen. Grundlage hierfür sind die im Integrierten Städtebaulichen Entwicklungskonzept (ISEK) erarbeiteten Analysen, die verschiedene städtebauliche Missstände aufzeigen, insbesondere:
• Defizite in der Aufenthaltsqualität öffentlicher Räume,
• überalterte bzw. versiegelte Verkehrsflächen sowie unzureichende Grün- und Freiraumstrukturen,
• vereinzelt funktionale Defizite durch Leerstände und Nutzungsrückgänge in der Ortsmitte.
Die vorgesehenen Maßnahmen konzentrieren sich überwiegend auf den öffentlichen Raum. Viele Straßen- und Platzflächen entsprechen in Gestaltung, Ausstattung und Barrierefreiheit nicht mehr den heutigen Standards. Darüber hinaus bestehen Defizite bei der Klimaanpassung, etwa fehlende Verschattung, mangelnde Entsiegelung sowie unzureichende Grünund Wasserstrukturen. Die Marktgemeinde verfolgt daher das Ziel, das Centrum durch die Aufwertung öffentlicher Räume, die Aktivierung von Leerständen und die Stärkung öffentlicher Nutzungen nachhaltig zu entwickeln und damit zugleich Anreize für Modernisierungsinvestitionen seitens der Privateigentümer:innen zu schaffen.
Die räumliche Festlegung des Sanierungsgebiets erfolgt gemäß Abbildung 174 durch die orange markierten Flächen. Innerhalb dieses Bereichs können die geplanten Maßnahmen zielgerichtet umgesetzt werden. Der Umgriff orientiert sich weitgehend am Untersuchungsgebiet des ISEK und umfasst die zentralen Flächen im Ortszentrum. Der Schwerpunkt liegt auf Bereichen mit besonderer Bedeutung für die Weiterentwicklung öffentlicher Räume und Gebäude sowie angrenzender Grundstücke. Einzelne Flächen
wurden nicht einbezogen, da sie für die Zielerreichung und Umsetzung der vorgesehenen Maßnahmen nicht erforderlich sind.
Die Ausweisung des Sanierungsgebiets erfolgt durch Beschluss des Marktgemeinderats nach § 142 Abs. 1 und 3 BauGB auf Grundlage der Ergebnisse des ISEK. Damit eröffnet sich für die Gemeinde die Möglichkeit, Fördermittel für die städtebauliche Entwicklung im abgegrenzten Bereich zu beantragen.
Im Zuge der Festlegung ist auch über das Sanierungsverfahren zu entscheiden. Da es sich im Wesentlichen um Maßnahmen zur Aufwertung des Bestands handelt und weder großflächige Umstrukturierungen noch erhebliche sanierungsbedingte Bodenwertsteigerungen zu erwarten sind, wird die Durchführung im vereinfachten Verfahren nach § 142 Abs. 4 BauGB vorgeschlagen. Dieses Vorgehen ist zweckmäßig und mit geringerem Verwaltungsaufwand verbunden. Zudem sieht es weniger Eingriffe in die Rechte der Eigentümer:innen vor. Insbesondere entfallen die sanierungsbedingte Bodenwertermittlung und die Erhebung von Ausgleichsbeträgen. Da aufgrund der vorgesehenen Maßnahmen keine erheblichen Bodenwertsteigerungen zu erwarten sind, ist das vereinfachte Verfahren angemessen.
Vor Erlass der Sanierungssatzung sind festzulegen, welche Genehmigungspflichten im Sanierungsgebiet gelten sollen, ob ein Sanierungsvermerk im Grundbuch einzutragen ist und welche weiteren Inhalte in die Satzung aufgenommen werden.
Die Abwägung der öffentlichen und privaten Belange erfolgte durch die umfassende Beteiligung und Mitwirkung der Bürgerschaft im Rahmen des Beteiligungsprozesses zum vorliegenden ISEK.



Abb.169 Vorschlag Sanierungsgebiet (final abzustimmen für Beschluss)



ISEK Centrum Postbauer-Heng Vorschlag Sanierungsgebiet
Sofern nicht anders angegeben: Eigene Darstellung nonconform
Abb.1 Das Centrum aus der Vogelperspektive, aufgenommen aus südwestlicher Richtung Quelle: Markt Postbauer-Heng 8
Abb.2 Das Untersuchungsgebiet im Kontext der Orte Postbauer-Heng und Kemnath M 1:7500 9
Abb.3 Räumliche Einbettung der Gemeinde Postbauer-Heng 17
Abb.4 Modell des Centrums 1978
Quelle: Markt Postbauer-Heng 18
Abb.5 Bau des Geschäftszentrums
Quelle: Markt Postbauer-Heng 18
Abb.6 Postbauer-Heng 1947 Quelle: bayernatlas.de 19
Abb.8 Postbauer-Heng 1969 Quelle: bayernatlas.de 19
Abb.10 Postbauer-Heng 1993 Quelle: bayernatlas.de 19
Abb.7 Postbauer-Heng 1956 Quelle: bayernatlas.de 19
Abb.9 Postbauer-Heng 1986 Quelle: bayernatlas.de 19
Abb.11 Postbauer-Heng 2003 Quelle: bayernatlas.de 19
Abb.12 Bevölkerungsveränderung Postbauer-Heng
Quelle: Bayerisches Landesamt für Statistk 20
Abb.13 Bevölkerungsentwicklung Gemeinde Postbauer-Heng
Quelle: Bayerisches Landesamt für Statistk 21
Abb.14 Bevölkerungsskizze im Jahr 2019 bzw. 2039
Quelle: Bayerisches Landesamt für Statistk 21
Abb.16 Einpendler nach Postbauer-Heng
Quelle: pendleratlas.statistikportal.de 22
Abb.15 Bevölkerungsanteil ab 65 Jahren an der Gesamtbevölkerung Quelle: atlas.zensus2022.de 22
Abb.17 Auspendler von Postbauer-Heng Quelle: pendleratlas.statistikportal.de 22
Abb.18 Postbauer-Heng im Landesentwicklungsprogramm Bayern
Quelle: Bayerisches Staatsministerium für Wirtschaft, Landesentwicklung und Energie 23
Abb.20 Ausschnitt Entwicklungskonzept aus der Entwicklungsstudie zur zukunftsorientierten städtebaulichen Entwicklung Quelle: Bartsch 2019 25
Abb.19 Ausschnitt FNP im Bereich des Centrums Quelle: Markt Postbauer-Heng 25
Abb.21 Centrum 2001 Quelle: bayernatlas.de 28
Abb.22 Centrum 2010 Quelle: bayernatlas.de 28
Abb.23 Centrum 2021 Quelle: bayernatlas.de 28
Abb.24
Abb.25
Abb.26 Städtebauliche Bereiche im Centrum 32
Abb.27 Aktive Erdgeschosszone mit großen Auslagen
Abb.28
Abb.29 Zweite Reihe des Centrums
Abb.30 Integration von Grün bei der Elisabethkirche 34
Abb.31 Außergewöhnliche prägende GebäudestrukturenKindergarten Himmelszelt 34
Abb.32 Raumprägende Gebäude in „zweiter Reihe“ 34
Abb.35 Visualisierung Neubau Betreutes und Barrierefreies Wohnen 35
Abb.33 Höhensprung und städtebaulicher Bruch zwischen Kernbereich und Einfamilienhäusern 35
Abb.34 Städtebauliche Zäsur zwischen Centrum und Bildungscampus
Abb.36 Qualitätsvoll gestaltete Turnhalle am Bildungscampus
35
35
Abb.39 Neubebauung mit Mehrfamilienhäusern im Norden 36
Abb.37 Fachmarktzentrum
Abb.38 Der Parkplatz dominiert das Fachmarktzentrum
36
36
Abb.40 Eingeschossiges Gebäude neben mehrgeschossigem Gebäude mit aktivem Erdgeschoss
Abb.41 Beispiel für die „Rückseite“ des Centrums
Abb.42 Zubauten mit verschiedenen Baustilen
Abb.43 Nachverdichtungspotenzial - ehemaliges PostGebäude mit anschließendem Parkplatz
Abb.44 Funktionale Bereiche im Centrum
36
37
37
37
38
Abb.45 Nutzungen und Funktionen im Centrum, o.M. 39
Abb.46 Espenpark Oberferrieden Quelle: maps.google.de
Abb.47 Geplante Flächenwidmung Mischgebiet
Abb.48 Zentrale Funktionen in der Umgebung Quelle: maps.google.de
Abb.49 Soziale Angebote im Centrum
Abb.50 Vorstellung der Kulturorte in Postbauer-Heng auf der Website der Gemeinde Quelle: www.postbauer-heng.de
41
41
43
44
45
Abb.51 Bürgertreff „Das Kästner“ Quelle: https://www.postbauer-heng.de/bildung-kultur-freizeit/ buergertreff-das-kaestner/#accordion-1-2
Abb.52 Örtlichkeiten Henger SV Quelle: Markt Postbauer-Heng
46
47
Abb.53 Vegetationsintensität im Centrum von Postbauer-Heng Quelle: bayernatlas.de
Abb.54 Grün- und Freiräume M 1:5000
Abb.55 Bademöglichkeit direkt im Centrum
Abb.56 Aktivitäten rund ums Naturbad
Abb.57 Ausstattungselemente und Gestaltung
Abb.58 Fehlende Barrierefreiheit
Abb.59 Bildungscampus mit hohen Qualitäten im Außenraum
48
49
50
50
51
51
51
Abb.60 Öffentliche Räume im Kern des Centrum 52
Abb.61 Fassaden und EG-Nutzungen beleben den öffentlichen Raum 52
Abb.66 Großzügige Platzsituationen, großteils nicht barrierefrei 53
Abb.62 Centrumsstraße mit breitem Querschnitt und hochwertigem Baumbestand 53
Abb.64 Großzügige Grünflächen rund um die Kirchen werden wenig genutzt 53
Abb.65 Außenbereiche der Gastronomie beleben den öffentlichen Raum 53
Abb.63 zahlreiche Querverbindungen und Passagen durchziehen den baulichen Kern des Centrums 53
Abb.67 Bestehende Anlagen erneuerbarer Energien im Centrum, Quelle: Auszug Energieatlas Bayern 55
Abb.68 Überschwemmungsgefahren, Quelle: Auszug Umweltatlas Bayern 55
Abb.69 Übersichtsbodenkarte, Auszug aus dem Bayernatlas Quelle: bayernatlas.de 56
Abb.70 Weg vom Bahnhof ins Centrum, Quelle: PSLV 58
Abb.71 Trampelpfad zum Schul- und Seniorenzentrum, Quelle: PSLV 58
Abb.72 Fehlende Barrierefreiheit am Marktplatz, Quelle: PSLV 58
Abb.73 Beeinträchtigung wünschenswerter Wegeverbindungen durch Dauerparker aufgrund unklarer Gestaltung, Quelle: PSLV 59
Abb.74 gestaltetes Pflasterband als Gehweg, Quelle: PSLV 59
Abb.75 nicht richtlinienkonforme Umlaufsperre, Quelle: PSLV 59
Abb.76 Sogenannte „Felgenbrecher“ im Einkaufsbereich des Centrums, Quelle: PSLV 60
Abb.77 gute Fahrradständer am Nettomarkt, Quelle: PSLV 60
Abb.78 Ungeeignete Fahrradständer an der Sportgaststätte, Quelle: PSLV 60
Abb.79 Fehlende Überdachung der Fahrradständer an der Sporthalle, Quelle: PSLV 61
Abb.80 Vorbildliche Fahrradständer am Schulzentrum, Quelle: PSLV 61
Abb.81 Großzügige Bushaltestelle, jedoch nicht barrierefrei, Quelle: PSLV 62
Abb.82 Großzügige Bushaltestelle mit Informationsfunktion, Quelle: PSLV 62
Abb.83 Kreisverkehr als zentraler Verknüpfungspunkt mit Portalfunktion zum Einzelhandelsbereich, Quelle: PSLV 63
Abb.84 Einfahrt in das Centrum von Osten, Quelle: PSLV 63
Abb.85 Centrum mit gepflastertem Straßenraum und Parkplätzen, Quelle: PSLV 63
Abb.86 Bezeichnung der Stellplätze der Parkraumerhebung, Quelle: PSLV 64
Abb.87 Parkplatzregelungen und Anzahl der Stellplätze, Quelle: PSLV 65
Abb.88 Ungenaues Parken mit Blockade zweier Stellplätze, Quelle: PSLV 66
Abb.89 Privat angebrachte Schilder vor den Stellplätzen, Quelle: PSLV 66
Abb.90 durch dauerparkende Anhänger blockierte Stellplätze, Quelle: PSLV 67
Abb.91 Personengruppenbezogene Stellplätze - nicht für die Allgemeinheit nutzbar, Quelle: PSLV 67
Abb.92 Zweckentfremdung der Stellplätze durch ContainerNutzung, Quelle: PSLV 67
Abb.93 Beispiel für Darstellung - Parkraumerhebung 06.07.11.2024 8:30-10:00, Quelle: PSLV 68
Abb.94 Auslastung im Centrum (allgemein nutzbare Parkplätze), Quelle: PSLV 69
Abb.95 Auslastung Längsparker Centrum West, Quelle: PSLV 69
Abb.96 Auslastung Längsparker Centrum Mitte, Quelle: PSLV 69
Abb.97 Auslastung Centrum Bäcker mit Belegungsdauer, Quelle: PSLV 71
Abb.98 Auslastung Dürerstraße Zahntechnik mit Belegungsdauer, Quelle: PSLV 71
Abb.99 Auslastung Centrum Sparkassenparkplätze mit Belegungsdauer, Quelle: PSLV 71
Abb.100 Räumliche Darstellung der Stärken-SchwächenChancen-Risiken 85
Abb.101 Die Bausteine des Zukunftsbilds Centrum 88
Abb.102 Verortung des Zukunftsbilds Centrum innerhalb der bestehenden kommunalen Konzeptlandschaft 89
Abb.103 Rahmenplan 103
Abb.104 Übersicht Maßnahmenlandschaft 104
Abb.105 Ausschnitt digitales Flächenkataster 109
Abb.106 Infoflyer zur Flächenmanagement-Datenbank des LfU, Quelle: LfU Bayern 109
Abb.107 Abbildung Maßnahmencluster „Öffentliche Räume im Kerncentrum“ Quelle: LfU Bayern 113
Abb.108 Heute: überdimensionierte Kreuzungssituation an der Bayernstraße, Quelle: Google-Earth 117
Abb.110 Pop-Up Dorfplatz in Vorarlberg Quelle: https://www.hittisau.at/ortschafft/dorfplatz 119 Abb.111 Temporäre Gestaltung Straßenraum in Lausanne Quelle: https://www.aktivmobil-bw.de/aktuelles/news/ infobroschuere-zum-thema-temporaere-gestaltungen/ vom/11/7/2023 119
Abb.109 Quelle: https://www.hittisau.at/ortschafft/dorfplatz 119
Abb.116 Quelle: https://www.sla.dk/cases/silkeborgpedestrian-streets-and-sondertorv/ 122
Abb.112 Quelle: https://www.traunstein.de/stadt-buerger/ aemter-und-dienststellen/planenbauen/abteilungen-im-rathaus/ sanierung-des-maxplatzes/ 122
Abb.113 Quelle: https://regenwasseragentur.berlin/magazin/ verkehrsberuhigung-mit-mehrwert-der-graefekiez-in-kreuzberg/ 122
Abb.118 Quelle: nonconform 122
Abb.115 Quelle: https://noordoutdoorfitness.de/eleganterfitnessbereich-in-roskilde/ 122
Abb.117 Quelle: https://stadtundgruen.de/artikel/einbaumquartier-fuer-buehl-20046 122
Abb.114 Quelle: https://sourceable.net/low-impactstormwater-management/ 122
Abb.120 https://www.archdaily.com.br/br/764998/pavilhaoem-varsovia-ponadto-grupa-projektowa/5514a325e58eceba3f 0000a4-15-jpg 123
Abb.119 Quelle: https://i.pinimg.com/736x/81/ef/5c/81ef5cd7 3ab18d39e647d0eb3f7387b0.jpg 123
Abb.122 Quelle: https://www.jillbjarvis.com/the-latest-look-atbarbara-fish-daniels-nature-play-area-at-buffalo-bayou/ 123
Abb.121 Quelle: https://i.pinimg.com/736x/d7/36/e2/ d736e2ac436dd78682902ed3cc270224.jpg 123
Abb.123 Quelle: https://www.timeout.es/barcelona/es/ deportes/toboganes-gigantes-en-barcelona 123
Abb.124 Quelle: https://www.derkleinegarten.de/images/ phocagallery/oeffentliches-Gruen/Spielplatz/13-spielplatz-mitrutschen-villingen.jpg 123
Abb.125 Quelle: https://www.designweek.co.uk/issues/26september-2-october-2016/new-digital-bus-shelter-designpiloted-manchester/ 125
Abb.126 Quelle: https://pepperboxcouture.wordpress. com/2013/01/30/designer-inspiration-eco-furniture-of-thefuture/ 125
Abb.128 Bestehende analoge Anschlagtafeln im Centrum von Postbauer-Heng 127
Abb.127 Gemeindeübergreifende Digitale Anschlagtafel im Rupertiwinkel
Quelle: https://www.zukunftsregion-rupertiwinkel.bayern/ projekte/digitale-anschlagtafeln/ 127
Abb.130 Jugendcontainer
Quelle: https://www.sueddeutsche.de/muenchen/muenchencontainer-jugendliche-treffen-1.5556590 135
Abb.131 Kreative Aktivitätsangebote
Quelle: https://www.nantes-amenagement.fr/wp-content/ uploads/2024/06/Opencafe2024-PPT-VFINALE-diffusion.pdf 135
Abb.129 Triste Atmosphäre am Basketballplatz heute 135
Abb.133 Geländemodellierungen ersetzen Spielgeräte
Quelle: https://naturgarten.org/blog/2023/09/08/naturerlebnis-schulhof-unterschleissheim-wird-weggebaggert/ 137
Abb.132 Schulhof als Naturerlebnisraum Quelle: https:// naturgartenplaner.de 137
Abb.134 Balancier-Balken
Quelle: Stefan Wrobel 137
Abb.135 Strukturreicher Übergang vom Wald zur Landwirtschaft
Quelle: https://www.infoportal-kirchenland.de/aktiv-werden/ massnahmen-fuer-den-naturschutz/massnahmen/?id=26 139
Abb.136 Offenlandbiotop mit hochwertigen Heckenstrukturen
Quelle: http://www.rexinger-themenwege.de/ panoramablicke/03_offenlandbiotop/ 139
Abb.137 Agroforststrukturen
Quelle: hhttps://www.oekolandbau.de/bio-in-der-praxis/ oekologische-landwirtschaft/oekologischer-pflanzenbau/ agroforstwirtschaft/ 139
Abb.138 Bestandssituation der Grünflächen an der Katholischen Kirche im Centrum 141
Abb.139 Ökologisches Strukturen, direkt nach der Anlage und in etabliertem Zustand
https://stadt.winterthur.ch/gemeinde/verwaltung/technischebetriebe/stadtgruen-winterthur/laufende-projekte/stadtwildnis 141
Abb.141 Quelle: https://www.365grad.com/eingruenungbaugebiet-leim-nord 143
Abb.142 Quelle: https://www.osty.fr/fr/projets/view/3/lespromenades 143
Abb.140 Quelle: https://de.pinterest.com/ pin/849491548492178937/ 143
Abb.143 Quelle: https://www.allstars-shop.com/shop-2/ spielplatzgeraete/schaukeln/huck-super-tampen-swinger-maxi/ 145
Abb.147 https://www.nantes-amenagement.fr/wp-content/ uploads/2024/06/Opencafe2024-PPT-VFINALE-diffusion.pdf 145
Abb.146 Quelle: https://www.flickr.com/photos/ mexbeadyeyes/2861174192/ 145
Abb.144 Quelle: https://b2519987.smushcdn. com/2519987/wp-content/uploads/2022/09/8-17. jpg?lossy=1&strip=1&webp=1 145
Abb.145 Quelle: https://www.vetschpartner.ch/projekte/810schulanlage-doeltschi-zuerich/ 145
Abb.148 Quelle: https://www.ichspringimdreieck.de/moorrundwanderung-cafe-pauli/21-weidentunnel-2/ 145
Abb.149 Bestandssituation im Zugangsbereich zum Familienstützpunkt 147
Abb.150 Versteckter Eingangsbereich ohne Aufenthaltsqualität 147
Abb.151 Die Bücherei heute: 148
Abb.152 Die Bücherei heute: 148
Abb.153 Prinzipskizze mit Optimierungspotentialen Bücherei 149
Abb.155 Quelle: mashbrewing.com.au 150
Abb.154 Quelle: adobe stock 150
Abb.156 Quelle: latelierdici.com 151
Abb.158 Quelle: theurbanletter.com 151
Abb.159 Quelle: alivreouvert.net 151
Abb.157 Quelle: danishdesignreview.com 151
Abb.160 Außenraum Kästner heute 152
Abb.161 Mögliche Eingriffe im Kästner* 153
Abb.164 Quelle: landezine-award.com/circle-form 153
Abb.162 Quelle: yelp.com/biz_photos/amplitude-digital 153
Abb.165 Quelle: nl.pinterest.com/masamilovac 153
Abb.163 Quelle: jp.pinterest.com/itspineacre 153
Abb.166 Quelle: norstudios 153
Abb.167 Soziales Netz Postbauer-Heng 155
Abb.168 Rahmenplan mit Verortung der Maßnahmen 157
Abb.169 Vorschlag Sanierungsgebiet (final abzustimmen für Beschluss) 171
