Praça São Jorge: articulações entre futebol, arquitetura e direito à cidade

Page 1

Praça São Jorge

Articulações entre futebol, arquitetura e direito à cidade

Praça São Jorge

Articulações entre futebol, arquitetura e direito à cidade

Universidade Federal de Pelotas

Faculdade de Arquitetura e Urbanismo

Trabalho Final de Graduação I

Ênfase em Espaços Construídos

Autor Vinícius Fossati da Silva

Orientador André Carrasco

Pelotas, 2020

Ao Thiago, meu parceiro de arquibancada, quem me ensinou sobre a vida muito mais do que devia.

Agradeço à minha mãe Daniela, ao meu pai Geraldo e à minha irmã Rafaela pelo apoio incondicional.

Aos meus amigos, por tanto tempo juntos.

Aos amigos e colegas que fizeram parte desta trajetória na FAUrb, em especial ao meu irmão hondurenho Jan, pelas voltas que a vida dá.

Ao André pela parceria e orientação, assim como ao Gabriel e ao Thomaz por mais esta companhia.

A Fer, a Flávia e ao Rodolfo, pela ajuda neste trabalho e por serem minhas referências na profissão.

Ao EMAU, pelas experiências que me proporcionou nos últimos anos.

SUMÁRIO Introdução ....................... 12 Temática .......................... 16 Lugar ............................ 26 Projeto .......................... 53 Referências ..................... 104 Ref.Bibliográficas................ 132

INTRODUÇÃO

Introdução

Construção da ideia

O presente trabalho busca constituir as bases para o desenvolvimento de um equipamento de lazer voltado para a prática do futebol no bairro Navegantes, localizado na periferia da cidade de Pelotas. A articulação da temática parte de três temas definidores; futebol, arquitetura e direito à cidade. A partir disso, busca-se compreendê-los através das relações de três grandes eixos: sociedade, cidade e cultura.

No eixo Sociedade a proposta pretende questionar nossa forma de vida baseada no mundo do trabalho e como os dias são moldados a partir disso, desde os tempos, deslocamentos e relacionamentos. Busca-se problematizar a consolidação da vida em rotina e o sufocamento que ela gera em atividades que, à primeira vista, não são produtivas, ou pelo menos estão de alguma forma deslocadas da lógica da produção - ou seja, fora da rotina. Aqui busca-se refletir principal-

12 INTRODUÇÃO
PRAÇA SÃO JORGE | Articulações entre futebol, arquitetura e direito à cidade. DIAGRAMA 1: Composição do assunto de projeto. Fonte: Elaborado pelo autor.

mente sobre o lazer, e a necessidade de compreendê-lo como algo mais importante que somente uma atividade residual.

No eixo cultura é onde pretende-se abordar o futebol como fenômeno social, explorando suas potencialidades e suas contradições, com a perspectiva de que, no fim, o futebol é uma expressão da nossa cultura, das mais populares.

Por último, no eixo Cidade pretende-se abordar a relação entre centro e periferia, localizando esses termos no contexto de Pelotas e identificando as particularidades da nossa cidade nesses quesitos, para que se estimule a importância do trabalho ser localizado num bairro periférico da cidade. Esse também vai ser o eixo responsável pela análise do contexto urbano do trabalho em pelo menos três escalas: macro (o bairro Navegantes x cidade de Pelotas); média (a região da balsa e os seus conflitos); e micro (o terreno do projeto x o bairro).

A temática é desenvolvida pela articulação direta das categorias apresentadas. De Sociedade x Cultura surgem questões da mercantilização e da espetacularização das nossas formas de expressão; de Sociedade x Cidade os temas de desigualdades urbanas como acesso à infraestrutura, ao transporte, e etc.; e entre Cidade x Cultura especificamente onde estão localizados esses equipamentos de lazer, e como o investimento em cultura chega nas periferias.

Estrutura do trabalho

O caderno da proposta foi elaborado a partir de seções. A primeira seção trata das definições do tema; a segunda seção estuda, a partir de uma transição de escalas, o lugar do projeto; a terceira seção apresenta os lançamentos iniciais do projeto, divididos nas partes do projeto de programa, estudo da forma, implantação, estrutura, estudo das rampas, paisagismo e arquibancada; por fim são apresentados os projetos de referência utilizados na concepção geral da proposta, as referências pontuais estão no corpo do texto, conectadas ao que contribuíram.

13
INTRODUÇÃO
PRAÇA SÃO JORGE | Articulações entre futebol, arquitetura e direito à cidade.

La pelota no se mancha. Diego Armando Maradona

TEMÁTICA

Da Rua à Arena: paralelos da cultura em disputa

“A história do futebol é uma triste viagem do prazer ao dever. Ao mesmo tempo em que o esporte se tornou indústria, foi desterrando a beleza que nasce da alegria de jogar só pelo prazer de jogar.” (Galeano, 2015, p.10)

A sociabilidade derivada do modo de produção capitalista impõe ao habitante da cidade a reprodução cotidiana de tarefas cíclicas e quase mecanizadas. A monotonia da rotina, conforme conhecemos e naturalizamos, limita as possibilidades de apropriação do espaço urbano e reduz as atividades àquelas que geram valor, ou àquelas que contribuem para a reprodução do que gera valor, uma vez que este cotidiano é construído em torno do trabalho produtivo e do consumo. O trabalho, a moradia, a saúde e as demais categorias sociais urgentes que reivindicamos também podem ser analisadas sob esta ótica, e por esta questão, tornam-se pautas pró-sistêmicas; na medida em que são atendidas, não só contribuem para a manutenção desta ordem, como também sufocam outras possibilidades de expressão humana, como a cultura e a arte, por exemplo.

Assim, passa pela reivindicação de um assim chamado “direito ao ócio” a possibilidade de construir novas formas de habitar a cidade e romper a normativa produtivista que conhecemos como rotina. O papel do projeto de arquitetura neste cenário deverá ser equipar e qualificar equipamentos coletivos cujos programas estimulem atividades não-produtivas.

“As necessidades urbanas específicas não seriam necessidades de lugares qualificados, lugares de simultaneidade e de encontros, lugares onde a troca não seria tomada pelo valor de troca, pelo comércio e pelo lucro? Não seria também a necessidade de um tempo desses encontros, dessas trocas?” (Lefebvre, 2011, p.105)

A afirmação das formas de habitar a cidade que subvertam a lógica esboçada acima demanda a construção de espaços urbanos pautados por relações sociais não-produtivas, vinculadas ao lazer, aos encontros e às atividades lúdicas. Para Lefebvre, nas condições favoráveis o arquiteto pode exercer o seu papel

16 TEMÁTICA
PRAÇA SÃO JORGE | Articulações entre futebol, arquitetura e direito à cidade.

de auxiliar o desenvolvimento dessas relações, preparar a forma com que elas aconteçam, mas não criá-las (Lefebvre, 2001).

Dessa maneira, partindo do pressuposto do trabalho com formas de relação social já consolidadas, que se enquadram nas ideias de renovação da atividade urbana dadas por atividades coletivas, espaços de troca e promoção de encontros, temos o futebol como uma potente ferramenta de manifestação cultural do nosso tempo. No seu sentido mais amplo possível, o futebol nasceu e resiste no espaço urbano, tendo a rua e os campos como palcos para a sua realização, e repercute à sua volta os valores de coletividade necessários e intrínsecos à vida humana.

Na mesma medida, a inserção urbana dos campos de futebol, quando públicos, exerce um papel fundamental de promoção não só da prática do esporte, como também de lugar cívico, espaço de encontros e de atividades culturais diversas. Ao tratar da cidade latino-americana, Gorelik sugere que antes de uma forma, ela é uma categoria do pensamento social latino-americano. Ainda que, sob o ponto de vista da forma, esta categoria se expressa, sobretudo, nas áreas de precariedade urbana: sejam elas as villas, barriadas, ou favelas (Gorelik, 2005). Faz-se necessário ressaltar nestes espaços os campos de futebol; grandes áreas livres em cenários de altíssima densidade populacional, muitas vezes planejados e geridos pelas populações locais, demonstrando a apropriação e a importância destas áreas.

A relação urbana dos campos de futebol nas periferias das cidades latinas ressalta aos olhos ao contrastar o vazio do campo com uma morfologia urbana que avança sobre todos os espaços disponíveis e parece não obedecer limites espaciais pré-definidos. Esta relação evidencia a centralidade destes espaços, e foi objeto de estudo da exposição “Pelada” do fotógrafo Leonardo Finotti (2011) e do ensaio “Terrão de Cima”, de Renato Stockler (2012):

“A imagem de um campo como um oásis na paisagem urbana transforma o vermelho da terra em palco para a resiliência do futebol popular e comunitário. Mas são raros hoje. São poucos os campos de várzea remanescentes: espaços que sobrevivem e resistem aos processos de ocupação e especulação imobiliária e que se tornam o retrato da urgência por espaços coletivos e públicos na periferia.” (Stockler, 2012)

17
TEMÁTICA
PRAÇA SÃO JORGE | Articulações entre futebol, arquitetura e direito à cidade.

Foto 1: Ensaio “Terrão de Cima”. Fonte: Acervo do fotógrafo Renato Stockler.

Foto 2: Ensaio “Terrão de Cima”. Fonte: Acervo do fotógrafo Renato Stockler.

18
TEMÁTICA
PRAÇA SÃO JORGE | Articulações entre futebol, arquitetura e direito à cidade.

Exposição “Pelada”. Fonte: Acervo do fotógrafo Leonardo Finotti.

Foto

Exposição “Pelada”. Fonte: Acervo do fotógrafo Leonardo Finotti.

19
PRAÇA SÃO JORGE | Articulações entre futebol, arquitetura e direito à cidade. TEMÁTICA Foto 3: 4:

Dessa forma, por um lado o futebol se expressa como uma manifestação popular da cultura brasileira e é visto como uma ferramenta potente de formação humana, sendo na cidade e nos bairros os lugares onde acontece e é celebrado. Porém, por outro lado, como qualquer forma de expressão da cultura ele passa por locais de disputa, e dentre os quais aqui serão identificados a mercantilização e a espetacularização.

“Toda a vida das sociedades nas quais reinam as modernas condições de produção se apresenta como uma imensa acumulação de espetáculos. Tudo o que era vivido diretamente tornou-se uma representação.” (Debord, 2017, p.37)

Ao diagnosticar no livro “A Sociedade do Espetáculo” como a realidade tem se estabelecido a partir de uma relação imagética entre tudo e todos, ainda que não tenha mencionado diretamente, Debord de certa forma previu as movimentações do mundo do futebol ao longo dos últimos anos. A “indústria da bola” tem modificado a forma com a qual se encara o esporte em todos os seus aspectos no caminho da sua produção espetacular. Desde domesticações ao modo como se comportam os espectadores nos estádios, até as movimentações financeiras milionárias do futebol-mercadoria, a hegemonia do esporte - e a sua relação com quem o acompanha - tem se descolado da realidade material e transferido sua vivência à realidade imagética.

Estes fenômenos amplos abrangem diversas categorias da cultura, na medida em que identificado o seu potencial de rentabilidade. Devido a este fato, aqui encontramos aproximações importantes entre o futebol e a arquitetura. Ao descrever o cenário da produção de arquitetura das últimas duas décadas, o arquiteto Pedro Arantes parece ter diagnosticado uma nova forma de gerar renda descoberta por este novo ciclo, que superou a velha renda fundiária. Este movimento aparece como uma característica central na era da arquitetura das marcas. Novos edifícios, os quais devem esbanjar as formas mais complexas possíveis, necessariamente assinados pelas mais expoentes estrelas do cenário global, são disputados por cidades que, no intuito de incluírem-se num seleto grupo, adequam as suas formas urbanas e re-caracterizam (ou criam) suas imagens para o mundo através da arquitetura (Arantes, 2012).

20
TEMÁTICA
PRAÇA SÃO JORGE | Articulações entre futebol, arquitetura e direito à cidade.

Ao passo que o objetivo da arquitetura hegemônica deixa de ser a solução de problemas reais e de grandes escalas, passamos à produção de mercadorias de um tipo especial, que carregam consigo a exclusividade, o ineditismo e a inovação, isto é, edifícios tão únicos quanto as cidades ‒ ou as marcas ‒ que representam. A relação com o ambiente construído deixa de ser material e passa ao plano imaterial, na medida em que o consumo não se dá somente pelo uso, mas principalmente pela imagem, ou, por sua vez, nas palavras de Debord, “a realidade vivida é materialmente invadida pela contemplação do espetáculo e retoma em si a ordem espetacular à qual adere de forma positiva” (Debord, 2017, p.39). Nesta arquitetura do espetáculo, “a forma se torna capital por meio de um fenômeno imagético, no qual é remunerada como capital simbólico, por uma espécie de renda da forma” (Arantes, 2012, p.55).

A expressão máxima da produção espetacular da arquitetura e do futebol, agora em conjunto, pode ser explicitamente representada pela Copa do Mundo de Futebol da Fédération Internationale de Football Association (FIFA). Sob o ponto de vista do esporte é o momento no qual o mundo inteiro volta a sua atenção para a forma máxima deste futebol hegemônico. Já sob o ponto de vista da arquitetura é o momento no qual os países disputam a exclusividade de obras assinadas pelos expoentes máximos da contemporaneidade, as quais estarão imersas neste circuito reconhecido por Arantes.

O legado da Copa do Mundo de 2014 nas cidades brasileiras ainda é um objeto amplamente estudado, e aponta como consequências diretas remoções, bairros gentrificados e descaracterização das paisagens urbanas. Já para a Copa do Mundo do Catar, a ser realizada em 2022, o casamento entre as formas hegemônicas do futebol e da arquitetura produz efeitos ainda mais preocupantes. Segundo investigação publicada em 2013 pelo jornal inglês The Guardian, os estádios da copa estavam sendo construídos sob condições de trabalho análogas à escravidão, e pelo menos 44 trabalhadores haviam morrido em decorrência das obras (The Guardian, 2013). O mesmo veículo, em 2019, revelou também que no pico da construção dos estádios, em regimes de 10 horas por dia sob temperaturas de até 45°C foram centenas os trabalhadores mortos (The Guardian, 2019). Na lista da autoria dos estádios, aparecem escritórios de arquitetura como Foster + Partners e Zaha Haddid Architects, por exemplo.

21
PRAÇA SÃO JORGE | Articulações entre futebol, arquitetura e direito à cidade.
TEMÁTICA

A partir dos fenômenos apresentados, o projeto reconhece o futebol e a arquitetura como categorias sociais cujas lógicas de produção estão em permanente disputa pelos seus agentes. Nesta medida, através da elaboração de um novo espaço construído é pretendido disputar estas categorias, sob a perspectiva de defesa de um futebol reconectado com as suas origens populares, desvinculado da lógica mercantil que carrega hoje e reconhecendo o seu potencial de contribuição pelo direito à cidade. Já pelo lado da arquitetura, busca-se a elaboração de um programa público capaz de fomentar as contribuições dadas pela prática do esporte.

22 TEMÁTICA
PRAÇA SÃO JORGE | Articulações entre futebol, arquitetura e direito à cidade. Foto 5: Acima o estádio Lusail, por Manica Architecture e Foster + Partners (Qatar 2022 Bid), abaixo o estádio Al Wakrah, por Zaha Haddid Architects (AECOM).
23
TEMÁTICA
PRAÇA SÃO JORGE | Articulações entre futebol, arquitetura e direito à cidade.
LUGAR

Será construída a definição do lugar do projeto a partir de uma estrutura a qual transitará do geral para o particular, e apresentará: a) centro e periferia na cidade de Pelotas; b) definição do bairro a ser trabalhado a partir da atuação universitária em contexto de precariedade urbana; c) avaliação da hipótese do lugar através de levantamento socioespacial da cidade e d) situação urbana da macrorregião São Gonçalo e do bairro Navegantes.

Centro e periferia na cidade de Pelotas

As dinâmicas urbanas que dão forma a uma cidade podem ser observadas a partir de uma perspectiva ampla de relação dialética da cidade entre centro e periferia. Essa possibilidade se explica no campo conceitual e é intrínseca ao nosso sistema produtor de desigualdades, mas é no espaço urbano onde ela se instala de maneira visível aos olhos e acaba por definir aos seus habitantes desde as condições de moradia até o acesso aos demais direitos básicos de cidadania. Ao tomarmos como exemplo localidades da periferia deste sistema, como por exemplo as grandes metrópoles do contexto latino-americano, é comum nos deparamos com cenários profundamente antagônicos no que diz respeito às condições urbanas; na medida em que encontramos zonas de luxo e áreas abastecidas com infraestruturas adequadas, ao mesmo tempo a maior parte da população convive com situações arcaicas de desenvolvimento urbano, onde o avanço tecnológico não se faz presente e a pobreza urbana predomina.

Este embate chega na cidade de Pelotas contendo as suas particularidades. Pelotas está localizada na zona sul do estado do Rio Grande do Sul, e possui dois limitadores naturais da sua urbanização localizados ao sul e ao leste da cidade: o canal São Gonçalo e a Lagoa dos Patos, respectivamente. A proximidade com os corpos d’água foi fator determinante para a localização do assentamento da cidade ao longo da história, uma vez que os afluentes do Canal - o Arroio Santa Bárbara e o Arroio Pepino, hoje em dia envolvidos pela urbanização - serviram de apoio não só ao abastecimento da cidade como também à atividade econômica responsável pela sua fundação.

As relações entre atividade econômica e evolução urbana

26 LUGAR
PRAÇA SÃO JORGE | Articulações entre futebol, arquitetura e direito à cidade.

constituem as bases para a compreensão da divisão de centro e periferia em Pelotas. O desenvolvimento da atividade charqueadora da região, no século XIX, possibilitou a urbanização e a qualificação da infraestrutura básica dos primeiros loteamentos. Ao passo que o seu declínio esteve diretamente ligado ao crescimento da pobreza urbana (Carrasco, 2017). Já no final do século, a institucionalização desta desigualdade pode ser observada pelas regulamentações do poder público municipal, as quais estabeleceram, entre outras diretrizes de uso do solo, um perímetro de proibição da construção e reforma dos cortiços - tipologia de moradia popular da época - consolidando delimitações claras no espaço urbano entre lugares ocupados pela elite e lugares destinados à classe trabalhadora (Rosa, 2006).

Os resquícios do desenvolvimento urbano pautado na segregação de áreas próximas entre si somados à evolução urbana contida pelos cursos d’água que tangenciam a cidade formam uma importante particularidade da periferia de Pelotas que se distingue de boa parte das cidades latinas, sobretudo as metrópoles; a proximidade geográfica entre centro e periferia. Por consequência, hoje em dia, algumas áreas periféricas da cidade se encontram em conflito com a expansão urbana; o resultado é a tensão direta de bairros populares situados no horizonte do avanço da urbanização voltada para as classes média e alta.

27
LUGAR
PRAÇA SÃO JORGE | Articulações entre futebol, arquitetura e direito à cidade.

Mapas 1 e 2: Marcação no mapa atual da cidade de: perímetro urbano de Pelotas em 1882 (amarelo), perímetro de proibição da construção e reforma dos cortiços de 1881 (vermelho), perímetro adicionado à proibição em 1888 (roxo).

Fonte: Redesenho elaborado pelo autor (Rosa, 2006).

28 LUGAR
PRAÇA SÃO JORGE | Articulações entre futebol, arquitetura e direito à cidade.

Arquitetura e Urbanismo em contexto de precariedade urbana: extensão popular universitária em Pelotas e a atuação do EMAU entre 2016 e 2018

“[...] a reinvenção do ofício passa necessariamente pelo embate direto com os problemas superestruturais da sociedade e, particularmente, pela invenção de uma relação qualitativamente transformada com o mundo, com a natureza e com os indivíduos que fazem uso dos objetos que colocamos no mundo.” (Lopes, 2018, p.250).

À vista deste panorama, o Escritório Modelo de Arquitetura e Urbanismo da Universidade Federal de Pelotas (UFPel), ao longo dos últimos anos, em meio a pesquisas e reflexões acerca do espaço urbano de Pelotas e da atuação profissional da disciplina, buscou atender, através de projetos de arquitetura, demandas coletivas das comunidades periféricas da cidade as quais teve contato, sob o entendimento de que a contribuição do arquiteto e urbanista nestas áreas é insuficiente, ainda que extremamente potente. Esta compreensão, em seguimento às experiências que serão apresentadas, definem a premissa deste trabalho de que a localidade de intervenção do projeto seja localizada em um bairro periférico da cidade, na perspectiva da popularização da atuação profissional nestas áreas.

No mapa 3 estão localizadas experiências de extensão, entre projetos elaborados pelo EMAU entre os anos de 2016 e 2018 e o Workshop Arquitetura na Produção Urbana Latino-americana (2019), sob as marcações das Áreas de Especial Interesse Social do III Plano Diretor de Pelotas e das áreas com ocupações em situação de irregularidade fundiária da cidade.

29
LUGAR
PRAÇA SÃO JORGE | Articulações entre futebol, arquitetura e direito à cidade.

Mapa 3: Extensão universitária em Pelotas entre 2016 e 2019: Escritório Modelo e Workshop Arquitetura na Produção Urbana Latino-americana. Fonte: Elaborado pelo autor com banco de dados da Prefeitura Municipal de Pelotas e da Faculdade de Arquitetura e Urbanismo da UFPel.

Conforme o levantamento apresentado das experiências extensionistas, a região do São Gonçalo foi onde foram realizados mais projetos (3): o mutirão de requalificação da praça do bairro Navegantes (2017), o Plano Popular da Estrada do Engenho (2017), e o projeto do Workshop para a quadra central de serviços do bairro Navegantes (2019). Tendo em vista a aproximação com a área a partir dos projetos mencionados, o bairro Navegantes foi o escolhido para o desenvolvimento deste trabalho.

30 LUGAR
PRAÇA SÃO JORGE | Articulações entre futebol, arquitetura e direito à cidade.
31
PRAÇA SÃO JORGE | Articulações entre futebol, arquitetura e direito à cidade. LUGAR Foto 6: Mutirão de requalificação da praça do bairro Navegantes, 2017. Fonte: Banco de dados do Escritório Modelo da UFPel. Foto 7: Oficina de projeto do Plano Popular da Estrada do Engenho, 2017. Fonte: Banco de dados do Escritório Modelo da UFPel.

Foto 9: Desenhos referentes ao projeto de urbanização do novo loteamento da Estrada do Engenho.

Fonte: Banco de dados do Escritório Modelo da UFPel.

Foto 10: Oficina de projeto do Workshop Arquitetura na Produção Urbana Latino-americana realizada na Escola Nossa Senhora dos Navegantes, no bairro Navegantes, 2019.

Fonte: Acervo do Workshop.

32 LUGAR
PRAÇA
SÃO JORGE | Articulações entre futebol, arquitetura e direito à cidade.

Levantamento socioespacial da cidade de Pelotas, validação da hipótese

A partir da definição da macrorregião do São Gonçalo e do bairro Navegantes como a área de intervenção do trabalho, foi realizado um levantamento socioespacial com o intuito de validação da hipótese eleita e de comparação da região ao contexto macro da cidade. O mapeamento foi realizado em SIG (Sistema de Informação Geográfica) e revisado com os materiais do GeoPelotas (Portal de Informações Geográficas da Prefeitura Municipal de Pelotas). Os diagnósticos foram agrupados em um conjunto de mapas temáticos que seguem na sequência:

Mapa 4: Áreas Verdes (praças e canteiros). Fonte: Elaborado pelo autor com base de dados da Prefeitura Municipal de Pelotas.

33
PRAÇA SÃO JORGE | Articulações entre futebol, arquitetura e direito à cidade.
LUGAR

Mapa 5: Áreas de Especial Interesse Ambiental e Áreas de Preservação Permanente. Fonte: Elaborado pelo autor com base de dados da Prefeitura Municipal de Pelotas.

Mapa 6: Vazios Urbanos. Fonte: Elaborado pelo autor com base de dados da Prefeitura Municipal de Pelotas.

34 LUGAR PRAÇA
SÃO JORGE | Articulações entre futebol, arquitetura e direito à cidade.

no

35
PRAÇA SÃO JORGE | Articulações entre futebol, arquitetura e direito à cidade. LUGAR Mapa 7: Densidade Populacional. Fonte: Elaborado pelo autor com base no censo do IBGE 2010. Mapa 8: Renda per Capita. Fonte: Elaborado pelo autor com base censo do IBGE 2010.

Mapa 9: Campos utilizados no campeonato de futebol amador de Pelotas de 2017. Fonte: Elaborado pelo autor com base nos dados da Liga Pelotense de Futebol Amador.

Diante dos indicadores apresentados pelos mapas temáticos pode-se observar características importantes da macrorregião do São Gonçalo e do bairro Navegantes em comparação ao contexto urbano da cidade de Pelotas, as quais contribuem para a validação hipótese de trabalho neste cenário:

a) O levantamento das áreas verdes, ainda que denuncie a baixa quantidade destas na cidade de maneira geral, apresenta algumas possibilidades de áreas com potencial de intervenção no bairro;

b) O mapa das áreas de interesse ambiental confirmam que a maior parte da região está sob a necessidade de preservação - também em decorrência da proximidade com a água -, e ainda aponta para a degradação do bairro Navegantes;

c) Os vazios urbanos da região do São Gonçalo induzem ao avanço da urbanização de média e alta renda nesta área, sobretudo pela quantidade em comparação às outras regiões e pela proximidade com a zona central da cidade;

36 LUGAR
PRAÇA SÃO JORGE | Articulações entre futebol, arquitetura e direito à cidade.

d) A densidade populacional do bairro Navegantes chama a atenção em comparação aos outros bairros da cidade, fator que deverá ser abordado pela intervenção do trabalho;

e) A renda per capita interna da região reproduz a desigualdade econômica encontrada também na cidade, e em conjunto com a análise de vazios urbanos reforça a tendência de expansão urbana de média e alta renda no São Gonçalo, a qual será abordada na próxima escala de análise deste trabalho;

f) Um dos indicadores da aproximação entre a temática apresentada e o lugar escolhido pode ser ilustrado pela presença de dois campos de futebol utilizados pela Liga Pelotense de Futebol Amador mapeados na região.

Situação urbana da macrorregião São Gonçalo e do bairro Navegantes

Sobre o contexto, os autores Lewkowics e Sztulwark constatam que não há objeto arquitetônico sem subjetividade urbana. E adicionam que esta subjetividade tem pontos de indeterminação os quais constroem a possibilidade de um projeto de arquitetura. Por sua vez, o projeto tem como potencialidade produzir consequências naquela subjetividade, sobretudo nos pontos que outrora ela fracassava (Lewkowics e Sztulwark, 2003). Dessa maneira, podemos afirmar que a análise do contexto ao qual se insere a intervenção tem como objetivo específico encontrar quais são essas indeterminações da realidade urbana trabalhada, no intuito de construir um projeto que sirva como resposta às lacunas observadas.

37
LUGAR
PRAÇA SÃO JORGE | Articulações entre futebol, arquitetura e direito à cidade.

Mapa 10: Desigualdades Urbanas no São Gonçalo. Fonte: Elaborado pelo autor com base de dados da Prefeitura Municipal de Pelotas e censo do IBGE 2010.

38 LUGAR PRAÇA
SÃO JORGE | Articulações entre futebol, arquitetura e direito à cidade.
39 PRAÇA
LUGAR
SÃO JORGE | Articulações entre futebol, arquitetura e direito à cidade.

O mapa 10 apresentado acima busca representar algumas dinâmicas urbanas em desenvolvimento na região administrativa São Gonçalo, além de espacializar a desigualdade socioeconômica presente na área. É possível afirmar, a partir de estudos recentes realizados neste contexto, que a partir da inserção de novos empreendimentos imobiliários, realizados sobretudo nas últimas duas décadas, há um vetor leste de crescimento da cidade de Pelotas que aos poucos vem consolidando novas centralidades urbanas nesta área (Vieira, 2018; Guerra, 2019):

a) jurídica (polo jurídico), tendo em vista as novas localizações das sedes do Ministério Público, da Defensoria Pública Estadual, da Procuradoria da República, da Justiça Eleitoral e do Ministério Público do Trabalho;

b) comercial, principalmente partir da instalação do Shopping Center Pelotas;

c) habitacional, devido aos loteamentos e condomínios voltados para média e alta renda, como o Condomínio Marina Ilha Verde, o Condomínio Lagos de São Gonçalo e o Parque Una.

Por outro lado, essas novas centralidades urbanas em curso dividem o espaço com bairros mais antigos da região, estes predominantemente de média e baixa renda, como Anglo, Balsa, Nossa Senhora de Fátima, Navegantes, Cruzeiro do Sul, Humuarama e Mário Meneghetti.

Da tensão gerada pela contraposição de bairros populares tradicionais com os avanços imobiliários apresentados, surge o processo de gentrificação latente na área, o qual pode ser confirmado pelos movimentos de remoção da comunidade da Estrada do Engenho em 2017. Diante destes conflitos, o projeto pretende contribuir para a disputa de narrativas pelo futuro da região do São Gonçalo, localizando um equipamento de lazer no bairro Navegantes. Entende-se este passo como fomento de investimento de infraestrutura urbana destes bairros e de cobrança pela garantia da presença daquelas pessoas onde elas estão.

40 LUGAR
PRAÇA SÃO JORGE | Articulações entre futebol, arquitetura e direito à cidade.

Bairro Navegantes e Praça São Jorge

O projeto a ser desenvolvido terá como contexto inserido o bairro Navegantes, em Pelotas, no terreno onde hoje encontramos a Praça São Jorge. Para o III Plano Diretor de Pelotas, a área de projeto é considerada uma AEIS de tipo 2, e nesse sentido apresentará especificações distintas para a intervenção proposta. Abaixo seguem considerações da Lei para esta área:

“w II – DAS ÁREAS ESPECIAIS DE INTERESSE SOCIAL

Art. 87 - As Áreas Especiais de Interesse Social são porções de território do Município, destinadas prioritariamente à recuperação urbanística e ambiental, à regularização fundiária e à produção de Habitação de Interesse Social (HIS), conforme mapa nº U-07 anexo à presente lei.

II - AEIS II: Áreas públicas ou privadas, ocupadas por população de baixa renda, em que haja interesse público em promover a regularização fundiária, produção, manutenção e recuperação de habitação de interesse social.

Art. 92 - As intervenções urbanísticas em AEIS I e II serão realizadas mediante elaboração de Plano de Urbanização, submetido ao Sistema Territorial, na escala da mesorregião. Cada projeto de intervenção deverá ser objeto de regulamentação específica.”

Na sequência, serão apresentados mapas e desenhos nas escalas do bairro e do terreno, contextualizando o local de intervenção do projeto.

41
LUGAR
PRAÇA
SÃO JORGE | Articulações entre futebol, arquitetura e direito à cidade.

Mapa 12: Mapa urbano do bairro Navegantes, configuração dos lotes e destaque para a Praça (lugar de intervenção do projeto) e a quadra de serviços (onde estão localizados equipamentos de saúde, educação e assistência social).

42 LUGAR PRAÇA
SÃO JORGE | Articulações entre futebol, arquitetura e direito à cidade. Mapa 11: Bairro Navegantes
N N

O mapeamento aproximado da escala do bairro Navegantes evidencia algumas indicações previstas no levantamento socioespacial. Em primeiro lugar podemos notar a alta taxa de ocupação da área em contraste às poucas áreas verdes, evidenciando não só a densidade populacional como também a importância urbana da Praça São Jorge. Fica também evidente a imporância da quadra de serviços, destacada pelo Mapa 12, conjunto que contêm equipamentos de saúde, educação e assistência social. Do ponto de vista da infraestrutura viária, nota-se a presença de bloco intertravado e asfalto nas ruas que conectam o bairro a outros vizinhos e naquelas que passam por pontos de destaque, como a quadra de serviços e a praça.

43
LUGAR
PRAÇA SÃO JORGE | Articulações entre futebol, arquitetura e direito à cidade. Mapa 13: Infraestrutura viária do bairro Navegantes. N
44 LUGAR PRAÇA
N N
SÃO JORGE | Articulações entre futebol, arquitetura e direito à cidade.

Mapa 14: Praça São Jorge, bairro Navegantes 2015. Mapa 15: Praça São Jorge, bairro Navegantes 2017, intervenção de equipamentos de recreação (playground infantil) e esportes (pista de skate e academia ao ar livre).

A Praça São Jorge é uma área verde de aproximadamente 11 mil m², com a sua face maior voltada para Nordeste. A partir do levantamento feito pelas fotos de satélite é possível identificar que, além de um espaço livre de lazer, havia a marcação de um campo de futebol naquele lugar. Também fica evidente um caminho que corta a praça no sentido norte-sul, marcado pelo desgate do gramado - formado pelo trajeto das pessoas.

Em 2017 foi inaugurado no local uma série de equipamentos de lazer e esportes: um playground infantil, uma pista de skate e uma academia ao ar livre, além de uma série de caminhos ligando-os. Segundo informação levantada junto à Secretaria Municipal de Gestão da Cidade e Mobilidade Urbana, a intervenção foi executada sem a elaboração de projeto arquitetônico.

45
LUGAR
PRAÇA SÃO JORGE | Articulações entre futebol, arquitetura e direito à cidade. Diagrama 2: Vista de pássaro do entorno imediato da Praça São Jorge; situação atual.
N 0 25 50m 111.90 71.52 1.74 1.74 1.52 2.34 1.74 1.74 1.46
129.67 118.02 1.74 1.93 1.90 1.74
Mapa 15: Planta baixa da Praça com marcação dos espaços existentes e pontos cotados.
48 LUGAR PRAÇA
SÃO JORGE | Articulações entre futebol, arquitetura e direito à cidade. Foto 11: Esquina Sul Praça São Jorge. Fonte: Google Street View, 2020 Foto 12: Esquina Leste Praça São Jorge. Fonte: Google Street View, 2020
49
PRAÇA SÃO JORGE | Articulações entre futebol, arquitetura e direito à cidade.
LUGAR
Foto 13: Esquina Norte Praça São Jorge. Fonte: Google Street View, 2020 Foto 14: Esquina Norte Praça São Jorge. Detalhe Playground . Fonte: Google Street View, 2020

PROJETO

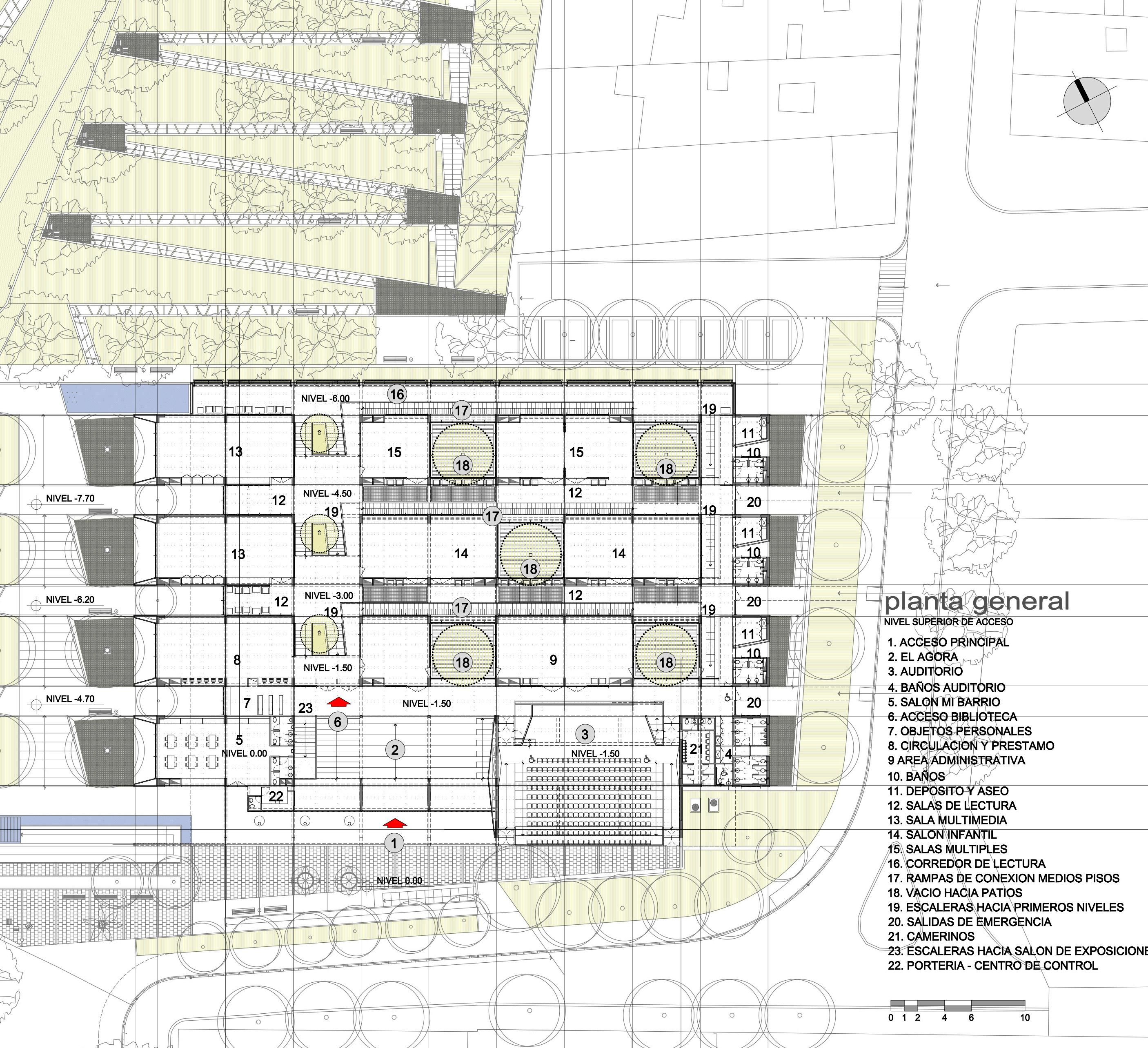
52 PROJETO | PROJETO DE PROGRAMA PRAÇA
SÃO JORGE | Articulações entre futebol, arquitetura e direito à cidade. Diagrama 03: Plano geral do projeto do programa de atividades. Elaborado pelo autor.

Projeto do programa

O desenvolvimento do programa de necessidades do trabalho foi construído a partir de uma metodologia que o compreende como algo a ser projetado, um projeto de programa, o qual incorpora uma perspectiva qualitativa, para além de uma listagem de ambientes pré-definidos. Assim, a própria ideia de programa pretende ser superada para dar lugar a ideia de possibilidades distintas de apropriação do espaço, num movimento em que se prioriza as atividades no lugar dos ambientes, onde

53
PROJETO | PROJETO DE PROGRAMA
PRAÇA
SÃO JORGE | Articulações entre futebol, arquitetura e direito à cidade.

o sujeito que utiliza o espaço é o sujeito de construção deste, e não o objeto.

Esta compreensão pressupõe o exercício de projeto de traduzir as atividades previstas em espaços, no intuito de articular os aspectos qualitativos com os aspectos quantitativos. Para tanto, o estudo dos ambientes é construído a partir de três perguntas disparadoras: a) “onde?” momento em que se define um determinado ambiente conhecido; b) “o quê?” momento em que se define as atividades previstas naquele espaço; e c) “como?” momentos em que serão planejados os aspectos qualitativos de adequação do espaço àquelas atividades.

Este exercício é o conteúdo que contempla o Diagrama 01 acima, no qual destacam-se os três principais ambientes do projeto: a praça, as quadras poliesportivas e o campo de futebol.

“Onde?” Praça;

“O quê?” Manter as atividades atuais do bairro, promover espaços destinados ao lazer, aos encontros, a descansar;

“Como?” Consolidar os fluxos atuais em caminhos no projeto, desenvolver espaços para apresentações, propor fluxos que integrem o existente com a nova intervenção.

“Onde?” Quadras;

“O quê?” Prática de futebol e demais esportes, reuniões e aulas que aproveitem as dimensões das quadras, possibilidade de outros jogos;

“Como?” Paginação da quadra “2 em 1” onde duas quadras lado a lado formem uma terceira com dimensões maiores, fechamentos móveis efêmeros que possibilitem a versatilidade do ambiente.

“Onde?” Campo de futebol;

“O quê?” Prática de futebol ao ar livre e área de estar verde;

“Como?” Demarcação de campo gramado de futebol de 7 em área localizada na cobertura do prédio.

Verticalização e densidade

A proposta de um programa voltado à prática do futebol,

54 PROJETO | PROJETO DE PROGRAMA
PRAÇA SÃO JORGE | Articulações entre futebol, arquitetura e direito à cidade.

ao lazer e às atividades lúdicas não-produtivas, localiza a produção arquitetônica destes temas com a presente separação de debates arquitetônicos construídos na esfera de outros programas. Ao pensarmos, por exemplo, na problemática habitacional das nossas cidades, é comum encontrar soluções que abarcam reflexões de projetos a partir dos temas de verticalização e densidade. Estes temas, sobretudo nas grandes cidades, aparecem como soluções importantes para a expansão horizontal exagerada das cidades, e da falta de espaços livres com localização central.

À primeira vista, há pressupostos contrários à ideia de aliar a prática esportiva à verticalização e à densidade. O esforço estrutural de unir quadras de futebol verticalmente parece supérfluo aos olhos de um suposto consenso que delega ao lazer uma segunda importância. Ao passo que a densidade de uso de uma quadra poliesportiva destina uma área de aproximadamente 800m² para cerca de 10 pessoas usarem simultaneamente, ou seja, baixíssimas densidades de uso e ocupação.

Para contrapor a estes estigmas, no sentido de reconhecer a centralidade dos programas esportivos e de lazer no centro do debate arquitetônico, o projeto a ser desenvolvido se propõe a ter como centrais na sua concepção de construção do programa as categorias de verticalização e densidade, não só pelo tema do projeto, mas também pelo lugar onde está inserido, afinal, conforme apresentado ao longo do trabalho, o bairro Navegantes possui uma das maiores densidades populacionais da cidade. Ou seja, a proposta de um programa esportivo que desconsidere estes temas estaria já no seu nascimento condenada à obsolescência.

Bloco de apoio

Para que possam operar conforme as expectativas estabelecidas, o programa de atividades torna necessário um conjunto de espaços de apoio aos usos esportivos, os quais possuem uma concepção mais determinada que os outros usos, com menos possibilidades de alteração ao que conhecemos, são eles: vestiários, banheiros, depósito e área administrativa.

55
PROJETO | PROJETO DE PROGRAMA
PRAÇA SÃO JORGE | Articulações entre futebol, arquitetura e direito à cidade.
56 PROJETO | ESTUDO DA FORMA
PRAÇA SÃO JORGE | Articulações entre futebol, arquitetura e direito à cidade.
57
PROJETO | ESTUDO DA FORMA
PRAÇA SÃO JORGE | Articulações entre futebol, arquitetura e direito à cidade. Diagrama 04: Diagrama de lançamento volumétrico e intenções da forma. Elaborado pelo autor.

Estudo da Forma

As premissas iniciais de intenção da forma projetada foram definidas a partir do levantamento socioespacial realizado e das motivações centrais do trabalho. Nesse sentido, alguns pontos foram fundamentais para os primeiros esboços (Diagramas 4, 5 e 6):

Térreo Livre: a ausência de áreas verdes livres no bairro - e na cidade - além do caráter atual de praça indicam a importância da manutenção do térreo livre, uma vez que a escala do bloco ocuparia uma quantidade muito grande da área do terreno. Outro fator importante para esta decisão foi o estudo apresentado por Vieira, quem destaca na Macrorregião do São Gonçalo uma consolidação geológica mais recente, formando um tipo de planície mais inundável e por isso importante na drenagem das águas da cidade (Vieira, 2017). Ao analisar os novos empreendimentos na região o autor os indica como prováveis facilitadores de inundações naquela área. Além disso, foi avaliada a partir das análises de referências, a sensação espacial e a potencialidade gerada pelo térreo livre. O espaço se torna um elemento direto de conexão entre o projeto e rua, amarrando a experiência urbana da praça com o novo abrigo.

Verticalização do programa: O destaque da forma estudada está na verticalização do programa como tradução da crítica em projeto. Este passo busca ressaltar a importância de espaços de lazer nas cidades e apropriar-se de soluções projetuais ainda contidas em outros programas - sobretudo aos habitacionais e aos comerciais. Por outro lado, é um exercício de reflexão comparativa para dentro da própria região do São Gonçalo, onde o crescimento vertical dos projetos vêm sendo exclusivo dos novos empreendimentos já apresentados. Por estas questões, o impacto visual possivelmente causado na paisagem do bairro não é visto como algo negativo, ainda que sejam buscadas soluções de projeto para amenizá-lo, sobretudo na escala humana; o térreo livre, o rebaixo das áreas de estar da praça localizadas abaixo do bloco e a permeabilidade visual no edifício, por exemplo.

Projetar pelo corte: Em decorrência dos pontos apresentados acima, o estudo da forma também propõe como exercício iniciar o projeto através do corte, o objetivo é colocar em primeiro plano: a) os lançamentos das alturas iniciais de cada pavimento, bem como as relações de proporção entre o térreo livre, a praça rebaixada e o bloco esportivo; b) a estrutura do bloco, sua modulação e materialidade aparente na fachada; c) a acessibilidade, o projeto será todo acessível através de rampas, as quais não serão encaradas somente como espaço de circulação, mas como percurso.

58 PROJETO | ESTUDO DA FORMA
PRAÇA SÃO JORGE | Articulações entre futebol, arquitetura e direito à cidade.
59
PROJETO | ESTUDO DA FORMA
PRAÇA
SÃO JORGE | Articulações entre futebol, arquitetura e direito à cidade. Diagrama 06: Corte transversal do lançamento volumétrico. Elaborado pelo autor. Diagrama 05: Corte longitudinal do lançamento volumétrico. Elaborado pelo autor.

Diagrama

Bloco de Apoio

60 PROJETO | ESTUDO DA FORMA
PRAÇA SÃO JORGE | Articulações entre futebol, arquitetura e direito à cidade. 07: Bloco de apoio, alternativa “A”. Elaborado pelo autor.
61
PROJETO | ESTUDO DA FORMA
PRAÇA
SÃO JORGE | Articulações entre futebol, arquitetura e direito à cidade.
62 PROJETO | ESTUDO DA FORMA
PRAÇA SÃO JORGE | Articulações entre futebol, arquitetura e direito à cidade. Diagrama 08: Bloco de apoio, alternativa “B”. Elaborado pelo autor.
63
PROJETO | ESTUDO DA FORMA
PRAÇA SÃO JORGE | Articulações entre futebol, arquitetura e direito à cidade.

Diagrama 09: Bloco de apoio, alternativa “B”. Programa. Elaborado pelo autor.

Diagrama 10: Bloco de apoio, alternativa “B”. Pré-dimensionamento. Elaborado pelo autor.

64 PROJETO | ESTUDO DA FORMA
PRAÇA
SÃO JORGE | Articulações entre futebol, arquitetura e direito à cidade.

Bloco de Apoio

Na sequência do estudo da forma foram realizadas duas propostas para a instalação do programa de apoio ao bloco esportivo. A definição programática deste conjunto foi definida pelos seguintes espaços: vestiários, banheiros, depósito e área administrativa. As duas alternativas de implantação do apoio estão apresentadas nos diagramas 7,8,9 e 10, divididas em “alternativa A” e “alternativa B”. Uma interna ao bloco principal e outra externa.

Alternativa A [diagrama 7]: o primeiro estudo é o da ocupação linear do apoio, dentro do bloco esportivo. Nesta opção cada pavimento conta com o seu bloco. A proposta foi elaborada a partir do estudo de modulação utilizado na estrutura de 5m x 5m [ver a seção estrutura]. Esta opção apresenta como pontos fortes: a) economia de espaço construído; b) relação direta entre apoio e quadra; c) menos área de circulação; d) suporte para instalação de arquibancada.

Alternativa B [diagramas 8,9 e 10]: a segunda proposta de ocupação do bloco de apoio é situá-lo independente do bloco esportivo, com o programa também verticalizado. Esta opção utiliza os níveis das quadras para a criação de meios-níveis no apoio, e a conexão feita por passarelas aéreas e rampas. Das potencialidades da alternativa B, destacam-se: a) influência de organização do paisagismo da praça; b) apoio para a circulação vertical através dos meios-níveis; c) composição volumétrica com o bloco esportivo; d) mais área disponível para as quadras; e) facilidade de solucionar a infraestrutura hidrossanitária.

As duas alternativas foram levadas em paralelo para a sequência do trabalho.

65
PROJETO | ESTUDO DA FORMA
PRAÇA SÃO JORGE | Articulações entre futebol, arquitetura e direito à cidade.

DIAGRAMA DE COMPOSIÇÃO VOLUMÉTRICA

Figura 01: Bloco das quadras [50x35m]; Figura 02: Suspensão do volume em 4,5m; Figura 03: Figura 05: Volume final.
03: Posicionamento perpendicular da rampa de acesso principal; Figura 04: Bloco de apoio.

ESTUDO DE IMPLANTAÇÃO

Para propor a implantação da intervenção na praça buscou-se estabelecer algumas diretrizes de inteções, as quais foram traduzidas em estratégias de desenho.

diretrizes

manutenção do sol para as casas;

inserção harmônica na paisagem urbana;

manutenção do papel de drenagem da praça;

consolidar fluxos atuais;

respeitar atividades existentes.

68 PROJETO | IMPLANTAÇÃO
PRAÇA SÃO JORGE | Articulações entre futebol, arquitetura e direito à cidade.
N

estratégias

recuo lateral >10m (definido a partir de estudo das sombras); linhas do terreno/ visuais de dentro do bairro; mínima ocupação do térreo; ligar caminhos existentes/ afirmar caminhos usados; bloco principal no lado oposto dos equipamentos existentes.

Diagrama 12 [página anterior]: Planta de situação da Praça São Jorge. Elaborado pelo autor.

Digrama 13: Planta de intenções da implantação. Elaborado pelo autor.

69
PROJETO | IMPLANTAÇÃO
PRAÇA SÃO JORGE | Articulações entre futebol, arquitetura e direito à cidade.
N

diretrizes de implantação

Digrama 14: Vista de pássaro do entorno imediato da praça. Diretrizes de Implantação. Elaborado pelo autor.

estratégias de implantação

Digrama 15: Vista de pássaro do entorno imediato da praça. Estratégias de Implantação. Simulação da sombra para Junho, às 13h. Elaborado pelo autor.

ESTRUTURA

O estudo da técnica construtiva utilizada no projeto, sobretudo no bloco esportivo, foi pautado pela demanda de vencer um grande vão requerido pelo programa. Através do dimensionamento do campo de futebol localizado na cobertura e das quadras poliesportivas presentes nos dois pavimentos tipo chegou-se a necessidade de um vão livre de 35 metros. A partir disso foram estudadas referências específicas de projetos com as mesmas necessidades, no intuito de solucionar esta complexidade da proposta com amarrações bem sucedidas.

A análise das referências estruturais estudou dois projetos. O primeiro é o vencedor do 12º Concurso do Centro Brasileiro de Construção em Aço para estudantes de Arquitetura, realizado em 2019. A proposta utiliza treliças metálicas lineares apoiadas em pilares de concreto, as quais ao vencerem toda a altura do edifício apoiam grelhas metálicas com um vão de 60x25m.

O segundo projeto utilizado como referência estrutural é a sede da empresa Unilever, localizada em Rotterdam, na Holanda. O escritório JHK Architecten posiciona uma volume prismático suspenso a mais de 25 metros do chão, acima de uma construção pré-existente. O projeto também se utiliza das treliças metálicas planas para vencer um vão de 32x133m.

O sistema estrutural escolhido usou como base estas duas referências e será apresentado na sequência [Diagramas 16 e 17]. Além da contribuição do vão, as treliças também serão usadas de maneira aparente nas fachadas, garantindo não só uma legibilidade clara do edifício pelo usuário, como também questões de ventilação e permeabilidade visual permanentes.

74 PROJETO | ESTRUTURA
PRAÇA SÃO JORGE | Articulações entre futebol, arquitetura e direito à cidade.

Fotos 15 e 16: Projeto vencedor do 12º Concurso do Centro Brasileiro de Construção em Aço para estudantes de Arquitetura. Acervo do Concurso.

Foto 17: Sede da empresa Unilever, em Rotterdam, Holanda. Michael van Oosten.

75
PROJETO | ESTRUTURA
PRAÇA SÃO JORGE | Articulações entre futebol, arquitetura e direito à cidade.
76 PROJETO | ESTRUTURA
PRAÇA SÃO JORGE | Articulações entre futebol, arquitetura e direito à cidade.

Diagrama 16: Lançamento da estrutra principal do bloco esportivo. Detalhe do corte com ampliações. Elaborado pelo autor.

77
PROJETO | ESTRUTURA
PRAÇA SÃO JORGE | Articulações entre futebol, arquitetura e direito à cidade.
1 5 2 3 6

Os diagramas 16 e 17 buscam lançar a lógica construtiva do bloco esportivo. Neles observa-se a seguinte proposta:

1) Bases em quatro pilares de concreto [aproximadamente 10x0,80x4,50m], garantindo o térreo livre;

2) Duas treliças lineares de aproximadamente 15 metros de altura e 50 metros de extensão [toda extensão do bloco]. As treliças são apoiadas nos pilares de concreto;

3) Grelhas metálicas em perfil I, moduladas com espaçamento de 5x5m e 1m de altura, gerando uma superfície total de 35x50m. As grelhas são apoiadas nas duas treliças;

4) Vigas laterais em perfil C fazendo o encaixe das grelhas com as treliças. As vigas laterais são apoiadas nos montantes verticais das treliças.

5) Será ainda estudada a proposta de uma segunda pele para as fachadas, mantendo a permeabilidade visual e a ventilação constante;

6) Cobertura verde [campo de futebol].

Diagrama 17: Lançamento da estrutra principal do bloco esportivo. Vista explodida. Elaborado pelo autor.

Digrama 18: Gráfico para pré-dimensionamento de treliças planas em aço (Rebello, 2007).

79
PROJETO | ESTRUTURA
PRAÇA
SÃO JORGE | Articulações entre futebol, arquitetura e direito à cidade.

RAMPAS

Um ponto definidor de espaços no trabalho serão as circulações verticais, a ideia da verticalidade somado às necessidades de acessibilidade implicam grandes estruturas para as rampas. Dessa maneira, elas são colocadas como elementos de destaque na forma. A proposta do projeto é transformar a circulação vertical num percurso de apropriação do espaço. Se a proposta tem como fundamento a crítica aos elementos da rotina e do mundo do trabalho podemos destacar entre eles o sufocamento do tempo. A pressa dos deslocamentos transforma a cidade em locais de passagem, com poucas brechas para parar, observar e pertencer a algum lugar. A valorização das rampas como elementos centrais da forma e como lugares de estar e contemplação é uma subversão à pressa, um convite ao usuário.

Por isso a rampa de acesso principal possui 50 metros de comprimento e 2,5 metros de largura. Seu posicionamento, antes paralelo à fachada lateral [conforme os Diagramas 5 e 6] foi alterado para ficar perpendicular ao bloco, ganhando ainda mais destaque. A ideia deste posicionamento é contribuir ao caráter lúdico do projeto, bem como voltá-la ao parque de diversões infantil e à pista de skate presentes na praça: um grande escorregador no meio da cidade.

Da mesma forma, as rampas internas possuem dimensionamento parecido e trazem no percurso momentos internos ao bloco e momentos aéreos na conexão com o apoio, proporcionando diferentes experiências para o percurso. A largura generosa contribui para que, através do posicionamento dela em planta, ganhe um papel e mirante para as quadras poliesportivas.

O estudo [diagrama 20] para o dimensionamento das rampas foi baseado, para além das normas técnicas, no projeto do SESC 24 de Maio, dos arquitetos Paulo Mendes da Rocha e MMBB Arquitetos, um prédio em altura de quase 15 andares totalmente acessível por rampas.

80 PROJETO | RAMPAS
PRAÇA SÃO JORGE | Articulações entre futebol, arquitetura e direito à cidade.
81
PRAÇA SÃO JORGE | Articulações entre futebol, arquitetura e direito à cidade.
PROJETO | RAMPAS
Diagrama 19: Croqui da perspectiva interna das rampas; relação rampa x quadra. Elaborado pelo autor.

Foto 18: Corte longitudinal e planta baixa

SESC 24 de Maio. Estudo de dimensionamento e inclinações das rampas.

82 PROJETO | RAMPAS
PRAÇA SÃO JORGE | Articulações entre futebol, arquitetura e direito à cidade.
83
PROJETO |
PRAÇA SÃO JORGE | Articulações entre futebol, arquitetura e direito à cidade.
RAMPAS
Foto 19: Vista interna das rampas do SESC 24 de Maio, São Paulo. Nelson Kon.
84 PROJETO | RAMPAS PRAÇA
50.00 35.00 3.00 30.00 2.00 3.25 18.00 2.50 18.00 8.25
SÃO JORGE | Articulações entre futebol, arquitetura e direito à cidade.
Estudo de planta baixa escala 1/500

Digrama 20: Planta baixa do pavimento tipo, “Alternativa B” [esq.]. Alternativa A [dir.]. Elaborado pelo autor.

85
PROJETO |
50.00 40.00 5.00 3.00 30.00 2.00 50.00 40.00 5.00 3.00 30.00 2.00
PRAÇA
SÃO JORGE | Articulações entre futebol, arquitetura e direito à cidade.
RAMPAS

PAISAGISMO

A proposta para o paisagismo da praça foi construída com as estratégias de implantação da intervenção. Para isso, o estudo partiu da manutenção dos programas atuais da praça e dos recentes fluxos construídos pela Prefeitura. Os novos trajetos tinham como premissa a consolidação do caminho desgastado diagnosticado na imagem aérea de 2015, entendendo a importância de qualificar o que fora criado pelas pessoas. Este trajeto corta o terreno no sentido norte-sul e é incorporado de modo a passar por dentro da proposta de projeto.

Outra estratégia do paisagismo é a criação de áreas rebaixadas abaixo do bloco esportivo, no intuito de aumentar a altura do vão livre e criar novos espaços de estar deslocados. A forma destes rebaixos foi estudada a partir da observação dos vazios do entorno imediato, considerando estes espaços como a extensão dos pátios das casas. As duas formas resultantes deste estudo estão representadas no Diagrama 22.

Para o térreo livre a proposta busca estabelecer um espaço remetente a um bosque, com caminhos sinuosos e vegetação arbustiva densa contornando-os. Os caminhos terão largura mínima de 2 metros com momentos de alargamento. Contornando os caminhos serão utilizados pedriscos brancos remetendo às linhas brancas que demarcam os campos de futebol, além da faixa arbustiva que fará a transição entre a área elevada e a área rebaixada.

O diagrama 21 mostra a representação esquemática dos caminhos, o diagrama 23 a planta baixa da proposta dos novos caminhos. Por fim, o diagrama 24 é uma perspectiva que apresenta as intenções de ambiência da proposta.

piso em madeira

86 PROJETO | PAISAGISMO
Esquema
PRAÇA SÃO JORGE | Articulações entre futebol, arquitetura e direito à cidade.
Digrama 21:
tipo da estrutura dos caminhos novos do paisagismo. Elaborado pelo autor.
faixa arbustiva densa pedrisco branco

Digrama 22: Estudo das formas para área rebaixada da praça a partir dos vazios encontrados no entorno imediato. Elaborado pelo autor.

87
PROJETO | PAISAGISMO
PRAÇA SÃO JORGE | Articulações entre futebol, arquitetura e direito à cidade.
88 PROJETO | PAISAGISMO
.74 .74 1.74 1.74 0 12.5 25m
PRAÇA SÃO JORGE | Articulações entre futebol, arquitetura e direito à cidade.

1.74

1.74

Digrama 23: Planta baixa da proposta de paisagismo. Elaborado pelo autor.

Diagrama 24 [página posterior]: Perspectiva de ambiência do vão livre. Elaborado pelo autor.

89
PROJETO | PAISAGISMO
PRAÇA
SÃO JORGE | Articulações entre futebol, arquitetura e direito à cidade.
90 PROJETO | PAISAGISMO
PRAÇA SÃO JORGE | Articulações entre futebol, arquitetura e direito à cidade.
91
PROJETO | PAISAGISMO
PRAÇA
SÃO JORGE | Articulações entre futebol, arquitetura e direito à cidade.

ARQUIBANCADA

O exercício final de projeto a ser apresentado é a proposta de uma arquibancada ocupando toda a lateral do bloco esportivo. A concepção da arquibancada foi pensada a partir do estudo da referência do Teatro Oficina, que será apresentada na sequência do trabalho e faz parte da proposta de incorporar três projetos diferentes da arquiteta Lina Bo Bardi.

As arquibancadas em estrutura metálica são propostas dessa forma para que completem a intenção da estrutura construtiva do bloco esportivo de legibilidade da técnica. Assim, o usuário tem o primeiro contato da estrutura com as treliças planas aparentes e continua a assimilação também no interior do edifício, com as arquibancadas. Do mesmo modo, sua concepção reproduz outras intenções da forma, como por exemplo a permeabilidade visual. A arquibancada completamente vazada faz parte do seu objetivo de funcionar como mirante para os dois lados: na visual interna sendo direcionada para as quadras, e na visual externa para o bairro, aproveitando a altura do bloco esportivo. Esta estratégia também foi pensada para que a fachada lateral do edifício se torne viva, uma vez que estando a arquibancada ocupada as pessoas também se tornam um elemento visual do projeto.

Para fazer esta transição de escala da mesma técnica construtiva, os perfis metálicos da arquibancada foram dimensionados com largura mínima e duplicados, assim cada elemento da estrutura possui dois perfis de 5cm de diâmetro. As dimensões gerais foram planejadas a partir da modulação da grelha metálica de 5x5m, replicada na arquibancada e preenchidas por placas de piso emborrachado. Sua largura preenche toda a extensão do bloco e para altura também foi utilizada a lógica da verticalização, reproduzindo os meios-níveis do apoio.

Por fim, foi acrescentado no primeiro módulo da arquibancada - onde se encontra a escada - uma tela em alambrado fazendo referência aos estádios de futebol da cidade. Este elemento possibilitará o uso de vegetação no conjunto. Os próximos materiais gráficos na sequência explicam a proposta.

92 PROJETO | PAISAGISMO
PRAÇA SÃO JORGE | Articulações entre futebol, arquitetura e direito à cidade.
93
PROJETO | PAISAGISMO
PRAÇA SÃO JORGE | Articulações entre futebol, arquitetura e direito à cidade. Digrama 25: Vista lateral da arquibancada. Visual do acesso principal do bloco. Elaborado pelo autor.
94 PROJETO | ARQUIBANCADA
PRAÇA SÃO JORGE | Articulações entre futebol, arquitetura e direito à cidade.

Digramas 26 e 27: Acima esquema de planta baixa e fachada frontal da arquibancada com modulações. Abaixo perspectiva da fachada frontal. Elaborado pelo autor.

95
PROJETO | ARQUIBANCADA
PRAÇA SÃO JORGE | Articulações entre futebol, arquitetura e direito à cidade.
96 PROJETO | ARQUIBANCADA
PRAÇA SÃO JORGE | Articulações entre futebol, arquitetura e direito à cidade.
97
PRAÇA SÃO JORGE | Articulações entre futebol, arquitetura e direito à cidade.
PROJETO | ARQUIBANCADA
Digrama 28: Ampliação da vista frontal da arquibancada. Detalhe para a tela em alambrado com elementos de vegetação. Elaborado pelo autor.
98 PROJETO | ARQUIBANCADA
PRAÇA SÃO JORGE | Articulações entre futebol, arquitetura e direito à cidade.

Digrama 29: Relação da legibilidade da técnica construtiva e transição de escalas da estrutura (treliça x arquibancada). Elaborado pelo autor.

99
PRAÇA SÃO JORGE | Articulações entre futebol, arquitetura e direito à cidade.
PROJETO | ARQUIBANCADA
100 PROJETO | ARQUIBANCADA
PRAÇA SÃO JORGE | Articulações entre futebol, arquitetura e direito à cidade.

Digramas 30: Arquibancada como composição da fachada do bloco esportivo. Elaborado pelo autor.

101
PRAÇA SÃO JORGE | Articulações entre futebol, arquitetura e direito à cidade.
PROJETO | ARQUIBANCADA

“Começa então uma guerra surda sobre o programa a ser implantado. Ao invés, de centro cultural e desportivo, começamos a utilizar o nome Centro de Lazer. O cultural, dizia Lina, “pesa muito e pode levar as pessoas a pensarem que devem fazer cultura por decreto. E isso, de cara, pode causar uma inibição ou embotamento traumático”. Dizia que a palavra cultura deveria ser posta em quarentena, descansar um pouco, para recuperar seu sentido original e profundo. E o termo desportivo implicava no esporte como competição, disputa. Um rumo, segundo ela, nocivo na sociedade contemporânea, que já é competitiva em demasia. Então, simplesmente lazer. O novo centro deveria fomentar a convivência entre as pessoas, como fórmula infalível de produção cultural (sem a necessidade do uso do termo). Deveria incentivar o esporte recreativo, com uma piscina em forma de praia para as crianças pequenas ou para os que não sabem nadar; quadras esportivas com alturas mínimas abaixo das exigidas pelas federações de esporte e, portanto, inadequadas à competição. A idéia era reforçar e fomentar a recreação, o esporte “leve”. Assim, programa e projeto se fundiriam, indissociáveis, amalgamados.” (Ferraz, 2008)

REFERÊNCIAS

LINA BO BARDI, uma referência à parte

Em uma aula de arquitetura, transcrita posteriormente para a Revista Projeto em 1990, Lina constrói, a partir de um resgate histórico da crítica de arquitetura, uma série de contribuições à formação universitária e ao debate arquitetônico que via na época a ascensão do pós-modernismo e a retomada do “entusiasmo pelo passado enquanto passado”. Ao tratar dos caminhos a serem seguidos pelos então estudantes, a arquiteta reflete sobre a importância de compreender a arquitetura como uma arte coletiva e sociopolítica, e pontua a necessidade de libertar-se das “amarras”, no sentido de estabelecer o passado como um presente histórico.

A noção de presente histórico, para Lina, é uma apropriação mais ativa das referências de projeto, a partir da qual se construiria o presente “verdadeiro”. Este movimento seria a capacidade de distinguir o que irá servir para os dias de hoje frente ao que as obras significavam nos seus tempos (Rubino e Grinover, 2009).

A contribuição teórica e prática de Lina Bo Bardi foi central para o desenvolvimento deste trabalho, por isso, em termos de exercício (e reconhecimento), a proposta pretende avaliar o presente histórico de Lina. Para tanto, foram analisados e incorporados três projetos da arquiteta: o SESC Pompéia, o Museu de Arte de São Paulo e o Teatro Oficina.

104 REFERÊNCIAS
PRAÇA SÃO JORGE | Articulações entre futebol, arquitetura e direito à cidade.
105
PRAÇA SÃO JORGE | Articulações entre futebol, arquitetura e direito à cidade. REFERÊNCIAS Foto 20: Lina. Acervo Instituto Bo Bardi.

REFERÊNCIAS

SESC POMPÉIA

FICHA TÉCNICA:

Arquiteta Lina Bo Bardi;

Ano: 1977-1986;

Localização: São Paulo; Área construída: 23 mil m².

106
PRAÇA SÃO JORGE | Articulações entre futebol, arquitetura e direito à cidade.

Nas recorrentes visitas à abandonada Fábrica de Tambores da Pompéia, localizada na zona oeste de São Paulo, no final dos anos 1970, Lina se deparava com um cenário alegre: crianças brincando ao ar livre, pessoas jogando futebol e teatros de rua. Com estas imagens baseou a intervenção que recuperou as estruturas industriais do complexo e construiu o novo bloco em concreto aparente; a intenção era consolidar um novo centro de lazer ao ar livre (Ferraz, 2013). O que de fato conseguiu.

O SESC Pompéia - ao que denominou “Cidadela” - é um conjunto cuja intervenção pode ser entendida em dois termos principais.

Na recuperação da fábrica o projeto estabelece espaços de estar, de estudos, de exposições e um novo teatro, tudo isso respeitando a estrutura pré-existente e valorizando sua forma no novo espaço: “Nós colocamos apenas algumas coisinhas: um pouco de água, uma lareira (Rubino e Grinover, 2009, p.149).”

Por outro lado, Lina propõe um novo bloco esportivo, cujo programa soluciona através da verticalização do espaço e da separação entre o prédio principal e o prédio de apoio, os quais conecta através de passarelas aéreas. Estes dois pontos do projeto são ligados através de uma rua, a qual chega numa faixa de deck em madeira que percorre a totalidade da extensão do terreno e se comporta como uma espécie de “prainha”.

O projeto do SESC Pompéia é a principal referência do trabalho, desde a sua concepção até as soluções projetuais. A Cidadela evidencia a importância de um equipamento de lazer em meio ao espaço urbano. Das influências de projeto geradas por esta intervenção podemos destacar: a) a verticalização do programa esportivo; b) a separação dos blocos principal e de apoio; c) a forma como expressão da materialidade e da técnica construtiva; d) a conexão dos blocos através de passarelas aéreas; e) o pé direito do bloco esportivo; f) os caminhos em madeira no térreo.

107
REFERÊNCIAS
PRAÇA SÃO JORGE | Articulações entre futebol, arquitetura e direito à cidade. Foto 21: SESC Pompéia, visual do bloco esportivo. Pedro Kok.
108
REFERÊNCIAS
PRAÇA SÃO JORGE | Articulações entre futebol, arquitetura e direito à cidade.

Diagrama 31 [página anterior]: acima SESC Pompéia, modelo ilustrado do conjunto. Abaixo amplicação em corte Rodolfo Martins.

Diagrama 32 [dir.]: Planta baixa e corte transversal do bloco esportivo.

Foto 24 [abaixo]: Visual interna do campo de futebol. Camila Ghendov.

109
PRAÇA SÃO JORGE | Articulações entre futebol, arquitetura e direito à cidade.
REFERÊNCIAS

MUSEU DE ARTE DE SÃO PAULO (MASP)

FICHA TÉCNICA:

Arquiteta Lina Bo Bardi;

Ano: 1957-1968;

Localização: São Paulo; Área construída: 10 mil m².

110
REFERÊNCIAS
PRAÇA SÃO JORGE | Articulações entre futebol, arquitetura e direito à cidade. Foto 25: Detalhe vão livre do MASP. Nelson Kon.

Com a demolição do antigo clube Trianon, na Avenida Paulista, no ano de 1957, o terreno livre resultante carregava consigo não só uma relevância cultural para a cidade como também uma localização privilegiada - estava em frente à mata do Parque Siqueira Campos, e era como um mirante da cidade, devido à sua topografia. Da relevância do lugar despertou-se a demanda de um novo museu de arte. A forma do MASP é resposta a demanda do projeto de manter o caráter de mirante daquele espaço, o resultado é o térreo livre sob o famigerado vão de 74 metros. Concebido com uma ideia de “antimuseu”, o projeto coloca em primeiro plano o convívio social e se propõe a resolver desde a escala urbana do equipamento até a escala dos cavaletes que suportam as obras expostas. Para além da função, o MASP se destaca sobretudo pela sua estrutura em concreto protendido, cuja clareza da solução contrasta com a sua complexidade de vencer os esforços.

Das influências projetuais incorporadas do MASP, destaca-se aqui: a) o uso de uma cor primária como destaque de elementos da forma; b) o térreo livre coberto pelo bloco principal.

111
PRAÇA SÃO JORGE | Articulações entre futebol, arquitetura e direito à cidade.
REFERÊNCIAS
Foto 26: Detalhe escadas interiores do MASP. Nelson Kon.
112
REFERÊNCIAS
PRAÇA SÃO JORGE | Articulações entre futebol, arquitetura e direito à cidade. Foto 27: Vista aérea do MASP. Nelson Kon.
113
REFERÊNCIAS
PRAÇA SÃO JORGE | Articulações entre futebol, arquitetura e direito à cidade.

REFERÊNCIAS

TEATRO OFICINA

FICHA TÉCNICA:

Arquiteta Lina Bo Bardi;

Ano: 1994;

Localização: São Paulo; Área construída: 700m².

114
PRAÇA SÃO JORGE | Articulações entre futebol, arquitetura e direito à cidade. Foto 28: Teatro Oficina em noite de espetáculo. Nelson Kon.

Repensar a cultura, sobretudo a cultura popular, em outros termos foi um exercício que acompanhou Lina ao longo da sua carreira, já na obra do MASP é notória a desconstrução da ideia comum de museu para a apresentação de uma outra forma de encarar a arte. Na mesma linha, a reforma do Teatro Oficina concebe aquele espaço como uma Rua, com todas as implicações conceituais e formais que disso decorrem. A rua é o espaço mais democrático da cidade, sob esta proposta o teatro quase não faz distinção entre palco e plateia e inova na experiência do espetáculo. Porém a forma-rua acarreta numa geometria estreita, ao que Lina soluciona através da verticalização da arquibancada.

Através da análise do projeto do Teatro Oficina foi estudada a viabilidade de releitura para a arquibancada do bloco esportivo.

Diagrama 33: Cortes longitudinal e transversal do Teatro Oficina.

Foto 29: Arquibancada do Teatro Oficina. Nelson Kon.

115
PRAÇA SÃO JORGE | Articulações entre futebol, arquitetura e direito à cidade.
REFERÊNCIAS
116
REFERÊNCIAS
PRAÇA SÃO JORGE | Articulações entre futebol, arquitetura e direito à cidade.
117
PRAÇA SÃO JORGE | Articulações entre futebol, arquitetura e direito à cidade.
REFERÊNCIAS
Foto 30: Vista interna do Teatro Oficina. Nelson Kon.

parque. Adeescribir y él, creimplemenpalabra con-

es que tienen una especial para la en el recolos vagones biblioteca –el diseinspiró en los vagometro– hay varios varios halls, para seno a conversar. Es en donde hacen énfasis en la de escritores antioqueños, gestor de lectura y escritura, interés de acercarse a los autores no solo a los reconocidos, además a los nuevos. Entonces hatertulias literarias en las que inviescritores a sentarse a charlar lectores.

PARQUE BIBLIOTECA SAN JAVIER

Entrada

Escaleras

Salón de lectura

Salón de internet

2° Nivel

Salón de estudio

1 er Nivel

Localização: Medellín, Colômbia; Área construída: 7 mil m².

También salen de las paredes del parlos abuelos cuentacuentos, que voluntarios, se van a los centros inlos barrios. Se ganan varios la exigencia de los niños: no llevar el mismo cuento. Igual colegios, porque la idea es que haga en los vagones, que se hasta donde está la gente, y antoque pasa adentro. cuando Andrés llega donde pequeños les pregunta que si se dónde viene. A veces saben, dice que ¡de un lugar mágico! mágico que en el Ágora, que entrada desde la parte de grupos se reúnen. La música en la comuna, y ahí estaba hip hop un grupo de jóvenes, moviéndose como si no tuvieran hueImagen que es cotidiana allí. comunidad se apropie del esuna de las tareas, señala Marian gestora de servicios bibliotecaAfuera, cerca a la huerta, sembratodos unas casitas para pájaaño, desde febrero, abrieron de lenguaje de señas y braille, personas sordas y ciegas aprenenseñan a otras que no lo son. Intercambio de conocimiento. En la sala infantil experimentan desde jueconstruir robots. comunidad es muy activa. Don expresa que “aquí es el parespecial. Aquí dicen vamos y trabajamos sobre esa idea. Esa camaradería es lo que hace que esto Y que sean felices y sueñen anda escribiendo al Lado de del abuelo Kike –como bautizó de pájaros–, dos palabras en y bien. Un parque en el que compañía ■

31: Hortas na fachada do Parque Biblioteca San Javier. Reprodução jornal El Colombiano.

PRAÇA SÃO JORGE | Articulações entre futebol, arquitetura e direito à cidade. El Parque Biblioteca de San Javier fue el primero que se inauguró. Terminamos con él un recorrido por los nueve que tiene la ciudad.
EN DEFINITIVA
Foto

REFERÊNCIAS

O sistema de parques biblioteca de Medellín é uma política da prefeitura municipal desenvolvida no início dos anos 2000 que construiu espaços públicos - sobretudo de educação - em assentamentos urbanos precários da periferia da cidade. A política era resposta aos anos repletos de violência urbana conhecidos mundialmente em decorrência do narcotráfico, de modo com que os primeiros parques foram localizados nas comunidades mais afetadas da cidade.

O programa dos projetos arquitetônicos conta com espaços de leitura, salas de aula, áreas livres, hortas urbanas, bibliotecas, laboratório de informática e auditórios. No total foram construídos nove parques biblioteca cujos projetos foram escolhidos através de concurso. As fotos abaixo mostram o Parque Biblioteca San Javier, localizado na Comuna 13.

A política pública de construção dos parques bibliotecas é a referência de concepção da ideia do projeto e evidencia a potência da intervenção de espaços públicos em contextos periféricos.

Foto 32 [abaixo]: Hortas do Parque Biblioteca San Javier. Jornal El Colombiano.

Foto 33 [página posterior]: Planta baixa e corte do Parque Biblioteca San Javier.

Foto 34 [página posterior]: Infográficos do Parque.Página do jornal El Colombiano.

119
PRAÇA
SÃO JORGE | Articulações entre futebol, arquitetura e direito à cidade.
120
PRAÇA SÃO JORGE | Articulações entre futebol, arquitetura e direito à cidade.

COLECCIÓN (no incluye material prestado en la actualidad)

DOMINGO, 26 DE JULIO DE 2015 TENDENCIAS 37
Colección de libros 19.280 Audiovisuales 1.247 Recurso digital 427 Servicio 52 Materiales en total 21.128 CONSTRUCCIÓN (m 2 ) EDIFICIO Todos los pisos tienen lectura braille
COLOMBIANO © 2015. Pedro Arbeláez R. (N1) INSPIRACIÓN Rampa Escaleras Entrada Área construida 5.632 Toma su forma del Metro de Medellín. Cada sección del edificio reprepresenta un vagón 7.000 TOTAL 1.368 Espacio público Cr.90 Cr. 87B Cr.94 Cr.99 Cr.96 Cr.84 Cr.93 Cr. 84 Cr.86A Cr.89 Cr.92 Cr.80 Cll.40 Cll.38 Cll. 48 Cll. 47B Cll.48D Cll.42C Av.SanJuan Iglesia La América Colegio Teresiano Cárcel el Buen Pastor Estación San Javier Estación Santa Lucía Parque Biblioteca *No se puede calcular cuántas veces viene una misma persona A julio 20 USUARIOS número de visistas* 2014 356.705 2015 201.406 Abril 45.037 Mayo 36.810 Junio 21.069 Biblioteca Auditorio
Fuente: Parque Biblioteca San Javier. Foto: Jaime Pérez. Infografía: EL

REFERÊNCIAS

CEU PIMENTAS

FICHA TÉCNICA:

Arquiteto Biselli + Katchborian Arquitetos;

Ano: 2010;

Localização: Guarulhos, SP;

Área construída: 16 mil m².

122
PRAÇA SÃO JORGE | Articulações entre futebol, arquitetura e direito à cidade.

REFERÊNCIAS

O CEU Pimentas é uma das mais de 20 unidades localizadas em São Paulo dos Centros Educacionais Unificados, cujos projetos eram de responsabilidade da Secretaria Municipal de Infraestrutura Urbana e Obras sob a coordenação do arquiteto Alexandre Delijaicov. Estes equipamentos possuem o programa destinado à educação, ao lazer e ao esporte, e tentam traduzir no desenho críticas a forma de ensino nas salas de aula e a ausência de espaços públicos desta natureza nas periferias das cidades.

A unidade Pimentas possui uma forma de ocupação linear, com duas fitas paralelas unidas por uma grande cobertura metálica que compõe todo o comprimento do edifício. Os blocos laterais em concreto pré-moldado abrigam as salas de aula, auditório, refeitório, salas de dança e ginástica. Já a cobertura metálica forma um espaço comum entre os blocos, e numa das suas extremidades localiza as quadras poliesportivas.

O projeto do CEU Pimentas, assim como dos parques biblioteca, foi referência direta na escolha e na validação da relevância do tema. Nota-se ainda a referência de um espaço de estar em nível rebaixado dos fluxos principais e coberto; esta sensação espacial foi utilizada na concepção do paisagismo da praça.

Foto 35 [página anterior]: CEU Pimentas. Leonardo Finotti.

Foto 36 [abaixo]: Croqui do corte longitundinal do CEU Pimentas.

123
PRAÇA SÃO JORGE | Articulações entre futebol, arquitetura e direito à cidade.
124 REFERÊNCIAS
PRAÇA SÃO JORGE | Articulações entre futebol, arquitetura e direito à cidade. Foto 37: Vista externa CEU Pimentas. Nelson Kon Foto 38: Vista interna CEU Pimentas. Leonardo Finotti.
125
REFERÊNCIAS
PRAÇA SÃO JORGE | Articulações entre futebol, arquitetura e direito à cidade. Foto 40: Vista interna CEU Pimentas. Nelson Kon. Foto 39: Vista interna CEU Pimentas. Leonardo Finotti.

REFERÊNCIAS

MUNDIAL DE FUTEBOL DE RUA

FICHA TÉCNICA:

Arquiteto b arquitetos;

Ano: 2014;

Localização: São Paulo;

126
PRAÇA SÃO JORGE | Articulações entre futebol, arquitetura e direito à cidade. Foto 41: Campo de Futebol montado no Largo da Batata B Arquitetos. Foto 42: Campo de Futebol montado na Avenida Ipiranga. B Arquitetos.

REFERÊNCIAS

O Mundial de Futebol de Rua é uma ação educativa vinculada ao esporte e organizada pelo Movimiento Fútbol Callejero da qual participam mais de 20 países. O projeto faz parte é vinculado a programas de inclusão social do mundo inteiro e promove o evento em contraposição à Copa do Mundo da FIFA, por isso sua sede é a mesma.

A proposta do futebol de rua é questionar os rumos que o esporte tem tomado , os quais foram esboçados neste trabalho, na sessão temática. As regras são repensadas para que se esvazie o caráter competitivo de disputa e construa-se um jogo mais solidário e participativo.

Para a realização do evento foram montadas estruturas provisórias de quadras de futebol e arquibancadas em espaços públicos da cidade de São Paulo: no Largo da Batata e na Avenida Ipiranga. O projeto elaborado para o Mundial de Futebol de Rua contribuiu diretamente para o estudo do tamanho do campo de futebol de 7 a ser projetado na cobertura do bloco esportivo. Para além das medidas oficiais recomendadas pelas instituições responsáveis, partiu-se dos 40m x 18m utilizados nesta referência, além da altura da tela de 6m, valor utilizado no pé direito das quadras.

127
PRAÇA SÃO JORGE | Articulações entre futebol, arquitetura e direito à cidade. Foto 43: Cartaz do Mundial de Futebol de Rua.

REFERÊNCIAS

Foto 44 [dir]: Implantação e corte da intervenção no Largo da Batata. B Arquitetos.

Fotos 45, 46 e 47 [abaixo]: Registros durante o Mundial de Futebol de Rua.

128
PRAÇA SÃO JORGE | Articulações entre futebol, arquitetura e direito à cidade.
129
REFERÊNCIAS
PRAÇA SÃO JORGE | Articulações entre futebol, arquitetura e direito à cidade.

REFERÊNCIAS

Foto 48 [dir]: Implantação e corte da intervenção na Avenida Ipiranga. B Arquitetos.

Fotos 49 e 50[abaixo]: Registros durante o Mundial de Futebol de Rua.

130
PRAÇA SÃO JORGE | Articulações entre futebol, arquitetura e direito à cidade.
131
REFERÊNCIAS
PRAÇA SÃO JORGE | Articulações entre futebol, arquitetura e direito à cidade.

REFERÊNCIAS BIBLIOGRÁFICAS

Arantes, P. Arquitetura na era digital-financeira. São Paulo: Editora 34, 2012.

Carrasco, A. O processo de produção do espaço urbano na cidade de Pelotas: subsídios para uma reflexão sobre o desenvolvimento das relações de desigualdade entre centro e periferia. Oculum Ensaios Revista de Arquitetura e Urbanismo, V.14, n.3, p. 595-611, 2017.

Debord, G. A sociedade do espetáculo. 2. ed. Rio de Janeiro: Contrapronto, 2017.

Ferraz, M. Numa velha fábrica de tambores. Sesc Pompeia comemora 25 anos. Minha Cidade, São Paulo, ano 08, n. 093.01, Vitruvius, abr. 2008 <https://www.vitruvius.com.br/revistas/ read/minhacidade/08.093/1897>.

Galeano, E. Futebol ao sol e à sombra; tradução de Eric Napomuceno e Maria do Carmo Brito. Porto Alegre: L&PM, 2015.

Guerra, H. Projeto e discurso: uma análise sobre os novos produtos do setor imobiliário. Dissertação (Mestrado) - Programa de Pós-Graduação em Arquitetura e Urbanismo, Faculdade de Arquitetura e Urbanismo, Universidade Federal de Pelotas, 2019.

Gorelik, A. A produção da “cidade latino-americana”. Tempo Soc. [online]. 2005, vol.17, n.1, pp.111-133. ISSN 1809-4554.

Lefebvre, H. O Direito à Cidade. 5. ed. São Paulo: Centauro, 2001.

Lopes, J. Nós, os arquitetos dos sem-teto. Rev. BR as. estudos. urbanos Reg., São Paulo, v.20, n.2, p.237-253, 2018.

Lewkowicz, I. e Sztulwark, P. Arquitectura plus de sentido. Buenos Aires. Ed. Altamira, 2003.

PRAÇA SÃO JORGE | Articulações entre futebol, arquitetura e direito à cidade.

132
REFERÊNCIAS BIBLIOGRÁFICAS

Moura, R. Habitação popular em Pelotas : 1980-1950 : entre políticas públicas e investimentos privados. 2006. 249 f. Tese (Doutorado em História) - Pontifícia Universidade Católica do Rio Grande do Sul, Porto Alegre, 2006.

PELOTAS. Prefeitura Municipal. Lei Municipal nº 5502, de 11 de setembro de 2008. Institui o Plano Diretor Municipal e estabelece as diretrizes e proposições de ordenamento e desenvolvimento territorial no município de Pelotas, e dá outras providências. Disponível em: <http://leismunicipa.is/ gicsd>. Acesso em: 29 nov.2020.

Rebello, Y., Bases para projeto estrutural na arquitetura. São Paulo: Zigurate Editora, 2007.

Revealed: hundreds of migrant workers dying of heat stress in Qatar each year. The Guardian, Londres, 25/09/2013. Disponível em: <https://www.theguardian.com/global-development/2019/oct/02/revealed-hundreds-of-migrant-workers-dying-of-heat-stress-in-qatar-each-year> Acesso em 20/11/2020.

Revealed: Qatar’s World Cup ‘slaves’. The Guardian, Londres, 25/09/2013. Disponível em: <https://www.theguardian. com/world/2013/sep/25/revealed-qatars-world-cup-slaves> Acesso em 20/11/2020.

Rubino, S. e Grinover, M. Lina por escrito. Textos escolhidos de Lina Bo Bardi/ organizado por Silvana Rubino e Marina Grinover. São Paulo: Cosac Naify, 2009.

Vieira, S. (Org.). Territorialidades e identidade: no Bairro São Gonçalo em Pelotas, RS. Conversas sobre o Dia do Patrimônio, Secretaria de Cultura, Prefeitura Municipal de Pelotas, 2017. Disponível em: <https://wp.ufpel.edu.br/ich/ files/2017/08/TERRITORIALIDADES-E-IDENTIDADE1.pdf>. Acesso em: 10 nov. 2020.

133
PRAÇA SÃO JORGE | Articulações entre futebol, arquitetura e direito à cidade.
REFERÊNCIAS BIBLIOGRÁFICAS

Turn static files into dynamic content formats.

Create a flipbook
Issuu converts static files into: digital portfolios, online yearbooks, online catalogs, digital photo albums and more. Sign up and create your flipbook.