

CONTENIDOS
01
Marco histórico
Tipología
Antecedentes históricos
Línea del tiempo
Conclusión
02
Marco teórico referencial
Concepto de Spa del silencio
Modelo análogo
Concepto formal Referente formal
Concepto estructural
03
Análisis de sitio
Análisis
Proyecto
Programa arquitectónico
Fachadas
La experiencia
Plantas arquitectónicas
Cortes arquitectónicos
Interior espacio A
Interior espacio B
Interior espacio C
Introducción
El presente proyecto de investigación está relacionado con el tema de la salud y propone desarrollar un establecimiento de spa, para el tratamiento del estrés y de la fatiga, cuya localización en la ciudad de Xalapa, Ver. cohabite en un ambiente natural, es por esto que la premisa de esta propuesta es que funcione como un filtro que aisle del bullicio a sus usuarios.
El proyecto se enfocará, como tema conceptual, al silencio, mismo que será implementado como parte de los objetivos del trabajo de investigación, por ello mismo, el nombre de este estudio se denomina SPA DEL SILENCIO.
Partiendo del estudio de referentes de spa a lo largo del tiempo servirá para sustentar las bases del proyecto y definirá el programa arquitectónico, los servicios que ofrecerá y las necesidades espaciales del mismo. Posteriormente se extraerán elementos de referentes contemporáneos que se transmitirán en la forma, materialidad y estructura de la propuesta.
Al ser un proyecto con una función determinada en un lugar específico, un spa en la ciudad, se realiza la búsqueda del sitio que cumpla con los requisitos en armonía con el concepto, mismos que influyen en la toma de decisiones para la elaboración de la propuesta desde el contexto en el que se emplaza y en el diseño de los espacios en su interior.
La situación del estrés en el ámbito global y loca l

El estrés o burnout será reconocido como una enfermedad para el 2022, según pronósticos de la Organización Mundial de la Salud (OMS).
1 de cada 4 de 450 millones de personas en el mundo, padece al menos un trastorno mental.
Para el año 2020 la depresión es la segunda causa de incapacidad en el mundo, aunado con el tema de la pandemmia por Covid19.
322 millones millones de personas en el mundo sufren depresión.
México: primer lugar en estrés laboral
Personas que se han sentido deprimidas en el estado de Veracruz:






01: Gráfico
México
El estrés es definido por la OMS como la vulnerabilidad en un grupo de personas e individualmente a las situaciones y ambientes a los que están expuestos, y esto tiene que ver con la interacción entre el sujeto y su entorno en la vida diaria. Ahora bien, ¿cuál es la repercusión de este detonante en la salud del ser humano?
La OMS (2012) afirma que el estrés repercute a nivel físico, mental y social. Las repercusiones se pueden manifiestar en trastornos mentales, afecciones que alteran los procesos psicológicos de las personas. Entre los trastornos más frecuentes se encuentran la depresión, la ansiedad, entre otros. Analizando esta situación global, queda preguntarnos lo siguiente: ¿De qué manera podemos hacer frente al estrés?
Una solución que propone la Organización Mundial de la Salud es poner como prioridad la salud de manera integral, misma que contempla las tres esferas del bienestar: fisico, mental y social.
En este tenor, el proyecto SPA DEL SILENCIO busca involucrar el concepto de salud en todos sus servicios, y no solo a nivel físico sino también a nivel mental.
La creencia colectiva ubica a los centros de spa como una actividad de tiempo libre que beneficia la salud y bienestar de sus visitantes. Los pasatiempos logran bienestar psicológico ante los estresantes cotidianos al ser alternativas que ofrecen experiencias que les genera satisfacción. (González, 2013). Es este vínculo de los pasatiempos con la vida diaria que la elección de un spa es una opción viable gracias al impacto positivo que produce bienestar en sus usuarios.


Img 03: Sala Lacónica o sala sudatoria en baños de Stabia en Pompeya, Italia. Fuente: Shutterstock.
“En medio de la bóveda, en su parte central déjese una abertura de luz. (...) Conviene que la sala de baños de vapor sea circular con el fin de que, desde el centro, se difunda por igual las fuerzas de las llamas y la del vapor, por toda la rotonda de la sala circular”.
Vitruvio, Marco
Vitruvio (1787)

Marco histórico
El contenido del presente capítulo analiza la evolución de los spa en el mundo desde sus orígenes hasta la actualidad, específicamente en occidente. También explicará la concepción del término spa así como el desarrollo de sus espacios. Posteriormente, se efectuará un análisis de las tipologías, a fin de conocer su clasificación, así como de sus elementos formales, mismos que nos servirán para determinar el proyecto del SPA DEL SILENCIO.
Tipología
Antecedentes históricos
Línea de tiempo
Conclusión
Tipología
En un panorama general, la industria del spa posee diez dominios de bienestar mediante los cuales basan las experiencias que ofrecen.
Recursos como las aguas termales, dieta y nutrición, ejercicio, terapias corporales mente-cuerpo-espíritu, tratamientos de estética, diseño sustentable, arte y valores socioculturales, marketing y manejo del tiempo.

















y tiempos
La NMX -TT-009-IMNC-2004 define a los establecimientos de spa como un lugar cuyo principal objetivo es buscar el bienestar físico, mental y espiritual del individuo por medio del agua a diferentes presiones y temperaturas, y otros elementos, técnicas, servicios convencionales, como son faciales, corporales, acondicionamiento físico, alimentación y actividades mente-cuerpo.
La clasificación de los spa se basa principalmente en su manera de operar y depende del tipo de cliente al que va dirigido, los servicios que ofrece y su ubicación.
A continuación, se muestra ocho diferentes tipos que existen y se presenta la tipología del SPA que este estudio considera: Spa de un día
















Spa de destino
Spa médico Spa termal
Spa holístico
Spa con termalismo marino
Spa de hotel Spa de un día
Spa de club
Img. 04: Dominios del Spa. Creación propia.
Img. 05: Tipologías del spa. Fuente: Creación propia.


Spa de destino
Con el objetivo de mejorar la calidad de vida del cliente de una manera integral, esta tipología ofrece los servicios de hospedaje, alimentación sana, corporales, faciales, circuitos de hidroterapia, y actividades conexión mente-cuerpo.


Spa de hotel
Tipo de spa que forma parte de las instalaciones de un hotel y se considera un servicio adicional para satisfacer las expectativas del huesped que quiere disfrutar sus vacaciones.


Img 06: Vista exterior de MRIYA Resort & Spa. Fuente: archello.com
Img 07: Recepción de Heavenly Spa by Westin del hotel The Westin en Santa Fe, Ciudad de México. Fuente: westin.marriott.com.


Spa de club
Spa cuyas actividades se desarrollan dentro de las instalaciones de un gimnasio o un club deportivo.



Spa de un día
El spa de un día es un recinto o establecimiento urbano donde se otorgan servicios de spa de un solo día, enfocados en mejorar la calidad de vida y no ofrece hospedaje.


Spa con termalismo marino
Establecimiento de spa donde la utilización integral del medio marino natural es la base. Los elementos fundamentales para el servicio de esta tipología es el agua de mar, limos marinos y algas.


Img. 08: Vista panorámica del Club de Golf Avandaro en Valle de Bravo, México. Fuente: clubdegolfavandaro.com.mx
Img 09: Vista exterior de Aigai Spa en Sao Paulo, Brasil. Fuente: archdaily.com
Img. 10: Experiencia de usuario en piscina de agua de mar marina en el resort Zoetry Paraíso de la Bonita ubicado en la Riviera maya. Fuente: zoetryresorts.com.mx


Spa médico
Tipo de establecimiento dirigido por médicos, cuyo objetivo es el promover la recuperación física y mental para prolongar la vida activa del ser humano.



Spa termal
Spa que cuenta con una fuente natural de agua mineral o termal, el cual ofrece a través de tinas, baños de burbujas, baños con masajes, duchas, vaporizaciones y/o servicios convencionales.

Img. 12: Interior de Termas de Vals, obra de Peter Zumthor ubicadas en Suiza. Fuente: archdaily.com.
Img. 11: Interior de una cabina de tratamiento en Kalos The Medical Spa en Forth Worth,Texas. Fuente: kalosmedicalspa.com.


Spa holístico
Establecimiento que brinda los servicios relacionados con el manejo de energía, conciencia del ser y desarrollo humano, además de los servicios de spa convencionales.

Img. 13: Usuarios disfrutando de una ceremonia ritual de té en el santuario de bienestar y retiro de spa holístico Kamalaya en Tailandia. Fuente: kamalaya.com
La tabla a continuación permite entender mejor las diferencias entre cada una de las tipologías de spa:
















Aguas termales
Nutrición
Fitness
Masajes
Meditación
Belleza
Sustentabilidad
Arte y valores
Marketing
Ciclo y tiempos
Img. 14: Tabla comparativa de las tipologìas de spa y los servicios que ofrecen. Fuente: Creación propia.

Antecedentes
De acuerdo a información de la Real Academia Española, el término SPA es un topónimo, es decir, se refiere a un lugar, en este caso, al pueblo belga de Spa, que era conocido en la época romana por sus baños de aguas termales. Otros autores señalan que SPA es un acrónimo latín de la frase salus per aquam, es decir, salud a través del agua.
El SPA es una tradición milenaria, los antiguos latinos en los tiempos del imperio romano derivaron de la expresión Salute Per Aqua la palabra spa, con la que designaron a los lugares con aguas minerales y termales en los que la gente practicaba la balneoterapia con resultados curativos para diversas afecciones.
Desde el imperio Romano se han pensado espacios puntuales de descanso, que tuvieron terapias que en aquel momento ayudaran a la recuperación de las tropas, y cuyo concepto en la actualidad tiene que ver con la recuperación de todos los individuos que estamos en el mundo moderno.
Los baños romanos no solo eran lugares para la limpieza corporal y relacionarse socialmente, sino también centros de tratamiento médico, asistían para ejercitarse y hacerse masajes.
Recuperado de https://www.ancient.eu/Roman Baths/





















Img 15: Exterior de las Termas de Caracalla en Roma, Italia. Fotografía de Wikiarquitectura.
Img 03: Sala Lacónica o sala sudatoria en baños de Stabia en Pompeya, Italia. Fuente: Shutterstock.
Img 16: Planta ilustrada de los baños de Estabia. Fuente: elaboración propia.
En el México precolombino, los antiguos mexicas utilizaban el temazcalli (“casa donde se suda”, de temaz, ‘sudor’, y calli, ‘casa’) como un ritual, mismo que consistía en un baño de vapor empleado en la medicina tradicional, y se usaba para limpiar las faltas morales de sus visitantes. Sin embargo, existe un origen común de esta tradición en el mundo, de la casa de baño, en poblaciones tan alejadas unas de las otras, tanto en Rusia, como Dinamarca, Suecia, China y Japón, entre otras.
Recuperado de https://es.wikipedia.org/wiki/Temazcal.


Img.

El uso de la balneoterapia perduró en el tiempo como una sana costumbre proveniente de Europa, como un modelo histórico que enfatizaba tomar las aguas curativas y retirarse a un retiro natural durante semanas e incluso meses, además trascendió como una tendencia de bienestar en demás países como Estados Unidos, es así que en los siglos XVIII y XIX se observa el interés por la creación de complejos que demandan exclusividad para la élite, espacios para el ocio y la relajación en grandes hoteles.
Img. 17. Temazcal mexica. Fuente: revistas.inah.gob.mx
18."Un baño Finlandés" Ilustración de Giuseppe Acerbi, 1802. Fuente: histarchfulbright.wordpress. com/2012/08/18/culture-heritage-and-the-finnish-sauna/
Img 19: El Hotel Adler en Sharon Springs, Nueva York, contaba con spa, teatro, salón de baile y cocina Kosher. Fotografía de Sharon Historical Society.
A partir de la década de los 70, los países aprovechan los recursos que poseen para potenciar la experiencia en centros de spa atrayentes a turistas. Un ejemplo que nos permite visualizar esto es Termas de Vals en Suiza. El icónico edificio funciona como complemento del Hotel 7132, en el que el planteamiento novedoso de los espacios interiores es el incitar a la experimentación, al descubrimiento de ambientes sensoriales, a la vez que el usuario disfruta de la experiencia relajante que ofrece el entorno que lo rodea.
En la era moderna del spa, la industria de estos centros de spa cambiaron su antiguo énfasis médico y espiritual por un modelo corporativo actual que se centra principalmente en la belleza, el fitness y el bienestar.


El Spa en México
Un spa en nuestro país que utiliza elementos de diseño espaciales y funcionales de acuerdo a tipología spa de día , es el Spa Querétaro. Ante el panorama global de la vida agitada del siglo XXI, este recinto integra la disciplina de yoga con los servicios de un spa. Es un centro donde los espacios y sus usos interactúan con la naturaleza mediante patios. Además es notable la manera en que los materiales, el color, las texturas y la iluminación actúan como detonantes de sensaciones.
Img. 20: Pasillo interior en Termas de Vals. Fotografía de Fernando Guerra.
Img 21. Interior en Spa Querétaro. Fotografía de Luis Gordoa.
El principal objetivo de los establecimientos del tipo Spa de día es ofrecer tratamientos antiestrés. Como ejemplo se tiene el spa Aigai en Sao Paulo, Brasil. Es referente de un oasis en medio de la gran urbe.
Para ofrecer relajación en estos escenarios urbanos, se valen de elementos de diseño para generar interiores relajantes. La arquitectura y el diseño de los spa también se enfocan en el cuidado del medio ambiente, incluyendo elementos bioclimáticos en su diseño. En este ejemplo, el Naman spa, cuenta con un diseño de celosías en sus fachadas para el aprovechamiento de la ventilación natural y también la filtración de luz natural hacia el interior.




El objetivo principal de los spa, es proveer un sentido de purificación para sus visitantes, y para ello proporcionan experiencias sensoriales a fin de aislar a sus asistentes del ruido externo. En este sentido, ese es el propósito que se puede experimentar en un SPA DEL SILENCIO. El Silent spa en Austria es ejemplo de esta premisa, ya que ofrece una experiencia de spa silenciosa con un diseño que es semejante a la función de los monasterios de la antigüedad.
La arquitectura de interiores aplicada a los espacios de los spa emplean formas sinuosas y orgánicas, además de echar mano de tecnologías para el diseño de la iluminación, a fin de ofrecer una experiencia sensorial a los huéspedes.
Img 24. Pasillo en el interior del Silent Spa ubicado en Laa an der thaya, Austria. Fuente: www.cladglobal.com
Img 25. Zona de piscinas en spa New Spax, ubicado en Bucarest, Rumania. Fuente: www.simonemicheli.com
Img 23. Fachada de Naman Spa. Fotografía de Oki Hiroyuki
Img 22. Acceso Spa Aigai. Fotografía de Revista Bamboo.
Línea de tiempo
La presente infografía ilustra la evolución de los establecimientos de spa a través del tiempo, desde sus orígenes alrededor del siglo 1 a.c, y como gradualmente fue desarrollándose en los siglos XIX y XX, hasta tiempos contemporáneos del siglo XXI.


TERMAS DE ESTABIA
Tipología
Termas
Ubicación
Pompeya, Italia.

HOTEL ADLER
Tipología
Spa de hotel Ubicación
Nueva York, E.U


TERMAS DE VALS
Tipología
Spa termal Ubicación
Vals, Suiza





PADME YOGA Y SPA
Tipología
Spa de un día Ubicación
Querétaro, México

Img. 03: Sala Lacónica o sala sudatoria en baños de Stabia en Pompeya, Italia. Fuente: Shutterstock.
Img. 19: Hotel Adler en Sharon Springs, Nueva York. Fotografía de Sharon Historical Society.
Img. 20: Pasillo interior en Termas de Vals. Fotografía de Fernando Guerra.
Img. 21. Interior en Spa Querétaro. Fotografía de Luis Gordoa.


AIGAI SPA
Tipología
Spa de un día Ubicación
Sao Paulo, Brasil


NAMAN SPA
Tipología
Spa de un día Ubicación
Da Nang, Vietnam


SILENT SPA
Tipología
Spa de destino Ubicación
Laa an der Thaya, Austria


NEW SPAX
Tipología
Spa de hotel Ubicación
Bucarest, Rumania




Img 22. Acceso Spa Aigai. Fotografía de Revista Bamboo.
Img 23. Fachada de Naman Spa. Fotografía de Oki Hiroyuki
Img 24. Pasillo en el interior del Silent Spa ubicado en Laa an der thaya, Austria. Fuente: www.cladglobal.com
Img 25. Zona de piscinas en spa New Spax. Fuente: www.simonemicheli.com
Conclusión
La industria del spa ha evolucionado para ser más accesible a las personas y ofrecer alternativas de tratamiento del estrés en tiempos actuales.
La tipología del proyecto Spa del silencio, spa de día, está centrada en zonas urbanas, puntos estratégicos ubicados en contextos rodeados de edificios con largas calles y avenidas en los que desarrollamos actividades importantes de la vida cotidiana. A nivel integral es un recinto que ofrece servicios de un solo día como lo son los masajes, yoga-meditación y tratamientos faciales. Para ello el Spa Padme es un claro referente en la escena actual de los spa en nuestro país.
TIPOLOGÍA


Spa de día
SERVICIOS

Masajes


Meditación
Img 26. Diagrama de elementos que forman la propuesta del proyecto. Fuente: Creación propia.
Teniendo el conocimiento de los fundamentos adquiridos en el presente capítulo podemos estimar un programa de necesidades que permite formular la experiencia de spa del silencio a través de cuatro salas: sala tierra, sala aire, sala agua y sala fuego. La tabla que se muestra a continuación describe cada una de las áreas que componen la propuesta y posteriormente cada uno de esos espacios se plasman en un diagrama utópico , una importante herramienta de apoyo en el proceso de diseño. CLAVE




















01 04 06 05 07-14 15
RECEPCIÓN
SALA TIERRA
VESTIDORES
SALA AIRE
SALA AGUA
SALA FUEGO
DESCRIPCIÓN
ÁREA PARA RECIBIR A CLIENTES Y MÓDULO DE INFORMACIÓN.
LA FUNCIÓN DE ESTE MÓDULO ES RELAJAR AL USUARIO AL BRINDARLE UNA INFUSIÓN HERBAL DE BIENVENIDA MIENTRAS UN TERAPEUTA RECABA INFORMACIÓN NECESARIA PARA OFRECERLE UN ÓPTIMO TRATAMIENTO.
ÁREA INDEPENDIENTE DE BAÑOS PARA QUE EL USUARIO SE CAMBIE DE ROPA.
ES UN ESPACIO PARA LA CONTEMPLACIÓN. EL USUARIO EXPERIMENTARÁ LA SABIDURÍA DEL YOGA BAJO LA INSTRUCCIÓN DE UN EXPERTO.
ESPACIO QUE FUNCIONA COMO COMPLEMENTO A LA TERAPIA DE MASAJE. INCLUYE ÁREA DE SAUNA, DUCHAS, BARRA DE BEBIDAS HIDRATANTES Y UNA ZONA PARA LA RELAJACIÓN.
CONJUNTO DE CABINAS DE MASAJE QUE VARÍAN SUS DIMENSIONES DEPENDIENDO DEL NUMERO DE USUARIOS, YA SEA SENCILLAS O DOBLES.
Img. 27. Tabla de módulos para la experiencia en spa del silencio. Fuente: Creación propia.


























































































La experiencia en SPA DEL SILENCIO propone llevar al usuario por un recorrido de terapias en orden de secuencia a los espacios con ese fin. Dichos espacios se componen de módulos o salas que se organizan de manera coherente en base a las necesidades de los mismos. Para una óptima distribución de las salas se optó por el uso del diagrama utópico, herramienta que sirve para planear las circulaciones óptimas entre cada una de dichas áreas y así posteriormente poder pasar a la etapa volumétrica. Las cuatro salas se clasifican en etapas: la etapa 1, la sala tierra, tiene la función de darle la bienvenida al cliente mientras que se le recaba la información necesaria para proporcionarle el tratamiento que mejor le beneficie, lo siguiente que el usuario debe hacer es pasar a la zona de vestidores para ponerse cómodo y poder pasar a la etapa 2, la sala aire, allí accesa a una sala con el equipamiento necesario para realizar ejercicios de yoga o bien, practicar la meditación.
Posteriormente la etapa 3, la sala agua, tiene como principal función ofrecer terapia de vapor mediante el sauna, a su vez que prepara el cuerpo del usuario abriendo los poros de su piel para que cuando pase a la siguiente etapa, reciba mejor el tratamiento de masaje corporal. Dicha sala también cuenta con una zona común para la relajación necesaria después de haber pasado por el sauna.
La etapa 4 y última es la sala fuego. Este módulo se caracteriza por adaptarse al número de usuarios, ya sea individual para una persona o doble para parejas y la terapia que allí se ofrece tiene que ver con los masajes corporales de su elección.
A continuación se muestra el diagrama utópico, herramienta visual que explica las diferentes cuatro etapas ya descritas.
Img 28: Experiencia propuesta. Fuente: creación propia.
Diagrama utópico






ETAPA 1 SALA TIERRA
01 RECEPCIÓN
02 RECABO DE INFORMACIÓN
03 RECOMENDACIÓN DE TERAPIA
04 BIENVENIDA HERBAL
05 VESTIDORES



ETAPA 2 SALA AIRE
06 EJERCICIO DE MEDITACIÓN Y YOGA






ETAPA 3 SALA AIRE
07 SAUNA DE VAPOR
08 DUCHAS
09 BARRA DE BEBIDAS
10 SAUNA DE VAPOR
11 BARRA DE BEBIDAS
12 ZONA DE RELAJACIÓN
13 HIDROMASAJE EN JACUZZI
14 VESTIDORES
15 TERAPIA DE MASAJE CORPORAL

























Img. 29: Diagrama utópico de la propuesta. Fuente: creación propia.
Marco Teórico
Referencial
En el contenido de este apartado se tratarán las teorías en base a conceptos de aquitectura y diseño que sustentan este proyecto, así como los referentes formales que han sido considerados para la exposición del mismo.
Este capítulo busca afirmar, por medio de las teorías y de los referentes de proyectos afines a este trabajo de tesis, que el SPA DEL SILENCIO coadyuvará, por medio de la arquitectura de interiores a que sea un espacio diseñado con el enfoque en el equilibrio del cuerpo, la mente y el alma, que resuelva las necesidades de este tipo de establecimientos.
Concepto del Spa del Silencio
Modelo análogo
Concepto formal
Referente formal
Concepto estructural
Sustentabilidad
Conclusión

Se ha perdido el respeto al silencio e incluso, al derecho de los demás a estar más cerca de sí mismos (...)
Arvelo, Alejandro. Filosofía del Silencio, 2008, p.18

Concepto del SPA DEL SILENCIO
Los centros de bienestar y los spa, han tenido como objetivo ser santuarios de calma, pero el ruido de la era digital ha dificultado esa tarea. A manera de mitigar y contrarrestar entornos ruidosos de la era actual, los expertos de la industria del bienestar proponen un nuevo enfoque del silencio en estos centros de spa. Definen y promueven el concepto de spa silencioso como un destino para la tranquilidad y la contemplación del ser semejante a la experiencia que se vivía en los antiguos monasterios.
De seguir con el ritmo de vida que impera en las ciudades, algunos de los lujos más preciados para las personas en el futuro serán el tiempo, el espacio y el silencio, por lo que se puede pronosticar con toda seguridad que los spa del silencio serán los espacios más demandados para el beneficio de nuestra salud y con toda seguridad, evolucionarán favorablemente.
La visión prospectiva que promueve la organización internacional Global
Wellness Summit es la siguiente: “Darle un enfoque más integral a estos centros de bienestar, que purifiquen al cuerpo física y mentalmente.” (Mcgroarty, 2016, p. 15)
J. Pallasmaa señala que el silencio de la arquitectura es un silencio receptivo, que hace recordar.
Una experiencia arquitectónica potente silencia todo el ruido exterior; centra nuestra atención sobre nuestra propia experiencia y, como ocurre con el arte, nos hace ser conscientes de nuestra soledad esencial. (Pallasmaa, 2006, p.54) Se propone el concepto del silencio como un escape que enfrenta a la cantidad de estímulos sonoros y visuales que se exhiben en la ciudad. Como es característico de este estilo, la influencia de la filosofía Zen es quien le dará el carácter a cada elemento tanto en el interior como exterior del spa. Esta filosofía en la arquitectura se designa no en la confrontación con la naturaleza , sino en su existencia dentro de ella.

Modelo análogo
En diseño, el uso de las analogías se refiere a la relación de parecido o semejanza entre cosas diferentes. Para el diseñador, el arquitecto o cualquier creativo, el pensamiento analógico es fundamental para la inventiva, ya que el uso de analogías puede ayudar a resolver problemas, crear vínculos entre disciplinas y usar esas correspondencias para proponer soluciones originales.
En este sentido, podemos ubicar tres tipos de analogías:
1. Analogías primarias: hacen referencia a objetos y fenómenos como el cuerpo humano, la naturaleza e incluso el universo abstracto de los signos.
2. Analogías disciplinarias: se toman a partir de ejemplos ya existentes en arquitectura y diseño.
3. Analogías fuera del campo: la música, la literatura y las artes visuales. Para concebir la propuesta arquitectónica de spa del silencio, el uso de la analogía disciplinaria permite analizar un ejemplo existente en armonía de la tipología sobre la que funciona el proyecto. El modelo análogo es el Spa Querétaro y es elegido por la manera en que responde favorablemente al contexto en el que está ubicado, la relación interior y exterior que guarda como objeto arquitectónico lo hacen ser un santuario de calma.
A continuación se extraen los siguientes elementos: contexto , función y atmósferas .
Img 31. Fachada en la que se accesa al Spa Querétaro. Fotografía de Luis Gordoa.
"Se trata de un centro de Yoga y SPA, inmerso en un contexto de barrio antiguo residencial de la ciudad de Querétaro, con calles empedradas y amplios camellones. Con el paso del tiempo a la colonia, le han ido surgiendo ciertos servicios en sus avenidas principales a los cuales se les suma este proyecto para brindar a los habitantes un espacio de refugio y relajación. Padme Yoga Spa busca integrarse al entorno mediante un volumen de concreto aparente bastante hermético que toma la esquina de dos de las avenidas principales del fraccionamiento"


33.
Proyecto PADME Yoga y spa
Ubicación
Querétaro, México
Contexto
Padme Yoga SPA, situado en fraccionamiento Carretas en la ciudad de Querétaro, México, es obra del despacho Ambrosi Etchegaray Arquitectos. La intención del proyecto es impactar positivamente en el sitio de uso de suelo mixto, es decir, uso residencial y uso comercial en un área conurbada de la ciudad. La edificación contrasta. con los demás edificios de su entorno además de resolver las necesidades del usuario urbano.
Img
Ubicación y contexto. Creación propia.
1. Descripción de los arquitectos. Entrevista con la revista CyT (Construcción y Tecnología) en México.
Img 32. Perspectiva exterior que muestra la fachada lateral de la edificación PADME Yoga y spa. Fuente: Archdaily.com
Función
El espacio interior se complementa con el espacio exterior mediante patios y jardines que permiten el contacto con la naturaleza, barreras naturales que actúan como disipadores del ruido externo. El centro se compone de dos niveles, la planta baja consta de dos salas de masajes, un salón jacuzzi, y áreas de relajación. Además hay un volumen que contiene una sala multiusos y cafetería. En el primer nivel se concentran dos salas de yoga formadas por dos volumenes independientes que sobresalen en la planta superior, y tienen capacidad para contener 25 y 40 personas.






Img. 34. Plantas y secciones que muestran las áreas del programa arquitectónico. Fuente: Creación propia.
Atmósferas
"...Entro en un edificio, veo un espacio y percibo una atmósfera, y en décimas de segundo, tengo una sensación de lo que es..."
Zumthor, Peter Zumthor (2006).
La configuración espacial invita a sus usuarios a que interactuen y exploren cada espacio. Es un lugar para internarse que emana atmósferas de tranquilidad por su materialidad y cualidades sensoriales.
La paleta de materiales es sencilla. Elementos como concreto aparente color marfil en muros, cerramientos de madera, cristal y acero son detonantes de sensaciones.
Las perforaciones que generan los patios interiores ajardinados también permiten entradas de luz natural y acentúan el color marfil de los muros, creando un juego de luces en su interior.



Img 38. Patio ajardinado. Fuente: archdaily.
Img. 39. Acceso a volumen de salas de masajes. www.padmeyogaspa.com
Img 35. Pasillo en interior planta baja que dirije a cabinas de masaje.. Fuente: www.padmeyogaspa.com
Concepto formal
A continuación se analiza el siguiente concepto utilizado para la definición formal de este proyecto de tesis, así como ejemplos de construcciones existentes que han empleado este elemento de diseño. .


Continuidad
La continuidad tiene que ver con la relación interior-exterior. El concepto de continuidad se define como "Propiedad de la percepción que nos lleva a agrupar todos aquellos elementos que siguen una misma línea o dirección" 3 . La propuesta tiene la intención de considerar que la envolvente es la piel del edificio. La búsqueda por una envolvente nada ornamentada, simple, pura. El diseño del proyecto spa del silencio se experimenta de adentro hacia afuera. Esto maximiza la experiencia interna porque el espacio interior en arquitectura es su propósito primordial. Generar una conitinuidad real que no niega lo que le rodea, sino que lo hace parte, sumergiendose así en la naturaleza.
3. www.parro.com.ar/definicion-de-continuidad
Img 40. Ejemplo del concepto Continuidad exterior-interior. Fotografía de André Klotz.
Img 41. Ejemplo de generar continuidad con el contexto natural. Fotografía de Sebastián Aguilar.
"...En nuestra cultura contemporánea, en la que todos estamos sometidos a una intensa estimulación exterior, en especial por el medio electrónico, resulta crucial el papel del espacio arquitectónico como refugio del espíritu..."
Tadao Ando
The pritzker Architecture Prize, 1995
La arquitectura es más que una construcción de espacios lógicos y funcionales. A través de ella, habitamos los espacios en el que apreciamos y sentimos distintas emociones al estar en ambientes novedosos.
En el caso de este proyecto, se recurre al minimalismo, que es una corriente estética que aparece como forma de reacción al pop art, a la saturación de las comunicaciones dentro del universo estético y al consumismo, buscando mitigar el estrés crónico de las personas a través de espacios que los aislen de estos factores, a fin de convertirse en un estilo de vida para muchas personas que buscan un respiro de la vida diaria.
La arquitectura es más que una construcción de espacios lógicos y funcionales. A través de ella, habitamos los espacios en el que apreciamos y sentimos distintas emociones al estar en ambientes novedosos.

Para este proyecto, la arquitectura minimalista aportará los conceptos necesarios que permitirá proponer espacios que influyan positivamente en el usuario y que le generen situaciones de paz al estar en contacto con ese ambiente. El diseño arquitectónico será el protagonista en el que un conjunto de atmósferas inducirá el sentir propio, y el diseño minimalista influirá en la sencillez del objeto arquitectónico, evocando lo esencial y al despojo de elementos sobrantes.
El concepto formal es aplicar un estilo arquitectónico que potencie las características naturales del sitio donde se emplace. Se trata de integrar lo natural con el diseño, por medio de los materiales naturales, tales como la madera, los elementos pétreos, y texturas lisas, como el cristal en fachadas.
Lo fundamental del estilo minimalista es la simpleza de los espacios, la pureza de los materiales, la horizontalidad de las formas. Todo se reduce a lo esencial y se evitan elementos distractores.
Img 42. Interior del museo Lee Ufan, obra en colaboración con el arquitecto Tadao Ando. Fotografía recuperada de https://benesse-artsite.jp/en/art/lee-ufan.html .
Referente formal
Edificio:
Termas de Vals
Ubicación:
Graubunden Canton, Suiza
Año:
1993-1996
Programa:
Terma y spa
Arquitecto a cargo:
Peter Zumthor
Área de construcción:
1,972 m2

Continuidad
Esta obra de Peter Zumthor surge con el objetivo de implementar un volumen cuyas funciones de spa aprovechen la naturaleza de termas subterráneas en la zona.
Se encuentra inmersa en una colina aprovechando la topografía de la zona, generando así un techo verde que permite que el césped tenga continuidad y la edificación se integre al entorno natural.
Este referente cumple con los fundamentos de la arquitectura minimalista , ya que el volumen arquitectónico se integra positivamente al espacio y se entrelaza con la naturaleza, creando un vínculo entre lo construido y el contexto.







Img 43. Contexto del edificio Termas de Vals cuyo terreno está emplazado en un espacio rodeado tanto por construcciones como por elementos naturales que van desde pasto hasta grandes coníferas. Fotografía de Fabrice Fouillet.
Img 44. Planta esquemática de los módulos que conforman el interior de las Termas de Vals. Fuente: es.wikiarquitectura.com
El espacio presenta volúmenes altos con acabados de roca aparente. Estos volúmenes no compiten con la escala humana, sino más bien, le dan protagonismo. Los interiores transmiten sensaciones, no solo con los materiales, sino también por medio de la temperatura del ambiente, el diseño de la iluminación así como en la escala misma del edificio y la integración de este con el paisaje.
La geometría ortogonal le da un caracter monolítico. Los recorridos en su interior transmiten el ritmo en las circulaciones, mismo que invita al usuario a vivir la experiencia de descubrir los espacios evocando el sentimiento de que el ser humano siempre busca descubrirse a sí mismo.
La estructura funciona como volúmenes ensamblados, bloques que contrastan con las líneas rectas de las formas y el movimiento del agua.
La luz natural actúa como un personaje etéreo, dando relevancia a los materiales propios de la región como lo es el material pétreo utilizado en muros, brindando así sobriedad con una paleta de tonos grises, creando una atmósfera pulcra y minimalista.



Img 45. Perspectiva 1 en el exterior del recinto. Fotografía de Fabrice Fouillet.
Img 46. Perspectiva 2 en el interior del recinto. Fotografía de Fabrice Fouillet.
Img 47. Perspectiva 3 en el exterior del recinto. Fotografía de Fabrice Fouillet.
Concepto Estructural
"Así, se levanta una estructura estereotómica que emerge de la tierra con una materialidad franca y desnuda que enfrenta a la arquitectura, despojada, con su entorno"
Perez Gomez Arquitectura. Descripción de los arquitectos.
Edificio:
Casa Amapa
Ubicación:
Guadalajara, Jalisco
Año:
2020
Programa:
Vivienda
Arquitecto a cargo:
Pérez González arquitectos
Área de construcción:
211 m2


Estructura estereotómica
A partir de la configuración del espacio, el sistema constructivo del proyecto Casa Amapa se proyecta apoyado en el concepto "esteorotomía".
Lucas Períes (2020) lo define de la siguiente manera: Proyectar esteorotópicamente implica esculpir una porción de materia, una masa sólida a la que se le extrae cuerpo, que es perforada; y que puede ser vacíada en su interior para producir cierta espacialidad arquitectónica. (p.69)
Basándose en el concepto de que con la sencillo y lo esencial, se puede desmaterializar la vida del que habita esta casa y que lo único importante sea existir en contacto con la naturaleza. (ver imagen 51)

Img 50. Isométrico de Casa Amapa. Fuente: Archdaily.com. Edición propia.
Img 48. Perspectiva exterior 1 de Casa Amapa. Fuente: Archdaily.com
Img 49. Perspectiva exterior 2 de Casa Amapa. Fuente: Archdaily.com

Img 51. Imagen de vista en planta de conjunto de Casa Amapa. Fuente: Archdaily.com
Es por eso que elimina el uso de todo material o acabados que sean ornamentales. La materialidad del concreto en unión con el entorno rico en vegetación genera un diálogo armónico y no le resta protagonismo a este entorno.
La estructura estereotómica es como un lenguaje que dialoga con esta armonía, que, como dicen los arquitectos diseñadores de este proyecto, parece que emerge de la tierra. Se caracteriza por ser rígida y pesada como la piedra, y en particular, en esta casa puede verse que los apoyos de la estructura son perimetrales y continuos. (ver img. 53 y 54)
SPA DEL SILENCIO se basa en este concepto estructural junto con la filosofía minimalista de sencillez en su materialidad.







Img 54: Planta de sótano del proyecto Casa Amapa. Fuente: Archdaily.com. Edición propia
Img 53: Planta baja del proyecto Casa Amapa. Fuente: Archdaily.com. Edición propia.
Img 52: Secciones longitudinal y transversal del proyecto Casa Amapa. Fuente: Archdaily.com. Edición propia.
Para el reflejo de la continuidad, se propone proyectar muros estructurales de concreto acabado aparente enduelado desde la fachada principal como si se tratara de una envolvente pétrea.
Sistema de muros
Sistema constructivo de muros: Se denomina muro de carga o muro portante a las paredes de una edificación que poseen función estructural , es decir, aquellas que soportan otros elementos estructurales del edificio









A8-01 MURO DE CONCRETO ACABADO APARENTE ENDUELADO
MURO DE CONCRETO MC1 DE 20 CM DE ESPESOR ARMADO CON VAR #3@20CM EN DOBLE PARRILLA, SENTIDO TRANSVERSAL Y LONGITUDINAL + GRAPA #3 @60CM, RECUBRIMIENTO DE 3CM.






CADENA DE DESPLANTE CD-1
ENRASE DE TABIQUE ROJO RECOCIDO ASENTADO CONMORTERO-ARENA
CONTRATRABE CT-2
ARMADO VARS.#4@15CM AMBOS SENTIDOS
ARMADO POR TEMPERATURA VARS.#4@18CM
PLANTILLA DE CONCRETO DE 5 CM DE ESPESOR F'C=100 KG/CM2
A8-01

CONCRETO ACABADO APARENTE ENDUELADO












































Img 55. Isométrico que muestra los elementos que forman el muro de carga. Fuente: Creación propia.

Sustentabilidad
Los recursos sustentables o biotecnologías que empleará el proyecto son patios y jardines verticales. A continuación se describe la función de cada unos de ellos junto con un proyecto referente de estos conceptos.
Patio
Proyecto
PADME Yoga y spa
Ubicación
Querétaro, México
El patio es una solución arquitectónica eficiente para el control del clima en el interior de los espacios. Su definición tradicional es la de un espacio cerrado con paredes o galerías, que en las casas y otros edificios se deja abierto.

Img 56: Patio lateral en el interior del spa Querétaro. Fuente: archdaily.
Img. 38: Patio interior en Spa Querétaro. Fuente: archdaily, foto de Luis Gordoa.
"....Proporciona a la ciudad y sus habitantes un espacio de belleza natural. Allí se puede disfrutar del asombroso diseño del jardín, el aroma de las plantas y la frescura del aire puro. Lo cual genera una atmósfera saludable y que motiva a la comunidad a tener nuevas iniciativas eco urbanistas."
#. Descripción tomada del blog Paisajismo digital.


Jardín vertical
Proyecto
Jardín vertical de la Universidad del Claustro de Sor Juana
Ubicación
Ciudad de México, México
En arquitectura diseñar un jardín vertical representa una herramienta que impacta positivamente y que enriquece de manera sustentable a un edificio. Aporta beneficios al usuario y al contexto en el que se ubique, ya que genera oxigeno, reduce el ruido por contaminación sonora, actúa como un filtro al atrapar el polvo y los gases nocivos del ambiente, y reduce la temperatura en el interior de la edificación. El sistema de de este recurso consiste en un método automatizado de riego y su estructura se compone de elementos superpuestos que se adaptan al muro portante de la estructura principal. (ver img. 58) Finalmente se siembran sobre la membrana las especies endemicas cuya particularidad es el crecimiento en sentido vertical.
Para el proyecto SPA DEL SILENCIO proponer este recurso sustentable es ideal para reforzar el concepto de spa en contacto con la naturaleza. Será utilizado como una piel arquitectónica que dotará, ademas de los beneficios antes mencionados, de cualidades estéticas y sensoriales que embellecerá el interior de la propuesta, y lo más importante, llevar al usuario en un recorrido para meditar en la necesidad de volver a la naturaleza para disfrutar de sus beneficios en nuestro cuerpo.
Img 57. Jardín vertical en fachada de la Universidad del Claustro de Sor Juana en CDMX. Fuente: www.paisajismodigital.com
Img 58. Detalle del sistema jardín vertical. Fuente: Archdaily.
Conclusión
Los resultados obtenidos en el presente capítulo teórico referencial permiten resolver el desarrollo del proyecto:
1. El silencio
2. Atmósferas de tranquilidad
3. Continuidad
4. Estructura estereotómica
5. Patios y jardines verticales
El silencio Atmósferas de tranquilidad






Destino para la tranquilidad y la contemplación del ser semejante a la experiencia que se vivía en los antiguos monasterios.
















Materiales puros tales como la madera, elementos pétreos como el concreto acabado aparente en muros y el mármol. Materialidad para brindar atmósferas de tranquilidad y sosiego.
Img 59: Práctica de meditación. Fuente: Freepik. Img 60: Materialidad. Fuente: Creación propia.
Continuidad Estructura estereotómica Patios y jardines verticales

















Arquitectura minimalista, simpleza de los espacios y la horizontalidad de las formas son ingredientes para generar el concepto formal de continuidad en este proyecto.
Estructura rígida y pesada como la tierra. Masa sólida perforada para producir espacialidad arquitectónica.
Involucrar la naturaleza del exterior hacia el interior de la edificación.
Img 61: Concepto formal. Fuente: Creación propia. Img 62: Maqueta de concepto estereotómico. Fuente: Creación propia.
Img 63: Ilustración concepto de patio central. Fuente: Creación propia.
Análisis de sitio
El siguiente apartado se encarga de analizar diversos aspectos de un análisis de sitio que permitirá la comprensión del espacio urbano para la realización del proyecto Spa del silencio. Para ello se realiza un análisis pormenorizado del sitio del proyecto ubicado en el municipio de Xalapa, Veracruz en el que se identifican en términos de limitantes y potencialidades los elementos para la propuesta de diseño urbano-arquitectónico a desarrollar.
Análisis macro
Ponderación de terreno
Análisis micro
Conclusión

Análisis Macro
Img 64: Vista de dron de la ciudad de Xalapa. Fuente: xalapaveracruz.mx




















El municipio de Xalapa pertenece a la región capital, localizada en el centro del Estado de Veracruz. Se encuentra en las coordenadas UTM (Universal Transversal de Mercator) E14B27, coordenadas con latitud 19.5426, Longitud -96.9137 19° 32 ′ 33 ″ de longitud Norte y 96° 54 ′ 49 ″ de longitud Oeste.


Temperatura
Rango de temperatura 18-24°C.




Clima


El clima de Xalapa es semicálido húmedo con abundantes lluvias en verano, semicálido húmedo con lluvias todo el año, cálido subhúmedo con lluvias en verano y templado húmedo con lluvias todo el año.




Vegetación
Debido al clima benigno y la gran fertilidad de las tierras de la región de Xalapa, especies nativas del bosque mesófilo de montaña como araucaria, encino sauce etc. elevan la calidad de vida en la ciudad.
Img 66: Mapa de la ciudad de Xalapa, Veracruz. Fuente: Edición propia.
Img 65: Mapa de México que señala la ubicación des estado de Veracruz. Fuente: Creación propia.
Ponderación de terreno
La tipología de este proyecto está centrada en zonas urbanas y en función del concepto y la tipología del Spa Urbano, la elección del sitio del proyecto tomó como referencia lo siguiente:
"...La segunda zona, ubicada el este, noreste y sobretodo sudoeste, ha experimentado una fuerte extensión de la trama urbana desde 1970 a lo largo de dos ejes viales que son: Xalapa El Castillo y sobre todo, la carretera Veracruz, entre Xalapa y El Lencero. En dicha zona, se ha planeado también el futuro crecimiento territorio de Xalapa".
(UAM 2012)
Con el fin de analizar las posibles poligonales de terreno idóneas para el proyecto, este análisis de sitio parte del Manual de Diseño Urbano de Jan Bazant, de manera que es útil para estructurar los conceptos que permiten la comprensión de un espacio urbano (véase imagen 65). El proceso de este análisis del sitio se divide en dos etapas: la etapa uno abarca los conceptos del contexto urbano y la etapa dos contiene los conceptos del contexto natural.

























































































Img 67. Conceptos del Manual de Diseño Urbano. Jan Bazant. Fuente: Creación propia.
6. Plan General de Desarrollo Urbano 2030, Ciudad Xalapa, Enriquez. UAM (2012).
Cada una de las opciones para el sitio del proyecto fue puesta bajo evaluación, de esta manera, a continuación se muestra que la opción de Sitio A es la más viable con un puntaje total de 34 de 40 puntos.
SITIO A











SITIO B









SITIO C









Img 68. Análisis de los conceptos que poseen cada una de las poligonales en base al Manual de Diseño Urbano de Jan Bazant. Fuente: Creación propia.
Análisis micro
Vialidades
En cuanto a las vialidades con las que cuenta el sitio, la carretera federal 140 Xalapa-Veracruz es la principal circulación mas no la más próxima, por lo que el ruido y el tráfico producidos por esta vía no afectan directamente a la poligonal del proyecto. La vialidad por la que se accesa al establecimiento corresponde a la vía secundaria, el boulevard Cristobal Colón perteneciente a la colonia Rubí Ánimas.
El uso de suelo que corresponde al contexto es mixto, ya que cerca del terreno se encuentran locales comerciales, hoteles, edificios de gobierno y viviendas residenciales. Como punto de referencia cerca de la poligonal se encuentra el edificio de oficinas conocido como “Torre Ánimas”.


Simbología
Vialidad secundaria
Vialidad primaria
Simbología
Uso residencial
Comercial
Equipamiento
Área de donación
Img 69. Mapa de vialidades principales y secundarias del sitio. Fuente: Creación propia.
Img 70 Mapa de usos de suelo en el sitio. Fuente: Creación propia.
En la presente imagen se observa que el sitio destaca por el potencial que le ofrece al proyecto la colindante de un área de donación orientada con dirección al Noreste; dicha área es una franja “verde” de árboles de Jinicuil cuya altura llega a los 15 metros de altura. Ubicar a SPA DEL SILENCIO cerca de este bosque le regala al usuario un oasis natural .

Simbología
Poligonal del terreno Área de donación Ángulos vistas
Vialidad secundaria
Vialidad primaria


Img 71. Plano de ubicación. Creación propia.
Contexto
A continuación se muestra un isométrico que incluye el contexto del sitio en el que se puede identificar como es la interacción del sitio elegido para el proyecto con el entorno inmediato; el asoleamiento que impacta sobre la poligonal y lo que corresponde a las colindancias y las vialidades así como diferentes fotografías del estado actual.





Perspectiva 1
Perspectiva 2
Perspectiva 3
Img 72. Fotografía captadas en diferentes perspectivas del sitio. Fuente: Fotografías propias.
Asoleamiento

Simbología
Poligonal del terreno
Área de donación

Ángulo de perspectiva


















Img 73. Isométrico del contexto inmediato del sitio A y como repercite el asoleamiento en el mismo. Creación propia.
m




Terreno
El área de la poligonal es de 520 m2, 20 metros de frente por 26 metros de fondo. El contexto inmediato colinda con dos viviendas a cada lado y las alturas de estas oscilan los 8.50 metros. La fachada principal ubicada al Sureste está sobre la avenida y en el extremo contrario fachada Noreste colinda con el area de donación antes mencionada.
Img. 74. Perfil de banqueta 01. Fuente: Creación propia.
Img. 75. Topografía del terreno. Fuente: Creación propia.
20.00 m

Colindancia




Topografía
El terreno desciende 5 metros en dirección Noreste hacia el área de donación, del nivel de banqueta N 0.00 desciende hasta llegar al nivel N-4.00 donde inicia la primera curva topográfica del área de donación. Sin duda el que el terreno sea accidentado condiciona la toma de decisiones en el diseño del objeto arquitectónico del spa.
Colindancia
Img. 77. Isométrico del terreno que muestra su topografía y la del área de donación. Fuente: Creación propia.
Img. 76. Perfil de banqueta 02. Fuente: Creación propia.
Propuesta
El contenido de este último apartado presenta los resultados obtenidos para la propuesta del proyecto Spa del silencio, y se compone del proceso de diseño, planos, cortes, fachadas e imágenes visuales 3D exteriores y de tres espacios interiores desarrollados a detalle.
Proceso de diseño
Planos
Visualizaciones 3D
Programa arquitectónico
El objetivo de la propuesta es el brindar a los usuarios una experiencia holística cuyo concepto los acerque a la meditación en la naturaleza.
La investigación ha mostrado que la topografía del terreno es esencial para la organización del programa arquitectónico. Sin embargo, la estrategia de diseño es distribuir los espacios en dos niveles: planta baja y planta sótano. De manera que la experiencia lleve al usuario a recorrer ambas plantas.
Las diferentes etapas que conforman spa del silencio se distribuyen en dos cuerpos volumétricos con vista principal hacia el Noreste. El primer cuerpo abarca las etapas 1 y 2, es decir, sala tierra y sala aire, el segundo cuerpo contiene las ultimas dos etapas 3 y 4, la sala agua y la sala fuego. La etapa 3 contiene sus salas en un solo cuerpo pero en ambos niveles y la etapa cuatro únicamente se ubica bajando al nivel de planta sótano.
En cuanto a los espacios operativos, al ser zonas privadas la decisón es ubicarlos de manera apartada de las zonas semipúblicas pero con cierta conexón para que a las personas operarias no se les dificulte accesar a las salas donde los usuarios los necesiten.
A dichos espacios los conforman una oficina administrativa, sala con cocineta y comedor, baños y vestidores para el personal operario, un almacén, cuarto de lavado, y un cuarto de máquinas.












































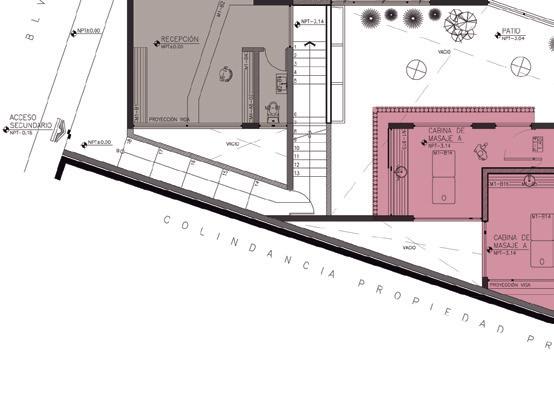
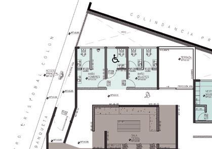
Img 79. Planta baja que ilustra las áreas conforme al programa arquitectónico. Fuente: Creación propia.
SALA AIRE
SALA AGUA
SALA FUEGO
SALA TIERRA
Img 75. Isométrico que ilustra la distribución de los espacios sobre el terreno. Fuente: Creación propia.
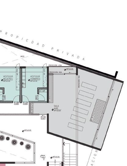
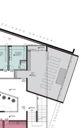
Img 78. Planta Sótano que ilustra las áreas conforme al programa arquitectónico. Fuente: Creación propia.
ESPACIO
ZONA PÚBLICA
Recepción
Baños planta baja
ZONA SEMIPÚBLICA
Sala tierra
Vestidores
Sala aire
Patio
Sauna
Baños-duchas
Jacuzzi
Cabinas de masaje A
Cabina de masaje B
ZONA PRIVADA
Administración
Sala de personal
Almacén
Cuarto de lavado
Cuarto de máquinas
Baños
Vestidores
Recepción de clientes
Sanitarios
ACTIVIDAD
Bienvenida herbal y recabo d e información.
Cambio de ropa.
Yoga y meditación
Patio central
Terapia de vapor
Sanitarios y duchas complemento de sala agua
Hidroterapia
Cabinas una persona.
Cabinas dos personas.
Actividades administrativas.
Zona común para los operarios.
Áreas de guardado para productos.
Área para lavar y secar blancos del spa.
Espacio designado para maquinas operarias.
Sanitarios para el personal operario del spa.
Vestidores para el personal operario del spa.





Img 81. Planta de conjunto. Fuente: Creación propia.


Un enfoque en el silencio
La planificación del lugar propuesto se basa en un enfoque contextual, donde la arquitectura se puede experimentar tanto desde el interior como desde el exterior. La ubicación en el sitio ha sido determinada por una serie de consideraciones estéticas, topográficas y ambientales.






FACHADA PRINCIPAL



Img 82. Fachada principal ( y fachada posterior. Fuente: Creación propia.
Fachadas
La fachada está conformada para lograr un buen ambiente interior, la fachada principal es diseñada sin aberturas al exterior para reducir y minimizar el ruido. En la fachada posterior cuya orientación es dirigida hacia área de donación contiene amplias aberturas correspondientes a las salas de tratamientos, enmarcando la vista hacia el exterior, mientras que al mismo tiempo se utilizan para obtener una ganancia solar pasiva y un factor de luz diurno adecuado.
A nivel estético, la geometría general de la propuesta dialoga armónicamente con el entorno al tener una expresión minimalista. La integración en la topografía, así como la materialidad y la relación a la escala de la arquitectura circuandante existente, abogan por la integración de la propuesta dentro de su contexto dado.















Img 83. Fachada lateral 01. Fuente: Creación propia
Img 84. Fachada lateral 02. Fuente: Creación propia
El acceso
El plano municipal designa la avenida Boulevard Cristobal Colón como acceso principal al sitio. Desde lal perspectiva de la calle, el acceso a SPA DEL SILENCIO es clara. La geometría de la entrada se ha inclinado para mantener una sensación de invitación a los espacios interiores del lugar. Al llegar, el acceso remetido involucra al visitante en la narrativa de la historia.

Img. 85. Visualización 3D nocturna de la fachada principal. Fuente: Creación propia.

Img 86. Visualización 3D de la fachada principal. Fuente: Creación propia.
Experiencia
La experiencia consta de cuatro diferentes etapas agrupadas cada una en una sala específicamente adaptada a las necesidades terapéuticas que aliviarán mente cuerpo y espíritu. La nomenclatura de estas etapas se basa en la filosofía de los 4 elementos naturales: tierra, aire, agua y fuego.
Todos los tratamientos comienzan con la Sala tierra , está situada espacialmente junto a la recepción por su proximidad al acceso. Este espacio recibe cálidamente al usuario al ofrecerle amplias vistas al patio central, también se le brinda una bienvenida herbal, el menú y toda la información necesaria para el conocimiento de cómo disfrutar la experiencia en el recinto.
La Sala aire, situada estratégicamente cerca de una zona de vestidores que cuentan con casilleros para el guardado de sus pertenencias. La manera de ingresar a esta sala es totalmente independiente, con la intención de que tenga total privacidad para el objetivo de la meditación. Al estar orientada hacia el bosque, eleva el concepto de serenidad y reconexión que ofrece spa del silencio. A la sala aire le precede la Sala agua. Ubicada hacia el bosque, lo que le permite al espacio y al usuario disfrutar de remates visuales agradables en el contexto natural. Es organizado como un circuito que consiste en jacuzzi, sauna y sala de relajación con mobiliario adecuado para el reposo necesario después de la terapia de vapor. Es un espacio cuyos servicios anteceden a las terapias corporales, es por ello que espacialmente se le ubicó cerca de la sala fuego.
Sala cuyas aberturas dirigen la mirada hacia el patio central y hacia el bosque, características potenciales para la relajación en un ambiente sereno de silencios y reconexiones.




























El diseño de las circulaciones en el interior del recinto considera en su totalidad siguiendo el perimetro del patio central, elemento potencial de la propuesta del programa. Está descubierto al exterior de manera vertical e involucra factores naturales del exterior al interior del objeto arquitectónico. Es mediante un cubículo de escaleras a modo de circulación vertical que permite acceder a la planta sótano y así descender tres metros abajo del nivel de banqueta. Esto hace posible que el programa de esta planta arquitectónica conviva con mayor cercanía al nivel del suelo del bosque de donación.
Losa de azotea
Nivel N.P.T+3.80 metros
Área de construcción= 414.36 m
Simbología
Acceso
Salida
Circulación horizontal
Circulación vertical
Área vestibular







Planta baja
Nivel N.P.T 0.00 metros
Área de construcción= 373.78 m







Sótano
Nivel N.P.T-3.14 metros
de construcción=
Área de construcción total= 384.38 m
Área libre= 128.26 m


Img. 88. Axonométrico explosivo. Fuente: Creación propia.
El proyecto se vale de un recurso sustentable de notable importancia hoy en día: El patio. La filosofía de spa del silencio promueve el contacto con la naturaleza, es por ello que el empleo de varios patios, es decir, áreas libres o abiertas es una excelente alternativa biotecnológica que enriquece los ambientes de las áreas del programa arquitectónico, y, además, es una solución eficiente para el control del clima en el interior de cada espacio.
La presencia de dos árboles en el terreno marcó las pautas de diseño, ya que se tomaron en cuenta en la planeación de los espacios y en torno a ellos gira la experiencia.









Simbología
Patios
Simbología
Patios
Área libre
Img. 89. Plantas de los dos niveles que muestran las áreas libres. Fuente: Creación propia.
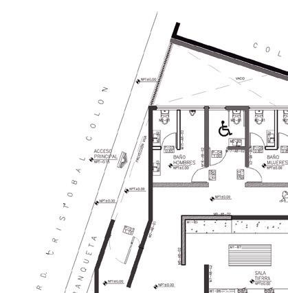
1 Recepción
2 Sala tierra
3 Baños
4 Vestidores mujeres
5 Vestidores mujeres
6 Sala aire
7 Cabina de masaje A














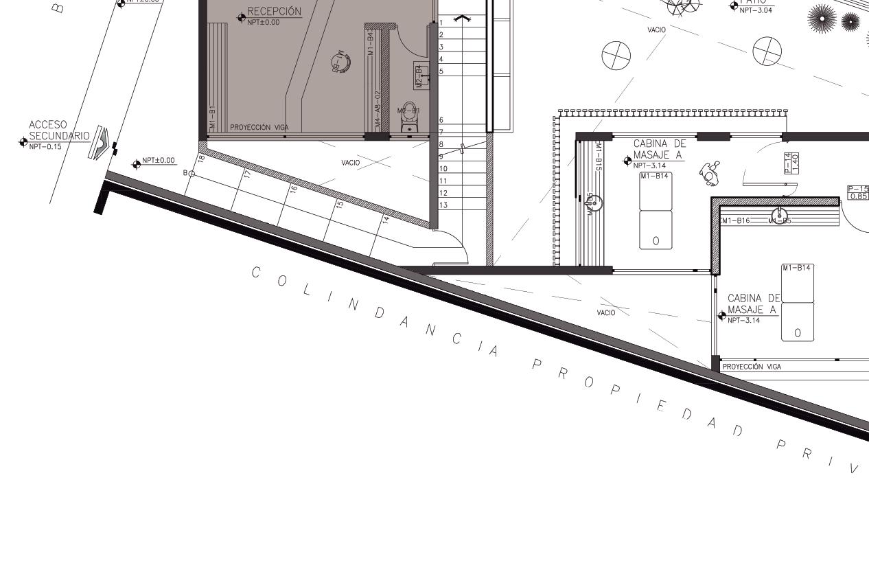
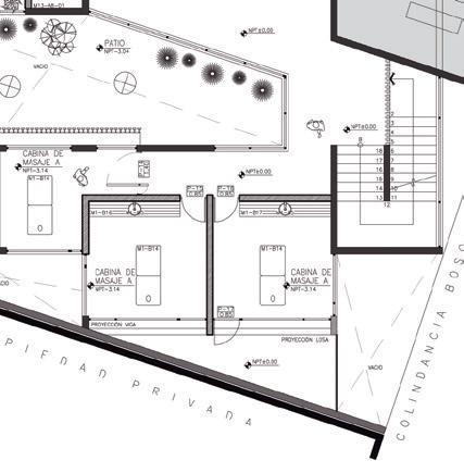
PLANTA ARQUITECTÓNICA
PLANTA BAJA NIVEL 0.00
Img. 90. Planta baja. Fuente: Creación propia.
8 Patio
9 Recepción
10 Baños
11 Duchas
12 Sauna
13 Sala relax
14 Jacuzzi
15 Cabina de masaje B
16 Administración
17 Sala de personal
18 Baños





19 vestidores
20 Cuarto de maquinas
21 Cuarto de lavado
22 Almacén









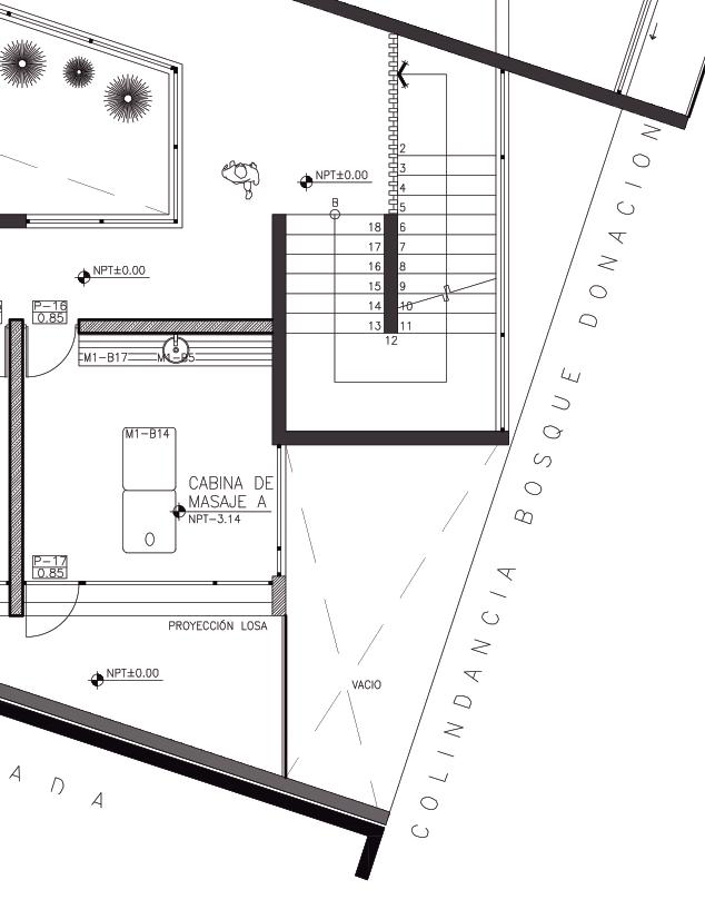
Img 91. Planta del sótano. Fuente: Creación propia.













PLANTA ARQUITECTÓNICA
PLANTA DE AZOTEA NIVEL 3.80 m
Img 92. Planta de azotea. Fuente: Creación propia.





CABINA DE MASAJE A






CABINA DE MASAJE B




SALA PERSONAL VESTIDOR M VESTIDOR H
CORTE A-A
Img 93. Corte arquitectónico A-A. Fuente: Creación propia.










VESTIDOR M

BAÑOS RECEPCIÓN




PATIO
CABINA DE MASAJE A
CABINA DE MASAJE B
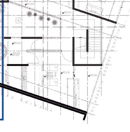
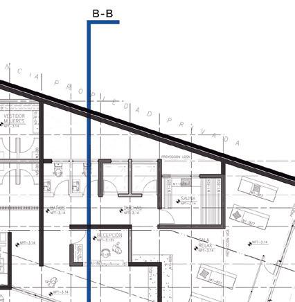
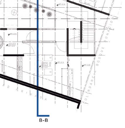
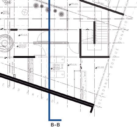
CORTE B-B
Img 94. Corte arquitectónico B-B. Fuente: Creación propia.






















CORTE C-C
Img 95. Corte arquitectónico C-C. Fuente: Creación propia.



















RECEPCIÓN

CORTE D-D
Img 96. Corte arquitectónico D-D. Fuente: Creación propia.

INTERIOR ESPACIO A
Recepción









A1-01 Madera maciza de roble acabado a barniz mate.
A3-01 Mármol mca. Arca mod. BIanco thassos clásico.
A8-01 Concreto acabado aparente enduelado.
A8-02 Microcemento acabado pulido tono gris.
L-02 Luminaria de techo mca.
Deltalight mod. Boxy R.
L-06 Luminaria arbotante mca.
Deltalight mod. Tiga in led.








A1-02
A8-01
Img 97. Axonométrico explosivo 01 del espacio A, materialidad y lámparas: Creación propia.







A1-01 Madera maciza de roble acabado a barniz mate.
A3-01 Mármol mca. Arca mod. BIanco thassos clásico.
A8-01 Concreto acabado aparente enduelado.
A8-02 Microcemento acabado pulido tono gris.
L-02 Luminaria de techo mca.
Deltalight mod. Boxy R.
L-06 Luminaria arbotante mca.
Deltalight mod. Tiga in led.









A1-02
A3-01
Img 98. Axonométrico explosivo 02 del espacio A, materialidad y lámparas: Creación propia.




Img 99. Ubicación en planta del espacio A: Creación propia.









Img 100. Planta ambientada del espacio A: Creación propia.
PLANTA AMBIENTADA RECEPCIÓN






Img 101. Corte 01 del espacio A: Creación propia.
CORTE 01 AMBIENTADO






Img 102. Corte 02 del espacio A: Creación propia.
CORTE 02 AMBIENTADO





Img 103. Visualización 3D del espacio A: Creación propia.
Img 104. Referencia en planta del espacio A. Creación propia.





Img 105. Visualización 3D del espacio A: Creación propia.
Img 106. Referencia en planta del espacio A. Creación propia.

INTERIOR ESPACIO B
Sala aire






A1-01 Madera maciza de pino acabado tinta al alcohol color Nogal Oscuro.
A1-02 Piso de madera de ingeniería mca. Natura mod. Dome.
A8-01 Concreto acabado aparente enduelado.
A8-02 Microcemento acabado pulido tono gris.
A8-03 Microcemento tono blanco cálido.
L-06 Luminaria arbotante mca. Deltalight mod. Tiga in led.







A1-02
A8-01
A8-02
A8-03 L-06
A1-03
Img 107. Axonométrico explosivo 01 del espacio B, materialidad y lámparas: Creación propia.















A1-01 Madera maciza de roble acabado a barniz mate.
A3-01 Mármol mca. Arca mod. BIanco thassos clásico.
A8-01 Concreto acabado aparente enduelado.
A8-02 Microcemento acabado pulido tono gris.
L-02 Luminaria de techo mca.
Deltalight mod. Boxy R.
L-06 Luminaria arbotante mca.
Deltalight mod. Tiga in led.
A1-02
A1-03
Img 108. Axonométrico explosivo 02 del espacio B, materialidad y lámparas: Creación propia.


























Img. 109. Ubicación en planta del espacio B: Creación propia.
Img 110. Planta ambientada del espacio B: Creación propia.
PLANTA AMBIENTADA SALA AIRE








CORTE 01 AMBIENTADO
Img 111. Corte 01 del espacio B: Creación propia.







Img 112. Corte 02 del espacio B: Creación propia.
CORTE 02 AMBIENTADO










CORTE 03 AMBIENTADO
Img 113. Corte 03 del espacio B: Creación propia.





Img 115. Referencia en planta del espacio B. Creación propia.
Img 114. Visualización 3D del espacio B: Creación propia.





Img 117. Referencia en planta del espacio B. Creación propia.
Img 116. Visualización 3D del espacio B: Creación propia.
INTERIOR ESPACIO C
Cabina de masaje A





A1-01 Madera maciza de roble acabado a barniz mate.
A1-04 Madera maciza de roble estufada.
A4-01-Aluminio tintado acabado color Bronce oscuro.
A8-01 Concreto acabado aparente enduelado.
A8-02 Microcemento acabado pulido tono gris.
L-06 Luminaria de techo mca.
Deltalight mod. Borderline Profile







A1-02
Img 118. Axonométrico explosivo 01 del espacio C, materialidad y lámparas: Creación propia.





A1-01 Madera maciza de roble acabado a barniz mate.
A1-04 Madera maciza de roble estufada.
A4-01-Aluminio tintado acabado color Bronce oscuro.
A8-01 Concreto acabado aparente enduelado.
A8-02 Microcemento acabado pulido tono gris.
L-06 Luminaria de techo mca.
Deltalight mod. Borderline Profile









A1-02
A4-01
A1-03
Img 119. Axonométrico explosivo 02 del espacio C, materialidad y lámparas: Creación propia.





A1-01 Madera maciza de roble acabado a barniz mate.
A1-04 Madera maciza de roble estufada.
A4-01-Aluminio tintado acabado color Bronce oscuro.
A8-01 Concreto acabado aparente enduelado.
A8-02 Microcemento acabado pulido tono gris.
L-06 Luminaria de techo mca.
Deltalight mod. Borderline Profile









A1-02
A4-01
A1-03
Img 120. Axonométrico explosivo 03 del espacio C, materialidad y lámparas: Creación propia.

















Img 113. Ubicación en planta del espacio c: Creación propia.
Img. 121. Planta ambientada del espacio C: Creación propia.
PLANTA AMBIENTADA CABINA DE MASAJE A





01 AMBIENTADO
02 AMBIENTADO
Img 122. Cortes 01 y 02 ambientados del espacio C. Creación propia.
CORTE
CORTE



CORTE 03 AMBIENTADO
Img 123. Corte 03 ambientado del espacio C. Creación propia.





Img 124. Visualización 3D del espacio C: Creación propia.
Img 125. Referencia en planta del espacio C. Creación propia.





Img 126. Visualización 3D del espacio C: Creación propia.
Img 127. Referencia en planta del espacio B. Creación propia.

Img 128. Visualización 3D desde el bosque donación y muestra la fachada posterior. Creación propia.













Img 129. Referencia en planta de la perspectiva hacia la fachada posterior. Creación propia.
Normativa NMX-TT-009-IMNC-2004
Universo de planos
Bibliografía
OMS (2013). Plan de acción sobre salud mental. Suiza: Organización Mundial de la Salud.
González, Mónica y Minerva, Vanegas-Farfano (2013). Los pasatiempos y sus efectos en el manejo del estrés y el Burnout. Nuevo León: UANL.
Pallasma, Juhani (2005). Los ojos de la piel. Barcelona:Gustavo Gili.
Arvelo, Alejandro (2008). Filosofía del silencio. República Dominicana: Santuario.
Períes, Lucas (2020). Esterreotomía y topología en arquitectura. Córdoba:EDUCC.
Vitruvio, Marco (1787). De architectura. Madrid: Imprenta Real.
Hemerografía
Mcgroarty, Beth (2016). 8 Wellness trends for 2017 and beyond. Global Wellness Summit, no. 140, 15-19.
Recuperado de https://www.forbes.com.mx/oms-clasifica-desgaste-y-estres-laboral-como-una-enfermedad/ Recuperado de https://www.forbes.com.mx/mexicanos-los-mas-estresados-del-mundo-por-su-trabajo/
1 OBJETO
Esta Norma Técnica Salvadoreña tiene la finalidad de establecer los requisitos básicos de calidad en instalaciones y servicios que debe cubrir un establecimiento que ofrezca servicios de salud por agua (SPA) y tratamientos terapéuticos
2 CAMPO DE APLICACIÓN
Esta Norma Técnica Salvadoreña es aplicable a todo tipo de establecimientos que proporcionen servicios de salud por agua (SPA) y tratamientos terapéuticos a nivel nacional
3 TÉRMINOS Y DEFINICIONES
Para el propósito de esta Norma Técnica Salvadoreña, son aplicables los siguientes los términos y definiciones:
3.1 spa establecimiento sanitario que ofrece la prestación de tratamientos de bienestar o sistemas de relajación utilizando como elemento principal el agua dentro de un espacio o un ambiente relajante, de salud y de bienestar. Proviene del acrónimo en latín de la frase “salus per aquam”, o sea, “salud por agua” (SPA)
3.2
establecimiento spa lugar cuyo principal objetivo es buscar el bienestar físico, mental y espiritual del individuo por medio del agua a diferentes presiones y temperaturas, y otros elementos, técnicas, servicios convencionales, como son: faciales, corporales, acondicionamiento físico, alimentación y actividades mente-cuerpo
3.3 masoterapia técnica basada en un conjunto de movimientos sistemáticos manuales o mecánicos practicados sobre los tejidos blandos y otras estructuras físicas del cuerpo humano
3.4 terapeuta persona capacitada con conocimientos especializados del cuerpo y la conducta del ser humano y técnicas profesionales en facial y corporal
3.5 tratamientos terapéuticos conjunto de prácticas, actividades mente-cuerpo y técnicas orientadas hacia el beneficio físico, mental y espiritual del individuo, tales como: Piedras calientes, faciales, aromaterapia, sauna, temazcal, talasoterapia, masoterapia etc.
3.6 talasoterapia
tratamiento terapéutico y/o preventivo usando agua de mar y sustancias extraídas directamente del medio ambiente del mar, en un sitio marino, bajo supervisión médica, la promoción del bienestar y la salud
Una combinación de elementos marinos, agua de mar, algas, lodos marinos, arenas y cualquier otra sustancia extraída directamente desde el entorno de mar se puede utilizar
[FUENTE: Norma ISO 17680:2015, definición 2.11]
4 TIPOS DE SPA
4.1 Spa de destino-resort
Establecimiento spa cuyo objetivo es el de proveer de manera integral un programa para mejorar la calidad de vida del cliente, incluyendo servicios como: hospedaje, alimentación sana, corporales, faciales, hidroterapia, conexión mente-cuerpo y acondicionamiento físico
4.2 Spa de hotel o de amenidad
Establecimiento spa que forma parte de las instalaciones de un hotel, se considera un servicio adicional para satisfacer las expectativas del huésped que quiere disfrutar de sus vacaciones.
4.3 Spa de un día
Establecimiento donde se otorgan servicios de spa de un solo día, enfocados a mejorar la calidad de vida; no ofrece hospedaje
4.4 Spa de club
Establecimiento spa cuyas actividades se desarrollan dentro de las instalaciones de un gimnasio o un club deportivo. Cuenta con áreas de acondicionamiento físico y algunas áreas especiales donde se ofrecen los servicios de spa.
4.5 Spa médico
Establecimiento spa dirigido por médicos, donde el objetivo es promover la recuperación física-mental y prolongar la vida activa del ser humano.
4.6 Spa termal
Establecimiento spa que cuenta con una fuente natural de agua mineral o termal, la cual se ofrece a través de tinas, baños de burbujas, baños con masaje, duchas y vaporizaciones, y/o servicios convencionales.
4.7 Spa con termalismo marino
Establecimiento spa que cuenta con instalaciones donde la utilización integral del medio marino natural es la base. La parte fundamental de los servicios es el agua de mar, las arenas, limos marinos y algas, además de ofrecer servicios spa convencionales.
4.8 Spa holístico
Establecimiento spa donde se ofrecen diferentes alternativas que contribuyen al equilibrio entre cuerpo, mente y espíritu. Los servicios que se brindan están relacionados con el manejo de energía, conciencia del ser y desarrollo humano, además de los servicios spa convencionales.
5 ORGANIZACIÓN
5.1 Requisitos generales
El establecimiento debe:
a) contar con documentos que demuestren que es una entidad legal;
b) contar con una estructura organizacional documentada;
c) contar con procedimientos operativos y los debidos registros que permitan verificar la operación del establecimiento;
d) contar con personal que tenga la capacitación, conocimiento y experiencia necesarios, para realizar sus funciones tomando en cuenta el tipo y volumen del trabajo asignado;
e) asegurar por medio de registros internos que el personal cumpla con lo establecido en las políticas y procedimientos de la organización;
f) contar con un reglamento de uso que se exhiba en el área de recepción y en las áreas comunes del establecimiento, para su conocimiento por parte del personal y los clientes, donde se estipulen los siguientes puntos básicos:
prohibido fumar;
prohibida la entrada a niños menores de 12 años; (cuando aplique)
prohibido ingerir bebidas alcohólicas;
declarar cualquier situación relevante relacionada con su estado de salud en el momento del registro (Ver anexo);
prohibido introducir alimentos; y
otras regulaciones que apliquen a la actividad y políticas del establecimiento
g) contar con un reglamento interno que incluya un código de buenas prácticas en el trabajo, el cual debe de ser firmado y respetado por todo el personal del establecimiento y debe contemplar por lo menos los siguientes puntos básicos:
arreglo personal, apariencia y uniforme impecable; respetar instalaciones del lugar, en cuanto al buen uso de las mismas;
uso correcto de cualquier tipo de equipo utilizado en el servicio; cumplir con el horario establecido de trabajo y de descanso;
confidencialidad en el manejo de cualquier información relacionada con el cliente; confidencialidad en el uso del sistema operativo e información interna, (sistema de cómputo, sistemas de control, o cualquier sistema que se implemente o desarrolle dentro del establecimiento);
actitud responsable y de respeto hacia clientes y compañeros de trabajo;
amabilidad, calidez y respeto tanto en la actitud como en el desempeño de sus actividades; capacitación y actualización constante respecto a técnicas y productos de vanguardia; y aplicar un programa de mejora continua basado en herramientas tales como encuesta de satisfacción de clientes y recomendaciones emanadas del personal.
h) manual, equipo y materiales de seguridad industrial y primeros auxilios;
i) dar la debida capacitación e inducción en el tema de seguridad industrial y contar con los debidos registros.
Literal i) debe cumplirse según “Ley General de prevención de riesgos en los lugares de trabajo”.
5.2 Del personal
El establecimiento debe:
a) contar con personal cualificado en las actividades que desempeñe;
b) tener disponibles para el personal, instrucciones documentadas claramente, en las que se describan sus deberes y responsabilidades; estas instrucciones deben mantenerse actualizadas;
c) definir, asegurar y documentar el mínimo de criterios pertinentes para la cualificación del personal;
d) realizar de manera periódica la evaluación y capacitación en todas sus áreas, de tal manera que asegure la competencia del personal para proporcionar sus servicios; y
e) mantener un registro con la información relevante y actualizada sobre la cualificación, capacitación y experiencia de cada miembro del personal involucrado en el servicio proporcionado por el establecimiento.
5.3 Subcontratación
Cuando el establecimiento decida subcontratar trabajo relacionado con la prestación de sus servicios a una organización o persona externa, debe establecer un acuerdo debidamente documentado asegurándose que la subcontratación cumpla los requisitos establecidos en esta norma
El establecimiento debe:
a) tomar la responsabilidad total de dicho trabajo subcontratado y asegurar que se brinde el servicio ofrecido;
b) asegurar que la organización o persona subcontratada cumple con los requisitos de cualificación establecidos; y
c) la organización o personal subcontratado deberá sujetarse a los procedimientos, instrucciones, reglamento interno y código de buenas prácticas del establecimiento.
5.4 Atención de quejas y sugerencias
El establecimiento debe:
a) mantener en un lugar visible un buzón de quejas y sugerencias, debidamente rotulado;
b) asegurar que cualquier queja o sugerencia sobre los servicios proporcionados sea atendida y resuelta con prontitud;
c) comunicar a todo el personal las quejas y sugerencias; y
d) mantener registros de atención y seguimiento de las quejas y sugerencias
5.5 Áreas generales
5.5.1 Área de recepción
El establecimiento debe contar con instalaciones con la debida accesibilidad1, mobiliario y equipo necesario para ofrecer los siguientes servicios:
a) información, registro, citas y reservaciones;
b) recepción de clientes y sala de espera;
c) caja de seguridad; y
d) venta de producto (área de exhibición opcional).
5.5.2 Área de casilleros y vestidores
El establecimiento debe tener un área donde se cuente con casilleros individuales y seguros y un área para vestidores.
5.5.3 Áreas de higiene y aseo personal
El establecimiento debe tener un área de higiene y aseo personal equipada con: lavamanos, tocadores, regaderas, sanitarios, recipiente de basura, depósito de blancos limpios y sucios, así como con productos básicos de cortesía como jabón, champú y similares.
5.5.4 Área para personal operativo
El establecimiento debe contar con al menos las siguientes facilidades para su personal operativo:
a) vestidores con casilleros individuales y seguros;
b) lavamanos y espejo;
c) sanitarios;
d) regaderas;
e) espacio de descanso;
f) bodega; y
g) ropería
1 Ver Norma NTS 11.69.01:14 Accesibilidad al medio físico. Urbanismo y Arquitectura. Requisitos.
6 ÁREAS BÁSICAS
El establecimiento puede tener por lo menos las siguientes áreas de trabajo según su oferta de servicios:
a) área seca;
b) área húmeda;
c) área de relajación;
d) área de acondicionamiento físico;
e) área de alimentación y/o jugos;
f) área de belleza; y
g) área de evaluación médica
El establecimiento adicionalmente puede contar con una cabina multiusos con las instalaciones necesarias para proporcionar los servicios de:
a) diagnóstico y consulta estética;
b) consejos de nutrición y dietética; y
c) consejos sobre ejercicios.
6.1 Servicios básicos por área
6.1.1 Área seca
El establecimiento puede ofrecer el servicio facial de limpieza de cutis, además de algunos de los siguientes servicios específicos:
a) limpieza profunda;
b) tonificante;
c) nutritivo;
d) hidratante; y
e) reafirmante.
El establecimiento puede ofrecer algunos de los siguientes servicios corporales específicos:
a) relajación;
b) drenaje linfático;
c) energético; y
d) sauna seco.
6.1.2 Área húmeda
El establecimiento puede ofrecer algunos de los siguientes servicios corporales:
a) exfoliaciones;
b) envolventes;
c) lodos;
d) arcillas;
e) fangos;
f) algas;
g) herbales;
h) parafinas; e
i) hidroterapia
6.1.3 Área de acondicionamiento físico
El establecimiento puede ofrecer algunos de los siguientes servicios:
a) estiramiento;
b) pesas libres;
c) aeróbicos;
d) elasticidad;
e) cardiovascular;
f) actividades en agua;
g) yoga; y
h) pilates
6.1.4 Área de alimentación y/o jugos
El establecimiento puede ofrecer agua envasada y por lo menos algunos de los siguientes alimentos o bebidas:
a) jugos naturales;
b) infusiones;
c) ensaladas;
d) frutas; y
e) alimentos orgánicos.
6.1.5 Área de belleza
El establecimiento puede ofrecer algunos de los siguientes servicios:
a) manicura;
b) pedicura;
c) depilación;
d) parafina manos y pies;
e) cuidado de cabello;
f) maquillaje; y
g) otros relacionados
6.1.6 Área de evaluación médica
El establecimiento debe asegurarse de las condiciones de salud en las que ingresa el cliente, por lo que puede ofrecer el servicio de valoración o en su defecto, se debe llenar una hoja registro con la información básica la cual debe ser firmada por el cliente (Ver Anexo)
6.2 Instalaciones básicas por área
6.2.1 Área seca
En esta área se pueden ofrecer servicios en cabinas de faciales y cabinas para tratamientos corporales, con las siguientes instalaciones básicas:
a) lavamanos;
b) iluminación y ventilación adecuada;
c) instalación eléctrica;
d) mobiliario y equipo adecuado para la prestación del servicio (camilla, banco, mesa auxiliar, etc.); y
e) medida mínima de cabina de facial o corporal de 1,75 m x 2,50 m
6.2.2 Área húmeda
Esta área debe cumplir con las siguientes instalaciones básicas:
a) iluminación y ventilación adecuada
b) piso antideslizante;
c) sistema de drenaje adecuado;
d) mobiliario y equipo adecuado; y
e) barras de seguridad;
También, en esta área se pueden ofrecer las siguientes instalaciones:
a) sauna de vapor;
b) jacuzzi;
c) tina de hidromasaje múltiple o individual;
d) circuito de regaderas;
e) suministro de agua a diferentes temperaturas.
6.2.3 Área de relajación
El establecimiento puede contar con un espacio donde el cliente pueda descansar, leer y esperar su siguiente servicio y debe contar con mobiliario adecuado.
6.2.4 Área de acondicionamiento físico
Espacio donde se encuentran opcionalmente instalaciones deportivas, gimnasio con equipo adecuado y en buen estado y albercas techadas o al aire libre con su debido plan de mantenimiento y prevención.
6.2.5 Área de alimentación y/o jugos
Instalación donde se ofrece y orienta sobre una alimentación equilibrada y saludable, se puede contar con una barra de jugos, cumpliendo con los requisitos regulatorios de higiene y manipulación de alimentos.
En el caso de que opere un restaurante este deberá estar autorizado por la entidad correspondiente.
6.2.6 Área da belleza
El área de belleza debe estar separada del área de los servicios y debe contar con mobiliario y equipo necesarios para ofrecer los servicios mencionados en el apartado 6.1.5 de esta norma
6.2.7 Área de evaluación médica
Esta área debe contar con mobiliario y equipo necesario para realizar una valoración general del cliente
6.3 Servicios adicionales
6.3.1 Orientaciones
El establecimiento puede ofrecer y contar con las instalaciones adecuadas para algunas de las siguientes orientaciones, ya sea individuales o de grupo a través de las herramientas tales como: charlas, material impreso, video entre otros, respecto a temas como:
a) ejercicio;
b) manejo de estrés;
c) alimentación sana;
d) conciencia corporal;
e) imagen personal; y
f) todo lo que ayude a mejorar el estilo de vida.
6.3.2 Programa de clases especiales
El establecimiento puede ofrecer y contar con las instalaciones adecuadas para algunas de las siguientes clases especiales, ya sea individuales o de grupo:
a) aeróbicos;
b) aquaeróbicos;
c) baile;
d) estiramiento;
e) tai chi;
f) yoga;
g) meditación; y
h) manualidades
6.4 Productos
Los productos empleados y comercializados dentro del establecimiento deben cumplir con los registros y permisos necesarios cuando la legislación lo requiera.
Universo de planos
