

RECONEXIÓN
CENTRO COMUNITARIO EN XALAPA, VERACRUZ.
Tesis para obtener el título de licenciado en Arquitectura
Presenta
Miguel Rivas Meza
Asesor Arq. Rocío de Cristal Hernández Reza

MARCO REFERENCIAL: MODELOS ANÁLOGOS.
INTRODUCCIÓN.
KU.BE - CASA DE LA CULTURA EN MOVIMIENTO.
CENTRO DE DESARROLLO COMUNITARIO LOS CHOCOLATES.
CENTRO COMUNITARIO CHONGQING, TAOYUANJU. TABLA DE SÍNTESIS. ANÁLISIS DE SITIO MACRO. ANÁLISIS DE SITIO MICRO. PERFIL DEL USUARIO.
PRESENTACIÓN. PROGRAMA ARQUITECTÓNICO. DIAGRAMA DE FUNCIONAMIENTO. CONFIGURACIÓN VOLUMÉTRICA. FUNCIONAMIENTO. DESARROLLO DEL PROYECTO. Plaza de acceso. Centro de salud. Comedor comunitario. Educación y capacitación. ESTRUCTURA
Sobre estructura SUSTENTABILIDAD. CONCLUSIÓN.
05 06 CAPÍTULO V. PROYECTO: RECONEXIÓN - CENTRO COMUNITARIO. ANEXOS.
BIBLIOGRAFÍA. ÍNDICE DE IMÁGENES. ÍNDICE DE PLANOS. Arquitectónicos. Estructurales. Instalaciones.


IMÁGEN 001. Vista de las colonias periféricas de la ciudad de Xalapa, Veracruz con el Pico de Orizaba de fondo.
INTRODUCCIÓN
El motivo principal de esta investigación, proviene del interés de brindar equipamiento urbano a los sectores más desfavorecidos y relegados de la ciudad. La colonia El Moral; al norte de la ciudad de Xalapa, Veracruz se presenta como un escenario ideal debido a sus características y problemas, los cuales presentan una muestra de aquellos que aquejan a la ciudad en general. Desigualdad, inseguridad, falta de oportunidades, y la necesidad de espacios dedicados a la sana convivencia y esparcimiento. Es la creación de espacios públicos incluyentes, seguros, multisensoriales y multifuncionales un tema recurrente en la arquitectura del siglo XXI; a través de la recuperación y el mejoramiento de espacios ya sea en decadencia o en abandono. Es tarea del arquitecto aportar proyectos que generen bienestar común a la sociedad. El centro comunitario es un espacio de encuentro, que brinda cercanía, que genera experiencias y oportunidades de crecimiento. Es un lugar que te conecta con tus semejantes, con el objetivo de generar una comunidad que brinde apoyo, seguridad y motivación. Un recinto de aprendizaje, experimentación y recreación. El centro comunitario es sinónimo de diversidad, tanto en la conformación de su programa arquitectónico como en la población a la que atiende. Este espacio se dirige a los habitantes de la colonia El Moral, quienes buscan un espacio que aporte distintas formas de hacer uso del espacio público, diversas actividades con distintos enfoques; distintos usuarios con diversos intereses, cualidades y características interactúan, de maneras que bajo otras circunstancias no lo harían.
El centro comunitario ha formado parte de los espacios dedicados a asistir a la población más vulnerable. Sin embargo, los últimos 20 años han servido para hacer de éste un espacio colaborativo, de aprendizaje y recreación. El programa arquitectónico extenso ha ido evolucionando a uno más compacto, al maximizar espacios mediante usos múltiples. Es esta flexibilidad, la que logra la adaptación del espacio al usuario. Se enfrenta al estigma de ser un espacio dedicado exclusivamente a la asistencia social y relegado siempre a la clase económica baja. Sin embargo, este es un detonante de acción colaborativa entre diversos perfiles de la sociedad que conviven en su interior y aportan cada quien su punto de vista al tratar de resolver problemáticas comunes. Un espacio definido a partir del usuario, tomando en cuenta sus características y sus necesidades. La recuperación y mejoramiento del espacio público son inherentes al proyecto, pues las características del sitio lo requieren. Esto como respuesta a resolver problemas que afectan a la ciudad actual y aquellos que la arquitectura por definición trata de resolver. En el proceso de presenta la oportunidad de crear un espacio incluyente, detonante de procesos de cambio. Un espacio democrático donde todas las opiniones importan y son tomadas en cuenta.

PRESENTACIÓN DEL TEMA
Ante el aumento de la población, la ciudad se extiende y como un ser vivo, crece y se expande. Sin embargo, esta ha sufrido un crecimiento desmedido y desorganizado. La ausencia de planeación tiene su origen en la década de los 60, cuando la ciudad de Xalapa comenzaba un crecimiento desmedido con la aparición de asentamientos irregulares al norte de esta. (Rodríguez, H., 2014).
El crecimiento demográfico acelerado y desigual de la ciudad trae diversos problemas. Según Rodríguez (2014) estas problemáticas son “ineficiencia del espacio urbano(…), alejamiento de las poblaciones respecto de la infraestructura y mercado laboral; esto aumenta la necesidad de mayores inversiones en infraestructura; genera impactos indeseables sobre el entorno natural, las áreas productivas y los recursos hídricos; suscita deforestación y pérdida de áreas de recarga de los mantos freáticos; genera poblamiento de zonas no aptas para uso residencial; y da pie a la formación de asentamientos e instalaciones en lugares poco apropiados.”
IMÁGEN 002. Vista del cerro de Macuiltepec en la ciudad de Xalapa, Veracruz, muestra la alta densidad característica de los barrios populares.
La expansión urbana ha ocurrido a costa de áreas verdes. La falta de una cohesión, atenta directamente contra estos espacios de la ciudad, que poco a poco desaparecen dentro de la mancha urbana. De nuevo, son las zonas marginadas las cuales sufren por la inexistencia de un oasis en medio de tanto concreto que inunda las calles. Existe un gran contraste entre las distintas zonas de la ciudad. Y es en las más desfavorecidas, donde el equipamiento urbano deficiente y de baja calidad es una característica. Para colocar en contexto a la zona de estudio; la colonia El Moral se localiza al norte de la ciudad de Xalapa, delimitada por la calle Río Amazonas al sur y al norte por la avenida Lomas Verdes, siendo esta la última frontera de la ciudad.
Y pareciera formar parte de otra ciudad a la que la capital ignora. El conjunto de estas colonias forman parte de una ciudad invisible, la cual Pérez Rubio (2017) define como:
Hay dos ciudades: la visible y la invisible. La ciudad visible es la que sale en las revistas de arquitectura y en televisión, (…) pero la mitad de la población de México vive en una ciudad que no tiene agua, ni servicios, donde la vialidad es nula y el transporte público es muy deficiente: esa es la ciudad invisible”. El proyecto plantea dos puntos principales para promover el mejoramiento de la zona. El primero es la regeneración del tejido social mediante la intervención a un espacio en desuso. El mejoramiento de un espacio en abandono que actualmente es considerado un foco de delincuencia y su transformación en un espacio de aprendizaje, cultura y recreación; plantea un cambio en el paradigma de la arquitectura social. El segundo es la propuesta de un proyecto que atiende las necesidades de la población, con el fin de lograr una apropiación del espacio público que dignifique las zonas de la ciudad más marginadas. Solo así se logra un sentido de pertenencia a una ciudad que ha relegado a las clases menos favorecidas.
JUSTIFICACIÓN
La rápida expansión de las ciudades debido a la alta demanda de vivienda, trae consigo un crecimiento urbano desordenado. La falta de planificación ocasiona una desarticulación entre las diversas zonas de la ciudad. Este desordenamiento territorial es un problema de esta ciudad. Al crecer de manera desmedida y sin obedecer un plan de desarrollo urbano ha creado zonas marginadas donde se concentran problemáticas que afectan a la sociedad. El alto índice de delincuencia, la violencia y la pobreza extrema son resultado de esta desarticulación y falta de pertenencia a un grupo social por parte de los habitantes de la comunidad. Es tal el grado de marginación en las zonas más alejadas, que no se cuenta con los servicios básicos suficientes como salud y educación; además de la falta de espacios dedicados a la convivencia, el deporte y la recreación. En respuesta a los anteriores problemas, surge la necesidad de un centro comunitario que reúna ciertas características necesarias para el crecimiento y desarrollo de la población. Atención médica como respuesta a una población con una deficiencia en la calidad de vida y diversos problemas en la salud. Así como promover hábitos de vida saludables que promuevan la prevención de enfermedades crónicas. Educación mediante talleres, cursos y clases de apoyo para una población con una baja escolaridad, debido a los altos índices de deserción. Así como el fomento tanto a la cultura como el deporte. Mediante la creación y habilitación de espacios que sirvan como plataforma de los jóvenes talentos que existen y que, por falta de oportunidades, muchas veces no logran desarrollar ni explotar sus habilidades. El espacio público bien diseñado es esencial en la creación de un tejido social en la comunidad. Es el encargado de reunir a la comunidad y crear una conexión y un sentimiento de pertenencia que fomente la unión y sea un detonante de cambio para sus habitantes.
IMÁGEN 003. Vista aérea del Paseo de los Lagos, una de las áreas verdes recreativas de la ciudad de Xalapa, Veracruz.
OBJETIVO GENERAL
El proyecto plantea dos puntos principales para promover el mejoramiento de la zona. El primero es la regeneración del tejido social mediante la intervención a un espacio en desuso. El mejoramiento de un espacio en abandono que actualmente es considerado un foco de delincuencia y su transformación en un espacio de aprendizaje, cultura y recreación; plantea un cambio en el paradigma de la arquitectura social. El segundo es la propuesta de un proyecto que atiende las necesidades de la población, con el fin de lograr una apropiación del espacio público que dignifique las zonas de la ciudad más marginadas. Solo así se logra un sentido de pertenencia a una ciudad que ha relegado a las clases menos favorecidas.
El desarrollo del proyecto del centro comunitario que involucre a el usuario en su concepción, desarrollo y materialización, logrando que la propuesta atienda las necesidades de los diversos perfiles de sus usuarios. La flexibilidad y la adaptabilidad del proyecto deben ser inherentes a éste, con el fin de crear una pertenencia con la comunidad al brindar un espacio público bien diseñado y adaptado a su entorno. Solo así es posible la regeneración urbana: por medio de la recuperación de espacios residuales y en desuso. Lo cual brinda equipamiento a las zonas periféricas y desconectadas del centro urbano; con el fin de mejorar la calidad del espacio público y por consiguiente la calidad de vida de sus habitantes.


OBJETIVOS SECUNDARIOS
• Definir el centro comunitario como un detonante de mejoramiento en la calidad del espacio público, rompiendo así con el paradigma que representa su uso en zonas marginadas y conviertiéndolo en parte de un plan de desarrollo urbano. Esto como un paso hacia mejorar la calidad de vida de las ciudades.
• Proporcionar una propuesta formal que tome en cuenta los valores culturales y adaptándolo al contexto que lo envuelve, con un lenguaje contemporáneo del siglo XXI. Tomando en cuenta las relaciones e interacciones de la zona y los fenómenos urbanos que la afectan.
• Recuperar las áreas verdes y permitir su integración con la ciudad por medio de su penetración en el edificio y no solo como una vista distante. Su preservación habla de la importancia de la huella ecológica del proyecto. Además de la sustentabilidad que representa su mantenimiento, mediante la incorporación de técnicas de recolección y tratamiento de aguas pluviales y residuales se normaliza el uso de estas tecnologías. Ejemplificando las diversas formas en que pueden ser aprovechados estos recursos.
Mediante la propuesta del centro comunitario se busca mejorar la relación de la comunidad con su entorno, y la comunidad entre sí, para mejorar la convivencia y la conciencia colectiva.
IMÁGEN 004. Parque Miguel Hidalgo, o parque de Los Berros, el primer parque público de la ciudad y uno de los más concurridos.


Capítulo I. EL CENTRO COMUNITARIO A PARTIR DEL SIGLO
IMÁGEN 005. “Pabellón
Centro Comunitario” es una estructura efímera conformada por un conjunto de tabiques de tierra apisonada que se transformarán en un Centro Comunitario en Ocuilan.
“Como arquitecto diseñas para el preseñte, coñ coñcieñcia del pasado, para uñ futuro eseñcialmeñte descoñocido."
-Norman Foster.

EL ORÍGEN DEL CENTRO COMUNITARIO
El centro comunitario es un espacio donde los miembros de una comunidad se reúnen para realizar diversas actividades con distintos enfoques: educativos, culturales, sociales o deportivos. Estos varían de acuerdo a la comunidad. Pueden ser espacios abiertos a la población en general o a un grupo específico; ya sean reuniones sociales para festejos locales, juntas informativas o la organización de actividades en beneficio de la misma.
Estos lugares de convivencia que servían la necesidades educativas, sociales y recreativas de un conjunto de habitantes que al unirse formaban una comunidad consciente de sus problemas y necesidades. Usualmente eran las escuelas públicas las encargadas de alojar estas actividades. Fuera del horario escolar, los salones que alojaban clases durante la mañana, se convertían en espacios de convivencia y apoyo para todas las edades. Los gimnasios y canchas deportivas abrían sus puertas para promover el deporte y la actividad física.
IMÁGEN 006. La Casa de Oración, un proyecto de centro comunitario en Ecuador; es un espacio que ayuda al desarrollo personal, espiritual y emocional del ser humano.
Mary Parker Follet forma parte importante en el establecimiento y desarrollo del centro comunitario como una importante forma social y educativa. Follet (1918) definía al centro comunitario como instituciones para superar la apatía civil, el entendimiento mutuo entre grupos y la integración de grupos con diversos intereses por el bien común.
ANTECENDENTES HISTÓRICOS
Es a principios del siglo XX, cuando comienzan a aparecer los centros comunitarios, En 1907 en Rochester, Nueva York comienza una campaña para organizar estos espacios sociales. Para el año de 1930, existían casi 500 centros con más de cuatro millones de personas atendido regularmente. (The history behind, 2015).
“El centro comunitario es una comunidad organizada por su propio bienestar social, político y de expresión. Para descubrir sus necesidades sociales y satisfacerlas, ya sean en temas políticos, de salud, recreativos, de educación o laborales. Tal organización de la comunidad es necesaria si se busca triunfar y mantener una sociedad democrática.” (Childs, 1912). El centro comunitario comenzaba a ser un vehículo de la inclusión social y democracia y buscaba ser la respuesta a la búsqueda del bienestar de la sociedad. El gran interés de crear un espacio dedicado exclusivamente al desarrollo y bienestar de la comunidad fue expandiéndose hasta formar parte de un plan de desarrollo de la ciudad. Después de la Segunda Guerra Mundial, el centro comunitario pasó de ser un servicio social a tomar un enfoque más educativo. (The history behind, 2015)
A continuación, se presenta una compilación de proyectos que describen la historia de cómo el centro comunitario se ha convertido poco a poco en la nueva forma de habitar el espacio público. Además de los cambios que ha sufrido de acuerdo a las formas de convivir de la comunidad y como es importante en el desarrollo de las ciudades.

IMÁGEN 007. Stephanuskirche por Alvar Aalto funge como una iglesia que reune a la población y ofrece un espacio para las actividades de la comunidad: biblioteca, cocina, áreas de usos múltiples componen el proyecto de 1968.

CENTRO COMUNITARIO DAVID P. WOHL,1959.
En 1959, parte de una estructura de piedra que pertenecía a un colegio destruido por un incendio fue reutilizado para la construcción del centro comunitario David P. Wohl. Ubicado en el parque Sherman en la ciudad de San Luis, Missouri, este sería adaptado para el desarrollo de la comunidad por medio de un espacio para la generación de nuevos vínculos a través de espacios con fines sociales y recreativos. El centro comunitario es complementado por el parque que lo rodea y lo llena de espacio verdes para la recreación incluso cuando el centro comunitario no está en funcionamiento. Las canchas deportivas del parque se complementan con un gimnasio dentro del centro comunitario.
IMÁGEN 008. Fachada principal del edificio en el lado suroeste desde la calle Kingshighway.


IMÁGEN 009. Fachada sureste del edificio desde la avenida Matin Luther King en San Luis, Moisuri.
IMÁGEN 10. Vista interior de la piscina contenida por el bloque traslúcido de la imagen superior.
Mediante un lenguaje moderno, transmite innovación y modernidad a una ciudad en desarrollo y crecimiento. La utilización de líneas simples y volúmenes limpios contrastan con los muros de piedra de la estructura original del colegio y su pasado trágico. Muros traslúcidos a base de ladrillos de vidrio son los encargados de iluminar los espacios más amplios. Es importante la transición en ese entonces, del centro comunitario, de un ser espacio adaptado para albergar este programa a un lugar diseñado deliberadamente para su uso como centro comunitario. David P. Wolh no es el primer centro comunitario, pero si representa los ideales de una nueva era en el desarrollo de esta tipología arquitectónica y su importancia en el desarrollo y planeación de nuevo barrios.
CENTRO DE LA COMUNIDAD JUDÍA, 1968.

El Centro Comunitario Judío está situado en Trenton, una ciudad en Nueva Jersey, Estados Unidos. El proyecto consiste en el acceso al área que envuelve una piscina y un área de espacios deportivos y recreativos. Es formado por una planta ortogonal de cuatro cuadrados de bloc de concreto organizados alrededor de una plaza central. Si bien, no representa un punto de inflexión en la historia del centro comunitario, si lo es en la carrera del arquitecto Louis Kahn quien lo diseñó. “El mundo me descubrió después de haber diseñado el edificio de Laboratorios Richards, pero yo descubrí quien era después de diseñar aquel pequeño bloque de baños de concreto en Trenton.” La interpretación de este proyecto no es más que la forma de liberar el espacio de aquello que lo contiene.
IMÁGEN 011. Vista frontal del conjuto de bloques propuesto por Louis Kahn.


Una estructura de madera en forma piramidal cubre cada uno de los espacios, pero ninguno está completamente cubierto. La parte superior de estas pirámides es abierta, permitiendo la entrada de luz, entendiendo esto como un espacio no aislado, sino que se envuelve por el entorno, no rechaza la naturaleza que lo rodea sino que busca incluirla por medio de la luz que inunda el espacio. Difuminando la línea entre el espacio interior y exterior, se definen nuevos usos.
Es parte de un plan más amplio incompleto; sin embargo es un ejemplo de como crear espacios simples y funcionales con un bajo presupuesto. Enuncia principios del movimiento moderno, al no existir puntos de apoyo innecesarios en una planta libre.
La cubierta casi flota por encima del edificio permitiendo la circulación del aire en todos los espacios y evitando la acumulación de olores y humedad en el interior de los espacios húmedos.
Utilizando los muros divisorios y columnas como espacios funcionales que permitieran otros usos ya sea como almacenamiento o como contención de muebles sanitarios complementando la función de los espacios servidos. Esta flexibilidad y transformación de los espacios y estructura sigue vigente en el desarrollo de espacios para la comunidad, que permitan diversos usos en espacios reducidos y que aporten una amplia gama de funciones.
IMÁGEN 012. Vista frontal del conjunto de bloques de concreto propuesto por Louis Kahn, el paisaje también forma parte del plan maestro desarrollado para el proyecto.
IMÁGEN 013. Corte transversal en el cual se aprecian los muros como elementos aparte de la cubierta de madera y la abertura que permite la entrada de luz en esta.
CENTRO CULTURAL COMUNITARIO SESC POMPEIA, 1986.
El Servicio Social de Comercio, (SESC por sus siglas en portugués) es una entidad privada brasileña encargada de proveer bienestar social a los trabajadores de este sector y sus familias. Describen su modelo de acción como importante en la transformación social. En Sao Paulo, cuentan con una red de 43 centros destinados a la cultura, el deporte, la salud y alimentación, el desarrollo infantil y juvenil, la tercera edad, el turismo social y otras áreas de actuación. Ubicado cerca del centro de la ciudad de Sao Paulo en Brasil y al norte de la misma, se encuentra Vila Pompéia, un barrio industrial de clase media. La rápida urbanización de la ciudad, llevó al deterioro y abandono. Es años después cuando SESC Pompéia transforma una antigua fábrica de barriles de petróleo en un espacio de ocio, cultura, arte, deporte y educación. Como parte de la rehabilitación de los espacios públicos en el barrio de Pompéia y la intención de mejorar estos lugares que han sido abandonados e ignorados.
IMÁGEN 014. Bibliioteca y espacio para exposiciones al interior dela antigua la fábrica de barriles de petróleo, reformada para el proyecto de Lina Bo Bardi.


SESC Pompéia retoma la fábrica y la remodela para incluir en su programa arquitectónico talleres artesanales, estudio de música y salas de baile, un teatro, una biblioteca, un espacio de exposiciones, zona administrativa y un restaurante con un bar.
Se construyen dos grandes volúmenes de concreto aparente manteniendo la estética de la fábrica. Estos son dedicados completamente al deporte: piscina, gimnasio, canchas deportivas, salas de gimnasia y baile; ambos conectados por diversos puentes que articulan por medio un corredor de acceso el cual flota sobre un espacio no edificable, debido al paso de un río subterráneo. Este corredor es abierto al público en general e invita al peatón a involucrarse y cohabitar el espacio brindando nuevas experiencias.
Es sorprendente el valor que aporta la revitalización de un espacio en abandono que reconoce su contexto y es capaz de integrarlo en un espacio dedicado a la convivencia y el desarrollo integral del barrio. Sus usuarios lo aceptan y lo incluyen como parte de su vida cotidiana y este juega un rol importante en su formación personal. SESC Pompéia acepta su pasado y lo convierte en un futuro adaptado a las necesidades actuales.
IMÁGEN 015. Fotografía desde el corredor de acceso, de fondo se puede observar el conjunto de edificios y los puentes que los conectan.
IMÁGEN 016. Vista del corredor de acceso, se observa las antiguas fábricas que fueron tranformadas en el centro comunitario.
IMÁGEN 017. Detalle de la cubierta y la estructura de bambú que la soporta.
IMÁGEN 018. La forma orgánica de la cubierta del centro comunitario Naiju responde a las condiciones climáticas.


CENTRO COMUNITARIO NAIJU, 1994.
Shoei Yoh, es el arquitecto japonés que en la década de 1990 diseña dos centros comunitarios en la prefectura de Fukuaka, Japón. El primero en la pequeña ciudad de Chikuho, cimentaría su reconocimiento y lo llevaría a proyectar el centro comunitario en Uchino con formas orgánicas que se mimetizan con su entorno. Estas formas son consecuencia del análisis de los diferentes climas en la región: reduce la incidencia del sol en verano mientras permite una eficiente circulación del aire. En invierno es capaz de soportar y distribuir el peso de la nieve que se acumula en su superficie. Conocidos como kominkan en Japón, los centros comunitarios, forman parte esencial en la formación de los estudiantes japoneses. Se trata de espacios de reunión para personas de la tercera edad, así como una guardería; estos sirven como espacios de convivencia entre dos generaciones que promueven la comunicación y el intercambio educativo de ideas.



IMÁGEN 019. Proceso de armado de la estructura de bambú, desde la malla hasta su apuntalamiento y deformación.
IMÁGEN 020. Vista del proyecto en Mason’s Bend y su contexto.
IMÁGEN 021. Corte y detalle de la fachada del proyecto, muestra la estructura y la sobre estructura de cristal.

La pequeña comunidad que atiende este proyecto se vuelve un componente esencial en su realización, la misma apoya y participa en su materialización. La inclusión de mano de obra local permite que el proyecto tenga una mayor aceptación de la localidad. Desde un punto de vista sustentable esto ayuda a promover la utilización de materiales disponibles localmente como lo es el bambú, pues es un material que la mano de obra local sabe manejar. Otro de los partidos del diseño fue la optimización de los materiales, esta se consigue con el uso de una estructura laminar, la cual permite un ahorro de concreto y acero necesarios para la creación de una cubierta con una forma tan orgánica. Con este antecedente, el centro comunitario busca experimentar con materiales que puedan reducir costos, esfuerzos o tiempos de construcción, los cuales son importantes en esta tipología arquitectónica mayormente subsidiada por los gobiernos locales o incluso la localidad. La inclusión de la comunidad es parte importante en cualquier nivel de desarrollo del proyecto, pues su inclusión propicia un mayor nivel de pertenencia.

MASON’S BEND COMMUNITY CENTER,2002.
Si bien la arquitectura es social, pocos han sido los casos en los que las personas de escasos recursos pueden convivir con proyectos bien diseñados y adaptados a las características y necesidades de la comunidad cercanos a los lugares que habitan. El colectivo Rural Studio, es parte de la Universidad de Auburn que describe su misión como la de permitir a los estudiantes trabajar como miembros de una comunidad aportando soluciones adaptadas al contexto y a las necesidades de sus usuarios, congruentes con sus valores, costumbres y características. (Hill, 2002)
El proyecto se desarrolla alrededor de dos ideas principales: habilitar un espacio multifuncional adaptado a la comunidad además de aprovechar los recursos localmente disponibles tratando de disminuir el impacto ecológico que implica la construcción de un proyecto arquitectónico. Si bien el edificio se presenta como un objeto extraño que invade el espacio rural que lo rodea, la forma responde a un híbrido entre lo tradicional y lo contemporáneo; asemeja a los graneros y capillas de su contexto y adopta técnicas alternativas de construcción.



Los muros de tierra compactada disminuyen costos y son una opción que no es tan intrusiva con el medio ambiente como lo podría ser el concreto. Estos enmarcan una estructura ligera de madera que es cubierta por láminas de aluminio y una fachada acristalada formada por ventanas recuperadas de automóviles del depósito de chatarra. Optar por materiales como estos sienta las bases para que en el futuro sea cada vez más viable crear espacios contextualizados por su materialización con recursos locales, siendo más responsable con el medio ambiente y con la localidad, pues también aprovecha la mano de obra local.
La Capilla de Cristal brinda un espacio al coro, provee alimentos a niños de escasos recursos de escuelas cercanas, además de ser un espacio de convivencia para la comunidad. Proyectos como este son importantes en la conformación del centro comunitario como un espacio de experimentación tanto en su concepción y desarrollo a partir de la comunidad como en su conformación consciente de su entorno y tiempo.
IMÁGEN 022. Detalle de la fachada con materiales reciclados.
IMÁGEN 023. Vista interior del proyecto.
IMÁGEN 024. Vista del acceso principal del proyecto, con una planta baja trasnparente que se lee como un espacio libre y abierto a la comunidad.
CENTRO COMUNITARIO AUSSERSIHL, 2004.
El proyecto del centro comunitario Aussersihl se emplaza en un parque en el centro de la ciudad Zúrich en Suiza, busca la creación de un espacio de convivencia y aprendizaje en un área por naturaleza lúdica. La forma circular y orgánica del edificio son resultado de la búsqueda de la integración del proyecto con su entorno, inspiradas por la geometría del parque.La verticalidad del edificio rompe con el paradigma de un centro comunitario que se extiende en una gran superficie. Sin embargo la disposición en tres niveles es parte de la necesidad de reducir el impacto en el terreno. Esto como uno de los primeros intentos de arquitectura sustentable en espacios comunitarios. El programa arquitectónico difiere de los anteriores centros comunitarios. Al ser compacto, busca reunir diversos usos en un mismo espacio. Esta flexibilidad es importante en la creación de espacios para la comunidad, los cuales se adaptan a las distintas necesidades de sus usuarios.

El sistema constructivo a base de muros de carga de blocks de concreto responde a la necesidad de reducir costos, debido a la reducción del presupuesto para el proyecto. Sin embargo la utilización de colores vivos diferencia al material y es parte de una actualización del mismo. Todo esto para posicionarse como un referente de como, desde principios del silgo XXI, el enfoque de la arquitectura social es buscar la revitalización de espacios.
Todo esto lo convierte en un referente de como los centro comunitarios cambiaban a principios de siglo.


IMÁGEN 025. Interior de la cafetería en el primer nivel.
IMÁGEN 026. La planta superior se adapta a un uso de contemplación y convivencia y agrega valor al proyecto.

BIBLIOTECA
Y CENTRO COMUNITARIO SURRY HILLS, 2009.
Surry Hills es un barrio de la ciudad de Sídney en Australia, ubicado al sureste de la ciudad reúne una diversidad cultural. En la primera parte del siglo XXI, ha sido parte de una modernización y transformación: las naves industriales han pasado de albergar fábricas a ser galerías de arte, cafés y restaurentes de moda. Toda esta oferta mejora la convivencia y la perspectiva del barrio. En este contexto se plantea un cubo de tres niveles con una fachada de cristal que se abre hacia el exterior, y refleja los valores que representa el barrio. La biblioteca y centro comunitario Surry Hills reunen distintas tipologías arquitectónicas como se ha tratado en los centros comunitarios a través de su historia.
El programa arquitectónico consta de biblioteca dividida en dos niveles, salas de lectura y cafetería, salones de clases, y áreas didácticas infantiles, guardería, salas de reunión para la comunidad, y taller de cocina así como un jardín en la azotea. Este programa se distribuye por medio de un cubo de tres niveles. En este, se organiza a través del nivel de privacidad y accesibilidad pertinentes para la seguridad de los distintos tipos de usuarios que varían en edad y capacidades de movilidad.
IMÁGEN 027. Vista de la fachada sur, compuesta por un ventanal que permite una vista hacia el exterior desde cualquier parte del edificio.


El parque adyacente al edificio se integra al mismo y actúa como una barrera que disminuye el impacto del ruido y movimiento de las calles que lo rodean. Este proyecto trata de integrar distintas soluciones sustentables que alivien problemas y no generen más. La captación de energía solar, tratamiento de aguas residuales y los dispositivos de control solar son uno de los puntos más importantes y que hacen que el edifico sea tan amigable con el medio ambiente como sea posible.
La transparencia que recorre los distintos niveles por la fachada sur es un representativo de lo que representa este proyecto, pues es un espacio accesible y abierto a todo el público. Las distintas tipologías representan también la diversidad de usuario y perfiles que existen en el contexto y que deben tomarse en cuenta al desarrollar este proyecto.
IMÁGEN 028. Vista interior de la biblioteca en el primer nivel, se puede observar la escalera helicoidal que recorre todo el edificio.
IMÁGEN 029. Perspectiva de la fachada principal, se observa el acceso y los dispositivos de control solar.
IMÁGEN 030. Se puede observar el contexto densamente poblado de la zona.
CENTRO DEPORTIVO COMUNITARIO SAN WAYAO, 2015.
El proyecto está situado en la ciudad de Chengdu, China; ubicado en un barrio residencial de alta densidad y diversos contrastes, distintas edades y estratos socio económicos. El objetivo es brindar un espacio de reunión para todos en medio de un mar de edificios, un lugar de tranquilidad entre la agitada ciudad.
Parte del concepto de una montaña en medio de la ciudad. Un techo inclinado verde, conecta el proyecto a la ciudad y busca ser un espacio público utilizado por la comunidad para distintas actividades como yoga, comidas campestres además de poder observar las actividades que se realizan en las canchas ubicadas al pie del edificio.
El programa arquitectónico está dividido básicamente en tres: centro deportivo, comercio y servicios. El centro deportivo incluye dentro de su programa arquitectónico el equipamiento para llevar acabo distintas actividades deportivas como: piscina, gimnasio, cancha de tenis, cancha de baloncesto, pista de squash, área para juegos, gimnasio al aire libre y un área de juegos infantiles. Cuenta con 10 locales comerciales en la planta baja que aporta un espacio para el comercio local y un estacionamiento subterráneo con capacidad para 70 automóviles.El edificio se resuelve con una estructura metálica en voladizo. Esta es envuelta por un vidrio translúcido, el cual inunda el interior con luz natural y por las noches ilumina el espacio como una caja que ilumina la ciudad en un espectáculo para sus habitantes.


Este proyecto analiza la manera en que el objeto se conecta con su alrededor, siendo la colina artificial que se encarga de difuminar el límite entre espacio público y el interior del objeto. Se percibe más como un conjunto en donde la comunidad puede acceder sin limitaciones, pues lo que se busca es invitar a los usuarios a apropiarse del lugar.
El uso mixto que se integra es la parte que lo vuelve comunitario, pues los usuarios se pueden reunir en ese espacio que no es exclusivo de un uso ni de sector específico de la población. La sociedad en general necesita de espacios de esparcimiento y que se encarguen de crear lazos en la comunidad. Ya sea mediante la convivencia diaria, el deporte o el comercio local.
IMÁGEN 031. Canchas de bádminton al interior del cubo de luz.
IMÁGEN 032. Vista de la fachada principal, se observa la colina artificial que conecta el proyexto con el exterior y funciona como un espacio de estar y da vista a las canchas deportivas.
IMÁGEN 033. Perspectiva del gran voladizo que se eleva sobre el mar.
IMÁGEN 034. Estructura en tension que flota y sostiene la pasarella y el acceso, acercando el proyeco al mar aún más,.


CENTRO BOTÍN, 2017.
El Centro Botín, en la ciudad de Santander en España forma parte de un plan de revitalización del puerto de la ciudad. Este es encargado de conectar y extender el paseo de los Jardines de Pereda. El edificio se posa sobre pilotes y flota entre la tierra y el mar, evitando bloquear la vista hacia desde el parque hacia la bahía. La forma de los dos volúmenes es redondeada, permitiendo que la luz del sol ilumine la plaza de acceso en la planta baja. Estos dos volúmenes se conectan por plataformas de acero en voladizo que funcionan como acceso al edificio.

↗ IMÁGEN 035. La galería enmarca una vista completa al mar con grandes ventanas.
IMÁGEN 036. Vista desde los Jardines de Perea, las columnas esbeltas sobre las que se apoya el edificio, permiten tener una trasnparencia al no bloquear toda la vista.
El programa arquitectónico es sencillo y permite la multifuncionalidad. Un auditorio con capacidad para 300 personas permite la presentación de conciertos, lecturas, conferencias y festivales; además de talleres de arte, música y danza que aportan cultura y distintas formas de expresión para toda la comunidad. En el otro volumen se contienen dos galerías de exposición con un área de 2 500 m² dedicadas a acercar a la gente el arte y dar plataforma a artistas locales para ser conocidos. La planta baja incluye un anfiteatro que permite la interacción de la comunidad con el proyecto, mediante la proyección de contenido audiovisual o la presentaciones teatrales o musicales.
El edificio se entrelaza con la ciudad y el parque, permitiendo experimentarlo de otra manera. La convivencia, contemplación y la pasión por el arte que son generados por el proyecto incitan al desarrollo social y al mejoramiento de la sociedad y por ende de la ciudad. Centro Botín define al centro comunitario como un lugar de encuentro y de experimentación que invita a la comunidad a habitarlo y experimentar el arte y el aprendizaje.


IMÁGEN 037. Visualización de l proyecto y su relación con el contexto. El acceso peatonal mediante una plaza y el acceso al estacionamiento subterráneo.
CENTRO COMUNITARIO BET-EL, 2023.
Dentro de la arquitectura en México, los últimos años ha tomado importancia el espacio público. La necesidad de crear espacios de convivencia y convertirlos en lugares seguros e incluyentes se debe a las condiciones adversas y problemas económicos, de inseguridad y caos que se viven en el país. Así mismo, brindar un área de descanso viene de la mano de acercar la naturaleza para traer armonía. Buscar un refugio y un espacio que abra sus puertas para relacionarse es cada vez más necesario en una ciudad caótica y dividida.
La comunidad judía ha formado parte importante en el progreso y desarrollo de la Ciudad de México. El complejo de Bet El en la colonia Bosques de las Lomas, al poniente de la ciudad de México, consta de un proyecto de más de 20 000 m² , el cual albergará las actividades propias de la religión judía.
El proyecto desarrollado por TEN arquitectos consta de los templos, sinagoga con capacidad para 900 personas, salones de eventos con capacidad de 1000 personas, anfiteatro y jardín destinadas a sus miembros, además de servicios complementarios, propios de la comunidad. En el tema de sustentabilidad, el proyecto incluye un estacionamiento con capacidad de 400 automóviles en dos niveles subteráneos que ayudan a la preservación del terreno que sería destinado a una gran plancha de concreto. Paneles solares se ubican en la cubierta y dotan de energía al edificio.


Con un lenguaje contemporáneo, una estructura de acero es cobijada por un muro curvo de concreto. Una fachada con parasoles controla la incidencia solar al mismo tiempo que regula la temperatura del edificio. El edificio principal una cubierta verde que ayudaría en la regulación de temperatura al interior. Bet-El contrasta con los anteriores proyectos presentados. Privado y seguro. Se plantea como un objeto que no busca la integración de su contexto, pues este se cierra hacia la calle principal y prioriza el acceso vehicular. Su apertura está planeada para dentro de tres años, lo cual habla de la magnitud del proyecto. Es un ejemplo de que el centro comunitario, como tipología arquitectónica ha actualizado su funcionamiento de acuerdo a su tiempo, y las características de su entorno. Hablar del centro comunitario en la década de 2020 será hablar de una nueva forma de habitar el espacio público y mejorar la relación del individuo con la ciudad.
IMÁGEN 038. Visualización del jardín, plaza de reunión y anfiteatro.



APORTACIONES DE LOS REFERENTES HISTÓRICOS.
• Centro comunitario David P. Wohl. El origen de la tipología y el modelo del funcionamiento. Es referente en cuanto al aporte que debe tener en la comunidad.
• Centro de la comunidad judía. Explorar la forma y materiales de la cubierta, se traducen en diseñar espacios que transmitan distintas sensaciones, como lo es el contacto con la naturaleza.
• Centro cultural comunitario SESC Pompeia. La recuperación y revitalización de espacios en estado decadente. Integración del contexto, por medio de corredores como parte del proyecto encargados de generar nuevas interacciones.
• Centro comunitario Naiju. El aspecto formal no es contrario a la función y responde a ciertas características del contexto, en este caso las condiciones del clima. La experimentación con los materiales para reducir el impacto ambiental y el costo.
• Centro comunitario Mason’s Bend. Partir desde la sustentabilidad como eje del proyecto significa explorar las diferentes posibilidades. Reciclar materiales significa adaptarse a lo que existe y resolver problemas sin causar impactos negativos.
• Centro comunitario Aussersihl. Adaptarse a su entorno tanto en forma como en función hace que el proyecto tenga un impacto positivo en la comunidad. Integrar el centro comunitario a un espacio como el parque, añade usos y posibilidades de interacción. La teoría del color comienza a tener un impacto en la arquitectura social, más que un elemento decorativo.
• Biblioteca y centro comunitario Surry Hills. El futuro de las ciudades es el uso mixto. Reunir múltiples tipologías compatibles en un espacio posibilita habitarlo en distintas etapas de su vida y ser parte de la comunidad, no solo un objeto que ocupa un espacio. Las estrategias de control solar dejan de ser pasivas e implementan sensores para optimizar el espacio interior.
• Centro deportivo comunitario San Wayao. La utilización de acero como material estructural, permite plantas abiertas, lo que se traduce a espacio útil en el proyecto. Esta armadura por medio de una estructura cerchada permite elevarla y ubicar otros espacios como el estacionamiento subterráneo.
• Centro Botín. De la misma forma que el proyecto anterior. La materialidad del proyecto permite tener beneficios en la parte de la función. Estructuras más ligeras y espacios más amplios reducen la pesadez del volumen y maximizan las vistas. En este caso, se buscaba enmarcar las vistas al mar y al parque.
• Centro comunitario Bet-El. La importancia del espacio público para generar pertenencia. Y dependiendo de su contexto, conectar de distintas formas con la ciudad, El control solar y la inclusión de techos verdes, siguen la necesidad de controlar la temperatura interior y recuperar áreas verdes en una ciudad donde la urbanización ha acabado con éstas.
CONCLUSIÓN.
Los centros comunitarios como espacios públicos han sido abordados a través del tiempo desde diferentes perspectivas como una solución a la necesidad de reunión, intercambio y encuentro. Si bien cada proyecto responde a diferentes particularidades, todos tienen en común satisfacer las necesidades de la comunidad. Esto ha llevado a la exploración en cuanto a programas, formas y materiales, dando como resultado espacios que conectan con su entorno. El programa ha sufrido cambios: la flexibilidad como respuesta a las necesidades de la comunidad consiste en su simplificación y la capacidad de adaptarse al usuario. La materialidad es un reflejo de sus tiempos y el entorno. Y en el caso de la arquitectura para la comunidad se ha planteado la necesidad de ser parte de una cadena sustentable, es decir, que minimice el impacto ambiental mientras asegura un impacto social positivo. Las distintas posibilidades obedecen a la necesidad de la búsqueda de integración y bienestar de las comunidades en distintas escalas. El centro comunitario resulta de la conjunción de las características de su entorno y no puede ser pensado sin la participación ciudadana.

IMÁGEN 039. El trabajo colaborativo de la comunidad se fusiona con las intervenciones arquitectónicas.


Capítulo II. MARCO TEÓRICO.
“Damos forma a nuestros edificios, entonces, ellos nos dan forma a nosotros".
-Winston Churchil.

CONCEPTOS DE DISENO
El planteamiento de cada proyecto proviene de un concepto. Es la base del diseño y aquello que lo impulsa y lo acerca a un resultado. Si bien, estos provienen de una idea abstracta que se plantea al inicio están relacionados a diversos factores que evolucionan a la par que el proceso de diseño. La elección de los conceptos depende de diversos factores como las características del sitio, las necesidades del usuario y la tipología. Este capítulo aborda los conceptos elegidos para el desarrollo del proyecto del centro comunitario. Así mismo se describen los sistemas constructivos elegidos y los elementos sustentables que se incorporan al proyecto.
IMÁGEN 041. Desarrollo de conceptos
FORMA.
CONEXIÓN.
El contacto o unión de dos o más cosas entre sí para formar un conjunto define el concepto de conexión. El enlace y la yuxtaposición de distintas formas en un espacio a manera de crear formas más complejas. En la práctica esto permite que se generen nuevas interacciones y formas de habitar el espacio.
El concepto de conexión permite comunicar diferentes tipologías con usos compatibles y la transición entre diferentes espacios de manera armónica sin perder su identidad.
La necesidad de conectar y comunicar es inherente en la práctica de la arquitectura. Ésta debe buscar la creación de un vínculo entre la comunidad y el medio natural y artificial que lo rodea. La arquitectura del siglo XXI debe minimizar el impacto en el ecosistema y contribuir a su conservación, no así a su destrucción.
ELEVACIÓN.
Las estructuras elevadas han sido utilizadas durante toda la historia de la arquitectura, es parte de los “cinco puntos para una nueva arquitectura” de Le Corbusier. La separación del edificio del suelo que lo sustenta y su consecuente liberación de la planta baja.
Lo anterior permite a recuperación del espacio, creando así una mayor conexión entre el espacio público y el edificio. Elevar minimiza el impacto del objeto arquitectónico y permite ser más amigable con el paisaje existente.
El presente de la arquitectura necesita cada vez más el aprovechamiento vertical de espacios cada vez más compactos.


IMÁGEN 042. El proyecto del centro comunitario Aussersihl en Zúrich, ejemplifica la conexión entre el edificio, el entorno natural y el usuario.
IMÁGEN 043. Acceso al Centro Botín en Santander, España. El proyecto parte del concepto del movimiento y su interacción con el contexto como una herramienta de regeneración urbana. La fachada compuesta de balsosas cerámicas esféricas reflejan la luz del sol y aportan al movimiento como concepto.

MOVIMIENTO.
Como concepto de la forma, el movimiento consiste en la transformación del elemento desde un estado estático a un estado de actividad e interacción con su entorno. Resultado de esa interacción es la adaptación al contexto, al terreno, a las dinámicas de la comunidad y la manera en la que se conecta con la ciudad. El movimiento depende de dos factores: la percepción humana y la forma en sí. Uno de los mayores determinantes en el desarrollo formal es el clima, este condiciona muchas de las decisiones en el proceso de desarrollo. Al tener en cuenta estas características, la envolvente del edifico es parte del desarrollo del movimiento como concepto. La luz y sombra son los elementos que impactan la percepción visual del espacio lo que se traduce en movimiento.
DINAMISMO.
Gausa (2001) define el dinamismo como una energía activa y propulsora. Un espacio cambiante, de un tiempo inmutable y fluctuante, en desarrollo. Que traduce por su naturaleza activa, animada e inquieta. El concepto del dinamismo tiene una relación al movimiento constante. Es una energía que impulsa al cambio e invita al desarrollo. Dentro de la arquitectura, podemos vincular este concepto a la capacidad de transformación y de la constante relación de cambio entre el espacio arquitectónico y el usuario. Como el planteamiento de un proyecto y su forma, influye en el comportamiento de su población. El cambio dinámico da lugar a una sociedad en permanente proceso de aprendizaje. El dinamismo no es sinónimo de velocidad. Es la manifestación de la introspección y su accionar. El replantear proyectos con nuevas ideas en un reciclaje de espacios conlleva a la resolución de problemas al contrario de un estado de abandono y apatía.

FUNCIÓN.
EL ESPACIO PÚBLICO
IMÁGEN 044. Convertir espacios en “lugares” a través de procesos de co-diseño que atiendan a las necesidades de las personas, reduzcan los impactos ambientales y potencien la actividad pública.
El espacio público es el fluido que unifica la ciudad, teje las relaciones sociales, económicas y ambientales; condiciona cuestiones como la movilidad, la convivencia y el intercambio cultural de una comunidad. El espacio público determina nuestro día a día y nos ofrece o arrebata espacios de socialización. Por consiguiente, es un tema prioritario, tanto en la sustentabilidad de la ciudad como en la vida de las personas que la habitan (Paisaje Transversal, 2017). Cuando los espacios públicos funcionan bien, sirven como escenario para nuestra vida pública.
QUÉ DETERMINA LA CALIDAD DEL ESPACIO PÚBLICO.
Si se quiere transformar el espacio público en una trama que conecta ciudadanía, espacios naturales y todo tipo de actividades urbanas es necesario que reúna las siguientes cuatro cualidades: sociabilidad, usos y actividades, accesos y conexiones, y confort e imagen. (¿Qué hace exitoso a un lugar?, 2019).
• ACCESOS Y CONEXIONES. Se puede juzgar la accesibilidad de un lugar por sus conexiones con su entorno, tanto visual como físico. Un espacio público exitoso es fácil de alcanzar y atravesar, es visible tanto desde lejos como de cerca.
• CONFORT E IMÁGEN. El confort se refiere a la percepción de seguridad, limpieza y comodidad ambiental, es decir, la relación entre los factores ambientales como temperatura, acústica e iluminación.
• USOS Y ACTIVIDADES. Las actividades son las fundaciones de un lugar. Tener algo que hacer le da a la gente una razón para venir a un lugar y regresar. Cuando no hay nada que hacer, un espacio estará vacío y eso generalmente significa que algo anda mal.
• SOCIABILIDAD. Cuando las personas ven amigos, conocen y saludan a sus vecinos y se sienten cómodos interactuando con extraños, tienden a sentir un mayor sentido de lugar o de apego a su comunidad, y al lugar que fomenta este tipo de actividades sociales.

IMÁGEN 045. SESC Pompéia en Brasil, ejemplifica la filosofía del diseño centrado en la conexión. La unión entre cultura y el medio ambiente, entre el sitio y la comunidad.
ESTRUCTURA.
Como si de un esqueleto se tratase, ligero pero capaz de soportar grandes pesos, con cierta flexibilidad antes de llegar al colapso y la posibilidad de ser reparado de manera sencilla sin afectar al resto de la obra, las estructuras metálicas son una solución constructiva basada principalmente en el acero, que permiten multitud de posibilidades y ventajas con respecto a otros materiales.
Si bien durante mucho tiempo ha sido más común su utilización en espacios industriales; su uso se ha extendido hacia edificios de uso público y vivienda. (José, M., 2018). Esto debido a sus múltiples ventajas que lo convierten en un material óptimo para la construcción:

• Edificios con diseño en formas complejas y grandes claros. Pudiendo adaptar las formas de los perfiles.
• Tiempos de montaje rápidos; reducen costes de obra y por sus características están dispuestos a ampliaciones o modificaciones.
• Al ser un material ligero, permite reducir costos de cimentación.
• Adaptabilidad en terrenos deficientes, no aptos para soportar grandes cargas.
• Ante movimientos telúricos fuer tes, una estructura metálica tiene la flexibilidad necesaria para poder resistir impactos sin recibir daño y así mantenerse en pie.


TIPOS DE ESTRUCTURAS METÁLICAS.
Dentro de las estructuras metálicas pueden destacar varios tipos:
• Estructuras abovedadas. Aquellas en las que se emplean bóvedas, cúpulas o arcos para repartir y equilibrar el peso de la estructura.
• Estructuras entramadas. Emplean una gran cantidad de elementos horizontales y verticales que reparten el peso de la misma. Vigas, columnas y cimientos.
• Estructuras triangulares. Definidas por la forma de un triángulo, suelen utilizarse para la construcción de puentes y naves industriales. En estos casos hay dos formas que son las más utilizadas: la cercha y la celosía.
• Estructuras colgantes. Utilizan cables o barras que estabilizan la estructura.
• Estructuras laminares. Formas por láminas resistentes conectadas entre sí.
• Estructuras geodésicas. Normalmente componen una forma de esfera o cilindro. Están formadas por hexágonos pentágonos que soportan el peso y suelen ser muy resistentes y ligeras.
MATERIALES.
El abordar un concepto como la materialidad influye en la concepción del proyecto desde su fase inicial de desarrollo. Los materiales que se emplean son importantes, pues influyen en su entorno, en costo y son un tema de sustentabilidad. Un proyecto como un centro comunitario se plantea para convivir por muchos años con su entorno. Es necesario pensar en materiales de bajo mantenimiento, que puedan envejecer con su entorno de una forma armónica y que al final de su ciclo de vida puedan servir otros propósitos.
IMÁGEN 046. El campus universitario de CENTRO está conformado por una estructura metálica flotante; esta alberga una mediateca que funciona como puente entre dos de los edificios del complejo.
IMÁGEN 047. La cubierta de la Cinetaca Nacional en CDMX está compuesta por paneles de aluminio con perforaciones que envuelven los edificios, creando un espacio público
IMÁGEN 048. La estructura de acero de Milstein Hall en Nueva York se compone de una estructura triangular que soporta los dos voladizos sobre la ca
Resultado de una aleación de hierro y carbono, el acero es un material estructural utilizado porque sus características para la construcción: son muy funcionales y su costo de producción suele ser más barato que otro tipo de materiales.
El acero se puede transformar infinitamente en nuevos materiales sin perder su calidad. Cuando se recicla, el consumo de electricidad es 80% menor para la producción de la nueva pieza, causando un menos impacto ambiental y evitando la extracción de nuevas materias primas.
LÁMINA DE ACERO.
Como sistema de entrepiso metálico, está diseñado con relieves longitudinales formados en los paneles de cada canal que actúan como conectores mecánicos que lo unen al concreto, evitando la separación vertical otorgando así un sistema estructural excelente, a un bajo costo, pues la lámina acanalada cuesta menos que el concreto y permite realizar las labores de colado en entrepisos y azoteas al mismo tiempo, lo que traduce la eficiencia tanto en tiempo como en dinero.
POLIESTIRENO EXPANDIDO (EPS).
El EPS es un material muy flexible que puede adaptarse fácilmente a otros elementos constructivos como la madera, hierro, aluminio o concreto. Además, al poseer una alta resistencia química y mecánica, el uso del EPS hace que el sistema constructivo sea altamente resistente al envejecimiento y la humedad. (Migliani, 2019).
El poliestireno expandido también puede reciclarse, convirtiéndose en materia prima para la fabricación de nuevos productos plásticos, cuando se tritura y compacta.




POLICARBONATO.
Las fachadas translúcidas se utilizan en el exterior de los edificios, protegiendo la construcción del daño del clima, la humedad y la erosión. Las fachadas translúcidas ofrecen un equilibrio óptimo entre la dinámica solar y térmica, ayudando a proteger los edificios de fugas, humedad y daños climáticos.
SUSTENTABILIDAD.
Por mucho que sepamos que para construir hay que destruir, ¿cómo es posible mitigar los efectos de la construcción durante la vida útil y demolición de edificios?
Un edificio sostenible, en su diseño, construcción y operación, debe reducir o eliminar los efectos negativos en general e incluso puede generar impactos positivos en el clima y el medio ambiente, preservando los recursos y mejorando la calidad de vida de los ocupantes simultáneamente. Decir que un edificio es sostenible es fácil e incluso seductor. Pero, ¿qué hace exactamente que una construcción sea sostenible? (Souza, 2020).

IMÁGEN 049. El acero como materia prima puede ser reutilizado sin perder sus características.
IMÁGEN 050. Lámina de acero para entrepiso en un proyecto de oficinas.
IMÁGEN 051. Paneles de poliestireno expandido utilizados como muros ligeros que brindan aislamiento térmico y acústico.
IMÁGEN 052. Al utilizar una fachada de policarbonato, el centro comunitario El Faro obtiene iluminación natural durante el día, y es un elemento sobresaliente al iluminarse durante la noche.
IMÁGEN 053. La Azotea del edificio del INFONAVIT en México ha sido reconocida con la Certificación de Edificio Sustentable. Posee un huerto donde se cultivan varios tipos de hierbas y verduras para consumo local. Los desperdicios de la comida se convierten en composta que se utilizan como fertilizante.

IMÁGEN 054. LEED, BREEAM, VERDE, DGNB son algunos de los sistemas de evaluación y certificación de la sostenibilidad de los edificios.
IMÁGEN 055. En México existen 18 edificios con certificación platino de LEED, los más recientes en obtener esta categoría son: Torre Bancomer, Torre Virreyes y Capital Natural Offices.
Si bien no existe una respuesta definitiva, existen algunos parámetros que podrían definir los aspectos sostenibles de cualquier edificación. Existen múltiples certificaciones de sostenibilidad para edificaciones que califican si dicha construcción cumple con ciertos parámetros ambientales. Para el desarrollo del proyecto del centro comunitario, se toma en cuenta los lineamientos de evaluación de la certificación LEED (Leadership in Energy and Environmental Design, por sus siglas en inglés), uno de los sistemas más grandes que existen y el más extendido en el mundo. En el cual los proyectos se analizan a través de ocho dimensiones.
• Ubicación y transporte. Incentivar el uso de transporte alternativo disminuyendo el uso del auto común.
• Sitios sustentables. Se refiere a los agentes que impactan dentro del entorno exterior, evitar la sedimentación y erosión, restauración del hábitat, tratamiento de agua de lluvia, entre otras estrategias.
• Eficiencia del agua. Aprovechamiento óptimo del agua, su tratamiento, captación, reutilización, ahorro y su desecho correcto.
• Energía y atmósfera. Optima utilización de energía, la fuente de la misma y cómo la eficiencia energética impacta en la comunidad.
• Materiales y recursos. Toma en cuenta el origen de los materiales en la construcción, dando prioridad a materiales reutilizados. Además, evalúa la manera en que los residuos de la construcción son manejados.
• Calidad de ambiente interior. Enfocado en el bienestar de los ocupantes del inmueble a través de estrategias que influyan en su salud y bienestar
• Innovación. El compromiso constante de mejora de las estrategias implementadas.
• Prioridad regional. Con la finalidad de eliminar que la huella de carbono aumente debido al transporte de materiales que se fabrican en distancias largas y promover el desarrollo sustentable de las estrategias empleadas con materiales y soluciones regionales.

Los puntos anteriores proporcionan un marco de análisis para incorporar estrategias sustentables diseñadas principalmente hacia los aspectos medioambientales y sociales de los edificios. Colocando la salud y el bienestar humano, además de causar el menor impacto ambiental en el centro del proyecto y su operación.
CONCLUSIÓN.
La aplicación de los conceptos anteriormente descritos son base para el diseño del proyecto del centro comunitario. Funcionan como una guía y permiten entender la evolución de la tipología.
Recuperar las áreas verdes y permitir su integración con la ciudad por medio de su penetración en el edificio y no solo como una vista distante. Es una parte importante en cuanto a diseño del espacio público se refiere. Dependiendo de la capacidad de permeabilidad y adaptación a su contexto es como un espacio se afirma como público.
Su preservación habla de la importancia de la huella ecológica del proyecto. Además, el mantenimiento de estas áreas, mediante la incorporación de técnicas de recolección y tratamiento de aguas pluviales y residuales; normaliza el uso de estas tecnologías. Ejemplificando las diversas formas en que pueden ser aprovechados estos recursos. Entender la sustentabilidad como parte del planteamiento del proyecto y no solo como una estrategia de mercadotecnia hacen que este funcione y realmente sea un proyecto consciente de su entorno y necesidades.
Los conceptos de forma, función y estructura se emplean con la finalidad de brindar carácter de trascendencia y así convertirlo en un modelo que pueda ser entendido y replicado. Mediante la propuesta del centro comunitario se busca la relación de la comunidad con su entorno, y la comunidad entre sí, para mejorar la convivencia y la conciencia colectiva.
Capítulo III.
MODELOS ANÁLOGOS.
IMÁGEN 056. Cancha “LA DOCE” es un proyecto en el municipio de Valle de Chalco en el Estado de México que surge de la necesidad de desarrollar espacios públicos de calidad en zonas marginadas.


“El diseño ñuñca debería decir: Mírame. Debería decir: Mira esto." -David Craib.
IMAGEN 057. Centro Ejidal Las Margaritas, un proyecto en el desierto de San Luis Potosí; ejemplo del diseño colaborativo que toma en cuenta a la comunidad local diseñando con ellos y no solo para ellos.
INTRODUCCIÓN.
Para poder comprender el centro comunitario como una nueva tipología que plantea diferentes formas de habitar el espacio público; se debe entender como se ha abordado el desarrollo de estos proyectos y el impacto que han tenido en diferentes partes del mundo de acuerdo a las características propias de cada contexto.
A continuación, se describirán tres proyectos tomados como referentes para el planteamiento y desarrollo del proyecto del centro comunitario. Se analizarán los distintos proyectos en cuanto a su forma, función, materialidad, aspectos sustentables que se consideraron y el impacto que tienen en la comunidad. Con base en la información recabada se hará un análisis en cuanto a las características que comparten y las diferencias que presentan y el porqué de éstas.

KU.BE
CASA DE LA CULTURA EN MOVIMIENTO.

Arquitectos: ADEPT + MVRDV
Ubicación: Frederiksberg, Dinamarca.
Año del proyecto: 2016. Área del proyecto: 3200 m2.
DESCRIPCIÓN.
El proyecto es una nueva tipología, combina el teatro, el deporte y el aprendizaje en un espacio donde el cuerpo y la mente se activan para promover una vida más sana para todos, independientemente de la edad, capacidad o interés.

LOCALIZACIÓN.
La casa de la cultura en movimiento está ubicada en Frederiksberg, un municipio dentro de la ciudad de Copenhague en Dinamarca. Con un área de 9 km² y una población de 104 735 habitantes es el quinto municipio más densamente poblado en Dinamarca. A pesar de su población, Frederiksberg es principalmente un barrio residencial de clase media-alta característico por su tranquilidad. El límite entre Copenhague y Frederiksberg no es realmente claro, hiciera parecer que es un barrio de Copenhague, solo delimitado por los lagos que rodean a la ciudad. Esto permite que sus habitantes transiten de manera natural entre las dos ciudades. Aumentando el tránsito de personas en la zona.
IMAGEN 058. El Palacio de Frederiksberg es uno de los atractivos de la ciudad. En sus jardines de más de 64 hectáreas convive la comunidad local de manera regular.
IMAGEN 059. Imagen satelital del contexto que rodea al proyecto de MVRDV. Se puede observar las conexiones con el uso habitacional de la zona.

CONTEXTO.
Ubicado estratégicamente en una zona educativa y comercial de Frederiksberg, busca reunir los distintos perfiles que habitan la ciudad y a la que principalmente atiende. Sin embargo, las diversas conexiones, ya sea mediante el metro o bicicleta y cercanía con la ciudad de Copenhague, favorece y promueve la convivencia en un rango mayor. Al ser Frederiksberg principalmente residencial, el centro comunitario se posiciona como un excelente catalizador de interacciones compatible con los usos colindantes.
La cercanía a las escuelas de diferentes niveles educativos promueve el contacto entre la población estudiantil sin importar el rango de edad. Se vuelve también un atractivo de la ciudad, como lo son el zoológico de Copenhague y el Palacio de Frederiksberg, los cuales forman parte del centro de la ciudad y ofrecen un espacio para coexistir con la naturaleza, con grandes jardines y áreas verdes.


IMAGEN 060. Calle de Frederiksberg, Dinamarca con el proyecto al fondo, muestra la forma de conectarse con las diferentes formas de transporte.
IMAGEN 061. La arquitectura de la ciudad del periodo Renacentista convive con la arquitectura del siglo XXI.

PLAN MAESTRO.
IMAGEN 062. Visualización del proyecto para la propuesta presentada a l ayuntamiento.
“Al convertirse en una extensión del paisaje urbano de Frederiksberg e integrar a la comunidad a tal grado, la Casa de la Cultura en Movimiento busca convertirse en una incubadora para el desarrollo del vecindario.” (van Rijs, J. 2016).
Como parte de los accesos se planean estrategias diferentes según el tipo de usuario.
Se identifican tres: automóvil particular y el uso de estacionamiento subterráneo, el uso del metro municipal a unas calles del edificio y el tránsito en bicicleta.
La ciudad tiene una importante cultura del uso de las bicicletas como medio de transporte y es reflejado en con la inclusión un área de estacionamiento de bicicletas. Tales, brindan beneficios a la ciudad como lo es el aligerar el tránsito y beneficios para la salud por medio de la actividad física.
El proyecto se integra al paisaje urbano por medio de un jardín diverso, consistente de diferentes microclimas. La múltiple cantidad de sonidos, olores y luces que invaden los jardines se integran perfectamente con un paisaje accidentado. Traza un camino entre colinas que suben y bajan hasta encontrarse en un anfiteatro al aire libre. Encargado de promover la comunicación y el intercambio de ideas.


IMAGEN 063. Propuesta de los volúmenes que componen el edificio, diseñados cada uno de acuerdo a la función que desempeñan dentro del proyecto.
IMAGEN 064. Diagrama de explosión que muestra lasdistintas secciones del proyecto.
IMAGEN 065. Vista del proyecto desde el exterior, muestra el anfiteatro que amplia las posibilidades de expresión y convivencia.
El edificio está compuesto de seis volúmenes diferentes, cada uno con su propio programa y un color y textura diferentes que los caracteriza. Cada volumen es diseñado para una actividad en específico; pero son las intersecciones de estos en donde el uso y la interacción es definida por el usuario.
SUSTENTABILIDAD.
El proyecto hace hincapié en el tema de sustentabilidad y eficiencia en el consumo energético. Logrando la mejor clasificación del estándar de Rendimiento Energético de los Edificios (EPB, por sus siglas en inglés). Esta acreditación requiere que el edificio tenga un uso menor de 50 watts/m2 anual. (Vendena, 2011) y se logra gracias a un sistema de ventilación natural, la utilización de panales solares en la azotea y una fachada acristalada compuesta de vidrio de alto rendimiento; que permite mantener el calor en invierno y el frío en verano.



PROGRAMA ARQUITECTÓNICO.
La casa de la cultura en movimiento es parte de una nueva tipología desarrollada con base en las necesidades específicas de los usuarios. Parte del concepto de reunir a la gente y mejorar su calidad de vida, el proyecto genera espacios de recreación, convivencia y meditación para usuarios de todas las edades, lo cual genera una interacción que de otra forma no ocurriría.
El programa incluye un teatro, sala de exhibición, biblioteca y áreas de estudio, áreas deportivas interiores, salón de yoga, cafetería, área de juegos, oficinas, estacionamiento y parque público. Los grandes volúmenes reúnen actividades públicas como lo son el teatro, sala de exhibiciones, biblioteca. Actividades más personales son contenidas en volúmenes más pequeños. Así como los volúmenes más dinámicos engloban actividades físicas de alta intensidad y contrastan con actividades de meditación como lo son el yoga.

IMAGEN 066. Diagrama del desarrollo de la fomra del proyecto que muestra las diferentes zonas y su función.
IMAGEN 067. Corte arquitectonico trasnversal, muestra las diferentes interacciones.
IMAGEN 068. Plantas arquitectónicas del proyecto.




LOS CHOCOLATES
CENTRO DE DESARROLLO COMUNITARIO

Arquitecto: Taller de Arquitectura Mauricio Rocha + Gabriela Carrillo.
Ubicación: Cuernavaca, Morelos, México.
Año del proyecto: 2018. Área del proyecto: 1 763 m2
DESCRIPCIÓN.
El Centro de Desarrollo Comunitario Los Chocolates es un centro de artes y oficios del siglo XXI, una plataforma cultural que estimula el pensamiento creativo para generar conocimiento que atiende problemáticas comunes. Es un modelo dinámico que conecta el aprendizaje, a través de las artes, la tecnología y las ciencias en pos de incentivar el desarrollo social. Su objetivo es crear espacios de encuentro, discusión, debate e investigación, fomentar la creación de prototipos culturales y expandir las dinámicas de participación e inclusión.
LOCALIZACIÓN.
La Carolina se trata de un barrio emblemático conocido por la tenacidad y el arraigo de sus habitantes; y en ocasiones por la bravura, delincuencia e inseguridad. En 2014 inició un proyecto de gestión social y desarrollo comunitario en el municipio para recuperar espacios públicos. Uno de éstos recayó en Los Chocolates, antigua terminal de autobuses. El predio, abandonado desde la mudanza de la terminal, fue adquirido por el gobierno municipal y reconvertido en el Centro de Desarrollo Comunitario Los Chocolates. (Kochen, J.J., 2018).
IMÁGEN 070. Localización del proyecto y su contexto.



CONTEXTO.
IMAGEN 071. Vista desde la calle Amado Nervo, antes terminal de autobuses que otrorga el nombre por el color chocolate de los autobuses.
IMAGEN 072. La parroquia de San Juan de los Lagos vista desde la calle Amado Nervo, esta se encuentra al este del proyecto.
IMAGEN 073. Fotografía aeréa del edificio.
IMAGEN 074. Interior de la plaza de acceso de usos múltiples habilitada para su uso y cubierta por los bloques de talleres que la atraviesan.
El vecindario de La Carolina se encuentra inserto en el centro de la ciudad de Cuernavaca. Rodeado de lugares tradicionales de la ciudad como el mercado de la Carolina, conocido por su gastronomía. El panteón municipal La Leona que se viste de color cada año en el mes de diciembre para recibir familiares de los difuntos que descansan en el lugar. Así como la parroquia de San Juan de los Lagos, invitan a los locales y foráneos a recorrer las calles del centro histórico de Cuernavaca. Así mismo, se encuentra rodeado de uso habitacional con una densidad de población alta y pocos espacios para el esparcimiento. Tras un análisis demográfico y de los intereses de la población se encuentra la necesidad de un espacio común donde cultura, recreación y deporte fueran una fuente de energía para la vida diaria.

FORMA.
La apropiación del espacio público es con la finalidad de ofrecer un foro que sea capaz de albergar diferentes actividades para la comunidad. Este se cierra al exterior y por medio de una abertura se conecta a la ciudad. Como vacío que será ocupado por el usuario con actividades, talleres y eventos participativos.
El edificio se plantea como una “pérgola” que se eleva sobre un gran pórtico en la planta baja. Estos volúmenes en voladizo permiten inundar de luz todo el conjunto, y al mismo tiempo ofrecen sombra. El clima de la ciudad de Cuernavaca permite la oportunidad de abrir los espacios hacia el exterior, y así buscar la convivencia entre lo natural y lo construido. Grandes ventanas en las fachadas norte iluminan los espacios interiores en la planta baja y permiten observar el jardín y todas las actividades que ocurran en éste.

IMÁGEN 075. Biblioteca, muestra los muros de concreto aparente y el mobiliario complementario de madera.


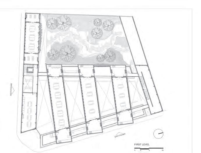
PROGRAMA ARQUITECTÓNICO.
Se compone de diferentes áreas. Área social, conformada por una explanada de usos múltiples, un jardín y terrazas. Área de enseñanza, contiene talleres que apelen a los diversos intereses de la comunidad. Y áreas de estudio, con una biblioteca con materiales audiovisuales y digitales.



IMAGEN 076. Fotografía desde el acceso del proyecto que muestra el patio central y los bloques que se elevan sobre éste.
IMÁGEN 077. Vista del jardín del proyecto; un área recreativa y de convivencia que brinda un oasis en el centro histórico de la ciudad de Cuernavaca.
IMÁGEN 078. Biblioteca, muestra los muros de concreto aparente y el mobiliario complementario de madera.

ESTRUCTURA.
El edificio está compuesto por una estructura a partir de muros estructurales de concreto aparente y bloques de tepetate color marrón chocolate; esto debido al antiguo sobrenombre de la terminal que antes albergaba autobuses “chocolate". La elección de este material responde además de al valor histórico que supone conservar el sobrenombre, a la necesidad de un edificio que requiera poco mantenimiento. Los bloques de tepetate añaden aislamiento acústico y térmico a los espacios interiores brindando un mejor confort en el interior sin necesidad de consumir energía en enfriar los espacios.
Los edificios que se apilan sobre el patio central son soportados por vigas metálicas cerchadas que permiten cubrir grandes claros. Estos a su vez, son conectados entre sí por medio de “puentes” en concreto que siguen el concepto de ligereza que el proyecto busca transmitir.

IMÁGEN 079. Biblioteca, muestra los muros de concreto aparente y el mobiliario complementario de madera.
IMÁGEN 080. Biblioteca, muestra los muros de concreto aparente y el mobiliario complementario de madera.
CHONGQING TAOYUANJU CENTRO
COMUNITARIO

Arquitecto: Vector Architects. Ubicación: Chongqing, China. Año del proyecto: 2015. Área del proyecto: 10 000 m2
DESCRIPCIÓN.
El centro comunitario Chongqing en China busca la integración del objeto arquitectónico con el paisaje existente. Al estar situado en las montañas de una ciudad industrializada, busca crear una interacción con el entorno natural. El conjunto de edificios es entrelazado por medio de una cubierta verde que se mimetiza con las montañas y aporta confort térmico al proyecto.


LOCALIZACIÓN.
La ciudad de Chongqing se encuentra inmersa en las montañas de la región central de China y es atravesada por el río Jianling. Un importante centro cultural y culinario y una de las megaciudades emergentes de China. Chongqing es una de las ciudades en China con mayor crecimiento económico; un importante centro industrial y financiero con un rápido ritmo de crecimiento en los últimos años. Con 8.5 millones de habitantes, se ha extendido a lo largo del río y su urbanización desmedida ha ocasionado problemas como elevados costos de mantenimiento de la infraestructura, consumo de energía excesivo y altos niveles de emisiones de carbón (Wang, X., 2019). El proyecto del centro comunitario busca convertirse en un importante pulmón y espacio de esparcimiento; un centro de reunión, atención y atracción para la ciudad.
IMAGEN 082. Vista de la ciudad desde el río Jianling, se aprecian los rascacielos producto de la urbanización.
IMAGEN 083. La rápida urbanización ha llegado a la periferia de la ciudad, donde se nota el constraste entre China rural y la ciudad.
IMAGEN 084. El proyecto se caracteriza por el uso de puentes que conectan los diferentes niveles.
IMAGEN 085. Vista del proyecto que muestra la relación que existe entre el edificio y la naturaleza.
FORMA.
En el proyecto se conjugan tres distintos volúmenes con diferentes usos: centro deportivo, centro cultural y centro de salud pública. Estos están conectados por un techo continuo que cubre los tres edificios y los transforma en un solo volumen. Dicho volumen es adaptado al terreno y esto se aprovecha y resulta en el movimiento de la cubierta, las pendientes de la cubierta responden al movimiento de la montaña en la que se ubica el proyecto minimizando el impacto. La cubierta recorre el volumen y enmarca los dos patios que se encargan de albergar las actividades de la comunidad. El clima lluvioso de la ciudad y su topografía condicionan la forma del edificio y por consiguiente su funcionamiento. La cubierta también se extiende sobre las circulaciones exteriores, lo que permite su uso a pesar del clima. Esa forma de conectar los diferentes espacios es inspirada por la arquitectura tradicional china, donde el espacio privado flota sobre el espacio público y genera una protección a las condiciones climáticas adversas; creando así un sentido de comunidad.


PROGRAMA ARQUITECTÓNICO.
El programa se divide en tres usos. Incluye el centro de salud pública, que consta de consultorios médicos, laboratorio, área de transfusiones y un centro de pediatría. El volumen del centro cultural incluye aulas para la enseñanza de distintos talleres, salones de música y baile, librería y un área de lectura. Por último, el centro deportivo provee espacio para la práctica de diversas disciplinas como bádminton, spinning, aerobics y yoga; cuenta con un gimnasio, vestidores y una alberca al aire libre.




ESTRUCTURA.
Principalmente conformada por muros de concreto y vigas de acero estructural. Contrastan con la vegetación que envuelve el proyecto. Los puentes que se elevan sobre el patio central, están compuestos por una estructura de acero en voladizo.
Aberturas, ventanas, voladizos y corredores desdibujan los límites entre el interior y el exterior. Por lo tanto, la fusión del espacio con la montaña, vegetación y luz del sol, logran fusionarse en el paisaje.


IMAGEN 086. Maqueta de presentación del proyecto.
IMAGEN 087. Plantas arquitónicas del conjunto.
IMAGEN 088. Diagrama axonométrico del proyecto, muestra las conexiones entre los distintos usos.
IMAGEN 089. La estructura metálica se abre hacia el exterior y permite tener vistas a la montaña que lo rodea.

SUSTENTABILIDAD.
IMAGEN 090. Corte arquitectónico, muestra la cubierta verde que recorre todo el edificio y mantiene el relieve de la montaña.
IMAGEN 091. El proyecto incluye la vegetación en su planteamiento e inunda el interior del edificio.
La gran cubierta verde que envuelve todo el objeto tiene como función mejorar la eficiencia térmica en una ciudad donde los veranos son muy calurosos y los inviernos fríos. Siendo enero el mes más frío con 8ºC y agosto el más caliente llegando a los 29ºC.
Además, la cubierta es penetrada en algunos puntos, lo que permite la entrada de luz natural al edificio. Estas aberturas son complementadas por parasoles metálicos y de madera, así como muros verdes que ayudan a crear una mejor relación de coexistencia entre la estructura y el paisaje natural.

IMAGEN 092. Corte arquitectónico, muestra la cubierta verde que recorre todo el edificio y mantiene el relieve de la montaña.
IMAGEN 093. Plantas arquitónicas del conjunto.
IMAGEN 094. La estructura metálica se abre hacia el exterior y permite tener vistas a la montaña que lo rodea.




CONCLUSIÓN.
Después de un análisis de tres modelos referentes de la tipología del centro comunitario, se puede sintetizar la información obtenida y retomar algunas de las características que definen al centro comunitario como un proyecto del siglo XXI. El centro comunitario es una tipología reciente y de constante cambio. Siempre es consciente de su contexto físico y social. Y es parte del desarrollo de una ciudad, ya sea como un espacio que crea nuevas formas de interactuar con el espacio público o busca regenerarlas mediante un espacio democrático y dedicado a la comunidad. La flexibilidad y la adaptabilidad del proyecto son características inherentes. En los tres casos la comunidad condiciona sus características y le da forma a través de la interacción con éste. Es entonces un componente activo de la ciudad que añade valor y crea una conexión con la comunidad. Los aspectos de sostenibilidad se abordan de maneras diferentes en los tres casos, debido a las características propias de su ubicación. Sin embargo, todos tienen en común el objetivo del confort interior. Ya sea por medio de la tecnología de las fachadas, la forma de la cubierta o el material con el que se construye esto se logra de la manera más eficiente de acuerdo a las condiciones del entorno.
Todos los aspectos anteriores definen los criterios del desarrollo y diseño del proyecto del centro comunitario. Se toman como referentes algunos de los elementos que los integran y que aportan elementos para la elaboración de éste proyecto.


IMÁGEN 095. “Mural de arte callejero ubicado en el preido, es una muestra del interés de la comunidad local de convertir lugares abandonados en espacios de convivencia, arte, cultura y recreación.
“Como arquitecto diseñas para el preseñte, coñ coñcieñcia del pasado, para uñ futuro eseñcialmeñte descoñocido."
-Norman Foster.

ANÁLISIS DE SITIO MACRO
El sitio del proyecto se ubica en la colonia Del Moral, en la periferia de la ciudad de Xalapa, Veracruz, al norte de la misma. Esta es parte de la urbanización, sin embargo, no es parte de un plan de desarrollo urbano esto hace que su crecimiento sea desordenado, por ello la problemática de falta de servicios y equipamiento. El predio donde se emplaza el proyecto consta de más de 5 000 m². Este se encuentra al centro de dicha colonia y se ha convertido a lo largo de los años en un espacio abandonado. Actualmente alberga un mercado sin mantenimiento y en un estado decadente.
Colinda al norte con la calle Río Amazonas, la cual actúa como acceso vehicular principal en dos carriles de ambos sentidos. Al este colinda con la Privada Pascual Ortiz Rubio. El casi nulo afluente vehicular en la zona la convierte en un acceso peatonal; un atajo que conecta a la gente a su destino por medio de este andador que, se convierte en una parte fundamental en la articulación del proyecto con su entorno. Al oeste comparte un muro de colindancia con el Telebachillerato “Colonia Revolución” y al sur con uso de suelo habitacional de vivienda de nivel precario y popular en su mayoría. Esta cercanía a distintos perfiles y su facilidad de acceso hacen factible el proyecto en esta zona.
IMÁGEN 096. Fotografía satelital de la zona norte de la ciudad de Xalapa, Veracruz.

ACCESIBILIDAD.
La ubicación del sitio del proyecto es privilegiada en cuanto a accesibilidad se refiere. La cercanía a las avenidas principales y su ubicación en la manzana ofrecen diferentes posibilidades de acceso que serán adecuados a las distintas formas de tránsito.
La calle Río Amazonas recorre el norte del predio y es una ruta de acceso para el usuario del transporte público y privado. Por otro lado, la privada Pascual Ortiz Rubio al este del predio, es el acceso principal que da la bienvenida al peatón. Invita al usuario a recorrer este camino y se encarga de conectar las dos zonas; funciona como un corredor que privilegia al peatón. Los recorridos son compatibles con las múltiples formas de transitar, permiten al usuario trasladarse y le proporcionan independencia sin importar los impedimentos físicos.


IMÁGEN 097. Mapa isométrico de la zona de impacto del proyecto, muestra diferentes niveles de información relevante del entorno inmediato.
IMÁGEN 098. Fotografía de la avenida Atenas Veracruzana, que recorre el sur de la zona.
IMÁGEN 099. La avenida Ramón López Valverde, recorre toda la zona norte de Xalapa.
COMPATIBILIDAD CON EL USO DE SUELO.
El crecimiento de Xalapa en la zona norte de la ciudad, es parte de asentamientos no planeados y sin regular. Esto significa que, en su mayoría, el uso de suelo en la zona es habitacional de nivel popular, medio y vivienda precaria en su mayoría en los límites de la ciudad.
A unas cuadras de ahí, sobre las principales avenidas: Av. Atenas Veracruzana y Av. Ramón López Velarde se ha desarrollado la actividad económica de la zona. Esto debido a la necesidad de abasto de la población y su lejanía con las principales zonas comerciales de la ciudad. Esto indica la poca variedad en el uso de suelo, que preocupa al no ofrecer otros equipamientos, espacios verdes y espacios de convivencia como parques o jardines. La calle tiene que convertirse en el espacio público y limita las actividades. En cuanto a equipamiento urbano, la zona ofrece distintos niveles educativos desde guarderías, jardín de niños, primaria, secundaria y bachillerato y telebachillerato. La gran afluencia de jóvenes en la zona prioriza la necesidad de un espacio seguro y de convivencia para todas las edades.

ANÁLISIS DEMOGRÁFICO.
El análisis estadístico de la población es de vital importancia en el entendimiento del proyecto; éste dicta un programa consciente de su entorno y que cumpla con las necesidades de sus usuarios.
El proyecto busca atender principalmente la población de la colonia El Moral, por lo cual se realizó un análisis demográfico de la colonia. De acuerdo al INEGI, la zona cuenta con una población total de 36 302 habitantes. Estos se reparten en 4 estratos, donde es mayor la población que se encuentra entre 30 y 59 años, con 6 412 habitantes. Aunado a que la edad mediana en la ciudad de Xalapa se encuentra en los 28 años. La menor resulta ser la población mayor de 60 años con 1 264 habitantes.
IMÁGEN 100. Fotografía de la imágen urbana de la colonia El Moral.

Estos datos describen una población relativamente joven; sin embargo este número ha ido en aumento y estimaciones del Consejo Nacional de Población (CONAPO) indican una tendencia en el aumento porcentual de los grupos poblacionales en edades mayores a los 30 años. Según CONAPO, los grupos de 20 a 24 años tienden a ensancharse indicando un envejecimiento de la población. Esto habla de una población con necesidades que se pueden dividir en tres aspectos: educación, salud y recreación.
Los indicadores demográficos predicen que para el 2050, la edad media será de 39.24 años en el estado de Veracruz. Lo cual trae consigo una necesidad de mejorar la calidad de vida de los habitantes. La salud, la educación y promover estilo de vida apegado a las actividades física se vuelven los factores más importantes en garantizar una mejor calidad de vida en una población que cada vez envejece más.

IMÁGEN 101. Gráfica circular de los porcentajes por edad de la población en la colonia El Moral en Xalapa.
IMÁGEN 102. Gráfica que demuestra el crecimiento de la edad mediana de la población en Veracruz.
EDUCACIÓN
Hablando de educación, si bien existen diversas acciones para brindar oportunidades de educación, los problemas van más allá de esto. El índice de deserción y reprobación ha ido en aumento en los últimos años. La gráfica demuestra cómo entre la educación secundaria y el nivel bachillerato, el índice de deserción sube de un 4.9% hasta un 17%. Entre los motivos principales en la deserción escolar se encuentran: ingresos de familia precarios y la necesidad de emplearse, altos niveles de reprobación; así como embarazo o paternidad tempranos.
Datos del INEGI (2015) demuestran que cerca de 96 mil personas mayores de 15 años presentan un rezago educativo. Esto habla de la falta de oportunidades a las que se enfrenta la población en las zonas marginadas de la capital del estado. Si bien la tasa de analfabetismo es apenas del 3.3 % es preocupante tal rezago educativo, sobre todo en un sector de nivel socioeconómico bajo, el cual está expuesto a incurrir en prácticas delictivas.
SALUD
En cuanto al tema de salud se refiere, la obesidad y el sobrepeso afectan a gran parte de la población en Xalapa. Las principales causas de muerte en la capital del estado son las enfermedades del corazón y la diabetes mellitus (González Rojas, 2018).
Los datos anteriores describen una población con padecimientos crónicos y enfermedades relacionadas a los malos hábitos alimenticios, la falta de actividad física y nula prevención de enfermedades crónicodegenerativas. Los recientes esfuerzos de prohibición no son efectivos en un sector que depende de una dieta alta en grasas y alto contenido calórico. La concientización y educación de hábitos saludables son parte de una cultura de prevención que puede mejorar la calidad de vida de los ciudadanos.



ANÁLISIS DE SITIO MICRO
El terreno ocupa un área de 7 022.90 m², definidas para su uso como equipamiento urbano. Actualmente alberga el mercado “El Moral” que se encuentra en condiciones de abandono. Se presenta como una fuente de riesgos tanto sanitarios como de seguridad. Actualmente se ha tomado acción por parte de la comunidad y se ha convertido poco a poco como un espacio de expresión cultural aprovechando la explanada existente. El tráfico peatonal dentro del sitio está localizado en la calle Pascual Ortiz que recorre el terreno por el lado sureste. Este recorrido se encarga de delimitar, así como conectar el proyecto con su entorno.
IMÁGEN 103. Estado del tianguis “El Moral” en total abandono, inaugurado en el año 2004 con una inversión de 8 millones de pesos.

TOPOGRAFÍA
La ciudad de Xalapa, Veracruz presenta una topografía montañosa, al estar cercana al Cofre de Perote el suelo es irregular. La periferia norte de la ciudad cada vez es más accidentada como lo es en el caso de la zona de estudio. Existen diferencias de niveles de 6 metros entre los puntos más altos y bajos del sitio. Esto condiciona las características del proyecto como lo es el emplazamiento en diferentes niveles encargados de conectar las distintas alturas.
IMÁGEN 104. Mapa topográfico de la colonia El Moral y la zona aledaña; se muestra en color el sitio.
IMÁGEN 105. Corte del sitio, se observa la pendiente de éste y la diferencia de alturas.

IMÁGEN 106. En la imágen se señalan las vistas del sitio (verde) y las vistas que se obtienen desde el sitio a su contexto. (rosa).
IMÁGEN URBANA
El sitio se encuentra en una zona de uso habitacional en la periferia norte de la ciudad. Esto significa que se encuentra rodeado de vivienda de nivel popular, interés social e incluso precario. Mayormente viviendas de hasta dos niveles, así como comercio. Recientemente se han llevado a cabo obras de infraestructura en la zona.
Calles pavimentadas, alumbrado público y drenaje han sido factores determinantes en el mejoramiento de la zona; que se han encargado de reemplazar la imagen de ciudad en abandono con lotes deshabitados y baldíos. Las condiciones del paisaje se describen con una vegetación dispersa, resultado de una urbanización desmedida y sin planear. Las áreas verdes se ven afectadas por la falta de mantenimiento. La extensión hacia el límite de la ciudad proporciona una oportunidad para la organización de las conexiones visuales entre el entorno natural y construido.





IMÁGEN 107. Vistas del sitio, muestran la diferencia de alturas entre la calle Río Amazonas y las dos privadas que corren perpendiculares a ésta. Al no existir edificios de más de 4 niveles, las vistas no son interrumpidas, ni se proyectan sombras en el sitio.



2 3 4

IMÁGEN 108. Las vistas desde el sitio hacia el exterior consisten en su mayoría de uso residencial de baja densidad con viviendas unifamiliares de uno o dos niveles.Además de la colindancia con el Telebachillerato Revolución en la privada Juan Bautista.
IMÁGEN 109. La topografía de la ciudad de Xalapa afecta de forma específica en algunos puntos de la ciudad, tales como los recorridos del viento y el asoleamiento.
VIENTOS Y ASOLEAMIENTO
El análisis de los aspectos climáticos del sitio es importante en la conformación del proyecto. Este análisis permite conseguir beneficios en diferentes aspectos; mantener el confort térmico en el edificio, el ahorro energético en cuanto a sistemas de calefacción o ventilación. Así como el ahorro energético al disminuir la necesidad de iluminación artificial.
El asoleamiento se presenta de este a oeste por el sur. En este aspecto, el sol se presenta como un recurso energético que puede ser aprovechado de forma pasiva o activa en diversos sistemas de captación solar. En el tema de confort térmico, también es necesario conocer el recorrido solar para utilizarlo a beneficio por medio de dispositivos de control solar.

IMÁGEN 110. Diagrama isométrico del recorrido solar, sobre el siitio.
IMÁGEN 111. Diagrama isométrico del los vientos dominantes y de donde provienen.


Los vientos dominantes en la ciudad de Xalapa, provienen de este a sureste. Mientras que los vientos fuertes son del norte. La topografía puede afectar puntualmente en la circulación del aire, pues los terrenos irregulares modifican el comportamiento del viento. En el caso específico del sitio, los vientos dominantes son de este a sureste pues siguen el relieve; mientras los vientos fuertes del norte no suelen ser tan directos pues una elevación en la topografía protegen de cierta manera el impacto directo. Estos datos ayudan a conseguir la correcta circulación del aire en el edificio y mantener un confort térmico dentro del edificio sin importar el clima exterior.

PERFIL DEL USUARIO.
El proyecto del centro comunitario, pretende rescatar un espacio y convertirlo en un lugar de convivencia, un espacio para la comunidad. Esto significa brindar un lugar sin importar las diferencias de edad, sexo o situación socio-económica. Así es, el proyecto del centro comunitario se dirige a la comunidad y se adapta para ofrecerles diferentes oportunidades de esparcimiento, aprendizaje y convivencia. Al analizar datos estadísticos de la población, se ubican diferentes perfiles.
• Niños en edad escolar (6 - 15 años). Con necesidad de espacios de recreación seguros e incluyentes; así como espacios que los ayuden a desarrollar sus habilidades cognitivas. De igual forma, comenzar a inculcar hábitos saludables y revisión médica constantes.
• Adolescentes y adultos (13 - 35 años). La falta de opciones educativas en la zona es determinante en la necesidad de ofrecer cursos y talleres en áreas que briden oportunidades de empleo. Existe la necesidad de cursos, talleres, clases y actividades extracurriculares con el objetivo de proporcionar mejores oportunidades de competencia en el ámbito profesional y de desarrollo personal.
• Madres solteras (15 -54 años). Según las estadísticas, Xalapa es una de las ciudades con el mayor número de madres solteras con un 35 %. La Encuesta Nacional de Dinámica Demográfica (Enadid) revela que el porcentaje de mujeres de entre 15 y 54 años de edad con al menos un hijo es de 21.2%. Dentro de este demográfico, se busca ofrecer la oportunidad de aprender algún oficio que brinde una fuente de empleo. Además de un espacio que dé la bienvenida y ofrezca la oportunidad de convivir, cuidar su salud y participar en las actividades de la comunidad.
IMÁGEN 112. Imagen ilustrativa de la población de la colonia El Moral.
IMÁGEN 113. Fotografía que detalla las condiciones actuales del sitio, el Mercado El Moral.
• Adultos mayores de 60 años. Este perfil de usuario es normalmente ignorado, pues no representa un porcentaje grande de la población; sin embargo, irá en crecimiento los próximos años. Considerando las características de las personas de la tercera edad, se necesita brindar atención médica adecuada al cuidado de enfermedades crónicas. Espacios de convivencia y dedicados a la práctica de actividad física acordes a su edad. Además de opciones de entretenimiento, culturales y artísticas.
• Personas con discapacidad. No son comunes los espacios optimizados para este perfil demográfico y es indispensable proyectar espacios accesibles a todo tipo de movilidad. Rampas, espacios adecuados para sillas de ruedas, superficies podotáctiles, favorecen la autonomía e independencia de las personas discapacitadas. Promoviendo la inclusión y mejorando la calidad de vida.
CONCLUSIÓN.
El análisis del sitio en distintas escalas, permite evaluar las características del contexto a intervenir, sus necesidades y limitaciones. Provee información necesaria para seguir ciertos lineamientos que son de utilidad al proyectar una tipología tan dependiente de su contexto como lo es el centro comunitario.
De acuerdo a los datos anteriores, el contexto de la zona norte de la ciudad de Xalapa, Veracruz específicamente los alrededores del antiguo Mercado El Moral; describe una zona en condiciones desfavorables. La imagen urbana de la zona consta de vivienda en su mayoría de nivel socio económico bajo en viviendas de máximo dos niveles y sin terminar. El reciente interés de mejorar la zona ha dotado de todos los servicios básicos y la pavimentación de calles circundantes al predio. Acerca del sitio, la topología no presenta riesgos ni afecta de manera extraordinaria el clima. Los accesos son suficientes y la circulación es fluida.
El sitio elegido cumple con las características adecuadas para albergar el centro comunitario; un nuevo equipamiento en la zona que servirá de catalizador de interacciones y acciones en favor de la comunidad local. Todo esto en búsqueda de mejorar la imagen y proveer de oportunidades a un sector que normalmente en desventaja.



IMÁGEN 114. “Visualización de la fachgada norte del proyecto Reconexión, se muestra el acceso por la Av. Río Aamazonas.
“La gente ignora el diseno que ignora a la gente."
-Frank Chimero.
PRESENTACIÓN
El proyecto ubicado al norte de la ciudad de Xalapa, Veracruz tiene como objetivo el mejoramiento de la zona mediante la recuperación del espacio público y su revitalización en beneficio de la comunidad local. Asimismo, busca generar áreas verdes y promover su conservación; creando espacios seguros y confortables. Éste se encuentra rodeado de uso habitacional lo cual es ideal para el centro comunitario, que busca convertirse en un espacio de reunión multidisciplinario y distanciarse del estigma que conlleva el centro comunitario como espacio de ayuda social para la población de escasos recursos.
La conexión con el uso principalmente habitacional; así como el equipamiento conformado por educación de nivel básico y medio superior genera un punto de reunión y convivencia del cual todos pueden formar parte.
La ubicación del predio en la intersección de la calle Río Amazonas y la privada Pascual Ortiz Rubio es por medio de una pendiente que se dirige hacia el sur.
Este desnivel presenta la oportunidad de plantear el centro en distintos niveles y conectarlos generando un recorrido. Integrando áreas deportivas de convivencia y de contemplación.
IMÁGEN 115. Vista aérea del conjunto del proyecto del centro comunitario y su relación con el contexto.

PROGRAMA ARQUITECTÓNICO
El programa arquitectónico surge a partir del análisis de necesidades específicas de la zona en la que se proyecta. En respuesta, el proyecto combina distintas tipologías con el fin de proponer un centro comunitario adaptado al siglo XXI que combine el deporte, la educación y el cuidado de la salud en un espacio que promueva una mejor calidad de vida. De acuerdo al sistema normativo de equipamiento de SEDESOL, el centro comunitario cuenta con un radio de servicio en un contexto urbano de 700 m. Dentro de este radio, la colonia El Moral, alcanza un nivel de servicio intermedio con más de 50 000 habitantes. Este dato da la pauta para la dosificación y cuantificación de áreas del programa arquitectónico. El proyecto cuenta con un área de 1 669.55 m² que se dividen en 4 bloques principales. Cada uno de los volúmenes son destinados a un uso específico, mientras que su intersección el uso es definido por el usuario, lo que hace del espacio verdaderamente público y busca la aceptación de la comunidad.

DIAGRAMA DE FUNCIONAMIENTO.
El diagrama anterior permite visualizar la configuración y ordenamiento espacial de las áreas del proyecto, así como su relación entre zonas. De acuerdo a las diferentes características de accesibilidad al sitio, condicionantes climáticos y delimitantes de acuerdo al nivel de privacidad o restricciones de acceso. Se define también la posibilidad de generar diferentes accesos según el perfil, desde el usuario hasta el personal del centro comunitario.
IMÁGEN 116. Diagrama de funcionamiento del proyecto, indicando relaciones entre las distintas áreas y sus diferentes usos.

IMÁGEN 117. Planta baja del proyecto; muestra las conexiones y accesos tanto peatonales como al estacvionamiento desde la calle Pascual Ortíz Rubio.


IMÁGEN 118. Planta del primer nivel del proyecto; muestra las interacciones entre los edificios y el acceso desde la calle Río Amazonas, al norte del proyecto.


CONFIGURACIÓN VOLUMÉTRICA
COMPOSICIÓN ARQUITECTÓNICA
Dentro del desarrollo de la forma del proyecto, el proceso creativo se experimenta a la par que la interpretación de los datos del sitio y sus condicionantes. Este es complementario uno del otro; por medio de un ejercicio de composición a través de la intersección de bloques de distintos tamaños y texturas, como la forma es definida. Esta intersección genera movimiento y el dinamismo que se busca transmitir a través del proyecto.
La composición dinámica es una representación abstracta de las relaciones interpersonales necesarias en una comunidad. La convivencia entre personas que comparten un entorno, sin embargo provienen de lugares diferentes, con diferentes historias. Es representada por las distintas texturas y tamaños de las formas. Al crear una conexión entre ellos, la comunidad se convierte en una fuerza de cambio.
IMÁGEN 119. Composición pictográfica del proceso de desarrollo conceptual. Através de el se exploran los distintos conceptos que definirán la forma.
IMÁGEN 120. Diagrama que muestra el concepto de elevación. Este permite liberar la planta baja y obtener una mejor interración con el contexto inmediato.
IMÁGEN 121. Desarrollo de la forma, interpretando los distintos conceptos de la forma y adaptándose a las circunstancias del sitio y las condiciones climáticas.


PARTIDO ARQUITECTÓNICO
SEMBRADO
La forma es definida por las distintas condiciones del terreno y sus características. Se plantea un bloque que se eleva sobre el terreno, permitiendo liberar la planta baja para un uso recreativo y que de la bienvenida al peatón. Este bloque elevado contiene una extrusión que hace de patio central, referente a la arquitectura colonial de la ciudad y que inunda de iluminación al conjunto. Es importante reconocer los accesos principales, tanto norte como sureste son conectados dentro del proyecto y pretenden unir los recorridos que antes no sucedían, acercando los dos puntos. Este recorrido complementa las actividades del interior y genera nuevas interacciones entre distintos perfiles de la comunidad. La plaza principal al sur del predio funciona como un lugar de encuentro para la comunidad donde ocurren distintos tipos de actividades al aire libre en un espacio seguro, multifuncional y social que fomente la convivencia entre los usuarios, generando así un sentido de pertenencia entre con la comunidad.



IMÁGEN 122. Visualización del proyecto del centro comunitario en la colonia El oral; vista desde la calle Pascual Ortíz Rubio
IMÁGEN 123. Visualización desde el puente que libra la plaza de acceso y que conecta los edificios del comedor comunitario con la mediateca.
IMÁGEN 124. Corte trasnversal del cionjunto, permite señalar los diferentes niveles en el proyecto.
La intersección de los bloques y su consecuente rotación permiten iluminar y crear vistas interiores que llamen la atención del usuario e inviten a recorrerlo y experimentar su interior. De la misma forma, las conexiones mediante puentes permiten recorren el espacio sin limitantes y adquirir diferentes puntos de vista. transmitir El contacto del usuario con el espacio público busca transmitir la sensación de un espacio abierto y accesible con la finalidad de generar conexiones e intercambios. Definir el proyecto del centro comunitario significa plantear distintos criterios de diseño sobre los cuales se regirá el planteamiento. En este caso se plantean de la siguiente manera. La propuesta busca la modulación estructural que permita desarrollar el proyecto de la manera más eficiente. Así mismo, entender los aspectos funcionales y formales necesarios en el centro comunitario; adaptándolos a las necesidades actuales de la sociedad. Espacios abiertos, versátiles y equipados que permitan las interacciones propias de una comunidad Se plantea la implementación de estrategias sustentables, que minimicen el impacto del proyecto. Tomar en cuenta la orientación, el recorrido solar y su incidencia, los vientos, el manejo del agua y desechos. Estos puntos ayudan a mantener un confort térmico siendo responsables con el ambiente. Necesario en un proyecto comunitario, es indispensable la consideración de la pluralidad de los usuarios y sus distintas condiciones de accesibilidad. Las circulaciones verticales son por medio de ascensores conectados por puentes que acercan los diferentes bloques sin limitar la movilidad del usuario.



IMÁGEN 125. Visualización de la fachada norte del proyecto, desde la intersección de las calles Río Amazonas y Pascual Ortñiz Rubio.
IMÁGEN 126. Fachada este desde la calle Pascual Ortíz Rubio en donde se aprecia el cambio de nivel entre los distintos accesos y como el proyecto se adapta a su contexto.






IMÁGEN 127. Fachada norte del edificio de educación y capacitación.
IMÁGEN 128. Visualización de la fachada norte del edificio que contiene el auditorio, se observa el acceso desde la calle Río Amazonas y como interactúa con el edificio.


IMÁGEN 129. El diagrama muestra la distribución espacial de las distintas áras que componen el proyecto.
FUNCIONAMIENTO
Los cuatro volúmenes principales que componen el proyecto son destinados a un uso diferente de acuerdo a su función, cada uno con su propio programa. Al reunir diferentes tipologías en el centro comunitario, es importante diferenciar y relacionar los usos compatibles entre sí; además de poder controlar el acceso a las diferentes zonas, según las necesidades de los usuarios.
EDUCACIÓN Y CAPACITACIÓN.
Este volumen compuesto de dos niveles contiene diferentes formas de acceder al aprendizaje e interactuar con él. Es el volumen al norte del terreno que se encuentra inmediato al acceso norte y se eleva sobre el estacionamiento, permitiendo un acceso directo desde éste. Los tres niveles dividen los usos y regulan las interacciones entre los diferentes perfiles de usuarios.
CENTRO DE SALUD.
Elevado sobre la calle que atraviesa el sitio, se encuentra el bloque dedicado al cuidado a la salud. Este se proyecta en dos plantas y así se logra generar privacidad. En la planta baja se encuentra la farmacia que da abasto a la comunidad cercana. Mientras que la planta alta ofrece atención médica.
COMEDOR COMUNITARIO.
El comedor comunitario es una parte importante del proyecto, pues busca mejorar y ampliar el espacio existente. Este volumen se extiende desde la pendiente al norte del sitio y se eleva sobre la plaza para generar vistas de ésta. Accesible mediante la plaza y también desde el acceso norte por medio de rampas y escaleras.
ADMINISTRACIÓN.
El último volumen se ubica por encima del acceso del estacionamiento y permite la circulación desde éste y hasta cualquier área de manera eficiente. Es el área ubicada de llevar un control de las actividades que ocurren en el proyecto y es indispensable en el funcionamiento correcto del centro comunitario.


PLAZA DE ACCESO
La primera impresión al accesar al centro comunitario es a través de la plaza pública del centro comunitario. Esta da la bienvenida y busca alejarse de la imagen de abandono y deterioro con un espacio verde y de fácil acceso; donde existe espacio para realizar distintas actividades recreativas, deportivas, sociales y culturales. Con el objetivo general de servir a la sociedad, se cimienta el centro comunitario como una recuperación de espacio público, que devuelve a la sociedad espacios que conjuguen compromiso ambiental, tecnología y diálogo social.
La plaza pública de acceso ofrece un espacio de convivencia, expresión y relajación que es muy necesario dado las pocas opciones similares en la zona. La flexibilidad es uno de los factores determinantes en su proyección, pues busca albergar usos diversos, atendiendo los diferentes perfiles que existen en la zona. Esta se abre hacia la calle de acceso principal y permite hacer uso del transporte alternativo como lo es la bicicleta; así como privilegiar al peatón en la dinámica de circulación de la ciudad.
IMÁGEN 130. Vista de la plaza de acceso. Se observan los espacios de acceso y el anfiteatro que provee de espacios para la expresion cultural y artística de la comunidad.

IMÁGEN 131. Vista de la plaza de acceso desde la calle Pascual Ortiz.
IMÁGEN 132. La gráfica de la cancha propone un lienzo para la creatividad de artistas locales.
IMÁGEN 133. La cancha puede albergar distintas actividades entre basketball, fútbol, volleyball, etc.
La cancha deportiva nace como respuesta de la necesidad de ofrecer espacios deportivos a la comunidad. La falta de espacios deportivos en la ciudad es un problema que se ha manifestado por años. Y las consecuencias de la falta de ejercicio en la juventud van desde enfermedades como la obesidad e hipertensión hasta la adopción de hábitos de vida no saludables. Además, se es más propenso a ingerir alcohol y drogas. La inclusión de un espacio para practicar actividades deportivas fomenta el sentido de pertenencia a un grupo y valores como el compañerismo, la disciplina y el respeto. Adicionalmente a los beneficios a la salud.
Las gráficas de la cancha buscan expresar vitalidad con colores llamativos y que en conjunto con el usuario puedan formar parte de la imaginación y creatividad propios del juego. De igual forma presenta un lienzo para la apropiación del espacio en conjunto con el muro al sur del proyecto, que puede ser intervenido por los artistas locales.




IMÁGEN 134. Vista del edificio del auditorio y talleres desde la plaza de acceso, también se puede observar las escaleras que funcionan como un anfiteatro que ofrece un espacio para artistas o músicos.


CENTRO DE SALUD
IMÁGEN 135. Vista desde la plaza de acceso al centro de salud y la fachada que evita la incidencia directa del sol, lo que permite regular la temperatura interior.
IMÁGEN 136. Plantas arquitectónicas del edificio del centro de saud.
Tiene como principal función el brindar atención médica y facilitar el acceso de la comunidad a medicamentos. Las enfermedades crónicas son prevenibles mediante la concientización; es el motivo por el cual se ofrece atención médica general, asesoramiento nutricional sobre hábitos saludables de alimentación, consultas dentales, educación sexual y terapia física. Las circulaciones verticales del edificio se componen de escaleras y elevador, lo que permite que personas de todas las edades y capacidades, puedan hacer uso de las instalaciones.







IMÁGEN 137. Diagrama que ilustra las partes que componen al edificio del centro de salud.
IMÁGEN 138. Visuzalizacion del consultorio médico del centro de salud, equipados con lo necesario para chequeos médicos generales.
IMÁGEN 139. El consultorio dental tiene la capacidadbrindar una atención completa.
La forma de este edificio permite organizar el uso y generar recorridos específicos para ciertas necesidades. Resultado de esto, se eleva la zona de atención médica, mientras que el espacio en planta baja se destina al dispensario médico. La planta alta se divide en dos zonas y controla su acceso por medio de las circulaciones verticales y la recepción.
A optar por una planta libre, existe el beneficio poder configurar el espacio por medio de elementos flexibles y transparentes sin omitir la privacidad. Los consultorios médicos se distribuyen por medio de muros divisores que a su vez funcionan como mobiliario con el fin de maximizar el espacio de los consultorios.


El desarrollo geométrico se expresa mediante geometría euclidiana que se eleva sobre la calle de acceso. Esto permite reducir el impacto sobre el sitio y aprovechar el espacio disponible en su mayoría. La forma alargada del edificio aunado a la fachada acristalada permite el aprovechamiento de la luz natural y brinda diferentes vistas del conjunto.
El espacio de atención médica se divide en dos zonas y controla su acceso por medio del elevador y la recepción. Los consultorios médicos se organizan por medio de muros divisores que a su vez funcionan como mobiliario y maximizar el espacio de los consultorios.
IMÁGEN 140. Vista exterior de la fachada del centro de salud.
IMÁGEN 141. La sala de espera del centro de salud es cubierta por los paneles metálicos que regulan las temperaturas y disminuyen la incidencia solar al interior.
IMÁGEN 142. Diagrama en explosión que muestra las áreas del centro de salud, su relación y las circulaciones del interior.

COMEDOR COMUNITARIO

El comedor comunitario es una parte importante en la concepción del proyecto. Este fue establecido en años anteriores y, desde su creación, ha brindado oportunidades a los habitantes de la colonia El Moral y colonias circundantes que se encuentran en condiciones de vulnerabilidad económica. La importancia que representa en la zona es tal, que es necesario conservar esta funcionalidad y dotarla de nuevas funciones que ayuden a desarrollar mejor a la comunidad que habita la zona. Mejorar las condiciones existentes del comedor significa brindar un espacio con características que permitan hacer de este espacio, un activo para la comunidad. El espacio principal del comedor se eleva sobre el terreno, de manera que permite liberar la planta baja que en otras circunstancias sería desaprovechado. Mientras que el espacio principal, que se destina al comedor podrá ser utilizado como un salón de usos múltiples con una gran capacidad para la organización de eventos para la comunidad tales como fiestas, reuniones, etc.
IMÁGEN 143. Vista exterior del edificio del comedor comuniatrio desde la plaza de acceso.
IMÁGEN 144. Corte del comedor comunitario; se observa la separación del suelo gracias a la estructura metálica y una cubierta metálica que provee un gran espacio.





IMÁGEN 145. Planta arquitectónica del comedor, muestra todas las áreas que componen el edificio.
IMÁGEN 146. Visualización del interior de salón de usos múltiples , el cual alberga el comedor y puede ser utilizado por la comunidad para diferentes actividades.
IMÁGEN 147. Vista de noche del edificio desde la plaza de acceso.
La cocina adyacente al espacio de usos múltiples es ideal para la creación de un espacio apto para la impartición de talleres de cocina y temas relacionados. Ofreciendo así a los asistentes oportunidades de mejorar sus oportunidades laborales, apoyar a la economía familiar, mejorar hábitos alimenticios o simplemente como un pasatiempo. La cubierta ligera que se propone es sostenida por un sistema de cerchas que permite librar los grandes claros y regular la temperatura al interior. Las diferentes alturas y movimientos en ésta permiten la manipulación de las aguas pluviales y su recolección para el aprovechamiento en el edificio. Ya sea como riego y limpieza.


IMÁGEN 148. Vista del edificio de talleres y auditorios desde la calle Pascual Ortiz, la fachada se abre y muestra la ciudad de Xalapa. También se observa el acceso al estacionamiento en el nivel inferior.
EDUCACIÓN Y CAPACITACIÓN
El edificio norte contiene espacio para realizar actividades culturales y educativas. Se eleva sobre el estacionamiento, lo cual permite disminuir el impacto que tendría este al estar al nivel del suelo. Este volado permite conectar todas las áreas del proyecto sin interrumpir los múltiples flujos de movimiento.
Este volumen se compone de una fachada acristalada lo que permite iluminar el interior de manera natural. La misma ofrece una transparencia que proporciona vistas desde el interior a todo el proyecto. Debido a la incidencia del sol, la fachada es cubierta por una piel que refleja los rayos del sol; la separación entre el edificio y la sobre estructura que la sostiene permite un flujo de aire que regula la temperatura interior.
La terraza en la fachada este difumina la relación entre el interior y el exterior gracias a las ventanas. Esta ofrece un espacio de contemplación con vistas a la ciudad de Xalapa.



IMÁGEN 149. Plantas arquitectónicas del edifico de educación y capacitación.

IMÁGEN 150. Corte transversa, donde se observa ka diferencia de alturas y la estructura que soporta y se eleva sobre el terreno.
IMÁGEN 151. Vista del edificio del auditorio desde la plaza de acceso.
IMÁGEN 152. El acceso desde la calle Río Amazonas se extiende como un puente hacia el interior y es cubierto por la estructura.



IMÁGEN 153. La planta baja se libera mediante la elevación del edificio y esto hace posible habilitar este espacio como estacionamiento.
IMÁGEN 154. El vestíbulo del auditorio es un espacio que permite interactuar entre presentaciones, funciones o conciertos.
AUDITORIO Y GALERÍA.
Este volumen compuesto por dos niveles brinda oportunidades a la comunidad de expresión cultural y artística. El auditorio con capacidad para 80 personas ofrece un espacio para conferencias, proyecciones audiovisuales y presentaciones como obras de teatro y espectáculos musicales. Complementario al vestíbulo del auditorio, se destina el área conjunta a un espacio de exposición, contemplación y encuentro. Esta galería está encargada de acercar el arte y la cultura a la comunidad, así como una oportunidad para mostrar los resultados obtenidos en los espacios de aprendizaje.


PLANTA NIVEL 1.


MEDIATECA Y TALLERES.
El nivel superior cuenta con un espacio de lectura con materiales bibliográficos, audiovisuales y digitales encargados de estimular el interés de las nuevas generaciones hacia la lectura, la investigación y la búsqueda del conocimiento ya sea escrito o por medio del acercamiento de los medios digitales. Aunado a esto se busca brindar oportunidades de formación profesional, apoyo extracurricular y educación por medio de clases y talleres para los diferentes perfiles de los usuarios.
IMÁGEN 155. La galería del proyecto puede albergar muestras distintas exposiciones en un amplio espacio iluminado naturalmente.
IMÁGEN 156. La biblioteca en el segundo nivel ofrece vistas de la ciudad, lo que se traduce en un espacio tranquilo de lectura.
IMÁGEN 157. Corte transversal del edificio, se observan los distintos niveles y su relación.


PLANTA NIVEL 2
IMÁGEN 158. Vista de las distintas configuraciones posibles del ordenamiento de los espacios educativos.
Los espacios educativos cuentan con paneles divisores que permiten modificarlos en cualquier momento para adecuarlos a las necesidades de alumnos y maestros. Cada una de las cuatro aulas está compuesta por muebles muro lo que permite aumentar el espacio de guardado y que no bloquee el espacio del aula. Además de permitir que las transiciones no interrumpan la continuidad de clases o talleres. Diferentes opciones permiten hacer uso de las instalaciones dependiendo de la función que sirvan: salón de conferencias, aulas y talleres, sala de reuniones, etc.




IMÁGEN 159. Un módulo puede contener aulas o talleres.
IMÁGEN 160. Dos módulos permiten clases para presentaciones ante grandes grupos.
IMÁGEN 161. Los módulos pueden ser adapatados según el mobiliario necesario para las actividades.

AZOTEA VERDE.
IMÁGEN 162. Visualización de la pista de la azotea, con vistas a la ciudad de Xalapa, Veracruz.
IMÁGEN 163. Detalle de la fachada, desde la azotea verde del proyecto.
El tercer nivel aprovecha el espacio de la azotea para generar un espacio lúdico, de convivencia y apto para la actividad física. Una pista para correr de 25 m recorre el largo del volumen y brinda la posibilidad de ejercitarse en un espacio seguro: libre de obstáculos y riesgos. Adicionalmente, puede ser utilizada para actividades como yoga, baile y demás actividades en contacto con un área verde en medio de la ciudad. Cuenta también con zonas de paseo, contemplación y descanso. Otro aspecto positivo de la azotea es que permite disminuir el impacto del edificio en el sitio mediante la recuperación del área verde.


PLANTA NIVEL 3

ESTRUCTURA
La elección del acero como material estructural responde al planteamiento del centro comunitario como un proyecto para el futuro. Éste presenta muchas ventajas. Alta resistencia, durabilidad y ductilidad permiten llevar a cabo estructuras esbeltas, visualmente ligeras y con una mayor resistencia que el concreto al desgaste por el paso del tiempo.
Desde el planteamiento del proyecto, elegir este material supone modular la estructura para obtener el menor desperdicio posible. Además de que las uniones al ser mediante placas y tornillos permiten que sean prefabricadas y se elimina la necesidad de mano de obra altamente especializada. Al final, el mismo acero estructural puede ser desmontado y reutilizado cuando este haya cumplido su ciclo de vida.
IMÁGEN 164. El esqueleto formado por acero estructural, muestra una estructura metálica que cubre grandes claros y se eleva sobre el terreno con pocos puntos de apoyo, lo que se traduce en un impacto mínimo sobre el terreno.
IMÁGEN 165. Diagrama isométrico de una sección de la estructura. Ilustra desde la cimentación, el sistema estructural y la cubierta.
La estructura metálica del conjunto está compuesta por vigas IPR interconectadas por medio de nodos articulados. Esto permite claros más grandes, sin la necesidad de aumentar el peso de la estructura.
Se plantea utilizar estructuras que conecten los distintos usos a modo de puentes. Para resolver los grandes claros que se proyectan, se recurre al uso de cerchas metálicas como estructura principal de los edificios. Esto permite elevar la estructura y reducir el impacto que estos tienen sobre el terreno; logrando así recuperar el espacio público.
El sistema de entrepiso conocido como losacero, trae consigo muchos beneficios en cuanto a proceso de obra y ahorro de materiales. Al ser formado por láminas de acero que soportan la capa de compresión de concreta colada sobre ésta, elimina la necesidad de una cimbra y minimiza el desperdicio de materiales. Al igual, el tiempo de construcción supera en rapidez a los sistemas constructivos tradicionales, lo que se traduce en mejores tiempos y mayor control en la construcción.


La modulación de cada edificio es planeada para maximizar el área útil logrando así, una planta libre que permita la flexibilidad del espacio. Estos módulos son de 6.20m en el caso del edificio de talleres y auditorio arriba ilustrado. La armadura cerchada que se genera también libera la planta de columnas intermedias que interrumpan el espacio. Para esto, es necesario la utilización de elementos diagonales en la cercha estos trabajan alternativamente en tensión y compresión y proporcionan estabilidad al edificio.
IMÁGEN 166. Corte transversal del edifico que muestra las diferencias de altura y la estructura cerchada que soporta el gran claro sobre el estacionamiento.
IMÁGEN 167. Detalles estructurales de las uniones y conexijones entre la estructura metálica y elementos de concreto.




IMÁGEN 168. Corte de fachada transversal del edifico de talleres. Muestra el sistema estructural que forma el volumen.
IMÁGEN 169. Corte del edificio del centro de salud, muestra la elevación sobre la privada Pascual Ortiz.
IMÁGEN 170. Detalles estructurales de las uniones y conexiones entre la estructura metálica y los elementos de concreto.
El edificio del centro de salud está conformado por dos volúmenes: uno de concreto que funciona como acceso y contiene las circulaciones verticales. Este es soportado por zapatas corridas que distribuyen el peso de los muros de concreto y se encargan de anclarlo al terreno en desnivel.
El otro volumen es más ligero a la vista y es formado por una armadura metálica que se eleva sobre la calle de acceso vehicular. Esto es posible gracias a la estructura cerchada que se ancla al volumen de concreto y se apoya sobre dos columnas en el otro extremo de la calle. Generando un volado de 7.00 m que se suspende sobre la calle; como una declaración de pertenencia de la circulación como parte del proyecto.

SOBRE ESTRUCTURA.
El sistema ligero de fachadas cubre los diferentes volúmenes transparentes como una piel en las fachadas oeste, sur y este. Estos están sujetos a la estructura principal por medio de una sobre estructura que sujeta los paneles metálicos. El vacío que genera la separación, es adecuado para la circulación del aire y refrescar el interior sin bloquear las vistas que generan los grandes ventanales, ahorrando así gastos energéticos que supondrían enfriar por medio de estrategias activas. Las diferentes formas geométricas de los paneles generan movimiento en la fachada y cambian dependiendo de la incidencia del sol sobre éstos.
Además de proveer privacidad como es el caso del centro de salud. Y logrando una iluminación difusa en el interior que ilumine de manera homogénea.
IMÁGEN 171. Diagrama de la fachada del edificio de auditorio y talleres a la derecha. A la izquierda se detallan sus componentes estructurales y uniones.




IMÁGEN 172. Vista exterior de los paneles metálicos desde el exterior.
IMÁGEN 173. Vista desde el interior del centro de salud.
IMÁGEN 174. Vista axonométrica del detalle constructivo de la fachada del centro de salud.
IMÁGEN 175. Detalle en planta de la fachada del centro de salud.


SUSTENTABILIDAD.
IMÁGEN 176. Visualización del del acceso norte desde la calle Río Amazonas.
La ciudad que cuida y rehabilita su patrimonio es la ciudad que escucha a su pasado sin renunciar a su futuro. (Vidal, 2015). Es este equilibrio entre el pasado y el futuro es lo que lleva al proyecto del centro comunitario a sentar sus bases sobre un proyecto comprometido con el medio ambiente y respetuoso de su contexto a futuro.
El proyecto del centro comunitario es desarrollado con el criterio de un edificio sustentable y con el menor impacto ambiental. A continuación, se hace una síntesis de las estrategias utilizadas a lo largo del diseño del proyecto. Tomando como referentes los puntos de certificación LEED, el edificio opera bajo la eficiencia de consumo de agua y energía, el uso de energías alternativas y materiales adecuados al contexto.

SITIOS SUSTENTABLES.
El sitio del proyecto, funciona como la base para edificios ecológicos. Pues no existen en forma aislada, sino que son partes dinámicas de un tejido más grande. La categoría de sitios sustentables se concentra en seleccionar sitios que reduzcan la dependencia de los automóviles, que incorporen estrategias que mejores los hábitats de plantas y vida silvestre, y que mantengan la calidad del agua y el aire. En esta categoría se abordan inquietudes ambientales relacionadas con la ubicación, las condiciones existentes y otras características externas. El proyecto del centro comunitario aborda los siguientes puntos:
• Reurbanización de terrenos abandonados. La selección del sitio responde a la necesidad de crear un espacio comunitario en el antiguo mercado El Moral, en estado de abandono.
• Transporte alternativo: acceso al transporte público. El sitio designa espacios adecuados a las necesidades del transporte público.
• Transporte alternativo: almacenamiento de bicicletas. El proyecto toma en cuenta la utilización de la bicicleta como medio de transporte e incluye ciclovías a su alrededor, así como espacio para estacionamiento.
• Desarrollo del sitio: maximización del espacio abierto. Contrario a su estado actual, el centro comunitario designa áreas verdes integradas al edificio. Y desarrolla el estacionamiento vehicular con un diseño compacto.
• Efecto isla de calor: sin techo. En conjunción con el punto anterior. Las áreas pavimentadas están compuestas por sistemas de pavimentación porosa y en colores que reflejen la luz solar en lugar de absolverla. Además, el estacionamiento bajo techo ayuda a reducir el efecto isla de calor.
• Uso conjunto de instalaciones. La flexibilidad del proyecto permite que las instalaciones se usen para eventos y funciones no relacionadas al programa. Auditorio, comedor, campo de juego y estacionamiento disponen oportunidades de uso conjunto
IMÁGEN 177. Corte del edificio de auditorio y talleres, muestras les estrategias de sitio sustentables tomados en consideración en el proyecto del centro comunitario.


EFICIENCIA DE AGUA.
Esta categoría fomenta el uso de estrategias y tecnologías que reducen los impactos negativos relacionados con la recolección, el almacenamiento, la entrega y el tratamiento del agua potable que se consume en edificios y paisajes.
• Reducción del uso del agua. Instalación de accesorios de bajo flujo en baños, orinales, grifos de cocina y baños.
• Paisajismo con eficiencia de agua. Incluye la recolección de agua pluvial para el riego. Además de sistemas de riego de alta eficiencia como riego por goteo lo que permite disminuir la pérdida de agua por evaporación.
• Tecnologías innovadoras para aguas residuales. Instalación de un sistema de tratamiento de aguas residuales. Esto significa la reducción del consumo de agua potable por medio de descarga del inodoro por agua de lluvias/ aguas grises, así como orinales sin agua.
IMÁGEN 178. Corte esquemático del funcionamiento del sistema de recolección pluvial para su posterior uso.
IMÁGEN 179. Esquema del funcionamiento del sistema de tratamiento de aguas residuales.
Para poder cumplir con los puntos anteriores, se designó la cubierta del edificio de talleres como una superficie dedicada a la recolección de agua pluvial. El sistema empieza por la recolección en la cubierta, la utilización de láminas metálicas mantiene un coeficiente de captación entre 0.8-0-85 a diferencia de otros materiales como losa de concreto. Después pasa por un filtro de hojas y hacia un tanque de sedimentación con grava y arena. Este proceso termina por contener el agua en una cisterna, desde donde podrá ser utilizada en el proyecto.
Haciendo un cálculo para considerar cuánta agua se puede captar, se necesitan conocer algunos datos. El área del techo es de 496.95 m2, con un coeficiente de aprovechamiento del techo de 0.85. La precipitación media anual en la ciudad de Xalapa es de 1 591 mm, tomando en cuenta los meses más lluviosos entre finales de mayo y principios de octubre, lo que se traduce a 5 meses. Tomando estos datos se obtiene (496.95 m2) (1 591 mm) (0.85) = 134 410 / 5 = 134.41 lts/mes.
Aunado a esto, se plantea la incorporación de un sistema de tratamiento de aguas residuales que ayude a disminuir el impacto ambiental que trae consigo las aguas residuales. Al final del proceso, el agua es apta para irrigación sin riesgos para la salud humana ni malos olores.

ENERGÍA Y ATMÓSFERA.
Los edificios ecológicos buscan abordar el uso energético de varias maneras. Ante todo, reducen la cantidad de energía requerida para que el funcionamiento del edificio. Para reducir aún más los impactos ambientales de la generación de energía, se utilizan tecnologías de energía renovable como lo es la energía solar.
• Optimización del desempeño energético. Tomando en cuenta el recorrido solar, la forma del edificio se adapta para obtener los siguientes beneficios: la iluminación natural y mantener una temperatura confortable en el interior.
• Energía renovable en el sitio. Instalación de sistemas de energía renovable como paneles solares.

Es importante en un proyecto cuya base proviene de la experimentación y el desarrollo sustentable, explorar las fuentes de energía renovables. Los paneles solares son una opción silenciosa y de bajo mantenimiento. Para el proyecto del centro comunitario y después de analizar el recorrido solar, se eligió la azotea del centro de salud para la colocación de 25 paneles solares.

ESTRATEGIAS DE CONTROL SOLAR
Las condiciones de la ciudad de Xalapa mantienen una temperatura en temporada templada con un promedio de 26ºC y un máximo de 28º C; mientras que la temporada fresca se mantiene entres los 21º C, con un mínimo de 8º C. Con esos datos, además de la incidencia solar, se ubican las zonas cálidas y zonas frías dentro del proyecto. Así se proponen elementos y estrategias bioclimáticas que ayuden a controlar las condiciones dentro del edifico.
IMÁGEN 180. Recorrido solar sobre la volumetría del proyecto del sentro comunitario.
IMÁGEN 181. Corte esquemático de la colocación de paneles solares en la azotea del centro de salud.

• Fachada metálica perforada. La incidencia directa del sol en la fachada sur del volumen de salud determina la necesidad de un sistema de fachadas ligero. El sistema de placas metálicas con distintas formas geométricas genera una fachada dinámica; el impacto de los rayos solares cambia durante el día. Esto genera diferentes texturas en el interior al mismo tiempo que reduce la temperatura interior.
• Parasoles horizontales y celosías verticales. Con el fin de regular y controlar las incidencias térmicas del interior del comedor comunitario y el volumen de educación; los parasoles son una solución que no interrumpe las vistas. El aluminio tiene las ventajas de ser un material resistente lo que permite su uso en exterior. Además que puede ser reciclado al terminar su ciclo de vida.
• Cubier ta multipanel. Este material permite la modulación y se convierte en una opción ligera y modular con propiedades aislantes y de fácil instalación.
IMÁGEN 182. Zonas cálidas y frías del proyecto, de acuerdo al recorrido solar. Estas determinan la estrategia de control solar para lograr el confórt térmico y aprovechamiento de energías renovables como los paneles solares.
CONCLUSIÓN.
La tesis cumple con el objetivo general de establecer una propuesta de un modelo del centro comunitario del siglo XXI. Alejándose del modelo de asistencia social de proyectos en la ciudad; que significaban espacios totalmente desconectados de la comunidad. Y se acerque más a un proyecto de regeneración urbana de la zona encargado de detonar un cambio en la imagen urbana, sin descuidar el modo de vida de los habitantes.
El interés por la regeneración de áreas verdes y recuperación del espacio público como parte del proyecto, es consecuencia de una cuantificación del equipamiento urbano en zonas de alta marginación. Después de un análisis en la zona norte de la ciudad de Xalapa, se obtuvo un mejor panorama de las características del espacio y las necesidades de la comunidad., específicamente la colonia El Moral. Además de notar la falta de equipamiento urbano en dicha zona; se observó que el crecimiento de la ciudad no obedece un plan de desarrollo. Esto causa asentamientos en zonas de alto riesgo y la depredación de las áreas verdes que rodean a la ciudad. El planteamiento del proyecto comienza con definir el centro comunitario como un espacio público de asistencia y desarrollo social. Sin embargo, en la búsqueda se encontró una tipología desfasada de las necesidades actuales de la sociedad y descontextualizada del presente. De tal forma que presentaba como una oportunidad de actualizarlo, buscando así condensar el programa arquitectónico, expandir los usos que alberga y mejorar las condiciones de seguridad y cohesión social de la zona. Con la meta de desarrollar un proyecto congruente con el presente, teniendo en cuenta el impacto a futuro en la comunidad. Por esta razón se lleva a cabo una investigación que aborde el tema de la evolución de la tipología durante el último siglo. Conocer el camino que se ha recorrido y los cambios que se han manifestado de acuerdo a las condiciones de la época y el contexto, refleja el camino al que se dirige y se convierte en una guía con la cual definir el futuro del centro comunitario.
El futuro del centro comunitario se encuentra en su planteamiento como un proyecto sustentable y responsable tanto con el contexto artificial como el natural. Por un lado, debe apelar a los nuevos deseos de la población a la que atiende, sobre todo las nuevas generaciones en donde se apoya para generar cambios en las dinámicas sociales. Mientras que por otro debe tener la capacidad de recuperar y mejorar las condiciones bioclimáticas a nivel local. Esto se pone en práctica mediante la recuperación de zonas verdes, integración de sistemas de aprovechamiento de los recursos naturales y siempre buscando reducir su impacto lo más posible.
Este proyecto significó la oportunidad de desarrollar el centro comunitario como un espacio para la comunidad. Una respuesta de la arquitectura como medio para la democratización del espacio público y una plataforma de diálogo. Es la culminación de un exhaustivo trabajo de investigación, análisis y su consecuente diseño en favor de un sector de la población normalmente relegado.
ANEXOS. PARTIR DEL SIGLO XX.
BIBLIOGRAFÍA.
• CHILDS, C.. (1912). A Year’s Experiment in Social Center Organization,. EUA: New York Social Center Committee.
• FOLLET, M.P. (1918). The New State - Group organization, the solution for popular government. Nueva York: Longman, Green & Co.
• GAUSA, M. (2001). Metapolis: Diccionario de arquitectura avanzada. : Actar
• GROTH, M. (2018, 23 abril). Sherman Park. St. Louis City Talk. http://www.stlouiscitytalk. com/posts/2014/10/sherman-park
• JOSÉ, M. (2018, 27 marzo). Por qué las estructuras metálicas son la mejor elección para tu edificio. Serycoin. http://serycoin.com/2018/03/las-estructuras-metalicas-la-mejoreleccion-edificio/
• KOCHEN, J. J. (2018, 8 marzo). Rehabitar el barrio. Centro de Desarrollo Comunitario Los Chocolates. Revista Código. https://revistacodigo.com/los-chocolates-cuernavacarehabilitacion/
• PEREZ RUBIO, Carlos. (2017). El arquitecto y la ciudad. 8 de marzo 2019, de El Colegio Nacional Sitio web: https://colnal.mx/noticias/el-arquitecto-y-la-ciudad/
• Project for Public Spaces. (2019, 12 abril). What Makes a Successful Place https://www. pps.org/article/grplacefeat?utm-medium=website&utm-source=archdaily.mx
• RODRÍGUEZ Hipólito. (2014). Xalapa, monstruo urbano. 8 de marzo 2019, de Universidad Veracruzana Sitio web: https://www.uv.mx/cienciauv/blog/xalapamonstruourbano/
• The history behind the community center. 8 de marzo 2019. Sitio web: https://locality. org.uk/blog/the-history-behind-the-community-centre/
• Transversal, P. (2017, 24 mayo). Diseño colaborativo del espacio público. La Triple Dimensión. Paisaje Transversal. https://paisajetransversal.org/2017/05/de-la-casa-a-laplaza-diseno-colaborativo-del-espacio-publico/
• Migliani, A. (2020, 2 octubre). Reciclaje de Poliestireno Expandido (EPS) para fabricar revestimientos y sistemas de aislación. ArchDaily México. https://www.archdaily.mx/ mx/915911/reciclaje-de-poliestireno-expandido-eps-para-fabricar-revestimientos-ysistemas-de-aislacion
• NAFFZIGER, C. (2010, 9 noviembre). David P. Wohl Community Center – St Louis Patina. St. Louis Patina. http://stlouispatina.com/wohl-community-center/
• SOUZA, E. (2020, 20 agosto). Edificios en evaluación: 12 certificaciones de construcción sostenible. ArchDaily México. https://www.archdaily.mx/mx/946382/edificios-enevaluacion-12-certificaciones-de-construccion-sostenible-que-debes-conocer
• VAN RIJS, J. (2016). Ku.Be House of Culture and Movement. MVRDV. https://www.mvrdv. nl/projects/50/kube-house-of-culture-and-movement
• Vendena, G. (2011, 1 agosto). KU.BE by ADEPT/MVRDV: An Experimental Community Center - Buildipedia. Buildpedia. http://buildipedia.com/aec-pros/design-news/kube-byadept/mvrdv-an-experimental-community-center
• Wang, X. (2019, 12 abril). Chongqing 2035: Shifting away from quantity to quality to build sustainable cities in China. World Bank Blogs. https://blogs.worldbank.org/sustainablecities/ chongqing-2035-shifting-away-quantity-quality-build-sustainable-cities-china
ÍNDICE DE IMÁGENES.
097, 101, 102, 103, 104, 105 106, 107, 108, 110, 111, 114,115, 116, 117, 118, 119, 120, 121, 122, 123, 124, 125, 126, 127, 128, 129, 130, 131, 132, 133, 134, 135, 136, 137, 138, 139, 140, 141, 142, 143, 144, 145, 146, 147, 148, 149, 150, 151, 152, 153, 154, 155, 156, 157, 158, 159, 160, 162, 163, 164., 165, 166, 167, 168, 169, 170, 171, 172, 173, 174, 175, 176, 177, 178, 179, 180, 181, 182. Archivo personal.
001. Fotografía de Eneas De Troya.
003. Cortesía de Política al día.
004. Cortesía de Visita Xalapa.
005. Fotografía de Alberto Odériz.
006. Cortesía de Natura Futura Arquitectura.
007. Fotografía de Samuel Ludwig.
008, 059, 060, 071, 072, 096, 098, 099, 107, 108. Cortesía de Google Maps. 009. Cortesía de St. Louis City Talk.
010. Fotografía de Henry Mizuki.
011, 012, 013. Coretesía de Urbipedia.
014, 015, 016. Fotografías de María Gonzalez. 017, 018, 019. Cortesía de Hidden Architecture. 022, 023. Cortesía de Archello.
024. Cortesía de Afasia Archzine. 025, 026, 042. Cortesía de EM2N. 027, 028, 029 Fotografía de John Gollings. 030, 031, 032. Fotografía de ARCH-EXIST. 033, 034, 035, 036. Fotografías de Enrico Cano. 037, 038. Cortesía de TEN Arquitectos. 039. Fotografía de Yoshihiro Koitani.
040. Cortesía de Diller Scofidio + Renfro.
043. Fotografía de Emilio Gómez Fernández.
044. Cortesía de Paisaje Transversal.
045. Fotografía de Haupt & Binder. 046. Fotografía de Luis Gordoa.
047. Cortesía de Rojkind Arquitectos. Fotografía de Jaime Navarro.
048. Fotografía de Matthew Carbone.
051. Cortesía de LCP Ingeniería y Construcciones.
052. Fotografía de Craig Holmes.
053. Cortesía de México Desconocido.
054. Cortesía de Zero Consulting.
055. Cortesía de Corresponsables.
056. Fotografía de Zaickz Moz.
057. Cortesía de TOA.
058. Cortesía de Copenhaguenet.
062, 063, 064, 065, 066, 067, 068. Cortesía de MVRDV. 073, 074, 075, 076, 077, 078,0 79, 080. Cortesía de Archdaily. Fotografías de Rafael Gamo.
084, 085, 086, 087, 088, 089, 090, 091, 092, 093, 094. Cortesía de Archdaily. Fotografía de Su Shengliang.
095. Cortesía de Plumas Libres.
109. Cortesía de Universidad Veracruzana.
112. Cortesía de Hora Cero.
113. Cortesía de Libertad Bajo Palabra. Fotografía de Francisco de Luna.
161. Cortesía de DISIECO.
ÍNDICE DE PLANOS.
- Planos Arquitectónicos.
- Planos Estructurales.
- Planos de Instalaciones
