MEMORIA DE TRABAJO
PROFESIONAL PARA OBTENER EL TÍTULO DE LICENCIADO EN ARQUITECTURA




![]()
PROFESIONAL PARA OBTENER EL TÍTULO DE LICENCIADO EN ARQUITECTURA




PROFESIONAL PARA OBTENER EL TÍTULO DE LICENCIADO EN ARQUITECTURA



Asesor:
Arq. Hugo Castañeda Peredo






INTRODUCCIÓN
DESARROLLO DEL PROYECTO ARQUITECTÓNICO
DISEÑO DE LAS HABITACIONES
HYATT ZIVA & HYATT ZILARA CAP CANA
DISEÑO DE LOS ESPACIOS PUBLICOS HYATT ZIVA & HYATT ZILARA CAP CANA
HABITACIONES MODELO
PROCESO CONSTRUCTIVO DEL PROYECTO ENTREGA HOTEL ALL INCLUSIVE HYATT ZIVA & HYATT ZILARA CAP CANA


La memoria de trabajo presentada tiene como objetivo la obtención del título de Licenciatura en Arquitectura. Este documento está sustentado por la compañía en la que el alumno Benjamin Montalvo Albuerne labora desde Agosto 09 del año 2016. La compañía se llama Tourism and Leisure Development International (TLDI) y se encarga de la administración, supervisión, ejecución y entrega de proyectos all inclusive, residenciales, comerciales y hoteleros llave en mano de gran lujo y gran escala en el Caribe. La función principal de esta compañía es el Project Managment de construcciones.
A continuación, se presentan las funciones que el alumno Benjamin Montalvo Albuerne ha desempeñado en la compañía como Arquitecto de Proyectos desde el día mencionado anteriormente, hasta la fecha:
• Dibujante de planos constructivos en obra.
• Supervisión de diseño arquitectónico ejecutado en obra.
• Delineante de planos de instalaciones mecánicas, eléctricas e hidrosanitarias; guías mecánicas de cocinas y lavandería.
• Coordinador de procesos de diseño y ejecución de todas las disciplinas involucradas en un proyecto hotelero All Inclusive.




El proyecto hotelero Hyatt Ziva & Hyatt Zilara Cap Cana está dirigido al público en general, aunque tiene una inclinación especifica a turistas americanos, europeos, canadienses, y de todas partes del mundo. Para poder lograr el objetivo de atracción, la marca Hyatt junto con la operación PLAYA Resorts y el estudio de arquitectura LHDI lidereado por el arquitecto Ken Shannon, se realizó la investigación correspondiente en la zona de Cap Cana, logrando así un compilado de posibles ocupantes habituales de este complejo turístico. También se plantearon las necesidades que debían cubrir para los usuarios y empleados, referentes a la función del proyecto.
El proyecto Hotelero parte de la idea conceptual principal de la fluidez que deben presentar los espacios junto con los usuarios; circulaciones fáciles, terrazas amplias, vistas al mar, y accesos a las zonas de convivencia en los edificios del proyecto, son de los puntos que el estudio de arquitectos LHDI refirió para el diseño conceptual. La continuidad, y la repetición, fueron parte fundamental en el proceso de diseño, también lo fue el analizar y planear la facilidad de poder construir edificios de gran magnitud en poco tiempo, lo cual llevo al arquitecto Ken Shannon y a TLDI a que el diseño arquitectónico general se manejara bajo una idea de minimalismo arquitectónico / estructural, sin dejar de lado la funcionalidad y la fluidez, que, con el proceso de diseño de interiores, se alimentaria de muchos valores arquitectónicos.


La forma de herradura de ambos edificios permite que la mayoría de las vistas desde cualquier punto del proyecto, internamente hablando sea hacia el mar, así como a las zonas de piscinas y restaurantes de cada hotel. El alumno Benjamin Montalvo Albuerne, tuvo la oportunidad de participar en el proceso de diseño arquitectónico desde su conceptualización, trabajando en conjunto con el arquitecto Ken Shannon en la importancia de la función y la forma que debería contar este proyecto.
La firma de arquitectos LHDI, propuso ideas vanguardistas e innovadoras de diseño y adaptación de los espacios a la función del proyecto que ya estaban establecidos por los estándares básicos y exigencias de diseño y operación que tanto la marca Hyatt como la operación Playa resorts, exigen.
Los conceptos propuestos y utilizados en este proyecto y planteados por el equipo de diseño del cual forma parte el alumno Benjamin Montalvo Albuerne son, la continuidad, la simetría entre ambos hoteles, penetración con elementos de tránsito, ritmo en fachadas, función y forma, entre otros. El alumno también formo parte del desarrollo del diseño de instalaciones mecánicas, eléctricas, sanitarias del proyecto, así como el proceso de diseño de los espacios para las cocinas, las zonas administrativas, el área de operaciones, patios de maniobra, entre otros.

El proyecto Hotelero All Inclusive HYATT ZIVA & HYATT ZILARA CAP CANA se localiza al Este de la isla de la Española, en la provincia de la Altagracia, en la Republica Dominicana. En este lugar, se encuentra una zona de proyectos habitacionales, residencial, de comercio, hotelero y de gran turismo llamado Cap Cana, en el cual está ubicado el hotel. Está dentro del mega desarrollo de Cap Cana y se emplaza en el área denominada zona Hotelera frente a la playa de Juanillo.


Se encuentra a 15km del Aeropuerto Internacional de Punta Cana y tiene en sus alrededores el desarrollo de viviendas y comercio Punta Cana Village. Hacia el norte se encuentra a 35km de la zona conurbada de Bávaro-Verón-Macao la cual alberga aproximadamente 130,000 habitantes, de los cuales la mayoría trabaja en el sector constructivo, hotelero operativo o de desarrollo inmobiliario. El terreno tiene una superficie total de 161,966.14 M2 (metros cuadrados), con 391.43 ML (metros lineales) de playa. Colinda al Norte con el proyecto hotelero Secrets Cap Cana y al sur con el desarrollo residencial y comercial La Rambla Cap Cana, al este con la playa de juanillo y al oeste con el proyecto residencial las Ramblas fase III.

El proyecto hotelero Hyatt Ziva & Zilara Cap Cana cuenta con un total de 750 habitaciones (816 módulos o bahías), repartidos en dos hoteles o marcas independientes, ambos con idéntico número de habitaciones, 375 en cada hotel.

Uno corresponde al Hyatt Ziva, el cual está destinado para toda la familia, cuenta con una zona de parque acuático, Teens & Kids club, albercas exteriores, restaurantes y bares; el otro corresponde al Hyatt Zilara, el cual está destinado solo para adultos y cuenta con un SPA que simula un cenote natural, así como albercas, restaurante y bares.
Cada hotel funciona de manera independiente; cada uno de ellos ofrece cinco (5) opciones de restaurantes, cuatro (4) opciones de bares y áreas de piscinas independientes para adultos y para público en general, así como zonas exclusivas para los miembros del Club Preferred de Hyatt.
Ambos hoteles comparten espacios comunes, tal es el caso del spa, el gimnasio, el parque acuático, los salones de banquetes, el Grand Ball Room, la terraza de eventos, la pradera de eventos, así como las zonas de servicios que logran el funcionamiento del proyecto (BOH). El proyecto se conforma de 8 edificaciones con diferentes alturas, relacionadas a la cercanía a la playa adyacente (línea de playa), teniendo los niveles más bajos en la parte cercana a la pleamar y la parte más alta en la zona posterior del terreno.

El diseño conceptual, estuvo a cargo de la firma de arquitectos LHDI. El arquitecto líder del proyecto fue Ken Shannon, quien desarrollo el concepto general en base a las vistas que los usuarios tuviesen hacia el mar. La funcionalidad de cada espacio se determina por el usuario en sí, el arquitecto buscó siempre la fluidez y la conexión con los espacios de convivencia y con los espacios de servicio que permiten operar el hotel de manera ordenada y sin interrumpir al huésped.
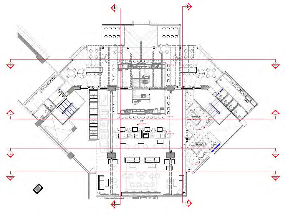
El primer plano conceptual que se presenta corresponde al nivel de playa y se basa en 5 zonas generales. La zona de piscinas y zonas de caminos en colores azul, crema y blanco, corresponde a la conexión de la playa y con acceso a un restaurante en cada hotel (Ziva & Zilara) que también da acceso a dos cuerpos de agua, uno para cada hotel. La segunda parte es la zona de habitaciones en amarillo, la cual corresponde a una parte de las dos grandes herraduras antes mencionadas. La tercera parte marcada en color rojo corresponde a los espacios públicos y de consumo que el proyecto ofrece tanto en Ziva como en Zilara.
La zona marcada en color purpura corresponde a todas las zonas de servicio y operación que el proyecto requiere, siempre pensando en la fluidez y conexión con las zonas públicas y de huéspedes. Se cuenta con una zona marcada en color verde olivo que se destina a la pradera de eventos, el parque acuático, Kids and Teens club y el SPA.
Al ser un proyecto que cuenta con 750 habitaciones, se debía buscar solucionar el entretenimiento para ambos hoteles. Para ello, en este nivel Lobby, se desarrollan espacios de consumo y entretenimiento que permiten la conexión con la planta de playa, así como de las habitaciones de hotel. En este nivel se buscó que la llegada fuera una experiencia única, al subir el motor lobby 9 metros sobre el nivel de playa, el huésped puede disfrutar de la vista directa hacia el mar.
Los lobbies de ambos hoteles, esta equipados con cafetería y bar, los cuales a su vez cuentan con mesas, sillones, sillas lounge, espacios de caminar y especialmente para la foto de recuerdo. También se cuenta con la zona de las oficinas administrativas principales de cada hotel. En este nivel se realiza la distribución en vertical de habitaciones hoteleras, las cuales se encuentran en los edificios principales (1 y 4) y que tienen vistas directas hacia la zona de playa.
En un principio, se tenía destinada la zona de pueblo o village, sin embargo, por cuestiones de costos y espacio, se decidió eliminar esta zona y en su lugar colocar salones de reuniones, un gran Ballroom de eventos y zonas de servicio, así como la pradera de eventos al aire libre. El acceso principal siempre se planteó al centro de lo ancho de la parcela, de esta manera, los recorridos de llegada serian diferentes para ambos hoteles. A continuación, se desglosa el proyecto arquitectónico por uso y edificación.

Durante el proceso de licitaciones, el Proyecto se tuvo que dividir en 4 fases de desarrollo constructivo, los cuales se relacionan cada uno con los procesos de diseño estructural, y de interiores. En este caso particular, la arquitectura dio forma y sustento al proceso de diseño estructural, el cual sufrió severas modificaciones durante la etapa de concepto.
La división dio partida al proceso de concurso de las compañías que construirían este proyecto, así como los acabados, mobiliario, decoración, equipamiento, entre otras necesidades. Esta división de edificios se caracteriza por tener, en cada edificio, diferentes usos con el mismo objetivo de cumplir con las necesidades básicas y recreativas a los huéspedes, así como mantener la funcionalidad de ambos hoteles con la operación. La primera fase corresponde a los edificios de habitaciones, los cuales son los edificios 2, 3, 5 y 6. La segunda fase es la del edificio principal, el cual se compone de los edificios 1, 4, 7 y 8. La tercera fase involucra varias partes exteriores, primeo los restaurantes de playa, Grill Ziva y Grill Zilara, luego las zonas de albercas y caminos y por último el SPA, Parque acuático, zona de Kids & Teens y el centro de convenciones.
La división de esas fases también permitió al sistema estructural analizar las cargas activas y pasivas de los edificios, dando como resultado la separación de edificios por juntas constructivas, las cuales, determinaron el orden del proceso constructivo de los edificios que a continuación se presentan. El proceso constructivo inicia con los edificios 1, 3, 5 y 6, continua con los edificios 1, 4, 7 y 8 y culmina con los edificios satélite.


EDIFICIO 1
EDIFICIO 2
EDIFICIO 7
EDIFICIO 8
EDIFICIO 4 PARQUE ACUATICO

EDIFICIO 3
EDIFICIO 5
EDIFICIO 6
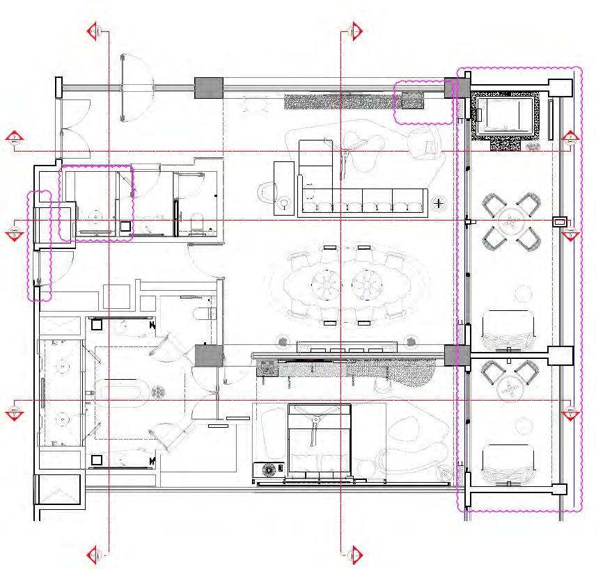
Los edificios de habitaciones se dividen en dos grupos; el edificio 2 y el edificio 3 corresponden al hotel Hyatt Ziva y los edificios 5 y 6 corresponden al hotel Hyatt Zilara. Todos los edificios de habitaciones se dividen en cuatro partes estructurales y al mismo tiempo en cuatro, cinco y 6 seis niveles constructivos, esto se realiza para poder cumplir con el reglamento de construcción de Cap Cana Desarrollo.


Cada edificio se divide con junta constructiva de la siguiente manera: en el Bloque A se desarrollan habitaciones en los edificios 3 (Ziva) y 5 (Zilara) estos cuentan con Swim Out en las habitaciones del primer nivel, para los edificios 2 y 6 se diseñó un restaurante de playa en la planta baja de doble altura, dejando solo 2 niveles de habitaciones; en el Bloque 2A en el último nivel, se optó por desarrollar una zona de eventos de bodas llamado Sky Wedding teniendo solo 1 nivel de habitaciones entre el restaurante de playa y el Sky Wedding. Para la parte operativa del hotel Ziva, estas habitaciones del último nivel del bloque 2A, se ofrecen a los usuarios que ocupen esta terraza de eventos. El siguiente es el Bloque B, que para todos los edificios (2, 3 para Ziva y 5 y 6 para Zilara) se ubicaron las circulaciones verticales con escaleras y elevadores. Este bloque también cuenta con zonas de camaristas, almacén de blancos, baños de servicio y elevadores de servicio.
El siguiente es el Bloque C, en el cual se encuentran solo habitaciones hoteleras para todos los edificios, todas las habitaciones del primer nivel tienen acceso al Swim Out. Por último, está el Bloque D, en este bloque se ubicaron circulaciones verticales para huéspedes y para camaristas, así como cuartos de servicio y escaleras de emergencia. En el nivel +3 de todos los edificios, el cual es el nivel de lobbies de los hoteles, se diseñaron 4 puentes estructurales, permitiendo a los huéspedes y a la operación, la fácil circulación a zonas de recreación y sus habitaciones. Las habitaciones del primer nivel también cuentan con Swim Out.
El edificio principal se compone de cuatro estructuras independientes, los edificios 1, 4, 7 y 8, las cuales se unifican en espacios en el interior y exterior. Cuenta con seis niveles constructivos, de los cuales dos de ellos son de “doble altura”. En el primer nivel de los edificios 1 (Ziva) y 4 (Zilara) se encuentra una parte de la zona de servicios (BOH) y áreas de utilidad para los huéspedes tales como, el restaurante asiático con capacidad para 84 PAX, el restaurante italiano-trattoria con capacidad para 100 PAX y al frente de ambos el Rum-Bar, con capacidad para 44 PAX, estos restaurantes están del lado de Hyatt Ziva; para Hyatt Zilara se encuentran los restaurantes hindú con capacidad para 100 PAX, el restaurante francés con capacidad para 86 PAX y al frente de ambos el Martini Bar con capacidad para 44 PAX. Todas estas zonas se interconectan con pasarelas techadas.
En la planta baja de cada hotel, se ubicaron espejos de agua con firepits, asientos y jardinería a modo de zonas de relajación.

En el segundo nivel (+8.80) se encuentra la recepción principal, así como diferentes áreas públicas y de servicio como el lobby bar (75 PAX), zonas de coffee shop (40 PAX), la recepción preferred. También se integraron a este espacio retails, zonas de descanso y pasarelas. En los siguientes niveles (+14.40m al +24.30m) se encuentran las
habitaciones correspondientes a los edificios 1 y 4, en ambos edificios se ubican las suites triangulares y la suite presidencial. En el edificio 7, al centro y en forma de unión entre los edificios 1 y 4, encontramos también una parte de zona de servicios (BOH) en el primer nivel que comparten ambos hoteles.

Esta parte del edificio principal (edificio 7) no tiene habitaciones en sus niveles superiores, cuenta en el segundo nivel (+8.10) con el centro de convenciones, los salones de reuniones principales y una terraza al aire libre para eventos. También tiene una escalera monumental que conecta con la pradera de eventos, el SPA, la zona de Kids and Teens club y el parque acuático. En el edificio 8 se desarrolla la cocina principal del proyecto, con una superficie aproximada de 400 m2, esta cocina suministra de alimentos a los bufets de ambos hoteles, tiene integrada la cocina del Room Servicie, la oficina del chef, almacenes y también se encuentran las zonas de cámaras frías y cuartos de preparación de alimentos especiales. En la planta baja encontramos el Buffet Ziva con capacidad para 325 PAX, y el Buffet Zilara con capacidad para 325 PAX ambos con zona de terraza al aire libre.
Entre ambos bufetes se coloca el Sports Bar con capacidad para 140 PAX, con un área cubierta y una terraza abierta adyacente al teatro al aire libre con capacidad para 300 PAX. Ambas zonas se destinan al uso mixto de ambos hoteles, permitiendo la comunicación de los dos proyectos en este punto. En la parte posterior de este conjunto de edificios, en el primer nivel, se encuentra el estacionamiento de huéspedes y de empleados, el cual tiene conexión en ambos extremos del proyecto. Este espacio se diseña con la finalidad de poder circular y acceder a ambos hoteles desde casi cualquier punto, así como suministrar y abastecer de diferentes productos y necesidades a los espacios próximos a este estacionamiento. También tiene acceso a la pradera de eventos, al SPA, Kids and Teens club y parque acuático.
ZONA A - RESTAURANTE DE CARNES Y MARISCOS
“EL EMBARCADERO” ZIVA
Situado en la zona de piscina principal del hotel Ziva. Cuenta con espacio para 100 personas aproximadamente. En su interior se encuentra un bar, que da servicio al restaurante y una zona de “fast food” que se encuentra en la parte posterior a la zona de comensales. Cuenta con su cocina exclusiva y servicios sanitarios. El restaurante es de estructura ligera independiente y cubierta de cana. El restaurante se encuentra elevado que permite ubicar los cuartos de máquinas de algunos cuerpos de agua.
ZONA B - RESTAURANTE DE CARNES Y MARISCOS
“FIRE SIDE” ZILARA
El restaurante está situado en la zona de piscina principal del hotel Zilara. Cuenta con espacio para aproximadamente 100 personas, tiene servicios sanitarios para comensales, terrazas al aire libre y bar. Cuenta con una zona de fast food continua al restaurante principal. La cocina es exclusiva de este lugar. El edificio está construido con elementos metálicos, concreto, ladrillos y madera. El espacio se encuentra elevado para contener debajo el cuarto de máquinas de algunos cuerpos de agua.



ZONA A – PARQUE ACUATICO
Esta zona al aire libre cuenta con un rio lento, toboganes y una piscina para niños con juegos. Cuenta con áreas de asoleaderos para colocar tumbonas, así como, bares y servicios sanitarios. También se cuenta con una recepción independiente para poder atender a usuarios que no estén hospedados en alguno de los dos hoteles que en su parte posteriori tiene baños y vestidores.
ZONA B – TEENS & KIDS CLUB
Situado a un costado del parque acuático, son dos estructuras independientes a base de concreto armado y revestimiento de porcelanato imitación madera que funcionan como áreas de entretenimiento para un público especifico. El diseño arquitectónico está pensado en la forma del abanico de la palma cana.
ZONA C –´PRADERA DE EVENTOS
Este espacio se encuentra en la parte posterior del edificio principal y ocupa toda la zona que se tendrá entre el parque acuático y el SPA. Con capacidad para 1500 personas aproximadamente, funciona como área para eventos de gran magnitud. Se tiene un escenario efímero, permitiendo la instalación de este en donde se desee. Se realizo una pared monumental que funciona como muro de privacidad entre el acceso principal y la zona de eventos que a su vez sirve como pantalla de proyección.



ZONA A - AREA DE PISCINAS ZIVA
Esta zona al aire libre cuenta con dos piscinas, una corresponde a la zona preferred y la otra es una piscina principal. Ambas cuentan con áreas de asoleaderos para colocar tumbonas, así como jacuzzis, bares dentro del agua y servicios sanitarios. Se cuenta con dos swim-up´s, correspondientes al primer nivel de habitaciones de los edificios 2 y 3; en el edificio 3 se cuenta con un swim-up independiente que tiene vista al mar. También se cuenta en la zona con espejos de agua en donde se colocan zonas de asiento acompañados de “fire pits”.
ZONA B - AREA DE PISCINAS ZILARA
Al igual que en Ziva, la parte de piscinas de Zilara cuenta con dos cuerpos de agua principales, uno correspondiente a la zona preferred y el otro a la zona principal. Ambas piscinas cuentan con bares que dan servicio a la zona seca y mojada. Esta área de piscinas cuenta con servicios sanitarios, asoleaderos para tumbonas y jardinería. Los edificios 5 y 6 cuentan con piscinas tipo “swim-up” en el primer nivel de habitaciones; el edificio 5 tiene piscinas “swim-up” con vistas al mar. También se cuenta con espejos de agua en donde se colocan zonas de asiento acompañados de “fire pits”.

La ubicación del SPA permite tener todos los es pacios necesarios para el correcto funcionamiento en un solo nivel y aislado del edificio principal. Está constituido por estructuras independientes de con creto con un sistema muy peculiar que se basa en simular una cueva con un cenote. Este SPA cuenta con una piscina lúdica, regaderas de sensaciones, cuartos de relajación, cabinas de tratamiento indi viduales, cabinas de tratamiento para parejas, área de sauna, vapor, pozas frías, pozas calientes, ja cuzzis, cuartos especiales para recibir novias, áreas de pedicura/manicure, estética, bar, entre otras co sas. También cuenta con una cabina de sal del Hi malaya, única en el país. La azotea del SPA funciona como jardín privado.



El desarrollo de los diseños de las habitaciones se basa en los lineamientos base que la marca Hyatt y la operación PLAYA Resorts exige, dando como resultado un programa de áreas para ambos hoteles, Hyatt Ziva & Hyatt Zilara Cap Cana y que se distribuye de manera equitativa entre ambas marcas del proyecto. Para cada hotel se determinan 375 llaves hoteleras, las cuales se dividen en habitaciones tipo Junior Suites, Master Suites y una Suite Presidencial, ubicada en la zona de los edificios principales, con las mejores vistas hacia las piscinas y la playa. También se cuenta con un departamento especial para el Gerente General del proyecto. A continuación, se realiza un resumen de la división de las tipologías por tipo de habitación para cada proyecto.
343 Habitaciones Junior Suite (una bahía)
25 Master Suites (dos bahías)
6 Master Suites Triangulares (Aproximadamente 3 bahías)
1 Suite Presidencial (tres bahías) con pantry de servicio
Estas habitaciones hacen un total de 375 por hotel o marca, dando un total de 750 habitaciones hoteleras equipadas con todo lo necesario que la marca Hyatt y la operación PLAYA Resorts necesita y exige en sus lineamientos de diseño.

El diseño base de las habitaciones estuvo a cargo del estudio de interiores INTERARQ quienes plasmaron la idea principal junto con el Arquitecto Ken Shannon y la operadora PLAYA Resorts. El alumno Benjamin Montalvo Albuerne, tuvo la oportunidad de participar en los procesos de diseño de estas habitaciones, aportando ideas y conceptos aprendidos en la carrera de Licenciatura en Arquitectura que la Universidad Gestalt de Diseño le ofreció. Los pasillos del Hyatt Ziva tienen la misma estética de las habitaciones, pisos en colores gris y crema mate, con detalles en la carpintería y plafones de geometría triangular, el cual refleja el concepto divertido y dinámico buscado por los interioristas. El patrón de colocación de los porcelanatos de piso se realizó siguiendo el concepto de repetición. También se incluyeron muros verdes y jardineas en los letreros de número de habitaciones y muros d pasillos. Las habitaciones del Hyatt Ziva se enfocan en presentarse como un hotel para familias, más divertido y amigable con colores vivos y elementos decorativos dirigidos a adultos y niños. Los colores utilizados en el diseño de las habitaciones son de la arena de playa y la vegetación de la zona, agregando acentos en color verde, para dar un ambiente de naturaleza en el interior.
Las habitaciones del Hyatt Ziva cuentan con un elemento decorativo único y divertido, realizado con canicas o cayucos de color verde montados en un panel de madera retroiluminado, el cual se mostrará más adelante. Las dimensiones de las habitaciones por bahía son de 55 metros cuadrados aproximadamente, todas las habitaciones tienen terraza exterior, que en su 95% se logran vistas directas a la zona de playa y piscinas. En el pasillo de acceso de las habitaciones se ubicó el closet siguiendo a la habitación. Se tienen dos tipos de habitaciones Junior Suite, una con cama King y la otra con dos camas tipo Queen. La habitación King cuenta con un sofá cama mientras la habitación Queen, una silla lounge. Los baños de ambas habitaciones están equipados con dos lavamanos, espejos retroiluminados, baldas inferiores, ducha de presión, ducha de mano e inodoro privado. Las amenidades con las que se cuentan son minibar, pantalla plana de 60” plancha, cafetera Nesspreso, teléfono, caja fuerte, secadora, bascula, espejo de maquillaje, entre otros. Toda la iluminación técnica está regulada a 2700k, lo que permite este efecto de calidez. A continuación, se presentan los renders preliminares de las habitaciones.













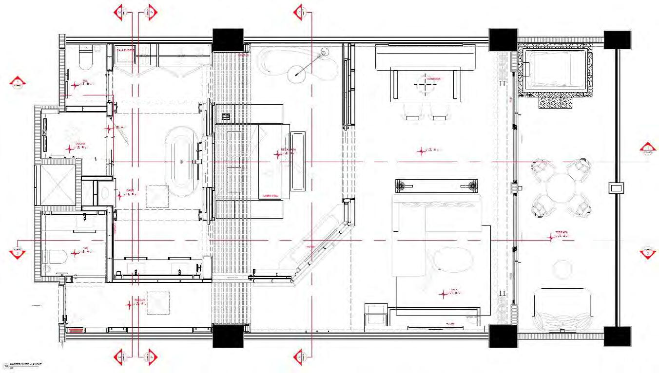
El diseño de interiores a cargo de INTERARQ junto con el Arquitecto Ken Shannon y la operadora PLAYA Resorts. de las habitaciones se basa en un concepto de colores mate, sobrios, utilizando como acento el color gris. Al ser un hotel de adultos se cuidó que el diseño reflejara elegancia y sobriedad en sus espacios interiores. Las habitaciones por bahía cuentan con 55 metros cuadrados aproximadamente, todas las habitaciones tienen terraza que en su 95% se logran vitas directas a la zona de playa y piscinas. Los baños están equipados con dos lavamanos, una encimera que se diseña pensando en el proceso de maquillaje y preparación para eventos. Cuenta con ducha e inodoro privado. En el pasillo de acceso se ubicó el closet a modo de isla, que permite tener acceso desde la parte interior del baño y desde el pasillo. A diferencia del Hyatt Ziva, el baño del Zilara cuenta con una mampara de cristal que se vuelve privada al mover una puerta, ese elemento se quiso agregar como parte del significado “adults only”.
Al igual que en Ziva se tienen dos tipos de habitaciones, la Junior Suite, una con cama King y la otra con dos camas Queen. La habitación King cuenta con un sofá cama mientras que la habitación tipo Queen cuenta con una silla tipo lounge. Las amenidades son minibar, pantalla plana de 60” plancha, cafetera Ness preso, teléfono, caja fuerte, secadora, bascula, espejo de maquillaje, entre otros. La iluminación decorativa se planteó de forma simple, resaltando solo detalles específicos de la carpintería fija y elementos decorativos. También se procuró que la iluminación estuviese graduada para permitir una atmosfera de calidez. Toda la iluminación técnica está regulada a 2700k, lo que permite este efecto de calidez. Los pasillos del Hyatt Zilara mantienen la misma estética de las habitaciones, pisos en colores gris y crema mate, reflejan la sobriedad y elegancia del concepto Zilara. El patrón de colocación de los porcelanatos de piso se realizó siguiendo el conceto de repetición y figura fondo.
A continuación, se presentan los renders preliminares de las habitaciones. Estos acabados, se reflejaron en todas las habitaciones que están dentro del Hyatt Zilara.

















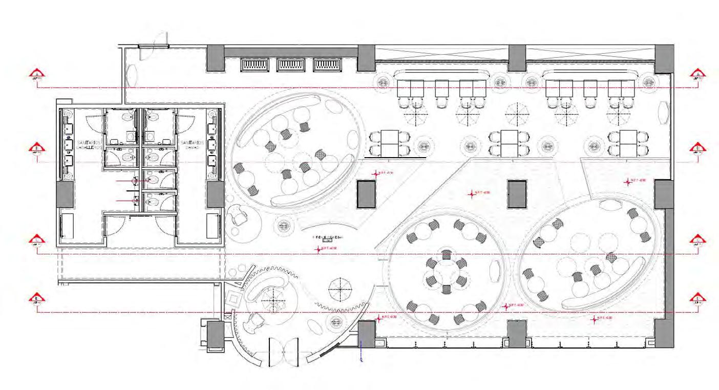
El desarrollo de los diseños de los espacios públicos se basa en los lineamientos que la marca Hyatt y la operación PLAYA Resorts exige, así como el chef ejecutivo que estará al frente de las cocinas y bares del proyecto. También estuvo a carago la firma de interiorismo Téllez & Téllez, junto con el arquitecto Ken Shannon, LHDI y TLDI. Hyatt Ziva & Hyatt Zilara Cap Cana se caracteriza por el servicio y calidad de los productos alimenticios que ofrece, como cualquier otro resort de clase mundial. Los equipos de cocina, la calidad de los muebles y los ambientes refrentes al interiorismo, marcaron una diferencia impórtate a comparación de otros proyectos cercanos. El alumno Benjamin Montalvo Albuerne, tuvo la oportunidad de participar en los procesos de diseño de cocinas, restaurantes, varias y zonas de recreación del proyecto, siempre siguiendo los lineamientos y estándares que la marca Hyatt y la operación Plata resorts requería. El proyecto cuenta con bares y restaurantes para ambos hoteles, en Ziva se encuentran 5 restaurantes, 4 bares y 2 coffee venus, así como diferentes zonas de descanso y relajación. Hyatt Zilara cuenta con la isma cantidad de espacios de restaurantes y bares y zonas de esparcimiento, con la diferencia de incluir la zona del SPA en su catálogo de amenidades. En cambio, Ziva, incluye el parque acuático, la zona de Kids club. Aunque pareciera competencia ambos proyectos comparten todas sus amenidades, así como también las zonas comunes que corresponden al salón de convenciones, salones de reuniones, el Sports bar, el fitness center y el teatro.





































































El alumno Benjamin Montalvo Albuerne formo parte del equipo de dibujantes de estos planos constructivos. Durante el proceso conceptual, se llevaron a cabo numerosas reuniones con los especialistas de las instalaciones del proyecto, con el único objetivo de poder coordinar y ejecutar con precisión los diseños arquitectónicos y de interiores junto con las disciplinas de instalaciones. En numerosas ocasiones, los resultados no fueron como se previeron, por lo que se tuvieron que modificar algunos espacios a la estructura correspondiente. La adaptación de estos planos constructivos, también tuvieron mucha influencia en el alumno, ya que el realizo numerosos levantamientos de los espacios construidos para poder cuadrar con los diseños arquitectónicos y de interoperes que se tenían en mente.
El arquitecto Ken Shannon junto con su equipo de diseño de LHDI, así como el equipo de diseño, costo y presupuestos de TLDI, llevaron a cabo numerosas decisiones referentes al costo de los espacios, alterando en lo posible los diseños preliminares ´presentados anteriormente. Duarte el capítulo de proceso constructivo, se podrá apreciar con mayor detalle. Estas alteraciones “mínimas” al diseño original que los espacios querían transmitir.



Durante el proceso constructivo se desarrollaron dos habitaciones modelo. Estas habitaciones permitieron identificar problemas de instalaciones con estructura, arquitectura e interiorismo, así como la definición de los materiales que se colocarían en pasillos exte riores y dentro de las habitaciones. Esta elaboración de las habitaciones modelo, también determino los diseños de carpintería y las compañías que realiza rían la carpintería fija, la decoración interior y la ilu minación, así como el uso de mamparas de cristal, elementos de herrajes, inodoros, griferías, sifones, y todos los detalles que conllevan una habitación hotelera. La operación, PLAYA Resorts, proporcionó todo lo referente al OS&E o parte operativa, caja fuerte, minibar, televisión, colchones, sabas, toallas, secadora, bascula, paraguas, entre otros.
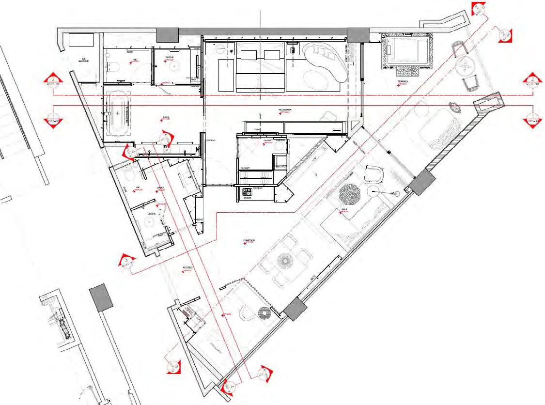
El diseño de la habitación Zilara se basa en la cultura dominicana, los colores y los elementos decorativos refieren al carnaval y sus tradicionales mascaras. La base arquitectónica se toma del funcionamiento de baño / habitación, conectado con un closet isla, per mitiendo circulación en ambos sentidos. Transpa rencia, integración, figura-fondo, fueron característi cas base para realizar el modelo de esta habitación. Para Ziva, la habitación muestra parte de un pensa miento familia. Los colores y elementos decorativos se basan en la naturaleza, en la integración de hués ped con elementos de color más suaves. El proceso constructivo de estas habitaciones arrojó muchos conflictos entre la estructura, la arquitectura y las ins talaciones, permitiendo resolverlos con tiempo en la obra general. Las habitaciones se realizaron en un almacén cercano al proyecto.
Inicio de Estructura Ligera – Marzo 2018
Inicio de Acabados – Mayo 2018
Conclusión Habitaciones Muestra – Junio 2018





















El proyecto está emplazado cerca del mar, por ley del Ministerio de Obras Públicas y Caminos, así como de Medio Ambiente y desarrollo Cap cana, se deben dejan 100 metros lineales desde la pleamar hasta el desplante de las estructuras de los edificios, piscinas, caminos y estructuras ligeras independientes. El tipo de suelo en esta zona es mayormente piedra caliza, arena, “caliche” y manglar. Para lograr la construcción dl proyecto, se tuvo que someter a estudio medioambiental ante el Ministerio De Medio Ambiente de la Republica Dominicana, un grupo de supervisores, realizaron varias visitas al terreno. Grupo Playa Resorts, junto con TLDI, contrataron a una empresa dedicada al estudio, seguimiento y aprobación de proyectos ante este ministerio de medio ambiente. Al tener zona de manglares, se buscó la solución de “alcantarillar” el flujo natural del agua, obteniendo la primera aprobación por parte del ministerio. El siguiente proceso de aprobación, fue el impacto industrial en la zona de suelos y cuerpos de agua subterráneas, para ello, se ocuparon máquinas de sondes de terreno, a cargo de la empresa BRIGEODOM, con quienes se fueron realizando exploraciones en zonas con mayor invasión de estructuras de concreto armado. Como resultado de todos estos procesos, el proyecto fue aprobado con la única condición de mantener dentro de la parcela el 30% del total en área verde protegida.











Una vez aprobado el proyecto por el Ministerio de Medio Ambiente, se comenzó con la preparación del terreno. Para poder determinar el tipo de cimentación que se debió emplear, el diseñaros estructural analizo las pruebas de sondeos realizadas en el terreno. En conclusión, el terreno estaba demasiado “licuable” para realizar plateas de cimentación o zapatas aisladas, por lo que se tomó la decisión de realizar pilotes de concreto armado. Estos pilotes se realizaron en el proyecto. Primero se realizaron las mediciones y los replanteos topográficos de la posición geográfica de los edificios, utilizando los planos arquitectónicos como base. Posterior a este proceso, se fueron marcando en el terreno los puntos de perforación para “hincar” os pilotes. En el terreno se instalaron los talleres correspondientes para fabricar los armados y encamisados, una vez se hizo el espacio en el punto topográfico determinado, se fueron colocando estos elementos de acero armado con maquinaria pesada. El proyecto en su totalidad cuenta con aproximadamente 2,300 pilotes. Durante el proceso de armado se fueron realizando pruebas de resistencia del concreto, así como pruebas de resistencia de los pilotes mediante métodos de compactación de carga estable y carga de impacto. Los resultados fueron tanto favorables como no favorables, se tuvo una temporada en donde el concreto estaba llegando con exceso de arena y poco concreto, por lo que se devolvieron miles de metros cúbicos de concreto. Las pruebas de resistencia al no ser aprobadas, lo que se realizaba era una demolición de los elementos y se iniciaba el proceso desde cero. Solo se dejaba el acero armado del pilote de desplante. A continuación, se presentan fotografías de campo del proceso de pilotaje, pruebas y aprobaciones del proyecto.



















En este apartado se mostrarán los procesos constructivos de cada edificio del proyecto. Este proceso constructivo fue de la mano con el concurso de licitaciones. Los primeros edificios en entrar a licitación fueron los edificios 2, 3, 5 y 6, por lo que también, fueron los primeros en comenzar el desplante de las columnas y pórticos estructurales. La empresa ganadora de este proceso constructivo en la primera ronda fue SINERCON. Cada edificio cuenta con sistemas estructurales parecidos, pilotes de 16 a 27 metros de profundidad, zapatas armadas con cabezales compuestos y a partir de esto, columnas y pórticos estructurales con vigas de concreto armado. El proceso constructivo de los edificios 2, 3, 5 y 6 se inicia entre Marzo 2018 y Abril 2018. Posterior a este concurso, se inició el proceso de licitación de los edificios 1, 4, 7 y 8 entre Junio 2108 y Julio 2018, resultando como empresa ganadora SINERCON. El desarrollo estructural se inicia con una diferencia de aproximadamente dos meses entre los edificios 2, 3, 5 y 6. El sistema estructural de todos los edificios responde a una necesidad sísmica de la zona, que son las juntas constructivas. Estas juntas se determinaron en relación al peso de cada bloque, todos los edificios cuentan con juntas constructivas. Los niveles constructivos van de 4 niveles a 8 niveles estructurales, cada Bloque, cuenta con un sistema estructural calculado y especifico de acuerdo a la posición que se tiene en el terreno, cada bloque también cuenta con diferentes sistemas de cabezales armados, ya que el peso no es el mismo entre los cuatro bloques. Todas las losas estructurales tienen el mismo sistema de armado constructivo, varillas de acero en dos sentidos, con calzos en puntos específicos, malla electrosoldada, casetones de foam o unicel para aligerar el peso y vaciados de cemento.
El proceso de armado se inició con el desplante de las columnas en cabezales compuestos, luego vigas horizontales, posterior a esto el armado de la losa estructural y finalmente los vaciados de cemento. El sistema de “encofrado” o cimbra se realizó con formaleta de acero. En algunos casos se utilizó madera de segunda, pero en su mayoría fue formaleta para garantizar la nivelación de muros y columnas estructurales. Para las instalaciones hidrosanitarias, mecánicas y eléctricas, se dejaron huecos o “patinillos” también llamados ductos de servicio en forma vertical, esto permite mantener todo el sistema de aire acondicionado, agua fría, agua caliente, energía eléctrica, drenajes de todo tipo y diferentes sistemas de instalaciones concentrados en un solo punto, cada 2 habitaciones. Para el desarrollo de las instalaciones dentro de los edificios, se emplearon sistemas de estructura ligera para crear plafones, muros, columnas y elementos arquitectónicos “falsos” que permitían “esconder” las instalaciones con Durock y sheet rock o tablaroca. Antes de la definición del tipo de muro que se tendría en cada espacio, se sometió a revisiones minuciosas por parte de la compañía que realizaba el programa de seguridad y protección civil o llamado “Fire and Life Safety program” impuesto por la cadena hotelera Hyatt y el grupo PLAYA Resorts. Sin este proceso de aprobación, el proyecto no podría operar. A continuación se muestran en fotos el proceso constructivo de los edificios 1, 2, 3, 4, 5, 6, 7 y 8 así como el SPA, Kids Club y Restaurantes de Piscina.

El edificio 1 corresponde al Hyatt Ziva, el cual contiene diferentes centros de consumo, áreas de servicio y habitaciones. En el proceso constructivo primero se realizó la estructura general del edificio, posterior a esto se fueron trabajando los espacios de servicio y por ultimo los bares y restaurantes, lobby, club preferred y habitaciones. A continuación, se muestra el proceso constructivo de todos estos espacios que se encuentran en el edifico 1 los cuales son:
Nivel Playa +1
• Salones de reuniones
• Restaurante Asiático
• Restaurante Italiano
• Rum Bar
• Lavandería
• Cocina de apoyo
• Fire Pits
Nivel Acceso +3
• Motor Lobby
• Lobby
• Lobby Bar
• Lobby Coffee shop
• Club Preferred
Nivel +5 al +8
• Habitaciones
Inicio de Limpieza de Pilotes – Abril 2018
Inicio de Armado Columnas y Pórticos – Julio 2018
Conclusión Estructural (Obra Gris) – Marzo 2019
Entrega a Operación Playa Resorts & Hyatt – Octubre 2019















































El edificio 2 fue el primero que inicia con el proceso constructivo, corresponde al Hyatt Ziva. En este edificio se desarrollan habitaciones tipo Junior Suite y Master Suite. Este edificio cuenta con 4 niveles en la parte cercana al mar, 5 en la zona intermedia y 6 niveles en la colindancia con el edificio 1. Este edificio se divide en 4 bloques que se determinan por la junta constructiva. Todas las habitaciones se orientan hacia las piscinas y playa, buscando la optimización de las vistas desde el interior de cada una de ellas. En uno de los bloques de este edificio, el más cercano a la línea de playa, se diseñó u espacio destinado a un restaurante para los miembros del club preferred, este restaurante cuenta con su propia cocina de apoyo. También se destinó la terraza de este bloque cercano a la línea de playa para un Sky Wedding o terraza de eventos. Todas las habitaciones del primer nivel cuentan con Swim Out.
Nivel +1 al +6
• Restaurante Chinola
• Habitaciones Junior Suite y Master Suite
• Terraza de eventos
Inicio de Limpieza de Pilotes – Febrero 2018
Inicio de Armado Columnas y Pórticos – Mayo 2018
Conclusión Estructural (Obra Gris) – Diciembre 2018
Entrega a Operación Playa Resorts & Hyatt – Octubre 2019






















El edificio 3 fue el segundo edificio que se inicia con el proceso constructivo, corresponde al Hyatt Ziva. En este edificio se desarrollan habitaciones tipo Junior Suite y Master Suite. Este edificio cuenta con 4 niveles en la parte cercana al mar, 5 en la zona intermedia y 6 niveles en la colindancia con el edificio 1. Este edificio se divide en 4 bloques que se determinan por la junta constructiva. Todas las habitaciones se orientan hacia las piscinas y playa, buscando la optimización de las vistas desde el interior de cada una de ellas. Todas las habitaciones del primer nivel cuentan con Swim Out. A diferencia del edificio 2, este edificio cuenta con habitaciones en el bloque frente al mar en sus 4 niveles.
Nivel +1 al +6
• Habitaciones Junior Suite y Master Suite
Inicio de Limpieza de Pilotes – Abril 2018
Inicio de Armado Columnas y Pórticos – Junio 2018
Conclusión Estructural (Obra Gris) – Diciembre 2018
Entrega a Operación Playa Resorts & Hyatt – Octubre 2019














El edificio 4 corresponde al Hyatt Zilara, el cual, al igual que el edificio 1, se encuentran diferentes centros de consumo, áreas de servicio y habitaciones. En el proceso constructivo primero se realizó la estructura general del edificio, posterior a esto se fueron trabajando los espacios de servicio y por ultimo los bares y restaurantes, lobby, club preferred y habitaciones. A continuación, se muestra el proceso constructivo de todos estos espacios que se encuentran en el edifico 4 los cuales son:
Nivel Playa +1
• Salones de reuniones
• Restaurante Frances
• Restaurante Hindú
• Martini Bar
• Cuarto de Maquinas
• Comedor de empleados
• Fire Pits
Nivel Acceso +3
• Motor Lobby
• Lobby
• Lobby Bar
• Lobby Coffee shop
• Club Preferred
Nivel +5 al +8
• Habitaciones
Inicio de Limpieza de Pilotes – Mayo 2018
Inicio de Armado Columnas y Pórticos – Agosto 2018
Conclusión Estructural (Obra Gris) – Abril 2019
Entrega a Operación Playa Resorts & Hyatt – Octubre 2019






































El edificio 5 inicia su proceso constructivo jun to con el edificio 3. Este edificio forma parte del Hyatt Zilara. En este edificio se desarrollan habi taciones tipo Junior Suite y Master Suite, estruc turalmente hablando, este edificio es un espejo del edificio 3. Cuenta con 4 niveles en la parte cercana al mar, 5 en la zona intermedia y 6 nive les en la colindancia con el edificio 4. Este edi ficio se divide en 4 bloques que se determinan por la junta constructiva. Todas las habitaciones se orientan hacia las piscinas y playa, buscando la optimización de las vistas desde el interior de cada una de ellas. Todas las habitaciones del pri mer nivel cuentan con Swim Out, este edificio cuenta con habitaciones en el bloque frente al mar en sus 4 niveles.
Nivel +1 al +6
• Habitaciones Junior Suite y Master Suite
Inicio de Limpieza de Pilotes – Abril 2018
Inicio de Armado Columnas y Pórticos – Junio 2018
Conclusión Estructural (Obra Gris) – Diciembre 2018
Entrega a Operación Playa Resorts & Hyatt – Octubre 2019

















El edificio 6 fue de los últimos edificios de habitaciones que inicia con el proceso constructivo, corresponde al Hyatt Zilara. En este edificio se desarrollan habitaciones tipo Junior Suite y Master Suite. Este edificio cuenta con 4 niveles en la parte cercana al mar, 5 en la zona intermedia y 6 niveles en la colindancia con el edificio 4. Este edificio se divide en 4 bloques que se determinan por la junta constructiva. Todas las habitaciones se orientan hacia las piscinas y playa, buscando la optimización de las vistas desde el interior de cada una de ellas. En uno de los bloques de este edificio, el más cercano a la línea de playa, al igual que el edificio 2, se diseñó un espacio destinado a un restaurante para los miembros del club preferred, este restaurante cuenta con su propia cocina de apoyo. Todas las habitaciones del primer nivel cuentan con Swim Out.
Inicio de Limpieza de Pilotes – Abril 2018
Inicio de Armado Columnas y Pórticos – Julio 2018
Conclusión Estructural (Obra Gris) – Enero 2019
Entrega a Operación Playa Resorts & Hyatt – Octubre 2019
Nivel +1 al +6
• Restaurante Chinola
• Habitaciones Junior Suite y Master Suite

















El edificio 7 inicia su proceso de pilotaje después de tener concluidos los pilotes de los edificios 1 y 4, sus edificios colindantes. El diseño estructural fue sometido a varias revisiones puesto que en este edificios se tiene un centro de convenciones con un claro de casi 50 metros de longitud, lo que represento un reto de diseño estructural y arquitectónico.
Este edificios forma parte de una de las zonas que tienen convivencia ambos hoteles, así como diferentes áreas de servicio, conectadas por el túnel de los edificios 1 y 4. también forma parte de la conexión de circulación con el SPA, el Parque Acuático, la Terraza de Eventos, el Jardín de Eventos y los espacios de Kids and Teens Club. Este edificios cuenta con una cancha de tenis profesional en su azotea, que se corresponde con el primer nivel de habitaciones de los edificios 1 y 4. En este edificios, también se colocaron una gran parte de equipos de extracción de humos, aire acondicionado, sistemas contra incendio, entre otros. Este edificios colinda con el edificio 8, y entre ambos, tienen la cocina principal de ambos hoteles.
Inicio de Limpieza de Pilotes – Julio 2018
Inicio de Armado Columnas y Pórticos – Octubre 2018
Conclusión Estructural (Obra Gris) – Abril 2019
Entrega a Operación Playa Resorts & Hyatt – Octubre 2019

Nivel +1
• Cocina Principal
Nivel +3
• Centro de Convenciones















El edificio 8 es el último edificio que inicia su proceso de pilotaje, este edificio se conecta con los edificios 1, 4 y 7. La parte más importante es la zona de bufetes de ambos hoteles si como el Sports Bar, que es utilizado por los huéspedes del Ziva y del Zilara. Frente al Sports bar, y aunque no tiene conexión estructural, se realizó el teatro, con un estilo arquitectónico de paraboloides. La estructura de metal se ancla a puntos específicos en los pilotes compuestos de los edificios
3 y 5, si como su propia estructura autoportante de cimentación generada a partir de vigas riostras amarradas a estos elementos estructurales de los edificios 3 y 5. El paraboloide se ancla también de la parte superior de estos edificios generando un espacio cubierto de gran altura y dinamismo. El teatro cuenta con sus camerinos, baños, duchas, almacenes y conexión con los cuartos de camaristas de los edificios
3 y 5. La parte exterior del Sports Bar cuenta con una terraza con su bar de servicio, que abastece al teatro y al mismo Sports bar. Esta zona cuenta con conexiones directas a las escaleras de emergencia de los edificios
1 y 4 así como baños, acceso a la cocina principal y almacenes. En este edificio también se encuentra el Fitness Center, diseñado en un estilo industrial y que se ocupa por ambos usuarios de Ziva y Zilara.
Nivel +1
• Sports Bar
• Teatro
Nivel +3
• Fitness Center
Inicio de Limpieza de Pilotes – Julio 2018
Inicio de Armado Columnas y Pórticos – Octubre 2018
Conclusión Estructural (Obra Gris) – Abril 2019
Entrega a Operación Playa Resorts & Hyatt – Octubre 2019
















El Grill Ziva inicia su proceso de limpieza de terreno y cimentación en Marzo del 2019. Este edificios forma parte del programa de restaurantes y bebidas del proyecto. Cuenta con su cocina independiente a la principal, una zona de comida rápida y una zona de cocina internacional. Debajo de este edificio se coloca la sala de maquinas de los cuerpos de agua que se encuentran en la zona. El diseño arquitectónico se define como dinámico y orgánico, la estructura esta fabricada con tubulares de acero arqueados, que permiten una cubierta orgánica. Se decide dejar vista la parte interior y se recubre con una losa de 14 cm de concreto, sobre la cual se colocaron tejas sintéticas. El edificio entra en operación en Octubre del 2019.
Inicio de Cimentación – Marzo 2019
Inicio de Armado Columnas y Pórticos – Abril 2019
Conclusión Estructural (Obra Gris) – Septiembre 2019
Entrega a Operación Playa Resorts & Hyatt – Octubre 2019





El Grill Zilara inicia su proceso de limpieza de terreno y cimentación en Marzo del 2019. Este edificios forma parte del programa de restaurantes y bebidas del proyecto. Cuenta con su cocina independiente a la principal, una zona de comida rápida y una zona de cocina internacional. Debajo de este edificio se coloca la sala de maquinas de los cuer pos de agua que se encuentran en la zona. El diseño arquitectónico se define como tardo moderno, con elementos estructurales metá licos y materiales vistos, y su cubierta verde. El edificio esta echo con columnas y losa de concreto armado, no se requirieron pilotes en esta zona. El edificio entra en operación en Octubre del 2019.
Inicio de Cimentación – Marzo 2019
Inicio de Armado Columnas y Pórticos – Abril 2019
Conclusión Estructural (Obra Gris) – Septiembre 2019
Entrega a Operación Playa Resorts & Hyatt – Octubre 2019





Inicio de Mejoramiento de Suelo – Octubre 2018
Inicio de Armado de Vasos y Caminos– Enero 2019
Conclusión Obra Gris – Septiembre 2019
Entrega a Operación Playa Resorts & Hyatt – Octubre 2019
Las áreas exteriores de la zona Hyatt Ziva in cluyen caminos, jardineros, dos albercas una principal y otra para clientes del club prefe rred, el grill Ziva, un bar para la piscina pre ferred y un bar para la piscina principal. Tam bién se incluyen en estos trabajos los cuartos de maquinas de los swim out de los edificios 2 y 3. El proceso de diseño de estas áreas estuvo a cargo de la compañía americana EDSA quienes realizaron el proyecto concep tual, posterior a este diseño conceptual, el arquitecto Ken Shannon junto con TLDI de cidieron continuar con el diseño conceptual y aterrizarlo con consultaría externa. Una vez e definieron las plantas que se sembrarían , se contrato al grupo Green Garden de Re publica Dominicana, quienes cuentan con muchos viveros en la zona. Para las albercas se realizaron cimentaciones especiales que llevaron l uso de micropilotes, esto fue ne cesario ya que la dimensión y el peso que contienen estas albercas es muy grande y se requería asegurar que no fracturara los vasos de agua.





Las áreas exteriores de la zona Hyatt Ziva incluyen caminos, jardineros, dos albercas una principal y otra para clientes del club preferred, el grill Zilara, un bar para la pis cina preferred y un bar para la piscina prin cipal. También se incluyen en estos trabajos los cuartos de maquinas de los swim out de los edificios 2 y 3. El proceso de diseño de estas áreas estuvo a cargo de la compañía americana EDSA quienes realizaron el pro yecto conceptual, posterior a este diseño conceptual, el arquitecto Ken Shannon junto con TLDI decidieron continuar con el diseño conceptual y aterrizarlo con consultaría ex terna. Una vez e definieron las plantas que se sembrarían , se contrato al grupo Green Garden de Republica Dominicana, quienes cuentan con muchos viveros en la zona. Para las albercas se realizaron cimentaciones es peciales que llevaron l uso de micropilotes, esto fue necesario ya que la dimensión y el peso que contienen estas albercas es muy grande y se requería asegurar que no fractu rara los vasos de agua.
Inicio de Mejoramiento de Suelo – Octubre 2018
Inicio de Armado de Vasos y Caminos– Enero 2019
Conclusión Obra Gris – Septiembre 2019
Entrega a Operación Playa Resorts & Hyatt – Octubre 2019





El SPA es un edificio que se comienza a re diseñar un aves el presupuesto general del proyecto se ve afectado por el sistema estructural que conllevaron los edificios principales. Este edificio en un principio se ubicaba en la zona entre los edificios 3 y 5, donde se desarrollo el teatro y el Sports Bar. Luego de varias reuniones con el arquitecto Ken Shannon y el comité ejecutivo de Grupo Playa y Hyatt resorts, se decidió tener el SPA en una zona alejada del paso de los huéspedes, con accesos independientes y abastecimientos de materiales y servicios, que no influyeran con el resto de operaciones del hotel. El edificio se desarrollo en la zona del jardín de eventos, al lado de la rampa de acceso al motor lobby del Zilara. Este edificio es de un solo nivel y la idea principal del diseño es simular una cueva con un cenote en el centro, que es donde se ubico la piscina de relajación y las zonas de aguas termales e hidroterapia. La simulación de cueva se realizara con un artista plástico el cual fue creando rocas falsas con malla electrosoldada, maderas y malla ligera, al tener estas formas irregulares, se le fue colocando concreto proyectado. Este edificio cuenta con un jardín en la azotea, el cual se accede desde el motor lobby del Zilara. Este spa cuenta con una cabina tipo sauna echa de sal del himalaya, única en el país, la cual le da un prestigio y valor comercial muy fuerte a la marca Hyatt. El SPA cuenta con 16 cabinas de tratamiento, lockers y vestidores para damas y caballeros, zona de relajación y su propio back of the house o zona de descanso y servicio de los operadores de SPA. Este edifico se entrega operativo en Diciembre 2019, dejando la cabina de sal y las cabinas de tratamiento VIP, para entregar en Enero 2020.
Inicio de Limpieza de Pilotes – Marzo 2019
Inicio de Armado Columnas y Pórticos – Abril 2019 2018
Conclusión Estructural (Obra Gris) – Septiembre 2019
Entrega a Operación Playa Resorts & Hyatt – Diciembre







Inicio de Limpieza de Terreno – Abril 2019
Inicio de Armado Columnas y Pórticos – Abril 2019
Conclusión Estructural (Obra Gris) – Septiembre 2019
Entrega a Operación Playa Resorts & Hyatt – Diciembre 2019

El Parque Acuático, al igual que el edificios del Kids and Teens club, forman parte del programa operativo del Hyatt Ziva. Al ser un hotel para toda la familia, la operación de cide colocar este espacio en conjunto y que a su vez, fuese ocupado por personal ajeno a la propiedad, ósea, para todo publico. A diferencia d los otros edificios, estas estruc turas son sencillas, excavaciones puntuales para realizar zapatas aisladas y levantar co lumnas, no se realizaron pilotes ni perforacio nes especiales. El estudio de suelos para la ubicación del Parque Acuático fue favorable, ya que el subsuelo de esta zona está confor mado por piedra caliza o caliche y muy poca arena. Para el edificio del teen and Kids Club, el diseño arquitectónico se baso en un abani co, dividido por muros estructurales que a su vez permitieron la partición de los espacios en el interior. Este criterio arquitectónico si gue la misma forma que la taquilla y baños del parque acuático, creando un ritmo en una zona abierta y sin edificios altos. Estos espa cios cuentan con sus áreas de servicio para operaciones y cuarto de maquinas. Al igual que el SPA, se entregaron formalmente en Enero 2020.











El proyecto Hotelero Hyatt Ziva & Hyatt Zilara Cap Capa se entrega en dos partes, la primera, es en Octubre 2019, en donde los espacios operativos, los que le dan vida al proyecto entran en pruebas finales, salas de generadores, cuartos de chillers, cuarto de maquinas de los cuerpos de agua, todas la cocinas de todos los restaurantes y bares, y las habitaciones. El lado Zilara se entrega primero, las zonas comunes y espacios de esparcimiento, así como habitaciones y áreas de servicio. El lado Ziva se retrasa un mes por cuestiones de suministro de materiales y aun así, con la espera de estos materiales, el proyecto lado Ziva abre y opera sin estas terminaciones. La parte esencial del proyecto referente a al operación entra en funcionamiento y poco a poco se va apoderando la operación del hotel, Grupo PLAYA. La firma de arquitectura LHDI, así como el Project management TLDI y todas las empresa involucradas, se hacen responsables durante el año siguiente a la entrega del proyecto, esto quiere decir que de Octubre 2019 a Octubre 2020 todas las compañías entregaron garantías de trabajos por cualquier situación que se presentara.
La apertura oficial del proyecto se realiza en febrero 2020 con una ceremonia oficial, muchos invitados y la orquesta sinfónica de santo domingo. A continuación, se presentan las fotos de lo espacios mencionados en los capítulos anteriores, en fecha de entrega Febrero 2020.

































El proyecto hotelero Hyatt Ziva & Hyatt Zilara Cap Cana es el primer proyecto en el que el alumno Benjamin Montalvo Albuerne se integra a participar desde cero su participación en un proceso constructivo. Desde el desarrollo conceptual del diseño, la materialización de los conceptos básicos arquitectónicos enseñados durante la carrera, hasta la entrega y validación del funcionamiento correcto de todas las áreas, así como poder apreciar a los huéspedes y operadores valorar y opinar de manera favorable y positiva a todos los espacios arquitectónicos desarrollados y mencionados en este documento.
El alumno fortalece los aprendizajes adquiridos durante su proceso de enseñanza en la carrera de licenciatura de arquitectura, llevando a cabo labores de dibujo de planos, desarrollo de conceptos arquitectónicos, participaciones en decisiones estructurales, arquitectónicas, de instalaciones hidrosanitarias, mecánicas, electica, cocinas, participación en el desarrollo del diseño de interiores, así como participación en el proceso constructivo como supervisor de obra y decoración.
El proyecto Hyatt también demostró muchos retos referentes a la parte de costos y presupuestos, sometiendo al alumno a tomar decisiones en conjunto con el equipo de diseño del cual sigue formando parte en cuanto a las compras de materiales, de pisos, de revestimientos, de mobiliario, maderas, metales, tuberías y todo lo que un proyecto hotelero all inclusive y de categoría mundial requiere.
Otro elemento importante a considerar durante el proceso de aprendizaje en este proyecto hotelero, fue el estar sometido a los estrictos requerimientos y estándares de diseño y operación que la marca Hyatt y la operación Playa resorts exige durante las tres fases que componen el proyecto, las cuales son diseño conceptual, desarrollo de los diseños y planos constructivos.




Referente al proceso de construcción, los mayores retos a los que el alumno se enfrentó fue el estar en constantes negociaciones con los diferentes contratistas de instalaciones mecánicas, eléctricas, cocinas, telecomunicaciones, protección y detección contra incendios y sanitarias, tomando en cuenta las opiniones de los especialistas durante un proceso de toma de decisiones que permitiesen la armonía con el diseño arquitectónico y estructural, al tiempo que favoreciesen el confort de todos los usuarios del proyecto, y la operación del resultado final.
Durante este proceso, el alumno también formó parte de las revisiones periódicas que el municipio de Higüey realizaba. El departamento gubernamental encargado de estas revisiones es el Ministerio de Obras Públicas y Comunicaciones, cuyos estándares y regulaciones constructivas se fueron analizando y resolviendo durante el proceso de construcción. Todo esto con el objetivo de obtener los permisos constructivos y de operación finales, habiendo obtenido previamente la pre-aprobación de un anteproyecto y obteniendo una licencia de construcción.
Los conocimientos teóricos y prácticos obtenidos durante el desarrollo de este proyecto han sido aplicados subsecuentemente en la realización de otros 2 proyectos hoteleros finalizados y 5 en proceso, llevados desde el inicio del diseño hasta la llave en mano con la compañía TLDI en la zona del Caribe.

