

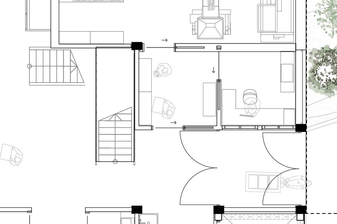
Vertical Farming 1
Area:
262 m²
Program:
Ground floor as a fully public Growth & Care space; Level 1 as a semi-public workshop zone. Upper levels transition into an Interior Vertical Farm operated by trained staff.
Key Elements:
Vertical Farming Core _ modular interior cultivation system.
Green Façade _vegetated envelope expressing the building’s productive function.
Transparent Circulation Path _visible public route revealing human interaction with the farming process.


Community-Facing Production & Learning Ground
Workshops, Participatory Cultivation, and On-Site Compost Cycles
The ground floor operates as a public-facing layer of the vertical farm, combining hands-on workshops, modular growing zones, and a small-scale compost studio. Here, visitors and entrepreneurs connect directly with cultivation processes, experiment with multiple planting modalities, and learn to prepare soil, fertilizers, and organic waste cycles. The space functions as an adaptable, transparent interface that anchors the hub’s replicable and community-driven food model.





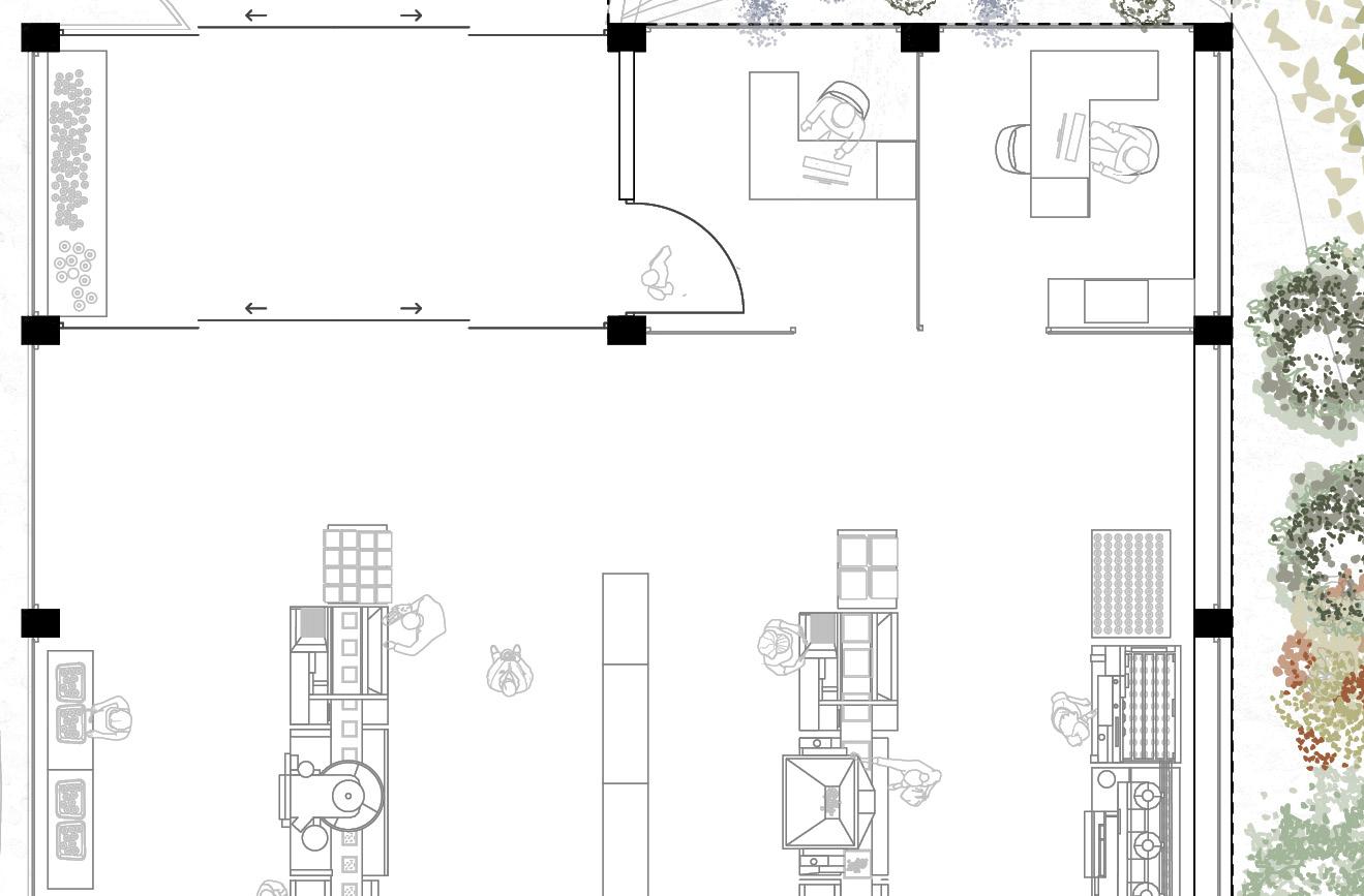
Vertical Farming 2
Area:
418 m²
Program:
Ground floor as a public coworking hub for local producers; Level 1 as a semi-public retail floor linked to an Interior Vertical Farm. Upper levels continue as the productive farming volume operated by staff.
Key Elements:
Vertical Farming Core _ modular interior cultivation system.
Green Façade _ vegetated skin articulating the building’s productive identity.
Transparent Circulation Path _ exposed vertical circulation revealing the public’s engagement with the farming process.


Collaborative Coworking for Circular Entrepreneurship
Shared Workspaces, Interlinked Production, and Mutual Exchange
The coworking space is designed as an active ecosystem where small producers and emerging entrepreneurs work side by side, forming strategic alliances that amplify their craft and commerce. Through shared desks, meeting areas, and material exchange zones, users can connect workflows—linking products, services, and even by-products so one maker’s waste becomes another’s resource. The environment cultivates continuous collaboration, fostering a resilient and interdependent local economy.







The Vertical Farm’s Spatial Sequence
From Public Threshold to Controlled Cultivation
The section reveals a public green forecourt where visitors encounter the first access tower—an elevated walkway that introduces the full arc of the food cycle. The building’s base hosts two workshop levels: a lower floor dedicated to hands-on cultivation and material handling, and an upper tier focused on theory, observation, and guided instruction, each reinforcing the other. Above them rise fully enclosed growing chambers—hermetic, temperature- and humidity-controlled floors equipped with stacked rack systems that mirror Chicago’s Farm Zero model, enabling dense, continuous production of leafy greens





Green Packaging
Area:
328 m²
Program:
Ground floor equipped with packaging machinery for powders, small goods, and refrigerated green leaves; includes cold storage islands for temporary holding. Upper floor operates as a shared kitchen rented by small producers and local businesses for food preparation and short-term storage within an affordable, flexible model.
Key Elements:
Green Façade _ vegetated surface suspended from the rooftop.
Fully Visible Interior _ open visibility despite housing industrial packaging equipment.
Local Production Loop _ infrastructure enabling small businesses and forming a closed-loop system with the Zero Waste Market.


Green Packaging as the Operation-
al Threshold
A Transparent Entry Point for Material Flow and Circular Logistics
Within the overall framework of the market, the Green Packaging space functions as the primary point of entry for all incoming supplies. Here, products are either temporarily stored for subsequent bulk distribution or packaged on-site through a series of specialized stations. This program operates as the logistical backbone of the market, ensuring that every material enters the system through processes aligned with principles of circularity, reduction, and responsible handling..
Its transparent enclosure allows visitors to visually engage with the workflow, reinforcing an ethic of openness and making the processes of sourcing, preparation, and material transformation visible and educational.





An Adaptive Production Line for Circular and Community-Driven Manufacturing
Shared Machinery, Distributed Making, and Transparent Zero-Waste Operations
The production line functions as a continuous and adaptable infrastructure that anchors the market’s circular operations. Structured around a sequence of processing, measuring, packaging, and cleaning machines.
Available for external users to rent, the space extends its utility beyond the immediate market operations, enabling local producers, entrepreneurs, and community members to access sustainable packaging infrastructure.. the line incorporates a collaborative design layer: local artists are invited to participate in the creation of labels, graphic identities, and visual narratives for the packaged goods.
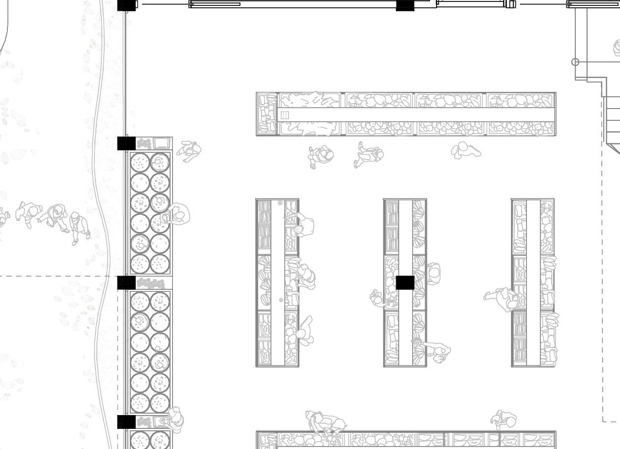
Zero Waste Market
Area:
272 m²
Program:
Ground floor dedicated to bulk produce, grains, vegetables, jars, boxes and refill stations; upper level focused on household essentials offered under a zero-packaging model where users bring and refill their own containers.
Key Elements:
Green Façade _ continuous vegetated surface descending from the rooftop.
Fully Visible Interior _ open, unobstructed layout emphasizing transparency and user flow.
Zero-Waste Furnishing System _ specialized furniture for bulk goods, refilling stations, and container-based circulation.


Zero- Waste Market
Dynamics
The furnishings are conceived as an adaptable infrastructure that enables users to purchase in bulk, weigh products on site, and carry them away in biodegradable or reusable materials. Each unit is designed as a functional interface that supports precise measurement, clean handling, and an intuitive flow of movement, ensuring that sustainable practices are embedded in the everyday act of buying food.
This system is provided by the VF, in collaboration with entrepreneurs from Green Packaging, Shared Kitchen initiatives, and any other partners who align with our values of sustainability, material circularity, and responsible urban consumption. Together, these contributors form an interconnected network of actors whose shared ethos reinforces the market as a living platform for ecological stewardship and community-driven innovation.







A Triad of Refill Modules for Circular, Package-Free Retail

Bulk Pantry Unit
Refillable Liquids Counter








Area:
278 m²
Program:
Three-level anchor space serving multiple user groups: ground floor and Level 1 function as a full library and exhibition hall, while the rooftop operates as an extension restaurant for Culinary School students to host showrooms and demonstrations.
Key Elements:
Organic Green Rooftop _ planted rooftop with organically shaped planters that create a soft, continuous parapet.
Ergonomic Furniture System _ sculptural seating and shelving pieces that carve intimate micro-spaces within the open library layout.
Double-Height Shelving Walls _ continuous book-lined surfaces establishing both verticality and visual connection to the surrounding landscape


Inside the Library
The furniture in this space acts as a generator of cozy micro-environments, forming small reading pods that invite people to slow down and feel held by the atmosphere. Its multifunctional design allows each piece to operate as a table, a bench, or a spatial divider, adapting to different activities while maintaining a continuous material language. Unlike a conventional library shelf, this system preserves openness and visual transparency by anchoring itself only to the structural columns, freeing the surrounding walls and allowing the display to unfold more generously. In this way, the furniture not only organizes and contains the space but also creates a warm, flexible, and visually open experience.

Creation of Microspaces






Communal Core of Learning and Food Culture
Adaptive ETFE Microclimate Roof with an Integrated Trombe-Layer Envelope
Within the project’s two covered zones a multilayer ETFE roof system with a secondary tensioned ETFE envelope functioning as a contemporary Trombe-like thermal mass. The upper single-layer membrane modulates solar gain through controlled aperture openings, capturing heat when required and releasing it to the interior microclimate. Beneath it, the tensioned ETFE layer operates as a thermal buffer, storing and gradually transferring heat to stabilize ambient conditions. Together, both systems create a responsive microclimatic enclosure that enhances environmental performance and seasonal comfort across the public realm.



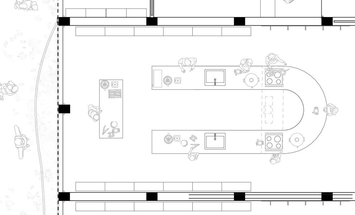
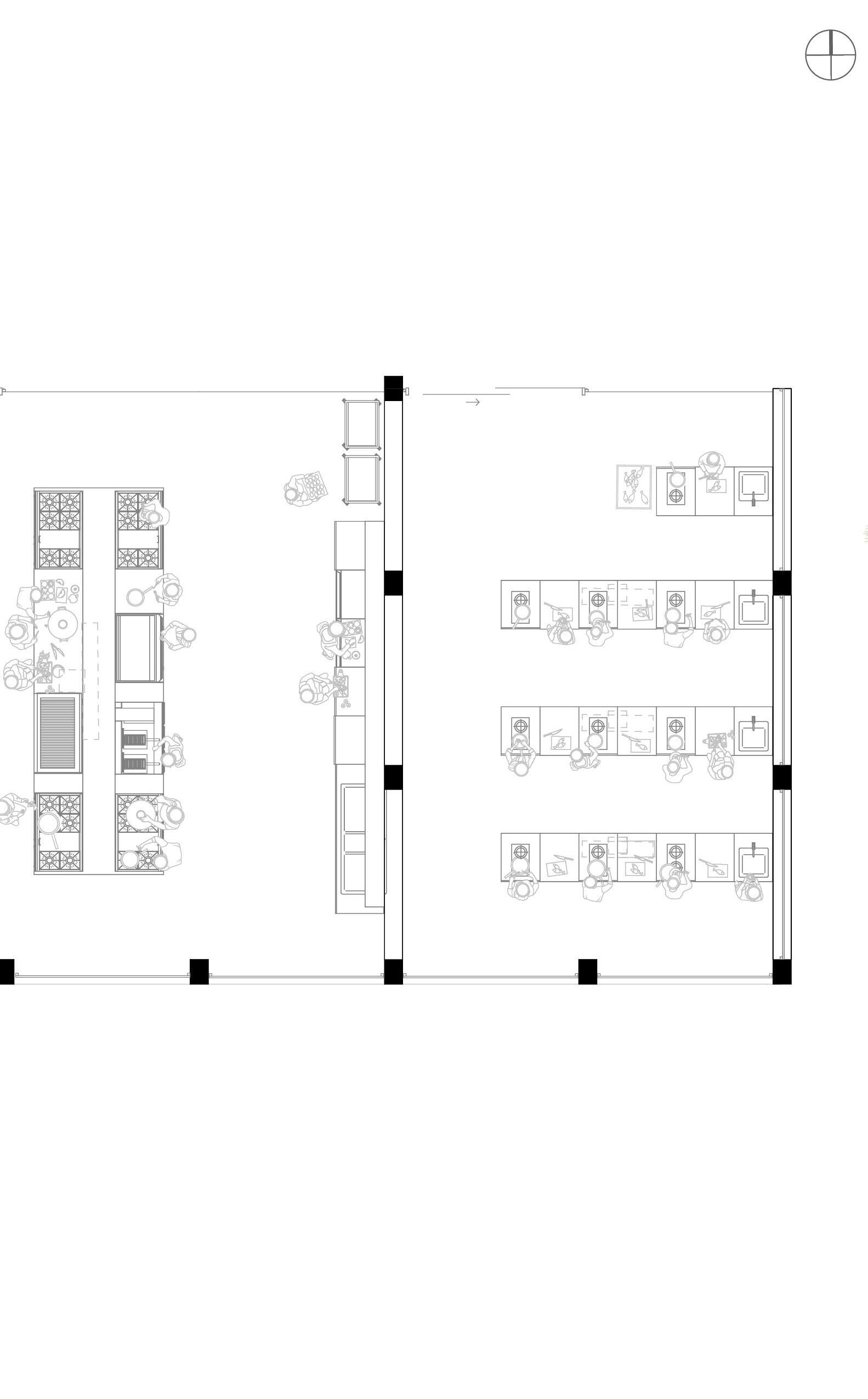
Culinary school
Area:
405 m²
Program:
Two-level culinary hub celebrating the craft and artistry of food: ground floor dedicated to social cooking experiences in a semi-industrial kitchen setting; upper floor hosting two nearly industrial teaching kitchens with central fire tables, administrative offices, and an atrium-style event space, topped by a green rooftop.
Key Elements:
Semi-Industrial Teaching Kitchens _ hybrid cooking environments bridging domestic and professional practice.
Atrium Event Space _ upper-level hall for demonstrations, gatherings, and culinary showcases.
Green Rooftop _ planted rooftop supporting the building’s educational and experiential identity.


Where Consumers Become Producers
From Tasting to Making: An Experiential Platform for Culinary Production
The culinary school is organized through a dual-entry system: a dedicated service access for ingredient delivery and a welcoming public entrance for visitors attending evening or afternoon cooking sessions. Designed to bring the craft of cooking closer to everyday life, the ground floor hosts two classroom types—a series of smaller, specialized kitchens for focused techniques, and a larger, flexible cooking hall that supports social workshops, shared meals, and playful, immersive learning.




Professional Teaching Kitchen (9 × 12 m)
Capacity: 20 users
_Double Deep Fryer
_Griddle Plate
_Large Grill
_Refrigeration Line
_Prep Counters
_Washing Area / Sinks
_Ventilated Hood System
_Cold Storage Access
_Shared Circulation Corridor
Visual Interaction Layer
South-Facing Circulation Spine

Workshop Counter
_Induction Cooktop Station
_Continuous Countertop
_End-of-Counter Sink
_Designed for Introductory Workshops
_ 3 Month Program Cooking Area
_Open Layout for Demonstrations
_Accessible Storage Shel

























A quienes construyeron con nosotras
Los proyectos grandes solo pueden llegar con personas más grandes apoyándolos
Este proyecto nos permitió hacer cosas diferentes e innovadoras; sin embargo, desde un inicio el equipo siempre tuvo claro que habría valores que nos guiarían y a los cuales regresar cuando estuviéramos perdidas o demasiado emocionadas. No nacimos con ellos: fueron inculcados desde pequeñas y a lo largo de nuestra formación arquitectónica. No llegamos sabiendo qué era la arquitectura —aún no lo sabemos del todo—, pero lo que sí sabemos (que es emocionantemente poco) viene de personas que nos han ayudado a cuestionar nuestro entorno y nuestra realidad, a dejar de esperar futuros posibles y comenzar a soñar futuros deseables. Este agradecimiento especial es para cada uno de ellos.
Gracias al Arq. Pedro, por mostrarnos que la realidad y los sueños no están peleados, y por calmarnos cuando teníamos demasiadas ideas. A la Arq. Yetzi, por ayudarnos siempre a encontrar orden en el caos y a contar bien nuestra historia. A la Arq. Viviana: te admiramos profundamente; gracias por demostrarnos cómo la innovación puede cambiar lo que llamamos realidad. A GOMA, por siempre volarnos la cabeza y por mostrarnos ese amor por lo bello. Gracias a la Arq. Dani, por ser real y por nunca guardar un secreto sobre cómo hacer las cosas mejor, por cada llamada tarde y por darnos ese extra de tu tiempo. A las generaciones arriba de nosotras, por ser quienes siempre pudimos mirar para inspirarnos y por poner la barra tan alta. Al arquitecto Pantoja: la idea de la escuela culinaria… aún te debemos un café por eso. Y muchas gracias a la arquitecta Diana, por decirnos que confiemos en nuestro instinto y no sobrepensemos nuestras propias ideas; esa lección es difícil de olvidar, la llevamos en nuestro corazón. Gracias a ambos por su paciencia y su visión de la arquitectura.
No menos importante, queremos agradecer a nuestra familia y a esos amigos que se volvieron familia. Gracias a Dios, Semina, Itzel, Litzi, Tata, Montse mamá, Montse hermana, Yolanda, Gabriela y Carlos, por acompañarnos, por esperar hasta tarde y madrugar con nosotras, por siempre estar ahí; por sus abrazos, su motivación y por cuidar de nosotras mientras estábamos muy ocupadas soñando. Gracias a nuestros amados amigos Azu y RAF; no hay palabras para describir lo mucho que los queremos, por sus consejos y su tiempo.
Hay bastante de ustedes en este proyecto. Han formado quienes somos, y por eso les dedicamos esto.
Nadia Torruco
Samantha Ortiz
To Those Who Built With Us
Great projects can only happen with greater people supporting them
.This project allowed us to do different and innovative things; however, from the very beginning, our team understood that there would be values guiding us—values we could return to whenever we felt lost or overly excited. We were not born with them; they were instilled in us since we were little and throughout our architectural education. We did not begin this journey knowing what architecture was—we still don’t fully know—but what we do know (which is excitingly little) comes from people who have helped us question our surroundings and our reality, to stop waiting for possible futures and instead dream of desirable ones. This special gratitude is for each of them.
Thank you to Arq. Pedro, for showing us that reality and dreams are not at odds, and for calming us when we had too many ideas. To Arq. Yetzi, for always helping us find order in chaos and for guiding us to tell our story well. To Arq. Viviana: we admire you deeply; thank you for showing us how innovation can change what we call reality. To GOMA, for always blowing our minds and showing us that love for what is beautiful. Thank you to Arq. Dani, for being genuine and for never keeping a secret about how to do things better, for every late-night call, and for giving us that extra bit of your time. To the generations above us, for being the ones we could always look up to for inspiration and for setting the bar so high. To Architect Pantoja: the idea of the culinary school… we still owe you a coffee for that. And many thanks to Architect Diana, for reminding us to trust our instincts and not overthink our own ideas; that lesson is hard to forget—we carry it in our hearts. Thank you both for your patience and your vision of architecture.
Equally important, we want to thank our families and those friends who became family. Thank you to God, Semina, Itzel, Litzi, Tata, Montse mamá, Montse hermana, Yolanda, Gabriela, and Carlos, for being with us, for waiting late at night and waking up early with us, for always being there; for your hugs, your encouragement, and for taking care of us while we were busy dreaming. Thank you to our beloved friends Azu and RAF; there are no words to describe how much we love you, for your advice and your time.
There is so much of you in this project. You have shaped who we are, and that is why we dedicate this to you.
Nadia Torruco
Samantha Ortiz