Lachlan Blackmore, Tahlia Farrant, Joel Tansey, Harry Tweedale_My-Co Home and Fabrication

Page 1


My-Co Home and Fabrication

Lachlan Blackmore, Tahlia Farrant, Joel Tansey, Harry Tweedale

We respectfully acknowledge the Wurundjeri People, and their Elders past and present, who are the Traditional Owners of the land on which Swinburne’s Australian campuses are located in Melbourne’s east and outer-east.

Problems With Today’s Affordable Housing

· 1 in 5 people have expressed their house does not feel like a home

2023 Study - ‘Social and emotional wellbeing of Aboriginal and Torres Strait Islander peoples in Aboriginal controlled social housing’

· Traditionally western ideas of a house

· Unsustainable and energy inefficient designs

· Slow time of construction

· Expensive to build

Lachlan Blackmore, Tahlia Farrant, Joel Tansey, Harry Tweedale

Purpose & Affordable Housing

Studio Brief

Digital Fabrication Tools

Lachlan Blackmore, Tahlia Farrant, Joel Tansey, Harry Tweedale

Sustainable Construction Linear Economy

This design research studio explores the intersection of organic building materials, computational design, digital fabrication, and circular economy principles. Our aim is to innovate with building materials and construction methods using sustainable materials like wood and mycelium, enhancing resource efficiency and minimising waste

Lachlan Blackmore, Tahlia Farrant, Joel Tansey, Harry Tweedale

Problems With Today’s Construction

Lachlan Blackmore, Tahlia Farrant, Joel Tansey, Harry Tweedale

Mycelium A Wasted Opportunity

· Cheap to source

· High acoustic and thermal insulation

· High compression strength

· Low carbon construction

· Biodegradable waste

Lachlan Blackmore, Tahlia Farrant, Joel Tansey, Harry Tweedale

Mycelium As A Building Material

Belgian Pavilion

Lachlan Blackmore, Tahlia Farrant, Joel Tansey, Harry Tweedale
PHOTO BY UGO CARMENI

A Wasted Opportunity In

Our Economy

Lachlan Blackmore, Tahlia Farrant, Joel Tansey, Harry Tweedale

BY BELOW FARM

https://www.youtube.com/watch?v=UAoztubnD2I

BY DEDMITYAY

https://stock.adobe.com/au/images/cultivation-of-mycelium-inorganic-material-in-plastic-bags-for-growing-mushrooms-inmushroom-farm/497796255?asset_id=497796255

Lachlan Blackmore, Tahlia Farrant, Joel Tansey, Harry Tweedale
PHOTO
PHOTO
Lachlan Blackmore, Tahlia Farrant, Joel Tansey, Harry Tweedale

Wasted Opportunity

Lachlan Blackmore, Tahlia Farrant, Joel Tansey, Harry Tweedale

Linear vs Circular Economy

Lachlan Blackmore, Tahlia Farrant, Joel Tansey, Harry Tweedale

Swinburne Co-Fab

Lachlan Blackmore, Tahlia Farrant, Joel Tansey, Harry Tweedale

Mycelium

Composite Concept

Key points

• Added strength

• Used to mould the Mycelium

• Wood and cardboard are consumed

• Reduced waste

Lachlan Blackmore, Tahlia Farrant, Joel Tansey, Harry Tweedale

Technology Experiments

Mycelium Technology

Compression Testing

Lachlan Blackmore, Tahlia Farrant, Joel Tansey, Harry Tweedale

Deployable Shed

Wantirna Campus Testing Grounds

Structural Design Concept Hanging Chains.

Catenary structures | Mycelium.

• Works well with mycelium as the material lends itself to compression.

• Versatile for creating more organic structures.

• ‘Hanging chains’ Naturally arrange themselves to the most efficient structure under compression.

Image 1: https://link.springer.com/article/10.1007/s00004-018-0385-9

Image 2: http://dataphys.org/list/gaudis-hanging-chain-models/

Image 3: https://www.researchgate.net/figure/Analogy-between-hanging-chain-in-tension-and-arch-in-compression_fig2_330764973

| My-Co Shed
Lachlan Blackmore, Tahlia Farrant, Joel Tansey, Harry Tweedale |

Structural

Design Concept Our Application.

Boundary

Determine the footprint of the building we would like to create our structure.

Base Lines (Hexagons)

Specially chosen for two main reasons, being:

• Scalable to fit most efficiently in a boundary.

• Density of hexagons can be optimised.

• Provides a simple geometry to work with.

Benefits of Hexagons

Inflation.

• Historically done by ‘hanging chains’ method.

• Optimized for structural integrity.

• Using as few hexagons as needed.

One of the key benefits is the way hexagons can be broken down into these 3-line segments. Using this, we developed a building system / technology to manufacture our shed. This will be detailed in greater detail later in the presentation

Lachlan Blackmore, Tahlia Farrant, Joel Tansey, Harry Tweedale
Lachlan Blackmore, Tahlia Farrant, Joel Tansey, Harry Tweedale
Lachlan Blackmore, Tahlia Farrant, Joel Tansey, Harry Tweedale
Lachlan Blackmore, Tahlia Farrant, Joel Tansey, Harry Tweedale
Lachlan Blackmore, Tahlia Farrant, Joel Tansey, Harry Tweedale
Lachlan Blackmore, Tahlia Farrant, Joel Tansey, Harry Tweedale
Lachlan Blackmore, Tahlia Farrant, Joel Tansey, Harry Tweedale
Lachlan Blackmore, Tahlia Farrant, Joel Tansey, Harry Tweedale
Lachlan Blackmore, Tahlia Farrant, Joel Tansey, Harry Tweedale
Lachlan Blackmore, Tahlia Farrant, Joel Tansey, Harry Tweedale
Lachlan Blackmore, Tahlia Farrant, Joel Tansey, Harry Tweedale
Lachlan Blackmore, Tahlia Farrant, Joel Tansey, Harry Tweedale
Lachlan Blackmore, Tahlia Farrant, Joel Tansey, Harry Tweedale
Lachlan Blackmore, Tahlia Farrant, Joel Tansey, Harry Tweedale
Lachlan Blackmore, Tahlia Farrant, Joel Tansey, Harry Tweedale
Lachlan Blackmore, Tahlia Farrant, Joel Tansey, Harry Tweedale
Lachlan Blackmore, Tahlia Farrant, Joel Tansey, Harry Tweedale
Lachlan Blackmore, Tahlia Farrant, Joel Tansey, Harry Tweedale
Lachlan Blackmore, Tahlia Farrant, Joel Tansey, Harry Tweedale
Lachlan Blackmore, Tahlia Farrant, Joel Tansey, Harry Tweedale
Lachlan Blackmore, Tahlia Farrant, Joel Tansey, Harry Tweedale
Lachlan Blackmore, Tahlia Farrant, Joel Tansey, Harry Tweedale
Lachlan Blackmore, Tahlia Farrant, Joel Tansey, Harry Tweedale
Lachlan Blackmore, Tahlia Farrant, Joel Tansey, Harry Tweedale
Lachlan Blackmore, Tahlia Farrant, Joel Tansey, Harry Tweedale
Lachlan Blackmore, Tahlia Farrant, Joel Tansey, Harry Tweedale
Lachlan Blackmore, Tahlia Farrant, Joel Tansey, Harry Tweedale
Lachlan Blackmore, Tahlia Farrant, Joel Tansey, Harry Tweedale
Lachlan Blackmore, Tahlia Farrant, Joel Tansey, Harry Tweedale
Lachlan Blackmore, Tahlia Farrant, Joel Tansey, Harry Tweedale
Lachlan Blackmore, Tahlia Farrant, Joel Tansey, Harry Tweedale
Lachlan Blackmore, Tahlia Farrant, Joel Tansey, Harry Tweedale
Lachlan Blackmore, Tahlia Farrant, Joel Tansey, Harry Tweedale
Lachlan Blackmore, Tahlia Farrant, Joel Tansey, Harry Tweedale
Lachlan Blackmore, Tahlia Farrant, Joel Tansey, Harry Tweedale
Lachlan Blackmore, Tahlia Farrant, Joel Tansey, Harry Tweedale
Exterior Render View From Tyner Street

Interior Render View From Assembly

Interior

Lachlan Blackmore, Tahlia Farrant, Joel Tansey, Harry Tweedale
Lachlan Blackmore, Tahlia Farrant, Joel Tansey, Harry Tweedale
Lachlan Blackmore, Tahlia Farrant, Joel Tansey, Harry Tweedale
Lachlan Blackmore, Tahlia Farrant, Joel Tansey, Harry Tweedale
Lachlan Blackmore, Tahlia Farrant, Joel Tansey, Harry Tweedale
Lachlan Blackmore, Tahlia Farrant, Joel Tansey, Harry Tweedale
Lachlan Blackmore, Tahlia Farrant, Joel Tansey, Harry Tweedale
Lachlan Blackmore, Tahlia Farrant, Joel Tansey, Harry Tweedale
Lachlan Blackmore, Tahlia Farrant, Joel Tansey, Harry Tweedale
Lachlan Blackmore, Tahlia Farrant, Joel Tansey, Harry Tweedale
Lachlan Blackmore, Tahlia Farrant, Joel Tansey, Harry Tweedale
Lachlan Blackmore, Tahlia Farrant, Joel Tansey, Harry Tweedale

Model Image

Lachlan Blackmore, Tahlia Farrant, Joel Tansey, Harry Tweedale

Site Plan

Swinburne Wantirna

My-Co Home

Current Indigenous Housing Plans

Factors to be considered in the design of indigenous communities' houses, with a focus on Australian first nation housing in the Northern Territory

Lachlan Blackmore, Tahlia Farrant, Joel Tansey, Harry Tweedale
PLANS FROM ALI RAJABIPOUR, CAT KUTAY, JOHN GUENTHER, MILAD BAZLI
Lachlan Blackmore, Tahlia Farrant, Joel Tansey, Harry Tweedale
Lachlan Blackmore, Tahlia Farrant, Joel Tansey, Harry Tweedale
Lachlan Blackmore, Tahlia Farrant, Joel Tansey, Harry Tweedale
Lachlan Blackmore, Tahlia Farrant, Joel Tansey, Harry Tweedale
Lachlan Blackmore, Tahlia Farrant, Joel Tansey, Harry Tweedale
Lachlan Blackmore, Tahlia Farrant, Joel Tansey, Harry Tweedale

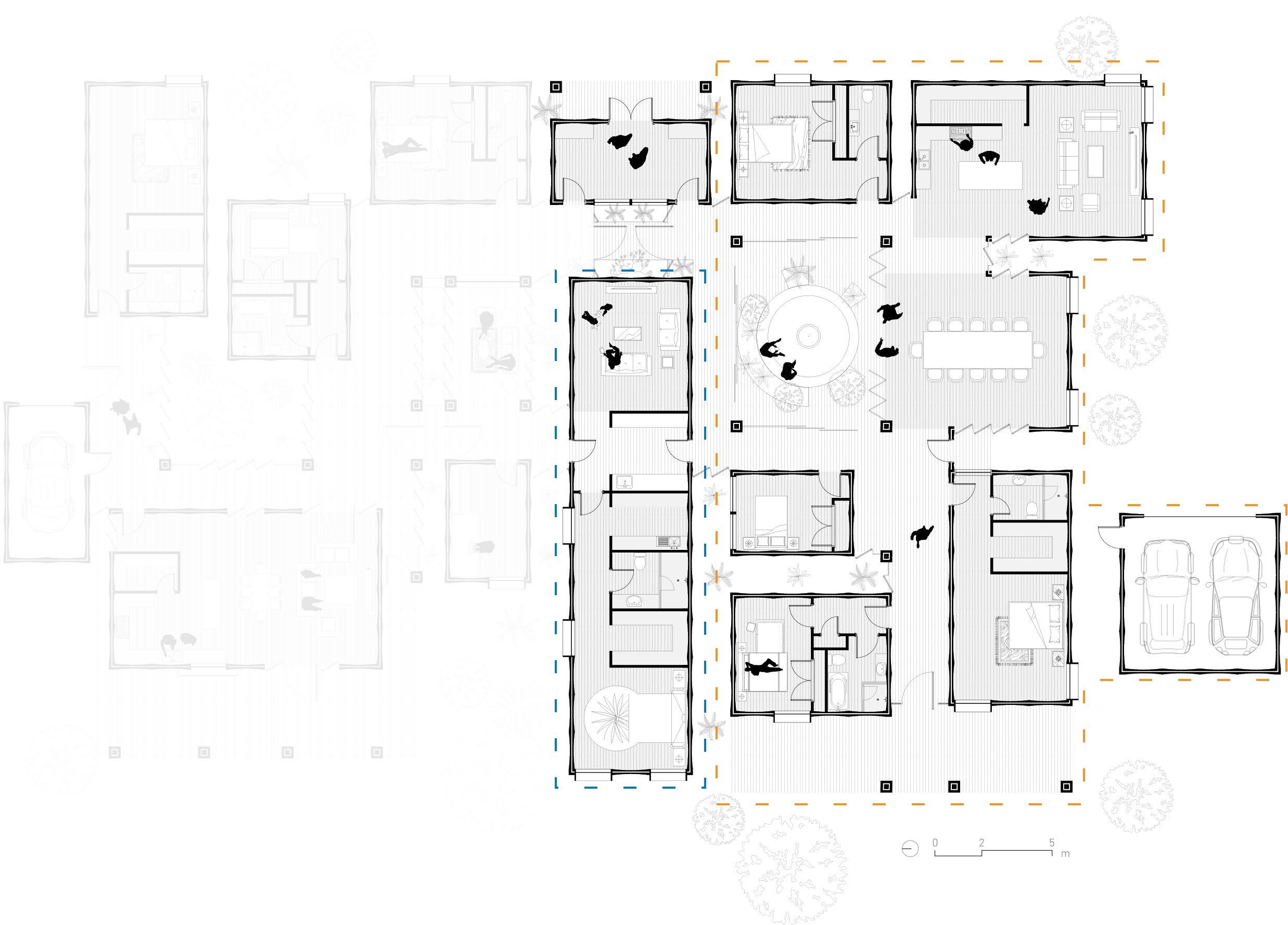
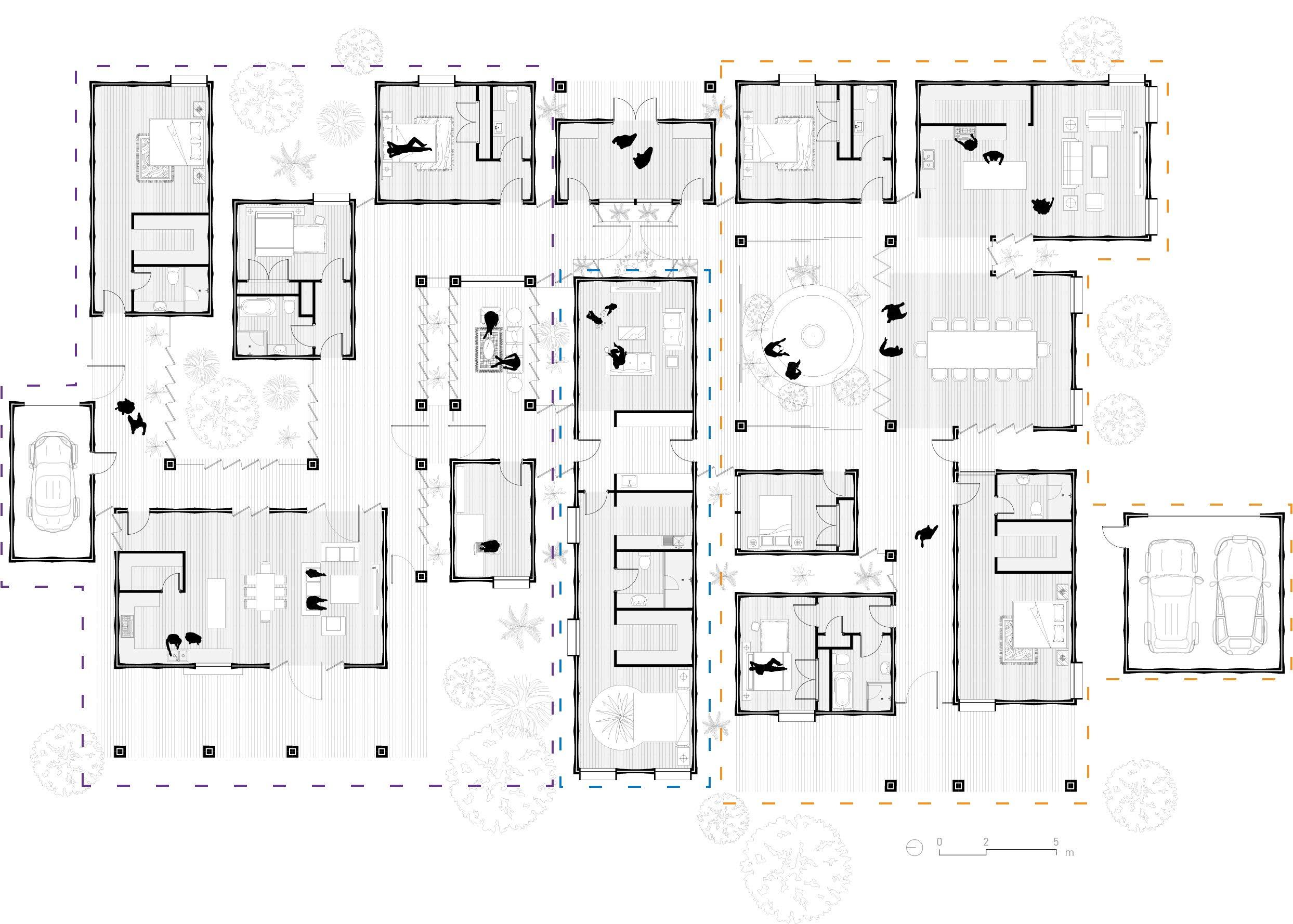
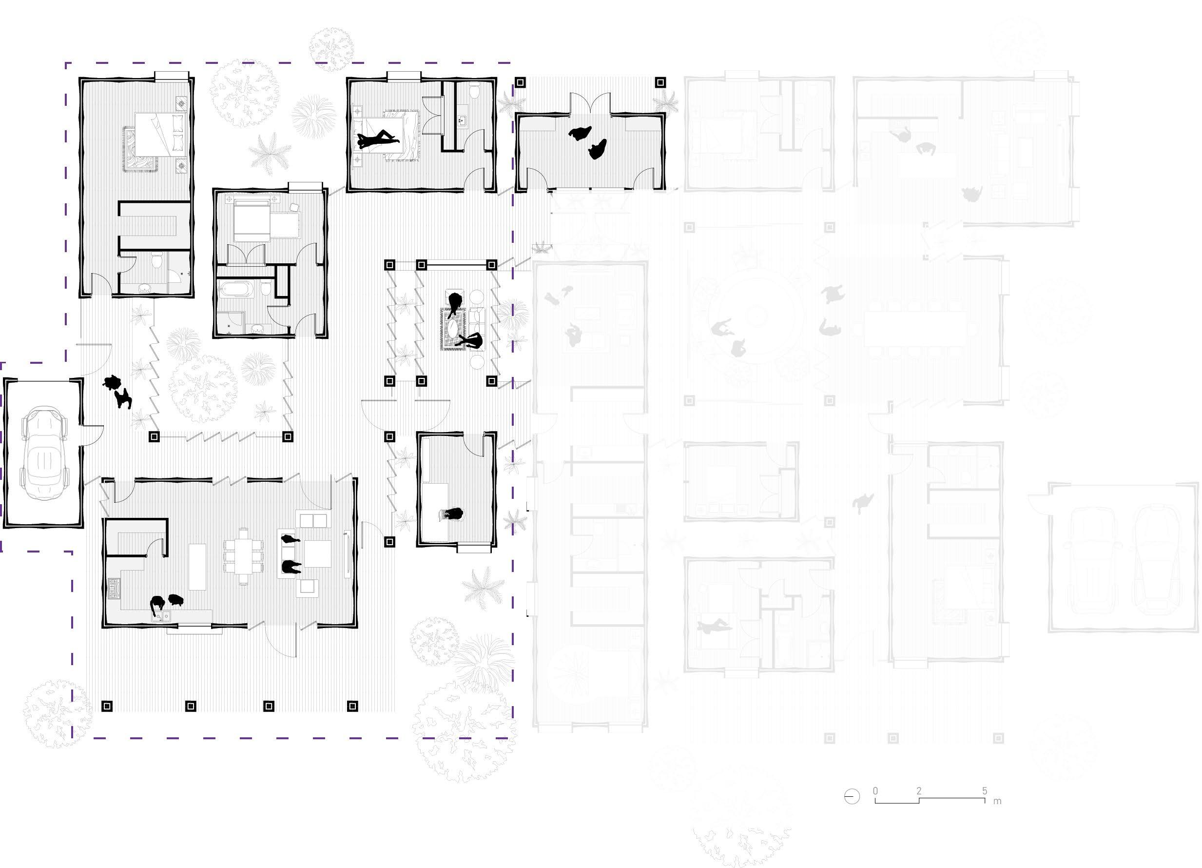
Floor Plan

Designed For Adaptability

Lachlan Blackmore, Tahlia Farrant, Joel Tansey, Harry Tweedale
Lachlan Blackmore, Tahlia Farrant, Joel Tansey, Harry Tweedale
Lachlan Blackmore, Tahlia Farrant, Joel Tansey, Harry Tweedale

My-Co Home Panels

Lachlan Blackmore, Tahlia Farrant, Joel Tansey, Harry Tweedale

My-Co Home Panels

Lachlan Blackmore, Tahlia Farrant, Joel Tansey, Harry Tweedale

My-Co Home Panels

Lachlan Blackmore, Tahlia Farrant, Joel Tansey, Harry Tweedale

My-Co Home as an Adaptive Future

Woorabinda, QLD Site

Thankyou

Joel Tansey, Harry Tweedale, Lachlan Blackmore, Tahlia Farrant
Lachlan Blackmore, Tahlia Farrant, Joel Tansey, Harry Tweedale
Lachlan Blackmore, Tahlia Farrant, Joel Tansey, Harry Tweedale

Turn static files into dynamic content formats.

Create a flipbook
Issuu converts static files into: digital portfolios, online yearbooks, online catalogs, digital photo albums and more. Sign up and create your flipbook.