SUSTAINABLE
LOW-COST





Image source: https://www.indigenous.gov.au/communities
CIRCULAR ECONOMY

CURVED ARCHITECTURE FORM

Formwork waste from the curved concrete fabrication process


Image source https://www.researchgate.net/figure/EPFL-Rolex-Learning-Center-construction-process-a-pouring-of-concrete-using-a-concrete_fig12_325362607



waste blocks as formwork




Image source: https://wewanttolearn.wordpress.com/tag/synclastic/


Concept Diagram

Site Location



Young Family House twho-bedrooms

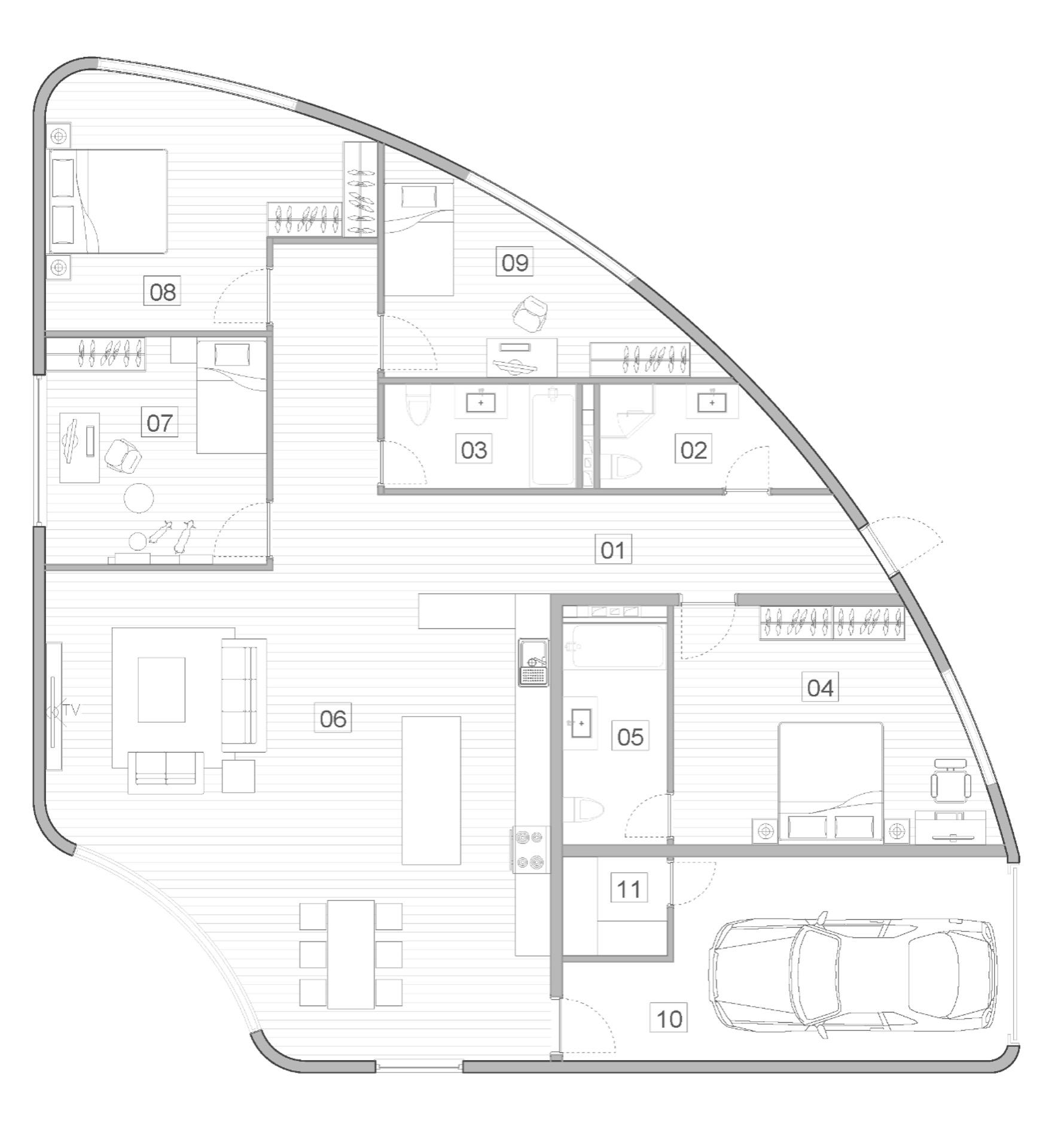
Multigenerational House four-bedrooms




Multigenerational House four-bedrooms

1. Entrance
2. Guest bathroom
3. Bathroom
4. Master bedroom
5. Bathroom /Master bedroom/
6. Living room/Kitchen
7. Children’s bedroom
8. Bedroom
9. Bedroom
10. Garage/Multipurpose room
11. Storage


Young Family House two-bedrooms
1. Entrance
2. Bathroom
3. Bedroom
4. Living room/Kitchen
5. Master bedroom
6. Bathroom
7. Garage/Multipurpose room
8. Storage




Young couple, Singles House two-bedrooms

1.
2. Bedroom 1
3.
4. Bedroom 2
5.
Multipurpose, Granny Flat one-bedroom



Elders Housing two-bedrooms



1. ACCESS

2.CIRCULATION







Vegetation Community area Flow
● Incorporates several access points.
● Features distinct zones for both privacy and communal family activities
Multipurpose area

During gatherings, the garage spaces in both the multigenerational and young family homes can be utilized as guest bedrooms. Vegetation Community area




Apply Housing project in Blackstone Community

Site Comparison
Djarindjin-Lombadina Community








Phase 4










Low-cost building
Community-focused Housing
