
PHASE 1 (weeks 1-6) site analysis precedent research concept ideation design proposal
PHASE 2 (weeks 7-14) site analysis precedent research concept ideation design proposal presentation 3-45 3-22 23-29 30-34 35-45

![]()

PHASE 1 (weeks 1-6) site analysis precedent research concept ideation design proposal
PHASE 2 (weeks 7-14) site analysis precedent research concept ideation design proposal presentation 3-45 3-22 23-29 30-34 35-45












While property density might appear similar when comparing them together, a key difference lies in the number of stories per dwelling. In Amsterdam and Tokyo, many buildings are typically two to three stories high, whereas in Carlton North, the majority of dwellings are single-story.

The subdivisions of Carlton North create a clear and distinct linear pattern with blocks running vertically for 200-300 meters, covering the majority of the suburb. This grid-like street structure is quite characteristic, although there are amendments to portions of the layout to accommodate existing parklands, seamlessly integrating green spaces into the urban fabric.
The establishment of the suburb dates back to the 1850s when development first began. The original vision was to create an extension of Melbourne’s residential areas, a vision that has remarkably remained consistent over the years. Over time, local council heritage regulations have played a crucial role in ensuring that the core historical structure of the suburb has remained intact. These regulations have preserved the unique architectural and cultural heritage of Carlton North, maintaining its historical charm while allowing for modern living.


The area of Carlton North presents an extremely fine grain towards its northernmost points, characterised by a dense and intricate layout. This fine-grained structure is contrasted by the southern neighbourhoods of Carlton and Fitzroy, which dominantly consist of vast commercial, community, and retail facilities. These areas are bustling with activity and offer a wide range of services and amenities to residents and visitors alike. The density in these southern neighbourhoods, whilst slightly coarser compared to Carlton North, still remains relatively compact. This is largely due to the heritage regulations imposed by the local council, which aim to preserve the architectural integrity and historical significance of the area. These regulations ensure that any new development or renovation projects are in harmony with the existing urban fabric, maintaining the unique character and charm of these neighbourhoods.
















LT Josai, a project by Naruse Inokuma Architects, is a compact mixed-use building located in Nagoya, Japan. The structure blends commercial and residential functions, featuring a bakery on the ground floor with residential units above. The building’s small footprint required a design that maximises functionality while maintaining a seamless connection between the different uses.
The building’s design emphasises transparency and openness, particularly on the ground floor, where large windows and a glass façade allow the bakery to engage directly with the street. This approach not only invites passers-by into the bakery but also creates a lively interaction between the interior and the urban environment, making the small building feel more expansive and connected to its surroundings.
Architectural elements such as wooden louvers and a minimalist interior further define the building’s character. These features contribute to a warm and inviting atmosphere in the bakery, while also ensuring privacy for the residents above. The wooden louvers, in particular, add texture and depth to the façade, creating a visual rhythm that enhances the building’s aesthetic appeal and provides a sense of cohesion between the commercial and residential spaces.









The Pixel Residential Complex, designed by MVRDV, is a sprawling 85,000-square-meter mixed-use development situated in Abu Dhabi. This ambitious project encompasses 525 apartments alongside retail spaces, office environments, and a range of amenities. The design integrates various elements to cater to both residential and commercial needs, creating a dynamic and functional urban environment.
At the heart of the Pixel Residential Complex is a central plaza, around which seven distinctive towers are arranged. The design emphasises community engagement through features such as terraces and bay windows. A striking aspect of the project is its shading screens, which are inspired by the lustrous colours of pearls, enhancing both the aesthetic and practical aspects of the complex.
The focus on community is evident throughout the development, with a variety of facilities aimed at promoting outdoor living and social interaction. Residents and visitors can take advantage of amenities including a gym, a medical clinic, an early learning centre, and start-up offices. These elements are designed to foster a sense of community and support a vibrant, interconnected lifestyle.
Architecturally, the Pixel Residential Complex stands out with its pixelated façade design. This visual motif integrates public and private spaces in a unique manner, using materials and colours to create a distinctive identity. The pixelated structure not only enhances the building’s appearance but also assists in wayfinding, making it easier for residents and visitors to navigate the complex.
The development’s social and environmental goals are focused on promoting a diverse community and sustainable living. By offering a range of apartment sizes and encouraging various forms of social interaction, the Pixel Residential Complex aims to create a balanced and inclusive environment that supports both personal and communal well-being.






The Rose Apartments is a significant project in Los Angeles, providing 35 units of 100% affordable housing specifically designed for transitional-aged youths. This initiative addresses the critical need for accessible housing options in the city.
The building’s design includes a central elevated courtyard, which serves as a communal space for residents. This feature promotes social interaction and fosters a strong sense of community among the tenants.
Sustainability is a key focus of the Rose Apartments, which has earned a LEED Gold certification. The project incorporates various sustainable design elements to minimise its environmental impact.
Situated near essential amenities and public transportation, the Rose Apartments offer residents easy access to necessary services and reduce reliance on cars, contributing to a more sustainable urban lifestyle.
The building’s architecture features scalloped cement plaster walls that not only enhance its aesthetic appeal but also manipulate natural light, creating a pleasant living environment.




Granville1500 is a 102-unit affordable housing project in Los Angeles, designed by Lorcan O’Herlihy Architects (LOHA). The development primarily serves low-income and formerly homeless residents, addressing a critical need for accessible housing in the
The design of Granville1500 focuses on fostering community interaction. Shared spaces such as courtyards and gardens are integrated into the building, creating environments that encourage socialisation while incorporating greenery and natural light for a pleasant living experience.
Sustainability is a key component of Granville1500, which utilises eco-friendly materials, solar panels, and energy-efficient systems. These features reduce the building’s environmental impact while promoting sustainable living practices among residents.









The Samseon-dong Mixed-Use project by A Round Architects in Seoul is a creative blend of residential and commercial spaces, designed to fit seamlessly into a compact urban environment. The project focuses on efficiently utilising the limited space available.
The building employs a vertical layout to maximise space, with different materials and textures used to distinguish between residential and commercial functions. This approach creates a dynamic and visually engaging structure.
Outdoor terraces are integrated into the design, providing aesthetic appeal and enhancing the quality of life for residents. These spaces offer a connection to the outdoors within an urban setting.
The design emphasises integration with the surrounding neighbourhood while ensuring privacy and comfort for its residents. This balance helps the building contribute positively to the community while providing a comfortable living environment.




The Kornmarktplatz Townhouse, a prominent building in the heart of Bregenz, Austria, plays a significant role in the city’s cultural and public life. It stands surrounded by key cultural institutions, shops, and restaurants.
Built in the 17th century, this townhouse boasts a rich history of transformation. It has served various purposes—from brewery to bank to nightclub—with each change over the centuries leading to structural and aesthetic alterations that reflect its diverse uses.
Herzog & de Meuron’s design preserves the building’s historic façade, ensuring it blends seamlessly with its surroundings. Behind this façade, they’ve introduced a modern five-story structure housing a small hotel, a cultural event space, and a private residence. This approach respects the building’s historical context while adding contemporary functionality.
On the ground floor, the townhouse features a multifunctional salon for cultural events. This space can be divided into two separate rooms using a movable partition, offering flexibility for various gatherings. The design emphasises creating adaptable spaces that serve the community’s cultural needs.










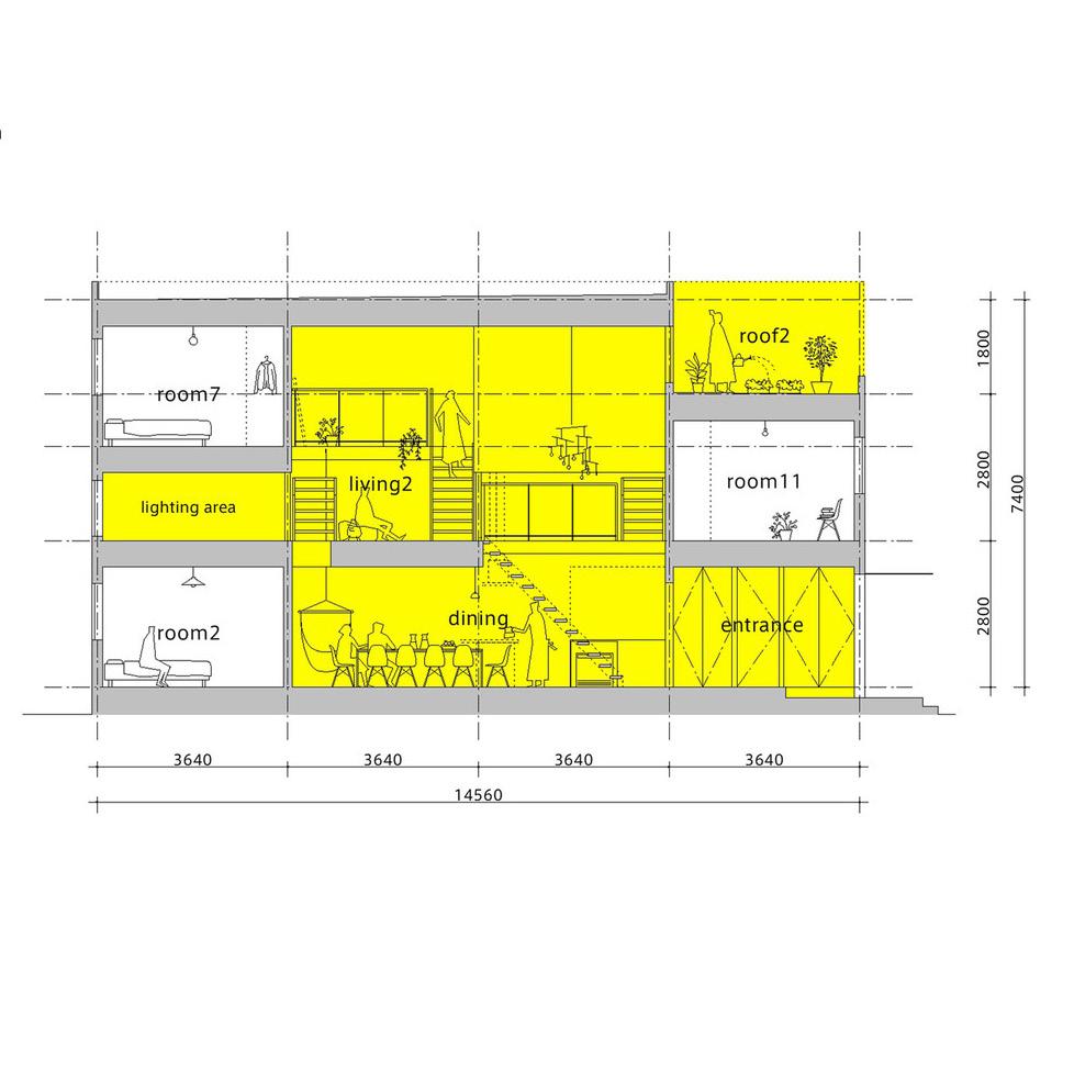
A couple (Jim, 34 + Pam, 32) in their early 30’s have come into ownership of a property; 320 Rathdowne Street, formally housing a European Restaurant, La Luna Bistro.
Jim and Pam wish to live + house their family (husband + wife + 5yr old boy) in their newly owned home, however it’s existing conditions lack the capability to do so.
Having come from a background of independent business management, Jim and Pam see the potential in the sites existing structure and wish to maximise it’s financial potential alongside it’s liveability.
As Jim and Pam plan to host exchange students + house their family alongside owning a café, they desire a clear separation between public and private spaces. However, they still wish to allow access between these areas for café operation purposes.
Spatial Layout
Prescribed sources of passive income;
Exchange
homestay
Second
(extension)
Design Considerations
Integration
Maximise

With primary inspiration stemming from the ‘Never Too Small’ book series, a study was taken exploring the design languages used to maxamise small spaces.
Key elements were noted. Afterwards, the user experience would be tested, simulating the environments in digital spaces and then evaluating through target user feedback.
Results were used as a framework to develop the final outcome.



Definition of project foundations created the clear paramaters required for the project. In doing so, 320 Rathdowne Street was defined as the project site leading to direct ideation between precedents and concept development of long block sites.


After having understood the appropriate design language for the site, the first floorplan draft was developed.
The plan includes a fluid 1:100 scale (on paper) with the appropriately scaled fixtures also being considered for further planning purposes.

The final element was considering spatial qualities, ensuring all provided spaces provided spatial solutions wherever possible to maxamise user experience.














Carlton North Italian Migration Italians migrated to Australia during WWII (1850’s) for greater economic opportunities (gold rush)
Corrugated iron roofing was first invented by Henry Palmer (British architect and engineer)
Making its was to Australia in the 1800’s gaining popularity during the gold rush due to it’s cheap cost + fast construction.
By 1915 Australian manufacturers, such as BlueScope Steel, had started using steel instead of iron
Steel and eventually galvanised steel became the norm as they were much more rust-resistant than iron and lasted longer








The utilisation of conditons analysis was conducted through AutoDesk’s Forma realtime environmental analysis tool.
This tool primarily served to reassure that existing conditions were adequate + further ensuring that design iterations would provide improvement.
Through it’s live intergration with Rhino, quick analysis could be run simultaneously to design, allowing for swift + informed design iteration.





After taking on feedback from the mid semester presentation, adjustments to form were made. The primary adjustments were made to the ‘extension’ as the heritage requirements made for minimal impact on the ‘existing’ facade.
Views were taken from the window positions of the ‘existing’ to create a coherant language across the whole building.
Finally cuts were made to the buildings mass to create setbacks, making the form coherant with the design language of it’s neighbours.





















Finally a 1:100 scaled model was created for presentation purposes. The model was 3D printed and then spray painted with a plum red on the extension envelope to depict the finished corrugated metal roof.