TUGAS B.1_212100300_STEFANUS YORIE LIUN

Page 1

Calvin Institute of Technology

Architecture and Sustainable Design

Giska Raissa, S.T., M.U.P.

STUDI PRESEDEN B.1

STEFANUS YORIE LIUN 212100300

Developer : Istana Group

Tahun : 2010

Luas Area 17.000m2

Lokasi: Bandung : Indonesia

Tinggi Bangunan : 16 Lantai

Unit : 900 Unit

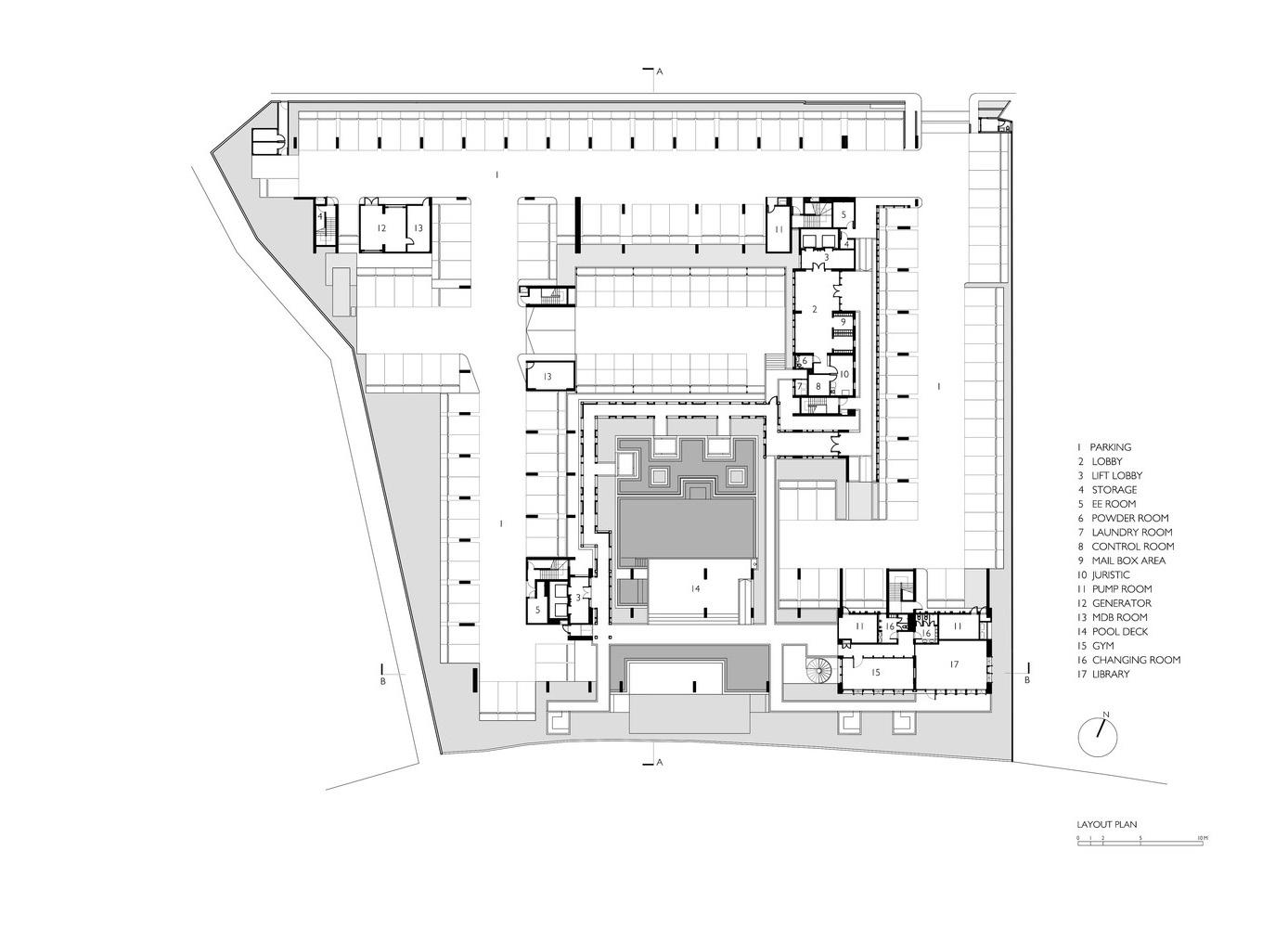
Landmark residence merupakan proyek residensial skala besar di pusat Kota Bandung yang bertujuan untuk memberikan hunian yang eksklusif dan nyaman di tengah kepadatan dan keramaian kota Bandung.

01 LANDMARK RESIDENCE INDONESIA

01 LANDMARK RESIDENCE INDONESIA

ONE STOP LIVING

Landmark Residence menyediakan berbagai fasilitas yang terintegrasi untuk memudahkan kehidupan penghuninya, seperti ruang perpustakaan, area taman, meeting room, study room, music room, multifunction hall, children playground, dan barbeque area. Berbagai fasilitas tersebut selain menunjang kehidupan sehari-hari juga mampu mendorong penghuni untuk memiliki kehidupan komunitas yang baik.

THEMATIC GARDEN

Fasilitas Halaman yang berada di tengah-tengah taman dirancang dengan tema-tema yang berbeda dengan tujuan memberikan pengalaman yang unik bagi penggunanya. Beberapa tema taman ini antara lain taman tropical garden, zen garden, dan flower garden. Selain itu, terdapat juga edible garden yang dapat dikelola oleh penghuni.

HEALTHY LIVING

Penambahan berbagai fasilitas penunjang kesehatan seperti pusat kebugaran, kolam renang, trek lari, serta berbagai jenis lapangan mendorong penghuni untuk dapat memiliki gaya hidup yang lebih sehat.

3

01 LANDMARK RESIDENCE INDONESIA

KELEMAHAN

Penggunaan material yang digunakan untuk memberikan kesan mewah harus diimpor dari luar negeri, misalnya marmer dan onix yang terdapat pada lobi dan masing-masing unit yang berasal dari Turki. Seharusnya, perancangan dapat menggunkan material lokal yang dekat dengan area perancangan untuk mengurangi emisi karbon.

75% DEDICATED GREEN AREA

Perancang mendedikasikan 75% dari total kawasan perancangan menjadi area hijau. Hal ini bertujuan untuk untuk menciptakan suasana lingkungan apartemen yang sejuk dan sehat bagi penghuninya.

STICK-ON SYSTEM

Sistem dinding yang ada pada apatemen ini menggunakan bata ringan yang dilapisi gypsum bolak-balik. Hal ini menghasilkan tembok ruangan yang rapi serta lebih kedap suara dibandingkan tembok apartemen pada umumnya.

PENCAHAYAAN ALAMI

Setiap unit pada apartemen difasilitasi dengan jendela floorto-ceiling yang lebar baik pada area ruang keluarga maupun area kamar tidur. Perancangan ini dapat mengurangi penggunaan pencahayaan buatan serta memberikan kesan area yang lebih luas.

KESIMPULAN

Proyek ini menunjukkan bahwa apartemen yang baik adalah apartemen yang mampu menunjang kebutuhan penghuninya menyediakan fasilitas yang beragam. Selain itu, proyek ini juga menunjukkan bahwa konsep center courtyard yang masif dapat menjadi salah satu fasilitas yang menarik yang dapat memenuhi kebutuhan kesehatan penghuninya.

4
Landmark Residence, 2010 Landmark Residence, 2010 Landmark Residence, 2010 Landmark Residence, 2010 Landmark Residence, 2010

JERVOIS MANSION

Arsitek : Serie Architect, Multiply Architect

Tahun : 2026

Luas Area : 8657m2

Lokasi : Singapura

Tinggi Bangunan : 5 Lantai

Merupakan proyek kerjasama antara arsitek yang berbasis di London, Serie Architect dan arsitek lokal yaitu Multyply Architect yang berusaha untuk menciptakan tempat tinggal yang rendah energi.

02
5

02 JERVOIS MANSION

NATURALLY VENTILATED CORRIDORS

Setiap koridor pada komplek apartemen ini ditempatkan secara terbuka. Hal ini memaksimalkan penggunaan cahaya serta ventilasi alami pada tiap bangunan. Dengan kata lain, bangunan ini dapat mengurangi penggunaan energi AC serta cahaya buatan. Selain itu, dengan konsep koridor yang terbuka ini, koridor dapat menjadi komponen interaksi yang baik bagi antara pengguna dengan aktivitas yang ada di lantai dasar.

TEMAK TREE

Perancangan didasarkan pada konsep bunga pohon Sala yang memiliki 7 kelopak bunga yang masing-masingnya merepresentasikan esensi dari kehidupan yang tumbuh dan berkembang pada tiap generasi di komplek apartemen ini. Pada penerapannya, apartemen ini dirancang agar dapat menumbuhkan interaksi yang intim baik antar sesama penghuninya maupun dengan alam untuk mewujudkan visi besar kota Singapura yaitu City in a Garden

GREEN MARK CERTIFICATION

Proyek ini merupakan proyek private residential building pertama yang mendapatkan Green Mark Goldplus Super Low Energy Status dari Singapore’s Building Construction Authority. Hal ini dikarenakan beberapa fitur keberlanjutan seperti pemakaian panel surya, roof garden untuk mengurangi panas, serta sistem irigasi air yang mengunakan sensor hujan.

PLANTERS AND BALCONIES

Setiap balkoni pada unit memiliki tanaman hias yang menjadi fasad dari bangunannya. Selain sebagai aspek dekoratif bangunan, beberapa tanaman hias berupa tanaman rambat juga berfungsi sebagai pembayang matahari yang secara pasif mengurangi panas yang masuk ke dalam bangunan.

6
Jervois Mansion, 2021 Jervois Mansion, 2021 Jervois Mansion, 2021 Jervois Mansion, 2021 Jervois Mansion, 2021

02 JERVOIS MANSION

ROOFTOP AND FACILITIES

Dikarenakan area lahan yang terbatas, daerah atap pada komplek apartemen ini dimanfaatkan secara maksimal dengan menjadi area komunal penghuni. Area atap tersebut dibagi menjadi 6 area yang saling terhubung. Di mana setiap areanya merepresentasikan aspek komunitas yang ada di Jervois Mansion, yaitu Family, Sunrise, Wilderness, Junior, Harvest, dan Social

URBANPLANING

Perancang bekerjasama dengan kurator keberlanjutan dari Mace Studio. Kurator tersebut berperan sebagai penasehat arsitek yang memberikan arahan terhadap jenis tanaman yang cocok untuk ditanam sesuai dengan jenis tanah di lahan ini.

KELEMAHAN

Dikarenakan bangunan yang mengusung tema mengitegrasikan bangunan dengan alam, perlu adanya pertimbangan yang baik terhadap pemeliharaan tanaman yang ada di apartemen ini. Salah satu hal yang dilakukan oleh pihak pengembang adalah menyewa tukang kebun, hal ini tentu saja akan menambah biaya yang akan diterima oleh penghuni apartemen nantinya.

KESIMPULAN

Serie Architect dan Multiply Architect berhasil untuk merancang bangunan residensial yang ramah lingkungan serta berkelanjutan untuk masyarakat Singapura. Proyek ini menunjukan bahwa konsep berkelanjutan pada rumah berkepadatan tinggi adalah hal yang sangat memungkinkan apabila dirancang dan dipertimbangkan dengan mendalam.

7
STACKED, 2021 STACKED, 2021

Arsitek : Somdoon Architects

Tahun : 2016

Luas Area : 19.900m2

Lokasi : Bangkok, Thailand

Tinggi Bangunan : 7 Lantai

Unit Bangunan : 333 Unit

Hasu Haus merupakan proyek skala besar yang diperuntukkan untuk menciptakan sebuah perumahan berkepadatan tinggi untuk masyarakat pekerja di Bangkok yang dekat dengan area bangunan ini.

HASU HAUS

03
8
ArchDaily, 2016

PILOTIS

Perancang mengunakan bentuk pilotis pada bangunan untuk memberikan lantai dasar yang lebih terkoneksi terhadap lingkungan sekitar. Area residensial yang diangkat ke lantai 2 memungkinkan area parkiran mobil, kolam renang, courtyard, serta kanal lebih terhubung satu sama lain.

ArchDaily, 2016

ArchDaily, 2016

CENTER COURTYARD

Apartemen ini dirancang dengan menggabungkan 2 massa berbentuk “L” untuk menciptakan couryard pada area tengah kawasan. Selain itu, massa bangunan di arah yang bersebelahan dengan kanal Prakanhong dibuat pilotis untuk memberikan ventilasi udara yang baik serta memberikan pemandangan yang menyatu dengan area courtyard bangunan.

ArchDaily, 2016

03 HASU
HAUS
9

FASAD BANGUNAN

Baik material fasad maupun pola pada fasad terinspirasi dari rumah tradisional Thailand yaitu Pha Pa Kon. Pola rumah tradisional yang disebut Kad Taeh menjadi inspirasi dalam berbagai elemen fasad, seperti paviliun pada courtyard serta pada diding pembatas.

FASILITAS UMUM

Setiap fasilitas yang ada di apartemen ini ditaruh pada lantai dasr bangunan untuk memudahkan interaksi dan aktivitas sosial antar penghuni.

KELEMAHAN

Meskipun sudah ada pertimbangan terhadap aspek penghijauan pada apartemen ini, fitur keberlanjutan lainnya belum diterapkan untuk dapat dikatakan menjadi bangunan yang hijau.

KESIMPULAN

Proyek ini menunjukan bahwa konteks lingkungan sekitar dapat menjadi sebuah komponen yang menarik apabila dapat dimanfaakan dengan baik. Selain itu, proyek ini juga menunjukan bahwa aspek kultural pada suatu daerah dapat dijadikan sebuah referensi yang menarik untuk perancangan.

03
HASU HAUS
10
ArchDaily, 2016 ArchDaily, 2016 ArchDaily, 2016 ArchDaily, 2016

HASU HAUS / Serie Architect, Multiply Architect

https://www.archdaily.com/883727/hasu-haus-somdoon-architects

https://www.somdoonarchitects.com/hasu-haus

JERVOIS MANSION / Soomdon Architects

https://stackedhomes.com/editorial/jervois-mansion-review/#gs.ug3x8j https://jervoismansion.com.sg/

LANDMARK RESIDENCE / Istana Group

https://www.landmarkresidence.co/ https://www.landmark-residence.com/

https://www.youtube.com/watch?v=_4u2qvy-XXE&t=277s

04 REFERENSI 11

Turn static files into dynamic content formats.

Create a flipbook
Issuu converts static files into: digital portfolios, online yearbooks, online catalogs, digital photo albums and more. Sign up and create your flipbook.