MÉLYBŐL A MAGASSÁGOKBA A BOHN Mélyépítő központja

fertő-táji módra
3h iroda
Hatásos, hibátlan
bebocsátott villa paloznakon
![]()
MÉLYBŐL A MAGASSÁGOKBA A BOHN Mélyépítő központja

fertő-táji módra
3h iroda
Hatásos, hibátlan
bebocsátott villa paloznakon
MAGYARORSZÁG
LEGNAGYOBB
LAKBERENDEZÉSI












































































































































































































aforgalmasabbhírlapárusoknál, azinmedioésa RELAYüzletekben valamintazalternatívárusítóhelyeken!
RÓZSAVÖLGYI ÉS TÁRSA ZENEMŰBOLT 1052Budapest,Szervitatér5.
FUGA | BUDAPESTI ÉPÍTÉSZETI KÖZPONT 1052Budapest,PetőfiSándorutca5.
MŰVÉSZETEK PALOTÁJA 1095Budapest,KomorMarcellutca1.
FÓKUSZ KÖNYVÁRUHÁZ 1072Budapest,Rákócziút14.
ÍRÓK BOLTJA 1061Budapest,Andrássyút45.
TERC SZAKKÖNYVESBOLT 1149Budapest,Pillangópark9.
Fiók for arts Kft. 1111Budapest,Csíkyu1
E lapszám szerkesztése közben lángba borul két BKK-busz is. Futnak a Tik-Tok videók, katasztrófaturista tartalmak lepik el „a feedet”. Ám a József nádor téri eset közben nem csak a tűzoltók aggódtak azon tényért, hogy a lángok átterjedhetnek a szomszédos épületre is. Az építészet-kedvelők azon rágták a körmüket, hogy a Gross-ház lángba ne boruljon. Van, akinek a Postabank és van, akinek a Szóda udvar juthat róla eszébe. De van, akinek a Blumenstöckl étterem – amelyet Gundel is vezetett – vagy Hild József egyik első komoly pesti munkájának sorsa. Legjelentősebb klasszicista építészünk nagyon fontos alkotásáról van ugyanis szó, ami évek óta ott áll üresen. Klasszicista épületként eleve csoda, hogy nagyjából őrzi architektúráját, régi sziluettjét. De kong a kihasználatlanságtól. Ott, az üzleti és banknegyed kellős közepén. Öröklési jogi perpatvarban veszett el virágzó jövője már vagy 10 éve.
Húzódó tulajdonjogi viták elnyúlása miatt Magyarországon rengeteg ingatlan nem eladható vagy kiadható, sőt beavatkozás sem hajtható rajtuk végre. Várakoznak a paragrafusok purgatóriumában. A Gross-házhoz hasonló hatalmas műemlékek is így járhatnak, nem csupán a lakások. Azaz nem kizárólag az ingatlanokat halmozó, vagy mondjuk amúgy külföldön élő tulajdonosokat lehet „utálni” azért, hogy Budapesten nagyjából 160 ezer körüli kihasználatlan ingatlan van ma jelenleg. A bankoknak van, hogy évekig nincs például kapacitásuk arra, hogy egy-egy hitelvisszafizetési elmaradásból visszavett ingatlan adminisztrációját elvégezzék, elrendezzék jogi hátterét is, majd elkezdjék végre kiadni vagy értékesíteni azt. Ellentmondásos az egész. Itt, a lakhatási válság sűrűjében. Közben az ötszázalékos áfa még jövő év végéig gerjeszti a fejlesztőket a tetőterek felvásárlására, a minél silányabb anyagú lakóparkok gyártására, amire rátett egy lapáttal a „minden fiatal problémáját megoldó”, fix három százalékos lakáshitel, új nevén az Otthon Start program is. Tudjuk, hogy a bankok egy másik csatornán veszik majd vissza, ami a három százalékon felül jár nekik, ahogy az is vészjósló, hogy kiemelt nemzetgazdasági beruházássá válik ezentúl minden olyan építkezés, amelyben a lakások 70 százaléka kielégíti a programban szereplő feltételrendszert. Képzeljük csak el, mit fog ez eredményezni! Egyszerűsített eljárással, komolyabb építészeti, minőségi stratégiák figyelembevétele nélkül juthatunk majd „első, biztonságos és megtérülő otthonunkhoz”.
Persze értjük, az ingatlanpiac és a lakhatási válság 100 százalékig nem kapcsolható ilyen szélsőségesen össze, csakhogy önkéntelenül is ennek iróniája ötlik lelkünkbe, amikor meglátjuk az építőipar hajtotta éghajlatváltozásban kigyulladt busz lángját, amint a tök üresen álló palota falait nyaldossa. Tudjuk, hogy nem lehet mindent a lakáshalmozó tulajdonosokra kenni. Többségük nem valami spekulatív szándékkal hagyja inaktívan és kihasználatlanul birtokát. Eleve a statisztikák is hamiskásak, hiszen a felmérések nem tudnak mindent átlátni, például a feketén kiadott lakásokat is inaktívnak számítják be. Nem az ingatlanba fektetőket, nem a luxuslakásokat tulajdonló réteget kell okolni a helyzetért. Viszont cserébe jó lenne, ha ugyanezen réteg oda-vissza szintén befejezné az Y és Z generációk hibáztatását helyzetükért, avokádó nemzedék mivoltukért. Az X és Boomer generáció nem tudhatja, hogy mit tenne, ha ugyanitt és most lenne 20 éves, és teljes mértékben a nulláról kellene indulnia. Hiába állítja, hogy jobban tudja, nem tudja. A fiatalabb generáció pedig hiába siránkozik, ő sem élt a múltban, és nem biztos, hogy neki annyival könnyebben menne azokban az években...
A generációk közötti beszólogatás helyett ideje egységesen kiállni amellett, hogy célzott, valódi állami támogatások lennének végre szükségesek, és nem olyanok, amelyek ismét csak felhajtják az árakat – ezáltal magát a vizionált támogatást is semmissé teszik. Vissza kell térnie az önkormányzati és állami lakásberuházások műfajának előbb-utóbb. Egy olyan laptól, amely luxusvillákról, lakóparkokról, fényűző ingatlanokról is ad hírt az oktatási és középületek beruházásai mellett, talán furcsának hangzik ez az elégia. Nem kérdés, igenis öröm és megtisztelő a mediátor szerep az igényes, minőségi lakóépületek bemutatására. Csak éppen a műfajok gazdagsága, a perspektívák változatossága egy gazdagabb építészeti világról adna tükörképet itthonról. Mert bizony régebben a gyönyörű designkultúrával megáldott otthonok, irodák, villák és luxus lakóegyüttesek mellett csak jó volt látni mondjuk egy Dévényi Tamás-féle Magházat vagy egy Kis Péter-féle Práter utcai szociális bérlakást is anno. Örömmel közölnénk ilyeneket is.
Pleskovics Viola
Gyász
JOSEPH PULITZER-EMLÉKDÍJ 2013
KIADJA PUBLISHER
© PUBLISHING KFT.
A SZERKESZTŐSÉG CÍME
ADDRESS OF THE EDITORIAL OFFICE 1025 Budapest, Szépvölgyi út 146.
LEVELEZÉSI, SZÁMLÁZÁSI CÍM
CORRESPONDENCE ADDRESS, INVOICE 1025 Budapest, Szépvölgyi út 146. info@octogon.hu
FŐSZERKESZTŐ | EDITOR-IN-CHIEF Martinkó József jozsef.martinko@octogon.hu
VEZETŐ SZERKESZTŐ | SENIOR EDITOR Szira Péter peter.szira@octogon.hu
SZERKESZTŐ | EDITOR dr. Pleskovics Viola viola.pleskovics@octogon.hu
ÁLLANDÓ MUNKATÁRSAK | CORRESPONDENTS Bán Dávid, Götz Eszter, Kovács Péter, Molnár Szilvia, Torma Tamás, Uhl Gabriella és Zöldi Anna
LAPIGAZGATÓ | EXECUTIVE DIRECTOR Bucsay Orsolya orsolya.bucsay@octogon.hu
MÉDIA ÉS KOMMUNIKÁCIÓS SZERVEZŐ MEDIA AND COMMUNICATION ORGANIZER Bencsik Klára
ÉRTÉKESÍTÉSI VEZETŐ | HEAD OF SALES Várszegi Csilla csilla.varszegi@octogon.hu
MÉDIATANÁCSADÓ | MEDIA CONSULTANT Smigróczki Anita anita.smigroczki@octogon.hu
GRAFIKAI TERVEZÉS | GRAPHIC DESIGN Hargitay Anna grafikus@octogon.hu
ALAPÍTÓ FŐSZERKESZTŐ | FOUNDING EDITOR Bojár Iván András (1998-tól 2015-ig)
LOGÓTERV | LOGO DESIGN Sólymos Ágnes Eszter
KÉPELŐKÉSZÍTÉS | PREPRESS Colorcom Media Kft.
NYOMDAI MUNKA | PRINTED BY EPC Nyomda | Elektroproduct Nyomdaipari Kft. | 2040 Budaörs, Baross u. 77. | 0623 416 000 | www.epcnyomda.hu
A nyomás Kristályrács technológiával készült.
2025/5 www.octogon.hu
Július 22-én, hosszú betegség után elhunyt Gulyás Attila János, aki a magazinunk alapítása utáni öt évben fontos munkatársa, egyfajta motorja volt szerkesztőségünk működésének. Az OCTOGON után Attila bő húsz éven át volt az epulettar.hu tulajdonos főszerkesztője és az epitesihirek.hu fotográfusa, szerkesztője. Soha nem találkoztam olyan emberrel, aki annyira önazonos volt azzal a kultúrával, érzelemvilággal, amiben felnőtt, mint Attila. Noha évtizedekig élt a fővárosban, minden mozdulatában, mondatában, gesztusában ott lüktetett, hogy Debrecen szülötte. Soha nem találkoztam gyökereiben ennyire erős és a szűkebb szülőföldje mentalitásához, szófordulataihoz, gondolatvilágához ragaszkodó emberrel. Béke poraira!
TERJESZTÉS | DISTRIBUTED BY Magyarország: Lapker Rt. Románia, Szerbia, Szlovákia: Color Interpress Kft. ORSZÁGOS KÖNYVTERJESZTŐ HÁLÓZATOK ÉS ALTERNATÍV TERJESZTŐHELYEK: ld. 5. oldal ISSN 1418522
A hirdetések tartalmáért szerkesztőségünk nem vállal felelősséget. Lapunkat rendszeresen szemlézi a megújult observer.hu.
A BORÍTÓN | ON THE COVER
A BOHN Mélyépítő Kf. új irodaháza (fotó: Batár Zsolt)
VILLA
18 | sz.: Götz Eszter f.: Hlinka Zsolt indusztriális elegancia
Családi ház a Normafánál
Horváth Sándor (DEKON design & construction)
30 | sz.: Szira Péter f.: Palkó György a család mint befe K tetés
Tanítandó példa, hogyan kérjünk
bebocsáttatást egy közösségbe
Tóth László, Papp László, Tálosi Gábor, Tóth Gergő (Tóth Project Építésziroda)
42 | sz.: Kovács Péter f.: Darabos György mérté K tartó nagyvonalúság
Egy Buda-környéki családi ház
Takács S. Sándor
BUDAPEST
50 |sz.: Martinkó József f.: Batár Zsolt
Szer K esztett szépség
A Bohn Mélyépítő székháza a Naphegy tövében
Turányi Bence (T2.a Építésziroda)
KKK
64 | sz.: Octogon f.: Szilágyi Gergő, Mogyorósy Márton
üzenet a múltból
Spomenik képesszé
ITTHON
70 | sz.: Bán Dávid f.: Bujnovszky Tamás fényűző csillogás helyett
Fertődi Esterházy-kastély: a nyugati szárny felújításának II. üteme Csillag Katalin, Gunther Zsolt (3h építésziroda)
82 | sz.: Pesti Monika f.: Vizit Studio fertő-táji K ara K tere K , egy modern hotel lépté K ében A HegiQ szálloda Hegykőn Józsa Dávid (Archi.doc Építésziroda)
88 | sz.: Octogon f.: Palkó György ismét be Köszönt a hello wood Pebl Grand Kabin: Mobilitás, fenntarthatóság, gyorsaság, élmény Huszár András, Fülöp Tamás, Ráday Dávid, Tóth Krisztián (Hello Wood)
94 | sz.: Kiss Dávid f.: Mudri László borterasz a sí K hegyen Fajcsák Dénes, Fábián Gábor DLA

FOTÓ: MOGYORÓSY MÁRTON
ÉS SZILÁGYI GERGŐ
98 | sz.: Octogon f.: KÖZTI Zrt. fel K iáltójel, több fronton
A ROM Vándor program legújabb állomása Kelemen Bálint (KÖZTI Zrt.)
102 | sz.: Uhl Gbriella f.: EBH Invest, Besenyei Gergely ó, a balaton, régi nyara Kon...
Az egykori Tátika étterem épületének felújítása Stachó Balázs (ABC Group), Masszi Pál DLA (Masszi Építész Iroda)
DESIGN
108 | sz.: Octogon f.: Bujnovszky Tamás ars poetica
A 3h építésziroda új otthona Csillag Katalin, Gunther Zsolt (3h építésziroda)
118 | sz.: Kovács Péter f.: Hlinka Zsolt Igénye K re hangolt elegancia
A Dentons új irodája a BEM Centerben Süket Aliz, Kiss Péter, Molnár-Fekete Réka (UPPER Design Studio)
KKK
126 | sz.: Pleskovics Viola f.: Gulyás Attila, Fortepan, Magyar Építőművészet Archív szocmodern i Kono K V. Az MTI székház Virág Csaba
134 | sz.: Faludi Julianna f.: La Biennale di Venezia, Marco Zorzanello, Andrea Avezzú K apszulába zárt intelligens jövő és a mesterséges természet Biennale Venezia 2025 - Intelligens. Natural. Artificial. Collective.
140 | INDEX
Hibaigazítás Jubileumi, 200-as lapszámunkban alaposan kitettünk magunkért, s ennek az igyekezetnek eredményeként a kiváló egyetemi tanár, az építészettörténet professzora, Vukoszávlyev Zorán – octogonos recenzensi pályafutása során először – építészeti fotográfusként debütálhatott, míg a hazai építészeti fotográfia legkiválóbb képviselője, Bujnovszky Tamás első kritikáját jegyezhette – mindezt persze a redakció figyelmetlenségének jóvoltából. Az érintettektől és az olvasótól elnézést kérve pirulva teszünk ígéretet, hogy az efféle „átképzéseket” a jövőben mindenképpen kerülni fogjuk.

Építészet: HORVÁTH SÁNDOR
| DEKON DESIGN & CONSTRUCTION
Szerző: GÖTZ ESZTER
Építészeti fotó: HLINKA ZSOLT


Szerző: Götz Eszter
Portréfotó: Noémi Jánossy Photography

EGY JOGÁSZ ÉS EGY MÉRNÖK?
A generálkivitelezés Jolly Jokere: Volt24
Interjú dr. Székely Tímeával és Sepsi Tibor Dániellel
Octogon: A Normafához közeli családi ház mind a tulajdonosok, mind a tervező számára ritkán tapasztalható, ideális módon épült, ugyanis a megbízók voltak egyben a kivitelezők is. Hogyan alakult ki ez a felálás, hogyan lett egy mérnökből és egy jogászból generálkivitelezői csapat? Dr. Székely Tímeával és Sepsi Tibor Dániellel, a Volt24 generálkivitelező cég alapító tulajdonosaival beszélgettünk pályaelhagyásról és a hivatásuk felfedezéséről. Székely Tímea: A magánéletben már 19 éve alkotunk egy párt, két gyermekünk született. Emellett több olyan ingatlanfejlesztést tudhatunk magunk mögött, amelyekre büszkék vagyunk és majdnem gyermekünkként tekintünk rájuk. Tizenöt éve újítottuk fel az első családi házunkat, és azóta lényegében folya-
matosan kivitelezünk. De eddig csak átépítésekkel volt dolgunk, ez az első új építésű ház. És nem akartuk más kezébe adni.
Komolyabb kivitelezőként a Normafa Rendezvényháznál léptünk elő. A mi feladatunk a rendezvényház koncepciójának megalkotása volt, de tudtuk, hogy előbb alaposan fel kell újítani. A generálkivitelezésre kaptunk egy olyan árajánlatot, amire Dani azt mondta: jó, akkor otthagyom a mérnöki állásomat, és ezért a pénzért inkább magam vezénylem le az építkezést. 2017-ben kezdtük meg a munkálatokat, és 2018 végén már sor került az első jótékonysági rendezvényre. Ekkorra azonban már több kisebb-nagyobb lakás, budai családi ház felújítása volt mögöttünk.
Én tulajdonképpen ebbe nőttem bele, mivel az édesapám az Egyesült Államokban generálkivitelezésben dolgozott. Nagyon vonzott az építészet, sok vacillálás után végül mégis jogi pályára álltam. De borzasztóan inspirált maga az alkotás, hogy a semmiből valamit csináljak. Azt hiszem, mondhatjuk, hogy ketten együtt meglátjuk a lehetetlen helyzetekben a lehetőséget, vagyis olyan ingatlanokban látunk fantáziát, amitől mások megriadnak.
Octogon: Dani, te villamosmérnök vagy?
Sepsi Tibor Dániel: Mechatronikai mérnökként diplomáztam. A gépészmérnök képzésen belül volt egy Integrated Engineering elnevezésű szakirány, mivel akkor még nem indult mechatronikai képzés a Budapesti Műszaki




Egyetemen, és az integrált mérnöki képzés angol nyelven folyt. Volt benne programozás, teljesítményelektronika. Villamosmérnöki ismeretek nem voltak, de kellett ahhoz, hogy egyáltalán meg tudja az ember csinálni azokat a feladatokat, amiket kijelölt magának. Diploma után a témavezetőm rábeszélt, hogy maradjak ott a Villamosmérnöki Karon doktoranduszként. Volt két tézispontom a három helyett, és már letelt a három év. Viszont a családdal olyan időszakba kerültünk, hogy el kellett kezdenem dolgozni. Megfordultam néhány mérnökirodákban, majd belevágtunk a családi vállalkozásba. Szeretem a precizitást, a határidők betartását és betartatását, ez elengedhetetlen a munkánkban.
SzT: Dani nem tudott megülni egy nyugodt irodában. A számítógép mellől rögtön átlátta, mit kellene máshogy csinálni, de nem volt abban a pozícióban, hogy azt megmondhassa. Viszont a rendkívüli szervezőképességét az építkezéseken és nagyobb volumenű felújításokon nagyon jól tudja kamatoztatni. Sokan foglalkoznak kisebb méretű házakkal, és vannak a nagy generálkivitelező cégek, de a kettő közötti volumenű építkezésekre nagyon nehéz olyan szakembert találni, aki megbízható, jó és szabad. Ráadásul évek óta súlyos szakemberhiánnyal küzd az építőipar. Pedig az a tapasztalatunk, hogy lehetne Magyarországon optimális kivitelezői munkát találni, elfogadható, normális áron, de nem így történik.
STD: Gyorsan rájöttünk, hogy a legnagyobb buktató anyagilag és minden más tekintetben az, hogy az egyes szakágak nincsenek jól összeszervezve. Ez logisztikai probléma, és megdrágítja, elhúzza a kivitelezés idejét.
Mondok egy példát: van egy remek burkolónk, aki azt mondja, hogy őt legalább 9 hónappal előre le kell foglalni. És ha bármi csúszik, akkor ő más munkába fog. Ilyen esetben több burkolóval kell szerződni? És azt foglalkoztatni, aki előbb ér oda? Egy ismerősünk most szeretné felújítani a házát, és segítséget kért tőlünk. Azt tanácsoltam neki, hogy amikor az építésszel véglegesítik a tervet, rögtön kezdje összeállítani, melyik szakemberre mikor lesz szüksége, és ezzel párhuzamosan kezdjen bele a bontásokba, hogy annyival is előrébb legyen. Ezt sokan nem értik, pedig szerintünk a szervezés az egész folyamat kulcsa.
SzT: Egy családi ház építése óriási stresszel jár a családra nézve. Az is gyakori, hogy menet közben a párok nem bírják és szétmennek. Hiányzik a hozzáértés és a szervezés, a logisztikai készség, a pontos időmenedzselés.
STD: Nálunk az is fontos, hogy az összes építkezésnél rend legyen, ne csak a végén, hanem munka közben is. A házunk építésénél Timivel naponta porszívóztunk és rendet csináltunk. Ha nincs rend, a következő szakág nem tudja átvenni a terepet. Egy nap például megelégeltem, hogy a munkások szertehajigálják a csikkeket. Azt mondtam, most mindenki tegyen le mindent és szánjunk rá fél napot, hogy szépen összeszedjük a csikkeket. Mert ha holnaptól eldobott csikket látok, az mínusz 10 000 forint. Elsőre nem értették, de látták, hogy komolyan kell venni, úgyhogy összegyűjtötték.
SzT: Minden helyen, ahol Dani a generálkivitelező, rend van, mert ő megköveteli. A rendetlenség súlyosan hátráltatja kivitelezést, nem beszélve arról, hogy mennyire balesetveszélyes.
Octogon: A saját házatokban a műszaki tartalom is egyedi lett. Jól vizsgázott a nyári és téli időszakban?
STD: Remekül, kiderül, hogy gyakorlatilag passzívházként működik. Timinek az volt a legnagyobb félelme, hogy a hőszivattyú nem fog működni. Ezért két hőszivattyút szereltünk fel a támfal elé, hogy ha az egyik meghibásodik, a másik átvegye a feladatot. Tökéletesen elég a ház fűtés-hűtési rendszeréhez. A tetőre napelem-rendszer került, ez szolgáltat áramot. Az elektromos rendszert úgy oldottuk meg, hogy csillagpontosan az összes kapcsolót, villanyt, mindent az elosztószekrénybe tettünk. Vagyis nincsenek kötések a falban; ez legalább háromszoros kábelmennyiséget jelent. Ha majd egyszer valaki szeretné továbbfejleszteni, akkor azt mini relékkel tudja megoldani.
Octogon: Milyen egyedi építőipari megoldásokat kellett alkalmazni?
SzT: Nagyon komoly vasbeton-szerkezetre volt szükség. A régi támfal megrogyott, újat kellett építeni, illetve a megmaradt részeket megerősíteni. Az autóbehajtónál szintén két támfal között érkezünk a mínusz 1. szintre, itt is vasbetonra volt szükség. A tervezés közben végül úgy döntöttünk, hogy az egész ház vasbeton-szerkezetű legyen. Eredetileg nem így képzeltük el, de a kivitelezési folyamatokhoz igazodtunk, és végül jó döntésnek bizonyult.
Octogon: Mi lesz a következő munkátok?
SzT: Tavaly lett készen a házunk, azóta megcsináltunk egy nyaralót, most egy tanya helyreállításán dolgozunk. És lesz egy nagyobb ház-átalakítási projektünk, szintén Budán.
Octogon: Hogyan osztjátok meg a feladatokat egymás között?
SzT: A készségeink szerint. Dani remekül átlátja az egészet és mindent strukturál, én pedig az apró részletekre figyelek, és a kellő pillanatban szólok, hogy itt ez is itt van, meg arra is kell figyelni. Ő menettervet tart, én burkolatmenynyiségeket számolok, vagy épp beszerzem, amit kell. És ez így együtt nagyon jól működik.


TANÍTANDÓ PÉLDA, HOGYAN KÉRJÜNK
BEBOCSÁTTATÁST EGY KÖZÖSSÉGBE

Építészet: TÓTH LÁSZLÓ, PAPP LÁSZLÓ, TÁLOSI GÁBOR, TÓTH GERGŐ | TÓTH PROJECT ÉPÍTÉSZIRODA
Szerző: SZIRA PÉTER
Építészeti fotó: PALKÓ GYÖRGY

Építészet: TAKÁCS S. SÁNDOR
Szerző: KOVÁCS PÉTER
Építészeti fotó: DARABOS GYÖRGY


Mivel az emelet lett a közösségi terek helyszíne, a fenti teraszt a medence felől is meg lehet közelíteni egy nagyobb lépcsőn át
Komplett tervezés: 2018 október-december
Megvalósulás/lakóépület: 2019 március – 2021 szeptember (beköltözés)
Nettó alapterület: 180 m2, ebből
Földszint nettó alapterület: 110 m2
Emelet nettó alapterület: 70 m2
Építészet, belsőépítészet: TAKÁCS S. SÁNDOR építész vezető tervező, dipl. belsőépítész
Statika: BALOGH BÉLA
Épületgépészet: PARTL TIBOR
Kert: SINKÓ ANNAMÁRIA






● Garázskapu meghajtással együtt
● Házbejárati ajtó RC2-es biztonsági felszereltséggel
● ÚJ. Juno eszköztároló házak, Modern típúsú RAL 7016 és RAL 9007-es akciós színben lapostetővel


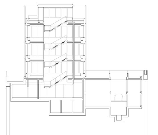
A BOHN MÉLYÉPÍTŐ SZÉKHÁZA
A NAPHEGY TÖVÉBEN

Építészet: TURÁNYI BENCE | T2.A ÉPÍTÉSZIRODA KFT. Szerző: MARTINKÓ JÓZSEF Építészeti fotó: BATÁR ZSOLT

Az alsó közösségi tér előtti „angolakna” nézete az épület földszintjéről


Az autólifttel automatizált parkolóban a réseken beérkező bevilágítások egyedisége, a cölöpök sora, valamint a talajszelvény látványa hoz létre építészeti élményt


EREDETILEG A MOSLAVINAI FORRADALMÁROK EMLÉKMŰVE ELNEVEZÉSÉBŐL INDULT, MAJD MINDEN EGYKORI JUGOSZLÁV ÁLLAM MÁSODIK VILÁGHÁBORÚ UTÁN ÉPÜLT EMLÉKMŰVÉRE RÁRAGADT A SPOMENIK KIFEJEZÉS. AZ EGY KONKRÉT IDŐSZAKOT, KORSZELEMET KŐVÉ DERMESZTŐ ALKOTÁSOK SZILÁGYI GERGŐ ÉS MOGYORÓSY MÁRTON SOROZATÁN ÉJJEL, KÜLÖNLEGES FÉNYHATÁSOKKAL VÁLNAK LÉLEKKEL BÍRÓ ÜZENETHORDOZÓKKÁ.

MOGYORÓSY MÁRTON ÉS SZILÁGYI GERGŐ KÉPESSZÉJE

FERTŐDI ESTERHÁZY-KASTÉLY: A NYUGATI SZÁRNY FELÚJÍTÁSÁNAK II. ÜTEME
Építészet: CSILLAG KATALIN, GUNTHER ZSOLT | 3H ÉPÍTÉSZIRODA
Szerző: BÁN DÁVID
Építészeti fotó: BUJNOVSZKY TAMÁS
A HEGIQ SZÁLLODA HEGYKŐN

Építészet: JÓZSA DÁVID | ARCHI.DOC ÉPÍTÉSZIRODA
Szerző: PESTI MONIKA
Építészeti fotó: VIZIT STUDIO


PEBL GRAND KABIN: MOBILITÁS, FENNTARTHATÓSÁG, GYORSASÁG, ÉLMÉNY

Építészet és design board: HUSZÁR ANDRÁS, FÜLÖP TAMÁS, RÁDAY DÁVID, TÓTH KRISZTIÁN | HELLO WOOD
Szerző: OCTOGON
Építészeti fotó: PALKÓ GYÖRGY

Építészet: FAJCSÁK DÉNES, FÁBIÁN GÁBOR DLA
|ARKT ÉPÍTÉSZ STÚDIÓ
Szerző: KISS DÁVID
Építészeti fotó: MUDRI LÁSZLÓ

A ROM VÁNDOR PROGRAM
LEGÚJABB ÁLLOMÁSA
Építészet: KELEMEN BÁLINT | KÖZTI ZRT.
Szerző: OCTOGON
Építészeti fotó: KÖZTI ZRT., MARKET ÉPÍTŐ ZRT.

Építészet: STACHÓ BALÁZS , MASSZI PÁL DLA
Szerző: UHL GABRIELLA
Építészeti fotó: BESENYEI GERGELY, EBH INVEST
AZ EGYKORI TÁTIKA ÉTTEREM
ÉPÜLETÉNEK FELÚJÍTÁSA

A 3H ÉPÍTÉSZIRODA
ÚJ OTTHONA
BUJNOVSZKY TAMÁS KÉPESSZÉJE
NEM LENNÉNK MEGLEPVE, HA AZ AMÚGY VON HAUS AUS NAGYVONALÚ, ELŐZÉKENY ÉS VÉGTELENSÉGIG GRACIÓZUS TERVEZŐPÁROS, CSILLAG KATALIN ÉS GUNTHER ZSOLT TALÁN MÁR MEG IS ELÉGELTE VOLNA, HOGY ANNYISZOR KÉRDEZTÜNK RÁ, MIKOR IS JUTHATNÁNK BE A 3H ÉPÍTÉSZIRODA KÉSZÜLŐ ÉPÜLETÉBE. VÁRTUNK, VÁRTUNK, S A FOTÓANYAG LÁTTÁN NEM VÉLETLENÜL FURDALTA OLDALUNKAT A KÍVÁNCSISÁG. EGY ÉPÍTÉSZ STÚDIÓ SAJÁT MAGA ÁLTAL MEGTERVEZETT SZÉKHELYE UGYANIS MINDIG KÜLÖNLEGES TETT, EGY ALKOTÓI HITVALLÁS. SZÁMÍTOTTUNK RÁ, HOGY ILYEN KALIBERŰ KOLLEKTÍVÁTÓL VALAMI KÜLÖNLEGES SZÜLETIK. ELYSIUMI MÉLTÓSÁG, A MINIMALIZMUS ÉS A FINOM ORNAMENTIKÁK, A FEKETÉK ÉS FEHÉREK, A KORTÁRS ÉPÍTÉSZET ÉS EGY RÉGI BUDAI VILLAÉPÜLET KONTRASZTJAI FOGADTAK. OLYAN ÉTERI MŰALKOTÁS, AMI SOKUNK SZÁMÁRA INSPIRÁLÓ LEHET.
Építészet: CSILLAG KATALIN, GUNTHER ZSOLT | 3H ÉPÍTÉSZIRODA (EREDETI TERVEZŐ: ÁRKAY ALADÁR – 1912)




Belsőépítészet: SÜKET ALIZ, KISS PÉTER, MOLNÁR-FEKETE RÉKA | UPPER DESIGN STUDIO
Szöveg: KOVÁCS PÉTER
Fotó: HLINKA ZSOLT



SZOCMODERN IKONOK V.
Szöveg: PLESKOVICS VIOLA
Építészeti fotó: GULYÁS ATTILA
Archív: FORTEPAN, MAGYAR
ÉPÍTŐMŰVÉSZET
A CÍMET MÁR AZ ELEJÉN HELYESBÍTENEM KELL, HISZEN NEM
SZIGORÚAN SZOCMODERN ÉPÜLETRŐL LESZ SZÓ A SOROZAT
V. RÉSZÉBEN. MAGA A SZOCMODERN EGYÉBKÉNT SEM A LEGMEGFELELŐBB KIFEJEZÉS AZ 1960-AS ÉS 1970-ES ÉVEK –
NAGYON IS A NYUGATI MODERNSÉG ÉRTÉKEIT ELSAJÁTÍTÓ – ÉPÜLETEIRE. A MOST BEMUTATOTT KONSTRUKCIÓ RÁADÁSUL A SZOCIALIZMUS VÉGÉN SZÜLETETT, ÉS MÁR MERŐBEN
EGY ÚJ KORSZAK KEZDETÉT ÉS A JÖVŐ TECHNOLÓGIAI FEJ -
LŐDÉSÉT TESTESÍTETTE MEG.
BIENNALE VENEZIA 2025INTELLIGENS. NATURAL. ARTIFICIAL. COLLECTIVE.

Szerző: FALUDI JULIANNA
Fotók: LA BIENNALE DI VENEZIA, MARCO ZORZANELLO, ANDREA AVEZZÙ

Fotó: Fotó: Andrea Avezzù, La Biennale di Venezia
VELENCÉT FELFOGNI NEM LEHET, CSAK MEGÉLNI. A VÁROSBAN SZÉTSZÓRT NEVES ÉS APRÓ KÉPTÁRAK, A BIENNÁLÉ ÉPÍTÉSZETI ÉS DESIGN INSTALLÁCIÓI VERSENYEZNEK A LÁTOGATÓKÉRT. SOKAN EGYHÁROM NAPRA ÉRKEZNEK, MINT ÉN, HOGY EGYFAJTA OVERDOSE-BAN FOGADJÁK BE, AMIT A KÉTÉVENTE VIZUÁLISAN ÉS INTELLEKTUÁLISAN FELTURBÓZOTT VÁROS KÍNÁL. LÁGY A HAJNAL, SÓS A LEVEGŐ, SIMOGATÓ A NAP. A KÖNNYŰ ZIVATAR NYOMAI DÉLRE FELSZÁRADTAK, A REKKENŐ HŐSÉG ÉS A KABÓCÁK KONCERTJE KÍSÉRT AZ ARSENALE ÉS A GIARDINO HELYSZÍNEKRE.













A SCONNEX® CSÖKKENTI AZ ENERGIAVESZTESÉGET A FALAKNÁL ÉS AZ OSZLOPOKNÁL.
Az új Schöck termékcsalád választ ad az energiahatékony építés eddig megoldatlan kérdéseire. A Schöck Sconnex® egyedülálló megoldást kínál a falaknál és oszlopoknál kialakuló függőleges hőhidakra, ezzel segíti a gazdaságosabb és esztétikusabb szerkezetek tervezését és kialakítását. www.schoeck.com/hu/sconnex



aBLaK és Bejárati ajtó gYártás
és ForgaLmazás
Internorm AblAk kft.
2051 BiatorBágY sasBérc út 1.
teL.: +36 30 650-6448
e-maiL: internorm@internorm.hu
WeB: WWW.internorm.hu
39. oLdaL
árnYéKoLástechniKa
roll-lAmell kft.
2120 dunaKeszi, Bem józseF u. 5.
teL.: +36 30 257 1531
e-maiL: inFo@roLL-LameLL.hu
WeB: WWW.umBroLL.hu
B4
BeLtéri ajtóK, téreLváLasztóK, KonYhaBútoroK, design BútoroK
ArkheneA
1054 Budapest, hoLd u. 21.
teL.: (+36-1) 302 8150, 302 8151
moBiL: (+36-30) 302 8150
e-maiL: arKhenea@arKhenea.hu
WeB: WWW.arKhenea.hu
5., 9. oLdaL
design & BuiLd nemzetKözi építész stúdió
hello Wood
1033 Budapest, Fő tér 1. zichY KastéLY
teL.: + 36 70 619 3901
e-maiL: heLLoWood@heLLoWood.eu
WeB: WWW.heLLoWood.eu
B3
egYedi BútorgYártás t ervezés
BeLsőépítészet kIskunfélegyházI nívó-bútor kft.
6100 KisKunFéLegYháza, moLnár teLep hrsz. 0461/141
teL.: +36 30 381 4845
e-maiL: inFo@nivoButor.hu
WeB: WWW. nivoButor.hu
26. oLdaL
egYedi Üvegezési munKáLatoK duAl glAss kft.
2241 sÜLYsáp, ipar utca 14/a.
teL.: (+36-20) 211 5151
e-maiL: arajanLat@duaLgLass.hu
WeB: WWW.duaLgLass.hu
8. oLd
építőanYag-ForgaLmazás nYíLászáróK, BeLtéri ajtóK, árnYéKoLóK gYártása, LogisztiKa és Fuvarozás hofstädter építőAnyAg Centrum kft. 2083 soLYmár, vaLKó út 8.
teL: építőanYag: +36 26 330 121 teL BurKoLat, szaniter: +36 26 530 122
teL. árnYéKoLás: +36 20 575 4865
Fax: +36 26 333 976
e-maiL: inFo@htuzep.hu
WeB: tuzep.hoFstadter.hu, WWW hoFstadter.hu/aBLaK-ajto/
27. oLdaL
építőanYag gYártás és KeresKedeLem sChöCk hungárIA kft.
2040 Budaörs, szaBadság út 117/a teL.: +36 23 507272
e-maiL: inFo@schoecK.hu
WeB: WWW.schoecK.hu
11. oLdaL
épÜLetasztaLos munKáK és egYediBútor-gYártás
b-my Wood kft.
7622 pécs, siKLósi út 3.
teL.: +36 70 673 85 65
e-maiL: inFo@B-mY.eu
WeB: WWW B-mY.eu
62. oLdaL
épÜLetautomatiKa
grüne AntWort kft. 1119 Budapest, téténYi út 93.
teL.: +36 70 457 5667
e-maiL: inFo@gruneantWort.com
WeB: WWW.gruneantWort.com
63. oLdaL
ermetiKa új generációs toLó- és tapétaajtó megoLdásoK magYarországi KépviseLet pAsCAl hungAry kft. 1038 Budapest, FÜrdő utca 2.
teL.: +36 30 665 5550
e-maiL: inFo@ermetiKaajto.hu
WeB: WWW. ermetiKaajto.hu
4. oLdaL
erős- és gYengeáramú rendszereK proFesszionáLis KiviteLezése vIlltek zrt. 8800 nagYKanizsa, magYar utca 152. teL.: +36 93 536 615
e-maiL: inFo@viLLteK.hu
WeB: WWW.viLLteK.hu
63. oLdaL
exKLuzív BeLtéri ajtóK, toLóajtóK gYártása, ForgaLmazása, BeLtéri LépcsőK, FaLBurKoLati rendszereK, LaKossági Bejárati rendszereK
JAp mAgyArország kft
1152 Budapest, iLLYés gYuLa utca 2-4. a ép. Fszt. 7. Kázmér adrián - KeresKedeLmi és műszaKi tanácsadó
teL.: +36 70 882 4271
e-maiL: Kazmer@japhu.hu
WeB: WWW.japhu.hu
6. oLdaL
FeLsőFoKú oKtatás
budApestI metropolItAn egyetem 1148 nagY Lajos KiráLY útja 1-9.
teL.: +36 1 273 3090 e-maiL: maiL@metropoLitan.hu
WeB: WWW. metropoLitan.hu
12. oLdaL
Fém és Fa áLmennYezeteK és FaLi BurKoLatoK eurotrend-2000 2600 vác, széchenYi istván utca 19. i/3. teL.: +3630 383 1619 e-maiL: inFo@FemmennYezet.hu WeB: WWW FemmennYezet.hu, WWW FamennYezet.hu
111. oLdaL
garázsKapuK, ajtóK, ipari KapurendszereK ForgaLmazása hörmAnn hungárIA kft. 2310 szigetszentmiKLós, LeshegY u. 15. teL.: +36 24 525 100 Fax: +36 24 525 110 e-maiL: inFo@hormann.hu WeB: WWW.hormann.hu
48. oLdaL
generáLKiviteLezés vIlAre-épszolg kft. 8200 veszprém, Kádártai út 8. a. ép.
teL.: +36 20 392 7247
e-maiL: viLareepszoLgKFt@gmaiL.com
38. oLdaL
generáLKiviteLezés, Fit-out KiviteLezés, ingatLanFejLesztés fItout zrt. Ferrum irodaház - 1139 Budapest, LomB utca 37-39. teL.: (+36-1) 700 1730 e-maiL: inFo@Fitout.hu WeB: WWW Fitout.hu
1. oLdaL
generáLKiviteLezés viLLamos rendszereK volt24.hu
cím: 1121 Budapest, hegYhát út 16.
teL.: +36 30 900 11 04
e-maiL: inFo@voLt24.hu
WeB: WWW.voLt24.hu
24-25. oLdaL
KőFaragás, KÜL- és BeLtéri építészeti eLemeK egYedi tervezése és KiviteLezése bozókI desIgn kft. 6100 KisKunFéLegYháza, csanYi út 1. teL.: +36 30 561 2728
e-maiL: inFo@BozoKiKFt.hu
WeB: WWW BozoKidesign.hu
28. oLdaL
KÜLtéri minőségi Fa nYíLászáróK JAnkó fAIpArI kft. 7971 hoBoL, asztaLos jános utca 54. teL.: (+36-73) 510 177, (+36-73) 510 286 e-maiL: inFo@janKoKFt.hu WeB: WWW.janKoKFt.hu
12. oLdaL
LaKBerendezés mAxCIty lAkberendezésI bevásárlóközpont 2045 töröKBáLint, tóparK utca 1/a teL.: (+36-23) 532-660 e-maiL: marKeting@maxcitY.hu WeB: WWW.maxcitY.hu
2-3. oLdaL
LaKó- és nem LaKóépÜLet építése záév zrt. 8900 zaLaegerszeg, miLLennium Köz 1. teL.: +3692 504 100 e-maiL: zaev@zaev.hu WeB: WWW.zaev.hu
80-81. oLdaL
száLcement-, aLumínium- és Fém tető száLcement-, aLumínium- és Kerámai homLoKzat, Kompozit LemezeK Crlt-solutIon kft. 1042 Budapest, árpád u. 56. teL.: (+36-30) 304-6969 e-maiL: inFo@crLt.hu
WeB: WWW.crLt-soLution.hu
36-37. oLdaL
szárazépítés knAuf építőIpArI kft. h-1124 Budapest, Lejtő út 5. teL.: +36 1 248 2430 e-maiL: inFo-hu@KnauF.com
WeB: WWW KnauF.com/hu-hu/KnauFgYpsum
B2 és 10. oLdaL
tető- és homLoKzatBurKoLatoK prefA hungárIA kft. 2040 Budaörs, gYár u. 2., Budaörsi ipari parK
teL.: (+36-30) 686 6786 e-maiL: oFFice.hu@preFa.com
WeB: WWW.preFa.hu
41. oLdaL
uszodatechniKai terméKeK ForgaLmazása, medence FóLiázás bAlAton pool kft. 8200 veszprém, Lövőház utca 2. teL.: +36 20 239 2526 e-maiL: BaLatonpooLshop@gmaiL.com
40. oLdaL
Üvegezett tűzgátLó megoLdásoK CoolfIre kft. 1149, Budapest Kövér Lajos u. 31-37. teL.: +36 20 978 4346 e-maiL: inFo@cooLFire.hu
WeB: WWW.cooLFire.hu
7. oLdaL