DETAILING AND WORKING DRAWINGS E-PORTFOLIO BY LOO ZHEN HUI

Page 1

IDS 60804 DETAILING & WORKING DRAWINGS LOO ZHEN HUI | 0342722 | BIA SEM 4 | E-PORTFOLIO

MODULE DESCRIPTION

In this module, we are focusing on the integration of the design process and its documentation. With the aid of digital photographs, sketch drawings, and field notes, we will do research on buildings. Then, using a suitable medium and architectural representation rules, we will also create measured drawings. The module lays the groundwork for our fundamental understanding of technical drawings, the value of services in buildings, the legal frameworks and rules of conduct that govern building construction, such as the UBBL, as well as the significance of an integrated approach to service delivery. The module covers the procedures from design approval to working drawing production.

|

Discipline Specific Knowledge Lifelong Learning

0 2 0 1

The module introduced many knowledges and trained us to be able to use correct symbol, line weight and method to produce a technical drawing alongside with the detailing and appropriate dimension that practice in the industry.

The module provided lifelong learning where it allow me to understand how the detailing and working drawings works that benefits me greatly to be professional to deal with these kind of drawings in my future career later

| TGC THAT I LEARNED...

03 ASSIGNMENT

WORKING DRAWINGS + SYSTEM INTEGRATION

In this assignment, we must create a number of working drawings that are integrated with the collaborative design module. Together, we will identify solutions to design needs with interior design proposals of the right building scale, with the goal of producing papers that integrate the building services components including the plans, section, detailing, SOA, SOF, FF&E as well as BQ.

In order to complete the assignment, i kicked start by getting approval of the selected floor after consultation with tutor. Then, by sending update and make changes, my progress went well and eventually turns out a complete set of drawing with all the detailing and specifications.

ASSIGNMENT 3 INTEGRATION DRAWING DETAILING WORKING DRAWINGS IDS 60804 NAME : LOO ZHEN HUI STUDENT ID : 0342722 PROGRAMME : BACHELOR IN INTERIOR ARCHITECTURE SEMESTER : AUGUST - DECEMBER 2022 TUTOR : MS. SIN AI
REVISIONTRACKING DRAWINGLIST SHEETNAME REV DATE DESCRIPTION ISSUE SECONDFLOORFURNITURELAYOUTPLAN(FLP) SECONDFLOORREFELCTEDCEILINGPLAN(RCP) SECONDFLOORLIGHTINGANDLOOPINGPLAN(LLP) SECONDFLOORFLOORFINISHESPLAN(FFP) THECORELAYOUTPLAN THECORESECTIONA-A THECOREBLOW-UPDETAIL SCHEDULEOFACOMMODATION(SOA) SCHEDULEOFELECTRICAL,LIGHTINGSANDEQUIPMENT(FF&E) ML/DWD/RCP/04 ML/DWD/LLP/05
ML/DWD/GD/08 ML/DWD/GD/09 ML/DWD/GD/10 02 02 02 03 02 04 01 01 01 1DEC2022 1DEC2022 27NOV2022 - NO 27NOV2022 - NO NO - NO NO - NO NO NO NO 27NOV2022
SECONDFLOORSETTINGOUTPLAN(SOP) ML/DWD/SOP/02 ML/DWD/FLP/03 02 NO PHASE1 SECTIONA-A BILLOFQUANTITIES(BQ) ML/DWD/SC/07 01 16NOV2022 NO 01 27NOV2022 - NO ML/DWD/GD/11 SCHEDULEOFFINISHES(SOF) ML/DWD/SOF/12
00 13OCT2022 NO 1DEC2022 1DEC2022 1DEC2022 1DEC2022 1DEC2022
ML/DWD/FFP/06
PHASE2 PHASE3
ML/DWD/FFE/13 ML/DWD/SOA/01
SCHEDULEOFACCOMMODATION AREA NO.OFOCCUPANTS NO.OFROOMS AREAOFONEROOM(M) TOTALAREAOFROOM(M) SECONDFLOOR 10 8 10 4 4 6 4 1 10 5 1 1 1 1 1 1 1 1 1 4 43.09 41.48 30.00 13.80 16.00 10.80 80.96 9.12 3.70 43.09 20.00 13.80 16.00 14.80 SELFREGISTRATION&INTRODUCTIONAREA PLASTICRECYCLINGSTATION LOUNGE/WAITINGAREA MIXERMACHINE&DISCUSSIONROOM COMBUSTIONMACHINE&DISCUSSIONROOM CO-WORKINGAREA1 CO-WORKINGAREA2 THECORE(MAINCO-WORKINGSPACE) CO-WORKINGAREA3 W/C STORAGE1 STORAGE2 STORAGE3 STORAGE4 LAVATORY 1 1 1 1 1 2 2.66 2.66 2 2 2 4 30.00 13.80 13.80 10.80 80.96 9.12 1.95 3.40 2.04 2.10 1.95 3.40 2.04 2.10
LIFT DN UP UP VOID VOID UP VOID EXISITNG WC EXISTING STORAGE2 EXISTING STORAGE3 EXISITNG STORAGE 4 VOID LIFT DP50 DP50 DP25 DP25 DP25 A B C D E F G H I J EXISITNG STORAGE1 EXISITNG LAVATORY 2.04M 3.40M 2.10M 41.48M 43.09M 30.00M 13.80M 13.80M 16.00M 10.80M 80.96M 9.12M 3.70M 3.70M NEWSELFREGISTRATION& INTRODUCTIONAREA NEWCOMBUSTION MACHINE&DISCUSSION ROOM NEWLOUNGE/ WAITINGAREA NEWCO-WORKINGAREA1 NEW'THECORE' NEWCO-WORKING AREA3 NEWMIXERMACHINE& DISCUSSIONROOM NEWPLASTIC RECYCLING STATION NEWCO-WORKING AREA2 3.70M DEMOLISHGLAZING DEMOLISHDRYWALL EXISITNGLIFT LOBBY EXISITNG EXIT 19.80M 4.80M 4.80M EXISITNG WC 3.70M EXISITNG EXIT EXISTING WC EXISITNG WC 1.95M 3.70M 1 4 D1 D1 D1 D1 D2 D7 D3 D3 D3 D3 D4 D5 D6 D6 D2 D2 D7 D7 D2 W1 W1 W1 W1 W1 SEC A SEC A 2 3
LIFT DN UP UP VOID VOID UP VOID UP VOID LIFT DP50 DP50 DP50 DP50 DP25 A B C D E F G H I J STORAGE3 2.04M UP UP UP UP VOID VOID VOID WC STORAGE2 STORAGE3 WC WC STORAGE 4 STORAGE 1 LAVATORY 2.04M 3.40M 2.10M 41.48M 43.09M 30.00M 13.80M 13.80M 16.00M 10.80M 80.96M 9.12M 3.70M 3.70M SELFREGISTRATION& INTRODUCTIONAREA COMBUSTION MACHINE& DISCUSSION ROOM LOUNGE/ WAITING AREA CO-WORKING AREA1 THE CORE CO-WORKING AREA3 MIXER MACHINE& DISCUSSION ROOM PLASTIC RECYCLING STATION CO-WORKING AREA2 3.70M LIFT LOBBY EXIT EXIT 19.80M 4.80M 4.80M 3.70M 3.70M WC 1.95M 1 4 2 3 LF2 LF2 LF1 LF1 BF1 BF3 BF2 BF2 BF4 BF4 BF4 BF4 BF4 BF4 BF4 LF3 LF3 LF3 LF3 BF5 LF4 LF4 LF4 LF4 BF6 SEC A SEC A P1 P1
LIFT DN UP UP VOID VOID UP VOID VOID LIFT DP50 DP50 DP50 DP50 DP25 A B C D E F G H I J WC WC STORAGE2 STORAGE3 WC WC STORAGE 4 STORAGE 1 LAVATORY CH3200 SELFREGISTRATION& INTRODUCTIONAREA COMBUSTION MACHINE& DISCUSSION ROOM LOUNGE/ WAITING AREA CO-WORKING AREA1 THE CORE CO-WORKING AREA3 MIXER MACHINE& DISCUSSION ROOM PLASTIC RECYCLING STATION CO-WORKING AREA2 LIFT LOBBY EXIT EXIT CH3200 CH3200 CH3200 CH3200 CH3200 CH3200 CH3200 CH9600 CH3200 CH3200 CH3200 CH3200 CH6400 CH3200 CH3200 CH3200 CH3200 CH3200 CH3200 CH3200 AC SEC A 1 4 2 3 SEC A
LIFT DN UP UP VOID VOID UP VOID VOID LIFT DP50 DP50 DP50 DP50 DP25 A B C D E F G H I J CH3200 CH3200 CH3200 CH3200 CH3200 CH3200 CH3200 CH3200 CH9600 CH3200 CH3200 CH3200 CH3200 CH6400 CH3200 CH3200 CH3200 CH3200 CH3200 CH3200 CH3200 WC WC STORAGE2 STORAGE3 WC WC STORAGE 4 STORAGE 1 LAVATORY SELFREGISTRATION& INTRODUCTIONAREA COMBUSTION MACHINE& DISCUSSION ROOM LOUNGE/ WAITING AREA CO-WORKING AREA1 THE CORE CO-WORKING AREA3 MIXER MACHINE& DISCUSSION ROOM PLASTIC RECYCLING STATION CO-WORKING AREA2 LIFT LOBBY EXIT EXIT SEC A 1 4 2 3 SEC A
LIFT DN UP UP VOID VOID UP VOID UP VOID LIFT DP50 DP50 DP25 DP25 DP25 A B C D E F G H I J WC STORAGE2 STORAGE3 WC WC STORAGE 4 STORAGE 1 LAVATORY 2.04M 3.40M 2.10M 41.48M 43.09M 30.00M 13.80M 13.80M 16.00M 10.80M 80.96M 9.12M 3.70M 3.70M SELFREGISTRATION& INTRODUCTIONAREA COMBUSTION MACHINE& DISCUSSION ROOM LOUNGE/ WAITING AREA CO-WORKING AREA1 THE CORE CO-WORKING AREA3 MIXER MACHINE& DISCUSSION ROOM PLASTIC RECYCLING STATION CO-WORKING AREA2 3.70M LIFT LOBBY EXIT EXIT 19.80M 4.80M 4.80M UP UP UP UP 3.70M 3.70M WC 1.95M F1 F2 F3 F4 F5 F5 F5 F5 F4 F4 F4 F4 F4 F2 F2 F6 F7 F3 F3 SEC A SEC A 1 4 2 3 P1 P1 D1 D1 D1 D1 D2 D7 D3 D3 D3 D4 D7 D7 D2
A B C D E F G H I J LIFT F7 WP4 F6 W1 F1 CP2 CP4 WP3 P1 F2 CP1 WP2 F4 WP1 F3 LIFT LOBBY LIFT LOBBY LIFT LOBBY LIFT LOBBY LIFT LOBBY LIFT LOBBY LIFT LOBBY LIFT LOBBY LIFT LOBBY OFFICE OFFICE OFFICE OFFICE OFFICE OFFICE OFFICE OFFICE OFFICE OFFICE OFFICE OFFICE LOUNGE FITTING ROOM EXPERIMENTALLAB& RESEARCHCENTER SELFEXPLORATIONAREA IMMERSIVEAND OBSERVINGROOM PROTOTYPINGROOM DIVINGTANK SEATINGAREA SEATINGAREA 3DPRINTINGAREA CO-WORKINGAREA1 CO-WORKINGAREA3 THECORE PLASTICRECYCLINGSTATION SELFREGISTRATION ANDINTRODUCTION AREA LOUNGE/ WAITING AREA LF1 LF3 BF5 BF2 BF1 BF4 LF5 LF5 LF6
SECA SECA
LF3 LF4 BF6 BF 5 P1 F2 F7 F3 BF 4 W1 CP1 CP4 LF10 LF 9 WP 1 WP 3
1000MM X 2000MM X 25MM THK MEDIUM TYPE WATER RIPPLE FINISH CEILINGPANEL PLASTER CEILING C/W PINK JOTUN JOTAPLAST MAX INTERIOR ACRYLIC EMULSION PAINT 6000K WHITE LED REVEALED COVE LIGHT 6000K WHITE 4 INCH 12 W DOWNLIGHT 1000MM (W) x 1500MM (H) x 20MM(THK) NAVY BLUE ACRYLICWALLPANELS WITHLEDGROOVELINE ORNAMENTED RECYCLED PLASTIC PARTITION C/W PLASTICWHITEDYE 108MM (W) x 2000MM (H) WOOD PANEL 610MM X 610MM X 5MM THK BEIGE YARN LOOP TYPE CARPET 108MM (W) x 1500MM (H) x 20MM(THK) BALAU WOOD FLOOR TILES 1500MM(W) X 3200MM(H) GLAZING WITH ALUMINUM FRAME AND 12MM TEMPEREDGLASS 610MM X 610MM X 5MM THK BLUE YARN LOOP TYPE CARPET 900 LITER AQUARIUM TANK WITH TEMPERED GLASS AND DRIFTWOODBASE 90MM DIA CURVY SHAPE RECYCLED PLASTICSEATING RECYCLED PLASTIC RESTORABLE SEAT C/W WHITE BIODEGRADABLE PLASTICDYE CYLINDRICAL TANK WITH TEMPERED GLASS RECYCLED PLASTIC MULTIFUNCTIONAL TABLE C/W WHITE BIODEGRADABLE PLASTICDYE

ACRILC MALAYSIA SDN.BHD.

ACRILC MALAYSIA SDN. BHD.

BILL OF QUANTITIES

QUOTATION

DATE : 23 NOV 2022 59100 KUALA LUMPUR, QUOTE NO. : ML/DWD/GD/1 FEDERAL TERRITORY OF KUALA LUMPUR TERM : CHEQUE/CASH

99L, JLN TANDOK, BANGSAR,

ATTENTION:

MALAYSIA

1 DRYWALL PARTITION WORKS

To supply material and labour to install 90MM DIA ORNAMENTED RECYCLED PLASTIC PARTITION C/W PLASTIC WHITE DYE at co working area.

2 CEILING WORK

To supply material and labour to install 1000MM X2000MM X 25MM THK MEDIUM TYPE WATER RIPPLE FINISH CEILING PANEL at co working area. Code: QS8622 (L Type)

3 TILING WORK

FLOOR

To supply material and labour to lay 108MM (W) x 1500MM (H) x 20MM(THK) BALAU WOOD FLOOR TILES at co working area

To supply material and labour to install 610MM X 610MM X 5MM THK BLUE YARN LOOP TYPE CARPET at co working area

To supply material and labour to install 610MM X 610MM X 5MM THK BEIGE YARN LOOP TYPE CARPET at co working area

WALL

To supply material and labour to install 1000MM (W) x 1500MM (H) x 20MM(THK) NAVY BLUE ACRYLIC WALL PANELS WITH LED GROOVE LINE at co working area

To supply material and labour to install 108MM (W) x 2000MM (H) WOOD PANEL at co working area

4 PAINTING WORK

CEILING

To supply material and labour to paint PLASTER CEILING WITH PINK JOTUN JOTAPLAST MAX INTERIOR ACRYLIC EMULSION PAINT. Code: 3029 (Pink)

5. BUILT IN FURNITURE

To supply and install 90MM DIA CURVY SHAPE RECYCLED PLASTIC SEATING at co working area

P1 9 SQM

CP1 67 SQM

F2 F3 F7 WP1 WP3

135 455 17 50 62

SQM SQM SQM SQM SQM

CP4 30 SQM

RENOVATION WORKS FOR ACRILC
SDN.BHD. BILL OF QUANTITIES NO. DESCRIPTION CODE QTY UNIT RATE(RM) TOTAL(RM)
Approx Area: 36 SQM
To supply and install 50 LITER CYLINDRICAL TANK WITH TEMPERED GLASS at co working area Approx Area: 3.5 SQM
To supply and install 900 LITER AQUARIUM TANK WITH TEMPERED GLASS AND DRIFTWOOD BASE at co working area Approx Area: 5.0 SQM BF4 BF5 BF6 3 1 1 SET NOS NOS
6. LOOSE FURNITURE
RECYCLED
RESTORABLE SEAT C/W WHITE BIODEGRADABLE PLASTIC DYE at co working area Selected 1450MM(L) X 560MM(W) X 800MM(H) RECYCLED PLASTIC MULTIFUNCTIONAL TABLE C/W WHITE BIODEGRADABLE PLASTIC DYE at co working area LF3 LF4 8 4 NOS NOS 7. ELECTRICAL WORKS LIGHTING To supply material and labour to install 6000K WHITE 4 INCH 12 W DOWNLIGHT at co working area To supply material and labour to install 6000K WHITE LED REVEALED COVE LIGHT at co working area LF9 LF10 14 15 NOS METER 8. WINDOW WORK To supply material and labour to install 1500MM(W) X 3200MM(H) GLAZING WITH ALUMINUM FRAME AND 12MM TEMPERED GLASS W1 64 SQM PG 1/2
Selected 1350MM(L) X 300MM(W) X 480MM(H)
PLASTIC

ACRILC MALAYSIA SDN.BHD.

TERMS AND CONDITION

1. Validity: 14 Days

2. Period of completed: 60 Days (refer of down payment upon confirmation of order) 3. All Dimension subject to Final site measurement. 4. 4 Variation Order: Any alteration not specified in the quotation will be issued under variation order follow with an invoice Variation Order (V.O.)

5. Pa yment Terms: ‐

THE CONTRACT SUM RUM

Percentage Stage I Upon confirmation of project/ service 50% = RM Stage II Progress Claim (Installation of fixtures & fittings) 20% = RM Stage III Progress Claim (Completion of fixtures & fittings) 20% = RM Stage IV Final payment (Full completion of all works) 10% = RM

Services/ works shall commence upon receipt of payment of each phase except for final phase. Time frame of work that has been agreed by both.

All outstanding amounts must be paid within ten (10) working days after the handover of site (exclude V.O. period).

ACRILC Malaysia Sdn. Bhd. do not hold any responsibilities in delay of work from the agreed time frame that is resulted by payment issues. Payment not made within above mentioned period will carry interest at the rate of 2% per month (30 Days) until full payment is made. Cheque should be crossed “ A/C Payee” & Made Payable to ACRILC Malaysia Sdn. Bhd.

ACRILC Malaysia Sdn. Bhd. Shall not in any circumstances or any reason whatsoever be liable for any losses, damages, cost, expenses, including, without limitation, direct, indirect, special or consequential damages or economic losses arising from any such failure to perform.

6. Design/ Works/ Service Disclaimer

ACRILC Malaysia Sdn. Bhd. Cannot be held responsible for design/ works/ service that may later be undesirable or cause inconvenience. The Client understands that all designs/ contractor interprets the Client’s requirements and wishes. However, any design/ works that are not done according to agreed as per quoted shall be rectified accordingly by ACRILC Malaysia Sdn. Bhd.

7. Project Access

Client will provide ACRILC Malaysia Sdn. Bhd. With access to the project and all information that may be required to complete the project. Failure to do so by the Client provides ACRILC Malaysia Sdn. Bhd. The right to terminate service (with a written notice) and collect outstanding balances.

8. Termination of Service

ACRILC Malaysia Sdn. Bhd. Has the right to terminate or suspend all works/ services, upon written notice, if the Client fails to make payments/ default in accordance with the mentioned terms and conditions herein.

Termination shall be without prejudice to all other rights and remedies of ACRILC Malaysia Sdn. Bhd. and Client shall remain liable for all Within five (5) Working days of termination of our service for any reasons, ACRILC Malaysia Sdn. Bhd. shall submit to Client an itemized invoice for any fees or expenses accrued under this quotation. The Client, upon payment of accrued amounts so invoiced, shall thereafter have no further liability or obligations to ACRILC Malaysia Sdn. Bhd. whatsoever for any further fees or expenses arising hereunder.

9. Project Time Frame & Fees for extra service

Reasonable time frame for drawings are to be discussed & agreed by both party ACRILC Malaysia Sdn. Bhd.

Estimated time frame for entire project’s time frame inclusive of revision period will be a maximum of TWO (2) MONTHS starts from date of appointment.

If project exceed the estimated time frame, an additional minimum fee of RM200 per month will be charged, as consultation fees only, excluded reimbursement claim & site visit charges. Subject to the project & remaining job scope.

10. Site Visit, Inspection & Travelling

Site visit or inspection services that requires AC RILC Malaysia Sdn. Bhd. to travel by air (overseas, Sabah, Sarawak) are subject to claim all.

11. Acknowledgement of Quoted Fees, Terms & Conditions

Upon receiving payment according to the percentage stated above, we will acknowledge that you have read & agreed on our scope of design works/ services, fees, terms & conditions. This quotation shall be treated as a contract legally once being signed. English languages/ wordings shall prevail and be used as contract terms shall any discrepancies arise due to translations.

ISSUE BY

COMPANY NAME

Acknowledge & Agreed By,

Signature with I.C. Number DIRECTOR (NAME: ) (IC NO.: )

ACRILC Malaysia Sdn. Bhd.

PG 2/2

SCHEDULEOFFINISHES

CODEIMAGE AREA(SQM) LOCATION DESCRIPTION SUPPLIER

FLOORFINISHES

F1 2.18 1.40 1.20

-PLASTICRECYCLINGSTATION -SELFREGISTRATION&INTRODUCTIONAREA -LOUNGE/WAITINGAREA

-LIFTLOBBY -THECORE -MIXERMACHINE&DISCUSSIONROOM -COMBUSTIONMACHINE&DISCUSSIONROOM

YTWOODINDUSTRY

LUXURYTILESU.K .https://www.luxurytiles.co.uk/ F2 8.80 13.00 2.80 2.80

Batu17,KechauTui27100,PadangTengku, 27100KualaLipis,Pahang F3 4.50 5.30 12.9 19.2

-PLASTICRECYCLINGSTATION -LOUNGE/WAITINGAREA -CO-WORKINGAREA2 -CO-WORKINGAREA3

DYNALOCSDN.BHD.

18,JalanUtama2/34,TamanPerindustrianPuchongUtama, 47100Puchong,Selangor F4 9.60 3.4 2.04 2.10

-EXIT -STORAGE2 -STORAGE3 -STORAGE4

SUZUKA

Lot6492,JalanHajiAbdulManan,OffJalanMeru, 41050,Klang,SelangorD.E.Malaysia. F5 14.80 -WC

WHITEHORSEMALAYSIA

Lot2737,JlnRajaNong/KS2,,TamanPerindustrianSg.Jati,, 41200Klang,Selangor F6 31.57 -CO-WORKINGAREA1

DYNALOCSDN.BHD.

18,JalanUtama2/34,TamanPerindustrianPuchongUtama, 47100Puchong,Selangor F7 17.20 -THECORE

DYNALOCSDN.BHD. 18,JalanUtama2/34,TamanPerindustrianPuchongUtama, 47100Puchong,Selangor

PG1/2

CODEIMAGE AREA(SQM) LOCATION DESCRIPTION SUPPLIER

WALLFINISHES

WP1 47.04 32.00 -SELFREGISTRATION&INTRODUCTIONAREA -CO-WORKINGAREAZONE

SUZUKA

Lot6492,JalanHajiAbdulManan,OffJalanMeru, 41050,Klang,SelangorD.E.Malaysia.

NIPPONPAINTMALAYSIA

JalanDataranSuria15/7/1,BandarPuncakAlam, 42300BandarPuncakAlam,Selangor WP3 20.80 -CO-WORKINGAREA3

WP2 103.00 103.00 -MIXERMACHINE&DISCUSSIONROOM -COMBUSTIONMACHINE&DISCUSSIONROOM

WP4 74.20 -WC

CEILINGFINISHES

DYNALOCSDN.BHD. 18,JalanUtama2/34,TamanPerindustrianPuchongUtama, 47100Puchong,Selangor

NIPPONPAINTMALAYSIA

JalanDataranSuria15/7/1,BandarPuncakAlam, 42300BandarPuncakAlam,Selangor

CP1

41.50 59.50 77.00 13.80 13.80

-PLASTICRECYCLINGSTATION -SELFREGISTRATION&INTRODUCTIONAREA -CO-WORKINGAREAZONE -MIXERMACHINE&DISCUSSIONROOM -COMBUSTIONMACHINE&DISCUSSIONROOM

FOSHANFEROSTEELCO.,LTD

26Floor,ShiboFinancialCenter,FenjiangSouthRoadNo.38, ChanchengDistrict,FoshanCity CP2 19.80 -LIFTLOBBY

EASYWOOD 4,JalanBP5/8,BandarBukitPuchong, 47100Puchong,Selangor CP3 9.60 7.50 -EXIT -STORAGEAREA

JOTUNPAINTMALAYSIA

85,JalanNautikaAU20/A,PusatKomersialTsb, 47000SungaiBuloh,Selangor CP4

JOTUNPAINTMALAYSIA

85,JalanNautikaAU20/A,PusatKomersialTsb, 47000SungaiBuloh,Selangor

14.50 -THECORE
PG2/2

CODE IMAGE SPECIFICATION LOCATION PRICEUNIT(RM) QTY. SUPPLIER

PLASTICRECYCLINGSTATION

LF9

SECONDFLOOR RM18.90 9

TOPESSENTIALTRADING

https://shopee.com.my/Panasonic-LED-Downlight--12W----D125mm--CDL-CW-WW--Energy-Savin g-i.74267708.4729904118?gclid=CjwKCAiAmuKbBhA2EiwAxQnt70DWExDF5UAD3h9JRj_scMIPdO pnXibOiD3MRl4wtH0G6yupBIK9EhoCBf4QAvD_BwE

LF10

SECONDFLOOR RM17.20M 17.8M(LENGTH)

CHANGZHOULIGHTSOURCE https://s.lazada.com.my/s.f2ABk

LF11

SECONDFLOOR RM3209.00 2

CULMIAIR-COND&REFRIGERATIONPARTSSUPPLYSDNBHD 24,JalanIndustriUSJ1/5,TamanPerindustrianUSJ1,47600SubangJaya,Selangor,Malaysia.

E-STREET

LF12

SCHNEIDEREPIENO3GANG1WAYSWITCH SECONDFLOOR RM37.20 1

https://www.lazada.com.my/products/schneider-pieno-3-gang-1-way-switch-with-fluorescent-locatorwhite-i118856092-s125988254.html?exlaz=d_1:mm_150050845_51350205_2010350205::12:15210 038057!133416790750!!!pla-293946777986!c!293946777986!125988254!118086758&gclid=CjwKCA iAmuKbBhA2EiwAxQnt79AHf2dhFqr3Z-A5ffhQAEJgKgVh-UxS5FIkrIyrVfiV95nWeq7R3hoCsnoQAvD _BwE

HNLMARKETING

LF13

https://www.lazada.com.my/products/schneider-vivace-13a-switch-socket-sirim-i2413140453-s10432 821081.html?exlaz=d_1:mm_150050845_51350205_2010350205::12:15210038057!133416790750!! !pla-293946777986!c!293946777986!10432821081!118216869&gclid=CjwKCAiAmuKbBhA2EiwAxQ nt7-kZROpwUC1gIxTfjnYgqUb6XsdOFd1Nrb1EzpNjuO34WCtGQVOWDhoCP5oQAvD_BwE

SCHEDULEOFELECTRICAL,LIGHTINGSANDEQUIPMENTS
SCHNEIDERVIVACE13ASWITCHSOCKETSIRIM SECONDFLOOR RM6.50 3
PG1/4

LIFTLOBBY,SELFREGISTRATION&INTRODUCTIONAREA,

LF9 SECONDFLOOR RM18.90 18

TOPESSENTIALTRADING

https://shopee.com.my/Panasonic-LED-Downlight--12W----D125mm--CDL-CW-WW--Energy-Savin g-i.74267708.4729904118?gclid=CjwKCAiAmuKbBhA2EiwAxQnt70DWExDF5UAD3h9JRj_scMIPdO pnXibOiD3MRl4wtH0G6yupBIK9EhoCBf4QAvD_BwE

CHANGZHOULIGHTSOURCE

LF10 SECONDFLOOR RM17.20/M 27.1M(LENGTH)

https://s.lazada.com.my/s.f2ABk

E-STREET

LF12

SCHNEIDEREPIENO3GANG1WAYSWITCH

SECONDFLOOR RM37.20 1

https://www.lazada.com.my/products/schneider-pieno-3-gang-1-way-switch-with-fluorescent-locatorwhite-i118856092-s125988254.html?exlaz=d_1:mm_150050845_51350205_2010350205::12:15210 038057!133416790750!!!pla-293946777986!c!293946777986!125988254!118086758&gclid=CjwKCA iAmuKbBhA2EiwAxQnt79AHf2dhFqr3Z-A5ffhQAEJgKgVh-UxS5FIkrIyrVfiV95nWeq7R3hoCsnoQAvD _BwE

HNLMARKETING

LF13

LF14

SCHNEIDEREPIENO3GANG2WAYSWITCH

SECONDFLOOR RM66.00 3

https://www.lazada.com.my/products/schneider-vivace-13a-switch-socket-sirim-i2413140453-s10432 821081.html?exlaz=d_1:mm_150050845_51350205_2010350205::12:15210038057!133416790750!! !pla-293946777986!c!293946777986!10432821081!118216869&gclid=CjwKCAiAmuKbBhA2EiwAxQ nt7-kZROpwUC1gIxTfjnYgqUb6XsdOFd1Nrb1EzpNjuO34WCtGQVOWDhoCP5oQAvD_BwE

LF15

SCHNEIDEREPIENO1GANG1WAYSWITCH

SECONDFLOOR RM16.00 1

ENE2U https://shopee.com.my/SCHNEIDER-PIENO-E8233L2F-16AX-250V-3-GANG-2-WAY-SWITCHWITH-FLUORESCENT-LOCATOR-i.14438470.9704585009?gclid=CjwKCAiAmuKbBhA2EiwAx Qnt7xR4RbS-KDfF-T3AIZlgqC2vRByBvb8B5LqPCVZR4NU1IJCo74WD5hoC6YIQAvD_BwE

E_WORLD

https://shopee.com.my/Schneider-Pieno-E8231L2F-16AX-250V-1-Gang-2-Way-Switch-with-Fluoresc ent-Locator-i.37071777.2720075187?gclid=CjwKCAiAmuKbBhA2EiwAxQnt7zdLYsQZI8QfL3S-ghg_ E_DaUWYKGuKT43iv2NO6CE9_RubqBtNP7xoCe_YQAvD_BwE

Q-POWER

LF16

SECONDFLOOR RM3980.00 2

https://shopee.com.my/DAIKIN-R32-2-0hp-Inverter-Wall-Mounted-SMARTO-FTKH-Series-FTKH50ARKU50F-i.104580728.2401606234?gclid=CjwKCAiAmuKbBhA2EiwAxQnt75VALwd3QZSiEV8_E_ba Y3EC-IO3XSvLz0DcHgQlaRmwS2rB3Dqe6hoCyJQQAvD_BwE

SCHNEIDERVIVACE13ASWITCHSOCKETSIRIM SECONDFLOOR RM6.50 4
MIXERMACHINE&DISCUSSIONROOM,COMBUSTIONMACHINE&DISCUSSIONROOM
PG2/4
SCHEDULEOFFURNITURE,FIXTURESANDEQUIPMENTS CODE IMAGE SPECIFICATION LOCATION PRICEUNIT(RM) QTY. SUPPLIER

LF9

SECONDFLOOR RM18.90 18

TOPESSENTIALTRADING

https://shopee.com.my/Panasonic-LED-Downlight--12W----D125mm--CDL-CW-WW--Energy-Savin g-i.74267708.4729904118?gclid=CjwKCAiAmuKbBhA2EiwAxQnt70DWExDF5UAD3h9JRj_scMIPdO pnXibOiD3MRl4wtH0G6yupBIK9EhoCBf4QAvD_BwE

CHANGZHOULIGHTSOURCE

LF10

SECONDFLOOR RM17.20/M 30.3M(LENGTH)

https://s.lazada.com.my/s.f2ABk

LF11

SECONDFLOOR RM3209.00 2

CULMIAIR-COND&REFRIGERATIONPARTSSUPPLYSDNBHD 24,JalanIndustriUSJ1/5,TamanPerindustrianUSJ1,47600SubangJaya,Selangor,Malaysia.

HNLMARKETING

LF13

SCHNEIDERVIVACE13ASWITCHSOCKETSIRIM

SECONDFLOOR RM6.50 12

https://www.lazada.com.my/products/schneider-vivace-13a-switch-socket-sirim-i2413140453-s10432 821081.html?exlaz=d_1:mm_150050845_51350205_2010350205::12:15210038057!133416790750!! !pla-293946777986!c!293946777986!10432821081!118216869&gclid=CjwKCAiAmuKbBhA2EiwAxQ nt7-kZROpwUC1gIxTfjnYgqUb6XsdOFd1Nrb1EzpNjuO34WCtGQVOWDhoCP5oQAvD_BwE

E-STREET

LF14

SCHNEIDEREPIENO2GANG1WAYSWITCH SECONDFLOOR RM27.60 1

https://www.lazada.com.my/products/schneider-pieno-2-gang-1-way-switch-with-fluorescent-locatorwhite-i118784291-s125903654.html?clickTrackInfo=query%253A%253Bnid%253A40572526%253B src%253AlazadaInShopSrp%253Brn%253Adba41caa4efc24b6196094a077f8d2f9%253Bregion%25 3Amy%253Bsku%253ASC700HLAAO5LYMANMY%253Bprice%253A27.60%253Bclient%253Adeskt op%253Bsupplier_id%253A37222%253Basc_category_id%253A10000493%253Bitem_id%253A118 784291%253Bsku_id%253A125903654%253Bshop_id%253A135&freeshipping=1&fs_ab=2&fuse_fs =1&mp=1&source=search&spm=a2o4k.seller.list.i40.20ae6db5DjD7Go

LF15

SCHNEIDEREPIENO2GANG2WAYSWITCH

ENE2U https://shopee.com.my/SCHNEIDER-PIENO-E8232L2F-16AX-250V-2-GANG-2-WAY-SWITCH-WITH -FLUORESCENT-LOCATOR-i.14438470.7270383012?gclid=CjwKCAiAmuKbBhA2EiwAxQnt77Xh7 Ujt98-8-Y-qgYLGXRciK03PoPXHK-uiJm76XaBTti8zl48imxoCHqsQAvD_BwE

CO-WORKINGAREA1,2,3
SECONDFLOOR RM47.00 4
SCHEDULEOFFURNITURE,FIXTURESANDEQUIPMENTS CODE IMAGE SPECIFICATION LOCATION PRICEUNIT(RM) QTY. SUPPLIER PG3/4

WC,LAVATORY,EXIT,STORAGE1,2,3,4

TOPESSENTIALTRADING

LF9 SECONDFLOOR RM18.90 18

https://shopee.com.my/Panasonic-LED-Downlight--12W----D125mm--CDL-CW-WW--Energy-Savin g-i.74267708.4729904118?gclid=CjwKCAiAmuKbBhA2EiwAxQnt70DWExDF5UAD3h9JRj_scMIPdO pnXibOiD3MRl4wtH0G6yupBIK9EhoCBf4QAvD_BwE

CHANGZHOULIGHTSOURCE

LF10

SECONDFLOOR RM17.20M 5.8M(LENGTH)

https://s.lazada.com.my/s.f2ABk

E-STREET

LF12

SCHNEIDEREPIENO3GANG1WAYSWITCH

SECONDFLOOR RM37.20 1

https://www.lazada.com.my/products/schneider-pieno-3-gang-1-way-switch-with-fluorescent-locatorwhite-i118856092-s125988254.html?exlaz=d_1:mm_150050845_51350205_2010350205::12:15210 038057!133416790750!!!pla-293946777986!c!293946777986!125988254!118086758&gclid=CjwKCA iAmuKbBhA2EiwAxQnt79AHf2dhFqr3Z-A5ffhQAEJgKgVh-UxS5FIkrIyrVfiV95nWeq7R3hoCsnoQAvD _BwE

E-STREET

LF14

LF15

SCHNEIDEREPIENO1GANG1WAYSWITCH SECONDFLOOR RM16.80 7

https://www.lazada.com.my/products/schneider-pieno-2-gang-1-way-switch-with-fluorescent-locatorwhite-i118784291-s125903654.html?clickTrackInfo=query%253A%253Bnid%253A40572526%253B src%253AlazadaInShopSrp%253Brn%253Adba41caa4efc24b6196094a077f8d2f9%253Bregion%25 3Amy%253Bsku%253ASC700HLAAO5LYMANMY%253Bprice%253A27.60%253Bclient%253Adeskt op%253Bsupplier_id%253A37222%253Basc_category_id%253A10000493%253Bitem_id%253A118 784291%253Bsku_id%253A125903654%253Bshop_id%253A135&freeshipping=1&fs_ab=2&fuse_fs =1&mp=1&source=search&spm=a2o4k.seller.list.i40.20ae6db5DjD7Go

E-STREET

https://shopee.com.my/Schneider-Pieno-1-Gang-1-Way-Switch-with-Fluorescent-Locator--White-i.21 512844.251031645?gclid=CjwKCAiAmuKbBhA2EiwAxQnt7wz4NKprbC9YEHfSQCRdiEhg5sJp2IQN rpTQMeZoD58z6UYYrrlt4hoCEmIQAvD_BwE

E_WORLD

LF17

SCHNEIDEREPIENO1GANG2WAYSWITCH

SECONDFLOOR RM16.00 4

https://shopee.com.my/Schneider-Pieno-E8231L2F-16AX-250V-1-Gang-2-Way-Switch-with-Fluoresc ent-Locator-i.37071777.2720075187?gclid=CjwKCAiAmuKbBhA2EiwAxQnt7zdLYsQZI8QfL3S-ghg_ E_DaUWYKGuKT43iv2NO6CE9_RubqBtNP7xoCe_YQAvD_BwE

ELECTRICDOM

LF18 SECONDFLOOR RM59.50 2

https://shopee.com.my/KELIP-KELIP-101B-LED-Flashing-Out-Keluar-Sign-BE1ST-101B-(Sirim-FireApproved)-(Bomba-Appored-)-KELIP-KELIP-i.175483735.11309701000?sp_atk=deeb6ae5-7b1b-48 86-a740-232caaae8bfa&xptdk=deeb6ae5-7b1b-4886-a740-232caaae8bfa

SCHNEIDEREPIENO2GANG1WAYSWITCH SECONDFLOOR RM27.60 1
CODE IMAGE SPECIFICATION LOCATION PRICEUNIT(RM) QTY. SUPPLIER PG4/4
SCHEDULEOFFURNITURE,FIXTURESANDEQUIPMENTS

Throughout this project, I get exposed to look very detail in each type of drawings and be able to clarify and to tell the design created in my design module into a working drawings. I learned in this assignment that i have to be very carefull and professional enough to deal with every single line i drew as everything means something. I also been exposed to many technical skills and knowing the quality presented by my lecturers which is crucial when i work outside later.

|
REFLECTION

02 PROJECT

AS-BUILT DRAWINGS: ‘SUSTAINABLE EDUCATION HUB’

In this project we are to select a precedent study pertaining to office layouts and coworking spaces for educational hubs. We have to recognise the layout in order to extract the precedent study's Schedule of Accommodation (SOA) and (FF&E). Additionally, we also been introduced to the UBBL and fire regulations that must be taken into consideration when constructing the area. It help us to comprehend how layout design relates to UBBL and fire requirements. A set of as-built drawings, including a plan, internal elevation, section, SOA, FF&E, and an analysis of the use of UBBL and materials based on the chosen precedent study, will be produced by us.

In a group of 5, we are to distribute the task evenly to produce the drawings and draw the drawings such as plan, section, detailing individually based on the selected case study approved by the tutor. With the guidance by tutor, we successfully completed all the drawings and learn many important details and more aware of errors when drawing them.

ASSIGNMENT 2 : ‘SUSTAINABLE EDUCATION HUB’ | DETAILING WORKING DRAWINGS(IDS 60804) | NAME : LOO ZHEN HUI STUDENT ID : 0342722 PROGRAMME : BACHELOR IN INTERIOR ARCHITECTURE SEMESTER : AUGUST - DECEMBER 2022 TUTOR : MS. FATIMAH KHAIRI
REVISIONTRACKING DRAWINGLIST SHEETNAME REV DATE DESCRIPTION ISSUE INDIVIDUALPRECEDENTSTUDY EXISTINGGROUNDFLOORPLAN SECTIONA-A INTERNALELEVATION1 BESPOKEDETAILPLAN BESPOKEDETAILFRONTELEVATION BESPOKEDETAILSECTIONA-A INDIVIDUALUBBL&FIREREQUIREMENT SCHEDULEOFACOMMODATION DOORSCHEDULE WINDOWSCHEDULE SCHEDULEOFFINISHES FIXTURES,FITTINGSANDEQUIPMENTSCHEDULE INDIVIDUALREFLECTION
-00 03 02 02 02 02 02 00 01 02 02 01 01 01
- NO
- NO - NO - NO - NO - NO - NO - NO - NO NO - NO NO NO - NO
PRECEDENTSTUDYANDDRAWINGS BESPOKEDETAILDRAWINGS UBBL&FIREREQUIREMENT,SCHEDULESANDREFLECTION
ML/DWD/FLP/01 ML/DWD/SC/02 ML/DWD/EL/03 ML/DWD/BFP/04 ML/DWD/BFE/05 ML/DWD/BFSC/06 DWD/G1/DS/07 DWD/G1/DS/08 DWD/G1/WS/09
22SEP2022 13OCT2022 13OCT2022 13OCT2022 13OCT2022 13OCT2022 13OCT2022
13OCT2022 16OCT2022 13OCT2022
12OCT2022 12OCT2022 12OCT2022 12OCT2022

(INDIVIDUAL PRECEDENT STUDY)

The project takes a broad, universal view on the definition of a typical space, allowing for a traditional distribution in areas of varying sizes, including offices, meeting spaces, work areas, and distribution halls. A different type of workplace is instead suggested, one where adaptability, fluidity, and adaptability provide a dynamic and open area for a variety of activities and simultaneous displays

OFFICES
MCVR STUDIO,2019 AREA: 700 m²
SECAD
BY
DIRECTIONAL EXHIBITION SPACE MEETING ROOM PRIVATE OFFICE MULTIPURPOSE AREA STORAGE AREA PANTRY LOUNGE WAITING ROOM 1 2 3 4 5 6 7 8 LEGEND: 1 2 3 4 5 6 7 8 MATERIALS:
StainlessSteel
Poycarbonatesheet
Carpet
CeramicTiles
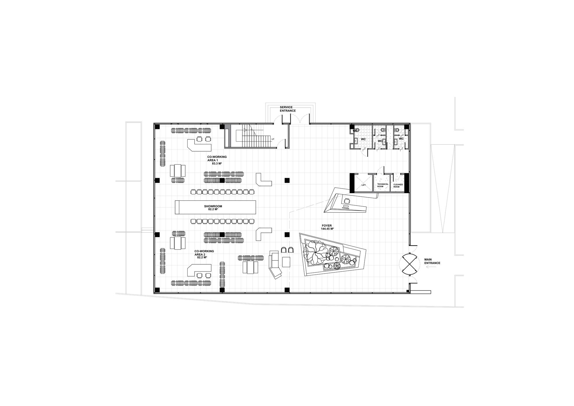
UP A B C D E 1 2 3 4 SEC A SEC A N MAIN ENTRANCE FOYER TECHNICAL ROOM CLEANER ROOM WC WC WC SERVICE ENTRANCE SHOWROOM LIFT F1 F1 F4 144.45M² 82.2M² D1 D2 D2 D3 D4 D4 D4 D5 D5 D5 D5 D5 D6 D6 CO-WORKING AREA2 CO-WORKING AREA1 82.2M² 83.3M² G1 DP50 DP50 DP50 DP50 DP50 CH1 CH2 T1 CH4 CH3 CT2 T2 T3 CT1 T4 F5
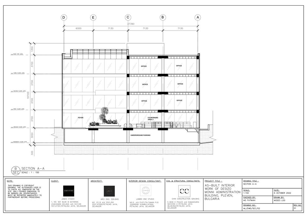
D E C B A F1 CT1 C1 G1 CT2 CO-WORKING AREA2 FOYER OFFICE UNDERGROUNDPARKING OFFICE OFFICE OFFICE OFFICE OFFICE
A B C1 G1 F1 CT1
SECA SECA
OPENSHELF OPENSHELF

UBBL AND FIRE REQUIREMENT

UBBL 107 Handrails

Staircase which have 4 riser and above must have handrails

Staircases exceeding 2225 millimetres in width shall be provided with intermediate handrail for each 2225 millimetres of required width spaced approximately equally.

handrail shall be provided on each side of the staircase when the width of the staircase is 1100 millimetres or more. [ONLY residential buildings MAY not have handrails on both sides]

Handrails to be max 80mm from face of walls,

Stairs Handrail Height >825mm<900mm measured from stair nosing

Handrails Height at Landing ≥900mm

Staircase with appropriate handrail could be observe through the perspective

UBBL 110 No obstruction in staircase

There shall be no obstruction in any staircase between the topmost landing thereof and the exit discharge on the ground floor

UBBL

166

Exits to be accesible all time

This is the primary concept for safe evacuation.

Every floor space shall be provided with at least two exits on the basis that if one exit is inoperable, the other exit can serve the function.

Application

a) Entrance doors to Fire Protected Staircases passage way and/or ramps

b) Doors leading into individual fire protected residential occupancies

c) Entrance door to individual fire protected commercial occupancies

d) Institutional or assembly building path of travel to exits

2 doors could be seen from plan which closest to the staircase for easy evacuation

UBBL 226 Hose Reel System

Door need to be fire resistan

An equipment mounted close to a fire service to provide uninterrupted water supply in the event of a fire outbreak

Hose Reel need to be placed at each floor level along the escape routes and besides doors or staircase within 30m hose reel coverage

Typical Dimension

Length : 3600mm max Diameter : 13mm 19mm

Horse Reel System is found close to the staircase and to the door in the building

Reinforced PVC fire hose

Sta nless Steel side reel with red epoxy powder finishes

staircase is clear and accessible in the building

UBBL 46 Height of Rooms

Ground Floor 3 0 meters min

Other Floors Height 2.75 meters min.

Basement Height 2 0 meters min

Habitable Room Headroom Height 2 0 meters min

Verandahway Height 3 0 meters min

refering the section, basement floor to ceiling height is around 3050mm and the grounf floor floor to ground floor ceiling height is 3700mm The height of rooms meets the UBBL

SECT ON NTS LOO ZHEN HUI 0342722 |
GROUNDFLOORPLAN NTS
SCHEDULEOFACCOMMODATION AREA NO.OFOCCUPANTS NO.OFROOMS AREAOFONEROOM(M) TOTALAREAOFROOM(M) LEVEL1(GROUNDFLOOR) MAINENTRANCE SERVICEENTRANCE FOYER SHOWROOM W/COKU W/C TECHNICALROOM CLEANERSROOM CO-WORKINGAREA1 CO-WORKINGAREA2 8 4 15 35 2 6 15 15 2 1 1 2 1 1 1 1 1 1 1 1 38.43 7.48 144.45 82.20 4.64 3.68 3.30 2.84 83.30 82.20 38.43 7.48 144.45 82.20 4.64 14.16 3.30 2.84 83.30 82.20 LEVEL2(FIRSTFLOOR) OFFICE MEETINGROOM INTERNALTERRACE ATRIUM RELAXZONE KITCHEN SERVERROOM STORAGE W/C TECHNICALROOM 26 16 2 30 9 4 6 2 3 2 1 1 1 2 1 1 1 1 2 1 214.65 18.40 5.17 146.90 30.70 1.94 17.17 5.76 3.68 7.48 214.65 36.80 5.17 146.90 30.70 1.94 17.17 5.76 3.68 7.48
SCHEDULEOFACCOMMODATION(CONT.) AREA NO.OFOCCUPANTS NO.OFROOMS AREAOFONEROOM(M) TOTALAREAOFROOM(M) LEVEL3(SECONDFLOOR) LEVEL4(THIRDFLOOR) OFFICE MEETINGROOM INTERNALTERRACE ATRIUM RELAXZONE KITCHEN SERVERROOM STORAGE W/C TECHNICALROOM 26 16 2 30 9 4 6 2 3 2 1 1 1 2 1 1 1 1 2 1 214.65 18.40 5.17 146.90 30.70 1.94 17.17 5.76 3.68 7.48 214.65 36.80 5.17 146.90 30.70 1.94 17.17 5.76 3.68 7.48 OFFICE MEETINGROOM INTERNALTERRACE ATRIUM RELAXZONE KITCHEN SERVERROOM STORAGE W/C TECHNICALROOM 26 16 2 30 9 4 6 2 3 2 1 1 1 2 1 1 1 1 2 1 214.65 18.40 5.17 146.90 30.70 1.94 17.17 5.76 3.68 7.48 214.65 36.80 5.17 146.90 30.70 1.94 17.17 5.76 3.68 7.48

DOORNO.

DESCRIPTION

D1

IRONMONGERY

SINGLELEAFEMERGENCYESCAPEDOOR

100MMTHKTEAKTIMBERW/2MMTHKGALVANIZEDSTEELSURFACEW/PROOFEXPANSIONRUBBER

EMERGENCYSTAIRCASE(GROUNDFLOOR&FIRSTFLOOR)

50
50 2100 130 1870
2450
PROJECTTITLE: CIVIL&STRUCTURALCONSULTANTS: INTERIORDESIGNCONSULTANT: ARCHITECT: CLIENT: NOTE: DRAWINGTITLE
JAMESSTUDIO ARCIONG.SDN.BHD. CHINCONSTRUCTIONSDN.BHD.
THISDRAWINGISCOPYRIGHTDRAWING.THE AUTHORIZEDUSERISTOCHECKALLDIMENSION ONTHESITE.ONLYFIGUREDDIMENSIONTOBE WORKEDON,DISCREPANCIESMUSTBE REPORTEDIMMEDIATELYTOPARTNERSHIP BEFOREPROCESSING. AS-BUILTINTERIOR WORKOFDESIZO MONNIADMINISTRATION BUILDING,PLEVEN, BULGARIA
DESCRIPTION IRONMONGERY
TYPE FRAME DOORLEAF HINGES LOCKBOLTS STOP/PULLS
50 2010 50 970 1080 2100 2060 50 5080050 1060 1000 2100 900 50
2450 1120 100 1120
100 5080050 1100 950 2100 900 50
2409
DOORSCHEDULE01 SCALE: 1:50 DATE: 12OCT2022 CHECKEDBY: MS.FATIMAH DRAWNBY: ANDREASIMXINYEN DRAWINGNO: DWD/G1/DS/07 REVNO. 02
1,NO.901BLOKBDATARANUSAHAWAN KELANAJLNSS7/26SS7,47301,PETALING JAYA,SELANGOR NO.23BJLNSS21/60 SS21,47000,PETALINGJAYA,SELANGOR NO.2,JLNPJS7/7H,TAMANPJS3,BANDAR SUNWAY,47500, PETALINGJAYA,SELANGOR 5BlOKEPHILEOJLNDAMANSARA SEKSYEN2PETALINGJAYA 46,46350,PETALINGJAYA,SELANGOR
DOORNO.
MAINENTRANCEREVOLVINGDOOR(GROUNDFLOOR)
LOCATION ALUMINUMREVOLVINGDOOR 50MMBLACKPOWDERCOATEDALUMINUM 2100MM(H)X1120MM(L)POWDERCOATEDALUMINUMW/25MMTHKTURNSTILEGLASS 100MMX25MMSTAINLESSSTEELFLOORPIVOTHINGE REMOTE/ACCESSCONTROLLOCKINGSYSTEM STANDARDREVOLVINGDOORPUSHSYSTEM
TYPE FRAME DOORLEAF HINGES LOCKBOLTS STOP/PULLS LOCATION FFL0
50MMTHKFIREPROOFROCKWOOLW/1MMSTEELSURFACEAND6MMTHKBOROSILICATEGLASSWINDOW 100MM(L)X70MM(W)X2MMTHKSTEELBUTTHINGE 730MM(L)STAINLESSSTEELPUSHPANICBAR REFERTOSUPPLIER D2 SERVICEENTRANCE(GROUNDFLOOR)
50MMTHKFIREPROOFROCKWOOLW/1MMGALVANIZEDSTEELSURFACEAND6MMTHKBOROSILICATEGLASSWINDOWS 100MM(L)X70MM(W)X2MMSTAINLESSSTEELHINGE 3-POINTLOCK 290MM(H)X110MM(L)STAINLESSSTEELPULLBARHANDLE D3
FFL0 ©COPYRIGHT NO.DESCRIPTION DATE 0 DOORSCHEDULE01 12OCTOBER2022
DOUBLELEAFSWINGFIREDOOR 100MMTHKTEAKTIMBERW/2MMTHKGALVANIZEDSTEELSURFACEANDALL-AROUNDPROOFEXPANSIONRUBBER
TECHNICALROOM(GROUND&FIRSTFLOOR) SINGLELEAFSWINGDARKWALNUTTIMBERDOOR 2100MM(H)X900MM(L)X40MM(THK)DARKWALNUTTIMBERHARDWOODDOORJAMB 40MMTHKSOLIDCOREDARKWALNUTTIMBERVENEERDOORW/GLOSSVARNISHFINISH 70MM(L)X50MM(W)X2MMSTAINLESSSTEELHINGE 3-POINTLOCK 180MM(L)STAINLESSSTEELALLOYLEVERHANDLE D4

DOORNO.

DESCRIPTION

IRONMONGERY

DOORNO.

DESCRIPTION

IRONMONGERY

TYPE FRAME

FFL0

TYPE

FRAME

DOORLEAF

HINGES

ONTHESITE.ONLYFIGUREDDIMENSIONTOBE WORKEDON,DISCREPANCIESMUSTBE REPORTEDIMMEDIATELYTOPARTNERSHIP BEFOREPROCESSING.

FFL0 D7 ©COPYRIGHT NO.DESCRIPTION DATE 0 DOORSCHEDULE02 12OCTOBER2022

2100MM(H)X1000MM(L)SINGLELEAFTOILETDOOR

50MMTHKOAKWOODTIMBER

2050MM(H)X900MM(L)x35MM(THK)RADIATAPINETIMBERW/VARNISHFINISH

70MM(L)X50MM(W)X2MMSTAINLESSSTEELHINGE

180MM(L)STAINLESSSTEELLEVERHANDLE 2-POINTLOCK D5 1060 1130

2600MM(H)X2050MM(L)DOUBLEGLASSSWINGDOOR

2MMTHKALUMINUMALLOYPROFILE

2430MM(H)X750MM(L)X6MM(THK)TEMPEREDCLEARGLASSPANELS

100MM(L)X70MM(W)X2MMSTAINLESSSTEELHINGE

STAINLESSSTEELCOVERCORNER3-POINTLOCK

D6

2150MM(H)X1000MM(L)SINGLECASEMENTGLASSDOOR 50MMTHKELECTROGALVANIZEDALUMINUM

1000 2150 900 2050 2600 750

2100MM(H)X1000MM(L)X6MM(THK)TEMPEREDCLEARGLASS 70MM(L)X50MM(W)X2MMSTAINLESSSTEELHINGE 3-POINTLOCK 180MM(L)STAINLESSSTEELALLOYLEVERHANDLE

MAINENTRANCESIDEDOOR(GROUNDFLOOR)

2100MM(H)X1000MM(L)SINGLELEAFGLASSDOOR

30MMTHKBLACKGALVANIZEDSTEELFRAME

2070MM(H)X940MM(L)X12MM(THK)TEMPEREDGLASS

2MMTHKRSPROSTEELBUTTHINGE

330MM(L)STAINLESSSTEELPULLBARHANDLE 1040 50 50 50

220MM(L)BRUSHEDSTAINLESSSTEELSINGLECYLINDER3-POINTLOCK D8 750 550 170 1300

12MM(L)STAINLESSSTEELT-BARHANDLE

AS-BUILTINTERIOR WORKOFDESIZO MONNIADMINISTRATION BUILDING,PLEVEN, BULGARIA

CIVIL&STRUCTURALCONSULTANTS: INTERIORDESIGNCONSULTANT:
CLIENT:
550 750 750 2050 900 1000 50 50 2100 50 1040 1010 1000 900 2100 1080 970 50 50 50 PROJECTTITLE:
ARCHITECT:
NOTE: DRAWINGTITLE DOORSCHEDULE02
THISDRAWINGISCOPYRIGHTDRAWING.THE AUTHORIZEDUSERISTOCHECKALLDIMENSION
SCALE: 1:50 DATE: 12OCT2022 CHECKEDBY: MS.FATIMAH DRAWNBY: MARIYAMYOOHAAHMED DRAWINGNO: DWD/G1/DS/08 REVNO. 02 JAMESSTUDIO ARCIONG.SDN.BHD. CHINCONSTRUCTIONSDN.BHD. 1,NO.901BLOKBDATARANUSAHAWAN KELANAJLNSS7/26SS7,47301,PETALING JAYA,SELANGOR NO.23BJLNSS21/60 SS21,47000,PETALINGJAYA,SELANGOR NO.2,JLNPJS7/7H,TAMANPJS3,BANDAR SUNWAY,47500, PETALINGJAYA,SELANGOR 5BlOKEPHILEOJLNDAMANSARA SEKSYEN2PETALINGJAYA 46,46350,PETALINGJAYA,SELANGOR
DOORLEAF HINGES LOCKBOLTS STOP/PULLS LOCATION
LOCKBOLTS STOP/PULLS LOCATION
OFFICEENTRANCE(FIRSTFLOOR)
TOILETDOOR(GROUND&FIRSTFLOOR)
INTERNALTERRACE&MEETINGROOM(FIRSTFLOOR)
FFL CH+18400MM NOTE: THISDRAWINGISCOPYRIGHTDRAWING.THEAUTHORIZED USERISTOCHECKALLDIMENSIONSONTHESITE.ONLY FIGUREDDIMENSIONTOBEWORKEDON.DISCREPANCIES MUSTBEREPORTEDIMMEDIATELYTOPARTNERSHIPBEFORE PROCESSING. ©COPYRIGHT NO.DESCRIPTION DATE 0 CLIENT: ARCHITECT: INTERIORDESIGNCONSULTANT: PROJECTNAME: DRAWINGTITLE: CHECKEDBY: DRAWNBY: DATE:16OCTOBER2022 SCALE:1:50 DRAWINGNO. REVNO. DWD_G1_WS_09 AS-BUILTINTERIORWORK OFDESIZOMONNI ADMINISTRATIVEBUILDING DESIZOMONNIADMINISTRATIVEBUILDING WINDOWSCHEDULE MSFATIMAH ASHLEYTEWLIWEN LOCATION IRONMONGERY DESCRIPTION WINDOWNO. TYPE FRAME THICKNESS HINGES LOCK/BOLTS STOP/PULLS ALL G1 SINGLEFIXED-PANELGLASSWINDOW 65MMTHKALUMINIUMWINDOWFRAME 10MMTHKTEMPEREDGLASS N/A N/A N/A 02 CIVIL&STRUCTURALCONSULTANTS:

SCHEDULE OF FINISHES

1.2 WALL FINISHES

W2

CODE IMAGE DESCRIPTION SIZE LOCATION SUPPLIER 1.3 CEILING FINISHES C1 AERATED GYPSUM PLASTERBOARD IN WHITE PAINT FINISH 12.5MM (THK) ALL SAINT GOBAIN (GYPROC) SDN BHD C2 GYPSUM ACOUSTIC CEILING PANEL 12.5MM (THK) OFFICE SAINT GOBAIN (GYPROC) SDN BHD C3 TEMPERED GLASS WITH ALUMINIUM FRAME IN POWDER COATED FINISH 10MM (THK) ATRIUM GLASS NETWORK (M) SDN BHD CODE IMAGE DESCRIPTION SIZE LOCATION SUPPLIER 1.1 FLOOR FINISHES F1 GREY PORCELAIN TILES IN MATT FINISH 1200MM (L) x 600MM (W) x 10MM (THK) MAIN ENTRANCE, SERVICE ENTRANCE, FOYER, SHOWROOM, RELAX ZONE, KITCHEN VERONA GROUP F2 ZKR02 ALAMO NATURAL TIMBER FLOORING 10MM (THK) OFFICE, MEETING ROOM, INTERNAL TERRACE NIRO CERAMIC (M) SDN BHD F3 EXPOSED CONCRETE SLAB 250MM (THK) STAIRCASE LAFARGE CONCRETE (MALAYSIA) SDN BHD F4 GPB05
300MM
CASTLE ROCK PORCELAIN TILES IN MATT FINISH
(L) x 300MM (W) x 10MM (THK) WC NIRO CERAMIC (M) SDN BHD F5 CONCRETE SLAB IN POLISHED FINISH 250MM (THK) TECHNICAL ROOM, CLEANER ROOM, SERVER ROOM, STORAGE LAFARGE CONCRETE (MALAYSIA) SDN BHD
W1 EXPOSED CONCRETE 200MM (THK) ALL LAFARGE CONCRETE (MALAYSIA) SDN BHD
GMA31 NOIR
TILES
10MM
REST
TEMPERED
10MM
GRANITE
IN POLISHED FINISH
(THK)
AREA NIRO CERAMIC (M) SDN BHD W3
GLASS WITH ALUMINIUM FRAME IN POWDER COATED FINISH
(THK) OFFICE, STAIRCASE, ATRIUM GLASS NETWORK (M) SDN BHD

LEVEL1-SHOWROOM

LEVEL1-CO-WORKINGSPACE1

2000MM(L)REVEALCOVELIGHTC/WALUMINUMFRAME AND3000KLEDWARMLIGHTSTRIP 4 PUREEDGELIGHTING RM481.60 T1

700MM(W)x1400MM(L)DESKYDUAL SOFTWOODSITSTANDDESKWITHACACIAWOODTABLE TOPANDPOWDERCOATEDALUMINUMSTAND 2 DESKY RM6498.00 CH2

BRUNSWICKSOLIDACACIAWOODBENCH ACRYLICEXPOXYFINISHED 4 BRUNSWICK RM2800.00 T2

700MM(W)x1500MM(L)x700MM(W)x 1500MM(L)x750MM(H)MAPLEMELAMINEWOOD TABLEC/WPOWDERCOATEDALUMINUMSTAND 1 AYOFFICESYSTEM RM475.00 T3

900MM(W)x1800MM(L)x750MM(H)MAPLEMELAMINE WOODTABLEC/WBLACKEPOXYCOATEDHOLLOWMILD STEEL 2 OFFICEPRO RM1,699.00 CT1

580MM(W)x1400MM(L)x1200MM(H) CABINETWITHPOWDERCOATEDSTAINLESSSTEEL FRAME 11 TRIBESIGN RM1969.00

580MM(W)x700MM(L)x1200MM(H) CABINETWITHSOLIDPINEWOODANDSTEELFRAME C/WCLEARACRYLICLAQUER 2 IKEA RM558.00

750MM(W)x640MM(L)x750MM(H) NOLMYRACHAIRWITHPOLYESTERSEATANDPOLYESTER POWDERCOATEDALUMINUMFRAME 2 IKEA RM358.00

SCHEDULEOFFURNITUREFIXTURESANDEQUIPMENT CODE IMAGE SPECIFICATION QTY SUPPLIER PRICEUNIT
1 FOSHANAOLPOLLIGHTING
2 HAIER
CH1 480MM(W)x620MM(L)x1040MM(H)ADELINEMESH MEDIUMBACKOFFICECHAIR 1 OFFICEPRO
LEVEL1-MAINENTRANCE/FOYER LF1 6000MM(L)POWDERCOATEDALUMINUMTRACKRAIL C/W30LEDTRACKLIGHT
TECHNOLOGYCO.,LTD. RM500.00 AC1 HAIERABH0901ERG3HP CEILINGCASSETTE
RM7238.00
RM149.00
AC1 HAIERABH0901ERG3HPCEILINGCASSETTE 2 HAIER
CH1 480MM(W)x620MM(L)x1040MM(H)ADELINEMESH MEDIUMBACKOFFICECHAIR 22 OFFICEPRO
LF2 2000MM(L)REVEALCOVELIGHTC/WALUMINUMFRAME AND3000KLEDWARMLIGHTSTRIP 5 PUREEDGELIGHTING RM602.00
RM7238.00
RM3278.00
AC1 HAIERABH0901ERG3HPCEILINGCASSETTE 1 HAIER
CH1 480MM(W)x620MM(L)x1040MM(H)ADELINEMESH MEDIUMBACKOFFICECHAIR 2 OFFICEPRO RM298.00 LF2 2000MM(L)REVEALCOVELIGHTC/WALUMINUMFRAME AND3000KLEDWARMLIGHTSTRIP 4 PUREEDGELIGHTING RM481.60 T1 700MM(W)x1400MM(L)DESKYDUAL SOFTWOODSITSTANDDESKWITHACACIAWOODTABLE TOPANDPOWDERCOATEDALUMINUMSTAND 1 DESKY RM3249.00 CH2 370MM(W)X1500MM(L)X450MM(H)BRUNSWICK SOLIDACACIAWOODBENCH ACRYLICEXPOXYFINISHED 2 BRUNSWICK RM1400.00 T2 700MM(W)x1500MM(L)x700MM(W)x 1500MM(L)x750MM(H)MAPLEMELAMINEWOOD TABLEC/WPOWDERCOATEDALUMINUMSTAND 1 AYOFFICESYSTEM RM475.00 T3 900MM(W)x1800MM(L)x750MM(H)MAPLEMELAMINE WOODTABLEC/WBLACKEPOXYCOATEDHOLLOWMILD STEEL 2 OFFICEPRO RM1,699.00 CT1 580MM(W)x1400MM(L)x1200MM(H) CABINETWITHPOWDERCOATEDSTAINLESSSTEEL FRAME 11 TRIBESIGN RM1969.00 CT2 580MM(W)x700MM(L)x1200MM(H) CABINETWITHSOLIDPINEWOODANDSTEELFRAME C/WCLEARACRYLICLAQUER 2 IKEA RM558.00 LEVEL1-CO-WORKINGSPACE2
RM3619.00
LEVEL1-CO-WORKINGSPACE2 AC1
HAIERABH0901ERG3HPCEILINGCASSETTE 1 HAIER RM3619.00 CH1
480MM(W)x620MM(L)x1040MM(H)ADELINEMESH MEDIUMBACKOFFICECHAIR 2 OFFICEPRO RM298.00 LF2
CT2
CH3
CH4
T4
SCHEDULEOFFURNITURE,FIXTURESANDEQUIPMENT CODE IMAGE SPECIFICATION QTY SUPPLIER PRICEUNIT LEVEL1-MAINENTRANCE/FOYER SCHEDULEOFFURNITURE,FIXTURESANDEQUIPMENTS
1660MM(W)x3110MM(L)x790MM(H) MX6208L-SHAPESOFA 1 MIXHOMEDESIGN RM4899.00
780MM(W)x1180MM(L)x750MM(H) PARTICLEBOARDLACKCOFFEETABLE 1 IKEA RM169.00 LEVEL2,3,4-OFFICES

4ftGENIALSUPERIORRECTANGULAROFFICETABLEWITH MOBILEPEDESTALOFT128SET W1200mmxD800mmxH750mm MOBILEPEDESTAL2D1FW400mmxD480mmxH620 mm

20 OFFICEFURNITURE MALAYSIA RM649.00 CH1 480MM(W)x620MM(L)x1040MM(H)ADELINEMESH MEDIUMBACKOFFICECHAIR 21 OFFICEPRO RM3,129.00 CH4 ADELINEMESHHIGHBACKOFFICECHAIROFNX220361 W620mmxD480mmxH1140-1240mm 2 OFFICEFURNITURE MALAYSIA RM639.00 CH5 480MM(W)x500MM(L)x930MM(H)ADELINEMESH VISITOROFFICECHAIROFNX220364 4 OFFICEFURNITURE MALAYSIA RM525.00 CT3

LÄCKÖ TABLE,OUTDOORGREY70cm MATERIALSTEELPOLYESTERPOWDERCOATING 1 IKEA RM159.00 CH6

TOBIAS CHAIRGREY-PLATED W55cm,D56cm,H82cm 2 IKEA RM475.00

LEVEL2,3,4-RELAXATIONZONE T8

SANDSBERG TABLE,BLACK,67x67cm PARTICLEBOARD,MELAMINEFOIL 1 IKEA RM159.00 CH6

TOBIAS CHAIRGREY-PLATED W55cm,D56cm,H82cm 9 IKEA RM475.00 LF2

LEVEL2,3,4-OFFICES T3
900MM(W)x1800MM(L)x750MM(H)MAPLEMELAMINE WOODTABLEC/WBLACKEPOXYCOATEDHOLLOWMILD STEEL 2 OFFICEPRO RM1,699.00 T5
BYOS71806FtMELAMINEOPENSHELF+SLIDINGDOOR LOWCABINET L180xW45xH75cm 14 FURNITURE DIRECT RM987.00 CT4
LEVEL2,3,4-MEETINGROOM T6 IP-OROSERIESPANELLEGCONFERENCETABLE MELAMINECHIPBOARD 3100x1300x750(mm) 2 OFFICEPRO RM4,254.00 CH1 480MM(W)x620MM(L)x1040MM(H)ADELINEMESH MEDIUMBACKOFFICECHAIR 21 OFFICEPRO RM3,129.00 LF2 2000MM(L)REVEALCOVELIGHTC/WALUMINUMFRAME AND3000KLEDWARMLIGHTSTRIP 6 PUREEDGELIGHTING RM602.00 AC1
CEILINGCASSETTE 2 HAIER RM7238.00 LEVEL2,3,4-INTERNALTERRANCE
BYOD135FtMELAMINESEMISWINGINGDOORMEDIUM CABINET L160xW40xH131cm 6 FURNITURE DIRECT RM588.00 LF2 2000MM(L)REVEALCOVELIGHTC/WALUMINUMFRAME AND3000KLEDWARMLIGHTSTRIP 48 PUREEDGELIGHTING RM602.00 AC1 HAIERABH0901ERG3HPCEILINGCASSETTE 2 HAIER RM7238.00
HAIERABH0901ERG3HP
LEVEL2,3,4-INTERNALTERRANCE T7
SCHEDULEOFFURNITURE,FIXTURESANDEQUIPMENT CODE IMAGE SPECIFICATION QTY SUPPLIER PRICEUNIT LEVEL1MAINENTRANCE/FOYER SCHEDULEOFFURNITURE,FIXTURESANDEQUIPMENT CODE IMAGE SPECIFICATION QTY SUPPLIER PRICEUNIT LEVEL1-MAINENTRANCE/FOYER SCHEDULEOFFURNITURE,FIXTURESANDEQUIPMENTS(CONT.)
2000MM(L)REVEALCOVELIGHTC/WALUMINUMFRAME AND3000KLEDWARMLIGHTSTRIP 5 PUREEDGELIGHTING RM602.00 AC1 HAIERABH0901ERG3HPCEILINGCASSETTE 2 HAIER RM7238.00

INDIVIDUAL REFLECTION

Locating in Pleven, Bulgaria, Desizo Monni corporate office building provides a creative working environment for a local fashion brand It aimed to create a new identity for the brand and to create a better environment for young talents who live abroad and wish to return in their home country.

The building has four floors above ground and one underground parking lot. The ground floor of the store features a reception area, a waiting lounge, and a showroom where the brand’s latest fashion collections are on display. The second, third, and fourth floors are home to the administrative offices and the creative team. The atrium is located in the eastern part of the building. The upper floors can be reached by way of the open-to-atrium balconies, where the relaxation areas are located (figure 2).

The combination of minimalistic external appearance and rich internal space references fashion shows with the simplicity of the catwalk and the splendid designer clothes (figure3). The project has the ambition of triggering the redevelopment of the neglected industrial zone, which will in turn make the local urban environment more attractive to other investors The building is designed to provide a positive working environment, benefiting employees through the large common recreational spaces.

The architectural language of the project consists of a limited number of materials: glass, exposed concrete, aluminum and wood. The exterior of the building is strictly geometric and minimalistic the clear glass prism of the exterior is interrupted only by the dark L-shaped aluminum canopy at the entrance (figure 4). The large-format triple glazing glass panels allow for unobstructed views of the surrounding areas and provide a subtle transition between inner and outer space. As a counterpoint of the minimalist exterior, the interior of the building strikes with rich space of the atrium and the dynamic volumes of the balconies. The vertical core of the elevator, as well as the structural columns and beams are made of exposed concrete. Natural wood panels visually warm up the atrium (figure5). The fifth “material” is the natural vegetation, covering the balconies, the relaxation areas and the atrium (figure 6).

Overall, the project literally showcase a strong characteristic of fashion and modern. It gives a huge impact to me regarding how well minimalistic could be portrayed by the used of materials as the saying goes " Less is more". However, i think that it could be better if there are openable window panels as from the image itself are all fixed. With it, not just only improve the ventilation for the building whilst just in case that the place caught in fire, smoke are allowed to escape freely to lower the danger to people.

Figure 1 Building Facade Figure 2 Exploaded Isometric View of Desizo Monni coporate building
LOO ZHEN HUI 0342722
Figure 3 Minimalist Interior Look Figure 4 Full of tempered glass in geometrical order Figure 5 Timber Flooring
Figure 6 Vegetation

| REFLECTION

To conclude in this project, the important thing in this subject is I get introduced to teamwork which we all have to work together to produce a series of drawings. Communication is the key, it is important that we discuss and distribute the task evenly to ensure eveything make sense and go smoothly. As a leader, i distribute the task evenly and keep track my members progress as well as double and triple check the drawings produces to ensure it is correct in term of the line weigh, coding, labelling and etc. With the great teamwork, we succesfully come out the set of drawings nicely. But yet, I do also have individual task where this trained my observation skills where it lead me to be able to analysis the materials and imagine the space according to the case study.

01 PROJECT

DRAWING CONVENTION: WORK-SPACE

In this project, we must choose a "working place" within the compound, such as a study area, bedroom, or working location with an opening that falls within the parameters of a door or a window. In order to create accurate 2D drawings with specifications, a schedule of finishes for the area's floor, wall, and ceiling as well as a door or window schedule that is visible in the space, we must first measure the space's real size, along with the openings and one piece of furniture.

My selection is my own room rented in PJS 7, with observation and analysis as well as the guidance by tutors, I've produced the CAD2D drawings with appropriate drawing convention.

ASSIGNMENT 1 : WORK FROM HOME + DOOR& /WINDOW | DETAILING WORKING DRAWINGS(IDS 60804) | NAME : LOO ZHEN HUI STUDENT ID : 0342722 PROGRAMME : BACHELOR IN INTERIOR ARCHITECTURE SEMESTER : AUGUST - DECEMBER 2022 TUTOR : MS. FATIMAH KHAIRI
D1 F1 V1 G2 N

To wrap up the project, I've been introduced to working drawings. With the guidance of lecturers, we are staring to produce the drawings in a small scale using our own workspace. With this, I am able to have a clear understanding how the fundamental drawings work and how each of them relate back to back.

|
REFLECTION

|

OVERALL REFLECTION

To conclude, I learned that what is drawing convention and how it acts as a communication tool in the construction industry. Not only that, i am more aware now how different drawings are functioned and how to use the correct way to tell the information in a professional way.

The moment that is the most rewarding is definitely the tutorial session. The lecturer delivers a lot of useful messages that really important for our project.

The main two of Taylor's Graduate Capabilities(TGC) that I learned throughout this module were discipline specific knowledge, as well as lifelong learning. Firstly, I am able to apply theories that I learned into practice like for example, I used proper drawing convention as well as acknowledge UBBL in building and design that learned via lectures and tutorials in my assignments. Secondly, I also learned independently to do research online and look for some examples that I could refer to. On top of that, I have also been practiced to utilize sustainable materials in my material selection for my design, this relate closely to the UBBL and also current circumstances where everyone is starting to aware of to preserve and protect the Earth.

In a nutshell, I love this module as I learned important lessons that could benefits me in my future career. I also glad and appreciate I have very generous lecturer who are Ms Fatimah and Ms Sin Aii who always tells us a useful message and guides us step by step. I would definitely install the things I learned throughout the module and use them in the following days as well as other projects and assignments.

LOO ZHEN HUI | 0342722 | BIA SEM 4 | E-PORTFOLIO 2022 IDS 60804 DETAILING & WORKING DRAWINGS

Turn static files into dynamic content formats.

Create a flipbook
Issuu converts static files into: digital portfolios, online yearbooks, online catalogs, digital photo albums and more. Sign up and create your flipbook.
DETAILING AND WORKING DRAWINGS E-PORTFOLIO BY LOO ZHEN HUI by Moses Loo - Issuu