
27. tbl. 07. árg. 30. október - 5. nóvember 2025
„GÓÐ


27. tbl. 07. árg. 30. október - 5. nóvember 2025
„GÓÐ
Hjá Bókaútgáfunni Hólum var að koma út bókin Segir mamma þín það? eftir Guðjón
Inga Eiríksson. Hún inniheldur gamansögur úr skólum, vítt og breitt um landið, og auðvitað koma Vestmannaeyingar þar við sögu. Hér koma tvær af fjölmörgum sögum úr bókinni:
Árið 1982 var afhjúpaður á Stakkagerðistúni minnisvarði um Oddgeir Kristjánsson tónskáld og höfðu Rotary-menn í Eyjum forgöngu um það verk. Þegar fyrsta skóflustungan var tekin að minnisvarðanum, í nóvember 1981, var margmennt á Stakkó og m.a. voru þar staddir nemendur úr barnaskólanum. Þeim hafði verið sagt að þarna myndi Svava Guðjónsdóttir, eiginkona Oddgeirs, taka fyrstu skóflustunguna að minnisvarðanum um mann sinn.
Eitthvað höfðu þær upplýsingar skolast til hjá smáfólkinu. Hrefna, dóttir Oddgeirs, heyrði á tal tveggja lítilla stúlkna í þann mund sem móðir hennar var að munda skófluna og önnur þeirra spurði hvað konan væri að gera. Hin var aftur á móti með það alveg á hreinu og svaraði:
„Hún er að fara að grafa upp manninn sinn.“
Eiríkur Guðnason kenndi einn veturinn heldur uppivöðslusömum strákabekk í Barnaskólanum í Vestmannaeyjum. Einn úr hópnum var hvað verstur og tók Eiríkur það til bragðs að láta hann sitja einan og sér við hliðina á kennaraborðinu, þannig að hinir hefðu frið og var hann hinn ágætasti eftir það. Einn daginn henti það Eirík að leysa vind í sæti sínu, einkar hljóðlega þó, en upp gaus mikil lykt. Eftir skamma stund tók nemandinn við hlið Eiríks að hnusa út í loftið og sagði síðan:
„Mikið er góð skitalykt af þér, Eiríkur.“
DREIFING:
Dreifing fer fram á fimmtudögum og er blaðinu dreift inn á öll heimili í Vestmannaeyjum. Einnig er hægt að skoða blaðið á vefsíðunni okkar: www.tigull.is

Tígull kemur út vikulega í Vestmannaeyjum og er dreift frítt inn á öll heimili. Ritstjórar & ábyrgðarmenn: Lind Hrafnsdóttir & Katrín Laufey Rúnarsdóttir.
Hönnun: Lind Hrafnsdóttir lind@leturstofan.is Auglýsingar: Katrín Laufey katalaufey@tigull.is Prentun: Prentun.is
Auglýsingar sendist á: tigull@tigull.is Skil á auglýsingum er í hádeginu á mánudögum. Vinsamlegast bókið tímalega.

Hlýja tannlæknastofa í Vestmannaeyjum óskar eftir tanntækni eða aðstoðarmanni tannlækna. Um er að ræða tímabundið starf til 1 árs og er vinnutími 10:00-16:00 fjóra daga vikunnar (mánudaga til fimmtudaga). Æskilegt er að viðkomandi geti hafið störf sem fyrst.
Í boði er fjölbreytt starf í jákvæðu umhverfi. Við hvetjum konur jafnt sem karla að sækja um starfið. Umsóknarfrestur er til og með 10. nóvember 2025.
Helstu verkefni og ábyrgð
Móttaka og samskipti við viðskiptavini
Aðstoða tannlækna fjórhent við stól
Sótthreinsun og þrif á áhöldum og búnaði
Röntgenmyndatökur
Önnur tilfallandi störf
Menntunar- og hæfniskröfur
Tanntækni- eða heilbrigðismenntun eða reynsla af vinnu á tannlæknastofu er kostur
Góð íslenskukunnátta
Hæfni til að tileinka sér nýja þekkingu fljótt og vel Rík þjónustulund
Frumkvæði og faglegur metnaður
Góð hæfni í mannlegum samskiptum
Nánari upplýsingar veitir Þórunn Ragnarsdóttir framkvæmdastjóri á netfanginu thorunn@hlyja.is. Áhugasamir sendi umsókn og ferilskrá á sama netfang.
Ég vil þakka Daníeli kærlega fyrir áskorunina og svara kallinu með: “Suðrænni og seiðandi Lizard”
Eggjafiskur
Það er gott að hafa nýjar kartöflur og sinnepssósu með.
Hráefni:
Rjómaostur frá Gott í matinn-400g
Salsasósa (hot salsa)-180-200g
Rifinn pizzaostur frá Gott í matinn -1 poki Doritos (allt nema blátt virkar)- poki
Aðferð:
Mjakið öllum rjómaostinum í botninn eldföstu móti(1-2 lítra helst, stærðin skiptir máli). Sullið næst sósunni yfir rjómaostinn. Dreifið ostinum vel yfir allt saman svo ekki sjáist í sósuna. Hendið þessu inn í ofn á 200° í 15-20 mínútur og málið er dautt. Njótið með ykkar uppáhalds snakki, helst Doritos samt. (Má bæta við þessa uppskrift chilli, jalapeño eða öðru drasli. Smekksatriði)
Ég skora á hornamanninn knáa, okkar eina sanna
Nökkva Óðins til að taka við boltanum

Jóhann Norðfjörð er sælkeri vikunnar.

Söfnun á Karolínufundi gekk vonum framar – rúmlega hálf milljón safnað á sjö klukkustundum
Eins og þjóðinni er kunnugt, hætti PLAY starfsemi á dögunum. Í kjölfarið voru ýmsir munir fyrirtækisins boðnir til sölu — þar á meðal hinn frægi PLAY-sófi,
sem margir kannast við úr höfuðstöðvum flugfélagsins.
Velunnarar félagsmiðstöðvarinnar Mávsins voru fljótir að bregðast við og hófu söfnun á Karolínufundi til að tryggja að sófinn fyndi nýtt heimili í félagsmiðstöðinni. Það tók ekki nema sjö klukkutíma að ná markmiðinu — og meira til!
Sófinn kostaði 450.000 krónur, en alls söfnuðust rúmlega 500.000 krónur, sem renna til Mávsins og nýtast til að standa straum af ýmsum kostnaði sem fylgir starfseminni.
Það var Baldur Haraldsson sem stóð fyrir söfnuninni, Síðastliðinn laugardag fór fram formleg afhending sófans til Almars, eiganda Mávsins. Fjölmenni var við athöfnina og vill Almar sérstaklega þakka Sigga Guðna fyrir djúphreinsun á sófanum — og öllum þeim sem tóku þátt í að láta þennan litla draum rætast.
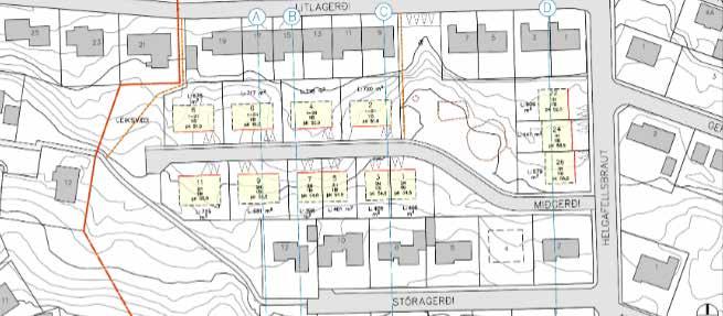
Vestmannaeyjabær auglýsir lausar til umsóknar lóðir við Miðgerði 1-11 og við Helgafellsbraut 22-26
Við Miðgerði er um að ræða 2 lóðir fyrir parhús og 6 lóðir fyrir einbýlishús. Hámarks byggingarmagn fyrir tvíbýli er 180 m 2 per íbúð en fyrir einbýli 280 m2 .
Við Helgafellsbraut er um að ræða raðhús með þremur íbúðareiningum. Gert er ráð fyrir að raðhúsin séu 1 hæð og að hámarks byggingarmagn íbúðanna sé 170 m2 . Verð er sett fyrir byggingarrétt lóðanna í samræmi við byggingarmagn.
Áhugasömum umsækjendum er bent á nánari upplýsingar á heimasíðu
Vestmannaeyjar (https://www.vestmannaeyjar.is/mannlif/frettir/lodir-lausar-til-umsoknar) og á að kynna sér vel skilmála deiliskipulags.

Skýringarmynd – dæmi um mögulegt útlit Umsóknarfrestur er til og með 13. nóvember 2025

Viltu minnast látins ættingja eða vinar?
Hægt er að senda okkur minningargrein á netfangið tigull@tigull.is og við birtum fyrir þig greinina á útfarardegi, þér að kostnaðarlausu.
Einnig er hægt að panta hjá okkur andlátstilkynningu og tilkynningu á vef.
Verð: 18.600 kr.

Tökum að okkur gerð sálmaskráa. Panta þarf tíma í síma 694 7999 eða senda tölvupóst á leturstofan@leturstofan.is


VANTAR MYND AF ÞÍNU BARNI? Sendu okkur endilega mynd og upplýsingar á tigull@tigull.is

Tökum passamyndir fyrir ökuskírteini og önnur skírteini. Panta þarf tíma í myndatöku Hægt er að senda tölvupóst á leturstofan@leturstofan.is eða hringja í síma 694 7999










–Heildræn nálgun á heilsu í hjarta Vestmannaeyja
Hvað varð til þess að þið stofnuðuð Allra Heilsu sjúkraþjálfun, og hver er hugsunin eða sýnin á bak við nafnið? Ég var búin að vera að leigja aðstöðu á 3.hæð sjúkrahúsins frá því ég útskrifaðist sem sjúkraþjálfari frá HÍ árið 2004. Mig langaði að breyta um umhverfi þar sem aðgengi væri betra og möguleikar fyrir fjölbreyttri hópaþjálfun. Anna Ólafsdóttir vildi einnig breyta til og kom með mér. Nafnið AllraHeilsa var þegar til þar sem ég og Davíð Hallgrímsson eiginmaður minn áttum fyrir vefverslunina allraheilsa.is sem við opnuðum í mars 2021. Nafnið vísar til þess að bæta heilsu allra, svo er gaman að það sé með sömu upphafsstafi og nafnið mitt.
Hvernig hefur ferðalagið verið síðan þið opnuðuð í janúar 2023? Ég og Anna vorum bara tvær í byrjun en svo strax það haust kom Eygló inn með jógatíma og svo í janúar 2024 bættist Emelía heilsunuddari við. Núna árið 2025 hefur svo aldeilis bæst við því í janúar byrjaði Kristín Ósk með tónheilunartíma, Ingibjörg Ýr heilsunuddari byrjaði að koma í apríl og hefur verið 4 daga í mánuði. Elísa Sjöfn sjúkraþjálfari útskrifaðist í sumar og kom beint til okkar að vinna og svo í haust bættust þeir Ingó og Ranni kírópraktórar við sem hafa verið að koma aðra hverja helgi en þeir voru áður í öðru húsnæði og hafa verið að koma til eyja frá því árið 2021.
Hvernig hefur samfélagið tekið ykkur og þjónustunni?
Mjög vel, eftir því sem ég best veit eru skjólstæðingar okkar ánægðir með þá fjölbreyttu þjónustu sem er í boði hjá okkur og fólk talar einnig um hvað aðgengi og staðsetning er góð. Við lögðum mikið upp úr því að fólki ætti að líða eins vel og mögulegt væri. .Það er gaman að heyra frá því hvað þeim líður vel að koma inn í aðstöðuna okkar, finnst svo rólegt og kósý hjá okkur, það hlýjar manni í hjartanu. Við erum hér til að hjálpa fólki með alskyns vandamál og öllum á að líða vel þegar þau koma.
Hverjir standa að fyrirtækinu? Ég rek fyrirtækið AllraHeilsa sjúkraþjálfun, starfa á stofunni sem sjúkraþjálfari og held utan starfsemina. Davíð eiginmaður minn sér viðhald á húsnæðinu, hann er húsvörður í hjáverkum ásamt að reka sitt eigið fyrirtæki. Hann er málarameistari, byggingariðnfræðingur og rekstrariðnfræðingur frá HR.
Hvaða þjónustu bjóðið þið upp á í dag? Sjúkraþjálfun á stofunni og í heimahúsi, heilsunudd, hnykk-
ingar, jóga, markþjálfun og tónheilun. Auk þess eru sjúkraþjálfararnir með hópatíma í bandvefsmeðferð (hreyfiflæði/boltanudd), styrktarþjálfun og fræðslu/ þjálfun fyrir konur meðgöngu/eftir fæðingu.
Hvernig vinna sjúkraþjálfarar, kírópraktorar og heilsunuddararnir saman að heildrænni nálgun á heilsu og vellíðan? Við metum líkamlegt ástand einstaklingsins og finnum út hvaða meðferð er best og meðhöndlum út frá því. Við sinnum fólki eftir okkar bestu getu og leiðbeinum þeim með sjálfsmeðferð til að viðhalda árangrinum sem fæst í meðferðinni. Og ef við teljum þörf á aðkomu annarra á stofunni þá ræðum við það okkar á milli og finnum bestu lausnina.
Hvernig tryggið þið að meðferðin sé sniðin að þörfum hvers einstaklings? Við ræðum við skjólstæðinga okkar í meðferðinni og metum árangurinn til þess að sjá hvað er að virka og hvað ekki. Aðlögum svo meðferðarformið þegar á því er þörf til þess að það verði ekki stöðnun í meðferðinni.
Eru einhver sérstök sérsvið eða áherslur sem þið leggið áherslu á (t.d. íþróttameiðsli, stoðkerfisvandamál, fyrirbyggjandi meðferð o.fl.)? Á svona stað eins og Vestmannaeyjum þá þurfum við að geta sinnt öllu. Hjá okkur eru börn og fólk á öllum aldri, fólk sem kemur eftir alls konar aðgerðir (t.d. liðskipti og brjósklos), fólk með taugasjúkdóma, hjarta- og lungnasjúkdóma, stoðkerfisvandamál, íþróttameiðsl, sogæða- og bláæðavandamál, fitubjúg, meðgönguverki, vandamál tengd grindarbotni, streitutengd einkenni, eftir beinbrot eða liðbandaáverka, fólk í starfsendurhæfingu, og ég er pottþétt að gleyma fullt af öðru.
Hvernig sjáið þið hlutverk ykkar í samfélaginu þegar kemur að forvörnum og fræðslu um heilsu? Að við getum tekið á móti og leiðbeint því með hvaða leið/ leiðir það þarf að fara til að ná betri heilsu. Það allra mikilvægasta er að fólk til þess að skilja að þau þurfa að vinna mestu vinnuna sjálf því þau eru með sjálfum sér allan daginn og það að koma til meðferðaraðila í nokkur skipti gerir ekkert gagn ef heimavinnan er engin. Hlutverk okkar er því að kenna þeim að hjálpa sér sjálf til að ná betri heilsu og það getum við gert með því að kenna þeim að gera æfingar, liðka sig og nudda sig sjálf með höndum eða með boltum. Að fólk komi í hópatímana okkar þar sem þau hafa þá stuðning til þess að læra æfingarnar vel og sjálfsnuddið til þess að þau verði öruggari að gera þetta sjálf heima.
Hvaða nýjungar eða þróun sjáið þið fram á í þjónustunni á næstu árum? Það hefur það hefur alltaf verið minn draumur að hafa fjölbreytta meðferðaaðila á sama staðnum til að geta hjálpað sem flestum. Ég væri til í að geta rekið heilsumiðstöð þar sem væru enn fleiri meðferðar aðilar þ.a. skjólstæðingar okkar þyrftu ekki að fara á marga staði í heilsuvinnunni. Ég er opin fyrir nýjum hugmyndum og reyni að sjá jákvæðu kostina á öllu og þá gerist örugglega eitthvað skemmtilegt og spennandi.
Getið þið sagt okkur aðeins frá teyminu — hverjir eru á bak við starfið og hvað einkennir vinnumenninguna hjá ykkur? Þetta er fjölbreyttur hópur af sérfræðingum sem hafa gaman að vinnunni sinni og vilja alltaf gera betur. Á stofunni starfa Anna Hulda Ingadóttir sjúkraþjálfari, Anna Ólafsdóttir sjúkraþjálfari og markþjálfi, Elísa Sjöfn Sveinsdóttir sjúkraþjálfari, Emelía Dögg Sigmarsdóttir heilsunuddari (í fæðingarorlofi), Ingibjörg Ýr Hafliðadóttir heilsunuddari, Eygló Egilsdóttir jógakennari og viðskiptafræðingur, Kristín Ósk Óskarsdóttir þroskaþjálfi og tónheilunarsnillingur, Ingólfur Ingólfsson kírópraktor og Rannver Sigurjónsson kírópraktor.
Hvaða eiginleikar eða gildi eru ykkur mikilvæg þegar kemur að þjónustu við skjólstæðinga? Það er mikilvægt fyrir okkur að skjólstæðingum okkar líði vel hjá okkur og geti treyst okkur fyrir leið sinni að betri heilsu. Það að hafa marga ólíka fagaðila á sömu stofunni er svo dýrmætt því eitt meðferðaform virkar ekki eins á alla. Þessi blanda hjá okkur með heilsunudd, hnykkingar, sjúkraþjálfun og jóga gerir það að verkum að við getum auðveldlega blandað þessum meðferðaformum saman fyrir skjólstæðinga okkar. Það er t.d. frábært að geta komið í heilsunudd og farið svo beint til kírópraktors, þá er búið að mýkja vöðva og bandvef í kringum stífa liði áður en þeim er hnykkt. Það er mikilvægt fyrir fólk sem fer í hnykkingar að fá leiðbeiningar um æfingar og sjálfsnudd til að meðferðin skili sem mestum árangri og líkaminn fari ekki strax í sama horf og var áður.
Hver hefur verið stærsti lærdómurinn hingað til? Að maður uppsker eins og maður sáir. Frá því að við tókum við húsnæðinu þurfti að breyta miklu til að aðlaga það að þeirri starfsemi sem fara átti fram í húsnæðinu. Við eigum mörgum það að þakka hvort sem það séu iðnaðarmenn eða Kiwanisfólk sem reyndust okkur ómetanleg í uppbyggingunni. En eftir að stofan opnaði erum við ótrúlega þakklát fyrir þá meðferðaraðila sem starfa með okkur sem gera stofuna að því sem hún er í dag.

Anna Hulda Ingadóttir, sjúkraþjálfari

Emilía Dögg Sigmardóttir

Kristín Ósk Óskarsdóttir Þroskaþjálfi og tónheilun

Rannver Sigurjónsson kírópraktor

Anna Ólafsdóttir, sjúkraþjálfari og markþjálfi

Ingibjörg Ýr Hafliðadóttir

Elísa Sjöfn Sveinsdóttir Sjúkraþjálfari

Ingólfur Ingólfsson kírópraktor
Eygló Egilsdóttir Jógakennari og viðskiptafræðingur

Lokahóf meistaraflokka ÍBV í knattspyrnu fór fram síðastliðið laugardagskvöld. Óskar Jósúa sá um veislustjórn og Einsi Kaldi sá um veisluborðið. Veitt voru verðlaun fyrir frammistöðu sumarsins.
Meistaraflokkur kvenna:
Besti leikmaðurinn: Olga Sevcova ÍBV-ari: Allison Grace Lowrey
Markahæsti leikmaðurinn: Allison Grace Lowrey
Fréttabikarinn/efnilegasti leikmaðurinn: Kristín Klara Óskarsdóttir
Meistaraflokkur karla:
Besti leikmaðurinn: Alex Freyr Hilmarsson ÍBV-ari: Jörgen Petterson
Markahæsti leikmaðurinn: Hermann Þór Ragnarsson
Fréttabikarinn/efnilegasti leikmaðurinn: Þorlákur Breki Baxter
2. flokkur kvenna
Besti leikmaðurinn: Embla Harðardóttir
ÍBV-ari: Erna Sólveig Davíðsdóttir
Mestu framfarir: Madgalena Jónasdóttir
2. flokkur karla
Besti leikmaðurinn: Alexander Örn Friðriksson
ÍBV-ari:
Gabríel Þór Harðarson
Mestu framfarir:
Sigurður Valur Sigursveinsson
Einnig voru Guðný Geirsdóttir og Felix Örn
Friðriksson heiðruð fyrir stórkostlegt framlag sitt til félagsins – Guðný fyrir að hafa leikið 100 leiki og Felix Örn fyrir 200 leiki í treyju ÍBV. Þá var Jón Ingason kvaddur með þakklætisorðum eftir að hafa ákveðið að leggja skóna á hilluna.


Klara Óskarsdóttir

Alex Freyr Hilmarsson
Jörgen Petterson ÍBV-ari


Sigurður Valur Sigursveinsson og Alexander Örn Friðriksson
Allison Grace Lowrey
& ÍBV-ari

Hermann Þór Ragnarsson Markahæðstur

Þorlákur Breki Baxter Efnilegastur


Embla Harðardóttir og Magdalena Jónasdóttir
30. OKT.- 2 . N ÓV. 20 2 5
13:30 SAFNAHÚS: LJÓSMYNDADAGUR

Fáir eru þeir viðburðirnir í Vestmanna eyjum á síðustu árum og áratugum sem Óskar Pétur hefur ekki fest á filmu. Úrval mynda hans hefur nú verið gefið út í upplagðri gjafabók, Westman Islands. Myndirnar á sýningunni eru úr bókinni sem verður til sölu á staðnum meðan á sýningunni stendur.
18:00 STAFKIRKJA: SETNING.
Sr. Guðmundur Örn Jónsson og Kristín Jóhannsdóttir. Tónlistaratriði flytja Júlíanna S. Andersen og Kitty Kovács.

20:00 HÖLLIN: ÉG SKAL SYNGJA FYRIR ÞIG. Einar Ágúst færir okkur margar af þekktustu perlum Íslandssögunnar er hann syngur ljóð Jónasar Friðriks við undirleik Gosanna.

18:00-20:00 BÓKASAFN: GRIKK EÐA GOTT. Í tilefni af Hrekkjavöku verður Bókasafnið opið til kl 20:00 og boðið upp á Grikk eða gott. Bókasafnið er skreytt í anda Hrekkjavökunnar og til valið að koma og skoða herlegheitin.

20:30 ELDHEIMAR: PÁLMI OG STEFANÍA. Pálmi Sigurhjartarson píanóleikari og Stefanía Svavarsdóttir söngkona hafa á undanförnum árum sem dúó leikið og sungið sig inn í hjörtu þjóðarinnar með þekkingu sinni og túlkun í hæsta gæðaflokki. Nú mæta þau í fyrsta sinn saman sem dúó í Eldheima og taka margar af ástsælustu perlum tónlistar sögunnar.




undur, sem í nýrri bók sinni bregður mannaeyjum. Báðar bækurnar verða

11:00 BÓKASAFN: EMBLA BACHMANN. Embla er orðin einn ástælasti barnabókahöfundur landsins þrátt fyrir ungan aldur. Fyrsta bókin hennar, Stelpur stranglega bannaðar, sló rækilega í gegn og nú er hún mætt með Paradísareyj una, spennusögu um dularfulla eyju og enn dularfyllri íbúa hennar og dónalega gesti. Bókin verður til sölu á staðnum.

14:00 SAGNHEIMAR: KONUNGLEGT TEBOÐ. Guðný Ósk Laxdal heldur erindi umný Ósk heldur úti vinsæla Instagram reikningnum Royal Icelander þar sem hún deilir alls konar fréttum og fróðleik úr heimi kóngafólksins.
A ÐRIR VIÐ B URÐI R OG OP N U NA RTÍ MA R :
• HVÍTA HÚSIÐ VIÐ STRANDVEG: Lista- og menningarfélagið verður með opið hús og opnar vinnustofur föstudag – sunnudags 13:00-16:00.
• ELDHEIMAR: Opið daglega kl. 13:30-16:30.
• BÓKASAFNIÐ: Opið fimmtudag kl. 10-17, föstudag kl. 10-20 og laugardag kl. 12-15.
• EINARSSTOFA: Opið daglega kl. 10-17.
• FÁGÆTISSALUR SAFNAHÚSS: Opið fimmtudag og föstudag kl. 13-17. Verið velkomin á varanlega sýningu á málverkum Jóhannesar S. Kjarvals og Júlíönu Sveinsdóttur. Margar af fágætustu bókum landsins eru einnig til sýnis á þessum einstaka stað.
• SAGNHEIMAR: Opið laugardag kl. 12:00-15:00.


Verið velkomin að kíkja til þessara heimila í “Grikk eða gott”
Drífa Þöll Ásavegur 24
Ragnheiður Ásavegur 31
Guðbjörg og Kristín Ásavegur 32
Guðný Ásavegur 33
Erla og Ívar Áshamar 103
Halldóra Kristín Áshamar 14
Sylvía Áshamar 5
Hjördís og Þorgils Áshamar 55
Angelika Ashamar 59
Sirrý Árdís Birkihlíð 20 neðri hæð
Lísa Boðaslóð 14
Thelma Rós Boðaslóð 17
Guðrún Boðaslóð 2
Guðrún María Boðaslóð 20
Sigþóra og Guðný Brattagata 13
Kristín, Rakel og draugarnir Brattagata 2
Sirrý Brattagata 29
Elísabet Brattagata 5
Aleksandra Brattagata 9 neðri hæð
Elísa/Lilja Brimhólabraut 10
Daníel Wirkner Brimhólabraut 31 miðhæð Þórarinn Brimhólabraut 36
Erna Tomm Búhamar 21
Ólöf Búhamar 28
Alda Guðjóns Búhamar 88
Hraunbúðir Dalhraun 3
Fríða Hrönn Faxastígur 6B
Guðbjörg Marta Faxastígur 8a eftri hæð
Ingimars og Hjördísarbörn Heiðarvegi 64
Sigubjörg Jóna Heiðarvegur 25 efri hæð
Klaudia og Marcin Heiðarvegur 35
Pizza 67 Heiðarvegur 5
Una Þorvalds Heiðarvegur 60
sandra og Egill Heiðarvegur 66
Daði & Thelma Höfðavegur 23
Hildur Ólafsdóttir Höfðavegur 39
Brynja Rut Hólagata 11
Helga Magnea Hólagata 17
Jordan og Stefán Hólagata 22
Linda og Valur Hólagata 23
Sólveig og Ellert Hólagata 31
Ólöf Halla Hólagata 36
Andrea Hólagata 45
Ragnheiður Hólagata 47
Agnes Hólagata 9
Ingibjorg Hrauntún 15
Arnar Bogi/amma Ebba Hrauntún 53
Thelma og Andri Illugagata 32
Berglind Illugagata 41
Alma Lísa Illugagata 6 Efri hæð
Emil og Halldor Kirkjuvegur 67
*Bókasafn Vestmannaeyja Safnahúsinu
Aníta Smáragata 1 Bílskúr
Dóra og Simmi Vallargata 10
Finnrós Vallargata 4b
Raine og Daði Vestmannabraut 36
Kristján vestmannabraut 52
Einar og Melissa Vesturvegur 4


Nýsmíði
Gólfhitafræsing
Gólfhitalögn
Pallasmíði
Þakvinna
Innréttingar
Parketlögn
Skjólgirðingar


















Árleg bólusetning gegn inflúensu er hafin á heilsugæslum HSU fyrir forgangshópa. Einstaklingar eru hvattir til þess að hringja í síma 432-2500 og bóka tíma.
Þeir sem eru ekki forgangshópum verður boðið að koma eftir 1. nóvember.
Forgangshópar eru:
Allir einstaklingar 60 ára og eldri.
Öll börn fædd 1.1.2021 - 30.6.2025, sem hafa náð 6 mánaða aldri þegar bólusett er.
Öll börn og fullorðnir sem þjást af langvinnum hjarta-, lungna-, nýrnaog lifrarsjúkdómum, offitu, sykursýki, illkynja sjúkdómum og öðrum ónæmisbælandi sjúkdómum.
Barnshafandi konur.
Heilbrigðisstarfsmenn sem annast einstaklinga í áhættuhópum sem taldir eru upp hér að ofan.
Fólk í starfstengdri áhættu vegna samsmits árlegrar inflúensu og fuglainflúensu eins og það var skilgreint í í frétt frá Embætti Landlæknis frá árinu 2023
Ekki er boðið upp á Covid bólusetningu samfara bólsetningu gegn inflúensu samlvæmt tilmælum sóttvarnalæknis. Nánar má lesa um stöðu bólusetninga um covid á á vef embættis landlæknis.
Bólusetningar verða á miðvikudögum frá kl. 13-14.30 Sérstakir tímar eru fyrir börn á miðvikudögum frá kl. 15-15.45