Luigi Pellegrino_Ricerca e Costruzione dell’Architettura

Page 1


Architetti CEAR/09 a Siracusa

Luigi Pellegrino

Un modo paziente di esercitare il mestiere dell’architetto

Marco Mannino

Qualche considerazione sul divorzio fra teoria e pratica nell’architettura contemporanea

Alessandro Mauro

La nostra tradizione

Paola Barbera

La memoria nel “fare” architettura

Francesco Cacciatore

Fabrica e ratiocinatio

Simona Calvagna

L’intreccio aperto dei rimandi

Francesca Serrazanetti

Architettura delle relazioni

Sale civiche e housing sociale per il quartiere San Rocco Ampliamento scolastico e palestra polifunzionale

Casa nei tre paesaggi

Frammenti | Memoria | Luogo | Progetto

Ex mercato coperto

Basilica paleocristiana di San Pietro

Centro civico polivalente

Dario Costi

Fabrizio Foti

La geografia, l’origine e il fine dell’architettura

Casa CF

Casa MP nella campagna iblea

I Banchi

Alberto Iacovoni

Luigi Franciosini

Come la forma dev’esser fatta

La torre di mezzo

Al giardino delle milizie

La collina della pace

Parco Guido Rossa

Polo scolastico Gignano

Polo scolastico alberghiero e agroalimentare

56

Gianfranco

Gianfriddo

Atlante di un’idea nella ricerca, nella pratica e nella didattica

Biblioteca scuola media Lombardi

Piazza Risorgimento

Scuola M. G. Cutuli

La casa sufficiente

Casa G

Casa P2

Casa P1

Vittorio Longheu 72

Sedimentare le forme nel tempo

Casa C.

Casa Z.

Museo Marcegaglia

80

88

Bruno Messina

La “costruzione” del paesaggio

Piccola casa per vacanze

Restauro dell’ex convento di Santa Maria del Gesù

Casa nella campagna iblea

Lina Malfona

Social Infrastructures

La casa blu

Red Hot Chili House

La villa

Forme istituenti

Casa con patio

Casa con terrazze

Corte Don Bosco

96

Carlo Moccia

Lo-Fi Architecture

Fitzcarraldo Pavilion

Parco lineare + Giardino arena

Protiro, Fondazione Concetta

D’alessandro Onlus

Valter Scelsi

112

L’arte del tagliare

Enoparking

Cantina Serafini&Vidotto

Tiemme Costruzioni Headquarters

La lingua perduta delle gru

Ascensore riflettente a Villa Bombrini

Le bonhomme de Libarna

Dispositivo mobile per la ricostruzione della meridiana a camera oscura del palazzo dell’Università

Luigi Pellegrino

Costruire case come costruire città

Casa BF

Casa SG

Casa sull’Etna

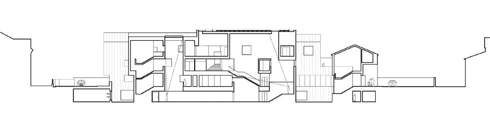
Sale civiche e housing sociale per il quartiere

San Rocco

L’intervento, oggetto di un Programma di Recupero Urbano, ha orientato il recupero del fabbricato delle ex scuole ad alloggi a canone sostenibile all’interno di un disegno complessivo di ricucitura dei rapporti con l’intorno con l’apertura di nuovi collegamenti veicolari e carrabili e l’ampliamento del giardino pubblico esistente. Il progetto sull’edificio mantiene inalterato il sistema strutturale a setti murari portanti adattando il nuovo assetto distributivo degli alloggi salvaguardando il sistema delle finestre

originarie con l’aggiunta di piccole aperture chiaramente distinte mentre un livello in più viene realizzato facendo affiorare un nuovo volume orizzontale oltre la linea di gronda. Intorno a questo intervento il progetto urbano si concentra sulla messa a sistema di percorsi pedonali che attraversano l’intera area, differenziandoli tra quelli carrabili con i parcheggi disposti su un lato e quelli pedonali che vengono portati all’interno del parco.

Borgotaro, Parma, Italia

2006-13

Studio MC2AA con Simona Melli

© Carlo Gardini

Siracusa, Italia

2006-08

Emanuele Fidone con: Angelo Troia, Sabrina Nastasi

© Lamberto Rubino

Basilica paleocristiana

di San Pietro

La Basilica paleocristiana di San Pietro a Siracusa è un edificio modesto nelle dimensioni ma di grande fascino determinato dalla sua lunga storia segnata da continue sovrapposizioni e trasformazioni. Se gli interventi che si sono succeduti nel tempo dall’epoca paleocristiana (IV sec. d.C.) a quella barocca, adattavano di volta in volta la struttura precedente alle nuove esigenze, i restauri degli anni ’50 del Novecento, hanno alterato la spazialità interna in modo irreversibile nella vana ricerca di una immagine originaria della chiesa. Il progetto trae la sua forza nella

sublimazione della stratigrafia delle superfici evidenziando le tracce degli affreschi bizantini che ricoprivano in origine l’intera chiesa con la creazione di due nuove strutture –il controsoffitto e il grande portale – pensati quali elementi di rilettura dello spazio e della storia dell’edificio. Il controsoffitto vuole essere una riproposizione della spazialità originaria paleocristiana, formato dalla stretta successione di sottili luci e ombre, filtra l’impatto visivo della struttura a capriate del tetto e modula la luminosità diurna che penetra delle finestre superiori.

I Banchi

Ospitato nelle scuderie del settecentesco palazzo Di Quattro, a Ragusa Ibla, il locale dello chef Ciccio Sultano è un bazar con i banchi per la vendita del pane, della pasticceria da forno, della caffetteria-cocktail bar e dei migliori prodotti freschi e confezionati dalla Sicilia e dal mondo. Annesso al bazar, il ristorante dispone di tre sale e una grande cantina. La successione degli spazi, tutti disposti in asse, si conclude alle spalle di un grande arredo-fondale scenografico, con le cucine. Materia centrale del progetto è la luce.

Nel progetto per I Banchi, la spazialità barocca delle scuderie di Palazzo Di Quattro, celata nella penombra, viene messa in mostra attraverso dei dispositivi luminosi: degli arredi in Cor-ten e acciaio inox illuminanti sottolineano le sottili modanature dello scarno decoro degli ambienti e drammatizzano il rilievo della scabrosa opera incerta dei muri in pietra calcarea, contribuendo alla percezione di una scansione spaziale lungo un asse con fondale e ad una comunione matericocromatica degli interni.

Ragusa, Italia

2014-15

Fabrizio Foti

© Fabrizio Foti

La collina della pace

La via del porre: Il progetto inserito nella periferia della città, prevede, con l’obiettivo di risarcire l’orografia originaria, la realizzazione di un grande rilevato naturale, che attraverso percorsi e piazze, consente di raggiungere dal fondovalle la sommità dominata dagli antichi casali.

Roma, Italia 1998-2007

Luigi Franciosini con Riccardo D’Aquino Paola Poretta

© Roberto Bossaglia

Parco Guido Rossa

La via del levare: L’area di progetto s’incunea tra gli ultimi brandelli d’agro romano sottratti all’edificazione. Il parco intende, mediante interventi di scavo e rimodellazione dei suoli, ripristinare l’orografia originaria dell’area, offrendo aperture visive sul paesaggio della campagna tiburtina.

Roma, Italia

1995-2005

Luigi Franciosini con Riccardo D’Aquino e Paola Poretta

© Andrea Iemolo

Casa P2

Il proprietario possiede un’azienda agricola di circa 400 ettari di terreno. L’attività prevalente è l’allevamento di bovini. Nel terreno di pertinenza si alterna il pascolo e la semina di foraggio. Il territorio è caratterizzato da una antica formazione geologica vulcanica. È il Monte Lauro, cuspide degli Iblei, con un’altitudine di circa 1000 m sul livello del mare. In tempi recenti, per un ottimale uso agricolo dei terreni, si è praticato e si continua a praticare lo spietramento col risultato di aver ottenuto dei campi a erba che possono raggiungere estensioni anche di 4 o 5 ettari. Le pietre, ammassate ai bordi, rappresentano dei veri e propri “recinti” alti fino a tre metri e oltre. All’interno, nell’alternanza a pascolo e semina, viene praticato il maggese. Esattamente quello che si faceva un tempo con muri a secco e

campi di qualche tumulo di terra. La casa, poggiata sul suo basamento di massi, sta in un campo contiguo alle strutture produttive dell’azienda rispetto alla quale stabilisce un rapporto di “presidio”. Non deve impressionare “l’enorme basamento”. Un tempo il contadino provvedeva da sé a realizzare la propria casa. Per realizzarlo provvederà lo stesso proprietario, spostando i massi necessari, con i propri mezzi meccanici che utilizza per la manutenzione e lo spietramento dei terreni.

Buccheri, Siracusa, Italia 2015

Gianfranco Gianfriddo

Piazza

Risorgimento

In una piccola piazza nella parte ottocentesca della città, di fronte ad una scuola recentemente rinnovata, il progetto propone oltre ai necessari interventi di ripavimentazione e di illuminazione, uno spazio pubblico continuamente riconfigurabile secondo i desideri dei suoi abitanti: tutte le sedute sono infatti delle panchine rotanti incernierate ad una estremità, che gli abitanti possono spostare secondo le proprie esigenze. Per sedere all’ombra degli alberi nei giorni più caldi dell’anno, o al contrario al sole in quelli più freddi, per rivolgersi verso la scuola in attesa di un figlio che sta per

Bari, Italia 2002-09

ma0, ing. Maurizio Franco © Roberto Dell’Orco

uscire, o verso la via commerciale di fronte in attesa di un appuntamento galante, o ancora alla luce del lampione per leggere la sera o al contrario nella penombra per appartarsi in un dolce incontro...

L’impianto generale della piazza, con la sua pavimentazione in pietra di Trani, la stessa che fa belli molti degli spazi della città storica, con la disposizione di una cornice di alberi quasi triplicati rispetto ai 16 preesistenti ed il mantenimento della fontana al centro, introduce un principio di disordine creativo nel rispetto della misurata monumentalità del progetto originario.

Casa C.

Collina di Monteberico, Vicenza, Italia 2004

Vittorio Longheu con: F. Durante, P. De Biasi, E. Roman, collaboratore U. Ross i © Federica Bottoli

Il progetto prende forma dalla relazione con il paesaggio attraverso la composizione di volumi elementari ai quali è assegnato, con l’uso di diverse materie, il compito di rappresentare i luoghi dell’abitare. Muri di pietra, intonaco e legno sono i materiali che raccontano già nella composizione dei volumi la presenza dei diversi luoghi della casa. In basso, a coincidere con un idea di basamento o giacitura, la pietra misura il rapporto della casa con il suolo in pendenza, scavando stanze nella roccia o emergendo dalla pendenza con un paramento murario sul quale si appoggiano i volumi della casa. Al di sopra di questo, il muro finestrato così come il tetto inclinato che collega il volume della zona giorno

con quello delle camere, rappresenta l’appartenenza di questo progetto alla tradizione del costruire e disegnare lo spazio domestico. Le zone che lo rappresentano sono composte da volumi bianchi, neutri, scavati e segnati dal chiaro scuro con l’apertura di finestre e logge. Verso l’alto, a proteggere il riposo e il sogno, il volume delle camere, completamente in legno, rappresenta un luogo caldo e accogliente, sereno e familiare. Il racconto di questi spazi nasce da un rapporto di empatia tra i luoghi del paesaggio e gli spazi della casa. Questa si presenta in tal senso allo stesso tempo introversa e estroversa e svela il proprio essere in un racconto fatto di spazi semplici immersi di luce.

La villa

Formello, Roma, Italia

2012-18

Lina Malfona con: Fabio Petrini, Tommaso Malfona

© Angelo Talia

In bilico tra indeterminazione e ambiguità dell’incompiuto, La Villa è essenzialmente un progetto di isolamento. Questa casa-laboratorio sorge in località ‘La Villa’ e dialoga con l’antica Villa Versaglia, residenza suburbana della Famiglia Chigi, collocata a qualche decina di metri di distanza dalla casa. La dimora seicentesca era composta da una serie di volumi disposti intorno ad uno spazio centrale ed era caratterizzata dalla presenza di una torre colombaia che fungeva da ingresso carraio. Traendo ispirazione

da questo complesso collocato nelle immediate vicinanze della casa e che oggi è in stato di rovina, La Villa è stata pensata secondo un impianto a patio, dominato dalla presenza di una torre, che contiene una scala che connette i vari livelli di cui la casa si compone. Per assecondare l’andamento del terreno, La Villa è concepita come una costruzione terrazzata, dove ciascuno dei tre piani è coperto da un giardino pensile. La casa si affaccia su una piscina costruita negli anni ottanta, che è stata restaurata e integrata nel progetto.

Piccola casa per vacanze

La piccola casa per vacanze, realizzata in una località marina vicino Siracusa, ricerca una sua autoreferenzialità, rispetto al circostante contesto anonimo.

Lo stereometrico volume color aragosta denota una sensazione di solarità in contrasto con la densa penombra dello spazio centrale interno della zona giorno che, con la sua maggiore altezza, riscatta le dimensioni minime della costruzione. Un calibrato uso della luce zenitale qualifica lo spazio domestico con dispositivi cromatici e tattili – il colore turchese, il pavimento in tessere di vetro – che amplificano il contrasto tra l’esterno e l’interno, generando un’atmosfera intensa.

Siracusa, Italia 2000-09

Bruno Messina con Francesco Infantino © E. Messina, A. Morana

Casa con terrazze

L’edificio interpreta il tema dell’isolato ‘a blocco’. Un basamento, che si estende per l’intera superficie del lotto perimetrata dalle strade, accoglie le attività commerciali. In continuità con il basamento si eleva la parte destinata alle residenze. Questa parte è caratterizzata da una sezione della costruzione che si riduce progressivamente verso l’alto, definendo un sistema di terrazze. I volumi del basamento e delle terrazze sono costruiti in pietra leccese ed ospitano i negozi, le stanze da letto delle case e i vani serventi. I soggiorni, che si dispongono tra le ‘scatole’ murarie e si aprono sulle terrazze, sono invece delimitati da grandi serramenti scorrevoli protetti da persiane in alluminio.

Rutigliano, Bari, Italia

2011

Carlo Moccia con Marialaura Polignano © Marco Introini

Caltagirone, Catania, Italia

2011-16

Marco Navarra con: Maria Marino e Fortunato Pappalardo © Peppe Maisto

Protiro, Fondazione Concetta

D’alessandro Onlus

Il riuso di due ex capannoni artigianali è l’occasione per segnare un contesto urbano anonimo e degradato attraverso il potere e la forza dell’Architettura che si serve di materiali grezzi rendendoli fortemente espressivi. Il programma prevedeva il riutilizzo di due edifici per attività di riabilitazione e formazione. Il nuovo corpo ha una struttura in acciaio e un rivestimento realizzato con le cassette di plastica per la raccolta delle arance di due tonalità di verde. Questo corpo si è trasformato in una nuova grande facciata caratterizzata da una pelle di cassette che compongono i pixel di una tessitura con una trama disegnata da linee diagonali parallele di un verde chiaro.

Il nuovo corpo, attraverso il suo cromatismo e l’illuminazione, ha assunto così il ruolo di segnale e di simbolo riconoscibile a distanza nell’anonimo paesaggio urbano circostante. Questo progetto, da un lato, è l’avanzamento di una ricerca, ormai decennale, sul riutilizzo delle cassette di plastica come materiale da costruzione per l’architettura, dall’altro rappresenta un modo per mettere al centro la forma e l’ornamento dell’architettura come potente strumento di promozione di azioni sociali di grande valore. Questa facciata nobilita materiali poveri trasformandoli attraverso il disegno e la tessitura in un potente segnale estetico e identitario.

Tiemme

Costruzioni Headquarters

La nuova sede della Tiemme Costruzioni è collocata in un’area ex-industriale il cui valore è legato al paesaggio circostante. Lì, infatti, la maglia regolare della partizione agraria romana lasciava spazio all’esondazione dei fiumi. Il progetto indaga il rapporto tra la dismisura del volume necessario a rendere sostenibile l’intervento e la misura del paesaggio veneto. Un paesaggio che – a dispetto della grandiosità della centuriazione romana – è caratterizzato da elementi edilizi di scala minore ritmati da serie di piccole finestre tutte uguali e dai grandi fori dei fienili, ma soprattutto da corpi di fabbrica di dimensioni ridotte. Elementi che mal si prestano a soddisfare le esigenze del vivere contemporaneo. Per non lasciar percepire la dimensione reale dell’intervento, il volume è caratterizzato dalla ripetizione di una “sezione tipo” che riprende le misure degli edifici tradizionali. In questo corpo allungato si addensano – a suggerire una condizione urbana – un fronte strada continuo e uno retrostante maggiormente articolato: due fronti che corrispondono ai tempi percettivi dell’automobile e del pedone. Slittamenti longitudinali, trasversali e sottrazioni di volume, hanno permesso di trovare relazioni precise con la preesistenza e di dar vita a uno spazio pubblico che conferisce valore urbano all’intervento. Le mosse con cui il volume trova la giusta misura sono infatti l’occasione per costruire un germe di urbanità capace di riscattare l’indeterminatezza della “città diffusa” veneta.

Loreggia, Padova, Italia

2012-18

L. C. Palazzolo, M. Marcon, L. Pellizon © Giorgio De Vecchi

L. Carlo Palazzolo

Casa sull’Etna

La stanza guarda le stelle perché è mezza coperta e mezza scoperta, mezza con il tetto mezza senza. Si è chiusa la stanza e così pure è stato fatto per la porzione di tetto scoperto. Fanno la differenza i frangisole di legno con cui si è circondato tutta la casa, compresa la “chambre”; quando essi restano chiusi l’unica porzione di vetro è solo quella del soffitto che cattura appunto le stelle. Di giorno ad essere catturato è il cielo, una porzione di azzurro intenso che fa da tetto alla stanza. Gli alberi cingono da

presso la casa a eccezione del terrazzo della loggia che, sporgendo, allontana gli alberi dalla casa liberando l’unico spiraglio di cielo sopra essa. Accade così che il verde degli alberi che il sole e la luce, traversando le foglie, tingano di verde riflesso l’azzurro della stanza. La verità è che non sappiamo cosa farne di un pezzo di bosco, nella misura in cui un pezzo di bosco non si distingue da un altro, è informe per noi; solo la geometria immobile del nostro abitare lo distingue, lo muta in poesia.

2016

Pedara, Catania, Italia
Luigi Pellegrino con Vincenzo Giusti e Daniela Finocchiaro © Peppe Maisto

Le bonhomme de Libarna

Libarna è stata per secoli una città imperiale romana sepolta nella campagna, forse appena intuibile nella modellazione del terreno, nell’affiorare episodico di reperti e di tracce, spoliata per costruire elementi di servizio, gradini, stipiti e muri, infine scoperta, ma lacerata nella sua stessa forma urbana dai due tracciati delle ferrovie, la prima costruita nel 1854, la seconda all’inizio del XX secolo.

Il progetto, commissionato dalla Soprintendenza per i Beni Archeologici del Piemonte e del Museo Antichità Egizie, ha disegnato una passerella di ferro zincato che ha la doppia funzione di coprire un canale di scarico delle acque, portato a vista dagli scavi, e di fissare l’originaria quota di pavimento del teatro romano. La struttura, montata in opera e collocata su martinetti meccanici a vite che la sollevano alla quota necessaria, rimanda nella sua geometria simmetrica le bonhomme d’Ampère, la sintetica figura umana che rappresenta la regola di elettromagnetica messa a punto nell’Ottocento dal fisico francese.

2014-15

©

Valter Scelsi
Serravalle Scrivia, Alessandria, Italia
Valter Scelsi con Francesco Testa
Anna Positano

Turn static files into dynamic content formats.

Create a flipbook
Issuu converts static files into: digital portfolios, online yearbooks, online catalogs, digital photo albums and more. Sign up and create your flipbook.
Luigi Pellegrino_Ricerca e Costruzione dell’Architettura by LetteraVentidue Edizioni - Issuu