Portfolio 10 Suter + Partner Architekten

Page 1

10 Dezember
2022
2

4 Prolog

PROJEKTE

6 Mehrfamilienhaus Köchlistrasse 10, Zürich

8 Bildungszentrum Emme, Burgdorf 10 Freibad Weyermannshaus, Bern

WETTBEWERBE

12 Schule für Gestaltung Bern und Biel, Bern 14 Wohnen am Mühleplatz, Lyss 16 Historisches Museum Thurgau, Frauenfeld

AUSKLANG

18 Lern- und Wanderjahre beim SIA

3 10

Sorgfalt ist das neue Neu

Wir müssen sparen: Energie, Ressourcen und Boden. Für das Bauen resultieren daraus erhebliche Herausforderungen. Um sie anzugehen, benötigen vernunftbegabte Menschen keine spezielle Motivationsspritze. Denn immerhin ist gemäss Werner Sobek1 die Baubranche für rund 60 Prozent des weltweiten Ressourcenverbrauchs und rund 50 Prozent des weltweiten Abfallaufkommens verantwortlich. Wir können mit unserem Schaffen also viel bewirken.

Die Herausforderungen haben einen erfreulichen Nebeneffekt. Es ist offensichtlich, dass es nachhaltig ist, bestehende Gebäude weiter zu nutzen und sie einem neuen Lebenszyklus zuzuführen. Das Sanieren und das Umbauen sind endlich feste Bestand teile im Diskurs zu Architektur und Städtebau.

In turbulenten Zeiten ist das ein kräftiger Lichtblick, wie ich finde.

1Werner Sobek: «non nobis – über das Bauen in der Zukunft», av edition, Stuttgart, 2022

4
1 PROLOG

Übrige Abfälle 13%

undAbfälleausGewinnung7%BodenschätzenBehandlungvon

Abfälle aus Abfallbehandlungsanlagen 13%

Siedlungsabfälle 12%

Bau- und Abbruchabfälle 55%

Abfallaufkommen in Deutschland im Jahr 2018. Getrennt nach Abfallströmen. Gesamt: 417 Mio. t

5

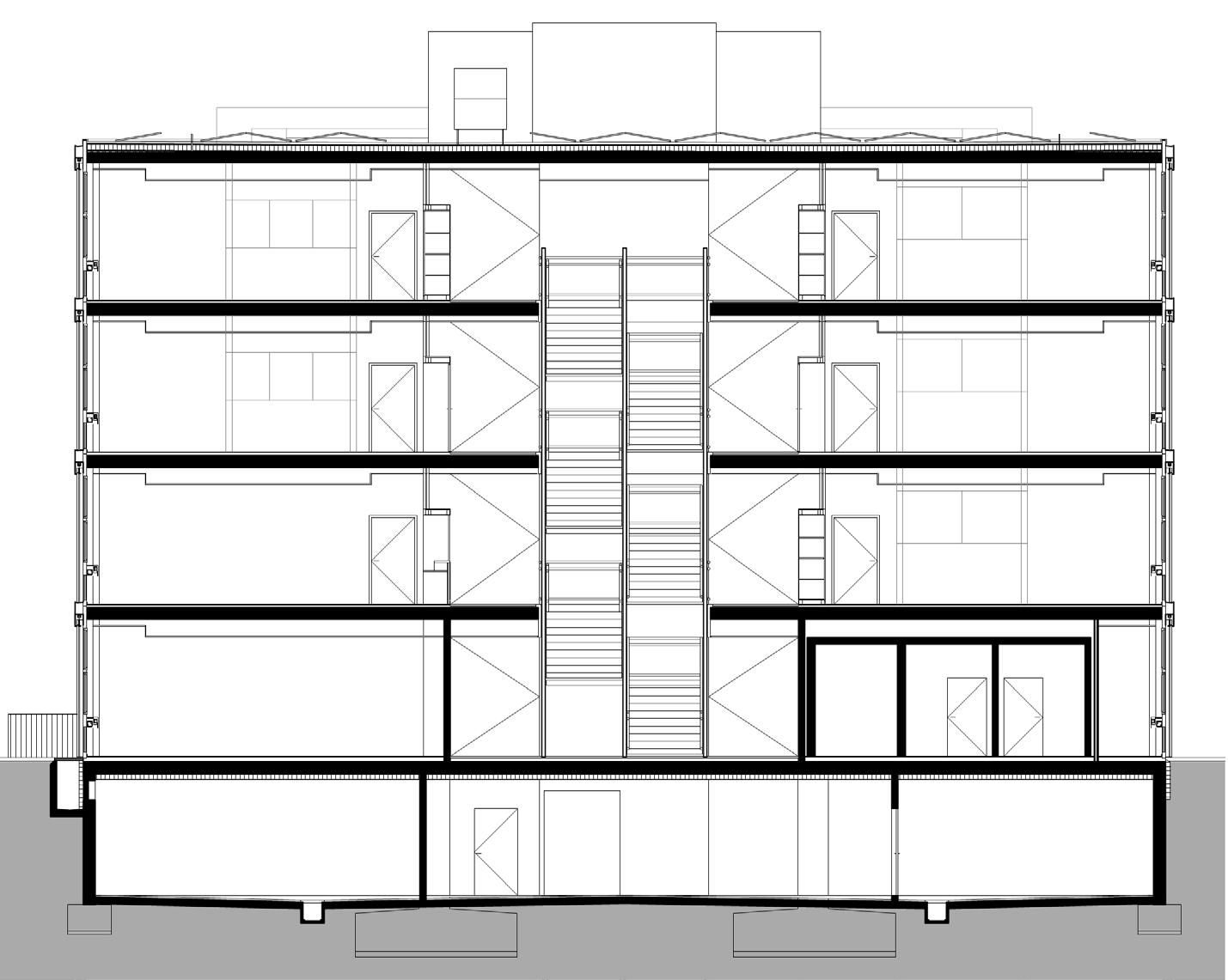
Mehrfamilienhaus Köchlistrasse 10, Zürich Gesamtsanierung und Umbau

Die Liegenschaft wurde ca.1890 als Doppelmehrfamilienhaus erbaut und letztmals Anfang der 1970er-Jahre umgebaut. Im Zuge dieser Sa nierung erhielt das Gebäude Kleinwohnungen, die teilweise nur über ein Etagenbad verfügten.

Wir haben das Mehrfamilienhaus entsprechend den Vorgaben der Bauherrschaft, den gesetzlichen Anforderungen und den aktuellen Bedürfnissen umfassend saniert. Die 34 1-Zimmer-Wohnungen bauten wir zu zwölf neuen 2-Zimmer-Wohnungen vom EG bis zum 3. OG sowie zu einer 2-Zimmer- und einer 3-Zimmer-Wohnung im Dachgeschoss um.

Neue, raumhohe Fenster generieren zum einen lichtdurchflutete Wohnungen. Zum andern prägen sie das Erscheinungsbild des Wohn hauses so, dass es sich auf zeitgemässe Weise in das Ensemble der benachbarten Gebäude einfügt.

SPEZIALISTEN

Henauer Gugler AG, Zürich Huustechnik Rechberger AG, Zürich HLS Engineering GmbH, Zürich r + b Engineering AG,Zürich Grolimund + Partner AG, Bern

6
AUFTRAGGEBERIN Privat PLANUNG 2014
2015
2017
2018
AUSFÜHRUNG
ARCHITEKT Suter + Partner AG Architekten, Bern
BÄRN OST
7 Grundriss

Bildungszentrum Emme, Burgdorf Sanierung unter laufendem Betrieb

Das Bildungszentrum Emme (bzemme) bietet Ausbildungen auf allen Laufbahnstufen an. Die Schulanlage in Burgdorf wurde 1974 erbaut und sollte entsprechend den aktuell gültigen Normen saniert werden. Die Anlage ist ein typischer Zeitzeuge der Bauten aus den 1970er-Jahren. Im Inventar der kantonalen Denkmalpflege ist sie als erhaltenswert einge stuft.

Im Zusammenhang mit der Gesamtsanierung sind auch die neuen betrieblichen Anforderungen der Schule baulich umgesetzt worden: Im Untergeschoss ist eine moderne Grossküche für die Ausbildung der Köchinnen und Köche entstanden. Bezüglich ihrer Grösse und Ausrüs tung sind die Unterrichtsräume auf maximale Nutzungsflexibilität ausgelegt. Die Sanierung der Gebäude erfolgte in Etappen unter laufen dem Schulbetrieb.

GENERALPLANER

Suter + Partner AG Architekten, Bern

SPEZIALISTEN

Henauer Gugler AG, Liebefeld

Gruner Roschi AG, Köniz

Elektroplan Buchs & Grossen AG, Frutigen Grolimund + Partner AG, Bern

H PLUS S Gastronomiefachplanung, Ittigen BDS Security Design AG, Bern

Fiorio Fassadentechnik gmbh, Zuzwil

8
AUFTRAGGEBER AGG Amt für Grundstücke und Gebäude des Kantons Bern
2016
2019
2019
PLANUNG
AUSFÜHRUNG
– 2020
STARTBAHN FÜR LAUFBAHNEN
9 Querschnitt

Freibad Weyermannshaus, Bern

Garderobengebäude und Ausstattung Umgebung

Die vom Architekten Hans Beyeler geplante Sportanlage Weyer mannshaus wurde 1958 gebaut und 1971 erweitert. Das «Weyerli» ist vor allem für das grosse, freiförmige Aussenbecken bekannt – aber auch für seine Schlittschuhbahnen und das Hallenbad. Das Bad ist eine bau historisch sehr wertvolle Anlage und steht unter dem Schutz der städtischen Denkmalpflege.

Die Gesamtsanierung wurde als Generalplanermandat vergeben. Unser Mandat beinhaltete den Umbau und die Sanierung der beiden Garderobengebäude, wovon eines aus der Bauzeit stammt.

Diese geschützten Gebäude haben wir in enger Zusammenarbeit mit der städtischen Denkmalpflege saniert und für die aktuellen Bedürfnisse umgebaut. Im Weiteren waren wir beauftragt, die speziellen Möblierun gen wie Aussenduschen und Rutschen so zu gestalten, dass sie trotz neuer Fertigung dem historischen Kontext gerecht werden.

10
AUFTRAGGEBERIN Hochbau Stadt Bern PLANUNG 2020 AUSFÜHRUNG 2021 GENERALPLANER Staubli, Kurath & Partner AG, Zürich ARCHITEKT Suter + Partner AG Architekten, Bern SPEZIALISTEN IPG Ingenieur- und Planungsbüro
, Bern WAM Planer und
AG, Bern Matter + Amman AG, Bern CSP Meier AG, Bern PLITSCH-PLATSCH MIT HISTORISCHEM TOUCH
Gränicher
Ingenieure
11 Grundriss

Schule für Gestaltung Bern und Biel, Bern Studienauftrag, Gesamtsanierung

Die Schule für Gestaltung wurde in den 1960er-Jahren errichtet und 1988 letztmals erweitert. Der Bau wies erheblichen Sanierungsbedarf auf. Er sollte mit Blick auf eine langfristige Nutzung saniert und betrieb lich optimiert werden.

Die Fassade ist neben der städtebaulichen Setzung das wichtigste Element dieses Entwurfs von Willy Pfister. Der Architekt hatte seine städtebauliche Absicht unterstrichen, qualitätsvolle Innenräume ge schaffen und in der Detaillierung den unbeschwerten Ideenreichtum der Sechzigerjahre illustriert.

Aus der Beurteilung der Bestandesfassade folgerten wir, dass sie selbst unter moderaten energetischen Vorgaben nicht ohne Verlust ihrer Eleganz aufgerüstet werden kann. Damit sowohl die städtebaulichen als auch die innenräumlichen Qualitäten dieser Architektur erhalten blei ben, schlugen wir die innenseitige Ertüchtigung mit einer von der originalen Substanz abgeleiteten Funktionsfassade vor: Die Flügel der neuen Fassade werden mit dem Bestand gekoppelt – die bestehende Fassade erhält dadurch die Funktion eines Vorfensters.

AUFTRAGGEBERIN

AGG Amt für Grundstücke und Gebäude des Kantons Bern

STUDIENAUFTRAG

2020 – 2021

GENERALPLANER

Suter + Partner AG Architekten, Bern

SPEZIALISTEN

WAM Partner and Ingenieur AG, Bern

Fassaden Konzept Engineering AG, Wallisellen

Gruner Roschi AG, Köniz

Elektroplan Buch & Grossen AG, Frutigen Amstein + Walthert, Bern

Grolimund + Partner AG, Bern

JURY

Michael Frutig (Vorsitz)

Lukas Huggenberger

Andreas Emmer

Jörg Lamster

12
BAU AM KUNST
13
Detail Sockel
Detail Klassenzimmer

Wohnen am Mühleplatz, Lyss Projektwettbewerb im

Einladungsverfahren

Am Mühleplatz in Lyss soll eine verdichtete, geordnete und gut gestaltete Überbauung mit altersgerechten Wohnungen und ergänzen den Dienstleistungen realisiert werden.

Mit unserem Vorschlag präsentierten wir ein Zuhause, welches den Bewohnerinnen und Bewohnern bequem erreichbare öffentliche, halböffentliche und private Lebensräume bietet.

Die Distanzen zwischen den Ereignissen und den einzelnen Orten sind zu Fuss gut überwindbar. Die Orientierung fällt leicht, so dass auch ältere Menschen am Geschehen teilnehmen können. Wir traten den Beweis an, dass zwischen Bahnlinie und Hauptstrasse eine hohe Lebens qualität möglich ist.

Trotz städtischen Wohnens am Mühleplatz bieten sämtliche Woh nungen einen Sichtbezug zu begrünten Aussenräumen. Weitere Mosaiksteine hoher Lebensqualität sind das vielfältige Angebot an Aussenräumen, die praktischen Dienstleistungen im Erdgeschoss sowie die räumliche Nähe zum Altersheim.

AUFTRAGGEBER

SUVA, Abteilung Immobilien und Allreal Generalunternehmung AG

PLANERWAHLVERFAHREN 2021

GENERALPLANER

Suter + Partner AG Architekten, Bern

SPEZIALISTEN w + s Landschaftsarchitekten AG, Solothurn

Dr. Lüchinger + Meier Bauingenieure AG, Zürich

JURY

Kaspar Lo Presti, Leiter Bereich Baumanagement, Suva Thomas Kissling, Portfoliomanagement Suva

Stefan Ringler, Vertretung Allreal Rolf Christen, Ressortvorsteher Bau + Planung

14
LYSSER LEBENSQUALITÄT
15
Grundriss Schnitt

GEFÜHRTE ZEITREISE

Historisches Museum Thurgau, Frauenfeld Projektwettbewerb im Einladungsverfahren

Das Schloss Frauenfeld steht in sensiblem städtischem Kontext und ist im Schweizerischen Inventar der Kulturgüter von nationaler Bedeu tung als A-Objekt (höchste Schutzstufe) eingetragen.

Das Bauwerk ist ein herausragendes Beispiel einer weitgehend erhal tenen kleineren Burganlage aus dem 13. und 14. Jahrhundert. Zusammen mit der Schlossremise beherbergt es seit 1958 das Histori sche Museum Thurgau.

AUFTRAGGEBER

Hochbauamt Thurgau STUDIENAUFTRAG 2021 GENERALPLANER Suter + Partner AG Architekten, Bern

JURY

Erol Doguoglu, Dipl. Architekt ETH SIA, Kantonsbaumeister Kanton Thurgau

Kristin Müller, Dipl. Architektin ETH SIA Markus Lüscher, Dipl. Architekt ETH SIA BSA

Daniel Ganz, Landschaftsarchitekt HTL BSLA

16
Unser Entwurf beinhaltet verschiedene kleinere Eingriffe, deren Legitimation sich aus der Geschichte des Ensembles ableiten. Aus be trieblicher Perspektive setzten wir auf ein Gesamterlebnis des historischen Areals: Den Besucherinnen und Besuchern wird ermöglicht, das Schloss mit seiner Umgebung sowie die Remise selbstständig zu entdecken. Wir entwarfen logische Wege, welche eine klare Orientie rung bieten, offerierten eine benutzerfreundliche Infrastruktur und stärkten so den mittelalterlichen Charakter des Bauwerks. Kantonales
SPEZIALISTEN w + s Landschaftsarchitekten AG, Solothurn Dr. Lüchinger + Meyer Bauingenieure AG, Zürich
17 Grundriss

Lern- und Wanderjahre beim SIA (Schweizerischer Ingenieur- und Architektenverein)

«Ausgelernt habe ich nie, und es wird viel Neues auf mich zukommen.» Das war mir bewusst, als ich im April 2014 in den Vorstand des Berufsverbandes gewählt wurde. Zwei Themen haben mich besonders zu diesem Engagement motiviert: Einerseits das Bedürfnis nach «gemeinnütziger» Arbeit für unseren Berufsstand – sind mir doch die Normen und Ordnungen seit dem Ende meines Studiums immer eine Stütze gewesen. Andererseits die Faszination für einen Verband, in dem sich Architekt:innen und Ingenieur:innen vereint für das qualitätsvolle Bauen engagieren.

Ich habe viele(s) kennengelernt und erlebt in diesen acht Jahren: drei Geschäftsführer, zwei Präsidenten und auch einen Frontalangriff der WEKO auf unsere Honorarordnungen. Der Kampf für eine gerechte Vergabe und Honorierung unserer Arbeit war nebst der strategischen Funktion meine Haupttätigkeit im Vorstand. Als grosse Bereicherung habe ich den Einblick in die Arbeit der Ordnungskommissionen und die Zusammenarbeit mit ihnen empfunden. Ich bewundere immer wieder, wie viel hochklassige Expertenarbeit hier im Milizsystem geleistet wird.

Kommen wir zu den «Wanderjahren». Wir haben regelmässig die Sektionen und lokale Vertreter:innen aus der Politik und Bauwirtschaft getroffen und lebhaft mit ihnen diskutiert. Dieses Erleben der Vielfalt unseres Landes und das Parlieren in den anderen Landessprachen habe ich sehr genossen.

Ich habe in den letzten Jahren politisch und auch vereinspolitisch viel dazugelernt. Eines steht fest: Neue Impulse sind erfrischend. Deshalb habe ich im April meinen SIA-Vorstandssitz und das Präsidium des Fachrates Vergabewesen weitergegeben.

Ich wünsche dem neuen Vorstand ein beschwingtes Lernen und Wandern!

18 AUSKLANG
Am SIA-Ordnungstag 2021 im Gespräch mit Federico Ferrario, damals Präsident der Sektion Jura, seit April 2022 Vorstandsmitglied SIA Schweiz.

IMPRESSUM

Herausgeber und Redaktion:

Suter + Partner AG Architekten Thunstrasse 95 CH-3006 Bern

Redaktion, Lektorat:

© BTK GmbH, Bern

© Jaunecitron.ch, Bern

Fotos:

© Christian Helmle, Thun

© Suter + Partner AG Architekten, Bern

© SIA Schweiz

Pläne, Schaubilder:

© Digitalnity, Bern

© Suter + Partner AG Architekten, Bern

Grafik:

© Gerhard Blättler, Bern

© Suter + Partner AG Architekten, Bern

Geschlechtergerechte Sprache: Wo immer möglich verwenden wir in dieser Publikation geschlechtergerechte Formulie rungen. Grundsätzlich gilt: Sämtliche Personenbezeichnungen gelten gleicher massen für alle Geschlechtsidentitäten.

19
20 SUTER + PARTNER AG ARCHITEKTEN
Thunstrasse 95 CH-3006 Bern Tel 031 357 35 25 spa@suterpartner.ch suterpartner.ch

Turn static files into dynamic content formats.

Create a flipbook
Issuu converts static files into: digital portfolios, online yearbooks, online catalogs, digital photo albums and more. Sign up and create your flipbook.
Portfolio 10 Suter + Partner Architekten by Anton Neuenschwander - Issuu