

Cuantificación y costeos
Este es un cuaderno didáctico académico. La información consignada en el mismo debe ser utilizada con criterio. El autor no se hace responsable por el uso indebido de su contenido ni a las malas interpretaciones sobre las opiniones técnicas vertidas a lo largo del mismo. Son opiniones del autor en base a su experiencia y conocimiento sobre la materia.

El costeo en cimentaciones de edificaciones en mampostería
Introducción a las cimentaciones en casas de dos niveles en mampostería reforzada. Caso real de licitación. Trabajo en clase: Jamboard. Asesoría presencial. Entrega de tareas grupales.
(Se recomienda estudio individual/grupal post sesión magistral colaborativa)


INTRODUCCIÓN AL ESTUDIO DE LAS CIMENTACIONES
EXCAVACIONES
2
3
En función del ancho, largo y espesor de los cimientos. Corridos y zapatas aisladas.
5
LEVANTADO HIDRÓFUGO
Distancias tomadas entre ejes por el alto del cimiento. Unidad en metros cuadrados. Cantidad de block y mortero de pega.
4
ESTABILIZACIÓN DEL FONDO
Espesor, largo y ancho de cimentaciones. Obtener volúmen para concreto pobre o de limpieza.
ACERO DE REFUERZO, CONCRETO, FORMALETAS
En cimientos corridos, zapatas, soleras de humedad. Cuantificar concreto. Todo en función de la geometría de los cimientos.
6 1
IMPERMEABILIZACIÓN Y RELLENO DE LA ZONA HIDRÓFUGA.
Impermeabilización de blocks en m². Relleno de la zona hidrófuga en m³. Seguir la geometría dentro de la zanja.
CÁLCULOS EN HOJA ELECTRÓNICA
Todos los cálculos ordenados en una hoja electrónica. REVISAR EJEMPLOS DE AÑOS ANTERIORES. Incorporar planos a la hoja. Creatividad y exactitiud.
De la vida real
(Cápsula 1 de gestión de costos y calidad)
LICITACIÓN ES:
Sistema por el que se adjudica la realización de una obra o un servicio, generalmente de carácter público o privado, a la persona o la empresa que ofrece las mejores condiciones. Wikipedia
En términos empresariales, es el proceso reglado mediante el cual una organización da a conocer públicamente una necesidad, solicita ofertas que la satisfagan, evalúa estas ofertas y selecciona una de ellas.
Esta palabra también puede referirse a un proceso de subasta. Wikipedia
A La larga…ES UN CONCURSO, UNA COMPETENCIA.


Planeamiento arquitectónico - urbanístico

¿ Quién ?
Urbanización y lotificación 1ª. FASE





Superficie de rodadura en concreto reforzado





ProcesodeLicitaciónestándar
Seguimiento a procedimiento de trabajo / Stolz / 2020
¿ Quién ?
FASE 01
PREPARACIÓN DE BORRADORES DE BASES DE LICITACIÓN.
¿ Qómo ?
FASE 02
REDACCIÓN DE DOCUMENTOS DE BASES DE LICITACIÓN (VALIDACIONES).
REVISIÓN DE PLANOS FINALES Y PRESUPUESTACIÓN MÁS FINA.
FASE 03
INVITACIÓN - CONCURSO – REVISIÓN DE REQUISITOS –
CLASIFICACIÓN DE OFERENTES – ANÁLISIS
PRESUPUESTARIO-FINANCIERO-SELECCIÓN DE FINALISTAS. .
FASE 04
PROCESO DE SELECCIÓN DE CONTRATISTAS: CALIDAD


CATÁLOGO DE RENGLONES
PROCESO DE SELECCIÓN DE CONTRATISTAS: CANTIDAD








El cliente El cliente El arquitecto


Algunas reflexiones de parte de la clase…
FORMA DE PRESENTAR LAS CUANTIFICACIONES –

COSTEOS Y PRESUPUESTO


HOJA DE EXCEL ORDENADA POR PESTAÑAS EN EL LIBRO GENERAL

GRUPO # E INTEGRANTES











Cuantificación de la armaduría


Herramientas básicas
Uso del Excel. Geometría plana. Aritmética básica. Tabla de mezclas. Tabla del acero corrugado de refuerzo. PLANOS.

Métodoconstructivodelascimentacionesenunacasa
ESPECIFICACIONES DEL ACERO CORRUGADO: TEMÁTICA DE CONSTRUCCIÓN 4

Algunas empresas de venta de materiales
MONOLIT (PEGA BLOCK)
https://grupomonolit.com/productos/premezclados-monolit/mortero-pegar-block/#! CEMENTOS PROGRESO (LEVANTAMURO)
https://www.mixtolisto.com/levantamuro-tipo-s-2/ FERRETERÍA EL ARENAL (VARIOS) POR COTIZACIÓN EN LÍNEA)


https://elarenal.com.gt/collections/materiales-de-construccion/bloques?sort_by=best-selling

ACEROS DE GUATEMALA (CATÁLOGO EN LÍNEA)
https://www.corporacionag.com/es/catalogo-en-linea-ag

SOLPRO (IMPERMEABILIZANTES)
https://solprosa.com/ MEGAPRODUCTOS (BLOCKS)

https://www.megaproductos.com/categoria-producto/block/

Métodoconstructivodelascimentacionesenunacasa
¿ Qué haces cuando LAS ESPECIFICACIONES NO SON CLARAS?



Mixto Listo Precón http://precon.com.gt/producto-industrial/block/
https://www.mixtolisto.com/category/mezclas-listas/mezclas-de-levantados/

DE LA CLASE ANTERIOR…




Cerramiento perimetral (exteriores)




“Oficina” contratista

“Lavamanos”
COVID Bodega “general”

1. Cantidad de estacas: 50 und tamaño: 1.355m
L= 1.355 x 50= 67.75 m
67.75 x 3.28 = 222.22 pies
222.22 /10= 23 piezas de 2”x2”x10 pies cepillado 4 caras.
= 92 PT (también de 3”x 3”)
2. Piezas horizontales de 2”x3” cepilladas 4 caras
L=26+34=60 metros de corral
60x3.28=196.80 pies
196.80/10 = 20 piezas de 2”x3”x10pies =100 PT
estacas espacios a 1.22m
TOTAL 192 PT cepillados
12 estacas espacios a 1.22m

MADERA EN LONGITUDES DE 14 PIES LINEALES
3. Clavos de 3 pulgadas
Índice= 0.077 lb/m de corral
Clavos = 60m x 0.077 lb/m
4.62lb de clavo de 3” aprox
5 libras de 3” Digamos 6lb de 3” por desperdicio y pérdidas por doblez
4. Ahoyados=50 und

ERROR DE Q 1.00
Problema en la exportación de la celda o tecleó a mano.

“CORRAL” Y NIVELACIONES: ¡AQUÍ ESTA LA PATA QUE PUSO ESTE OTRO HUEVO!

CÉDULA DE COSTEO: EL CONTRATISTA LA ENTREGA SI DENTRO DE LAS BASES DE LICITACIÓN EL CLIENTE LAS PIDE DE MANERA EXPLÍCITA.




Ahoyados, estaqueados, ejes





1 2 2 2 2 3 3 3 3 3 3
1) Ahoyados: excavo
2) Estacas: coloco – relleno “compactado”
3) Largueros
4) Nivelación de los “puentes”
5) Marco los ejes – pinto blanco - señalo



Excavaciones de cimentaciones corridas




2

Elaboración propia. Proyecto en Villanueva 2020.
3
3
2
2

EJEMPLOS DE TRABAJOS DE AÑOS ANTERIORES

Cimentaciones
Uso del Excel. Geometría plana. Aritmética básica. Tabla de mezclas. Tabla del acero corrugado de refuerzo. PLANOS.
Abran sus planos de Cimentaciones y el Jamboard: trabajo en clase
Uso del Excel. Geometría plana. Aritmética básica. Tabla de mezclas. Tabla del acero corrugado de refuerzo. PLANOS.
ENLACE A JAMBOARD GRUPAL DE TRABAJO EN CLASE:
https://jamboard.google.com/d/15w28V15mQSCFUyZClpI4bxouh3LKJlUUhVjSuLiossI/edit?usp=sharing
INSTRUCCIONES:
1. Pase la información de sus planos de cimentación al Jamboard a medida que avanza el profesor en su exposición. (Cada elemento en elevación y la planta)
2. Plantee una estrategia de cuantificación – medición de los elementos estructurales de acuerdo a lo que vaya planteando el profesor conforme avance su exposición para:
1)Excavaciones 4)Levantadoshidrófugos
2) Concreto de limpieza 5) Impermeabilización de zona hidrófuga
3) Pastilla de concreto 6) Solera de humedad 7) ACERO DE REFUERZO
8) Tacos de recubrimiento (silletas plásticas) 9) Alambre de amarre 10) Rellenos compactados
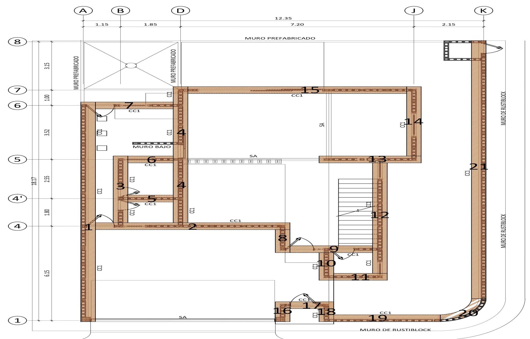
PLANO TÍPICO DE

CIMENTACIONES

CERRAMIENTO PERIMETRAL

Columnas y/o mochetas
Cimiento corrido intermedio
SegundoDiagrama360gradosdelascimentacionesenunacasa
Dinámica de ordenamiento constructivo en un diagrama.

Rellenocompactado dezonahidrófuga. Cantidaddematerial compactado y abundamiento.

Impermeabilización asfáltica dezonahidrófuga: Cantidaddematerial.
7
8



2
Excavaciones
Cimientoscorridos

6

Levantadosysoleraen zona hidrófuga: Cantidaddeblocksy materialdepega.Materialdeformaleta desoleraycolocación.Fundiciónde solera. .
1

2




5


Zapatasaisladas
3 Concretos
Concretodelimpieza(pobreo Deestabilizacióndefondo)
Cimientoscorridos
Zapatasaisladas Solerahidrófuga
4 acero
Aceroderefuerzo: Largos,traslapes,cantidadde varillas,peso


Cimiento corrido colindante

Identificar elementos


estructurales(trasladen al Jamboard)


Cimiento corrido interior



Excepción: Cimiento corrido fundido



Cómo y cuánto


Dónde y cuántas
Columnas y/o mochetas

Cómo y cuánto


CIMENTACIONES
CORRIDAS
(medio ancho del cimiento a
cada lado del eje: por fuera en más, por dentro en menos)
Ancho corte = 0.40 m
Profundidad del corte ejemplo: 0.95 m
Espesor cimiento = 0.20m
Altura del levantado
hidrófugo = 0.40m
Espesor del concreto de limpieza (pobre) = 0.15 m
Tamaño de solera 0.15m x 0.20m


Nota:
Al trazar los cimientos se trazan las líneas punteadas en rojo y la del centro, usualmente. 3 veces la distancia de encalado.
R= 210m / 3 sacos de cal hidratada.
CIMENTACIONES
(medio ancho del cimiento a cada lado del eje: por fuera en más, por dentro en menos)

0.40 m ESTRATEGIA


Vol pastilla de cimiento con un valor asumido de
Vol concreto de limpieza (pobre) en el fondo del cimiento = 33.12 x 0.15 m (asumidos) = 4.97 m³

ESTRATEGIA:
EXCAVACIONES
EN CIMIENTOS CORRIDOS
NORMALMENTE ZONA CC
(INTERMEDIOS Y DE ORILLA)
Excavación 0.95m
SECCIÓN TRANSVERSAL DE LA EXCAVACIÓN m²

Excavación 0.95m
Las excavaciones tienen 0.10 - 0.15 m adicionales para la estabilización o concreto de limpieza (concreto pobre)

Excavación 0.95m

Excavación 0.95m

Excavaciones de cimentaciones corridas


Excavaciones de cimentaciones aisladas y conectoras



Excavación de cimientos corridos

Elaboración propia. Proyecto en Villanueva 2020.


Excavación de cimientos corridos y colocación del acero de cimientos corridos y de columnas y/o mochetas.

Excavación de cimientos corridos colocado de acero de columnas.


Prueba en campo de traslapes longitudinales



ESTRATEGIA:
CONCRETO DE LIMPIEZA (POBRE)
O ESTABILIZACIÓN DE FONDO
SECCIÓN TRANSVERSAL DEL CONCRETO DE LIMPIEZA en m²
Las excavaciones tienen 0.15 m adicionales para la estabilización o concreto de limpieza (concreto pobre)

X 0.15 = 0.06 m²
0.45 X 0.15 = 0.07 m ²



ESTRATEGIA:
CONCRETO EN CIMIENTO CORRIDO CC
SECCIÓN TRANSVERSAL DEL CONCRETO del CC en m² 0.45 X 0.20 = 0.09 m ²




Cimentación corrida. El mal llamado “caite”




Cimentación corrida. Armaduría.


Cimentación corrida. Armaduría.

Al calcular los rellenos compactados restar también los pequeños volúmenes de las mochetas y columnas.
Elaboración propia. Proyecto en Villanueva 2020.

Fundición de cimentación corrida.

ESTRATEGIA:
CONCRETO EN SOLERA DE HUMEDAD
SECCIÓN TRANSVERSAL DE LA SOLERA DE HUMEDAD en m²

X 0.20= 0.04 m²
0.15 X 0.20 = 0.03 m ²



EJEMPLOS DE TRABAJOS DE AÑOS ANTERIORES



ESTRATEGIA:
BLOCKS EN LEVANTADO HIDRÓFUGO
ALTURA DEL LEVANTADO HIDRÓFUGO en m²
Nota: la altura del levantado de zona hidrófuga depende de la pendiente del terreno y puede ser mayor de 0.40m.
Por ejemplo, si la distancia de todos los ejes es 57m, el área de levantado sería 70 x 0.40 = 28 m² x
12.5 = 350 blocks de 14x19x39 (si así lo indican los planos) TIPO tal…






6.00 m
6.00 m con traslape de 0.60 m


6.00 m 0.60 m traslape 5.40 m
Longitud total de acero # 4 longitudinal = 11.40 – 0.15 (rec) = 11.25 m
utilizará 2 varillas completas #4 de 6 metros por punto.

2#4 traslapada 0.60m EN CADA
EJE sobrante de 0.15m por eje
2#4 traslapada 0.60m EN CADA EJE sobrante de 0.15m por eje
2#4 traslapada 0.60m EN CADA EJE sobrante de 0.15m por eje
EJE LARGO:


Longitud total de acero # 4 longitudinal = 15.40 – 0.15 (rec) = 15.25 m
utilizara 2 varillas completas #4 de 6 metros por punto.

3#4 traslapada 0.60m EN CADA EJE sobrante de 1.55m por posición
3#4 traslapada 0.60m EN CADA EJE sobrante de 1.55m por posición
3#4 traslapada 0.60m EN CADA EJE
sobrante 1.55m por posición


total de acero # 4 para eslabones = tomemos la distancia de cimentaciones, un caso
LEVANTADOS HIDRÓFUGOS
(Proyectados a todo lo largo de los ejes de la casa)
Lh = [((5x2)+(3X2))A + ((5X2)+(10X2))B + ((4X2)+(5X2))C + 3 + 6 + 6 + 5] =


LIBRETA DE CÁLCULOS: Longitud = 84.00 m
Asumiendo 0.60m de levantado hasta la solera hidrófuga incluida y 0.40m de blocks 1. Levantado hidrófugo = 84 x 0.40 (altura de block) = 33.60 m² Cantidad de blocks = 33.60 m²x 12.5 blocks/m² = 420 blocks

ESTRATEGIA:
IMPERMEABILIZACIÓN
HIDRÓFUGA (APLICADA CON RODILLO O BROCHA)
ALTURA DE LA IMPERMEABILIZACIÓN HIDRÓFUGA en m (MULTIPLICADA POR 2)
EJEMPLO:
ALTURA EXTERIOR = 0.60 m
ALTURA INTERIOR = 0.60 m (Esto es: 2 x 0.60 m = 1.20 m)
En una longitud de 84m solo por una cara
Área = 1.20 x 84 = 100.80 m²




ESTRATEGIA: RELLENO EN ZONA HIDRÓFUGA
(REALIZADO CON MAZO DE COMPACTACIÓN)
SECCIÓN TRANSVERSAL DEL RELLENO EN ZONA HIDRÓFUGA en m (MULTIPLICADA POR 2)
EJEMPLO:
ÁREA EXTERIOR = 0.15 x 0.60 m
ÁREA INTERIOR = 0.15 x 0.60 m (Esto es: 2 x 0.09 m = 0.18 m²)
En una longitud de cimentaciones de = 82.80 m

0.125 X 0.60= 0.075 m² 0.075 m² x 2 = 0.15 m² 0.125 x 0.60 = 0.075 m²
0.15 X 0.60 = 0.09 m² 2x0.09=0.18m²


m² x 2 = 0.150 m² 0.30 X 0.60 = 0.18 m²
https://youtu.be/6Q0E0bLyzkI

ESTRATEGIA: FORMALETA DE SOLERA DE HUMEDAD
Igual para todas las soleras (comprar 2 juegos)
UBICACIÓN DE LA FORMALETA DE LA SOLERA DE HUMEDAD EN
CANTIDAD DE TABLAS Y PIES TABLARES
LONGITUD TOTAL DE EJES = DIGAMOS 84 m
LLEVA SEPARADORES EN 3/8 “ A CADA 40 – 60 cm
PIES TABLARES = ((12 X 2.54/12) X 10 X 58 = 1,473.20 PT ÍNDICE = 1,473.20 PT / 84 m = 17.53 PT/ m de solera **
TABLÓN DE 12 X 2 ½” X LARGO PIES

Acero de 3/8” separador
Amarrado con alambre de amarre



Solera de humedad (hidrófuga)






UNA VISTA AL EXCEL
Cimentaciones
Clases 3y 4
Febrero 1 – 8 2023
EJEMPLO

DETALLAR LONGITUDES DE CIMENTACIONES Y EJES

EJEMPLOS DE TRABAJOS DE AÑOS ANTERIORES



EJEMPLOS DE TRABAJOS DE AÑOS ANTERIORES



Mínimo 4 máximo 6 ferreterías y centros de venta de materiales.

EN UN SOLO LIBRO
EJEMPLOS DE TRABAJOS DE AÑOS ANTERIORES



EJEMPLOS DE TRABAJOS DE AÑOS ANTERIORES

POR
ESPECIALIDADES
