Casa de dos niveles en mampostería: Introducción a las cuantificaciones de cimentaciones

Page 1


ADMINISTRACIÓN Y GESTIÓN 1 2025

Cuantificación en cimentaciones: Corridas – concreto de limpiezalevantado hidrófugo - impermeabilizaciones– solera de humedad

Enero 2025 / Semana 3 / Clases 5 y 6

Este es un cuaderno didáctico académico. La información consignada en el mismo debe ser utilizada con criterio. El autor no se hace responsable por el uso indebido de su contenido ni a las malas interpretaciones sobre las opiniones técnicas vertidas a lo largo del mismo. Son opiniones del autor en base a su experiencia y conocimiento sobre la materia.

Semana 3

Clase 5 del 28 de enero

Clase 6 del 31 de enero

Introducción a las cimentaciones en casas de dos niveles en mampostería simple o reforzada.

Trabajo en clase: Presentación PITCH 3 minutos avances en cálculos de cimentaciones (enero 31)

(Se recomienda estudio individual/grupal post sesión magistral colaborativa)

INTRODUCCIÓN AL ESTUDIO DE LAS CIMENTACIONES

EXCAVACIONES

2

3

En función del ancho, largo y espesor de los cimientos. Corridos y zapatas aisladas.

5

LEVANTADO HIDRÓFUGO

Distancias tomadas entre ejes por el alto del cimiento. Unidad en metros cuadrados. Cantidad de block y mortero de pega.

4

ESTABILIZACIÓN DEL FONDO

Espesor, largo y ancho de cimentaciones. Obtener volúmen para concreto pobre o de limpieza.

ACERO DE REFUERZO, CONCRETO, FORMALETAS

En cimientos corridos, zapatas, soleras de humedad. Cuantificar concreto. Todo en función de la geometría de los cimientos.

6 1

IMPERMEABILIZACIÓN Y RELLENO DE LA ZONA HIDRÓFUGA.

Impermeabilización de blocks en m². Relleno de la zona hidrófuga en m³. Seguir la geometría dentro de la zanja.

CÁLCULOS EN HOJA ELECTRÓNICA

Todos los cálculos ordenados en una hoja electrónica. REVISAR EJEMPLOS DE AÑOS ANTERIORES. Incorporar planos a la hoja. Creatividad y exactitiud. Ejemplos.

FORMA DE PRESENTAR LAS CUANTIFICACIONES –

COSTEOS Y PRESUPUESTO

EJEMPLO: HOJA DE EXCEL ORDENADA

POR PESTAÑAS

EN EL LIBRO GENERAL

GRUPO # E INTEGRANTES

LOGO

Cuantificación de la armaduría

Herramientas básicas

Uso del Excel. Geometría plana. Aritmética básica. Tabla de mezclas. Tabla del acero corrugado de refuerzo. PLANOS.

Métodoconstructivodelascimentacionesenunacasa

ESPECIFICACIONES DEL ACERO CORRUGADO: TEMÁTICA DE SISTEMAS CONSTRUCTIVOS

Métodoconstructivodelascimentacionesenunacasa

¿ Qué haces cuando LAS ESPECIFICACIONES NO SON CLARAS?

Mixto Listo
Precón

DE LAS CLASES ANTERIORES…

“CORRAL”

Cerramiento perimetral (exteriores)

“Oficina” contratista

“Lavamanos”

COVID Bodega “general”

1. Cantidad de estacas: 50 und tamaño: 1.355m

L= 1.355 x 50= 67.75 m

67.75 x 3.28 = 222.22 pies

222.22 /10= 23 piezas de 2”x2”x10 pies cepillado 4 caras.

= 92 PT (también de 3”x 3”)

2. Piezas horizontales de 2”x3” cepilladas 4 caras

L=26+34=60 metros de corral

60x3.28=196.80 pies

196.80/10 = 20 piezas de 2”x3”x10pies =100 PT

estacas espacios a 1.22m

TOTAL 192 PT cepillados

12 estacas espacios a 1.22m

MADERA EN LONGITUDES DE 14 PIES LINEALES

3. Clavos de 3 pulgadas

Índice= 0.077 lb/m de corral

Clavos = 60m x 0.077 lb/m

4.62lb de clavo de 3” aprox

5 libras de 3” Digamos 6lb de 3” por desperdicio y pérdidas por doblez

4. Ahoyados=50 und

ERROR DE Q 1.00

Problema en la exportación de la celda o tecleó a mano.

“CORRAL” Y NIVELACIONES: ¡AQUÍ ESTA LA PATA QUE PUSO ESTE OTRO HUEVO!

CÉDULA DE COSTEO: EL CONTRATISTA LA ENTREGA SI DENTRO DE LAS BASES DE LICITACIÓN EL CLIENTE LAS PIDE DE MANERA EXPLÍCITA. Puede construirla a su

conveniencia pero de manera transparente

Ahoyados. Estaqueados, ejes

Ahoyados, estaqueados, ejes

1 2 2 2 2 3 3 3 3 3 3

1) Ahoyados: excavo

2) Estacas: coloco – relleno “compactado”

3) Largueros

4) Nivelación de los “puentes”

5) Marco los ejes – pinto blanco - señalo

Excavaciones de cimentaciones corridas

2

Elaboración propia. Proyecto en Villanueva 2020.

3

3

2

2

EJEMPLOS DE TRABAJOS DE AÑOS ANTERIORES

Cimentaciones

Uso del Excel. Geometría plana. Aritmética básica. Tabla de mezclas. Tabla del acero corrugado de refuerzo. PLANOS.

Distribución de la presión en el suelo

Una carga vertical aplicada a la zapata es resistida por la presión del suelo que actúa sobre la superficie inferior de la zapata o cimiento corrido.

La distribución de la presión depende del tipo de suelo en el sitio.

En la práctica, aproximamos la distribución real de la presión debida a una carga concéntrica con una “distribución uniforme promedio”.

Suelo arenoso Suelo arcilloso Presión promedio del suelo (uniforme)

Realizar una compactación uniforme en la parte inferior “concreto de limpieza o pobre” o material selecto compactado.

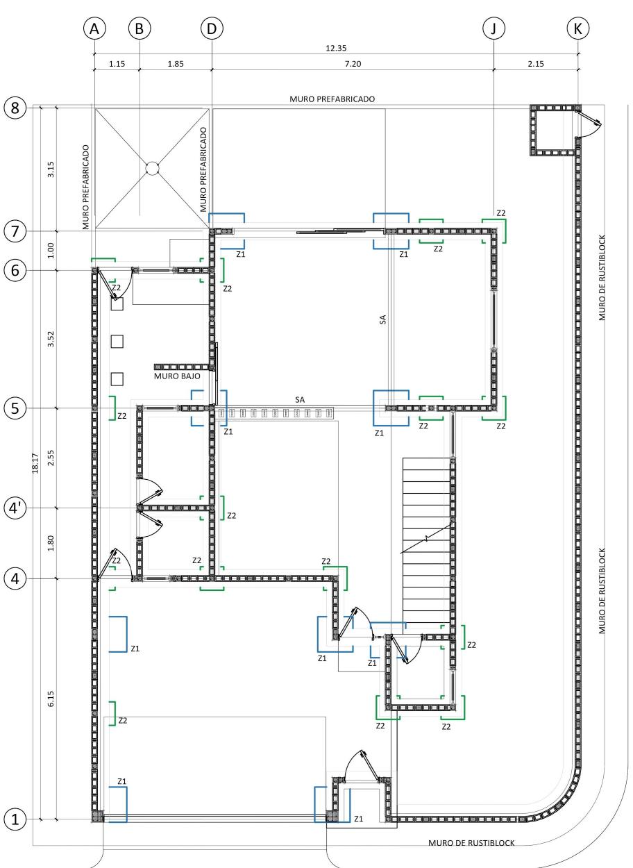
PLANO TÍPICO DE CIMENTACIONES

CERRAMIENTO PERIMETRAL

Cimiento corrido exterior CC

Solera de amarre SA

Zapata aislada Z

Columnas y/o mochetas

C y/o MCH

Cimiento corrido interior

“CORRAL”

SegundoDiagrama360gradosdelascimentaciones enunacasa

Forma del ordenamiento constructivo en un diagrama. Al tener el “corral” construido para el #1.

Rellenocompactado dezonahidrófuga. Cantidaddematerial compactadoy abundamiento.

8

Impermeabilización asfáltica dezonahidrófuga: Cantidaddematerial.

7

2

Excavaciones

Cimientoscorridos

6

Levantadosysoleraen zona hidrófuga: Cantidaddeblocksy materialdepega.Materialdeformaleta desoleraycolocación.Fundicióndesolera. .

1

Zapatasaisladas

2 Cimentaciones

3 Concretos

Concretodelimpieza(pobreo Deestabilizacióndefondo)

5

4 acero

Cimientoscorridos Zapatasaisladas Solera hidrófuga

Aceroderefuerzo: Largos,traslapes,cantidadde varillas,peso

Cimiento corrido exterior

Cimiento corrido interior

Excepción:

Cimiento corrido fundido

Cómo y cuánto

Dónde y cuántas

Columnas y/o mochetas

Cómo y cuánto

CIMENTACIONES

CORRIDAS

(medio ancho del cimiento a

cada lado del eje: por fuera en más, por dentro en menos)

Ancho corte = 0.40 m

Profundidad del corte ejemplo: 0.95 m

Espesor cimiento = 0.20m

Altura del levantado

hidrófugo = 0.40m

Espesor del concreto de limpieza (pobre) = 0.15 m

Tamaño de solera 0.15m x 0.20m

TÍPICOS: 0.40 – 0.60 m F=(CONDICIONES DE SUELO)

Nota:

Al trazar los cimientos se trazan las líneas punteadas en rojo y la del centro, usualmente. 3 veces la distancia de encalado.

R= 210m / 3 sacos de cal hidratada (medido en obra en el 2020)

1 alb + 1 ayd / en una jornada

ESTRATEGIA:

EXCAVACIONES EN CIMIENTOS CORRIDOS

NORMALMENTE ZONA CC

(EXTERIORES E DE INTERIORES)

SECCIÓN TRANSVERSAL DE LA EXCAVACIÓN m²

Casa 1

Excavación 0.95m

Las excavaciones tienen 0.10- 0.15 m (compactados) adicionales para la estabilización del fondo conocido como concreto de limpieza (concreto pobre)

Excavación 0.95m

Excavación 0.95m

Excavación 0.95m

Casa 2
Casa 3

CIMENTACIONES

(medio ancho del cimiento a cada lado del eje: por fuera en más, por dentro en menos)

0.40 m

ESTRATEGIA

(Por sectores por colores)

Vol pastilla de cimiento con un valor asumido de

=

m³ Vol concreto de limpieza (pobre) en el fondo del cimiento = 33.12 x 0.15 m (asumidos) = 4.97 m³

Excavaciones de cimentaciones corridas

Excavaciones de cimentaciones aisladas y conectoras

Excavación de cimientos corridos

Elaboración propia. Proyecto en Villanueva 2020.

Excavación de cimientos corridos y colocación del acero de cimientos corridos y de columnas y/o mochetas.

Excavación de cimientos corridos colocado de acero de columnas.

Prueba en campo de traslapes longitudinales

ESTRATEGIA:

CONCRETO DE LIMPIEZA (POBRE)

O ESTABILIZACIÓN DE FONDO

SECCIÓN TRANSVERSAL DEL CONCRETO DE LIMPIEZA en m²

Las excavaciones tienen 0.15 m adicionales para la estabilización o concreto de limpieza (concreto pobre)

X 0.15 = 0.06 m²

0.45 X 0.15 = 0.07 m ²

ESTRATEGIA:

CONCRETO EN CIMIENTO CORRIDO CC

SECCIÓN TRANSVERSAL DEL CONCRETO del CC en m² 0.45 X 0.20 = 0.09 m ²

Cimentación corrida. El llamado coloquialmente “caite”

Cimentación corrida. Armaduría.

Elaboración propia. Proyecto en Villanueva 2020.

Cimentación corrida. Armaduría.

Elaboración propia. Proyecto en Villanueva 2020.
Cimentación corrida. Armaduría.

Al calcular los rellenos compactados restar también los pequeños volúmenes de las mochetas y columnas. (No restarlos es un pequeño factor de seguridad económico)

Elaboración propia. Proyecto en Villanueva 2020.

Fundición de cimentación corrida.

ESTRATEGIA:

CONCRETO EN SOLERA DE HUMEDAD

SECCIÓN TRANSVERSAL DE LA SOLERA DE HUMEDAD en m²

x 0.20 = 0.03m²

X 0.20= 0.03 m²

0.15 X 0.20 = 0.03 m ²

EJEMPLOS DE TRABAJOS DE AÑOS ANTERIORES

ESTRATEGIA:

BLOCKS EN LEVANTADO HIDRÓFUGO

ALTURA DEL LEVANTADO HIDRÓFUGO en m²

Nota: la altura del levantado de zona hidrófuga depende de la pendiente del terreno y puede ser mayor de 0.40m.

Por ejemplo, si la distancia de todos los ejes es 70m, el área de levantado sería 70 x 0.40 = 28 m² x

12.5 = 350 blocks de 14x19x39 (si así lo indican los planos) TIPO tal…

6.00 m

6.00 m con traslape de 0.60 m

6.00 m 0.60 m traslape 5.40 m

Longitud total de acero # 4 longitudinal = 11.40 – 0.15 (rec) = 11.25 m

utilizará 2 varillas completas #4 de 6 metros por punto.

2#4 traslapada 0.60m EN CADA

EJE sobrante de 0.15m por eje

2#4 traslapada 0.60m EN CADA EJE sobrante de 0.15m por eje

2#4 traslapada 0.60m EN CADA EJE sobrante de 0.15m por eje

EJE LARGO:

Longitud total de acero # 4 longitudinal = 15.40 – 0.15 (rec) = 15.25 m

utilizara 2 varillas completas #4 de 6 metros por punto.

3#4 traslapada 0.60m EN CADA EJE sobrante de 1.55m por posición

3#4 traslapada 0.60m EN CADA EJE sobrante de 1.55m por posición

3#4 traslapada 0.60m EN CADA EJE

sobrante 1.55m por posición

Longitud total de acero # 4 para eslabones = tomemos una distancia de cimentaciones, ejemplo:

Abran sus planos de Cimentaciones: trabajo en clase

Uso del Excel. Geometría plana. Aritmética básica. Tabla de mezclas. Tabla del acero corrugado de refuerzo. PLANOS.

INSTRUCCIONES:

1. Pase la información de sus planos de cimentación a una PPTX o similar. (Cada elemento en elevación y la planta)

2. Plantee una estrategia de cuantificación – medición de los elementos estructurales de acuerdo a lo que vaya planteando el profesor conforme avance su exposición para:

1) Excavaciones 4) Levantados hidrófugos

2) Concreto de limpieza 5) Impermeabilización de zona hidrófuga

3) Pastilla de concreto 6) Solera de humedad 7) ACERO DE REFUERZO

8) Tacos de recubrimiento (silletas plásticas) 9) Alambre de amarre 10) Rellenos compactados

LEVANTADOS HIDRÓFUGOS

(Proyectados a todo lo largo de los ejes de la casa)

Lh = [((5x2)+(3X2))A + ((5X2)+(10X2))B + ((4X2)+(5X2))C + 3 + 6 + 6 + 5] = 16 + 30 +18 +20 =

LIBRETA DE CÁLCULOS:

Longitud = 84.00 m

Asumiendo 0.60m de levantado hasta la solera hidrófuga incluida y 0.40m de blocks

1. Levantado hidrófugo = 84 x 0.40 (altura de block) = 33.60 m²

Cantidad de blocks = 33.60 m²x 12.5 blocks/m² = 420 blocks 2. Solera asumida de 0.20 m x 0.15 m

ESTRATEGIA:

IMPERMEABILIZACIÓN

HIDRÓFUGA (APLICADA CON RODILLO y/o BROCHA)

ALTURA DE LA IMPERMEABILIZACIÓN HIDRÓFUGA en m (MULTIPLICADA POR 2)

EJEMPLO:

ALTURA EXTERIOR = 0.60 m

ALTURA INTERIOR = 0.60 m (Esto es: 2 x 0.60 m = 1.20 m)

En una longitud de 84m solo por una cara

Área = 1.20 x 84 = 100.80 m²

ESTRATEGIA: RELLENO EN ZONA HIDRÓFUGA

(REALIZADO CON PALA Y MAZO DE COMPACTACIÓN)

SECCIÓN TRANSVERSAL DEL RELLENO EN ZONA HIDRÓFUGA en m (MULTIPLICADA POR 2)

EJEMPLO:

ÁREA EXTERIOR = 0.15 x 0.60 m

ÁREA INTERIOR = 0.15 x 0.60 m (Esto es: 2 x 0.09 m = 0.18 m²)

En una longitud de cimentaciones de = 82.80 m

0.125 X 0.60= 0.075 m² 0.075 m² x 2 = 0.15 m² 0.125 x 0.60 = 0.075 m²

0.15 X 0.60 = 0.09 m² 2x0.09=0.18m²

m² x 2 = 0.150 m² 0.30 X 0.60 = 0.18 m²

https://youtu.be/6Q0E0bLyzkI

ESTRATEGIA: FORMALETA DE SOLERA DE HUMEDAD

Igual para todas las soleras (comprar 2 juegos)

UBICACIÓN DE LA FORMALETA DE LA SOLERA DE HUMEDAD EN

CANTIDAD DE TABLAS Y PIES TABLARES

LONGITUD TOTAL DE EJES = DIGAMOS 84 m

LLEVA SEPARADORES EN 3/8 “ A CADA 40 – 60 cm

PIES TABLARES = ((12 X 2.54/12) X 10 X 58 = 1,473.20 PT ÍNDICE = 1,473.20 PT / 84 m = 17.53 PT/ m de solera **

TABLÓN DE 12 X 2 ½” X LARGO PIES

Acero de 3/8” separador

Amarrado con alambre de amarre

Solera de humedad (hidrófuga)

UNA VISTA AL EXCEL

Cimentaciones

Ejemplo s

EJEMPLO

DETALLAR LONGITUDES DE CIMENTACIONES Y EJES

FALTA LA FORMALETA DE LA SOLERA DE HUMEDAD QUE ES
UNA PREGUNTA DE CLASE.

EJEMPLOS DE TRABAJOS DE AÑOS ANTERIORES

EJEMPLOS DE TRABAJOS DE AÑOS ANTERIORES

EN UN SOLO LIBRO

EJEMPLOS DE TRABAJOS DE AÑOS ANTERIORES

EJEMPLOS DE TRABAJOS DE AÑOS ANTERIORES

POR

ESPECIALIDADES

EJEMPLOS

Turn static files into dynamic content formats.

Create a flipbook
Issuu converts static files into: digital portfolios, online yearbooks, online catalogs, digital photo albums and more. Sign up and create your flipbook.