AG1_2025_Introducción_Instalaciones eléctricas 2025

Page 1


INSTALACIONES ELÉCTRICAS

GENERALIDADES CON BASE EN PLANOS

Administración y Gestión 1 2025

Sección ingeniero Stolz

Abril 1

Contenido de la sesión del 1 de abril

Subestación eléctrica (definición)

Esquemas de subestaciones eléctricas Acometidas

Instalaciones eléctricas (Fuerza)

Instalaciones eléctricas (Iluminación)

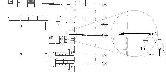
Pararrayos

Fosa a tierra Fotografías

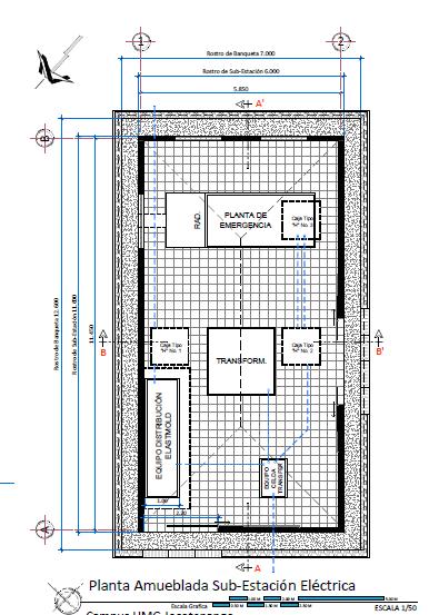
Subestaciones

Subestación

Una subestación eléctrica es una instalación dentro del sistema de generación, transmisión y/o distribución de energía eléctrica que cumple funciones esenciales para el control y la transformación de los niveles de tensión (voltaje).

Su objetivo principal es ajustar el voltaje de la corriente eléctrica a los valores requeridos por las líneas de transmisión, las redes de distribución y, finalmente, los usuarios finales. Además, en la subestación se llevan a cabo procesos de protección y maniobra (conmutación o corte de circuitos) para garantizar la seguridad de la red y la confiabilidad del suministro eléctrico.

Manual de Subestaciones. Red Eléctrica de España, 2018.

Manual de Subestaciones. Red Eléctrica de España, 2018.

Subestaciones

Ubicaciones:

Planta de emergencia

Cajas tipo H Transforador

Distribución Elastimold

Equipo celda Transferencia

Componentes

Seguridad

Acometidas eléctricas

Acometidas eléctricas

La acometida eléctrica es el conjunto de elementos y conductores que realizan la conexión entre la red de distribución de la compañía suministradora y la instalación eléctrica interna de un inmueble.

Incluye, por lo general, el tramo de línea desde la red de baja tensión hasta el cuadro o armario de protección y medida (donde se encuentra normalmente el contador), así como los dispositivos de protección necesarios para garantizar la seguridad y la fiabilidad del suministro.

En otras palabras, la acometida es el enlace fundamental entre la empresa distribuidora de electricidad y el usuario final (viviendas, edificios, instalaciones industriales, etc.), de manera que su correcto dimensionamiento y ejecución son esenciales para cumplir con los requisitos de seguridad y eficiencia energética establecidos por la normativa.

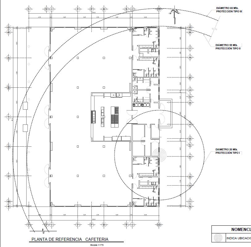
Planta de cafetería
Planta central del complejo

Instalaciones eléctricas

Restaurante

Fuerza (Extracto para circuitos F-G-H-I-J)

(Extracto para circuitos A-B-C-D-E-J-K)

https://new.abb.com/products/es/2CTH030004R0000/pulsar steel

https://new.abb.com/products/es/2CTH030004 R0000/pulsar-60-stainless-steel

https://www.nvent.com/en-us/erico/products/grounding

https://www.nvent.com/enus/erico/products/grounding-and-bonding

Fotografías

Subestación Centro Comercial XXXX XXXX

Muxbal / 12 de junio de 2013

Turn static files into dynamic content formats.

Create a flipbook
Issuu converts static files into: digital portfolios, online yearbooks, online catalogs, digital photo albums and more. Sign up and create your flipbook.