J Maligne

Page 1

LES THERMES DE VALS

SOMMAIRE PETER ZUMTHOR 3 LES THERMES DE VALS 16 MON OPINION 27

PETER ZUMTHOR

Peter Zumthor, né à Bâle le 26 avril 1943.

C’est un architecte suisse, lauréat du prix Pritzker 2009.

De 1958 à 1962, Peter Zumthor effectue un apprentissage d’ébéniste auprès de son père Oscar Zumthor à Oberwil près de Bale. Il étudie ensuite l’architecture d’intérieur à Schule für Gestaltung de Bâle et enfin, dans les années 1960, l’architecture à l’institut Pratt de New York.

À partir de 1968, il exerce auprès des monuments historiques du canton des Grisons. En 1979, il ouvre son agence à Haldenstein. Son travail de restauration lui a permis d’étudier les construction et les qualités des différents matériaux de construction rustique. Au fils des projets, Zumthor intègre ses connaissances des matériaux à la construction et aux détails modernes. Dans ses édifices, il explore les qualités tactiles et sensorielles des espaces et des matériaux tout en conservant un sentiment minimaliste.

3

En 1994, Il est élu membre de l’Académie des arts de Berlin. En 1998, il reçoit le prix Calsbergs d’architecture pour le musée de Brégence (Kunsthaus Bregenz) et les thermes de Vals.

Depuis 1996, il est proffesseur à l’Académie d’architecture de l’université de la Suisseitalienne à Mendrisio.

En 2009, il est désigné lauréat du pric Pritzer par la fondation américaine Hyatt pour l’ensemble de son peuvre, dont les thermes de Vals, qualifiés de chef-d’oeuvre.

En 2014, il reçoit le prix du FILAF d’argent au Festival international du livre d’art et du film et Perpignan pour son ouvrage réalisé avec Thomas Durish, Peter Zumthor Buildings & Porjects, 1985-2013.

4

Sa conception de l’architecture

Peter Zumthor définir l’architecture non comme un message ou symbole, mais comme enveloppe et arrière-fond de la vie qui passe : «un récipient sensible au rythme des pas sur le sol, à la concentration du travail, au silence du sommeil». Sonarchitecture à très souvent un lien avec son enfance : son expérience du monde constitue sa base de travail. La réalité de l’architecture est le concret. Il perçoit les formes, le smasses et les espaces en architecture comme un tout.

Sa conception du projet

Il s’occupe personnellement de tous les projets, des esquisses jusqu’au dernier détail. Son travail de conception est un processus long qui «commence avec et renvoie à la notion d’habiter».

5

SES CRÉATIONS

6
Home for citizens - Chur Graubüden Switerland 1993

Kunsthaus Bregenz - Bregenz Vorarlberg Austria 1997

7
8 Luzi House Jenaz Prättigau Switzerland 2002
9
Kolumba Art Museum - Köln Germany 2007
10
Steilneset Memorial for the Victims of the Witch Trials Vardo Norway 2011
11
Werkraum Bregenzerwald Andelsbush, Austria 2012
12 Leis Vacation Homes Vals Graubûden Switzerland 2013
13
New Studio Zumthor - Haldenstein Graubünden Switzerland 2016
14
Allmannajuvet Rest Area and Museum Sauda Norway 2016
15 Secular
2018
Retreat Devon UK

LES THERMES DE VALS

Pour Peter Zumthor, la qualité architecturale d’un bâtiment dépend des sensations ressenties : « faire l’expérience de l’architecture, c’est toucher, voir, entendre, sentir son corps » Ainsi, l’atmosphère révèle des émotions en lien direct avec ce qui nous entoure.

Dans les Thermes de Vals, les sensations sont mises en avant, créant une symbiose entre le corps et l’architecture.

16

Ce bâtiment, source de la notoriété de P.Zumthor, est un exemple de sa méthode de travail. Lors d’une premiere reunion. des imades tortes de sensations qu’il qualifie de naïves, sont sélectionnées afin d’être transformées en architecture.

Dans le cas des thermes, l’image de référence fut celle d’une caverne sombre, où la lumière est rare, filtrée par des interstices à travers la toiture. Le bâtiment s’intègre dans le flanc d’une montagne en totale fusion avec le site. Ses façades fermées lui procurent une dimension mvsterieuse.

17

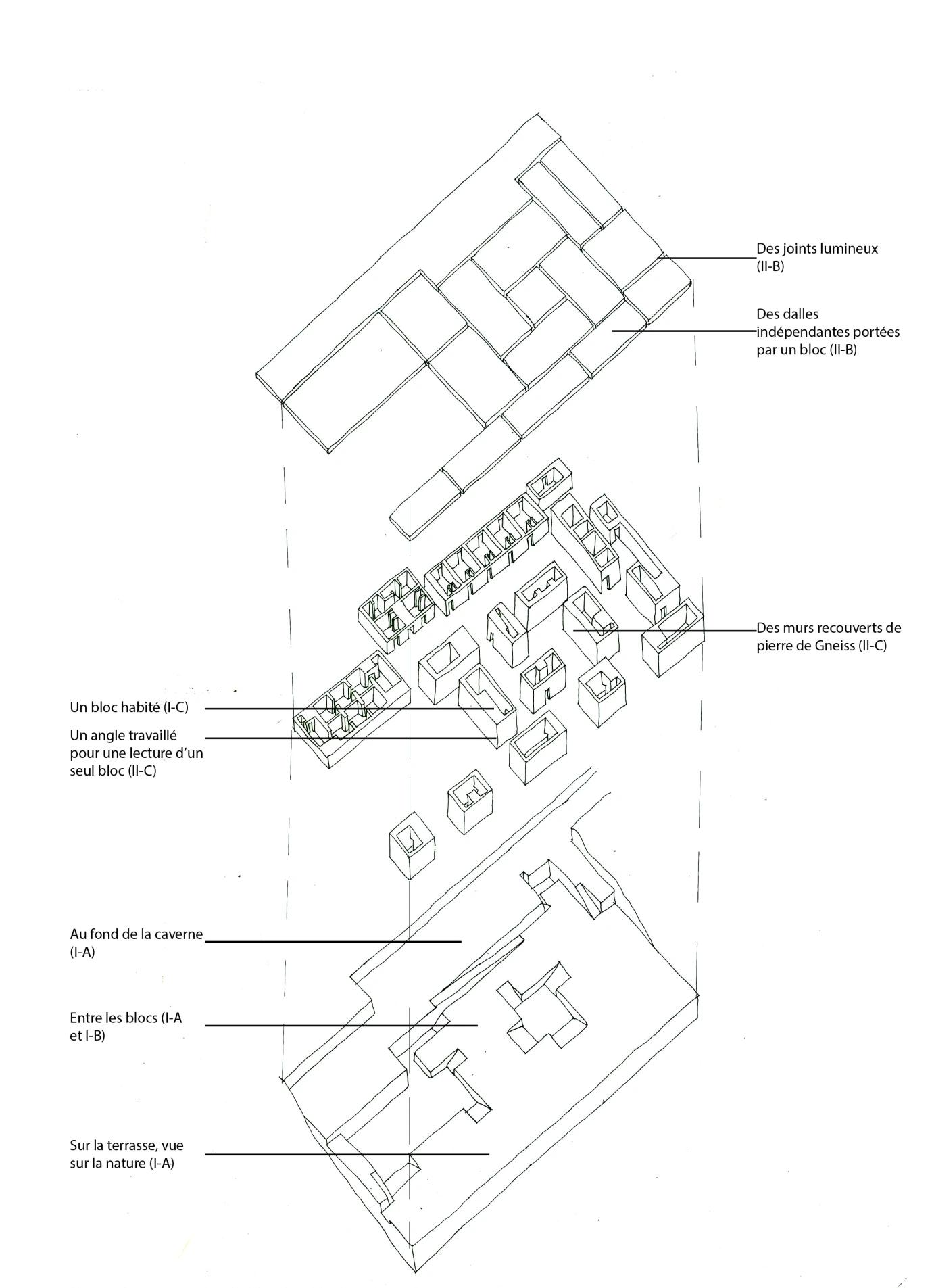
L’entrée, souterraine, se situe au niveau de l’hôtel. Ce tunnel, sombre, intrique et mène à la caverne. A l’intérieur de celle-ci, une déambulation se crée par la présence de blocs de pierre. Ces derniers rappellent chez P.Zumthor ceux d’une carrière laissée à l’abandon avec des blocs de pierre extraits, mais pas usinés. une sculpture forgée par le temps et les forces de la nature. Le jeu savant des différents éléments d’architecture et de sensations se dévoile avec clarté.

Chacun de ces éléments, en relation avec les autres, prend une autre dimension dans cette œuvre.

18

La sensation d’être dans une caverne se dégage alors. De plus, l’absence de lumière naturelle coupe l’usager de l’extérieur.

Passée cette étape, l’usager arrive au milieu de la caverne. Des blocs formant des plans verticaux en relation avec les plans horizontaux du sol et du toit l’accueillent. Ces différentes facettes de mur sont disposées afin que la déambulation soit libre.

Une traversée de caverne Trois paliers d’intimités composent le bâtiment conçu par Peter Zumthor. L’entrée des thermes de Vals s’apparente à un fond de caverne. L’accès, imperceptible depuis l’extérieur, s’effectue par un tunnel provenant de l’hôtel des bains. La profondeur du couloir (trente mètres) écrase les proportions. Il donne une premiere sensation d’entermement et annonce un espace clos. Une lueur annonce au loin l’entrée des Thermes. P.

Zumthor confronte les usagers à la masse, à la corporalité de l’architecture.

19

La lumière appelle vers des lieux inconnus où de nouvelles sensations softriront au visiteur.

Au bout de la déambulation se situe la partie extérieure de la caverne. Cette partie est source d’une véritable ambiguïté dans sa perception.

En effet, à travers de larges ouvertures, la montagne apparaît, mais la présence de la masse la trouble. La recherche de la tension entre intérieur et extérieur est un des points de l’architecture de P.Zumthor.

20
21
22

Cette tension est obtenue par un rapport au site particulier du bâtiment. En effet, les Thermes viennent s’insérer dans la pente de la montagne, comme un accident naturel. Il souhaitait un bâtiment qui se confond avec l’environnement pour donner un édifice plus grand.

Aux Thermes de Vals, la présence du bâtiment est peu visible, il suit la pente de la montagne. La toiture végétalisée poursuit la végétation de la montagne, et seules les lignes entre les toitures viennent briser cette continuité et indiquent une construction.

23

P.Zumthor y a conçu des espaces avec comme pensée : « L’architecture connaît deux manières fondamentales de définir un espace : le corps fermé, qui isole en son intérieur un espace, et le corps ouvert, qui enferme un fragment d’espace à l’infini du continuum spatial.»

Différentes atmosphères composent le bâtiment selon les espaces. Pour cela P;Zumthor a défini des volumes aux dimensions précises pour obtenir une ambiance particulière. Souvent parallélépipèdiques, ils nécessitent des accès. Ainsi tout élément autre que l’accès et le volume sensoriel sont laissés libres. Les lieux liés à l’eau sont positionnés dans la partie centrale des thermes.

24

Tandis que les espaces de repos sont en limite du bâtiment afin que les visiteurs puissent observer les paysage. La hiérarchie conçue par P;Zumthor est arypique. En effet, d’une manière génerale, les espaces servants ont une volumétrie restreinte par rapport aux espaces servis. Ces derniers sont généralement plus spacieux. Des couloirs peu larges desservent ainsi des pièces spacieuses.

25
26

MON OPINION

J’apprécie tout particulièrement Les thermes de Vals de Peter Zumthor car c’est le genre d’endroit qui respire le bien être.

Ce bâtiment est un mix parfait entre brutalisme, avec ses murs de pierres et ses lignes droites, et douceur avec ses bassins et son payage à couper le souffle. Le gris permet de souligner les couleurs extérieures comme intérieures raison pour laquelle il a également placé des lumières de couleur dans les bassins intérieus.

Quelque part, la rudeur des murs gris à un effet canalisateur permettant de se concentrer sur les autres éléments qui nous entourent. Ainsi, nos idées sont comme caressées et apaisées.

Même à travers des simples photos, les thermes de Vals est satisfaisant à regarder.

27
28
Maligne Jade
«Là où des matériaux concrets sont assemblés et édifiés, l’architecture imaginée devient une part du monde réel.»
- Peter Zumthor

Turn static files into dynamic content formats.

Create a flipbook
Issuu converts static files into: digital portfolios, online yearbooks, online catalogs, digital photo albums and more. Sign up and create your flipbook.
J Maligne by Adinterieur adinterieur - Issuu