
UNIVERSIDAD DE LIMA
CARRERA DE ARQUITECTURA

CÓDIGO DE ALUMNO 20220574
PRODUCIDO EN TALLER 5, NIVEL V PROFESORES: SEBASTIÁN TEJEDA Y TAMARA FLORES CICLO 2024-1
![]()

UNIVERSIDAD DE LIMA
CARRERA DE ARQUITECTURA

CÓDIGO DE ALUMNO 20220574
PRODUCIDO EN TALLER 5, NIVEL V PROFESORES: SEBASTIÁN TEJEDA Y TAMARA FLORES CICLO 2024-1



20220574@aloe.ulima.edu.pe
Software de Diseño
Autocad 2023
Revit 2023
Sketchup
Abril 2022 - Diciembre 2026
Universidad de Lima / Pregrado
Decimo Superior
Marzo 2017 - Diciembre 2018
Colegio Dalton / Secundaria
Decimo superior
Castellano Ingles Italiano frances S O B R E M Í
Estudiante de la facultad de arquitectura en la Universidad de Lima Mi visión profesional es crear, diseñar y dirigir grandes obras a nivel internacional. Soy una persona proactiva, confiable y segura . Dedico mi máxima energía al desarrollo de mis trabajos. Y estoy lista para enfrentar nuevos retos y crecer como estudiante de arquitectura
APTITUDES
Organización y planificación
Toma de decisiones
Mantenimiento de la limpieza y el orden en el espacio de trabajo
Atención y concentración
Habilidades comunicativas
ACTIVIDADES ACADÉMICAS
PRESENTACIÓN: "LIMAQ", NROS. 9 Y 10 / UNIVERSIDAD DE LIMA, AUDITORIOS O1 / 14/04/2023
METODOLOGIAS PROYECTUALES: LA FORMA EN LA ARQUITECTURA / UNIVERSIDAD E LIMA / AUDITORIO O1 / 14/06/2023
REFLEXIONES ACERCA DE LA ACCESIBILIDAD UNIVERSAL EN ARQUITECTURA/ PRESENCIALUNIVERSIDAD DE LIMA/ 2 DE JUNIO 2023
ESPACIOS PARA USUARIOS CON DISCAPACIDAD/ PRESENCIAL- UNIVERSIDAD DE LIMA/ 12 DE JUNIO 2023
METODOLOGÍAS PROYECTUALES/ UNIVERSIDAD DE LIMA/ 23 DE MAYO DEL 2022










El encargo cons ste en una propuesta de intervención en la zona del Jr Centenario, desde la Av N de Piérola hasta la Plaza Butters, destacando e Óvalo Balta y el Parque Malecón de Barranco Se debe reconocer e ident f car e es transversales como plazaparque, plaza-ed f cio calle-comercio, entre otros, para proponer rehab litac ón, ntegración y nuevos usos
El entregable fina consiste en 2 lám nas A-0 que incluyan:
Planta y corte de estado actua 1
Planta y corte de la propuesta 2
Plano del estado actual 3.
Propuesta en 3D urbana 4.


COMENTARIO
Como estud ante de arquitectura, este proyecto me permitió profund zar en el anál s s y la intervención urbana En el primer encargo, exp oramos detalladamente el eje que incluye la Plaza Butters, Jr Arica, Óva o Balta, Av Nicolás de P érola y Jr Centenar o, investigando variables cruciales como contam nación, mater alidad, uso del suelo, señalización, alturas, vegetación uso por parte de los usuarios e iluminac ón Esta base de aná is s fue fundamental , donde ap icamos este conoc miento a una propuesta concreta de intervención en el área, integrando la rehabilitación y nuevos usos de espac os clave, y presentando nuestras ideas a través de plantas, cortes y modelos 3D urbanos. Este proceso ha enriquecido mi comprensión del diseño urbano y su impacto en la comunidad
Diseño y reconfiguración de espacio e infraestructura pública en espacio frente al Ovalo Balta (esquina de Balta y Jr Progreso) La propuesta debe contener:

4 und de ss hh (un sex, acceso universal) No debe haber reg stro visua de las puertas
Iluminación y ventilación natura obligatoria.
Batería de pozas de agua lavatorios y bebederos, de libre acceso (sin puerta)
Pedestal (mirador) que llegué a NPT+4 00
Espacios de sombra y as ento Árboles como parte de la propuesta











PRIMERA PLANTA
El encargo cons ste en diseñar la ocupación de los otes y defin r el programa arquitectónico, enfocándose en la re ac ón entre espacio público y pr vado, y desarrollando figuras de llenos y vac os Incluye investigación de referentes culturales y la presentación de una maqueta de vo umen, planta de llenos y vacíos, y un panel expl cativo.
COMENTAR O
En este encargo, aprendí a equilibrar la relación entre espac o públ co y pr vado, desarrollando estrategias para integrar lo lleno y lo vacío en un contexto urbano Además entendí a importancia de nvestigar referentes para def nir programas arqu tectónicos efectivos y coherentes








ENCARGO

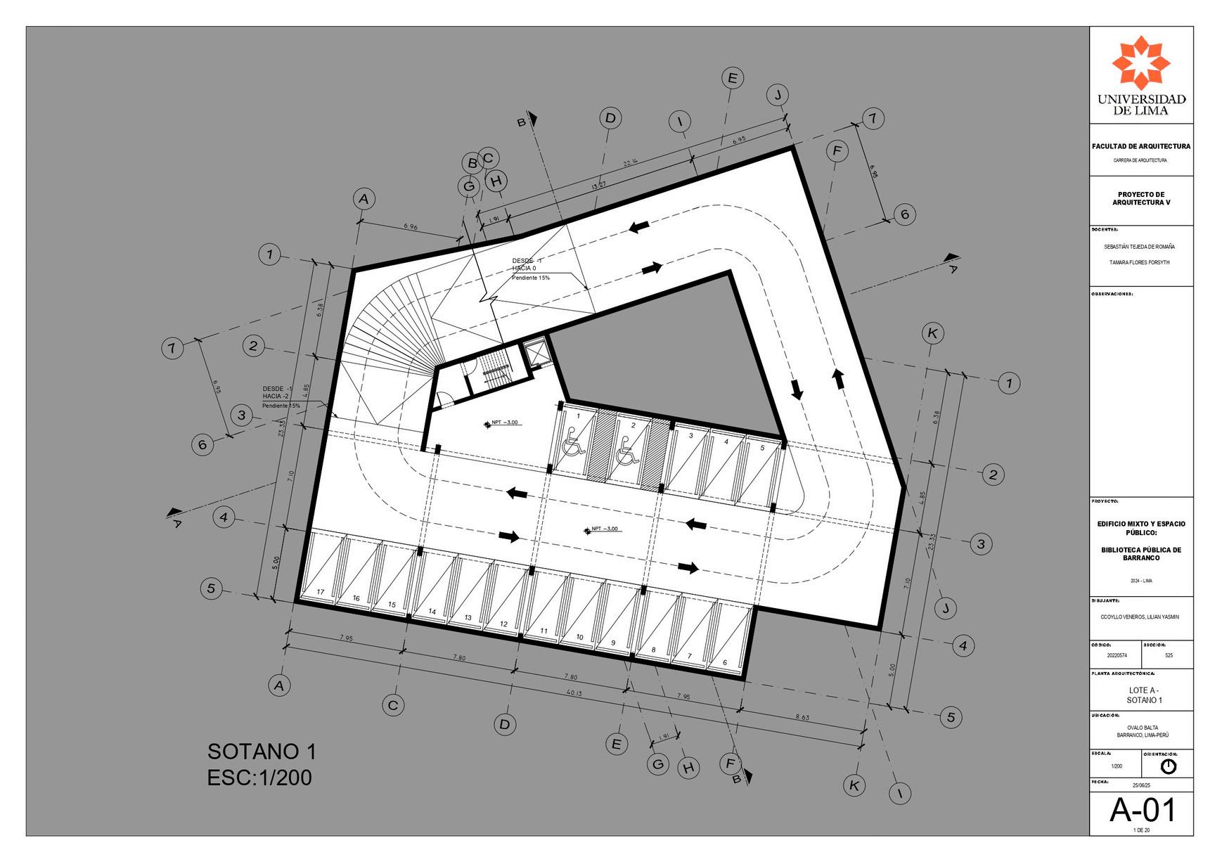
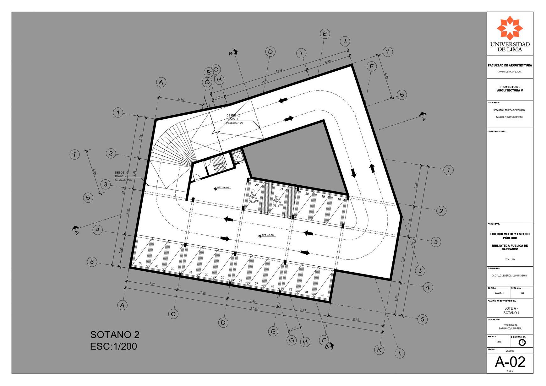
En el encargo, definimos espacios como los estacionamientos subterráneos, lo que determ nó la ub cación de las columnas. Además, el programa arquitectónico se consol dó en las áreas propuestas La entrega incluyó planos del nivel de calle y cortes para mostrar la ub cación y relaciones espaciales, y la maqueta en escala 1/200 destacó los espacios y propuestas de cerram ento


E cambio de escala en este ejercicio fue clave para a ustar y entender a relación entre los d ferentes elementos del proyecto Aprendí a ntegrar estacionamientos subterráneos y columnas en el d seño, y a consolidar el programa arqu tectónico de forma coherente
ENCARGO
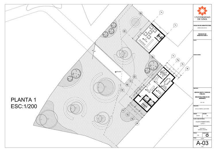
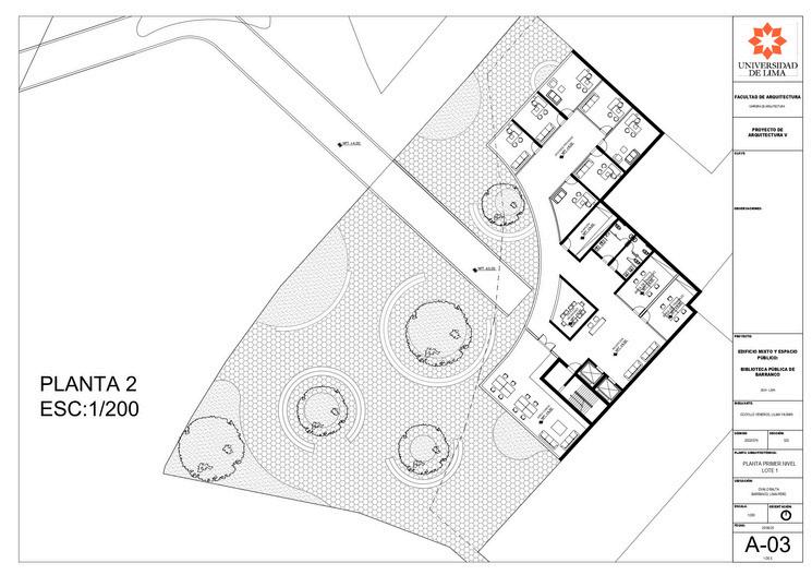
Se trabajó una entrega gráfica, un corte axonométrico en corte, formato A2 Dos maquetas independientes en base en escala 1/100 y los planos finales en esca a 1/200.
ENCARGO
Se traba ó una entrega gráfica, un corte axonométr co en corte, formato A2. Dos maquetas independientes en base en escala 1/100 y los planos finales en esca a 1/200


















1/100
LOTE A




1/100 LOTE B


PROYECTO DE ARQUITECTURA V
NOMBRE DEL CURSO
Proyecto de Arquitectura V
SECCIÓN
525
NOMBRE DEL PROFESOR
Sebastián Tejeda / Támara Flores
SUMILLA DEL CURSO
Proyecto de Arquitectura V, es una asignatura obligatoria TeóricoPráctica, que forma parte del Taller Vertical. Su desarrollo temático gira en torno al diseño de un objeto arquitectónico o un conjunto de objetos arquitectónicos vinculados o tributarios a un espacio público urbano
OBJETIVOS
Intervenir el espacio urbano y proyectar un edificio de uso mixto en función a las dinámicas entre los usuarios y lo construido
1 Enfatizar el rol de la arquitectura dentro del paisaje
2 Considerar el rol de los usuarios dentro de la configuración del paisaje urbano
3 Conceptualizar la relación entre espacio público, espacio semipúblico y espacio privado.
4. Objetivos de Desarrollo Sostenible - ODS: Página 2 de 5
- Lucha contra la pobreza (ODS 3,9,11)
- Cuidado del planeta (ODS 13,15)
- Respeto a la diversidad (ODS 5,10)
5 Temas RIBA desarrollados en la asignatura:
- Tema 1: Salud y seguridad en la vida
- Tema 2: Práctica ética y profesional
- Tema 3: Estructura, construcción y recursos
- Tema 4: Historia, teoría y metodologías
- Tema 5: Pedagogías de diseño y expresión arquitectónica
CONSOLIDADO DE MATRÍCULA

En este curso, a través de los ejercicios realizados, he aprendido a abordar la complejidad del diseño urbano y arquitectónico desde múltiples perspectivas, siempre considerando la relación entre lo público y lo privado Reflexionando sobre el curso en su totalidad, me doy cuenta de lo valioso que ha sido para mi formación como arquitecto Estos ejercicios me han preparado para enfrentar desafíos reales en el diseño urbano, equilibrando la estética y la funcionalidad Este conocimiento será fundamental como estudiante, permitiéndome diseñar espacios que respondan adecuadamente a las necesidades del entorno urbano. El curso me ha dado herramientas prácticas y teóricas para abordar proyectos complejos con confianza y creatividad, lo cual será invaluable en mi futura carrera como arquitecta
Como estudiante de arquitectura, la exposición anual de maquetas de la Universidad de Lima fue una experiencia muy enriquecedora Me permitió ver de cerca la creatividad y el esfuerzo de los alumnos en proyectos de todo el año, desde los Talleres Básicos hasta el Proyecto Fin de Carrera Aprendí mucho observando las diferentes soluciones y enfoques que cada uno utilizó para resolver los problemas planteados Lo que más me gustó fue la oportunidad de compartir ideas y aprender de los proyectos innovadores de otros estudiantes Esta experiencia es clave en mi formación profesional, ya que me ayuda a mejorar mis habilidades y a inspirarme para futuros proyectos
ENCARGO
Este trabajo anal za la oferta de departamentos en el distrito de Lince, que ha crecido significat vamente en los últimos años por su atractivo para vivir trabajar e invertir Se recopilaron datos de 200 ofertas de d versas nmobiliarias y se encuestaron 80 personas para anal zar las prioridades de los usuarios al elegir un departamento La nvestigación identificó variables clave comparándolas y clasificándolas, y presentó los hallazgos en una nfograf a que resume todo el análisis real zado
COMENTARIO
Este traba o me permitió entender y aprender a recolectar datos sobre la demanda y las preferencias de las personas en relación con los departamentos ofertados en Lima Metropolitana. Además, el curso será útil en mi vida profesional, ya que en un proyecto hay mú tiples var ables, y la estadística es fundamental Util zaré el análisis de datos y diversas herramientas para tomar decisiones informadas y comprender las var ables y necesidades de las personas
SECCIÓN: 325
PROFESOR: Jessica Muñoz Grados de Flores

E modelo de departamento ser a a ten endo un á ea de 37 a 60m2 con un prec o categor zado es ándar s endo más acces ble As m smo las tab as son ind cadores de que los compradores optan por buscar o comprar departamentos que ya es én constru dos, también ex s e una tendencia mayor a no tener todas las 6 áreas comunes en los departamentos o ertados ya que so o el 3 5% cuentan con el as tamb én e número de habitaciones deseadas ser an 2 y la distr buc ón perm r a 2 baños E ed c o ser a ecoam gab e deb do a que el 61 5% de os ed fic os nvestigados un o con as nmobi arias presentan una v sión donde e entorno sea más sosten b e a la vez se busca que no sea petfr endly h p //wwwadondevv com/proped des/cas cado/acapn-aqu o- ndodepa amen o-de-es eno-en- nce- m e- 4328675 h m
POBLACIÓN
Todos los departamentos en venta en e d strito de L nce durante el mes de abr 2024
MUESTRA
200 departamentos en venta en e d str to de Lince durante e mes de abri 2024
DEPARTAMENTOS QUE SI CUENTAN CON SALA DE REUNIONES O EVENTOS
Un departamento en venta en el distr to de L nce durante el mes de abril 2024
UNIDAD DE ANÁLISIS ÁMBITO
D str to de Lince
DEPARTAMENTOS QUE NO CUENTAN CON SALA DE REUNIONES O EVENTOS
SECCIÓN: 522
PROFESOR: Iván Raúl Izquierdo Casafranca
COMPONENTES RECTANGULARES DE UNA FUERZA
A. En dos dimensiones
B. En tres dimensiones
EL MOMENTO DE UNA FUERZA ES LA MEDIDA DE COMO UNA FUERZA
APLICADA HACE GIRAR UN CUERPO RESPECTO A UN PUNTO
A. Escalar C. Teorema de varignon

Mo: momento
F: fuerza
d: d stancia
B. Vectorial

Resultante de vectores:
Resultante :
Magnitud:

Dirección:

Magnitud:

Relación de ángulos:
Dirección:


OBJETIVO
EL CENTRO GEOMÉTRICO DE UN CUERPO(CENTROIDE) NO NECESAR AMENTE CO NCIDE CON SU CENTRO DE MASA(O GRAVEDAD)
Mo: momento
F: fuerza
r: posición



B. Signos - + Horario Antihorario
UNA PART CULA ESTÁ EN EQU LIBRIO SI ESTÁ EN REPOSO O SE MUEVE EN LÍNEA RECTA A VELOC DAD CONSTANTE, SI YA ESTABA EN MOV MIENTO
A. Sistemas de apoyo
Móvil (1 reacción)
B. Equilibrio fórmulas


C. Ejemplo de ejercicio con carga distribuida
Simple ( 2 reacciones)


Pasos para real zar un e ercicio:
1 Divid r la superf cie en f guras conoc das
2.Halalr áreas de cada figura y sumar. 3 Hal ar centro de gravedad de cada figura (coordenadas) 4.Multipl car e área de cada f gura para su coordenada en “ x ” y lo mismo con “ y ” . y dividir valores obtenidos entre e área total
LOS MARCOS SON ESTRUCTURAS QUE ESTÁN COMPUESTAS POR MIEMBROS MULT FUERZAS CONECTADOS MED ANTE PASADORES (PERNOS,ART CULACIONES)
A. Ejemplo de ejercicio de marcos



Empotramiento (3 reacciones)
Realizar dc y identificar las reacc ones en los apoyos 1 Sumator a de fuerzas en el e e x 2 Sumatoria de fuerzas en el eje y 3. Calcular momento desde un punto de g ro en el que se anu en más fuerzas 4
Remplazar valores y hallaras las reacciones en los apoyos 5.

Realizar dcl de todo el marco como s fuese de una sola p eza (no considerar pernos), identificar las reacciones en los apoyos, transformar en puntuales equiva entes, acotar
Resolver las ecuaciones de equ libr o para el marco completo: sumatoria fuerzas en Fx, Fy y calcular el Mo. 2 Separar los miembros, aparecen fuerzas internas en los pines 3 Realizar los DCL de cada uno de los m embros por separado 4 Reso ver las ecuac ones de equil brio para cada miembro Tomar en consideración primero el momento desde el pin 5
El curso de estructuras I del ciclo 2024-1 se centró en capacitar en la resoluc ón de sistemas isostáticos mediante ecuaciones de equilibrio y diagramas de fuerzas internas en vigas Además, se desarrollaron hab lidades en el aná is s de sistemas estructura es complejos Tamb én se profundizó en el func onam ento de armaduras y en el cálculo prec so de fuerzas, enriqueciendo la comprensión de mundo físico y las habilidades matemáticas. El curso me proporc onó una base sólida en la resolución de s stemas estructurales y e anál sis de fuerzas, hab lidades fundamentales como para cualquier estudiante de arquitectura Aprendí a aplicar ecuaciones de equil brio Este conoc m ento es crucia no solo para e diseño estructural, s no también para comprender mejor cómo las fuerzas interactúan en los edificios y otras estructuras en la vida cotid ana como estudiante Dom nar estas habi idades no solo mejora mi capacidad para diseñar proyectos arquitectónicos que sean estéticamente atract vos s no también funcionalmente sólidos Esto es esencial para asegurar la viabilidad y la seguridad de mis d seño COMENTAR O
En el presente trabajo se analizó y comentó con gráficos la arqu tectura de Fi ppo Brunellesch En una primera parte se explicaron las innovaciones arquitectón cas que realizó e introdu o en su arquitectura respecto al gótico y estilos anter ores En una segunda parte, se analizaron dos construcciones (una de planta longitud nal y otra central zada) en as que se evidenciaron estas novedades y se analizaron: los elementos formales, sustentantes y sustentados, el ritmo, la armonía, entradas, salidas, uso de os espacios, etc
¿QUE APREND ?
Como estud ante de arquitectura, aprendí sobre la importancia de las innovaciones de Filippo Brunellesch en la transición del estilo gótico a a arquitectura renacentista. Analicé cómo sus obras ejemp ifican un nuevo enfoque en el uso de proporc ones, simetría y armonía, as como la aplicación de técn cas construct vas avanzadas También comprendí cómo Brunelleschi utilizó los espac os nteriores y exteriores para crear una experiencia arquitectónica coherente y flu da, destacando los elementos sustentantes y sustentados en sus diseños Este estudio me perm tió valorar la influencia de Brunelleschi en a evolución de la arquitectura moderna
Método constructivo: La Cúpula

f guran AxonometradelaCúpuladeFlorencia Fuente Chng 20 1 P3
Intervendopor YasmnCcoyllo 2024
SegúnCh ngetal (201 ) en1488seconvocó aunconcursoparaabordarelproblemade unaaberturaeneltechodeSantaMaríade las Flores Brunelleschi emergió como el ganador grac as a su nnovadora y astuta propuesta de un método de construcción delacúpulaquerequer aelusom n mode cimbras de madera Su desafío no se l mitó ún camente a la tarea de er gir la bóveda, sino que también implicó encontrar una maneradereducirlosempu eslateralesde la cúpula sin depender de contrafuertes externos
Como señala Ching et al 2011 Brunellesch desarrolló una estructura curva con nervaduras en celosía para la cúpula reforzada con un zuncho metálico en su base para contrarrestar los empujes hor zontales res duales, y ut l zó ladrillos en esp na de pez para garantizar una mayor cohes ón como se muestra en la figura n 1 Este método perm tió una construcción n cial sin necesidad de estructuras de apoyo ya que cada capa se cohes onaba con la sigu ente mientras se aproximabaalcentro
Soloenlafasefinalserequir óunac mbrasuspendida acúpulanosecerrócompletamente terminando enunóculodeaproximadamentesietemetrosded ámetro Paragarant zarquelosnerv osfuncionarana compresión,en1446seconstruyóunalinternamáspesadadelohabitualsobreelóculo,proyectotamb én de Brunelleschi A pesar de estar inspirado en el Panteón de Agripa el s stema constructivos es d ferentes
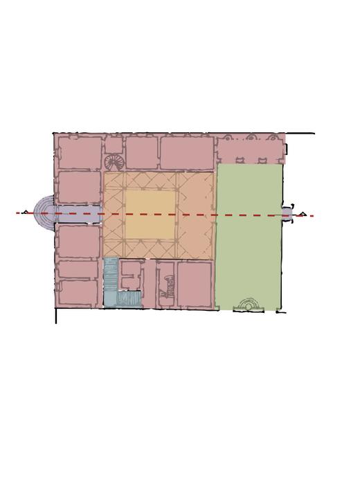
CONTEXTO URBANO Y UBICACION
Laactualiglesiatuvoungran mpactoenlahistor a del lugar pues esta fue construida enc ma de las ruinas de un convento agustino pertenec ente al sigloXIII SegúnKoftof 1988)duranteelaño1269,los monjes agustinos construyeron en la zona donde hoy está Santo Esp ritu un convento y una pequeña gles a enfrente de ésta se reun an los florent nos para escuchar las pred caciones de los mon es, posteriormente fue destruido por un ncendio ocasionado en 137 Brunelleschi comenzó los d señosdelnuevoedific oaprinc p osde1444 luego de su muerte en 1446 el trabajo fue continuado modificado por sus seguidores Anton o Manett GiovannidaGaioleySalvidAndrea
FUNCIÓN Y COMPOSICIÓN:
Según Koftof 1988) Brunellesch d seño una planta longitudinal con forma de cruz lat na para la basílica Santo Espir tu La edificación está compuesta por una nave central y dos laterales en paralela, un transepto y un cruceroconcúpula Lasnaveslateralest enen adosadas a ella capillas semic rculares La iglesianofueterminadaporBrunelleschi,tras sumuertesehicieroncamb oseneld seño,los muros terminaron s endo rectos en todo su contorno, ocultando las cap llas sem circulares

F
SECCIÓN: 522
DOCENTE: María de la Paloma
Carcedo Muro de Mufarech
planta centralizada
Roth 2013) señala que uno de los pr meros ejemplos de edifico de planta cuadrada rematado por una cúpula es el de la cap lla de los Pazz de Brunelleschi Además nd ca que la expresión más clara del uso del circulo y el cuadrado como módulosgeneradoressealapequeña glesiadeSanta maria delle Carceri obra de Giuliano da Sangallo una planta central en forma de cruz griega como se muestraenla f guran 4
Según Roth 20 3 Esta técnica mpl caba la reorgan zación de los espac os arquitectónicos alrededor de un punto central en lugar de un eje lineal comoeracomúnenlaarquitecturaanterior BrunelleschiaplicóesteconceptoenlaCúpuladela Catedral de Florencia, donde diseñó un espac o central zado que enfatizaba la perspect va y la monumental daD
Ordenación racional del espacio
Según Roth 2013) El Hosp tal de los nocentes en Florencia, d señado por Brunelleschi marcó el primer ejemplo de ordenación racional del espacio Enesteproyecto seconstruyóunagaler aport cada con acceso d recto a la plaza caracterizada por columnas cor ntias monol t cas La disposición de estas columnas se plan f có de manera que la distancia entre cada una fuera igual a su altura, comoseilustraenla f guranº5

f guran 4 P antacentralzadadeSantaMaradelle Carcer Fuente Roth 20 3,P352 ntervenidopor YasmnCcoyllo 2024
Disposición modular Como señala Roth 20 3) esta disposic ón se basaba en una minuc osa organizac ón a través de relac ones proporcionales Los arqu tectos renacentistas buscaban la belleza deal en sus obras y para lograrlo adoptaron el círculo y el cuadrado como

f guran 5 pórticodelhospitaldelos nocentes Fuente Roth 201 ) P349 ntervendopor YasminCcoyl o 2024)
Según Kostof 20 5 Se le cons dera a Brunelleschi como el inventor de la perspectiva Aquello se observaatrevesdesusedificac ones Comoesenel casodelaiglesiaSantoesp ritu,seapreciacomosi estuviera proyectado en una retícula de perspectiva, eso le da un carácter artíst co ya que parecequeusuarioestaenunapintura



CONTEXTO URBANO Y UBICACION
Sensibilidad con el espacio urbano Alonso (2012) aborda la nnovación arquitectónica de Brunellesch centrándose en su sensibilidad hacia el espac o urbano Se d scute cómo Brunelleschi en su obra comoelHospitaldelosInocentes demostróuna comprensión profunda del entorno urbano como se muestra en la f gura nº6 además de tener una fachada abierta que nfluyó a las construcciones de la época Esta sensibilidad se manifiesta en su habilidad para ntegrar sus edificaciones en el te ido urbano existente se profundiza en cómo Brunelleschi aplicó los princ pios clás cos en sus d seños lo que contr buyó a la creación de una arqu tectura que armonizabaconelcontextoh stór coyculturaldela época



La Cap lla Pazz esta ubicada en el claustro de la bas l ca Santa Croce en Florenc a como se ve en la imagen Nº13 Según Rachiteanu (2015 fue encargada por Andrea Pazz cabeza de la familia Pazz en ese momento a Filipo Brunelleschi en 1430, justo en la f nalización de la obra de la Sacrist a Vie a de San Lorenzo para los Med ci Dos de las familias más importantes de Florencia así como r vales, la obra comenzóen1433 concierta lent tud en el proceso de construcción,enbasealos antecedentes se sabe que s rv ó como sala capitular ya que la anter or había s do destruida en un incend o Según Marcus (2023 la última obra de Brunelleschi es un espac o armon oso y med tativo marcado por un plan geométrico simple , que cumple con el orden f losófico y crít co del autor
FIGURA N 13 magen de contexto de a Cap a Pazzi
FUENTE: Goog e Ear h INTERVENIDO POR Mar ana Cast a 2024
FUNCIÓN Y COMPOSICIÓN:
Según Alonso (2012 la planta centralizada humanista se cons dera como la expresión apropiada de lo divino y de la armon a universal entre el m crocosmos y macrocosmos la cual era una visión religiosa de la época, además, de ser la capilla funerar a de la fam l a Pazzi y sirvió como estudio teológ co y filosóf co Además, según Rachiteanu 20 5 los princ palespuntosquetomóBrunelleschiparaeldiseñofueronlageometr a,losmodelos de la antigüedad clásica y la s metr a como se puede ver en la magen Nº 4 el retoma la concepción del espac o arquitectónico de hecho quiere la monumentalidad y la claridad delclasicismoantiguo
SegúnRoth(2013 estafueunadelasprimerasplantascuadradasrematadasconunacúpula







ENCARGO
PALACIO RENACE ACIO FARNESSE
CONTEXTO URBANO Y U El palac o Farnese se encuentra u Italia cerca al rio Tiber Según construccióndelaed f caciónini por el arqu tecto Sangallo el Jov del cardenal Alejandro Farn conv erto poco t empo después e III Según Roth (2013 en 534 tras cardenal Ale andro Farnese como Sangallo la ampl ac ón del pala encontraba en obra El palacio d terminadoporSangaloelJovend en 1546 Sino fue culm nada po quien hizo algunas mod f cac ón laed f cación ANÁLISIS ESPACIAL:
Observando la F gura 4 se puede palac o Farnese contaba con c niveles y 3 ventana en cada observando el plano de la ed f c deducimosquet eneunaplantad yunrecorr doque n ciaporelv gran patio central abierto q diferentes espacios Además trayector a recta el pat o te c ardíntrasero



Según Kostof ( 988 Enelsótanoye átcode edfcosealojabamembrosde clase in eror que trabaaban en el Palacio A su vez a planta baja estaba ocupadaporoficnas establos cocnasyotrosespacosquetenanaccesoala calle se alqulaban como vvenda o tienda El pano noble es donde se encontraba el dueño y el tercer pso lo usaban nvitados u otros membros secundarosdelafamila

BASILICA DE SANT’ ANDREA : LEÓN

Según Ch ng et al 20 1 SantAndreadeMantuasediseñóen torno a 1470 y se construyó entre 1472 y 1494 Alberti abandonó la tradic ón de las naves laterales y optó por una sola nave con bóveda decañónycapillaslaterales Roth(2013 , señala que Sant Andrea se s tuá al norte de tal a, Mantua Talcomosemuestraenla f guran 1 FECHA
FUNCIÓNYUSUARIOS
Según Chng et al 201) SantAndrea dsponadeunamplioespaciointeriorpara acomodara agrancantdaddeperegrno queacudíananualmentealaexposcónde lasangredeCrsto
MATERIALIDAD
Según Roth 2008, la nave de la iglesa SantAndreaestácubertaporunabóveda de cañón de ladrllo, adornada con

RASGOS MORFOLÓGICOS: COMPOSITIVO
Según Roth 2013) el arqu tecto renacent sta no contaba con un terreno l bre para constru r, por lo que tuvo que adaptar su preferencia por la planta central clásica a una estructura bas l cal gótica ya ex stente Por esta razón la fachada se integró al campanar o, resultando en una versión algo reducida que se diferenciaba del cuerpo princ pal de la iglesia Aunque Albert prefer a las plantas centrales basadas en cuadrados y c rculos debido a las preferencias de losclér gos desarrollóunaplantabasilicaltradic onalenformadecruzlatina moduladayproporcionada Además,enel nterior Albert d señóunadisposición centradaalrededordelcrucero,queasuvezdirigelaatenc ónhaciaelaltar El cubodelcruceroseextiendehaciaambosladosyhac aadelanteenformadetres bóvedasdecañón,formandolosbrazosdeltranseptoyelcoro,queterminaenun ábside sem circular Sin embargo esta disposic ón se cont núa de manera l neal extendiéndoseentrescruj asqueconfiguranlanavecentral,talcomosemuestra enlafiguran°3
PALACIO MEDICI-RICARDI DEL SIGO XV
Según roth 20 3) En la próspera Florencia mercantilde 444Cosme de Medc, cabeza de famlia quien gobernó una organizacón bancara y mercantil concbóe una gra famliar encargánd Michelozz arquitecto conservad ornamenta el Palaci nombrede enFlorenc a la basí Lorenzo posteriorm construrí puede ver n Ade Ching et proyectof dos déca con nflue prncpios Brunelles Davanzati palacosde CONTEXTO



l
Figuran 1 UbicacónycontextodelPa aco Medic-Rcardi
Elaboradopor MaranaCastil a2024
Según Ch ng et al 2011) el palacio Medici tiene solo tres plantas cuadradas ten endo en la planta ba a un pat o de una arcada de cuatro lados con un recorridoquellevaaunespacio ampl o al aire libre que serv a como log a de recepción y conducía a jardín trasero del palacio que por su proporción y elegancia tenía semejanza a una plaza pr vada como se ve en la Figura n°2 un escalera semipública desde una esqu na del patio hasta las cámaras más mportantes del p ano nobile
As mismo según Roth 20 3 nteriormente, las hab taciones estaban organizadas alrededor de este patio central y pese a su aspecto actual, se p ense que en su época debió bullir de activ dad, entre cl entes miembros de la fam l a, ar stas y escritores a los que Cosme patroc naba, el pat o estaba decorado de esculturas como el DaviddeDonatello

Figuran 2 PlantaycortedelPalacoMedc-Ricard Fuente Chngetal 201 Intervenidopor MaranaCastlla2024 y a E t d P cp A s P lc L P r E a a m b ANÁLISIS ESPACIAL

TEMPLETE DE SAN PIETRO IN MONTORIO: DONATO BRAMANTE
En este trabajo se analizaron un palacio renacent sta florentino o romano del siglo XV y otro del siglo XVI, explicando sus características formales con dibujos Además, se estudió la arquitectura de León Battista Alberti y Donato Bramante comparando dos construcciones y detallando sus elementos arquitectón cos clave del Renacimiento
¿QUE APREND ?
CONTEXTO URBANO Y UBICACIÓN
UBICAC ÓN ROMA ITALIA FECHA 1502- 510
En 1499, ba o el encargo de los leyes catól cos Bramante levantó un pequeño templo en el lugar donde se cree que enterraron a San Pedro San P etro in Montorio es considerado un convento de franciscanos españoles en Roma, según Roth (2013 paraestaobrasedebían ntegrarcaracteríst caseidealesde lanuevaarquitecturaydemostrarelpoderdeuncr stian smorevigor zado







Cruzesfera
Linterna
Cupulasemesferca
Arcosdemediopunto
Tambornchos
Ventanas adnteladas generan unrtmoenlafachada ba austres friso
metopa-tiglfo
Ventanasdemedopunto
tantointernacomoexterna co umnasdórcas entradaadntelada escalnata ELEMENTOS ESTRUCTURALES Y Y FORMALES
aprendí a identificar y ana izar as característ cas forma es y construct vas de los palacios renacent stas florentinos y romanos de los siglos XV y XVI Desarrol é la habi idad de interpretar y representar mediante dibujos los detalles arquitectónicos y estructurales. Además, comprend las contribuc ones y diferenc as en la arquitectura renacent sta de León Batt sta Alberti y Donato Bramante, profund zando en el estud o de elementos como la materialidad, los s stemas constructivos la s metría y la ax alidad en sus obras
BASÍLICA DE VICENZA
CONTEXTO URBANO Y UBICACIÓN
Se anal zó gráf camente la Basíl ca de Vicenza de Andrea Pallad o y se exploraron las nnovac ones arqu tectónicas junto con sus referentes teóricos También se exam naron as características del urban smo barroco y se compararon la Catedral de San Pablo en Londres con a iglesia de San Carlo de as Cuatro Fuentes de Borromini
¿QUE APRENDÍ?
En este trabajo, como estudiante de arquitectura, aprendí a analizar gráf camente as innovaciones arquitectón cas de Andrea Pal adio en la Basíl ca de Vicenza, así como a entender sus fundamentos teóricos desde "Los Cuatro Libros de la Arqu tectura" Además, adquir conocimientos sobre as características de urbanismo barroco y e uso del espac o públ co comparando las obras de Borromin y la Catedra de San Pabl d entend simil t estilos
F guran° Ubicacióny contextodeBaslcade Vicenza

la Bas lica de V cenza se ub ca al norte de Ital a en la cuidad de V cenza en el corazón de la Plaza de los Signori Propuesta hecha en 549 y rediseñada por Andrea Palladio construcción ex stente de antecedente gótico, ventanas ojivales concluyendo en 16 7 siendo obra póstuma del arquitecto Como se ve en la imagen N 1 ENTANA AL
Fuentedemapa Goog e EarthFuentede sometra PnterestElaboradopor MaranaCastlla(2024


Según Pallad o 1570 el d seño de la planta se baso en una conexión del espac o públ co La plaza de los S gnor ) con la bas l ca por lo que se busco esa permeab l dad influencia arquitectónica de Vitruv o , presentado así una planta modular ideal con tales ordenes s nembargodebidoalas complicaciones de ser una construcción existente y su muerte surg eron variaciones a la que es la planta actual pero sin perder esa esenc a de comun cación de lo inter or a lo exterior como se ve en la magen N 2 Así como, las relaciones espac ales que se identifican en el corte como la tr ple altura que cuenta desde la segunda hastaterceraplanta



F guran 2:PlantaycortedelaBas licadeVicenza
Fuentedeplanta1 Pallad o 1570) P327Fuentedeplanta2 P nterestFuentedecorte Fletcher 1896 P489 Intervenidopor Mar anaCastilla2024
BARROCO C ENERALES DEL URBANISM DEL ESPACIO PÚBLICO BARROCO
1 PLACE DAUPHINE (1599 - 1606) ENRIQUE V
UBICACIÓN
CONTEXTO

2. LA PLACE DES VICTOIRES (1682 - 1687) LOUIS XIV
Segùn Palladio 157 elementos empleados en e son destacados por su gr belleza comenzando creac òn para el pòrtico l las ventanas palladian constadeunaventantripa columnas jònicas o dòr arco de med o punto ce dinteles decorados con para las entradas de luz la estructura se comp p lastrasenlasarcadasy de doble columnas c lenguaedeMiguelAngèl, superior decoraba con e los elementos hor zont componian del arqu tra friso decorado la corn segunda planta estab balaustres como se ve imagenNº3 Ensuinter or apreciar que esta la e gòt co con ventanas oculto grac as a la crea concepto de log a ab e bòvedasaristasdeladr llos

Figuran°3 Elemento constructvosdelexterorde laBaslcadeVcenza Fuente Pallado( 570,P328 ntervendopor MaranaCast la2024
Según Palladio (1570 lasbas l casdelaant guaromaeranlugaresdonde mpartía ustic ay los ueces la adm nistraban ubicadas en la planta el tomó este concepto y modifico ten endocomofunciónenlaplantabajatalleresparad versasartes mercaderíasyotros lugares pertinentes a las
comoseveenla magenNº6
BARROCO COMPARACIÓN DE UNA CONSTRUCCIÓ
INGLÉS CON EL BARROCO ITALIANO
Construida ba o el mandato de Enrique V, como una de las pr meras construcc ones urbanas mpulsor
Isladelacité-par sfrancia gran movimiento urbano en esta época unto al puente Sena sirvió como un ón entre dos islotes que se encontraban al frente de la plaza ( slote jud o y el slote

Figuran 1 fotosatelitalplace dauph neintervenidopor ana

RASGOSMORFOLÓGICOS COMPOSITIVO
Según Kostof (2012 con forma de tr ángulo acentuaba el eje del gran río y en su punta donde se encontraba un nuevo puente que continuaba en las calles rectas de las zonas construidasdelnorte
Debido al entorno en el que se construyó se dispuso con una planta triangular delimitada por casas las cuales estaban ba o una misma norma todas iguales de ladr llo y estuco El vérticeoccidentalllegabaalcentrodelPont Neuf, justo ante la estatua del rey s tuada al otro lado del puente como se muestra en la f gura n°3
simból camente,el vért cemásagudose encuentraenel puente
UB CACIÓN par sfranc a CONTEXTO
Se encuentra cruzada por la Cat nat, la calle de la Feu llade la calle VideGousset, Fue naugurada en 1686sobreelsolarqueocupoel ant guo hotel FertéSenneterre el cual hab a sido demolido,
F gur

RASGOSMORFOLÓGICOS:COMPOSITIVO



PENSAMIENTOE INFLUENCIADELAUTOR
Según Kostof 2012) empleaba una forma crcular completa con avenidas radiales que comuncan varos puntos mportantes tantoantguoscomonuevos Espacioab ertocentrífugo

F
Eslaúncaplazarealquees crcular debido al espaco, debidoaello,lasviv endasque se generaron alrededor sigueronelmsmolenguaje

ESTILODE CONSTRUCCIÓN
CÚPULA PLANTAS FACHADA
RASGOS COMPOSITIVOS
ESPACIALIDAD
Segun roth 203, Wrentuvovarasideas para proyectar as plantasdelas glesas, insprándose en San PedrodeRomapero modfcándolo estlo a su


F guran 6 Fachadacompostivade aBasílcadeVcenza Fuentedefachada PnterestElaboradopor MarianaCastilla2024)
BASÍLICADESANTANDREA ALBERTI TEMPLETEDESANPIETROINMONTORIO BRAMANTE
Borromini basados equiláteros utilzó esquemas trángulos formas geométricasparaunficarel en y dseño Roth 201 )

Borromini basó su dseño en estudios geométrcos contemporáneos integrando triángu os equláteros y rombos resolvió este problema medante un entablamento mo duradoapoyadoenplastrasadosadasalosmurose teenfoquepudohaberseinspirado enlosestudiosdeGalleoGallei contemporáneodeBorromini Roth 2013 Borrominiusóunóvaloregularconentradaslateralesycapllasque sobresa íandelespacooval creandounaconfiguracóndecruzgregacon ángulosconvexos Ko tof 205
Se pequeñas e belto apoya en sostendas dferencándose ocho pechnas más plares la cúpu adeBramantequeusabacuatro grandespilares Roth 201) Además tienetrescapas,simlaralhotelde losinváldosdeMansart conuna estructuradepedraymadera por de F u an D P r e e an v a r F e t Un e d d d N v r n e v n o an r S c d 0

Estloclásicosimlara un palaco con pilastrasycolumnas corintiasempareadas, inspiradas en la Louvre fachada del Chng 999

Cruzlatnaconcúpulayaguja ref eandoelpoderdelaiglesiaAnglcana Roth 1999 para la Wrense nspróenelRenacmentoItalanoyelBarrococontnental sintetzando estos estlos para crear uno propo con prncipos cláscos y ornamentacón detallada Roth 203 Losdeseo delcleroanglcanollevaronalacreacóndeunaplantadecruz latinaconunacúpulayagujacaracter tca mantenendounestlotradconal ymonumental
Usodeunaplantadecruzlatinaconespacosbendefndos funconalidade ntegracón Roth 203
e apoya en y
La Borromn pechnas cúpula ovalada de 4 presenta casetonesgeométricosyuna linternaoctogonalconvexa, creandouna lusióndemayor altura Kostof,205
Fachadaondu adaenelcentro y convexidad concavdad en os laterales creando volúmenesnegativos que central AlonsoPereira 202) enmarcan el elemento


Óvaloregularconentradalateralycapllashexagonales creandounespacio centralzado Kostof 2015
Plantarodeadadecapillashexagonale yespaciossubordinadosaláreacentral, ncluyendosacrsta salacaptulary ardines Kosto 201 )
ENCARGO

conte
Bauaka
Fuentede Ea
Fuentedep Ela
Mariana

Según Kerne (x LaBauakademiedeBerl n,Aleman a delaescueladearqu tecturaydeledific oqueocupa fue constru do entre 1832 y 1836 y diseñado por destacado arqu tecto clas cista e historic sta de P d seño gran parte de espacio público en el cent De ando un legado para la arqu tectura moderna e enAleman aunanormadelaarqu tecturadelsigloX enlaimagenN 1 E
EMPLAZAMIENTO
Elproyectoseemplazóalasafuerasde Vaduz, la capital de Liechtenstein Se escogió el lugar por ser un terreno plano lleno de vegetación para el arreglodeljardínyelusodeespacios semiabertosparavisualizarelpaisaje
ARCOSDEMEDIOPUNTO
Losreferentesutilizadosparadiseñar los arcos que rodean la casa y conducen al jardín : el Convento de Santa María de los Ángeles por Brunelleschi, se tomó el recorrido conunpórtcodecolumnasunidaspor arcosdemediopunto



Según Fernández 2015 la BAUAKADEMIE es como una cuadrícula que se componen de 64 cuadrados perfectos snparedesmaestras enlaquelosespacos nteroressepodríandividirsegúnlasnecesdades de los usuaros teniendo un espaco de encuentro y ventilación que sera el pato, las entradas se delimtanporlaavendayeljardntriangularhacaelotroextremo contandoconunvestíbulovidrado
Además laestructurasedivdetreslargosmurosprncipalesacompañadodecolumnasdórcasentresus intersecciones teniendoelsoporteenbóvedasyarcosentodalaedifcacón Comoseapreciaenla magen N2
PERIODOESTIL STICO
SegúnMarchan 1 4 inale delNeocláscoaemán Schnkelhabagenerado unestloquerecogelosdferentesaporte delaarqui ecturagótca cásca vvendasurbana talanas legandoaconsder r eunarquit c oeclétco hastaque lviaede18 urgóuncambodeprincpo quesetransformaen unaépocatecncstadesues ioarqutectónco riorzando la unconaldad de acons ruccón ponendoensegundopano o stétco
Planfcó aBAUAKADEMIEcomounacuadrculade 5metroscuadrado oresaciosendoentotalde 4cuadradosperfectos snp rede maestras en a quelosespacos nerore e odrandvdirsegún asnecesdadesde o usuaro
ELECC ÓNDE MATERIALES
ELECCIÓNDEL D SEÑO
DIFERENCIAS TIPOLÓGICAS

RECORRIDOLATERAL
Otraobraarquitectónicabajoelmismoautor,LaCapillaPazzifuetomada tambénporsurecorridolateral ylomismosevecon la basílica de san ambrosio de Bramante,endondeseveconmayordetallelaintenciónde pasarelaenelprimernivel
la propueta de Mguel Angel para a fachadadeSanLorenzoenFlorenca con elo se mplementó la colocacón de columnasenmarcandoel ngreo


IGLESIASANCARLOS BORROMEO FISHER
La gesadeSanC ro Borromeo Karlskrche enViena dseñadapor ohann BernhardFschervonErlach per eneceale t obarroco Karl krche sun eempo destacado del barroco venés carac rzado por su grandosd d dnamsmoyusodramátcodelaluz lasombra FschervonErlachcombnó elementos del Renacimiento el barroco ita no con un enfoque en la teatraidadye mpactoemoconal

e contextohi tóricoenelqueseconcbólaBauakademe argumentaqueel vaedeSchnkela ngaterraen1 26 nluyóensunuevoes o Men r estaba enManche er Schnk escrbeen udaro sobre afábrcadeherrode Watts Bol on teniendouncon ac odearqui ectur fabrlyutltara loque eservraparalaeleccóndemat ra para aed cacón aBauakademeseasemeaaunedfco ndustralzadohas acertopun o Conel obetvodecombinar anuevaracon ldadde trabaoindu tralcon o deales del arte Schnkel trató de encontrar una smboss en el edfco a veces rgdamente re icular altamente ornamen l A c ndo las deas de Marx y Engels una sociedad gualtara e relearía en u es io arqutectónco la imetr en o cuatro ados la falta de una entrada pomposa os releves detalado nlos nele de asven ana elusode adrlo roossugeriranque í La edfcacón es de tpologa civl urb no teniendo en a planta baa el mercadoqueconectaconel paco úbico laprimeraplantaesdehabtacones deestudan yparalaacadema asegundaplantaesdeoicnasylatercera aralaautordad sendom sprvado or oque eteneencuentaelu uaroal

neunasemeanzaenproporcionescompostvasenla fach das lazzos talanos ademáselarqui ectoteneun nteré orla rloque decoracóndelproyectoteneestosmotvosenlas h da pó,enestaobramae ra,a oquemástardeseralanormaen modernadelosedfcosdevaro psos ydarapa o las o ascon trucconesprefabrcadas
SEGUNDO NIVEL
Elanálssde aspro orcone exceent lograndoque anavecen ralyel pórtcohexástlot nganlamsmaanchur mientrasqueparae transeptodela glesa etomacomoreferencaelpardecoumna traanasquesedest can smé ricam nte n afachada Fi chervonErlachdi eñabaconunenfoqueenla atraldadye impactovi ua Su cons ruccone eranmonum ntaesyllenasdede allesornamentale qu bu cabanasombrara pectador AdemásLaKarlskrchefuecon trudaenVen como un monumento votvo releando la grandeza y poder d l mpero Habsburgo
Fi chervonErlachdseñólaKarlskrcheconunenoqueen amonumenta dad ye dramatsmo caracterstcascentraesdelestlobarroco Suel ccónde dseñose nspró nvaroselementosarqutectóncoshi tórcosysmbó cos La fachadaprncpa del Karlskrche easemeaaunpórtcodetemplogriego lo querefleala nluencadelaarqutec uracláscaensud ño Estafachada estáflanqueadapordo columnasmonumentale n pr dasen Coumnade TraanoenRoma quemu stranescenasdelavidadeSanCarlosBorromeoen releve
Pertenecea es iobarrocoye tádseñadaprncpalmentecomounlugarde culto y monumen o m ra La glesa es un eemplo de arqutectura monumen alconuna uertecargasmbólc yrelgo a
nluencasdel rrocoromano es eciamen edearqutectoscomoBernniy Borromn as comoelementosdel arqutecturarenacen s a
Suu odramátcode espacoylaornamentacón nfluencióe neo rrocoy otros movmento arqutectónicos que buscaban cap urar a grandeza y el dnamsmodelbarroco
lainfluencadeltrabaodeBrunelleschitambiénsereflejóenelusodeltechodelos arcoscomoparatransitarenelsegundonveltalcomounaterrazaobalcón conello seimplementóeldoblenivelsostenidoporlosarcosdemedopuntopresentadosenla


El a umno realizó un análisis compositivo y de uso de mater ales de la fachada de la Bauakademie de Karl Friederich Schinke . Comparó esta construcción con la fachada de a iglesia de San Carlos Borromeo de Viena, diseñada por F scher von Erlach, destacando sus per odos estilísticos respectivos y cómo plan f caban sus construcciones, ncluyendo la elecc ón del lugar y el d seño arquitectónico. Se exam naron las d ferencias tipológicas según el uso y cl ente, as como los referentes arquitectónicos considerados y la nf uenc a de sus obras en los s glos posteriores
¿QUE APRENDÍ?
Aaprend a realizar un aná is s detallado de la compos ción y uso de mater ales en la arquitectura de Karl Fr edr ch Schinkel y Fischer von Erlach Comprend las d ferencias esti ísticas entre la Bauakademie y la iglesia de San Carlos Borromeo, exp orando cómo plan f caban sus construcc ones, considerando el contexto urbano y los diseños arquitectónicos También adquirí conocimientos sobre la influenc a de sus obras en los siglos posteriores y cómo seleccionaban referentes arquitectónicos para enriquecer sus d seños
SECCIÓN: 524
PROFESOR: Van a Lanatta Ort z
El encargo consiste en que se proponga un sistema de protecc ón para evitar la rad ación solar durante e mes y rango de horas más cr ticos. El sistema debe ser diseñado considerando el acimut la altura de sol en eso momentos, util zando ábaco solar para análisis Se debe d mensionar sistema de protecció en corte y en plant graf cando el ángu de incidencia solar e ambas vistas. Poster ormente, s modelará el sistem de protección en 3D se demostrará s efectividad median una simulac ón que muestre la protección solar en las horas cr ticas
COMENTARIO
STUACÓNCRTICA01:


Ángu o de AC M Ángu o


En este encargo, aprendí a diseñar un sistema de protección so ar efectivo, considerando factores clave como el ac mut y a altura de sol durante los momentos más cr t cos del mes Utilizando el ábaco so ar, pude analizar y d mensionar el sistema de protecc ón, comprendiendo cómo el ángulo de inc nación del sol afecta en planta y corte Modelar el sistema en 3D y realizar simulac ones me permit ó visua izar y demostrar su ef cacia, reforzando a importancia de integrar anál s s técnicos precisos en el d seño arqu tectónico para mejorar a habitab lidad y el confort térmico
PLANTAYCORTEANALIZADOSCONÁNGULODEINCIDENCIASOLAR
50
ÁnguodeACMUT -74º ÁnguodeALTURA 49 ÁnguodeACMUT -94 ÁnguodeALTURA 45
ÁnguodeACMUT -78º ÁnguodeALTURA 42 14:45





MODELADO3D,DIMENSIONES ESPECIFCACIÓNDEMATERIALESYANCLAJE
LAMASDEMADERAFIJAS

Sobresa e 50 cm de muro de an e de a ven ana MATER AL DAD







ns a a soportes ménsulas en a pared deben estar n velados y f ados con o n os y anc a es 1 Co oca as amas de madera sobre os sopor es asegurándote de que es én a ineadas y n ve adas
A orn a as lamas a os sopo tes usando o n los res s entes a a ntempe e pa a asegu a una f ac ón rme 3


ENCARGO



A TEMPERATURA
La temperatura máx ma med a suele ser entre os 31 2 C° Junio) y 33 1 C° Sep iembre) La temperatura m n ma med a suele ser entre los 18 7 C° (Jul o Y 21 2 C°
Enero-Febrero
B OSCILAC ÓN TÉRMICA
La osc lac ón térm ca de Puca lpa va de un rango de 10 3 a 13 7 o cua s gni ca que t ene una osc lac ón med a deb do a que no hay grandes d ferenc as de tempera ura máx ma y mínima , por o que no necesi amos pro eger de fr o
C CONFORT HIGROTÉRM CO:
Según el cl mograma de G von se encuentra fuera de la zona de confort deb do princ palmente a la relac ón desproporc onada entre tempera ura y humedad re at va duran e e año
CONSDERACONESGENERALES










El encargo es diseñar una vivienda unifam liar adecuada al clima de la ciudad as gnada, presentando 6 lám nas Estas incluirán análisis climático y recomendaciones, v stas 3D expl cando el diseño, un master plan con estrategias climáticas, esquemas de protección solar y comprobaciones, d agramas de captación de viento e iluminación natural, y propuestas de materia es con ustificaciones
¿QUE APREND ?
En este encargo, aprend a diseñar una v v enda adaptada a c ima espec f co de una c udad, integrando anál s s cl mático en cada etapa del proyecto Adquirí habi idades para real zar estud os deta lados del entorno, crear estrategias de protección so ar y captación de viento, y seleccionar materiales adecuados. Además, mejoré en la presentación gráfica y en la ustificación técn ca de mis decisiones de d seño
















