Technická univerzita vo Zvolene Drevárska fakulta

K
ATARÍNA DÚBRAVSKÁ
Ľ
UDMILA TEREŇOVÁ
D
![]()
Technická univerzita vo Zvolene Drevárska fakulta

K
Ľ
D
Skriptá
Autori:
Ing. Katarína DÚBRAVSKÁ, PhD.
Ing. Ľudmila TEREŇOVÁ, PhD.
Ing. Dominik ŠPILÁK, PhD.
Katedra protipožiarnej ochrany
Drevárska fakulta
Technická univerzita vo Zvolen
T. G. Masaryka 24, 960 01 Zvolen
Katedra protipožiarnej ochrany
Drevárska fakulta
Technická univerzita vo Zvolen
T. G. Masaryka 24, 960 01 Zvolen
Katedra protipožiarnej ochrany
Drevárska fakulta
Technická univerzita vo Zvolen
T. G. Masaryka 24, 960 01 Zvolen
Skriptá
Recenzenti:
prof. Ing. Jozef Štefko, CSc. Technická univerzita vo Zvolene
doc. Bc. Ing. Stanislava Gašpercová, PhD. Žilinská univerzita v Žiline
I. vydanie v rozsahu 249 strán, 17,05 AH, 17,35 VH
Forma dokumentu: elektronická (online PDF)
Vydavateľ: Technická univerzita vo Zvolene
Redakčné práce: Vydavateľstvo Technickej univerzity vo Zvolene
Rok vydania: 2024
Schválené rektorom Technickej univerzity vo Zvolene dňa 19.2. 2024 číslo EP 24/2024 ako skriptum pre Drevársku fakultu. Za odbornú úroveň zodpovedajú autori a recenzenti. Rukopis neprešiel jazykovou úpravou.
© Technická univerzita vo Zvolene
© Ing. Katarína Dúbravská, PhD.
Ing. Ľudmila Tereňová, PhD.
Ing. Dominik Špilák, PhD.
ISBN 978-80-228-3445-2
Všetky práva sú vyhradené. Nijaká časť textu ani ilustrácie nemôžu byť použité na ďalšie šírenie akoukoľvek formou bez predchádzajúceho súhlasu autorov alebo vydavateľstva.
Technická univerzita vo Zvolene Drevárska fakulta
K
Ľ
Skriptá
Skriptá Protipožiarna bezpečnosť stavieb poskytuje ucelený prehľad toho najdôležitejšieho z danej problematiky Publikácia je rozdelená na 15 hlavnýchkapitol, ktoré vás postupne prevedú od teoretických východísk k praktickým príkladom s využitím interaktívnych pomôcok.
Okrem množstva dôležitých informácií sa v texte nachádza aj veľké množstvo odkazov na externé zdroje, odkiaľ môžete načerpať ďalšie informácie a rozšíriť si tak povedomie o problematike protipožiarnej bezpečnosti stavieb. Odkazy v texte sú spracované vo forme internetových odkazov a vo forme QR kódov. Každý QR kód obsahuje ikonku poukazujúcu na typ elektronického zdroja:


Internetová stránka PDF dokument


video Rozšírená realita
Využitie QR kódov je možné s pomocou mobilného zariadenia alebo tabletu s nainštalovanou čítačkou QR kódov. Väčšina mobilných zariadení čítačku QR kódov už má, pokiaľ vo vašom zariadení ešte nie je nainštalovaná, je možné si ju stiahnuť a nainštalovať napríklad pomocou nasledovných odkazov:
https://play.google.com/store/apps/details?id=com.scanteam.qrcodereader https://play.google.com/store/apps/details?id=qrcodereader.barcodescanner.scan.qrscanner https://play.google.com/store/apps/details?id=com.roximderzy.qrcodescanandgeneratepro https://apps.apple.com/sk/app/%C4%8D%C3%ADta%C4%8Dka-%C4%8Diarov%C3%BDchk%C3%B3dov-qr/id1397416952?l=sk
Využitie QR kódov s ikonou Rozšírenej reality (AR) je čiastočne obmedzené. AR vám umožní zobraziť si 3D model pomocou vášho mobilného zariadenia alebo tabletu v pohodlí domova bez potreby iných zariadení. Umožní vám to získať iný pohľad na danú situáciu V prípade že vám AR nebude fungovať, na získanie potrebnej perspektívy sú postačujúce priložené obrázky. Aplikácia podporuje nasledovné zariadenia: https://developers.google.com/ar/devices
Pokiaľ vlastníte zariadenie so systémom iOS, je možné zobraziť si obsah aplikácie Aero bez toho, aby bola nainštalovaná vo vašom mobilnom zariadení Pokiaľ nepoužívate zariadenie so systémom iOS, je potrebné si aplikáciu stiahnuť do mobilného zariadenia. AplikáciuAdobe Aero je možné získať pomocou nasledovného odkazu: https://www.adobe.com/sk/products/aero.html
Používanie Rozšírenej reality s pomocou mobilného zariadenia je jednoduché. Po naskenovaní QR kódu a kliknutí na odkaz sa objaví okno s obrázkom 3D modelu, kde stačí kliknúť na kolónku Continue. Po nahratí modelu musí aplikácia nájsť rovný
povrch kde zobrazí model. Aplikácia má problém zobraziť objekty na lesklé povrchy. Ak aplikácia nájde rovný povrch, zobrazí sa ohraničená plocha vyplnená bielymi bodkami, kde aplikácia zobrazí 3D model. Následne si treba model pohybom mobilného zariadenia umiestniť na vhodnú plochu a kliknutím na obrazovku sa 3D model ukotví na povrch a môžete si ho prezrieť.



2.2.3
4.3
4.2.3
5.2 Najväčší dovolený počet požiarnych podlaží z nevýrobnej stavby .......... 70
5.3 Najväčšia dovolená plocha požiarneho úseku Smax výrobnej stavby ......... 71
5.3.1 Súčiniteľ počtu podlaží k5 ........................................................................ 72
5.3.2 Súčiniteľ horľavosti konštrukčného celku k6 72
5.3.3 Súčiniteľ vplyvu následných škôd k7 73
5.3.4 Najväčšia dovolená hodnota indexu pravdepodobnosti rozsahu škôd spôsobených požiarom P2max ........................................................................................ 73
5.3.5 Index pravdepodobnosti vzniku a rozšírenia požiaru ........................ 75
5.3.6 Súčiniteľ vyjadrujúci vplyv požiarnotechnických zariadení 76
5.4 Najväčšia dovolená plocha požiarneho úseku Smax skladu v jednopodlažnej stavbe 79
5.4.1 Súčiniteľ vyjadrujúci vplyv požiarnotechnických zariadení v sklade v jednopodlažnej stavbe............................................................................................... 80
5.4.2 Súčiniteľ vyjadrujúci vplyv elektrickej požiarnej signalizácie a možnosť zásahu hasičskej jednotky cs1 82
5.4.3 Súčiniteľ vyjadrujúci vplyv stabilného hasiaceho zariadenia so samočinným spúšťaním cs2........................................................................................... 83
5.4.4 Súčiniteľ vyjadrujúci vplyv horenia zariadenia na odvod tepla a splodín so samočinným spúšťaním cs3 .................................................................... 83
5.4.5 Súčiniteľ vyjadrujúci vplyv technického riešenia proti rozšíreniu požiaru cs4 83
6 Stupeň protipožiarnej bezpečnosti ......................................................................... 86
6.1 Stupeň protipožiarnej bezpečnosti výrobných stavieb a stavieb poľnohospodárskej výroby 87
6.2 Stupeň protipožiarnej bezpečnosti nevýrobných stavieb 88
6.3 Stupeň protipožiarnej bezpečnosti stavieb na bývanie a ubytovanie skupiny B............................................................................................................................ 89
6.4 Stupeň protipožiarnej bezpečnosti stavieb pre radové a hromadné garáže 90
7.1
7.1.2 Určovanie požiarnej odolnosti ................................................................ 94 7.1.3 Hodnotenie požiarnej odolnosti.............................................................. 96
7.2 Požiadavky na požadovanú požiarnu odolnosť 97
7.4.1
7.4.3
7.4.4
7.4.7
7.4.8
7.4.9
7.4.10
7.4.11
7.4.12
7.5.4
8.3.5 Rýchlosť pohybu osôb a jednotková kapacita únikového pruhu
8.4
8.5 Stupeň protipožiarnej bezpečnosti priestorov, kde sa nachádzajú únikové cesty 147
8.6 Požiarne zaťaženie únikových ciest
8.7
8.7.1
8.7.3 Vetranie chránenej únikovej cesty typu
8.7.4
10.2.1 Vymedzenie požiarne nebezpečného priestoru..................................
10.2.2 Požiadavky na požiarne nebezpečný priestor ....................................
10.2.3 Požiarne otvorené plochy.......................................................................
10.2.4 Požiarne otvorená plocha od strešného plášťa
10.2.5 Plošná hustota tepelného toku
10.3 Určovanie odstupových vzdialeností...........................................................
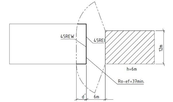
10.3.1 Odstupová vzdialenosť pre požiarny úsek ......................................... 178
10.3.2 Odstupová vzdialenosť od otvorených skladov.................................
10.3.3 Odstupová vzdialenosť od otvorených technologických zariadení
10.3.4 Odstupová vzdialenosť od technologických mostov a potrubných rozvodov 195
10.3.5 Odstupová vzdialenosť od požiarneho úseku, ktorý tvorí obytná bunka 196
Vnútorná zásahová cesta........................................................................
11.4.1 Vybavenie nevýrobných a výrobných stavieb požiarnotechnickými zariadeniami.................................................................................................................
11.4.2 Vybavenie skladov v jednopodlažnej stavbe požiarnotechnickými zariadeniami
Hlasová signalizácia požiaru
Dodávka elektrickej energie...................................................................
Zariadenia na dodávku vody na hasenie požiarov............................
Ústredňa elektrickej požiarnej signalizácie .........................................
12.2 Typy
12.3 Inštalácia, prevádzka a údržba systémov elektrickej požiarnej signalizácie 218
12.4 Moderné technológie a inovácie v oblasti elektrickej požiarnej signalizácie 220
13.3 Inštalácia, prevádzka a údržba stabilných hasiacich zariadení................
Inštalácia ...................................................................................................
13.4 Moderné technológie a inovácie v oblasti stabilných hasiacich zariadení 229 14 Zariadenie na odvod tepla a
14.1 Teoretické východiská ....................................................................................
14.1.1 Fyzikálna podstata vetrania
14.1.3 Prenos tepla pri požiari ..........................................................................
14.2 Základné komponenty zariadení na odvod tepla a splodín horenia ......
14.3 Prepojenie so stabilným hasiacim zariadením............................................
14.4 Moderné technológie a inovácie v oblasti zariadení na odvod tepla a splodín horenia
15.1 Zhromažďovacie priestory.............................................................................
15.1.1 Vnútorný zhromažďovací priestor .......................................................
15.1.2 Vonkajší zhromažďovací priestor
15.2 Stavby na bývanie a ubytovanie
15.2.1 Stavby na bývanie a ubytovanie skupiny
15.2.2 Stavby na bývanie a ubytovanie skupiny B.........................................
15.3 Jednotlivé, radové a hromadné garáže ........................................................
15.4 Stavby zdravotnícky zariadení......................................................................
1 Územné, stavebné a kolaudačné konanie
Územné konanie, stavebné konanie a kolaudačné konanie tvoria základný rámec legislatívy zameranej na reguláciu a kontrolu stavebnej činnosti v Slovenskej republike. Tieto právne postupy sú nevyhnutné pre zabezpečenie dodržiavania primeraných technických a bezpečnostných štandardov, ochranu životného prostredia a koordináciu rozvoja územia. Každé z týchto konaní plní špecifickú funkciu v celkovom procese stavebného plánovania a realizácie.
Právne postupy v stavebnom sektore zohrávajú kľúčovú úlohu pri zabezpečovaní transparentnosti, spravodlivosti a ochrany práv všetkých zúčastnených strán. Stavebné konania, územné konania a kolaudačné konania predstavujú systematické procesy, ktoré umožňujú reguláciu výstavby a rozvoja územia v súlade s platnými právnymi predpismi. Tieto postupy zabezpečujú, že stavby sú navrhnuté a realizované v súlade s požiadavkami na bezpečnosť, protipožiarnu bezpečnosť, ochranu životného prostredia a plánovanie rozvoja
Stavby musia byť navrhnuté a zhotovené tak, aby spĺňali základné požiadavky na stavby podľa Stavebného zákona, ktoré sú bližšie definované v Nariadení EP CPR č. 305/2013 [1]:
1. Mechanická odolnosť a stabilita. Stavby musia byť navrhnuté a zhotovené tak, aby zaťaženie, ktorému sú vystavené v priebehu zhotovovania a používania, neviedlo k žiadnej z týchto udalostí:
a) zrútenie celej stavby alebo jej časti, b) významná deformácia v neprípustnom rozsahu, c) poškodenie ostatných častí stavby alebo zariadení či inštalovaného vybavenia následkom významnej deformácie nosnej konštrukcie, d) poškodenie v dôsledku udalosti, ktoré je rozsahom neúmerné pôvodnej príčine.
2. Bezpečnosť v prípade požiaru. Stavby musia byť navrhnuté a zhotovené tak, aby sa v prípade vypuknutia požiaru: a) počas určitého času zachovala nosnosť konštrukcie, b) obmedzila tvorba a šírenie ohňa a dymu v stavbe, c) obmedzilo rozširovanie požiaru na susedné stavby, d) osoby nachádzajúce sa v stavbe z nej mohli odísť alebo aby mohli byť zachránené iným spôsobom, e) zohľadnila bezpečnosť záchranných tímov.
3. Hygiena, zdravie a životné prostredie. Stavby musia byť navrhnuté a zhotovené tak, aby počas svojho životného cyklu neohrozovali hygienu, zdravie a bezpečnosť pracovníkov, obyvateľov alebo okolia a aby v priebehu svojho celého životného cyklu nemali pri svojom zhotovovaní, používaní ani pri demolácii neprimerane veľký vplyv na kvalitu životného prostredia ani na podnebie, najmä v dôsledku: a) uvoľňovania toxických plynov;
b) emisie nebezpečných látok, prchavých organických zlúčenín (VOC), skleníkových plynov alebo nebezpečných častíc do vzduchu v interiéri alebo exteriéri;
c) emisie nebezpečného žiarenia; d)uvoľňovania nebezpečných látok do podzemnej vody, morskej vody, povrchových vôd alebo do pôdy;
e) uvoľňovania nebezpečných látok do pitnej vody alebo uvoľňovania látok, ktoré majú iný negatívny vplyv na pitnú vodu; f) nesprávneho vypúšťania odpadovej vody, emisie spalín alebo nesprávneho zneškodňovania tuhých alebo kvapalných odpadov; g) vlhkosti v častiach stavieb alebo na povrchoch stavieb.
5. Ochrana proti hluku Stavby musia byť navrhnuté a zhotovené tak, aby sa hluk, ktorý vnímajú ich obyvatelia alebo ľudia v blízkom okolí, udržiaval na úrovni, ktorá nie je hrozbou pre ich zdravie a umožňuje im spánok, oddych a prácu v prijateľných podmienkach.
6. Energetická hospodárnosť a udržiavanie tepla Stavby a ich vykurovanie, chladenie, osvetlenie a ventilácia musia byť navrhnuté a zhotovené tak, aby množstvo energie, ktoré vyžadujú pri ich používaní, bolo nízke, ak sa zohľadnia obyvatelia a klimatické podmienky miesta. Stavby musia byť taktiež energeticky úsporné a musia v priebehu zhotovovania a demolácie spotrebúvať čo najmenšie množstvo energie.
7. Trvalo udržateľné využívanie prírodných zdrojov. Stavby musia byť navrhnuté, zhotovené a zdemolované tak, aby bolo využívanie prírodných zdrojov trvalo udržateľné a aby sa zabezpečilo najmä:
a) opakované použitie alebo recyklovateľnosť stavieb, ich materiálov a častí po demolácii;
b) trvanlivosť stavieb;
c) používanie ekologických surovín a druhotných materiálov v stavbách.
Súčasné slovenské právne predpisy, ktoré sa zaoberajú protipožiarnou bezpečnosťou stavieb alebo úzko s touto problematikou súvisia, sú nasledovné:
Zákon č. 50/1976 Zb. o územnom plánovaní a stavebnom poriadku(stavebný zákon), v znení neskorších predpisov,
Zákon č. 133/2013 Z. z.. o stavebných výrobkoch,
Zákon č. 314/2001 Z. z. o ochrane pred požiarmi, v znení neskorších predpisov,
Súčasné slovenské vykonávacie predpisy, ktoré sa zaoberajú protipožiarnou bezpečnosťou stavieb alebo úzko s touto problematikou súvisia, sú nasledovné:
Vyhláška MV SR č. 94/2004 Z. z., ktorou sa ustanovujú technické požiadavky na protipožiarnu bezpečnosť pri výstavbe a užívaní stavieb,
Vyhláška MV SR č. 699/2004 Z. z. o zabezpečení stavieb vodou na hasenie požiarov,
Vyhláška MŽP SR č. 532/2002 Z. z., ktorou sa ustanovujú podrobnosti o všeobecných technických požiadavkách na stavby užívané osobami s obmedzenou schopnosťou pohybu a orientácie,
Vyhláška MDV RR č. 162/2013 Z. z., ktorou sa ustanovuje zoznam skupín stavebných výrobkov a systémy posudzovania parametrov,
Vyhláška MV SR č. 719/2002 Z. z., ktorou sa ustanovujú vlastnosti prenosných hasiacich prístrojov a podmienky ich prevádzkovania a zabezpečovania pravidelnej kontroly,
Vyhláška MV SR č. 478/2008 Z. z., o vlastnostiach, konkrétnychpodmienkach prevádzkovania a zabezpečenia pravidelnej kontroly požiarneho uzáveru,
Vyhláška MV SR č. 258/2007 Z. z. o požiadavkách na protipožiarnu bezpečnosť pri skladovaní, ukladaní a pri manipulácii s tuhými horľavými látkami,
Vyhláška MV SR č. 142/2004 Z. z. o protipožiarnej bezpečnosť pri výstavbe a pri užívaní prevádzkarne a iných priestorov, v ktorých sa vykonáva povrchová úprava výrobkov náterovými látkami,
Vyhláška MV SR č. 96/2004 Z. z., ktorou sa ustanovujú zásady protipožiarnej bezpečnosti pri manipulácii a skladovaní horľavých kvapalín, ťažkých vykurovacích olejov a rastlinných a živočíšnych tukov a olejov,
Vyhláška MV SR č. 124/2000 Z. z., ktorou sa ustanovujú zásady požiarnej bezpečnosti pri činnostiach s horľavými plynmi a horenie podporujúcimi plynmi,
Vyhláška MV SR č. 196/2006 Z. z. o konkrétnych vlastnostiach stabilného hasiaceho zariadenia a polostabilného hasiaceho zariadenia a o podmienkach ich prevádzkovania a zabezpečenia ich pravidelnej kontroly,
Vyhláška MV SR č. 726/2006 Z. z., ktorou sa ustanovujú vlastnosti elektrickej požiarnej signalizácie, podmienky jej prevádzkovania a zabezpečenia jej pravidelnej kontroly.
Technické normy, ktoré sa zaoberajú protipožiarnou bezpečnosťou stavieb alebo úzko s touto problematikou súvisia, sú nasledovné:
STN 92 0101:1997 Požiarna bezpečnosť stavieb. Názvoslovie,
STN 92 0111:1998 Protipožiarne zariadenia. Grafické značky pre výkresy požiarnej ochrany,
STN 92 0201-1:2000 Požiarna bezpečnosť stavieb. Spoločné ustanovenia.
Časť 1: Požiarne riziko, veľkosť požiarneho úseku. a s ňou súvisiace zmeny,
STN 92 0201-2:2017 Požiarna bezpečnosť stavieb. Spoločné ustanovenia.
Časť 2: Stavebné konštrukcie. a s ňou súvisiace zmeny,
STN 92 0201-3:2000 Požiarna bezpečnosť stavieb. Spoločné ustanovenia.
Časť 3: Únikové cesty a evakuácia osôb. a s ňou súvisiace zmeny,
STN 92 0201-4:2000: Požiarna bezpečnosť stavieb. Spoločné ustanovenia.
Časť 4: Odstupové vzdialenosti. a s ňou súvisiace zmeny,
STN EN 13501-1+A1/O1: 2012:Časť 1: Klasifikácia využívajúca údaje zo skúšok reakcie na oheň,
STN EN 13501-2 + A1: 2010:Časť 2: Klasifikácia využívajúca údaje zo skúšok požiarnej odolnosti,
STN 92 0241:2011Požiarna bezpečnosť stavieb. Obsadenie stavieb osobami,
STN 92 0400:2005 Požiarna bezpečnosť stavieb. PBS. Zásobovanie vodou na hasenie požiarov,
STN 92 0202-1:1999 Požiarna bezpečnosť stavieb. Vybavovanie stavieb hasiacimi prístrojmi,
STN 92 0203: 2013 Požiarna bezpečnosť stavieb. Trvalá dodávka elektrickej energie pri požiari,
STN 92 0204:2010 Požiarna bezpečnosť stavieb. Priestory káblového rozvodu,
STN 73 0834: 2010 Požiarna bezpečnosť stavieb. Zmeny stavieb
Nariadenie vlády SR č. 387/2006 Z. z. o požiadavkách na používanie označenia, symbolov a signálov na zaistenie bezpečnosti a ochrany zdravia pri práci
1.3 Územné konanie
Územné konanie je regulované legislatívou a vykonáva sa prostredníctvom miestnych samospráv, ktoré majú za úlohu zhodnotiť navrhované zámery v súlade s príslušnými predpismi. Tento proces zabezpečuje aj možnosť participácie verejnosti a zainteresovaných strán, čím sa podporuje transparentnosť a demokratické princípy pri rozhodovaní o využívaní územia. Zohľadňuje faktory ako infraštruktúra, ochrana životného prostredia a sociálne vplyvy, čo prispieva k vyváženému rozvoju územia.
V rámci územného konania sa zvyčajne vykonáva množstvo činností, ktoré zahŕňajú vypracovanie a posúdenie územného plánu, ako aj konzultácie so zainteresovanými stranami. Z hľadiska protipožiarnej bezpečnosti je pre potreby územného konania dôležité spracovanie dokumentácie protipožiarnej bezpečnosti stavby spracovanej špecialistom požiarnej ochrany, ktorá obsahuje textovú a výkresovú časť. Dokumentáciou sa preukazuje vhodnosť umiestnenia navrhovanej stavby od okolitej zástavby s dôrazom na odstupové a bezpečnostné vzdialenosti od stavby, určenie predbežného množstva vody na hasenie požiarov, zabezpečenie prístupových komunikácií a nástupných plôch pre zásah hasičských jednotiek a zakreslenie dôležitých informácií vo výkrese situácie stavby, hlavne predpokladaných odstupových vzdialeností, zdrojov vody a odberných miest na hasenie požiarov, príjazdových komunikácií a nástupných plôch pre hasičské jednotky.
1.4 Stavebné konanie
Po územnom konaní a získaní rozhodnutia o umiestnení stavby nasleduje stavebné konanie s cieľom získať stavebné povolenie. Stavebné povolenie sa dá získať od príslušného stavebného úradu predložením žiadosti o stavebné povolenie spolu s potrebnými dokladmi (projektová dokumentácia, statické posudky, doklady o
vlastníctve pozemku). Z pohľadu protipožiarnej bezpečnosti je dôležitou časťou projektovej dokumentácie riešenie protipožiarnej bezpečnosti stavby.
Po predložení žiadosti stavebný úrad následne oznamuje začatie stavebného konania (okrem drobných a jednoduchých stavieb) príslušnému orgánu štátneho požiarneho dozoru, ktorý posúdi projektovú dokumentáciu stavby a vydá písomné stanovisko (súhlasné bez pripomienok, súhlasné s pripomienkami alebo nesúhlasné).
Projektovú dokumentáciu drobných a jednoduchých stavieb z hľadiska protipožiarnej bezpečnosti posudzuje len stavebný úrad. Po splnení všetkých požiadaviek vydá stavebný úrad stavebné povolenie a rozhodne o prípadných námietkach účastníkov konania.
1.5 Kolaudačné konanie
Dokončenú stavbu alebo stavbu po rekonštrukcii možno užívať iba na základe kladného kolaudačného rozhodnutia. Kolaudačné konanie sa vykonáva iba v prípadoch, že na stavbu bolo vydané stavebné povolenie stavebným úradom. Kolaudačné konanie vykonáva stavebný úrad, ktorý vydal stavebné povolenie Termín kolaudačného konania prideľuje stavebný úrad, ktorý to oznámi účastníkom kolaudačného konania a orgánom vykonávajúcim štátny požiarny dozor. Štátny požiarny dozor sa nevykonáva pri drobných a jednoduchých stavbách akými sú napr. rodinné domy. Na kolaudačné konanie býva väčšinou prizvaný projektant, zhotoviteľ stavby, dodávatelia konštrukcií a pod. V prípade že kolaudáciou prechádza historická budova po rekonštrukcii, prítomný býva aj zástupca z Pamiatkového úradu Slovenskej republiky.
Z hľadiska protipožiarnej bezpečnosti sa počas kolaudačného konania preveruje splnenie požiadaviek protipožiarnej bezpečnosti stavby podľa schválenej a overenej projektovej dokumentácie stavby spracovanej špecialistom požiarnej ochrany. Ďalej sa preverujú doklady preukazujúce požadované vlastnosti a parametre stavebných výrobkov, častí stavieb a zariadení či vykonanie prác osobami s odbornou spôsobilosťou. Počas kolaudačného konania sa spisuje záznam, ktorý obsahuje stanovisko príslušného orgánu vykonávajúceho štátny požiarny dozor. V kolaudačnom konaní sa preveruje konštrukčné a dispozičné riešenie, rozdelenie stavby na požiarne úseky, utesnenie prestupov, ochrana stavebných konštrukcií, vyhotovenie požiarnych uzáverov, označenie únikových ciest, dodržanie odstupových vzdialeností, vybavenie požiarnymi zariadeniami, hasiace prístroje, zariadenia na zabezpečenie vody na hasenie požiarov, zabezpečenie trvalej dodávky elektrickej energie, vyhotovenie elektrickej požiarnej signalizácie, vyhotovenie stabilného hasiaceho zariadenia, vybavenie zariadeniami na protipožiarny zásah, a pod.
Pri kolaudácií musia byť orgánom vykonávajúcim štátny požiarny dozor poskytnuté viaceré dokumenty. Sú to osvedčenia požiarnych konštrukcií, doklady o preukázaní zhody technologického vybavenia stavby, potvrdenia o registrácii požiarnotechnického zariadenia, potvrdenia o vykonaní kontrol a školení osôb zodpovedných za prevádzku, údržbu a obsluhu požiarnotechnických zariadení,
požiarnych zariadení a v prípade že sa v stavbe nachádza komín tak aj záznam alebo potvrdenie o preskúšaní komína.
Záverom kolaudačného konania je vydanie rozhodnutia stavebným úradom, ktorým povoľuje užívanie stavby na stanovený účel. Pokiaľ je to potrebné, stavebný úrad určí podmienky za akých je možné stavbu užívať, definuje nedostatky ktoré je treba opraviť a lehoty na ich odstránenie. Ak štátny požiarny dozor alebo stavebný úrad zistí nedostatky, ktoré bránia bezpečnému užívaniu stavby na definovaný účel, kolaudačné konanie sa pozastaví, stanoví sa lehota na ich odstránenie a nevydá sa povolenie.
Použitá literatúra:
1. NARIADENIE EURÓPSKEHO PARLAMENTU A RADY (EÚ) č. 305/2011, ktorým sa ustanovujú harmonizované podmienky uvádzania stavebných výrobkov na trh a ktorým sa zrušuje smernica Rady 89/106/EHS
2.1 Požiarne podlažia, požiarna výška
Podlažie je úroveň budovy, na ktorej sa nachádzajú všetky miestnosti a priestory na tej istej výškovej úrovni. V závislosti od umiestnenia podlažia vzhľadom na úroveň okolitého terénu sa delia podlažia na nadzemné (nad zemou, nad úrovňou okolitého terénu) alebo podzemné (pod zemou, pod úrovňou okolitého terénu). Je nevyhnutné si uvedomiť, že nie každé konštrukčné podlažie stavby sa považuje aj za požiarne podlažie.
Požiarne podlažie je každé podlažie stavby alebo jej časti, ak spĺňa nasledovné podmienky [1]:
a) je na konštrukcii s požiarnou odolnosťou, b) má v podlahe otvory s celkovou plochou
1. najviac 10% pôdorysnej plochy nižšieho požiarneho podlažia,
2. od 10 % do 20 % pôdorysnej plochy nižšieho požiarneho podlažia a tieto otvory sú oddelené od priestorov s požiarnym rizikom konštrukčnými prvkami druhu D1 s požiarnou odolnosťou najmenej 15 min.; ak otvory v ohraničujúcich konštrukčných prvkoch druhu D1 presahujú 25 % plôch týchto konštrukčných prvkov, musia byť uzatvárateľné požiarnymi uzávermi typu EW-15/D3 (obr. 1),
c) na ktorom sa nachádza 10 a viac osôb podľa STN 92 0241 [2] okrem osôb, ktoré tam majú prechodné alebo občasné pracovné miesto a okrem osôb v prístavbách a vstavbách.

Obr. 1 Posúdenie požiarneho podlažia (autori)
Pre správne určenie požiarnej výšky stavby je nevyhnutné správne určiť prvé nadzemné požiarne podlažie. Vyhláška MV SR č. 94/2004 Z. z. [3] uvádza, že prvé
nadzemné požiarne podlažie je najnižšie podlažie, ktorého povrch podlahy nie je nižšie ako 1,5 m pod najvyššou úrovňou priľahlého terénu do vzdialenosti 3 m od stavby (obr. 2)


Obr. 2 Posúdenie prvého požiarneho podlažia [3]
Ak sa úroveň podlahy nachádza nižšie ako 1,5 m pod najvyššou úrovňou priľahlého terénu do vzdialenosti 3 m od stavby, jedná sa o podzemné podlažie. Vyhláška MV SR č. 94/2004 Z. z. [3], uvádza výnimky, keď aj takéto podlažie (úroveň podlahy je nižšie ako 1,5 m pod úrovňou okolitého terénu) môžeme považovať za prvé nadzemné požiarne podlažie:
1. Za prvé nadzemné požiarne podlažie možno považovať aj podlažie, ktoré je nižšie ako 1,5 m pod najvyššou úrovňou priľahlého terénu do vzdialenosti 3 m od stavby, ak parameter odvetrania je najmenej 0,025m1/2 alebo súčiniteľ odvetrania je najviac 1,25.
Ak by sme chceli uplatniť túto výnimku, je potrebné pre požiarne úseky nachádzajúce sa na posudzovanom podlaží najskôr stanoviť súčiniteľ odvetrania pri nevýrobných stavbách a parameter odvetrania pri výrobných stavbách, ktoré nesmú prekročiť hodnoty stanovené vyhláškou.
2. Ak polohu prvého nadzemného požiarneho podlažia nemožno určiť podľa vyššie uvedených spôsobov, určuje sa prvé nadzemné požiarne podlažie podľa vstupu do stavby, ku ktorej vedie prístupová komunikácia pre hasičskú jednotku.
Požiarna výška stavby je podľa Reichela [4] definovaná ako výška objektu, ktorá sa vzťahuje buď k jej nadzemnej alebo podzemnej časti a meria sa pre nadzemnú časť stavby od podlahy prvého nadzemného požiarneho podlažia po podlahu posledného nadzemného požiarneho podlažia. Pre podzemnú časť stavby sa meria od podlahy prvého nadzemného požiarneho podlažia po podlahu posledného podzemného
podlažia. To znamená, ak má stavba nadzemné aj podzemné podlažia, stanoví sa zvlášť požiarna výška pre nadzemnú časť (uvažuje sa s ňou privýpočtoch pre požiarne úseky nachádzajúcich sa v nadzemnej časti) a zvlášť požiarna výška pre podzemnú časť (uvažuje sa s ňou pri výpočtoch pre požiarne úseky nachádzajúcich sa v podzemnej časti). Pri jednopodlažných stavbách je požiarna výška rovná nule, pretože prvé nadzemné požiarne podlažie je zároveň aj posledným nadzemný požiarnym podlažím.
Za požiarne podlažie sa nepovažuje [1]:
technické podlažie, na ktorom je najmä strojovňa výťahu, alebo strojovňa vzduchotechniky a ktoré je umiestnené ako posledné nadzemné podlažie, ak v ňom nie je trvalé pracovné miesto alebo dočasné pracovné miesto,
prístavba a vstavba v jednopodlažnej stavbe, ktoré zaberajú najviac 30% pôdorysnej plochy požiarneho úseku a ktoré majú súčet podlahových plôch najviac 500 m2, a v ktorých môže byť najviac 50 osôb (obr. 3). Tieto podmienky platia pre nevýrobné a výrobné stavby.

Obr. 3 Vstavok v jednopodlažnej stavbe [1]
Špecifickým prípadom je prístavba alebo vstavba v sklade v jednopodlažnej stavbe, alebo ďalšie podlažie v takejto stavbe. Nepovažujú sa za požiarne podlažie, ak pôdorysná plocha podlaží nachádzajúcich sa nad alebo pod úrovňou prvého nadzemného podlažia, nepresiahne 300 m2 alebo 15 % pôdorysnej plochy požiarneho úseku skladu v jednopodlažnej stavbe.
Pri viacpodlažných vstavkoch sa pri posúdení, či sa jedná o požiarne podlažia, neposudzuje každé podlažie zvlášť. Ako je na obr. 3 znázornené, spočíta sa plocha všetkých podlaží v prístavbe alebo vstavbe a tá sa potom posudzuje vzhľadom na pôdorysnú plochu požiarneho úseku, v ktorom sa nachádzajú.
Ďalším pojmom, ktorý sa vyskytuje pri charakteristike priestoru je svetlá výška priestoru. Svetlá výška priestoru sa meria od podlahy po strop miestnosti. Zjednodušene povedané je to výška priestoru, ktorú človek vníma, keď sa v miestnosti nachádza. Ak sa v požiarnom úseku nachádzajú priestory s rôznou svetlou výškou priestoru, váženým aritmetickým priemerom sa stanoví priemerná hodnota svetlej výšky (podľa vzorca 17). Klasický príkladom je divadelná sála.
Výšková poloha požiarneho úseku definuje v akej výške sa nachádza požiarny úsek vzhľadom na úroveň podlahy prvého nadzemného podlažia. Je to výška od podlahy prvého nadzemného požiarneho podlažia po podlahu požiarneho podlažia, pre ktorú sa výšková poloha určuje.
2.2 Reakcia na oheň, konštrukčné prvky a konštrukčné celky
2.2.1 Reakcia na oheň
Každý materiál sa v podmienkach požiaru správa odlišne. Závisí od druhu materiálu a jeho vlastností, ktoré napomáhajú reagovať na vplyv vysokej teploty a ohňa v prípade požiaru. Najrozhodujúcejšou vlastnosťou je v tomto prípade horľavosť materiálu. Čím je materiál horľavejší, tým rýchlejšie reaguje na vplyv požiaru, ako materiál, ktorý je menej horľavý.
Reakcia na oheň je príspevok výrobku k rozvoju požiaru, ktorému je exponovaný, spôsobený tepelným rozkladom výrobku za definovaných podmienok. Reakcia na oheň zahŕňa požiarno-technické vlastnosti stavebných výrobkov, ktoré sa pôvodne v SR posudzovali jednotlivo, ako je horľavosť, šírenie plameňa po povrchu, odpadávanie a odkvapkávanie horiacich častí a pod.
Podľa klasifikačnej normy STN EN 13 501-1 [5] sa reakcia na oheň stavebných výrobkov vyjadruje triedou. Trieda reakcia na oheň stavebných výrobkov sa určuje na základe skúšok, ktoré sa vykonávajú v autorizovanýchskúšobniach v zmysle platných skúšobných noriem.
2.2.2 Triedy reakcie na oheň
V zmysle klasifikačnej normy STN EN 13 501-1 [5] sa stavebné materiály, výrobky a prvky stavieb klasifikujú z hľadiska ich reakcie na oheň do tried A1, A2, B, C, D, E a F (zoradené od najnižšej po najvyššiu triedu) (tab. 1). Pre stavebné výrobky triedy reakcie na oheň A2, B, C, D a E sa z hľadiska tvorby horiacich kvapiek a častíc určuje doplnková klasifikácia d0, d1, d2 a z hľadiska tvorby dymu doplnková klasifikácia s1, s2 a s3 (tab. 2). Obdobne pre podlahové krytiny platia triedy A1fl, A2fl, Bfl, Cfl, Dfl, Efl, Ffl. Pre hodnotenie tepelnoizolačných výrobkov pre lineárne potrubia platia triedy reakcie na oheň A1L – FL.
Tab. 1 Triedenie výrobkov do tried reakcie na oheň [5]
Trieda reakcie na oheň podľa STN EN 13 501-1 [1]
A1
Rozdelenie z hľadiska horľavosti
nehorľavé A2 B horľavé C D E F
Tab. 2 Triedy reakcie na oheň stavebných výrobkov [5]
Trieda Skúšobná metóda (skúšobné metódy)
EN ISO 1182 (1)
A1
A2
EN ISO 1716
EN ISO 1182 (1) alebo
EN ISO 1716 a
EN 13823
EN 13823 a
B
C
D
EN ISO 11925-2 (8): expozícia = 30 s
EN 13823 a
EN ISO 11925-2 (8): expozícia = 30 s
EN 13823 a
EN ISO 11925-2 (8): expozícia = 30 s
E EN ISO 11925-2 (8): expozícia = 15 s
F bez definície charakteristík
Klasifikačné kritériá
ΔT ≤ 30 °C; a Δm ≤ 50 %; a tf = 0 (to je bez trvalého horenia)
PCS ≤ 2,0 MJ·kg-1 (1) a
PCS ≤ 2,0 MJ·kg-1 (2) (2a) a
PCS ≤ 1,4 MJ m-2 (3) a
Doplnková klasifikácia
PCS ≤ 2,0 MJ·kg-1 (4) –
ΔT ≤ 50 °C; a
Δm ≤ 50 %; a tf ≤ 20 s
PCS ≤ 3,0 MJ·kg-1 (1) a
PCS ≤ 4,0 MJ·m-2 (2) a
PCS ≤ 4,0 MJ·m-2 (3) a
PCS ≤ 3,0 MJ·kg-1 (4) –
FIGRA ≤ 120 W·s-1 a
LFS < okraj skúšobnej vzorky a THR600s ≤ 7,5 MJ
FIGRA ≤ 120 W·s-1 a LFS < okraj skúšobnej vzorky a THR600s ≤ 7,5 MJ
FS ≤ 150 mm za 60 s
LFS < okraj skúšobnej vzorky a THR600s ≤ 15 MJ
tvorba dymu (5) a horiace kvapky /častice (6)
tvorba dymu (5) a horiace kvapky /častice (6)
FIGRA ≤ 250 W·s-1 a horiace kvapky /častice (7)
FS ≤ 150 mm za 60 s
FS ≤ 150 mm za 60 s
FIGRA ≤ 750 W·s-1 a tvorba dymu (5) a horiace kvapky /častice (6)
FS ≤ 150 mm za 20 s horiace kvapky /častice (7)
(1) Pre homogénne výrobky a významné prvky nehomogénnych výrobkov.
(2) Pre každý vonkajší nevýznamný prvok nehomogénnych výrobkov.
(2a) Alternatívne, každý vonkajší nevýznamný prvok majúci PCS ≤ 2,0 MJ·m-2, za predpokladu, že výrobok spĺňa nasledujúce kritériá EN 13823: FIGRA ≤ 20 W/s a LFS < okraj skúšobnej vzorky a THR600s ≤ 4,0 MJ a s1 d0.
(3) Pre každý vnútorný nevýznamný prvok nehomogénnych výrobkov.
(4) Pre výrobok ako celok.
(5) V poslednej fáze vývoja skúšobnej metódy sa zaviedli zmeny systému merania dymu, ktorých účinok si vyžaduje ďalšie skúmanie. To môže viesť k zmenám hraničných hodnôt alebo parametrov na zisťovanie tvorby dymu.
s1 = SMOGRA ≤ 30 m2·s-2 a TSP600s ≤ 50 m2; s2 = SMOGRA ≤ 180 m2·s-2 a TSP600s ≤ 200 m2; s3 = nespĺňa s1 alebo s2.
Trieda Skúšobná metóda (skúšobné metódy) Klasifikačné kritériá Doplnková klasifikácia
(6) d0 = nijaké horiace kvapky/častice pri skúške podľa EN 13825 počas 600 s; d1 = nijaké horiace kvapky/častice pretrvávajúce dlhšie ako 10 s pri EN 13823 počas 600 s; d2 = nespĺňa d0 alebo d1.
(7) Vyhovuje = bez zapálenia papiera (bez klasifikácie).
(8) V podmienkach vystavenia povrchu vzorky plameňu, a ak je to vhodné, z hľadiska konečného používania aj vystavenie hrany vzorky plameňu.
Znaky a značky:
ΔT T rast teploty [K]
Δm úbytok hmotnosti [%]
Fs šírenie plameňa [mm]
FIGRA index rýchlosti rozvoja požiaru používaný na účely klasifikácie
Figra 0,2 MJ index rýchlosti rozvoja požiaru s hraničnou hodnotou pre THR 0,2 MJ
Figra 0,4 MJ index rýchlosti rozvoja požiaru s hraničnou hodnotou pre THR 0,4 MJ
LFS šírenie plameňa vo vodorovnom smere [m]
PCS spalné teplo [MJ·kg-1 alebo MJ·m-2]
PCI výhrevnosť [MJ·kg-1 alebo MJ·m-2]
SMOGRA rýchlosť tvorby dymu
tf pretrvávanie trvalého horenia plameňom [s]
THR600s celkové uvoľnené teplo počas 600 s [MJ]
TSP600s celkové množstvo vytvoreného dymu počas 600 s [m2] m´ priemerná hodnota množiny výsledkov spojitého parametra, ktorá sa zisťuje podľa príslušnej skúšobnej metódy s použitím minimálneho počtu skúšok, tak ako sa určuje v skúšobnej metóde m priemerná hodnota množiny výsledkov spojitého parametra, ktorá sa zisťuje podľa postupu uvedeného v článku 7.3 STN EN 13501-1 a používa sa na klasifikáciu
Z tab. 2 je zrejmé, že zaradenie materiálov do príslušnej triedy reakcie na oheň je podmienené skúškou podľa platných skúšobných noriem a splnením daných klasifikačných kritérií. Takmer pri všetkých triedach je potrebné materiál odskúšať podľa minimálne dvoch skúšobných metodík.
2.2.3 Princípy a skúšobné zariadenia na stanovenie triedy reakcie stavebných výrobkov na oheň
V závislosti od klasifikácie z hľadiska reakcie na oheň sú určené nasledujúce skúšobné postupy:
2.2.3.1 Skúška nehorľavosti
Pomocou tejto skúšky sa určujú výrobky, ktoré neprispievajú alebo významne neprispievajú k požiaru bez ohľadu na ich konečné používanie. Skúška sa používa pri triedach A1, A2, A1fl, A2fl. Skúšobný postup je podľa STN EN ISO 1182 [6].
Princíp skúšobnej metódy: Vzorka s priemerom 45 mm a výškou 50 mm sa 20 minút zahrieva v peci pri teplote 800 – 850 °C, pričom sa registrujú teploty na povrchu a vo vnútri vzorky. Zaznamenáva sa čas horenia vzorky. Po skúške sa musí určiť hmotnostný úbytok každej vzorky, rozdiel maximálnej teploty pece a ustálenej teploty
pece, rozdiel maximálnej teploty na povrchu vzorky a ustálenej teploty pece, čas trvania horenia vzorky (obr. 4).

2.2.3.2 Skúška spalného tepla
Skúšobný postup je podľa STN EN ISO 1716 [7]. Pomocou tejto skúšky sa zisťuje najväčšia možná hodnota celkového uvoľneného tepla výrobkom pri jeho úplnom zhorení bez ohľadu na jeho konečné používanie. Skúška sa používa pri triedach A1, A2, A1fl, A2fl. Skúška umožňuje zisťovať spalné teplo (PCS) aj výhrevnosť (PCI – na základe vlhkosti a % vodíka).
Princíp skúšobnej metódy: Stanovenie spalného tepla spočíva v úplnom spálení navážky 0,5 g vzorky s 0,5 g kyseliny benzoovej v kyslíku pod tlakom v kalorimetrickej tlakovej nádobe (za stáleho objemu) v izotermických alebo adiabatických podmienkach a v nameraní vzostupu teploty vody v kalorimetrickej nádobe (obr. 5)

2.2.3.3 Skúška osamelo horiacim predmetom (SBI test)
Skúškou sa zisťuje možný príspevok výrobku k rozvoju požiaru pri simulácii požiaru osamelo horiaceho predmetu v rohu miestnosti blízko skúšaného výrobku. Skúška sa vykonáva podľa STN EN 13823 [9]. Skúška sa používa pri triedach A2, B, C a D (za splnenia stanovených podmienok v STN EN 13501-1 [5] sa skúška používa aj pri triede A1).
Princíp skúšobnej metódy: Tepelnému zaťaženiu zo zvláštneho horáka, v ktorom sa spaľuje propán, sú vystavené tri vzorky. Každá vzorka je zostavená tak, že vytvára vnútorný kút zo stenami šírky 1 a 0,5 m a výšky 1,5 m. Horák je umiestnený v rohu dolnej časti. Z nameraných veličín sa vyhodnocujú parametre FIGRA, SMOGRA a LFS (šírenie plameňa vo vodorovnom smere). Vzorky sa skúšajú v podmienkach konečného použitia (obr. 6).

2.2.3.4 Skúška zapáliteľnosti
Skúška zapáliteľnosti sa vykonáva podľa STN EN ISO 11925-2 [11] a používa sa pri triedach B, C, D, E, Bfl, Cfl, Dfl a Efl
Princíp skúšobnej metódy: Stanovenie zapáliteľnosti spočíva vo vystavení 6 vzoriek výrobku s rozmermi 250 mm x 90 mm, max. hrúbky 60 mm, účinkom malého plameňa na čas 15 s alebo 30 s(časzávisíod klasifikačnej triedy). Výsledkom merania je zistenie, či sa vzorka zapálila a či sa plameň rozšíril o viac ako 150 mm počas 20 s alebo 60 s skúšky (čas závisí od klasifikačnej triedy). Vzorky sa skúšajú v podmienkach konečného použitia (obr. 7).

Obr. 7 Skúška zapáliteľnosti (autori)
2.2.3.5 Zisťovanie správania podlahových krytín pri horení s použitím sálavého zdroja tepla (skúška radiačným panelom).
Pomocou tejto skúšky sa zisťuje kritický sálavý tok (obr. 8). Pri nižšom tepelnom toku sa už plamene po vodorovnom povrchu vzorky nešíria. Skúška sa používa pri triedach A2fl, Bfl, Cfl, Dfl a vykonáva sa podľa STN EN ISO 9239-1 [12].

Obr. 8 Skúška radiačným panelom [13]
Prínosom uvedených skúšobných postupov je, že približujú správanie sa materiálov pri požiari v závislosti od toho, ako budú reálne zabudované v stavbe. Pri SBI teste je najvyššie riziko rozvoja požiaru práve v rohu miestnosti, pri skúške zapáliteľnosti sa plameň šíri zvislo po povrchu vzoriek, rovnako ako reálne v stavbe, pri skúške radiačným panelom sú vzorky umiestnené vo vodorovnej polohe, čo predstavuje umiestnenie podlahových krytín v stavbe.
Nehorľavosť a spalné teplo sú však materiálové charakteristiky a sú teda nezávislé na spôsobe použitia stavebného výrobku v praxi. Pri skúške sa odoberie malé množstvo skúšaného materiálu bez ohľadu na to, kde bude materiál v stavbe zabudovaný.
Všetky výrobky mimo podlahové krytiny musia byť pre účely klasifikácie skúšané vo zvislej polohe. Podlahové krytiny musia byť skúšané exponovanou stranou hore podľa EN ISO 9239-1 [12] a zvislo podľa EN ISO 11925-2 [11].
2.3 Konštrukčné prvky a konštrukčné celky
Konštrukcie stavby, či už nosné alebo nenosné sa zhotovujú z rôznych druhov stavebných materiálov, ktoré majú od výrobcu deklarovanú svoju triedu reakcie na oheň. Z hľadiska protipožiarnej bezpečnosti stavby je dôležité zvoliť v konštrukčnom systéme stavby také konštrukcie a ich skladbu, ktoré v prípade požiaru po určitý čas odolajú účinkom požiaru a tým zabezpečia bezpečnosť pre evakuované osoby. Podľa toho, z akých materiálov podľa triedy reakcie na oheň stavebná konštrukcia pozostáva a ako sú v nej materiály usporiadané, môžu projektanti navrhovať stavebné konštrukcie, ktoré nesmú alebo aj ktoré môžu v požadovanom čase zvyšovať intenzitu požiaru. Všetko závisí od konkrétnych podmienok navrhovanej stavby.
2.3.1 Druhy konštrukčných prvkov
Konštrukčné prvky sa podľa ich vplyvu na intenzitu požiaru členia na konštrukčné prvky druhu D1, druhu D2 a druhu D3 [3] (obr. 9).
V STN 92 0201-2 [11] sú uvedené presné definície konštrukčných prvkov: Konštrukčný prvok druhu D1 je konštrukcia, ktorá v čase požadovanej požiarnej odolnosti nezvyšuje intenzitu požiaru, pretože:
– stavebné materiály alebo komponenty, z ktorých sú zhotovené, majú triedu reakcie na oheň A1 alebo A2;
– stavebné materiály alebo komponenty s triedou reakcie na oheň inou ako A1 alebo A2, ktoré nezabezpečujú nosnosť a stabilitu konštrukčného prvku, sú uzavreté stavebnými materiálmi alebo komponentmi s triedou reakcie na oheň A1 alebo A2 tak, že v požadovanom čase požiarnej odolnosti sa nezapália a neuvoľňuje sa z nich teplo.
Konštrukčný prvok druhu D2 je konštrukcia, ktorá v určenom čase požiarnej odolnosti nezvyšuje intenzitu požiaru, pretože:
– stavebné materiály alebo komponenty s triedou reakcie na oheň inou ako A1 alebo A2 sú uzavreté stavebnými materiálmi alebo komponentmi s triedou
reakcie na oheň A1 alebo A2 tak, že v požadovanom čase požiarnej odolnosti sa nezapália a neuvoľňuje sa z nich teplo.
Horľavé materiály a komponenty uzavreté vo vnútri konštrukčných prvkov druhu D1 a D2 nesmú počas požadovanej doby požiarnej odolnosti dosiahnuť teplotu vzplanutia; ak táto teplota nie je jednoznačne určená, uvažuje sa s teplotou vzplanutia
180 °C. Čas potrebný na dosiahnutie teploty vzplanutia, to znamená požadovaný čas požiarnej odolnosti je možné preukázať experimentálne, alebo výpočtom.
Konštrukčný prvok druhu D3 je konštrukcia, ktorá sa v určenom čase požiarnej odolnosti môže zapáliť a zvyšovať intenzitu požiaru a ktorú nemožno posudzovať ako konštrukčný prvok druhu D1 alebo D2. Konštrukčný prvok druhu D3 môže byť vyhotovený z komponentov ktorejkoľvek triedy reakcie na oheň. a)


b)

c)
Obr. 9 Konštrukčné prvky (autori) a) druhu D1, b) druhu D2, c) druhu D3 Poznámka: Povrchová úprava sa nezohľadňuje pri zatrieďovaní konštrukčných prvkov. Zatepľovacie systémy budov tvoria taktiež povrchovú úpravu konštrukčného prvku obvodovej steny a nezohľadňujú sa pri určovaní konštrukčných prvkov.
2.3.2 Druhy konštrukčných celkov a zásady ich určovania
Pri riešení stavby z hľadiska protipožiarnej bezpečnosti je veľmi dôležité správne určenie konštrukčného celku stavby, to znamená posúdenie, z akých konštrukčných prvkov pozostáva nosný konštrukčný systém stavby a ako sú v ňom tieto prvky (D1, D2, D3) usporiadané. Od správneho určenia druhu konštrukčného celku stavby potom závisíjej ďalšie posudzovanie, najmä čo sa týka stanovenia požiadaviek na konštrukcie stavby.
Konštrukčné celky sa podľa druhu konštrukčných prvkov použitých v požiarne deliacich konštrukciách a nosných konštrukciách, ktoré zabezpečujú stabilitu stavby alebo jej časti, členia na (obr. 10):
– nehorľavé – sú konštrukčné systémy, v ktorých požiarne deliace konštrukcie a nosné konštrukcie sú len druhu D1;
– zmiešané – sú konštrukčné systémy, v ktorých zvislé požiarne deliace konštrukcie a zvislé nosné konštrukcie sú len druhu D1, ostatné požiarne deliace a nosné konštrukcie sú druhu D2; – horľavé – sú konštrukčné systémy, v ktorých sú požiarne deliace konštrukcie a nosné konštrukcie: o len druhu D2, o druhu D1, D2 alebo D3; tieto konštrukčné celky však nespĺňajú požiadavky na nehorľavý konštrukčný celok a zmiešaný konštrukčný celok.




Obr. 10 Konštrukčné celky stavby (autori) a) nehorľavý, b) zmiešaný, ca) horľavý – všetky D2, cb) horľavý – všetky D3 alebo kombinácia D1, D2, D3 [11]
V STN 92 0201-2 [1] čl. 2.6.4 b) je zadefinovaný nový zmiešaný konštrukčný celok, ktorého určením sa vytvorili podmienky pre projektovanie viacpodlažných drevostavieb v SR.
Zmiešaný konštrukčný celok pre viacpodlažné drevostavby je konštrukčný systém, v ktorom sú všetky požiarne deliace konštrukcie a nosné konštrukcie zabezpečujúce stabilitu stavby alebo jej časti len druhu D2, na ktoré sú však stanovené sprísnené požiadavky.
Nosné komponenty všetkých zohľadňovaných konštrukčných prvkov druhu D2 musia mať triedu reakcie na oheň nie nižšiu ako D-s2,d0 a všetky dutiny v konštrukcii musia byť celkom vyplnené komponentmi triedy reakcie na oheň A1 alebo A2 s teplotou tavenia, resp. tepelnej degradácie 1000 °C alebo vyššou. Schéma konštrukčného prvku druhu D2 pre zmiešaný konštrukčný celok viacpodlažných drevostavieb je vyobrazená na obr. 11.
Komponenty vypĺňajúce dutiny konštrukčných prvkov musia byť uložené tak, aby nedochádzalo k ich pohybu (sadaniu) v dutinách alebo k ich vypadnutiu a to ani po zlyhaní vonkajších ochranných komponentov (opláštenia) [1], [14].

Obr. 11 Konštrukčný prvok druhu D2 pre zmiešaný konštrukčný celok viacpodlažných drevostavieb [15]

QR kód 1 Prečo je možné stavať päťposchodové drevostavby už aj na Slovensku (https://www.ecose.sk/sk/preco-je-mozne-stavat-patposchodove-drevostavby-uz-aj-na-slovensku/)
2.3.3 Pravidlá pri určovaní konštrukčného celku stavby
Pri rôznorodosti súčasného projektovania stavieb z hľadiska konštrukčného a materiálového riešenia je určenie konštrukčného celku stavby nie vždy celkom jednoznačné. Vo vyhláške č. 94/2004 Z. z., § 13, ods. 7 [3] sú preto stanovené ďalšie
doplňujúce pravidlá, ktoré sa musia zohľadňovať pri určovaní konštrukčného celku stavby.
Pri určovaní konštrukčného celku sa nezohľadňuje:
a) konštrukčný prvok, ktorý sa nachádza nad požiarnym stropom posledného požiarneho nadzemného podlažia, ak požiarny strop nie je staticky závislý od týchto konštrukčných prvkov (Obr. 10a, nezohľadňuje sa drevený krov);
b) konštrukčný prvok v poslednom požiarnom nadzemnom podlaží v stavbe s nehorľavým alebo zmiešaným konštrukčným celkom, ktorá má viac ako dve nadzemné požiarne podlažia a požiarnu výšku najviac 22,5 m (Obr. 10b, konštrukčné prvky druhu D3 vo štvrtom nadzemnom požiarnom podlaží sa nezohľadňujú);
c) druh požiarne deliacich a nosných konštrukcií vstavaných častí, umiestnených vo väčších požiarnych úsekoch, ak tieto konštrukcie nezabezpečujú stabilitu stavby a ani neohraničujú požiarny úsek, v ktorom sú umiestnené.
Konštrukčný celok pre časť stavby sa považuje za samostatný, ak je časť stavby staticky nezávislá a oddelená po celej výške stavby požiarne deliacimi konštrukciami druhu D1 a staticky nezávislými konštrukciami na nosných konštrukciách vyhotovených z konštrukčných prvkov druhu D2 alebo D3.
Ak má stavba v podzemných podlažiach nosné a požiarne deliace konštrukcie druhu D1, riešime ju v nehorľavom konštrukčnom celku len v podzemných podlažiach.
Ak má stavba v nadzemných podlažiach nosné a požiarne deliace konštrukcie druhu D2, D3, riešime ju v zmiešanom alebo horľavom konštrukčnom celku v nadzemných podlažiach.
Ak na 1.n.p.p. stavby sú nosné a požiarne deliace konštrukcie druhu D1, požiarne úseky v tomto podlaží sa môžu uvažovať v nehorľavom konštrukčnom celku, v ostatných nadzemných podlažiach uvažujeme zmiešaný alebo horľavý konštrukčný celok. Takáto stavba nemusí mať podzemné podlažie (obr. 12).

Obr. 12 . Použitie nehorľavého a horľavého konštrukčného celku pri riešení protipožiarnej bezpečnosti stavby [13]
Na obr. 12 je príklad stavby, ktorá má podzemné podlažie s nosnými a požiarne deliacimi konštrukciami druhu D1 a na 1.n.p.p. sú taktiež nosné a požiarne deliace konštrukcie druhu D1. Požiarne úseky v týchto podlažiach môžeme riešiť v nehorľavom konštrukčnom celku a vo vyšších nadzemných podlažiach v horľavom konštrukčnom celku.
Použitá literatúra
[1.] STN 92 0201-2: 2017 Požiarna bezpečnosť stavieb. Spoločné ustanovenia. Časť 2: Stavebné konštrukcie
[2.] STN 92 0241: 2012 Požiarna bezpečnosť stavieb. Obsadenie stavieb osobami.
[3.] Vyhláška MV SR č. 94/2004, Z. z., ktorou sa ustanovujú technické požiadavky na protipožiarnu bezpečnosť pri výstavbe a pri užívaní stavieb, v znení neskorších predpisov
[4.] Reichel, V. Navrhovaní požární bezpečnosti staveb. Zväzok 11. Praha : Česká republika, 1987, 72 s.
[5.] STN EN 13501-1: 2019 Klasifikácia požiarnych charakteristík stavebných výrobkov a prvkov stavieb. Časť 1: Klasifikácia využívajúca údaje zo skúšok reakcie na oheň
[6.] STN EN ISO 1182: 2021 Skúšky reakcie výrobkov na oheň. Skúška nehorľavosti
[7.] STN EN ISO 1716: 2019 Skúšky reakcie výrobkov na oheň. Stanovenie celkového spalného tepla [8.] Kačíková. D., Majlingová, A., Veľková, V., Zachar, M. 2017. Modelovanie vnútorných požiarov s využitím výsledkov progresívnych metód požiarneho inžinierstva. Zvolen: Technická univerzita vo Zvolene, 2017, 147 s. ISBN 978-80-228-3006-5
[9.] STN EN 13823: 2023 Skúšky reakcie stavebných výrobkov na oheň. Stavebné výrobky okrem podlahových krytín, vystavené pôsobeniu osamelo horiacemu predmetu (SBI test) [10.] Skúšanie reakcie na oheň stavebných výrobkov [online]. [cit. 2024-08-16]. Dostupné na internete: https://fires.sk/fotogaleria/ [11.] STN EN ISO 11925-2: 2021 Skúšky reakcie na oheň. Časť 2: Zapáliteľnosť výrobkov vystavených priamemu pôsobeniu malého plameňa. Skúška jednoplameňovým zdrojom [12.] STN EN ISO 9239-1: 2011 Skúšky reakcie podlahových krytín na oheň. Časť 1: Určovanie správania sa pri horení s použitím zdroja sálavého tepla [13.] Cementotriesková doska Cetris [online]. [cit. 2024-08-16]. Dostupné na internete: https://www.asb.sk/stavebnictvo/realizacia-stavieb/podlahy-z-dosiek-cetris-nehoria [14.] Mitterpach, J., Tereňová, Ľ., Osvald, A., Štefko, J. 2023. Požární bezpečnost staveb se zaměřením na dřevostavby. I. vydanie. Praha: Česká zemědělská univerzita, 2023. 218 s. ISBN 978-80-213-32829 [15.] Aktuálne zmeny v oblasti požiarnej prevencie [online]. [cit. 2024-08-16]. Dostupné na internete: https://www.sksi.sk/buxus/docs/anotacie/BA/9-MACASEK_2018_zmeny_v_94_2004.pdf
Požiarny úsek je celá stavba alebo jej časť, ktorá je oddelená od jej ostatných častí alebo od inej stavby požiarnou deliacou konštrukciou alebo odstupovou vzdialenosťou [1]. Význam členenia stavby na požiarne úseky je zamedziť šírenie požiaru z ohniska požiaru vo zvislom a vodorovnom smere, a tým vymedziť priestor požiaru len na jeden požiarny úsek. V rámci stavby bránia šíreniu požiaru z jedného požiarneho úseku do druhého práve požiarne deliace konštrukcie, ktoré musia spĺňať minimálnu požiadavku na požiarnu odolnosť požiarne deliacej konštrukcie. Zabránenie prenosu požiaru z jednej stavby na druhú sa zabezpečí dodržaním odstupových vzdialeností medzi stavbami. Odstupové vzdialenosti vymedzujú požiarne nebezpečný priestor v okolí stavby, v ktorom by mohlo dôjsť k prenosu požiaru na susedné objekty, a to sálaním alebo padaním horiacich častí.
Ako uvádza Reichel [2], členenie stavby na požiarne úseky je v podstate ekonomickou úlohou, t.j. hľadanie optimálnej úrovne medzi nákladmi spojenými s vybudovaním požiarnych úsekov a prípadným rozsahom škôd. Avšak prioritná úroveň je vždy bezpečnosť.
Postup členenia stavby na požiarne úseky:
1. priestory, ktoré sú uvedené v Prílohe 1 vo Vyhláške MV SR č. 94/2004 Z.z. musia tvoriť samostatný požiarny úsek. Jedná sa napr. o vybrané priestory zdravotníckych zariadení, stavieb poľnohospodárskej výroby, garáží, stavieb na bývanie a ubytovanie, skladov v jednopodlažných skladov a ďalšie. Súčasťou samostatného požiarneho úseku môžu byť priestory, v ktorých požiarne zaťaženie tvoria iba horľavé látky v konštrukciách okien, dverí a podláh
2. ostatné priestory sa delia vzhľadom na dispozičné riešenie na požiarne úseky, tak aby tvorili ucelené priestory (nemusia by navzájom priechodné). Súčasne musí byť splnená podmienka bezpečnej evakuácie (čas evakuácie, dĺžka únikovej cesty, šírka únikovej cesty), prístupu hasičov, zabezpečenie odvodu splodín horenia, obmedzenie prestupov požiarne deliacimi konštrukciami, a súčasne náklady spojené s členením stavby na požiarne úseky (náklady na požiarne uzávery v PDK) sú minimálne alebo na prijateľnej úrovni.
Pri dodržaní vyššie uvedeného postupu je potrebné dbať, aby sa splnili nasledovné podmienky.
plocha požiarneho úseku nepresiahne dovolenú plochu požiarneho úseku,
počet požiarnych podlaží neprekročí dovolený počet požiarnych podlaží požiarneho úseku.
Požiarny úsek môže byť tvorený aj priestormi na viacerých požiarnych podlažiach. Počet požiarnych podlaží v požiarnom je limitovaný aj požiarnou výškou stavby. Ako uvádza STN 92 0201-2 [3], požiarny úsek môže mať najviac:
dve požiarne podlažia v stavbách s požiarnou výškou nad 60 m,
tri požiarne podlažia v stavbách s požiarnou výškou nad 45 m a najviac 60 m,
štyri požiarne podlažia v stavbách s požiarnou výškou nad 22,5 m a najviac 45 m,
päť požiarnych podlaží v stavbách s požiarnou výškou do 22,5 m.
Viacpodlažný požiarny úsek môže mať aj o dve podlažia viac, ako je uvedené v predchádzajúcom odstavci. Nemôže sa však jednať o požiarne podlažia, len o konštrukčné.
Pri viacpodlažných požiarnych úsekoch sa celková plocha požiarneho úseku určí na základe súčtu pôdorysných plôch jednotlivých požiarnych podlaží. Zároveň treba dbať na to, aby viacpodlažné požiarne úseky boli tvorené len nadzemnými alebo len podzemnými požiarnymi podlažiami. Viacpodlažný požiarny úsek nesmie byť tvorený súčasne nadzemnými aj podzemnými podlažiami. Existuje však výnimka, ktorá pojednáva o tom, že je možné k požiarnemu úseku nadzemnej časti pripojiť časť podlažia z podzemnej časti stavby, a naopak. Nejedná sa však o celé podlažia, ale [3]:
súčasťou požiarneho úseku na prvom nadzemnom požiarnom podlaží môže byť aj podzemné požiarne podlažia alebo jeho časť s plochou najviac 50 m2 ,
súčasťou požiarneho úseku, ktorý je tvorený prvým podzemným podlažím, môže byť aj nadzemné požiarne podlažia alebo jeho časť s plochou najviac 50 m2 .

Obr. 13 Požiarny úsek N1.01, ktorého súčasťou je max. 50 m2 1. podzemného podlažia (autori)
Počet požiarnych podlaží chránených únikových ciest je neobmedzený a neplatia vyššie uvedené limity. Avšak počet požiarnych podlaží požiarnych úsekov bez rizika (čiastočne chránených únikových ciest) je podľa STN 920201-2 [3] maximálne 10 požiarnych podlaží a najviac dve ďalšie podlažia, ak nespĺňajú podmienku požiarneho podlažia.
Jednopodlažný požiarny úsek musí tvoriť [1]:
priestor radovej garáže,
lôžková ošetrovacia jednotka; jej súčasťou môže byť vyšetrovacia, liečebná alebo riadiaca zložka, jednotka intenzívnej starostlivosti, anestéziologickoresuscitačné oddelenie, operačné oddelenie; strojovňa vzduchotechniky, ktorá
je súčasťou takéhoto požiarneho úseku, môže byť umiestnená aj na inom požiarnom podlaží,
podzemné podlažie,
sklad horľavých kvapalín podľa Vyhlášky MV SR 96/2004 Z.z., ktorou sa ustanovujú zásady protipožiarnej bezpečnosti pri manipulácii a skladovaní horľavých kvapalín, ťažkých vykurovacích olejov a rastlinných a živočíšnych tukov a olejov [4],
sklad s plochou väčšou ako 100 m2, v ktorom je náhodné požiarne zaťaženie viac ako 60 kg m-2 .
Podzemné podlažia s plochou menšou ako 1 000 m2 môžu tvoriť [1]:
najviac dvojpodlažný požiarny úsek, ak sú vybavené stabilným hasiacim zariadením,
najviac štvorpodlažný požiarny úsek, ak sú vybavené stabilným hasiacim zariadením a zariadením na odvod tepla a splodín horenia.
V praxi nastávajú aj situácie, keď viacero menších stavieb tvorí jeden požiarny úsek.
V tomto prípade musí byť splnené nasledovné:
plocha jednej stavby nepresahuje 50 m2 ,
vzájomná vzdialenosť medzi susednými stavbami nie je väčšia ako odstupová vzdialenosť,
plocha, na ktorej sú tieto stavby umiestnené, nepresahuje dovolenú plochu požiarneho úseku.
Použitá literatúra
[1.] Vyhláška MV SR č. 94/2004 Z. z., ktorou sa ustanovujú technické požiadavky na protipožiarnu bezpečnosť pri výstavbe a pri užívaní stavieb, v znení neskorších predpisov
[2.] Reichel, V. Navrhovaní požární bezpečnosti staveb. Zväzok 11. Praha : Česká republika, 1987, 72 s.
[3.] STN 92 0201-2: 2017 Požiarna bezpečnosť stavieb. Spoločné ustanovenia. Časť 2: Stavebné konštrukcie
[4.] Vyhláška MV SR 96/2004 Z.z., ktorou sa ustanovujú zásady protipožiarnej bezpečnosti pri manipulácii a skladovaní horľavých kvapalín, ťažkých vykurovacích olejov a rastlinných a živočíšnych tukov a olejov,
Riziko je vo všeobecnosti chápané ako miera očakávaných nepriaznivých následkov, ktoré nastanú v prípade neúspešného zvládnutia situácie. Jedná sa o pravdepodobnosť vzniku nežiaducej udalosti, ktorá je v prípade protipožiarnej bezpečnosti, práve vznik požiaru.
Požiarne riziko je pravdepodobná intenzita požiaru v požiarnom úseku alebo v jeho časti [1]. Je potrebné si uvedomiť, čo predstavuje riziko vzniku v požiaru v stavbe, aké situácie môžu nastať a aká je pravdepodobnosť, že nastane nepriaznivá situácia vzhľadom.
Požiarne riziko sa určuje pre požiarny úsek alebo pre celú stavbu na základe STN 92 0201-1 [2], a to nasledovne:
výpočtovým požiarnym zaťažením pre nevýrobné stavby,
ekvivalentným časom trvania požiaru pre výrobné stavby a stavby poľnohospodárskej výroby,
indexom skladovaných materiálom a indexom ekonomického rizika pre sklady v jednopodlažných stavbách.
Bez požiarneho rizika je požiarny úsek v nevýrobnej stavbe, ktorá má nehorľavý konštrukčný celok, v ktorom nie je sústredené požiarne zaťaženie a zároveň [1]:
výpočtové požiarne zaťaženie je najviac 3,5 kg·m-2 alebo
výpočtové požiarne zaťaženie je najviac 7,5 kg·m-2 a súčiniteľ horľavých látok je najviac 1,1.
Časť požiarneho úseku bez požiarneho rizika je časť v požiarnom úseku, ktorá spĺňa nasledovné [1]:
výpočtové požiarne zaťaženie je najviac 3,5 kg·m-2 alebo
výpočtové požiarne zaťaženie je najviac 7,5 kg m-2 a súčiniteľ horľavých látok je najviac 1,1, a zároveň:
je ohraničená konštrukčnými prvkami druhu D1, ktoré majú požiarnu odolnosť najmenej 15 min.,
má otvory v ohraničujúcich konštrukčných prvkoch uzatvárateľné požiarnymi uzávermi aspoň typu EW/15 okrem otvorov v obvodových stenách.
Bez požiarneho rizika je taký požiarny úsek vo výrobnej stavbe a v stavbe poľnohospodárskej výroby, ktoré majú nehorľavý konštrukčný celok, v ktorom nie je sústredené požiarne zaťaženie a v ktorom [1]:
a) ekvivalentný čas trvania požiaru je najviac 7,5 min.,
b) nie sú umiestnené prevádzkarne zaradené do skupiny 6 alebo 7.
Časť požiarneho úseku je bez požiarneho rizika, ak spĺňa hore uvedené podmienky, a zároveň [1]:
a) je ohraničená konštrukčnými prvkami druhu D1, ktoré majú požiarnu odolnosť najmenej 15 min.,
b) má otvory v ohraničujúcich konštrukciách okrem otvorov v obvodových stenách, uzavierateľné požiarnymi uzávermi aspoň typu EW/15.
Výpočtovým požiarnym zaťažením sa vyjadrí požiarne riziko v nevýrobných stavbách. Jedná sa o teoretickú intenzitu požiaru, ktorá závisí od druhu priestoru alebo prevádzky, od množstva horľavých látok, ktoré sa v priestore nachádzajú, od materiálového a konštrukčného prevedenia stavby a geometrie priestoru a otvorov v obvodových konštrukciách.
Nevýrobná stavba je stavba, ktorá nie je určená na výrobu a technologicky nesúvisí s výrobou a nepovažuje sa ani za sklad v jednopodlažnej stavbe , otvorené technologické zariadenie, otvorený sklad alebo stavbu poľnohospodárskej výroby. Patria sem polyfunkčné budovy, rodinné domy, bytovky, obchody, administratívne budovy, školy, zdravotnícke zariadenia a mnoho iných.
Požiarne riziko požiarneho úseku v nevýrobnej stavbe sa vyjadruje výpočtovým požiarnym zaťažením v závislosti [1]:
od priemerného požiarneho zaťaženia,
od súčiniteľa horľavých látok,
od súčiniteľa odvetrania.
Výpočtové požiarne zaťaženie pre vybrané požiarne úseky v nevýrobných stavbách je stanovené v technickej norme STN 92 0201-1 [2], v Prílohe K. Priestory uvedené v tejto prílohe musia tvoriť samostatný požiarny úsek. Jedná sa napr. o priestory kancelárie, lôžkové izby v nemocniciach, byty, poštové prevádzky, chodby a ďalšie (tab. 3).
Tab. 3 Vybrané hodnoty výpočtového požiarneho zaťaženia pv a súčinitele a vybraných prevádzkarní a priestorov, ktoré tvoria samostatné požiarne úseky [2]
Pol. Prevádzkarne a priestory, kt. tvoria samostatný PU pv (kg·m-2) a
1 Priestory kancelárskeho charakteru, pisárne, kresliarne, študovne, čitárne
4 Archívy, knižnice
6 Zasadacie, prednáškové a konferenčné siene, hovorne, učebne, posluchárne
10 Lôžkové izby v nemocniciach, sanatóriách a liečebniach
14 Izby v hoteloch, moteloch, hromadných ubytovaniach, nocľahárňach, internátoch,
16 Byty, bytové domy, rodinné domy, domovy dôchodcov vrátane príslušenstva
17 Poštové prevádzky - priehradková hala a nadväzujúce administratívne priestory
20 Čakárne, foyery, fajčiarne, haly, recepcie, chodby, dvorany, vstupné priestory a pod., v kt. je nábytok, čalúnené sedadlá, výstavné vitríny
21 WC, umyvárne a priestory uvedené v položke 20 bez nábytku, čalúnených sedadiel, výstavných vitrín
Pre priestory, ktoré nie sú uvedené v Prílohe K STN 92 0201-1 [2] alebo požiarne úseky tvorené z priestorov s rôznou prevádzkou a nenachádza sa v nich sústredené
požiarne zaťaženie, t.j. sú charakteristické rovnomerným rozmiestnením horľavých materiálov na pôdorysnej ploche požiarneho úseku, sa výpočtové požiarne zaťaženie určí podľa nasledovného vzorca:
kde:
pv – výpočtové požiarne zaťaženie v kg.m-2 , �� – priemerné požiarne zaťaženie v kg.m-2 ,
a – súčiniteľ horľavých látok (-),
b – súčiniteľ odvetrania (-).
Výpočtové požiarne zaťaženie prislúchajúce sústredenému požiarnemu zaťaženiu sa vypočíta podľa nasledovného vzorca [2]:
kde:
pvm – výpočtové požiarne zaťaženie prislúchajúce sústredenému požiarnemu zaťaženiu v kg.m-2 , pm – sústredené požiarne zaťaženie v kg.m-2 ,
a – súčiniteľ horľavých látok prislúchajúci sústredenému požiarnemu zaťaženiu(-),
b – súčiniteľ odvetrania prislúchajúci priestorom s výskytom pm (-).
4.1.1 Požiarne zaťaženie
Požiarne zaťaženie je prepočítaná hmotnosť dreva v kg na jednotku pôdorysnej plochy požiarneho úseku v m2, ktorého výhrevnosť je rovnaká ako výhrevnosť všetkých horľavých látok, ktoré sú na tejto ploche [1]. Jednoducho povedané, jedná sa hmotnosť všetkých horľavých látok, ktoré sa v požiarnom úseku nachádzajú v konštrukciách a v zariadení (nábytok, oblečenie, kancelársky materiál, výpočtová technika, tovar v obchodoch a iné), ktoré sa skladujú v požiarnom úseku alebo sa spracúvajú. Zosumarizovaná hmotnosť všetkých horľavých materiálov sa prepočíta na 1 m2 pôdorysnej plochy požiarneho úseku.
Požiarne zaťaženie je tvorené priemerným požiarnym zaťažením �� alebo sústredeným požiarnym zaťažením pm (obr. 14). Požiarne riziko v požiarnom úseku nevýrobnej stavby alebo výrobnej stavby sa v prípade rovnomerného rozmiestnenia horľavých materiálov na pôdorysnej ploche vyjadrí priemerným požiarnym zaťažením. Ak je koncentrácia horľavých materiálov vo vymedzenej časti požiarneho úseku neporovnateľne vyššia ako v ostatných priestoroch, je možné pre túto vymedzenú časť vyjadriť požiarne riziko prostredníctvom sústredeného požiarneho zaťaženia.
Požiarne zaťaženie
Priemerné
požiarne zaťaženie
Náhodné
požiarne zaťaženie

Sústredené
požiarne zaťaženie
Stále požiarne zaťaženie


Obr. 14 Schematické rozdelenie požiarneho zaťaženia [3]
4.1.1.1 Náhodné požiarne zaťaženie
Náhodné požiarne zaťaženie je požiarne zaťaženie, ktoré zahŕňa hmotnosť a výhrevnosť všetkých horľavých látok, ktoré sa počas bežnej prevádzky dodávajú do požiarneho úseku alebo sú v požiarnom úseku [1]. Jedná sa väčšinou o horľavé látky v nábytku a v zariadení, ktoré je charakteristické pre konkrétny druh priestoru alebo prevádzky.
Náhodné požiarne zaťaženie je tvorené horľavými látkami nachádzajúcimi sa [2]:
v zariaďovacích predmetoch, nábytku, technologickom zariadení, prípadne ich náplne a izolácie,
v technologických zariadeniach (výrobky, horľavé látky, ktoré sa spracúvajú v požiarnom úseku) alebo v tepelných spotrebičoch, ktoré sa dodáva do požiarneho úseku počas:
o 5 min., ak je zariadenie dodávajúce horľavé látky vybavené uzáverom, ktorý samočinne preruší ich dodávku na impulz z požiarnobezpečnostného zariadenia, alebo ak hladina horľavej kvapaliny v nádržiach a v zariadeniach dosiahne určenú výšku, alebo ak teplota prostredia dosiahne 80 °C, alebo ak sa táto teplota alebo teplota vnútri technologického zariadenia zvýši o vopred určený rozdiel,
o 15 min. v ostatných prípadoch.
Ak celkové množstvo horľavých látok dodávaných do požiarneho úseku má tepelný výkon menší ako 0,01 MW na 1 m2 celkovej pôdorysnej plochy požiarneho úseku, tieto horľavé látky sa do náhodného požiarneho zaťaženia nezapočítavajú.
Horľavé látky, ktoré môžu odhorievať iba v povrchovej vrstve a na ohraničenej ploche, sa pri určovaní náhodného požiarneho zaťaženia započítavajú svojou hmotnosťou, najviac však hmotnosťou, ktorá odhorí za 180 min. Plocha povrchovej
vrstvy horľavých látok sa určuje podľa prílohy č. 4 uvedenej vo Vyhláške MV SR č. 94/2004 Z. z. alebo sa plocha povrchovej vrstvy horľavých látok a ohraničená plocha určuje podľa skupenstva látky, podľa počtu podlaží v požiarnom úseku a podľa počtu vytvorených prekážok určených v STN 92 0201
Pre väčšinu priestorov je náhodné požiarne zaťaženie stanovené v STN 92 0201-1 [2], v Prílohe A. Na základe druhu prevádzky alebo priestoru je stanovené náhodné požiarne zaťaženie (tab. 4).
Tab. 4 Hodnoty náhodného požiarneho zaťaženia pn a an [2]
Pol. Prevádzkarne a priestory, kt. tvoria samostatný PU an pn (kg·m-2)
1.1 Priestory kancelárskeho charakteru, pisárne
1.6 Archívy, knižnice
1.7 Príručné a centrálne sklady kancelárskych potrieb
1.9 Foyery, čakárne, fajčiarne
1.10 Vstupné priestory, haly, dvoran, chodby a pod.
2.1 Kmeňové učebne, posluchárne
4.4 Lôžkové izby v nemocniciach, sanatóriách a liečebniach
4.8 Výdajne liekov (lekárne)
5
9.1 Bytové domy, rodinné domy, domovy dôchodcov vrátane príslušenstva 1,0 40 16.2 Umyvárne, záchody, úpravne zamestnancov 0,8 5
V niektorých prípadoch sa priestor s konkrétnym pomenovaním nenachádza v Prílohe A uvedenej v STN 92 0201-1 [2], avšak uvádza sa priestor s rovnakým alebo približným vybavením, zariadením, množstvom a rozmiestnením horľavých látok. Vtedy je možné hodnoty výpočtového požiarneho zaťaženia pv a súčiniteľa horľavých látok a priradiť hľadanému priestoru, ktorý sa v Prílohe 1 v STN 92 0201-1 [2] nenachádza.
Pri príručných skladoch sa v Tabuľke A.1 uvedenej v STN 920201-1 [2] neuvádza konkrétna hodnota náhodného požiarneho zaťaženia. Pre príručné sklady sa náhodné požiarne zaťaženie určí navýšením náhodného požiarneho zaťaženia stanoveného pre daný druh prevádzky o:
hodnotu 30 kg·m-2 alebo
35 % z hodnoty náhodného požiarneho zaťaženia stanoveného pre daný druh výroby.
Prvý spôsob stanovenia náhodného požiarneho zaťaženia je pre príručný sklad obchodov. Náhodné požiarne zaťaženie pre príručný sklad predajne s odevmi sa stanoví nasledovne:
vyhľadá sa prevádzka, ku ktorej patrí príručný sklad (tab. 5),
Tab. 5 Hodnoty pn a an pre predajňu textilu [2]
Pol. Druh prevádzkarne alebo priestoru an pn (kg·m-2)
6.2.2 Obchodné domy textilného tovaru 1,05 90
k hodnote náhodného požiarneho zaťaženia pn = 90 kg.m-2 (pol. 6.2.2.) sa pripočíta hodnota pn = 30 kg m-2 (pol. 6.3.3.) (tab. 6),
Tab. 6 Hodnoty pn a an pre príručný sklad [2]
Pol. Druh prevádzkarne alebo priestoru an pn (kg·m-2)
6.3.3 Príručné sklady ostatných predajní (okrem položiek 6.3.1 a 6.3.2) náhodné požiarne zaťaženie sa oproti predajniam zvyšuje o 2) 30
konečná hodnota náhodného požiarneho zaťaženia pre príručný sklad k obchodu s odevmi je pn = 90 (pol. 6.2.2) + 30 (pol. 6.3.3) = 120 kg m-2 .
Druhý spôsob stanovenia náhodného požiarneho zaťaženia pre príručné sklady je špecifický pre výrobné stavby, t.j. sklady k výrobe (tab. 7)
Tab. 7 Hodnoty pn pre príručné sklady výrobnej stavby [2]
Pol. Druh prevádzkarne alebo priestoru an pn (kg·m-2)
11.8
11.8.4 Iné priemyselné výroby príručných skladov a expedície tovaru - výrobkov o 35 % hodnoty náhodného požiarneho zaťaženia príslušného druhu tovaruvýrobkov, najmenej však o
30 11.8.5. skladov (trvale vymedzený priestor skladu), kde skladovaná výška tovaru - výrobku neprekračuje 3 m, a to o 70 %náhodného požiarneho zaťaženia príslušného tovaru - výrobkov, najmenej však o
50
Napríklad pre výrobu cukroviniek je náhodné požiarne zaťaženie pn = 20 kg.m-2. Pre príručný sklad k cukrárskej výrobe sa náhodné požiarne zaťaženie určí navýšením o 35 % hodnoty náhodného požiarneho zaťaženia pre výrobu. 35 % z hodnoty pn = 20 kg.m-2 je 7. Avšak ako je v položke 11.8.4 v Prílohe A v STN 920201-1 [2] uvedené, hodnoty náhodného požiarneho zaťaženia pre príručné sklady sa navyšujú o 35 % vzhľadom na výrobu, minimálne však o 60 kg m-2. To znamená, že náhodné požiarne zaťaženie pre príručný sklad k cukrárskej výrobe je pn = 50 kg.m-2 . Pri drevárskej výrobe, pre ktorú je pn = 150 kg·m-2 (výroba latoviek a preglejok) sa pre náhodné požiarne zaťaženie pre príručný sklad určí navýšením o 35 %. 35 % z pn = 150 kg m-2 je 75 kg m-2. V takomto prípade je splnená požiadavka, že pn sa musí navýšiť o hodnotu 30 kg m-2. Preto náhodné požiarne zaťaženie pre príručný sklad k drevárskej výrobe je pn = 225 kg·m-2
Ďalšou možnosťou je stanoviť náhodné požiarne zaťaženie podľa rovnice uvedenej v STN 92 0201-1 [2]:
(3)
kde:
pn – náhodné požiarne zaťaženie, Mi – hmotnosť i-tej horľavej látky v kg, v požiarnom úseku, alebo jeho časti,
Ki – súčiniteľ ekvivalentného množstva dreva i-tej horľavej látky s hmotnosťou Mi podľa STN 73 0824 [4] bez rozmeru, S – pôdorysná plocha v m2, na ktorej sa vyskytuje stále požiarne zaťaženie.
Ak je projektom dané, že v stavbe sa nachádzajú kancelárskej priestory, pre ktoré je charakteristické náhodné požiarne zaťaženie pn = 40 kg m-2, nesmú byť v týchto priestoroch umiestnené napríklad obchody s knihami a hudobninami, pre ktoré je charakteristické náhodné požiarne zaťaženie pn = 120 kg·m-2. Došlo by k navýšeniu požiarneho rizika. Stavba by nebola dostatočne nadimenzovaná z hľadiska protipožiarnej bezpečnosti.
4.1.1.2 Stále požiarne zaťaženie
Stále požiarne zaťaženie je požiarne zaťaženie, ktoré zahŕňa hmotnosť a výhrevnosť horľavých látok v konštrukciách požiarneho úseku [1].
Ide o horľavé látky, ktoré sa nachádzajú v konštrukciách okien, dverí, podláh (tab. 8) a horľavé látky nachádzajúcich sa v konštrukciách požiarneho úseku (priečkach), okrem [1]:
nosných konštrukcií, ktoré zabezpečujú stabilitu stavby alebo jej časti,
požiarnych deliacich konštrukcií a
povrchových úprav konštrukcií s hrúbkou menšou ako 2 mm.
Tab. 8 Hodnoty stáleho požiarneho zaťaženia ps [2]
Pôdorysná plocha miestnosti, prípadne priestoru (m2) ps okien (kg·m-2) ps dvier (kg·m-2) ps podláh1)
1) Započítava sa nášľapná, resp. vyrovnávacia vrstva podlahy podľa STN 74 4505
Požiarne deliace konštrukcie a nosné konštrukcie zabezpečujúce stabilitu stavby sa nezapočítavajú do stáleho požiarneho zaťaženia, pretože tieto konštrukcie sú zohľadnené v konštrukčnom celku stavby.
Stále požiarne zaťaženie sa môže vypočítať podľa rovnice uvedenej v STN 92 02011 [2]:
kde:
ps – stále požiarne zaťaženie v kg·m-2 , Mi – hmotnosť i-tej horľavej látky v kg, v požiarnom úseku, alebo jeho časti, Ki – súčiniteľ ekvivalentného množstva dreva i-tej horľavej látky s hmotnosťou Mi podľa STN 73 0824 bez rozmeru,
S – pôdorysná plocha v m2, na ktorej sa vyskytuje stále požiarne zaťaženie.
Stanovenie stáleho požiarneho zaťaženia tvoreného horľavými látkami nachádzajúcimi sa v nenosných konštrukciách je vysvetlené na vzorovom požiarnom úseku (obr. 15). Požiarny úsek je tvorený dvoma kanceláriami – kancelária 1 s plochou 70 m2 a kancelária 2 s plochou 56 m2 oddelenými nenosnou priečkou, ktorá je zhotovená z dreveného obkladu 20 mm, nosného rámu (3 stĺpiky SM/JD) 160/160 mm, nehorľavej izolácie a dreveného obkladu o hrúbke 20 mm. Svetlá výška priestoru je 2,7 m.

Obr. 15 Stanovenie stáleho požiarneho zaťaženia tvoreného horľavými látkami v nenosných konštrukciách (autori)
Hmotnosť jedného stĺpika SM/JD sa vypočíta zo vzorca m=δ.V a je 33 kg. Pri troch stĺpikoch je to 99 kg. Hmotnosť dreveného obkladu z jednej strany je 177,5 kg. Keďže sú stĺpiky opláštené dreveným obkladom z obidvoch strán, celková hmotnosť dreveného obkladu je 355 kg. Hmotnosť dreva použitého v nenosnej konštrukcii je 454 kg. Súčiniteľ ekvivalentného množstva dreva je podľa STN 73 0824 [4] Ki =1,0. Celková hmotnosť dreva použitého v nenosnej konštrukcii sa prepočíta na m2 pôdorysnej plochy priestoru, pre ktoré sa určuje stále požiarne zaťaženie. Pri takejto nenosnej konštrukcii a charakteristike priestoru sa hodnota stáleho požiarneho zaťaženia tvoreného horľavými látkami okien, dverí a podláh navýši o hodnotu 6,5 kg.m-2 (stáleho požiarneho zaťaženia tvoreného horľavými látkami v nenosných konštrukciách). Hodnota sa pripočíta k stálemu požiarnemu zaťaženiu kancelárie 1
Hmotnosť a výhrevnosť obvodových konštrukčných prvkov druhu D3 a stropných konštrukčných prvkov druhu D3, ktoré tvoria vstavaný požiarny úsek, sa započítavajú do stáleho požiarneho zaťaženia požiarneho úseku, v ktorom sú umiestnené [1]. Jedná sa o výnimku, keď sa požiarne deliace konštrukcie, ktoré oddeľujú požiarny úsek vstavku od priestorov, v ktorých je vstavok umiestnený, započítavajú do stáleho požiarneho zaťaženia (obr. 16).
V prípade, ak vstavok netvorí samostatný požiarny úsek je nutné do ps požiarneho úseku, v ktorom je umiestnený, zahrnúť všetky konštrukčné prvky druhu D3 a nielen tie, ktoré ho ohraničujú [3]

Obr. 16 Stále požiarne zaťaženie tvorené konštrukciami D3(vstavba, ktorá tvorí samostatný požiarny úsek) [3]
Hodnota stáleho požiarneho zaťaženia prebratá z tab. 8 sa nenásobí počtom okien a dverí. Podľa jednotky „kg·m-2“ je zrejmé, že je to priemerná hodnota horľavých látok v oknách a dverách prepočítaná na m2 pôdorysnej plochy. Zo vzorca 5 pre priemerné požiarne zaťaženie vyplýva, že náhodné a stále požiarne zaťaženie je priemerná hodnota horľavých látok nachádzajúcich sa na m2 a je závislá od pôdorysnej plochy priestoru. Hodnota stáleho požiarneho zaťaženia okien a dverí, sa teda nenásobí počtom okien a dverí, ktoré sa nachádzajú v príslušnom priestore.
4.1.1.3 Priemerné požiarne zaťaženie
Priemerné požiarne zaťaženie je tvorené náhodným požiarnym zaťažením a stálym požiarnym zaťažením. Do priemerného požiarneho zaťaženia sa nezapočítava sústredené požiarne zaťaženie.
Priemerné požiarne zaťaženie �� požiarneho úseku sa vypočíta podľa rovnice uvedenej v STN 92 0201-1 [2]:
(5)
kde:
�� – priemerné požiarne zaťaženie v kg·m-2 ,
pn – náhodné požiarne zaťaženie v kg m-2 ,
ps – stále požiarne zaťaženie v kg·m-2 ,
Si – pôdorysná plocha v m2 i-teho priestoru v požiarnom podlaží,
S – celková pôdorysná plocha požiarneho úseku v m2 .

QR kód 2 Zatriedenie náhodného a stáleho požiarneho zaťaženia (https://www.youtube.com/watch?v=pGNRvaRJWms)
V kapitole 2 sa spomína, že súčasťou požiarneho úseku môžu byť aj podlažia, ktoré nespĺňajú podmienky kladené na požiarne podlažia, najviac však dve podlažia. Požiarne zaťaženia, ktoré sa nachádzajú len na takýchto „konštrukčných“ podlažiach, sa pripočítava k požiarnemu zaťaženiu požiarneho podlažia nachádzajúceho sa pod ním. Akoby sa horľavý nábytok a zariadenie z dvoch podlaží (jedno konštrukčné a jedno požiarne podlažie) umiestnil na jedno podlažie, a to požiarne. Plocha priestorov, ktoré sa nenachádzajú na požiarnom podlaží sa nezapočítava do celkovej plochy požiarneho úseky.
Priemerné požiarne zaťaženie pre požiarny úsek, ktorého súčasťou je konštrukčné podlažie, ktoré sa nepovažuje za požiarne podlažie, si vysvetlíme na nasledovnom príklade. Požiarny úsek je tvorený tanečnou sálou s plochou 350 m2. V tanečnej sále je umiestnený balkón s plochou 100 m2 a tento priestor slúži na občerstvenie návštevníkov. Úroveň podlahy balkóna vzhľadom na podlahu sály je 5 m. Je potrebné posúdiť priestor balkónu, či spĺňa požiadavky na požiarne podlažie. Z podmienok na požiarne podlažia, ktoré sú uvedené v kap. 2.1 (30 % pôdorysnej plochy nižšieho požiarneho podlažia, max. 50 m2) je zrejmé, že balkón sa nepovažuje za požiarne podlažie. To znamená, že ak sa pôdorysná plocha balkónu nepovažuje za požiarne podlažie, celková plocha požiarneho úseku sa rovná pôdorysnej ploche tanečnej sály, t.j. 350 m2. Pri výpočte priemerného požiarneho zaťaženia sa započítava hodnota náhodného požiarneho zaťaženia pn=15 kg·m-2 (pol. 3.3 Prílohy A v STN 92 0201-1) a stáleho požiarneho zaťaženia ps=10 kg.m-2 (ps okien, dverí a podláh) pre tanečnú sálu a hodnoty náhodného požiarneho zaťaženia pn=20kg.m-2 (pol. 7.1.2 PrílohyA v STN 92 0201-1) a stáleho požiarneho zaťaženia ps=10 kg. m-2 (ps okien, dverí a podláh) pre balkón (ako reštauračné priestory).
4.1.1.4 Sústredené požiarne zaťaženie
Sústredené požiarne zaťaženie je požiarne zaťaženie nachádzajúce sa na časti pôdorysnej plochy požiarneho úseku, ktoré výrazne presahuje priemerné požiarne zaťaženie [1]. Sústredné požiarne zaťaženie sa vytvorí kumuláciou horľavých materiálov len na určitej pôdorysnej ploche požiarneho úseku. Jedná sa napríklad o sypké látky v silách alebo na hromadách za predpokladu, že pri požiari nedôjde k ich víreniu; horľavé kvapaliny v nádržiach a zásobníkoch, ktorých celistvosť sa počas požiaru neporuší; tuhé kompaktné predmety, ktoré sa pri požiari nerozpadnú. Dochádza tu k výraznému zvýšeniu teploty vzhľadom na zvyšný priestor požiarneho úseku. Preto je nevyhnutné tento priestor vymedziť a postupuje sa podľa Vyhlášky MV SR č. 94/2004 Z. z. [1]:
pre plochu, na ktorej sa vyskytuje sústredené požiarne zaťaženie, sa určí požiarne riziko, alebo
sa z tejto plochy vytvorí samostatný požiarny úsek, alebo
sa ako priemerné požiarne zaťaženie požiarneho úseku určí najvyššia hodnota sústredeného požiarneho zaťaženia.
V STN 92 0201-1 [2] sú presne špecifikované podmienky, kedy sa požiarne zaťaženie v požiarnom úseku považuje za sústredné požiarne zaťaženie:
pre požiarne úseky nevýrobných stavieb, v ktorom sa požiarne riziko vyjadrí prostredníctvom výpočtového požiarneho zaťaženia, musia byť splnené obe podmienky súčasne:
0,01��≤���� >25��2 (6) 2(��·��)1 ≤(���� ·��)2 >50����·�� 2 (7)
kde:
S – celková plocha požiarneho úseku v m2 ,
Ss – pôdorysná plocha, na ktorej sa nachádza sústredné požiarne zaťaženie, v m2 , (�� ��)1 – súčin hodnoty priemerného požiarneho zaťaženia v kg.m-2 a súčiniteľa horľavých látok (-) celého požiarneho úseku okrem častí, kde sa vyskytuje sústredené požiarne zaťaženie,
(���� ·��)2 – súčin hodnoty sústredného požiarneho zaťaženia v kg.m-2 a súčiniteľa horľavých látok (-) prislúchajúcemu sústredenému požiarnemu zaťaženiu,
pre požiarne úseky výrobných stavieb, v ktorom sa požiarne riziko vyjadrí prostredníctvom ekvivalentného času trvania požiaru, musia byť splnené obe podmienky súčasne:
0,01�� ≤���� >50��2 (8)
2(��·��1)1 ≤(���� ·��1)2 >50����·�� 2 (9)
kde:
S – celková plocha požiarneho úseku v m2 ,
Ss – pôdorysná plocha, na ktorej sa nachádza sústredné požiarne zaťaženie, v m2 , (��·��)1 – súčin hodnoty priemerného požiarneho zaťaženia v kg.m-2 a súčiniteľa výhrevnosti (-) celého požiarneho úseku okrem častí, kde sa vyskytuje sústredené požiarne zaťaženie, (���� ·��)2 – súčin hodnoty sústredného požiarneho zaťaženia v kg.m-2 a súčiniteľa výhrevnosti (-) prislúchajúcemu sústredenému požiarnemu zaťaženiu.
Vymedzenú časť požiarneho úseku tvorí priestor v okolí sústredného požiarneho zaťaženia a vymedzí sa nasledovne [5]:
pôdorysne (obr. 17): o kružnicou alebo obdĺžnikom, alebo o plochou miestnosti, ktorá je ohraničená zvislými konštrukciami vrátane požiarnych uzáverov s požiarnou odolnosťou aspoň 15 minút,
výškovo výškou podlažia.
Sústredené požiarne zaťaženie sa neurčuje, ak [1]:
ide o viacpodlažný požiarny úsek, v ktoromjepožiarne zaťaženie určené súčtom požiarnych zaťažení v jednotlivých podlažiach,
priemerné požiarne zaťaženie je väčšie ako 150 kg·m-2

Obr. 17 Vymedzenie časti požiarneho úseku (okolo sústredeného požiarneho zaťaženia) [6]
V prípade, ak požiarne zaťaženie dosahuje vyššie hodnoty a jedná sa o viacpodlažný požiarny úsek, v ktorom je požiarne zaťaženie určené sumarizáciou požiarnych zaťažení na jednotlivých podlažiach, takéto zaťaženie sa nepovažuje za sústredenie. K vysokým hodnotám požiarneho zaťaženia môže dôjsť v prípade, ak požiarny úsek pozostáva z dvoch až troch konštrukčných podlaží, pričom iba spodné podlažie sa považuje aj za požiarne. Náhodné a stále požiarne zaťaženie sa určí pre všetky priestory (aj na podlažiach, ktoré nie sú klasifikované ako požiarne). Avšak sa podelia výlučne na pôdorysnú plochu požiarneho podlažia.
4.1.2 Súčiniteľ horľavých látok
Horľavé látky odhorievajú rôznou rýchlosťou. Aj tá istá horľavá látka môže odhorievať rôznou rýchlosťou, ak sa odlišuje tvarom, rozmermi, zoskupením, prípadne uložením.
Súčiniteľ horľavých látok je relatívnym vyjadrením ich rýchlosti odhorievania, t.j. úbytku hmotnosti horľavej látky za časovú jednotku z hľadiska charakteru horľavých látok. [2]
Tak ako výpočtové požiarne zaťaženie, aj súčiniteľ horľavých látok pre vybrané požiarne úseky v nevýrobných stavbách je stanovený v technickej norme STN 92 02011 [2], v Prílohe K (tab. 4). Priestory uvedené v tejto prílohe musia tvoriť samostatný požiarny úsek.
Pre priestory, ktoré nie sú uvedené v Prílohe K STN 92 0201-1 [2] alebo nespĺňajú požiadavku samostatného požiarneho úseku, sa súčiniteľ horľavých látok stanoví podľa rovnice uvedenej v STN 92 0201-1 [2]:
(10)
kde:
a – súčiniteľ horľavých látok bez rozmeru,
pni – i-te náhodné požiarne zaťaženie v kg m-2 , psi – i-te stále požiarne zaťaženie v kg·m-2 ,
ani – súčiniteľ horľavých látok prislúchajúci náhodnému požiarnemu zaťaženiu bez rozmeru,
asi – súčiniteľ horľavých látok prislúchajúci stálemu požiarnemu zaťaženiu – bez rozmeru,
Si – pôdorysná plocha v m2, na ktorej sa vyskytuje i-te požiarne zaťaženie.
Hodnota súčiniteľa horľavých látok prislúchajúca stálemu požiarnemu zaťaženiu je vždy konštantná, as je rovné 0,9.
Hodnota súčiniteľa horľavých látok an prislúchajúca náhodnému požiarnemu zaťaženiu sa určí z Prílohy A uvedenej v STN 92 0201-1 [2]. Niektoré vybraté položky sú uvedené v tab. 4.
Ak nie je súčiniteľ horľavých látok an stanovený normovou hodnotou alebo je priestor charakterizovaný sústredeným požiarnym zaťažením a existuje dostatok informácií o druhu a množstve horľavých látok nachádzajúcich sa v priestore, súčiniteľ horľavých látok sa stanoví podľa rovnice uvedenej v STN 92 0201-1 [2]:
(11)
kde:
an – súčiniteľ horľavých látok (-),
Mi – hmotnosť i-tej horľavej látky v kg v požiarnom úseku alebo jeho časti,
Ki – súčiniteľ ekvivalentného množstva dreva i-tej horľavej látky s hmotnosťou Mi určený podľa STN 73 0824 (-), ami – súčiniteľ horľavých látok (-), pre i-tý druh horľavej látky podľa Prílohy B uvedenej v STN 92 0201-1, závisí od charakteru horľavej látky.
Hmotnosť horľavých látok, ktoré pri požiari odhorievajú z povrchu materiálu umiestnenému na ohraničenej ploche (sypké materiály v silách alebo hromadách, pri ktorých sa nepredpokladá, že dôjde k rozvíreniu pri požiari), sa započítavajú svojou skutočnou hmotnosťou, najviac však hmotnosťou Mi stanovenou podľa STN 92 02011 [2]:
kde:
Mi – celkové odhorené množstvo i-tej horľavej látky v kg v čase 180 minút, mi – hmotnosť odhoreného množstva i-tej horľavej látky v jedného m2 jej povrchu za minútu, ktorá je uvedená v Prílohe C uvedenej
v STN 92 0201-1,
Sfi – skutočná povrchová plocha i-tej horľavej látky, na ktorej môže pri požiari dôjsť k odhorievaniu v m2 .
Pre druhy prevádzok, prípadne pre objekty, pre ktoré nie je ustanovená hodnota súčiniteľa an (pre náhodné požiarne zaťaženie), alebo v ktorých je zložité jednoznačne určiť charakter horľavých látok (napr. z dôvodu zmien v priebehu užívania objektu), môže sa pre celý posudzovaný úsek bez ďalšieho preukazovania alebo výpočtu použiť hodnota a = 1,2 [7]
Súčiniteľ horľavých látok an a as je možné zmenšiť o 30 % v prípade, ak je priestor chránený stabilným hasiacim zariadením. Znížením hodnôt súčiniteľov horľavých látok sa vyjadruje účinok stabilného hasiaceho zariadenia na proces a rýchlosť odhorievania horľavých látok nachádzajúcich sa v chránenom priestoru. Aplikácia pri výpočtoch je možná, ak stabilné hasiace zariadenie spĺňa nasledovné podmienky:
jedná sa o SHZ so samočinným spúšťaním,
chráni celú plochu požiarneho úseku, okrem plôch bez požiarneho rizika,
jeho súčasťou je signalizácia oznamujúca uvedenie do činnosti.
4.1.3 Súčiniteľ odvetrania
Súčiniteľ odvetrania vyjadruje vplyv geometrie priestoru, prítomnosti otvorov v obvodových konštrukciách, a tým vplyv výmeny plynov medzi interiérom a exteriérom na pravdepodobnú intenzitu požiaru v požiarnom úseku.
Pre stanovenie hodnoty súčiniteľa odvetrania sú podstatné otvory s porušiteľnou výplňou, ktoré sa nachádzajú v konštrukciách oddeľujúcich interiér od exteriéru. Pri otvore s porušiteľnou výplňou sa predpokladá, že v prípade požiaru dôjde k porušeniu výplne do 15 minút. Jedná sa o presklené plochy okien a dverí, ktoré
v dôsledku vysokých teplôt pri požiari prasknú, a tým sa do požiarneho úseku privádza čerstvý vzduch a hornou časťou otvoru sa odvádzajú splodiny.
Pri súčiniteli odvetrania sa neuvažuje s dverami (výnimka je presklená plocha v dverách), vrátami, bránami, protipožiarnymi oknami alebo oknami s drôtenou mriežkou. Nie je možné zaručiť ich poškodenie v priebehu 15 min, a tým prívod čerstvého vzduchu do priestoru požiaru.
Je všeobecne dané, že ak hodnota súčiniteľa odvetrania dosiahne hodnotu menšiu ako 0,5, potom sa pre stanovenie výpočtového požiarneho zaťaženia použije hodnota 0,5. Ak hodnota súčiniteľa odvetrania dosiahne hodnotu väčšiu ako 2, potom sa pre stanovenie výpočtového požiarneho zaťaženia použije hodnota 2.
Súčiniteľ odvetrania b sa určí v závislosti od výskytu otvorov v obvodovej konštrukcii:
1. V obvodových konštrukciách sa nachádzajú otvory s porušiteľnou výplňou. Vtedy sa podľa rovnice uvedenej v STN 92 0201-1 [2]:
(13)
kde:
b – súčiniteľ odvetrania (-), S – celková pôdorysná plocha požiarneho úseku v m2 , k – súčiniteľ geometrie otvorov v m1/2 , Soi – plocha i-tého otvoruv m2 v obvodových konštrukciách a konštrukciách striech ohraničujúcich požiarny úsek alebo jeho časť, hoi – výška i-tého otvoru v m v obvodových konštrukciách a konštrukciách striech ohraničujúcich požiarny úsek alebo jeho časť
2. V obvodových konštrukciách a konštrukciách striech sa nenachádzajú otvory s porušiteľnou výplňou alebo sú odvetrávané nepriamo (vzduchotechnickým zariadením). Vtedy sa postupuje podľa rovnice [2]:
�� = k 0,005ℎ�� 1/2 (14)
kde:
b – súčiniteľ odvetrania (-), k – súčiniteľ geometrie otvorov v m1/2 , hs – svetlá výška miestnosti.
Súčiniteľ geometrie otvorov k závisí od [2]:
prevládajúcich veľkostí pôdorysných plôch miestností alebo priestorov v požiarnom úseku, oddelených priečkou alebo inou nepohyblivou deliacou stenou;
celkovej plochy otvorov So v obvodových konštrukciách a konštrukciách striech požiarneho úseku alebo jeho časti;
výšky týchto otvorov ho;
celkovej pôdorysnej plochy S požiarneho úseku alebo jeho časti;
svetlej výšky priestorov (miestností) hs prislúchajúcej ploche S
Súčiniteľ geometrie otvorov k sa určí z Prílohy E uvedenej v STN 92 0201-1 [2] na základe pomerového súčiniteľa odvetrania a prevládajúcej veľkosti miestností.
Za prevládajúcu veľkosť miestnosti sa považuje plocha miestností, ktorá sa v požiarnom úseku vyskytuje najčastejšie. Napríklad v požiarnom úseku sa nachádza 5 kancelárií s plochou 40 m2, kuchynka s plochou 15 m2, chodba s plochou 35 m2 a zasadacia miestnosť s plochou 80 m2. Za prevládajúcu veľkosť miestnosti sa stanoví plocha 40 m2, pretože sa v danom požiarnom úseku nachádza viackancelárií s plochou 40 m2. Druhá situácia môže nastať, ak miestnosti v požiarnom úseku majú rôzne pôdorysné plochy - reštaurácia s plochou 200 m2, kuchyňa s plochou 70 m2, bar 20 m2 , chodba 10 m2. V prípade výrazne rozdielnych plôch miestností sa súčiniteľ geometrie otvorov stanoví na základe priestoru s najväčšou pôdorysnou plochou (plocha reštaurácie).
Stanovenie pomerového súčiniteľa odvetrania n sa môže vykonať dvoma spôsobmi: 1. stanovenie podľa Prílohy D uvedenej v STN 92 0201-1 [2] na základe pomeru plochy otvorov k celkovej pôdorysnej plocha a pomeru priemernej výšky otvorov k svetlej výške priestoru (tab. 9). Ak sa výsledné hodnoty pomerov nachádzajú v rozmedzí dvoch hodnôt, za pomerový súčiniteľ odvetrania sa stanoví najbližšia vyššia hodnota.
Tab. 9 Stanovenie pomerového súčiniteľa odvetrania [2]
Pomer
2. presné stanovenie podľa rovnice uvedenej v STN 92 0201-1 [2]: ��
kde: n – pomerový súčiniteľ odvetrania (-),
So – celková plocha otvorov v m2 v obvodových konštrukciách a konštrukciách striech ohraničujúcich požiarny úsek alebo jeho časť, S – celková pôdorysná plocha požiarneho úseku v m2 , hs – svetlá výšky priestorov v m, ho – priemerná výška otvorov v m.
Ak sa v priestore nachádzajú otvory s rozdielnou výškou, potom sa svetlá výška otvoru stanoví ako vážený priemer [2]:
kde:
ho – priemerná výška hodnoty otvorov v m,
Soi – plocha jednotlivých otvorov v m2 v obvodových konštrukciách a konštrukciách striech ohraničujúcich požiarny úsek alebo jeho časť, hoi – výška i-tého otvoru v m v obvodových konštrukciách a konštrukciách striech ohraničujúcich požiarny úsek alebo jeho časť.
Pre otvory v konštrukciách striech (svetlíky) sa za plochu takýchto otvorov Soi považuje ich pôdorysný priemet a za výšku hoi sa považuje šírka pôdorysného priemetu, t.j. menší rozmer. V praxi sa však stretávame s viacerými konfiguráciami strešných otvorov, pozri príklady na obr. 18. [3]

Obr. 18 Určovanie rozmerov otvorov v strešných konštrukciách pre stanovenie Soi [3]
Svetlá výška priestoru (miestnosti) hs sa meria od podlahy k spodnej časti alebo ku konštrukcii stropu alebo strechy ohraničujúcich požiarne podlažie. Do svetlej výšky priestoru sa nezapočítavajú svetlíky, svetlá výška takéhoto priestoru sa stanoví po spodný okraj strešnej konštrukcii, v ktorej je svetlík zabudovaný.
Ak má priestor rozdielne svetlé výšky priestoru, potom sa svetlá výška priestoru stanoví ako vážený priemer [2]:
kde:
hs – priemerná hodnota svetlých výšok v m,
Si – pôdorysná plocha jednotlivých priestorov (miestností) v m2, so svetlou výškou hsi,
hsi – svetlá výška priestorov (miestností) v m,
S – celková pôdorysná plocha požiarneho úseku alebo jeho časti v m2 .
Výšku otvorov a svetlú výšku miestností nie je potrebné počítať, ak sa za výslednú považuje [2]:
ho – najmenšia výška otvoru započítateľná do plochy So,
hs – najmenšie svetlá výška priestoru (miestnosti) v požiarnom úseku.
4.2 Ekvivalentný čas trvania požiaru
Ekvivalentným časom trvania požiaru ����sa vyjadruje požiarne riziko vo výrobných stavbách a stavbách poľnohospodárskej výroby. Je to pomyselná doba trvania požiaru, v priebehu ktorej by mal požiar v posudzovanom požiarnom úseku prebiehať podľa normovej teplotnej krivky a vyvolal by v reprezentatívnej konštrukcii (t.j. betónovej doske) rovnaké (ekvivalentné) účinky ako skutočný plne rozvinutý požiar [8].
Podľa STN 92 0101 [9] je výrobná stavba definovaná ako stavba alebo časť stavby určená na výrobu alebo služby výrobného charakteru alebo objekt technologicky alebo funkčne súvisiaci s výrobou, hoci nemá výrobný charakter (napr. kotolne, výmenníkové stanice, trafostanice a pod.). Okrem samotných priestorov na výrobu, k výrobným priestorom patria opravárenské priestory, ale aj priestory technologicky alebo funkčne súvisiace s výrobou (balenie tovaru, príručné alebo expedičné sklady). V závislosti od druhu prevádzky, ktorá je charakterizovaná pravdepodobnosťou vzniku a rozšírenia požiaru, sa prevádzkarne vo výrobných stavbách delia do nasledovných skupín prevádzkarní (tab. 10). Čím viac horľavých látok sa vo výrobe spracúva, nachádza alebo sa do výroby dodáva, tým je vyššia hodnota pravdepodobnosti vzniku a rozšírenia požiaru.
Tab. 10 Pravdepodobnosť vzniku a rozšírenia požiaru [1]
Skupina prevádzkarne Pravdepodobnosť vzniku a rozšírenia požiaru
Ekvivalentný čas trvania požiaru je pre vybrané prevádzky výrobných stavieb stanovený v technickej norme STN 92 0201-1 [2], v Prílohe L. Priestory uvedené v tejto
prílohe musia tvoriť samostatný požiarny úsek. Niektoré položky sú uvedené aj v tab. 11.
Tab. 11 Ekvivalentné časy trvania požiaru vybraných prevádzkarní, vybrané položky Prílohy L v STN 92 0201-1 [2]
Pol. Prevádzkarne a priestory, kt. tvoria samostatný PU
2 Strojovne osobných aj nákladných výťahov
5 Strojovne vzduchotechniky
7 Kompresorové stanice pre nehorľavé plyny a čerpacie stanice pre nehorľavé kvapaliny
8 Elektrorozvodne bez olejových vypínačov, s olejovými vypínačmi,
13 Garáže pre osobné automobily, dodávkové automobily, jednostopové automobily (garáže skupiny 1) pre nákladné automobily, autobusy, špeciálne vozidlá, traktory, samojazdné stroje (garáže skupín 2 a 3)
Pre priestory, ktoré nie sú uvedené v Prílohe L STN 92 0201-1 [2], sa ekvivalentný čas trvania požiaru určí jedným z nasledovných postupov:
zjednodušený postup
podrobný postup.
Podrobný postup sa môže použiť vo všetkých prípadoch pri stanovení požiarneho rizika výrobnej stavby. Ako z pomenovania vyplýva, jedná sa o zložitejší, resp komplikovanejší postup stanovenia požiarneho rizika. Na druhej strane, ekvivalentný čas trvania požiaru pre niektoré prevádzkarne sa môže stanoviť prostredníctvom zjednodušeného postupu. STN 92 0201-1 [2] uvádza pravidlá, kedy sa nesmie zjednodušený postup použiť [2]:
ak sa v požiarnom úseku vyskytuje sústredené požiarne zaťaženie, alebo
sa pravdepodobný čas trvania požiaru pre jednotlivé požiarne zaťaženie určuje podľa rovnice charakteristickej pre požiar riadený povrchom odhorievajúceho paliva,
má parameter odvetrania požiarneho úseku Fo > 0,03 m1/2, alebo
má index pravdepodobnosti vzniku a rozšírenia požiaru hodnotu P1 > 0,9.
Ak sa poruší len jedna z vyššie uvedených podmienok, zjednodušený postup sa nesmie použiť a ekvivalentný čas trvania požiaru sa musí určiť podľa podrobného postupu.
Jednou z podmienok je, že sa pravdepodobný čas trvania požiaru pre jednotlivé požiarne zaťaženie určuje podľa rovnice charakteristickej pre požiar riadený povrchom odhorievajúceho paliva. Pre posúdenie tejto podmienky sú bližšie definované nasledovné pojmy.
Požiar riadený palivom je definovaný nasledovne:
Po zapálení a na začiatku rozvoja požiaru sa požiar označuje ako riadený palivom, pretože na jeho horenie existuje dostatok vzduchu a rozvoj požiaru je
plne riadený vlastnosťami a usporiadaním paliva. Požiar môže byť takisto riadený palivom v neskoršej fáze jeho vývoja. [10]
Pri požiari riadenom palivom hovoríme po iniciácii (zapálení) a vo fáze rozvíjajúceho sa požiaru, rovnako ako pri uhasínaní. Je charakterizovaný dostatkom kyslíka a zmeny parametrov požiaru sú dominantne ovplyvňované charakteristikami paliva (horľavého materiálu). [10]
Požiar riadený odvetraním je definovaný nasledovne:
Ako sa požiar rozrastá, môže sa požiar zmeniť na požiar riadený ventiláciou, keď už nie je dostatok kyslíka na horenie, vznikajú pyrolýzne plyny. Rýchlosť uvoľňovania tepla pri požiari je potom úplne riadená množstvom dostupného vzduchu, v prípade ktorého sa požiar označuje ako požiar riadený ventiláciou. [10]
V prípade požiaru riadeného ventiláciou (odvetraním), ktorý nastáva vo fáze plne rozvinutého požiaru, je nedostatok kyslíka na horenie produktov pyrolýzy, ktoré vznikajú následkom zvyšovania sa teploty v priestore. Na zmenu parametrov vnútorného požiaru má dominantný vplyv vzduch prúdiaci otvormi. [10]
K prvkom zabezpečujúcim odvetranie patria bežné ventilačné a klimatizačné systémy, okná, a zariadenia na odvod tepla a splodín horenia. [11]
Podľa Reichela [12], v bežných podmienkach a pri plne rozvinutom požiari sa väčšinou jedná o požiar riadený odvetraním, pričom pre určenie intenzity požiaru sa vychádza z priemerného požiarneho zaťaženia.
Ekvivalentný čas trvania požiaru otvoreného technologického zariadenia, otvoreného skladu a technologického mosta sa podľa Vyhlášky MV SR č. 94/2004 Z.z [1], neurčuje
4.2.1 Ekvivalentný čas trvania požiaru zjednodušeným postupom
Pri splnení podmienok pre stanovenie ekvivalentného času trvania požiaru zjednodušeným spôsobom sa postupuje podľa vzorca uvedeného v STN 92 0201-1 [2]:
(17)
kde:
���� – ekvivalentný čas trvania požiaru v min, �� – priemerné požiarne zaťaženie v kg·m-2 , k3 – súčiniteľ plôch, bez rozmeru, Fo – parameter odvetrania v m1/2 .
Stanovenie priemerného požiarneho zaťaženia �� je totožné ako pri nevýrobných stavbách (kap. 4.1.3).
4.2.1.1 Súčiniteľ plochy
Súčiniteľ plôch k3 vyjadruje závislosť medzi plochou konštrukcií ohraničujúcich požiarny úsek Sk a pôdorysnou plochou požiarneho úseku S. Stanoví sa podľa vzorca [2]:
kde:
k3 – súčiniteľ plôch, bez rozmeru, Sk – povrchová plocha konštrukcií v m2 , S – celková pôdorysná plocha požiarneho úseku v m2 .
Povrchová plocha ohraničujúcich stavebných konštrukcií Sk zahŕňa plochu zvislých požiarne deliacich alebo obvodových stien, podlahy a stopu nad požiarnym úsekom, ktoré vymedzujú požiarny úsek. Do povrchovej plochy ohraničujúcich konštrukcií sa nezapočítavajú otvory v obvodových konštrukciách a konštrukcii strechy, ktoré sa porušia pri požiari v priebehu 15 min (totožné podmienky ako pri otvoroch v nevýrobných stavbách), a tým sa do požiarneho úseku privedie čerstvý vzduch z exteriéru.
Ak je požiarny úsek obdĺžnikového tvaru, súčiniteľ plôch k3 sa môže určiť aj podľa Tabuľky 2 uvedenej v STN 92 0201-1 [2] v závislosti od pôdorysnej plochy požiarneho úseku a svetlej výšky priestoru.
4.2.1.2 Parameter odvetrania
Parameter odvetrania Fo vyjadruje vplyv geometrie priestoru, prítomnosti otvorov v obvodových konštrukciách, a tým vplyv výmeny plynov medzi interiérom a exteriérom na pravdepodobnú intenzitu požiaru v požiarnom úseku.
Pre stanovenie hodnoty parametra odvetrania sú podstatné otvory s porušiteľnou výplňou, ktoré sa nachádzajú v konštrukciách oddeľujúcich interiér od exteriéru. Pri otvore s porušiteľnou výplňou sa predpokladá, že v prípade požiaru dôjde k porušeniu výplne do 15 minút. Jedná sa o presklené plochy okien a dverí, ktoré v dôsledku vysokých teplôt pri požiari prasknú, a tým sa do požiarneho úseku privádza čerstvý vzduch a hornou časťou otvoru sa odvádzajú splodiny.
Pri parametri odvetrania sa neuvažuje s dverami (výnimka je presklená plocha v dverách), vrátami, bránami, protipožiarnymi oknami alebo oknami s drôtenou mriežkou.
Parameter odvetrania sa určí podľa nasledovnej rovnice [2]:
kde:
Fo – parameter odvetrania v m1/2 ,
Soi – plocha i-tého otvoruv m2 v obvodových konštrukciách a konštrukciách striech ohraničujúcich požiarny úsek alebo jeho časť, hoi – výška i-tého otvoru v m v obvodových konštrukciách a konštrukciách striech ohraničujúcich požiarny úsek alebo jeho časť, Sk – povrchová plocha ohraničujúcich konštrukcií v m2 .
4.2.2 Ekvivalentný čas trvania požiaru podrobným postupom (pre priemerné požiarne zaťaženie)
Ekvivalentný čas trvania požiaru stanovený podrobným postupom sa používa, ak je požiarne zaťaženie v požiarnom úseku rovnomerne rozmiestnené (nenachádza sa v požiarnom úseku sústredené požiarne zaťaženie) a index pravdepodobnosti vzniku a rozšírenia požiaru P1 je väčšie ako 0,9. Stanoví sa podľa Prílohy F uvedenej v STN 92 0201-1 [2] na základe:
pravdepodobného času trvania požiaru ����,����, a
prepočtového parametra odvetrania F1.
4.2.2.1 Pravdepodobný čas trvania požiaru
Pravdepodobný čas trvania požiaru je doba plne rozvinutého požiaru (bez zásahu hasičských jednotiek alebo stabilného hasiaceho zariadenia), v priebehu ktorého sa predpokladá, že odhorí 80 % horľavých látok tvoriacich požiarne zaťaženie [12]. Odhorenie 80 % horľavých látok tvoriacich požiarne zaťaženie, ktoré sú charakteristické určitou výhrevnosťou, je zahrnuté v čitateli nižšie uvedeného vzorca (vz. 20).
Pravdepodobný čas trvania požiaru pre požiar riadený odvetraním, sa vypočíta nasledovne [2]:
�� = 0,8����1
(20)
kde:
���� – pravdepodobný čas trvania požiaru v min, �� – priemerné požiarne zaťaženie v kg m-2 , k1 – súčiniteľ výhrevnosti, bez rozmeru, vv – rýchlosť odhorievania látok pre požiar riadený odvetraním v kg·m-2·min-1 .
Pravdepodobný čas trvania požiaru pre požiar riadený povrchom odhorievajúceho paliva, ak je splnená podmienka, že rýchlosť odhorievania horľavých látok pre požiar riadený odvetraním vv je väčšia ako rýchlosť odhorievania látok pre požiar riadený povrchom paliva vp, sa môže vypočítať nasledovne [2]:
�� = ��.��1 v�� �� (21)
kde:
�� – pravdepodobný čas trvania požiaru pre jednotlivé požiarne zaťaženie v min,
�� – priemerné požiarne zaťaženie v kg.m-2 , k1 – súčiniteľ výhrevnosti prislúchajúci jednotlivému požiarnemu zaťaženiu, bez rozmeru, vp – rýchlosť odhorievania látok tvoriacich jednotlivé požiarne zaťaženia pre požiar riadený povrchom odhorievajúceho paliva v kg.m-2.min-1 , stanoveného podľa STN 92 0201-1, �� – súčiniteľ ekvivalentného množstva dreva podľa STN 73 0824 prislúchajúci horľavým látkam tvoriacim jednotlivé požiarne zaťaženie, vz. 25.
Ak sa v požiarnom úseku nachádza priemerné požiarne zaťaženie a nie je dostatok informácií o tom, či sa jedná o požiar riadený odvetraním alebo požiar riadený povrchom odhorievajúceho paliva, pri výpočte pravdepodobného času trvania požiaru sa postupuje podľa postupu pre požiar riadený odvetraním.
4.2.2.2 Súčiniteľ výhrevnosti k1
Súčiniteľ výhrevnosti k1 vyjadruje podiel tepla, ktorý sa pravdepodobne uvoľní z konkrétneho náhodného požiarneho zaťaženia (t.j. paliva) (k1ni) a pri konkrétnych podmienkach horenia pri požiari (klsi) [6]:
(22)
kde:
k1 – súčiniteľ výhrevnosti, bez rozmeru, pni – i-te náhodné požiarne zaťaženie v kg.m-2 ,
psi – i-te stále požiarne zaťaženie v kg.m-2 , klni – súčiniteľ výhrevnosti prislúchajúci náhodnému požiarnemu zaťaženiu bez rozmeru, podľa prílohy G uvedenej v STN 92 0201-1, klsi – súčiniteľ výhrevnosti prislúchajúci stálemu požiarnemu zaťaženiu bez – rozmeru, podľa prílohy G uvedenej v STN 92 0201-1, Si – pôdorysná plocha v m2, na ktorej sa vyskytuje i-te požiarne zaťaženie.
4.2.2.3
Rýchlosť odhorievania látok vv
Rýchlosť odhorievania horľavých látok vv priamo ovplyvňuje pravdepodobný čas trvania požiaru. Pojednáva o intenzite akou horľavé látky odhorievajú. Čím je rýchlosť odhorievania horľavých látok vyššia, tým je odhorievanie intenzívnejšie.
Rýchlosť odhorievania horľavých látok vv pre priemerné požiarne zaťaženie sa vypočíta [2]:
1. Vo všeobecnosti
kde:
vv – rýchlosť odhorievania pre požiar riadený odvetraním v kg·m-2·min-1 ,
γ – súčiniteľ rýchlosti odhorievania v kg m-5/2 min-1 ,
Fo – parameter odvetrania v m1/2 ,
k3 – súčiniteľ plôch bez rozmeru.
2. Ak hodnota ekvivalentného množstva dreva dosiahla priemerne hodnoty viac ako 1, vtedy sa môže použiť:
(24)
kde:
vv – rýchlosť odhorievania pre požiar riadený odvetraním v kg·m-2·min-1 ,
γ – súčiniteľ rýchlosti odhorievania v kg·m-5/2·min-1 ,
F1 – prepočtový parameter odvetrania v m1/2 ,
k3 – súčiniteľ plôch bez rozmeru.
4.2.2.4 Súčiniteľ rýchlosti odhorievania
Súčiniteľ rýchlosti odhorievania γ sa určí na základ parametru odvetrania, a to podľa Tabuľky 3 v STN 92 0201-1 [2] (tab. 12).
Tab. 12 Hodnoty súčiniteľa rýchlosti odhorievania γ [2]
Parameter odvetrania Fo (m1/2)
Hodnota súčiniteľa �� (kg·m-5/2·min-1)
Parameter odvetrania Fo (m1/2)
Hodnota súčiniteľa �� (kg·m-5/2·min-1)
Ak sa skutočné hodnoty parametra odvetrania Fo nachádzajú medzi tabuľkovými hodnotami, postupuje sa takto: – použije sa najbližšia vyššia tabuľková hodnota Fo, alebo – použije sa lineárna interpolácia medzi susednými tabuľkovými hodnotami, alebo – hodnoty súčiniteľa �� sa vypočítajú z rovnice �� =2,92������( 4 Fo ) v rozsahu 8,47≥4,25.
4.2.2.5 Súčiniteľ ekvivalentného množstva dreva ��
Súčiniteľ ekvivalentného množstva dreva �� porovnáva výhrevnosť materiálov nachádzajúcich sa v požiarnom úseku s výhrevnosťou dreva (referenčná vzorka). V praxi sa nachádza v požiarnom úseku viac druhov horľavých látok. Preto je potrebné vypočítať priemernú hodnotu [2]:
kde:
�� – súčiniteľ ekvivalentného množstva dreva, Mi – hmotnosť i-tej horľavej látky v kg, Ki – súčiniteľ ekvivalentného množstva dreva charakteristický pre i-tu horľavú látku.
Jedná sa o vážený aritmetický priemer. Ak sa v požiarnom úseku vyskytujú napríklad nasledovné horľavé látky:
mazací olej s hmotnosťou 50 kg, pre ktorý je charakteristický súčiniteľ ekvivalentného množstva dreva K = 2,5,
benzín s hmotnosťou 10 kg, pre ktorý je charakteristický súčiniteľ ekvivalentného množstva dreva K = 2,6,
glykol s hmotnosťou 5 kg, pre ktorý je charakteristický súčiniteľ ekvivalentného množstva dreva K = 1,0, potom:
Súčiniteľ ekvivalentného množstva dreva K pre požiarny úsek, v ktorom sa nachádza 50 kg mazacieho oleja, 10 kg benzínu, 5 kg glykolu, je K = 2,4.
Na základe hodnoty súčiniteľa ekvivalentného množstva dreva �� a jeho vplyvu na prepočtový parameter F1 a F2 podľa Reichela [12], pri výpočte priemernej hodnoty �� môžu nastať dve situácie:
1. hodnota súčiniteľa ekvivalentného množstva dreva �� je menšia ako 1, t.j. výhrevnosť materiálov nachádzajúcich sa v požiarnom úseku je menšia ako referenčná výhrevnosť dreva. Potom súčiniteľ �� má minimálny vplyv na prepočtový parameter F1 a F2 a pri ďalších výpočtoch by sa malo uvažovať �� = 1
2. hodnota súčiniteľa ekvivalentného množstva dreva �� je väčšia ako 1, t.j. výhrevnosť materiálov nachádzajúcich sa v požiarnom úseku je väčšia ako referenčná výhrevnosť dreva. Potom súčiniteľ �� má podstatný vplyv na prepočtový parameter F1 a F2 a pri ďalších výpočtoch by sa malo uvažovať s priemernou hodnotou �� stanovenou podľa vz 25
Na základe množstva horľavých látok, ktoré sa štandardne nachádzajú v prevádzkach, Dekánek [13] uvádza priemerné hodnoty súčiniteľa ekvivalentného množstva dreva �� v závislosti od druhu prevádzky. Hodnoty zvýraznené v tab. 13 nie sú uvedené v STN 92 0201-1 [2], ide o návrh úpravy.
Tab. 13 Vybrané časti z modifikovanej tabuľky s pridanými hodnotami súčiniteľa K [13]
Pol. Skupina prevádzkarní
1.2 Ťažba rúd
2.1 Prevádzky strojárske, kovospracujúce a opravárenské spracúvajúce výrobky, ktoré neobsahujú horľavé látky
2.13 Stajne
4.2 Spracovanie uhlia
4.23 Garáže
5.7 Spracovanie gumy a plastov
5.11 Drevospracujúca výroba
6.7 Výroba rastlinných olejov, spracovanie tukov
6.8 Lakovne, v ktorých sa používajú nitrolaky a liehové laky
7.1 Výroba plynných palív
4.2.2.6 Prepočtový parameter odvetrania F1
Parameter odvetrania Fo vyjadruje vplyv geometrie priestoru, prítomnosti otvorov v obvodových konštrukciách na intenzitu požiaru. Ako uvádza Reichel [12], svoj základ má v rovniciach energetickej rovnováhy, najvýraznejšie charakterizuje podmienky požiaru riadeným odvetraním, ale do istej miery aj podmienky požiaru riadeného povrchom odhorievajúceho paliva. Pri tvorbe vzorcov sa stanovili reprezentatívna konštrukcia a reprezentatívne požiarne zaťaženie. Avšak stavebný materiál, z ktorého sú vyhotovené konštrukcie ohraničujúce požiarny úsek, s jeho tepelnotechnickými vlastnosťami, ovplyvňuje teplotu plynov v priestore požiaru. Zohľadnenie vlastností stavebných materiálov sa vykonajú prepočtom parametra odvetrania Fo na prepočtový parameter odvetrania F1.
Ako je na začiatku kapitoly 3.2 uvedené, ekvivalentný čas trvania požiaru stanovený podrobným postupom sa určí podľa Prílohy F uvedenej v STN 92 0201-1 [2], pre požiar riadený odvetraním s rovnomerným rozmiestnením horľavých látok, sa určí na základe pravdepodobného času trvania požiaru ���� a prepočtového parametra odvetrania F1.
Ak sa pravdepodobný čas trvania požiaru určí na základe vzorca 20, potom prepočtový parameter odvetrania určí podľa vzorca [2]: ��1 =��4.����.K (26)
kde:
F1 – prepočtový parameter odvetrania v m1/2 , k4 – súčiniteľ vplyvu tepelnotechnických vlastností konštrukcií, ktoré ohraničujú požiarny úsek, na priebeh teplôt v horiacom priestore, bez rozmeru, určí sa podľa Prílohy H uvedenej v STN 92 0201-1,bez dôkazu je možné použiť hodnotu 1,
Fo – parameter odvetrania v m1/2 , K – súčiniteľ ekvivalentného množstva dreva, bez rozmeru.
Ak hodnota parametra odvetrania Fo, F1 dosiahne hodnotu menšiu ako 0,005, potom sa pre stanovenie ekvivalentného času trvania požiaru použije hodnota 0,005. Ak
hodnota parametra odvetrania Fo, F1 dosiahne hodnotu väčšiu ako 0,14, potom sa pre stanovenie výpočtového požiarneho zaťaženia použije hodnota 0,14.
4.2.3 Ekvivalentný čas trvania požiaru podrobným postupom (pre sústredené požiarne zaťaženie)
4.2.3.1 Pravdepodobný čas trvania požiaru (pre sústredené požiarne zaťaženie)
Tak ako pri nevýrobných stavbách, tak aj pri výrobných môže dôjsť ku kumulácii horľavých materiálov len na určitej pôdorysnej ploche požiarneho úseku, čím sa vytvorí sústredné požiarne zaťaženie. Pravdepodobný čas trvania požiaru, ak sa v požiarom úseku nachádza sústredené požiarne zaťaženie sa podľa Kucbela [6] môže stanoviť dvoma spôsobmi:
1. presným výpočtom prostredníctvom vzorca:
(27)
kde:
���� – pravdepodobný čas trvania požiaru pre sústredené požiarne zaťaženie v min, ���� – sústredené požiarne zaťaženie v kg.m-2 , k1 – súčiniteľ výhrevnosti prislúchajúci sústredenému požiarnemu zaťaženiu, bez rozmeru, vp – rýchlosť odhorievania látok, ktoré tvoria sústredené požiarne zaťaženie, pre požiar riadený povrchom odhorievajúceho paliva v kg·m-2·min-1, stanoveného podľa STN 92 0201-1, �� – súčiniteľ ekvivalentného množstva dreva podľa STN 73 0824 prislúchajúci horľavým látkam tvoriacim jednotlivé požiarne zaťaženie.
2. Ako pravdepodobný čas trvania požiaru pre sústredené požiarne zaťaženie sa použije hodnota 180 min.
4.2.3.2 Rýchlosť odhorievania látok vv pre požiar riadený povrchom odhorievajúceho paliva
Rýchlosť odhorievania horľavých látok vv pre požiar riadený povrchom odhorievajúceho paliva [2]:
(28)
kde:
vp – rýchlosť odhorievania pre požiar riadený povrchom odhorievajúceho paliva v kg.m-2.min-1 ,
SS – pôdorysná plocha, na ktorej dochádza k odhorievaniu paliva rýchlosťou odhorievania vp v m2 ,
Sfi – skutočná povrchová plocha i-tej horľavej látky, na ktorej môže dôjsť k odhorievaniu v m2 ,
mi – hmotnosť odhoreného množstva i-tej horľavej látky v kg.m-2.min-1 , uvedená Prílohe C v STN 92 0201-1.
4.2.3.3 Prepočtový parameter odvetrania F2
Ak sa v požiarnom úseku vyskytuje sústredené požiarne zaťaženie a rýchlosť odhorievania horľavých látok sa určí na základe rovnice 27 , potom prepočtový parameter odvetrania F2 určí podľa vzorca [2]: ��2 =��4.����.K.���� ���� (29)
kde:
F2 – prepočtový parameter odvetrania (charakteristický pre požiar riadený povrchom odhorievajúceho paliva) v m1/2 ,
k4 – súčiniteľ vplyvu tepelnotechnických vlastností konštrukcií, ktoré ohraničujú požiarny úsek, na priebeh teplôt v horiacom priestore, bez rozmeru,
Fo – parameter odvetrania v m1/2 , K – súčiniteľ ekvivalentného množstva dreva, bez rozmeru, vm – výsledná rýchlosť odhorievania v kg·m-2 , vv – rýchlosť odhorievania v kg·m-2 .
Ak hodnota parametra odvetrania F2 dosiahne hodnotu menšiu ako 0,005, potom sa pre stanovenie ekvivalentného času trvania požiaru použije hodnota 0,005. Ak hodnota parametra odvetrania F2 dosiahne hodnotu väčšiu ako 0,14, potom sa pre stanovenie výpočtového požiarneho zaťaženia použije hodnota 0,14.
4.3 Požiarne riziko v skladoch v jednopodlažných stavbách
Požiarne riziko v skladov v jednopodlažných stavbách sa vyjadruje indexom skladovaných materiálov a indexom ekonomického rizika. Pri týchto stavbách musí byť bezpodmienečne splnená požiadavka, že stavba má len jedno požiarne podlažie (požiarna výška stavby je 0 m), je určená na skladovanie a má samostatný konštrukčný celok.
V sklade v jednopodlažnej stavbe sa môže vyskytovať aj prístavba alebo vstavba, ktorej úroveň podlahy nie je totožná s úrovňou podlahy skladu. Avšak celková pôdorysná plocha prístavby alebo vstavby nesmie prekročiť 15 % pôdorysnej plochy skladu v jednopodlažnej stavbe, maximálne však 300 m2. Ak nie sú prekročené stanovené limity plochy a percent, nadzemné alebo podzemné podlažia prístavby alebo vstavby nie sú považované za požiarne podlažia a požiarne riziko sa stanoví indexom ekonomického rizika a indexom skladovaných materiálov.
Ak celková pôdorysná plocha prístavby alebo vstavby, ktorej úroveň podlahy nie je totožná s úrovňou podlahy skladu, prekročí 15 % pôdorysnej plochy skladu v jednopodlažnej stavbe alebo plochu 300 m2, prístavba alebo vstavby sa považuje za ďalšie nadzemné alebo podzemné požiarne podlažie. Takúto stavbu nemožno
definovať ako sklad v jednopodlažnej stavbe a požiarne riziko sa nesmie určiť prostredníctvom indexu skladovaných materiálov a indexu ekonomického rizika.
4.3.1 Index skladovaných materiálov
Indexom skladovaných materiálov sa zohľadňuje druh a množstvo skladovaných látok, nebezpečenstvo, ktoré skladované látky predstavujú z hľadiska vzniku a rozvoja požiaru, spôsob skladovania, ale aj materiálové vyhotovenie jednotlivých konštrukcií v stavbe a materiálové prevedenie zariaďovacích predmetov. Index skladovaných materiálov sa vypočíta nasledovne [2]:
kde:
ip – index skladovaných materiálov bez rozmeru,
Ps – súčiniteľ hmotnosti, bez rozmeru,
As – súčiniteľ nebezpečenstva, bez rozmeru,
Bs – súčiniteľ skladovania, bez rozmeru.
4.3.1.1 Súčiniteľ hmotnosti
Súčiniteľ hmotnosti Ps charakterizuje hmotnosť horľavých materiálov vyskytujúcich sa na 1 m2 pôdorysnej plochy požiarneho úseku. Do hmotnosti horľavých materiálov sa započítava hmotnosť všetkých horľavých skladovaných materiálov a horľavých stavebných látok v konštrukciách. [1]
Ak sa v požiarnom úseku skladu nachádza viac horľavých látok, hmotnosť horľavých materiálov vyskytujúcich sa na 1 m2 sa stanoví podľa nasledovného vzorca [2]:
(31)
kde:
m – hmotnosť horľavých látok nachádzajúcich sa v priestore v kg·m-2 ,
Mi – hmotnosť i-tej horľavej látky v kg,
S – celková plochy požiarneho úseku v m2. Do plochy požiarneho úseku sa započítava len pôdorysná plocha požiarneho podlažia skladu, nie prístavby alebo vstavby.
Súčiniteľ hmotnosti dostaneme na základe hmotnosti horľavých látok (stanovenej podľa vz. 31) podľa tab. 14.
Tab. 17 Hodnoty súčiniteľa skladovania Bs [2]
Pol. Druh ochrannej vrstvy
1 Bez ochrannej vrstvy
2
Súčiniteľ skladovania Bs5)
Výška skladovania materiálu v paletách alebo voľne v regáloch v m Výška skladovania sypkých látok voľne na podlahe3) v m Blokové skladovanie2) Regálové skladovanie
3
Ochranná vrstva bez hornej steny (napr. ohradová paleta celokovová s plnými stenami) 1),4)
Ochranná vrstva poskytuje ochranu zo všetkých strán (napr. oceľový sud)
1) Súčiniteľ skladovania Bs pre látky uložené do paliet, ak ich steny majú medzery (napr. sú zhotovené z drôteného pletiva), sa posudzuje podľa pol. 1
2) Ako blokové skladovanie sa posudzuje aj vrstvenie kusových látok voľne na podlahe bez použitia paliet a regálov.
3) Hodnoty súčiniteľa skladovania Bs pre sypké látky platia len vtedy, ak sú súčasne splnené obidve tieto podmienky: a) výška bočných oporných stien kôp je najviac 2 m, b) sypké látky sú skladované najviac na 65% pôdorysnej plochy požiarneho úseku, Prípady, v ktorých sú prekročené dovolené hodnoty v a) alebo b), sa posudzujú ako skladovanie v silách alebo zásobníkoch.
4) Položky 2 alebo 3 sa môžu použiť len v tom prípade, ak je viac ako 70 % hmotnosti skladovaných látok uložených v súlade s príslušnou položkou.
5) Ak hmotnosť horľavých látok m je daná len hmotnosťou horľavého skladovacieho a manipulačného zariadenia a hmotnosťou horľavých látok obsiahnutých vo všetkých konštrukciách, je hodnota súčiniteľ skladovania Bs=1.
6) Ak sa skutočné hodnoty výšky skladovania nachádzajú medzi tabuľkovými hodnotami, postupuje sa takto:
a) použije sa najbližšia vyššia tabuľková hodnota výšky skladovania, alebo b) použije sa lineárna interpolácia medzi susednými tabuľkovými hodnotami.
Podľa [3] sa rozlišujú tri základné spôsoby skladovania:
blokové skladovanie - palety s materiálom alebo jednotlivé kusy sú uložené priamo na sebe - medzery medzi jednotlivými paletami alebo kusmi sú relatívne malé a významne nepodporujú šírenie požiaru,
regálové skladovanie - palety s materiálom alebo jednotlivé kusy uložené v regáloch - medzery medzi jednotlivými paletami alebo kusmi sú väčšie a významne podporujú šírenie požiaru,
voľné skladovanie - najčastejšie tuhé sypké látky nasypané na hromadáchhorenie sa realizuje primárne na povrchu hromady.
Ak sa vyskytuje v požiarnom úseku niekoľko spôsobov skladovania a skladovacích výšok, započítava sa najvyšší súčiniteľ skladovania Bs, podľa tab. 17, vyskytujúci sa na ploche väčšej ako 5 % z celkovej plochy požiarneho úseku skladu v jednopodlažnej stavbe. [2]
4.3.2 Index ekonomického rizika
Index ekonomického rizika poukazuje na predpokladaný rozsah škôd, ktoré by vznikli v prípade požiaru, a na znehodnotenie skladovaných materiálov v dôsledku eventuálneho zadymenia priestoru (znečistenie, poškodenie v dôsledku teploty splodín horenia), na plochu požiarneho úseku.
Index ekonomického rizika sa určuje v závislosti od súčiniteľa škôd, od súčiniteľa plochy a od súčiniteľa splodín horenia podľa STN 92 0201-1 [2]:
kde:
ip – index ekonomického rizika bez rozmeru, Es – súčiniteľ škôd bez rozmeru,
U – súčiniteľ plochy bez rozmeru,
Zs – súčiniteľ splodín horenia bez rozmeru.
4.3.2.1 Súčiniteľ škôd Es
Súčiniteľ škôd Es charakterizuje rozsah predpokladaných škôd, ktoré sa odhadujú, ak by v požiarnom úseku vznikol požiar. Hodnota Es závisí od ekonomického alebo spoločenského významu skladovaného materiálu. Zaradenie skladovaných látok do jednej z troch skupín je popísané v poznámke tab. 18. Súčiniteľ škôd Es sa určí podľa tab. 18.
Tab. 18 Hodnoty súčiniteľa škôd Es [2]
Pol. Hodnota skladovaných látok
1 Látky s nízkou hodnotou
2 Látky so strednou hodnotou
Súčiniteľ škôd Es Výška skladovania v m < 3 6 12 >12
3 Látky s vysokou hodnotou 2,2
Poznámka 1. - Príklad látok:
položka 1: odpadový a zberový materiál, stavebné drevo, niektoré obaly, hutný materiál, niektoré stavebné materiály, väčšina surovín a pod.
položka 2: priemyselné výrobky pre domácnosť, potraviny, niektoré ľahko dostupné lieky a pod.
položka 3: priemyselné výrobky strategického významu, drahé lieky, originálne výrobky (modely pre odliatky) a pod.
Poznámka 2. - Ak sa skutočné hodnoty výšky skladovania nachádzajú medzi tabuľkovými hodnotami, postupuje sa takto:
a) použije sa najbližšia vyššia tabuľková hodnota výšky skladovania, alebo
b) použije sa lineárna interpolácia medzi susednými tabuľkovými hodnotami.
Ak uloženie skladovaných materiálov dosahuje rôzne skladovacie výšky, do vzorca 33 sa uvedie najvyššia hodnota. Pri posudzovaní skladovacích výšok sa posudzuje len tie výšky, ktoré sú na ploche viac ako 5 % z celkovej plochy požiarneho úseku. [2]
4.3.2.2 Súčiniteľ plochy U
Súčiniteľ plochy U závisí od plochy požiarneho úseku a určí sa podľa tab. 19 alebo podľa vzorca, ktorý je uvedený v Poznámke c) tabuľky 19. V tab. 19 sú k plochám požiarneho úseku priradené súčinitele plochy U
Tab. 19 Hodnoty súčiniteľa škôd U [2]
Plocha požiarneho úseku S m2
Súčiniteľ plochy U
Poznámka. - Ak sa skutočné hodnoty plochy požiarneho úseku S nachádzajú medzi tabuľkovými hodnotami, postupuje sa takto:
a) použije sa najbližšia vyššia tabuľková hodnota S, alebo b) použije sa lineárna interpolácia medzi susednými tabuľkovými hodnotami, alebo c) hodnoty súčiniteľa plochy U sa vypočítajú z rovnice u=0,2.S0,2584 v rozsahu 1,0 ≤U≥2,8.
4.3.2.3 Súčiniteľ splodín horenia Zs
Súčiniteľ splodín horenia Zs charakterizuje citlivosť skladovaných látok na splodiny horenia vzhľadom na ich korozívne, znečisťujúce alebo inak znehodnocujúce účinky. Súčiniteľ splodín horenia nadobúda hodnotu Zs = 1,2 v prípade, že viac ako 10 % hmotnosti skladovaných materiálov alebo výrobkov je citlivých na účinky splodín horenia. V opačnom prípade je hodnota súčiniteľa Zs = 1,0. Rovnako ako v prípade súčiniteľa škôd, je potrebné, aby zvolená hodnota súčiniteľa Zs reflektovala názor užívateľa skladovacích priestorov. [3]
Použitá literatúra
[1.] Vyhláška MV SR č. 94/2004 Z. z., ktorou sa ustanovujú technické požiadavky na protipožiarnu bezpečnosť pri výstavbe a pri užívaní stavieb, v znení neskorších predpisov
[2.] STN 92 0201-1:2000, Požiarna bezpečnosť stavieb. Spoločné ustanovenia. Časť 1: Požiarne riziko, veľkosť požiarneho úseku.
[3.] Mózer, V. Požiarna bezpečnosť stavieb. Bratislava : Eurostav, 2017, 250 s. ISBN 9788089228508.
[4.] STN 73 0824:1992, Požiarna bezpečnosť stavieb. Výhrevnosť horľavých látok.
[5.] STN 92 0201-2:2017, Požiarna bezpečnosť stavieb. Spoločné ustanovenia. Časť 2: Stavebné konštrukcie
[6.] Kucbel, J. Protipožiarna bezpečnosť stavieb. Bratislava : Slovenská technická univerzita, 2003, 278 s. ISBN 8080543321.
[7.] ČSN 73 0802:2000, Požární bezpečnost staveb. Nevýrobní objekty
[8.] STN 73 0804: 1991, Požiarna bezpečnosť stavieb. Výrobné objekty.
[9.] STN 92 0101:1997, Požiarna bezpečnosť stavieb. Názvoslovie.
[10.] Kačíková, D. a iní. Dynamika požiaru. Zvolen : Technická univerzita vo Zvolene, 2022, 171 s. ISBN 978-80-228-3344-8.
[11.] Hietaniemi, J., Mikkola, E. Design Fires for Fire Safety Engineering. Espoo : VTT Technical Research Centre of Finland, 2010, 103 s. ISBN 978-951-38-7479-7.
[12.] Reichel, V. Navrhovaní požární bezpečnosti výrobných objektů I. Zväzok 17. Praha : Česká státní pojišťovna, 1987, 128 s.
[13.] Dekánek, J. Súčiniteľ ekvivalentného množstva dreva K. Podrobná analýza. APPO SR –Asociácia pasívnej požiarnej ochrany Slovenskej republiky [online]. [cit. 2024-05-28]. Dostupné na internete: https://appo.sk/podrobna-analyza-sucinitela-ekvivalentneho-mnozstva-dreva-k/
[14.] STN 730825:1991, Požiarnotechnické vlastnosti hmôt. Triedy požiarneho nebezpečenstva skladových materiálov.
Jednou z podmienok pri delení stavby na požiarne úseky je, aby plocha požiarneho úseku neprekročila dovolenú plochu požiarneho úseku a počet požiarnych podlaží v požiarnom úseku neprekročil dovolený počet požiarnych podlaží.
Pri prekročení dovolenej plochy požiarneho úseku Smax je potrebné:
prerozdeliť požiarny úsek na minimálne dva menšie požiarne úseky, alebo
ak je požiarny úsek vybavený požiarnotechnickými zariadeniami, najväčšiu dovolenú plochu požiarneho úseku možno zväčšiť a to vynásobením hodnoty Smax súčiniteľom vyjadrujúcim účinnosť požiarnotechnických zariadení cn (najviac hodnotou 2). Súčiniteľ vyjadrujúci účinnosť požiarnotechnických zariadení cn sa určí podľa časti 4.2 Požiarnotechnické zariadenia pre nevýrobné stavby, ktorá je uvedená v STN 92 0201-1[1].
5.1 Najväčšia dovolená plocha požiarneho úseku Smax nevýrobnej stavby
Najväčšia dovolená plocha požiarneho úseku Smax sa stanoví podľa STN 92 0201-1 [1]. Závisí od horľavosti konštrukčného celku, súčiniteľa horľavých látok a počtu nadzemných alebo podzemných podlaží stavby. Na základe týchto vstupných parametrov sa zvolí jeden z nižšie uvedených vzorcov [1]:
a) nehorľavý konštrukčný celok:
1. nadzemné podlažia nehorľavého konštrukčného celku:
= 1250 2020ln�� 0,2 (������)1/2 (34)
2. podzemné podlažia nehorľavého konštrukčného celku:
1250 2020ln��
(20+������)1/2 (35)
b) zmiešaný konštrukčnýcelok - zvislé požiarne deliace konštrukcie a zvislé nosné konštrukcie zabezpečujúce stabilitu stavby alebo jej časti sú druhu D1, ostatné požiarne deliace a nosné konštrukcie môžu byť aj druhu D2:
3. nadzemné podlažia nehorľavého konštrukčného celku:
(36)
4. podzemné podlažia nehorľavého konštrukčného celku:
(37)
c) zmiešaný konštrukčný celok - všetky požiarne deliace konštrukcie a nosné konštrukcie zabezpečujúce stabilitu stavby sú len druhu D2 (nosný prvok
prvku nemá triedu reakcie na oheň nižšiu ako D-s2, d0; dutiny vyplnené materiálom s triedou reakcie na oheň A1 alebo A2 s teplotou tavenia, resp. tepelnej degradácie od 1000°C):
5. nadzemné podlažia nehorľavého konštrukčného celku:
6. podzemné podlažia nehorľavého konštrukčného celku:
b) horľavý konštrukčný celok : 1. nadzemné podlažia nehorľavého konštrukčného celku:
kde:
Smax – najväčšia dovolená plocha požiarneho úseku v m2 , a – súčiniteľ horľavých látok bez rozmeru, npn – počet nadzemných podlaží stavby, npp – počet podzemných podlaží stavby.
Dovolená plocha požiarneho úseku sa neposudzuje, ak je pôdorysná plocha požiarneho úseku do 300 m2, ak sa jedná o požiarny úsek bez požiarneho rizika alebo o chránenú únikovú cestu.
Vyhláška MV SR č. 94/2004 Z.z. [2] uvádza podmienky, kedy je potrebné dovolenú plochu požiarneho úseku zmenšiť a v ktorých prípadoch je ju možné zväčšiť:
1. Ak sa požiarny úsek vybaví požiarnotechnickým zariadením, jeho dovolenú plochu možno zväčšiť, najviac však na dvojnásobnú veľkosť. Požiadavky na zväčšenie dovolenej plochy požiarneho úseku sú určené v technickej norme.
2. Dovolená plocha požiarneho úseku nevýrobnej stavby sa musí zmenšiť najmenej o 30 %, ak má hasičská jednotka v požiarnom úseku na zásah iba jednu vnútornú zásahovú cestu alebo ak sa nepredpokladá zásah cez vnútornú zásahovú cestu a hasičská jednotka má na zásah v požiarnom úseku prístup iba z jednej strany nevýrobnej stavby; to neplatí, ak ide o požiarny úsek vybavený stabilným hasiacim zariadením
5.2 Najväčší dovolený počet požiarnych podlaží z nevýrobnej stavby
Najväčší dovolený počet požiarnych podlaží požiarneho úseku z sa stanoví podľa STN 92 0201-1 [1]. Závisí od horľavosti konštrukčného celku a výpočtového požiarneho zaťaženia [1]:
a) nehorľavý konštrukčný celok:
b) zmiešaný konštrukčný celok:
c) horľavý konštrukčný celok:
kde:
z1, z2, z3 – najväčší dovolený počet podlaží v požiarnom úseku, pv – výpočtové požiarne zaťaženie v kg. m-2 , z – skutočný počet požiarnych podlaží v požiarnom úseku.
5.3 Najväčšia dovolená plocha požiarneho úseku Smax výrobnej stavby
Najväčšia dovolená plocha požiarneho úseku Smax výrobnej stavby, stavby poľnohospodárskej výroby alebo otvoreného technologického zariadenia sa stanoví podľa STN 92 0201-1 (cit). Závisí od horľavosti konštrukčného celku, počtu požiarnych podlaží súčiniteľa následných škôd a najvyššej dovolenej hodnoty indexu pravdepodobnosti rozsahu škôd spôsobených požiarom [1]:
(44)
kde:
Smax – najväčšia dovolená pôdorysná plocha požiarneho úseku v m2 ,
P2max – najväčšia dovolená hodnota indexu pravdepodobnosti rozsahu škôd spôsobených požiarom bez rozmeru,
p2 – pravdepodobnosť rozsahu škôd spôsobených požiarom v závislosti – od skupiny prevádzkarne (Príloha I v STN 92 0201-1),
k5 – súčiniteľ počtu podlaží bez rozmeru,
k6 – súčiniteľ horľavosti konštrukčného celku bez rozmeru,
k7 – súčiniteľ vplyvu následných škôd bez rozmeru,
S – celková pôdorysná plocha požiarneho úseku v m2 .
Najväčšia dovolená plocha požiarneho úseku Smax výrobnej stavby zohľadňuje ekonomického charakter protipožiarnej bezpečnosti stavby a vplyv stavebného riešenia objektu (obr. 19).

Obr. 19 Analýza vzorca Smax (autori)
Pre požiarne úseky výrobných stavieb, ktoré sú klasifikované ako požiarne úseky bez požiarneho rizika (kap. 4), sa najväčšia dovolená pôdorysná plocha požiarneho úseku neurčuje. Ako uvádza Reichel [3], v požiarnych úsekoch, kde nie je požiarne riziko, neexistuje ani ekonomické riziko.
Tento spôsob stanovenie najväčšej dovolenej plochy požiarneho úseku Smax sa používa aj pri otvorenom technologickom zariadení (destilačná kolóna, nádrž, zásobník). Pre súčiniteľ počtu podlaží k5 a súčiniteľ horľavosti konštrukčného celku k6 sa zadáva hodnota 1.
5.3.1 Súčiniteľ počtu podlaží k5
Súčiniteľ počtu podlaží k5 vyjadruje vplyv počtu nadzemný a podzemných požiarnych podlaží na dovolenú plochu požiarneho úseku výrobnej stavby, stavby poľnohospodárske výroby. Jedná sa o druhú odmocninu z počtu podlaží [1]:
k5=(npn)1/2 (44)
kde:
k5 – súčiniteľ počtu podlaží bez rozmeru, npn – počet nadzemných podlaží stavby bez rozmeru, v prípade posúdenia požiarneho úseku na podzemných podlažiach sa miesto npn dosadí npp .
Hodnoty súčiniteľa počtu podlaží k5 sú uvedené v tab. 20, aj so zaokrúhlením.
Tab. 20 Hodnoty súčiniteľa počtu podlaží [1]
Počet podlaží
5.3.2 Súčiniteľ horľavosti konštrukčného celku k6
Súčiniteľ horľavosti konštrukčného celku k6 vyjadruje vplyv konštrukčného prvku v obvodových a požiarne deliacich konštrukciách a nosných konštrukciách zabezpečujúcich nosnosť a stabilitu stavby. Jednotlivým konštrukčným celkom sú pridelené nasledovné hodnoty [1]:
nehorľavý konštrukčný celok - k6 = 1,0,
zmiešaný konštrukčný celok (zvislé KP druhu D1, vodorovné KP druhu D2)k6 = 1,4,
zmiešaný konštrukčný celok (KP druhu D2, podľa STN 92 0201-2, 2.6.4 b))k6 = 1,55,
horľavý konštrukčný celok (KP druhu D2, podľa STN 92 0201-2, 2.6.5 b))k6 = 1,7,
horľavý konštrukčný celok (kombinácia KP druhu D1, D2 a D3) - k6 = 2,0.
5.3.3 Súčiniteľ vplyvu následných škôd k7
Súčiniteľ vplyvu následných škôd k7 je daný podielom priamych škôd a škôd následných. Priame škody zahŕňajú škody, ktoré vzniknú pri požiari na objektoch, budovách, zariadeniach, výrobkoch a materiáloch. K následným škodám patria straty, ktoré sú spojené s prerušením výrobného procesu nielen v požiarnom úseku, v ktorom vznikol požiar, ale aj v požiarnych úsekoch, ktorý činnosť je závislá od funkčnosti požiarom zasiahnutého úseku. Príkladom následných škôd je aj poškodenie rozvodne požiarom, a tým sú od prevádzky odstavené všetky požiarne úseky, ktoré sú na rozvodňu napojené. Určí sa podľa tab. 21.
Tab. 21 Hodnoty súčiniteľa následných škôd k7 [1]
Pol. Charakter následných škôd
Hodnota súčiniteľa k7
1 žiadne alebo malé od 1,0 do 1,2
2 nahraditeľné v rámci pracoviska, strediska, závodu a pod nad 1,2 do 1,8
3 nahraditeľné v rámci podniku alebo ďalších podnikov nad 1,8 do 2,5
4 ťažko nahraditeľné v rámci rezortu, vyžaduje náhradu dovozom alebo naopak dôsledky požiaru ohrozujú vývoz nad 2,5 do 3,5
5 celoštátneho významu, napr. pri dlhodobom vyradení jedinej alebo inak významnej výroby pri národné hospodárstvo nad 3,5 do 4,5
Poznámka 1. - Nevýrobné priestory, ak sú súčasťou výrobných požiarnych úsekov, sa posudzujú podľa položky 1 (napr. hygienické zariadenia) alebo podľa položky 2 (napr. laboratóriá)
Poznámka 2. - Ak je výrobná stavba umiestnená v stavbe, ktorá je kultúrnou pamiatkou a dochádza k zmene, potom sa národné kultúrne pamiatky zaraďujú pod položku 5 a ostatné pamiatky pod položku 4.
Ak nie je k dispozícii dostatok podkladov na určenie súčiniteľa k7, použijú sa nasledovné hodnoty [1]:
pre nevýrobné priestory - k7 = 1,3,
pre výrobné priestory - k7 = 2,0,
pre výrobné priestory, ktorý produkciu možno nahradiť iba dovozom zo zahraničia alebo ak je produkcia určená na vývoz - k7 = 3,0.
5.3.4 Najväčšia dovolená hodnota indexu pravdepodobnosti rozsahu škôd spôsobených požiarom P2max
Najväčšia dovolená hodnota indexu pravdepodobnosti rozsahu škôd spôsobených požiarom P2max je jedným z faktorov ovplyvňujúci ekonomické riziko stavby a jeho stanovenie je nasledovné [1]:
kde:
P2max – najväčšia dovolená hodnota indexu pravdepodobnosti rozsahu škôd spôsobených požiarom bez rozmeru,
P1 – najväčšia dovolená hodnota indexu pravdepodobnosti vzniku a rozšírenia požiaru bez rozmeru.
Tieto dva faktory (P1, P2max), prostredníctvom ktorých sa vyjadruje ekonomické riziko, sú vzájomne závislé. Závislosť je znázornená na obr. 20 Priesečník najväčšej dovolenej hodnoty indexu pravdepodobnosti rozsahu škôd spôsobených požiarom P1 a najväčšej dovolenej hodnoty indexu pravdepodobnosti rozsahu škôd spôsobených požiarom P2max môže ležať na krivke, naľavo alebo napravo od krivky. Vzhľadom na polohu priesečníku v diagrame sa zhodnotí ekonomický charakter protipožiarnej bezpečnosti stavby. Ako je na diagrame znázornené, krivka rozdelila diagram na dve oblasti:
oblasť prípustných hodnôt - oblasť naľavo od krivky a umiestnenie priesečníka na krivke,
oblasť neprípustných hodnôt - oblasť napravo od krivky.
Pri umiestnení priesečníka do oblasti neprípustných hodnôt sa musia znížiť hodnoty najväčšej dovolenej hodnoty indexu pravdepodobnosti rozsahu škôd spôsobených požiarom P1 alebo najväčšej dovolenej hodnoty indexu pravdepodobnosti rozsahu škôd spôsobených požiarom P2max Zníženie hodnôt sa dá dosiahnuť inštaláciou požiarnotechnických zariadení do požiarneho úseku výrobnej stavby.

Obr. 20 Diagram: Vzájomný vzťah indexov pravdepodobnosti vzniku a rozšírenia požiaru a rozsahu škôd spôsobených požiarom [1]
5.3.5 Index pravdepodobnosti vzniku a rozšírenia požiaru
Ide o druhý z faktorov vyjadrujúci ekonomický charakter protipožiarnej bezpečnosti stavby a stanoví sa nasledovne [1]:
��1 =p1 ���� ≥0,11 (46)
kde:
P1 – index pravdepodobnosti vzniku a rozšírenia požiaru bez rozmeru, p1 – pravdepodobnosť vzniku a rozšírenia požiaru v závislosti od skupiny prevádzkarní bez rozmeru (stanovený podľa Prílohy I v STN 92 0201-1), cv – súčiniteľ vyjadrujúci vplyv požiarnotechnických zariadení bez rozmeru.
Pravdepodobnosť vzniku a rozšírenia požiaru p1 závisí od druhu prevádzky, resp. zaradenia prevádzky do jednej zo siedmich skupín prevádzkarní.
Prevádzkarne, v ktorých sa používajú a manipuluje sa s nehorľavými materiálmi (skupina prevádzkarní 1), sú špecifické pravdepodobnosťou vzniku a rozšírenia požiaru p1 = 0,15. Ak sa výroba orientuje na výrobu plynných palív (skupina prevádzkarní 7), tak sa jej priradí index pravdepodobnosti vzniku a rozšírenia požiaru 3,2.
5.3.6 Súčiniteľ vyjadrujúci vplyv požiarnotechnických zariadení
Prostredníctvom súčiniteľa vyjadrujúceho vplyv požiarnotechnických zariadení sa zohľadňuje prítomnosť elektrickej požiarnej signalizácie, možnosť zásahu hasičskej jednotky, stabilného hasiaceho zariadenia, zariadenia na odvod tepla a splodín horenia alebo vplyv technického riešenia proti šíreniu požiaru. Inštaláciou spomínaných zariadení sa zabezpečí včasná detekcia požiaru, zamedzenie rozvoju požiaru (prípadné uhasenie požiaru), odvod splodín horenia, a tým bezpečnejšia evakuácia a zásah hasičskej jednotky.
Súčiniteľ vyjadrujúci vplyv požiarnotechnických zariadení sa určí nasledovne [1]:
kde:
cv – súčiniteľ vyjadrujúci vplyv požiarnotechnických zariadení bez rozmeru,
cv1 – súčiniteľ vyjadrujúci vplyv elektrickej požiarnej signalizácie bez rozmeru a možnosť zásahu hasičskej jednotky bez rozmeru,
cv2 – súčiniteľ vyjadrujúci vplyv stabilného hasiaceho zariadenia so samočinným spúšťaním bez rozmeru,
cv3 – súčiniteľ vyjadrujúci vplyv zariadenia na odvod tepla a splodín horenia so samočinným spúšťaním bez rozmeru,
cv4 – súčiniteľ vyjadrujúci vplyv technického riešenia proti šíreniu požiaru bez rozmeru.
Ak v požiarnom úseku nie sú inštalované spomínané požiarnotechnické zariadenia, súčiniteľ vyjadrujúci vplyv požiarnotechnických zariadení cv je daný hodnotou 1.
Ak sa v požiarnom úseku nachádza niektoré zo spomínaných požiarnotechnických zariadení, potom sa od hodnoty 1 odpočíta hodnota súčiniteľa charakteristická pre konkrétne požiarnotechnické zariadenie a stanovené podľa nižšie uvedeného postupu.
Stanovenie súčiniteľa vplyvu požiarnotechnických zariadení je vysvetlené na príklade. V požiarnom úseku sa nachádza zariadenie na odvod tepla a splodín horenia a elektrická požiarna signalizácia a zásah hasičskej jednotky od ohlásenia požiaru je do 8 minút, potom sa súčiniteľ vyjadrujúci vplyv požiarnotechnických zariadení stanoví nasledovne:
5.3.6.1 Súčiniteľ vyjadrujúci vplyv elektrickej požiarnej signalizácie a možnosť zásahu hasičskej jednotky
Znižujúca hodnota súčiniteľa vyjadrujúceho vplyv elektrickej požiarnej signalizácie a možnosti zásahu hasičskej jednotky vyjadruje vplyv EPS a zásahu hasičskej jednotky. Pričom ústredňa elektrickej požiarnej signalizácie musí byť umiestnená na ohlasovni požiarov alebo na mieste so stálou službou. Hasičská jednotka musí spĺňať požiadavku na početné stavy (1+6), výstroj a výzbroj, akcieschopnosť a časové limity od ohlásenia do začiatku hasenia.
Podmienka na zohľadnenie vplyvu elektrickej požiarnej signalizácie je správne zvoliť požiarny hlásič vzhľadom na snímaný jav (tepelné, dymové, plynové alebo plameňové hlásiče) a ich konfiguráciu (bodové, líniové, nasávacie hlásiče...).
Nainštalovaná elektrická požiarna signalizácia musí byť akcieschopná a rozmiestnením hlásičov sa chráni celý požiarny úsek.
Ak je elektrická požiarna signalizácia inštalovaná v požiarnom úseku, potom sa hodnota súčiniteľa vplyvu požiarnotechnických zariadení zníži o hodnotu z tab. 22.
Tab. 22 Hodnoty súčiniteľa cv1 [1]
Pol. Predpokladaný čas od ohlásenia požiaru do začiatku hasenia 1) cv12)
1 do 5 minút 0,25
2 do 10 minút 0,20
3 do 15 minút 0,15
1) Do tohto čas sa započítava čas od vyhlásenia poplachu do príjazdu k požiaru a čas bojového rozvinutia.
2) Ak v predpokladanom čase je možný hasebný zásah dvomi alebo viacerými jednotkami požiarnej ochrany súčasne, môže sa súčiniteľ cv1 zvýšiť o hodnotu 0,05.
5.3.6.2 Súčiniteľ vyjadrujúci vplyv stabilného hasiaceho zariadenia so samočinným spúšťaním cv2
Inštaláciou stabilného hasiaceho zariadenia so samočinným spúšťaním do požiarneho úseku výrobnej stavby sa bráni rozvoju požiaru, dostáva sa požiar pod kontrolu do príchodu hasičskej jednotky alebo sa uhasí.
Znižujúca hodnota súčiniteľa cv2 vyjadrujúca vplyv stabilného hasiaceho zariadenia so samočinným spúšťaním sa určí hodnotou cv2 = 0,35 za predpokladu, že zariadenie [1]: a) chráni
1. celú plochu požiarneho úseku okrem priestorov bez požiarneho rizika, alebo 2. aspoň potenciálne miesta vzniku požiaru v rozsahu najmenej 50 % podlahovej plochy všetkých požiarnych podlaží požiarneho úseku, b) má ako súčasť výbavy signalizáciu, ktorá oznamuje uvedenie do činnosti. STN 92 0201-1 [1] uvádza dve varianty vzhľadom na chránenú plochu. Prvá varianta je, že stabilné hasiace zariadenie chráni celú plochu požiarneho úseku, okrem priestorov bez požiarneho rizika. Druhú variantu, t.j. SHZ chráni aspoň potenciálne miesta vzniku požiaru v rozsahu najmenej 50 % podlahovej plochy všetkých
požiarnych podlaží požiarneho úseku, sa aplikuje najmä vo výrobných stavbách, v ktorých nepredstavujú všetky kroky technologického postup riziko vzniku požiaru.
5.3.6.3 Súčiniteľ vyjadrujúci vplyv horenia zariadenia na odvod tepla a splodín so samočinným spúšťaním cv3
Zariadenia na odvod tepla a splodín horenia sú definované ako zariadenia, ktorých hlavnou úlohu je regulovať odvod tepla a splodín horenia z oblasti vzniku požiaru do exteriéru. Medzi najdôležitejšie úlohy požiarneho vetrania patrí udržať vrstvu horúcich plynov a dymu vo vopred stanovej výške nad podlahou a korigovať teplotu vrstvy horúcich plynov pod strechou alebo stropom, a tým:
zaistiť podmienky pre bezpečnú evakuácia osôb a pre bezpečný zásah hasičskej jednotky,
zabrániť ohrevu konštrukcií ohraničujúcich ohnisko požiaru, ktorý by mohol viesť ku kolapsu konštrukcie,
zmenšiť rozsah škôd spôsobených znečisťujúcimi a korozívnymi účinkami splodín horenia alebo zmenšiť rozsah škôd spôsobených otvorením sprinklerových hlavíc nad miesta, kde to nie je potrebné.
Podľa STN 92 0201-1 [1] sa v prípade prítomnosti zariadenia na odvod tepla a splodín horenia zníži súčiniteľ vyjadrujúci vplyv požiarnotechnických zariadení o hodnotu cv3 = 0,1.
5.3.6.4 Súčiniteľ vyjadrujúci vplyv technického riešenia proti rozšíreniu požiaru cv4
So súčiniteľom vyjadrujúci vplyv technického riešenia proti rozšíreniu požiaru sa uvažuje v prípadoch, ak sú všetky potencionálne miesta vzniku požiaru v požiarnom úseku zabezpečené [3]:
samočinným vyprázdňovacím zariadením k odčerpaniu horľavých látok z nádrží, zásobníkov a pod., mimo požiarny úsek v čase kratšom ako je ¼ pravdepodobného času trvania požiaru�� alebo pravdepodobného času trvania požiaru pre sústredené požiarne zaťaženie ����,
samočinným uzatváracím zariadením horľavých látok tak, že sa nemôžu uvoľňovať horľavé plyny, alebo
samočinným zariadením k zastaveniu prívodu, prítoku alebo iného prísunu látok do požiarneho úseku, alebo
zariadením zabraňujúcim rozliatiu kvapalín, rozsypaniu tuhých horľavých látok (zariadenie musí byť z nehorľavých hmôt, schopné po celú dobu požiaru �� zachovať svoju celistvosť a stabilitu, prípadné deformácie nesmú umožniť rozliatie alebo rozsypanie látok), alebo
samočinným lokálnym hasiacim zariadením ( SHZ so samočinným spúšťaním) v potencionálnych miestach vzniku požiaru, ak nie je požiarny úsek vybavený SHZ so samočinným spúšťaním, ktorý je zohľadnený v súčiniteli cv2, alebo
zariadením automaticky signalizujúcim nebezpečnú koncentráciu unikajúcich horľavých plynov a pár vrátane zariadení brániacich ďalšiemu úniku týchto plynov a pár.
Podľa STN 92 0201-1 [1] sa v prípade zabezpečenia technického riešenia proti rozšíreniu požiaru zníži súčiniteľ vyjadrujúci vplyv požiarnotechnických zariadení o hodnotu cv4 = 0,2.
5.4 Najväčšia dovolená plocha požiarneho úseku Smax skladu v jednopodlažnej stavbe
Najväčšia dovolená pôdorysná plocha požiarneho úseku skladu v jednopodlažnej stavbe Smax sa stanoví nasledovne [1]:
Smax = Smax1 + Smax2 (48)
kde:
Smax – najväčšia dovolená pôdorysná plocha požiarneho úseku v m2 ,
Smax1 – najväčšia dovolená pôdorysná plocha v m2 stanovená podľa tab 23, Smax2 – najväčšia dovolená pôdorysná plocha v m2 stanovená podľa vz 49
Najväčšia dovolená pôdorysná plocha požiarneho úseku skladu v jednopodlažnej
stavbe Smax je daná súčtom:
Smax1, ktorá závisí od indexu skladovaných materiálov a vybavenia požiarneho úseku požiarnotechnickými zariadeniami cs (stanoveného podľa vz. 50),
Tab. 23 Najväčšia dovolená pôdorysná plocha Smax1 [1]
Súčin ip.cs Plocha Smax1 v m2
Súčin ip.cs Plocha Smax1 v m2 do 1,0 bez obmedzenia nad 4,5 do 5,0 6000 nad 1,0 do 2,0 24000 nad 5,0 do 5,5 5000 nad 1,5 do 2,0 20000 nad 5,5 do 6,0 3000 nad 2,0 do 2,5 17000 nad 6,0 do 6,5 2000 nad 2,5 do 3,0 14000 nad 6,5 do 7,0 1500 nad 3,0 do 3,5 12000 nad 7,0 do 7,5 1000 nad 3,5 do 4,0 10000 nad 7,5 do 8,0 500 nad 4,0 do 4,5 8000 nad 8 200
Smax2, ktorá závisí od vybavenia požiarneho úseku deliacimi priečkami a stanoví sa nasledovne [1]:
Smax2 = Sd .cs4 (49)
kde:
Smax2 – najväčšia dovolená pôdorysná plocha v m2 , Sd – pôdorysná plocha vybavená deliacimi priečkami a stenami v m2 , cs4 – súčiniteľ vyjadrujúci vplyv technického riešenia proti rozšíreniu požiaru bez rozmeru.
Deliace priečky sú umiestnené v regáloch a deliace steny rozdeľujúce priestor skladu (bližšie popísané v kap. 5.4.5).
5.4.1 Súčiniteľ vyjadrujúci vplyv požiarnotechnických zariadení v sklade v jednopodlažnej stavbe
Prostredníctvom súčiniteľa vyjadrujúceho vplyv požiarnotechnických zariadení sa zohľadňuje prítomnosť elektrickej požiarnej signalizácie a možnosti zásahu hasičskej jednotky, stabilného hasiaceho zariadenia, zariadenia na odvod tepla a splodín horenia alebo vplyv technického riešenia proti šíreniu požiaru. Inštaláciou spomínaných zariadení sa zabezpečí včasná detekcia požiaru, zamedzenie rozvoju požiaru (príp. uhasenie požiaru), odvod splodín horenia a tým bezpečnejšia evakuácia a zásah hasičskej jednotky.
Pri skladoch v jednopodlažných stavbách sa vplyv požiarnotechnických zariadenia na zníženie rozsahu škôd spôsobených požiarom delí na:
cs - súčiniteľ vyjadrujúci vplyv požiarnotechnických zariadení, ktorý vyjadruje vplyv elektrickej požiarnej signalizácie, stabilného hasiaceho zariadenia a zariadenia na odvod tepla a splodín horenia,
cs4 - súčiniteľ, ktorý sa používa v prípade, že sklad je vybavený deliacimi priečkami alebo deliacimi stenami. Jedná sa o technické riešenie, ktoré bráni šíreniu požiaru.
Súčiniteľ vyjadrujúci vplyv požiarnotechnických zariadení cs sa určí nasledovne [1]:
kde:
cs – súčiniteľ vyjadrujúci vplyv požiarnotechnických zariadení bez rozmeru,
cs1 – súčiniteľ vyjadrujúci vplyv elektrickej požiarnej signalizácie bez rozmeru a možnosť zásahu hasičskej jednotky bez rozmeru,
cs2 – súčiniteľ vyjadrujúci vplyv stabilného hasiaceho zariadenia so samočinným spúšťaním bez rozmeru,
cs3 – súčiniteľ vyjadrujúci vplyv zariadenia na odvod tepla a splodín horenia so samočinným spúšťaním bez rozmeru.
Povinnosť vybaviť požiarny úsek skladu v jednopodlažnej stavbe požiarnotechnickými zariadeniami vyplýva z Prílohy 13 uvedenej vo Vyhláške MV SR č. 94/2004 Z.z. [2] na základe indexu skladovaných materiálov ip a indexu ekonomického rizika ie (obr. 21).

ip – index skladovaných materiálov, Ps– súčiniteľ hmotnosti, As – súčiniteľ nebezpečenstva, Bs – súčiniteľ skladovania, ie – index ekonomického rizika, Es – súčiniteľ škôd, U – súčiniteľ plochy, Zs – súčiniteľ splodín horenia,
PLOCHA 1 – požiarny úsek nemusí byť vybavený zariadením elektrickej požiarnej signalizácie, stabilným hasiacim zariadením a zariadením na odvod tepla a splodín horenia,
PLOCHA 2 – požiarny úsek musí byť vybavený elektrickou požiarnou signalizáciou,
PLOCHA 3 – požiarny úsek musí byť vybavený stabilným hasiacim zariadením,
PLOCHA 4 – požiarny úsek musí byť vybavený elektrickou požiarnou signalizáciou a stabilným hasiacim zariadením,
PLOCHA A – požiarny úsek musí byť vybavený zariadením na odvod tepla a splodín horenia, (nad bodkočiarkovanou čiarou)
PLOCHA B – požiarny úsek nemusí byť vybavený zariadením na odvod tepla a splodín horenia. (pod bodkočiarkovanou čiarou)
Obr. 21 Vybavenie požiarneho úseku skladu v jednopodlažnej stavbe PTZ [2]
Graf je rozdelený bodkočiarkovanou čiarou na oblasť A, ktorá sa nachádza nad bodkočiarkovanou čiarou, a na oblasť B, ktorá sa nachádza pod bodkočiarkovanou čiarou. Zároveň je plnými čiarami rozdelený do ďalších štyroch plôch 1, 2, 3, 4. Po stanovení požiarneho rizika pre sklad v jednopodlažnej stavbe sa hľadá priesečník hodnôt indexu ekonomického rizika a indexu skladovaných materiálov. Vždy je priesečníku priradená plocha A alebo B a zároveň plocha 1-4
Výpočtom požiarneho rizika skladu v jednopodlažnej stavbe je hodnota indexu skladovaných materiálov napríklad ip=3,5 a hodnota indexu ekonomického rizika ie=2,9. Nasledovný krok je spraviť priesečník v grafe zobrazenom na obr. 22 .

Obr. 22 Vybavenie požiarneho úseku skladu v jednopodlažnej stavbe PTZ - konkrétny príklad (Zdroj: Autori)
Priesečník týchto hodnôt je v plocheA (nad bodkočiarkovanou čiarou) a v ploche 3.
Na základe popisu uvedenom pri grafe na obr. 22 sa stanoví potreba vybavenia požiarnotechnickými zariadeniami. Ploche A3 prislúcha potreba vybavenia požiarneho úseku zariadením na odvod tepla a splodín horenia (plochaA) a stabilným hasiacim zariadením (plocha 3).
Na základe takto stanovenej potreby vybavenia požiarnotechnickými zariadeniami sa presne stanovia zariadenia, ktoré sa zarátajú do vz. 50.
Ak v požiarnom úseku nie sú inštalované požiarnotechnické zariadenia, potom je súčiniteľ vyjadrujúci vplyv požiarnotechnických zariadení cs daný hodnotou 1.
5.4.2 Súčiniteľ vyjadrujúci vplyv elektrickej požiarnej signalizácie a možnosť zásahu hasičskej jednotky cs1
Znižujúca hodnota súčiniteľa vyjadrujúceho vplyv elektrickej požiarnej signalizácie a možnosti zásahu hasičskej jednotky vyjadruje vplyv EPS a zásahu hasičskej jednotky. Pričom ústredňa elektrickej požiarnej signalizácie musí byť umiestnená na ohlasovni požiarov alebo na mieste so stálou službou. Hasičská jednotka musí spĺňať požiadavku na početné stavy (1+6), výstroj a výzbroj, akcieschopnosť a časové limity od ohlásenia do začiatku hasenia.
Ak je elektrická požiarna signalizácia inštalovaná v požiarnom úseku, potom sa hodnota súčiniteľa vplyvu požiarnotechnických zariadení zníži o hodnotu z tab. 24.
Tab. 24 Hodnoty súčiniteľa cs1 [1]
Pol. Predpokladaný čas od ohlásenia požiaru do začiatku hasenia 1) cs12)
1 do 5 minút 0,25
2 do 10 minút 0,20
3 do 15 minút 0,15
1) Do tohto čas sa započítava čas od vyhlásenia poplachu do príjazdu k požiaru a čas bojového rozvinutia.
2) Ak v predpokladanom čase je možný hasebný zásah dvomi alebo viacerými jednotkami požiarnej ochrany súčasne, môže sa súčiniteľ cs1 zvýšiť o hodnotu 0,05.
5.4.3 Súčiniteľ vyjadrujúci vplyv stabilného hasiaceho zariadenia so samočinným spúšťaním cs2
Inštaláciou stabilného hasiaceho zariadenia so samočinným spúšťaním do požiarneho úseku výrobnej stavby sa bráni vzniku alebo rozvoju požiaru, dostáva sa požiar pod kontrolu do príchodu hasičskej jednotky alebo sa uhasí.
Znižujúca hodnota súčiniteľa cs2 vyjadrujúca vplyv stabilného hasiaceho zariadenia so samočinným spúšťaním sa určí hodnotou cs2 = 0,35 za predpokladu, že zariadenie [1]:
a) chráni celú plochu požiarneho úseku,
b) má ako súčasť výbavy signalizáciu, ktorá oznamuje uvedenie do činnosti, c) je vhodné pre druh skladovaných materiálov a spôsob skladovania, je bezpečné pre osoby nachádzajúce sa v požiarnom úseku, je zaručená jeho účinnosť.
5.4.4 Súčiniteľ vyjadrujúci vplyv horenia zariadenia na odvod tepla a splodín so samočinným spúšťaním cs3
Podľa STN 92 0201-1 [1] sa v prípade prítomnosti zariadenia na odvod tepla a splodín horenia zníži súčiniteľ vyjadrujúci vplyv požiarnotechnických zariadení o hodnotu cs3 = 0,1.
5.4.5 Súčiniteľ vyjadrujúci vplyv technického riešenia proti rozšíreniu požiaru cs4
So súčiniteľom vyjadrujúci vplyv technického riešenia proti rozšíreniu požiaru sa pri skladoch v jednopodlažných stavbách uvažuje vtedy, ak je určitá plocha požiarneho úseku Sd vybavená deliacimi priečkami a deliacimi stenami (obr. 23).
Deliace priečky sú umiestnené v regáloch a zabraňujú šíreniu požiaru vo zvislom alebo vodorovnom smere, alebo v obidvoch smeroch súčasne. Musia by celistvé, vyhotovené ako konštrukčný prvok druhu D1 a trvalo uchytené na konštrukciách z nehorľavých materiálov (triedy reakcie na oheň A1, A2s1, d0).
Deliace steny rozdeľujú priestor skladu, sú celistvé a vyhotovené z nehorľavých materiálov. Dôležitou podmienkou je, aby deliace steny presahovali skladovaciu výšku najmenej o 60 cm. Ak nadväzujú na obvodové steny požiarneho úseku, musia sa s nimi stýkať.

Obr. 23 Sklad v jednopodlažnej stavbe vybavený deliacimi priečkami a stenami [4]
Vzájomná vzdialenosť deliacich priečok a deliacich stien nesmie prekročiť hodnoty uvedené v tab. 25.
Tab. 25 Hodnoty súčiniteľa cs4 [1]
ožka Spôsob vyhotovenia a vzdialenosti
Pol
Hodnota súčiniteľa cs4 Požiarna odolnosť v minútach všetkých deliacich priečok alebo deliacich stien vrátane ich nosných konštrukcií deliacich priečok deliacich stien do 30 30 a viac
1 Pozdĺžne priečky pri b1 do 6 m Priečne a výškové deliace priečky nie sú zhotovené b4 do 9 m 0,10 0,20
2 Pozdĺžne a priečne priečky pri b1 a b2 do 3 m b4 do 6 m 0,15 0,30
3 Pozdĺžne, priečne a výškové priečky pri b1, b2, b3 do 3 m neurčuje sa 0,25 0,40
Podľa STN 92 0201-1 [1] sa v prípade zabezpečenia technického riešenia proti rozšíreniu požiaru zníži súčiniteľ vyjadrujúci vplyv požiarnotechnických zariadení o hodnotu cv4 = 0,2.
Použitá literatúra
[1.] STN 92 0201-1:2000, Požiarna bezpečnosť stavieb. Spoločné ustanovenia. Časť 1: Požiarne riziko, veľkosť požiarneho úseku.
[2.] Vyhláška MV SR č. 94/2004 Z. z., ktorou sa ustanovujú technické požiadavky na protipožiarnu bezpečnosť pri výstavbe a pri užívaní stavieb, v znení neskorších predpisov
[3.] Reichel, V. Navrhovaní požární bezpečnosti výrobných objektů I. Zväzok 17. Praha : Česká státní pojišťovna, 1987, 128 s.
[4.] Mózer, V. Požiarna bezpečnosť stavieb. Bratislava : Eurostav, 2017, 250 s. ISBN 9788089228508.
Stupeň protipožiarnej bezpečnosti je Vyhláškou MV SR č. 94/2004 Z.z. [1] definovaný ako súhrn technických vlastností konštrukcií požiarneho úseku, ktoré vyjadrujú ich schopnosť odolávať predpokladaným účinkom požiaru. Stupeň protipožiarnej bezpečnosti sa stanoví na základe STN 92 0201-2: Požiarna bezpečnosť stavieb Spoločné ustanovenia Časť 2: Stavebné konštrukcie [2]. V tejto norme [2] je stupeň protipožiarnej bezpečnosti vyjadrením technických vlastností konštrukcií v požiarnom úseku, ktoré zabezpečujú ich schopnosť odolávať predpokladaným účinkom požiaru.
Požiarnemu úseku nevýrobnej alebo výrobnej stavby sa na základe stanoveného požiarneho rizika pridelí jeden z piatich stupňov protipožiarnej bezpečnosti. Označujú sa rímskymi číslicami - I., II., III., IV. a V. SPB. Snahou projektantov je priradiť posudzovaného požiarnemu úseku, čo najnižší stupeň protipožiarnej bezpečnosti.
Pre požiarne úseky skladov v jednopodlažných stavbách sa podľa Vyhlášky MV SR č. 94/2004 Z.z. [1], §37 stupeň protipožiarnej bezpečnosti neurčuje.
V závislosti od účelu budovy, resp. druh priestoru sa stupeň protipožiarnej bezpečnosti určí na základe jednej z tabuliek uvedených v STN 92 0201-2 [2]:
určenie SPB pre výrobné stavby a stavby poľnohospodárskej výroby - Tabuľka 1 v STN 92 0201-2 [2],
určenie SPB pre nevýrobné stavby - Tabuľka 2 v STN 92 0201-2 [2],
určenie SPB pre stavby na bývanie a ubytovanie skupiny B - Tabuľka 3 v STN 92 0201-2 [2],
určenie SPB pre radové a hromadné garáže - Tabuľka 4 v STN 92 0201-2 [2].
Existujú aj priestory, ktoré sa zaraďujú do I. stupňa protipožiarnej bezpečnosti. Jedná sa o nasledovné priestory:
požiarny úsek, ktorý je zadefinovaný ako PU bez požiarneho rizika (napr. CHUC) - I. SPB,
stavby na bývanie a ubytovanie skupiny A - I. SPB,
jednotlivé garáže skupiny 1 - I. SPB.
Pri určovaní stupňa protipožiarnej bezpečnosti pre požiarne úseky nachádzajúce sa na podzemných požiarnych podlažiach, pri stanovení stupňa protipožiarnej bezpečnosti sa postupuje nasledovne [3]:
pri požiarnej výške nadzemnej časti do 6 m:
o SPB pre 1. podzemné podlažie sa určí ako pre nadzemnú časť s požiarnou výškou do 6 m,
o SPB pre 2. a ďalšie podzemné podlažie sa určí ako pre nadzemnú časť s požiarnou výškou do 12 m ,
pri požiarnej výške nadzemnej časti nad 6 m:
o SPB pre 1. podzemné podlažie sa určí ako pre nadzemnú časť s požiarnou výškou do 22,5 m,
o SPB pre 2. a ďalšie podzemné podlažie sa určí ako pre nadzemnú časť s požiarnou výškou do 30 m (obr. 24).

Obr. 24 Požiarna výška podzemných podlaží pre stanovenie stupňa protipožiarnej bezpečnosti (Zdroj: Autori)
Ak sa v požiarnom úseku nachádza sústredené požiarne zaťaženie je potrebné aj pre túto vymedzenú časť požiarneho úseku stanoviť jeden z piatich stupňov protipožiarnej bezpečnosti stavby. Pre priestor so sústredným požiarnym zaťažením sa určilo požiarne riziko, je nevyhnutné tomuto priestoru priradiť aj stupeň protipožiarnej bezpečnosti . To znamená, že pre vymedzenú časť požiarneho úseku platia iné požiadavky, napr. na konštrukcie stavby, ako na zvyšnú časť požiarneho úseku, v ktorom sa sústredné požiarne zaťaženie nachádza.
6.1 Stupeň protipožiarnej bezpečnosti výrobných stavieb a stavieb poľnohospodárskej výroby
Stupeň protipožiarnej bezpečnosti pre požiarny úsek výrobnej stavby alebo stavby poľnohospodárskej výroby, alebo jeho vymedzenú časť, sa určí podľa tab. 26. Pre stanovenie sú potrebné údaje o:
horľavosť konštrukčného celku,
počte požiarnych podlaží,
ekvivalentnom čase trvania požiaru.
Tab. 26 Určenie SPB pre výrobné stavby a stavby poľnohospodárskej výroby [2]
Najnižší stupeň protipožiarnej bezpečnosti požiarneho úseku alebo jeho časti
Počet podlaží stavby podľa
4.5 STN 92 0201-1
I. II. III. IV. V. podľa súčinu ekvivalentného času trvania požiaru a súčiniteľa bezpečnosti k8
Ʈe.k8 prípadne Ʈe k8 alebo Ʈem.k8 do dvoch podlaží do 45 do 75 do 90 nad 90nad dve podlažia do 30 do 60 do 90 do 120 nad 120
Ako si je možné všimnúť v tab. 26, pri určení stupňa protipožiarnej bezpečnosti pre požiarne úseky výrobnej stavby je nutné ekvivalentný čas trvania požiaru prenásobiť súčiniteľom bezpečnosti, ktorý je závislý od druhu konštrukčného celku a počtu požiarnych podlaží (pozri kap. 5.3.1 a 5.3.2). ��8 = k5 ��6 2,4 (51)
kde:
k8 – súčiniteľ bezpečnosti bez rozmeru,
k5 – súčiniteľ počtu podlaží bez rozmeru (kap. 4.3.1).
k6 – súčiniteľ horľavosti konštrukčného celku bez rozmeru (kap. 4.3.2).
6.2 Stupeň protipožiarnej bezpečnosti nevýrobných stavieb
Stupeň protipožiarnej bezpečnosti pre požiarny úsek nevýrobnej stavby alebo jeho vymedzenú časť, sa určí podľa tab 27. Pri stanovení stupňa sa zohľadňuje:
horľavosť konštrukčného celku,
výpočtové požiarne zaťaženie,
požiarna výška stavby.
Tab. 27 Určenie SPB pre nevýrobné stavby [2]
Konštrukčný celok
Výpočtové požiarne zaťaženie v požiarnom úseku
Nehorľavý do 15
Najnižší stupeň protipožiarnej bezpečnosti požiarneho úseku
I. II. III. IV. V.
Požiarna výška stavby h do m
obmedzenia
45 bez obmedzenia nad 45 do 60
45 bez obm. nad 60 do 90
12 30 bez obm. nad 90 do 120
N
N
N2 nad 75 do 100
Konštrukčný celok
Výpočtové požiarne zaťaženie v požiarnom úseku
Najnižší stupeň protipožiarnej bezpečnosti požiarneho úseku
I. II. III. IV. V. Požiarna výška stavby h do m
0 0a *) (12) tento stupeň protipožiarnej bezpečnosti sa nesmie použiť; zmiešaný a horľavý konštrukčný celok sa nesmie použiť pre tieto stupne protipožiarnej bezpečnosti; požiarne úseky v jednopodlažných stavbách; požiarne úseky v jednopodlažných stavbách a so súčiniteľom a ≤1,1; ak je náhodné požiarne zaťaženie vyššie ako 180 kg.m-2 pri nehorľavom konštrukčnom celku, 100 kg.m-2 pri zmiešanom konštrukčnom celku alebo 80 kg.m-2 pri horľavom konštrukčnom celku a súčasne súčiniteľ a je vyšší ako 1,1, môže územne príslušný orgán požiarnej ochrany požadovať ďalšie požiarne bezpečnostné opatrenia s ohľadom na konkrétne podmienky v týchto požiarnych úsekoch (napr. inštaláciu elektrickej požiarnej signalizácie, stabilného hasiaceho zariadenia, zvýšenie požiarnej odolnosti nosných a požiarne deliacich konštrukcií a požiarnych uzáverov v nich); v podzemných podlažiach sú neprípustné uvedené výpočtové požiarne zaťaženia pri súčasnom súčiniteli a vyššom ako 1,1 bez ďalších požiarnych bezpečnostných opatrení; hodnoty v zátvorkách platia pre zmiešané konštrukčné celky podľa 2.6.4 b) uvedenej v STN 920201-2
6.3 Stupeň protipožiarnej bezpečnosti stavieb na bývanie a ubytovanie skupiny B
Stupeň protipožiarnej bezpečnosti pre požiarny úsek stavby na bývanie alebo ubytovanie skupiny B sa určí podľa tab. 28. Pri stanovení stupňa sa zohľadňuje:
horľavosť konštrukčného celku,
počtu nadzemných podlaží,
podlažie, v ktorom sa nachádza požiarny úsek stavby na bývanie alebo ubytovanie skupiny B.
Pri určovaní SPB pre požiarne úseky stavieb na bývanie alebo ubytovanie skupiny B nie je v tab. 28 zahrnuté požiarne riziko, t.j. výpočtové požiarne zaťaženie. Predpokladá sa, že výpočtové požiarne zaťaženie má hodnotu 50 kg.m-2 (hodnota stanovená podľa prílohy K uvedenej v STN 92 0201-1 [4]).
Tab. 28 Určenie SPB pre stavby na bývanie alebo ubytovanie skupiny B [2]
Konštrukčný celok
Najväčší počet nadzemných podlaží
Najnižší stupeň protipožiarnej bezpečnosti požiarnych úsekov v NP + 1. PP v 2. PP a ďalšom PP
6.4 Stupeň protipožiarnej bezpečnosti stavieb pre radové a hromadné garáže
Stupeň protipožiarnej bezpečnosti pre požiarny úsek stavby pre radové a hromadné garáže sa určí podľa tab. 29. Pri stanovení stupňa sa zohľadňuje:
horľavosť konštrukčného celku,
skupina garáže,
poloha garáže,
počet podlaží,
požiarna výška stavby.
Tab. 29 Stupeň protipožiarnej bezpečnosti pre požiarny úsek stavby pre radové a hromadné garáže [2]
Druh garáže
Najnižší stupeň protipožiarnej bezpečnosti Konštrukčný celok nehorľavý zmiešaný horľavý
Skupina 1 nadzemná voľne stojaca a pristavená jednopodlažná I I I dvojpodlažná I II III viacpodlažná s požiarnou výškou stavby:2) do 12 m II I1) III od 12 do 18 m III I1) V nad 18 m III neprípustné vstavaná v stavbe s požiarnou výškou do 6 m II v stavbe s požiarnou výškou nad 6 m III podzem ná voľne stojaca a pristavená jednopodlažná I III viacpodlažná III V vstavaná jednopodlažná v stavbe s h do 6 m III V v stavbe s h nad 6 m III neprípustné
Druh garáže
Skupina 2 a 3
nadzemná voľne stojaca a pristavaná 4)
Najnižší stupeň protipožiarnej bezpečnosti Konštrukčný celok nehorľavý zmiešaný horľavý
viacpodlažná v stavbe s h do 6 m III v stavbe s h nad 6 m
jednopodlažná
dvojpodlažná
IV viacpodlažná s požiarnou výškou stavby do 9 m
podzem n á jednopodlažná
dvojpodlažná
neprípustné neprípustné od 9 m do 12 m
neprípustné viacpodlažná
1) Len pri stálom požiarnom zaťažení rovnajúcom sa nule (ps=0).
2) Jedno podzemné podlažie, nad ktorým sú len podlažia hromadnej garáže, posudzuje sa ako nadzemné podlažie (t.j. prvé nadzemné podlažie).
3) Ak nie sú nad nadzemným podlažím žiadne nadzemné podlažia.
4) Stupne protipožiarnej bezpečnosti vstavaných garáží skupiny 2 a 3 sa stanovia ako pre požiarne úseky v nevýrobných stavbách.
Osobitným prípadom sú garáže skupiny 2 a 3, ktoré sú vstavané. Jedná sa napr. o výrobnú stavbu, ktorá pozostáva z výrobnej haly a garáže pre jeden nákladný automobil. Ako si je možné všimnúť, podľa tab. 29 nie je možné určiť stupeň protipožiarnej bezpečnosti, pre takúto vstavanú garáž. V takomto prípade sa postupuje ako pre požiarny úsek nevýrobnej stavby a stupeň protipožiarnej bezpečnosti sa stanoví podľa tab. 27.
Použitá literatúra
[1.] STN 92 0201-2:2017, Požiarna bezpečnosť stavieb. Spoločné ustanovenia. Časť 2: Stavebné konštrukcie.
[2.] Vyhláška MV SR č. 94/2004 Z. z., ktorou sa ustanovujú technické požiadavky na protipožiarnu bezpečnosť pri výstavbe a pri užívaní stavieb, v znení neskorších predpisov
[3.] Reichel, V. Navrhovaní požární bezpečnosti staveb. Zväzok 11. Praha : Česká republika, 1987, 72 s.
[4.] STN 92 0201-1:2000, Požiarna bezpečnosť stavieb. Spoločné ustanovenia. Časť 1: Požiarne riziko, veľkosť požiarneho úseku.
7
Požiadavky na stavebné konštrukcie v riešení PBS sú dané požiarnou odolnosťou, ktorá zabezpečí funkčnosť konštrukcií stavby odolávať účinkom požiaru počas určitého času a pritom spĺňať požadované vlastnosti ako je nosnosť a stabilita, celistvosť, schopnosť izolovať voči tepelným a radiačným účinkom požiaru, voči dymu, prípadne odolávať zvláštnym mechanickým vplyvom v priebehupožiaru alebo zabezpečovať požadovanú protipožiarnu ochranu stavebnej konštrukcie.
7.1 Požiarna odolnosť
Požiarna odolnosť je schopnosť konštrukcie odolávať účinkom požiaru tak, aby nedošlo k porušeniu jej funkcie. Pojem požiarna odolnosť sa na časovo-teplotnej krivke požiaru vzťahuje k III. etape požiaru, ktorú nazývame plne rozvinutý požiar, ako vidíme na obr. 25. Ide o etapu plne rozvinutého požiaru, počas ktorej musia všetky nosné a požiarne-deliace konštrukcie odolávať účinkom požiaru počas stanoveného času a počas ktorej sa musia všetky osoby nachádzajúce sa v stavbe bezpečne evakuovať.

Obr. 25 Časovo-teplotná krivka požiaru [1]
7.1.1 Požiarna konštrukcia
Požiarna konštrukcia je stavebná konštrukcia, konštrukčný prvok alebo stavebný výrobok ktorá spĺňa požadované kritériá na použitie v podmienkach požiaru. Požiarnu konštrukciu môže zhotoviť a zabudovať do stavby iba právnická osoba alebo fyzická osoba-podnikateľ, ktorý musí osvedčiť vlastnosti požiarnej konštrukcie písomnou formou.
Spôsob osvedčovania a členenie požiarnych konštrukcií sú uvedené v prílohe č. 3
Vyhlášky MV SR č. 94/2004 Z.z., v znení neskorších predpisov [2]. Za osvedčenie požiarnych konštrukcií zhotoviteľom sa považuje najmä
zoznam požiarnych konštrukcií, pre ktoré je osvedčenie vystavené;
kópie technických listov, katalógových listov alebo návodov na montáž, podľa ktorých boli požiarne konštrukcie zhotovené;
kópie dokladov preukazujúcich zhodu stavebných výrobkov použitých na zhotovenie požiarnych konštrukcií;
vypočítané hodnoty hrúbok ochrany jednotlivých prvkov chránených požiarnych konštrukcií,
kópie iných dokumentov (napríklad doklad o povinnej odbornej kvalifikácii, doklad o preškolení výrobcom a zoznam tesnení prestupov a lineárnych stykov), ak boli k predmetným požiarnym konštrukciám vydané.
Požiarna odolnosť požiarnych konštrukcií sa skúša v certifikovaných skúšobniach požiarnej odolnosti a na základe výsledkov vykonaných skúšok sa jednotlivé požiarne konštrukcie klasifikujú do tried požiarnej odolnosti podľa platných klasifikačných noriem. Základnou klasifikačnou normou pre požiarne konštrukcie s požiarnou odolnosťou je STN EN 13 501-2 [3]. Zoznam požiarnych konštrukcií a ostatných klasifikačných noriem je uvedený v tab. 30.
Tab. 30 Požadované kritériá a klasifikačné normy požiarnych konštrukcií [2]
Položka
Požiarne konštrukcie
Požadované kritériá
Klasifikácia na základe skúšok podľa technickej normy
1. Nosné prvky bez požiarnej deliacej funkcie (steny, stropy, strechy, nosníky, stĺpy, balkóny, lávky a schodištia) R STN EN 13501-2
2. Nosné prvky s požiarnou deliacou funkciou (steny, stropy, strechy a zdvojené podlahy)
3. Nosné obvodové steny
RE, REI, REW, REI-M STN EN 13501-2
REI, REW STN EN 13501-2
4. Ochrana konštrukcií obkladmi, nátermi, nástrekmi, vodorovnými membránami a zvislými membránami R STN EN 13501-2
5. Nenosné steny (priečky)
6. Fasády (závesové steny) a nenosné vonkajšie steny
7. Požiarne pásy
8. Podhľady s nezávislou požiarnou odolnosťou
9. Požiarne dvere a uzávery
10. Dvere tesné proti prieniku dymu
11. Uzávery dopravníkových systémov
12. Požiarne tesnenia prestupov
13. Požiarne tesnenia lineárnych stykov
14. Inštalačné kanály a šachty
EI STN EN 13501-2
EI, EW, orientácia o, i STN EN 13501-2
REI, REW, EI, EW STN EN 13501-2
EI, orientácia a, b STN EN 13501-2
EI, EI1, EI2, EW, C0 až C5 STN EN 13501-2
Sm, C0 až C5 STN EN 13501-2
EI, EI1, EI2, EW, C0 až C5, T STN EN 13501-2
EI, U/U, U/C, C/U, C/C STN EN 13501-2
EI, H, V, T, X, M, F, B, W STN EN 13501-2
EI, orientácia o, i, ve, ho STN EN 13501-2
Požiarne konštrukcie
15. Vzduchotechnické potrubia s požiarnou odolnosťou
16. Požiarne klapky
17. Potrubia na odvod tepla a splodín horenia v jednom požiarnom úseku
18. Potrubia na odvod tepla a splodín horenia, ktoré vedú cez iný požiarny úsek
19. Kombinované vzduchotechnické potrubia s požiarnou odolnosťou a súčasne na odvod tepla a splodín horenia
20. Dymové klapky
21. Dymové zábrany
Požadované kritériá
Klasifikácia na základe skúšok podľa technickej normy
EI, orientácia o, i, ve, ho STN EN 13501-3
EI, EI-S, E-S STN EN 13501-3
E300, E600-SINGLE STN EN 13501-4
EI (tlak)-S-MULTI STN EN 13501-4
EI (tlak)-S-MULTI STN EN 13501-4
E, E-S, EI, EI-S STN EN 13501-4
D, DH STN EN 12101-1
22. Strešný plášť Croof (t4) STN EN 13501-5
23. Zariadenia pre trvalú dodávku elektrickej energie pri požiari
Px *) STN 92 0205 STN 92 0206
*) Kritérium pre trvalú dodávku elektrickej energie pri požiari je Px, kde x = H pre káble s priemerom do 20 mm a prierezom vodičov do 2,5 mm2 , x = sa neuvádza pre káble s priemerom nad 20 mm alebo pre protipožiarne ochranné systémy káblových systémov, x = S pre káblové systémy s funkčnou odolnosťou pri požiari, x = R pre elektrické rozvádzače s funkčnou odolnosťou pri požiari.
7.1.2 Určovanie požiarnej odolnosti
Požiarnu odolnosť stavebnej konštrukcie je možné určiť na základe skúšky alebo vypočítať podľa technickej normy – Eurokódov, čo je sústava európskych technický noriem na navrhovanie a posudzovanie stavebných konštrukcií, ktorá platí v rámci Európskej únie. (zoznam Eurokódov platných v SR – viď. Poznámka).
Pri skúške požiarnej odolnosti podľa skúšobnej normy STN EN 1363-2 [4] je tepelné namáhanie v skúšobnej peci určené normovou teplotnou krivkou pre vnútorný plne rozvinutý požiar (obr. 26). Podľa STN EN 13 501-2 [3] je normová teplotná krivka daná vzťahom:
T = 345 log (8t + 1) + 20 (52)
T – priemerná teplota v peci (°C)
t – čas od začiatku skúšky (min.)
20 – počiatočná teplota v peci (°C).
Obr. 26 Normová teplotná krivka pre vnútorný plne rozvinutý požiar [5]
STN EN 13 501-2 [3] uvažuje okrem vnútorného plne rozvinutého požiaru, ktorý je charakterizovaný normovou teplotnou krivkou aj s ďalšími požiarnymi scenármi:
Krivka vonkajšieho požiaru sa používa pre stanovenie požiarnej odolnosti obvodových stien namáhaných vonkajším požiarom. Krivka pôsobenia vonkajšieho požiaru (obr. 27) je daná nasledovným vzorcom, ktorý reprezentuje vystavenie vonkajšieho povrchu steny požiaru, ktorý môže vystupovať z okna budovy, alebo voľne horiacemu vonkajšiemu požiaru:
T = 660 (1 – 0,687 e-0,32t – 0,313 e-3,8t) + 20 (2)
T – priemerná teplota v peci (°C)
t – čas od začiatku skúšky (min.)
20 – počiatočná teplota v peci.

Obr. 27 Krivka vonkajšieho požiaru [4]
Požiar podobný prirodzenému požiaru sa používa len pre ľahké zavesené horizontálne ochranné podhľady s nízkou tepelnou zotrvačnosťou (teplota požiarnych plynov pri stropnom podhľade má počas skúšky dosiahnuť 1000 °C medzi 10. až 20. minútou od začiatku skúšky).
Krivka pomalého ohrevu – požiar tlením sa môže použiť za predpokladu, že požiarna odolnosť daného prvku smie byť znížená jeho vystavením teplotám spojených s rozvíjajúcim sa požiarom (hlavne reagujúce a napeňujúce produkty).
Namáhanie konštantnou teplotou napr. pre hodnotenie intenzity prieniku u dverí tesných proti prieniku dymu, požiarnych vlastností zdvojených podláh, pre hodnotenie odolnosti proti požiaru sadzí v komínoch.
Poznámka:
Prehľad Eurokódov:
STN EN 1992-1-1 Eurokód 1. Zaťaženia konštrukcií. Časť 1-1: Všeobecné zaťaženia. Objemová tiaž, vlastná tiaž a úžitkové zaťaženia budov.
STN EN 1992-1-2 Eurokód 2. Navrhovanie betónových konštrukcií. Časť 1-2: Všeobecné pravidlá. Navrhovanie konštrukcií na účinky požiaru.
STN EN 1993-1-2 Eurokód 3. Navrhovanie oceľových konštrukcií. Časť 1-2: Všeobecné pravidlá. Navrhovanie konštrukcií na účinky požiaru.
STN EN 1994-1-2 Eurokód 4. Navrhovanie spriahnutých oceľobetónových konštrukcií. Časť 1-2: Všeobecné pravidlá. Navrhovanie konštrukcií na účinky požiaru.
STN EN 1995-1-2 Eurokód 5. Navrhovanie drevených konštrukcií. Časť 1-2: Všeobecné pravidlá. Navrhovanie konštrukcií na účinky požiaru.
STN EN 1996-1-2 Eurokód 6. Navrhovanie murovaných konštrukcií. Časť 1-2: Všeobecné pravidlá. Navrhovanie konštrukcií na účinky požiaru.
STN EN 1997-1 Eurokód 7. Navrhovanie geotechnických konštrukcií. Časť 1: Všeobecné pravidlá
STN EN 1998-1 Eurokód 8. Navrhovanie konštrukcií na seizmickú odolnosť. Časť 1: Všeobecné pravidlá, seizmické zaťaženia a pravidlá pre budovy
STN EN 1999-1-2 Eurokód 9. Navrhovanie hliníkových konštrukcií. Časť 1-2: Všeobecné pravidlá. Navrhovanie konštrukcií na účinky požiaru.

QR kód 3 Veľkorozmerová skúška požiarnej odolnosti drevostavby (https://www.youtube.com/watch?v=xklktjR9Y4Q)
7.1.3 Hodnotenie požiarnej odolnosti
Požiarna odolnosť stavebnej konštrukcie sa hodnotí stanovenými kritériami (medznými stavmi) a časom v minútach. Klasifikačná norma STN EN 13501-2 [3] stanovuje klasifikačné doby požiarnej odolnosti stavebných konštrukcií 10, 15, 20, 30, 45, 60, 90, 120, 180, 240 alebo 360 minút.
Medzné stavy požiarnej odolnosti konštrukcií a príslušné symboly:
a) nosnosť a stabilita – R, b) celistvosť – E,
c) tepelná izolácia – I – izolačná schopnosť (dodržanie medznej teploty z neohrievanej strany konštrukcie),
d) izolácia riadená radiáciou – W – izolačná schopnosť (dodržanie medznej hustoty tepelného toku z neohrievanej strany konštrukcie); kritérium W možno nahradiť kritériom I,
e) predpokladané zvláštne mechanické vplyvy – M, f) uzáver vybavený automatickým zatváracím zariadením – C, g) konštrukcie s osobitným obmedzením prieniku dymu – S,
h) odolnosť proti požiaru sadzí v komínoch G, i) schopnosť protipožiarnej ochrany – K (schopnosť obkladu steny alebo stropu zabezpečiť materiál nachádzajúci sa pod obkladom).
Tieto medzné stavy požiarnej odolnosti sa vzťahujú na všetky konštrukcie, ktoré majú požiarne deliacu funkciu.
Požiarnu odolnosť konštrukcie vyjadruje časový interval od začiatku skúšky až po dosiahnutie niektorého z medzných stavov. Pri hodnotení medzného stavu tepelnej izolácie I sa sleduje prestup tepla stavebnou konštrukciou tak, aby sa na strane odvrátenej od požiaru nezvýšila priemerná teplota o viac ako 140 °C a maximálne o viac ako 180 °C v ktoromkoľvek bode. Pri hodnotení medzného stavu W sa sleduje, aby intenzita tepelného žiarenia z povrchu odvráteného od požiaru neprekročila hodnotu 15 kW/m2 (v normou predpísanej vzdialenosti). Prekročenie medzného stavu celistvosti (E) sa preukáže stratou celistvosti, ktorú charakterizujú vzniknuté otvory a trhliny v konštrukcii. Hodnotenie celistvosti sa všeobecne robí na základe troch stavov porušenia kritéria celistvosti: trhliny alebo otvory presahujúce stanovené medze, vznietenie bavlneného vankúšika a trvalé horenie plameňom na neexponovanej strane. Pri hodnotení kritéria nosnosti R sa zisťuje schopnosť prvku stavebnej konštrukcie odolávať po určitú dobu požiaru pôsobiacemu na jednu alebo viacero strán, pri stanovenom mechanickom namáhaní, bez straty jeho konštrukčnej pevnosti. Kritériá vedúce k hodnoteniu hroziaceho zrútenia sa menia v závislosti od druhu nosného prvku.
7.2 Požiadavky na požadovanú požiarnu odolnosť
Po zaradení jednotlivých požiarnych úsekov do príslušného stupňa protipožiarnej bezpečnosti (SPB) sa stanovujú požiadavky na požadovanú požiarnu odolnosť nosných a požiarne-deliacich konštrukcií podľa nasledujúcej tab. 2 (tab. 5 v STN 92 0201-2 [6]).
Tab. 31 obsahuje 14 položiek. Položky 1 až 11 sa používajú pre viacpodlažné stavby, položky 12, 13, 14 sa používajú pre jednopodlažné stavby staticky nezávislé. Ak riešime protipožiarnu bezpečnosť jednopodlažnej stavby, požiadavky na požadovanú požiarnu odolnosť stavebných konštrukcií určujeme podľa položiek 1 až 11 a to podľa hodnôt pre posledné nadzemné podlažie.
Podľa položiek 12, 13 a 14 sa postupuje len vtedy, ak je jednopodlažná stavba staticky nezávislá a to len v odôvodnených prípadoch. Položky 12,13,14 zahŕňajú požadovanú požiarnu odolnosť len na určité druhy stavebných konštrukcií a to na: požiarne steny, požiarne uzávery, zvislé požiarne pásy v obvodových stenách (ak sa požadujú) a obvodové steny, ktoré nesmú mať v sebe požiarne otvorené plochy. Odpadá požiadavka na nosné konštrukcie zaisťujúce stabilitu stavby, požiadavka na nosnú konštrukciu strechy, strešný plášť a pod.
Z toho vyplýva, že toto riešenie požiadaviek na požadovanú požiarnu odolnosť jednopodlažných stavieb staticky nezávislých sa používa pri jednoduchších riešeniach jednopodlažných stavieb, napr. v prípade rámových alebo väzníkových oceľových konštrukčných systémov halových stavieb, pri ktorých sa predpokladá určitá
dovolená deformácia nosného konštrukčného systému v priebehu požiaru, ktorá však nepovedie ku kolapsu celej stavby. Tieto riešenia však musí špecialista požiarnej ochrany prekonzultovať so statikom projektovanej stavby, ktorý ich musí preukázať v projektovom riešení stavby. Aby sa zabránilo preneseniu požiaru medzi požiarnymi úsekmi strešným plášťom, často sa používa riešenie prevýšenia požiarnych stien min.
o 450 mm nad úroveň strešného plášťa alebo zmena výškovej úrovne strešnej roviny min. o 1,2 m (obr. 37).
Pre sklady v jednopodlažnej stavbe sa požiadavky na požadovanú požiarnu odolnosť a druh konštrukčných prvkov stavebných konštrukcií určujú podľa samostatnej tabuľky v STN 92 0201-2 [6] (viď. tab. 32) podľa hodnôt indexu skladovaných materiálov ip.
Tab. 31 Požadovaná požiarna odolnosť a požadovaný druh konštrukčných prvkov [6]
Pol. Konštrukčný prvok
Druh konštrukčných prvkov a najnižšia požiarna odolnosť v minútach podľa stupňa protipožiarnej bezpečnosti
Súči niteľ k9 I. II. III. IV. V.
Viacpodlažné stavby
1.
Požiarne steny a požiarne stropy:
a) v podzemných podlažiach, 45/D1 60/D1 90/D1 120/D1 180/D1 1,3 b) v nadzemných podlažiach, 30 45
1,0 c) v poslednom nadzemnom podlaží, 15
d) požiarne steny medzi stavbami. 45/D1 60/D1 90/D1 120/D1 180/D1 1,3
2. Obvodové steny:
a) zabezpečujúce stabilitu stavby alebo jej časti:
1. v podzemných podlažiach z vnútornej strany, 45/D1 60/D1 90/D1 120/D1
2. v nadzemných podlažiach
3. v poslednom nadzemnom podlaží, 15
b) nezabezpečujúce stabilitu stavby
3. Strešný plášť:
4. Požiarne uzávery otvorov:
a) v podzemných podlažiach, 30/D1 45/D1 45/D1 60/D1 90/D1 –b) v nadzemných podlažiach, 30 30 45 60/D1 90/D1 –c) v poslednom nadzemnom podlaží, 15 30 30 45 60/D1 –
5. Nosné konštrukcie schodísk vo vnútri požiarneho úseku, ktoré nie sú súčasťou chránených únikových ciest: – 15 30/D2 30/D1 45/D1 –
6. Šachty a kanály: a) požiarne deliace konštrukcie, 1. šácht evakuačných výťahov, podľa položky 1 1) 2. šácht ostatných výťahov, 30/D1 30/D1 45/D1 60/D1 90/D1 –3. inštalačných šácht a kanálov 30/D1 45/D1 60/D1 90/D1 90/D1 –
Jednopodlažné stavby staticky nezávislé s h = 0
Pol. Konštrukčný prvok
Druh konštrukčných prvkov a najnižšia požiarna odolnosť v minútach podľa stupňa protipožiarnej bezpečnosti
Súči niteľ k9 I. II. III. IV. V.
b) požiarne uzávery otvorov v požiarnych deliacich konštrukciách, 1. šácht evakuačných výťahov, podľa položky 4 2)
2. šácht ostatných výťahov. 30/D1 30/D1 30/D1 30/D1 45/D1 –
3. inštalačných šácht a kanálov 30 45 60/D1 90/D1 90/D1 –
7. Nosné konštrukcie striech bez požiarnej deliacej funkcie: 15 30 45 60 90 0,5
8. Nosné konštrukcie vnútri stavby, ktoré zabezpečujú stabilitu stavby:
a) v podzemných podlažiach, 45/D1 60/D1 90/D1 120/D1 180/D1 1,3 b) v nadzemných podlažiach, 30 45 60 90/D1 120/D1 1,0 c) v poslednom nadzemnom podlaží. 15 30 45 60/D1 90/D1 0,5
9. Nosné konštrukcie vnútri požiarneho úseku nezabezpečujúce stabilitu stavby: 15 30/D2 45/D2 60/D1 90/D1 0,4
10. Nosné konštrukcie mimo požiarneho úseku zabezpečujúce stabilitu stavby:
11. Konštrukcie podporujúce technologické zariadenia, ktorých zrútenie prispieva k rozšíreniu požiaru: 15 30 45 45/D1 60/D1 0,4
12. Požiarne steny: 30/D1 45/D1 60/D1 90/D1 120/D1 –
13. Požiarne uzávery otvorov v požiarnych stenách: 15/D1 30/D1 45/D1 45/D1 60/D1 –14. Zvislé požiarne pásy v obvodových stenách a obvodové steny, ktoré majú byť bez požiarne otvorených plôch: 15/D1 30/D1 45/D1 45/D1 60/D1 –
Poznámka – Požadovaný stupeň požiarnej bezpečnosti je dosiahnutý vtedy, ak sú všetky konštrukčné prvky uvedené v tabuľke požadovaného druhu a vykazujú požadovanú požiarnu odolnosť okrem položiek 2b), 3, 9 a 11, pre ktoré je hodnota požiarnej odolnosti len odporúčaná.
1) Požiarne deliaca konštrukcia medzi šachtou evakuačných a požiarnych výťahov a medzi predsieňou chránenej únikovej cesty sa navrhuje podľa položky 6.a) bodu 2
2) Požiarne uzávery otvorov v požiarne deliacej konštrukcii medzi šachtou a predsieňou chránenej únikovej cesty sa navrhujú podľa položky 6.b) bodu 2
3) Ak nie je požadovaná požiarna odolnosť splnená, je táto konštrukcia úplne požiarne otvorenou plochou.
4) Ak nie je požadovaná požiarna odolnosť splnená, je táto konštrukcia požiarne otvorenou konštrukciou strešného plášťa.
Tab. 32 Požiarna odolnosť a druh konštrukčných prvkov stavebných konštrukcií pre sklady v jednopodlažnej stavbe
Pol. Požiarne deliace konštrukcie
1 Požiarne steny prípadne požiarne stropy vrátane nosnej konštrukcie zabezpečujúcej jej stabilitu
2 Požiarne uzávery otvorov
3 Obvodové steny, ktoré majú byť bez požiarne otvorených plôch
Zvyšovanie
Index skladovaných materiálov ip do 1,0 nad 1,0 do 2,0 nad 2,0 do 4,0 nad 4,0 Požiarna odolnosť v minútach a druh stavebnej konštrukcie
Požiarnu odolnosť požiarnej konštrukcie možno zvýšiť jej úpravou a za podmienok určených v technickej norme STN 92 0201-2 [6].
Na zvýšenie požiarnej odolnosti stavebných konštrukcií v praxi sa používa ochrana mokrou alebo suchou technológiou. Tradičným spôsobom mokrej technológie je ochrana omurovaním, obetónovaním alebo použitím protipožiarnych omietok, náterov a nástrekov. Pri suchej technológii sa konštrukcie chránia obkladmi, pričom vždy pracujeme so záväznými podkladmi dodávateľa a vyhotovenie prác zveríme odborne spôsobilej firme. Z obkladových protipožiarnych materiálov sa v praxi používajú hlavne sadrokartónové systémy RIGIPS, KNAUF, sadrovláknité systémy FERMACELL a protipožiarne systémy PROMAT.

QR kód 4 Sadrokartón a protipožiarna ochrana budov (https://www.rigips.sk/clanky/sadrokarton-protipoziarna-ochrana-budov)
7.4 Požiarne deliace konštrukcie
Každý požiarny úsek musí byť zo všetkých strán ohraničený požiarne deliacimi konštrukciami Ich účelom je zabrániť šíreniu požiaru mimo požiarom napadnutého požiarneho úseku vo vodorovnom alebo zvislom smere. Patria medzi ne:
požiarne steny,
požiarne stropy,
obvodové steny
Požiadavky na požiarne deliace konštrukcie stanovuje projektová norma STN 92 0201-2 [6].
Najnižšia požiarna odolnosť nosných konštrukcií zabezpečujúcich stabilitu stavby alebo jej časti je stanovená Vyhláškou MV SR č. 94/2004 Z.z. [2] podľa požiarnej výšky nasledovne:
a) nad 22,5 m do 45 m – 60 min,
b) nad 45 m do 60 m – 90 min,
c) nad 60 m – 120 min.
7.4.1 Obvodová stena
Obvodové steny bránia šíreniu požiaru mimo požiarny úsek na inú stavbu alebo na iný požiarny úsek tej istej stavby.
Požiarna odolnosť obvodových stien sa stanovuje z vnútornej a z vonkajšej strany, od čoho závisia aj požadované kritériá požiarnej odolnosti. Zároveň závisí aj od toho, či je obvodová stena nosná alebo nenosná.
Obvodová stena musí z vnútornej strany spĺňať aspoň tieto kritériá:
a) REW – nosná
b) EW – nenosná.
Obvodová stena z vonkajšej strany musí spĺňať aspoň tieto kritériá:
a) REI – nosná
b) EI – nenosná.
V prípade ak je stavba podpivničená, obvodová stena v podzemných podlažiach, zabezpečujúca stabilitu stavby, za ktorou je z vonkajšej strany zemina, musí spĺňať aspoň kritérium R (obr. 28).

Obr. 28 Obvodová stena v podzemných podlažiach (autori)
7.4.2 Požiarne pásy
Súčasťou obvodovej steny sú požiarne pásy, ktoré bránia šíreniupožiaru vo zvislom alebo vodorovnom smere do vedľajšieho PÚ Musia sa vyhotoviť v mieste, kde sa požiarna stena stýka s obvodovou stenou (zvislé požiarne pásy) a v mieste, kde sa požiarny strop stýka s obvodovou stenou (vodorovné požiarne pásy). Požiarne pásy musia byť vyhotovené z konštrukčných prvkov druhu D1, šírky najmenej 0,9 - 1,2 m (v závislosti od veľkosti požiarneho zaťaženia). Príklad zvislých požiarnych pásov a vodorovných požiarnych pásov je zobrazený na obr. 29

a)

b)
Obr. 29 Požiarne pásy (autori) a) zvislý, b) vodorovný
Požiarny pás možno nahradiť:
a) ustúpením líca obvodovej steny alebo
b) predĺžením požiarnej steny alebo požiarneho stropu pred líce obvodovej steny.
Požiarna stena a požiarny strop musia byť v týchto prípadoch konštrukčnými prvkami druhu D1 (obr. 30).
a)

b)
Obr. 30 Spôsoby nahradenia požiarnych pásov (autori)
a) ustúpením líca obvodovej steny (nad a pod požiarnym stropom, zalomením obvodovej steny, b) predĺžením požiarneho stropu alebo požiarnej steny pred líce obvodovej steny
V prípade ak sa stýkajú dve budovy, jedna s požiarnou výškou menšou ako 12 m, druhá s požiarnou výškou väčšou ako 12 m, v mieste ich styku musí byť vyhotovený požiarny pás požadovanej šírky.
Sú prípady, kedy požiarny pás nie je potrebné vyhotoviť (pozri § 44, ods. 6, Vyhlášky MV SR č. 94/2004 Z.z. [2]) a to napr. v mieste, kde sa stýka požiarny strop umiestnený nad CHÚC s obvodovou stenou, ďalej ak aspoň na jednej strane požiarnej steny, ktorá rozdeľuje dva požiarne úseky je priestor bez požiarneho rizika šírky najmenej 2,5 m. Pre stavby s požiarnou výškou do 12 m sa požiarne pásy nemusia vyhotoviť a to vo
výrobných stavbách, v nevýrobných stavbách a v stavbách poľnohospodárskej výroby. Neplatí to pre požiarny úsek chránenej únikovej cesty (CHÚC), pre stavby zdravotníckych zariadení a stavby určené pre osoby s obmedzenou schopnosťou pohybu a neschopné samostatného pohybu (sociálne zariadenia, školy a internáty pre zdravotne postihnuté deti a pod.).
V obvodových stenách stavieb na ubytovanie s požiarnou výškou h >12 m sa na mieste ich styku s požiarnou stenou medzi požiarnymi úsekmi tvorenými obytnými bunkami nemusí vyhotoviť požiarny pás, ak požiarnu stenu tvorí konštrukčný prvok druhu D1 a ak tento konštrukčný prvok prechádza až do líca obvodovej steny (obr. 31).

Obr. 31 Styk požiarnej steny s obvodovou stenou v stavbách na ubytovanie s požiarnou výškou h >12 m (autori)
7.4.3 Obvodová stena v požiarne nebezpečnom priestore stavby
Obvodová stena, vrátane požiarneho pása, ktorá zasahuje do požiarne nebezpečného priestoru iného požiarneho úseku alebo inej stavby, musí podľa STN 92 0201-2 [6] z vonkajšej strany stavby spĺňať požiadavky na požiarnu odolnosť Ro-ef a druh konštrukčného prvku D1 a to podľa požiarneho rizika a vzdialenosti posudzovanej obvodovej steny od hranice požiarne nebezpečného priestoru, do ktorého zasahuje
Požiarna odolnosť Ro-ef z vonkajšej strany pre obvodové steny v požiarne nebezpečnom priestore sa stanovuje v závislosti od:
a) požadovanej požiarnej odolnosti a odstupovej vzdialenosti požiarneho úseku, do ktorého požiarne nebezpečného priestoru posudzovaná obvodová stena zasahuje; b) vzdialenosti d´ obvodovej steny od hranice požiarne nebezpečného priestoru.
PRÍKLAD
Stanovte požadovanú požiarnu odolnosť Ro-ef pre obvodovú stenu požiarneho úseku obytnej budovy, ktorý je zaradený do II. SPB. Obvodová stena sa nachádza v požiarne nebezpečnom priestore susednej stavby plechového skladu, v ktorom je
určené požiarne riziko τe = 50 min. Rozmery obvodovej steny skladu sú dĺžka 12 m a výška 6 m. Daná situácia je zobrazená na obr. 32.

Obr. 32 Obvodová stena v požiarne nebezpečnom priestore susednej stavby skladu (autori)
Najprv určíme odstupovú vzdialenosť od obvodovej steny plechového skladu:
l = 12 m
h = 6 m
τe = 50 min
po = 100 % (plechová stena bez požiarnej odolnosti)
d = 10,7 m určená podľa tab. 3 STN 92 0201-4 [8]
Požiarne nebezpečný priestor od plechového skladu je 10,7 m, to znamená, že bude zasahovať do posudzovanej obytnej budovy do vzdialenosti d´ = 4,7 m (obr. 32).
Požadovanú požiarnu odolnosť obvodovej steny obytnej budovy Ro-ef určíme na základe pomeru d´/d a požadovanej požiarnej odolnosti obvodovej steny plechového skladu:
d´/d = 4,7/10,7 = 0,44 m
Zadaný ekvivalentný čas trvania požiaru v plechovom sklade τe = 50 min vyjadruje strednú plošnú hustotu tepelného toku skladovaných látok (pozri kap. 10.3.2). To znamená, že na grafe na obr. 81 v kap. 10 sa použije priamka požiarnej odolnosti R = 50 min. Požiarnu odolnosť Ro-ef určíme ako priesečník hodnoty d´/d na priamke R = 50 min a následným odčítaním Ro-ef na osi y.
Ro-ef = 37 min
Požadovaná požiarna odolnosť obvodovej steny požiarneho úseku v obytnej budove je podľa STN 92 0201-2 [6] pre II. SPB 45 min v nadzemných podlažiach, ktorá bude spĺňať aj určenú požiarnu odolnosť Ro-ef = 37 min.
7.4.4 Požiarna stena
Požiarna stena bráni šíreniu požiaru medzi požiarnymi úsekmi vo vodorovnom smere. Požiadavky na požadovanú požiarnu odolnosť požiarnych stien sa stanovujú
podľa požiarneho úseku s vyššími požiadavkami, to znamená s vyšším stupňom protipožiarnej bezpečnosti (SPB) (obr. 33).
Požiarna stena musí spĺňať aspoň tieto kritériá:
a) REI – nosné požiarne steny
b) EI – nenosné požiarne steny
c) REI - M – požiarne steny medzi stavbami
d) REW – nosné obvodové požiarne steny, hodnotené z hľadiska požiarnej odolnosti z vonkajšej strany posledného nadzemného požiarneho podlažia vstavaného do povalového priestoru [6] .

Obr. 33 Požiarna stena medzi požiarnymi úsekmi [7]
Požiarne deliace konštrukcie, ktoré ohraničujú požiarny úsek sa musia navzájom stýkať s ostatnými požiarne deliacimi konštrukciami, aby si požiar nenašiel cestu šírenia do susedného požiarneho úseku.
Požiarna stena sa musí stýkať s
a) požiarnym stropom alebo s konštrukciou strechy, ktorá plní funkciu požiarneho stropu, alebo s konštrukciou strechy a strešného plášťa vyhotovených z konštrukčných prvkov druhu D1 s požadovanou požiarnou odolnosťou,
b) obvodovou stenou alebo s požiarnym pásom, ak sa požiarny pás požaduje
Príklady styku požiarnej steny s ostatnými požiarne deliacimi konštrukciami sú zobrazené na obr. 34 (zobrazenie je v reze) a obr. 35 (zobrazenie je v pôdoryse).

Obr. 34 Styk požiarnej steny s ostatnými požiarne deliacimi konštrukciami (autori) 1 – s požiarnym stropom, 2 – s konštrukciou strechy a strešného plášťa vyhotovených z konštrukčných prvkov druhu D1 s požadovanou požiarnou odolnosťou, 3 – s konštrukciou strechy, ktorá plní funkciu požiarneho stropu

Obr. 35 Styk požiarnej steny s ostatnými požiarne deliacimi konštrukciami (autori) 1 – s obvodovou stenou, 2 – s požiarnym pásom, ak sa požaduje
Ak konštrukcia strechy a strešného plášťa nemá požadovanú požiarnu odolnosť (alebo je vyhotovená z D2 alebo D3), požiarna stena musí prestupovať cez konštrukciu strechy a strešného plášťa tak, aby prevyšovala vonkajší povrch strešného plášťa najmenej o 450 mm (obr. 36). Alternatívou tohto riešenia sú „požiarne pásy“ v strešnom plášti z každej strany požiarnej steny do vzdialenosti min. 1,2 m, alebo zmena výškovej úrovne strešného plášťa o najmenej 1,2 m (obr. 37).

Obr. 36 Prestup požiarnej steny cez konštrukciu strechy druhu D2, D3 (autori)

a)

b)
Obr. 37 Styk požiarnej steny s konštrukciou strešného plášťa duhu D2, D3 (autori) a) „požiarne pásy“ v strešnom plášti, b) zmena výškovej úrovne strešného plášťa [6]
7.4.5 Požiarny strop
Požadovaná požiarna odolnosť a druh konštrukčných prvkov požiarneho stropu sa určujú podľa požiadaviek na požiarny úsek pod požiarnym stropom (obr. 38a)
Požiarny strop musí spĺňať najmenej kritériá REI:
a) ak je nad požiarnym stropom stále alebo náhodné požiarne zaťaženie, alebo b) nad chránenou únikovou cestou.

a)

b)
Obr. 38 Požiarna odolnosť požiarneho stropu a) podľa požiadaviek pod požiarnym stropom b) v poslednom nadzemnom požiarnom podlaží (Zdroj: Autori)
Ak nad požiarnym stropom v poslednom nadzemnom požiarnom podlaží nie je náhodné požiarne zaťaženie, strop musí spĺňať najmenej kritériá RE (obr. 38b).
Požadovanú požiarnu odolnosť požiarneho stropu možno dosiahnuť:
1. Použitím podhľadovej konštrukcie (obr. 39a, 39b). V stropnej dutine medzi podhľadovou konštrukciou a konštrukciou stropu nesmú byť vedené inštalácie, okrem: a) káblov pre svietidlá umiestnené pod vodorovnou membránou, b) inštalácií stabilných a polostabilných hasiacich zariadení a elektrickej požiarnej signalizácie.
2. Použitím podhľadovej konštrukcie s nezávislou požiarnou odolnosťou a kritériom EI. Podhľad s nezávislou požiarnou odolnosťou nie je kotvený do nosnej konštrukcie stropu ale do bočných stien alebo inej pomocnej konštrukcie, ktorá nezaťažuje strop (obr. 39c).
Požiarny strop sa musí stýkať s:
a) požiarnou stenou, b) obvodovou stenou alebo s požiarnym pásom, ak sa požiarny pás požaduje.


a) b) c)

Obr. 39 Požiarny strop s funkciou podhľadovej konš. a podhľad s nezávislou požiarnou odolnosťou (autori) a) podhľad kotvený do nosnej konštrukcie strechy alebo b) stropu; c) podhľad s nezávislou požiarnou odolnosťou
7.4.6 Nosná konštrukcia strechy
Najnižšia požadovaná požiarna odolnosť a najnižší druh nosných konštrukcií striech a stropov s funkciou strechy nad posledným požiarnym podlažím sa určujú podľa požiadaviek požiarneho úseku, ktorý zhora ohraničujú. Nosná konštrukcia strechy musí spĺňať kritérium R (obr. 40a).
Nosné konštrukcie striech umiestnené v podstrešnom priestore nad požiarnym stropom nemusia vykazovať požiarnu odolnosť a môžu byť konštrukciami druhu D3 (drevené krokvy a nosníky), ak v podstrešnom priestore:
a) nie je pn,
b) je pn, ale nenachádzajú sa v ňom žiadne osoby, okrem osôb, ktoré tam vykonávajú údržbu, kontrolu a opravy súvisiace s týmto priestorom [6] (obr. 40b).


a) b)
Obr. 40 Požiarna odolnosť nosnej konštrukcie strechy a) podľa požiadaviek PÚ, ktorý zhora ohraničuje b) požiarna odolnosť sa nepožaduje (autori)
7.4.7 Strešný plášť
Ak sa požaduje požiarna odolnosť strešného plášťa, musí spĺňať kritériá:
a) EI – ak obsahuje horľavé látky (napr. tepelnoizolačné vrstvy alebo vrstvy krytiny),
b) E – v ostatných prípadoch
Strešný plášť s nosnou funkciou strechy musí okrem týchto kritérií spĺňať aj kritérium R. Príklady určovania požiarnej odolnosti strešného plášťa sú zobrazené na obr. 41 a obr. 42

Obr. 41 Požiarna odolnosť strešného plášťa s nosnou funkciou strechy, ktorý obsahuje horľavé látky (napr. drevené latovanie) (autori)

Obr. 42 Požiarna odolnosť strešného plášťa z izolačných panelov, ktorý neobsahuje horľavé látky (autori)
Ak je v strešnom plášti inštalované zariadenie na odvod tepla a splodín horenia (ZOTSH) alebo stabilné hasiace zariadenie (SHZ), strešný plášť musí mať požiarnu odolnosť ako nosná konštrukcia strechy. Požiarnu odolnosť strešného plášťa možno dosiahnuť aj ochladzovaním SHZ.
Ak strešný plášť zasahuje do požiarne nebezpečného priestoru iného PÚ, musí byť vyhotovený tak, aby spĺňal kritérium BROOF (t3) alebo BROOF (t4) podľa STN 13 501-5 [9]. Požiarny uzáver v takomto strešnom plášti musí byť typu EW, z konštrukčných prvkov druhu D1 a s požiarnou odolnosťou rovnajúcou sa najmenej polovičnej hodnote požadovanej požiarnej odolnosti strešného plášťa, v ktorom je umiestnený (obr. 43).

Obr. 43 Strešný plášť v požiarne nebezpečnom priestore iného PÚ (autori)
7.4.8 Výťahová šachta
Výťahová šachta umiestnená v chránenej únikovej ceste typu A nemusí tvoriť samostatný požiarny úsek, ak spája najviac sedem nadzemných podlaží a jedno podzemné podlažie a priestor šachty je oddelený od únikovej cesty konštrukčnými prvkami druhu D1.
Ak výťahová šachta netvorí samostatný požiarny úsek, musí byť výťahová kabína vyhotovená zo stavebných výrobkov triedy reakcie na oheň A1 alebo A2 [2].
7.4.9 Inštalačný kanál a inštalačná šachta
Inštalačný kanál a inštalačná šachta, ktoré tvoria samostatný požiarny úsek, musia byť vyhotovené zo stavebných výrobkov triedy reakcie na oheň A1 alebo A2; konštrukcie inštalačného kanála a inštalačnej šachty sú požiarnymi deliacimi konštrukciami. Montážny alebo kontrolný otvor (uzáver) konštrukcií inštalačného kanála alebo inštalačnej šachty musí spĺňať požiadavku na požiarnu odolnosť požiarnej deliacej konštrukcie a nemusí sa automaticky uzatvárať [2] (obr. 44).


Obr. 44 Montážny otvor v konštrukcii inštalačnej šachty uzatvorený protipožiarnymi revíznymi dvierkami [11] [12]
7.4.10 Vzduchotechnické zariadenie
Ochranu stavieb proti šíreniu požiaru vzduchotechnickým zariadením určuje technická norma STN 73 0872 Požiarna bezpečnosť stavieb. Ochrana stavieb proti šíreniu požiaru vzduchotechnickým zariadením [10].
7.4.11 Požiadavky na prestupy cez požiarne deliace konštrukcie
Požiarna odolnosť požiarne deliacich konštrukcií nesmie byť znížená ich zoslabením, ktoré môže byť spôsobené prestupmi rozvodov, prestupmi inštalácií, prestupmi technických a technologických zariadení. Taktiež nesmie byť znížená požiarna odolnosť v miestach lineárnych stykov stavebných prvkov v požiarne deliacich konštrukciách, napr. pri zhotovovaní sadrokartónových alebo iných protipožiarnych obkladov.
Prestupy rozvodov, prestupy inštalácií, prestupy technických zariadení a prestupy technologických zariadení cez požiarne deliace konštrukcie musia byť utesnené tak, aby zabránili rozšíreniu požiaru do iného požiarneho úseku. Utesnený prestup musí spĺňať požiadavky na požadovanú požiarnu odolnosť požiarne deliacej konštrukcie,
ktorou prestupuje, najviac však EI 90 [2]. Na obr. 45 sú zobrazené príklady riešenia prestupov cez požiarne deliace konštrukcie.
Lineárne styky stavebných prvkov požiarnych deliacich konštrukcií musia byť utesnené tak, aby zabránili rozšíreniu požiaru do iného požiarneho úseku. Utesnený lineárny styk musí spĺňať požiadavky na požiarnu odolnosť požiarne deliacej konštrukcie.




Obr. 45 Príklady riešenia prestupov cez požiarne deliace konštrukcie a) prestup potrubia cez požiarny strop použitím protipožiarnej manžety b) prestup káblov vyplnený protipožiarnymi tvarovkami c) prestup technológie d) prestup káblových rozvodov vyplnený protipožiarnymi vankúšmi (rozoberateľný prestup) [14]
Tesnenie prestupov cez požiarne deliace konštrukcie s plochou otvoru viac ako 0,04 m2 sa označuje štítkom umiestneným priamo na utesnenom stavebnom prvku alebo v jeho tesnej blízkosti. Štítok označenia tesnenia prestupu sa umiestňuje aspoň na jednej strane požiarnej deliacej konštrukcie tak, aby bol vždy viditeľný, čitateľný, prístupný a ťažko odstrániteľný. Štítok označenia tesnenia prestupu obsahuje najmä tieto údaje: a) nápis PRESTUP, b) symboly kritérií a číselnú hodnotu požiarnej odolnosti, c) názov systému tesnenia prestupu, d) mesiac a rok zhotovenia, e) názov a adresu zhotoviteľa požiarnej konštrukcie [11].

QR kód 5 Protipožiarne systémy HILTI (https://www.youtube.com/watch?v=fijJgBWYDvo&list=PLKA7Xfe_OOsUsDW5awv73e1D8fkHxubl&index=10)

QR kód 6 Protipožiarne prestupy Rockwool (https://www.rockwool.com/sk/produkty-a-riesenia/produkty/rocklit/)

QR kód 7 Protipožiarny štítok (https://www.hilti.sk/c/CLS_CUSTOMER_SOFTWARE/CLS_SOFTWARE_FIRE_PROTECTION/3488606)
7.4.12 Povrchová úprava stavebných konštrukcií
7.4.12.1 Povrchová úprava stavebných konštrukcií vo vnútri požiarneho úseku
Aby sme zabránili šíreniu požiaru po povrchu stavebných konštrukcií vo vnútri požiarneho úseku, ktorý nie je chránený stabilným hasiacim zariadením, obmedzíme používanie takých materiálov, ktoré šíria plameň po svojom povrchu. Neprihliada sa na nátery, nástreky, maľby, tapety a na obdobné úpravy z materiálov triedy reakcie na oheň:
a) A2 alebo B ak ich priemerná hr. je najviac 5 mm,
b) C až F, ak ich priemerná hr. je najviac 2 mm.
Najvyššiu hodnotu indexu šírenia plameňa povrchovej úpravy konštrukcie v PÚ (okrem PÚ so SHZ), ktorej hrúbka je viac ako 5 mm z materiálov triedy reakcie na oheň B alebo 2 mm z materiálov triedy reakcie na oheň C až F určuje tab. 32
Tab. 32 Najvyšší dovolený index šírenia plameňa [6]
Povrchová úprava Index šírenia plameňa is (mm/min) pre požiarne úseky skupiny U1
podľa 5.13.3 STN 92 0201-2
podľa 5.13.4 STN 92 0201-2
podľa 5.13.5 STN 92 0201-2
podľa 5.13.6 STN 92 0201-2 ZP1 ZP2 ZP3
Do skupiny U1 sa podľa tab. 2 zaraďujú požiarne úseky, v ktorých sú lôžkové oddelenia zdravotníckych zariadení, oddelenia jaslí a pod., do skupiny U2 patria požiarne úseky s väčšou plochou a väčším počtom osôb, v ktorom sa vyskytujú aj osoby neschopné samostatného pohybu, do skupiny U3 kde sa vyskytujú aj osoby s obmedzenou schopnosťou pohybu a do skupiny U4 patria požiarne úseky zhromažďovacích priestorov.
Povrchové úpravy vo vnútri požiarneho úseku triedy reakcie na oheň horšej akoA2 sa započítavajú do stáleho požiarneho zaťaženia ps.
Povrchové úpravy stavebných konštrukcií, ktoré sú z materiálov triedy reakcie na oheň A1 majú index šírenia plameň is = 0 mm/min. Takáto povrchová úprava sa požaduje hlavne v prípadoch, keď sa stavebná konštrukcia nachádza v požiarne nebezpečnom priestore susednej stavby alebo susedného požiarneho úseku.
7.4.12.2 Povrchové úpravy a obklady obvodových stien z vonkajšej strany stavby
Obvodové konštrukcie stavieb sa z vonkajšej strany často povrchovo upravujú alebo obkladajú rôznymi druhmi materiálov, ktoré keď sú z horľavých materiálov, môžu predstavovať riziko šírenia požiaru po fasáde na susedné požiarne úseky alebo na susedné budovy. Za povrchovú úpravu sa považuje aj obkladanie stavieb zatepľovacími systémami na báze EPS alebo minerálnej vlny, pre ktoré sú v legislatíve stanovené prísne protipožiarne požiadavky.
Ak sa jedná o dodatočné zateplenie starších stavieb, ktoré boli z hľadiska protipožiarnej bezpečnosti projektované podľa predchádzajúcich predpisov, vzťahujú sa na ne požiadavky v zmysle STN 73 0802 [15].
Ak sa jedná o novostavby projektované z hľadiska protipožiarnej bezpečnosti podľa aktuálnych právnych predpisov, v STN 92 0201-2 [6] sú stanovené požiadavky na povrchové úpravy a obklady obvodových stien, ktoré musia byť vyhotovené z nehorľavých materiálov triedy reakcie na oheň A1 alebo A2 v nasledovných prípadoch, ak:
a) sú v požiarne nebezpečnom priestore, b) obvodové steny tvoria ohraničujúce konštrukcie CHÚC a sú v nich požiarne neuzatvárateľné otvory,
c) sú to obvodové steny na vonkajších schodiskách, pavlačiach a iných komunikáciách stavby, ktoré slúžia ako ČCHÚC alebo CHÚC,
d) obvodové steny tvoria požiarne steny medzi stavbami, e) sa zhotovujú zospodu horizontálnej vystupujúcej, alebo ustupujúcej konštrukcie,
f) ide o stavby s požiarnou výškou h > 22,5 m, g) ide o stavby so zmiešaným konštrukčným celkom podľa 2.6.4 b) STN 92 0201-2 [6], ktorý platí pre viacpodlažné drevostavby, h) ide o povrchové úpravy alebo exteriérové obklady spojené s obvodovou stenou nekontaktne (napr. prevetrávané fasády) na stavbách, ktoré vyžadujú požiarne pásy.

QR kód 8 Zásady navrhovania ETICS z hľadiska PBS pre dodatočné zateplenie stavieb (https://polyform.sk/wp-content/uploads/2020/09/OZ-ZPZ-TI2-Za%CC%81sady-navrhovaniaa-ETICS-zhl%CC%8Cadiska-protipoz%CC%8Ciarnej-ochrany-pri-obnove-budov.pdf)
Požiarny uzáver je konštrukčný prvok zabudovaný v požiarne deliacich konštrukciách, ktorý zabraňuje šíreniu požiaru v stavbe vo zvislom i vodorovnom smere, poprípade bráni jeho preneseniu na susedné stavby. Súčasní výrobcovia vyrábajú požiarne uzávery na báze tradičných materiálov (drevo, oceľ a hliník) s presklenou alebo plnou výplňou na použitie v interiéri alebo exteriéri. Vlastnosti požiarnych uzáverov z hľadiska protipožiarnej bezpečnosti, podmienky prevádzkovania a zabezpečenia ich pravidelnej kontroly upravuje Vyhláška MV SR č. 478/2008, Z. z. [16].
7.5.1 Rozdelenie požiarnych uzáverov
Podľa vyhotovenia a účelu delíme požiarne uzávery na požiarne dvere,požiarne okná, požiarne klapky, požiarne uzávery otvorov dopravníkových systémov a oddeľujúce konštrukcie odlišného vyhotovenia ako predchádzajúce požiarne uzávery (napr. roletové požiarne uzávery).
Z hľadiska druhu konštrukčných prvkov Vyhláška 478/2008 Z. z. [16] rozdeľuje požiarne uzávery na druh D1 a D3.
Podľa schopnosti odolávať šíreniu tepla a prieniku dymu na požiarne uzávery: brániace šíreniu tepla (typ EI),
obmedzujúce šírenie tepla (typ EW),
brániace prenosu plameňa (E),
tesné proti prieniku dymu (typ Sa, Sm).
7.5.2 Hodnotenie požiarnej odolnosti požiarnych uzáverov
Z hľadiska požiarnej odolnosti sa požiarne uzávery hodnotia kritériami požiarnej odolnosti E, I1, I2, W, podľa typu požiarneho uzáveru a časom v minútach podľa stanovenej stupnice požiarnej odolnosti 15, 20, 30, 45, 60, 90, 120, 180 a 240 minút v zmysle klasifikačnej normy STN EN 13 501-2 [3]. Typ požiarneho uzáveru je vyjadrený triedou. Z tohto pohľadu delíme požiarne uzávery na:
požiarne odolné:
o EI1, EI2 – brániace šíreniu tepla, o EW – obmedzujúce šírenie tepla, o E – brániace prenosu plameňa,
dymotesné – Sa, Sm,
kombinované.
Triedy požiarnej odolnosti požiarnych uzáverov sú uvedené v tab. 33 (tab. 4 príloha č. 2 Vyhl. 478/2008 Z. z. [16]).
Tab. 33 Zásady navrhovania ETICS z hľadiska PBS pre dodatočné zateplenie stavieb [16]
Poradové číslo
Požiarny uzáver
Požiarne odolné
2
1. Dvere okrem dv erí v polo žke
2. Dvere výťahovej šachty
Dymotesné
Brániace šíreniu tepla
Obmedzujúce šírenie tepla
Typ požiarneho uzáveru
EI1
EI2
EW Brániace prenosu plameňa
E
Sm
Sa Kombinované
EI1 Sa
Predpis pre klasifikáciu požiarnych uzáverov do tried pož uzáverov
Brániace šíreniu tepla
Brániace šíreniu tepla a prieniku dymu
Obmedzujúce šírenie tepla a brániace prieniku dymu
Brániace prenosu plameňa a prieniku dymu
Obmedzujúce šírenie tepla
STN 1)
EI2 Sa
EI1 Sm
EI2 Sm
EW Sa
EW Sm
E Sa E Sm
EW
Brániace prenosu plameňa E
Brániace šíreniu tepla
Obmedzujúce šírenie tepla
EI STN 3) ak skúška požiarnej odolnosti bola vykonaná podľa STN 3)
EI1 EI
EW
Brániace prenosu plameňa E
STN 1) ak skúška požiarnej odolnosti bola vykonaná podľa STN 4)
Poradové
Požiarny uzáver
Požiarne odolné
Dymotesné
3. Okno
Kombinované
Brániace šíreniu tepla
Obmedzujúce šírenie tepla
Typ požiarneho uzáveru
EI1
Predpis pre klasifikáciu požiarnych uzáverov do tried pož. uzáverov
EI2 STN 1)
EW
Brániace prenosu plameňa E
Sm Sa
EI1 Sa
Brániace šíreniu tepla a prieniku dymu
Obmedzujú šírenie tepla a brániace prieniku dymu
Brániace prenosu plameňa a prieniku dymu
Brániace šíreniu tepla
Požiarne odolná
4. Klapka
EI2 Sa
EI1 Sm
EI2 Sm
EW Sa EW Sm
E Sa E Sm
EI STN 2)
Obmedzujúce šírenie tepla EW
Brániace prenosu plameňa E STN 2)
Dymotesná S
Brániaca šíreniu tepla a prieniku dymu
Kombinovaná
5. Dopravníkový uzáver
Brániaci šíreniu tepla
Brániaca prenosu plameňa a prieniku dymu
EI S STN 2)
E S
EI
EI1
EI2 STN 1)
Obmedzujúci šírenie tepla EW
Brániaci prenosu plameňa
E
1) STN EN 13501-2: 2023 Klasifikácia požiarnych charakteristík stavebných výrobkov a prvkov stavieb. Časť 2: Klasifikácia využívajúca údaje zo skúšok požiarnej odolnosti a /alebo dymotesnosti (okrem ventilačných zariadení)
2) STN EN 13 501-3: 2023 Klasifikácia požiarnych charakteristík stavebných výrobkov a prvkov stavieb. Časť 3: Klasifikácia využívajúca údaje zo skúšok požiarnej odolnosti výrobkov a prvkov používaných v prevádzkových zariadeniach stavieb. Potrubia s požiarnou odolnosťou a požiarne klapky
3) STN EN 81-58 Bezpečnostné pravidlá na konštrukciu a montáž výťahov. Prehliadky a skúšky. Časť 58: Skúšanie požiarnej odolnosti šachtových dverí
4) STN EN 1634-1 Skúšanie požiarnej odolnosti a tesnosti proti prieniku zostáv dverí a uzáverov, otváracích okien a prvkov stavebného kovania. Časť 1: Skúšanie požiarnej odolnosti zostáv dverí, uzáverov a otváracích okien
7.5.2.1 Hodnotenie kritéria celistvosti E
Hodnotenie celistvosti sa pri skúške požiarnej odolnosti požiarneho uzáveru hodnotí na základe troch stavov porušenia:
vznik trhlín alebo otvorov presahujúcich určené medze,
vznietenie bavlneného vankúšika,
trvalé horenie plameňom na neexponovanej strane.
7.5.2.2 Hodnotenie kritéria tepelnej izolácie I (I1, I2)
Kritérium tepelnej izolácie sa hodnotí na neexponovanej strane požiarneho uzáveru použitím jedného z dvoch kritérií:
I1 – vzrast priemernej teploty na dverovom krídle je obmedzený na 140°C (vzrast max. teploty v ktoromkoľvek bode je obmedzený na 180 °C) – vzrast teploty v ktoromkoľvek mieste zárubne je obmedzený na 180°C,
I2 – vzrast priemernej teploty na dverovom krídle je obmedzený na 140°C (vzrast max. teploty v ktoromkoľvek bode je obmedzený na 180 °C)
vzrast teploty v ktoromkoľvek mieste zárubne je obmedzený na 360°C.
Porušenie kritéria celistvosti E ktorýmkoľvek spôsobom zároveň znamená aj porušenie kritéria tepelnej izolácie I.
7.5.2.3 Hodnotenie radiácie W
Pri hodnotení kritéria izolácie riadenej radiáciou je hodnota tepelného toku na neexponovanej strane požiarneho uzáveru obmedzená na 15 kW m-2 .
Porušenie kritéria celistvosti stavom „trhliny a otvory presahujúce určené medze“ alebo stavom „trvalé horenie plameňom na neexponovanej strane“ znamená automaticky porušenie kritéria radiácie.
Prvok, ktorý spĺňa kritériá izolácie I, I1 alebo I2 sa súčasne považuje za schopný vyhovieť požiadavke W v tom istom časovom intervale.

QR kód 9 Skúšanie požiarnej odolnosti stavebných výrobkov (Zdroj: https://fires.sk/fotogaleria/)
7.5.2.4 Dymotesné požiarne uzávery
Tesnosť proti prieniku dymu je schopnosť prvku znížiť alebo vylúčiť prechod plynov alebo dymu z jednej strany prvku na druhú. Pri skúšaní dymotesnosti požiarnych uzáverov sa hodnotia nasledovné kritériá:
Sa – posudzuje sa tesnosť proti prieniku dymu len pri teplote okolia,
Sm – posudzuje sa tesnosť proti prieniku dymu aj pri teplote okolia, aj pri teplote 200 °C.
7.5.2.5 Hodnotenie prieniku dymu
Prienik dymu dymotesných požiarnych uzáverov sa hodnotí nasledovnými kritériami:
Sa – ak max. intenzita prenikania, meraná len pri teplote okolia a pri tlaku do 25 Pa nepresiahne 3 m3/h na meter dĺžky škáry medzi pevným a pohyblivým komponentom zostavy dverí (napríklad medzi dverovým krídlom a zárubňou), s vylúčením prenikania pri prahu,
Sm – ak max. intenzita prenikania, meraná pri teplote okolia aj pri 200 °C a pri tlaku do 50 Pa, nepresiahne 20 m3/h pre jednokrídlové dvere, alebo 30 m3/h pre dvojkrídlové dvere.
7.5.2.6 Hodnotenie kritéria samozatvárania
Vybavenie požiarneho uzáveru automatickým uzatváracím mechanizmom sa vyjadruje v type požiarneho uzáveru symbolom C. Požiarny uzáver sa musí automaticky uzatvárať po každom otvorení alebo pri vzniku požiaru; to neplatí na vstupné dvere do bytu a na požiarny uzáver v strope, ktorým sa prestupuje len pri oprave a kontrole technického zariadenia alebo technologického zariadenia.
Vyhláška 478/2008 Z. z. [16]klasifikuje požiarne uzávery z hľadiska samozatvárania do tried C0 až C5, ktoré platia pre požiarne dvere, požiarne okná a dopravníkové uzávery. Životnosť samozatvárania sa overuje skúšaním podľa STN EN 1191: Okná a dvere – odolnosť proti opakovanému otváraniu a zatváraniu – skúšobná metóda [20]. V tab. 34 je pre jednotlivé triedy C0 až C5 uvedený počet vykonávaných skúšobných cyklov.
Tab. 34 Počet cyklov uzatvorenia pri skúške samozatvárania [20]
Trieda Počet vykonávaných skúšobných cyklov Vlastnosť
C5
C4
C3
C2
200 000 veľmi intenzívne používanie
100 000 veľká frekvencia používania
50 000 stredná frekvencia používania
10 000 malá frekvencia používania
C1 500 udržiavané v otvorenej polohe
C0 0 bez definície vlastností
7.5.2.7 Požiadavky na požiarne uzávery
Požiadavky na požiarne uzávery z hľadiska zabezpečenia protipožiarnej bezpečnosti pri výstavbe a užívaní stavieb sú stanovené vo vyhláške MV SR č. 94/2004 Z. z. [2] a STN 92 0201-2 [6]
Najnižšia požadovaná požiarna odolnosť a druh konštrukčného prvku požiarneho uzáveru sa určujú pre požiarny uzáver umiestnený:
a) v požiarnej stene podľa vyšších požiadaviek jedného z dvoch priľahlých požiarnych úsekov, medzi ktorými je požiarna stena umiestnená (obr. 46), b) v požiarnom strope podľa požiadaviek požiarneho úseku pod požiarnym stropom.

Obr. 46 Požadovaná požiarna odolnosť požiarneho uzáveru medzi dvomi požiarnymi úsekmi [7]
Požiarne uzávery medzi požiarnymi úsekmi musia spĺňať kritériá EW-C
Požiarne uzávery ústiace do chránených únikových ciest musia spĺňať kritériá EI-C (okrem požiarnych uzáverov ústiacich do chránených únikových ciest z požiarnych úsekov bez požiarneho rizika alebo z požiarnych úsekov vybavených automatickým hasiacim zariadením, ktoré musia spĺňať kritériá EW-C) (obr. 47).
Požiarne uzávery oddeľujúce požiarnu predsieň od ostatných priestorov chránenej únikovej cesty musia spĺňať kritériá S-C (obr. 48).
Požiarny uzáver typu EW možno nahradiť požiarnym uzáverom typu EI, ale nie naopak.

Obr. 47 Požiarne uzávery medzi požiarnymi úsekmi a ústiace do CHÚC [7]

Obr. 48 Požiarny uzáver S-C oddeľujúci požiarnu predsieň od ostatných priestorov CHÚC [7]
Požiarny uzáver, ktorý je umiestnený v požiarne nebezpečnom priestore iného požiarneho úseku, musí byť typu EI a vyhotovený z konštrukčných prvkov druhu D1
s požadovanou požiarnou odolnosťou, ktorá sa rovná aspoň polovičnej hodnote požadovanej požiarnej odolnosti konštrukcie obvodovej steny, v ktorej je umiestnený (Vyhláška 94/2004 Z. z., § 45 ods. 8). Podobne požiarny uzáver v strešnom plášti, ktorý sa nachádza v požiarne nebezpečnom priestore, musí byť druhu D1 a typu EW, s požadovanou požiarnou odolnosťou, ktorá sa rovná aspoň polovičnej hodnote požadovanej požiarnej odolnosti strešného plášťa, v ktorom je umiestnený (obr. 49).

Obr. 49 Požiadavky na požiarny uzáver umiestnený v požiarne nebezpečnom priestore iného požiarneho úseku (autori)
7.5.3 Únikové uzávery
Najmä v súvislosti s bezpečnou evakuáciou osôb zo stavby ohrozenej požiarom sa navrhujú únikové uzávery:
panikový uzáver a – núdzový uzáver.
Panikový uzáver sa používa pre požiarne uzávery na únikových komunikáciách, kde sa predpokladá vznik panikovej situácie, najmä v zhromažďovacích priestoroch a v priestoroch, v ktorých je sústredených viac osôb. Panikový uzáver umožňuje otvorenie dverí v každom čase tlakom ruky alebo tela na panikový uzáver z vnútornej strany bez potreby použitia kľúča alebo iného predmetu (obr. 50)


a) b)
Obr. 50 Panikový uzáver a) tlačný, b) dotykový [21]
Núdzový uzáver sa navrhuje tam, kde nie je pravdepodobnosť vzniku panikovej situácie a kde sú osoby oboznámené s únikovými východmi a ich súčasťami. Navrhuje sa tak, aby uvoľnenie dverí zvnútra nastalo v krátkom čase a to jednoduchou operáciou jednou rukou bez potreby použitia kľúča alebo iného predmetu (kľučkou alebo tlačidlom). Núdzový východový uzáver sa vyhotovuje tak, aby sa po tom, ako sa uviedol do činnosti, automaticky vrátil do zaistenej polohy a bol pripravený na opakované použitie (obr. 51).

a)

b)
Obr. 51 Núdzový uzáver a) ovládaný kľučkou, b) ovládaný tlačidlom [21]

QR kód 10 Protipožiarne dvere a protipožiarne okná (https://www.avg-group.com/protipoziarne-dvere-protipoziarne-okna/)

QR kód 11 Protipožiarny roletový uzáver (https://www.spedos.sk/protipoziarny-roletovy-uzaver/produkt)

QR kód 12 Požiarne klapky (https://klimatizacie-kolad.sk/poziarne-klapky)

Obr. 52 Zatváranie dopravníkového požiarneho uzáveru [13]

QR kód 13 Núdzový východ vs. panikové dvere (https://www.alutech.top/index.php/sk/blog/37-ake-su-to-panikove-dvere-a-co-je-nudzovy-vychod)
7.5.4 Prevádzkovanie požiarnych uzáverov
Povinnosťou prevádzkovateľa je počas celej životnosti požiarneho uzáveru uchovávať sprievodnú dokumentáciu, ktorú výrobca alebo dovozca prikladá ku každému požiarnemu uzáveru a na požiadanie orgánov štátneho požiarneho dozoru
túto predkladá k nahliadnutiu. Sprievodnú dokumentáciu ku každému požiarnemu uzáveru tvorí vyhlásenie o zhode vydané výrobcom alebo splnomocneným zástupcom výrobcu v zmysle Zákona č. 133/2013 Z. z. o stavebných výrobkoch [22], návod na jeho montáž a prevádzkovanie a prevádzkový denník, do ktorého sa zaznamenávajú údaje o vykonávaní údržby, oprave a kontrole požiarnych uzáverov.
Prevádzkový denník vedie vlastník nehnuteľnosti. Zabezpečí vedenie záznamov o vykonaní údržby: osobou zodpovednou za údržbu, výrobcom požiarneho uzáveru, technikom požiarnej ochrany ak výrobca vydal iba potvrdenie o vykonaní údržby, ďalej zabezpečí vedenie záznamov o vykonaní kontroly požiarneho uzáveru technikom požiarnej ochrany a zaznamenáva bez zbytočného odkladu poruchu požiarneho uzáveru a uvádza vykonané opatrenia. Ak v prevádzkových pokynoch výrobca určí úkony údržby a nevyhradí si ich realizáciu, vlastník zabezpečí preukázateľne školenie osoby zodpovednej za údržbu požiarneho uzáveru výrobcom.Ak výrobca nevykoná školenie, vlastník nehnuteľnosti zabezpečí oboznámenie osoby zodpovednej za údržbu PU s prevádzkovými pokynmi. Na inštalovanom požiarnom uzávere musí byť zabezpečené vykonávanie:
a) Preventívnej údržby v lehotách určených v prevádzkových pokynoch (ak nie sú stanovené lehoty, údržba najmenej raz za 12 mesiacov),
b) Prehliadky požiarneho uzáveru:
1. raz za 12 mesiacov, ak prevádzkové pokyny neurčujú kratšiu lehotu, 2. bez zbytočného odkladu po preventívnej údržbe a po oprave PU;
c) Kontroly požiarneho uzáveru, ktorá sa vykonáva v rámci preventívnej protipožiarnej prehliadky, ak vlastník neurčil kratšiu lehotu, v rozsahu určenom v prevádzkových pokynoch a Vyhláškou č. 478/2008 Z. z. [16]. Ak rozsah kontroly nie je určený, postupuje sa podľa správnej technickej praxe. Najmenší rozsah kontroly požiarneho uzáveru je uvedený v prílohe č. 5 Vyhlášky č. 478/2008 Z. z. [16]. Pozostáva z:
vizuálnej prehliadky – vybavenosť vrátane neporušenosti, úplnosť označenia, súlad typu požiarneho uzáveru s dokumentáciou PBS a zo
skúšky funkčnosti požiarneho uzáveru – ľahký chod pohyblivej konštrukcie, ľahký chod zatváracieho zariadenia, ľahký chod bezpečnostného mechanizmu, spúšťacieho mechanizmu pri požiarnych klapkách, odstránenie dopravovaného predmetu separačným zariadením pri požiarnych uzáveroch dopravníkových systémov, dodávka energie alebo hasiacej látky ak sa požaduje, činnosť optickej signalizácie alebo zvukovej signalizácie ak je súčasťou požiarneho uzáveru a oznamuje zmenu stavu požiarneho uzáveru.
V zmysle Vyhlášky č. 478/2008 Z. z. [16] sa požiarne uzávery okrem dverí do bytov a do stavieb na bývanie a ubytovanie skupiny A označujú čitateľným, viditeľným a ťažko odstrániteľným nápisom bielej farby na červenom podklade nasledovne:
POŽIARNE DVERE; alebo POŽIARNE DVERE. FIRE DOOR
POŽIARNE OKNO; alebo POŽIARNE OKNO. FIRE WINDOW
POŽIARNA KLAPKA alebo piktogram podľa prílohy č. 3 Vyhlášky č. 478/2008
Z. z. [16]
DOPRAVNÍKOVÝ UZÁVER
POŽIARNY UZÁVER; alebo FIRE SHUTTER – pre oddeľujúce konštrukcie iného vyhotovenia.
Únikové východy sa označujú nápisom bielej farby na zelenom podklade:
ÚNIKOVÝ VÝCHOD; alebo ÚNIKOVÝ VÝCHOD, EXIT.

QR kód 14 Označovanie požiarnych uzáverov (Zdroj: https://www.piktogram.sk/62-poziarne-uzavery-a-pod)
7.5.5 Dokumentácia požiarnych konštrukcií
Dokumentácia požiarnych konštrukcií je jednou zo základných dokumentácií, ktoré sa predkladajú počas kolaudačného konania, avšak v praxi sa stáva, že nebýva kompletná a často sa na ňu zabúda. Požiadavky na dokumentáciu upravuje Vyhláška MV SR č. 94/2004 Z. z. [2], podľa ktorej osvedčenie požiarnych konštrukcií obsahuje najmä názov a miesto stavby, obchodné meno a sídlo zhotoviteľa požiarnych konštrukcií, meno a priezvisko osoby zodpovednej za zhotovenie požiarnych konštrukcií, názov požiarnych konštrukcií, kritériá a požiarnu odolnosť, názov a číslo dokladu preukazujúceho vlastnosti požiarnych konštrukcií, prípadné riešenia špecifických detailov požiarnych konštrukcií, miesto a dátum vystavenia, podpis a odtlačok pečiatky zhotoviteľa požiarnych konštrukcií.
Za osvedčenie požiarnych konštrukcií zhotoviteľom sa v zmysle Vyhlášky MV SR č. 94/2004 Z. z. [2] považuje najmä zoznam požiarnych konštrukcií, pre ktoré je osvedčenie vystavené, kópie technických listov, katalógových listov alebo návodov na montáž, podľa ktorých boli požiarne konštrukcie zhotovené, kópie dokladov preukazujúcich zhodu stavebných výrobkov použitých na zhotovenie požiarnych konštrukcií, vypočítané hodnoty hrúbok ochrany jednotlivých prvkov chránených požiarnych konštrukcií, kópie iných dokumentov (napríklad doklad o povinnej odbornej kvalifikácii, doklad o preškolení výrobcom a zoznam tesnení prestupov a lineárnych stykov), ak boli k predmetným požiarnym konštrukciám vydané. Požadované kritériá a klasifikačné normy požiarnych konštrukcií sú uvedené v prílohe 3 Vyhlášky MV SR č. 94/2004 Z. z (tab. 35).
Tab. 35 Požadované kritériá a klasifikačné normy požiarnych konštrukcií [2]
Položka
1.
Požiarne konštrukcie
Nosné prvky bez požiarnej deliacej funkcie (steny, stropy, strechy, nosníky, stĺpy, balkóny, lávky a schodištia)
2. Nosné prvky s požiarnou deliacou funkciou (steny, stropy, strechy a zdvojené podlahy)
3. Nosné obvodové steny
4. Ochrana konštrukcií, obkladmi, nátermi, nástrekmi, vodorovnými membránami a zvislými membránami
5. Nenosné steny (priečky)
6. Fasády (závesové steny) a nenosné vonkajšie steny
7. Požiarne pásy
8. Podhľady s nezávislou požiarnou odolnosťou
9. Požiarne dvere a uzávery
10. Dvere tesné proti prieniku dymu
11. Uzávery dopravníkových systémov
12. Požiarne tesnenia prestupov
13. Požiarne tesnenia lineárnych stykov
14. Inštalačné kanály a šachty
15. Vzduchotechnické potrubia s požiarnou odolnosťou
16. Požiarne klapky
17. Potrubia na odvod tepla a splodín horenia v jednom požiarnom úseku
18. Potrubia na odvod tepla a splodín horenia, ktoré vedú cez iný požiarny úsek
19. Kombinované vzduchotechnické potrubia s požiarnou odolnosťou a súčasne na odvod tepla a splodín horenia
20. Dymové klapky
21. Dymové zábrany
22. Strešný plášť
Požadované kritériá
Klasifikácia na základe skúšok podľa technickej normy
R STN EN 13501-2
RE, REI, REW, REI-M STN EN 13501-2
REI, REW STN EN 13501-2
R STN EN 13501-2
EI STN EN 13501-2
EI, EW, orientácia o, i STN EN 13501-2
REI, REW, EI, EW STN EN 13501-2
EI, orientácia a, b STN EN 13501-2
EI, EI1, EI2, EW, C0 až C5 STN EN 13501-2
Sm, C0 až C5 STN EN 13501-2
EI, EI1, EI2, EW, C0 až C5, T STN EN 13501-2
EI, U/U, U/C, C/U, C/C STN EN 13501-2
EI, H, V, T, X, M, F, B, W STN EN 13501-2
EI, orientácia o, i, ve, ho STN EN 13501-2
EI, orientácia o, i, ve, ho STN EN 13501-3
EI, EI-S, E-S STN EN 13501-3
E300, E600-SINGLE STN EN 13501-4
EI (tlak)-S-MULTI STN EN 13501-4
EI (tlak)-S-MULTI STN EN 13501-4
E, E-S, EI, EI-S STN EN 13 501-4
D, DH STN EN 12101-1
BROOF (t3) alebo BROOF (t4) STN EN 13501-5
23. Zariadenia pre trvalú dodávku elektrickej energie pri požiari Px *)
*) Kritérium pre trvalú dodávku elektrickej energie pri požiari je Px, kde
STN 92 0205
STN 92 0206
x = H pre káble s priemerom do 20 mm a prierezom vodičov do 2,5 mm2 , x = sa neuvádza pre káble s priemerom nad 20 mm alebo pre protipožiarne ochranné systémy
káblových systémov, x = S pre káblové systémy s funkčnou odolnosťou pri požiari, x = R pre elektrické rozvádzače s funkčnou odolnosťou pri požiari.
Je dôležité aby v priebehu stavby bolo zabezpečené priebežné vyhotovovanie dokumentácie požiarnych konštrukcií. Zhotoviteľ požiarnej konštrukcie po jej vyhotovení musí prevádzkovateľovi odovzdať osvedčenie požiarnej konštrukcie (obr. 53). Nesmie sa zabudnúť na žiadnu konštrukciu v stavbe, ktorá má požiarnu odolnosť. Osvedčenie sa musí vydať pre každú jednu konštrukciu zvlášť a vo finále môže dokumentácia požiarnych konštrukcií obsahovať stovky dokumentov.


Obr. 53 Príklad osvedčenia požiarnej konštrukcie (autori)
V osvedčení sa musí uviesť zhotoviteľ, typ požiarnej konštrukcie a potrebné prílohy, ktoré sa môžu v závislosti od typu konštrukcie líšiť. V prípade požiarnych uzáverov sú dôležitými dokumentmi osvedčenie o výrobku kde musí byť preukázaná požiarna odolnosť a vyhlásenie o parametroch, kde sa aj uvádza certifikát o nemennosti parametrov podstatných vlastností výrobku. V prípade železobetónových konštrukcií sú dôležitou súčasťou technické výkresy výstuže, použitý betón, fotodokumentácia a preukázanie požiarnej odolnosti na základe výpočtu, skúškou alebo pomocou tabuľkových hodnôt v zmysle príslušného Eurokódu. Dôležitou súčasťou je aj fotodokumentácia umiestnenia a vyhotovenia požiarnej konštrukcie, ktoré slúžia aj ako dôkazový materiál o správnom vyhotovení a umiestnení požiarnej konštrukcie.
Použitá literatúra
[1.] Osvald, A. 2011. Drevostavba ≠ požiar. I. vydanie. Zvolen: TU vo Zvolene, 2011. 336 s. ISBN 978-80228-2220-6
[2.] Vyhláška MV SR č. 94/2004, Z. z., ktorou sa ustanovujú technické požiadavky na protipožiarnu bezpečnosť pri výstavbe a pri užívaní stavieb, v znení neskorších predpisov
[3.] STN EN 13501-2: 2023 Klasifikácia požiarnych charakteristík stavebných výrobkov a prvkov stavieb. Časť 2: Klasifikácia využívajúca údaje zo skúšok požiarnej odolnosti a /alebo dymotesnosti (okrem ventilačných zariadení)
[4.] STN EN 1363-2: 2001 Skúšanie požiarnej odolnosti. Časť 2: Alternatívne a doplnkové postupy
[5.] Osvald, A. a kol. 2009. Hodnotenie materiálov a konštrukcií pre potreby protipožiarnej ochrany. Zvolen: Technická univerzita vo Zvolene, 2009, 335 s. ISBN 978-80-228-2039-4
[6.] STN 92 0201-2: 2017 Požiarna bezpečnosť stavieb. Spoločné ustanovenia. Časť 2: Stavebné konštrukcie
[7.] Smutný, M., Lopušniak, M. 2006. Konštrukcie pozemných stavieb 5. Košice : Stavebná fakulta TU, 2006. 200 s. ISBN 80-8073-705-3
[8.] STN 92 0201-4: 2000 Požiarna bezpečnosť stavieb. Spoločné ustanovenia. Časť 4: Odstupové vzdialenosti
[9.] STN EN 13 501-5: 2018 Klasifikácia požiarnych charakteristík stavebných výrobkov a prvkov stavieb. Časť 5: Klasifikácia využívajúca údaje zo skúšok striech namáhaných vonkajším ohňom
[10.] STN 73 0872: 1978 Požiarna bezpečnosť stavieb. Ochrana stavieb proti šíreniu požiaru vzduchotechnickým zariadením
[11.] RevízneDvierka.eu Autorizovaný dovozca a veľkoobchodný predajca v SR českej značky ZAVRZ [online]. [cit. 2024-07-28]. Dostupné na internete: https://www.reviznedvierka.eu/sk/2/eshop-revizne-dvierka/index.htm
[12.] Zavrz revizní dvířka na míru [online]. [cit. 2024-07-28]. Dostupné na internete: https://www.reviznidvirka.com/protipozarni-revizni-dvirka-pod-obklad-600-x-800
[13.] Video činnosti uzáveru Fibershield poskytnuté firmou Stöbich Brandschutz s.r.o.
[14.] Prestupy cez požiarne deliace konštrukcie [online]. [cit. 2024-08-08]. Dostupné na internete: geogle.com/prestupy cez požiarne deliace konštrukcie/Obrázky
[15.] STN 73 0802: 2023 Požiarna bezpečnosť stavieb. Spoločné ustanovenia [16.] Vyhláška MV SR č. 478/2008, Z. z. o vlastnostiach, konkrétnych podmienkach prevádzkovania a zabezpečenia pravidelnej kontroly požiarneho uzáveru
[17.] STN EN 13 501-3: 2023 Klasifikácia požiarnych charakteristík stavebných výrobkov a prvkov stavieb. Časť 3: Klasifikácia využívajúca údaje zo skúšok požiarnej odolnosti výrobkov a prvkov používaných v prevádzkových zariadeniach stavieb. Potrubia s požiarnou odolnosťou a požiarne klapky
[18.] STN EN 81-58 Bezpečnostné pravidlá na konštrukciu a montáž výťahov. Prehliadky a skúšky. Časť 58: Skúšanie požiarnej odolnosti šachtových dverí
[19.] STN EN 1634-1 Skúšanie požiarnej odolnosti a tesnosti proti prieniku zostáv dverí a uzáverov, otváracích okien a prvkov stavebného kovania. Časť 1: Skúšanie požiarnej odolnosti zostáv dverí, uzáverov a otváracích okien
[20.] STN EN 1191: 2013 Okná a dvere. Odolnosť proti opakovanému otváraniu a zatváraniu. Skúšobná metóda.
[21.] Smiková, K., Bukovinský, J. 2006. Požiarne deliace konštrukcie: Príručka pre 2. seminár Slovenskej asociácie rizikového manažmentu. Batizovce: Pyrobatys, s.r.o., 2006 15.s.
[22.] Zákon č. 133/2013 Z. z. o stavebných výrobkoch a o zmene a doplnení niektorých zákonov
Bezpečná evakuácia osôb zo stavby v prípade požiaru je jednou zo základných a najdôležitejších požiadaviek kladených na pozemné stavby ale aj na niektoré druhy inžinierskych stavieb. Vykonanie úspešnej evakuácie osôb zo stavby je možné dosiahnuť iba v prípade dobre navrhnutých únikových ciest. Medzi základné riziká, kvôli ktorým sa dimenzujú únikové cesty nepatrí len požiar, ale môžu to byť aj iné mimoriadne udalosti.
Návrh a výpočty únikových ciest v stavbách majú svoje špecifiká. Prvým faktorom predstavujúcim zvýšené riziko je fakt, že vo väčšine prípadov sa jedná o uzavretý priestor, ktorý sa môže niekedy nachádzať aj pod zemou. Druhým faktorom sú podmienky evakuácie, ktoré sa môžu časom zhoršovať. Zadymenie, panika, neznalosť danej stavby sú kľúčové aspekty, ktoré v kombinácii s nevhodným návrhom stavby z hľadiska bezpečnosti môžu viesť až k tragickým udalostiam. Preto je mimoriadne dôležité, aby únikové cesty zo stavieb boli navrhnuté správne. Únikové cesty zo stavieb, ich počet, rozmiestnenie, dĺžka a šírka sa musia navrhnúť, zhotoviť a prevádzkovať tak, aby predpokladaný čas evakuácie osôb bol čo najkratší.
8.1 Právny rámec na úseku návrhu únikových ciest
V oblasti objektovej evakuácie osôb a návrhu únikových ciest je najdôležitejším právnymi predpisom na území SR vyhláška NR SR č. 94/2004 Z. z. [1] ktorou sa ustanovujú technické požiadavky na protipožiarnu bezpečnosť pri výstavbe a pri užívaní stavieb. Vo vyhláške sa problematikou únikových ciest venuje hlavne jej piata časť rozdelená na 4 hlavy. Prvá hlava sa zaoberá druhmi únikových ciest, druhá hlava požiadavkami na únikové cesty, tretia hlava vybudovaním a vybavením únikových ciest a štvrtá hlava evakuačnými cestami pre zvieratá.
Druhým významným predpisom na území SR je STN 92 0201-3 [2] Požiarna bezpečnosť stavieb, Spoločné ustanovenia, Časť 3: Únikové cesty a evakuácia osôb.
V norme je uvedený podrobný popis výpočtov a návrhu únikových ciest.
8.2 Typy únikových ciest
Únikovú cestu definuje STN 92 0201-3 [2] a vyhláška MV SR č. 94/2004 Z. z. [1] ako trvalo voľnú komunikáciu alebo priestor v stavbe alebo na nej, ktorá umožňuje bezpečnú evakuáciu osôb zo stavby alebo z požiarneho úseku na voľné priestranstvo alebo do priestoru kde nehrozí akékoľvek nebezpečenstvo. Únikové cesty v zmysle vyhlášky MV SR č. 94/2004 Z. z. [1] sa členia podľa stupňa ochrany, ktorú poskytujú unikajúcim osobám, na nechránené, čiastočne chránené a na chránené.
8.2.1 Nechránená úniková cesta
Nechránená úniková cesta je v zmysle vyhláška MV SR č. 94/2004 Z. z. [1] úniková cesta, ktorá nie je chránená proti účinkom požiaru a ktorá vedie z požiarneho úseku k východu zo stavby na voľné priestranstvo alebo k východu do čiastočne chránenej
únikovej cesty alebo do chránenej únikovej cesty. Nechránená úniková cesta je aj vonkajšia komunikácia stavby v požiarne nebezpečnom priestore.
Nechránené únikové cesty nemusia byť od ostatných priestorov v stavbe oddelené stavebnými konštrukciami. Tento typ únikovej cesty poskytuje len minimálnu ochranu evakuujúcim sa osobám a zároveň je to ajjedna z najčastejšie navrhovaných únikových trás v budovách. V takýchto priestoroch môže dôjsť k zadymeniu priestoru a rozšíreniu požiaru. K väčšine strát na životoch osôb počas požiaru došlo práve na miestach nechránených únikových ciest. Je preto potrebné zabezpečiť evakuáciu osôb po nechránených únikových trasách v čo najkratšom čase ešte pred rozšírením požiaru a zadymením priestoru. Pokiaľ nechránená úniková trasa v budove nevyhovuje na základe výpočtu (kap. 8.3), navrhuje sa čiastočne chránená úniková trasa, resp. chránená úniková trasa. Nechránená úniková cesta môže viesť aj cez niekoľko ďalších požiarnych úsekov.
8.2.2 Čiastočne chránená úniková cesta
Čiastočne chránená úniková cesta je v zmysle vyhláška MV SR č. 94/2004 Z. z. [1] úniková cesta, ktorá je v požiarnom úseku bez požiarneho rizika alebo prechádza časťou požiarneho úseku, ktorá je bez požiarneho rizika, alebo prechádza susedným požiarnym úsekom, v ktorom nie sú prevádzkarne zaradené do skupiny 6 alebo 7 alebo v ktorom hodnota súčiniteľa horľavých látok je najviac 1,1.
Bez požiarneho rizika je v zmysle vyhlášky MV SR č. 94/2004 Z. z. [1] taký požiarny úsek v nevýrobnej stavbe, výrobnej stavbe avstavbe poľnohospodárskej výroby, ktorý má nehorľavý konštrukčný celok, v ktorom nie je sústredené požiarne zaťaženie a v ktorom výpočtové požiarne zaťaženie je najviac 3,5 kg·m-2 alebo výpočtové požiarne zaťaženie je najviac 7,5 kg·m-2 a súčiniteľ horľavých látok je najviac 1,1 alebo ekvivalentný čas trvania požiaru je najviac 7,5 min. a nie sú tam umiestnené prevádzkarne zaradené do skupiny 6 alebo 7. Zoznam prevádzkarní je uvedený v STN EN 92 0201-1 a zaraďujú sa sem napríklad sklady horľavých kvapalín, mlyny na obilie, halový sklad sena a pod.
Časť požiarneho úseku je bez požiarneho rizika v takom prípade, ak spĺňa predchádzajúce podmienky a je ohraničená konštrukčnými prvkami druhu D1, ktoré majú požiarnu odolnosť najmenej 15 min. a má otvory v ohraničujúcich konštrukciách okrem otvorov v obvodových stenách, uzavierateľné požiarnymi uzávermi aspoň typu EW/15 avšak okrem otvorov v obvodových stenách pre nevýrobné stavby.
8.2.3 Chránená úniková cesta
Chránená úniková cesta je v zmysle Vyhlášky MV SR č. 94/2004 Z. z. [1] úniková cesta, ktorá vedie k východu zo stavby na voľné priestranstvo alebo do priestoru, ktorý nie je ohrozený požiarom, je oddelená od ostatných požiarnych úsekov požiarnymi deliacimi konštrukciami a požiarnymi uzávermi druhu D1, je vetraná a umožňuje bezpečný pohyb osôb. Chránená úniková cesta musí tvoriť samostatný požiarny úsek.
Chránené únikové cesty sa podľa času, počas ktorého sa môžu osoby pri požiari v
únikovej ceste bezpečne zdržiavať, členia na chránené únikové cesty typu A, typu B a typu C.
Chránená úniková cesta typu A je vybavená prirodzeným vetraním alebo umelým vetraním. Chránená úniková cesta typu B je vybavená samostatne vetranou požiarnou predsieňou, prirodzeným vetraním alebo umelým vetraním a núdzovým osvetlením.
Chránená úniková cesta typu C je vybavená samostatne vetranou požiarnou predsieňou, pretlakovým vetraním a núdzovým osvetlením.
8.2.4 Požiarna predsieň chránenej únikovej cesty
Požiarna predsieň sa buduje na vstupe do chránenej únikovej cesty typu B a C. Význam požiarnej predsiene je v poskytnutí väčšej ochrany pre unikajúce osoby a zníženie možného prenikania dymu do chránenej únikovej cesty na minimum v prípade otvárania dverí pri evakuácii osôb zo zadymeného priestoru. Pôdorysná plocha požiarnej predsiene chránenej únikovej cesty typu B alebo chránenej únikovej cesty typu C sa určuje podľa predpokladaného počtu evakuovaných osôb a ich schopnosti pohybu. Požiarna predsieň musí mat’ pôdorysnú plochu najmenej 5 m2 Odporúča sa najmenší pôdorysný rozmer 1200 mm.
Ak je z požiarnej predsiene chránenej únikovej cesty zároveň vstup do požiarneho výťahu alebo do evakuačného výťahu, musí byt’ pôdorysná plocha požiarnej predsiene väčšia najmenej o 3 m2 pre každý evakuačný výťah alebo každý požiarny výťah. Odporúča sa najmenší pôdorysný rozmer 2400 mm.
8.2.5 Najnižší typ chránených únikových ciest
V prípade, že na základe výpočtov evakuácie (kap. 8.3) vyplynie, že je potrebné mať v stavbe chránenú únikovú cestu, STN 92 0201-3 [2] nám definuje na základe požiarnej výšky stavby typ požadovanej chránenej únikovej cesty (tab. 36).
Tab. 36 Najnižší typ chránenej únikovej cesty [2]
Počet únikových ciest z požiarneho úseku alebo zo stavby
Najnižší typ chránenej únikovej cesty V nadzemných podlažiach V podzemných podlažiach S požiarnou výškou stavby hpv (m)
Do 22,5 22,5-45,0
Viac ako 45,0
Do 4,5 4,5-8,0
Viac ako 8,0
Jedna úniková cesta A B C A B C 1) Ďalšia úniková cesta A A B A A B 1) 1) Ak sa z podzemného podlažia predpokladá evakuácia najviac 30 osôb, možno chránenú únikovú cestu typu C nahradiť chránenou únikovou cestou typu B s umelým vetraním
8.3 Návrh únikových ciest
V procese projektovania protipožiarnej bezpečnosti stavby sa únikové cesty navrhujú po vypočítaní požiarneho rizika, stanovenia stupňa protipožiarnej bezpečnosti, maximálnej dovolenej plochy požiarneho úseku a definovaní požiadaviek na konštrukcie v stavbe. Avšak už na začiatku procesu je potrebné mať približnú predstavu o únikových cestách.
Úniková cesta môže pozostávať z nechránenej únikovej cesty, čiastočne chránenej únikovej cesty a z chránenej únikovej cesty. Hlavnou otázkou je, kedy je potrebné navrhnúť do stavby čiastočne chránenú únikovú cestu alebo chránenú únikovú cestu. Vyhláška MV SR č. 94/2004 Z. z. [1] a STN 92 0201-3 [2] nám definuje len malé množstvo prípadov kedy je potrebné v návrhu stavby už vopred uvažovať o čiastočne chránenej únikovej ceste alebo o chránenej únikovej ceste.
V zmysle vyhlášky MV SR č. 94/2004 Z. z. [1] spoločná komunikácia, do ktorej vedú dvere z obytných buniek stavieb na bývanie alebo ubytovanie musí tvoriť chránenú únikovú cestu alebo samostatný požiarny úsek bez požiarneho rizika. Ďalej v stavbe určenej na bývanie a ubytovanie s požiarnou výškou nadzemnej časti do 12 m, musí spoločná komunikácia, do ktorej vedú dvere z obytných buniek v stavbe tvoriť chránenú únikovú cestu, samostatný požiarny úsek bez požiarneho rizika.
V iných prípadoch sa čiastočne chránená alebo chránená úniková cesta do stavby navrhuje iba v prípade, že je prekročený dovolený čas evakuácie pomocou nechránenej únikovej cesty (kap. 8.3.3), čím sa zvýši maximálny dovolený čas evakuácie (tab. 39)
Ďalej je potrebné brať do úvahy počet únikových ciest, či z predmetnej stavby alebo požiarneho úseku vedie len jedna úniková cesta, alebo viac ako jedna úniková cesta. V neposlednej rade je dôležitým faktorom aj kapacita únikových ciest.
Vyhláška MV SR č. 94/2004 Z. z. [1] nám definuje taktiež niekoľko obmedzení. Je potrebné brať aj do úvahy, že vzájomná vzdialenosť najbližších východov únikových ciest z miestnosti alebo z požiarneho úseku nesmie byť väčšia ako 60 m a taktiež vzájomná vzdialenosť najbližších schodísk únikových ciest v stavbe nesmie byt’ väčšia ako 60 m. V stavbách s požiarnou výškou nadzemnej časti väčšou ako 60 m musia byť chránené únikové cesty iba typu C. Ak je v stavbe vybudovaná chránená úniková cesta, musí byť z nej prístup na strechu stavby. V stavbách s požiarnou výškou viac ako 45 m musia byt’ chránené únikové cesty na najvyššom požiarnom podlaží navzájom spojené.
Čiastočne chránená úniková cesta v nevýrobnej stavbe sa môže použiť na evakuáciu osôb z nadzemných podlaží a najviac z druhého podzemného podlažia, v nevýrobnej stavbe je možné použiť čiastočne chránenú únikovú cestu na evakuáciu osôb aj z druhého podzemného podlažia ale len vtedy, ak vedie k samostatnému východu zo stavby na voľné priestranstvo.
V prípade, že únikové cesty sú navrhnuté, je potrebné overiť správnosť riešenia evakuácie. Či sú evakuačné cesty navrhnuté správne sa preveruje pomocou pravdepodobného času evakuácie, dovolenej dĺžky únikovej cesty a minimálneho počtu únikových pruhov.
8.3.1 Počet únikových ciest
Základným pravidlom je, že z každej stavby alebo z jej časti a z každého miesta požiarneho úseku musia viesť najmenej dve samostatné únikové cesty rôznym smerom na voľné priestranstvo. V určitých prípadoch môže viesť len jedna úniková cesta a to za podmienok uvádzaných v STN 92 0201-3 [2] (Tab. 37).
Tab. 37 Dovolené použitie jednej únikovej cesty [2]
Položka Dovolené použitie jednej únikovej cesty
1. Z miestnosti (a ≤ 1,1)2)
2. Z požiarneho úseku3) (a ≤ 1,1)2)
3. Zo stavby, ktorá má:
a) Nechránenú únikovú cestu (a ≤ 1,1)
b) Čiastočne chránenú únikovú cestu
c) Chránenú únikovú cestu
1) ≤ 3 požiarne úseky
2) ≥ 3 požiarne úseky4)
Dovolený súčin počtu evakuovaných osôb a súčiniteľa podmienok evakuácie E·s1)
Nadzemné podlažie Podzemné podlažie
Chránená úniková cesta typ A 450 (250)5)
Chránená úniková cesta typ B 650 (350)5) 50
Chránená úniková cesta typ C 900 (450)5) 50
1) Dovolený počet osôb sa určuje podľa STN 92 0241
2) Pri položkách 1., 2. a 3. sa môže použiť jedna úniková cesta, aj keď súčiniteľ a ≥ 1,1 pokiaľ počet evakuovaných osôb nie je väčší ako 10
3) Pokiaľ požiarny úsek tvorí iba jedna miestnosť, použije sa položka 1.
4) V žiadnom požiarnom úseku nesmie byť viac ako 50 osôb
5) Hodnoty v zátvorkách platia pre stavby s požiarnou výškou hpv > 22,5 m.
Pri výklade tabuľky je potrebné mať ujasnené, či riešime evakuáciu z miestnosti, požiarneho úseku alebo zo stavby. Pri riešení podľa položky 3 sa jedná o stavby alebo jej časti, ktoré majú len jednu únikovú cestu na voľné priestranstvo ktorá prepája viacero požiarnych úsekov.
V prípade že stavba má niekoľko nechránených únikových ciest, ktoré sa spájajú do jednej chránenej únikovej cesty, musí chránená úniková cesta spĺňať podmienky pre dovolené použitie jednej únikovej trasy.
Ak sa v miestnosti alebo v požiarnom úseku nachádza viacero východov, nemusí sa nutne jednať o viac ako jednu únikovú cestu (obr. 54) Pokiaľ z najvzdialenejšieho miesta miestnosti alebo požiarneho úseku vedú von 2 cesty a ich trasy majú v počiatku navzájom menší uhol ako 45°, jedná sa stále o jednu únikovú trasu.

54 Vysvetlenie jednej únikovej trasy (autori)

QR kód 15 Vysvetlenie jednej únikovej trasy
Na obrázku 54 sa najvzdialenejší bod k únikovému východu von zo stavby nachádza v pravom dolnom rohu označenom ako začiatok únikovej cesty (ZÚC).
Z daného miesta existujú dve možnosti úniku, avšak pretože uhol medzi týmito trasami je menší ako 45°, zo stavby vedie len jedna úniková cesta, ktorej dĺžka je rovná dĺžke dlhšej trasy.
Vyhláška MV SR č. 94/2004 Z. z. [1] nám ďalej definuje stavby, v ktorých nie je prípustné mať len jednu únikovú cestu. Je to v stavbách určených na bývanie a na ubytovanie s požiarnou výškou nadzemnej časti viac ako 22,5 m musí byť z každého požiarneho úseku umožnený únik najmenej dvoma chránenými únikovými cestami typu B alebo typu C. Platí to aj pre stavby s iným účelom, v ktorých sú viac ako dve obytné bunky alebo v ktorých je ubytovaných viac ako 20 osôb na podlažiach s požiarnou výškou viac ako 22,5 m.
Jedna úniková cesta nesmie viesť taktiež z požiarneho úseku, v ktorom sú prevádzkarne zaradené do skupiny 6 alebo 7 a v ktorom je trvalé pracovné miesto pre päť a viac osôb alebo v ktorom je viac ako desať osôb s obmedzenou schopnosťou pohybu alebo neschopných samostatného pohybu.
Z požiarneho úseku, v ktorom je najviac 20 miest na státie pre motocykle, trojkolky, štvorkolky alebo osobné automobily alebo desať miest na státie pre autobusy, nákladné automobily, špeciálne automobily, ťahače, traktory a pracovné stroje, môže viesť len jedna nechránená úniková cesta pričom náhradné únikové možnosti sa nepožadujú.
8.3.2 Kapacita únikových ciest
Ak vedú dve a viac únikových ciest z miestnosti, z požiarneho úseku alebo zo stavby, určí sa dovolená kapacita každej jednej únikovej cesty. Pri rozmiestňovaní únikových ciest je potrebné prihliadať na pohyb osôb v miestnosti, v požiarnom úseku alebo v stavbe, osobitne v prípade, ak sú osoby nerovnomerne rozmiestnené v priestore i časti stavby. Odporúčaná kapacita únikovej cesty je definovaná v STN 92 0201-3 [2] pomocou nasledovnej tabuľky (tab. 38). Uvedené hodnoty predstavujú, koľko percent osôb z celkového počtu sa môže po danej únikovej ceste evakuovať.
Tab. 38 Odporúčaná kapacita únikovej cesty [2]
Počet únikových ciest
Odporúčaná kapacita únikovej cesty podľa súčinu počtu evakuovaných osôb a súčiniteľa podmienok evakuácie E·s v % najmenej
V tomto procese jepotrebné poznať celkový počet evakuovanýchosôb a podmienky evakuácie. Ako sa zistí počet osôb a podmienky evakuácie je vysvetlené v nasledovných kapitolách (kap. 8.3.5 a 8.3.6)
8.3.3 Čas evakuácie
Najdôležitejším parametrom únikových ciest je čas evakuácie, predstavujúci časový údaj, za koľko sa osoby dokážu s využitím únikových ciest evakuovať zo stavby. Únikové cesty sa preto navrhujú tak, aby ich dĺžka, šírka a rozmiestnenie umožňovali dosiahnuť čo najkratší čas evakuácie. Predpokladaný čas evakuácie osôb sa určuje podľa dĺžky únikovej cesty, rýchlosti pohybu osôb, počtu evakuovaných osôb, súčiniteľa podmienok evakuácie osôb, jednotkovej kapacity únikového pruhu a započítateľného počtu únikových pruhov.
Predpokladaný čas evakuácie osôb po únikových cestách nesmie byť dlhší ako dovolený čas evakuácie osôb, ktorý je uvedený vo vyhláške MV SR č. 94/2004 Z. z. [1] v prílohe č. 8 (tab. 39). Dovoleným časom evakuácie osôb je najdlhší možný čas bezpečnej evakuácie osôb na únikových cestách.
Určuje sa osobitne pre každú únikovú cestu, a to pre nechránenú únikovú cestu po východ zo stavby na voľné priestranstvo alebo po vstup do čiastočne chránenej únikovej cesty, alebo po vstup do chránenej únikovej cesty. Ďalej pre čiastočne chránenú únikovú cestu po východ zo stavby na voľné priestranstvo alebo po vstup do chránenej únikovej cesty a pre chránenú únikovú cestu po východ zo stavby na voľné priestranstvo alebo do priestoru, ktorý nie je ohrozený požiarom.
Tab. 39 Dovolený čas evakuácie [2]
Úniková cesta
Nechránená úniková cesta v požiarnom úseku so súčiniteľom horľavých látok „a“
Nechránená úniková cesta v požiarnom úseku s pravdepodobnosťou vzniku a rozšírenia požiaru „p1“
Dovolený čas evakuácie osôb 1) tu max v min
jediná úniková cesta viac únikových ciest
Úniková cesta
Dovolený čas evakuácie osôb 1) tu max v min
jediná úniková cesta viac únikových ciest nad 2,7 0,75 1,5
Čiastočne chránená úniková cesta v požiarnom úseku
Chránená úniková cesta typu A
typu B
typu C 30,0 30,0
1) Dovolený čas evakuácie osôb sa znižuje pri použití únikového rebríka, a to o 0,5 min na každých začatých 8 m prekonávaného výškového rozdielu; pri použití sklzných tyčí a sklzných žľabov sa dovolený čas evakuácie neznižuje.
2) Pre medziľahlé hodnoty sa dovolený čas evakuácie osôb môže určiť lineárnou interpoláciou.
3) Úniková cesta prechádza cez požiarny úsek bez požiarneho rizika.
4) Úniková cesta prechádza časťou požiarneho úseku, ktorá je bez požiarneho rizika.
5) Úniková cesta prechádza susedným požiarnym úsekom, v ktorom nie sú prevádzkarne zaradené do skupiny 6 alebo 7, alebo v ktorom hodnota súčiniteľa horľavých látok je najviac 1,1.
Je logické, že čím vyššiu ochranu úniková cesta poskytuje, tým je vyšší maximálny dovolený čas na evakuáciu. V prípade že úniková cesta je zložená z nechránenej, čiastočne chránenej a chránenej únikovej cesty, maximálny dovolený čas evakuácie sa určí pre každú jednu únikovú cestu samostatne podľa tab. 39.
Výpočet pre predpokladaný čas evakuácie osôb je definovaný v STN 92 0201-3 [2] pomocou rovnice (53). Ak všetky evakuované osoby musia prekonať celú dĺžku riešenej únikovej cesty alebo ak je k dispozícii len jedna úniková cesta, nahradí sa hodnota 0,75 v rovnici (53) hodnotou l,0.
(53)
kde:
���� – predpokladaný čas evakuácie osôb (min),
���� – dĺžka únikovej cesty (m),
���� – rýchlosť pohybu osôb (m·min-1),
�� – počet evakuovaných osôb (-),
�� – súčiniteľ podmienok evakuácie (-),
���� – jednotková kapacita únikového pruhu (min-1),
�� – započítateľný počet únikových pruhov (-).
Predchádzajúca rovnica predstavuje základ výpočtov evakuácie a je zložený z dvoch zlomkov. Prvýzlomok predstavuje časpohybujednej osoby po únikovej trase. Druhý zlomok predstavuje zdržanie osôb v dôsledku podmienok evakuácie až kým sa všetky osoby neevakuujú. Používanie vzorca je v praxi jednoduché, prakticky sa len dosadzujú hodnoty zistené z tabuliek alebo z projektu stavby. V prípade že sa podmienky evakuácie menia, do vzorca sa dosadzujú najnepriaznivejšie hodnoty.
Pokiaľ sa úniková cesta skladá z nechránenej, čiastočne chránenej a chránenej únikovej cesty, predpokladaný čas evakuácie sa počíta pre každú únikovú cestu samostatne a porovná sa s dovoleným časom evakuácie.
Daný výpočet je možné charakterizovať ako statický, vzhľadom na rôzne rozmiestnenie osôb po objekte. Znamená to, že osoby, ktoré sú bližšie k východu, budú skôr na voľnom priestranstve ako osoby, ktoré musia prekonať celú dĺžku trasy k východu. Z toho nám vyplýva, že výsledný čas sa v skutočnosti nebude rovnať súčtu oboch zlomkov, ale bude kratší. Vzhľadom na vyššie uvedené je lepšie riešiť požiadavky na únikové cesty po častiach zdokonaleným výpočtom a to najmä vtedy, keď sa na únikovej ceste menia podmienky, pretože tým sa mení aj predpokladaný čas evakuácie. Princíp výpočtu spočíva v rozdelení únikovej cesty na jednotlivé časti, kde sa menia podmienky evakuácie. Následne sa vypočítajú jednotlivé čiastkové časy a výsledný čas predstavuje súčet čiastkových časov, ktoré vyberáme podľa najnepriaznivejších podmienok. Takýto výpočet je možný v rámci jedného požiarneho úseku, ale aj celej stavby. Postup bude bližšie rozobratý v ďalších kapitolách.
8.3.4 Dĺžka únikovej cesty
Každá úniková cesta má svoj začiatok a koniec. Začiatok nechránenej únikovej cesty je v najvzdialenejšom mieste požiarneho úseku alebo na osi východu z bytu, alebo na osi východu z miestnosti, ktorej podlahová plocha je menšia ako 40 m2, alebo na osi východu z miestnosti alebo z funkčne ucelenej skupiny miestností s podlahovou plochou najviac 100 m2. Predpokladom je, že vzdialenosť ktoréhokoľvek miesta k východu z miestnosti alebo z funkčne ucelenej skupiny miestností je najviac 15 m a v týchto miestnostiach nie sú umiestnené prevádzkarne zaradené do skupiny 6 alebo 7 alebo súčiniteľ horľavých látok nie je vyšší ako 1,1 a v týchto miestnostiach nie je viac ako 40 osôb.
Začiatočný bod čiastočne chránenej únikovej cesty sa určuje ako najvzdialenejšie miesto požiarneho úseku alebo jeho časti k východu na voľné priestranstvo alebo do vstupu do chránenej únikovej cesty (obr. 55).
Začiatočný bod chránenej únikovej cesty sa určuje ako najvzdialenejšie miesto požiarneho úseku chránenej únikovej cesty k východu na voľné priestranstvo (obr. 55). Z predchádzajúceho vyplýva, že chránená úniková cesta nemôže ústiť do nechránenej alebo čiastočne chránenej únikovej cesty, tak isto čiastočne chránená úniková cesta nesmie ústiť do nechránenej únikovej cesty.
Dĺžka únikovej cesty sa ráta ako vzdialenosť medzi jej začiatkom a východom z nej na voľné priestranstvo alebo vstupom do chránenej únikovej cesty alebo do čiastočne chránenej únikovej cesty.

Obr. 55 Ukážka začiatku a konca únikovej trasy (autori)

QR kód 16 Ukážka začiatku a konca únikovej trasy
Na predchádzajúcom obrázku (obr. 55) sú znázornené trasy únikových ciest. Modrou farbou je znázornená nechránená úniková cesta, ktorej začiatok (ZNÚC) sa nachádza v ľavom hornom rohu plochou najväčšej miestnosti a koniec (KNÚC) sa nachádza pri vstupe do chránenej únikovej cesty kde sa zároveň nachádza začiatok chránenej únikovej cesty (ZCHÚC). Ako najvzdialenejší bod a teoreticky aj ZNÚC sa ponúka miestnosť nachádzajúca sa na konci chodby, avšak nespĺňa podmienku o veľkosti aspoň 40 m2 a preto začiatok únikovej trasy by bol na východe z miestnosti. Táto trasa je však kratšia ako vyznačená, preto za najdlhšiu NÚC sa považuje trasa vyznačená modrou farbou.
Dĺžka únikovej cesty nie je samozrejme ľubovoľná, pričom musí platiť, že dĺžka únikovej cesty musí byť kratšia ako dovolená dĺžka únikovej cesty podľa STN 92 02013 [2]. Dovolená dĺžka únikovej cesty sa ráta pomocou rovnice 54. Ak všetky evakuované osoby musia prekonať celú dĺžku riešenej únikovej cesty alebo ak je k dispozícii len jedna úniková cesta, nahradí sa hodnota 0,75 v rovnici (54) hodnotou l,0.
(54)
kde:
������ – dovolená dĺžka únikovej cesty (m),
������ – dovolený čas evakuácie osôb (min) (tab. 3),
���� – rýchlosť pohybu osôb (m·min-1),
�� – počet evakuovaných osôb (-),
�� – súčiniteľ podmienok evakuácie (-),
���� – jednotková kapacita únikového pruhu (min-1),
�� – započítateľný počet únikových pruhov (-).
V prípade že z požiarneho úseku vedie viac nechránených únikových ciest, dĺžka aspoň jednej z nich musí byť menšia alebo rovná dovolenej dĺžke nechránenej únikovej cesty.
Vyhláška MV SR č. 94/2004 Z. z. [1] nám ďalej definuje určité obmedzenia na dĺžku únikovej cesty. V stavbách určených na bývanie najviac so štyrmi nadzemnými podlažiami nie je obmedzená dĺžka čiastočne chránenej únikovej cesty, do ktorej vedú dvere z najviac šiestich obytných buniek na každom podlaží a ktorá vedie na voľné priestranstvo. Čiastočne chránená úniková cesta z obytných buniek a priestorov domového vybavenia môže mať dĺžku najviac 20 m, ak vedie k jednému východu na voľné priestranstvo alebo do chránenej únikovej cesty.
Ak čiastočne chránená úniková cesta vedie najmenej dvomi rôznymi smermi úniku k najbližšiemu východu na voľné priestranstvo alebo do chránenej únikovej cesty môže mať dĺžku najviac 40 m.
8.3.5 Rýchlosť pohybu osôb a jednotková kapacita únikového pruhu
Rýchlosť pohybu osôb po únikovej ceste a jednotková kapacita únikového pruhu sa stanovuje pomocou tabuľky v STN 92 0201-3 [2] (tab. 40). Je ovplyvnená viacerými faktormi, ale predovšetkým tým, či sa osoby pohybujú po rovine alebo po schodoch hore, alebo dole. Kapacita únikového pruhu nám udáva, koľko osôb sa dokáže evakuovať únikovým pruhom za minútu.
Tab. 40 Rýchlosť pohybu osôb a jednotková kapacita únikového pruhu [2]
Úniková cesta Rýchlosť pohybu osôb vu (m·min1)
Po rovine
Po schodoch hore
Po schodoch dole
30 (25)
25 (20)
20 (15)
Jednotková kapacita únikového pruhu Ku (min-1)
40 (35)
30 (25)
25 (20)
Hodnoty v zátvorkách sa odporúča použiť v prípade, že sa v požiarnom úseku nachádza taký počet osôb, že plocha prislúchajúca na jednu osobu je menšia ako 2 m2 , alebo ak sa predpokladá únik osôb s obmedzenou schopnosťou pohybu alebo osoby neschopné samostatného pohybu.
8.3.6 Počet evakuovaných osôb
Najnižší počet evakuovaných osôb E pre výpočet ich evakuácie sa určuje pre každý jeden priestor, požiarny úsek a stavbu samostatne. Počet evakuovaných osôb je možné určiť niekoľkými spôsobmi. Základom je využiť normu STN 92 0241: 2012 [3], ktorá rieši obsadenie stavieb osobami. V norme sú uvedené rôzne priestory a k ním prislúchajúce počty osôb, ktoré sa musia brať pri výpočte evakuácie do úvahy.
Vo všeobecnosti pokiaľ sa jedná o verejné priestory, kde nie je známy počet osôb, odporúča sa využiť práve spomínanú normu. Pokiaľ sa jedná o súkromnú budovu kde nemá verejnosť prístup a v budove sa môže nachádzať len presne definovaný počet osôb, určí sa výsledný počet napríklad podľa počtu zamestnancov. Pokiaľ má budova viaczmenovú prevádzku, je potrebné pri definovaní počtu osôb uvažovať s najhorším scenárom a to pri výmene jednotlivých zmien, kedy sa v budove nachádzajú súčasne zamestnanci z obidvoch zmien súčasne.
V prípade evakuácie osôb viacerými únikovými cestami, sa počet osôb prislúchajúcich na jednotlivé únikové cesty prepočítava na základe počtu ich únikových pruhov. Napríklad pokiaľ je potrebné evakuovať 100 osôb 2 evakuačnými cestami z ktorých jedna má šírku 2 únikové pruhy a druhá 3 únikové pruhy, a ide sa preverovať každá úniková cesta, tak pre prvú únikovú cestu prislúcha počet evakuovaných osôb 2/5 zo 100 (40) a pre druhú 3/5 zo 100 (60).
8.3.7 Súčiniteľ podmienok evakuácie
Súčiniteľ podmienok evakuácie osôb s vyjadruje podmienky evakuácie osôb v požiarnom úseku alebo v stavbe. Určuje sa podľa druhu a typu únikovej cesty, schopnostipohybuosôb a spôsobu ich evakuácie podľa tabuľky (tab.41) v zmysle STN 92 0201-3 [2].
Tab. 41 Súčiniteľ podmienok evakuácie [2]
Položka
Evakuované osoby
1 Schopné samostatného pohybu
2 S obmedzenou schopnosťou pohybu
3 Neschopné samostatného pohybu
Spôsob evakuácie osôb
Súčasný
Hodnota súčiniteľa podmienok evakuácie osôb s Úniková cesta
Nechránená Čiastočne chránená Chránená typu a) b) c) A
Postupný Nepovoľuje sa Nepovoľuje
Súčasný
Súčasný
Postupný Nepovoľuje sa Nepovoľuje sa
a) prechádza časťou požiarneho úseku, kde nie je požiarne riziko b) prechádza susedným požiarnym úsekom kde a ≤ 1,1 c) je v požiarnom úseku bez požiarneho rizika
Spolu s počtom evakuovaných osôb je daná podmienka, že v prípade E·s ≤ 10, sa do vzorca (53, 54, 55) dosadzuje E·s = 10. Súčasný postup evakuácie je najbežnejšie používaný. Využíva sa hlavne vo verejných budovách, kde sa predpokladá výskyt osôb ktoré predmetnú stavbu nepoznajú. Nevýhodou je nepredvídateľnosť pohybu osôb a možný vznik paniky. Výhodou je jednoduchosť a nízke požiadavky z pohľadu STN 92 0201-3 [2]. Postupný spôsob evakuácie predpokladá, že všetky osoby v stavbe poznajú budovu, vedia sa v nej orientovať a majú nacvičený postup evakuácie pomocou cvičných evakuačných poplachov. Postupný spôsob evakuácie umožňuje
znížiť čas evakuácie avšak nie je možné ho často použiť, tak isto sú na tento spôsob evakuácie kladené vysoké nároky v zmysle STN 92 0201-3 [2] z pohľadu konštrukčného riešenia stavby
8.3.8 Šírka únikovej cesty
Šírka únikovej cesty sa v zmysle STN 92 0201-3 [2] vyjadruje počtom únikových pruhov. Najmenšia šírka nechránenej únikovej cesty je jeden únikový pruh so šírkou 0,55 m. Základnou podmienkou v zmysle STN 92 0201-3 [2] je, že najmenší počet únikových pruhov musí byť menší ako započítateľný počet únikových pruhov.
Najmenší počet únikových pruhov je možne vyrátať podľa rovnice 3 v zmysle STN 92 0201-3 [2]. Ak všetky evakuované osoby musia prekonať celú dĺžku riešenej únikovej cesty alebo ak je k dispozícii len jedna úniková cesta, nahradí sa hodnota 0,75 v rovnici (55) hodnotou l,0.
(55)
kde:
�������� – najmenší počet únikových pruhov (-),
���� – dĺžka únikovej cesty (m),
������ – dovolený čas evakuácie osôb (min) (tab. 3),
���� – rýchlosť pohybu osôb (m·min-1),
�� – počet evakuovaných osôb (-),
�� – súčiniteľ podmienok evakuácie (-),
���� – jednotková kapacita únikového pruhu (min-1).
Prinavrhovaníúnikových ciest je potrebné zabezpečiť, aby sa úniková cesta v smere úniku nezužovala. Pre nechránené únikové cesty je najmenší dovolený počet únikových pruhov 1 (0,55 m) [2]. Najmenšia šírka čiastočne chránenej únikovej cesty alebo chránenej únikovej cesty je jeden a pol únikového pruhu, čo spĺňajú dvere so šírkou 0,80 m. Pri určovaní predpokladaného času evakuácie osôb sa berie do úvahy skutočná najmenšia šírka určenej únikovej cesty po celej trase, pričom šírka únikovej cesty sa nesmie zužovať v smere úniku.
Ak do čiastočne chránenej únikovej cesty alebo do chránenej únikovej cesty vedie v jednom podlaží viac nechránených únikových ciest z jedného požiarneho úseku, musí sa šírka nadväzujúcej únikovej cesty rovnať aspoň súčtu únikových pruhov týchto nechránených únikových ciest.
Ak do čiastočne chránenej únikovej cesty alebo do chránenej únikovej cesty vedú v jednom podlaží nechránené únikové cesty z viacerých požiarnych úsekov, musí sa šírka nadväzujúcej únikovej cesty rovnať aspoň súčtu únikových pruhov najmenej z dvoch susedných požiarnych úsekov, z ktorých uniká najväčší počet osôb. Podobný princíp sa uplatňuje aj pri chránenej únikovej ceste, do ktorej vedie viac čiastočne chránených únikových ciest.
Šírka únikovej cesty, ktorá je určená na evakuáciu osôb neschopných samostatného pohybu, nesmie byť menšia ako tri únikové pruhy. V stavbách určených na bývanie nemusí šírka únikovej cesty presiahnuť 1,1 m a možno ju zúžiť dverami na 0,9 m.
Ak je súčasťou únikovej cesty vrátane chránenej únikovej cesty náhradná úniková možnosť alebo pohyblivé schody, započítavajú sa tieto zariadenia iba jedným únikovým pruhom.
8.4 Zdokonalený výpočet evakuácie
Vypočítať čas evakuácie je možné jednoduchým alebo zdokonaleným výpočtom. Keďže zdokonalený postup je pomerne náročný, vždy je snaha splniť podmienku (čas evakuácie je kratší ako dovolený čas evakuácie) s pomocou zjednodušeného postupu. Pri výpočtoch sa vždy začína stanovením počtu evakuovaných osôb, vytýčením trasy evakuácie a určení počtu únikových pruhov.
Na nasledovnom obrázku (obr. 57) je znázornený zjednodušený pôdorys jedného poschodia školského zariadenia. Z priestorov vedú von dve evakuačné cesty schodiskami, ktoré predstavujú chránenú únikovú cestu. Našou úlohou je preveriť čas evakuácie osôb z celého poschodia. Počty osôb boli stanovené na základe kapacity učební a počtu osôb nachádzajúcich sa v kancelárskych priestoroch. Z priestorov vedú von 2 únikové cesty cez vedľajšie a hlavné schodisko. Najvzdialenejší miesto k vedľajšiemu schodisku sa nachádza v učebni napravo. Najvzdialenejšie miesto k hlavnému schodisku sa nachádza v učebni vpravo. Na základe STN 92 0201-3 [2] postačuje, keď aspoň jedna úniková cesta bude vyhovovať. Keďže hlavné schodisko poskytuje lepšie podmienky na evakuáciu, bude preverená práve táto možnosť.

Obr. 56 Výpočet evakuácie osôb (autori)
Vstupné údaje do výpočtu sú nasledovné [2], dĺžka únikovej cesty je 65,4 m, počet evakuovaných osôb je 61, najužšie miesto na evakuačnej ceste sú dvere do učebne, kde je počet únikových pruhov 1,5, rýchlosť pohybu osôb po rovine je 30 m·min-1 (tab. 40), jednotková kapacita únikového pruhu je 40 (tab. 40) a súčiniteľ podmienok evakuácie je 1 (tab. 41). Po dosadení hodnôt do rovnice (53) je výsledok nasledovný:
Výsledný čas 2,65 min nám poskytuje približný čas evakuácie všetkých osôb po jednej nechránenej únikovej ceste. Pre ďalší postup výpočtu a to výpočet času evakuácie po schodisku, ktorý predstavuje chránenú únikovú cestu, je veľkou nevýhodou, že na schodisko smerujú všetky evakuované osoby. Je preto potrebné
rozdelenie počtu evakuovaných osôb na dve únikové cesty. Postupuje sa tak, že sa najprv zistí počet osôb, ktoré sa budú po trasách evakuovať, a to tak, že sa počet evakuovaných osôb (61) vydelí celkovým počtom únikových pruhov (2,7+1,8) a vynásobí počtom únikových pruhov prislúchajúcim iba jednej únikovej ceste.
61· 2,7 2,7+1,8 =36,6= ̃ 37
Zákonite pre druhú trasu bude pripadať zvyšok evakuovaných osôb a to 24. Zmení sa tým pádom aj začiatok únikových ciest a ich dĺžky (obr. 57).

Obr. 57 Prerozdelenie evakuovaných osôb (autori)

QR kód 17 Prerozdelenie evakuovaných osôb
Pri následnom výpočte času evakuácie pre obe evakuačné trasy zistíme nasledovné:
Z výsledkov je viditeľné zníženie času evakuácie a súčasne sme zabezpečili prerozdelenie osôb pre dve únikové trasy. Čas evakuácie po obidvoch únikových trasách je vďaka takémuto prerozdeleniu evakuovaných osôb približne rovnaký, vďaka čomu sa zabezpečí plynulejšia evakuácia. Ako čas úniku z podlažia sa v takomto prípade môže označiť dlhší čas, t.j. 1,2 min. Za povšimnutie stojí, že za hodnotu počtu únikových pruhov nebola dosadená hodnota 3,6 pre šírku spojovacej chodby, ale šírka dverí pri vstupe na schodisko, pretože sa jedná o najužšie miesto na únikovej ceste. Uvedený čas preto predstavuje čas pokiaľ všetky evakuované osoby
neprejdú cez dvere do chránenej únikovej cesty. Keďže sa preveruje čas pre každú jednu únikovú cestu, hodnota 0,75 zo vzorca vypadáva.
V prípade že sa jedná o viacpodlažnú budovu, ktorá sa môže skladať aj z viacerých blokov, je potrebné podobným postupom prerozdeliť osoby a vypočítať čas evakuácie pre každú jednu únikovú cestu, pričom musí byť dodržaná podmienka, že čas evakuácie musí byť kratší ako maximálny dovolený.
Po vypočítaní každého jedného podlažia nasleduje preverenie času evakuácie po chránenej únikovej ceste predstavujúcej hlavné schodisko (obr. 58) Nasledovný príklad predstavuje výpočet evakuácie osôb po schodisku. Ako z obrázka vyplýva, na každom podlaží sa bude počet evakuovaných osôb postupne zvyšovať. Šírka evakuačnej cesty u=4,3 je všade rovnaká. Úniková cesta je rozdelená na 5 častí na základe toho, ako sa menia podmienky evakuácie, v tomto prípade je to počet evakuovaných osôb a prechod z trasy po schodoch na trasu po rovine.

Obr. 58 Evakuácia po schodisku (autori)

QR kód 18 Evakuácia po schodisku
Výpočet evakuácie je v tomto prípade vhodné spracovať pomocou tabuľky, kde sa postupne zadajú všetky premenné a vypočítajú sa jednotlivé časti únikovej cesty (tab. 42). Rýchlosť pohybu osôb je 20 m·min-1 po schodoch dole a 30 m·min-1 po rovine (tab. 40), jednotková kapacita únikového pruhu je 25 po schodoch dole a 40 po rovine (tab. 40) a súčiniteľ podmienok evakuácie je 1 (tab. 41).
Tab. 42 Výpočet evakuácie (autori)
Trasa
5-6 7,9 30
Výpočet je potrebné rozdeliť na dve časti tu1 a tu2 ktoré sa vyrátajú samostatne. Výsledný čas sa následne získa ako súčet čiastkových časov tu1 (3,27 min) plus najhorší čas z tu2 (2,5 min). Celkový čas tu1 predstavuje čas pohybu jednej osoby zatiaľ čo čas tu2 predstavuje zdržanie osôb. Z tab. 42 je viditeľné, že najviac sa osoby zdržia na trase 45, pretože po nej pôjde najvyšší počet osôb. Výsledný čas evakuácie osôb po chránenej únikovej ceste pomocou zdokonaleného postupu je tým pádom 5,77 min. Vo vzorci pre tu1 si treba všimnúť chýbajúcej hodnoty 0,75. Je to z toho dôvodu že všetky osoby prechádzajú stanovenú trasu. V takomto prípade hodnota 0,75 zo vzorca vypadáva. Čas evakuácie je možné získať aj zjednodušeným postupom, kedy všetky osoby (268) prejdú cestu o dĺžke 68,1 m s počtom únikových pruhov 4,3. Rýchlosť pohybu osôb je 20 m·min-1 po schodoch dole (tab. 40), jednotková kapacita únikového pruhu je 25 po schodoch dole (tab. 40) a súčiniteľ podmienok evakuácie je 1 (tab. 41). Je potrebné vždy vybrať tie najhoršie hodnoty. Po dosadení hodnôt do rovnice (53) je výsledok nasledovný:
+
= 68,1 20 + 2681
=5,9������
Výsledný čas 5,9 min je o niečo málo dlhší ako v predchádzajúcom prípade, vďaka čomu sa môže zdať zdokonalený postup ako zbytočný. Avšak v mnohých prípadoch prináša výrazné zlepšenie, čo umožní dodržať podmienku o maximálnom dovolenom čase evakuácie.
8.5 Stupeň protipožiarnej bezpečnosti priestorov, kde sa nachádzajú únikové cesty
Stupeň protipožiarnej bezpečnosti únikovej cesty sa určuje v závislosti na jej type. Pre nechránenú únikovú cestu, ktorá vedie cez požiarny úsek alebo skupinu miestností sa stupeň protipožiarnej bezpečnosti samostatne neurčuje keďže sa nejedná o samostatný požiarny úsek, ale určuje sa pre požiarny úsek, ktorému úniková cesta
prináleží podľa STN 92 0201-2 [4]. V rámci čiastočne chránenej únikovej cesty je dôležité, či prechádza cez požiarny úsek bez požiarneho rizika alebo prechádza časťou požiarneho úseku, ktorá je bez požiarneho rizika a určuje sa taktiež podľa STN 92 0201-2 [4]
Najnižší stupeň protipožiarnej bezpečnosti chránenej únikovej cesty sa určuje v závislosti od predpokladaného času evakuácie osôb, typu chránenej únikovej cesty a počtu chránených únikových ciest podľa STN 92 0201-3 [2] (tab. 43).
Tab. 43 Najnižší stupeň protipožiarnej bezpečnosti chránenej únikovej cesty [2]
Najnižší stupeň protipožiarnej bezpečnosti chránenej
únikovej cesty I. III. IV.
Predpokladaný čas
evakuácie osôb v minútach
Typ chránenej únikovej cesty
Do 6 Nad 6 do 15 Nad 15
Jediná chránená úniková cesta A, B, C B, C C Viac chránených únikových ciest A, B, C A, B, C B, C
8.6 Požiarne zaťaženie únikových ciest
Na nechránenú únikovú cestu nie sú kladené žiadne požiadavky ohľadom požiarneho zaťaženia. V čiastočne chránenej únikovej ceste môžu byť priestory vrátnice, recepcie, informačnej služby, umyvární a toaliet. Náhodné požiarne zaťaženie v týchto priestoroch nemôže byť väčšie ako 15 kg·m-2 .
V chránených únikových cestách v zmysle vyhlášky MV SR č. 94/2004 Z. z. [1] môžu požiarne zaťaženie tvoriť horľavé látky v konštrukciách dverí, podláh, držadiel a okenných rámov, zariaďovacie predmety v priestoroch vrátnice, recepcie, informačnej služby, umyvární a toaliet. Náhodné požiarne zaťaženie v týchto priestoroch nemôže byť väčšie ako 15 kg·m-2
V priestoroch. ktoré tvoria súčasť chránenej únikovej cesty a sú určené na vykonávanie stáleho dozoru nad prevádzkou v stavbe (informačná služba, vrátnica, recepcia, ohlasovňa požiarov a podobne), môže sa vyskytovať v jednej chránenej únikovej ceste náhodné požiarne zaťaženie. Nevzťahuje sa to na stavbu, v ktorej je len jedna chránená úniková cesta.
V chránenej únikovej ceste typu A môže byt’ v zmysle vyhlášky MV SR č. 94/2004 Z. z. [1] výťahová šachta. V chránenej únikovej ceste nesmú byt’ umiestnené voľne vedené rozvodné potrubia na horľavé látky (kvapaliny, plyny, prachy a pod.), voľne vedené rozvody vzduchotechnických zariadení okrem rozvodov zabezpečujúcich vetranie týchto priestorov, voľne vedené elektrické rozvody a rozvádzače okrem rozvodov a rozvádzačov zabezpečujúcich jej prevádzku, voľne vedené dymovody, voľnevedené rozvodystrednotlakovej avysokotlakovej pary, rozvody toxických alebo inak nebezpečných látok, predmety alebo zariadenia zužujúce šírku únikovej cesty pod minimálnu dovolenú šírku únikovej cesty.
8.7 Vetranie únikových ciest
Nechránené únikové cesty sú spravidla súčasťou väčších požiarnych úsekov a nevzťahujú sa na nich požiadavky z hľadiska vetrania. Čiastočne chránenú únikovú
cestu sa podľa STN 92 0201-3 [2] odporúča vetrať ako chránenú únikovú cestu typu A. Chránená úniková cesta vrátane požiarnej predsiene sa musívetrať prirodzeným alebo umelým vetraním. Hnacou silou prirodzeného vetrania je rozdiel tlaku vzduchu zapríčinený rozdielnou teplotou vzduchu v rôznych výškových úrovniach budovy alebo v dôsledku aerodynamiky budovy, kedy na záveternej strane budovy vzniká podtlak, čím sa vytvára tzv. prievan. Ak je chránená úniková cesta v nadzemnej časti stavby, ktorá má požiarnu výšku viac ako 22,5 m, musí sa vetrať umelým vetraním a to z toho dôvodu, že prirodzené vetranie už nedokáže zabezpečiť dostatočnú výmenu vzduchu. Hnacou silou umelého vetrania býva spravidla pohyb lopatiek prúdových ventilátorov.
Pri zabezpečení vetrania únikových ciest platí základné pravidlo. Čím sa zvyšuje počet evakuovaných ľudí a rastie čas evakuácie, zvyšujú sa zákonite aj požiadavky na zabezpečenie prívodu čerstvého vzduchu do priestoru. Úlohou prirodzeného vetrania je v prípade požiaru výmena vzduchu v priestore, čím sa zabezpečí zriedenie prípadného dymu ktorý sa mohol do priestoru dostať pri používaní požiarnych dverí, ochladenie priestoru a zvýšenie komfortu ľudí pohybujúcich sa po evakuačnej trase. Úlohou umelého vetrania je vďaka pretlaku vzduchu zabránenie prenikania akéhokoľvek dymu do priestoru únikovej cesty a zvýšenie komfortu ľudí pohybujúcich sa po evakuačnej trase.
Prirodzené vetranie chránených únikových ciest sa podľa STN 92 0201-3 [2] zabezpečuje otvárateľnými otvormi (oknami, dverami a pod.) s plochou najmenej 2 m2 na každom podlaží alebo otvormi s plochou najmenej 1 m2 na každom podlaží, umožňujúcimi priečne vetranie. Ak je pôdorysná plocha chránenej únikovej cesty na podlaží väčšia ako 20 m2 , tak sa podľa STN 92 0201-3 [2] určí plocha otvárateľných otvorov podľa pôdorysnej plochy chránenej únikovej cesty na podlaží, a to 10 % pri jednostrannom vetraní a 5 % pri priečnom vetraní. Prirodzené vetranie je možné taktiež zabezpečiť podľa STN 92 0201-3 [2] vetracím otvorom s plochou najmenej 2 m2 , umiestneným na najvyššom mieste chránenej únikovej cesty a rovnako veľkým otvorom pre prívod čistého vzduchu z voľného priestoru, ktorý je umiestnený na vstupnom podlaží alebo nižšie. Otvárací mechanizmus horného otvoru musí byt’ vybavený diaľkovým ovládaním z niekoľkých miest.
Priečne vetranie je možné podľa STN 92 0201-3 [2] zabezpečiť vetracími prieduchmi s výustkami v každom podlaží chránenej únikovej cesty s odvodom vzduchu pri strope a s prívodom čerstvého vzduchu pri podlahe, prierezová plocha každého prieduchu musí byt’ najmenej 1 % pôdorysnej plochy tej časti únikovej cesty, ktorú má prieduch vetrať.
Ak je navrhnuté uzatváranie výustkov prieduchov v každom podlaží tak, aby splodiny horenia nemohliprenikať prieduchom z jedného podlažia do druhého, môžu byť prieduchy na odvod a prívod vzduchu pre viac podlaží podľa STN 92 0201-3 [2] spoločné. Prierezová plocha spoločného prieduchu musí v takomto prípade postačiť na prívod alebo odvod vzduchu najmenej 50 % výustkov napojených na tento prieduch, najmenej však pre tri výustky
Umelé vetranie sa podľa STN 92 0201-3 [2] zabezpečuje prívodom vzduchu v množstve zodpovedajúcom najmenej desaťnásobnému objemu priestoru chránenej únikovej cesty počas 1 hodiny a odvodom vzduchu pomocou prieduchov, šácht a podobne. Prívod vzduchu musí byť zabezpečený bez ohľadu na miesto vzniku požiaru v stavbe na čas, ktorý sa rovná dvojnásobku predpokladaného času evakuácie osôb, nie však menej ako na 10 minút.
Pretlakové vetranie je umelé vetranie, pri ktorom sa vytvára pretlak vzduchu medzi priestorom únikovej cesty a požiarnou predsieňou v hodnote od 15 Pa do 50 Pa [2] a medzi požiarnou predsieňou a vedľajšími požiarnymi úsekmi v hodnote od 10 Pa do 30 Pa [2] tak, aby sa dodržal najmenší tlakový spád z priestoru únikovej cesty a požiarnej predsiene. Pretlak zabezpečuje, aby sa splodiny horenia nedostali do únikovej cesty. Musí sa však zabezpečiť, aby pretlak nesťažoval otváranie protipožiarnych dverí.
8.7.1 Vetranie chránenej únikovej cesty typu A
Chránená úniková cesta typu A sa spravidla vetrá prirodzeným vetraním. Ak sa chránená úniková cesta typu A vetrá umelým vetraním, musí byt’ podľa STN 92 02013 [2] činnosť’ vetracieho zariadenia zabezpečená najmenej na čas, ktorý sa rovná dvojnásobku predpokladaného času evakuácie osôb, nie však menej ako na 10 minút.
Ak je v nadzemnej časti stavby viac ako jedna chránená úniková cesta typu A a predpokladaný čas evakuácie osôb je v nich dlhší ako 6 min, musí existovať druhá, prípadne ďalšia chránená úniková cesta, vetraná kombinovaným prirodzeným vetraním alebo umelým vetraním.
Chránená úniková cesta typu A pre viac ako jedno podzemné podlažie sa musí vetrať umelým vetraním [2]
Chránená úniková cesta typu A vo vodorovných úsekoch únikovej cesty, ktorú nie je možné vetrať prirodzene otvormi vzdialenými od seba najviac 10 m, odporúča sa vetrať umelým vetraním [2].
8.7.2 Vetranie chránenej únikovej cesty typu B
Ak sa chránená úniková cesta typu B vetrá umelým vetraním, musí byt’ činnosť vetracieho zariadenia zabezpečená najmenej na čas, ktorý sa rovná dvojnásobku predpokladaného času evakuácie osôb, nie však menej ako na 30 minút [2]. Činnosť vetracieho zariadenia v chránenej únikovej ceste typu B s umelým vetraním, ktorá súčasne slúži ako zásahová cesta, musí byt’ zabezpečená najmenej počas 45 minút.
V stavbách, v ktorých sa nachádzajú dve alebo viac chránených únikových ciest typu B a predpokladaný čas evakuácie osôb je dlhší ako 15 min, musí sa podľa STN 92 0201-3 [2] najmenej jedna chránená úniková cesta typu B vetrať umelým vetraním.
Ak je v nadzemnej časti stavby viac ako jedna chránená úniková cesta typu B a predpokladaný čas evakuácie osôb je v nich dlhší ako 15 minút [2], druhú, prípadne ďalšiu chránenú únikovú cestu, okrem vetrania požiarnych predsiení sa odporúča vetrať kombinovaným prirodzeným vetraní alebo umelým vetraním.
Chránená úniková cesta typu B pre viac ako jedno podzemné podlažie sa musí vetrať umelým vetraním.
Chránenú únikovú cestu typu B na vodorovných úsekoch únikovej cesty, ktorú nie je možné vetrať prirodzene otvormi vzdialenými od seba najviac 10 m, odporúča sa vetrať umelým vetraním.
8.7.3 Vetranie chránenej únikovej cesty typu C
V chránenej únikovej ceste typu C sa musí zabezpečiť pretlakové vetranie. Činnosť vetracieho zariadenia podľa STN 92 0201-3 [2], ktoré zabezpečuje vetranie v chránenej únikovej ceste typu C, musí byt’ zabezpečená najmenej ma čas, ktorý sa rovná dvojnásobku predpokladaného času evakuácie osôb, nie však menej ako 45 minút. Ak chránená úniková cesta typu C slúži ako zásahová cesta, musí byt" činnosť vetracieho zariadenia zabezpečená najmenej na 90 minút.
8.7.4 Prívod čerstvého vzduchu do chránenej únikovej cesty a odvod vzduchu
Prívodné vetracie otvory, vetracie prieduchy alebo vetracie šachty vetrania chránenej únikovej cesty sa odporúča umiestniť tak, aby sa zabránilo prenikaniu dymu do chránenej únikovej cesty a to vplyvom prevládajúceho smeru vetra, otvorov v obvodových konštrukciách v blízkosti sacích otvorov, prienik dymu zo susedných požiarnych úsekov a pod.
Vetracie prieduchy a šachty alebo sacie prieduchy umelého vetrania môžu byť súčasťou požiarneho úseku chránenej únikovej cesty, pre ktorú slúžia.
Čerstvý vzduch sa odporúča privádzať proti smeru pohybu evakuovaných osôb, aby sa obmedzilo prenikaniu dymu hlbšie do únikovej cesty a zabránilo sa tak zasiahnutiu dymom vyššieho počtu unikajúcich osôb
Rozmery a rozmiestnenia výustkov sa podľa STN 92 0201-3 [2] navrhujú tak, aby sa dosiahol čo najrovnomernejší pretlak pri zatvorených otvárateľných konštrukciách (okná, dvere a pod.) na chránenej únikovej ceste (okrem východových dvier z chránenej únikovej cesty na voľné priestranstvo a únikových východov zo zhromažďovacích priestorov. Odporúča sa aby zvislá a vodorovná vzdialenosť dvoch výustkov nebola väčšia ako 6 m [2].
Na zabezpečenie pretlaku sa odporúča umiestniť na najvyššom mieste chránenej únikovej cesty vetracie zariadenie s automatickým otváraním pri dosiahnutí najvyššej hranice pretlaku, čo sa dá dosiahnuť s využitím napr. klapky
Umelé vetranie sa ovláda ručne z priestoru chránenej únikovej cesty s možnosťou ovládania na každom podlaží a z miesta určeného na vykonávanie stáleho dozoru nad prevádzkou stavby (ohlasovňa požiaru). Umelé vetranie sa môže ovládať automaticky (miestne alebo diaľkovo) a aby ho v prípade požiaru vedel ovládať veliteľ zásahu z Hasičského a Záchranného zboru.
8.8 Úniková cesta ako zásahová cesta
Zásahová cesta predstavuje dôležitú trasu umožňujúcu jednotkám Hasičského a Záchranného zboru dostať sa čo najbližšie k miestu požiaru v stavbe. Nechránená
úniková cesta sa nepokladá za vnútornú zásahovú cestu, pretože neposkytuje ochranu. Čiastočne chránená úniková cesta v zmysle STN 92 0201-3 [2] môže byt’ vnútornou zásahovou cestou Za vnútornú zásahovú cestu sa pokladá chránená úniková cesta.
Ak je v stavbe vybudovaná chránená úniková cesta, musí z nej byť prístup na strechu stavby, prípadne ak je v stavbe viac chránených únikových ciest, musí byt’ prístup na strechu najmenej z jednej z nich [2].
Z vnútornej zásahovej cesty (napr. z miesta určeného na vykonávanie stáleho dozoru nad prevádzkou stavby, ohlasovne požiaru) musia byt’ prístupné všetky zariadenia umožňujúce evakuáciu osôb, zariadenia obmedzujúce šírenie požiaru a zariadenia pomáhajúce likvidáciu požiaru alebo ovládacie prvky týchto zariadení.
8.9 Evakuačný výťah
V prípade vzniku požiaru sa nesmie používať obyčajný výťah na prepravu osôb a zvierat, a to aj napriek tomu, že podľa vyhlášky MV SR č. 94/2004 Z. z. [1] prílohy č. 1 musia tvoriť samostatný požiarny úsek. Vplyvom požiaru môže dôjsť k prerušeniu dodávky elektrickej energie a teda nastáva nebezpečenstvo uväznenia a zaseknutia osôb vo výťahovej šachte, kde môžu byť osoby priamo vystavené požiaru. Kabína a dvere do výťahu resp. do výťahovej šachty v bežných výťahoch nie sú navrhnuté ako tesné proti prieniku dymu. V prípade pohybu výťahu počas požiaru dochádza k nasávaniu dymu a jeho vytláčaniu na iné podlažia budovy. Je preto nevyhnutné aby sa zabránilo používaniu bežných výťahov počas požiaru. Evakuačné výťahy sú určené na evakuáciu osôb zo stavby a od bežných výťahov sa líšia po konštrukčnej stránke. Kabína výťahu a dvere do výťahovej šachty sú riešené ako tesné proti dymu. Môžu predstavovať hlavnú únikovú možnosť alebo doplnkovú únikovú možnosť k chráneným únikovým cestám. Evakuačné výťahy sa musia zriadiť v stavbách s požiarnou výškou viac ako 60 m, v ktorých sa na nadzemných podlažiach umiestnených v požiarnej výške viac ako 45 m zdržuje viac ako 50 osôb [2]
Evakuačný výťah sa musí taktiež podľa STN 92 0201-3 [2] umiestniť v stavbe s viac ako dvoma nadzemnými podlažiami, na ktorých sa trvale alebo pravidelne zdržuje viac ako desať osôb s obmedzenou schopnosťou pohybu alebo sa tam zdržujú osoby neschopné samostatného pohybu a z ktorých nie je zabezpečená ich evakuácia iným vhodným spôsobom alebo v stavbe s podzemnými podlažiami, na ktorých sa trvale alebo pravidelne zdržuje viac ako päť osôb s obmedzenou schopnosťou pohybu, alebo sa tam zdržujú osoby neschopné samostatného pohybu a z ktorých nie je zabezpečená ich evakuácia iným vhodným spôsobom.
Evakuačný výťah musí byť podľa STN 92 0201-3 [2] umiestnený v chránenej únikovej ceste typu B alebo v chránenej únikovej ceste typu C, pričom v spoločnej šachte môžu byť umiestnené najviac dva evakuačné výťahy.
V stavbe, v ktorej je evakuačný výťah a viac chránených únikových ciest typu B alebo typu C po schodiskách, musí byť na každom podlaží najmenej z dvoch takých chránených únikových ciest vstup do evakuačného výťahu
Pre evakuačný výťah umiestnený v chránenej únikovej ceste typu B a C musí byť zabezpečená trvalá dodávka elektrickej energie počas činnosti vetracieho zariadenia. Za evakuačný výťah sa považuje aj požiarny výťah, avšak to neplatí na evakuačný výťah umiestnený v lôžkových častiach zdravotníckych zariadení.
Kapacita evakuačného výťahu sa v zmysle STN 92 0201-3 [2] určuje podľa celkového počtu osôb, ktoré sa majú evakuovať týmto výťahom, dovoleného času evakuácie osôb, počtu evakuovaných osôb v kabíne výťahu a času jednej jazdy výťahu. V stavbe zdravotníckeho zariadenia s lôžkovými oddeleniami, v ktorej je viac ako desať osôb, sa počet evakuačných výťahov určuje v zmysle STN 92 0201-3 [2] podľa predpokladaného počtu pacientov neschopných samostatného pohybu, počtu podlaží, ktoré sa majú evakuovať, a podľa ich výškovej polohy, a technických parametrov výťahu.
Každá stavba zdravotníckeho zariadenia s lôžkovými oddeleniami, v ktorej je viac ako desať osôb musí byť v zmysle STN 92 0201-3 [2] vybavená aspoň dvoma evakuačnými výťahmi.
8.9.1 Počet osôb evakuovaných evakuačným výťahom
Pri výpočte času evakuácie s pomocou evakuačného výťahu sa postupuje podľa vzorca v zmysle STN 92 0201-3 [2].
(56)
kde:
Ev – je celkový počet osôb evakuovaných evakuačným výťahom,
Ev1 – počet evakuovaných osôb v kabíne výťahu (vracajúce sa sprevádzajúce osoby sa nezapočítavajú) pri jednej jazde, tud – dovolený čas evakuácie osôb (min), tv1 – čas jednej jazdy výťahu (min).
Pre zabezpečenie efektívnej evakuácie ľudí pomocou evakuačného výťahu je potrebné okrem výpočtu mať pripravený aj podrobný plán evakuácie osôb s určením zodpovedných osôb a ich úloh. Aby sa predišlo zbytočným komplikáciám a možnosti predĺženia evakuácie kvôli prípadnej panike, pri každom vstupe do výťahu musí byť zodpovedná osoba, ktorá bude riadiť evakuáciu. Musí zabrániť, aby boli stlačené tlačidlá na privolávanie výťahu na každom poschodí, aby nedochádzalo ku kongescii osôb pri vstupe do evakuačného výťahu, ktorý by nekontrolovateľne doň vošli a spôsobili preťaženie. Zodpovedná osoba musí mať zabezpečené školenie a v prípade spozorovania dymu nesmie spanikáriť. Vzhľadom na zložitosť evakuácie sa odporúča používanie evakuačného výťahu na evakuáciu osôb predovšetkým pri postupnej evakuácií osôb (kap. 8.3.7).
8.9.2 Vetranie evakuačného výťahu
Zabezpečenie efektívneho vetrania výťahovej šachty je náročné. Pohyb vzduchu uľahčuje a zároveň vytvára možné nebezpečenstvo pohyb kabíny oboma smermi. Šachta evakuačného výťahu, vrátane výťahovej kabíny sa musí vetrať ako chránená úniková cesta prirodzeným alebo umelým vetraním. Pokiaľ je výťahová šachta umiestnená v chránenej únikovej ceste, odporúča sa ju vetrať mimo stavby nad úroveň najvyššej polohy výťahovej kabíny, aby sa zamedzilo nasatiu vzduchu odvádzaného z chránenej únikovej cesty do výťahovej šachty pri pohybu výťahovej kabíny smerom nadol.
Ak pôdorysná plocha šachty je menšia ako 1,2 násobok pôdorysnej plochy výťahovej kabíny, výustky prívodu vzduchu sa odporúča umiestniť po výške šachty vo vzájomnej vzdialenosti najviac 6 m, pretože okolo kabíny je málo priestoru a správa sa čiastočne ako piest, čo môže mať za následok vytvorenie vysokého pretlaku resp. podtlaku. Medzi šachtou evakuačného výťahu a požiarnou predsieňou chránenej únikovej cesty typu C s pretlakovým vetraním sa odporúča vytvoriť pretlak v hodnote od 10 Pa do 30 Pa [2]
Vetranie šachty evakuačného výťahu sa môže ovládať ručne z priestoru chránenej únikovej cesty s možnosťou ovládania na každom podlaží a z miesta určeného na vykonávanie stáleho dozoru nad prevádzkou stavby (ohlasovňa požiaru). Umelé vetranie sa môže ovládať automaticky (miestne alebo diaľkovo) a aby ho v prípade požiaru vedel ovládať veliteľ zásahu z Hasičského a Záchranného zboru.
Pre evakuačný výťah umiestnený v chránenej únikovej ceste typu B alebo C sa musí zabezpečiť trvalá dodávka elektrickej energie počas činnosti vetracieho zariadenia najmenej na čas, ktorý sa rovná dvojnásobku predpokladaného času evakuácie osôb, nie však menej ako na 30 minút [2]. Činnosť vetracieho zariadenia výťahovej šachty v chránenej únikovej ceste typu B s umelým vetraním, ktorá súčasne slúži ako zásahová cesta, musí byt’ zabezpečená najmenej počas 45 minút.
Vo výťahovej šachte v chránenej únikovej ceste typu C sa musí zabezpečiť činnosť vetracieho zariadenia podľa STN 92 0201-3 [2] najmenej na čas, ktorý sa rovná dvojnásobku predpokladaného času evakuácie osôb, nie však menej ako 45 minút. Ak chránená úniková cesta typu C slúži ako zásahová cesta, musí byt" činnosť vetracieho zariadenia zabezpečená najmenej na 90 minút.
8.10 Náhradná úniková možnosť
V prípade keď nepostačuje jedna úniková cesta a nie je možné do stavby alebo jej časti v dôsledku technického riešenia stavby navrhnúť ďalšiu únikovú trasu, je potrebné navrhnúť náhradnú únikovú možnosť. Náhradná úniková možnosť je podľa STN 92 0201-3 [2] možnosť mimoriadneho spôsobu úniku z požiarneho úseku alebo otvoreného technologického zariadenia, ktorý je namáhavejší ako chôdza alebo sa vykonáva pomocnými prostriedkami na evakuáciu osôb.
Náhradná úniková možnosť musí byť podľa STN 92 0201-3 [2] zriadená v stavbe, v ktorej je len jedna nechránená úniková cesta, a to z miestnosti v podzemnom podlaží,
ak je v ňom viac ako päť trvalých pracovných miest alebo dočasných pracovných miest alebo v nadzemnom podlaží, ak je v ňom viac ako desať trvalých pracovných miest.
Náhradnou únikovou možnosťou na prekonanie výškových rozdielov je otvárateľný otvor v obvodovej konštrukcii, únikový rebrík (obr. 59), sklzný žľab (obr. 60), požiarny rebrík a tunelová plachta (obr. 61) a sklzná tyč (obr. 62), ktoré môžu používať iba na to vycvičené osoby. Vyžitie náhradnej únikovej možnosti sa odporúča použiť iba pri vykonávaní postupnej evakuácie osôb.

Obr. 59 Požiarny rebrík (https://www.sz-rebriky.sk/sk/vyroba-rebrikov/)

Obr. 60 Sklzný žľab (https://www.startupselfie.net/2018/12/06/slide-to-safety-rapid-evacuation-system/)

Obr. 61 Tunelová plachta (https://www.indiamart.com/proddetail/vertical-spiral-fire-escape-chute-19378493588.html)

Obr. 62 Sklzná tyč (https://giftgoodsm.shop/product_details/22889529.html)
8.11 Požiadavky na vyhotovenie únikových ciest
Úniková cesta musí spĺňať podľa vyhláška MV SR č. 94/2004 Z. z. [1], STN 92 02012 [4] a STN 92 0201-3 [2] viacero prísnych požiadaviek. Požiadavky sú kladené predovšetkým na požiarnu odolnosť konštrukcií a ich druh, podlahu, dvere, schodisko, osvetlenie a označenie únikových ciest. Cieľom je dosiahnuť čo najjednoduchšiu evakuáciu, aby nedošlo k zraneniam evakuovaných osôb a strate orientácie.
8.11.1 Požiadavky na konštrukčné prvky
Požiadavky na konštrukcie nachádzajúce sa v únikových cestách sú vztiahnuté na typ únikovej cesty a stupeň protipožiarnej bezpečnosti požiarneho úseku v ktorom sa nachádzajú. Pre nechránené únikové cesty a čiastočne chránené únikové cesty vyhláška MV SR č. 94/2004 Z. z. [1], STN 92 0201-3 [2] neuvádzajú špeciálne požiadavky. Požiarna odolnosť konštrukcií je v tomto smere určená v zmysle STN 92 0201-2 [4]. Pre chránené únikové cesty sa požiadavky na požiarnu odolnosť konštrukcií taktiež určujú v zmysle STN 92 0201-2 [4]. Keďže STN 92 0201-3 [2] dovoľuje pre chránené únikové cesty len 3 stupneproti požiarnej bezpečnosti (I., III., a IV.), požiadavky sa stanovujú podľa časti požiarne steny a stropy, a požiarne uzávery v tabuľke 5 v STN 92 0201-2 [4] (tab. 44).
Tab. 44 Druh konštrukčných prvkov [4]
Konštrukčný prvok
Pol.
1.
4.
Požiarne steny a požiarne stropy:
Druh konštrukčných prvkov a najnižšia požiarna odolnosť v minútach podľa stupňa protiprotipožiarnej bezpečnosti I. III. IV.
a) v podzemných podlažiach, 45/D1 90/D1 120/D1
b) v nadzemných podlažiach, 30 60 90
c) v poslednom nadzemnom podlaží, 15 45 60
d) požiarne steny medzi podlažiami. 45/D1 90/D1 120/D1
Požiarne uzávery otvorov:
a) v podzemných podlažiach, 30/D1 45/D1 60/D1
b) v nadzemných podlažiach, 30 45 60/D1
c) v poslednom nadzemnom podlaží, 15 30 45
5. Šachty a kanály
a) požiarne deliace konštrukcie, 1. šácht evakuačných výťahov, podľa položky 1
2. šácht ostatných výťahov, 30/D1 45/D1 60/D1
b) požiarne uzávery otvorov v požiarnych deliacich konštrukciách,
1. šácht evakuačných výťahov, podľa položky 4
2. šácht ostatných výťahov. 30/D1 30/D1 30/D1
Okrem požiadaviek definovaných v STN 92 0201-2 [4] nám STN 92 0201-3 [2] uvádza, že požiarne deliace konštrukcie, konštrukcie zabezpečujúce stabilitu
chránenej únikovej cesty a obvodové konštrukcie chránenej únikovej cesty musia byť vyhotovené z konštrukčných prvkov druhu D1 v zmysle STN 92 0201-2 [4]. Z čoho vyplýva, že bez ohľadu na podlažie sa musí vždy použiť iba konštrukcia druhu D1. Ďalej z STN 92 0201-3 [2] vyplýva, že požiarny strop nad chránenou únikovou cestou musí byť vyhotovený z konštrukčných prvkov druhu D1 s požiarnou odolnosťou najmenej REI 30, čiže aj v poslednom nadzemnom podlaží. Hodnota 15 pre posledné nadzemné podlažie sa nesmie použiť a je v tomto smere mierne zavádzajúca.
8.11.2 Podlaha na únikovej ceste
Úniková cesta musí byť riešená tak, aby sa zabránilo zakopnutiu alebo pošmyknutiu evakuovaných osôb a to pomocou vhodnej úpravy podlahy. Kritické miesto kde hrozí najvyššie riziko je oblasť v blízkosti dverí, pretože hlavne pokiaľ sa evakuujú osoby neznalé priestorov stavby, často netušia čo sa nachádza za dverami. Z tohto dôvodu vyhláška MV SR č. 94/2004 Z. z. [1] uvádza, že podlaha po oboch stranách dverí, ktorými prechádza úniková cesta, musí byť vo vzdialenosti rovnajúcej sa aspoň šírke únikovej cesty v rovnakej výškovej úrovni, avšak neplatí to na podlahu pri dverách, ktoré vedú na voľné priestranstvo, na terasu, plochú strechu, balkón, pavlač a podobne.
8.11.3 Dvere na únikovej ceste
Dvere na únikovej ceste musia spĺňať viacero požiadaviek definovaných vo vyhláške MV SR č. 94/2004 Z. z. [1] a v STN 92 0201-3 [2]. Dôležité je či sa nachádzajú dvere priamo na únikovej ceste alebo prepájajú únikovú cestu s iným požiarnym úsekom. Dvere nachádzajúce sa na únikovej ceste musia umožňovať bezpečný a rýchly prechod pri evakuácii osôb a nesmú brániť zásahu hasičskej jednotky. Dôležitým pravidlom je, že dvere na únikovej ceste okrem dverí na začiatku únikovej cesty sa musia otvárať v smere úniku pootáčaním dverových krídel v postranných závesoch alebo v čapoch. Výnimka je pre dvere, ktoré vedú zo stavby určenej na bývanie na voľné priestranstvo a na dvere vedúce zo stavby na voľné priestranstvo, cez ktoré sa vykonáva evakuácia najviac 100 osôb.
Na čo sa pri návrhu stavieb nesmie zabúdať je, že v prípade keď z priestoru vedie na voľné priestranstvo viacero únikových ciest, musia sa aspoň jedny dvere vedúce na voľné priestranstvo otvárať v smere úniku pootáčaním dverových krídel v postranných závesoch alebo v čapoch. Dvere na ďalšej únikovej ceste môžu byť kývavé alebo vodorovne posuvné. Uvedená podmienka nachádzajúca sa vo vyhláške MV SR č. 94/2004 Z. z. [1] je dôležitá hlavne pre predajné priestory, kedy vstup do priestoru býva často riešený cez posuvné dvere. Pokiaľ by sa jednalo o jedinú únikovú cestu ak to dovoľuje vyhláška MV SR č. 94/2004 Z. z. [1], je potrebné navrhnúť zmenu typu dverí poprípade je potrebné navrhnúť druhú únikovú cestu, kde budú osadené dvere, ktoré sa musia otvárať v smere úniku pootáčaním dverových krídel v postranných závesoch alebo v čapoch.
Ďalšou požiadavkou pre dvere na únikovej ceste je v zmysle vyhlášky MV SR č. 94/2004 Z. z [1], že dvere na únikovej ceste nesmú pri otvorení zúžiť šírku únikovej
cesty pod hodnotu, ktorá sa zistila výpočtom pre minimálny počet únikových pruhov (kap. 1.3.8). V prípade že sa dvere nachádzajú na únikovej ceste zo zhromažďovacieho priestoru (priestor na zhromaždenie viac ako 200 osôb, v ktorom pripadá na jednu osobu pôdorysná plocha menšia ako 4 m2) alebo je úniková cesta určená pre viac ako 300 osôb, musia byť dvere na strane v smere úniku opatrené panikovým východovým uzáverom ovládaným horizontálnym držadlom podľa STN EN 1125 [5] (obr. 63). V tomto smere je taktiež dôležité dodržať ďalšie požiadavky definované vo vyhláške MV SR č. 478/2008 Z. z. o vlastnostiach, konkrétnych podmienkach prevádzkovania a zabezpečenia pravidelnej kontroly požiarneho uzáveru

Obr. 63 Panikový východový uzáver (autori)
Ak má dverové krídlo plochu väčšiu ako 4 m2 a cez tieto dvere vedie len jediná úniková cesta, tak v zmysle vyhlášky MV SR č. 94/2004 Z. z [1] prechod osôb musí byť zabezpečený ďalším dverovým krídlom s menším rozmerom, najmenej však s rozmerom zodpovedajúcim minimálnemu počtu únikových pruhov (kap. 8.3.8).
Dverové krídlo s menším rozmerom môže byť súčasťou väčšieho dverového krídla (obr. 64) Tento typ dverí je typický predovšetkým pre výrobné prevádzky.

Obr. 64 Roletové dvere s vloženým dverovým krídlom (autori)
Pre zabezpečenie správneho fungovania dverí sa musí zabrániť tomu, aby roletové dvere boli vytiahnuté len čiastočne, pretože je tým ohrozená funkčnosť menších jednokrídlových dverí. Dovolené sú len dva prevádzkové stavy a to buď úplne
otvorené roletové dvere ale úplne zatvorené, pričom sa musí zabezpečiť ich pravidelná kontrola.
Pokiaľ úniková cesta prechádza cez viac požiarnych úsekov, musia dvere na únikovej ceste spĺňať požiadavky na požiarne uzávery a osobitné požiadavky uvedené vo vyhláške MV SR č. 94/2004 Z. z. [1] a STN 92 0201-3 [2]. Požiarny uzáver je definovaný ako konštrukčný prvok zabudovaný v požiarnej deliacej konštrukcii alebo v inej konštrukcii, ktorý bráni šíreniu požiaru.
Najnižšia požadovaná požiarna odolnosť a druh konštrukčného prvku požiarnych dverí sa určuje pre požiarne dvere umiestnené v požiarnej stene podľa vyšších požiadaviek jedného z dvoch priľahlých požiarnych úsekov, medzi ktorými sú požiarne dvere umiestnené.
Kritériá požiarnej odolnosti ktoré musia požiarne dvere na únikovej ceste spĺňať sú uvedené vo vyhláške MV SR č. 94/2004 Z. z. [1] Požiarne dvere umiestnené na nechránenej únikovej ceste medzi jednotlivými požiarnymi úsekmi musia byť typu minimálne EW. Požiarne dvere typu EW možno nahradiť požiarnymi dverami typu EI. Požiarny dvere vedúce do chránenej únikovej cesty musia byť typu EI.
Požiarne dvere, ktoré oddeľujú chránenú únikovú cestu od požiarneho úseku bez požiarneho rizika alebo od iného priestoru bez požiarneho rizika, alebo od požiarneho úseku chráneného stabilným hasiacim zariadením, alebo od vonkajšej komunikácie, môže byť typu EW. V prípade chránenej únikovej cesty typu B a C, musia byť požiarne dvere ktoré oddeľujú požiarnu predsieň chránenej únikovej cesty od ostatných priestorov chránenej únikovej cesty typu EI-S.
Pokiaľ chránená úniková cesta prepája najmenej dve podzemné podlažia s nadzemnými podlažiami, musia byť podzemné podlažia od nadzemných podlaží oddelené požiarnym uzáverom typu EI-S.
Ak dvere na únikovej ceste ústia na voľné priestranstvo, nemusia byť vyhotovené ako požiarny uzáver. Problémom je, ak do priestoru kde sa nachádzajú dvere zasahuje požiarne nebezpečný priestor z inej stavby alebo z tej istej stavby. V takomto prípade musia byť dvere vyhotovené ako požiarny uzáver typu EI a vyhotovený z konštrukčných prvkov druhu D1 s požiarnou odolnosťou, ktorá sa rovná aspoň polovičnej hodnote požadovanej požiarnej odolnosti konštrukcie obvodovej steny, v ktorej je umiestnený. Ak sú požiarne dvere umiestnené vo vzdialenosti najmenej 30 % odstupovej vzdialenosti od požiarne otvorenej plochy iného požiarneho úseku, môžu byť vyhotovené z konštrukčných prvkov druhu D2 Základným poznávacím znakom požiarnych dverí je značka „Požiarne dvere“ a samozatvárací mechanizmus, ktorý zabezpečí automatické uzatváranie dverí po každom otvorení alebo pri vzniku požiaru. Preto je potrebné k požiarny dverám do požadovaných kritérií uvádzať aj skratku C, ktorá predstavuje požiadavku na samozatváranie. Táto podmienka uvádzaná vo vyhláške MV SR č. 94/2004 Z. z. [1] sa nemusí uplatniť na vstupné dvere do bytu. Samozatvárací mechanizmus môže mať rôzne prevedenie, pričom najbežnejšie je použitie nožnicového ramena (obr. 65).

8.11.4 Schodisko na únikovej ceste
Schodisko na únikovej ceste je kritickým miestom, pretože spomaľuje pohyb osôb znížením rýchlosti pohybu osôb a kapacity osôb ktoré môžu po únikovej ceste prejsť za určitý čas. Tak isto je schodisko miestom, kde dochádza ku kongescii osôb a často aj k zastaveniu evakuácie osôb.
Vyhláška MV SR č. 94/2004 Z. z. [1] a v STN 92 0201-3 [2] definuje niekoľko požiadaviek na schodiská na únikovej ceste. Prvou je, že na únikovej ceste určenej na únik viac ako 50 osôb musí mať schodisko sklon väčší ako 25 stupňov a menší ako 35 stupňov. V prípade točitého schodiska je potrebné dodržať najmenšiu šírku kosých stupňov, ktorá je minimálne 23 cm vo vzdialenosti30 cm od vnútorného okrajaramena a to vo všetkých prípadoch, ak schodisko slúži pre viac ako desať osôb. Dĺžka nástupnice schodiskového stupňa okrem časti kde je jej šírka menšia ako 23 cm sa započítava do šírky únikovej cesty.
V prípade veľmi širokých schodísk, schodiskové rameno a rampa na únikovej ceste musia byť po celej dĺžke rozdelené tak, aby sa ich šírka rovnala najviac štyrom únikovým pruhom, to neplatí na schodiská, ktoré majú najviac šesť schodiskových stupňov. Čiže v prípade že schodisko je veľmi široké, rozdelí sa po šírke na sériu viacerých schodísk. Toto opatrenie slúži na efektívnejšie usmernenie ľudí prievakuácii a znižuje sa tak riziko tlačenice, paniky a taktiež osoby so sťaženým pohybom si môžu pomôcť zábradlím.
Ďalšia požiadavka je určená predovšetkým pre zdravotnícke zariadenia, kde z každého podlažia, na ktorom sú osoby neschopné samostatného pohybu a z ktorého nie je zabezpečená evakuácia osôb priamo na voľné priestranstvo, musí viesť aspoň jedno schodisko s takou šírkou ramena a podesty, ktoré umožňujú prenos osôb na nosidlách.
Za schodisko ktoré môže byť súčasťou únikovej cesty sa považuje aj eskalátor, ktorý sa môže umiestniť aj do chránenej únikovej cesty.
Okrem vyššie spomenutých pravidiel, existujú osvedčené postupy v oblasti projektovania schodísk na únikovej ceste, ktoré zabezpečia efektívnejšiu evakuáciu. Poznatky sa opierajú predovšetkým o výsledky výskumu psychológie správania sa ľudí pri pohybe. Základom je vyhnúť sa rozličnej výške schodiskových stupňov pričom je dôležitá presnosť, pretože dokonca aj s milimetrovým rozdielom osoby
idúce po schodisku môžu zakopnúť. Súvisí to s automatizáciou ľudského pohybu kedy ľudský mozog nad pohybom nerozmýšľa. Ďalším neoficiálnym pravidlom je zatáčanie schodiska v smere pohybu do ľavej strany. Dôvodom je, že dezorientované osoby alebo osoby v strese majú tendenciu zahýbať do ľavej strany a pohyb doľava je prirodzenejší. Vo väčšine prípadov to zapríčiňuje silnejšia pravá noha, ktorú má vo všeobecnosti približne 90 % svetovej populácie. Posledným nepísaným pravidlom pri návrhu schodísk je dodržanie párneho počtu schodiskových stupňov na schodiskovom ramene. Dôvodom je, že ľudia majú sklon vždy začínať výstup do schodiska alebo zo schodiska tou istou nohou bez toho, aby si to uvedomovali. V prípade nepárneho počtu schodiskových stupňov a veľkého počtu schodiskových ramien, to môže mať za následok preťaženie jednej nohy, čo môže spôsobiť kŕče, sťaženie pohybu alebo až zranenie a to pre evakuované osoby ale aj pre zasahujúce záchranné zložky.
8.11.5 Osvetlenie a označenie únikových ciest
Osvetlenie únikových ciest je nevyhnutnou požiadavkou pre zabezpečenie účinnej evakuácie. Podľa vyhlášky MV SR č. 94/2004 Z. z. [1] všetky únikové cesty musia byť počas prevádzky v stavbe osvetlené denným svetlom alebo umelým svetlom. Pokiaľ slúžia únikové cesty na evakuáciu viac ako 50 osôb, musia byť vybavené núdzovým osvetlením. V zdravotníckych zariadeniach musia byť únikové cesty osvetlené umelým svetlom. Pokiaľ sa tam nachádzajú osoby neschopné samostatného pohybu, musia byť únikové cesty osvetlené umelým svetlom až po východ na voľné priestranstvo.
Osvetľovacie telesá núdzového osvetlenia sa odporúča umiestniť vo výške 2 000 až 2 500 mm nad úroveň podlahy únikovej cesty. Dôležité je osvetliť miesta, kde nastáva zmena sklonu, smeru alebo druhu únikovej cesty, čiže na miestach vstupu do chránenej únikovej cesty, na začiatku schodiska v smere úniku, na rampách, a pod. Smer úniku zo stavby nemusí byť na prvý pohľad vždy zrejmí a v niektorých prípadoch dokonca komplikovaný. Preto v zmysle vyhlášky MV SR č. 94/2004 Z. z. [1], ak východ zo stavby na voľné priestranstvo nie je priamo viditeľný, musí byť smer úniku vyznačený na všetkých únikových cestách pomocou zariadení s vlastným zdrojom svetla (obr. 66) alebo pomocou núdzových fotoluminiscenčných značiek.

Smer úniku musí byť vyznačený zariadením s vlastným zdrojom svetla na chránenej únikovej ceste typu B a na chránenej únikovej ceste typu C, na únikových cestách v stavbe určenej na ubytovanie a na únikových cestách zo zhromažďovacieho priestoru a z lôžkovej časti zdravotníckeho zariadenia, avšak pokiaľ sa predpokladá evakuáciu najviac 25 osôb možno zariadenie s vlastným zdrojom svetla nahradiť fotoluminiscenčnými značkami. V ostatných prípadoch sa na únikových cestách nevyžaduje využitie zariadení s vlastným zdrojom svetla. Veľkosti, tvary, zobrazenia a umiestnenie bezpečnostných značiek súvisiacich s evakuáciou a únikovými cestami sú definované v STN EN ISO 7010 [6].
Použitá literatúra
[1.] Vyhláška MV SR č. 94/2004, Z. z., ktorou sa ustanovujú technické požiadavky na protipožiarnu bezpečnosť pri výstavbe a pri užívaní stavieb, v znení neskorších predpisov
[2.] STN 92 0201-3 Požiarna bezpečnosť stavieb. Spoločné ustanovenia. Časť 3: Únikové cesty a evakuácia osôb
[3.] STN 92 0241: 2012 Požiarna bezpečnosť stavieb. Obsadenie stavieb osobami.
[4.] STN 92 0201-2: 2017 Požiarna bezpečnosť stavieb. Spoločné ustanovenia. Časť 2: Stavebné konštrukcie.
[5.] STN EN 1125 Stavebné kovanie. Panikové východové uzávery ovládané horizontálnym držadlom. Požiadavky a skúšobné metódy.
[6.]STN EN ISO 7010 Grafické symboly. Bezpečnostné farby a bezpečnostné značky. Registrované bezpečnostné značky.
Pri likvidácii požiaru príslušníkmi Hasičského a Záchranného zboru, je uplatňovaná séria priorít ktorým je prispôsobený zásah. Cieľ je vždy záchrana a evakuácia osôb, záchrana a evakuácia zvierat, záchrana majetku a lokalizácia a likvidácia požiaru. Aj keď evakuácia zvierat má svoje špecifiká, podobá sa do určitej miery evakuácii osôb zo stavby.
9.1 Právny rámec na úseku evakuácie zvierat
Základným právnym predpisom je vyhláška MV SR č. 94/2004 Z. z. [1] ktorou sa ustanovujú technické požiadavky na protipožiarnu bezpečnosť pri výstavbe a pri užívaní stavieb. Vo vyhláške sa problematikou evakuácie zvierat venuje hlavne jej siedma časť rozdelená na 3 hlavy. Druhým predpisom na území SR je STN 92 0201-3 [2] Požiarna bezpečnosť stavieb, Spoločné ustanovenia, Časť 3: Únikové cesty a evakuácia osôb.
Z hľadiska terminológie sa pri evakuácii zvierat používa pojem evakuačná cesta, čo je rozdielne ako pri evakuácii osôb zo stavieb kedy sa používa pojem úniková cesta. Pojem evakuačná cesta sa používa z dôvodu, že zvieratá nie sú schopné samostatného úniku, vyžadujú asistenciu a je ich potrebné evakuovať.
9.2 Požiadavky na evakuačné cesty pre zvieratá
Evakuačné cesty pre zvieratá sa musia navrhnúť tak, aby ich dĺžka a šírka umožňovala vykonať bezpečnú evakuáciu zvierat zo stajní ohrozených požiarom na voľné priestranstvo. Pri evakuácii zvierat sa nepreveruje čas evakuácie ako pri evakuácii osôb, ale preveruje sa len technické vyhotovenie únikových ciest (dĺžka, šírka a výška) a počet zvierat na jednu evakuačnú cestu Evakuačnou cestou pre zvieratá sa v zmysle vyhlášky MV SR č. 94/2004 Z. z. [1] rozumie každý voľný komunikačný priestor vrátane stajňových priestorov s rozpojiteľnými rúrkovými zábranami, smerujúcimi k východu na voľné priestranstvo. Evakuačná cesta pre zvieratá môže prechádzať susedným požiarnym úsekom, ak v ňom nie sú prevádzkarne skupiny výroby 6 alebo 7. Zoznam prevádzkarní je uvedený v STN EN 92 0201-1 [3] a zaraďujú sa sem napríklad sklady horľavých kvapalín, mlyny na obilie, halový sklad sena a pod.
9.2.1 Dovolený počet zvierat
Najväčší počet zvierat na jednej evakuačnej ceste pre zvieratá sa určuje podľa druhu zvierat a podľa druhu konštrukčného celku stavby v zmysle STN EN 92 0201-3 [2] (tab. 45).
Tab. 45 Počet zvierat na jednu evakuačnú cestu pre zvieratá [2]
Pol. Druh zvieraťa
1. Hovädzí dobytok alebo teliatka v rastlinnej výžive
2. Prasce vo výkrme, prasničky a prasiatka v dochove
3. Oplodnené a zapustené prasnice v pôrodnici, kance
4. Ovce
5. Kone
9.2.2 Dĺžka únikových ciest
Konštrukčný celok stavby podľa STN EN 92 0201-2
Nehorľavý
Nehorľavý
Najväčší počet zvierat na jednu evakuačnú cestu pre zvieratá
Horľavý 100
Nehorľavý 180
Zmiešaný 120
Horľavý 60
Nehorľavý
Nehorľavý 35
Zmiešaný
Evakuačná cesta pre zvieratá sa v zmysle vyhlášky MV SR č. 94/2004 Z. z. [1]nemusí zriaďovať v stavbách určených na chov hydiny a drobných zvierat a v stavbách určených na klietkový odchov zvierat, a to z toho dôvodu, že technické riešenie na evakuáciu zvierat by bolo značne zložité a klietky je možné odniesť po štandardnej únikovej ceste.
Tak ako pri evakuácii ľudí platí, že z každého stajňového priestoru, v ktorom sa zriaďujú únikové cesty pre zvieratá, musia viesť najmenej dve evakuačné cesty pre zvieratá rôznym smerom na voľné priestranstvo alebo do susedného požiarneho úseku. Jedna evakuačná cesta pre zvieratá sa v zmysle vyhlášky MV SR č. 94/2004 Z. z. [1] môže zriadiť zo stajňového priestoru, v ktorom je ustajnených najviac 60 kusov hovädzieho dobytka alebo teliat v rastlinnej výžive, 100 kusov prasiat vo výkrme, prasničiek a prasiatok v dochove, 60 kusov prasníc zapustených a oplodnených, prasníc v pôrodnici alebo kancov, 150 kusov oviec, 25 kusov koní.
Dĺžka evakuačnej cesty pre zvieratá sa meria na trase skutočnej evakuačnej cesty zvierat od najvzdialenejšieho miesta ustajňovacieho priestoru k východu na voľné priestranstvo. Dĺžka aspoň jednej evakuačnej cesty pre zvieratá musí byť kratšia ako 65 m.
Najmenšia šírka evakuačnej cesty pre zvieratá a najmenšie svetlé rozmery dvier, brán a prielezov na evakuačnej ceste pre zvieratá sa určujú podľa druhu zvierat v zmysle STN EN 92 0201-3 [2] (tab. 46)
Tab. 46 Najmenšia šírka evakuačnej cesty [2]
Pol. Druh zvierat
1. Hovädzí dobytok a teliatka v rastlinnej výžive
2. Prasce vo výkrme, prasničky a prasiatka v dochove
3. Prasnice zapustené a oplodnené
Najmenšia šírka evakuačnej cesty pre zvieratá (mm)
4. Prasnice v pôrodnici a kance 1 000
5. Ovce
6. Kone
7. Plemenné býky
8. Plemenné kone
Najmenšie svetlé rozmery dvier, brán a prielezov (mm) šírka výška
1) Platí pre zvieratá na vnútorných evakuačných cestách pre zvieratá, svetlá šírka dvier alebo brán na voľné priestranstvo je 1 600mm.
2) Pre pripustené kravy v pôrodniciach sa odporúča najmenšia šírka vnútornej evakuačnej cesty pre zvieratá 1 000 mm.
Použitá literatúra
[1.] Vyhláška MV SR č. 94/2004, Z. z., ktorou sa ustanovujú technické požiadavky na protipožiarnu bezpečnosť pri výstavbe a pri užívaní stavieb, v znení neskorších predpisov.
[2.] STN 92 0201-3 Požiarna bezpečnosť stavieb. Spoločné ustanovenia. Časť 3: Únikové cesty a evakuácia osôb.
[3.] STN 92 0201-1 Požiarna bezpečnosť stavieb. Spoločné ustanovenia
Určenie odstupových vzdialeností je ďalšia dôležitá časť riešenia PBS, v ktorej sa určia bezpečné vzdialenosti od stavieb alebo medzi stavbami, aby nedošlo k preneseniu požiaru na iné časti posudzovanej stavby alebo na susedné stavby.
Požiarne nebezpečný priestor
Požiarne nebezpečný priestor definuje Vyhláška MV SR č. 94/2004, Z.z. [1] (ďalej len Vyhláška) ako priestor okolo stavby, otvoreného technologického zariadenia alebo otvoreného skladu, z ktorého sa môže preniesť požiar sálaním tepla alebo padajúcimi časťami horiacej konštrukcie. Sálanie tepla sa uskutočňuje cez tzv. požiarne otvorené plochy. Padajúce častice sa zohľadňujú vtedy, ak sa na vonkajšej strane budovy, či už na fasáde alebo strešnej konštrukcii vyskytujú horľavé materiály alebo prvky, ktoré prihorení môžu odpadávať pod určitým uhlom a tým môžu zväčšiť určenú odstupovú vzdialenosť. Predpokladá sa, že horľavé prvky môžu odpadávať pod uhlom 20° do vzdialenosti rovnajúcej sa 0,36 násobku výšky pádu.
Poznámka: Požiarne nebezpečný priestor a jeho určovanie od otvorených skladov a otvorených technologických zariadení bude popísaný v kap. 8.3.2 a 8.3.3.
Požiarne otvorené plochy
Projektová norma STN 92 0201-4/Z3 [2] požiarne otvorenú plochu (POP) rozdeľuje
na:
úplne požiarne otvorené plocha,
čiastočne požiarne otvorená plocha,
požiarne otvorená plocha strešného plášťa
Úplne požiarne otvorená plocha je plocha
a) obvodovej steny nezabezpečujúcej stabilitu stavby alebo jej časti, ktorá nespĺňa požiadavku na požiarnu odolnosť podľa STN 92 0201-2 [3];
b) obvodovej steny jednopodlažnej stavby, ktorá nespĺňa požiadavku na požiarnu odolnosť podľa STN 92 0201-2 [3];
c) otvoreného otvoru v obvodovej stene alebo otvoru v obvodovej stene uzavretého výplňou, ktorá nespĺňa požiadavky na požiarnu odolnosť podľa STN 92 0201-2 [3].
Čiastočne požiarne otvorená plocha je plocha obvodovej steny alebo jej časti, ktorá spĺňa požiadavku na požiarnu odolnosť, jej vonkajšia strana má však horľavý povrch a je pri požiari schopná uvoľniť plošné množstvo tepla z 1 m2 viac ako 100 MJ/m2 (vzorec 1).
Požiarne otvorená plocha strešného plášťa je plocha strešného plášťa, ktorý nespĺňa požiadavku na požiarnu odolnosť alebo jevyhotovený z konštrukcie druhu D3, takisto požiarne neuzatvárateľné otvory (napr. strešné okná, svetlíky) v strešnom plášti.
Plošné množstvo uvoľneného tepla Q z horľavých látok vonkajšieho povrchu sa určí podľa rovnice:
Q = Σ Mi . Hi (57)
kde:
Q – množstvo uvoľneného tepla (MJ/m2),
Mi – plošná hmotnosť i-tej horľavej látky umiestnenej na vonkajšom povrchu obvodovej steny (kg/m2),
Hi – výhrevnosť i-tej horľavej látky vonkajšieho povrchu obvodovej steny (MJ kg-1), ktorú určíme podľa STN 73 0824 [4].
Odstupová vzdialenosť
Odstupová vzdialenosť d je kolmá vzdialenosť od povrchu požiarne otvorenej plochy, alebo zrovnávacej roviny požiarne otvorených plôch požiarneho úseku, stavby, otvoreného technologického zariadenia alebo otvoreného skladu po hranicu požiarne nebezpečného priestoru.
Zrovnávacia rovina
Ak v obvodovej stene požiarneho úseku požiarne otvorené plochy nie sú v jednej rovine, môžu sa tieto plochy pri určovaní odstupovej vzdialenosti premietnuť do zrovnávacej roviny požiarne otvorených plôch. Polohu zrovnávacej roviny požiarne otvorených plôch určujeme čo najbližšie k obvodovej stene a nemusí byť rovnobežná s obvodovou stenou (obr. 67).

Obr. 67 Požiarne nebezpečný priestor pred zrovnávacou rovinou požiarneho úseku [5]
10.2 Požiarne nebezpečný priestor
10.2.1 Vymedzenie požiarne nebezpečného priestoru
V pôdoryse sa požiarne nebezpečný priestor vymedzí vodorovnou rovinou, vedenou vo vzdialenosti d od požiarne otvorených plôch a zároveň rovinami, vedenými pod uhlom 20 °od krajných bodov požiarne otvorených plôch a uzatvorí sa oválnou plochou s polomerom r = d, ktorá sa vykreslí z krajných bodov požiarne otvorených plôch. Vymedzenie požiarne nebezpečného priestoru je zobrazené na obr. 68.

Obr. 68 Vymedzenie požiarne nebezpečného priestoru v pôdoryse [5]
Požiarne nebezpečný priestor sa vymedzuje od každého požiarneho úseku samostatne a to od každej obvodovej steny požiarneho úseku, v ktorej sú umiestnené požiarne otvorené plochy (obr. 69).

Obr. 69 Vymedzenie požiarne nebezpečného priestoru od požiarneho úseku [5]
Výškovo je požiarne nebezpečný priestor pred požiarne otvorenou plochou požiarneho úseku určený podobne, pričom je možné zjednodušenie, pri ktorom sa tento priestor určuje:
a) vodorovnou rovinou vedenou dolnou hranicou požiarne otvorenej plochy a vodorovnou rovinou vedenou vo vzdialenosti 0,7 d od hornej hranice požiarne otvorenej plochy,
b) vodorovnou rovinou vedenou v úrovni stropu posledného nadzemného podlažia (obr. 70).

Obr. 70 Vymedzenie požiarne nebezpečného priestoru požiarneho úseku po výške (v reze) [5]
Požiarne nebezpečný priestor od strešného plášťa vymedzíme v zmysle obr. 71a a obr. 71b. Vymedzenie požiarne nebezpečného priestoru od strešného plášťa závisí aj od sklonu strechy. Výška požiarne otvorenej plochy strešného plášťa sa určí kolmým priemetom do zvislej roviny vedenej v líci obvodovej steny (obr. 71b). Pre strešný plášť so sklonom väčším ako 15° je výška požiarne otvorenej plochy strešného plášťa hu ≥ 2,0 m a pri sklone do 15° hu = 2,0 m. Do požiarne otvorenej plochy strešného plášťa sa uvažujú aj požiarne neuzatvárateľné otvory v strešnom plášti (strešné okná, svetlíky), ktoré sú umiestnené v rovine strešného plášťa alebo môžu mať aj iný sklon ako je sklon strešného plášťa a tiež sa uvažujú ako kolmý priemet do zvislej roviny vedenej v líci obvodovej steny.
Poznámka: Strešný plášť, ktorý má iba povrchovú krytinu do hrúbky 15 mm vyhotovenú z horľavých materiálov, sa nepovažuje za požiarne otvorenú plochu.


Obr. 71 Vymedzenie požiarne nebezpečného priestoru od požiarne otvorenej plochy strešného plášťa a) požiarne nebezpečný priestor od požiarne otvorenej plochy strešného plášťa z konštrukcií druhu D3, b) stanovenie výšky hu požiarne otvorenej plochy strešného plášťa [5]
10.2.2 Požiadavky na požiarne nebezpečný priestor
Požiarne nebezpečný priestor môže zasahovať do verejného priestranstva, napr. do ulice, námestia, parku, priestoru vodnej plochy.
Poznámka: Ak požiarne nebezpečný priestor zasahuje do susedného pozemku, rieši sa jeho určenie v rámci stavebného konania.
V požiarnom nebezpečnom priestore požiarneho úseku stavby, otvoreného skladu, otvoreného technologického zariadenia, potrubného alebo dopravníkového mosta môžu byť umiestnené:
a) Iné požiarne úseky, ak:
1. ich obvodové steny zasahujúce do požiarne nebezpečného priestoru majú požiarnu odolnosť najmenej Ro-ef, určenú podľa čl. 5.4.11 STN 92 0201-2 [3] (obr. 15); povrchové úpravy dodatočného zateplenia musia mať povrchovú úpravu s indexom šírenia plameňa is = 0 mm/min podľa STN 73 0863 [6],
2. ich strešný plášť zasahujúci do požiarne nebezpečného priestoru spĺňa požiadavky pre vyhotovenie strešného plášťa;
b) Pozemné komunikácie vrátane železničných traťových vlečiek;
c) Dopravné a iné pomocné technické a technologické zariadenia (potrubné a káblové mosty, dopravníky, kompresory, chladiace zariadenia a pod.) slúžiace danému požiarnemu úseku alebo stavbe, alebo na ne priamo nadväzujú a spĺňajú požiadavky na ich vyhotovenie;
d) Otvorené stavby vodohospodárskych zariadení;
e) Sklady a skládky nehorľavých látok voľne uložených alebo v nehorľavých obaloch, ak tieto látky pri horení alebo pôsobení tepla neuvoľňujú toxické alebo žieravé splodiny.
Stavby alebo zariadenia uvedené v c) až e) musia byť vyhotovené z konštrukcií druhu D1 alebo z nehorľavých materiálov.
Požiarne nebezpečný priestor sa neurčuje pre:
a) požiarny úsek bez požiarneho rizika,
b) požiarny úsek chránenej únikovej cesty,
c) požiarny úsek v nevýrobnej stavbe alebo vo výrobnej stavbe a v stavbe poľnohospodárskej výroby so skupinou prevádzkarní 1 až 5 alebo v sklade v jednopodlažnej stavbe s As ≤ 1, v ktorých je na celej pôdorysnej ploche inštalované SHZ. Obvodové steny musia byť vyhotovené z konštrukčných prvkov druhu D1 alebo D2, avšak vonkajší povrch nemôžu mať z horľavých materiálov triedy reakcie na oheň E alebo F uvoľňujúcich množstvo tepla väčšie ako 100 MJ z 1 m2 povrchu [2].
10.2.3 Požiarne otvorené plochy
Úplne požiarne otvorenou plochou sú najčastejšie konštrukcie okien a dverí s výplňou bez požiarnej odolnosti (sklo, drevo, plast, hliník), pričom ich rozloženie na ploche obvodovej steny konkrétneho požiarneho úseku môže byť rôzne. Závisí od toho, akú majú tieto okenné a dverové otvory plochu a ako sú od seba navzájom vzdialené. Úplne požiarne otvorenou plochou môže byť aj obvodová stena, ktorá nemá požiarnu odolnosť alebo ktorá ju nemá preukázanú, napr. izolačný panel z trapézového plechu z PUR alebo PIR tepelnou izoláciou.
Jednotlivé úplne požiarne otvorené plochy sú plochy s menšími rozmermi ako 0,5 x 0,5 m, od ktorých požiarne nebezpečný priestor nemusíme určovať. Ak by však vzdialenosť medzi nimi bola menšia ako 1 m v ktoromkoľvek smere, už tieto plochy nemôžeme považovať za jednotlivé úplne požiarne otvorené plochy (obr. 72).




Obr. 72 Jednotlivé úplne požiarne otvorené plochy a) okná sú jednotlivé úplne požiarne otvorené plochy, b) okná nie sú jednotlivé úplne požiarne otvorené plochy Čiastočne požiarne otvorenou plochou je plocha obvodovej steny (napr. murovanej s požiarnou odolnosťou), ktorá je z vonkajšej strany zateplená penovým polystyrénom EPS (obr. 73a) alebo napr. drevovláknitou tepelnou izoláciou STEICO (obr. 73b) alebo obvodová stena obložená dreveným obkladom. Môže to byť aj celodrevená obvodová konštrukcia zrubovej steny alebo obvodovej steny vyhotovenej
z CLT panelov (obr. 73c), ak sa výpočtom podľa vzťahu (57) preukáže, že uvoľní zo svojho povrchu väčšie množstvo tepla ako 100 MJ z 1 m2. Príklady čiastočne požiarne otvorenej plochy obvodovej steny sú na obr. 73

a)
b) c)
Obr. 73 Príklady čiastočne požiarne otvorenej plochy obvodovej steny (autori) a) murovaná stena zateplená EPS, b) panelová konštrukcia obvodovej steny drevostavby zateplená drevovláknitou izoláciou, c) obvodová stena z CLT panelov
10.2.4 Požiarne otvorená plocha od strešného plášťa
Požiarne otvorená plocha od strešného plášťa závisí od sklonu strechy, z čoho nám vyplynie výška požiarne otvorenej plochy hu a od dĺžky strešnej konštrukcie lu v pozdĺžnom smere stavby (obr. 74). Do požiarne otvorenej plochy od strešného plášťa započítavame aj strešné okná, ktorých výška hu1 je taktiež kolmý priemet do zvislej roviny vedenej v líci obvodovej steny a šírka lu1 sa uvažuje podľa výkresovej časti projektovej dokumentácie.

Obr. 74 Požiarne otvorená plocha od strešného plášťa (autori) lu – dĺžka POP strešného plášťa, hu – výška POP strešného plášťa
V prípade, že ide o stavbu s dreveným krovom a nevyužívaným podkrovným priestorom nad požiarnym stropom, nosná konštrukcia strechy spolu so strešným plášťom nemusí podľa čl. 5.11.3 STN 92 0201-2 [3] vykazovať požiarnu odolnosť. Tým, že priestor pod strechou je nevyužívaný, je v ňom pn = 0, čiže je bezpredmetné určovať odstupovú vzdialenosť od strešného plášťa (obr. 75a).
Ak by išlo o podobnú stavbu s využívaným podkrovným priestorom, strešný plášť musí byť zateplený, jeho skladba je s nosnou funkciou strechy a musí spĺňať požiadavku na požadovanú požiarnu odolnosť. To znamená, strešný plášť nie je požiarne otvorenou plochou, teda odstupová vzdialenosť sa neurčuje (obr. 75b).
Na obr. 75c) je znázornená halová stavba s väzníkovou konštrukciou strechy a strešným plášťom z izolačných panelov z trapézového plechu s vnútornou PUR tepelnou izoláciou. V prípade, ak strešný plášť nemá požiarnu odolnosť alebo ju nemá preukázanú, uvažujeme ho ako požiarne otvorenú plochu a určujeme požadovanú odstupovú vzdialenosť d
Poznámka: Strešný plášť, prípadne stenový plášť stavby vyhotovený z gumotextilných plachiet, laminátových škrupín a pod. sa bez ohľadu na hrúbku týchto horľavých povrchových vrstiev a druh konštrukcii, ktoré ho podporujú, posudzuje ako požiarne otvorená plocha, ak výsledkami skúšok nie je preukázané inak


a) b) c)

Obr. 75 Príklady určovania požiarne otvorenej plochy od strešného plášťa (autori) a) stavba s nevyužívaným podstrešným priestorom, b) stavba s využívaným podstrešným priestorom, c) halová stavba s väzníkovou konštrukciou strechy
10.2.5 Plošná hustota tepelného toku
Hustota tepelného toku, tiež plošná hustota tepelného toku je tepelný tok, ktorý prechádza jednotkovou plochou kolmou na smer prenosu tepla. Jednotkou SI hustoty tepelného toku je W·m-2
V zmysle STN 92 0201-4/Z3 [2] je požiarne nebezpečný priestor, ohraničený určenou odstupovou vzdialenosťou bezpečný vzhľadom na susedné budovy vtedy, ak na jeho hranici je plošná hustota tepelného toku pod úrovňou q = 18,5 kW m-2 .
Veľa krajín má túto hodnotu stanovenú prísnejšie, napr. Anglicko 12,5 kW·m-2 , Švédsko 15 kW·m-2 a odstupové vzdialenosti potom vychádzajú väčšie. Napr. vo Švédsku sa odstupové vzdialenosti riešia pomocou švédskeho návodu pre projektovanie (wedish design guide). Budovy musia byť umiestnené minimálne 4,0 m od hranice alebo poprípade minimálne 8,0 m od ostatných budov na susedných pozemkoch. V prípade, že nie sú odstupové vzdialenosti dodržané, musí byť preukázané, že sa medzi budovami prípadný požiar nerozšíri [7].
Plošná hustota tepelného toku q sa určí z ekvivalentného času trvania požiaru τe, prípadne z výpočtového požiarneho zaťaženia pv a z teploty plynov, ktorá je pre ekvivalentný čas trvania požiaru vyjadrená normovou teplotnou krivkou TN
q = (TN + 273)4 . 5,67 . 10-11 (58)
TN = 20 + 345 log (8t + 1) (59)
kde:
q – plošná hustota tepelného toku (kW·m-2),
TN – normová teplota plynov v horiacom priestore (°C), t – ekvivalentný čas trvania požiaru τe (min), príp. výpočtové požiarne zaťaženie pv (kg·m-2).
Hodnoty q sú uvedené v tab. 47, pričom sa predpokladá, že emisivita telesa ε = 1,0.
Tab. 47 Plošná hustota tepelného toku [5]
τe, pv
Súčiniteľ
Plošná hustota tepelného toku q (kW·m-2)
Poznámka: Ak sa skutočné hodnoty τe, pv nachádzajú medzi tabuľkovými hodnotami, môže sa postupovať takto:
a) použije sa najbližšia vyššia tabuľková hodnota alebo b) použije sa lineárna interpolácia medzi susednými tabuľkovými hodnotami.
Ak je stavba vyhotovená z horľavého alebo zmiešaného konštrukčného celku, zvyšuje sa plošná hustota tepelného toku a k ekvivalentnému času trvania požiaru príp. výpočtovému požiarnemu zaťaženiu sa pripočítava hodnota [2]:
a) 10 min. príp. 10 kg·m-2 pre zmiešaný konštrukčný celok podľa 2.6.4. a) STN 92
0201-2 [3];
b) 15 min. príp. 15 kg·m-2 pre zmiešaný konštrukčný celok podľa 2.6.4. b) STN 92 0201-2 [3];
c) 20 min. príp. 20 kg·m-2 pre horľavý konštrukčný celok podľa 2.6.5. a) STN 92 0201-2 [3];
d) 25 min. príp. 25 kg·m-2 pre horľavý konštrukčný celok podľa 2.6.5. b) STN 92 0201-2 [3]
V zmysle ČSN 73 0802 [8] sú určené hranice medzi požiarne otvorenými a požiarne uzavretými plochami obvodových stien medznými hodnotami množstva uvoľneného tepla Q a plošnej hustoty tepelného toku podľa nasledujúcej tab. 48.
Tab. 48 Medzné hodnoty hustoty tepelného toku I a množstva uvoľneného tepla Q [8]
Špecifikácia požiarnej uzavretosti I (kW·m-2) Q (MJ·m-2)
Požiarne uzavretá plocha I ≤ 15 Q ≤ 150
Čiastočne požiarne otvorená plocha 15 > I ≤ 60 150 > Q ≤ 350
Úplne požiarne otvorená plocha I > 60 Q > 350
Pre obvodové steny druhu DP1 (D1) či DP2 (D2) možno použiť obidve vyššie uvedené kritériá (I i Q), pre steny druhu DP3 možno použiť iba výpočet hustoty tepelného toku I alebo požiarnu skúšku.
Výpočet hustoty tepelného toku je možné použiť pre všetky druhy konštrukčných prvkov D1, D2, D3. Pre určenie požiarnej otvorenosti obvodových stien môžeme použiť nasledovnú zjednodušenú rovnicu [3]:
(TN + 273)
(60)
kde:
I – hustota tepelného toku (kW·m-2),
ε – emisivita s predpokladanou hodnotou ε = 1,0 (-),
σ – Stefan-Boltzmannova konštanta rovná hodnote 5,67.10-8 W m-2 K-4 , TN – teplota horiaceho povrchu (°C).
Hodnota teploty plynov je premenná. Do rovnice sa dosadzuje predpis krivky vonkajšieho požiaru alebo tiež uhľovodíkovej krivky (pre horľavé plyny a pary). Všetky zmienené krivky sú závislé na čase trvania požiaru.
U drevostavieb z konštrukčných prvkov druhu D3 je možné použiť aj efektívnejšie zhodnotenie požiarnej otvorenosti, prípadne uzavretosti obvodových stien v závislosti na výhrevnosti a rýchlosti odhorievania. Tento spôsob sa používa napríklad pri softvéroch pre požiarne CFD simulácie [3]:
(61)
kde:
I – hustota tepelného toku (kW·m-2),
υ – rýchlosť odhorievania hmoty (kg·m-2·min-1),
H – výhrevnosť horľavého výrobku vonkajšieho povrchu obvodovej steny (MJ·kg-1).
Pri výpočte je možné zohľadniť skutočnosť, že z celkového uvoľneného tepla sa obvykle uvoľňuje väčšia časť vo forme prúdenia vzduchu a splodín horenia a menšia časť sálaním tepla, prestup tepla vedením sa zanedbáva. Na strane bezpečnosti je možné uvažovať hodnotu radiačného podielu rovnú 50% z celkového uvoľneného tepla. U matematických modelov sa radiačný podiel predpokladá i menší [9].
Podľa článku 8.4.5 ČSN 73 0802 [8] konštrukčné časti (konštrukčné prvky) druhu DP1 (D1) a DP2 (D2) sú klasifikované ako požiarne uzavreté plochy (PUP). Výnimku tvoria prípady, keď je vonkajší povrch z výrobkov triedy reakcie na oheň E či F s uvoľneným teplom �� > 150 MJ m-2. Stena je potom posudzovaná ako čiastočne požiarne otvorená plocha. Na klasifikáciu požiarnej otvorenosti obvodových stien podľa predpisov ČR má vplyv druh konštrukčných častí (konštrukčných prvkov). Konštrukcie DP1 a DP2 (pokiaľ sa na ich vonkajší povrch nepridáva horľavý materiál) je možné z podstaty ich definície (neuvoľňuje sa z nich teplo) zaradiť ako požiarne uzavreté plochy. Konštrukcie druhu DP3 sa väčšinou klasifikujú ako požiarne otvorené plochy. Dôležitým faktorom u týchto konštrukcií je požiarna odolnosť. To znamená, že aj konštrukčná časť druhu DP3 môže byť zaradená ako požiarne uzavretá
plocha, pokiaľ je jeho požiarna odolnosť zabezpečená účinným protipožiarnym opláštením z vonkajšej strany steny.
Projektová norma STN92 0201-4/Z3 [2] v SR však nemá stanovené medzné hodnoty plošnej hustoty tepelného toku a množstva uvoľneného tepla pre špecifikáciu požiarnej otvorenosti. Je určené len hraničné množstvo uvoľneného tepla pre zaradenie obvodovej steny s vonkajším horľavým povrchom ako čiastočne požiarne otvorenej plochy (Q > 100 MJ·m-2), ktorá sa musí zohľadniť pri výpočte odstupových vzdialeností. To však nezohľadní druh a hrúbku horľavého povrchu obvodovej steny, iba zaradí horľavý povrch obvodovej steny ako čiastočne požiarne otvorenú plochu (ČPOP), čím odstupová vzdialenosť od rôznych horľavých povrchov ostáva rovnaká.
10.3 Určovanie odstupových vzdialeností
Odstupová vzdialenosť sa určuje pre každý požiarny úsek stavby, otvoreného skladu alebo otvoreného technologického zariadenia samostatne. Ak má požiarny úsek členitý povrch, určí sa odstupová vzdialenosť pre všetky požiarne otvorené plochy, čo je znázornené na obr. 3
Pri nebezpečenstve padania častí stavebných konštrukcii sa musí odstupová vzdialenosť zväčšiť tak, aby tieto časti dopadli vždy do požiarne nebezpečného priestoru danej stavby, za predpokladu, že môžu padať v odchýlke 20° od zvislej roviny, t.j. do vzdialenosti rovnajúcej sa 0,36 násobku výšky pádu.
10.3.1 Odstupová vzdialenosť pre požiarny úsek
Odstupová vzdialenosť pre požiarny úsek sa určuje: a) štandardným spôsobom:
1. určí sa celková plocha Sp v m2 obvodovej steny alebo strešného plášťa s dĺžkou l (m) a výškou hu (m). Ak požiarne otvorené plochy nie sú rozmiestnené po celej ploche Sp, zvolí sa za Sp čo najmenšia plocha pravouhlého štvoruholníka s dĺžkou l1 (m) a výškou hu1 (m), v ktorej ležia všetky požiarne otvorené plochy. Určenie plochy Sp je zobrazené na obr. 10;
2. určí sa veľkosť požiarne otvorených plôch Spo v m2;
3. určí sa podiel po požiarne otvorených plôch k ploche obvodovej steny podľa rovnice:
kde:
po - podiel požiarne otvorených plôch k ploche obvodovej steny (%),
Spo - veľkosť požiarne otvorených plôch (m2),
Sp - plocha obvodovej steny, v ktorej sú požiarne otvorené plochy (m2);
(62)
4. v závislosti od dĺžky l alebo l1 a výšky hu alebo hu1, podielu po a ekvivalentného času trvania požiaru τe, príp. výpočtového požiarneho zaťaženia pv sa určí odstupová vzdialenosť d v m podľa tabuľky 3 v STN 92 0201-4 [5] alebo
b) sa vypočíta presným výpočtom, napríklad podľa literatúry [1] a [2] v Prílohe A STN 92 0201-4/Z3 [2].
10.3.1.1 Veľkosť požiarne otvorených plôch
Veľkosť požiarne otvorených plôch obvodových stien Spo sa započítava:
a) pri úplne požiarne otvorených plochách skutočnou plochou v m2;
b) pri čiastočne požiarne otvorených plochách plochou v m2 vynásobenou hodnotou súčiniteľa k10,
c) pri požiarne otvorených plochách od strešného plášťa plochou v m2 vynásobenou hodnotou súčiniteľa k11
Ak sú v požiarnom úseku úplne požiarne otvorené plochy obvodových stien Spo1, čiastočne požiarne otvorené plochy Spo2 a požiarne otvorené plochy strešného plášťa Spo3, určuje sa celková požiarne otvorená plocha Spo z pomeru hustoty tepelného toku jednotlivých plôch podľa rovnice:
kde:
Spo – celková požiarne otvorená plocha v m2 ,
Spo1 – úplne požiarne otvorená plocha v m2 ,
Spo2 – čiastočne požiarne otvorená plocha v m2 ,
Spo3 – požiarne otvorená plocha strešného plášťa v m2 , k10 – súčiniteľ čiastočne požiarne otvorených plôch podľa tab. 47, k11 – súčiniteľ požiarne otvorených plôch strešných plášťov podľa tab. 47. Obr. 76 Určenie plochy obvodovej steny Sp (autori)

Ak je podľa uvedenej rovnice plocha Spo väčšia ako plocha obvodovej steny Sp, určí sa celková požiarne otvorená plocha podľa rovnice:
(64)
Pri postupe podľa tejto rovnice sa odstupová vzdialenosť v tabuľke 3 STN 9202014 [5] určí pre e = 30 min alebo pv = 30 kg·m-2
PRÍKLAD 1
Vypočítajte odstupovú vzdialenosť od obvodovej steny požiarneho úseku drevostavby rodinného domu panelovej konštrukcie. Požiarne riziko požiarneho úseku je vyjadrené výpočtovým požiarnym zaťažením pv = 50 kg·m-2 (tab. K1 STN 92 0201-1 [10]). Rozmery obvodovej steny sú 12,41 x 4,3 m a nachádzajú sa v nej dva okenné otvory rozmerov 1,10 x 1,25 m. Obvodová stena má deklarovanú požiarnu odolnosť 30 min. Pri výpočtoch budeme uvažovať s tromi alternatívami riešenia vonkajšej fasády obvodovej steny: a) zateplená tepelnou izoláciou z minerálnej vlny hr. 150 mm, b) zateplená fasádnym penovým polystyrénom EPS hr. 200 mm, c) obložená palubkovým fasádnym systémom zo smrekového dreva hr. 24 mm. a) obvodová stena je požiarne uzatvorená plocha (PUP) a sú v nej dve úplne požiarne otvorené plochy (ÚPOP):
Sp = l hu = 12,41 4,3 = 53,36 m2
Spo = Spo1= (1,1·1,25) ·2 = 2,75 m2
·100= 2,75 53,36 ·100=5,15%
V prípade horľavého konštrukčného celku stavby, čo je náš prípad, sa musí výpočtové požiarne zaťaženie v požiarnom úseku zvýšiť o hodnotu 25 kg·m-2 v zmysle čl. 4.4.1 d) STN 92 0201-4/Z3 [2]: pv = 50 + 25 = 75 kg m-2
Odstupová vzdialenosť d = 2,7 m (tab. 3, STN 92 0201-4 [5]
b) obvodová stena je zateplená fasádnym penovým polystyrénom EPS hr. 200 mm. Zistíme, či obvodová stena tvorí čiastočne požiarne otvorenú plochu:
ς = 17 kg·m-3, Mi = ς·hrúbka = 17·0,2 = 3,4 kg·m-2, Hi = 39 MJ·kg-1
Q = Σ Mi·Hi. =3,4·39 = 132,6 MJ·m-2
132,6 MJ·m-2 > 100 MJ·m-2
Obvodová stena tvorí čiastočne požiarne otvorenú plochu (ČPOP).
k10 = 0,44 pre pv = 75 kg·m-2 (tab. 47)
Spo2 = 53,36 – 2,75 = 50,61 m2
Spo = Spo1 + k10·Spo2 =2,75 + 0,44·50,61 = 25,02 m2 ���� = ������ ���� ·100= 25,02 53,36 ·100=46,89%
Odstupová vzdialenosť d = 8,1 m (tab. 3, STN 92 0201-4 [5].
c) obvodová stena je obložená palubkovým fasádnym systémom zo smrekového dreva hr. 24 mm.
Zistíme, či obvodová stena tvorí čiastočne požiarne otvorenú plochu:
ς = 460 kg·m-3, Mi = ς·hrúbka = 460·0,024 = 11,04 kg·m-2, Hi = 17 MJ·kg-1
Q = Σ Mi·Hi =11,04·17 = 187,68 MJ·m-2 187,68 MJ·m-2 > 100 MJ·m-2
Obvodová stena tvorí čiastočne požiarne otvorenú plochu (ČPOP).
k10 = 0,44 pre pv = 75 kg·m-2 (tab. 47)
Spo2 = 53,36 – 2,75 = 50,61 m2
Spo = Spo1 + k10·Spo2 =2,75 + 0,44·50,61 = 25,02 m2 ���� = ������ ��
25,02
Odstupová vzdialenosť d = 8,1 m (tab. 3, STN 92 0201-4 [5]).
Rozdiel vo vypočítaných odstupových vzdialenostiach od požiarne uzatvorenej obvodovej steny (PUP) – alternatíva a) a čiastočne požiarne otvorených obvodových stien (ČPOP) – alternatíva b), c) je 5,4 m. Odstupová vzdialenosť vyšla v prípade čiastočne požiarne otvorených plôch rovnaká – 8,1 m. Zaradenie obvodovej steny s horľavým povrchom ako čiastočne požiarne otvorenej plochy je podľa STN 92 02014/Z3 [2] dané množstvom uvoľneného tepla Q > 100 MJ·m-2 bez ohľadu na mieru prekročenia tejto hodnoty.

Obr. 77 Porovnanie určených odstupových vzdialeností od PUP a ČPOP obvodovej steny (autori)
Vypočítané odstupové vzdialenosti sú vykreslené na obr. 77.
Vypočítajte odstupovú vzdialenosť od obvodovej steny rodinného domu z PRÍKLADU 1 pre nasledovné alternatívy vyhotovenia obvodovej steny:
a) konštrukcia z CLT panelov hrúbky 80 mm zo smrekového dreva;
b) zrubová konštrukcia z ostro-hranených trámov hrúbky 0,20 m zo smrekového dreva (prierez 0,20 x 0,22 m).
Zrubová a CLT konštrukcia obvodovej steny je typickým konštrukčným prvkom druhu D3 (v zmysle definícií konštrukčných prvkov uvedených v kap. 2). Na určenie požiarnej otvorenosti je preto vhodné zvoliť metodiku klasifikácie podľa hustoty tepelného toku I v zmysle ČSN 73 0802 [8], pričom budeme uvažovať s 50 % radiačným podielom.
a) obvodová stena z CLT panelov
υ = 0,45 kg·m-2·min-1 (príloha C, STN 92 0201-1 [8]; H = 17 MJ·kg-1 (STN 73 0824 [4]); pv = 75 kg/m2
Podľa tab. 48 je obvodová stena z CLT panelov klasifikovaná ako úplne požiarne otvorená plocha (ÚPOP).
Spo = Sp= 53,36 m
Odstupová vzdialenosť d = 11,4 m (tab. 3, STN 92 0201-4 [5]).
Poznámka: Odstupovú vzdialenosť pre konštrukciu obvodovej steny z ostro hranených trámov nie je potrebné počítať, pretože bude rovnaká ako u obvodovej steny z CLT panelov d = 11,4 m, pretože vstupné údaje do výpočtu sú rovnaké.
10.3.1.2 Určenie odstupovej vzdialenosti od značne vzdialených alebo relatívne malých požiarne otvorených plôch
Ak sú v jednej rovine obvodového alebo strešného plášťa požiarne otvorené plochy vzájomne značne vzdialené, prípadne sú relatívne malé tak, že pomerná veľkosť po < 40 % a to aj pre dĺžky l1 a výšky hu1 (podľa obr. 78a), určí sa odstupová vzdialenosť pre jednotlivé požiarne otvorené plochy podľa tab. 49. Takto určené odstupové vzdialenosti sa považujú za výsledné, ak je vzdialenosť okrajov susedných požiarne otvorených plôch najmenej 0,6 násobok súčtu odstupových vzdialeností týchto požiarne otvorených plôch. Ak je táto vzdialenosť menšia, postupuje sa podľa štandardného spôsobu výpočtu [2]. Určenie odstupových vzdialeností je viditeľné na obr. 78b.


Obr. 78 Určenie odstupových vzdialeností v zmysle čl. 3.2.4 STN 92 0201-4/Z3: 2020 [2] (autori) a) ohraničenie požiarne otvorených plôch, b) určenie odstupovej vzdialenosti [2]
Tab. 49 Určenie odstupovej vzdialenosti od jednotlivých otvorov [2] Dĺžka otvoru (m) Výška otvoru (m)
riziko (pv, pvm, τe, τem)
Poznámky:
1. Hodnoty platia pre úplne požiarne otvorené plochy a 100 % požiarne otvorených plôch.
2. Ak sa skutočné dĺžky alebo výšky otvorov nachádzajú medzi tabuľkovými hodnotami, určí sa odstupová vzdialenosť podľa najbližších vyšších tabuľkových hodnôt dĺžky a výšky otvoru alebo sa použije lineárna interpolácia medzi tabuľkovými hodnotami alebo sa vypočíta presným výpočtom.
3. Pre jednotlivé otvory prípadne jednotlivé úplne požiarne otvorené plochy a súčasne výškou menšou ako 0,5 m sa odstupová vzdialenosť nestanovuje.
PRÍKLAD 3
Vypočítajte odstupovú vzdialenosť od obvodových stien (označených na obr. 79 ako A1 a A2) požiarneho úseku jednopodlažnej administratívnej budovy, ktorá má nehorľavý konštrukčný celok, obvodové steny nemajú z vonkajšej strany horľavý povrch. Rozmery steny a umiestnenie otvorov sú pre stenu A1 znázornené na obr. 79a. Otvory majú rozmery 1450 x 1200 mm. Rozmery steny A2 a umiestnenie otvorov sú znázornené na obr. 79b. Rozmery okien sú 1450 x 1200 mm a 1500 x 1200 mm. Výpočtové požiarne zaťaženie v posudzovanom požiarnom úseku je 53,53 kg·m-2 .
Stena A1:
Sp = l·hu = 12·2,85 = 34,20 m2
Spo = Spo1= (1,45·1,2)·2 = 3,48 m2
Sp1 = l1·hu1 = 8,45·1,2 = 10,14 m2 ���� = ������ ����1 ·100= 3,48 10,14·100=34,31%
34,31 % ≤ 40 %, z čoho vyplýva, že požiarne otvorené plochy v stene A1 spĺňajú vyššie uvedené ustanovenia (ustanovenia čl. 3.2.4 STN 92 0201-4/Z3 [2]) pre určenie odstupovej vzdialenosti podľa tab. 49. Vzdialenosť medzi okrajmi požiarne otvorených plôch „x“ je taktiež vyhovujúca: x ≥ 0,6·(d1+d2) v zmysle obr. 79b
Odstupová vzdialenosť pre stenu A1 je d = 2 m
Stena A2:
Sp = l·hu = 13,3·2,85 = 37,91 m2
Spo = Spo1= (1,45·1,2) ·2 + (1,5·1,2) ·2 = 7,08 m2
Sp1 = l1·hu1 = 10,74·1,2 = 12,88 m2
54,96 % ≥ 40 %, z čoho vyplýva, že požiarne otvorené plochy v stene A2 nespĺňajú podmienky pre určenie odstupových vzdialeností podľa tab. 4. Vzdialenosť medzi okrajmi požiarne otvorených plôch „x“ vyhovuje podmienke x < 0,6·(d1+d2) podľa obr. 78b. Odstupovú vzdialenosť budeme určovať v zmysle čl. 3.2.4 STN 92 0201-4/Z3: 2020 [2] štandardným postupom.
Stena A2: štandardný postup:
Výpočtové požiarne zaťaženie pv =53,53 kg·m-2
Veľkosť požiarne otvorených plôch:
Odstupová vzdialenosť pre stenu A2 je d = 1,4 m (podľa tab. 3 STN 92 0201-4 [5]).
Odstupové vzdialenosti od steny A1 a steny A2 sú znázornené na obr. 79. V závislosti od toho, akým postupom sú odstupové vzdialenosti určené, je odlišné zakreslenie požiarne nebezpečného priestoru ako môžeme vidieť na obr. 79a a 79b




a) b)
Obr. 79 Príklad určenia odstupových vzdialeností a vykreslenia požiarne nebezpečného priestoru (autori) a) podľa tab. 4 STN 92 0201-4/Z3: 2020 [2] b) štandardným postupom
10.3.2 Odstupová vzdialenosť od otvorených skladov
Odstupová vzdialenosť otvorených skladov horľavých látok sa určuje ako pre celok v závislosti od jeho pôdorysných rozmerov, výšky hu a plošnej hustoty tepelného toku podľa tabuľky 3 STN 92 0201-4/Z3 [2]
Pri určení odstupovej vzdialenosti sa považuje: a) za dĺžku požiarneho úseku l posudzovaná strana otvoreného skladu; ak má otvorený sklad kruhový alebo nepravidelný pôdorys, dĺžka l sa určí ako 0,75 násobok priemeru kružnice opísanej okolo pôdorysnej plochy skladu; b) za výšku požiarneho úseku hu priemerná výška skladovanej horľavej látky zväčšená o predpokladanú výšku plameňa, najmenej však
1. 3,0 m pre nízku plošnú hustotu tepelného toku (pozri 5.4.3.1 STN 92 02014),
2. 4,5 m pre strednú plošnú hustotu tepelného toku (pozri 5.4.3.2 STN 92 02014),
3. 6,0 m pre vysokú plošnú hustotu tepelného toku (pozri 5.4.3.3 STN 92 02014);
Poznámka: Pre voľne nasypané látky je priemerná výška polovicou celkovej výšky nasypanej látky. Ak sú voľne nasypané látky z niektorej strany, prípadne viacerých strán ohraničené stenou s požiarnou odolnosťou najmenej EW 60/D1, určí sa priemerná výška ako polovica rozdielu celkovej výšky nasypanej látky a výšky steny.
c) za podiel plôch po = 100 % okrem skladov voľne nasypaných látok, kde je:
1. po = 80 % pre voľne nasypané skládky bez ohradenia s uhlom uloženia viac ako 30° podľa STN EN 1991-1-1 [11],
2. po = 60 % pre voľne nasypané skládky bez ohradenia s uhlom uloženia najviac ako 30° podľa STN EN 1991-1-1 [11]
Plošná hustota tepelného toku z požiarne otvorenej plochy požiarneho úseku otvoreného skladu sa určuje podľa charakteru voľne skladovaných horľavých látok. Na obr. 80 je znázornené ohraničenie požiarne nebezpečného priestoru voľného skladu.

Obr. 80 Požiarne nebezpečný priestor otvoreného skladu [5] Nízku plošnú hustotu tepelného toku vyjadrenú ekvivalentným časom trvania požiaru 15 min. majú:
a) látky, ktoré majú podľa STN 92 0201-1 [10] hodnotu súčiniteľa k1 ≤ 0,65,
b) látky v obaloch z nehorľavých alebo neľahko horľavých materiálov,
c) látky so súčiniteľom am ≤ 0,6 (napr. koks, uhlie, rašelina, rezivo, vlhčené štiepky a pod.),
d) látky vyskytujúce sa v 1. až 3. skupine prevádzkarní podľa STN 92 0201-1 [10], e) látky uvedené v 5.4.3.2 STN 92 0201-4 [5], ak ich množstvo vyjadrené náhodným požiarnym zaťažením nie je väčšie ako 15 kg·m-2 , f) voľné skládky tuhých horľavých látok zabezpečené stabilným hasiacim zariadením so samočinným spúšťaním.
Strednú plošnú hustotu tepelného toku vyjadrenú ekvivalentným časom trvania požiaru 50 min. majú:
a) látky, ktoré majú podľa STN 92 0201-1 [10] hodnotu súčiniteľa 0,65 k1 ≤ 0,85, b) látky ktoré majú hodnotu súčiniteľa 0,6 am ≤ 1,1,
c) látky vyskytujúce sa v 4. a 5. skupine prevádzkarní podľa STN 92 0201-1 [10],
d) látky uvedené v 5.4.3.3, STN 920201-4 [5], ak ich množstvo vyjadrené náhodným požiarnym zaťažením nie je vyššie ako 50 kg·m-2 ,
e) otvorené sklady horľavých plynov zabezpečené stabilným hasiacim zariadením so samočinným spúšťaním.
Vysokú plošnú hustotu tepelného toku vyjadrenúekvivalentným časom trvania požiaru 120 min. majú:
a) hodnotu súčiniteľa k1 0,85;
b) látky, ktoré sa pri horení roztekajú alebo rozlietajú (napr. plastické hmoty, parafín, poľnohospodárske produkty),
c) látky so súčiniteľom am 1,1,
d) látky vyskytujúce sa v 6. a 7. skupine prevádzkarní podľa STN 92 0201-1 [10].
Pri určovaní odstupových vzdialeností otvorených skladov sa môže prihliadať na všetky skutočnosti, ktoré bránia sálaniu tepla, napr. tieniaca prekážka zobrazená na obr. 14. Tieniaca prekážka musí byť vyhotovená ako stavebná konštrukcia, ktorá bude brániť sálaniu tepla a bude spĺňať požiadavkyna požiarnuodolnosť Ro-ef, určenú podľa čl. 5.4.10, obrázka 10 v STN 92 0201-2 [3] (obr. 81), musí byť vyhotovená z konštrukčných prvkov druhu D1 a povrchová úprava musí byť z nehorľavých materiálov triedy reakcie na oheň A1, ktoré nešíria plameň po svojom povrchu. Pre určenie požiarnej odolnosti Ro-ef sa pre nízku plošnú hustotu tepelného toku použije priamka požiarnej odolnosti R = 15 min (stupnica na zvislej osi na pravom okraji obrázka 15), pre strednú plošnú hustotu tepelného toku sa použije priamka požiarnej odolnosti R = 50 min a pre vysokú plošnú hustotu tepelného toku sa použije priamka požiarnej odolnosti R = 120 min.


PRÍKLAD 4
Určte odstupovú vzdialenosť od otvoreného skladu reziva, ktorý sa nachádza vo vonkajšom areáli výrobnej haly drevovýroby. Sklad reziva je umiestnený na spevnenej
ploche rozmerov 15 x 20 m v množstve skladovaného reziva do 300 m3. Priemerná výška skladovania neprekročí 1,5 m.
lu1 = 15 m
lu2 = 20 m
τe = 15 min (nízka plošná hustota tepelného toku podľa 5.4.3.2 STN 92 0201-4 [5])
hu = 1,5 m + 3 m = 4,5 m (priemerná výška skládky zväčšená o predpokladanú výšku plameňa)
po = 100 %
d1 = 6,9 m (tab. 3 STN 92 0201-4 [5])
d2 = 7,5 m (tab. 3 STN 92 0201-4 [5])
Odstupové vzdialenosti od otvoreného skladu sú vykreslené na obr. 82.

Obr. 82 Príklad odstupovej vzdialenosti od otvoreného skladu (autori)

Obr. 83 3D pohľad na otvorený sklad reziva (z príkladu 4) (autori)
10.3.3 Odstupová vzdialenosť od otvorených technologických zariadení
Odstupová vzdialenosť od otvorených technologických zariadení (OTZ) sa určuje pre každý požiarny úsek v závislosti od rozmerov pôdorysných plôch, na ktorých môže dôjsť k odhorievaniu látok spracúvaných v týchto zariadeniach, výšky hu a plošnej hustoty tepelného toku podľa tabuľky 3 STN 92 0201-4/Z3 [2].
Pri určovaní odstupovej vzdialenosti sa považuje:
a) za dĺžku l v m strana plochy, na ktorej môže nastať odhorievanie látok; ak má otvorené technologické zariadenie kruhový alebo nepravidelný pôdorys, dĺžka
l sa určí ako 0,75 násobok priemeru kružnice opísanej okolo pôdorysnej plochy otvoreného technologického zariadenia;
b) za výšku hu v m priemerná výška rozsypanej horľavej látky zväčšená o predpokladanú výšku plameňa, najmenej však
1. 3,0 m pre nízku plošnú hustotu tepelného toku (pozri kap. 10.3.2),
2. 4,5 m pre strednú plošnú hustotu tepelného toku (pozri kap. 10.3.2),
3. 6,0 m pre vysokú plošnú hustotu tepelného toku (pozri kap. 10.3.2); pre horľavé kvapaliny a horľavé plyny sa výška hu určuje iba výškou plameňa; Poznámka: Pre rozsypané látky je priemerná výška polovicou celkovej výšky rozsypanej látky. Ak sú rozsypané látky z niektorej strany, prípadne viacerých strán ohraničené stenou s požiarnou odolnosťou najmenej EW 60/D1, určí sa priemerná výška ako polovica rozdielu celkovej výšky rozsypanej látky a výšky steny.
c) za podiel plôch po = 100 % okrem voľne rozsypaných látok, kde je:
1. po = 80 % pre rozsypané látky bez ohradenia s uhlom uloženia viac ako 30° podľa STN EN 1991-1-1 [11],
2. po = 60 % pre rozsypané látky bez ohradenia s uhlom uloženia najviac ako 30° podľa STN EN 1991-1-1 [11].
Plošná hustota tepelného toku z požiarne otvorenej plochy požiarneho úseku otvoreného technologického zariadenia sa určuje podľa charakteru spracúvaných
látok, pričom pre horľavé kvapaliny a horľavé plyny sa vždy predpokladá vysoká plošná hustota tepelného toku.
Pri určovaní dĺžky l a výšky hu je potrebné prihliadať ku konkrétnym podmienkam, napr. k svahovitosti terénu, tlakovým pomerom v technologických zariadeniach a pod. Súčasne sa berú do úvahy aj všetky skutočnosti, ktoré bránia sálaniu tepla, rovnako ako sa požaduje pri otvorených skladoch.
PRÍKLAD 5
Určte odstupovú vzdialenosť od stáčacej stanice vykurovacieho oleja, ktorú tvorí oceľová nádrž o objeme vykurovacieho oleja 1400 m3. Vykurovací olej sa z oceľovej nádrže prečerpáva do vedľajšej budovy za účelom vykurovania technológie. Nádrž je umiestnená v záchytnej železobetónovej vani o objeme 1950 m3, ktorá svojim objemom pokryje množstvo skladovaného oleja. Pôdorysné rozmery záchytnej nádrže sú 30 x 50 m a hĺbka je 1,3 m. Zároveň určte požiadavky na tieniacu konštrukciu, ktorá bude brániť sálaniu tepla, v prípade nebezpečenstva prenesenia požiaru na susedné stavby.
lu1 = 30 m
lu2 = 50 m
τe = 120 min (vysoká plošná hustota tepelného toku podľa 5.4.3.3 STN 92 0201-4 [5])
hu = 6 m (pre horľavé kvapaliny a horľavé plyny sa výška hu určuje iba výškou plameňa
po = 100 %
d1 = 20 m (tab. 3 STN 92 0201-4 [5])
d2 = 21,3 m (tab. 3 STN 92 0201-4 [5])
Odstupové vzdialenosti od otvoreného technologického zariadenia sú vykreslené na obr. 84


Obr. 85 3D pohľad na otvorené technologické zariadenie stáčacej stanice vykurovacieho oleja (z príkladu 5) (autori)
Vzhľadom na to, že požiarne nebezpečný priestor z pravej strany OTZ zasahuje do budovy technológie, ako môžeme vidieť na obr. 85, je potrebné navrhnúť tieniacu konštrukciu s požiarnou odolnosťou Ro-ef, ktorá bude brániť preneseniu požiaru na susednú budovu.
d = 21,3 m
d´ = 4 m ��´ d = 4 21,3 =0,19
– použijeme priamku požiarnej odolnosti R = 120 min pre vysokú plošnú hustotu tepelného toku (obr. 15).
Ro-ef = 45 min (odčítané na grafe na obr. 81).
Tieniaca konštrukcia bude vyhotovená ako železobetónová stena hr. 200 mm, ktorá bude spĺňať požadovanú požiarnu odolnosť Ro-ef, a zároveň požiadavku na konštrukčný prvok druhu D1 a na povrchovú úpravu s indexom šírenia plameňa is = 0 mm/min v zmysle kap. 7.4.12 (čl. 5.4.10 STN 92 0201-2 [3]). Navrhnutá tieniaca konštrukcia je zobrazená na obr. 84
10.3.4 Odstupová vzdialenosť od technologických mostov a potrubných rozvodov Požiarne nebezpečný priestor pre potrubné, káblové a dopravníkové mosty, pre technické a technologické veže, ktorých nosné a ohraničujúce konštrukcie sú druhu D1 sa neurčuje. Mosty a veže, ktorých nosné a ohraničujúce konštrukcie sú druhu D2 alebo D3 musia mať odstupovú vzdialenosť najmenej 4 m od vonkajšieho okraja konštrukcií druhu D2 alebo D3, ako je znázornené na obr. 86

Obr. 86 Požiarne nebezpečný priestor technologického mosta [5]
Potrubné rozvody na rozvod horľavých plynov a horľavých kvapalín musia byť vyhotovené z nehorľavého materiálu a nesmú byť umiestnené v požiarne nebezpečnom priestore otvorených plôch obvodovej steny, po ktorej sú vedené.
Potrubné rozvody a iné technické a technologické zariadenia slúžiace na dopravu horľavých látok môžu byť umiestnené v požiarne nebezpečnom priestore len vtedy, ak sú vyhotovené z nehorľavých materiálov, alebo ak sú chránené proti účinkom požiaru konštrukciou druhu D1 s požiarnou odolnosťou najmenej 30 min.
10.3.5 Odstupová vzdialenosť od požiarneho úseku, ktorý tvorí obytná bunka
Odstupová vzdialenosť pre požiarny úsek, ktorý tvorí obytná bunka v stavbe na bývanie sa určuje podľa tab. 50.
Odstupová vzdialenosť pre požiarny úsek, ktorý tvorí obytná bunka v stavbe na ubytovanie sa určuje podľa tab. 51.
Tab. 50 Odstupová vzdialenosť pre obytnú bunku v stavbe na bývanie [5] % požiarne otvorenej plochy
4,4/5,4
3,8/4,7
3,1/4,0
2,3/3,0
5,9/7,3
5,0/6,4
4,0/5,2
2,8/3,8
6,9/8,0
5,8/7,5
4,5/5,6
2,9/4,2
Odstupová vzdialenosť v m pri dĺžke požiarneho úseku v m do 4,5 9 15 24 a viac 100 80 60 40 20
0,7/1,5
0,7/1,8
0,8/1,8
7,6/10,1
6,2/8,4
4,7/6,5 3,0/4,4
0,8/1,8
POZNÁMKA 1: Hodnoty za zlomkovou čiarou platia pre stavby s nosnými a požiarne deliacimi konštrukciami z konštrukčných prvkov druhu D3
POZNÁMKA 2: Pre dvojpodlažný požiarny úsek sa hodnoty násobia súčiniteľom 1,5 a pre trojpodlažný požiarny úsek súčiniteľom 2,0.
Poznámka 3: Ak sa skutočné hodnoty % požiarne otvorenej plochy alebo dĺžky požiarneho úseku nachádzajú medzi tabuľkovými hodnotami, postupuje sa takto: a) použije sa najbližšia vyššia tabuľková hodnota, alebo b) použije sa lineárna interpolácia medzi susednými tabuľkovými hodnotami.
Tab. 51 Odstupová vzdialenosť pre obytnú bunku v stavbe na ubytovanie [5] % požiarne otvorenej plochy
Odstupová vzdialenosť v m pri dĺžke požiarneho úseku v m ≤ 4,5 9 15 24 ≥36
4,0/5,0
3,5/4,4
2,8/3,5
1,9/2,7
0,0/1,2
5,3/6,7
4,4/5,8
3,5/4,7
2,3/3,4
0,0/1,4
6,1/8,0
5,1/6,3
3,9/5,4
2,4/3,7
0,0/1,4
6,6/9,0
5,5/7,5
4,0/5,7
2,5/3,8
0,0/1,4
6,9/9,6
5,5/7,8
4,0/5,9
2,5/3,8
0,0/1,4
POZNÁMKA 1: Hodnoty za zlomkovou čiarou platia pre stavby s nosnými a požiarne deliacimi konštrukciami z konštrukčných prvkov druhu D3.
POZNÁMKA 2: Pre dvojpodlažný požiarny úsek sa hodnoty násobia súčiniteľom 1,5 a pre trojpodlažný požiarny úsek súčiniteľom 2,0
Poznámka 3: Ak sa skutočné hodnoty % požiarne otvorenej plochy alebo dĺžky požiarneho úseku nachádzajú medzi tabuľkovými hodnotami, postupuje sa takto: a) použije sa najbližšia vyššia tabuľková hodnota, alebo b) použije sa lineárna interpolácia medzi susednými tabuľkovými hodnotami.
Použitá literatúra
[1.] Vyhláška MV SR č. 94/2004, Z. z., ktorou sa ustanovujú technické požiadavky na protipožiarnu bezpečnosť pri výstavbe a pri užívaní stavieb, v znení neskorších predpisov
[2.] STN 92 0201-4/Z3: 2020 Požiarna bezpečnosť stavieb. Spoločné ustanovenia. Časť 4: Odstupové vzdialenosti. Zmena 3
[3.] STN 92 0201-2: 2017 Požiarna bezpečnosť stavieb. Spoločné ustanovenia. Časť 2: Stavebné konštrukcie
[4.] STN 73 0824: 1992 Požiarna bezpečnosť stavieb. Výhrevnosť horľavých látok
[5.] STN 92 0201-4: 2000 Požiarna bezpečnosť stavieb. Spoločné ustanovenia. Časť 4: Odstupové vzdialenosti
[6.] STN 73 0863: 1991 Požiarnotechnické vlastnosti hmôt. Stanovenie šírenia plameňa po povrchu stavebných hmôt
[7.] POLÁK, S. a kol. Studie zaměřená na zhodnocení stávajícího stavu požadavků na požární bezpečnost dřevostaveb v ČR a v zahraničí. Výskumné projekty Grantové služby LČR. Praha, 2019
[8.] ČSN 73 0802: 2020 Požární bezpečnost staveb – Nevýrobní objekty
[9.] POKORNÝ, M. Požární bezpečnost staveb – Sylabus pro praktickou výuku. Praha : ČVUT v Praze, 2014. ISBN 978-80-01-05456-7
[10.] STN 92 0201-1: 2000 Požiarna bezpečnosť stavieb. Spoločné ustanovenia. Časť 1: Požiarne riziko, veľkosť požiarneho úseku
[11.] STN EN 1991-1-1: 2007 Eurokód 1. Zaťaženia konštrukcií. Časť 1-1: Všeobecné zaťaženia. Objemová tiaž, vlastná tiaž a úžitkové zaťaženia budov
Zariadenia na zásah sú neoddeliteľnou súčasťou stavebného riešenia stavieb, umožňujúce viesť príslušníkom Hasičského a záchranného zboru (HaZZ) zásah z vonkajšieho priestoru stavby alebo z vnútorného priestoru stavby, alebo z obidvoch priestorov súčasne. Podmienky na prevádzku a technické riešenie zariadení na zásah upravuje siedma časť vyhlášky MV SR č. 94/2004 Z. z. [1] ktorou sa ustanovujú technické požiadavky na protipožiarnu bezpečnosť pri výstavbe a pri užívaní stavieb. V zmysle vyhlášky MV SR č. 94/2004 Z. z. [1] zariadeniami umožňujúcimi zásah sú prístupové komunikácie, nástupné plochy, zásahové cesty a požiarne zariadenia. V každom projekte protipožiarnej bezpečnosti stavby sa uvádzajú požiadavky na zariadenia na zásah, ktoré musia byť vybudované.
Prístupová komunikácia slúži ako hlavná trasa pre príjazd hasičskej techniky HaZZ k stavbe kde je potrebné vykonať zásah. Za týmto účelom musí spĺňať podmienky na vzdialenosť vzhľadom k stavbe, únosnosť a prejazdnú šírku. V zmysle vyhlášky MV SR č. 94/2004 Z. z. [1] prístupová komunikácia na zásah musí viesť aspoň do vzdialenosti 30 m od stavby a od vchodu do nej, cez ktorý sa predpokladá zásah Ak prístupová komunikácia vedie k rodinnému domu, táto vzdialenosť môže byť najviac 50 m.
V tomto smere platí výnimka pre samostatne stojace stavby alebo stavby v odľahlom teréne, alebo pre stavby kde náklady na vybudovanie prístupovej komunikácie by boli neúmerne vysoké alebo vyššie ako cena stavby. V takomto prípade sa prístupová komunikácia nevyžaduje.
Problematickým v rámci prístupovej komunikácie býva predovšetkým v husto zastavaných oblastiach miest a obci zabezpečenie minimálnej trvale voľnej šírky 3 m, do ktorej sa nezapočítava parkovací pruh. Vjazdy na prístupové komunikácie a prejazdy na nich musia mať šírku najmenej 3,5 m a výšku najmenej 4,5 m. Zlá organizácia parkovania v mestách, nesprávne odstavené autá, nevhodne postavené komunikácie často zužujú prejazdnú šírku komunikácie pod 3 m, čím sa znemožní prejazd hasičskej techniky. Na tento problém sa v praxi často zabúda a ostáva mnohé roky neriešený.
Z hľadiska technického vyhotovenia musí prístupová komunikácia byť v zmysle vyhlášky MV SR č. 94/2004 Z. z. [1] vyhotovená tak, aby jej únosnosť na zaťaženie jednou nápravou vozidla bola najmenej 80 kN, čo je približne 8,2 t. Podľa TP 3/2009 [2] pre navrhovanie netuhých a polotuhých vozoviek takúto únosnosť spĺňa spevnená komunikácia asfaltová resp. betónová.
Ďalšou podmienkou, ktorá je predovšetkým v mestských oblastiach problematická, je že každá neprejazdná jednopruhová prístupová komunikácia dlhšia ako 50 m musí mať na konci slučkový objazd alebo plochu umožňujúcu otáčanie vozidla. Jedná sa o dôležité konštrukčné vyhotovenie, pretože cúvanie veľkorozmernej hasičskej
techniky po jednopruhovej komunikácii je veľmi náročné a zároveň slučkový objazd poskytuje aj priestor pre rozloženie hasičskej techniky.
11.2 Nástupná plocha
Aby bolo umožnené zasahujúcim jednotkám z HaZZ vykonať úspešný zásah, potrebujú miesto kde môžu urobiť nástup hasičských jednotiek a umiestniť hasičskú techniku. Z tohto dôvodu musí mať každá stavba nástupnú plochu. V zmysle vyhlášky MV SR č. 94/2004 Z. z. [1] existuje niekoľko výnimiek, kedy stavba nemusí mať nástupnú plochu. Nástupná plocha nemusí byť vybudovaná pre stavby ktoré majú požiarnu výšku najviac 9 m, v ktorých sú zriadené vnútorné zásahové cesty, v ktorých nemožno viesť zásah z vonkajšieho priestoru stavby, v ktorých sú všetky priestory bez požiarneho rizika alebo ku ktorým nemusí viesť prístupová komunikácia.
Z hľadiska technického vyhotovenia nástupná plocha musí byť široká najmenej 4 m, mať sklon najviac 2 %, mať únosnosť rovnakú ako prístupová komunikácia a to najmenej na jednorazové použitie, byť trvale voľná a označená dopravnou značkou ZÁKAZ STÁTIA a musí byť napojená na prístupovú komunikáciu.
Nástupná plocha musí byť umiestnená pozdĺž priečelia stavby alebo kolmo k priečeliu stavby tak, aby bol možný zásah mobilnou hasičskou technikou do každého požiarneho úseku priliehajúceho k priečeliu
11.3 Zásahové cesty
Zásahová cesta je v zmysle vyhlášky MV SR č. 94/2004 Z. z. [1] komunikácia alebo technické zariadenie vnútri stavby alebo na vonkajšej strane stavby umožňujúce zásah hasičským jednotkám. Poznáme vnútornú a vonkajšiu zásahovú cestu.
11.3.1 Vnútorná zásahová cesta
Vnútorná zásahová cesta umožňuje príslušníkom HaZZ vykonať zásah v stavbe z jej vnútorných priestorov. Svoje opodstatnenie má predovšetkým v stavbách s vysokou výškou, pretože dosah výškovej techniky a možnosti zásahu z vonkajšej strany stavby sú obmedzené. Rovnaký princíp platí aj pre stavby s vysokou hĺbkou, pretože nie je možné vykonať zásah z vonkajšej strany. Z tohto dôvodu v zmysle vyhlášky MV SR č. 94/2004 Z. z. [1] vnútorná zásahová cesta musí byť vybudovaná v stavbe, ktorá má požiarnu výšku nadzemnej časti menej ako 22,5 m a hĺbku viac ako 30 m, ak možno viesť zásah len z jednej strany stavby alebo 60 m v ostatných prípadoch. Vnútorná zásahová cesta musí v takomto prípade spĺňať požiadavky aspoň na čiastočne chránenú únikovú cestu. Vnútorná zásahová cesta musí byť vybudovaná aj v stavbe, ktorá má požiarnu výšku v nadzemnej časti viac ako 22,5 m alebo nemá otvory vhodné na vedenie zásahu z vonkajšieho priestoru. V takomto prípade vnútorná zásahová cesta musí spĺňať požiadavky na chránenú únikovú cestu. Podľa vyhlášky MV SR č. 94/2004 Z. z. [1] existujú výnimky, kedy vnútorná zásahová cesta nemusí byť vybudovaná. Platí to pre stavby v ktorej sú všetky požiarne úseky bez požiarneho rizika alebo v ktorých sú požiarne úseky vybavené stabilným
hasiacim zariadením. Z vnútornej zásahovej cesty musia byť prístupné všetky zariadenia umožňujúce evakuáciu osôb, zariadenia obmedzujúce šírenie požiaru a zariadenia napomáhajúce likvidáciu požiaru alebo ovládacie prvky týchto zariadení.
11.3.2 Požiarny výťah
Požiarny výťah je výťah zriadený na dopravu hasičských jednotiek a hasičskej techniky, z ktorého je východ na všetky podlažia stavby, na ktorých sa predpokladá zásah. Zriaďuje sa prioritne vo výškových budovách na uľahčenie práce príslušníkov HaZZ. Za požiarny výťah sa považuje aj evakuačný výťah (kap. 1.9).
Požiarnym výťahom musí byť vybavená stavba s požiarnou výškou v nadzemnej časti viac ako 22,5 m, ak sú v tejto výške umiestnené prevádzkarne zaradené do skupiny 6 alebo 7, alebo stavba s požiarnou výškou viac ako 60 m. Zoznam prevádzkarní je uvedený v STN EN 92 0201-1 [3] a zaraďujú sa sem napríklad sklady horľavých kvapalín, mlyny na obilie, halový sklad sena a pod.
Požiarny výťah musí byť v zmysle vyhlášky MV SR č. 94/2004 Z. z. [1] umiestnený v chránenej únikovej ceste typu B alebo typu C (kap. 8.2.3) a musí mať zabezpečenú trvalú dodávku elektrickej energie najmenej počas 45 min ak je súčasťou chránenej únikovej cesty typu B a 90 min ak je súčasťou chránenej únikovej cesty typu C. Z pohľadu stavebných konštrukcií sa na výťahovú šachtu požiarneho výťahu kladú rovnaké požiadavky ako na výťahovú šachtu evakuačného výťahu (kap. 8.11).
Požiarny výťah musí byť vyhotovený tak, aby jeho prevádzková rýchlosť bola najmenej 0,7 m·s-1 .
11.3.3 Vonkajšie zásahové cesty
Vonkajšia zásahová cesta umožňuje príslušníkom HaZZ vykonať zásah v stavbe z jej vonkajších priestorov a to predovšetkým v stavbách s nízkou výškou. Za vonkajšie zásahové cesty sa v zmysle vyhlášky MV SR č. 94/2004 Z. z. považujú požiarne rebríky, požiarne schodiská a požiarne lavičky. Musia byť vyhotovené z nehorľavých materiálov a umiestnené mimo požiarne nebezpečného priestoru, kde hrozí riziko prenosu požiaru na iné objekty
Aby sa uľahčil zásah príslušníkov HaZZ a nebolo potrebné používať výškovú techniku alebo prenosné rebríky, tak stavby s požiarnou výškou menšou ako 9 m, v ktorých nie je prístup na strechu stavby z vnútorného priestoru a v ktorých konštrukcia strešného plášťa má požiarnu odolnosť aspoň 15 min a pôdorysná plocha je väčšia ako 200 m2, musia byť v zmysle vyhlášky MV SR č. 94/2004 Z. z. vybavené požiarnymi rebríkmi alebo požiarnymi schodiskami. Pokiaľ pochôdzna strecha stavby nemá v pôdoryse rovnakú výšku, na prekonanie výškových rozdielov konštrukcií striech väčších ako 0,6 m musia byť vybudované požiarne rebríky alebo požiarne schodiská. Požiarne rebríky a požiarne schodiská musia byť po obvode stavby umiestnené tak, aby ich vzájomná vzdialenosť bola najviac 200 m, čo zároveň predstavuje aj základ pre určenie potrebného počtu rebríkov.
11.4 Požiarne zariadenia
Požiarne zariadenia predstavujú aktívny prvok ochrany stavby a osôb nachádzajúcich sa v nej. Podľa vyhlášky MV SR č. 94/2004 Z. z. požiarne zariadenia sú požiarnotechnické zariadenia, hlasová signalizácia požiaru, zariadenia na trvalú dodávku elektrickej energie pri požiari, zariadenia na dodávku vody na hasenie požiarov a iné zariadenia slúžiace na evakuáciu a zásah
11.4.1 Vybavenie nevýrobných a výrobných stavieb požiarnotechnickými zariadeniami
Požiarnotechnické zariadenie sú elektrická požiarna signalizácia, stabilné hasiace zariadenie a zariadenie na odvod tepla a splodín horenia. Potreba umiestnenia požiarnotechnického zariadenia vychádza z vyhlášky MV SR č. 94/2004 Z. z. [1]. Pre nevýrobné a výrobné stavby zariadením elektrickej požiarnej signalizácie musí byť vybavená stavba určená na ubytovanie viac ako 20 osôb, ktorá má konštrukčný celok zmiešaný alebo horľavý, určená na ubytovanie viac ako 50 osôb, ktorá má konštrukčný celok nehorľavý, zdravotníckeho zariadenia s lôžkovou časťou alebo v ktorej je vnútorný zhromažďovací priestor. Zariadením elektrickej požiarnej signalizácie musí byť taktiež vybavená podzemná časť stavby, ak sa v podzemných podlažiach trvale zdržuje viac ako 20 osôb, nevýrobná stavba s požiarnou výškou nad 45 m a požiarny úsek, v ktorom je hromadná garáž pre viac ako 50 motorových vozidiel. Podrobnosti ohľadom elektrickej požiarnej signalizácie definuje vyhláška MV SR č. 726/2002 Z. z.[4] ktorou sa ustanovujú vlastnosti elektrickej požiarnej signalizácie, podmienky jej prevádzkovania a zabezpečenia jej pravidelnej kontroly.
Pre nevýrobné a výrobné stavby stabilným hasiacim zariadením musí byť v zmysle vyhlášky MV SR č. 94/2004 Z. z. [1] vybavené javisko s povraziskom určené pre vnútorný zhromažďovací priestor hľadiska s viac ako 500 osobami a javisko bez povraziska určené pre vnútorný zhromažďovací priestor hľadiska s viac ako 800 osobami. Javisko sa vybavuje SHZ z dôvodu, že sa v priestore nachádza veľké množstvo vysoko horľavých materiálov uložených vo všetkých smeroch, čo umožňuje rýchly rozvoj požiaru. Stabilným hasiacim zariadením musí byť ďalej vybavená ubytovacia časť hotela určeného na ubytovanie viac ako 300 osôb, ubytovacia časť inej stavby určenej na ubytovanie viac ako 500 osôb, nevýrobná stavba s požiarnou výškou nad 60 m, lôžková časť stavby zdravotníckeho zariadenia určená pre viacako 800 osôb, výstavná hala, v ktorej požiarny úsek má plochu viac ako 5 000 m2 , plocha požiarneho úseku obchodných priestorov väčšia ako 1 000 m2 , to neplatí, ak požiarny úsek obchodných priestorov sa nachádza v stavbe s jedným nadzemným podlažím a má plochu najviac 2 000 m2 a predpokladaný čas evakuácie je najviac 90 % hodnoty dovoleného času evakuácie.
Zariadením na odvod tepla a splodín horenia musí byť v zmysle vyhlášky MV SR č. 94/2004 Z. z. [1] vybavený vnútorný zhromažďovací priestor. Vnútorný zhromažďovací priestor je podľa vyhlášky MV SR č. 94/2004 Z. z. [1] priestor na zhromaždenie viac ako 200 osôb, v ktorom pripadá na jednu osobu pôdorysná plocha
menšia ako 4 m2.Vo vnútornom zhromažďovacom priestore, v ktorom má súčiniteľ horľavých látok hodnotu najviac 0,75, priemerné požiarne zaťaženie je najviac 15 kg m2 a súčiniteľ odvetrania má hodnotu najviac 0,8, možno nahradiť zariadenie na odvod tepla a splodín horenia otvormi, ktoré umožňujú prístup vzduchu pri požiari, pričom najmenej polovica plochy týchto otvorov je umiestnená v hornej tretine výšky obvodových konštrukcií alebo v strešnej konštrukcii.
11.4.2 Vybavenie skladov v jednopodlažnej stavbe požiarnotechnickými zariadeniami
Požiarnotechnické zariadenia v skladoch v jednopodlažnej stavbe sa určujú inak ako pri nevýrobných a výrobných stavbách. Na určenie potrebných zariadení sa postupuje podľa prílohy 13 vyhlášky MV SR č. 94/2004 Z. z. [1] kde je kľúčom nasledovný graf (obr. 87).

Obr. 87 Stanovenie požiarnotechníckých zariadení pre sklady v jednopodlažnej stavbe. (Zdroj: vyhláška MV SR č. 94/2004 Z. z.)
Podľa prílohy vyplýva, že požiarny úsek skladu v jednopodlažnej stavbe musí byť vybavený zariadením elektrickej požiarnej signalizácie, stabilným hasiacim
zariadením a zariadením na odvod tepla a splodín horenia podľa hodnôt indexu skladovaných materiálov a indexu ekonomického rizika. Podľa priesečníku hodnôt a jeho polohy sa stanovia minimálne požiadavky na požiarnotechnické zariadenia. Graf je rozdelený na dve hlavné plochy A a B a 4 menšie plochy očíslované 1-4. Pokiaľ sa priesečník nachádza na ploche A (nad bodkočiarkovanou čiarou), požiarny úsek musí byť vybavený zariadením na odvod tepla a splodín horenia. Pokiaľ sa priesečník nachádza na ploche B (pod bodkočiarkovanou čiarou), požiarny úsek nemusí byť vybavený zariadením na odvod tepla a splodín horenia. Pokiaľ sa priesečník nachádza súčasne na ploche 1, tak požiarny úsek nemusí byť vybavený zariadením elektrickej požiarnej signalizácie, stabilným hasiacim zariadením a zariadením na odvod tepla a splodín horenia, na ploche 2 musí byť požiarny úsek vybavený elektrickou požiarnou signalizáciou, na ploche 3 musí byť požiarny úsek vybavený stabilným hasiacim zariadením a na ploche 4 musí byť požiarny úsek vybavený elektrickou požiarnou signalizáciou a stabilným hasiacim zariadením.
Požiarny úsek skladu v jednopodlažnej stavbe musí byť v zmysle vyhlášky MV SR č. 94/2004 Z. z. [1] vybavený stabilným hasiacim zariadením aj vtedy, ak z indexu skladovaných materiálov a z indexu ekonomického rizika vyplýva potreba vybaviť ho elektrickou požiarnou signalizáciou a ak zásah hasičskou jednotkou nie je zabezpečený do 12 min od zistenia požiaru.
11.4.3 Hasiace prístroje
Hasiace prístroje patria medzi aktívne prvky protipožiarnej bezpečnosti stavieb a slúžia na vykonanie prvotného laického zásahu. Počet hasiacich prístrojov a ich druh sa určuje samostatne pre každý požiarny úsek zvlášť alebo pre celú stavbu v zmysle STN 92 0202-1 [5] Požiarna bezpečnosť stavieb – Vybavenie stavieb hasiacimi prístrojmi. Podmienky prevádzkovania hasiacich prístrojov upravuje vyhláška MV SR č. 347/2022 Z. z. [6] o vlastnostiach a o podmienkach prevádzkovania, označovania a zabezpečenia pravidelnej kontroly hasiacich prístrojov.
Hasiace prístroje sa na základe hmotnosti delia na prenosné a pojazdné. Prenosný hasiaci prístroj má celkovú hmotnosť najviac 20 kg, ktorý pozostáva z tlakovej nádoby obsahujúcej hasiacu látku a z príslušenstva tlakovej nádoby k nej pripevneného. Pojazdný hasiaci prístroj má celkovú hmotnosť viac ako 20 kg, ktorý pozostáva z kolesového podvozku s nainštalovanou tlakovou nádobou obsahujúcou hasiacu látku a z príslušenstva tlakovej nádoby k nej pripevneného
Podľa druhu hasiacej látky sa hasiace prístroje delia na vodné, penové, práškové, CO2, halónové a s čistou hasiacou látkou. Každá z uvedených hasiacich látok sa používa na iný typ požiaru a ich použitie je obmedzené. Pri výbere vhodného hasiaceho zariadenia a hasiacej látky do prevádzky neexistuje univerzálny návod. Je preto potrebná znalosť hasiacich látok a ich možností vrátane znalosti prostredia a zloženia horľavých materiálov v priestore, kde budú hasiace prístroje inštalované. Voda, ako najbežnejšia hasiaca látka, je efektívna pri hasení pevných horľavých materiálov, pričom hlavný hasiaci efekt je chladiaci a sekundárny je zrieďovací. Je vhodná na hasenie pevných látok triedy ako je drevo, papier, textil a pod. Voda nie je
vhodná pri hasení výpočtovej techniky, zariadení pod prúdom, alkalických kovov a horľavých kvapalín. Výhodou použitia vody je nízka cena, avšak má viacero obmedzení a môže spôsobiť nevratné poškodenie majetku.
Pena sa používa predovšetkým pri hasení kvapalín ale vhodná je aj pre hasenie pevných látok ako drevo, papier, textil a pod. Nesmie sa používať na hasenie výpočtovej techniky, zariadení pod prúdom a alkalických kovov. Je výnimočná v schopnostivytvárať ochranný filmna povrchuhorľavých látok. Jej hlavný hasiaciefekt je izolačný a sekundárny je ochladzovací. Pena vzniká z penotvorného roztoku zloženého z vody a penidla.
Práškové hasiace látky sa považujú za najuniverzálnejšie hasiace látky, ktorými je možné hasiť pevné, kvapalné a aj plynné látky. Prášok pri hasení vytvára súvislú vrstvu hasiacej látky na povrchu horľavej látky a zabraňuje prístupu vzduchu Hlavný hasiaci efekt je izolačný. Prášok nemá chladiaci efekt, preto pri aplikácii nedostatočnej vrstvy prášku môže dôjsť k opätovnému rozvoju požiaru. Nevýhodou prášku je, že počas hasenia môže dôjsť ku zníženiu viditeľnosti v dôsledku rozptýleného prachu v ovzduší pričom môže spôsobiť aj respiračné problémy CO2 je plynová hasiaca látka pričom hasiace prístroje využívajúce CO2 sa označujú aj ako snehové. Bezfarebný plyn sa skladuje v tlakovej nádobe ako skvapalnený, pričom po vypustení sa prudko ochladí z časti sa mení na suchý ľad. Hlavný hasiaci efekt je zrieďovací a sekundárny je ochladzovací. CO2 po vyprchaní nezanecháva stopy a je vhodný na hasenie požiarov v miestnostiach s výpočtovou technikou alebo na objekty o vysokej hodnote, kde je potrebné vyhnúť sa ich poškodeniu hasiacou látkou. Nesmie sa používať na hasenie alkalických kovov a práškových a sypkých horľavých látok, pretože by mohlo dôjsť k ich rozptylu.
Halotrónové hasiace látky nahradili halónové hasiace látky a to v dôsledku negatívnych dopadov na životné prostredie. Hlavný hasiaci efekt je inhibičný (chemicky preruší horenie) a sekundárny je zrieďovací a ochladzovací. Je vhodný na hasenie požiarov v miestnostiach s výpočtovou technikou alebo na objekty o vysokej hodnote, kde je potrebné vyhnúť sa ich poškodeniu hasiacou látkou. Je vhodný aj na hasenie zariadení pod elektrickým prúdom. V dôsledku toxicity produktov rozkladu sa nesmie používať na hasenie v uzavretých priestoroch. Náhrady halónových hasiacich prístrojov sa označujú ako hasiace prístroje s čistou hasiacou látkou.
Pri stanovovaní potrebného množstva hasiacej látky pre daný priestor sa postupuje v zmysle STN 92 0202-1 [5]. V závislosti od typu stavby je množstvo hasiacej látky závislé od plochy priestoru a od pravdepodobnosti vzniku a rozšírenia požiaru alebo súčiniteľa triedy požiarneho nebezpečenstva, alebo súčiniteľa horľavých látok. Pre nevýrobné stavby sa ekvivalentné množstvo hasiacej látky určuje podľa nasledovnej rovnice (65):
���� =0,9 (�� ��)1/2 ≥6 (65)
kde:
���� – celkové ekvivalentné množstvo hasiacej látky (kg),
�� – pôdorysná plocha požiarneho úseku alebo jedného podlažia viacpodlažného požiarneho úseku (m2), �� – súčiniteľ rýchlosti odhorievania.
So vzorcom sa pracuje jednoducho, napr. pri požiarnom úseku o veľkosti 1000 m2 a súčiniteľoviodhorievania 1 je celkové ekvivalentné množstvo hasiacej látky približne 28,5 kg. Výsledkom výpočtu je stanovenie množstva hasiacej látky ale nie jej druh a počet hasiacich prístrojov. Pre určenie počtu hasiacich prístrojov existuje v STN 92 0202-1 [5] ďalší vzorec, ktorý berie do úvahy účinnosť hasiacej látky uvedenej v tabuľke 52.
Tab. 52 Porovnanie hasiacej účinnosti jednotlivých druhov hasiacich prístrojov [5] Druh hasiaceho prístroja Práškový CO2 Halónové Vodný alebo penový Štandardná náplň (kg)
účinnosť
Vzorec uvádzaný v STN 92 0202-1 [5] pre stanovenie počtu hasiacich prístrojov je však možné vynechať Výslednú hodnotu celkového ekvivalentného množstva hasiacej stačí vydeliť číslom 6 a zaokrúhliť nahor. Z predchádzajúceho príkladu je to 28,5/6 = 4,75 čo je 5 hasiacich prístrojov práškových so štandardnou náplňou 6 kg. Ostáva potom už len na znalostiach špecialistu požiarnej ochrany vybrať vhodný druh hasiacej látky. V prípade že sa rozhodne pre CO2 hasiace prístroje, bude potrebovať 5 štandardných snehových hasiacich prístrojov o hmotnosti 10 kg alebo akýkoľvek iný počet ale musí ostať zachované minimálne množstvo hasiacej látky, čo je v tomto prípade hodnota 5·10=50 kg. Hasiace prístroje o hmotnosti menej ako 2 kg sa do celkového počtu nezapočítavajú. Obdobne sa postupuje aj pri iných typoch hasiacich prístrojoch.
Konštrukcia hasiaceho prístroja musí umožňovať jeho opakované plnenie. Každý hasiaci prístroj musí byť označený štítkom, kde je uvedený typ hasiacej látky, typy požiarov ktoré je možné hasiť a záznam o poslednej kontrole. Hasiace prístroje sa umiestňujú na stanovište hasiaceho prístroja, ktoré musí byť viditeľné, trvale prístupné a označené štítkom Prenosný hasiaci prístroj sa inštaluje spravidla na zvislej stavebnej konštrukcii. Tak aby jeho rukoväť bola maximálne vo výške najviac 1,5 m nad podlahou. Kontrola hasiacich prístrojov sa vykonáva najmenej raz za 24 mesiacov. 11.4.4 Hlasová signalizácia požiaru Úlohou hlasovej signalizácie požiaru je signalizácia požiaru a riadenie evakuácie pomocou slovných pokynov. Prax ukázala, že mnoho ľudí pri spustení elektrickej požiarnej signalizácie nechápe zvukový signál, ignoruje ho alebo si myslia že sa jedná o poruchu, prípadne skúšku, čo predstavuje potenciálne riziko ohrozenia ich zdravia, pretože sa tak predlžuje čas evakuácie. Hlasová signalizácia požiaru pomocou jasných a stručných slovných pokynov znižuje toto riziko a skracuje čas reakcie osôb na požiar v budove.
Povinnosti ohľadom inštalácie hlasovej signalizácie požiaru upravuje vyhláška MV SR č. 94/2004 Z. z. [1] v odseku 88. Hlasovou signalizáciou požiaru musia byť vybavené stavby, v ktorých sú zhromažďovacie priestory, určených na ubytovanie viac ako 20 osôb, ktorá má konštrukčný celok zmiešaný alebo horľavý, určených na ubytovanie viac ako 50 osôb, ktorá má konštrukčný celok nehorľavý, zdravotníckeho zariadenia s lôžkovou časťou, vktorých jevnútorný zhromažďovacípriestor a v stavbách v ktorých sa predpokladá postupná evakuácia osôb, podzemná časť stavby, ak sa v podzemných podlažiach trvale zdržuje viac ako 20 osôb a v ktorých je viac ako 200 osôb, okrem stavieb určených na bývanie. Vnútorný zhromažďovací priestor je podľa vyhlášky MV SR č. 94/2004 Z. z. [1] priestor na zhromaždenie viac ako 200 osôb, v ktorom pripadá na jednu osobu pôdorysná plocha menšia ako 4 m2 . Problematickým v oblasti hlasovej signalizácie požiaru sú osoby so sluchovým hendikepom. Tieto osoby sú školené všímať si okolie a prípadné nebezpečné javy a v prípade že sú v priestore prítomné osoby, nasledujú ich správanie. Problematické sú priestory kde sa takéto osoby môžu nachádzať samostatne (napr. toalety). Preto sa takéto priestory v stavbách prioritne vybavujú zariadením na vizuálnu signalizáciu požiaru.
Z hľadiska konštrukčného riešenia existuje množstvo technických noriem s označením STN EN 54-XX, pričom hlavná technická norma je STN EN 54-24 [7] Elektrická požiarna signalizácia. Časť 24: Súčasti systému hlasovej signalizácie požiaru Z konštrukčného hľadiska sú najdôležitejšou súčasťou hlasovej signalizácie požiaru práve reproduktory. Ich umiestnenie je kľúčové pre zabezpečenie rozpoznateľnosti zvukových povelov. Hlasová signalizácia požiaru sa často prepája s elektrickou požiarnou signalizáciou a jej ústredňou ktorá ju ovláda. Pokiaľ je v budove umiestnený aj rozhlas alebo iné zvukové zariadenia, musí sa zabezpečiť ich prepojenie s hlasovou signalizáciou požiaru tak, aby pri spustení hlasovej signalizácie došlo k vypnutiu spustených zvukových zariadení alebo k ich výraznému stíšeniu. Zabezpečí sa tak lepšie rozpoznanie zvukových príkazov z hlasovej požiarnej signalizácie.
11.4.5 Dodávka elektrickej energie
V prípade požiaru existuje reálne riziko, že dôjde k prerušeniu dodávky elektrickej energie, preto je v zmysle vyhlášky MV SR č. 94/2004 Z. z. [1] potrebné zabezpečiť, aby elektrické zariadenia, ktoré sú v prevádzke počas požiaru, mali zabezpečenú trvalú dodávku elektrickej energie a zároveň aby sa odstavili všetky nepotrebné zariadenia. Trvalú dodávku elektrickej energie pri požiari a vlastnosti káblových rozvodov určuje STN 92 0203 [8] Požiarna bezpečnosť stavieb – Trvalá dodávka elektrickej energie pri požiari.
Elektrické zariadenia v prevádzke počas požiaru musia mať zabezpečenú trvalú dodávku elektrickej energie najmenej z dvoch od seba nezávislých zdrojov, pričom každý nezávislý zdroj napájania musí mať dostatočný výkon. Ak nie je možné zabezpečiť druhé, prípadne ďalšie napájanie z distribučnej siete, použije sa ako ďalší
nezávislý zdroj napájania záložný zdroj v podobe agregátu na výrobu elektrickej energie alebo systém pozostávajúci z batérií.
V prípade výpadku elektrickej energiu musí dôjsť k automatickému naštartovaniu alebo spusteniu záložného zdroja. Je dôležité zabezpečiť, aby výpadok elektrickej energie bol po časovej stránke čo najkratší a nedošlo tak k prerušeniu fungovania dôležitých systémov. Dôležité elektrické zariadenia musia mať mechanizmus, ktorý v prípade výpadku zabráni ich zdĺhavému spúšťaniu prípadne resetovaniu nastavení. Výhodné je využitie systému pozostávajúceho z batérie a agregátu, kedy zdroj elektrickej energie počas preklenovacieho obdobia spúšťania agregátu zabezpečí batéria. Takýto systém sa využíva hlavne v stavbách, kde zariadenia ovláda centrálny riadiaci systém a ten nesmie ostať bez zdroja elektrickej energie.
Po spustení záložného zdroja sa musí automaticky zabezpečiť jeho prepojenie na elektrické rozvody na trvalú dodávku elektrickej energie pre elektrické zariadenia v prevádzke počas požiaru. Agregát a batérie bývajú umiestnené v strojovni a tvoria samostatných požiarnych úsek. Priestor v ktorom je umiestnený záložný zdroj sa musí zabezpečiť proti prieniku vody na hasenie.
Elektrické rozvody sa musia navrhnúť a zhotoviť tak, aby sa zaistilo bezpečné vypnutie dodávky elektrickej energie pre elektrické zariadenia v stavbe alebo v jej časti vrátane elektrických zariadení, ktoré musia zostať v prevádzke počas požiaru. Za týmto účelom každá stavba musí byť vybavená ovládacím prvkom CENTRAL STOP, ktorý slúži na zabezpečenie vypnutia dodávky elektrickej energie pre elektrické zariadenia v stavbe alebo v jej časti, ktoré nie sú elektrickými zariadeniami v prevádzke počas požiaru. Každá stavby musí mať aj ovládací prvok TOTAL STOP, ktorým je možné vypnúť dodávku elektrickej energie pre všetky elektrické zariadenia v stavbe vrátane zariadení v prevádzke počas požiaru. Priestor, z ktorého sa elektrická energia vypne, musí byť v prípade požiaru prístupný z vonkajšieho priestoru, priestoru chránených únikových ciest, vnútorných, alebo vonkajších zásahových ciest alebo z priestoru trvalej obsluhy.
11.4.6 Zariadenia na dodávku vody na hasenie požiarov
Zariadenia na dodávku vody na hasenie požiarov zabezpečujú v prípade požiaru dostatočný prísun základnej hasiacej látky vody v prípade požiaru. Zabezpečenie dodávky vody je jednou z častí riešenia požiarnej bezpečnosti stavby. Základom pre navrhnutie zariadení na dodávku vody je vyhláška MV SR č. 699/2004 Z. z. [9] o zabezpečení stavieb vodou na hasenie požiarov a STN 92 0400 [10] Požiarna bezpečnosť stavieb – Zásobovanie vodou na hasenie požiarov. Zariadenie na dodávku vody na hasenie požiarov sa zvyčajne navrhujú spoločne so zariadeniami pitnej alebo úžitkovej vody, popr. ako samostatný požiarny vodovod. Zásobovanie vodou sa zabezpečuje pomocou zdrojov vody na hasenie požiarov a musia byť schopné trvalo zabezpečovať potrebu vody na hasenie požiarov najmenej počas 30 minút a musia mať vyhovujúce podmienky na čerpanie vody na hasenie požiarov. Zariadeniami na dodávku vody nachádzajúce sa mimo stavby sú v zmysle vyhlášky MV SR č. 699/2004 Z. z. [9] čerpacie stanovište pre hasičskú techniku (rieka,
jazero, studňa a pod.), odberné miesta (nadzemný požiarny hydrant, podzemný hydrant, výtokový stojan, plniace miesto), zavodnený vonkajší požiarny vodovod s odbernými miestami a nezavodnený vonkajší požiarny vodovod. Zariadeniami na dodávku vody nachádzajúc vo vnútri stavby sú v zmysle STN 92 0400 [10] hadicové zariadenie (hadicový navijak, nástenný hydrant), nezavodnený vnútorný požiarny vodovod (nezavodnené stúpacie potrubie) a zavodnený vnútorný požiarny vodovod (zavodnené stúpacie potrubie). STN 92 0400 [10] nám určuje minimálne vzájomné vzdialenosti odberných miest. Pre hydrant je to 160 m, výtokový stojan 600 m a pre plniace miesto 6 000 m.
Nadzemné požiarne hydranty a podzemné hydranty na vonkajšom vodovode sa navrhujú tak, aby boli umiestnené mimo požiarne nebezpečného priestoru požiarneho úseku a priestoru snebezpečenstvom výbuchu, najmenej 5 m a najviac80 m od stavieb. Pre stavby na bývanie a ubytovanie skupiny A podľa vyhlášky MV SR č. 94/2004 Z. z. [1] sa hydranty umiestňujú mimo požiarne nebezpečného priestoru najmenej 5 m a najviac 200 m od stavby, pričom je povolené predĺžiť ich maximálnu vzájomnú vzdialenosť zo 160 m na 400 m. Stavba na bývanie a ubytovanie skupiny A je stavba s najviac dvoma obytnými bunkami (stavba rodinného domu)
Zariadenia na dodávku vody na hasenie požiarov mimo stavby (budovy) sú určené predovšetkým na dodávku vody pre čerpanie hasičskou technikou pri zásahu vodou alebo penou. Hadicové zariadenia vo vnútri budov slúžia predovšetkým na vykonanie prvotného zásahu osobami nachádzajúcimi sa na mieste požiaru pred príjazdom hasičských jednotiek. Nezavodnené alebo zavodnené požiarne vodovody sa zriaďujú vo vysokých alebo plošne rozľahlých budovách a slúžia na uľahčenie a urýchlenie zásahu hasičských jednotiek, pretože odpadá potreba budovať dopravné vedenie pomocou hadíc
Pri určovaní minimálnej potreby vody na hasenie požiaru sa za rozhodujúce považuje požiarny úsek stavby (budovy) s najväčšou potrebou vody na hasenie požiarov. Množstvo vody na hasenie požiarov v stavbe sa musí rovnať najmenej množstvu vody na hasenie požiarov určenému pre požiarny úsek s najväčšou potrebou vody na hasenie požiarov podľa tabuľky 2 v STN 92 0400 [10] položky pre v = 1,5 m·s-1 (tab. 53).
Pri určovaní množstva vody sa postupuje podľa tabuľky nasledovne. Najprv sa určí druh stavby, na základe čoho sa určí priemer potrubia (DN) a prislúchajúci odber vody. V prípade že stavba už existuje, preveruje sa či skutočný stav vodovodného potrubia vyhovuje, pričom základom je práve priemer potrubia. Pokiaľ je DN menší ako 80 mm alebo menší ako prikazuje tabuľka pre rôzne druhy stavieb, potrubie automaticky nevyhovuje a musí sa navrhnúť náhradné riešenie. To spočíva buďto v návrhu nového potrubia alebo v zbudovaní nádrže na vodu, ktorej minimálny objem pre rôzne stavby je definovaný v tabuľke 2 v STN 92 0400 [10] (tab. 53). Pri návrhu nádrže sa musia vždy preveriť možnosti výstavby, či daný priestor postačuje na zbudovanie nádrže a že nádrž nebude zasahovať do susedného pozemku.
Tab. 53 Hodnoty najmenšej dimenzie vodovodného potrubia, odberu vody a objemu nádrže zdroja vody [10]
Položka
1
Druh stavby a dovolená plocha požiarneho úseku S 1) [m2]
a) Stavby na bývanie a ubytovanie skupiny A s
plochou S ≤ 200 a b) nevýrobné stavby2) s plochou
S ≤ 120
a) Nevýrobné stavby2) s plochou
120 < S ≤ 1 000 a
2
Potrubie DN [mm]
Odber Q [l.s-1] pre v = 0,8 m.s-1 (odporúčaná rýchlosť)
Odber Q [l.s-1] pre v = 1,5 m.s-1 (s požiarnym čerpadlom) 3)
Najmenší objem nádrže vody na hasenie požiarov [m3]
3
b) výrobné stavby a sklady v jednopodlažnej stavbe s plochou S ≤ 500
a) Nevýrobné stavby2) s plochou 1 000 < S ≤ 2 000; b) výrobné stavby a sklady v jednopodlažnej stavbe s plochou 500 < S ≤ 1 000 a
c) otvorené technologické
zariadenia s plochou S ≤ 1 500
a) Nevýrobné stavby2) s plochou
S > 2 000;
4
b) výrobné stavby, sklady v jednopodlažnej stavbe s plochou S > 1 000 a
c) otvorené technologické
zariadenia s plochou S > 1 500
5 Stavby s vysokým požiarnym zaťažením2) ( p > 120 kg.m-2) a súčasne
1) Plocha S v m2 predstavuje plochu požiarneho úseku (pri viacpodlažných požiarnych úsekoch je daná súčtom plôch podlaží).
2) Nevýrobné stavby sú aj stavby na bývanie a ubytovanie skupiny B. Pri položkách 1 až 4 sa nemusí prihliadnuť na požiarne zaťaženie
3) Pri zásahu sa dá pripojením mobilnej hasičskej techniky na hydrant prekročiť odporúčaná rýchlosť prúdenia vody v potrubí (v = 0,8 m s-1) až na hodnotu v = 2,5 m s-1, aby sa zabránilo kavitácii pri prevádzke požiarneho čerpadla vplyvom zvýšených hydraulických strát, na účely tejto normy sa určila nižšia hodnota rýchlosti, a to v = 1,5 m·s-1
4) Hodnotu je možné preukázať analýzou zdolávania požiaru v stavbe (pozri prílohu B).
V prípade že je celý požiarny úsek vybavený vodným stabilným hasiacim zariadením so samočinným spúšťaním možno v zmysle vyhlášky MV SR č. 699/2004
Z. z. [9] potrebu vody na hasenie požiarov preodberné miesta znížiť pre požiarny úsek o 50 %.
Zdroj vody na hasenie požiarov má mať zásobu vody na minimálne 30 minút a najmenší odber 12 litrov za sekundu pre v = 1,5 m s-1 alebo výdatnosť jednej lafetovej požiarnej prúdnice, ak má prúdnica väčší odber.
Dôležitými zariadeniami v každej stavbe ktoré slúžia na prvotný laický zásah sú hadicové zariadenia. Rozlišujú sa dva typy a líšia sa predovšetkým dĺžkou, na ktorú sa dajú použiť. Pre nástenné hydranty s plochou hadicou to je 20 m a pre hadicové navijaky s tvarovo stálou hadicou je to 30 m. Výber hadicového zariadenia je závislý od najvzdialenejšieho bodu v priestore, kde je potrebné vykonať zásah. Parametre hadicových zariadení (minimálnym priemer hubice, minimálny prietok) sa určujú podľa prevádzky alebo typu stavby, kde budú umiestnené. Hadicový navijak s tvarovo stálou hadicou s menovitou svetlosťou 33 mm, s minimálnym priemerom hubice alebo ekvivalentným priemerom 12 mm s minimálnym prietokom Q = 90 l·min-1 pri tlaku 0,2 MPa alebo nástenný hydrant s plochou požiarnou hadicou s minimálnou svetlosťou hubice alebo ekvivalentnou svetlosťou 13 mm s minimálnym prietokom Q = 120 l min-1 pri tlaku 0,2 MPa) sa v zmysle STN 92 0400 [10] osadzujú najmä v požiarnych úsekoch s prevádzkami zaradenými do skupiny výroby a prevádzky 6 alebo 7 alebo ak súčiniteľ horľavých látok a je vyšší ako 1,1, v požiarnych úsekoch s priemerným požiarnym zaťažením väčším ako 120 kg·m-2 alebo sústredeným požiarnym zaťažením väčším ako 120 kg m2 , v požiarnych úsekoch (v stavbách) s lineárnou rýchlosťou šírenia požiaru vl > 1,2 m·min-1 a v stavbách alebo ich častiach ako predajné sklady, výstaviská, filmové, televízne a rozhlasové štúdia, javiská a zákulisia, sklady rekvizít a dekorácií.
Hadicový navijak s tvarovo stálou hadicou s menovitou svetlosťou 25 mm, s minimálnym priemerom hubice alebo ekvivalentným priemerom 10 mm s minimálnym prietokom Q = 59 l·min-1 pri tlaku 0,2 MPa alebo nástenný hydrant s plochou požiarnou hadicou s minimálnou svetlosťou hubice alebo ekvivalentnou svetlosťou 11 mm s minimálnym prietokom Q = 93 l min-1 pri tlaku 0,2 MPa sa v zmysle STN 92 0400 [10] osadzujú najmä v požiarnych úsekoch s prevádzkami zaradenými do skupiny výroby a prevádzky 1 až 5 alebo ak súčiniteľ horľavých látok a je vyšší ako 0,7, v požiarnych úsekoch s priemerným požiarnym zaťažením väčším ako 30 kg·m-2 alebo sústredeným požiarnym zaťažením väčším ako 30 kg·m-2 , v požiarnych úsekoch (stavbách) s lineárnou rýchlosťou šírenia požiaru vl > 0,3 m min-1 a v stavbách alebo ich častiach ako stavby na bývanie a ubytovanie skupiny B (stavba na bývanie a ubytovanie skupiny B je stavba s viac ako dvoma obytnými bunkami), stavby zdravotníckych zariadení, stavby zariadení sociálnych služieb, maloobchodné predajne, vnútorné zhromažďovacie priestory, v stavbách, kde súčin E x s je väčší ako 200 osôb, hromadné garáže, a požiarne úseky v podzemných podlažiach, v ktorých je počet osôb podľa STN 92 0241 [11] vyšší ako 10 V ostatných prípadoch stačí v zmysle STN 92 0400 [10] inštalovať hadicové zariadenia s minimálnym prietokom Q = 31 l·min-1 pri tlaku 0,2 MPa resp. hadicový navijak s tvarovo stálou hadicou s menovitou svetlosťou 19 mm, s minimálnym priemerom hubice alebo ekvivalentným priemerom 7 mm.
Na hadicové zariadenia sú kladené viaceré požiadavky. Hadicové zariadenia musia byť okrem pár výnimiek trvalo pod tlakom s okamžite dostupnou plynulou dodávkou vody. Hadicové navijaky s tvarovo stálou hadicou sa umiestňujú tak, aby ich mohla obsluhovať jedna osoba. Hadicové zariadenia sa rozmiestňujú tak, aby v každom mieste požiarneho úseku, v ktorom sa predpokladá hasenie, bolo možné hasiť najmenej jedným prúdom vody. Hadicové zariadenia sa umiestňujú tak, aby uzatváracia armatúra alebo uzatvárací ventil boli najviac vo výške 1,3 m nad podlahou, aby bol k nim umožnený ľahký prístup a nezužovali požadovaný trvale voľný komunikačný priestor. Hadicové zariadenie sa má prednostne umiestniť v požiarnom úseku, pri únikových východoch. Pri umiestnení hadicového zariadenia v požiarnom úseku únikovej cesty môže jeho použitie ohrozovať evakuované osoby na únikovej ceste. Hadicové zariadenie sa má umiestniť na každom podlaží požiarneho úseku, na ktorom nie je možné bezpečne vykonať zásah z hadicového zariadenia umiestneného na inom podlaží požiarneho úseku.
Pri inštalácii nástenného hydrantu s plochou hadicou sa musí zabezpečiť, aby sa požiarna hadica v priestore dala rozvinúť po celej dĺžke 20 m, bez prípadných ohybov alebo zlomenín okolo rohov Problematický je priechod cez dvere vybavené automatickým zatváracím mechanizmom, kde hrozí seknutie alebo zachytenie hadice do dverí. Hadicové zariadenie sa môže taktiež zachytiť o prekážku aj pri rozvíjaní hadice po ramenách krivočiareho schodiska. Pokiaľ na mieste hrozí zaseknutie hadice, musí sa vykonať zmena vyhotovenia konštrukcie, kde toto hrozí alebo sa zváži umiestnenie hadicového zariadenia do iného priestoru stavby, pokiaľ to jej stavebné vyhotovenie umožňuje.
Použitá literatúra
[1.] Vyhláška MV SR č. 94/2004, Z. z., ktorou sa ustanovujú technické požiadavky na protipožiarnu bezpečnosť pri výstavbe a pri užívaní stavieb, v znení neskorších predpisov
[2.] TP 3/2009 Navrhovanie netuhých a polotuhých vozoviek
[3.] STN EN 92 0201-3 Požiarna bezpečnosť stavieb. Spoločné ustanovenia. Časť 3: Únikové cesty a evakuácia osôb.
[4.] Vyhláška MV SR č. 726/2002 Z. z., ktorou sa ustanovujú vlastnosti elektrickej požiarnej signalizácie, podmienky jej prevádzkovania a zabezpečenia jej pravidelnej kontroly
[5.] STN 90 0202-1 Požiarna bezpečnosť stavieb. Vybavovanie stavieb hasiacimi prístrojmi.
[6.] Vyhláška MV SR č. 347/2022 Z. z. o vlastnostiach a o podmienkach prevádzkovania, označovania a zabezpečenia pravidelnej kontroly hasiacich prístrojov
[7.] STN EN 54-24 Elektrická požiarna signalizácia. Časť 24: Súčasti systému hlasovej signalizácie požiaru - Reproduktory.
[8.] STN 92 0203 Požiarna bezpečnosť stavieb. Trvalá dodávka elektrickej energie pri požiari.
[9.] Vyhláška MV SR č. 699/2004 Z. z. o zabezpečení stavieb vodou na hasenie požiarov.
[10.] STN 92 0400 Požiarna bezpečnosť stavieb. Zásobovanie vodou na hasenie požiarov
[11.] STN 92 0241 Požiarna bezpečnosť stavieb. Obsadenie objektov osobami.
Elektrická požiarna signalizácia (EPS) predstavuje jeden z kľúčových aktívnych ochranných prvok stavby pred požiarmi, ktorý zabezpečuje detekciu, hlásenie a monitorovanie požiarov v rôznych priestoroch. EPS je zariadenie ktoré vyhláška MV SR č. 94/2004 Z. z. [1] prikazuje do určitých priestorov inštalovať a sú na ňu kladené konkrétne špecifiká. Podmienky na prevádzku a technické riešenie EPS upravuje vyhláška MV SR č. 726/2002 Z. z. [2] ktorou sa ustanovujú vlastnosti elektrickej požiarnej signalizácie, podmienky jej prevádzkovania a zabezpečenia jej pravidelnej kontroly (obr. 88).
EPS slúži na ochranu života, zdravia a majetku osôb pred negatívnymi následkami požiarov. S rastúcim počtom budov a infraštruktúry, v ktorej sú tieto systémy implementované, sa ich význam čoraz viac zvyšuje. Všetky systémy EPS sú navrhnuté tak, aby fungovali rýchlo a efektívne, čím umožňujú včasné rozpoznanie potenciálnych hrozieb. Týmto spôsobom môžu minimalizovať škody a zachrániť životy v prípade požiaru.
V súčasnosti sa systémy EPS neustále vyvíjajú, pričom moderné technológie zlepšujú ich funkčnosť a efektívnosť. Zohľadňujú sa rôzne faktory, ako sú nové typy detektorov, inteligentné ovládacie panely a integrácia s inými bezpečnostnými systémami. V súčasnosti disponujú moderné systémy EPS pokročilými funkciami ako sú automatizované upozornenia (SMS správy, upozornenia pomocou aplikácie v mobilných telefónoch) a integrácia so smart technológiami, čo zabezpečuje zvýšenú bezpečnosť a účinnosť v prevencii požiarov.
12.1 Základné komponenty elektrickej požiarnej signalizácie
EPS sa skladá z niekoľkých kľúčových komponentov, ktoré spoločne vytvárajú účinný a spoľahlivý systém detekcie a signalizácie požiaru. Tieto komponenty sú navrhnuté tak, aby zabezpečili včasnú detekciu požiaru, minimalizovali riziko škôd a chránili životy ľudí. V zmysle vyhlášky MV SR č. 726/2002 Z. z. [2] je EPS zariadenie, ktoré pozostáva z ústredne, hlásičov požiaru, zariadení signalizácie požiaru, zariadení na prenos požiarnej signalizácie a napájacieho zariadenia V praxi medzi hlavné komponenty EPS patria hlásiče požiaru (detektory), signalizačné zariadenia a ústredňa.
Hlásiče požiaru nazývané aj ako detektory sú zodpovedné za identifikáciu najmenej jedného fyzikálneho alebo chemického javu spôsobeného požiarom v monitorovanom priestore (prítomnosť dymu, tepla alebo plameňa). Existuje niekoľko typov detektorov, vrátane ionizačných, optických a teplotných detektorov, ktoré sú prispôsobené rôznym prostrediam a požiadavkám.
Signalizačné zariadenia sú určené na poskytovanie vizuálnych a akustických varovaní, aby informovali osoby nachádzajúce sa v stavbe alebo v priestore o vzniknutom požiari.
Ústredňa niekedy nazývaná aj ako centrálna jednotka alebo centrálny ovládací panel predstavuje riadiace centrum celej požiarnej signalizácie. Spracováva dáta z
detektorov a ovláda reakciu systému v prípade požiaru, ukladá záznamy z EPS, prevádzkové stavy a funkčnosť systému. Pre správne fungovanie EPS je nevyhnutné, aby boli všetky tieto komponenty správne integrované a pravidelne udržiavané.
H H H H H H
H H H
slučka s hlásičmi
Ustredňa
Výstupné zariadenia: vyhlásenie poplachu (opticky a akusticky), uzatvorenie požiarnych uzáverov, vetranie UC, SHZ, centrálny pult, štart diesel agregátu,
ústredňa ovládacie zariadenia
Obr. 88 Zjednodušená zostava EPS (autori)
12.1.1 Hlásiče požiaru
Hlásiče požiaru predstavujú kľúčový komponent systému EPS, ktorý je navrhnutý na včasné odhaľovanie požiarov. Hlásiče môžu byť automatické alebo tlačidlové (manuálne ovládané). Primárnou funkciou automatických hlásičov je v prípade požiaru detekcia dymu, tepla alebo plameňa. Existujú rôzne typy automatických požiarnych detektorov, ktoré sú založené na odlišných fyzikálnych princípoch. Najbežnejšie sú optické a ionizačné detektory. Optické detektory využívajú zmenu jasnosti svetla v prostredí na detekovanie prítomnosti dymu, zatiaľ čo ionizačné detektory fungujú na princípe merania zmien elektrického prúdu v dôsledku znečistenia vzduchu dymom.
Hlásiče požiaru môžu byť integrované do väčších systémov správy budov a sú často prepojené s hlasovou signalizáciou, čo zaručuje komplexnú ochranu objektov pred požiarom.
Automatické hlásiče požiaru sa vždy používajú spolu s tlačidlovými hlásičmi. Len tlačidlové hlásiče požiaru možno v zmysle vyhlášky MV SR č. 726/2002 Z. z. [2] umiestniť do priestoru, v ktorom je zabezpečená trvalá prítomnosť osôb, alebo sú trvalo vytvárané nepriaznivé podmienky na prácu automatických hlásičov, napr. miesta kde môže vznikať veľké množstvo falošných signálov.
Hlásiče požiaru monitorujú aspoň jeden fyzikálny alebo chemický jav nepretržite alebo v opakovaných časových intervaloch, pričom poskytujú ústredni EPS aspoň jeden zodpovedajúci signál. Signál môže obsahovať správu o spustení alebo aj údaj o adrese (polohu) snímača. V zmysle vyhlášky MV SR č. 726/2002 Z. z. [2]
automatickými hlásičmi požiaru s adresáciou musí byť v stavbe vybavený požiarny úsek s plochou väčšou ako 1 000 m2 , lôžkovej časti zdravotníckeho zariadenia, ubytovacej časti hotela alebo inej stavby určenej na ubytovanie viac ako 100 osôb, alebo vnútorného zhromažďovacieho priestoru pre viac ako 500 osôb.
Hlásič požiaru musí opticky signalizovať uvedenie do činnosti a musí mať vyhotovenie umožňujúce jeho pripojenie na ústredňu EPS a pripojenie optickej a zvukovej signalizácie umiestnenej mimo hlásiča. Optická signalizácia a zvuková signalizácia po uvedení do činnosti zostáva v činnosti až do ich manuálneho zrušenia.
Pre prípad opravy a výmeny hlásiča požiaru jeho odpojenie nesmie ovplyvniť
činnosť iných pripojených hlásičov požiaru. Oddeliteľný hlásič musí zabezpečiť diaľkové vyslanie signálu poruchy do centrály EPS pri jeho oddelení.
Tlačidlový hlásič požiaru je hlásič požiaru, ktorým sa ručne vyhlasuje požiar. Je obvykle hranatého tvaru v červenej farbe s nápisom HLÁSIČ POŽIARU, ktorý je napísaný bielou farbou. Tlačidlo je chránené priehľadným ľahko rozbitným krytom, ktorý má zabrániť nežiadúcemu stlačeniu.
V závislosti od zmeny stavu operačného prvku na poplachový stav sa tlačidlové hlásiče v zmysle vyhlášky MV SR č. 726/2002 Z. z. [2] členia na priamu prevádzku a nepriamu prevádzku. Tlačidlový hlásič na priamu prevádzku je hlásič požiaru, v ktorom sa zmena stavu operačného prvku na poplachový stav uskutoční automaticky po porušení ochranného krehkého komponentu zo skla alebo z materiálu, ktorý sa na sklo podobá.
Tlačidlový hlásič na nepriamu prevádzku je hlásič požiaru, v ktorom si zmena stavu operačného prvku na poplachový stav vyžaduje ešte ďalšiu manuálnu operáciu po rozbití ochranného krycieho skla alebo materiálu, ktorý sa na sklo podobá. Tento typ tlačidlového hlásiča musí byť vybavený aretáciou, ktorá zaisťuje trvanie výstupného elektrického signálu od začiatku až do zrušenia aretácie.
Základným pravidlom je, aby tlačidlové hlásiče na priamu prevádzku a tlačidlové hlásiče na nepriamu prevádzku neboli umiestnené v jednej stavbe súčasne. Tlačidlový hlásič požiaru musí byť vybavený zariadením umožňujúcim vykonať jeho skúšku, optickou signalizáciou uvedenia hlásiča do činnosti a výstupmi, ktoré umožňujú spojenie vodičmi.
12.1.2 Signalizačné zariadenia
Signalizačné zariadenia predstavujú kľúčový komponent systému EPS, ktorý slúži na upozornenie obyvateľov budov na prebiehajúci požiar alebo iné núdzové situácie. Ich primárnou funkciou je generovanie zvukových alebo vizuálnych signálov, aby sa zabezpečila včasná reakcia na vznikajúcu hrozbu.
Medzi najbežnejšie typy signalizačných zariadení patria sirény, reproduktory a zábleskové svetlá. Zvukové signály sú navrhnuté tak, aby boli dostatočne hlasné a prenikavé, čím zabezpečujú, že upozornenie bude počuť aj v hlučných prostrediach.
Signalizačné zariadenia sú často prepojené s požiarnymi detektormi, ktoré detegujú prítomnosť dymu, tepla alebo plameňov. Akonáhle detektor zaznamená požiar,
okamžite aktivuje signalizačné zariadenia, čím sa maximalizuje šanca na evakuáciu osôb a minimalizuje sa riziko spôsobené požiarom.
Okrem toho moderné signalizačné zariadenia môžu byť integrované s inteligentnými technológiami, ktoré umožňujú prenos oznámení priamo na mobilné zariadenia alebo do centrálneho riadiaceho systému budovy. Takáto integrácia posilňuje možnosti reakcie a zabezpečuje lepšiu koordináciu pri zásahu. Celkový význam signalizačných zariadení spočíva v ich schopnosti poskytnúť včasné a efektívne varovanie v prípade ohrozenia, čím sa podieľajú na ochrane života a majetku.
12.1.3 Ústredňa elektrickej požiarnej signalizácie
Ústredňa alebo centrálne ovládacie panely sú kľúčovými komponentmi EPS, ktoré zohrávajú rozhodujúcu úlohu v monitorovaní a správe celého systému. Ústredne slúžia ako centrálny uzol, kde sú zhromažďované informácie zo všetkých pripojených hlásičov požiaru a signalizačných zariadení. Ich hlavnou funkciou je spracovanie a vyhodnocovanie signálov, ktoré hlásiče požiaru generujú v prípade identifikácie potenciálneho požiaru. Ústredňa býva spravidla umiestnená na mieste s trvalou obsluhou (obr. 89).
Ústredne sú navrhnuté tak, aby ich používanie bolo intuitívne a efektívne. Väčšina panelov ústredne EPS disponuje grafickým rozhraním, ktoré zobrazuje stav systému a umožňuje operátorom rýchlo identifikovať požiarny poplach. Mnohé moderné panely sú vybavené pokročilými funkciami, ako sú automatizované reporty, analýzy trendov a možnosti vzdialeného prístupu, čo zvyšuje ich funkčnosť a flexibilitu.
Z hľadiska vyhotovenia sa ústredne členia podľa funkcie, ktorú plnia, na hlavné ústredne a vedľajšie ústredne. Hlavná ústredňa okrem bežných informácií z požiarnych hlásičov prijíma a vyhodnocuje informácie z vedľajších ústrední. Vedľajšie ústredne spracúvajú a vyhodnocujú informácie predovšetkým z požiarnych hlásičov. Takéto riešenie je často využívané vo väčších a komplexnejších stavbách a vykonáva sa s cieľom znížiť množstvo signalizačných liniek, zvýšiť prehľadnosť, zjednodušiť údržbu a znížiť tak v dlhodobejšom horizonte prevádzkové náklady.

Obr. 89 Ústredňa EPS [3]
Ústredňa EPS v zmysle vyhlášky MV SR č. 726/2002 Z. z. [2] dodáva elektrickú energiu iným častiam EPS, prijíma, vyhodnocuje a vysiela signály, sleduje správnu funkčnosť a signalizuje poruchu elektrickej požiarnej signalizácie. Ústredňa musí najmä trvalo vyhodnocovať situáciu v stráženom priestore, kontrolovať svoj technický stav a signalizovať poruchu alebo zmenu technického stavu. EPS musí signalizovať stav požiaru, poruchy, dezaktivácie, skúšania a pokoja.
Pri stave signalizovania požiaru ústredňa opticky a akusticky signalizuje požiar v budove alebo v priestore a taktiež v ústredni, pričom ústredňa musí signalizovať požiar najneskôr do 10 s od uvedenia tlačidlového hlásiča do činnosti. Po zrušení stavu signalizovania požiaru alebo stavu signalizovania poruchy sa ústredňa musínajneskôr do 20 s vrátiť do stavu pokoja. Akustická signalizácia stavu signalizovania požiaru sa môže vypnúť iba manuálnym ovládačom
Stav signalizovania poruchy nastáva po prijatí signálu z hlásičov, ktorý ústredňa vyhodnotí ako porucha, na základe nastavených kritérií. Ústredňa sa vyhotovuje tak, aby sa uviedla do stavu signalizovania poruchy najneskôr do 100 s od vzniku poruchy alebo prijatia signálu o poruche.
Stav dezaktivácie je činnosť ústredne, pri ktorej sa skončia všetky zodpovedajúce indikácie.
Stav skúšania je činnosť, ktorá sa spúšťa manuálne a slúži na vykonanie pravidelných kontrol požiarnych hlásičov.
Dôležitým aspektom ústredne EPS je aj schopnosť interagovať s inými bezpečnostnými systémami, ako sú správy o únikoch plynu alebo bezpečnostné kamery. Týmto spôsobom zabezpečuje komplexný prístup k bezpečnosti budov a zvyšuje efektivitu reakcie na prípadné priame alebo následné ohrozenia. Investovanie do kvalitnej ústredne EPS je nevyhnutné pre účinné riadenie EPS a ochrane života a majetku.
12.2 Typy elektrických požiarnych signalizácií
EPS systémy môžeme rozdeliť do niekoľkých hlavných kategórií, pričom každá z týchto kategórií sa vyznačuje odlišnými technickými vlastnosťami pričom každá ma svoje výhody a nevýhody. Tieto systémy sú kritickým prvkom ochrany pred požiarmi, pričom zabezpečujú včasné varovanie a možnosť rýchlej reakcie na vznikajúce riziká. Prvou kategóriou sú analógové systémy, ktoré využívajú technológie na detekciu zmien fyzikálnych parametrov, ako je teplota, dym alebo iné produkty termickej degradácie. Tieto systémy sú schopné na základe analógového signálu vyhodnocovať situácie v reálnom čase a signalizovať potenciálne riziká. Pracujú na princípe neustáleho monitorovania prostredia, čo umožňuje ich flexibilitu a prispôsobiteľnosť. Druhou kategóriou sú digitálne systémy, ktoré implementujú digitálnu technológiu na spracovanie a analýzu údajov. Tieto systémy môžu byť prepojené s rôznymi zariadeniami na ochranu pred požiarmi a poskytujú vyššie úrovne automatizácie a integrácie. Digitálne systémy majú tendenciu byť efektívnejšie a presnejšie v identifikácii skutočných hrozieb.
Poslednou významnou kategóriou sú bezdrôtové systémy, ktoré eliminujú potrebu fyzického prepojenia medzi hlásičmi požiaru a ústredňou. Bezdrôtová technológia ponúka flexibilitu pri inštalácii a je menej obmedzená pri pokrývaní špecifických oblastí bez nutnosti rozsiahlej kabeláže. Svoje využitie nachádzajú hlavne v historických budovách, ktoré sú často zaradené medzi kultúrne pamiatky.
12.2.1 Analógové systémy
Analógové systémy EPS predstavujú jeden z najstarších a stále široko využívaných typov technológií v oblasti detekcie a signalizácie požiaru. Tieto systémy fungujú na základe merania fyzikálnych zmien v prostredí, ako sú zmeny teploty, dymu alebo iných produktov horenia, ktoré sú následne prevádzané na elektrické signály.
Hlavným rysom analógových systémov je ich schopnosť poskytnúť informácie o aktuálnych podmienkach prostredia v reálnom čase. Hlásiče požiaru sa pritom vybavujú senzormi, ktoré detekujú prítomnosť dymu alebo zvýšenie teploty v dôsledku požiaru a na základe prednastavených prahových hodnôt spúšťajú poplach. Analógové detektory sú schopné rozlíšiť rôzne úrovne ohrozenia, čím minimalizujú falošné poplachy, čo zvyšuje efektivitu celého systému.
Ďalšou výhodou analógových systémov EPS je ich flexibilita pri konfigurácii a rozšírení. Technicky sa môžu prispôsobiť tak, aby zohľadňovali špecifické potreby objektu, v ktorom sú inštalované, a to aj pri komplexných architektúrach budov. Napriek vzostupu digitálnych technológií si analógové systémy EPS zachovávajú svoj význam a sú často integrovateľné s modernými bezpečnostnými systémami, čo umožňuje lepšiu ochranu pred požiarom.
12.2.2 Digitálne systémy
Digitálne systémy EPS predstavujú moderný prístup k detekcii a monitorovaniu požiarov, ktorý využíva pokročilé technológie pre zvýšenie účinnostia presnosti. Tieto systémy sú založené na digitálnych signáloch, ktoré spracovávajú dáta zo senzorov a požiarnych hlásičoch a na základe preddefinovaných algoritmov identifikujú potenciálne hrozby.
Jednou z hlavných výhod digitálnych systémov je ich schopnosť poskytovať presnejšie a rýchlejšie informácie o vznikajúcich požiaroch. Na rozdiel od analógových systémov, ktoré reagujú na zmeny hodnoty analógového signálu, digitálne systémy analyzujú dáta prostredníctvom logických operácií a môžu tak eliminovať falošné poplachy, ktoré sú častým problémom pri tradičných analógových riešeniach.
Digitálne systémy môžu obsahovať širokú škálu pokročilých funkcií, ako je napríklad ovládanie vonkajších systémov, integrácia s ďalšími bezpečnostnými technológiami, ako sú kamerové systémy alebo alarmy. Taktiež umožňujú vzdialený monitoring a diagnostiku, čo značne zjednodušuje a urýchľuje údržbu EPS.
12.2.3 Bezdrôtové systémy
Bezdrôtové systémy EPS sa v súčasnosti stávajú čoraz populárnejšími, predovšetkým vďaka svojej flexibilite a jednoduchosti inštalácie. Tieto systémy
nevyžadujú zložitú kabeláž, čo môže značne znížiť náklady na inštaláciu a prácu, a zároveň uľahčiť umiestnenie detektorov v neprístupných či rozmanitých priestoroch.
Bezdrôtové detektory využívajú rádiofrekvenčné signály na prenos informácií medzi detektormi a ústredňou EPS. Týmto spôsobom je možné rýchlo a efektívne informovať o prípadnom vzniku požiaru. Niektoré z moderných bezdrôtových systémov sú schopné spájania s ďalšími zariadeniami, ako sú inteligentné budovy a automatizačné systémy, čo poskytuje ďalší stupeň ochrany a kontroly.
Medzi hlavné výhody bezdrôtových systémov patrí ich schopnosť operovať aj v prostrediach, kde by tradičné systémy mohli mať obmedzenú funkčnosť, napríklad v budovách s obmedzeným alebo žiadnym prístupom k elektrickej sieti. Taktiež ponúkajú jednoduchú aktualizáciu a modernizáciu bez potreby zásahov do fyzickej infraštruktúry. Na druhej strane, bezdrôtové systémy môžu byť náchylnejšie na rušenie signálu, čo je dôležité zohľadniť pri ich výbere a inštalácii.
12.3 Inštalácia, prevádzka a údržba systémov elektrickej požiarnej signalizácie
Správna inštalácia, prevádzka a údržba systémov EPS sú kľúčové aspekty zabezpečenia ich správneho fungovania. Neodborné zaobchádzanie môže viesť k vážnym rizikám, ako je nesprávne detekovanie požiaru alebo neschopnosť systému reagovať na potenciálne hrozby. Aby sa zabezpečila optimálna funkčnosť, je dôležité dodržiavať presne stanovené postupy a normy.
12.3.1 Inštalácia
Inštalácia EPS je kritickým procesom, ktorý si vyžaduje dôkladný prístup a dodržiavanie stanovených postupov. Inštalácia systému vyžaduje odborné znalosti a predchádzajúce plánovanie, vrátane analýzy potrebných komponentov, ako sú hlásiče požiaru a signalizačné zariadenia, a ich umiestnenia v objektoch. Uprednostniť by sa malo umiestnenie detektorov na strategických miestach, kde je najväčšie riziko vzniku požiaru. Dôležité je tiež zvážiť nároky na napájanie z elektrickej siete a prepojenie so zvukovými a vizuálnymi alarmami. Celý proces je možné rozdeliť do niekoľkých kľúčových krokov.
Prvým krokom jevykonanie analýzy miesta inštalácie. V rámcitejtofázy je potrebné identifikovať miesta so zvýšeným nebezpečenstvom vzniku požiaru, miesta kde sa vykonávajú činnosti so zvýšeným nebezpečenstvom vzniku požiaru ako aj miesta, kde sa nachádza alebo sústreďuje väčší počet osôb. Pokiaľ stavba má vyhotovenú analýzu nebezpečenstva vzniku požiaru, je možné vychádzať práve z nej
Druhým krokom je návrh a výber vhodného systému EPS. Na základe predchádzajúcej analýzy je dôležité zvoliť typ požiarnych hlásičov a signalizačných zariadení, ktorý najlepšie vyhovuje potrebám daného objektu.
Nasleduje fyzická inštalácia komponentov systému. Tento proces zahŕňa montáž hlásičov požiaru, signalizačných zariadení a ústredne EPS. Je dôležité dodržiavať pokyny výrobcu a normy platné v danej oblasti.
Po inštalácii je potrebné vykonať dôkladné testovanie funkčnosti systému. Táto fáza zabezpečuje, že všetky komponenty správne fungujú a sú schopné reagovať na rozmanité scenáre
Posledným krokom je dokumentácia procesu inštalácie a školenie obsluhy. Je nevyhnutné, aby všetci zamestnanci boli oboznámení s fungovaním a údržbou systému.
12.3.2 Prevádzka
Prevádzka EPS je v podstate jednoduchá, avšak je potrebné ju prevádzkovať len spôsobom uvedeným v návode na obsluhu dodanom zhotoviteľom, aby sa zabránilo jej poškodeniu. Kľúčové je aby inštalovaná EPS mala posúdenie zhody vlastností s technickými predpismi. Sprievodná dokumentácia EPS spravidla obsahuje minimálne návod na obsluhu a údržbu všetkých častí zariadenia EPS, pokyny na obsluhu, prevádzkovú knihu, blokovú schému EPS, doklady o kontrolách a odborných prehliadkach, kópie dokladov o overení zhody vlastností výrobkov s technickými predpismi a projekt skutočného vyhotovenia EPS v štátnom jazyku.
EPS môžu obsluhovať iba zaškolení zamestnanci, ktorí boli poučení, pri svojej činnosti postupujú podľa pokynov na obsluhu od výrobcu a vedú záznamy v prevádzkovej knihe EPS. Je potrebné zabezpečiť v mieste kde sa nachádza ústredňa EPS trvalú obsluhu alebo prenos signálu o stave tejto ústredne do miesta s trvalou obsluhou
12.3.3 Pravidelná údržba a kontroly
Údržba EPS systémov je neoddeliteľnou súčasťou celkového bezpečnostného riešenia. Odporúča sa vykonávať pravidelné kontroly a testy funkčnosti hlásičov požiaru a príslušných komponentov, vrátane ústredne EPS. Takéto preventívne opatrenia zabezpečujú, že systém bude pripravený na okamžitú reakciu v prípade požiaru, čo môže zachrániť životy a majetok. Efektívne plánovanie údržby tiež predlžuje životnosť zariadení a znižuje náklady na opravy a výmeny.
Jedným z kľúčových aspektov pravidelnej údržby je kontrola hlásičov požiaru, vrátane funkčnosti senzorov a ich pripojenia k ústredni EPS. Tieto kontroly by sa mali vykonávať minimálne raz ročne, avšak v prípade určitých prostredí, ako sú priemyselné alebo komerčné objekty, môžu byť požiadavky na častejšie kontroly. Preveruje sa nielen vizuálny stav zariadení, ale aj ich funkcia Ďalším dôležitým aspektom je testovanie signalizačných zariadení, ktoré musia byť funkčné a schopné okamžite informovať osoby nachádzajúce sa v budove alebo v priestore o prípadnom nebezpečenstve. Pravidelná údržba zahŕňa aj školenia zamestnancov v oblasti evakuácie a vnímania zvukovej a svetelnej signalizácie požiaru.
V prípade že sa počas bežnej prevádzky alebo údržby zistí porucha niektorého komponentu, musí sa okamžite nahradiť rovnakou súčasťou vyrobenou pôvodným výrobcom alebo s jeho súhlasom. V prípade, že výrobca zanikol alebo prestal pôsobiť v tejto oblasti, môže sa súčasť EPS nahradiť súčasťou s rovnakými alebo obdobnými
vlastnosťami. Výmenu komponentov môže robiť iba osoba s oprávnením (autorizáciou).
Kontrola celej EPS sa vykonáva najmenej raz za rok, ak výrobca v technickej dokumentácii, vzhľadom na vplyv prostredia, neurčil kratšiu lehotu. O vykonaní kontroly osobou s odbornou spôsobilosťou a o jej výsledku sa vydáva potvrdenie. V potvrdení sa uvádza najmä číslo potvrdenia, meno a priezvisko fyzickej osoby, ktorá má osobitné oprávnenie na kontrolu zariadení elektrickej požiarnej signalizácie, číslo osobitného oprávnenia o odbornej spôsobilosti, názov alebo meno vlastníka elektrickej požiarnej signalizácie, výrobca a typ elektrickej požiarnej signalizácie, skutočný stav elektrickej požiarnej signalizácie zistený kontrolou, dátum vykonania kontroly a podpis osoby, ktorá kontrolu vykonala. Potvrdenie o kontrole sa vždy zakladá do prevádzkovej knihy EPS, čím sa zabezpečí transparentnosť a súlad s legislatívnymi požiadavkami. Takto sa zaručuje, že systémy EPS budú spĺňať potrebné normy a požiadavky, čím sa zvyšuje bezpečnosť všetkých osôb nachádzajúcich sa v budove.
12.4 Moderné technológie a inovácie v oblasti elektrickej požiarnej signalizácie
V súčasnej dobe je technológia v oblasti EPS neustále na vzostupe, pričom množstvo inovácií zlepšuje účinnosť a spoľahlivosť týchto systémov. Moderné systémy sa už nezameriavajú len na detekciu a signalizáciu požiaru, ale komunikujú aj s inými systémami a technológiami, čím napomáhajú k celkovému zvýšeniu bezpečnosti budov.
Jednou z kľúčových inovácií v oblasti EPS je jej integrácia s inteligentnými systémami budov a dokonca aj umelou inteligenciou. Tieto budovy využívajú pokročilé technológie na automatizáciu rôznych funkcií, a to vrátane správy osvetlenia, vykurovania a klimatizácie. EPS systémy sú teraz schopné komunikovať s inými komponentmi inteligentnej budovy, čo umožňuje efektívnejšie riadenie v prípade požiaru Môžu byť napríklad prepojené s inými senzorovými technológiami, ako sú detektory pohybu, CO2 a teplomery, čím sa zvyšuje celková účinnosť a presnosť detekcie požiaru.
Okrem toho moderné technológie umožňujú pripojenie EPS k internetovým aplikáciám, ktoré umožňujú vzdialený monitoring a kontrolu budovy. Tieto inovačné prístupy zabezpečujú rýchlu detekciu požiaru a okamžité upozornenie príslušných zložiek, čím sa minimalizuje riziko a škody spôsobené požiarom. Naplnenie týchto technologických trendov poskytuje robustnejší rámec pre ochranu a prevenciu požiarov v budovách, čím sa zvyšuje celková úroveň bezpečnosti.
Použitá literatúra
[1.] Vyhláška MV SR č. 94/2004, Z. z., ktorou sa ustanovujú technické požiadavky na protipožiarnu bezpečnosť pri výstavbe a pri užívaní stavieb, v znení neskorších predpisov.
[2.] Vyhláška MV SR č. 726/2002 Z. z., ktorou sa ustanovujú vlastnosti elektrickej požiarnej signalizácie, podmienky jej prevádzkovania a zabezpečenia jej pravidelnej kontroly.
[3.] https://www.antesgm.sk/produkty/elektricka-poziarna-signalizacia
Stabilné hasiace zariadenia (SHZ) predstavujú neoddeliteľnú súčasť moderných systémov protipožiarnej ochrany, ktorých cieľom je zabezpečiť ochranu osôb a majetku pred požiarom. Považujú sa za aktívne systémy ochrany stavieb pred požiarom. Tieto zariadenia sa vyznačujú svojou schopnosťou automaticky reagovať na vznikajúce riziká a účinne zasahovať v počiatočných fázach požiaru. Ich implementácia a správne fungovanie sú nevyhnutné pre zabránenie šírenia požiaru. Účinnosť SHZ závisí predovšetkým od správneho výberu hasiacej látky, technológie detekcie a včasného varovania osôb.
SHZ je zariadenie ktoré vyhláška MV SR č. 94/2004 Z. z. [1] prikazuje do určitých priestorov inštalovať a sú na ňu kladené konkrétne špecifiká. Podmienky na prevádzku a technické riešenie SHZ upravuje vyhláška MV SR č. 169/2006 Z. z. [2] o konkrétnych vlastnostiach stabilného hasiaceho zariadenia a polostabilného hasiaceho zariadenia a o podmienkach ich prevádzkovania a zabezpečenia ich pravidelnej kontroly. V oblasti SHZ existuje veľké množstvo európskych a slovenských technických noriem, ktoré sú určené pre rôzne druhy SHZ, rozdelené väčšinou na základe systému hasenia a typu hasiacej látky.
SHZ predstavuje komplexný systém určený na prevenciu a zvládanie požiarov predovšetkým vo vnútorných ale aj vonkajších priestoroch. Tieto zariadenia sú navrhnuté tak, aby automaticky detekovali prítomnosť požiaru a účinne reagovali prostredníctvom aplikácie hasiacej látky.
Vyhláška MV SR č. 169/2006 Z. z. [2] nám definuje SHZ ako hasiace zariadenie, ktoré obsahuje najmä stabilný zdroj hasiacej látky, rozvodné potrubie, vypúšťaciu armatúru, spúšťací mechanizmus a signalizačné zariadenie, ktoré spoločne zabezpečujú ochranu osôb a majetku pred požiarom. SHZ musí požiar uhasiť alebo uviesť pod kontrolu, signalizovať svoju činnosť a vykonať pomocnú funkciu.
Význam SHZ je nezanedbateľný, najmä v kontexte zvyšujúcej sa urbanizácie a komplikovaného rozvoja budov, kde riziko vzniku požiaru môže byť vyššie. Efektívne hasiace zariadenia prispievajú k rýchlejšej detekcii a lokalizovaniu požiaru, čím znižujú potenciálnu škodu a ochraňujú životy. Okrem toho, ich existencia môže znížiť poistné náklady pre právnické osoby a fyzické osoby podnikateľov, nakoľko mnohé poisťovne uprednostňujú klientov, ktorí bezprostredne investujú do aktívnej ochrany budov pred požiarmi.
13.1 Základné komponenty stabilného hasiaceho zariadenia
SHZ je komplexný systém, ktorý pozostáva z viacerých kľúčových komponentov. Bez ohľadu na hasiace látky a typ SHZ sa SHZ vo všeobecnosti skladajú zo zdroja hasiacej látky kde je uskladnená samotná hasiaca látka, sústavy dopravných potrubí na dopravu hasiacej látky na miesto požiaru, pohonného agregátu ktorý zabezpečí dopravu hasiacej látky na miesto aplikácie, zariadenia na účinnú aplikáciu hasiacej látky a samotnej hasiacej látky. Dôležitou súčasťou SHZ je aj spúšťací mechanizmus ktorý uvedie SHZ do činnosti (obr. 90).
Pri návrhu SHZ sa musí uplatňovať niekoľko dôležitých a logických pravidiel, uvedených aj vo vyhláške MV SR č. 169/2006 Z. z. [2] komponenty SHZ musia byť vyhotovené z materiálov, ktoré odolávajú vplyvom prostredia, v ktorom je SHZ umiestnené, alebo musí mať zodpovedajúcu povrchovú úpravu. Prvky a časti SHZ, ktoré prichádzajú do styku s hasiacou látkou, musia byť odolné voči jej vplyvom, predovšetkým voči korózii. V dôsledku spustenia pohonnej jednotky a pohybu hasiacej látky potrubím vzniká veľké množstvo vibrácií kvôli nárazom hasiacej látky o vnútorné steny dopravného potrubia a taktiež nezanedbateľný pretlak, preto komponenty SHZ musia byť vyhotovené tak, aby vykazovali požadovanú tesnosť, pevnosť a aby odolávali vibrácii a tlaku hasiacej látky. Keďže stavby v dôsledku zmeny ročných období pracujú, musia sa dopravné potrubia bezpečne upevniť s príslušnou vôľou na dilatáciu a musí byť umiestnené tak, aby sa minimalizovalo vystavenie účinkom požiaru, mechanického poškodenia, chemického poškodenia alebo iného poškodenia.

Sprinklerové zariadenie so suchou a mokrou sústavou: 1–nádrž, 2–skúšobné potrubie, 3–čerpacie zariadenie, 4–mokrá ventilová stanica, 5–suchá ventilová stanica, 6–hlavná uzatváracia armatúry suchej sústavy, 7–tlaková nádoba, 8–spozďovač s tlakovým spínačom diaľkového poplachu, 9–sprinkler, 10–poplachový zvon, 11–tlakové spínače štartovania čerpacieho systému
Obr. 90 Sprinklerove zariadenie - zostava [3]
13.1.1 Zdroj hasiacej látky
Zdroj hasiacej látky je základný komponent SHZ a slúži na uskladnenie hasiacej látky. Okrem SHZ existujú ešte polostabilné hasiace zariadenie, ktoré sa líšia práve v zdroji hasiacej látky. U SHZ je zdrojom zásobník s hasiacou látkou pevne zabudovaný v stavbe alebo mimo stavby a môže mať rôzne podoby a rozmery.
U polostabilného hasiaceho zariadenia je zdrojom hasiacej látky zásahové vozidlo z Hasičského a záchranného zboru, najčastejšie hasičská cisterna, pripojená k rozvodnému potrubiu. V takomto prípade pohonnú jednotku zabezpečuje čerpadlo z hasičskej cisterny. V súčasnosti je využitie polostabilných hasiacich zariadení v budovách minimálne.
Zásobník hasiacej látky musí mať primerané rozmery, tak aby v ňom bolo možné uskladniť aspoň minimálne množstvo hasiacej látky, stanovej podľa príslušných noriem pre daný typ SHZ. Okrem hlavného zdroja hasiacej látky musí byť zabezpečená aj rezervná zásoba hasiacej látky určená podľa príslušnej technickej normy. Rezervná zásoba hasiacej látky sa nesmie použiť na iné účely.
13.1.2 Dopravné potrubie
Dopravné potrubie predstavuje základnú zložku v rámci SHZ, pričom ich hlavnou funkciou je transport hasiacich látok na miesto požiaru. Tieto systémy sú navrhnuté tak, aby zabezpečili rýchly a efektívny prenos hasiacej látky od zdroja hasiacej látky k zariadeniu na aplikáciu hasiacej látky (trysky, hlavice)
Dopravné potrubia môžu byť vyrobené z rôznych materiálov, ako sú pozinkovaná oceľ, nerezová oceľ alebo plast, pričom výber materiálu závisí od špecifických potrieb prostredia, v ktorom sa používajú. Okrem toho je dôležité, aby boli potrubia správne navrhnuté tak, aby odolávali vysokým tlakom a teplotám, ktoré sa môžu vyskytnúť počas požiaru.
13.1.3 Spúšťací mechanizmus
Spúšťací mechanizmus zabezpečuje rýchle a efektívne spustenie SHZ pri detekovaní požiaru. SHZ môže byť vyhotovené tak, aby zabezpečovalo automatické alebo ručné spúšťanie. Pokiaľ je SHZ inštalované v priestore ktorý je pod dohľadom obsluhy, nemusí mať automatické spúšťanie. Spúšťací mechanizmus na ručné spúšťanie SHZ musí byť umiestnený mimo chráneného priestoru, na mieste v blízkosti východu z priestoru alebo v blízkosti chráneného technologického zariadenia na bezpečnom mieste, aby sa minimalizoval kontakt obsluhy s hasiacou látkou a zároveň sa musí zabezpečiť aby bol mechanizmus dobre prístupný. Pokiaľ je potrebné aby sa SHZ spúšťalo automaticky, je to možné dosiahnuť niekoľkými spôsobmi. Prvou možnosťou je inštalácia detektorov požiaru, ktoré sú rovnaké ako pri elektrickej požiarnej signalizácii (hlásiče požiaru). Existujú rôzne typy automatických požiarnych detektorov, ktoré sú založené na odlišných fyzikálnych princípoch. Najbežnejšie sú optické a ionizačné detektory. Optické detektory využívajú zmenu jasnosti svetla v prostredí na detekovanie prítomnosti dymu, zatiaľ čo ionizačné detektory fungujú na princípe merania zmien elektrického prúdu v dôsledku znečistenia vzduchu dymom. Predchádzajúce riešenie si vyžaduje inštalovanie samostatnej ústredne SHZ. Ďalšou možnosťou zabezpečenia automatického spustenia SHZ je vytvorenie komunikačného spojenia s EPS, ktorá môže SHZ ovládať. Predpokladom je samozrejme prítomnosť samotnej EPS
v priestore. Poslednou možnosťou je využitie mechanického spúšťania, ktoré najčastejšie využívajú vodné SHZ.
13.1.4 Ústredňa
Jedným z hlavných prvkov ovládacích mechanizmov je centrálne riadiace zariadenie, ktoré zhromažďuje informácie z hlásičov požiaru, vyhodnocuje ich, spúšťa SHZ a signalizuje činnosť. Pomocou ústredne je možné zabezpečiť automatický chod SHZ bez potrebného zásahu obsluhy.
Ústredňa umožňuje obsluhe monitorovať stav systému v reálnom čase a manuálne zasahovať v prípade potreby. Moderné systémy často disponujú aj prostriedkami pre vzdialené pripojenie cez mobilné aplikácie alebo pomocou SMS správ, čím sa zvyšuje bezpečnosť a efektivita riadenia požiarnej ochrany.
Ústredňa musí signalizovať uvedenie SHZ do činnosti zvukovým signálom.
Zvukový signál musí znieť od signalizovania požiaru po začiatok hasenia a počas hasenia. V prípade plynových SHZ ktoré môžu vytvoriť nebezpečnú koncentráciu ohrozujúcu zdravie osôb (nedýchateľná atmosféra), zvukový signál musí zaznievať až do času opätovného vytvorenia bezpečnej koncentrácie v chránenom priestore.
13.1.5 Pohonná jednotka
Srdcom systému SHZ je jeho pohonná jednotka nachádzajúca sa väčšinou v samostatnom požiarnom úseku predstavujúcom strojovňu SHZ. Pohonnou jednotkou býva v závislosti od typu SHZ čerpadlo alebo tlaková nádoba, ktorá zároveň slúži ako zdroj hasiacej látky. Pohon pre čerpadlo zabezpečuje najčastejšie spaľovací motor (obr. 91). V zmysle vyhlášky MV SR č. 169/2006 Z. z. [2] spaľovací motor na pohon čerpadla SHZ alebo na pohon generátora SHZ vrátane nádrže na trvalú zásobu kvapalných palív musí byť chránený SHZ.
Každá hasiaca látka má svoje špecifiká, preto je potrebné v priestore strojovne zabezpečiť vhodnú prevádzkovú teplotu, ktorá zodpovedá vlastnostiam hasiacej látky. Pri vodných SHZ je dôležité zabezpečiť, aby nedošlo k zamrznutiu vody v systéme, čo by okrem znefunkčnenia SHZ mohlo spôsobiť aj poškodenie jednotlivých komponentov SHZ.
Každý spaľovací motor v strojovni SHZ musí mať zásobu pohonných látok v množstve trojnásobku potrebného množstva paliva pre stanovený prevádzkový čas SHZ V prípade že pohonnou látkou je benzín, musí sa zabezpečiť pravidelná výmena benzínu v dôsledku jeho starnutia. Podľa STN EN 228 [4] je potrebné vymieňať uskladnený benzín každé 3 mesiace, čo je doba, počas ktorej si benzín pri bežných podmienkach uchová svoje vlastnosti. V prípade nafty je potrebné vykonávať výmenu každých 24 mesiacov.

Obr. 91 Strojovňa SHZ [5]
13.1.6 Hasiace látky
Hasiace látky predstavujú základný element SHZ a hrajú kľúčovú úlohu pri efektívnom zdolávaní požiarov. Medzi najpoužívanejšie hasiace látky patrí voda, pena, prášok a plynné hasiace látky (CO2, N2, halóny alebo Inergén).
Voda, ako najbežnejšia hasiaca látka, je efektívna pri hasení pevných horľavých materiálov, pričom hlavný hasiaci efekt je chladiaci a sekundárny je zrieďovací. Je vhodná na hasenie pevných látok triedy ako je drevo, papier, textil a pod. Voda nie je vhodná pri hasení výpočtovej techniky, zariadení pod prúdom, alkalických kovov a horľavých kvapalín. Výhodou použitia vody je nízka cena, avšak má viacero obmedzení a môže spôsobiť nevratné poškodenie majetku.
Pena sa používa predovšetkým pri hasení kvapalín ale vhodná je aj pre hasenie pevných látok ako drevo, papier, textil a pod. Nesmie sa používať na hasenie výpočtovej techniky, zariadení pod prúdom a alkalických kovov. Je výnimočná v schopnostivytvárať ochranný filmna povrchuhorľavých látok. Jej hlavný hasiaciefekt je izolačný a sekundárny je ochladzovací. Pena vzniká z penotvorného roztoku zloženého z vody a penidla.
Práškové hasiace látky sa považujú za najuniverzálnejšie hasiace látky, ktorými je možné hasiť pevné, kvapalné a aj plynné látky. Prášok pri hasení vytvára súvislú vrstvu hasiacej látky na povrchu horľavej látky a zabraňuje prístupu vzduchu. Hlavný hasiaci efekt je izolačný. Prášok nemá chladiaci efekt, preto pri aplikácii nedostatočnej vrstvy prášku môže dôjsť k opätovnému rozvoju požiaru. Nevýhodou prášku je, že
počas hasenia môže dôjsť ku zníženiu viditeľnosti v dôsledku rozptýleného prachu v ovzduší pričom môže spôsobiť aj respiračné problémy.
CO2 je plynová hasiaca látka, jedná sa o bezfarebný plyn skladovaný v tlakovej nádobe ako skvapalnený, pričom po vypustení sa prudko ochladí z časti sa mení na suchý ľad. Hlavný hasiaci efekt je zrieďovací a sekundárny je ochladzovací. CO2 po vyprchaní nezanecháva stopy a je vhodný na hasenie požiarov v miestnostiach s výpočtovou technikou alebo na objekty o vysokej hodnote, kde je potrebné vyhnúť sa ich poškodeniu hasiacou látkou. Nesmie sa používať na hasenie alkalických kovov a práškových a sypkých horľavých látok, pretože by mohlo dôjsť k ich rozptylu.
Halotrónové hasiace látky nahradili halónové hasiace látky a to v dôsledku negatívnych dopadov na životné prostredie. Hlavný hasiaci efekt je inhibičný (chemicky preruší horenie) a sekundárny je zrieďovací a ochladzovací. Je vhodný na hasenie požiarov v miestnostiach s výpočtovou technikou alebo na objekty o vysokej hodnote, kde je potrebné vyhnúť sa ich poškodeniu hasiacou látkou. Je vhodný aj na hasenie zariadení pod elektrickým prúdom.
13.2 Rozdelenie stabilných hasiacich zariadení
V oblasti požiarnej bezpečnosti je zásadné rozlišovať medzi rôznymi typmi SHZ, pretože každé zariadenie je koncipované tak, aby reagovalo na špecifické podmienky a požiadavky z hľadiska požiarov. Hasiace zariadenia môžeme rozdeliť do niekoľkých hlavných kategórií predovšetkým na základe hasiacej látky ktorú používajú. Najbežnejšie používané sú predovšetkým vodné, penové a plynové SHZ.
13.2.1 Vodné stabilné hasiace zariadenia
Vodné SHZ patria medzi najbežnejšie inštalované SHZ. Ich výhodou je zdravotná nezávadnosť používanej hasiacej látky, nízka cena a dobrá účinnosť hasenia. Podľa spôsobu spúšťania sa rozdeľujú na Sprinklerové a Drenčerové SHZ.
Sprinklerové SHZ fungujú na základe aktivácie tepelných poistiek vo výstrekových hlaviciach. Tepelné poistky v dôsledku zvýšenia teploty pri určitej teplote prasknú, čím sa vytvorí v systéme podtlak, ktorý spúšťa SHZ. Pre rôzne priestory sa na základe predpokladaného požiaru zvolia tepelné poistky ktoré prasknú pri presne definovanej teplote tak aby sa zároveň zabránilo falošnému spusteniu SHZ (obr. 92)

Obr. 92 Sprinklerova hlava so sklenenou poistkou [6]
Drenčerové SHZ je systém podobný sprinklerovému zariadeniu, ale bez tepelných poistiek vo výstrekových hlaviciach, ktoré zabraňujú výstreku vody. Pri aktivácii zariadenia najčastejšie pomocou EPS sú všetky inštalované výstrekové hlavice v činnosti súčasne, a hasenie sa vykonáva celoplošne. Tento systém je účinný v priestoroch, kde sa predpokladá rýchly rozvoj požiaru. Nevýhodou je zaplavenie celého priestoru hasiacou látkou aj tam, kde požiar ešte nie je
Vodné SHZ sa zároveň členia podľa prítomnosti hasiacej látky v dopravnom potrubí na zavodnené a nezavodnené systémy. Spúšťanie obidvoch systémov je rovnaké, pri nezavodnenom systéme je prítomné určité oneskorenie hasenia spôsobené dopravou vody na miesto hasenia. Výhodou nezavodneného systému je väčšia životnosť dopravného vedenia (nedochádza k hrdzaveniu potrubia) a v prípade že v priestore hrozí pokles teploty pod bod mrazu, nedôjde k zamrznutiu hasiacej látky v dopravnom potrubí.
13.2.2 Penové stabilné hasiace zariadenia
Penové SHZ nachádzajú svoje využitie priveľkokapacitnýchnádržiach s horľavými kvapalinami. Zdroj hasiacej látky býva najčastejšie rozdelený na dve časti (zdroj vody a penidlo). Tieto dve zložky sa zmiešavajú v zmiešavači a vytvára sa penotvorný roztok. S pomocou špeciálnej trysky, ktorá do roztoku vháňa plyn sa vytvára pena ktorá je priamo nanášaná na kvapalinu. Na základe množstva kyslíka, ktorý sa do zmesi dostane, rozoznávame ľahkú, strednú a ťažkú penu.
13.2.3 Plynové stabilné hasiace zariadenia
Plynové hasiace systémy, naopak, používajú hasiace látky na báze plynu a sú častokrát využívané v priestoroch, kde by použitie vody mohlo poškodiť cenné zariadenia alebo materiály. Nevýhodou plynových hasiacich zariadení je, že z miesta
aplikácie hasiacej látky vytláčajú kyslík a vytvárajú tak nedýchateľnú atmosféru, čo predstavuje potenciálne riziko pre osoby nachádzajúce sa v danom priestore. SHZ musí byť preto napojená na systém, ktorý zabráni jej spusteniu, pokiaľ sa v priestore nachádzajú osoby. Môže sa jednať napr. o detektor pohybu alebo inteligentné kamery, ktoré vedia zistiť prítomnosť osôb.
V dôsledku toho, že je potrebné zabezpečiť odklad spustenia plynového SHZ, musia požiarne konštrukcie v priestore spĺňať aspoň minimálnu požiarnu odolnosť 15 min. Plynové SHZ sa hodia na hasenie priestorov kde sa nepredpokladá pohyb osôb. Jedná sa hlavne o priestory serverovní alebo konzervačné miestnosti múzeí.
Jedným z najrozšírenejších typov plynových hasiacich systémov sú systémy na báze inertných plynov, ako je argón, nitrogen alebo oxid uhličitý. Tieto plyny sú privádzané do chránenej oblasti, kde znižujú koncentráciu kyslíka pod hladinu potrebnú na udržanie horenia. Okrem inertnýchplynov existujú aj chemické hasiace systémy, ktoré používajú halóny alebo podobné chemikálie. Avšak ich používanie sa v posledných rokoch obmedzuje pre negatívny dopad na životné prostredie. Plynové hasiace systémy vyžadujú náročné navrhovanie a odbornú inštaláciu na zabezpečenie ich efektívnosti a bezpečnosti
13.3 Inštalácia, prevádzka a údržba stabilných hasiacich zariadení
Správna inštalácia, prevádzka a údržba SHZ predstavujú kľúčové aspekty, ktoré zásadne ovplyvňujú efektivitu a bezpečnosť týchto systémov. Správna inštalácia a prevádzka zabezpečuje funkčnosť a aj dlhodobú životnosť SHZ, zatiaľ čo pravidelná údržba garantuje, že zariadenia budú pripravené na okamžité použitie v prípade potreby.
13.3.1 Inštalácia
Pri inštalácii SHZ musí byť dodržaná konkrétna metodológia, ktorá zohľadňuje technické normy a legislatívne predpisy. Zároveň je dôležité zabezpečiť, aby boli všetky komponenty plne kompatibilné a spĺňali požiadavky na výkon a spoľahlivosť. Správne umiestnenie všetkých súčastí zariadenia je nevyhnutné na optimalizáciu detekcie požiarov a samotného zásahu.
Proces inštalácie SHZ začína samotným návrhom a zvyčajne začína analýzou rizika, ktorá zahŕňa hodnotenie potenciálnych zdrojov požiarov a posúdenie vhodnosti hasiacich systémov v danom priestore. Nasleduje výber vhodného systému, pričom sa zohľadňujú faktory ako typ objektu, jeho využitie a legislatívne požiadavky. Po schválení plánov sa prechádza k samotnej inštalácii, kedy sa montujú jednotlivé komponenty SHZ. Dôležité je správne umiestnenie a prepojenie všetkých častí, aby sa zabezpečila maximálna účinnosť SHZ.
Po dokončení inštalácie je potrebné vykonať testovanie funkčnosti, ktoré overí, či všetky komponenty fungujú podľa stanovených noriem. Vyhotoví sa dokumentácia, zaškolí sa obsluha a SHZ sa odovzdá prevádzkovateľovi.
13.3.2 Prevádzka
Správna prevádzka je kľúčová pre zabezpečenie správneho fungovania SHZ. V dôsledku veľkého množstva komponentov z ktorých je SHZ zložená, existuje potenciálne vysoké riziko poruchy. Je preto dôležité aby prevádzkovateľ prevádzkoval SHZ iba podľa dokumentácie vyhotovenej výrobcom. Kľúčové je aby inštalované SHZ malo posúdenie zhody vlastností s technickými predpismi. Sprievodná dokumentácia SHZ spravidla obsahuje projekt skutočného vyhotovenia stabilného hasiaceho zariadenia, prevádzkový predpis, prevádzkový denník, doklady o kontrolách a odborných prehliadkach, osvedčenie o výrobku, záručný list a kópie dokladov o overení zhody vlastností častí SHZ s technickými normami alebo s technickými špecifikáciami v štátnom jazyku.
SHZ môžu obsluhovať iba zaškolení zamestnanci, ktorí boli poučení, pri svojej činnosti postupujú podľa pokynov na obsluhu od výrobcu a vedú záznamy v prevádzkovej knihe SHZ.
13.3.3 Pravidelná údržba a kontroly
Údržba SHZ zahŕňa pravidelné kontroly, opravy a aktualizácie systémov. Údržba musí byť systematická a mala by zahŕňať niekoľko základných aspektov.
Prvým krokom v rámci pravidelnej údržby je vizuálna kontrola zariadenia. Táto kontrola by mala byť vykonávaná minimálne raz ročne a jej cieľom je overiť, či nie sú žiadne viditeľné poškodenia, korózia alebo nefunkčné komponenty. Okrem toho je potrebné pravidelne testovať hlásiče požiaru a alarmové systémy, aby sa zaistilo, že správne reagujú na prejavy požiaru.
Ďalším dôležitým aspektom údržby je čistenie a doplnenie hasiacich látok, predovšetkým a plynových systémoch. Tieto procesy môžu vykonávať iba zaškolené osoby s autorizáciou. Možnosti údržby, opráv a rozsah kontrol ktoré môže vykonávať prevádzkovateľ a ktoré len zaškolené osoby s autorizáciou je podrobne rozpísaný vo vyhláške MV SR č. 169/2006 Z. z. [2]
Pri zistení poruchy je nevyhnutné najprv určiť jej rozsah a bezprostredné dopady na funkčnosť SHZ. Môže to zahrňovať zlyhanie hlásičov požiaru, nedostatočný prítok hasiacich látok alebo mechanické poruchy v strojovni. Následne je potrebné analyzovať príčiny týchto porúch, ktoré môžu byť spôsobené neoprávnenými zásahmi, nedostatkom pravidelnej údržby alebo zastaranou technológiou. Falošné poplachy alebo neefektívne hasenie si vyžadujú presne definované postupy. Prevádzkovateľ SHZ by mal v rámci svojej organizačnej štruktúry vypracovať krízové plány a cvičiť zamestnancov na ich efektívne plnenie. Tieto plány zahrňujú presné postupy ohľadom evakuácie, zabezpečenia miesta požiaru a koordinácie so zasahujúcimi zložkami.
13.4 Moderné technológie a inovácie v oblasti stabilných hasiacich zariadení
SHZ zohrávajú kľúčovú úlohu v oblasti protipožiarnej bezpečnosti. Inovácie v oblasti technológií detekcie a hasenia, vrátane inteligentných systémov s využitím
umelej inteligencie, ktoré dokážu predvídať a reagovať na vznik požiaru s vysokou presnosťou, umožňujú efektívnejší zásah a minimalizujú potenciálne škody.
Mnohí výrobcovia vyvíjajú ekologické hasiace látky, ktoré sú šetrné k prírode a zároveň efektívne v boji proti ohňu. Dôležitá je v súčasnej dobe aj otázka možností hasenia elektromobilov, na ktoré sa vyvíjajú nové systémy hasenia.
Okrem toho moderné technológie umožňujú pripojenie SHZ k internetovým aplikáciám, ktoré umožňujú vzdialený monitoring a kontrolu budovy. Tieto inovačné prístupy zabezpečujú rýchlu detekciu požiaru a jeho uvedenie pod kontrolu a okamžité upozornenie príslušných zložiek, čím sa minimalizuje riziko a škody spôsobené požiarom.
Použitá literatúra
[1.] Vyhláška MV SR č. 94/2004, Z. z., ktorou sa ustanovujú technické požiadavky na protipožiarnu bezpečnosť pri výstavbe a pri užívaní stavieb, v znení neskorších predpisov
[2.] Vyhláška MV SR č. 169/2006 Z. z. o konkrétnych vlastnostiach stabilného hasiaceho zariadenia a polostabilného hasiaceho zariadenia a o podmienkach ich prevádzkovania a zabezpečenia ich pravidelnej kontroly
[3.] https://voda.tzb-info.cz/pozarni-vodovod/13971-sprinklerova-zarizeni-i-dil
[4.] STN EN 228 Automobilové palivá. Bezolovnatý benzín. Požiadavky a skúšobné metódy.
[5.] Kratochvíl, V.; Navarová, Š.; Kratochvíl, M. Požárně bezpečnostní zařízení ve stavbách. Ostrava : SPBI, 2011, 693 s.
[6.] https://cms.media.wilo.com/cdndoc/wilo595743/7225999/wilo595743.pdf
Zariadenia na odvod tepla a splodín horenia (ZOTSH) predstavujú dôležitú súčasť vybavenia stavieb v oblasti protipožiarnej ochrany. Považujú sa za aktívne systémy ochrany osôb v stavbe v prípade požiaru a ich cieľom je znížiť koncentráciu škodlivých produktov horenia pri požiari pod nebezpečnú úroveň a umožniť tak vykonanie účinnej evakuácie.
ZOTSH je zariadenie ktoré vyhláška MV SR č. 94/2004 Z. z. [1] prikazuje do určitých priestorov inštalovať a sú na ňu kladené konkrétne špecifiká. V tejto oblasti existuje široká škála technických noriem s označením STN EN 12101-X [2].
14.1 Teoretické východiská
ZOTSH pracuje na jednoduchom princípe. Pomocou prirodzenej alebo nútenej ventilácie odvádza z priestoru požiaru splodiny horenia, čím sa znižuje jeho zadymenie, zvyšuje sa viditeľnosť a zároveň sa privádza do priestoru čerstvý vzduch, ktorý zrieďuje splodiny horenia a umožňuje tak osobám nachádzajúcim sa v priestore požiaru ľahšie dýchanie. Odvod horúcich splodín horenia a prívod čerstvého vzduchu zároveň zabezpečuje zníženie teploty v priestore. Prívod čerstvého vzduchu do priestoru na druhej strane spôsobuje zrýchlenie rozvoja požiaru. V tomto smere je potrebné si pri návrhu ZOTSH uvedomiť, čo predstavuje pre evakuáciu osôb z priestoru požiaru vyššie riziko a to, či sú väčší problém splodiny horenia alebo rozvoj požiaru.
14.1.1 Fyzikálna podstata vetrania
Fyzikálnou podstatou prirodzenej výmeny vzduchu v priestore budovy (miestnosti) je rozdiel tlaku vzduchu vo vnútri priestoru a mimo neho. Keďže teplota vzduchu v budove býva spravidla rozdielna ako teplota vzduchu mimo nej, tak v dôsledku rozdielnej teploty majú vzduchové hmoty aj rozdielnu hustotu. Pri otvorení otvoru v budove tak dochádza k pohybu vzduchu ktorý sa skončí až v momente vyrovnania tlaku a vzniku rovnováhy. Rýchlosť pohybu a výmeny vzduchu býva závislá od viacerých faktorov, ako veľkosť otvoru, teplotný gradient, vietor a ďalšie externé faktory.
Nútená výmena vzduchu býva zabezpečená pomocou ventilačného systému. V prípade že prirodzená výmena vzduchu pre správne fungovanie ZOTSH nestačí, je nútená ventilácia jedinou možnosťou. Fyzikálnou podstatou núteného vetrania je vytvorenie tlakového gradientu pomocou rotácie lopatiek ventilátora, kedy pred ventilátorom vzniká podtlak a za ventilátorom zase pretlak vzduchu.
14.1.2 Fázy požiaru
Pre správne navrhnutie ZOTSH je potrebné porozumieť fázam a procesom prebiehajúcich počas požiaru. Priebeh požiaru je možné rozdeliť na dve kľúčové fázy a to na fázu rozvoja pred plne rozvinutým požiarom (preflashover) a fáza plne rozvinutého požiaru (postflashover).
Fáza preflashover predstavuje postupný rozvoj požiaru od iniciácie až k celkovému vzplanutiu priestoru. Je charakteristická postupným zvyšovaním tlaku, teplotou a vznikom dokonalých produktov horenia, pretože je v priestore prítomné dostatočné množstvo kyslíka. Preto je v tejto fáze požiar riadený odhorievajúcim palivom, čo znamená že rozvoj požiaru je závislý od prítomnosti kyslíka.
Fáza postflashover je charakteristická tým, že celý priestor je zachvátený požiarom, horí väčšina horľavých materiálov, teplota je veľmi vysoká, priestor je zahalený hustým dymom a vzniká veľké množstvo produktov nedokonalého horenia. V tejto fáze je nedostatok kyslíka a preto je požiar riadený ventiláciou.
Z hľadiska evakuácie osôb je nepodstatné sa venovať fáze plne rozvinutého požiaru, pretože sa nepredpokladá, že by sa v tejto fáze požiaru mohli v priestore ešte nachádzať osoby na žive. ZOTSH slúži práve na to, aby fázu preflashover predĺžil čo najdlhšie a poskytol tak osobám čas na evakuáciu.
Oddialenie začiatku fázy postflashover sa s pomocou ZOTSH dosahuje niekoľkými spôsobmi. V dôsledku odvetrania horúceho dymu sa znižuje teplota nie len v priestore, ale aj vďaka zníženiu prenosu tepla aj teplota stavebných konštrukcií. V dôsledku zníženia teploty v priestore dochádza k pomalšej iniciácii horľavých látok a utlmuje sa tak rýchlosť rozvoja požiaru a tým sa odďaľuje nástup fázy postflashover. S odvodom splodín horenia je spojený aj prívod čerstvého vzduchu do priestoru. Ten zabezpečuje zníženie koncentrácie splodín horenia, čím sa zároveň zvyšuje aj viditeľnosť. Taktiež studený vzduch klesá nadol zatiaľ čo horúce splodiny horenia a ohriaty vzduch stúpajú nahor, čo vytvára jasne viditeľné rozhranie medzi čistým vzduchom a splodinami horenia (neutrálna rovina). Dostatočný prívod čerstvého vzduchu zabezpečí, že postupný posun neutrálnej roviny nadol sa spomalí a oddiali sa tak nástup fázy postflashover.
Na druhej strane prístup vzduchu čiastočne urýchľuje rozvoj požiaru, avšak tento negatívny efekt prevyšujú svojimi prínosmi vyššie spomínané vplyvy.
14.1.3 Prenos tepla pri požiari
Ovládanie teórie prenosu tepla počas požiaru je kľúčové z hľadiska správneho návrhu ZOTSH. Pri požiari dochádza k ohrievaniu stavebných konštrukcií, vzduchu a aj samotného ZOTSH. Poznáme tri základné mechanizmy prenosu tepla, vedenie, prúdenie a sálanie.
Vedenie je proces, pri ktorom teplo prechádza cez materiál priamym kontaktom. Fyzikálnou podstatou je výmena tepla medzi molekulami látky z molekúl s vyššou energiou na molekuly s nižšou energiou. Vedenie tepla materiálom je kľúčové z hľadiska požiarnej odolnosti konštrukcií.
Prúdenie zabezpečuje prenosu tepla prostredníctvom pohybu kvapalín alebo plynov. V tomto procese teplé, menej husté oblasti stúpajú a sú nahrádzané chladnejšími, hustejšími oblasťami. Prúdenie môže byť prirodzené alebo nútené a je na ňom postavené fungovanie ZOTSH. Prúdenie je najdôležitejšou zložkou prenosu tepla pri požiari a ovplyvňuje teplotu celého priestoru.
Sálanie je tretím mechanizmom prenosu tepla, ktorý sa odohráva bez prenosu materiálu pričom materiály nemusia byť ani v kontakte. Fyzikálnou podstatou prenosu tepla žiarením je prenos tepla pomocou infračerveného žiarenia. K prenosu tepla nie je potrebné fyzické prostredie a môže sa odohrávať aj vo vákuu. Infračervené žiarenie pri požiari je významnou zložkou, jeho vplyv na ohrev plynov je minimálny avšak je veľmi významný pri ohreve okolitých konštrukcií.
Pri návrhu ZOTSH zohrávajú procesy prenosu tepla kľúčovú úlohu a sú zohľadnené vo fyzikálnych rovniciach. V súčasnosti sa ZOTSH projektujú predovšetkým pomocou počítačového modelovania a tzv. analýzy konečných prvkov.
14.2 Základné komponenty zariadení na odvod tepla a splodín horenia
Na rozdiel od elektrickej požiarnej signalizácie a stabilných hasiacich zariadení ZOTSH nemajú presne definovanú štruktúru pričom jednotlivé typy ZOTSH sa od seba výrazne líšia. V prípade že ZOTSH funguje na prirodzenom odvode splodín horenia, ZOTSH často predstavujú len jednoducho otvárateľné otvory v konštrukciách, ktoré sa manuálne alebo automaticky otvárajú. Pri automatickom otváraní je mechanizmus otvárania pomocou dátových liniek prepojený na ústredňu alebo riadiacu jednotku, ktorá ZOTSH ovláda. Väčšinou ZOTSH pracuje spolu s EPS a je ovládaný ústredňou EPS.
V prípade že je potrebné zabezpečiť nútené odvetranie, množstvo potrebných komponentov sa zvyšuje. Najdôležitejšími súčasťami sú systém odvetrania, najčastejšie prúdové ventilátory a sústava potrubí. Rozmery ventilátorov a priemer potrubí sa dimenzujú na základe predpokladaného množstvu dymu, ktorý je potrebné odviesť mimo budovu. Súčasti ZOTSH musia byť vyhotovené z materiálov odolných voči požiaru, s požiarnou odolnosťou rovnakou ako okolité konštrukcie. Umiestnenie komponentov ZOTSH sa musí zvoliť tak, aby bolo možné vykonávať ich pravidelnú údržbu.
14.3 Prepojenie so stabilným hasiacim zariadením
Prepojenie ZOTSH s ostatnými systémami aktívnej protipožiarnej ochrany budovy akými sú EPS a SHZ je v súčasnosti bežnou praxou. Avšak spoločné fungovanie ZOTSH a SHZ je problematické a musí sa k tomu pristupovať opatrne.
Hlavným problémom je pokiaľ oba systémy fungujú súčasne. Pri spustení SHZ prúd hasiacej látky vytvára veľké množstvo vzdušných výrov a taktiež ochladzuje splodiny horenia, vďaka čomu ich rozptyľuje do priestoru, narúša neutrálnu rovinu a tlačí ju smerom nadol. Znižuje sa tak viditeľnosť v priestore a zhoršujú sa podmienky evakuácie. Je preto nevyhnutné, aby sa tomu zabránilo. Kľúčové je správne nastavenie spúšťania oboch systémov na základe výpočtov, pričom kľúčovú úlohu zohráva čas evakuácie osôb a prípadný zásah jednotiek Hasičského a záchranného zboru.
14.4 Moderné technológie a inovácie v oblasti zariadení na odvod tepla a splodín horenia
Rozvoj a inovácie v oblasti ZOTSH sú úzko spojené so zlepšením v oblasti návrhu. Významným faktorom je vývoj digitálnych technológií a počítačového modelovania. Návrh ZOTSH bol v minulosti často otázkou praktických skúseností projektanta podporených jednoduchými empirickými vzťahmi, prípadne sa využívali jednoduché fyzikálne modely. S nástupom nových softvérov na počítačové modelovanie sa významným spôsobom zefektívnil a zoptimalizoval proces návrhu ZOTSH. Počítačové modely a softvéry vychádzajú už len z riešenia diferenciálnych fyzikálnych rovníc, bez použitia empirických vzťahov, čo značne zlepšuje presnosť modelov. Moderné systémy ZOTSH sú vďaka tomu menšie, majú vyššiu účinnosť a nižšiu finančnú náročnosť.
Digitálne technológie a automatizácia sa stávajú čoraz významnejšími aspektmi v oblasti ZOTSH Digitálny prenos informácií umožňuje plnú integráciu všetkých aktívnych protipožiarnych zariadení budovy do jedného celku. Nie je tak problém prepojiť EPS, SHZ a ZOTSH do jedného systému, ktorý je plne automatický, sú v ňom implementované požiarne scenáre a pokyny, čo majú jednotlivé systémy plniť. Eliminuje sa tak možnosť ľudskej chyby a zvyšuje sa bezpečnosť celej budovy.
Použitá literatúra
[1.] Vyhláška MV SR č. 94/2004, Z. z., ktorou sa ustanovujú technické požiadavky na protipožiarnu bezpečnosť pri výstavbe a pri užívaní stavieb, v znení neskorších predpisov.
[2.] STN EN 12101-X Zariadenia na odvod tepla a splodín horenia. Časť XX.
15.1 Zhromažďovacie priestory
Zhromažďovací priestor je definovaný ako priestor určený na zhromaždenie minimálne 200 osôb, v ktorom pripadá na jednu osobu plocha menej ako 4,0 m2 Jedná sa napr. o hľadiská kín, divadiel, posluchárne, viacúčelové výstavné haly, obchody, šatne, kostoly, telocvične a mnoho ďalších. Delia sa nasledovne [1]:
vnútorný zhromažďovací priestor - zhromažďovací priestor alebo miestnosť, ktorá je po celom obvode a zhora ohraničená stavebnými konštrukciami,
vonkajší zhromažďovací priestor - zhromažďovací priestor, ktorý nemusí byť strán alebo zhora ohraničený stavebnými konštrukciami, ale priestor je určitým spôsobom vymedzený (tribúna).
Zhromažďovacie priestory sa triedia podľa veľkosti pôdorysnej plochy na jednu osobu a celkového počtu osôb v týchto priestoroch na:
zhromažďovacie priestory ZP 1,
zhromažďovacie priestory ZP 2,
zhromažďovacie priestory ZP 3.
V prípade, ak sa priestor využíva na viacero účelov, zaradí sa priestor do zhromažďovacieho priestoru podľa funkčnosti pre každé využitie. Následne sa uvažuje s najvyššou triedou, do ktorej bol zhromažďovací priestor s variabilným využitím zaradený.
Zaradenie zhromažďovacieho priestoru do príslušnej triedy ZP1, ZP2 alebo ZP3 sa môže vykonať:
na základe Prílohy E uvedenej v STN 92 0201-3 [2], ktoré sa vykoná na základe počtu osôb a funkčného zamerania priestoru, alebo
podľa diagramu (obr. 93), na základe počtu osôb a pôdorysnej plochy prislúchajúcej na jednu osobu.

Obr. 93 Diagram triedenia zhromažďovacieho priestoru ZP podľa počtu osôb v zhromažďovacom priestore EZP a veľkosti pôdorysnej plochy na jednu osobu [2]
15.1.1 Vnútorný zhromažďovací priestor
Jedná sa väčšinou o stavbu alebo jej časť, v ktorej je viac ako 200 osôb a na jednu osobu plocha menej ako 4,0 m2 a zároveň je ohraničená zvislými a vodorovnými stavebnými konštrukciami. Podľa Prílohy 1 uvedenej vo Vyhláške MV SR č. 94/2004
Z. z. [3] musia v týchto stavbách tvoriť samostatný požiarny úsek:
a) vnútorný zhromažďovací priestor; súčasťou požiarneho úseku vnútorného zhromažďovacieho priestoru môžu byť aj priestory s náhodným požiarnym zaťažením najviac 5,0 kg·m-2 , b) javisko s povraziskom, ktorého súčasťou môžu byť, ak ide o javisko:
1. vnútorného zhromažďovacieho priestoru ZP1, všetky pomocné a prevádzkové priestory javiskovej časti stavby (zariadení),
2. vnútorného zhromažďovacieho priestoru ZP2, všetky pomocné priestory javiska,
3. vnútorného zhromažďovacieho priestoru ZP3, len pomocné priestory, ktoré bezprostredne slúžia na prevádzku javiska.
Vnútorným zhromažďovacím priestorom nesmú prechádzať zariadenia [3]:
voľne vedené rozvodné potrubia na horľavé látky,
voľne vedené rozvody vzduchotechnických zariadení okrem rozvodov zabezpečujúcich vetranie týchto priestorov,
voľne vedené elektrické rozvody a rozvádzače okrem rozvodov a rozvádzačov zabezpečujúcich jej prevádzku,
voľne vedené dymovody,
voľne vedené rozvody strednotlakovej a vysokotlakovej pary,
rozvody toxických látok alebo inak nebezpečných látok, predmety alebo zariadenia zužujúce šírku únikovej cesty pod jej najmenšiu dovolenú šírku únikovej cesty.
Strecha nad zhromažďovacím priestorom a nosné konštrukcie, od ktorých závisí jej stabilita, musí spĺňať požiadavku požiarnej odolnosti zodpovedajúcej dvojnásobnej hodnote predpokladaného času evakuácie osôb, najmenej však 15 min [3]:
Pri posudzovaní únikových ciest v zhromažďovacích priestoroch nad 500 m2 a pevne zabudovaným zariadením, nesmie najkratšia vzdialenosť od začiatku únikovej cesty po východ prekročiť 0,7-násobok dovolenej dĺžky nechránenej únikovej cesty. To však neplatí, ak je daný požiarny úsek chránený stabilným hasiacim zariadením.
V prípade vzniku požiaru v priestoroch s vyššou hustotou osôb, môže dôjsť k vzniku paniky. Preto sa dvere na únikových cestách v zhromažďovacích priestoroch vybavujú panikovým východovým uzáverom. Zároveň musí byť vyznačený smer úniku, a to prostredníctvom zariadenia s vlastným zdrojom svetla
Na zhromažďovacie priestory sú kladené prísne požiadavky z hľadiska vybavenia priestoru požiarnotechnickými zariadeniami. Vyhláška MV SR 94/2004 Z. z. [3] uvádza nasledovné požiadavky:
zariadením elektrickej požiarnej signalizácie musí byť vybavená stavba, v ktorej je vnútorný zhromažďovací priestor,
stabilným hasiacim zariadením musí byť vybavené javisko:
o s povraziskom určené pre vnútorný zhromažďovací priestor hľadiska s viac ako 500 osobami,
o bez povraziska určené pre vnútorný zhromažďovací priestor hľadiska s viac ako 800 osobami,
zariadenie na odvod tepla a splodín horenia musí byť vo vnútornom zhromažďovacom priestore, v ktorom má súčiniteľ horľavých látok hodnotu vyššiu ako 0,75, požiarne zaťaženie je väčšie ako 15 kg·m-2 a súčiniteľ odvetrania má hodnotu vyššiu ako 0,8.
hlasovou signalizáciou požiaru musia byť vybavené stavby, v ktorých sú zhromažďovacie priestory, prípadne vizuálnou signalizáciou požiaru,
Vnútorný zhromažďovací priestor, v ktorom nie je zariadenie na odvod tepla a splodín horenia pri požiari, musí mať najmenej polovicu plochy otvorov, ktoré umožňujú prístupvzduchu pri požiari, v hornej tretine výšky obvodových konštrukcií alebo v strešnej konštrukcii.
15.1.2 Vonkajší zhromažďovací priestor
Jedná sa väčšinou o športové areály a tribúny, ktoré sú zastrešené, ale väčšina strán po obvode je otvorená. K vonkajším zhromažďovacím priestorom patria aj nádvoria, ktoré nie sú síce zastrešené, ale sú ohraničené konštrukciami budovy. Požiadavky na únikové cesty z vonkajšieho zhromažďovacieho priestoru, ktoré prechádzajú vnútorným priestorom stavby, sú rovnaké ako na únikové cesty z vnútorného zhromažďovacieho priestoru; to však neplatí, ak všetky požiarne úseky v stavbe, ktorou prechádzajú únikové cesty, sú bez rizika [3].
Ďalším špecifickým vonkajším zhromažďovacím priestorom sú kaviarne na terasách viacpodlažných budov, alebo aj priestor strechy budovy, na ktorom sa organizuje napr. koncert. Vyhláška MV SR č. 94/2004 Z.z. [3] vymedzuje požiadavky na priestory nachádzajúce sa pod vonkajším zhromažďovacím priestorom:
nesmú byť umiestnené priestory s nebezpečenstvom výbuchu,
musia byť vybavené stabilným hasiacim zariadením alebo musia mať požiarne deliace konštrukcie z konštrukčných prvkov druhu D1 alebo D2, to neplatí pre požiarne úseky bez rizika.
15.2 Stavby na bývanie a ubytovanie
Stavby na bývanie a ubytovanie sú určené na dlhodobé alebo krátkodobé ubytovanie osôb. Pre dlhodobé ubytovanie, resp. bývanie slúžia bytové budovy, ktoré sú podľa Stavebného zákona [4] definované nasledovne:
bytové domy (tzv. paneláky, bytovky) – sú tvorené zo štyroch a viacerých bytov so spoločným hlavným vstupom z verejnej komunikácie;
rodinné domy - tvorené maximálne tromi bytmi (stavby s najviac2 nadzemnými podlažiami a podkrovným priestorom),
ostatné budovy na bývanie (detské domovy, študentské domovy, domovy dôchodcov...).
Stavby na bývanie a ubytovanie sa delia do dvoch skupín na základe počtu obytných buniek:
stavby na bývanie a ubytovanie skupiny A - do dvoch obytných buniek,
stavby na bývanie a ubytovanie skupiny B - tri a viac obytných buniek.
Pojem obytná bunka je Vyhláškou MV SR č. 94/2004 Z.z. [3]definovaný nasledovne:
Obytná bunka je: o byt, o izba alebo skupina izieb s príslušenstvom na ubytovanie najviac 20 osôb.
15.2.1 Stavby na bývanie a ubytovanie skupiny A
Jedná sa zväčša rodinné domy s maximálne dvomi obytnými bunkami.
Stavby na bývanie a ubytovanie skupiny A môžu tvoriť jeden požiarny úsek. Podľa Prílohy 1 uvedenej vo Vyhláške MV SR č. 94/2004 Z. z. [3] musia v týchto stavbách tvoriť samostatný požiarny úsek vstavané alebo pristavané prevádzkarne, ak nie sú súčasťou obytnej bunky.
Na druhej strane, súčasťou požiarneho úseku obytnej bunky môžu byť [3]:
miestnosti nesúvisiace s prevádzkou bytu, napríklad kancelária, ordinácia, obchod s plochou najviac 40 m2. Môže sa jednať o malý obchod, ordináciu, firemné priestory,
jednotlivá garáž s najviac dvoma státiami.
Výpočtové požiarne zaťaženie sa pre požiarny úsek tvoreným obytnou bunkou stanoví podľa prílohy K uvedenej v STN 92 0201-1 [5] a je dané pv = 50 kg m-2. Pre tento druh priestoru je stanovená aj hodnota súčiniteľa horľavých látok a = 1,0.
Stavby na bývanie a ubytovanie skupiny A sa zaraďujú do I. stupňa protipožiarnej bezpečnosti [6]
Pri určení odstupových vzdialeností od požiarneho úseku stavby, ktorý tvorí obytná bunka v stavbe na bývanie sa postupuje podľa Tab.6 uvedenej v STN 92 0201-4 [7]. Pri dvojpodlažnom požiarnom úseku sa hodnoty v uvedenej tabuľke násobia súčiniteľom 1,5 a pritrojpodlažnompožiarnom úseku sa hodnoty násobia súčiniteľom 2. Priurčení odstupových vzdialeností od požiarneho úseku stavby, ktorý tvorí obytná bunka v stavbe na ubytovanie sa postupuje podľa Tab. 7 uvedenej v STN92 0201-4 [7]. V obidvoch prípadoch sa pri dvojpodlažnom požiarnom úseku hodnoty v uvedenej tabuľke násobia súčiniteľom 1,5 a pri trojpodlažnom požiarnom úseku sa hodnoty násobia súčiniteľom 2
15.2.2 Stavby na bývanie a ubytovanie skupiny B K stavbám na bývanie a ubytovanie skupiny B patria bytové domy, apartmánové domy, hotely, motely, penzióny, ubytovne, rekreačné zariadenia, detské domovy, študentské domovy,domovydôchodcov aútulky pre bezdomovcov. Jedná sa o stavby pre dlhodobý alebo krátkodobý pobyt, ktoré disponujú s tri a viac obytnými bunkami.
V stavbách na bývanie a ubytovanie skupiny B musia podľa Prílohy 1 uvedenej vo Vyhláške MV SR č. 94/2004 Z.z. [3], bod 4, tvoriť samostatný požiarny úsek nasledovné
priestory:
každá obytná bunka,
domové vybavenie:
o kotolňa so skladom paliva,
o sklad paliva, ak je stavebne oddelený od kotolne,
o ostatné priestory domového vybavenia aj pre viac sekcií obytného domu,
iné priestory, ktoré sú umiestnené v stavbe určenej na bývanie alebo na ubytovanie.
Samozrejme, samostatný požiarny úsek tvoria aj priestory uvedené v ostatných bodoch tejto prílohy, ako napríklad chránené únikové cesty, šachty, požiarne výťahy, výťahové šachty a ich strojovne, garáže a ďalšie.
Výpočtové požiarne zaťaženie pre požiarny úsek tvoreným obytnou bunkou, ktorá je určená na bývanie (byty, domovy dôchodcov), sa stanoví podľa prílohy K uvedenej v STN 92 0201-1 [5] a je dané pv = 50 kg·m-2. Pre tento druh priestoru je stanovená aj hodnota súčiniteľa horľavých látok a = 1,0. Výpočtové požiarne zaťaženie sa pre požiarny úsek tvoreným obytnou bunkou, ktorá je určená na ubytovanie (izby v hoteloch, moteloch, na internátoch) je pv = 40 kg m-2 a súčiniteľ horľavých látok a = 1,0. Ak v takýchto stavbách tvorí výťahová šachta samostatný požiarny úseku, potom výpočtové požiarne zaťaženie) je pv = 30 kg·m-2 a súčiniteľ horľavých látok a = 0,9. Chodby, do ktorých ústia obytné bunky, sú buď požiarne úseky bez rizika alebo chránené únikové cesty. Pre tieto priestory je pv = 7,5 kg m-2 a súčiniteľ horľavých látok a = 0,85.
Požiarne úseky, ktoré sú tvorené obytnou bunkou v stavbe na bývanie a ubytovanie skupiny B sa zaraďujú do príslušného stupňa protipožiarnej bezpečnosti podľa Tab. 28. Je závislý od horľavosti konštrukčného celku, počtu podlaží a podlažia, na ktorom sa nachádza posudzovaný požiarny úsek.
Z hľadiska dodržania požiadaviek na bezpečnú evakuáciu Vyhláška MV SR č. 94/2004 Z. z. [3] uvádza pre stavby na bývanie a ubytovanie skupiny B, resp. na únikové cesty z obytných buniek nachádzajúcich sa v stavbe iného účelu špeciálne požiadavky:
Spoločná komunikácia, do ktorej ústia obytné bunky umiestnené v stavbe na bývanie a ubytovanie skupiny B, je buď priestor bez požiarneho rizika alebo chránená úniková cesta. Súčasťou tohto požiarneho úseku môžu byť aj priestory recepcie.
V stavbách určených na bývanie najviac so štyrmi nadzemnými podlažiami nie je obmedzená dĺžka čiastočne chránenej únikovej cesty, do ktorej vedú dvere z najviac šiestich obytných buniek na každom podlaží a ktorá vedie na voľné priestranstvo.
Spoločná komunikácia, do ktorej vedú dvere z obytných buniek v stavbe určenej na bývanie a ubytovanie s požiarnou výškou nadzemnej časti do 12 m, musí tvoriť: chránenú únikovú cestu,
samostatný požiarny úsek, ktorý tvorí čiastočne chránenú únikovú cestu a v ktorom je:
o výpočtové požiarne zaťaženie najviac 3,5 kg·m-2 alebo
o výpočtové požiarne zaťaženie najviac 7,5 kg·m-2 a súčiniteľ horľavých látok je najviac 1,1,
a jej súčasťou môžu byť priestory vrátnice, recepcie, informačnej služby, umyvární a toaliet. Náhodné požiarne zaťaženie v týchto priestoroch nemôže byť väčšie ako 15 kg·m-2
Čiastočne chránená úniková cesta z obytných buniek a priestorov domového vybavenia môže mať dĺžku najviac:
20 m, ak vedie k jednému východu na voľné priestranstvo alebo do chránenej únikovej cesty,
40 m k najbližšiemu východu na voľné priestranstvo alebo do chránenej únikovej cesty, ak čiastočne chránená úniková cesta vedie najmenej dvomi rôznymi smermi úniku.
V stavbách určených na bývanie a na ubytovanie skupiny B s požiarnou
výškou nadzemnej časti viac ako 22,5 m musí byť z každého požiarneho úseku
umožnený únik najmenej dvoma chránenými únikovými cestami typu B alebo typu C; to platí aj na stavbu na iný účel, v ktorej je viac ako dve obytné bunky alebo v ktorej je ubytovaných viac ako 20 osôb na podlažiach s požiarnou výškou viac ako 22,5 m.
Začiatok únikovej cesty sa meria na osi východu z bytu. V rámci obytnej bunky sa neposudzuje dovolená dĺžka únikovej cesty. Úniková cesta nesmie byť užšia ako 0,9 m, minimálne šírka krídla dverí je 0,8 m.
Odstupová vzdialenosť pri stavbách na bývanie a ubytovanie skupiny B závisí od veľkosti požiarne otvorených plôch požiarneho úseku, dĺžky požiarneho úseku, počtu podlaží v požiarnom úseku (nie vstavby!) a druhu konštrukčného celku. Výpočtové požiarne zaťaženie nefiguruje v tabuľkách na určenie odstupov, pretože sa uvažuje s normovou tabuľkovou hodnotou 50 kg·m-2. Tak isto nie je zohľadnená výška obytnej bunky, pretože sa odporúčajú štandardy pre obytné bunky a následne sa s nimi uvažuje. Pri odstupových vzdialenosť je potrebné mať na zreteli, či sa jedná o stavbu na bývanie alebo ubytovanie. Pri určení odstupových vzdialeností od požiarneho úseku stavby, ktorý tvorí obytná bunka v stavbe na bývanie sa postupuje podľa Tab.6 uvedenej v STN 92 0201-4 [7]. Pri určení odstupových vzdialeností od požiarneho úseku stavby, ktorý tvorí obytná bunka v stavbe na ubytovanie sa postupuje podľa Tab. 7 uvedenej v STN 92 0201-4 [7]. V obidvoch prípadoch sa pri dvojpodlažnom požiarnom úseku hodnoty v uvedenej tabuľke násobia súčiniteľom 1,5 a pri trojpodlažnom požiarnom úseku sa hodnoty násobia súčiniteľom 2 Obytné bunky sa môžu nachádzať aj v stavbách s iným účelom, napr. polyfunkcie, administratívne budovy a ďalšie. Nesmie sa však zabudnúť na to, že aj v týchto prípadoch musia byť splnené vyššie uvedené podmienky.
15.3 Jednotlivé, radové a hromadné garáže
Garáž je stavba pevne spojená so zemou alebo jej časť, ktorá slúži na umiestnenie motorového vozidla. Jej funkciou je chrániť motorové vozidlo pred poveternostnými vplyvmi a vandalmi. V závislosti od veľkosti vozidiel, ktorým má garáž slúžiť, sa garáže delia do nasledovných tried [8]:
garáže skupiny 1 – pre osobné automobily, dodávkové automobily, jednostopové vozidlá (motocykly, skútry, mopedy),
garáže skupiny 2 – pre nákladné automobily, autobusy a špeciálne automobily,
garáže skupiny 3 – pre traktory a samojazdné pracovné stroje.
Ďalšie delenie garáži je nasledovné:
jednotlivá garáž - stavba, resp. priestor, ktorý slúži na odstavovanie vozidiel, má najviac 3 státia a môže mať len jeden vjazd [9,
radová garáž - pre viac ako 3 státia, státia môžu byť vedľa seba, v jednom alebo dvoch radoch za sebou, pričom každé státie v prvom rade má samostatný vjazd [9],
hromadná garáž - stavba, resp. priestor na odstavovanie alebo parkovanie vozidiel. Má viac ako 3 státia. Môžu byť jednopodlažné alebo viacpodlažné [10].
Z hľadiska protipožiarne bezpečnosti v jednotlivých, radových a v hromadných garážach a v ostatných stavbách musia podľa Prílohy 1 uvedenej vo Vyhláške MV SR č. 94/2004 Z.z. [3] tvoriť samostatný požiarny úsek nasledovné priestory:
a) priestor garáže; jeho súčasťou môžu byť priestory, ktoré súvisia s prevádzkou garáže, ak ich plocha je najviac 10% celkovej plochy požiarneho úseku garáže, do ktorej sú priestory vstavané, a ak ich plocha je menšia ako 100 m2 ,
b) priestory, ktoré súvisia s prevádzkou garáže, ak ich plocha je väčšia ako 10 % celkovej plochy požiarneho úseku garáže, do ktorej sú priestory vstavané, a ak ich plocha je väčšia ako 100 m2 ,
c) priestory, ktoré nesúvisia s prevádzkou garáže,
d) priestory čerpacích staníc kvapalných palív,
e) priestory na ošetrenie, údržbu alebo opravy motorových vozidiel, a to najmä 1. sklad olejov a mazadiel, 2. sklad náterových hmôt, 3. sklad pneumatík a sklad čalúnnickej dielne s plochou viac ako10 m2 , 4. sklad tlakových fliaš na horľavé plyny.
Priestory uvedené v písmene e) bodoch 1 až 3 môžu tvoriť spoločný požiarny úsek. Požiarne riziko pre požiarny úsek garáže sa stanoví podľa Prílohy L uvedenej v STN 92 0201-1 [5]:
a) garáže pre osobné automobily, dodávkové automobily, jednostopové vozidlá (garáže skupiny 1) je ekvivalentný čas trvania požiaru Ʈe = 20 min,
b) pre nákladné automobily, autobusy, špeciálne vozidlá, traktory, samojazdné stroje (garáže skupín 2 a 3) je ekvivalentný čas trvania požiaru Ʈe = 45 min.
Jednotlivým garážam je priradený I. stupeň protipožiarnej bezpečnosti. Stupeň protipožiarnej bezpečnosti hromadných a radových garáži sa stanoví podľa Tab. 29.
Určuje v závislosti od skupiny garáže, od horľavosti konštrukčného celku, od počtu podlaží, požiarnej výšky a od polohy garáže.
Výnimkou sú však vstavané garáže skupiny 2 alebo 3. Pre požiarny úsek vstavanej garáže skupiny 2 alebo 3 sa požiarne riziko musí stanoviť na základe výpočtového požiarneho zaťaženia ako pri nevýrobných stavbách. Stupeň protipožiarnej bezpečnosti vstavanej garáže skupiny 2 alebo 3 sa určí podľa Tabuľky 27 (t.j. Tab. 2 uvedená v STN 92 0201-2 [6]).
Požiarny pás nemusí byť vyhotovený podľa Vyhlášky MV SR č. 94/2004 Z. z. [3] na mieste styku požiarneho stropu s obvodovou stenou na mieste styku požiarnej steny a obvodovej steny, v ktorej sú umiestnené vjazdy do garáže.
Odstupové vzdialenosti sa určia podľa STN 92 0201-4 [7] štandardným spôsobom, t.j. odstupové vzdialenosti od požiarneho úseku.
Zariadením elektrickej požiarnej signalizácie musí byť vybavený požiarny úsek, v ktorom je hromadná garáž pre viac ako 50 motorových vozidiel [3].
Motorové vozidlá na prepravu horľavých kvapalín a horľavých plynov možno umiestňovať len v jednopodlažných voľne stojacích alebo pristavených garážach; jednotlivé miesta určené na státie motorových vozidiel v garáži musia byť od seba oddelené požiarnymi stenami s požiarnou odolnosťou najmenej 30 min [3].
15.4 Stavby zdravotnícky zariadení
Zdravotnícke zariadenie je zariadenie zamerané na poskytovanie zdravotnej starostlivosti a služieb súvisiacich s poskytovaním zdravotnej starostlivosti. Osobitné požiadavky zdravotníckych zariadení sa čiastočne vzťahujú aj liečené a kúpeľné domy, domovy dôchodcov ale aj oddelenia jaslí.
Podľa Prílohy 1 uvedenej vo Vyhláške MV SR č. 94/2004 Z. z. [3] musia v týchto stavbách tvoriť samostatný požiarny úsek: a) lôžková ošetrovacia jednotka; jej súčasťou môže byť vyšetrovacia, liečebná alebo riadiaca zložka,
b) jednotka intenzívnej starostlivosti,
c) anestéziologicko-resuscitačné oddelenie, d) operačné oddelenie, e) sklady horľavých plynov a kyslíka, f) iné priestory, ktoré priamo nesúvisia so zdravotníckou starostlivosťou.
Priestory uvedené v bodoch a) až d) musia tvoriť jednopodlažný požiarny úsek. Samozrejme samostatný požiarny úsek v zdravotníckych zariadeniach tvoria aj priestory uvedené v ostatných bodoch tejto prílohy, ako napríklad chránené únikové cesty, šachty, požiarne výťahy, výťahové šachty a ich strojovne, garáže a ďalšie.
Výpočtové požiarne zaťaženie a súčiniteľ horľavých látok pre požiarne úseky v zdravotníckych zariadenia, ktoré sú tvorené vybranými priestormi, sa stanoví podľa prílohy K uvedenej v STN 92 0201-1 [5]:
pre priestory v zdravotníckych zariadeniach, v ktorých sa poskytuje zdravotnícka starostlivosť (vyšetrovne, prípravne, terapeutické izby, špeciálny vyšetrovne, zákrokové sály a pod.) je pv = 26 kg.m-2 a a = 0,9,
pre priestory na rehabilitáciu, elektroliečbu, liečebný telocvik, ergoterapiu, masáže je pv = 14 kg.m-2 a a = 0,8,
pre lôžkové izby v nemocniciach, sanatóriách a liečebniach, okrem kúpeľných liečební je pv = 26 kg.m-2 a a = 0,9,
pre lôžkové izby v kúpeľných liečebniach je pv = 37 kg.m-2 a a =1,0.
Požiadavky na stavebné konštrukcie zdravotníckych zariadení sú bližšie špecifikované Vyhláškou MV SR č. 94/2004 Z.z. [3] nasledovne:
1. V stavbách zdravotníckych zariadení musia byť požiarne deliace konštrukcie a konštrukcie zabezpečujúce stabilitu stavby vyhotovené z konštrukčných prvkov druhu D1; to neplatí na stavby zdravotníckych zariadení, ktoré majú najviac dve nadzemné podlažia.
2. Požiarny pás musí byť vyhotovený aj v stavbách s požiarnou výškou do 12 m.
3. Požiarny úsek, v ktorom je umiestnená jednotka intenzívnej starostlivosti, anestéziologicko-resuscitačné oddelenie a operačné oddelenie, musí byť od ostatných požiarnych úsekov oddelený predsieňou vetranou pretlakovým vetraním, ktorého činnosť musí byť zabezpečená najmenej počas 240 min. Predsieň musí mať také rozmery, aby v nej bolo možné manipulovať s lôžkom.
4. Požiadavky na požiarne deliace konštrukcie požiarneho úseku, v ktorom je umiestnená jednotka intenzívnej starostlivosti, anestéziologicko-resuscitačné oddelenie a operačné oddelenie musia byť určené podľa susedného požiarneho úseku s najvyšším stupňom protipožiarnej bezpečnosti a zvýšené o jeden stupeň.
Zdravotnícke zariadenia, rehabilitačné zariadenia, domovy dôchodcov, oddelenia jaslí sú špecifické stavby z hľadiska evakuácie. Osoby nachádzajúce sa v takýchto zariadeniach sú zo zdravotných dôvodov, prípadne podľa veku, považované za osoby s rôznou schopnosťou pohybu. Percentuálne zloženie pacientov v zariadeniach zdravotníckej starostlivostipodľa schopnosti pohybuuvádza Príloha Dv STN92 02013 [2] v závislosti od zamerania zdravotníckeho zariadenia.
Tab. 54 Percentuálne zloženie pacientov v zariadeniach zdravotníckej starostlivosti podľa schopnosti pohybu [2]
Pol. Zdravotnícke zariadenie
4.2 Chirurgické oddelenie
4.4 Detské oddelenie
4.6 Psychiatrické oddelenie
4.12 Stomatologické oddelenie
4.18 Odd. anestéziologickoresuscitačné a JIS
4.19 Detské oddelenie
6.3 Jasle
Zloženie pacientov podľa schopnosti pohybu v % schopní samostatného pohybu s obmedz. schopnosťou pohybu neschopní samostatného pohybu
Pre zdravotnícke zariadenia, ktoré nie sú uvedené v Prílohe D v STN 92 0201-3 [2], sa odporúča použiť nasledovné percentuálny pomer:
a) pacienti schopní samostatného pohybu 40 %,
b) pacienti s obmedzenou schopnosťou pohybu 35 %,
c) pacienti neschopní samostatného pohybu 25 %.
Z dôvodu, že sa v zdravotníckych zariadeniach nachádzajú aj osoby s obmedzenou schopnosťou pohybu a osoby neschopné samostatného pohybu, je nevyhnutné, že sú vybavené evakuačnými výťahmi pre pacientov. Ich hlavnou úlohou je zabezpečenie evakuácie pacientov s obmedzenou schopnosťou alebo neschopných samostatného pohybu v prípade vzniku požiaru. Pacienti musia byť evakuovaní zdravotníckym personálom, alebo pomocným zdravotníckym pracovníkom. V stavbe zdravotníckeho zariadenia s lôžkovými oddeleniami, v ktorej je viac ako desať osôb, sa počet evakuačných výťahov určuje podľa [2]:
a) predpokladaného počtu pacientov neschopných samostatného pohybu, b) počtu podlaží, ktoré sa majú evakuovať, a podľa ich výškovej polohy,
c) technických parametrov výťahu, minimálne musí byť vybavená aspoň dvoma evakuačnými výťahmi.
Požiadavky na únikové cesty v stavbách zdravotníckych zariadení sú nasledovné [2]:
1. V stavbách viacpodlažných zdravotníckych zariadení s lôžkovými oddeleniami a oddeleniami jaslí, z ktorých nie je východ priamo na voľné priestranstvo ani úniková cesta po rovine do vedľajšej stavby, musí byť každé podlažie rozdelené najmenej na dva požiarne úseky; v takto vytvorených požiarnych úsekoch musia byť zabezpečené podmienky na bezpečnú evakuáciu osôb aj z vedľajšieho požiarneho úseku.
2. Požiarny úsek, do ktorého smeruje evakuácia podľa odseku 1, musí
a) mať požiarne zaťaženie, ktorého súčiniteľ horľavých látok je najviac 1,0,
b) mať dostatočnú plochu na umiestnenie pacientov evakuovaných zo susedného požiarneho úseku,
c) nadväzovať na chránenú únikovú cestu alebo na východ na voľné priestranstvo, d) mať zabezpečené prirodzené vetranie oknami alebo otvormi v obvodových stenách.
Najnižší typ chránenej únikovej cesty sa v zdravotníckych zariadeniach stanoví podľa Prílohy 8 uvedenej vo Vyhláške MV SR č. 94/2004 Z.z. [3].
Tab. 55 Najnižší typ chránenej únikovej cesty v stavbách zdravotníckych zariadení s lôžkovými oddeleniami [3] Počet nadzemných podlaží stavby Typ jednej únikovej cesty Typ ďalšej únikovej cesty
2 A A
3 až 8 B A
9 až 12 B B**) viac ako 12 C B
**) Jednu z ďalších únikových ciest typu B možno nahradiť dvoma únikovými cestami typu A vybavenými umelým vetraním.
Únikové cesty musia byť vyznačené zariadením s vlastným zdrojom svetla a únikové cesty z lôžkovej časti stavby musia byť osvetlené umelým svetlom.
Vyhláška MV SR 94/2004 Z.z. [3] uvádza požiadavky na vybavenie zdravotníckych zariadení požiarnotechnickými zariadeniami:
stabilným hasiacim zariadením musí byť vybavená o lôžková časť stavby zdravotníckeho zariadenia určená pre viac ako 800 osôb,
zariadením elektrickej požiarnej signalizácie musí byť vybavená aj stavba o zdravotníckeho zariadenia s lôžkovou časťou.
Použitá literatúra
[1.] STN 92 0101:1997, Požiarna bezpečnosť stavieb. Názvoslovie.
[2.] STN 92 0201-3:2000, Požiarna bezpečnosť stavieb. Spoločné ustanovenia. Časť 3: Únikové cesty a evakuácia osôb.
[3.] Vyhláška MV SR č. 94/2004 Z. z., ktorou sa ustanovujú technické požiadavky na protipožiarnu bezpečnosť pri výstavbe a pri užívaní stavieb, v znení neskorších predpisov.
[4.] Zákon č. 50/1976 Zb., zákon o územnom plánovaní a stavebnom poriadku (stavebný zákon).
[5.] STN 92 0201-1:2000, Požiarna bezpečnosť stavieb. Spoločné ustanovenia. Časť 1: Požiarne riziko, veľkosť požiarneho úseku.
[6.] STN 92 0201-2:2017, Požiarna bezpečnosť stavieb. Spoločné ustanovenia. Časť 2: Stavebné konštrukcie
[7.] STN 92 0201-4:2000, Požiarna bezpečnosť stavieb. Spoločné ustanovenia. Časť 4: Odstupové vzdialenosti.
[8.] STN 73 0837:1977, Požiarna bezpečnosť stavieb. Jednotlivé a radové garáže.
[9.] STN 73 6057:1987, Jednotlivé a radové garáže. Základné ustanovenia.
[10.] STN 73 6058:1987, Hromadné garáže. Základné ustanovenia.
A
analógové systémy...................................216, 217
automatický uzatvárací mechanizmus 121
B
bezdrôtové detektory...................................... 218
bezdrôtové systémy ........................................ 217
bezpečnosť 10
brániace prenosu plameňa............................. 118
brániace šíreniu tepla 117
C
celistvosť 119
centrálne riadiace zariadenie 224
čas evakuácie.................................................... 137
čas pohybu jednej osoby................................. 138
čiastočne chránená úniková....................132, 134 čiastočne požiarne otvorená plocha.............. 172
D
digitálne systémy 216, 217 dilatácia 222 dĺžka únikovej cesty 139
doklady o preukázaní zhody 14 dokumentácia požiarnych konštrukcií 127 dokumentácia protipožiarnej bezpečnosti stavby 13
dopravné potrubie 223 dopravníkové mosty 195 dovolená dĺžka únikovej cesty 141 dovolený počet únikových pruhov 143 drenčerové stabilné hasiace zariadenie 227 drevený krov 174
E
ekvivalentný čas trvania požiaru .........34, 51, 55 elektrická požiarna signalizácia ..14, 77, 82, 201, 212 elektrické rozvody........................................... 207 energetická hospodárnosť................................ 11 Eurokód.............................................................. 94 evakuácia osôb................................................. 131 evakuácia zvierat............................................. 164 evakuačná cesta pre zvieratá ......................... 165 evakuačné cesty pre zvieratá ......................... 164 evakuačný výťah ......................................152, 153
G garáž.................................................................. 241
hadicové zariadenie .................................210, 211 hadicový navijak ............................................. 210 halotrónové hasiace látky........................204, 226 hasiaca látka 203 hasiace látky..................................................... 225 hasiace prístroje 203 hlásiče požiaru 212, 213 hlasová signalizácia požiaru 205 hlavná ústredňa 215 horľavosť 19 horľavý konštrukčný celok 70 hromadná garáž 241 hustota tepelného toku 175 hygiena 10
chránená úniková cesta 132 chránená úniková cesta typu A 133, 150 chránená úniková cesta typu B ..............133, 150 chránená úniková cesta typu C ..............133, 151
index ekonomického rizika.............34, 61, 66, 80 index pravdepodobnosti rozsahu škôd.......... 73 index skladovaných materiálov 34, 61, 62, 80 inštalačná šachta.............................................. 113 inštalačný kanál 113 izolácia riadená radiáciou 120
jedna úniková cesta 136 jednostranné vetranie 149
kapacita únikového pruhu............................. 141 klietkový odchov zvierat................................ 165 kolaudačné konanie .....................................10, 14 konštrukcie stavby ............................................ 25 konštrukčné a dispozičné riešenie .................. 14 konštrukčné prvky............................................ 27 konštrukčný celok stavby ................................ 27 konštrukčný prvok............................................ 29 konštrukčný prvok druhu D1.......................... 25 konštrukčný prvok druhu D2.......................... 25
konštrukčný prvok druhu D3 26 konštrukčný systém 27
kontrola hlásičov požiaru 219 kritériá požiarnej odolnosti 118 krivka pomalého ohrevu 95 krivka pôsobenia vonkajšieho požiaru 95
L
lineárne potrubia............................................... 19
lineárne styky................................................... 114
M
maximálny dovolený čas 138 medzné stavy 96 mechanická odolnosť 10 miesta so zvýšeným nebezpečenstvom vzniku požiaru 218
N nadzemné požiarne hydranty ....................... 208 náhodné požiarne zaťaženie 37 náhradná úniková možnosť........................... 154 najnižší počet evakuovaných osôb................ 141 najväčší počet zvierat...................................... 164 najväčšia dovolená plocha ............................... 69 namáhanie konštantnou teplotou................... 95 nástenný hydrant ............................................ 210 nástupná plocha .............................................. 199 nástupné plochy ................................................ 13 nehorľavý konštrukčný celok.....................34, 69 nechránená úniková cesta .............................. 131 nevýrobná stavba .............................................. 35 normová teplotná krivka.................................. 94 nosné konštrukcie striech a stropov 110 núdzový východový uzáver.......................... 124 nútená ventilácia ............................................. 231 O obmedzujúce šírenie tepla 118 obvodová stena 104 obvodové steny 101 obytná bunka 196 odberné miesta 13 odkvapkávanie 19 odpadávanie 19 odstupová vzdialenosť 167, 168, 178 odstupové vzdialenosti 13, 14 ochrana proti hluku 11 osoby neschopné samostatného pohybu ..... 141 osoby s obmedzenou schopnosťou pohybu 141 osvedčenia požiarnych konštrukcií 14 osvetlenie únikových ciest ............................. 162
otvárateľný otvor 155 otvorené technologické zariadenia 192 otvorený sklad 187
P
pacienti neschopní samostatného pohybu... 244 pacienti s obmedzenou schopnosťou pohybu ....................................................................... 244
pacienti schopní samostatného pohybu....... 244 Pamiatkový úrad SR ......................................... 14 panikový uzáver.............................................. 123 parameter odvetrania ..................................54, 59 pena............................................................204, 225 penové stabilné hasiace zariadenie............... 227 plocha požiarneho úseku ......................69, 71, 79 plošná hustota tepelného toku 188, 192 plošné množstvo uvoľneného tepla 167 plynová hasiaca látka 204, 226 plynové hasiace systémy 227 počet požiarnych podlaží 70 počet únikových ciest 134 podhľad 109 podzemné hydranty 208 pohonná jednotka 224 pohonný agregát 221 postflashover 231 požiadavky na požiarne uzávery 121 požiar riadený odvetraním 53 požiar riadený palivom 52 požiarna konštrukcia 92 požiarna odolnosť 92, 93, 101, 157 požiarna predsieň 133 požiarna výška 17 požiarne deliace konštrukcie 100, 106 požiarne dvere 160 požiarne nebezpečný priestor 167, 168 požiarne otvorená plocha 167 požiarne pásy 102 požiarne podlažie...................................16, 18, 31 požiarne riziko..............................................34, 81 požiarne zariadenia 14, 201 požiarne zaťaženie .....................................36, 148 požiarnotechnické zariadenie........................ 201 požiarny rebrík................................................ 155 požiarny strop.................................................. 109 požiarny úsek .................................14, 31, 86, 100 požiarny uzáver..........................................14, 117 požiarny výťah ................................................ 200 práškové hasiace látky.............................204, 225 pravdepodobný čas trvania požiaru..........55, 60 predpokladaný čas evakuácie ....................... 137 preflashover ..................................................... 231
prepočtový parameter odvetrania 59, 61 prestupy 113
priebeh požiaru 231 priečne vetranie 149 priemer potrubia 208 priemerné požiarne zaťaženie 42, 43 prirodzená ventilácia 231 prirodzené vetrania 149 prirodzené vetranie 149 príručné sklady.................................................. 38 prístavba........................................................18, 61
prístupová komunikácia ................................ 198
projektová dokumentácia ................................ 13
prúdenie ........................................................... 232 prvé nadzemné požiarne.................................. 16
R reakcia na oheň 19
rýchlosť odhorievania horľavých látok 56, 60, 61
rýchlosť pohybu osôb 141
S
sálanie 233 samozatváranie 160 signalizačné zariadenia 212, 214 sklad v jednopodlažnej stavbe 35, 62, 98, 202 sklzná tyč.......................................................... 155 sklzný žľab 155
skúška nehorľavosti 21
skúška osamelo horiacim predmetom ........... 23 skúška radiačným panelom............................. 24
skúška spalného tepla....................................... 22
skúška zapáliteľnosti ........................................ 24 smer úniku ................................................158, 162 sprinklerové stabilné hasiace zariadenie ..... 226 spúšťací mechanizmus ................................... 223 stabilné hasiace zariadenia ...14, 77, 83, 201, 221 stále požiarne zaťaženie ................................... 40
statický posudok ............................................... 13 stav dezaktivácie ............................................. 216
stav signalizovania.......................................... 216
stav skúšania.................................................... 216
stavby na bývanie a ubytovanie.................... 237 stavby na bývanie a ubytovanie skupiny A 238
stavby na bývanie a ubytovanie skupiny B 238
stavebné konanie 10, 13
stavebné konštrukcie 92 stavebné výrobky 19
stavebný úrad 14
stavebný zákon 10, 11
strecha nad zhromažďovacím priestorom 236
strešný plášť 111, 112, 173 stupeň požiarnej bezpečnosti 147
stupeň protipožiarnej bezpečnosti86, 87, 88, 89, 90, 97
súčiniteľ ekvivalentného množstva dreva 57, 58
súčiniteľ geometrie otvorov 49
súčiniteľ hmotnosti 62
súčiniteľ horľavosti konštrukčného celku 72
súčiniteľ horľavých látok 46
súčiniteľ nebezpečenstva.................................. 64
súčiniteľ odvetrania .....................................47, 48
súčiniteľ plochy ................................................. 67
súčiniteľ plôch.................................................... 54
súčiniteľ počtu podlaží ..................................... 72 súčiniteľ podmienok evakuácie..................... 142 súčiniteľ rýchlosti odhorievania...................... 57
súčiniteľ skladovania ........................................ 64
súčiniteľ splodín horenia.................................. 67
súčiniteľ škôd..................................................... 66
súčiniteľ vplyvu následných škôd .................. 73
súčiniteľ výhrevnosti ........................................ 56 sústava dopravných potrubí.......................... 221 sústredené požiarne zaťaženie .............44, 60, 61 svetlá výška priestoru 18, 50
šírenie plameňa 19 šírka únikovej cesty 143 špecialista požiarnej ochrany 13 štátny požiarny dozor 14
podlažie.............................................
technické riešenia proti rozšíreniu požiaru ... 83 technologické veže .......................................... 195 tepelná izolácia ................................................ 120 tesné proti prieniku dymu ............................. 118 tesnenie prestupov.......................................... 114 tesnosť proti prieniku dymu.......................... 120 tlačidlový hlásič...............................................
tlak vzduchu .................................................... 231 triedy reakcie na oheň ...................................... 19 trvalá dodávka elektrickej energie................ 206 tunelová plachta
únikový rebrík 155 Úplne požiarne otvorená plocha 171
ústredňa 212, 215
územné konanie 10, 13
V
vedenie tepla.................................................... 232
vetranie výťahovej šachty .............................. 154
viacpodlažné drevostavby ............................... 28 viacpodlažný vstavok....................................... 18 vnútorná zásahová cesta ................................ 199 vnútorný zhromažďovací priestor.........235, 236 voda............................................................203, 225 vodné stabilné hasiace zariadenie..........209, 226 vonkajší zhromažďovací priestor...........235, 237 vonkajšia zásahová cesta 200 vstavba 18, 61 vstavok 42 východ 134 výpočtové požiarne zaťaženie 36 výpočtové požiarné zaťaženie 34 výrobné stavby 51
výšková poloha 19
výťahová šachta 113 vzduchotechnické zariadenia 113
začiatok únikovej cesty................................... 139 zariadenia na dodávku vody..................207, 208 zariadenia na odvod tepla a splodín horenia78, 83, 231 zariadenia na zásah......................................... 198 zariadenie na odvod tepla a splodín horenia ....................................................................... 201
zásahová cesta ..........................................151, 199 zásobník hasiacej látky ................................... 223 zásobovanie vodou ......................................... 207 zdokonalený postup ....................................... 144 zdravotnícke zariadenie 242 zdroj hasiacej látky 221, 222 zdroj vody 210 zdržanie osôb 138 zhromažďovací priestor 235 zmiešaný konštrukčný celok 69 zrovnávacia rovina 168 zvýšenie požiarnej odolnosti 100