
Das Heimatmagazin aus Hauzenberg mit Amtsblatt
Das Heimatmagazin aus Hauzenberg mit Amtsblatt
Der Wandkalender von ui-Fotograf Daniel Anetzberger ist auch für das nächste Jahr 2026 wieder erhältlich! Mit 12 einzigartigen Naturund Drohnenaufnahmen aus Hauzenberg und der näheren Umgebung ist er ein stimmungsvoller Zeitbegleiter durch unsere heimatlichen Landschaften im Jahresablauf – ein wunderbares Geschenk und Blickfang an jeder Wand.
Die Kalender sind bis spätestens 16. November 2025 vorzubestellen!
Anschließend werden alle Kalender gesammelt bestellt und bis spätestens Mitte Dezember zu Ihnen nach Hause gebracht. Ein paar Exemplare sind darüber hinaus in der Stadtbücherei und im Tourismusbüro des Rathauses in Hauzenberg und im Granitzentrum Hauzenberg erhältlich, aber nur solange der Vorrat reicht. Bei Bedarf wäre auch direkter Versand möglich (+ 7 Euro Versandkosten).
Wenn Sie einen Kalender erwerben möchten, melden Sie sich bei Daniel Anetzberger unter der Telefonnummer 0 162 - 2 61 24 39 oder schreiben Sie eine kurze Mail mit Ihrem Namen und Ihrer Anschrift an: daniel.anetzberger@googlemail.com
Kalendergröße: DIN A3
Preis: 20,– Euro
Neu! Auf Anfrage gibt es nun auch einen beschreibbaren Familienkalender mit bis zu vier individuellen Spalten (siehe Beispielbild). Der Preis hierfür liegt bei 30 Euro.
„Ausbildung ist der beste Reiseproviant für die Reise zum hohen Alter.“
Aristoteles, 384� 322 v. Chr. griechischer Philosoph, Schüler Platons, Lehrer Alexanders des Großen von Makedonien
Es ist wie ein zweiter Teil, eine Fortsetzung des Editorials – „Ohne Fleiß kein Preis und ohne Leidenschaft kein Erfolg!“der vorangegangenen Oktober ui:
Ohne Ausbildung keine Zukunft! Wie wichtig persönliche (Aus)Bildung ist, hat der griechische Philosoph Aristoteles schon vor rund 2400 Jahren gewußt und beschrieben. Ich denke, daran hat sich bis heute nichts geändert. Die Rahmenbedingungen dafür sind aber unvergleichbar günstiger als im Altertum und dem alten Griechenland. Hier und heute ist es niemanden mehr verwehrt, Schulen, Universitäten zu besuchen und/oder den Beruf frei zu wählen und zu erlernen, der zu ihm paßt, den er sich wünscht und zu dem er fähig und motiviert ist. Eine freie Ausbildungs-/Berufswahl, ohne Standes- und Zünftedünkel oder Herkunft, ist heute für uns so selbstverständlich, dass wir gelegentlich vergessen: Diese Freiheit hat auch bei uns eine sehr junge Geschichte und existiert in vielen Ländern dieser Erde (immer noch) nicht. Eigentlich müßten wir, ob dieser uneingeschränkten Freiheiten, ein überaus glückliches Volk sein und mit Fleiß und Leidenschaft unsere Zukunft gestalten. Ich fürchte, irgendwie sind wir aus der Spur gekommen und haben ein wenig die Richtung verloren.
Handwerk, Gewerbe, Industrie, Dienstleister – alle suchen händeringend Mitarbeiter, Auszubildende und Fachkräfte. Die in diesem Monat stattfindende Hauzenberger Ausbildungsmesse ist ein deutliches Zeichen für den riesigen Bedarf an qualifizierten, gut ausgebildeten Mitarbeitern. Auf den folgenden zehn ui-Seiten präsentiert sich die Messe und verdeutlicht mit der großen Anzahl und Vielfalt an Ausstellern die breite Palette von Ausbildung- und Arbeitsplätzen in der Region. Nie, oder zumindest selten, war es leichter einen passenden Ausbildungs-/Arbeitsplatz zu
finden als in diesen Tagen – und nie war es wichtiger, nicht nur für den einzelnen Menschen um seinen „Reiseproviant für die Reise zum hohen Alter“ zu sichern, nein auch für uns, unsere Gesellschaft, unser Wirtschaftssystem, unseren Wohlstand und unsere Demokratie und Freiheit. Was das mit meiner Ausbildung zu tun hat? Sehr viel – eigentlich alles. In Abwandlung des Aristoteles-Zitates könnte man sagen: „Gut ausgebildete Bürger sind der beste Reiseproviant für die gesellschaftliche Reise in eine gute Zukunft!“ Dabei spielt die Vielfalt der Ausbildungen, insbesondere im Handwerk- und Dienstleistungsbereich eine ganze besondere Rolle. Wir brauchen nicht nur Akademiker und Verwaltungsfachleute, wir brauchen mehr Handwerker, Arbeiter, die ihr Handwerk verstehen, lieben und die Ärmel hochkrempeln. Das machen bei uns vermehrt nur noch ausländische Mitbürger ohne die, zum Beispiel auf dem Bau oder in den Krankenhäusern, schon lange alle Räder still stehen würden.
Um mich nicht falsch zu verstehen: Ich bin diesen multinationalen Mitarbeitern sehr dankbar und wir werden auf sie – schon auf Grund unseres demographischen Wandels – niemals verzichten können. Ganz im Gegenteil, wir werden zunehmend mehr, auch hier gut qualifizierte, ausländische Fachkräfte benötigen um unseren Lebensstandard sichern zu können. Wer anderes sagt oder vielleicht sogar wegen „Überfremdung“ hetzt, lebt in einer Welt von Gestern. Aber, wir sollten vielleicht die Qualität des Handwerks, die Fähigkeit „mit meiner Hände Arbeit“ etwas tun, etwas erschaffen zu können, auch für uns wieder entdecken und uns dafür begeistern können. Ich denke, es gibt nichts Schöneres und eine gute Ausbildung dafür ist Grundstock für beruflichen Erfolg und persönliches Glück.
Impressum
»ui Hauzenberg« ist ein Magazin, das über Kultur, Leben und Wirtschaft in der Region berichtet. »ui« erscheint monatlich in der ui Verlag GmbH. Das Amtsblatt der Stadt Hauzenberg ist Teil der Ausgabe. Abdruck, auch auszugsweise, nur mit schriftlicher Genehmigung des Herausgebers. herausgeber / anschrift der redaktion ui Verlag GmbH
Danglmühle 19 • 94051 Hauzenberg
Telefon (0 85 86) 97 94 23 Telefax (0 85 86) 97 94 27 redaktion@ui-hauzenberg.de www.ui-hauzenberg.de redaktion / inhalt für »ui« Manfred Sommer (redaktion@ui-hauzenberg.de) amtsblatt Stadt Hauzenberg (stadtinfo@hauzenberg.de) titelbild
Daniel Anetzberger text, fotos und illustration Centa Allmannsberger, Thomas Heindl, Daniel Anetzberger, Andreas Windpassinger, Josef Schmid, Manfred Sommer (sofern nicht anders angegeben) anzeigen Katharina Zeller werbung@ui-hauzenberg.de Telefon 0 151 24 10 39 99 grafische gestaltung Thomas Heindl, H2 Design buero@h2design.bayern druck PASSAVIA, Passau www.passavia.de auflage 6.000 Stück verteilung
Per Postzustellung an alle Haushalte. Außerdem liegt »ui« in allen teilnehmenden Geschäften und in folgenden Raiffeisenbanken und Sparkassen zur Mitnahme aus: Hauzenberg, Sonnen, Breitenberg, Wegscheid, Untergriesbach, Obernzell, Salzweg, Thyrnau, Büchlberg, Waldkirchen. erscheinungstermin nächste ausgabe 04. November 2025 anzeigenannahmeschluss 24. Oktober 2025
24. — 25. Oktober
Freitag, 24. Oktober: 08:30 — 14:00 Uhr
Samstag, 25. Oktober: 09:00 — 13:00 Uhr
Dreifachturnhalle Hauzenberg und Adalbert-Stifter-Halle
www.ausbildungsmesse-hauzenberg.de
www.ausbildungsmesse-hauzenberg.de
... oder du scannst einfach den QR-Code unten!
Hier findest du alle wichtigen Informationen zu den diesjährigen Ausstellern. Du kannst dir außerdem einen ersten Überblick über die angebotenen Ausbildungsoder Praktikumsstellen oder Studienmöglichkeiten machen.
Bei Fragen dazu steht dir online jederzeit (natürlich auch nach der Messe) ein Ansprechpartner zu jedem Aussteller zur Verfügung.
In diesem Jahr findest du im Eingangsbereich zur Dreifachturnhalle außerdem einen Stand zu AzubiTok. Was das ist?
AzubiTok ist dein Guide für Ausbildung & Zukunft!
Bock auf eine Ausbildung, die wirklich zu dir passt?
Im AzubiTok Magazin findest du alle Infos rund um Ausbildung, Praktikum und Karriere – kompakt,verständlich und direkt auf dich zugeschnitten. Dazu stellen sich viele spannende Betriebe aus der Region vor und zeigen dir, welche Möglichkeiten sie dir bieten. Am Stand kannst du dir das aktuelle Magazin kostenlos abholen!
Und das Beste: AzubiTok gibt’s auch online.
Auf TikTok warten kurze, coole Videos mit Tipps zur Berufsorientierung, Trends und echten Einblicken in den Azubi-Alltag.
Du bist auf der Suche nach deinem Traumjob und willst dabei an einem coolen Gewinnspiel teilnehmen? Dann nutze die Chance und mach mit bei unserer Messe-Rallye im Zuge der Hauzenberger Ausbildungsmesse! Fülle deinen Stempelpass mit mindestens vier verschiedenen Ausstellerstempeln, wirf ihn in die Teilnahmebox am Infostand der Stadt Hauzenberg und schon bist du im Lostopf mit dabei und hast die Chance auf einen von sieben tollen Preisen! Die Stempelpässe liegen natürlich während der Messe aus.
LIVE-MESSE-MATCHING AM MESSESAMSTAG VON 9–13 UHR
Teilnahmebedingungen und
Weitere Informationen zu den Teilnahmebedingungen und den Gewinnen gibt es unter www.ausbildungsmessehauzenberg.de!
Du weißt noch nicht, in welche berufliche Richtung du gehen willst oder welcher Aussteller zu dir passen könnte? Kein Problem! Schau einfach am Stand von RECREWT am Messesamstag vorbei! Mit Hilfe der entwickelten Matching-App erhältst du nach der Beantwortung der Fragen passende Aussteller-Vorschläge basierend auf deinen Vorlieben und Wünschen. Die kannst du dann einfach nach und nach besuchen und dich über die Berufsangebote erkundigen.
Teilnehmende Betriebe, Bildungseinrichtungen und Behörden:
ACP IT Solutions AG, Hauzenberg
Agentur für Arbeit, Passau
Agrardienst Wimmer GmbH & Co. KG, Salzweg
AKE technologies GmbH, Passau-Patriching
Allianz Beratungs- und Vertriebs-AG, Passau
AMG Graphite / Graphit Kropfmühl, Hauzenberg
ASB Group GmbH, Röhrnbach
Autohaus Amsl, Hauzenberg
AZURIT Pflegezentrum, Hutthurm
B.B.W. Bayrische Bohrerwerke GmbH, Büchlberg
Karl Bachl GmbH & Co. KG, Röhrnbach
Herbert Bauer GmbH & Co. KG, Obernzell
Bayernwerk Netz GmbH, Regensburg
BAYERWALD® - Fenster Haustüren GmbH & Co. KG, Neukirchen v. W.
Beinbauer Automotive GmbH & Co. KG, Büchlberg
Berger Bau SE, Passau
ICUnet.Group, Hauzenberg
Stand 55
Stand 01
Stand 18
ASH-F1
Stand 63
Stand 29
ASH 08
Stand 23
Stand 40
ASH 12
Stand 19
Stand 52
ASH 1
Stand 19
ASH 10
Stand 60
Berufsfachschule für Hotel- und Tourismusmanagement, Grafenau Stand 32
Berufsfachschule für Physiotherapie, Freyung Stand 61
Berufsfachschulen für Kinderpflege, Sozialpflege und Ernährung und Versorgung, Vilshofen an der Donau
Private Berufsfachschule für Kosmetik
Schmalzbauer-Liebl, Tittling
Stand 44
ASH 7
Private Berufsakademie Passau gGmbH, Passau Stand 20
Brillux GmbH & Co. KG, Passau
BRK Kreisverband Passau, Passau
Karriereberatung der Bundeswehr, Deggendorf
Caritas-Seniorenheim St. Josef, Hauzenberg
Caritasverband für die Diözese Passau e. V., Hauzenberg Kreis-Caritasverband Freyung-Grafenau e. V., Freyung
Caverion Deutschland GmbH, Passau
Draxinger GmbH, Hauzenberg
Stand 58
Stand 50
Stand 48
ASH 11
Stand 41
ECOVIS BLB Steuerberatungsges. mbH, Hutthurm ASH 02
Edscha Automotive Hauzenberg GmbH, Hauzenberg Stand 46
Electrovac Hacht und Huber GmbH, Salzweg Stand 59
Elektro Hazod GmbH, Hauzenberg Stand 57
EVS Hydrogen GmbH, Untergriesbach Stand 12
Fachakademie für Sozialpädagogik, Passau
Stand 45 Fachakademie für Sozialpädagogik / Berufsfachschule für Kinderpflege, Grafenau
ASH 05 Facharztzentrum Hauzenberg, Hauzenberg Stand 24 Fachschulen für Heilerziehungspflege/-hilfe der bfz gGmbH, Passau
ASH 06
Fürst Reisen GmbH & Co. KG, Hutthurm Stand 26
Modehaus Garhammer GmbH, Waldkirchen
Stand 16
Stand 43
Gienger Passau KG, Tiefenbach ASH 03
GKS Gesellschaft für Kommunikationsservice mbH, Passau Stand 13
GTSL Steuerberatungsgesellschaft Part mbB, Passau ASH-F2 H
Handwerkskammer Niederbayern-Oberpfalz, Passau Stand 02
Hauptzollamt Landshut, Altdorf Stand 34 Herzpraxis Salzweg, Salzweg Stand 30
Jelba Werkzeug- und Maschinenbau GmbH & Co. KG, Hauzenberg Stand 54 K
Knaus Tabbert AG, Jandelsbrunn
Stand 14 Kneidinger GmbH (Außenstelle Werk Lacken), Hauzenberg Stand 51 Kompetenzzentrum Ambulantes Operieren GmbH, Passau Stand 31
LLandkreis Passau, Passau
Stand 38 Landrefugium Wolfgang Obermüller e.K., Untergriesbach Stand 36 Lohschmidt Versicherungsmakler GmbH, Hauzenberg online
M & S Fertigungstechnik GmbH, Hauzenberg Stand 10 Meusburger Fahrzeugbau GmbH, Eging am See online
Nutripack Deutschland GmbH, Hutthurm Stand 09
Ordenskliniken München-Passau gGmbH, Standort Kinderklinik Dritter Orden, Stand 62 Berufsfachschule für Pflege, Passau
Oskar Müller GmbH & Co. KG, Hauzenberg Stand 25
PARAT Technology GmbH & Co. KG, Neureichenau
15 Patricio Travel GmbH, Obernzell
28 Pfaffinger Unternehmensgruppe, Passau
A1 Pflegeakademie Bayerischer Wald gGmbH, Grafenau
21 Bayerische Polizei, Passau
Richter + Frenzel Passau GmbH, Passau
9 Rosenium GmbH, Neureichenau
Schmid Service GmbH, Hauzenberg
Interior GmbH, Hauzenberg
22
11
17 Schörghuber Spezialtüren KG, Hauzenberg
Segl Bauzentrum GmbH - hagebaumarkt, Hauzenberg Stand 56
Sparkasse Passau, Passau
Spieth & Wensky GmbH, Obernzell ASH 13
53
Stadtwerke Passau GmbH, Passau Stand 39
Stahlbau Wegscheid GmbH, Wegscheid Stand 37
Stemplinger KVF GmbH, Hauzenberg Stand 27
Steuerkanzlei Martina Essl, Hauzenberg Stand 42
SUMIDA Components & Modules GmbH, Obernzell Stand 47
VR-Bank Passau eG, Passau
Wasserstraßen- und Schifffahrtsamt Donau
MDK, Bauhof Passau, Passau Stand 33
Wundsam Bau GmbH, Hauzenberg ASH-F3
Zambelli Metalltechnik GmbH & Co. KG, Wegscheid ASH 04
Zellner Möbel, Hauzenberg Stand 06
ZF Friedrichshafen AG, Passau Stand 08 Infostand der Stadt Hauzenberg
Dreifachturnhalle
Adalbert-Stifter-Halle
Adalbert-Stifter-Halle
Außengelände
Dreifachturnhalle
Infostand der Stadt Hauzenberg
Standnummer
Wegeführung
Notausgang
Industriekaufleute (m/w/d)
Industriemechaniker (m/w/d)
Sieh Dir unsere Benefits an!
Bergbautechnologe (m/w/d)
Elektriker für Betriebstechnik (m/w/d)
Graphit Kropfmühl GmbH
Langheinrichstraße 1 | 94051 Hauzenberg | recruitment@gk-graphite.com | 08586 609-178
Wir bieten folgende Ausbildungsberufe: Automobilkaufmann/-frau Kraftfahrzeugmechatroniker-/in
Bist Du bereit für eine neue Herausforderung? Dann freuen wir uns auf Deine Bewerbung, gern auch per E-Mail an thomas.amsl@autohaus-amsl.de
Du gibst uns drei Jahre – wir bieten Dir eine Zukunft, Sicherheit und spannende Aufstiegsmöglichkeiten . Dir stehen viele Türen offen. Steig bei uns ein — komm in unser Team und starte mit uns durch !
Marktstraße 54 94107 Untergriesbach Telefon 0 85 93 900 212 www.autohaus-amsl.de
Ausbildungsmesse Hauzenberg Stand 23
2 94051 Hauzenberg Telefon 0 85 86 22 22 Hast Du schon einen Plan, wie es nach der Schule weitergeht?
Jetzt bewerben!
Schule fertig? Dann komm zu uns als Azubi zum Schreiner (m/w/d):
Bei uns bekommst du das BGJ vergütet! Interesse? Besuch uns am 24./25. Oktober 2025 auf der Hauzenberger Ausbildungsmesse, Standnummer 3. Schörghuber – der führende Anbieter von Spezialtüren aus Holz Industriestraße 11, 94051 Hauzenberg-Jahrdorf www.schoerghuber.de
| Wir sind dabei!
Werde Pflegefachkraft in einem der 21 Rosenien in Niederbayern
Werde als AZUBI
Teil unserer Hausgemeinschaft
08586 6050
verwaltungahhauzenberg@caritas-passau.de Mehr Infos
Komm vorbei, schreib uns oder ruf uns an!
Unentschlossen?
Wir bieten auch TOP-Praktikumsplätze!
Wohn- und Pflegegemeinschaft
Seniorenheim St. Josef Hauzenberg Kusserstraße 14 94051 Hauzenberg
Draxinger GmbH
Werkzeugbau Stanz-Umformtechnik
Starte deine Karriere bei uns mit deiner
Ausbildung zum Werkzeugmechaniker (m/w/d)
Fachrichtung Stanztechnik Ausbildungsstart 2025 oder 2026
Du bringst mit:
handwerkliches Geschick und technisches Verständnis
logisches Denken und räumliches Vorstellungsvermögen
Interesse am Umgang mit Maschinen
Teamfähigkeit
qualifizierenden Hauptschulabschluss oder mittlerer Reife
Wir haben einiges zu bieten:
attraktive Entlohnung gem. Tarif Metall
Lernzeiten im Betrieb – um Ausbildungsinhalte zu vertiefen
umfangreiche Sozialleistungen
vierteljährliche Anwesenheitsprämie
Fragen zur Ausbildung und den Inhalten beantwortet gerne:
Stefan Pilsl, Ausbildungsleiter
Draxinger GmbH Werkzeugbau Stanz- und Umformtechnik Jahrdorferschacht 10 • 94051 Hauzenberg Tel. 08586 9764-24 • Mail: s.pilsl@draxinger.com
Ausbildungsmesse Hauzenberg 2025 Stand 41
Starte bei ZF in Passau und mach eine Ausbildung oder ein duales Studium – bewirb Dich jetzt unter: ausbildungsfinder.zf.com
Ausbildung zum Zerspanungsmechaniker (m/w/d)
Ausbildungsmesse Hauzenberg 24.–25. Oktober 2025 Stand 25
Oskar Müller GmbH & Co. KG Wastlmühlstraße 8 94051 Hauzenberg Telefon: +49 8586 9585-11 E-Mail: info@fa-oskar-mueller.de www.oskar-mueller.com
Innovation braucht kluge Köpfe Für den Ausbildungsbeginn zum
(m/w/d):
Wir sind ein aufstrebendes, junges Unternehmen in der Melktechnikbranche. Unser Spezialgebiet ist die Beratung, Planung, Verkauf, Service und Reparatur von Melk-, Kühl-, und Fütterungsanlagen. Wir sind Handelspartner der Firma DeLaval GmbH und haben unseren Firmensitz in Salzweg.
Zum Ausbildungsbeginn am 01. September 2026 suchen wir
(m/w/d)
DAS BRINGST DU MIT
Technisches Verständnis und handwerkliches Geschick Teamfähigkeit, Zuverlässigkeit qualifizierender Hauptschulabschluss oder mittlere Reife
WIR BIETEN DIR
Angenehme Arbeitsatmosphäre und gutes Betriebsklima Intensive Prüfungsvorbereitung und individuelle Fort- und Weiterbildungsmöglichkeiten gute Übernahmemöglichkeiten attraktive Bezahlung (Urlaubs- und Weihnachtsgeld) 30 Tage Jahresurlaub
Wir freuen uns auf Deine Bewerbung.
Agrardienst Wimmer GmbH & Co. KG
Wolfgang Wimmer
Ebenäcker 9 • 94121 Salzweg
Tel. 08505 9168827 Mail: info@agrar-wimmer.de
Interesse geweckt? Bewirb dich jetzt!
Besuch uns beim Stand 37 und mach mit bei unserem GEWINNSPIEL !!
Nachrichten aus dem Pfarrverband Hauzenberg
Dienstag, 07. Oktober
s tadt hauzenberg Präventionskabarett „Ned mit mir“
14– 18:00 Uhr | Adalbert-Stifter-Halle Der Landkreis Passau, die Polizeiinspektionen Hauzenberg und Vilshofen sowie die Polizeistation Pocking informieren zusammen mit Kabarettist Tom Bauer über Enkeltrick, Schockanrufe und Internetkriminalität. Kabarettist Tom Bauer sorgt dabei für humorvolle Unterhaltung. Der Eintritt ist frei; Einlass um 13:00 Uhr! Eine Anmeldung ist dringend erforderlich: Fachstelle für Senioren Landkreis Passau, Tel: 0851-397-2318 oder fachstelle.senioren@landkreis-passau.de
Donnerstag, 09. Oktober
Förderverein Lo K a L bahn h auzenberg- p assau e. v . Stammtisch 19:00 Uhr | Gasthaus Gottinger
Dienstag, 14. Oktober
aK tivc L ub h auzenberg Handarbeit 14:00 Uhr | Pfarrsaal Hauzenberg Tanz mit – bleib fit 14:30 + 16:30 Uhr | Pfarrsaal
Donnerstag, 16. Oktober
K ath. Frauenbund h auzenberg Jahreshauptversammlung 19:00 Uhr | Gasthaus Gottinger
Freitag – Sonntag 17. – 19. Oktober
s tadt hauzenberg Rallye-Wochenende Ausführliche Infos siehe Seiten 16 + 17
Freitag, 17. Oktober
seniorenbeirat stadt hauzenberg
Seniorenfahrt mit den Eisenbahnfreunden Passau
Abfahrtszeiten:
7:30 Uhr | Germannsdorf
7:45 Uhr | Bürgerpark
8:00 Uhr | Busbahnhof
Fahrt nach Passau mit dem Bus, Führung im Lokschuppen am Bahnhof Passau, Fahrt mit dem Bistrowagen PANDORA nach Kalteneck inklusive Kaffee und Kuchen, Besuch einer Töpferei, Rückfahrt nach Passau und Panoramafahrt durch die Innstadt bis Lindau; Anmeldung: (max. 45 Teilnehmer), Tel. 0 85 86 - 44 40 und 0172 - 4 41 12 34
s tadtbücherei h auzenberg
Vorlesetermin für Kinder
15:00 Uhr | Bücherei
Interessante Geschichten für Kinder mit Peter Weska
Kath. F r auenbund oberdiendor F Jahreshauptversammlung und Spendenübergabe
19:00 Uhr | Pfarrheim Oberdiendorf
Samstag, 18. Oktober
FFW Windpassing- h aag Weinfest 2025
14:00 Uhr | FFW-Gerätehaus Haag Ab 14:00 Uhr mit Kaffee & Kuchen, Abends Disco-Zelt
Sonntag, 19. Oktober
stadt hauzenberg Verkaufsoffener Sonntag 11–17:00 Uhr | Innenstadtbereich
Montag, 20. Oktober
trachtenverein immergrün Wotzdor F Kirchweih 17–23:00 Uhr | Vereinsheim
Dienstag, 21. Oktober
s tadt hauzenberg
Resilienz-Training für pflegende Angehörige
16– 18:00 Uhr | Kaisergebäude
Anmeldung: Fachstelle Senioren Landkreis Passau, Tel. 0851-3972318 oder daniela.schalinski@landkreis-passau.de oder Elisabeth Graml, Tel. 0170-906004 oder info@insila-akademie.de
Freitag – Samstag 24. – 25. Oktober
s tadt hauzenberg
Ausbildungsmesse Hauzenberg
Freitag, 8:30 – 14:00 Uhr
Samstag, 9:00 – 13:00 Uhr Dreifachturnhalle und Adalbert-Stifter-Halle
Ausführliche Infos ab Seite 4
Freitag, 24. Oktober
Kath. Frauenbund h auzenberg
Herbstlicher Flammkuchen –Kürbis & Co.
18:30 Uhr | Realschule, Schulküche
Referentin: Jessica Bauer
Anmeldung bis 10. Oktober bei Kerstin Braun, Teilnehmeranzahl ist begrenzt.
Samstag, 25. Oktober
s ternschützen oberdienddor F Vereinsabend und Beginn der Vereinsmeisterschaft
19:00 Uhr | Vereinsheim
Vorschau November
Mittwoch, 05. November
Kath. Frauenbund h auzenberg Spieleabend
18:00 Uhr | Gasthaus Gottinger
Freitag, 07. November
s ta FF e L berg- b ühne g ermannsdor F e. v . Die Leiche im Schrank
19:30 Uhr | Gasthaus Höfler
Nächster Termin: Samstag, 08.11
Kartenreservierung: 0151 50780954
Weitere Infos zu den Veranstaltungen
jeden Montag
F reunde der m a L erei
Treffen zum Malen und Gestalten ab 18:00 Uhr | Jahrdorf, Hangetweg 5
jeden Dienstag
Wochenmarkt Hauzenberg
7:00 – 12:00 Uhr | Innenstadt
DONUM VITAE Passau
Staatlich anerkannte Beratungsstelle für Schwangerschaftsfragen
Bahnhofstr.32, 94032 Passau Telefon: 0851 37362
jeden Dienstag
s eniorenheim s t. Jose F
Second-Hand-Laden für Jedermann/-frau
08–12:00 Uhr | Seniorenheim
Kleiderspenden für Erwachsene sind jederzeit erwünscht.
jeden Mittwoch stadt hauzenberg
Mittwochs-Wanderer
13:00 Uhr | Bürgerpark
Gemeinsames Wandern rund um Hauzenberg. Führung: Elisabeth Schopper und Loni Meisinger. Infos unter Tel. 08586/3153
jeden Donnerstag stadt h auzenberg g esunde g emeinde
Fitness am Freudensee 17:30 Uhr | Parkplatz Freudensee mit einer ausgebildeten Sport- u.Gesundheitstrainerin
jeden Donnerstag
Johannisverein
Vereinsabend | 18:00 Uhr
02.10.2025 Kai's Bistro
09.10.2025 Gasthaus Gottinger
16.10.2025 Gasthaus Falkner
23.10.2025 Bergasthof Sonnenalm
30.10.2025 Wolfis Hütte
jeden Freitag
W ander F reunde h auzenberg Freitagswanderung
Immer 14:00 Uhr ab Bürgerpark
16.— 19. Oktober
VKO x Rallye –
Drei Tage Motorsport, Musik und Genuss in Hauzenberg
Im Oktober wird Hauzenberg erneut zum Treffpunkt für Motorsportfans und Genießer. Von 16. bis 19. Oktober 2025 macht die Central European Rally Station in der Region. Gemeinsam mit der Stadt organisiert der Gewerbeverein Hauzenberg-aktiv von 17. bis 19. Oktober ein vielseitiges Programm mitten in der Innenstadt. Neben spektakulären Fahrzeugdurchfahrten und -ausstellungen warten Live-Musik, kulinarische Highlights und ein abwechslungsreiches Rahmenprogramm für Jung und Alt.
Freitag, 17.10. von 16 – 22 Uhr
RALLYE: 17:30 – ca. 18:30 Uhr
Durchfahrt der original WRC-Rallye-Autos mit Moderation
MUSIK: ab 16:00 Uhr Band „Pine Cone“
Auch im Granitzentrum dreht sich während der Rallyewoche alles um das Auto: Der MSC Passau präsentiert dort von Donnerstag bis Sonntag eine Oldtimer-Ausstellung. Clubmitglieder holen dafür ihre historischen Raritäten aus den Garagen und stellen sie für diese Sonderschau zur Verfügung. Geöffnet ist täglich von 10 bis 17 Uhr.
So verbindet Hauzenberg Motorsport-Flair mit Unterhaltung, Genuss und einem besonderen Erlebnis für die ganze Region.
Samstag, 18.10. von 12 – 17 Uhr
RALLYE: 13:30 – 15:30 Uhr
Durchfahrt mit anschließender Ausstellung der Slowly Sideways (OldtimerRallye-Wägen) mit Moderation
MUSIK: ab 12:00 Uhr Band „Four Greyhounds“
PROGRAMMPUNKTE:
Kart-Parcours des RC Hauzenberg e.V. auf dem Parkplatz vor Bettenhaus Haller
Aufführung der Tanzschule SomeSimpleSteps um 13:00 Uhr Hüpfburg und Kinderschminken
Rallye-Simulator vor Foto Dünnbier
KULINARISCHE KÖSTLICHKEITEN
Von Käse bis hin zu Pizza, Krapfen, Bratwurst & Spiralkartoffeln ...
GETRÄNKE
Pilsinsel Piazza oberhalb Marktbrunnen
Cocktail-Bar Kleinstadtliebe vor ehemaligem Kaufhaus Weilnböck
Weinlounge im Innenhof Intermezzo (Freitag & Samstag)
Spritz-Bar durch Reisebüro RMA-Tours Hauzenberg anlässlich des 40-jährigen Firmenjubiläums (Freitag & Samstag)
Verkaufsoffener Sonntag, 19.10. von 11 – 17 Uhr
RALLYE: 11:00 Uhr – Durchfahrt der Opel-E-Corsas mit Moderation durch Marcus Lacroix von Opel Motorsport
VERKAUFSOFFENER SONNTAG: bereits ab 11:00 Uhr
MUSIK: ab 13:00 Uhr Duo „Oamoi Zwoa“
PROGRAMMPUNKTE:
Kart-Parcours des RC Hauzenberg e.V. auf dem Parkplatz vor Bettenhaus Haller Hüpfburg und Kinderschminken
Flohmarkt das Wohnviertelapostolats Bauzing/ Hemerau ab 10:00 Uhr vor Reinigung Mörtl Rallye-Simulator vor Foto Dünnbier Verkaufsstände zum Durchstöbern
Text:
Andreas Windpassinger, Foto: Manfred Sommer
Ein Ärzte-Ehepaar, ein Wort: Gesundheit! In loser Folge stellen wir die neue junge Mediziner-Generation der Granitstadt vor. Nach dem Orthopäden Dr. Michael Schneebauer und dem Internisten Dr. Tobias Mir Sadry ist jetzt der Facharzt für Allgemeinmedizin Josef Hirz (42) an der Reihe, der zusammen mit seiner Ehefrau, der Internistin Dr. Christiane Schellenberger (37), am Marktplatz praktiziert. Die beiden betonen im „ui-Eckbäng-Gespräch“ mit Manfred Sommer und Andreas Windpassinger in der Danglmühle, zu dem sie auch ihren kleinen Buben Lukas mitgenommen haben, dass der Hausarzt vor der künstlichen Intelligenz keine Angst haben muss. Bei der Behandlung der Patienten zählen nicht nur Fakten, sondern auch Gefühl. Und bei der Diagnose geht es in vielen Fällen auch um den „richtigen Riecher“, den man als Arzt braucht, nebst all der objektiven Faktoren, wie Blut- und Röntgenbild oder Belastungs-EKG. Die Sinneseindrücke sind das A & O: das Sehen, Hören und Tasten.
Bei Tee und Nuss-Zopf erzählt uns das Paar, das seit fünf Jahren verheiratet ist, dass gerade das Hausbauen in Zentrumsnähe ihren Alltag bestimmt. Kennengelernt haben sie sich während ihrer Assistenzarztzeit im Krankenhaus der Barmherzigen Brüder in Regensburg. Hirz ist gebürtiger Hauzenberger, Schellenberger kommt aus Sulzbach-Rosenberg, aus der Oberpfalz. In der Abi-Zeitung hat Josef Hirz damals noch angegeben, dass er gerne Winzer werden möchte. Und SportJournalismus, das wäre auch sein Ding gewesen, hat er selbst doch erfolgreich Volleyball gespielt. Vorstellen hätte er sich vieles können, auch ein Arbeiten im Ausland, er hat sich längere Zeit in Rom und Davos aufgehalten.
Mitunter ein Augenöffner fürs Medizinstudium ist aber dann der Zivildienst im damaligen Wohnheim für psychisch kranke Menschen in Bauzing gewesen. „Das Reden, das Helfen, der Umgang mit den Menschen, das hat mir was gegeben.“ So geradlinig wie bei seiner Frau, die im-
mer in die Forschung gehen wollte, war sein Werdegang jedenfalls nie. Die ist heute froh darüber, dass sie in der Praxis vor Menschen und nicht nur vor Zellen sitzen darf. Freilich wäre Regensburg auch ein schöner gemeinsamer Wirkungsort gewesen, aber da hätte sich auch erstmal eine Allgemeinarzt-Praxis auftun müssen. Deshalb war schnell klar, dass es zu Oma und Opa gehen muss, da es neben dem Kindergarten auch auf die Unterstützung der Eltern drauf ankommt, erst recht, wenn beide voll berufstätig sind. So konnte Josef Hirz seine Frau von der Granitstadt Hauzenberg überzeugen, und von seinem Vorhaben, den Arzt-Sitz von Dr. Tillmann Schneebauer im April 2021 zu übernehmen. „Er hat mich oft gefragt, ob ich das nicht einmal machen will, und so ist es auch gekommen, obwohl ich es nie wirklich konkret und von vorneherein geplant hatte“, so Hirz. Schellenbergers Vater betreibt in Sulzbach im Übrigen auch eine Allgemeinarzt-Praxis, die ihre Schwester einmal übernehmen wird.
Ein Arzt muss zuhören können
Beide heben die breite Palette der Allgemeinmedizin hervor, bei der es nicht nur um die Organe geht. Von einer ganzheitlichen Herangehensweise ist die Rede, man muss erkennen, um was es geht. Man muss von allem etwas wissen, und genau das ist das Herausfordernde. Leider fehlt im hausärztlichen Praxis-Alltag mit Blick auf die gängige „8-Minuten-Patiententaktung“ oft der Faktor Zeit. „Das schaffe ich bei einem Menschen, der Husten oder Schnupfen hat, aber nicht bei einem, der wirklich schwer krank ist“, erzählt Dr. Schellenberger. Sie stellt fest, dass die „sprechende Medizin“ den Menschen so wichtig ist, dass sie wen brauchen, der ihnen zuhört und dem sie sich anvertrauen können. Und auch Josef Hirz bläst ins gleiche Horn. Die Anamnese, das Reden, die Zeit für Erklärung und Aufklärung, ist elementar. Fehler und Fehldiagnosen gehören zum Beruf dazu, aber Fakt ist auch, dass keine KI einen Hausarzt ersetzen kann, weil bei
der Diagnose eben auch die Sinnesorgane und nicht nur die harten Fakten eine Rolle spielen. „Mit Herz und Hirz für meine Gesundheit“ ist ihr netter Praxis-Slogan. Auf Vorsorge und Prävention legen die beiden großen Wert.
„Mit Herz und Hirz für meine Gesundheit“
„Wer von uns behandelt wird, soll nicht nur gesund werden, sondern vor allem gesund bleiben.“ Mit Blick auf eine gesunde Lebensführung sagen die zwei, dass man sich nicht kasteien, der Genuss nicht zu kurz kommen darf und ein extremes Vorhaben genau das Verkehrte ist. Man muss sich niedrige, machbare Ziele setzen, etwa den Alkoholkonsum reduzieren oder zweimal in der Woche für eine einstündige Bewegungseinheit sorgen. Fans sind die beiden auch von Präventionsangeboten für Kindergärten und Schulen, damit in der Brotzeitbox nicht nur der Schoko-Muffin, sondern auch das Vollkornbrot liegt.
Auf unserer Eckbank berichtet das ÄrzteEhepaar auch von einer sich verändernden Anspruchshaltung der Patienten im Allgemeinen, die von sich aus bestimmte Untersuchungen einfordern, bedingt durch „Dr. Google“. Bei Schwindel oder Durchfall durchforstet man gerne das Internet, was dahinterstecken könnte und springt womöglich auf das „Worst-Case-Szenario“ auf, am Ende braucht es aber Vertrauen in die ärztliche Diagnose. Wenn Hirz und Schellenberger, die ihre Praxis mit dem Rad oder zu Fuß ansteuern, nicht gerade Patienten behandeln oder auf Hausbesuche fahren, können sie der Natur viel abgewinnen, garteln und kochen gerne.
Das ist Josef Hirz
„Eine breit gefächerte allgmeinmedizinische Ausbildung lag mir von Anfang an am Herzen und so begann ich meine ärztliche Tätigkeit zunächst in der Klinik für Neurologie am Krankenhaus der Barmherzigen Brüder in Regensburg. Anschließend
durchlief ich dort die internistischen Abteilungen der Gastroenterologie, Kardiologie und Allgemeinen Inneren Medizin, bevor ich meine Krankenhauslaufbahn im Notfallzentrum sowie im SonographieZentrum abschloss. Meine Facharztausbildung komplettierte ich im hausärztlich-internistischen Praxiszentrum ‚Alte Mälzerei‘ in Regensburg. Nach insgesamt 15 Jahren im schönen Regensburg kehrte ich 2021 zu meinen Hauzenberger Wurzeln zurück.“*
Das ist Cristiane Schellenberger
„Nach langjähriger rein internistischer Tätigkeit im Krankenhaus der Barmherzigen Brüder in Regensburg genieße ich besonders das große Spektrum der Allgemeinmedizin, insbesondere den Umgang mit Jung und Alt. Durch meine breite internistische Ausbildung freue ich mich, in der Hausarztpraxis Leistungen wie etwa Gefäß- und Herzultraschall anbieten zu können.“*
* Der Hompage www.praxis-hirz.de entnommen
griech.-
keck, vorlaut
engl. Adelstitel: Graf
Essen, Nahrung
Bühnenauftritt
Handelsbrauch Vorgefühl, Vermutung veraltet: Leinen
von Bäumen gesäumte Straße
Seemannsruf äußerste Armut
Fluss durch Weimar
Spion, Spitzel
nicht der Mode unterworfen
als Anlage zugefügt
Frau Jakobs im A. T. ungeordnet; fahrig
Wüste in Südwestafrika
Beduinenmantel sehr kurze Kleidung
dt. Tv-, Radiosender (Abk.) Staat in Nahost, Persien Schmuckstein
kleine Flagge, Fähnchen
Diplomat, Unterhändler sich wohlig ausstrecken (sich ...)
Landkartenwerk
germanisches Schriftzeichen
Signalfarbe
Straßenbahn (süddt.)
Himmelsrichtung
Bad an der Lahn
Anerkennung aussprechen
Vogelweibchen
in Richtung, nach
wHeldengedicht
Schubs, Anprall; Stapel
Zierpflanze; Wappenblume
Nadelbaum
Göttin der Künste mit anderem Namen
Kfz-Zeichen Landkreis Rostock
Pfannkuchen (ostdeutsch)
Luftpost (engl.) glätten, planieren
KfzZeichen Braunschweig
Wort der Ablehnung anfänglich
kurzer Schmerzenslaut
Fuge, längliche Vertiefung
Liebe Patientinnen und Patienten!
Wir haben unsere Praxistätigkeit zum 30.09.2025 beendet. Wir bedanken uns für Ihr Vertrauen und werden viele angenehme Begegnungen in Erinnerung behalten.
Unser besonderer Dank gilt unserem tollen Praxisteam: Danke Diana, Gerlinde, Ingrid, Kristina, Marion, Tine, Uli und Veronika! Wir freuen uns sehr, dass unser Sohn, Dr. Paul Rüter, mit seiner Kollegin, Fr. Dr. Sophia Wieland, unsere Praxis weiterführt. Wir hoffen, dass Sie unseren Nachfolgern auch weiterhin Ihr Vertrauen schenken.
Bleiben Sie gesund Dr. Ursula Rüter und Dr. Martin Rüter
Marktplatz 19 a 94051 Hauzenberg Tel. 08586 917106 www.hausarzt-hauzenberg.de
Gewinn
Auflösung aus 239/09.2025
Kreuzworträtsel: SCHULANFANG
Sudoku: 284 116 774
Auf einen Mord(s)Lese-Spaß mit dem Bayerwaldkrimi von Fabian Stadler dürfen sich freuen:
Michael Veit aus Hauzenberg, Helga Hartl aus Breitenberg und Heidi Leuschner aus Hauzenberg
Mit Vollgas zum Motorsport-Event!
Unter allen Einsendungen verlosen wir 2 × 2 Tickets zur CENTRAL EUROPEAN RALLY! (Gültig an allen vier Tagen + allen 18 Prüfungen / Wert je 99,—€)
Gib Gas, denn der Einsendeschluss ist schon am Montag, den 13.10 2025
nn
Abbildung zeigt aufpreispflichtige Sonderausstattung.
Ihr Suzuki Fachhändler vor Ort
Der Kunde steht bei uns im Mittelpunkt
Schicken Sie mindestens eine Lösung der Rätselseite bis Montag, 13. Oktober 2025, mit Telefonnummer per Post an die ui-Redaktion oder per E-Mail an redaktion@ui-hauzenberg.de. Der Rechtsweg ist ausgeschlossen.
Kronreuth 2
94051 Hauzenberg
Telefon 0 85 86/22 22 e-Mail: az@autohaus-amsl.de www.autohaus-amsl.de
Nach einer Idee von Albert Lehner und Manfred Sommer, erzählt von Karin Friedl
Die Kinder sind in der Schule und Bärtl sitzt nachdenklich vor seiner Bärenhöhle. Die Riesen-Überraschungs-Schultüte, die er von Maxi und Moni bekommen hat, ist schon lange aufgefuttert. Hat eigentlich nur zwei Tage gedauert, bis die ganzen Zuckerstangen, Bonbons, Lutscher und Schokoladen im Bärenbauch verschwunden waren. „War ganz lecker!“
murmelt der Bär, streichelt sich dabei genüsslich den Bärenbauch und leckt mit der Zunge die Schnauze, als hätte er gerade noch einmal die ganze Schultüte aufgegessen. „Hmm – schade, dass nicht jeden Tag Schulanfang ist. Oder zumindest jede Woche einmal“, seufzt er. Aber Bärtl, Du bist doch schon lange kein Schulkind mehr und die Schultüte war nur eine kleine Aufmunterung für Dich von Deinen Freunden. So ein dicker ..., oh, entschuldige,
starker und großer Bär hätte ja in der Schulbank überhaupt keinen Platz mehr. Außerdem wird es langsam Zeit, dass Du Dir überlegst, was Du denn einmal werden möchtest? Hast Du denn einen ganz besonderen Berufswunsch? „Ouhhh …, ja …, nein, eigentlich nicht – keine Ahnung, was ich machen möchte. Hab' ja schon viel probiert, Holzfäller, Schwammerlsucher, Bienenzüchter, … aber irgendwie bin ich nicht weitergekommen!“
„Was brummelst Du denn da so vor Dich hin?“
Maxi, der gerade zufällig vorbei gekommen ist, schubst seinen in Gedanken versunkenen, Selbstgespräche führenden Freund an. „Oh Maxi, Du!“„Ja ich, nicht der Schwammerlsucher oder Bienenzüchter“ lacht Maxi. „Da habe ich wohl ein wenig in den Tag hinein geträumt“, antwortet Bärtl und kratzt sich nachdenklich am Kopf. „Jetzt sag schon, was ist los, was geht Dir so durch Deinen Bärenkopf?“
„Maxi, ich … ich möchte was lernen, was tun und gut machen können. So wie Du das als Bergmann und Tunnelspezialist ja auch gelernt hast und wirklich gut kannst.“ „Bei uns ist das über alle Generationen hinweg eine Familientradition, da gab es nicht lange was zu überlegen, das ist uns Maulwürfen in die Wiege gelegt und vorbestimmt. Vielleicht hätte ich ja auch gerne was ganz anderes gelernt und getan ...“ „Ja was denn?“ unterbricht Bärtl neugierig und ungeduldig den Freund. „Ich wär' gerne Koch geworden“ antwortet Maxi und fügt hinzu: „Erinnerst Du
Dich noch an meine One-Pot-Nudel-Küche? Alles in einen Topf und die Nudeln werden direkt mit und in der Soße gegart. Man verwendet kein Wasser zum Kochen, sondern einen Mix aus verschiedenen Flüssigkeiten wie zum Beispiel Milch, Sahne oder Gemüsebrühe. Ich liebe das, denn so wird das ganze schön cremig – und jetzt zur Kürbiszeit mit Kürbis, oh Mann, Kürbis-Spaghetti!“ Maxi wäre wohl aus dem Schwärmen nicht mehr herausgekommen, hätte ihn Bärtl nicht mit einem schmatzenden und schluckenden „Ich erinnere mich und kann es fast noch schmecken“ unterbrochen. „Ich seh' Dich immer noch an dem großen Topf, Rezeptbuch in der Hand und Mütze auf dem Kopf, die Nudeln kochen, Maxi“. „Wenn ich mir es recht überlege“, antwortet Maxi nachdenklich, „könnte ich mir Dich als Koch, vielleicht noch besser, weil Du ja so gerne Süßes magst, als Zuckerbäcker oder als Konditor gut vorstellen. Wir könnten dann zusammen kochen – ich den Hauptgang und Du die Nachspeise – was meinst Du?" „Bääärtl!!“ Bärtl aber träumt von Maxis Kürbis-Spaghetti und alles was man von ihm hört, ist ein leises Schmatzen und ein tiefes Grummeln des Bärenmagens.
Wie wird die Geschichte wohl weitergehen?
Wird Bärtl Koch, Konditor oder ganz was anderes?
Damit die Zeit bis zur Aufklärung in der nächsten Geschichte schneller vergeht, verrate ich Euch noch das Rezept von Maxis OnePot-Kürbis-Spaghetti!
Kürbis-Spaghetti
Zutaten für 4 Personen:
500 g Nudeln (z.B. Spaghetti)
Hokkaido-Kürbis (ich hatte einen halben)
200 g Sahne -
200 ml Milch
etwa 800 ml Gemüsebrühe
Salz, Pfeffer Parmesan zum Servieren
Zubereitung:
Kürbis waschen, halbieren, entkernen und raspeln. Die Kürbisraspeln zusammen mit den Nudeln in einen Topf geben und mit der Flüssigkeit auffüllen, zusammen köcheln lassen (je nach Nudel-Garzeit / für Spaghetti ca. 8-10 min) und immer wieder umrühren, mit Salz und Pfeffer abschmecken. Die Flüssigkeit wird komplett von den Nudeln aufgesogen. Ich lasse den Topf vorm Servieren immer noch zugedeckt ein wenig stehen, so zieht die Flüssigkeit komplett ein - mit Parmesan servieren.
Vor 25 Jahren gegründet ist die Donum Vitae Beratungsstelle in Passau Mitglied im Landesverband DONUM VITAE in Bayern e.V. und staatlich anerkannte Beratungsstelle für Schwangerschaftsfragen. Es ist ein bürgerlich-rechtlicher Verein, der sich auf der Grundlage des christlichen Menschenbildes für den Schutz des ungeborenen Lebens und die Würde von Frau, Mann und Kind einsetzt. Die Beratungsstellen informieren, beraten und begleiten in Fragen der Sexualität, Schwangerschaft, Elternzeit und bei Schwangerschaftskonflikten. Die Beratung ist kostenlos, vertraulich und ergebnisoffen und richtet sich an Frauen und Männer unabhängig ihrer Herkunft, Religion oder sexuellen Orientierung.
IM EINZELNEN:
Psychosoziale Beratung bei unerfülltem Kinderwunsch Einfühlsame Begleitung und Unterstützung bei emotionalen Belastungen und Entscheidungsprozessen, vor während und nach einer Kinderwunschbehandlung
Allgemeine Schwangerenberatung
Unterstützung bei organisatorischen, individuellen Fragen rund um die Schwangerschaft und familienbezogenen Leistungen
Schwangerschaftskon iktberatung
Ergebniso en, kostenfrei, auf Wunsch anonym, Einhaltung der Schweigep icht, Unterstützung bei der Entscheidungs ndung, Begleitung auch nach einem Schwangerschaftsabbruch, Ausstellung Beratungsschein nach §219 StGB
Psychosoziale Beratung bei Pränataldiagnostik Begleitung vor, während und nach pränatalen Untersuchungen, Re exion von Risiken, Raum für Fragen Sorgen und Ängste
— Beratung nach Geburt
Beratung und Begleitung bis zum 3.Lebensjahr des Kindes, Ansprechpartner bei Anzeichen postpartaler Depression
WO UND WIE ERREICHE ICH
DIE BERATUNGSSTELLE?
Termine und Vereinbarungen laufen immer über die zentrale Beratungsstelle in Passau, Bahnhofstraße 32 Tel.: 0851-37362 oder per Mail an: passau@donum-vitae-bayern.de Die Beratungen selbst nden entweder persönlich, telefonisch oder per Video statt.
Beratung nach schwierigen Geburtserlebnissen
Schätzungsweise 20 – 40% aller Frauen erleben die Geburt ihres Kindes als schwierig, belastend oder gar traumatisch, Beratung bietet Raum um über Geburtserlebnisse zu sprechen
Beratung nach Verlust des Kindes
Beratung und Begleitung in der schweren Zeit der Trauer, Beratung bei Fragen zur Geburt, auf Wunsch auch bei Gestaltung des Abschieds und der Bestattung, Begleitung bei erneuter Schwangerschaft
Vertrauliche Geburt
psychosoziale Begleitung der Frau unter Pseudonym (Identität wird nicht ö entlich preisgegeben), niemand soll von der Schwangerschaft erfahren, Frau bringt Kind vertraulich aber sicher zur Welt
Sexuelle Bildung
sexualpädagogische Angebote für Jugendliche, Schulen und Einrichtungen, Ziel: selbstbestimmte Entscheidungen und Schutz vor sexualisierter Gewalt
Finanzielle Hilfen
Beratung und Unterstützung bei Anträgen zu staatlichen und nicht staatlichen nanziellen Hilfen
NEU: JETZT AUCH IN HAUZENBERG
1 x wöchentlich ndet ein Sprech-/Beratungstag im Kinderwunsch-Zentrum, Florianstraße 8 / 2.Stock statt. Dazu kann man Termine über die Beratungsstelle in Passau vereinbaren.
Die Beraterin vor Ort, Frau Elisabeth Lazar, Sozialpädagogin (BA) , freut sich auf die Tätigkeit vor Ort in Hauzenberg.
Elisabeth Lazar, Sozialpädagogin (BA)
Licht, helle, freundliche Farben und warmes Holz bestimmen die neu gestalteten Räume der Hausarztpraxis von Dr. Sadry –es ist viel passiert seit der Praxisübernahme vor gut einem Jahr. Das sieht, spürt und erlebt man schon gleich am Empfang und das setzt sich in den Behandlungs- und Besprechungszimmern kontinuierlich fort. Eine behutsame aber sorgfältige An-
passung an die Erscheinungsformen und Bedürfnisse moderner Arztpraxen.
Aber nicht nur die Räume wurden neu gestaltet, auch das Versorgungsangebot wurde erweitert. Neu hinzugekommen und angeboten werden jetzt auch die sogenannten U+J-Untersuchungen für Kinder und Jugendliche, die auf mehrere dieser Früherkennungsuntersuchungen Anspruch haben. Ziel ist, mögliche Erkrankungen und Auffälligkeiten in der Entwicklung frühzeitig zu erkennen und behandeln zu können.
Hausarztpraxis
Dr. Tobias Mir sadry
Dr. Tobias Mir Sadry: „Um was geht es letztendlich? Ausschließlich um nichts anderes als Ihre Gesundheit. Sie werden sich sicherlich bei uns wohlfühlen. Aber in erster Linie wollen Sie gesund werden und gesund bleiben. Und dafür sind wir da.“
Marktplatz 2, 94051 Hauzenberg Tel. 08586 6747
Wir suchen ein Christkindl & kleine Engerl für unseren Weihnachtsmarkt und die Granitweihnacht!
Bald ist es wieder so weit, der Hauzenberger Lichterzauber – unser Weihnachtsmarkt –ö net seine Pforten! Auch im Granitzentrum laufen die Vorbereitungen für die Granitweihnacht auf Hochtouren! Doch was wären diese Feste ohne ein Christkindl und seine Engerl?
Samstag, 22.11.2025 um 15 Uhr auf dem Hauzenberger Lichterzauber und in diesem Jahr zum ersten Mal auch in der Granitweihnacht im Granitzentrum Bayerischer Wald am Sonntag, 30.11.2025 um 16 Uhr
Ein strahlendes Christkind, das eine festliche Weihnachtsgeschichte vorliest
Liebevolle Engerl, die danach kleine Geschenke an die Kinder verteilen
Wer kann mitmachen?
Bitte melde dich bis 26.10.2025 bei uns ausschließlich unter tourismus@hauzenberg.de mit Angabe deines Namens, einer Telefonnummer und deiner Kleidergröße. Bei der Bewerbung für das Christkindl, gib bitte gleichzeitig deine Weihnachtsgeschichte mit an und warum du das diesjährige Christkindl sein möchtest.
Christkindl: Jugendliche ab ca. 10 Jahren, die gerne vorlesen und Freude schenken
Bitte beachte außerdem, dass die himmlischen Gewänder für die Engerl nur in begrenzter Anzahl vorhanden sind. Diese werden je nach Größe in der Reihenfolge der eingegangenen Anmeldungen vergeben.
Himmlische Gewänder (werden gestellt)
Engerl: Kinder von ca. 5 bis 10 Jahren, die mit Begeisterung und einem Lächeln Geschenke überreichen
Lasst uns gemeinsam den Zauber von Weihnachten lebendig werden lassen –wir freuen uns auf viele kleine und große Himmelsboten!
Ein besonderer Auftritt auf unserem Weihnachtsmarkt und in der Granitweihnacht
Leuchtende Kinderaugen, Applaus und eine kleine Überraschung als Dankeschön für dich
116
Jahrgang 52.09
07. Oktober 2025
Standesamt
Amtliche Bekanntmachungen
117 Umwidmung einer Teilfläche der Flurnummer 1505 Gemarkung Jahrdorf bei Renfting als Ortsstraße
118 Änderung des Bebauungsplanes „Bergäcker, Kirche, Friedhof“ mit Deckblatt Nr. 8
118 Antragsfristen für Sitzungen
119 Satzung für die Herstellung und Ablösung von Stellplätzen (Stellplatzsatzung) in der Stadt Hauzenberg vom 02.10.2025
Informationen aus dem Sitzungsdienst
120 Stadtrat, Sitzung vom 15.09.2025
122 Bauausschuss, Sitzung vom 16.09.2025
Informationen
123 Vergabe einer Bauparzelle im Baugebiet Haag
123 Ehrung für ehrenamtliche Bürgerinnen und Bürger
123 Bürgerversammlungen 2025
124 Wichtige Hinweise zum Winterdienst
124 Schließtag Rathaus
125 Jagdgenossenschaft Raßreuth
125 Bundesförderprogramm Graue-Flecken-Programm (GFP) –Förderbescheide eingetroffen – Realisierungszeitpunkt startet
125 Bundesförderprogramm Gigabit-Richtlinie 2.0 –Ergebnisse MEV vorgestellt und vorläufiger Förderantrag gestellt
125 Zeitumstellung
125 Privater Wohnungsmarkt
126 Ein Rückblick auf das Städtepartnerschaftstreffen
126 Personelles aus der Kläranlage Kaindlmühle
126 Tourismus im Abteiland: Neuer Verein gegründet – Datenpflege im Fokus
128 Neue Wanderbroschüre für das Abteiland – 35 Touren für Gäste und Einheimische
128 Kostenloses Energieberatungsangebot
129 ILE Abteiland informiert sich über Sonnenstrom
129 vhs Hauzenberg – Kurse Oktober, November
130 Adressen & Öffnungszeiten
Geburten
24.08.2025
Louis Johannes Seibold Ascher
Christina Ascher und Fabian Seibold
Kollersberger Straße 5, Hauzenberg
28.08.2025
Max Hauzeneder
Jenny Hauzeneder und Florian Knödlseder
Niederbrünst 35, Hauzenberg
wir trauern b und fürs leben
23.08.2025
Nathalie Jungbauer und Tobias Heidelberger
Röhrenwiesen 28, Hauzenberg
20.09.2025
Helena Kummer und Christoph Bauer, Hauzenberg
25.08.2025
Gunel Hagverdiyeva
Saeid Binajoo
Egerstraße 12, Hauzenberg
21.09.2025
Michaela Zillner und Tobias Wandl Aubach 18, Hauzenberg
29.08.2025
Helena Reisinger und Thomas Stangl
Kugelmanngasse 1 A/46, Wien
12.09.2025
Kerstin Allmannsberger und Stefan Windpassinger Hangetweg 7, Hauzenberg
13.08.2025
Brigitta Dünnbier
Pfarrstraße 10, Hauzenberg 92 Jahre
23.08.2025
Albert Falkner
Steinfeld 1 A, Hauzenberg 75 Jahre
23.09.2025
Ralf Lieglein Simonstraße 34, Hauzenberg 58 Jahre
15.08.2025
Maria Stemplinger
Kusserstraße 24, Hauzenberg 95 Jahre
23.08.2025
Rudolf Ullmann
Kusserstraße 14, Hauzenberg 99 Jahre
18.08.2025
Günther Leeb
Im Tränental 16 A, Hauzenberg 87 Jahre
24.08.2025
Sonja Stegmüller Pointweg 1, Hauzenberg 58 Jahre
22.08.2025
Fabian Schmid
Toni-Pötzl-Straße 11, Hauzenberg 39 Jahre
25.08.2025
Irmgard Anetzberger Wehrberg 46, Hauzenberg 86 Jahre
h I nwe I s
Alle Eheschließungen, Geburten und Sterbefälle von Hauzenberger Bürgern können hier nur noch mit einer schriftlichen Einverständniserklärung veröffentlicht werden. Weitere Informationen erhalten Sie im Bürgerbüro der Stadtverwaltung Hauzenberg, Marktplatz 10, 94051 Hauzenberg, Telefon: 08586-3062.
umwIdmung eIner teIlfläche
der flurnummer 1505 gemarkung Jahrdorf beI renftIng als ortsstrasse
Der Bauausschuss hat in der Sitzung vom 16.09.2025 beschlossen, die nachfolgend bezeichnete Teilfläche des öffentlichen Feld- und Waldweges bei Renfting gemäß Art. 3 Abs. 1 Nr. 3 BayStrWG i.V. m. Art. 6 BayStrWG umzuwidmen sowie den bestehenden öffentlichen Feld- und Waldweg hinsichtlich Endpunkt und Straßenlänge abzuändern:
Ortsstraße in Renfting (südöstliche Stichstraße)
Flurnummer: 1505 Gmkg. Jahrdorf
Anfangspunkt: Einmündung in die Ortsstraße Fl.Nr. 1493 Gmkg. Jahrdorf
Endpunkt: Auf Höhe der südwestlichen Grundstücksgrenze von Fl.Nr. 1518 Gmkg. Jahrdorf
Baulastträger: Stadt Hauzenberg
Länge: 0,093 km
Belastungen: keine
Benutzung: für Fahrzeuge aller Art Einteilung: Gemeindestraße (Ortsstraße)
Feld- und Waldweg bei Renfting, Nr. 92
Flurnummer: 1505 Gmkg. Jahrdorf
Anfangspunkt: Einmündung in den öffentlichen Feld- und Waldweg Fl.Nr. 1646 Gmkg. Jahrdorf
Endpunkt: Auf Höhe der südwestlichen
Grundstücksgrenze von Fl.Nr. 1518
Gmkg. Jahrdorf
Baulastträger: Stadt Hauzenberg
Länge: 0,247 km
Belastungen: keine
Benutzung: für Fahrzeuge aller Art
Einteilung: öffentlicher Feld- und Waldweg
Die Widmung kann im Rathaus Hauzenberg, Marktplatz 10, 94051 Hauzenberg, während der üblichen Dienststunden (Montag – Freitag 08:00 Uhr – 12:00 Uhr, zusätzlich Montag, Dienstag und Donnerstag 13:00 Uhr – 16:00 Uhr) eingesehen werden.
Rechtsbehelfsbelehrung
Gegen die Widmung kann innerhalb eines Monats nach ihrer Bekanntgabe Klage bei dem
Bayerischen Verwaltungsgericht in Regensburg
Postfachanschrift: Postfach 11 01 65, 93014 Regensburg
Hausanschrift: Haidplatz 1, 93047 Regensburg schriftlich oder zur Niederschrift des Urkundsbeamten der Geschäftsstelle dieses Gerichts erhoben werden.
Die Klage muss den Kläger, den Beklagten (Stadt Hauzenberg) und den Gegenstand des Klagebegehrens bezeichnen und soll einen bestimmten Antrag enthalten. Die zur Begründung dienenden Tatsachen und Beweismittel sollen angegeben, der angefochtene Bescheid soll in Urschrift oder in Abschrift beigefügt werden. Der Klage und allen Schriftsätzen sollen Abschriften für die übrigen Beteiligten beigefügt werden.
Hinweise zur Rechtsbehelfsbelehrung:
— Durch das Gesetz zur Änderung des Gesetzes zur Ausführung der Verwaltungsgerichtsordnung vom 22. Juni 2007 (GVBl S. 390) wurde das Widerspruchsverfahren im Bereich des BayStrWG abgeschafft. Es besteht keine Möglichkeit, gegen diese Widmung Widerspruch einzulegen.
— Die Klageerhebung in elektronischer Form (z. B. durch E-Mail) ist unzulässig.
— Kraft Bundesrechts ist in Prozessverfahren vor den Verwaltungsgerichten seit 1. Juli 2004 grundsätzlich ein Gebührenvorschuss zu entrichten.
Stadt Hauzenberg, 25.09.2025 Gudrun Donaubauer, 1. Bürgermeisterin
Mit 100 % Ökostrom aus nachhaltiger Erzeugung.
änderung des bebauungsplanes „bergäcker, kIrche, frIedhof“ mIt deckblatt nr. 8; Bekanntmachung Änderungsbeschluss nach § 2 Abs. 1 Baugesetzbuch (BauGB) und Beteiligung der Öffentlichkeit nach § 13a, § 13 Abs. 2 i.V.m. § 3 Abs. 2 BauGB
Der Stadtrat der Stadt Hauzenberg hat am 07.07.2025 beschlossen, den Bebauungsplan Bergäcker, Kirche, Friedhof zu ändern. Der Beschluss wird gemäß § 2 Abs. 1 Satz 2 Baugesetzbuch (BauGB) ortsüblich bekannt gemacht.
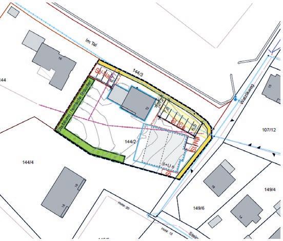
Mit der Änderung soll eine intensivere Bebauung des Grundstücks Flur-Nr. 144/2 Gemarkung Hauzenberg ermöglicht werden. Hierzu werden die Baufelder und die notwendigen Festsetzungen angepasst. Nach aktueller Planung soll ein Mietshaus mit 6 Wohnungen, eine Carportanlage und entsprechend viele Stellplätze entstehen.
Die Änderung des Bebauungsplans mit Deckblatt Nr. 8 erfolgt nach § 13a Abs. 1 Nr. 1 BauGB im beschleunigten Verfahren ohne Durchführung einer Umweltprüfung nach § 2 Abs. 4 BauGB, die Öffentlichkeitsbeteiligung erfolgt nach § 13 Abs. 2 Nr. 2 BauGB in Verbindung mit § 3 Abs. 2 BauGB. Auf eine frühzeitige Beteiligung nach § 13 a Abs. 2 i.V.m. § 13 Abs. 2 BauGB wird verzichtet.
Die Öffentlichkeit kann sich nach § 13a Abs. 3 Satz 1 Nr. 1 BauGB während der nachfolgend genannten Auslegungsfrist im Bauamt der Stadt Hauzenberg, Marktplatz 10, 1. OG, 94051 Hauzenberg über die allgemeinen Ziele und Zwecke sowie die wesentlichen Auswirkung der Planung informieren.
Der Entwurf der Bebauungsplanänderung liegt ab 14.10.2025 für die Dauer eines Monats bis einschließlich 14.11.2025 im Bauamt der Stadt Hauzenberg während der allgemeinen Öffnungszeiten des Rathauses zur allgemeinen Einsichtnahme aus. Mit Erscheinen des Amtsblattes wird auf diese Auslegung hingewiesen. Während der Zeit der Auslegung kann die Öffentlichkeit Anregungen, Hinweise und Einwendungen geltend machen. Diese sollen elektronisch übermittelt werden (planenundbauen@hauzenberg.de), können bei Bedarf aber auch auf anderem Weg abgegeben werden.
Ergänzend werden die Verfahrensunterlagen während der Auslegungsfrist auch auf der Homepage der Stadt Hauzenberg „www.hauzenberg.de“ in der Rubrik „Planen und Bauen und Wohnen / Bauleitplanung“ bereitgestellt.
Nicht fristgerecht abgegebene Stellungnahmen können bei der Beschlussfassung über die Aufstellung des Bebauungsplanes unberücksichtigt bleiben, wenn die Stadt den Inhalt nicht kannte und nicht hätte kennen müssen und deren Inhalt für die Rechtmäßigkeit des Bebauungsplanes nicht von Bedeutung ist.
Datenschutz:
Die Verarbeitung personenbezogener Daten erfolgt auf der Grundlage der Art. 6 Abs. 1 Buchstabe e (DSGVO) i.V.m. § 3 BauGB und dem BayDSG. Sofern Sie Ihre Stellungnahme ohne Absenderangaben abgeben, erhalten Sie keine Mitteilung über das Ergebnis der Prüfung. Weitere Informationen entnehmen Sie bitte dem Formblatt „Datenschutzrechtliche Informationspflichten im Bauleitplanverfahren“, das ebenfalls öffentlich ausliegt.
Stadt Hauzenberg, 22.09.2025
Rudolf Hirz, 2. Bürgermeister antragsfrIsten für sItzungen
— Am 13.10. für die Sitzung des Hauptund Finanzausschuss am 27. Oktober 2025
— Am 27.10 für die Sitzung des Stadtrates am 10. November 2025
— Am 03.11. für die Sitzung des Bauausschusses am 17. November 2025
PREMIUM HEIZÖL AUS BAYERN!
Ihr Vitatherm Partner:
Heizen mit dem bayrischen Qualitätsprodukt am Markt.
Brennstoffe Hans-Josef Stadler e.K. Bahnhofstr. 7, 94051 Hauzenberg www.brennstoffe-stadler.de
s atzung für d I e h erstellung und a blösung von s tellplätzen ( s tellplatzsatzung)
I n der s tadt h auzenberg vom 02.10.2025
Die Stadt Hauzenberg erlässt auf Grund des Art. 23 der Gemeindeordnung für den Freistaat Bayern in der Fassung der Bekanntmachung vom 22. August 1998 (GVBl S. 796 ff.), zuletzt geändert durch § 2 des Gesetzes vom 9. Dezember 2024 (GVBl. S. 573 ff.), und Art. 81 Abs. 1 Nr. 4 der Bayerischen Bauordnung in der Fassung der Bekanntmachung vom 14. August 2007 (GVBl. S. 588 ff), die zuletzt durch die §§ 12 und 13 des Gesetzes vom 23. Dezember 2024 (GVBl. S. 605) und durch § 4 des Gesetzes vom 23. Dezember 2024 (GVBl. S. 619) geändert worden ist, folgende Satzung:
§ 1 Geltungsbereich
Die Satzung gilt für das gesamte Gemeindegebiet einschließlich aller Ortsteile. Sie gilt nicht, soweit in rechtsverbindlichen Bebauungsplänen oder anderen städtebaulichen Satzungen davon abweichende Bestimmungen bestehen.
Die Satzung gilt für die Errichtung, Änderung oder Nutzungsänderung von Anlagen im Sinne des Art.1 Abs. 1 BayBO. Ausgenommen sind, wenn sie zu Wohnzwecken erfolgen, Änderungen oder Nutzungsänderungen im Sinne des Art. 81 Abs. 1 Nr. 4b Halbsatz 2 BayBO.
§ 2 Allgemeine Grundsätze
1. Werden bauliche oder andere Anlagen errichtet, durch die ein Zu- und Ab-
fahrtsverkehr zu erwarten ist, so sind Stellplätze herzustellen bzw. nachzuweisen.
Bei der Änderung oder Nutzungsänderung von Anlagen sind Stellplätze herzustellen, wenn dadurch zusätzlicher Zu- oder Abfahrtsverkehr zu erwarten ist. Bei Teilung von Grundstücken sind die jeweils erforderlichen Stellplätze entsprechend dieser Satzung nachzuweisen.
2. Die Zahl der notwendigen Stellplätze bemisst sich nach der Anlage der Verordnung über den Bau und Betrieb von Garagen sowie über die Zahl der notwendigen Stellplätze (GaStellV) vom 30. November 1993 in ihrer jeweils gültigen Fassung.
3. Die Ermittlung erfolgt jeweils nach Nutzungseinheiten. Bei baulichen Anlagen, die unterschiedliche Nutzungsarten enthalten, wird die Zahl der notwendigen Stellplätze getrennt nach den jeweiligen Nutzungsarten ermittelt.
4. Die Zahl an notwendigen Stellplätzen ist jeweils auf eine Dezimalstelle zu ermitteln und nach kaufmännischen Grundsätzen zu runden. Bei baulichen Anlagen mit mehreren Nutzungseinheiten oder unterschiedlichen Nutzungsarten erfolgt die Rundung erst nach Addition der für jede Nutzungseinheit und jede Nutzungsart notwendigen Stellplätze.
§ 3 Herstellung der Stellplätze
1. Die erforderlichen Stellplätze sollen in erster Linie auf dem Baugrundstück nachgewiesen werden.
Stellplätze können auch auf geeigneten Grundstücken in angemessener Nähe hergestellt werden, wenn ihre Benutzung für diesen Zweck rechtlich und tatsächlich gesichert ist.
Die Errichtung eines Stellplatzes auf einem anderen als dem Baugrundstück ist mit einer beschränkt persönlichen Dienstbarkeit zugunsten des Freistaates Bayern zu sichern, auch wenn das Grundstück im Eigentum des Bauherren steht. Die Dienstbarkeit ist so einzutragen, dass ihr keine anderen Rechte entgegenwirken oder im Range vorgehen, die ihren dauernden Bestand gefährden können.
Der Bauherr hat auf eigene Kosten dauerhaft und in geeigneter Weise auf diese abgelegenen Stellplätze am Baugrundstück hinzuweisen.
2. Die Inanspruchnahme derselben Stellplätze durch zwei oder mehrere Nutzungen mit unterschiedlichen Geschäfts- oder Öffnungszeiten (Wechselnutzung) kann zugelassen werden, wenn sichergestellt ist, dass keine Überschneidungen der Benutzung des Stellplatzes auftreten und keine negativen Auswirkungen auf den Verkehr in der Umgebung zu erwarten sind.
3. Von der Möglichkeit der Ablöse nach Absatz 1 sind Nutzungen ausgenommen, die für ihren geordneten Betriebsablauf darauf angewiesen sind, ihren Zu- und Abfahrtsverkehr durch Stellplätze auf dem Baugrundstück oder auf einem geeigneten Grundstück in der Nähe des Baugrundstücks abzuwickeln.
Seit 200 Jahren sind wir Möglichmacher für die Menschen in unserer Region. sparkasse-passau.de/200
§ 4 Anforderungen an die Herstellung
1. Für Stellplätze in Garagen gelten die baulichen Anforderungen der Verordnung über den Bau und Betrieb von Garagen sowie über die Zahl der notwendigen Stellplätze vom 30. November 1993 in ihrer jeweils gültigen Fassung.
2. Im Übrigen sind Stellplätze in ausreichender Größe und in Abhängigkeit der beabsichtigten Nutzung herzustellen. Es gilt Art. 7 BayBO.
§ 5 Stellplatzablösungsvertrag
1. Soweit die Unterbringung der Stellplätze, die herzustellen sind, auf dem Baugrundstück oder in Nähe des Baugrundstücks nicht möglich ist, kann die Verpflichtung nach § 2 in besonderen Einzelfällen auf Antrag auch dadurch erfüllt werden, dass die Kosten für die Herstellung der notwendigen Stellplätze in angemessener Höhe gegenüber der Gemeinde (Ablösevertrag) übernommen werden.
Die Entscheidung über den Abschluss eines Ablösungsvertrags steht im Ermessen der Gemeinde. Der Bauherr hat keinen Anspruch auf Abschluss eines solchen Vertrags; dies gilt auch dann, wenn die Stellplätze nicht auf dem Baugrundstück oder in der Nähe des Baugrundstücks tatsächlich hergestellt werden können.
2. Der Ablösebetrag bemisst sich nach der Zahl der erforderlichen Stellplätze, die zu errichten wären.
3. Der Ablösungsbetrag beträgt je Stellplatz 5.100,00 Euro.
4. Der Ablösungsvertrag ist vor Erteilung der Baugenehmigung abzuschließen. Ist die Erteilung einer Baugenehmigung nicht erforderlich, so ist der Vertrag spätestens einen Monat vor Baubeginn abzuschließen. Die Ablösebeträge aus dieser Satzung sind mit Erteilung der Baugenehmigung bzw. mit Baubeginn zur Zahlung fällig.
§ 6 Abweichungen
Von den Vorschriften dieser Satzungen können nach Art. 63 BayBO Abweichungen von der Bauaufsichtsbehörde im Einvernehmen mit der Gemeinde erteilt werden.
§ 7 Inkrafttreten
Diese Satzung tritt am 09.10.2025 in Kraft.
Hauzenberg, 02.10.202 Gudrun Donaubauer, 1.Bürgermeisterin
informationen aus dem sitzunGsdienst
stadtrat , s I tzung vom 15.09.2025
Breitbandausbau Gigabit 2.0 Richtlinie; Ergebnisse Markterkundungsverfahren und Beschluss über Antragsstellung – Abstimmung 22:0 In der Sitzung vom 17.03.2025 hat der Bauausschuss beschlossen, für die restlichen ca. 500 nicht gigabitfähigversorgten Adressen im Stadtgebiet in das Bundesförderprogramm „Gigabit-Richtlinie 2.0“ einzusteigen.
Als ersten Schritt vor einer Förderantragsstellung wurde ein Markterkundungsverfahren (MEV) durchgeführt.
Aufgrund des Ergebnisses im MEV ergeben sich folgende Gesamtkosten: Gesamtkosten 2.067.000,00 € Beantragte Zuwendung Bund (50 %) 1.033.500,00 €
e nde der a mtl I chen b ekanntmachungen
Beantragte Zuwendung Land (40 %) 826.800,00 € Eigenanteil 206.700,00 €
Der Stadtrat beschloss, den gestellten Förderantrag im Bundesprogramm „GigabitRichtlinie 2.0“ in Höhe von 1.033.500,00 € zu genehmigen.
Änderung des Bebauungsplanes „Schachet-Steinwall“; Änderungsbeschluss – Abstimmung 21:0
Die bestehende Garage auf der Flurnummer 156/41 Gemarkung Hauzenberg soll
Maler- und Lackierermeister
CHRISTIAN WATZINGER
CHRISTIAN WATZINGER
Wolkar 25 Telefon (08586)975922 94051 Hauzenberg Mobil (0151) 116374 03 www.malerbetrieb-watzinger.de www.malerbetrieb-watzinger.de
Für unser junges Team suchen wir zum nächstmöglichen Eintritt einen mit viel Freude für Farben. engagierten Facharbeiter Maler (m/w/d) sowie zum 01. August 2026 eine(n) Auszubildende(n) für das Maler- und Lackierhandwerk
Wir freuen uns auf Deine Bewerbung.
Richtung Nordosten erweitert werden. Die im Bebauungsplan festgesetzten Baugrenzen sollen an den Bestand angepasst werden. Zugleich kann der Bebauungsplan an die tatsächlichen Gegebenheiten angepasst werden.
Der Stadtrat beschloss die Änderung des Bebauungsplanes Schachet-Steinwall im Bereich der Grundstücke 156/40, 156/41 und 156/110 jeweils Gemarkung Hauzenberg.
Entscheidung über den Erlass einer Außenbereichssatzung in Guppenberg – Abstimmung 13:9 Der Antrag der Außenbereichssatzung Guppenberg hat die Grundintention, eine Bebauung auf dem Grundstück Fl.-Nr. 505, Gemarkung Jahrdorf mit drei Wohnhäusern zu ermöglichen.
Für das Bauvorhaben wurden jeweils Bauvoranfragen eingereicht, zu der der Bauausschuss am 12.12.2023 das Einvernehmen erteilt hat.
Das Landratsamt als Genehmigungsbehörde lehnte die Bauvoranfragen jedoch ab. Gründe hierfür waren:
keine Priviligierung des Bauvorhabens nach § 35 Abs. 1 BauGB Widerspruch zum Flächennutzungsplan (§ 35 Abs. 3 Satz 1 Nr. 1 BauGB) Beeinträchtigung der natürlichen Eigenart der Landschaft (§ 35 Abs.3 Satz 1 Nr. 5 BauGB)
Erweiterung und Verfestigung einer Splittersiedlung (§ 35 Abs. 3 Satz 1 Nr. 7 BauGB)
Eine für Guppenberg geplante Außenbe-
reichssatzung mit Einbeziehung nennenswerter zusäzlicher Flächen wurde bereits im Jahr 2023 von den Fachstellen als rechtswidrig eingestuft. Nach erneuter Rücksprache mit dem Landratsamt hinsichtlich Baumöglichkeiten in diesem Bereich wurde mitgeteilt, dass das betroffene Grundstück nicht in eine Außenbereichssatzung aufgenommen werden könne. Daher wurde seitens der Bauverwaltung empfohlen, dem Antrag auf Aufstellung einer Außenbereichssatzung aufgrund der negativen Perspektiven nicht zu entsprechen.
Der Stadtrat beschloss, dem Antrag auf Aufstellung einer Außenbereichssatzung für den Bereich Guppenberg zu entsprechen und eine Bauleitplanung durchzuführen.
Entscheidung über Zulassungskriterien für Batteriespeicher –Abstimmung 17:5
Aufgrund der hohen Anfrage auf Bauleitplanung für Batteriespeicher wurde dem Stadtrat empfohlen, Kriterien für derartige Anlagen zu erstellen.
Der Stadtrat beschloss daraufhin folgende Kriterien zu Batteriespeicheranlagen: Schutzgebiete werden nicht für Bauleitplanungen verwendet
Weithin unbebaute Gebiete, Bachtäler und exponierte weit einsehbare Hänge sind zu vermeiden Landschaftliche Vorbehaltsgebiete gemäß Regionalplan können nur ausnahmsweise und mit besonderer Begründung zugelassen werden
Als Spengler*in bringst Du auf Dächern und Fassaden Verkleidungen aus Blechen aller Art an, die Du zuvor in der Werkstatt fachgerecht geschnitten, gebogen und geformt hast. Als Fachmann/-frau für Metalle findest Du im Team mit Deinen Kollegen und Kolleginnen immer die beste Lösung, damit bei Wind und Wetter an Häusern, Kirchen und anderen Gebäuden alles dicht bleibt. Du bist schwindelfrei, kreativ und hast keine Angst vor schweren Maschinen?
Zulässig sind Anlagen, welche ausschließlich aus dem Nahbereich wahrgenommen werden und auf keine sensiblen Bereiche einwirken
Vermeidung von Konzentrationen in Gebieten bzw. örtlicher Konzentration
Gewerbesteuereinnahmen
Zulassung nur von Vorhabensträgern mit Sitz innerhalb Hauzenberg oder
Zulassung von Vorhabensträgern, wenn Betriebsstätte in Hauzenberg besteht oder begründet wird Vorhabensgebiet soll mit vorhandener Infrastruktur gut erschließbar sein
Keine an die Siedlung unmittelbar anschließende Fläche, Abstand zur Wohnbebauung von mind. 150 m Einbeziehung in 60 ha Begrenzung der Freiflächenphotovoltaikanlagen Einzelfallentscheidung zu jedem Antrag seitens des Stadtrates
Baugebiet „Germannsdorf-Nord II“; Straßenbenennung – Abstimmung 17:5
Im Zuge der Erschließung des neuen Baugebiets „Germannsdorf Nord-II“ ist die Benennung der neu entstehenden Erschließungsstraße erforderlich. Die Vergabe eines eindeutigen und sinnvollen Straßennamens ist notwendig.
Der Stadtrat beschloss für die Erschließungsstraße im Baugebiet „Germannsdorf-Nord II“ die Namensgebung mit „Bergmannsweg“.
Dann wird es allerhöchste Zeit für Deinen Weg nach oben – mit Deiner Bewerbung bei uns als:
Spengler-Facharbeiter (m/w/d)
Spengler-Helfer (m/w/d) oder zur Ausbildung als Spengler (m/w/d)
Wir freuen uns auf Dich!
Dorferneuerung Germannsdorf; Vertragsabschluss zur Objektplanung für Verkehrsanlagen und Kostenbeteiligung OD Germannsdorf
Abstimmung 22:0
Für diese Umsetzung der Dorferneuerungsmaßnahme durch die Teilnehmergemeinschaft ist der Abschluss einer Vereinbarung zwischen der Teilnehmergemeinschaft Germannsdorf, der Stadt Hauzenberg sowie dem Ingenieurbüro Architekten Ingenieure Weber – Architekturschmiede 2.0 (Ruhmannsfelden) erforderlich.
Die Kostenregelung erfolgt wie üblich: 60 Prozent – Teilnehmergemeinschaft Germannsdorf
40 Prozent – Stadt Hauzenberg
Auf der Haushaltsstelle eingeplante Mittel betragen für das Jahr 2025 430.000 €, davon sind noch 230.000 € verfügbar.
Der Stadtrat beschloss den Abschluss einer Vereinbarung zur Dorferneuerungsmaßnahme Gestaltung Ortsdurchfahrt Germannsdorf zu den entsprechenden Bedingungen.
b auausschuss, s I tzung vom 16.09.2025
Aufstellung eines vorhabenbezogenen Bebauungsplanes „SO Solarpark Erlet-West“; Abwägung und Satzungsbeschluss – einstimmig beschlossen Der Stadtrat hat am 19.09.2022 beschlossen, zur Errichtung eines Solarparks westlich von Erlet den Flächennutzungsplan zu ändern und einen Bebauungsplan aufzustellen.
Mit der Bauleitplanung soll westlich von Erlet die Voraussetzung für die Planung und Errichtung eines Solarparks geschaffen werden. Unmittelbar betroffen ist gemäß Antrag das Grundstück Flur-Nr. 1536 Gemarkung Jahrdorf. Der Flächenbedarf beträgt einschließlich Grünflächen und ökologischer Ausgleichsflächen insgesamt 3,3 ha. Die öffentliche Auslegung erfolgte mit Bekanntmachung im Amtsblatt vom 06.05.2025 in der Zeit von 14.05.2025 bis 16.06.2025, die Beteiligung der Träger
Öffentlicher Belange mit Schreiben/Email vom 14.05.2025 bis 16.06.2025. Der Bauausschuss schloss sich den Abwägungsempfehlungen der Verwaltung an und beschloss den vorhabenbezogenen Bebauungsplan „SO Solarpark Erlet-West“ als Satzung.
Aufstellung eines vorhabenbezogenen Bebauungsplanes „Solarpark Petzenberg-Stockländer“; Abwägung und Satzungsbeschluss – einstimmig beschlossen
Der Stadtrat hat am 07.11.2022 beschlossen, zur Errichtung eines Solarparks nahe Petzenberg den Flächennutzungsplan zu ändern und einen Bebauungsplan aufzustellen. Parallel erfolgt die Änderung des Flächennutzungsplanes mit Deckblatt Nr. 120. Die Genehmigung des Deckblattes Nr. 120 zum Flächennutzungsplanes liegt bereits vor.
Mit der Bauleitplanung soll südlich von Petzenberg die Voraussetzung für die Planung und Errichtung eines Solarparks geschaffen werden. Unmittelbar betroffen sind gemäß Antrag die Grundstücke Flur-Nrn. 1340 und 1341 jeweils Gemarkung Windpassing. Der Gesamtflächenbedarf einschließlich Eingrünung beträgt ca. 7,4 ha.
Die erneute Auslegung erfolgte mit Bekanntmachung im Amtsblatt vom 05.08.2025 in der Zeit von 08.08.2025 bis 27.08.2025, die erneute Beteiligung der Träger Öffentlicher Belange mit Schreiben/ Email von 08.08.2025 bis 27.08.2025. Der Bauausschuss schloss sich den Abwägungsempfehlungen der Verwaltung an und beschloss den vorhabenbezogenen Bebauungsplan „Solarpark PetzenbergStockländer“ als Satzung.
Umwidmung einer Teilfläche des öffentlichen Feld- und Waldweges bei Renfting zur Ortsstraße Fl.Nr. 1505 Gemarkung Jahrdorf ― einstimmig beschlossen
Mit Deckblatt Nr. 2 wurde die Ortsabrundungssatzung „Renfting“ geändert. Die am Erweiterungsbereich vorbeilaufende Straße dient der Erschließung der anliegenden
Grundstücke und ist entsprechend ihrer Verkehrsbedeutung gem. Art. 3 Abs. 1 Nr. 3 i.V. Art. 6 BayStrWG zur Ortsstraße umzuwidmen. Länge: 0,093 km, Benutzung: für Fahrzeuge aller Art, Einteilung: Gemeindestraße (Ortsstraße). Der bereits bestehende öffentliche Feld- und Waldweg bei Renfting soll aufgrund der Aufstufung des Teilstücks zur Ortsstraße hinsichtlich des Endpunktes und der Straßenlänge abgeändert werden. Der Bauausschuss beschloss, eine Teilfläche des bezeichneten öffentlichen Feld- und Waldweges bei Renfting umzuwidmen sowie den bestehenden öffentlichen Feld- und Waldweg hinsichtlich Endpunkt und Straßenlänge abzuändern.
Kanalbau Röhrendobl; Durchführung – einstimmig beschlosen In Röhrendobl / Kollersberg sollen die Anwesen mit der Fl.Nr. 1652/1 und 1652/2 Gemarkung Germannsdorf bebaut werden. Der Kanal ist in diesem Bereich noch nicht erschlossen. Die Stadt Hauzenberg wird ihn bis zum Anfang der Fl.Nr. 1652/1 Gemarkung Germannsdorf bauen; den restlichen Abschnitt bis Anfang der Fl.Nr. 1652/2 Gemarkung Germannsdorf übernimmt der Eigentümer. Eine entsprechende Vereinbarung besteht. Eine erste Kostenschätzung beläuft sich auf ca. 60.000 € (brutto) für den Abschnitt der Stadt Hauzenberg. Die Erschließung soll im Trennsystem erfolgen, da der Folgekanal bereits als Trenn-/Twin-System ausgebaut ist und in diesem Bereich ohnehin Entwässerungsprobleme bestehen. Der Bauausschuss beschloss die Durchführung der Maßnahme „Kanalbau Röhrendobl“ zu einer geschätzten Summe von 60.000 € (brutto). Die entsprechenden Mittel werden im Haushalt 2026 eingeplant.
v ergabe e I ner b auparzelle I m b augeb I et h aag Im Baugebiet Haag steht noch die Bauparzelle 12 zur Verfügung.
Die Größe beläuft sich auf 634 m², der Grundkaufpreis beträgt 40,00 EUR je m² zzgl. Vorauszahlung auf Erschließungskosten, Herstellungs- und Verbesserungsbeiträge und Vermessungskosten (vorläufig 60.606,08 €).
Neben dem vorläufigen Kaufpreis sind unter anderem noch die Kosten des Grunderwerbs, insbesondere Notar- und Grundbuchkosten zu tragen.
Für alle Bauparzellen gelten die Bedingungen aus der Vergaberichtlinie, insbesondere die Selbstnutzungsverpflichtung und das Wiederkaufsrecht von 5 Jahren (Bauzwang).
Die Vergaberichtlinie sowie der Bewerbungsbogen können ab dem 08.10.2025 auf der Homepage heruntergeladen werden oder beim zuständigen Sachbearbeiter Herrn Böhmisch per Mail unter michael.boehmisch@hauzenberg.de angefordert werden.
Der Bewerbungsbogen nebst Anlagen ist bis spätestens 29.10.2025, 12 Uhr (Ausschlussfrist) im Rathaus oder unter der angegebenen Mailadresse einzureichen.
Lageplan:
e hrung für ehrenamtl I che
b ürger I nnen und b ürger
Viele Bürgerinnen und Bürger engagieren sich ehrenamtlich, sei es in Vereinen, gemeinnützigen oder caritativen Organisationen.
Gemäß der Satzung über die Verleihung von Auszeichnungen für besondere Verdienste um die Stadt Hauzenberg erhalten
Erste und Zweite Vereinsvorstände Leiter von gemeinnützigen und caritativen Organisationen
Ortsbäuerinnen und Obmänner des Bayerischen Bauernverbandes nach einer Amtszeit von mindestens 15 Jahren eine Dankurkunde.
Die ersten und zweiten Kommandanten der Freiwilligen Feuerwehren erhalten wegen der besonderen Belastung und Verantwortung für die Allgemeinheit diese Auszeichnung nach einer Amtszeit von mindestens 12 Jahren.
Um diese ehrenamtlich tätigen Personen auszeichnen zu können, bitten wir um Ihre Mithilfe.
Melden Sie uns bis spätestens 28. Oktober 2025 langjährig ehrenamtlich tätige Mitbürgerinnen und Mitbürger!
Stadt Hauzenberg
Nico Drexler
Marktplatz 10, 94051 Hauzenberg
Tel.: 08586 30-23
E-Mail: nico.drexler@hauzenberg.de
b ürgerversammlungen 2025
Liebe Mitbürgerinnen und Mitbürger, auch in diesem Jahr werden wieder vier Bürgerversammlungen stattfinden. Im Rahmen dieser Bürgerversammlungen möchte ich Ihnen gerne unsere bereits angepackten und abgeschlossenen Projekte vorstellen. Ebenso möchte ich Ihre Anliegen erfahren und Ihnen im persönlichen Dialog Rede und Antwort stehen, zu Themen, die Sie interessieren und bewegen. Daher lade ich Sie sehr herzlich zu den insgesamt vier Bürgerversammlungen im Oktober und November
ein. Diese finden an folgenden Terminen und Orten statt:
29.10.2025
Gasthaus Gottinger; für Hauzenberg
04.11.2025
Gasthof Waldbauer; für die Gemeindeteile Germannsdorf, Jahrdorf, Haag
12.11.2025
Veit-Hof; für die Gemeindeteile Raßreuth, Krinning, Gießübl, Geiersberg, Freudensee
19.11.2025
Gasthaus Waldhäusl; für die Gemeindeteile Wotzdorf, Oberdiendorf, Oberkümmering, Raßberg, Bauzing
Beginn der Versammlungen ist jeweils um 19:00 Uhr.
Diese Versammlungen bieten eine gute Gelegenheit, Themen aus allen Gemeindeteilen kennenzulernen und sich einen Überblick über die Vielfalt der Maßnahmen zu verschaffen.
Falls Sie bereits im Vorfeld Fragen zu den Bürgerversammlungen stellen möchten, schicken Sie uns diese gerne unter Angabe Ihres Namens und Ihrer Kontaktdaten per E-Mail an buergerversammlungen@hauzenberg.de
Bei der Beantwortung Ihrer Fragen wird Ihr Name öffentlich genannt. Deshalb ist es notwendig, dass Sie eine Einwilligungserklärung ausfüllen und uns in der E-Mail gemeinsam mit Ihrer Frage zukommen lassen. Die Einwilligungserklärung finden Sie auf unserer Homepage unter www.hauzenberg.de/buergerversammlungen
Ich freue mich auf Ihre rege Teilnahme!
Gudrun Donaubauer, 1. Bürgermeisterin
wI nterd I enst Räum- und Streupflicht auf Gehwegen
In Vollzug der Verordnung über die Reinhaltung und Reinigung der öffentlichen Straßen, Wege und Plätze und die Sicherung der Gehbahnen im Winter in der Stadt Hauzenberg vom 10.02.2021 möchten wir die Eigentümer von Grundstücken, die innerhalb der geschlossenen Ortslage an öffentlichen Straßen Angrenzer bzw. Hinterlieger sind, auf die Räum- und Streupflicht während der Wintermonate hinweisen. Demnach haben diese Grundstückseigentümer die Gehbahnen auf eigene Kosten zu räumen und zu streuen. Insbesondere sind an Werktagen ab 7.00 Uhr und an Sonntagen und gesetzlichen Feiertagen ab 08.00 Uhr die Gehbahnen soweit wie möglich von Schnee zu räumen und bei Schnee-, Reif- oder Eisglätte mit Sand oder anderen geeigneten Mitteln, jedoch nicht mit ätzenden Stoffen zu bestreuen oder das Eis zu beseitigen. Diese Sicherungsmaßnahmen sind bis 20.00 Uhr so oft zu wiederholen, wie es zur Verhütung von Gefahren für Leben, Gesundheit, Eigentum oder Besitz erforderlich ist.
Der geräumte Schnee oder die Eisreste sind neben der Gehbahn so zu lagern, dass der Verkehr nicht gefährdet oder erschwert wird. Ist das nicht möglich, haben die Vorder- und Hinterlieger das Räumgut spätestens am folgenden Tag von der öffentlichen Straße zu entfernen. Abflussrinnen, Hydranten, Kanaleinlaufschächte und Fußgängerüberwege sind bei der Räumung freizuhalten.
Um bei Unfällen, die besonders im Winter immer wieder passieren, eine Haftung für die Grundstückseigentümer auszuschließen, bitten wir um besondere Beachtung dieser Verordnung.
Schneeablagerung auf Verkehrsflächen
Auf Verkehrsflächen darf auch kein Schnee aus Hauszufahrten oder aus den Gärten der Anwesen gelagert werden. Dies kann einen gefährlichen Eingriff in den Straßenverkehr darstellen.
Zuschneiden von Hecken, Stauden und Bäumen
Nicht ausreichend zugeschnittene Hecken, Stauden und Bäume hängen in den Wintermonaten durch Schneelast in den Verkehrsraum an Straßen aber auch auf Gehwegen. Dadurch ist die Nutzung dieser Flächen eingeschränkt und kann zu Beschädigung an Fahrzeugen aber auch zu Unfällen durch Ausweichen führen.
Bitte überprüfen Sie Ihre Bepflanzungen und schneiden Sie diese als Verantwortliche für das Grundstück rechtzeitig und ausreichend zurück. Bei Schäden haftet der Grundstückseigentümer bzw. der Verantwortliche für das Grundstück.
Parken auf Verkehrsflächen
Parkende Fahrzeuge auf öffentlichen Verkehrsflächen außerhalb gekennzeichneter Parkplätze behindern in der Regel den Winterdienst. Auf engeren Straßen kann dies sogar dazu führen, dass dieser Straßenzug oder Teile hiervon nicht rechtzeitig und ausreichend geräumt und gestreut werden können.
Wir möchten ausdrücklich darauf hinweisen, dass vor allem auf öffentlichen Wendeplatten grundsätzlich nicht geparkt werden darf, auch wenn keine entsprechende Beschilderung vorhanden ist. In den Wintermonaten wird besonders auf diese Regelung geachtet, die Polizei wird dies gegebenenfalls auch ahnden.
Schnee auf Dächern, Photovoltaikanlagen
Von Hausdächern abrutschender Schnee kann Leben, Gesundheit und Vermögen der Hausbesitzer selber aber auch der Nachbarn gefährden. Besonders groß ist aber die Gefahr, wenn Schnee von Hausdächern auf öffentliche Verkehrsflächen zum Teil aus großen Höhen abrutscht. Schnell kann es hier neben Sachschäden zu lebensgefährlichen Verletzungen der Verkehrsteilnehmer insbesondere der Fußgänger führen.
Der Hausbesitzer ist alleine verantwortlich dafür, dass von seinem Gebäude keine Gefahren ausgehen. Er hat insoweit auch alle Vorkehrungen zu treffen, um
Gefahren zu vermeiden, insbesondere entsprechende Vorrichtungen auf dem Dach anzubringen, dass Schnee nicht unkontrolliert abrutscht.
Besondere Gefahren gehen hier auch von Photovoltaikanlagen ohne besondere Schneefangeinrichtungen aus. Vorhandene Schneefangeinrichtungen erweisen sich oft als nicht geeignet, da sie zu niedrig sind. Teilweise reichen Photovoltaikanlagen auch bis zur Dachrinne, so dass eine Schneefangeinrichtung kaum mehr angebracht werden kann. Dies entlässt einen Hausbesitzer aber nicht aus seiner Haftung.
Diese Rechtslage und damit die Haftung des Hausbesitzers wurde durch die Untere Bauaufsichtsbehörde mit der Bayerischen Staatsregierung abgestimmt und so bestätigt.
Die Stadt wird alles Notwendige dazu beitragen, dass die Verkehrsflächen ausreichend geräumt und gestreut werden, soweit nicht die Anlieger hierzu verpflichtet sind. Weiterhin bitten wir um Verständnis, dass darüber hinaus verkehrswichtige Straßen und Schulbusstrecken im Winterdienst Vorrang haben. Die Stadt wünscht allen Verkehrsteilnehmern einen unfallfreien Winter.
s chl I esstag r athaus
Am Montag, 20.10.25, findet nachmittags die Personalversammlung der Stadt Hauzenberg statt. Aus diesem Grund sind das Rathaus sowie der Bauhof an diesem Tag nachmittags geschlossen. Ab Dienstag, 21.10.25 sind Verwaltung und Bauhof wieder zu den gewohnten Zeiten erreichbar. Wir bitten die Bevölkerung hierfür um Verständnis.
Reguläre Öffnungszeiten:
Mo- Fr: 8.00 – 12.00 Uhr
Mo, Di, Do: 13.00 – 16.00 Uhr
Jagdgenossenschaft r assreuth
Am Sonntag, den 26. Oktober 2025 wird ab 11:00 Uhr im Veit-Hof eine Jagdversammlung mit Neuwahlen der Jagdgenossenschaft Raßreuth abgehalten. Zur Versammlung sind auch alle Altenteiler und die Ehepartner der Jagdgenossen herzlich eingeladen.
Tagesordnung:
1. Begrüßung durch den Notvorstand Bgm.Gudrun Donaubauer
2. Bericht bisherigen Vorstand
3. Bericht des angestellten Jägers über den aktuellen Stand im Jagdjahr
4. Neuwahlen
5. Wünsche und Anträge
Bgm. Gudrun Donaubauer, Notvorstand
b undesförderprogramm
g raue- f lecken- p rogramm ( gfp ) –f örderbesche I de e I ngetroffen –r eal I s I erungsze I tpunkt startet Die Stadt Hauzenberg hat im Bundesförderprogramm nun alle beiden Förderbescheide erhalten. Mit einem Investitionsvolumen von 9.367.167,00 € fördert der Bund mit 50 % in Höhe von 4.917.762,00 € und das Land Bayern mit 40 % in Höhe von 3.934.209,00 €. Der Stadt Hauzenberg bleibt ein Eigenanteil von 936.718,00 €.
Mit Erhalt dieser Förderbescheide startete nun der Realisierungszeitraum für die beiden Telekommunikationsunternehmen in den beiden Losen. Los 1 „Hauzenberg Nord“ ging an die Telekom Deutschland GmbH und Los 2 „Hauzenberg Süd“ an die Telepark Passau GmbH.
Als nächsten Schritt werden nun mit beiden Telekommunikationsunternehmen die Ausbauverträge unterzeichnet.
Der Zeitpunkt, wann es zu tatsächlichen Tiefbaumaßnahmen in den beiden Losen kommen wird, wird noch bekannt gegeben. Zunächst wird in die entsprechende Genehmigungsplanung eingestiegen.
Stadt Hauzenberg, 17.09.2025 Gudrun Donaubauer, 1. Bürgermeisterin
b undesförderprogramm gI gab I t- rI chtl I n I e 2.0 –e rgebn I sse mev vorgestellt und vorläuf I ger f örderan-trag gestellt
In der vergangenen Stadtratssitzung am 15.09.2025 wurden die Ergebnisse des Markterkundungsverfahren (MEV) vorgestellt. Dieses lief von 28.04. bis 23.06. Dabei wurde erneut die IST-Situation im Stadtgebiet abgefragt. 318 Adressen wurden als förderfähig identifiziert. Dadurch ergibt sich ein Gesamtvolumen für den weiteren Breitbandausbau in Höhe von 2.067.000,00 €.
Zunächst wurde ein vorläufiger Förderantrag beim Bund in Höhe von 50 % der Gesamtkosten, also 1.033.500,00 € gestellt. Hier findet sich eine Karte, die das Ergebnis des MEVs aufzeigt. Grüne, rote und gelbe Punkte sind im aktuellen Förderprogramm förderfähig.
Aktuelle Entwicklungen zum Thema Breitbandausbau finden Sie auch immer auf der Homepage der Stadt Hauzenberg unter: www.hauzenberg.de/planen-bauen-wohnen#breitbandausbau
z e I tumstellung
Morgens früher hell, abends eher dunkel! Wie in jedem Jahr werden auch 2025 die Uh ren am letzten Sonntag im Oktober umgestellt. In der Nacht vom 25. auf den 26. Oktober 2025 heißt es dann: eine Stunde mehr Schlaf. Die Uhren werden von 3 auf 2 Uhr zurückgedreht.
Schöne 3-Zimmer-Wohnung in Hauzenberg zentrale und ruhige Lage, Erdgeschoß, Einbauküche, 2 Terrassen und Gartenanteil; 74 m 2, 630 Euro Kaltmiete + NK, Garage 40 Euro/Monat ab 1.12.2025 Anfragen an 0 85 86 - 18 16
eI n r ückbl I ck auf das s tädtepartnerschaftstreffen a m 19. und 20. s eptember
Ein Wochenende voller Begegnungen, spannender Einblicke und guter Stimmung! Von der lebhaften Kneipentour in Hauzenberg über die spannende Führung im neu erbauten Kinderwunschzentrum bis hin zu den Besichtigungen des Waldkindergartens und des Kindergartens in Fürsetzing – unsere Gäste aus den Partnerstädten erlebten ein abwechslungsreiches Programm.
Besonders begeistert zeigten sie sich von der hohen medizinischen Versorgung sowie den innovativen pädagogischen Konzepten unserer Einrichtungen.
Am Freitag verlagerte sich das Treffen abends in die verschiedenen Lokale in Hauzenberg. Es war ein sehr belebter und gelungener Abend. Ein herzliches Dankeschön an alle, die bei der Kneipentour mitgemacht haben!
p ersonelles aus der k läranlage k a I ndlmühle Die Stadt Hauzenberg freut sich, zwei engagierte Mitarbeitende zu ehren, die vor Kurzem ihre Abschlussprüfungen zur Fachkraft für Abwassertechnik mit Erfolg bestanden haben. Mit ihrem Einsatz und Engagement leisten beide einen wichtigen Beitrag zur sicheren und nachhaltigen Abwasserbehandlung in unserer Gemeinde.
Johannes Schützeneder absolvierte in den vergangenen drei Jahren eine fundierte Ausbildung zur Fachkraft für Abwas-
sertechnik. Das Bestehen der anspruchsvollen Abschlussprüfung ist der verdiente Lohn für seinen Einsatz. Wir gratulieren ihm herzlich zu diesem wichtigen Meilenstein und freuen uns, dass Johannes nun das Team mit seinem frischen Fachwissen verstärkt.
Harald Hausteiner war bereits zuvor in der Kläranlage beschäftigt und hat die Abläufe bestens kennengelernt. Um seine Kenntnisse noch weiter zu vertiefen, absolvierte er einen Lehrgang mit anschließender Abschlussprüfung zur Fachkraft für Abwassertechnik. Mit dem erfolgreichen Abschluss hat Harald seine Kompetenzen eindrucksvoll unter Beweis gestellt und bringt nun weiter seine Erfahrung und erlernten Kenntnisse in unser Team ein.
Im Namen der Stadt Hauzenberg gratulierte 1. Bürgermeisterin Gudrun Donaubauer Johannes und Harald zur bestandenen Abschlussprüfung und wünschte ihnen weiterhin alles Gute und viel Freude im Beruf.
nau) begrüßten gemeinsam mit Markus Garnitz, Bereichsleitung Digitalisierung der Bayern Tourismus Marketing GmbH (BayTM) die Gäste im Bürgerhaus Waldkirchen.
t our I smus I m a bte I land: n euer v ere I n gegründet –d atenpflege I m f okus Zwei große Themenbereiche standen auf der Tagesordnung des Arbeitstreffens im Bereich Tourismus: Zum einen die Vorstellung des neu gegründeten Vereins für Tourismus und Lebensraumgestaltung im Abteiland e.V., weswegen zu diesem Punkt auch zahlreiche Bürgermeisterinnen und Bürgermeister erschienen waren. Zum anderen ging es umfassend um das Thema „Einheitliche Touristische Datenpflege“, zu dem die Touristikerinnen und Touristiker der zehn ILE-Abteiland-Gemeinden im Rahmen des Projekts „Smarte ILE“ aktuell Unterstützung vom Technologie Campus (TC) Grafenau der Technischen Hochschule Deggendorf erhalten.
Die das „Handlungsfeld Tourismus“ leitenden Bürgermeister Heinz Pollak (Waldkirchen) und Franz Mautner (Thyr-
Neuer Verein für mehr Zusammenarbeit
Wolfgang Obermüller (Landrefugium Obermüller, Untergriesbach) und Hermann Reischl (Reischlhof, Wegscheid) stellten die Hintergründe zur Gründung des „Vereins für Tourismus und Lebensraumgestaltung im Abteiland e.V.“ vor. Sie machten deutlich, dass die klassischen Fremdenverkehrsvereine in den Gemeinden zwar wertvolle Arbeit leisten, deren Attraktivität und Aufrechterhaltung jedoch zunehmend schwieriger geworden sei. Kleine Strukturen erschweren zudem den Austausch.
Da die Tourist-Informationen der zehn Kommunen Breitenberg, Hauzenberg, Jandelsbrunn, Neureichenau, Obernzell, Sonnen, Thyrnau, Untergriesbach, Waldkirchen und Wegscheid bereits seit Jahren erfolgreich zusammenarbeiten – etwa bei den Projekten „Radgebiet Donau-Moldau“ und „Wandergebiet Donau-Moldau“ – lag es laut
Obermüller nahe, hier auch die Gastgeber und Gastronomen enger zu vernetzen.
Ziel des neuen Vereins ist es, ein starkes Netzwerk aufzubauen, in dem sich nicht nur Vereine und ILE-Gemeinden, sondern auch Gastgeber, Gastronomen und Erlebnisanbieter austauschen können. Zudem sollen Infoveranstaltungen, etwa zu Förderprogrammen, organisiert werden. Die Bürgermeisterinnen und Bürgermeister begrüßten die Initiative und dankten Obermüller und Reischl für ihr Engagement.
Einheitliche Datenpflege als Zukunftsaufgabe
Nach einer kurzen Pause ging es mit dem Thema „Einheitliche Touristische Datenpflege“ weiter. Max Geisberger vom TC Grafenau erläuterte kurz das Projekt „Smarte ILE Abteiland“. Im Rahmen dieses vom Amt für Ländliche Entwicklung (ALE) Landau unterstützten Projekts wurden in mehreren Treffen und Workshops acht Schwerpunktthemen und Maßnahmen – eines davon „Einheitliche Touristische Datenpflege“ – erarbeitet, die nun nach und nach umgesetzt werden sollen.
Franziska Friedenberger, die am TC Grafenau auf den Bereich Tourismus und Digitalisierung spezialisiert ist, informierte mit Tanja Angerer und Johanna Anetzberger (Tourismusreferate Landkreis Passau bzw. Freyung-Grafenau) zum aktuellen Stand der Datenpflege. In sogenannten Destinationsmanagementsystemen (DMS) pflegen die Mitarbeiterinnen und Mitarbeiter der Tourist-Informationen Daten zu Wander- und Radwegen, Veranstaltungen, Sehenswürdigkeiten (z.B. Museen, Aussichtstürme, Kirchen), Gastronomien und weitere relevante Informationen wie E-Bike-Ladestationen, barrierefreie öffentliche Toiletten oder Spielplätze, ein.
Dieser Prozess der Datenpflege ist auf einem guten Weg, nimmt jedoch viel Zeit in Anspruch. Dabei sind die Hindernisse vielfältig: zum einen die Menge an Daten, die „nebenbei“ zum normalen Betrieb einer Tourist-Information gepflegt werden müssen. Denn zu den Aufgaben einer Tourist-Information gehören neben der Beantwortung von Fragen von Gästen und dem Versand von Karten und Informationsmaterialien weitere Aufgaben wie der Verkauf von Tickets von Veranstaltungen, Wertgutscheinen oder das Betreuen der Social-Media-Kanäle der Kommunen. Hinzu kommt, dass gerade in kleineren Kommunen die Mitarbeiter für weitere Sachgebiete zuständig sind.
Auch führen fehlende Informationen häufig zu falschen Datensätzen bzw. Rechercheaufwand, wenn z.B. ein Restaurant seine Öffnungszeiten ändert, jedoch vergisst, die Tourist-Information zu informieren.
Bei allem sind stets die Urheberrechte zu beachten: wer ist Inhaber eines Fotos bzw. der Bildrechte, und unter welchen Voraussetzungen darf es veröffentlicht werden? Das gleiche gilt für den redaktionellen Text, d.h. ggf. muss ein Text neu formuliert werden. Das Zauberwort heißt hier „Open Data“. So sind aktuell zwar bereits viele Datensätze angelegt, aber konnten noch nicht umfangreich freigeschaltet werden, weil noch keine Fotos mit entsprechender offener Bildlizenz vorliegen.
Eine weitere Herausforderung ist, dass es sehr viele unterschiedliche Systeme gibt, in die die Daten eingepflegt werden. Hier-
zu wurde die BayernCloud Tourismus als zentrale Datendrehscheibe für alle touristisch relevanten Daten in Bayern geschaffen. Dies bedeutete, dass die Daten einmal eingepflegt und – dank Schnittstellen – auf den relevanten Portalen ausgespielt werden können. Die Umsetzung sei lt. Markus Garnitz komplex, aber man sei laufend in Abstimmung mit den Systemanbietern. Das langfristige Ziel: eine bayernweite Freizeit-Informationsplattform für Gäste und Einheimische.
Teamgeist und Ausblick
Nach rund dreieinhalb Stunden endete das Arbeitstreffen. Die Umsetzungsbegleitung der ILE Abteiland, Edith Stadlmeyer, die das Handlungsfeld Tourismus koordiniert, bedankte sich herzlich bei allen Teilnehmenden für den regen Austausch. Auch Bürgermeister Franz Mautner zeigte sich beeindruckt: „Es ist motivierend zu sehen, wie viel Teamgeist hier im Abteiland herrscht. Mit dem neuen Verein und der gemeinsamen Datenpflege setzen wir die richtigen Schritte, um unsere Region touristisch zukunftsfähig aufzustellen.“ Auch die Teilnahme von Christian Zeidler vom ALE Niederbayern und Natalie Askar vom Staatsministerium für Ernährung, Landwirtschaft, Forsten und Tourismus (StMELF), die für die Umsetzung der BayernCloud mit verantwortlich ist und extra aus München angereist war, wurde mit Freude aufgenommen.
Arbeitstreffen Tourismus der ILE Abteiland: gemeinsam für eine lebendige Region und eine zukunftsfähige Zusammenarbeit:
v.l.n.r.: Manfred Falkner (2. Bgm. Untergriesbach), Ludwig Prügl (Bgm. Obernzell), Wolfgang Obermüller (Landrefugium Obermüller, Untergriesbach), Christian Escherich (Bgm. Wegscheid), Markus Garnitz (BayTM), Natalie Böhmisch (TI Thyrnau-Kellberg), Heinz Pollak (Bgm. Waldkirchen), Katrin Wimmer (TI Untergriesbach), Christian Zeidler (ALE Niederbayern), Gudrun Donaubauer (Bgm. Hauzenberg), Edith Stadlmeyer (ILE Abteiland), Johanna Anetzberger (Lkr. FRG), Natalie Brem (TI Sonnen), Verena Hazott (TI Wegscheid), Hermann Reischl (Reischlhof, Wegscheid), Tanja Angerer (Lkr. PA), Adolf Barth (Bgm. Breitenberg), Andreas Gründinger (TI Waldkirchen), Julia Feucht (TI Hauzenberg), Max Geisberger (TC Grafenau), Celina Putz (TI Breitenberg), Franz Mautner (Bgm. Thyrnau), Katrin Fisch (TI Hauzenberg), Nina Freund (TI Neureichenau), Franziska Friedenberger (TC Grafenau), Natalie Askar (StMELF), Ewald Schober (TI Jandelsbrunn), Michael Hobelsberger (Veranstaltungsmanagement Waldkirchen); Foto: © ILE Abteiland
n eue w anderbroschüre für das a bte I land – 35 t ouren für g äste und eI nhe I m I sche
Nachdem die ILE Abteiland bereits erfolgreich ein Radwegeprojekt umgesetzt hat, wurde nun auch das Thema Wandern gemeinsam in Angriff genommen. Ziel war es, 35 ausgewählte Touren vorzustellen – von kurzen, familienfreundlichen Wegen (teils kinderwagengeeignet) bis hin zu längeren und sportlichen Strecken. Viele der Touren verlaufen zudem entlang bekannter Fernwanderwege wie Goldsteig, Jakobsteig und Donausteig und bieten attraktive Varianten dazu.
Ein Mehrwert für alle: Die Broschüre richtet sich nicht nur an Urlaubsgäste, sondern auch an die Bevölkerung vor Ort. Sie bietet neue Ideen für Ausflüge in der eigenen Heimat, lädt dazu ein, bekannte Wege neu zu entdecken und die Vielfalt unserer Region zu genießen – ob für den kurzen Spaziergang am Feierabend oder die sportliche Wochenendtour.
Die Broschüre wurde im Handlungsfeld Tourismus der ILE Abteiland mit den Handlungsfeld leitenden Bürgermeistern Heinz Pollak, Waldkirchen und Franz Mautner, Thyrnau in enger Zusammenarbeit mit den Tourismusreferaten der Landkreise Passau und Freyung-Grafenau erstellt und wird über das Regionalbudget mit dem Maximalbetrag von 10.000 € gefördert.
Ab Mitte September ist die Broschüre in den Tourist-Informationen der Kommunen der ILE Abteiland erhältlich. Bereits jetzt kann sie auf www.wandergebiet-donau-moldau.de sowie auf www. abteiland.de/downloads/ heruntergeladen werden. Dort stehen auch die gpx-Dateien der Touren bereit, die sich bequem in gängigen Wander-Apps (z. B. Komoot, Outdooractive) nutzen lassen.
Bis Herbst 2026 ist zudem geplant, die bestehende RadHomepage (www.radgebiet-donau-moldau.de) um den Wanderbereich zu erweitern.
Über die neue Wanderbroschüre freuen sich:
Obere Reihe v.l.n.r.: Manfred Falkner (2. Bgm Untergriesbach), Heinz Muggenthaler (Kartographie Muggenthaler), Christian Escherich (Bgm. Wegscheid), Natalie Brem (TI Sonnen), Natalie Böhmisch (TI Thyrnau-Kellberg), Karin Weidinger (TI Hauzenberg), Julia Feucht (TI Hauzenberg), Lilly Moser (Stadt Hauzenberg); Mittlere Reihe v.l.n.r.: Heinz Pollak (Bgm. Waldkirchen), Gabi Hauer-Heinrich (Werbeagentur Hauer-Heinrich), Sabrina Wittmann (Werbeagentur Hauer-Heinrich), Verena Hazott (TI Wegscheid), Johanna Anetzberger (Tourismusreferat FreyungGrafenau), Andreas Gründinger (TI Waldkirchen), Beata Kania (Fotografie Beata Kania); Untere Reihe v.l.n.r.: Edith Stadlmeyer (ILE Abteiland), Maria Denkmayr (Zweckverband TI Passauer Land), Gudrun Donaubauer (Bgm. Hauzenberg); Foto: © ILE Abteiland
k ostenloses e nerg I eberatungsangebot
Bei detaillierten Fragen rund um das Thema Energie sowie für eine kostenlose Energieberatung bietet die ILE Abteiland in Kooperation mit dem VerbraucherService Bayern im KDFB e. V. Termine in Beratungsstellen in der Region an.
Anmeldung: Zur einfacheren Koordinierung ist eine Anmeldung vorab beim Energiemanager der ILE Abteiland, Matthias Obermeier unter 08582/9797090, oder dem Verbraucherservice (Beratungsstelle Passau) unter der kostenlosen Hotline 0800−809 802 400 erforderlich.
Hinweis: Es besteht bei einem Eigenanteil von 40 € auch die Möglichkeit zur Energieberatung bei Ihnen vor Ort.
Balkonsolaranlagen – was es grundsätzlich zu beachten gilt
Die Balkonsolaranlage ist eine interessante Möglichkeit erneuerbaren Strom zu produzieren und den Stromverbrauch zu senken. Im Folgenden werden die einzuhaltenden und grundlegenden Rahmenbedingungen beschrieben:
1. Wer darf Balkonsolaranlagen betreiben? Grundsätzlich jeder. Bei einer in Mietrecht befindlichen Immobilie ist die Zustimmung des Vermietenden oder der Wohnungseigentümergemeinschaft nötig.
2. Was muss bei der Anmeldung beachtet werden?
— Die Anmeldung im Marktstammdatenregister ist verpflichtend.
— Für Steckersolargeräte entfällt die separate Anmeldung beim Netzbetreiber.
3. Welche Leistung ist für eine Balkonsolaranlage sinnvoll?
— Balkonsolaranlagen dienen insbesondere dem zeitgleichen Stromeigenverbrauch.
— Die sinnvolle Auslegung erfolgt daher am benötigten Stromverbrauch der Immobilie.
— Erlaubte Nennleistung der Wechselrichter: max. 800 Watt
— Erlaubte installierte Leistung (Modulleistung): max. 2.000 Watt
4. Weitere Informationen
— Montage z. B. an Fassade, an Balkonbrüstung oder am Terrassengeländer möglich.
— Im Normalfall erfolgt die Überschusseinspeisung in einer „unentgeltlichen Abnahme“.
— Ein Balkonkraftwerk darf von Ihnen selbst installiert und angeschlossen werden. Einen angedachten Festanschluss muss jedoch ein Elektrohandwerker durchführen.
— Bis zur Installation eines geeichten Zweirichtungszählers werden übergangsweise alte rückwärtsdrehende Zähler geduldet.
— Die Anlage kann nach ihrem Anschluss sofort in Betrieb genommen werden.
— Anlagenkosten z. B. für 870 Watt: ca. 500 € brutto (mit Eigenleistung und ohne Speicher)
Weitere Informationen hierzu erhalten Sie u. a. unter https://energiewende.bundeswirtschaftsministerium.de EWD/Redaktion/Newsletter/2025/01/Meldung direkt-erklaert.html
I le a bte I land I nform I ert s I ch über s onnenstrom Photovoltaik spielt eine immer größere Rolle in unserer Energieversorgung – allein 2024 wurde in Deutschland so viel PV-Leistung installiert wie noch nie zuvor. Auch für Privathaushalte wird es zunehmend wichtig, sich mit den Möglichkeiten der eigenen Stromerzeugung auseinanderzusetzen. Aus diesem Grund lud die ILE Abteiland zu einem praxisnahen Informationsabend rund um das Thema Sonnenstrom ein.
Ende Juli fand im neuen Rathaus in Jandelsbrunn hierzu ein kostenloser Workshop unter dem Titel „Sonnenstrom von Dach und Balkon“ statt. Interessierte Bürgerinnen und Bürger erfuhren, wie sie mit einer eigenen Photovoltaikanlage aktiv zur Energiewende beitragen und gleichzeitig ihre Stromkosten senken können. Ob die Photovoltaikanlage auf dem Dach oder am Balkon installiert wird, ist dabei nahezu nebensächlich.
Der geladene Referent Daniel Eisel von LandSchafftEnergie+ am TFZ vermittelte praxisnah die Grundlagen privater PVAnlagen und beantwortete zahlreiche Fragen zur optimalen Dachausrichtung, zu Investitionskosten, rechtlichen Rahmenbedingungen bis hin zum Batteriespeicher. LandSchafftEnergie+, welche vom Technologie- und Förderzentrum (TFZ) und C.A.R.M.E.N. e.V. in Straubing getragen wird, führt diese Workshops im Auftrag des Bayerischen Staatsministeriums für Wirtschaft, Landesentwicklung und Energie produktneutral sowie kostenlos aus.
Der Einladung des kommunalen Zusammenschlusses folgten rund 50 interessierte Personen, welche mit ihrem Interesse und ihren Fragen die Veranstaltung aktiv bereicherten. Gemeinsam mit ILE-Energiemanager Matthias Obermeier wurden verschiedene Varianten miteinander verglichen. Außerdem wurde eine steckerfertige Solaranlage modellhaft aufgebaut und die Stromerzeugung veranschaulicht.
hauzenber G kurse oktober–november
11.10. Seife sieden
Sa, 15:00 – 18:00 Uhr, 1 × 22.10. Besser fotografieren statt knipsen - mit Exkursion
Mi, 16:00 – 18:00 Uhr, 7 × 04.11. Selbstverteidigung und Selbst behauptung für Frauen
Di, 18:30 – 20:00 Uhr, 6 x 07.11. Acrylworkshop für Kinder 6–12 Jahre
Fr, 15:00 – 18:00 Uhr, 1 × 08.11. Malen mit Acryl für Anfänger und Fortgeschrittene –Workshop
Sa, 10:00 – 16:00 Uhr, 1 ×
Bürgermeister der Gemeinde Jandelsbrunn Herr Roland Freund freute sich über das große Interesse und die spürbare Begeisterung der Bürger für das Thema Photovoltaik.
Ihre Kommunen der ILE Abteiland Breitenberg, Hauzenberg, Jandelsbrunn, Neureichenau, Obernzell, Sonnen, Thyrnau, Untergriesbach, Waldkirchen und Wegscheid
12.11. Nähen am Mittwoch
Mi, 19:00 – 22:00 Uhr, 5 × 18.11. Filz-Werkstatt: Weihnachts filzen für Groß und Klein
Di, 15:00 – 17:30 Uhr, 1 × 29.11. Nähmaschinenführerschein Party – ab 6 Jahre
Sa, 10:00 – 12:30 Uhr, 11 × Info und Anmeldung gerne unter Tel. 08586 5798 –vhs
Außenstelle Hauzenberg, Astrid Veit – oder per E-Mail: info-hauzenberg@vhs-passau.de
Die genaue Kursbeschreibung finden Sie auch auf unserer Homepage: www.vhs-passau.de
Posthalterweg 7
Telefon: 08586/9687-18
Mo+Di: 8:30 – 16:30 Uhr
Mi+ Fr: 8:30 – 13:00 Uhr
Do: 8.30 – 17.30 Uhr
b auhof Jahrdorf
Industriestraße 9
Telefon: 08586/3055
Telefax: 08586/30-155
Wasserwart: 0171/7374332
b ayer I sches r otes k reuz
• Ambulante Pflege • Hilfe für Angehörige • Essen auf Rädern • Hausnotruf
• Seniorenreisen • Erste Hilfe-Kurse jeden letzten Samstag im Monat
Florianstraße 5
Telefon: 08586/970-93
Mobil: 0176/10222044
b eratungs- und b egegnungsterm I n der b ayer. b l I nden- und s ehbeh I ndertenbundes e. v .
Jeden letzten Samstag im Monat ab 14:00 Uhr, Gasthaus Falkner
Leitung: Egid Mühlberger
Telefon: 08584/638
b rennpunkt –offener Jugendtreff
Pfarrstraße 3
Leitung: Jugendpflegerin
Martina Schwarz, Tel. 0171-9713707
Di: offener Mädchentreff ab 11 Jahre von 15:30 – 19:00 Uhr
Mi: offener Jugendtreff für alle Jugendliche ab 12 Jahre von 15:30 – 20:00 Uhr
c ar I tas Eckhofkeller 6
Ambulante Pflege • Hausnotruf • Essen auf Rädern • Kranken-Pflegekurse
Telefon: 0 85 86/976033-31
Fachstelle für pflegende Angehörige:
Beratung und Entlastung Pflegender
Telefon: 08586/976033-35
Tagesbetreuung
Telefon 08586/976033-60
Allgemeine Sozialberatung
Telefon 0851/5018-109
f l ändl I cher f am I l I end I enst
dI özese p assau
Leitung Maria Eder
Tel. 08592/1888
Mobil: 0160/4532412
h allenbad h auzenberg ( e ckmühlstr. 28)
Das Hallenbad ist ab 11. Oktober wieder geöffnet.
Di + Fr: 17:00 – 20:00 Uhr
Sa: 14:00 – 17:00 Uhr
k fz- z ulassungstelle/ Bahnhofstraße 18
Mo–Do: 07:30 – 12:00 Uhr 13:00 – 15:30 Uhr
Fr: 07:30 – 11:30 Uhr
Tel: 0851/397-4722
k re I smus I kschule
Telefon: 08586/9 10 47
p ol I ze II nspekt I on
Langfeld 1 (Gewerbegebiet Eben)
Telefon: 08586/96050
p ostagentur – fI l I ale h auzenberg
Pfarrer-Zellbeck-Weg 4
Mo–Fr: 08:00 – 18.00 Uhr
Sa: 07:30 – 13:00 Uhr
Telefon: 08586/97626614
r athaus h auzenberg
Marktplatz 10
Tel.: 08586/30-0, Fax: 08586/30-120
E-Mail: stadtinfo@hauzenberg.de
Öffnungszeiten:
Mo – Fr 8.00 – 12.00 Uhr
Mo, Di + Do 13.00 – 16.00 Uhr
Mi + Fr nachmittags geschlossen
s s tadtbüchere I h auzenberg
Marktplatz 10, Tel.: 08586/3080
Mo 16:00 – 18:30 Uhr
Mi + Fr 14:30 – 17:00 Uhr
Sa 10:00 – 11:30 Uhr
E-Mail: buecherei@hauzenberg.de
t tüv - p rüfstelle
Fritz-Weidinger-Straße 38
Mi+Do:08:00–12:00 Uhr u. 13:00–17:00 Uhr
Fr: 08:00–12:00 Uhr u. 13:00–16.00 Uhr
Telefon: 08586/91557
w ertstoffhof
Steinmetzstraße 6, Tel: 08586/6408
Öffnungszeiten ab 01. April
Di, Mi + Fr 09:00 – 17:00 Uhr, Sa: 09:00 – 14:00 Uhr Ab 26. Oktober gelten die Öffnungszeiten der Winterzeit
Di, Mi, Fr: 9.00 – 16.00 Uhr Sa 9.00 – bis 12.00 Uhr
w ochenmarkt
Jeden Dienstag, 7:00 – 12:00 Uhr
Zentrum Hauzenberg
b eratung für w aldbes I tzer Förster Florian Hofinger Sprechzeiten: Mo 9.00 – 12.00 Uhr, Rathaus, Zimmer-Nr. 2.02
Außerhalb der Sprechzeiten telefonisch 08586/3090 oder Mobil +49(0)162/1316070
sP rechta G e im r athaus, Rentensprechtag:
08.10.25 von 13:00 Uhr – 16:00 Uhr (Bürgerbüro, Zimmer E.04), Ansprechpartner für Terminvereinbarung:
Frau Stefan Tel.: 08586/30 -63 oder Frau Anetzberger Tel.: 08586/30 -62
g esundhe I tsamt p assau –s oz I aler b eratungsd I enst Tel. 0851/397-800 oder -841
b eratungsstelle der l ebensh I lfe p assau für m enschen m I t b eh I nderung e. v .
Telefon: 08 51/949 94-710
Dann bewirb Dich per Post oder e-Mail WIR FREUEN UNS AUF DICH. WIR STELLEN EIN AUSZUBILDENDE
FÜR INFORMATIONSELEKTRONIK MIT SCHWERPUNKT
sind ein familiengeführtes Einzelhandelsunternehmen mit einem breiten Produktsortiment von Consumer Electronic über Weiße Ware bis hin zu Multimedia und Telekommunikation.
Unsere Serviceleistungen beinhalten die fachliche Beratung im Verkauf, Lieferung, Montage, Vernetzung von Geräten sowie Reparaturen.
Die Ausbildungszeit beträgt in der Regel 3,5 Jahre. Die Berufschule findet in Straubing im Blockunterricht statt. In Deiner Ausbildung befasst Du Dich mit informationstechnischen Systemen im professionellen und im privaten Bereich sowie mit dem Massenkommunikationsmittel Rundfunk, Fernsehen
DU hast eine abgeschlossene Schulausbildung, gute Deutsch- und Mathematikkenntnisse. Du bist zuverlässig, motiviert und lernbereit und hast elektrotechnisches Interesse und etwas handwerkliches Geschick.
und der Unterhaltungselektronik, Telekommunikations- und Funkanlagen zur Individualkommunikation mittels Bild, Ton und sonstiger Daten.
Die Lieferung, Montage, Instandhaltung und Reparatur von Haushaltsgeräten ist ebenfalls Teil Deiner Ausbildung.
INTERESSE AN EINER SPANNENDEN UND ABWECHSLUNGSREICHEN A USBILDUNG IN EINEM ENGAGIERTEN TEAM?
EINE RALLY, DIE ÜBER GRENZEN GEHT!
Erleben Sie die einzigartige Rally in drei Ländern –ein Motorsportevent für die ganze Familie! Pure Action auf spektakulären Wertungsprüfungen. Genießen Sie den besten Blick auf das Geschehen in unseren Fanzonen!
JETZT TICKETS SICHERN