Tepa Tribal Solutions - Development Process

Page 1


f $2B in revenue since 2005

f $500M bonding capacity with $250M per project

f 500+ projects concurrently with combined value of more than $650M

f Experience modifications rating (EMR) below industry standard

f 8(a) Sole-Source Capability

/// The Tepa Companies, 100% owned by the federally-recognized Paskenta Band of Nomlaki Indians, provide access to over 400 employees across the country. The companies share a common administrative and executive management team through Tepa, LLC, to reduce client costs and improve project efficiency. All Tepa employees have access to extensive resources, professional expertise and financial backing to ensure the successful delivery of projects.

The Tepa Companies are tribally-owned small businesses working independently and collaboratively to offer construction, engineering, environmental, industrial, staffing, and technology services. The companies deliver sustainable solutions to governmental, commercial, and tribal clients nationwide.

/// WHY TEPA

DEVELOPMENT PROCESS

This is a detailed visual summary of the usual development process. The chosen construction contract method has a significant impact, and we provide an analysis of the three most common construction contract methods: Design-Build, Construction Manager at Risk, and Design-Bid-Build.

01 PROJECT VISIONING

Shaping Your Future Landscape

To collaborate with tribal leaders and stakeholders to articulate a clear, shared vision for the project that reflects the community's aspirations and strategic goals.

Collaboratively Crafting a Clear Project Vision

f Community Engagement:

Foster strong community involvement and buy-in from the outset.

f Tribal Goals Alignment: Ensure that projects align with the tribe's long-term goals and cultural values.

f Inspirational Outcomes: Create a project vision that inspires and drives all stages of development.

The Project Visioning process involves collaborative efforts to define a development project's vision and goals. We work closely with tribal leaders, members, and non-tribal stakeholders to gather insights and input. Collaboration with commercial entities like hotels and restaurants ensures alignment with the tribe's goals. Our team facilitates open communication, guiding discussions to translate collective vision into actionable goals. This inclusive approach ensures that the development project aligns with the aspirations of all stakeholders involved, resulting in a shared vision that drives the project forward successfully.

01 PROJECT VISIONING

Iowa Tribe of Kansas and Nebraska

New Brewery Concept

OVERVIEW

New Brewery Concept for the Iowa Tribe of Kansas and Nebraska White Cloud, Kansas

Through a collaborative effort, Tepa worked alongside the Iowa Tribe and Mad River Brewing. The collaboration aimed to support the Iowa Tribe in defining their vision for a new brewery production facility and tasting room to be established at the Tribe's Casino Site. This initiative sought to align with the tribe's goals and enhance their offerings.

02 SITE SELECTION

Strategic Site Selection

To identify the most strategic location for new development projects that optimizes accessibility, maximizes economic benefits, and respects the cultural and environmental significance of tribal lands.

BENEFITS

f Optimal Placement: Ensure the location contributes to the project’s success.

f Community Integration: Select sites that harmonize with community needs and cultural significance.

f Economic Enhancement: Boost the local economy through strategically placed developments.

Optimizing Location for Maximum Benefit

The Site Selection process involves a systematic evaluation of potential sites based on project requirements. We research and identify sites, considering factors such as location, size, zoning, and utility access. Subsequently, we assess suitability by examining topography, environmental factors, and regulations. If needed, we visit sites to gain a better understanding of their conditions and suitability. Information gathered from these visits is then analyzed to compare strengths and weaknesses in relation to project needs. Based on this analysis, one or more preferred sites are chosen. Throughout this process, documenting and communicating findings ensures a thorough evaluation and informed decision-making to select the most suitable site(s) for the project.

02 SITE SELECTION

Crow Creek Sioux Tribe

Crow Creek Commercial Store

OVERVIEW

Crow Creek Commercial Store

Fort Thompson, South Dakota

The Crow Creek Tribe asked Tepa to help them choose a location for a new commercial store that would offer goods and services to the South Dakota West Bend State Park. During the process, it was discovered that although there was a feasible site near the park, there were potentially more profitable options available nearby that could serve the local communities of the Tribe and the State Park.

03 SITE FEASIBILITY

Maximize Your Land's Potential

To accurately assess and validate the potential uses of tribal land, ensuring that any proposed development is viable, sustainable, and aligned with tribal values and long-term objectives.

BENEFITS

f Informed Decisions: Empower tribes with detailed insights to make informed decisions.

f Risk Management: Identify potential risks early to avoid costly mistakes.

f Sustainable Development: Ensure projects are viable and sustainable, aligning with tribal values and environmental standards.

Assessing Viability and Sustainability of Development

Site Feasibility involves several key steps to ensure thorough viability assessments. It begins with comprehensive site visits to assess the physical characteristics of the land and identify any potential constraints or opportunities. Market analysis is conducted to understand the demand for the proposed development and assess its economic viability. Initial environmental screenings are performed, utilizing State and Federal EPA site lists, to identify any environmental risks or concerns that need to should be considered. Additionally, infrastructure identification ensures that essential services are available to support the new development. Throughout this process, close attention is paid to local rules and regulations to ensure compliance and avoid any legal complications.

03 SITE FEASIBILITY

Karuk Tribe

Rain Rock Travel Center

Yreka, California /// OVERVIEW

Rain Rock Travel Center | Fuel Center

Tepa, in collaboration with WorthGroup Architects and Sunflower Consulting, assessed two potential sites for the future Travel Center of the Karuk Tribes. The assessment included an evaluation of the feasibility of developing a travel center, taking into account factors such as wetlands and site size constraints.

04 DUE DILIGENCE

Protect Your Investments

To conduct a thorough investigation of all regulatory, environmental, and legal factors affecting a potential development site, providing a detailed risk assessment to safeguard the tribe’s investment and interests.

BENEFITS

f Transparency: Provide complete visibility into potential issues and opportunities.

f Security: Protect tribal investments by identifying risks before they become problematic.

f Confidence: Build confidence in project decisions through objective research and analysis.

Thorough Risk Assessments for Informed Decisions

Due Diligence is a thorough investigation typically done before buying the property or making final decisions. This phase covers various aspects: Legal Examination involves checking legal documents like title deeds and agreements to make sure there are no issues that could affect the property. Detailed Environmental Assessments are conducted to understand any ecological risks and how to address them to protect the site and surrounding areas. Financial Analysis includes looking at costs, funding options, and potential returns on investment to ensure the project is fiscally sound. Market Analysis involves studying market trends and demands to ensure the project fits with current and future market conditions. This detailed assessment aims to uncover any potential problems or risks associated with the property before progressing the project.

04 DUE DILIGENCE

Iowa Tribe of Kansas and Nebraska

Foreign Trade Zone Development

OVERVIEW

Foreign Trade Zone Development

Forest City, Missouri

Tepa completed a review for the Iowa Tribe to assess the potential for an industrial complex on their owned fee land. This involved examining local zoning regulations, building and development codes, as well as federal environmental and wetland requirements. The goal of the review was to identify any potential issues that could arise for future industrial development on the site.

05 SITE PROGRAMMING

Effective Site Planning

To develop a detailed plan that outlines the functional requirements and design criteria for the proposed development, ensuring all tribal needs are met and future growth is facilitated.

Tailoring Developments to Tribal Needs

f Customization: Custom-tailor projects to meet specific tribal needs and aspirations.

f Efficiency: Streamline development processes through clear, early-stage planning.

f Scalability: Design projects that can adapt to future growth and changes.

Site Programming is where we kick off the process of turning your project idea into reality. Using the project vision and site details you provide—or those we've worked on together in earlier stages—we start figuring out how everything will fit together on the site. We carefully study the site's features, any rules and regulations we need to follow, and what you want to achieve with the project. From there, we come up with a solid plan that lays the groundwork for the project's development. This step is crucial because it ensures that your goals are met while also meeting all the necessary regulations and making the most of the site's potential.

05 SITE PROGRAMMING

Karuk Tribe

Rain Rock Travel Center

OVERVIEW

Yreka, California

Tepa, in collaboration with WorthGroup Architects and Sunflower Consulting, helped the tribe create a program that included the quantity and types of fuel pumps, the sizes and types of coolers for the commercial store, the number of parking spaces, and the amenities for truckers at the Travel Center of the Karuk Tribes.

Rain Rock Travel Center

06 CONCEPT TEST-FITS

Ensuring Design Feasibility

To evaluate preliminary design concepts against the actual site conditions and programming requirements, ensuring the final designs will be feasible and effective.

Validating Concepts Against Real-World Conditions

f Practicality: Confirm that design concepts are practical and executable.

f Cost Efficiency: Avoid costly design alterations by testing concepts early.

f Project Success: Enhance the likelihood of project success with validated designs.

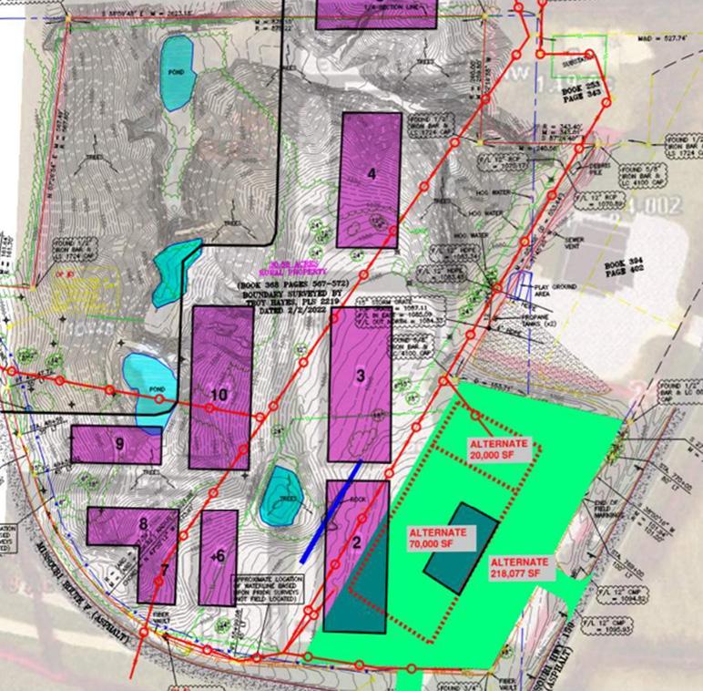
The Concept Test-fit phase works closely with Site Programming to shape the architectural spaces that will be placed on the site. We focus on figuring out the best shapes and placements for buildings while making sure they fit well within the site's boundaries and serve their intended purposes effectively. This phase helps us align our initial design ideas with the actual conditions of the site and the specific requirements of the project. By exchanging ideas between Concept Test-fit and Site Programming, we ensure that the final plan optimally uses the available space and meets the project's goals while considering practical constraints.

06 CONCEPT TEST-FITS

Karuk Tribe

Rain Rock Travel Center

Yreka, California /// OVERVIEW

Rain Rock Travel Center

Tepa, in collaboration with WorthGroup Architects and Sunflower Consulting, utilized previously created programming information to develop conceptual site plans and renderings, aiding the Tribe in visualizing the potential Travel Center.

Turn static files into dynamic content formats.

Create a flipbook
Issuu converts static files into: digital portfolios, online yearbooks, online catalogs, digital photo albums and more. Sign up and create your flipbook.
Tepa Tribal Solutions - Development Process by Tepa Companies - Issuu