







![]()








SCHRIJFKAMER VOOR HUGO CLAUS, NUKERKE, 1966, ARCH ALBERT BONTRIDDER (1921-2015)
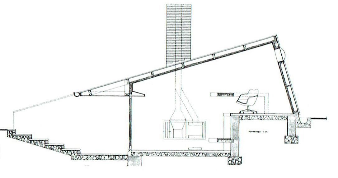
HICKORY HILL HOUSE FOR IRMA BARTMAN, KENTUCKY, 1941, ARCH BRUCE GOFF (1904-1982)
































Deze abstracte architectuuroefening vormt de overgang van 2D composities (4BARVO) naar 3D ruimtelijkheid.
De opdracht bestaat uit een startcompositie in 2D van waaruit een 3D ruimtelijkheid wordt gecomponeerd.
We creëren een open en gesloten ruimtelijkheid,
startend vanuit een grondvlak, door middel van vierkanten
én hun restanten versneden volgens de gulden snede.
Grondvlak - 25x25cm silckboard 2mm
2D compositie - silckboard 2mm, bekleefd met gekleurd papier Tiziano: wit (Ivory 40 Avorio) en zwart (Black 31 Nero) en als accentkleur groen (Moss green 14 Muschio) of geel (Gold 44 Oro).
3D compositie - silckboard 1mm, bekleefd met gekleurd papier Tiziano (zie hoger).


Van een compositorische complexiteit naar een speelse ruimtelijkheid die rust en soberheid uitstraalt.








































































TEGEN / IN / TUSSEN / OP DE HELLING
We ontwerpen een ruimtelijke geborgenheid binnen een ruimtehoek van 15,45cm door middel van vierkanten en hun restanten versneden volgens de gulden snede.
Deze oefening focust op het menselijk streven naar geborgenheid en zijn architecturale vertaling. We laten ons inspireren door de ruimtelijkheid van een primitieve shelter en vernaculaire architectuur, alsook op de groeiprocessen in de natuur.
We evoceren een geborgen ruimtelijkheid binnen een kubus, door middel van vierkanten en restanten versneden volgens de gulden snede.
3D compositie - silckboard 1mm, bekleefd met gekleurd papier Tiziano. Kleuren op basis van persoonlijke voorkeur.












Observation pavilion for the Norwegian Wild Reindeer Foundation, Dovrefjell-Sunndalsfjella National Park
Noorwegen, 2009-2011, Snøhetta




























































THE GREAT WAVE OFF KANAGAWA 1830, KATSUSHIKA HOKUSAI
We maken een vormstudie op basis van het meest iconische Japanse kunstwerk, nl. The great Wave off Kanagawa, van de hand van Ukiyo-e kunstenaar Katsushika Hokusai.
Under the Wave off Kanagawa maakt deel uit van een serie prenten getiteld Thirty-six views of Mount Fuji, die Hokusai maakte tussen 1830 en 1833. Het is een polychrome houtsnede gedrukt op papier van ongeveer 25 x 38cm. Op alle afbeeldingen in de serie is een glimp van de berg te zien, maar zoals je in dit voorbeeld kunt zien, domineert de berg Fuji niet altijd het kader. In plaats daarvan is de voorgrond hier gevuld met een enorme, oprijzende golf. De dreigende golf wordt afgebeeld vlak voordat hij neerstort op drie vissersboten eronder. Under the Wave bij Kanagawa zit vol visuele speling. De berg, die klein is gemaakt door het gebruik van perspectief, lijkt te worden opgeslokt door de golf. Hokusai’s optische spel kan ook luchtig zijn, en de nevel van de top van de neerstortende golf lijkt op sneeuw die neerdwarrelt op de berg.
Startende vanuit een treffende foto wordt – na geometrische analyse- een ruimtelijke voorstelling gevraagd. De betrachting is om de ruimtelijke continuïteit van het werk te evoceren, zowel in het geheel als in zijn details.

Japanse prenten inspireerden de ontwerpen van 20e Eeuwse Westerse architecten, zoals F. Lloyd Wright en













































































OPDR_4 NEGOZIO OLIVETTI VENETIË, 1958
CARLO SCARPA (1906-1978)







RECHTER ZIJAANZICHT
LINKER ZIJAANZICHT
























SCHRIJFKAMER VOOR HUGO CLAUS NUKERKE, 1966
ARCH. ALBERT BONTRIDDER (1921-2015)





Een cabanon is een klein, eenvoudig huisje of hut, vaak gebruikt als vakantieverblijf of tijdelijke woning. Deze constructies focussen op praktisch comfort en functionaliteit, terwijl ze een sterke band met de omgevende natuur behouden.


HICKORY HILL HOUSE FOR IRMA BARTMAN FERN CREEK, KENTUCKY, 1941
ARCH. BRUCE GOFF (1904-1982)

























Decouvreur leidde tussen 1977 en 2015 het atelier Ruimtelijke Vormgeving op het Kunsthumaniora Sint-Lucas. Hij verfijnde er over deze bijna 4 decennia zijn pedagogische methode, gebaseerd op de natuur en haar verlengstuk, de menselijke nederzetting. Via het aanbrengen van architecturale basisconcepten zoals ruimtelijkheid, geborgenheid en massa in vormelijke experimenten binnen een afgebakende ruimte komen de leerlingen er toe om aan de hand van foto’s van (historische) complexe architectuur en cultureel erfgoed via analysetekeningen tot een ruimtelijke voorstelling te komen in de vorm van maquettes.
De boekdelen van het atelier Architecturale Vorming 1977-2015 zijn te bekijken en bestellen via http://nl.blurb.com/bookstore/c-architecture.


Peter Van Accoleyen startte in 1979 zijn architecturale vorming in de kunsthumaniora Sint-Lucas te Gent onder Gilbert Decouvreur.
In 1993 keerde hij er terug als leerkrachtarchitect en sinds 2014 geeft in de derde graad Architecturale Vorming de vakken schetsen en architecturaal tekenen.

Stijn Gilbert volgde vanaf 1999 architecturale vorming in kunsthumaniora Sint-Lucas te Gent onder Gilbert Decouvreur.
Na zijn architectuurstudies aan de LUCA School of Arts te Brussel behaalde hij in 2005 zijn masterdiploma na een uitwisselingsjaar in Japan (Tokyo & Kyushu University). Sinds 2010 is hij als leerkracht-architect terug op de kunsthumaniora, waar hij vanaf 2015 in de tweede en derde graad Architecturale Vorming geeft.
De catalogi van het atelier Architecturale Vorming vanaf 2015 zijn te bekijken en bestellen via https://issuu.com/stijngilbert
VORMSTUDIES DOOR DE
HET 5e JAAR ARCHITECTURALE VORMING OP
KUNSTHUMANIORA SINT-LUCAS, OP BASIS VAN DE PEDAGOGISCHE METHODE ONTWIKKELD
DOOR GILBERT DECOUVREUR.
ATELIERBEGELEIDING, OPMAAK & FOTOGRAFIE ARCH. STIJN GILBERT
DANK AAN
KUNSTHUMANIORA SINT-LUCAS voor het artistieke nest
SABRINA STERCKI FERNANDEZ voor de fotografische expertise GILBERT DECOUVREUR voor zijn visie en mentorschap