

![]()


LOCI
LEHEN PALKHAR, LEH, LADAKH, INDIA (ca. 1600)
THIKSEY GOMPA, LEH, LADAKH, INDIA (1433)
1854-1875, PARIJS, HENRI LABROUSTE (1801-1875)
(KIN+RVG+CAD+ASC)
CSH#08 EAMES HOUSE, 1949, CHARLES & RAY EAMES / CSH#09 ENTENZA HOUSE, 1943, CHARLES EAMES
EERO SAARINEN / CSH#10, 1947, KEMPER NOMLAND / CSH#21 BAILEY HOUSE, 1958, PIERRE KOENIG / CSH#22 STAHL HOUSE, 1960, PIERRE KOENIG

ROTSKOEPEL, JERUZALEM, ISRAËL, 688-692
SONSBEEK PAVILJOEN 2D & 3D, 1966, ALDO VAN EYCK
LIBRARY OF MUYINGA, KATANGA, KONGO, 2012, BC ARCHITECTS
CASE STUDY HOUSES
PUBLIEKE ARCHITECTUUR EN RUIMTE
BIBLIOTHEQUE NATIONALE DE FRANCE, 1854-1875, HENRI LABROUSTE (1801-1875)
BIBLIOTHECA MEDICEA LAURENZIANA, 1523-1526, FIRENZE, MICHELANGELO
BIBLIOTHEQUE DU ROI, 1785, ETIENNE LOUIS BOULLEE (1728-1799)
STOCKHOLMS STADSBIBLIOTHEK, 1928, GUNNAR ASPLUND
VIIPURI LIBRARY, 1927-1935, ALVAR AALTO
BOEKENTOREN GENT, 1936-1942, HENRY VAN DE VELDE
HISTORY FACULTY LIBRARY CAMBRIDGE, 1963-1968, JAMES STIRLING
PHILIPS EXETER ACADEMY LIBRARY, 1965-1971, LOUIS KAHN
STAATSBIBLIOTHEK ZU BERLIN, 1967-1978, HANS SCHAROUN & EDGAR WISNIEWSKI TU DELFT, 1997, MECANOO
BIBLIOTHECA ALEXANDRINA, 1989-2001, SNOHETTA
SEATTLE CENTRAL LIBRARY, 2004, OMA



























LADAKH, INDIA
LEHEN PALKHAR
THIKSEY GOMPA

Deze vormstudie neemt ons mee naar Azië, meer bepaald aan de voet van de Himalaya in India. Het imposante zeventiendeeeuwse Leh Palace (Lehen Palkhar) van negen verdiepingen doemt hoog op de heuvel op boven de tempels, moskeeën en huizen van de stad Leh. Dit massieve stenen paleis bekroont de vernaculaire architectuur uit het dal en gaat naadloos op in het omgevende berglandschap. De poëtische integratie van dit paleis, gebouwd door koning Sengge Namgyal (1590-1640), respecteert de geest van de plaats.
Op het moment dat het gebouwd werd was het het hoogste gebouw in de Himalaya, tot aan de bouw van het 13 verdiepingen tellende Potala Palace in Lhasa (Tibet) enige tijd later (1645). Beide gebouwen, hoewel aan tegenovergestelde zijden van het Himalaya gebergte, putten uit dezelfde bouwtraditie van de grote kloosters uit de regio.
Startende vanuit een tekening en/of foto wordt – na geometrische analyse – een ruimtelijke voorstelling gevraagd, gepresenteerd op een grond- en achtervlak. De bedoeling is om een voorstelling te creëren die de ruimtelijke continuïteit van het gebouw in zijn omgeving evoceert, zowel in zijn detail als in het geheel.

Architecture belongs to poetry, and its purpose is to help man to dwell. But architecture is a difficult art. To make practical towns and buildings is not enough. Architecture comes into being when a ‘total environment is made visible”
Christian Norberg-Schulz, Genius Loci: Towards a Phenomenology of Architecture







































































HENRI LABROUSTE (1801-1875)

We gaan op basis van bronmateriaal en de plannen van architect Sylvain Le Stum aan de slag voor het maken van een schaalmodel. In dit model kunnen we het individeel ontwerp voor de zuil/overkapping (GIP) toetsen aan de bestaande ruimtelijk context.
We werken een schaalmodel uit van een quadrant (1/4) van de ‘Salle Labrouste’ in de Bibliothèque Nationale op schaal 1/50.
De opdracht wordt uitgevoerd in groepjes van 3 leerlingen, waarbij elke leerling een bijdrage levert in het geheel. We willen de bestaande context van de leeszaal zo goed mogelijk weergeven om als basis te dienen voor ons ontwerpend onderzoek in het kader van de GIP.
De focus ligt op een leesbare abstractie van de aanwezige volumes en ornamentiek.



Het schaalmodel vormt samen met de 3 overige onderdelen een totaalbeeld van de Salle Labrouste van de Bibliothèque Nationale de France.




STUDIETRIP PARIJS
29/01/2024


























Iconen van het modernisme tussen 1945 en 1966
Het Case Study House programma, dat in 1945 werd gestart door het tijdschrift Arts & Architecture in Los Angeles, blijft één van Amerika’s belangrijkste bijdragen aan de architectuur van het midden van de vorige eeuw. De zesendertig ontwerpen van het programma, ontworpen als goedkope, experimentele moderne prototypes, belichaamden de aspiraties van een generatie moderne architecten die actief waren tijdens de bloeiende jaren van Amerika’s bouwwoede na de Tweede Wereldoorlog.
De opdracht koppelt binnen meerdere vakken (RVG/ ART/KIN) een breed spectrum aan onderdelen van de architecturale vorming, zowel ruimtelijk (volume, materiaal en textuur) als grafisch (voorstelling in plan, foto en tekening).















































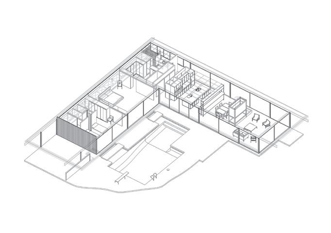
WOONCULTUUR CASE STUDY HOUSES



living
slaapkamer
badkamer
keuken
carport







Constructie
De constructie v komt tot stan vierkante staalconstructie. Dit was oo een van de eerste Case Study Houses die hier gebruik v Het gebruik v mogelijk om een gr creëren in het interieur eigenaar van h Architecture Magazin weinig privéruimtes en v imposante ruimtes voor entertainment. Dit is ook duidelijk te zien door de zeer grote living met aanliggende slaapkamer Tussen living en slaapkamer is opmerkelijk weinig afscheiding.


Charles & Ray Eames
Charles Eames was een Amerikaanse architect, ontwerper en filmregisseur Hij werd geboren in 1907 en stierf in 1978. Samen met zijn vrouw Ray Eames, ontwierp hij veel klassieke ontwerpen uit de 20e eeuw
Eames studeerde architectuur aan de Washington University in Saint Louis. Hij werd daar echter van school gestuurd omdat zijn inzichten van architectuur te modern waren. Later werkte hij samen met onder meer Eero Saarinen en het Case Study House Project.

Eero Saarinen
Eero Saarinen was een FinsAmerikaans architect. Hij werd geboren in 1910 en stier in 1961. Saarinen studeerde aan de Académie de la grande Chaumière in Parijs en later ook aan Yale in de VS. Na zijn studies ging hij bij zijn vader Eliel Saarinen, als architect aan de slag. In 1952 werd hij lid van het American Institute of Architects.























TEMPELBERG, JERUZALEM, 688-692

























































BIBLIOTHEKEN
Het ruimtelijk onderzoek voor de geïntegreerde proef focust dit schooljaar op bibliotheken. Veel meer dan enkel een opslagplaats van boeken en tijdschriften, bieden moderne bibliotheken zich aan als een pleisterplaats, een toevluchtsoord, voor lezen, studie en reflectie. Als materiële bewaarplaats van het collectief geheugen zijn ze plaatsen van kennis en cultuur. Enkele markante voorbeelden uit de Renaissance, de 20e en 21e eeuw worden tegen het licht gehouden.
De Bibliothèque Nationale die Henri Labrouste tussen 1854 en 1875 integreerde in het Palais Mazarin te Parijs staat op een belangrijk kruispunt in de architectuurgeschiedenis. Door zijn toepassing van gietijzer en glas - materialen van de industriële revolutieen zijn omgang met licht en ruimte legde hij de basis voor de Art Nouveau. De analyse van dit gebouw staat dan ook model voor het GIP-onderdeel van ruimtelijke vormgeving.
Daarnaast wordt het onderzoek van één van de volgende visionaire bibliotheken (1 t.e.m. 11) geëvoceerd in ruimtelijk en grafisch werk.
0/ BIBLIOTHEQUE NATIONALE DE FRANCE, 1854-1875, HENRI LABROUSTE (1801-1875)
1/ BIBLIOTHECA MEDICEA LAURENZIANA, 1523-1526, FIRENZE, MICHELANGELO
2/ BIBLIOTHEQUE DU ROI, 1785, ETIENNE LOUIS BOULLEE
3/ STOCKHOLMS STADSBIBLIOTHEK, 1928, GUNNAR ASPLUND
4/ VIIPURI LIBRARY, 1927-1935, ALVAR AALTO
5/ BOEKENTOREN GENT, 1936-1942, HENRI VAN DE VELDE
6/ HISTORY FACULTY LIBRARY CAMBRIDGE, 1965-1971, JAMES STIRLING
7/ PHILIPS EXETER ACADEMY LIBRARY, 1965-1971, LOUIS KAHN
8/ STAATSBIBLIOTHEK ZU BERLIN, 1967-1978, HANS SCHAROUN & EDGAR WISNIEWSKI
9/ BIBLIOTHEEK TU DELFT, 1997, MECANOO
10/ BIBLIOTHECA ALEXANDRINA, 1989-2001, SNOHETTA
11/ SEATTLE CENTRAL LIBRARY, 2004, OMA


De Bibliothèque Nationale die Henri Labrouste tussen 1854 en 1875 integreerde in het Palais Mazarin te Parijs staat op een belangrijk kruispunt in de architectuurgeschiedenis. Door zijn toepassing van gietijzer en glasmaterialen van de industriële revolutie - en zijn omgang met licht en ruimte legde hij de basis voor de Art Nouveau.
De planopbouw bestaat uit 9 vierkanten, met op elk hoekpunt een slanke gietijzeren kolom. Hierop rusten 9 lichte koepels met een oculus die daglicht binnenbrengt in de leeszaal. De structuur is van een verbluffende lichtheid en precisie. Hierdoor doet de structuur denken aan een tentzeil, die samen met de natuurlijke fresco’s het gevoel geven dat je buiten bent.
We maken een ruimtelijk onderzoek van de structuur van de Bibliothèque Nationale, en ontwikkelen op basis van een (an) organische vormentaal een alternatieve overkapping voor de leeszaal.








“I have always imagined that Paradise will be a kind of library.”
Luis Borges)



BIBLIOTHECA MEDICEA
LAURENZIANA
1523-1526, FIRENZE, MICHELANGELO









PHILIPPA CARLTON
HISTORY FACULTY
LIBRARY CAMBRIDGE
1965-1971, JAMES STIRLING









BOEKENTOREN GENT 1936-1942, HENRI VAN DE VELDE














BIBLIOTHECA MEDICEA
LAURENZIANA
1523-1526, FIRENZE, MICHELANGELO





LIBRARY CAMBRIDGE
1965-1971, JAMES STIRLING








BOEKENTOREN GENT 1936-1942, HENRI VAN DE VELDE











BIBLIOTHEEK
TU DELFT
1997, MECANOO





STOCKHOLMS STADSBIBLIOTHEK






BIBLIOTHECA ALEXANDRINA
1989-2001, SNOHETTA






PHILIPS EXETER ACADEMY LIBRARY
1965-1971, LOUIS KAHN






PHILIPS EXETER ACADEMY LIBRARY 1965-1971, LOUIS KAHN










BIBLIOTHEEK







BOEKENTOREN GENT 1936-1942, HENRI VAN DE VELDE






STAATSBIBLIOTHEK ZU BERLIN
1967-1978 SCHAROUN & WISNIEWSKI
















BIBLIOTHEQUE DU ROI
1785,






SEATTLE CENTRAL LIBRARY










BOEKENTOREN







BIBLIOTHEEK
TU DELFT 1997, MECANOO






LIBRARY CAMBRIDGE
1965-1971, JAMES STIRLING








za22/6
zo23/6






Gilbert Decouvreur leidde tussen 1977 en 2015 het atelier Ruimtelijke Vormgeving op de Kunsthumaniora Sint-Lucas. Hij verfijnde er over deze bijna 4 decennia zijn pedagogische methode, gebaseerd op de natuur en haar verlengstuk, de menselijke nederzetting. Via het aanbrengen van architecturale basisconcepten zoals ruimtelijkheid, geborgenheid en massa in vormelijke experimenten binnen een afgebakende ruimte komen de leerlingen er toe om aan de hand van foto’s van (historische) complexe architectuur en cultureel erfgoed via analysetekeningen tot een ruimtelijke voorstelling te komen in de vorm van maquettes.
De boekdelen van het atelier Architecturale Vorming 1977-2015 zijn te bekijken en bestellen via http://nl.blurb.com/bookstore/c-architecture.


Stijn Gilbert volgde vanaf 1999 architecturale vorming in kunsthumaniora Sint-Lucas te Gent onder Gilbert Decouvreur.
Na zijn architectuurstudies aan de LUCA School of Arts te Brussel behaalde hij in 2005 zijn masterdiploma na een uitwisselingsjaar in Japan (Tokyo & Kyushu University).
Sinds 2010 is hij als leerkracht-architect terug op de kunsthumaniora, waar hij vanaf 2015 in de tweede en derde graad Architecturale Vorming geeft.
De catalogi van het atelier Architecturale
Vorming vanaf 2015 zijn te bekijken en bestellen via https://issuu.com/stijngilbert

Pieter-Jan Eggermont
volgde vanaf 2007 architecturale vorming in kunsthumaniora Sint-Lucas te Gent.
In 2015 studeerde hij na een uitwisseling in Milaan bij de Politecnico di Milano af als master in de interieurarchitect aan de KU Leuven. Hij doceerde interieurontwerp als gastdocent aan de hogeschool van Rotterdam in de richting Arts & Crafts. Sinds 2023 is hij terug op de kunsthumaniora, waar hij in de 2e graad architecturale vorming geeft en in de 3e graad architecturaal tekenen & CAD.

Floris Vieren
volgde vanaf 2009 architecturale vorming en later architecturale en binnenhuiskunst in kunsthumaniora Sint-Lucas te Gent.
In 2018 behaalde hij zijn Master in de Architectuur aan de KU Leuven. Na zijn architectuurstage gaat hij aan de slag als architect, tentoonstellingsontwerper en leerkracht architecturaal schetsen aan kunsthumaniora Sint-Lucas.
VORMSTUDIES DOOR DE LEERLINGEN VAN HET 6e JAAR ARCHITECTURALE VORMING OP KUNSTHUMANIORA SINT-LUCAS, OP BASIS VAN DE PEDAGOGISCHE METHODE ONTWIKKELD DOOR G.DECOUVREUR.
ATELIERBEGELEIDING, OPMAAK & FOTOGRAFIE ARCH. STIJN GILBERT
DANK AAN
KUNSTHUMANIORA SINT-LUCAS voor het artistieke nest
SABRINA STERCKI FERNANDEZ voor de fotografische expertise GILBERT DECOUVREUR voor zijn visie en mentorschap