E-Book - Station 8 - Residential Buildings

Page 1


Realised projects

Not realised projects

Work in progress

Germany

Residential building Rauchstraße for the I.B.A. 1981–1986

Residential Park Am Elbpavillon 1993–1995

Senior citizens’ residences and hotel An den Dominikanern 1996–2000

France

Apartment building Coeur

Impérial – Monarque

2015–2021

Apartment building Coeur

Impérial – Le Gouverneur 2015–2021

Luxembourg

Réimerwee dwellings 1990

Nuddelsfabrik social housing 1993–1995

Two residential buildings Avalon House 3 and House 4 1994–1996

Residential building Avalon House 13 2000–2004

Apartment building Grünewald District 2004–2007

Six apartment buildings with thirty-three dwellings Bei Woiwer 2007–2011

General development plan for the Rilspert neighbourhood 2009

Rilspert subdivision with twenty-three terraced houses and landscaping 2009–2014

Social housing building for the Housing Fund 1991–1994

Social housing residence Kräizbierg – vingt-trois apartments 2009–2019

Multi-purpose complex: stores, offices and dwellings 2016

Residential Building Route d’Esch–Monopol Résidence Route d’Esch Monopol 2016

Muller single-family house 1984–1985

Ruppert single-family house 1984–1985

Single-family house Hirtt-Gaspar 1999–2000

Conversion of the Jankowitz building into a residential and office building 2004–2007

Apartment building A Spunjesch

2006–2007

Two single-family homes Weber 2006–2007

Single-family house La Schiazza 2009–2011

Conversion of the Wilzius House 2009–2010

Conversion of the Kayser House 2009–2011

Pretemer

Single-family house 2010–2011

Four terraced houses, op der Wollefskaul 2010–2012

Housing subdivision Am Doelchen 2011–2015

Single-family house

Obertin-Marx 2013–2015

Conversion and extension of the D’Haeseleer House 2014–2018

Conversion of a grocery store and construction of an apartment and a single-family house 2010–2012

Conversion of a winegrower’s house and dwellings Dentzscheseck 2013–2020 House for Karl Friedrich Schinkel 1979

Energy-house on the Mosel 1985

Reuter single-family house 1985–1987

Bortuzzo single-family house 1988–1989

Valentiny-Zucca single-family house 1988–1989

Hoffmann single-family house 1989–1990

Marxen single-family house 2003–2006

Artist’s studio Martine Deny 2016–2017

Wurth single-family house 2006–2007

Maglica single-family house 1988–1989

Schmit-Lauer single-family house 2012–2013

Reuter-Santer single-family house 2014–2016

Winter garden for a single-family house 2011–2012

Conversion and extension of the Rodenbourg house 2012–2015

Conversion of Heisdorf Castle into an integrated centre for the elderly 2002–2004

Residence for the elderly Les Jardins de Schengen 2007–2015

BÂTIMENTS RÉSIDENTIELS

1.1

Residential building Rauchstraße for the I.B.A. Immeuble d’habitation Rauchstraße pour I.B.A. Berlin (Germany) 32 1.2

COMPETITION | CONCOURS Housing Habitations Linz-Ebelsberg (Austria) 40 1.3

Residential building Erlachgasse Immeuble d’habitation Erlachgasse Vienna (Austria)

42 1.4

COMPETITION | CONCOURS

Residential building Traviatagasse Immeuble d’habitation Traviatagasse Vienna (Austria) 44 1.5

COMPETITION | CONCOURS Réimerwee dwellings, 1st prize Habitations Réimerwee, 1er prix Luxembourg-Kirchberg (LU)

50 1.6

Residential Park Am Elbpavillon Parc résidentiel Am Elbpavillon Dessau-Ziebigk (Germany)

52 1.7

Nuddelsfabrik social housing

Résidence de logements sociaux Nuddelsfabrik Dudelange (Luxembourg)

64 1.8

Residential blocks Kirchsteigfeld 15 & 33 Blocs résidentiels Kirchsteigfeld 15 & 33 Potsdam-Berlin (Germany)

74 1.9

Two residential buildings Avalon House 3 and House 4

Deux immeubles d’habitation Avalon Maison 3 et maison 4 Luxembourg-Kirchberg (LU) 78

Residential building Avalon House 13

Immeuble d’habitation Avalon Maison 13

Luxembourg-Kirchberg (LU)

COMPETITION | CONCOURS

Residential building

Lehrter Railway Station

Bâtiment résidentiel

Lehrter Railway Station Berlin (Germany)

Development plan Grünewald District

Plan d’aménagement Quartier Grünewald

Luxembourg-Kirchberg (LU)

Apartment building Grünewald District

Immeuble résidentiel Quartier Grünewald

Luxembourg-Kirchberg (LU)

Six apartment buildings with thirty-three dwellings Bei Woiwer

Six résidences Bei Woiwer avec trente-trois logements Differdange (Luxembourg)

General development plan for the Rilspert neighbourhood

Plan d’aménagement général pour le quartier Rilspert Bertrange (Luxembourg)

Rilspert subdivision with twentythree terraced houses and landscaping

Lotissement Rilspert avec vingt-trois maisons en bande et aménagement extérieur Bertrange (Luxembourg)

Social housing for the Housing Fund

Immeuble de logements sociaux pour le Fonds du Logement

Grevenmacher (Luxembourg)

RESIDENTIAL BUILDINGS

BÂTIMENTS RÉSIDENTIELS

Social housing Kräizbierg

Résidence de logements

sociaux Kräizbierg

Grevenmacher (Luxembourg)

COMPETITION | CONCOURS Housing, 1st prize Logements, 1er prix

Buildings Immeuble résidentiel Zhejiang (China)

Residential building Coeur Impérial –

Le Monarque & Le Gouverneur

Immeuble résidentiel Coeur Impérial –Le Monarque & Le Gouverneur Metz (France)

Multi-purpose complex: stores, offices and dwellings

Complexe multifonctionnel : commerces, bureaux et logements Luxembourg-Howald (LU)

Residential Building Route d’Esch - Monopol

Résidence Route d’Esch - Monopol Luxembourg-Gasperich (LU)

Shahe residential building

Bâtiment résidentiel de Shahe Beijing (China)

Shahe landscape design

Aménagement paysager de la zone résidentielle de Shahe Beijing (China)

Residential

building Rauchstraße for the I.B.A. Immeuble d’habitation Rauchstraße pour I.B.A.

Location: Berlin (Germany)

Partner: Groth & Gralfs

Year: 1981–1986

1.2 COMPETITION | CONCOURS

Housing

Habitations

Location: Linz-Ebelsberg (Austria)

Year: 1988

Residential building Erlachgasse

Immeuble d’habitation Erlachgasse

Location: Vienna (Austria)

Year: 1988–1990

1.4 COMPETITION | CONCOURS

Residential building Traviatagasse

Immeuble d’habitation Traviatagasse

Location: Vienna (Austria)

Year: 1989

1.5

COMPETITION | CONCOURS

Réimerwee dwellings, 1 st prize

Habitations Réimerwee , 1 er prix

Location: Luxembourg-Kirchberg (LU)

Year: 1990

Residential Park Am Elbpavillon

Parc résidentiel Am Elbpavillon

Location: Dessau-Ziebigk (Germany)

Client: Aachener Münchener Lebensversicherung

Year: 1993–1995

1.7

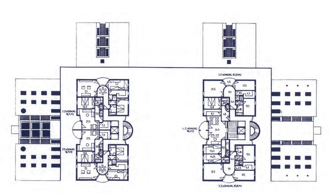
Nuddelsfabrik social housing

Résidence de logements sociaux Nuddelsfabrik

Location: Dudelange (Luxembourg)

Client: Fonds du Logement

Year: 1993–1995

A notable exception is the construction of the residential block in Dudelange, carried out in the 1990s, for which we designed open corridors.

Une exception notable est la construction du bloc résidentiel à Dudelange, réalisée dans les années 1990, pour laquelle nous avons imaginé des coursives ouvertes.

Today, they are covered with lush vegetation and look like green tunnels. An inclined structure forms a semi-transparent wall, like a privacy screen in front of the eastern façade, where the railway tracks are located.

Aujourd’hui, recouvertes d’une végétation abondante, elles ressemblent à des tunnels verdoyants. Une structure inclinée y forme un mur semi-transparent, comme un écran d’intimité devant la façade est, où se trouvent les voies du chemin de fer

The fact that the steel stairs and the corridors have been moved outwards means that construction costs have been considerably reduced. Building materials remain untreated and are limited to plaster, sheet metal, wooden windows, wooden panels, galvanized steel, concrete paving stones laid in a sand bed and bare screed in outdoor areas.

Le fait que les escaliers, qui sont construits en acier, et les couloirs aient été déplacés vers l’extérieur signifie que les coûts de construction ont été considérablement réduits. Les matériaux de construction restent non traités et se limitent au plâtre, à la tôle, aux fenêtres en bois, aux panneaux en bois, à l’acier galvanisé, aux pavés en béton posés dans un lit de sable et à la chape nue dans les zones extérieures.

1.8

Residential blocks Kirchsteigfeld 15 & 33 Blocs résidentiels Kirchsteigfeld 15 & 33

Location: Potsdam-Berlin (Germany)

Year: 1993–1995

1.9

Two residential buildings Avalon House 3 and House 4 Deux immeubles d’habitation Avalon Maison 3 et maison 4

Location: Luxembourg-Kirchberg (LU)

Client: Félix Giorgetti Sarl Year: 1994–1996

Residential building Avalon House 13 Immeuble d’habitation Avalon Maison 13

Location: Luxembourg-Kirchberg (LU)

Client: Félix Giorgetti Sarl

Year: 2000–2004

COMPETITION | CONCOURS

Residential building Lehrter Railway Station

Bâtiment

résidentiel Lehrter Railway Station

Location: Berlin (Germany)

Year: 2003

1.12

Development plan Grünewald District Plan d’aménagement Quartier Grünewald

Location: Luxembourg-Kirchberg (LU)

Client: Fonds du Kirchberg Year: 1999–2000

1.13

Apartment building Grünewald District

Immeuble résidentiel Quartier Grünewald

Location: Luxembourg-Kirchberg (LU)

Client: Hochtief Luxembourg SA

Year: 2004–2007

1.1 4

Six apartment buildings with thirty-three dwellings Bei Woiwer

Six résidences Bei Woiwer avec trente-trois logements

Location: Differdange (Luxembourg)

Client: Immo-Alliance

Year: 2007–2011

1. 15

General

development plan for the Rilspert neighbourhood Plan d’aménagement général pour le quartier Rilspert

Location: Bertrange (Luxembourg)

Client: Administration communale de Bertrange Year: 2009

1.16

Rilspert subdivision with twenty-three terraced houses and landscaping

Lotissement Rilspert avec vingt-trois maisons en bande et aménagement extérieur

Location: Bertrange (Luxembourg)

Year: 2009–2014

1.17

Social housing Immeuble de logements sociaux

Location: Grevenmacher (Luxembourg)

Client: Fonds du Logement

Year: 1991–1994

1.18

Social housing Kr ä izbierg

Résidence de logements

sociaux Kr ä izbierg

Location: Grevenmacher (Luxembourg)

Client: Fonds du Logement

Year: 2009–2019

1.19 COMPETITION | CONCOURS

Housing, 1 st prize

Logements, 1 er prix

Location: Beijing (China)

Year: 2011

1.20

Residential Buildings Immeuble résidentiel

Location: Zhejiang (China)

Year: 2014

1.21

Residential building Coeur Impérial –

Le Monarque & Le Gouverneur

Immeuble résidentiel Coeur Impérial –Le Monarque & Le Gouverneur

Location: Metz (France)

Client: Le Monarque: Groupe Habiter / Le Gouverneur: Groupe Claude Rizzon

Year: 2015–2021

K:\Dokument\BÜRO\ORIGINAL\valentiny architects\plankopf\plankopf__a3.jpg

1.22

Multi-purpose complex: stores, offices and dwellings

Complexe multifonctionnel : commerces, bureaux et logements

Location: Luxembourg-Howald (LU)

Client: Mr. Feidt

Year: 2016

1.23

Residential Building Route d’Esch–Monopol Résidence Route d’Esch Monopol

Location: Luxembourg-Gasperich (LU)

Year: 2016

1.24

Shahe residential building

Bâtiment résidentiel de Shahe

Location: Beijing (China) Year: 2018

1.25

Shahe landscape design

Aménagement paysager de la zone résidentielle de Shahe

Location: Beijing (China)

Year: 2018

Turn static files into dynamic content formats.

Create a flipbook
Issuu converts static files into: digital portfolios, online yearbooks, online catalogs, digital photo albums and more. Sign up and create your flipbook.