In an interview with François Valentiny & Hubert Hermann in Vienna, September 1990
Interview über den Dächern von Wien
EN DE
Rob Krier: By way of beginning this conversation, I would like you to talk about our relationship and have you define where you stand with respect to your own generation. Where are your foundations?
As artists, where is your home? Do your foundations suit you, or do you feel hampered by being so near to another generation?
Hermann&Valentiny: We don’t feel that the other generation hampers us, or that it imposes constraints – quite the contrary, in fact. Inasmuch as we agree that architecture should be an evolutionary process and not a succession of period fads, contact of this kind is linked to an ongoing process, to the path taken by people we met here during our studies, or encountered later: yourself, for example, or Holzbauer, Hollein, Spalt, Peichl, etc. The generation gap does not affect us. Our attention goes into the effort to elicit progress from the matter at hand. The advantage of this approach is that it allows study to continue and the learning process to go on without ruling out the possibility of transformation.
R.K. In your sketches and in your buildings, you quite clearly allude to A. Rossi, Hollein and Scolari. Why proffer these details? H&V Occasionally we overshoot the mark, naturally. But what you would really like to know is how much we have been influenced by these architects, to which the answer is: they were the first to break with the Moderns. For us, this was crucial: because the Moderns had killed drawing and killed vision. So we framed our quotations in homage to these artists, as acknowledgments of their importance.
Rob Krier: Einleitend möchte ich einmal auf unsere persönliche Beziehung eingehen und Euer Verhältnis zu der eigenen Generation definiert wissen. Wie fühlt Ihr euch eingebettet und wo habt ihr Eure künstlerische Heimat gefunden? Fühlt Ihr euch in dieser Einbettung zu Hause oder belastet euch die Nähe zu einer anderen Generation?
Hermann&Valentiny: Wir fühlen uns dadurch weder eingeschränkt, noch belastet. Im Gegenteil – da wir die Architektur als Entwicklung und nicht als Modeerscheinung einer Zeitspanne sehen, ist es doch ein Teil kontinuierlichen Entwicklung. Zuerst einmal den Weg der Leute, die wir hier in Wien schon während unseres Studiums und danach kennengelernt haben, wie z.B. Dich, Holzbauer, Hollein, Spalt, Peichl etc., fortzusetzen. Ein Generationsproblem haben wir nicht. Wir sind eher bestrebt an Vorhandenem weiterzuentwickeln. Das hat den Vorteil, dass man wirklich sehr lange fähig ist zu lernen und zu studieren und trotzdem noch die Möglichkeit hat zu transformieren.
R.K. Es gibt in Euren Zeichnungen wie auch in Euren Bauten ganz konkrete Assoziationen, die auf Rossi, Hollein, Scolari hinweisen. Diese Details, warum tauchen die auf?
H&V Also die Details sind teilweise natürlich übers Ziel hinausgeschossen. Doch der Kern der Frage besteht darin, inwieweit diese Architekten uns beeinflusst haben. Sie waren nun mal unter den Ersten, die den Abgang von der Moderne herbeiführten und das war ausschlaggebend. Die Moderne hat die Zeichnung und somit die Vision totgemacht. Das direkte Zitat war also eine Hommage an diese Künstler.
R.K. Also, wenn ich das aus meinem Lernschatz heraus betrachte, so lag mir das Repertoire von Le Corbusier nahe, einerseits aus Leidenschaft zu diesem gigantischen Künstler und andererseits, um es eben auch auszuprobieren.
H&V Le Corbusier hat als genialer Künstler eben mehr geboten, als den freien Grundriss. Für unsere Prägung war wesentlich, dass
Reflection on Drawing
Authors: Hubert Hermann and François Valentiny
from: Hubert Hermann; François Valentiny (eds.): Hermann & Valentiny Architects Stuttgart/Zurich: Krämer Verlag, 1991, 249-254. ISBN 3-7828-1607-2
R.K. When I look using my eyes and what I know, I discover affinities with the repertoire of Le Corbusier; on the one hand, enthusiasm for the work of this great artist, and on the other, the need to have a go at it too.
H&V Le Corbusier was a brilliant artist and he had more to offer than just the outline of a program. Our attitudes were determined when we were students and we modeled ourselves on architects who approached architecture as an art, in other words, not only built, but also sketched, painted and sculpted. We feel a spiritual kinship with these people.
R.K. Do you feel an affinity with anyone in particular belonging to the Vienna scene?
H&V Naturally. We’re students of Holzbauer, and that has influenced us.
R.K. What did you learn from Holzbauer?
H&V The craft, and we were taught a way of seeing what architecture should be – but never dogma; he only preached when he sensed that a pupil stood on weak ground. He sketched into our projects when he corrected them. Holzbauer’s influence was in itself indirect; he affected our attitudes to the subject. After graduation, when we worked together in Berlin, you became the next step in our education.
R.K. I ask you this so bluntly, because when I was young and had just begun my studies, after a lecture once I asked Siegfried Giedion to suggest persons one could model oneself on and learn from, and his answer crushed me, because he seemed to think that a really free artist would never look back at any other achievement at all – a typical assertion, coming from a man who seems to have broken with the past in the twenties. H&V He was trying to provoke you.
R.K. Yes, but I was young and no match for him. Today, I know that everyone stands in the middle of a whole network of con-
wir uns schon während des Studiums an Architekten orientiert haben, die die Architektur als Künstler betrachten, die also nicht nur bauen, sondern auch zeichnen, malen und Bildhauern. Geistig fühlen wir uns diesen Leuten sehr nahe.
R.K. Ist jemand aus der Wiener Szene Euch direkt nahegestanden?
H&V Ja natürlich. Wir sind ja Holzbauerschüler und das hat uns schon geprägt.
R.K. Was habt Ihr von Holzbauer gelernt?
H&V Eben das Handwerk und die Vermittlung einer Vision, wie man Architektur betreiben kann – also kein Diktat; das machte er nur, wenn man sehr schwach dastand. Er hat uns zeichnend in den Entwurf hineinkorrigiert. Der Einfluss von Holzbauer ist nicht so direkt, er hat unsere Einstellung zur Sache geprägt. Nach dem Studium warst, durch unser gemeinsames Wirken in Berlin, Du die Fortsetzung unseres Lernens.
R.K. Ich frage Euch dies so direkt, weil ich als junger Student Siegfried Giedion nach einem Vortrag gefragt habe, an welchen Persönlichkeiten man sich anlehnen und hocharbeiten könnte. Und er hat mich damals so fertig gemacht, da er meinte, dass ein selbständiger Künstler niemals auf irgendein Werk zurückblickt. Die typische Aussage eines Menschen, der in den 20er Jahren scheinbar mit der Vergangenheit gebrochen hat.
H&V Das war natürlich eine provokative Antwort.
R.K. Ja, aber ich war jung und ihm nicht gewachsen, heute weiß ich, dass man in einem ganzen Netz von Beziehungen steht. Wenn ich in einem Arbeitsprozess stehe, so ist es, wie wenn ich nachlese, wie doch ein Satzbau bei Fontane ausschaut. Glaubt Ihr, dass der Künstler unabhängig von der Geschichte steht und alles von selbst aus dem Bauch herausholt?
H&V Auf keinen Fall, wir alle sind Teile einer Kette, wir bauen auf, versuchen zu bestehen und stricken weiter. Wir haben auch keine Vorzüge für einen bestimmten Künstler, uns interessiert nicht das Formale sondern der Geist der dahintersteckt.
nections. When I am involved with some job, it’s as if I were thinking about, say, Fontane and stopped to look up how he phrased his prose. You don’t think that the artist stands outside history and originates his discoveries from nothing?
H&V Of course not. We’re all links in a chain, we build, we do our best to maintain, and we carry on. We have no preference for any particular artist, and we are more interested in the spirit behind something than in its formal expression.
R.K. How did your partnership begin and what are your work habits? Is Luxembourg the fructuous place, and Vienna where you go for inspiration, how in fact do you manage the backand-forth of your professional lives?
H&V You have asked a very complicated question. There was no connection between us in the beginning. In fact, when we were students together, we didn’t get along particularly well. It was curiosity that brought us together; we wondered how working with someone quite different would turn out. It led us to the decision to collaborate on the Berlin project. It’s obvious that a connection arising from the need to carry out a project together will sometimes generate a stronger bond than old friendships. Berlin was both an unexpected and an intense experience for us
R.K. I have never felt the need to work with another person, except for with my brother. How do you explain it?
H&V There was something interesting in bringing together opposites. The overtones had to be positive.
R.K. Who took first place for repeated arrogance? H&V We came out about even there.
Francy: I’d like to carry on with the answer to your question asking whether Luxembourg or Vienna were more fructuous or more inspiring for us. We’d have to say that having both places is essential. Here in Vienna I got to know a world that can nourish me spiritually; Luxembourg on the contrary provides a more rational environment. I’m certain that in some earlier lifetime I lived in Vienna. This odd feeling makes me very sensitive to the many tendencies represented in the city.
R.K. How about you, Hubert? How did you become intimate with the Luxembourg cultural landscape?
Hubert: I felt it was something familiar. As you know, I come from the Burgenland, and here we work in Luxembourg and on the Moselle, which is also wine country. The change from a city to a civilized landscape dotted with villages, castles and vineyards was unabrupt. I much appreciate the privilege of being able to work alternately in the city and in the country; it is motivating and encourages me to reconsider all my work from a distance.
Francy: And he’s married to a girl from Luxembourg.
R.K. How you accomplish as much as you do impresses me. When I glance through your projects, I see virtuoso programs and often very mannered forms, for example in some of your designs for single family homes. What role do these buildings play in your work?
H&V We don’t get big commissions every day and the actual
R.K. Wie kam eigentlich Eure Partnerschaft zustande und wie arbeitet Ihr? Ist Luxemburg ein Standort der befruchtet, ist Wien einer der euch animiert, wie managt Ihr das Hin und Her?
H&V Das ist eine sehr komplizierte Frage. Wir hatten null Beziehung zueinander. Eigentlich haben wir uns auch nicht sehr gemocht all die Studienjahre. Erst die Neugierde mit jemandem zu arbeiten, der sehr weit von einem entfernt ist, hat uns zu einer gemeinsamen Arbeit für Berlin geführt. Es ist ja bekannt, dass Beziehungen, die aus dem Anlass heraus entstehen, etwas gemeinsam zu machen, stärker sind, als alte Freundschaften. Für uns war Berlin ein unerwartetes und starkes Erlebnis zugleich.
R.K. Ich habe dieses Bedürfnis, mit jemanden zu arbeiten nie gehabt, außer mit meinem Bruder. Wie war das bei Euch?
H&V Eben, weil in dieser Antipathie ein gewisser Reiz lag. Der Oberton musste dann positiv sein.
R.K. Wer hat denn die Arroganzschwelle am meisten ausgespielt?
H&V Da waren wir uns ziemlich ebenbürtig.
F.V. Um deine Frage aber weiter zu beantworten, ob Luxemburg oder Wien für uns befruchtender, uns animierender ist, so müssen wir antworten, dass wir zumindest diese beiden Orte brauchen. Hier in Wien habe ich eine Welt kennengelernt, aus der ich mich geistig nähren kann, Luxemburg dagegen ist eher ein rationaleres Ambiente.
Ich bin überzeugt, dass ich in einem früheren Leben schon einmal in Wien gelebt habe. Dieses Gefühl macht mich natürlich sehr empfänglich für viele Strömungen in dieser Stadt.
R.K. Wie ist es mit Dir Hubert? Wie hast du die Luxemburger Kulturlandschaft kennengelernt?
H. H. Mir war sie auch verwandt. Ich komme ja aus dem Burgenland und wir arbeiten in Luxemburg an der Mosel, was ja auch eine Weingegend ist. Und der Wechsel von der Stadt in so eine kultivierte Landschaft mit den Dörfern, den Festen, dem Wein war mir nicht fremd. Dieses Pendeln von Stadt und Land schätze ich, es motiviert mich und gibt den Anstoß, die Arbeit neu zu überdenken und Abstand zu gewinnen.
F.V. Er hat schließlich dann auch eine Luxemburgerin geheiratet.
R.K. Wie Ihr das alles zustande kriegt, beeindruckt mich. Wenn ich Eure Projekte durchblättere, sehe ich virtuose Grundrisse und oft auch sehr manerierte Formen wie z.B. bei einigen Einfamilienhäusern. Welche Rolle spielen diese Bauten für Euch?
H&V Nicht jeden Tag gibt es große Aufträge und der Reiz der Auseinandersetzung mit den Problemen ist nicht unbedingt von der Größe abhängig. Jedoch sehen wir diese Bauten – ebenso wie die Innenausbauten – als Übungsstücke für größere Aufgaben.
R.K. Gibt es andere Entwürfe von Euch, wo die Kompositionsübungen praktiziert werden?
H&V Seit zwei Jahren zeichnen wir wieder sehr intensiv, d.h. wir legen Tagebücher mit Zeichnungen an und versuchen, die gebauten Gesetzmäßigkeiten mit diesen Prinzipien zu überlagern. Es entspricht unserer Sucht zu suchen, umzusetzen und neu zu interpretieren. Außerdem haben wir das Bedürfnis gespürt, über
challenge inherent to a project does not always depend on the latter’s size. Still, we view these constructions – and our interior design work – as preparatory exercises for the larger jobs.
R.K. Are there other projects where you practice composition?
H&V For the past two years we have been drawing again intensively, which means that we keep adding drawings to the journals we keep and try to superimpose their principles on our work when building habitually. This satisfies our need to seek, to put ideas into circulation and to interpret afresh. But it’s also because we’ve felt the need to reflect on our building work and to draw more.
Francy: Drawings have become more powerful instruments of communication between us than words.
Hubert: It can happen in a flash, and sometimes in the way he interprets my sketches or the way I interpret his we get fantastic results, incredible material.
Francy: Rob is probably curious and wants some details.
R.K. Not at all! We were only speaking about the repertoire, about the very banal tools of the trade. For example, your atelier in Remerschen graces the landscape with a marvelous building. What it expresses on the outside, the work you do inside naturally contradicts. It manifests the formal at considerable length in a fairly well controlled building. The building has become an impressive part of the landscape.
H&V Of course. We have built something here that we could only allow ourselves. No one should be tempted to imitate it. It is a mannerist manifesto, no more than a little poetry.
R.K. With its quarry stone façade, I also find the Ruppert house quite impressive.
H&V Our efforts to get a firm grip on larger forms have intensified – especially in response to the challenges carried by the work of other architects. The details of buildings by Döllgast in Munich, or by Heinz Bienefeld, for example, whom we learned to know in the Eifel, have opened up new worlds to us. And you can learn quite a bit from Scarpa, even though his reactions are a little urban. We have discovered quiet and a poetical style at work only recently. Strangely, it is not difficult to duplicate this repertoire emotionally. Translating these feelings calls for a perfectly mastered craft – precisely what we have concentrated on acquiring.
R.K. I think that the house you did for Francy’s brother is a step in this direction.
H&V Yes. What we tried to do here for the first time was make traditional ornamentation on an archaic foundation of clinker bricks merge with the earth, so that the building seems to be a growth emerging tectonically from the lawn. Plants have become important to us. It would have been unimaginable a few years ago, but today they assume an ever-increasing importance in expressing the connection with earth.
R.K. Why do you take architecture so seriously? H&V ………..
unsere Bautätigkeit hinaus weiter nachzudenken und mehr zu zeichnen.
F.V. Jetzt ist die Zeichnung z.B. ein viel wichtigeres Kommunikationsmittel zwischen uns beiden geworden als das gesprochene Wort.
H.H. Das geht besonders schnell, und so wie er meine Skizzen interpretiert und ich seine, lässt ganz tolle Sachen entstehen – das ist unglaublich.
F.V. Rob ist neugierig und will es sicher ganz konkret wissen?
R.K. Aber nein! Wir sprechen natürlich über das Repertoire, das ganz banale Handwerkszeug. Das Atelier in Rermersehen z.B. ist ein wunderschöner Baukörper in der Landschaft. Was dort zum Ausdruck kommt widerspricht natürlich was innendrinnen vor sich geht. Hier ist sehr viel Formales ausgespielt in einer ziemlichen Maitrise von Baukörper. Der Bau steht sehr beeindruckend in der Landschaft.
H&V Ja natürlich. Hier haben wir etwas gebaut, was wir uns auch nur uns selbst erlauben. Lehren sollte man das nicht. Es ist ein maneriertes Manifest. Es soll nur Poesie sein.
R.K. Sehr beeindruckend finde ich auch das Haus Ruppert mit seiner Bruchsteinfassade.
H&V Unsere Bestrebungen, die große Form konstruktiv in den Griff zu bekommen, haben zugenommen – speziell durch die Auseinandersetzung mit dem Werk anderer Architekten. Details von Döllgast-Bauten in München z.B. oder Heinz Bienefeld, den wir in der Eifel kennenlernten, haben uns neue Welten geöffnet. Auch von Scarpa ist viel zu lernen, aber der reagierte städtischer. Diese Stille und Poesie in der Arbeit haben wir erst für uns entdeckt. Erstaunlicherweise können wir dieses Repertoire emotional sehr gut nachvollziehen. Das Umsetzen dieser Gefühle setzt jedoch ein perfektes Handwerk voraus – und da sind wir gerade dabei, uns das anzueignen.
R.K. Ich glaube das Haus von François’ Bruder geht in die Richtung. H&V Ja, hier versuchen wir zum ersten Mal traditionellen Putz mit einem archaischen Sockel aus Klinkersteinen in die Erde übergehen zu lassen, sodass das Gebäude tecktonisch aus dem Rasen herauswächst. Sehr wichtig werden für uns auch die Pflanzen. Vor Jahren noch unvorstellbar, nehmen sie jetzt einen immer größeren Stellenwert ein, der diese Verbindung zur Erde herstellt.
R.K. Warum nehmt Ihr die Architektur so ernst?
H&V ........
R.K. In Eurem Werk ist oft der Versuch gemacht worden, die Künste in der Architektur einfließen zu lassen. Persönlich habe ich das ja in Bettembourg kennengelernt, wo ich von Euch eingeladen wurde, einige Skulpturen für diese Anlage zu machen oder im Tutensall in Luxemburg wo Ihr selbst gemalt habt. Wie ist der Stellenwert und welche Künstler würdet Ihr beschäftigen?
H&V Dieser Aspekt wird immer stärker. Künstler sind nicht immer zu finden, die der Vision des Architekten folgen, und auch die
R.K. Your work has often attempted to let art influence architecture. I discovered this for myself in Bettembourg, when you invited me to create some sculpture for the project, or in the Tutensall in Luxembourg, where you did some of the mural painting yourselves. What importance do you give to this and if you could, which artist would you commission?
H&V This aspect is assuming greater importance. It is not always easy to find artists that can follow through on an architect’s vision, not to speak of patrons. Often political conditions result in compromises that misapply abstract art. In our field this is one reason why representational art is neglected, and it is a shame. You can only have full participation in the building effort when there is symbiosis. For us, working with other artists is a more agreeable process than working with people who don’t understand and to whom you have explain every brick and obtain approval. An on-site workshop would be ideal. The chasm between planner and executant or between idea and realization could be avoided.
R.K. A final question. What do you find particularly interesting about your teaching activities?
H&V Students’ questions make it easier to adopt a critical stance toward one’s own work. Putting thoughts into words becomes important and in communicating them, one’s theories undergo a very rigorous examination. The greatest fascination resides in the contact with energy – and illusion fraught humans, beings rarely met with among the masses outside universities.
R.K. I think I detect in your work a tragic concept of the profession – which is why I ask the question. You express it in your resolution and in your industry. I don’t have this tragic conception of the trade. I find that whereas my relations with architecture are ambivalent, yours are unyielding; and this makes me uneasy.
H&V What does the word “serious” mean? Our work is our “raison d’être.” That question is as if someone asked “Why do you love women?” to which I could only answer, “Because I’m not a pansy.” But dealing with architecture, what kind of an answer do you want? We get enough fun out of just pushing ideas back and forth, expanding and changing them. For the same reason, we combat what is tragic. The architect’s role in today’s world is miserable – but as none of us have any illusions on that score, let’s avoid lowering the tone of the discussion to that level. And then, there are two of us. When one can’t do something, the other can: that’s very important.
R.K. The discussion has become somewhat personal. What role does town planning research play in your work.
H&V We began our work at a time when town planning was returning to favor again. We have always been opposed to applying the principles of the Athens Charta in our regions. We try to have our plans manifest order and tension outside a historical context, because that is the lifestyle we seek and that appeals to us. Many of our ideas occur while travelling, and they are noted immediately in the form of more or less abstract drawings. If any are applied, it is in a very precise context when we assume a project.
Geldgeber nicht. In vielen Fällen wird aus politischen Gründen gegenstandslose Kunst als Kompromiss missbraucht. Deswegen kommt die darstellende Kunst in unserem Bereich ins Hintertreffen und das ist sehr schade. Eine Partizipation am Bau gibt es also nur, wenn eine Symbiose da ist. Wir sehen das Zusammenarbeiten mit anderen Künstlern als lustvolleren Prozess, als mit Leuten zu arbeiten, die nichts verstehen und wo man jeden Ziegelstein erklären und durchsetzen muss. Eine Bauhütte z.B. wäre ideal. Die Kluft zwischen Planer und Ausführenden, zwischen Idee und Realisierung könnte vermieden werden.
R.K. Eine letzte Frage. Was interessiert Euch an Eurer Lehrtätigkeit. H&V Durch die Reflexionen der Studenten wird die kritische Haltung zur eigenen Arbeit leichter. Das Verbalisieren der eigenen Gedanken wird wichtig und durch das Vermitteln unterzieht sich die eigene Theorie einer sehr strengen Prüfung. Die eigentliche Faszination liegt eher im Kontakt mit energie- und illusionsgeladenen Menschen, die in dem Maße außerhalb der Universität kaum anzutreffen sind.
R.K. Also ich merke in Eurem Werk eine gewisse Tragik der Berufsauffassung – deshalb die Frage. In der Konsequenz und dem Fleiß kommt das zum Ausdruck. Ich persönlich habe dieses tragische Berufsempfinden nicht. Ich finde meine Beziehungen zur Architektur ambivalent aber Ihr seid so ungebrochen – das beunruhigt mich.
H&V Was heißt Ernsthaftigkeit. Wir sehen unseren Sinn in der Arbeit. Die Frage ist ähnlich gemeint, wie wenn man fragte warum liebst du Frauen? Da kann ich nur antworten: „Weil ich nicht schwul bin.“ Aber bei der Architektur ... was willst Du da antworten? Wir haben schon unseren Spaß daran uns damit zu beschäftigen, die Dinge hin und herzuschieben, zu ergänzen und zu verändern. Darum wehren wir uns auch gegen die Tragik. Die Rolle des Architekten ist heute miserabel; aber da haben wir keine Illusionen – also lassen wir uns auch nicht auf diese Ebene bringen. Außerdem sind wir ja zu zweit. Kann der Eine nicht, übernimmt der Andere, das ist schon sehr wichtig.
R.K. Jetzt sind wir sehr persönlich geworden, aber was spricht die städtebauliche Recherche für eine Rolle?
H&V Wir haben in einer Zeit angefangen zu arbeiten, wo wieder über Städtebau nachgedacht wurde. Den Prinzipien der Charta von Athen haben wir – angewendet in unseren Regionen – immer widersprochen. Wir versuchen aus dem Grundriss heraus, Ordnungen und Spannungen herzustellen und das aus einem historischen Kontext heraus, weil das einer Lebensart entspricht, die wir suchen und die uns anspricht. Sehr viele Überlegungen werden bei Reisen gemacht, die dann in mehr oder weniger abstrakten Zeichnungen umgesetzt werden. Zur Anwendung kommt es bei der Übernahme eines Programms in einem ganz präzisen Kontext.
Rob Krier
Bio / CV EN
Rob Krier was born on June 10, 1938 in Grevenmacher, Luxembourg. After studying architecture in Munich (1959–1964), he worked for O. M. Ungers and Frei Otto. Following teaching assignments in Stuttgart and Lausanne, he became a professor at the Vienna University of Technology, where he taught from 1976 to 1998. He was a guest professor at Yale University in New Haven, Connecticut, USA in 1986. Rob Krier became internationally known through his book Urban Space, published in 1975, in which – as in his later practice – he deals with the reconstruction of destroyed urban structures and the reintroduction of traditional spatial compositions into post-war urban planning. In connection with historical paragons and archetypal urban models, he developed, among other things, typologies of street and square spaces. Moreover, Rob Krier is active as a sculptor and mainly creates sculptures for public spaces.

Rob Krier, geboren am 10. Juni 1938 in Grevenmacher, Luxemburg. Er war nach dem Architekturstudium in München (1959–1964) bei O. M. Ungers und bei Frei Otto tätig. Nach Lehrtätigkeiten in Stuttgart und Lausanne war er von 1976 bis 1998 Professor an der TU Wien und 1986 Gastprofessor an der Yale University, New Haven, USA. International bekannt wurde Rob Krier durch seine 1975 erschienene Publikation Stadtraum, in der er sich – wie in seiner späteren Praxis – mit der städtebaulichen Rekonstruktion zerstörter urbaner Strukturen und der Wiedereinbringung traditioneller Raumkompositionen in den Städtebau der Nachkriegszeit auseinandersetzt. In Anknüpfung an historische Vorbilder und archetypische Städtebaumuster entwickelte er unter anderem Typologien von Straßen- und Platzräumen. Rob Krier ist außerdem als Bildhauer tätig und realisiert überwiegend Skulpturen für öffentliche Räume.
In conversation with Hubert Hermann, January 2021
Im Gespräch mit Hubert Hermann, Januar 2021
Anna Valentiny: You have been working as an architect for 40 years, so many things come together. One cannot avoid talking a little about the past, but our conversation will be more future-oriented. We’ll talk a lot about current issues, but we’ll start with your beginnings anyway. Why did you become an architect?
H. H Becoming an architect was a very intuitive decision for me. One aspect was certainly my joy in drawing, designing, doing. As well as a certain curiosity about what could happen when one gets involved in the next step, not just drawing, but actually building something, going into the three-dimensional. The initial spark was also to apply to a school and be selected as one of seven among the 400 applicants – the immeasurable feeling of happiness when one is accepted. There is nothing left for one to do but get fully engaged.
A.V. You were born in Austria and studied together with Franz Valentiny at the University of Applied Arts Vienna. After graduation, you founded the office quite soon because you had already received commissions and needed to act. At that time, you lived between two worlds – between Vienna and Remerschen – depending on where there was something to be built. Can you tell a little about that period? About the last years of the diploma thesis project and the beginnings of the joint office?
H.H. I think it was the same for Franz as it was for me; it was a huge feeling of happiness to be able to study at the Angewandte (Academy of Applied Arts Vienna). My study years were also some of the most beautiful times in my life. It was very motivating, and you were in a kind of paradisiacal bubble. We had the full support of the university during our studies; with a ratio of 30 students to five teachers we were almost over-looked after. Wilhelm Holzbauer, who was not actually our preferred candidate at the beginning, was extremely generous and far-sighted, so that in retrospect I can only raise my hat to him. In the scope of
Anna Valentiny: Du bist bereits seit 40 Jahren als Architekt tätig, da kommt ja Einiges zusammen. Man kommt nicht umher, auch ein bisschen über die Vergangenheit zu reden, unser Gespräch wird allerdings eher zukunftsgewandt sein. Wir werden viel über gegenwärtige Themen sprechen, aber trotzdem bei deinen Anfängen beginnen. Warum bist du Architekt geworden?
H.H. Architekt zu werden, war für mich eine sehr intuitive Entscheidung. Ein Aspekt war sicher meine Freude am Zeichnen, am Gestalten, am Tun. Auch eine gewisse Neugierde was passieren könnte, wenn man sich auf den nächsten Schritt einlässt, also nicht nur zu zeichnen, sondern auch tatsächlich Etwas zu bauen, ins Dreidimensionale zu gehen. Die Initialzündung war auch, sich an einer Schule zu bewerben und als einer von sieben unter 400 Bewerbern ausgesucht zu werden – das maßlose Glücksgefühl, wenn man genommen wird. Da bleibt einem ja garnichts anderes über als voll einzusteigen.
A.V. Du bist in Österreich geboren und hast zusammen mit Franz Valentiny an der Universität für angewandte Kunst Wien studiert. Nach dem Abschluss habt ihr recht bald das Büro gegründet, weil ihr bereits an Aufträge gekommen seid und agieren musstet. Ihr habt zu dieser Zeit ein Leben zwischen zwei Welten geführt – zwischen Wien und Remerschen – je nachdem, wo es gerade etwas zu Bauen gab. Kannst du ein wenig über diese Zeit erzählen? Über die letzten Jahre des Diploms und die Anfänge des gemeinsamen Büros.
H.H. Ich glaube für Franz war es ähnlich wie für mich, es war ein riesiges Glücksgefühl an der Angewandten studieren zu dürfen. Das Studium war auch eine der schönsten Zeiten in meinem Leben, es war sehr motivierend, man befand sich in einer Art paradiesischer Blase. Wir hatten während des Studiums die volle Unterstützung der Universität, bei einem Verhältnis von 30 Schülern zu fünf Lehrkräften waren wir beinahe schon überbetreut. Wilhelm Holzbauer, der ja anfangs eigentlich nicht unser
the diploma thesis project, Franz and I put the other candidates under great stress because we were so incredibly ambitious and absolutely wanted an award. We worked day and night, and the one or the other student dropped out and postponed the diploma to the next semester. The beginning of our joint office followed our studies in a nearly seamless transition. Immediately after graduation, we took part in the competition for the IBA (International Building Exhibition) in Berlin and, contrary to expectations, won a prize. You have to imagine winning second prize in an international competition at the age of 26 in which several hundred offices from all over the world take part.
A.V. Where otherwise only architectural greats stood next to you.
H.H. So, on the one hand, we had to set up an office to be credible, but it was especially the motivation to take part in the competition at all, the desire or the mission to get the potential out of our contrasting characters and make something new out of it. We were curious about how to work with someone who is completely different from you. Because of the competition, I came to Luxembourg for the first time, and paradise carried on there somewhat.
Wunschkandidat war, hat sich enorm großzügig und weitsichtig verhalten, dass ich im Nachhinein nur den Hut vor ihm ziehen kann. Im Rahmen des Diploms haben Franz und ich bei den anderen Kandidaten großen Stress hervorgerufen, weil wir so rasend ehrgeizig waren und unbedingt eine Auszeichnung wollten. Wir haben Tag und Nacht gearbeitet, da ist schon der eine oder andere ausgestiegen und hat das Diplom auf das nächste Semester verschoben. Dem Studium folgten in einem beinahe nahtlosem Übergang die Anfänge unseres gemeinsamen Büros. Unmittelbar nach dem Abschluss haben wir am Wettbewerb für die IBA in Berlin teilgenommen und wider Erwarten einen Preis gewonnen. Man muss sich vorstellen, mit 26 Jahren bei einem internationalen Wettbewerb den zweiten Preis zu erlangen, an dem mehrere hundert Büros aus der ganzen Welt teilnehmen.
A.V. Wo sonst nur Architekturgrößen neben euch standen.
H.H. Wir mussten also einerseits ein Büro gründen, um glaubhaft zu sein, aber es war vor allem die Motivation, überhaupt an dem Wettbewerb teilzunehmen, das Verlangen oder die Mission, das Potenzial aus unseren gegensätzlichen Charakteren rauszuholen und daraus etwas Neues zu machen. Wir waren neugierig, wie man mit jemandem arbeitet, der ganz anders ist als man selbst. Aufgrund des Wettbewerbs bin ich das erste Mal nach Luxemburg gekommen und dort hat sich das Paradies ein wenig fortgesetzt.
Hubert & François in Remerschen
A.V. Where did you work there?
H.H. We worked on the competitions in grandma’s parlor and then Colum became our first employee. We somehow carried over our luck. In terms of the projects, we were caught in a whirl of various influences. Other architects who have worked in other offices between their studies and self-employment do not have to find themselves so quickly. The first assignments were a type of self-discovery process. You have to make thoughts about it and do projects that match your character somewhere. It’s a discovery process, and it was great; I can’t say anything bad about that.
A.V. If you look at your work from that time – I think Franz’s design process still works that way – there are drawings, there are sculptures and then at some point there are projects. You can’t say that things are directly interrelated, but somewhere you can always find the same or similar themes. Back then, in the early Eighties and the following period, Rob Krier already spoke in an interview that you conducted over the rooftops of Vienna about the “waters of postmodernism,” in which you feel anchored. Was that something you understood and felt at the moment or was it more an intuition and not a dogma, and you actually felt yourselves free in the design? How can that be understood today?
H.H. We already felt free; whether we were actually free is an open question. To be able to participate in the IBA in Berlin and to sit at a table with people like Aldo Rossi, Grassi, Hollein or Rob Krier was, of course, overwhelming and, of course, had a strong influence on us. Especially when it comes to the drawings – that was perhaps something Franz and I also had in common – we were crazy fans of Aldo Rossi’s drawings. Of course, Rob Krier also contributed with his pastel sketches. Our role models or dogmas were not yet clear at this point; they were emerging. Our role models were actually all architects who also drew. At
A.V. Wo habt ihr da gearbeitet?
H.H. Wir haben in Omas Stube an den Wettbewerben gearbeitet und hatten dann mit Colum auch schon unseren ersten Mitarbeiter. Wir haben uns das Glück irgendwie hinübergerettet. Was die Projekte anbelangt, waren wir im Strudel unterschiedlichster Einflüsse. Andere Architekten, die zwischen Studium und selbstständiger Tätigkeit noch in anderen Büros gearbeitet haben, müssen sich nicht so schnell selbst finden. Die ersten Arbeiten waren eine Art Selbstfindungsprozess. Man muss ja Gedanken fassen und Projekte machen, die irgendwo auch deinem Charakter entsprechen. Das ist ein Findungsprozess, der war klasse, darüber kann ich nichts Schlechtes sagen.
A.V. Wenn man sich eure Arbeiten aus dieser Zeit anschaut –ich denke der Entwurf bei Franz funktioniert ja noch immer so – gibt es Zeichnungen, gibt es Skulpturen und dann gibt es irgendwann Projekte. Man kann nicht sagen, dass die Sachen direkt zusammenhängen, aber irgendwo finden sich doch immer wieder gleiche oder ähnliche Themen. Damals, in den frühen Achtzigern und der darauffolgenden Zeit, hat Rob Krier in einem Interview, das ihr damals über den Dächern Wiens geführt habt, auch schon vom „Fahrwasser der Postmoderne“ gesprochen, in dem ihr euch verankert seht. War das etwas, das ihr in dem Moment begriffen und gefühlt habt oder war das eher eine Intuition und kein Dogma und ihr habt euch eigentlich frei im Entwurf gespürt? Wie kann man das heute verstehen?
H.H. Wir haben uns schon frei gefühlt, ob wir tatsächlich frei waren, sei dahingestellt. Dieses riesen Erlebnis an der IBA in Berlin teilnehmen zu können und dort mit Leuten wie Aldo Rossi, Grassi, Hollein oder Rob Krier an einem Tisch zu sitzen, war natürlich überwältigend und hat natürlich auch starken Einfluss auf uns ausgeübt. Gerade was die Zeichnungen anbelangt – das war vielleicht auch eine Gemeinsamkeit von Franz und mir – waren wir
Hubert & François teaching in Trier (more images on pages 204-205)
that time, the Aedes gallery was established in Berlin – we went there as often as we could; it was always very exciting. Back then, the world was an exclusively analog one, which means that a lot of emotion and feeling comes across when you see drawings like this – that’s authentic, you present yourself.
A. V. Yes, you reveal yourself. That brings me to the next question: How did you design back then and how did that change over time? Perhaps you can sketch that using a classic design process from then and now?
H.H. I think that essentially nothing has changed over the years –I assume it is the same with Franz. The design is created from the sketch and then you work every which way so that you somehow get in the direction you had imagined. You don’t know that exactly when you start designing. The sketch is like a seismograph, which also brings things from the back of the mind or from the gut onto the paper, and you can then reflect on them. That is the case today and it will also be so in the future, although nowadays there are, of course, technical means that are indispensable. It is also important that this allows you to calculate things that would not have been possible in analog era. The drawing as a picture is something else again, something much more concrete. A picture is not a sketch; a sketch leaves a lot open. When I draw pictures, it is a design in which you quickly realize how you think it out, a design that does not take weeks or years until it stands, as it usually does. We are impatient and the picture is a compensation to see your own ideas faster. I don’t see that there is much of a difference to 40 years ago; you might draw a little differently; you might have calmed down a little or not, but basically nothing has changed in the process.
A.V. After the early years, that is, after the Eighties, the constellation changed a bit. In the Nineties, Mona, your first daughter, I, and, shortly afterwards, Fritz were born. At least for us at home, that was sketched out as the time when life played out a little more in one place and not quite as much on the road. Whereby traveling is a topic that runs through the years and has never really broken off. Then came Leipzig, where you still teach today. Can you say something about the Luxembourg-Vienna-Leipzig axis?
H.H. Yes, from my perspective there was a turning point. The fact that it had become a little quieter thanks to the children may be true for Franz. We drove with kit and caboodle from Vienna to Luxembourg. In the beginning I left Vienna almost entirely behind me. I was busy building up a structure for myself and learning to articulate myself. That didn’t bother me either, the family played along. I can still remember changing Mona’s diaper on the warm hood of my car to keep her from freezing. It was a great time and I think it was essential for my children to see that there are several places where you can develop. In Luxembourg we lived in the country, not in the city. At the time, the collaboration between Franz and me was very intense, full of joys and conflicts, as it should be when you are ambitious – after all, two alpha males met. Leipzig represented another turning point; for me it was a huge challenge. I was very happy that my colleagues accepted me there but being intensively in three places was not
wahnsinnige Fans von den Zeichnungen Aldo Rossis. Natürlich hat auch Rob Krier mit seinen Pastellskizzen dazu beigetragen. Unsere Vorbilder oder Dogmen waren zu diesem Zeitpunkt noch nicht klar, sie waren im Entstehen. Unsere Vorbilder waren eigentlich alle Architekten, die auch zeichneten. Zu dieser Zeit wurde die Galerie Aedes in Berlin gegründet – so oft wir konnten waren wir dort, das war immer sehr aufregend. Die Welt war damals eine ausschließlich analoge, wodurch vieles an Emotion und an Gefühl herüberkommt, wenn man solche Zeichnungen sieht – das ist authentisch, man präsentiert sich.
A.V. Ja, man offenbart sich. Das bringt mich zur nächsten Frage: Wie habt ihr damals entworfen und wie hat sich das im Laufe der Zeit gewandelt, vielleicht kannst du das anhand eines klassischen Entwurfsprozesses von damals und heute skizzieren?
H.H. Ich glaube, im Wesentlichen hat sich daran über die Jahre nichts verändert – ich nehme an, bei Franz ist es auch so. Der Entwurf entsteht über die Skizze und dann arbeitet man kreuz und quer, sodass man irgendwie in die Richtung kommt wie man es sich vorstellt. Das weiß man ja anfänglich, wenn man den Entwurf beginnt, noch nicht so ganz genau. Da ist die Skizze quasi der Seismograph, der auch Dinge aus dem Hinterkopf oder aus dem Bauch auf das Papier bringt und man dann darüber reflektieren kann. Das ist heute so und das wird in Zukunft auch so sein obwohl es heutzutage natürlich technische Mittel gibt, die auch nicht wegzudenken sind. Es ist auch wichtig, dass man dadurch Dinge berechnen kann, die in der analogen Zeit nicht möglich gewesen wären. Die Zeichnung als Bild ist wieder etwas anderes, etwas viel Konkreteres. Ein Bild ist ja keine Skizze, eine Skizze lässt vieles offen. Wenn ich Bilder zeichne, ist das ein Entwurf, bei dem du dir innerhalb kurzer Zeit klar wirst, wie du das denkst, ein Entwurf, bei dem es nicht wie sonst wochenlang oder heute jahrelang dauert, bis er steht. Wir sind ja ungeduldig und das Bild ist ein Ausgleich, um die eigenen Vorstellungen auch einmal schneller zu sehen. Ich erkenne darin keinen großen Unterschied zu vor 40 Jahren, man zeichnet vielleicht ein bisschen anders, man ist vielleicht ein bisschen ruhiger geworden oder auch nicht, aber grundsätzlich hat sich an dem Prozess nichts geändert.
A.V. Nach den frühen Jahren, also nach den 80ern, hat sich die Konstellation ein bisschen verändert. In den 90ern sind Mona, deine erste Tochter, ich und kurz darauf Fritz zur Welt gekommen. Zumindest bei uns zuhause wurde das als jene Zeit skizziert, wo sich das Leben ein bisschen mehr an einem Ort abgespielt hat und nicht mehr ganz so viel auf Reisen. Wobei das Reisen ein Thema ist, das sich durch die ganzen Jahre zieht und auch nie wirklich abgebrochen ist. Dann kam Leipzig, wo du ja bis heute unterrichtest. Kannst du etwas zur Achse LuxemburgWien-Leipzig sagen?
H.H. Ja, von meiner Warte aus gab es da eine Zäsur. Dass es durch die Kinder etwas ruhiger geworden ist, mag vielleicht für Franz stimmen, wir sind mit Kind und Kegel von Wien nach Luxemburg gefahren. In der ersten Zeit habe ich Wien ja beinahe gänzlich hinter mir gelassen. Ich war damit beschäftigt, mir eine Struktur aufzubauen und zu lernen, mich zu artikulieren. Mich hat das auch nicht gestört, die Familie hat mitgespielt. Ich kann mich
possible. The professional pressure – I had to make sure that the office in Vienna was up and running even though I wasn’t there – which wasn’t necessarily a disadvantage, as I can now see in retrospect. From that time on, in 2004, I worked independently on the projects at the same time and, at best, we exchanged ideas whenever someone was at a loss somewhere or wanted feedback. I would say it’s a continuous change if both characters want to develop – otherwise one of them goes to the dogs. I am very proud of ourselves that we did it that way. When I look at other fellow architects, for example, how the relationship between Domenig and Huth fell apart – suddenly there was a wall in the middle of the office, and no one talked to each other anymore – I think we managed it a little more masterfully and I am pleased about that.
A.V. I would like to come back to your time in Leipzig and the subject of teaching.
H.H. Together with Franz, I previously held a visiting professorship in Trier, and that’s when the pedagogical eros ignited in me. It is wonderful to work with young people and to try to pass on the few pieces of wisdom that you have acquired and to help. If you yourself had such a good time at the university, where you were looked after and supervised – although with significantly rougher approaches than we dare to do today – you also have a certain obligation or the desire to do it just as well when you are in the role yourself. I love teaching very, very much and it gives me great pleasure. The way I did it – I was always half the week in Vienna and half the week in Leipzig during class times – my time in Leipzig was a time of reflection, of distance. In this way you advance much better in your own work and design and manage to gain distance in between.
A.V. Traveling makes you see the places and things in a new way, and physical movement creates psychological pleasure. Are there places, urban spaces, architectures, or landscapes that you
noch daran erinnern, dass Mona zu der Zeit einmal auf der warmen Motorhaube meines Autos gewickelt wurde, damit sie nicht friert. Das war eine schöne Zeit und ich glaube, es war auch für meine Kinder ganz wesentlich zu sehen, dass es mehrere Orte gibt, an denen man sich entfalten kann. In Luxemburg haben wir am Land gewohnt, nicht in der Stadt. Zu dem Zeitpunkt war die Zusammenarbeit zwischen Franz und mir sehr intensiv, mit Freuden und Konflikten behaftet, wie sich das gehört, wenn man ehrgeizig ist – da haben sich schließlich zwei Alphamännchen getroffen. Leipzig stellte eine erneute Zäsur dar, für mich war es eine riesige Herausforderung. Ich habe mich sehr gefreut, dass mich die Kollegen dort aufgenommen haben, aber intensiv an drei Orten zu sein war nicht möglich. Der berufliche Druck – ich musste ja auch schauen, dass das Büro in Wien läuft, obwohl ich nicht da bin – was nicht unbedingt ein Nachteil war, wie ich jetzt im Nachhinein feststelle. Ab dieser Zeit, also ab dem Jahr 2004, habe ich parallel selbständig an den Projekten gearbeitet und wir haben uns bestenfalls ausgetauscht, wenn man mal irgendwo anstand oder Feedback haben wollte. Ich würde sagen, das ist eine kontinuierliche Veränderung, wenn sich beide Charaktere weiterentwickeln wollen – ansonsten kommt einer unter die Räder. Ich bin sehr stolz auf uns, dass wir das so geschafft haben. Wenn ich mir andere Architekten-Kollegen anschaue, wie zum Beispiel das Verhältnis zwischen Domenig und Huth auseinandergegangen ist – da stand plötzlich eine Mauer mitten im Büro und man hat nicht mehr miteinander geredet – denke ich, das haben wir ein wenig souveräner geschafft und das freut mich.
A.V. Ich würde gerne nochmal auf deine Zeit in Leipzig und das Thema des Unterrichtens zurückkommen.
H.H. Gemeinsam mit Franz habe ich davor in Trier eine Gastprofessur innegehabt und da hat sich der pädagogische Eros in mir entzündet. Es ist wunderschön, mit jungen Leuten zu arbeiten und zu versuchen die paar Weisheiten, die man sich angeeignet hat, weiterzugeben und weiterzuhelfen. Wenn man selbst eine so
Aït Benhaddou, Marocco
“The colossal idols at Bameean” Engraving from Alexander Burnes’ Travels into Bokhara 1833
got to know or experienced during your travels, both professionally and on private excursions, that have had a lasting impact on you and your work?
H.H. I think one of the reasons why I started architecture in the first place was my grammar school graduation trip to Afghanistan, which I still talk about today. These were incredible landscapes, incredible architecture, the mosque in Herat and the Buddha statues in Bamiyan, which were unfortunately blown up by madmen, the Band-e-Amir Lakes, which are in the middle of the desert – deep blue water with trout in it, surrounded by desert. These are impressions, spaces open up, and you get a feel for a scale that is stunning – you immediately know what is small and what is large. When you stand in the foothills of the Himalayas, the Alps appear to you like a miniature world, both in terms of power and scale. That was a huge enrichment. Just like a later trip to the desert cities in Morocco, where everything is made of one material. There are cities built entirely of clay, the ground, the wall, everything is modeled out of the ground. They have an incredibly endearing charm. Over time, the fact that something is made of one piece has become one of our design principles –the fewer materials you need for implementation, the better the whole thing will be. Especially the desert cities, the oasis cities with their insane green in a small space that creates a strong contrast, and how they are dealt with, have certainly shaped me.
In the last few years, I have combed the Balkans with students, and I think that by now I have absorbed almost all of the Spomeniks between Slovenia and North Macedonia. It is no coincidence either, because these monuments are very closely related to the pictures we make – they have a similar style. For me it was so incredibly impressive because they are the work of architects – except for Bogdan Bogdanović, who is known in Vienna – nobody knows them. It is also a type of seismographic architecture that is not pathetic as is so often the case with monuments. These are expressive objects that are usually

gute Zeit an der Uni hatte, in der man gepflegt und betreut wurde – zwar mit deutlich gröberen Ansätzen als wir uns das heutzutage trauen – hat man auch eine gewisse Verpflichtung oder den Wunsch, das ähnlich gut zu machen, wenn man dann selbst in der Rolle ist. Ich unterrichte sehr, sehr gerne und es macht mir eine riesen Freude. So wie ich das gehandhabt habe – ich war zu Unterrichtszeiten immer die halbe Woche in Wien und die halbe Woche in Leipzig – war die Zeit in Leipzig für mich eine Zeit der Reflexion, des Abstandes. So kommt man auch viel besser in der eigenen Arbeit und im Entwurf weiter und schafft es, zwischendurch Abstand zu gewinnen.
A.V. Durch das Reisen sieht man die Orte und die Sachen neu, durch die physische Bewegung entsteht eine psychische Lust. Gibt es Orte, Stadträume, Architekturen oder Landschaften, die du im Zuge deiner Reisen kennengelernt hast, erfahren hast, sowohl beruflich als auch auf privaten Exkursionen, die dich und deine Arbeit nachhaltig geprägt haben?
H.H. Ich glaube einer der Gründe, warum ich überhaupt mit der Architektur begonnen habe, war meine Maturareise nach Afghanistan, von der erzähle ich noch heute. Das waren so unglaubliche Landschaften, unglaubliche Architekturen, die Moschee in Herat und die Buddha Statuen in Bamiyan, die leider von Wahnsinnigen gesprengt wurden, die Band-e-Amir-Seen, die sich inmitten der Wüste befinden – tiefblaues Wasser mit Forellen darin und rundherum ist Wüste. Das sind Eindrücke, da machen sich Räume auf und du bekommst ein Gefühl für einen Maßstab, das umwerfend ist – du weißt sofort was klein und was groß ist. Wenn du in den Vorläufen des Himalayas stehst, kommen dir die Alpen wie Minimundus vor, von der Mächtigkeit und vom Maßstab her. Das war eine riesen Bereicherung. Genauso wie eine spätere Reise in die Wüstenstädte in Marokko, wo alles aus einem Material besteht. Da gibt es Städte, die sind gänzlich aus Lehm gebaut, der Boden, die Wand, alles ist aus dem Boden heraus modelliert. Die haben einen unvorstellbar reizenden Charme. Dass etwas aus

Band-e-Amir Lakes, Afghanistan
set perfectly into the landscape, combine with the landscape, or reinterpret the landscape. In this respect, too, there are many similarities with what you have acquired in terms of knowledge and striving to get where you actually want to go.
A.V. Very interesting! Especially with the drawing, I never thought about it!
H.H. For example, Bogdanović’s tulip; these monuments are so expressive as a large form, as a detail, as a space, as a landscape installation. Something doesn’t have to carry a big name to be good – such as bridges as mostly anonymous architecture. The big names are important, they give you the push when you are young, and you look up to where you want to go. But if you continue to work, you should distance yourself from such role models in a maturation process and look for your own path.
A.V. Your office is on Rainergasse in Vienna, a few minutes’ walk from Belvedere Castle. When we talked about the urban or rural spaces of Luxembourg and Vienna, they are quite different, just like the construction tasks at the sites are different. What are the tasks, the functions that are brought to your attention or that you are applying for with the office, and what have you been working on lately?
H.H. Nothing is brought to your attention in Vienna. Franz once told me that he understood that I wanted to go to Vienna again, because after a while in Luxembourg I was homesick. But at the same time, he told me, and he was absolutely right, that it would probably be easier for me in Luxembourg. We made a name for ourselves a little through urban planning designs, some of which we were then able to implement – mainly in residential construction. We have already landed projects in Germany – currently in Mainz, where an entire city district is being built, and also a small part in Leipzig – that is a line in which we have
einem Guss besteht, ist im Laufe der Zeit zu einem unserer Entwurfsgrundsätze geworden – je weniger Materialien man für die Umsetzung benötigt, desto besser wird das Ganze. Speziell die Wüstenstädte, die Oasenstädte mit ihrem wahnsinnigen Grün auf kleinem Raum, das einen starken Kontrast bildet, und wie damit umgegangen wird, haben mich sicher geprägt.
In den letzten Jahren habe ich mit den Studierenden den Balkan durchkämmt und ich glaube, mittlerweile habe ich mir fast alle Spomeniks zwischen Slowenien und Nordmazedonien einverleibt. Das ist auch kein Zufall, weil diese Monumente sind sehr nah verwandt mit den Bildern, die wir machen – sie haben einen ähnlichen Duktus. Für mich war es so wahnsinnig eindrucksvoll, weil das Werke von Architekten sind – bis auf Bogdan Bogdanović, den kennt man in Wien – die kennt kein Mensch. Es handelt sich dabei auch um eine Art seismographische Architektur, die nicht pathetisch ist wie es bei Denkmälern so oft der Fall ist. Das sind ausdrucksstarke Objekte, die auch meistens perfekt in die Landschaft gesetzt sind, sich mit der Landschaft verbinden oder die Landschaft neu interpretieren. Auch diesbezüglich gibt es viele Gemeinsamkeiten mit dem, was man sich angeeignet hat an Erkenntnis und am Streben, wo man eigentlich hin will.
A.V. Sehr interessant! Vor allem mit der Zeichnung, da habe ich nie darüber nachgedacht!
H.H. Zum Beispiel die Tulpe von Bogdanović, diese Monumente sind so expressiv als Großform, als Detail, als Raum, als Landschaftsinstallation. Etwas muss keinen großen Namen tragen, um gut zu sein – wie etwa Brücken als meist anonyme Architektur. Die großen Namen sind schon wichtig, die geben dir den Push, wenn du jung bist und hinaufschaust, wo du hinwillst. Aber wenn man weiterarbeitet, sollte man sich in einem Reifeprozess von solchen Vorbildern distanzieren und den eigenen Weg suchen.
A.V. Dein Büro ist in der Rainergasse in Wien ein paar Gehminuten vom Belvedere entfernt. Wenn wir über die Stadt- oder Landräume von Luxemburg und Wien gesprochen haben, sind das ja sehr verschiedene, genau wie die Bauaufgaben an den Orten verschiedene sind. Was sind die Aufgaben, die Funktionen, die an dich herangetragen werden oder auf die du dich mit dem Büro bewirbst und woran hast du in letzter Zeit gearbeitet?
H.H. Herangetragen wird einem in Wien gar nichts. Franz hat mir einmal gesagt, er verstehe, dass ich wieder nach Wien gehen will, weil ich nach einiger Zeit in Luxemburg Heimweh hatte. Aber er hat mir gleichzeitig gesagt, und damit hatte er vollkommen Recht, in Luxemburg hättest du es wahrscheinlich leichter. Wir haben uns ein wenig über städtebauliche Entwürfe profiliert, von denen wir dann auch Teile umsetzen konnten – hauptsächlich im Wohnbau. In Deutschland konnten wir schon Projekte an Land ziehen – aktuell in Mainz, wo ein ganzes Stadtviertel gebaut wird, in Leipzig auch ein kleines Stück – das ist eine Schiene, in der es uns gelungen ist, eine gewisse Kontinuität hineinzubringen. Ich weiß nicht wie es Franz geht, aber ich bin über alles froh, was reinkommt. Das Engagement den unterschiedlichen Projekten gegenüber ist gleich stark vorhanden. Wir haben z.B. Schulen, Kitas und Pflegeheime gebaut, seit 15 Jahren arbeiten wir an einem
The Popina Monument by Bogdan Bogdanovič
succeeded in bringing a certain degree of continuity into it. I don’t know how Franz is doing, but I’m happy with everything that comes in. The commitment to the various projects is equally strong. We have built schools, daycare centers and nursing homes, for example, and we have been working on a hotel project in Vienna’s First District for 15 years – I hope I’ll be able to experience that still. The library in Luxembourg was also a decade-long project, so you have to be patient. As architects today, you cannot specialize, although you are almost pushed into a certain role by various procedural methods... A small task can be just as exciting as a huge project.
A.V. How do you see the development of our profession? You said earlier that in the design process you don’t see a big difference between 40 years ago and today, but how do you think the profession will change in terms of execution in the coming years and what are new responsibilities towards society or social developments or challenges in our profession?
H.H. In order to stick to the challenges, our society is becoming aware that we have a little responsibility after all for our environment, for the spaces in which we move – that was not always the case. I think there is some hope that you will find actual themes again and not just talk about whether something is postmodern or deconstructive or something else. Those were substitute discussions, which were quite tiresome in the end; I see a lot of potential in them. You have to be careful, of course –and I don’t think anything has changed fundamentally if you look at the biographies, starting with the Baroque architects, where you can read this for the first time – it was always a struggle with the bureaucracy or a struggle against the authorities. A struggle against immobility, against laziness – but it’s not just the case for architects, but basically for all professional groups who want to advance something. In order to somehow escape the growing bureaucracy, you need passion in order to be able to design living architecture. That is something emotional; that cannot be objectified.
A.V. If you could choose a function that would be brought to your attention, that you would like to build, a building or a typology that you would like to construct, is there something you haven’t done yet?
H.H. We’re up in arms about building a museum one day, I’d really like to do that. But I have to say that every task is wonderful when you let yourself into it and perceive it and try to make something out of it. If this succeeds, however small the task may be, we are very pleased. That keeps you awake and offers opportunities to develop yourself further.
A.V. You spoke of a passion that it takes to face the adversities of bureaucracy – what keeps this passion alive over so many years?
Hubert Hermann
Our teachers at the university brought this passion into the world and we are at its mercy, you cannot escape it. What keeps this passion alive? Possibly the inevitable failures that you are
Hotelprojekt im Ersten Wiener Bezirk – ich hoffe, das erlebe ich noch. Die Bibliothek in Luxemburg war auch ein Jahrzehntprojekt, da muss man Geduld haben. Als heutiger Architekt kannst du dich nicht spezialisieren, du wirst zwar durch verschiedene Verfahrensmethoden fast in eine gewisse Rolle gedrängt… Eine kleine Aufgabe kann genauso aufregend sein wie ein riesen Projekt.
A.V. Wie siehst du die Entwicklung unseres Berufsstandes. Du hast vorhin gesagt, dass du im Entwurfsprozess an sich keinen großen Unterschied zwischen vor 40 Jahren und heute erkennst, aber wie glaubst du wird sich der Berufsstand in der Ausführung in den kommenden Jahren verändern und was sind auch gegenüber der Gesellschaft oder gesellschaftlichen Entwicklungen neue Verantwortungen oder Herausforderungen unserer Profession?
H.H. Um gleich bei den Herausforderungen zu bleiben, unserer Gesellschaft wird bewusst, dass wir doch ein wenig Verantwortung haben, was unsere Umwelt anbelangt, was die Räume, in denen wir uns bewegen, anbelangt – das war ja nicht immer so. Ich glaube es gibt ein wenig Hoffnung, dass man wieder tatsächliche Themen findet und sich nicht nur darüber unterhält, ob etwas postmodern oder dekonstruktiv oder sonst etwas ist. Das waren ja Ersatzdiskussionen, die letztlich wirklich leidig waren, darin sehe ich viel Potential. Man muss natürlich aufpassen – und da hat sich glaube ich grundsätzlich nichts geändert, wenn man sich die Biografien, angefangen von den Barockarchitekten, wo man das zum ersten Mal nachlesen kann, ansieht – es war immer ein Kampf mit der Bürokratie oder ein Kampf gegen die Obrigkeit. Ein Kampf gegen Unbeweglichkeit, gegen Gedankenfaulheit – aber da geht es nicht nur den Architekten so, sondern grundsätzlich allen Berufsgruppen, die etwas weiterbringen wollen. Um der wachsenden Bürokratie irgendwie zu entkommen, braucht man Leidenschaft, um auch lebendige Architekturen konzipieren zu können. Das ist etwas Emotionelles, das ist nicht objektivierbar.
A.V. Wenn du dir eine Funktion aussuchen könntest, die an dich herangetragen würde, die du gerne bauen würdest, ein Gebäude oder eine Typologie, die du gerne bauen würdest, gibt es etwas, das du noch nicht gemacht hast?
H.H. Wir laufen Sturm, um irgendwann einmal ein Museum bauen zu können, das würde ich wirklich gerne machen. Aber ich muss dazu sagen, es ist jede Aufgabe wunderschön, wenn man sich hineinlässt und sie wahrnimmt und versucht, etwas daraus zu machen. Wenn das gelingt, kann die Aufgabe noch so klein sein, dann freut uns das sehr. Das hält einen wach und birgt Chancen, sich weiterzuentwickeln.
A.V. Du hast von einer Leidenschaft gesprochen, die es braucht, um sich den Widrigkeiten der Bürokratie entgegenzustellen – was hält diese Leidenschaft über so viele Jahre hinweg am Leben?
H.H. Unsere Lehrer an der Universität haben diese Leidenschaft in die Welt gesetzt und der sind wir ausgeliefert, der entkommst du nicht. Was hält diese Leidenschaft lebendig? Möglicherweise die unvermeidlichen Misserfolge, denen man permanent ausgesetzt ist und das Bewusstsein, dass man sie überwinden muss und dass
constantly exposed to and the awareness that you have to overcome them and that you have to learn from them. I don’t know how Franz is doing, but when I look at a competition that I did a long time ago and that I can’t remember, I sometimes smile when I was outraged back then that I had been kicked out. You realize, yes, things weren’t quite right at the time. This constant fine-tuning to do something better keeps the passion going.
A.V. You can answer the next four questions with just one word. Our books are called: Culture, Work, Living and Leisure. So, my question to you is: What is culture? What is work? What is living and what is leisure?
H.H. Since we were already at the topic of passion: Culture means doing something with passion. No matter what that is, music, performing arts, visual arts or even a craft. Work and leisure – if you are reasonably satisfied with your job, if you find fulfillment in it, then these two terms become blurred. I also think that’s a good thing because you go to sleep with thoughts and ideas and get up with them in the morning – it takes away the harsh tone of work, it becomes more continuous. Of course, you are also happy when you are not working, having a good meal or going on a nice trip, but they cannot be separated from each other. I think if you separate them, you actually lead a very sad life, so I am very grateful that I have the opportunity to pursue this job. What is living? I’ve been thinking about that a little – the best definition is, “Living is space for hedonism.” If you as an architect manage to design spaces in such a way that people indulge in their desires and joys, then you have won.
A.V. Architecture in three words?
H.H. Someone said, “Everything is architecture,” but that’s too pathetic for me. I say: “practical and beautiful.” I often say that, if something does not suit me at all, if you are being pressured by some engineers who believe something would be particularly useful now, while it actually destroys the whole project, then I often say: practical and beautiful. If you go inside yourself, there is something to it. I have nothing against fine arts; fine arts are important. Even if they are ultimately not beautiful, they are nonetheless beautiful. A Tinguely jalopy is probably not pretty in the real sense of the word, but I get goose bumps when I look at it. Seen in this way, let’s stick to beauty, that is a fulfilling term.
A.V. Fantastic, thank you very much for the interview!
H.H. I thank you!
man daraus lernen muss. Ich weiß nicht wie es Franz geht, aber wenn ich mir einen Wettbewerb anschaue, den ich vor längerer Zeit gemacht habe und an den ich mich nicht mehr so erinnern kann, dann kommt mir schon manchmal das Schmunzeln, wenn man damals empört war, dass man rausgeflogen ist. Man stellt fest, ja, die Dinge waren zu dem Zeitpunkt noch nicht so ganz richtig ausgereift. Dieses permanente Feilen daran, etwas besser zu machen, das hält die Leidenschaft aufrecht.
A.V. Die nächsten vier Fragen kannst du auch mit nur einem Wort beantworten. Unsere Bücher heißen: Kultur, Arbeiten, Wohnen und Freizeit. Daher lautet meine Frage an dich: Was ist Kultur? Was ist Arbeiten? Was ist Wohnen und was ist Freizeit?
H.H. Da wir ja schon bei der Leidenschaft waren: Kultur bedeutet, etwas mit Leidenschaft zu machen. Egal was das ist, Musik, darstellende Kunst, bildende Kunst oder auch ein Handwerk. Arbeiten und Freizeit – wenn man mit seiner Tätigkeit einigermaßen zufrieden ist, wenn man darin Erfüllung findet, dann verschwimmen diese beiden Begriffe. Ich finde das auch gut so, weil man mit Gedanken und Ideen schlafen geht und mit ihnen in der Früh aufsteht – es nimmt dem Arbeiten den herben Ton, es wird kontinuierlicher. Natürlich freut man sich auch, wenn man nicht arbeitet, gut Essen geht oder eine schöne Reise macht, aber es ist nicht voneinander zu trennen. Ich glaube, wenn man es trennt, führt man in Wirklichkeit ein sehr trauriges Leben, daher bin ich sehr dankbar, dass ich die Möglichkeit habe, diesen Beruf zu auszuüben. Was ist Wohnen? Darüber habe ich etwas nachgedacht – die beste Definition ist, „Wohnen ist Raum für Hedonismus“. Wenn man es schafft als Architekt, Räume so zu gestalten, dass sich die Leute ihren Lüsten und Freuden hingeben, dann hat man gewonnen.
A.V. Architektur in drei Worten?
H.H. Jemand hat gesagt „Alles ist Architektur“, aber das ist mir zu pathetisch. Ich sage: „praktisch und schön“. Das sage ich oft, wenn mir etwas überhaupt nicht passt, wenn man von irgendwelchen Ingenieuren bedrängt wird, die glauben etwas wäre jetzt besonders sinnvoll, während es eigentlich das ganze Projekt zerstört, dann sage ich oft: praktisch und schön. Wenn man in sich geht, ist da etwas dran. Ich habe auch nichts gegen schöne Künste, schöne Künste sind wichtig. Auch wenn sie dann letztlich nicht schön sind, sind sie trotzdem schön. Eine Klapperkiste von Tinguely ist im tatsächlichen Sinn wahrscheinlich nicht schön, aber ich bekomme eine Gänsehaut, wenn ich mir das anschaue. So gesehen bleiben wir bei der Schönheit, das ist ein erfüllender Begriff.
A.V. Fantastisch, vielen herzlichen Dank für das Interview!
H.H. Ich danke dir!
Hubert Hermann
Bio / CV
1955 Born in Wiener Neustadt (AT) Geboren in Wiener Neustadt (AT)
1974–1980 Studied architecture at the University of Applied Arts Vienna (AT) Architekturstudium an der Hochschule für angewandte Kunst in Wien (AT)
1980 Completed his studies with the title “Magister architecturae” in the master class of Prof. Holzbauer at the University of Applied Arts Vienna (AT) Abschluss „Magister architecturae“ in der Meisterklasse von Prof. Holzbauer an der Hochschule für angewandte Kunst in Wien (AT)
1980 Scholarship by the Federal Ministry for Science and Research (AT) Förderungspreis des Bundesministeriums für Wissenschaft und Forschung (AT)
1980 Founding of the architects’ office Hermann & Valentiny in Luxembourg und in Vienna (LU, AT) Gründung der Architekturbüros Hermann & Valentiny in Luxemburg und in Wien (LU, AT)
1984–1985 University assistant to Professor Spalt at the University of Applied Arts Vienna (AT) Assistent an der Hochschule für angewandte Kunst in Wien bei Prof. Spalt (AT)
1987–1992 Gastdozent an der FH Trier, Abteilung Architektur (DE) Visiting lecturer at the University of Applied Sciences Trier, Department of Architecture (DE)
1991 Luxembourg’s first representative at the Venice Architecture Biennale, together with François Valentiny (IT) Luxemburgs erste Vertreter bei der Architekturbiennale in Venedig, zusammen mit François Valentiny, (IT)
2001 Founding of the company Hermann & Valentiny und Partner ZT GmbH Gründung der Gesellschaft Hermann & Valentiny und Partner ZT GmbH
Since | seit
2003 Professor at the Leipzig University of Applied Sciences (DE) Professor an der Hochschule für Technik, Wirtschaft und Kultur Leipzig (DE)
2004 Otto Wagner Urban Planning Prize, together with the ARGE Kabelwerk (AT) Otto Wagner Städtebau-Preis, gemeinsam mit der ARGE Kabelwerk (AT)
2007 Gold Medal of Honor for Services to the Republic of Austria Goldenes Ehrenzeichen für die Verdienste um die Republik Österreich
Since | seit
2007 Corresponding member of the Saxon Academy of the Arts, architecture class (DE) Korrespondierendes Mitglied der sächsischen Akademie der Künste, Klasse Baukunst (DE)
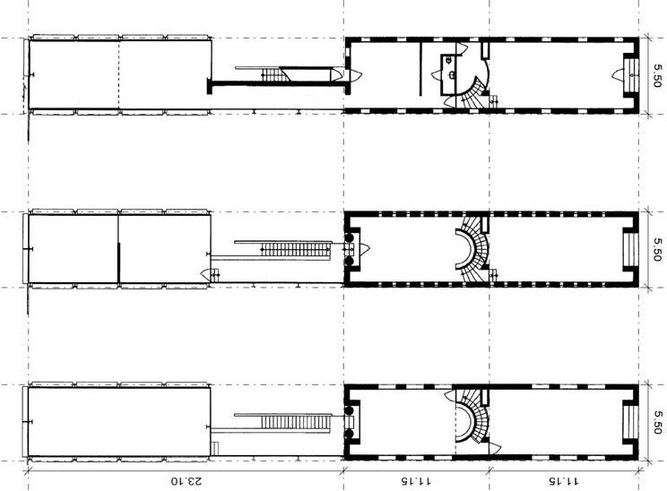
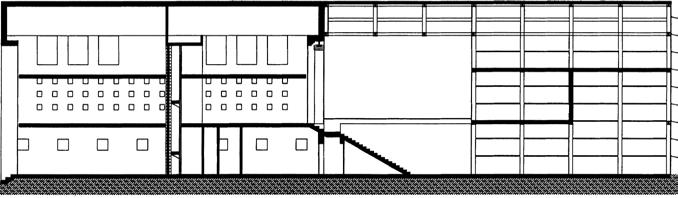
HVP Office Extension
Extension bureau HVP
Location: Remerschen (Luxembourg)
Year: 1997
The growing number of projects from outside the country has also led me to travel a lot around the world. It is also this contrast, between far away travels and reunion with this village where the winegrower walks by and takes a look at what I’m doing, that means a lot to me. For forty years, it has remained unchanged.
The office has been extended a few times over the years. The third extension, where my personal workspace is located, is connected to the original building by a sort of covered bridge with a roof, which was added fifteen years later. It is a sturdy, rudimentary steel and glass structure, for high transparency and to let in natural light. The trees have grown in the meantime and have almost tripled in height to sixteen metres, hiding all the buildings. Everything is natural, basic, in this building. We do not have air conditioning: only fixed protective slats protect from the sun.
Le nombre croissant de projets venus de l’extérieur m’a également amené à beaucoup voyager à travers le monde. C’est également ce contraste-là, entre voyages lointains et retrouvailles avec ce village où le vigneron passe dans la rue et jette un coup d’œil sur ce que je suis en train de faire, qui est important pour moi. Depuis quarante ans, il est resté inchangé.
Le bureau a reçu quelques extensions au fil des années. La troisième, où se trouve mon espace de travail personnel, est reliée au bâtiment initial par une sorte de pont couvert d’un toit, ajouté quinze ans plus tard. C’est une structure robuste, rudimentaire, faite d’acier et de verre, pour permettre une grande transparence et laisser entrer la lumière naturelle. Les arbres ont poussé entretemps et ont presque triplé de hauteur pour s’élever à seize mètres, cachant ainsi toutes les bâtisses. Tout est naturel, basique, dans ce bâtiment. Nous n’avons pas l’air conditionné : seules des lamelles de protection fixes protègent du soleil.
The third extension, where my personal workspace is located, is connected to the original building by a sort of covered bridge with a roof, which was added fifteen years later. It is a sturdy, rudimentary steel and glass structure, for high transparency and to let in natural light.
La troisième, où se trouve mon espace de travail personnel, est reliée au bâtiment initial par une sorte de pont couvert d’un toit, ajouté quinze ans plus tard. C’est une structure robuste, rudimentaire, faite d’acier et de verre, pour permettre une grande transparence et laisser entrer la lumière naturelle.
There is also, in the design of this office, a strong reference to German Romanticism, a movement that began in 1770 and lasted until the mid-1850s, affecting literature, but also music and the visual arts. This period saw the sometimes artificial reconstruction of ruins, which can still be found today in some cities – just think of Peacock Island (Pfaueninsel) on Berlin’s Wannsee, which is a perfect example of Romantic architecture. At the time, it was a question of arousing dreamlike memories, a certain nostalgia (Sehnsucht in German), a reverie.
There was also the will to create harmony between the built environment and nature through plant and green areas. Within the limits of my abilities, I have carefully maintained and cultivated, even domesticated a certain amount of nature surrounding the office for the past four decades.
Il y a également, dans la conception de ce bureau, une référence fortement marquée au romantisme allemand, ce mouvement qui a commencé en 1770 et a duré jusqu’au milieu des années 1850, touchant la littérature, mais aussi la musique ou les arts visuels. Cette période a vu la reconstruction parfois artificielle de ruines, qu’on trouve encore de nos jours dans certaines villes – il suffit de penser à l’île aux Paons (Pfaueninsel), sur le Wannsee de Berlin, qui est un parfait exemple d’architecture romantique. Il s’agissait à l’époque de susciter des souvenirs oniriques, une certaine nostalgie (en allemand : Sehnsucht), une rêverie.
À cela s’ajoute la volonté de créer une harmonie entre le bâti et la nature par des plantations et des espaces verts. Depuis quarante ans, dans la limite de mes capacités, j’ai soigneusement entretenu et cultivé, voire domestiqué un certain ensauvagement de la nature qui entoure le bureau.
I like the dia-
logue