E-Book - Station 12 - Educational Buildings

Page 1


Not realised projects

Work in progress

United States

Capitol Area 1986

Germany

Westend University Campus 2004

Parliamentary and ministerial buildings 1995

Administrative Court 2006

Government District Berlin Capital Spreebogen 1992

Hotel and service complex 1993–1995

Hindenburgplatz subdivision 1993

Five residential buildings 1993–1995

Neighbourhood centre

– shopping centre and cinema 1997–1999

Luxembourg

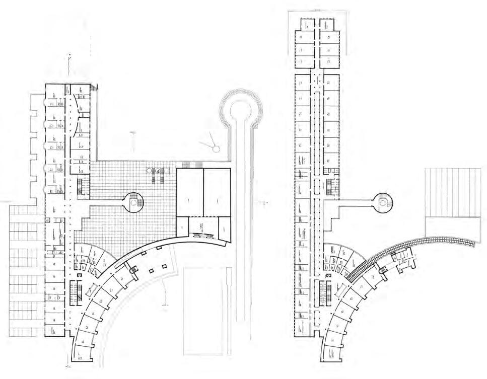
Conversion and extension of the Lycée classique 1993–2005

Sports hall for the Lycée classique 1993–1998

Children’s day care centre Stärenhaus 1995–1998

Extension and transformation of the primary and secondary Schools 2001–2003

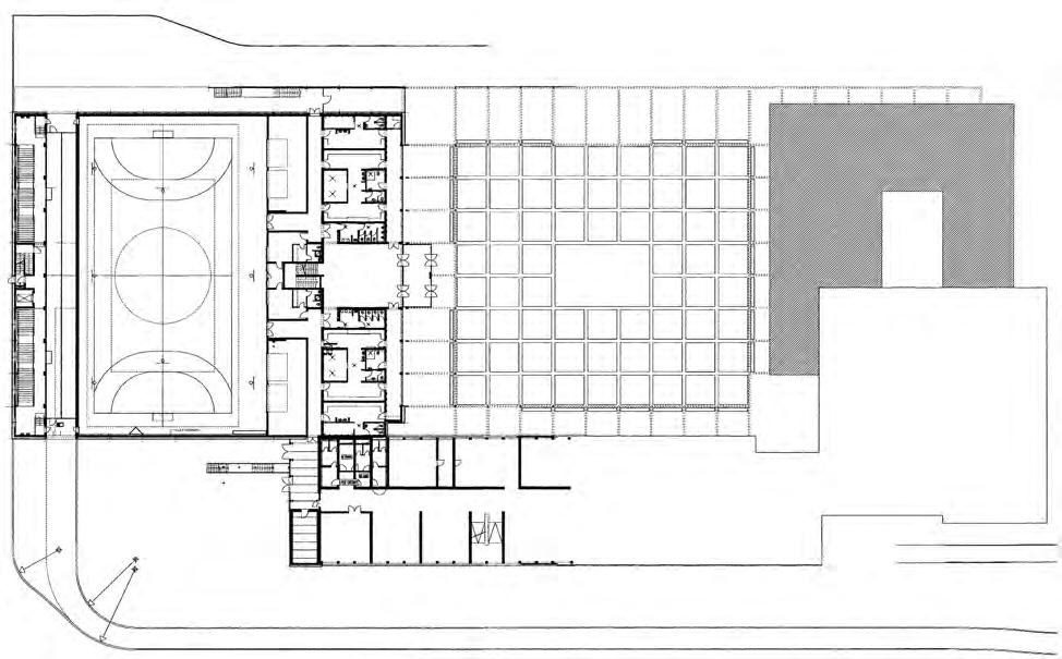
Sports hall and classrooms for a primary school 2017–2020

Preschool and primary school 2002–2005

Cité des Sciences Education Building, 2nd prize 2006

University Library Luxembourg Learning Centre 2008–2018

Town Hall 1993–1996

Conversion and construction of an additional floor for the town hall 1998–1999

Construction of a multipurpose hall in the church and outdoor facilities 2011–2012

Conversion of the Koch’haus 2012–2014

Fire station 1986–1988

Customs facility on the Luxembourg-Trier motorway 1984–1987

DG Bank 1989–1990

Commerzbank administration building 2000–2003

Mother-Child Centre for the Centre Hospitalier de Luxembourg 2003–2015

Nursery for the Centre Hospitalier de Luxembourg 2009–2013

Administrative building for Ciments S.A. 1998–2000

BCEE bank building 2007–2008

Administration building for KPMG 2010–2015

Entrance building of the Rotarex Group 2011–

Office building Mediabay The Waves 2014–

Switzerland

Roche administration tower 2008

Office building B2-01 - Le Bijou 2015–2020

New headquarters of the Luxembourg Post 2017

BASEP multi-purpose complex 2018

Office building –The Flower Building 2019–

Office building –Lot E04-E10 2020–

New carpentry workshops Annen SA 2013–

Schumann Roundabout 1981–1982

Tunnel du Saint Esprit 1984–1986

Extension of the KonradAdenauer building for the European Parliament 2003

Austria

School Centre 1984

Schweglerstrasse Comprehensive School 1991–1994

New building for the Danube Private University 2013–2018

Halls of residence for students and professors of the DPU Danube Private University 2017–

Embassy of Luxembourg 1993–1995

The Danube Barrage 1987

China

Campus planning of Yangtze River Art Engineering Vocational School 2018

Campus for an art university Campus pour une université d’art 2018

Shahe residential area building and landscape design 2018

Low-carbon city 2015

EDUCATIONAL BUILDINGS

BÂTIMENTS ÉDUCATIFS

EDUCATIONAL BUILDINGS BÂTIMENTS ÉDUCATIFS

Sports hall and classrooms for a primary school Hall sportif et salles de classe pour une école primaire

(Luxembourg)

and primary school

| CONCOURS

des Sciences Education Building, 2nd prize

de l’enseignement de la Cité des Sciences, 2ème prix

(Luxembourg)

building for the Danube Private University

bâtiment pour la Danube Private University

of residence for students and professors of the DPU Immeubles de logements pour étudiants et professeurs de la DPU Unterloiben (Austria)

for an art university Campus pour une université d’art Dalian (China)

Campus planning of Yangtze River Art Engineering Vocational School

Aménagement du campus de Yangtze River Art Engineering Vocational School Jingzhou, Hubei Province (China)

| CONCOURS Educational centre for digital media Centre de référence dans les médias du numérique Diamniadio (Senegal)

1.1 COMPETITION | CONCOURS

School Centre Centre scolaire

Location: Vienna (Austria)

Client: City of Vienna

Year: 1984

1.2

Schweglerstrasse Comprehensive School

Ecole polyvalente S chweglerstrasse

Location: Vienna (Austria)

Client: City of Vienna

Year: 1991–1994

Conversion and extension of the Lycée classique

Transformation et extension du Lycée classique

L ocation: Diekirch (Luxembourg)

Client: Administration des Bâtiments Publics

Year: 1991–1994

Sports hall for the Lycée classique

Hall sportif pour le Lycée classique

Location: Diekirch (Luxembourg)

Client: Administration des Bâtiments Publics

Year: 1993–1998

1.5

Children’s day care centre Stärenhaus Foyer de jour pour enfants Stärenhaus

Location: Bettembourg (Luxembourg)

Client: Administration communale de Bettembourg

Year: 1995–1998

1.6

Extension and transformation of the primary and secondary Schools

Extension et transformation de l’école primaire et collège

Location: Lallange (Luxembourg)

Client: Commune d’Esch-sur-Alzette

Year: 2001–2003

Erdgeschoss ground floor

1.7

Sports hall for a primary school Hall sportif pour une école primaire

Location: Lallange (Luxembourg)

Client: Commune d’Esch-sur-Alzette

Year: 2017–2020

Preschool and primary school

Préscolaire et école primaire

Location: Wellenstein (Luxembourg)

Client: Administration communale de Wellenstein

Year: 2002–2005

1.9 COMPETITION | CONCOURS

Westend University Campus Campus universitaire Westend

Location: Frankfurt am Main (Germany) Year: 2004

1.10 COMPETITION | CONCOURS

Primary School École primaire

Location: Sanem (Luxembourg)

Year: 2007

1.11

COMPETITION | CONCOURS

Cité des Sciences Education Building, 2 nd prize Bâtiment de l’enseignement de la Cité des Sciences , 2 ème prix

Location: Esch-Belval (Luxembourg)

Year: 2006

1.12

University Library Luxembourg Learning Centre

Bibliothèque universitaire Luxembourg Learning Centre

Location: Esch-Belval (Luxembourg)

Client: Le Fonds Belval

Year: 2008–2018

[ It is regrettable that the architectural modernism of the early twentieth century made educational buildings insipid. Nowadays, people struggle to identify them in the urban landscape. ]

[Il est déplorable que le modernisme architectural du début du xxe siècle ait rendu les bâtiments éducatifs insipides. Aujourd’hui, les gens peinent à les identifier dans le paysage urbain.]

When we build schools, we try to present a response to this insipid trend by proposing open, transparent structures, both inside and outside the school.

Lorsque nous construisons des écoles, nous tentons de présenter une réaction à ce courant de l’insipide en proposant des structures ouvertes, transparentes, tant à l’intérieur de l’école que vers l’extérieur.

We offer views of the outside, of the playgrounds, of the green areas.

Nous offrons des vues vers l’extérieur, vers les cours de récréation, vers les espaces verts.

While respecting the function required by the various classrooms, from language or mathematics classrooms to sports halls and chemistry laboratories, we offer places that no longer frighten students as much. We offer buildings that are less threatening, less stifling than blockhouse buildings with their almost military rigour and harsh forms.

Yet, and in a somewhat contradictory way, I confess my admiration for old solemn university buildings, higher education buildings that are often over a hundred years old.

Tout en respectant la fonction que demandent les différentes salles de classe, des salles de langues ou de mathématiques aux salles de sport et aux laboratoires de chimie, nous proposons des lieux qui ne font plus autant peur aux élèves : moins menaçants, moins étouffants que les bâtiments blockhaus à la rigueur quasi militaire et aux formes dures.

D’un autre côté, et de façon un peu contradictoire, j’avoue mon admiration pour les vieux bâtiments solennels des universités, édifices souvent centenaires de l’éducation supérieure.

By building the Library of the University of Luxembourg – the Luxembourg Learning Centre – we tried to recover some of the aura of the old libraries. We wanted to create a space that would be both a place for the transmission of knowledge and a meeting place, with a unique and grandiose architecture.

En construisant la bibliothèque de l’Université du Luxembourg, le Luxembourg Learning Centre, nous avons essayé de retrouver un peu de l’aura des vieilles bibliothèques. Nous avons voulu créer un espace qui soit à la fois un lieu de transmission du savoir et un lieu de rencontre, à l’architecture unique et grandiose.

This concept was strongly supported by Belval Fund directors Alex Fixmer and Luc Dhamen.

The library is located around what remains of the blast furnaces, bunkers and places where the ore was deposited. At the beginning of the project, we noticed that all these ruins were in a pitiful state and that it was impossible to restore them. The large bars, pillars and frames, on the other hand, had retained their solidity. These steel constructions could support a very heavy weight. They could be used for the suspension of the different storeys of the future building. The library’s façade is composed of raised octagons, which are darker and more closed than on the other. At first, it was supposed to have a rusty colour, but we gave up that idea given the nature of the post-industrial site. We analysed photographs of the windows of old industrial buildings in the vicinity and started from the patterns that the dust and dirt had left in the windows and enlarged them into triangles of different sizes and aspects. As glass is more difficult to cool, we coated the building with a translucent skin.

Cette conception a été fortement soutenue par les directeurs du Fonds Belval Alex Fixmer et Luc Dhamen.

L’emplacement de la bibliothèque se décline autour de ce qui reste des hauts-fourneaux, des bunkers, des endroits où l’on déposait le minerai. Au début du projet, nous avons remarqué que toutes ces ruines étaient dans un état pitoyable et qu’il était impossible de les restaurer. Les grandes barres, les piliers, les cadres avaient par contre conservé leur solidité. Ces constructions en acier pouvaient supporter un poids très important. Il était possible de les utiliser dans la suspension des différents niveaux de l’édifice futur. La façade de la bibliothèque est composée d’octogones en relief, d’un côté plus sombres, plus fermés que de l’autre. Au début, elle devait avoir une couleur rouille, mais vu la nature du site postindustriel, cette idée a été abandonnée. Nous avons analysé les photos des fenêtres d’anciens bâtiments industriels des environs, et nous sommes partis des motifs que la poussière et la crasse avaient laissés dans ces fenêtres ; nous les avons agrandies pour en faire des triangles de différentes tailles et de différents aspects. Comme le verre est plus difficile à refroidir, nous avons revêtu le bâtiment d’une peau translucide.

1.13

Danube Private University (DPU)

Danube Private University (DPU)

Location: Krems (Austria)

Client: Danube Private Doctors Club GmbH

Year: 2013–2018

1.14

Halls of residence for students and professors of the DPU

Immeubles de logements pour étudiants et professeurs de la DPU

Location: Unterloiben (Austria)

Client: Danube Private Doctors Club GmbH

Year: 2017–

1.15

Campus for an art university Campus pour une université d’art

Location: Dalian (China) Year: 2008

A completely different methodology needs to be applied when it comes to developing the campus of an art school in China. This is what we did in Dalian, a city of over 7 million people in Liaoning province, overlooking the Gulf of Korea, seven hours by train from Beijing. Even though Dalian is one of the cities with the most western architecture in China, we had to tackle specific Chinese challenges, such as, above all, the very high number of students: you have to think about the halls of residence, concert halls, institutes for the different subjects, as well as about the school itself and its classrooms. For the music classes alone, two hundred piano rooms had to be created! Building an art school in China is like building an entire village.

Lorsqu’il s’agit de développer le campus d’une école d’art en Chine, c’est une toute autre méthodologie qu’il faut appliquer. C’est ce que nous avons fait à Dalian, une ville de plus 7 millions d’habitants de la province du Liaoning, donnant sur le golfe de Corée, à sept heures de train de Pékin. Même si Dalian est une des villes à l’architecture la plus occidentale de Chine, il s’agissait de relever les défis spécifiques chinois, dont, avant tout, le nombre très élevé d’étudiants : il faut penser aux lieux de résidence, aux salles de concert, aux instituts des différentes disciplines, à l’école avec ses salles de classe. Rien que pour la musique, il fallait créer deux cents salles de piano ! Construire une école d’art en Chine revient à construire un village tout entier.

1.16

Campus planning of Yangtze River Art

Engineering Vocational

School

Aménagement du campus de Yangtze River Art

Engineering Vocational School

Location: Jingzhou, Hubei Province (China)

Client: Yangtze River Art Engineering Vocational School Year: 2018

1.17

Educational centre for digital media

Centre de référence dans les médias du numérique

Diamniadio (Senegal)

Client: LUXDEV

Year: 2020

Partner: We Architects.

learning street

éclairage led fondation sur pieux

dalle de béton armé couche de gravier sol compacté

Coupe constructive - Éch : 1/35

Coupe A-A’ - Éch: 1/300

• Ombrage

• Ventilation croisée

• Sols perméables

• Collecte et réutilisation des eaux de pluie

• Matériaux locaux et non polluants

• Puits canadien peau

• Toiture ventilée

• Éclairage naturel

• Protection contre les bruits de trafic

• Réutilisation des eaux grises

• Dispositifs et matériels hydro-économiques

Perspective depuis la coursive

• Design/Développement tion

universelle

Design/Développement participatif, interacavec usagers et professeurs le projet (phase APS-APD)

• Installations techniques visibles ou facilement accessibles

Perspective depuis le learning street

Turn static files into dynamic content formats.

Create a flipbook
Issuu converts static files into: digital portfolios, online yearbooks, online catalogs, digital photo albums and more. Sign up and create your flipbook.