

Introduction
Northwest Hills Neighborhood
The Northwest Hills Neighborhood District is located on the west side of IH 35, north of Airport Road. Even though these two corridors seem to divide it from the rest of the community, this little neighborhood still feels very much like Temple. The housing stock in Northwest Hills is an eclectic mix of apartment living, duplex living and single-family homes. The area along Airport Road is also an eclectic commercial mix that includes some retail, industrial and healthcare facilities. Even though the area seems to be a mixing pot of different housing types and land uses, the residents seem to celebrate those characteristics.
The most unique aspect of the Northwest Hills Neighborhood is the number of parks and public spaces. The district is home to the Saulsbury Community Garden, Northwest Hills Park, and Little Bluestem Park. The Saulsbury Community Garden is the only community garden in town. It is a model we hope to replicate in other areas, because it is so well built and managed. People from all over the community come to the garden to grow fresh fruits and vegetables throughout the year. The two parks are also very well built and managed. Neighbors use these facilities often, as they are perfectly situated. Northwest Hills Park is north of Airport Road, while Little Bluestem is to the south. Residents can use the most conveniently located park without the need to cross a busy street to get there.
The Northwest Hills District is chock full of unique features, parks, and natural attractions – with plenty of room to grow into the future!
TEMPLE, TEXAS
PURPOSE
The City of Temple is dedicated to fostering cohesive, distinct, vibrant, safe, and attractive neighborhoods where citizens take pride and are engaged with their community. These objectives will be accomplished through the work of the City’s Neighborhood Team.
Through a process of collaboration and communication, the City’s Neighborhood Team will strive to ensure continued improvements to Temple’s neighborhoods, as well as access to a wide variety of housing types that are safe, accessible, and affordable.
HOUSING & COMMUNITY DEVELOPMENT
MISSION
Working alongside residents in each neighborhood, our mission is to identify neighborhood concerns, values, visions, and goals. Through this process, the City will develop long-range plans for each Neighborhood Planning District to include:
• City Capital Improvement Projects
• Private Investment & Economic Development Opportunities
• Community Development Block Grant Projects
A strong emphasis will be placed on improving the quality of life in each neighborhood while increasing access to affordable housing. YOUR NEIGHBORHOOD TEAM

PLANNING BACKGROUND
The Northwest Hills Neighborhood is one of 24 planning districts within the City of Temple. Each district plan has a similar planning process that is intended to complement the City’s Comprehensive Plan with a more focused effort at the neighborhood level. This plan looks at the existing conditions and engages residents to derive genuine information and direction from the neighborhood. While using the best practices for planning, the results of each plan define specific recommendations that are unique to each district.
The Story
NORTHWEST HILLS NEIGHBORHOOD IS...

The Northwest Hills Neighborhood has housing that dates back around 50 years. While the neighborhood still has a significant amount of undeveloped land within its boundary, any future development would undoubtedly be influenced by the existing characteristics of the neighborhood.

In terms of the composition of land uses, the Northwest Hills Neighborhood has a mix of parks, commercial businesses, education, and housing choices. Traveling a short distance outside the neighborhood’s boundary you will find even more supporting elements, such as a grocery store and a large employment center, that further contribute to meeting the needs of its residents.

HIDDEN

While the neighborhood is complete in terms of its land use, that does not mean it has a cohesive feel. The built environment has abrupt transitions and an absence of curb appeal due to a lack of streetscape, property landscaping, and vehicular clutter. This fragmentation could be seen as a contributing factor to discouraging reinvestment in the neighborhood.
The residential element of the neighborhood is not visible from the periphery thoroughfares. This relationship allows for the residential portion of Northwest Hills to be overlooked. Increasing the neighborhood’s exposure along these thoroughfares will be key to enhancing the neighborhood’s sense of place.



IDENTIFY PATH FORWARD

• Currently, internal sidewalks that would provide safe travel to the neighborhood’s parks and commercial are lacking. An effort should focus on the addition of sidewalks and traffic calming to improve the accessibility of neighborhood destinations for pedestrians.
• Airport Road provides an important connection back to Downtown Temple. The City’s Major Thoroughfare Plan identifies the application of a sidepath of at least 10’. Implementing this facility should be a priority to provide improved bicycle and pedestrian linkages to the nearby offerings downtown.
• There is a contrast in the quality of housing stock within the plan area, with much of the single-family housing being in good condition, while the multi-family housing often lacks the same degree of upkeep. Targeting reinvestment and redevelopment of the existing multi-family housing is key.
• When new housing stock is added to the neighborhood, it needs to be focused on market rate options. Attracting new residents with a goal of a more balanced mix of incomes will be important to stabilize the existing housing stock and conversely attract new residential development projects.
STRENGTHEN INWARD AND OUTWARD CONNECTIONS REINVEST IN HOUSING IMPROVE NEIGHBORHOOD COMMERCIAL
• The existing commercial is a mix of office, self-storage, and service industries with limited retail or dining. Increasing restaurants and neighborhood services will be important to the long-term stability of the neighborhood. These commercial offerings are viewed as amenities to the nearby residential.
STRATEGIC CONSIDERATIONS
This planning effort is intended to complement the focus areas and initiatives laid forth in Temple By Design, the 2020 Comprehensive Master Plan. The strategic considerations identified above highlight key features of the plan area that are intended to help guide unique recommendations for the Northwest Hills Neighborhood. These resulting recommendations will be compiled into an Action Plan which include references to the specific Comprehensive Plan Initiatives they are intending to help realize. This planning effort includes a public engagement and visioning process to determine recommendations which ultimately lead to a series of corresponding capital improvement projects.
Community Input & Background
DEMOGRAPHIC PROFILE
A look into the demographics helps to frame the characteristics of the plan area’s population. This information is used to guide recommendations for policies and changes to the built environment. This information is derived from the American Community Survey 2017-2021 5-year using Esri’s Community Analyst software that aggregates multiple block groups that make up the plan area. This gives us the most accurate information for the defined area and helps tell the story of the plan area demographics.
Race and Ethnicity








$50,369


2020 or later
2010 to 2019
2000 to 2009
1939 or earlier 1940 to 1949 1950 to 1959 1960 to 1969 1970 to 1979 1980 to 1989 1990 to 1999







DEMOGRAPHIC TAKEAWAYS
The following are a few summary conclusions derived from reviewing the demographics within the plan area:
• Northwest Hills Neighborhood is a diverse neighborhood with 42.2% identifying as White, 30.3% as Black, and 29.4% of Hispanic origin.
• The largest age cohort is 5-9 years of age, attributing to a slightly younger median age for the neighborhood at 30.2. Texas as a whole has a 34.8 median age.
• Significant portion of the population with an educational level of high school graduate/GED or some college/associates.
• Median household income is about $17,000 less than that of the State of Texas at $67,321 and a significant portion of the neighborhood households are below the poverty rate.
• The Educational Services, Healthcare, and Social Assistance industries employ the most neighborhood residents by far at 35.4%. This industry employs more than the next 3 biggest industry categories combined.
• Rental housing makes up slightly more than half of all of the neighborhood’s housing stock.
• While nearly 11.7% of households do not have access to a vehicle, nearly all of the workforce commutes via personal automobile.
PUBLIC ENGAGEMENT
The Neighborhood Planning Team was challenged to develop a community engagement method so that crucial feedback could be gathered from the residents of the Northwest Hills Neighborhood. The city staff conducted events in an effort to engage plan area residents and inform them about the planning effort. As part of that outreach, residents were invited to a public open house where input was solicited, as well as a longer online survey. The results of the outreach efforts are highlighted on the following pages.




What
the biggest strength of
What


























Rate the following land uses on their importance to the Northwest Hills Neighborhood District (1–Unimportant, 5 – Most Important).


























































































































PUBLIC SURVEY TAKEAWAYS




































The following are a few summary conclusions derived from reviewing the online survey responses:
• The residents of Northwest Hills believe that the strengths of the plan area are its sense of community and quietness. The biggest weakness is trash.
• Most residents said that if they used an alternative form of transportation they would prefer to walk, carpool, taxi, or use the HOP.
• Transportation and pedestrian improvements that the residents want to see are more sidewalks, street lights, bike lanes, bus stops, and landscaping.
• The residents of the neighborhood expressed a desire for more restaurants and grocery stores.
Inventory & Analysis


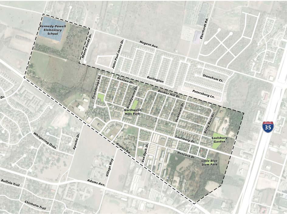
This exhibit provides a regional context for the plan area as well as important destinations such as schools, grocery, parks, & open space.
This exhibit shows the plan area boundaries and important points of interest.

PHOTO INVENTORY
The images displayed on the right are taken from the Northwest Hills Neighborhood plan area. These images assist in providing context to the character of the neighborhood’s built environment. Images were selected to show neighborhood assets, concerns, opportunities, conditions, etc.














This exhibit shows the Future Development Plan and Major Thoroughfare Plan for the Northwest Hills Neighborhood from the 2020 Comprehensive Plan.


&

This exhibit shows the location and breakdown for Northwest Hills zoning.






This exhibit shows the conditions of properties in the neighborhood and provides an overview of residential structure health.




This exhibit shows the existing pedestrian infrastructure and how it currently serves the Northwest Hills Neighborhood properties.







John Paul Jones Drive and Liberty Drive Intersection
John Paul Jones Drive and Liberty Drive lack sidewalk infrastructure. To improve overall pedestrian safety along the two corridors, it is recommended that sidewalks be added to the streetscape. John Paul Jones Drive provides a north-south linkage in the western half of the plan area, allowing connections to Nugent Avenue and Airport Road. Liberty Drive provides access to the plan area’s largest neighborhood park, Northwest Hills Park.
Overall Takeaways:
• Intersection enhancements should be prioritized near parks and schools.
• Crosswalks should be delineated with markings to increase visibility at cross walk zones.
• Consider pedestrian activated signal in especially high volume or hazardous intersections.


Multiplex Infill



Overall Takeaways:
It is important that the plan area promotes reinvestment into new housing stock within the neighborhood. The age and deteriorating conditions of some of the existing residential structures within the neighborhood are having a negative impact on the overall image. New housing with a more pedestrian scale that celebrates the building architecture and engages the street will help improve the neighborhood’s image. Attention should placed to reducing the cluttered effect of front yard parking.
• Upsizing the zoning to allow for a higher unit per acre count will help encourage new development.
• Shared driveways and parking should be utilized in the rear of the lot to encourage security as well as improving curb appeal.
• Front porches should be integrated into new buildings as to promote passive surveillance of the neighborhood.



Dumpster Enclose Along Saulsbury Drive
Currently there two large dumpsters for the residents of the apartments that are found between Yorktown Drive and Betsy Ross Drive on the north side of Saulsbury Drive. While the dumpsters themselves are an unsightly presence along the road, the high visibility results in additional piling up of trash at the location. Steps should be taken to secure the dumpsters and improve the adjacent curb appeal.


Overall Takeaways:
• Enclosures should screen dumpsters from public view along Saulsbury Drive.
• Additional surveillance cameras should be added to deter non-apartment residents from dropping off trash.
• Add landscaping to soften dumpster screening structure and enhance the street corridor’s aesthetic.
Concept & Planning
This exhibit builds upon the direction of Temple’s Comprehensive Plan in refining the Major Thoroughfare Plan (MTP) to meet the needs of the Northwest Hills Neighborhood.
The following are the key takeaways:
• Add intersection enhancements along John Paul Jones Drive and Saulsbury Drive to improve pedestrian safety.
• Add new neighborhood collector 1 block north of Airport Road on west end of plan area, explore connection to Parnell Drive/Saulsbury Drive to reduce impact on Airport Road.
• Extend Trenton Drive to Cearley Road and ensure future connections to Monte Verde Drive and Kennedy Powell Elementary School. Consider extension of Monte Verde as pedestrian connector to new neighborhood collector
• Trenton Drive, Bunker Hill Drive, Betsy Ross Drive, Brandywine Drive, and Liberty Drive are all given the plan designation of pedestrian connector streets.
This exhibit recommends adding the Northwest Hills Trail to the Parks and Trails Master Plan.




CHARACTER IMAGERY








Airport Rd
Airport Road is a major arterial on the southernmost boundary of the plan area. This is a TxDOT facility with four travel lanes and one turn lane. This street provides connections to I-35 and H. K. Dodgen Loop. The City’s focus should be on providing pedestrian infrastructure in the form of a sidepath along the corridor.










Key Characteristics:
• Minimum 8’ sidepath, 10’ preferred sidepath.
• With the high rate of travel, it is recommended that a minimum planting buffer of 6’ is present, a 12’ planting buffer should be considered standard.
• Meander sidepath to avoid utility and drainage.
• Where possible, add street/shade to improve pedestrian comfort.
Preferred Street Edge Programming
Street Edge Programming




CHARACTER IMAGERY









Nugent Ave

Nugent Avenue, a minor arterial on the northernmost boundary of the plan area, currently has two lanes. However, the 2022 Master Mobility Plan calls for additional lanes. This street connects both I-35 and H.K. Dodgen Loop, serving as a crucial connection between West Temple and Temple High School. A sidepath will be located on the south side of Nugent Avenue, tying into the proposed and existing sidepaths found on Cearley Road. This connection aims to improve pedestrian access to Kennedy-Powell Elementary School. The road’s future design includes a center turn lane to alleviate high traffic levels.
Key Characteristics:
• Two travel lanes with a turn lane to ensure that turning vehicles do not impede the flow of east and westbound traffic.
• Streetlights to ensure that the vehicular and pedestrian environments are well-lit.
• Landscape buffers on both sides of the street to separate traffic and pedestrians on the sidewalk, as well as provide shade for pedestrians.




CHARACTER IMAGERY


Community Collector








Cearley Rd
Neighborhood Collector
Pedestrian Connector
Cearley Road is a collector that runs between pastureland and along Kennedy-Powell Elementary School and two residences. This road section calls for a dedicated turn lane to maintain traffic flow, knowing that easy access to Kennedy-Powell Elementary School is necessary. On the elementary school side of the road, there is a sidepath rather than a sidewalk to provide pedestrians with more room to walk. To enhance the overall image and improve pedestrian safety in the area, it is recommended that planting buffers be added to both sides of the road.
Key Characteristics:
• Dedicated turn lane to maintain traffic flow.
• One travel lane going in each direction.
• Sidepath to provide safe pedestrian environment for the school.
• Enhanced planting to create a consistent buffer between the road and pedestrian realm.
• Lights to ensure safety in pedestrian and vehicular environments.

CHARACTER IMAGERY



Major Arterial
Minor Arterial
Community Collector











43rd Street
Neighborhood Collector
Pedestrian Connector
43rd Street is proposed to become a new collector that will act as the eastern boundary of the Northwest Hills plan area. This new road alignment will connect Adams Ave. and Airport Rd. to Nugent Ave. This connection would help to alleviate traffic flowing north and south through the plan area. In addition, this road would act as a buffer to divide the adjacent I-35 commercial corridor from the neighborhood’s residential housing. Trees won’t be planted along the road where it interferes with the sewer line which runs along the west side of the road.
Key Characteristics:
• Two-lane road with a turn lane.
• 5’ sidewalks on both sides.
• North/South slip road.
• Divide residential from I-35 commercial development.
• No trees where sewer line is present.




Major Arterial
Minor Arterial
Community Collector
Neighborhood Collector
Pedestrian Connector











Saulsbury Dr
Saulsbury Drive is a collector that runs through the middle of the plan area. This road provides connections to I-35 and Airport Road. In an effort to slow the speed of through traffic, it is recommended that parallel parking be provided on both sides of the road. Additionally, providing sidewalks on both sides of the street enables stronger pedestrian access to Saulsbury Community Garden.

Key Characteristics:
• Two travel lanes.
• Parking on each side of the road to help slow traffic.
• Lights to ensure safety in pedestrian and vehicular environments.

CHARACTER IMAGERY



Major Arterial
Minor Arterial


Community Collector






Neighborhood Collector
Pedestrian Connector
Pedestrian Connector
The pedestrian connectors are a network of roads that run through the residential core of the neighborhood. These roads connect users to the arterial and collector roads in the plan area. Having a sidewalk on one side of the road allows for safer routes for pedestrians to access the neighborhood parks. For optimal placement, consider constructing these sidewalks on the side of the road with fewer wide and/or frequent driveways within the R.O.W. This improves pedestrian safety and reduces potential conflicts from parked cars blocking the sidewalk.

Key Characteristics:
• Two travel lanes.
• Sidewalk on one side of the road.
• Small planting buffer to separate pedestrians from the road.
• Improved access to neighborhood parks and open space.
INTERSECTION ENHANCEMENTS

Intersection enhancements are intended to be located where vehicular traffic and pedestrian traffic are the most concentrated within a neighborhood. These locations, as one would suspect, should be aligned with street hierarchy of the Major Thoroughfare Plan. Arterials and collectors predicate a need for guiding vehicles and pedestrians alike to controlled and uncontrolled crossings. The plans identification of pedestrian connectivity is a means for the city to better manage its resources for sidewalk infrastructure as these routes will have a higher presence of pedestrians. Within the interior of the Northwest Hills Neighborhood, where neighborhood collectors and pedestrian connectors cross, there is a need to communicate to both drivers and pedestrians the location of a crossing.
Intersection Enhancement Recommendations
• Streets should consider painted/striped crosswalk and pedestrian crossing signage
• Stop signs may be appropriate at the most heavily trafficked intersections or where vehicular speeding is prevalent
• Crossing flags may be appropriate for routes that are key corridors for students.
UTILITY PLACEMENT
The Northwest Hills Neighborhood is an established neighborhood within the City of Temple and as such its existing utilities have been in place for quite some time. The absence of alleys in the neighborhood may require overhead utilities to be located within the street R.O.W. while street tree plantings and other infrastructure should respond accordingly. Moving forward, the diagram below provides some direction on how to assign the placement of utilities within the context of the street R.O.W. spacing and programing.
Waterlines located in the street R.O.W. should be placed in an unprogrammed area or beneath the sidewalk rather than under the street. Pipe size can vary, but should not encroach on the tree’s critical root zone.
Planting Strip
Planting strips of 6’ or greater are needed to give a street tree proper growing conditions.
Stormwater
3 Common Trench
1 2 Wastewater
The stormwater pipe should be placed underneath the curb and gutter in the street R.O.W. Pipe size can vary, but should not encroach on the tree’s critical root zone.
Electric, telecommunications, and other overhead utilities connections are found along the alley or rear of property. The trench should preferably be located in a public utility easement adjacent to, but outside of the R.O.W.
Wastewater is primarily found in the rear of properties in the Northwest Hills Neighborhood. If wastewater lines are to be located in street R.O.W. they should be placed in an unprogrammed area or beneath the sidewalk as opposed to under the street. Pipe size can vary, but should not encroach on the tree’s critical root zone.



Overhead Utilities
If utilities cannot be placed in a trench, the use of ornamental trees is an acceptable alternative to large shade trees to maintain street trees. These trees should not exceed 15’ mature height. Overhead utilities should be consolidated on one side of the road where possible.
Ornamental Tree










Sidewalks are fragmented and discontinuous. These conditions create an unpleasant pedestrian environment. ADA ramps and crossings are absent.
Stormwater Management
The management of stormwater drainage is inconsistent along the corridor. A drainage ditch is present along some segments of the corridor between the street edge and the property.
Landscape
Landscaping along Airport Road lacks consistency along the corridor. For the most part, the landscaping is not present leading the corridor to feel incongruous, as it doesn’t fit harmoniously with its surroundings.
Continuous Driveways
Driveways that extend the length of the frontage can confuse drivers and interfere with traffic flow. Sidewalks may also be disturbed, creating unsafe conditions for pedestrians as well.
Parnell Dr.
Circle K at Van Dyck Dr.
Private Dr. for Veterans of Foreign Wars Saulsbury Dr. Draper Dr. Cottingham Dr. Entrance to éLan Salon & Spa
Alley between Cottingham Dr. & Dodge Dr.
Guy Dr.
Parnell Dr. Sidewalks
Key Considerations:




Connection to Greater Temple. The trails along the proposed Northwest Hills Linear Park are intended to connect the residents along its corridor to Airport Road and ultimately to Downtown Temple. Trail corridors provide opportunities to expand the bikeable and walkable destinations within the city, while also providing improved recreational amenities.
Transition to Residential. The proposed linear park’s location acts as a buffer of physical space and vegetative screening to separate future mixeduse/commercial development from residential development in the plan area, preserving the neighborhood’s character. Having the commercial located along the I-35 corridor is an asset to the plan area, providing a walkable destination that can help make the neighborhood feel more complete. Allowing for a mix of residential uses along the linear park will result in increased utilization of the park facilities, including Saulsbury Community Garden.

Multi-use trail within linear park can double as sidewalk for nearby street Utilize land along the linear park to expand Saulsbury Community Garden
Integrate regional detention facility to include wet pond element
Linear Park

This section illustrates how residents with housing lots abutting the Northwest Hills Linear Park can access the park corridor.
In some instances, along the linear park, a bridge will be necessary to link the trail to future mixeduse development. This should be viewed as an opportunity to coordinate mixed-use development around that access point to create a unique space.

Trail Corridor Near Residential
Trail Corridor Near Mixed-Use Development
Mixed Use Neighborhood
NEW NORTHWEST HILLS
NEIGHBORHOOD CENTER
Currently, the Northwest Hills plan area lacks a strong connection to a neighborhood identity. The infill opportunity along the southeast portion of the plan area would take advantage of the proximity to the heavily traveled I-35 and Airport Road to create a node for retail, dining, personal service, and office. This would be complemented by a range of residential opportunities. The proposed Northwest Hills Trail and Linear Park would provide a strong pedestrian connection for the residential development found to the north of the site.
Mixed Use. As part of the redevelopment, mixed use principles should be introduced. The relative closeness to downtown and I-35 make this location ideal for working professionals new to Temple. Mixed-use developments provide expanded opportunities and amenities for residents.
Utilize Floodplain. The eastern portion of the site addresses floodplain concerns. A portion of this area should remain open space and contribute to parkland and regional detention/ stormwater infrastructure. Both of these types of open space would complement future development by providing the necessary supporting infrastructure.


Mixed Use Neighborhood
NORTHWEST HILLS NEIGHBORHOOD CENTER
Mixed Use Neighborhood Center
The close proximity to I-35 coupled with its location along Airport Road make this site ideal for retail, dining, office, and personal service businesses. The current composition of the neighborhood may fall short in terms of the number of households needed to independently support the proposed development. However, by introducing nearby multi-family housing, we can activate the neighborhood center. This enhancement will benefit both patrons and employees, allowing them convenient pedestrian access to their preferred destinations and places of work. The addition of a shared plaza and gathering space adjoining the sidewalks provides opportunities for outdoor merchandising, seating, and dining. With the neighborhood center’s proximity to the proposed multi-family and compact single-family housing, the need for large parking lots is reduced.

The following are typical elements and features that are unifying to the district:
• Establish a walkable main street environment.
• Pedestrian scale signage and lighting.
• On-street parking to act as a traffic calming measure.
• Outdoor merchandising and dining found in shared plaza space or adjoining sidewalks.
• Acts as a catalyst to transition detracting neighborhood uses and improve street fabric.
• Co-locate multi-family to help activate neighborhood center.
Live Work
The live work area is intended to provide additional flexibility by allowing housing and businesses to intermingle within a neighborhood context. Housing would be built intentionally to have a shopfront-like appeal. Nearby townhomes would complement the built form, by continuing the strong street engagement. This would promote additional day time activity, while expanding the areas’ draw to people looking for personal office, studio, and retail space. The streetscape plays an important role in providing an aesthetic softening of street edge. The area should be thoroughly planned to balance the demands of residential and visitor parking demands.

The following are typical elements and features that are unifying to the district:
• Walkable street environment.
• Live work shopfronts.
• Porches and stoops for street engagement.
• Delineated resident and visitor parking.
• Separate business and residential entries.
• Increased housing opportunities adjacent to open space.
Compact Single-family
The compact single-family refers to an alternative approach that is intended to provide a variety of housing choice and building scale. These residential properties should be more intentional with their design, where smaller lots result in more shared green space and improved walkablity. The variety in housing type is very much determined by the surrounding context. Housing units may be accessed by a shared private drive or alley at the rear of the lot. This district essentially acts as a step down in intensity from the neighborhood center into the established residential element of Northwest Hills.

The following are typical elements and features that are unifying to the district:
• Integral front porches.
• Small private yards.
• Shared driveways and parking areas.
• Nearby Northwest Hills Linear Park provides additional open space.
• Smaller footprint homes allows for overall closer placement acting as a buffer to the development behind.
Character:
Character:
Character:
Commercial Edge
NORTHWEST HILLS WEST END
Future Connection to Kennedy Powell Elementary School With Expanded Pickup/Dropoff
Monte Verde Drive Connection Traditional Single-family
New Neighborhood Collector Traditional Single-family
Connection to Saulsbury Drive Corridor Commercial Realigned Intersection
ROAD

Corridor Commercial. The properties fronting Airport Road are in an excellent location for commercial business. The number of driveways and street intersections should be limited, abiding by access management principles with larger block spacing.
Mix of Single-Family. Consider a mix of single-family housing types increase the plan areas housing choice and affordability. The uses of a smaller alley supported lot is intended to increase housing units, with the thought that the increase in rooftops providing more support for neighborhood serving commercial.
Airport Road Slip Street. The concept proposed neighborhood collector street would contribute to a complete east-west route through the neighborhood. This road would also act as a transition between the more intense land uses fronting Airport Road and the more residential portion of the neighborhood.
This concept illustrates how the undeveloped land in the western portion of the Northwest Hills planning area should be developed. The concept identifies a series of new roads that provide the desired level connectivity into the surrounding development. With Airport Road being a major arterial and important regional travel route establishing a parallel street will reduce internal travel within the neighborhood from impacting the traffic flows.
Floodplain Limitation. Site constraints associated with drainage and floodplain conditions limits some areas of development. This area should be utilized to provide opportunities for regional detention and open space. Lots fronting this opens space will provide passive surveillance as well as being more in demand.
Neighborhood Conservation
The Middle Housing Type
Housing affordability is typically only viewed in terms of the dollar amount of price per square foot. This focus is absent the understanding of how housing type influences affordability and abundance of housing choice, and treats affordable housing as something that is addressed through large apartment complexes or bland/dated buildings. Middle housing refers to housing which allows additional units within a framework that is still “human scaled.” This human scale allows the building and site to be designed for an environment that is inviting and comfortable for pedestrians, not for autocentric living or dense vertical development. This housing type fits with the block framework that is associated with single-family lot dimensions and sizes, but adjusts the building interior make up to accommodate more units. Many of these types of structures could easily be mistaken for large, single owner occupied homes.

Benefits
• Allows for owner-rental oversight relationship
• Can mimic single-family housing architecture type
• Easy means to add additional housing units to areas near active centers like neighborhood commercial nodes
Parking Consideration:
• All parking should be accounted for behind front building wall
• Consider tandem parking with single car width driveway
• Alley parking may enable smaller lot width

Benefits
• Larger home structure, sometimes referred to as mansion style apartment
• Allows for varying number of units
• Allows for varying unit sizes (1, 2, and 3 bedrooms)
• Easy means to add additional housing units to areas near active centers like neighborhood commercial nodes
Parking Consideration:
• All parking should be accounted for behind front building wall
• Parking in rear of building needs to be able to accommodate 1 or 2 cars per unit
• Alley parking may enable smaller lot width
Building Architecture vs Parking
A key consideration when allowing the middle housing types is to fully understand and account for the parking dynamic. These housing types can mimic existing single-family building scale, or in some instances may even be a little larger, allowing for the human scale environment with strong architectural contributions. However, if parking is not accounted for in a thoughtful manner the human scale will be lost and the neighborhood will be given over to the parking lot effect, and in turn the concept of “there goes the neighborhood.” People and their experiences within the built environment will be drastically compromised by the over catering to the automobile.

Benefits
• Allows for single-family ownership, while increasing unit density
• Allows for private lawn
• Allows for more units on a lot
• Great option for providing dense housing near neighborhood commercial nodes
Parking Consideration:
• All parking should be accounted for behind front building wall
• Avoid front garage parking
• Alley parking simplifies parking layout

Benefits
• Allows for varying unit size within the structure (1, 2, and 3 bedrooms)
• Limits overall units to be better integrated into neighborhood fabric
• Easy means to add additional housing near activity centers
• Use of balconies adds private outdoor space
• Height should be limited to 3-4 stories as not to overpower adjacent buildings
Parking Consideration:
• For interior lots an alley is likely needed
• Corner lots may provide improved access to rear of property allowing for consolidated parking
• Parking lot should be located in the rear of group lot, screened by the development.
Duplex
Multiplex
Townhouse
Neighborhood Apartment
Neighborhood Conservation
Housing Infill Considerations
The Northwest Hills Neighborhood is a mixture of single-family housing, duplex, and small apartment buildings. The following elements should be used to guide the development of future multi-family housing in a way that better accommodates parking and strengthens the neighborhood’s character.
Multi-Family Elements












Neighborhood Conservation Overlay District
A Neighborhood Conservation Overlay District is a tool used to manage a neighborhood’s revitalization to ensure that inherent character elements remain. This tool is an extension of the base zoning district and typically focuses on lot size, setbacks, streetscapes, and tree protection. These protections focus on providing certainty and compatibility between new and existing development. A Neighborhood Conservation Overly District may include both residential and commercial land uses.
Only in certain circumstances would it be appropriate to use a Neighborhood Conservation Overlay District. Neighborhoods must possess a distinct land use pattern, predominant scale/spacing, similar construction type, contributing open space/streetscape elements, and proximity to or contributing impact on historic landmarks or districts. Additionally, there must be support from the affected population within the proposed Neighborhood Conservation Overlay.
Desired Outcomes from a Neighborhood Conservation Overlay District
• Promote high quality of life and livability standards
• To protect and promote unique physical features and valued aesthetic appearances
• To stabilize and invigorate neighborhood economic conditions
• To reduce conflicts from development and investments into the neighborhood through added regulatory certainty
• Encourage a sense of place and source of neighborhood pride
• Provide a path forward for orderly redevelopment within the City.
Criteria to consider for a Neighborhood Conservation Overlay District
• Contain at least one block face or all lots on the same side of a block
• The area has been developed for at least 25 years
• 75% of land in the proposed area must be presently improved
• Possess “principal design feature” that is cohesive for character establishment:
• Scale, size, and type of construction
• Spatial relationships between buildings
• Lot layouts, including setbacks, sidewalks, and alleys
• Natural or public space characteristics such as creek beds, parks, greenbelts, or street landscaping
• Land use patterns and/or an identifiable mix in of similar uses
• Abuts or links to designated historic landmarks and/or districts.
Establishing a Neighborhood Conservation District Overlay
• Director of Planning and Development initiated rezoning, pursuant to a neighborhood or community plan adopted by City Council, or city or community revitalization program; or
• Neighborhood initiated application for rezoning (support from majority of affected landowners)
• Boundary and site inventory review (establishment of a base district boundary for zoning map)
• Create development standards and identification of “principal design feature”
• Create voluntary design guidelines (extra design or architectural guidance)
• Public hearing and final adoption to be conducted by Planning & Zoning Commission and City Council.
Bay window
Awnings
Dormer
Shutters
Stoops
Garage Alleyway Utilization
Rear Parking
Single Lane Driveways
Match Single-family Character
Private Entry Door For Each Unit
LIGHTING ZONES



GENERAL STREET ZONE
*Information
MULTI-FAMILY ZONE
The Multi-Family Zone is intended to encourage special attention to apartments and group housing. Spacing should be done in a manner to maximize safety by provision of lighting in common areas, parking lots, entrances, and pedestrian paths.
Lighting Notes:
See section 6.7.7.J of the City of Temple’s UDC for on premise lighting requirements.


NEIGHBORHOOD ZONE

INTERSECTION ZONE
The
PARK ZONE
BUSINESS/COMMERCIAL ZONE
The use of Backlight, Uplight, and Glare (BUG) ratings should be considered for business or commercial properties to promote dark sky principles and reduce off-site lighting impact on adjacent properties, especially near a residential neighborhood.
The Northwest Hills name for the neighborhood originated as part of this planning exercise. The establishment of the neighborhood’s brand was a process that included significant input from the City’s planning team in an effort to capture the spirit of the neighborhood in graphic form. Below illustrates the concept development of the Northwest Hills brand.
NORTHWEST HILLS
HILLS
NORTHWEST HILLS
NORTHWEST HILLS
NORTHWEST HILLS
NORTHWEST HILLS
NORTHWEST HILLS
NORTHWEST HILLS
NEIGHBORHOOD BRANDING
Since the Northwest Hills Neighborhood is a directional name, it is fitting for the neighborhood’s identity to allude to a compass or some other directional component. This is displayed through the use of north arrows as well as modern or antique-looking compass designs. In addition to compass references, some of the designs incorporate the hills aspect of the Northwest Hills name.
FONTS Industry Inc base
BROTHERS OT REGULAR


STREET SIGN TOPPERS
NORTHWEST HILLS
NORTHWEST HILLS




NORTHWEST HILLS







NEIGHBORHOOD MONUMENT
Since Northwest Hills is more of a drive-by neighborhood rather than a drive-through neighborhood, it is important to add monumentation along the bounding major arterial (Airport Rd.) to further enhance the neighborhood’s identity and visibility from the major arterial. In addition to Airport Rd., there are opportunities for a monument to be placed along Saulsbury Dr. Three monument designs are provided to accommodate the varying constraints at the potential sites.



Recommendations
Northwest Hills Neighborhood Action Plan
This section of the plan summarizes the recommendations derived from the project findings into the Northwest Hills Neighborhood Action Plan. These actions follow the direction put forth in the City’s Strategic Plan and Temple By Design, 2020 Comprehensive Master Plan. In accordance with those plans, the actions are organized by the focus areas Smart Growth, Public Safety, Places and Spaces, and High-performing Organization. The recommendations in the Action Plan will reference the respective Comprehensive Plan initiative they help to realize. The Action Plan will identify the implementation method, priority, and department involvement.
DD.1
DD.2
and Development
Northwest Hills Neighborhood Center. Encourage development to engage with the proposed Northwest Hills Linear Park Trail. The development should include a wide mix of uses from single and multi-family housing to commercial and retail.
Northwest Hills West End. Encourage development at the west end of the Northwest Hills neighborhood to address connectivity and provide expanded choice for single-family housings.
Streets and Thoroughfares
ST.1 Update Major Thoroughfare Plan to add the neighborhood collector one block north of Airport Road. Explore connection to Saulsbury Drive.
ST.2 Airport Road. Explore access management program along Airport Road to consolidate access points and reduce conflict areas along the northern edge of the road. Construct a minimum 6’ planting buffer and 8’ sidepath, however, 8’ planting buffer and 10’ sidepath is preferred. These efforts are intending to improve health safety concerns within the road.
ST.3 Nugent Avenue. Reconstruct Nugent Avenue to include a center turn lane to optimize traffic flow. The addition of an 8’ planting buffer, as well as, a sidepath along both sides of the road to improve pedestrian access to Kennedy-Powell Elementary School should be a priority.
ST.4 Cearley Road. Reconstruct Cearley Road to include a center turn lane to increase traffic flow. The addition of a sidewalk on the western edge of the road and a sidepath along the eastern edge of the road should be a priority to enhance pedestrian access to Kennedy-Powell Elementary School.
ST.5 43rd Street. Update Major Thoroughfare Plan to include extension of 43rd Street as a community collector running parallel to I-35, providing connections to Airport Road, Saulsbury Drive, and Nugent Avenue. Plan, design, and construct improvements and/or enhancements to corridor.
New Neighborhood Collector. Plan, design, and construct improvements and/or enhancements to corridor. Intersection improvements should promote
Pedestrian Connectors. Construct sidewalks along Trenton Drive, Brandywine Drive, Liberty Drive, Red Coat Drive, Princeton Drive, Bunker Hill Drive, Yorktown Drive, and Betsy Ross Drive. For optimal placement, consider constructing these sidewalks on the side of the road with fewer wide and/or frequent driveways within the R.O.W. Promote connections of Trenton Drive Extension to existing Monte Verde Drive and Kennedy Powell Elementary School.
Street Tree Program. Conduct inventory and evaluate existing trees in the neighborhood to establish tree replacement recommendations/plan at the block level. Encourage new street trees and street tree replacement as needed throughout the plan area. Include review of street trees to ensure limbs do not impede ingress and egress of emergency and city vehicles. Consider ordinance revisions to assist in this program.
Implement a sidewalk condition evaluation on a 5-year cycle to assess for ADA compliance and connectivity. Schedule repairs and replacement through the CIP plan or identify funding through other programs, such as a replacement grant.
ST.12 Involve departments to develop solutions for traffic calming methods throughout the neighborhood.
Infrastructure Systems
IS.1 Lighting Plan. Implement lighting plan within the Northwest Hills Neighborhood. Evaluate high needs areas to receive lighting priority.
IS.2 Encourage the burying of overhead utilities to improve neighborhood resiliency. This is to be evaluated on a case-bycase basis, preferably at the block level. Within the Northwest Hills NPD area Bunker Hill Drive.
Drainage
D.1 Coordinate development within the plan area so detention facilities promote access and complement the Northwest Hills linear park.
D.2 Consider exploring regional detention facility as part of the Bird Creek drainage way as well as the floodplain in the west end of the Northwest Hills Plan area.
Parks and Trails
PT.1 Plan and Design Northwest Hills Linear Park. Acquire property, plan, design, and construct shared use trail. Connect trail to adjoining public and HOA park property.
PT.2 Pursue opportunity to divest the Camden Open Space property, as it is redundant to Northwest Hills Park.
PT.3 Coordinated expansion of Saulsbury Garden into land along the proposed linear park.
Economic Growth
EG.1 Work with TRC and TEDC to explore options to better align commercial development along Airport Road to serve nearby residential.
Capital
Neighborhood Stabilization and Redevelopment
the use of the Track Temple app via promotional materials and expanded messaging
Northwest Hills Neighborhood Capital Improvement Plan
The following list of projects was derived from the concepting and recommendations formulated as part of the planning process. The projects identified correlate with the actions found in the Northwest Hills Neighborhood Action Plan. Projects may be a single action or a combination of actions. The opinion of the probable cost was developed uniquely for each particular project and includes the cost of construction, contingency, land/right-of-way acquisition, and professional services. Action prioritization in regards to project implementation should be followed; however, if circumstances arise that increase the urgency or cost savings for the realization of the project, deviations from the recommended action priority is appropriate.
5
6
7
13



The water lines identified in this exhibit provide recommended locations and capacity to serve the neighborhood district.






