Authoring Experience
          
    MIXED-USE 2024
        WE ARE
          CREATIVES.
          EXPERTS.
          COLLABORATORS. INNOVATORS.
          LEADERS. LEARNERS. PARTNERS.
          
    
    For more than 65 years, OMNIPLAN has been known for innovative and evocative architecture. More than 118 design awards, including five 25-Year Awards, are a testament to this heritage. George Harrell and EG Hamilton founded the firm in 1956 as Harrell & Hamilton with a commitment to elevating the quality of their community’s built environment as a core value. OMNIPLAN is Texas’ only firm to have won five AIA 25Year Awards for enduring design excellence.
          WE WANT TO TRANSFORM OUR WORLD THROUGH THE POWER OF THOUGHTFUL AND EXCELLENT DESIGN.
          Headquartered in Dallas, the firm has worked in 38 states and six foreign countries. Our practice is focused in both the commercial and institutional arenas with special emphasis in workplace, museums, retail and mixed-use developments, multifamily developments, and facilities for institutions of higher education. What is common in all our work is the focus and dedication that goes into each unique project and the
          universal desire that every project contributes to the built environment in a meaningful way.
          We see the world differently. Not for what it is, but for what it could be. We are seekers, striving to create better places, buildings and experiences. Our work is connected, transformative and memorable. It is organic and nimble, leaning into the future and anticipating change.
          WE ARE A COLLECTIVE OF THINKERS THAT EMBODY AN ENTREPRENEURIAL SPIRIT CONSISTENTLY EXPLORING NEW SOLUTIONS.
          Our culture is creative and collaborative. We are passionate about encouraging our clients to fully engage with us in the creative process. Our creative process is always guided by our commitment to excellence in project delivery and technical expertise. We are a tightknit team of the talented, creative and confident dreamers who are defined by their trustworthiness and integrity of character. We understand that it is through the talents and abilities of our people that we deliver maximum value to our clients.
          
    
    
    5
        
    RETAIL/MIXED-USE
          
    OFFICE
          
    PLANNING
          
    MULTIFAMILY
          
    WORSHIP
          
    RESEARCH
          
    CULTURAL
          
    EDUCATION
          OMNIPLAN’s practice encompasses Architecture, Planning, Interior Design, and Graphic Design. Our expertise is in both commercial and institutional arenas including large-scale commercial and mixed-use planned developments, urban and suburban office buildings, facilities for institutions of higher education, research laboratories, and places of community and worship.
          What is common to all of our work is the focus and dedication that goes into each unique project and the universal desire that every project contributes to the built environment in a meaningful way.
          The diversity in project types is a planning principle that we embrace so that our masterplanning and mixed-use developments have the expertise of the multitude of project types being applied.
          7
        
    
    
    
    
    
    
    
    The Quad
          Location: Dallas, Texas
          SERVICES: Full A/E
          STATUS: In Construction
          335,000 SF Office
          15,000 SF Retail
          680 Below-Grade Parking Spaces
          
    9
        
    
    
    
    
    
              
              
            
            Confidential Mixed
          SERVICES: Full A/E
          STATUS: Complete
          75,000 SF Office
          550 MF Units
          120,000 SF Grocery
          1,450 Parking Spaces
          
    11
        
    
    
    
    
    
    Block 23
          Location: Phoenix, Arizona
          The Ryan Apartments are located within Block 23, a 1.1M SF mixed-use development in the heart of Downtown Phoenix. This one-stop live-work-play community is steps away from the Phoenix Suns Arena and the Diamondbacks Stadium. The block includes creative office space, grocery store, restaurant, retail and a shared parking garage. Resident amenities include a pool deck, fitness center, co-working space, pet spa, bar, coffee shop and panoramic views of Downtown and the nearby mountains.
          
    SERVICES: Full A/E
          STATUS: Complete
          330 Multifamily Units
          80,000 SF Retail
          210,000 SF Office
          1.125M SF Total
          13
        
              
              
            
            The Boardwalk at Granite Park
          Location: Plano, Texas
          Centered on an existing retention pond, this restaurant park serves the adjacent Granite Office Park as well as the surrounding neighborhoods. With its back to a major highway intersection, the retention pond was repurposed to provide a focal point for restaurant patrons and to serve as a backdrop for live music. The Boardwalk offers six new restaurants that are walking distance from the office park, making it highly accessible during and after work hours. The multi-building development flanks the pond with a layering of restaurant patios, a pedestrian path, and lounge seating, creating an outdoor amenity for office park employees and visitors alike.
          
    
    
    
    
    
    
    
    15
        
    
    
    
              
              
            
            The Farm
          Location: Allen, Texas
          OMNIPLAN worked with Brookfield to create an interior refresh concept for Stonebriar Centre, which opened in August of 2000. The new concept created an engaging, urban experience in an enclosed mall. This transformation would revitalize the center and create memorable experiences that are naturally instagrammable without trying too hard.
          Our strategy envisioned a series of nodes where community gathering can occur. These nodes are connected by paths that ebb and flow guiding people throughout the space and steering them toward our larger central spaces where events and performances will be on regular rotation. Additionally, these nodes would be loosely segmented by consumer types grouping tenants by their target demographics. With hospitalitylevel finishes and a simplified palette, Stonebriar Centre would be timeless and elegant, serving its community for years to come.
          
    17
        
    
    
    
    Location: Frisco, Texas
          SERVICES: Retail, Office, Hotel, Masterplanning
          STATUS: Under Construction
          240 Acres
          
    19 The Link
        SERVICES: Full A/E Services
          147,000 SF Total 1.4 Acres
          32 Tenants
          8 Restaurants
          
    
    
    
    
    
              
              
            
            Hillcrest Village
          Location: Dallas, Texas
          SHOP selected OMNIPLAN to reimagine this lackluster retail plaza built in the late 1970s and early 1980s. Located in Far North Dallas, the center was characterized by one and two-story commercial buildings containing an array of retail and office tenants. Once slotted for demolition in favor of a multifamily development, the center has found new life as a community destination. Central to the project is a 1.5-acre City Park, developed as part of a Public-Private Partnership with SHOP and the City of Dallas. An existing retail building was torn down to free up space for the park that includes a programmable central lawn, activated promenades, playground, and public art.
          
    
    21
        
              
              
            
            The Willow
          Location: Dallas, Texas
          Located in the Deep Ellum District in Dallas, Texas, this 7-level podium project has 190 units. The building is reflective of the Historic Deep Ellum character, but executed in a more contemporary architectural style. Amenities include co-working space, a coffee bar and an elevated pool deck.
          
    SERVICES: Full A/E
          STATUS: Under Construction
          190 Units
          236 Parking Spaces
          300,000 SF Total
          
    
    
    
    
    
    
    23
        
    
    
    
    
              
              
            
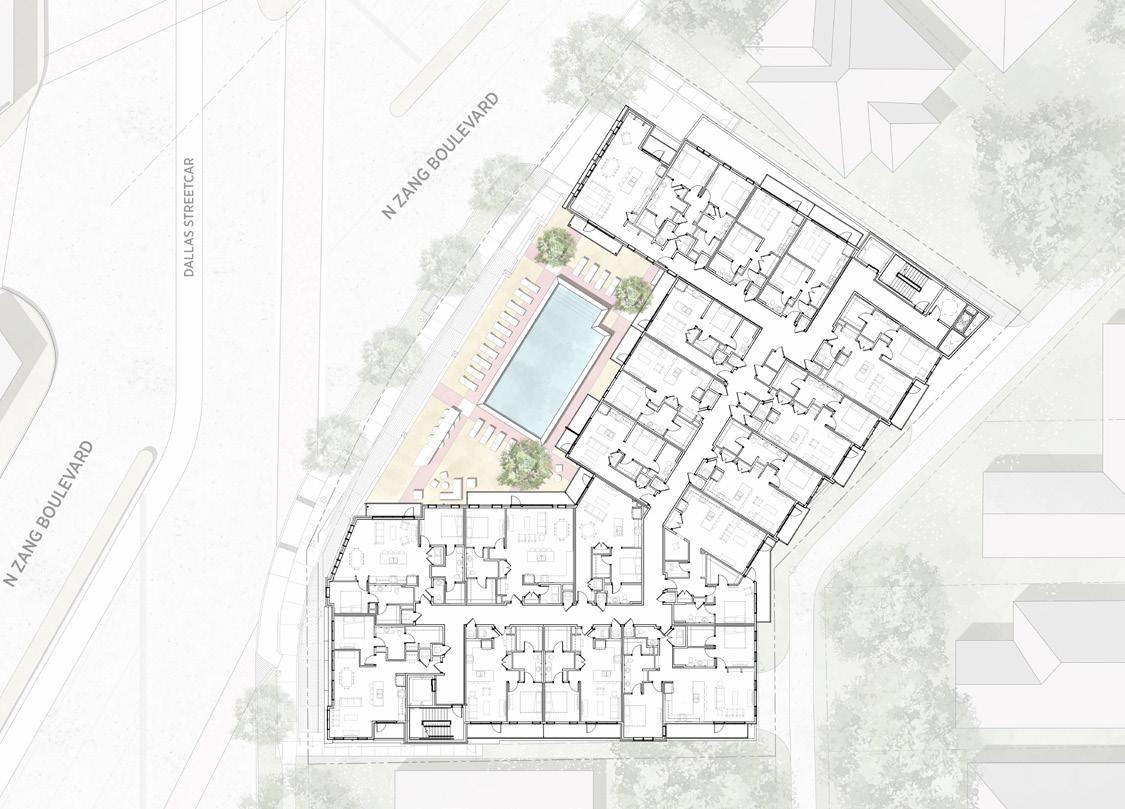
            Zang Flats
          Location: Dallas, Texas
          This lively project is located at the intersection of two prominent streets in the Oak Cliff neighborhood in Dallas. This urban building is complete with live-work style units that have front doors right out to the sidewalk. This style mimics the storefronts in the surrounding area. The City of Dallas Modern Streetcar system travels in front of the building with a stop just a block away, creating a true walkable lifestyle.
          
    
    
    
    25
        
              
              
            
            2800 Taylor
          Location: Dallas, Texas
          Located in Deep Ellum at the intersection of Malcolm X and Taylor, this is a podium multifamily project with 177,599 NRSF. The design includes 192 units total with a mix of studio, one and two bedroom layouts. Three levels of parking, including one below grade, provide 209 parking spaces. There is also 13,000 SF of amenity/ leasing space and a 7,600 SF outdoor pool and amenity deck on the third floor. The facade’s bold grid pattern creates an industrial feeling in keeping with the surrounding neighborhood.
          
    
    
    
    2800 TAYLOR MF | SCHEMATIC DESIGN AUGUST STREETSCAPE PLAN TAYLOR STREET 25’ ALLEY S CROWDUS STREET S MALCOLM X BLVD ORNAMENTAL TREE CANOPY TREE PLANTING PAVER A SIGN WALL PAVER B 6’ EVERGREEN SHRUB GRAVEL BAND NORTH 30’ 60’ 90’
        
    
    
    27
        
    
    
    
    
              
              
            
            Magnolia Petroleum Building
          Location: Dallas, Texas
          SERVICES: Core & Shell
          STATUS: Complete
          3 Floors
          17,300 SF Total
          
    PLAZA
          COMMERCE STREET HARWOODPARK
          
    
    29
        
    
    
    
    
    
    
    
              
              
            
            NorthPark Center
          Location: Dallas, Texas
          The largest shopping center in North Texas, and among the top 5 shopping destinations in the country, NorthPark Center has maintained its unique sense of identity for 50 years. A rare achievement for a regional shopping center, NorthPark Center’s architecture has afforded OMNIPLAN the honor of receiving several Design Awards from the Texas Society of Architects, and also the Dallas Chapter AIA, which specifically honored us with a 25-Year Award. In 2022, NorthPark Center was recognized by the Texas Society of Architects with an Architectural Landmark Award.
          Inside NorthPark, a controlled introduction of natural light animates sequences of modular spaces. The ceiling’s skeletal structure is expressed concrete—borrowing light from baffled clerestories and skylights to fill the mall’s open spaces. Its dark stained floors and white brick walls comprise its minimalist materials palette, which carries throughout the contemporary expansion. Given careful attention to space, order and natural light, its restrained design has secured lasting success for its simple palette.
          31
        
    
    
    
    
              
              
            
            Galleria Redevlopment
          OMNIPLAN worked with Trademark on multiple design studies for the redevelopment of the Galleria. The plans all centered on densifying the site with a mix of uses to create an engaging destination at the center of a changing metroplex. New product types included creative office, Class A office, multifamily and boutique hotel.
          Along with Park Heritage and the planned Midtown development, the exciting redevelopment of the Galleria will create a much needed anchor in the center of the DFW metroplex.
          
    
    33
        THE WESTIN GALLERIA 22 LEVELS DROP- OFF MULTIFAMILY 24 LEVELS 300 UNITS 327,000 SF CREATIVE OFFICE 4 LVLS - 71,400 SF RETAIL/REST. 3,000 SF RETAIL/REST. 3,000 SF 16 LEVELS 400,000SF AMENITY DECK/ ROOF ABOVE GREAT LAWN PURPLE GARAGE BELOW NEW DROP-0FF NEW ESCALATOR CLASS A OFFICE REST. / MEETING SPACE RESTAURANT LVL 1 - 9,000 SF MTG SPACE LVL 2 - 9,000 SF RESTAURANT LVL 1 RESTAURANT LVL 1 BRIDGE BOUTIQUE HOTEL 16 LEVELS - 180 ROOMS 209,500 SF +/Location: Dallas, Texas
        
              
              
            
            Park Heritage at Dallas Midtown
          Location: Dallas, Texas
          At the intersection of the LBJ Freeway and Preston Road, the former Sears store at Valley View Mall sees a new future as a creative mixed-use project. The project takes advantage of the convenient access to the major thoroughfares while building upon the 430-acre Midtown Dallas Redevelopment Zone.
          The 22-acre mixed-use development is focused around a central park that connects the various use buildings together all while catering to the pedestrian environment.
          Featured within the development are Class-A office towers, hospitality, luxury residences, vibrant shopping, dining and entertainment. The blend of uses creates an environment that is able to thrive on its own while also taking advantage of the tremendous growth happening in the future.
          
    
    
    
    
    
    
    35
        
              
              
            
            Highland Park Village
          Location: Dallas, Texas
          Originally built in 1931, Highland Park Village was billed as the country’s first self-contained, open-air shopping center and was declared a National Historic Landmark in 2000. It represents a pivotal point in the evolution of the shopping centers that transitions from main street to the shopping malls that we know today. The Village is viewed as the first planned shopping center in the United States with a unified architectural style. The Village includes more than 70 tenants, including world-class luxury retail and was built by the developers as a town square. Many of the tenants are exclusive to Highland Park Village making the site a retail destination, including Hermes.
          
    
    
    
    
    
    
    
    37
        
    
    
    
    
    
    
              
              
            
            Stonebriar Refresh
          Location: Frisco, Texas
          OMNIPLAN worked with Brookfield to create an interior refresh concept for Stonebriar Centre, which opened in August of 2000. The new concept created an engaging, urban experience in an enclosed mall. This transformation would revitalize the center and create memorable experiences that are naturally instagrammable without trying too hard.
          Our strategy envisioned a series of nodes where community gathering can occur. These nodes are connected by paths that ebb and flow guiding people throughout the space and steering them toward our larger central spaces where events and performances will be on regular rotation. Additionally, these nodes would be loosely segmented by consumer types grouping tenants by their target demographics. With hospitality-level finishes and a simplified palette, Stonebriar Centre would be timeless and elegant, serving its community for years to come.
          
    RELOCATE D&B AND CHEESECAKE FACTORY TO FAMILY ZONE NEWLUXURY ANCHOR FAMILYSTREET LUXURY STREET VALUE STREET
        
    
    
    
    
    
    NORDSTROM
          MACY’S
          
    Oakbrook Center
          Location: Oak Brook, Illinois
          General Growth Partners (now Brookfield), the owner and developer, commissioned retail design experts OMNIPLAN to lead the charge in redesigning this premier center. The resulting design enhanced Oakbrook’s already elegant character by creating an atmosphere that is inviting and approachable and acts as a backdrop to the many activities in the space, from large planned events to informal gatherings. With the help of landscape designers, StudioOutside, the design extends the lush landscaping throughout the space and adds several pavilions to guard patrons from the harsh Chicago winters and allow them to enjoy the beautiful holiday season at Oakbrook. The design also incorporates a large common space to accommodate events and create a sense of community at the heart of the center. A second expansion included the addition of the AMC theatre and the District food hall.
          
    41
        KIDZANIA
          AMC THEATRE AT THE DISTRICT PARKING BELOW
          NEIMAN MARCUS
          BARNES & NOBLE
          LORD & TAYLOR
          SEASONS 52
          CRATE AND BARREL
          
    
    
    
    
              
              
            
            La Plaza Mall
          Location: McAllen, Texas
          Through exploring McAllen’s culture, we recognized a need to establish La Plaza with a clear definition of place among a landscape where the art of rational building is imperative. Based on simple, innovative and authentic design, the design philosophy centers around two essential architectural ideas. The first is to use the building’s structure to create a significant place within a site. The second is to be sensitive to the local culture— responding to environmental demands with the form of the building. The ideas for the design evolved from our appreciation of the natural environment’s elements, which has inspired the structure’s cultural textures. In this way, the project presents itself like it has always meant to be there.
          
    
    
    43
        
              
              
            
            The Boardwalk at Granite Park
          Location: Plano, Texas
          Centered on an existing retention pond, this restaurant park serves the adjacent Granite Office Park as well as the surrounding neighborhoods. With its back to a major highway intersection, the retention pond was repurposed to provide a focal point for restaurant patrons and to serve as a backdrop for live music. The Boardwalk offers six new restaurants that are walking distance from the office park, making it highly accessible during and after work hours. The multi-building development flanks the pond with a layering of restaurant patios, a pedestrian path, and lounge seating, creating an outdoor amenity for office park employees and visitors alike.
          
    
    
    
    
    
    
    
    45
        
    
    
    
    
    
    Baybrook Mall
          Location: Houston, Texas
          A 200,000 SF open-air retail expansion for the once totally enclosed Baybrook Mall, near Houston, complements yesterday’s anchors and shops with new outdoor entertainment, restaurants and shops. The expansion is organized around an open greenspace to offer a lifestyle experience at the Mall for community activities and leisure. A parking deck provides additional parking. A future power center will expand the box and shop retail offerings to this regional center.
          
    
    47
        
    
    
    
    
    
              
              
            
            Hillcrest Village
          Location: Dallas, Texas
          SHOP selected OMNIPLAN to reimagine this lackluster retail plaza built in the late 1970s and early 1980s. Located in Far North Dallas, the center was characterized by one and two-story commercial buildings containing an array of retail and office tenants. Once slotted for demolition in favor of a multifamily development, the center has found new life as a community destination. Central to the project is a 1.5-acre City Park, developed as part of a PublicPrivate Partnership with SHOP and the City of Dallas. An existing retail building was torn down to free up space for the park that includes a programmable central lawn, activated promenades, playground, and public art.
          
    
    49
        
    
    
    
    
    
    Northbrook Court
          Location: Northbrook, Illinois
          Northbrook Court is undergoing major renovations to their 40-year-old shopping mall. The current anchor department store, Macy’s, will be demolished to make room for the Great Lawn, an open-air plaza as well as a high-end grocery store. Overlooking the new Green Lawn will be 315 luxury multifamily units as well as several new restaurants and retail tenants. Underneath the residential units will be a parking deck that will hold 434 cars. Later phases include a full renovation of the mall interiors and entries.
          
    
    
    Cityline
          Location: Richardson, Texas
          OMNIPLAN is the urban planning and retail design architect for KDC’s Cityline development, which is located on 186 acres near the intersection of the George Bush Turnpike (Highway 190) and Central Expressway in Richardson, Texas. The name CityLine was a natural choice as the development is on the border of two great cities: Richardson and Plano. Adjacent to DART’s existing light rail station and surrounded by major highways, CityLine aspires to be an instant city with a true urban environment.
          In addition to the 1.5 million SF of office towers to be leased by State Farm, thie initial phase will include development of more than 92,000 SF of retail, dining, entertainment, hospitality and multi-family residential units. There will also be a medical office building and a 3.5 acre park with trails.
          
    
    
    
    
    
    
    
    
    
    Santa Monica Place
          Location: Santa Monica, California
          Originally designed by Frank Gehry, Santa Monica Place opened in 1980 and underwent renovations in 1990 and 1996. Completed in Fall 2010, this 557,000 SF mall underwent an extensive transformation to become an outdoor shopping area. The design involved the conversion of this indoor mall to an outdoor shopping center in order to better connect with shoppers on the adjacent Third Street Promenade. In addition to taking advantage of the area’s ocean views, the design now better reflects the interests of this unique community, as well as creates a dynamic environment that makes the most of the urban, beachside setting. The design was completed in association with The Jerde Partnership of Los Angeles.
          
    55
        
              
              
            
            The Shops at RedBird
          Location: Dallas, Texas
          The Shops at RedBird is part of Dallas’ GrowSouth Plan to build a foundation for sustainable growth in poverty areas, specifically South Dallas. Currently under construction, the new RedBird will become a true mixed-use destination with office, healthcare, multifamily, hotel, entertainment and retail components. All this, plus an open one-acre lawn for community gatherings and events. The lawn will create a unique community environment within RedBird for an enhanced dining and shopping experience.
          The redevelopment of The Shops at RedBird is rooted in a collective desire to create a new and authentic heart to South Dallas. By re-envisioning this once-thriving center, the new vision seeks to create a dense mixture of retail, office, hotel, community health clinics and multifamily space while also encouraging walkability throughout the site.
          
    
    
    
    57
        
    
    Design That Is Crafted For The Human Experience
          
              
              
            
            Mall Experience
          1845
          
    WOODALL RODGERS FWY
        1600 | DALLAS,
        214.826.7080
        SUITE
        TEXAS 75201