Moorman Parade Home - Muriel Brown

Page 1


Parade of Homes - Moorman Home

Muriel Brown
Professor Moorman Spring 2024 Residential Design II Parade Home

T i m e L o g

A b o u t T h e C l i e n t

S c h e m a t i c D e s i g n

R o o m S c h e d u l e

F l o o r P l a n s

E x t e r i o r

S i t t i n g R o o m

K i t c h e n

P a n t r y

B r e a k f a s t N o o k

L i v i n g R o o m

P r i m a r y

2 n d F l o o r

K o l s o n ’ s R o o m

K e n s l e y ’ s R o o m

K a l y a ’ s R o o m

K a r d e r ’ s R o o m

Table of Contents

G a m e R o o m 3 4 8 13 15 18 21 23

Time Log

About The Client

Location

Merritt Island, Florida

Merritt Island is a peninsula on the eastern coast of Florida with a population of about 34,000. With ocean views, warm weather, water activities and plenty of new opportunities, it’s no wonder the Moorman’s want to move their family from Cedar Rapids, Iowa, to Merritt Island.

The Moormans

After lots of consideration, the Moorman’s are making the big move to Florida. Now, Jillissa and Brooks along with their four children, Kalya, Karder, Kolson, and Kensley, are looking for their forever home. As a family of 6, they already need plenty of space. However, they also love to host and require space in their new home to do so. The Moorman’s look forward to moving into their spacious new home that features elements of coziness and sophistication.

Client’s Wishes

2 dishwashers

3 refrigerators

6 bedrooms

Plenty of seating for guests

Cool tones

Plenty of storage

Library

Office space

Architectural moments

Wallcoverings

Schematic Design Phase

Concept Changing of the Tides

The Moormans are moving to Florida, and the tides are changing. While moving can be difficult, it is our goal at MB Designs to make the transition as comfortable as possible. With that goal in mind, our mission is to create a home that seamlessly blends the essence of the beach, and modern design. With the concept of “Changing of the Tides”, we will design spaces that draw inspiration from elements of the ocean. The home will feature materials and finishes that resemble driftwood, seaweed, the ocean ’ s tide, and the pebbles it carries in.

Kalya's Room Game Room

OPENTO SITTING ROOM

BKalya'sathroom WIC GreatRoom

Kensley's Bathroom WIC

Kensley'sRoom

2nd Floor

BKolson'sathroom WIC

Karder'sRoom

Foster/GuestRoom Bathroom

Room Schedule

1st Floor

Garage 1

Garage 2

Mud Room

Laundry Room

Dining Room

Kitchen

Pantry

Family Room

Breakfast Nook

Karder’s Room

Sitting Room

Office

Library

Primary Bedroom

Pool Bathroom

Room Schedule

2nd Floor

Great Room

Game Room

Kalya’s Room

Kolson’s Room

Kensley’s Room

Foster/Guest Room

Floor Plans

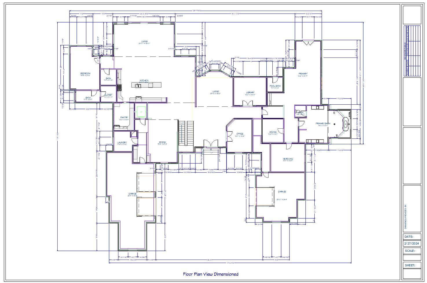
1st Floor

1 s t F l o o r

D i m e n s i o n e d F l o o r P l a n

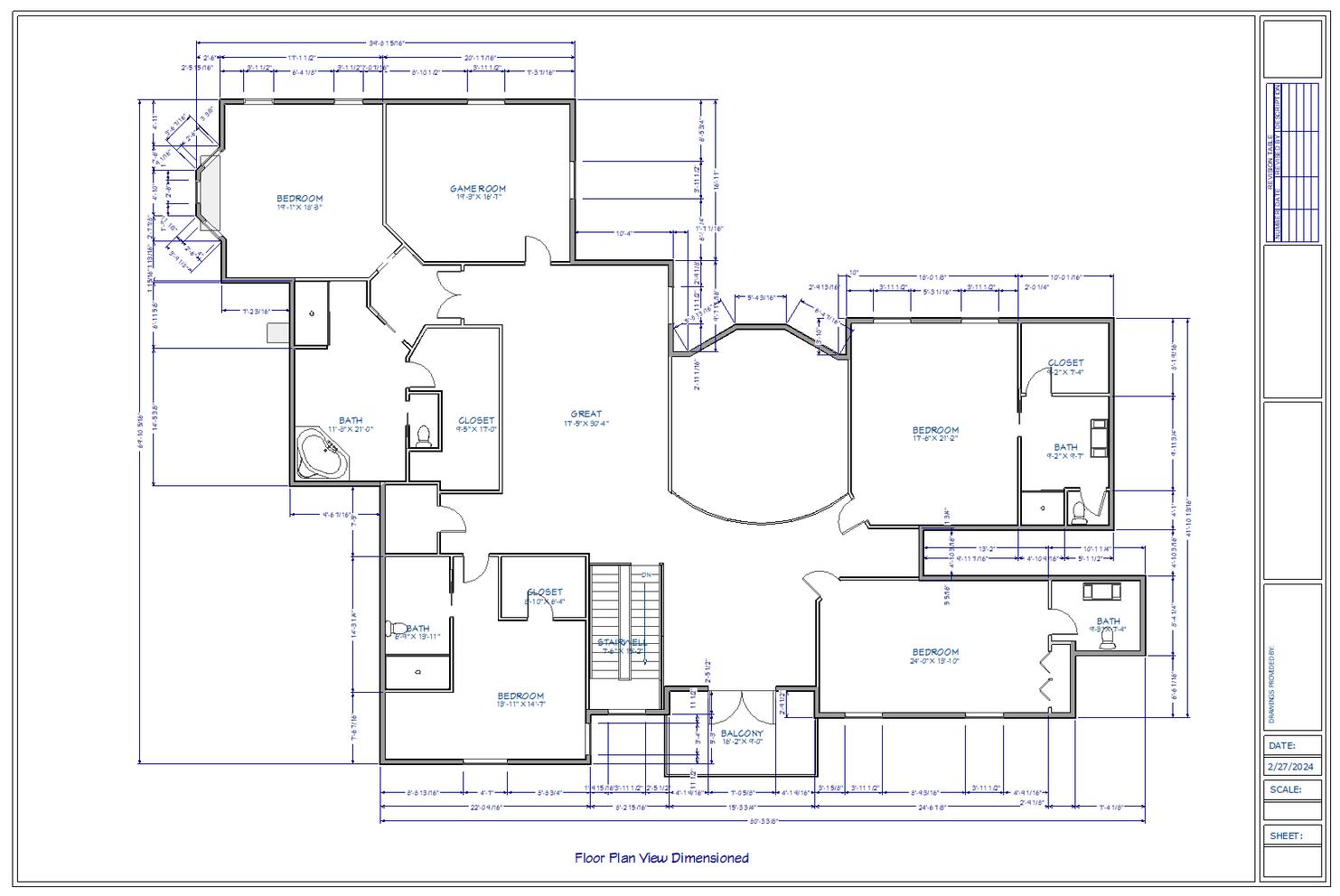
2nd Floor

2 n d F l o o r

D i m e n s i o n e d F l o o r P l a n

Exterior

This 8,899 sq/ft home features 2 garages with space for 3 cars and a golf cart. 6

Bedrooms 6.5 Bathrooms

Sitting Room

Codiys 59.1" Art Deco White
Arched Bookcase Tall Open
Geometric Japandi Bookshelf Wood
Large windows and shelving was added in the sitting room to create a formal and calm feel.
Theodore Armchair Soho Home

Kitchen

Berkshire Brass
Cambria
Waterfall island countertop in the beautiful Cambria countertop with brass veining to bring out the brass fixtures. Modern Black Faux Leather Bar Height
Bar Stools Set of 2 with Back & Footrest

Two dishwashers upon the request of the client to make washing dishes more efficient and easier.

Fisher & Paykel - Top Control
Stainless Steel Built-in Double DishDrawer with 44 dBA
A large apron front sink was added with removable cutting and dish drying rack. The island cabinets were painted a gorgeous sage green to pull in the color from the wallcovering in the living room.
Nuova White Fireclay 34 in. Single Bowl Drop-In Apron Front Kitchen Sink with Protective Grid, Strainer, & Cutting Board

A beautiful arched niche was add to create a designated space for the range, and space to cook.

Monet Honed Marble Mosaic 6
Tile in White Carrara
36 in. 6 Burner Dual Fuel Range in Stainless Steel with Griddle

Elevation of Range

Snack area for easy snack access for the kids, as well as a coffee area for the parents.

Three refrigerators upon request of client to make storing food for a hosting family of 6 much more efficient.

Microwave located in the pantry to create more space for storage in main kitchen.

Refrigerator w/ Ice and Water

Dispenser and SmartDiagnosis in PrintProof Stainless Steel

25 cu. ft. French Door

Breakfast Nook

A round table with 6 chairs was chosen for the informal dining space to promote conversation, and quality time as a family. It can also be used as a space for the children to do homework in a space other than their room.

Living Room

The living room features a stunning accent wallcovering from Burke Decor.
Sample Blake Moss Leaf Wallpaper from Concrete Advantage Collection

A large couch and two very large love seats were chosen for this space because the family hosts many people at a time and wanted a space where they can all gather.

A large sliding glass door in the living room leads straight out to the backyard, pool, and playground.

Primary

BLA-01 AR Sky / Beige

A beautiful wallcovering was sourced for the primary to enhance calmness.

Stira’s Hand, Changing Tides Ombre
Brittanicca Warm Cambria
A coffee bar was built in the primary to create easy access in the mornings.

Elevation of Coffee Bar

Wood beams span the ceiling of the primary.

2nd Floor Foyer

Kolson’s Room

Kensley’s Room

Kalya’s Room

Karder’s Room

Game Room

A gorgeous rug from Loloi and simple wallcovering from HollyHunt create a cozy, yet lively feel.
HTH-04 Beige / Multi Loloi
Renzo: Marine HollyHunt

A zero-gravity massage chair was added in the game room upon request of the family.

20 Features

Infinity Dynasty Luxury Massage Chair with Zero Gravity & Over

A large flat screen tv is added to enhance video game playing for the kids, and movie nights for the familly.

Thank You For Your Time And Attention!

Turn static files into dynamic content formats.

Create a flipbook
Issuu converts static files into: digital portfolios, online yearbooks, online catalogs, digital photo albums and more. Sign up and create your flipbook.
Moorman Parade Home - Muriel Brown by Muriel Brown - Issuu