

Hella’s Haven
InternationalHome
Hella,Iceland
PRELIMINARYPLANNING
TIMELOG
CONSTRUCTIONDOCUMENTATION
MODELING 25hrs
RENDERING
SELECTIONS
TOTAL 4hrs 5hrs 4hrs 8hrs 46hrs
LOCATION Hella,Iceland
HellaisasmalltowninsouthernIcelandontheshoresoftheriver
Ytri-Rangáandhas,asof2021,942inhabitants.Hellaissituated94 kilometrestotheeastofReykjavíkontheHringvegurbetween SelfossandHvolsvöllur.

PROJECTOVERVIEW
BjornandElviawouldwantyoutodoeverything-fromasmaller2-3bedroomfloorplanfromanonlinewebsite (ofcoursebuiltwithlocaldesign/architecturalstyles-notlikewhatwewoulddohereintheUS)toallmaterials andfinishes,andallfurniture!OfcoursetheywanttosourceproductsfromthatregionandIthoughtyouwould doagreatjobatthat!Theyaren'tveryspecific,butElviadidtalkalotaboutherloveforalloftheverycleanlines, concrete,simplicityofarchitectureandcleancabinaesthetics.TheydesireaverymodernDanishaestheticand hopethatyouwouldbeabletointerprettheirdesigninterests.WhentheyareinHella,Icelandtheyliketovisit glaciers,watchtheNorthernLights,andcozyupinfrontofafire.
CONCEPT
TheconceptforHella’sHavenistoembodyunderstatedluxurywhilecelebratingthebreathtakingnatural surroundings.Weenvisionadesignthatharmoniouslyblendssimplicityandsophistication,creatingaserene retreatthatprioritizesthebeautyoftheoutdoors.Withcleanlines,minimalistaesthetics,andluxurioustouches, theinteriorspaceswillexudeasenseoftranquilityandrefinement.Naturalmaterialssuchaswood,stone,and Icelandicwoolwillbethoughtfullyincorporatedtoevokeaconnectiontotheruggedlandscapeandcreatea warm,invitingatmosphere.
COLORPALETTE



MATERIALFLATLAY







WifiHandout
Logo
Hella’s Haven BRANDING



BrandingExample

Hella’sHaven
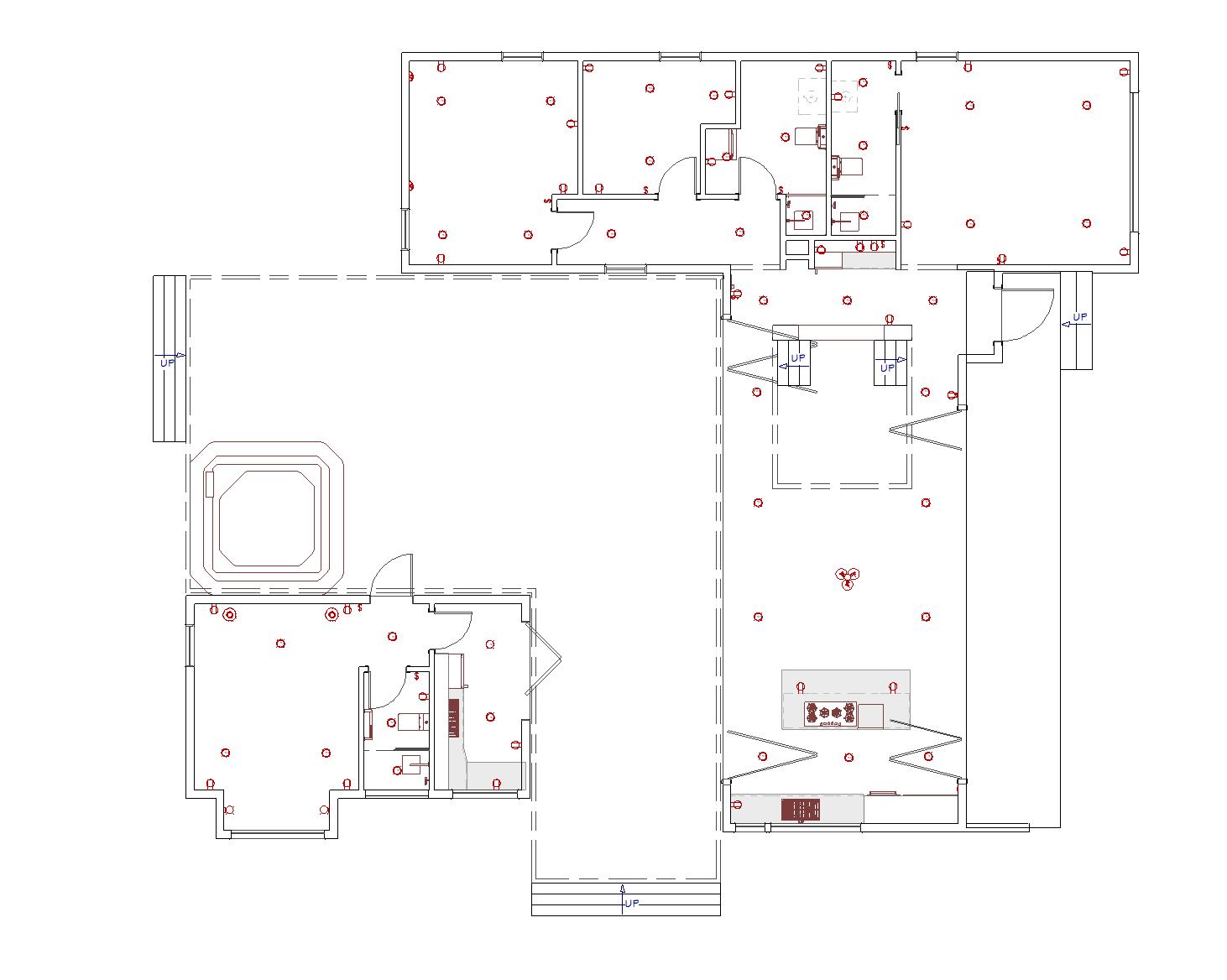
CONSTRUCTIONDOCUMENTATION

FLOORPLAN






































RECESSEDLIGHTING ACCENTLIGHITNG
PENDANTLIGHITNG

OTTOMAN



BACKELEVATION

EXTERIOR

FRONTPERSPECTIVE

BACKPERSPECTIVE
PRIMARYRESIDENCE

KITCHENPERSPECTIVE


KITCHENPERSPECTIVE


CABINETRY DETAIL DRAWING


DININGSPACEPERSPECTIVE


DININGSPACENIGHTTIMEPERSPECTIVE

CONVERSATIONPITPERSPECTIVE




BARPERSPECTIVE
PATIO


PATIOPERSPECTIVE

PATIOPERSPECTIVE

GUESTHOUSE

GUESTBEDROOMPERSPECTIVE



GUESTBEDROOMNIGHTTIMEPERSPECTIVE


GUESTBEDROOMPERSPECTIVE


GUESTBEDROOMART


GUESTBEDROOMDETAIL


GUESTKITCHENPERSPECTIVE



GUESTKITCHENNIGHTTIMEPERSPECTIVE
GUESTKITCHENDETAIL



GUESTBATHROOMDETAIL



GUESTBATHROOMPERSPECTIVE

