Kevin Nathanael Portfolio

Page 1

PORTFOLIO

BASIC INFORMATION

Name : Kevin Nathanael

Born : 24 Aug 2003

Birthplace : Jakarta, Indonesia

Current Occupation : Student

EDUCATION

SMA Galatia 3

2018 - 2021

Universitas Multimedia Nusantara Architecture Degree

2021 - 2025

EXPERIENCE

2019

Became vice chairman of the Galatia 3 high school student council

2021

Participate in the Introduction to the Committe for the Architecture Study Program 2022 as member of the Equipment and Security division

2022

Participate in the set of architecture majors at Multmedia Nusantara University (HIMARS Gen 5) as a member of the creative division

2022

Participate in Paper Recycling Activities event as Person In Charge

2023

Participate the Archiweek 2023 as a member of program division

KEVIN NATHANAEL

ARCHITECTURE STUDENT

As a student majoring in architecture, i define myself as a person that has many experiences of designing various building typologies with a precise thinking of room qualities and human comfort. I'm a responsible person and have huge commitments in every architecture works that i do because i enjoy the process of designing with a simple touch of sketches and a signature visualisation.

TOOLS

Revit Rhinoceros

Photoshop

AutoCad

SKILLS

CRITICAL DESIGN THINKING RENDERING

DIAGRAMS

WORKING UNDER PRESSURE

ATTENTION TO DETAIL PUBLIC SPEAKING

SketchUp Figma
CONTENTS
The Haven A Quintessential Place
Bunkatsu Bokkusu Divided

A PLACE THAT OFFERS SAFETY, IN BOTH PHYSICAL AND PSYCHOLOGICAL WAY.

The project is located at Citra Garden Aeroville and is designed for a client that is an office worker and have an interesting hobby for car mofidication. He often invites his friend to do car modifications together. His wife is a housewife that love to grow plants and water them everyday. They have two kids, a 7 y.o and a 5 y.o. This project has a main goal of creating a housing system that will be a safe place for them to call a series of walls and roofs as their home.

1

The Haven

project type

- architectural design 2

project year - 2022

project place - indonesia, west jakarta

project type

- passive design house

FIRST FLOOR
1. Living room 2. Dining room 3. Kitchen 4. Powder room 5. Storage room 6. Garage 7. Inner garden 8. Outdoor garden
SECOND FLOOR
9. Master bedroom 10. Kids bedroom 11. Bathroom 12. Rooftop garden

CIRCULATION PLANTER

SITE LOCATION

CONCEPT

existing site

add innercourt

make hierarchy

cut to maximize lighting

is implemented at the middle of the housing program. Void is used to capture maximum intensity of natural light for all rooms. Other than that, void also maximizes air circulation throughout all rooms so that the system of cross ventilation is created and natural air is divided equally for each and every room.

THE VOID

THE OVERALL EXPERIENCE creted at haven house is a place that is close to nature with the domination of void and innercourtyard, aswell as a rooftop garden to fulfill client’s hobby for treating plants.

PRIVATE PRIVATE PRIVATE SEMI PRIVATE SEMI P SEMI P SEMI P SEMI SEMI P SEMI PRIVATE SERVI ES ZONING
extrude

“Split” emerges as a compelling response to client needs, accompanied by pressing concerns such as the lack of gathering spots for students, the absence of children’s play facilities in the neighborhood, and limited opportunities on the site.

This remarkable structure encompasses an array of four sports venues, including badminton, basketball, futsal, and an indoor gym, catering to the fervent passions of both students and the local community. Furthermore, the building boasts additional amenities such as a vibrant gathering space, an enticing playground, and engaging booths, synergistically intertwined to create an enriching spatial experience that complements one another.

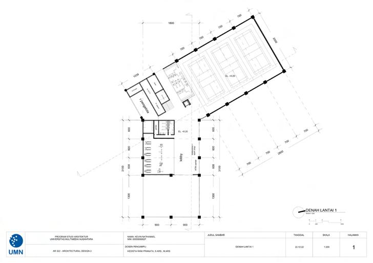
2

Split

project type

- architectural design 2

project year - 2022

project place - indonesia, tangerang

project type - sport center

THIRD FLOOR

SECOND FLOOR

FIRST FLOOR

1. Badminton court 2. Basketball court 3. Futsall court 4. GYM 5. Changing room 6. Cafetaria 7. Playground 8. Park

FRONT VIEW

BACK VIEW

SECTION

This building is a 30-storey high-rise dedicated to office purposes.

It features various types of rooms for everyday activities, such as office spaces, meeting rooms, and seminar rooms.

In addition to the working areas, the building is equipped with additional facilities such as a cafeteria and a rooftop terrace (Sky terrace).

3

Bunkatsu Bokkusu

project type

- building technology 3

project year - 2023

project place - indonesia, central jakarta

project type

- smart high-rise building

ZONING

FEATURES

Sky Terrace

The sky terrace serves as a lush oasis within the building, providing vegetation that creates a microclimate, fostering a refreshing and psychologically comforting environment.

Photovoltaic Panel

The captivating Photovoltaic Panels (PV Panels) harness the power of renewable energy, derived from the radiant sun, to generate a sustainable and awe-inspiring source of power.

Active Facade

The mesmerizing second skin of this building gracefully adapts to the varying intensity of sunlight, courtesy of a sophisticated system powered by the PV Panels installed on its rooftop, harnessing the sun’s energy.

ISOMETRIC

photovoltaic panel

greywater system

low-e glass

active facade

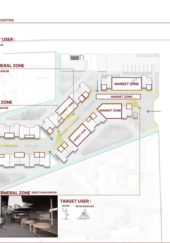
In the midst of the densely populated residential area of “Bidara Cina” village lies a captivating district. The vibrant Krenso Kebon Sayur Market stands as the main commercial hub, providing a unique essence to the community with its lively social-economic interactions. However, limited space poses various challenges in terms of circulation and mobility along the roadside, which serves as the focal point of social-economic interactions. The planning of a commercial corridor aims to create a more suitable space for social-economic interactions while preserving the existing market’s identity.

A Quintessential Place

project type

- architectural design 3

project year - 2023

project place - indonesia, east jakarta

project type

- urban village

EXISTING INFORMALMARKET USER

MINDMAP

FORM FINDING

cut

to gain public magnet

cut for connectivity

rotation

bigger circulation

more space to add function

CONCEPT

Turn static files into dynamic content formats.

Create a flipbook
Issuu converts static files into: digital portfolios, online yearbooks, online catalogs, digital photo albums and more. Sign up and create your flipbook.
Kevin Nathanael Portfolio by KEVIN NATHANAEL (00000060027) - Issuu