Recycling the Sea Container: An invitation to construction

Page 1


Recycling the Sea Container

An invitation to construction

Funding Home as Territory: A blueprint for community-driven housing produc;on in Nunavik has received support and funding from the Canada Mortgage and Housing Corpora;on as part of the Northern Access Round 3: Supply Chain Solu;ons for Northern and Remote Housing that supports innova;ve solu;ons that remove barriers to increase Canada's housing supply.

Project Home as Territory: A Blueprint for Community-driven Housing Produc<on in Nunavik aims to foster Inuit autonomy and to invent new forms of engagement between North and South when it comes to meaningful dwelling places.

The Blueprint promotes rich and open intercultural understanding and exchanges by tackling three interdependent “chan;ers” [Building Autonomy • Building Capacity • Building Houses]. Flexible and open to complex ideas, the Blueprint provides paths or i;neraries for inven;ng Stories (or Shared visions), as opportuni;es for greater empowerment

Stories take shape from a chan;er, and are built around a selec;on of promising Mo;va;ons, Assets, and Tools, such as this booklet: Tool 6 • Recycling the Sea Container.

Chan2ers [Building Capacity] Learning and fostering, especially among Inuit youth, the skills needed to meet contemporary challenges and support innova;on.

[Building Houses] Offering choices within a variety of housing types and tenure paUerns, as well as sustainable construc;on techniques and materials that are adapted to the Nunavik territory.

Research Habiter le Nord québécois École d’architecture, Université Laval, Québec

Wri6en by

Edited by Samuel Boudreault and CharloUe Audifax Gauthier

Samuel Boudreault

Kuujjuaq, Nunavik. Photograph by Maxime Vaillancourt-CosseAe (2024)

2.4

2.5

2.6 Opportuni*es for housing in Nunavik. Imagining new rela*ons

Introduc1on

A bricoleur reinterprets and recontextualizes knowledge, materials and tools at hand in ways that, even in diverging from their original purpose, create new meanings or func<ons or uses. Bricolage is akin to frugality, low-tech, and just-tech.

Asset #10. Bricolage, in Home as territory (2025)

Recycling the Sea Container explores the poten*al of such an object – widely available in the North – as a founda*on for a variety of uses. This booklet combines a pedagogical guide about an innova*ve building method with an exhibi*on to spark young minds' interest in designing and building homes. The exhibit features a curated selec*on of works by Habiter le Nord québécois – suppor*ng the chan*ers [Building Capacity • Building Houses] of the Home as Territory research project.

1 Pedagogical Guide

This pilot project aims to illustrate how the recycling of an everyday object – in this case, a shipping container – can serve as a basis for:

• the construction of temporary housing

• the demonstration of new construction techniques, or

• on-site training for Inuit youth.

1.1 Construction Principles

The construction of the container cabin is presented as a step-by-step process where each step focuses on a construction component that has a specifc function.

Anchoring

Anchoring is the way the house meets the ground.  It involves planning and choosing the appropriate solution according to the concerned ground. The sea-container creates a base that lifts the cabin so that it doesn’t interfere with the permafrost.

Spanning

Spanning is the building of a platform to become a foor while protecting the land beneath. It involves laying down and tying beams. The foor is placed over the roof of the sea container and secure to it.

Framing

Framing is the action of erecting support for the roof, so it can be both solid and stable to resist high winds. It involves vertical pieces and their tying.

Bracing

Bracing is the action of solidifying the vertical structure so can resist sideway movements. It involves horizontal, vertical and diagonal additional support pieces.

Sheltering

Sheltering is applying a protection to a framed house to repel water and snow.  It involves waterproof materials closely ftted and precise joinery.

Weatherproofng

Weatherproofng is the shell around the house to protect from all severe weather occurrences including heat loss. It involves multilayered protection, thermal insulation and overlapping of components.

Envelope

The term envelope refers to the walls, roofs, windows and above ground foors that enclose a building. The envelope act as a boundary, as well as a flter, which aims to control the effects of the environment and climatic conditions, between inside and outside.

Insulation

Air-vapor barrier

Structural frame

Warm interior side

Outsulation (or perfect wall) refers to a wall composition where moisture and air fow are controled by a single membrane, located on the exterior side of the structural frame. The insulation layer is then installed over the membrane, wrapping the building entirely.

Five conditions of an effcient building envelope:

• Heat fow control

• Air fow control

• Moisture control

• Rain penetration control

• Durability

Cladding

Cladding is the solid shell around the house to protect all the underlying sheltering and weatherproofng layers.  It involves resistant materials tied to the framing and organized so it can resist weather.

Finishing

Finishing is the treatment of the inner surfaces of the house to provide durability in time. It involves a variety of materials applied to foors, walls and ceiling of the house.

Services

Services are the means to provide lighting, heating, water distribution and dispose of waste.  It involves technical knowledge regarding electricity and plumbing.

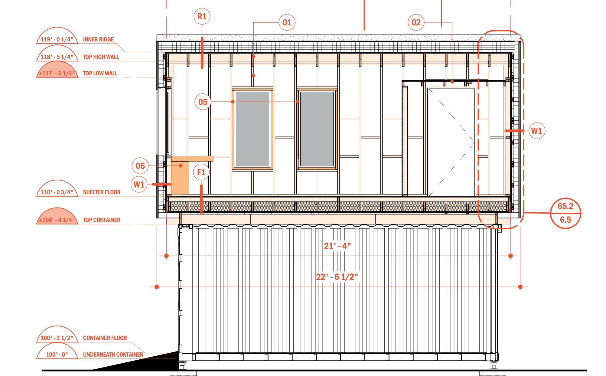
1.2 The prototype Inigna [the Spot]: Construction drawings

Outsulation construction details

The prototype Inigna [the Spot], Drawings by Lanterne architectes (2025). lanternearchitectes.com

Ground foor plan

Cross section

The prototype Inigna [the Spot], Drawings by Lanterne architectes (2025). lanternearchitectes.com

Longitudinal section

The prototype Inigna [the Spot], Drawings by Lanterne architectes (2025). lanternearchitectes.com

2 Invitation to construction: an exhibition

Invitation to construction is an exhibition to spark young minds’ interest in designing and building homes. It features a curated selection of works by Habiter le Nord québécois supporting the Home as Territory research project.

2.1 Cabins on the Land

Understanding the construction of buildings we live in allows for a better appropriation of the places we call home.

Cabanes et campements du fjord de Salluit : une lecture des savoir-faire locaux et des pratiques d’autoconstruction dans la toundra, Master’s Thesis (Université Laval) by Pierre-Olivier Demeule (2021).

Near Kuujjuaq, Photograph by Maxime Cossette-Vaillancourt (2023).

2.2 Construction principles illustrated – In relations to Inuit know-how

Inuit people have always been builders. Techniques used in the making of traditional objects can also be applied to contemporary housing construction.

CONSTRUCTION PRINCIPLES ILLUSTRATED BOOKLET

Tool 6: Recycling the Sea Container by Habiter le Nord québécois (2025).

2.3 Building a tupiq. An example of material circularity

Using materials and rethinking the construction cycle so as to preserve Nuna

Tool 2: Towards Renewable Energy, Habiter le Nord québécois (2025).
Near Kuujjuaq, Photograph by Maxime Cossette-Vaillancourt (2024).

2.4 Passive energy strategies. Bioclimatic knowledge in and for the North

Passive energy strategies applied to housing help keep warmth inside during cold seasons. Other passive energy strategies help regulate temperature and ventilate the home all year round.

Towards Renewable Energy

A9•TRADITIONAL ECOLOGICAL KNOWLEDGE

Strategies for housing construction

Renewable energy is “[e]nergy derived from natural processes that are replenished at a higher rate than they are consumed, such as solar or wind energy.”

Producing energy from renewable resources at the household and village scale would reduce their carbon footprint and increase self-suffciency.

Tarquti, Renewable Energy, https://tarquti.ca/ glossary/renewable-energy/

Through ecological design, strategies that reduce energy needs while improving comfort will promote the transition to renewable energy. Reducing energy consumption is desirable, both in production and in use.

Designing systems and shapes optimized for the local climate through passive and active strategies would save energy and improve comfort.

Limiting the energy used to mine, process, and transport materials would help reduce the carbon footprint. Material strategies such as designing for deconstruction and reuse can be implemented in construction.

2.5 Nordic houses. Their characteristics and construction

U3 Model in Nunavik, Société d’habitation du Québec (1987)

Northern House for Nunavik, Student project by Alexandre Morin (2017).

14 nordic houses: their characteristics and their construction, Habiter le Nord québécois (2024). issuu.com/hlnq.linq/docs/14-nordic-houses

Near Kuujjuaq, Photograph by Maxime Cossette-Vaillancourt (2024).

2.6 Opportunities for housing in Nunavik.

Imagining new relations with neighbors and the

Land

The community

Imagining outdoor spaces so that a community of neighbors may be created while remaining connected to the rest of the village.

The threshold

Adapting houses to the Land so that they connect with the territory at ground level and with the village at street level. Outdoor spaces can be used for traditional activities, both indoors and outdoors, and can adapt to needs and seasons.

On the hill

Protected thresholds, spacious and adaptable, welcomes visitors and serves as a constructive base for a storage shed or a workshop.

Réfexions pour une architecture signifcative : univers symbolique et matériel de la maison chez les Inuit du Nunavik, Master’s Thesis (Université Laval) by Myrtille Bayle (2023).

Turn static files into dynamic content formats.

Create a flipbook
Issuu converts static files into: digital portfolios, online yearbooks, online catalogs, digital photo albums and more. Sign up and create your flipbook.