60 Nordic Dwellings: Architectural innovations in the Artic

Page 1


60 Nordic Dwellings

Architectural innovations in the Arctic

Funding Home as Territory: A blueprint for community-driven housing produc;on in Nunavik has received support and funding from the Canada Mortgage and Housing Corpora;on as part of the Northern Access Round 3: Supply Chain Solu;ons for Northern and Remote Housing that supports innova;ve solu;ons that remove barriers to increase Canada's housing supply.

Project Home as Territory: A Blueprint for Community-driven Housing Produc<on in Nunavik aims to foster Inuit autonomy and to invent new forms of engagement between North and South when it comes to meaningful dwelling places.

The Blueprint promotes rich and open intercultural understanding and exchanges by tackling three interdependent “chan;ers” [Building Autonomy • Building Capacity • Building Houses]. Flexible and open to complex ideas, the Blueprint provides paths or i;neraries for inven;ng Stories (or Shared visions), as opportuni;es for greater empowerment

Stories take shape from a chan;er, and are built around a selec;on of promising Mo;va;ons, Assets, and Tools, such as this booklet: Tool 1 • 60 Nordic Dwellings.

Chan2er [Building Houses] Offering choices within a variety of housing types and tenure paTerns, as well as sustainable construc;on techniques and materials that are adapted to the Nunavik territory.

Research Habiter le Nord québécois École d’architecture, Université Laval, Québec

Edited by JulieTe Denis, Simone Leblanc, Rosalie Piché with Marcel Chapeau-Morin, Victor Demers, Maxime Vaillancourt-CosseTe, Charlie Wenger (research assistants)

Near Kuujjuaq, Nunavik. Photograph by Maxime Vaillancourt-CosseAe (2023).

Table of contents

Introduc)on page 1

60 Nordic dwellings Projects Numbers

Introduc1on

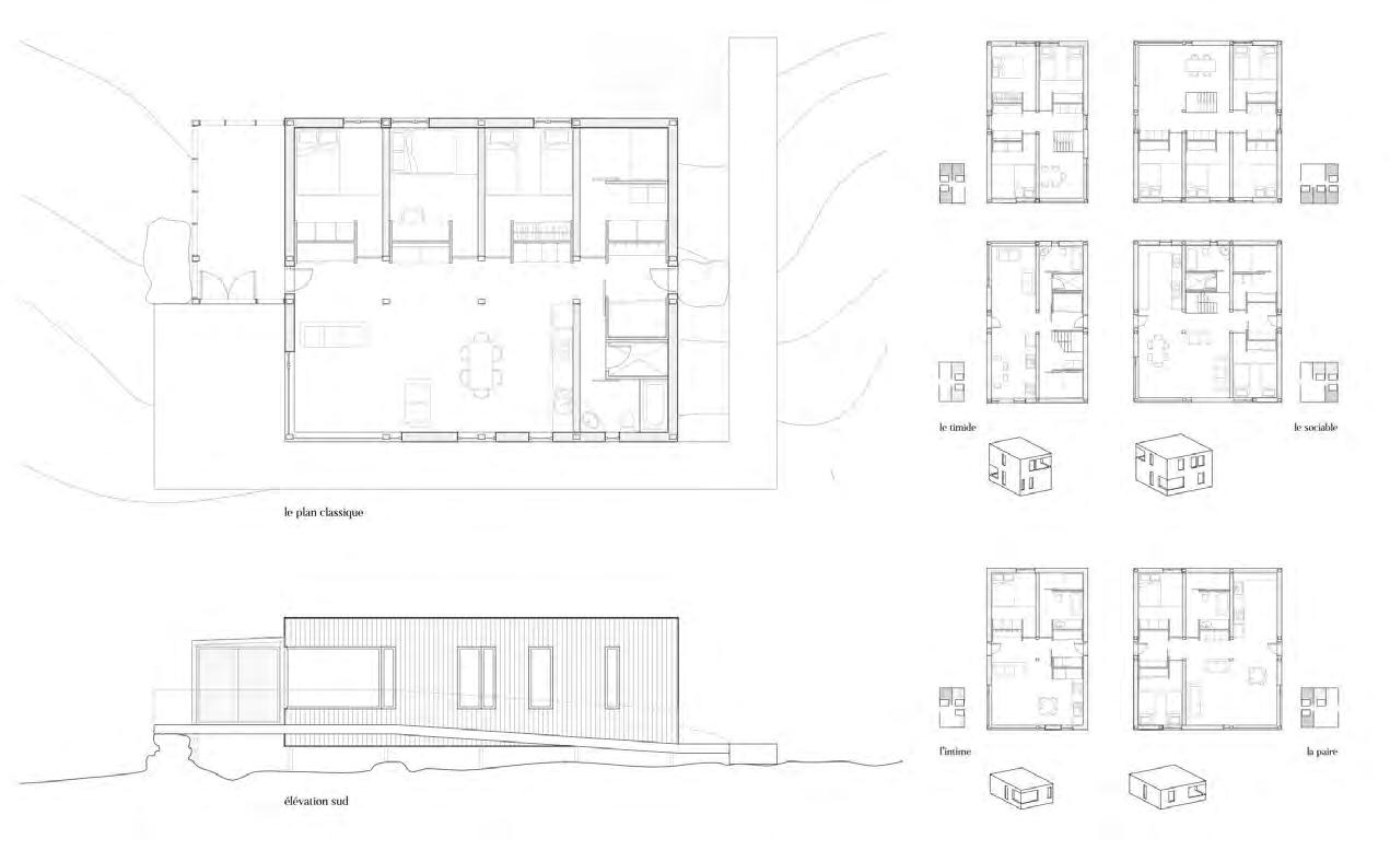
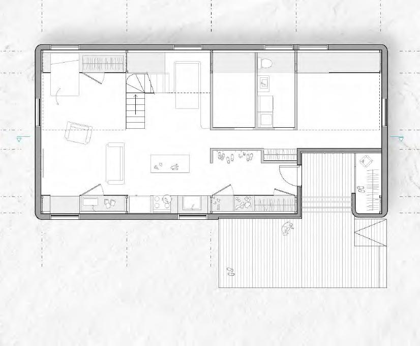
60 Nordic Dwellings illustrates a variety of arcEc housing types, highlighEng some of the qualiEes and characterisEcs that could be interesEng for Nunavik. It consists of 29 research-creaEon projects designed by architecture students at the École d’architecture (Université Laval, Québec), and 31 internaEonal realisaEons. This catalog accompanies the “chanEer ” [Building Houses] of the Home as Territory research project.

Each project is presented by a schematic image where the information that describes it is located:

• The project number (refers to the table of contents) and its authors,

• The living area of a unit (in square feet),

• The number of units per hectare (density),

• The dwelling type (refers to the table of contents)

sINgle dwellINgs

Units sharing no wall(s), ceilling(s) or floor(s) with another unit.

projectsnumbers

•Cabins/Mountain huts

•Tiny houses

•Individual houses

•Clusters of houses

01 to 10 11 to 14 15 to 27 28 to 32

Interior inspired by the igloo Focus on
Heat is captured and stocked in the bench, then released at night

École

M1: Composition type mur extérieur

3/4’’ Revêtement de bois brûlé recyclé

CONTAINER RECYCLED

P1: Composition type de plancher

-Membrane Pare-air

3/4’’ Fourrures de bois @ 16’’ c/c

1/2’’ Finition de plancher

3/4’’ Revêtement de bois brûlé recyclé

5’’ Structure du Conteneur

-Remplir avec du polyuréthane giclé

5 1/2’’ Panneau d’isolant rigide

Parcours

P1: Composition type de plancher

5/8’’ Panneau de gypse extérieur

-Membrane Pare-air

3/4’’ Fourrures de bois @ 16’’ c/c

1/2’’ Finition de plancher

3/4’’ Revêtement de bois brûlé recyclé

5’’ Structure du Conteneur

-Remplir avec du polyuréthane giclé

5 1/2’’ Panneau d’isolant rigide

5/8’’ Panneau de gypse extérieur

-Membrane Pare-air

3/4’’ Fourrures de bois @ 16’’ c/c

3/4’’ Revêtement de bois brûlé recyclé

Charlotte Audifax-Gauthier, Vincent Morrier

Space organized following

CONTAINER RECYCLED

Claire Lambert, Jade Simard
Simple finishes for DIY
Recycled sea container

Emy

École d’architecture • Université Laval

Nunavik, 2022

CONTAINER RECYCLED

On-site rocks

Stilt House David Grandorge and Paloma Gormley United Kingdom, 2020

Prefabricated

Maxime V.-Cossette, Samuel Létourneau

École

Nunavik, 2023

Compact

François-Alexandre Côté, Sabrina Côté

École d’architecture • Université Laval

Nunavik, 2022

CONTAINER RECYCLED

Recycled

Piles
Stained
Modular design
Movable dwellings inspired by qamutik Glycol-heated floors
Steel H beams with skates Prefabrication
TINY HOUSE

Memu Meadows, Experimental House Kengo Kuma Japan, 2011

Couples

Translucent insulated walls
Natural light
Section cut
HOUSE
Photo : Designboom (2012). www.designboom.com
Upper + bottom image : Vandkunsten Architects (2023). www.baumeister.de
Photo : Vandkunsten Architects (2023). www.baumeister.de
Vandkunsten Architects (2023).
Concept from La Biennale di Venezia 2012
Double skin facade
Thermal gradient within spaces
Becomes a lighthouse,
landmark at night HOUSE

HOUSE

Couples Families

Friction piles
Jacks on pad
Ground floor
Second floor

Rémy Jussaume, Rémi Pétrin

École d’architecture • Université Laval Nunavik,2022

Nunavik, 2023

Modularity of containers = flexibility and scalability

Julie Bradette, Audrey Turcotte

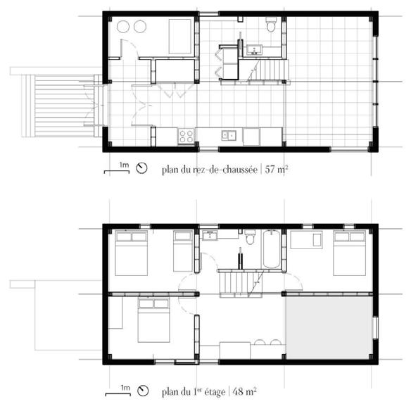
Renovation U5 model

Marie Bergeron, Tristan Morissette

École d’architecture • Université Laval Nunavik, 2022

Couples

FamiliesHOUSE

U5 model

Limits

•Porch size

•Divided common spaces

•Mechanical room size

•Size and lack of openings

Potentials

•Openings towards the street

•Main access and porch from the street

•Intimacy on the second floor

250 sq ft per unit 10u/ha

HOUSE

Couples Families

Composition

Wooden wall trusses

Horizontal furring

Sheathing (plywood)

Waterproof membrane

Rigid insulation

Z-bars

Vertical furring (metallic)

Horizontal furring (metallic)

Prefab. plastic panel

cladding

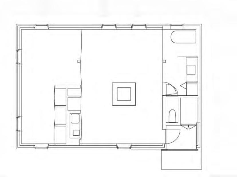
Flexible open space with integrated furniture
Flexible gathering spaces
Piles to bedrock

Delphine Laforest Pradet

20u/ha

HOUSE

Families Multi-gen.

Plan easily adapts for multiplex

Customizable modular units

Igloo inspired bed plateform
Second floor
Ground floor

Alexandre

Relationship between spaces Streamlined mechanical systems

Structural expression 1 700 sq ft per unit 20u/ha

Urban infill for gentle densification

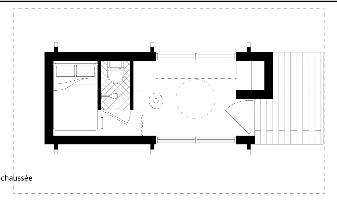
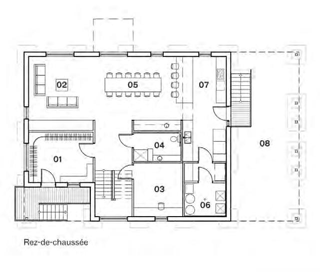
Rez-de-chaussée

Rez-de-chaussée

1. Espace tempéré

1. Espace tempéré

2. Espace de vie

2. Espace de vie

3. Salle à manger traditionnel

3. Salle à manger traditionnel

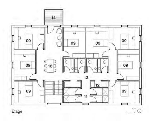
Étage

Étage

1. Espace calme

3. Mur rangement 4. Cuisine

Espace calme

4. Cuisine 5.Dépense 6. Espace calme

1. Espace calme

2. Chambre visiteur

2. Chambre visiteur

3. Mur rangement

Double skin facade
Termal gradient

1 000

1 700

Maude Boulay, Isabelle Boily École d’architecture

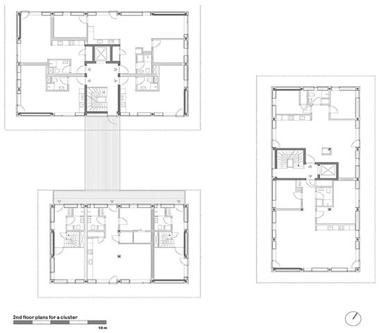
Couples Solo Families Multi-gen. CLUSTER OF HOUSES

IMPLANTATION |

DÉTAILCONSTRUCTIF

Arianne Côté École d’architecture • Université Laval

Nunavik, 2022

Couples Solo Families CLUSTER OF HOUSES

Prefabricated structural panels Made in Nunavik, insulated with local moss

Prefabricated mobile partitions Made in the South, includes services as plumbing, electricity,

Gabion foundation walls

partitions services such electricity, etc.

Using the topography to integrate utilidors

Winds guided to minimize snow accumulation thanks to curvature of the ridge edges

Perforated black spruce structure offers an opportunity to customize

Platform supported by glulam beams attached to the pedestal

Gabion pedestal

Storage space under the house

Sarah-Ève Cloutier, Xavier Moreau

École d’architecture • Université Laval Nunavik, 2020

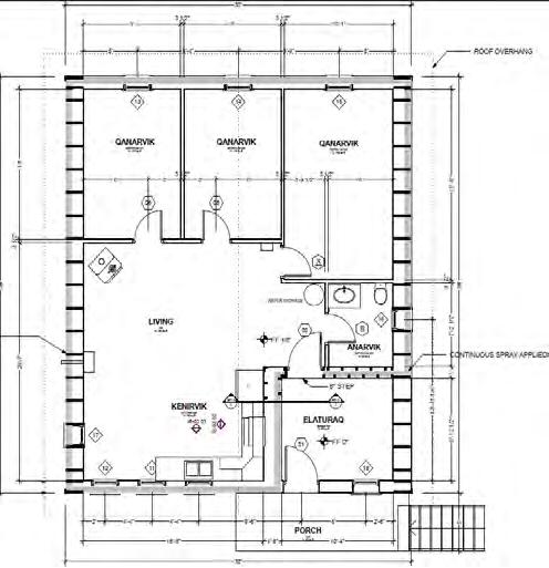
Unifamiliale 2 type 1

Unifamiliale 1 type 2

1700 sq ft per unit

11u/ha

Mezzanine

CLUSTER OF HOUSES

Families Multi-gen.

À la manière de Annie Pootoogook

Habiter la mezzanine

Rez-de-chaussée

Annie Pootoogook est une artiste inuit canadienne qui est connue pour ses dessins qui représentent la vie contemporaine inuit, basés sur ses propres expériences.

L’aquarelle à la manière d’Annie Pootoogook illustre une manière d’habiter la mezzanine, soit en tirant des matelas pour accueillir la visite. C’est un mode de représentation comme clin d’oeil à la mission.

Mezzanine

Rez-de-chaussée

A windprotected square

Housing belt inspired by penguin huddling

Mezzanine

Habitabilité de l’îlot

Coupe sud Coupes de jour

Transversal section

Rez-de-chaussée

Water concentrated within a thick wall

Rez-de-chaussée

À la manière de Annie Pootoogook Habiter la mezzanine

Section

Cross section

Annie Pootoogook est une artiste inuit canadienne qui est connue pour ses dessins qui représentent la vie contemporaine inuit, basés sur ses propres expériences.

L’aquarelle à la manière d’Annie Pootoogook illustre une manière d’habiter la mezzanine, soit en tirant des matelas pour accueillir la visite. C’est un mode de représentation comme clin d’oeil à la mission.

Coupe nord

Coupe longitudinale unifamiliale 2 type 1
Coupe transversale unifamiliale 2 type 1
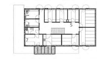
Ground floor (model A)
Model A Model B Model C Workshops
Art : Annie Pootoogook, In The Summer Camp Tent (2002)
Ground floor (model B)

Antonin Boulanger Cartier, Marie-Claude Gravel, Pierre-Olivier Demeule

École d’architecture • Université Laval Nunavik, 2016

CLUSTER OF HOUSES

Choose the people you are neighbors with and share spaces with them

Co-op helps to create harmonious proximity and community

The pulaarviks are connected together by the shared covered space

Topography is used to create storage under the houses

Foundation walls on rock

Even though the neighborhood is dense, the dwellings are spacious

joiNed dwellINgs

Units sharing wall(s) and/or ceilling(s) with other units. Each unit has a private entrance.

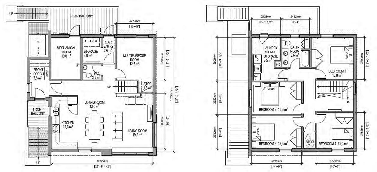
ROW HOUSES

Couples Families

Self built

ROW HOUSES

Couples Families

Groundfloor

EVOQ - Maisons en rangée - evoqarchitecture.com/galerie-des-projets

Built on splope

Marie-Jeanne Allaire-Côté

École d’architecture • Université Laval Nunavik, 2017

ROW HOUSES

ROW HOUSES

Energy and space efficiency

1

EN CHIFFRES

Different levels of intimacy in the same

PLANS TYPES RDC

COUPE EN NORD & CONCEPT

2nd Level typologies

EN CHIFFRES

EN CHIFFRES

Variety of units for different needs

Ground floor typologies

Couples Families

Microclimate in between

HABITAT ÉVOLU OFFRIR UN

LIEU POUR

AUX PRATIQUES DES GENS

AXONOMÉTRIE DU PROJET

Axonométries explicatives de l’aménagement de ces espaces incrémentaux:

Dwellings that change with

Précédent:

Typical dwelling plan

FLEXIBILITÉ

Adaptability and flexibility in the different typologies DIY Evolutive Design

Type de logement : co-housing

Clientèle cible : Jeune, petite famille, permanente et

Thomas Fournier École

PLEXES

Provide selfbuilders with basic units

Anticipate seasonal extension

Replicable modules with regular volume

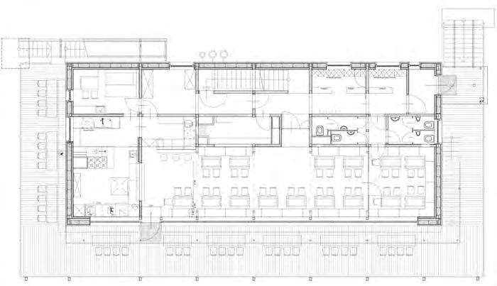
mulTiFAmilY dwellINgs

A single envelope hosts multiple households/ units. Some or all units have a shared entrance.

•Shared access units 45 to 60 projectsnumbers

SHARED ACCES UNITS

Variety

Plan - First floor
kobayashi + zedda - Inuvik Singles
kobayashi + zedda -
Plan - First floor

Longitudinal section Groundfloor plan Transversal section

Couples Families

Brunstorp Arrhov Frick Arkitektkontor Sweden, 2018

800-1300 sq ft per unit 138u/ha

Couples Families

SHARED ACCESS UNITS

Arrhov Frick arkitektkontor - Brunstorp - www.archdaily.com/912243/brunstorp-arrhov-frick-arkitektkontor

Transition spaces
Double skin facade

Couples

Maxime

École d’architecture • Université Laval Nunavik, 2023

3 rooms_26

4 rooms_13

5 rooms_8 Emergency room_7

The site layout is inspired by the ice floe
Streetscapes with views on the land

Étienne Lajoie-Asselin

École d’architecture • Université Laval

Nunavik, 2023

Combine walkways and utilidors

Preserves the natural soil
Inuit craft and expression

Semi-public

KINDERGARTEN

Turn static files into dynamic content formats.

Create a flipbook
Issuu converts static files into: digital portfolios, online yearbooks, online catalogs, digital photo albums and more. Sign up and create your flipbook.
60 Nordic Dwellings: Architectural innovations in the Artic by Habiter le Nord québécois / Living in Northern Quebec - Issuu