Vers une habitation nouvelle [2] : coopération et mutualisation

Page 1


Variété,

Opportunités de conception et de réalisation de milieux de vie qui correspondent aux ressources et aux aspirations des communautés du Nord québécois

[Ministère des Affaires Municipales et de l’Habitation + Société du Plan Nord • 2022-2024]

Cahier de projets d’atelier no 5

Automne 2022 • ARC-3501 Atelier 6

Vers une habitation nouvelle [2]

Coopération et mutualisation

Kangirsuk • Nunavik

illu-nunavik.org

École d’architecture • Université Laval © 2024 Habiter le Nord québécois

I dwell in Possibility –A fairer House than Prose –

More numerous of Windows –

Superior – for Doors –

Of Chambers as the Cedars –

Impregnable of eye – And for an everlasting Roof

The Gambrels of the Sky –

Of Visitors – the fairest – For Occupation – This –

The spreading wide my narrow Hands

To gather Paradise –

Financement

Recherche-création

Mission du projet

But du projet et enjeux

Emily Dickenson, I dwell in possibility

Ministère des Affaires municipales et de l'Habitation [MAMH]

Société du Plan Nord [SPN] • Habiter notre Nord

Dans le cadre de la Mesure 3.4.1.5 du Plan d’Action Nordique [2020-2023] • Contribuer au projet de recherche visant l’amélioration de la conception des logements nordiques

École d’architecture • Université Laval

Équipe de recherche Habiter le Nord québécois

Myriam Blais • Geneviève Vachon • Samuel Boudreault

Planification, conception et réalisation de milieux de vie nordiques territorialement et culturellement adaptés.

Innovation, dans la conception et la réalisation de milieux résidentiels nordiques au Nunavik, fondée sur trois enjeux-clé :

• Variété des choix en matière d’habitation et d’aménagement

• Acceptabilité sociale et culturelle envers ces nouvelles opportunités

• Faisabilité de leur éventuelle mise en œuvre

Vers une habitation nouvelle [2]

Coopération et mutualisation

Le projet vise à identifier les défis et les enjeux importants qui caractérisent la conception d’habitations nordiques, culturellement et territorialement appropriées, pour les populations Inuit. Il cherche aussi à imaginer l’expérience idéale à offrir, tout en précisant les moyens pour y parvenir. En réfléchissant à la signification de l’habiter pour les communautés inuit, le projet propose des typologies d’habitation nouvelles, variées et conviviales, une investigation qui considère aussi bien différentes clientèles et personnes que des tenures ou modes de regroupement variés. Il met notamment l’accent sur la coopération et la mutualisation.

Enjeu • Variété

Professeure-superviseure

Professionnel de recherche

Auxiliaire d’enseignement

Mise en page et édition

Étudiant.e.s

Conception de nouveaux modèles (habitation et voisinage) et diversification des modes de tenure

Myriam Blais

Samuel Boudreault

Arianne Côté

Alexis Dion et Maxime Vaillancourt-Cossette

Emy Boissoneault • Louis Darche • Mathis Fayolle • Louis Heyries • Samuel Létourneau • Martin Maurel • Megan Pronovost • Sarah TétreaultBrisebois • Noémie Thompson • Maxime Vaillancourt-Cossette • Élodie Vallières

Co-habitat

Emy Boissonneault

Élodie Vallières

Vers une habitation nouvelle [2]

Coopération et mutualisation

Kangirsuk • Nunavik

École d’architecture • Université Laval

La mission de ce projet consiste à consolider le partage les connaissances et la solidarité au sein de l’habitation. Les enjeux suivants ont été considérés :

Territorialité

• Cohabiter avec Nuna grâce à un territoire traversant

• Cadrer le paysage

Adaptabilité

• Prévoir l’évolution des logements

Interactions sociales

• Favoriser les échanges et le partage

• Encourager le collectif

Deux typologies ont été développées sur ces assises.

Typologie : Co-housing

Fragment développé : Espace de rencontre

Le co-housing est un mode de vie axé sur le vivre ensemble. L’agglomération de chambres privés au sein d’un même bâtiment ainsi que l’ajout d’espaces partagés favorisent les interactions entre les occupants n’appartenant pas nécessairement à la même famille nucléaire. C’est un type de d’habitat collaboratif qui incite à développer d’étroites relations entre ses membres.

Typologie : microcosme de jumelés

Fragment développé : Seuil

Le microcosme est une petite agglomération de logements partageant un espace naturel protégé. Cette organisation en cercle permet d’établir des rapports de sociabilité, d’entraide et de partage afin de renforcer les liens entre les habitants du microcosme.

Co-housing

Co-housing

LT Josai Shared House
Japon
Naruse Inokuma Architects

Niveau 2

Espace commun avec terrasse extérieure

Niveau 1
Niveau 2

Niveau 2

Espace de rencontrepulaarvik

1

Niveau

Espace de rencontrepulaarvik (4e variante)

Niveau 1
Niveau 2

Niveau 2

Espace de rencontrepulaarvik (5e

Niveau 1

Niveau 2

Niveau 1

Espace de rencontrepulaarvik (6e

https://issuu.com/hlnq.linq/docs/imaginer-imagining

Consolidation à coeur ouvert: Affirmer les centralités de Kuujuaq Laurence Gaudette, Julien Landry, Brigitte Messier-Legendre,

Illuqarviviniq : Imaginer les rives d’Inukjuak Mathieu Avarello, Marianne GarneauCharbonneau, Guillaume Larouhce, Ève RenaudRoy

https://issuu.com/hlnq.linq/docs/imaginer-imagining (p.231)

Qatigiipuut : Faire Ensemble, Inukjuak

Marie-Jeanne Allaire-Côté

https://issuu.com/hlnq.linq/docs/imaginer-imagining (p.41)

Variante 1 - Seuil

• Escalier centralisé sur la galerie

• Diminution de la hauteur du bâtiment

• Augmentation du contact avec le sol

Niveau 1
Niveau 2

Variante 2 - Seuil

• Escalier intérieur déplacé

• Augmentation de l’espace du Pulaarvik

• Escalier centralisé sur la galerie

• Diminution de la hauteur du bâtiment

• Augmentation du contactavec le sol

Niveau 1
Niveau 2

Variante 3 - Seuil

• Escalier intérieur déplacé

• Augmentation de l’espace du Pulaarvik

• Escalier centralisé sur la galerie

• Diminution de la hauteur du bâtiment

• Augmentation du contact avec le sol

Niveau 1
Niveau 2

Habitations multiples

Vers une habitation nouvelle [2] Coopération et mutualisation

Kangirsuk • Nunavik

Le projet a pour mission de densifier le village en profitant du territoire au maximum ; par l’accès, les vues, et l’utilisation, tout en limitant l’impact des habitations sur celui-ci. Le projet forme un trait d’union entre l’intimité de chacun par rapport à la communauté et le village, mais aussi entre le sol accessible, le territoire et les vues sur le village existant et l’eau.

Ceci en déposant delicatement des branches d’habitations disposés selon la topographie pour optimiser au maximum les vues ainsi que l’accessibilité au territoire. Ces différentes branches sont construites sur pilotis et reliées par des passerelles pour limiter l’empreinte au sol et pour pouvoir mieux négocier la topographie. Ces branches sont munies d’utilidors pour permettre aux camions de venir seulement aux extrémités.

Les habitations sont disposées en longueur selon la pente pour profiter d’une vue traversante dans les espaces communs. Elles sont conçues avec une bande centrale de service, permettant de séparer les espaces plus privés des espaces plus communs.

du secteur C par rapport à l’eau, au village et aux infrastructures

Implantation déterminée en considérant la topographie et pour profiter un maximum du territoire et des vues

Relations

Inspirations

Habiter le territoire, en laissant place à celui-ci

Avoir une vie de comunauté, de village et être en lien direct avec celui-ci

Garder une vue importante sur le land, sur le paysage et sur l’eau, laisser passser le territoire

La disposition de plusieurs habitations permet des liens entre celles-ci

Profiter de la disposition des bâtiments pour proposer des espaces de vie communautaire, des espaces partagés etc.

Plan niveau 0

Disposition de plusieurs logements le long de la passerelle

Volumétrie des logements

Disposition de plusieurs logements le long de la passerelle

Structure de deux différents types de logements

Système de poteaux-poutres avec toiture à un seul versant

Structure bâtiment type 1

Structure bâtiment type 2

Plans étages type 1

2 logements sur 3 niveaux (11-12 personnes)

Plans étages type 2

3 logements sur 3 niveaux (15 personnes)

Logement 5 personnes

Logement 6-7 personnes (avec mezaninne)

Logement 5 personnes

Logement 5 personnes

Logement 5 personnes

Niveau 0
Niveau 1
Niveau 2
Mezannine

Les espaces de nuit ou plus calmes à gauche de l’épaisseur du mur de services et les espaces communs (plus

Coupe longitudinale

Le rapport du logement avec l’avant : la passerelle ainsi que la vue lointaine sur le village

Coupe

transversale

(plus ouverts ou plus fermés) à droite, coupe avec regard à l’arrière de la maison qui est en lien avec le territoire

longitudinale village et l’eau. Le rapport à l’arrière : avec le land accessible directement depuis le logement

Bureau

ouvert sur l’espace commun central (1e variante)

Vue intérieure sans matérialité ni aménagement (1e variante)

Vue intérieure aménagée (1e variante)

Bureau séparé et mezzanine (2e variante)

Vue intérieure sans matérialité ni aménagement (2e variante)

Vue intérieure aménagée (2e variante)

Habitations multiples

Vers une habitation nouvelle [2] Coopération et mutualisation

Kangirsuk • Nunavik

École d’architecture • Université Laval

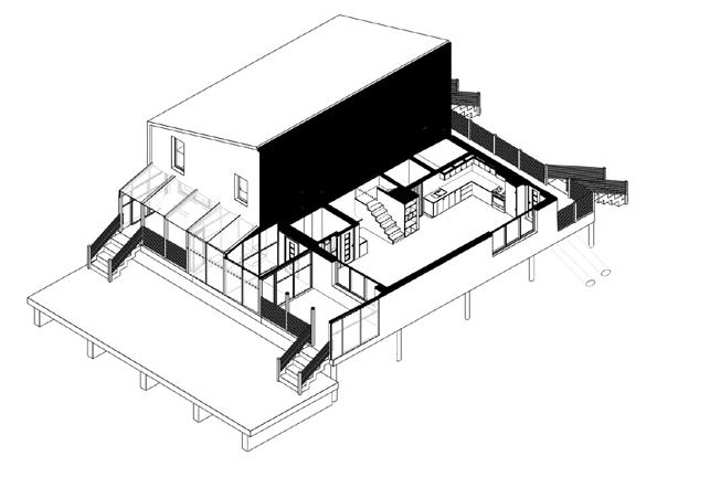
Continuum est un projet de cohabitat coopératif qui met l’accent sur le partage intergénérationnel en offrant un milieu de vie convenant à différents profils d’usagers. La mission est double :

• Proposer un habitat qui favorise l’appropriation par les usagers, de manière pertinente et durable;

• Établir un dialogue entre le pulaarvik commun et les espaces qui gravitent autour.

Par les relations qu’articulent les pulaarviks et les seuils communs, le bâti favorise l’interaction, l’appropriation, et ultimement, la

Le projet est constitué de « microcosmes » contenant chacun 3 microcommunautés. Ces dernières accueillent divers types de ménages.

Précédents

Lean-to House

Mackay-Lyons Sweetapple

Nouvelle-Écosse, Canada, 2013

Les fondations de ce projet établissent une relation au sol hors de l’ordinaire. Les poutres donnent l’impression que le bâtiment est déposé sur le sol, tandis que s’il avait été sur pilotis, il aurait semblé flotter. En plan, un grand axe est délimité par un mur de services épais. Finalement, les cloisons mobiles rehaussent la flexibilité du plan en permettant de connecter ou de fermer un espace adjacent aux aires de vie commune.

Photos : MacKay-Lions Sweetapple

Boathouse

TYIN Tegnestue

Norvège, 2011

Au plan constructif, le parement de ce refuge a une apparence perméable, tout en étant particulièrement simple à construire. Dans la même logique, les lattes laissent parfois place au polycarbonate pour faire entrer la lumière. La façade s’ouvre complètement pour devenir un espace extérieur couvert.

Photos : Pasi Aalto

1. 115 m2

2. 31 m2

3. 31 m2

4. 34 m2

6. 20 m2 - Alcôves flexibles

1. 115 m2

2. 59 m2

3. 34 m2

4. 30 m2

5. 42 m2 - Pulaarvik commun

6. 20 m2 - Porche chaud

7. 6 m2 - Mécanique

115 m2 - Porche froid 5. 59 m2

8.

La volumétrie se lit comme une seule grande maison dans laquelle s’est glissé un espace commun. Ce dernier agit comme un porche, un seuil connectant la communauté au territoire, et les pulaarviks ensemble. La tôle ondulée à l’horizontale projette une image de durabilité, tandis que le centre contraste par son aspect tout bois, voué à évoluer au fil du temps.

Vers la communauté
Vers le territoire
Coupe A 0

L’espace central s’adapte à de multiples activités. Sa structure est autonome et l’utilisation d’un système de poteauxpoutres facilite une appropriation par les usagers, puisque les éléments autoconstruits n’auront pas à être porteurs. Les surfaces suggèrent des sous-espaces, sans toutefois contraindre l’usager à des activités ou des usages précis. Au fond, des panneaux ouvrants permettent de transformer ce lieu en un espace extérieur couvert par beau temps. La construction frugale réfute l’idée de la perfection et favorise plutôt un processus de construction et d’appropriation continu.

↑↓ La grande ouverture vers le centre est en relation directe avec le pulaarvik qui lui fait face, ce qui favorise la continuité de l’espace et par ce fait même, de l’espace de parole.

↓ Les panneaux coulissants permettent d’agrandir le pulaarvik de ce logement ou bien d’obtenir une pièce fermée supplémentaire.

À l’image des tentes prospecteur, des toiles tendues sur ce système étendent le seuil vers le territoire.

Variante principale

Il s’agit du plan de base montré précédemment, supposant un site avec une topographie modérée. Le sol s’élève du côté du territoire pour former une rampe, tandis que des terrasses permettent de profiter d’un espace extérieur couvert. De grandes ouvertures mettent les pulaarviks directement en relation avec le centre, mais aussi entre eux, prolongeant l’espace de la parole plus loin qu’un seul logement. Dans le volume de gauche, le foyer et l’escalier forment un bloc repère visible d’un peu partout, constituant un appel à se réunir dans le pulaarvik commun.

Sur un terrain accidenté (2e variante)

En imaginant le projet sur l’un des terrains plus accidentés, les bâtiments varient de hauteur entre eux, générant des sous-espaces avec ce jeu de paliers. On profite de l’occasion pour placer les pulaarviks sur un palier pour marquer leur importance. Dans la portion centrale commune, la topographie fait entrer le sol et, en construisant des planchers autour, on obtient de nouveaux sous-espaces. La limite entre extérieur et intérieur se brouille et la maison n’est plus un objet déconnecté du territoire. Cette disposition minimise un peu l’empreinte du projet, puisque la rampe de gravier qui permettait de monter au centre n’est plus nécessaire.

Les foyers (3e variante)

l’extérieur, des rampes sont plutôt alignées avec l’axe de circulation et sont construites en bois plutôt qu’avec un remblai de sol. Ainsi, la travée adjacente se complète avec de petites terrasses. Finalement, l’ensemble du plancher de la portion centrale est fait de bois, contribuant à la frugalité recherchée.

La portion centrale chauffée (4e variante)

Avec une portion centrale chauffée, il est essentiel de réduire la taille du volume central. Sa longueur et sa hauteur sont grandement réduites et son enveloppe conçue plus étanche ; on élimine le retrait entre les bâtiments et la structure centrale. Vers le territoire, le sol forme 2 grandes rampes, menant à des portes plus conventionnelles. Un foyer constitue désormais l’interlocuteur principal du volume central. Dans une optique d’efficacité, on ajoute un pulaarvik commun supplémentaire au-dessus de celui du volume de gauche, comblant cet espace inutilisé et déjà chauffé. Celui-ci ainsi que le pulaarvik qui lui fait face de l’autre côté disposent de fenêtres extérieures, puisque la hauteur du centre est réduite. Au niveau 1, les pulaarviks sont dotés d’ouvertures plus petites et plus étanches.

Habitations incrémentales

Martin Maurel

Vers une habitation nouvelle [2] Coopération et mutualisation

Kangirsuk • Nunavik

École d’architecture • Université Laval

La mission de ce projet est de mettre en place une architecture incrémentale qui permette une appropriation de son habitat dans l’objectif de renouer avec l’acte d’habiter.

Architecture comme palimpseste

Deuxième incrément Troisième incrément

Précédent

Villa le Lac, Le Corbusier | Suisse, 1924

Circulation sans cul-de-sac autour de la cuisine

Terrasse et communauté (1e variante)
Matériaux et circulation ouverte (2e variante)

Co-habitat

Megan Pronovost

Noémie Thompson

Vers une habitation nouvelle [2]

Coopération et mutualisation

Kangirsuk • Nunavik

École d’architecture • Université Laval

La mission du projet est de permettre à la population de s’approprier un logement correspondant à sa situation sociale. Les maisons multigénérationnelles visent notamment les familles nombreuses qui prônent le vivre-ensemble, que ce soit en connectant avec les membres de sa famille, avec le voisinage ou même avec le territoire. La résidence pour personnes seules, quant à elle, offre à ses résidents des espaces de vie confortables, sécuritaires et adaptés à leurs besoins. Ouvert sur le territoire, le bâtiment laisse libre court à une appropriation par ses occupants, laissant autant place à la vie individuelle qu’à la vie en micro-communauté.

Les

maisons multigénérationnelles

Identité

• Imaginer des formes correspondant aux aspirations inuit et contribuant à l’imagibilité de la maison;

Interactions

• Proposer des espaces flexibles permettant aux jeunes et aux aînés de se côtoyer, tout en offrant des espaces leur étant spécifiquement dédiés;

Relation au sol

• S’implanter de manière sensible sur le territoire;

• Assurer l’accessibilité universelle.

Rez-de-chaussée

Le balcon

Étage

Pulaarvik appropriable (variante principale)

Les résidences pour personnes seules

Les appartements

Parcours commun

Parcours appartement

Parcours vertical

Habitations multiples

Vers une habitation nouvelle [2]

Coopération et mutualisation

Kangirsuk • Nunavik

École d’architecture • Université Laval

Ce projet a pour mission de créer des espaces d’habitation riches en opportunités de relations humaines. Il s’agit d’habitations multiples offrant deux logements d’une superficie d’environ 80 m2 comportant chacun une chambre et offrant la possibilité d’en ajouter une seconde. Ces unités sont reliées à un logement d’une superficie d’environ 160 m2 sur deux étages pouvant accueillir de plus grandes familles.

Espaces communs extérieurs protégés des vents

Zone innondable

Nouvelle rue

Chemin carossable modeste 100

Secteur B - Zone 2
Territoire

Chaque bâtiment est recouvert de revêtement en planche de bois teint selon des couleurs vibrantes pour dynamiser l’ensemble et pour créer un repère dans le paysage. La typologie d’habitation est lisible au travers des volumes, mais aussi les revêtements.

L’orientation des bâtiments dévie les vents dominants provenant de l’ouest et favorise l’apport en gain solaire. Des espaces protégés du vent par les bâtiments sont ainsi créés, propices aux rencontres.

Un espace commun à l’abri du vent

A Terrasse extérieur

B Porche froid partagé

C Porche froid privé

D Porche chaud

E Salle de bain

F Cuisine

G Séjour

H Espace commun/Atelier

I Salle à manger

J Chambre

K Bureau

L Salle mécanique

M Rangement commun

Possibilité de chambre supplémentaire

Le projet comporte deux successions de porches froids et de porches chauds situées de part et d’autre des logements. L’une des deux, de taille modeste, est accessible de la route, surtout utilisée en période estivale. Comme le territoire est d’une grande importance, une seconde succession de porches de taille plus généreuse est orientée vers l’espace extérieur, endroit où se dérouleront des activités de la communauté.

La forme concave du bâtiment permet au land d’entrer dans le volume

A Terrasse extérieur

B Porche froid partagé

C Porche froid privé

D Porche chaud

E Salle de bain

F Cuisine

G Séjour

H Espace commun/Atelier

I Salle à manger

J Chambre

K Bureau

L Salle mécanique

M Rangement commun

La première variante en lien avec la connexion au territoire consiste à déployer davantage le volume et les terrasses pour augmenter la quantité d’espaces extérieurs aménagées, mais aussi varier leurs qualités. De plus, le porche froid partagé est bonifié en superficie et est recouvert de polycarbonate pour accueillir plus de lumière naturelle et en profiter davantage.

Étage

Extension de la toiture vers le territoire (2e

A Terrasse extérieur

B Porche froid partagé

C Porche froid privé

D Porche chaud

E Salle de bain

F Cuisine

G Séjour

H Espace commun/Atelier

I Salle à manger

J Chambre

K Bureau

L Salle mécanique

M Rangement commun

La seconde variante reprend la stratégie de la dernière, mais propose une extension de toiture offrant un espace protégé en relation directe avec le land. Si l’occupant le désire, il serait assez simple d’y bâtir des murs pour l’utiliser à l’année.

Les projets d’atelier présentés ici se sont inscrits dans le cadre du projet de recherche intitulé Variété, acceptabilité, faisabilité : opportunités de conception et de réalisation de milieux de vie qui correspondent aux ressources et aux aspirations des communautés du Nord québécois [financé par le Ministère des Affaires municipales et de l’Habitation et la Société du Plan Nord — 2022-2024]. Ce projet porte sur l’innovation dans la conception et la réalisation de milieux résidentiels nordiques au Nunavik, en se fondant sur trois enjeux-clés : la variété des choix en matière d’habitation et d’aménagement, l’acceptabilité sociale et culturelle envers ces nouvelles opportunités, et la faisabilité de leur éventuelle mise en œuvre. Il prend appui sur l’expérience de recherche-création collaborative de l’équipe de recherche Habiter le Nord québécois de l’Université Laval qui mobilise un réseau d’acteurs investis dans la recherche de formes d’habitations adaptées aux communautés et aux contextes qui les accueillent.

Le projet vise à identifier les défis et les enjeux importants qui caractérisent la conception d’habitations nordiques, culturellement et territorialement appropriées, pour les populations Inuit. Il cherche aussi à imaginer l’expérience idéale à offrir, tout en précisant les moyens pour y parvenir. En réfléchissant à la signification de l’habiter pour les communautés inuit, le projet propose des typologies d’habitation nouvelles, variées et conviviales, une investigation qui considère aussi bien différentes clientèles et personnes que des tenures ou modes de regroupement variés. Il met notamment l’accent sur la coopération et la mutualisation.

Turn static files into dynamic content formats.

Create a flipbook
Issuu converts static files into: digital portfolios, online yearbooks, online catalogs, digital photo albums and more. Sign up and create your flipbook.